Brivo Systems ACS6000-01 ACS6000 Access Control System User Manual
Brivo Systems, Inc. ACS6000 Access Control System Users Manual
Users Manual

Brivo ACS6000 (A/E/F/S)
Installation Manual
10/17/2016

Brivo ACS6000 Installation Manual Page 2
© 2016 Brivo Systems LLC. All rights reserved. 10/17/2016
Legal Disclaimers
Federal Communications Commission (FCC) Compliancy
You are cautioned that changes or modifications not expressly approved by the part responsible for
compliance could void the user’s authority to operate the equipment.
This equipment has been tested and found to comply with the limits for a Class B digital device,
pursuant to Part 15 of the FCC Rules. These limits are designed to provide reasonable protection
against harmful interference in a residential installation or when the equipment is operated in a
commercial environment. This equipment generates, uses, and can radiate radio frequency energy and,
if not installed and used in accordance with the instruction manual, may cause harmful interference to
radio communications. However, there is no guarantee that interference will not occur in a particular
installation. If this equipment does cause harmful interference to radio or television reception, which can
be determined by turning the equipment off and on, the user is encouraged to try to correct the
interference by one or more of the following measures:
• Re-orient or relocate the receiving antenna.
• Increase the distance between the equipment and receiver.
• Connect the equipment into an outlet on a circuit other than the one to which the receiver is
connected.
• Consult the dealer or an experienced radio/TV technician for help.
This device complies with Part 15 of the FCC Rules. Operation is subject to the following two conditions:
1. This device may not cause harmful interference and
2. This device must accept any interference received, including interference that may cause
undesired operation of the device.
FCC RF Radiation Exposure Statement
1. This transmitter must not be co-located or operate in conjunction with any other antenna or
transmitter.
2. This equipment complies with the FCC RF radiation exposure limits set forth for an uncontrolled
environment. This equipment should be installed and operated with a minimum distance of 20
centimeters between the radiator and your body.
Canada-Underwriters Laboratories (C-UL) Compliancy (CSA C22.2 No. 205)
For C-UL Listed applications, the unit shall be installed in accordance with Part 1 of the Canadian
Electrical Code.
UL294 Performance Levels
Model Number
Access Control
Line Security
Level
Destructive
Attack Level
Endurance Level
Stand-by Power
Level
Conditions
Brivo ACS6000
and ACS6008
Level I
Level I
Level IV
Level I
N/A
Documentation Disclaimer and Restrictions
Information in this document is subject to change without notice and does not represent a commitment
on the part of Brivo Systems LLC. For the most up-to-date information, visit www.brivo.com.
This document and the data herein shall not be duplicated, used or disclosed to others for procurement
or manufacturing, except as authorized with the written permission of Brivo Systems LLC. The
information contained within this document or within the product itself is considered the exclusive
property of Brivo Systems LLC. All information in this document or within the hardware and software

Brivo ACS6000 Installation Manual Page 3
© 2016 Brivo Systems LLC. All rights reserved. 10/17/2016
product themselves is protected by the copyright and/or other intellectual property laws of the United
States.
Product Support
All support for this product is provided by the third-party dealer. Please contact the dealer who installed
the product with questions and support requests.
© 2016 Brivo Systems LLC. All rights reserved.
Brivo® is a trademark of Brivo Systems LLC. Brivo Systems LLC., 7700 Old Georgetown Road, Suite
300, Bethesda, MD 20814

Brivo ACS6000 Installation Manual Page 4
© 2016 Brivo Systems LLC. All rights reserved. 10/17/2016
Table of Contents
LEGAL DISCLAIMERS ................................................................................................................................. 1
TABLE OF CONTENTS ................................................................................................................................ 4
INTRODUCTION ........................................................................................................................................... 5
PRE-INSTALLATION PROCEDURES ........................................................................................................... 7
POWERING AND TESTING PROCEDURES .............................................................................................. 19
INSTALLATION PROCEDURES ................................................................................................................. 21

Brivo ACS6000 Installation Manual Page 5
© 2016 Brivo Systems LLC. All rights reserved. 10/17/2016
Introduction
Document Objectives
This Installation Manual provides step-by-step instructions for installing the Brivo ACS6000 Control
Panel. Its primary audience is trained access control installation technicians (Installers) who are
responsible for installing the ACS6000 Control Panel at client sites.
This version of the manual is also intended for IT personnel, who should use it in conjunction with the
ACS6000 Networking Admin Interface Guide. It may be used by dealers and their sales professionals to
help them conduct pre-sales, and to provide client support during the installation process. Finally, it
may be used for in-house training purposes and ongoing support.
Document Layout
This manual is organized into a series of procedural checklists, detailing steps you must follow to ensure
a safe and effective installation. The main sections of the manual are:
• Pre-Installation Procedures
• General Assembly Procedures
• Power and Testing Procedures
• Installation Procedures
Terminology
Following is a list of terms that are used throughout this document. While some of these terms may have
other meanings, the definitions provided below are the ones intended in this Installation Manual.
• Control chassis. The main chassis for a control panel. The control chassis contains the MAIN
BOARD, and may also contain one expansion board, either a DOOR BOARD or an INPUT
OUTPUT BOARD (if using a standard chassis) or three expansion boards in any combination of
DOOR BOARDs or INPUT OUTPUT BOARDs (if using a large chassis).
• Expansion chassis. Additional chassis, containing one or two expansion boards, either DOOR
BOARDs and/or INPUT OUTPUT BOARDs.
• Large expansion chassis. Additional chassis, containing up to four expansion boards, either
DOOR BOARDs and/or INPUT OUTPUT BOARDs.
• Control panel. The complete system of control chassis and expansion chassis for an account. A
control panel will have the MAIN BOARD (contained in the control chassis) and a number of
additional expansion chassis (standard or large) to hold a maximum of 14 additional DOOR
BOARDs and/or INPUT OUTPUT BOARDs (for a total maximum of 15 boards).
• Access control system (ACS). The complete interaction between a control panel, the Brivo
product (OnAir, OnSite, or OnSite Server) and in the case of Brivo OnAir, the Brivo OnAir cloud
server.
• Brivo OnAir®. Brivo’s cloud based software application which enables the end user to manage
his or her Brivo OnAir account.
• Brivo OnAir Cloud Server. The off-site servers, hosted by Brivo, that are used to store an
account’s database. Configuration and maintenance of the control panel is managed through
Brivo OnAir.
• Brivo OnAir for Government. Brivo’s cloud based software application which connects to Brivo’s
OnAir for Government servers and enables the end user to manage his or her Brivo OnAir for
Government account.
• Brivo OnSite. Brivo’s standalone software application which enables an end user to manage his
or her Brivo OnSite account.
• Brivo OnSite Server. Brivo’s appliance-based application which enables the end user to manage
his or her Brivo OnSite Server account.

Brivo ACS6000 Installation Manual Page 6
© 2016 Brivo Systems LLC. All rights reserved. 10/17/2016
Wiring Recommendations
Signal
Belden # or
Equivalent
AWG
Twisted
Pair
Conductor
Shielded?
Max Length
RS-485 Comm, two wire
9841
24
Yes
Yes
4000 ft
Power (22 gauge)
5504FE
22
Yes
Yes
600 ft
Power (18 gauge)
6300FE
18
Yes
Yes
1500 ft
RJ45-Ethernet (CAN Bus)
N/A
Cat5
Yes
Yes
1500 ft
Fire Alarm Relay
6300FE
18
Yes
Yes
1500 ft
Request-to-Exit
5520FE/6300FE
22/18
Yes
Yes
1500 ft
Door Contact
5500FE
22
Yes
Yes
1500 ft
Transformer Block
6300FE
18
Yes
Yes
1500 ft
Molex Connector
N/A
22
Yes
No
1 ft
Earth ground
N/A
6
Yes
Yes
20 to 40 ft
Reader Option 1 (22 AWG)
5504FE
22
Yes
Yes
250 ft
Reader Option 2 (20 AWG)
5400FE
20
Yes
Yes
300 ft
Reader Option 3 (18 AWG)
6300FE
18
Yes
Yes
500 ft
Additional Resources
The following additional resources are available for the installer as well as the client.
• ACS6000 Networking Admin Interface Guide
• Reader/Keypad Wiring Guide
• Installation Worksheet: Network
• Installation Worksheet: Door Board
• Installation Worksheet: Input Output Board
• Brivo OnAir Quick Start Guide
• Brivo Cellular Network Router Configuration Guide
• Brivo OnSite Quick Start Guide
• Brivo OnSite Server Quick Start Guide
• Technical Support: 1-866-BRIVO-4-U
• www.brivo.com

Brivo ACS6000 Installation Manual Page 7
© 2016 Brivo Systems LLC. All rights reserved. 10/17/2016
Pre-Installation Procedures
Before you begin installing the Brivo control panel, perform the following tasks to ensure a safe, speedy,
and successful installation.
Understand the function of the Brivo ACS6000 control panel (A/E/F/S).
The ACS6000-E, ACS6000-F, ACS6000-A, and ACS6000-S are four (4) reader control panels
with multiple access points (up to four readers per panel). This control panel is considered a
standalone system. The main board has two (2) readers on-board, and one additional expansion
board can be integrated with the main board which will form the four (4) reader panel. Additional
expansion panels (ACS6000-EXP) can connect to the main control panel with two expansion
boards in each. Each expansion board can be a door board (two (2) readers on board) or an
input-output board.
The Brivo ACS6000-E uses an on-board Ethernet interface to communicate via any TCP/IP
networking technology that can be connected through a hub, router or switch, including Wi-Fi
and satellite communications. It is an IP-enabled Access Control System that interacts with the
Brivo OnAir cloud server via the Internet application Brivo OnAir.
The Brivo ACS6000-A is identical to the ACS6000-E except that the ACS6000-A communicates
to a Brivo OnSite Server instead of the Brivo OnAir cloud server.
The Brivo ACS6000-F is identical to the ACS6000-E except that the ACS6000-F communicates
to the Brivo OnAir for Government cloud server instead of the Brivo OnAir cloud server.
The Brivo ACS6000-S is identical to the ACS6000-E except that the ACS6000-S cannot
communicate through the web. Instead, it is programmed through an on-board interface for data
management.
The ACS6008-E, ACS6008-F, ACS6008-A, and ACS6008-S are identical to their respective
ACS6000 models except for a larger enclosure which allows for two additional expansion boards
(door board or input-output boards). Also, the ACS6008 series are connected to two (2) 12V,
7Ah batteries for standby power (Batteries should be connected in parallel).
Understand Brivo ACS6000 control panel product compatibility.
The ACS6000 control panel is compatible with a large number of standard reader models
including the following UL tested reader models: HID600, Identiv 8110, HID RPK40, Allegion
MTK15, AWID KP-6840, and OSDP reader 921PTPTEK00385. Brivo products are designed to
accommodate the latest updates in Wiegand and OSDP using RS-485 reader formats. The
ACS6000 control board is compatible with Wiegand devices that transmit up to 255-bit data and
OSDP readers using RS-485.
A current list of compatible readers and keypads is maintained on Brivo’s website at
http://www.brivo.com. If you have a specific model of reader or keypad that is not listed on the
Brivo website, please contact Technical Support at 1-866-BRIVO-4-U to determine
compatibility.
Verify that the client site is ready to support the installation.
1. Check with the IT department to ensure that the ACS6000 control panel to be installed is
compatible with the company’s local area network (LAN).
a) The ACS6000 control panel is equipped with a standard RJ-45 socket that
accepts a CAT5 or CAT6 cable with an RJ-45 plug on any 10/100 Ethernet

Brivo ACS6000 Installation Manual Page 8
© 2016 Brivo Systems LLC. All rights reserved. 10/17/2016
network. Physically connecting the panel is the same as plugging any computer
or other device into the LAN.
b) Refer to the ACS6000 Networking Admin Interface Guide for instructions on
connecting to the LAN. The ACS6000 Networking Admin Interface Guide also
contains a complete list of requirements regarding TCP/IP configuration
parameters and information about security considerations.
2. Download the appropriate Quick Start Guide from the Brivo website and provide it to the
Master Administrator. This document provides instructions for registering and
configuring the control panel in the appropriate application.
3. For Brivo OnAir accounts, make sure the account has been created and the control
panel is registered through Brivo OnAir. If the control panel has not been registered by
the dealer, the installer may either contact Brivo Technical Support for assistance or
simply register the panel directly.
4. Verify that the Master Administrator and any other employee who will be accessing the
system have Internet access on a computer equipped with a supported Web browser.
Verify shipping contents.
1. Locate and check the contents of the Control Panel kit.
The ACS6000 control panel kit should contain the following parts:
a) 1 metal chassis. Packed inside the chassis are:
o An identify label to be adhered to the inside of the door.
o 1 cardboard box containing the MAIN BOARD and an Identity Label.
o 1 cardboard box containing a power supply board.
o 1 cardboard box containing accessories, including:
o 1 AC transformer
o 1 7Ah lead-acid battery
o 1 power cable assembly
o 2 MOVs (Metal Oxide Varistors)
o 16 EOL (End of Line) resistors
o 2 sets of 18-gauge battery wires (1 red, 1 black), with female
spade-type connectors
o Wi-Fi connector cable
o Wi-Fi antenna
b) 1 lock and key set
c) 5 screws for power supply
d) 6 standoffs for the MAIN BOARD
e) 1 documentation set, including:
• Installation Manual (this document)
2. If additional DOOR BOARDs have been ordered with the control panel, locate and check
the contents of each 2-Door Board (B-ACS5000-DB) Kit. There may be up to 15 of these
kits, and each should contain the following parts:

Brivo ACS6000 Installation Manual Page 9
© 2016 Brivo Systems LLC. All rights reserved. 10/17/2016
a) 1 DOOR BOARD
b) 5 standoffs for the DOOR BOARD
c) 6 EOL resistors
d) 2 MOVs (Metal Oxide Varistors)
e) 1 power cable assembly
3. If additional INPUT OUTPUT BOARDs have been ordered with the control panel, locate
and check the contents of each INPUT OUTPUT BOARD (B-ACS5000-IO) Kit. There
may be up to 15 of these kits, and each should contain the following parts.
a) 1 INPUT OUTPUT BOARD
b) 5 standoffs for the INPUT OUTPUT BOARD
c) 8 EOL resistors
d) 1 power cable assembly
4. If additional expansion chassis have been ordered with the control panel, locate and
check the contents of each Expansion Chassis Kit (B-ACS6000-EXP) or Large
Expansion Chassis Kit (B-ACS6008-EXP). Each standard expansion chassis can hold up
to two boards, including any combination of door and/or Input Output boards. Each
large expansion chassis can hold up to four boards, including any combination of door
and/or Input Output boards. There may be enough Expansion Chassis kits or Large
Expansion Chassis Kits to hold 1 MAIN BOARD, and any combination of 14 door and/or
Input Output boards. Each should contain the following parts:
a) 1 metal chassis
b) 1 lock and key set
c) 5 screws for power supply
d) 1 door label showing wiring and setup guide
e) 1 power supply board
f) 1 AC transformer
g) 1 pair of battery wires
h) 1 7Ah lead-acid battery
Plan your installation.
1. Determine the size of your control panel.
a. In addition to the control chassis, which contains the MAIN BOARD, there may
be up to seven expansion chassis.
b. The control chassis contains the MAIN BOARD, which also serves as a 2-door
board, and may also contain either a DOOR BOARD or an INPUT OUTPUT
BOARD.
c. Each expansion chassis may contain one or two boards: one DOOR BOARD,
one INPUT OUTPUT BOARD, two DOOR BOARDs, two INPUT OUTPUT
BOARDs, or one DOOR BOARD and one INPUT OUTPUT BOARD.
• Each DOOR BOARD has two terminal nodes, each of which contains a
complete set of terminals for controlling a door. This means that each
DOOR BOARD can be used to control two doors.

Brivo ACS6000 Installation Manual Page 10
© 2016 Brivo Systems LLC. All rights reserved. 10/17/2016
• The same inputs and outputs that drive a door can also be used for other
devices. In other words, DOOR BOARDs do not need to be used to control
doors.
WARNING: Door Wiring
If a node is to be used for a door, do not connect any other device to the
following terminal blocks: REX & DOOR, DOOR LOCK RELAY, and
READER.
• An INPUT OUTPUT BOARD cannot be used to control a door; however, it
can be used in any circumstance that uses contact closure to track change
of status.
2. Using the packing slip as a guide, complete the appropriate Installation Worksheets
included with your documentation set.
Decide where to install each chassis.
1. Do not place the control chassis more than 100 feet from the transformer. This is the
maximum cable run allowed by the ACS power supply.
2. Calculate the distance between the control chassis and each expansion chassis using
the chart in Table 1 below. The calculations are based on the following restrictions.
a) The control chassis, containing the MAIN BOARD, and the first expansion
chassis can be up to 1500 feet apart.
b) Each time another expansion chassis is added, the maximum distance between
the first and last chassis decreases by 50 feet. So, if there are three chassis in a
system, the control chassis plus two expansion chassis, the two most distant
chassis can be no more than 1450 apart.
Total # of chassis
Max allowed distance
2
1500
3
1450
4
1400
5
1350
6
1300
7
1250
8
1200
Maximum Distance Calculations
c) Calculate the distance between each chassis and its associated keypad or
reader. The ACS6000 does not specify a maximum distance between the
chassis and a keypad or reader, but the keypad/reader manufacturer does.
Follow manufacturer guidelines for each keypad and reader.
d) Place each chassis within 500 feet of its associated electronic strike or latch.

Brivo ACS6000 Installation Manual Page 11
© 2016 Brivo Systems LLC. All rights reserved. 10/17/2016
Follow safety precautions.
WARNING: Fire Code
NEVER CONNECT A KEYPAD/READER OR LOCK TO DOORS WITHOUT
FIRST CONSULTING THE APPLICABLE FIRE CODE. You must consult
with, and get approval from, local fire officials before installing locks or
devices on any doors that may be fire exits. Use of egress push buttons
may not be legal. Single action exits may be required. Always obtain proper
permits and approvals in writing before installing equipment
WARNING: Fail Secure Mode
DO NOT INSTALL THE SYSTEM IN THE FAIL SECURE MODE UNLESS
PERMITTED BY THE LOCAL AUTHORITY HAVING JURISDICTION. Doing
so may cause interference with the operation of panic hardware.
WARNING: Heat and Noise
DO NOT INSTALL THE CONTROL PANEL IN AN AREA THAT COULD
DROP BELOW 32 DEGRESS FAHRENHEIT OR EXCEED 120 DEGREES.
Doing so can cause damage to components within the control panel.
DO NOT INSTALL THE CONTROL PANEL NEAR OR ON THE SAME
CIRCUIT WITH DEVICES THAT PRODUCE LARGE AMOUNTS OF
ELECTRICAL NOISE. This includes grinders, electric motors and blowers,
electrical switch-gear and other electrically noisy equipment. Electrical
noise can interfere with panel operation. If it is not possible to install the
panel away from such sources of noise, it is advisable to isolate it by using a
high-quality UPS (Uninterruptible Power Supply) between the AC Mains and
the transformer.

Brivo ACS6000 Installation Manual Page 12
© 2016 Brivo Systems LLC. All rights reserved. 10/17/2016
General Assembly Procedures
Assemble and mount chassis.
1. Stick the identity label to the inside of the metal chassis.
2. Install the supplied nylon stand-offs into each chassis by inserting them from the rear.
NOTE: This step MUST be performed before the chassis is mounted to the
wall. Once the chassis has been mounted, it is not possible to insert the
stand-offs.
a) There are five stand-offs for each board, but there are more holes than that in
the chassis.
b) Determine which holes you will use based on the size of the boards you are
installing.
3. Mount the chassis.
a) Use four bolts to mount each chassis securely in place.
b) Make sure the chassis door can swing open freely to allow for access after the
installation is complete.
4. Remove any knock-outs that may be required to accommodate conduit or wiring.
WARNING: Knockouts
DO NOT ATTEMPT TO REMOVE THE KNOCKOUTS WITH A HAMMER.
Banging on the knockouts may result in shock to the circuit boards, which
could cause permanent damage. Pry them out using a screwdriver.
5. Assemble the chassis.
a) Install the power supply board in each chassis first. If you install the MAIN
BOARD or a Door or INPUT OUTPUT BOARD first, you may find it difficult to
position your screwdriver in a way that will allow you to install the power supply
board later.
b) Install the MAIN BOARD in the control chassis.
• Install each board by aligning it with the previously installed stand-
offs and then gently pressing it into place. You will hear a slight click
as the board settles into the locked position on the standoffs
c) If there is a DOOR BOARD or an INPUT OUTPUT BOARD for the control
chassis, install that now, using the procedures described for the MAIN BOARD.
d) If there are expansion chassis, install the appropriate DOOR BOARDs and/or
INPUT OUTPUT BOARDs in each chassis at this time, using the procedures
described for the MAIN BOARD.
e) You will note that the control panel kit contained an adhesive Identity Label.
This label should be affixed to the inside of the front door of the control chassis,
beneath the large wiring guide.

Brivo ACS6000 Installation Manual Page 13
© 2016 Brivo Systems LLC. All rights reserved. 10/17/2016
6. Verify presence of optical tamper reflector on the inside of the chassis door.
7. OPTIONAL: Install the physical tamper switch in the chassis.
a) Install the tamper switch in the chassis by removing the hex collar, seating the
switch inside the provided mounting bracket, and reattaching and tightening the
hex collar.
Confirm the SW 7 switch settings are in the correct positions
ACS6000 SW 7 Switch Bank Location
ACS6000 SW 7 Switch Settings

Brivo ACS6000 Installation Manual Page 14
© 2016 Brivo Systems LLC. All rights reserved. 10/17/2016
Connect the MAIN BOARD and all expansion boards to a power supply board
1. Connect the MAIN BOARD in the control chassis to the power supply board.
Connect MAIN BOARD to Power Supply
2. If there is a DOOR BOARD or an INPUT OUTPUT BOARD in the control chassis, connect
that to the power supply board.
Connect Expansion Board to Power Supply
3. If there are expansion chassis, connect each DOOR BOARD and INPUT OUTPUT
BOARD to the power supply board in each chassis.
a) Use the power cable that came with each circuit board kit.
b) The Power connector uses a PC-style 4-wire molded (Molex) connector to
deliver +12V, Ground, AC, Power Detection, and Earth Ground to each board
from the power supply.
WARNING: Power Supply
DO NOT USE ANY POWER SUPPLY OTHER THAN THOSE SUPPLIED
WITH YOUR BRIVO PRODUCT.

Brivo ACS6000 Installation Manual Page 15
© 2016 Brivo Systems LLC. All rights reserved. 10/17/2016
WARNING: Powering Electronic Strikes and Latches
DO NOT POWER ELECTRONIC STRIKES AND LATCHES WITH THE
BATTERY (OR OTHER POWER SOURCE) USED TO POWER THE
CONTROL PANEL; DOING SO WILL CAUSE DAMAGE TO THE BRIVO
CONTROL PANEL. USE ONLY A UL LISTED BURGLAR ALARM OR
ACCESS CONTROL SYSTEM TO POWER ELECTRONIC STRIKES AND
LATCHES.
Connect the AC Power Indicator LED for each chassis to the power supply for
that chassis.
1. Mount the AC power indicated LED on the front door of the chassis by pushing it
through the hold in the upper left corner of the door and securing using the bolt and
washer included with your packaging.
2. Connect the white and green wires from the AC power indicated LED to the 16.5VAC
terminals of the power supply board.
The ACS6000 control panel Tamper On/Off Toggle in the off position deactivates
both optical and physical tamper switches.
Tamper Switch and Optical Tamper Sensor Locations
If there is no reflector present, the optical tamper will not activate. The presence of the optical reflector is
required for this functionality.

Brivo ACS6000 Installation Manual Page 16
© 2016 Brivo Systems LLC. All rights reserved. 10/17/2016
OPTIONAL: Connect the physical tamper switch to the MAIN BOARD and to one
board in each expansion chassis.
1. Connect the physical tamper switch to the MAIN BOARD in the control chassis.
Connect Tamper Switch to MAIN BOARD
a) The tamper header connects to the supplied tamper switch.
b) The header connector for the tamper switch should be connected to the
TAMPER pins located on the lower right side of the MAIN BOARD and each
expansion board.
2. Connect the tamper switch to one expansion board (DOOR BOARD or INPUT OUTPUT
BOARD) in each expansion chassis.
Connect Tamper Switch to Expansion Board
NOTE: If a chassis has two boards, connect the tamper switch to the upper
board.
NOTE: If the tamper switch is not going to be used, leave the supplied
jumper on this connector to keep the circuit closed.

Brivo ACS6000 Installation Manual Page 17
© 2016 Brivo Systems LLC. All rights reserved. 10/17/2016
Connect the battery leads to the power supply
WARNING: Backup Battery
DO NOT CONNECT THE BACK-UP BATTERY AT THIS TIME. Premature
connection of the battery terminals may cause damage to the control
panel.
1. Connect the battery wires that come with each circuit board kit to the power supply
BATTERY INPUT terminal block.
a) Connect the black wire to the ground (GND) terminal.
b) Connect the red wire to the +12V terminal.
c) Make sure the battery wires are segregated at least ¼ inch away from all other
input/output wiring.
NOTE: Power Standby Level 1 for UL listed systems.
Connect Battery Leads to Power Supply

Brivo ACS6000 Installation Manual Page 18
© 2016 Brivo Systems LLC. All rights reserved. 10/17/2016
Wire the AC/DC transformer to the power supply
WARNING: Transform Connection
DO NOT CONNECT THE TRANSFORMER TO A SWITCHED OUTLET OR
OTHERWISE CONTROLLED AC OUTLET.
DO NOT CONNECT THE TRANSFORMER TO THE 120 VAC OUTLET
UNTIL ALL WIRING IS COMPLETED.
1. Use 18 AWG wire (minimum grade) to connect the screw terminals on the transformer to
the 16VAC/19VDC POWER INPUT terminal block on the power supply board, using
terminals DC +/AC1 and DC -/AC2.
Connect AC Transformer to Power Supply
2. To maintain UL compliance, the unit must be powered by a UL 294 Listed power supply
capable of supplying 16VAC/19VDC, 2.1A.
Model
Circuit
Voltage (VDC/AC)
Current (mA/A)
Brivo ACS6000-A/ACS6008-A
Brivo ACS6000-E/ACS6008-E
Brivo ACS6000-F/ACS6008-F
Brivo ACS6000-S/ACS6008-S
Input
120/240VAC (Primary)
0.49 A/1.0A
19VDC (Secondary)
2.1 A
16VAC (Secondary)
2.1 A

Brivo ACS6000 Installation Manual Page 19
© 2016 Brivo Systems LLC. All rights reserved. 10/17/2016
Powering and Testing Procedures
WARNING: Power Precautions
BEFORE POWERING UP THE CONTROL PANEL, CHECK THE
FOLLOWING CONNECTIONS. MAKE SURE THAT:
• The transformer is NOT plugged into the 120VAC outlet.
• All wiring to the back-up battery is DISCONNECTED.
Power up the control panel.
1. Plug the transformer into a 120VAC outlet.
2. Check ALL power indicators:
a) Check the power supply board to confirm that the green LED is on, indicating
that AC power is being supplied to the board and that the board is producing
12VDC power.
b) Check the MAIN BOARD to confirm that the LOCAL HRTBT (local heartbeat)
and MAIN HRTBT (main heartbeat) have come on and are blinking.
• The local heartbeat should begin blinking immediately.
• The main heartbeat can take 30-60 seconds to establish a steady
beat.
MAIN BOARD Heartbeats

Brivo ACS6000 Installation Manual Page 20
© 2016 Brivo Systems LLC. All rights reserved. 10/17/2016
c) Check each DOOR BOARD to confirm that the LOCAL HRTBT has come on and
is blinking, indicating that 12 VDC power is present.
Expansion Board Local Heartbeat
d) Check each INPUT OUTPUT BOARD to confirm the LOCAL HRTBT has come
on and is blinking.
e) If any of these power indicators is not correct (i.e., the LED light does not come
on or does not begin blinking, check the connections from the power supply to
each of the circuit boards. If all connections are good but there is a still a
problem with the power indicator, contact Technical Support.
NOTE: A steady light is an indication of a problem, just as much as no light
is.
3. If ALL power indicators are correct, attach the back-up battery and check that ALL
indicators remain the same. Only then should you go on to Installation Procedures.

Brivo ACS6000 Installation Manual Page 21
© 2016 Brivo Systems LLC. All rights reserved. 10/17/2016
Installation Procedures
Establish CAN BUS Wiring
1. If there is an expansion board in the control chassis, connect it to the MAIN BOARD.
Connect Expansion Board to MAIN BOARD

Brivo ACS6000 Installation Manual Page 22
© 2016 Brivo Systems LLC. All rights reserved. 10/17/2016
2. If there are expansion chassis, in each chassis connect the second expansion board to
the first one.
Connect Expansion Boards in Expansion Chassis
3. Daisy-chain the complete set of chassis together.
a) For example, if there are six boards in the control panel, there would be a MAIN
BOARD and five expansion boards (E1, E2, E3, E4, and E5). Each expansion
board could be either a DOOR BOARD or an INPUT OUTPUT BOARD.
b) To daisy-chain the boards together: (See Figure 11 below.)
• Wire E5 to E4 in Expansion Chassis 2.
• Wire E4 in Expansion Chassis 2 to E3 in Expansion Chassis 1.
• Wire E3 to E2 in Expansion Chassis 1.
• Wire E2 in Expansion Chassis 1 to E1 in the Control Chassis.
• Wire E1 to the MAIN BOARD.

Brivo ACS6000 Installation Manual Page 23
© 2016 Brivo Systems LLC. All rights reserved. 10/17/2016
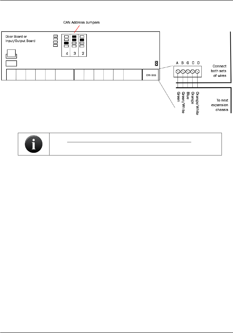
CAN BUS Configuration
4. Use standard CAT5 or CAT6 (unshielded twisted pair) cabling to connect all the boards
in the control panel via the CAN BUS terminals.
5. Always connect like terminals to one another (i.e., A to A, B to B, and so on.).
6. Follow the color coding shown on the wiring diagram on the inside of the chassis door.
WARNING: CAN BUS Wiring
THE A/B CIRCUITS MUST SHARE A TWISTED PAIR, AND THE C/D
CIRCUITS MUST SHARE A TWISTED PAIR. Otherwise, the distance and
data integrity of the communications channel will be compromised.
WHEN USING JUST A MAIN BOARD, SWITCH 7-1 TO THE ON POSITION
WHICH ENABLES CAN TERMINATION ON THE MAIN BOARD. If expansion
boards are used, the can termination jumper remains attached on the very
last board(s) in the daisy chain; i.e. It must be removed from all boards
except the endpoint of the daisy chain. (NOTE: The MAIN BOARD does not
have to be an endpoint in the control panel; the control panel may be in the
middle of the chain with expansion boards branching out in either direction.)
7. On the first board, connect the wires of the CAT5/CAT6 cable to the CAN BUS terminal
block as follows:
a) Connect the green wire to the A terminal.
b) Connect the green and white wire to the B terminal.
c) Connect the blue wire to the G (ground) terminal.
d) Connect the orange wire to the C terminal.
e) Connect the orange and white wire to the D terminal.
8. After all the wires of the CAT5/CAT6 cable are connected to the first board, connect the
wires to the second board in the same manner.
9. Connect the CAN NODE ADDRESS jumpers. The silkscreen next to the CAN NODE
ADDRESS pins shows how to position the jumpers for first four addresses.
10. Positions for additional address values are shown in the diagram below.

Brivo ACS6000 Installation Manual Page 24
© 2016 Brivo Systems LLC. All rights reserved. 10/17/2016
CAN NODE ADDRESS Jumpers
WARNING: CAN BUS Wiring
The CAN NODE ADDRESS jumpers are used to set the address of each
board on the CAN BUS. DO NOT ASSIGN TWO BOARDS THE SAME
ADDRESS, OR THE BUS WILL NOT FUNCTION PROPERLY.
Set these values sequentially, starting with 2 as the first expansion board
address; address 1 is the MAIN BOARD. Record all addresses on the
Installation Worksheet. These jumper settings will map to board numbers
when the control panel is configured via the application.
Connect a laptop to the MAIN BOARD’s ADMIN Port
Connect Laptop to MAIN BOARD
1. Connect a laptop to the ADMIN port on the MAIN BOARD using a standard Ethernet
cable or a patch cable.
a) The ADMIN port is a 10/100 Ethernet interface with RJ45 jack for connecting the
MAIN BOARD to a laptop or PC to gain access to the local administrative
interface for debug and manual configuration utilities.

Brivo ACS6000 Installation Manual Page 25
© 2016 Brivo Systems LLC. All rights reserved. 10/17/2016
b) The port uses auto-sensing technology to determine polarity, which permits
either a straight or crossover cable to be used between the board and the
computer.
Connect the LAN to the MAIN BOARD
Connect LAN to MAIN BOARD
1. Connect the LAN to the MAIN BOARD according to the instructions in the ACS6000
Networking Admin Interface Guide.
a) The LAN port is a 10/100 Ethernet interface with an RJ45 jack for connecting the
MAIN BOARD to a Local Area Network in order for it to gain connectivity to the
Internet and the appropriate server depending upon the version of MAIN
BOARD.
b) Use a straight, (i.e., non-crossover) cable to connect this port to a local hub,
switch or router that has connectivity to the Internet.
Wire Doors
For each board node to be used for controlling a door, as indicated in the completed Installation
Worksheet, make the following connections.
NOTE: Doors can be wired to the MAIN BOARD or to expansion boards,
including both DOOR BOARDs and INPUT OUTPUT BOARDS.

Brivo ACS6000 Installation Manual Page 26
© 2016 Brivo Systems LLC. All rights reserved. 10/17/2016
Wire Doors for Wiegand Readers
NOTE: ACS6000 Output Ratings for the ACS6000 Main Board
• Two (2) reader ports, 12V, 350mA each
• Two (2) selectable wet contacts, 12VDC, 350mA each
• Four (4) dry contacts are 28VDC, 6A each
NOTE: ACS6000 Output Ratings for the Door Board
• Two (2) reader ports, 12V, 300mA COMBINED for both readers.
• Six (6) relays on the Door Board. The ratings are 24VDC, 3A each.
1. Wire the REX & DOOR terminal block.
a) Connect the Normally Open (NO) contacts of the REX device to the REX and
COM terminals.
• When this switch closes, it initiates a Request-to-Exit (REX) program
sequence, as defined by the appropriate application, including the

Brivo ACS6000 Installation Manual Page 27
© 2016 Brivo Systems LLC. All rights reserved. 10/17/2016
option to activate the door or other relays, fire the door strike, and
suppress any “Door Forced” messages.
b) Connect the Normally Closed (NC) contacts of the Door Sensor to the COM and
CONTACT terminals.
• In this context, an NC switch is considered closed when the door is
closed (magnet is present), and open when the door is open (no magnet
is present).
• When the switch is open, the control panel interprets this input as a
“Door Open” condition. When the switch is closed, the control panel
interprets this input as a “Door Closed” condition.
• This circuit provides door status information (open/closed) to the control
panel so the application can take appropriate action locally, or send
email notifications if necessary.
2. Wire the DOOR LOCK RELAY terminal block.
a) Connect the door latch to the COM terminal and either the NO or NC terminal.
b) The DOOR LOCK RELAY provides both NO (Normally Open) and NC (Normally
Closed) contacts, and is driven in response to the presentation of valid
credentials or the programmable REX input.
c) Timing and other aspects of relay activation are programmed through the
application.
3. If used for an alarm shunt, wire the AUX RELAY 1 terminal block. If not used for an alarm
shunt, AUX RELAY 1 can be used for a variety of purposes.
4. Wire AUX RELAY 2. Like the AUX RELAY 1, this terminal block can be used for a variety
of purposes, and are programmed via the application.
NOTE: The fully programmable AUX RELAYs provide both NO (Normally
Open) and NC (Normally Closed) contacts.
WARNING: Relay Amp Limit
THERE IS A 3A, 24VDC LIMIT ON THROUGH CURRENT FOR ALL
RELAYS.
5. If used, wire the AUX INPUTS terminal block.
a) The IN1 and IN2 terminals are contact closure type inputs that share a COM
terminal.
b) The terminals can be used for a variety of purposes, and are programmed
through the application.
6. Wire the Reader terminals to the last block of terminals in this door node.
NOTE: To activate RS-485 functionality on the ACS6000 MAIN BOARD for
Door 1, put the RS-485 Door 1 switch in the RS-485 position. For Door 2,
put the RS-485 Door 2 switch into the RS-485 position.

Brivo ACS6000 Installation Manual Page 28
© 2016 Brivo Systems LLC. All rights reserved. 10/17/2016
RS-485 Switch Locations
NOTE: The ACS6000 board defaults to Half-Duplex communication when
using RS-485 reader functionality. In order to switch to Full-Duplex
communication, move the Door 1 F/H switch on Door 1 and Door 2 F/H
switch on Door 2 to the Full-Duplex position.
RS-485 Full Duplex/Half Duplex Switch Locations for Doors 1 and 2
NOTE: RS-485 bus requires termination. Door 1 RS-485 Term is the RS-
485 Door 1 bus termination switch and Door 2 RS-485 Term is the RS-485
Door 2 bus termination switch.

Brivo ACS6000 Installation Manual Page 29
© 2016 Brivo Systems LLC. All rights reserved. 10/17/2016
RS-485 Termination Switch Locations for Doors 1 and 2
NOTE: Door lock relays can be provided with power by using Door 1
Wet/Dry Switch above Door Node 1 and Door 2 Wet/Dry Switch above
Door Node 2.
ACS6000 Wet/Dry Door Contact Switches for Doors 1 and 2
NOTE: Refer to the Reader/Keypad Wiring Guide for Brivo approved
devices and connection diagrams.

Brivo ACS6000 Installation Manual Page 30
© 2016 Brivo Systems LLC. All rights reserved. 10/17/2016
a) Use the wire recommended by the manufacturer of the reader or keypad. If no
wire is recommended, use a minimum of 22 AWG wire with sufficient
conductors that include shield (drain).
b) If your reader interface uses standard Wiegand conventions, connect the wire
properly to the terminal block on the appropriate board node. Following is a
typical, but not universal, wiring guide. Refer to the Reader/Keypad Wiring Guide
for guidelines related to your specific reader or keypad.
• Connect the green reader wire to the DATA0 terminal. This is the
standard Data 0 circuit for Wiegand readers.
• Connect the white reader wire to the DATA1 terminal. This is the
standard Data 1 circuit for Wiegand readers.
• Connect the black reader wire to the GND terminal. This is the
standard Ground circuit for the reader.
• Connect the blue reader wire to the BUZZ terminal. This is the
standard Buzzer circuit for the reader.
• Connect the red reader wire to the 12VDC terminal. This provides
+12VDC to power the reader.
• Connect the orange reader wire to the GRN LED terminal. This is the
green LED circuit.
• Connect the brown reader wire to the RED LED terminal. This is the
red LED circuit.
c) If your reader is OSDP using RS-485 wiring conventions, connect the wire
properly to the terminal block on the appropriate board node. Following is a
typical, but not universal, wiring guide. Refer to the Reader/Keypad Wiring Guide
for guidelines related to your specific reader or keypad.
• Connect the green reader wire to the RXD+ terminal. This is the
standard RXD+ circuit for OSDP readers using RS-485.
• Connect the white reader wire to the RXD- terminal. This is the
standard RXD- circuit for OSDP readers using RS-485.
• Connect the black reader wire to the GND terminal. This is the
standard Ground circuit for the reader.
• Connect the blue reader wire to the BUZZ terminal. This is the
standard Buzzer circuit for the reader.
• Connect the red reader wire to the 12VDC terminal. This provides
+12VDC to power the reader.
• Connect the orange reader wire to the TXD+ terminal. This is the
standard TXD+ circuit for OSDP readers using RS-485.
• Connect the brown reader wire to the TXD- terminal. This is the
standard TXD- circuit for OSDP readers using RS-485.

Brivo ACS6000 Installation Manual Page 31
© 2016 Brivo Systems LLC. All rights reserved. 10/17/2016
Wire Doors for OSDP Readers using RS-485
7. Install MOVs.
WARNING: Noise Suppression
INSTALL THE TRANSIENT NOISE SUPPRESSION DEVICE (MOV) SUPPLIED
WITH THE CONTROL PANEL.
a) Install the MOV across the conductors, as close as possible to the electric strike
or latch. This will normally be at the connection from the field-installed wiring to
the pig tail or screw terminals of the electronic strike or latch.
b) Use the wire recommended by the manufacturer of the electric strike or latch. If
no wire is recommended, use a minimum of 18 AWG wire with sufficient strands
for the specific electronic strike or latch.

Brivo ACS6000 Installation Manual Page 32
© 2016 Brivo Systems LLC. All rights reserved. 10/17/2016
Wire INPUT OUTPUT BOARDs
Wire INPUT OUTPUT BOARD
NOTE: ACS6000 Output Ratings for the Input Output Board
• Eight (8) relays on the I/O Board. The ratings are 24VDC, 3A each.
1. An INPUT OUTPUT BOARD has 8 output relays and 8 inputs. The inputs can be wired
for line supervision.
2. The ACS6000 control panel is capable of 4-state input monitoring at each input
connector, whether it be on the Main Board, a Door Board, or an Input Output Board.
This allows for monitoring of not only open and closed switches, but cut and short-
circuited lines as well. This can only happen when the EOL (end-of-line) resistor wiring is
installed.
a) You will need two 2Kohm resistors for each input.
b) The resistors are installed on the input lines as close to the switch as possible,
and as far from the ACS6000 control panel.
c) One resistor is placed in parallel with the switch, so that one end of the resistor
is connected to wire 1 from the switch, while the other end is connected to wire
2 from the switch.
d) The second resistor is placed in series with the switch, so that one end of the
resistor is connected to wire 1 from the switch, while the other end is connected
to the wire leading to the ACS6000 control board.
e) The other wire from the ACS6000 is connected to wire 2 from the switch, as
shown in 0.

Brivo ACS6000 Installation Manual Page 33
© 2016 Brivo Systems LLC. All rights reserved. 10/17/2016
EOL Resistor Wiring
WARNING: Powering Electronic Strikes and Latches
DO NOT POWER ELECTRONIC STRIKES AND LATCHES WITH THE
BATTERY (OR OTHER POWER SOURCE) USED TO POWER THE
CONTROL PANEL; DOING SO WILL CAUSE DAMAGE TO THE BRIVO
CONTROL PANEL. USE ONLY A UL LISTED BURGLAR ALARM OR
ACCESS CONTROL SYSTEM TO POWER ELECTRONIC STRIKES AND
LATCHES.

Brivo ACS6000 Installation Manual Page 34
© 2016 Brivo Systems LLC. All rights reserved. 10/17/2016
Mount and connect the ACS6000 Wi-Fi antenna
1. If you are using the Wi-Fi functionality of the ACS6000 board, please make certain that
your SW 7-3 Wi-Fi switch is set to the Enabled position.
2. Included in the shipping contents of the ACS6000 panel is a Wi-Fi connector cable with
one end being a brass washer/screw connector and the other end being a silver snap
connector (which is covered by a removable red protective cover).
3. Unscrew the brass washer from the cable and place that end through the top of the
chassis. Now screw the washer back in place on the outside of the chassis, securing the
cable to the top of the chassis.
4. Attach the Wi-Fi antenna (included with the shipping contents) to the connector atop the
chassis.
ACS6000 Wi-Fi Cable Connection
5. Attach the silver end of the Wi-Fi antenna cable to the connector in the upper right hand
corner of the Wi-Fi antenna transmitter on the ACS6000 MAIN BOARD.
ACS6000 Wi-Fi Antenna Location

Brivo ACS6000 Installation Manual Page 35
© 2016 Brivo Systems LLC. All rights reserved. 10/17/2016
6. When snapped into place, you may feel and hear an audible click.
Ground the control chassis.
1. Wire the control chassis to the green Earth Ground screw.
2. Use 18 AWG or larger wire to connect the chassis to a suitable earth ground.
3. The ground contact point is in the lower panel area, near the hinge for the door and in
front of the power supply.
Revision Table
Date
Author
Change
1.0
8/26/2016
LMW
Original
1.1
10/7/2016
LMW
FCC language updated
1.2
10/17/2016
LMW
Wi-Fi Antenna
instructions added