CARRIER Package Units(both Units Combined) Manual L0801131
User Manual: CARRIER CARRIER Package Units(both units combined) Manual CARRIER Package Units(both units combined) Owner's Manual, CARRIER Package Units(both units combined) installation guides
Open the PDF directly: View PDF
.
Page Count: 28

_rn to the Expertg
Installation Instructions
NOTE: Read the entire instruction manual before starting the
installation.
NOTE: Installer: Make sure the Owner's Manual and Service
Instructions are left with the unit after installation.
TABLE OF CONTENTS
Page
SAFETY CONSIDERATIONS ........................ 1
INTRODUCTION .................................. 2
RECEIVING AND INSTALLATION ................ 2-12
Check Equipment ................................. 2
Identify Unit ................................... 2
Inspect Shipment ................................ 2
Provide Unit Support .............................. 2
Roof Curb ..................................... 2
Slab Mount .................................... 2
Ground Mount ................................. 2
Field Fabricate Ductwork ........................... 2
Provide Clearances ................................ 6
Rig and Place Unit ................................ 6
Inspection ..................................... 6
Use of Rigging Bracket ........................... 6
Connect Condensate Drain .......................... 8
Install Flue Hood .................................. 8
Install Gas Piping ................................. 9
Install Duct Connections ............................ 9
Configuring Units for Downflow (Vertical)
Discharge ..................................... 9
Install Electrical Connections ....................... 11
High- Voltage Connections ....................... 11
Special Procedures for 208-V Operation ............. 11
Control Voltage Connections ...................... 11
Heat Anticipator Setting ......................... 12
Transformer Protection .......................... 12
PRE-START-UP .................................. 12
START-UP AND TROUBLESHOOTING ........... 12-19
Check for Refrigerant Leaks ........................ 12
Start-Up Heating & Make Adjustments ............... 13
Check Heating Control .......................... 13
Check Gas Input ............................... 13
Adjust Gas Input ............................... 13
Check Burner Flame ............................ 14
Airflow and Temperature Rise ..................... 14
Heating Sequence of Operation .................... 14
Limit Switches ................................ 18
Rollout Switch ................................ 18
Start-Up Cooling & Make Adjustments ............... 18
Checking Cooling Control Operation ............... 18
Checking & Adjusting Refrigerant Charge ........... 18
Indoor Airflow and Airflow Adjustments ............ 19
Cooling Sequence of Operation .................... 19
MAINTENANCE ............................... 23-25
Air Filter ....................................... 23
Indoor Blower and Motor .......................... 23
Flue Gas Passageways ............................. 23
Induced Draft (Combustion Air) Blower ............... 24
A99338
Fig. 1 - Unit 48SD
(Low NOx Model Available)
Limit Switch .................................... 24
Burner Ignition .................................. 24
Main Burners ................................... 24
Outdoor Coil, Indoor ('oil, & Condensate Drain Pan ..... 24
Outdoor Fan .................................... 25
Electrical Controls and Wiring ...................... 25
Refrigerant Circuit ................................ 25
Indoor Airflow . ................................. 25
Metering Devices-
Thermostatic Expansion Valve .................... 25
AccuRater _" Piston ............................. 25
Liquid Line Strainer .............................. 25
TROUBLESHOOTING .......................... 25-27
START-UP CHECKLIST ........................... 25
SAFETY CONSIDERATIONS
Installation and servicing of this equipment can be hazardous due to
mechanical and electrical components. Only trained and qualified
personnel should install, repair, or service this equipment.
Untrained personnel can perform basic maintenance functions such
as cleaning and replacing air filters. All other operations must be
performed by trained service personnel. When working on this
equipment, observe precautions in the literature, on tags, and on
labels attached to or shipped with the unit and other safety
precautions that may apply.
Follow all safety codes. Installation must be in compliance with
local and national building codes. Wear safety glasses, protective
clothing, and work gloves. Have fire extinguisher available. Read
these instructions thoroughly and follow all warnings or cautions
included in literature and attached to the unit.
Recognize safety information. This is the safety-alert symbol _.
When you see this symbol on the unit and in instructions or manuals,

n
be alert to the potential for personal injury. Understand these signal
words: DANGER. WARNING. and CAUTION. These words are
used with the safety-alert symbol. DANGER identifies the most se-
rious hazards which will result in severe personal injury or death.
WARNING signifies hazards which could result in personal injury
or death. CAUTION is used to identify unsafe practices which may
result in minor personal injury or product and property damage.
NOTE is used to highlight suggestions which will result in en-
hanced installation, reliability, or operation.
ELECTRICAL SHOCK HAZARD
Failure to follow this warning could result in personal injury
or death.
Before installing or servicing system, always turn off main
power to system. There may be more than one disconnect
switch. Turn off accessory heater power switch if applicable.
FIRE, EXPLOSION, ELECTRICAL SHOCK AND
CARBON MONOXIDE POISONING HAZARD
Failure to follow this warning could result in personal injury
or unit damage.
A qualified installer or agency must use only
factory-authorized kits or accessories when modifying this
product.
PERSONAL INJURY AND ENVIRONMENTAL
HAZARD
Failure to relieve system pressure could result in personal
injury and/or death.
1. Relieve pressure and recover all refrigerant before servicing
existing equipment, and before final unit disposal. Use all
service ports and open all flow-control devices, including
solenoid valves.
2. Federal regulations require that you do not vent refrigerant
into the atmosphere. Recover during system repair or final unit
disposal.
INTRODUCTION
The 48SD unit (see Fig. 1) is a fully self-contained, combination
Category I gas heating/electric cooling unit designed for outdoor
installation (See Fig. 3 and 4 for unit dimensions). All unit sizes
have return and discharge openings for both horizontal and
downflow configurations, and are factory shipped with all
downflow duct openings covered. Units may be installed either on
a rooftop, a cement slab, or directly on the ground if local codes
permit (See Fig. 5 for roof curb dimensions).
Models with an N in the fifth position of the model number are
dedicated Low NOx units designed for California installations.
These models meet the California maximum oxides of nitrogen
(NOx) emissions requirements of 40 nanograms/joule or less as
shipped from the factory and must be installed in California Air
Quality Management Districts or any other regions in North
America where a Low NOx rule exists.
NOTE: Low NOx requirements apply only to natural gas
installations.
RECEIVING AND INSTALLATION
Step 1--Check Equipment
IDENTIFY UNIT
The unit model number and serial number are stamped on the unit
information plate. Check this information against shipping papers.
INSPECT SHIPMENT
Inspect for shipping damage while unit is still on shipping pallet. If
unit appears to be damaged or is torn loose from its anchorage, have
it examined by transportation inspectors before removal. Forward
claim papers directly to transportation company. Manufacturer is
not responsible for any damage incurred in transit. Check all items
against shipping list. Immediately notify the nearest equipment
distribution office if any item is missing. To prevent loss or damage,
leave all parts in original packages until installation.
Step 2_Provide Unit Support
For hurricane tie downs, contact distributor for details and PE
(Professional Engineering) Certificate if required.
ROOF CURB
Install accessory roof curb in accordance with instructions shipped
with curb (See Fig. 5). Install insulation, cant strips, roofing, and
flashing. Ductwork must be attached to curb.
IMPORTANT: The gasketing of the unit to the roof curb is critical
for a water tight seal. Install gasketing material supplied with the
roof curb. Improperly applied gasketing also can result in air leaks
and poor unit performance.
Curb should be level to within 1/4 in. (6.4 mm). This is necessary
for unit drain to function properly. Refer to accessory roof curb
installation instructions for additional information as required.
SLAB MOUNT
Place the unit on a solid, level concrete pad that is a minimum of 4
in. (102 mm) thick with 2 in. (51 mm) above grade (See Fig. 2). The
slab should extend approximately 2 in. (51 mm) beyond the casing
on all 4 sides of the unit. Do not secure the unit to the slab except
when rec uired by local codes.
EVAR COIL COND. COIL
c9g096
Fig. 2 - Slab Mounting Details
GROUND MOUNT
The unit may be installed either on a slab or placed directly on the
ground, if local codes permit. Place the unit on level ground
prepared with gravel for condensate discharge.
Step 3--Field Fabricate Ductwork
Secure all ducts to roof curb and building structure on vertical
discharge units. Do not connect ductwork to unit. For horizontal
applications, unit is provided with flanges on the horizontal
openings. All ductwork should be secured to the flanges. Insulate
and weatherproof all external ductwork, joints, and roof openings
with counter flashing and mastic in accordance with applicable
codes.
Ducts passing through an unconditioned space must be insulated
and covered with a vapor barrier.
If a plenum return is used on a vertical unit. the return should be
ducted through the roof deck to comply with applicable fire codes.
A minimum clearance is not required around ductwork. Cabinet
return-air static shall not exceed -.25 in. wc.

i
I
.=.
86 1
i339]
r
406 5
116 OO]
OUiDOOR
_79R 5 -
[3i4_i
_\ _42 7
19 0[675i R PT
X??O GEEP
G31 O
[3272}
168)
_S26
i i [12 85]
12 85
LEFT SIDE VIEW
i i OTROORCOiLQ
NROOR COiL _
TOP VIEW
i
11939
[4TONi
,c_, , i
. J
1 nJ
!
- X
COMPRESSOR, GLOWER, GAG PARTI110N _
& ELSCTRICAL ACCESS PANEL
12263
[48 2G]
FRONTVIEW
=A'
ELECTRKAL I UNiT WT I UM]I MEiGH] I CENTER O_ GRAVITY MM/iN i
UN!T CHARACTERISTICS i LG I _G 'A'_ I _ T 2
L 4ESGO]BO40 ................... ...... lg41414_O] 59181233] 40391159] 3937[1551 i
486D024040/060 208/230 1 60 i 343 Ii56 5080[20 Oi 43181170] 447 0[/7 5] ]
48SDO30040/060
805
i {3 i71
_53 3
[6 D4}
REQ_RED CLEARANCES TO COMBUSTIBLE MATL.
M_[L/_ETERS I/N]
toP OF UNIT ........................................... 3§56 [i4OD]
GUCT SIDE OF UNIT 608 _2 DO]
G!GE ORPOS]IE I)GC;S ............................ 3556 _14 oR]
BOTTOM Of UNiT ........................... BOO [OOO]
FiOE PANEL 9i4 4 i36 OOi
NEC. REOUIRED CLEARANCE& _[[LIMETERS [IN]
RETW6EN URNS, PO_ER ENTRY SiD6 ................... IR668 142D0]
UNIT AND _RGROUNDED SURFACES, POWER ENTRY SIDE 914 O i36 OR]
MN_] AND BLOCK OR CO_CREiE WALLS ANG OTHER
GROUNDED SURFACES, POWER ENTRY SiDE .......... 1066¸8 _4200]
REO_RED CLEARANCE FOR OPERATION AIED SERE_IN6
_IL[_ETERS [IN]
EVAP COIL ACCESS SIGE ............................. 9140 _36 oR]
POWER ENTRY SiDE .......................... ID668 14200]
{EXCEPT FOR NEC REOUINE_ENTS)
MNiT TOP .............................................. _2162 _GOo]
SiDE OPPOSITE DMCTS......... 914 6 i36RO]
GUCT ?ANEi ........................... 304¸8 i12061_
_M_NIMU_ GISTANCES:I£ UNN #S PLACED LESS THAN 304 8 [i2 OO] £RO_ WALL
SYGTE_THEN SYSTEM PERTOR_AMGE MAYBE GO_PROMiSEG
DIMENSIONS [N El ARE [N iNCHES
_116 S
[4 581
G221088i G_A NOIE-\
CONTROL ENTRY \
i23 8
[4871
N 456¸2
[1796]
313 0
[/232]
4_ 8
[184]
628
[2 OGi
i22 2
[4 G1]
RIGHTSIDEVIEW
13481
RETURN
GMGT
2496 _ _ 2496
_9 831 i9 831
REAR VIEW

ml
i
I
-I
o6 6
16 01]
i
OLI O00R --80 5
i [3 17]
i
t
II}S
{6 851
[] iNDOOR (CiL_ t _\
\ OUTDOOR COIL
TOP VIEW
1_96 6
{4_ 941
Fi[LD _I4TRI ¸
STITV[Cii PORi
I I .,_\: %°
620 2
[24 42]
{i68}
[i 95
{44 22]
................................................/i_3 9 ................................................
[47 00]
= ' {4 54i
i 2}0
j [0 9/i
{4 8,11
•i'"'
-_ 12263 "4
{46 26]
LEFT SIDE VIEW FRONT VIEW
REOUIRED CLEARANCES TO COP,_US'RBLE MATL IM q !1
1)1 Of N/ 35 6 4 0"1
0¢I S 4 0N I ................. :_08 ;00]
S!O[ 0 051 E L{TS .......... 356 14 00]
BOTO_ OF NT ............................. 0 00 0el]
UE PD!_EI I_ 4 56 DO]
NCC. REOUIRBO CLEARANCES.
L M I]
[ & H WI S [8_'[R HTR 68 ........ n66 6 4F )]
'_ T At U!GROW@ B UR;AC S, CWR q ! ...... 914. 36 00]
'/ T Af8 800{ O ':O'/¢P [ _/'A 8 q@ O [R
':)U/Oi S:.</,I iO_i I'/HY 6]1 i06_, 8 I} I
REOUIRED CLEARANCE FOR OPERATION AND SERVICING !, I M F S f]
OL ASS I E..................... 014 0 fl I:'0]
Ol_[ E R/ SI E ...... I(,6¢ 8 42 0 ]
( >6 I I E N i O[ I I I t411 I 6
I'9 ,8 i I
S['{ Of 18S/ ( tC S 40;36 001
8UCT [A[I ....................... 08 i2 68 _
II t !4W< DIST#NCES IF U T S PL&CED LESS TH_ 3848 [12 00] fROM _NALL
SY6i[!_ lHi_ 8 S I i_ilTIORMANCi _kAYS[ COMPITOf4iSED
IM[NS_O_5 i '_ [] A[[ i_ i!CIIS
28 61i 13] )IA K 0 -_
50
[8 26]
82
[}4}]
/
--3:,i _TI_
f/38}
REAR VIEW
f[ tlii
I)b(:
OFEIJi!i6
J i _ L_
S47 3 _'
i13 62} _351 2
[13 83]

HVAOunit
/(NOTE A) _11
/0,=4
' Wood nailer*
/Flashing field
I_I::!i:_ _nsulati°9 (field
I Roofing rr, aterial It_-;!_'YII sopp,,ed>
/ '_e'ds_Pp"e_- lC_J:!IIIL
Roof Curb for SmMI Cabinet
Note A: When unit mounting screw is used,
retainer bracket must also be used.
/ ,,,_%w _.<_
/
i 1tl
' Wood nailer*
/Elasl_ing field _od nailer*
IY_ /lnsulati£9 (f!eld
\ field -- -II: iitllL
Roof Curb for Large Cabinet
Note A: When unit mounting screw is used,
retainer bracket must also be used.
/
Retu n opel_lrlg
(BXO)
E
Long
SuppoEt
Short
Support
A
R/A
\\ _Gasket around
\\ duct
\\
S/A
/2
Insulated Gasket around
deck pan outer edge X
\
UNIT SIZE
48SD018-036
48SD042-060
NOTES:
ODS CATALOG A B
NUMBER IN. (aM) IN. (aM)
CPRFCURBOO6AOO 8 (203) 11 (279)
CPRFCURBOO7AOO 14 (356) 11 (279)
CPRFCURBOO8AOO 8 (203) 16-3/18 (411)
CPRFCURBOO9AOO 14 (356) 16-3/16 (411)
[. Roof curb lnust be set tip for ullit being installed.
C
IN. (MM)
16-1/2 (419)
16-1/2 (419)
17-3/8 (441)
17-3/8 (441)
D
IN. (MM)
28-3/4 (730)
28-3/4 (730)
40-1/4 (1022)
40-1/4 (1022)
E
IN. (MM)
30-3/8 (771)
30-3/8 (771)
41-15/16 (1065)
41-15/18 (1065)
F
IN. (MM)
44-5/16 (1126)
44-5/16 (1126)
44-7/16 (1129)
44-7/16 (1129)
A05308
G
iN.(MM)
45-15/16 (1167)
45-15/16 (1167)
48 - 1/18 (1169)
46-1/18 (1169)
2. Seat strip nlusr be applied, as required, to unit being installed.
3. Dimensions are in inches.
4. Dimension in ( ) are in millimeters.
5. Roof curb is made of 16 gauge steel.
6. Attach dtlctwork to curb (flanges of duct rest oi1 ctlrb),
7. Inadated panels: I in. (25 ram) thick fiberglass 1 lb. density.
8. When unit mounting screw is used (see Note A)+ a retainer bracket must be used as well. This bracket must also be used when required by code for hurricane or seismic
conditions. This bracket is available through Micrometl.
Fig. 5 -Roof Curb Dimensions

n
Step 4--Provide Clearances
The required minimum operating and service clearances are shown
in Fig. 3 and 4. Adequate combustion, ventilation and condenser air
must be provided in accordance with section 5.3. Air for
Combustion and Ventilation, of the National Fuel Gas Code ANSI
(American National Standards Institute) Z223.1 or applicable
provisions of local building code. In Canada. follow sections 7.2,
7.3, or 7.4 or Can/CGA (Canadian Gas Association) B149
Installation Codes or applicable provisions of local building code.
IMPORTANT: Do not restrict outdoor airflow. An air restriction at
either the outdoor-air inlet or the fan discharge may be detrimental
to compressor life.
The condenser fan pulls air through the condenser coil and
discharges it through the top grille. Be sure that the fan discharge
does not recirculate to the condenser coil. Do not locate the unit in
either a corner or under an overhead obstruction. The minimum
clearance under a partial overhang (such as a normal house
overhang) is 48-in. (1219 mm) above the unit top. The maximum
horizontal extension of a partial overhang must not exceed 48-in.
(1219 mm).
Do not place the unit where water, ice, or snow from an overhang
or roof will damage or flood the unit. Do not install the unit on
carpeting or other combustible materials. Slab-mounted units
should be at least 4 in. (102 mm) above the highest expected water
and runoff levels. Do not use unit if it has been under water.
Step 5--Rig and Place Unit
Rigging and handling of this equipment can be hazardous for many
reasons clue to the installation location (roofs. elevated structures,
etc.).
Only trained, qualified crane operators and ground support staff
should handle and install this equipment.
When working with this equipment, observe precautions in the
literature, on tags, stickers, and labels attached to the equipment, and
any other safety precautions that might apply.
Training for operators of the lifting equipment should include, but
not be limited to. the following:
1. Application of the lifter to the load. and adjustment of the
lifts to adapt to various sizes or kinds of loads.
2. Instruction in any special operation or precaution.
3. Condition of the load as it relates to operation of the lifting
kit, such as balance, temperature, etc.
Follow all applicable safety codes. Wear safety shoes and work
gloves.
INSPECTION
The lifting/rigging bracket is engineered and designed to be
installed only on Small Packaged Products. This bracket is to be
used to rig/lift a Small Packaged Product onto roofs or other
elevated structures.
Prior to initial use, and at monthly intervals, all rigging equipment
and straps should be visually inspected for any damage, evidence of
wear. structural deformation, or cracks. Particular attention should
be paid to excessive wear at hoist hooking points and load support
areas. Equipment or straps showing any kind of wear in these areas
must not be used and should be discarded.
PROPERTY DAMAGE HAZARD
Failure to follow this warning could result in personal
injury/death or property damage.
Rigging brackets for one unit use only. When removing a
unit at the end of its useful life. use a new set of brackets.
USE OF RIGGING BRACKET
Field Installation of Ri_in_ Bracket (if not already installed)
1. Remove unit from shipping carton. Leave top shipping skid
on the unit for use as a spreader bar to prevent the rigging
straps from damaging the unit. If the skid is not available, use
a spreader bar of sufficient length to protect the unit from
damage.
2. Remove 4 screws in unit corner posts.
3. Attach each of the 4 nmtal rigging brackets under the panel
rain lip (See Fig. 6). Use the screws removed in step 2 above
to secure the brackets to the unit.
PROPERTY DAMAGE HAZARD
Failure to follow this warning could result in personal
injury/death or property damage.
Rigging bracket MUST be under the rain lip to provide
adequate lifting.
PROPERTY DAMAGE HAZARD
Failure to follow this warning could result in personal
injury/death or property damage.
Do not strip screws when re-securing the unit. If a screw is
stripped, replace the stripped one with a larger diameter screw
(included). When straps are taut, the clevis should be a
minimum of 36 in. (914 mm) above the unit top cover.
Ri_,_in_/Liftin_ of Unit
1. Bend top of brackets down approximately 30 degrees from
the corner posts.
2. Attach straps of equal length to the rigging brackets at
opposite ends of the unit. Be sure straps are rated to hold the
weight of the unit (See Fig. 6).
3. Attach a clevis of sufficient strength in the middle of the
straps. Adjust the clevis location to ensure unit is lifted level
with the ground.
After the unit is placed on the roof curb or mounting pad. remove
the top crating, remove corner post screws and rigging brackets,
then re-install screws.
UNIT FALLING HAZARD
Failure to follow this warning could result in personal injury
or death.
Never stand beneath rigged units or lift over people.

Table1--Physical Data - Unit 48SD
UNIT SIZE 486D
NOMINAL CAPACITY (ton)
OPERATING WEIGHT (Ib)
(kg)
COMPRESSORS
REFRIGERANT (R-22)
Quantity (Ib)
(kg)
REFRIGERANT METERING DEVICE
Orifice ID (in.)
Part Number
CONDENSER COIL
Rows--Fins/in.
Face Area (sq ft)
CONDENSER FAN
Nominal Cfm
Diameter (in.)
Motor Hp
(Rpm)
EVAPORATOR COiL
Rows--Fins/in.
Face Area (sq ft)
EVAPORATOR BLOWER
Nominal Airflow (Cfm)
Size (in.)
Size (ram)
Motor Hp
(RPM)
FURNACE SECTION*
Burner Orifice No. (Qty--Dril[ Size) Natural Gas
Burner Orifice No, (Qty--Drill Size) Propane
RETURN-AIR FILTERS Throwaway (in.)T
(mm)
018040
15
290
132
Scroll
53
24
TXV
NA
EA36YD097
024040 024060 030040
2 2 2-1/2
343 343 355
158 156 158
5.9 59 5.0
2.7 27 2.7
0.065 0.055 0070
I
030060 036060 036090 042060 042090
2-1/2 33 3-1/2 3-1/2
355 360 360 450 450
156 163 163 204 204
Scroll
80 L 72 7.2 78 I7.8
27 33 3.3 35 3.5
Aoou ater
0.070 0080 0080 0.084 0084
121 221 221 221 2.21 2..21 221 221 221
13.8 102 102 11.9 119 113.8 13.6 194 19.4
2200 2200 2200 2800 2800 3000 3000 3500 3500
22 22 22 22 22 22 22 22 22
1/8 _25) 1/8 (825) 1/8 (825) 1/8 (825) 1/8 (825) 1/8 _25) 1/8 (825) 1/8 (825) 1/8 (825)
317 317 317 317 317 417 417 317 317
37 3.7 37 3.7 37 37 3.7 47 4.7
600 800 800 1000 1000 1200 1200 1400 1400
10x10 10x10 1OxlO 10xlO 10x10 10x10 10xlO 11x10 11x10
254x254 254x254 254x254 254x254 254x254 254x254 254x254 279x254 279x254
1/4 _25) 1/3 (1050) 1/3 (1050) 1/3 (1050) 1/3 (1050) 1/2 (1000) 1/2 (1000) 1/2 (1075) 1/2 (1075)
244
250
2_44 2.88 2..44 2_38 238 3_38 2.88 3.33
2...50 2.48 2..50 2..48 246 3..46 2.48 3.46
20x20x1 24x30x1
508x508x25 610x752x25
UNIT SIZE 48SD
NOMINAL CAPACITY (ton)
OPERATING WEIGHT (Ib)
kg
COMPRESSORS
REFRIGERANT (R-22)
Quantity (Ib)
(kg)
HEI-RIGERANT METERING DEVICE
Orifice ID (in,)
CONDENSER COIL
Rows--Fins/in,
Face Area (sq ft)
CONDENSER PAN
Nominal Cfm
Diameter (in.)
Motor Hp (Rpm)
EVAPORATOR COIL
Rows--Fins/in,
Face Area (sq ft)
EVAPORATOR BLOWER
Nominal Airflow (Cfm)
Size (in.)
Size (mm)
Motor Hp (RPM)
FURNACE SECTION _
Burner Orifice No, (Qty--Drill Size) Natural Gas
Burner Orifice No. (Qty--Drill Size) Liquid Propane
RETURN-AIR I-ILTERS Throwaway
(in.)f
(ram)
048090 048115
4 4
480 480
218 218
12.4 12.4
5.6 5.6
048130 060090 060115 060130
4555
480 484 484 484
218 220 220 220
Scroll
12.4
5.6
AccuHater
0.088 0.088 0.088 0.098 0.098 0.098
2...21 2...21 2...21 2...21 2...21 2...21
19.4 19.4 19.4 19.4 19.4 19.4
3500 3500 3500 4200 4200 4200
22 22 22 22 22 22
1/4 (t100) 1/4 (t100) 1/4 (1100) 1/4 (1100) 1/4 (t100) 1/4 (1100)
3...17
5.7
3...17
5.7
1600
11x10
279x254
1/2 (1075)
1600
11x10
279x254
1/2 (1075)
3...17
5.7
1600
11xl 0
279x254
1/2 (1075)
12.0 12.0
5.4 5.4
4...17
5.7
1750
11x10
279x254
1 (1040)
4...17
5.7
1750
11x10
279x254
1(1040)
12.0
5.4
4...17
5.7
1750
11x10
279x254
I(1040)
3...38 3...33 3...31 3...38 3...33 3...31
3...46 3...42 3...41 3...46 3...42 3...41
24x36x1
610x914x25
LEGEND
* Based on attitude of 0 to 2000 feet (0 to 810 m).
Required filter sizes on shown are based on the larger of the ARI (Air Conditioning and Refrigeration institute) rated cooling airflow or the heating airflow
velocity of 800 ft/min for throwaway type or 450 ft/min for high-capacity type, Air filter pressure drop for non-standard filters must not exceed 0,08 in, wc.

12
43
C00070b
SEE DETAIL
DETAIL A
CORNER WEIGHTS (SMALL CABINET)
018 024 030 036
Unit Unit
Ib kg Ib kg Ib kg Ib kg
Unit Only 290 132 343 156 355 161 360 163 Unit Only
Weight Weight
Corner Weight 75 34 69 31 75 34 74 34 Corner Weight
1 1
Corner Weight 62 28 53 24 56 25 55 25 Corner Weight
2 2
Corner Weight 97 44 83 38 81 37 86 39 Corner Weight
3 3
Corner Weight 56 25 138 63 143 65 145 66 Corner Weight
4 4
Rigging Weight 309 140 353 160 365 166 370 168 Rigging Weight
Shipping 344 156 383 173 395 179 400 181 Shipping
Weight Weight
MINIMUMHEIGHT: 36'
UNITHEIGHT
A05161
CORNER WEIGHTS (LARGE CABINET)
042 048 060
Ib kg Ib kg lb kg
450 204 480 218 484 220
90 41 97 44 98 45
72 33 74 34 75 34
110 50 116 53 118 54
178 81 193 88 193 88
465 211 495 225 499 226
510 231 540 245 544 247
Fig. 6 - 48SD Unit Corner Weights and Suggested Rigging
Step 6--Connect Condensate Drain
NOTE: When installing condensate drain connection be sure to
comply with local codes and restrictions.
Model 48SD disposes of condensate water through a 3/4 in. NPT
fitting which exits through the base on the evaporator coil access
side. See Fig. 3 & 4 for location.
Condensate water can be drained directly onto the roof in rooftop
installations (where permitted) or onto a gravel apron in ground
level installations. Install a field-supplied 2-in. condensate trap at
the end of condensate connection to ensure proper drainage. Make
sure that the outlet of the trap is at least i in. (25 mm) lower than the
drain-pan condensate connection to prevent the pan from
overflowing (See Fig. 7). Prime the trap with water. When using a
gravel apron, make sure it slopes away from the unit.
TRAP
OUTLET
C00009
Fig. 7 -Condensate Trap
Connect adrain tube using aminimum of 3/4-in. PVC or 3/4-in.
copper pipe (all field-supplied) at tire outlet end of the 2-in. trap.
Do not undersize the tube. Pitch the drain tube downward at a slope
of at least 1-in. (25 mm) for every 10 ft (3 m) of horizontal run. Be
sure to check the drain tube for leaks.
Step 7--Install Flue Hood
The flue assembly is secured and shipped in the return air duct.
Remove duct cover to locate the assembly (See Fig. 9 and 10).
NOTE: Dedicated low NOx models MUST be installed in
California Air Quality Management Districts where a Low NOx
rule exists.
These models meet the California maximum oxides of nitrogen
(NOx) emissions requirements of 40 nanograms/joule or less as
shipped from the factory.
NOTE: Low NOx requirements apply only to natural gas
installations.
CARBON MONOXIDE POISONING HAZARD
Failure to follow this warning could result in personal injury
or death.
The venting system is designed to ensure proper venting. The
flue hood assembly must be installed as indicted in this section
of the unit installation instructions.
Install the flue hood as follows:
1. This installation must conform with local building codes and
with the National Fuel Gas Code (NFGC), ANSI Z223.1 (in
Canada, CAN/CGA B149.1, and B149.2) or NFPA
(National Fire Protection Association) latest revision. Refer
to Provincial and local plumbing or wastewater codes and
other applicable local codes.
2. Remove flue hood from shipping location (inside the return
section of the blower compartment-see Fig. 9 & 10). Re-
move the return duct cover to locate the flue hood. Place flue
hood assembly over flue panel. Orient screw holes in flue
hood with holes in the flue panel.
3. Secure flue hood to flue panel by inserting a single screw on
the right side and the left side of the hood.

Step8---InstallGas Piping
The gas supply pipe enters the unit through the access hole
provided. The gas connection to the unit is made to the 1/2-in. FPT
gas inlet on the gas valve.
Install a gas supply line that runs to the heating section. Refer to
Table 2 and the NFGC for gas pipe sizing. Do not use cast-iron pipe.
It is recommended that a black iron pipe is used. Check the local
utility for recommendations concerning existing lines. Size gas
supply piping for 0.5 in. wc maximum pressure drop. Never use
pipe smaller than the 1/2-in. FPT gas inlet on the unit gas valve.
For natural gas applications, the gas pressure at unit gas connection
must not be less than 4.0 in. wc or greater than 13 in. wc while the
unit is operating. For propane applications, the gas pressure must
not be less than 7.0 in. wc or greater than 13 in. wc at the unit
connection.
A 1/8-in. NPT plugged tapping, accessible for test gauge
connection, must be installed immediately upstream of the gas
supply connection to the gas valve.
When installing the gas supply line, observe local codes pertaining
to gas pipe installations. Refer to the NFGC ANSI Z223.1-2005
NFPA latest edition (in Canada, CAN/CGA B149.1).
NOTE: In the state of Massachusetts:
1. Gas supply connections MUST be performed by a licensed
plumber or gas fitter.
2. When flexible connectors are used. the maximum length
shall not exceed 36 inches (915 mm).
3. When lever handle type manual equipment shutoff valves
are used. they shall be T-handle valves.
4. The use of copper tubing for gas piping is NOT approved by
the state of Massachusetts.
In the absence of local building codes, adhere to the following
pertinent recommendations:
1. Avoid low spots in long runs of pipe. Grade all pipe 1/4 in.
(6.4 ram) for every 15 ft (5 m) of length to prevent traps.
Grade all horizontal runs downward to risers. Use risers to
connect to heating section and to meter.
2. Protect all segments of piping system against physical and
thermal damage. Support all piping with appropriate straps,
hangers, etc. Use a minimum of one hanger every 6 ft. (1.8
m). For pipe sizes larger than 1/2 in. (13 mm), follow
recommendations of national codes.
3. Apply joint compound (pipe dope) sparingly and only to
male threads of joint when making pipe connections. Use
only pipe dope that is resistant to action of liquefied
petroleum gases as specified by local and/or national codes.
Never use Teflon tape.
4. Install sediment trap in riser leading to heating section (See
Fig. 8). This drip leg functions as a trap for dirt and
condensate.
5. Install an accessible, external, manual main shutoffvalve in
gas supply pipe within 6 ft (1.8 m) of heating section.
6. Install ground-joint union close to heating section between
unit manual shutoff and external manual main shut-off
valve.
7. Pressure test all gas piping in accordance with local and
national plumbing and gas codes before connecting piping
to unit.
NIPPLE
CAP
099020
Fig. 8 - Sediment Trap
NOTE: Pressure test the gas supply system after the gas supply
piping is connected to the gas valve. The supply piping must be
disconnected from the gas valve during the testing of the piping
systems when test pressure is in excess of 0.5 psig. Pressure test the
gas supply piping system at pressures equal to or less than 0.5 psig.
The unit heating section must be isolated from the gas piping system
by closing the external main manual shutoff valve and slightly
opening the ground-joint union.
FIRE OR EXPLOSION HAZARD
Failure to follow this warning could result in personal injury,
death and/or property damage.
-Connect gas pipe to unit using a backup wrench to avoid
damaging gas controls.
-Never purge a gas line into a combustion chamber. Never test
for gas leaks with an open flame. Use a commercially available
soap solution made specifically for the detection of leaks to
check all connections.
-Use proper length of pipe to avoid stress on gas control
manifold.
-If a flexible connector is required or allowed by authority
having jurisdiction, black iron pipe shall be installed at furnace
gas valve and extend a minimum of 2 in. (51 mm) outside
furnace casing.
-If codes allow a flexible connector, always use a new
connector, do not use a connector which has previously
serviced another gas appliance.
8. Check for gas leaks at the field-installed and
factory-installed gas lines after all piping connections have
been completed. Use soap-and-water solution (or method
specified by local codes and/or regulations).
Step 9---Install Duct Connections
The unit has duct flanges on the supply- and return-air openings on
the side and bottom of the unit. For downshot applications, the
ductwork connects to the roof curb (See Fig. 3 and 4 for connection
sizes and locations).
CONFIGURING UNITS FOR DOWNFLOW (VERTICAL)
DISCHARGE
ELECTRICAL SHOCK HAZARD
Failure to follow this warning could result in personal injury
or death.
Before installing or servicing system, always turn off main
power to system. There may be more than one disconnect
switch.

Table2--MaximumGasFlowCapacity*
NOMINAL INTERNAL LENGTH OF PIPE (FT)t
IRON PIPE DIAMETER
SIZE (IN.) (IN.) 10 20 30 40 50 60 70 80 90 100 125 150 175 200
1/2 .622 175 120 97 82 73 66 61 57 53 50 44 40
3/4 .824 360 250 200 170 151 138 125 118 110 103 93 84 77 72
1 1.049 680 465 375 320 285 260 240 220 205 195 175 160 145 135
1-1/4 1.380 1400 950 770 600 580 530 490 460 430 400 360 325 300 280
1-1/2 1.610 2100 1460 1180 990 900 810 750 690 650 620 550 500 460 430
Capacity of pipe in cu ft of gas per hr for gas presalre of 0.5 psig or tess. Pressure drop of 0,5 in, wc (based on a 0.60 specific gravity gas). Refer to Table, National Fire Prolec
tion Association NFPA 54.
This length includes an ordinary number of fittings.
1. Open all electrical disconnects before starting any service
work.
2. Remove horizontal (metal) duct covers to access vertical
(down flow) discharge duct knockouts in unit base.
3. Use a screwdriver and hammer to remove the panels in the
bottom of the unit base (See Fig. 10).
4. If unit ductwork is to be attached to vertical opening flanges
on the unit base (iackstand applications only), do so at this
time.
PROPERTY DAMAGE HAZARD
Failure to follow this caution may result in property damage.
Collect ALL screws that were removed. Do not leave screws
on rooftop as permanent damage to the roof may occur.
5. It is recommended that the base insulation around the
perimeter of the vertical return-air opening be secured to the
base with aluminum tape. Applicable local codes may
require aluminum tape to prevent exposed fiberglass.
6. Coverbothhorizontalductopeningswiththe )rovidedduct
covers. Ensure opening is air- and watertight.
7. After completing unit conversion, perform all safety checks
and power up unit.
NOTE: The design and installation of the duct system must be in
accordance with the standards of the NFPA for installation of
nonresidence-type air conditioning and ventilating systems. NFPA
90A or residence-type, NFPA 90B: and/or local codes and
ordinances.
.........................7......
\
SUPPLY RETURN VENT HOOD
DUCT DUCT SHIPPING
OPENING OPENING LOCATION
A05143
Fig. 9 -Supply and Return Duct Opening
DUCT COVERS REMOVED
Fig. 10 - Vertical Duct Cover Removed
C99012
Adhere to the following criteria when selecting, sizing, and
installing the duct system:
1. Units are shipped for horizontal duct installation (by
removing duct covers).
2. Select and size ductwork, supply-air registers, and
return-air grilles according to American Society of Heating,
Refrigeration and Air Conditioning Engineers (ASHRAE)
recommendations.
3. Use flexible transition between rigid ductwork and unit to
prevent transmission of vibration. The transition may be
screwed or bolted to duct flanges. Use suitable gaskets to en-
sure weather-tight and airtight seal.
4. All units must have field-supplied filters or accessory filter
rack installed in the return-air side of the unit.
Recommended sizes for filters are shown in Table 1.
5. Size all ductwork for maximum required airflow (either
heating or cooling) for unit being installed. Avoid abrupt
duct size increases or decreases or performance may be
affected.
6. Adequately insulate and weatherproof all ductwork located
outdoors. Insulate ducts passing through unconditioned
space, and use vapor barrier in accordance with latest issue
of Sheet Metal and Air Conditioning Contractors National
Association (SMACNA) and Air Conditioning Contractors
of America (ACCA) minimum installation standards for
heating and air conditioning systems. Secure all ducts to
building structure.
7. Flash. weatherproof, and vibration isolate all openings in
building structure in accordance with local codes and good
building practices.
10

Step10--Install Electrical Connections
ELECTRICAL SHOCK HAZARD
Failure to follow this warning could result in personal injury
or death.
The unit cabinet must have an uninterrupted, unbroken
electrical ground. This ground may consist of an electrical
wire connected to the unit ground screw in the control
compartment, or conduit approved for electrical ground when
installed in accordance with NEC, ANSI/NFPA American
National Standards Institute/National Fire Protection
Association (latest edition) (in Canada. Canadian Electrical
('ode CSA C22.1) and local electrical codes.
UNIT COMPONENT DAMAGE HAZARD
Failure to follow this caution may result in damage to the unit
being installed.
1. Make all electrical connections in accordance with NEC
ANSI/NFPA (latest edition) and local electrical codes
governing such wiring. In Canada, all electrical
connections must be in accordance with CSA standard
C22.1 Canadian Electrical Code Part 1 and applicable local
codes. Refer to unit wiring diagram.
2. Use only copper conductor for connections between
field-supplied electrical disconnect switch and unit. DO
NOT USE ALUMINUM WIRE.
3. Be sure that high-voltage power to unit is within operating
voltage range indicated on unit rating plate. On 3-phase
units, ensure phases are balanced within 2 percent. Consult
local power company for correction of improper voltage
and/or phase imbalance.
4. Insulate low-voltage wires for highest voltage contained
within conduit when low-voltage control wires are in same
conduit as high-voltage wires.
5. Do not damage internal components when drilling through
any panel to mount electrical hardware, conduit, etc.
HIGH-VOLTAGE CONNECTIONS
When routing power leads into unit, use only copper wire between
disconnect and unit. The high voltage leads should be in a conduit
until they enter the duct panel; conduit termination at the duct panel
must be watertight.
The unit must have a separate electrical service with a
field-supplied, waterproof disconnect switch mounted at, or within
sight from, the unit. Refer to the unit rating plate, NEC and local
codes for maximum fuse/circuit breaker size and minimum circuit
amps (ampacity) for wire sizing.
The field-supplied disconnect switch box may be mounted on the
unit over the high-voltage inlet hole when the standard power and
low-voltage entry points are used (See Fig. 3 and 4 for acceptable
location).
See unit wiring label and Fig. 11 for reference when making high
voltage connections. Proceed as follows to complete the
high-voltage connections to the unit.
Single phase units:
1. Run the high-voltage (L1, L2) and ground lead into the
control box.
2. Connect ground lead to chassis ground connection.
3. Locate the black and yellow wires connected to the line side
of the contactor.
4. Connect field L1 to black wire connected to 11 terminal of
the compressor contactor.
5. Connect field wire L2 to yellow wire connected to 23
terminal of the compressor contactor.
Three-phase units:
1. Run the high-voltage (L1, L2, L3) and ground lead into the
control box.
2. Connect ground lead to chassis ground connection.
3. Locate the black and yellow wires connected to the line side
of the contactor, and blue wire from compressor.
4. Connect field L1 to black wire on connected to 11 terminal
of the compressor contactor.
5. Connect field wire L3 to yellow wire connected to 13
terminal of the compressor contactor.
6. Connect field wire L2 to blue wire from compressor.
SPECIAL PROCEDURES FOR 208-V OPERATION
ELECTRICAL SHOCK HAZARD
Failure to follow this warning could result in personal injury
or death.
Before making any wiring changes, make sure the gas supply
is switched off first. Then switch off the power supply to the
unit and install lockout tag.
CONTROL VOLTAGE CONNECTIONS
Do not use any type of power-stealing thermostat. [;nit control
problems may result.
Use no. 18 American Wire Gage (AWG) color-coded, insulated
(35°C minimum) wires to make the control voltage connections
between the thermostat and the unit. If the thermostat is located more
than 100 ft from the unit (as measured along the control voltage
wires), use no. 16 AWG color-coded, insulated (35°C minimum)
wires.
Standard Connection
Remove knockout hole located in the flue panel adjacent to the
control access panel (See Fig. 3 and 4). Remove the rubber grommet
from the installer's packet (included with unit) and install grommet
in the knockout opening. Provide a drip loop before running wire
through panel.
HIGH VOLTAGE tv - - -
POWER LEADS Ic e- ---
(SEE UNIT WIRING
LABEL) _:_ - - -
CONTROLBOX
LOW-VOLTAGE
POWER LEADS-
(SEE UNIT
WIRING LABEL)
[0-
I0-
I0-
SPLICE BOX
FIELD-SUPPLIED
FUSED DISCONNECT
]
TAT
® I/
A05144
Fig. 11 - High- and Control-Voltage Connections
11

Runthelow-voltageleadsfromthethermostat,throughtheinlet
hole,andintounitlow-voltagesplicebox(seeFig.13).
Locatefive18-gagewiresleavingcontrolbox.Theselow-voltage
connectionleadscanbeidentifiedbythecolorsred,green,yellow,
brown,andwhite(SeeFig.11).Ensuretheleadsarelongenough
toberoutedintothelow-voltagesplicebox(locatedbelowright
sideofcontrolbox).Routeleadsthroughholeinbottomofcontrol
boxandmakelow-voltageconnections(SeeFig.11).Secureallcut
wires,sothattheydonotinterferewithoperationofunit.
HEAT ANTICIPATOR SETTING
See thermostat instructions for anticipator and cycle rate setup
details.
NOTE: For thermostat selection purposes, use 0.18 amp for the
approximate required setting. Failure to make a proper heat
anticipator adjustment will result in improper operation, discomfort
to the occupants of the conditioned space, and inefficient energy
utilization; however, the required setting may be changed slightly
to provide a greater degree of comfort for a particular installation.
TRANSFORMER PROTECTION
The transformer is of the energy-limiting type. It is set to withstand
a 30-sec. overload or shorted secondary condition.
PRE- START- UP
FIRE, EXPLOSION, ELECTRICAL SHOCK HAZARD
Failure to follow this warning could result in personal injury
or death.
1. Follow recognized safety practices and wear protective
goggles when checking or servicing refrigerant system.
2. Do not operate compressor or provide any electric power
to unit unless compressor terminal cover is in place and
secured.
3. Do not remove compressor terminal cover until all
electrical sources are disconnected and tagged.
4. Relieve and recover all refrigerant from system before
touching or disturbing anything inside terminal box if
refrigerant leak is suspected around compressor terminals.
5. Never attempt to repair soldered connection while
refrigerant system is under pressure.
6. Do not use torch to remove any component. System
contains oil and refrigerant under pressure.
To remove a component, wear protective goggles and
proceed as follows:
a. Shut off electrical power to unit and install lockout
tag.
b. Relieve and reclaim all refrigerant from system
using both high- and low-pressure ports.
c. Cut component connecting tubing with tubing
cutter and remove component from unit.
d. Carefully unsweat remaining tubing stubs when
necessary. Oil can ignite when exposed to torch
flame.
Use the Start-Up Checklist supplied at the end of this book and
proceed as follows to inspect and prepare the unit for initial start- up:
1. Remove access panel.
2. Read and follow instructions on all DANGER, WARNING,
CAUTION. and INFORMATION labels attached to, or
shipped with unit.
3. Make the following inspections:
a. Inspect for shipping and handling damage, such as
broken lines, loose parts, disconnected wires, etc.
b. Inspect for oil at all refrigerant tubing connections and on
unit base. Detecting oil generally indicates a refrigerant
leak.
c. Leak-test all refrigerant tubing connections using
electronic leak detector, or liquid-soap solution. If a
refrigerant leak is detected, see following Check for
Refrigerant Leaks section.
d. Inspect all field- and factory-wiring connections. Be
sure that connections are completed and tight.
e. Ensure wires do not touch refrigerant tubing or sharp
sheet metal edges.
f. Inspect coil fins. If damaged during shipping and
handling, carefully straighten fins with a fin comb.
FIRE, EXPLOSION HAZARD
Failure to follow this warning could result in personal injury,
death or property damage.
Do not purge gas supply into the combustion chamber. Do not
use a match or other open flame to check for gas leaks.
4. Verify the following conditions:
a. Make sure gas line is free of air. Before lighting the unit
for the first time, perform the following with the gas valve
in the OFF position:
NOTE: If the gas supply pipe was not purged before connecting the
unit, it will be full of air. It is recommended that the ground joint
union be loosened, and the supply line be allowed to purge until the
odor of gas is detected. Never purge gas lines into a combustion
chamber. Immediately upon detection of gas odor, retighten the
union. Allow 5 minutes to elapse, then light unit.
b. Make sure that condenser-fan blade is correctly
positioned in fan orifice. As a general rule, the top 1/3 of
condenser-fan blade should be within fan orifice venturi.
c. Ensure fan hub is positioned correctly with respect to
motor housing (See Fig. 12).
d. Make sure that air filter(s) is in place.
e. Make sure that condensate drain trap is filled with water
to ensure proper drainage.
f. Make sure that all tools and miscellaneous loose parts
have been removed.
MOTOR GRILLE
-q
1/8" MAX BETWEEN
MOTOR AND FAN HUB MOTOR SHAFT
Fig. 12 -Fan Blade Clearance
C99009
START-UP
Step 1--CHECK FOR REFRIGERANT LEAKS
Proceed as follows to locate and repair arefrigerant leak and to
charge the unit:
1. Locate leak and make sure that refrigerant system pressure
has been relieved and reclaimed from both high- and
low-pressure ports.
2. Repair leak following accepted practices.
12

NOTE:Installafilterdrierwheneverthesystemhasbeenopened
forrepair.
3.AddasmallchargeofR-22refrigerantvaportosystemand
leak-testunit.
4.Recoverrefrigerantfromrefrigerantsystemandevacuateto
500micronsifnoadditionalleaksarefound.
5.ChargeunitwithR-22refrigerant,usingavolumetric
chargingcylinderoraccuratescale.Refertounitratingplate
forrequiredcharge.Besuretoaddextrarefrigerantto
compensateforinternalvolumeoffilterdrier.
STEP2--START-UPHEATINGANDMAKEADJUST-
MENTS
Completetherequiredproceduresgivenin thePre-Start-Up
sectionbeforestartingtheunit.Donotjumperanysafetydevices
whenoperatingtheunit.Makesurethatburnerorificesareproperly
aligned.Unstableoperationmyoccurwhentheburnerorificesin
themanifoldaremisaligned.
Followthelightinginstructionsontheheatingsectionoperation
label(locatedinsidetheburnerorbloweraccessdoor)tostartthe
heatingsection.
NOTE:Makesurethatgassupplyhasbeenpurged,andthatallgas
pipinghasbeencheckedforleaks.
LOWVOLTAGE
SPLICE BOX
J
CHECK HEATING CONTROL
Start and check the unit for proper heating control operation as
follows (see furnace lighting instructions located inside burner or
blower access panel):
1. Place room thermostat SYSTEM switch in the HEAT
position and the fan switch is placed in AUTO position.
2. Set the heating temperature control of the thermostat above
room temperature.
3. The induced-draft motor will start.
4. After a call for heating, the main burner should light within
5 sec. If the burners do not light, there is a 22-sec. delay
before another 5-sec. try. If the burners still do not light, this
sequence is repeated. If the burners do not light within 15
minutes from the initial call for heat, there is a lockout. To
reset the control, break the 24-v power to W.
5. The evaporator fan will turn on 45 sec. after the flame has
been established. The evaporator fan will turn off 45 sec.
after the thermostat has been satisfied.
CHECK GAS INPUT
Check gas input and manifold pressure after unit start-up (See Table
3). If adjustment is required proceed as follows:
• The rated gas inputs shown in Table 3 are for altitudes
from sea level to 2000 ft above sea level. These inputs are
based on natural gas with a heating value of 1050 Btu/ft 3
at 0.65 specific gravity, or propane gas with a heating
value of 2500 Btu/ft 3 at 1.5 specific gravity.
• For elevations above 2000 ft (610 m), reduce input 4%
for each 1000 ft (305 m) above sea level. For example at
2001 ft (610 m) a 12% total derate is required.
• When the gas supply being used has a different heating
value or specific gravity, refer to national and local codes.
or contact your distributor to determine the required
orifice size.
MANIFOLD I_IPEPLUG
Fig. 13 -Burner Assembly
A07568
BURNER FLAME
Fig. 14 - Monopoly Burner
C99021
UNIT DAMAGE HAZARD
Failure to follow this caution may result in reduced unit and/or
component life.
Do Not redrill an orifice. Improper drilling (burrs,
out-of-round holes, etc.) can cause excessive burner noise
and misdirection of burner flame. If orifice hole appears
damaged or it is suspected to have been redrilled, check orifice
hole with a numbered drill bit of correct size.
ADJUST GAS INPUT
The gas input to the unit is determined by measuring the gas flow
at the meter or by measuring the manifold pressure. Measuring the
gas flow at the meter is recommended for natural gas units. The
manifold pressure must be measured to determine the input of
propane gas units.
Measure Gas Flow (Natural Gas Units)
Minor adjustment to the gas flow can be made by changing the
manifold pressure. The manifold pressure must be maintained
between 3.4 and 3.6 in. wc.
If larger adjustments are required, change main burner orifices
following the recommendations of national and local codes.
NOTE: All other appliances that use the same meter must be turned
off when gas flow is measured at the meter.
Proceed as follows:
1. Turn off gas supply to unit.
13

HEATING INPUT
(BTUH)
NUMBER OF
ORIFICES
40,000 2
60,000 2
90,000 3
115,000 3
130,000 3
Min
4.0
4.0
4.0
4.0
4.0
Table 3--Heating Inputs
GAS SUPPLY PRESSURE (IN. WC)
Naturalt
Max
13.0
13.0
13.0
13.0
13.0
Propane*t
Min
4.0
4.0
4.0
4.0
4.0
Max
13.0
13.0
13.0
13.0
13.0
MANIFOLD PRESSURE (IN. WC)
Naturalt
3.5
3.5
3.5
3.5
3.5
Propane*t
3.5
3.5
3.4
3.7
3.5
When aunit is converted to propane, different size orifices must be used. See separate, natural to propane conversion kit instructions.
_Based oil altitudes from sea level to 2000 ft above sea level. For altitudes above 2000 ft, reduce input rating 4 percent fc_r each additional I000 ft above sea level, In Canada.
from 2000 ft above sea level to 4500 ft above sea level, @rate the unit I0 percent.
2. Remove pipe plug on manifold (See Fig. 13) and connect
manometer. Turn on gas supply to unit.
3. Recnrd number of seconds fnr gas meter test dial to make one
revolution.
4. Divide number of seconds in Step 3 into 3600 (number of
seconds in one hr).
5. Multiply result of Step 4 by the number of cubic feet (cu ft)
shown for one revolution of test dial to obtain cubic feet (cu
ft) of gas flow per hour.
6. Multiply result of Step 5 by Btu heating value of gas to
obtain total measured input in Btuh. Compare this value with
heating input shown in Table 3 (Consult the local gas
supplier if the heating value of gas is not known).
EXAMPLE: Assume that the size of test dial is 1 cu ft, one
revolution takes 32 sec, and the heating value of the gas is 1050
Btu/ft 3. Proceed as follows:
1. 32 sec. to complete one revolution.
2. 3600 + 32 = 112.5.
3. 112.5 x 1 =112.5 ft3 of gas flow/hr.
4. 112.5 x 1050 = 118,125 Btuh input.
If the desired gas input is 115.000 Btuh, only a minor change in the
manifold pressure is required.
Observe manifold pressure and proceed as follows to adjust gas
input:
1. Remove cover screw over regulator adjustment screw on gas
valve.
2. Turn regulator adjustment screw clockwise to increase gas
input, or turn regulator adjustment screw counterclockwise
to decrease input. Manifold pressure must be between 3.4
and 3.6 in. wc.
FIRE AND UNIT DAMAGE HAZARD
Failure to follow this warning could result in personal injury
or death and/or property damage.
Unsafe operation of the unit may result if manifnld pressure is
outside this range.
3. Replace cover screw cap on gas valve.
4. Turn off gas supply to unit. Remove manometer from
pressure tap and replace pipe plug on gas valve. Turn on gas
to unit and check for leaks.
Measure Manifold Pressure (Propane Units)
The main burner orifices on a propane gas unit are sized for the unit
rated input when the manifold pressure reading matches the level
specified in Table 3.
Proceed as follows to adjust gas input on a propane gas unit:
1. Turn off gas to unit.
2. Remove pipe plug on manifold and connect manometer (See
Fig. 13).
3. Turn on gas to unit.
4. Remove cover screw over regulator adjustment screw on gas
valve.
5. Adjust regulator adjustment screw to the correct manifnld
pressure, as specified in Table 3. Turn adjusting screw
clockwise to increase manifold pressure, or turn adjusting
screw counterclockwise to decrease manifnld pressure.
6. Replace cover screw.
7. Turn off gas to unit. Remove manometer from pressure tap.
Replace pipe plug on gas valve, then turn on gas to unit.
Check for leaks.
CHECK BURNER FLAME
With burner access panel removed, observe the unit heating
operation. Watch the burner flames to see if they are light blue and
soft in appearance, and that the flames are approximately the same
for each burner. Propane will have blue flame (See Fig. 14). Refer
to the Maintenance section for information on burner removal.
AIRFLOW AND TEMPERATURE RISE
The heating section for each size unit is designed and approved for
heating operation within the temperature-rise range stamped on the
unit rating plate.
Table 8 shows the approved temperature rise range for each heating
input, and the air delivery cfm at various temperature rises. The
heating operation airflow must produce a temperature rise that falls
within the approved range.
Refer to Indoor Airflow and Airflow Adjustments section to adjust
heating airflow when required.
HEATING SEQUENCE OF OPERATION
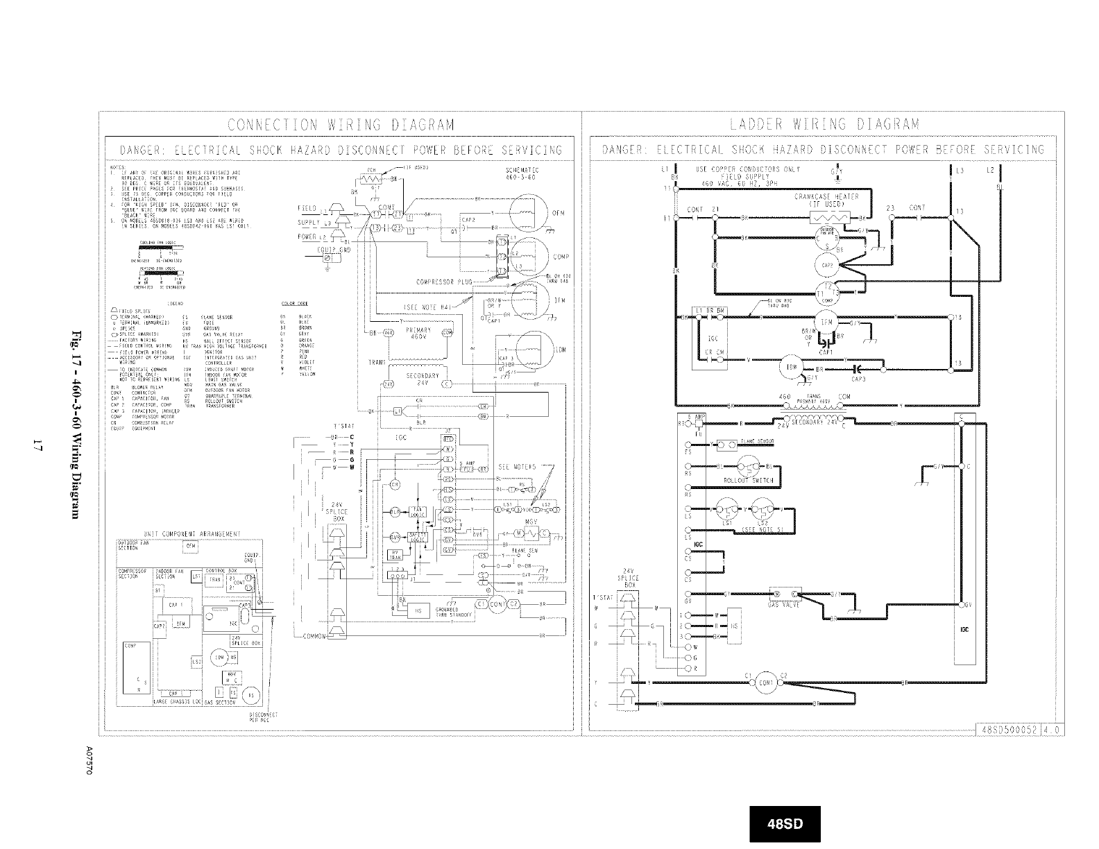
(See Fig. 15-17 and unit wiring label.)
On a call for heating, terminal W of the thermostat is energized.
starting the induced- draft motor. When the hall-effect sensor on the
induced-draft motor senses that it has reached the required speed,
the burner sequence begins. This function is performed by the
integrated gas control (IGC). The indoor (evaporator)-fan motor is
energized 45 sec after flame is established. When the thermostat is
satisfied and W is de-energized, the burners stop firing and the
indoor (evaporator) fan motor shuts off after a 45-sec time-off
delay.
Please note that the ignition control board (IGC) has the capability
to automatically reduce the indoor fan motor on and offdelays in the
event of high duct static and/or partially-clogged filter. An
adjustment of fan delays by the ignition control board is indicated
by a flash code "1" on the LED on the IGC.
An LED (light-emitting diode) indicator is provided on the control
board to monitor operation. The control board is located by
removing the burner access panel. During normal operation, the
LED is continuously on (See Table 4 for status codes).
14

'Ji
I
i
E
=.
g
g
ii
i
)c
sc

_d
I
i
I
's sl_,,,, 4;;c , ., ,, D _ .... .
'_kJ k, lkJ ' I' _ U
IS i
i
(}---
(_
IS
L]1 CI,!i OI /d! _ri IMI IS
i _ (5_1 3;LIC ,S
j _.................., ....................::::: _,, : c_
,s,, i[
i sill _ .... l: J J C,'I/
Jd"x:,
i: _ \L x........ io 0
...............................................................................................................................................................................................I.......................................... 8q}500S 0
g
g

o

n
LIMIT SWITCHES
Normally closed limit switch (LS) completes the control circuit.
Should the leaving-air temperature rise above the maximum
allowable temperature, the limit switch opens and the control circuit
"breaks." Any interruption in the control circuit instantly closes the
gas valve and stops gas flow to the burners and pilot. The blower
motor continues to run until LS resets.
When the air temperature at the limit switch drops to the
low-temperature setting of the limit switch, the switch closes and
completes the control circuit. The direct-spark ignition system
cycles and the unit returns to normal heating operation.
Table 4--LED Indications
STATUS CODE
Normal Operation 2
Hardware Failure
Fan On/Off Delay Modified 2
Limit Switch Fault
Flame Sense Fault
Four Consecutive Limit Switch Faults
Ignition Lockout Fault
Induced-Draft Motor Fault
Rolloat Switch Fault
Internal Control Fault
Temporary Lock-Out 1 hr auto reset 1
NOTES:
LED INDICATION
On
Off
1 Flash
2 Flashes
3 Flashes
4 Flashes
5 Flashes
6 Flashes
7 Flashes
8 Flashes
9 Flashes
i, This code indicates an internal processor fault that will reset itself ill one hr.
Fault Call be caused by stray RF signals ill tile strueture or nearby. This is a UL
requirement.
2. LED indicates acceptable operation. Do not ehange ignition control board.
3. When W1 is energized the burners will remain oil fur alninilnum of 60 see.
4. If more than one error mode exists they will be displayed on the LED ill se
quellce.
ROLLOUT SWITCH
The function of the rollout switch is to close the main gas valve in
the event of flame rnllout. The switch is located above the main
burners. When the temperature at the rollout switch reaches the
maximum allowable temperature, the control circuit trips, closing
the gas valve and stopping gas flow to the burners. The indoor
(evaporator) fan motor (IFM) and induced draft motor continue to
run until switch is reset. The IGC LED will display FAULT CODE
7.
Step 3---START-UP COOLING AND MAKE ADJUST-
MENTS
Complete the required procedures given in the Pre-Start-Up
section befnre starting the unit. Do not jumper any safety devices
when operating the unit. Do not operate the compressor when the
outdoor temperature is below 40°F (4.4°C) (unless accessory
low-ambient kit is installed). Do not rapid-cycle the compressor.
Allow 5 minutes between on cycles to prevent compressor damage.
CHECKING COOLING CONTROL OPERATION
Start and check the unit for proper cooling control operation as
follows:
1. Place room thermostat SYSTEM switch in OFF position.
Observe that blower motor starts when FAN switch is placed
in ON position and shuts down when FAN switch is placed
in AUTO position.
2. Place SYSTEM switch in COOL position and FAN switch
in AUTO position. Set cooling control below room
temperature. Observe that compressor, condenser fan, and
evaporator blower motors start. Observe that cooling cycle
shuts down when control setting is satisfied. The evaporator
fan will continue to run for 30 sec.
3. When using an auto-changeover room thermostat, place
both SYSTEM and FAN switches in AUTO positions.
Observe that unit operates in Heating mode when
temperature control is set to call for heating (above room
temperature) and operates in Cooling mode when
temperature control is set to call for cooling (below room
temperature).
IMPORTANT: Three-phase, scroll compressors are direction
oriented. Unit must be checked to ensure proper compressor
3-phase power lead orientation. If not corrected within 5 minutes.
the internal protector will shut off the compressor. The 3-phase
power leads to the unit must be reversed to correct rotation. When
turning backwards, the difference between compressor suction and
discharge pressures may be dramatically lower than normal.
CHECKING AND ADJUSTING REFRIGERANT CHARGE
UNIT DAMAGE HAZARD
Failure to follow this caution may result in unit damage.
When evaluating the refrigerant charge, an indicated
adjustment to the specified factory charge must always be very
minimal. If a substantial adjustment is indicated, an abnormal
condition exists somewhere in the cooling system, such as
insufficient airflow across either coil or both coils.
The refrigerant system is fully charged with R-22 refrigerant and
is tested and factory sealed. Allow system to operate a minimum of
15 minutes before checking or adjusting charge.
NOTE: Adjustment of the refrigerant charge is not required unless
the unit is suspected of not having the proper R-22 charge.
A refrigerant charging label is attached to the outside of the service
access door. The charging label and the tables shown refer to system
temperatures and pressures in cooling mode only.
018 Model Only
The charging chart (see Table 6) includes the required liquid line
temperature at given discharge line pressures and outdoor ambient
temperatures.
An accurate subcooling thermocouple or thermistor-type
thermometer and a gauge manifold are required when using the
subcooling charging method for evaluating the unit charge. Do not
use mercury or small dial-type thermometers because they are not
adequate for this type of measurement.
Proceed as follows:
1. Remove caps from low- and high-pressure service fittings.
2. Using hoses with valve core depressors, attach low- and
high-pressure gauge hoses to low- and high-pressure
service fittings, respectively.
3. Start unit in Cooling Mode and let unit run until system
pressures stabilize.
4. Measure and record the fnllowing:
a. Outdoor ambient-air temperature (°F (°C)db).
b. Liquid line temperature (°F (°C).
c. Discharge (high-side) pressure (psig).
5. Using "Cooling Charging (;harts," compare outdoor-air
temperature (°F (°C) db) with the discharge line pressure
(psig) to determine desired system operating liquid line
temperature (See Table 6).
6. Compare actual liquid line temperature with desired liquid
line temperature. Using a tolerance of-+ 2°F. (-+1.1°C) add
refrigerant if actual temperature is more than 2°F (1.1°C)
higher than proper liquid line temperature, or remove
refrigerant if actual temperature is more than 2°F (1.1°C)
lower than required liquid line temperature.
18

024 through 060 Models
The charging chart (see Table 6A) includes the required suction
line temperature at given suction line pressures and outdoor ambient
temperatures.
An accurate superheat thermocouple or thermistor-type
thermometer and a gauge manifold are required when using the
superheat charging method for evaluating the unit charge. Do not
use mercury or small dial-type thermometers because they are not
adequate for this type of measurement.
Proceed as follows:
1. Remove caps from low- and high-pressure service fittings.
2. Using hoses with valve core depressors, attach low- and
high-pressure gauge hoses to low- and high-pressure
service fittings, respectively.
3. Start unit in Cooling Mode and let unit run until system
pressures stabilize.
4. Measure and record the following:
a. Outdoor ambient-air temperature (°F (°C)db).
b. Evaporator inlet-air temperature (°F (°C) wb.
c. Suction-tube temperature (°F (°C) at low-side service
fitting.
d. Suction (low-side) pressure (psig).
5. Using "Cooling Charging Charts," compare outdoor-air
temperature(°F (°C) db) with the suction line pressure (psig)
to determine desired system operating suction line
temperature. (See Fig. Table 6A.)
6. Compare actual suction-tube temperature with desired
suction-tube temperature. Using a tolerance of .+ 3°F
(-+1.7°C), add refrigerant if actual temperature is more than
3°F (1.7°C) higher than proper suction-tube temperature,
or remove refrigerant if actual temperature is more than 3°F
(1.7°C) lower than required liquid line temperature.
NOTE: If the problem causing the inaccurate readings is a
refrigerant leak, refer to the Check for Refrigerant Leaks section.
INDOOR AIRFLOW AND AIRFLOW ADJUSTMENTS
UNIT OPERATION HAZARD
Failure to follow this caution may result in unit damage.
For cooling operation, the recommended airflow is 350 to 450
cfm for each 12.000 Btuh of rated cooling capacity. For
heating operation, the airflow must produce a temperature rise
that falls within the range stamped on the unit rating plate.
Table 8 shows the temperature rise in each heating mode. Refer to
these tables to determine the desired heating airflow for the system
being installed. (See Table 7 for filter pressure drop and Table 9 for
wet coil pressure drop).
NOTE: Be sure that all supply-and return-air grilles are open, free
from obstructions, and adjusted properly.
ELECTRICAL SHOCK HAZARD
Failure to follow this warning could result in personal injury
or death.
Disconnect electrical power to the unit and install lockout tag
before changing blower speed.
Airflow can be changed by changing the lead connections of the
blower motor.
All 48SD units are factor wired for low speed except the 030
through the 048 size.
For color coding on the motor leads, see Table 5.
Table 5--Color Coding for Motor Leads
Black =High Speed
Blue = Medium Speed
Red = Low Speed
To change the speed of the indoor fan motor (IFM), remove the fan
motor speed leg lead from the blower relay (BR). This wire is
attached to terminal blower motor (BM) of the integrated gas control
(IGC) board for single-phase units. To change the speed, remove
and replace with lead for desired blower motor speed. Insulate the
removed lead to avoid contact with chassis parts.
COOLING SEQUENCE OF OPERATION
With the room thermostat SYSTEM switch in the COOL position
and the FAN switch in the AUTO position, the cooling sequence of
operation is as follows:
1. When the room temperature rises to a point that is slightly
above the cooling control setting of the thermostat, the
thermostat completes the circuit between thermostat
terminal R to terminals Y and G.
2. The normally open contacts of energized contacmr (C) close
and complete the circuit through compressor motor (COMP)
to condenser (outdoor) fan motor (OFM). Both motors start
instantly.
3. The set of normally open contacts of energized relay BM
close and complete the circuit through evaporator blower
(indoor) fan motor (IFM).
NOTE: Once the compressor has started and then stopped, it should
not be started again until 5 minutes have elapsed. The cooling cycle
remains on until the room temperature drops to a point that is
slightly below the cooling control setting of the room thermostat. At
this point, the thermostat breaks the circuit between thermostat
terminal R to terminals Y and G. These open circuits deenergize
contactor coil C. The condenser and compressor motors stop. After
a 30-sec. delay, the blower motor stops. The unit is in a standby
condition, waiting for the next call for cooling from the room
thermostat.
19

Model
Size
018
Table 6---Cooling Charging Chart -018 only
Required Subcooling °F (°C) Required Liquid Line Temperature for a Specific Subcooling (R-22)
Outdoor Ambient Temperature Required Subcooling (°F) Required Subcooling (°C)
76 (24) 85 (29) 96 (36) 106 (41) 115 (46)
12(6.7) 12(6,7) 12(6.7) 12(6,7) 12(6.7)
Pressure 5 10 15 20
(psig)
134 71 66 61 56
141 74 69 64 59
148 77 72 67 62
166 80 75 70 65
163 83 78 73 68
171 86 81 76 71
179 89 84 79 74
187 92 87 82 77
196 95 90 85 80
206 98 93 88 83
214 101 96 91 86
223 104 99 94 89
233 107 102 97 92
243 110 105 100 95
253 113 108 103 98
264 116 111 106 101
274 119 114 109 104
265 122 117 112 107
297 125 120 115 110
309 128 123 118 113
321 131 126 121 116
331 134 129 124 119
346 137 132 127 122
359 140 135 130 125
Pressure 36811
(kPa)
924 22 19 16 13
972 23 21 18 15
1020 25 22 19 17
1076 27 24 21 18
1124 28 26 23 20
1179 30 27 24 22
1234 32 29 26 23
1289 33 31 28 25
1351 35 32 29 27
1413 37 34 31 28
1475 38 36 33 30
1536 40 37 34 32
1606 42 39 36 33
1675 43 41 38 35
1744 45 42 39 37
1820 47 44 41 38
1889 48 46 43 40
1965 50 47 44 42
2048 52 49 46 43
2130 53 51 48 45
2213 55 52 49 47
2282 57 54 51 48
2386 58 56 53 50
2475 60 57 54 52
Table 6A--Coollng Charging Chart = 024 through 060 only
ODTemp,
45
55
65
75
85
95
105
115
125
Sucti0nLineTem_
SuctionLinePressurePS(P_.G._
52 54 56 59 61 64 67 70 73 76 79 82 85 89 92
51 55 60 64 69 ...................
53 57 62 66 70 ...............
53 57 62 66 71 75 .........
............. 56 61 66 71 76
............... 53 58 63 67 72
................. 50 54 58 62 66
................... 50 53 57 60 64
................... 49 52 55 58 61
..................... 50 53 56 59
FILTER SIZE in.
(mm)
20X20X1
(508X508X25)
24X30X1
(610X762X25)
24X36X1
(61OX914X24)
ODTemp,
(°C)
7
13
18
24
29
35
41
46
52
SuctionLineTem_
SactionLinePress_
36t 370 387 405 423 442 462 482 502 523 544 566 589 612 636
I1 13 15 18 21 ...................
12 14 16 19 21 ...............
....... 12 14 17 19 21 24 .........
............. 13 I6 19 22 24
............... 12 14 17 20 22
................. 10 12 14 17 19
................... 10 12 14 16 18
................... 9 11 13 14 16
..................... 10 1I 13 15
AO5109v2
Table 7--Filter Pressure Drop Table (in. wc)
CFM
500 600 700 800 900 1000 1100 1200 1300 1400 1500 1600 1700 1800 1900 2000 2100 2200 2300
0.05 0.07 0.08 0.1 0.12 0.13 0.14 0.15
0.04 0.05 0.06 0.07 0.07 0.08 0.09 0.1
0.06 0.07 0.07 0.08 0.09 0.09 0.10 0.11 0.12 0.13 0.14 0.14
20

Unit
48SD(-,N)018040
48SD(-,N)024040
48SD(-,N)024060
48SD(-,N)030040
48SD(-,N)030060
48SD(-,N)036060
48SD(-,N)056090
48SD(-,N)042060
48SD(-,N)042090
48SD(-,N)048090
48SD(-,N)048115
Heating Rise Motor
Range °F Speed
Low 1
30 -60
High
Table 8--Dry Coil Air Delivery* - Horizontal and Downflow Discharge -
Unit 48SD018-060 (Deduct 10% for 208 Volts)
External Static Pressure (in. we)
0.1 0,2 0.3 0,4 0.5 0,6
Watts 260 243 229 217 209 - -
CFM 859 775 667 536 382 - -
Heating Rise OF 35 39 45 56 NA NA
Watts 340 328 317 307 300 294
CFM 1064 948 820 680 528 364
Heating Rise OF NA 32 37 44 57 NA
Watts 311 309 304 301 285 290
Low 1 CFM 955 885 820 757 685 583
Heating Rise OF 32 34 37 40 44 NA
Watts 411 405 398 390 379 357
20 - 50 Medium CFM 1195 1155 1100 1028 957 868
Heating Rise OF 25 26 27 29 31 35
Watts 528 518 509 492 477 467
High CFM 1484 1421 1568 1279 1185 1088
Heating Rise OF 20 21 22 23 25 28
Watts 311 309 304 301 286 290
Low I CFM 955 885 820 757 686 583
Heating Rise OF 48 51 55 59 NA NA
Watts 411 405 398 390 379 357
35 - 65 Medium CFM 1195 1155 1100 1028 957 868
Heating Rise OF 38 39 41 44 47 52
Watts 528 518 509 492 477 467
High CFM 1484 1421 1568 1279 1185 1088
Heating Rise OF NA NA NA 35 38 41
Watts 311 309 304 301 286 290
Low CFM 955 885 820 757 686 583
Heating Rise OF 32 34 37 40 44 NA
Watts 411 405 398 390 379 357
20 - 50 Medium I CFM 1195 1155 1100 1028 957 868
Heating Rise OF 25 26 27 29 31 35
Watts 528 518 509 492 477 467
High CFM 1484 1421 1568 1279 1185 1088
Heating Rise OF 20 21 22 23 25 28
Watts 311 309 304 301 286 290
Low CFM 935 885 820 757 686 583
Heating Rise OF 48 51 55 59 NA NA
Watts 411 405 398 390 379 357
35 - 65 Medium I CFM 1195 1155 1100 1028 957 868
Heating Rise OF 38 39 41 44 47 52
Watts 528 518 509 492 477 467
High CFM 1484 1421 1568 1279 1185 1088
Heating Rise OF NA NA NA 35 38 41
Watts 439 429 415 401 395 380
Low CFM 1242 1170 1089 994 917 837
Heating Rise OF 36 38 41 45 49 54
Watts 503 491 479 461 450 436
25 - 55 Medium I CFM 1320 1244 1162 1081 1005 897
Heating Rise OF 34 36 39 42 45 50
Watts 641 627 623 609 601 588
High CFM 1562 1288 1205 1119 1033 935
Heating Rise OF 33 35 37 40 44 48
Watts 439 429 415 401 395 380
Low CFM 1242 1170 1089 994 917 837
Heating Rise OF 54 58 62 68 NA NA
Watts 503 491 479 461 450 436
40 - 70 Medium I CFM 1320 1244 1162 1081 1005 897
Heating Rise OF 51 54 58 62 67 NA
Watts 641 527 623 509 601 588
High CFM 1562 1288 1205 1119 1033 935
Heating Rise OF 50 52 56 60 65 NA
Watts 434 428 422 403 404 390
Low CFM 1282 1241 1206 1160 1109 1040
Heating Rise OF 35 36 37 39 41 43
Watts 560 548 555 526 511 496
0.7 0,8
NA NA
NA NA
286 280
423 263
NA NA
357 345
769 647
39 46
447 435
970 855
31 35
286 280
423 263
NA NA
357 345
769 647
59 NA
447 435
970 855
46 53
286 280
423 263
NA NA
357 345
769 647
39 46
447 435
970 855
31 35
286 280
423 263
NA NA
357 345
769 647
59 NA
447 435
970 855
46 53
355 339
702 570
NA NA
418 404
757 662
NA NA
571 559
826 714
54 NA
556 339
702 570
NA NA
418 404
767 662
NA NA
571 559
826 714
NA NA
375 360
967 890
47 51
478 460
25 - 55 Medium I CFM 1526 1482 1437 1398 1344 1281 1205 1125
Heating Rise OF 29 30 31 32 33 35 37 40
Watts 755 746 730 709 690 664 642 624
High CFM 1860 1805 1751 1685 1620 1541 1468 1370
Heating Rise OF NA 25 26 27 28 29 31 33
Watts 434 428 422 403 404 390 575 360
Low CFM 1282 1241 1206 1160 1109 1040 967 890
Heating Rise OF 55 54 56 58 61 65 70 NA
Watts 560 548 555 526 511 496 478 460
40 - 70 Medium I CFM 1526 1482 1437 1398 1344 1281 1205 1125
Heating Rise OF 44 46 47 48 50 53 56 60
Watts 755 746 730 709 690 564 642 524
High CFM 1860 1805 1751 1685 1620 1541 1468 1370
Heating Rise OF NA NA NA 40 42 44 46 49
Watts 627 617 607 584 567 548 528 503
Low CFM 1550 1530 1493 1461 1414 1361 1620 1250
Heating Rise OF 44 44 45 46 48 50 51 54
Watts 771 755 734 711 690 565 639 507
25 - 55 Medium I CFM 1798 1771 1734 1687 1645 1595 1530 1449
Heating Rise OF 38 38 39 40 41 42 44 47
Watts 969 941 908 887 858 827 804 767
High CFM 2124 2071 2000 1944 1876 1811 1735 1647
Heating Rise OF 32 33 34 35 36 37 39 41
Watts 627 617 607 584 567 548 528 503
Low CFM 1550 1530 1493 1461 1414 1361 1520 1250
Heating Rise OF 56 56 58 59 61 63 65 NA
Watts 771 755 734 711 690 665 639 607
35 - 65 Medium I CFM 1798 1771 1734 1687 1645 1595 1530 1449
Heating Rise OF 48 49 50 51 52 54 56 60
Watts 969 941 905 887 858 827 804 767
High CFM 2124 2071 2000 1944 1876 1811 1735 1647
Heating Rise OF 41 42 43 44 46 48 50 52
0.9
NA
NA
NA
327
365
NA
421
712
42
NA
327
365
NA
421
712
63
NA
327
365
NA
421
712
42
NA
327
565
NA
421
712
65
329
442
NA
389
541
NA
548
580
NA
529
442
NA
389
541
NA
548
580
NA
344
813
55
439
1029
44
600
1265
36
544
813
NA
439
1029
66
600
1265
55
480
1177
NA
572
1355
50
748
1555
43
480
1177
NA
572
1355
64
748
1555
55
21

Table 8Con't--Dry Coil Air Delivery* - Horizontal and Downflow Discharge -
Unit 48SD018-060 (Deduct 10% for 208 Volts)
Unit Heating Rise Motor
Range °F Speed 0.1 0.2 0.3
Watts 627 6t 7 607
Low CFM 1550 1530 1493
Heating Rise OF 63 64 65
Watts 771 755 734
48SD(-,N)048130 40 - 70 Medium I CFM 1798 1771 1734
Heating Rise OF 54 55 56
Watts 969 941 908
High CFM 2124 2071 2000
Heating Rise OF 46 47 49
Watts 786 769 754
Low I CFM 2027 1960 1901
Heating Rise OF 83 34 86
Watts 873 849 833
48SD(-,N)060090 25 - 55 Medium CFM 2095 2026 1962
Heating Rise OF 32 33 34
Watts 1012 998 981
High CFM 2184 2109 2036
Heating Rise OF 81 32 83
Watts 786 769 754
Low I CFM 2027 1960 1901
Heating Rise OF 43 44 45
Watts 873 849 833
48SD(-,N)060115 35 - 65 Medium CFM 2095 2026 1962
Heating Rise OF 41 43 44
Watts 1 O12 998 981
High CFM 2184 2109 2036
Heating Rise OF 39 41 42
Watts 786 769 754
Low I CFM 2027 1960 1901
Heating Rise OF 48 50 51
Watts 873 849 833
48SD(-,N)060130 40 - 70 Medium CFM 2095 2026 1962
Heating Rise OF 47 48 50
Watts 1012 998 981
High CFM 2184 2109 2036
Heating Rise OF 45 46 48
Air delivery values are without air filter and are for dry coil (see \V_t Coil Pressure Drop table).
iFactory shipped lleating'cooling speed
"NA" = Not allowed for heating speed
Note: Deduct field supplied air filter pressure drop and wet coil pressure drop to obtain external static pressure available for ducting.
External Static Pressure (in. we)
0,4 0.5 0,6 0.7 0,8 0.9
584 567 548 528 503 480
1461 1414 1361 1320 1250 1177
67 69 NA NA NA NA
711 690 665 639 607 572
1687 1645 1595 1530 1449 1355
58 59 61 64 67 NA
887 858 827 804 767 748
1944 1876 1811 1735 1647 1555
50 52 54 56 59 63
736 722 705 684 658 616
1821 1759 1693 1616 1518 1354
37 38 40 42 45 50
815 798 782 763 748 704
1887 1817 1748 1679 1583 1439
38 37 39 40 43 47
963 948 927 904 886 848
1963 1886 1812 1729 1647 1496
34 86 37 89 41 45
736 722 705 684 658 616
1821 1759 1693 1616 1513 1354
47 49 51 53 57 64
815 798 782 763 748 704
1887 1817 1748 1679 1583 1439
46 47 49 51 54 60
963 948 927 904 886 848
1963 1886 1812 1729 1647 1496
44 46 48 50 52 58
736 722 705 684 658 618
1821 1759 1693 1616 1513 1354
54 55 58 60 64 NA
815 798 782 763 748 704
1887 1817 1748 1679 1583 1439
52 54 56 58 82 68
963 948 927 904 886 848
1963 1886 1812 1729 1647 1496
50 52 54 56 59 65
Table 9--48SD Wet Coil Pressure Drop (in. wc)
UNIT STANDARD CFM (S.C.EM.)
SIZE 500 600 700 800 900 1000 1100 1200 1300 1400 1500 1600 1700 1800 1900 2000
018 0.011 0.013 0.018 0.022 - -
024
030
036
042
048
060
0,030 0.037 0,044 0.053 0,063 - -
0.037 0.044 0.053 0.063 0.072 0.081 0.105 -
0.05 0.061 0.072 0.080 0.090 0.110
0.044 0.051 0.059 0.065 0.072 0.080 0.088 0.095 0.105 -
0.044 0.050 0.053 0.059 0.066 0.072 0.077 0.086
- 0.079 0,087 0.095 0,102 0.113 0,123
22

MAINTENANCE
To ensure continuing high performance and to minimize the
possibility of premature equipment failure, periodic maintenance
must be performed on this equipment. This unit should be inspected
at least once each year by a qualified service person. To troubleshoot
unit, refer to Table 10, Troubleshooting Chart.
NOTE TO EQUIPMENT OWNER: Consult your local dealer
about the availability of a maintenance contract.
PERSONAL INJURY AND UNIT DAMAGE HAZARD
Failure to follow this warning could result in personal injury
or death and unit component damage.
The ability to properly perform maintenance on this
equipment requires certain expertise, mechanical skills, tools
and equipment. If you do not possess these, do not attempt to
perform any maintenance on this equipment, other than those
procedures recommended in the Owner's Manual.
ELECTRICAL SHOCK HAZARD
Failure to follow these warnings could result in personal
injury or death:
1. Turn off electrical power to the unit before performing any
maintenance or service on this unit.
2. Use extreme caution when removing panels and parts.
3. Never place anything combustible either on or in contact
with the unit.
UNIT OPERATION HAZARD
Failure to follow this caution may result in improper
operation.
Errors made when reconnecting wires may cause improper
and dangerous operation. Label all wires prior to
disconnecting when servicing.
The minimum maintenance requirements for this equipment are as
follows:
1. Inspect air filter(s) each month. Clean or replace when
necessary.
2. Inspect indoor coil, drain pan, and condensate drain each
cooling season for cleanliness. Clean when necessary.
3. Inspect blower motor and wheel for cleanliness at the
beginning of each heating and cooling season. Clean when
necessa U. For first heating and cooling season, inspect
blower wheel bi-monthly to determine proper cleaning
frequency.
4. Check electrical connections for tightness and controls for
proper operation each heating and cooling season. Service
when necessary.
5. Ensure electric wires are not in contact with refrigerant
tubing or sharp metal edges.
6. Check and inspect heating section before each heating
season. Clean and adjust when necessary.
7. Check flue hood and remove any obstructions, if necessary.
AIR FILTER
IMPORTANT: Never operate the unit without a suitable air filter
in the return-air duct system. Always replace the filter with the same
dimensional size and type as originally installed. See Table 1 for
recommended filter sizes.
Inspect air filter(s) at least once each month and replace
(throwaway-type) or clean (cleanable-type) at least twice during
each cooling season and twice during the heating season, or
whenever the filter becomes clogged with dust and lint.
INDOOR BLOWER AND MOTOR
NOTE: All motors are pre-lubricated. Do not attempt to lubricate
these motors.
For longer life, operating economy, and continuing efficiency, clean
accumulated dirt and grease from the blower wheel and motor
annually.
ELECTRICAL SHOCK HAZARD
Failure to follow this warning could result in personal injury
or death.
Disconnect and tag electrical power to the unit before cleaning
and lubricating the blower motor and wheel.
To clean the blower motor and wheel:
1. Remove and disassemble blower assembly as follows:
a. Remove unit access panel.
b. Disconnect motor lead from blower relay (BM).
Disconnect yellow lead from terminal L2 of the
contactor.
c. On all units remove blower assembly from unit. Remove
screws securing blower to blower partition and slide
assembly out. Be careful not to tear insulation in blower
compartment.
d. Ensure proper reassembly by marking blower wheel and
motor in relation to blower housing before disassembly.
e. Loosen setscrew(s) that secures wheel to motor shaft,
remove screws that secure motor mount brackets to
housing, and slide motor and motor mount out of
housing.
2. Remove and clean blower wheel as follows:
a. Ensure proper reassembly by marking wheel orientation.
b. Lift wheel from housing. When handling and/or cleaning
blower wheel, be sure not to disturb balance weights
(clips) on blower wheel vanes.
c. Remove caked-on dirt from wheel and housing with a
brush. Remove lint and/or dirt accumulations from wheel
and housing with vacuum cleaner, using soft brush
attachment. Remove grease and oil with mild solvent.
d. Reassemble wheel into housing.
e. Reassemble motor into housing. Be sure setscrews are
tightened on motor shaft flats and not on round part of
shaft.
f. Reinstall unit access panel.
3. Restore electrical power to unit. Start unit and check for
proper blower rotation and motor speeds during heating and
cooling cycles.
FLUE GAS PASSAGEWAYS
To inspect the flue collector box and upper areas of the heat
exchanger:
23

1.Removetheinduced-draftblowerassemblyaccordingto
directionsbelow.
2.Removethefluecollectorboxcover(SeeFig.18)fromthe
heatexchangerassembly.Inspecttheheatexchangers.
3.Cleanallsurfaces,asrequired,usingawirebrush.
INDUCED-DRAFT (COMBUSTION AIR) BLOWER
ASSEMBLY
The induced-draft blower assembly consists of the inducer motor.
the blower housing, and the induced-draft blower wheel.
Clean periodically to assure proper airflow and heating efficiency.
Inspect blower wheel every fall and periodically during the heating
season. For the first heating season, inspect blower wheel bimonthly
to determine proper cleaning frequency.
To inspect blower wheel, remove draft hood assembly. Shine a
flashlight into opening to inspect wheel. If cleaning is required,
remove induced-draft blower assembly as follows:
1. Remove unit access panel (See Fig. 19).
2. Remove the 7 screws that attach induced-draft motor
assembly to the flue collector box cover.
3. Slide the assembly out of the unit. (See Fig. 20). Clean the
blower wheel. If additional cleaning is required, continue
with Steps 4 and 5.
4. To remove blower wheel, remove 2 setscrews.
5. To remove inducer motor, remove screws that hold the
inducer motor to the blower housing.
6. To reinstall, reverse the procedure outlined above.
LIMIT SWITCH
Remove unit access panel. Limit switch is located on the blower
partition.
NOTE: Some models have two limit switches.
BURNER IGNITION
Unit is equipped with a direct spark ignition 100 percent lockout
system. Ignition module is located in the control box (See Fig. 18).
Module contains a self-diagnostic LED. During servicing, refer to
label diagram for LED interpretation.
If lockout occurs, unit may be reset by either momentarily
interrupting power supply to unit or by turning selector switch to
OFF position at the thermostat.
MAIN BURNERS
At the beginning of each heating season, inspect for deterioration or
blockage due to corrosion or other causes. Observe the main burner
flames and adjust, if necessary.
Removal of Burner Assembly
To remove the burner assembly for servicing:
1. Shut off main gas valve.
2. Shut off power to unit and install lockout tag.
3. Remove unit access panel (See Fig. 19).
4. Disconnect gas piping at unit gas valve.
5. Remove wires connected to gas valve. Mark each wire.
6. Remove ignitor and sensor wires at the ignitor module.
7. Remove the mounting screw that attaches the burner rack to
the unit base (See Fig. 18).
8. Slide the burner rack out of the unit (See Fig. 18 and 21).
9. To reinstall, reverse the procedure outlined above.
OUTDOOR COIL. INDOOR COIL. AND CONDENSATE
DRAIN PAN
Inspect the condenser coil, evaporator coil. and condensate drain
pan at least once each year.
The coils are easily cleaned when dry; therefore, inspect and clean
the coils either before or after each cooling season. Remove all
obstructions, including weeds and shrubs, that interfere with the
airflow through the condenser coil.
Straighten bent fins with a fin comb. If coated with dirt or lint, clean
the coils with a vacuum cleaner, using the soft brush attachment. Be
careful not to bend the fins. If coated with oil or grease, clean the
coils with a mild detergent and water solution. Rinse coils with clear
water, using a garden hose. Be careful not to splash water on motors.
insulation, wiring, or air filter(s). For best results, spray condenser
coil fins from inside to outside the unit. On units with an outer and
inner condenser coil, be sure to clean between the coils. Be sure to
flush all dirt and debris from the unit base.
Inspect the drain pan and condensate drain line when inspecting the
coils. Clean the drain pan and condensate drain by removing all
foreign matter from the pan. Flush the pan and drain trough with
clear water. Do not splash water on the insulation, motor, wiring, or
air filter(s). If the drain trough is restricted, clear it with a "plumbers
snake" or similar probe device.
IGNITION MODULE INDUCED DRAFT MOTOR MOUNT
\ ! ¢
ROLLOUT
\ SWITCH
BURNER MOUNTING
COLLECTOR BLOWER
BOX HOUSING RACK SCREW
Fig. 18 - Blower Housing and Flue Collector Box
A05119
FRONT
ACCESS PANEL
24
Fig. 19 - Unit Access Panel
C99091

BLOWER
HOUSING
(HIDDEN)
C99085
Fig. 20 -Removal of Induced-Draft Blower Assembly
ELECTRICAL CONTROLS AND WIRING
Inspect and check the electrical controls and wiring annually. Be
sure to turn off the electrical power to the unit.
Remove access panel to locate all the electrical controls and wiring.
Check all electrical connections for tightness. Tighten all screw
connections. If any smoky or burned connections are noticed.
disassemble the connection, clean all the parts, re-strip the wire end
and reassemble the connection properly and securely.
After inspecting the electrical controls and wiring, replace all the
panels. Start the unit, and observe at least one complete cooling
cycle to ensure proper operation. If discrepancies are observed in
operating cycle, or if a suspected malfunction has occurred, check
each electrical component with the proper electrical
instrumentation. Refer to the unit wiring label when making these
checks.
REFRIGERANT CIRCUIT
Inspect all refrigerant tubing connections and the unit base for oil
accumulation annually. Detecting oil generally indicates a
refrigerant leak.
Fig. 21 - Burner Rack Removed
OUTDOOR FAN
C99086
UNIT OPERATION HAZARD
Failure to follow this caution may result in damage to unit
components.
Keep the condenser fan free from all obstructions to ensure
proper cooling operation. Never place articles on top of the
unit.
1. Remove 6 screws holding outdoor grille and motor to top
cover.
2. Turn motor/grille assembly upside down on top cover to
expose fan blade.
3. Inspect the fan blades for cracks or bends.
4. If fan needs to be removed, loosen setscrew and slide fan off
motor shaft.
5. When replacing fan blade, position blade so that the hub is
1/8 in. away from the motor end (1/8 in .of motor shaft will
be visible) (See Fig. 12).
6. Ensure that setscrew engages the flat area on the motor shaft
when tightening.
7. Replace grille.
EXPLOSION, PERSONAL INJURY HAZARD
Failure to follow this warning could result in property
damage, personal injury or death.
System under pressure. Relieve pressure and recover all
refrigerant before system repair or final unit disposal. Use all
service ports and open all flow-control devices, including
solenoid valves.
If oil is detected or if low performance is suspected, leak test all
refrigerant tubing using an electronic leak detector, or liquid-soap
solution. If a refrigerant leak is detected, refer to Check for
Refrigerant Leaks section.
If no refrigerant leaks are found and low performance is suspected,
refer to Checking and Adjusting Refrigerant Charge section.
INDOOR AIRFLOW
The heating and/or cooling airflow does not require checking unless
improper performance is suspected. If a problem exists, be sure that
all supply- and return-air grilles are open and free from
obstructions, and that the air filter is clean.
METERING DEVICES
018 Model Onlv-TXV
This metering device is a hard shutoff, balance port TXV. The TXV
maintains a constant superheat at the evaporator exit resulting in
higher overall system efficiency.
024 through 060 Models-AccuRater Piston
Refrigerant metering device is a fixed orifice and is located in the
distributor assembly to the indoor coil.
LIQUID LINE STRAINER
The liquid line strainer (to protect metering device) is made of wire
mesh and is located in the liquid line on the inlet side of the metering
device.
TROUBLESHOOTING
Refer to the Troubleshooting (:hart (Table 10-12) for
troubleshooting information.
START-UP CHECKLIST
Use the Start-Up Checklist at the back of this manual.
25

n
SYMPTOM
Compressor and condenser fan will not start,
Compressor will not start but condenser fan
rune
Three-phase scroll compressor
makes excessive noise, and there may be a
low pressure differential
Compressor cycles (other than normally sat=
isfying thermostat)
Compressor operates continuously
Excessive head pressure
Head pressure too low
Excessive suction pressure
Suction pressure too low
Table lO--Troubleshooting Chart
CAUSE
Power failure
Fuse blown or circuit breaker tripped
Defective contactor, transformer, or high-pressure,
loss-of-charge or low-pressure switch
Insufficient line voltage
Incorrect or faulty wiring
Thermostat setting too high
Faulty wiring or loose connections in compressor cir-
cuit
Compressor motor burned out, seized, or
internal overload open
Defective run/start capacitor, overload, start relay
One leg of 3-phase power dead
Low input voltage (20% low)
Scroll compressor is rotating in the wrong direction
Refrigerant overcharge or undercharge
Defective compressor
Insufficient line voltage
Blocked outdoor coil
Defective run/start capacitor
Faulty outdoor fan motor or capacitor
Restriction in refrigerant system
Dirty air filter
Unit undersized for load
Thermostat temperature set too low
Low refrigerant charge
Air in system
Outdoor coil dirty or restricted
Dirty air filter
Dirty condenser coil
Refrigerant overcharged
Air in system
Condenser air restricted or air short-cycling
Low refrigerant charge
Restriction in liquid tube
High heat load
Compressor valves leaking
Refrigerant overcharged
Dirty air filter
Low refrigerant charge
Metering device or low side restricted
Insufficient evaporator airflow
Temperature too low in conditioned area
Outdoor ambient below 55°F
Filter drier restricted
REMEDY
Call power company
Replace fuse or reset circuit breaker
Replace component
Determine cause and correct
Check wiring diagram and rewire correctly
Lower thermostat temperature setting below
room temperature
Check wiring and repair or replace
Determine cause
Replace compressor
Determine cause and replace
Replace fuse or reset circuit breaker
Determine cause
Determine cause and correct
Correct the direction of rotation by reversing the
8-phase power leads to the unit, Shut down unit
to allow pressures to equalize,
Recover refrigerant, evacuate system, and re-
charge to capacities shown on rating plate
Replace and determine cause
Determine cause and correct
Determine cause and correct
Determine cause and replace
Replace
Locate restriction and remove
Replace filter
Decrease load or increase uoit size
Reset thermostat
Locate leak, repair, and recharge
Recover refrigerant, evacuate system, and re-
charge
Clean coil or remove restriction
Replace filter
Clean coil
Recover excess refrigerant
Recover refrigerant, evacuate system, and re-
charge
Determine cause and correct
Check for leaks, repair, and recharge,
Remove restriction
Check for source and eliminate
Replace compressor
Recover excess refrigerant
Replace filter
Check for leaks, repair and recharge
Remove source of restriction
Increase air quantity
Check filte_replace if necessary
Reset thermostat
Install low-ambient kit
Replace filter
2d

Table ll--Troubleshoofing Guide-Heating
SYMPTOM CAUSE REMEDY
Water in gas line Drain. Install drip leg.
No power to furnace Check power supply fuses, wiring or circuit breaker,
Check transformer.
No 20-v power supply to control circuit NOTE: Some transformers have internal over-current protection
that requires a cool-down period to reset.
Burners will not ignite Mis-wired or loose connections Check all wiring and wire nut connections
Check flame ignition and sense electrode positioning,
Misaligned spark electrodes Adjust as necessary,
1. Check gas line for air. Purge as necessary. NOTE: After purging
gas line of air, wait at least 5 minutes for any gas to dissipate be-
No gas at main burners fore attempting to light unit,
2. Check gas valve,
Dirty air filter Clean or replace filter as necessary
Gas input to furnace too low Check gas pressure at manifold match with that on unit nameplate
Unit undersized for application Replace with proper unit or add additional unit
Inadequate heating Restricted airflow Clean or replace filter, Remove any restriction.
Check rotation of blower, temperature rise of unit, Adjust as neces-
Limit switch cycles main burners sary,
1. Tighten all screws around burner compartment
2. Cracked heat exchanger. Replace.
3. Unit over-fired. Reduce input (change orifices or adjust gas line
Poor flame characteristics Incomplete combustion results in: Aldehyde odors, or manifold pressure).
carbon monoxide, sooting flame, floating flame 4. Check burner alignment.
5. Inspect heat exchanger for blockage. Clean as necessary,
Table 12--Troubleshooting Guide-LED Status Codes
SYMPTOM CAUSE REMEDY
Check 5-amp fuse son IGC*, power to unit, 24-v circuit breaker,
Hardware failure and transformer. Units without a 24-v circuit breaker have an inter-
(LED OFF) Loss of power to control module (iGC)*, nal overload in the 24-v transformer, If the overload trips, allow 10
minutes for automatic reset.
Limit switch faults Check the operation of the indoor (evaporator) fan motor. Ensure
(LED 2 flashes) High temperature limit switch is open, that the supply-air temperature rise is in accordance with the range
on the unit nameplate. Clean or replace filters,
Flame sense fault The IGC sensed flame that should not be present. Reset unit, If problem persists, replace control board,
(LED 3 flashes)
4 consecutive limit switch Check the operation of the indoor (evaporator) fan motor and that
faults Inadequate airflow to unit, supply-air temperature rise agrees with range on unit nameplate
(LED 4 flashes) information,
Ignition lockout Check ignitor and flame sensor electrode spacing, gaps, etc, En-
(LED 5 flashes) Unit unsuccessfully attempted ignition for 15 minutes, sure that fame sense and ignition wires are properly terminated,
Verify that unit is obtaining proper amount of gas.
Check for proper voltage. If motor is operating, check the speed
Induced-draft motor fault IGC does not sense that induced-draft motor is operat- sensor ptug/IGC Terminal J2 connection, Proper connection:
(LED 6 flashes) ing,* PIN 1 - White
PIN 2 - Red
PIN 3 - Black
Rollout switch will automatically reset, but IGC will continue to
Roliout switch fault lockout unit. Check gas valve operation. Ensure that induced-draft
(LED 7 flashes) Rollout switch has opened, blower wheel is properly secured to motor shaft, inspect heat ex-
changer. Reset unit at unit disconnect.
Internal control fault Microprocessor has sensed an error in the software or If error code is not cleared by resetting unit power, replace the
(LED 8 flashes) hardware. IGC*.
Temporary software lockout Reset 24-v. to control board or turn thermostat oft, then on again,
(LED 9 flashes) Electrical interference impeding IGC software Fault will automatically reset itself in one (1) hour,
WARNING/!_ :If the IOC illI1st be replaced, be stlre to ground yotlrself to dissipate any electrical charge that my be present before handling new control board. The IOC is
sensitive to static electricity and m) be damaged if the necessary precautions are not taken.
IMPORTANT: Refer to Table 11 Troubleshooting Guide Heating for additional troubleshooting analysis.
LEGEND
IG( Integrated Gas Unit Controller
LED Light Emitting Diode
27

i. Preliminary Information
MODEL NO.:
SERIAL NO.:
DATE:
TECHNICIAN:
START-U P CHECKLIST
(Remove and Store in Job File)
il. PRE-START-UP (Insert checkmark in box as each item is completed)
() VERIFY THAT ALL PACKING MATERIALS HAVE BEEN REMOVED FROM UNIT
( ) REMOVE ALL SHIPPING HOLD DOWN BOLTS AND BRACKETS PER INSTALLATION INSTRUCTIONS
( ) CHECK ALL ELECTRICAL CONNECTIONS AND TERMINALS FOR TIGHTNESS
( ) CHECK GAS PIPING FOR LEAKS (WHERE APPLICABLE)
() CHECKTHAT INDOOR (EVAPORATOR) AIR FILTER IS CLEAN AND IN PLACE
( ) VERIFY THAT UNIT INSTALLATION IS LEVEL
( ) CHECK FAN WHEEL, AND PROPELLER FOR LOCATION IN HOUSING/ORIFICE AND SETSCREWTIGHTNESS
ill. START-UP
ELECTRICAL
SUPPLY VOLTAGE
COMPRESSOR AMPS
INDOOR (EVAPORATOR) FAN AMPS
TEMPERATURES
OUTDOOR (CONDENSER) AIR TEMPERATURE DB
RETURN-AIR TEMPERATURE DB WB
COOLING SUPPLY AIR DB WB
GAS HEAT SUPPLY AIR
PRESSURES
GAS INLET PRESSURE
GAS MANIFOLD PRESSURE
REFRIGERANT SUCTION
REFRIGERANT DISCHARGE
( ) VERIFY REFRIGERANT CHARGE USING CHARGING CHARTS
GAS HEAT TEMPERATURE RISE
TEMPERATURE RISE (See Literature) RANGE
MEASURED TEMPERATURE RISE
*Measured at suction inlet to compressor
1-Measured at liquid line leaving condenser.
IN.WG
IN.WG
PSiG SUCTION LINE TEMP*
PSIG DISCHARGE TEMPt
Copyright 2007 Carrier Corp °7310 W Morris St • Indianapolis, iN 46231 Printed in U.SA. Edition Date: 07/07
Manufacturer reserves the right to change_ at any time_ specifications and designs without notice and without obligations,
28
Catalog No: 48SD-7Sl
Replaces: 48SD-6SI