Samsung Electronics Co SWL-B70F Air Conditioner User Manual 2
Samsung Electronics Co Ltd Air Conditioner 2
Contents
- 1. User Manual
- 2. User Manual - 1
- 3. User Manual - 2
User Manual - 2

Safety precautions
Carefully follow the precautions listed below because they are essential to guarantee the safety of the equipment.
•
Always disconnect the air conditioner from the power supply before servicing it or accessing its internal components.
•
Verify that installation and testing operations are performed by qualified personnel.
•
Verify that the air conditioner is not installed in an easily accessible area.
General information
Carefully read the content of this manual before installing the air conditioner and store the manual in a safe place in order
to be able to use it as reference after installation.
For maximum safety, installers should always carefully read the following warnings.
Store the operation and installation manual in a safe location and remember to hand it over to the new owner if the air
conditioner is sold or transferred.
This manual explains how to install an indoor unit with a split system with two SAMSUNG units.
The use of other types of units with different control systems may damage the units and invalidate the warranty.
The manufacturer shall not be responsible for damages arising from the use of non compliant units.
This product has been determined to be in compliance with the Low Voltage Directive (2006/95/EC), and the
Electromagnetic Compatibility Directive (2004/108/EC) of the European Union.
The manufacturer shall not be responsible for damage originating from unauthorized changes or the improper connection
of
electric and requirements set forth in the“Operating limits”table, included in the manual, shall immediately invalidate
the
warranty.
The air conditioner should be used only for the applications for which it has been designed: the indoor unit is not suitable
to
be installed in areas used for laundry.
Do not use the units if damaged. If problems occur, switch the unit off and disconnect it from the power supply.
In order to help prevent electric shocks, fires or injuries, always stop the unit, disable the protection switch and contact
SAMSUNG’s technical support if the unit produces smoke, if the power cable is hot or damaged or if the unit is very noisy.
Always remember to inspect the unit, electric connections, refrigerant tubes and protections regularly. These operations
should be performed by qualified personnel only.
The unit contains moving parts, which should always be kept out of the reach of children.
Do not attempt to repair, move, alter or reinstall the unit. If performed by unauthorized personnel, these operations may
cause electric shocks or fires.
Do not place containers with liquids or other objects on the unit.
All the materials used for the manufacture and packaging of the air conditioner are recyclable.
The packing material and exhaust batteries of the remote controller(optional) must be disposed of in accordance with
current laws.
The air conditioner contains a refrigerant that has to be disposed of as special waste. At the end of its life cycle, the air
conditioner must be disposed of in authorized centers or returned to the retailer so that it can be disposed of correctly and
safely.
Installing the unit
IMPORTANT: When installing the unit, always remember to connect first the refrigerant tubes, then the electrical lines.
Always disassemble the electric lines before the refrigerant tubes.
Upon receipt, inspect the product to verify that it has not been damaged during transport.
If the product appears damaged, DO NOT INSTALL it and immediately report the damage to the carrier or retailer (if the
installer or the authorized technician has collected the material from the retailer.)
After completing the installation, always carry out a functional test and provide the instructions on how to operate the air
conditioner to the user.
Do not use the air conditioner in environments with hazardous substances or close to equipment that release free flames to
avoid the occurrence of fires, explosions or injuries.
English-30
A3050 CV_IB&IM_DB68-04405A_HP_EN.indd 30 2013-12-10 14:38:45

05
INST
ALL
A
TION
To help prevent injury when accidentally touching the indoor unit fan, install the indoor unit at least 2.5 m above the floor.
The air conditioner should be used only for the applications for which it has been designed : the indoor unit is not suitable
to
be installed in areas used for laundry.
Our units must be installed in compliance with the spaces indicated in the installation manual to ensure either accessibility
from both sides or ability to perform routine maintenance and repairs. The units’components must be accessible and that
can
be disassembled in conditions of complete safety either for people or things.
For this reason, where it is not observed as indicated into the Installation Manual, the cost necessary to reach and repair the
unit (in safety, as required by current regulations in force) with slings, trucks, scaffolding or any other means of elevation
won’t be considered in-warranty and charged to end user.
This equipment complies with
FCC
and
IC RSS-102
radiation exposure limits set forth for an uncontrolled environment. This
equipment should be installed and operated with minimum distance 20cm between the radiator & your body.
Any changes or modifications not expressly approved by the manufacturer could void the user's authority to operate this
equipment.
This device complies with Industry Canada licence-exempt RSS standard(s). Operation is subject to the following two
conditions: (1) this device may not cause harmful interference and (2) this device must accept any interference received,
including interference that may cause undesired operation.
Power supply line, fuse or circuit breaker
Always make sure that the power supply is compliant with current safety standards. Always install the air conditioner in
compliance with current local safety standards.
Always verify that a suitable grounding connection is available.
Verify that the voltage and frequency of the power supply comply with the specifications and that the installed power is
sufficient to ensure the operation of any other domestic appliance connected to the same electric lines.
Always verify that the cut-off and protection switches are suitably dimensioned.
Verify that the air conditioner is connected to the power supply in accordance with the instructions provided in the wiring
diagram included in the manual.
Always verify that electric connections (cable entry, section of leads, protections…) are compliant with the electric
specifications and with the instructions provided in the wiring scheme.
Always verify that all connections comply with the standards applicable to the installation of air conditioners.
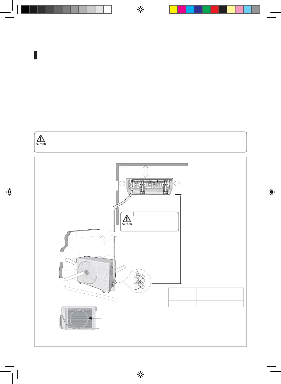
Choosing the installation location
Indoor unit
For Wi-Fi Air-conditioner installation, select indoor unit location near to wireless router.
In case Wi-Fi signal strength weakened , Smart APP may be disconnected depending on the Wi-Fi signal strength.
Where airflow is not blocked.
Where cool air can be distributed throughout the room.
Install the refrigerant piping length and the height difference of both indoor and outdoor units as indicated in the
installation diagram.
Wall that prevents vibration and is strong enough to hold the product weight.
Out of the direct sunlight .
1 m or more away from the TV or radio (to prevent the screen from being distorted or noise from being generated).
As far away as possible from the fluorescent and incandescent lights (so that the remote controller can be operated well).
A place where the air filter can be replaced easily.
Don't install directly above electronics equipment as leaking water may cause damage if not serviced. (eg. Computers, TV, etc).
English-31
A3050 CV_IB&IM_DB68-04405A_HP_EN.indd 31 2013-12-10 14:38:45

Choosing the installation location
Outdoor Unit
Where it is not exposed to strong wind
Well ventilated and dustless places
Where possible keep out of sunlight and rain
Where neighbors are not annoyed by operation sound or hot air
Solid wall or support that prevents vibration and is strong enough to hold the product weight
Where there is no risk of flammable gas leakage
When installing the unit at a high place be sure to fix the unit legs
3 m or more away from the TV or radio (to prevent the screen from being distorted or noise from being generated)
Install the unit horizontally
Place where drained water does not become any problem.
Place with no plants (especially climbing plants) and where small animal can not access.
Outdoor unit should not be place higher than 2.4 m or directly under eaves for accessibility for service and OH&S reasons.
•
Avoid the following places to prevent malfunction of the unit
-
Where there is machine oil - Salty environment such as seaside areas
-
Where sulfide gas exists - Other special atmosphere areas
11.8inch(300mm) or more
4.9inch(125mm)
or more
Wrap the refrigerant pipes and the drain hose
with the absorbent pad and vinyl tape. Refer to
page 50 for further details.
You can select the direction of
draining (left or right).
4.9inch(125mm)
or more
11.8inch(300mm)
minimum
23.6inch(600mm)
minimum
'L' m as maximum pipe length
and 9.84ft(3m) as minimum pipe
length. (It will reduce noise and
vibration)
'L' meters maximum total pipe
length
11.8inch(300mm)
minimum
'H' meters maximum total
pipe height
23.6inch(600mm)
minimum
Model
L
H
09
/
12
49.2ft(15m)
26.24ft(8m)
18
/
24
98.4ft(30m)
49.2ft(15m)
Make at least one round: It will help reduce noise and vibration.
The appearance of the unit may be different from the diagram depending on the model.
English-32
A3050 CV_IB&IM_DB68-04405A_HP_EN.indd 32 2013-12-10 14:38:45

11.8 or more
05
INST
ALL
A
TION
59
.
1
or
m
or
e
11
.
8
or
m
or
e
19
.
7
or
m
or
e
59
.
1
or
mor
e
59
.
1
or
m
or
e
11
.
8
or
m
or
e
11
.
8
or
mor
e
59
.
1
or
m
or
e
11
.
8
or
m
or
e
Space Requirements for Outdoor Unit
When installing 1 outdoor unit
Figure Description
Top view
Side v
iew
Air intake
Air outlet
Air outlet
Air intake
, Air flow direction
.
When the air outlet is opposite the
wall
When the air outlet is towards the
wall
(Unit : inch)
When 3 sides of the outdoor unit are
blocked by the wall
5.9 or more 23.6 or more
The upper part of the outdoor unit
and the air outlet is towards the wall
The upper part of the outdoor unit
and the air outlet is opposite the
wall
When the walls are blocking front
and the rear side of the outdoor unit
78.7 or more
When installing more than 1 outdoor unit
(Unit : inch)
When the air outlet is towards the wall
When 3 sides of the outdoor unit are blocked by the wall
11.8 or more 23.6 or more 23.6 or more 23.6 or more
English-33
A3050 CV_IB&IM_DB68-04405A_HP_EN.indd 33 2013-12-10 14:38:46

11
.
8 or more
11.
8 or more
59
.
1
or
11
.
8
or
mor
e
mor
e
19
.
7
or
m
or
e
19
.
7
or
m
or
e
Choosing the installation location
When the walls are blocking front and the rear side of the outdoor units
(Unit : inch)
When the upper part of the outdoor unit
and the air outlet is opposite the wall
23.6 or more 23.6 or more
When front and rear side of the outdoor unit is towards the wall
59.1 or
more
23.6 or
more
118.1 or
more
118.1 or
more
7.9
or
more
•
If installation is done in inappropriate space, unit may generate sound and cause bad effect on the product.
•
Installation must be done in level and in a place where vibration will not cause any effect.
Accessories
The following accessories are supplied with the air conditioner:
•
The number of each accessory is indicated in parentheses.
Accessories in the indoor unit case
Installation Plate (1)
09/12
(04 frame)
Installation Plate (1)
18/24
(05 frame)
Remote controller (1)
Batteries for Remote
controller (2)
User’s & Installation
Manual (1)
Wi-Fi Manual (1)
AR
HSSD
M4 x 10 Tapped
Screws(2)
Cap Screws(3)
English-34
A3050 CV_IB&IM_DB68-04405A_HP_EN.indd 34 2013-12-10 14:38:46

Insulated
Assembly Pipe,
Ø1/4inch (Ø6.35mm)
(1)
Insulated
Assembly Pipe,
Ø3/8inch(9.52mm) (1)
09/12
Insulated
Assembly Pipe, Ø
1/2inch(12.70mm) (1)
18
Insulated
Assembly Pipe, Ø
5/8inch(15.88mm) (1)
24
PE T3 Foam Tube
Insulation (1)
Vinyl Tapes (2)
Drain Plug (1)
Rubber Legs (4)
Pipe Clamps A (3)
Pipe Clamps B (3)
Cement Nails (6)
M 0.16 x 0.98
(M4 x 25) Tapped
Screws (6)
Drain Hose,
length 6.56ft(2m) (1)
Putty 100g (1)
Foam
Insulation
(1)
Wired remote
controller (1)
Sub COMM PBA
05
INST
ALL
A
TION
Accessories in the outdoor unit case
2-wire
Assembly Cable (1)
3-wire
Assembly Cable (2)
Drain Plug (1)
Rubber Leg (4)
• The flare nuts are attached to the end of each pipe of an evaporator or a service port.
Use the nuts when connecting the pipes.
•
The assembly cable is optional. If it is not supplied, use the standard cable.
•
The drain plug and rubber leg are only included when the air conditioner is supplied without the assembly
pipe as seen in the picture below.
Optional accessories
The following connection accessories are optional. If they are not supplied, you should obtain them before installing the air
conditioner.
•
If these accessories are supplied, they will be in the
accessory box.
•
Wired remote controller is optional. It has no Filter Reset
function in this model.
•
At cool mode, when wireless Remote controller temp
setting is from 61
o
F~64
o
F, wired Remote controller
can display the setting temp correctly, but can't set
TEMP below from 64
o
F to 61
o
F .
Tools required for installation
General Tools
•
Vacuum Pump(Backward flowing prevention) • Manifold Gauge • Stud Finder
•
Torque Wrench
•
Pipe Cutter
•
Reamer
•
Pipe Bender
•
Spirit Level
•
Screw Driver
•
Spanner
•
Drill
•
L Wrench
•
Measuring Tape
Tools for test operations
•
Thermometer • Resistance Meter • Electroscope
English-35
A3050 CV_IB&IM_DB68-04405A_HP_EN.indd 35 2013-12-10 14:38:47

Model
A
B
C
D
09
/
12
1.42(36)
7.48(190)
3.19(81)
1.42(36)
18
/
24
1.30(33)
4.33(110)
4.33(110)
1.30(33)
A
D
A
D
Fixing the installation plate
You can select the direction of the drain hose depending on where you want to install the indoor unit. Therefore before fixing
the installation plate to a wall or a window frame, you must determine the position of the 65 mm hole through which the cable,
pipe and hose pass to connect the indoor unit to the outdoor unit.
When facing the wall, the pipe and cable can be connected from the:
Direction of pipe
•
Right (A)
•
Left (B)
•
Underside_right (C)
A B
•
Rear_right or left (D)
D D
C
1. Determine the position of the pipe and drain hose hole as seen in the picture and drill the hole with an inner diameter
of 65 mm so that it slants slightly downwards.
Pipe hole (Ø2.56inch(65mm)) Pipe hole (Ø2.56inch(65mm)
B C B C
(Unit : inch(mm))
•
Make sure to drill only one hole after
choosing the direction of the pipe.
2. Fix the indoor unit.
If you fix the indoor unit on a wall
(1) Fix the installation plate to the wall giving attention to the weight of the indoor unit.
• If you mount the plate to a concrete wall using plastic anchors, make sure that
gaps between the wall and the plate, created by projected anchor, is less than
0.79inch(20mm).
Plastic
Anchor
<0.79inch
(20 mm)
Wall
If you fix the indoor unit on a window frame
(1)
Determine the positions of the wooden uprights to be attached to the window frame.
(2)
Attach the wooden uprights to the window frame giving attention to the weight of the indoor unit.
(3)
Attach the installation plate to the wooden upright using tapping screws.
If you fix the indoor unit on a gypsum board
(1)
Use stud finder to find out locations of the studs.
(2)
Fix the plate hanger on two studs.
•
Search for other spots if there are less than two studs, or the distance between the studs are different from the
plate hanger.
•
Fix the installation plate without inclining to one side.
•
Make sure that a wall can withstand the weight of the product. If you install the product in a place where it is not
strong enough to withstand the product weight, the unit could fall and cause injury.
English-36
A3050 CV_IB&IM_DB68-04405A_HP_EN.indd 36 2013-12-10 14:38:48

Disassembling/Assembling the Cover panel for indoor unit installation
Number and location of the hooks
Hook
05
INST
ALL
A
TION
Please scan
this QR code for detail
video of indoor unit
installation
.
In order to install the indoor unit, you must disassemble the cover panel first
.
Please proceed following
instructions to disassemble and assemble the cover panel
.
Hooks (on the cover panel) may get damaged if you
apply excessive force as you disassemble and assemble the cover panel
.
Please follow the following instructions
.
Removing the screws
Cover panel is assembled on the bottom part of the indoor unit (as shown in the illustration) and it is fastened
with screws
.
Remove the Cap screw first and unfasten the screws so that you can disassemble the cover panel
.
Cap Screw
<Remove the Cap screw>
Cover Panel
<Unfasten the screw>
Removing the Cover panel (Before mounting the indoor unit)
Cover panel is fixed to a main body of the product with hooks on two sides and central part as shown in the
illustration
.
Release the hooks on the sides first, and then release the hooks on the central part
.
Check the location of the hooks before removing the cover panel
.
Location of the hooks on the central part
Side
part
Central part
◆
For specific Hook location and quantity, please refer
to cover panel with indicating arrows based on
physical goods
.
English-37
A3050 CV_IB&IM_DB68-04405A_HP_EN.indd 37 2013-12-10 14:38:49

Disassembling/Assembling the Cover panel for indoor unit installation
Removing the hooks on the side
Removing the hooks on the central part
◆
Caution (fragile)
- Gently press the both side of the cover
panel inwards (
①
) and release the hooks
on both sides(
②
)
.
◆
Caution (fragile)
-
Use both hands
-
Release each hook by pushing it up at an angle
.
Assembling the Cover panel (After mounting the indoor unit)
To assemble the Cover panel, proceed in reverse order of disassembling
.
Use both hands for assembling and be extra careful not to damage the pipes and drain hose
.
Fix the hooks on the side and central part
.
Then fasten the screws and assemble the Cap screws
.
<Fix the hooks on side parts>
<Fix the hooks on central part>
<Fasten the screw>
<Assemble the Cap screw>
English-38
A3050 CV_IB&IM_DB68-04405A_HP_EN.indd 38 2013-12-10 14:38:50

Connecting the assembly cable
Upside down
05
INST
ALL
A
TION
Cable specification
Model
Use
AWG
Cross sectional area (mm
2
)
09/12
Main power supply 3-wire Power cable
15 or fewer
1.5 or more
Indoor power supply 3-wire power cable
17 or fewer
1.0 or more
2-wire assembly cable
18 or fewer
0.75 or more
18
Main power supply 3-wire Power cable
13 or fewer
2.5 or more
Indoor power supply 3-wire power cable
17 or fewer
1.0 or more
2-wire assembly cable
18 or fewer
0.75 or more
24
Main power supply 3-wire Power cable
11 or fewer
4.0 or more
Indoor power supply 3-wire power cable
17 or fewer
1.0 or more
2-wire assembly cable
18 or fewer
0.75 or more
• Connect the power cable to the auxiliary circuit breaker. If every pole fails to connect to the
power supply, it must be incorporated in a wire with a contact opening of ≥0.118inch(3mm).
•
Use shield cable (Category 5; less than 50pF/m) for noisy environmental site.
Connecting the cable
Electrical work
(1)
For electrical and earth works, comply with the‘technical standards of electrical installations’and the the‘wiring
regulations’of the Local wiring regulations.
(2)
Tighten the terminal block screw to under 0.87ft
•
lb[1.2 N•m (12 kgf•cm)].
(3)
Precautions when connecting terminal blocks of the indoor unit
Before connecting, make sure the connecting part of the terminal socket is facing upwards.
The terminal
socketis damaged.
There is no ring
terminalto cover the wire.
There must be no space between the terminal and the screw when connected.
-
Any remaining space may become a fire hazard due to overheating of the electrical contact.
The terminal socket
is upside down.
Either the screw is not fitted
properly or there is a space
between the screw and the
ring terminal.
•
For the terminal block wiring, use a wire with a ring terminal socket only.
Regular wires without a ring terminal socket may become a fire hazard due to overheating of the electrical contact during
a wiring work.
When you install the unit, make first refrigerant connections and then electrical connections.
Connect the air conditioner to grounding system before performing the electrical connection.
If unit is uninstalled, first disconnect electrical cables, then refrigerant connections.
If the outdoor unit is more than 24.6ft(7.5m) meters away from the indoor unit, you must extend the cable. The maximum
length of the cable is 49.2ft(15m)(
09/12
)/98.4ft(30m)(
18/24
).
1.
Extend the assembly cable if necessary.
•
Do not connect two or more different cables to extend the length.
It may cause fire.
English-39
A3050 CV_IB&IM_DB68-04405A_HP_EN.indd 39 2013-12-10 14:38:50

Connecting the assembly cable
t
2
. Open the cover panel.
3
. Remove the screw securing the connector cover.
4
. Pass the assembly cable through the rear of the indoor unit and connect the assembly cable to terminals.
(Refer to the picture below)
•
Each wire is labeled with the corresponding terminal number.
5 . Pass the other end of the cable through the 2.56inch(65mm) hole in the wall.
6 . Close the connector cover by tightening the screw carefully.
7
. Close the cover panel.
8 . Remove the terminal board cover on the side of the outdoor unit.
9.
Connect the cables to the terminals as seen in the picture.
•
Each wire is labeled with the corresponding terminal number.
Indoor unit
Indoor unit
09/12/18
24
Indoor unit
L1 L2 F1 F2
L3 L4 F1 F2
L1 L2 F1 F2
L3 L4 F1 F2
Outdoor uni
L1 L2
F1 F2
L3 L4
L1 L2
F1 F2
Outdoor unit
Outdoor unit
•
Also circular terminal must be matched with screw size in terminal block.
•
After connecting the cables, make sure terminal numbers on the indoor/outdoor unit matches.
•
Please ensure that Power & Communication cables are separated, they must not be in the same cable.
10. Connect the grounding conductor to the grounding terminals.
11.
Close the terminal board cover by tightening the screw carefully.
• In Russia and Europe, consult with the supply authority to determine the supply system impedance before
installation.
•
Connect the wires firmly so that wires can not be pulled out easily.
(If they are loose, it could cause burn-out of the wires.)
•
Connect the wires according to color codes, referring to the wiring diagram.
•
The power cable and the interconnection cable should be selected according to the specification in page 39.
English-40
A3050 CV_IB&IM_DB68-04405A_HP_EN.indd 40 2013-12-10 14:38:51

Installing and connecting the assembly pipe of the indoor unit
Outer
Diameter
Torque
N•m
ft•lb
(kgf•cm)
ø1/4 inch
(ø6.35mm)
14~18
10.1~13.0
(140~180)
ø3/8 inch
(ø9.52mm)
34~42
25.3~31.1
(350~430)
ø1/2 inch
(ø12.70 mm)
49~61
36.2~44.8
(500~620)
ø5/8 inch
(ø15.88mm)
68~82
49.9~60.0
(690~830)
05
INST
ALL
A
TION
Connect indoor and outdoor units with field-supplied copper pipes by means of flare connections. Use insulated seamless
refrigeration grade pipe only, (Cu DHP type according to ISO1337), degreased and deoxidized, suitable for operating pressures
of at least 4200 kPa and for burst pressure of at least 20700 kPa. Under no circumstances must sanitary type copper pipe be
used.
There are 2 refrigerant pipes of different diameters:
•
The smaller one is for the liquid refrigerant
•
The larger one is for the gas refrigerant
A short pipe is already fitted to the air conditioner. You may
need to extend the pipe using the assembly pipe (optional).
The connection procedure for the refrigerant pipe varies
according to the exit position of the pipe when facing the wall:
•
Right(A) A B
•
Left(B) C
•
Underside(C)
•
Rear
1. Cut out the appropriate knock-out piece (A, B, C) on the rear of the
indoor unit unless you connect the pipe directly from the rear.
2.
Smooth the cut edges.
3. Remove the protection caps of the pipes and connect the assembly
pipe to each pipe. Tighten the nuts first with your hands, and then with
a torque wrench, applying the following torque:
•
If you want to shorten or extend the pipes, refer to page 42~43.
4. Cut off the remaining foam insulation.
5. If necessary, bend the pipe to fit along the bottom of the indoor unit.
Then pull it out through the appropriate hole.
The pipe should not project from the rear of the indoor unit.
The bending radius should be 3.94inch(100 mm) or more.
6. Pass the pipe through the hole in the wall.
7. For further details on how to connect to the outdoor unit and evacuate the air, refer to page 46~48.
• The pipe will be insulated and fixed permanently into position after finishing the installation and the gas leak test;
refer to page 49 for further details.
•
Tighten the flare nut with torque wrench according to specified method.
If the flare nut is over-tightened, the flare may break and cause refrigerant gas leakage.
•
DO NOT WALL UP THE PIPE CONNECTION !
All refrigerant pipe connection must be easy accessible and serviceable.
English-41
A3050 CV_IB&IM_DB68-04405A_HP_EN.indd 41 2013-12-10 14:38:51

Installing and connecting the assembly pipe of the indoor unit
Assembling the hanger screw
Use 2 screws to fix the indoor unit as shown in the picture
.
Screw(M4x10)
Evacuating the indoor unit
The indoor unit is supplied with inert gas (nitrogen).
Before installing the unit, check if nitrogen gas flow out of indoor unit.
If this one isn’t true, DO NOT INSTALL THE UNIT since leakage could be inside the indoor unit.
1. Unscrew the caps at the end of each pipe.
All inert gas exhausts from the indoor unit.
• To prevent dirt or foreign substances from getting into the pipes during
installation, do NOT remove the caps completely until you are ready to
connect the pipes.
•
The remaining air in the Refrigeration cycle, which contains moisture,
may cause malfunction on the compressor.
•
Always contact the service center or a professional installation agency
for product installation.
Pipes
Unscrew the
caps
Cutting or extending the pipe
The length of the pipe can be:
•
Extended up to : see table page 32
•
Shorten up to: see page 32
If you need a pipe longer than 24.6ft(7.5m):
•
You must add refrigerant to the pipes; otherwise, the indoor unit may freeze.
English-42
A3050 CV_IB&IM_DB68-04405A_HP_EN.indd 42 2013-12-10 14:38:52

Outer Diameter (D)
Depth (A)
Flaring Size (B)
ø1/4inch
(6.35mm)
0.051inch
(1.3mm)
0.3425 - 0.3583 inch
(8.7 - 9.1 mm)
ø3/8inch
(9.52mm)
0.071inch
(1.8mm)
0.5039 - 0.5197 inch
(12.8 - 13.2 mm)
ø1/2inch
(12.70mm)
0.079inch
(2.0mm)
0.6378 - 0.6535 inch
(16.2 - 16.6 mm)
ø5/8inch
(15.88mm)
0.087inch
(2.2mm)
0.7598 - 0.7756 inch
(19.3 - 19.7 mm)
Outer
Diameter
Torque
N•m
ft•lb(kgf•cm)
ø1/4 inch (ø6.35mm)
14~18
10.1~13.0 (140~180)
ø3/8 inch (ø9.52mm)
34~42
25.3~31.1 (350~430)
ø1/2 inch (ø12.70 mm)
49~61
36.2~44.8 (500~620)
ø5/8 inch (ø15.88mm)
68~82
49.9~60.0 (690~830)
05
INST
ALL
A
TION
1. Make sure that you have all the required tools (pipe cutter, reamer, flaring tool and pipe holder).
2. If you want to shorten the pipe, cut it using a pipe cutter, ensuring that the cut edge remains at 90° with the side of the
pipe (see below examples of correct and incorrect cut edges).
Pipe
cutter
Pipe
Oblique Rough Burr
3. To prevent a gas leak, remove all burrs at the cut edge of the pipe using a reamer.
•
Face the pipe down while removing the burrs to make sure that burrs do not get in to the pipe.
4. Put a flare nut slightly into the pipe and modify the flare.
90°± 2°
B
Pipe Flare
R 0.4~0.8
5.
Check if you flared the pipe correctly (see examples of incorrectly flared pipes below).
Correct
Inclined
Damaged
Surface
Cracked
Uneven
Thickness
6. Align the pipes to connect them easily. Tighten the flare nuts first with your hands, and then with a torque wrench,
applying the following torque:
Flare nut
Indoor outlet pipe Connectingpipe
• Excessive torque can be cause of gas leakage. If extending pipe by welding/brazing please ensure nitrogen is used
during welding/brazing process. The joint must be accessible and serviceable.
7. For further details on how to connect to the outdoor unit and evacuate the air, refer to page 46~48.
•
Tighten the flare nut with torque wrench according to specified method.
If the flare nut is over-tightened, the flare may break and cause refrigerant gas leakage.
English-43
A3050 CV_IB&IM_DB68-04405A_HP_EN.indd 43 2013-12-10 14:38:52

Installing and connecting the drain hose of the indoor unit
When installing the drain hose for the indoor unit, check if condensation draining is adequate.
When passing the drain hose through the 2.56inch(65mm) hole drilled in the wall, check the followings:
Wall
Indoor unit
Drain hose
The drain hose must NOT
slant upwards.
The end of the drain hose
must NOT be placed under
water.
The drain hose must not
be bent.
2inch
(50mm)
less
Keep a clearance of at least
5 cm between the end of the
drain hose and the ground.
Ditch
Do not place the end of the
drain hose in a hollow.
After completing the
installation of the drain
hose, pour water into
the drain pan to check
whether the hose is well
drained.
1)
Correct connection
2)
Incorrect connection
Drain hose
Pipe
Drain hose
Pipe
• Don’t tie drain hose to the assembly pipe which may lead to water leakage.
Drain hose installation
1.
If necessary, connect the 6.6ft(2m) extension drain hose to the drain hose.
2.
If you use the extension drain hose, insulate the inside of the extension drain hose with a shield.
3.
Fit the drain hose into 1 of 2 drain hose holes, then fix the end of the drain hose tightly with a clamp.
• If you do not use the other drain hose hole,
block it with a rubber stopper.
4.
When extending the Drain Hose, hold the end of Drain Hose and Extended Hose,
rotate and insert the drain hose into Extended hose for 1.57~1.77 inch(40~45 mm).
Make sure the two hoses are firmly connected, there is no water leakage.
Drain hose hole
5. Connect the Drain Hose after using Foam Insulation to wrap the Extended Hose. Then, Use vinyl tape to wrap the
each side of connection by 0.79inch(20mm) .
English-44
A3050 CV_IB&IM_DB68-04405A_HP_EN.indd 44 2013-12-10 14:38:53

Drain hose
05
INST
ALL
A
TION
1.57~1.77 inch
(40~45 mm)
0.79inch 0.79inch
(20mm) (20mm)
or more or more
Drain hose Extension
drain hose
Extension
drain hose
Vinyl Tape
Foam Insulation
6.
Pass the drain hose under the refrigerant pipe, keeping the drain hose tight.
7.
Pass the drain hose through the hole in the wall. Check if it slants
downwards as seen in the picture.
8.
Using natural drainage method, check the drainage is normal.
Shield
Drain hose Extension drain hose
• The hose will be fixed permanently into position after finishing the installation and the gas leak test;
refer to page 49 for further details.
•
Make sure the installed direction of the drain hose is correct.
Inadequate installation may cause condensate water leakage.
•
If the drain hose is routed inside the room, insulate the hose so that dripping condensation does not damage the
furniture or floors.
•
DO NOT WALL UP THE DRAIN HOSE CONNECTION !
Drain hose connection must be easy accessible and serviceable.
Changing direction of the drain hose
Change the direction only when it is necessary.
1. Detach the rubber cap with the pliers.
2. Detach the drain hose by pulling it and turning to the left.
3. Insert the drain hose by fixing it with the screw into the groove of the drain
hose and the outlet of the drain pan.
4.
Attach the rubber cap with a screwdriver by turning it to the right until it
fixes to the end of the groove.
5. Check for leakage on both side of the drain outlet.
Screw hole
Screw
Drain hose
Drain pan outlet
Rubber cap
Pour the water in direction of arrow.
Direction of the drained water
•
Make sure the indoor unit is in upright position when you pour water to check for leakage.
Make sure that the water does not overflow onto the electrical part.
English-45
A3050 CV_IB&IM_DB68-04405A_HP_EN.indd 45 2013-12-10 14:38:54

Installing and connecting the drain hose of the outdoor unit
While heating, ice may accumulate. During the process of defrosting, check if condensation draining is adequate. For adequate
draining, do the following.
1. Insert the drain plug into the drain hole on the underside of the outdoor unit.
•
To avoid drain plug from contacting the ground, secure gap between the
ground and the bottom surface of the outdoor unit.
Drain hole
Drain plug
2. Connect a drain hose to the drain plug.
Bottom surface of outdoor unit
Drain hole
Drain plug
Drain hose
3.
Ensure that condensation draining is adequate.
Snow-proof hood
•
In areas with heavy snow fall, piled snow could block the air intake.
To avoid this incident, install a frame that is higher than estimated snow
fall.
In addition, install a snow-proof hood to avoid snow from piling on the
outdoor unit.
Estimated
snow fall
Frame
Ground
Evacuating the connected pipes
The outdoor unit is loaded with sufficient R-410A refrigerant. Do not vent R-410A into atmosphere: it is a fluorinated
greenhouse gas, covered by Kyoto Protocol, with a Global Warming Potential (GWP) = 1975.
You should evacuate the air in the indoor unit and in the pipe. If air remains in the refrigerant pipes, it affects the compressor.
It may cause reduction of cooling capacity and malfunction. Use Vacuum Pump as seen in the picture.
•
When installing, make sure there is no leakage. When recovering the refrigerant, ground the compressor first
before
removing the connection pipe. If the refrigerant pipe is not properly connected and the compressor works
with the
service valve open, the pipe inhales the air and it makes the pressure inside of the refrigerant cycle
abnormally high.
It may cause explosion and injury.
English-46
A3050 CV_IB&IM_DB68-04405A_HP_EN.indd 46 2013-12-10 14:38:54

Outer
Diameter
Torque
N•m
ft•lb
(kgf•cm)
ø1/4 inch
(ø6.35mm)
14~18
10.1~13.0
(140~180)
ø3/8 inch
(ø9.52mm)
34~42
25.3~31.1
(350~430)
ø1/2 inch
(ø12.70 mm)
49~61
36.2~44.8
(500~620)
ø5/8 inch
(ø15.88mm)
68~82
49.9~60.0
(690~830)
05
INST
ALL
A
TION
1. Connect each assembly pipe to the appropriate valve on the outdoor unit and
tighten the flare nut.
2. Tighten the flare nut first with your hands, and then with a torque wrench,
applying the following torque.
Outdoor unit Indoor unit
Gas pipe side
Liquid pipe side
• Excessive torque can be cause of gas leakage.
•
Make the electrical connection and leave the system into
“stand by mode”. Do not turn on the system! This
is
necessary for better vacuum operation (full OPEN
position
of Electronic Expansion Valve - EEV -).
3.
Connect the charging hose of the low-pressure side of manifold gauge
to a gas service port as seen in the picture.
4. Open the valve of the low pressure side of manifold gauge
counterclockwise.
Manifold gauge
5. Evacuate the air in the connected pipes using the vacuum pump for
about15 minutes.
Make sure that pressure gauge shows -0.1 MPa(-76 cmHg) after about
10 minutes.
This procedure is very important to avoid a gas leak.
Close the valve of the low pressure side of manifold gauge clockwise.
Turn off the vacuum pump.
Check for 2 minutes if there is any pressure change.
Remove the hose of the low pressure side of manifold gauge.
Valve
Gas service port
<Low pressure>
Liquid service port
Vacuum
Pump
6.
Set a valve cork of liquid and gas service port to the open position.
<High pressure> (Backward flowing
prevention)
Adding Refrigerant
Add refrigerant charge according to table below:
If you use a pipe longer than 24.6ft(7.5m),
‘15’g of refrigerant R-410A must be added for each extra meter.
If you use a pipe shorter than 24.6ft(7.5m),
The evacuate time is normal.
Refer to the Service Manual for further details.
•
The remaining air in the Refrigeration cycle, which contains moisture, may cause malfunction on the compressor.
•
Always contact the service center or a professional installation agency for product installation.
English-47
A3050 CV_IB&IM_DB68-04405A_HP_EN.indd 47 2013-12-10 14:38:54

Evacuating the connected pipes
Important information regulation regarding the refrigerant used
This product contains fluorinated greenhouse gases covered by the Kyoto
Protocol.
Do not vent gases into the atmosphere.
1. Please fill in with indelible ink,
the factory refrigerant charge of the product,
the additional refrigerant amount charged in the field and
+
the total refrigerant charge. on the refrigerant charge label
supplied with the product.
a. Factory refrigerant charge of the product:
Refrigerant type
GWP value
R-410A
1975
GWP=Global Warming Potential
Contains fluorinated greenhouse gases
covered by the Kyoto Protocol.
Indoor unit
see unit name plate
b.
Additional refrigerant amount charged in the field (Refer
to the above information for the quantity of refrigerant
replenishment.)
a
= ( ) kg
d
Outdoor unit
c.
Total refrigerant charge
= ( ) kg
+
= ( ) kg
d. Refrigerant cylinder and manifold for charging
b c
•
The filled-out label must be adhered in the proximity of the product charging port (e.g. onto the inside of the stop
valve cover).
Charging the refrigerant under conditions of liquid by using a liquid pipe
R-410A is a mixed type of refrigerant. It is necessary for recharging under conditions of liquid. When recharging refrigerant from
the refrigerant cylinder to the equipment, follow the instructions below.
1.
Before recharging, check whether the cylinder has a siphon or not.
There are two ways to recharge the refrigerant.
Cylinder with siphon
Cylinder without siphon
Siphon
Charge the refrigerant standing the
cylinder upright.
Charge the refrigerant turning the cylinder
upside down.
• If R-410A refrigerant is charged with gas, the composition of the charged refrigerant changes and the
characteristics of the equipment vary.
•
During the measuring operation of refrigerant quantity added use electronic scales.
If cylinder doesn’t have syphon, upset it.
English-48
A3050 CV_IB&IM_DB68-04405A_HP_EN.indd 48 2013-12-10 14:38:54

Outer Diameter
(mm)
Tightening torque
Body cap
ft•lb(N•m)
Charging port cap
ft•lb (N•m)
ø1/4inch(6.35mm)
14.8~18.4 (20~25)
7.4~8.9(10~12)
ø3/8inch(9.52mm)
14.8~18.4 (20~25)
ø1/2inch(12.70mm)
18.4~22.1(25~30)
ø5/8inch(15.88mm)
22.1~25.8 (30~35)
ø3/4inch(19.05mm)
25.8~29.5(35~40)
05
INST
ALL
A
TION
Performing the gas leak tests
Make sure to check for gas leaks before completing the installation process (connecting the assembly pipe and hose between
indoor unit and outdoor unit, insulating the cables, hose and pipe, and fixing the indoor unit to the installation plate).
A C D
Test part for outdoor unit
Tightening torque for body cap
(Refer to the table)
Charging
core
B
Spindle
Test part for indoor unit
Before inspecting the leakage, use a torque wrench
to close the cap for the service valve. (Comply with a
tightening torque for each size of the diameter,and
tighten the cap firmly to prevent any leakage.).
To check for any possible leakage, insert inert gas into
the pipes connected to indoor/outdoor units and
check
the connection part of the indoor/outdoor
units with
soap lather or liquid for leakage test.
R-22: Diameter of the screw - 7/16-20UNF
R-410A: Diameter of the screw - 1/2-20UNF
Tightening torque for charging port cap
(Refer to the table)
To check for gas leaks on the outdoor unit,
Check the valve A and B using a leak detector.
To check for gas leaks on the indoor unit,
Check the flare nut C and D using a leak detector.
( 1 N•m = 10 kgf•cm )
Leak test with nitrogen (before opening valves)
In order to detect basic refrigerant leaks, before recreating the vacuum and recirculating the R-410A, it’s responsible of
installer to pressurize the whole system with nitrogen (using a cylinder with pressure reducer) at a pressure above 40 bar
(gauge).
Leak test with R-410A (after opening valves)
Before opening valves, discharge all the nitrogen from the system and create vacuum according to page 46~48.
After opening valves, check leaks using a leak detector for refrigerant.
Pump down (before disconnecting the refrigerant connections for unit repair, removal or disposal)
Pump-down is an operation intended to collect all the system refrigerant in the outdoor unit.
This operation must be carried out before disconnecting the refrigerant tubing in order to avoid refrigerant loss to the
atmosphere.
Shut off the liquid valve with the Allen wrench.
Turn the system on in cooling with fan operating at high velocity.
(Compressor will immediately start, provided 3 minutes have elapsed since the last stop).
After 2 minutes of operation, shut the suction valve with the same wrench.
Turn the system off and switch mains supply off.
Disconnect tubing. After disconnection, protect valves and tubing ends from dust.
Compressor damage may occur if run at a negative suction pressure.
English-49
A3050 CV_IB&IM_DB68-04405A_HP_EN.indd 49 2013-12-10 14:38:55

Model
X
Y
09
/
12
2.01ft
(612mm)
1.04ft
(317mm)
18
2.16ft
(660mm)
1.12ft
(340mm)
24
2.12ft
(645mm)
1.12ft
(340mm)
'
Y
'
mm
Fixing the indoor unit in place
Perform the following work on the area where gas leak test was done priory.
After checking for gas leaks in the system, insulate the pipe, hose and cables.
Then place the indoor unit on the installation plate.
1.
To minimise condensation problems, wrap foam insulation (as shown in the
figure) on a part without insulation on the end of the pipes.
2. Wind the pipe, assembly cable and drain hose with vinyl tape.
3.
Place the bundle (the pipe, assembly cable and drain hose) in the lower part
of the indoor unit carefully so it does not project from the rear of the indoor
unit.
4. Hook the indoor unit to the installation plate and move the unit to the right
and left until it is securely in place.
•
Make sure pipe does not move when you install the indoor unit on
an installation plate.
Insulation
Pipes
Installation
plate
Vinyl tape
Connecting wires
Drain hose
Connecting
pipes
5. Wrap the rest of the pipe with vinyl tape.
6. Attach the pipe to the wall using clamps (optional).
Fixing the outdoor unit in place
Install the outdoor unit in level on a stable base to help avoid the generation of noise and
vibration, especially when installing the unit close to a neighbor.
If you install the outdoor unit in a place exposed to strong winds or at a height, fix it to an
appropriate support (wall or ground).
'X' mm
1.
Place the outdoor unit as indicated on the top of the unit to let the discharged air
Rubber leg
out properly.
2. Fix the outdoor unit in level to an appropriate support using anchor bolts.
3.
If the outdoor unit is exposed to strong winds, install shield plates around the
outdoor unit so that the fan can operate correctly.
•
Secure the rubber leg to help prevent the generation of noise and vibration.
Outdoor unit installed on the wall by rack
•
Ensure the wall will be able to suspend the weight of rack and
outdoor unit;
•
Install the rack close to the column as much as possible;
•
Install proper grommet in order to help reduce noise and residual
vibration transferred by outdoor unit towards wall.
Designed to cut off residual vibration
from outdoor unit to rack.
(not supplied with product)
Soft rubber designed to cut off
vibration from rack to wall.
(not supplied with product)
English-50
A3050 CV_IB&IM_DB68-04405A_HP_EN.indd 50 2013-12-10 14:38:55

Smart Install mode
05
INST
ALL
A
TION
This model supports Smart Install mode which checks installation status to find out if there is any problems with any of the
functions
.
Execute Smart Install mode after installation
.
1
.
Check the installation status of the air conditioner
.
1) Check the power supply, service valve (if it's open), power cable of the indoor and outdoor unit and amount of
additional refrigerant required for pipe extension
.
2)
Status of the indicator after supplying the power : Standby status
2
.
When the air conditioner is in standby status, use the remote controller to start the Smart Install mode
.
1)
Press the [Set/Cancel or Cancel], [Mode], [Power] button simultaneously for 4 seconds
.
Smart Install mode can be operated only with the supplied remote controller
.
During the Smart install mode procedure, remote controller cannot be operated
.
◆
Remote controller may be different (image/functions) depending on the model
.
English-51
A3050 CV_IB&IM_DB68-04405A_HP_EN.indd 51 2013-12-10 14:38:55

Smart Install mode
2) Smart Install mode in progress
•
88 Display : Progress will be diplayed in 0~99
.
•
LED Display : Indicator on the indoor unit display will blink in sequence and then all indicators will blink
.
(This will be
repeated .)
TYPE
88 Display
LED Display
Indoor unit indicator
LED 1
LED 2
LED 3
◆
Display may be different depending on the model
.
3
.
Smart Install mode will end
.
1) Smart Install mode will take approximately 7~13 minutes
.
(Actual time may be different depending on the model .)
2) When Installation is successful : Smart Install mode will end with ringing sound and the air conditioner will be in
standby status
.
(Error message will not be displayed on the indoor unit indicator and the remote controller and
buttons on the indoor unit will work normally .)
3) When installation is not successful : Smart Install mode will end and error message will be displayed on the indoor
unit display
.
1. Take necessary measures when error occurs.
-
Refer to the service manual for necessary measures for each error that occurs.
2.
Use the product after taking care of the error that occurs.
Display
Error indicator
LED Display
LED 1 LED 2
LED 3
/ /
Error Measures to take by an installer
,
display and all
Error on indoor
temperature sensor
Error on indoor heat
exchanger
Error on indoor fan
motor
1
.
Check the connection of the connector
1
.
Check the connection of the connector
1
.
Check the connection of the connector
2
.
Remove foreign substance (Check for the
cause that restrains motor)
1
.
Re-set options
LED blinks
EEPROM/Option error
,
EEV or Valve Close
error-Self diagnosis
(blockage error/
refrigerant leakage)
1
.
Check if the service valve is open
2
.
Check for refrigerant leakage (pipe
connections, heat exchanger) and charge
refrigerant if necessary
3
.
Check if there's any blockage on refrigerant
cycle (indoor unit/outdoor unit)
4
.
Check if additional refrigerant has been
added after pipe extension
◆
: Off / : Blinking /
: On
English-52
A3050 CV_IB&IM_DB68-04405A_HP_EN.indd 52 2013-12-10 14:38:56

05
INST
ALL
A
TION
Final check and trial operation
To complete the installation, perform the following checks and tests to
ensure that the air conditioner operates correctly.
Check the followings:
•
Strength of the installation site
•
Tightness of pipe connection to detect gas leak
•
Electric wiring connection
•
Heat-resistant insulation of the pipe
•
Drainage
•
Grounding conductor connection
•
Correct operation (follow the steps below)
1.
Press the Power button and check the following:
The indicator on the indoor unit lights up.
The airflow blade opens and the fan gears up for operation.
2. Press the Mode button to select Cool or Heat mode.
In Cool mode, use
Temp hr. +
or
–
button and set the temperature at 16 °C.
In Heat mode, use
Temp hr. +
or
–
button and set the temperature at 30 °C.
• Approximately 3~5 minutes later, outdoor unit will start to operate and the
Cool or Warm air will blow out.
•
After 12 minutes of stationary condition check the indoor unit air treatment.
Cooling mode (indoor unit check)
Inlet air temp. - Outlet air temp:
From 10 °C to 12 °C (indicative delta T)
Heating mode (indoor unit check)
Outlet air temp. - Inlet air temp:
From 11 °C to 14 °C (indicative delta T)
In heating mode, the indoor fan motor can remain off to avoid cold air blown into
conditioned space.
3. Press the Air swing button and check the following:
The airflow blades work properly.
4. Press the Power button to stop the operation.
• When you complete the installation successfully, hand over this manual to the user for storage in a handy and safe
place.
Pump down procedure (when removing the product)
1. Press the Power button on the indoor unit for 5 seconds. Beep will sound immediately to let you know that the product
is ready for pump down procedure.
2
. Release the valve caps on High and Low pressure side.
3
. Use L wrench to close the valve on the high pressure side.
4 . After approximately 2 minutes, close the valve on the low pressure side.
5 . Stop operation of the air conditioner.
6 . Disconnect the pipes.
English-53
A3050 CV_IB&IM_DB68-04405A_HP_EN.indd 53 2013-12-10 14:38:57

How to connect your extended power cables
Items to prepare
(compressor and insulation tape should be prepared by an installation technician.)
Tools
Crimping plier
Connection sleeve
Insulation tape
Contraction tube (mm)
Spec
MH-14
0.79xØ0.28inch
((20xØ7.0mm)(HxOD)
Width
0.71inch(18mm)
1.97x Ø0.31inch
(50xØ8.0mm)(LxOD)
Shape
1. As shown in the figure, peel off the shields from the rubber/wire
of
the power cable.
- Peel off 0.79inch(20mm) of the wire shields of the tube installed already.
(Unit: inch(mm))
Power cable (provided by us)
•
After peeling off the tube wire, you must insert a contraction tube.
0.79(20) 0.79(20) 0.79(20)
2.36(60)
4.72(120)
7.09(180)
Wire tube power cable
2.
Insert both sides of core wire of the power cable into the connection sleeve.
0.79(20)
3.
Using a compressor, compress the two points and flip it over
and compress another two points in the same location.
-
The compression dimension should be 8.0.
-
After compressing it, pull both sides of the wire to
make sure it is firmly pressed.
Connection sleeve
Comp. dim.
Compress it 4 times
4. Wrap it with the insulation tape twice and position your
contraction tube in the middle of the insulation tape.
5. Apply heat to the contraction tube to contract it.
6.
After tube contraction work is completed, wrap it with the
insulation tape to finish.
0.20inch(5mm)
Insulation tape
1.57inch(40mm)
Contraction tube
Insulation tape
•
In case of extending the electric wire, please DO NOT use a round-shaped pressing socket.
- Incomplete wire connections can cause electric shock or a fire.
English-54
A3050 CV_IB&IM_DB68-04405A_HP_EN.indd 54 2013-12-10 14:38:57

04
O
THERS
Sub PCB installation(optional)
(Wired remote controller, central remote controller etc.)
1. Turn the power off and take off the cover panel of the indoor unit.
2.
Attach the Sub PCB to the Case Sub PCB.
3.
Assemble the Case Sub PCB to the indoor unit.
Case Sub PCB
Sub PCB
4.
Find the PCB wire, and connect the wire to the Sub PCB as seen in the picture.
5. Connect the wire(remote controller, central remote controller etc) to the Sub
PCB.
6.
Assemble the Cover PCB and the front panel.
•
The Sub PCB is attached to be controlled by the wired remote controller and central controller.
English-55
A3050 CV_IB&IM_DB68-04405A_HP_EN.indd 55 2013-12-10 14:38:59

Remocon module installation (optional)
Components parts
Product name
RAC-SUB PBA
Haness Wire
(for Wired Remocon)
Wire Joint
Quantity
1EA
1EA
4EA
Shape
Code
DB93-11412A
DB93-11405A
DB96-90020A
Description
RAC MAIN -SUB
Connection
Wired Remocon
(1,2 : 12V / 4,5 : COM2)
External controller
connection (MIM-B14)
RAC SUB PBA - Wired Remote Controller Wire Connection
RAC SUB PCB
12V COM2
ORG
YEL
BLU
RED
ORG
YEL
POWER Cable
RED
BLU
Communication Cable
Wired Remote
Controller
English-56
A3050 CV_IB&IM_DB68-04405A_HP_EN.indd 56 2013-12-10 14:39:00

04
O
THERS
IMPORTANT - This product has been designed and manufactured to
meet ENERGY STAR criteria for energy efficiency when matched with
appropriate coil components. However, proper refrigerant charge and
proper air flow are critical to achieve rated capacity and efficiency.
Installation of this product should follow the manufacturer’s refrigerant
charging and air flow instructions.
Failure to confirm proper charge
and airflow may reduce energy efficiency and shorten equipment
life.
English-57
A3050 CV_IB&IM_DB68-04405A_HP_EN.indd 57 2013-12-10 14:39:00

QUESTIONS OR COMMENTS?
COUNTRY
CALL
OR VISIT US ONLINE AT
CANADA
1-800-SAMSUNG(726-7864)
www.samsung.com/ca (English)
www.samsung.com/ca_fr (French)
U.S.A
- Consumer
Electronics
1-800-SAMSUNG(726-7864)
www.samsung.com/us
U.S.A
- Mobile Phones
[HHP]
1-888-987-HELP(4357)
www.samsung.com
MEXICO
01-800-SAMSUNG(726-7864)
www.samsung.com
ARGENTINE
0800 333 3733
www.samsung.com.ar
Uruguay
000 405 437 33
www.samsung.com
Paraguay
009 800 542 0001
www.samsung.com.py
BRAZIL
0800-124-421 (Demais cidades e regiões)
4004-0000 (Capitais e grandes centros)
www.samsung.com.br
CHILE
"800-SAMSUNG(726-7864)
[HHP] 02-24828200
www.samsung.com/cl
Bolivia
800-10-7260
www.samsung.com
COLOMBIA
01 8000 112 112
Bogotá 600 12 72
www.samsung.com/co
COSTA RICA
0-800-507-7267
www.samsung.com/latin (Spanish)
www.samsung.com/latin_en (English)
DOMINICA
1-800-751-2676
www.samsung.com/latin (Spanish)
www.samsung.com/latin_en (English)
ECUADOR
1-800-10-7267
www.samsung.com/latin (Spanish)
www.samsung.com/latin_en (English)
EL SALVADOR
800-6225
www.samsung.com/latin (Spanish)
www.samsung.com/latin_en (English)
GUATEMALA
1-800-299-0013
www.samsung.com/latin (Spanish)
www.samsung.com/latin_en (English)
HONDURAS
800-27919267
www.samsung.com/latin (Spanish)
www.samsung.com/latin_en (English)
JAMAICA
1-800-234-7267
www.samsung.com
NICARAGUA
001-800-5077267
www.samsung.com/latin (Spanish)
www.samsung.com/latin_en (English)
PANAMA
800-7267
www.samsung.com/latin (Spanish)
www.samsung.com/latin_en (English)
PERU
0-800-777-08
Desde celulares por favor llamar al
número 336 8686
www.samsung.com/pe
PUERTO RICO
1-800-682-3180
www.samsung.com
TRINIDAD &
TOBAGO
1-800-SAMSUNG(726-7864)
www.samsung.com
Venezuela
0-800-100-5303
www.samsung.com/ve
A3050 CV_IB&IM_DB68-04405A_HP_EN.indd 58 2013-12-10 14:39:00