Superior Vf4000 Chn 2 Users Manual VF4 P (903590) M 04 07
VF4000-CMP-2 to the manual c99770cc-6f85-4199-884c-102f5a4587d9
2015-01-24
: Superior Superior-Vf4000-Chn-2-Users-Manual-234240 superior-vf4000-chn-2-users-manual-234240 superior pdf
Open the PDF directly: View PDF
.
Page Count: 20

VF4000-CHN-2 VF4000-CHP-2
VF4000-CMN-2 VF4000-CMP-2
US
Portland
Do not store or use gasoline or other flammable
vapors and liquids in the vicinity of this or any
other appliance.
WHAT TO DO IF YOU SMELL GAS
• Donottrytolightanyappliance.
• Donottouchanyelectricalswitch;donotuse
any phone in your building.
• Immediatelycallyourgassupplierfroma
neighbor’sphone.Followthegassupplier's
instructions.
• Ifyoucannotreachyourgassupplier,call
the fire department.
Installation and service must be performed by
aqualiedinstaller,serviceagencyorthegas
supplier.
WARNING: If the information in this manual is
notfollowedexactly,areorexplosionmay
resultcausingpropertydamage,personalinjury
or loss of life.
WARNING:IMPROPERINSTALLATION,ADJUSTMENT,
ALTERATION,SERVICEORMAINTENANCECANCAUSE
INJURYORPROPERTYDAMAGE.REFERTOTHISMANUAL.
FORASSISTANCEORADDITIONALINFORMATIONCONSULT
AQUALIFIEDINSTALLER,SERVICEAGENCYORTHE
GAS SUPPLIER.
CAREFULLYREVIEWTHEINSTRUCTIONSSUPPLIEDWITH
THEDECORATIVETYPEUNVENTEDROOMHEATERFOR
THEMINIMUMFIREPLACESIZEREQUIREMENT.
DONOTINSTALLTHEAPPLIANCEINTHISFIREBOX,UNLESS
THISFIREBOXMEETSTHEMINIMUMDIMENSIONS
REQUIRED FOR THE INSTALLATIONS.
WARNING:DONOTBURNWOODOROTHERMATERIALIN
THESEAPPLIANCES.
This is an unvented gas-fired heater. It uses air
(oxygen)fromtheroominwhichitisinstalled.
Provisions for adequate combustion and ventilation
airmustbeprovided.RefertoCombustion
andVentilationAirSection,Page3.
Duetohightemperatures,theapplianceshouldbelocatedout
oftrafcandawayfromfurnitureordraperies.
Do not place clothing or other materials on or near this appliance.
IMPORTANT:READANDUNDERSTANDTHESEINSTRUCTIONS
COMPLETELY BEFORE INSTALLING YOUR UNVENTED ROOM
HEATERS.
INSTALLATION AND
OPERATIONINSTRUCTIONS
MODELS
STANDARD SERIES
P/N903590,REV.P,04/2010
Unvented Decorative Gas Fireplaces
INSTALLER:Leavethismanualwiththeappliance.
CONSUMER:Retainthismanualforfuturereference.
FORUSEONLYWITHDECORATIVETYPE
UNVENTEDROOMHEATERS.
DONOTBUILDAWOODFIRE.

NOTE: DIAGRAMS & ILLUSTRATION NOT TO SCALE.
2
These heaters are manually controlled. Models
VF4000-CMN-2 and VF4000-CMP-2 feature a
gas valve incorporating a millivolt operating
system.
A spark ignition system (piezo) allows the heater
pilot gas to be lit without the use of matches or
batteries and permits operation of the heater
during a power outage.
These heaters are fitted with a specially de-
signed pilot (ODS) which responds to the
amount of oxygen available in the room and
shuts the heater off before the oxygen level
drops below 18%. The pilot can be relit only
when fresh air is available. Refer to the Com-
bustion and Ventilation Air section.
The VF4000 Series Unvented Room Heaters
may be built into a framed wall, or installed in an
optional oak surround.
This heater has been tested to the standards of
ANSI Z21.11.2 unvented heaters.
Do not install these unvented room heaters in
a bedroom or bathroom as all units exceed
maximum allowable BTU/Hr input of 10,000.
Inventory
Unvented Gas Fireplace
Gas connection fittings
Installation and Operating Instructions
Tools and Building Supplies
Normally Required
Tools Should Include:
Phillips screwdriver
Hammer
Saw and/or Sabersaw
Measuring tape
Electric drill and bits
Pliers
Square
Piping complying with local codes
Pipe wrench
TABLE OF CONTENTS
General Information ......................... page 2
Inventory ......................................... page 2
Tools and Building Supplies ............ page 2
Installation Applications .................. page 2
Important Safety Information .......... page 2
Codes .............................................. page 3
Combustion and Ventilation Air ....... page 3
Location of Fireplace ....................... page 4
Clearances ....................................... page 5
Preinstallation .................................. page 5
Installation – Built-In ....................... page 5
Connecting Gas Line ........................ page 6
Gas Pressure Check......................... page 6
Electrical Wiring – Optional Blower . page 7
Finished Wall Details ....................... page 8
Installation – Surround .................... page 8
Log Assembly .................................. page 8
Flame Appearance ........................... page 9
Optional Equipment ......................... page 10
Forced Air Kit ................................... page 10
Operation and Care .......................... page 11
Cleaning and Servicing .................... page 11
Replacement Parts .......................... page 11
Accessories/Components ................ page 12
Appliance Specifications .................. page 13
CH Operating Instructions ............... page 14
CM Operating Instructions............... page 16
Troubleshooting Guide .................... page 17
Replacement Parts List .................... page 18
Replacement Parts .......................... page 19
Valve Regulator Pressure Gas Inlet
Model No. Gas Type Maximum BTU/HR Operation Ignition Setting Pressure
VF4000-CHN-2 Natural 25,000 Manual Piezo 5" w.c. Max 10 ¹⁄₂" w.c.
VF4000-CMN-2 Min. 6" w.c.
VF4000-CHP-2 Propane/ 25,000 Manual Piezo 10" w.c. Max 13" w.c.
VF4000-CMP-2 LPG Min. 11" w.c.
UNVENTED GAS ROOM HEATER SPECIFICATIONS AND TECHNICAL DETAILS
Tee joint
Pipe compound
Building Supplies Should Include:
Framing materials
Wall finishing materials
Caulking materials (noncombustible)
Fireplace surround materials
Installation Applications
1. Fireplace built into a framed wall.
2. Fireplace installed with oak surround and/
or platform (Refer to the SUR-5/6 unfin-
ished oak veneer surround installation in-
structions, P/N 903593).
Check the inventory list to be sure that you have
all the necessary parts in usable condition. Also
check for concealed damage.
IMPORTANT SAFETY INFORMATION
INSTALLER: PLEASE LEAVE THESE INSTRUC-
TIONS WITH THE OWNER.
OWNER: PLEASE RETAIN THESE INSTRUC-
TION FOR FUTURE REFERENCE.
IMPORTANT: BEFORE STARTING YOUR
HEATER INSTALLATION, READ THESE INSTAL-
LATION INSTRUCTIONS CAREFULLY TO BE
SURE YOU UNDERSTAND THEM COMPLETELY
AND IN ENTIRETY. FAILURE TO FOLLOW
THESE INSTRUCTIONS COULD CAUSE A
HEATER MALFUNCTION RESULTING IN SERI-
OUS INJURY AND/OR PROPERTY DAMAGE.
GENERAL INFORMATION
The VF4000 Series Unvented Room Heaters
covered in this manual feature ceramic fiber
split logs which glow realistically when the
heater is operating.
WARNING: THESE APPLIANCES ARE
DESIGNED TO OPERATE ON NATURAL
OR PROPANE GAS ONLY. THE USE OF
OTHER FUELS OR COMBINATION OF
FUELS WILL DEGRADE THE PERFOR-
MANCE OF THIS SYSTEM AND MAY BE
DANGEROUS.

NOTE: DIAGRAMS & ILLUSTRATION NOT TO SCALE. 3
Carbon Monoxide Poisoning: Early signs of
carbon monoxide poisoning are similar to the
flu with headaches, dizziness and/or nausea. If
you have these signs, obtain fresh air immedi-
ately. Turn off the gas supply to the heater and
have it serviced by a qualified professional, as
it may not be operating correctly.
•Due to high temperatures, the heater should
be located out of traffic and away from furniture
and draperies.
•Children and adults should be alerted to the
hazard of high surface temperatures and should
stay away to avoid burns or clothing ignition.
•Young children should be carefully super-
vised when they are in the same room with
the heater.
•Do not place clothing or other flammable
material on or near the heater for the purpose
of drying.
•Installation and repair should be done by a
qualified service person. The heater should be
inspected before use and at least annually by a
professional service person. More frequent clean-
ing may be required due to excessive lint from
carpeting, bedding material, etc. It is important
that control compartments, burners and circulat-
ing air passageways of the heater be kept clean.
•Allow the heater to cool before servicing.
Always shut off any electricity or gas to the
heater while performing service work.
•Do not install the VF4000 series heaters in a
bedroom or bathroom.
•The installation must conform with local
codes or, in the absence of local codes with the
National Fuel Gas Code, ANSI Z223.1.
•The heater and its individual shut-off valve
must be disconnected from the gas supply
piping system while performing any tests of the
gas supply piping system at pressures in ex-
cess of 1/2 psig.
• Vent-Free appliances may NOT be installed in
bedrooms or bathrooms.
• A working smoke detector must be installed
in the area where vent-free appliances are
installed.
Seller of unvented propane or natural gas-
fired supplemental room heaters shall pro-
vide to each purchaser a copy of 527 CMR 30
upon sale of the unit.
New York:
These fireplaces are approved for installation
in the US state of New York, but not in New
York City.
COMBUSTION AND VENTILATION AIR
These heaters shall not be installed in a con-
fined space. The heater may be located in
unusually tight construction provided the
space is unconfined, or if confined, is pro-
vided with two permanent openings commu-
nicating directly with an additional room(s)
of sufficient volume so that the combined
volume of all connected spaces meets the
criteria for an unconfined space, (National
Fuel Gas Code ANSI Z223.1 (latest edition),
Section 5.3). Generally 50 ft3 per 1,000 BTU
input of all operating appliances in the space.
The National Fuel Gas Code defines a con-
fined space as a space whose volume is less
than 50 ft 3 per 1,000 BTU/Hr (4.8 m
3 per kw)
of the aggregate input rating of all appliances
installed in that space and an unconfined
space as a space whose volume is not less
than 50 ft3 per 1,000 BTU/Hr (4.8m3 per kw)
of the aggregate input rating of all appliances
installed in that space. Rooms communicat-
ing directly with the space in which the appli-
ances are installed, through openings not
furnished with doors, are considered a part of
the unconfined space.
Unusually tight construction is defined as con-
struction where:
a. wall and ceilings exposed to the outside
atmosphere have a continuous water vapor
retarder with a rating or one perm or less with
openings gasketed or sealed, and
b. weather stripping has been added on oper-
able windows and doors, and
c. caulking or sealants are applied to areas such
as joints around window and door frames,
between sole plates and floors, between wall-
ceiling joints, between wall panels, at penetra-
tions for plumbing, electrical, and gas lines,
and at other openings.
•The heater must be isolated from the gas
supply piping system by closing its individual
manual shut-off valve during any pressure test-
ing of the gas supply piping system at test
pressures equal to or less than 1/2 psig.
•Any safety screen or guard removed for
servicing the heater must be replaced prior to
operating the heater.
•Keep heater area clear and free from com-
bustible materials, gasoline and other flam-
mable vapors and liquids.
•Do not use these appliances if any part has
been under water. Immediately call a qualified
professional service technician to inspect the
appliance and to replace any parts of the control
system and any gas control which have been
under water.
•Input ratings are shown in BTU per hour and
are for elevations up to 7,000 feet. Operating
heater above elevations of 7,000 feet may cause
ODS pilot outage.
•Ensure that the heater is clean when operat-
ing. Excessive dust accumulation on the burner
and logs will increase the amount of carbon
monoxide formation and could lead to carbon
monoxide poisoning and death.
CODES
Adhere to all local codes or in their absence the
latest edition of The National Fuel Gas Code
ANSI Z223.1 or NFPA54 which can be obtained
from The American National Standards Insti-
tute, Inc. (1430 Broadway, New York, NY,
10018) or National Fire Protection Association,
Inc. (Batterymarch Park, Quincy, MA, 02269).
Massachusetts And New York Require-
ments
These appliances are approved for installation
in the following USA locations listed in the
following:
Massachusetts:
These fireplaces are approved for installation
in the US state of Massachusetts if the follow-
ing additional requirements are met-
• Installation and repair must be done by a
plumber or gas fitter licensed in the Common-
wealth of Massachusetts.
• The flexible gas line connector used shall not
exceed 36 inches (92 centimeters) in length.
• The individual manual shut-off must be a T-
handle type valve.
WARNING: FAILURE TO COMPLY WITH
THE INSTALLATION AND OPERATING
INSTRUCTIONS PROVIDED IN THIS
DOCUMENT WILL RESULT IN AN IM-
PROPERLY INSTALLED AND OPERAT-
ING UNVENTED ROOM HEATER, VOID-
ING ITS WARRANTY. ANY CHANGE TO
THIS HEATER AND/OR ITS OPERATING
CONTROLS IS DANGEROUS. IMPROPER
INSTALLATION OR USE OF THIS HEATER
CAN CAUSE SERIOUS INJURY OR DEATH
FORM FIRE, BURNS, EXPLOSION OR
CARBON MONOXIDE POISONING.

NOTE: DIAGRAMS & ILLUSTRATION NOT TO SCALE.
4
Your options are:
a. Rework equations adding the space of ad-
joining room(s). If the extra volume provides
an unconfined space, then remove door or
add ventilation grills between rooms. Refer
to National Fuel Gas Code, ANSI Z223.1
1992, Section 5.3.
b. Vent room directly to the outdoors. Refer to
National Fuel Gas Code, ANSI Z223.1 1992,
Section 5.3.
c. Install a lower BTU/Hr heater, to make the
area an unconfined space.
If the actual BTU/Hr used is less than the
maximum BTU/Hr the space can support, then
the space is an unconfined space. You will need
no additional fresh air ventilation for an uncon-
fined space.
LOCATION OF FIREPLACE
Carefully select the best location for installa-
tion of your VF4000 series Unvented Room
Heater. The following factors should be taken
into consideration:
•Clearance to side wall, ceiling, woodwork
and windows.
•Location must not be affected by drafts
caused by kitchen exhaust fans, return air reg-
isters for forced air furnaces/air conditioners,
windows or doors.
•Installation must provide adequate ventila-
tion and combustion air.
•Do not install the VF4000 series heaters in a
sleeping room or bathroom.
•Never obstruct the front opening of the heater
or restrict the flow of combustion and ventila-
tion air.
•This appliance may be installed in an after-
market* manufactured (Mobile) Home, where
not prohibited by state or local codes.
*Aftermarket: Completion of sale, not for pur-
pose of resale, from the manufacturer.
•Minimize modifications to existing construc-
tion. Refer to
Figure 1
for location suggestions.
Figure 1
To ensure even heat distribution, it is best to
position the heater centrally against the longest
wall of the room. Make sure there is adequate
ventilation where the heater is installed. The
gas appliance will shut off if the oxygen level
falls below 18%.
These appliances are uniquely suited for instal-
lations requiring a utility shelf positioned di-
rectly above the fireplace. Utility shelves like
these are commonly used for locating televi-
sion sets and decorative plants.
To provide for the lowest possible shelf sur-
face, combustible materials used to support a
utility shelf directly above these appliances
should be positioned just above the appliance
top spacers. The minimum height from the
base of the VF4000 to the underside of com-
bustible materials used to construct a utility
shelf is 37-1/4” (946 mm).
The appliance should be mounted on a fully
supported base extending the full width and
depth of the unit. The appliance may be located
on or near conventional construction materi-
als. However, if installed on combustible mate-
rials, such as carpeting, vinyl tile, etc., a metal
or wood barrier covering the entire bottom
surface must be used.
If the appliance is to be elevated above floor
level, a solid continuous platform must be
constructed.
WARNING: MAINTAIN MINIMUM
CLEARANCES.
WARNING: IF THE AREA IN WHICH THE
HEATER MAY BE OPERATED IS SMALLER
THAN THAT DEFINED AS AN UNCON-
FINED SPACE, PROVIDE ADEQUATE
COMBUSTION AND VENTILATION AIR BY
ONE OF THE METHODS DESCRIBED IN
THE NATIONAL FUEL GAS CODE, ANSI
Z223.1 1992, SECTION 5.3 OR APPLI-
CABLE LOCAL CODES.
Use the following equations to determine if you
have a confined or unconfined space.
1. Determine the volume of space — ft 3.
Length x Width x Height = _____ ft 3
(Include adjoining rooms with doorless pas-
sageways or ventilation grills between
rooms.)
Example: 20' (L) x 16' (W) x 8' (H) = 2560 ft
3
2. Divide the volume of space by 50 ft 3 to
determine the maximum BTU/Hr the space
can support.
______ (volume of space – ft 3)/ 50 ft 3 =
(Maximum BTU/Hr the space can support)
Example: 2560 ft 3 / 50 ft 3 = 51.2
or 51,200 BTU/Hr the space can support.
3. Add the BTU/Hr of all the fuel burning appli-
ances in the space.
Vent-Free heater _______ BTU/Hr
Gas appliance #1* _______ BTU/Hr
Gas appliance #2 + _______ BTU/Hr
Total = _______ BTU/Hr
Example:
VF4000 Vent-free heater 25,000 BTU/Hr
Gas appliance #1 34,000 BTU/Hr
(water heater)
Total = 59,000 BTU/Hr
* Do not include direct-vent gas appliances.
Direct-vent is sealed combustion and draws
combustion air from the outdoors.
4. Compare the maximum BTU/Hr the space
can support with the actual amount of BTU/
Hr used.
_________ BTU/Hr
(max. the space can support)
_________ BTU/Hr
(actual amount of BTU/Hr used)
Example:
51,200 BTU/Hr
(max. the space can support)
59,000 BTU/Hr
(actual amount of BTU/Hr used)
The space in the above example is a confined
space because the actual BTU/Hr used is more
than the maximum BTU/Hr the space can sup-
port. You must provide additional fresh air.

NOTE: DIAGRAMS & ILLUSTRATION NOT TO SCALE. 5
Ensure the minimum clearances shown in
Figures 2 and 3
are maintained.
Minimum clearance to combustibles are:
Appliance: side and back - 0"
floor - 0"
adjacent wall - 6"
ceiling - 37-1/2” (953 mm)
Figure 2
A hearth extension is not required with this
appliance. If a hearth extension is used, do not
block the lower control compartment door. Any
hearth extensions used is for appearance only
and does not have to conform to standard
hearth extension installation requirements.
PREINSTALLATION
Check that all listed parts have been received.
Carefully inspect the heater case and contents
for shipping damage and immediately inform
the dealer from whom you purchased the gas
fireplace if any damage is found.
The appliance is shipped with all gas controls
and components installed and pre-wired. Re-
move the shipping carton. The nailing flanges
are installed at each side of the appliance back-
wards when shipped from the factory to protect
the unit from shipping damage. Remove the
nailing flanges and retain for use when install-
ing the appliance in framing. Remove three
screws and remove the screen panel. Remove
the logs and set aside.
Check Gas Type
This appliance can only be connected to the gas
type specified on the appliance data plate. This
appliance can not be modified in the field for a
different gas type. If the gas type to be used is
not the one specified contact the dealer to
obtain the correct gas appliance.
Note: Illustrations shown in this manual reflect
“typical” installations with nominal dimensions
and are for design and framing reference only.
Actual installations may vary due to individual
design preferences. However, always maintain
minimum clearances to combustible materials
and do not violate any specific installation re-
quirements.
Figure 3
37-1/2" Min.
to Ceiling
(953 mm)
(See Fig. 2)
6" Clearance
to Combustible
Side Wall
Max. Projection (See Fig. 2)
Combustible
Mantel
Combustible
Finished Wall
Materials
Top of Appliance
VF Series
12"
( mm)
2-1/2"
( mm)
8"
( mm)
26"
( mm)
Top of Door Frame
Spacer
6''
8''
10''
22-1/2"
( mm)
18-5/8"
( mm)
14-1/2"
( mm)
Header
1/4" Gap
Required
Note: The following steps represent the normal
sequence of installation. Each installation is
unique, however, and might require a different
sequence.
CAUTION: HEATERS CREATE WARM AIR CUR-
RENTS. THESE CURRENTS MOVE HEAT TO
WALL SURFACES NEXT TO HEATER. INSTALL-
ING HEATER NEXT TO VINYL OR CLOTH WALL
COVERINGS OR OPERATING HEATER WHERE
IMPURITIES IN THE AIR (SUCH AS TOBACCO
SMOKE) EXISTS, MAY DISCOLOR WALLS.
Step 1. Position heater in desired location
(freestanding, onto surround base or into pre-
pared framing) and secure.
Step 2. Plumb gas line. (Gas connections should
only be performed by an experienced, licensed/
certified tradesman.)
Step 3. Assemble logs and test flame appear-
ance.
Step 4. Complete finish wall material, sur-
round and optional hearth extension to your
individual taste.
INSTALLATION STEPS
Built-In Systems
WARNING: DO NOT ALLOW FANS TO
BLOW DIRECTLY INTO THE FIREPLACE.
AVOID ANY DRAFTS THAT ALTER
BURNER FLAME PATTERNS.
WARNING: DO NOT USE A BLOWER IN-
SERT, HEAT EXCHANGER INSERT OR
OTHER ACCESSORY NOT APPROVED
FOR USE WITH THIS HEATER.
Do not burn solid fuels in this listed unvented
gas room heater.
Step 1. Frame VF4000 appliance enclosures
as illustrated in
Figures 4, 5 and 6
.
Note: The framed depth (15-1/2" for a flat wall,
29" for a corner VF4000) must always be
measured from a finished surface. If a wall
covering such as drywall is to be attached to
the rear wall, then the dimension must be
measured from the drywall surface.
Note: Framing dimensions in Figures 4 - 6
are calculated for a nailing flange depth of
1/2" (13 mm).
Note: Combustible wall finish materials and/or
surround materials must not be allowed to
encroach the area defined by the appliance
front face (black sheet metal). Never allow
combustible materials to be positioned in front
of or overlapping the appliance front face.
Do not install in the vicinity of gasoline or other
flammable liquids. The heater must be kept
clear and free from these combustible materi-
als and may not be located near where they are
stored.
Clearances
WARNING: DO NOT INSTALL VF SE-
RIES UNVENTED ROOM HEATERS IN
SLEEPING QUARTERS, OR IN RECRE-
ATIONAL VEHICLES.
WARNING: DO NOT INSTALL THE VF
UNVENTED ROOM HEATER:
• WHERE CURTAINS, FURNITURE,
CLOTHING OR OTHER FLAMMABLE
OBJECTS ARE LESS THAN 42" FROM
THE FRONT OF THE UNVENTED ROOM
HEATER.
• IN HIGH TRAFFIC AREAS.
• IN WINDY OR DRAFTY AREAS.

NOTE: DIAGRAMS & ILLUSTRATION NOT TO SCALE.
6
The gas control valve is located in the lower
control compartment. To access the valve
open the lower control compartment door
(
Figure 9
).
The regulator has a 3/8" NPT thread inlet port
and is fitted with a 3" (76 mm) long nipple, ³⁄₈"
NPT on both ends. Plan the connections ac-
cordingly.
We recommend that the gas line be routed for
the right side of the appliance to ensure ad-
equate access to the rear lower compartment
for installation and servicing of the optional
FAB-1100 blower.
Figure 6
Figure 8
37-1/4"
(946 mm)
37"
(940 mm)
15-1/2"
(394 mm)
Figure 9
Secure all joints tightly using appropriate
tools and sealing compounds (ensure pro-
pane resistant compounds are used in
propane applications).
Turn on gas supply and test for gas leaks,
using a gas leak test solution (also referred to
as bubble leak solution).
Note: Using a soapy water solution (50% dish
soap, 50% water) is an effective leak test
solution but it is not recommended, because
the soap residue that is left on the pipes/
fittings can result in corrosion over time. Never
use an open flame to check for leaks.
Figure 4
37" (940mm)
15-1/2"
(394mm)
Outside Wall
Back Wall of
Chase/Enclosure
Including Finishing
Materials If Any.
Figure 5
37" (940mm)
58-1/2" (1486mm)
13-1/2"
(343mm)
29"
(737mm)
41"
(1041mm)
Back Wall of
Chase/Enclosure
Including Finishing
Materials If Any.
Step 2. Route a 1/2" (13 mm) gas line along the
left or right side framing (
Figure 7
).
All appliances have a 3" long 3/8" NPT nipple
installed at the regulator. To quickly and easily
complete the gas line routing, use the gas flex
line kit, Model GFLV.
Step 3. Position appliance into prepared fram-
ing, secure with 6d nails at the nailing flange
along each side.
Step 4. Connecting Gas Line – Make gas line
connections. All codes require a shut-off valve
mounted in the supply line.
Figure 8
illustrates
two methods for connecting the gas supply.
Installation methods and materials must be in
compliance with local codes.
3"
(76 mm) 7"
(178 mm)
Figure 7
Gas Stub
1/2" x 3/8" Flare
Shut-Off Valve
3/8" Flex Tubing
3/8" NPT x 3/8"
Flare Fitting
3/8" Nipple, Standard
with all Units
3/8" Union
3/8" Close Nipple
3/8" Shut-Off Valve
1/2" x 3/8" Reducer
Gas Valve
Gas Flex Line Kit, Model GFLV
Control Valve
(Standard)
Lower Control
Compartment Door

NOTE: DIAGRAMS & ILLUSTRATION NOT TO SCALE. 7
Figure 12
White
(Supply)
Black
(Supply)
Bipolar
Terminal
Screw
Blower
(Lower)
Outlet
Black
Wire
Mating
Connectors
Red Wire
120 Vac
60 Hz
Blower Wiring Diagram
}
OFF/ON Blower
Wall Switch
To Fuse or
Circuit Breaker
120V
AC
60Hz
Fireplace
Junction Box
Black
White
Receptacle
Ground Wire
Connection
Note: Supply wires may be alternatively connected to the outlet using the screw terminals,
however the black supply wire must be ganged wired to the same terminal that the pre-wired black
wire is attached to and the white supply wire must be connected to the opposite side of the outlet.
Step 5. Installing the Optional Remote Wall
Switch (VF4000-CMN/P models only) – The
millivolt system comes from the factory wired
as shown in
Figure 10
. Select a convenient
location for the remote wall switch and connect
the wiring to the appliance (
Figure 11
).
CAUTION: DO NOT CONNECT THE OPTIONAL
REMOTE SWITCH TO A 120V POWER SUPPLY.
Note: The optional rocker switch is mounted to
the appliance and wired in the same way as the
remote wall switch.
Figure 11
Step 6. Installing the Optional Forced Air
Blower Kit Wiring – A receptacle plate is
provided for the installation of the FAB-1100
forced air blower kit (optional). Electrical
power must be provided to this plate to oper-
ate the blower.
Route a 3-wire, 120Vac power line with con-
trol switch to the lower left front corner of the
appliance. Supply wires are to be connected to
the outlet as shown in
Figure 12
, ensuring that
the polarity (as determined by the colors of the
wires) is exactly as shown. The black and red
wire loop must be left intact, with the mating
connectors connected.
Figure 10
VF4000-CMN/P Series
Wiring Diagram
TPTH TP TH
Thermopile
If any of the original wire as supplied must be replaced, it
must be replaced with Type AWM 105°C – 18 GA. wire.
* For Rocker or ON/OFF Wall Switch Attachment Only.
**
From Thermocouple
VF4000-CMN/P Series
Optional Wiring Diagram
TPTH TP TH
Thermopile
If any of the original wire as supplied must be replaced, it
must be replaced with Type AWM 105°C – 18 GA. wire.
Optional ON/OFF
Wall Switch/Rocker Switch
Factory Wired Field Wired
*
* For Rocker Switch Attachment Only.
*
From Thermocouple
A. Light the appliance (refer to safety and
lighting instructions on pages 14 and 16).
B. Brush all joints and connections with the
gas leak test solution to check for leaks. If
bubbles are formed, or gas odor is detected,
turn the gas control knob to the “OFF” posi-
tion. Either tighten or refasten the leaking
connection and retest as described above.
C. When the gas lines are tested and leak free,
be sure to rinse off the leak testing solution.
D. When the gas lines are tested and leak free,
observe the individual tongues of flame on the
burner. Make sure all ports are open and
producing flame evenly across the burner. If
any ports are blocked, or partially blocked,
clean out the ports.
An external regulator must be used on all pro-
pane (L.P.G.) heaters, in addition to the regula-
tor fitted to the heater, to reduce the supply tank
pressure to 13" w.c. (maximum).
WARNING: CONNECTING DIRECTLY TO
AN UNREGULATED PROPANE TANK CAN
CAUSE AN EXPLOSION.

NOTE: DIAGRAMS & ILLUSTRATION NOT TO SCALE.
8
Figure 14
Note: The heater may be installed directly on a
floor made of standard combustible wood con-
struction materials. Do not install the heater
directly on carpeting or other soft floor cover-
ing such as vinyl tile or flooring materials. Use
a wood or metal panel that extends the full
width and depth of the heater between the
heater and any soft floor covering material.
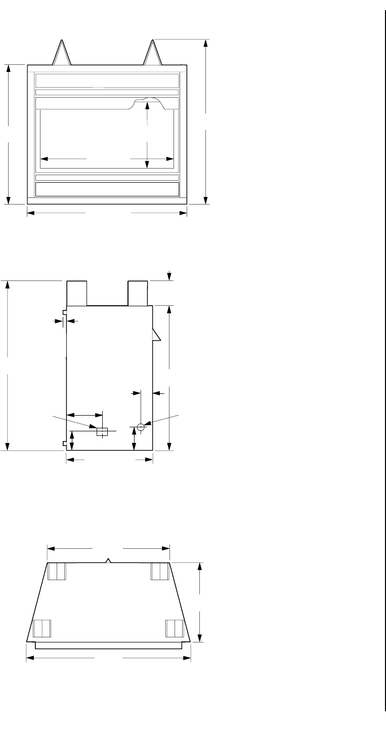
Refer to Figure 20 for base dimensions.
Step 8. Secure Heater – Bend the tabs down
(
Figure 13
). Using two (2) screws securely
tighten the appliance to the platform.
Note: Heater must be anchored to the floor or
platform.
Step 9. Install Optional 120V Wiring – Refer
to Step 6 for wiring instructions.
Connecting Gas Line
Step 10. A qualified gas appliance installer
must connect the gas room heater to the gas
supply.
Consult all local codes and refer to Step 5.
The heater gas inlet connection is 3/8" NPT,
located on the right side facing the heater. If a
left side connection is required, route the gas
line under the valve to end at the right hand side
for connection to the inlet. This may be re-
quired to allow for installation of the blower.
When tightening up the joint to the valve hold
the valve securely with a wrench to prevent the
valve from moving.
Step 11 . For Surround Installations Only –
Finish the assembly of the surround compo-
nents and secure the surround to the appliance.
Step 12. The heater includes a unitized set of
ceramic fiber logs. The heater and logs are
assembled as shown in
Figure 14
. Handle
these logs with great care. The logs can be
easily damaged, but when handled properly
they can provide years of performance and
enjoyment.
IMPORTANT: Ground lead must be connected
to the green screw located on the junction box
cover plate. Failure to do so will prevent the
appliance from operating.
The appliance must be electrically grounded in
accordance with local codes or, in the absence
of local codes, the National Electrical Code,
ANSI/NFPA 70-(latest edition). (In Canada, the
current CSA C22-1 Canadian Electrical Code.)
The forced air blower kit may be mounted at
initial appliance installation or at any time there-
after. Follow the instructions provided with the
blower kit.
Finished Wall Details
It is sometimes best to frame the appliance
after it has been positioned in place. Frame with
2 x 4s or heavier lumber. Always frame in
accordance with local building codes.
Note: The header may rest on the top spacers
but must not be notched to fit around them.
In order to install the appliance facing flush with
the finished wall, position the framework to
accommodate the thickness of the finished wall
(
Refer to Figures 2 and 3
).
If you live in a cold climate, seal all cracks
around your appliance with noncombustible
material and wherever cold air could enter the
room. It is especially important to insulate
outside chase cavity between studs and under
floor on which appliance rests, if floor is above
ground level.
Proceed to Step 10.
Surround Installations
Note: The VF4000 series appliances must be
installed giving full consideration to the clear-
ance and height requirements identified in this
manual.
Step 7. Position Heater – Place the heater in
desired location. It may be helpful to tempo-
rarily assemble the surround around the appli-
ance to properly locate the unit. Refer to
Figure 13
for floor and platform installations.
If the heater is to be installed into a framed wall
refer to the built-in assembly steps beginning
on page 5.
Figure 13
Assembling the Logs
WARNING: DO NOT ADD EXTRA LOGS OR
ORNAMENTS SUCH AS PINE CONES, VER-
MICULITE OR ROCK WOOL. USING THESE
ADDED ITEMS CAN CAUSE SOOTING.
WARNING: DO NOT PLACE ANY LAVA
ROCK ON LOGS OR BURNERS. THIS MAY
CAUSE SOOTING.

NOTE: DIAGRAMS & ILLUSTRATION NOT TO SCALE. 9
To light the burner; rotate the gas valve control
knob counterclockwise to the “ON” position.
Step 14. Installing the Hood Assembly –
Attach the hood assembly over the firebox
opening with three (3) screws.
Step 15. Installing the Screen Assembly –
Position the screen assembly in front of the
firebox opening, with the joint in the gasket
down (
Figure 18
). Locate the three (3) tabs at
the bottom edge of the frame into the three (3)
brackets at the base of the fireplace front
opening. Lean the frame back towards the
fireplace. Install the three (3) 1/4"-20 x 1"
Phillips pan head screws removed previously
and tighten to secure.
In normal operation, at full rate, after 15 min-
utes the following flame appearance should be
observed:
Rear Burner Flame Characteristics – The rear
flames should be yellow. The flames should
extend about 3 – 4" above the front log for
natural gas and 2 – 3" above for propane
(L.P.G.) gas (
Figure 17
).
When first lighting the appliance, it will take a
few minutes for the line to purge itself of air.
Once purging is complete, the pilot and burner
will light and operate as indicated in the instruc-
tion manual. Subsequent lightings of the appli-
ance will not require such purging. Inspect the
pilot flame (remove logs, if necessary, handling
carefully).
The pilot flame should be steady, not lifting or
floating. Flame should be blue in color with
traces of orange at the outer edge.
The top 3/8" (10 mm) at the pilot thermocouple
should be engulfed in the pilot flame (NG only).
Replace logs if removed for pilot inspection.
Screws
Step 13. Checking the System – With gas line
installed run initial system checkout before
closing up the front of the unit. Follow the pilot
lighting instructions on pages 14 and 16.
Note: Instructions are also found on the pull
out panel located on the bottom surface of the
appliance.
Figure 16
Figure 18
Standard (Manual)
Version Shown
After setting the logs into position as described
above, ensure they are properly and firmly
situated. The heater will not function as in-
tended if the logs are not correctly positioned.
Periodically check the positioning of the logs.
WARNING: FAILURE TO POSITION THE
PARTS IN ACCORDANCE WITH THESE
DIAGRAMS OR FAILURE TO USE ONLY
PARTS SPECIFICALLY APPROVED WITH
THIS HEATER MAY RESULT IN PROP-
ERTY DAMAGE OR PERSONAL INJURY.
Flame Appearance
REFER TO THE OPERATING INSTRUCTIONS
LOCATED AT THE BACK OF THIS MANUAL
BEFORE LIGHTING THE HEATER TO OBSERVE
THE FLAMES.
Flames from the pilot, front and rear burner
should be visually checked as soon as the
heater is installed. In addition a periodic visual
check of the flames should be made. The pilot
flame should always be present when the heater
is in operation and should just envelope the tip
of the thermocouple (
Figure 15
).
WARNING: NO ADJUSTMENTS ARE TO
BE MADE TO THE ODS PILOT SYSTEM.
TAMPERING WITH THIS SYSTEM CAN
BE EXTREMELY HAZARDOUS.
Figure 15
An incorrect pilot flame is shown in
Figure 16
.
This pilot flame will cause the thermocouple to
cool. When the thermocouple cools, the heater
will shut off. If pilot flame pattern is incorrect,
or if heater shuts off, contact your service
representative.
Figure 17
Main Burner – The flames at the front burner
holes will be blue becoming yellowish as they
hit the bark-like texture of the base and front
face of the front log (
Figure 17
).
Appliance Operation
WARNING: THE LOWER CONTROL COM-
PARTMENT AREA AND LOWER CONTROL
COMPARTMENT ACCESS DOOR ARE EX-
TREMELY HOT WHEN THE APPLIANCE IS
IN OPERATION. EXERCISE EXTREME CARE
WHEN ACCESSING THIS AREA. TOUCH
ONLY THE FAR ENDS OF THE LOWER
CONTROL COMPARTMENT DOOR WHEN
OPENING WHILE THE APPLIANCE IS HOT.
Standard (Manual)
Version Shown

NOTE: DIAGRAMS & ILLUSTRATION NOT TO SCALE.
10
Grounded
to Appliance
Blower Motor
Motor Plug
Receptacle
120V
Appliance Junction Box
Figure 20
Brass Louver Kit
Brass louvers are available for use with these
appliances. These louvers are designed to
replace the standard black louvers that are
provided with the appliance. The brass louver
kit includes six (6) louvers that simply snap
into place. They provide a touch of elegance to
the VF appliance. This kit can be retrofitted to
previously installed appliances.
Brass Square Surround Kit
A decorative brass square surround kit is
available for use with these appliances. The
BSK-5 is designed to attach directly to the
front face of the appliance at its extreme edges.
The BSK-5 provides a picture frame finish for
the appliance 2-1/2" wide. The brass square
surround kit can be retrofitted onto previously
installed appliances.
Square Trim Kit
A square trim kit is available for use with this
appliance. This kit is easy to install and does
not require hardware to attach it as de-
signed, directly to the standard door frame.
The four piece square trim kit can be in-
stalled without the bottom or bottom and
side pieces to customize the look of our
appliance. This kit can be retrofitted to
previously installed appliances.
OPTIONAL EQUIPMENT
An incomparable package of options are avail-
able for use with these appliances. These op-
tions can both customize the operation of these
unique appliances and enhance their beauty
and charming appeal. All options are available
in kit form, are easy to install and are packaged
complete with all required parts and instruc-
tions. Some of the option kits need to be fitted
prior to completing the installation of the appli-
ance. The following paragraphs detail the kit
options available for use with the appliances
covered in this manual.
These outstanding optional items can be added
individually or in sets of two or more to custom-
ize your vent-free appliance to fit your homes
unique needs. Kit part numbers are provided
on page 12 along with descriptive illustrations.
The appliances covered in this manual are
heater rated and produce a great deal of heat.
Decorative brass trim pieces and hoods may
tarnish because of their proximity to the heater
opening and front face. Tarnishing of these
pieces is normal, unavoidable and should be
expected.
Forced Air Kit
The FAB-1100 assembly provides a forced air
circulation feature for your appliance. This kit
mounts directly into the lower intake chamber
with an electrical connection made at the recep-
tacle provided. The appliance must have an
independent 120Vac power line incorporated at
the time of installation. Refer to Step 5 of the
installation instructions supplied with the forced
air kit (
Figures 19 and 20
).
Figure 19
Decorative Volcanic Stone
The decorative volcanic stone, Model FDVS,
can be used to enhance the look of your
appliance. Spread the decorative volcanic stone
evenly around the bottom of the firebox.
Refractory Liner Kit
One of the most beautiful enhancements you
can make to this appliance is the addition of
refractory liners. The refractory liner kit in-
cludes tan ceramic fiber panels for the rear and
side walls of the firebox. The ceramic fiber
panels have brick-like features in relief. To
install the three panels, simply place them in
position against the firebox walls. This kit can
be retrofitted into previously installed appli-
ances.
Screen Panel Kit
An optional fixed fine mesh screen panel can be
installed on the VF4000 Series Units. This screen
panel is easy to install. This kit can be retrofitted
to previously installed VF4000 appliances.
Gas Flex Line with Valve
A gas flex line kit is available to aid in attaching
the appliance to the gas supply. This kit can
only be used where local codes permit. The kit
includes a 1/2" NPT to 3/8" flare in line shut-off
valve, a 12" flex line 3/8" female flare through
and a 3/8" flare to 3/8" NPT fitting. The compo-
nents of this kit are rated for both natural and
propane gas. This kit is designed to be used as
an aid in installing the appliance.
WARNING: CHILDREN AND ADULTS
SHOULD BE ALERTED TO THE HAZARDS
OF HIGH SURFACE TEMPERATURES. USE
CAUTION AROUND THE APPLIANCE TO
AVOID BURNS OR CLOTHING IGNITION.
YOUNG CHILDREN SHOULD BE SUPER-
VISED WHEN THEY ARE IN THE SAME
ROOM AS THE APPLIANCE.

NOTE: DIAGRAMS & ILLUSTRATION NOT TO SCALE. 11
OPERATION AND CARE OF YOUR
APPLIANCE
1. Blower operation may be controlled through
the ON/OFF unit rocker switch, located in the
lower control compartment.
2. These heater rated units are equipped with
a two stage (HI, LOW) gas control valve. To set
the burner at the HI and LOW settings, rotate
the control knob to the desired position.
3. When lit for the first time, the appliance will
emit a slight odor for an hour or two. This is
due to the “burn-in” of the internal paints and
lubricants used in the manufacturing process.
Additionally, when lit for the first time, this
appliance may produce smoke, this is normal
and should be expected. For the first few
hours, operate the appliance with doors and
windows open to encourage the dissipation of
smoke and fumes.
4. Keep lower control compartment clean by
vacuuming or brushing at least twice a year.
More frequent cleanings may be required due
to excessive lint from carpeting, bedding ma-
terials, etc. It is important that the control
compartments, burners and circulating air pas-
sageways of the heater be kept clean.
5. Always turn off gas to pilot before cleaning.
Before relighting, refer to the lighting instruc-
tions in this manual. Instructions are also
found on a pull-out panel located on the floor
of the appliance.
6. Always keep the appliance area clear and
free from combustible materials, gasoline and
other flammable liquids.
7. Remember, this appliance has a continuous
burning pilot flame. Exercise caution when
using products with combustible vapors.
Remote Control Kit
The Model RCL adds the convenience of re-
mote control for your millivolt controlled ap-
pliance. The kit includes a wireless, hand held
transmitter and a receiver that replaces the
wall switch. This special receiver permits ei-
ther manual or remote control modes. Both
receiver and transmitter operate on standard 9
volt batteries (not included). Refer to the RCL
installation instruction for specific details.
Wall Switch Kit
An optional wall switch kit can be installed
along with the millivolt controlled appliances.
The kit consists of a standard UL wall switch
with cover plate. This kit provides for remote
(wall) operation of the appliance. Replace the
wall switch and cover plate of this kit with the
components of the FWSK and you can have true
remote control of your vent-free appliance,
turning it on and off from your favorite easy
chair. The wall switch kit should be installed
along with the appliance. Refer to
Figure 11
and Step 5 for detailed installation instructions.
Rocker Switch Kit
An optional rocker switch kit can be installed
directly on VF4000-CMN/P series appliances
to provide for On and Off operation in lieu of a
wall switch. This kit is designed to install in the
lower control compartment out of view and is
perfect for use in high volume areas such as
lobbies and model homes where limited ac-
cess to the appliance On/Off switch is desir-
able. This kit can be retrofitted to previously
installed appliances and may be temporarily
installed in place of other switch circuitry.
Wall Thermostat Kit
A wall thermostat kit is available for use with
the millivolt controlled appliances. The wall
thermostat is designed to be wired directly to
the appliance millivolt gas control circuit and
provide automatic On/Off control of the appli-
ance to maintain a desired temperature within
the room.
CLEANING AND SERVICING
WARNING: TURN OFF THE UNVENTED
GAS ROOM HEATER AND ALLOW TO COOL
BEFORE CLEANING.
Only limited cleaning will be required under the
normal use of the heater. Dust the front grate, the
top of the piezo cover and the control knob
occasionally. Do not use cleaning fluids to clean
the logs or any other part of the room heater.
Remove the log assembly, gently handling by
holding each log at each end. Use a vacuum
cleaner to remove loose particles from the base
and from around the burners. Gloves are rec-
ommended to prevent the fibers from pricking
your skin. If the skin is pricked, wash gently
with soap and water. Replace the logs as de-
tailed in Step 12 Assembling the Logs.
If, after a period of use, the flames start to
exhibit unusual shapes and behavior, or the
burners fail to ignite smoothly, then the burner
holes may require some cleaning. If this hap-
pens, it is preferable to contact your nearest
dealer to get the appliance serviced.
REPLACEMENT PARTS
An exploded view of the room heater with
numbered parts and a parts list can be found
on pages 20 and 21. All parts should be or-
dered through your Lennox distributor or
dealer. Parts will be shipped at prevailing
prices at time of order.
When ordering repair parts, always give the
following information:
1. The model number of the heater.
2. The serial number of the heater.
3. The part number.
4. The description of the part.
5. The quantity required.
6. The installation date of the heater.
If you encounter any problems or have any
questions concerning the installation of this
heater, please contact your distributor. For the
name of your nearest distributor contact:
LHP
1110 West Taft Avenue
Orange, CA 92865

NOTE: DIAGRAMS & ILLUSTRATION NOT TO SCALE.
12
ACCESSORIES AND COMPONENTS
Forced Air Kit FAB-1100
Gas Flex Line Kit FFGC
Refractory Liner Kit VF5RLK
Decorative
Volcanic Stone FDVS
Wood Surround-Wall SUR-5PW
Wood Surround-Corner SUR-5PC
Brass Louver Kit BRLK-5C
BSK-5
Brass Surround Kit BRLK-CS
Square Trim Kit STK-5-4
Remote Control RCL
Rocker Switch Kit FRS
Wall Switch Kit FWSK
Thermostat WTK

NOTE: DIAGRAMS & ILLUSTRATION NOT TO SCALE. 13
VF4000 SPECIFICATIONS
Figure 21
37"
(940 mm)
36" (914 mm)
30" (762 mm)
31-1/2"
(800 mm) 15"
(381 mm)
Front View
Left Side View
(Right Side View - Opposite)
Gas Line
Opening
J Box
Opening
8"
(203 mm)
3-3/4"
(95 mm)
3-1/2"
(89 mm)
Top View
27"
(686 mm)
36"
(914 mm)
15-1/2"
(394 mm)
31-1/2"
(800 mm)
37"
(940 mm)
15-1/2" (394 mm)
1/2
"
(13 mm)
5-1/2"
(140 mm)
3"
(76 mm)

NOTE: DIAGRAMS & ILLUSTRATION NOT TO SCALE.
14
VF4000-CHM/P OPERATING INSTRUCTIONS (STANDARD VALVES)
FOR YOUR SAFETY READ BEFORE LIGHTING
LIGHTING INSTRUCTIONS
1. Stop! Read the safety information above.
2. Make sure manual shut-off valve is fully open.
3. Locate gas control knob and piezo.
4. Depress control knob in and turn clockwise to the
“OFF” position (
Figure 22
).
5. Wait 5 minutes to clear out any gas. Then smell for gas,
including near the floor. If you smell gas, STOP! Follow “B” in
the safety information above. If you do not smell gas, go to the
next step.
6. The pilot is located on the right side in front of the burner
(
Figure 23
).
7. Depress control knob in and turn counterclockwise
to the “IGN” position (
Figure 24
). Press the control knob all
the way in for 5 seconds.
Note: If you are running the heater for the first time it will be
necessary to press the control knob all the way in for 30
seconds to allow air to bleed out of the gas piping.
MANUAL MATCH LIGHTING PROCEDURE — EMERGENCY ONLY
1. If the pilot cannot be lit with the piezo igniter, the heater can be
manually lit with a match.
2. With the right hand, depress and turn the control knob
counterclockwise to the “ON” position. Hold in the
knob.
TO TURN OFF GAS TO HEATER
1. Depress and turn control knob clockwise to the “OFF”
position (
Figure 22
).
3. Light the match and hold the flame to the end of the pilot and
ignite the pilot.
4. Continue to hold control knob for an additional 10 seconds to
insure pilot remains lit.
5. Release the control while turning control knob to desired
setting.
8. With the control knob pressed in, push in and release the
piezo igniter button to light the pilot.
9. Hold the control knob in for a further 10 seconds to prevent
the flame failure detector from shutting off the gas while the
probe is warming up.
10. Release the control knob while turning counterclockwise
to the "HI" or "LOW" Position.
•If the knob does not pop out when released, stop and
immediately call your service technician or gas supplier.
•If the pilot will not stay lit after several tries, depress and
turn the gas control knob clockwise to “OFF”
and wait 30 seconds. Depress and turn knob counter-
clockwise to “IGN” and
press igniter button again. If your pilot
does not relight depress and turn
control knob clockwise to
“OFF” and call your service technician
or gas supplier.
11. Wait 30 seconds before readjusting the heater when the
control knob has been turned down to a lower setting.
•Immediately call your gas supplier from a neighbor’s
phone. Follow the gas supplier’s instructions.
•If you cannot reach your gas supplier, call the fire
department.
C. Use only your hand to push in or turn the gas control knob.
Never use tools. If the knob will not push in or turn by hand, do
not try to repair it, call a qualified service technician. Forced or
attempted repair may result in a fire or explosion.
D. Do not use this heater if any part has been under water.
Immediately call a qualified service technician to inspect the
appliance and to replace any part of the control system and any
gas control which has been under water.
A. This heater has a pilot which must be lit by hand. When
lighting the pilot, follow these instructions exactly.
B. BEFORE OPERATING smell all around the heater area for gas.
Be sure to smell next to the floor because some gas is heavier
than air and will settle on the floor.
WHAT TO DO IF YOU SMELL GAS
•Do not try to light any appliance.
•Do not touch any electric switch; do not use any phone
in your building.
WARNING: IF YOU DO NOT FOLLOW THESE INSTRUCTIONS EXACTLY, A FIRE OR EXPLOSION MAY
RESULT CAUSING PROPERTY DAMAGE, PERSONAL INJURY OR LOSS OF LIFE.

NOTE: DIAGRAMS & ILLUSTRATION NOT TO SCALE. 15
Figure 22
Pilot Location
Figure 23
Pilot
Turn Control Knob to “OFF” Position
Figure 24
Turn Control Knob to “IGN” Position
O
F
F
I
G
N
L
O
W
H
I
O
F
F
I
G
N
L
O
W
H
I

NOTE: DIAGRAMS & ILLUSTRATION NOT TO SCALE.
16
VF4000-CMN/P OPERATING INSTRUCTIONS (MILLIVOLT VALVES)
FOR YOUR SAFETY READ BEFORE LIGHTING
•Do not use any phone in your building.
•Immediately call your gas supplier from a neighbor’s phone.
•If your gas supplier cannot be reached, call the fire department.
C. Use only your hand to push in or turn the gas control knob.
Never use tools. If the knob will not push in or turn by hand,
do not try to repair it, call a qualified service technician. Force
or attempted repair may result in a fire or an explosion.
D. Do not use this appliance if any part has been under water.
Immediately call a qualified service technician to inspect the
appliance and to replace any part of the control system and
any gas control which has been under water.
A. This appliance has a pilot which must be lighted by hand.
When lighting the pilot, follow these instructions exactly.
B. BEFORE OPERATING smell all around the appliance area for
gas. Be sure to smell next to the floor because some gas is
heavier than air and will settle on the floor.
WHAT TO DO IF YOU SMELL GAS
•Extinguish any open flame.
•Open windows.
•Do not light any appliance.
•Do not touch any electrical switches.
TO TURN OFF GAS TO APPLIANCE
1. Turn remote wall switch “OFF.” The pilot will remain lit for
normal service.
2. For complete shutdown, turn remote wall switch to “OFF.”
3. Access the left side louver.
4. Depress gas control knob slightly and turn clockwise
to “OFF.” Do not force.
5. Close the side louver.
LIGHTING INSTRUCTIONS
1. STOP! Read the safety information above on this page.
2. Access left side louver.
3. Turn remote wall switch to “OFF.”
4. Verify main line shut-off valve is open.
5. Push in gas control knob slightly and turn clockwise
to “OFF.”
Note: Knob cannot be turned from “PILOT” to “OFF”
unless the knob is pushed in slightly. Do not force.
6. Wait five (5) minutes to clear out any gas. If you then smell
gas, STOP! Follow “B” in the safety information above on this
page. If you do not smell gas, go to the next step.
7. Push in gas control knob slightly and turn counterclockwise
to “PILOT.”
8. Push in control knob all the way and hold in. Immediately
light the pilot by triggering the spark ignitor (pushing red
button) until pilot lights. Continue to hold the control knob in
for about 1 ¹⁄₂ minutes after the pilot is lit. Release knob and
it will pop back up. Pilot should remain lit. If it goes out,
repeat steps 5 through 8.
•If knob does not pop up
when released, stop and
immediately call your
service technician or gas
supplier.
•If pilot will not stay lit after
several tries, turn the control knob to “OFF” and call your
service technician or gas supplier.
9. Turn gas control knob counterclockwise to “ON.”
10. Close the side louver.
Note: If the gas valve is turned directly from the “ON” to “OFF”
position, the valve will latch in the “OFF” position for 60 seconds.
Thermopile
Ignitor
Thermocouple
EA
TPTH TP TH
P
I
L
O
T
P
I
L
O
T
O
N
it
O
F
F
SIT Millivolt
Valve
Gas Control Knob
Piezo Ignitor
Flame Adjustment Knob
Honeywell
Millivolt Valve
Gas Control Knob Spark Ignitor
O
N
O
F
F
P
I
L
O
T
L
O
H
I
WARNING: IF YOU DO NOT FOLLOW THESE INSTRUCTIONS EXACTLY, A FIRE OR EXPLOSION
MAY RESULT CAUSING PROPERTY DAMAGE, PERSONAL INJURY OR LOSS OF LIFE.

NOTE: DIAGRAMS & ILLUSTRATION NOT TO SCALE. 17
1. When igniter button is
pressed, there is no spark
at ODS/pilot.
2. Heater produces unwanted
odors.
3. Heater shuts off in use
(ODS operates).
4. Gas odor even when control
knob is in “OFF” position.
5. When igniter button is
pressed, there is spark at
ODS/pilot, but no ignition.
6. ODS/pilot lights, but flame
goes out when control knob
is released.
7. Burner does not light after
ODS/pilot is lit.
8. Delayed ignition of burner.
9. Burner backfiring during
combustion.
10. Slight smoke or odor during
initial operation.
11. Heater produces a whistling
noise when burner is lit.
Replace igniter.
Replace igniter.
Reconnect igniter cable.
Free igniter cable if pinched by any metal or tubing. Keep igniter cable dry.
Tighten nut.
Replace igniter cable.
Replace piezo igniter.
Ventilate room. Stop using odor-causing products while fireplace is running.
Locate and correct all leaks.
Open window and/or door for ventilation.
Contact local gas company.
Clean ODS/pilot.
Locate and correct all leaks (see Checking Gas Connections, page 7).
Replace control valve.
Turn on gas supply or open manual shut-off valve.
Turn control knob to pilot position.
Press in control knob while in pilot position.
Continue holding down control knob. Repeat igniting operation until air is
removed.
Replace ODS/pilot assembly or get it serviced.
Replace gas regulator.
Press in control knob fully.
After ODS/pilot lights, keep control knob pressed in 30 seconds.
Fully open manual shut-off valve.
Hand tighten until snug, then tighten ¹⁄₄ turn more.
1). Contact local gas company.
2). Replace ODS/pilot assembly or get pilot serviced.
Replace thermocouple.
Replace control valve.
Clean burner or replace burner orifice.
Replace burner orifice.
Contact local gas company.
Contact local gas company.
Clean burner or replace burner orifice.
Clean burner or replace burner orifice.
Replace burner.
Replace gas regulator.
Problem will stop after a few hours of operation. SFC recommends running the
heater with excess ventilation for the first few hours.
Turn control knob to “LO” position and let warm up for a minute.
Operate burner until air is removed from line. Have gas line checked by local gas
company.
Clean burner or replace burner orifice.
A. Igniter electrode positioned wrong.
B. Igniter electrode broken.
C. Igniter electrode not connected to igniter cable.
D. Igniter cable pinched or wet.
E. Piezo igniter nut is loose.
F. Broken igniter cable.
G. Bad piezo igniter.
A. Heater burning vapors from paint, hair spray, glues, etc.
B. Gas leak. See Warning statement on the front page.
A. Not enough fresh air is available.
B. Low line pressure.
C. ODS/pilot is partially clogged.
A. Gas leak. See Warning statement on the front page.
B. Control valve defective.
A. Gas supply turned off or manual shut-off valve closed.
B. Control knob not in “PILOT” position.
C. Control knob not pressed in while in “PILOT” position.
D. Air in gas lines when installed.
E. ODS/pilot is clogged.
F. Gas regulator setting is not correct.
A. Control knob not fully pressed in.
B. Control knob not pressed in long enough.
C. Manual shut-off valve not fully open.
D. Thermocouple connection loose at control valve.
E. Pilot flame not touching thermocouple, which allows
thermocouple to cool, causing pilot flame to go out. This
problem could be caused by one or both of the following:
1). Low gas pressure
2). Dirty or partially clogged ODS/pilot
F. Thermocouple damaged.
G. Control valve damaged.
A. Burner orifice is clogged.
B. Burner orifice diameter is too small.
C. Inlet gas pressure is too low.
A. Manifold pressure is too low.
B. Burner orifice is clogged.
A. Burner orifice is clogged or damaged.
B. Burner damaged.
C. Gas regulator defective.
A. Vapors from paint or curing process of logs.
A. Turning control knob to “HI” position when burner is cold.
B. Air in gas line.
C. Dirty or partially clogged burner orifice.
OBSERVED PROBLEM POSSIBLE CAUSE REMEDY
TROUBLESHOOTING GUIDE FOR UNVENTED GAS PRODUCTS

NOTE: DIAGRAMS & ILLUSTRATIONS ARE NOT TO SCALE.
18
REPLACEMENTPARTSLIST
Item
No. Description
VF4000-CHN(Manual)
VF4000-CHP(Manual)
VF4000-CMN(Millivolt)
VF4000-CMP(Millivolt)
PartNo. Qty. PartNo. Qty.
1. Valve (Natural) H4111 1 – –
Valve (Propane) H4111 1 – –
SIT Valve (Natural) – – H4173 1
Honeywell Valve (Natural) – – 24M13 1
SIT Valve (Propane) – – H4278 1
Honeywell Valve (Propane) – – 67L02 1
2. Injector, Burner (Natural) H4115 2 H4115 2
Injector, Burner (Propane, LPG) H4116 2 H4116 2
3. Pilot (Natural) H4114 1 H4113 1
Pilot (Propane, LPG) H4112 1 H4170 1
4. Regulator (Natural) H4869 1 903218 1
Regulator (Propane, LPG) H4870 1 112081 1
5. Front Burner H4170 1 H4170 1
6. Rear Burner (Natural) H6430 1 H6430 1
Rear Burner (Propane, LPG) H6430 1 H6430 1
7. Crossover Burner H4110 1 H4110 1
8. Injector, Crossover Burner (Natural) H4118 1 H4118 1
Injector, Crossover Burner (Propane, LPG) H4119 1 H4119 1
9. Piezo 10K86 1 10K86 1
10. Piezo Wire H4868 1 H4868 1
11. Log Set H2335 1 H2335 1
12. Bar, Louver-Black H4317 2 H4317 2
13. Panel, Radiant H4315 2 H4315 2
14. Replacement Screen H4178 1 H4178 1
15. Hood H4141 1 H4141 1

NOTE: DIAGRAMS & ILLUSTRATION NOT TO SCALE. 19
REPLACEMENT PARTS
9
10
15
14
4
7
6
5
12
1
12
13
13
2
8
3
CH Models
CM Models
CH Models
CM Models
(SIT Valve
Shown)
11

NOTE: DIAGRAMS & ILLUSTRATION NOT TO SCALE.
20
Printed in U.S.A. © 1997 by Lennox Hearth Products
P/N 903590 REV. P 04/2010
Lennox Hearth Products reserves the right to make changes at any time, without notice, in design, materials, specifications and prices, and also to discontinue colors, styles and products.
Consult your local distributor for fireplace code information.
LHP
1508 Elm Hill Pike, Suite 108
Nashville, TN 37210