GRIDCOMM GC9838LR PLC-RF DIN RAIL MODEN User Manual 15 GC9838 LR UserMan

gridComm Pte Ltd PLC-RF DIN RAIL MODEN 15 GC9838 LR UserMan

15_GC9838-LR UserMan

 PB64021-01)GC9838))DIN)Rail)Hybrid)PLC-RF)Modem))))Product)Brief) © gridComm  Pte. Ltd.     Product Brief Page 1 of 4 GC9838-LR - INTELLIGENT HYBRID PLC-RF DIN RAIL MODEM   Overview  Power-line  communications  (PLC)  and  low-cost  Radio Frequency (RF) networking can suffer from high noise and attenuation due to environmental factors which often cause communication  links  between  two  nodes to  vary significantly in quality. A communication link which may be optimal  on  certain  medium  and  channel  at  a  given  time may  become  sub-optimal  as  time  passes  resulting  in breakdown  of  the  network.  In  certain  cases, communication  can  be  totally  disrupted due  to interferences or breakdown in the medium. For example, in the case of PLC, a transformer or a physical discontinuity in  the  power  line  would  impede  communications  while metallic  and concrete  objects  to  the  extent  of  weather (humidity, rain, lightning etc.) can block or affect the quality of wireless communication. The  gridComm GC9838- L   R  is  a  next  generation  hybrid DIN Rail  Power  Line  Communication  -  Radio  Frequency modem providing  complete  hardware  and  software networking  solution.  It  automatically  configures  the  PLC and RF real-time and self-adapts to the varying conditions in the communication  links  with  the  most  optimal  data routing  paths,  resulting in  extremely  reliable  and  robust communications  in  a  Low-Voltage  power  network.  This new generation GC9838-LR DIN Rail hybrid PLC-RF modem utilizes the industry-leading gridComm GC2200 Integrated circuit,  an  OFDMA  (Orthogonal  Frequency  Division Multiple Access) Power Line Communication Transceiver and a built-in sub-GHz wireless module to allow adaptive networking over different media. The wireless connectivity can  be  available  in  LoRa  for  tree-structure  network  or gridComm proprietary VE mesh-structure network.   Benefits  By taking advantage  of  its inherent 18  independent PLC channels and the additional 19th RF channel, the GC9838-LR is able to communicate over PLC and RF concurrently via gridComm GCNet network. This brings upon the benefits of  operating  in  a  single  unified  communication  network using  common communication  protocol,  command  sets and  ID  addressing  scheme.  This  not  only  enables  the GC9838 to serve as an automatic bridge or range extender but, at the same time, also allows it to connect with discrete PLC or RF devices which can be extremely useful in IoT sensor applications.  The 18 PLC channels are capable of operating with up to 54 carrier frequencies over a wide frequency  range from 5KHz  to  500KHz on the  power  lines  whilst the 19th  RF channel  operates  on  industrial-strength  ISM  frequency bands. The new GC9838-LR is capable of communicating via low voltage power network of up to 2 Km in range in either PLC or RF modes.  The GC9838-LR     is ideal  for applications such  as  Industrial  Automation,  Automatic  Meter  Reader (AMR), M2M and other applications that require extremely reliable and robust communication links. The GC9838-LR is also equipped with a set of Digital Input and Dry Contact Relay controlling up to 2KW AC power output. By making use of gridComm GCNet Network Management Command APIs or gridComm PLCM Utility tool1, the user can attach  a  sensor  tied  to  the  Digital  Input  for  trigger-based  event  scenarios.  Likewise,  the  user  can  also perform  remote  On/Off  switching  for  a  motor  or  any electrical device.  Note 1: For availability of the Digital Input and Dry Contact Relay GCNet APIs and PLCM Utility tool, please contact gridComm.  Auto Network Applications The GC9838-LR is optimized for network topologies such as star  or  tree  configurations (PLC/wireless  modes).  With gridComm VE wireless module, the RF link layer can be implemented in  a “Tree and Mesh” network structure.   Figure 1 shows a simple hybrid PLC-RF network system connected  with  five  modems  installed  in  a  “Star” configuration. Figure 2 shows a hybrid “Tree” network with PLC  and wireless  nodes.  Figure  3 shows  a  hybrid  PLC and wireless nodes in “Tree and Mesh” network.
 PB64021-01)GC9838))DIN)Rail)Hybrid)PLC-RF)Modem))))Product)Brief) © gridComm  Pte. Ltd.     Product Brief Page 2 of 4  Figure'1'-'“Star”-Shaped'Network'  Figure'2'-'“Tree”'Structure'  Figure'3'-'“Tree'&'Mesh”'Structure  Features and Specifications  • Connects directly to Low-Voltage AC power line • Input power supply: Options for 90VAC~ 277VAC, 50/60 Hz, 100mA • Operating Temperature -40°C to +85°C  • Standards: CE , FCC ü EMC: test as per EN 50065-1, EN 55022, EN 55024, EN 61000-3-2, EN 610000-3-3, EN 61000-6-2 & EN 61000-6-4   FCC Part 15B ü Safety: EN 60950  ü Euro RoHS ü IP 40 • Size in mm: 71 L x 54.5 W x 75 H, Weight: 350 g • Flame Retardant ABS casing with DIN Rail mounting • Supports RS485 via transparent protocol • 32-bit addressing scheme • Four operation modes: Point-to-Point, Simple Broadcast, Auto-Routing, and Broadcast-Routing • One master node supports up to 240 slave nodes in Auto-Routing and Broadcast-Routing modes • Support user packet size of up to maximum of 512 bytes  • Distance: Up to 2km- actual distance depends on environments • Interface:  o PWM outputs- 150ps  o Dry Contact Relay control for up to 2KW AC power output o RS485, no external interface converter needed  • Preset Serial COM Port settings: 115200 Baud rate, No Parity Bit, 8 Data Bit and 1 Stop Bit  • OFDMA Power Line Communications:   ü 18 independent channels operating with up to 54 out of 100 pre-installed carrier frequencies between 5 kHz to 500 kHz.3QPSK, 3BPSK, or 1BPSK modulation schemes with up to 18 levels of redundancy ü Maximum raw data rates at Phy level between 1.22 Kbps to 7.32 Kbps depending modulation scheme ü Scan Frequency tool to scan for best 18 carrier frequencies based on RSSI and Received Success Rate for up to 8 nodes ü Noise Indicator tool to detect noise level for selected frequency channels  ü Debug tool to test success rate of communication links ü Options for operation on CENELEC A, CENELEC B, CENELEC C, CENELEC D, FCC or ARIB bands. ü Rx Sensitivity: -75 dBm  • LoRa Radio Frequency:  ü LoRaTM Modem
 PB64021-01)GC9838))DIN)Rail)Hybrid)PLC-RF)Modem))))Product)Brief) © gridComm  Pte. Ltd.     Product Brief Page 3 of 4  ü 168 dB maximum link budget ü +18 dBm - 60 mW constant RF output vs. V supply ü +14 dBm high efficiency PA ü Data rate up to 2.4 kbps ü High sensitivity: down to -148 dBm ü Bullet-proof front end: IIP3 = -12.5 dBm ü Excellent blocking immunity ü Low RX current of 10.3 mA, 200 nA register retention ü Fully integrated synthesizer with a resolution of 61 Hz ü FSK, GFSK, MSK, GMSK, LoRaTM and OOK modulation ü Operating communication frequency- Sub 1GHz ü Built-in bit synchronizer for clock recovery ü Preamble detection ü 127 dB Dynamic Range RSSI ü Automatic RF Sense and CAD with ultra-fast AFC. ü Packet engine up to 256 bytes with CRC.                 Contact Information For more information regarding the GC9838 DIN Rail hybrid PLC-RF modem including pricing and ordering, please contact: gridComm Pte Ltd sales@gridCommplc.com www.gridComm -plc.com    Warning: Changes or modifications to this unit not expressly approved by the party responsible for compliance could void the user’s authority to operate the equipment.  This device complies with Part 15 of the FCC Rules. Operation is subject to the following two conditions:  (1) this device may not cause harmful interference and  (2) this device must accept any interference received including interference that may cause undesired operation.
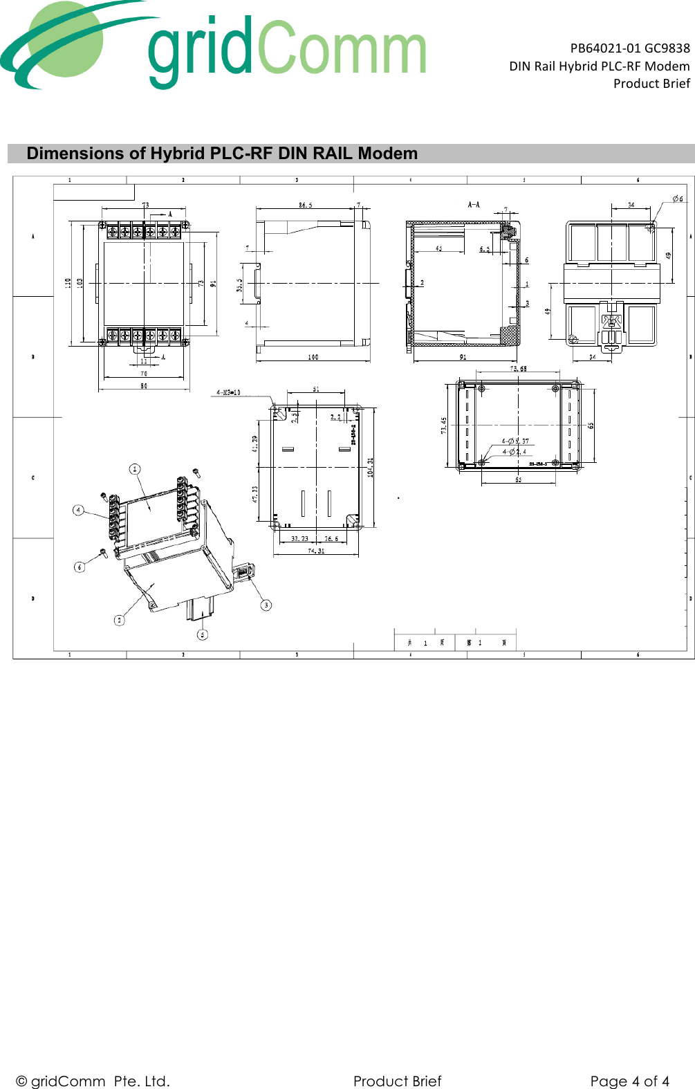
 PB64021-01)GC9838))DIN)Rail)Hybrid)PLC-RF)Modem))))Product)Brief) © gridComm  Pte. Ltd.     Product Brief Page 4 of 4 Dimensions of Hybrid PLC-RF DIN RAIL Modem  .
FCC Warning   This  device  complies  with  Part  15  of  the  FCC  Rules.  Operation  is  subject  to  the  following  two conditions   (1) this device may not cause harmful interference, and   (2)  this  device  must  accept  any  interference  received,  including  interference  that  may  cause undesired operation. Changes or modifications not expressly approved by the party responsible for compliance could void the user’s authority to operate the equipment.   Note 1: This equipment has been tested and found to comply with the limits for a Class B digital device,  pursuant  to part 15 of the FCC  Rules.  These  limits  are  designed  to  provide  reasonable protection  against  harmful  interference  in  a  residential  installation.  This  equipment  generates, uses and can radiate radio frequency energy and, if not installed and used in accordance with the instructions,  may  cause  harmful  interference  to  radio  communications.  However,  there  is  no guarantee  that  interference  will  not  occur  in  a  particular  installation.  If  this  equipment  does cause harmful interference to radio or television reception, which can be determined by turning the equipment  off and on, the  user is encouraged  to  try to  correct the  interference by  one  or more of the following measures:   —Reorient or relocate the receiving antenna.   —Increase the separation between the equipment and receiver.   —Connect the equipment into an outlet on a circuit different from that to which the receiver is connected.   —Consult the dealer or an experienced radio/TV technician for help.   Note 2: 1.Changes or modifications to this unit not expressly approved by the party responsible for compliance could void the user’s authority to operate the equipment. 2. The minimum separation generally be used is at least 20 cm.

Navigation menu