Accutech Security IGWT-662008 S-TAD User Manual Install Manual v2 36 ES IS BR July 2007
Innovative Control Systems Inc S-TAD Install Manual v2 36 ES IS BR July 2007
Contents
- 1. User Manual 1 of 4
- 2. User Manual 2 of 4
- 3. User Manual 3 of 4
- 4. User Manual 4 of 4
User Manual 1 of 4

ES 2100 / ES 2200 / IS 3200 / BR 4200
Installation Manual
800-356-2671 | Accutech | www.accutech-ics.com
Version 2.37 July 2008
DOC.970003

Installation Manual Preface i
IMPORTANT FCC & DOC INFORMATION
Note: This equipment has been tested and found to comply with the limits for a Class B digital
device, pursuant to Part 15 of the FCC Rules. These limits are designed to provide reasonable
protection against harmful interference in a residential installation. This equipment generates,
uses, and can radiate radio frequency energy and, if not installed and used in accordance with the
instructions, may cause harmful interference to radio communications. However, there is no
guarantee that interference will not occur in a particular installation. If this equipment does cause
harmful interference to radio or television reception, which can be determined by turning the
equipment off and on, the user is encouraged to try to correct the interference by one or more of
the following measures:
Reorient or relocate the receiving antenna.
Increase the separation between the equipment and receiver.
Connect the equipment into an output on a circuit different from that to which the receiver is
connected.
Consult the dealer or an experienced radio/TV technician for help.
Canadian D.O.C. Statement
This digital apparatus does not exceed the Class B
limits for radio noise emissions from digital appartus
as set out in the radio interference regulations of the
Canadian Department of Communications.
Le present appareil numerique n,emet pas de bruits
radiolectriques depassant les limits appliques aux
appereils numeriques de Class B prescrites dans le
rglement sur le brouillage radiolectrique dicte par le
ministere des Communications du Canada.
FCC ID/DOC for the
Zone/Auxiliary Receiver:
FCC ID: JM7-IGWT-660076
Canada IC: 2683A-660076
This device complies with Part 15 of the FCC rules.
Operation is subject to the following two conditions:
(1) This device may not cause harmful interference,
and (2) this device must accept any interference
received, including interference that may cause
undesired operation.
FCC ID/DOC for the ES Sensor:
FCC ID: JM7-IGWT-662002
Canada IC: 2683A-662002
This device complies with Part 15 of the FCC rules.
Operation is subject to the following two conditions:
(1) This device may not cause harmful interference,
and (2) this device must accept any interference
received, including interference that may cause
undesired operation.
FCC ID/DOC for the ES Controller:
FCC ID: JM7-ITYS-700035
Canada 2683 102 312
This device complies with Part 15 of the FCC rules.
Operation is subject to the following two conditions:
(1) This device may not cause harmful interference,
and (2) this device must accept any interference
received, including interference that may cause
undesired operation.
FCC ID/DOC for the S-TAD:
FCC ID: JM7-IGWT-662008
Canada IC: 2683A-662008
This device complies with Part 15 of the FCC rules.
Operation is subject to the following two conditions:
(1) This device may not cause harmful interference,
and (2) this device must accept any interference
received, including interference that may cause
undesired operation.

ii Preface Installation Manual
IMPORTANT:
Keep all Televisions, Computers, X-ray
equipment, etc. at least 10 feet away from
the ES Receiver. This includes equipment
located on the other side of walls and doors.
Picture the area around the monitored
zone as a big globe with the receive
antenna as the center. Keep all sources of
interference outside this globe.
IMPORTANT NOTICE:
Do not store ES Sensor(s) within 3 feet
of ANY of the sources of electrical
noise listed on this page. These
sources can reduce sensor activation.
This activation can lead to possible
undesirable responses from the
system.
Common Sources of Interference
Include:
Television Sets
Computer Monitors
Medical Monitoring Equipment
Electric Motors
Electrical Distribution Panels and
Transformers
Fluorescent Lighting
Some Electronic Washers and Dryers
X-ray and other Imaging Equipment
Unshielded Computer Cables

Installation Manual UL Addendum (UL 294, BP9480) iii
FOR UL LISTED SYSTEMS:
MODEL VOLTAGE, V FREQUENCY CURRENT
ESI, ESR, ES 120 V 50-60 HZ 1 A
ESRI, ESRR 12 DC 50 mA
TW 24 DC (RMS) 150 mA
FPI, FPIB 12 DC 120 mA
SAP 12 DC 300 mA
GDP 12 DC 500 mA
ED 12 DC 100 mA
ADD 12 DC 100 mA
PS51, PS68 PRI – 120 V
SEC – 12 V
PRI – 60 HZ
SEC - DC
PS51 = 5.1 A
PS68 = 6.8 A
MX, MXB 12 DC 500 mA
LT, SB, BR, CB 3.0 DC Standby off = 1.5 uA
Standby on = 5 uA
Transmit (BR) = 1.6 mA
Transmit activated (all) = 3 mA
TAD, PTAD 9 DC NSC = 20 mA,
Transmit = (2s)80 mA
CL-8A 12 DC NSC = 15 mA,
Alarm = 55 mA
MODEL OPERATION
ESI, ESR Controller coordinates and controls all of the devices and functions.
ES Controller PCB
ESRI, ESRR Receiver picks up signal from an activated Tag and relays it to the
Controller (ESI) and the Multiplexer (MX).
TW Transmit wand antenna generates a Tag-activating signal near a monitored
zone.
FPI, FPIB Fire Panel Interface ensures that in the event of a fire alarm, the Lock and
Elevator Deactivator will disengage.
SAP Staff Alert Panel notifies staff when an activated Tag enters a monitored
zone via a piezo and LEDs.
GDP Graphic Display Panel provides staff with a visual representation of the floor
being monitored and notifies staff when an activated Tag enters a monitored
zone via a piezo and LEDs.
ED Elevator Deactivator prevents monitored residents from using the elevator.
ADD Automatic Door Deactivator prevents monitored residents from using the
door.
PS51, PS68 Power Supply
MX, MXB Multiplexer relay event information from the Controller to Graphic Display
Panels (GDP) and to the PC.

iv UL Addendum (UL 294, BP9480) Installation Manual
LT, SB, BR, CB Long Term (LT), Slotted Back (SB), Band Removal (BR), Cut Band (CB)
Tags, small wristwatch sized device, activated Tag sends signal via receiver
to the Controller.
TAD, PTAD Tag activator/deactivator, also checks Tag’s battery and assists in finding
lost Tags. PTAD is identical to TAD except it does not activate/deactivate
tags. Testing with TAD shall be conducted before use daily.
CL-8A Keypad, used to disable audible device.
Installation - The control units and accessories are intended to be installed in accordance
with the following:
1. The National Electrical Code, ANSI/NFPA 70.
2. Local Authority having Jurisdiction.
3. Manufacturer's installation instructions provided with each unit.
Access Control
1. The minimum system configuration consists of Model ESI, ESRI, TW, keypad, audible
device or magnetic lock or door/elevator deactivator, Tags LT and/or SB and/or BR and
or CB.
2. The system shall be installed in the fail-safe mode and shall release the lock upon loss of
power, loss of connection between ESI and fire alarm control panel. Loss of battery to the
TAG (LT, SB, BR, CB) shall release the lock.
3. The control unit shall be mounted in a protected area.
4. The system does not provide standby power.
5. All accessories are restricted to be installed in the same room. A room is defined as an
enclosed area bounded by walls extending from ceiling to floor, one or more of which
may contain an entranceway that is marked with an Exit sign under the requirements of
the NFPA code. An enclosed area bounded by walls from drop ceiling to floor is not
considered a room but is determined to be part of the room. Rooms having no exit, as
defined under the NFPA that are found within a room with exits, as defined by the NFPA,
are considered part of the overall room.
6. Monitoring station is not UL Listed as an access control unit accessory.
7. This equipment is not evaluated as or meant to be installed as a burglary alarm system.
8. The Model ED is not listed as elevator equipment. The fire alarm control panel shall
override the ED.

Installation Manual UL Addendum (UL 294, BP9480) v
9. The magnetic switch shall be UL Listed as a connector and switches.
10. Wiring of FPI must be wired to fail-safe in an alarm or loss of power condition.
11. The Passive Infrared Detector for use with this system is not intended to be used as an
intrusion detector. It is for monitoring use only.
12. The following components have not been evaluated as a UL Listed access control unit
accessory (although they may carry other UL listings): Local Alarm (LA), Central Alarm
CA3), Speakers (AS3), Timer (DNT), LED Tag (LED), Multi-Tone Local Alarm (MTLA),
Push Button Override (PBO), Tag Test Station (TTS) (the Tx antenna portion of the TTS
has not been tested), Voice Alarm (VA)
13. The detection range for a zone-activated Tag is approximately 8 ft. but the actual range
shall be determined by the Installation Test (Facility Performance Testing).
14. The Tag’s (LT, SB, BR, CB) battery status shall be checked with a TAD, PTAD at least
twice daily.
15. The ESRR (remote receiver) may be used if the desired signal cannot be achieved with
the internal receiver.
16. Models ESI and ESR are provided with a tamper switch.
17. Model ES has only been tested by UL for use in the ESI or ESR system.
18. The Tag Model CB’s Pod (plastic covers) has not been evaluated by UL.
19. The Tag’s (LT, SB, BR, CB) battery is not replaceable in the field.

vi Installation Manual
ICS/ACCUTECH LIMITED WARRANTY
Innovative Control Systems, Inc. (ICS) warrants its Accutech™ equipment (Product) against
defect in materials and workmanship under normal use for one (1) year from the date of product
shipment.
Defective equipment will be either repaired or replaced at ICS’ discretion, free of charge to the
Customer during the warranty period. ICS will supply labor depending on contract to repair or
replace defective equipment, free of charge, during the warranty period only if ICS or an ICS-
certified subcontractor hired by ICS installed such equipment.
In addition, ICS warrants its Accutech™ ES 2200 / IS 3200 / BR 4200 System Tags against
defects in materials and workmanship under normal use and service for a period of one (1) year
from the date of shipment.
If a Tag fails during the warranty period due to defects in material and workmanship, ICS will at
its sole discretion, repair or replace the Tag with like quality product free of charge, although
overnight shipping charges may apply.
Furthermore, the express limited warranty of ICS shall be the sole and exclusive warranty of ICS,
and ICS hereby disclaims all other warranties, express, implied or statutory, including but not
limited, all other implied warranties of merchantability or fitness for a particular purpose. In no
way should ICS be liable for special, incidental, or consequential damages. ICS reserves the right
to change such limited warranty from time to time upon thirty (30) days written notice.
Computers and monitors provided by ICS shall not be submitted for repair to ICS but instead
shall be submitted directly to their respective manufacturer and serviced under their inherent
manufacturer warranty policy present at the time of purchase. Customer shall be responsible for
registering any and all warranty requirements.
ICS assumes no responsibility if any Product shall fail to function during any warranty period by
reason of any one or more of the following causes:
Abuse or misuse of the Product or failure to operate the Product in accordance with
operating instructions or specifications.
Improper preventive maintenance of the Product.
Alteration or modification of the Product not specifically approved in writing by ICS.
Improper installation, repair, modification, or servicing the Product performed by any
unauthorized service personnel.
Equipment or cabling damaged by unauthorized personnel knowingly or unknowingly.
Use or operation of the Product in conjunction with any accessories or auxiliary equipment
not specifically approved in writing by ICS.
Acts of God, including, but not limited to, natural disaster, fire, explosions, flood, accidents
and the like.
24-hour, 7-days-a-week, 365-days-a-year over the phone technical support at 1-800-356-2671

Installation Manual
Contents
Preface i
UL Addendum iii
Chapter 1: The Accutech Systems 1-1
Chapter 2: Wire and Cables 2-1
Chapter 3: The Controller 3-1
Chapter 4: The Tx wand antenna 4-1
Chapter 5: The Receiver 5-1
Chapter 6: The Tag 6-1
Chapter 7: The Keypad 7-1
Chapter 8: The Push Button Override (PBO) 8-1
Chapter 9: The Magnetic Switch 9-1
Chapter 10: The Passive Infrared Reader (PIR) 10-1
Chapter 11: Magnetic Locks 11-1
Chapter 12: Fire Panel Interface (FPI) 12-1
Chapter 13: Alarm Output Devices
(Local Alarm, Central Alarm, Speakers, SAP, GDP)
13-1
Chapter 14: Elevator Deactivation 14-1
Chapter 15: Perimeter Functions 15-1
Chapter 16: Automatic Door Deactivation 16-1
Chapter 17: The Multiplexer 17-1
Chapter 18: Power Supply 18-1
Chapter 19: The Accutech Software 19-1
Chapter 20: Tag Test Station 20-1
Chapter 21: Band Removal Lockdown 21-1
Chapter 22: User-Defined Settings 22-1
Appendix A: Discontinued Components A-1
Appendix B: Jumpers, LEDs, Pots, Switches & Fuses B-1
Appendix C: Block Diagrams C-1
Appendix D: Troubleshooting D-1
Appendix E: Product Cut Sheets E-1
Glossary G-1
Index I-1
The information, procedures, and advice contained herein is subject to change without notice.
800-356-2671 | Accutech | www.accutech-ics.com

Installation Manual
Chapter 1:
The Accutech Systems
IMPORTANT:
No Security System can replace human vigilance. Creating a safe environment requires the
combined efforts of personnel, physicians, security, and patients. Global policies,
procedures, and processes on patient care should be discussed and disseminated. Education,
communication, and coordination are key. No level of security can replace an informed and
knowledgeable staff. Any electronic or physical security system should be considered as a
supplemental deterrent, but by no means an end-all.

Installation Manual The Accutech Systems 1-1
The Accutech Systems
ES 2200 System
IS 3200 System
BR 4200 System
Cut Band System
How Accutech Systems Work
System Components
Typical System Configurations
Throughout this manual, when referring to the
various applications of the system, the term
“Tag” is used to represent all possible
applications of the system (i.e., a resident, a
patient, an infant, pediatrics, or an asset, etc.)
Furthermore, the terms “ingress” and “egress”
will be encountered. They are another way of
saying “coming and going” or “entering and
exiting” respectively.
The ES 2200 System is our platform system
from which all Accutech System’s are built.
Each subsequent system adds on to the system
before. Each system can be easily upgraded as
facility needs change and technology advances.
ES 2200 System
The function of the ES 2200 System is to alert
facility personnel of the possible egress of a
monitored resident.
The ES 2200 can be utilized for special care
residents suffering from wandering malady or
tendencies of straying into unauthorized areas or
leaving a facility, pediatric patients, asset
security and/or low-cost infant security. The
system is designed so that each monitored door
is a stand-alone system.
The ES 2200 System consists of a Controller, a
Transmit (Tx) wand antenna, a Receiver, a
Magnetic Switch, a Keypad, a Local Alarm, and
an ES 2200 System Tag (LT/SB22).
When a Tag enters a monitored area, the system
can automatically:
lock doors
deactivate elevators
sound alarms
flash lights
trigger visual displays (e.g., SAPs or GDPs)
The Controller can be mounted on the wall near
the point of egress or can be mounted out of
sight in a utility or equipment closet.
A Tx wand antenna is typically mounted on the
wall at the point of egress. However, in some
cases it is possible to mount the Tx wand
antenna at the zone so that it is not seen.
The Receiver is mounted internally (inside the
Controller) when the Controller is located at the
zone or externally (near the monitored area)
when the Controller is located remotely.
Virtually any hallway, doorway or elevator can
be made to sense the approach of monitored
resident, and then trigger audial and/or visual
alarms to prompt a staff response.
By adding options, such as the Magnetic Lock or
an Elevator Deactivation Unit, most egress
opportunities can be eliminated without
restricting staff, visitors and non-monitored
residents access.
Additional options such as the Loiter alarm,
Door Ajar alarm, Local alarms, Central alarms,
Passive Infrared Readers (PIRs), Staff Alert
Panels (SAPs), and Graphic Displays Panels
(GDPs) further enhance your ability to prevent
unescorted egress.

1-2 The Accutech Systems Installation Manual
IS 3200 System
The IS 3200 System is the ES 2200 System plus
a computer with the Accutech Software
installed, a TAD, a Tag Test Station, a
Multiplexer, a Power Supply.
The IS 3200 System uses IS 3200 System Tags
(LT/SB32) that are placed on the monitored
resident or asset. Once assigned, the computer
associates a name, room number and any other
pertinent information about the resident/asset
with that Tag.
BR 4200 System
The function of the BR 4200 and System is to
alert facility personnel of the possible abduction
of an infant.
The BR 4200 System is the IS 3200 System plus
BR 4200 Auxiliary Receivers (as needed) and an
additional alarm to announce when a band
removal incident has occurred.
The BR 4200 System uses BR 4200 System
Tags (BR42) that are placed on infants. In
addition to the functionality of an IS 3200
System Tag, the BR 4200 System Tag will
trigger alarms (visual and/or audial) if the band
is removed or tampered with in any way to alert
facility personnel of a possible infant abduction
attempt.
Cut Band System
The function of the Cut Band System is to alert
facility personnel of the possible adduction of a
child. The Cut Band System is the BR 4200
System with Cut Band Tags, which will trigger
alarms (visual and/or audial) if the band is cut.
How Accutech Systems Work
Doors
Elevators
Hallways
Alarms
This section explains how Accutech Systems
react to a Tag entering a monitored door zone, a
monitored elevator zone, and other alarm events.
NOTE: In this manual, Egress alarms are
referred to as “Alarms.” Other alarm types are
referred to by name (i.e., door ajar, loiter,
supervise, band removal).
Doors
When a Tag enters a monitored door zone, the
system will detect the Tag. At that moment
(providing the door has the Magnetic Lock
option, the door is closed, and the Lock is
unobstructed) the doors will lock and will
remain locked as long as the Tag is in the
monitored door zone. When the Tag leaves the
monitored zone, the door will unlock after an
adjustable period of time.
If a Tag enters a monitored door zone (with or
without the Magnetic Lock option) and the door
is already open (or is opened while the Tag is in
the zone), the Accutech System will go into
alarm.
If you wish to escort a Tag through a monitored
zone, you will need to enter a valid code into the
zone’s Keypad to activate the Escort function.
The Keypad’s Escort function will release the
Magnetic Lock, silence alarms, and allow the
Tag to pass through the monitored door zone for
the designated Escort time. The duration of the
Escort function is adjustable from 0 to 98
seconds.

Installation Manual The Accutech Systems 1-3
An optional Loiter function is available to alert
staff personnel if a Tag is in a monitored zone
(even if the door or elevator is closed) for too
long. The time setting is adjustable (10-110
seconds) and is factory set for 15 seconds.
An optional Door Ajar function is also available
to alert staff personnel if the door in a monitored
zone has been held open for too long. The time
range can be set for immediate or from 10 to 110
seconds and is factory set for approximately 15
seconds.
Elevators
Elevator Deactivation Circuitry is needed to
restrict the operation of a monitored elevator
from a Tag.
If a Tag enters a monitored elevator zone (with
Elevator Deactivation Circuitry), the elevator’s
call button will be deactivated for as long as the
Tag is in the zone.
If the elevator car is en route to that floor and the
door(s) open (or if the elevator car door is
already open at that floor when a Tag
approaches), the system will go into alarm and
will not allow the elevator doors to close until a
valid code is entered into the zone’s Keypad.
If you wish to escort a Tag through a monitored
elevator zone, push the call button while the Tag
is out of the zone and wait for the car to arrive
(when the elevator bell rings). Enter a valid code
into the zone’s Keypad. Then escort the Tag to
the elevator door and you will be able to move
the Tag between floors using the elevator.
Hallways
If a Tag enters a monitored hallway zone, the
system will detect the Tag and the PIR will
detect motion. The system can then sound
alarms, trigger visual displays and, in special
circumstances, lock nearby doors.
If you wish to escort a Tag through a monitored
hallway zone, you will need to enter a valid code
into the zone’s Keypad to activate the Escort
function. This will silence alarm and allow the
Tag the pass through the monitored hallway
zone for the designated Escort time. The
duration of the Escort function is adjustable
from 0 to 98 seconds.
Alarms
In this manual, Egress alarms are referred to as
“Alarms.” These alarms do not automatically
reset once the Tag leaves the monitored zone or
the door has been closed. They are “latched”
once they have been triggered. This has been
done, by design, to ensure that all alarm
conditions are investigated and corrected by
facility staff.
An alarm (i.e., an Egress alarm) occurs
whenever a Tag enters a monitored zone and the
door is opened or a PIR is triggered. To clear
this alarm remove the Tag from the zone, close
the door and enter a valid code into the Keypad.
Other alarm types are referred to by name in this
manual. These alarms can be automatically reset
once the condition(s) causing the alarm have
been corrected.
A Door Ajar alarm occurs when a door is open
for longer than the preset time. The door must be

1-4 The Accutech Systems Installation Manual
closed and a Keypad Reset (or AutoReset
jumper in place) to clear.
A Loiter alarm occurs when a Tag lingers in the
Tx Activation Field. Remove all Tags from the
Field and then enter a Keypad Reset (or
AutoReset jumper in place) to clear this alarm.
A Supervisor alarm occurs when the
performance of the system has been altered due
to tampering or inadvertent acts such as cut
wires, antenna damage or interference, etc. The
alarm will reset when the condition is corrected.
Contact the person outlined in your protocol for
this type of alarm.
NOTE: Receiver-related supervise events can
be reset by the Keypad for the duration of the
supervise interval. This will silence the alarm.
A Band Alarm occurs when the BR42 Tag/band
is removed or tampered with in any way or the
Cut Band Tag/band is cut.
System Components
This section contains a brief description and a
simple graphic (not to scale) for each component
and its role in the Accutech Systems.
NOTE:
Accutech reserves the right to substitute
comparable components.
Since each facility’s system is unique to its
particular needs, check off the components that
your facility’s system has below:
Components
The ES 2200 System Tag (LT/SB22)
The IS 3200 System Tag (LT/SB32)
The BR 4200 System Tag (BR42)
Cut Band Tag
Tag barcodes
Visual Pulse LED
The Tag Activator Deactivator (TAD)
The Tag Test Station (TTS)
The Accutech Software
The Controller
The Transmit (Tx) wand antenna
The Receiver
The Keypad
The Push Button Override (PBO)
The Magnetic Switch
The Passive Infrared Reader (PIR)
The Local Alarm
The Central Alarm
The Speakers
The Multiplexer
Power Supply
The Staff Alert Panel (SAP)
The Graphic Display Panel (GDP)
Magnetic Locks
Elevator Deactivation Circuitry
The Fire Panel Interface (FPI)
Timer

Installation Manual The Accutech Systems 1-5
LT22
SB22
Figure 1.1
ES 2200 System Tag
(band not shown)
The ES 2200 System Tag
The ES 2200 System Tag (Figure 1.1) is a small wristwatch-sized
device that is worn by a resident or attached to an asset.
Two models are available:
LT = Long Term resident care
SB = Slotted Back; to be used on small infants and assets
When an ES 2200 System Tag enters a Tx Activation Field (near a
monitored zone), the ES 2200 System Tag activates and responds by
sending a signal via the Receiver to the Controller. This information is
processed by the Controller for appropriate control action or response
at the zone.
ES 2200 System Tags are attached to residents/assets with a nylon-
mesh vinyl band, are activated/deactivated using a TAD unit, and
contain a visual pulse LED.
LT32
SB32
Figure 1.2
IS 3200 System Tag
(band not shown)
The IS 3200 System Tag
In addition to the look and functionality of ES 2200 System Tags, IS
3200 System Tags (Figure 1.2) are assigned to a specific resident or
asset (via the Tag Test Station and a computer with the Accutech
Software). The computer then associates the name, room number, and
any other helpful comments about the resident or asset with that Tag.
When the IS 3200 System Tag enters a Tx Activation Field (near a
monitored zone), the IS 3200 System Tag responds by sending a signal
via the Receiver to the Controller while the Multiplexer sends the
information to a computer with the Accutech Software and/or to
Graphic Display Panels (GDPs). This information is processed by the
Controller for appropriate control action or response at the zone.
IS 3200 System Tags are attached to residents/assets with a nylon-
mesh vinyl band, are activated/deactivated using a TAD unit, and
contain a visual pulse LED.

1-6 The Accutech Systems Installation Manual
Figure 1.3
BR 4200 System Tag
(band not shown)
The BR 4200 System Tag
In addition to the functionality of an IS 3200 System Tag, the BR 4200
System Tag (Figure 1.3) will alarm if the band is removed or tampered
with in any way.
BR 4200 System Tags are attached to infants with a conductive fiber
striped-cloth band, are activated/deactivated using a TAD unit, and
contain a visual pulse LED.
Figure 1.4
Cut Band Tag
(band not shown)
Cut Band Tag
Similar to the functionality of a BR 4200 System Tag, Cut Band Tags
(Figure 1.4) will alarm if the band is cut and is designed for use in
pediatrics applications.
Cut Band Tags are attached to patients with a Tyvek band (Figure 1.5)
and plastic covers (Figure 1.6), are activated/deactivated using a TAD
unit, and contain a visual pulse LED. The band contains foil adhesive
that will fray during tampering. Using plastic covers with a Cut Band
Tag will significantly reduce the need for sanitizing the Tag between
applications.
Figure 1.5 Cut Band Band Figure 1.6 Plastic Covers

Installation Manual The Accutech Systems 1-7
Tag barcodes
Tag barcodes (Figure 1.7) contain a Tag’s
manufacturing history.
Figure 1.7 Tag barcode example
The coding scheme is as follows:
M-WWYY-TSSS
”M” is the manufacturer designator.
”WWYY” is the date code.
(“1706” would mean the 17th week of 2006)
”T” is the tag type designator.
1 is for CB (Cut Band)
2 is for BR (Band Removal)
3 is for LT (Long Term)
4 is for SB (Slotted Back)
”SSS” is the serial number for that tag type
manufactured during that week.
Visual Pulse LED
The Visual Pulse LED indicates the Tag’s current mode
(see Table 1.1)
Table 1.1 Visual Pulse LED status
LED Light Pattern off on Tag LED Status
LT, SB Tags
None Tag is off.
Active, not in zone
Active, in zone
BR, CB Tags
None Tag is off.
Active, not in zone,
non-Band Alarm
Active, in zone
(may be in Band Alarm)
Active, not in zone
Band Alarm mode,
Tag base color chart
Tag tops are smoke-colored while the Tag base color will
vary based upon Tag type (see Table 1.2).
Table 1.2 Tag base color chart
Tag Type Base Color
CB White
SB Gray
LT Gray
BR Yellow

1-8 The Accutech Systems Installation Manual
Figure 1.8
The Tag Activator/Deactivator
(TAD)
The Tag Activator/Deactivator (TAD)
The Tag Activator/Deactivator (TAD) (Figure 1.8) turns
IS 3200 System and BR 4200 System Tags on and off.
In addition, the TAD checks a Tag’s battery and assists in finding lost
Tags.
Figure 1.9
Tag Test Station (TTS)
The Tag Test Station (TTS)
The Tag Test Station (TTS) (Figure 1.9) is used for Tag assignments.
Figure 1.10
Accutech Software example
The Accutech Software
The Accutech Software (Figure 1.10) displays events in real-time on a
PC using the facility’s floor plan.
Figure 1.11
The Controller
The Controller
The Controller (Figure 1.11) coordinates and controls all of the devices
and functions of the Accutech Systems.

Installation Manual The Accutech Systems 1-9
Figure 1.12
Transmit (Tx) wand antenna
(shown without cover)
The Transmit (Tx) wand antenna
The Transmit (Tx) wand antenna (Figure 1.12) generates a Tag-
activating signal near a monitored zone. This signal is referred to as
the “Tx Activation Field.”
Figure 1.13
Receiver (remote shown)
The Receiver
The Receiver (Figure 1.13) picks up the signal from an activated tag
and relays it to the Controller and the Multiplexer. Receivers can be
internally or remotely mounted near a monitored zone. BR 4200 Zone
Receivers monitor both zone events and Band Removal events. BR
4200 Auxiliary Receivers only monitor Band Removal events.
Figure 1.14 Keypad
The Keypad
The Keypad (Figure 1.14) is used to escort residents through a
monitored zone and to reset zone equipment once an alarm has
occurred.
Figure 1.15
Push Button Override (PBO)
The Push Button Override (PBO)
The Push Button Override (PBO) (Figure 1.15) triggers the Keypad’s
Escort function; this option allows free access through a monitored
door from the non-Keypad side of the door.

1-10 The Accutech Systems Installation Manual
Figure 1.16 Magnetic Switch
The Magnetic Switch
The Magnetic Switch (Figure 1.16) is used on a door when alarm
activation is not desired unless the door is open when a monitored
resident is near that door.
Figure 1.17
Passive Infrared Reader (PIR)
The Passive Infrared Reader (PIR)
A Passive Infrared Reader (PIR) (Figure 1.17) is a device that uses a
infrared sensor to monitor doors, hallways, corridors and passageways.
Like the Magnetic Switch, the PIR is used in areas where alarm
activation is not desired immediately upon Tag detection. It is used in
hallways or other areas where a Magnetic Switch would not be
feasible.
Figure 1.18 Local Alarm
The Local Alarm
The Local Alarm (Figure 1.18), a piezo-signaling device, is intended to
attract attention near the monitored zone only.
Figure 1.19 Central Alarm
The Central Alarm
The Central Alarm (Figure 1.19) is a multi-tone alert. It consists of a
tone generator that operates Speakers located throughout a facility.
There are eight different tones available. You may choose to assign a
separate tone for each zone, share the same tone for adjacent zones or
use one tone for all zones.
Figure 1.20 Speakers
The Speakers
The Speakers (Figure 1.20) provided by Accutech are 8-ohm speakers
and used in conjunction with the Central Alarm.

Installation Manual The Accutech Systems 1-11
Figure 1.21 Multiplexer
The Multiplexer
The Multiplexer (Figure 1.21) relays event information from the
Controller to Graphic Display Panels (GDPs) and to a PC with the
Accutech Software.
Figure 1.22 Power Supply
Power Supply
Some installations of Accutech System peripherals require more
power than the Controller can provide. In these cases, a Power Supply
(Figure 1.22) is added to the system to meet the additional power
requirements.
Figure 1.23 SAP
The Staff Alert Panel (SAP)
The Staff Alert Panel (SAP) (Figure 1.23), typically located at a staff
station, notifies staff when an alarm condition occurs in a monitored
zone through a piezo buzzer and alarm-specific LEDs.
Figure 1.24 GDP
The Graphic Display Panel (GDP)
The Graphic Display Panel (GDP) (Figure 1.24) provides the staff with
a visual representation of the floor being monitored. GDPs are custom-
made to a facility’s floor plan and notify staff when an alarm condition
occurs in a monitored zone through a piezo buzzer and alarm-specific
LEDs.

1-12 The Accutech Systems Installation Manual
Figure 1.25
Magnetic Locks
Magnetic Locks
Magnetic Locks (Figure 1.25) prevent unescorted egress.
The 3000 Series Magnetic Lock features:
1500 pound holding force
12V to 24V AC/DC
Unlock instantly if facility fire panel activated
The 3101 Series Magnetic Lock features:
1200 pound holding force
12V AC/DC
Unlock instantly if facility fire panel activated
NFPA101 Life Safety Code conformity (Delay Egress Circuitry)
a selectable nuisance delay
an Accutech-exclusive electromagnetic coil
an Accutech-exclusive firmware chip
Figure 1.26
Elevator Deactivation Circuitry
Elevator Deactivation Circuitry
Elevator Deactivation Circuitry (Figure 1.26)
prevents monitored residents from using an elevator.
Figure 1.27 FPI
The Fire Panel Interface (FPI)
The Fire Panel Interface (FPI) (Figure 1.27) ensures that in the event of
a fire alarm, the Magnetic Lock and Elevator Deactivation Circuitry
will disengage. Although the restraint systems are disengaged, the
system visual and audial alarms remain active.
Figure 1.28 Timer example
Timer
A Timer (Figure 1.28) allows the user to engage/disengage certain
system functions on a time schedule.

Installation Manual The Accutech Systems 1-13
Typical System Configurations
Single Door Example
Remote Single Door Example
Double Door Example
6 to 8 foot Elevator Example
The following are lists of the components used in each of the more typical zones encountered. They are
accompanied by graphics that are intended merely as suggestions as to where the components should be
placed in relationship to the opening being covered. They are shown with a “drop” ceiling, where it is
typically easy to access an “out of the way” area.
The chapters that follow will more clearly define the parameters used to determine component locations.
As always, common sense, local codes, and consultation with your Accutech Representative will go a
long way toward answering many of your questions.
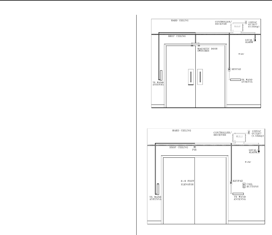
Single Door Example
(Figure 1.29)
(Controller mounted at door, above drop ceiling)
1-Accutech Controller/Receiver (Ch. 3; Ch 5)
1-Accutech Tx wand antenna (Ch. 4)
1-Magnetic Switch (Ch. 9)
1-Keypad (Ch. 7)
1-Local Alarm (Ch. 13)
1-Cable Kit (Ch. 2)
Figure 1.29 Single Door Example
Remote Single Door Example
(Figure 1.30)
(Controller mounted remotely, in utility room)
1-Accutech Controller (Ch. 3)
1-Remote Receiver (Ch. 5)
1-Accutech Tx wand antenna (Ch. 4)
1-3101 Magnetic Lock (Ch. 11)
1-Magnetic Switch (Ch. 9)
1-Keypad (Ch. 7)
1-Local Alarm (Ch. 13)
1-Cable Kit (Ch. 2)
1-Junction Box
1-Composite Cable (specify length) (Ch.2)
Figure 1.30 Remote Single Door Example

1-14 The Accutech Systems Installation Manual
Double Door Example
(Figure 1.31)
(Controller mounted at door, above drop ceiling)
1-Accutech Controller/Receiver (Ch. 3; Ch 5)
2-Accutech Tx wand antennas (Ch. 4)
2-Magnetic Switches (Ch. 9)
1-Keypad (Ch. 7)
1-Local Alarm (Ch. 13)
1-Cable Kit (Ch. 2)
Figure 1.31 Double Door Example
6 to 8 Foot Elevator Example
(Figure 1.32)
(Controller mounted at elevator, above drop ceiling)
1-Accutech Controller/Receiver (Ch. 3; Ch 5)
2-Accutech Tx wand antennas (Ch. 4)
1-PIR (Passive Infrared Reader; Ch. 10)
1-Keypad (Ch. 7)
1-Local Alarm (Ch. 13)
1-Cable Kit (Ch. 2)
Figure 1.32 6-to-8 Foot Elevator Example

Installation Manual
Chapter 2:
Wire and Cables

Installation Manual Wire and Cables 2-1
Wire and Cables
Cable Door Kit
SAP and GDP Cable Specifications
Fire Panel Cable Specifications
Composite Cable
Wire Gauge Table
Each component in the Accutech Systems has
its own wiring requirements.
They have been determined by:
the amount of Current they will draw
the Voltage they require
the type of Signal they will carry
the Distance the signal can/will travel
the type of environment the cables
will be exposed to
National Fire Prevention Association
(NFPA) codes
National Electoral Code (NEC)
All cables used by Accutech are “Plenum”
rated unless otherwise specified. This allows
them to be run in areas that other cable would
not be allowed.
Be sure you consult Local, State, and Federal
codes as well as with your Accutech
Representative before making any wiring
substitutions.
Cable Door Kit
Accutech’s Cable Door Kit (see Table 2.1) is
the building block for the installation of any
type of zone. As options are added additional
wire or cables will be required.
SAP and GDP Cable Specifications
The addition of a SAP or GDP to your system
will require additional cables. SAPs and
GDPs require a run of 22-gauge, 6-conductor
cable from each zone Controller to the
respective Panel. Consult Table 2.2 on page
2-4 to determine the necessary gauge verses
the distance from the source to the SAP or
GDP.
Furthermore, SAPs and GDPs have a fire
alarm indicator LED that is designed to
receive a signal from the Fire Panel Interface
(FPI) unit. Using 22-gauge, 2-conductor
cables should be adequate up to 1000 feet for
this task.
Table 2.1 Accutech Cable Door Kit # 700150 Contents
Accutech Part # Gauge/
Conductor Shielded? Length in Feet Used for
200302 18/6 No 30 Lock
200306 22/2 No 40 Magnetic Switch; Local Alarm
200304 22/4 No 65 Keypad
200307 18/2 Yes 50 Tx wand antenna

2-2 Wire and Cables Installation Manual
Fire Panel Cable Specifications
The addition of a Lock requires an interface to
the Fire Panel. If future expansion of the system
is a possibility, it is recommended that you use a
Fire Panel Interface (FPI) unit.
If expansion is not possible and there are only
one or two zones, a Fire Panel Relay (with 3 sets
of dry contacts) can be used instead.
If a FPI unit is used, you will need to run a
separate 2-conductor cable from one of the zone
Controllers to the FPI unit to provide power.
You may choose to run a length of 4-conductor
and include the wire for that unit's dry contacts
in the cable as well.
Furthermore, a length of 22-gauge,
2-conductor will need to go from the FPI to each
SAP’s or GDP’s Fire Alarm indicator LED.
NOTE: Some installations may allow for the FPI
to be mounted very near a SAP. You could then
include the Fire Contacts in the same run of
cable as the SAP or GDP. This can minimize
long, multiple runs of cable considering that
there are connections between each of these
three units.
Composite Cable
Technical Specifications
NOTE: For easier installation, Accutech
Composite Cable (Part # 200355) was
replaced with Composite Cable
(Part # 200371) on June 1st, 2004. For
information on the previous composite cable,
see page A-5.
Accutech offers a “composite” cable (Figure 2.1;
Part # 200371) for wire runs from the Controller
to a Junction Box when the Controller is
mounted away from the zone.
At the zone, use the cable kits supplied with the
system to run from the Junction Box to the
individual components at the zone.
When wiring composite cable, use the same
color code throughout the Accutech System
(Figure 2.1).

Installation Manual Wire and Cables 2-3
Technical Specifications
The technical specifications for the Accutech Composite Cable (Part # 200371) are:
A four-element Plenum-rated composite cable
Element 1: 18 gauge 4 conductor shielded Mid-Cap (Color code: orange, yellow, white, green)
Element 2: 18 gauge 4 conductor non-shielded (Color code: red, black, blue, brown)
Element 3: 24 gauge 2 conductor shielded (Color code: gray, violet)
Element 4: 25 gauge 14 conductor non-shielded (Color code: white, green, beige, brown, orange, blue,
pink, yellow, red, black, white/blue, white/brown, white/red, white/green)
Each element is individually wrapped with a clear mylar binder and all elements are cabled together
Jacket Material: Low Smoke Polyvinylchloride (PVC)
Jacket color: yellow
Jacket Ripcord: Yes
Jacket Print: “18 AWG 4C SHIELDED + 18 AWG 4C + 24 AWG 2C + 24 AWG E171202 (UL) CL3P
OR CMP C (UL) 75 º www.accutech-ics.com 800-356-2671”
Ascending/Descending Footage Markers
Diameter: nominal 0.386”
Made in accordance with UL Subject 444, NEC Type CMP
Figure 2.1
Composite Cable (Part # 200371) Conductor Uses and Color Code

2-4 Wire and Cables Installation Manual
Table 2.2 Wire Gauge Table - For common system devices
The following table indicates the recommended minimum wire gauge for a given length of cable. This table reflects
the fact that there are two conductors, power and ground, running to each device.
Note: 1000 feet of cable means the supply current travels a total of 2000 feet.
Supply
Voltage
(DC)
V
Min.
Peripheral
Device:
Current
@12V
AC/DC
1’-
25’
25’-
100’
100’-
250’
250’-
500’
500’-
1000’
1000’-
000’
12V 10V
Local Alarm 12mA 24 24 24 24 24 24
12V 9V Central
Alarm 100mA 24 24 24 22 18 16
12V 9V Keypad 55mA 24 24 24 24 22 20
12V 9V Keypad
w/ PBO 75mA 24 24 24 24 22 18
12V 6V
Magnetic
Switch 25mA 24 24 24 24 24 18
12V 9V SAP 150mA 24 24 24 24 24 18
12V 9V GDP 500mA 24 24 24 24 24 18
12V 9.5V PIR 10mA 24 24 24 24 24 18
12V 11V
Multiplexer 500mA 18 18 18 18 18 16
12V 9V
Elevator
Deactivation
Relay
100mA 18 18 18 18 18 18
12V 10.5V
3000/3101
Lock* 450mA 18 18 18 18 16 12
12V 10.5V
3000/3101
Lock** 900mA 18 18 18 16 12 10
*This is for one lock, receiving 12VAC from the Controller.
**This is for two locks, in parallel, receiving 12VAC from the same Controller.

Installation Manual
Chapter 3:
The Controller

Installation Manual The Controller 3-1
The Controller
Controller Specifications
Mounting the Controller at the zone
Remote Mounting the Controller
Hard Wiring Power
The System Supervisor
Tamper Switch
The Controller coordinates and controls all
of the devices and functions of the Accutech
Systems.
Controller Specifications
Power Requirements
Temperature
Weight
Location
Power Requirements
120V AC, 1.0 amp
A dedicated 120V AC, 15-amp
circuit with emergency backup is
recommended.
Each Controller comes with a
grounded 6-foot power cord for
ease of installation.
A three-prong 120-Volt outlet with
emergency back up should be
located within 6 feet of each
Controller.
Temperature
The Controller and its associated peripherals
operate best in an ambient temperature
between 35 and 90 degrees Fahrenheit.
Operation outside of this range may cause
unexpected or undesirable results, including
premature component or device failure.
Weight
The Controller weighs approximately 13
U.S. pounds, which should be considered
when choosing mounting location and
hardware.
Location
The recommended location of the Controller
is out of sight above a drop ceiling near the
monitored zone. If it is not possible to
mount the Controller out of sight, place the
Controller high on the wall.
By default, the Controller is factory
configured to use an internally mounted
zone Receiver. However, if desired, a
remote mounting system can be used to
mount the Receiver at the zone allowing the
Controller to be mounted in a utility closet
or other concealed location.

3-2 The Controller Installation Manual
Mounting the Controller at the zone
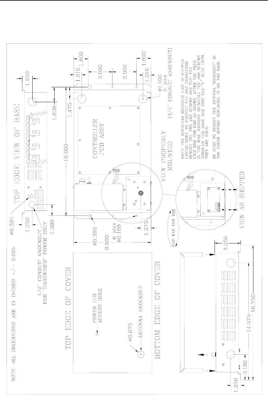
To mount the Controller, refer to Figure 3.1
and use the following instructions:
1. Mark-out and drill 4 mounting holes
in the wall corresponding to the
mounting holes of the Controller.
2. Using appropriate hardware for the
mounting surface, install the four
anchors, then the upper two screws
leaving about a 1/8th of an inch
exposed.
NOTE: The hole spacing on the
Controller is 16” on centers, which
is typical wall stud spacing.
3. Remove the Controller cover.
4. Align the large “key-way” holes
with the upper screws and gently
guide the Controller base onto the
screws allowing the unit to hang
from these screws temporarily.
5. Determine which knock-outs will be
used for bringing the wires and/or
cable into the Controller. Remove
the Controller from the upper
screws, remove the appropriate
knock-outs and install the proper
fittings and/or bushings.
6. The Controller is shipped with an
internally mounted Receiver
(mounted backwards to protect the
antenna connector in shipment).
You will need to flip the Receiver
around.
7. Refer to Figure 3.1 and remove the
two mounting screws that attach the
Receiver to the Controller.
8. Flip the Receiver around and
re-mount it.
NOTE: Be sure to keep the wire
harness connections intact during
this move.
9. Make any and all conduit
connections that require the
Controller to be unmounted.
10. Position the Controller back on the
first two screws and install the last
two mounting screws then tighten
all 4 mounting screws.
11. Punch out the Receiver antenna
knock-out on the Controller cover.
12. Replace the Controller cover and
attach the Receiver antenna.

Installation Manual The Controller 3-3
Figure 3.1 Mounting the Controller

3-4 The Controller Installation Manual
Remote Mounting
of the Controller
To mount the Controller remotely, follow
the same instructions as you would to mount
the Controller locally.
However, remote mounting of the Controller
requires that a Remote Receiver be
positioned at the zone. The Receiver,
normally mounted inside of the Controller,
requires a different mounting plate and a
4”x4”x2” electrical box.
Furthermore, using a composite cable
(available from Accutech) will greatly ease
the pulling of wire from zone components to
the Controller. The composite cable is a
multi-conductor cable that is color coded to
provide ease of installation. In order to make
it easier for Accutech personnel to offer
assistance, either over the phone or in
person, please be consistent in following the
color-coding for the Composite Cable stated
on page 2-3.
Finally, a 4”x4”x2” junction box (also
available from Accutech) is recommended
to make the connections between zone
components and the Controller.
Hard Wiring Power
If installation requires that the Controller
power be hard wired, then the Controller’s
power cord must be removed.
WARNING: Before making any attempt at
hard wiring, turn off the power and unplug
the Controller.
NOTE: Only a certified electrician or
equivalent should attempt hard wiring.
To hard wire the Controller, refer to Figure
3.2 and use the following instructions:
1. Remove the Controller cover by
removing the screws.
2. Remove the Power Supply cover by
removing the 4 mounting screws.
3. On the three-position power
terminal strip, remove the 3 power
cord wires* by loosening the 3
terminal screws that hold them in
place.
*NOTE: On newer models, the
Green wire coming from the power
cord will go directly to a chassis
ground instead of a terminal block.
4. Using pliers to squeeze the cord
strain relief bushing, remove the
power cord.
NOTE: A suitable plug or cap
should be put in the power cord
hole.

Installation Manual The Controller 3-5
Figure 3.2 Hard wiring the Controller

3-6 The Controller Installation Manual
5. Punch out the ½” conduit fitting
knock-out and install a proper
conduit fitting for the connection
you are making.
6. After your conduit runs are
complete and tight, fish solid 14-
gauge conductor from the power
source through to the power
terminal strip. Be sure to leave
yourself 4-6” of excess wire to work
with.
7. Replace the Power Supply Cover.
8. Turn on the power to test the
connections.
NOTE: The Red wires from the
secondary of the transformer carry
approximately 15V AC. The Blue
wires carry approximately 30V AC.
9. Once hard wire power has been
verified, make sure the Power
Switch on the Controller is turned
off.
10. Replace the Controller cover.
The System Supervisor
Supervisor Threshold
Power Loss Supervise Alarm
The System Supervisor, is a built-in
self-diagnostic circuit, continuously
monitors the Tx Activation Field and
periodically simulates a Tag in the zone.
If the System Supervisor detects a problem,
the zone’s Controller will begin to alarm via
a piezo buzzer (provided jumper JP13 is in
place) and on SAPs/GDPs and the Accutech
Software.
The System Supervisor will initiate an alarm
when:
Certain “critical” wires are
cut or broken
Certain “critical” components fail
The Tx Activation Field is
compromised by a metal structure
(such as a food cart) or by radio
frequency interference.
The system loses power (battery
required).
JP5 (Table 3.1) determines how often the
System Supervisor checks each Zone
Receiver in the Accutech System.
Table 3.1 JP5 Positions and Results
Position Result
(Check system Once/Time Interval)
1 Test
(testing purposes only)
2 Demo; Once/min
(demonstration purposes only)
3 Once/ 2 Hours
4 Once/ 4 Hours
5 Once/ 8 Hours
6 Once/16 Hours
7 Disable

Installation Manual The Controller 3-7
NOTE: JP5 Positions 1 and 2 are only for
testing and demonstration purposes; they
should not be used during normal operation.
If desired, the System Supervisor can also be
wired to trigger an external alarm (e.g. Local
Alarm)
A common System Supervisor condition is
that a large metal object (such as a food cart)
has been placed very near the Tx wand
antenna and has diminished the Tx
Activation Field.
NOTE: Receiver-related supervise events
can be reset by the Keypad for the duration
of the supervise interval. This will silence
the alarm.
Supervisor Threshold
The Supervisor Threshold Level is set using
potentiometer R26 and should be set at the
second bar from the bottom of LED13. For
more information see page B-7 (for LED13),
B-10 (for R26), and B-12 (for S3).
Power Loss Supervise Alarm
The Controller also has a Power Loss
Supervise function that will indicate that the
system power has been lost.
To activate this feature a jumper must be
placed in JP13 (Piezo Enable) and a
rechargeable 9-vold NiCad (nickel-
cadmium) battery (purchased separately)
must be installed in the battery clip
connected to P12 of the Controller.
When the battery is installed and the power
is applied to the Controller, the battery is
being trickle charged constantly. When
power is lost to the Controller, the Piezo
Alert of the Controller will sound for as long
as the 9-volt battery has enough power to
drive the Piezo.
NOTE: To avoid possible damage or wear
and tear to the battery cable, connector, the
battery itself, or interference with the wiring
within the Controller case, the battery
should be secured to the inside of the
Controller case with Velcro, Double Stick
tape, or a Tie wrap.
WARNING:
For the Power Loss Supervise function, use
a 9-volt Ni-Cad (nickel-cadmium)
rechargeable battery ONLY as other types of
batteries may explode or leak causing
damage to the Controller or injury to the
person(s) working on the equipment.
WARNING:
If a battery is not installed, make sure that
the battery clip cover is in place over the
battery lead terminals. If you have lost the
cover, then be sure to cover the terminals of
the battery clip with electrical tape or heat
shrink tubing before you apply power to the
unit. Failure to do so can result in the
terminal leads shorting to the case causing
damage to the Controller or electric shock.

3-8 The Controller Installation Manual
Tamper Switch
UL 294 requirements call for the installation
of a “tamper switch” that engages the lid,
and is wired so as to cause an alarm if the lid
is removed.
When the tamper switch is installed and the
lid is removed, a Tx Supervise alarm will be
generated and LED14 will illuminate red.
To remedy the alarm, replace the lid.
The switch is mounted with #4-40, ½”
machine screws, star washer, and nut to the
Controller case (Figure 3.4).
To wire the tamper switch, use
Figures 3.3 - 3.4 and the following
instructions:
1. The BLACK wire of the tamper
switch goes to the “X” Tx wand
antenna at the “Antenna” terminal
(Figure 3.3).
2. The WHITE/BLUE wire of the
tamper switch goes to the “X”
terminal of the Controller (P1-2).
(Figure 3.4)
Figure 3.3
Tamper Switch antenna connection

Installation Manual The Controller 3-9
Figure 3.4 Connecting the Tamper Switch

Installation Manual
Chapter 4:
The Tx wand antenna

Installation Manual The Tx wand antenna 4-1
The Tx wand antenna
Tx wand antenna Specifications
Single Door Applications
Double Door Applications
Spacing Tx wand antennas
at the Same Zone
Mounting a Tx wand antenna
Connecting a Tx wand antenna
to the zone Controller
Stagger Tuning
Why Re-tune the Tx wand antenna?
Tuning a Tx wand antenna
Alternate Tuning Method
Adjusting the Tx Activation Field
A Tx wand antenna (Figure 4.1 and 4.2) located
at a zone generates a Tag activating, radio
frequency signal called the “Tx Activation
Field.”
Figure 4.1
A Tx wand antenna (with cover off)
When a Tag is activated it sends a signal to the
Receiver. The Receiver then sends the signal
to the Controller, which validates the signal
before initiating any action such as locking a
door, deactivating an elevator or triggering
system alarms.
Tx wand antenna Specifications
Power Requirements
Temperature
Weight
Location
Power Requirements
Figure 4.2 Tx wand antenna PCB
Provided by Controller
Weight
Temperature
A Tx wand antenna weighs approximately 1.5
U.S. pounds, which should be considered
when choosing mounting hardware.
Tx wand antennas operate best in an ambient
temperature between 35 and 90 degrees
Fahrenheit. Operation outside of this range
may cause unexpected or undesirable results,
including premature failure. Location
Position the antenna on the latch side of the
door with its lowest point about 3 feet above

4-2 The Tx wand antenna Installation Manual
Single Door Applications
the floor and at least 3 inches away from any
metal doorframe (Figure 4.3). A 3-inch wood
or plastic spacer may be used to keep the
antenna away from a metal door frame. In
some circumstances due to a building’s
construction, it may be necessary to mount the
antenna on the hinge side of the door.
A single door application (Figure 4.3) usually
requires only one antenna for adequate
coverage.
Double Door Applications
For a double door or hallway application 6
feet or wider (Figure 4.4), two antennas are
usually required.
Furthermore, never mount any metal electrical
box or run conduit right behind the “ferrite”
bar portion of the antenna (Figure 4.1).
However, it is acceptable to mount the metal
box so that it is directly behind the circuit
board only.
If you are protecting a double door or hallway,
which is adjacent to a resident’s room, you
should turn down the Tx Activation Field on
the antenna (see page 4-14) that is nearest the
resident’s room to avoid nuisance activation.
In addition, the antenna should be positioned
within 18 inches maximum of the monitored
door to assure proper coverage. The
recommended distance is from 3 to 6 inches.
Positioning the antenna correctly will help in
avoiding unintended activation of a Tag in a
nearby room or a passerby. The goal is to
produce a Tx Activation Field that adequately
covers the doorway but does not extend into
nearby resident rooms. For more information,
see Tuning a Tx wand antenna on page 4-7.
Figure 4.4 Double Door Placement
Spacing Tx wand antennas
at the Same Zone
It is recommended that the distance between
antennas for a double door or hallway
application should not be greater than 8 feet.
If the opening is greater than 8 feet wide, then
it may be necessary to add a third antenna,
mounted in a horizontal position above the
door or hallway to assure full coverage.
Figure 4.3 Single Door Placement

Installation Manual The Tx wand antenna 4-3
NOTE: When using multiple antennas, it is
necessary to install jumper JP4 on the
Controller board. Install in position 2-3 for
two antennas, or position 1-2 for three
antennas. For more information on jumper
JP4, see Appendix B-1.
Mounting a Tx wand antenna
Use the following instructions to mount a Tx
wand antenna:
1. Select appropriate screws and wall
anchors for the mounting surface.
2. Using the spanner key supplied, take
off the antenna cover by removing
the two spanner security screws and
slipping the cover off of the base.
3. If the antenna cable is to be fished
through the wall only, decide where
you will mount the antenna and go to
step 4.
If not, consider the following before you
proceed to step 4:
If the cable is being run through wire
molding, cut a small notch in the Tx
wand antenna plastic case where the
molding meets the antenna case to
facilitate wire entry.
If the cable is required to run through
conduit due to building codes, then
be certain not to run any conduit
directly behind the antenna’s “ferrite”
bar.
NOTE: Running cable through
conduit is not recommended because
it may de-tune the antenna and/or the
cable thus negatively affecting the
system’s performance.
If conduit is used, a single gang box
can be used to terminate the
connection, but it must be mounted
so that it will be directly behind the
circuit board of the antenna only and
not behind the ferrite.
4. Using the antenna as a template,
mark the four mounting holes.
NOTE: Use the antenna as a template
only for marking the holes; do not
attempt to drill while holding the
antenna to the mounting surface.
5. Drill the 4 mounting holes in the
mounting surface.
6. Fish 18-gauge, 2-conductor shielded
cable through the wall, raceway, or
conduit and out through the middle
hole at the bottom of the antenna. The
cable will be used to connect the
antenna to the zone Controller.
7. Secure the antenna to the mounting
surface with appropriate hardware.

4-4 The Tx wand antenna Installation Manual
Connecting a Tx wand antenna
to the zone Controller
To connect a Tx wand to the zone Controller,
refer to Figure 4.5 (and if applicable, Figures 4.6
and 4.7) and use the following instructions:
1. Using the RED wire, connect the
“UNREG” on the antenna (pin P1-2)
to “UNREG” on the zone Controller
(pin P1-5).
NOTE: When multiple antennas are
being used, each subsequent antenna
should have its RED wire connected
to one of the two “UNREG” positions
on the zone Controller (P1-1 or P1-5).
2. Using the BLACK wire, connect the
“ANT” on the antenna (pin P1-1) to
“X” on the zone Controller (pin P1-2).
NOTE: When multiple antennas are
being used, the second antenna’s
BLACK wire should be connected to
“Y” (pin P1-3) and the third antenna’s
BLACK wire should be connected to
“Z” (pin P1-4).
3. Regardless of how many antennas are
being used, the bare “SHIELD” wire
from each antenna cable should be
tied together and connected at the
“SHIELD” position (pin P1-6) on the
zone Controller. The shields wires are
not to be connected to the antenna.
4. After the antenna(s) are connected and
tuned properly (see page 4-7), replace
the antenna cover(s).

Installation Manual The Tx wand antenna 4-5
Figure 4.5 Connecting a Tx wand antenna to the zone Controller
Figure 4.6 Connecting two Tx wand antennas to the zone Controller
Figure 4.7 Connecting three Tx wand antennas to the zone Controller

4-6 The Tx wand antenna Installation Manual
Stagger Tuning
Implementing Stagger Tuning
Stagger Tuning allows monitored zones to be
located closer than the normal minimum 70
feet distance by using different Tx operating
frequencies for adjacent zones so that Tags
activated in one zone do not create events
(locks, alarms, etc.) in another zone.
Implementing Stagger Tuning
The Controller comes from the factory with 3
different crystals, Y1 (130 KHZ), Y2 (131.072
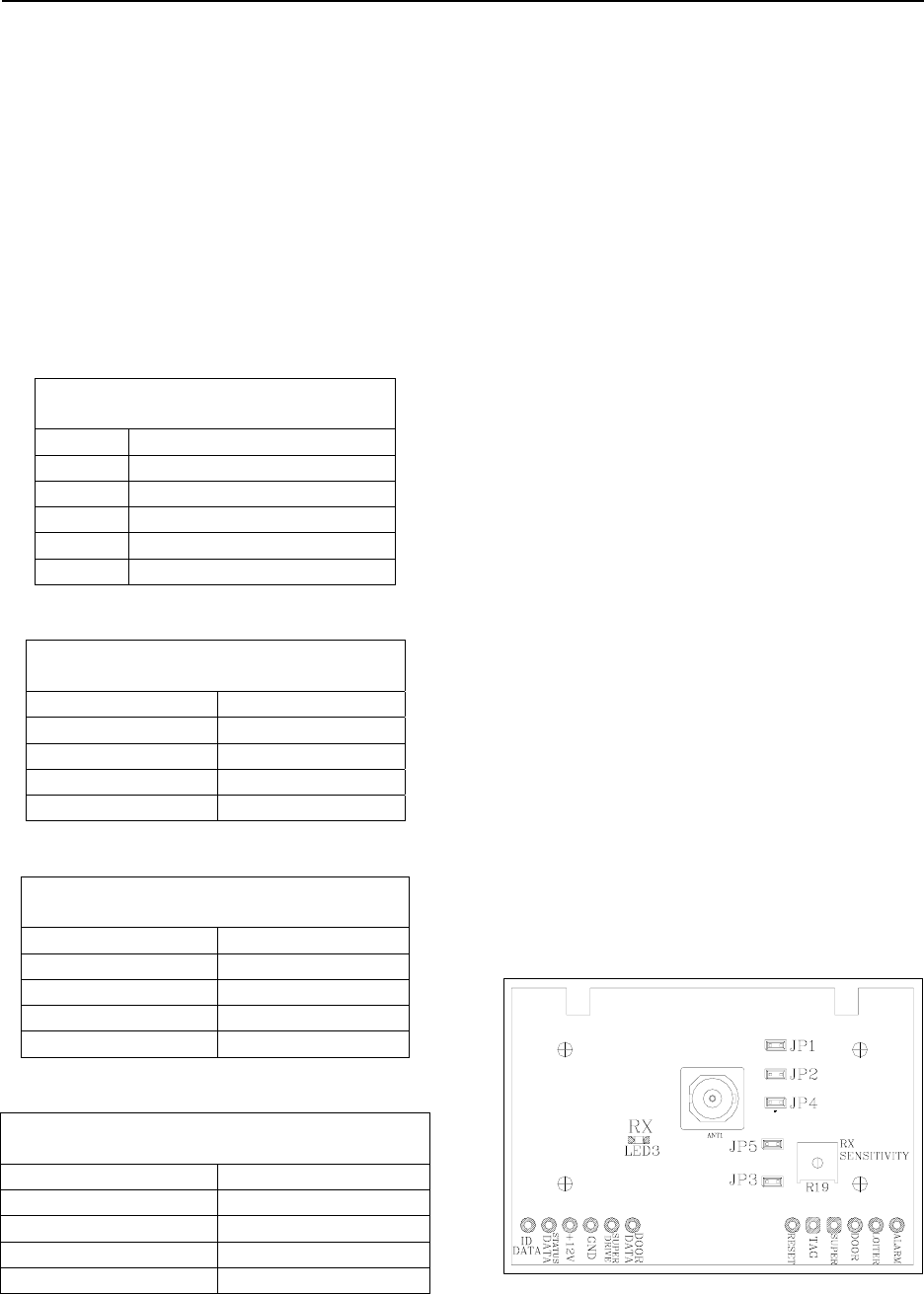
KHZ) and Y3 (132 KHZ). Jumper JP1 on the
Controller selects which crystal frequency is
in use. Position 1 (the upper position) selects
crystal Y1. Position 2 selects crystal Y2, and
position 3 selects Y3. (see Figure 4.8) Be sure
to turn the unit off, and then back on when you
are done changing the frequency. You must
re-tune after changing the frequency.
The Controller and the Tx wand antennas will
come from the factory set to Y2 (131.072
KHZ). This is the primary frequency and
should be used whenever possible.
When two zones are close enough to “see”
Tags activated in the other zone, you should
implement alternate frequencies. Remember to
cycle the power.
If you are dealing with 3 or more doors close
together, you should stagger the frequencies so
that the 131.072 KHZ (Y2) frequency is used
most often (see Figure 4.9).
Figure 4.8 The Tx frequency crystals
Typically, you should not operate two doors
on the same frequency when they are closer
than 70 feet.
If you should need more than the 3 factory
installed frequency crystals, contact your
Accutech Representative about acquiring
additional alternate frequency crystals.
Keep in mind whenever you change to an
alternate frequency, you will need to re-tune
the Tx wand antenna(s) (see page 4-7).
Figure 4.9
Alternating Tx Frequencies in nearby zones

Installation Manual The Tx wand antenna 4-7
Why Re-tune a Tx wand Antenna?
Tx wand antennas come from the factory set
to Y2 (131.072 KHZ). Under most
circumstances, they will not need to be
adjusted. However, there are 3 possible
reasons to re-tune:
a. The antenna had to be mounted close
to a metal object during installation
and was detuned.
b. Stagger Tuning is implemented.
c. Someone has made an adjustment to
the Tx wand antenna and you want to
get it back to the factory setting.
Tuning a Tx wand antenna
A Tx wand antenna should only be adjusted
during initial installation or for the reasons
stated in the “Why Re-tune a Tx wand
antenna?” section.
NOTE: Make sure all connections have been
made as outlined in the previous sections.
In this manual, the term “potentiometer “ is
often shortened to “pot” for simplicity.
IMPORTANT:
Tuning procedures can cause Supervise
alarms. Notify staff and security that you will
be adjusting (and possibly weakening) the
zone and they will need to pay special
attention to area traffic during this time.
Before you start
For either tuning method, before you start note
the number of antennas in the zone and
complete the following steps to establish a
good starting point:
On the Controller:
Verify JP14 (Bar Display Enable) is
in place.
Verify JP15 (Tx Output LED Enable)
is in place.
Adjust pot R6 (Tx Gain), clockwise
to the maximum.
Verify pots R4 (Y Balance) and R12
(Z Balance) are at their maximums
(fully clockwise).
Move Switch S3 to the right position.
Verify JP1 (Tx Frequency Select) is
in the correct frequency for the zone.
Verify that the Supervise Threshold
Level (the “flashing” green bar) is set
at the second bar from the bottom on
LED13 (Figure 4.10). If necessary,
adjust pot R26 (Tx Supervise
Threshold) to make it this way.
On each Tx wand antenna:
Adjust pot R1 (LED Brightness)
clockwise to the maximum
After completing the previous steps, refer to
the appropriate section for your zone.
One-antenna zone
Two-antenna zone
Three-antenna zone

4-8 The Tx wand antenna Installation Manual
One-antenna zone
To tune a one-antenna zone, refer to Figure
4.10 and use the following instructions:
1. Using the spanner key provided or a
spanner screwdriver, remove the antenna
cover by removing the spanner screws.
2. Remove the Controller cover by removing
the cover screws.
3. A “steady” and a “flashing” green bar
should be illuminating on LED13. The
“steady” green bar is the Tx Output Level
and should be above the “flashing” bar but
not off the top of the scale. The “flashing”
green bar is the Tx Supervise threshold
and should be at the second bar from the
bottom on LED13.
NOTES:
You want to have the “steady” green bar
as close to the top of LED13 as you can
get it without going off the scale (Figure
4.10). Adjust pot R6 (Tx Gain) to make it
this way. If the “steady” green bar is not
present, then you need to turn down pot
R6.
4. On the antenna, adjust C1 until LED1 is as
bright as you can make it (Figure 4.11).
NOTE: The object here is to use the
brightness of LED1 to show when C1 has
been adjusted properly. Therefore, if you
try to see a change with LED1 set too
bright you may miss that change and be
slightly off tune. If this is the case, on the
antenna, turn pot R1 (LED brightness
adjust) counterclockwise until the yellow
LED1 dims then adjust C1 again.
5. After you have finished adjusting, on the
antenna, turn pot R1 completely
counterclockwise so that LED1 is dim.
6. On the Controller, return switch S3 to the
left position.
7. Replace the antenna cover and secure it
with the spanner screws.
8. Replace the Controller cover and secure it
with the screws.
Figure 4.10
LED13 Tuning Mode (S3 to the Right)
Figure 4.11 Tx wand antenna PCB

Installation Manual The Tx wand antenna 4-9
Two-antenna zone
To tune a two-antenna zone, refer to Figure
4.10 and use the following instructions:
1. Using the spanner key provided or a
spanner screwdriver, remove both
antenna covers by removing the
spanner screws on each.
2. Remove the Controller cover.
3. A “steady” and a “flashing” green bar
should be illuminating on LED13. The
“steady” green bar is the Tx Output
Level and should be above the
“flashing” bar but not off the top of
the scale. The “flashing” green bar is
the strength of the Tx Supervise
threshold and should be at the second
bar from the bottom of LED13.
NOTES:
You want to have the “steady” green
bar as close to the top of LED13 as
you can get it without going off the
scale (Figure 4.10). Adjust pot R6 (Tx
Gain) to make it this way. If the
“steady” green bar is not present, then
you need to turn down pot R6.
4. Normally in two-antenna zones
jumper JP6 (Scan Rate) alternates
between illuminating LED1 and
LED2 as it checks the “X” and “Y”
antennas. For tuning two-antenna
zones, you want to isolate one antenna
at a time using jumper JP6. For these
instructions we will start with the “X”
antenna and then the “Y” antenna
second.
5. On the Controller, quickly remove
jumper JP6 (Scan Rate) so that only
LED1 (the “X” antenna output
indicator) is illuminating. This may
take a few attempts. You will not
leave the jumper in place while
tuning.
6. On the antenna, adjust C1 until LED1
is as bright as you can make it (Figure
4.11).
NOTE: The object here is to use the
brightness of LED1 to show when C1
has been adjusted properly. Therefore,
if you try to see a change with LED1
set too bright you may miss that
change and be slightly off tune. If this
is the case, on the antenna, turn pot R1
(LED brightness adjust)
counterclockwise until the yellow
LED1 dims then adjust C1 again.
7. After you have finished adjusting, on
the “X” antenna, turn R1
counterclockwise so that LED1 is
dim.
8. Replace jumper JP6.
9. On the Controller, quickly remove
jumper JP6 (Scan Rate) so that only
LED2 (the “Y” antenna output
indicator) is illuminating. This may
take a few attempts. You will not
leave the jumper in place while
tuning.
10. On the “Y” antenna, adjust C1 until
LED1 is as bright as you can make it
(Figure 4.11).
NOTE: The object here is to use the
brightness of LED1 to show when C1

4-10 The Tx wand antenna Installation Manual
has been adjusted properly. Therefore,
if you try to see a change with LED1
set too bright you may miss that
change and be slightly off tune. If this
is the case, on the antenna, turn pot R1
(LED brightness adjust)
counterclockwise until the yellow
LED1 dims then adjust C1 again.
11. After you have finished adjusting, on
the “Y” antenna, turn R1
counterclockwise so that LED1 is
dim.
12. On the Controller, place jumper JP6
(Scan Rate) into position 1-2.
13. On the Controller, return switch S3 to
the left position.
14. Replace both antenna covers and
secure them using the spanner screws.
15. Replace the Controller cover and
secure it with the screws.
Three-antenna zone
To tune a three-antenna zone, refer to Figure
4.10 and use the following instructions:
1. Using the spanner key provided or a
spanner screwdriver, take off all
antenna covers by removing the
spanner screws on each.
2. Take off the Controller cover.
3. A “steady” and a “flashing” green bar
should be illuminating on LED13. The
“steady” green bar is the Tx Output
Level and should be above the
“flashing” bar but not off the top of
the scale. The “flashing” green bar is
the Tx Supervise threshold and should
be at the second bar from the bottom
on LED13.
NOTES:
You want to have the “steady” green
bar as close to the top of LED13 as
you can get it without going off the
scale (Figure 4.10). Adjust pot R6 (Tx
Gain) to make it this way. If the
“steady” green bar is not present, then
you need to turn down pot R6.
4. Normally in three-antenna zones
jumper JP6 (Scan Rate) alternates
between illuminating LED1, LED2
and LED3 as it checks the “X”, “Y”
and “Z” antennas. For tuning three-
antenna zones, you want to isolate one
antenna at a time using jumper JP6.
For these instructions we will start
with the “X” antenna, then the “Y”
antenna second and finally the “Z”
antenna.
5. On the Controller, quickly remove
jumper JP6 (Scan Rate) so that only
LED1 (the “X” antenna output
indicator) is illuminating. This may
take a few attempts. You will not
leave the jumper in place while
tuning.
6. On the “X” antenna, adjust C1 until
LED1 lights brightly (Figure 4.11).
NOTE: The object here is to use the
brightness of LED1 to show when C1
has been adjusted properly. Therefore,
if you try to see a change with LED1
set too bright you may miss that
change and be slightly off tune. If this
is the case, on the antenna, turn pot R1

Installation Manual The Tx wand antenna 4-11
(LED brightness adjust)
counterclockwise until the yellow
LED1 dims then adjust C1 again.
7. After you have finished adjusting, on
the “X” antenna, turn pot R1
completely counterclockwise so that
LED1 is dim.
8. Replace jumper JP6.
9. On the Controller, quickly remove
jumper JP6 (Scan Rate) so that only
LED2 (the “Y” antenna output
indicator) is illuminating. This may
take a few attempts. You will not
leave the jumper in place while
tuning.
10. On the “Y” antenna, adjust C1 until
LED1 lights brightly (Figure 4.11).
NOTE: The object here is to use the
brightness of LED1 to show when C1
has been adjusted properly. Therefore,
if you try to see a change with LED1
set too bright you may miss that
change and be slightly off tune. If this
is the case, on the antenna, turn pot R1
(LED brightness adjust)
counterclockwise until the yellow
LED1 dims then adjust C1 again.
11. After you have finished adjusting, on
the “Y” antenna, turn R1 completely
counterclockwise so that LED1 is
dim.
12. Replace jumper JP6.
13. On the Controller, quickly remove
jumper JP6 (Scan Rate) so that only
LED3 (the “Z” antenna output
indicator) is illuminating. This may
take a few attempts. You will not
leave the jumper in place while tuning
14. On the “Z” antenna, adjust C1 until
LED1 lights brightly (Figure 4.11).
NOTE: The object here is to use the
brightness of LED1 to show when C1
has been adjusted properly. Therefore,
if you try to see a change with LED1
set too bright you may miss that
change and be slightly off tune. If this
is the case, on the antenna, turn pot R1
(LED brightness adjust)
counterclockwise until the yellow
LED1 dims then adjust C1 again.
15. After you have finished adjusting, on
the “Z” antenna, turn R1 completely
counterclockwise so that LED1 is
dim.
16. On the Controller, place jumper JP6
(Scan Rate) into position 1-2.
17. On the Controller, return switch S3 to
the left position
18. Replace all antenna covers and secure
them using the spanner screws.
19. Replace the Controller cover and
secure it using the screws.
Alternate Tuning Method
WARNING: The following alternate tuning
method requires more user knowledge about
the Controller because it includes physically
isolating each Tx wand antenna on the
Controller during tuning.

4-12 The Tx wand antenna Installation Manual
NOTE: Make sure that all connections have
been made as outlined in the previous section
and you have competed the steps in the
“Before you start” section on page 4-7.
To tune a Tx wand antenna, refer to Figures
4.11, and use the following instructions:
1. Using the spanner key provided or a
spanner screwdriver, take off all
antenna covers by removing the
spanner screws on each.
2. Take off the Controller cover.
3. A “steady” and a “flashing” green bar
should be illuminating on LED13. The
“steady” green bar is the Tx Output
Level and should be above the
“flashing” bar but not off the top of
the scale. The “flashing” green bar is
the Tx Supervise threshold and should
be at the second bar from the bottom
on LED13 (Figure 4.10).
NOTES:
You want to have the “steady” green
bar as close to the top of LED13 as
you can get it without going off the
scale (Figure 4.10). Adjust pot R6 (Tx
Gain) to make it this way. If the
“steady” green bar is not present, then
you need to turn down pot R6.Turn
off power to the system and:
a. Disable the antenna X, Y, Z
scan select by removing JP4.
(If it is not already removed.)
b. If this is a single antenna
system, skip to Step 4.e. If
this is a multi-antenna system,
one by one, remove, mark and
tape the ends of the wires that
are used in positions X, Y, &
Z of the Controller's P1
connector.
c. If this is not a 3 antenna
system, skip to Step 4.d.,
otherwise, insert the wire that
is marked "Z" into P1-pin2, or
the "X" position, and tighten
it. (Be sure that the "Unreg"
wire is also connected.)
Proceed to Step 5.
d. Insert the wire that is marked
"Y" into P1-pin2, or the "X"
position, and tighten it. (Be
sure that the "Unreg" wire is
also connected.) Proceed to
Step 5.
e. Insert the wire for the X
antenna into P1-pin2, or the
"X" position, and tighten it.
(Be sure that the "Unreg" wire
is also connected.) Proceed to
Step 5.
4. Turn on power to the system.
5. On the Tx wand antenna PCB, adjust
C1 until LED1 gets bright. If it gets
very bright, re-adjust R1, so that it just
turns on dimly.
NOTE: The object here is to use the
brightness of LED1 to show when C1
has been adjusted properly. Therefore,
if you try to see a change with LED1
set too bright you may miss that
change and be slightly off tune. If this
is the case, on the antenna, turn pot R1
(LED brightness adjust)

Installation Manual The Tx wand antenna 4-13
counterclockwise until the yellow
LED1 dims then adjust C1 again.
6. Turn off power to the system.
7. If you have not been working with
antenna "Z", go to Step 9, otherwise,
loosen the terminal screw for position
X and remove the Z wire from
position X on the Controller's P1
connector. Return it to its normal Z
position and tighten it. Go to Step 4.d.
8. If you have not been working with
antenna "Y", go to Step 10, otherwise,
loosen the terminal screw for position
X and remove the "Y" wire from
position X on the Controller’s P1
connector. Return it to its normal Y
position and tighten it. Go to Step 4.e.
9. If this is a multi antenna system, you
need to replace JP4 (the X, Y, Z scan
select jumper). It goes in the lower
position, (2-3) for a two-antenna
system. If you are using a three-
antenna system place it in the upper
position (1-2).
10. On the Controller, return switch S3 to
the left position.
11. Replace all antenna covers and secure
them using the spanner screws.
12. Replace the Controller cover and
secure it using the screws.
Adjusting the Tx Activation Field
IMPORTANT:
Adjusting the Tx Activation Field can cause
Supervise alarms. Notify staff and security
that you will be adjusting (and possibly
weakening) the zone and they will need to pay
special attention to area traffic during this
time.
The Tx Activation Field can be reduced or
expanded to match each unique zone’s needs.
Each monitored zone may have circumstances
that require an adjustment to the range of the
Tx Activation Field. The most common reason
is that the Field is overlapping or “bleeding”
into other areas.
To adjust the range of the Tx Activation Field
emanating from the Tx wand antenna slowly
adjust potentiometer R6 (Tx Gain) on the
Controller. Turn counterclockwise to reduce
the range of the Field, turn clockwise to
expand the range of the Field.
As you adjust, use a Tag to test the range of
the Field to ensure there is adequate coverage
for the zone.

Installation Manual
Chapter 5:
The Receiver

Installation Manual the Receiver 5-1
The Receiver
Receiver Specifications
Internal vs. External Receivers
Receiver Mounting Options
Receiver Positioning/Stagger Tuning
BR 4200 Auxiliary Receivers
Receiver Jumpers
Connecting the Receiver
Adjusting the Receiver
The Receiver (Figures 5.1-5.2) located at the
monitored zone, picks up the signal from an
activated Tag and relays it to the Controller.
Zone Receivers can be internally or externally
mounted near a monitored zone. BR 4200 Zone
Receivers monitor both zone events and Band
Removal events. BR 4200 Auxiliary Receivers
only monitor Band Removal events.
NOTE: For ES 2100 Receiver information, see
Appendix A.
Figure 5.1 Zone Receiver (Internal)
Receiver Specifications
Power Requirements
Temperature
Weight
Power Requirements
12V DC
Temperature
Receivers operate best in an ambient
temperature between 35 and 90 degrees
Fahrenheit. Operation outside of this range may
cause unexpected or undesirable results,
including premature failure.
Weight Figure 5.2 Zone Receiver (Remote)
Internal and External Receivers weigh
approximately 5 oz. and 1 lb. 5 oz. U.S.
respectively, which should be considered when
choosing mounting hardware.

5-2 the Receiver Installation Manual
Internal vs. External Receivers Receiver Positioning/Stagger Tuning
When the Controller is positioned near the
monitored door, the Receiver is mounted
internally in the Controller housing.
Position the Receiver within approximately 6
feet of the center of the monitored zone or door
opening. It is permissible to mount it beyond 6
feet, but do not exceed 15 feet from the center of
the zone or door opening.
When the Controller is positioned away from the
monitored door, the Receiver is mounted at the
zone in a 4”x4”x2” electrical box (Figure 5.3). The recommended location for the Receiver unit
is up and out of the way such as above the
doorframe or above drop ceiling panels if
possible. Receivers monitor 40 feet outward in
every direction; therefore, they should be
positioned approximately 70 feet apart.
If the Receivers of adjacent zones need to be
closer than 70 feet (Figure 5.4), implement
Stagger Tuning (page 4-6) to avoid crosstalk
(activated Tags from one zone being detected in
another zone).
Figure 5.3 4”x4”2” electrical box
Keep in mind when the Controller is remotely
located, at least two 4”x4”x2” electrical boxes
are needed at the zone. One box is used to mount
the Receiver near the door as mentioned above
and the second box is used as a junction box for
the composite cable (where connections are
made to wires that “branch” to the individual
system components).
Receiver Mounting Options
Figure 5.4 Receiver positioning
If you receive your system equipment and
determine that the Receiver needs to be changed
from an Internal to External mounting or vice
versa, contact your Accutech Representative
about acquiring the proper faceplate.

Installation Manual the Receiver 5-3
BR 4200 Auxiliary Receivers
Auxiliary Receivers require an external
power source (+12V and GND; see page 17-5
for connections).
BR 4200 Zone Receivers monitor both zone
events and Band Removal events. BR 4200
Auxiliary Receivers only monitor Band
Removal events. Depending upon your facility’s
physical layout, Zone Receivers may be enough
to ensure full Band Removal coverage.
Auxiliary Receivers monitor
approximately 40 feet outward in every
direction; therefore, they should be
positioned 70 feet* apart to avoid
confusion about the location of a Band
Removal alarm.
However, to determine where Auxiliary
Receivers may be needed, a test BR42 Tag
should be used to check every potential location
in the area being covered. This includes storage
rooms, laundry rooms, restrooms, etc. The idea
is to be absolutely certain that there is no area
where a BR42 Tag can be removed without
being detected.
Auxiliary Receivers can be positioned in
nurseries, doorways, hallways, or any
other area that coverage is desired (see
Figure 5.5).
When choosing the exact location and
number of Auxiliary Receivers, be sure to
consider the facility’s structure (i.e.,
concrete/metal lathe as opposed to drywall
walls or foil-backed ceiling tiles). Also
keep a minimum distance of 4 feet away
from fluorescent lighting and air ducts.
When installing BR 4200 Auxiliary Receivers,
consider the following:
BR 4200 Auxiliary Receivers are only
used in BR 4200 Systems.
BR 4200 Auxiliary Receivers are always
mounted in 4”x4”x2” electrical boxes.
* The distances listed here are approximate. Each
facility should consider its unique environment when
positioning Receivers.
Figure 5.5 Receiver Positioning

5-4 the Receiver Installation Manual
Receiver Jumpers NOTES:
Receiver Jumpers JP1 through JP5 are set to
factory defaults when you receive them. The
default settings have been determined by the
most common usage. Some facilities may have
different requirements. Please consult your
Accutech Representative before altering jumper
positions.
Jumper Definitions
IS 3200 Zone Receiver jumper settings
BR 4200 Zone Receiver jumper settings
BR 4200 Auxiliary Receiver jumper settings
The following tables (Tables 5.1 – 5.4) contain
the Receiver jumper definitions and default
positions for each system. Refer to Figure 5.6
for the locations of the Receiver jumpers.
Jumper JP4 sends status data upon a change in a
Tag’s status. This includes Band Removal, Low
Battery, and/or Wet Band.
Table 5.1
Jumper Definitions
Jumper Sends Status Data Upon…
JP1 Any 418MHZ Signal
JP2 Rx Supervise Events
JP3 Valid Zone Tag Detections
JP4 Change in Tag status
JP5 Zone Reset Events
Connecting the Receiver
Whether internally or externally mounted, the
wire connections from the Receiver to the
Controller are the same. See Figure 5.7 for the
proper wire connections.
Table 5.2
IS 3200 Zone Receiver jumper settings
JP1 Off
JP2 Off
JP3 Off
JP4 On
JP5 On
NOTE: The internally mounted Receiver is
provided with a factory-installed interconnect
cable. There should be no reason to ever
disassemble it. If however it should need
replacement for any reason simply use an 18-
inch piece of 22 gauge 12-conductor non-
shielded cable. Follow the color code in Figure
5.7.
Table 5.3
BR 4200 Zone Receiver jumper settings
JP1 Off
JP2 Off
JP3 Off
JP4 On
JP5 On
Table 5.4
BR 4200 Auxiliary Receiver jumper settings
JP1 Off
JP2 Off
JP3 Off
JP4 On
JP5 Off
Figure 5.6 Receiver jumper locations

Installation Manual the Receiver 5-5
Figure 5.7 Connecting the Receiver to the Controller

5-6 the Receiver Installation Manual
Adjusting the Receiver
The Receiver is factory set for optimum
performance, and as such, it should NOT be
necessary for you to make any adjustments to it.
NOTE: If you are trying to eliminate crosstalk
(activated Tags from one zone being detected in
another zone), implement Stagger Tuning
(page 4-6).
However, there are a couple of exceptions:
When protecting a wide hallway or
passageway, it may be necessary to
increase Receiver sensitivity to assure
optimum detection.
When unavoidable background noise (such
as from permanent medical equipment or
wireless communication devices) is
present, it may be necessary to reduce
Receiver sensitivity.
IMPORTANT:
Adjusting the Receiver can cause Supervise
alarms. Notify staff and security that you will
be adjusting (and possibly weakening) the
zone and they will need to pay special
attention to area traffic during this time.
To adjust a Receiver, refer to Figure 5.1 or 5.2
and use the following instructions:
1. Around the access hole for
potentiometer R19 on a Receiver, a
decal marks the minimum and
maximum settings. The factory setting is
approximately halfway between the
minimum and maximum marks. The
Receiver will not work outside these
marks. When adjusting, it is best to stay
within 1/16” of a turn of the factory
setting.
2. As you adjust, remember to verify that
there is adequate zone coverage.
3. To decrease the Receiver’s sensitivity,
slowly turn potentiometer R19
clockwise toward the minimum setting
on the R19 decal.
4. To increase the Receiver’s sensitivity,
slowly turn potentiometer R19
counterclockwise toward the maximum
setting on the R19 decal.

Installation Manual
Chapter 6:
The Tag

6-2 The Tag Installation Manual
BR 4200 System Tags
In addition to the functionality of an IS 3200
System Tag, BR 4200 System Tags (Figure
6.3) will alarm if the band is removed or
tampered with in any way.
BR 4200 System Tags also contain a visual
pulse LED. Tags are activated/deactivated
with a TAD unit.
BR 4200 System Tags are attached to
infants with a conductive-fiber-striped cloth
band.
Figure 6.3 BR 4200 System Tag
Cut Band Tags
Similar to the functionality of a BR 4200
System Tag, Cut Band Tags (Figure 6.4) will
alarm if the band is cut and is designed for
use in pediatric applications. Cut Band Tags
also contain a visual pulse LED.
Cut Band Tags are attached to patients with
a Tyvek band and a pod.
The band (Figure 6.5) contains a foil
adhesive that will fray during tampering.
Using a pod (Figure 6.6) with a Cut Band
Tag will reduce the need for sanitizing the
Tag between applications and is water-
resistant during use.
Figure 6.4 Cut Band Tag
Figure 6.5 Cut Band Band
Figure 6.6 Cut Band Pod

Installation Manual The Tag 6-3
Tag barcodes
Tag barcodes (Figure 6.7) contain a Tag’s
manufacturing history.
Figure 6.7 Tag barcode example
The coding scheme is as follows:
M-WWYY-TSSS
”M” is the manufacturer designator.
”WWYY” is the date code.
(“1706” would mean the 17th week of 2006)
”T” is the tag type designator.
1 is for CB (Cut Band)
2 is for BR (Band Removal)
3 is for LT (Long Term)
4 is for SB (Slotted Back)
”SSS” is the serial number for that tag type
manufactured during that week.
Visual Pulse LED
The Visual Pulse LED indicates the Tag’s
current mode (see table 6.1)
Table 6.1 Visual Pulse LED status
LED Light Pattern off on Tag LED Status
LT, SB Tags
None Tag is off.
Active, not in zone
Active, in zone
BR, CB Tags
None Tag is off.
Active, not in zone,
non-Band Alarm
Active, in zone
(may be in Band Alarm)
Active, not in zone
Band Alarm mode,
Tag base color chart
Tag tops are smoke-colored while the Tag
base color will vary based upon Tag type.
Tag Type Base Color
CB White
SB Gray
LT Gray
BR Yellow

6-4 The Tag Installation Manual
LED Tag
Verifying Proper Zone Coverage
Identifying Foreign Tag-Activating Sources
DISCLAIMER: Due to each facility’s unique environment, an LED Tag cannot give an exact measurement of zone
coverage; it can only give an estimation of zone coverage.
Verifying Proper Zone Coverage
An LED Tag (Figure 3.8) is used to verify proper zone coverage during
installation, adjustment, or testing of a monitored zone.
Proper zone coverage fully protects the intended area (door, elevator,
hallway, or any other passageway) without extending into other areas (in
front, in back, on sides, above, and beneath the intended area).
Monitored zones emit a Tag-activating signal called the Tx Activation Field.
When a Tag enters a zone’s Tx Activation Field, the system will detect the
Tag and take appropriate action response.
An LED Tag can detect a zone’s Tx Activation Field without causing alarms
making it a quick and easy way to verify proper zone coverage. This is not
only useful in ensuring complete zone coverage but also in locating areas
where a Tx Activation Field may be extending into common areas and
causing nuisance alarms.
Figure 6.8 The LED Tag
To verify proper zone coverage with an LED Tag, use the following
instructions:
1. Using a TAD, activate the LED Tag.
NOTE: The Signal Strength LEDs of the TAD will not indicate the
state of the LED Tag. Once activated the LED Tag’s LED will
illuminate when it is in a Tx Activation Field. Therefore, to verify
the LED Tag is active, turn on the TAD and place the LED Tag near
it. The LED Tag’s LED should illuminate (since a TAD has a small
Tx Activation Field associated with it).
2. With the LED Tag in your hand, slowly approach each zone at
various angles and orientations. The LED Tag’s LED will illuminate
when it detects the zone’s Tx Activation Field.

Installation Manual The Tag 6-5
3. If you find that a zone’s coverage is at unacceptable levels (too small,
too big, extends too far in one direction), look for factors that may be
affecting the zone (food carts, medical equipment, and/or building
construction).
4. If you cannot locate any immediate causes, contact your system
maintenance technician for further assistance.
5. When finished, deactivate the LED Tag using a TAD.
Identifying Foreign Tag-Activating Sources
In addition to verifying proper zone coverage, an LED Tag (Figure 3.3) can be
used to identify foreign Tag-activating sources to help preserve your Tags’
battery life and prevent nuisance alarms.
Monitored zones emit a Tag-activating signal called the Tx Activation Field.
When a Tag enters a zone’s Tx Activation Field, it is activated. The system
detects the activated Tag and takes appropriate action response.
However, there are sources that can activate a Tag other than a Tx Activation
Field. When Tags are activated by these “foreign” sources, battery life is
depleted and/or nuisance alarms can be caused. Therefore, identifying these
sources will prolong Tags battery life and prevent nuisance alarms.
To identify activating sources with an LED Tag, use the following
instructions:
1. Using a TAD, activate the LED Tag.
NOTE: The Signal Strength LEDs of the TAD will not indicate the
state of the LED Tag. Once activated the LED Tag’s LED will
illuminate when it is in a Tx Activation Field. Therefore, to verify the
LED Tag is active, turn on the TAD and place the LED Tag near it.
The LED Tag’s LED should illuminate (since a TAD has a small Tx
Activation Field associated with it).
2. With the LED Tag in your hand, slowly investigate each area for
possible activating sources*. The LED Tag’s LED will illuminate
when it detects an activating source. Note each activating source and
keep Tags away from those sources.
3. When finished, deactivate the LED Tag using a TAD.
*Some activating sources can be:
Computer Monitors
Unshielded computer cables
Television Sets
Medical Monitoring
equipment
X-ray and other imaging
equipment
Fluorescent Lighting
Wireless Communication
Devices

6-6 The Tag Installation Manual
Testing Tags
For maximum protection of residents or
assets, Accutech recommends that Tags be
tested on a weekly basis.
There are 6 ways that you can test Tags:
Enter a monitored zone
(Software will report.)
With a TAD
With a PTAD
The Keypad’s Auxiliary LED
(Yellow) will light when a Tag is
detected (Optional; additional wire
required).
Check Visual Pulse LED if present
BR and CB Tags only - Remove
Band Removal band or Cut Band
band (alarm will sound)
Tag and Band Maintenance
Cleaning of Tags
Cleaning of Bands
Storage of Tags and Bands
Cleaning of Tags
All Tags are reusable but they must be
cleaned and sanitized between applications.
In long-term applications, periodically
replace the bands and clean the Tags.
There are a few methods that can be used to
clean and sanitize Tags:
HOWEVER, DO NOT:
DO NOT submerge Tags in water
DO NOT soak Tags in water
DO NOT submerge Tags in cleaning
solutions
DO NOT soak Tags in cleaning
solutions
DO NOT use solvents
DO NOT use abrasive cleaners or cloths
DO NOT put Tags in an AutoClave
DO NOT put Tags in a dishwasher
DO NOT steam clean Tags
DO NOT put Tags in a washing
machine or dryer
Acceptable Tag Cleaning Methods:
Antibacterial wipes
(wipe only, DO NOT soak)
Hydrogen peroxide (wipe only
from cloth, DO NOT submerge or
soak)
Cleaning of Bands
All Tag bands are one-time use only. In
long-term applications, periodically replace
the bands and clean the Tags.

Installation Manual The Tag 6-7
Storing Tags
To preserve battery life, Tags must be
turned off with a TAD during storage or
periods of non-use. CB and BR Tags must
be deactivated to prevent alarms when not
use.
However, if you do not have a TAD or your
Tags are always activated, Tags should be
stored away from sources of electrical noise
(see below) and stored in a metal container
with lid.
Furthermore, if you use a TAD to turn off
your Tags, you would not necessarily need
to follow the precautions listed above,
however, it is still good practice to do so.
Do not store Tags within 3 feet of any of the
following sources of electrical noise:
Computer monitors
Unshielded computer cables
Television sets
Medical Monitoring Equipment
X-ray and other imaging equipment
Fluorescent Lighting
Storing Bands
Extra Tag bands should be stored in clean
and dry environment.

6-8 The Tag Installation Manual
The S-TAD
Powering the S-TAD On/Off
Unlocking the S-TAD
Activating/Deactivating Tags
The S-TAD (Secure Tag Activator/Deactivator)
is used to check the functionality of an Accutech
Tag. Accutech Tags operate by internal battery.
Over the course of normal operation, Tags
eventually lose battery power and the Tags will
need to be replaced. The S-TAD is used to
determine if a Tag has sufficient battery power
to respond to an activating signal. The S-TAD
requires a 9-volt battery to operate.
Powering the S-TAD On/Off
The S-TAD includes a built-in power saving
feature that automatically turns off the S-TAD
after a period of inactivity.
1. Press the Power/Clear button
The Power/Clear LED illuminates (solid
green with wink).
The LED will remain lit for 1 minute.
While nearing the 1 minute mark, the
LED will begin to pulse until the LED
turns faster pulsing red and then
extinguishes while powering off the S-
TAD.
To extend the length of time, press the
Power/Clear button again anytime
before the LED turns off. Each press
will extend by 1 minute (up to 5 minutes
maximum).
2. Conversely you may manually power
off the S-TAD by pressing and holding
the Power/Clear button until the LED
turns solid red.
Unlocking the S-TAD
For added security, access to
activating/deactivating Tags is locked via 4-digit
user codes.
1. Press the Power/Clear button.
The Power/Clear LED illuminates (solid
green with wink).
2. Using the number keypad, enter a valid
4-digit user code. Entering a valid code
will illuminate the Enter LED (solid
green) for about 5 seconds. Once the
Enter LED illuminates, press the Enter
button again. The WAIT LED will
illuminate (red) for 2 seconds to
confirm activation/deactivation action.
The Enter LED will then remain lit for 1
minute for the purpose of
activating/deactivating Tags.
Notes:
• Entering an invalid code will
illuminate the Enter LED red.
Verify your user code is valid. Key
Power/Clear before reentering code
to clear any inadvertent previous
entries
• Once lit, each time you press the
Enter button will extend the Enter
LED life briefly (up to 1 minute).
• Pressing the Power/Clear button will
clear out the user code. Otherwise,
after 1 minute of inactivity the Enter
LED will extinguish automatically.

Installation Manual The Tag 6-9
Activating/Deactivating Tags
The S-TAD can activate and deactivate Tags
preserving Tag battery life and preventing
nuisance alarms.
ACTIVATING
1. Unlock the S-TAD.
2. Place the inactive Tag in the correct
orientation within the Tag receptacle.
The Tag’s graphic’s LED is silent (just
like the physical Tag’s LED is silent).
3. Press the Enter button (green LED lit).
The Wait LED will illuminate (red) for
2 seconds. The Tag graphic’s LED on
the S-TAD will illuminate (pulsing
yellow) indicating the Tag is active (just
like the physical Tag’s LED will
illuminate).
4. If a low battery condition is detected,
the Low Tag Battery LED will
illuminate red.
5. If a band alarm condition is detected, the
Band LED will illuminate red.
Likewise, if a band compromise
condition is detected, the Band LED will
illuminate green/red.
Note: Band alarm and/or band
compromise conditions always take
precedence over a low tag battery
condition, therefore, be sure to handle
the BR Tag appropriately to truly check
for a low battery condition.
6. The S-TAD will still detect active Tags
in the area even after the Enter LED
extinguishes. However, you will have to
unlock the S-TAD again to be able to
activate/deactivate a Tag. Remember the
S-TAD will automatically lock after 1
minute of inactivity.
DEACTIVATING
1. Unlock the S-TAD.
2. Place the active Tag in the correct
orientation within the Tag receptacle.
The Tag graphic’s LED will be pulsing
yellow (just like the physical Tag’s LED
will be pulsing).
3. Press the Enter button (green LED lit).
The Wait LED will illuminate (red) for
2 seconds. The Tag graphic’s LED on
the S-TAD will extinguish indicating the
Tag is deactivated (just like the physical
Tag’s LED will extinguish).
Figure 6.9 S-TAD Tag Orientation

Installation Manual
Chapter 7:
The Keypad

Installation Manual The Keypad 7-1
The Keypad
Keypad Specifications
Positioning the Keypad
Surface Mounting the Keypad
Flush Mounting the Keypad
Connecting the Keypad to the Controller
Programming the Keypad
The Keypad is used to escort residents through a
monitored zone and to reset zone equipment
once an alarm has occurred.
The Keypad provided by Accutech (Visonic CL-
8A) is intended as an indoor Keypad only. If you
require an outdoor Keypad, contact your
Accutech Representative.
Keypad Specifications
Power Requirements
Temperature
Weight
Power Requirements
12V DC @ 55 mA
Temperature
The Keypad operates best in an ambient
temperature between 35 and 90 degrees
Fahrenheit. Operation outside of this range may
cause unexpected or undesirable results,
including premature failure.
Weight
The Keypad weighs approximately 4.4 ounces.

7-2 The Keypad Installation Manual
Positioning the Keypad
The Keypad should be located within 3 to 5 feet
of the monitored door or elevator. In hallway
applications, mount the Keypad just outside of
the zone to avoid alarm activation when
escorting a monitored resident.
If your system includes the optional Push Button
Override (PBO), it is recommended to mount it
on the other side of the wall directly behind the
Keypad.
Figure 7.1 Surface Mounting the Keypad
Surface Mounting the Keypad
The Keypad is designed to be surface mounted
using the white back box provided.
To surface mount the Keypad, refer to Figure
7.1 and use the following instructions:
1. Using a screwdriver, separate the
Keypad from the white back box by
removing the two screws.
2. If you are using wire molding, push or
cut out the two knock-outs located on
the top and bottom of the white back
box for the wiring molding to interface
with the white back box.
3. If you are running cable behind the wall,
put or drill out the center knock-out in
the white back box to wire from behind
the wall into the white back box.
4. Drill out the four mounting knock-outs
in the white back box.
5. If you have a PBO and plan to mount it
on the other side of the wall of the
Keypad, push or drill out the knock-out
in the center of the back of the box.
6. Using the white back box as a template,
mark all the holes that need to be drilled.
7. Drill the necessary holes in the
mounting surface.
8. Secure the white back box to the
mounting surface with appropriate
hardware.
9. Replace the Keypad to the white back
box using the two screws.

Installation Manual The Keypad 7-5
Figure 7.3 Connecting the Keypad to the Controller
Figure 7.4 Connecting the Keypad to the Controller with Tag Detect option

Installation Manual The Keypad 7-3
Flush Mounting the Keypad
If flush mounting is required, use a plastic single
gang electrical switch box, instead of the
original white back box (see Figure 7.2). A flush
mount box can be obtained from your local
building supply outlet.
CAUTION: The Keypad manual shows the use
of a standard single gang, metal electrical switch
box. Accutech does not recommend the use of
this type of box for two reasons:
1. The fit is very, very tight. If the wires
are stripped a little “long” as they enter
the terminal block they may short to the
side of the metal box.
2. If this is not new construction and an
electrical box with “zip” mounts is to be
retrofitted in the wall, these zip mount
tabs may actually protrude into the box
and then it will be impossible to fit the
Keypad circuitry inside the box.
If a metal box is required, you will need to find a
single gang box fitting the dimensions indicated
in Figure 7.2. You may find it easier to use a 4”
square metal box and then use one of the many
varieties of face plates available from your local
building supply outlet that will accept the
Keypad.
Figure 7.2 Flush Mounting the Keypad

7-4 The Keypad Installation Manual
Connecting the Keypad
to the Controller
You will need 22-gauge 4-conductor plenum-
rated cable for installation. If you are using
composite cable, see Chapter 2 for color code.
If you are going to connect the Tag Detect signal
to the auxiliary LED of the Keypad, you will
need at least a 5-conductor cable.
To connect the Keypad to the Controller, refer to
Figures 7.3 – 7.4 and use the following
instructions:
1. Separate the Keypad from the white
back box.
2. Remove the Controller cover.
3. Feed the cable from the Controller to the
Keypad through the raceway, conduit, or
wall and then through the access hole
you made in the white back box.
4. With the WHITE wire, pin 1 of the
Keypad to P8-pin1 (Kypd Alarm) of the
Controller.
5. With the BLACK wire, connect pin 6 of
the Keypad to P8-pin2 (Ground) of the
Controller.
6. With the RED wire, connect pin 10 of
the Keypad to P8-pin3 (+12v) of the
Controller.
7. With the GREEN wire, connect pin 11
of the Keypad to P8-pin4 (Kypd Reset)
of the Controller.
8. If you are using the Tag Detect option
(Figure 7.4), with the BROWN wire,
connect pin 4 of the Keypad to P8-pin5
(Tag Detect) of the Controller.
9. Place a jumper connecting the Keypad
pins 2, 4 and 6.
NOTE: If using Tag Detect option, only
jumper Keypad pins 2 and 6.
10. Place a jumper connecting the Keypad
pins 3, 7 and 10.
11. Replace the Controller cover.
12. Replace the Keypad to the white back
box.

7-6 The Keypad Installation Manual
Programming the Keypad
Keypad Operation
Programming user codes
Deleting user codes
Resetting the master code
Adjusting the Keypad Escort Time
NOTE: In any Keypad operation, if any code is
entered 3 times or more incorrectly, the Keypad
will lockout for 90 seconds; this lockout mode is
indicated by a green blinking LED.
Programming the Keypad is, in simple terms,
providing it with a set of instructions on how to
react in various contingencies. The Keypad must
be programmed as soon as all installation and
wiring have been completed. Later on, as
changes take place, partial or full
reprogramming may be carried out as many
times as necessary.
The first step in “telling the Keypad what to do”
is to access the programming menu, which is
accessible only by the use of the current “master
code”. The factory default master code is 1234,
but after subsequent programming, this default
code will be automatically superseded by user
code No. 1, which becomes the real master code.
The Keypad’s EEPROM memory stores up to 56
individual access codes, each assigned to an
authorized individual user or to a group of users.
CAUTION: User code No. 01, must be kept
secret at all time to prevent the introduction of
unauthorized changes in the Keypad’s
programming. Do not use this code for normal
entry into the restricted area.
Keypad Operation
The Keypad has three LED indicators. See Table
5.1 for their functions during normal operation.
Table 7.1 Keypad LED Indicators
LED Status Function
Green Off Zone Ready
On* Keypad Reset
or Escort Time
initiated
Yellow Off No Power or
No Tag
On Power
indicator or
Tag in Zone
indicator
(dependant on
installation)
Red Off Zone Normal
On Alarm
* During programming, the green LED functions
differently.

Installation Manual The Keypad 7-7
Programming user codes
Remember that user code No. 01 will become
the new master code as soon at it is
programmed, and therefore should be assigned
to the person in charge of security.
It is recommended that the master code be
composed of at least 8 digits.
To program user codes, use the following
instructions:
1. Prepare a list of user codes you want to
program and record them.
2. Invoke the programming menu by
entering **, [master code], **. At this
point we shall assume that the factory
default of 1234 is still valid. When the
programming menu is active, the green
LED flashes slowly, approximately once
every two seconds.
3. Press 1 to select user code programming
(function No. 1).
The green LED begins to flash rapidly
(approximately 5 times per second),
indicating that the Keypad is ready to
receive data.
NOTE: To prevent programming by
unauthorized people, it is dangerous to
continue using the default master code
1234. It is mandatory to set a new
master code, which will be used for
programming only and not for everyday
requirements. We recommend that the
master code be comprised of at least 8
digits.
4. Enter user number 01, followed by #.
The green LED lights steadily for two
seconds and then returns to rapid
flashing indicating that the step has been
completed successfully.
5. Enter the code assigned to this user,
followed by #.
The green LED lights steadily for two
seconds and then returns to rapid
flashing.
6. Repeat the user code followed by #. The
green LED will acknowledge as in the
step above.
7. Now select which outputs will be
tripped by the new master code, select 3
for all outputs and then press #.
This time the green LED lights steadily
for two seconds and then flashes slowly,
indicating that the new master code and
its extent of control have been
programmed successfully and that the
Keypad has returned to the
programming menu. Now you can either
program the next user code or quit
programming by pressing #.
8. Repeat these steps to assign other user
codes.
NOTES:
Do not enter new data if the green LED
responds by going out for 3 seconds after having
pressed [#]. If the Keypad detects an error, the
green LED turns off for 3 seconds and then
returns to slow flashing, thus indicating that the
data has not bee accepted. It would be necessary
to repeat the entire programming sequence for
the rejected user code.

7-8 The Keypad Installation Manual
If you make an error while programming, press
[*] and you will be instantly returned to the
programming menu. To quit programming,
ensure that the green LED is flashing slowly,
then press [#]. This will restore the Keypad to
normal operation.
Deleting user codes
To delete user codes, use the following
instructions:
1. Access the programming menu by
entering **, [master code], **.
With the programming menu active, the
green LED will flash slowly.
2. Enter 4 to select the user code deleting
function.
The green LED will respond by flashing
rapidly, indicating that the Keypad is
ready to receive data.
3. Enter the user number whose code you
wish to delete (02-56), or enter [**] to
delete all user codes, and finish off by
entering #.
The green LED will light steadily for 2
seconds and then will resume rapid
flashing.
NOTE: The master code (User Code No.
01) cannot be deleted in this manner.
4. Enter the [master code] once more,
followed by #.
The green LED will light steadily for 2
seconds and will return to slow flashing.
5. If you intend to delete another user
code, return to step 2 above. If you are
through deleting, restore the Keypad to
regular operation by pressing # while
the green LED is flashing slowly.
Resetting the master code
If you forgot or lost your master code (User
Code No. 1), you can reset the Keypad to the
factory default master code (1234).
To reset the master code to the factory default
master code (1234), use the following
instructions:
1. Open the Keypad’s case to expose the
printed circuit board.
2. Install the jumper across the two pins
labeled JP2.
3. Momentarily short circuit the pins
labeled JP1 using a screwdriver or
jumper wire.
4. Wait ten seconds, remove the jumper
from JP2, and immediately press 1234#.
The green LED will light steadily for
two seconds and then start flashing
slowly, indicating that the programming
menu is active.
NOTE: While the master code is
reverted to 1234, all other data
programmed previously remains intact.
5. Program a new master code (user code
No. 1) immediately (see “Programming
user codes section) and record it in a
secret, safe place.

Installation Manual The Keypad 7-9
6. To quit programming at this stage, press
# while the green LED is flashing
slowly.
Adjusting the Keypad Escort Time
To adjust the Keypad Escort Time, use the
following instructions:
1. Access the programming menu by
entering **, [master code], **.
With the programming menu active, the
green LED will flash slowly.
2. Enter “2” to select the relay timer
function.
The green LED will respond by flashing
rapidly, indicating that the Keypad is
ready to receive data.
3. Enter the escort time (two digits, from
1-98 seconds) followed by the # sign.
The green LED will light steadily for 2
seconds and then will resume rapid
flashing.
4. To exit, press # while the green LED is
flashing slowly.