Adic Faststor 22 Users Manual
22 to the manual 12145dc8-cf55-4ea3-bed5-37ee0fe89cf9
2015-02-05
: Adic Adic-Faststor-22-Users-Manual-505225 adic-faststor-22-users-manual-505225 adic pdf
Open the PDF directly: View PDF  .
.
Page Count: 8

Document 62-0135-01 Rev B, Copyright © ADIC 1998, 1999, 2000
Installation and
Operating Guide
FastStor & FastStor 22
Barcode Reader Module

ii
Table of Contents
Equipment Description............................................................................................................................................................................................. 1
FastStor Barcode Reader Module Installation .......................................................................................................................................................... 2
FastStor 22 Barcode Reader Module Installation ..................................................................................................................................................... 4
Diagnostic Menu ...................................................................................................................................................................................................... 6
Barcode Function.........................................................................................................................................................................6
Barcode Labels......................................................................................................................................................................................................... 6

1
Equipment Description
The user-installable Barcode Reader module option enables your FastStor/FastStor 22 to read cartridge information contained in a
barcode label attached to each of the data cartridges. This information becomes part of the application software’s library cartridge
inventory.
 Reader Module, Top View
Barcode Reader Module, Bottom View
Interface Connector
Mounting Bracket
Barcode Reader
Thumbscrew

2
FastStor Barcode Reader Module Installation
The Barcode Reader module is installed by connecting it to the interface connector on the inside top panel of your FastStor. This
location prevents you from using data cartridge storage slot # 1. Whenever the Barcode Reader module is installed the capacity of
your FastStor is reduced to six data cartridge storage slots. The front storage slots are still numbered 1 through 5, but the FastStor
menu functions and the application software cannot select or use slot 1. This is best illustrated by observing that whenever the Barcode
Reader module is installed the LOAD SLOT function of the FastStor menu will use storage slots 2 and 3 as the cartridge source
locations to load slots 6 and 7. Without the Barcode Reader module installed, the LOAD SLOT function uses storage slots 1 and 2 as
the source locations.
✔ Remove the Barcode Reader module and trim panel from packaging and check that the reader is securely attached to the
mounting bracket.
No tools are needed to install the Barcode Reader module in your FastStor. A thumbscrew and interface connector on the mounting
bracket secure it to the inside top panel of your FastStor directly above data cartridge storage slot 1. The trim panel is installed by
pressing it into place in front of the Barcode Reader module. Follow the installation instructions below to install the optional barcode
reader module and trim panel.
1.  Power down your FastStor.
2.  Remove the FastStor AC line cord from the AC source outlet.
3.  Open the front door of your FastStor.
4.  Remove all data cartridges from your FastStor.
Note
Whenever the Barcode Reader module is installed there are only six
cartridge storage slots available.
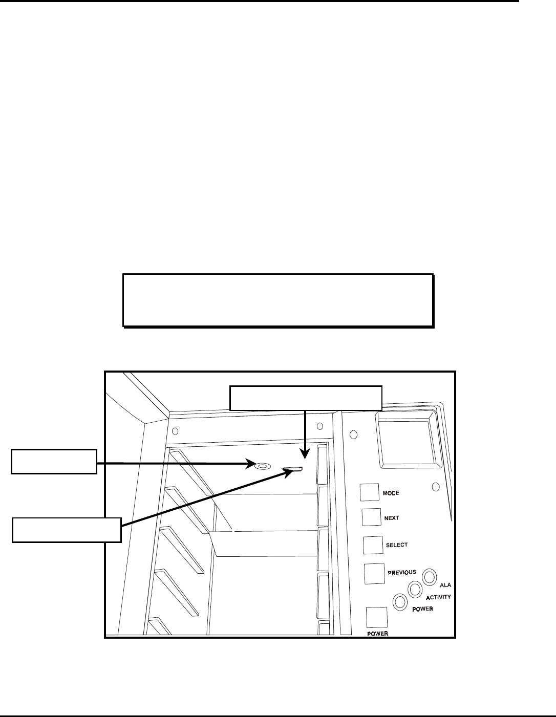
5.  Locate the interface connector and mounting hole on the inside top panel of your FastStor directly above data cartridge
storage slot 1.
Barcode Reader Module Mounting Location
Mounting Hole
Data Cartridge Storage Slot 1
Interface Connector

3
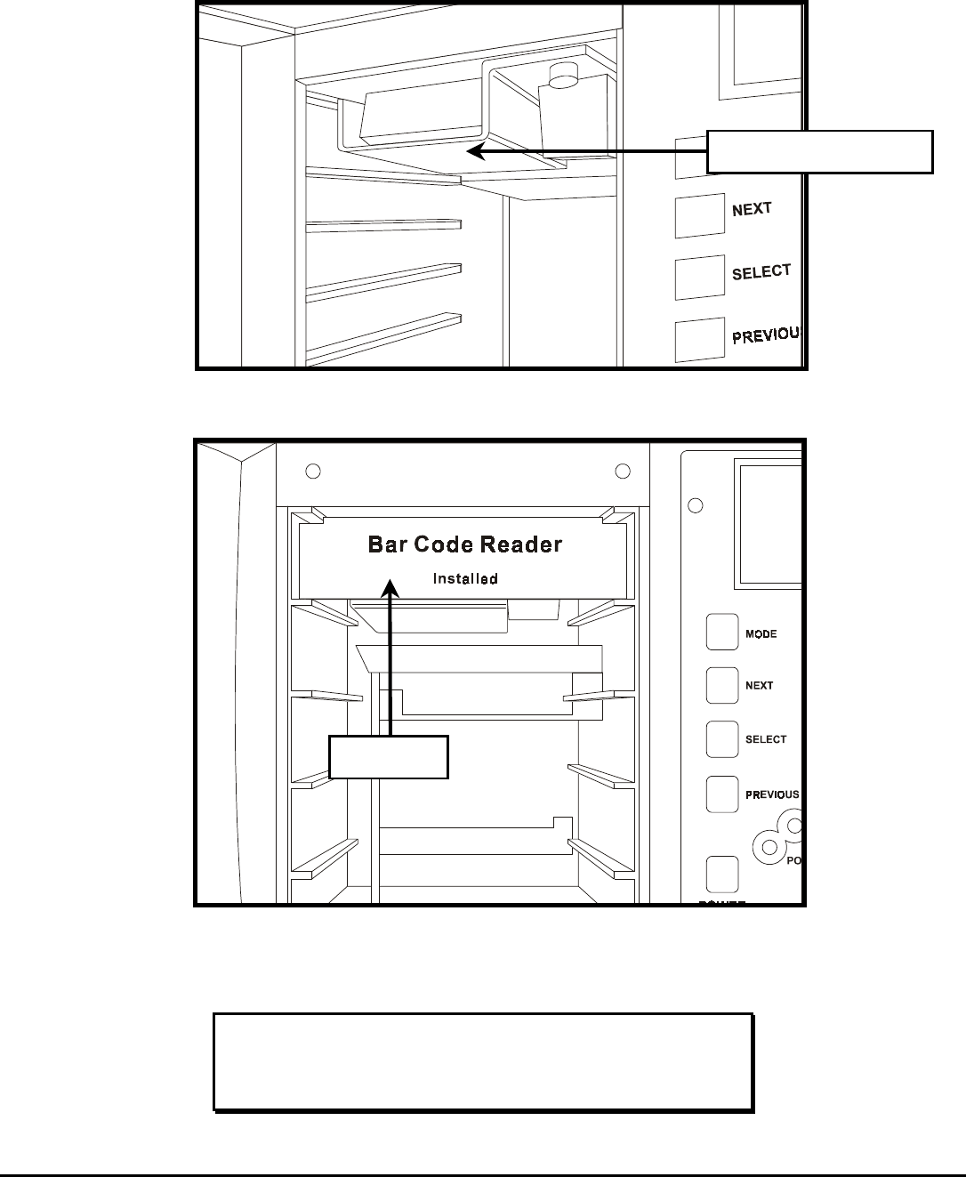
6.  Press the interface connector on the Barcode Reader module into the mating interface connector on the inside top panel.
7.  Push in and tighten the thumbscrew on the Barcode Reader module bracket until it secures the Barcode Reader module to the
inside top panel.
Barcode Reader Module Installed
8.  Install the trim panel by snapping it into position in front of the Barcode Reader module.
Trim Panel Installed
9.  Connect the FastStor AC line cord to the AC source outlet.
10. Power up your FastStor by pressing the POWER button.
Note
Your FastStor will automatically sense the presence of the Barcode
Reader module when power is applied.
Trim Panel
Barcode Reader Module

4
FastStor 22 Barcode Reader Module Installation
The Barcode Reader module is installed by connecting it to the interface connector on the right inside panel of your FastStor 22.
✔ Remove the Barcode Reader module from the packaging and check that the reader is securely attached to the mounting
bracket.
You do not need any tools to install the Barcode Reader module in your FastStor 22. A thumbscrew and interface connector on the
mounting bracket secure it to the right inside panel of your FastStor 22 directly to the right of the I/E Slot. Follow the installation
instructions below to install the optional barcode reader module.
1.  Power down your FastStor 22.
2.  Remove the FastStor 22 AC line cord from the AC source outlet.
3.  Open the front door of your FastStor 22.
4.  Remove all data cartridges from your FastStor 22.
5.  Locate the interface connector on the inside right panel of your FastStor 22 directly to the right of the I/E Slot.
Barcode Reader Module Mounting Location
Interface Connector

5
6.  Press the interface connector on the Barcode Reader module into the mating interface connector on the inside right panel.
Installing the Barcode Reader Module
7.  Push in and tighten the thumbscrew on the Barcode Reader module bracket until it secures the Barcode Reader module to the
inside right panel.
Barcode Reader Installed
8.  Connect the FastStor 22 AC line cord to the AC source outlet.
9.  Power up your FastStor 22 by pressing the POWER button.
Note
Your FastStor 22 will automatically sense the presence of the
Barcode Reader module when power is applied.
Barcode Reader Module
Thumbscrew

6
Diagnostic Menu
Your FastStor/FastStor 22 automatically senses the presence of the Barcode Reader at power-up and enables the barcode read
function. The application software can start scanning barcode labels as soon as the FastStor/FastaStor 22 is powered-up. When the
Barcode Reader module is installed, a new BARCODE function appears under the FastStor/FastStor 22 DIAGNOSTIC MENU. The
BARCODE function is not available if the Barcode Reader module is not installed.
Barcode Function
The bARCOdE function, available under the dIAG MENU whenever the Barcode Reader module is installed, is used to
enable/disable the module.  If disabled, the barcode reader is not available to the application software.
Note
The bARCOdE function default setting is bCOdE ON.
The dIAG MENU is accessed by pressing and holding first the NEXT button and then the MODE button for approximately 5
seconds. dIAG MENU will appear on the LCD. The FastStor/FastStor 22 will automatically exit the dIAG MENU and return to LdR
REAdY if the keypad is idle for 30 seconds.
1.  After entering the dIAG MENU, access the Barcode function by pressing the MODE button until bARCOdE appears on the
LCD.
2.  Press the SELECT button. bCOdE ENAb will appear on the LCD.
3.  Press the SELECT button. bCOdE ON will appear on the LCD.
4.  To disable the Barcode Reader module, use the NEXT or PREVIOUS keys to select " bCOdE OFF". Press the SELECT
button to execute the change.
Barcode Labels
After installing the Barcode Reader module, before inserting any data cartridges into your FastStor or FastStor 22, affix the barcode
labels to the cartridges as described:
❐ To install the barcode labels, position the label with the numbers upright, as shown in the illustration below, sliding the label
under the ridges on the sides of the cartridge recess.
Note
Do not peel label from liner. Use perforations to separate labels.
Refer to Chapter 3 of your Installation and Operating Guide to load the media into your FastStor or FastStor 22.
Installing a Barcode Label