Alcatel Lucent USA BBTRX-06 LTE RRH2X40-07L-AT User Manual Exhibit D Users Manual per 2 1033 c3

Alcatel-Lucent USA Inc. LTE RRH2X40-07L-AT Exhibit D Users Manual per 2 1033 c3

Exhibit D Users Manual per 2 1033 c3

APPLICANT:  Alcatel-Lucent                                                                                  FCC ID:  AS5BBTRX-06 Alcatel-Lucent Use pursuant to Company Instructions           Section 2.1033(C)(3)  USERS MANUAL
APPLICANT:  Alcatel-Lucent                                                                                  FCC ID:  AS5BBTRX-06 Alcatel-Lucent Use pursuant to Company Instructions   USERS MANUAL  SECTION 2.1033(c) (3)   A  copy of the installation and operating instructions to be furnished the user.  A draft copy of the instructions may be submitted if the actual document is not available.  The actual document shall be furnished to FCC when it becomes available.   RESPONSE:   A copy of  (1) 9442 Remote Radio Head (RRH) Hardware Installation Manual is attached.
Title pageAlcatel-LucentFDD Remote Radio Head 700 MHz_15.5 (Lower Band)Hardware Installation Manual (formerly 418–000–425)3MN-00075-0002-RJZZAIssue 0 | September 2012Alcatel-Lucent – ProprietaryUse pursuant to applicable agreementsUse pursuant to applicable agreements
Legal noticeLegal noticeAlcatel, Lucent, Alcatel-Lucent and the Alcatel-Lucent logo are trademarks of Alcatel-Lucent. All other trademarks are the property of their respectiveowners.The information presented is subject to change without notice. Alcatel-Lucent assumes no responsibility for inaccuracies contained herein.Copyright © 2012 Alcatel-Lucent. All rights reserved.Contains proprietary/trade secret information which is the property of Alcatel-Lucent and must not be made available to, or copied or used by anyone outsideAlcatel-Lucent without its written authorization.Not to be used or disclosed except in accordance with applicable agreements.NoticeEvery effort was made to ensure that the information in this document was complete and accurate at the time of printing. However, information is subjecttochange.Developed by the Alcatel-Lucent Documentation Team.Use pursuant to applicable agreementsAlcatel-Lucent – ProprietaryUse pursuant to applicable agreements
ContentsAbout this documentPurpose ............................................................................................................................................................................................ viiviiSafety information ...................................................................................................................................................................... viiviiIntended audience ....................................................................................................................................................................... viiviiSafety labels .................................................................................................................................................................................. viiviiSystems supported ...................................................................................................................................................................... viiviiHow to comment ......................................................................................................................................................................... viivii1SafetyOverview ...................................................................................................................................................................................... 1-11-1Structure of safety statements ............................................................................................................................................... 1-21-2Safety ........................................................................................................................................................................................... 1-41-4Safety - specific hazards ......................................................................................................................................................... 1-51-5Product safety .......................................................................................................................................................................... 1-101-102Product overviewOverview ...................................................................................................................................................................................... 2-12-1Functional description ............................................................................................................................................................. 2-22-2RRH description ........................................................................................................................................................................ 2-32-3RRH weights and dimensions .............................................................................................................................................. 2-62-63Site configurationsOverview ...................................................................................................................................................................................... 3-13-1RF configurations ..................................................................................................................................................................... 3-23-2Common Public Radio Interface Configuration ............................................................................................................ 3-33-3....................................................................................................................................................................................................................................FDD RRH 700L3MN-00075-0002-RJZZAIssue 0 September 2012Alcatel-Lucent – ProprietaryUse pursuant to applicable agreements iii
4Tools, materials, and checklistOverview ...................................................................................................................................................................................... 4-14-1Preparatory informationOverview ...................................................................................................................................................................................... 4-24-2Tools required for installation .............................................................................................................................................. 4-34-3Torque requirements ................................................................................................................................................................ 4-64-6Verify site preparation completed ....................................................................................................................................... 4-84-8Physical installation process overview ............................................................................................................................. 4-94-9Installation procedure checklist ......................................................................................................................................... 4-104-105Transport, mount, and ground the RRHOverview ...................................................................................................................................................................................... 5-15-1Pre-installation instructionsOverview ...................................................................................................................................................................................... 5-25-2Transport and mount the RRH ............................................................................................................................................. 5-35-3Mounting instructionsOverview ...................................................................................................................................................................................... 5-85-8To mount hardware to wall .................................................................................................................................................... 5-95-9Pole mount installation overview ..................................................................................................................................... 5-165-16To mount hardware to pole with pole bands ................................................................................................................. 5-185-18To mount hardware to pole with pole brackets ............................................................................................................ 5-225-22To install RRH on pole weldment assemblies ............................................................................................................. 5-255-25To ground the RRH ................................................................................................................................................................ 5-275-276Connect interface and DC cablesOverview ...................................................................................................................................................................................... 6-16-1Route and connect user alarm cables ................................................................................................................................. 6-26-2Route and connect ALD cable (Optional) ........................................................................................................................ 6-56-5Contents........................................................................................................................................................................................................................................................................................................................................................................................................................................................................iv Alcatel-Lucent – ProprietaryUse pursuant to applicable agreementsFDD RRH 700L3MN-00075-0002-RJZZAIssue 0 September 2012
Route and connect optical fiber cables ............................................................................................................................. 6-76-7Fiber distribution unit (optional) ...................................................................................................................................... 6-126-12To route and connect DC power cables .......................................................................................................................... 6-146-14Phoenix copper power distribution unit (optional) .................................................................................................... 6-166-167Finish the installationOverview ...................................................................................................................................................................................... 7-17-1To route and connect RF jumper cables ........................................................................................................................... 7-27-2To finalize RRH installation ................................................................................................................................................. 7-77-7AProduct conformance statementsOverview ..................................................................................................................................................................................... A-1A-1Canada ......................................................................................................................................................................................... A-2A-2China ............................................................................................................................................................................................ A-5A-5European Union ........................................................................................................................................................................ A-7A-7United States ........................................................................................................................................................................... A-11A-11BAcronymsOverview ..................................................................................................................................................................................... B-1B-1Acronyms .................................................................................................................................................................................... B-2B-2IndexContents........................................................................................................................................................................................................................................................................................................................................................................................................................................................................FDD RRH 700L3MN-00075-0002-RJZZAIssue 0 September 2012Alcatel-Lucent – ProprietaryUse pursuant to applicable agreements v
Contents........................................................................................................................................................................................................................................................................................................................................................................................................................................................................vi Alcatel-Lucent – ProprietaryUse pursuant to applicable agreementsFDD RRH 700L3MN-00075-0002-RJZZAIssue 0 September 2012
About this documentAbout this documentPurposeThis document provides hardware installation instructions for an Alcatel-Lucent FDDRemote Radio Head.Procedures are provided for handling, placement, grounding, powering, and cabling theRRH.Safety informationFor your safety, this document contains safety statements. Safety statements are given atpoints where risks of damage to personnel, equipment, and operation may exist. Failure tofollow the directions in a safety statement may result in serious consequences.Intended audienceThis document is intended for customers installing an Alcatel-Lucent FDD Remote RadioHead (700 MHz).Safety labelsThe safety alert symbol is used on product labels and in this IP to alert the user the user toimportant safety instructions.Systems supportedThis document applies to LTE indoor and outdoor cell sites.How to commentTo comment on this document, go to the Online Comment Form (http://infodoc.alcatel-lucent.com/comments/) or e-mail your comments to the Comments Hotline(comments@alcatel-lucent.com)....................................................................................................................................................................................................................................FDD RRH 700L3MN-00075-0002-RJZZAIssue 0 September 2012Alcatel-Lucent – ProprietaryUse pursuant to applicable agreements vii
About this document........................................................................................................................................................................................................................................................................................................................................................................................................................................................................viii Alcatel-Lucent – ProprietaryUse pursuant to applicable agreementsFDD RRH 700L3MN-00075-0002-RJZZAIssue 0 September 2012
11SafetyOverviewPurposeThis chapter covers safety precautions.ContentsStructure of safety statements 1-2Safety 1-4Safety - specific hazards 1-5Product safety 1-10...................................................................................................................................................................................................................................FDD RRH 700L3MN-00075-0002-RJZZAIssue 0 September 2012Alcatel-Lucent – ProprietaryUse pursuant to applicable agreements 1-1
Structure of safety statementsOverviewThis topic describes the components of safety statements that appear in this document.General structureSafety statements include the following structural elements:Item Structure element Purpose1 Safety alert symbol Indicates the potential for personal injury(optional)2 Safety symbol Indicates hazard type (optional)3 Signal word Indicates the severity of the hazard4 Hazard type Describes the source of the risk of damage orinjury5 Safety message Consequences if protective measures fail6 Avoidance message Protective measures to take to avoid the hazard7 Identifier The reference ID of the safety statement(optional)SAMPLEBC DEFGHLifting this equipment by yourself can result in injurydue to the size and weight of the equipment.Always use three people or a lifting device to transportand position this equipment.                     [ABC123]CAUTIONLifting hazardSafety Structure of safety statements........................................................................................................................................................................................................................................................................................................................................................................................................................................................................1-2 Alcatel-Lucent – ProprietaryUse pursuant to applicable agreementsFDD RRH 700L3MN-00075-0002-RJZZAIssue 0 September 2012
Signal wordsThe signal words identify the hazard severity levels as follows:Signal word MeaningDANGER Indicates an extremely hazardous situation which, if not avoided, willresult in death or serious injury.WARNING Indicates a hazardous situation which, if not avoided, could result indeath or serious injury.CAUTION Indicates a hazardous situation which, if not avoided, could result inminor or moderate injury.NOTICE Indicates a hazardous situation not related to personal injury.Safety Structure of safety statements........................................................................................................................................................................................................................................................................................................................................................................................................................................................................FDD RRH 700L3MN-00075-0002-RJZZAIssue 0 September 2012Alcatel-Lucent – ProprietaryUse pursuant to applicable agreements 1-3
SafetyGeneral precautions for installation proceduresWARNINGFailure to observe these safety precautions may result in personalinjury or damage to equipment.•Read and understand all instructions.•Follow all warnings and instructions marked on this product.•Installation and maintenance procedures must be followed and performed bytrained personnel only.•The equipment must be provided with a readily accessible disconnect deviceas part of site preparation.•Grounding and circuit continuity is vital for safe operation of the equipment.Never operate the equipment with grounding/bonding conductordisconnected.•Install only equipment identified in the product's installation manual. Use ofother equipment may result in an improper connection which could lead tofire or injury.•Use caution when installing or modifying telecommunications lines.•The product has multiple power inputs. Before servicing, Disconnect allinputs to reduce the risk of energy hazards.•For continued protection against risk of fire, all fuses used in this productmust be replaced only with fuses of the same type and rating.•Never install telecommunications wiring during a lightning storm.•Never install telecommunications connections in wet locations.•Never touch uninsulated wiring or terminals carrying direct current orringing current, and never leave this wiring exposed. Protect and tapeuninsulated wiring and terminals to avoid risk of fire, electrical shock, andinjury to personnel.•Never spill liquids of any kind on the product.•To reduce the risk of an electrical shock, do not disassemble the product.Opening and removing covers and/or circuit boards may expose you todangerous voltages or other risks. Incorrect reassembly can cause electricalshock when the unit is subsequently used.Safety Safety........................................................................................................................................................................................................................................................................................................................................................................................................................................................................1-4 Alcatel-Lucent – ProprietaryUse pursuant to applicable agreementsFDD RRH 700L3MN-00075-0002-RJZZAIssue 0 September 2012
Safety - specific hazardsDANGERElectric-shock hazardWorking in severe weather can result in personal injury or death and damage to theequipment.Never install or perform maintenance during severe weather (high winds, lightning,blizzards, hurricane etc.).DANGERNoxious-substance hazardUse of unspecified cleaning agents can result in personal injury.Use only specified cleaning agents. Never use flammable solvents.Always ensure there is adequate ventilation in the work area and wear the appropriatepersonal protective equipment.DANGERLaser hazardThis equipment operates with invisible laser radiation. Laser radiation can causeconsiderable injuries to the eyes.Never look into the end of an exposed fiber or into an open optical connector when theoptical source is switched on. Always observe the laser warning instructions.WARNINGElectric-shock hazardSome parts of all electrical installations are energized. Failure to observe this fact andthe safety warnings may lead to bodily injury and property damage.For this reason, only trained and qualified personnel (electrical workers as defined inIEC 60215 + A1 or EN 60215) may install or service the installation.Safety Safety - specific hazards........................................................................................................................................................................................................................................................................................................................................................................................................................................................................FDD RRH 700L3MN-00075-0002-RJZZAIssue 0 September 2012Alcatel-Lucent – ProprietaryUse pursuant to applicable agreements 1-5
WARNINGElectric-shock hazardThe power supply lines to the network element are energized. Contact with parts carryingvoltage can cause health problems, possibly including death, even hours after the event.Open and lockout the load disconnect switch in the distribution box to completelyde-energize the network element.WARNINGElectric-shock hazardThis product may be connected to an AC main power supply and may contain an internalbattery supply. Disconnecting one power source may not de-energize the system, and canlead to serious injury.Disconnect and lock out the AC main power supply, if present, and the internal batterysupply, if present, before servicing the equipment.WARNINGLaser hazardThe light from laser and high-radiance LED's may cause eye damage if absorbed by theretina.In the US consult ANSI Z136.2, in Europe consult IEC-60825 Safety of laser products, forguidance on the safe use of optical fiber communication systems in the workplace.Safety Safety - specific hazards........................................................................................................................................................................................................................................................................................................................................................................................................................................................................1-6 Alcatel-Lucent – ProprietaryUse pursuant to applicable agreementsFDD RRH 700L3MN-00075-0002-RJZZAIssue 0 September 2012
NOTICEESD hazardSemiconductor devices can be damaged by electrostatic discharges.The following rules must be complied with when handling any module containingsemiconductor components:•Wear conductive or antistatic working clothes (for example, coat made of 100%cotton).•Wear the grounded wrist strap.•Wear shoes with conductive soles on a conductive floor surface or conductive workmat.•Leave the modules in their original packaging until ready for use.•Make sure there is no difference in potential between yourself, the workplace, and thepackaging before removing, unpacking, or packing a module.•Hold the module only by the grip without touching the connection pins, tracks, orcomponents.•Place modules removed from the equipment on a properly grounded approved ESDwork mat.•Test or handle the module only with grounded tools on grounded equipment.•Handle defective modules exactly like new ones to avoid causing further damage.NOTICECondensationSudden changes in the weather may lead to the formation of condensation oncomponents. Operating the unit when condensation moisture is present can destroy theunit.Units which show signs of condensation must be dried before installation.CAUTIONLaceration hazardThe RRH may have sharp edges and burrs and contact may cause cuts and lacerations.Beware of sharp edges and burrs.Wear appropriate personal protective equipment.Safety Safety - specific hazards........................................................................................................................................................................................................................................................................................................................................................................................................................................................................FDD RRH 700L3MN-00075-0002-RJZZAIssue 0 September 2012Alcatel-Lucent – ProprietaryUse pursuant to applicable agreements 1-7
NOTICEToolsTools left in the working area can cause short circuits during operation which can lead tothe destruction of units.Make sure after finishing your work that no tools, testing equipment, flashlights, etc.,have been left in or on the equipment.NOTICEInadequate circulationInadequate circulation of cooling air can cause some units to become too warm. This canlead to operational impairment.Cover all installation slots for unequipped units with blanking panels.CAUTIONHot-surface hazardTouching a hot heater may cause burns.Do not touch the heaters.Before touching the units wait until they have cooled down, wear safety gloves andclothes.NOTICECorrosive-substance hazardCleaning plastic containers and lids with abrasive and aggressive cleaning agents maycause permanent damage.Do not use solvents, paraffin, abrasive or aggressive cleaning fluids, abrasive oraggressive antiseptic agents or abrasive or aggressive materials.NOTICEService-disruption hazardCleaning with water or a high-pressure cleaner will damage the RRH.The washing down of the equipment with water or a high-pressure cleaner is notpermitted.Safety Safety - specific hazards........................................................................................................................................................................................................................................................................................................................................................................................................................................................................1-8 Alcatel-Lucent – ProprietaryUse pursuant to applicable agreementsFDD RRH 700L3MN-00075-0002-RJZZAIssue 0 September 2012
CAUTIONLifting hazardLifting this equipment by yourself can result in injury due to the size and weight of theequipment.Always use at least three people or a lifting device to move or position this equipment.Safety Safety - specific hazards........................................................................................................................................................................................................................................................................................................................................................................................................................................................................FDD RRH 700L3MN-00075-0002-RJZZAIssue 0 September 2012Alcatel-Lucent – ProprietaryUse pursuant to applicable agreements 1-9
Product safetyEquipment safetySafety information for this equipment can be found on various Caution, Warning, Danger,information labels or instructions affixed to or included with the RRH, its internalassemblies or included within this document. Informational and cautionary labels mayappear near the item they address or may be grouped in a single location on theequipment. Warnings are typically adjacent to the hazard that is noted on the label. Theinstructions, cautions and warnings found on these labels must be understood andobserved by all personnel involved with the equipment installation and maintenance.Safety Product safety........................................................................................................................................................................................................................................................................................................................................................................................................................................................................1-10 Alcatel-Lucent – ProprietaryUse pursuant to applicable agreementsFDD RRH 700L3MN-00075-0002-RJZZAIssue 0 September 2012
22Product overviewOverviewPurposeThis chapter provides an overview of the Alcatel-Lucent FDD Remote Radio Head.ContentsFunctional description 2-2RRH description 2-3RRH weights and dimensions 2-6...................................................................................................................................................................................................................................FDD RRH 700L3MN-00075-0002-RJZZAIssue 0 September 2012Alcatel-Lucent – ProprietaryUse pursuant to applicable agreements 2-1
Functional descriptionGeneral descriptionThe 2 x 40W 700MHz RRH specified here supports 3GPP E-UTRAN Band 12. The RRHincludes an amplifier with two transmitters, four receivers, and filter all within onechassis. The RRH supports2x2MIMO and2x4MIMO within one module. The RRHunits can be combined to support4x4MIMO. The nominal transmit power is 40Watts atthe filter output for each of the two transmit paths.Product capabilitiesThe product capabilities in this release are:•Outdoor, -48 V DC•Transmit Power 2 Tx at 40W each•700 MHz•Supports up to six user alarms for each RRH•RRH Mounting:– pole– wall•Front access installation and service•Bottom I/O panel accessProduct overview Functional description........................................................................................................................................................................................................................................................................................................................................................................................................................................................................2-2 Alcatel-Lucent – ProprietaryUse pursuant to applicable agreementsFDD RRH 700L3MN-00075-0002-RJZZAIssue 0 September 2012
RRH descriptionRRH front-view (external)The following figure shows the front external view of the 700 MHz RRH.Wall mounting bracketWall mounting bracketMounting brackets (1of 2)Mounting brackets (1of 2)Solar ShieldSolar ShieldDC Conduit boxDC Conduit boxProduct overview RRH description........................................................................................................................................................................................................................................................................................................................................................................................................................................................................FDD RRH 700L3MN-00075-0002-RJZZAIssue 0 September 2012Alcatel-Lucent – ProprietaryUse pursuant to applicable agreements 2-3
Bottom view of the RRHBottom view of the RRH 700 MHz:DC entryDC entryUser alarmUser alarm AISG (ALD)AISG (ALD)GroundCPRIGigEProduct overview RRH description........................................................................................................................................................................................................................................................................................................................................................................................................................................................................2-4 Alcatel-Lucent – ProprietaryUse pursuant to applicable agreementsFDD RRH 700L3MN-00075-0002-RJZZAIssue 0 September 2012
Top view of the RRHTop view of the RRH 700 MHz:Cable interfacesAt the bottom of the RRH, the following cable interface points are found:•-48 DC power connector:•Two (2) Optical connectors: One optical interface to connect the RRH and the secondoptical interface to support daisy-chain•Two (2) External Alarm Connectors: (8-pin Circular Din Female connector)•One ALD (RS485) Connector: (8-pin Circular Din Female connector)•ANT RX: (7/16 DIN coaxial female connector)•ANT TX/RX: (7/16 DIN coaxial female connector)•Two (2) SMA connectors: (For testing TX main and TX Diversity)The top of the RRH allows access for connecting RF cables.RF Antenna connectionsRF Antenna connectionsProduct overview RRH description........................................................................................................................................................................................................................................................................................................................................................................................................................................................................FDD RRH 700L3MN-00075-0002-RJZZAIssue 0 September 2012Alcatel-Lucent – ProprietaryUse pursuant to applicable agreements 2-5
RRH weights and dimensionsWeights and dimensionsThis topic covers the RRH weights and dimensions.Standard RRH weights and dimensionsThe following table provides weights and dimensions for the RRHs.RRH configuration Estimated maximuminstalled weight withoutmounting brackets kg (lb.)Overall dimensions width x depth xheightmm (inches)RRH 700 MHz w/ SolarShield23 (51) 310 x 275 x 530 (12.2 x 10.8 x 21)Notes:1. Dimensions are including mounting bracket, solar shield and connectors.Miscellaneous hardware weightsThe following table provides approximate weights for other miscellaneous hardware.Item Weight kg (lb.)Shipping box 4.9 (10.8)Wall bracket (RRH) 4.1 (9)Pole brackets (2) (standard) 2.73 (6)Pole Bands (2) 1.8 (4)Pole Bracket (Low Profile) 1.8 (4)Product overview RRH weights and dimensions........................................................................................................................................................................................................................................................................................................................................................................................................................................................................2-6 Alcatel-Lucent – ProprietaryUse pursuant to applicable agreementsFDD RRH 700L3MN-00075-0002-RJZZAIssue 0 September 2012
33Site configurationsOverviewPurposeThis chapter provides configuration information for the RRH site.ContentsRF configurations 3-2Common Public Radio Interface Configuration 3-3...................................................................................................................................................................................................................................FDD RRH 700L3MN-00075-0002-RJZZAIssue 0 September 2012Alcatel-Lucent – ProprietaryUse pursuant to applicable agreements 3-1
RF configurationsThe RF capacity is measured in sectors, carriers, and RF signal power. The RF capacitydetermines what components appear in the RRH and what antenna connections arerequired.Physical RF connectionsThe base station can be connected to RRHs with the following RF frequencies:•700 MHz.The RRH accept connections for:•Two RF antenna cables with 7-16 DIN female connectors.RF configurationsThe following configurations are supported.Configuration RF connectors (per sector) RF signal power per carrier(nominal)700 MHz 2 40WSite configurations RF configurations........................................................................................................................................................................................................................................................................................................................................................................................................................................................................3-2 Alcatel-Lucent – ProprietaryUse pursuant to applicable agreementsFDD RRH 700L3MN-00075-0002-RJZZAIssue 0 September 2012
Common Public Radio Interface ConfigurationThe Common Public Radio Interface (CPRI) of the RRHs can be connected in twodifferent ways to the Base Band Unit:•Star configuration•Daisy chain configurationStar configurationThe star configuration is used when the RRHs are being mounted far from each other, butnearly equally spaced from the Base Band Unit.Daisy chain configurationThe daisy chain configuration is used when the RRHs are being mounted close togetherbut far from the Base Band UnitFrom an installation perspective these main configurations can be distinguished:RRH RRHRRHFiber InCPRI SLAVECCMAlpha Sector Beta Sector Gamma SectorBBU****Customer supplied optional Fiber Splice/Management enclosure*CPRI SLAVE CPRI SLAVESite configurations Common Public Radio Interface Configuration........................................................................................................................................................................................................................................................................................................................................................................................................................................................................FDD RRH 700L3MN-00075-0002-RJZZAIssue 0 September 2012Alcatel-Lucent – ProprietaryUse pursuant to applicable agreements 3-3
Daisy chain1x3:RRH RRHRRHFiber InCPRICCMAlpha Sector Beta Sector Gamma SectorBBU***Customer supplied optional Fiber Splice/Management enclosure*CPRI*CPRI CPRI CPRISite configurations Common Public Radio Interface Configuration........................................................................................................................................................................................................................................................................................................................................................................................................................................................................3-4 Alcatel-Lucent – ProprietaryUse pursuant to applicable agreementsFDD RRH 700L3MN-00075-0002-RJZZAIssue 0 September 2012
44Tools, materials, andchecklistOverviewPurposeThis chapter provides the tools and general installation requirements for the RRH.ContentsPreparatory information 4-2Tools required for installation 4-3Torque requirements 4-6Verify site preparation completed 4-8Physical installation process overview 4-9Installation procedure checklist 4-10...................................................................................................................................................................................................................................FDD RRH 700L3MN-00075-0002-RJZZAIssue 0 September 2012Alcatel-Lucent – ProprietaryUse pursuant to applicable agreements 4-1
Preparatory informationOverviewPurposeThis section presents information and procedures that are relevant before the RRHs aremounted, and grounded.Also included in this section is information for verifying that site preparationrequirements have been met so that installation of the product can begin properly.Reference documentsFurther information on RRH clearances and anchor holes can also be found in theAlcatel-Lucent FDD Remote Radio Head (700MHz) Site Preparation Guidelines,418-000-424.Refer to the site-specific layout information for details on where the equipment must bepositioned.This document also contains all necessary information on how to mark the positions ofthe anchor holes and how to drill them.ContentsTools required for installation 4-3Torque requirements 4-6Verify site preparation completed 4-8Physical installation process overview 4-9Installation procedure checklist 4-10Tools, materials, and checklistPreparatory informationOverview........................................................................................................................................................................................................................................................................................................................................................................................................................................................................4-2 Alcatel-Lucent – ProprietaryUse pursuant to applicable agreementsFDD RRH 700L3MN-00075-0002-RJZZAIssue 0 September 2012
Tools required for installationOverviewThis section provides a master list of all tools, materials, and parts required during theinstallation process. Items required for installation of the RRH are listed within theapplicable chapter.ToolsWARNINGElectric-shock hazardIf the installation is performed with energized DC circuits or with a battery backup supplyconnected, an energy hazard exists.Therefore, always use tools that are properly insulated.The following is a master list, in alphabetical order, of all tools that may be utilizedduring installation:•Adjustable open-ended wrench (or set of fixed open-ended wrenches)•Antioxidant compound•Shackle links, or equivalent (quantity: 2)•Bolt anchor setting tool•Bonding clamps for facility and phone line cables (normally provided by telephonecompany)•Box cutter or equivalent, to open packaging•Chalk line•Channel-lock pliers [for 2-1/2 inch nuts, max. 3/4-inch (19 mm) wide]•Channel-lock pliers (standard)•Crimping tools 22-16 gauge, 10-4/0 gauge (5-120 mm2) for installation of terminallugs and c-taps (R-3695A)•Derrick, capable of supporting a 500 lb. (220 kg) load•Drill and drill bits (including 5/8" [16 mm] and 11/16" [18 mm] for drilling anchorholes)•Drill bit (3/4") for 5/8" through bolts, if required•Drill - Pneumatic Hammer (R-5006),Roto-Stop Hammer Kit (R-4416) with 1/2-inch (12 mm) chuck, or equivalent to drillanchor holes•Ear protection gearTools, materials, and checklistPreparatory informationTools required for installation........................................................................................................................................................................................................................................................................................................................................................................................................................................................................FDD RRH 700L3MN-00075-0002-RJZZAIssue 0 September 2012Alcatel-Lucent – ProprietaryUse pursuant to applicable agreements 4-3
•Electrical conduit installation equipment and materials•Electrical tape•ESD wrist strap (not provided with RRHs)•Eye protection gear•Fish tape•Flashlight•Floor punch, for cutting asbestos floor tile prior to drilling•Floor tile puller, for raised floor tiles•A hoist capable of lifting and moving the RRH into final position•Galvanizing paint•Gin boom•Gloves - Low voltage rubber lineman's gloves (R-4285)•Hammer, 16 oz. (.5 kg) for anchor installation•Heat gun for heat shrink•Insulated gloves•Insulated hand tools (for completing electrical connections)•Ladder or work stand/stool .•Level (4 ft. - 1.5 m) (steel)•Marker, to mark floor for lineup and drilling•Measuring tape•Nut driver set (decimal) with 10-inch extension•Nut driver set (metric) with 250-mm extension•Ohmmeter (Multimeter, volt/ohmmeter, or equivalent)•Pallet jack•Pliers•Plumb line•Pry bar•Safety goggles or glasses (R-3055)•Screwdrivers (power and manual), flat-blade, Phillips•Silicone caulk•Socket sets (decimal and metric) various drives, including 1/4" drive for security bit•Stripping tool (for LDF4 antenna jumper cables) - part number 74Z-0-12-15 forHuber Suhner connectors; part number ITE-7189 for Andrew connectors.•Tools for preparing cables•Torque wrenches, 35 - 300 in.-lb. (4 - 34 Nm)•Torque wrenches, 4.4 -150 ft.-lb. (6 - 200 Nm)Tools, materials, and checklistPreparatory informationTools required for installation........................................................................................................................................................................................................................................................................................................................................................................................................................................................................4-4 Alcatel-Lucent – ProprietaryUse pursuant to applicable agreementsFDD RRH 700L3MN-00075-0002-RJZZAIssue 0 September 2012
•Vacuum cleaner or equivalent, as required for clearing debris from anchor holes•Volt/ohmmeter•Wire stripper•Wire rope or chain slings, 7/16 inch (11 mm), 7 feet long (2 m), minimum (quantity:2)•Wrench - Adjustable, (3/4 in./20 mm) open-ended wrench (or set of fixed open-endedwrenches)•Wrench - Flare Nut or Box Wrench, 12 mm (1/2 in.) required to install seismicanchors.Parts and/or kits neededThe following is a master list of all parts and kits that are required during installation ofthe RRH.•DC connectorized cable•External user alarm interface kit•Fiber optics connectorized cable•RF antenna jumper cables•Anchor kit - 12 mm expansion anchor kit•RRH grounding kit•R-ITE-6111 M10 eyebolts (2).•Mounting bracket (wall, pole, floorstand)Tools, materials, and checklistPreparatory informationTools required for installation........................................................................................................................................................................................................................................................................................................................................................................................................................................................................FDD RRH 700L3MN-00075-0002-RJZZAIssue 0 September 2012Alcatel-Lucent – ProprietaryUse pursuant to applicable agreements 4-5
Torque requirementsOverviewThis section provides mechanical torque requirements. Refer to the table below.Torque requirements for mechanical connectionsThe table below identifies the torque requirements to be followed when makingmechanical connections.Item Description TorqueNewtonMetersInchPoundsRF cable connections 25 221M6 x 16-mm thread rolling screw 4 30All other M6 fasteners (nuts, hex-head bolts, etc.) 4 30All M5 fasteners (pan-head screws, Torx screws and hex nut,etc.)430All M4 fasteners (pan-head screws, hex nut, etc.) 1.5 14Generic torque specifications for electrical connectionsImportant! The table below is to be used exclusively for electrical connections. Referto the previous table for mechanical connections.The table below identifies the torque requirements to be followed when makingelectrical connections.MetricScrewSizeSAEScrewSizeTorque - in.-lb. [or ft.-lb.] and (Nm)Wire Connections Head Tightened Nut TightenedSlottedMachineHex orSocketCapSlottedMachineHex orSocketCapSlottedMachineHex orSocketCapM4 8-32 15 (1.7) 15 (1.7) 19 (2.1) 19 (2.1) 19 (2.1) 23 (2.6)M5 10-24 21 (2.4) 21 (2.4) 27 (3.1) 27 (3.1) 27 (3.1) 33 (3.7)M6 1/4-20 50 (5.6) 50 (5.6) 65 (7.3) 65 (7.3) 65 (7.3) 80 (9.0)M8 5/16-18 - 100(11.3)- 135 (15.3) 135 (15.3) 165(18.6)M10 3/8-16 - 180(20.3)- 240 (27.1) 240 (27.1) 290(32.8)Tools, materials, and checklistPreparatory informationTorque requirements........................................................................................................................................................................................................................................................................................................................................................................................................................................................................4-6 Alcatel-Lucent – ProprietaryUse pursuant to applicable agreementsFDD RRH 700L3MN-00075-0002-RJZZAIssue 0 September 2012
MetricScrewSizeSAEScrewSizeTorque - in.-lb. [or ft.-lb.] and (Nm)Wire Connections Head Tightened Nut TightenedSlottedMachineHex orSocketCapSlottedMachineHex orSocketCapSlottedMachineHex orSocketCapM12 1/2-13 - 280(31.6)- 385 (43.5) 385 (43.5) 465(52.5)M14 1/2-13 - 500(56.5)- 585 (66.1) 585 (66.1) 710(80.2)M16 5/8-11 - [71](96.3)- [97] (131.5) [97] (131.5) [118](160.0)M20 3/4-10 - [125](169.5)- [172](233.2)[172] (233.2) [209](283.4)Tools, materials, and checklistPreparatory informationTorque requirements........................................................................................................................................................................................................................................................................................................................................................................................................................................................................FDD RRH 700L3MN-00075-0002-RJZZAIssue 0 September 2012Alcatel-Lucent – ProprietaryUse pursuant to applicable agreements 4-7
Verify site preparation completedOverviewThis topic describes what must be done to verify that the site preparation is complete sothat installation procedures can begin.If some of the requirements are not met, the installer must do so now.Verify site preparationBefore installation of the RRH site can begin, site preparation should have beencompleted in accordance with Alcatel-Lucent FDD Remote Radio Head (700 MHz) SitePreparation Guidelines, 418-000-424.This unit is only to be installed in restricted access locations.The following site preparation requirements must be met before the installation of theRRH can begin:•Adequate clearance must be provided for service access.•DC electric service must be installed.•User alarm facilities must be installed.•Grounding electrode system must be installed.•RF and antenna runs must be installed.•Surge protection for antennas must be installed (if required).•Tower light power must be installed (if required).•Tower light alarm must be installed (if required).•Mounting bracket holes must be drilled.•The environment must comply with limits listed under Environmental Requirements.•Cable supports and racks must be installed.•Conduits for user alarms, and power are provided.Tools, materials, and checklistPreparatory informationVerify site preparation completed........................................................................................................................................................................................................................................................................................................................................................................................................................................................................4-8 Alcatel-Lucent – ProprietaryUse pursuant to applicable agreementsFDD RRH 700L3MN-00075-0002-RJZZAIssue 0 September 2012
Physical installation process overviewOverviewThis topic delineates the steps involved in the installation of the RRH.Installation processFollowing are the high level steps of the installation process:1. Verify site preparation is complete2. Transport the RRH3. Mount the RRH4. Ground the RRH5. Connect user alarm6. Connect DC power cable7. Connect RF cables8. Initial start-up & system test9. Connect fiber optics cable.10. Final steps to finish installation.Tools, materials, and checklistPreparatory informationPhysical installation process overview........................................................................................................................................................................................................................................................................................................................................................................................................................................................................FDD RRH 700L3MN-00075-0002-RJZZAIssue 0 September 2012Alcatel-Lucent – ProprietaryUse pursuant to applicable agreements 4-9
Installation procedure checklistOverviewThe following is a procedure checklist.Checklist installation procedureDone N/A TaskVerify site preparation completedTransport and mount the RRHMounting instructionsGround the RRHConnect DC cable to the RRHConnect twisted-pair cables to the RRHConnect user alarms cableConnect fiber optics cableBackground information on antenna jumper cablesFinal installation proceduresTools, materials, and checklistPreparatory informationInstallation procedure checklist........................................................................................................................................................................................................................................................................................................................................................................................................................................................................4-10 Alcatel-Lucent – ProprietaryUse pursuant to applicable agreementsFDD RRH 700L3MN-00075-0002-RJZZAIssue 0 September 2012
55Transport, mount, andground the RRHOverviewPurposeThis chapter provides general instructions for mounting and grounding the RRH.ContentsPre-installation instructions 5-2Transport and mount the RRH 5-3Mounting instructions 5-8To mount hardware to wall 5-9Pole mount installation overview 5-16To mount hardware to pole with pole bands 5-18To mount hardware to pole with pole brackets 5-22To install RRH on pole weldment assemblies 5-25To ground the RRH 5-27...................................................................................................................................................................................................................................FDD RRH 700L3MN-00075-0002-RJZZAIssue 0 September 2012Alcatel-Lucent – ProprietaryUse pursuant to applicable agreements 5-1
Pre-installation instructionsOverviewPurposeThis section covers the:1. Instructions for transporting and mounting the RRH.ContentsTransport and mount the RRH 5-3Transport, mount, and ground the RRHPre-installation instructionsOverview........................................................................................................................................................................................................................................................................................................................................................................................................................................................................5-2 Alcatel-Lucent – ProprietaryUse pursuant to applicable agreementsFDD RRH 700L3MN-00075-0002-RJZZAIssue 0 September 2012
Transport and mount the RRHOverviewThis topic describes how to attach a two-leg lifting sling to the RRH and to move it nearto its designated position using a lifting mechanism such as a derrick.Unpack the RRHUse the following steps to unpack the RRH....................................................................................................................................................................................................1Make note of the "TIP N TELL" indicator on the package to see if the RRH wasmishandled or tipped during shipment....................................................................................................................................................................................................2Remove the bubble wrap.Important! Keep RRH upright....................................................................................................................................................................................................3Check RRHs for signs of damage....................................................................................................................................................................................................4Report damage as required.Prepare RRH for lifting and transportA lifting device or hoisting mechanism is required when moving the RRH.Obtain M10 eyebolts, lifting device, and mounting hardware.Lifting harness requirements, when requiredThe general requirements for a lifting harness are as follows:•Two-leg sling•Without shortening element•Length: greater than or equal to 305 mm (12 inch) from hook to lifting point•Angle should not be greater than 45 degrees from y-axis•Sufficient lifting capacity for the RRH including the pallet.Transport, mount, and ground the RRHPre-installation instructionsTransport and mount the RRH........................................................................................................................................................................................................................................................................................................................................................................................................................................................................FDD RRH 700L3MN-00075-0002-RJZZAIssue 0 September 2012Alcatel-Lucent – ProprietaryUse pursuant to applicable agreements 5-3
WARNINGRRH may fallIf the RRH falls while being lifted, it may injure or kill a person.Take both of the following precautions:•Use lifting shackles and lifting straps that can support the RRH if one shackle or onelifting strap fails and three remain. If a separate rating for shear is not provided, eachshackle must be used at no more than 25% of its tension rating.•Keep the area beneath the RRH and the immediate surrounding area completely clearof personnel at all times during the lifting operation.Before you beginFor each cell site, the shipping company, installer, or installation supervisor must planwhich methods to use based on:•How the equipment is delivered•The dimensions and weights of the equipment•The access route to the position where the equipment will be installedThe RRH equipment typically arrive at the site by truck. This topic assumes that:•Each RRH is on a pallet•The packaging has been removed.Lift RRH using boom tip winch, when requiredImportant! Before attempting to use derrick equipment, refer to Chapter 2, "Safetyprecautions for handling equipment".Use the following procedure to lift a RRH using a rotating derrick equipped with a boomtip winch....................................................................................................................................................................................................1Important! Use only the required eyebolts. DO NOT use any other holes or the RRHmay be damaged.At two positions, install an M10 eye bolt on the top of the RRH....................................................................................................................................................................................................2WARNINGSlip hazardPersonnel injury or equipment damageWhen moving the RRH, use appropriate lifting devices and sufficient number ofpersonnel.Transport, mount, and ground the RRHPre-installation instructionsTransport and mount the RRH........................................................................................................................................................................................................................................................................................................................................................................................................................................................................5-4 Alcatel-Lucent – ProprietaryUse pursuant to applicable agreementsFDD RRH 700L3MN-00075-0002-RJZZAIssue 0 September 2012
For more detailed information, refer to Corner Mounted Rotating Derrick Equipped withHydraulic Digger- Description and Maintenance, 649-300-021 for operating proceduresand precautions. Also consult Slings, 649-310-115, and B Connecting Links,081-410-105....................................................................................................................................................................................................3Important! To avoid excessive stress on the top of the RRH, make sure that each legof the lifting harness is at least 305 mm (12 inches) long.Note: It is permissible for two people to lift.Attach the slings to the boom line on the winch with a B connecting link or clevis....................................................................................................................................................................................................4Attach the other ends of the slings to the lifting eye-bolts on the RRH with a shackle linkor clevis.Transport, mount, and ground the RRHPre-installation instructionsTransport and mount the RRH........................................................................................................................................................................................................................................................................................................................................................................................................................................................................FDD RRH 700L3MN-00075-0002-RJZZAIssue 0 September 2012Alcatel-Lucent – ProprietaryUse pursuant to applicable agreements 5-5
Transport, mount, and ground the RRHPre-installation instructionsTransport and mount the RRH........................................................................................................................................................................................................................................................................................................................................................................................................................................................................5-6 Alcatel-Lucent – ProprietaryUse pursuant to applicable agreementsFDD RRH 700L3MN-00075-0002-RJZZAIssue 0 September 2012END OF STEPS...................................................................................................................................................................................................
Transport and place the RRHProceed as follows to transport the RRH by derrick:...................................................................................................................................................................................................1Carefully lift the RRH using the boom tip wench....................................................................................................................................................................................................2Transport the RRH via the rotating derrick to the installation position....................................................................................................................................................................................................3Determine if the RRH is being installed against a wall or on a pole....................................................................................................................................................................................................4Set the RRH down at or near the installation position, depending on the type of mountingmethod is to be used. Use the following instructions.If mounting on a: Then:Wall Use the hoisting mechanism to align the RRH where it is to be mountedon the wall.Continue with “Wall mount hardware installation”.Pole Use the hoisting mechanism to align the RRH where it is to be mountedon the pole.Continue with “Pole mount installation overview” (p. 5-16)....................................................................................................................................................................................................5Remove the lifting harness and the eye bolts once the RRH is in position.For wall and pole mounting, continue using the lifting harness to hold the RRH intoposition until mounting has been fully completed.Transport, mount, and ground the RRHPre-installation instructionsTransport and mount the RRH........................................................................................................................................................................................................................................................................................................................................................................................................................................................................FDD RRH 700L3MN-00075-0002-RJZZAIssue 0 September 2012Alcatel-Lucent – ProprietaryUse pursuant to applicable agreements 5-7END OF STEPS...................................................................................................................................................................................................
Mounting instructionsOverviewPurposeThis sections contains instructions for the various methods of mounting the RRH.ContentsTo mount hardware to wall 5-9Pole mount installation overview 5-16To mount hardware to pole with pole bands 5-18To mount hardware to pole with pole brackets 5-22To install RRH on pole weldment assemblies 5-25To ground the RRH 5-27Transport, mount, and ground the RRHMounting instructionsOverview........................................................................................................................................................................................................................................................................................................................................................................................................................................................................5-8 Alcatel-Lucent – ProprietaryUse pursuant to applicable agreementsFDD RRH 700L3MN-00075-0002-RJZZAIssue 0 September 2012
To mount hardware to wallOverviewThis section describes the procedures to be followed when installing the mountinghardware for the RRH on a solid concrete wall (or to the Unistrut on a wall).Wall mount bracketsWARNINGPersonnel injury or equipment damageBefore any hardware installation occurs, carefully read the section:"Safety precautions for handling and placement"Important! Various building materials and construction methods dictate that the RRHbe fastened to the wall with appropriate mounting hardware. It is the responsibility ofthe customer to provide any necessary support material and structures to ensure thatthe installation will be in compliance with Building Officials and Code Administrators(BOCA), Uniform Building Code (UBC), and all local codes.Transport, mount, and ground the RRHMounting instructionsTo mount hardware to wall........................................................................................................................................................................................................................................................................................................................................................................................................................................................................FDD RRH 700L3MN-00075-0002-RJZZAIssue 0 September 2012Alcatel-Lucent – ProprietaryUse pursuant to applicable agreements 5-9
The following figure illustrates the mounting bracket that is required to mount the RRHon a wall.Wall bracket assemblyTransport, mount, and ground the RRHMounting instructionsTo mount hardware to wall........................................................................................................................................................................................................................................................................................................................................................................................................................................................................5-10 Alcatel-Lucent – ProprietaryUse pursuant to applicable agreementsFDD RRH 700L3MN-00075-0002-RJZZAIssue 0 September 2012
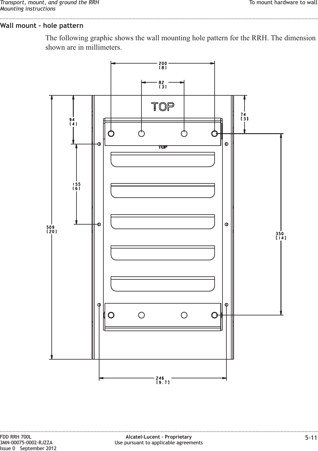
Wall mount - hole patternThe following graphic shows the wall mounting hole pattern for the RRH. The dimensionshown are in millimeters.Transport, mount, and ground the RRHMounting instructionsTo mount hardware to wall........................................................................................................................................................................................................................................................................................................................................................................................................................................................................FDD RRH 700L3MN-00075-0002-RJZZAIssue 0 September 2012Alcatel-Lucent – ProprietaryUse pursuant to applicable agreements 5-11
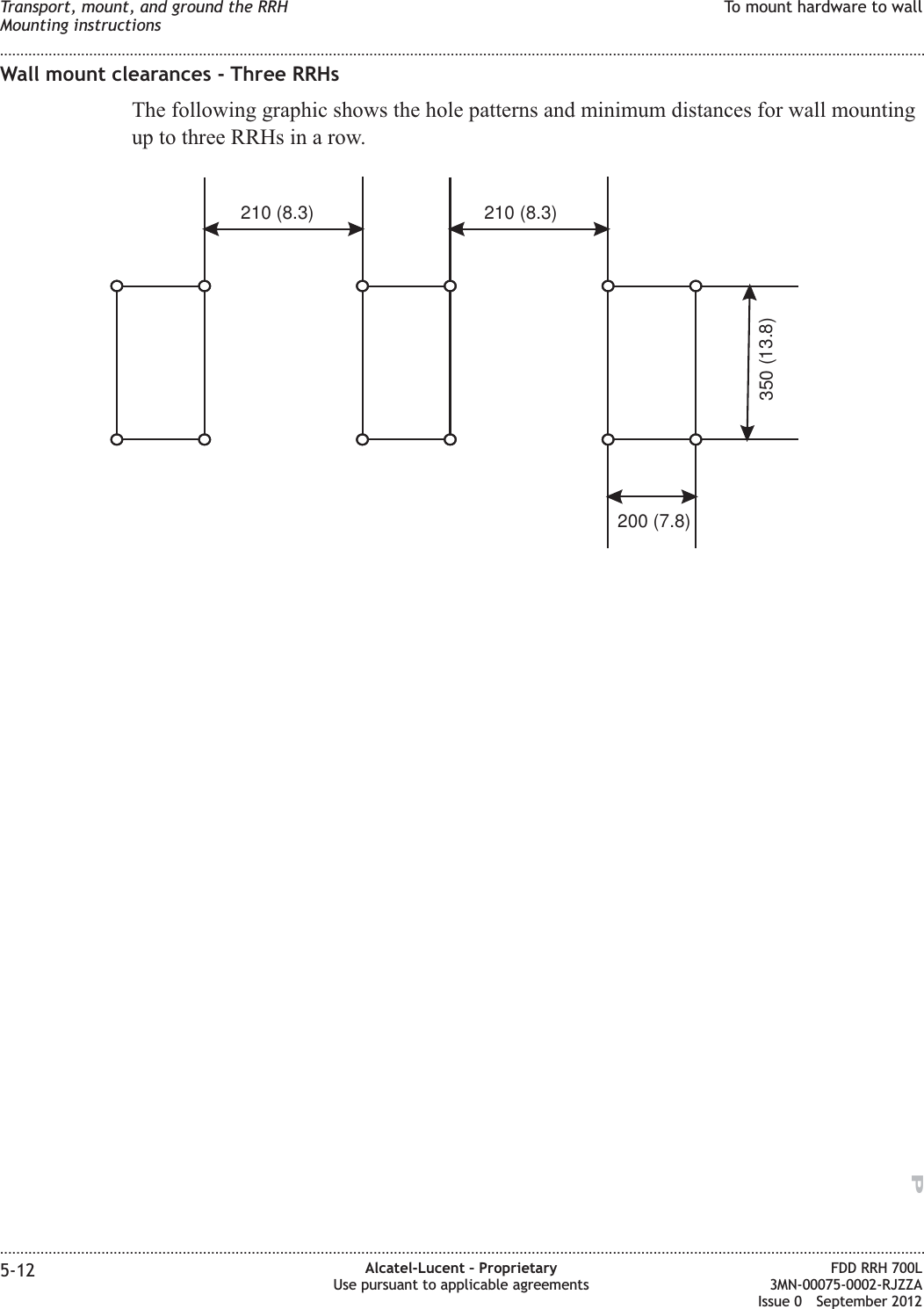
Wall mount clearances - Three RRHsThe following graphic shows the hole patterns and minimum distances for wall mountingup to three RRHs in a row.P210 (8.3)210 (8.3)200 (7.8)350 (13.8)Transport, mount, and ground the RRHMounting instructionsTo mount hardware to wall........................................................................................................................................................................................................................................................................................................................................................................................................................................................................5-12 Alcatel-Lucent – ProprietaryUse pursuant to applicable agreementsFDD RRH 700L3MN-00075-0002-RJZZAIssue 0 September 2012
Indirect wall mounting (unistrut)The following graphic shows the unistrut.Before you beginMake sure you have read and understood the section “Transport and mount the RRH”(p. 5-3).Attach mounting bracket...................................................................................................................................................................................................1Attach the wall mounting bracket for the RRH to concrete wall using four M10 or 3/8”anchor bolts. Use four M10 (3/8”) hex bolts with flatwasher, lockwasher and, springnutfor unistrut system....................................................................................................................................................................................................2Level and properly torque bolts.Transport, mount, and ground the RRHMounting instructionsTo mount hardware to wall........................................................................................................................................................................................................................................................................................................................................................................................................................................................................FDD RRH 700L3MN-00075-0002-RJZZAIssue 0 September 2012Alcatel-Lucent – ProprietaryUse pursuant to applicable agreements 5-13END OF STEPS...................................................................................................................................................................................................
ResultThe RRH mounting bracket is attached to the wall or to the unistrut.Install RRH on wallCAUTIONPersonal InjuryThe bolts on the RRH can pinch and damage your fingers.Keep fingers clear when lowering the RRH into position.Perform the following procedure to install the RRH on a wall or to the unistrut on a wall....................................................................................................................................................................................................1Insert Gin Boom into top of the wall mount bracket....................................................................................................................................................................................................2Attach the hoisting mechanism chains....................................................................................................................................................................................................3If you have not already done so, attach lifting harness to the two lifting points (eye bolts)of the RRH....................................................................................................................................................................................................4Carefully raise the RRH into position using the hoisting mechanism, if required....................................................................................................................................................................................................5Loosely attach the two side top M10 hex bolts, flat washers, and lock washers to the RRHas supplied with the wall mounting kit. Do not tighten yet, install only halfway. Tape thewashers to the bolts.Important! When lifting the RRH, do not rest the bottom side on the ground....................................................................................................................................................................................................6At the upper corners of the RRH, pull the washers to the sides. Position to the M10 hexbolts on the RRH in the top mounting slots of the wall bracket....................................................................................................................................................................................................7Remove the sling....................................................................................................................................................................................................8Install the two bottom side M10 hex bolts, flat washers, and lock washers through thewall mounting bracket.Remove tape from top hardware.Transport, mount, and ground the RRHMounting instructionsTo mount hardware to wall........................................................................................................................................................................................................................................................................................................................................................................................................................................................................5-14 Alcatel-Lucent – ProprietaryUse pursuant to applicable agreementsFDD RRH 700L3MN-00075-0002-RJZZAIssue 0 September 2012
...................................................................................................................................................................................................9If necessary, level brackets to insure that the RRH will be mounted level. Use a level tolevel the top of the RRH....................................................................................................................................................................................................10 Tighten all the M10 hex bolts and use a torque wrench to tighten all the nuts 32.2 Nm (25ft/lb)....................................................................................................................................................................................................11 Install tamper proof screws.Transport, mount, and ground the RRHMounting instructionsTo mount hardware to wall........................................................................................................................................................................................................................................................................................................................................................................................................................................................................FDD RRH 700L3MN-00075-0002-RJZZAIssue 0 September 2012Alcatel-Lucent – ProprietaryUse pursuant to applicable agreements 5-15END OF STEPS...................................................................................................................................................................................................
Pole mount installation overviewOverviewThis section describes the procedures to be followed when installing the RRH on a pole.There are two types of pole mounting installations:1. Pole brackets and pole bands2. Pole brackets with (customer supplied) through boltsPole brackets are available in low profile or standard. Standard pole brackets provide agreater standoff from pole for additional cable clearance.Pole mounting weldment and pole band componentsEach pole mounting band consists of a fixed retainer extrusion, a sliding retainerextrusion, a carriage bolt, and a band, as shown in the following figureTo mount equipment pole brackets - standard or low profiles - must be threaded on to theband.Transport, mount, and ground the RRHMounting instructionsPole mount installation overview........................................................................................................................................................................................................................................................................................................................................................................................................................................................................5-16 Alcatel-Lucent – ProprietaryUse pursuant to applicable agreementsFDD RRH 700L3MN-00075-0002-RJZZAIssue 0 September 2012
The following figure shows both, low profile and standard weldment:Note: Pole band weldment assemblies must be created for both upper and lower bands atthe same time.Standard PolebandTransport, mount, and ground the RRHMounting instructionsPole mount installation overview........................................................................................................................................................................................................................................................................................................................................................................................................................................................................FDD RRH 700L3MN-00075-0002-RJZZAIssue 0 September 2012Alcatel-Lucent – ProprietaryUse pursuant to applicable agreements 5-17
To mount hardware to pole with pole bandsPurposeThis section describes the procedures to be followed when installing the RRH on a 152mm to 380 mm diameter pole with pole brackets.WARNINGFall hazardFalls can occur when working at heights resulting in serious personal injury or death.To prevent a fall when working at heights (ladder, scaffold, manlift, roof etc.) follow safework practices and wear appropriate fall protection equipment.Before you beginThe following mounting hardware is required to mount up to the RRH on a pole:•Pole mounting bands (qty. 2)•Pole brackets (qty. 2)•Wall Mounting Brackets•M10 bolts, lock washers, and flat washers (four).Measure and mark pole and pole bandsPerform the following procedure to measure and mark the upper and lower pole bandlocations and the pole bands....................................................................................................................................................................................................1Use a tape measure to determine and mark the position of the upper and lower pole bands350 mm (14.37 in) apart for RRHs. Refer to specific cell site engineering information formeasurement details....................................................................................................................................................................................................2Measure the circumferencee (distance around the pole) at the heights of the bands to beinstalled....................................................................................................................................................................................................3Measure the distances you calculated in Step 2 on the pole bands from the fixed retainerextrusion as shown in the following figure.Transport, mount, and ground the RRHMounting instructionsTo mount hardware to pole with pole bands........................................................................................................................................................................................................................................................................................................................................................................................................................................................................5-18 Alcatel-Lucent – ProprietaryUse pursuant to applicable agreementsFDD RRH 700L3MN-00075-0002-RJZZAIssue 0 September 2012
...................................................................................................................................................................................................4Mark the bands at that point....................................................................................................................................................................................................5Use a nail and a chalked plumb line or plumb bob to mark a vertical line on the pole sothat the upper and lower brackets will be aligned.Place weldment(s) on pole bandsPerform the following procedure to place the pole weldment on the upper and lower polebands....................................................................................................................................................................................................1Remove the sliding retainer extrusion from the pole bands....................................................................................................................................................................................................2Thread the weldment(s) onto the pole bands.Transport, mount, and ground the RRHMounting instructionsTo mount hardware to pole with pole bands........................................................................................................................................................................................................................................................................................................................................................................................................................................................................FDD RRH 700L3MN-00075-0002-RJZZAIssue 0 September 2012Alcatel-Lucent – ProprietaryUse pursuant to applicable agreements 5-19END OF STEPS...................................................................................................................................................................................................
...................................................................................................................................................................................................3Replace the sliding retainer extrusion on each pole band so that the beveled ends ofextrusion faces the open end of the band.Bend the bandsPerform the following procedure to bend the upper and lower pole bands....................................................................................................................................................................................................1Bend the bands at the previously marked spot so that the pointed end of the band will beinside the band after installation....................................................................................................................................................................................................2Strike the bands with a hammer to create a sharp radius that allows the retainer to lockinto place....................................................................................................................................................................................................3Make a 90 degree bend at the base of each retainer extrusion to allow the retainers andcarriage bolt to properly align and lock into place.Install pole bands on polePerform the following procedure to install the upper and lower pole bands on the pole....................................................................................................................................................................................................1Place the pole bands around the pole at the determined height....................................................................................................................................................................................................2Insert the carriage bolt through both retainers, making sure that the head of bolt properlylocks into the fixed retainer....................................................................................................................................................................................................3Install the nut and tighten it just enough so that the band and weldment(s) maintain theirposition on the pole. Do not fully tighten the nut....................................................................................................................................................................................................4Adjust the position of the weldment(s) so that they are centered on the horizontal andvertical lines marked on the pole.Transport, mount, and ground the RRHMounting instructionsTo mount hardware to pole with pole bands........................................................................................................................................................................................................................................................................................................................................................................................................................................................................5-20 Alcatel-Lucent – ProprietaryUse pursuant to applicable agreementsFDD RRH 700L3MN-00075-0002-RJZZAIssue 0 September 2012END OF STEPS...................................................................................................................................................................................................END OF STEPS...................................................................................................................................................................................................
...................................................................................................................................................................................................5Adjust bands so that they are snug and do not slide down pole (bands may needadjustment when attaching wall mounting brackets....................................................................................................................................................................................................6Attach wall mounting bracket using four M10 hex bolts, lockwasher, and flatwasher....................................................................................................................................................................................................7Torque each bolt 32.2 Nm (25 ft/lb.)....................................................................................................................................................................................................8Fully tighten each band.Transport, mount, and ground the RRHMounting instructionsTo mount hardware to pole with pole bands........................................................................................................................................................................................................................................................................................................................................................................................................................................................................FDD RRH 700L3MN-00075-0002-RJZZAIssue 0 September 2012Alcatel-Lucent – ProprietaryUse pursuant to applicable agreements 5-21END OF STEPS...................................................................................................................................................................................................
To mount hardware to pole with pole bracketsPurposeThis section describes the procedures to be followed when installing the RRH on a 50mm to 152 mm diameter pole with pole brackets.Pole brackets for small diameter polesThe figure shows a complete pole bracket assembly.WARNINGFall hazardFalls can occur when working at heights resulting in serious personal injury or death.To prevent a fall when working at heights (ladder, scaffold, manlift, roof etc.) follow safework practices and wear appropriate fall protection equipment.Before you beginThe following mounting hardware is required to mount up to the RRH on a smalldiameter pole:•Pole mounting brackets (qty. 2x2)•300 mm M10 hex nut bolts (qty. 4)•80 mm M10 hex nut bolts (qty. 4)Pole bracketOpposite bracket300 mm M10 hex bolt80 mm M10 hex boltLockwasherFlatwasherM10 nutTransport, mount, and ground the RRHMounting instructionsTo mount hardware to pole with pole brackets........................................................................................................................................................................................................................................................................................................................................................................................................................................................................5-22 Alcatel-Lucent – ProprietaryUse pursuant to applicable agreementsFDD RRH 700L3MN-00075-0002-RJZZAIssue 0 September 2012
•lock washers (qty. 12), flat washers (qty. 12), for M10 bolts•M10 nuts (qty. 4)•Wall Mounting Brackets (equipped with RRH).Measure and mark pole and attach pole brackets...................................................................................................................................................................................................1Use tape measure to determine and mark the position of upper pole bracket....................................................................................................................................................................................................2Attach upper pole bracket to the wall mount bracket using two 80mm long M10 hex bolts,lock washers, flat washers. Insert bolts through inner holes of the wall mount bracketpanel.Repeat for lower pole bracket...................................................................................................................................................................................................3Insert a 300 mm, M10 long hex bolt, equipped with lock washer, and flat washer, throughthe upper left-most hole in the bracket panel, through the attached pole bracket....................................................................................................................................................................................................4Insert opposite bracket over threaded portion of the 300 mm bolt, and secure with flatwasher, lockwasher, and hex nut....................................................................................................................................................................................................5Adjust to estimated pole diameter...................................................................................................................................................................................................6Lift sub-assembly to marked height...................................................................................................................................................................................................7Insert 300 mm long, M10 hex bolt, lock washer, and flat washer through the right- mostupper hole in mounting bracket panel, through the attached pole bracket and the oppositebracket, and secure with lock washer, flat washer and hex nut...................................................................................................................................................................................................8Equally tighten hardware...................................................................................................................................................................................................9Install opposite end of lower pole bracket using 300 mm, M10 long hex bolts, lockwashers, and flat washersTransport, mount, and ground the RRHMounting instructionsTo mount hardware to pole with pole brackets........................................................................................................................................................................................................................................................................................................................................................................................................................................................................FDD RRH 700L3MN-00075-0002-RJZZAIssue 0 September 2012Alcatel-Lucent – ProprietaryUse pursuant to applicable agreements 5-23
...................................................................................................................................................................................................10 Equally tighten hardwareHow to continueContinue hardware installation with the installation of the RRH: “To install RRH on poleweldment assemblies” (p. 5-25)Transport, mount, and ground the RRHMounting instructionsTo mount hardware to pole with pole brackets........................................................................................................................................................................................................................................................................................................................................................................................................................................................................5-24 Alcatel-Lucent – ProprietaryUse pursuant to applicable agreementsFDD RRH 700L3MN-00075-0002-RJZZAIssue 0 September 2012END OF STEPS...................................................................................................................................................................................................
To install RRH on pole weldment assembliesPurposeThis section describes the procedures to be followed when installing the RRH to poleweldment assemblies.WARNINGFall hazardFalls can occur when working at heights resulting in serious personal injury or death.To prevent a fall when working at heights (ladder, scaffold, manlift, roof etc.) follow safework practices and wear appropriate fall protection equipment.Before you beginMake sure you have read and understood the section “Transport and mount the RRH”(p. 5-3).Install RRH on pole weldment assembliesPerform the following procedure to install the RRH on the mounting hardware....................................................................................................................................................................................................1Attach the hoisting mechanism chains....................................................................................................................................................................................................2If you have not already done so, attach the lifting harness to the two lifting points (eyebolts) of the RRH....................................................................................................................................................................................................3Carefully raise the RRH into position using the hoisting mechanism, if required....................................................................................................................................................................................................4Loosely attach the two side top M10 hex bolts, flat washers, and lock washers to the RRHas supplied with the wall mounting kit. Do not tighten yet, install only halfway. Tape thewashers to the bolts.Note: When lifting the RRH, do not rest the bottom side of the RRH on the ground....................................................................................................................................................................................................5At the upper corners of the RRH, pull the washers to the sides. Position the M10 hex boltson the RRH in the top mounting slots of the bracket.Transport, mount, and ground the RRHMounting instructionsTo install RRH on pole weldment assemblies........................................................................................................................................................................................................................................................................................................................................................................................................................................................................FDD RRH 700L3MN-00075-0002-RJZZAIssue 0 September 2012Alcatel-Lucent – ProprietaryUse pursuant to applicable agreements 5-25
...................................................................................................................................................................................................6Remove the sling....................................................................................................................................................................................................7Install the two bottom side M10 hex bolts, flat washers, and lock washers through thewall mount bracket.Remove tape from top hardware....................................................................................................................................................................................................8If necessary, level brackets to insure that the RRH will be mounted level. Use a level tolevel the top of the RRH....................................................................................................................................................................................................9Tighten all the M10 hex bolts and use a torque wrench to tighten all the nuts to 32.2 Nm(25 ft/lb)....................................................................................................................................................................................................10 Install tamper proof screws.Transport, mount, and ground the RRHMounting instructionsTo install RRH on pole weldment assemblies........................................................................................................................................................................................................................................................................................................................................................................................................................................................................5-26 Alcatel-Lucent – ProprietaryUse pursuant to applicable agreementsFDD RRH 700L3MN-00075-0002-RJZZAIssue 0 September 2012END OF STEPS...................................................................................................................................................................................................
To ground the RRHPurposeThis topic describes how to ground the RRH.To ground the RRH, a minimum of one connection to the grounding system is required.The grounding position is located on the top of the RRH.Ground area at RRHThe following figure shows the grounding area on the RRH.Ground the RRHTo ground the RRH, perform the following steps....................................................................................................................................................................................................1Route the 16 mm2(#6 AWG) ground cable pigtail from the ground system (installedduring site preparation) to the RRH.GroundTransport, mount, and ground the RRHMounting instructionsTo ground the RRH........................................................................................................................................................................................................................................................................................................................................................................................................................................................................FDD RRH 700L3MN-00075-0002-RJZZAIssue 0 September 2012Alcatel-Lucent – ProprietaryUse pursuant to applicable agreements 5-27
...................................................................................................................................................................................................2At the RRH end, cut the cable to proper length and strip the cable's end....................................................................................................................................................................................................3Crimp the supplied ground lug on the end of the cable. Clean the contact surface area anduse antioxidant to avoid oxidation....................................................................................................................................................................................................4Connect each ground lug to the RRH using the supplied M6 screws, lock washers, andflat washers. Use antioxidant at the grounding pads....................................................................................................................................................................................................5Torque each screw to 5.6 Nm (50 in-lb).Transport, mount, and ground the RRHMounting instructionsTo ground the RRH........................................................................................................................................................................................................................................................................................................................................................................................................................................................................5-28 Alcatel-Lucent – ProprietaryUse pursuant to applicable agreementsFDD RRH 700L3MN-00075-0002-RJZZAIssue 0 September 2012END OF STEPS...................................................................................................................................................................................................
66Connect interface and DCcablesOverviewPurposeThis chapter provides instructions for routing and connecting the following cables to theRRH:•User alarm cables•ALD cable•Fiber optics cables.•DC cableContentsRoute and connect user alarm cables 6-2Route and connect ALD cable (Optional) 6-5Route and connect optical fiber cables 6-7Fiber distribution unit (optional) 6-12To route and connect DC power cables 6-14Phoenix copper power distribution unit (optional) 6-16...................................................................................................................................................................................................................................FDD RRH 700L3MN-00075-0002-RJZZAIssue 0 September 2012Alcatel-Lucent – ProprietaryUse pursuant to applicable agreements 6-1
Route and connect user alarm cablesPurposeThis topic provides all necessary information and procedural instructions to route andconnect the user alarm cables to the Remote Radio Head (RRH).User alarm cablesThe RRH manages and reports 4 external alarms to the OMC. The alarm cable can beconnected to the User alarm interface of the RRH.User alarm cable connectionsThe following table shows the connector type on the user alarm cable.Cable Connectors typeUser alarms 8-pin Circular Male connectorUser alarmUser alarmConnect interface and DC cables Route and connect user alarm cables........................................................................................................................................................................................................................................................................................................................................................................................................................................................................6-2 Alcatel-Lucent – ProprietaryUse pursuant to applicable agreementsFDD RRH 700L3MN-00075-0002-RJZZAIssue 0 September 2012
Cable Connectors typeUser alarms wire colors and punchdown positionsRefer to table below for RRH wire color-coding and punch down information.Pin # Function Wire Color1 N/C (No Connect N/A2 ALARM 3 RTN (N) BLACK3 ALARM 1 (P) BROWN6 ALARM 2 RTN (N) GREEN4 ALARM 2 (P) RED5 N/C N/A7 ALARM 3 (P) BLUE8 ALARM 1 RTN (N) WHITERoute and connect the alarm cablePerform the following steps to route and connect the alarm cable.....................................................................................................................................................................................................1Route the external alarm cable from RRH to the alarm Distribution Frame....................................................................................................................................................................................................2Connect the alarm cable to the distribution block. Refer to the following figure.Connect interface and DC cables Route and connect user alarm cables........................................................................................................................................................................................................................................................................................................................................................................................................................................................................FDD RRH 700L3MN-00075-0002-RJZZAIssue 0 September 2012Alcatel-Lucent – ProprietaryUse pursuant to applicable agreements 6-3
...................................................................................................................................................................................................3Route the alarm cable in the cable way under the RRH....................................................................................................................................................................................................4Remove the protective cover and check the continuity of the wires between thedistribution frame (alarm Distribution Frame) and the connector pins using a multimeter.Note: This measurement is performed on the alarm cable connector (RRH side) with aloop back of each pair (one by one) on the alarm DF side. Using a multimeter, checkthat no short circuit appears between each pair and the shielding wires....................................................................................................................................................................................................5Screw the alarm connector in RRH.Connect interface and DC cables Route and connect user alarm cables........................................................................................................................................................................................................................................................................................................................................................................................................................................................................6-4 Alcatel-Lucent – ProprietaryUse pursuant to applicable agreementsFDD RRH 700L3MN-00075-0002-RJZZAIssue 0 September 2012END OF STEPS...................................................................................................................................................................................................
Route and connect ALD cable (Optional)PurposeThis topic provides all necessary information and procedural instructions to route andconnect the ALD cable to the Remote Radio Head (RRH).ALD cable connectionRoute and connect the alarm cablePerform the following steps to route and connect the alarm cable....................................................................................................................................................................................................1Route the ALD cable under the RRH, use a ty rap to fix this cable....................................................................................................................................................................................................2Remove the cap from ALD connector.AISG (ALD)AISG (ALD)Connect interface and DC cables Route and connect ALD cable (Optional)........................................................................................................................................................................................................................................................................................................................................................................................................................................................................FDD RRH 700L3MN-00075-0002-RJZZAIssue 0 September 2012Alcatel-Lucent – ProprietaryUse pursuant to applicable agreements 6-5
...................................................................................................................................................................................................3Screw the ALD connector on the RRH connector.Connect interface and DC cables Route and connect ALD cable (Optional)........................................................................................................................................................................................................................................................................................................................................................................................................................................................................6-6 Alcatel-Lucent – ProprietaryUse pursuant to applicable agreementsFDD RRH 700L3MN-00075-0002-RJZZAIssue 0 September 2012END OF STEPS...................................................................................................................................................................................................
Route and connect optical fiber cablesPurposeThis topic provides all necessary information and procedural instructions to route andconnect the optical fiber cables to the Remote Radio Head (RRH).CPRI connectionsThe fiber optic cables are connected at the bottom of the RRH as shown in the followingfigure.Cable functionsCable Use Cable type Number oflines per cableMax.CablesConnec-tor typeFiber optic Base Band Unitconnectionsingle mode 2 1 LCCPRIConnect interface and DC cables Route and connect optical fiber cables........................................................................................................................................................................................................................................................................................................................................................................................................................................................................FDD RRH 700L3MN-00075-0002-RJZZAIssue 0 September 2012Alcatel-Lucent – ProprietaryUse pursuant to applicable agreements 6-7
Cable Use Cable type Number oflines per cableMax.CablesConnec-tor typeFiber optic Daisy chainconnectionbetween twoRRHssingle mode 2 2 forSlave /MasterLCIdentify CPRI ConfigurationRemote Radio Heads can be connected to the Base Band Unit in different ways. Makesure which configuration is applicable.Depending on the actual site configuration, there can be•up to three RRHs individually connected•one daisy chain, containing three RRHs•two daisy chains, each containing three RRHs•three daisy chains, each containing two RRHsEach individual connection or daisy chain is connected to one CPRI port of the BaseBand Unit. Depending on the actual configuration the RRHs may need to beinterconnected too.Route and connect fiber cableNOTICEProtect fiber cable.The optical fiber should be protected in solid pipe to proximate of RRH, use twine tosecure the optical fiber in the cable way (neither use tie rap), neither cut this cable onsite, the exceed length should be coil in side and protected in box. The fiber opticconnector should be protected by cap when not being used. Respect the bending radiusduring the manipulation of optic cable (82.5mm).Perform the following steps to connect the fiber optic cables to the RRH....................................................................................................................................................................................................1Locate the fiber optic cable connections for the RRH. Refer to “CPRI connections”(p. 6-7) -- and Loosen the cable gland to allow pulling of the fiber cable.Connect interface and DC cables Route and connect optical fiber cables........................................................................................................................................................................................................................................................................................................................................................................................................................................................................6-8 Alcatel-Lucent – ProprietaryUse pursuant to applicable agreementsFDD RRH 700L3MN-00075-0002-RJZZAIssue 0 September 2012
...................................................................................................................................................................................................2On the RRH, remove the protective cap from the CPRI connector....................................................................................................................................................................................................3Remove protector cover from transceiver. Refer to the following figure.Connect interface and DC cables Route and connect optical fiber cables........................................................................................................................................................................................................................................................................................................................................................................................................................................................................FDD RRH 700L3MN-00075-0002-RJZZAIssue 0 September 2012Alcatel-Lucent – ProprietaryUse pursuant to applicable agreements 6-9
...................................................................................................................................................................................................4Insert the SFP optical transceiver in the appropriate location and lock them....................................................................................................................................................................................................5Connect the Radial connector side to the RRH in the CPRI PRI port....................................................................................................................................................................................................6Connector the cable to the RRH -Turn clockwise to secure the Radiall connector.FIBER TRANSCEIVERRear side(side with label)ProtectorCoverTop sideLockingBracketPlug(RRH)endReceptacle(cable)endConnect interface and DC cables Route and connect optical fiber cables........................................................................................................................................................................................................................................................................................................................................................................................................................................................................6-10 Alcatel-Lucent – ProprietaryUse pursuant to applicable agreementsFDD RRH 700L3MN-00075-0002-RJZZAIssue 0 September 2012
...................................................................................................................................................................................................7Secure the coupling nut and locked to the receptacle.Connect interface and DC cables Route and connect optical fiber cables........................................................................................................................................................................................................................................................................................................................................................................................................................................................................FDD RRH 700L3MN-00075-0002-RJZZAIssue 0 September 2012Alcatel-Lucent – ProprietaryUse pursuant to applicable agreements 6-11END OF STEPS...................................................................................................................................................................................................
Fiber distribution unit (optional)OverviewThis topic describes the optional fiber distribution unit and its connection to the RRHs.Requirements and specificationsThe fiber distribution unit is required when an RRH is pole or wall mounted and has thefollowing requirements and capabilities:•Can be sited up to a distance of 14 km from the RRH•Can connect via 3 output glands to a maximum of 12 RRHs.Connection of 6 RRHs (3x2) via a fiber distribution unitThis example configuration shows 3 RRHs connected directly from the fiber distributionunit and 3 RRHs connected by daisy chainConnect interface and DC cables Fiber distribution unit (optional)........................................................................................................................................................................................................................................................................................................................................................................................................................................................................6-12 Alcatel-Lucent – ProprietaryUse pursuant to applicable agreementsFDD RRH 700L3MN-00075-0002-RJZZAIssue 0 September 2012
BBUD2URRH RRH*RRH RRH*RRH RRH*FiberDistributionUnit* Customer supplied optional Fiber Splice/Management enclosureConnect interface and DC cables Fiber distribution unit (optional)........................................................................................................................................................................................................................................................................................................................................................................................................................................................................FDD RRH 700L3MN-00075-0002-RJZZAIssue 0 September 2012Alcatel-Lucent – ProprietaryUse pursuant to applicable agreements 6-13
To route and connect DC power cablesPurposeThe following section covers the procedures for connecting DC and power alarm cables.DC cable connectionsThe following table provides information about the DC feeder cables for the RRH.Purpose Wire size [mm² (AWG)]-48 V DC Feeder 16 (6)Conduit for DC feeder cables (outdoor)For outdoor installation, the DC feeder and power alarm cables are routed through thesame 1-inch rigid or liquid-tight flexible metal conduit. For indoor installation, conduit isnot required for the cables.DC power connectionDC entryDC entryConnect interface and DC cables To route and connect DC power cables........................................................................................................................................................................................................................................................................................................................................................................................................................................................................6-14 Alcatel-Lucent – ProprietaryUse pursuant to applicable agreementsFDD RRH 700L3MN-00075-0002-RJZZAIssue 0 September 2012
Before you beginMake sure power at DC source is turned off and secured against turn-on.Route and connect DC power cables to the RRHWARNINGTurn OFF circuit breakerRisk of injury or/and equipment damage by electricity.The circuit breaker dedicated to the RRH must be DISCONNECTED.Perform the following procedure to connect the DC power cables to the RRH:...................................................................................................................................................................................................1Route the DC power cables to the RRH.Remove the protective cap from the DC connector....................................................................................................................................................................................................2Screw the DC cable to the DC connector....................................................................................................................................................................................................3Connect the other side of the DC cable to the power plant.The cables must be connected with respect to the following polarity:•Blue to -48V•Black to 0VConnect interface and DC cables To route and connect DC power cables........................................................................................................................................................................................................................................................................................................................................................................................................................................................................FDD RRH 700L3MN-00075-0002-RJZZAIssue 0 September 2012Alcatel-Lucent – ProprietaryUse pursuant to applicable agreements 6-15END OF STEPS...................................................................................................................................................................................................
Phoenix copper power distribution unit (optional)OverviewThis topic describes the optional Phoenix copper power distribution unit and itsconnection to the RRHs.Requirements and specificationsThe power distribution unit is required when an RRH is pole or wall mounted:•Can connect to a maximum of 6 RRHs•Can be sited at a distance as required per calculation of voltage drop to the RRHBBUD2UPhoenixCopperPowerDistributionUnitRRHRRHRRHRRHRRHRRHConnect interface and DC cables Phoenix copper power distribution unit (optional)........................................................................................................................................................................................................................................................................................................................................................................................................................................................................6-16 Alcatel-Lucent – ProprietaryUse pursuant to applicable agreementsFDD RRH 700L3MN-00075-0002-RJZZAIssue 0 September 2012
77Finish the installationOverviewPurposeThis chapter details the procedures for connecting RF cables to the RRH. In the standardconfiguration, there are two RF jumper cables. Final actions to finish the RRH installationare described.ContentsTo route and connect RF jumper cables 7-2To finalize RRH installation 7-7...................................................................................................................................................................................................................................FDD RRH 700L3MN-00075-0002-RJZZAIssue 0 September 2012Alcatel-Lucent – ProprietaryUse pursuant to applicable agreements 7-1
To route and connect RF jumper cablesJumper cable and connector stripping toolsThe following table describes the stripping tools that can be used to prepare jumper cablesand connectors:Cable AssemblyManufacturerCableManufacturerConnectorManufacturerStripping Tool Part NumberManufacturer PartNumberAlcatel-LucentPart NumberAndrew Andrew Andrew Andrew Part Number:CPT-L4ARC1ITE-7189Huber-Suhner Andrew Huber-Suhner Huber-Suhner PartNumber 74Z-0-12-15R-6042RFS RFS RFS RFS Part Number:TRIM-L12-AR-6096Amphenol •RFS•LeoniAmphenol RFS Part Number:TRIM-L12-AR-6096Notes:1. The “R” or “ITE” prefix identifies tools that can be borrowed from a centralized location by Alcatel-Lucentpersonnel only.Finish the installation To route and connect RF jumper cables........................................................................................................................................................................................................................................................................................................................................................................................................................................................................7-2 Alcatel-Lucent – ProprietaryUse pursuant to applicable agreementsFDD RRH 700L3MN-00075-0002-RJZZAIssue 0 September 2012
RF connector locationThere are two RF connectors at the top of the RRH:Before you beginThis procedure assumes the following requirements have been met.•Cable shield grounding has been completed for all antenna cables at a point outside ofthe Node B.The RF jumper cables must be labeled at both ends so they can be properly connected.ToolsThe following tools are required:Quantity Description1 Open end wrench, 22 mm1 Open end wrench, 32 mmRF Antenna connectionsRF Antenna connectionsFinish the installation To route and connect RF jumper cables........................................................................................................................................................................................................................................................................................................................................................................................................................................................................FDD RRH 700L3MN-00075-0002-RJZZAIssue 0 September 2012Alcatel-Lucent – ProprietaryUse pursuant to applicable agreements 7-3
MaterialsThe following materials are expected to be present:Quantity Description2 per sector RF jumper cableOne 7/16, DIN male connector supplied installed at one end.One 7/16, DIN male connector supplied loose for other end.2 per sector In case of Tower Top mounted Low Noise Amplifiers (TTLNAs)installed: Y-Bias-T (9-PIN D-SUB to SMA (Outdoor)/ SMB(Indoor))Notes:1. All RF cable connectors must be at least IP67 rated. (IP67 rating requirement, as defined byIEC 60529, calls for total protection against dust and protection against submersion inwater.)2. Since the RF cable connectors are at least IP 67 rated, no additional weatherproofing of theconnectors is required if these are torque to the recommended value of 221 lbf in.. However,if customer wants to weather proof the connectors at the RRH or outside, optional 'Weatherproofing kit' from Alcatel-Lucent may be used.The RF jumper cables connect the external antenna cables to the RF transmit and receiveconnectors on the RRH. The minimum bending radius for the RF jumper cables is 125mm (5 inches).Important! The RF jumper cables must be connected before initial start-up andtesting can take place. Do not connect the RF jumper cables if testing is going to beperformed immediately.Install Bias-T connectorsIn case TTLNAs are installed, a Bias-T connector has to be installed to each RRH RFantenna port used:...................................................................................................................................................................................................1Install Y-Bias-T connector to RRH port....................................................................................................................................................................................................2Connect each SMA connector to Bias –T...................................................................................................................................................................................................3Route the 9-pin D-Sub through cable gland at the bottom of RRH and connect at ALDportFinish the installation To route and connect RF jumper cables........................................................................................................................................................................................................................................................................................................................................................................................................................................................................7-4 Alcatel-Lucent – ProprietaryUse pursuant to applicable agreementsFDD RRH 700L3MN-00075-0002-RJZZAIssue 0 September 2012
...................................................................................................................................................................................................4Ground the M6x10 grounding stud at Bias-Ts with customer provided grounding system.Y-Bias-T connectorRoute and connect RF jumper cables to the RRHUse the following procedure to connect the RF jumper cables to the RF ports on top ofthe RRH...................................................................................................................................................................................................1Label both ends of each cable with receive diversity number....................................................................................................................................................................................................2Connect the RF jumper cable(s) to the RRH port(s) and route them from the RRH to theRF antenna....................................................................................................................................................................................................3Providing adequate slack, cut each cable so it reaches its corresponding RF antennaconnector or, if applicable, its corresponding RF surge protector.Re-mark each RF jumper cable if the cable marking has been removed....................................................................................................................................................................................................4Terminate the end of each cable with the supplied 7/16 DIN connector. (Use theappropriate stripping tool. Refer to “Jumper cable and connector stripping tools”(p. 7-2)for the appropriate tool required for installation).M6 x 1.0 Grounding studM29 x 1.5-6g threadAntenna portDC Injection port(40.0mm) (20.0mm)(31.8mm Hex flats)(81.7mm)BTS portMates to IEC 169-4: 169-1 or equivalent(41.8mm)Finish the installation To route and connect RF jumper cables........................................................................................................................................................................................................................................................................................................................................................................................................................................................................FDD RRH 700L3MN-00075-0002-RJZZAIssue 0 September 2012Alcatel-Lucent – ProprietaryUse pursuant to applicable agreements 7-5END OF STEPS...................................................................................................................................................................................................
...................................................................................................................................................................................................5Connect each RF jumper cable to its corresponding RF antenna cable.Important! RF surge protectors are optional....................................................................................................................................................................................................6Torque each 7/16, male DIN connector to 25 Nm (221 in lb), as shown in the figurebelow.Important! When connecting the 7/16, DIN male connector (on the RF jumper cable)to the 7/16, DIN female connector (on the antenna cable) two wrenches must be used.The rotating coupling nut on the 7/16, male connector is tightened with a 32 mm endwrench while the 7/16, male connector on the RF jumper cable is held with a 22 mmend wrench. Refer to the figure below.Finish the installation To route and connect RF jumper cables........................................................................................................................................................................................................................................................................................................................................................................................................................................................................7-6 Alcatel-Lucent – ProprietaryUse pursuant to applicable agreementsFDD RRH 700L3MN-00075-0002-RJZZAIssue 0 September 2012END OF STEPS...................................................................................................................................................................................................
To finalize RRH installationInitial start-up and system test proceduresThe actual procedures for initial start-up and test are not covered in this document.Before initial start-up and testTo perform initial start-up and system test, the RF jumper cables will be temporarilydisconnected at the RRH by the personnel who perform initial start-up and system test.After performing initial start-up and system test, the personnel will permanently connectthe RF jumper cables to the RRH.System testFollowing installation of the RRH, the system should be tested before being put it intooperation. System test procedures are not covered in this installation document.Information concerning system test and integration is contained in Alcatel-LucentInstallation Engineering Handbook 401.Final actions after initial start-up and testNOTICERF hazard!If it is necessary to disconnect an RF jumper cable, make sure there is no transmit signalin the RF jumper cable....................................................................................................................................................................................................1Once initial start-up and test have been completed, make sure the RF jumper cables areproperly connected to the RRH....................................................................................................................................................................................................2Torque each RF connector at the radio RRH to 25 Nm (221 in-lb).Important! Hold the body of the connector (part connected to the entry cable) with a22 mm open-end wrench. Torque the rotating nut with a 32 mm open-end wrench....................................................................................................................................................................................................3Secure the RF jumper cables along their route....................................................................................................................................................................................................4Inspect site for loose tools, materials, and parts. Remove all such loose tools, materials,and parts.Finish the installation To finalize RRH installation........................................................................................................................................................................................................................................................................................................................................................................................................................................................................FDD RRH 700L3MN-00075-0002-RJZZAIssue 0 September 2012Alcatel-Lucent – ProprietaryUse pursuant to applicable agreements 7-7
...................................................................................................................................................................................................5Verify that all the exterior conduit and cable connections are secure.Finish the installation To finalize RRH installation........................................................................................................................................................................................................................................................................................................................................................................................................................................................................7-8 Alcatel-Lucent – ProprietaryUse pursuant to applicable agreementsFDD RRH 700L3MN-00075-0002-RJZZAIssue 0 September 2012END OF STEPS...................................................................................................................................................................................................
Appendix A: Productconformance statementsOverviewPurposeThis section presents the product conformance statements that apply to the FDD RRH.In regions such as North America and the European Union, the statements that arerequired are determined primarily by national or multi-national regulations. However, insome regions, contract terms determine which statements are required.The presence of the statement indicates that the product does comply with that statementwherever it is required to do so.ContentsCanada A-2China A-5European Union A-7United States A-11...................................................................................................................................................................................................................................FDD RRH 700L3MN-00075-0002-RJZZAIssue 0 September 2012Alcatel-Lucent – ProprietaryUse pursuant to applicable agreements A-1
CanadaIntroductionThe statements that follow are the product conformance statements that apply to the FDDRRH when deployed in Canada.Industry CanadaICES-003: Interference-Causing Equipment Standard Digital ApparatusThis Class A digital apparatus complies with Canadian ICES-003.Cet appareil numérique de la classe A est conforme à la norme NMB-003 du Canada.IC CS-03: Specification for Terminal Equipment, Terminal Systems, NetworkProtection Devices, Connection Arrangements and Hearing Aids CompatibilityThis product meets the applicable Industry Canada technical specifications.RF approval•RSS-132: Cellular Telephones Employing New Technologies Operating in the Bands824-849 MHz and 869-894 MHzThe term “IC” before the certification/registration number only signifies that theIndustry Canada technical specifications were met.•RSS-133: PCS Radio Standards SpecificationsThe term “IC” before the certification/registration number only signifies that theIndustry Canada technical specifications were met.Product safety conformanceThis product is safety certified for Canada by a laboratory accredited by the StandardsCouncil of Canada (SCC), such as CSA, UL, or others. The product bears thiscertification mark of this certification laboratory on its main nameplate label. Should thelocal authority having jurisdiction (AHJ) require prior or additional verification of thiscertification, a product certificate of compliance can be obtained from the specificcertification laboratory by the business/product unit Applicant for the product.Any modifications to this equipment are not permitted without review and written officialauthorization from the specific certification laboratory. Unauthorized changes may violatethe product safety certification. Modifications or changes authorized by official CN/CNNare assumed to have received prior approval from this Lab.Antenna exposureAntenna installations for the FDD RRH shall be performed in accordance with allapplicable manufacturer's recommendations, and national laws and regulations. To ensurecorrect antenna installation, the antenna installer shall perform all necessary calculationsand/or field measurements to evaluate compliance with applicable national laws orProduct conformance statements Canada........................................................................................................................................................................................................................................................................................................................................................................................................................................................................A-2 Alcatel-Lucent – ProprietaryUse pursuant to applicable agreementsFDD RRH 700L3MN-00075-0002-RJZZAIssue 0 September 2012
regulations regarding exposure to electromagnetic fields. The supplier of radioequipment, the supplier of antenna equipment and the integrator and builder of the sitemust provide sufficient information so that the limits of the exclusion zones can bedetermined. Any changes to the antenna or other equipment in the transmit path mayrequire re-evaluation of the exposures to electromagnetic fields.Human exposurePursuant to Health Canada Safety Code 6, Limits of Human Exposure to Radio frequencyElectromagnetic Fields in the Frequency Range from 3 kHz to 300 GHz, all installationsmust be evaluated against the Maximum Exposure Limits as described in Chapter 2,Health Canada 99-EHD-237.Optical transmittersAlcatel-Lucent declares that FDD RRH complies with the International ElectrotechnicalCommission (IEC) standards IEC 60825-1 Edition 2.0 (2007) and IEC 60825-2 Edition3.1 (2007). It is a Class I/1 laser optical fiber communication systems "product" under theIEC classifications.This product is designed to ensure that personnel operating the product are notendangered by laser radiation during normal operation and fault conditions. This productdoes not present a risk of eye injury because it is fully enclosed and does not containembedded lasers greater than Class I/1 unless otherwise noted.CAUTIONLaser hazardUse of controls or adjustments or performance of procedures other than those specifiedherein may result in hazardous laser radiation exposure.Do not view directly into the laser beam with optical instruments such as a fibermicroscope because viewing of laser emission in excess of Class 1 limits significantlyincreases the risk of eye damage.Never look into the end of an exposed fiber or an open connector as long as the opticalsource is switched on.Ensure that the optical source is switched off before disconnecting optical fiberconnectors.Product conformance statements Canada........................................................................................................................................................................................................................................................................................................................................................................................................................................................................FDD RRH 700L3MN-00075-0002-RJZZAIssue 0 September 2012Alcatel-Lucent – ProprietaryUse pursuant to applicable agreements A-3
Packaging collection and recovery requirementsCountries, states, localities, or other jurisdictions may require that systems be establishedfor the return and/or collection of packaging waste from the consumer, or other end user,or from the waste stream. Additionally, reuse, recovery, and/or recycling targets for thereturn and/or collection of the packaging waste may be established.For more information regarding collection and recovery of packaging and packagingwaste within specific jurisdictions, please contact the Alcatel-Lucent Services -Environmental Health and Safety organization. For installations not performed byAlcatel-Lucent Technologies, please contact the Alcatel-Lucent Customer Support Centerat:Technical Support Services, within Canada: +1 630 224 4672, prompt 2Product conformance statements Canada........................................................................................................................................................................................................................................................................................................................................................................................................................................................................A-4 Alcatel-Lucent – ProprietaryUse pursuant to applicable agreementsFDD RRH 700L3MN-00075-0002-RJZZAIssue 0 September 2012
ChinaIntroductionThe statements that follow are the product conformance statements that apply to the FDDRRH when deployed in China.EMC ComplianceThe equipment complies with the following electromagnetic compatibility specifications:•CISPR 22 Class BProduct safety conformanceThe equipment complies with the following product safety specifications:•IEC 60950-1Optical transmittersAlcatel-Lucent declares that FDD RRH complies with the International ElectrotechnicalCommission (IEC) standards IEC 60825-1 Edition 2.0 (2007) and IEC 60825-2 Edition3.1 (2007). It is a Class I/1 laser optical fiber communication systems "product" under theIEC classifications.This product is designed to ensure that personnel operating the product are notendangered by laser radiation during normal operation and fault conditions. This productdoes not present a risk of eye injury because it is fully enclosed and does not containembedded lasers greater than Class I/1 unless otherwise noted.CAUTIONLaser hazardUse of controls or adjustments or performance of procedures other than those specifiedherein may result in hazardous laser radiation exposure.Do not view directly into the laser beam with optical instruments such as a fibermicroscope because viewing of laser emission in excess of Class 1 limits significantlyincreases the risk of eye damage.Never look into the end of an exposed fiber or an open connector as long as the opticalsource is switched on.Ensure that the optical source is switched off before disconnecting optical fiberconnectors.Product conformance statements China........................................................................................................................................................................................................................................................................................................................................................................................................................................................................FDD RRH 700L3MN-00075-0002-RJZZAIssue 0 September 2012Alcatel-Lucent – ProprietaryUse pursuant to applicable agreements A-5
Packaging collection and recovery requirementsCountries, states, localities, or other jurisdictions may require that systems be establishedfor the return and/or collection of packaging waste from the consumer, or other end user,or from the waste stream. Additionally, reuse, recovery, and/or recycling targets for thereturn and/or collection of the packaging waste may be established.For more information regarding collection and recovery of packaging and packagingwaste within specific jurisdictions, please contact the Alcatel-Lucent Services -Environmental Health and Safety organization. For installations not performed byAlcatel-Lucent Technologies, please contact the Alcatel-Lucent Customer Support Centerat:Technical Support Services, within China : +1 630 224 4672, prompt 2Material content complianceThe People's Republic of China Ministry of Information Industry has published aregulation (Order #39) and associated standards regarding restrictions on hazardoussubstances (China RoHS). Currently, the legislation requires all Electronic andInformation Products (EIP) to comply with certain labeling and documentationrequirements. Alcatel-Lucent products manufactured on or after 1 March 2007, that areintended for sale to customers in the China market, comply with these requirements.In accordance with the People's Republic of China Electronic Industry Standard “Markingfor the Control of Pollution Caused by Electronic Information Product”(SJ/T11364-2006), customers may access Alcatel-Lucent's Hazardous Substances Tableinformation at either of the following URLs (for the convenience of our diverse customerbase):•Access via the Alcatel-Lucent Corporate web site at:http://www.alcatel-lucent.com/cn•Access via the Alcatel Shanghai Bell web site at:http://www.alcatel-sbell.com.cn/product_solution/in4.aspProduct conformance statements China........................................................................................................................................................................................................................................................................................................................................................................................................................................................................A-6 Alcatel-Lucent – ProprietaryUse pursuant to applicable agreementsFDD RRH 700L3MN-00075-0002-RJZZAIssue 0 September 2012
European UnionIntroductionThe statements that follow are the product conformance statements that apply to the FDDRRH bearing the CE Marking and when deployed in the European Union.Declaration of Conformity for radio and telecommunication terminal equipment under the scopeof Directive 1999/5/ECHereby, Alcatel-Lucent declares that the equipment documented in this publication is incompliance with the essential requirements and other relevant provisions of Directive1999/5/EC.The technical documentation as required by the Conformity Assessment procedure is keptat the Alcatel-Lucent location which is responsible for this product. For more informationplease contact your local Alcatel-Lucent Customer Service Organization.CE markingThis product has been CE-marked in accordance with the following European Directive:•Radio and Telecommunication Terminal Equipment (R&TTE) 1999/5/ECEMC and radio spectrum compliance for the 850 MHz productThe equipment complies with the following EMC and radio spectrum specifications:•EN 60950-1•EN 60215EMC and radio spectrum compliance for the 450 MHz productThe equipment complies with the following EMC and radio spectrum specifications:•ETSI EN 301 449 V1.1.1 (2005-05)•ETSI EN 301 489-1 V1.6.1 (2005-09)•Code of Federal Regulations FCC part 24(E)•IS 3GPP2 - C.S0010-BProduct safety conformanceThe equipment complies with the following product safety specifications:•EN 60950-1:2001•EN 60215:1989Telecommunications StandardsThe equipment complies with the following telecommunication specifications:•Technical Basis Regulation TBR 13Product conformance statements European Union........................................................................................................................................................................................................................................................................................................................................................................................................................................................................FDD RRH 700L3MN-00075-0002-RJZZAIssue 0 September 2012Alcatel-Lucent – ProprietaryUse pursuant to applicable agreements A-7
Antenna exposureAntenna installations for the FDD RRH shall be performed in accordance with allapplicable manufacturer's recommendations, and national laws and regulations. To ensurecorrect antenna installation, the antenna installer shall perform all necessary calculationsand/or field measurements to evaluate compliance with applicable national laws orregulations regarding exposure to electromagnetic fields. The supplier of radioequipment, the supplier of antenna equipment and the integrator and builder of the sitemust provide sufficient information so that the limits of the exclusion zones can bedetermined. Any changes to the antenna or other equipment in the transmit path mayrequire re-evaluation of the exposures to electromagnetic fields.Pursuant to•European Council Recommendation 1999/519/EC “On the limitation of exposure ofthe general public to electromagnetic fields” dated 12 July 1999 and•ICNIRP (International Commission on Non-Ionising Radiation Protection)“Guidelines for limiting exposure to time-varying electric, magnetic, andelectromagnetic fields”,all installations must be evaluated against the Reference Levels, and if necessaryexclusion zones for public and installation workers defined.The following information on Alcatel-Lucent supplied equipment is available fromcustomer representatives:•Output power and antenna characteristic, if the product is equipped with an integralantenna.•A detailed description of at least one typical normal configuration, including antennasystem (feeders, connectors, combiners, antennas etc.), if the product is intended to beused with external antennas.•Limit distances for general public and occupational exposure. If the product isintended for use with external antennas, limit distances shall be given for the giventypical system configurations.•Information how to specify exposure levels and limit distances for any optionalsystem configuration not specified in detail.•Information on how to install the equipment/system or the external antennas in orderto ensure that the separation between the radiating antenna and general public areexceeding the maximum allowed distances.Information on the methodology used for the determination of RF safety compliancedistances and exclusion zones, and the results of the compliance evaluation shall beavailable for inspection by officials of the governing authorities.Product conformance statements European Union........................................................................................................................................................................................................................................................................................................................................................................................................................................................................A-8 Alcatel-Lucent – ProprietaryUse pursuant to applicable agreementsFDD RRH 700L3MN-00075-0002-RJZZAIssue 0 September 2012
Optical transmittersAlcatel-Lucent declares that FDD RRH complies with the CENELEC standards EN60825-1 Edition 1994 and its amendment 1 (2002) and amendment 2 (2001) and EN60825-2 Edition 2004. It is a Class I/1 laser optical fiber communication systems“product” under the IEC classifications.This product is designed to ensure that personnel operating the product are notendangered by laser radiation during normal operation and fault conditions. This productdoes not present a risk of eye injury because it is fully enclosed and does not containembedded lasers greater than Class I/1 unless otherwise noted.CAUTIONLaser hazardUse of controls or adjustments or performance of procedures other than those specifiedherein may result in hazardous laser radiation exposure.Do not view directly into the laser beam with optical instruments such as a fibermicroscope because viewing of laser emission in excess of Class 1 limits significantlyincreases the risk of eye damage.Never look into the end of an exposed fiber or an open connector as long as the opticalsource is switched on.Ensure that the optical source is switched off before disconnecting optical fiberconnectors.Packaging collection and recovery requirementsCountries, states, localities, or other jurisdictions may require that systems be establishedfor the return and/or collection of packaging waste from the consumer, or other end user,or from the waste stream. Additionally, reuse, recovery, and/or recycling targets for thereturn and/or collection of the packaging waste may be established.For more information regarding collection and recovery of packaging and packagingwaste within specific jurisdictions, please contact the Alcatel-Lucent Services -Environmental Health and Safety organization. For installations not performed byAlcatel-Lucent Technologies, please contact the Alcatel-Lucent Customer Support Centerat:Technical Support Services, from all other countries: +1 630 224 4672, prompt 2Product conformance statements European Union........................................................................................................................................................................................................................................................................................................................................................................................................................................................................FDD RRH 700L3MN-00075-0002-RJZZAIssue 0 September 2012Alcatel-Lucent – ProprietaryUse pursuant to applicable agreements A-9
Recycling / take-back / disposal of productElectronic products bearing or referencing the symbol shown below when put on themarket within the European Union, shall be collected and treated at the end of their usefullife, in compliance with applicable European Union and local legislation. They shall notbe disposed of as part of unsorted municipal waste. Due to materials that may becontained in the product, such as heavy metals or batteries, the environment and humanhealth may be negatively impacted as a result of inappropriate disposal.Important! In the European Union, a solid bar under the crossed-out wheeled binindicates that the product was put on the market after 13 August 2005.Moreover, in compliance with legal requirements and contractual agreements, whereapplicable, Alcatel-Lucent will offer to provide for the collection and treatment ofAlcatel-Lucent products bearing the logo at the end of their useful life, or productsdisplaced by Alcatel-Lucent equipment offers. For information regarding take-back ofequipment by Alcatel-Lucent, or for more information regarding the requirements forrecycling/disposal of product, please contact your Alcatel-Lucent Account Manager orAlcatel-Lucent Takeback Support at:takeback@alcatel-lucent.com.Material content complianceEuropean Union (EU) Directive 2002/95/EC, “Restriction of the use of certain HazardousSubstances” (RoHS), restricts the use of lead, mercury, cadmium, hexavalent chromium,and certain flame retardants in electrical and electronic equipment. This Directive appliesto electrical and electronic products placed on the EU market after 1 July 2006, withvarious exemptions, including an exemption for lead solder in network infrastructureequipment. Alcatel-Lucent products shipped to the EU after 1 July 2006 comply with theEU RoHS Directive.Product conformance statements European Union........................................................................................................................................................................................................................................................................................................................................................................................................................................................................A-10 Alcatel-Lucent – ProprietaryUse pursuant to applicable agreementsFDD RRH 700L3MN-00075-0002-RJZZAIssue 0 September 2012
United StatesIntroductionThe statements that follow are the product conformance statements that apply to the FDDRRH when deployed in the United States.Federal Communications CommissionImportant! Changes or modifications not expressly approved by Alcatel-Lucent, Inc.could void the user's authority to operate the equipment..FCC Part 15This device complies with Part 15 of the FCC Rules. Operation is subject to the followingtwo conditions: (1) This device may not cause harmful interference, and (2) this devicemust accept any interference received, including interference that may cause undesiredoperation.FCC Part 15 Class A (as marketed)Important! This equipment has been tested and found to comply with the limits for aClass A digital device, pursuant to Part 15 of the FCC Rules. These limits aredesigned to provide reasonable protections against harmful interference when theequipment is operated in a commercial environment. This equipment generates, uses,and can radiate radio frequency energy and, if not installed and used in accordancewith the instruction manual, may cause harmful interference to radio communications.Operation of this equipment in a residential area is likely to cause harmfulinterference, in which case the user will be required to correct the interference at theuser's expense.FCC Part 15 Class B (as marketed)Important! This equipment has been tested and found to comply with the limits for aClass B digital device, pursuant to Part 15 of the FCC Rules. These limits aredesigned to provide reasonable protection against harmful interference in a residentialinstallation. This equipment generates, uses, and can radiate radio frequency energyand, if not installed and used in accordance with the instructions, may cause harmfulinterference to radio communications. However, there is no guarantee thatinterference will not occur in a particular installation. If this equipment does causeharmful interference to radio or television reception, which can be determined byturning the equipment off and on, the user is encouraged to try to correct theinterference by one or more of the following measures:•Reorient or relocate the receiving antenna•Increase the separation between the equipment and receiverProduct conformance statements United States........................................................................................................................................................................................................................................................................................................................................................................................................................................................................FDD RRH 700L3MN-00075-0002-RJZZAIssue 0 September 2012Alcatel-Lucent – ProprietaryUse pursuant to applicable agreements A-11
•Connect the equipment into an outlet on a circuit different from that to which thereceiver is connected•Consult the dealer or an experienced radio/TV technician for help.FCC Part 68This equipment complies with Part 68 of the FCC rules and the requirements adopted bythe ACTA. On the cabinet assembly of this equipment is a label that contains, amongother information, a product identifier in the format of AAAEQ##TXXXX. If requested,this number must be provided to the telephone company.•FIC 04DU9-1SN•SOC 6.0NThe T1 network interface on this equipment is hard wired to a punchdown block , whichmeets the FCC specifications.If this equipment FDD RRH causes harm to the telephone network, the telephonecompany will notify you in advance that temporary discontinuance of service may berequired. However, if advance notice is not practical, the telephone company will notifythe customer as soon as possible. Also, you will be advised of your right to file acomplaint with the FCC if you believe it is necessary.The telephone company may make changes in its facilities, equipment, operations, orprocedures that could affect the operation of the equipment. If this happens, the telephonecompany will provide advance notice in order for you to make necessary modifications tomaintain uninterrupted service.FCC regulations prohibit the connection of customer-provided equipment to central officeimplemented systems. Connection to party lines is subject to tariffs; users should contacttheir state public utility commission, public service commission, or corporationcommission for information.If the equipment is causing harm to the telephone network, the telephone company mayrequest that you disconnect the equipment until the problem is resolved.If trouble is experienced with this equipment repair or warranty information may beobtained by contacting:Technical Support Services, within the United States: +1 630 224 4762, prompt 2RF approvalThis equipment complies with Part 2, Subpart J - Equipment Authorization Procedures, ofthe FCC Rules.This equipment complies with Part 27 - Miscellaneous Wireless CommunicationsServices.Product conformance statements United States........................................................................................................................................................................................................................................................................................................................................................................................................................................................................A-12 Alcatel-Lucent – ProprietaryUse pursuant to applicable agreementsFDD RRH 700L3MN-00075-0002-RJZZAIssue 0 September 2012
FDA/IEC optical transmitter product complianceAlcatel-Lucent declares that FDD RRH complies with the Food and DrugAdministration's Center for Devices and Radiological Health (FDA/CDRH) regulations21 CFR 1040.10 and 1040.11. It is a Class I/1 laser optical fiber communication systems"product" under the FDA.This Product is designed to ensure that personnel operating the product are notendangered by laser radiation during normal operation and fault conditions. This productdoes not present a risk of eye injury because it is fully enclosed and does not containembedded lasers greater than Class I/1 unless otherwise noted.CAUTIONLaser hazardUse of controls or adjustments or performance of procedures other than those specifiedherein may result in hazardous laser radiation exposure.Do not view directly into the laser beam with optical instruments such as a fibermicroscope because viewing of laser emission in excess of Class 1 limits significantlyincreases the risk of eye damage.Never look into the end of an exposed fiber or an open connector as long as the opticalsource is switched on.Ensure that the optical source is switched off before disconnecting optical fiberconnectors.Product safety conformanceThis product is safety listed for the United States of America by a Nationally RecognizedTest Laboratory (NRTL) accredited by the US Department of Labor, Occupational Safetyand Health Administration (OSHA), such as UL, CSA, or others. The product bears thiscertification mark of this certification laboratory on its main nameplate label. Should thelocal authority having jurisdiction (AHJ) require prior or additional verification of thiscertification, a product certificate of compliance can be obtained from the specificcertification laboratory by the business/product unit Applicant for the product. “Anymodifications to this equipment are not permitted without review and written officialauthorization from the specific certification laboratory. Unauthorized changes may violatethe product safety certification. Modifications or changes authorized by official CN/CNNare assumed to have received prior approval from this Lab.Product conformance statements United States........................................................................................................................................................................................................................................................................................................................................................................................................................................................................FDD RRH 700L3MN-00075-0002-RJZZAIssue 0 September 2012Alcatel-Lucent – ProprietaryUse pursuant to applicable agreements A-13
Antenna exposureAntenna installations for the FDD RRH shall be performed in accordance with allapplicable manufacturer's recommendations, and national laws and regulations. To ensurecorrect antenna installation, the antenna installer shall perform all necessary calculationsand/or field measurements to evaluate compliance with applicable national laws orregulations regarding exposure to electromagnetic fields. The supplier of radioequipment, the supplier of antenna equipment and the integrator and builder of the sitemust provide sufficient information so that the limits of the exclusion zones can bedetermined. Any changes to the antenna or other equipment in the transmit path mayrequire re-evaluation of the exposures to electromagnetic fields.Pursuant to 47 CFR Part 1, Subpart I, subject to the provisions of section 1.1307, allinstallations must be evaluated for requirements contained in Table 1, “Limits formaximum permissible exposure,” in section 1.1310.Packaging collection and recovery requirementsCountries, states, localities, or other jurisdictions may require that systems be establishedfor the return and/or collection of packaging waste from the consumer, or other end user,or from the waste stream. Additionally, reuse, recovery, and/or recycling targets for thereturn and/or collection of the packaging waste may be established.For more information regarding collection and recovery of packaging and packagingwaste within specific jurisdictions, please contact the Alcatel-Lucent Services -Environmental Health and Safety organization. For installations not performed byAlcatel-Lucent Technologies, please contact the Alcatel-Lucent Customer Support Centerat:Technical Support Services, within the United States: +1 630 224 4762, prompt 2Product conformance statements United States........................................................................................................................................................................................................................................................................................................................................................................................................................................................................A-14 Alcatel-Lucent – ProprietaryUse pursuant to applicable agreementsFDD RRH 700L3MN-00075-0002-RJZZAIssue 0 September 2012
Material content complianceThe following notification applies to Alcatel-Lucent products distributed for sale, resaleor use.This product, part, or both may include a lithium-manganese dioxide battery, whichcontains very small amounts of a perchlorate substance. Special handling may apply.For California:Perchlorate Material - special handling may apply.See http:\\www.dtsc.ca.gov/hazardouswaste/perchlorate/Product conformance statements United States........................................................................................................................................................................................................................................................................................................................................................................................................................................................................FDD RRH 700L3MN-00075-0002-RJZZAIssue 0 September 2012Alcatel-Lucent – ProprietaryUse pursuant to applicable agreements A-15
Product conformance statements United States........................................................................................................................................................................................................................................................................................................................................................................................................................................................................A-16 Alcatel-Lucent – ProprietaryUse pursuant to applicable agreementsFDD RRH 700L3MN-00075-0002-RJZZAIssue 0 September 2012
Appendix B: AcronymsOverviewPurposeThis appendix lists abbreviations used in this document.ContentsAcronyms B-2...................................................................................................................................................................................................................................FDD RRH 700L3MN-00075-0002-RJZZAIssue 0 September 2012Alcatel-Lucent – ProprietaryUse pursuant to applicable agreements B-1
Acronyms0-94G fourth generationAAWS Advanced Wireless ServicesBBS Base StationCCCM Channel Control ModuleCEM Channel Element ModuleCIC Customer Information CenterCPRI Common Public Radio InterfaceCSA Canadian Standards AssociationDd2U digital 2U-height boxEeCCM enhanced Channel Control ModuleeCEM enhanced Channel Element ModemeNodeB (eNB) evolved NodeBFFDD frequency division duplexGGPS Global Positioning SystemHHz HertzAcronyms Acronyms........................................................................................................................................................................................................................................................................................................................................................................................................................................................................B-2 Alcatel-Lucent – ProprietaryUse pursuant to applicable agreementsFDD RRH 700L3MN-00075-0002-RJZZAIssue 0 September 2012
IISO International Standards OrganizationLLTE Long Term EvolutionLTE RAN (eUTRAN, E-UTRAN) Long Term Evolution radio access networkMMHz megahertzNNE network elementOOLCS Online Customer SupportRRRH Remote Radio HeadTTRDU Transmit Receive Duplex UnitTx TransmitUUE user equipmentWWAN wide area networkXXMS eXtended Management SystemAcronyms Acronyms........................................................................................................................................................................................................................................................................................................................................................................................................................................................................FDD RRH 700L3MN-00075-0002-RJZZAIssue 0 September 2012Alcatel-Lucent – ProprietaryUse pursuant to applicable agreements B-3
Acronyms Acronyms........................................................................................................................................................................................................................................................................................................................................................................................................................................................................B-4 Alcatel-Lucent – ProprietaryUse pursuant to applicable agreementsFDD RRH 700L3MN-00075-0002-RJZZAIssue 0 September 2012
IndexAALD cableroute and connect ~s, 6-5Attach wall mounting bracket,5-13.............................................................BBands for pole mounting, 5-16Bend pole bands, 5-20Boom tip winch, 5-4Bottom view, 2-4Bracketsfor small diameter poles, 5-22for wall mounting, 5-9bracketsplace ~ on pole bands, 5-19.............................................................CCableDC ~ connection, 6-14facilities ~ connection, 6-2,6-5function and description, 6-7interfaces, 2-5route and connect ~s, 6-3route and connect DC ~, 6-15Checklistinstallation procedure, 4-10ConfigurationsRF,3-2Connect RF jumper cables, 7-5Connectionstorque requirements forelectrical ~, 4-6torque requirements formechanical ~, 4-6Connectorstripping tools, 7-2ConnectorsRF,3-2.............................................................DDC cableconduit for ~, 6-14connection, 6-14entry point, 6-14route and connect, 6-15DC terminal block, 6-14Derrick equipment, 5-4Dimensions and weights, 2-6drill patternfor wall mounting, 5-11,5-12.............................................................EElectrical connectionstorque requirements of ~, 4-6Entry pointALD cable, 6-5DC cable, 6-14facilities cables, 6-3.............................................................FFinal actions, 7-7.............................................................GGround area at RRH, 5-27Ground the RRH, 5-27.............................................................IIndirect wall mounting, 5-13Initial start up, 7-7Install pole bands on pole, 5-20Install RRH on pole weldmentassemblies, 5-25Install RRH on wall, 5-14Installationchecklist for ~ procedure, 4-10overview of ~ procedure, 4-9Intended audience, vii.............................................................JJumper cable tools, 7-2.............................................................KKits, list of ~, 4-5....................................................................................................................................................................................................................................FDD RRH 700L3MN-00075-0002-RJZZAIssue 0 September 2012Alcatel-Lucent – ProprietaryUse pursuant to applicable agreements IN-1
.............................................................LLift RRHusing boom tip winch, 5-4Liftingharness requirements, 5-3prepare RRH for ~, 5-3Listof needed parts/kits, 4-5of needed tools, 4-3.............................................................MMark pole and pole bands, 5-18Measure and mark poleand attach brackets, 5-23Measure pole and pole bands, 5-18Mechanical connectionstorque requirements of ~, 4-6Miscellaneous hardware weights,2-6.............................................................OOptical transceiver(s)install, 6-8Overview of physical installationprocess, 4-9.............................................................PParts, list of ~, 4-5Physical RF connections, 3-2Place brackets on pole bands, 5-19Place RRH, 5-7Pole bandsinstall on pole, 5-20pole bracketsfor pole mounting, 5-16Pole mountingbend the bands, 5-20brackets for small poles, 5-22install pole bands, 5-20install RRH, 5-25measure and mark pole andbands, 5-18pole brackets and pole bands,5-16Prepare RRH for lifting andtransport, 5-3Product capabilities, 2-2product conformance statements,A-1Canada, A-2China, A-5European Union, A-7United States, A-11.............................................................RRF configurations, 3-2RF connections, 3-2RF connector location, 7-3RF jumper cablesroute and connect ~, 7-5Route RF jumper cables, 7-5RRHbottom view, 2-4ground area, 5-27ground the ~, 5-27install ~ on pole weldmentassemblies, 5-25install ~ on wall, 5-14lift ~ using boom tip winch,5-4prepare ~ for lifting andtransport, 5-3top view, 2-5transport and place ~, 5-7unpack the ~, 5-3.............................................................SSite preparationverify ~, 4-8Small diameter poleattach brackets, 5-23brackets, 5-22System test procedures, 7-7Systems supported, vii.............................................................TTerminal block, 6-14Tip winch, 5-4Toolsconnector stripping ~, 7-2jumper cable ~, 7-2Tools, list of ~, 4-3Top view, 2-5Torque requirementsfor electrical connections, 4-6for mechanical connections,4-6Transceiverinstall optical ~ (s), 6-8Transportprepare RRH for ~, 5-3Transport and place RRH, 5-7Transport RRH, 5-7.............................................................UUnistrut, 5-13Unpack RRH, 5-3User Alarmswire colors, 6-3Index........................................................................................................................................................................................................................................................................................................................................................................................................................................................................IN-2 Alcatel-Lucent – ProprietaryUse pursuant to applicable agreementsFDD RRH 700L3MN-00075-0002-RJZZAIssue 0 September 2012
.............................................................VVerify site preparation, 4-8.............................................................WWall mountingattach bracket, 5-13brackets for ~, 5-9wall mountingdrill pattern, 5-11,5-12Wall mountinginstall RRH, 5-14Weights and dimensions, 2-6Weights of miscellaneoushardware, 2-6Wire colorsUser Alarms, 6-3Index........................................................................................................................................................................................................................................................................................................................................................................................................................................................................FDD RRH 700L3MN-00075-0002-RJZZAIssue 0 September 2012Alcatel-Lucent – ProprietaryUse pursuant to applicable agreements IN-3
Index........................................................................................................................................................................................................................................................................................................................................................................................................................................................................IN-4 Alcatel-Lucent – ProprietaryUse pursuant to applicable agreementsFDD RRH 700L3MN-00075-0002-RJZZAIssue 0 September 2012

Navigation menu