Alpine IDA X305S OM 68 13530Z42 A ES User Manual To The Ca2e2fbf 73d4 4643 8836 63fc46ddfc09
User Manual: Alpine iDA-X305S to the manual
Open the PDF directly: View PDF
.
Page Count: 49
- Manual de instrucciones
- ADVERTENCIA
- Funcionamiento del codificador de doble acción
- Primeros pasos
- Radio
- iPod/iPhone
- Pandora Radio (iPhone)
- Memoria USB/ Reproductor de audio portátil/ Cambiador
- Cómo visualizar la pantalla
- Reproducción
- Selección de un disco (cambiador) (opcional)
- Selección de cambiador múltiple (opcional)
- Selección de la carpeta deseada (Carpeta arriba/abajo) (MP3/WMA/AAC)
- Repetición de reproducción
- M.I.X. (Reproducción aleatoria)
- Búsqueda por número de pista de CD (sólo cambiador de CD)
- Búsqueda de nombre de archivo/carpeta (relativo a MP3/WMA/AAC)
- Acerca de MP3/WMA/AAC
- Ajuste de sonido
- CONFIGURACIÓN
- Ajuste de BLUETOOTH
- Configuración general
- Configuración de la visualización del reloj (Clock Mode)
- Ajuste del cambio de patrones para visualización del calendario (Calendar Type)
- Configuración de horario de verano (Daylight Time)
- Conexión de un cambiador de MP3 (Play Mode)
- Función de guía de sonido (Beep)
- Activación/desactivación del modo de silenciamiento (Int Mute)
- Ajuste de rechazo de tono para dispositivos externos (Int Audio)
- Ajuste del nombre de cambiador (CHG Name)
- Ajuste del modo AUX (V-Link)
- Configuración de AUX+ Mode
- Ajuste del nivel de audio de AUX+ (AUX+ IN GAIN)
- Conexión a un amplificador externo (Power IC)
- Ajuste del idioma (Language)
- Demostración (Demo)
- Ajuste de la pantalla
- Cambio del color de iluminación (Illumination)
- Control de atenuación (Dimmer)
- Ajuste de la atenuación de la pantalla (Dimmer Level)
- Ajuste de desplazamiento (Text Scroll)
- Cambio del tipo de visualización de animaciones (BGV Select)
- Ajuste del color del fondo de escritorio (BGV Color)
- Descarga de fondo de escritorio (BGV Download)
- Ajuste de iPod/iPhone
- Configuración de HD Radio™ (sólo si hay conectada HD Radio)
- Configuración del audio
- Receptor de SAT Radio (Opcional)
- Cómo visualizar la pantalla
- Recepción de canales con el receptor de SAT Radio (Opcional)
- Comprobación del número de identificación de SAT Radio
- Almacenamiento de preajustes de canal
- Recepción de canales almacenados
- Almacenamiento del equipo de deportes deseado (sólo en SIRIUS)
- Almacenamiento del artista/canción que desee (sólo en SIRIUS)
- Recuperación de la información almacenada (sólo en SIRIUS)
- Cancelación de la Memoria de alerta almacenada (sólo en SIRIUS)
- Función de búsqueda
- Selección de la categoría deseada (categoría arriba/abajo)
- Recepción de información sobre el tiempo o el tráfico mediante SAT Radio
- Función de repetición instantánea (sólo en SIRIUS)
- Cambio de la pantalla
- Configuración de la pantalla Campo de datos auxiliares
- Funcionamiento de IMPRINT (Opcional)
- Cambio del modo MultEQ
- Ajuste del sonido en modo manual
- Conexión y desconexión (ON/OFF) de Media Xpander (MX)
- Ajuste del nivel MX
- Memorias del ecualizador (Factory’s EQ)
- Conexión y desconexión del subwoofer
- Ajuste del sistema de subwoofer
- Ajuste de la fase del subwoofer
- Ajuste del canal del subwoofer
- Ajuste de la inclinación de respuesta del altavoz de tonos agudos (Tweeter)
- Ajuste del modo EQ
- Ajuste del tipo de filtro
- Ajuste de la unidad de corrección de tiempo
- Ajuste del campo de sonido
- Acerca de la corrección de tiempo
- Acerca de Crossover
- Información
- Instalación y conexiones

Designed by ALPINE Japan
68-13530Z42-A
EN
FR
ES
Digital Media Receiver
iDA-X305S
• OWNER’S MANUAL
Please read before using this equipment.
• MODE D’EMPLOI
Veuillez lire avant d’utiliser cet appareil.
• MANUAL DE OPERACIÓN
Léalo antes de utilizar este equipo.
ALPINE ELECTRONICS MARKETING, INC.
1-1-8 Nishi Gotanda,
Shinagawa-ku,
Tokyo 141-0031, Japan
Phone 03-5496-8231
ALPINE ELECTRONICS OF AMERICA, INC.
19145 Gramercy Place, Torrance,
California 90501, U.S.A.
Phone 1-800-ALPINE-1 (1-800-257-4631)
ALPINE ELECTRONICS OF CANADA, INC.
777 Supertest Road, Toronto,
Ontario M3J 2M9, Canada
Phone 1-800-ALPINE-1 (1-800-257-4631)
ALPINE ELECTRONICS OF AUSTRALIA PTY. LTD.
161-165 Princes Highway, Hallam
Victoria 3803, Australia
Phone 03-8787-1200
ALPINE ELECTRONICS GmbH
Wilhelm-Wagenfeld-Str. 1-3,
80807 München, Germany
Phone 089-32 42 640
ALPINE ELECTRONICS OF U.K. LTD.
Alpine House
Fletchamstead Highway, Coventry CV4 9TW, U.K.
Phone 0870-33 33 763
ALPINE ELECTRONICS FRANCE S.A.R.L.
(RCS PONTOISE B 338 101 280)
98, Rue de la Belle Etoile, Z.I. Paris Nord Il,
B.P. 50016, 95945 Roissy Charles de Gaulle
Cedex, France
Phone 01-48638989
ALPINE ITALIA S.p.A.
Viale C. Colombo 8, 20090 Trezzano
Sul Naviglio (MI), Italy
Phone 02-484781
ALPINE ELECTRONICS DE ESPAÑA, S.A.
Portal de Gamarra 36, Pabellón, 32
01013 Vitoria (Alava)-APDO 133, Spain
Phone 945-283588
ALPINE ELECTRONICS (BENELUX) GmbH
Leuvensesteenweg 510-B6,
1930 Zaventem, Belgium
Phone 02-725-13 15
R

1-ES
ESPAÑOL
Índice
Manual de instrucciones
ADVERTENCIA
ADVERTENCIA ........................................ 4
PRUDENCIA ............................................. 4
PRECAUCIONES ..................................... 4
Funcionamiento del codificador de
doble acción
Funcionamiento normal .....................................6
Funcionamiento alternativo ................................6
Primeros pasos
Lista de accesorios ........................................... 7
Conexión y desconexión de la alimentación .... 7
Extracción y fijación del panel frontal ............. 7
Puesta en funcionamiento inicial del
sistema .......................................................... 7
Ajuste del volumen ........................................... 7
Configuración de la hora y el calendario ......... 7
Visualización del calendario y de la hora ......... 8
Radio
Cómo visualizar la pantalla .............................. 8
Funcionamiento de la radio .............................. 9
Almacenamiento manual de emisoras .............. 9
Almacenamiento automático de emisoras ........ 9
Sintonía de emisoras memorizadas .................. 9
Recepción de una emisora multidifusión
(sólo modo HD Radio) .................................. 9
Cambio de la visualización
(sólo modo HD Radio) ................................ 10
iPod/iPhone
Cómo visualizar la pantalla ............................ 11
Reproducción ................................................. 11
Búsqueda de la canción o título deseado ........ 11
Función saltar página/saltar
porcentaje/saltar letras ................................ 12
Memoria de posición de búsqueda ................. 12
Función Up/Down ..........................................12
Reproducción aleatoria Shuffle ......................13
Reproducción aleatoria Shuffle All ................13
Repetición de reproducción ............................ 13
Cambio de la pantalla .....................................13
Pandora Radio (iPhone)
Cómo visualizar la pantalla ............................14
Escuchar Pandora ............................................ 14
Opiniones gestuales ........................................14
Búsqueda de una emisora deseada ..................15
Búsqueda alfabética ..........................................15
Búsqueda por fecha de agregación ...................15
QuickMix ........................................................ 15
Agregar a favoritos una canción o artista
que desee ..................................................... 15
Cambio de la pantalla .....................................15
Memoria USB/Reproductor de audio
portátil/Cambiador
Cómo visualizar la pantalla ............................16
Reproducción ..................................................17
Selección de un disco (cambiador)
(opcional) ....................................................17
Selección de cambiador múltiple
(opcional) ....................................................17
Selección de la carpeta deseada
(Carpeta arriba/abajo)
(MP3/WMA/AAC) ......................................17
Repetición de reproducción ............................ 18
M.I.X. (Reproducción aleatoria) ..................... 18
Búsqueda por número de pista de CD
(sólo cambiador de CD) ..............................18
Búsqueda de nombre de archivo/carpeta
(relativo a MP3/WMA/AAC) ......................19
Modo de memoria USB ....................................19
Modo de reproductor de audio portátil .............19
Modo de cambiador de MP3 ............................19
Acerca de MP3/WMA/AAC ........................... 19
Ajuste de sonido
Ajuste de subwoofer/graves/agudos/balance
(entre los altavoces derechos e izquierdos)/
Fader (entre los altavoces delanteros y
traseros)/sonoridad/rechazo .........................21

2-ES
Ajuste del control de graves ........................... 21
Ajuste de la frecuencia central de graves ....21
Ajuste del ancho de banda de graves ........... 21
Ajuste del control de agudos .......................... 22
Ajuste del filtro paso alto ................................22
Conexión y desconexión (ON/OFF) del
subwoofer ....................................................22
CONFIGURACIÓN
Ajuste de BLUETOOTH
Ajuste de la conexión BLUETOOTH
(BLUETOOTH IN) ......................................23
Configuración general
Configuración de la visualización del reloj
(Clock Mode) ...............................................24
Ajuste del cambio de patrones para visualización
del calendario (Calendar Type) .................... 24
Configuración de horario de verano
(Daylight Time) ............................................24
Conexión de un cambiador de MP3
(Play Mode) ..................................................24
Función de guía de sonido (Beep) ...................24
Activación/desactivación del modo de
silenciamiento (Int Mute) .............................24
Ajuste de rechazo de tono para dispositivos
externos (Int Audio) .....................................24
Ajuste del nombre de cambiador
(CHG Name) ................................................24
Ajuste del modo AUX (V-Link) .......................24
Configuración de AUX+ Mode ........................24
Ajuste del nivel de audio de AUX+
(AUX+ IN GAIN) ........................................24
Conexión a un amplificador externo
(Power IC) ....................................................25
Ajuste del idioma (Language) ..........................25
Demostración (Demo) ......................................25
Ajuste de la pantalla
Cambio del color de iluminación
(Illumination) ...............................................25
Control de atenuación (Dimmer) .....................25
Ajuste de la atenuación de la pantalla
(Dimmer Level) ............................................ 25
Ajuste de desplazamiento (Text Scroll) ...........25
Cambio del tipo de visualización de
animaciones (BGV Select) ...........................25
Ajuste del color del fondo de escritorio
(BGV Color) ................................................25
Descarga de fondo de escritorio
(BGV Download) .........................................26
Ajuste de iPod/iPhone
Ajuste del modo de búsqueda del
iPod/iPhone ..................................................26
Configuración de HD Radio™ (sólo si hay
conectada HD Radio)
Ajuste de llamada de emisora de HD Radio
(Station Call) ................................................26
Activación y desactivación de la configuración
de búsqueda digital (Digital Seek) ...............26
Configuración del audio
Almacenamiento del nivel de ajuste de audio
(User Preset) .................................................26
Recuperación del nivel de ajuste de audio .......26
Conexión y desconexión de Media Xpander
(MX) .............................................................27
Ajuste del nivel MX
(MX Level Adjustment) ...............................27
Conexión y desconexión del subwoofer
(Subwoofer) ..................................................27
Ajuste del sistema de subwoofer
(Subwoofer System) .....................................27
Receptor de SAT Radio (Opcional)
Cómo visualizar la pantalla .............................27
Recepción de canales con el receptor de SAT
Radio (Opcional) .........................................28
Comprobación del número de identificación de
SAT Radio ....................................................28
Almacenamiento de preajustes de canal .........28
Recepción de canales almacenados .................28
Almacenamiento del equipo de deportes
deseado (sólo en SIRIUS) ............................28
Almacenamiento mientras recibe la
emisión de un partido ...............................29
Ajuste de la alerta de partidos ......................29
Almacenamiento del artista/canción que
desee (sólo en SIRIUS) ................................29
Recuperación de la información almacenada
(sólo en SIRIUS) ..........................................29
Cancelación de la Memoria de alerta
almacenada (sólo en SIRIUS) ......................29
Función de búsqueda .......................................30
Selección de la categoría deseada
(categoría arriba/abajo) ................................30
Recepción de información sobre el tiempo
o el tráfico mediante SAT Radio ..................30
Función de repetición instantánea
(sólo en SIRIUS) ..........................................30
Cambio de la pantalla ......................................31
Configuración de la pantalla Campo de datos
auxiliares ......................................................31

3-ES
Funcionamiento de IMPRINT
(Opcional)
Cambio del modo MultEQ ............................. 32
Ajuste del sonido en modo manual ................ 32
Conexión y desconexión (ON/OFF) de
Media Xpander (MX) .............................. 33
Ajuste del nivel MX .................................... 33
Memorias del ecualizador
(Factory’s EQ) ......................................... 33
Conexión y desconexión del subwoofer ..... 33
Ajuste del sistema de subwoofer ................ 33
Ajuste de la fase del subwoofer .................. 33
Ajuste del canal del subwoofer ................... 33
Ajuste de la inclinación de respuesta del
altavoz de tonos agudos (Tweeter) .......... 33
Ajuste del modo EQ .................................... 33
Ajuste del tipo de filtro ............................... 34
Ajuste de la unidad de corrección
de tiempo ................................................. 34
Ajuste del campo de sonido ........................ 34
Ajuste de curva de ecualizador paramétrico ....34
Ajuste de la curva del ecualizador gráfico .......34
Ajuste de la corrección de tiempo ....................35
Ajuste de configuración de crossover ..............35
Almacenamiento y recuperación del
contenido ajustado ........................................36
Acerca de la corrección de tiempo ................. 37
Acerca de Crossover ....................................... 38
Información
En caso de dificultad ...................................... 39
Especificaciones ............................................. 42
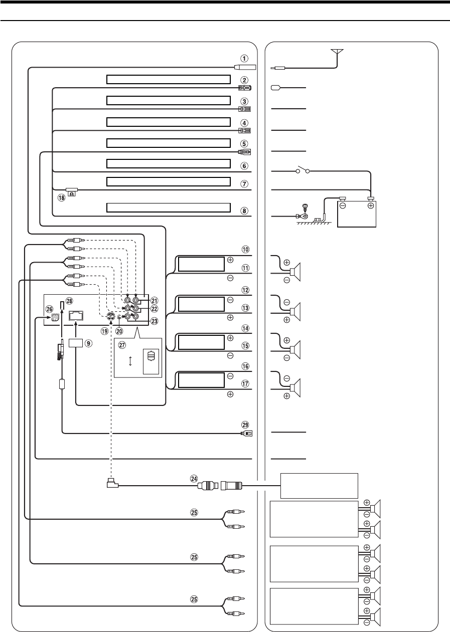
Instalación y conexiones
Advertencia ........................................... 43
Prudencia ............................................... 43
Precauciones ......................................... 43
Instalación ...................................................... 44
Conexiones ..................................................... 46

4-ES
Manual de instrucciones
NO REALICE NINGUNA OPERACIÓN QUE PUEDA DISTRAER
SU ATENCIÓN Y COMPROMETER LA SEGURIDAD DURANTE
LA CONDUCCIÓN DEL VEHÍCULO.
Las operaciones que requieren su atención durante más tiempo sólo
deben realizarse después de detener completamente el vehículo.
Estacione el vehículo en un lugar seguro antes de realizar dichas
operaciones. De lo contrario, podría ocasionar un accidente.
MANTENGA EL VOLUMEN A UN NIVEL QUE NO LE IMPIDA
ESCUCHAR LOS SONIDOS DEL EXTERIOR MIENTRAS
CONDUCE.
Los niveles de volumen demasiado altos que reducen la percepción
de otros sonidos como las sirenas de emergencia o posibles señales
acústicas de advertencia en carretera (cruces de trenes, etc.) podrían
ser peligrosos y provocar un accidente. LOS NIVELES DE
VOLUMEN ALTOS EN EL VEHÍCULO TAMBIÉN PUEDEN
DAÑAR EL SISTEMA AUDITIVO DE LOS PASAJEROS.
REDUZCA AL MÁXIMO LA VISUALIZACIÓN DE LA
PANTALLA MIENTRAS CONDUCE.
El conductor puede distraer su atención de la carretera mientras
mira la pantalla y ocasionar un accidente.
NO DESMONTE NI ALTERE LA UNIDAD.
Si lo hace, podrá ocasionar un accidente, un incendio o una
descarga eléctrica.
UTILICE LA UNIDAD SOLAMENTE EN VEHÍCULOS QUE
TENGAN 12 VOLTIOS CON NEGATIVO A MASA.
(Consulte a su distribuidor en caso de duda.) De no ser así, podría
ocasionar un incendio, etc.
MANTENGA LOS OBJETOS PEQUEÑOS, COMO TUERCAS O
TORNILLOS, FUERA DEL ALCANCE DE LOS NIÑOS.
La ingestión de estos objetos puede provocar lesiones graves. Si
esto ocurre, consulte con un médico inmediatamente.
UTILICE EL AMPERAJE CORRECTO CUANDO CAMBIE
FUSIBLES.
De lo contrario, puede producirse un incendio o una descarga
eléctrica.
NO OBSTRUYA LOS ORIFICIOS DE VENTILACIÓN O LOS
PANELES DEL RADIADOR.
Si los bloquea, el calor podría acumularse en el interior y producir
un incendio.
UTILICE ESTE PRODUCTO CON APLICACIONES MÓVILES
DE 12 V.
Si se emplea para otra aplicación distinta de la prevista, podría
producirse un incendio, una descarga eléctrica u otras lesiones.
DEJE DE USAR LA UNIDAD INMEDIATAMENTE SI APARECE
ALGÚN PROBLEMA.
Su uso en estas condiciones podría ocasionar lesiones personales o
daños al producto. Lleve la unidad a un distribuidor Alpine
autorizado o al Centro de servicio Alpine más próximo para repararla.
PRECAUCIONES
Limpieza de productos
Limpie el producto periódicamente con un paño suave y seco. Para
limpiar las manchas más difíciles, humedezca el paño únicamente
con agua. Cualquier otro líquido puede disolver la pintura o
deteriorar el plástico.
Temperatura
Cerciórese de que la temperatura del interior de vehículo esté entre
+60 °C y –10 °C antes de conectar la alimentación de la unidad.
Mantenimiento
Si tiene problemas, no intente reparar la unidad por sí mismo.
Devuélvala a su proveedor Alpine o a la estación de servicio Alpine
más cercana para que se la reparen.
Ubicación de instalación
Asegúrese de que la unidad iDA-X305S no se instala en una
ubicación sujeta a:
• La luz solar directa ni el calor
• Elevada humedad y agua
• Polvo excesivo
• Vibraciones excesivas
Protección del conector USB
• Sólo se puede conectar un iPod/iPhone, una memoria USB o un
reproductor de audio portátil en el conector USB de esta unidad.
No se garantiza el funcionamiento correcto de otros productos
USB conectados.
• Si se utiliza el conector USB, es importante usar únicamente el
cable conector suministrado con la unidad. No se pueden
conectar concentradores USB.
• En función del dispositivo de memoria USB conectado, es
posible que la unidad no funcione correctamente o que no
puedan activarse ciertas funciones.
• El formato de archivo de audio que puede reproducirse en la
unidad es MP3/WMA/AAC.
• Se puede visualizar el nombre del intérprete, de la canción, etc.,
pero es posible que los caracteres no se muestren correctamente.
ADVERTENCIA
ADVERTENCIA
Este símbolo indica que las instrucciones son
importantes. De no tenerse en cuenta, podría
ocasionarse heridas graves o muerte.
PRUDENCIA
Este símbolo indica que las instrucciones son
importantes. De no tenerse en cuenta, podría
ocasionarse heridas graves o daños materiales.
PRUDENCIA
Alpine no se responsabiliza de los datos perdidos incluso si éstos se
pierden durante el uso del producto.

5-ES
Manipulación de la memoria USB
• Esta unidad puede controlar un dispositivo de almacenamiento
de memoria compatible con el protocolo de almacenamiento
masivo USB (USB Mass Storage Class - MSC). Se pueden
reproducir los formatos de archivo de audio MP3, WMA y AAC.
• No es posible garantizar la funcionalidad de la memoria USB.
Utilice la memoria USB según las condiciones de este contrato.
Lea detenidamente el manual de operación de la memoria USB.
• Evite utilizar la unidad o guardarla en los lugares siguientes:
En cualquier lugar del vehículo que esté expuesto a la luz solar
directa o sometido a altas temperaturas.
En cualquier lugar sometido a mucha humedad o próximo a
sustancias corrosivas.
• Coloque la memoria USB en un lugar en el que la acción del
conductor no se vea afectada.
• Es posible que la memoria USB no funcione correctamente a
temperaturas demasiado altas o bajas.
• Utilice solamente memorias USB certificadas. Tenga en cuenta
que incluso las memorias USB certificadas pueden no funcionar
correctamente según el estado en que se encuentren.
• En función de la configuración del tipo de memoria USB, el
estado en que se encuentre o el software de codificación, es
posible que la unidad no reproduzca el contenido correctamente.
• Los archivos protegidos frente a copia (mediante DRM, Digital
Rights Management, función de protección de derechos de
propiedad intelectual) no se pueden reproducir en esta unidad.
Los archivos en formato WMA con DRM o los archivos en
formato AAC adquiridos en iTunes Store están incluidos
también en esta restricción.
• La llave de memoria USB puede tardar unos segundos en iniciar
la reproducción. Si la llave de memoria USB contiene archivos
especiales que no sean de audio, el tiempo que transcurre hasta
la reproducción o los resultados de búsqueda es bastante mayor.
• La unidad puede reproducir las extensiones de archivos “mp3”,
“wma” o “m4a”.
• No agregue estas extensiones a archivos que no contengan datos
de audio. Los datos que no sean de audio no se reconocerán. La
reproducción resultante puede emitir ruidos que podrían averiar
los altavoces y los amplificadores.
• Se recomienda hacer copias de seguridad de los datos
importantes en un ordenador personal.
• No extraiga el dispositivo USB mientras la reproducción esté en
curso. Cambie la fuente (SOURCE) a cualquier opción que no
sea USB y, a continuación, extraiga el dispositivo USB para
evitar que la memoria se dañe.
Acerca del manejo del reproductor de audio portátil
• La unidad puede controlar un reproductor de audio portátil
mediante la interfaz USB. Se pueden reproducir los formatos de
archivo de audio MP3 y WMA.
• No se garantiza el funcionamiento del reproductor de audio
portátil. Utilice el reproductor de audio portátil según las
condiciones de este contrato. Lea detenidamente el manual de
operación del reproductor de audio portátil.
• Evite utilizar la unidad o guardarla en los lugares siguientes:
En cualquier lugar del vehículo que esté expuesto a la luz solar
directa o sometido a altas temperaturas.
En cualquier lugar sometido a mucha humedad o próximo a
sustancias corrosivas.
• Coloque el reproductor de audio portátil en un lugar en el que la
acción del conductor no se vea afectada.
• Es posible que el reproductor de audio portátil no funcione
correctamente a temperaturas demasiado altas o bajas.
•
En función de la configuración del tipo de reproductor de audio
portátil, el estado en que se encuentre o el software de codificación,
es posible que la unidad no reproduzca el contenido correctamente.
•
Si el reproductor de audio portátil tiene un ajuste MSC/MTP en MTP.
• Es posible que un reproductor de audio portátil con datos
almacenados mediante almacenamiento masivo USB no sea
reconocible por la unidad.
•
En función de la configuración del reproductor de audio portátil,
es posible que el almacenamiento masivo USB sí sea compatible.
Para obtener más información sobre la configuración, consulte el
Manual del propietario del reproductor.
• La unidad puede reproducir archivos MP3/WMA sincronizados
con Windows Media Player (versión 10 u 11) y enviarlos
después al reproductor. Se pueden reproducir archivos con
extensiones “mp3” o “wma”.
• Si los datos no están sincronizados con Windows Media Player y
se envían por otro medio, es posible que la unidad no reproduzca
los archivos correctamente.
• La unidad es compatible con WMDRM10.
• No es posible reproducir archivos protegidos frente a copias (con
protección de copyright).
• Se recomienda hacer copias de seguridad de los datos
importantes en un ordenador personal.
• No extraiga el dispositivo USB mientras la reproducción esté en
curso. Cambie la fuente (SOURCE) a cualquier opción que no
sea USB y, a continuación, extraiga el dispositivo USB para
evitar que la memoria se dañe.

6-ES
Existen dos modos de utilizar el codificador de doble acción.
Funcionamiento normal
Gire el codificador de doble acción hacia la derecha
o la izquierda.
Volumen de ajuste y desplazamiento en una lista de opciones.
Funcionamiento alternativo
Presione el anillo exterior y gire el codificador de
doble acción hacia la derecha o la izquierda.
Al soltar el codificador de doble acción, la pantalla cambia.
En función del modo actual, la acción resultante varía. Si presiona
y gira el codificador de doble acción hacia la izquierda o la
derecha mientras lo mantiene pulsado, podrá cambiar elementos/
pantallas de manera continua.
Funcionamiento
del codificador de
doble acción
Codificador de doble acción
Presione el codificador de doble acción.

7-ES
Lista de accesorios
•Receptor de medios digitales...........................................1
•Cable de alimentación.......................................................1
•Funda de montaje..............................................................1
•Maletín de transporte ........................................................1
•Marco frontal ......................................................................1
•Llaves de soporte ..............................................................2
•Tornillo (M5x8) ...................................................................4
•Cable USB ..........................................................................1
•Cable de interfaz de acople del iPod................................1
•Manual del propietario ........................................... 1 copia
Conexión y desconexión de la
alimentación
Pulse SOURCE para encender la unidad.
•La unidad puede encenderse pulsando cualquier otro botón excepto
(liberar), codificador de doble acción y VIEW. La unidad
también se enciende automáticamente si detecta que se ha conectado
un iPod/iPhone o una memoria USB.
Mantenga pulsado SOURCE durante, al menos,
2 segundos para apagar la unidad.
Extracción y fijación del panel frontal
Extracción
1
Desconecte la fuente de alimentación de la unidad.
2
Pulse (liberar) ubicado en la parte inferior
izquierda hasta que el panel frontal salga hacia
fuera.
3
Sujete la parte izquierda del panel frontal y
extráigala.
•
Puede que el panel frontal se caliente durante el uso normal
(especialmente los terminales del conector situados en la parte trasera
del panel frontal). Este comportamiento no es síntoma de un error.
•Para proteger el panel frontal, métalo en la caja de transporte
suministrada.
Fijación
1
Inserte la parte derecha del panel frontal en la
unidad principal. Alinee la ranura del panel frontal
con los salientes de la unidad principal.
2
Empuje la parte izquierda del panel frontal hasta que
quede firmemente fijada en la unidad principal.
•Antes de fijar el panel frontal, cerciórese de que no haya suciedad ni
polvo en los terminales del conector y de que no existan objetos
extraños entre el panel frontal y la unidad principal.
•Fije el panel frontal con cuidado, sujetándolo por los lados para
evitar pulsar cualquier botón por equivocación.
Puesta en funcionamiento inicial del sistema
Asegúrese de presionar el interruptor RESET cuando utilice la unidad
por primera vez, después de cambiar la batería del coche, etc.
1
Desconecte la fuente de alimentación de la unidad.
2
Pulse (liberar) para extraer el panel frontal.
3
Pulse
RESET
con un bolígrafo u otro objeto puntiagudo.
Ajuste del volumen
Gire el codificador de doble acción hasta obtener el
sonido deseado.
Configuración de la hora y el calendario
1
Mantenga pulsado
(FUNCTION/SETUP)
durante, al menos, 2 segundos para activar el modo
de selección SETUP
.
2
Gire el codificador de doble acción para
seleccionar “General” y, a continuación, pulse
/ENTER.
BLUETOOTH General Display iPod XM*
SIRIUS* HD Radio* Audio
* Sólo si el receptor de radio SAT/Sintonizador de HD Radio está
conectado.
3
Gire el codificador de doble acción para
seleccionar Clock Adjust y, a continuación, pulse
/ENTER.
Se activa el modo de ajuste del calendario.
Una vez ajustado el año, proceda al paso 5.
Primeros pasos
/ENTER
Codificador de doble acción
SOURCE VIEW
(FUNCTION/SETUP)

8-ES
4
Gire el codificador de doble acción para
seleccionar y ajustar el año, el mes, el día, la hora y
los minutos.
5
Pulse /ENTER.
Se activa el modo de ajuste del año y éste parpadea.
(Cuando el “año” está ajustado)
6
Gire el codificador de doble acción para ajustar
el año y, a continuación, pulse /ENTER.
Ha completado el ajuste del año. (Cuando el “año” está
ajustado)
7
Repita los pasos 4 a 6 descritos anteriormente para
ajustar el mes, el día, la hora y los minutos.
8
Si mantiene pulsado durante, al menos,
2 segundos, volverá al modo normal.
•Si pulsa durante el procedimiento, regresará al modo anterior.
Visualización del calendario y de la hora
Pulse VIEW.
Se visualizarán el calendario y la hora. Si pulsa VIEW de
nuevo, volverá al modo normal.
•Si selecciona cualquier función del sintonizador o del iPod/iPhone
mientras se encuentra en modo de prioridad del reloj, la
visualización de la hora se interrumpirá momentáneamente. La
función seleccionada se mostrará durante unos 5 segundos antes de
que vuelva a aparecer la visualización de la hora.
•Si hay un sintonizador de radio digital conectado, se puede
visualizar la información de texto. Consulte “Cambio de la
visualización (sólo modo HD Radio)” (página 10).
•Si hay conectado un receptor XM, el campo de datos auxiliares se
muestra en la pantalla. Consulte “Configuración de la pantalla
Campo de datos auxiliares” (página 31).
•Si se ha conectado un iPod/iPhone, se podrá visualizar la portada
del disco correspondiente. Consulte “Cambio de la pantalla”
(página 13).
•En modo Auxiliary/Auxiliary+, la hora y el calendario no se
visualizan.
Esta unidad no puede recibir señales HD Radio™ (radio digital
terrestre). Con el fin de activar las funciones de radio digital descritas
más abajo, debe conectarse un módulo sintonizador HD Radio opcional
a través del bus Ai-NET.
Las función de etiquetas de iTunes permite etiquetar las canciones que
escuche en emisoras de HD Radio con el nuevo iDA-X305S y,
posteriormente, previsualizarlas, comprarlas y descargarlas desde su
lista de reproducción de etiquetas de iTunes la próxima vez que
sincronice el iPod.
Si la unidad está conectada a un dispositivo compatible con etiquetas,
puede utilizar la función de etiquetas de iTunes. Para obtener más
información, consulte el manual de operación del dispositivo
compatible con etiquetas.
Cómo visualizar la pantalla
<Ejemplo de visualización de la pantalla de la radio>
1 Visualización de modo
2 Número de memoria
3 Volumen
4 Modo de sintonización
5 Frecuencia
6 Calendario/Hora
Controlable con mando a distancia
Apunte el transmisor del mando a distancia opcional hacia
el sensor.
Sensor del mando a distancia
Radio
TUNE/A.ME (PRESET)
/ENTER
SOURCE Codificador de
doble acción
BAND
4
5
6
3
1
2
VIEW

9-ES
Funcionamiento de la radio
Es posible recibir señales de HD Radio™ si se conecta el TUNER
MODULE de radio digital. Durante la recepción de HD Radio, la
unidad puede cambiar automáticamente entre señales digitales y
analógicas.
1
Pulse SOURCE para seleccionar el modo
TUNER.
2
Pulse repetidamente BAND hasta que se visualice la
banda de radio deseada.
FM-1 FM-2 AM FM-1
3
Pulse TUNE/A.ME para seleccionar el modo de
sintonización.
DX (modo distancia) Local (modo local)
Manual (modo manual) DX (modo distancia)
•El modo inicial es modo distancia.
Modo distancia:
Se sintonizarán automáticamente las emisoras de señal intensa
y débil (Sintonización con búsqueda automática).
Modo local:
Sólo se sintonizarán automáticamente las emisoras de señal
intensa (Sintonización con búsqueda automática).
Modo manual:
La frecuencia se sintoniza de forma manual en varios pasos
(Sintonización manual).
4
Pulse o para sintonizar la emisora
deseada.
Si mantiene pulsado o , la frecuencia cambiará
continuamente.
•“Digital” aparece en la pantalla cada vez que se recibe una emisora
de HD Radio (con información de audio y de texto).
•Si la búsqueda digital está activada (ON), las funciones SEEK UP/
DOWN sólo se detienen en emisiones de HD Radio. Consulte
“Activación y desactivación de la configuración de búsqueda digital
(Digital Seek)” (página 26).
Almacenamiento manual de emisoras
1
Seleccione la banda y sintonice la emisora que
desee almacenar en la memoria.
2
Pulse (PRESET).
Se mostrará la pantalla Preset.
3
Gire el codificador de doble acción para
seleccionar el número de memorización.
4
Mantenga pulsado /ENTER durante, al menos,
2 segundos.
La emisora seleccionada se guarda.
El visualizador mostrará la banda, el número de
memorización y la emisora almacenada.
•Es posible memorizar hasta un total de 18 emisoras en los números
de memorización (6 emisoras por cada banda; FM1, FM2 y AM).
•Si almacena una emisora en un número de memorización que ya
contiene otra emisora, la emisora anterior será reemplazada por la
nueva.
•Presione el anillo exterior y gire el codificador de doble acción a la
izquierda y la derecha en la pantalla Preset: podrá cambiar la
pantalla Preset de otra banda.
FM-1 FM-2
AM FM-1
También puede cambiar la banda de radio deseada pulsando BAND.
Almacenamiento automático de
emisoras
1
Pulse repetidamente BAND hasta que se visualice la
banda de radio deseada.
2
Mantenga pulsado TUNE/A.ME durante, al menos,
2 segundos.
La pantalla mostrará “Auto Memory” mientras se encuentre
activa la memoria automática. El sintonizador buscará y
almacenará automáticamente 6 emisoras de señal intensa
en la banda seleccionada. Se almacenarán en los botones
1 al 6 según el orden de intensidad de la señal.
Cuando finalice el almacenamiento automático, el
sintonizador volverá a la emisora almacenada en la
ubicación de memorización 1.
•Si no hay emisoras almacenadas, el sintonizador volverá a la
emisora original que estaba escuchando antes de iniciar el
procedimiento de almacenamiento automático.
Sintonía de emisoras memorizadas
1
Pulse repetidamente BAND hasta que se visualice la
banda deseada.
2
Pulse (PRESET).
Se mostrará la pantalla Preset.
3
Gire el codificador de doble acción para
seleccionar una emisora.
4
Pulse /ENTER.
El visualizador mostrará la banda, el número de presintonía
y la frecuencia de la emisora seleccionada.
•Presione el anillo exterior y gire el codificador de doble acción a la
izquierda y la derecha en la pantalla Preset: podrá cambiar la
pantalla Preset de otra banda.
FM-1 FM-2
AM FM-1
También puede cambiar la banda de radio deseada pulsando BAND.
Recepción de una emisora multidifusión
(sólo modo HD Radio)
La multidifusión es la capacidad para emitir varios flujos de programas
en una sola frecuencia FM. De este modo aumenta la cantidad y la
diversidad de contenidos. Se puede seleccionar un máximo de ocho
canales de emisoras multidifusión en esta unidad.
1
Cuando se recibe una emisora de multidifusión, se
muestra el número de programa.
Nº de
programa

10-ES
2
Pulse
/ENTER
para acceder a la pantalla del tipo de
programa.
3
Gire el codificador de doble acción para
seleccionar un archivo y pulse /ENTER.
Se recibirá el programa seleccionado.
Ejemplo de servicio programa:
Cambio de la visualización (sólo modo
HD Radio)
Pulse VIEW.
Cada vez que pulse VIEW, la pantalla cambiará.
* Es posible definir un nombre de emisora de HD Radio digital corto o
largo. Consulte “Ajuste de llamada de emisora de HD Radio (Station
Call)” (página 26).
Si se conecta un iPod/iPhone al iDA-X305S mediante el cable
adecuado, los controles del iPod/iPhone no están operativos.
•Internet o las funciones de teléfono, etc., del iPhone o del iPod touch
no se pueden controlar desde la unidad, pero sí desde el propio
iPhone o iPod touch.
•Si se conecta un iPhone al iDA-X305S, se puede utilizar como un
iPod. Si se usa el iPhone como un teléfono manos libres, se necesita
la INTERFAZ BLUETOOTH (KCE-400BT).
•Esta unidad no es compatible con la conexión FULL SPEED de
iPod. Por lo tanto, aunque conecte un iPod/iPhone utilizando el
cable de conexión FULL SPEED (KCE-433iV) en la INTERFAZ
BLUETOOTH (KCE-400BT), no es posible utilizar el iPod/iPhone.
•Esta unidad no es compatible con la reproducción de vídeo del iPod/
iPhone.
Acerca de los iPod/iPhone que pueden utilizarse con
esta unidad
•Dispositivos confirmados con la marca Made for iPod
(Fabricado para iPod). No se garantiza el funcionamiento
correcto con versiones anteriores.
iPod touch (final de 2009): ver.3.1.2
iPod nano (5ª generación): ver.1.0.1
iPod classic (final de 2009): ver.2.0.3
iPod touch (2ª generación): ver.3.1.2
iPod nano (4ª generación): ver.1.0.3
iPod classic (120 GB): ver.2.0.1
iPod touch (1ª generación): ver.3.1.2
iPod nano (3ª generación): ver.1.1.3
iPod classic (80 GB, 160 GB): ver.1.1.2
iPod nano (2ª generación): ver.1.1.3
iPod con vídeo: ver.1.3
iPod nano (1ª generación): ver.1.3.1
•Dispositivos confirmados con la marca Works for iPhone
(Funciona con iPhone). No se garantiza el funcionamiento
correcto con versiones anteriores.
iPhone 3GS: ver.3.1.2
iPhone 3G: ver.3.1.2
iPhone: ver.3.1.2
•Para ayudarle a identificar su modelo de iPod, consulte el
documento de Apple “Identifying iPod models”, en
http://support.apple.com/kb/HT1353.
Emisora de radio
multidifusión
Nº de programa Servicio de programa
88,9 MHz Nº 1
MPS
: servicio de programa
principal
88,9 MHz Nº 2 SPS: servicio de programa
suplementario
88,9 MHz Nº 3 SPS: servicio de programa
suplementario
·
·
·
88,9 MHz Nº 8 SPS: servicio de programa
suplementario
Título de
canción
Nombre de
artista
Título de
álbum
Frecuencia
Letra de
emisora*
Calendario/
Hora
Título de
canción
Nombre de
artista
Título de
álbum
Frecuencia
iPod/iPhone
(FUNCTION/SETUP)
SOURCE
//ENTER
Codificador de doble acción
VIEW

11-ES
Cómo visualizar la pantalla
1 Visualización de modo
2 Título de canción/episodio/Título de audiolibro
3 Nombre del artista/Título de podcast
4 Título del álbum/Fecha de edición
5 Pantalla de portadas
6 Tiempo transcurrido
7 Tiempo de reproducción restante
8 Calendario/Hora
•Cuando el tiempo de reproducción alcanza los 100 minutos, se
muestra “00’00”.
Reproducción
1
Pulse SOURCE para cambiar al modo iPod.
2
Pulse o para seleccionar la canción
deseada.
3
Para hacer una pausa en la reproducción, pulse
/ .
Si vuelve a pulsar /, volverá a activarse la
reproducción.
•Si se reproduce una canción en el iPod/iPhone cuando está
conectado al modelo iDA-X305S, la reproducción seguirá tras la
conexión.
•Los podcasts o audiolibros pueden contener varios capítulos. Puede
cambiar de capítulo pulsando o .
Búsqueda de la canción o título deseado
Un iPod/iPhone puede contener miles de canciones. Por este motivo, la
unidad puede efectuar varias búsquedas mediante la función de
búsqueda mostrada a continuación.
Utilice la jerarquía individual del modo de búsqueda Lista de
reproducción/Artista/Álbum/Podcast/Audiolibro/Género/Compositor/
canción para restringir las búsquedas, según la tabla siguiente.
•Puede seleccionar su modo de búsqueda preferido. Consulte “Ajuste
del modo de búsqueda del iPod/iPhone” (página 26).
•Por ejemplo, si el artista seleccionado solo tiene un álbum, el modo
de búsqueda de canciones se selecciona inmediatamente, omitiendo
el modo de búsqueda de álbumes.
Por ejemplo: búsqueda por nombre de artista
El ejemplo siguiente muestra cómo se realiza una búsqueda por
ARTIST. Puede utilizarse otro modo de búsqueda para la misma
operación, aunque la jerarquía será diferente.
1
Pulse /ENTER para activar el modo Menu Select.
2
Gire el codificador de doble acción para
seleccionar “Artists” y, a continuación, pulse
/ENTER.
Se activa el modo de búsqueda de artista y se mostrará el
nombre de un artista.
3
Gire el codificador de doble acción para
seleccionar al artista deseado y luego pulse
/ENTER.
Se activa el modo de búsqueda de álbum y se mostrará el
título de un álbum.
Mantenga pulsado /ENTER durante, al menos,
2 segundos para reproducir todas las canciones del artista
seleccionado.
4
Gire el codificador de doble acción para
seleccionar un álbum y luego pulse /ENTER.
Se activa el modo de búsqueda de canción y se mostrará el
título de una canción.
Mantenga pulsado /ENTER durante, al menos,
2 segundos para reproducir todas las canciones del álbum
seleccionado.
5
Gire el codificador de doble acción para
seleccionar una canción y pulse /ENTER.
Se reproducirá la canción seleccionada.
Para volver al principio de la canción actual:
Pulse .
Retroceso rápido:
Mantenga pulsado .
Para avanzar al principio de la siguiente canción:
Pulse .
Avance rápido:
Mantenga pulsado .
2
3
4
5
67
1
8
Jerarquía 1 Jerarquía 2 Jerarquía 3 Jerarquía 4
Lista de
reproducción
(Playlists) Canciones — —
Artistas (Artists) Álbumes Canciones —
Álbumes
(Albums) Canciones — —
Podcasts Episodio — —
Audiolibros
(Audiobooks) ———
Géneros
(Genres) Artistas Álbumes Canciones
Compositores
(Composers) Álbumes Canciones —
Canciones
(Songs) ———

12-ES
•Mientras se encuentre en modo de búsqueda, si mantiene pulsado
durante, al menos, 2 segundos, el modo de búsqueda se
cancela.
•Si pulsa en modo de búsqueda, volverá al modo anterior.
•Si se selecciona el nombre del iPod/iPhone en el modo de búsqueda
de lista de reproducción y se pulsa /ENTER, podrá buscar todas
las canciones que contenga el iPod/iPhone. Además, si mantiene
pulsado /ENTER durante, al menos, 2 segundos, se reproducen
todas las canciones del iPod/iPhone, comenzando por la primera de
la lista.
•Aparece “No Support” cuando la información del texto no sea
compatible con el iDA-X305S.
•Cuando se visualiza una lista, puede utilizar la función de saltar
página, saltar porcentaje o saltar letras. Para obtener más
información, consulte “Función saltar página/saltar porcentaje/
saltar letras” (página 12).
•Durante el modo de búsqueda, si selecciona Todos (All) y pulsa
/ENTER, podrá buscar todos los títulos de la jerarquía siguiente.
Si selecciona All y mantiene pulsado /ENTER durante, al menos,
2 segundos, se reproducirán repetidamente todos los títulos incluidos
en la jerarquía seleccionada.
Función saltar página/saltar porcentaje/
saltar letras
La unidad dispone de una función de saltar página/saltar porcentaje/
saltar letras para conseguir una mayor efectividad en la búsqueda. Puede
utilizar esta función en el modo de búsqueda para buscar rápidamente
un artista, una canción, etc.
1
Pulse (FUNCTION/SETUP) varias veces para
elegir el modo que desee.
La configuración predefinida de fábrica está establecida en
la función saltar página.
Page skip function Alphabets skip function
Percent skip function Page skip function
2
Presione el anillo exterior y gire el codificador de
doble acción hacia la derecha o la izquierda.
La lista pasa a la siguiente página, a la siguiente letra o
porcentaje.
Ejemplo de visualización de la función saltar
Ejemplo de visualización de la función saltar letras
•Si presiona y gira el codificador de doble acción hacia la izquierda o
la derecha mientras lo mantiene pulsado, la visualizacion cambiará
de manera continua.
•El orden de la lista depende del diseño del iPod/iPhone.
Memoria de posición de búsqueda
Durante la reproducción del iPod/iPhone, puede subir rápidamente
hasta la jerarquía seleccionada, de nivel en nivel.
Pulse .
El visualizador mostrará el nivel de la última jerarquía seleccionada en
el modo de búsqueda. Si pulsa varias veces, se retrocede del nivel actual
al más alto.
Función Up/Down
Si selecciona un álbum y mantiene pulsado /ENTER en el modo de
búsqueda, este álbum se reproducirá de manera repetida. Para ir al
álbum anterior o siguiente, utilice la función Up/Down.
Visualización del indicador
La visualización del indicador UP/DOWN muestra qué elemento se puede
seleccionar.
Presione el anillo exterior y gire el
codificador de doble
acción
hacia la izquierda.
Permite regresar al elemento anterior.
Presione el anillo exterior y gire el
codificador de doble
acción
hacia la derecha.
Permite avanzar hasta el siguiente elemento.
•Si no se realiza ninguna búsqueda, esta función no es válida.
•Si está buscando una canción, este método no se puede aplicar.
•Durante una búsqueda de un artista, podrán reproducirse los
álbumes de dicho artista.
•
Si selecciona un álbum durante una búsqueda de un artista, podrá utilizar
la función Up/Down para reproducir otros álbumes de dicho artista.
Page skip function: La lista se va pasando de página en
página.
Alphabets skip function:
La función de salto alfabético permite
pasar al siguiente carácter alfabético,
como de la A a la B, de la B a la C, etc.
Puede saltar en orden inverso, como de
la B a la A, girando el
codificador
de
doble acción
hacia la izquierda.
Percent skip function:
Por ejemplo, hay 100 canciones
almacenadas en el iPod/iPhone.
Estas
100 canciones se dividen en 10
grupos (0%, 10%, … 90%).
Visualización del
porcentaje
Lista de reproducción
Artista
Álbum
Podcast
Audiolibro
Género
Compositor
Visualización de
las letras
Indicador
UP/DOWN

13-ES
Reproducción aleatoria Shuffle
1
Pulse (FUNCTION/SETUP).
Se mostrará la pantalla de función.
2
Gire el codificador de doble acción para
seleccionar “Shuffle” y, a continuación, pulse
/ENTER.
Se activa el modo Shuffle.
3
Gire el codificador de doble acción para
seleccionar el modo de reproducción Shuffle y, a
continuación, pulse /ENTER.
4
Pulse .
Las canciones se reproducirán en secuencia aleatoria.
•Para cancelarlo, seleccione Off en el procedimiento anterior.
•Shuffle Album/Shuffle Song funciona de la misma manera que la
función Shuffle Albums/Shuffle Songs del iPod/iPhone.
Reproducción aleatoria Shuffle All
La función Shuffle ALL reproduce todas las canciones del iPod/iPhone
de forma aleatoria.
1
Pulse /ENTER.
Se mostrará la pantalla de selección de menú.
2
Pulse /ENTER mientras selecciona “Shuffle All”.
Se encenderá el indicador y todas las canciones se
reproducirán en secuencia aleatoria.
•Para cancelarlo, desactive el modo Shuffle (Off). Consulte
“Reproducción aleatoria Shuffle” (página 13).
•Si Shuffle All está seleccionado, se cancelan las canciones
seleccionadas que se reprodujeron en el modo de búsqueda.
Repetición de reproducción
1
Pulse (FUNCTION/SETUP).
Se mostrará la pantalla de función.
2
Pulse /ENTER.
Se activa el modo de repetición.
3
Gire el codificador de doble acción para
seleccionar “Song” y, a continuación, pulse
/ENTER.
4
Pulse .
Se reproducirá repetidamente la canción.
•Para cancelarlo, seleccione Off en el procedimiento anterior.
•Durante la reproducción en modo de repetición, no se podrán
seleccionar más canciones pulsando o .
•Se muestran tanto el indicador Shuffle como el Repeat que se pueden
ajustar y solamente se repite una canción.
Cambio de la pantalla
Pulse VIEW.
* Información de etiquetas
Si no hay información de texto, no se mostrará nada.
•Sólo se pueden mostrar caracteres alfanuméricos.
•El número de caracteres máximo es 128 (128 bytes).
•Es posible que algunos caracteres no se visualicen correctamente.
•Aparece “No Support” cuando la información del texto no sea
compatible con el iDA-X305S.
Shuffle Album : se selecciona aleatoriamente un
álbum del iPod/iPhone y se
reproducen sus canciones en el
orden en que aparecen en el álbum.
Song : si selecciona una canción en el
modo de búsqueda, todas las
canciones del modo seleccionado
se reproducirán de forma aleatoria.
Off : modo Shuffle desactivado.
Repeat Song : se reproduce una sola canción de
forma repetida.
Off : modo de repetición desactivado.
*Pantalla de
ilustraciones
/Título de
canción
Título de
canción
Nombre del
artista
Título del álbum
Título de canción
Nombre de artista
Título de álbum
Calendario/
Reloj
*

14-ES
Pandora Radio es una radio totalmente personalizable y GRATUITA
ahora disponible para escuchar música en streaming en el iPhone.
Simplemente busque el nombre de uno de sus artistas favoritos,
canciones o compositores clásicos y Pandora creará una “emisora” que
reproduzca su música y otras canciones relacionadas.
La unidad iDA-X305S permite interactuar con su cuenta de Pandora si
conecta un iPhone con la aplicación compatible con Pandora para
iPhone instalada.
Para obtener más información sobre la aplicación compatible con
Pandora para iPhone, visite: http://www.pandora.com/on-the-iphone
Para controlar Pandora a través del iDA-X305S, debe disponer de una
versión de la aplicación móvil Pandora compatible con Pandora Link en
un smartphone compatible. Para obtener más información sobre los
teléfonos y las aplicaciones compatibles, visite www.pandora.com/link.
•Algunas de las funciones de la aplicación compatible con Pandora
para iPhone no se pueden controlar desde la unidad iDA-X305S.
Cómo visualizar la pantalla
<Ejemplo de pantalla de Pandora>
1 Visualización de modos
2 Visualización de portadas
3 Tiempo transcurrido
4 Título de canción
5 Nombre del artista
6 Título del álbum/Nombre de emisora
7 Tiempo restante de reproducción de la canción
8 Calendario/Hora
Escuchar Pandora
1
Inicie la aplicación Pandora App en el iPhone.
La unidad iDA-X305S pasará al modo Pandora.
2
Para poner la reproducción en pausa, pulse / .
Si vuelve a pulsar / volverá a activarse la
reproducción.
3
Para saltar a la canción siguiente, pulse .
4
Salga de la aplicación Pandora App en el iPhone
para salir del modo Pandora en la unidad iDA-X305S.
La unidad iDA-X305S pasará al modo iPod.
•Si Pandora sigue ejecutándose en segundo plano, la unidad
iDA-X305S puede volver al modo Pandora desde cualquier otra
fuente.
•La función de reproducción de una canción anterior no está
disponible.
•Pandora limita el número de saltos permitidos en su servicio. Si se
intenta saltar más canciones, aparecerá el mensaje “No Skips
Remaining” (No le quedan más saltos).
Opiniones gestuales
Puede personalizar las emisoras con su opinión mediante gestos “pulgar
hacia arriba” (aprobación) o “pulgar hacia abajo” (desaprobación). De
este modo, el sistema lo tendrá en cuenta para las selecciones de música
que haga en el futuro.
Durante la reproducción, pulse el aro exterior y gire el
codificador de doble acción hacia la izquierda para
desaprobar o hacia la derecha para mostrar aprobación.
•En algunos casos, es posible que la información de los “pulgares”
no esté disponible.
Pandora Radio
(iPhone)
Codificador de doble acción
VIEW
//ENTER (PRESET/Bookmark)
4
5
6
3
2
1
8
7
Derecha: Aparece el indicador “ ” en la pantalla. Pandora
agregará música parecida a su emisora.
Izquierda: Aparece el indicador “ ”. Pandora bloqueará esta
canción en su emisora y se saltará la canción
actual. Si ha alcanzado ya el número máximo de
saltos, la canción actual continúa reproduciéndose.

15-ES
Búsqueda de una emisora deseada
Puede visualizar la lista de emisoras y seleccionarlas directamente
desde la unidad iDA-X305S.
Búsqueda alfabética
1
Pulse /ENTER para activar el modo de
búsqueda.
2
Gire el codificador de doble acción para
seleccionar “A-Z” y, a continuación, pulse
/ENTER.
El modo de búsqueda “A-Z” se activa y los nombres de las
emisoras se muestran alfabéticamente.
3
Gire el codificador de doble acción para
seleccionar la emisora deseada y luego pulse
/ENTER.
Pandora reproducirá dicha emisora.
Búsqueda por fecha de agregación
1
Pulse /ENTER para activar el modo de
búsqueda.
2
Gire el codificador de doble acción para
seleccionar “By Date” y, a continuación, pulse
/ENTER.
El modo de búsqueda “By Date” se activa y los nombres de
las emisoras se visualizan según la fecha en que se
agregaron a la cuenta.
3
Gire el codificador de doble acción para
seleccionar la emisora deseada y luego pulse
/ENTER.
Pandora reproducirá dicha emisora.
•Creación de una nueva emisora
Si no está conduciendo y el iPhone no está conectado a la unidad
iDA-X305S, puede crear emisoras personalizadas de Pandora con la
aplicación Pandora App del iPhone. También puede crear emisoras
desde Internet en www.pandora.com.
QuickMix
Utilice QuickMix para crear una lista de reproducción basada en dos o
más de sus emisoras de Pandora. Edite las selecciones de emisoras de
QuickMix en la aplicación compatible con Pandora para iPhone cuando
no esté conectado a la unidad iDA-X305S.
1
Pulse /ENTER para activar el modo de
búsqueda.
2
Gire el codificador de doble acción para
seleccionar “A-Z” o “By Date” y, a continuación,
pulse /ENTER.
El modo de búsqueda “A-Z” o “By Date” se activa y se
visualiza el nombre de la emisora.
3
Pulse /ENTER mientras selecciona “QuickMix”.
•Se encenderá el indicador y todas las canciones de las emisoras
creadas se reproducirán en secuencia aleatoria.
Agregar a favoritos una canción o artista
que desee
La canción o artista que se esté reproduciendo en ese momento puede
agregarse a favoritos y guardarse en su cuenta de Pandora.
1
Durante la reproducción presione
(PRESET/Bookmark).
Aparecerá la pantalla de favoritos de Pandora.
2
Gire el codificador de doble acción para
seleccionar “Song Bookmark” o “Artist Bookmark”
y, a continuación, pulse /ENTER.
La canción o artista actual se agrega a favoritos. Aparece el
texto “Song Bookmarked” o “Artist Bookmarked”.
•Puede ver sus favoritos en la página “Profile” en
www.pandora.com.
•En algunos casos, es posible que la información de los favoritos no
esté disponible.
Cambio de la pantalla
Pulse VIEW.
* Información de etiquetas
Si no hay información de texto, no aparecerá nada.
•Sólo se pueden mostrar caracteres alfanuméricos.
•El número de caracteres máximo es 128 (128 bytes).
•Es posible que algunos caracteres no se visualicen correctamente.
•Aparece “No Support” cuando la información del texto no sea
compatible con la unidad iDA-X305S.
Título de canción
Nombre de artista
Título de álbum
Calendario/
Reloj
Título de canción
Nombre de artista
Título de álbum
Título de canción
Nombre de artista
Nombre de emisora
Pantalla de portadas/
Título de canción
**
*

16-ES
Si se ha conectado un dispositivo de memoria USB, un reproductor de
audio portátil o un cambiador a la unidad, el equipo podrá reproducir
archivos de formato MP3/WMA/AAC.
Cómo visualizar la pantalla
Pantalla de la memoria USB/reproductor de audio portátil
Ejemplo de visualización en pantalla de la memoria USB/
reproductor de audio portátil (si existe información de
etiquetas)
1 Visualización de modo
2 Título de canción
3 Nombre de artista
4 Título de álbum
5 Tiempo transcurrido
6 Calendario/Hora
Ejemplo de visualización en pantalla de la memoria USB/
reproductor de audio portátil (si no existe información
de etiquetas)
1 Visualización de modo
2 Nombre de carpeta*1
3 Nombre de archivo
4 Tiempo transcurrido
5 Calendario/Hora
Visualización de cambiador
<Ejemplo de visualización en pantalla de un cambiador
de CD (si el CD incluye texto)>
1 Visualización de modo
2 Texto del CD (nombre del disco)*2
3 Texto del CD (nombre de la pista)*2
4 Número de disco
5 Número de pista
6 Tiempo transcurrido
7 Calendario/Hora
<Ejemplo de visualización en pantalla del cambiador de
CD (si el CD no incluye texto)>
1 Visualización de modo
2 Número de disco
3 Número de pista
4 Tiempo transcurrido
5 Volumen
6 Calendario/Hora
<Ejemplo de visualización en pantalla de un cambiador
de MP3 (si existe información de etiquetas)>
1 Visualización de modo
2 Título de canción
3 Nombre de artista
4 Título de álbum
5 Tiempo transcurrido
6 Calendario/Hora
Memoria USB/
Reproductor de
audio portátil/
Cambiador
SOURCE
BAND
Codificador de doble acción
(PRESET)
/ENTER
/
(FUNCTION/SETUP)
6
3
1
2
5
4
4
1
2
3
5
5
7
3
1
2
6
4
5
4
1
2
6
3
4
1
3
2
6
5

17-ES
<Ejemplo de visualización en pantalla de un cambiador
de MP3 (si no existe información de etiquetas)>
1 Visualización de modo
2 Nombre de carpeta*1
3 Nombre de archivo
4 Número de disco
5 Número de carpeta
6 Número de archivo
7 Tiempo transcurrido
8 Calendario/Hora
*1En el caso de la visualización del nombre de carpeta, se muestra
“ROOT” para la carpeta raíz que no dispone de nombre.
*2Se muestra durante la reproducción de un disco con texto CD.
•Etiqueta ID3/etiqueta WMA
Si un archivo MP3/WMA/AAC contiene información de etiqueta ID3
o de etiqueta WMA, se mostrará toda la información de dichas
etiquetas.
•Tiene prioridad la visualización de la información de la etiqueta. Si
está disponible dicha información, no se mostrará el nombre de
carpeta ni el de archivo.
•Aparece “No Support” cuando la información del texto no sea
compatible con el iDA-X305S.
Reproducción
1
Pulse /SOURCE para seleccionar el modo “USB
Audio” o “CD CHG”.
2
Pulse o para seleccionar la pista
(o archivo) deseado.
Para volver al principio de la pista (o archivo) actual:
Pulse .
Retroceso rápido:
Mantenga pulsado .
Para avanzar hasta el principio de la pista (o archivo) siguiente:
Pulse .
Avance rápido:
Mantenga pulsado .
•Si se conecta un reproductor de audio portátil, no estará disponible
la función de avance/rebobinado rápido.
3
Para hacer una pausa en la reproducción, pulse
/ .
Si vuelve a pulsar /, volverá a activarse la
reproducción.
•El tiempo de reproducción puede no mostrarse correctamente
cuando se reproduce un archivo grabado en VBR (velocidad variable
de bits).
Selección de un disco (cambiador)
(opcional)
Es posible conectar un cambiador opcional de 6 ó 12 discos compactos
si esta unidad es compatible con Ai-NET. Con un cambiador de discos
compactos conectado a la entrada Ai-NET, podrá controlar dicho
cambiador CD desde esta unidad.
Gracias a KCA-410C (Versatile Link Terminal), esta unidad permite
controlar múltiples cambiadores.
Consulte “Selección de cambiador múltiple (opcional)” en la página 17
para seleccionar los cambiadores de discos compactos.
•Los controles de esta unidad para operaciones de cambiador de
discos compactos sólo pueden utilizarse cuando hay un cambiador
conectado.
•El cambiador de DVD (opcional) también puede controlarse desde
esta unidad.
1
Pulse (PRESET).
Se mostrará la pantalla Disc Select.
2
Gire el codificador de doble acción para
seleccionar un disco.
3
Pulse /ENTER.
La pantalla mostrará el número de disco seleccionado y
comenzará la reproducción del CD/MP3.
Selección de cambiador múltiple
(opcional)
Al utilizar KCA-410C (Versatile Link Terminal), es posible conectar
dos cambiadores y dos salidas externas (AUX).
1
Pulse SOURCE de esta unidad para activar el
modo “CD CHG”.
2
Pulse BAND para activar el modo de selección de
cambiador de discos compactos.
Este modo de selección permanecerá activo durante unos
segundos.
3
Pulse BAND hasta que aparezca en pantalla el
cambiador de discos deseado.
•Para obtener información detallada acerca de la entrada externa
(AUX) cuando utilice KCA-410C, consulte la sección “Ajuste del
modo AUX (V-Link)” en página 24.
Selección de la carpeta deseada
(Carpeta arriba/abajo) (MP3/WMA/AAC)
Presione el anillo exterior y gire el
codificador de
doble acción
hacia la izquierda.
Permite regresar a la carpeta anterior.
Presione el anillo exterior y gire el
codificador de doble
acción
hacia la derecha.
Permite avanzar hasta la siguiente carpeta.
Se reproduce el primer archivo de la carpeta seleccionada.
•Si se reproduce el modo M.I.X. en el reproductor de audio portátil y
en la memoria USB, esta operación no se podrá llevar a cabo.
6
8
3
1
2
7
45

18-ES
Repetición de reproducción
1
Pulse (FUNCTION/SETUP).
Se mostrará la pantalla de función.
2
Pulse /ENTER.
Se activa el modo de repetición.
3
Gire el codificador de doble acción para
seleccionar el modo de reproducción de repetición.
Modo de memoria USB/reproductor de audio portátil:
Modo de cambiador de discos compactos:
* Si se ha conectado un cambiador de CD compatible con MP3.
•Si se ajusta el modo Repeat Disc en la posición ON durante la
reproducción M.I.X. One en el modo de cambiador de CD, ésta sólo
afectará al disco actual.
Aparece el indicador en la pantalla.
4
Pulse /ENTER.
5
Pulse .
La pista (o el archivo) se reproducirá de forma repetida.
•Para cancelarlo, seleccione Off en el procedimiento anterior.
M.I.X. (Reproducción aleatoria)
1
Pulse (FUNCTION/SETUP).
Se mostrará la pantalla de función.
2
Gire el codificador de doble acción para
seleccionar el modo M.I.X.
3
Pulse /ENTER.
Se activa el modo M.I.X.
4
Gire el codificador de doble acción para
seleccionar el modo de reproducción M.I.X.
Modo de memoria USB/reproductor de audio portátil:
Modo de cambiador de discos compactos:
*1Si se ha conectado un cambiador de CD compatible con MP3.
*2Si está conectado un cambiador de CD equipado con la función ALL
M.I.X.
•Si se ajusta el modo M.I.X. One en la posición ON durante el modo
de reproducción Repeat Disc en el modo de cambiador de CD, el
modo M.I.X. sólo afectará al disco actual.
5
Pulse /ENTER.
6
Pulse .
Las pistas (o archivos) se reproducirán en secuencia
aleatoria.
•Para cancelarlo, seleccione Off en el procedimiento anterior.
Búsqueda por número de pista de CD
(sólo cambiador de CD)
Puede buscar una canción por número de pista.
1
Pulse /ENTER durante la reproducción.
Se fijará el modo de búsqueda.
2
Gire el codificador de doble acción para
seleccionar la pista deseada y luego pulse
/ENTER.
Se reproducirá la pista seleccionada.
•Pulse en el modo de búsqueda para cancelar.
•Durante la selección, si pulsa el anillo exterior y gira el codificador
de doble acción hacia la izquierda o la derecha, la lista va pasando
de pantalla en pantalla. Si presiona y gira el codificador de doble
acción hacia la izquierda o la derecha mientras lo mantiene pulsado,
podrá cambiar de pantalla de lista de manera continua.
•Cuando se está reproduciendo en modo M.I.X., no se pueden realizar
búsquedas de números de pista de CD.
Repeat One : sólo se reproduce varias veces una
pista.
Folder : sólo se reproducen varias veces los
archivos incluidos en una carpeta.
Off : modo de repetición desactivado.
Repeat One : sólo se reproduce varias veces un
archivo.
Folder * : sólo se reproducen varias veces los
archivos incluidos en una carpeta.
Disc : se repite varias veces la
reproducción de un disco.
Off : modo de repetición desactivado.
M.I.X. Folder : sólo se reproducen en secuencia
aleatoria los archivos incluidos en
una carpeta.
All : todas las canciones de la memoria
USB/reproductor de audio portátil se
reproducen de forma aleatoria.
Off : modo M.I.X. desactivado.
M.I.X. One : todos los archivos de un disco se
reproducen en secuencia aleatoria
y, al finalizar, comienza la
reproducción del siguiente disco.
Folder *1 : sólo se reproducen en secuencia
aleatoria los archivos incluidos en
una carpeta.
All *2 : las pistas de todos los CD en el
cargador actual se incluirán en la
reproducción de secuencia
aleatoria.
Off : modo M.I.X. desactivado.

19-ES
Búsqueda de nombre de archivo/carpeta
(relativo a MP3/WMA/AAC)
Puede realizar búsquedas y mostrar el nombre de la carpeta y del
archivo que se está reproduciendo actualmente.
Modo de memoria USB
1
Durante la reproducción de MP3/WMA/AAC, pulse
/ENTER para activar el modo de búsqueda.
Se activa el modo de búsqueda y se mostrará el nombre de
la carpeta/archivo.
2
Gire el
codificador de doble acción
para
seleccionar la carpeta/archivo deseado.
3
Pulse /ENTER.
Si selecciona un archivo, comenzará la reproducción de éste.
Si selecciona una carpeta, se mostrarán los archivos o
subcarpetas que contenga. Proceda al paso 4.
4
Repita los pasos 2 y 3 hasta que encuentre el
archivo deseado.
Modo de reproductor de audio portátil
Si un reproductor de audio portátil se sincroniza con Windows Media
Player (ver. 10, 11), lleve a cabo lo siguiente.
1
Pulse /ENTER para activar el modo de
búsqueda.
Se activa el modo de búsqueda.
2
Gire el
codificador de doble acción
para
seleccionar “Music”, “Albums”, o “Playlists”, y a
continuación, pulse
/ENTER
.
Si selecciona “Music”, aparecerá la lista de nombres de
artistas. Vaya al paso 3.
Si ha seleccionado “Albums”, vaya al paso 4-1.
Si ha seleccionado “Playlists”, vaya al paso 4-2.
3
Gire el codificador de doble acción para
seleccionar al artista deseado y luego pulse
/ENTER.
Aparecerá una lista de álbumes del artista seleccionado.
Vaya al paso 4-1.
4
-
1
Gire el codificador de doble acción para
seleccionar al álbum deseado y luego pulse
/ENTER.
Aparecerá una lista de canciones del álbum seleccionado.
4
-
2
Gire el codificador de doble acción para
seleccionar la lista de reproducción deseada y luego
pulse /ENTER.
Aparecerá una lista de canciones de la lista de
reproducción seleccionada.
5
Gire el codificador de doble acción para
seleccionar la canción deseada y luego pulse
/ENTER.
Se reproducirá la canción seleccionada.
Modo de cambiador de MP3
1
Durante la reproducción MP3, pulse /ENTER
para activar el modo de búsqueda de carpetas.
Se activa el modo de búsqueda y se mostrará el nombre de
la carpeta.
2
Gire el codificador de doble acción para
seleccionar la carpeta deseada y luego pulse
/ENTER.
Aparecerá el nombre de archivo de la carpeta
seleccionada.
3
Gire el codificador de doble acción para
seleccionar el archivo deseado y luego pulse
/ENTER.
Se reproducirá el archivo seleccionado.
•Si se ha conectado una memoria USB, se puede buscar la carpeta o
archivo hasta la octava jerarquía. No es posible buscar ni reproducir
las carpetas/archivos de la novena jerarquía en adelante.
•
Mantenga pulsado durante, al menos, 2 segundos en el modo de
búsqueda para cancelar.
•Cuando se encuentre en el modo de búsqueda, pulse para
volver al modo anterior.
•Durante la selección, si pulsa el anillo exterior y gira el codificador
de doble acción hacia la izquierda o la derecha, la lista va pasando
de pantalla en pantalla. Si presiona y gira el codificador de doble
acción hacia la izquierda o la derecha mientras lo mantiene pulsado,
podrá cambiar de pantalla de lista de manera continua.
•Cuando se está reproduciendo en modo M.I.X., no se pueden realizar
búsquedas de nombres de archivos o carpetas.
•Si la carpeta no contiene ningún archivo, no se mostrará nada.
•
Se muestra “ROOT” para las carpetas que no tengan nombre de carpeta.
•
Si se conecta un reproductor de audio portátil y únicamente se han creado
“Playlists”, sólo se mostrarán estas listas.
•
Si se conecta un reproductor de audio portátil mediante almacenamiento
masivo USB (USB Mass Storage, no sincronizado con el Reproductor de
Windows Media), consulte la operación de búsqueda con conexión de
memorias USB. Consulte también la página 5.
Acerca de MP3/WMA/AAC
¿Qué es MP3?
MP3, cuyo nombre oficial es “MPEG-1 Audio Layer 3”, es un
estándar de compresión formulado por ISO (International
Standardization Organization) y MPEG, que es una institución
adjunta a IEC.
Los archivos MP3 contienen datos de audio comprimidos. La
codificación MP3 puede comprimir los datos de audio a
relaciones notablemente altas comprimiendo archivos de
música a una décima parte de su tamaño original. Esto es
posible manteniendo a la vez una calidad similar a la de CD. El
formato MP3 permite obtener relaciones de alta compresión
eliminando los sonidos que son inaudibles para el oído humano
o enmascarados por otros sonidos.
¿Qué es AAC?
AAC es la forma abreviada de “Advanced Audio Coding,” un
formato básico de compresión de audio utilizado por MPEG2 o
MPEG4.
¿Qué es WMA?
WMA o “Windows Media™ Audio” son las siglas para datos de
audio comprimidos.
El formato WMA es similar a los datos de audio MP3 y puede
conseguir la calidad de sonido de un CD en archivos de tamaño
reducido.
Método de creación de archivos MP3/WMA/AAC
Los datos de audio MP3/WMA/AAC se comprimen mediante el
software especificado. Para obtener información detallada
sobre la creación de archivos MP3/WMA/AAC, consulte el
manual del usuario del software.
Los archivos MP3/WMA/AAC que se pueden reproducir en esta
unidad tienen las siguientes extensiones:
MP3: “mp3”
WMA: “wma” (las versiones 7.1, 8, 9, 9.1, 9.2 son compatibles)
AAC: “m4a”
WMA no es compatible con los siguientes archivos: Windows
Media Audio Professional, Windows Media Audio 9 Voice o
Windows Media Audio 9 Pro Lossless.
En función del software empleado para crear los archivos AAC,
el formato de archivo podría ser diferente de la extensión.
Se acepta la reproducción de los archivos AAC codificados por
la versión 7.7 iTunes.
PRECAUCIÓN
Excepto para uso personal, la duplicación de datos de audio
(incluidos datos MP3/WMA/AAC) o su distribución,
transferencia o copia, ya sea de forma gratuita o no, sin el
permiso del propietario de copyright están estrictamente
prohibidos por las leyes de copyright y por tratados
internacionales.

20-ES
Índices de muestreo y velocidades de bits de reproducción
admitidos
MP3
WMA
AAC
Es posible que este dispositivo no se reproduzca correctamente
según el índice de muestreo.
Etiquetas ID3/etiquetas WMA
Este dispositivo admite las versiones 1, 2.2.0 y 2.3.0 de la
etiqueta ID3 y la etiqueta WMA. Los siguientes archivos no
admiten compresión, codificación, agrupación o no
sincronización.
Si los datos de etiqueta ID3/WMA se encuentran en un archivo
MP3/WMA/AAC, este dispositivo podrá mostrar los datos de
etiqueta ID3/etiqueta WMA de título (título de pista), de nombre
de artista y de nombre de álbum.
Este dispositivo sólo puede mostrar caracteres alfanuméricos
de un solo byte y el subrayado. En el caso de caracteres no
admitidos, aparece “No Support”.
La información de etiqueta puede que no se visualice
correctamente, en función del contenido.
Reproducción de MP3/WMA/AAC
Los archivos MP3/WMA/AAC se preparan y, a continuación, se
escriben en una memoria USB. O bien, sincronizar un archivo
MP3/WMA con Windows Media Player (versión 10 u 11) y
enviarlo después al reproductor de audio portátil.
Un dispositivo de memoria USB puede contener hasta
10.000 archivos/1.000 carpetas (incluidas las carpetas raíz). La
reproducción puede que no se realice si una memoria USB/
reproductor de audio portátil excede las limitaciones descritas
anteriormente.
Medios admitidos
Este dispositivo puede reproducir medios contenidos en una
memoria USB/reproductor de audio portátil.
Sistemas de archivo correspondientes
Este dispositivo admite FAT 12/16/32.
Velocidad de bits
Se trata de la velocidad de compresión de “sonido” especificada
para la codificación. Cuanto mayor sea la velocidad de bits, mayor
será la calidad de sonido, aunque los archivos serán más grandes.
Índice de muestreo
Este valor muestra las veces que los datos se muestrean (graban) por
segundo. Por ejemplo, los discos compactos de música utilizan un
índice de muestreo de 44,1 kHz, por lo que el nivel de sonido se
muestrea (graba) 44.100 veces por segundo. Cuanto mayor sea el
índice de muestreo, mayor será la calidad de sonido, aunque el
volumen de datos también será mayor.
Codificación
Conversión de discos compactos de música, archivos WAVE (AIFF) y
demás archivos de sonido en el formato de compresión de audio
especificado.
Etiqueta
Información sobre las canciones como los títulos, nombres de los
artistas, nombres de los álbumes, etc., escrita en archivos MP3/
WMA/AAC.
Carpeta raíz
La carpeta raíz se halla en el nivel superior del sistema de archivos.
La carpeta raíz contiene todas las carpetas y archivos.
Índices de muestreo:
48 kHz, 44,1 kHz, 32 kHz, 24 kHz, 22,05 kHz,
16 kHz, 12 kHz, 11,025 kHz, 8 kHz
Velocidades de bits: 16 - 320 kbps
Índices de muestreo:48 kHz, 44,1 kHz, 32 kHz, 24 kHz,
22,05 kHz, 16 kHz
Velocidades de bits: 16 - 320 kbps
Índices de muestreo: 48 kHz, 44,1 kHz
Velocidades de bits: 16 - 320 kbps
Terminología

21-ES
Si se conecta un procesador de audio externo o IMPRINT, la pantalla
Sound Setup no se mostrará. Si se trata de un procesador de audio
externo, consulte “Configuración del audio” (página 26) de
“CONFIGURACIÓN” (página 23) para ajustar el sonido. En el caso de
procesadores de audio IMPRINT, consulte “Funcionamiento de
IMPRINT (Opcional)” (página 32) para ajustar el sonido.
Ajuste de subwoofer/graves/agudos/balance
(entre los altavoces derechos e izquierdos)/
Fader (entre los altavoces delanteros y
traseros)/sonoridad/rechazo
1
Pulse (IMPRINT) varias veces para elegir el
modo que desee.
Cada vez que presione se cambia el modo, como se indica
a continuación:
Subwoofer*1 Bass Level Treble Level Balance
Fader Loudness Defeat Volume Subwoofer
Subwoofer: 00 ~ 15
Nivel de graves: –7 ~ +7
Nivel de agudos: –7 ~ +7
Balance: Izquierda 15 ~ Derecha 15
Fader: Trasero 15 ~ Delantero 15
Sonoridad: ON/OFF
Rechazo: ON/OFF
Volumen: – ~ 0 dB
•La sonoridad destaca una frecuencia baja y alta especial
cuando se escucha a niveles bajos. Esto compensa la
sensibilidad menor del oído a los sonidos graves y agudos.
Esta función no está activa si Rechazo está fijado en ON.
•Si ajusta Rechazo en ON, se restablecerán los ajustes
predeterminados de fábrica de Graves, Agudos, Filtro de
paso alto.
•Si no pulsa (IMPRINT) dentro de los 15 segundos después de
seleccionar el modo Subwoofer, Bass, Treble, Balance o Fader, la
unidad volverá automáticamente al modo normal.
*1Cuando el modo subwoofer está ajustado en OFF, no es posible
ajustar su nivel.
2
Gire el codificador de doble acción hasta
obtener el sonido deseado en cada modo.
•Dependiendo de los dispositivos conectados, algunas funciones no
funcionarán.
•Es posible almacenar los ajustes de Balance/Fader/Sonoridad una
vez completado el ajuste. Para obtener información sobre cómo
almacenar los ajustes, consulte “Almacenamiento del nivel de ajuste
de audio (User Preset)” (página 26).
Ajuste del control de graves
Puede cambiar el énfasis de la frecuencia de graves para crear el tono
que prefiera.
1
Mantenga pulsado (IMPRINT) durante, al
menos, 2 segundos.
Se mostrará la pantalla Sound Setup.
2
Pulse /ENTER.
Se activa el modo de ajuste de graves.
3
Pulse /ENTER.
Se mostrará la pantalla de ajuste de F0.
4
Pulse /ENTER.
5
Gire el codificador de doble acción para
seleccionar la frecuencia central de graves deseada
y, a continuación, pulse /ENTER.
60 Hz 80 Hz 100 Hz 200 Hz
Enfatiza las gamas de frecuencia de graves mostradas.
6
Pulse para regresar al modo de ajuste de
graves.
3
Gire el codificador de doble acción para
seleccionar “Q” y, a continuación, pulse
/ENTER.
Se mostrará la pantalla de ajuste de Q.
4
Pulse /ENTER.
5
Gire el codificador de doble acción para
seleccionar el ancho de banda de graves deseado.
1 1,25 1,5 2
Cambia el ancho de banda de graves potenciado a ancho
o estrecho. Un ajuste más ancho potenciará una gama
amplia de frecuencias superiores e inferiores a la
frecuencia central. Un ajuste más estrecho potenciará sólo
frecuencias cercanas a la frecuencia central.
6
Pulse para regresar al modo de ajuste de
graves.
•Si se pulsa durante el ajuste, la unidad vuelve al elemento
anterior.
•Esta función no está activa si Rechazo está fijado en ON.
•
Es posible ajustar el nivel de graves en modo normal. Para obtener
más información, consulte “Ajuste de subwoofer/graves/agudos/
balance (entre los altavoces derechos e izquierdos)/Fader (entre los
altavoces delanteros y traseros)/sonoridad/rechazo” (página 21).
•Después de realizar el ajuste, es recomendable almacenar los ajustes
en la unidad. Para obtener más información, consulte
“Almacenamiento del nivel de ajuste de audio (User Preset)”
(página 26).
•Los ajustes del nivel de graves se memorizarán individualmente para
cada fuente (FM, AM, CD, etc.) hasta que se modifique el ajuste. Los
ajustes de la frecuencia y el ancho de banda de graves establecidos
para una fuente son efectivos para el resto de fuentes
(FM, AM, CD, etc.).
Ajuste de sonido
Codificador de doble acción
/ENTER
(IMPRINT)
Ajuste de la frecuencia central de graves
Ajuste del ancho de banda de graves

22-ES
Ajuste del control de agudos
Puede cambiar el énfasis de la frecuencia de agudos para crear el tono
que prefiera.
1
Mantenga pulsado (IMPRINT) durante, al
menos, 2 segundos.
Se mostrará la pantalla Sound Setup.
2
Gire el codificador de doble acción para
seleccionar “Treble Adjustment” y, a continuación,
pulse /ENTER.
3
Pulse /ENTER.
Se mostrará la pantalla de ajuste de F0.
4
Pulse /ENTER.
5
Gire el codificador de doble acción para
seleccionar la frecuencia central de agudos deseada
y, a continuación, pulse /ENTER.
10 kHz 12,5 kHz 15 kHz 17,5 kHz
Enfatiza las gamas de frecuencia de agudos mostradas.
6
Si mantiene pulsado durante, al menos,
2 segundos, volverá al modo normal.
•Si se pulsa durante el ajuste, la unidad vuelve al elemento
anterior.
•Esta función no está activa si Rechazo está fijado en ON.
•
Es posible ajustar el nivel de agudos en modo normal. Para obtener
más información, consulte “Ajuste de subwoofer/graves/agudos/
balance (entre los altavoces derechos e izquierdos)/Fader (entre los
altavoces delanteros y traseros)/sonoridad/rechazo” (página 21).
•Después de realizar el ajuste, es recomendable almacenar los ajustes
en la unidad. Para obtener más información, consulte
“Almacenamiento del nivel de ajuste de audio (User Preset)”
(página 26).
Ajuste del filtro paso alto
El filtro paso alto de esta unidad puede ajustarse a su gusto.
1
Mantenga pulsado (IMPRINT) durante, al
menos, 2 segundos.
Se mostrará la pantalla Sound Setup.
2
Gire el codificador de doble acción para
seleccionar “High Pass Filter Adjustment” y, a
continuación, pulse /ENTER.
3
Gire el codificador de doble acción para
seleccionar la frecuencia de filtro paso alto deseada
y pulse /ENTER.
80 Hz 120 Hz 160 Hz off
4
Pulse para regresar al modo normal.
•Si se pulsa durante el ajuste, la unidad vuelve al elemento
anterior.
•La función no puede utilizarse cuando Defeat está ajustado en ON.
•
Después de realizar el ajuste, es recomendable almacenarlo. Para
obtener información sobre cómo almacenar los ajustes, consulte
“Almacenamiento del nivel de ajuste de audio (User Preset)”
(página 26).
Conexión y desconexión (ON/OFF) del
subwoofer
Si conecta un subwoofer opcional a la unidad, realice lo siguiente.
Si el subwoofer está conectado, puede ajustar el nivel de salida del
mismo (consulte página 21).
1
Mantenga pulsado (IMPRINT) durante, al
menos, 2 segundos.
Se mostrará la pantalla Sound Setup.
2
Gire el codificador de doble acción para
seleccionar “Subwoofer” y, a continuación, pulse
/ENTER.
3
Gire el codificador de doble acción para
seleccionar ON/OFF y, a continuación, pulse
/ENTER.
4
Pulse para regresar al modo normal.
•Si se pulsa durante el ajuste, la unidad vuelve al elemento
anterior.
•
Es posible ajustar el nivel de salida del subwoofer en modo normal.
Consulte la sección “Ajuste de subwoofer/graves/agudos/balance
(entre los altavoces derechos e izquierdos)/Fader (entre los altavoces
delanteros y traseros)/sonoridad/rechazo” (página 21).
•Es posible ajustar el sistema subwoofer en el modo SETUP. Consulte
la sección “Ajuste del sistema de subwoofer (Subwoofer System)”
(página 27).

23-ES
Utilice el menú de configuración para personalizar con flexibilidad la
unidad para que se ajuste a sus propias preferencias de utilización. Elija
los ajustes de General, Display, etc., para realizar los cambios que
desee.
1
Mantenga pulsado (FUNCTION/SETUP)
durante, al menos, 2 segundos para activar el modo
de selección SETUP.
2
Gire el codificador de doble acción para
seleccionar el elemento deseado y luego pulse
/ENTER.
BLUETOOTH General Display iPod XM*
SIRIUS* HD Radio*
Audio
(seleccione, por ejemplo, General)
* Sólo si el receptor HD/SAT está conectado.
3
Gire el codificador de doble acción para
seleccionar un elemento de ajuste y luego pulse
/ENTER.
(por ejemplo, seleccione Beep)
BLUETOOTH:
BLUETOOTH IN
General:
Clock Mode Clock Adjust
*
1
Calendar Type
Daylight Time Play Mode Beep Int Mute Int Audio
CHG Name
*
2
AUX IN AUX+ AUX Name
*
3
AUX+ IN GAIN
*
4
Power IC Language Demo
Display:
Illumination Dimmer Dimmer Level Text Scroll
BGV Select BGV Color
BGV Download
iPod:
Playlists Artists Albums Podcasts Audiobooks
Genres Composers Songs
XM*5:
XM ADF
SIRIUS*5:
Game Alert
HD Radio*6:
Station Call Digital Seek
Audio*7:
User Preset MX*8 Subwoofer*8 Subwoofer System*9
MX Level Adjustment*8*10
*1Consulte “Configuración de la hora y el calendario” (página 7).
*2Sólo es posible realizar el ajuste si se ha conectado un cambiador.
*3Sólo se muestra si AUX IN está ajustado en ON.
*4Sólo se muestra si AUX+ está ajustado en ON.
*
5
Se muestra solamente si hay conectado un receptor de radio por satélite.
Para la configuración de radio por satélite, consulte “Receptor de
SAT Radio (Opcional)” (página 27).
*6Se muestra solamente si se conecta el TUNER MODULE de HD
Radio digital.
*7 Si está conectado el procesador de audio IMPRINT, podrá efectuar
más ajustes detallados de audio. Para obtener más información,
consulte “Funcionamiento de IMPRINT (Opcional)” (página 32).
*
8
El ajuste puede efectuarse solamente si hay conectado un procesador de
audio externo. Consulte el Manual del propietario del procesador de
audio externo.
*9 El ajuste sólo está disponible si el Subwoofer está ajustado en ON.
*10El ajuste sólo está disponible si MX está ajustado en ON.
4
Gire el codificador de doble acción para
modificar el ajuste y luego pulse /ENTER.
(por ejemplo, seleccione Beep On o Beep Off).
5
Si mantiene pulsado durante, al menos,
2 segundos, volverá al modo normal.
•Si pulsa durante el procedimiento, regresará al modo anterior.
•Durante la configuración, si pulsa el anillo exterior y gira el
codificador de doble acción hacia la izquierda o la derecha, la
pantalla de selección del elemento de configuración va pasando de
página en página. Si presiona y gira el codificador de doble acción
hacia la izquierda o la derecha mientras lo mantiene pulsado, podrá
cambiar de pantalla de selección del elemento de configuración de
página en página.
Seleccione “BLUETOOTH” en el menú principal de configuración
(paso 2 anterior).
Si se ha conectado una INTERFAZ BLUETOOTH (KCE-400BT)
opcional, podrá instalar un receptor manos libres con un teléfono móvil
que disponga de BLUETOOTH.
Realice este ajuste cuando haya conectado la INTERFAZ
BLUETOOTH y se esté utilizando la función BLUETOOTH. Para
obtener más información, consulte el Manual de operación de la
INTERFAZ BLUETOOTH.
•Cuando Int Mute está ajustado en On, no es posible realizar el ajuste
de BLUETOOTH. Si la INTERFAZ BLUETOOTH está conectada,
ajuste Int Mute en Off. Consulte la sección “Activación/
desactivación del modo de silenciamiento (Int Mute)” (página 24).
Ajuste de la conexión BLUETOOTH (BLUETOOTH IN)
CONFIGURACIÓN
Siga los pasos del 1 al 5 para elegir el elemento que
desea cambiar. Para obtener más información,
consulte las descripciones individuales de los
elementos que siguen al paso 5.
Codificador de doble acción
(PRESET)
SOURCE
BAND /ENTER
(FUNCTION/SETUP)
Ajuste de BLUETOOTH
BLUETOOTH IN Adapter / BLUETOOTH IN Off (ajuste inicial)

24-ES
“General” puede seleccionarse en el menú de instalación del paso 2.
Configuración de la visualización del reloj (Clock Mode)
Puede seleccionar el tipo de visualización de la hora (12 ó 24 horas),
según prefiera.
Ajuste del cambio de patrones para visualización del
calendario (Calendar Type)
Puede cambiar el patrón de visualización del calendario que aparece
junto a la hora.
ej. M/D/Y Dic/31/2009
Configuración de horario de verano (Daylight Time)
Conexión de un cambiador de MP3 (Play Mode)
Realice este ajuste cuando conecte un cambiador de MP3. El cambiador
de MP3 puede reproducir discos compactos que contengan tanto datos
de CD como MP3. Sin embargo, en algunos casos (ciertos discos
mejorados), la reproducción puede hacerse complicada. Para estos casos
especiales, puede seleccionar sólo la reproducción de datos de CD. Si
un disco contiene datos de CD y MP3, la reproducción comenzará por la
parte de datos de CD del disco.
•Cambie los discos una vez efectuado este ajuste.
Función de guía de sonido (Beep)
Esta función permite obtener respuesta audible con distintos tonos
según el botón que se pulse.
Activación/desactivación del modo de silenciamiento
(Int Mute)
Si se conecta un dispositivo que disponga de la función de interrupción,
el audio se silenciará automáticamente cada vez que se reciba la señal
de interrupción procedente del dispositivo.
•Si BLUETOOTH está ajustado en Adapter, no es posible ajustar Int
Mute. Consulte la sección “Ajuste de la conexión BLUETOOTH
(BLUETOOTH IN)” (página 23).
•Si la INTERFAZ BLUETOOTH está conectada, ajuste Int Mute en
Off.
Ajuste de rechazo de tono para dispositivos externos
(Int Audio)
Al conectar dispositivos externos a esta unidad, la activación del
rechazo de tono evitará la frecuencia de graves, de agudos, y el filtro de
paso alto, es decir, el sonido de los dispositivos externos se emitirá
según la configuración predefinida.
Ajuste del nombre de cambiador (CHG Name)
Cuando se conecta un cambiador opcional, puede ajustar el nombre del
modo que se visualiza en pantalla.
•Sólo es posible realizar el ajuste si se ha conectado un cambiador.
Cuando se conectan dos cambiadores, se muestra CHG1 Name/
CHG2 Name y se pueden realizar los respectivos ajustes.
Ajuste del modo AUX (V-Link)
Puede introducir sonido de TV/vídeo conectando un Versatile Link
Terminal (KCA-410C) opcional a este componente.
Puede cambiar la visualización del nombre AUX cuando AUX IN está
establecido en ON. Si ajusta AUX IN en On, gire el codificador de
doble acción para seleccionar el modo “AUX Name” y, a continuación,
pulse /ENTER.
Una vez realizado lo anterior, gire el codificador de doble acción para
seleccionar el nombre AUX deseado y, a continuación, pulse
/ENTER.
Si el KCA-410C está conectado, es posible seleccionar dos nombres
para AUX.
•Mediante el KCA-410C, es posible conectar hasta dos dispositivos
externos con salida RCA. En este caso, pulse SOURCE para
seleccionar el modo AUX y, a continuación, pulse BAND para
seleccionar el dispositivo deseado.
Configuración de AUX+ Mode
Puede recibir sonido de un dispositivo externo (como un reproductor de
audio portátil) al conector de la interfaz BLUETOOTH de esta unidad.
Es preciso utilizar un cable de conversión (KCE-237B) especial para
poder utilizar el conector de interfaz BLUETOOTH como entrada AUX
IN.
Ajuste del nivel de audio de AUX+ (AUX+ IN GAIN)
Configuración general
24H Type / 12H Type (ajuste inicial)
M/D/Y / (ajuste inicial) D/M/Y / Y/M/D
Y: indica el año
M: indica el mes
D: indica el día
On/Off (ajuste inicial)
On: Activa el modo de horario de verano. El reloj se
adelanta una hora en las zonas correspondientes
al horario de verano.
Off: Vuelve a la hora normal.
CDDA (ajuste inicial) / CDDA & MP3
CDDA: Únicamente es posible reproducir datos de CD.
CDDA & MP3:
Es posible reproducir datos de CD y pistas MP3.
Beep On (ajuste inicial) / Beep Off
Int Mute On (ajuste inicial) / Int Mute Off
Int Audio On / Int Audio Off (ajuste inicial)
CHG (ajuste inicial) / PMD
AUX IN On / AUX IN Off (ajuste inicial)
AUX+ On / AUX+ Off (ajuste inicial)
AUX+ On: Está ajustado en On cuando está conectado un
dispositivo externo. Si se pulsa SOURCE y
Auxiliary+ se encuentra seleccionado, el sonido
del dispositivo externo se recibe en la unidad.
AUX+ Off: Está ajustado en Off si hay una INTERFAZ
BLUETOOTH conectada.
High (ajuste inicial) / Low
Low: Reduce el nivel de audio de la entrada externa
High: Aumenta el nivel de audio de la entrada externa

25-ES
Conexión a un amplificador externo (Power IC)
Al conectar un amplificador externo, la calidad del sonido mejora al
desactivarse la fuente de alimentación del amplificador incorporado.
•Cuando la salida está establecida en OFF, el sistema no produce ni
reproduce ningún sonido.
Ajuste del idioma (Language)
Define el idioma que se mostrará en la unidad. Se ajusta inicialmente en
For US (inglés, francés, español).
Demostración (Demo)
Esta unidad cuenta con una función de demostración que incluye
visualización.
•Para salir del modo Demo, ajústelo en Demo OFF.
“Display” puede seleccionarse en el menú de instalación del paso 2.
Cambio del color de iluminación (Illumination)
Puede cambiar el color de iluminación de los botones.
Control de atenuación (Dimmer)
Establezca el control Dimmer en On para atenuar el brillo de la unidad
con las luces del coche encendidas. Este modo resulta útil si cree que,
tras ajustar el nivel de oscurecimiento de la unidad, aún brilla
demasiado por la noche.
Ajuste de la atenuación de la pantalla (Dimmer Level)
En la pantalla de configuración Dimmer On hay tres niveles
disponibles; el más alto (Level3) es el más atenuado cuando las luces
del coche están encendidas.
Ajuste de desplazamiento (Text Scroll)
Puede seleccionar un tipo de desplazamiento como título de canción o
nombre de archivo en la pantalla de origen. Si la pantalla de modo de
búsqueda está llena de texto, se desplazará.
También puede seleccionar el tipo de desplazamiento deseado.
•En algunas partes de la pantalla, puede que no haya desplazamiento
o el contenido del desplazamiento sea diferente.
•Independientemente de este ajuste, si la pantalla está llena de texto,
se producirá el desplazamiento.
Cambio del tipo de visualización de animaciones
(BGV Select)
Puede elegir entre 3 tipos distintos de luz de fondo de la pantalla.
Para visualizar en la unidad datos descargados, seleccione User. Consulte
“Descarga de fondo de escritorio (BGV Download)” (página 26).
Ajuste del color del fondo de escritorio (BGV Color)
Es posible seleccionar dos tipos de color de fondo de la pantalla.
Power IC On (ajuste inicial) / Power IC Off
Power IC Off: Utilice este modo cuando los preamplificadores
delantero y trasero de la unidad se utilizan para
alimentar a un amplificador externo conectado a
los altavoces. Con este ajuste, el amplificador
interno principal de la unidad no enviará ninguna
señal de salida a los altavoces.
Power IC On: Los altavoces reciben la señal desde el
amplificador incorporado.
For US (ajuste inicial) / For EU1 / For EU2 / For Japan / Other
For US: inglés, francés, español
For EU1: ruso, inglés
For EU2: inglés, alemán, francés, español, italiano,
sueco, portugués
For Japan: japonés, inglés
Other: chino (chino estándar), inglés
Demo On / Demo Off (ajuste inicial)
Amplificador
Delantero
izquierdo
Delantero
derecho
Amplificador
Trasero
izquierdo
Trasero
derecho
Altavoces
ALTAVOZ
DELANTERO DERECHO
Delantero
derecho
ALTAVOZ
POSTERIOR DERECHO
Trasero
derecho
ALTAVOZ
POSTERIOR IZQUIERDO
Trasero
izquierdo
ALTAVOZ
DELANTERO IZQUIERDO
Delantero
izquierdo
Ajuste de la pantalla
Illumination Blue (ajuste inicial) / Illumination Red
Dimmer On / Dimmer Off (ajuste inicial)
Dimmer Level1 (ajuste inicial) / Level2 / Level3
Text Scroll Type1 / Type2 / Off (ajuste inicial)
Type1/Type2: La información de texto se desplaza de
forma automática.
Off: La primera pantalla desplaza la información
de texto una sola vez.
BGV Select Type 1 (ajuste inicial) / Type 2 / Type 3 / User
BGV Color Type 1 (ajuste inicial) / Type2
Type1: azul
Type2: rojo

26-ES
Descarga de fondo de escritorio (BGV Download)
Los fondos de escritorio se descargan solamente si se encuentra en
modo de memoria USB. Los datos del fondo de escritorio están
disponibles en un sitio web diseñado por los propietarios de los
productos Alpine. Descargue el fondo de escritorio en su memoria flash
USB. Cargue el fondo de escritorio desde su memoria flash USB a la
unidad.
Para iniciar la descarga, entre en la siguiente URL y siga las
instrucciones que aparecen en pantalla.
https://i-personalize.alpine.com/
1
Gire el codificador de doble acción para
seleccionar “BGV Download” y pulse /ENTER.
Se buscarán los datos de la memoria USB y se mostrarán
10 archivos como máximo.
2
Gire el codificador de doble acción para
seleccionar un archivo y pulse /ENTER.
El archivo seleccionado ha sido descargado a la unidad.
•La extensión de los datos descargados es “apn”.
•No es posible visualizar fondos de escritorio diseñados por usted.
•Para visualizar el fondo de escritorio que ha descargado a la unidad,
seleccione User en “Cambio del tipo de visualización de
animaciones (BGV Select)” (página 25).
“iPod” está seleccionado en el menú de instalación del paso 2.
Ajuste del modo de búsqueda del iPod/iPhone
La unidad permite buscar el iPod/iPhone empleando ocho modos de
búsqueda diferentes.
Cuando se ha ajustado el modo de búsqueda en Playlists/Artists/
Albums/Podcasts/Audiobooks, el ajuste inicial es On, mientras que
cuando el modo de búsqueda se ha ajustado en Genre/Composers/
Songs, el ajuste inicial es Off.
•Para obtener más información, consulte “Búsqueda de la canción o
título deseado” (página 11).
“HD Radio” puede seleccionarse en el menú de instalación del paso 2.
Ajuste de llamada de emisora de HD Radio (Station Call)
En el modo HD Radio, puede seleccionarse el número de caracteres de
visualización para el nombre de emisora de HD Radio.
Activación y desactivación de la configuración de
búsqueda digital (Digital Seek)
“Audio” puede seleccionarse en el menú de instalación del paso 2.
•Si está conectado el procesador de audio IMPRINT, podrá efectuar
más ajustes detallados de audio. Para obtener más información,
consulte “Funcionamiento de IMPRINT (Opcional)” (página 32).
Almacenamiento del nivel de ajuste de audio (User
Preset)
Se pueden almacenar hasta 6 contenidos ajustados en esta unidad.
Todas las siguientes opciones de ajuste se almacenan en una
memoria preajustada.
1
Gire el codificador de doble acción para
seleccionar “User Preset” y, a continuación, pulse
/ENTER.
Se mostrará la pantalla User Preset.
2
Gire el codificador de doble acción para
seleccionar un número de memorización y
mantenga pulsado /ENTER durante al menos
2 segundos.
El contenido ajustado se almacena en el número de
memorización seleccionado.
•También se puede acceder a la pantalla User Preset en modo normal
pulsando (PRESET) y manteniéndolo presionado durante, al
menos, 2 segundos.
Recuperación del nivel de ajuste de audio
Es posible recuperar el contenido almacenado en “Almacenamiento del
nivel de ajuste de audio (User Preset)” (página 26).
1
Gire el codificador de doble acción para
seleccionar “User Preset” y, a continuación, pulse
/ENTER.
Se mostrará la pantalla User Preset.
2
Gire el codificador de doble acción para
seleccionar un número de memorización y pulse
/ENTER.
Se recuperará el contenido ajustado en el número
seleccionado.
•También se puede acceder a la pantalla User Preset en modo normal
pulsando (PRESET) y manteniéndolo presionado durante, al
menos, 2 segundos.
Ajuste de iPod/iPhone
On / Off
Configuración de HD Radio™ (sólo si hay
conectada HD Radio)
Station Call Long / Station Call Short (ajuste inicial)
Long: 56 caracteres
Short: 8 caracteres (FM)
4 caracteres (AM)
Digital Seek On / Digital Seek Off (ajuste inicial)
On:
SEEK UP/DOWN sólo se utiliza para Emisora de radio digital.
Off:
SEEK UP/DOWN se utiliza para todas las Emisoras de radio.
Configuración del audio
Opciones para ajustar Página de referencia
Ajuste de balance página 21
Ajuste de fader página 21
Ajuste de sonoridad página 21
Ajuste de la frecuencia central de graves página 21
Ajuste de la frecuencia central de agudos página 22
Ajuste del HPF página 22

27-ES
Conexión y desconexión de Media Xpander (MX)
Si el Media Xpander está activado y hay un procesador de audio externo
conectado, es posible ajustar el nivel del Media Xpander (para obtener
más información, consulte el Manual del propietario del procesador de
audio externo).
•Se muestra solamente si hay conectado un procesador de audio
externo.
Ajuste del nivel MX (MX Level Adjustment)
MX (Media Xpander) hace que las voces o instrumentos suenen
diferentes independientemente de la fuente musical. La radio FM, el
CD, la memoria USB y el iPod/iPhone pueden reproducir la música de
un modo claro incluso en el coche cuando hay mucho ruido en el
exterior.
•Se muestra solamente si hay conectado un procesador de audio
externo y MX está en ON.
Conexión y desconexión del subwoofer (Subwoofer)
Si conecta un subwoofer opcional a la unidad, realice lo siguiente.
•Se muestra solamente si hay conectado un procesador de audio
externo.
Ajuste del sistema de subwoofer (Subwoofer System)
El ajuste sólo está disponible si “Conexión y desconexión (ON/OFF)
del subwoofer” (página 22) está ajustado en On.
Cómo visualizar la pantalla
<Ejemplo de pantalla XM>
1 Visualización de modo
2 Número de canal
3 Nombre de emisora
4 Título de canción
5 Nombre de artista
6 Nombre de categoría
7 Calendario/Hora
<Ejemplo de pantalla SIRIUS>
1 Visualización de modo
2 Número de canal/Número de presintonización
3 Nombre de emisora
4 Título de canción
5 Nombre de artista
6 Nombre de categoría (nombre del compositor)
7 Calendario/Hora
MX On / MX Off (ajuste inicial)
Non Effect / Level 1 / Level 2 / Level 3 (ajuste inicial)
Subwoofer On (ajuste inicial) / Subwoofer Off
Sys 1 (ajuste inicial) / Sys 2
Sys 1: El nivel del subwoofer cambia en función del ajuste
del volumen principal.
Sys 2: El cambio en el nivel del subwoofer es diferente
respecto al ajuste del volumen principal. Por
ejemplo, incluso con ajustes de volumen reducidos,
el subwoofer es todavía audible.
Receptor de SAT
Radio (Opcional)
Receptor de SAT: receptor de XM o SIRIUS
Cuando hay conectada una caja de receptor XM o
SIRIUS opcional mediante el bus Ai-NET, se pueden
llevar a cabo las siguientes operaciones. No
obstante, el receptor de XM y el receptor de SIRIUS
no pueden conectarse a la vez.
Receptor SIRIUS:
compruebe las funciones de la caja receptora
SIRIUS conectada. No todos los receptores SIRIUS
tienen las mismas funciones y es posible que
algunas de ellas no se puedan utilizar en esta
unidad. Para obtener más información sobre las
distintas funciones, consulte el manual de
instrucciones de la caja receptora SIRIUS.
/
BAND
SOURCE
(PRESET)
VIEW
/ENTER
Codificador de
doble acción
(FUNCTION/SETUP)
3
4
5
6
2
1
7
3
4
5
6
2
1
7

28-ES
Recepción de canales con el receptor de
SAT Radio (Opcional)
Acerca de SAT Radio
Satellite Radio* es la próxima generación de entretenimiento de audio,
con más de 100 canales de audio digitales. Por una pequeña cuota
mensual, los subscriptores pueden escuchar música con claridad,
deportes, noticias y charlas, de costa a costa mediante satélite. Para
obtener más información, visite el sitio Web de XM en
www.xmradio.com. o el sitio Web de SIRIUS en www.sirius.com.
Para recibir SAT Radio, se requerirán XM Direct™ o el sintonizador de
radio satélite SIRIUS y un adaptador de interferencias Ai-NET
adecuado, que se venden por separado. Para obtener más información,
póngase en contacto con su distribuidor Alpine más cercano.
•Los controles del receptor SAT que contiene el iDA-X305S están
operativos sólo cuando hay conectado un receptor SAT.
1
Pulse
SOURCE
para activar el modo de radio SAT.
2
Pulse BAND para seleccionar una de las tres
presintonías de SAT Radio.
Cada vez que pulse el botón, cambiará la banda:
Modo XM:
XM-1 XM-2 XM-3 XM-1
Modo SIRIUS:
SIRIUS-1 SIRIUS-2 SIRIUS-3 SIRIUS-1
3
Pulse o para seleccionar el canal
deseado.
Si mantiene pulsado o los canales se
cambiarán continuamente.
•Puede seleccionar directamente un canal SAT Radio mediante las
teclas numéricas del mando a distancia opcional (RUE-4190, etc.).
1 En el modo de radio XM o SIRIUS, introduzca el número
del canal que desea seleccionar con las teclas
numéricas del mando a distancia.
2 Pulse ENTER en el mando a distancia antes de que
transcurran 5 segundos para recibir el canal.
Si el número del canal tiene 3 dígitos, el canal se recibirá
inmediatamente después de introducir su número.
Comprobación del número de
identificación de SAT Radio
Se requiere un número de identificación de radio único para suscribirse a la
programación de SAT Radio. Todas las radios XM o SIRIUS de terceros
vienen con este número.
Este número es un número alfanumérico de 8 caracteres (para XM
Radio) o 12 caracteres (para SIRIUS Radio). Está impreso en una
etiqueta del receptor SAT.
También puede mostrarse en la pantalla del iDA-X305S de la siguiente
forma.
XM:
1
Al recibir una banda de XM Radio, pulse o
para seleccionar el canal “0” para XM.
2
Para cancelar la pantalla del número de
identificación, ajuste el canal a otro número
diferente de “0”.
SIRIUS:
1
Al recibir una banda de SIRIUS Radio, pulse o
para seleccionar el canal “255” para SIRIUS.
2
Para cancelar la pantalla del número de
identificación, ajuste el canal a un número que no
sea “255”.
•No puede utilizar “O,” “S,” “I” ni “F” para el número de
identificación (receptor de radio XM únicamente).
•Puede comprobar el número de identificación impreso en la etiqueta
del paquete del receptor de SAT Radio de terceros.
Almacenamiento de preajustes de canal
1
Pulse BAND para seleccionar la banda que desee
almacenar.
2
Pulse (PRESET).
Se mostrará la pantalla Preset.
3
Gire el codificador de doble acción para
seleccionar el número de memorización.
4
Mantenga pulsado /ENTER durante, al menos,
2 segundos.
La emisora seleccionada se guarda.
5
Repita el procedimiento para almacenar hasta otros
5 canales en la misma banda.
•Para utilizar este procedimiento para otras bandas, seleccione
simplemente la banda deseada y repita el procedimiento.
•Pueden almacenarse un total de 18 canales en la memoria
preajustada (6 canales para cada banda; XM-1, XM-2 y XM-3 o
SIRIUS-1, SIRIUS-2 y SIRIUS-3).
•Si almacena un canal en un número de memorización que ya
contiene otra emisora, el canal anterior será reemplazado por el
nuevo.
Recepción de canales almacenados
1
Pulse BAND para seleccionar la banda deseada.
2
Pulse (PRESET).
Se mostrará la pantalla Preset.
3
Gire el codificador de doble acción para
seleccionar una emisora.
4
Pulse /ENTER.
Almacenamiento del equipo de deportes
deseado (sólo en SIRIUS)
Almacene su equipo favorito en una de las cubiertas de SIRIUS de ligas
disponibles. Una vez almacenados, los tiempos y las puntuaciones del
partido de dicho equipo se anuncian utilizando la pantalla de
interrupción Alert mientras recibe otra programación. Para recibir estos
anuncios, consulte página 29.
Esta función es efectiva después de realizar estas dos operaciones.

29-ES
1
Selección del canal que emita el partido de su
equipo favorito.
2
Pulse (FUNCTION/SETUP) para activar el modo
Function.
3
Mientras selecciona la memoria de alertas “Alert
Memory”, pulse /ENTER para activar el modo
Memoria.
4
Gire el codificador de doble acción para
seleccionar el equipo cuyo partido desee ver y, a
continuación, pulse /ENTER.
5
Gire el codificador de doble acción para
seleccionar un tipo de alerta y luego pulse
/ENTER.
6
Pulse para cancelar el modo Function.
1
Mantenga pulsado (FUNCTION/SETUP) durante
al menos 2 segundos para seleccionar el modo
Setup.
2
Gire el codificador de doble acción para
seleccionar una opción de SIRIUS y luego pulse
/ENTER.
3
Pulse /ENTER para seleccionar “Game Alert”.
4
Gire el codificador de doble acción para
seleccionar la liga deseada y luego pulse
/ENTER.
5
Gire el codificador de doble acción para
seleccionar el equipo que desee almacenar y luego
pulse /ENTER.
6
Gire el codificador de doble acción para
seleccionar un tipo de alerta y luego pulse
/ENTER.
7
Si mantiene pulsado durante, al menos,
2 segundos, cancelará el modo SETUP.
•Pulse para regresar al modo Setup anterior.
•Si mantiene pulsado durante, al menos, 2 segundos, se
cancelará el modo de ajuste.
•Puede guardar un equipo por liga como máximo.
Almacenamiento del artista/canción que
desee (sólo en SIRIUS)
Se anuncia un nombre de artista o título de canción cuando se encuentra
un título o artista que coincida en otro canal. La interrupción Alert se
muestra mientras escucha un programa de otro canal. Para recibir
información sobre la interrupción, consulte “Recuperación de la
información almacenada (sólo en SIRIUS)” (página 29).
1
Pulse (FUNCTION/SETUP) para activar el modo
Function cuando se emita una canción o la canción
de una artista que quiera almacenar.
2
Mientras selecciona la memoria de alertas “Alert
Memory”, pulse /ENTER para activar el modo
Memoria.
3
Gire el codificador de doble acción para
seleccionar “Song” o “Artist” y, a continuación,
pulse /ENTER.
4
Gire el codificador de doble acción para
seleccionar el nombre de la canción o del artista y, a
continuación, pulse /ENTER.
5
Pulse para cancelar el modo Function.
•Si intenta guardar una canción/artista en una memoria llena,
aparecerá la lista Alert. Seleccione un título de canción o nombre de
artista que desee reemplazar y pulse /ENTER.
Recuperación de la información almacenada
(sólo en SIRIUS)
Cuando se reproduce el equipo, canción o artista almacenado, aparece
una interrupción Alert en la pantalla de la unidad.
1
Una vez mostrada la alerta “Game Alert”, “Song
Alert” o “Artist Alert”, aparece automáticamente la
lista de alertas correspondiente.
2
Gire el codificador de doble acción para
seleccionar la información deseada.
3
Pulse /ENTER.
Se recibe el canal seleccionado que contiene la
información deseada.
•Si no se pulsa ningún botón en un espacio de 10 segundos, la unidad
vuelve al modo normal.
•Sólo se muestra un equipo, canción o artista en una interrupción
Alert. Por ejemplo, no se pueden mostrar una canción y un artista en
Alert al mismo tiempo.
Cancelación de la Memoria de alerta
almacenada (sólo en SIRIUS)
1
Durante la recepción habitual, pulse
(FUNCTION/SETUP) para activar el modo
Function.
2
Gire el codificador de doble acción para
seleccionar “Alert Delete” y, a continuación, pulse
/ENTER.
Aparecerá la lista de memoria.
3
Gire el codificador de doble acción para
seleccionar la alerta que quiera eliminar y luego
pulse /ENTER.
4
Pulse
para cancelar el modo Function.
Almacenamiento mientras recibe la
emisión de un partido
Initial (ajuste inicial) Update
Initial: la pantalla Alert interrumpe cuando el
partido comienza.
Update: la pantalla Alert interrumpe en el progreso
del partido (cambio de marcador, resultado
del partido, etc.).
Ajuste de la alerta de partidos
Initial (ajuste inicial) Update
Initial: la pantalla Alert interrumpe cuando el
partido comienza.
Update: la pantalla Alert interrumpe en el progreso
del partido (cambio de marcador, resultado
del partido, etc.).

30-ES
Función de búsqueda
Puede buscar programas por Categoría, Canal, Artista o Canción.
1
Pulse /ENTER en el modo XM o SIRIUS.
2
Gire el codificador de doble acción para
seleccionar el modo de búsqueda y luego pulse
/ENTER.
Artist*
Song*
Category
Channel
* Sólo en SIRIUS.
3
Gire el codificador de doble acción para
seleccionar la categoría deseada y luego pulse
/ENTER.
4
Gire el codificador de doble acción para
seleccionar el nombre de canal deseado y luego
pulse /ENTER.
•Mientras esté en modo de búsqueda de categoría, pulse para
volver al modo selección de búsqueda.
•El modo de búsqueda se cancela si pulsa y mantiene presionado
durante, al menos, 2 segundos en el modo de búsqueda de categoría.
•Durante la selección, si pulsa el anillo exterior y gira el codificador
de doble acción hacia la izquierda o la derecha, la lista va pasando
de pantalla en pantalla. Si presiona y gira el codificador de doble
acción hacia la izquierda o la derecha mientras lo mantiene pulsado,
podrá cambiar de pantalla de lista de manera continua.
•Si se sucede una interrupción Alert en el modo de búsqueda, éste se
cancelará.
3
Gire el codificador de doble acción para
seleccionar el nombre de canal/artista/canción
deseado y luego pulse /ENTER.
•Mientras esté en modo de búsqueda de Canal/Artista/Canción, pulse
para volver al modo selección de búsqueda.
•El modo de búsqueda se cancela si mantiene pulsado durante,
al menos, 2 segundos en el modo de búsqueda de Canal/Artista/
Canción.
•La búsqueda de canal sólo es posible en una categoría (último
modo).
•Durante la selección, si pulsa el anillo exterior y gira el codificador
de doble acción hacia la izquierda o la derecha, la lista va pasando
de pantalla en pantalla. Si presiona y gira el codificador de doble
acción hacia la izquierda o la derecha mientras lo mantiene pulsado,
podrá cambiar de pantalla de lista de manera continua.
•Si se sucede una interrupción Alert en el modo de búsqueda, éste se
cancelará.
Selección de la categoría deseada
(categoría arriba/abajo)
1
Presione el anillo exterior y gire el codificador de
doble acción hacia la derecha o la izquierda.
Si lo gira a la derecha, avanzará a la categoría siguiente.
Si lo gira a la izquierda, irá a la categoría anterior.
Se reproduce el primer canal de la categoría seleccionada.
Recepción de información sobre el
tiempo o el tráfico mediante SAT Radio
1
Seleccione el canal SAT Radio para obtener
información local sobre el tráfico/previsión
meteorológica.
2
Mantenga pulsado / durante, al menos,
2 segundos en el modo SAT.
Se almacena el canal de tiempo o tráfico recibido.
3
Pulse y mantenga pulsado BAND durante, al menos,
2 segundos.
Se recuperará el canal de tiempo o tráfico almacenado.
4
Pulse y mantenga pulsado BAND durante, al menos,
2 segundos.
Vuelve al modo normal.
•También se pueden almacenar y recuperar otros canales diferentes a
los de Previsión meteorológica o Tráfico.
Función de repetición instantánea
(sólo en SIRIUS)
En el modo SIRIUS, el canal actual se graba utilizando la función de
memoria de Repetición instantánea. Utilice esta función para detener el
contenido del canal en cualquier momento. Al reanudar la reproducción,
comenzará en la posición en que se detuvo. Esta función se puede
utilizar para almacenar hasta 44 minutos de audio.
1
Durante la recepción de SIRIUS, pulse / para
seleccionar el modo de Repetición instantánea.
Se muestra “Pause” y se almacena la emisora recibida.
2
Pulse / de nuevo para seleccionar el modo de
reproducción.
Se reproducirán los contenidos almacenados.
•Si continúa pulsando el avance rápido hasta el final, se cancelará el
modo Instant Replay, y la unidad cambiará a la recepción habitual.
3
Pulse
durante al menos 2 segundos para
cancelar el modo Instant Replay.
La unidad volverá al modo de emisión SIRIUS habitual.
Modo de búsqueda de categoría:
Modo de búsqueda por Canal/Artista/
Canción:
Durante la reproducción de Repetición Instantánea:
Fast reverse: mantenga pulsado .
Fast forward: mantenga pulsado .
Tiempo de reproducción
(Tiempo restante para
Repetición Instantánea.)

31-ES
Cambio de la pantalla
Con cada canal XM o Sirius hay disponible información de texto, como
el nombre del canal, el nombre del artista y el título de las canciones o
de los programas. La unidad puede mostrar esta información de texto,
tal y como se explica más abajo.
En el modo XM o SIRIUS, pulse VIEW.
Cada vez que pulsa este botón, la pantalla cambia tal y como se
muestra más abajo.
Modo XM:
Modo SIRIUS:
*1Cuando se desactiva ADF, no se muestra esta información (consulte
“Configuración de la pantalla Campo de datos auxiliares” en la
página 31).
*2Si ya hay un canal guardado en el número de presintonización, se
mostrarán alternativamente el número del canal y el de
presintonización.
•
Si el “Ajuste de desplazamiento (Text Scroll)” (página 25) se configura
en “Auto”, el nombre del canal y del intérprete se desplaza
continuamente. Si el ajuste de desplazamiento se configura en
“Manual”, el nombre del canal y del intérprete sólo se desplaza una vez.
•Dependiendo del modelo, la pantalla puede ser diferente de la
mostrada más arriba.
Configuración de la pantalla Campo de
datos auxiliares
Puede activarse o desactivarse la pantalla Campo de datos auxiliares de
XM (ADF). No existe la función ADF para el receptor SIRIUS.
1
Mantenga pulsado (FUNCTION/SETUP) durante
al menos 2 segundos para seleccionar el modo
Setup.
2
Gire el codificador de doble acción para
seleccionar el modo XM y, a continuación, pulse
/ENTER.
3
Pulse /ENTER para seleccionar el modo “XM
ADF”.
4
Gire el
codificador de doble acción
para seleccionar
On/Off y, a continuación, pulse
/ENTER
.
Al configurarlo en On, el campo de datos auxiliares se
muestra pulsando VIEW (consulte la sección “Cambio
de la pantalla” en la página 31).
5
Si mantiene pulsado durante, al menos,
2 segundos, volverá al modo normal.
•Si pulsa durante el procedimiento, regresará al modo anterior.
*1
Calendario/
Reloj
Campo de
datos
auxiliar
N° de canal/Nombre del canal
Título de canción
Nombre de artista
Categoría
N° de canal/Nombre del canal
Título de canción
Nombre de artista
Categoría
Calendario/
Reloj
N° de canal*2/Nombre del canal
Título de canción
Nombre de artista
Compositor
N° de canal*2/Nombre del canal
Título de canción
Nombre de artista
Categoría
N° de canal*2/Nombre del canal
Título de canción
Nombre de artista
Categoría

32-ES
Alpine presenta IMPRINT, la primera tecnología del mundo capaz de
eliminar completamente los problemas acústicos de los automóviles que
a menudo provocan la disminución de la calidad del sonido, y que nos
permite disfrutar de la música del modo ideado por los artistas.
Si se conecta el procesador de audio IMPRINT (PXA-H100) (a la venta
por separado) a la unidad, podrá llevar a cabo MultEQ y los siguientes
ajustes de sonido.
Cambio del modo MultEQ
MultEQ, desarrollado por Audyssey Labs, corrige automáticamente el
sonido para que se ajuste al entorno acústico. El sistema está optimizado
para determinadas posiciones del vehículo. Para ello, es necesario que
MultEQ disponga de las dimensiones del vehículo en cuestión. Para
obtener más información acerca del procedimiento de configuración,
consulte a su distribuidor autorizado de Alpine.
1
Mantenga pulsado (IMPRINT) durante, al
menos, 2 segundos.
2
Pulse /ENTER.
3
Gire el codificador de doble acción para
seleccionar el modo MultEQ y, a continuación, pulse
/ENTER.
Curve 1 (MultEQ-1) Curve 2 (MultEQ-2)
OFF (Modo manual)
4
Si mantiene pulsado durante, al menos,
2 segundos, volverá al modo normal.
•El modo Curve sólo se puede seleccionar si las curvas 1 y 2 están
almacenadas.
•
Cuando se ajusta MultEQ en ON, MX, Factory’s EQ, Parametric EQ,
Graphic EQ, X-Over, Time Correction, Subwoofer System, Tweeter,
EQ Mode, Filter Type, Time Correction Parameter y MX Level
Adjustment se ajustan automáticamente. El usuario ya no podrá
ajustarlos.
Ajuste del sonido en modo manual
Es posible cambiar estos ajustes de sonido para crear los suyos propios
si el modo MultEQ está ajustado en Off (modo manual).
Los cambios realizados en modo manual se pueden almacenar en un
botón de memorización. Consulte “Almacenamiento y recuperación del
contenido ajustado” (página 36).
1
Mantenga pulsado (FUNCTION/SETUP)
durante, al menos, 2 segundos para activar el modo
de selección SETUP.
2
Gire el codificador de doble acción para
seleccionar “Audio” y, a continuación, pulse
/ENTER.
BLUETOOTH General Display iPod Tuner
Audio
3
Gire el codificador de doble acción para
seleccionar el elemento deseado y luego pulse
/ENTER.
User Preset/MX/Factory’s EQ/Sound Field Adjustment*4/
Subwoofer/Subwoofer System*1/Subwoofer Phase*1/
Subwoofer Channel*1/Tweeter*2/EQ Mode/Filter Type/
Time Correction Parameter/MX Level Adjustment*3
(por ejemplo, seleccione MX)
*1Estas funciones no están activas si el Subwoofer está desconectado.
*2Esta función puede utilizarse únicamente con el modelo PXA-H100
(a la venta por separado) conectado y el conmutador X-OVER está
ajustado en modo 3WAY. Para obtener más información, consulte el
Manual del propietario del modelo PXA-H100.
*3Esta función no está activa si MX está desconectado.
*4En el paso 3, es posible seleccionar tres elementos de ajuste de
sonido (Parametric EQ/Graphic EQ, Time Correction, X-Over) en el
modo de ajuste del campo acústico, girar el codificador de doble
acción para seleccionar el elemento deseado y, a continuación,
pulsar /ENTER para continuar hasta el paso 4.
4
Gire el codificador de doble acción para
modificar el ajuste y luego pulse /ENTER.
(por ejemplo, seleccione MX On o MX Off)
5
Si mantiene pulsado durante, al menos,
2 segundos, volverá al modo normal.
•No se pueden ajustar las funciones User Preset, Media Xpander,
Factory’s EQ, Parametric EQ/Graphic EQ Adjustment, EQ Mode y
MX Level Adjustment si Rechazo está ajustado en ON.
•Pulse para regresar al modo de menú de sonido anterior.
•Durante la configuración, si pulsa el anillo exterior y gira el
codificador de doble acción hacia la izquierda o la derecha, la
pantalla de selección del elemento de configuración va pasando de
página en página. Si presiona y gira el codificador de doble acción
hacia la izquierda o la derecha mientras lo mantiene pulsado, podrá
cambiar de pantalla de selección del elemento de configuración de
página en página.
Funcionamiento
de IMPRINT
(Opcional)
BAND
(PRESET)
Codificador de doble acción
(FUNCTION/SETUP)
(IMPRINT)
/ENTER
Lleve a cabo los pasos del 1 al 5 para seleccionar uno
de los modos de menú de sonido que desee
modificar. Consulte la sección correspondiente a
continuación para obtener más información acerca
del elemento seleccionado.

33-ES
On / Off (ajuste inicial)
Si el Media Xpander está activado, puede ajustar el nivel del Media
Xpander (consulte la página 33).
•La función no puede utilizarse cuando Defeat está ajustado en ON.
MX (Media Xpander) hace que las voces o instrumentos suenen
diferentes independientemente de la fuente musical. La radio FM, el
CD, la memoria USB y el iPod/iPhone pueden reproducir la música de
un modo claro incluso en el coche cuando hay mucho ruido en el
exterior.
Cambio de la fuente a la que desea aplicar el Media
Xpander.
FM (Level 1 a 3, Non Effect):
Aumenta la claridad de las frecuencias medias y altas y se
produce un sonido bien equilibrado en todas las frecuencias.
CD (Level 1 a 3, Non Effect):
El modo CD procesa un gran volumen de datos durante la
reproducción. MX aprovecha esta gran cantidad de datos para
reproducir un sonido más claro y limpio.
MP3/WMA/AAC/iPod/BLUETOOTH Audio (Level 1 a 3, Non Effect):
Esta función corrige la información perdida al realizar la
compresión. Esto reproduce un sonido bien equilibrado y muy
similar al original.
DVD (Video CD)
(Level 1 a 2 (MOVIE), Non Effect):
Los diálogos de un vídeo se reproducen con mayor claridad.
(Level 3 (MUSIC), Non Effect):
Un DVD o un CD de vídeo contienen una gran cantidad de
datos, tal como sucede, por ejemplo, con los videoclips
musicales. MX utiliza estos datos para reproducir un sonido de
gran calidad.
AUX (Level 1 (MP3/WMA/AAC/iPod/BLUETOOTH Audio), Level 2
(MOVIE), Level 3 (MUSIC), Non Effect):
Seleccione el modo MX que se ajuste al medio conectado.
En caso de que se hayan conectado dos dispositivos externos,
se podrá seleccionar un modo MX diferente para cada medio.
•Para cancelar el modo MX para todas las fuentes musicales, ajuste
MX en Off (desactivado) en el paso 4.
•Cada fuente musical, como sintonizador FM, CD y MP3/WMA/AAC,
puede tener su propia configuración de MX.
•Al cambiar la fuente de “MP3/WMA/AAC a CD-DA” o de “CD-DA
a MP3/WMA/AAC”, el cambio de modo MX puede provocar un
pequeño retraso en la reproducción.
•Si se ajusta MX en Off, todos los modos MX de cada una de las
fuentes musicales quedarán ajustados en Off.
•No hay modo MX para la radio AM.
•La función no puede utilizarse cuando Defeat está ajustado en ON.
Flat / Pops/Rock / News/Jazz&Blues/Electric Dance/Hip Hop
&Rap/Easy Listening/Country/Classical/User 1~6*
El ecualizador se configura en fábrica con 10 memorias típicas para la
reproducción de material procedente de diversas fuentes musicales.
* Si selecciona User’s 1 - 6, podrá recuperar el nivel de ajuste de EQ
almacenado en “Almacenamiento y recuperación del contenido
ajustado” (página 36).
•La función no puede utilizarse cuando Defeat está ajustado en ON.
Subwoofer On (ajuste inicial) / Subwoofer Off
Si conecta un subwoofer opcional a la unidad, realice lo siguiente.
Si el subwoofer está conectado, puede ajustar el nivel de salida del
mismo (consulte la página 21).
Sys 1 (ajuste inicial) / Sys 2
Si el subwoofer está conectado, puede seleccionar o bien Sys 1 o bien
Sys 2 en función del efecto de subwoofer deseado.
Normal (ajuste inicial) / Reverse
La fase de salida del subwoofer cambia a Subwoofer Normal (0º) o
Subwoofer Reverse (180°).
Stereo (ajuste inicial) / Mono
Es posible cambiar la salida del subwoofer a estéreo o monoaural.
Asegúrese de ajustar la salida correcta para el tipo de subwoofer de que
dispone.
Maker’s (ajuste inicial) / User’s
En función de las características de respuesta del altavoz, es necesario
tener cuidado al ajustar la inclinación de respuesta del altavoz de tonos
agudos en 0 dB/oct en el modo (3WAY) (consulte “Ajuste de
configuración de crossover” en la página 35), ya que es posible que se
produzcan daños en los altavoces.
•Únicamente se puede ajustar en Tweeter si el conmutador del
sistema del procesador de audio IMPRINT (PXA-H100) está
ajustado en 3WAY.
Graphic / Parametric (ajuste inicial)
Este ajuste permite seleccionar entre un ecualizador paramétrico de 5
bandas y uno gráfico de 7.
•La función no puede utilizarse cuando Defeat está ajustado en ON.
Conexión y desconexión (ON/OFF) de
Media Xpander (MX)
Ajuste del nivel MX
Memorias del ecualizador (Factory’s EQ)
Conexión y desconexión del subwoofer
Ajuste del sistema de subwoofer
Sys 1: El nivel del subwoofer cambia en función del ajuste
del volumen principal.
Sys 2: El cambio en el nivel del subwoofer es diferente
respecto al ajuste del volumen principal. Por
ejemplo, incluso con ajustes de volumen reducidos,
el subwoofer es todavía audible.
Ajuste de la fase del subwoofer
Ajuste del canal del subwoofer
Stereo: Salida estéreo (L/R) del subwoofer
Mono: Salida monoaural del subwoofer
Ajuste de la inclinación de respuesta del
altavoz de tonos agudos (Tweeter)
Maker’s: Como protección ante posibles daños en los
altavoces, no es posible ajustar 0 dB/oct como
inclinación de respuesta de los altavoces de tonos
agudos en el modo 3WAY.
User’s: El ajuste de 0 dB/oct es posible en el modo 3WAY.
Ajuste del modo EQ

34-ES
Normal (ajuste inicial) / Individual
Si ajusta X-OVER, podrá configurar el canal L y R al mismo nivel, o de
forma independiente.
cm (ajuste inicial) / inch
Es posible cambiar la unidad (cm o pulgadas) de la corrección del
tiempo.
Es posible ajustar Parametric EQ/Graphic EQ Adjustment, Time
Correction y X-Over en este modo.
Ajuste de curva de ecualizador paramétrico
Sound Field Adjustment EQ Adjustment
Es posible modificar los ajustes del ecualizador para crear una curva de
respuesta más acorde con sus preferencias personales. Para ajustar la
curva del ecualizador paramétrico, ajuste el modo EQ en Parametric
EQ. Para obtener más información, consulte la sección “Ajuste del
modo EQ” (página 33).
1
Gire el codificador de doble acción para
seleccionar el modo “EQ Adjustment” en el modo de
ajuste de campo de sonido y, a continuación, pulse
/ENTER.
2
Gire el codificador de doble acción para
seleccionar una banda y luego pulse /ENTER.
Si selecciona una banda, se mostrará la pantalla de ajuste
de cada una.
Band1 / Band2 / Band3 / Band4 / Band5
3
Gire el codificador de doble acción para ajustar
el nivel/ancho de frecuencia/banda.
La opción que se ajusta en ese momento se iluminará.
4
Si pulsa /ENTER, se grabará el valor ajustado y
se pasará a la siguiente opción.
5
Cuando haya terminado de configurar la banda
seleccionada, pulse BAND.
Se mostrará la pantalla de ajustes de la siguiente banda.
6
Repita los pasos del 3 a 5 y ajuste cada banda.
Ajuste de frecuencia (F0)
Bandas de frecuencia ajustables:
de 20 Hz a 20 kHz (en pasos de 1/3 de octava)
Band1: de 20 Hz a 80 Hz (63 Hz)
Band2: de 50 Hz a 200 Hz (150 Hz)
Band3: de 125 Hz a 3,2 kHz (400 Hz)
Band4: de 315 Hz a 8 kHz (1 kHz)
Band5: de 800 Hz a 20 kHz (2,5 kHz)
Ajuste de ancho de banda (Q)
Ancho de banda ajustable: 1, 1,5, 3
Nivel de ajuste (Gain)
Nivel ajustable: de -6 a +6 dB
•Las frecuencias de las bandas contiguas no se pueden ajustar en
4 pasos.
•Durante el ajuste de Parametric EQ, es necesario que tenga en
cuenta la respuesta de frecuencia de los altavoces conectados.
•Durante el ajuste, si pulsa el anillo exterior y gira el codificador de
doble acción hacia la derecha o la izquierda, la banda cambia para
poder ajustar la adyacente. Si presiona y gira el codificador de doble
acción hacia la izquierda o la derecha mientras lo mantiene pulsado,
podrá cambiar de banda de manera continua.
•La función no puede utilizarse cuando Defeat está ajustado en ON.
Ajuste de la curva del ecualizador gráfico
Sound Field Adjustment EQ Adjustment
Es posible modificar los ajustes del ecualizador para crear una curva de
respuesta más ajustada a sus preferencias personales. Para ajustar la
curva del ecualizador gráfico, ajuste el modo EQ en Graphic EQ. Para
obtener más información, consulte la sección “Ajuste del modo EQ”
(página 33).
1
Gire el codificador de doble acción para
seleccionar el modo “EQ Adjustment” en el modo de
ajuste de campo de sonido y, a continuación, pulse
/ENTER.
2
Gire el codificador de doble acción para
seleccionar una banda y luego pulse /ENTER.
Si hay una banda seleccionada, aparecerá la pantalla para
poder ajustarla.
Band1
/
Band2
/
Band3
/
Band4
/
Band5
/
Band6
/
Band7
3
Gire el codificador de doble acción para ajustar
el nivel y, a continuación, pulse
/ENTER.
Se selecciona el nivel y se activa el modo de selección de
frecuencia.
4
Gire el
codificador de doble acción
para
seleccionar una frecuencia y luego pulse
/ENTER
.
Se selecciona la frecuencia y el modo de ajuste de nivel. La
frecuencia seleccionada se muestra en amarillo.
5
Cuando haya terminado de configurar la banda
seleccionada, pulse
BAND
.
Se mostrará la pantalla de ajustes de la siguiente banda.
Ajuste del tipo de filtro
Normal (L=R): los altavoces izquierdo y derecho se
ajustan del mismo modo.
Individual (L/R): los altavoces izquierdo y derecho se
ajustan de manera individual.
Ajuste de la unidad de corrección de
tiempo
Ajuste del campo de sonido
Frecuencia Nivel
Ancho de banda
Nivel
Frecuencia

35-ES
6
Repita el posos 3 a 5 y ajuste cada nivel de banda.
Ajuste de frecuencia (F0)
Band1 (63 Hz) / Band2 (150 Hz) / Band3 (400 Hz) /
Band4 (1 kHz) / Band5 (2,5 kHz) / Band6 (6,3 kHz) /
Band7 (17,5 kHz)
Ajuste de nivel (Gain)
Nivel de salida ajustable: de -6 a +6 dB
•Durante el ajuste, si pulsa el anillo exterior y gira el codificador de
doble acción hacia la derecha o la izquierda, la banda cambia para
poder ajustar la adyacente. Si presiona y gira el codificador de doble
acción hacia la izquierda o la derecha mientras lo mantiene pulsado,
podrá cambiar de banda de manera continua.
•La función no puede utilizarse cuando Defeat está ajustado en ON.
Ajuste de la corrección de tiempo
Sound Field Adjustment Time Correction
Antes de llevar a cabo los siguientes procedimientos, consulte “Acerca
de la corrección de tiempo” (página 37).
1
Gire el codificador de doble acción para
seleccionar “Time Correction” en el modo de ajuste
de campo de sonido y, a continuación, pulse
/ENTER.
En función de la configuración del conmutador X-OVER del
procesador de audio IMPRINT (PXA-H100), el altavoz
ajustable varía.
Sistema 3WAY
Sistema F/R/SUBW.
2
Gire el codificador de doble acción para
seleccionar el altavoz y pulse /ENTER.
3
Gire el codificador de doble acción para definir
la distancia de cada altavoz.
0,0 cm~336,6 cm
4
Si pulsa /ENTER, se definirá el valor de ajuste y
se activará el modo de selección de altavoces.
5
Repita los pasos del 2 a 4 y ajuste todos los
altavoces.
•Durante el ajuste, si pulsa el anillo exterior y gira el codificador de
doble acción hacia la derecha o la izquierda, el altavoz cambia para
poder ajustar la banda adyacente. Si presiona y gira el codificador
de doble acción hacia la izquierda o la derecha mientras lo mantiene
pulsado, podrá cambiar de altavoz de manera continua.
También puede cambiar el altavoz pulsando BAND.
Ajuste de configuración de crossover
Sound Field Adjustment X-Over
Antes de llevar a cabo los siguientes procedimientos, consulte “Acerca
de Crossover” (página 38).
1
Gire el codificador de doble acción para
seleccionar “X-Over” en el modo de ajuste de campo
de sonido y, a continuación, pulse /ENTER.
2
Gire el codificador de doble acción para
seleccionar una banda y luego pulse /ENTER.
Si hay una banda seleccionada, cada banda aparecerá la
pantalla para poder ajustarla.
Sistema 3WAY / Normal (L=R)
Elementos de ajuste:
Low/Mid-Low/Mid-High/High
Sistema 3WAY / Individual (L/R)
Elementos de ajuste:
Low L/Low R/Mid-Low L/Mid-Low R/Mid-High L/
Mid-High R/High L/High R
Sistema F/R/SUBW. / Normal (L=R)
Elementos de ajuste:
Subw./Rear/Front
Sistema F/R/SUBW. / Individual (L/R)
Elementos de ajuste:
Subw. L/Subw. R/Rear L/Rear R/Front L/Front R
•En función del sistema actual, variará el contenido de la banda
seleccionable. Consulte “Ajuste del tipo de filtro” (página 34) y la
configuración del conmutador X-OVER del procesador de audio
IMPRINT (PXA-H100).
3
Gire el codificador de doble acción para ajustar
la frecuencia/inclinación/nivel.
La opción que se ajusta en ese momento se iluminará.
4
El contenido del ajuste se selecciona pulsando
/ENTER y la operación cambia para realizar el
siguiente ajuste.
5
Cuando haya terminado de configurar la banda
seleccionada, pulse BAND.
Se mostrará la pantalla de ajustes de la siguiente banda.
6
Ajuste todas las bandas repitiendo los pasos 3 a 5.
High L
/
High R
/
Mid L
/
Mid R
/
Low L
/
Low R
Front L / Front R / Rear L / Rear R / Subw. L / Subw. R
Altavoces
seleccionados
Nivel
Frecuencia
de corte Inclinación
Banda

36-ES
Frecuencia de corte (FC)
Bandas de frecuencia ajustables:
Sistema 3WAY
Elementos de ajuste:
Low/Mid-Low L 20 Hz~200 Hz
Mid-High 20 Hz~20 kHz
High (1 kHz~20 kHz)*1/(20 Hz~20 kHz)*2
*1Si Maker’s está seleccionado. Consulte “Ajuste de la inclinación de
respuesta del altavoz de tonos agudos (Tweeter)” (página 33).
*2Si User’s está seleccionado. Consulte “Ajuste de la inclinación de
respuesta del altavoz de tonos agudos (Tweeter)” (página 33).
Sistema F/R/SUBW.
Elementos de ajuste:
20 Hz~200 Hz
Ajuste de la inclinación
Inclinación ajustable: 0/6/12/18/24 dB/oct
* 0 dB/oct sólo puede ajustarse en la inclinación High si se ha
seleccionado User’s en el “Ajuste de la inclinación de respuesta del
altavoz de tonos agudos (Tweeter)” (página 33). En función de las
características de respuesta del altavoz, es necesario tener cuidado
al ajustar la inclinación de respuesta en 0 dB/oct, ya que es posible
que se produzcan daños en los altavoces. Con esta unidad, se
muestra un mensaje cuando la inclinación de respuesta del altavoz
de tonos agudos está ajustada en 0 dB/oct.
Ajuste de nivel
Nivel de salida ajustable: de -12 a 0 dB.
•Durante el ajuste de X-Over, es necesario que tenga en cuenta la
respuesta de frecuencia de los altavoces conectados.
•Durante el ajuste, si pulsa el anillo exterior y gira el codificador de
doble acción hacia la derecha o la izquierda, la banda cambia para
poder ajustar la adyacente. Si presiona y gira el codificador de doble
acción hacia la izquierda o la derecha mientras lo mantiene pulsado,
podrá cambiar de banda de manera continua.
•Acerca del sistema F/R/SUBW. / 3WAY
Es posible cambiar al modo de sistema F/R/SUBW. / 3WAY con el
conmutador X-OVER del PXA-H100. Para obtener más información,
consulte el Manual del propietario del modelo PXA-H100.
Almacenamiento y recuperación del contenido
ajustado
User 1 / User 2 / User 3 / User 4 / User 5 / User 6
El contenido de todas las opciones ajustables (en modo manual) se
pueden almacenar juntas en un botón de memorización. Se pueden
utilizar hasta 6 botones de memorización.
Almacenamiento del contenido ajustado
1
Gire el codificador de doble acción para
seleccionar “User Preset” y, a continuación, pulse
/ENTER.
Se mostrará la pantalla User Preset.
2
Gire el codificador de doble acción para
seleccionar un número de memorización y
mantenga pulsado /ENTER durante al menos
2 segundos.
El contenido ajustado se almacena en el número de
memorización seleccionado.
Recuperación del contenido ajustado
Es posible recuperar el contenido almacenado en “Almacenamiento del
contenido ajustado” (página 36).
1
Gire el codificador de doble acción para
seleccionar “User Preset” y, a continuación, pulse
/ENTER.
Se mostrará la pantalla User Preset.
2
Gire el codificador de doble acción para
seleccionar un número de memorización y pulse
/ENTER.
Se recuperará el contenido ajustado en el número de
memorización seleccionado.
•También se puede acceder a la pantalla User Preset en modo normal
pulsando (PRESET) y manteniéndolo presionado durante 2
segundos.
•Los contenidos almacenados no se eliminarán aunque restaure la
unidad o desconecte la batería.
•La función no puede utilizarse cuando Defeat está ajustado en ON.

37-ES
Acerca de la corrección de tiempo
La distancia existente entre el oyente y los altavoces de un automóvil
varía ampliamente debido a la compleja ubicación de los altavoces. Esta
diferencia en las distancias existentes desde los altavoces hasta el oyente
crea un cambio en las características de la imagen del sonido y en la
frecuencia. Esto está provocado por la diferencia de tiempo existente
entre la llegada del sonido al oído derecho e izquierdo del oyente.
Para corregirlo, esta unidad es capaz de retrasar el envío de la señal de
audio a los altavoces situados más cerca del oyente. Ello crea de manera
efectiva una percepción de mayor distancia hasta dichos altavoces. El
oyente puede colocarse a la misma distancia del altavoz izquierdo y del
derecho para obtener un entorno acústico óptimo.
El ajuste se efectuará para cada altavoz en pasos de 3,4 cm.
Ajuste el nivel de corrección del tiempo del altavoz delantero izquierdo
en un nivel alto y el altavoz posterior derecho en cero o en un valor bajo.
El sonido no está equilibrado debido a que la distancia entre la
posición de escucha y los distintos altavoces es diferente.
La diferencia de distancia entre el altavoz delantero izquierdo y el
posterior derecho es de 1,75 m.
A continuación se efectúa el cálculo del valor de la corrección del tiempo
del altavoz delantero izquierdo del diagrama facilitado anteriormente.
Condiciones:
Altavoz más alejado – posición de escucha: 2,25 m
Altavoz delantero izquierdo – posición de escucha: 0,5 m
Cálculo: L = 2,25 m – 0,5 m = 1,75 m
Corrección del tiempo = 1,75 ÷ 343*1 × 1000 = 5,1 (ms)
*1Velocidad del sonido: 343 m/s (765 mph) a 20°C
En otras palabras, asignar al altavoz delantero izquierdo un valor de
corrección del tiempo de 5,1 ms permite que parezca que la
distancia existente entre éste y el oyente sea la misma que la
existente hasta el altavoz más alejado.
La corrección del tiempo permite eliminar las diferencias existentes en el
tiempo necesario para que el sonido llegue hasta la posición de escucha.
El tiempo del altavoz delantero izquierdo se corrige en 5,1 ms, de
modo que el sonido proveniente de éste llega a la posición de
escucha al mismo tiempo que el sonido del resto de los altavoces.
Ajuste el nivel de corrección del tiempo de cada altavoz casi al mismo nivel.
1
Siéntese en la posición de escucha (asiento del
conductor, etc.), y mida la distancia existente (en metros)
existente entre su cabeza y los distintos altavoces.
2
Calcule la diferencia existente entre el valor de
corrección de la distancia del altavoz más alejado y
del resto de altavoces.
L = (distancia existente hasta el altavoz más alejado) –
(distancia existente hasta otros altavoces)
Estos valores corresponden a la corrección del tiempo de los
diferentes altavoces. Ajuste estos valores para conseguir que el
sonido llegue a la posición de escucha al mismo tiempo que el
sonido de los demás altavoces.
Lista de valores de corrección de tiempo
Ejemplo 1. Posición de escucha: asiento
delantero izquierdo
Ejemplo 2. Posición de escucha: todos los
asientos
5,1ms
2,25m
0,5m
Valor
del retraso
Diferencia
de tiempo
(ms)
Distancia
(cm)
Distancia
(pulgadas)
Valor
del retraso
Diferencia
de tiempo
(ms)
Distancia
(cm)
Distancia
(pulgadas)
00,0 0,0 0,0 51 5,1 173,4 68,3
10,1 3,4 1,3 52 5,2 176,8 69,7
20,2 6,8 2,7 53 5,3 180,2 71,0
30,3 10,2 4,0 54 5,4 183,6 72,4
40,4 13,6 5,4 55 5,5 187,0 73,7
50,5 17,0 6,7 56 5,6 190,4 75,0
60,6 20,4 8,0 57 5,7 193,8 76,4
70,7 23,8 9,4 58 5,8 197,2 77,7
80,8 27,2 10,7 59 5,9 200,6 79,1
90,9 30,6 12,1 60 6,0 204,0 80,4
10 1,0 34,0 13,4 61 6,1 207,4 81,7
11 1,1 37,4 14,7 62 6,2 210,8 83,1
12 1,2 40,8 16,1 63 6,3 214,2 84,4
13 1,3 44,2 17,4 64 6,4 217,6 85,8
14 1,4 47,6 18,8 65 6,5 221,0 87,1
15 1,5 51,0 20,1 66 6,6 224,4 88,4
16 1,6 54,4 21,4 67 6,7 227,8 89,8
17 1,7 57,8 22,8 68 6,8 231,2 91,1
18 1,8 61,2 24,1 69 6,9 234,6 92,5
19 1,9 64,6 25,5 70 7,0 238,0 93,8
20 2,0 68,0 26,8 71 7,1 241,4 95,1
21 2,1 71,4 28,1 72 7,2 244,8 96,5
22 2,2 74,8 29,5 73 7,3 248,2 97,8
23 2,3 78,2 30,8 74 7,4 251,6 99,2
24 2,4 81,6 32,2 75 7,5 255,0 100,5
25 2,5 85,0 33,5 76 7,6 258,4 101,8
26 2,6 88,4 34,8 77 7,7 261,8 103,2
27 2,7 91,8 36,2 78 7,8 265,2 104,5
28 2,8 95,2 37,5 79 7,9 268,6 105,9
29 2,9 98,6 38,9 80 8,0 272,0 107,2
30 3,0 102,0 40,2 81 8,1 275,4 108,5
31 3,1 105,4 41,5 82 8,2 278,8 109,9
32 3,2 108,8 42,9 83 8,3 282,2 111,2
33 3,3 112,2 44,2 84 8,4 285,6 112,6
34 3,4 115,6 45,6 85 8,5 289,0 113,9
35 3,5 119,0 46,9 86 8,6 292,4 115,2
36 3,6 122,4 48,2 87 8,7 295,8 116,6
37 3,7 125,8 49,6 88 8,8 299,2 117,9
38 3,8 129,2 50,9 89 8,9 302,6 119,3
39 3,9 132,6 52,3 90 9,0 306,0 120,6
40 4,0 136,0 53,6 91 9,1 309,4 121,9
41 4,1 139,4 54,9 92 9,2 312,8 123,3
42 4,2 142,8 56,3 93 9,3 316,2 124,6
43 4,3 146,2 57,6 94 9,4 319,6 126,0
44 4,4 149,6 59,0 95 9,5 323,0 127,3
45 4,5 153,0 60,3 96 9,6 326,4 128,6
46 4,6 156,4 61,6 97 9,7 329,8 130,0
47 4,7 159,8 63,0 98 9,8 333,2 131,3
48 4,8 163,2 64,3 99 9,9 336,6 132,7
49 4,9 166,6 65,7
50 5,0 170,0 67,0

38-ES
Acerca de Crossover
Crossover (X-OVER):
Esta unidad está equipada con un crossover activo. El crossover limita
las frecuencias emitidas a través de las salidas. Cada canal es controlado
de manera independiente. Por esta razón, cada par de altavoces puede
recibir las señales de las frecuencias para las que han sido diseñados
óptimamente.
El crossover ajusta el HPF (filtro de paso alto) o LPF (filtro de paso
bajo) de cada banda, así como la inclinación (con qué rapidez procesa el
filtro los agudos y los graves).
Los ajustes deben realizarse de acuerdo con las características de
reproducción de los altavoces. En función de los altavoces, es posible
que no sea necesario disponer de una red pasiva. Si no está seguro de
este punto, consulte con un distribuidor autorizado de Alpine.
Modo F/R/SUBW.
Modo 3WAY
* Sólo cuando se seleccione User’s en “Ajuste de la inclinación de
respuesta del altavoz de tonos agudos (Tweeter)” (página 33).
•HPF (filtro de paso alto): corta las frecuencias más bajas y permite
el paso a las más altas.
•LPF (filtro de paso bajo): corta las frecuencias más altas y permite
el paso a las más bajas.
•Inclinación: cambio de nivel (en dB) de un cambio de frecuencia de
una octava.
•
Cuanto mayor sea el valor de la inclinación, más empinada será ésta.
•
Ajuste la inclinación en FLAT (0 dB/oct) para evitar los filtros HP o LP.
•No utilice un tweeter sin el HPF activado ni lo ajuste en una
frecuencia baja, ya que podrían producirse daños en el altavoz
debido a la baja frecuencia.
•No es posible ajustar la frecuencia de crossover en un nivel superior
al HPF o inferior al LPF.
•El ajuste debe efectuarse de acuerdo con la frecuencia de crossover
recomendada de los altavoces conectados. Determine la frecuencia
de crossover recomendada de los altavoces. El ajuste de una gama
de frecuencia diferente a la recomendada puede provocar daños en
los altavoces.
Para obtener información acerca de las frecuencias de crossover
recomendadas de los altavoces Alpine, consulte el Manual del
propietario respectivo.
Alpine no se hace responsable de los daños o fallos de
funcionamiento de los altavoces causados por la utilización de un
valor de crossover distinto del recomendado.
Frecuencia de corte
(pasos de
1/3 de octava) Inclinación Nivel
HPF LPF HPF LPF
Altavoz
de tonos
graves ---- 20 Hz -
200 Hz ----
FLAT, 6,
12, 18,
24 dB/oct.
De 0 a
-12 dB
Altavoz
posterior
de tonos
agudos
20 Hz -
200 Hz ----
FLAT, 6,
12, 18,
24 dB/oct.
---- De 0 a
-12 dB
Altavoz
delantero
de tonos
agudos
20 Hz -
200 Hz ----
FLAT, 6,
12, 18,
24 dB/oct.
---- De 0 a
-12 dB
Frecuencia de
corte (pasos de
1/3 de octava)
Inclinación Nivel
HPF LPF HPF LPF
Altavoz
de tonos
graves ---- 20 Hz -
200 Hz ----
FLAT, 6,
12, 18,
24 dB/oct.
De 0 a
-12 dB
Altavoz
de tonos
medios
20 Hz -
200 Hz
20 Hz -
20 kHz
FLAT, 6,
12, 18,
24 dB/oct.
FLAT, 6,
12, 18,
24 dB/oct.
De 0 a
-12 dB
Altavoz
de tonos
agudos
1 kHz -
20 kHz,
(20 Hz ~
20 kHz)*
----
FLAT*
6, 12, 18,
24 dB/oct.
---- De 0 a
-12 dB
Tonos graves Tonos agudos
(Diferente de la visualización real)
Tonos graves Tonos medios Tonos agudos
(Diferente de la visualización real)
Ajuste del nivel
(de 0 a -12 dB) Gama de frecuencias de salida
Inclinación FLAT
Ajuste de la
inclinación
20 Hz
Frecuencia de
corte de HPF
Frecuencia de
corte de LPF
(Diferente de la visualización real)

39-ES
En caso de dificultad
Si surge algún problema en el dispositivo, apáguelo y vuelva a
encenderlo. Si la unidad sigue sin funcionar correctamente, compruebe
los puntos que aparecen en la lista siguiente. Esta guía le ayudará a
aislar el problema si la unidad no funciona. Si el problema persiste,
compruebe si el resto de su sistema está adecuadamente conectado o
consulte a un proveedor autorizado por Alpine.
En la pantalla no aparece ningún elemento o función.
• La llave de encendido del automóvil está en off.
- Si ha realizado las conexiones de acuerdo con las
instrucciones, la unidad no funcionará con la llave de
encendido en off.
• Las conexiones del conductor de alimentación (rojo) y el
conductor de batería (amarillo) no son adecuadas.
- Compruebe las conexiones del conductor de alimentación y el
conductor de batería.
• Fusible quemado.
- Compruebe el fusible de la unidad. Si fuera necesario,
cámbielo por otro del valor apropiado.
• El microordenador interno funciona mal a causa de
interferencias, ruido, etc.
- Presione el interruptor RESET con un bolígrafo u otro objeto
puntiagudo.
No se recibe ninguna emisora.
• La antena no está conectada o el cable está desconectado.
- Asegúrese de que la antena está correctamente conectada;
cambie la antena o el cable si es necesario.
No se pueden sintonizar emisoras en el modo de
búsqueda.
• Se encuentra en un área de recepción débil.
- Compruebe si el sintonizador está en el modo DX.
• Si se encuentra en una zona de señal intensa, es posible que la
antena no esté puesta a tierra o conectada adecuadamente.
- Compruebe las conexiones de la antena, si está bien conectada
a tierra y si la ubicación de montaje es correcta.
• Es posible que la longitud de la antena no sea adecuada.
- Compruebe si la antena está completamente desplegada. Si
está rota, reemplácela por otra nueva.
La emisión es ruidosa.
• La longitud de la antena no es adecuada.
- Extienda completamente la antena. Si está rota, reemplácela
por otra.
• La antena está mal conectada a tierra.
- Compruebe si la antena está bien conectada a tierra y si la
ubicación de montaje es correcta.
Los archivos MP3, WMA o AAC no se reproducen.
• Se ha producido un error de escritura. El formato de MP3/
WMA/AAC no es compatible.
- Compruebe que el MP3/WMA/AAC se ha grabado en un
formato compatible. Consulte “Acerca de MP3/WMA/AAC”
(páginas 19-20) y vuelva a grabar en el formato compatible
con este dispositivo.
No sale el sonido por los altavoces.
• La unidad no recibe señal del amplificador interno.
- Power IC está en “On” (página 25).
iPod/iPhone no puede reproducir y no emite ningún
sonido.
• El iPod/iPhone no se ha reconocido.
- Reinicie esta unidad y el iPod/iPhone. Consulte la sección
“Puesta en funcionamiento inicial del sistema” (página 7). Para
reiniciar el iPod/iPhone, consulte el Manual del propietario del
iPod/iPhone.
• El dispositivo del conector USB recibe una corriente anormal (es
posible que se muestre un mensaje de error en caso de que el
dispositivo USB no sea compatible con la unidad que se haya
conectado).
- Trate de conectar otro iPod/iPhone.
• Se ha conectado un iPod/iPhone incompatible con la unidad.
- Conecte un iPod/iPhone compatible.
- Reinicie el iPod/iPhone.
• El iPod/iPhone no está conectado.
- Asegúrese de que ha conectado correctamente el iPod/iPhone y
de que el cable no esté doblado en exceso.
• El reproductor iPod/iPhone no contiene ninguna canción.
- Descargue canciones en el reproductor iPod/iPhone y
conéctelo a la unidad.
• Se ha recibido información de texto que no es compatible con la
unidad.
- Utilice un iPod/iPhone en el que la información de texto
introducida sea compatible con la unidad.
• Error de comunicación
- Apague la llave de contacto y ajuste la unidad en ON de nuevo.
- Compruebe la pantalla una vez que haya vuelto a conectar el
iPod/iPhone al cable de interfaz de acople del iPod y al cable
USB.
- Reinicie el iPod/iPhone.
• Se debe a que la versión de software del iPod/iPhone no es
compatible con la unidad.
- Actualice la versión de software del iPod/iPhone a una
compatible con la unidad.
Información
Cuestiones básicas
Radio
MP3/WMA/AAC
Audio
iPod/iPhone
Indicación de modo iPod/iPhone
Current Error
USB Device Error
No USB Device
No Support

40-ES
• El iPod/iPhone no está verificado.
- Reinicie el iPod/iPhone.
- Pruebe con otro iPod/iPhone.
• No ha creado ninguna emisora personalizada de Pandora.
- Si no está conduciendo, puede utilizar la aplicación compatible
con Pandora para iPhone para crear sus emisoras de Pandora.
• La música no se puede reproducir porque la aplicación
compatible con Pandora para iPhone exige la atención del
usuario.
- Si no está conduciendo, consulte la aplicación compatible con
Pandora para iPhone.
• El dispositivo del conector USB recibe una corriente anormal (es
posible que se muestre un mensaje de error en caso de que el
dispositivo USB no sea compatible con la unidad que se haya
conectado).
La memoria USB no funciona correctamente o está estropeada.
- Conecte otra memoria USB.
• Se ha conectado un dispositivo USB incompatible con la unidad.
- Conecte un dispositivo USB compatible.
• No se ha conectado ninguna memoria USB.
- Asegúrese de que ha conectado correctamente la memoria
USB y de que el cable no esté doblado en exceso.
• La memoria USB no contiene ninguna canción (o ningún
archivo).
- Conecte el dispositivo de memoria USB una vez que haya
almacenado canciones (archivos) en él.
• Se utiliza un índice de muestreo/velocidad de bits no compatible
con la unidad.
- Utilice un índice de muestreo/velocidad de bits compatible con
la unidad.
• Se ha reproducido un archivo WMA con protección contra copias.
-
Sólo es posible reproducir archivos sin protección contra copias.
• Se ha recibido información de texto que no es compatible con la
unidad.
- Utilice un dispositivo de memoria USB que contenga
información de texto compatible con la unidad.
• El dispositivo del conector USB recibe una corriente anormal (es
posible que se muestre un mensaje de error en caso de que el
dispositivo USB no sea compatible con la unidad que se haya
conectado).
- Intente conectar otro reproductor de audio portátil.
• Se ha conectado un reproductor de audio portátil incompatible
con la unidad.
- Intente conectar otro reproductor de audio portátil.
• No se ha conectado ningún reproductor de audio portátil.
- Asegúrese de que ha conectado correctamente el reproductor
de audio portátil y de que el cable no esté doblado en exceso.
• El reproductor de audio portátil no contiene ninguna canción.
- Descargue canciones al reproductor de audio portátil y
conéctelo a la unidad.
• Se ha recibido información de texto que no es compatible con la
unidad.
- Utilice un reproductor de audio portátil en el que la
información de texto introducida sea compatible con la unidad.
• Se utiliza un índice de muestreo/velocidad de bits no compatible
con la unidad.
- Utilice un índice de muestreo/velocidad de bits compatible con
la unidad.
• Se ha reproducido un archivo WMA con protección contra copias.
-
Sólo es posible reproducir archivos sin protección contra copias.
-
Es importante verificar que el reproductor de audio portátil esté
ajustado en MTP.
• Error de comunicación
- Apague la llave de contacto y ajuste la unidad en ON de nuevo.
- Verifique la pantalla después de volver a conectar el
reproductor de audio portátil al cable de conexión.
Indicaciones para memorias USB
No Stations
(Modo Radio Pandora)
(Modo Radio Pandora)
Current Error
USB Device Error
No USB Device
Indicación del modo de reproductor de
audio portátil
No Support
Current Error
USB Device Error
No USB Device
No Support

41-ES
• Se debe a que la versión de software no es compatible con la
unidad.
- Actualice la versión del software del reproductor de audio
portátil. Para obtener más información, consulte el Manual del
propietario del reproductor.
- Reinicie el reproductor de audio portátil.
• Se ha activado el circuito protector debido a la alta temperatura.
- El indicador desaparecerá cuando la temperatura vuelva al
rango normal de funcionamiento.
• Mal funcionamiento del cambiador de CD.
-
Consulte a su proveedor Alpine. Presione el botón de expulsión
del cargador y extráigalo.
Compruebe la indicación. Introduzca de nuevo el cargador.
Si no puede extraer el cargador, consulte a su proveedor Alpine.
• No es posible extraer el cargador.
- Presione el botón de extracción del cargador. Si no puede
extraer el cargador, consulte a su proveedor Alpine.
• En el interior del cambiador de CD ha quedado un disco.
- Presione el botón Eject para activar la función de expulsión.
Cuando el cambiador de CD termine de ejecutar la función,
introduzca un cargador de CD vacío en el cambiador de CD
para que recoja el disco que quedó en el cambiador de CD.
• No hay cargador insertado en el cambiador de CD.
- Inserte un cargador.
• El disco indicado no existe.
- Elija otro disco.
• La antena de XM o SIRIUS no está conectada al módulo de
radio de XM o SIRIUS.
- Compruebe si el cable de la antena de XM o SIRIUS está bien
conectado al módulo de radio de XM o SIRIUS.
• La radio se está actualizando con el último código de
encriptación.
- Espere hasta que el código de encriptación se haya actualizado.
Los canales 0 y 1 deberían funcionar con normalidad.
• La señal de XM o SIRIUS es demasiado débil en la ubicación
actual.
- Espere hasta que el vehículo llegue a una ubicación con una
señal más fuerte.
• La radio está recogiendo información de audio o programas.
- Espere hasta que la radio haya recibido la información.
• El canal seleccionado actualmente ha dejado de emitir.
- Seleccione otro canal.
• El usuario ha seleccionado un número de canal que no está
disponible.
- No se necesita ninguna acción.
• El usuario ha seleccionado un número de canal al que no está
suscrito.
- La unidad utilizará el canal seleccionado previamente.
• Si ocurre un error u otro problema.
- Cambie los canales o consulte con su proveedor de Alpine.
Indicaciones para el cambiador de CD
Indicación para el modo de receptor SAT
(Modo SIRIUS)
(Modo XM)
(Modo SIRIUS)
(Modo SIRIUS)
(Modo XM)
(Modo SIRIUS)
(Modo XM)
(Modo SIRIUS)
(Modo XM)
(Modo SIRIUS)
(Modo XM)

42-ES
Especificaciones
SECCIÓN DEL SINTONIZADOR FM
SECCIÓN DEL SINTONIZADOR AM
SECCIÓN USB
GENERAL
TAMAÑO DEL CHASIS
TAMAÑO DE LA PIEZA FRONTAL
TAMAÑO DEL PANEL FRONTAL EXTRAÍBLE
•Debido a la mejora continua del producto, las especificaciones y el
diseño están sujetos a cambios sin previo aviso.
•Windows Media y el logotipo de Windows son marcas
comerciales o marcas registradas de Microsoft Corporation en
los Estados Unidos de América y/u otros países.
•iPod y iTunes son marcas comerciales de Apple Inc., registradas
en Estados Unidos y otros países.
iPhone es una marca comercial de Apple Inc., registradas en
Estados Unidos y otros países.
•“Made for iPod” significa que un accesorio electrónico se ha
diseñado para conectarse específicamente a un iPod y que está
certificado por el fabricante conforme cumple los estándares de
rendimiento de Apple.
•“Works with iPhone” significa que un accesorio electrónico se
ha diseñado para conectarse específicamente a un iPhone y que
está certificado por el fabricante conforme cumple los
estándares de rendimiento de Apple.
•
Apple no se hace responsable del funcionamiento de este dispositivo
ni de su conformidad con los estándares de regulación y seguridad.
•Audyssey MultEQ XT es una marca comercial registrada de
Audyssey Laboratories Inc.
•
La marca y los logotipos de BLUETOOTH
®
son marcas
comerciales registradas propiedad de Bluetooth SIG, Inc. y
cualquier uso que de ellos hace Alpine Electronics, Inc. siempre es
bajo licencia.
•
Pandora y el logotipo de Pandora son marcas comerciales
registradas de Pandora Media, Inc. Todos los derechos reservados.
Debido a restricciones de licencias musicales, el servicio de radio
Pandora sólo está disponible en los Estados Unidos.
•XM y sus logos correspondientes son marcas de XM Satellite
Radio Inc.
•SIRIUS y sus logos correspondientes son marcas de SIRIUS
Satellite Radio Inc.
•HD RadioTM y los logotipos HD y HD Radio Ready son marcas
comerciales de iBiquity Digital Corp.
•“Tecnología de codificación de audio MPEG Layer-3 con
licencia de Fraunhofer IIS y Thomson”.
•“El suministro de este producto sólo cubre la licencia para uso
privado y no comercial, y no implica una licencia ni ningún
derecho de uso de este producto en ninguna difusión comercial
(es decir, que genere ingresos) en tiempo real (terrestre, por
satélite, por cable y/u otros medios), la difusión/reproducción
mediante Internet, intranets y/u otras redes o mediante otros
sistemas de distribución de contenido electrónico, como
aplicaciones de audio de pago o previa petición. Es necesaria
una licencia independiente para dicho uso. Para más
información, consulte http://www.mp3licensing.com”
•
“Uni-Type™” es un estilo de la fuente de diseño Universal
desarrollada en una investigación conjunta entre LIM Corporation
Ltd. y la Facultad de Ingeniería de la Chiba University.
•“Uni-Type™” es una marca comercial registrada por LIM
Corporation Ltd.
Rango de sintonía 87,7 – 107,9 MHz
Sensibilidad útil en modo
monoaural
9,3 dBf (0,8 µV/75 ohmios)
Sensibilidad de silenciamiento de
50 dB
13,5 dBf (1,3 µV/75 ohmios)
Selectividad de canal alternativo 80 dB
Relación de señal de ruido 65 dB
Separación estéreo 35 dB
Relación de captura 2,0 dB
Rango de sintonía 530-1.710 kHz
Sensibilidad (Norma IEC) 22,5 µV/27 dB
Requisitos del USB USB 1.1/2.0
Consumo de energía máximo 500 mA
Sistema de archivos FAT12/16/32
Descodificación de MP3 MPEG-1/2 AUDIO Layer-3
Descodificación de WMA Windows Media™ Audio
(Se admite WMDRM10)
Descodificación de AAC Archivo de formato AAC-LC
“.m4a”
Número de canales 2 canales (estéreo)
Respuesta de frecuencia* 5 – 20.000 Hz (±1 dB)
Distorsión armónica total 0,008% (a 1 kHz)
Gama dinámica 95 dB (a 1 kHz)
Relación de señal de ruido 105 dB
Separación de canales 85 dB (a 1 kHz)
*La respuesta de frecuencia puede variar en función de la
velocidad de bits y el software del codificador.
Alimentación 14,4 V CC
(11–16 V margen permisible)
Salida de alimentación 18 W RMS × 4*
* Calificaciones del amplificador primario de acuerdo con la
norma CEA-2006
• Salida de alimentación: medida a 4 ohmios y 1% THD+N
• Señal/Ruido: 80 dBA (referencia: 1 W en 4 ohmios)
Tensión de salida de
preamplificación máxima
2 V/10 k ohmios
Peso 1,0 kg (2 lbs. 3 oz)
Anchura 178 mm
Altura 50 mm
Profundidad 156 mm
Anchura 170 mm
Altura 46 mm
Profundidad 28 mm
Anchura 108 mm
Altura 46 mm
Profundidad 36 mm

43-ES
Instalación y conexiones
Antes de instalar o conectar la unidad, lea atentamente
las indicaciones siguientes y las páginas 4 y 5 de este
manual para emplearla adecuadamente.
Advertencia
REALICE LAS CONEXIONES CORRECTAMENTE.
Una conexión incorrecta puede producir un incendio o dañar el equipo.
UTILICE LA UNIDAD SOLAMENTE EN VEHÍCULOS QUE
TENGAN 12 VOLTIOS CON NEGATIVO A MASA.
(Consulte a su distribuidor en caso de duda.) De no ser así, podría
ocasionar un incendio, etc.
ANTES DE EFECTUAR EL CABLEADO, DESCONECTE EL
CABLE DEL TERMINAL NEGATIVO DE LA BATERÍA.
De no hacerlo así, podría ocasionar una descarga eléctrica o heridas
debido a cortocircuitos eléctricos.
NO EMPALME CABLES ELÉCTRICOS.
Nunca corte el aislamiento de un cable para suministrar energía a
otro equipo. Esto hace que la capacidad portadora del cable se
supere y puede ser la causa de incendios o descargas eléctricas.
EVITE DAÑAR LOS TUBOS Y EL CABLEADO CUANDO
TALADRE AGUJEROS.
Si taladra agujeros en el chasis durante la instalación, tome las
precauciones necesarias para no rozar, dañar u obstruir los tubos,
las tuberías de combustible, los depósitos o el cableado eléctrico.
De lo contrario, podría provocar un incendio.
NO UTILICE TUERCAS O PERNOS EN EL SISTEMA DE FRENOS
O DE DIRECCIÓN PARA REALIZAR LAS CONEXIONES A MASA.
Los pernos o tuercas empleados en los sistemas de freno o de
dirección (o en cualquier otro sistema relacionado con la seguridad
del vehículo), o los depósitos, NUNCA deben utilizarse para
instalaciones de cableado o conexión a masa. Si utiliza tales partes
podrá incapacitar el control del vehículo y provocar un incendio, etc.
MANTENGA LOS OBJETOS PEQUEÑOS, COMO LAS PILAS,
FUERA DEL ALCANCE DE LOS NIÑOS.
La ingestión de estos objetos puede provocar lesiones graves. Si
esto ocurre, consulte con un médico inmediatamente.
NO INSTALE EL EQUIPO EN LUGARES QUE PUEDAN
INTERFERIR CON LA OPERACIÓN DEL VEHÍCULO, COMO
EL VOLANTE DE DIRECCIÓN O LA CAJA DE CAMBIOS DE
VELOCIDAD.
Esto podría obstaculizar la visibilidad y dificultar el movimiento,
etc. y provocar accidentes graves.
IMPIDA QUE LOS CABLES SE ENREDEN CON LOS OBJETOS
SITUADOS ALREDEDOR.
Disponga la instalación eléctrica y los cables conforme a lo descrito
en el manual para evitar obstáculos durante la conducción. Los
cables que obstaculizan la conducción o que cuelgan de partes del
vehículo como el volante de dirección, la palanca de cambios, los
pedales de freno, etc., se consideran extremadamente peligrosos.
Prudencia
CONFÍE EL CABLEADO Y LA INSTALACIÓN A PROFESIONALES.
El cableado y la instalación de este equipo requieren una
competencia y experiencia técnica confirmada. Para garantizar la
seguridad, póngase siempre en contacto con el distribuidor al que
ha comprado el equipo para confiarle estas tareas.
UTILICE LOS ACCESORIOS ESPECIFICADOS E INSTÁLELOS
CORRECTAMENTE.
Asegúrese de utilizar los accesorios especificados solamente. La
utilización de otras piezas no designadas puede ser la causa de
daños en el interior de la unidad o de una instalación incorrecta.
Las piezas pueden aflojarse, lo que, además de ser peligroso, puede
provocar averías.
DISPONGA EL CABLEADO DE FORMA QUE LOS CABLES NO
SE DOBLEN, NO SE CONTRAIGAN NI ROCEN UN BORDE
METÁLICO AFILADO.
Aleje los cables y el cableado de piezas móviles (como los raíles de
los asientos) o de bordes puntiagudos o afilados. De esta forma
evitará dobleces y daños en el cableado. Si los cables se introducen
por un orificio de metal, utilice una arandela de goma para evitar
que el borde metálico del orificio corte el aislamiento del cable.
NO INSTALE LA UNIDAD EN LUGARES MUY HÚMEDOS O
LLENOS DE POLVO.
Evite instalar la unidad en lugares con altos índices de humedad o
polvo. Si entra polvo o humedad, el equipo puede averiarse.
Precauciones
• Asegúrese de desconectar el cable del borne negativo (–) de la
batería antes de instalar el iDA-X305S. Esto reducirá cualquier
posibilidad de dañar la unidad en caso de un cortocircuito.
• Asegúrese de conectar los cables codificados con colores de
acuerdo con el diagrama. Las conexiones incorrectas podrán
ocasionar un malfuncionamiento de la unidad o dañar el sistema
eléctrico del vehículo.
• Cuando haga las conexiones al sistema eléctrico del vehículo,
tenga en cuenta los componentes instalados en fábrica (p.ej., el
ordenador de a bordo). No coja corriente de estos conductores
para alimentar esta unidad. Cuando conecte el iDA-X305S a la
caja de fusibles, asegúrese de que el fusible del circuito que
piensa utilizar para el iDA-X305S tiene el amperaje adecuado.
De lo contrario, la unidad y/o el vehículo podrán sufrir daños.
Cuando no esté seguro, consulte a su distribuidor ALPINE.
• El iDA-X305S utiliza tomas tipo RCA hembras para la conexión
a otras unidades (p.ej., amplificador) dotadas de conectores
RCA. Es posible que necesite un adaptador para conectar otras
unidades. En ese caso, póngase en contacto con su distribuidor
ALPINE autorizado para que le aconseje.
• Asegúrese de conectar los cables (–) de altavoz al terminal (–) de
altavoz. No conecte nunca entre sí los cables de altavoz de los
canales izquierdo y derecho ni a la carrocería del vehículo.
IMPORTANTE
Anote el número de serie de la unidad en el espacio proporcionado a
continuación y consérvelo como registro permanente. La placa del
número de serie se encuentra en la base de la unidad.
NÚMERO DE SERIE:
FECHA DE INSTALACIÓN:
INSTALADOR:
LUGAR DE ADQUISICIÓN:

44-ES
Instalación
•La unidad principal se debe montar a un máximo de 35 grados con
respecto al plano horizontal, de detrás hacia delante.
* Si el manguito de montaje instalado en la unidad principal está flojo,
las placas de presión pueden ensancharse un poco para solventar el
problema.
•Para el tornillo con la marca “*2”, utilice un tornillo adecuado para
la ubicación de montaje elegida.
Extracción
1. Extraiga el panel frontal desmontable.
2. Inserte las llaves de soporte en la unidad, a lo largo de
las guías de cada lado. Ahora puede extraer la unidad
del manguito de montaje.
3. Tire de la unidad hacia fuera y manténgala
desbloqueada mientras lo hace.
<VEHÍCULO JAPONÉS>
•Fije el cable de tierra de la unidad en un punto metálico desnudo con
un tornillo (*3) ya fijado al chasis del vehículo.
Precaución
No bloquee el ventilador o el sumidero de calor de la unidad, ya
que impediría la circulación de aire. Si dichos elementos están
bloqueados, el calor se acumulará dentro de la unidad y ello
puede provocar un incendio.
Precaución
Cuando instale esta unidad en el vehículo, no extraiga el panel
frontal desmontable.
Si lo hace durante la instalación, podría presionar demasiado y
deformar la placa de metal que lo sujeta.
1
Extraiga el manguito de montaje de la unidad
principal (consulte “Extracción” en la página 44).
Sumidero de calor
Desmontable
Panel frontal
Menos de 35°
Manguito de
montaje (Incluido)
Salpicadero
Esta unidad
Placas de presión*
2
Refuerce la unidad principal con la cinta de montaje
metálica (no suministrada). Fije el cable de tierra de
la unidad en un punto metálico desnudo con un
tornillo (*1) ya fijado al chasis del vehículo.
Conecte cada conector de entrada del amplificador
o el ecualizador al conector de salida
correspondiente de la parte trasera del iDA-X305S.
Conecte el resto de los conectores del iDA-X305S de
acuerdo con las instrucciones descritas en la
sección CONEXIONES.
3
Deslice el iDA-X305S hacia el interior del salpicadero
hasta que escuche un chasquido. Eso permite
asegurarse de que la unidad queda correctamente
fijada y no se salga accidentalmente del salpicadero.
Instale el panel frontal desmontable.
Tuerca hexagonal (M5) Tornillo
Perno
Esta unidad
Chasis
Cable de tierra
Cinta
metálica de
montaje
*2
*1
Esta unidad
Llaves de soporte
(incluidas)
Marco frontal
Tornillos (M5 × 8)
(incluidos)
Soporte de montaje
Cable de tierra
Esta unidad
*3

45-ES
Conexión de cable USB
Conecte un cable USB a la unidad y fíjelo con un tornillo de
bloqueo.
Conexión de iPod/iPhone (se vende por separado)
Conecte el cable USB a un iPod/iPhone con el cable de interfaz
de acople del iPod.
Retire el iPod/iPhone
Desconecte el iPod/iPhone del cable de interfaz de acople del
iPod.
•Después de cambiar la unidad a una fuente que no sea el iPod,
extraiga el iPod/iPhone. Si desconecta el iPod/iPhone mientras la
unidad se encuentra todavía en modo iPod, los datos podrían
resultar dañados.
•Si la unidad no emite sonido alguno o si no reconoce el iPod/iPhone
a pesar de estar conectado, desconecte una vez el iPod/iPhone y
vuelva a conectarlo, o reinicie el iPod/iPhone.
•Antes de conectar el iPod/iPhone a esta unidad, ajuste la función EQ
del iPod/iPhone en OFF.
•No deje el iPod/iPhone en el interior de un vehículo durante un
tiempo prolongado. El calor y la humedad podrían dañar el iPod/
iPhone y provocar que no pueda volver a reproducir.
Conexión de memoria USB (se vende por separado)
Conecte la memoria USB
Conecte la memoria USB al cable USB.
Desconecte la memoria USB
Tire de la memoria USB directamente del cable USB.
•Al desconectar la memoria USB, tire de ella de forma recta.
•Si la unidad no emite sonido alguno o si no reconoce la memoria
USB a pesar de estar conectada, desconecte una vez dicha memoria
y vuelva a conectarla.
•Cambie a una fuente que no sea memoria USB y, a continuación,
retire la memoria USB. Si retira la memoria USB mientras la unidad
todavía se encuentra en dicho modo, los datos podrían resultar
dañados.
Conexión del reproductor de audio portátil (a la venta
por separado)
Conecte el reproductor de audio portátil
Conecte el cable suministrado con el reproductor de audio
portátil al cable USB.
Extraiga el reproductor de audio portátil
Desconecte el reproductor de audio portátil del cable
suministrado.
•Consulte asimismo el manual del propietario del reproductor de
audio portátil.
Cable USB
Cable de interfaz de acople del iPod
Cable USB
Memoria USB
Cable USB
Memoria USB
Cable USB
Cable USB
Cable suministrado para el reproductor de audio portátil

46-ES
Conexiones
NORM
EXT AP
*1
Cambiador de CD
(se vende por
separado) Altavoces
Amplificador
(se vende por separado)
Posterior
izquierdo
Posterior
derecho
Frontal
izquierdo
Frontal
derecho
Subwoofers
Amplificador
(se vende por separado)
Amplificador
(se vende por separado)
Altavoces
Frontal derecho
Posterior derecho
Posterior izquierdo
Frontal izquierdo
Gris
ALTAVOZ FRON-
TAL DERECHO
Blanco
Gris/Negro
Violeta/Negro
Violeta
Ver de
Verde/Negro
Blanco/Negro
ALTAVOZ POSTE-
RIOR DERECHO
ALTAVOZ POSTE-
RIOR IZQUIERDO
ALTAVOZ DELANTERO
IZQUIERDO
Antena
A la antena eléctrica
Al amplificador o al ecualizador
Al teléfono del vehículo
Llave de contacto
Batería
A la INTERFAZ BLUETOOTH
Al cable de iluminación del conjunto
de instrumentos
Al iPod/iPhone o memoria USB/
Reproductor de audio portátil
ANTENA ELÉCTRICA
ILUMINACIÓN
ENCENDIDO
BATERÍA
MASA
ACTIVACIÓN AUTOMÁTICA
ENTRADA DE INTERRUPCIÓN DE AUDIO
Azul
Naranja
Rojo
Amarillo
Negro
Rosa/Negro
Azul/Blanco
*1El interruptor del sistema está situado en la parte inferior de la unidad.

47-ES
Receptáculo de la antena
Cable para antena eléctrica (Azul)
Si es necesario, conecte este cable al terminal +B de la
antena eléctrica.
•Este cable sólo debe utilizarse para controlar la antena eléctrica del
vehículo. No lo utilice para encender un amplificador o un
procesador de señales, etc.
Toma de conexión remota (Azul/Blanca)
Conecte este cable al cable de control remoto del
amplificador o del procesador de señal.
Cable de entrada de interrupción audio (Rosa/Negro)
Cable de iluminación (Naranja)
Este cable puede conectarse al cable de iluminación del
grupo de instrumentos del automóvil. De esta forma se
permitirá que la luz de fondo de la unidad iDA-X305S se
atenúe cuando las luces del vehículo estén encendidas.
Cable de alimentación con interruptor (Encendido)
(Rojo)
Conecte este cable a un terminal abierto de la caja de
fusibles del vehículo o a otra fuente de alimentación no
utilizada que genere una potencia de (+)12 V sólo cuando
el contacto esté encendido o en posición auxiliar.
Cable de la batería (Amarillo)
Conecte este cable al borne positivo (+) de la batería del
vehículo.
Cable de tierra (Negro)
Conecte este cable a una buena toma de tierra del
vehículo. Asegúrese de realizar la conexión sólo en el metal
y de que quede perfectamente sujeto utilizando el tornillo
de chapa de metal incorporado.
Conector de alimentación de energía
Cable de salida del altavoz delantero derecho (+) (Gris)
Cable de salida del altavoz delantero derecho (–)
(Gris/Negro)
Cable de salida del altavoz trasero derecho (–)
(Violeta/Negro)
Cable de salida de altavoz derecho trasero (+) (Violeta)
Cable de salida de altavoz izquierdo trasero (+) (Verde)
Cable de salida del altavoz trasero izquierdo (–)
(Verde/Negro)
Cable de salida del altavoz delantero izquierdo (–)
(Blanco/Negro)
Cable de salida de altavoz izquierdo delantero (+)
(Blanco)
Portafusibles (10A)
Conector Ai-NET
Conéctelo al conector de salida o de entrada de otro
dispositivo (cambiador de CD, ecualizador, modo de
sintonización HD Radio™, etc.) equipado con Ai-NET.
•Es importante ajustar “Configuración de la unidad principal
conectada (CONFIGURACIÓN DEL MODELO)” en “DVD CHG”,
si hay conectado un DHA-S690.
•No se aconseja utilizar el adaptador de interfaz para iPod
(KCA-420i) con este producto.
Conector de la interfaz de control remoto del volante
A la caja de la interfaz de control remoto del volante.
Para obtener más información sobre las conexiones,
consulte a su distribuidor Alpine más cercano.
Conectores RCA de salida/entrada traseros
Se puede utilizar como conector RCA posterior de salida o
de entrada.
ROJO (derecha) y BLANCO (izquierda).
Conectores RCA de salida/entrada delanteros
Se puede utilizar como conector RCA delantero de salida o
de entrada.
ROJO (derecha) y BLANCO (izquierda).
Conectores RCA de subwoofer
ROJO (derecha) y BLANCO (izquierda).
Cable Ai-NET (Incluido con el cargador de CD)
Prolongador eléctrico RCA (se vende por separado)
Conector de interfaz BLUETOOTH
Conectar a una INTERFAZ BLUETOOTH opcional
(KCE-400BT).
Para utilizar un teléfono móvil manos libres, es necesaria
una INTERFAZ BLUETOOTH opcional. Para obtener más
información acerca de las conexiones, consulte el Manual
de operación de la INTERFAZ BLUETOOTH. Puede recibir
sonido de un dispositivo externo (como un reproductor de
audio portátil) al conector de la interfaz BLUETOOTH de
esta unidad. Es preciso utilizar un cable de conversión
(KCE-237B) especial para poder utilizar el conector de
INTERFAZ BLUETOOTH como entrada AUX IN.
Interruptor del sistema
Si conecta un procesador o divisor utilizando la función
Ai-NET, ajuste este interruptor en la posición EXT AP. Si no
hay ningún dispositivo conectado, deje el interruptor en
posición NORM.
•Si está conectado el procesador de audio IMPRINT, ajústelo en la
posición EXT AP.
•Asegúrese de desactivar la alimentación de la unidad antes de
cambiar la posición del interruptor.
Conector USB
Conecta el cable USB.
Cable USB
Conéctelo a una memoria USB/reproductor de audio
portátil o a un iPod/iPhone. Para utilizar un iPod/iPhone, es
necesario disponer de una conexión por cable de interfaz
de acople del iPod.
•Utilice el cable USB suministrado. Si se utiliza un cable USB
diferente del suministrado, no se podrá garantizar un
funcionamiento correcto.
•Separe el cable USB del resto de cables.
Para evitar ruidos externos en el sistema de audio.
• Coloque la unidad y pase los cables a 10 cm por lo menos del conjunto de cables del automóvil.
• Mantenga los conductores de la batería lo más alejados posible de otros cables.
• Conecte el conductor de puesta a masa con seguridad a un punto metálico desnudo (si es necesario, elimine la pintura, suciedad o
grasa) del chasis del automóvil.
• Si añade un supresor de ruido opcional, conéctelo lo más lejos posible de la unidad. Su proveedor Alpine ofrece distintos supresores
de ruido; póngase en contacto con él para obtener más información.
•Su proveedor Alpine conoce la mejor forma de evitar el ruido. Solicítele más información.