Ampt 31570001-12 Solar PV Converter User Manual Exhibit D Users Manual per 2 1033 b3

Ampt LLC Solar PV Converter Exhibit D Users Manual per 2 1033 b3

Exhibit D Users Manual per 2 1033 b3

TheSPTOperatorManualSmartPanelTechnology
Page2of52CONTENTSInformation&Disclaimer..............................................................................................................................................5ReadthisFirst............................................................................................................................................................6FCCcompliance..........................................................................................................................................................6ImportantSafetyInformation.......................................................................................................................................7SavetheseInstructions..............................................................................................................................................7Markings....................................................................................................................................................................9Protection................................................................................................................................................................10Servicing...................................................................................................................................................................11MessagefromAmpt....................................................................................................................................................12WhySPT–WhygetAmpt?..................................................................................................................................13SmartPanelTechnologyOverview..............................................................................................................................14Insimpleterms,theSPT:.....................................................................................................................................15Here’showitworks:............................................................................................................................................16TheoryofOperation............................................................................................................................................18SPTFundamentals:..............................................................................................................................................18IntroductiontoLogicMatrix(summaryversion).................................................................................................19Valuepropositionlist...............................................................................................................................................20Testresults..............................................................................................................................................................20Internaltesting....................................................................................................................................................20Thirdpartyvalidation..........................................................................................................................................20Safetyandconveniencefeatures............................................................................................................................21Fullsystemdiagram.............................................................................................................................................21Energyvspower......................................................................................................................................................21LCOE.....................................................................................................................................................................22MaximumPowerPointTracking..............................................................................................................................23GUI–graphicaluserinterface&SoftwareUserManual.........................................................................................24Overview..............................................................................................................................................................24Databaseandtrendanalysis...............................................................................................................................27CompletesystemlayoutandWiringDiagram.........................................................................................................28Communicationsystemlayout................................................................................................................................28DesigningyourSPTsystemsolution....................................................................................................................29Orderinginformation–SampleSalesOrder........................................................................................................30QuickInstallGuide.......................................................................................................................................................31
Page3of52SPTInstallation........................................................................................................................................................35MechanicalmountingSPTtothePVmodule......................................................................................................35WiringSPTtothePVmodule...............................................................................................................................35Completingthestringwiring...............................................................................................................................35HRDInstallation.......................................................................................................................................................36MechanicalmountingtheHRD............................................................................................................................36WiringtheHRD....................................................................................................................................................36GatewayandFieldComputer..................................................................................................................................36Locationdetermination.......................................................................................................................................36Systemrequirements...............................................................................................................................................36ACpower.............................................................................................................................................................36InternetAccess....................................................................................................................................................36Mechanicalmounting..........................................................................................................................................36Electricalwiring....................................................................................................................................................36SPTSystemCommissioning.........................................................................................................................................37Mappingyoursystem..............................................................................................................................................37UsingtheHandHeldFC.......................................................................................................................................37PoweruptheFC......................................................................................................................................................40Verifygatewayoperation....................................................................................................................................40TestingthesignalstrengthtotheGateway.........................................................................................................40AccessingtheFCthroughtheinternet................................................................................................................40SettinguptheGUI...................................................................................................................................................40Definingusersandadministrativefunctions.......................................................................................................40Choosingtheuserdefinedparameters...............................................................................................................40AlertThresholds...................................................................................................................................................40Scriptchoices.......................................................................................................................................................40Summarypage.....................................................................................................................................................40Settingupthedatabase..........................................................................................................................................40OperatingInstructions.................................................................................................................................................40ReadingtheGUI.......................................................................................................................................................40Controlfeatures.......................................................................................................................................................42Normaloperation....................................................................................................................................................42Whatyousee.......................................................................................................................................................42Howtointerpret..................................................................................................................................................42
Page4of52Howtomodify.....................................................................................................................................................42Accessingthedatabase...........................................................................................................................................42Sortingthedata...................................................................................................................................................42Definingusertemplates.......................................................................................................................................42Interpretingalertmessages.....................................................................................................................................42Troubleshooting..........................................................................................................................................................43SPToperationalissues.............................................................................................................................................43GUIoperationalissues.............................................................................................................................................43TechnicalData.............................................................................................................................................................44SPTspecificationssheet...........................................................................................................................................44SPTPhoto&MechanicalDrawing...........................................................................................................................44HRDspecificationssheet.........................................................................................................................................45HRDMechanicalDrawing........................................................................................................................................45FCspecificationssheet............................................................................................................................................46HandHeldFCspecificationssheet...........................................................................................................................47GUIparametersandsystemrequirements.............................................................................................................48TechnicalSupport........................................................................................................................................................49InformationRegardingtheSPT:...........................................................................................................................49InformationRegardingthePVmodules:.............................................................................................................49LimitedWarranty.........................................................................................................................................................50WarrantyConditions............................................................................................................................................50ExclusionofLiability.............................................................................................................................................50forWarrantyReturns&InstallerReplacement:..................................................................................................50Appendix:.....................................................................................................................................................................52FAQ..........................................................................................................................................................................52InstallationMapping................................................................................................................................................52WiringDiagrams......................................................................................................................................................52Orderingspareorreplacementparts......................................................................................................................52Returnprocedures...................................................................................................................................................52WhitePapers...........................................................................................................................................................52Presentations...........................................................................................................................................................52
Page5of52INFORMATION&DISCLAIMERCopyright©2009AmptLLC.Allrightsreserved.Nopartofthisdocumentmaybereproduced,retransmitted,orcopiedinanyformwithouttheexpressedandwrittenpermissionofAmpt.Amptmakesnorepresentations,expressedorimplied,thatwithrespecttothisdocumentationoranyoftheequipmentand/orsoftwareitmaydescribe,including(withnolimitation)anyimpliedwarrantiesofutility,merchantability,orfitnessforanyparticularpurpose.Allsuchwarrantiesareexpresslydisclaimed.Amptshallnotbeliableforanyindirect,incidental,orconsequentialdamagesunderanycircumstances.(Theexclusionofimpliedwarrantiesmaynotapplyinallcasesundersomestatutes,andthustheaboveexclusionmaynotapply.)Thefollowingspecificationsaresubjecttochangewithoutnotice,eventhougheveryattempthasbeenmadetomakethisdocumentcomplete,accurateandup‐to‐date.Readersarecautioned,however,thatAmptreservestherighttomakechangeswithoutnoticeandshallnotberesponsibleforanydamages,includingindirect,incidentalorconsequentialdamages,causedbyrelianceonthematerialpresented,including,butnotlimitedto,omissions,typographicalerrors,arithmeticalerrorsorlistingerrorsinthecontentmaterial.AmptLLC4850InnovationDriveFortCollins,Colorado80525Tel970‐372‐6950www.ampt.com
Page6of52READTHISFIRSTThisoperatormanualcontainsalloftheinformationneededtoinstall,commission,andoperateanAmptSPTdistributedpowerconversiondevicewithinagrid‐tiedphotovoltaic(PV)installation.Tohelpavoidproblemsduringthesysteminstallation,familiarizeyourselfinadvance,withtheinstallationprocessbyreadingtheentireInstallationGuidebeforestartingtheinstallation.Bealert!ThereareextremelydangerousandlethalvoltagespresentatvariouspointsinaPVsystem.Forsafetyreasons,itisrecommendedthatonlyqualifiedpersonnelinstallandoperatethisequipment.FCCCOMPLIANCEAmptSPT‐ThisequipmenthasbeencertifiedascompliantwiththelimitsforaClassBdigitaldevice,pursuanttoPart15oftheFCCRules.Theselimitsaredesignedtoprovidereasonableprotectionagainstharmfulinterferenceinaresidentialinstallation.Thisequipmentgenerates,uses,andcanradiateradiofrequencyenergyandifnotinstalledandusedinaccordancewiththeinstructions,maycauseharmfulinterferencetoradiocommunications.However,thereisnoguaranteethatinterferencewillnotoccurinaparticularinstallation.TheuseriscautionedthatchangesormodificationsnotexpresslyapprovedbyAmptLLC.couldvoidtheuser’sauthoritytooperatethisequipment.***AmptV40‐xSPTModel#s31570003‐10FCCID#X3R‐31570003‐1031570003‐11FCCID#X3R‐31570003‐11AmptV50‐2xSPTModel#s31570001‐12FCCID#X3R‐31570001‐1231570001‐13FCCID#X3R‐31570001‐13Theboxistwopiecesandisnotmeanttobeuserservicedoropenedinanyway.***AmptGatewayFCCID#X3R‐31570002‐00GatewayModelNumber:31570002‐00ThislabelisfoundoneachAmptGatewayenclosure.Theboxissmallerthanpalmsize,thusthefollowingtextisonlyprintedhere:Thisdevicecomplieswithpart15oftheFCCrules.Operationissubjecttothefollowingtwoconditions:(1)thisdevicemaynotcauseharmfulinterference,and(2)thisdevicemustacceptanyinterferencereceived,includinginterferencethatmaycauseundesiredoperation.Theboxistwopiecesandisnotmeanttobeuserservicedoropenedinanyway.
Page7of52***IMPORTANTSAFETYINFORMATIONSAVETHESEINSTRUCTIONSThismanualcontainsimportantinstructionsfortheAmptSPTdistributedpowerconversiondevicethatshallbefollowedduringinstallationandmaintenanceofthemoduleandaffiliatedhardwareandsoftware.TheSPThasbeendesignedandtestedaccordingtointernationalsafetyrequirements,butrequirescertainprecautionsareobservedwheninstallingand/oroperatingtheAmptSPTproduct.ToreducetheriskofpersonalinjuryandtoensurethesafeinstallationandoperationoftheSPT,pleasebesureyoucarefullyreadandfollowallinstructions,cautionsandwarningsinthisoperatormanual.WarningsAWarningidentifiesahazardtoequipmentorpersonnel.Itcallsattentiontoaprocedureorpractice,which,ifnotcorrectlyperformed,couldresultindamagetoordestructionofpartoralloftheAmptequipmentand/orotherequipmentconnectedtotheAmptequipmentorpersonalinjury. DANGERindicatesahazardoussituationwhich,ifnotavoided,willresultindeathorseriousinjury.WARNINGindicatesahazardoussituationwhich,ifnotavoided,couldresultindeathorseriousinjury.CAUTIONindicatesahazardoussituationwhich,ifnotavoided,couldresultinminorormoderateinjury.NOTICEindicatesasituationthatcanresultinpropertydamageifnotavoided.InadditiontothesafetyandhazardsymbolsthefollowingisalsousedinthisOperatorManual:Information‐ThissymbolaccompaniesnotesthatcallattentiontosupplementaryinformationthatyoushouldknowandusetoensureoptimaloperationoftheAmptsystem.GeneralWarnings:AllelectricalinstallationsmustbedoneinaccordancewiththelocalandNationalElectricalCodeANSI/NFPA70.TheAmptproductcontainsnouser‐serviceableparts.ForallrepairandmaintenancealwaysreturntheunittoanauthorizedAmptServiceCenter.BeforeinstallingorusingtheAmptSPT,readalloftheinstructions,cautions,andwarningsontheSPT,thePVarray,inthisInstallationGuide.BeforeconnectingtheSPTtotheelectricalutilitygrid,contactthelocalutilitycompany.Thisconnectionmustbemadeonlybyqualifiedpersonnel.PVarrays
Page8of52produceelectricalenergywhenexposedtolightandthuscancreateanelectricalshockhazard.WiringofthePV‐arraysshouldonlybeperformedbyqualifiedpersonnel.
Page9of52MARKINGSModelAmptV40‐xAmptV50‐2xAmptModelNumber31570003‐10 31570003‐11 31570001‐1231570001‐13FCCIDX3R‐31570003‐10 X3R‐31570003‐11 X3R‐31570001‐12X3R‐31570001‐13MaximumInputVoltage46Vdc 102VdcInputVoltageRange(MPPTracking)10–38Vdc 36–90VdcMaximumInputOperatingCurrent(MPPTracking)8.5Adc 5.45AdcMaximumInputShortCircuitCurrentatSTC9.2Adc 6.0AdcOperatingInputVoltageRange10–46Vdc 36–102VdcProgrammableOutputVoltageRange0–46Vdc 0–102VdcMaximumProgrammableOutputCurrent9.2Adc 6.2AdcMaximumContinuousOutputPower300W420WMaximumOutputFaultCurrentandDuration9.4Adccontinuous 6.5AdccontinuousMaximumOutputOvercurrentProtection9.2Adc 6.2AdcNormalOperationTemperatureRange‐40to+70⁰CMaximumFullPowerOperatingAmbient+70⁰CEnclosureType3R
Page10of52PROTECTIONTheSPThasinternalprotectionfromabnormalorfaultconditionsasdescribedinthefollowingparagraphs:IftheSPToutputisoperatedintoanopencircuit,aprogrammablemaximumvoltageisappliedtotheoutput.Thisconditionwouldoccurintheeventofanopenwireoraconditionwherebytheinverterisnotconnectedtothegrid.Thesystemintegratorisresponsibleforsettingthecorrectmaximumvoltageset‐point.Itisnotpossibletosetavoltagehigherthanthemaximumratedoutputvoltage.IftheSPToutputisoperatedintoashortcircuit,aprogrammablemaximumcurrentwouldflowthroughtheoutputterminals.Thismayoccurifthereisashortonagivenoutputorsomeshortmayoccuronastring.Itisneverpossibletoprovidemorecurrentontheoutputthanthislimitallows.Thesystemintegratorisresponsibleforsettingthecorrectmaximumcurrentset‐point. Itisnotpossibletosetacurrenthigherthanthespecifiedmaximumratedoutputcurrent.Ifthereisacombinationofoperationalconditionswhichcausetheinternaltemperaturetoexceed105°C,over‐temperatureprotectionwillfoldbacktheoutputcurrenttoapproximately50%ofthefullratedvalue.Thismayoccurinanextremecombinationofconditionslikelyincluding: operationatelevatedambientintherangeof70°C,operationatfullratedpower,andboostingorbuckingoveralargerange.Thisprotectionwillonlyactivatewhentheseextremesaremaintainedoverlongperiodsoftime(likelymeasuredinhours). Whentheinternaltemperaturecoolsto95°C,normaloperationresumes.
Page11of52SERVICINGWarnings:1. Whenthephotovoltaic(PV)arrayisexposedtolight,itproducesaDCvoltage,andtheAmptequipmentisenergized.2. Servicinginstructionsareforusebyqualifiedpersonnelonly.Toreducetheriskofelectricshock,donotperformanyservicingotherthanthatspecifiedintheseOperatingInstructions.3. TheinstallationofAmptequipmentrequiresfollowingtheNationalElectricalCode(ANSI/NFPA70)wiringmethods.4. CAUTION:Toreducetheriskoffire,connecttheoutputsoftheAmptEquipmentonlytoconductorswithaminimumampacityof9.4ampereswhende‐ratedfortemperatureandconduitfill.Over‐currentprotectiondevicesandconductorsshallbesizedinaccordancewiththeNationalElectricalCode(ANSI/NFPA70).5. AmptrequiresovercurrentprotectionfortheDCoutputcircuitintheinstallation.6. AmptrecommendsthatadisconnectswitchbeincludedintheinstallationfortheDCinputandDCoutputcircuitasrequiredbythelocalauthorities.7. TheAmptconverteristobeinstalledsothatitisnotexpectedtobecontactedbyunauthorizedorunqualifiedpersons.8. TheAmptconverterisintendedtobemountedonabracketinopenspaceawayfromothersurfacesand/ordevices.
Page12of52MESSAGEFROMAMPTThefirstproductsthatAmptisintroducingarearesultoflookingatrequirementstorealizemaximumenergyatthelowestcost–fromasystemlevelperspective.Thisinitialpremiseisthatthemaximumenergycannotbeharvestedfullywithouttherightgranularity.Webelievethatthisrequirespowerconversiontobedoneatthemodulelevel.Ourcustomersrequireminimallostharvestfromlocalsoiling,shading,orpanelimbalance–sowithregardstolocalpowerconversion,thereisnomoresuitableeconomicalternative.Webelievethatthepowerconversionhastobeextremelyefficientoveraverywiderange–soourproductsareover99%efficientovergreaterthan3:1inputrange.Toputthatintocontext,theAmptSPTconsumesonly,upto2Woftheenergygeneratedbya200Wmodule–relativelyspeakingthatisthesamelossasexpectedfromenergytravelingthrough3feetofconventionalwirecabling.WebelievethathighspeedMPPisverycriticaltomaximizeharvest–wehaveover99.9%accurateMPPin100milliseconds.Therefore,wecancapturethepowergainfromtheedgeofacloudandtherefractedirradiationonamodule.Webelievethatmaximizingthenumberofmodulesperstringisimportant.TheAmptproductisdynamicallycontrolled,andwecancommunicatewirelesslytoourfieldadaptablefirmware.Webelievethatreliabilityisahugedriveofeconomics–sowehaveanenvironmentallyvalidated(notsuperficiallymodeled)1000yearMTBF.Webelievethathighaccuracyandstableinstrumentationcombinedwithrobustcommunicationiscrucialforlarge‐scalearraysandbeneficialforallsmallerarrays.Itlowersinstallationcosts,andradicallyreducesO&Mwhilemaximizingtheeconomicsofharvesting.Wehaveabetterthan1%fieldcalibrate‐ablemeasurementsystemthatincludesmultiplechannelsofcriticalelectricalandtemperatureparameters,aswellasidentityinformation–permodule.Webelievethatcommunicationaloneisn’tsufficient.Theseapplicationsneedscalabilityandrobustnessthatdoesnotdependonproblematicconnections.Wedesignedahighlyrobustwirelesssystem.Webelievethatifthesystemisdesignedwiththerightgranularity,withtherightcomponents,withtherightinterfacesandtherightarchitecturethatitbecomesunlimitedinitsabilitytooperateatanyscale.Wehavedesignedthissystemtoallowscalingfromonemoduletoaboveamillionmodules.ThankyouforContinuedSupport–welookforwardtoworkingwithyou!WeareAmpt.
Page13of52WHYSPT–WHYGETAMPT?Whatismaximumpower?Isitdefinedbytheenergyoutputoftheweakestmoduleinastring,orthecombinedoutputofeverysinglemoduleoneverystring?Isitdefinedbyanalyzingenergyharvesteachdayatonesite,oreverysecondoneverypanelatonemillionsites?Isitdefinedbythemonitoringofinformationwithinanarray,orthecommunicationofknowledgethatleadstoimprovedperformancewithineverymodule?Byansweringwhatnooneelsehasevenyetasked,Amptisnotjustincreasingenergy,buthelpingyoutorealizeenergyyouneverknewpossible.CongratulationsonputtingtheabsolutebestcommunicationsandpowerconversionequipmentavailableonyourPVsystem!
Page14of52SMARTPANELTECHNOLOGYOVERVIEWAmpthasdevelopedSmartPanelTechnologyTM‐SPT‐astheoptimalsolutionforenergyharvestingfromanyPVsystem.ThefirstimplementationofAmptSPTisinastandalonedevicethatisplacedindirectconnectionwiththePVmoduletodeliverMPPT(MaximumPowerPointTracking)whichistheharvestedenergy.ConventionalPVsystemshavesolarmodulesseriesconnected,andaretherebylimitedbytheweakestmoduleinthestring.ThesestringsarewiredtoabulkDC‐ACinverterwhichusesalgorithmstoattemptamaximumharvestgiventhepotentialfromeachstring.
Page15of52TheAmptSPTputstheMPPTlogicwhereitbelongs,oneachsolarmodule,andallowseachmoduletoproduceitsmaximumpower.TheneachSPTdevicecombinestoprovidethebulkinverterwithitshighestefficiencyinputpower.Theresult:thehighestenergyfromeachmodule,operatingwiththehighestefficiencyofthebulkinverter. INSIMPLETERMS,THESPT: ReceivesthepowerfromthemoduleatitsMaximumPowerPointTracking(MPPT)regardlessofnormalorproblematicoperatingconditions DeliversmoduleMPPTpowerintoanyimpedancedeterminedbytheremainderofthestringandtheinverter Solvestheproblemofhavingpanels(currentsources)inseriesbeinglimitedbytheweakestpanelinthestring‐improvesstringsightingoptions Ensureseverypanelproduceswhateveritcanregardlessoftheremainderofthesystem Allowstheinvertertooperateatitshighestefficiencypoint Provideswirelesscommunicationoneachmodule,reportingmorethanjustpanelvoltage,currentandtemperature.Additionalinformationisresidentsuchasmoduleserialnumberandmanufacturinginformation Wirelesscommunicationalsoprovidesdiagnosticinformationformaintenance,andthroughradiocommandstheoutputcanbeturnedon/off
Page16of52HERE’SHOWITWORKS: EachsolarmodulewillhaveadedicatedAmptSPTdeviceconnectedtothemoduleoutputs.TheAmptSPTdevicesthenareconnectedinseriestoeachotherandwillmakeupa“string”ofmodules.Eachstringisthencombinedinparalleltoconnectwiththebulkinverter(intoday’sconventionalarray).WhensolarraysareabsorbedbythePVmodule,energyisproduced.TheSPTmaximizestheharvestableenergyfromeachPVmodule,andconvertsittoausefuloutputthatisthendeliveredtothestring(regardlessoftheenvironmentaloroperationalconditionsaffectingthatparticularpanel).Thestringsarethencombinedasanarrayanddeliveredtothebulkinverteratitspre‐determinedimpedancerequirement.ItisimportanttonotethattheconventionalbulkinverterdynamicallyissearchingforMPPT(maximumpowerpointtracking),andmaychangeitsimpedancerequirementsevery4+seconds.TheAmptSPThoweverisadjustingitsMPPT8timespersecondtoagainmaximizetheharvestableenergyproducedoneachPVmodule.InconventionalPVinstallations(withouttheAmptSPT),withseriesconnectedmodules,oneweaklinkinastringcausessignificantenergyharvestdegradation,andwilllowertheproducedpowerproduced.Ifthereissufficientobstructiontotheamountofsolarinsolationabsorbedbyasinglemodule(oroverseveralmodules),itispossiblethattheentirestringcollapses(electrically),andnetszeropoweroutput.TheAmptSPTsolvesthisproblembymaximizingthepowerharvestateachmoduleregardlessoftheconditions,andconvertsthattoaviableoutputtherebyeliminatingtheweakestlinkphenomenon.WithAmptSPT,evenalowpowerproducingmoduleisvaluable,andcontributestothenetpowergenerated.Ofcourse,ifthemoduleisdamagedorobstructedtothepointwhereitsinternalcircuitcannotproducepower,AmptSPTcannotcorrectthiscondition.Withthewirelesscommunicationlinkthough,theowneroperatorcanidentifythiscondition,andmakethenecessarycorrections.Inthemeantimethough,thebalanceofthestringisstilloperationalandgeneratingasmuchpowerasrequiredbythebulkinverter.EachSPTisaccessiblebyahostcomputerthroughawirelessAND“gateway”interface.Thisgatewayallowstheowner/operatortospeakspecificallytoeachSPT,andprovidesabi‐directionalwirelesscommunicationlinkwhichisthevehicleforcommand/controlanddataacquisition.TheANDGUI(graphicaluserinterface)isthenutilizedtoobservetheperformanceandcontroltheSPToperations.ExamplesofthisGUIareshownbelow:
Page17of52TheGUIhasalotofdatapresentedandwilllikelychangeforincreasedusability,butatpresentdemonstratesthekindofinteractionandreportingavailable.Asyoucansee,eachmodule(andcorrespondingSPT)ismappedoutpertheirinstalledlocation.Note:eachSPTisbarcoded,andduringthefieldcommissioningprocess,abarcodescannercanbeutilizedtologicallymapouttheorganizationofmodules.ItisalsopossiblethatthebarcodereadercaninterfacetotheSPTthroughaseparategateway,andtherebycontrolitson/offstateforfieldpersonnelsafety.That’sit.Withasimpleinstallation,theAmptSPTproductsoperateimmediatelyandautomaticallyenhancethepowergeneratedbythePVinstallation.Ongoingmonitoringandcommandcontrolfeaturesareavailabletotheowneroperation,butregularinteractionisnotrequiredtogetmaximumpower.
Page18of52THEORYOFOPERATIONSPTFUNDAMENTALS:•  TheSPTmoduleputsMPPwhereitbelongs,oneverypanel,andproducesthemaximumpowerthatisavailableregardlessofpanelcondition,andregardlessoftheremainderofthesystem.Ifthereispartialshade,dirtorpanelimbalance,everypanelstillputsoutitsmaximumpower.•  TheSPTmodulereceivesthepowerfromthepanelatMPP.Itdeliversthepowertoanyimpedancedeterminedbytheremainderofthestringandtheinverter.Thissolvestheproblemofhavingpanels(currentsources)inseriesbeinglimitedbytheweakestpanelinthestring.•  TheconventionalbulkpowerinvertermayimpressanyvoltageitwantsandbecausetheSPTisdeployedasalocalizedDC‐DCconverter,thepanelfieldwillsimplyoutputMPPfromeverypanel.Thisallowstheinvertertooperateatitshighestefficiencypoint.•  Goingforward,SPTbasedinstallationscanenablebetterbulkinverterdesignsthatdeliverhigherefficiency,greaterreliability,smallerandlighterastheywouldnolongerberequiredtoincludeanMPPstage.•  OneofthemostsignificantelementsoftheSPTistheinherentwirelesscommunicationscapabilities,whichenablesinstantaneouscommunicationandcontrol.TheradioandubiquitouswirelessmeshnetworkformedbySPTmoduleswillnotonlyreportpanelvoltage,currentandtemperature,butalsoprovideoperationalbenefitsbytogglingthepaneloutputsonandoff.•  Otherinformationcouldalsoresidetheresuchasserialnumberandmanufacturinginformation.•  Thewirelessradiowillalsoprovidediagnosticinformationformaintenanceandtrendanalysisthusallowingintelligentdecisionsonwhatrequiresserviceandwhen.TheAmpt SPTisdesignedtomitigateirregularitiesbetweenthemodulesinanarrayandthebulkinverter.Specifically,theSPTcanfixitsoutputtomatchtheoptimalinverterinputvoltageandbroadentheperformancerangeofconventionalPVmodules&invertercombinations.ByprovidinglocalizedDC‐DCconversionalongwithwirelesscommunication,theSPTenablesinstantaneouscontrolandfeedbacktothesystemandtherebymaximizesenergyharvesting.
Page19of52INTRODUCTIONTOLOGICMATRIX(SUMMARYVERSION)
Page20of52VALUEPROPOSITIONLIST Temperaturecoefficientpowerlosses‐TemperatureEffect/FillFactorManagement Panelobstruction/shading(leaf/snow/haze/birdgifts)‐Dynamicstringadjustmenttocapitalizeonunbalancedpanelproduction Panelpowervariation(mismatch/aging/broken/defect)‐diverseutilizationandimbalancecorrection Installedefficiency(placement/wiring/opens)‐MoreKWhr/KWproduction(12‐15%moreharvesting) Bi‐polarbalancing‐+/‐operationsforAdvancedEnergyInverterapplications VariableInverteroperatingalgorithmsandefficiency–deliversMPPTtoinverterhighestpointofefficiency Improvesstringsightingoptions(notsoPOAlimited) Conventionalinverterlimitations‐Greatercompatibilitybetweenconventionalinvertersandallmoduletypes(fromC‐SI,througha‐SI,CDTe,CIGSandfuturedesigns) Realtimecommandandcontrol‐WirelessCommunicationsSystem&Diagnostics–nolongerreliantondispatchedanalysisanderrorcorrection ImprovesSafety‐enablinginstantaneouson/offcyclingfortheentireSystem/atargetedString/orindividualPanelModule EnablesSoftstartforsomeinvertertypesTESTRESULTSINTERNALTESTING1. 90MhoursDemonstratedMTBF@40°CcontinuousNote:InitiallyAmptcalculatedMTBF,however,thedemonstratedperformanceisabetterindicatorofarchitecturalperformance.(MBTFof90Mhrsmeansafailurerateof0.01%PER25YEARS(warrantyperiod)assuming10hoursofoperationperdayat40Cambient).THIRDPARTYVALIDATION1. Sandia2. BEW Testreportswillbemadeavailableuponrequest
Page21of52SAFETYANDCONVENIENCEFEATURESCurrently,oneproblemfacinginstallersandmaintenanceprovidersofPVSystemsissafety.Sinceconventionally,allpanelsareconnectedinseriesandinstallationandmaintenanceworkisdoneduringperiodsofirradiance,thevoltageacrossthepanelsmightreachdangerouslevelsexposingfieldpersonneltoarealdangerofelectrocution.Amptprovidesa“convenience”modewhichsupportsan“on/off”modeofoperation.ThismodeofoperationessentiallyenablesordisablestheSPToutputandcanfacilitatesysteminstaller/operatorsduringinstallation,diagnostics,andmaintenancetasks.Itisimportanttorecognizethatthisisaelectricalcircuitlogicchangeandisnottobeconfusedwithahardswitch.Thisconveniencefeatureisdesignedtoenhancetheprotectionofmodulehandlers,includingtheinstaller,maintenanceproviderandpotentiallyemergencypersonnel(ie.FireDepartment)."FULLSYSTEMDIAGRAMENERGYVSPOWEREnergyisthecapacityofasystemtodowork.Poweristherateofdoingwork.
Page22of52LCOE
Page23of52MAXIMUMPOWERPOINTTRACKING
Page24of52GUI–GRAPHICALUSERINTERFACE&SOFTWAREUSERMANUALOVERVIEWTheAmptsoftwareisawebbasedmanagementapplicationforviewingthereal‐timeperformanceandmanagementofyoursolarinstallationatthearray,string,andmodulelevel.INTRODUCTION:TherearetwoviewsavailableformanagingyourSolarArray;summaryandstringview.TheSummaryviewprovidesanoverviewofthestateofthesolararray.ItincludescurrentDCenergyoutputinWatts,Volts,andAmps,powerbystring,SPTstatus,andestimatedACPower.TheStringviewprovidesdetailedinformationontheperformanceofeachSPT.Itprovidesperformanceinformationatthestringlevel;DCenergyoutputinWatts,Volts,andAmps.Bothviewsautomaticallyrefreshaboutevery15seconds.DETAILSSUMMARYVIEWTheSummarypage(figure1)presentsinformationatthearraylevel.Thebuttonacrossthetop“Lock/UnlockWholeStation”allowsyoutodisablecommandstothesystem.Thisisusefulasasafetyprecautionwhenservicingthestation.Totherightisthetimetheinformationyourviewingwaslastupdated.Thisisbasedonyourlocalcomputer’stime.Thestringsareorganizedaroundthephysicalandlogicallayoutascloselyaspossibleandlistthestatusofthemodule,onoroff,andstatusoftheMaximizePowerPointfeature,MPP,onoroff.ClickingonthestringandmoduleareawilltakeyoutotheStringView.Belowthestringandmoduleareaisabarchartshowingthepoweroutputforeachstringinthearray.Thepoweroutputdetailsforthearrayareshownontherightedge;includingestimatedkWhours.AtthebottomisagraphofEnergy,powerandtemperature.Thescaleforthetemperatureislistedontherightedgeofthegraph.Youcanpositionyourmouseoverthelinestoseethetimeandvalueofthemeasurement.Thetimescaleofthegraphcanbechangedusingthecontrolstotherightofthegraph.Youcanchangethetimeintervalaswellasgobackandforwardtimeperiods.
Page25of52FIGURE1STRINGVIEWSimilartotheSummaryview,thestringsareorganizedaroundthephysicalandlogicallayoutascloselyaspossible.InStringviewthestatusofthemoduleisshownindetail.There’salegendonthenextpagethatcoversthemeaningofdifferentbackgroundcolors. MaxPower–MaximumpoweroutputfromSolarModulewithSPTTechnology Vmp‐IN–VoltageoutputfromSPTModule I‐Out–AmpsoutputfromSPTModule V‐Out–SolarModulevoltageoutput Temp–TemperatureinsidetheSPTModule OverV–OverVoltagesettingforSPTModule ModON–SPTModulestatus(on/off) MppON–MaximizePowerPointTechnologystatus(on/off) ID–UniqueidentifierfortheSPTModule
Page26of52FIGURE2TotherightofthestringlayoutisPoweroutputdetailsforeachstring;Power,Voltage,Current,andEnergy.Therearemultiplecontrolsonthefarrightedge. SetOverV–SetOverVoltagelimitforalltheSPTModules. ON–TurnstheSPTModuleonallowingcurrentandvoltagetopassthroughdevice. OFF‐TurnstheSPTModuleoffblockingcurrentandvoltageoutput. WARNING***Moduleisstillproducingvoltageandlookingforapathwaytoground.*** MPPON–EnabletheMaximizePowerPointfeatureoftheSPTModule MPPOFF–DisabletheMaximizePowerPointfeatureoftheSPTModule DownloadDbData–Downloadthedatathatiscurrentlybeingviewedinthegraphatthebottom.GUILEGENDTheSPTmodulebackgroundcolorvariesbasedonthepoweroutputofthemodule.
Page27of520to39.9W40to79.980to119.9W120To159.9WOver160WAreddishbackgroundmeansSPTisnottalkingtothegatewayandfieldcomputer.Ie.Nodataisbeingcapturedforthatmodule.BrownindicatesthatamodulepositionisreservedGUIbutnoSPTinstalled.DATABASEANDTRENDANALYSIS
Page28of52COMPLETESYSTEMLAYOUTANDWIRINGDIAGRAMCOMMUNICATIONSYSTEMLAYOUT
Page29of52DESIGNINGYOURSPTSYSTEMSOLUTION
Page30of52ORDERINGINFORMATION–SAMPLESALESORDER
Page31of52QUICKINSTALLGUIDEForthosewhoalreadyknowthebasicsandjustwanttogetgoing.INSTALLATIONSEQUENCEOFEVENTS1. Unpackingandinspection2. Propersystemgroundingpriortoinstallation3. Installationofthefieldcomputera. Mountingb. ACPowerc. InternetconnectionviaEthernetd. ConnectiontotheGatewaye. Connectiontoalaptop4. SPTmountingandmechanicala. Mountingchoicesi. Planeofarrayii. Perpendiculartoplaneofarrayiii. Otherb. InstallingtheSPTtothebracketc. Installingthebrackettothemountingstructurei. Hardwareandtorquesii. Groundingd. Usingthehandhelddevicetorecordserialnumbers5. HRDmountingandmechanical6. Electricalconnectionsandcommunicationwithhandhelda. ProperconnectionwithMCconnectorsb. ModuletoSPTi. Establishingcontactwiththehandhelddeviceii. TurningontheSPTiii. Measuringmodulecharacteristicsiv. TurningofftheSPTc. SPTtoSPTCablingd. SPTtoHRDboxe. Cablehandlingandsecuring7. GraphicalUserInterfaceUNPACKINGANDINSPECTIONCarefullyunpackandinspecteachSPT,HRDandcablefordamage.InspecteachfieldcomputerfordamageInspecteachMCconnectorbeforemakinganyelectricalconnections.Properconnectorsshouldbecleanandfreefromdamage.Insertpictureshere.PROPERSYSTEMGROUNDING
Page32of52INSTALLATIONOFTHEFIELDCOMPUTERa. Mountingb. ACPowerc. InternetconnectionviaEthernetd. ConnectiontotheGatewaye. ConnectiontoalaptopSPTMOUNTINGANDMECHANICALMountandgroundrackingorsupportstructureperNECArticle690andmanufacturer’sinstructions.EnsurethatsupportstructureisgroundedbeforemountingmodulesorSPTsPlanningUseonlystainlesssteelfastenerstosecuretheSPTbrackettothemountingstructureChooseflatbracketsor“L”bracketsfortheinstallation.InserttheSPTinthebracketbypushinguntilthepushpinholesalignInstallmountingpushpinsPlantomountSPTatleastoneinch(2.5cm)fromthebackofthemodulesurfacetoallowforadequatecoolingairflow.PlantomountSPT,modulecables,andSPTconnectioncablinginalocationthatwillnotbesubjecttophysicaldamage,andwillnotbesubjecttosnoworotherdebrisslides.(reword)Mountingintorailswith3/8or1/4slots
Page33of52Ifmountingtoastructurewithrailslots,insert3/8or1/4inchhardwareintherailslotbeforemodulesor“L”feetorstanchionsaresecured.EachSPTrequirestwobolts,twonuts,twoflatwashers,andtwolockwashers.Whizznutsarenotrecommendedasthegalvanizedcoatingofthebracketmaybecompromised.Secureeachbracket,makingsurethateachlockwasherisfullycompressed.Torque3/8inchfastenerstoXXXinch‐poundsand1/4inchfastenerstoYYYinch‐pounds.MountingintorailsorbraceswithoutslotsCheckwithrackingormodulesupportmanufacturerforsuggestedmountingprocedure.Checkwithalocalstructuralengineerand/ortherackingmanufacturerifanymodificationstothestructure(ie.Drillingholes)Usethebracketasaguideforanypre‐drilledholes.Insert3/8or¼inchhardwareintherailslot.EachSPTrequirestwobolts,twonuts,twoflatwashers,andtwolockwashers.Whizznutsarenotrecommendedasthegalvanizedcoatingofthebracketmaybecompromised.Secureeachbracket,makingsurethateachlockwasherisfullycompressed.Torque3/8inchfastenerstoXXXinch‐poundsand¼inchfastenerstoYYYinch‐pounds.HRDMountingandMechanicalElectricalconnectionsandcommunicationwithhandheldMountandgroundmodulepermodulemanufacturer’sinstructions.ConnectthemoduleleadstotheSPTInspectMCconnectorforwatertightsealEstablishcommunicationwiththehandheldunit.PlaceSPTin“On”mode.
Page34of52CheckmoduleVocfortemperatureandirradianceadjustedvaluefrommodulenameplatereading.PlaceSPTin“Off”modeRepeatfornextSPT’sinstringConnectSPT‐SPTcable.SecuremoduleandSPT‐SPTcablestosupportstructureormoduleframewithUVratedwiretiesand/orstainlesssteelclipsorstrainrelieff. MounteachSPTaseachmoduleisinstalled.ModulesperformancemaybetestedwiththeSPTaseachmoduleisinstalled.g. ChoosetomounttheSPT’seitherparallel,perpendicular,orinafashionthattakesadvantageofthemodulesupportstructure.TheSPTissuppliedwithaflatandan“L”shapedbracket.Bracketshave3/8”and¼”pre‐drilledtotheplaneofthearray.h. i. Mountingchoicesi. Planeofarrayii. Perpendiculartoplaneofarrayiii. Otherj. InstallingtheSPTtothebracketk. Installingthebrackettothemountingstructurei. Hardwareandtorquesii. Grounding
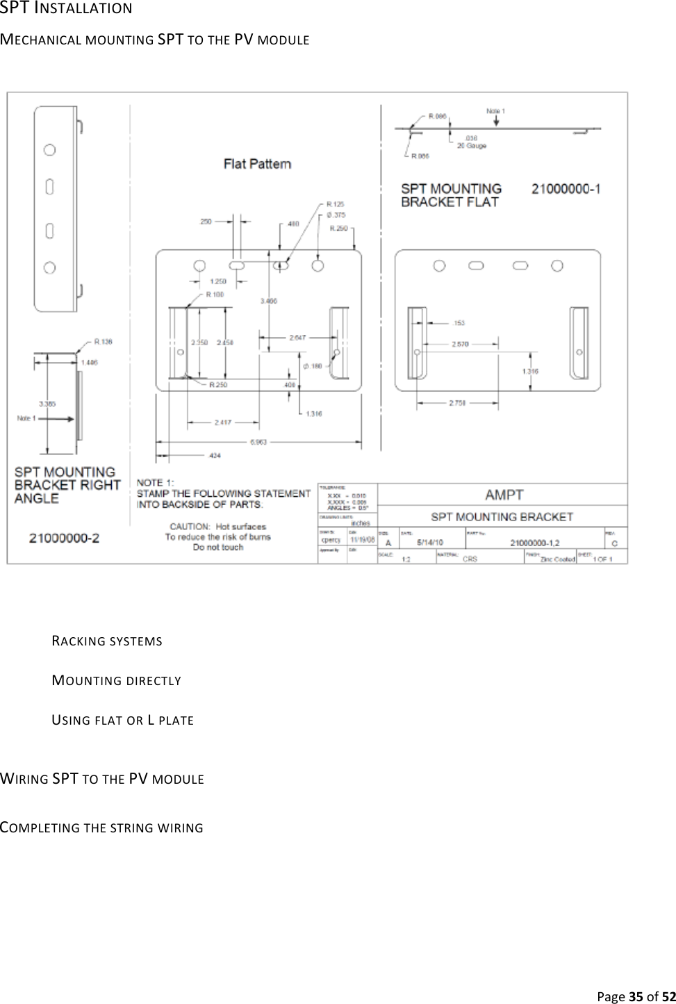
Page35of52SPTINSTALLATIONMECHANICALMOUNTINGSPTTOTHEPVMODULERACKINGSYSTEMSMOUNTINGDIRECTLYUSINGFLATORLPLATEWIRINGSPTTOTHEPVMODULECOMPLETINGTHESTRINGWIRING
Page36of52HRDINSTALLATIONMECHANICALMOUNTINGTHEHRDTheAmptHRDisencasedinaplastichousingwithtwothrough‐holemountingloopswhichmakeiteasytoattachtothePVrackviaappropriaterackscrewsorplasticquickties.WIRINGTHEHRDThereare4stepstoconnectingtheAmptHRD(includedintheSPTconnectionsdiagramonpage26):1. Connectthe18”quick‐connectwire,whichisgendermatched,tothelastAmpt‐xconverteronthehighsideofthePVStringofsolarmodules.2. ConnecttheoppositesideofthiswiretothegendermatchedquickconnectontheAmptHRD.3. Connectthehome‐runwiretothegendermatchedoppositesideoftheAmptHRD.4. Connectthehomerunwiretoeitherthenextappropriatecombinerboxorcentralinverter(applicationspecific).GATEWAYANDFIELDCOMPUTERLOCATIONDETERMINATIONSYSTEMREQUIREMENTSACPOWERINTERNETACCESSMECHANICALMOUNTINGELECTRICALWIRING
Page37of52SPTSYSTEMCOMMISSIONINGMAPPINGYOURSYSTEMUSINGTHEHANDHELDFCUsingthehandhelddevicetologSPTserialnumbersandgetthemuploadedtotheIDSsystem:1. ScanningSPTsintothehandhelda. Turningonthehandheldb. OpeningtheDataCollectionProgramc. TurningontheGPSd. Checkingstringsettingsandenteringsiteandstringinformatione. ScanningSerialNumbers2. LoadingthedatafileintoExcelforincorporationtotheFieldcomputer1. ScanningSPTsintothehandheld.Toenterdataintoaninputwindow,clickinthewindowwiththestylusandusethekeyboardorclickthekeyboardiconatthebottomofthewindowandusethestylustoselectcharacters.a. Turningonthehandheld1. Hittheredbuttonontheupperrightoftheunittoturnonthesystem.b. OpeningtheDataCollectionProgram
Page38of521. Ifpresentedwiththe“OwnerInformation”Screen,clickanywhereonthenextscreenwiththestylustoaccesstheoperatingsystempages.2. Clicktheupperlefthand“Start”menu3. Select“FieldDataCollector”fromthelistofoptionsc. TurningontheGPS1. Fromthelowerlefthandcorner,selectMenu.2. SelectStartGPSd. Checkingstringsettingsandenteringsiteandstringinformation1. SelectMenuagain.2. SelectSettings3. MakesureDebugmodeisoff(unchecked)4. MakesureSendDataviaHTTPPostisoff(unchecked)5. Inputthenumberofmodules(SPT’stobescanned)inthestring.Fordifferingstringlengths,choosethelargeststringsize.6. Makesurethebarcodelengthequalsthenumberofcharactersandspacesonthebarcode.7. ChooseSaveinthelowerlefthandcorner.8. EntertheSiteName9. Enterthestringname.10. ClickintheBarcodeentrybox.11. Ensurethatthe#ofSatellitesreportingtotheGPSisatleast???e. ScanningSerialNumbers1. Followthelayoutorstringplanandplanyourscanningforefficiency.2. Thethreeyellowbuttonsontheright,left,andabovethemanualkeyboardwillallactivatethescanner.Donotpointthescannerintoyoureyesorinthedirectionofanyoneelse’seyes.3. Pointthescanneratthetopoftheunittowardthebarcodetobescanned.Hitoneoftheyellowbuttonsandpositionthescanneruntilabeepisheard.Verifyonthescreenthatthebarcodehasrecordedandthestringpositionhasincrementedtothenext(correct)modulenumber.4. Scanthenextmodule.5. Repeatscanninguntiltheendofthestringisreached.6. Donotscanagainuntilthestringnameandmodulenumberhavebeenresetperbelow.7. Changethestringnameforthenextstring8. Ensurethatthemodulepositioninstringhasresetto1.Intheeventthatthepriorstringsizewaslessthanthestringsizeenteredinthesettingspage,manuallydecrementitto1.9. Repeatsteps1‐6.10. Whenfinished,chooseexit.Atextlogfileisstoredonthehandheldcomputerforuploadofdata.2. LoadingthedatafileintoExcelforincorporationtotheFieldcomputera. MicrosoftActiveSynchmustbeloadedandrunningonthePC.b. Loadthehandheldintoitscradlec. InserttheUSBcableintothePC.d. Waitforconnectionandnavigatetothepathbelow.
Page39of52e. Copythelogfiletoyourcomputer.f. DisconnecttheUSBcablefromthePCg. Turnofthehandheld.h. Rightclickthelogfileandopenwithexcel.i. Parsethetextwithsemicolondelimiting.ii. OpentheP:\Operations\SPTGeneology.xlsasREADONLY!!iii. CopytheappropriatetabfromtheP:\Operations\SPTGeneology.xlstoyourspreadsheet.ThetabmustbefromthebuildthatcontainstheSPTserialnumbers.iv. PerformaVlookupandmatchtheSPTserialnumbertothePCBAserialnumber.v. ClearlylabeltheSPTSerialNumber,PCBAserialnumber,StringName,ModuleNumberlikethetablebelow,orrunamacroifonehasbeenrecordedforthispurpose.vi. EmailtoTimorwhoeverwilluploadthedatatotheGUI/MiddlewareFilenameisdifferentforeachdayofscans.
Page40of52POWERUPANDDOWNREADINGTHEDISPLAYTURNINGMODULESONANDOFFRECORDINGSERIALNUMBERSDOWNLOADINGDATAPOWERUPTHEFCVERIFYGATEWAYOPERATIONTESTINGTHESIGNALSTRENGTHTOTHEGATEWAYACCESSINGTHEFCTHROUGHTHEINTERNETSETTINGUPTHEGUIDEFININGUSERSANDADMINISTRATIVEFUNCTIONSCHOOSINGTHEUSERDEFINEDPARAMETERSALERTTHRESHOLDSSCRIPTCHOICESINSTALLATIONMODECOMMERCIALOPERATIONMODERESIDENTIALOPERATIONMODEUTILITYOPERATIONMODEMAINTENANCEMODESUMMARYPAGEMAPPINGOUTYOURARRAYCROSSCHECKINGYOURMODULEPOSITIONSSETTINGUPTHEDATABASEOPERATINGINSTRUCTIONSREADINGTHEGUI
Page41of52
Page42of52CONTROLFEATURESNORMALOPERATIONWHATYOUSEEHOWTOINTERPRETHOWTOMODIFYACCESSINGTHEDATABASESORTINGTHEDATADEFININGUSERTEMPLATESINTERPRETINGALERTMESSAGES
Page43of52TROUBLESHOOTINGSPTOPERATIONALISSUESGUIOPERATIONALISSUES
Page44of52TECHNICALDATASPTSPECIFICATIONSSHEETSPTPHOTO&MECHANICALDRAWING
Page45of52HRDSPECIFICATIONSSHEETHRDMECHANICALDRAWING
Page46of52FCSPECIFICATIONSSHEETManufacturedbyDMPElectronicsInc ModeleBox‐3300 CPUMSTIPDX‐600(1GHz) MemoryOnboard256MBDDR2 GraphicsXGIZ9swith32MBDDR2 External15‐pinD‐typefemaleVGAconnector EthernetIntegrated10/100MbpsLAN Built‐inPXEdisklessbootfunction 2ndEthernetchipRealtekRTL8100B10/100 Base‐TEthernet(optional) I/O44pinIDEx1 MicroSDx1 CFSlotx1 USBPortx3(2infront) RJ‐45x1 PS/2x1Keyboard/Mouseshared MiniPCISocketx1(optional) RS232x2(optional) AudioMicinandLineout Power+5V@2A(10W) Dimensions115x115x35mm Weight505g
Page47of52HANDHELDFCSPECIFICATIONSSHEETManufacturedbyMotorolaPhysicalCharacteristics Dimensions:6in.Lx3.3in.Wx1.7inD(15.24cmLx8.4cmWx4.4cmD) Weight(includingStandard1.5Xbattery:14.9oz./422g) Display:Transflectivecolor640x4803.5”fullVGAwithbacklight TouchPanel:Glassanalogresistivetouch Backlight:LEDbacklight MainBattery:RechargeableLithiumIon3.7V,3600mAhSmartBattery ExpansionSlot:microSDslot(maximum2GB) NetworkConnections:Ethernet(viacradle);full‐speedUSB,hostorclient Notification:VibratorandLED KeypadOptions:26‐keyNumeric;44‐keyQWERTY Audio:Speaker,receiver,microphone,headsetjackPerformanceCharacteristics CPU:XScale™PXA270624MHzprocessor OperatingSystem:Microsoft®WindowsMobile®6.0 Memory:128MBRAM;256MBFlash Interface:RS‐232,USB1.1UserEnvironment OperatingTemperature:14°Fto122°F/‐10°Cto50°C StorageTemperature:‐40°Fto140°F/‐40°Cto60°C(w/obattery) Humidity:95%non‐condensing DropSpecification:5ft.droptoconcrete,atambienttemperature73°F/23°C; Sealing:IP54 IrDA:Integrated Clock:IntegratedrealtimeclockBaselinefeatures: EachHandHeldComputerwillbecapableofcommunicatingwiththeSPT/IJBandFieldComputerthroughouttheexpected20yearsinatypicalinstallationlifetime WWANRadio:GSM:3GHSDPA;CDMA:EVDORevA GPS:IntegratedAssisted‐GPS(A‐GPS) WLANRadio:Tri‐modeIEEE®802.11a/b/g ColorCameraResolution:2megapixel ElectricalSafety:CertifiedtoUL/cUL60950‐1,IEC/EN60950‐1 FCCClassBEMICertified Environmental:RoHS‐compliant
Page48of52GUIPARAMETERSANDSYSTEMREQUIREMENTS
Page49of52TECHNICALSUPPORTBychoosinganAmptproduct,youhavealsochosencomprehensivetechnicalsupport&service.Inordertoattendtoyourneedsinasflexibleamanneraspossible,weofferyouthefollowingservices: TheAmptTechnicalSupport&ServicePhoneHotline:970‐372‐6947 Replacementservice:970‐372‐6950 On‐siteservice:970‐372‐6950 ComprehensivewarrantyprogramWiththisofferyouenjoyadefinitiveadvantage:Amptsupportsyoufromtheinitialplanningphaseonward–and,ofcourse,duringtheentireoperatingtimeofthePVsystem.InordertobetterassistyouwhencontactingAmpt,pleaseprovidethefollowinginformation.Thisinformationisrequiredforserviceassistance.INFORMATIONREGARDINGTHESPT: Serialnumber ModelNumber Shortdescriptionoftheproblem BlinkingCodeordisplaymessage WhaterrorcodeisindicatedviatheAmptGUI? DClinevoltage Canyoureproducethefailure?Ifyes,how? Hasthisproblemoccurredinthepast? Whatweretheambientconditionswhentheproblemoccurred?INFORMATIONREGARDINGTHEPVMODULES:•  ManufacturernameandmodelnumberofthePVmodule•  Outputpowerofthemodule•  Opencircuitvoltage(Voc)ofthemodule•  Numberofmodulesineachstring
Page50of52LIMITEDWARRANTYTheAmptSPTiswarrantedagainstdefectsinworkmanshipandmaterialsforaperiodof1yearfromdateofshipment,providedthattheproductremainsunmodifiedandisoperatedundernormalandproperconditions.TheAmptSPT25yearoperationalwarrantycoversanyrepairorreplacementpartcostsincurredduringtheagreedperiod,beginningonthedevice’spurchasedate,subjecttotheconditionslistedbelow.WARRANTYCONDITIONSIfanAmptSPTdevicebecomesdefectiveduringthe25yearAmptwarrantyperiod,oneofthefollowingservices,asselectedbyAmpt,willbeperformedatnochargeformaterialsorlaborcosts:RepairatAmpt,orRepairOn‐Site,orExchangeforaReplacementDeviceInthecaseofanexchange,theremainderofthewarrantyeligibilitywillbetransferredtothereplacementdevice.Amptgenerallywillprovideanequivalentreplacementdevice,packagedappropriatelyfortransport,within48hours.ThedefectivedeviceistobepackedinthistransportpackagingforreturntransporttoAmpt.EXCLUSIONOFLIABILITYWarrantyclaimsandliabilityfordirectorindirectdamageareexcludedifarisingfrom: TransportDamage, IncorrectInstallationorCommissioning, failuretoObservetheMaintenanceRegulationsandIntervals, Modifications,ChangesorAttemptedRepairs, IncorrectUseorInappropriateOperation, InsufficientVentilationoftheDevice failuretoObservetheApplicableSafetyRegulations, forceMajeure(e.g.lightning,overvoltage,storm,fire),or CosmeticShortcomings(whichdonotinfluencethesupplyofenergy)Further‐reachingoradditionalclaimsduetodirectorindirectdamage,includingclaimsforcompensationfordamagesduetolossofprofitsorduetocostsarisingfromdisassemblyandmounting,areexcluded.FORWARRANTYRETURNS&INSTALLERREPLACEMENT:AmptwillcompensateinstallersforexpensesassociatedwithreplacingSPTproductsunderwarrantyperthefollowingregistrationandwarrantyprocess:1.InstallermustcontactthetechnicalsupportteamatAmpttoregisterthesupportissueandseekassistance.AmptTechnicalsupportwillprovidetroubleshootingassistanceandiscommittedtoresolvingtheclaiminoneofthefollowingways;
Page51of52a.Situationwillberesolvedtotheinstaller’ssatisfactionoverthephoneorviatheAmptwirelesscommunicationlinktotheSPTb.AmptoroneoftheAmptcertifiedfieldservicetechnicianswillbedispatchedtothesiteforadditionaltroubleshootingandrepairoftheSPTc.AmptwilldeterminethattheunitshouldbereplacedandwillprovidetheinstallerwithanRMAnumbertoproceedwithwarrantyreplacementoftheunit2.OncetheRMAnumberhasbeenissuedbyAmpt,therearetwooptions;a.TheinstallercanuseanexistingunitfrominventorytoreplacethefailedSPTorb.Amptcansendoutanadvancereplacementunit3.Ineithercase,thereplacedunitmustbereturnedtoAmptforissueconfirmation,rootcauseanalysisandcorrectiveactionplanning4.AnyexceptionstothisprocessmustbeapprovedinadvancebyanauthorizedAmptrepresentative
Page52of52APPENDIX:FAQINSTALLATIONMAPPINGWIRINGDIAGRAMSORDERINGSPAREORREPLACEMENTPARTSRETURNPROCEDURESWHITEPAPERS1. RobustLargeScalePVSystemsHavingDistributedDC/DCConversion–ByRobertPorterPropertransferfunctiontoachievestable,predictable,andreliableoperationPRESENTATIONS

Navigation menu