Apc Mge Galaxy 5000 Users Manual 86 174010 00
40130kva c498a556-23b7-4c85-9a5e-542391623040 APC Fan 40 130KVA User Guide |
2015-02-03
: Apc Apc-Mge-Galaxy-5000-Users-Manual-470914 apc-mge-galaxy-5000-users-manual-470914 apc pdf
Open the PDF directly: View PDF
.
Page Count: 76

www.mgeups.com
40 – 130KVA
MGE Galaxy 5000
Critical Power and Cooling Services Division
Installation and User Manual


Installation and User Manual
i86-174010-00 B00
MGE Galaxy 5000
40 – 130KVA
Uninterruptible Power Systems
Installation and User Manual
Schneider Electric
1660 Scenic Avenue, Costa Mesa, CA 92626, (714) 557-1636
Service Solutions Team:
1-800-438-7373
(Hours: 24/7)
Revision History: A00 ECN-005986 5/28/08
B00 ECN-006020 6/20/08
Copyright © 2008 American Power Conversion Corporation. All rights reserved.
Printed in U.S.A.

MGE Galaxy 5000
Important Safety Instructionsii 86-174010-00 B00
IMPORTANT SAFETY INSTRUCTIONS
SAVE THESE INSTRUCTIONS – This manual contains important instructions for Galaxy
5000 that must be followed during operation and maintenance of the equipment.
WARNING Opening enclosures expose hazardous voltages. Always refer service to qualified
personnel only.
ATTENTION L'ouverture des cellules expose à des tensions dangereuses. Assurez-vous
toujours que le service ne soit fait que par des personnes qualifiees.
WARNUNG! Das öffnen der Gehäuse legen gefährliche Spannungen bloss. Service sollte
immer nur von qualifizierten Personal durchgeführt werden.
WARNING As standards, specifications, and designs are subject to change, please ask for
confirmation of the information given in this publication.
ATTENTION Comme les normes, spécifications et produits peuvent changer, veuillez
demander confirmation des informations contenues dans cette publication.
WARNUNG! Normen, Spezifizierungen und Pläne unterliegen Anderungen. Bitte verlangen
Sie eine Bestätigung über alle Informationen, die in dieser Ausgabe gemacht
wurden.
NOTE This equipment has been tested and found to comply with the limits for a Class
A digital device, pursuant to part 15 of the FCC rules. These limits are designed
to provide reasonable protection against harmful interference when the
equipment is operated in a commercial environment.
This equipment generates, uses, and can radiate radio frequency energy and, if
not installed and used in accordance with the instruction manual, may cause
harmful interference to radio communications. Operation of this equipment in a
residential area is likely to cause harmful interference in which case the user
will be required to correct the interference at user's own expense.
WARNING To reduce the risk of fire or electric shock, install in a controlled indoor
environment free of conductive contaminants.
This equipment is intended only for installations in a RESTRICTED ACCESS
LOCATION.
ATTENTION Pour réduire le riske d'inccendie ou d'électrocution, installer dans une enciente
intérieure contrôlée en température et humidité et sans contaminants conduc-
teurs.
Ce matériel est destiné seulement pour des installations dans un EMPLACE-
MENT RESTREINT D'ACCES.
WARNUNG! Um die Gefahr von Feuer und elektrischem Schock zu reduzieren, muss das
Gerät in einem temperatur – und feuchtigkeitskontrollierten Raum, frei von
leitungsfähigen Verunreinigungen, installiert werden. Dieses Gerät ist nur für
die Installation an einem Ort mit qeingeschränkter Zugangserlaubnis vorge-
sehen.
Diese Ausrüstung ist nur für Anlagen in einem EINGESCHRäNKTEN ZUGRIFF
STANDORT bestimmti.

Installation and User Manual
iii86-174010-00 B00
WARNING HIGH LEAKAGE CURRENT. Ground connection essential before connecting
supply.
ATTENTION COURANT DE FUITE ELEVE. Raccordement a la terre indispensable
avant le raccordement au reseau.
WARNUNG! Hoher Ableitstrom Vor Inbetriebnahme Schutzleiterverbindung herstellen.
Certification Standards – Three Phase UPS
◗IEC1004/ANSI C62.41 Standards for Surge Withstand Ability.
◗FCC Part 15, Subpart J, Class A.
◗UL/CUL 1778, Standards for Uninterruptible Power Supply Equipment.
◗NEMA PE 1 - Uninterruptible Power Systems.
◗NFPA 70 – National Electrical Code.
◗ISO 9001.
Environment
This product has been designed to respect the environment. It does not contain any Chlorofluorocarbon (CFC) or
Hydrochlorofluorocarbon (HCFC).
UPS recycling at the end of service life: Schneider Electric undertakes to recycle, by certified companies and in
compliance with all applicable regulations, all UPS products recovered at the end of their service life (contact your
Schneider Electric branch office).
Packing: UPS packing materials must be recycled in compliance with all applicable regulations.
WARNING: This product may be supplied with lead-acid batteries. Lead is a dangerous substance for the environment
if it is not properly recycled by specialized companies.
Certification Standards, Three Phase UPS, Environment

(This page left blank intentionally)
MGE Galaxy 5000
iv 86-174010-00 B00

Contents
Contents
I86-174010-00 B00
IMPORTANT SAFETY INSTRUCTIONS . . . . . . . . . . . . . . . . . . . . . . . . . . . . . . . .ii
Certification Standards – Three Phase UPS . . . . . . . . . . . . . . . . . . . . . . . . . . . . .iii
Environment . . . . . . . . . . . . . . . . . . . . . . . . . . . . . . . . . . . . . . . . . . . . . . . . . . . . . .iii
Contents
CAUTION: Record All Serial Numbers! . . . . . . . . . . . . . . . . . . . . . . . . . . . . . . . . .IV
Safety Rules . . . . . . . . . . . . . . . . . . . . . . . . . . . . . . . . . . . . . . . . . . . . . . . . . . . . . .V
Symbol Usage . . . . . . . . . . . . . . . . . . . . . . . . . . . . . . . . . . . . . . . . . . . . . . . . . . . . .VI
Section Descriptions . . . . . . . . . . . . . . . . . . . . . . . . . . . . . . . . . . . . . . . . . . . . . . .VII
Introduction
1.0 Scope . . . . . . . . . . . . . . . . . . . . . . . . . . . . . . . . . . . . . . . . . . . . . . . . . . . . .1 — 1
1.1 General Description . . . . . . . . . . . . . . . . . . . . . . . . . . . . . . . . . . . . . . . . . .1 — 1
1.2 Inside the UPS Cabinet, Access to Connections . . . . . . . . . . . . . . . . . . . .1 — 3
1.3 UPS Cabinet Bottom View Layout . . . . . . . . . . . . . . . . . . . . . . . . . . . . . . .1 — 4
1.4 User-Machine Interface Display . . . . . . . . . . . . . . . . . . . . . . . . . . . . . . . . .1 — 5
1.5 Display Screens . . . . . . . . . . . . . . . . . . . . . . . . . . . . . . . . . . . . . . . . . . . . .1 — 6
1.6 Relay Communication Card . . . . . . . . . . . . . . . . . . . . . . . . . . . . . . . . . . . .1 — 7
Setup and Installation
2.0 Scope . . . . . . . . . . . . . . . . . . . . . . . . . . . . . . . . . . . . . . . . . . . . . . . . . . . . .2 — 1
2.1 Location . . . . . . . . . . . . . . . . . . . . . . . . . . . . . . . . . . . . . . . . . . . . . . . . . . .2 — 1
2.1.1 Layout of Cabinets . . . . . . . . . . . . . . . . . . . . . . . . . . . . . . . . . . . . . . . . . . .2 — 2
2.2 Electrical Specifications . . . . . . . . . . . . . . . . . . . . . . . . . . . . . . . . . . . . . . .2 — 2
2.3 Connection of Power Cables in a Single UPS . . . . . . . . . . . . . . . . . . . . . .2 — 3
2.4 Redundant Parallel Configuration (Maximum Two UPS Units for Pn) . . . .2 — 4
2.5 Auxiliary Interconnections Between UPSs in Parallel Configurations . . . .2 — 5
2.6 Connection of General Shutdown or Remote Emergency Power Off
(REPO) Terminal Block . . . . . . . . . . . . . . . . . . . . . . . . . . . . . . . . . . . . . . .2 — 7
2.7 Adding Communication Cards . . . . . . . . . . . . . . . . . . . . . . . . . . . . . . . . . .2 — 8
2.8 Connection of the Relay Communications Card . . . . . . . . . . . . . . . . . . . .2 — 9
2.8.1 Characteristics of the Contacts on the Relay Communications Card . . . .2 — 10
2.9 Routing the Control/Communications Cables . . . . . . . . . . . . . . . . . . . . . .2 — 11
Operation
3.0 Scope . . . . . . . . . . . . . . . . . . . . . . . . . . . . . . . . . . . . . . . . . . . . . . . . . . . . .3 — 1
3.1 Shutting Down a Single UPS . . . . . . . . . . . . . . . . . . . . . . . . . . . . . . . . . . .3 — 1
3.2 Restarting a Single UPS . . . . . . . . . . . . . . . . . . . . . . . . . . . . . . . . . . . . . .3 — 2
3.3 Shutting Down a Parallel Configuration . . . . . . . . . . . . . . . . . . . . . . . . . . .3 — 2
3.4 Restarting a Parallel Configuration . . . . . . . . . . . . . . . . . . . . . . . . . . . . . .3 — 3
3.5 Operation of Mimic-Panel LEDs . . . . . . . . . . . . . . . . . . . . . . . . . . . . . . . .3 — 4

MGE Galaxy 5000
ContentsII 86-174010-00 B00
3.6 Operating Modes . . . . . . . . . . . . . . . . . . . . . . . . . . . . . . . . . . . . . . . . . . . .3 — 5
3.7 Load on Battery Power . . . . . . . . . . . . . . . . . . . . . . . . . . . . . . . . . . . . . . .3 — 5
3.8 UPS Personalization . . . . . . . . . . . . . . . . . . . . . . . . . . . . . . . . . . . . . . . . .3 — 6
3.9 Display Messages List . . . . . . . . . . . . . . . . . . . . . . . . . . . . . . . . . . . . . . . .3 — 7
3.10 Operation of the Relay Communication Card (Dry Contacts) . . . . . . . . . .3 — 8
3.10.1 Standard Mode . . . . . . . . . . . . . . . . . . . . . . . . . . . . . . . . . . . . . . . . . . . . .3 — 8
3.10.2 Programmable Mode . . . . . . . . . . . . . . . . . . . . . . . . . . . . . . . . . . . . . . . . .3 — 8
3.10.3 List of Operating Status Conditions That May be Assigned to an
SECI Output . . . . . . . . . . . . . . . . . . . . . . . . . . . . . . . . . . . . . . . . . . . . . . . .3 — 9
Maintenance
4.0 Scope . . . . . . . . . . . . . . . . . . . . . . . . . . . . . . . . . . . . . . . . . . . . . . . . . . . . .4 — 1
4.1 Identification of Alarms . . . . . . . . . . . . . . . . . . . . . . . . . . . . . . . . . . . . . . . .4 — 1
4.2 Life Cycle Monitoring (LCM) . . . . . . . . . . . . . . . . . . . . . . . . . . . . . . . . . . .4 — 1
4.3 UPS Isolation . . . . . . . . . . . . . . . . . . . . . . . . . . . . . . . . . . . . . . . . . . . . . . .4 — 2
4.3.1 UPS Isolation Single UPS . . . . . . . . . . . . . . . . . . . . . . . . . . . . . . . . . . . . .4 — 2
4.3.2 UPS Isolation Parallel UPS Without External Bypass Cabinet . . . . . . . . .4 — 3
4.3.3 UPS Isolation Parallel UPS With External Bypass Cabinet . . . . . . . . . . . .4 — 4
4.4 Return to the Normal Operation . . . . . . . . . . . . . . . . . . . . . . . . . . . . . . . . .4 — 5
4.4.1 Return to Normal Single UPS . . . . . . . . . . . . . . . . . . . . . . . . . . . . . . . . . .4 — 5
4.4.2 Return to Normal Parallel UPS Without External Bypass Cabinet . . . . . .4 — 6
4.4.3 Return to Normal Parallel UPS With External Bypass Cabinet . . . . . . . . .4 — 8
4.5 Servicing Batteries . . . . . . . . . . . . . . . . . . . . . . . . . . . . . . . . . . . . . . . . . . .4 — 9
4.6 Training Center . . . . . . . . . . . . . . . . . . . . . . . . . . . . . . . . . . . . . . . . . . . . .4 — 9
Appendices
A1 Electrical Characteristics . . . . . . . . . . . . . . . . . . . . . . . . . . . . . . . . . . . . . .A — 1
A2 Maximum Allowable Power for Parallel UPS Units . . . . . . . . . . . . . . . . . .A — 5
A3 UPS Cabinet Major Internal Components . . . . . . . . . . . . . . . . . . . . . . . . .A — 6
A4 Available Options . . . . . . . . . . . . . . . . . . . . . . . . . . . . . . . . . . . . . . . . . . . .A — 7
A5 Environment . . . . . . . . . . . . . . . . . . . . . . . . . . . . . . . . . . . . . . . . . . . . . . . .A — 8
MGE Warranty & Proprietary Rights Statement for Three Phase Products
MGE Standard Three Phase Warranty . . . . . . . . . . . . . . . . . . . . . . . . . . . . . . . . . .W — 1
Proprietary Rights Statement . . . . . . . . . . . . . . . . . . . . . . . . . . . . . . . . . . . . . . . . .W — 1
Warranty and Product Registration
User Information . . . . . . . . . . . . . . . . . . . . . . . . . . . . . . . . . . . . . . . . . . . . . . . . . .W — 2
Product Information . . . . . . . . . . . . . . . . . . . . . . . . . . . . . . . . . . . . . . . . . . . . . . . .W — 2
Warranty Extension (Warranty+) . . . . . . . . . . . . . . . . . . . . . . . . . . . . . . . . . . . . . . .W — 2
Service Solutions Team — Three Phase Products
Technical Support and Product Services . . . . . . . . . . . . . . . . . . . . . . . . . . . . . . . .S — 1
Who To Contact . . . . . . . . . . . . . . . . . . . . . . . . . . . . . . . . . . . . . . . . . . . . . . . . . . .S — 1
Scheduling Field Service Engineer Support . . . . . . . . . . . . . . . . . . . . . . . . . . . . . .S — 1
Return Policy for Repair of Three Phase Products (RGA) . . . . . . . . . . . . . . . . . . .S — 1
Glossary
Reorder Form

Installation and User Manual
Contents III86-174010-00 B00
Figures
1-1 MGE Galaxy 5000 UPS Cabinet. . . . . . . . . . . . . . . . . . . . . . . . . . . . . . . . .1 — 2
1-2 Single Line Diagram . . . . . . . . . . . . . . . . . . . . . . . . . . . . . . . . . . . . . . . . . .1 — 2
1-3 Inside MGE Galaxy 5000 UPS Cabinet . . . . . . . . . . . . . . . . . . . . . . . . . . .1 — 3
1-4 Power Connection Terminals . . . . . . . . . . . . . . . . . . . . . . . . . . . . . . . . . . .1 — 4
1-5 INTN PCA for Auxiliary Interconnections of Parallel UPSs . . . . . . . . . . . .1 — 4
1-6 MGE Galaxy 5000 Cabinet Bottom View Layout . . . . . . . . . . . . . . . . . . . .1 — 4
1-7 User-Machine Interface Display . . . . . . . . . . . . . . . . . . . . . . . . . . . . . . . . .1 — 5
1-8 Display Screens . . . . . . . . . . . . . . . . . . . . . . . . . . . . . . . . . . . . . . . . . . . . .1 — 6
1-9 Relay Communication Card . . . . . . . . . . . . . . . . . . . . . . . . . . . . . . . . . . . .1 — 7
2-1 Space Allowance for Installation of UPS . . . . . . . . . . . . . . . . . . . . . . . . . .2 — 1
2-2 Layout of Cabinets (typical) . . . . . . . . . . . . . . . . . . . . . . . . . . . . . . . . . . . .2 — 2
2-3 Single UPS With Common Normal and Bypass AC Inputs . . . . . . . . . . . .2 — 3
2-4 Single UPS With Separate Normal and Bypass AC Inputs . . . . . . . . . . . .2 — 3
2-5 Parallel UPS With Common Normal and Bypass AC Inputs . . . . . . . . . . .2 — 4
2-6 Parallel UPS With Separate Normal and Bypass AC Inputs . . . . . . . . . .2 — 4
2-7 Redundant Parallel Configuration (Maximum Two UPS) . . . . . . . . . . . . . .2 — 5
2-8 Parallel Configuration for Increased Capacity (Four UPSs) . . . . . . . . . . .2 — 6
2-9 Fitting the Protection Cover for the Auxiliary Interconnection Cables . . . .2 — 7
2-10 Connection of General Shutdown or Remote Emergency Power Off
(REPO) Terminal Block . . . . . . . . . . . . . . . . . . . . . . . . . . . . . . . . . . . . . . .2 — 7
2-11 Adding Communication Cards . . . . . . . . . . . . . . . . . . . . . . . . . . . . . . . . . .2 — 8
2-12 Connection of Relay Communication Card . . . . . . . . . . . . . . . . . . . . . . . .2 — 9
2-13 Characteristics of the Contacts on the Relay Communications Card . . . .2 — 10
2-14 Routing the Control/Communications Cables for Single UPS . . . . . . . . . .2 — 11
2-15 Routing the Control/Communications Cables for Parallel UPS . . . . . . . . .2 — 12
3-1 Shutting Down a Single UPS . . . . . . . . . . . . . . . . . . . . . . . . . . . . . . . . . . .3 — 1
3-2 Restarting a Single UPS . . . . . . . . . . . . . . . . . . . . . . . . . . . . . . . . . . . . . .3 — 2
3-3 Shutting Down a Parallel Configuration . . . . . . . . . . . . . . . . . . . . . . . . . . .3 — 2
3-4 Restarting a Parallel Configuration . . . . . . . . . . . . . . . . . . . . . . . . . . . . . .3 — 3
3-5 Operation of Mimic-Panel LEDs . . . . . . . . . . . . . . . . . . . . . . . . . . . . . . . .3 — 4
3-6 Normal (Double Conversion) Operating Mode . . . . . . . . . . . . . . . . . . . . .3 — 5
3-7 Load on Battery Power . . . . . . . . . . . . . . . . . . . . . . . . . . . . . . . . . . . . . . .3 — 5
3-8 UPS Personalization . . . . . . . . . . . . . . . . . . . . . . . . . . . . . . . . . . . . . . . . .3 — 6
4-1 Life Cycle Monitoring (LCM) . . . . . . . . . . . . . . . . . . . . . . . . . . . . . . . . . . .4 — 1
4-2 UPS Isolation . . . . . . . . . . . . . . . . . . . . . . . . . . . . . . . . . . . . . . . . . . . . . . .4 — 2
4-3 Parallel UPS Configuration Without External Bypass Cabinet . . . . . . . . .4 — 3
4-4 Parallel UPS Configuration With External Bypass Cabinet . . . . . . . . . . . .4 — 4
4-5 Shutdown and Isolation of all the UPSs . . . . . . . . . . . . . . . . . . . . . . . . . .4 — 4
4-6 Return to the Normal Operation for Single UPS . . . . . . . . . . . . . . . . . . . .4 — 5
4-7 Parallel UPS Configuration Without External Bypass Cabinet . . . . . . . . .4 — 6
4-8 Parallel UPS Configuration With External Bypass Cabinet . . . . . . . . . . . .4 — 8
Tables
2-1 Electrical Specifications for the MGE Galaxy 5000 . . . . . . . . . . . . . . . . . .2 — 2
4-1 Identification of Alarms . . . . . . . . . . . . . . . . . . . . . . . . . . . . . . . . . . . . . . . .4 — 1

MGE Galaxy 5000
Record All Serial NumbersIV 86-174010-00 B00
CAUTION: Record All Serial Numbers!
RECORD ALL SERIAL NUMBERS FOR THE MGE GALAXY 5000 AND ACCESSORIES.
THESE SERIAL NUMBERS WILL BE REQUIRED IF YOUR SYSTEM NEEDS SERVICE.
KEEP THIS MANUAL IN A PLACE WHERE YOU CAN REFERENCE THE SERIAL NUMBERS
IF SERVICE IS REQUIRED!
UPS SERIAL NUMBER: ____________________________________________________________
BATTERY SERIAL NUMBER: _______________________________________________________
AUXILIARY SERIAL NUMBER: ______________________________________________________
ADDITIONAL SERIAL NUMBERS:
____________________________________ ____________________________________
____________________________________ ____________________________________
____________________________________ ____________________________________
____________________________________ ____________________________________
____________________________________ ____________________________________
____________________________________ ____________________________________
____________________________________ ____________________________________
NOTES:

Safety Rules
Safety of persons
The UPS must be installed in a room with restricted access (qualified personnel only). A UPS has its own external
power source (the battery). Consequently, the power outlets may be energized even if the UPS is disconnected from
the AC-power source.
Dangerous voltage levels are present within the UPS. It should be opened exclusively by qualified service
personnel.
The UPS must be properly grounded.
The battery supplied with the UPS contains small amounts of toxic materials.
To avoid accidents, the instructions below must be observed.
◗Never operate the UPS if the ambient temperature and relative humidity are higher than the levels specified
in the documentation.
◗Never burn the battery (risk of explosion).
◗Do not attempt to open the battery (the electrolyte is dangerous for the eyes and skin).
◗Comply with all applicable regulations for the disposal of the battery.
◗Caution, wait five minutes before opening the UPS to allow the capacitors to discharge.
◗Caution, there is high leakage current, the grounding conductor must be connected first.
◗The product must be installed on a non-inflammable surface (e.g. concrete).
◗Caution, battery replacement must be carried out by qualified personnel.
Product safety
A protection circuit breaker must be installed upstream and downstream, and be easily accessible.
◗Never install the UPS near liquids or in an excessively damp environment.
◗Never let a liquid or foreign body penetrate inside the UPS.
◗Never block the ventilation grates of the UPS.
◗Never expose the UPS to direct sunlight or a source of heat.
◗When replacing battery cells, use the same type and number of cells.
Special precautions
◗The UPS connection instructions contained in this manual must be followed in the indicated order.
◗Check that the indications on the rating plate correspond to your AC-power system and to the actual electrical
consumption of all the equipment to be connected to the UPS.
◗If the UPS must be stored prior to installation, storage must be in a dry place.
◗The admissible storage temperature range is -25°C to +45°C.
◗If the UPS remains de-energized for a long period, we recommend that you energize the UPS for a period of 24
hours, at least every three months. This charges the battery, thus avoiding possible irreversible damage.
◗The UPS is designed for normal climatic and environmental operating conditions concerning the altitude, ambient
operating temperature, relative humidity and ambient transport and storage conditions.
◗Using the UPS within the given limits guarantees its operation, but may affect the service life of certain compo-
nents, particularly that of the battery and its autonomy. The maximum storage time of the UPS is limited due to the
need to recharge the battery.
◗Unusual operating conditions may justify special design or protection measures:
- harmful smoke, dust, abrasive dust,
- humidity, vapor, salt air, bad weather or dripping,
- explosive dust and gas mixture,
- extreme temperature variations,
- bad ventilation,
- conductive or radiant heat from other sources,
- strong electromagnetic fields,
- radioactive levels higher than those of the natural environment,
- fungus, insects, vermin, etc.,
- battery operating conditions.
Installation and User Manual
Safety Rules V86-174010-00 B00

MGE Galaxy 5000
Symbol UsageVI 86-174010-00 B00
Symbol Usage
Danger, these instructions
are imperative.
Information, advice, help
Visual indication
Action
Audio signal
LED OFF
LED flashing
LED ON
Ground cables
Other cables
Vertical selection
Other selection
Enter / Confirm
Event scroll in log
Page scroll in log
Fast forward
Forward
Details
Circular menu
Graphical display
Return to previous display
Delete
Access to measurements
Buzzer off
Move up or down one
page
Event selection in log
by date and time
Increase
Decrease
Save
Alarm
Status conditions
Settings
Maintenance
Control
Document Icons Display Icons
may

Installation and User Manual
Section Descriptions VII86-174010-00 B00
Section Descriptions
1 Introduction
Provides a general description of the MGE Galaxy 5000 system’s intended use, single line, major components, and
mechanical specifications.
2 Setup and Installation
Guides the user through performing connections required for initial installation. Included are the electrical specifi-
cations and connection details.
3 Operation
Provides startup, shutdown, and normal operation of the MGE Galaxy 5000 UPS. Describes the operation of the
mimic-panel LEDs.
4 Maintenance
Identifies alarm conditions, UPS isolation operation, and maintenance and safety information on servicing batteries
for the MGE Galaxy 5000.
AGlossary provides definitions of abbreviations and terms used in this manual.

(This page left blank intentionally)
MGE Galaxy 5000
VIII 86-174010-00 B00

Introduction
Thank you for selecting a Schneider Electric product to protect your electrical equipment. The MGE Galaxy 5000
range has been designed with the utmost care. We recommend that you take the time to read this manual to take
full advantage of the many features of your UPS. Schneider Electric pays great attention to the environmental
impact of its products. Measures that have made MGE Galaxy 5000 a reference in environmental protection include:
◗the eco-design approach used in product development,
◗production in an ISO 14001 certified factory,
◗recycling of the MGE Galaxy 5000 at the end of its service life.
To discover the entire range of Schneider Electric products and the options available for the MGE Galaxy 5000
range, we invite you to visit our web site, www.mgeups.com, or contact your local Schneider Electric representative.
All products in the MGE Galaxy 5000 range are protected by patents. They implement original technology not
available to competitors of Schneider Electric.
To take into account evolving standards and technology, equipment may be modified without notice. Indications
concerning technical characteristics and dimensions are not binding unless confirmed by Schneider Electric.
This document may be copied only with the written consent of Schneider Electric. Authorized copies must be
marked "MGE Galaxy 5000 Installation and User Manual” no. 86-174010-00. We invite you to visit our web site,
www.mgeups.com, or contact your local Schneider Electric representative.
1.0 Scope
Provides a general description of the MGE Galaxy 5000 system’s intended use, single line major components, and
mechanical specifications.
1.1 General Description
The MGE Galaxy 5000 is a three phase double conversion uninterruptible power supply (UPS), designed for
flexibility to meet a wide range of application requirements. The MGE Galaxy 5000 offers many options to allow you
to customize a solution to meet your unique specifications. The options offered include, but are not limited to,
adjacent and remote battery cabinets, input and output isolation transformers, distribution options, parallel system
bypass cabinets, and a variety of communication cards.
1 — 186-174010-00 B00 Introduction

MGE Galaxy 5000
1 — 2 86-174010-00 B00
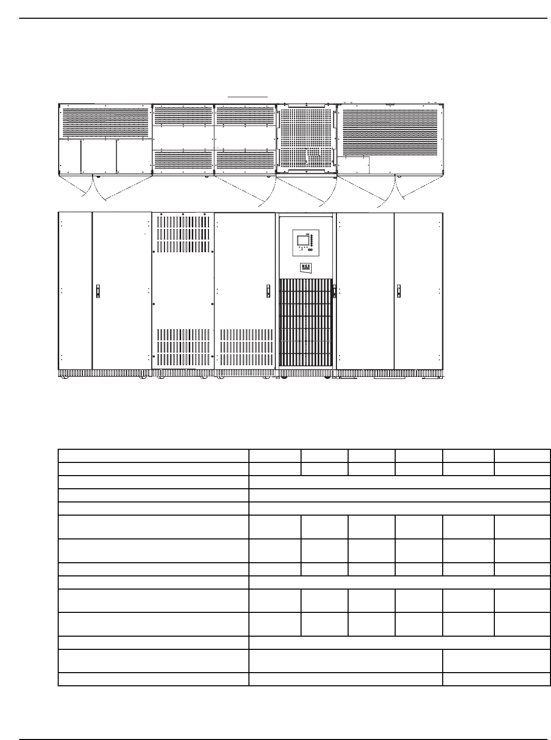
Figure 1-1: MGE Galaxy 5000 UPS Cabinet.
Figure 1-2: Single Line Diagram
Optional
Bypass
Input
480Y VAC
Main
Input
480 VAC
Main
Input
Bypass
Input
Output
Q3BP
Q5N
UPS
Input
Fuses
Input
Static
Switch To
Critical
Load
Q4S KA2
KA1Q1
CB
Battery
Charger
Battery
Static Switch
PFC
Boost
Rectifier Inverter
Output
Fuses
Output
Static
Switch
MGE GALAXY 5000 UPS SYSTEM WITH BATTERY SINGLE LINE DIAGRAM
CB CB CB
Introduction
UPS power rating (KVA) Dimensions (H x W x D)
40-130 75” x 28” x 33.4”
1900 x 712 x 850 mm

Installation and User Manual
1 — 386-174010-00 B00
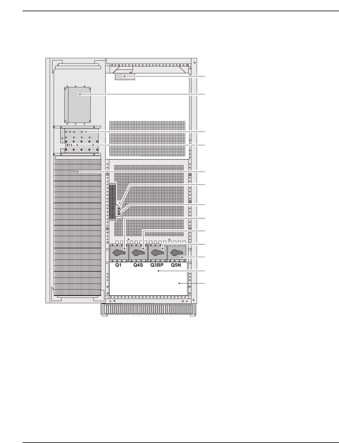
1.2 Inside the UPS Cabinet, Access to Connections
Figure 1-3: Inside MGE Galaxy 5000 UPS Cabinet
(1) Connectors for auxiliary interconnections of
parallel UPS units (INTN PCA), optional
(2) User-machine interface display
(3) Slot for relay communications card
(4) Open slots for optional communication cards
(5) Open cabinet door
(6) Screw-type terminal block for connections of
contacts and coils for two external battery
circuit breakers XMB07, XMB08
(7) Screw-type terminal block for connection of
remote emergency power off (REPO) XMB06
(
(
8) Q1: input switch for normal AC input
(9) Q4S: input switch for bypass AC input
(10) Q3BP: bypass switch
(11) Q5N: UPS output switch
(12) Protection cover for power connections
(13) Screw-type terminal block for connection of
contacts for parallel circuit breakers TB6,
optional
Introduction

MGE Galaxy 5000
1 — 4 86-174010-00 B00
Figure 1-4: Power Connection Terminals
Figure 1-5: INTN PCA for Auxiliary Interconnections of Parallel UPSs
1.3 UPS Cabinet Bottom View Layout
Figure 1-6: MGE Galaxy 5000 Cabinet Bottom View Layout
4.04 (102.50)
1.26 (32.00)
17.32 (440.00)
fixed casters (2)
17.32 (440.00)
1.08 (27.50) 1.32 (33.50)
25.39 (645.00)
29.33
(745.00)
26.81
(681.00)
swivel casters (2)
levelers (4)
(19) DB9 connectors: exchange-current
information
(20) Screw connectors: position information
on Q5N, Q4S and Q3BP switches, from
the external bypass
(21) DB9 connectors: CAN communication
information between UPSs
PIN 1 PIN 1
(14) Terminals for load output
(15) Terminals for bypass AC input
(16) Terminals for normal AC input
(17) Main grounding connector
(22) Connection of external battery
(+/- poles)
Introduction

Installation and User Manual
1 — 586-174010-00 B00
1.4 User-Machine Interface Display
Figure 1-7: User-Machine Interface Display
(30) Graphical display
(31) Load protected LED
(32) Minor fault LED
(33) Major fault LED
(34) Help key
(35) Function keys
(36) Menu key
(38) OFF button
(37) ON button
(42) Load supplied LED
(40) UPS ON LED
(41) Operation on battery power LED
(43) Bypass in operation LED
(39) PFC ON LED
Introduction

1.5 Display Screens
Figure 1-8: Display Screens
Personalization
Frequency measurements
MGE Galaxy 5000
Introduction1 — 6 86-174010-00 B00

Installation and User Manual
1.6 Relay Communication Card
Figure 1-9: Relay Communication Card
(50) Card cover screws
(51) Card screw holes
(52) Card cover
(53) Cable entry holes
(54) Output terminal block
(55) Input terminal block
(56) Cable clamping screws
Introduction 1 — 786-174010-00 B00

(This page left blank intentionally)
MGE Galaxy 5000
Introduction1 — 8 86-174010-00 B00

Setup and Installation
2.0 Scope
Guides the user through performing connections required for initial installation. Included are the electrical specifi-
cations and connection details.
2.1 Location
To ensure correct ventilation, leave nothing on top of the UPS.
Leave three feet of free space in front of the UPS for door opening.
The UPS cabinet rests on four levelers positioned in the four corners of the cabinet to spread the weight.
The UPS must be installed in a room with restricted access (qualified personnel only).
Figure 2-1: Installation of UPS
2 — 186-174010-00 B00 Setup and Installation

2.1.1 Layout of Cabinets
Figure 2-2: Layout of Cabinets (typical)
2.2 Electrical Specifications
Table 2-1: Electrical Specifications for the MGE Galaxy 5000
Output Power Rating (0.9 PF) 40KVA 50KVA 60KVA 80KVA 100KVA 130KVA
UPS Voltage (input/output) 480/480 480/480 480/480 480/480 480/480 480/480
Input/Output Requirements & Frequency Three phase, Three wire + G, 60Hz
Input Phase Rotation A, B, C Clockwise
Input Power Factor > 0.98
Input Current/Input Current with Battery
Charging Current 48A/59A 59A/70A 71A/88A 94A/111A 117A/150A 151A/182A
Maximum Input Current with Charging Current
(at low line -10%) 57A 70A 85A 111A 148A 182A
Bypass/Output Current 48A 60A 72A 96A 120A 156A
Battery Voltage 356VDC End Voltage 432VDC Nominal 490VDC Max. Floating Voltage
Max. Battery Current at Battery Voltage
(432 VDC at 100% Load) 90A 113A 135A 180A 225A 293A
Max. Battery Current at End-Voltage
(356 VDC at 100% Load) 109A 137A 164A 219A 273A 355A
Battery Disconnect Circuit Breaker Rating 175A, 250A, 400A
Input, Bypass, Maintenance Bypass and
Output Switch Rating 125A 250A
Input and Output Fuse Rating 160A 315A
DISTRIBUTION TRANSFORMER MBC
TOP VIEW
UPS BATTERY
MGE Galaxy 5000
Setup and Installation2 — 2 86-174010-00 B00

Installation and User Manual
CAUTION Only an authorized electrical professional should access electrical connections.
A severe shock hazard exists.
2.3 Connection of Power Cables in a Single UPS
Figure 2-3: Single UPS With Common Normal and Bypass AC Inputs
Figure 2-4: Single UPS With Separate Normal and Bypass AC Inputs
To access the connections, remove cover (see Section 1.3).
1 - The grounding conductors must be connected to the UPS
grounding-plate connections (17).
2 - Connect the three phases of the normal AC source to
connection (16).
3 - Connect the three phases of the bypass AC source to
connection (15).
4 - Connect the three phases supplying the load to connection
(14).
5 - Connect external battery (+/-) to connection (22).
6 - Tie the cables down to the frame.
7 - Put the cover back in place.
14.56”
22
To access the connections, remove cover (see Section 1.3).
1 - The grounding conductors must be connected to the UPS
grounding-plate connections (17).
2 - Connect the three phases of the normal AC source to
connection (15).
3 - Connect the three phases supplying the load to connection
(14).
4 - Connect external battery (+/-) to connection (22).
5 - Tie the cables down to the frame.
6 - Put the cover back in place.
14.56” 22
Setup and Installation 2 — 386-174010-00 B00

2.4 Redundant Parallel Configuration (Maximum Two UPS Units for Pn)
These configurations do not have an external System Bypass Cabinet (SBC).
Figure 2-5: Parallel UPS With Common Normal and Bypass AC Inputs
Figure 2-6: Parallel UPS With Separate Normal and Bypass AC Inputs
CAUTION If the two UPSs are placed side by side, connect as indicated above. In the other
configurations, always make sure that the cables between the UPSs and bypass
AC source have the same cross-section and the same length. The same is true
for the cables between the UPSs and the load.
To access the connections, remove cover
(see Section 1.3).
1 - The grounding conductors must be
connected to the grounding-plate of each
UPS (17).
2 - Connect the three phases of the normal
AC source to connection (16) in each UPS.
3 - Connect the three phases of the bypass AC
source to connection (15) in each UPS unit.
4 - Connect the three phases of the supplied
loads to connection (14) in UPS1.
5 - Connect (14) in UPS2 to (14) in UPS1
using the three load conductors.
6 - Connect the external battery (+/-) to
connections (22) in UPS1 and UPS2.
7 - Tie the cables down to the cabinet frames.
8 - Put the covers back in place.
To L oa d To B yp as s
AC Source
To Normal
AC Source
UPS 1 UPS 2
14.56”
22
14.56”
22
Ground
To access the connections, remove cover
(see Section 1.3).
1 - The grounding conductors must be
connected to the grounding-plate of each
UPS (17).
2 - Connect the three phases of the bypass
AC source to connection (15) in each UPS.
3 - Connect the three phases of the supplied
loads to connection (14) in UPS1.
4 - Connect (14) in UPS2 to (14) in UPS1
using the three load conductors.
5 - Connect the external battery (+/-) to
connections (22) in UPS1 and UPS2.
6 - Tie the cables down to the cabinet frames.
7 - Put the covers back in place.
To loadTo loadTo Load
14.56” 14.56”
To Normal / Bypass
Ground
AC Source
UPS 1 UPS 2
22 22
MGE Galaxy 5000
Setup and Installation2 — 4 86-174010-00 B00

Installation and User Manual
2.5 Auxiliary Interconnections Between UPSs in Parallel Configurations
Figure 2-7: Redundant Parallel Configuration (Maximum Two UPS)
Exchange-current interconnections (19):
Link connectors XMS02 and XMS03 on the
two UPS units.
CAN // interconnections (21):
Fit a blue plug on connector XMS06 on
UPS1. Link connector XMS07 on UPS1 to
connector XMS06 on UPS2. Fit a red plug
on connector XMS07 on UPS2.
Note: The supplied cables (33 ft) limit the
distance between the two UPS units to
approximately 20 ft.
UPS 1
PCA INTN
19 19 19 19
21 21 21 21
PCA INTN
UPS 2
Blue
plug
Red plug
Setup and Installation 2 — 586-174010-00 B00

Figure 2-8: Parallel Configuration for Increased Capacity (Four UPSs)
These configurations have an external System Bypass Cabinet (SBC).
UPS 2
UPS 1
UPS 4 UPS 3
Blue
plug
Red
plug
no
m
mo
C
UPS 1
SBC
TB2
UPS 2
UPS 4 UPS 3
Blue
plug
Red plug
Interconnections with the external system
bypass cabinet (20):
◗ Interconnect terminals 7, 8, 9, and 10 on the
auxiliary terminal block TB2 in the system
bypass cabinet to UPS terminal blocks
XMS04/XMS05 pins 1, 2, 3, and 4 respectively.
◗ Create a loop connection between the cabinet
and the UPSs as shown in Figure 2-8.
Details of terminal block connections.
Note: The interconnection cables for the
SBC are not supplied
Note: The supplied cables are 33 ft long.
To ensure sufficient isolation of
exchange-current, CAN and external
bypass cabinet cables, they must be run
separately from the power cables.
Exchange-current interconnections (19):
Use the XMS02 and XMS03 connectors to
create a loop between the UPSs (all the XMS02
and XMS03 connectors must be used).
CAN // interconnections (21):
Daisy-chain the UPSs using the XMS06
and XMS07 connectors. Fit a blue plug on the
first UPS unit and a red plug on the last UPS
(all the XMS06 and XMS07 connectors must
be used).
78
9
8
7
10
3
2
1
4
910
PCA INTN
19 19 19 19
20 20
TB2
4321
20 20
21 21 21 21
PCA INTN
9
8
7
10
3
2
1
4
SBC
XMS04 /
XMS05
MGE Galaxy 5000
Setup and Installation2 — 6 86-174010-00 B00

Installation and User Manual
Fitting the Protection Cover for the Auxiliary Interconnection Cables
The protection cover supplied with the parallel connected UPS units protects the user against direct contact with
voltages other than SELVs and ensures the auxiliary interconnection cables are maintained in position.
Figure 2-9: Fitting the Protection Cover for the Auxiliary Interconnection Cables
Note: Tie down the cables as indicated in the diagram in Section 2.9.
2.6 Connection of General Shutdown or Remote Emergency Power Off (REPO) Terminal Block
Figure 2-10: Connection of General Shutdown or Remote Emergency Power OFF (REPO) Terminal Block
CAUTION Pressing the general shutdown button causes UPS shutdown and opening of the
battery circuit breaker (with opening of the bypass static switch depending on
personalization settings). The Remote Emergency Power Off (REPO) notion is
applicable to installations where pressing the button also causes the upstream
Normal AC source and bypass AC source circuit-breakers to open. In parallel
configurations, there must be a single general shutdown button with a separate
contact for each UPS unit.
1 - Remove the wire jumper from terminal block (7).
2 - Connect the general shutdown NC contact to terminals 1 and 2 (SELV).
3 - Tie the cable down as illustrated in Section 2.9.
XMB08 XMB07 XMB06
Setup and Installation 2 — 786-174010-00 B00

2.7 Adding Communication Cards
Figure 2-11: Adding Communication Cards
MGE Galaxy 5000
Setup and Installation2 — 8 86-174010-00 B00

Installation and User Manual
2.8 Connection of the Relay Communications Card
CAUTION Isolate and lock-out all power sources for this card before making connections.
Never connect SELV (safety extra low voltage) and non-SELV circuits to the
different outputs of the same card.
1 - Remove the cover (52) secured by the screws (50).
2 - Run the communications cables through the cable entry holes (53).
3 - Connect the conductors to the input (55) and output (54) terminal blocks.
4 - Put the cover back in place and secure it with the screws (50).
5 - Tighten the screws (56) to lock the cables.
6 - Indicate the locations of the power sources on the labels.
7 - Insert the card in its slot.
8 - Secure the card with two screws (51).
Figure 2-12: Connection of Relay Communication Card
Setup and Installation 2 — 986-174010-00 B00

2.8.1 Characteristics of the Contacts on the Relay Communications Card
Figure 2-13: Characteristics of the Contacts on the Relay Communications Card
Communications Card Connection Example
If a SELV (safety extra low voltage) source is used, it must always be possible to isolate the communications card from
the upstream source to ensure the safety of personnel working on the installation.
Disconnecting device that can be locked
AC communication
card
UPS OFF
UPS ON
Low battery warning
Load on battery power
Load on automatic bypass
Load on UPS
Battery fault
General alarm
Characteristics of the output contacts:
Permissible voltage: 250V AC, 30V DC.
Permissible current: 2 A.
Cable: 4 x 0.93 mm2, Ø 6.6 ± 0.3 mm.
Characteristics of the input contacts:
Switched voltage: 5 V DC
Consumption: 10 mA.
Cable: 4 x 0.34 mm2, Ø 5 ± 0.5 mm.
MGE Galaxy 5000
Setup and Installation2 — 10 86-174010-00 B00

Installation and User Manual
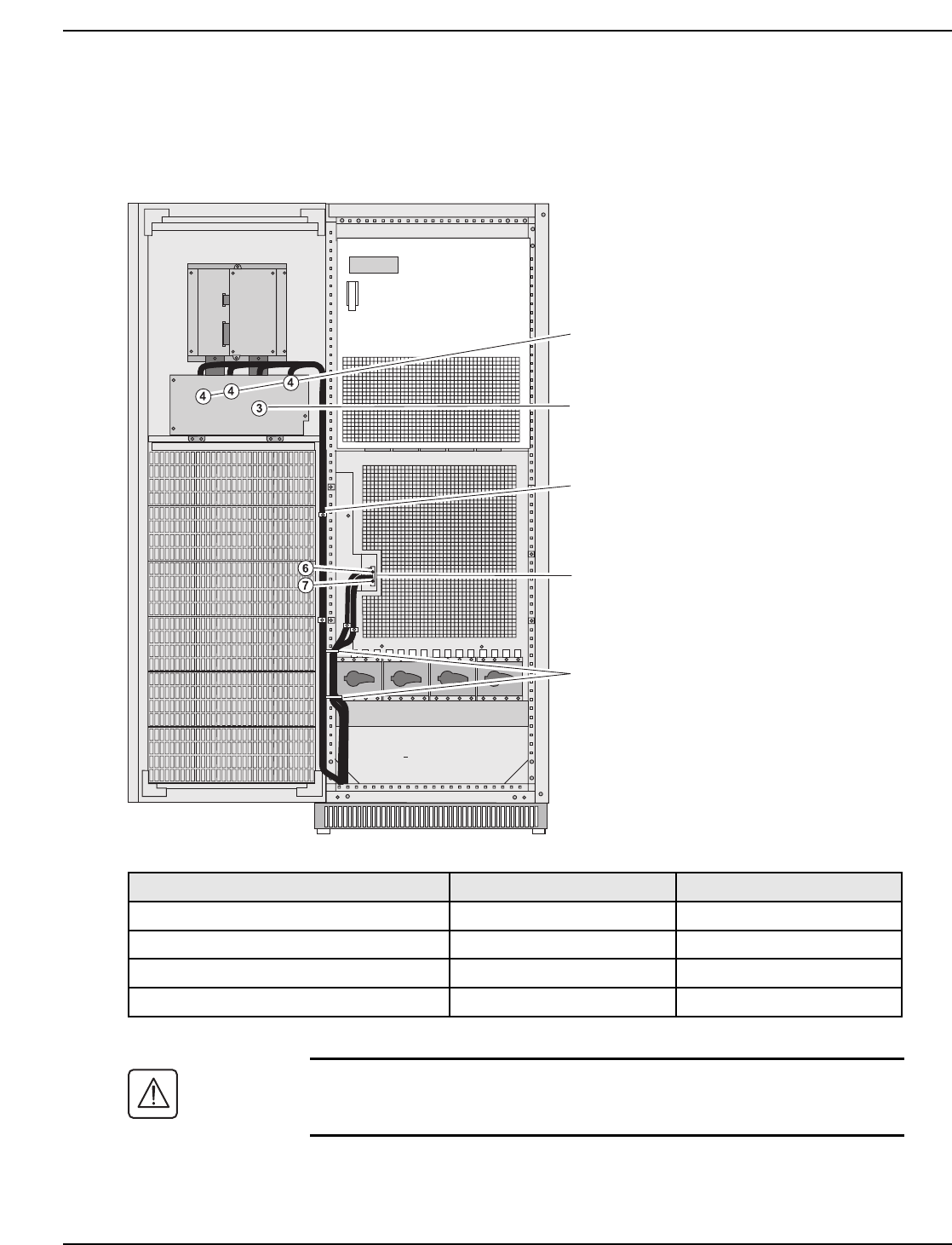
2.9 Routing the Control/Communications Cables
Single UPS
Figure 2-14: Routing the Control/Communications Cables for Single UPS
CAUTION To ensure sufficient isolation of control and communication cables, they must
be run separately from the power cables. Reinforce the insulation of these control
and communication cables if any risk of contact with the power cables exists.
Cable description Insulation level Location on illustration
Relay communication card SELV 3
Optional communication card SELV or LV 4
External battery circuit-breaker cables SELV 6
General-shutdown cable SELV 7
Tie
Ties
Separate the control and communication
cables from the power cables.
Run the cables together in front of the
protection panels and tie them to the
panels as indicated.
General-shutdown cable (not supplied)
and external battery circuit breaker cable
must be tied down separately.
Free slots for optional communication
cards. See installation drawing for proper
card placement.
Slot for relay communications card
Setup and Installation 2 — 1186-174010-00 B00

Parallel UPS
Figure 2-15: Routing the Control/Communications Cables for Parallel UPS
CAUTION To ensure sufficient isolation of exchange-current, CAN and external bypass
cabinet cables, they must be run separately from the power cables. Reinforce
the insulation of these control and communication cables if any risk of contact
with the power cables exists.
Cable description Insulation level Location on illustration
External bypass cabinet cable ELV 1
CAN cables SELV 1
Exchange-current cables SELV 1
Relay communication card SELV 3
Optional communication card SELV or LV 4
External battery circuit-breaker cables SELV 6
General-shutdown cable SELV 7
Ties
Ties
Parallel-connection cables for connection
to the SBC (not supplied). The CAN and
current exchange cables are supplied.
Slot for relay communications card
Free slots for optional communication
cards. See installation drawing for proper
card placement.
General-shutdown cable (not supplied)
and external battery circuit breaker cable
must be tied down separately.
Separate the control and communication
cables from the power cables.
Run the cables together in front of the
protection panels and tie them to the
panels as indicated.
MGE Galaxy 5000
Setup and Installation2 — 12 86-174010-00 B00

Operation 3 — 186-174010-00 B00
Operation
CAUTION All operations concerning system start-up and compliance with standards and
regulations, including those related to the battery cabinet, must be carried out
by trained and certified personnel before using the UPS.
3.0 Scope
Provides startup, shutdown, and normal operation of the MGE Galaxy 5000 UPS. Describes the operation of the
mimic-panel LEDs.
3.1 Shutting Down a Single UPS
The UPS remains energized unless it is shut down.
Figure 3-1: Shutting Down a Single UPS
1 - Press a button to exit sleep mode.
2 - Press the OFF button (38) for 3 seconds.
The load is no longer protected by the UPS. It is
supplied via the bypass.
3 - Set the battery circuit breaker of the auxiliary cabinets
to OFF.
4 - Set the input switch Q1 (8) to OFF.
The charger no longer operates to keep the batteries
fully charged.
5 - Open the upstream circuit breakers of the Normal AC
source and Bypass AC source to completely power off
the UPS.

3.2 Restarting a Single UPS
Check that switches Q4S (9) and Q5N (11) are closed. If this is the case, continue with this procedure, otherwise
refer to Section 4.4.1 "Return to the Normal Operation, Single UPS".
Figure 3-2: Restarting a Single UPS
3.3 Shutting Down a Parallel Configuration
Figure 3-3: Shutting Down a Parallel Configuration
1 - Press a button on each unit to exit sleep mode.
2 - Press the OFF button (38) on each unit for 3 seconds.
The load is no longer protected by the UPSs. It is
supplied via the bypass.
3 - Set the battery circuit breakers of the auxillary cabinets
to the OFF position.
4 - Set the input switch Q1 (8) in each UPS to the OFF
position.
The charger no longer operates to keep the batteries
fully charged.
5 - Open the upstream circuit breakers of Normal AC source
and Bypass AC source to completely power off the
installation.
1 - Set the Normal AC source input switch Q1 (8) to the
ON position.
2 - Wait until the end of the start sequence.
3 - Set the battery circuit breaker of the auxiliary cabinets
to the ON position.
The UPS starts automatically.
LED (31) is ON.
The load is protected by the UPS.
If LED (31) remains OFF, press the ON button (37) (the UPS
is in manual start mode) and confirm if necessary by
pressing the function key (35) marked .
If LED (31) still remains OFF and either of LEDs (32) or (33)
is ON, a fault has occurred (see Section 4.1).
35
MGE Galaxy 5000
Operation3 — 2 86-174010-00 B00

Installation and User Manual
3.4 Restarting a Parallel Configuration
Check that switches Q4S (9) and Q5N (11) are closed. If this is the case, continue with this procedure, otherwise
refer to Section 4.4.2 or Section 4.4.3 "Return to the Normal Operation, Parallel UPS".
Figure 3-4: Restarting a Parallel Configuration
1 - Check that the output switch CB2 in the external
system bypass cabinet is closed.
2 - Check that the bypass switch CB1 in the external
system bypass cabinet is open.
Then carry out steps 3 to 5 below on each of the UPSs.
3 - Set the Normal AC source input switch Q1 (8) to the
ON position.
4 - Wait until the end of the start sequence.
5 - Set the battery circuit breaker of the auxiliary cabinets
to the ON position.
The UPSs start automatically. On each unit, LEDs (32)
and (33) go OFF and LED (31) goes ON.
The load is protected by the UPSs.
If LED (31) remains OFF, press the ON button (37) on
each UPS (the UPS is in manual start mode) and confirm
if necessary by pressing the function key (35) marked .
If LED (31) still remains OFF and either of LEDs (32) or
(33) is ON, a fault has occurred (see Section 4.1).
Operation 3 — 386-174010-00 B00

3.5 Operation of Mimic-Panel LEDs
The MGE Galaxy 5000 system is simple to operate and yet provides a wealth of continuous monitoring and
diagnostic features to ensure proper operation. Operators gain access to information in the MGE Galaxy 5000
system through the display and its integrated LED mimic panel.
Figure 3-5: Operation of Mimic-Panel LEDs
Single UPS Start Sequence on Normal AC Input
Single UPS Start Sequence on Bypass AC Input
Steps Action LED (39) LED (40) LED (41) LED (42) LED (43)
1Q4S open Off Off Off Off Off
2Close Q4S Off Off red Off green
3Close Q5N Off Off red green green
4Open Q3BP Off Off red green green
5Close Q1 green Off red green green
6Close Battery CB green Off Off green green
7Press ON button (37) green green Off green Off
Steps Action LED (39) LED (40) LED (41) LED (42) LED (43)
1Q1 open Off Off Off Off Off
2Close Q1 green Off red Off red
3Close Battery CB green Off Off Off red
4Close Q4S green Off Off Off green
5Close Q5N green Off Off green green
6Open Q3BP green Off Off green green
7Press ON button (37) green green Off green Off
37
MGE Galaxy 5000
Operation3 — 4 86-174010-00 B00

Installation and User Manual
3.6 Operating Modes
Normal (Double Conversion) Mode
This is the standard operating mode, set by default in the factory. Two possible cases:
Figure 3-6: Normal (Double Conversion) Operating Mode
3.7 Load on Battery Power
The load continues to be protected by the UPS when the normal AC source is not available. Power is supplied by
the battery.
Figure 3-7: Load on Battery Power
Transfer to Battery Power
End of Battery Power
LED (33) is ON.
The buzzer sounds intermittently.
The load is transferred on the bypass AC input if it is
present.
LED (32) is ON.
The buzzer sounds intermittently.
The load is supplied by the battery.
The display indicates any anomalies related to the AC source or the UPS as well as remedial action
if applicable.
Press the function key (35) indicated by the display to turn the buzzer OFF.
1 - Normal AC source available:
LED (31) is ON.
The load is protected by the UPS.
2 - Normal AC source not available:
LED (32) is ON.
The buzzer sounds intermittently.
LED (41) on the mimic-panel is green.
The load is supplied by the UPS from battery power.
Operation 3 — 586-174010-00 B00

3.8 UPS Personalization
Access to the Personalization Functions
CAUTION Personalization must be carried out with switches Q1 (8) and Q5N (11) open (OFF)
and switch Q4S (9) closed (ON).
Figure 3-8: UPS Personalization
Personalization Settings
Operating Mode
Frequency
Automatic Bypass
Transfer to bypass AC source Enabled Disabled – disabled when
limiting
Transfer to bypass with bypass AC source out of
tolerances Enabled Disabled
UPS output frequency 60 Hz 60Hz
Tolerance for bypass AC source 8 % 0.5 - 1 - 2 - 4 %
Synchronization speed with bypass AC source 2 Hz / s 1 Hz / s
Function Factory setting Options
UPS operating mode NORMAL
UPS automatic start Disabled Enabled
Authorized number of starts 41 to 255
Delay before reset of number of executed
automatic starts 4 seconds 1 to 60 seconds
The password
To change the password, see the Settings menu.
1 - Press the menu key (36).
2 - Select "Settings", then "Personalization" using the
function keys (35) or .
3 - Confirm by pressing the function key (35) .
4 - Enter the password by successively selecting each icon
using the corresponding function key.
5 - Confirm by pressing the function key (35) .
6 - To save the personalization settings, confirm by
pressing the function key (35) .
is factory set.
MGE Galaxy 5000
Operation3 — 6 86-174010-00 B00

Installation and User Manual
Battery
3.9 Display Messages List
Low battery warning threshold if battery monitor
inactive 40% remaining backup time 20 - 60 - 80 % remaining
backup time
Low battery warning threshold if battery monitor
active
4 minutes of battery backup
time
1 to X minutes of battery
backup time
Interval between two battery tests 30 days 1 to 180 days
Operation 3 — 786-174010-00 B00
Fault of downgraded mode
Internal CAN communication fault
External CAN communication fault
CAN communication relay fault
UPSs not connected by CAN cable
Resynchronizing
CAN communication resynchronization fault
Loss of communication with UPS 1
Loss of communication with UPS 2
Loss of communication with UPS 3
Loss of communication with UPS 4
Loss of communication with UPS X
Fault, filtering of customer communication
Customer communication disabled
Generic fault on equipment
Emergency Power Off (EPO)
UPS personalization fault
Personalization does not match UPS
Transfer to bypass disabled
Major Fault on subassembly
Charger fault
Bypass static switch fault
PFC fault
Inverter fault
Power supply board fuse blown
Fan fault
TVSS fault
Internal and external switches
Q3BP switch closed
Q5N switch open
Q4S switch open
External Q3BP switch closed (MBC or SBC CB1)
External Q5N switch open (MBC or SBC CB2)
External Q4S switch open (MBC CB3)
Abnormal bypass operation
Abnormal external bypass operation
Fault or state of installation
Installation overload
Non-redundant installation
Inverter starting
Not enough inverters for load connection
Not enough bypass static switches
Inverter ready for load connection
Fault or state on Normal AC
Q1 switch open
Normal AC source downgraded
Normal AC input phase rotation fault
Normal AC fuse blown
Normal AC source static switch failure
Normal AC source outside tolerances
Normal AC backfeed (KA1) is open
Normal AC backfeed (KA1) fault
Fault or state on Bypass AC or Bypass Static Switch
Bypass source present
Bypass static switch overload
AC Bypass static switch thermal overload
Bypass input phase rotation fault
Bypass source outside tolerances
Bypass AC backfeed (KA2) is open
Bypass AC backfeed (KA2) fault
Fault or state for PFC
PFC overload
PFC thermal overload
Starting
Fault or state standard charger
Low battery warning
Low battery shutdown
Battery circuit breaker open (QF1) (Battery Cabinet #1 or #3)
Battery circuit breaker 2 open (QF2) (Battery Cabinet #2 or #4)
End of theoretical battery service life
Battery temperature fault
Battery deep discharge
Battery room temperature fault
Battery test result not OK
Battery test in progress
Charger shutdown by PFC overload
Fault or state inverter
Inverter current limiting
Inverter overload
Inverter thermal overload
Inverter fuse blown
Inverter and bypass desynchronized
Fault or state load
Abnormal presence of output voltage
Load short circuit
Fault or state external synchronization
External sync frequency outside tolerances
UPS on external synchronization

3.10 Operation of the Relay Communication Card (Dry Contacts)
All systems are equipped with this remote transmissions card (also known as SECI).
A complete specification exists for the card used in MGE Galaxy 5000.
This card is used for the transmission of information between the system and the environment.
Two inputs and six outputs are available for the user (see the table below for the default programming).
3.10.1 Standard Mode
It is compatible with all MGE systems that are I
2C compatible.
All the SA1 microswitches must be set to OFF (if two SECI cards are installed in the unit, the second card must
be identified differently. On the second card, microswitch 1 on SA1 must be set to ON).
In this mode, the relays switch when the UPS changes status. The information listed below is transmitted if the
parameters were enabled in UPS Tuner.
The indications 1.X become 2.X for a second identical card in the UPS.
Contacts are of the NO (normally open) type.
(1) The general alarm can be tested by opening the battery circuit breaker.
3.10.2 Programmable Mode
This operating mode is specific to the MGE Galaxy 5000. The description in this document concerns only the MGE
Galaxy 5000.
Microswitch 3 on SA1 must be set to ON (if two SECI cards are installed in the unit, the second card must be
identified differently. On the second card, microswitch 1 on SA1 must be set to ON).
In this mode, it is possible to assign predefined operating status conditions (see the complete list) to the various
SECI output relays and predefined UPS commands to the SELV inputs.
Assignments are made using the MGE Galaxy 5000 user-machine interface.
Outputs Factory configuration Other possible signals for each contact
1.1 General alarm - Overload
- PFC fault
- Inverter fault
- Charger fault
- Automatic-bypass fault
- Bypass AC source out of tolerances
- Battery-temperature fault
- Ventilation fault
- Emergency power OFF activated
- Battery circuit breaker(s) open
- Phase inversion on normal or bypass AC input
- Fuses blown
- Transfer to AC bypass disabled
- Operation in ECO mode
- Load on maintenance bypass
1.2 Battery fault
1.3 Load on UPS
1.4 Load on automatic bypass
1.5 Load on battery power
1.6 Low battery warning
Inputs Factory configuration Other possible signals for each contact
1 A UPS ON - Temperature fault in room
- Transfer to bypass AC input disabled
- Transfer to bypass AC input disabled if it is out of tolerances
- UPS not synchronized with the bypass AC input
1.B UPS OFF
MGE Galaxy 5000
Operation3 — 8 86-174010-00 B00

Installation and User Manual
3.10.3 List of Operating Status Conditions That May be Assigned to an SECI Output
Operating status
conditions
Description
GENERAL ALARM PFC fault OR
Inverter fault OR
Bypass static switch fault OR
Charger fault OR
Thermal overload on AC bypass OR
Normal AC input fuse blown OR
ALIN board input fuse blown OR
Q3BP and Q5N are closed simultaneously OR
External Q3BP and external Q5N are closed simultaneously OR
EPO activated OR
Battery backup time ended, shift to wait mode OR
Battery temperature fault > 45°C , charger shutdown OR
Battery deep discharge OR
Charger shutdown due to battery room temperature outside tolerances OR
Abnormal presence of voltage on the output before closing the bypass static
switch. (frequency converter) OR
UPS in downgraded mode OR
External CAN communication fault OR
Internal CAN communication fault (GDEN, MIZNUS and CHAN) OR
CAN cable physically cut OR
CAN communication relay fault OR
UPS personalization fault.
BATTERY FAULT The battery will soon reach the end of its theoretical service life OR
Battery must be checked (following a faulty battery test)
LOAD ON UPS Inverter connected to the load and operating on normal AC input.
Battery operations due to a BPI or battery test are signalled as operation on the
normal AC input.
LOAD ON AUTOMATIC
BYPASS
The static switch on the AC bypass is closed.
LOAD ON BATTERY
POWER
Inverter connected to the load and operating on battery power.
Battery operations due to a battery test are not signalled.
LOW BATTERY WARNING Battery has reached the low-battery warning level (voltage or time). The two
thresholds may be user set.
OVERLOAD One of the unit modules (rectifier, inverter or AC bypass) is overloaded (thermal or
instantaneous).
Operation 3 — 986-174010-00 B00

PFC FAULT Neutral leg fault OR
Neutral leg IGBT temperature outside tolerances OR
Voltage difference between 2 DC half-buses outside tolerances OR
Top DC half-bus voltage outside tolerances OR
Bottom DC half-bus voltage outside tolerances
PFC fault OR
DC-bus voltage at end of CSR1 walk-in is lower than a threshold OR
DC-bus voltage at end of DC walk-in is lower than a threshold OR
DC-bus voltage is higher than the high threshold OR
DC-bus voltage is lower than the minimum threshold
Mean DC-bus voltage is higher than the maximum setpoint OR
Mean DC-bus voltage is lower than the minimum setpoint OR
DC-bus voltage is higher than the fast hardware threshold OR
Temperature of the static switch on the AC normal outside tolerances OR
Temperature of the battery static switch outside tolerances OR
Rectifier is current limiting OR
Rectifier thermal overload OR
PFC IGBT base-plate temperature outside tolerances OR
IGBT inductor temperature outside tolerances.
INVERTER FAULT Inverter short-circuit detected OR
Inverter current limiting OR
Inverter static switch failure OR
Temperature fault on inverter static switch OR
Inverter base-plate temperature outside tolerances OR
Inverter thermal overload OR
Inverter phase-1 fuse has blown OR
Inverter phase-2 fuse has blown OR
Inverter phase-3 fuse has blown OR
Inverter phase-1 voltage amplitude outside tolerances OR
Inverter phase-2 voltage amplitude outside tolerances OR
Inverter phase-3 voltage amplitude outside tolerances OR
Instantaneous inverter voltage outside tolerances OR
Inverter relay for parallel connection is faulty.
CHARGER FAULT Fault of non-isolated supply on charger board OR
Fault of isolated supply on charger board OR
Opening fault on battery circuit breaker no. 1 OR
Opening fault on battery circuit breaker no. 2 OR
Charger IGBT temperature outside tolerances OR
Difference in charge-current measurements between safety and measurement
systems OR
Charge current on measurement system close to zero OR
Charge current on safety system close to zero OR
Charge current is higher than safety level OR
Difference in voltage measurements between safety and measurement systems
OR
Voltage on measurement system close to zero OR
Voltage on safety system close to zero OR
Battery voltage higher than safety level OR
Charger fuse blown.
AUTOMATIC-BYPASS
FAULT
Supply fault for the static switch on the AC bypass OR
Fault on static switch on AC bypass OR
Temperature of the static switch on the AC bypass outside tolerances.
BYPASS AC SOURCE OUT
OF TOLERANCE
Bypass AC source outside of tolerances (voltage and/or frequency).
MGE Galaxy 5000
Operation3 — 10 86-174010-00 B00

Installation and User Manual
Galaxy 5000 can be equipped with up to two SECI cards maximum. In this case, the second card must be identified
differently. On the second card, microswitch 1 on SA1 must be set to ON.
BATTERY TEMPERATURE FAULT Battery ambient temperature outside tolerances.
VENTILATION FAULT Excessive temperature on one or more inductors OR
Inverter or AC bypass static switch fan fault.
EMERGENCY POWER OFF
ACTIVATED
EPO set on control-monitoring board OR
EPO set on charger board.
BATTERY CIRCUIT BREAKER(S)
OPEN
One or two Battery circuit breaker is open.
PHASE ROTATION FAULT Phase inversion on normal AC input OR
Phase inversion on AC bypass.
FUSES BLOWN Fuse blown at normal AC input OR
Charger fuse has blown OR
Power supply board fuse has blown OR
Inverter phase-1 fuse has blown OR
Inverter phase-2 fuse has blown OR
Inverter phase-3 fuse has blown.
TRANSFER TO BYPASS DISABLED Transfer to AC bypass disabled (control and monitoring board checks
for disabling by the personalization and/or an SECI input).
ECO MODE ACTIVATED The unit is operating in ECO mode. It is configured for ECO mode and
the static switch on the AC bypass is closed.
MAINTENANCE POSITION Switch Q5N is open.
CHECK THE UPS A Life Cycle Monitoring alarm has been activated:
◗End of warranty.
◗End of AC capacitor service life
◗End of DC capacitor service life
◗End of fan service lives.
◗End of power supply board service life.
◗End of battery service life.
Operation 3 — 1186-174010-00 B00

(This page left blank intentionally)
MGE Galaxy 5000
3 — 12 86-174010-00 B00

4 — 186-174010-00 B00 Maintenance
Maintenance
4.0 Scope
Identifies alarm conditions, UPS isolation operation, and maintenance and safety information on servicing batteries
for the MGE Galaxy 5000.
4.1 Identification of Alarms
Alarm conditions are identified by LEDs (31), (32), (33) and the buzzer.
Table 4-1: Identification of Alarms
Detailed information on all alarms is supplied on the display.
1 - On the screen, select the alarm for which information is required.
2 - Hold down the corresponding function key to display the possible causes of the fault and the required action.
4.2 Life Cycle Monitoring (LCM)
Figure 4-1: Life Cycle Monitoring (LCM)
◗The "Life Cycle Monitoring" (LCM) function provides UPS
maintenance advice to guarantee installation availability for the
user.
◗The display gives 3 messages enabling the following to be
identified:
- The end of the contractual legal warranty: "End of warranty
check recommended".
- Regular maintenance requirements and the end of service life for
consumable components: "Technical check recommended".
- The end of the battery service life: "Battery check required".
In addition to these messages, the minor fault LED (32) lights up
and the buzzer sounds.
These messages can be deleted by pressing the function key (35).
This also causes LED (32), to go out, the buzzer to stop and the
removal of the "Global Alarm" remote signaling.
To completely disable LCM indications, use the display to enter the
password required to disable the function.
LED (31) LED (32) LED (33) Buzzer Significance
– – Intermittent Normal AC source not available
– – Intermittent UPS shut down following end of
battery power
– – Intermittent UPS shut down on fault requiring
servicing by after-sales support

4.3 UPS Isolation
4.3.1 UPS Isolation Single UPS
To isolate the UPS from the electrical power source and supply the load directly by the normal or bypass AC source,
follow the instructions below.
Figure 4-2: UPS Isolation
ATTENTION Power is present on the power connection terminals.
1 - Press a button to exit sleep mode.
2 - Shut down the UPS by pressing the OFF button (38) for
3 seconds.
The load is no longer protected by the UPS.
3 - Set bypass switch Q3BP (10) to ON.
4 - Set output switch Q5N (11) to OFF.
5 - Set the battery circuit breaker of the auxiliary cabinets
to OFF.
6 - Set the input switch Q1 (8) to OFF.
7 - Set the switch Q4S (9) to OFF.
8 - Wait until the display and LEDs go off.
The load is no longer protected by the UPS, but
continues to be supplied with AC power.
UPS maintenance or servicing can now be carried out.
MGE Galaxy 5000
Maintenance4 — 2 86-174010-00 B00

Installation and User Manual
4.3.2 UPS Isolation Parallel UPS Without External Bypass Cabinet
Shutdown and isolation of the first UPS:
Figure 4-3: Parallel UPS Configuration Without External Bypass Cabinet
ATTENTION Power is present on the power connection terminals.
Shutdown and isolation of the second UPS:
1 - Press a button to exit sleep mode.
2 - Shut down the UPS by pressing the OFF button (38) for 3 seconds.
3 - Set bypass switch Q3BP (10) to ON.
4 - Set output switch Q5N (11) to OFF.
5 - Set the battery circuit breaker of the auxiliary cabinets to OFF.
6 - Set the input switch Q1 (8) to OFF.
7 - Set the switch Q4S (9) to OFF.
8 - Wait until the display and LEDs go off.
The load is no longer protected by the UPS, but continues to be supplied with AC power.
UPS maintenance or servicing can now be carried out.
ATTENTION Power is present on the power connection terminals.
1 - Check that the two UPSs are operating.
2 - Press a button to exit sleep mode.
3 - Shut down the UPS by pressing the OFF button (38) for
3 seconds.
4 - Set output switch Q5N (11) to OFF.
5 - Set the battery circuit breakers of the auxiliary cabinets
to OFF.
6 - Set the input switch Q1 (8) to OFF.
7 - Set the switch Q4S (9) to OFF.
8 - Wait until the display and LEDs go off.
The load is still protected by the other UPS.
Maintenance or servicing can now be carried out on the
UPS that has been shut down.
Maintenance 4 — 386-174010-00 B00

4.3.3 UPS Isolation Parallel UPS With External Bypass Cabinet
Shutdown and isolation of one UPS:
Figure 4-4: Parallel UPS Configuration With External Bypass Cabinet
Shutdown and isolation of all the UPSs:
Figure 4-5: Shutdown and Isolation of all the UPSs
1 - On each UPS, press a button to exit sleep mode.
2 - Shutdown each UPS by pressing their OFF buttons (38)
for 3 seconds.
3 - Depress the “transfer initiate” switch on the SBC. Unlock
“KS” and remove key “A”.
4 - Insert key “A” into CB1. Unlock and close CB1.
5 - Open CB2 and lock open, and remove key “B”.
6 - Insert key “B” into key interlock “KS” and turn to lock.
7 - Open output isolation CB11-16, as applicable, and open all
Q5N (11) switches of each UPS.
8 - Open battery CB of each UPS.
9 - Open Q1 (8) and Q4S (9) switches of each UPS.
10 - Turn off all inputs to the UPSs.
11 - Wait until the control electronics of all UPS units have
fully shutdown.
The load is no longer protected by the UPSs, but
continues to be supplied with AC power.
UPS maintenance or servicing can now be carried out.
CB2
KS
KB
KA
CB11
CB12
CB13
CB14
CB15
CB16
CB1
1 - First check that the total capacity of the remaining UPSs
is sufficient to supply the connected load.
2 - Press a button to exit sleep mode.
3 - Shut down the UPS by pressing the OFF button (38) for
3 seconds.
4 - Set output switch Q5N (11) to OFF.
5 - Set the battery circuit breaker of the auxiliary cabinets
to OFF.
6 - Set the input switch Q1 (8) to OFF.
7 - Set the switch Q4S (9) to OFF.
8 - Wait until the display and LEDs go off.
MGE Galaxy 5000
Maintenance4 — 4 86-174010-00 B00

Installation and User Manual
Maintenance 4 — 586-174010-00 B00
4.4 Return to the Normal Operation
4.4.1 Return to Normal Single UPS
Figure 4-6: Return to the Normal Operation for Single UPS
1 - Check that bypass switch Q3BP (10) is ON and that all other
switches are OFF.
2 - Set switch Q4S (9) to ON.
3 - Set output switch Q5N (11) to ON.
4 - Wait until the display goes on and check that there are no
faults on the static switch on the bypass line.
5 - Set bypass switch Q3BP (10) to OFF.
6 - Set the input switch Q1 (8) to ON.
7 - Set the battery circuit breaker of auxiliary cabinets to ON.
The UPS starts automatically.
LED (31) is ON.
If LED (31) remains OFF, press the ON button (37) (the UPS is
in manual start mode) and confirm if necessary by pressing the
function key (35) marked .
If LED (31) still remains OFF and either of LEDs (32) or (33) is
ON, a fault has occurred (see Section 4.1).

MGE Galaxy 5000
Maintenance4 — 6 86-174010-00 B00
4.4.2 Return to Normal Parallel UPS Without External Bypass Cabinet
Restart the UPS unit for which switch Q3BP (10) is ON and the other switches are OFF.
CAUTION It is imperative to restart this UPS. Otherwise, load power is lost if the other UPS
is shut down.
Figure 4-7: Parallel UPS Configuration Without External Bypass Cabinet
1 - Set the input switch Q4S (9) to ON.
2 - Set output switch Q5N (11) to ON.
3 - Check that the UPS is listed by the display, then confirm by
pressing the function keys (35).
4 - Set bypass switch Q3BP (10) to OFF.
5 - Set the input switch Q1 (8) to ON.
6 - Set the battery circuit breaker of the auxiliary cabinets to ON.
The UPS starts automatically. LED (31) is ON.
The load is protected by the UPS.
If LED (31) remains OFF, press the ON button (37) on each UPS
(the UPS is in manual start mode) and confirm, if necessary, by
pressing the function key (35) marked .
If LED (31) still remains OFF and either of LEDs (32) or (33) is
ON, a fault has occurred (See Section 4.1).

Installation and User Manual
Maintenance 4 — 786-174010-00 B00
Restart the UPS for which all switches are set to OFF.
1 - Set the input switch Q4S (9) to ON.
2 - Set output switch Q5N (11) to ON.
3 - Check that all the UPS units present in the installation are
included in the list on the display and confirm by pressing
the function buttons (35).
4 - Set the input switch Q1 (8) to ON.
5 - Set the battery circuit breaker of the auxiliary cabinets to
ON.
The UPS restarts and LED (31) is ON.
If LED (31) remains OFF, press the ON button (37) on each
UPS (the UPS is in manual start mode) and confirm,
if necessary, by pressing the function key (35) marked .
If LED (31) still remains OFF and either of LEDs (32) or (33) is
ON, a fault has occurred (see Section 4.1).

4.4.3 Return to Normal Parallel UPS With External Bypass Cabinet
Figure 4-8: Parallel UPS Configuration With External Bypass Cabinet
1 - Check that all switches on the UPSs are set to OFF.
2 - Apply bypass and input power to UPSs.
3 - Set switch Q4S (9) on each UPS to ON.
4 - Set output switch Q5N (11) on each UPS and CB11-CB16,
as applicable, to ON.
5 - Check that all the UPSs present in the installation are
included in the list on the display and confirm by pressing
the function button (35) on each UPS.
6 - Set CB2 in the external system bypass cabinet to ON.
7 - Set CB1 in the external system bypass cabinet to OFF.
8 - Set the input switch Q1 (8) on each UPS unit to ON.
9 - Set the battery circuit breakers of the auxiliary cabinets to ON.
The UPS units start automatically. LED (31) is ON.
The load is protected by the UPS.
If LED (31) remains OFF, press the ON button (37) on each UPS
unit (the UPS is in manual start mode) and confirm, if
necessary, by pressing the function key (35) marked .
If LED (31) still remains OFF and either of LEDs (32) or (33) is
ON, a fault has occurred (see Section 4.1).
MGE Galaxy 5000
Maintenance4 — 8 86-174010-00 B00

Installation and User Manual
4.5 Servicing Batteries
IMPORTANT SAFETY INSTRUCTIONS FOR SERVICING BATTERIES
Servicing of batteries should be performed or supervised by personnel knowledgeable of batteries and the required
precautions. Keep unauthorized personnel away from batteries.
When replacing batteries, use the same model and manufacturer of batteries.
CAUTION Do not dispose of battery or batteries in a fire. The battery may explode. Do not
open or mutilate the battery or batteries. Released electrolyte is harmful to the
skin and eyes. It may be toxic. A battery can present a risk of electrical shock and
high short-circuit current.
The following precautions should be observed when working with batteries:
◗Remove watches, rings, or other metal objects.
◗Use tools with insulated handles.
◗Wear rubber gloves and boots.
◗Do not lay tools or metal parts on top of batteries.
◗Disconnect charging source prior to connecting or disconnecting battery terminals.
◗Determine if the battery is inadvertently grounded. If inadvertently grounded, remove the source of ground.
Contact with any part of a grounded battery can result in electrical shock. The likelihood of such shock will be
reduced if such grounds are removed during installation and maintenance.
4.6 Training Center
To allow you to use Schneider Electric products effectively and carry out basic maintenance, we offer a complete
range of technical training courses in English and French.
60 Hz Training Center 50 Hz Training Center
Schneider Electric Schneider Electric
1660 Scenic Avenue 140 avenue Jean-Kuntzmann
Costa Mesa CA 92626 USA Zirst - Montbonnot St-Martin
38334 St-Ismier Cedex FRANCE
Tel. +1 714 557 1637 Tel. +33 (0)4 76 18 34 14
Fax +1 714 437 9072 Fax +33 (0)4 76 18 45 21
technical.training@mgeups.com training@mgeups.com
www.mgepowerlearning.com www.mgepowerlearning.com
On-line catalog and registration. On-line catalogue and registration.
Maintenance 4 — 986-174010-00 B00

(This page left blank intentionally)
MGE Galaxy 5000
4 — 10 86-174010-00 B00

Appendices
A1 Electrical Characteristics
Selection of Protection Devices
UPS with common normal and bypass AC inputs
UPS unit with separate normal and bypass AC inputs
NOTE: Interrupted Transfer to Bypass Source:
If the bypass source is beyond the conditions stated below, the UPS will make an interrupted transfer (not more than 100 msec. in duration).
1. Bypass voltage greater than +15%, -15% from the UPS rated output voltage.
2. Bypass frequency greater than ±2 Hz from the UPS rated output frequency.
Downstream
circuit breaker
(not supplied)
Upstream
circuit breaker
(not supplied)
Upstream
circuit breaker
(not supplied) Main
Input
Bypass
Input Q4S
Q1
Battery CB
Inverter
Bypass
Static Switch
Output
Q3BP
Q5N Load
PFC
Boost
Rectifier
Downstream
circuit breaker
(not supplied)
Upstream
circuit breaker
(not supplied) Main
Input
Q4S
Q1
Battery CB
PFC
Inverter
Bypass
Static Switch
Output
Q3BP
Q5N
Normal AC
Bypass AC
Load
Rectifier
Boost
Appendices A — 1
86-174010-00 B00

When sizing the upstream circuit breakers, the parameters presented below must be taken into account:
Time/current curves for UPS input and output fuses:
UPS short-circuit current with inverter coupled and By-pass AC source out of tolerances
Line Current Values
Rated power of
each UPS unit
Continuous input
current at V=480V
Input current at
V=480V overload
= 1.25 In limited to
10 min.
Input current at
V=480V overload
= 1.5 In limited to
1 min.
Input/output fuse
ratings
40KVA 48 A 60 A 72 A 160 A
50KVA 60 A 75 A 90 A 160 A
60KVA 72 A 90 A 108 A 160 A
80KVA 96 A 120 A 144 A 160 A
100KVA 120 A 150 A 180 A 315 A
130KVA 156 A 195 A 234 A 315 A
Sn 40KVA 50KVA 60KVA 80KVA 100KVA 130KVA
In 48 A 60 A 72 A 96 A 120 A 156 A
Limitation 230 A 230 A 230 A 260 A 435 A 435 A
40-80 kVA: 160A
100-130 kVA: 315A
I (A)
t (s)
10 102103104
10
10-1
1
102
10-2
103
10-3
104
10-4
MGE Galaxy 5000
AppendicesA — 2 86-174010-00 B00

Installation and User Manual
A — 386-174010-00 B00
Input/Output Characteristics
Normal AC source/Bypass AC source
Power supplied as a function of Permissible UPS overloads as a function of time
input voltage
UPS
Uin 432 to 528 V
Input voltage range permitted by the
standard according to the curve below 310 to 528 V
Fin 45 to 65 Hz
Appendices
310V 432V 528V V

MGE Galaxy 5000
A — 4 86-174010-00 B00
General characteristics of Galaxy 5000 UPSs
INFORMATION The operating temperature range is 32°F to 104°F (0°C to +40°C); for overload
conditions is 32°F to 86°F (0°C to +30°C). Optimum operating range is within 68°F
to 77°F (20°C to +25°C). Battery backup time is adversely affected by high and low
temperatures. It is significantly reduced at temperatures under 50°F (10°C). Above
77°F (25°C), battery service life is cut in half every 18°F (10°C). Above 104°F (40°C),
battery manufacturers no longer guarantee operation due to the risk of thermal
runaway.
UPS power in KVA 40 50 60 80 100 130
Normal AC input
Number of conductors 3 phases + ground
Reference voltage at Pn 432 V to 528 V
Reference frequency 45 Hz to 65 Hz
THDI Typically 3% at Pn
Power factor >0.99
Bypass AC input
Number of conductors 3 phases + ground
Reference voltage at Pn 432 V to 528 V
Reference frequency 45 Hz to 65 Hz
Load output
Number of conductors 3 phases
Set phase-to-phase voltages 480 V
Voltage variation ± 1%
Adjustable frequencies and
tolerance (on battery power) 60 Hz ± 0.1 Hz
Voltage variation for 0 to
100% load step change ± 1%
Permissible overloads 150% for 1 minute, 125% for 10 minutes
THDU Ph-to-Ph and Ph-to-N
for nonlinear load < 2% Ph-to-Ph
Battery
Standard battery technology Sealed lead-acid battery (gas-recombination)
Inverter
Active power (kW) 36 45 54 72 90 117
Heat losses in kW Heat
Heat losses in BTUs
2.71
9250
3.39
11560
4.06
13870
5.42
18500
5.74
19610
7.47
25490
Storage temperature range -13°F to 103°F (-25°C to +45°C)
Relative humidity 20% to 95%
Maximum operating altitude
without derating 3281 ft (< 1000 m)
Operating temperature range
at Pn 32°F to 104°F (0°C to 40°C)
Appendices

Installation and User Manual
A — 586-174010-00 B00
A2 Maximum Allowable Power for Parallel UPS Units
INFORMATION The maximum allowable power for 6 parallel UPSs is limited to 5 x Pn for
40-80kVA UPSs. For 100-130kVA UPSs, the maximum is up to 4 x Pn.
With external system bypass cabinet:
Without external system bypass cabinet:
= 1 x Pn
= 1 x Pn
= 2 x Pn
= 3 x Pn
= 4 x Pn
= 5 x Pn
= 5 x Pn
+
+++++
+++
++
+
+
+
+
+
Appendices

MGE -Galaxy 5000
A — 6 86-174010-00 B00
A3 UPS Cabinet Major Internal Components
IGBT charger + neutral leg
IGBT PFC
IGBT inverter
EXTN PCA
DC capacitors
Normal AC and battery SS PCA
Output fuse
Bypass AC and inverter SS PCA
DALIN PCA
Output capacitors
ALIN PCA
Input fuse
Input capacitors
Inductor and SS fans
Output-filter PCA
ETONUS PCA
Input-filter PCA
Appendices

Installation and User Manual
A — 786-174010-00 B00
A4 Available Options
NMC (Network Management Card) option
This option is a communications card for supervision and protection of a three-phase device. Each UPS can be
equipped with a maximum of four NMC communications cards.
Optional communications card with additional power relay
The UPS is already equipped with a relay communications card. But it is possible, with this option, to add another
card with programmable power-relay functions.
Optional serial communications card
This option is an RS232 or RS485 serial communications card operating under the JBUS protocol.
AS4I option
This option consists of a low-power relay card for shut-off and scheduling functions.
Multislot option
This option consists of communications cards to concentrate the communication of two parallel-connected UPSs.
External synchronization module option
With this option, a SYNIN communications card and two circuit breakers are added to each UPS unit. The external
synchronization module issues a reference frequency used to synchronize the UPS units.
CAUTION Check the different input/output signal levels (LV, ELV, SELV) on the optional
communication cards (4) and use appropriate wiring.
Appendices

MGE Galaxy 5000
A — 8 86-174010-00 B00
A5 Environment
Schneider Electric has implemented an environmental-protection policy.
Products are developed according to an eco-design approach.
Substances
This product does not contain CFCs, HCFCs or asbestos.
Packing
To improve waste treatment and facilitate recycling, separate the various packing components.
The cardboard we use includes over 50% of recycled cardboard.
Sacks and bags are made of polyethylene.
Packing materials are recyclable and bear the appropriate identification symbol .
Follow all local regulations for the disposal of packing materials.
End of life
Schneider Electric will process products at the end of their service life in compliance with local regulations.
Schneider Electric works with companies in charge of collecting and eliminating our products at the end of their
service life.
Product
The product is made up of recyclable materials.
Dismantling and destruction must take place in compliance with all local regulations concerning waste.
At the end of its service life, the product must be transported to a processing center for electrical and electronic waste.
Make the product unusable by cutting the internal supply cables.
Battery
The product contains lead-acid batteries that must be processed according to applicable local regulations
concerning batteries.
The battery may be removed to comply with regulations and in view of correct disposal.
The "Material Safety Data Sheets" (MSDS) for the batteries are available on our web site*.
(*) For more information or to contact the Product Environmental manager, use the "Environmental Form" on the site:
www.mgeups.com -> About us -> Environment.
Material Abbreviation Symbol Number
Polyethylene terephthalate PET 01
High-density polyethylene HDPE 02
Polyvinyl chloride PVC 03
Low-density polyethylene LDPE 04
Polypropylene PP 05
Polystyrene PS 06
01
PET
Appendices
01
PET

Installation and User Manual
Warranty, Registration, & Customer Support W — 186-174010-00 B00
MGE Warranty & Proprietary Rights Statement for Three Phase Products
(Applicable within the United States, Canada and Mexico)
MGE Standard Three Phase Warranty
MGE UPS SYSTEMS, INC. (“MGE”) warrants three phase products it manufactures to be free from defects in
materials and workmanship for a period of three hundred sixty five (365) days counting from the date of purchase by
or for the first end user (“Purchaser”), or, if applicable, the date of MGE’s completion of initial startup of the subject
product, provided however said warranty shall not exceed eighteen (18) months from the date of delivery of the
subject product to Purchaser (the “Warranty Period”). MGE’s liability hereunder is limited to replacing or repairing at
MGE’s factory or on the job site, at MGE’s option, any part or parts that are defective and reported to MGE during
the Warranty Period. MGE shall have the sole right to determine if the parts are to be repaired at the job site or
whether they are to be returned to the factory for repair or replacement. All items returned to MGE for repair or
replacement must be sent freight prepaid to its factory. Purchaser must obtain MGE’s Return Goods Authorization
(“RGA”) prior to returning items. The conditions stated herein must be met for MGE’s warranty to be valid. MGE will
not be liable for any damage done by unauthorized repair work, unauthorized replacement parts, from any misappli-
cation of the subject product, for damage due to accident, abuse, or act of God (such as earthquake, flood, inclement
weather, rain or fire), or relating to Purchaser’s failure to follow proper environmental conditions for the product.
In no event shall MGE be liable for loss, damage, or expense directly or indirectly arising from the use of or any
defects in the subject product, or from any other cause, except as expressly stated in this warranty. EXCEPT AS
EXPRESSLY STATED IN THIS WARRANTY, MGE UPS SYSTEMS, INC. MAKES NO WARRANTIES, EXPRESS OR
IMPLIED, INCLUDING ANY WARRANTY AS TO MERCHANTABILITY OR FITNESS FOR A PARTICULAR
PURPOSE OR USE OR NON-INFRINGEMENT. MGE is not liable for and Purchaser waives any right of action it
has or may have against MGE for any consequential or special damages arising out of any breach of warranty, and
for any damages Purchaser may claim for damage to any property or injury or death to any person arising out of its
purchase or the use, operation or maintenance of the subject product. The warranty stated herein includes parts and
labor; however, MGE will not be liable for any labor subcontracted or performed by Purchaser for preparation of the
warranted item for return to MGE’s factory or for preparation work for field repair or replacement, and MGE will not
be responsible to pay any invoice therefore.
This warranty shall be exclusive of any and all other warranties express or implied and may be modified only by a
writing signed by an authorized officer of MGE UPS SYSTEMS, INC. This warranty shall extend to the Purchaser
but to no one else. Accessories supplied by MGE, but manufactured by others, carry any warranty the manufactur-
ers have made to MGE, and which can be passed on to Purchaser.
MGE UPS SYSTEMS, INC. makes no warranty with respect to whether the products sold hereunder infringe any
patent, U.S. or foreign, and Purchaser represents that any specially ordered products do not infringe any patent.
Purchaser agrees to indemnify and hold MGE UPS SYSTEMS, INC. harmless from any liability by virtue of any
patent claims where Purchaser has ordered a product conforming to Purchaser’s specifications, or conforming to
Purchaser’s specific design.
Purchaser has not relied and shall not rely on any oral representation regarding any products sold hereunder and
any oral representation shall not bind MGE UPS SYSTEMS, INC. and shall not be part of any warranty.
There are no warranties which extend beyond the description on the face hereof. In no event shall MGE UPS SYSTEMS,
INC. be responsible for consequential damages or for any other damages except as expressly stated herein.
Proprietary Rights Statement
The information in this manual is the property of MGE UPS SYSTEMS, INC., and represents a proprietary article in
which MGE UPS SYSTEMS, INC. retains any and all intellectual property rights, including exclusive rights of use
and/or manufacture and/or sale. Possession of this information does not convey any permission to reproduce, print,
manufacture or have made the article or articles shown herein. Such permission may be granted only by specific
written authorization signed by an authorized officer of MGE UPS SYSTEMS, INC.
IBM, PC-AT, ES/9000, and AS/400 are trademarks of International Business Machines Corporation. MGE and MGE
UPS SYSTEMS are trademarks of MGE UPS SYSTEMS, INC. Other trademarks that may be used herein are owned
by their respective companies and are referred to in an editorial fashion only.
For Three Phase Warranty outside of the United States, Canada and Mexico, refer to Three Phase International Warranty.
January 2005 Rev C00

MGE Galaxy 5000
Warranty, Registration, & Customer SupportW — 2 86-174010-00 B00
Warranty and Product Registration
Thank you for choosing MGE UPS SYSTEMS, INC. for your power protection, distribution, and quality
requirements. We are pleased to have you join our increasing family of users.
In order to maximize the value you receive from this product, and to ensure that you are kept informed of
product or software updates, we recommend that you take a few minutes to register your new purchase.
You may register online at the URL noted below. Should you not have Internet access, you may mail or fax
this form back (attn: Warranty Registration) as indicated at the bottom of the page.
Register your product at: http://www.mgeups.com/email/warranty/menu.htm
Please be prepared with the following information to register and validate your product’s warranty, keep
informed on software and product updates, and register your extension "Warranty+" if purchased with the
product.
User Information
Last name ____________________________________________________________________
First name ____________________________________________________________________
Company name ____________________________________________________________________
Address ____________________________________________________________________
Zip code ____________________________________________________________________
City ____________________________________________________________________
State/Province ____________________________________________________________________
Country ____________________________________________________________________
Tel ____________________________________________________________________
Fax ____________________________________________________________________
Email ____________________________________________________________________
Product Information
Model ____________________________________________________________________
Serial Number ____________________________________________________________________
Date of purchase ____________________________________________________________________
Warranty Extension (Warranty+)
I have purchased a warranty extension (Warranty+)
Reference: ________________________Contract Number: __________________________________
Thank you from all of us at MGE.
MGE UPS SYSTEMS, INC., 1660 Scenic Avenue, Costa Mesa, CA 92626, USA
Tel: 714-557-1636 Fax: 714-557-9788
41-000154-53 Rev B02 8/2005

Installation and User Manual
Warranty, Registration, & Customer Support S — 186-174010-00 B00
Service Solutions Team — Three Phase Products
Technical Support and Product Services
Technical questions? If you encounter a problem while following the instructions in this manual, or have
questions about the operation, repair, or servicing of your equipment, please direct calls to the Service Solutions Team
or visit our web site www.mgeups.com for complete service information.
To insure that your questions are correctly answered, please obtain the serial number of the unit and include them
in any discussions or correspondence.
Serial number: ________________________________________________________________________________
Who To Contact
Service Solutions Team: 1-800-438-7373 (Hours: 24/7)
Customer FAQ
or International calls: 1-714-557-1636
Commitment: We are committed to providing easy access to factory trained experts that will provide responses to
any questions that you might have.
Scheduling Field Service Engineer Support
Scheduling of the Schneider Electric Field Service Engineers typically should be done 7 to 10 days before they are
required on-site. If the startup of the product is critical to maintaining your schedule, please call the Schneider Electric
toll free telephone number at 1-800-438-7373 for assistance.
Return Policy for Repair of Three Phase Products (RGA)
Should you require factory service for your equipment, contact Schneider Electric Service Solutions Team and obtain a
Return Goods Authorization (RGA) prior to shipping your unit. Never ship equipment to Schneider Electric without first
obtaining an RGA number.
Date: ________________________________________________________________________________
RGA Number: ________________________________________________________________________________
Contact Name: ________________________________________________________________________________
Website service address http://www.mgeups.com/products/pdt120/service/ccc.htm
?

(This page left blank intentionally)
MGE Galaxy 5000
S — 2 86-174010-00 B00

Glossary
Term used Definition/Meaning
@ At.
/ And/or.
+/- Plus or Minus.
≤ Equal to or less than.
# Number.
°C Degree Celsius.
°F Degree Fahrenheit.
Ø Phase angle.
Ω Ohm; unit of resistance.
® Trade Mark.
AC or ac Alternating current, also implies root-mean-square (rms).
Ambient Temp. Temperature of surrounding air.
Ambient noise Acoustical noise of surrounding environment.
ANSI American National Standard Institute.
AWG American Wire Gauge. A standard unit for measuring wire cross-sectional area.
BTU or Btu British thermal unit. Defined as the amount of heat required to raise the temperature
of one pound of water by 1°F.
BYPASS mode Load is powered by the bypass input line through the static switch.
CB Circuit breaker.
DC or dc Direct current, or voltage.
Earth ground A ground circuit that has contact with the earth.
GND Electrical ground.
Hz Hertz, frequency measurement unit, 1Hz is one cycle per second.
I Current.
In Nominal current.
IEC International Electrotechnical Commission.
Glossary G — 186-174010-00 B00

Glossary
MGE Galaxy 5000
G — 2 86-174010-00 B00
IEEE Institute of Electrical and Electronic Engineers.
Inverter An electrical circuit that generates an AC voltage source from a DC voltage source.
IGBT Insulated gate bipolar transistors.
I/O Input/Output.
KVA KiloVolt-Ampere; is equal to 1000 Volt-Ampere.
KW True power. Kilo-Watt = 1000 Watt.
L Line.
LCD Liquid-Crystal Display.
LED Light Emitting Diode.
Mains or Mains 1 Main AC input source.
Mains 2 Bypass AC input source.
mA Milliampere.
MAX. Maximum.
N Neutral.
NC Normally closed.
NO Normally open.
NEC National Electrical Code.
NFPA National Fire Protection Association.
PN Part number.
Pn Nominal power.
On-line mode Inverter output power is the primary energy source to load.
OSHA Occupational Safety and Health Agency.
PCA Printed circuit assembly.
PCB Printed circuit board.
PWM Pulse Width Modulation.
Q1 UPS input isolation switch.
Q3BP UPS maintenance bypass switch.
Q4S UPS bypass switch.
Q5N UPS output switch.
Remote Emergency A switch used for shutting down electrical equipment from a location away from
Power Off the equipment.
REPO Remote Emergency Power Off.

SCR Silicon controlled rectifier.
Static Transfer A solid state switching mechanism electronically controlled to pass AC power directly
from the utility to an output load.
Test connector DB-9 type connector on the LCD panel allowing MGE UPS SYSTEMS Customer Support
Service technician to access programmable and diagnostic features of the system.
UL Underwriter’s Laboratories, Inc.
V Volts
VA Volt-amperes, unit for apparent power measurement, equal V x I.
VAC Voltage of AC type.
Vdc Voltage of DC type.
Glossary G — 386-174010-00 B00

MGE Galaxy 5000
G — 4 86-174010-00 B00

Reorder Form
1660 Scenic Avenue
Costa Mesa, CA 92626
Use this form to report any errors, omissions, or other problems you have experienced, or to order
additional hardcopies of this document. A free copy of this document may be downloaded
from the proprietary Web site. Please contact your APC by Schneider Electric Sales
Representative for assistance.
NAME _____________________________________________________________________________________
COMPANY ___________________________________________________________________________________
STREET ADDRESS ____________________________________________________________________________
CITY ________________________________________ STATE __________________ ZIP ___________________
I would like to order______ (quantity @ $75.00 each) additional copies of the:
MGE Galaxy 5000
40 – 130KVA
Installation and User Manual
86-174010-00 B00
I would like to report the following problems with this document:
Reorder R — 186-174010-00 B00



Contact Information
Schneider Electric
1660 Scenic Avenue,
Costa Mesa, California 92626
Tel: (714) 557-1636
(800) 523-0142
Fax: (714) 557-9788
email: info@mgeups.com
www.mgeups.com