Apollo America 51000357 Wireless Smoke Heat Alarm User Manual
Apollo America, Inc Wireless Smoke Heat Alarm Users Manual
Users Manual

Cet appareil est conforme à la partie 15 de la réglementation de la FCC et aux normes RSS sur les appareils
exempts de licence d'Industrie Canada. Son fonctionnement est soumis aux deux conditions suivantes:
(1) Ce dispositif ne doit pas causer d’interférences nuisibles, et (2) cet appareil doit accepter toute
interférence reçue, y compris les interférences pouvant causer un fonctionnement inopiné de l’appareil.
Cet équipement a été testé et déclaré conforme aux limites applicables aux périphériques numériques
de classe B, selon la partie 15 de la réglementation de la FCC. Ces limites ont été conçues pour fournir
une protection raisonnable contre les interférences nuisibles en milieu résidentiel. Cet équipement
produit, utilise et peut émettre de l’énergie de fréquence radio. Si l’équipement n’est pas installé
et utilisé conformément aux instructions fournies, il peut provoquer des interférences néfastes aux
communications radio. Cependant, la possibilité qu'une interférence se produise dans une installation
particulière n’est pas totalement exclue. Si cet équipement ne produit pas d'interférences nuisibles à la
réception radio ou télévision, ce qui peut être déterminé en éteignant et en rallumant l’équipement, il
est recommandé à l’utilisateur d'essayer de remédier aux interférences en appliquant l’une ou plusieurs
des mesures suivantes:
• Réorientez ou déplacez l’antenne de réception.
• Augmentez la distance qui sépare l’équipement du récepteur
• Branchez l’équipement à une prise située sur un circuit différent de celui auquel le récepteur est
connecté.
• Consultez le revendeur ou un technicien radio/TV expérimenté pour obtenir de l’aide
«Pour votre information, la norme NFPA 72 du code national d’alarme incendie stipule que:
«Détection requise 11.5.1»
«Lorsque cela est requis par les lois, des codes ou normes applicables pour un type spéci que
d’habitation, les détecteurs de fumée simples et multipostes approuvés seront installés de la manière
suivante:
1. Dans les chambres à coucher et chambres d'amis
2. À l’extérieur de chaque chambre à coucher d'une maison d'habitation, à 6,4m (21pieds) de toute
porte donnant sur une chambre à coucher, la distance étant mesurée le long d’un chemin de
circulation
3. À chaque niveau d’une maison d’habitation, y compris les sous-sols
4. À chaque niveau d’un foyer résidentiel et d'un établissement de soins (petit établissement), y
compris les sous-sols et excepté les vides sanitaires et les combles inachevés
5. Dans la salle de séjour d'une suite d'amis
6. Dans la salle de séjour d’un foyer résidentiel et d'un établissement de soins.
(Réimprimé avec la permission de la norme NFPA 72®, du code national d’alarme incendie Copyright
© 2007 National Fire Protection Association, Quincy, MA 02269. Cette réimpression n’exprime pas la
position complète et of cielle de la National Fire Protection Association sur le sujet cité qui est représenté
uniquement par la norme dans son intégralité.)
(Code national d’alarme incendie® et NFPA 72® sont des marques déposées de la National Fire Protection
Association, Inc., Quincy, MA 02269.)
Dans les maisons d'habitation à niveau unique et à plusieurs niveaux ainsi que dans les immeubles
d'habitation équipés de systèmes de détecteurs de fumée similaires, il est possible que les signaux
envoyés par des capteurs sans l soient bloqués ou ré échis par le métal avant d'atteindre le panneau
de commande du détecteur et ce, même si le parcours du signal a été récemment véri é au cours
d'un test hebdomadaire. Un blocage peut se produire si un objet métallique a été déplacé dans le
parcours du signal du capteur.
Apollo America
25 Corporate Drive
Auburn Hills, MI 48326
248-332-3900 Phone
888-332-2241 Tech Support
www.apollo- re.com
ATTENTION: This manual should be read prior to use and retained for further information.
GENERAL INFORMATION
The Wireless Smoke Heat Alarm is a 3xAAA battery powered wireless detector intended for
use with a compatible wireless alarm system. The detector has a built-in wireless transmitter,
which communicates with the control panel. When smoke is detected, the alarm sounds a
loud local alarm and the built-in transmitter sends a signal to the control panel. The Wireless
Smoke Heat Alarm contains an integrated xed 41°F temperature freeze sensor that will
send a warning signal based on temperature detected. This detector is designed to provide
protection with 70-foot spacing capability.
The detector can send alarm, tamper and battery condition messages to the system’s
receiver. Refer to the wireless system’s instruction for the maximum number of transmitters
that can be supported.
CONTENTS OF BOX:
• Wireless Smoke Heat Alarm with base
• Installation guide (APD0601)
• Pack of screws and anchors
• Labels or decals as appropriate
• 3 AAA PC2400 Duracell Procell batteries (1.5V 1100mAh) or 3 AAA Energizer E92
batteries (1.5V 1100mAh)
The Wireless Smoke Heat Alarm contains a sounder which generates the ANSI S3.41
temporal 3 pattern in an alarm condition. In alarm, a message is also sent to the control
panel and the detector’s ID is displayed at the console. During an alarm condition, pressing
the detector’s hush button will silence the sounder (see table below). The mounting base
installation is simpli ed by the incorporation of features compatible for both drywall
fasteners (not supplied) and other methods.
Tricolored LED (red, yellow, green) and a sounder on the detector provide local visual and
audible indication of the detector’s status as listed in Table 1.
During initial power-up the LED blinks alternately red, yellow then green. It takes about 8
seconds for the detector to stabilize.
After power-up has completed and the detector is functioning normally, the green LED
blinks once every 12 seconds.
Detector Trouble: When the detector has a general fault, the yellow LED blinks once every
four seconds and there is a chirp every 48 seconds. After 12 hours the panel will display a
loss of supervision message.
51000-355/51000-357
Wireless Smoke Heat Alarm
Installation Guide

2 INST APD0601 B141212 Wireless Smoke Heat Alarm Install Guide
Status LEDs
Sounder
(do not pulse the sounder
and LED concurrently)
Normal Green ash every 12 seconds Off
Heat Alarm Red ash every 1 second ANSI S3.41 temporal 3
Heat Test Red ash every 1 second ANSI S3.41 temporal 3
Smoke Alarm Red ash every 1 second ANSI S3.41 temporal 3
(press button to hush
for 5-10 minutes)
Smoke Test Red ash every 1 second ANSI S3.41 temporal 3
(press button to hush
for 5-10 minutes)
Test Alarm Red ash every 1 second ANSI S3.41 temporal 3
Freeze Warning 3 yellow ashes
every 4 seconds
Off
Detector Trouble Yellow ash every 4 seconds One chirp every 48 seconds
Low Battery Yellow ash every 12 seconds One chirp every 48
seconds (press button
to hush for 12 hours)
Detector Dirty Yellow ash every 8 seconds One chirp every 48 seconds
Power-up Red, yellow, green
ash sequence
One chirp at the end
of power-up sequence
Tamper Red, yellow, green ash
sequence every 12 seconds
Off
Detector Dirty Feature: When the detector has been contaminated, the yellow LED blinks
once every 8 seconds and there is a chirp every 48 seconds. Refer to MAINTENANCE
section for cleaning your alarm. After 12 hours the panel will display a loss of supervision
message.
Low Battery Detection: The Wireless Smoke Heat Alarm is powered by 3 AAA Duracell
Procell or 3 AAA Energizer E92 batteries (included). The detector regularly checks for a
low battery. If a low battery is detected, the transmitter sends a low battery message to
the control panel, which displays the detector’s ID at low battery. In addition, the yellow
LED of the detector will blink every 12 seconds. The detector’s sounder will chirp every
48 seconds (yellow LED continues to blink) until the batteries are replaced. Pressing the
hush button will silence the chirps for 12 hours, if no other trouble conditions exist. The
batteries should be replaced WHEN the chirps begin. Be sure to replace the batteries with
fresh ones.
Low Battery Detection: The Wireless Smoke Heat Alarm is powered by 3 AAA Duracell
Procell or 3 AAA Energizer E92 batteries (included). The detector regularly checks for a
low battery. If a low battery is detected, the transmitter sends a low battery message to
the control panel, which displays the detector’s ID at low battery. In addition, the yellow
LED of the detector will blink every 12 seconds. The detector’s sounder will chirp every
48 seconds (yellow LED continues to blink) until the batteries are replaced. Pressing the
hush button will silence the chirps for 12 hours, if no other trouble conditions exist. The
batteries should be replaced WHEN the chirps begin. Be sure to replace the batteries with
fresh ones.
Table 1. Detector status and indication
15 Guide d'installation du détecteur de chaleur et de fumée sans l INST APD0601 B141212
• La consommation d’alcool ou de drogues peut également diminuer la capacité à entendre l’alarme
de fumée. Pour une protection maximale, installez un détecteur de fumée dans chaque chambre à
coucher à chaque étage d’une habitation.
• Bien que les détecteurs de fumée puissent aider à sauver des vies en donnant une alerte incendie
précoce, ils ne se substituent pas à une police d’assurance. Les propriétaires et les locataires
doivent avoir une assurance adaptée à la protection de leurs biens.
PLAN D’ÉVACUATION FAMILIALE
Selon la National Fire Protection Association (NFPA), il s’écoule souvent très peu de temps entre la
détection d’un incendie et le moment où il devient mortel. Cet intervalle peut être de seulement 1
ou 2 minutes. La plani cation et la pratique des conditions d’incendie avec un accent sur l’évacuation
rapide de l’habitation sont importantes. Il faut organiser des exercices a n que tous les membres de
la famille sachent quelle action entreprendre.
CONSIGNES DE SÉCURITÉ
• Faites un plan d’évacuation de la maison. Dessinez un plan de votre maison qui indique toutes les
portes et fenêtres. Discutez du plan avec tout le monde dans votre maison.
• Retenez au moins deux sorties de chaque pièce, si possible. Assurez-vous que toutes les portes et
fenêtres qui mènent dehors s’ouvrent facilement.
• Ayez un point de rencontre à l’extérieur (comme un arbre, un lampadaire ou une boîte aux lettres) à
distance sûre de la maison, où tout le monde devrait se rencontrer.
• Pratiquez votre exercice d’incendie familial pendant la nuit et pendant le jour avec tout le monde
dans votre maison, deux fois par an.
• Exercez-vous en utilisant différentes sorties.
• Enseignez à vos enfants comment s’échapper seuls au cas où vous ne pourriez pas les aider.
• Fermez les portes derrière vous lorsque vous partez.
SI L’ALARME RETENTIT
• Si l’alarme du détecteur de fumée retentit, sortez et restez dehors. Ne retournez jamais à l’intérieur
pour chercher des personnes ou des animaux.
• Si vous devez évacuer à travers la fumée, baissez-vous et marchez sous la fumée pour sortir.
• Appelez le service des pompiers de l’extérieur de votre maison. POUR PLUS DE RENSEIGNEMENTS
SUR LA SÉCURITÉ, CONSULTEZ LE SITE WEB : www.nfpa.org/education
SPÉCIFICATIONS
• Fréquence de l’émetteur: 345 000MHz (piloté par quartz)
• Dimensions: Ø 125mm x hauteur 63mm (Ø 5po x hauteur 2,5po)
• Poids (piles incluses): 243g oz (8,57)
• Couleur: blanc
• Capacité du rayon: 70pi
• Signal sonore (ANSI Temporel 3): 85 dBA min. en cas de déclenchement de l’alarme
• Sensibilité: 1,5 - 3,5 %/pied
• Température de fonctionnement: 4,4°-37,8°C (40°-100°F)
• Valeur thermique supplémentaire: 135°F
• Humidité relative: 15-90 % sans condensation
• Piles (incluses): trois (3) piles AAA PC2400 Duracell Procell ou trois (3) piles AAA Energizer E92
• Liste de matériels homologués réglementaires: UL 217
• Garantie: deux (2) ans
• Accessoires inclus: Trousse de matériel de montage
INFORMATIONS RÉGLEMENTAIRES:
Des changements ou modi cations non autorisés pourraient entraîner l’annulation de l’autorisation
d’exploiter l’équipement.

Guide d'installation du détecteur de chaleur et de fumée sans l INST APD0601 B141212 14
2. Appuyez et maintenez le bouton de test pendant au moins 5 secondes. Le panneau d’alarme se
déclenche puis le détecteur se met en alerte. La sonde émet la séquence temporelle 3 et la DEL
rouge clignote. La console du panneau d’alarme doit en principe af cher le nom du détecteur
ayant déclenché l’alarme.
Test de fumée
Ten ez u n b ât onn et f uma nt o u u ne mèc he de co ton à c ôt é d u dé tec teu r e t so uf ez doucement la
fumée sur le détecteur jusqu’à ce que l’appareil déclenche l’alarme. La fumée en aérosol est également
une méthode acceptable. Le test de détection de fumée est recommandé pour véri er la capacité de
protection du système.
Méthode de chauffage direct (sèche-cheveux de 1 000·1 500 watts)
Dirigez la chaleur vers le thermistor. Assurez-vous de tenir la source de chaleur à environ 12 pouces du
détecteur pour éviter d'endommager le plastique. Le détecteur se réinitialise uniquement après avoir eu
le temps de refroidir.
Un détecteur qui ne s’active pas au cours d'un de ces tests doit d’abord être nettoyé comme le décrit
la section MAINTENANCE de ce manuel. Si le détecteur ne s’active toujours pas, retournez-le pour
réparation.
MAINTENANCE
EFFECTUEZ LE TEST UNE FOIS PAR SEMAINE.
AVERTISSEMENT! UTILISEZ UNIQUEMENT LES PILES SPÉCIFIÉES. L’USAGE DE PILES DIFFÉRENTES PEUT
AVOIR UN EFFET NUISIBLE SUR LE DÉTECTEUR DE FUMÉE.
VOTRE DÉTECTEUR DOIT ÊTRE NETTOYÉ AU MOINS UNE FOIS UN AN.
Pour nettoyer votre détecteur, ôtez-le du socle de xation. Vous pouvez nettoyer l’intérieur de votre
détecteur à l’aide d’un tuyau d’air comprimé ou d’un aspirateur en souf ant ou en aspirant les ori ces
situés autour du périmètre du détecteur. L’extérieur du détecteur peut être essuyé avec un chiffon
humide.
Après nettoyage, réinstallez et testez votre détecteur à l’aide du bouton de test. Si le nettoyage ne
restaure pas le fonctionnement normal de l’alarme, le détecteur doit être remplacé.
AVERTISSEMENT: LIRE ATTENTIVEMENT ET MINUTIEUSEMENT
• La norme NFPA 72 stipule: Un équipement d’alerte incendie pour locaux d’habitation est capable de
protéger environ la moitié des occupants des incendies potentiellement mortels. Les victimes sont
souvent proches de l’incendie, trop âgées ou trop jeunes, présentent des dé ciences physiques ou
mentales, de telle façon qu’elles ne peuvent pas s’échapper, même si elles sont averties suf samment tôt
pour qu’une évacuation soit possible. Pour ces personnes, d’autres stratégies telles que des mesures de
protection, une évacuation ou un secours assisté seraient nécessaires.
• Un détecteur alimenté par piles doit avoir des piles du type spéci é, en bon état et convenablement
installées.
• Les détecteurs de fumée doivent être régulièrement testés pour s’assurer que les piles et les
circuits du détecteur sont en bon état de fonctionnement.
• Les détecteurs de fumée ne peuvent pas produire une alarme si la fumée n’atteint pas le détecteur.
Par conséquent, les détecteurs de fumée ne peuvent pas détecter les incendies commençant
dans les cheminées, sur les murs, les toits, de l’autre côté d’une porte fermée ou sur un autre
étage.
• Si le détecteur est situé hors de la chambre à coucher ou sur un autre étage, il peut ne pas réveiller
une personne profondément endormie.
• Les études ont montré que les détecteurs de fumée et de chaleur peuvent ne pas réveiller toutes
les personnes endormies, et qu’il incombe aux habitants de la maison qui sont en mesure d’aider
les autres de porter assistance à ceux qui pourraient ne pas être réveillés par le son de l’alarme ou
ceux qui seraient incapables d’évacuer le site en toute sécurité de manière autonome.
INST APD0601 B141212 Wireless Smoke Heat Alarm Install Guide 3
BATTERY INSTALLATION AND REPLACEMENT
To replace the batteries:
1. Remove the detector from its mounting base by twisting the detector
counterclockwise. Remove and dispose of the batteries according to your local
regulations.
2. To ensure proper power-down sequence, wait a minimum of 20 seconds before
installing new batteries.
3. Install 3 new AAA batteries (available from your local Duracell or Energizer dealer)
in the battery compartment. Follow the polarity diagram inside the compartment. If
the batteries are incorrectly inserted please remove gently with a non-conductive
tool and correctly reinsert.
4. Reinstall the detector onto the mounting
base by turning the detector clockwise until the mating marks align.
5. After the power-up sequence the green LED should blink about once every 12
seconds to indicate normal operation. If the batteries are not installed correctly, the
detector will not operate and the batteries may be damaged. If the detector does not
power-up, check for correct batteries installation and for a fully charged batteries.
6. Test the detector (as described later).
CONSTANT EXPOSURES TO HIGH OR LOW TEMPERATURES OR HIGH HUMIDITY MAY
REDUCE BATTERY LIFE.
PROGRAMMING
Refer to the appropiate compatible control panel programming guide for the proper
procedure required to enroll the wireless smoke/heat into the system.
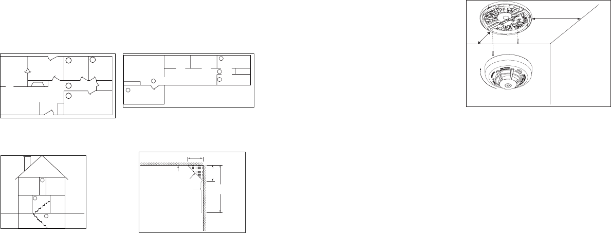
RECOMMENDED LOCATIONS FOR SMOKE HEAT ALARM
According to National Fire Protection Association (NFPA) the major threat from re in a
dwelling unit occurs at night when everyone is asleep. The principal threat to persons
in sleeping areas comes from res in the remainder of the unit; therefore, a smoke
detector(s) is best located between the bedroom areas and the rest of the unit. In units
with only one bedroom area on one oor, the smoke detector(s) should be located as
shown in Figure 2. In dwelling units with more than one bedroom area or with bedrooms
on more than one oor, more than one smoke detector is required, as shown in Figure 3.
In addition to smoke detectors outside of the sleeping areas, the device should be
installed on each additional story of the dwelling unit, including the basement. These
installations are shown in Figure 4. The living area smoke detector should be installed in
the living room or near the stairway to the upper level, or in both locations. The basement
%$77(5<&203$570(17
HUSH/TEST BUTTON
Fig 1. Wireless Smoke Heat Alarm

4 INST APD0601 B141212 Wireless Smoke Heat Alarm Install Guide
smoke detector should be installed in close proximity to the stairway leading to the oor
above. Where installed on an open-joisted ceiling, the detector should be placed on the
bottom of the joists. The detector should be positioned relative to the stairway so as to
intercept smoke coming from a re in the basement before the smoke enters the stairway.
Smoke detectors are optional where a door is not provided between living room and
recreation room (Figure 5). The smoke from a re generally rises to the ceiling, spreads
out across the ceiling surface, and begins to bank down from the ceiling. The corner
where the ceiling and wall meet is an air space into which the smoke could have dif culty
penetrating. In most res, this dead air space measures about 0.1m (4in.) along the ceiling
from the corner and about 0.1m (4in.) down the wall. Detectors should not be placed in
this dead air space, see Figure 6, 7 and 8.
Where NOT to install the alarm:
• Directly above a sink, cooker, stove or oven
• Do not locate detector within 5 feet (1.5 m) of any cooking appliance
• Next to a door or window that would be affected by drafts i.e extractor fan or air vent
• Outside
• Do not install in any environment that does not comply with the detector’s
environmental speci cations
• In or below a cupboard
• Where air ow would be obstructed by curtains or furniture
• Where dirt or dust could collect and block the sensor
• Where it could be knocked, damaged, or inadvertently removed
This detector shall not be installed in location where the normal ambient temperature is
below 40°F (4.4°C) or where it exceeds 100°F (37.8°C).
THIS EQUIPMENT SHOULD BE INSTALLED IN ACCORDANCE WITH NFPA 72: NATIONAL
FIRE ALARM AND SIGNALING CODE.
Dining
room
Kitchen BedroomBedroom
Bedroom
Living room
TV
room
Dining
room Kitchen
Living room
Bedroom
Bedroom
Bedroom
Fig 2./RFDWLRQRIWKHGHWHFWRUV
LQXQLWVZLWKRQO\RQHEHGURRP
DUHDRQRQHÀRRU
Fig 3./RFDWLRQRIWKHGHWHFWRUVLQ
GZHOOLQJXQLWVZLWKPRUHWKDQRQH
EHGURRPDUHDRUZLWKEHGURRPVRQ
PRUHWKDQRQHÀRRU
Bedroom
Living
room Dining
room
Basement
Hall Bedroom
Fig 4.'HWHFWRUORFDWHGRQHDFKVWRU\
Ceiling
Acceptable here
Never here
Top of detector
acceptable here
Sidewall
100 mm (4 in.)
100-mm
(4-in.)
minimum
300-mm
(12-in.)
maximum
Note: Measurements shown are to
the closest edge of the detector.
Fig 6.([DPSOHRISURSHUPRXQWLQJIRUGHWHFWRUV
13 Guide d'installation du détecteur de chaleur et de fumée sans l INST APD0601 B141212
• À l'intérieur ou sous un placard
• Dans des endroits où la circulation d'air serait obstruée par des rideaux ou des meubles
• Dans un endroit où de la saleté ou de la poussière pourrait s'accumuler et bloquer le détecteur
• Dans un endroit où il pourrait être cogné, endommagé ou ôté par inadvertance
Ce détecteur ne doit pas être installé dans un endroit où la température ambiante normale est inférieure
à 4,4°C (40°F) ou là où elle est supérieure à 37,8°C (100°F).
CET ÉQUIPEMENT DOIT ÊTRE INSTALLÉ CONFORMÉMENT À LA NORME 72 DE LA NATIONAL FIRE
PROTECTION ASSOCIATION: CODE NATIONAL D'ALARME INCENDIE ET DE SIGNALISATION.
MONTAGE DU DÉTECTEUR
Remarque: Ces dispositifs d’alarme doivent être installés uniquement par un ingénieur/technicien
compétent.
Cet appareil ne doit pas être utilisé avec une grille de protection.
Une fois que vous avez trouvé un emplacement convenable, montez le détecteur comme suit:
1. Consultez le schéma ci-dessous et installez le socle de xation au plafond ou sur le mur (si les
décrets locaux le permettent) à l’aide des positions de vis indiquées. Utilisez les deux vis et les pièces
d'ancrage fournies. Manipulez le socle pour que les vis s’emboîtent correctement dans les fentes
prévues à cet effet.
2. Ajustez le détecteur sur son socle en l’alignant dessus comme l'indique l'illustration (l’encoche
d’alignement du détecteur devrait être légèrement décalée de la languette de sécurité du socle
de xation), puis tournez le détecteur dans le sens horaire jusqu’à ce qu’il s'emboîte dans un
déclic.
3. Testez le détecteur à la n de l’installation (comme le décrit la section TESTER LE DÉTECTEUR de
ce manuel) et consultez les instructions du système de commande pour plus de renseignements
sur l’utilisation des appareils sans l.
1HSDVIL[HUOHGpWHFWHXUVXUGHVSDQQHDX[GHSODIRQGDPRELEOHV
100 mm (4 in.) minimum
100 mm (4 in.)
minimum
Fig 9.,QVWDOODWLRQGXGpWHFWHXU
TESTER LE DÉTECTEUR
REMARQUE: Avant le test, informez le poste central que le système du détecteur est en maintenance
a n d’empêcher des alarmes super ues. Le test du détecteur active une alarme et envoie un signal au
panneau. Par ailleurs, la fonction de test ne peut pas être utilisée si le détecteur est en panne.
Les détecteurs doivent être testés après installation et en fonction de l’entretien périodique.
Tester le fonctionnement du détecteur
Ce test véri e la sonde du détecteur, les DEL et l’émetteur.
1. Le bouton de test est situé sur le boîtier du détecteur.

Fig 7.([HPSOHG¶LQVWDOODWLRQDSSURSULpHGHVGpWHFWHXUVVXUXQSODIRQGLQFOLQp
Guide d'installation du détecteur de chaleur et de fumée sans l INST APD0601 B141212 12
3ALLEË
MANGER
#UISINE#HAMBRE#HAMBRE
#HAMBRE
3ALON
TV
room
#UISINE
3ALON
#HAMBRE
#HAMBRE
#HAMBRE
Fig 2.(PSODFHPHQWGHVGpWHFWHXUV
GDQVGHVPDLVRQVD\DQWXQHVHXOH
FKDPEUHjFRXFKHUVXUXQpWDJH
Fig 3.(PSODFHPHQWGHVGpWHFWHXUV
GDQVGHVPDLVRQVGHSOXVGXQH
FKDPEUHjFRXFKHURXD\DQWGHV
FKDPEUHVVXUSOXVGXQpWDJH
3ALLEË
MANGER
#HAMBRE
3ALON
3ALLEDEJEUX
#HAMBRE
#AVE
I)NSTALLATIONOPTIONNELLEDUND TECTEURDEFUM ESgIL
NgYAPASDEPORTEENTRELESALONETLASALLEDEJEUX
)NSTALLATIONDUND TECTEURDEFUM EREQUISE
%NTR E
#HAMBRE
3ALON 3ALLEË
MANGER
#AVE
%NTR E
#HAMBRE
Fig 5.,QVWDOODWLRQGDQVXQHPDLVRQ
Fig 4.8QGpWHFWHXULQVWDOOpjFKDTXHpWDJH
0LAFOND
)NSTALLATIONACCEPTABLEICI
.EJAMAISLINSTALLERICI
)NSTALLATIONDELAPARTIE
SUP RIEUREDUD TECTEUR
ACCEPTABLEICI
0AROILAT RALE
100 mm (4 in.)
100-mm
(4-in.)
minimum
300-mm
(12-in.)
maximum
2EMARQUELESMESURES
INDIQU ESSONTËLANGLE
LEPLUSPROCHEDUD TECTEUR
900 mm (3 ft)
102 mm (4 in.)
0ASDANSCETTEZONE
.IMPORTEO
DANSCETTEZONE
Fig 6.([HPSOHG¶LQVWDOODWLRQDSSURSULpHGHVGpWHFWHXUV
En plus des détecteurs de fumée installés hors des chambres à coucher, l’appareil doit être installé
à chaque étage supplémentaire de la maison, y compris au sous-sol. Ces installations sont illustrées
dans la Figure 4. Le détecteur de fumée de la salle de séjour doit être installé dans le salon ou près
de l’escalier menant au niveau supérieur, ou aux deux endroits. Le détecteur de fumée du sous-sol
doit être installé tout près de l’escalier qui mène à l'étage supérieur. S’il est installé sur un plafond à
solives apparentes, le détecteur devrait être placé sous les solives. Le détecteur doit être placé par
rapport à l’escalier de manière à intercepter la fumée provenant d’un incendie au sous-sol avant que
la fumée n’entre dans l’escalier.
Les détecteurs de fumée sont optionnels s’il n’y a pas de porte entre la salle de séjour et la salle
de jeux (Figure 5). La fumée d’un incendie s’élève généralement au plafond, se répand sur toute la
surface du plafond et commence à s'amonceler à partir du plafond. L’angle où le plafond et le mur se
rejoignent est un espace d’air où la fumée peut dif cilement pénétrer. Dans la plupart des incendies,
cet espace sans courant d’air mesure environ 0,1m (4po) le long du plafond depuis l’angle et environ
0,1m (4po) le long du mur. Les détecteurs ne doivent pas être placés dans cet espace sans courant
d’air. Voir les gures 6, 7 et 8.
Endroits déconseillés pour l'installation d'un détecteur:
• Directement au-dessus d'un évier, d'une cuisinière, d'un poêle ou d'un four
• Ne placez pas le détecteur à 1,5m (5pi) d’un appareil de cuisson
• Près d'une porte ou d'une fenêtre où il peut y avoir des courants d'air, à l'instar d'un ventilateur
d'extraction ou d'une bouche d'aération
• À l'extérieur
• Ne l'installez pas dans un environnement qui n'est pas conforme aux spéci cations
environnementales du détecteur.
)NSTALLATION
RECOMMAND E
PARTOUTDANS
CETTEZONE
)NSTALLATIONINTERDITE
DANSCETTEZONE
900 mm
(36 in.) 900 mm
(36 in.)
102 mm
(4 in.)
Fig 8.([HPSOHG¶LQVWDOODWLRQDSSURSULpH
GHGpWHFWHXUVVXUGHVSODIRQGVHQUHOLHI
INST APD0601 B141212 Wireless Smoke Heat Alarm Install Guide 5
Q
o
m
o
m
Anywhere in
this area
Not in this area
900 mm
(36 in.) 900 mm
(36 in.)
102 mm
(4 in.)
900 mm (3 ft)
102 mm (4 in.)
Not in this area
Anywhere in
this area
Fig 8.([DPSOHRISURSHUPRXQWLQJIRU
GHWHFWRUVZLWKSHDNHGFHLOLQJV
Fig 7.([DPSOHRISURSHUPRXQWLQJIRUGHWHFWRUVZLWKVORSHGFHLOLQJV
Bedroom
Living room
Recreation room
Bedroom
Basement
Indicates optional smoke alarm where a door
is not provided between living room and recreation room
Indicates required smoke detector
Hall
Fig 5.6SOLWOHYHODUUDQJHPHQW
MOUNTING THE DETECTOR
Note: These alarm devices should only be installed by a competent engineer/technician.
This device should not be used with a guard.
Once a suitable location is found, mount the detector as follows:
1. Refer to the diagram below and install the mounting base on the ceiling or on the
wall (if local ordinances permit) using screw locations as required. Use the two
screws and anchors provided. Maneuver the base so the screws are at the elbow of
the screw slots and secure.
2. Fit the detector inside the base by aligning it over the base as shown (detector’s
alignment notch should be slightly offset from mounting base tamper release tab),
then turn the detector in a clockwise direction until it clicks into place.
3. Test the detector after completing the installation (as described in the TESTING THE
DETECTOR section of this manual) and refer to the control system’s instructions for
additional information concerning the use of wireless devices.
'2127DWWDFKWKHGHWHFWRUWRUHPRYDEOHFHLOLQJSDQHOV
100 mm (4 in.) minimum
100 mm (4 in.)
minimum
Fig 9.0RXQWLQJWKHGHWHFWRU
TESTING THE DETECTOR
NOTE: Before testing, notify the central station that the detector system is undergoing
maintenance in order to prevent unwanted alarms. Testing the detector will activate an
alarm and send a signal to the panel. Also, the test function cannot be used if the detector
has a trouble condition.
Detectors must be tested after installation and following periodic maintenance.

6 INST APD0601 B141212 Wireless Smoke Heat Alarm Install Guide
Testing Detector Operation
This test checks the detector’s sounder, LEDs, and transmitter.
1. The test button is located on the detector housing.
2. Push and hold the test button for a minimum of 5 seconds. The alarm panel will
trigger and then the detector will go into alarm. The sounder begins the temporal
3 pattern and the red LED blinks. The alarm panel’s console should display the
detector’s name in alarm.
Smoke Test
Hold a smoldering punk stick or cotton wick at the side of the detector and gently
blow smoke through the detector until the unit alarms. Canned smoke aerosol is also
an acceptable method. Smoke detection testing is recommended for verifying system
protection capability.
Direct Heat Method (Hair dryer of 1000-1500 watts)
Direct the heat toward the thermistor. Be sure to hold the heat source about 12 inches
from the detector to avoid damage to the plastic. The detector will reset only after it has
time to cool.
A detector that fails to activate with any of these tests should rst be cleaned as outlined
in this manual’s MAINTENANCE section. If the detector still fails to activate, return for
repair.
MAINTENANCE
TEST ONCE A WEEK.
WARNING! USE ONLY BATTERIES SPECIFIED. USE OF DIFFERENT BATTERIES MAY HAVE A
DETRIMENTAL EFFECT ON THE SMOKE ALARM.
YOUR ALARM SHOULD BE CLEANED AT LEAST ONCE A YEAR.
To clean your alarm, remove it from the mounting base. You can clean the interior of
your alarm by using compressed air or vacuum cleaner hose and blowing or vacuuming
through the openings around the perimeter of the alarm. The outside of the alarm can be
wiped with a damp cloth.
After cleaning, reinstall and test your alarm by using the test button. If cleaning does not
restore the alarm to normal operation the alarm should be replaced.
WARNING: PLEASE READ CAREFULLY AND THOROUGHLY
• NFPA 72 states: Fire-warning equipment for residential occupancies are capable of
protecting about half of the occupants in potentially fatal res. Victims are often
intimate with the re, too old or too young, or physically or mentally impaired such
that they cannot escape even when warned early enough that escape should be
possible. For these people, other strategies such as protection-in-place or assisted
escape or rescue would be necessary.
• A battery powered alarm must have a battery of the speci ed type, in good condition
and installed properly.
• Smoke alarms must be tested regularly to make sure the batteries and the alarm
circuits are in good operating condition.
• Smoke alarms cannot provide an alarm if smoke does not reach the detector.
Therefore, smoke alarms may not sense res starting in chimneys, walls, on roofs, on
the other side of a closed door or on a different oor.
• If the alarm is located outside the sleeping room or on a different oor, it may not
wake up a sound sleeper.
11 Guide d'installation du détecteur de chaleur et de fumée sans l INST APD0601 B141212
INSTALLATION ET REMPLACEMENT DES PILES
Pour remplacer les piles:
1. Déposez le détecteur de son socle de xation en le tournant dans le sens antihoraire. Enlevez
les piles et mettez-les au rebut selon les réglementations locales.
2. A n de garantir une mise hors tension appropriée, attendez 20 secondes au moins avant
d'installer les piles neuves.
3. Installez 3 nouvelles piles AAA (disponibles auprès votre détaillant Duracell ou Energizer local)
dans le compartiment à piles. Suivez le schéma de polarité présenté dans le compartiment. Si
les piles sont insérées de façon incorrecte, veuillez les enlever doucement avec un outil isolant
et réinsérez-les correctement.
4. Réinstallez le détecteur sur la base de montage en tournant le détecteur dans le sens horaire
jusqu’à ce que les repères soient alignés.
5. Après la mise sous tension, la DEL verte devrait clignoter une fois toutes les 12 secondes
environ, pour indiquer un fonctionnement normal. Si les piles ne sont pas correctement
installées, le détecteur ne fonctionnera pas et les piles risquent d'être endommagées. Si vous
ne parvenez pas à mettre le détecteur sous tension, véri ez que les piles sont correctement
installées et qu'elles sont bien chargées.
6. Testez le détecteur (comme décrit plus loin).
DES EXPOSITIONS CONSTANTES À DES TEMPÉRATURES ÉLEVÉES OU BASSES OU À UNE HUMIDITÉ
ÉLEVÉE PEUVENT RÉDUIRE LA DURÉE DE VIE DES PILES.
PROGRAMMATION
Reportez-vous au guide de programmation approprié du panneau de commande compatible pour
connaître la procédure adéquate et requise pour enregistrer le détecteur de fumée/chaleur sans l
dans le système.
EMPLACEMENTS RECOMMANDÉS POUR LE DÉTECTEUR DE CHALEUR ET DE FUMÉE
Selon la National Fire Protection Association (NFPA), la principale menace d’incendie dans une
maison d'habitation survient la nuit, quand tout le monde est endormi. La menace principale pour les
personnes se trouvant dans les chambres à coucher vient des incendies survenant dans le reste de
l’habitation. Le meilleur emplacement pour un détecteur de fumée se situe donc entre les chambres
à coucher et le reste de l’habitation. Dans les habitations avec seulement une chambre à coucher sur
un étage, le détecteur doit être installé tel que l'indique la Figure 2. Dans les maisons d'habitations
ayant plus d’une chambre à coucher ou des chambres sur plus d’un étage, il est nécessaire d'installer
plus d’un détecteur de fumée, comme le démontre la Figure 3.
&203$57,0(17'(/$%$77(5,(
#0650/4*-&/$&5&45
Fig 1. Détecteur de chaleur et de fumée sans l

État DEL
Sonde
(n'appuyez pas simultanément sur
la sonde et la DEL)
Normal
Clignote en vert toutes les 12 secondes
Désactivé
Détecteur de chaleur
Clignote en rouge chaque seconde ANSI S3.41 temporel 3
Épreuve de résis-
tance à la chaleur
Clignote en rouge
chaque seconde
ANSI S3.41 temporel 3
Détecteur de
fumée
Clignote en rouge
chaque seconde
ANSI S3.41 temporel 3
(appuyez sur le bouton pour
l'arrêter pendant
5 à 10 minutes)
Test de fumée Clignote en rouge
chaque seconde
ANSI S3.41 temporel 3
(appuyez sur le bouton pour
l'arrêter pendant
5 à 10 minutes)
Tester le détecteur Clignote en rouge chaque seconde ANSI S3.41 temporel 3
Alarme de gel Clignote en jaune 3 fois
toutes les 4 secondes
Désactivé
Défaut du détecteur
Clignote en jaune toutes les 4 secondes Un bip sonore toutes les 48 secondes
Piles faibles Clignote en jaune toutes les
12 secondes
Un bip sonore toutes les 48
secondes (appuyez sur le bouton
pour l'arrêter pendant 12 heures)
Détecteur sale
Clignote en jaune toutes les 8 secondes Un bip sonore toutes les 48 secondes
Activation Rouge, jaune, vert
séquence de clignotement
Un bip sonore à la n
de la séquence d'activation
Languette de
sécurité
Rouge, jaune, vert
séquence de clignotement toutes les
12 secondes
Désactivé
Lors de la première mise sous tension, la DEL clignote alternativement entre le rouge, le jaune et le vert.
Il faut environ 8 secondes pour que le détecteur se stabilise.
À la n de la mise sous tension, si le détecteur fonctionne normalement, la DEL verte clignote une fois
toutes les 12 secondes.
Défaut du détecteur: Lorsque le détecteur est en panne, la DEL jaune clignote une fois toutes les quatre
secondes et un bip sonore retentit toutes les 48 secondes. Après 12 heures, le panneau af che un
message de perte de supervision.
Fonction détecteur sale: Lorsque le détecteur est contaminé, la DEL jaune clignote une fois
toutes les 8 secondes et un bip sonore retentit toutes les 48 secondes. Reportez-vous à la section
MAINTENANCE pour le nettoyage de votre détecteur. Au bout de 12 heures le panneau de contrôle
af che un message de perte de contrôle.
Détection d’un signal de piles faibles: Le détecteur de chaleur et de fumée sans l est alimenté par
3 piles AAA Duracell Procell ou 3 piles AAA Energizer E92 (incluses). Il véri e régulièrement le
niveau des piles. Si des piles faibles sont détectées, l’émetteur envoie un message de piles faibles
au panneau de commande qui af che l’identi ant du détecteur ayant un faible niveau. Par ailleurs,
la DEL jaune du détecteur va clignoter toutes les 12 secondes. La sonde du détecteur émet un signal
sonore toutes les 48 secondes (la DEL jaune continue à clignoter) jusqu’à ce que les piles soient
remplacées. Appuyez sur le bouton silence pour arrêter les bips sonores pendant 12 heures, s’il
n’existe aucun autre défaut. Remplacez les piles dès que les bips sonores recommencent. Assurez-
vous de remplacer les anciennes piles par des neuves.
Tableau 1. Statut et indications du détecteur
INST APD0601 B141212 Wireless Smoke Heat Alarm Install Guide 7
• Studies have shown that smoke and heat alarms may not awaken all sleeping
individuals, and that it is the responsibility of individuals in the household that are
capable of assisting others to provide assistance to those who may not be awakened
by the alarm sound or those who may be incapable of safely evacuating the area
unassisted.
• The use of alcohol or drugs may also impair one’s ability to hear the smoke alarm.
For maximum protection, a smoke alarm should be installed in each sleeping area on
every level of a home.
• Although smoke alarms can help save lives by providing an early warning of a re,
they are not a substitute for an insurance policy. Home owners and renters should
have adequate insurance to protect their properties.
FAMILY ESCAPE PLAN
According to National Fire Protection Association (NFPA) there often is very little time
between the detection of a re and the time it becomes deadly. This interval can be as
little as 1 or 2 minutes. Planning and practicing for re conditions with a focus on rapid
exit from the residence are important. Drills should be held so that all family members
know the action to be taken.
SAFETY TIPS
• Make a home escape plan. Draw a map of your home showing all doors and windows.
Discuss the plan with everyone in your home.
• Know at least two ways out of every room, if possible. Make sure all doors and
windows leading outside open easily.
• Have an outside meeting place (like a tree, light pole or mailbox) a safe distance from
the home where everyone should meet.
• Practice your home re drill at night and during the day with everyone in your home,
twice a year.
• Practice using different ways out.
• Teach children how to escape on their own in case you can’t help them.
• Close doors behind you as you leave.
IF THE ALARM SOUNDS
• if the smoke alarm sounds, get out and stay out. Never go back inside for people or
pets.
• if you have to escape through smoke, get low and go under the smoke to your way
out.
• Call the re department from outside your home. FOR MORE SAFETY INFORMATION
SEE THE WEBSITE: www.nfpa.org/education.
SPECIFICATIONS
• Transmitter Frequency: 345.000 MHz (crystal controlled)
• Dimensions: Ø 5’’ x 2.5’’ high (Ø 125mm x 63mm high)
• Weight (including battery): 8.57 oz (243 g)
• Color: White
• Spacing rating: 70ft
• Audible Signal (ANSI Temporal 3): 85dBA min. in alarm
• Sensitivity: 1.5 - 3.5%/foot
• Operating Temperature: 40°-100°F (4.4°-37.8°C)
• Supplementary heat rating: 135°F
• Relative Humidity: 15-90% Non-Condensing

8 INST APD0601 B141212 Wireless Smoke Heat Alarm Install Guide
• Battery (included): Three (3) AAA PC2400 Duracell Procell or three (3) AAA Energizer
E92 batteries
• Regulatory Listing: UL 217
• Warranty: Two (2) years
• Included Accessories: Mounting Hardware Package
REGULATORY INFORMATION NOTICE:
Unauthorized changes or modi cations could void the user’s authority to operate the
equipment.
This device complies with Part 15 of the FCC Rules and Industry Canada licence-exempt
RSS standard(s). Operation is subject to the following two conditions: (1) This device may
not cause harmful interference, and (2) this device must accept any interference received,
including interference that may cause undesired operation of the device.
This equipment has been tested and found to comply with the limits for a Class B
digital device, pursuant to Part 15 of FCC Rules. These limits are designed to provide
reasonable protection against harmful interference in a residential installation. This
equipment generates, uses and can radiate radio frequency energy and if not installed
and used in accordance with the instructions, may cause harmful interference to radio
communications. However, there is no guarantee that interference will not occur in a
particular installation. If this equipment does cause harmful interference to radio or
television reception, which can be determined by turning the equipment off and on, the
user is encouraged to try to correct the interference by one or more of the following
measures:
• Reorient or relocate the receiving antenna.
• Increase the separation between the equipment and the receiver
• Connect the equipment into an outlet on a circuit different from that to which the
receiver is connected.
• Consult the dealer or an experienced radio/television technician for help
“For your information, The National Fire Alarm Code, NFPA 72, reads as follows:
“11.5.1 Required Detection.”
“Where required by applicable laws, codes, or standards for a speci c type of occupancy,
approved single- and multiple-station smoke alarms shall be installed as follows:
1. In a sleeping rooms and guest rooms
2. Outside of each separate dwelling unit sleeping area, within 6.4 m (21 ft) of any
door to a sleeping room, the distance measured along a path of travel
3. On every level of a dwelling unit, including basements
4. On every level of a residential board and care occupancy (small facility), including
basements and excluding crawl spaces and un nished attics
5. In the living area(s) of a guest suite
6. In the living area(s) of a residential board and care occupancy.
(Reprinted with permission from NFPA 72®, National Fire Alarm Code Copyright © 2007
National Fire Protection Association, Quincy, MA 02269. This reprinted material is not
the complete and of cial position of the National Fire Protection Association, on the
referenced subject which is represented only by the standard in its entirety.)
(National Fire Alarm Code® and NFPA 72® are registered trademarks of the National Fire
Protection Association, Inc., Quincy, MA 02269.)
In typical single level and multilevel dwelling units and apartment buildings having similar
smoke alarm systems there is a possibility that signals sent by wireless sensors may be
blocked or re ected by metal before they reach the alarm Control Panel, even if the signal
path has been recently checked during a weekly test. Blockage can occur if a metal object
has been moved into the sensor’s signal path.
INST APD0601 B141212 Wireless Smoke Heat Alarm Install Guide 9
ATTENTION: Vous devez lire ce manuel avant de l'utiliser et le conserver pour les
références futures.
RENSEIGNEMENTS GÉNÉRAUX
Le détecteur de chaleur et de fumée sans l est un détecteur sans l alimenté par 3 piles
AAA conçu pour être utilisé avec des systèmes d'alarme sans l compatibles. Le détecteur
est doté d'un émetteur sans l intégré qui communique avec le panneau de commande.
Lorsque de la fumée est détectée, l'alarme retentit comme une sonnerie locale bruyante
et l'émetteur intégré envoie un signal au panneau de commande. Le détecteur de chaleur
et de fumée sans l contient un capteur de gel intégré xé à une température de 5 °C
qui envoie un signal d'alarme en fonction de la température détectée. Ce détecteur a été
conçu pour fournir une protection dans un rayon de 70pieds.
Il peut envoyer des messages concernant le statut de l’alarme, du dispositif de sécurité et
des messages sur l'état des piles au récepteur du système. Reportez-vous aux instructions
du système sans l pour connaître le nombre maximum d'émetteurs pouvant être pris en
charge.
CONTENU DE LA BOÎTE:
• Détecteur de chaleur et de fumée sans l avec base
• Guide d'installation (APD0601)
• Paquet de vis et de pièces d'ancrage
• Étiquettes ou décalcomanies au besoin
• 3 piles Duracell Procell AAA PC2400 (1,5V 1 100mAh) ou 3 piles Energizer E92 AAA
(1,5V 1 100mAh)
Le détecteur de fumée et de chaleur sans l contient une sonde qui émet une séquence temporelle 3
ANSI S3.41 dans des conditions d’alarme. En état d’alerte, un message est envoyé aussi au panneau de
commande et l’ID du détecteur s’af che sur la console. En cas de déclenchement d’une alarme, appuyez
sur le bouton de silence du détecteur pour arrêter la sonde (voir le tableau ci-dessous). L’installation du
socle de xation est simpli ée grâce à l’intégration de caractéristiques compatibles avec les attaches pour
cloisons sèches (non fournies) et d’autres méthodes.
La DEL tricolore (rouge, jaune, vert) et la sonde du détecteur émettent des signaux visuels et sonores
locaux relatifs au statut du détecteur tel que l’indique le Tableau 1.
51000-355/51000-357
Détecteur de chaleur et de fumée sans l
Guide d'installation