Audiovox aar Systems D189050 Rear Seat Entertainment System DVD Loader User Manual Installation Guide
Audiovox Incaar Systems GmbH Rear Seat Entertainment System DVD Loader Installation Guide
Contents
- 1. User Manual 1
 - 2. User Manual 2
 - 3. Installation Guide
 
Installation Guide

Bentley Rear Seat Entertainment System Installation Manual 
621 
BY62PDS-182 
Name: 
Ian Briggs 
E-mail address: 
ian.briggs@bentley.co.uk 
Telephone number: 
+447507889462 
Created on (date): 
28/04/2014 
Current issue level 
1.2 
Issue date: 
28/04/2011 
Bentley Motors Ltd 
Pyms Lane 
Crewe 
Cheshire 
CW1 3PL 
England 
Tel: +44 (0)1270 255155 

Bentley Rear Seat Entertainment System Installation Manual     Issue 1.2 - 28/04/14 
1 
LIST OF CONTENTS 
List Of Contents  1 
Revision History  2 
Abbreviations and Definitions used in this Document  3 
Confidentiality and Security  4 
1.1 Feature Description  4 
1.1.1 General Overview  4 
1.1.2 Component Description(s)  5 
2 Installation Requirements  6 
2.1 RSE Control Unit  6 
2.1.1 General Information  8 
2.1.2 Installation  9 
2.1.3 Removal  10 
2.2 DVD Loader unit  11 
2.2.1 Installation Guide  13 

Bentley Rear Seat Entertainment System Installation Manual     Issue 1.2 - 28/04/14 
2 
REVISION HISTORY 
Version 
Issue date 
Reason for change 
V1 
Initial Version 

Bentley Rear Seat Entertainment System Installation Manual     Issue 1.2 - 28/04/14 
3 
ABBREVIATIONS AND DEFINITIONS USED IN THIS DOCUMENT 
The following table lists the terms used in this document. 
Term 
Definition 
The following table lists the abbreviations used in this document. 
Abbreviation 
Meaning 
RSE 
Rear Seat Entertainment 
DVD 
Digital Video Disc 

Bentley Rear Seat Entertainment System Installation Manual     Issue 1.2 - 28/04/14 
4 
CONFIDENTIALITY AND SECURITY 
The information contained within this Specification is of a confidential nature and a 
Confidentiality Agreement must exist between our companies before you may examine any 
part of this document.  
If you are not aware of any such agreement you must seek an Agreement without delay by 
contacting the undersigned.  Pending such agreement you will treat all information contained 
within this Specification as being strictly private and confidential and all reasonable steps will be 
taken by you to preserve such confidentiality, including not taking copies or converting it into 
an alternative format without the prior written consent of Bentley Motors Ltd, and will not be 
used for any purpose other than in order to evaluate it. 
A list of authorised personnel should be available for inspection. Visitors should only be allowed 
access with the prior permission of Bentley Motors Ltd.  All information stored electronically 
must only be accessible by authorised personnel. Adequate protection should be taken to 
ensure data could not be read by any other source.  All hard copy information must similarly be 
restricted to authorised personnel only. 
This document remains the property of Bentley Motors Ltd, the supplier shall at any time at the 
request of Bentley Motors Ltd. return all materials and copies of documentation relating to the 
specification or project whether supplied by Bentley Motors Ltd. or otherwise. 
To  the  extent  it  so  desires,  Bentley  Motors  Ltd  shall  receive  free  of  charge  exclusive, 
irrevocable, perpetual, geographically unlimited, transferable and sub-licensable rights of use and 
exploitation with respect to all work results and products representing a special development 
for us or VW group companies or developed exclusively for us or VW group companies.  VW 
group companies shall enjoy the same rights. 
You shall inform us of any and all innovations arising within your organization in connection 
with the performance of the contractual work, including without limitation inventions, 
suggestions for technical improvements, know-how, and any other individually identifiable 
intellectual property, and you shall furnish all documentation necessary to assess such 
innovations. 
1.1 FEATURE DESCRIPTION 
1.1.1 GENERAL OVERVIEW 
The components described in this document shall be the components to make up a brand new 
rear seat entertainment system for the Bentley 621 project.  
The systems will provide the user the following high level features: 
RSE High  

Bentley Rear Seat Entertainment System Installation Manual     Issue 1.2 - 28/04/14 
5 
1. Access to the internet via a 3G UMTS module (Package protection to be included for 
LTE module as part of design). User accessible SIM slot. 
2. Use of the system as an in-car Wi-Fi hotspot for up to 5 devices. 
3. The ability to listen to music in the vehicle using the vehicle speakers and/or 
headphones. 
4. The ability to connect 3rd party devices to use the internet 
5. The ability to listen to internet radio  
6. The ability to bring their media to the car and be able to watch & listen to it (SD Cards 
and USB devices including apple devices).  
7. The ability to have any customer accessible USB connections. 
8. Controlling the system via the supplied Touch screen remote control, or a 3rd Party 
application on a compatible device (device application development not part of this 
specification) via a Bluetooth or Wi-Fi (third party) link 
9. Provide Diagnostics on CAN for the Dealers to diagnose faults. 
10. The ability to watch videos using the provided screens in the car. 
11. The ability to display location based map data to the customer via Bing maps. 
12. The ability to watch DVD’s 
13. The system shall allow the user to watch TV. There is a group TV tuner fitted to the 
vehicle with a component output. 
14. The system shall enable the user to use wireless headphones. 
1.1.2 COMPONENT DESCRIPTION(S) 
1.1.2.1 General 
The system shall be made up of four fundamental units. The system shall have one primary 
diagnostics address on CAN to report diagnostic information to the vehicle and also to 
integrate with the vehicle power management system. 
1.1.2.2 RSE Control Unit 4W0.907.157.X 
This 1 DIN unit shall go in the glove box. This unit should deal with connectivity and vehicle 
integration. 
1.1.2.3 DVD Loader unit 4W0.035.123.X (2 off) 
DVD Loader, USB, SD and a HDMI in interface. Located in the Front seatbacks 
1.1.2.4 LCD Monitor 4W0.919.607 (2 off) 
10” Screens Mounted on the Seatbacks 

Bentley Rear Seat Entertainment System Installation Manual     Issue 1.2 - 28/04/14 
6 
2 INSTALLATION REQUIREMENTS 
2.1 RSE CONTROL UNIT 
In order to meet the legislation for the FCC & IC requirements the system needs to have some 
minimum separation distances from the surface that the user could touch for the SAR 
regulations. 
CAUTION: FCC REGULATORY REQUIREMENTS 
This device complies with Part 15 of the FCC Rules. Operation is subject to the following two 
conditions: 
1 -   This device may not cause harmful interference, and 
2 -   This device must accept any interference received, including interference that may cause 
undesired operation. 
Any change or modification to the product not expressly approved by the manufacturer could 
void the user's authority to operate the device. 
FCC RF Radiation Exposure Statement: 
This equipment contains a radio transmitter. It is designed and manufactured not to exceed the 
emission limits for exposure to radio frequency energy set by the Federal Communication 
Commission (FCC) of the US Government in accordance with part 2.1091 of the FCC Rules 
for an uncontrolled environment. 
The equipment is installed to ensure a minimum 20 cm distance between the two antennas and, 
with a minimum safe operating distance of 20 cm between the respective antennas and the car 
occupants 
CAUTION: IC REGULATORY REQUIREMENTS 
This device complies with Industry Canada licence-exempt RSS standard(s). Operation is 
subject to the following two conditions: 
1 -   This device may not cause interference. 
2 -   This device must accept any interference, including interference that may cause 
undesired operation of the device. 
Any change or modification to the product not expressly approved by the manufacturer could 
void the user's authority to operate the device. 
IC RF Radiation Exposure Statement: 
This equipment contains a radio transmitter. It is designed and manufactured not to exceed the 
emission limits for exposure to radio frequency energy as stated within the Industry Canada 
RSS standard(s). 
This radio transmitter (IC: 11196A-D189070) has been approved by Industry Canada to 
operate with the antenna types listed below with the maximum permissible gain and required 
antenna impedance for each antenna type indicated. Antenna types not included in this list, 
having a gain greater than the maximum gain indicated for that type, are strictly prohibited for 
use with this device.  
Antenna Models:  

Bentley Rear Seat Entertainment System Installation Manual     Issue 1.2 - 28/04/14 
7 
For GSM / UMTS: Smarteq Antenna AB; part No: 3W7.035.524.A  
For Bluetooth / WLAN: WISI Automotive GmbH & Co. KG; part: Wisi AG91 WLAN Bentley 
4W0.962.131 
The equipment is installed to ensure a minimum 20 cm distance between the two antennas and, 
with a minimum safe operating distance of 20 cm between the respective antennas and the car 
occupants. 
ATTENTION: IC EXIGENCES RÉGLEMENTAIRES 
Cet appareil est conforme avec Industrie Canada RSS exemptes de licence standard (s). Son 
fonctionnement est soumis aux deux conditions suivantes: 
1 -   Ce dispositif ne peut causer des interférences. 
2 -   Ce dispositif ne peut causer des interférences. 
Tout changement ou modification au produit non expressément approuvés par le fabricant 
peuvent annuler le droit de l'utilisateur à utiliser l'appareil. 
IC Rayonnement RF de Déclaration d'exposition: 
Cet appareil contient un émetteur radio. Il est conçu et fabriqué pour ne pas dépasser les 
limites d'émission pour l'exposition à l'énergie de radiofréquence comme indiqué dans la norme 
(s) d'Industrie Canada RSS 
Le présent émetteur radio (IC: 11196A-D189070) a été approuvé par Industrie Canada pour 
fonctionner avec les types d'antenne énumérés ci-dessous et ayant un gain admissible maximal 
et l'impédance requise pour chaque type d'antenne. Les types d'antenne non inclus dans cette 
liste, ou dont le gain est supérieur au gain maximal indiqué, sont strictement interdits pour 
l'exploitation de l'émetteur.  
Modèles d'antenne:  
Pour GSM / UMTS: Smarteq Antenna AB; part No: 3W7.035.524.A  
Pour Bluetooth / WLAN: WISI Automotive GmbH & Co. KG; part: Wisi AG91 WLAN Bentley 
4W0.962.131 
L'équipement est installé pour assurer une distance minimale de 20 cm entre les deux antennes 
et, avec une distance de fonctionnement minimale de sécurité de 20 cm entre les antennes 
respectives et les occupants de la voiture. 

Bentley Rear Seat Entertainment System Installation Manual     Issue 1.2 - 28/04/14 
8 
2.1.1 GENERAL INFORMATION 
Figure 1 Location of RSE Control Unit in the front glove box 
Figure 2 Removal tool WT 10221 
The Control unit 2 for information 
electronics -J829- -arrowed- is 
located inside the glove box on the 
outboard side. 
Note 
Image shows a right hand drive 
vehicle. Left hand drive vehicle is a 
mirror image. 
Replacement control units require 
additional programming via the 
Vehicle tester. Refer to Installation 
instructions. 
Special tools and workshop 
equipment required 
1. Removal tool -WT 10221- 

Bentley Rear Seat Entertainment System Installation Manual     Issue 1.2 - 28/04/14 
9 
Figure 3 Vehicle tester 
2.1.2 INSTALLATION 
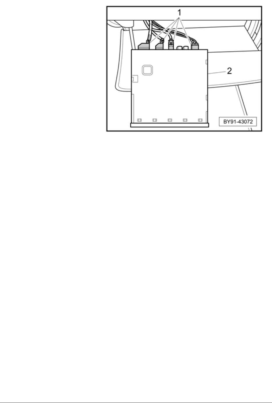
Figure 4 RSE Control Unit - Electrical Connections behind 
RSE   Control Unit 
Removal                                          
2. Vehicle tester 
Torque tightening values 
Unless otherwise shown, 
standard torque values apply. 
→
 Rep.-Gr.00 
1. Ensure all electrical 
connectors are connected 
correctly. 
2. Insert the unit into the slot 
in the Glove box. 
3. After installation ensure the 
catches secure the control 
unit on both sides. This can be 
confirmed by an audible click 
being heard and then 
attempting to withdraw the 
control unit without using the 
removal tools. 
4. A new control unit will 
require coding. Connect the 
Vehicle tester to the vehicle 
and run Software Version 
Management (SVM). Refer to 
"Diagnostic system - Guided 
functions/Component 
replacement".  
→ Rep.-Gr.97 

Bentley Rear Seat Entertainment System Installation Manual     Issue 1.2 - 28/04/14 
10 
2.1.3 REMOVAL 
   Figure 5 RSE Control Unit - Removal of RSE Control Unit 
Figure 6 RSE Control Unit – Extracting removal tool 
The following procedure is 
based on a right hand drive 
vehicle. The procedure is the 
same for both left hand and 
right hand drive. 
1. Switch off the ignition 
2. Insert the removal tools -
WT  
3. 10221- into the slots in the 
control unit until they locate 
Note
Ensure that both tools click 
into position before attempting 
to remove the control unit. 
Push and hold the tools 
outwards in the direction of the 
-arrows- to release the 
retaining clips, then pull 
rearwards evenly to slide out 
the control unit. 
Press the retaining clips -
arrowed- inwards on both 
sides to release the removal 
tools -1-. 

Bentley Rear Seat Entertainment System Installation Manual     Issue 1.2 - 28/04/14 
11 
          Figure 7 RSE Control Unit - Removal of Electrical Connectors 
2.2 DVD LOADER UNIT 
In order to meet legislation for the FCC & IC requirements the system needs to have some 
minimum separation distances from the surfaces that the user could touch for the SAR 
regulations.  
CAUTION: FCC REGULATORY REQUIREMENTS 
This device complies with Part 15 of the FCC Rules. Operation is subject to the following two 
conditions: 
1 - This device may not cause harmful interference, and  
2 - This device must accept any interference received, including interference that may cause 
undesired operation.  
Any change or modification to the product not expressly approved by the manufacturer could 
void the user's authority to operate the device. 
FCC RF Radiation Exposure 
Statement: 
This equipment contains a radio transmitter. It is designed and manufactured not to exceed the 
emission limits for exposure to radio frequency energy set by the Federal Communications 
Commission (FCC) of the US Government. This equipment complies with the FCC radiation 
exposure limits set forth for an uncontrolled environment in accordance with Part 2.1093 of 
the FCC Rules and KDB 447498. 
CAUTION: IC REGULATORY REQUIREMENTS 
This device complies with Industry Canada licence-exempt RSS standard(s). Operation is 
subject to the following two conditions:  
1 - This device may not cause interference. 
Disconnect the harness 
connectors -1- and remove 
the control unit -2- from the 
vehicle. 

Bentley Rear Seat Entertainment System Installation Manual     Issue 1.2 - 28/04/14 
12 
2 - This device must accept any interference, including interference that may cause undesired 
operation of the device. 
Any change or modification to the product not expressly approved by the manufacturer could 
void the user's authority to operate the device.  
IC RF Radiation Exposure Statement: 
This equipment contains a radio transmitter. It is designed and manufactured not to exceed the 
emission limits for exposure to radio frequency energy as stated within the Industry Canada 
RSS standard(s). 
This equipment is compliant with RSS-102, exemption from routine evaluation limits for 
uncontrolled environments. 
ATTENTION: IC EXIGENCES RÉGLEMENTAIRES 
Cet appareil est conforme avec Industrie Canada RSS exemptes de licence standard (s). Son 
fonctionnement est soumis aux deux conditions suivantes: 
1 - Ce dispositif ne peut causer des interférences. 
2 - Ce dispositif ne peut causer des interférences. 
Tout changement ou modification au produit non expressément approuvés par le fabricant 
peuvent annuler le droit de l'utilisateur à utiliser l'appareil IC Rayonnement RF de Déclaration 
d'exposition: 
Cet appareil contient un émetteur radio. Il est conçu et fabriqué pour ne pas dépasser les 
limites d'émission pour l'exposition à l'énergie de radiofréquence comme indiqué dans la norme 
(s) d'Industrie Canada RSS. 
Cet équipement est conforme à la norme RSS-102, l'exonération des limites d'évaluation de 
routine pour les 
environnements non contrôlés. 
For the IC certification the minimum distance is not maintained without the surrounding 
components such that any modification to the system must meet the requirements as follows: 

Bentley Rear Seat Entertainment System Installation Manual     Issue 1.2 - 28/04/14 
13 
Figure 8 Minimum required separation distances required to be maintained between Antenna and 
Body or Limbs 
2.2.1 INSTALLATION GUIDE 
Installing the DVD loader as per this guide will ensure that the minimum distances as 
mentioned in Figure 8 are met. 
Connect the harness connections prior to refitting the DVD loader to the front seat squab. 
Torque tighten all fixings. 
Slide the DVD Loader unit Figure 9-2- down over the catches on the front. And insert the 
fixings Figure 9-1- (1.8Nm). 

Bentley Rear Seat Entertainment System Installation Manual     Issue 1.2 - 28/04/14 
14 
Figure 9 DVD Loader Unit Installation – Mounting to map pocket 
Connect the DVD loader unit harness connections to the leads coming off the seat as shown in 
Figure 10.  
Figure 10 DVD Loader Unit Installation - Harness Connection 
Offer the DVD Loader Unit and map pocket to the seat and slide upwards to engage the 
catches at the side inserting the 3 fixings as shown in Figure 11. 

Bentley Rear Seat Entertainment System Installation Manual     Issue 1.2 - 28/04/14 
15 
Figure 11 DVD Loader Unit Installation - mounting to seat