Users Manual

GmbH
Max-Eyth-Straße 16 Phone: +49 7931 597-0 Support: support-antares@bartec.de
97980 Bad Mergentheim Fax: +49 7931 597-119 Download: http://automation.bartec.de
GERMANY
Internet:
www.bartec.de
User Manual - Original
10.1" Tablet PC Agile X IS
Type 17-A1B*-****/********
ATEX / IECEx Zone 0
ATEX / IECEx Zone 1
UL Class I Division 1
Document No.: XX-XXXX-XXXX
Status: 3. January 2017
Reservation: Technical data subject to change without notice. Changes, errors
and misprints may not be used as a basis for any claim for damages.
Content Page
English 1-xx

1.Basic safety information ...................................................................................................................... 1
1.1Information on this user manual ....................................................................................... 1
1.1.1Languages ........................................................................................................................ 2
1.1.2Changes in the document ................................................................................................. 2
1.1.3Registered trademarks ..................................................................................................... 2
1.2Regulatory information ..................................................................................................... 2
1.2.1Federal Communications Commission (FCC) statement ................................................. 2
1.2.2Federal Communications Commission (FCC) statement ................................................. 3
1.2.3Industry Canada (IC) statement ....................................................................................... 3
1.2.4Canada, avis d’industry Canada (IC) ................................................................................ 3
1.2.5Radio Frequency Exposure statement ............................................................................. 4
1.3Handling the product ........................................................................................................ 4
1.4Intended use ..................................................................................................................... 5
1.4.1Exclusive purpose ............................................................................................................ 5
1.4.2Unintended use ................................................................................................................ 5
1.5Duties of the operator ....................................................................................................... 5
1.6General safety information ............................................................................................... 5
1.7Maintenance ..................................................................................................................... 6
1.7.1Servicing ........................................................................................................................... 6
1.7.2Inspection ......................................................................................................................... 6
1.7.3Repairs ............................................................................................................................. 6
1.7.4Commissioning ................................................................................................................. 6
1.8Labelling, test certificate and standards ........................................................................... 6
1.9Warranty ........................................................................................................................... 6
1.10Co-applicable documents - set of documents ................................................................... 7
1.11Definition of terms ............................................................................................................. 8
1.12Configuration .................................................................................................................... 8
2.Product description .............................................................................................................................. 9
2.1Agile X IS .......................................................................................................................... 9
2.2Structure ........................................................................................................................... 9
2.2.1Front side ......................................................................................................................... 9
2.2.2Rear side ........................................................................................................................ 10
2.2.3Side view ........................................................................................................................ 10
2.3Purpose of use ............................................................................................................... 11
3.Explosion protection and approvals ................................................................................................. 12
3.1Applicable standards ...................................................................................................... 14
4.Technical data ..................................................................................................................................... 16
4.1Features ......................................................................................................................... 16
4.1.1Performance features ..................................................................................................... 16
4.1.2Physical characteristics .................................................................................................. 16
4.1.3Ambient conditions ......................................................................................................... 17
4.1.4Application development ................................................................................................ 17
4.1.5Voice and data transmission Bluetooth .......................................................................... 18
4.1.6Data transmission Wi-Fi and Bluetooth .......................................................................... 18
4.1.7Barcode scan options ..................................................................................................... 19
4.1.8Symbologies supported .................................................................................................. 20
4.1.9Decode range ................................................................................................................. 20
4.1.10NFC options ................................................................................................................... 20
4.2Battery ............................................................................................................................ 21
4.3External interfaces .......................................................................................................... 22
4.4Product labelling ............................................................................................................. 23
4.5Laser labels .................................................................................................................... 25
5.Transport and storage ........................................................................................................................ 26
5.1Transport ........................................................................................................................ 26
5.2Storage ........................................................................................................................... 26
6.Commissioning ................................................................................................................................... 27
6.1Scope of delivery ............................................................................................................ 27
6.1.1Optional accessories ...................................................................................................... 27
6.2Requirements in potentially explosive atmosphere ........................................................ 28
6.3Handling accessories ..................................................................................................... 29
6.4First steps ....................................................................................................................... 29
6.4.1Erste Schritte .................................................................................................................. 29
6.4.2Insert battery .................................................................................................................. 29
6.4.3Insert USB stick .............................................................................................................. 31
6.4.4Insert SIM card ............................................................................................................... 32
6.4.5Insert micro SD card ....................................................................................................... 33
6.4.6Remove/replace screen protector .................................................................................. 34
6.5HART Add-On Module (for future use) ........................................................................... 35
6.5.1Versions ......................................................................................................................... 35
6.5.2Software ......................................................................................................................... 35
6.5.3Assembly of the HART Add-on Module .......................................................................... 35
6.5.4Installation HART Add-On Module ................................................................................. 36
7.Operation ............................................................................................................................................. 42
7.1Final inspection .............................................................................................................. 42
7.2Care and cleaning .......................................................................................................... 42
7.2.1Care ................................................................................................................................ 42
7.2.2Cleaning ......................................................................................................................... 43
7.2.3Suitable materials for cleaning ....................................................................................... 43
7.3Operation, recommendations and requirements ............................................................ 45
7.3.1Basic safety and health protection requirements ............................................................ 45
7.3.2Information on the use of wireless devices ..................................................................... 47
7.3.3Equipment of the laser devices ...................................................................................... 48
7.3.4LED devices ................................................................................................................... 48
7.3.5Restrictions in the case of wireless devices ................................................................... 48
7.4Operating frequency - FCC and IC ................................................................................. 49
7.5Electromagnetic fields .................................................................................................... 51
8.Service, inspection and repair ........................................................................................................... 55
8.1Service intervalls ............................................................................................................ 55
8.2Inspection ....................................................................................................................... 55
8.3Service and repair work .................................................................................................. 55
8.3.1Information on sending in for repairs (new picture of the device) ................................... 55
9.Disposal ............................................................................................................................................... 56
10.Forwarding and packaging information ............................................................................................ 56
11.Accessories ......................................................................................................................................... 57
12.Additional information ........................................................................................................................ 57
12.1Links ............................................................................................................................... 57

10.1" Tablet PC - Agile X IS
Type 17-A1B*-****/******** Basic Safety Information
Subject to technical changes.
12/2016
1/50
1. Basic safety information
1.1 Information on this user manual
Read carefully before putting the devices into operation.
The user manual is a fixed part of the product. It must be kept in the direct vicinity of the
device and the installation, operating and service staff must have access to it at all
times.
The user manual contains important information, safety instructions and test certificates
which are necessary for the perfect function of the device in operation.
The user manual is directed at all individuals concerned with the commissioning,
handling and servicing of the product. The applicable guidelines and standards for
areas with gas and dust atmosphere (EN/IEC 60079-17, EN/IEC 60079-19,) must be
observed when conducting this work.
Knowledge of the safety and warning information in this user manual and the strict
compliance with it is essential for safe installation and commissioning. Accidents,
injuries and material damage can be avoided by circumspect handling and
systematically following the instructions.
The examples, tables, and figures provided in this user manual are for illustration
purposes. Due to the different requirements of the respective application, the BARTEC
company cannot assume responsibility or liability for actual use based on the examples
and figures.
The BARTEC company reserves the right to carry out technical changes at any time.
In no event will BARTEC company be responsible or liable for indirect or consequential
damages resulting from the use or application of this User Manual.
Safety and warning information is particularly emphasised in this User Manual and
marked by symbols.
DANGER
DANGER describes a directly imminent danger. If not avoided, death or severe injury
will be the consequence.
WARNING
WARNING describes a possibly imminent danger. If not avoided, death or severe
injury may be the consequence.
CAUTION
CAUTION describes a possibly imminent danger. If not avoided, mild or slight injury
may be the consequence.
ATTENTION
ATTENTION describes a possibly damaging situation. If not avoided, the plant or
objects in its vicinity may be damaged.
Important information on effective, economical & environmentally compliant handling.

10.1" Tablet PC - Agile X IS
Type 17-A1B*-****/******** Basic Safety Information
2/50 Subject to technical changes.
12/2016
1.1.1 Languages
The original User Manual with safety information is written in English.
All other available languages are translations of the original User Manual.
The User Manual is available in German and English. If further languages are required,
these must be requested from BARTEC or stated on placing an order.
1.1.2 Changes in the document
BARTEC reserves the right to change the content of this document without notification.
No warranty is assumed for the correctness of the information. In cases of doubt, the
German safety instructions apply because it is not possible to rule out errors of translation
or printing. In the case of legal disputes, the “General Terms and Conditions of Business”
of the BARTEC GmbH also apply.
The current versions of the datasheets, operating instructions, certificates and EC
declarations of conformity can be downloaded from www.bartec.de or may be requested
directly from BARTEC GmbH.
1.1.3 Registered trademarks
Intel® is a registered trademark of Intel Corporation
Centrino® is a registered trademark of Centrino Mobile Technology
Bluetooth® is a registered trademark of Bluetooth Special Interest Group
WINDOWS is a registered trademark of MICROSOFT Corporation
Winmate is a registered trademark of Winmate Inc.
1.2 Regulatory information
1.2.1 Federal Communications Commission (FCC) statement
You are cautioned that changes or modifications not expressly approved by the part
responsible for compliance could void the user’s authority to operate the equipment.
This equipment has been tested and found to comply with the limits for a Class B digital
device, pursuant to part 15 of the FCC rules. These limits are designed to provide
reasonable protection against harmful interference in a residential installation. This
equipment generates, uses and can radiate radio frequency energy and, if not installed
and used in accordance with the instructions, may cause harmful interference to radio
communications. However, there is no guarantee that interference will not occur in a
particular installation. If this equipment does cause harmful interference to radio or
television reception, which can be determined by turning the equipment off and on, the
user is encouraged to try to correct the interference by one or more of the following
measures:
- Reorient or relocate the receiving antenna.
- Increase the separation between the equipment and receiver.
- Connect the equipment into an outlet on a circuit different from that to which the
receiver is connected.
- Consult the dealer or an experienced radio/TV technician for help.

10.1" Tablet PC - Agile X IS
Type 17-A1B*-****/******** Basic Safety Information
Subject to technical changes.
12/2016 3/50
This device complies with Part 15 of the FCC Rules. Operation is subject to the following
two conditions:
1) This device may not cause harmful interference
2) This device must accept any interference received, including interference that may
cause undesired operation of the device
1.2.2 Federal Communications Commission (FCC) statement
This equipment complies with FCC radiation exposure limits set forth for an uncontrolled
environment. End users must follow the specific operating instructions for satisfying RF
exposure compliance. This transmitter must not be co-located or operating in conjunction
with any other antenna or transmitter.
1.2.3 Industry Canada (IC) statement
This device complies with Industry Canada license-exempt RSS standard(s). Operation is
subject to the following two conditions: (1) this device may not cause interference, and (2)
this device must accept any interference, including interference that may cause undesired
operation of the device.
1.2.4 Canada, avis d’industry Canada (IC)
Le présent appareil est conforme aux CNR d'Industrie Canada applicables aux appareils
radio exempts de licence. L'exploitation est autorisée aux deux conditions suivantes:
(1) l'appareil ne doit pas produire de brouillage, et
(2) l'utilisateur de l'appareil doit accepter tout brouillage radioélectrique subi, même si le
brouillage est susceptible d'en compromettre le fonctionnement.
This device complies with RSS-210 of the Industry Canada Rules. Operation is subject to
the following two conditions: (1) This device may not cause harmful interference, and (2)
this device must accept any interference received, including interference that may cause
undesired operation.
Ce dispositif est conforme à la norme CNR-210 d'Industrie Canada applicable aux
appareils radio exempts de licence. Son fonctionnement est sujet aux deux conditions
suivantes: (1) le dispositif ne doit pas produire de brouillage préjudiciable, et (2) ce
dispositif doit accepter tout brouillage reçu, y compris un brouillage susceptible de
provoquer un fonctionnement indésirable.
Contains Transmitter Module FCC ID: TBUAGXISWL / IC: 5736C-AGXISWL and
FCC ID: TBUAGXISWW / IC: 5736C-AGXISWW

10.1" Tablet PC - Agile X IS
Type 17-A1B*-****/******** Basic Safety Information
4/50 Subject to technical changes.
12/2016
CAUTION - PRUDENCE
CAUTION
The device for operation in the band 5150-5250 MHz is only for indoor use to
reduce the potential for harmful interference to co-channel mobile satellite systems;
High-power radars are allocated as primary users (i.e. priority users) of the bands
5250-5350 MHz and 5650-5850 MHz and that these radars could cause
interference and/or damage to LE-LAN devices.
PRUDENCE
Les dispositifs fonctionnant dans la bande 5 150-5 250 MHz sont réservés
uniquement pour une utilisation à l’intérieur afin de réduire les risques de brouillage
préjudiciable aux systèmes de satellites mobiles utilisant les mêmes canaux;
De plus, les utilisateurs devraient aussi être avisés que les utilisateurs de radars de
haute puissance sont désignés utilisateurs principaux (c.-à-d., qu’ils ont la priorité)
pour les bandes 5 250-5 350 MHz et 5 650-5 850 MHz et que ces radars pourraient
causer du brouillage et/ou des dommages aux dispositifs LAN-EL.
1.2.5 Radio Frequency Exposure statement
Radiation Exposure Statement:
The product comply with the Canada portable RF exposure limit set forth for an
uncontrolled environment and are safe for intended operation as described in this
manual. The further RF exposure reduction can be achieved if the product can be kept
as far as possible from the user body or set the device to lower output power if such
function is available.
Déclaration d'exposition aux radiations:
Le produit est conforme aux limites d'exposition pour les appareils portables RF pour les
Etats-Unis et le Canada établies pour un environnement non contrôlé.
Le produit est sûr pour un fonctionnement tel que décrit dans ce manuel. La réduction
aux expositions RF peut être augmentée si l'appareil peut être conservé aussi loin que
possible du corps de l'utilisateur ou que le dispositif est réglé sur la puissance de sortie
la plus faible si une telle fonction est disponible.
1.3 Handling the product
The product described in this User Manual left the factory in a perfect and tested state in
terms of safety. To maintain this state and to achieve a perfect and safe operation of this
product, it may only be operated in the manner described by the manufacturer. In
addition, the perfect and safe operation of this product requires correct transportation,
proper storage and careful operation.
The safe and perfect handling of the Tablet PC is a prerequisite for its perfect and correct
functioning.

10.1" Tablet PC - Agile X IS
Type 17-A1B*-****/******** Basic Safety Information
Subject to technical changes.
12/2016 5/50
1.4 Intended use
1.4.1 Exclusive purpose
The Tablet PC series is a handheld piece of electrical equipment. It serves the purpose of
the mobile recording, processing and/or radio transmission of data within potentially
explosive atmospheres.
It is used exclusively in combination with devices which comply with the requirements
placed on the overvoltage category I.
The admissible operating data of the device used must be considered.
1.4.2 Unintended use
Any other use is unintended and may lead to damage and accidents. The manufacturer
shall not be liable for any use extending beyond the exclusive purpose.
1.5 Duties of the operator
The operator undertakes to only permit persons to work with the Tablet PC who:
are acquainted with the basic regulations on safety and accident prevention, and who
have been inducted in the use of the Tablet PC,
have read and understood the documentation, the safety chapter and the warnings.
The operator checks that the safety and accident prevention regulations applicable to the
respective case of use have been observed.
1.6 General safety information
Do not dry wipe or clean devices in potentially explosive atmospheres!
Do not open devices in potentially explosive atmospheres.
Do not charge the device in potentially explosive atmospheres.
General statutory provisions or guidelines on occupational health and safety,
accident prevention provisions and environmental protection laws must be heeded,
e.g. Operational Safety Ordinance (BetrSichV) and nationally applicable ordinances.
Use suitable clothing and shoes with respect to the danger of hazardous electrostatic
charges.
Avoid heat influences outside the specified temperature range.
Protect device from external influences! Do not expose device to caustic/aggressive
liquids, vapours or spray. In the case of malfunction or damaged enclosure, remove
the device immediately from the potentially explosive atmosphere and bring it to a
safe place.

10.1" Tablet PC - Agile X IS
Type 17-A1B*-****/******** Basic Safety Information
6/50 Subject to technical changes.
12/2016
1.7 Maintenance
The pertinent erection and operating provisions for electrical systems must be observed!
(E.g. Directive RL 2014/34/EU, BetrSichV and nationally applicable ordinances EN 60079-
14, IEC 60079-14 and the series DIN VDE 0100)!
Observe the national waste disposal regulations when disposing of the devices.
1.7.1 Servicing
No constant servicing will be necessary if operated correctly under consideration of the
assembly instructions and environmental conditions. See Chapter “Service, inspection,
repair” in this respect.
1.7.2 Inspection
According to EN/IEC 60079-17 and EN/IEC 60079-19, the operator of electrical systems
in potentially explosive atmospheres is obliged to have these inspected by an electrician
to ensure correct condition.
1.7.3 Repairs
Repairs to explosion-protected devices may only be performed by authorised personnel
with original spare parts and according to the state of the art. The applicable provisions
must be observed in this respect.
1.7.4 Commissioning
It must be checked that all components and documents are available before
commissioning.
1.8 Labelling, test certificate and standards
Labels on explosion protection and the test certificate are attached to the Tablet PC. See
Chapter 3 “Explosion protection and approvals” with respect to labelling.
The guidelines and standards applicable to the Tablet PC for devices and protected
systems for intended use in potentially explosive atmospheres are provided in Chapter 4
“Technical data”.
1.9 Warranty
WARNING
No changes or retrofits may be made without the written consent of the
manufacturer.
If non-specified components are used, the explosion protection will no longer be
guaranteed. In the case of externally procured parts, it is not guaranteed that these
have been designed and manufactured in accordance with their load and requisite
safety.
Contact the manufacturer before any changes or retrofits to receive a release.
Only use original spare and wearing parts.
The manufacturer shall exclusively assume the complete warranty only for spare parts
ordered from him.

10.1" Tablet PC - Agile X IS
Type 17-A1B*-****/******** Basic Safety Information
Subject to technical changes.
12/2016 7/50
Our “General Terms and Conditions of Sale and Delivery” shall apply in principle. These
shall be made available to the operator on signing of contract at the latest. Warranty and
liability claims in the case of injury and damage to property shall be excluded if they are
attributable to one or several of the following causes:
Unintended use of the Tablet PC.
Incorrect handling
Failure to observe the information in the User Manual with respect to transport,
storage, commissioning, operation and service.
Independent structural changes
Faulty monitoring of parts subject to wear and tear.
Incorrectly performed repairs.
Cases of disaster through the impact of foreign bodies and force majeure.
The BARTEC company grants a warranty period of three years starting from the date of
delivery from the Bad Mergentheim factory on the Tablet PCs (exception: battery
6 months). The warranty period for accessories is one year starting from the date of
delivery from the Bad Mergentheim factory. This warranty covers all parts of the delivery
and shall be restricted to the free replacement or repair of the defective parts in our Bad
Mergentheim factory. For this purpose, any packaging supplied must be kept where
possible. In the case of warranty, the goods must be returned to us after written
agreement using an RMA form. There shall be no claim to repair at the sight of erection.
The information contained herein refers to the explosion-protected version of the Tablet
PC series Agile X IS.
This User Manual contains all important information on the subject of explosion protection.
A Short Guide and further product information on handling and commissioning are
similarly available.
1.10 Co-applicable documents - set of documents
User Manual for the Tablet PC series Agile X IS:
The use, commissioning and settings of the explosion-protected version of the Tablet
PC series Agile X IS are described in this User Manual.
Quick Start Guide for the Tablet PC series Agile X IS:
The safety relevant information, initial use and further data on the explosion-protected
version of the Tablet PC series Agile X IS are described in this Short Guide.
Technical Datasheet for the explosion-protected version of the Tablet PC series
Agile X IS: The technical data sheet contains the most important explosion-relevant
technical data as well as general technical data.

10.1" Tablet PC - Agile X IS
Type 17-A1B*-****/******** Basic Safety Information
8/50
Subject to technical changes.
12/2016
1.11 Definition of terms
A few abbreviations are used in the documentation.
IS = Intrinsically Safe =>
is used a generic term for the
Zone 0, Zone 1 and Division 1 version
NI = stands for the entire explosion-protected product series
1.12 Configuration
The devices are only supplied with preinstalled operating system.
Windows 10 IoT
Windows Embedded 8.1 Industry Pro – 64 Bit
Windows 7 Professional – Service Pack 1 – 64 Bit (on request)
Customer software or further applications are not contained in the delivery.
This User Manual refers to the following configurations:
Configuration Version
Processor Intel Pentium N3710 Quad Core 1.6GHz
Display 10.1" with 1920 x 1200 Pixel resolution
RAM 8 GB SODIMM DDR3L-1600
Main memory 128 GB
Operating system
options Supplied as standard with
-
Windows 10 IoT
-
Windows Embedded 8.1 Industry Pro – 64 Bit
WLAN IEEE 802.11 a/b/g/n/ac
Bluetooth 4.0 (Class I)
WWAN
(optional)
-
4G/LTE module with European frequencies
-
4G/LTE module with North American frequencies
GPS u-Blox Neo-M8N
Scanner Options
(optional) 1D/2D Imager SE 4500 from ZEBRA
RFID HF/ NFC
(optional)
-
13.56 MHz
-
ISO 15693 (read and write)
-
ISO 14443-A (read and write)
-
ISO 14443-B (only read Uid)

10.1" Tablet PC - Agile X IS
Type 17-A1B*-****/******** Product description
Subject to technical changes.
12/2016
9/50
2. Product description
2.1 Agile X IS
The Agile X IS is a tough Tablet PC with 10.1" display, which has been designed for use
in the industrial environments and especially developed by BARTEC for use in potentially
explosive atmospheres.
2.2 Structure
2.2.1 Front side
No Description
1 Full HD 10-finger multi-touch outdoor display
2 2x digital microphone with noise cancellation
3 Rubber bumper
4 Front camera
5 LED indicators
6 Power button
7 Home menu
8 Function key, freely programmable

Product description 10.1" Tablet PC - Agile X IS
Type 17-A1B*-****/********
10/50
Subject to technical changes.
12/2016
2.2.2 Rear side
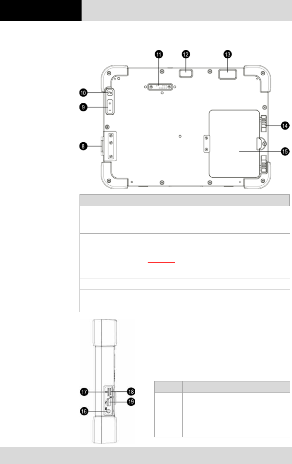
No Description
8 External I/O ports under protective cover
Charging (DC), USB 2.0 (intrinsically safe),
Micro SD slot and Micro SIM Card slot
9 Volume (+/-)
10 Function key
11 Expansion port (incl. cover)
12 High quality 8MP camera with flash
13 Barcode scanner
14 Battery with 2-step release latch
15 Cover module / Hot-swappable external battery
2.2.3 Side view
No Description
16 Charging
17 SIM card slot
18 Micro SD card slot
19 USB 2.0 port

10.1" Tablet PC - Agile X IS
Type 17-A1B*-****/******** Product description
Subject to technical changes.
12/2016 11/50
2.3 Purpose of use
The Tablet PCs Agile X IS is a handheld electrical devices. They serve the purpose of
entry, processing and (radio) transmission of data within potentially explosive
atmospheres.
The Tablet PC Agile X IS is used exclusively in combination with devices which comply
with the requirements placed on the overvoltage category I.
The Tablet PC Agile X IS is developed for the use in the following potentially explosive
atmospheres:
ATEX / IECEx Zone 0
ATEX / IECEx Zone 1
UL Class I Division 1 Groups A, B, C and D
UL Class 1 Zone 0 AEx ia IIC T4 Ga
UL Class 1 Zone 1 AEx ia IIC T4 Gb
The Tablet PC Agile X IS may not be used in the following zones:
ATEX / IECEx Zone 20, 21 and 22

Explosion protection and
approvals
10.1" Tablet PC - Agile X IS
Type 17-A1B*-****/********
12/50 Subject to technical changes.
12/2016
3. Explosion protection and approvals
Agile X IS Type 17-A1B*-****/********
ATEX
ATEX Zone 0 Labelling
Type: 17-A1B5-****/********
17-A1B6-****/********
II 1 G Ex ia op is IIC T4 Ga
-20 °C ≤ Ta ≤ +50 °C
ATEX Zone 1 Labelling
Type: 17-A1B3-****/********
17-A1B4-****/********
II 2 G Ex ia op is IIC T4 Gb
-20 °C ≤ Ta ≤ +50 °C
Test certificate DEMKO 16 ATEX 1803
Standards EN 60079-0:2012 + A11: 2013
EN 60079-11: 2012
EN 60079-28: 2015
Guidelines ATEX 2014/34/EU
EMV 2014/30/EU
RED 2014/53/EU
RoHS 2011/65/EU
IECEx
IECEx Zone 0 Labelling
Type: 17-A1B5-****/********
17-A1B6-****/********
Ex ia IIC op is T4 Ga
-20 °C ≤ Ta ≤ +50 °C
IECEx Zone 1 Labelling
Type: 17-A1B3-****/********
17-A1B4-****/********
Ex ia IIC op is T4 Gb
-20 °C ≤ Ta ≤ +50 °C
Test certificate IECEx UL 16.0160
Standards IEC 60079-0: 2011
IEC 60079-11: 2011
IEC 60079-28: 2014
Guidelines ATEX 2014/34/EU
EMV 2014/30/EU
RED 2014/53/EU
RoHS 2011/65/EU

10.1" Tablet PC - Agile X IS
Type 17-A1B*-****/********
Explosion protection and
approvals
Subject to technical changes.
12/2016 13/50
UL Class I, Division 1 and Class I Zone 0 / 1
UL Class I Division 1 Labelling
Type: 17-A1B1-****/********
17-A1B4-****/********
17-A1B6-****/********
Class I, Division 1, Groups A, B, C and D;
UL Zone 0 Labelling
Type: 17-A1B6-****/********
Class I, Division 1, Groups A, B, C and D;
Class I, Zone 0, AEx ia IIC T4 Ga
-20 °C ≤ Ta ≤ +50 °C
UL Zone 1 Labelling
Type: 17-A1B4-****/********
Class I, Division 1, Groups A, B, C and D;
Class I, Zone 1, AEx ia IIC T4 Gb
-20 °C ≤ Ta ≤ +50 °C
Test certificate USA and Canada E226123
Standards UL 913, 8th Edition
UL 60079-0: 6th Edition
UL 60079-11: 6th Edition
CAN/CSA C22.2 No. 157-92
CAN/CSA C22.2 No. 6079-0:11
CAN/CSA C22.2 No. 6079-11:11

Explosion protection and
approvals
10.1" Tablet PC - Agile X IS
Type 17-A1B*-****/********
14/50 Subject to technical changes.
12/2016
3.1 Applicable standards
Explosion protection
EN 60079-0: 2012 + A11: 2013 Potentially explosive atmospheres –
Part 0: Equipment – General requirements
EN 60079-11: 2012 Potentially explosive atmospheres –
Part 11: Equipment protection by intrinsic safety "i"
EN 60079-28: 2015
Potentially explosive atmospheres –
Part 28: Protection of equipment and transmission
systems using optical radiation
IEC 60079-0: 2011 Potentially explosive atmospheres –
Part 0: Equipment – General requirements
IEC 60079-11: 2011 Potentially explosive atmospheres –
Part 11: Equipment protection by intrinsic safety "i"
IEC 60079-28: 2014
Potentially explosive atmospheres –
Part 28: Protection of equipment and transmission
systems using optical radiation
UL 913, 8th Edition
Standard for Safety –
Insztinsically Safe Apparatus and Associated
Apparartus for Use in Class I, II, and III, Division 1,
Hazardous (Classified) Locations
UL 60079-0: 6th Edition Explosive Atmospheres –
Part 0: Equipment – General requirements
UL 60079-11: 6th Edition Explosive Atmospheres –
Part 11: Equipment protection by intrinsic safety "i"
CAN/CSA C22.2 No. 157-92 Intrinsically Safe and Non-Incendive Equipment for
Use in Hazardous Locations
CAN/CSA C22.2 No. 6079-0:11 Explosive Atmospheres –
Part 0: Equipment – General requirements
CAN/CSA C22.2 No. 6079-11:11
Explosive Atmospheres –
Part 11: Equipment protection by intrinsic safety "i"
Electrical safety
IEC 60950-1 (ed.2); am1
UL 60950-1
CSA22.2 No. 60950-1-07
Information technology equipment – safety
Part 1: General requirements
Radio specification - WLAN / Bluetooth
EN 300 328 V1.8.1: 2012
Electromagnetic compatibility and radio spectrum
matters (ERM) – wideband transmission systems –
data transmission equipment operating in the
2.4 GHz ISM band and using wideband modulation
techniques Winmate

10.1" Tablet PC - Agile X IS
Type 17-A1B*-****/********
Explosion protection and
approvals
Subject to technical changes.
12/2016 15/50
Safety specification - Laser and/or LED Products
EN 60825-1 Safety of laser products – Equipment classification and
requirements
Safety specification - Specific Absorption Rate (SAR)
EN 62209-2:2010
Human exposure to radio frequency fields from hand-held and
body-mounted wireless communication devices – Human models,
instrumentation and procedures – Part 2: Procedure to determine
the specific absorption rate (SAR) for wireless communication
devices used in close proximity to the human body
RSS-132 Issue 3
January 2013
Industry Canada: Cellular Telephone Systems Operating in the
Bands 824-849 MHz and 869-894 MHz
RSS-133 Issue 6
January 2013 Industry Canada: 2 GHz Personal Communications Services
RSS-139 Issue 2
February 2009
Industry Canada: Advanced Wireless Services (AWS) Equipment
Operating in the Bands 1710-1780 MHz and 2110-2180 MHz
RSS-210 Issue 8
December 2010
Industry Canada: Licence-exempt Radio Apparatus (All Frequency
Bands): Category I Equipment
Electromagnetic compatibility (EMC)
EN 300 440-1
V1.6.1:2010
Electromagnetic compatibility and radio spectrum matters (ERM) –
short range devices – radio equipment to be used in the 1 GHz to
40 GHz frequency range – Part 1: Technical characteristics and
test methods
EN 300 440-2
V1.4.1:2010
Electromagnetic compatibility and radio spectrum matters (ERM) –
short range devices – radio equipment to be used in the 1 GHz to
40 GHz frequency range – Part 2: Harmonised EN covering
essential requirements of article 3.2 of the R&TTE Directive
EN 50566:2013
Product standard to demonstrate compliance of radio frequency
fields from handheld and body-mounted wireless communication
devices used by the general public (30 MHz - 6 GHz)
EN 55032: 2015 Electromagnetic compatibility of multimedia equipment –
Emissions requirements
EN 55024: 2010 Information technology equipment – radio disturbance
characteristics – limits and methods of measurement
EN 61000-3-2:
2006 + A1: 2009
+ A2: 2009
Limits – Limits for harmonic current emissions (equipment input
current <= 16 A per phase)
EN 61000-3-3:
2008
Limits – limitation of voltage charges, voltage fluctuations and
flicker in public low-voltage supply systems, for equipment with
rated current <=16 A per phase and not subject to conditional
connection
FCC Part 15
Class B
EMC requirements in the USA:
Testing for compliance with limits for a digital device of Class B
IC ICES-003 EMC requirements in Canada:
Testing for compliance with limits for a digital device of Class B

Technical data
10.1" Tablet PC - Agile X IS
Type 17-A1B*-****/********
16/50 Subject to technical changes.
12/2016
4. Technical data
4.1 Features
4.1.1 Performance features
Processor Intel Pentium N3710 QuadCore 1.6GHz
1.6-2.56 GHz Clock Speed
- 14 nm for low power consumption
Operating system Windows 10 IoT Enterprise
Windows Embedded 8.1 Industry Pro – 64 Bit
RAM 8 GB
Main memory 128 GB (standard version)
I/O ports at the Tablet PC 1 x USB 2.0 (intrinsically safe)
1 x Micro SD card slot
1 x SIM card Slot
1 x Charging
1 x Extension port for Add-On Modules
1 x Docking Connector
Interfaces via
desktop docking station
1 x 10/100 MBit Ethernet
1 x RS232 Serial
4 x USB 2.0
1 x HDMI
1 x Power connector
4.1.2 Physical characteristics
Dimensions in mm/in
(width x height x depth) 290 mm x 209 mm x 33 mm
Weight (including battery) Depends on version and configuration
approx. 2,6 kg
Weight (without external battery) Depends on version and configuration
approx. 2,3 kg
Display Size 10.1"
Background lighting IPS LED
Resolution 700 nits (typical) 1920 x 1200
Contrast 800:1 (typical)
Viewing angle 89/89/89/89
Touch Projective capacity Multi-Touch 10 points
Interactive sensor technology - Light sensor
- G Sensor
- Gyrometer
- E-compass

10.1" Tablet PC - Agile X IS
Type 17-A1B*-****/******** Technical data
Subject to technical changes.
12/2016
17/50
Keys on front side
-
1x programmable function button
-
1x home / menu button
-
1x power button
Keys on rear side
-
1 x programmable function button
-
2 x button for volume ( +/-)
4.1.3 Ambient conditions
Operating temperature
In potentially explosive atmosphere
-20 °C to +50 °C / -4 °F to +122 °F
Operating temperature
during charging
0 °C to +40 °C / +32 °F to +104 °F
Storage temperature
(without battery)
-30 °C to +60°C / -22 °F to +140 °F
Air humidity 30 % to 90 % (non-condensing)
Class of protection (EN 60529) IP 65
4.1.4 Application development
Creation of a customised image
All drivers for the creation of a customized image are available for download from the
BARTEC download page (http://automation.bartec.de)
Camera
The camera supports the Windows Standard DLLs for connection to a customized
application.
1D/2D Imager – Zebra SE4500
The Imager supports the Windows Standard DLLs for connection to a customized
application. Zebra support homepage for OEM scan engines:
https://www.zebra.com/us/en/support-downloads.html
-
SE4500
-
Software Downloads
-
Scanner SDK for Windows
The Zebra Scanner Software Developer Kit (SDK) for Windows defines an architectural
framework providing a single programming interface across multiple programming
languages (such as MS .NET, C++, Java) for all scanners communication variants
(such as IBMHID, SNAPI, HIDKB, Nixdorf Mode B, etc.).
The Zebra Scanner SDK includes a suite of components that provides a unified
software development framework with a wide range of functions for interfacing Zebra
Scanners to user applications and solutions.

Technical data
10.1" Tablet PC - Agile X IS
Type 17-A1B*-****/********
18/50 Subject to technical changes.
12/2016
4.1.5 Voice and data transmission Bluetooth
Dual Wi-Fi and Bluetooth connections are realised with the assistance of the WiFi and
Bluetooth integrated module
WiFi IEEE 802.11a/b/g/n/ac WiFi compliant
Bluetooth 4.1 (Low Energy)
Antenna Internal
4.1.6 Data transmission Wi-Fi and Bluetooth
Dual Wi-Fi and Bluetooth connections
Wi-Fi (2.4GHz) RF specification
WLAN standard IEEE 802.11a/b/g/n/ac
Frequency range - 2.400 GHz ~ 2.497 GHz (2.4 GHz ISM Band)
Number of channels - 2.4 GHz : Ch1 ~ Ch14
Modulation 802.11 b : DQPSK, DBPSK, CCK
802.11 g/n : OFDM /64-QAM, 16-QAM, QPSK, BPSK
Output power 802.11b / 11Mbps :16 dBmേ1.5 dB @ EVM -9dB
802.11b / 54Mbps :15 dBmേ1.5 dB @ EVM -25dB
802.11n / MCS7 :14 dBmേ1.5 dB @ EVM -28dB
Maximum input level 802.11b : -10 dBm
802.11g/n : -20 dBm
Antenna reference Small antennas with 0-2 dBi peak gain
WiFi (5 GHz) RF specification
WLAN standard IEEE 802.11a/n 2 x 2
Frequency range 4.900 GHz ~ 5.845 GHz (5.0 GHz ISM band)
Number of channels - 5.15 GHz ~ 5.25 GHz : CH 36,40,44,48
- 5.25 GHz ~ 5.35 GHz : CH 52,56,60,64
- 5.5 GHz ~ 5.7 GHz :
CH 100,104,108,112,116,120,124,128,132,136,140
- 5.725 GHz ~ 5.825 GHz : CH 149,153,157,161
Modulation 802.11 a : OFDM /64-QAM, 16-QAM, QPSK, BPSK
802.11 n : OFDM/64-QAM, 16-QAM, QPSK, BPSK
802.11 ac : OFDM / 256-Qam
Output power 802.11a / 54Mbps :13 dBmേ1.5 dB @ EVM -25dB
802.11n /MCS7 : 12dBmേ1.5 dB @ EVM -28dB
802.11ac /MCS9 : 10dBmേ1.5 dB @ EVM -32dB
Maximum input level 802.11 a/n : -30 dBm
Antenna reference Small antennas with 0~2 dBi peak gain

10.1" Tablet PC - Agile X IS
Type 17-A1B*-****/******** Technical data
Subject to technical changes.
12/2016 19/50
Bluetooth specification
Bluetooth std. Bluetooth V4.1 of 1,2, and 3 Mbps.
Antenna reference Small antennas with 0~2 dBi peak gain
Frequency band 2402 MHz ~ 2480 MHz
Number of channels 79 channels
Modulation FHSS, GFSK, DPSK, DQPSK
RF specification
Maximum input level GFSK (1Mbps): -20dBm
TT/4 –DQPSK (2Mbps) : -20dBm
8DPSK (3Mbps) : -20dBm
4.1.7 Barcode scan options
The maximum read range of the scan engine depends on the barcode type used, the
quality of print and the module width (in mil).
available scan engine 1D/2D Imager (SE4500 from Zebra)
4.1.7.1 1D/2D Imager (SE4500)
For Agile X IS with integrated 1D-/2D- Imager
The SE4500 is ideal for small to medium bar codes and 2D intensive applications.
The decode range depends on the quality and size of the bar code and on the scan
engine’s software setting.
Laser class CDRH/IEC Class 2 laser and IEC Class 1M light
Aiming LED (VLD) 655nm Laser
Decode
range
5 mil Code 39
100 % UPC/EAN
6.7 mil PDF 417
Near: 2.1 in./5.3 cm Far: 7.5 in./19.1 cm
Near: 1.6 in./4.1 cm Far: 15.5 in./39.4 cm
Near: 3.4 in./8.6 cm Far: 7.1 in./18.0 cm
Skew, pitch & roll Skew tolerance : ± 60°
Pitch tolerance : ± 60°
Roll tolerance : 360°
Focal distance from front of
engine 8.0 in
Scan rate Up to 60 fps
Sensor resolution 752 (H) x 480 (V) pixel
Field of view Horizontal: 40 deg. Vertical : 25 deg.
Aiming LED (VLD) 655 Nm ± 10 nm
Illumination element 2 x 625nm LEDs
Minimum print contrast Minimum 25% absolute dark/light reflectance
measured at 650 nm

Technical data
10.1" Tablet PC - Agile X IS
Type 17-A1B*-****/********
20/50 Subject to technical changes.
12/2016
4.1.8 Symbologies supported
4.1.9 Decode range
4.1.10 NFC options
The maximum read/write ranges of the NFC reader will depend on the different
ambient conditions. For example:
- Transponder (tag), size
- Aerial used in the tag (size, model ...)
- Site of installation (metal, wood or other base)
- Ambient conditions
- External magnetic influences
- Temperature
- Humidity

10.1" Tablet PC - Agile X IS
Type 17-A1B*-****/******** Technical data
Subject to technical changes.
12/2016 21/50
NFC Support Protocol
Tag Type Description Support
Type 1 TOPAZ (BCM20203T96) Read UID only
Type 2 Mifare Ultralight (MF0ICU1) Read / Write
Type 3 Felica Lite rc-s965 Read / Write
Type 4 DESFire EV1 (MF3ICD81) Read / Write
ISO 15693 ICODE SLI (SL2ICS20)
HF-I Pro,
HF-I Plus
Read / Write
ISO 14443A MiFare Classic (MF 1S50) Read / Write
Support NFC Mode (Refer to the following table for tag types supported)
ISO 15693 (R/W) TI HF-I Plus
TI HF-I Pro
ISO 14443-A (R/W) NXP Mifare_One (S50_4byte)
NXP Mifare_One (S70_4byte)
NXP Mifare UltraLight
NXP Mifare UltraLight C
NXP Mifare_Plus_S 2K
NXP Mifare_Plus_S 4K
NXP Mifare_Plus_X 2K
NXP Mifare_Plus_X 4K
ISO 14443-A NXP Mifare DESFire _EV1 4K
ISO 14443-B ST SRIX 4K

Technical data
10.1" Tablet PC - Agile X IS
Type 17-A1B*-****/********
22/50 Subject to technical changes.
12/2016
4.2
4.3 Battery
The life of the battery will depend on different use factors and the device settings, e.g.:
Use and setting of WLAN / Bluetooth
Background lighting brightness level/screensaver
Power management settings
Use and setting of 1D-/2D-Imager, 4G/LTE module, Add-on module and camera
Battery (only replaceable in safe range)
Build in 7.4 V / 4,200 mAh
Hot-swappable 2nd battery (optional) 7.4 V / 4,200 mAh
Operating temperature
During charging 0 °C to +45 °C +32 °F to 113 °F
During discharging in potentially
explosive atmosphere
-20 °C to +50 °C -4 °F to 122 °F
Storage temperature -20 °C to +50 °C -4 °F to 122 °F
Relative air humidity 30 %-90 % (non condensing)
Lifecycle ≥ 300
Charging time (only internal) 2,5h
Charging time (internal + external
battery) Up to 4h (intelligent algorithm to charge first
of all the internal battery)
4.4 External interfaces
DANGER
Non-certified accessories endanger the explosion protection.
Danger to life exists in potentially explosive atmospheres!
The external interfaces may only be used outside the potentially explosive range
with accessories specified by the manufacturer.
Only use original BARTEC accessories:
- Add-On modules,
- BARTEC certified USB Drive,
- BARTEC certified Micro SD card.

10.1" Tablet PC - Agile X IS
Type 17-A1B*-****/******** Technical data
Subject to technical changes.
12/2016
23/50
4.5 Product labelling
Laser warning - Type Label Zone 0
With scanner
Type:
17-A1B6-****/*****1**
Label comes from Winmate
Without scanner
Type:
17-A1B6-****/*****0**
Label comes from Winmate

Technical data
10.1" Tablet PC - Agile X IS
Type 17-A1B*-****/********
24/50
Subject to technical changes.
12/2016
Laser warning - Type Label Zone 1
With scanner
Type:
17-A1B4-****/*****1**
Label comes from Winmate
Without scanner
Type:
17-A1B4-****/*****0**
Label comes from Winmate
External battery
type 17-A1Z0-0006
USB Stick 8 GB
type 17-A1Z0-0007
Micro SD card
type 17-A1Z0-0008
type 17-A1Z0-0009 and
type 17-A1Z0-0010
Microsoft Windows
Licence

10.1" Tablet PC - Agile X IS
Type 17-A1B*-****/******** Technical data
Subject to technical changes.
12/2016 25/50
4.6 Laser labels
The accessible laser radiation is in the visible spectral range (630nm to 680nm). It is
not dangerous to the eye for short term exposure (up to 0.25 s).
NB:
In the case of laser devices of class 2, the eye is not in danger from incidental short
term exposure to laser radiation, i.e. radiation exposure up to 0.25 s.
Laser devices of class 2 may therefore be used without protective measures if it is
ensured that:
neither intentional looking into the device is necessary for the application for a
period longer than 0.25 s
nor repeated looking into the laser radiation or reflected laser radiation.
In compliance with IEC 60825 and EN 60825, Clause 5 the following information is
provided:
DEUTSCH
KLASSE 1 KLASSE 1 LASER PRODUKT
KLASSE 2
LASERLICHT
NICHT IN DEN LASERSTRAHL
SEHEN
KLASSE 2 LASER PRODUKT
ENGLISH FRENCH / FRANÇAIS
CLASS 1 CLASS 1 LASER PRODUCT CLASSE 1 PRODUIT LASER DE CLASSE 1
CLASS 2
LASER LIGHT
DO NOT STARE INTO BEAM
CLASS 2 LASER PRODUCT
CLASSE 2
LUMIERE LASER NE PAS
REGARDER LE
RAYON FIXEMENT
PRODUIT LASER DE CLASSE 2
ITALIAN / ITALIANO PORTUGUESE / PORTUGUÊS
CLASSE 1 PRODOTTO AL LASER DI
CLASSE 1 CLASSE 1 PRODUTO LASER DA CLASSE 1
CLASSE 2
LUCE LASER
NON FISSARE IL
RAGGIOPRODOTTO
AL LASER DI CLASSE 2
CLASSE 2
LUZ DE LASER NÃO FIXAR O
RAIO LUMINOSO
PRODUTO LASER DA CLASSE 2
DUTCH / NEDERLANDS DANISH / DANSK
KLASSE 1 KLASSE-1 LASERPRODUKT KLASSE 1 KLASSE 1 LASERPRODUKT
KLASSE 2
LASERLICHT
NIET IN STRAAL STAREN
KLASSE-2 LASERPRODUKT
KLASSE 2
LASERLYF
SE IKKE IND I STRÅLEN
KLASSE 2 LASERPRODUKT
NORWEGIAN / NORSK FINNISH / SUOMI
KLASSE 1 LASERPRODUKT, KLASSE 1 LUOKKA 1
LUOKKA 1 LASERTUOTE
KLASSE 2
LASERLYS IKKE STIRR INN I
LYSSTRÅLEN
LASERPRODUKT, KLASSE 2
LUOKKA 2
LASERVALO
ÄLÄ TUIJOTA SÄDETTÄ
LUOKKA 2 LASERTUOTE

Transport and storage 10.1" Tablet PC - Agile X IS
Type 17-A1B4-1..1/2221….
26/50 Subject to technical changes.
12/2016
5. Transport and storage
5.1 Transport
Report any transport damage or incomplete deliveries immediately after receipt in
writing to the forwarding company and BARTEC GmbH.
Any damage caused through incorrect storage shall not be covered by the warranty
provisions of BARTEC GmbH.
5.2 Storage
ATTENTION
Property damage through incorrect storage!
Observe storage temperatures.
Keep humidity away from the Tablet PC.
Additional information on the batteries
The batteries of BARTEC are developed and manufactured in accordance with the
highest industrial standards. The operating time or storage period of a battery is restricted,
however. The actual life of a battery is influenced by different factors, e.g. hot, cold, rough
operating environment and falling from a great height. If a battery is kept longer than six
months, the performance may be impaired on a permanent basis. Keep the batteries in a
dry, cool place. For longer periods of storage, remove the batteries from the device to
prevent self-discharge, rusting of the metallic and the escape of electrolyte.
Batteries kept for duration of six months or longer should be charged and discharged
again at least every three months. If electrolyte has escaped, do not touch the areas
affected and dispose of the batteries as prescribed. Replace the battery if the operating
time has shortened considerably.
The standard warranty period for all BARTEC batteries is six months, whereby it is
irrelevant whether the battery was acquired separately or was contained in the scope of
the delivery of the Tablet PC.

10.1" Tablet PC - Agile X IS
Type 17-A1B*-****/******** Commissioning
Subject to technical changes.
12/2016 27/50
6. Commissioning
DANGER
Avoid electrostatic charging in potentially explosive atmosphere.
Danger to life in explosive atmosphere!
Do not dry wipe or clean the devices.
Wear suitable clothing and shoes.
Do not use rubber gloves or similar.
DANGER
Unintended use endangers explosion protection.
Danger to life in explosive atmosphere!
Do not make any changes to the 10.1" Agile X IS Tablet PC.
In the case of function disturbances or damage to the enclosure, the device
should be removed immediately from the potentially explosive atmosphere to a
safe place. Remove battery to decommission the device!
Do not use any battery replicas or batteries from other manufacturers.
Before you assemble the device, make sure that all components and documents exist.
6.1 Scope of delivery
- Agile X IS Tablet PC (10.1“ Ex Certified)
- Charging power supply
- Cover module (if there is no external battery)
- Stylus
- Quick Start Guide
6.1.1 Optional accessories
Authorised accessories from BARTEC:
Lithium-Ion battery pack (type 17-A1Z0-0006) with 7.4 V / 4,200 mAh
BARTEC intrinsically safe USB stick (type 17-A1Z0-0007)
Micro SD card (type 17-A1Z0-000x)
Spare stylus (type 03-9849-0149)
Desktop docking station for network communication and charging
Table-top charger dual compartment
Charging power supply
Screen protector (type 17-A1Z0-0011)

Commissioning 10.1" Tablet PC - Agile X IS
Type 17-A1B*-****/********
28/50 Subject to technical changes.
12/2016
6.2 Requirements in potentially explosive atmosphere
Tablet PC
The Tablet PC may not be opened.
Do not use, swap or replace and non-specified components.
Do not retrofit any components to the internal plugs or slots. One exception is the port
for SIM card and the port for the Micro SD card.
Protect the Tablet PC from impact!
External battery pack replacement is possible!
USB stick (only with special BARTEC intrinsically safe USB stick possible)
Do not expose the Tablet PC to caustic/aggressive liquids, vapours, mists!
Avoid the impact of moisture outside the specifications.
Avoid thermal impact outside the specified temperature range.
Battery
The battery may not be opened.
Only charge the battery (type 17-A1Z0-0006) outside the potentially explosive
atmosphere.
Only use the battery for the purpose listed in this manual is suitable for the Tablet PC
Agile X IS.
There is a danger of burning if used incorrectly. Do not expose the battery to
temperatures of more than +60 °C (+140 °F).
Battery acid may escape from the cells and cause burning in the case of damage.
Defective batteries must be disposed of immediately, whereby the provisions on
battery disposal applicable in the respective region must be observed.
The battery may explode if it catches fire!
Do not short circuit the battery!
Only use BARTEC certified batteries!
Accessories
Only install or replace accessories (except BARTEC USB stick, Micro SD Card and
BARTEC external battery) outside the potentially explosive atmosphere.
User accessories exclusively which have been tested or certified by BARTEC for this
purpose.

10.1" Tablet PC - Agile X IS
Type 17-A1B*-****/******** Commissioning
Subject to technical changes.
12/2016 29/50
6.3 Handling accessories
DANGER
Non certified accessories endanger explosion protection.
Danger to life exists in potentially explosive atmospheres!
Only use original accessories from BARTEC
Only permitted outside the potentially explosive atmosphere:
Charge battery.
Insert/remove Add-on modules
6.4 First steps
The individual steps are explained in detail in the following chapters!
1. Unpack the Tablet PC.
2. Insert the battery into the Tablet PC.
3. Charge the battery in the Tablet PC in a safe atmosphere using charging power
supply.
4. Switch on the Tablet PC.
In order to start using the Agile X IS Industry Tablet for the first time:
1. Install the external battery/cover module.
2. Fully charge the internal and external battery (if used, optionally available)
3. Install SIM/Micro SD Card/USB-Stick (Optional)
4. Start the Agile X IS
6.4.2 Insert battery
The Tablet PC is supplied with a build in 7.4 V / 4,200 mAh battery. If no external
battery is insert, a cover module must be placed instead.
Battery for explosion-protected
version, type
Order number Charge time
Lithium-Ion battery pack
with 7.4 V / 4,200 mAh
17-A1Z0-0006 Less than 2.5 hours

Commissioning 10.1" Tablet PC - Agile X IS
Type 17-A1B*-****/********
30/50
Subject to technical changes.
12/2016
Work steps:
1. Place the Agile X IS with the front side (display facing down) on a flat surface.
2. Before the battery can be inserted, the two-step unlocking device (a) of the
battery compartment must be open.
3. Please make sure that both latches are locked in place in the outer position (red
marking in the unlocking device becomes visible).
4. Insert the battery (b) with the charging contacts firstly into the battery
compartment.
5. The battery charging contacts (c) must be consistent with the charging contacts
in the battery compartment.
6. Press the battery into the clamp position until you hear a click.
7. Slide the latches to the middle position (d).

10.1" Tablet PC - Agile X IS
Type 17-A1B*-****/******** Commissioning
Subject to technical changes.
12/2016
31/50
8. Press the battery into the battery compartment until you hear a click (e).
9. Slide the latches into the unlocked position (f).
6.4.3 Insert USB stick
Only the BARTEC USB stick (Type 17-A1Z0-0027) is to be used for data exchange (via
the USB port) in potentially explosive atmospheres.

Commissioning 10.1" Tablet PC - Agile X IS
Type 17-A1B*-****/********
32/50
Subject to technical changes.
12/2016
6.4.4 Insert SIM card
The Tablet PC has a replaceable micro Sim Card slot.
DANGER
Non-certified accessories endanger explosion protection.
Danger to life exists in potentially explosive atmospheres!
The ignition protection is rendered ineffective by using modules from other
manufacturers so that a danger of fire or explosion exists.
Only admissible outside potentially explosive atmospheres:
The Sim Card may only be replaced outside the potentially explosive atmosphere!
The EGB information should be followed in order to prevent any damage to the
Tablet PC. This includes working on an antistatic mat. The operator must also be
correctly earthed. (EGB = Rules in the handling of electrostatically endangered
construction elements and assemblies.)
ATTENTION
Incorrect handling can lead to material damage!
Switch off the Tablet PC before replacing components.
Turn off the Tablet PC before removing the battery. Errors when removing the
battery may lead to a loss of data.
Work steps:
Only insert or remove the micro SIM Card outside the potentially explosive atmosphere.
Switch off the Tablet PC using the Power button.
1. Remove the battery.
2. Place the Tablet PC on the display side. Ensure that no parts lying about scratch the
display.
3. Open the cover above the I/O interfaces (a).
4. Insert the micro SIM Card and push it in with the
contacts facing upwards into the micro SIM card
compartment (b) until it locks in.
5. Close the cover of the I/O interface.
6. Insert the battery.
7. Switch on the Tablet PC using the Power button.
8. Start up the Tablet PC and check whether the SIM Card has been recognised in the
system control.

10.1" Tablet PC - Agile X IS
Type 17-A1B*-****/******** Commissioning
Subject to technical changes.
12/2016
33/50
6.4.5 Insert micro SD card
ATTENTION
Damage to the micro SD card through electrostatic discharges!
User antistatic mat.
Ensure that the operator is correctly earthed.
A maximum of 32 GB are supported.
BARTEC offers the following micro SD cards:
8 GB order number 17-A1Z0-0008
16 GB order number 17-A1Z0-0009
32GB order number 17-A1Z0-0010
Work steps:
Only install or replace the micro SD card outside of the potentially explosive atmosphere.
Only use micro SD cards which have been tested and certified by BARTEC for this
purpose.
1. Switch off the Tablet PC using the Power button.
2. Place the Tablet PC on its front (display facing downwards).
3. Open the cover above the I/O interfaces (a).
4. Push in the micro SD card with the contacts facing upwards into the micro SD card
compartment (b) until it locks in.
5. Close the cover of the I/O interface.
6. Switch on the Tablet PC using the Power button
7. Check whether the micro SD card has been recognised and is available in system
control or in the file explorer.

Commissioning 10.1" Tablet PC - Agile X IS
Type 17-A1B*-****/********
34/50
Subject to technical changes.
12/2016
6.4.6 Remove/replace screen protector
DANGER
Non-certified accessories endanger explosion protection.
A danger to life exists in a potentially explosive atmosphere!
A condition for a safety conscious operation is the use of original screen protectors
which have been specified for use by BARTEC.
Using screen protectors from different manufacturers renders the ignition
protection useless so that there is a danger of fire or explosion.
Only admissible outside potentially explosive atmospheres:
The screen protector may only be attached or replaced outside the potentially
explosive atmosphere!
ATTENTION
Incorrect handling may cause damage to property!
Use a screen protector so as not to impair the device warranty.
Only use screen protector (Type 17-A1Z0-0011) from BARTEC.
Observe the installation instructions for the screen protector.
Do not use any sharp objects to remove the screen protector!
The screen protector can be ordered from BARTEC. The installation instructions for the
screen protector forms part of the scope of delivery. Parts number: 17-A1Z0-0011
screen protector, 1 piece.
Work steps:
Only remove or replace the screen protector outside the potentially explosive atmosphere.
1. Lift a corner of the screen protector (a) and remove it from the display.
2. Attach the screen protector in accordance with the “Screen protector installation
instructions”.

10.1" Tablet PC - Agile X IS
Type 17-A1B*-****/******** Commissioning
Subject to technical changes.
12/2016
35/50
6.5
HART Add-On Module (for future use)
The intrinsically safe combination of the Agile X IS tablet PC system
and the HART Add-On Module makes it possible to perform
diagnostics, set parameters and manage field devices much more
quickly and efficiently. The HART module is used as an add-on
module for the Agile X IS tablet PC system in its extension interface.
Since the user is now able to switch safely between the Ex and non-
Ex area, only one device is then needed for the wireless uploading
or adjusting of the field devices distributed there, completely
independently of the control system.
6.5.1 Versions
ATTENTION
Not for use in Zone 0
6.5.2 Software
The usual software solution available in the market may also be used on the Windows-
based Agile X IS. Communication using the industrial standard FDT / DTM is also
possible.
Available DTM software supports the following 64-bit operating systems:
- Windows 8.1 Embedded Industry Pro
- Windows 10 IoT Enterprise
6.5.3 Assembly of the HART Add-on Module
The intrinsically safe combination of the tablet PC system and the newly developed HART
Add-On Module makes it possible to perform diagnostics, set parameters and manage
field devices much more quickly and efficiently. The HART modem is used as an add-on
module for the tablet PC system in its extension interface. Since the user is now able to
switch safely between the Ex and non-Ex area, only one device is then needed for the
wireless uploading or adjusting of the field devices distributed there, completely
independently of the control system.
Scope of delivery:
-
1x HART Add-On Module
-
2x Pan head screw M3x10
-
2x Pan head screw M3x7
-
2x Truss head screw M3x7
-
2x Connection cable
-
2x Test probes
-
1x Installation instruction HART Add-On Module

Commissioning 10.1" Tablet PC - Agile X IS
Type 17-A1B*-****/********
36/50
Subject to technical changes.
12/2016
DANGER
The extension interface of the tablet PC must always be sealed in a potentially
explosive atmosphere! There is a risk of explosion!
Only remove or mount the cover of the extension module outside the potentially
explosive atmosphere.
Only assemble/dismantle the HART Add-On Module outside the potentially
explosive atmosphere.
Risk of short circuiting if the screws supplied with delivery are not used.
Carry out the correct assembly for the attachment.
Use the screws supplied with delivery. All screws must be used to ensure the safe
mechanical assembly of the HART Add-On Module on the tablet PC.
Store the cover of the extension port safely.
6.5.4 Installation HART Add-On Module
Only assemble/dismantle the HART Add-On Module outside the potentially explosive
atmosphere.
Only use the HART Add-On Module for the purpose that they have been tested and
certificated by BARTEC.
Avoid data losses!
Do not just switch the tablet PC using the "ON/OFF" switch.

10.1" Tablet PC - Agile X IS
Type 17-A1B*-****/******** Commissioning
Subject to technical changes.
12/2016
37/50
Work steps:
1. Shut the tablet PC down using the operating system.
2. Place the tablet PC on the display side, taking care that
no parts nearby scratch the screen.
3. Remove the top middle screws on the I/O interface cover.
4. Unpack the HART Module (the srews supplied for
mounting are in the packaging).
5. Place the HART Add-On Module on the extension
interface.
1. Fasten the HART Add-On Module using 5 screws. Torque
value 3 Nm.
2. Visual inspection of the HART Add-On Modules to ensure
correct positioning and assembly.
3. Switch the tablet PC on using the "ON/OFF" button.
DANGER
Non-certified accessories endanger explosion protection.
Danger to life exists in potentially explosive atmospheres!
A condition for a safety conscious operation is the use of HART Add-on modules
which have been specified for use by BARTEC.
The ignition protection is rendered ineffective by using modules from other
manufacturers so that a danger of fire or explosion exists.
Only admissible outside potentially explosive atmospheres:
The HART Add-on modules may only be replaced outside the potentially
explosive atmosphere!
The EGB information should be followed in order to prevent any damage to the
Tablet PC. This includes working on an antistatic mat. The operator must also be
correctly earthed.
(EGB = Rules in the handling of electrostatically endangered construction
elements and assemblies.)
ATTENTION
Incorrect handling may cause damage to property!
Switch off the Tablet PC before replacing components.
Turn off the Tablet PC before removing the battery. Errors when removing the
battery may lead to a loss of data.
For a secure mechanical mount of the HART Add-On Module on the tablet-PC
Agile X IS, all supplied screws need to be used.

Commissioning 10.1" Tablet PC - Agile X IS
Type 17-A1B*-****/********
38/50 Subject to technical changes.
12/2016
6.5.5 Zubehör Schultergurt/4-Punkt Tragegurt
6.5.6 Setting up/activating the HART Add-On Module
Switching the tablet PC on.
Press the ON/OFF button for three seconds.
Activating the HART Add-On Module.
(1) Click on "Hottab" on the start screen to start the application.
(2) Click in the menu on the option "Device ON/OFF".
(3) Select "Ext.Module" to active the extension interface.
(orange = ON; White = OFF)
(4) Power set to ON.
In up-to-date versions of the operating system the driver has already been integrated in
the image. With older versions the driver must be installed manually using the device
manager.
Do not assemble or remove the hand strap in a potentially explosive atmosphere.
6.5.7 Downloading and installing driver software

10.1" Tablet PC - Agile X IS
Type 17-A1B*-****/******** Commissioning
Subject to technical changes.
12/2016
39/50
1. If the driver for the virtual COM port is not listed in the tablet PC’s system image, a new "CP2109 USB to UART
Bridge Controller" device will appear under "Other devices" in the device manager once the HART Add-On Module
has been mounted.
2. Download the driver from:
http://automation.bartec.de/
3. Unzip the zip file.
4. Select the right driver installer for the operating system
- 32-bit driver version:
CP210xVCPInstaller_x86-Installer
- 64-bit driver version:
CP210xVCPInstaller_x64-Installer
5.
The "User Account Control" (UAC) window opens.
6.
Start installation by clicking on "Yes".
1.
Continue installation in the
"CP210x USB to UART Bridge Driver Installer" window by clicking on "Next".

Commissioning 10.1" Tablet PC - Agile X IS
Type 17-A1B*-****/********
40/50
Subject to technical changes.
12/2016
1.
Accept the licence conditions by clicking on "I accept this agreement" and
confirm by clicking on "Next".
7. The "The Drivers were
successfully installed on this
computer" message appears in
the window.
Complete installation by clicking on
"Finish".
8. Once the driver has been installed,
the HART Add-On Module can be
found in the device manager under:
"Ports (COM & LPT)" with the
designation "Silicon Labs CP210x
USB to UART Bridge".

10.1" Tablet PC - Agile X IS
Type 17-A1B*-****/******** Commissioning
Subject to technical changes.
12/2016 41/50

Operation 10.1" Tablet PC - Agile X IS
Type 17-A1B*-****/********
42/50 Subject to technical changes.
12/2016
7. Operation
The operator using an electric system in a potentially explosive environment must keep
the accompanying operation equipment in good condition, operate and monitor it correctly
and conduct the requisite services and repairs. Before operation the devices it must be
checked that all components and documents are available.
7.1 Final inspection
The following aspects must be checked before putting the device into operation:
Is there any damage to the display, scanner window or enclosure?
Are all covers closed as required?
Is the battery used certified?
Is the battery correctly inserted and locked?
Does the screen protector (if used) have the requisite certification?
Is the micro SD card specified for the Tablet PC?
Has the SIM card been correctly inserted?
Have only accessory parts been attached to the device which have been released for
use in potentially explosive atmospheres?
7.2 Care and cleaning
We recommend that the devices be cleaned regularly depending on use and also treated
with care to ensure smooth and trouble free operation.
7.2.1 Care
Display Only use with supplied stylus for the touchscreen.
Use screen protector.
Use a soft cloth to clean and do not use aggressive cleaners.
Enclosure Protect device from impacts.
Do not expose to extreme loads, e.g. strong knocks and
falling from great heights.
Environment Do not expose to extreme temperatures.
Do not leave in dirty, moist or wet environment.

10.1" Tablet PC - Agile X IS
Type 17-A1B*-****/******** Operation
Subject to technical changes.
12/2016 43/50
Battery Change battery regularly.
Discharge and charge battery regularly (every 3 months).
For long term storage, remove the batteries from the Tablet PC and store in a cool
environment at around 0 °C to +10° C and with a charge state of approximately
40-50 %.
Once a charge state of approximately 5 % has been reached, it is recommended
that the battery be recharged. It is not necessary to discharge the battery entirely.
The daily charging of the battery is also not harmful. Nowadays batteries no longer
have a “Memory Effect”.
If the battery reduces its charge state from 100 % to half to quickly it is time to
replace the battery. The expected of the life off the battery is approximately 300
charges with standard use.
7.2.2 Cleaning
DANGER
Danger to life exists in potentially explosive atmospheres!
Only clean the devices and the accessories outside of the potentially explosive
atmosphere.
ATTENTION
Devices and accessories can be destroyed if handled incorrectly!
Generally separate the charger from the power supply.
Only clean the interface contacts if the battery has been removed.
There should be no residue, e.g. fluff on the contacts.
There should be no moisture residue on the contacts.
Heed the safety precautions when drying with compressed air.
To guarantee your own safety and the operational safety of the device, observe the
precautionary measures carefully.
7.2.3 Suitable materials for cleaning
Alcohol cleaning cloths
Lens cleaning cloths
Cotton swabs
Isopropanol
Compressed air spray with tube

Operation 10.1" Tablet PC - Agile X IS
Type 17-A1B*-****/********
44/50 Subject to technical changes.
12/2016
Enclosure With alcohol cleaning cloths.
Keys and
intermediate
spaces
With alcohol cleaning cloths.
Screen With alcohol cleaning cloths.
Avoid collections of fluid and rub with smooth cloths.
Scanner window Use cleaning agent for optical devices.
Battery contacts Remove the battery from the device to clean.
Soak the cotton swabs in an alcohol solution to remove all grease and dirt deposits
on the contacts.
Repeat cleaning several times.
Before replacing the battery, the contacts need to be completely dry and no dust
should remain.
Interface contacts
To clean the interface contacts, remove the battery from the device.
Soak the cotton swabs in an alcohol solution to remove all grease and dirt deposits
on the contacts.
Repeat cleaning several times.
Before the interfaces of the devices are used again, the interface contacts must be
completely dry and no fluff should remain.
Accessories such
as charger,
docking station,
cradle connectors
Separate the accessories from the power supply to clean.
Soak the cotton swabs in an alcohol solution to remove all grease and dirt deposits
on the contacts.
Repeat cleaning several times.
Before the accessory is reconnected to the power supply, the contacts must be
completely dry and no fluff should remain.

10.1" Tablet PC - Agile X IS
Type 17-A1B*-****/******** Operation
Subject to technical changes.
12/2016 45/50
7.3 Operation, recommendations and requirements
7.3.1 Basic safety and health protection requirements
Consult your local health and safety officer to ensure that you are acquainted with the
safety regulations in your company which serve to protect employees at the workplace.
7.3.1.1 Ergonomic recommendation
The following recommendations should be considered for everyday work at the
workplace:
Avoid one-sided, constantly repetitive movements.
Body posture should be as neutral as possible.
Avoid exercising great force.
Keep objects which are used frequently within a functional distance.
Adjust the working height to the body height and type of work.
Erect objects without vibration.
Avoid the exercising of direct pressure.
Ensure that the tables and chairs are adjustable.
There must be sufficient room for body movements.
Ensure that the working environment is suitable.
Optimise work flows.
Alternate between the left and right hand as frequently as possible when conducting
repetitive tasks.
7.3.1.2 Vehicle installation
It is not permitted to connect a warning device which leads to horn sounds or light
signals when receiving a call in road traffic.
Information on conducting telephone conversations only applies if a 4G LTE module is
used.
RF signals may impair incorrectly installed or inadequately shielded electronic systems in
vehicles (including safety systems). If you have any questions on your vehicle, get in
touch with the manufacturer or sales person.
You can also learn from the manufacturer whether additional equipment has been fitted to
the vehicle. An airbag has a strong impact. Do NOT place objects, such as installed or
portable radio equipment, in the area above the airbag or in the area of deployment of the
airbag. If radio equipment was not correctly installed in the vehicle, severe injuries may
result if the airbag is triggered.
Position the device within good range. Ensure that you have access to the device without
having to take your eye off the road.

Operation 10.1" Tablet PC - Agile X IS
Type 17-A1B*-****/********
46/50 Subject to technical changes.
12/2016
Road traffic safety
Do not take any notes and do not use the device when driving. Making a list of to-dos or
browsing through the address book when driving has a negative effect on safe driving.
When driving on the road, you must primarily think of your safety and that of other road
users. You should therefore concentrate completely on the road. Check the legal
provisions on the use of wireless devices in road traffic of the respective region. Always
observe these.
If you use a wireless device during driving a car, rely on your good judgement and
remember the following:
Become acquainted with the wireless device and its functions such as the shortcut
dialling or dial repetition function. These functions may prove to be useful if you would
like to make calls without taking your eye off the road.
Where possible, use hands-free equipment.
Let your dialogue partner know that you are behind the steering wheel. When
necessary discontinue the call in dense traffic or poor weather conditions. Rain, sleet,
snow, ice and even very dense traffic represent dangers.
Dial the required numbers carefully and estimate and the traffic situation. Make your
calls once you have brought your car to a stop or before you leave. Plan your calls
such that these can be done when parked. If you really must make a call during the
trip, only dial a part of the number, check the road and look in the rear view mirror
and then dial the rest of the number.
Do not succumb to stressful and emotional telephone conversations which could take
your attention from the road. Let your dialogue partner know that you are in a car and
refrain from conversations which could take your attention from the road.
Call for help using your mobile device if necessary. Dial the emergency services (911
in the USA and 112 in Europe) or other local emergency service numbers in the
event of fire, accident or medical emergencies. Remember that these calls are free of
charge on the wireless device! The call can be made independently of security code
or networks with or without a SIM card.
Help your fellow humans in emergency situations with your mobile device. If you
witness a serious accident, crime or any other emergency, call the emergency
service (911 in the USA and 112 in Europe) or another local emergency service
number because you could be the one who needs help next time.
Call the breakdown service or a special mobile radio number for support if you
encounter problems on the road. If you pass a car with a breakdown, which does not
represent a serious impediment to traffic, pass traffic lights which do not function, a
traffic accident with slight damage and without injuries or a possibly stolen car, please
get in touch with the road police or another special mobile radio number for support.
The “Mobile Communication Industry” requests you to give safety priority when using your
device/telephone.

10.1" Tablet PC - Agile X IS
Type 17-A1B*-****/******** Operation
Subject to technical changes.
12/2016 47/50
7.3.2 Information on the use of wireless devices
Heed all warnings referring to the use of wireless devices.
7.3.2.1 Safety in aircraft
Switch off the wireless device when asked to do so by the ground staff and by employees
of the airline. If your device has a flight mode or similar function, find out about its correct
use with the help of the aircraft staff.
7.3.2.2 Safety in hospitals
Wireless devices emit radio frequencies and cause disturbances to medical technical
electrical devices. Wireless devices should be switched-off on request when you are in
hospitals, clinics or health establishments. This is intended to avoid any possible
interferences with sensitive medical equipment.
7.3.2.3 Heart pacemakers
Manufacturers recommend that a minimum distance of 15 cm be observed between a
wireless handheld device and a pacemaker to avoid potential interference. This guideline
is in line with the independent research results and recommendations of Wireless
Technology Research.
Persons with heart pacemakers should ALWAYS keep at least 15 cm away from the
activated device.
The device may not be worn by these persons in the breast pocket.
The device should be held to the ear which is further away from the heart pacemaker.
If you have reason to assume that an interference has arisen you should SWITCH-
OFF the device immediately.
7.3.2.4 Hearing aids
The wireless device may cause disturbances to hearing devices. Get in contact with the
manufacturer of your hearing device in the case of disturbances to ask about possible
solutions.
The device should be held to the ear which is furthest away from the heart pacemaker.
If you have reason to assume that interference has arisen you should SWITCH OFF
the device immediately.
7.3.2.5 Other medical equipment
Ask your doctor or the manufacturer of the medical device to determine whether putting
the wireless product into operation impairs the medical device.

Operation 10.1" Tablet PC - Agile X IS
Type 17-A1B*-****/********
48/50 Subject to technical changes.
12/2016
7.3.3 Equipment of the laser devices
CAUTION
Laser radiation! May damage eyesight!
Do not look into the laser beam.
Devices from BARTEC equipped with lasers comply with the following guidelines:
IEC 60825-1:2007 / EN 60825-1:2008-05 Class 2 (1 mW, 630-680 nm)
IEC 60825-1 / EN 60825-1: Class 1 LED product (only with imaging option, no laser
label)
The Tablet PC uses the ZEBRA SE4500 barcode reader. The classification for the laser
device is stated on the plate attached to the device. Laser devices of class 1 are not
considered to be dangerous as long as they are used for their intended purpose.
7.3.4 LED devices
CAUTION
LED light! May damage eyesight!
If you use LED for the camera flash, keep the camera flash LED at least 317 mm
(12.5 inch) away from a person’s eyes. Otherwise serious damage may be caused
to the eyes.
Devices from BARTEC equipped with LED devices comply with the following guidelines:
IEC 62471:2006-07 for LED safety.
7.3.5 Restrictions in the case of wireless devices
The use of wireless devices is possibly forbidden or restricted. This applies primarily on
board aircraft, in hospitals, in the vicinity of explosive substances or under other
hazardous conditions. If you are not sure which regulations apply to the use of the
device, ask permission before switching it on.
Radio modules
The device contains radio modules. The identification data for these modules are provided
below:
Radio module from BARTEC which supports WLAN 802.11 a/b/g/n/ac and Bluetooth.
Bluetooth® radio technology
This is an authorised Bluetooth® product. Further information and an end product list is
provided at https://www.bluetooth.org/tpg/listings.cfm.
Country-specific roaming
This device has the International Roaming function (IEEE802.11d) which ensures that the
device is used on the channels prescribed for the respective country.
Ad-hoc operation
The ad-hoc operation is restricted to the channels 36–48 (5150–5250 MHz). The use of
this bandwidth is restricted to indoor areas; use outdoors is not permitted.

10.1" Tablet PC - Agile X IS
Type 17-A1B*-****/******** Operation
Subject to technical changes.
12/2016
49/50
7.4 Operating frequency - FCC and IC
5 GHz Only
The use in the UNII (Unlicensed National Information Infrastructure) band 1 5150 -5250
MHz band is restricted to Indoor Use Only; any other use will make the operation of this
device illegal.
Industry Canada Statement
CAUTION - AVERTISSEMENT
Devices can be damaged by inappropriate handling!
The device for operation in the band 5150-5250 MHz is only for indoor use to
reduce the potential for harmful interference to co-channel mobile satellite
systems;
High-power radars are allocated as primary users (i.e. priority users) of the bands
5250-5350 MHz and 5650-5850 MHz and that these radars could cause
interference and/or damage to LE-LAN devices.
Devices can be damaged by inappropriate handling!
Les dispositifs fonctionnant dans la bande 5 150-5 250 MHz sont réservés
uniquement pour une utilisation à l’intérieur afin de réduire les risques de
brouillage préjudiciable aux systèmes de satellites mobiles utilisant les mêmes
canaux;
De plus, les utilisateurs devraient aussi être avisés que les utilisateurs de radars
de haute puissance sont désignés utilisateurs principaux (c.-à-d., qu’ils ont la
priorité) pour les bandes 5 250-5 350 MHz et 5 650-5 850 MHz et que ces radars
pourraient causer du brouillage et/ou des dommages aux dispositifs LAN-EL.
2.4 GHz only
In the USA the channels 1 to 11 are available for the 802.11 b/g operation. The range of
channels is restricted by the firmware.
FCC requirements to protect against high-frequency interference
This device has been tested and satisfies the limit
values for a digital device of Class B according to Part
15 of the FCC Guideline. These limit values were
stipulated to guarantee appropriate protection against
disturbances if the device is used in residential areas.
The device generates and uses radio frequency energy and may emit this energy. This
can have a disturbing effect on other radio frequencies if the device is not connected and
used in accordance with the operating instructions. A guarantee that no interference will
arise for a certain installation cannot be given.
If the device causes interference to the radio or TV reception which can be recognised by
switching the device on and off, the interference should be eliminated by one or several of
the following measures:
Re-alignment or moving of the receiving aerial.
Enlarging the distance between device and receiver.
Connecting the device to a different socket than the one to which the receiver is
connected.
Advice from the dealer or a radio/television technician.

Operation 10.1" Tablet PC - Agile X IS
Type 17-A1B*-****/********
50/50 Subject to technical changes.
12/2016
Declaration in accordance with the FCC regulations, Part 15.21
Changes which have not been explicitly approved by the party responsible for compliance
with the regulations can lead to the expiry of the operating authorization for this device.
Radio transmission devices (Part 15)
This device satisfies the requirements of Part 15 of the FCC Guidelines. The operation of
the device is based on the following two conditions:
The device may not cause any damaging interference.
The device must absorb all receiving interference including interference which may
lead to undesirable operation.
Requirements placed on the protection from high frequency interference - Canada
This digital device of Class B satisfies the Guidelines of the Canadian standard ICES-003.
Radio transmission devices
This device corresponds to RSS 210 (Industry & Science Canada). The operation of the
device is based on the following two conditions:
The device may not cause any damaging interference.
The device must absorb all receiving interference including interference which may
lead to undesirable operation.
Label symbol: “IC:” before the radio certification means that the technical data of Industry
Canada have been satisfied.
Country approvals
For 2.4-GHz products: Europe covers Belgium, Bulgaria, Denmark, Germany,
Estonia, Finland, France, Greece, Great Britain, Ireland, Iceland, Italy, Latvia,
Liechtenstein, Lithuania, Luxembourg, Malta, Netherlands, Norway, Austria, Poland,
Portugal, Romania, Sweden, Switzerland, Slovakia, Slovenia, Spain, Czech Republic,
Hungary and Cyprus.
Test symbols are attached to the device which shows that the radio modules are
approved for use in the following countries: USA, Canada and Europe.
Detailed information on the test symbol for other countries is provided in the EC
declaration of conformity.
USA
WARNING
It is not permitted to operate the device without official approval.
Acquire permission from the authorities first.
The channels 1 to 11 are available in the USA for 802.11 b/g operation. The range of the
channels is restricted by the firmware.

10.1" Tablet PC - Agile X IS
Type 17-A1B*-****/******** Operation
Subject to technical changes.
12/2016 51/50
Radio transmitters for RLAN devices
The operation of RLAN devices (5 GHz) is subject to the following restrictions in Canada:
Frequency range restricted to 5.60 GHz to 5.65 GHz.
This device complies with the radio standard RSS 210 of the Industry & Science Canada.
The operation of the device is based on the following two conditions:
The device may not cause any damaging interference
The device must absorb all receiving interference including interference which may
lead to undesirable operation.
Label symbol “IC:” before the radio certification merely means that the technical data of
Industry Canada have been satisfied.
7.5 Electromagnetic fields
Reduction in high frequency energy – intended use
Only use device in compliance with the supplied instructions.
International
The device complies with the internationally recognized standards for the recommended
maximum values for electromagnetic fields of radio devices. Information on
“internationally“ recommended maximum values for electromagnetic fields is provided in
BARTEC’s Declaration of Conformity at http://www.bartec.de/.
Europe
Portable devices have been specially tested for operation in direct body proximity. Use
exclusively belt clips, holsters and similar accessories which have been tested and
approved by BARTEC to ensure compliance with the EU regulations.
USA and Canada
Declaration on joint use
To comply with the FCC guidelines with respect to exposure to high frequency energy, the
aerial for this transmitter should not be used in the direct vicinity of, or in an operation unit
with, other transmitters/aerials with the exception of those approved in this document.
The Tablet PC should only be worn close to the body when turned off.
Portable devices have been specially tested for operation in direct body proximity. Use
exclusively belt clips, holsters and similar accessories which have been tested and
approved by BARTEC to ensure compliance with the FCC regulations. Belt clips, holsters
and similar accessories of third manufacturers may not satisfy the FCC requirements for
the recommended maximum values for electromagnetic fields and should not therefore be
used.
Micro SD card
The Micro SD card slot provides a secondary, non-volatile memory. The slot is located at
the side of the Tablet PC. Further information is provided in the documentation supplied
with the card. Observe the manufacturer’s recommendations on use.

Service, inspection and
repair
10.1" Tablet PC - Agile X IS
Type 17-A1B*-****/********
52/50 Subject to technical changes.
12/2016
8. Faults and troubleshouting
DANGER
Danger to life exists in potentially explosive atmospheres!
Examine defective devices and any accessories only outside the potentially
explosive atmosphere.
8.1 Troubleshooting
Problem Solution
The battery does not charge. Check that the external power supply is connected and that the
replaceable battery is inserted correctly.
No image on the display. The Tablet PC is possibly in sleep mode.
Press power button to wake up the device.
The settings for the background lighting are possibly too low.
Increase the settings of the background lighting.
The screen suddenly switches off
and the power LED goes out.
With the hot tab tool, check whether the power power LED has
been deactivated.
Check whether the external power supply is connected.
In the battery mode, check whether the battery is inserted
correctly.
It may be necessary to charge the battery.
The WLAN signal is very poor. With the hot tab tool, check whether the WLAN is activated.
Check whether the SSID is identical everywhere in the network.
Restart the Tablet PC.
Check whether the IP and subnet mask are set correctly.
Bluetooth connection to other
devices is not working.
Check that the Bluetooth is switched on in both devices. On the
Tablet PC, check with the hot tab tool.
Check whether the two devices are discoverable (connectable).
Check whether the two devices are compatible with each other.
Check whether the two devices are further than 10 m apart.
The GPS application cannot find my
position.
With the hot tab tool, check whether the GPS is activated.
Check whether the GPS receiver and the position sensor are
active in the device manager.
You may possibly be outside the GPS range. Take the Tablet PC
outdoors or closer to a window.
Check whether the objects in the environment generate faults
such as microwaves or mobile telephones.
Move the Tablet PC away from any such objects.

10.1" Tablet PC - Agile X IS
Type 17-A1B*-1***/********
Service, Inspection and
Repair
Subject to technical changes.
12/2016 53/50
Problem Solution
The GPS is very inaccurate. When using the GPS we recommend that the 1D/2D imager be
deactivated to avoid faults.
There is no sound from the
loudspeaker.
Check the volume setting with the buttons for high and low.
When using external audio devices check whether the cable has
been connected correctly.
The display of the Tablet PC cannot
be displayed on an external monitor.
Check whether the VGA driver is installed.
Check that the output settings are correct.
No laser appears with the 1D/2D
imager and it does not appear to
work.
With the hot tab tool, check that the 1D/2D imager is active.
In the system settings, check that the 1D/2D imager is set to
COM15 so that the hot tab tool has access.
The laser appears with the 1D/2D
imager but no data are shown.
Reduce the distances between the 1D/2D imager.
In the 1D/2D imager configuration, check whether the barcode
type use is active.
The RFID reader does not work.
In the system settings, check whether the RFID reader is set to
COM3 so that the hot tab tool has access.
8.2 Resetting the Tablet PC using the recovery function
ATTENTION
Recovery can cause data loss!!
Data which are stored on the Tablet PC and are not subject to data backup will be
deleted and loss irretrievably.
You should therefore first conduct a data backup in order to prevent data loss.
Every Tablet PC is supplied with a recovery partition and permits a 1-key recovery
procedure.
Work steps:
Conduct the recovery function only outside of potentially explosive atmospheres. Only
start and conduct the recovery function if the Tablet PC is connected to an external power
supply.
1. Switch on the Tablet PC using the Power button.
2. When the boot screen appears, there are two ways of reaching the recovery menu.
Press Fn1 button on the front side of the Tablet PC.
When using an external USB keyboard, press the F6 button
3. The following screen of the recovery function appears.

Service, inspection and
repair
10.1" Tablet PC - Agile X IS
Type 17-A1B*-****/********
54/50
Subject to technical changes.
12/2016
4. Select the Recovery option and continue.
5. A warning appears that all data will be lost. Ensure that all data are backed up.
Where necessary, abort with No and conduct a data backup first. Only select Yes if
you are certain that all data are secure.
6. Wait until the recovery process has been completed. A command window appears
during the recovery and shows the progress of the recovery. The Tablet PC restarts
after recovery has been completed.
7. Check whether the Tablet PC is working and restore your data and application
programs.

10.1" Tablet PC - Agile X IS
Type 17-A1B*-1***/********
Service, Inspection and
Repair
Subject to technical changes.
12/2016
55/50
9. Service, inspection and repair
Service, inspection, and repair of Tablet PCs may be conducted exclusively by trained
and qualified staff! The staff who is familiar with the service, inspection, and repair of the
Tablet PCs, has been informed about the risks and has the qualifications necessary for
this work.
9.1 Service intervalls
DANGER
Prevent electrostatic charging in potentially explosive atmospheres.
Danger to life in explosive atmosphere!
Do not dry wipe or dry clean devices.
The mechanical state of the device should be regularly checked. The service intervals will
depend on the ambient conditions. We recommend that a service be conducted at least
once a year. Regular servicing is not necessary if the device is correctly operated in
accordance with the installation instructions and under appropriate consideration of the
ambient conditions.
9.2 Inspection
According to EN/IEC 60079-17 and EN/IEC 60079-19, the owner/operator of electrical
plants in potentially explosive atmospheres is obliged to have these plants checked by an
electrician to ensure that they are in a correct condition.
9.3 Service and repair work
In addition to the standards EN/IEC 60079-17 and EN/IEC 60079-19 also apply to the
servicing and repair as well as the testing of accompanying operating devices.
Work connected with assembly/dismantling, operation and servicing may only be
conducted by trained specialists. All statutory requirements and other binding guidelines
on occupational health and safety, accident prevention and environmental protection must
be observed.
9.3.1 Information on sending in for repairs (new picture of the device)
The following information is required for the repair:
Serial number of the device,
see label for series number (1)
Model number or product name,
see type plate (2)
Software type and version number from
the system information in system control

Repair,
Disposal and Packaging
10.1" Tablet PC - Agile X IS
Type 17-A1B*-1***/********
56/50 Subject to technical changes.
12/2016
Please read through the handling guidelines for the RMA process before you send in a
defective device for repair. Then complete the RMA form (Return Merchandise
Authorization), sign it and send it to our “Returns Centre”.
E-Mail: services@bartec.de
Fax: +49 7931 597-119
We cannot guarantee the processing within the contractually agreed period for any
returns received by us without RMA number.
The handling guidelines and the RMA form are available for download from our website:
http://www.bartec.de
> Quality and Culture
> RMA Form
Haben Sie Fragen? Schreiben Sie uns eine E-Mail oder rufen Sie uns an.
E-Mail: services@bartec.de
Phone: +49 7931 597-444
10. Disposal
As professional electrical devices, our devices are intended exclusively for commercial
use, so-called B2B devices, in accordance with the WEEE Directive.
The WEEE Directive provides the framework for the treatment of old electrical
equipment throughout Europe. This means that you may not dispose of these devices
in usual household waste but must dispose of them separately in an environmentally
compatible manner and can also bring them to the collection points of public disposal
companies.
All products purchased from us can be returned to us by our customers for
disposal. We will ensure disposal in accordance with the applicable laws.
The sender shall bear the costs of postage and packaging.
The Tablet PCs contain metallic and plastic parts and electronic components.
11. Forwarding and packaging information
ATTENTION
Sensitive devices! Damage may be caused by incorrect packaging!
Use original packaging for transport.

10.1" Tablet PC - Agile X IS
Type 17-A1B*-1***/********
Accessories
Additional Information
Subject to technical changes.
12/2016
57/50
12. Accessories
Ex-certified
Description Order number
Replacement battery
Hot-swappable external battery (7.4 V / 4,200 mAh)
ATEX/IECEx /UL 17-A1Z0-0006
Further accessories
Spare stylus
1 piece per pack with rubber strap
suitable for capacitive touch screen
with anti-scratch rubber tip
03-9849-0149
Screen protector
ATEX/IECEx cerified for gas groups IIA, IIB and IIC
1 piece per pack
10.1'' widescreen
17-A1Z0-0011
The following accessories are only suitable for use outside of a potentially explosive
atmosphere.
General (only for use in safe environments)
Description Order number
ATP industrial-type micro SD cards
with 8 GB 17-A1Z0-0008
with 16 GB 17-A1Z0-0009
with 32 GB 17-A1Z0-0010
USB stick
with 8 GB 17-A1Z0-0007
13. Additional information
13.1 Links
http://www.bartec.de.com
BARTEC website
http://www.bartec.de/automation-download/
BARTEC download page
http://www.bartecmobility.com
BARTEC Agile System homepage

Accessories and
additional information
10.1" Tablet PC - Agile X IS
Type 17-A1B*-****/********
58/50
Subject to technical changes.
12/2016
14. Declaration of Conformity

10.1" Tablet PC - Agile X IS
Type 17-A1B*-1***/********
Accessories
Additional Information
Subject to technical changes.
12/2016
59/50