Baldor GLC105 MN2408 GLC Generator Manual User To The 1d331a4e 75ec 4d57 Bb33 Eb464ec1c68a
User Manual: Baldor GLC105 to the manual
Open the PDF directly: View PDF
.
Page Count: 114 [warning: Documents this large are best viewed by clicking the View PDF Link!]

GLC Generator
(Gaseous Liquid Cooled)
GLC10, 15, 20, 25 30, 40, 45, 60, 65, 100 and 105
Installation & Operating Manual
2/08 MN2408

Any trademarks used in this manual are the property of their respective owners.
WARNING:
CALIFORNIA PROPOSITION 65 WARNING:
Engine exhaust from this product contains chemicals known
to the state of California to cause cancer, birth defects and
other reproductive harm.
WARNING:
CALIFORNIA PROPOSITION 65 WARNING:
Battery posts, terminals and related accessories are known to
the state of California to cause cancer, birth defects and other
reproductive harm.

Table of Contents
Table of Contents iMN2408
Section 1
Product Safety Information 1-1. . . . . . . . . . . . . . . . . . . . . . . . . . . . . . . . . . . . . . . . . . . . . . . . . . . . . . . . . . . . . . . . . . . . . . . . . . . . .
Safety Notice 1-1. . . . . . . . . . . . . . . . . . . . . . . . . . . . . . . . . . . . . . . . . . . . . . . . . . . . . . . . . . . . . . . . . . . . . . . . . . . . . . . . . . . .
Responsibility 1-1. . . . . . . . . . . . . . . . . . . . . . . . . . . . . . . . . . . . . . . . . . . . . . . . . . . . . . . . . . . . . . . . . . . . . . . . . . . . . . . . . . . .
IMPORTANT SAFETY INSTRUCTIONS 1-2. . . . . . . . . . . . . . . . . . . . . . . . . . . . . . . . . . . . . . . . . . . . . . . . . . . . . . . . . . . . . . . . .
Caution Statements 1-6. . . . . . . . . . . . . . . . . . . . . . . . . . . . . . . . . . . . . . . . . . . . . . . . . . . . . . . . . . . . . . . . . . . . . . . . . . . . . . .
Section 2
General Information 2-1. . . . . . . . . . . . . . . . . . . . . . . . . . . . . . . . . . . . . . . . . . . . . . . . . . . . . . . . . . . . . . . . . . . . . . . . . . . . . . . . . .
Limited Warranty 2-1. . . . . . . . . . . . . . . . . . . . . . . . . . . . . . . . . . . . . . . . . . . . . . . . . . . . . . . . . . . . . . . . . . . . . . . . . . . . . . . . .
Installation Guidelines 2-3. . . . . . . . . . . . . . . . . . . . . . . . . . . . . . . . . . . . . . . . . . . . . . . . . . . . . . . . . . . . . . . . . . . . . . . . . . . . . .
Site Planning 2-3. . . . . . . . . . . . . . . . . . . . . . . . . . . . . . . . . . . . . . . . . . . . . . . . . . . . . . . . . . . . . . . . . . . . . . . . . . . . . . . . . . . .
Room Size 2-3. . . . . . . . . . . . . . . . . . . . . . . . . . . . . . . . . . . . . . . . . . . . . . . . . . . . . . . . . . . . . . . . . . . . . . . . . . . . . . . . .
Room Location 2-4. . . . . . . . . . . . . . . . . . . . . . . . . . . . . . . . . . . . . . . . . . . . . . . . . . . . . . . . . . . . . . . . . . . . . . . . . . . . . .
Foundation Design 2-5. . . . . . . . . . . . . . . . . . . . . . . . . . . . . . . . . . . . . . . . . . . . . . . . . . . . . . . . . . . . . . . . . . . . . . . . . . . .
Exhaust System 2-9. . . . . . . . . . . . . . . . . . . . . . . . . . . . . . . . . . . . . . . . . . . . . . . . . . . . . . . . . . . . . . . . . . . . . . . . . . . . . . . . . .
Level Of Attenuation 2-9. . . . . . . . . . . . . . . . . . . . . . . . . . . . . . . . . . . . . . . . . . . . . . . . . . . . . . . . . . . . . . . . . . . . . . . . . . .
System Placement 2-9. . . . . . . . . . . . . . . . . . . . . . . . . . . . . . . . . . . . . . . . . . . . . . . . . . . . . . . . . . . . . . . . . . . . . . . . . . . .
Multi-Engine Installations 2-9. . . . . . . . . . . . . . . . . . . . . . . . . . . . . . . . . . . . . . . . . . . . . . . . . . . . . . . . . . . . . . . . . . . . . . .
Exhaust Manifold 2-9. . . . . . . . . . . . . . . . . . . . . . . . . . . . . . . . . . . . . . . . . . . . . . . . . . . . . . . . . . . . . . . . . . . . . . . . . . . . .
Exhaust Gas Restriction 2-9. . . . . . . . . . . . . . . . . . . . . . . . . . . . . . . . . . . . . . . . . . . . . . . . . . . . . . . . . . . . . . . . . . . . . . . .
Exhaust Piping 2-10. . . . . . . . . . . . . . . . . . . . . . . . . . . . . . . . . . . . . . . . . . . . . . . . . . . . . . . . . . . . . . . . . . . . . . . . . . . . . .
Rain Protection 2-10. . . . . . . . . . . . . . . . . . . . . . . . . . . . . . . . . . . . . . . . . . . . . . . . . . . . . . . . . . . . . . . . . . . . . . . . . . . . . .
Transfer Switch 2-11. . . . . . . . . . . . . . . . . . . . . . . . . . . . . . . . . . . . . . . . . . . . . . . . . . . . . . . . . . . . . . . . . . . . . . . . . . . . . . . . . .
Battery Starting System 2-12. . . . . . . . . . . . . . . . . . . . . . . . . . . . . . . . . . . . . . . . . . . . . . . . . . . . . . . . . . . . . . . . . . . . . . . . . . . .
Battery Location 2-12. . . . . . . . . . . . . . . . . . . . . . . . . . . . . . . . . . . . . . . . . . . . . . . . . . . . . . . . . . . . . . . . . . . . . . . . . . . . . .
Battery Size 2-12. . . . . . . . . . . . . . . . . . . . . . . . . . . . . . . . . . . . . . . . . . . . . . . . . . . . . . . . . . . . . . . . . . . . . . . . . . . . . . . . .
Battery Charger 2-13. . . . . . . . . . . . . . . . . . . . . . . . . . . . . . . . . . . . . . . . . . . . . . . . . . . . . . . . . . . . . . . . . . . . . . . . . . . . . .
Battery Cables 2-13. . . . . . . . . . . . . . . . . . . . . . . . . . . . . . . . . . . . . . . . . . . . . . . . . . . . . . . . . . . . . . . . . . . . . . . . . . . . . . .
Section 3
Receiving & Installation 3-1. . . . . . . . . . . . . . . . . . . . . . . . . . . . . . . . . . . . . . . . . . . . . . . . . . . . . . . . . . . . . . . . . . . . . . . . . . . . . . . .
Receiving & Inspection 3-1. . . . . . . . . . . . . . . . . . . . . . . . . . . . . . . . . . . . . . . . . . . . . . . . . . . . . . . . . . . . . . . . . . . . . . . . . . . . .
Lifting the Generator 3-1. . . . . . . . . . . . . . . . . . . . . . . . . . . . . . . . . . . . . . . . . . . . . . . . . . . . . . . . . . . . . . . . . . . . . . . . . . . . . . .
Physical Location 3-1. . . . . . . . . . . . . . . . . . . . . . . . . . . . . . . . . . . . . . . . . . . . . . . . . . . . . . . . . . . . . . . . . . . . . . . . . . . . . . . . .
Secure the Generator 3-3. . . . . . . . . . . . . . . . . . . . . . . . . . . . . . . . . . . . . . . . . . . . . . . . . . . . . . . . . . . . . . . . . . . . . . . . . .
Engine Cooling 3-3. . . . . . . . . . . . . . . . . . . . . . . . . . . . . . . . . . . . . . . . . . . . . . . . . . . . . . . . . . . . . . . . . . . . . . . . . . . . . .
Hot Exhaust Gasses 3-4. . . . . . . . . . . . . . . . . . . . . . . . . . . . . . . . . . . . . . . . . . . . . . . . . . . . . . . . . . . . . . . . . . . . . . . . . .
Installation 3-6. . . . . . . . . . . . . . . . . . . . . . . . . . . . . . . . . . . . . . . . . . . . . . . . . . . . . . . . . . . . . . . . . . . . . . . . . . . . . . . . . . . . . .
Fuel Connections 3-6. . . . . . . . . . . . . . . . . . . . . . . . . . . . . . . . . . . . . . . . . . . . . . . . . . . . . . . . . . . . . . . . . . . . . . . . . . . . .
Electrical Connections 3-9. . . . . . . . . . . . . . . . . . . . . . . . . . . . . . . . . . . . . . . . . . . . . . . . . . . . . . . . . . . . . . . . . . . . . . . . .
Battery Connections 3-12. . . . . . . . . . . . . . . . . . . . . . . . . . . . . . . . . . . . . . . . . . . . . . . . . . . . . . . . . . . . . . . . . . . . . . . . . . . . . . .
Recommended Engine Oil and Battery Type 3-13. . . . . . . . . . . . . . . . . . . . . . . . . . . . . . . . . . . . . . . . . . . . . . . . . . . . . . . . . . . . . .
Post Installation Checks 3-13. . . . . . . . . . . . . . . . . . . . . . . . . . . . . . . . . . . . . . . . . . . . . . . . . . . . . . . . . . . . . . . . . . . . . . . . . . . .

ii Table of Contents MN2408
Section 4
Operation 4-1. . . . . . . . . . . . . . . . . . . . . . . . . . . . . . . . . . . . . . . . . . . . . . . . . . . . . . . . . . . . . . . . . . . . . . . . . . . . . . . . . . . . . . . . . .
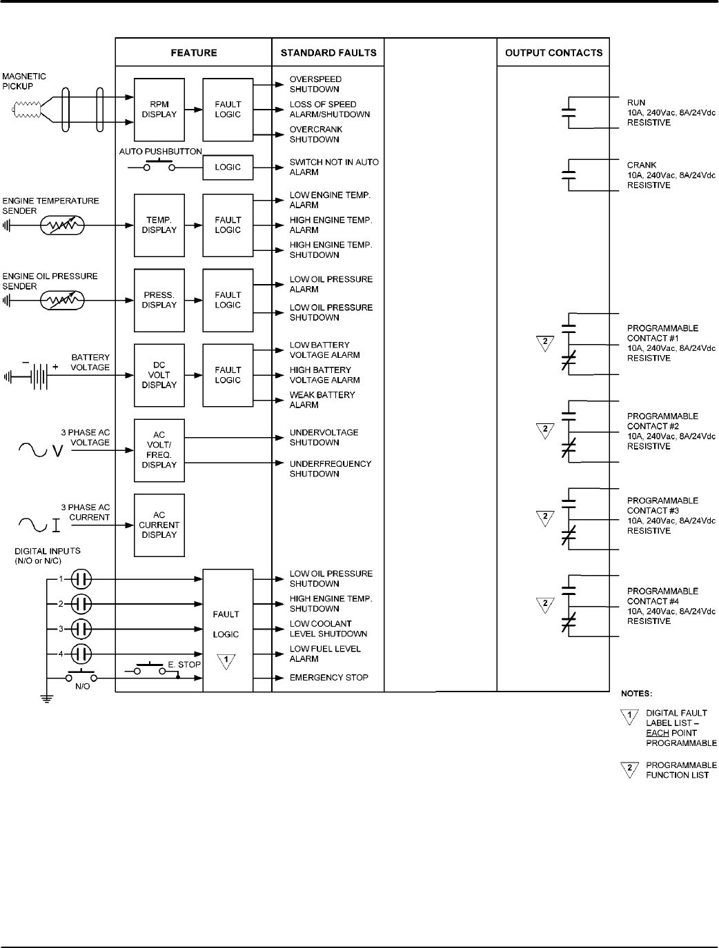
Digital Engine Controller Description 4-1. . . . . . . . . . . . . . . . . . . . . . . . . . . . . . . . . . . . . . . . . . . . . . . . . . . . . . . . . . . . . . . . . . .
Alarms 4-4. . . . . . . . . . . . . . . . . . . . . . . . . . . . . . . . . . . . . . . . . . . . . . . . . . . . . . . . . . . . . . . . . . . . . . . . . . . . . . . . . . . .
Inputs and Outputs 4-5. . . . . . . . . . . . . . . . . . . . . . . . . . . . . . . . . . . . . . . . . . . . . . . . . . . . . . . . . . . . . . . . . . . . . . . . . . . .
Analog Inputs 4-6. . . . . . . . . . . . . . . . . . . . . . . . . . . . . . . . . . . . . . . . . . . . . . . . . . . . . . . . . . . . . . . . . . . . . . . . . . . . . . .
Set points 4-6. . . . . . . . . . . . . . . . . . . . . . . . . . . . . . . . . . . . . . . . . . . . . . . . . . . . . . . . . . . . . . . . . . . . . . . . . . . . . . . . . .
Operator Control Panel (MICROPROCESSOR Engine Controller Only) 4-13. . . . . . . . . . . . . . . . . . . . . . . . . . . . . . . . . . . . . . . . . .
Operating Procedures 4-14. . . . . . . . . . . . . . . . . . . . . . . . . . . . . . . . . . . . . . . . . . . . . . . . . . . . . . . . . . . . . . . . . . . . . . . . .
Manual Start/Stop 4-14. . . . . . . . . . . . . . . . . . . . . . . . . . . . . . . . . . . . . . . . . . . . . . . . . . . . . . . . . . . . . . . . . . . . . . . .
Automatic Start/Stop 4-14. . . . . . . . . . . . . . . . . . . . . . . . . . . . . . . . . . . . . . . . . . . . . . . . . . . . . . . . . . . . . . . . . . . . . .
Automatic Fault Shutdown 4-15. . . . . . . . . . . . . . . . . . . . . . . . . . . . . . . . . . . . . . . . . . . . . . . . . . . . . . . . . . . . . . . . . .
Automatic Mains Failure (AMF) 4-15. . . . . . . . . . . . . . . . . . . . . . . . . . . . . . . . . . . . . . . . . . . . . . . . . . . . . . . . . . . . . .
Standard Faults 4-17. . . . . . . . . . . . . . . . . . . . . . . . . . . . . . . . . . . . . . . . . . . . . . . . . . . . . . . . . . . . . . . . . . . . . . . . . . . . . .
Output Contacts 4-20. . . . . . . . . . . . . . . . . . . . . . . . . . . . . . . . . . . . . . . . . . . . . . . . . . . . . . . . . . . . . . . . . . . . . . . . . . . . . .
Display Modes 4-21. . . . . . . . . . . . . . . . . . . . . . . . . . . . . . . . . . . . . . . . . . . . . . . . . . . . . . . . . . . . . . . . . . . . . . . . . . . . . . .
Operating Status 4-21. . . . . . . . . . . . . . . . . . . . . . . . . . . . . . . . . . . . . . . . . . . . . . . . . . . . . . . . . . . . . . . . . . . . . . . . .
Fault Display 4-21. . . . . . . . . . . . . . . . . . . . . . . . . . . . . . . . . . . . . . . . . . . . . . . . . . . . . . . . . . . . . . . . . . . . . . . . . . . .
Timer Countdown 4-22. . . . . . . . . . . . . . . . . . . . . . . . . . . . . . . . . . . . . . . . . . . . . . . . . . . . . . . . . . . . . . . . . . . . . . . .
Generator AC Metering 4-23. . . . . . . . . . . . . . . . . . . . . . . . . . . . . . . . . . . . . . . . . . . . . . . . . . . . . . . . . . . . . . . . . . . .
Engine Parameter Display 4-24. . . . . . . . . . . . . . . . . . . . . . . . . . . . . . . . . . . . . . . . . . . . . . . . . . . . . . . . . . . . . . . . . .
Program Menus 4-24. . . . . . . . . . . . . . . . . . . . . . . . . . . . . . . . . . . . . . . . . . . . . . . . . . . . . . . . . . . . . . . . . . . . . . . . . . . . . .
Main Menu Loop 4-25. . . . . . . . . . . . . . . . . . . . . . . . . . . . . . . . . . . . . . . . . . . . . . . . . . . . . . . . . . . . . . . . . . . . . . . . . . . . .
Analog Fault Menu Loop 4-26. . . . . . . . . . . . . . . . . . . . . . . . . . . . . . . . . . . . . . . . . . . . . . . . . . . . . . . . . . . . . . . . . . . . . . . .
Digital Fault Menu Loop 4-27. . . . . . . . . . . . . . . . . . . . . . . . . . . . . . . . . . . . . . . . . . . . . . . . . . . . . . . . . . . . . . . . . . . . . . . .
Calibration Menu Loop 4-27. . . . . . . . . . . . . . . . . . . . . . . . . . . . . . . . . . . . . . . . . . . . . . . . . . . . . . . . . . . . . . . . . . . . . . . . .
Voltage Sensing Calibration 4-27. . . . . . . . . . . . . . . . . . . . . . . . . . . . . . . . . . . . . . . . . . . . . . . . . . . . . . . . . . . . . . . . .
Voltage Calibration Procedure 4-27. . . . . . . . . . . . . . . . . . . . . . . . . . . . . . . . . . . . . . . . . . . . . . . . . . . . . . . . . . . . . . .
Current Sensing Calibration 4-28. . . . . . . . . . . . . . . . . . . . . . . . . . . . . . . . . . . . . . . . . . . . . . . . . . . . . . . . . . . . . . . . .
Battery Voltage Calibration 4-28. . . . . . . . . . . . . . . . . . . . . . . . . . . . . . . . . . . . . . . . . . . . . . . . . . . . . . . . . . . . . . . . . .
Engine Temperature & Oil Pressure Calibration 4-29. . . . . . . . . . . . . . . . . . . . . . . . . . . . . . . . . . . . . . . . . . . . . . . . . . .
Section 5
Troubleshooting and Maintenance 5-1. . . . . . . . . . . . . . . . . . . . . . . . . . . . . . . . . . . . . . . . . . . . . . . . . . . . . . . . . . . . . . . . . . . . . . .
Maintenance 5-1. . . . . . . . . . . . . . . . . . . . . . . . . . . . . . . . . . . . . . . . . . . . . . . . . . . . . . . . . . . . . . . . . . . . . . . . . . . . . . . . . . . .
Problems and Solutions 5-2. . . . . . . . . . . . . . . . . . . . . . . . . . . . . . . . . . . . . . . . . . . . . . . . . . . . . . . . . . . . . . . . . . . . . . . . . . . .
Appendix A
Options & Accessories A-1. . . . . . . . . . . . . . . . . . . . . . . . . . . . . . . . . . . . . . . . . . . . . . . . . . . . . . . . . . . . . . . . . . . . . . . . . . . . . . . .
Battery Charger A-1. . . . . . . . . . . . . . . . . . . . . . . . . . . . . . . . . . . . . . . . . . . . . . . . . . . . . . . . . . . . . . . . . . . . . . . . . . . . . . . . . .
Battery Heaters A-3. . . . . . . . . . . . . . . . . . . . . . . . . . . . . . . . . . . . . . . . . . . . . . . . . . . . . . . . . . . . . . . . . . . . . . . . . . . . . . . . . .
Engine Block Heater A-5. . . . . . . . . . . . . . . . . . . . . . . . . . . . . . . . . . . . . . . . . . . . . . . . . . . . . . . . . . . . . . . . . . . . . . . . . . . . . . .
Silencers A-6. . . . . . . . . . . . . . . . . . . . . . . . . . . . . . . . . . . . . . . . . . . . . . . . . . . . . . . . . . . . . . . . . . . . . . . . . . . . . . . . . . . . . . .
Fuel Strainers & Fuel Lines A-7. . . . . . . . . . . . . . . . . . . . . . . . . . . . . . . . . . . . . . . . . . . . . . . . . . . . . . . . . . . . . . . . . . . . . . . . . .
E-Stop A-8. . . . . . . . . . . . . . . . . . . . . . . . . . . . . . . . . . . . . . . . . . . . . . . . . . . . . . . . . . . . . . . . . . . . . . . . . . . . . . . . . . . . . . . .
Remote Annuciators A-9. . . . . . . . . . . . . . . . . . . . . . . . . . . . . . . . . . . . . . . . . . . . . . . . . . . . . . . . . . . . . . . . . . . . . . . . . . . . . . .
Radiator Duct Flange A-10. . . . . . . . . . . . . . . . . . . . . . . . . . . . . . . . . . . . . . . . . . . . . . . . . . . . . . . . . . . . . . . . . . . . . . . . . . . . . .
Enclosures A-11. . . . . . . . . . . . . . . . . . . . . . . . . . . . . . . . . . . . . . . . . . . . . . . . . . . . . . . . . . . . . . . . . . . . . . . . . . . . . . . . . . . . . .
Appendix B
Series GLC Parts & Wiring Diagrams B-1. . . . . . . . . . . . . . . . . . . . . . . . . . . . . . . . . . . . . . . . . . . . . . . . . . . . . . . . . . . . . . . . . . . . . .
GLC Circuit Breaker & Electrical Data B-1. . . . . . . . . . . . . . . . . . . . . . . . . . . . . . . . . . . . . . . . . . . . . . . . . . . . . . . . . . . . . . . . . .
GLC Wire Size B-2. . . . . . . . . . . . . . . . . . . . . . . . . . . . . . . . . . . . . . . . . . . . . . . . . . . . . . . . . . . . . . . . . . . . . . . . . . . . . . . . . . .
Wiring Diagrams B-2. . . . . . . . . . . . . . . . . . . . . . . . . . . . . . . . . . . . . . . . . . . . . . . . . . . . . . . . . . . . . . . . . . . . . . . . . . . . . . . . . .
Start-up Inspection Form B-25. . . . . . . . . . . . . . . . . . . . . . . . . . . . . . . . . . . . . . . . . . . . . . . . . . . . . . . . . . . . . . . . . . . . . . . . . . .

Section 1
Product Safety Information
Product Safety Information 1‐1MN2408
Safety Notice Be sure that you are completely familiar with the safe operation of this equipment. This
equipment may be connected to other machines that have rotating parts or parts that are
controlled by this equipment. Improper use can cause serious or fatal injury. Always
disconnect all electrical loads before starting the generator.
Installation and repair procedures require specialized skills with electrical generating equipment
and liquid cooled engine systems. Any person that installs or repairs this generator must have
these specialized skills to ensure that this generating unit is safe to operate. Contact Baldor
service department for repairs or any questions you may have about the safe installation and
operation of this system.
The precaution statements are general guidelines for the safe use and operation of this
generator. It is not practical to list all unsafe conditions. Therefore, if you use a procedure that is
not recommended in this manual you must determine if it is safe for the operator and all
personnel in the proximity to the generator and connected loads. If there is any question of the
safety of a procedure please contact Baldor before starting the generator.
This equipment contains high voltages. Electrical shock can cause serious or fatal injury. Only
qualified personnel should attempt the start-up procedure or troubleshoot this equipment.
This equipment may be connected to other machines that have rotating parts or parts that are
driven by this equipment. Improper use can cause serious or fatal injury. Only qualified
personnel should attempt the start-up procedure or troubleshoot this equipment.
- System documentation must be available to anyone that operates this equipment at all
times.
- Keep non‐qualified personnel at a safe distance from this equipment.
- Only qualified personnel familiar with the safe installation, operation and maintenance
of this device should attempt start‐up or operating procedures.
- Always stop engine before making or removing any connections.
- Always stop engine and allow it to cool before refueling.
Responsibility When your generator is delivered, it becomes the responsibility of the owner/operator of the
generator set to prevent unsafe conditions and operation of the equipment. Some
responsibilities include (but are not limited to) the following:
1. It is the responsibility of the owner/operator of this generator to ensure that this
equipment is correctly and safely installed.
2. It is the responsibility of the owner/operator of this generator to ensure that this
equipment, when installed fully complies with all federal, state and local codes.
3. It is the responsibility of the owner/operator of this generator to ensure that any person
operating this equipment has been properly trained.
4. It is the responsibility of the owner/operator of this generator to ensure that any person
operating this equipment has access to all manuals and information required for the
safe use and operation of this equipment.
5. It is the responsibility of the owner/operator of this generator to ensure that it is properly
maintained and safety inspected at regular scheduled intervals.
6. It is the responsibility of the owner/operator of this generator to ensure that any person
who has not been trained on the safe use of this equipment does not have access to
this equipment.
Read This Manual Thoroughly
If you do not understand any concept, any procedure, any safety warning statement, any safety
caution statement or any portion of this manual, contact Baldor or your nearest authorized Baldor
representative. We are happy to make sure you understand the information in this manual so
that you can safely enjoy the full use of this generator.

1‐2 Product Safety Information MN2408
This symbol is shown throughout the manual to indicate a connection to ground reference point.
Symbols
Indicates a potentially hazardous situation which, if not avoided, could result in injury or death.
Indicates a potentially hazardous situation which, if not avoided, could result in injury or death.
Precaution Statements Used In This Manual
There are three classifications of precautionary statements used in this manual. The most critical
is a WARNING statement, then the Caution statement and the least critical is the Note
statement. The usage of each statement is as follows:
WARNING: Indicates a potentially hazardous situation which, if not avoided, could result in injury or
death.
Caution: Indicates a potentially hazardous situation which, if not avoided, could result in damage to
property.
Note: Additional information that is not critical to the installation or operation.
IMPORTANT SAFETY INSTRUCTIONS
SAVE THESE INSTRUCTIONS - This manual contains important instructions for the generator that
should be followed during installation, operation and maintenance of the generator and battery (batteries).
For ease of reading, the Warning statements are divided into four categories: Operation, Burn, Installation,
and Maintenance.
Operation
WARNING: Never operate this generator in a manner other than as described in this manual. Operation
in any manner not described in this manual should be considered unsafe and should not be
attempted. Never start the engine unless you have first verified that the installation and
operation of the generator are as described in this manual.
WARNING: Be sure that you are completely familiar with the safe operation of this equipment. This
equipment may be connected to other machines that have rotating parts or parts that are
controlled by this equipment. Improper use can cause serious or fatal injury.
WARNING: Exhaust fumes/gases are extremely dangerous and can cause severe illness or death. Never
breath exhaust fumes produced by a running engine. Only run the engine outdoors where
ventilation is plentiful. Exhaust gases contain carbon monoxide, a colorless, odorless and
extremely dangerous gas that can cause unconsciousness or death. Symptoms of carbon
monoxide poisoning include: dizziness, nausea, headaches, sleepiness, vomiting or
incoherence. If you or anyone else experiences these symptoms, get out into fresh air
immediately. Stop the engine and do not restart the engine until it has been inspected and if
necessary repaired or reinstalled in a well ventilated area.
WARNING: Hot exhaust gasses must never be directed toward anything that may catch fire or explode.
WARNING: This generator must not be used on or near any forest covered, brush covered, or grass
covered land unless the engine's exhaust system is equipped with a spark arrestor. The
spark arrestor must be maintained in effective working order by the operator.
WARNING: Some parts of this generator rotate during operation. Rotating parts can present extreme
danger if clothing or body extremities are caught by the rotating part and can cause serious
or fatal injury. Never touch a part of the generator until the engine has been stopped and all
rotating parts are completely stopped. Also, disconnect the spark plug wires and battery
connection to prevent accidental engine rotation during servicing.
WARNING: Never move a generator set that is running. Loads should be connected and position secure
before starting the engine. Hazards are caused by moving a generator set that is running.
Continued on next page.

Product Safety Information 1‐3MN2408
Operation Warning Statements Continued
WARNING: Never connect or disconnect loads during operation. Always connect load circuits before
starting the engine and use external branch disconnects etc. to switch loads On/Off.
WARNING: Be sure that you understand how to stop the engine quickly in case of an emergency situation.
Become familiar with the controls and safety systems provided with this generator set.
WARNING: Always wear safety glasses with side shields and hearing protection when working near the
generator.
WARNING: Improper operation may cause violent motion of connected equipment. Be certain that
unexpected movement will not cause injury to personnel or damage to equipment.
WARNING: Never operate the generator set indoors or in a poorly ventilated area such as a tunnel or cave.
Exhaust fumes are extremely dangerous to all personnel that are in or in contact with that area.
WARNING: Never permit anyone to operate the generator without proper instructions. Be sure to keep a
copy of this manual with the generator so that all users can be properly informed of its safe
operation.
WARNING: Never allow children or pets to be in the area where the generator is running. The generator
and the equipment being powered by the generator may cause injury or death.
WARNING: Never operate the generator unless all guards, covers, shields and other safety items are
properly installed.
WARNING: Do not put hands, feet, tools clothing or other objects near rotating parts such as drive shaft,
pulley, belt etc. Rotating parts cause extremely dangerous situations because they can catch
loose clothing or extremities and cause serious or fatal injury.
WARNING: When operating this generator remain alert at all times. Never operate machinery when
physically or mentally fatigued, or while under the influence of alcohol, drugs or medication.
WARNING: Never operate the engine when the air cleaner is removed. An engine backfire can cause
serious burns.
WARNING: Never “jump start” a generator to start the engine. If the battery charge is insufficient to start
the engine, charge or replace the battery and try to restart. Jump starting a battery can cause
the battery to explode and cause severe injury or death to anyone in the area.
WARNING: High voltage is present whenever engine is running. Electrical shock can cause serious or
fatal injury. Never operate electrical equipment while standing in water, on wet ground or with
wet hands, feet or shoes or while barefoot.
WARNING: High voltage is present whenever the engine is running. Electrical shock can cause serious
or fatal injury. Always stop engine before connecting or disconnecting power cords or
external devices.
WARNING: Do not smoke near generator during operation or when close to fuel source. LPG and natural
gas fuels are flammable and can cause fire, explosions, injury or death.
WARNING: Keep generator at least three feet away from buildings and other structures.
WARNING: Keep generator away from flammable or hazardous materials (trash, rags, lubricants,
explosives, paints etc.) and grass or leaf build up.
WARNING: Keep a fire extinguisher near the generator while generator is in use. An extinguisher rated
“ABC” by the National Fire Protection Association is appropriate.
Burn
WARNING: Parts of this generator are extremely hot during and after operation. To prevent severe burns,
do not touch any part of the generator until you have first determined if the part is hot. Wear
protective clothing and after use allow sufficient time for parts to cool before touching any
part of the generator.
WARNING: Do not touch the hot exhaust parts or the high voltage spark plug or coil terminals of the
engine. Although spark plug voltages are not normally lethal, a sudden involuntary jerk of the
hand or body part caused by contact with high voltage or a hot surface can result in injury to
yourself or others.
WARNING: Engine coolant is under pressure and is near the boiling point of water when engine is hot.
Do not open the coolant system until the engine has completely cooled. Hot coolant can
cause severe burns and other injuries. When engine is cool, coolant level can be checked.
Continued on next page.

1‐4 Product Safety Information MN2408
Warning Statements Continued
Installation
WARNING: Installation and servicing of batteries is to be performed or supervised by personnel
knowledgeable of batteries and the required precautions. Keep unauthorized personnel away
from batteries.
WARNING: Disconnect the battery's ground terminal before working in the vicinity of the battery or
battery wires. Contact with the battery can result in electrical shock when a tool accidently
touches the positive battery terminal or wire. The risk of such shock is reduced when the
ground lead is removed during installation and maintenance.
WARNING: An open bottom stationary engine generator set must be installed over noncombustible
materials and shall be located such that it prevents combustible materials from accumulating
under the generator set.
WARNING: Installation and repair procedures requires specialized skills with electrical generating
equipment and small engine systems. Any person that installs or performs repairs must have
these specialized skills to ensure that the generator set is safe to operate. Contact Baldor for
installation or repairs.
WARNING: Be sure all wiring complies with the National Electrical Code (NEC) and all regional and local
codes or CE Compliance. Improper wiring may cause a hazardous condition and exposure to
electrical hazards can cause serious injury or death.
WARNING: Be sure the system is properly grounded before applying power. Do not apply AC power
before you ensure that grounds are connected. Electrical shock can cause serious or fatal
injury. NEC requires that the frame and exposed conductive surfaces (metal parts) be
connected to an approved earth ground. Local codes may also require proper grounding of
generator systems.
WARNING: Place protective covers over all rotating parts such as drive shaft, pulley, belt etc. Rotating
parts cause extremely dangerous situations because they can catch loose clothing or
extremities and cause serious or fatal injury.
WARNING: Unauthorized modification of a generator set may make the unit unsafe for operation or may
impair the operation of the unit. Never start a generator set that has been modified or
tampered with. Be sure that all covers and guards are properly installed and that the unit is
safe before starting the engine. If you are unsure, contact Baldor before starting the engine.
WARNING: When moving the generator, use reasonable caution. Be careful where you place fingers and
toes to prevent injury “Pinch Points”. Never try to lift a generator without a hoist or lift means
because they are heavy and bodily injury may result.
Warning: Never connect this generator to the electrical system of any building unless a licensed
electrician has installed an approved transfer switch. The national electrical code (NEC)
requires that connection of a generator to any electrical circuit normally powered by means of
an electric utility must be connected by means of approved transfer switch equipment to
isolate the electrical circuit from the utility distribution system when the generator is
operating. Failure to isolate the electrical circuits by such means may result in injury or death
to utility power workers due to backfeed of electrical energy onto the utility lines.
WARNING: Circuit overload protection must be provided in accordance with the National Electrical Code
and local regulations.
WARNING: Check Ground Fault Circuit Interrupt (GFCI) receptacles monthly by using the “Test” and
“Reset” buttons.
WARNING: Only a professional experienced technician should install a fuel supply system. LPG and
natural gas fuels are flammable and can cause fire, explosions, injury or death. Fuel supply
lines should be kept away from sharp objects to prevent rupture. Comply with all NFPA
regulations and local codes for shut-off valves, regulators, fuel line type, connectors etc.
WARNING: Have electrical circuits and wiring installed and checked by licensed electrician or qualified
technician. Electrical shock can cause serious or fatal injury.
WARNING: Incorrect installation of this generator set could result in property damage, injury or death.
Connection of the generator to its fuel source must be done by a qualified professional
technician or contractor.
WARNING: An open bottom stationary engine generator set must be installed over noncombustible
materials and shall be located such that it prevents combustible materials from accumulating
under the generator set.
Continued on next page.

Product Safety Information 1‐5MN2408
Warning Statements Continued
Battery Safety
WARNING: Installation and servicing of batteries is to be performed or supervised by personnel
knowledgeable of batteries and the required precautions. Keep unauthorized personnel away
from batteries.
WARNING: Do not dispose of battery or batteries in a fire. The battery is capable of exploding. If the
battery explodes, electrolyte solution will be released in all directions. Battery electrolyte
solution is caustic and can cause severe burns and blindness. If electrolyte contacts skin or
eyes, immediately flush the area with water and seek medical attention quickly.
WARNING: Do not mutilate the battery . The battery contains electrolyte solution which is caustic and
can cause severe burns and blindness. If electrolyte contacts skin or eyes, immediately flush
the area with water and seek medical attention quickly.
WARNING: A battery presents a risk of electrical shock hazard and high short circuit current. The
following precautions are to be followed when working on batteries:
1. Remove watches, rings, necklaces and all other metal objects.
2. Use tools with insulated handles.
WARNING: The battery electrolyte is a dilute sulfuric acid that is harmful to the skin and eyes. It is
electrically conductive and corrosive. The following precautions are to be followed when
working on batteries:
1. Wear full eye protection (safety glasses or goggles) and protective clothing.
2. Where electrolyte contacts the skin, flush the area immediately with water and wash it
off using soap and water.
3. Where electrolyte contacts the eyes, immediately flush the eye thoroughly with water
and seek medical attention quickly.
4. Spilled electrolyte is to be washed down with an acid neutralizing agent. A common
practice is to use a solution of one pound (500 grams) bicarbonate of soda to one
gallon (four liters) of water. The bicarbonate solution is to be added until evidence of
reaction (foaming) has ceased. The resulting liquid is to be flushed with water and the
area dried.
WARNING: A battery presents a risk of fire because they generate hydrogen gas. Hydrogen gas is
extremely explosive. Never jump start a battery, smoke in the area around the battery or
cause any spark to occur in the area around the battery. The following precautions are to be
followed when working on batteries:
1. Do not smoke when near batteries.
2. Do not cause flame or spark in battery area.
3. Discharge static electricity from body before touching batteries by first touching a
grounded metal surface.
Continued on next page.

1‐6 Product Safety Information MN2408
Warning Statements Continued
Maintenance
WARNING: Before cleaning, inspecting, repairing or performing any maintenance to the generator set,
always be sure the engine has stopped and that all rotating parts have also stopped. After
stopping, certain components are still extremely hot so be careful not to get burned. Before
servicing the generator set, be sure to disconnect the spark plug wires and the battery
terminals to prevent accidental engine rotation or starting.
WARNING: Engine coolant is under pressure and is near the boiling point of water when engine is hot.
Do not open the coolant system until the engine has completely cooled. Hot coolant can
cause severe burns and other injuries. When engine is cool, coolant level can be checked.
WARNING: Before servicing the generator set, be sure to disconnect the spark plug wires and the battery
terminals to prevent accidental engine rotation or starting.
WARNING: Inspect all wiring frequently and replace any damaged, broken or frayed wiring or wires with
damaged insulation immediately. Electrical shock can cause serious or fatal injury.
WARNING: Disconnect all electrical wires and load devices from generator power outlets before servicing
the generator. Electrical shock can cause serious or fatal injury. Always treat electrical
circuits as if they are energized.
WARNING: Check all fuel supply piping, and their connections monthly for fuel leaks. LPG and natural
gas fuels are flammable and can cause fire, explosions, injury or death. If a leak is found,
replace only with approved pipe or components.
Caution Statements
Caution: Avoid installing the generator set beside heat generating equipment, or directly below water
or steam pipes or in the vicinity of corrosive substances or vapors, metal particles and dust.
Heat can cause engine problems to develop and unwanted substances can cause rust or
generator failure over time.
Caution: Do not apply high voltage to windings (do not start the generator) in a moisture-saturated
condition. Moisture can cause insulation breakdown, making it necessary to return the
generator for repair.
Caution: Use only original equipment or authorized replacement parts. Using the correct parts will
assure continued safe operation as designed.
Caution: Do not support the generator from the top of the frame or enclosure.
Caution: Do not tamper with or change the engine speed. Engine speed is factory set to produce the
correct voltage and output frequency.
Caution: Never operate the engine without a muffler. The engine is designed to have the correct
exhaust components installed and operating without these components can present a fire
hazard, cause excessive exhaust gases and cause damage to engine. Inspect muffler
periodically and replace if necessary.
Caution: The Programmable Output Contacts selection must agree with the external control wiring
prior to energizing the controller. Failure to do so may cause severe equipment damage.

Section 2
General Information
General Information 2‐1MN2408
Thank you for purchasing your Baldor Generator Set. This manual contains information you need to safely and
efficiently install and operate your generator set. During the preparation of this manual every effort was made to
ensure the accuracy of its contents. This manual describes only very basic engine information. A separate owner's
manual for the engine is supplied with this unit for your use. Please refer to the engine manual for information
relative to engine operation, maintenance, recommendations and additional safety warnings.
Copyright Baldor 2008. All rights reserved.
This manual is copyrighted and all rights are reserved. This document may not, in whole or in part, be copied or
reproduced in any form without the prior written consent of Baldor Electric Company, Inc.
Baldor Generators have earned the reputation of being high quality and dependable. We take pride in this fact and
continue to keep our quality standards high on our list of priorities. We are also constantly researching new
technological ideas to determine if they could be used to make our generator sets even better.
Baldor makes no representations or warranties with respect to the contents hereof and specifically disclaims any
implied warranties of fitness for any particular purpose. The information in this document is subject to change
without notice. Baldor assumes no responsibility for any errors that may appear in this document.
Limited Warranty
Baldor will replace or repair free of charge any part or parts of the generator of their manufacture that are defective in
workmanship and materials for a period of time as set forth in the Warranty Period chart below. All Baldor products
requiring warranty service shall be transported or shipped freight pre-paid to a Baldor Generator repair facility.
Notification of the defect or problem, a description of the manner in which the Baldor generator is used, and the name,
address and telephone number of the customer requiring warranty service must be included. Baldor is not responsible for
removal and shipment of the Baldor product to the service center or for the reinstallation of the Baldor product upon its
return to the customer, or any incidental or consequential damages resulting from the defect, removal, reinstallation,
shipment or otherwise. Problems with Baldor products can be due to improper maintenance, faulty installation,
non-Baldor additions or modifications, or other problems not due to defects in Baldor workmanship or materials. If a
Baldor Generator repair facility determines that the problem with a Baldor product is not due to defects in Baldor
workmanship or materials, then the customer will be responsible for the cost of any necessary repairs. Genset engines
are covered under the engine manufacturers warranty. Proper engine maintenance is required. Any request for engine
warranty or repair should be made directly with the engine manufacturers warranty center. See engine manufacturers
data for applicable engine warranty periods and location of repair centers. This Limited Warranty and Service Policy
represents Baldor's sole and exclusive warranty obligation with respect to Baldor products. Baldor's liability to a customer
or any other person shall not exceed Baldor's sales price of the applicable Baldor product. BALDOR DISCLAIMS ALL
OTHER EXPRESSED AND IMPLIED WARRANTIES INCLUDING THE IMPLIED WARRANTIES OF FITNESS FOR A
PARTICULAR PURPOSE AND MERCHANTABILITY.
Warranty Period
Generator Series Labor* Parts
Portable Products (Premier, Powerchief,
DG Series)
1 Year 3 Years
Towable Products (TS) 1 Year or 3,000 Hours 3 Years or 3,000 Hours
POW'R LITE Light Towers 1 Year or 3,000 Hours 3 Years or 3,000 Hours
Light Fixture, Lamps and Ballasts are excluded from
any warranty coverage
3600 RPM Standby Systems
(Some AE Models)
1 Year or 1,000 Hours 3 Years or 1,000 Hours
1800 RPM Standby Systems
(Some AE Models, DLC, GLC)
1 Year or 3,000 Hours 3 Years or 3,000 Hours
Industrial Standby Systems 1 Year or 1,000 Hours 2 Years or 1,000 Hours
Industrial Prime Power Systems 1 Year or 1,000 Hours 1 Year or 1,000 Hours
International 1 Year or 1,000 Hours 1 Year or 1,000 Hours
*For products covered under labor coverage, travel expenses will be allowed up to 7 hours straight labor or 300 miles,
whichever occurs first, and only applies to permanently wired and mounted products (AE, DLC, GLC, IDLC).
You must save the purchase receipt. Proof of purchase, date, serial number and model number will be required for all
portable and Towable products to qualify for any warranty consideration.
A start-up inspection form/warranty registration must be completed in its entirety and submitted to Baldor Generators
within 30 days of start-up to qualify for any warranty consideration, excluding: Portables, Towables and Light Towers.

2‐2 General Information MN2408

General Information 2‐3MN2408
Important Be sure you are completely familiar with all Safety Instructions detailed in Section 1 of this
manual. Do not proceed if you are unsure of any detail. Contact your Baldor Distributor, they are
experienced and are happy to assist you and to answer your questions.
Installation Guidelines
The procedures presented in this manual are suggestions and it is the responsibility of the
Owner/Operator to arrange for these procedures to be performed by licensed contractors
according to all applicable codes including local codes for your Municipality/City/County and
State. In addition to these suggestions, before installing your generator you should obtain the
most up to date copies of the following documents from the National Electrical Code and other
authorities:
SNational Electric Code, Articles 230, 250, 445, 517, 700.
SNational Fire Protection Association
No. 30 - Storage, Handling and Use of Flammable Liquids.
No. 37 - Stationary Combustion Engines and Gas Turbines.
No. 99 - Essential Electrical Systems for Health Care Facilities.
No. 101 - Life Safety Code No. Systems.
No. 110 - 1985 Emergency and Standby Power Systems.
SNEMA MG1
SLocal Codes applicable to Genset Installation. See your local building inspector.
NFPA (National Fire Protection Association (617) 770-3000 (includes NEC)
1 Batterymarch Park, Quincy, MA 02169-7471 USA
NEMA (National Electrical Manufacturers Association) (703) 841-3200
1300 N. 17th Street, Suite 1847, Rosslyn, VA, 22209 USA
Site Planning
Room Size Open frame generators must be protected from the environment while having good ventilation
and cooling. Here are some considerations for planning a generator room or enclosure:
SNever use the Genset room for storage as well.
SThe room must be large enough to contain the genset and all the accessories, such as
batteries and their charging system, transfer switch and other controls, and elements of
the cooling and fuel systems.
SA minimum of 2 feet (preferably 4 feet), must be allowed on the two sides of the engine
for service access.
SOn the generator end of the engine, allow a space equal to the length of the generator
(generator length only, not the entire genset).
SAt the front of the engine, 4 feet of clearance is preferable. Allow clearance between
hot parts of the system (exhaust) and structural members of the building.
SCertain safety and building codes may require the genset room not to be used to house
any other mechanical or electrical equipment.

2‐4 General Information MN2408
Room Location Often a separate building located on the site away from the main building is the most simple and
cost effective. Major considerations when housing the genset in a separate building are:
SMaintain the building at a satisfactory temperature year round (to meet applicable
codes).
SAssure the genset is not located so far from the emergency loads that reliability is
compromised.
SThe floor's load carrying capacity must be checked and must exceed the weight of the
genset and its associated equipment.
SEngine Cooling System
A genset with an engine mounted radiator is the least costly to install; however, the
room must be located in a place where sufficient radiator cooling air can be brought
into and exhausted from the room.
SExhaust System
The exhaust system must minimize exhaust restriction. Exhaust restriction must be
limited to 3 in. Hg (76 mm Hg) maximum, to ensure proper engine operation. The
exhaust system should be as short and have as few bends as possible.
SRoom Air
If the genset is cooled with an engine mounted radiator, and sufficient air is brought into
and exhausted from the room to satisfy the radiator cooling requirements and the
combustion air requirements, the room will not overheat when the genset is running.
If a remote mounted radiator or a heat exchanger is used, and adequate air is
circulated through the room to keep it at a reasonable temperature, there will be
adequate air for combustion.
SFuel Tanks (Diesel Only)
Locate the fuel storage tank as near the genset as possible. This will minimize the cost
of fuel system installation and will maximize fuel system reliability.
SControls and Transfer Switch
Locate the control switch gear as close to the emergency loads and the genset as
practical. This will minimize the chances that a failure of the power line to the
emergency load will go undetected. In locating the switchgear, accessibility for service
and maintenance must be considered.
SGenset Noise
Internal combustion engines produce noise, so the room should be located away from
occupied buildings. In addition the genset room can be treated to reduce noise
transmission. In locating the genset room, both engine, fan and exhaust noise must be
considered.
If noise within the genset room, or noise transmitted to the surrounding parts of the
building are a concern, then the room must be made large enough to allow for
installation of noise attenuating walls and noise absorbing walls.
Light weight concrete blocks filled with sand or special “sound block” concrete blocks
are commonly used. Noise attenuating, tight fitting windows and doors also help reduce
noise transmission to the rest of the building.
A double-walled room should be considered. Vibration isolators under the genset rails
will also reduce the transmission of noise through the floor.
SCode Requirements
Building and safety codes deal with engine location. These requirements are
concerned with fire rated walls, a location that minimizes the possibility of damage to
the genset and interruption of the emergency system due to storms, foods, fire,
vandalism, etc.
Codes often deal with the need to maintain certain temperatures in the genset room
and with fuel system location. The most important codes in the USA are the National
Fire Protection Association Code Numbers 99 and 110, but local codes must also be
observed.

General Information 2‐5MN2408
Foundation Design
WARNING: An open bottom stationary engine generator set must be installed over noncombustible
materials and shall be located such that it prevents combustible materials from accumulating
under the generator set.
Foundation Checklist
A. Evaluate if a separate, isolated foundation is required for the application.
B. Observe local codes on soil bearing capacity freezing and thawing.
C. Design the separate foundation for the genset and specify the appropriate concrete mix.
D. Determine if the application requires vibration isolators and if so, order as a factory option.
The foundation must be strong enough to support the weight of the genset and its associated
equipment, must prevent any deflection of the genset base and absorb vibration produced by the
rotating and reciprocating masses.
Setting The Genset On An Existing Concrete Floor Slab
SIf an existing floor is used, the floor slab must be strong enough to carry 1.50 times the
genset wet weight (including coolant and oil) to accommodate dynamic loads.
SThe actual mounting arrangement (ie., surface area in contact with the floor) will
determine the compressive strength required.
SThe genset should be securely fastened to the floor slab with expansion anchors that fit
the mounting holes shown on the genset installation diagram.
SFor installations not expected to be permanent, elastomer pad with non-slip surface
placed between the base and the floor will also prevent movement.
SAny floor/slab surface should be as flat as possible to prevent sub-base deflection.
Vibration Isolators
SMounting to the pad, will result in overall reduced motion on other parts of the genset.
The trade-off is that slightly more vibration is transmitted to the structure.
SA more common practice when mounting to a concrete pad is to use vibration isolators.
The two most common types of vibration isolators are steel spring and elastomer pad.
The primary purpose of vibration isolators is to reduce the noise and vibration which
would be transmitted from the genset to the foundation or supporting structure.
SA simple and effective method of mounting and applying pad type isolators is to place
non-skidding type isolation pads directly between the sub-base and floor.
The number of pads required will be determined by the load bearing capability of the
pads and the genset's weight.
Figure 2‐1 Typical Installation of Spring Type Isolator

2‐6 General Information MN2408
SSteel spring isolators are a very effective and commonly used. Steel spring isolators
are typically 95-98% efficient (reduces the transmitted vibration 95-98%) while a pad
type can be 75-88% efficient. Spring isolators also level the genset sub-base in the
event the foundation pad is not perfectly level.
Spring steel isolators offer the highest level of vibration isolation, however higher levels
of vibration (although not detrimental) may be seen on some areas of the genset when
mounted on steel springs, due to the (almost) total isolation from the foundation. The
base of most steel spring isolators contains a non-skid pad. The base should be
mounted to the foundation pad as shown in Figure 2‐1 or as recommended by the
isolator manufacturer.
A common practice is to pour a concrete pad directly on top of the floor slab and to
mount the genset on this pad. The purpose of the pad is to facilitate cleaning around
the genset and to provide a more level base. When using this method, floor strength
must support the pad and the genset. The pad should be at least 6in (150mm) thick
and extend beyond the genset in all directions 12in (300mm).
Weight Of The Genset
The dry weight of the entire genset is shown on the Generator Set Specification Sheet. The wet
weight includes the fluids (coolant and oil). Figure 2‐2 can be used to design the foundation
except in critical situations.
Figure 2‐2 Approximate Weight vs. kW Output

General Information 2‐7MN2408
Designing An Isolated Foundation
If the genset cannot be mounted directly on a floor slab, or if it is desirable to isolate it from the
floor slab, then a separate foundation slab must be designed.
A massive concrete foundation is not required. Outside dimensions of the foundation should
exceed the outside genset dimensions by 12in (300mm).
For single genset installation, the foundation weight should be a minimum of 1.50 times the
genset wet weight.
For multiple genset installation, the foundation weight should be a minimum of 2.0 times the
genset wet weight.
Figure 2‐3 shows a method to calculate foundation thickness and the soil bearing load of the
foundation and generator set. The soil load bearing capacity under the foundation must equal or
exceed the load from the foundation and genset. If it does not, then a footing, as shown in Figure
2‐4 must be added to spread the load over a larger area.
Figure 2‐3 Calculate Soil Bearing Load (SBL) Capacity
Figure 2‐4 Typical Footing on Foundation in Soil With Low Soil Load Bearing Capacity

2‐8 General Information MN2408
Table 2‐1 Approximate Load Bearing Capacities of Various Soil Types
Soil Type Safe Bearing Capacity
lb per ft2kilo Pascals
Hard Rock - Granite etc. 50,000 - 200,000 2,395 - 9,576
Medium Rock - Shale etc. 20,000 - 30,000 958 - 1,436
Hardpan 16,000 - 20,000 766 - 958
Soft Rock 10,000 - 20,000 479 - 958
Compacted Sand and Gravel 10,000 - 12,000 479 - 575
Hard Clay 8,000 - 10,000 383 - 479
Gravel and Coarse Sand 8,000 - 10,000 383 - 479
Loose, Medium and Coarse Sand 8,000 - 10,000 383 - 479
Compacted Fine Sand 6,000 - 8,000 287 - 383
Medium Clay 4,000 - 8,000 192 - 383
Loose Fine Sand 2,000 - 4,000 96 - 192
Soft Clay 2,000 96
Table 2‐1 shows approximate load bearing capacities for various types of soil if the actual load
bearing capacity of the soil under the foundation is not known.
Caution: Check the local building codes for load bearing capacity requirements.
Caution: If the soil is subject to freezing and thawing, the foundation must be extended below the frost
line. Check the local building codes.
SReinforce the foundation with No. 8 gauge steel wire mesh placed horizontally on
6in (150mm) centers. As an alternative, use No. 6 re-bars on 12in (300mm) centers
horizontally. Minimum cover over the bars should be 3in (76mm).
SSuggested concrete mixture by volume is 1 part cement, 2 parts sand, and 3 parts
aggregate. Maximum slump of 4in (100mm) and a 28-day compressive strength of
3000 psi (20,600 kPa).
SThe size of the bolts holding the sub-base to the foundation should be sized to fit the
mounting holes shown on the Installation Diagram.
SThree-inch (76mm) iron pipe sleeves should be placed around the bolts in the
foundation to allow for any mislocation of the bolts after the foundation hardens. “J” or
“L” type bolts are recommended for the foundation bolts.
SAfter the foundation is cured and the genset is located, the sleeves are filled with grout.
Figure 2‐5 shows a typical foundation installation.
Figure 2‐5 Typical Foundation Installation

General Information 2‐9MN2408
Exhaust System
Exhaust Checklist
A. Exhaust outlets are not located upwind or near any building air intakes.
B. Flexible piping section is used at engine exhaust outlet.
C. Exhaust piping material is adequate for expected service.
D. Exhaust piping sizing is adequate to prevent back pressure.
E. Exhaust piping components are insulated as necessary to prevent operator burns and reduce
pipe radiant heat losses.
F. Pipe sleeves or fire proof materials are used where exhaust pipe passes through building
materials as per local and state codes.
G. Exhaust pipe includes rain cap or is horizontal.
The purpose of the exhaust system is to safely discharge the engine combustion products into
the atmosphere outside the building. A silencer should be installed in the exhaust system to
reduce noise levels. Compliance with local noise codes is always required.
Level Of Attenuation
In general, manufacturers offer three grades of silencers: industrial, residential, and critical. In
most cases, these grades are comparable from make to make. However, attenuation curves for
the silencer should be checked to assure the desired level of silencing is met.
System Placement
By this time, the general genset placement within the room or building has been decided. The
routing of the exhaust system should be as direct as possible to the building exterior.
WARNING: Never allow the exhaust outlet to be positioned so that the exhaust gases are directed
towards any openings or air entry routes (doors, windows, vents, etc...) of an occupied
building. When discharging the hot exhaust gases out of the building do not direct them
towards anything that could catch fire or explode.
For aesthetic reasons, consider exhaust placement in relation to the building. Over a period of
time, exhaust gas carbon deposits will tend to accumulate on any nearby wall or structure.
Attention must also be given to exhaust noise in selecting placement of the exhaust system.
Multi-Engine Installations
Caution: Do not connect multi-engine exhaust systems together. Each engine must have its own
exhaust system for proper operation.
Exhaust gases from an operating engine will migrate back through a non-operating engine and
cause a hydraulic lock. This may interfere with starting of the second engine. The migrating
gases will also tend to turn the turbos which are not being provided lubrication if the engine is not
running. The use of check valves in the exhaust system are discouraged due to their tendency
to “stick”.
Exhaust Manifold
There are two exhaust manifold types. Dry type which is standard and the optional water cooled.
The dry type is simply exposed to the surrounding air and becomes very hot. Shields, insulating
wraps, or other types of guards can be used to limit operator contact with the hot surfaces. This
practice is common where engine room size is small, creating cramped conditions.
Water cooled exhaust manifolds are not available on all engine models. This type manifold has
passages through which engine coolant is circulated to remove heat from the manifold surface. It
also will help protect the operator from contact with the hot manifold surface. This will reduce the
amount of heat that is radiated by the engine to the surrounding air by approximately 20%. In
addition, this type manifold significantly increases the amount of heat the cooling system must
dissipate. Marine and Mining Safety Administration (MSA) codes may require water cooled
manifolds in all genset installations. If you are in doubt on your particular application, consult your
Baldor Distributor.
Exhaust Gas Restriction
The maximum allowable back pressure, or system restriction, is 3 inches of mercury. If this back
pressure is exceeded, the air-fuel ratio is reduced due to incomplete scavenging of the cylinders,
fuel economy and power output is reduced, engine life is reduced and exhaust temperatures and
smoke levels increase. Any restriction of the exhaust gas reduces horsepower. Take every
precaution to reduce restriction. Proper design and installation will provide safe genset operation.
It is essential that all engine exhaust systems by designed with the least possible restriction to
exhaust gas flow. This can be calculated through the use of Figure 2‐6, or in the case of simple
exhaust systems, the nomograph in Figure 2‐6 may be used.

2‐10 General Information MN2408
Figure 2‐6 Exhaust System Calculations
Exhaust Piping
Caution: The weight of the exhaust system must never be imposed on the turbo-charger outlet.
Damage to the turbo-charger and other components may result.
An exhaust system must withstand the vibration and thermal expansion that they are subjected
to, yet supported well enough to remain independent of the engine.
The most common method of providing flexibility is with the use of bellows type flexible piping.
This piping component allows lateral and linear movement of the piping system without
subjecting fixed components to excessive stress. A minimum of 12 inches of flexible connection
must be provided at the engine exhaust manifold to allow for thermal expansion and vibration. If
the engine is to be mounted on spring type vibration isolators, increase the length to 24 inches.
This component can be specified to be provided by your Baldor distributor. Flexible pipe should
never be used for pipe bends or to cure misalignment problems.
Exhaust piping systems may be supported by a wide variety of methods to long as the system
remains flexible, and capable of withstanding thermal expansion.
The material most commonly used for straight runs and elbows in exhaust systems is Schedule
40 black iron. If hanging weight is a problem, other materials may be used. Galvanized piping
should never be used in exhaust system. Where exhaust piping passes through combustible
material, exhaust thimbles must be used. See Figure 2‐7.
Figure 2‐7 Exhaust Pipe Thimble Installation
Rain Protection
Moisture entering the engine through an exhaust system can cause extensive damage. Exhaust
outlets must have a rain cap or be horizontal to prevent such damage. See Figure 2‐7.

General Information 2‐11MN2408
Transfer Switch
Transfer Switch Checklist
A. Locate transfer switch in a clean, dry place, near the emergency load.
B. Provide a circuit breaker between the genset and the transfer switch.
C. Put a flexible connection between the conduit and genset.
D. Observe applicable codes in wiring-in the transfer switch and genset.
The transfer switch connects the genset to the emergency power system. The emergency power
system may include several gensets and several transfer switches. Typically, the genset is wired
to the emergency power system through a transfer switch as shown in Figure 2‐8.
Figure 2‐8 Typical Emergency power System Installations
Multiple Gensets can be arranged either in parallel or separately connected to dedicated
emergency loads. Figure 2‐8 also shows a typical arrangement of two gensets in parallel with
transfer switches for loads that have different levels of priority. A typical multiple genset
installation is shown for NFPA 110 Level 1 and Level 2 emergency power circuits and a priority
control to select the appropriate transfer switch.
Wattmeters should be installed on each genset so load sharing can be checked. The control
system should include an automatic paralleling control. Paralleling identical gensets is not
difficult, but paralleling dissimilar sets can cause load sharing problems. When designing an
installation that includes the paralleling of dissimilar generators, contact your nearby Baldor
Distributor.
Transfer Switch Location
The transfer switch location is important and key considerations are:
1. Locate the transfer switch as close to the emergency load as practical to avoid
interruptions of the emergency power system due to natural or man-made disasters, or
to equipment failures. Consider several small transfer switches instead of one large
one to increase reliability.
2. Locate the transfer switch in a clean, dry, well ventilated location, away from excessive
heat. When the ambient air is above 104 F (40 C), fuses and circuit breakers must be
derated. Allow adequate working space around the transfer switch.
3. A circuit breaker (or fuses) should be installed in the line between the generator and
the transfer switch. Baldor Gensets are available with properly sized circuit breaker
built into the generator control through 1200 amp breakers. The circuit breaker can be
separately mounted. In the case of very large circuit breakers, a separate floor
mounted circuit breaker is easier to wire up than a wall mounted breaker.
4. Install power and control wires in separate solid conduit with flexible sections at the
genset. The flexible sections prevent vibration from damaging the conduit. All power
conduits from the genset must contain all three phases.
5. Never install control wires in the same conduit as power conductors.

2‐12 General Information MN2408
6. Conduit, wire, circuit protective device sizes, insulation etc. must conform to applicable
local and national codes and regulations.
7. Be certain to seal around conduits that penetrate the walls of the genset room to
reduce the amount of noise that is transmitted to the surrounding areas of the building
and maintain site fire code rating.
Battery Starting System
This section describes the battery starting system (nominal 12 volt rating of the battery supply)
for the engine, battery charger, and precautions to take if the ambient temperature is expected to
be below 70 F (20C).
WARNING: If batteries are not mounted in the battery rack supplied with the genset, protect batteries
from vibration and do not locate them near a source of flame or spark. A battery presents a
risk of fire and explosion because they generate hydrogen gas. Hydrogen gas is extremely
explosive. Never jump start a battery, smoke in the area around the battery or cause any
spark to occur in the area around the battery.
Battery Location
Locate batteries as close as possible to the genset to minimize starting circuit resistance, see
Figure 2‐9. High starting circuit resistance substantially reduces starting cranking ability. Mount
batteries on a level rack away from dirt and liquids. Allow space for servicing (checking water
level and level of charge). Cold ambient temperature at the battery location substantially reduces
the battery output.
Figure 2‐9 Battery Starting System
Battery Size
The ability to start the engine depends upon battery capacity, ambient temperature and coolant
and oil temperatures. The Engine/Generator Set Data Sheet lists minimum recommended battery
capacity.
Battery capacities decrease as ambient temperatures decrease so it is important to specify
batteries with the appropriate CCA rating at a temperature no higher than the minimum ambient
temperature for the application.

General Information 2‐13MN2408
Battery Charger
An engine mounted alternator charges the batteries during engine operation. Standby gensets
should include a solid state battery charger that is connected to utility power so the battery is
charged continuously while the genset is not running. The battery charger should be connected
to the utility power emergency circuit. The batteries on prime power gensets are charged by the
engine mounted alternator, if equipped.
The output of the battery charger or the belt driven alternator must be connected directly to the
battery or to the battery terminals on the starter to prevent the electronic governor from acting
erratically. Make control connections to the genset control using a conduit with a flexible section
at the genset to avoid damage due to genset vibrations.
Battery Cables
The wire size (wire gauge) of the cables connecting the starter to the batteries must be large
enough to ensure proper voltage at the engine starter motor during cranking. The total cranking
circuit resistance includes the resistance of the cables from the starting motor to the battery and
the resistance of all relays, solenoids, switches, and connections. The resistance of various sizes
of cables is shown in Figure 2‐10. For purposes of calculating cranking circuit resistance to select
cable size, the resistance of each connection can be taken as .00001 ohms and the resistance of
each relay, solenoid, and switch can be taken as .0002 ohms. Figure 2‐10 illustrates an example
of a typical cranking circuit resistance calculation.
Figure 2‐10 Typical Battery Cable Calculations

2‐14 General Information MN2408

Section 3
Receiving & Installation
Receiving & Installation 3‐1MN2408
Receiving & Inspection When you receive your generator, there are several things you should do immediately.
1. Observe the condition of the shipping container and report any damage immediately to
the commercial carrier that delivered your system.
2. Verify that the part number of the system you received is the same as the part number
listed on your purchase order.
3. If the system is to be stored for several weeks before use, be sure that it is stored in a
location that conforms to published storage temperature and humidity specifications.
Lifting the Generator When lift or hoist equipment is used to lift the generator and move it to position, be careful not
to contact overhead wires or other obstacles. Be sure lift or hoist equipment has appropriate tires
for the terrain to avoid becoming stuck or tipping over. If the shipping pallet is intact, use a fork lift
to move the generator. If the shipping pallet has been removed, use two steel pipes through the “Lift
Point” holes to lift the generator. See Figure 3‐1.
Figure 3‐1 Generator Lifting
Lift Point
Lift
Point
Height
Width
Length
To lift the generator, always use spreader bars,
chains, eyehooks and other hardware that is of
sufficient strength to lift at least three times the
weight of the generator.
Physical Location The mounting location of the system is important. It should be installed in an area that is
protected from direct harmful gases or liquids, dust, metallic particles, shock and vibration.
It should be installed in an outdoor location so the exhaust fumes are vented to the atmosphere.
When the Generator is installed outdoors
The factory installed enclosure is designed to keep out undesirable weather elements while
providing cooling and ventilation.
When the Generator is installed in a building it is essential to provide:
1. Adequate control and exhausting of the heated air.
2. An adequate and constant supply of incoming cooling air.
3. Adequate control and discharge of the engine's hot exhaust gases.
4. Adequate ventilation of the building when the engine shuts down.

3‐2 Receiving & Installation MN2408
WARNING: An open bottom stationary engine generator set must be installed over noncombustible
materials and shall be located such that it prevents combustible materials from accumulating
under the generator set.
Several other factors should be carefully evaluated when selecting a location for installation:
1. For effective cooling and maintenance, the system should be mounted on a flat,
smooth, noncombustible level surface. A concrete pad is ideal and provides a secure
installation.
2. Installation should prevent water levels from reaching the generator. Drainage must be
adequate to keep concrete pad free from standing water.
3. Installation should prevent obstructions by buildup of leaves, grass, sand, snow, etc. If
these items pose a problem, consider building a small fence or other break to protect
the unit from accumulation of debris.
4. Installation should place the generator as close as possible to the fuel supply and
transfer switch.
5. At least twenty-four (24) inches clearance must be provided on all sides for air flow.
6. Access must be provided to allow the enclosure covers to be opened or removed for
service and maintenance.
7. Maximum Ambient temperature is 122F (50C).
Figure 3‐2 Generator Mounting
A2
Electrical Stub Up
B1
Fuel Stub Up
B
A
A2A1
F1
A3
A
Fuel Stub Up
GLC125 ONLY
Large Exhaust Area
For all models with enclosure
F2
Table 3‐2 Mounting Dimensions
Generator A
(Open)
A
(Weather.)
A
(Sound)
A1 A2 A3 BB1 F1 F2
GLC10-25 60.25 72.0 72.0 4.026.1 11.75 31.5 30.5 17.634.2
GLC30-45 78.0 78.0 108.0 6.0 33.0 30.0 44.0 42.5 21 58
GLC60-65 88.0 88.0 118.0 6.0 38.0 30.0 44.0 42.5 23 63
GLC80-105 88.0 88.0 118.0 6.0 38.0 30.0 44.0 42.5 27 68
Add 11.75 in for Weather & Sound Attenuated enclosures.
Table 3‐3 Stub Up Detail
Generator Stub Up Area Fuel Connection (NG or LP Vapor)
Electrical Fuel
GLC10-25 6.25” x 5” 5” x 18” 3/4” NPT, C/L is 3” above base bottom.
GLC30-45 15” x 6” 18”x 6” 3/4” NPT, C/L is 12” above base bottom.
GLC60-65 21” x 6” 20” x 6” 1- 1/4” NPT, C/L is 12” above base bottom.
GLC80-105 16” x 6” 21” x 6” 1- 1/4” NPT, C/L is 12” above base bottom.

Receiving & Installation 3‐3MN2408
Secure the Generator
Six (eight for the GLC125) mounting bolts in the base frame secure the generator to the shipping
pallet. Remove these bolts, lift the generator and remove the shipping pallet. Secure the
generator to the concrete pad using 3/8 anchor hardware (not provided) in the base frame
mounting holes. See Figure 3‐2. Anchor bolts must be long enough to extend through the
generator mounting frame.
Engine Cooling A sufficient flow of clean, cool air is required for combustion and to dissipate the heat produced
by the engine. Approximately 60% of the heat value of the fuel used is given off as heat (cooling
air and exhaust).
The air that will cool the engine must be brought in from outside the building. A sufficient air-flow
of rate “Cubic Feet per Minute” (CFM) will allow the incoming fresh air to cool the engine. This
requires a power ventilation system of sufficient CFM to be located at the highest possible point
of the building to exhaust hot air and draw in cool fresh air.
Note: The exhaust fan must not be located where it could easily become blocked by leaves,
snow, water, debris, etc.
It is recommended that the cool air intake have at least three (3) times the cross-sectional area
of the power ventilation system. It is also recommended that the cool air intake be located as
close as possible to the top of the generator set.
The exhaust fan must be connected to the AC power terminals of the generator set so that when
the generator set starts it will provide immediate cooling air flow. The fan will operate until the
generator set stops. To test the ventilation system, do the following:
Ventilation Test
1. Place a thermometer as close to the cool air intake of the engine's blower housing as
you can without allowing the thermometer to touch any material surface.
2. Place another thermometer outside of the building or compartment in the open air
(Keep the thermometer out of direct sunlight or any other heat sources).
3. Run the engine under maximum load for an extended period of time (at least one hour).
4. The temperature difference between the two should not exceed 15 degrees F.
Note that opening any door, window or other opening can upset the air-flow pattern and result in
a significant reduction in the cooling air-flow across the generator set. This may result in
overheating, fire, or explosion.

3‐4 Receiving & Installation MN2408
Hot Exhaust Gasses
WARNING: Exhaust fumes/gases are extremely dangerous and can cause severe illness or death. Never
breath exhaust fumes produced by a running engine. Only run the engine outdoors where
ventilation is plentiful. Exhaust gases contain carbon monoxide, a colorless, odorless and
extremely dangerous gas that can cause unconsciousness or death. Symptoms of carbon
monoxide poisoning include: dizziness, nausea, headaches, sleepiness, vomiting or
incoherence. If you or anyone else experiences these symptoms, get out into fresh air
immediately. Stop the engine and do not restart the engine until it has been inspected and if
necessary repaired or reinstalled in a well ventilated area.
WARNING: Hot exhaust gasses must never be directed toward anything that may catch fire or explode.
It is extremely important to discharge engine exhaust gasses away from the engine and out of
the building. If these gasses remain in the cylinder, poor performance or eventual engine damage
may result. This condition results from excessive back-pressure, which could be caused by any
one or a combination of the following conditions:
1. Exhaust pipe too long or the diameter is too small.
2. Excessive number of sharp bends in the exhaust system.
3. Obstruction in the exhaust system.
Backpressure must not exceed 20” of water column.
The direction of the discharged hot air and hot exhaust gases is important as they have the
potential to create brown spots on the lawn or adjacent structures. In extreme cases this
extremely hot air could cause dried grass or other debris to ignite.
Exhaust lines should be as short and straight as possible. Long pipe lengths and elbows tend to
resist the flow of gases and accumulate carbon deposits. Each pipe fitting and elbow will further
restrict the exhaust flow.
Guidelines for Exhaust System
1. If you are using a remote muffler it should be mounted as close to the engine as
possible, since it will clog with carbon if it's operating temperature is too low.
2. If you are using a remote muffler a flexible coupling of 12” or more must be installed
between the exhaust line and the manifold to absorb the engine's vibration. However,
a short, solid section of pipe between 6” and 8” long should be placed between the
connection of the manifold and the flexible coupling. This nipple will reduce the
possibility of the hot gases burning up the flexible coupling.
3. It is extremely important that you do not allow the hot exhaust gases to re-circulate into
the engine's cooling air intake.
4. Water is one by-product of combustion and is present in the exhaust pipes or muffler.
This water must be kept from draining back into the engine. This can be done by
slanting the horizontal section of the exhaust system piping downward slightly, away
from the engine. A water trap consisting of a tee extension with a drain cock should
also be provided. This water trap should be located between the flex coupling and the
muffler, but as close to the engine as possible on a horizontal section of the exhaust
piping.
5. It is also recommended that an exhaust rain cap be used whenever it is possible that
rain could get into the system. This will help to prevent corrosion and damage to the
exhaust system and engine.
6. The exhaust system is subject to the engine's vibration and it must therefore be solidly
secured to reduce mechanical stress and the potential for breakage.
7. The engine's exhaust system is the hottest component of the installation and extreme
care and considerations must be given to it.

Receiving & Installation 3‐5MN2408
8. As much of the exhaust piping as possible should be located near the power ventilation
exhaust. This will reduce the radiant exhaust heat inside the building.
9. Keep all fuel and its associated piping away from all components of the engine exhaust
system.
10. After the exhaust system is installed it should be inspected on a regular basis to assure
there are no toxic exhaust gas leaks. In some areas this inspection may be provided by
your local public service.
11. A carbon monoxide tester may be installed to detect the presence of the deadly gas
during times when you are in the building with the engine running (during testing or
maintenance).
WARNING: Never allow the exhaust outlet to be positioned so that the exhaust gases are directed
towards any openings or air entry routes (doors, windows, vents, etc...) of an occupied
building. When discharging the hot exhaust gases out of the building do not direct them
towards anything that could catch fire or explode.
WARNING: Exhaust fumes/gases are extremely dangerous and can cause severe illness or death. Never
breath exhaust fumes produced by a running engine. Only run the engine outdoors where
ventilation is plentiful. Exhaust gases contain carbon monoxide, a colorless, odorless and
extremely dangerous gas that can cause unconsciousness or death. Symptoms of carbon
monoxide poisoning include: dizziness, nausea, headaches, sleepiness, vomiting or
incoherence. If you or anyone else experiences these symptoms, get out into fresh air
immediately. Stop the engine and do not restart the engine until it has been inspected and if
necessary repaired or reinstalled in a well ventilated area.

3‐6 Receiving & Installation MN2408
Installation The generator is completely assembled, tested and adjusted at the factory before it is shipped to
you. The procedures presented in this manual are suggestions and it is the responsibility of the
Owner/Operator to arrange for these procedures to be performed by licensed contractors
according to all applicable codes including local codes for your Municipality/City/County and
State. External connections required at the time of installation are:
1. Fuel System.
2. Electrical Connections - power wiring (optional transfer switch) and control wiring.
3. Battery (not included).
4. Ground Connection.
After installation, the post installation checks must be performed prior to starting the engine.
After these checks have been performed and the system operation is verified to be good, refer to
Section 5 Maintenance for periodic checks that must be performed at scheduled intervals to
ensure continued operation with minimal problems.
Fuel Connections
Fuel selection is Natural Gas or LPV (Liquid Propane Vapor). If natural gas supply is used,
follow the “Natural Gas Connections” procedure. If LPV supply is used, follow the “LP Vapor
Connections” procedure. Table 3‐4 defines the flow rate required for each fuel type.
Table 3‐4 Fuel Consumption Natural and LPV
Model Fuel Consumption at 100% load
cubic ft/Hr (cubic m/Hr)
Model Fuel Consumption at 100% load
cubic ft/Hr (cubic m/Hr)
Natural Gas LP Vapor Natural Gas LP Vapor
GLC10 348(9.9) 145.2(4.1) GLC45 584(16.5) 242(6.9)
GLC15 438(12.4) 189.3(5.4) GLC50 731(20.7) 269(8.2)
GLC20 528(15.0) 233.4(6.6 GLC60 780(22.1) 321(9.1)
GLC25 618(17.5) 277.5(7.9) GLC80 1012(28.7) 425(12)
GLC30 526(14.9) 197(5.6) GLC100 1133(32.1) 487(13.8)
GLC35 575(16.3) 240(6.0) GLC125 1651(46.8) 852(16.5)
General Considerations
1. A generator set needs the engine to deliver 2 hp of energy to the alternator for every
1000 watts of electric output power (example: an 8000 watt generator needs the engine
to deliver 16 hp of energy to the generator end).
2. An engine needs 10,000 BTU's of fuel energy per horsepower of engine power to
provide a sufficient supply of fuel (example: a 16 Hp engine needs 160,000 BTU's of
fuel energy for it to work properly). This fuel must be supplied to the regulator on the
generator set at a pressure of 6 oz (11 inches of water column). To achieve this 6 oz.
pressure in a L.P. System, you will normally have to reduce the tank pressure by
means of a primary regulator or a regulator system of 2 or more regulators.
3. There are 2,516 BTU's in one cubic foot of Propane (LP Fuel).
There are 1,096 BTU's in one cubic foot of Natural Gas.
4. There are 36.39 cubic feet in one gallon of Propane.
There are 57.75 cubic feet in one gallon of Natural Gas.
5. There are 8.58 cubic feet per pound of Propane.
There are 23.56 cubic feet per pound of Natural Gas.
6. When installing the piping for the gaseous fuel supply please refer to the pipe chart in
Tables 3‐5 and 3‐6 to be sure you are using piping of significantly large size to deliver
the necessary amount of fuel.
7. If copper tubing is used, it should be “K” or “L” having a minimum wall thickness of
0.032 inches. Black Iron Pipe is recommended but follow building codes for your area.
The following pamphlets are available from:
National Fire Protection Association (NFPA) P.O. Box 9101 Quincy, MA 02269
No. 37 - Combustion Engines
No. 54 - Gaseous Appliances and piping
No. 58 - Storage and handling LPV

Receiving & Installation 3‐7MN2408
Example: Determining Pipe Size for Natural Gas
A generator has a 16Hp engine 60 feet from the supply.
Determine the supply pipe size for Natural Gas fuel.
16 x 10,000 = 160,000 BTU's / per hour for proper operation.
160, 000
1, 096 + 146cubicfeetperhour.
From Table 3‐6, a 60 foot run requires a minimum 1” pipe at full engine load.
Natural Gas Connections
The incoming pressure must be 11 inches water column (6 oz. pressure).
Table 3‐5 Natural Gas Flow Rate (Cubic Feet per Hour) per Pipe Length
Pipe
Length
(Feet)
Iron Pipe Size
1/23/411- 1/41- 1/222- 1/23468
15 73 165 332 722 1174 2386 3704 6253 13352 37229
30 50 115 232 515 818 1712 2646 4521 9331 26330 53728
45 41 95 191 418 673 1419 2213 3752 7600 22462 43867
60 37 83 166 366 587 1241 1924 3319 6542 18595 37999
75 74 149 332 524 1077 1684 2886 5772 16652 33959
90 67 137 298 433 962 1501 2597 5291 15200 31025
105 63 126 274 885 1376 2357 4906 14064 28715
120 115 260 404 827 1289 2213 4618 13160 26859
150 105 233 366 750 1174 2011 4185 11775 24050
180 96 216 337 693 1077 1876 3848 10736 21934
210 89 197 308 635 991 1712 3559 9937 20298
240 183 289 596 933 1616 3357 9235 18990
270 171 274 558 875 1520 3127 8658 17903
300 164 260 524 827 1433 2886 8177 16998
Note: Almost all operation problems are related to the installation techniques used. Do Not
guess, be sure pipe size is adequate for required flow rate.
1. Connect the proper size gas pipe at the Inlet Connection to the Fuel Lock Solenoid.
Connect the Natural Gas pipe line shown in Figure 3‐3 using the correct size pipe for
the required flow rate and length of pipe. Refer to Table 3‐5 for pipe size. Be certain
that all connections are sealed and no leaks are present. The installer must ensure
that all gas connections comply with all building codes.
2. Verify Fuel Supply Pressure
Prior to initial operation of generator, verify that fuel system pressure is 11 Water
Column (6 oz. pressure) and fuel pipe sizes comply with Table 3‐5.
3. Proceed to Electrical Connections.
Figure 3‐3 Gas Line Connections
Solenoid, Fuel Lock
Inlet Connection
Air Cleaner
Carburetor
Mounting Bracket Additional Valve
(Safety Shutoff Valve)
Supply Piping
U.L. requires a second shutoff valve and regulator to be installed in the supply piping to
control the gas supply to the generator.
Additional Regulator
(11 - 14” water column pressure)
External Supply Piping (by installer)
To Inlet
Connection

3‐8 Receiving & Installation MN2408
Example: Determining Pipe Size for LPV
A generator has a 16Hp engine 60 feet from the supply.
Determine the supply pipe size for Natural Gas fuel.
16 x 10,000 = 160,000 BTU's / per hour for proper operation.
160, 000
2, 516 + 63.5cubicfeetperhour.
From Table 3‐6, a 60 foot run requires a minimum 1” pipe at full engine load.
LP Vapor Connections (vapor withdrawal only)
The LPV connections should only be made if your generator is setup to run on LPV. If it is setup
to run on Natural Gas, contact your Baldor representative and do not continue with installation.
The incoming pressure must be 11 inches water column (6 oz. pressure).
Table 3‐6 LP Vapor Flow Rate (Cubic Feet per Hour) per Pipe Length
Pipe
Length
(Feet)
Iron Pipe Size
1/23/411- 1/41- 1/222- 1/23468
15 48 109 218 475 772 1570 2437 4115 8786 24497 50007
30 33 76 153 339 538 1127 1741 2975 6140 17325 35353
45 27 63 126 275 443 934 1456 2469 5001 14781 28865
60 24 54 110 241 386 817 1266 2184 4304 12236 25004
75 49 98 218 345 709 1108 1899 3798 10957 22345
90 44 89 196 310 633 987 1709 3482 10001 20414
105 41 83 180 285 582 905 1551 3228 9254 18895
120 76 171 266 544 848 1456 3038 8659 17673
150 69 153 241 494 772 1323 2754 7748 15825
180 63 142 222 456 709 1234 2532 7064 14432
210 58 130 202 418 652 1127 2342 6439 13356
240 120 190 393 614 1063 2209 6077 12405
270 113 180 367 576 1000 2057 5697 11780
300 108 171 345 544 943 1899 5381 11179
Note: Almost all operation problems are related to the installation techniques used.
Do Not guess, be sure pipe size is adequate for required flow rate.
1. Connect the proper size gas pipe at the input to the LP Vapor regulator. Connect the
LPV pipe line shown in Figure 3‐3 using the correct size pipe for the required flow rate
and length of pipe. Refer to Table 3‐6 for pipe size. Be certain that all connections are
sealed and no leaks are present. The installer must ensure that all gas connections
comply with all building codes.
2. Verify Fuel Supply Pressure
Prior to initial operation of generator, verify that fuel system pressure is 11 Water
Column (6 oz. pressure) and fuel pipe sizes comply with Table 3‐6.
3. Proceed to Electrical Connections.

Receiving & Installation 3‐9MN2408
Electrical Connections Class 1 wiring methods must be used for field wiring connections to terminals of a class
2 circuit. It is the responsibility of the owner/operator to arrange for these procedures to be
performed by a licensed electrical contractor and ensure conformance to all applicable codes
including local codes peculiar to your municipality/city/county and state. Wire size and insulation
type should be as required by NEC (National Electrical Code) and local codes.
Warning: Never connect this generator to the electrical system of any building unless a licensed
electrician has installed an approved transfer switch. The national electrical code (NEC)
requires that connection of a generator to any electrical circuit normally powered by means of
an electric utility must be connected by means of approved transfer switch equipment to
isolate the electrical circuit from the utility distribution system when the generator is
operating. Failure to isolate the electrical circuits by such means may result in injury or death
to utility power workers due to backfeed of electrical energy onto the utility lines.
Warning: Incorrect installation of this generator set could result in property damage, injury or death.
Connection of the generator to its fuel source must be done by a qualified professional
technician or contractor.
WARNING: Be sure the system is properly grounded before applying power. Do not apply AC power
before you ensure that grounds are connected. Electrical shock can cause serious or fatal
injury. NEC requires that the frame and exposed conductive surfaces (metal parts) be
connected to an approved earth ground. Local codes may also require proper grounding of
generator systems.
Intended Use The intended purpose of this generator set is to provide emergency power when the main utility
power supply is interrupted. Therefore, it is important that all the wiring that connects the generator
set with your house, transfer switch, distribution box, battery charger, etc. be properly installed.
Circuit Protection Circuit protection is not provided within the generator. Circuit Breaker protection is an option.
If purchased with your generator, the breaker box is mounted to the generator prior to shipment.
If the optional circuit breaker protection was not ordered, see “GLC Circuit Breaker & Wire Size
Data” in Appendix A for recommendations.
Wire Size Proper lead wire from the circuit breaker to the automatic transfer switch (or load switching
device) is mandatory. See transfer switch information for connection information. When
connecting the generator output to an electrical load, a UL listed circuit breaker with the
appropriate ratings must be provided within 25 feet of the generator set. Use only copper wires.
Generator Rating Input Breaker Rating (at 115% FLA)
Catalog No. Kilowatt (kW)
Rating
1 Phase Amps
(240VAC) * 3 Phase Amps (240VAC) * 3 Phase Amps (480VAC) *
LPV/Nat. Gas
Delta (Wye)
Nat. Gas
Delta (Wye)
LPV
Delta (Wye)
Nat. Gas
Delta (Wye)
LPV
Delta (Wye)
GLC10 10 50
GLC15 15 70
GLC20 20 100
GLC25 25 125
GLC30 30 110 110 110 60 60
GLC35 35 125 125 125 60 60
GLC45 45 150 150 175 70 80
GLC50 50 175 175 175 90 90
GLC60 60 200 200 200(225) 100 110
GLC80 80 300 300 300 150 150
GLC100 100 300 300 350 150 175
GLC125 125 450 450 400 225 200

3‐10 Receiving & Installation MN2408
Transfer Switch Considerations
The following are general considerations for the safe use of a transfer switch:
1. The transfer switch should be located inside the building near the main breaker box or
the disconnect box.
2. The transfer switch must be kept away from any location that might allow water to get
on it.
3. If the transfer switch is mounted outside, it must be protected from the environment and
it's elements.
4. Do not mount the transfer switch on the generator set.
5. Do not mount the transfer switch where flammable liquids or vapors are present.
Figure 3‐4 Basic Power Transfer System
Utility Power Generator Power
L1 L2 N
Main Panel
Fuses or
Circuit
Breakers
Transfer
Switch Mechanical
Interlock
L1 L2 N
Fuses or
Circuit
Breakers
Power To Load
L1 L2 N
Remote Start
Contact
Earth
Ground
Ground
Ground
Remote Start
Connect the remote start start contact (from transfer switch) to GLC Remote Start terminals.
Single Phase Power Connections
Output power connections must be fused within 25 feet of the generator. If the wires to the
transfer switch are shorter than 25 feet, connect L1, L2 and N to the transfer switch being sure to
follow NEC and local codes. If the wires to the transfer switch are longer than 25 feet, UL
requires that branch circuit protection be provided.
Power connections are made at L1, L2, Neutral and Ground points indicated in the Customer
Connections area shown in Figure 3‐5.

Receiving & Installation 3‐11MN2408
Figure 3‐5 Single Phase Connections
From Alternator
(Factory Wired)
AC Power Connections
Neutral
Connections
Ground
Connections
LOAD
NEUTRAL
GROUND
Customer Connections
Bond Jumper
L1 L2
Note: Remove the Bonding
jumper to meet local
codes if required.
Figure 3‐6 Three Phase WYE and DELTA Connections
N
N
L3
L2
L1
N
L3
L2
L1
N
L3
L2
L1

3‐12 Receiving & Installation MN2408
Battery Charger Considerations
1. Mount the battery charger on the generator or as close to the generator as possible.
2. If you mount the battery charger inside the building, mount it near the main breaker box
or disconnect box.
3. If you mount the battery charger outside, you must protect it from the environment and
the elements.
4. Do not mount the battery charger where flammable liquids or vapors are present.
General Wiring Considerations
1. When routing the interface wiring, do not route it up against anything that could cut or
chafe the wiring. do not route the wire up against any hot or potentially hot object.
2. Make sure that all the electrical components (generator set, transfer switch, battery
charger, etc.) share a common hard wired ground.
3. Check with your local building inspector to determine what you must do to comply with
the local regulations for grounding of this type of permanent installation.

Receiving & Installation 3‐13MN2408
Battery Connections The generator may be shipped with no battery installed.
Procedure: The correct type battery must be installed in the battery compartment provided, see Table 3‐7.
Installation and servicing of batteries is to be performed or supervised by personnel
knowledgeable of batteries and the required precautions.
Keep unauthorized personnel away from batteries.
1. Open access doors and locate battery tray.
2. Place the correct battery (see Table 3‐7) on the tray.
3. Install the Battery Hold Down Bar and Rods as shown in Figure 3‐7.
a. Place the bent end of the Battery Hold Down Rod through the hole in the Battery
Tray.
b. Place the threaded end of the Battery Hold Down Rod through the hole in the
Battery Hold Down Bar and secure with flat washer, lock washer and nut.
c. Repeat steps a and b for the other Battery Hold Down Rod.
Figure 3‐7 Battery Installation
Washers & Nut
Battery
Battery Hold Down Rod
Washers & Nut
Battery Tray
The + and - terminals of your battery may
be different than shown. Be sure that the
Positive lead is connected to the positive
(+) terminal of your battery.
Battery Hold Down Bar
(Install away from terminals)
4. Connect the positive lead to the positive (+) battery terminal.
5. Connect the negative lead to the negative (-) battery terminal.
6. Do not lay tools or metal parts on top of batteries.
7. Connect charging source to the battery terminals.
8. Disconnect the battery's ground terminal before working in the vicinity of the battery or
battery wires. Contact with the battery can result in electrical shock when a tool
accidently touches the positive battery terminal or wire. The risk of such shock is
reduced when the ground lead is removed during installation and maintenance.
Recommended Engine Oil and Battery Type
When replacing batteries, use only the recommended battery for your generator, see Table 3‐7.
Table 3‐7
MODEL SUMMER
OIL
WINTER
OIL
OIL
CAPACITY
RECOMMENDED
BATTERY
(AMPS) COLD
CRANKING
GLC10-25 SAE. 30 5W/30 5.0 QTS BCI Group 31 675
GLC30 SAE. 30 5W/30 6.0 QTS BCI Group 31 925
GLC35 SAE. 30 5W/30 6.0 QTS BCI Group 31 925
GLC45 SAE. 30 5W/30 6.0 QTS BCI Group 31 925
GLC50 SAE. 30 5W/30 6.2 QTS BCI Group 31 925
GLC60 SAE. 30 5W/30 6.2 QTS BCI Group 31 925
GLC80 SAE. 30 5W/30 6.5 QTS BCI Group 31 925
GLC100 SAE. 30 5W/30 6.5 QTS BCI Group 31 925
GLC125 SAE. 30 5W/30 6.5 QTS BCI Group 31 925

3‐14 Receiving & Installation MN2408
Post Installation Checks
When the initial installation is complete, these checks must be performed before starting the
engine. These checks are not required before each start, only after the initial installation.
1. Generators that have been in transit or storage for long periods may be subjected to
extreme temperature and moisture changes. This can cause excessive condensation,
and the generator windings should be thoroughly dried before bringing the generator
up to full nameplate voltage. If this precaution is not taken, serious damage to the
generator can result.
Caution: Do not apply high voltage to windings (do not start the generator) in a moisture-saturated
condition. Moisture can cause insulation breakdown, making it necessary to return the
generator for repair.
Note: These precautions are especially necessary in locations such as seaboard installations
and other high humidity areas. Some installations will be in atmospheres that are much
more corrosive than others.
2. Verify that the transfer switch is in Utility Power mode. No power must be present at
the generator or transfer switch connections. Verify with a voltmeter.
3. Verify that the engine starting battery is disconnected so accidental starting is not
possible.
4. Verify that the generator is securely mounted and anchored to its cement pad.
5. Verify that proper clearance exists on all sides and top of enclosure.
6. Verify that generator power is properly connected to the transfer switch.
7. Verify that generator and transfer switch are properly grounded.
8. Assure that generator is a safe distance from any flammable or combustible material.
9. Verify that the generator and transfer switch load are voltage compatible.
10. Verify that no load is connected to the circuit breaker and/or transfer switch.
11. Inspect the engine and generator and verify that there are no loose wires or
components. Tighten if necessary.
12. Verify that the ground conductor is of correct wire size and properly connected.
13. Verify engine oil level is full. Refer to engine manual if necessary.
14. Verify engine coolant level is full. Refer to engine manual if necessary.
15. Verify exhaust system to assure it is in properly connected and pointing away from
combustible materials.
16. Verify that the Master Control Switch is still in the “Stop” position.
Connect the engine starting battery to the starter. Verify it is installed correctly.
17. Verify the fuel source is ON and the pressure and flow rate are correct.
18. Remove all tools, rags, etc. from inside the generator enclosure. Close all enclosure
doors and be sure no hands are inside the generator enclosure when it starts.
19. Verify all loads are disconnected.
20. Start the generator. (Refer to Section 4 Operation for details).
21. The engine should begin to crank and start when the fuel moves through the pipe to
the carburetor. If the engine fails to start, refer to Section 5 Troubleshooting.

Receiving & Installation 3‐15MN2408
Post Installation Checks Continued
22. With the engine running, several checks must be made:
a. Verify there are no fuel leaks. If a fuel leak is detected, stop the engine
immediately (move the Master Control Switch to the “Stop” position) and
repair the leak before proceeding.
b. Verify there are no coolant or oil leaks. If a leak is detected, stop the engine
immediately and repair the leak before proceeding.
c. Verify that operation is smooth. If belt squeals, vibrations or other sources of
noise exist, stop the engine immediately and repair before proceeding.
d. Verify that the correct voltage exists (line-to-line and line-to-neutral) at the
generator and at the transfer switch.
e. Minor adjustment of the output voltage is made using the “Voltage Adjust”
potentiometer on the control panel.
WARNING: Engine coolant is under pressure and is near the boiling point of water when engine is hot.
Do not open the coolant system until the engine has completely cooled. Hot coolant can
cause severe burns and other injuries. When engine is cool, coolant level can be checked.
23. After the operation checks are made, stop the engine (move the Master Control Switch
to the “Stop” position) and wait at least 2 hours for the engine to cool. When the
engine is cool, check engine oil and coolant levels as instructed in the engine operation
manual.
24. Close all enclosure covers. The post installation checks are now complete.

3‐16 Receiving & Installation MN2408

Section 4
Operation
Operation 4‐1MN2408
Digital Engine Controller Description EM0046A21 (MRS17)
Figure 4‐8 Operator Control Panel
Stop
Manual
Run
Display
Menu
Group
LED Indicators
Operating Modes and
Horn & Fault Reset
Note: The operator control panel is equyipped with a heater element that allows the LCD display
to operate to -40C (not the entire generator set, see generator specifications). This
heater operates from the main battery power.
LED Indicators Alarm (red) - Alarm (shutdown) condition occurred. Annunciates & shuts down generator.
Not In Auto (red) - Control is not in auto mode and cannot provide standby power.
Running (green) - Generator is running, no alarms or warnings.
Warning (yellow) - A warning condition has occurred. Annunciates only.
Ready/Auto (green) - Control is in Auto mode and ready to provide standby power.
Supplying Load (green) - Generator is providing output voltage to load.
Table 4‐8 Alarm & Warning Conditions
Alarm Warning
X X High Coolant temperature
X X Low Oil pressure
X X Low Fuel level
X X Generator Under/Over Voltage
X X Generator Under/Over Frequency
X X Generator Over Current
XGenerator Overspeed
XCoolant temperature Low
XStarting battery Under/Over Voltage
Manual Run Immediately begins the crank cycle to start engine and produce power (MAN mode only).
Start Start generator set operation (MAN mode only).
Stop Stops the Engine and generator set (MAN mode only).
Display Displays setpoints, adjustments, Alarms and Warning conditions and Operating Mode selections.
Page Changes menu displayed - Measurement, Adjustment or History.
Mode A and " Allows selection of OFF - MAN - AUTO mode choices.
Horn Reset Deactivates the Horn output.
Fault Reset Reset Alarms and Warnings.
Y and B Selects the menu choice, select the setpoint or select the menu or increase/decrease the
setpoint value.
Enter Confirm and accept changed setpoint value.
Enter + Y and BAdjusts display contrast.
Enter+ Fault Reset Clears engine ECU faults.

4‐2 Operation MN2408
Digital Engine Controller Description EM0046A21 (MRS17) Continued
Operating Mode Press Mode or to scroll though the list of operating modes: Off, Manual and Automatic.
The control mode is shown in the highlighted area at the top of the display, Figure 4‐9.
When the desired Control Mode is highlighted, press Start to begin operation.
Press Stop to terminate operation.
OFF - Generator set operation is not allowed.
MAN - Press Start to manually start the generator set immediately.
Press Stop to stop the generator set immediately.
AUT - Start and Stop buttons are ignored.
The binary input terminal conditions start and stop the generator set.
Display Menus Three display menus are available: Measurement, Adjustment and history.
Press the Page button repeatedly to display each menu. Use and Enter keys to change
and accept setpoint values or press the Page button to cancel changes.
Measurement Menu
The measurement menu, shown in Figure 4‐9 displays the operating mode, and operating
parameters such as kW, engine RPM etc.
Figure 4‐9 Measurement Menu
OFF MAN AUT
Ready
PF
RPM
Timer
0.00
0
0
0kW
Control Mode
Operating Modes and
Horn & Fault Reset
Ready = Status
kW = Active power produced by generator
PF = Power Factor
RPM = Engine speed in revolutions per minute
Timer = Event counting time (e.g. prestart, cooling etc.)
!
OFF MAN AUT = Control operating mode (highlighted)
! = Alarm indication is active
OFF Mode
Starting of the generator set is not possible. Outputs STARTER (BO1) and FUEL SOLENOID
(BO2) are not energized. No action if buttons START and STOP are pressed.
MAN Mode
START button starts the generator set.
STOP stops the generator set.
This operation is further defined in Table 4‐9.
AUT Mode
No action if buttons START and STOP are pressed.
Engine Start/Stop request is given by binary input REM Start/Stop (BI1).

Operation 4‐3MN2408
Digital Engine Controller Description EM0046A21 (MRS17) Continued
Table 4‐9 Manual Mode Sequence Description
Menu Status Condition of Transition Action Next State
Main
Measurement
Ready
Start request PRESTART on,
Prestart time counter started
PRESTART
RPM > 2 or Oil pressure detected or
Gen voltage > 10V
Stop (Stop fail)
OFF mode selected or Shut down alarm active Not Ready
Not Ready RPM < 2, Oil pressure not detected, Vgen < 10V,
no shutdown alarm active, other than OFF mode
selected
Ready
Prestart Prestart time elapsed STARTER on, FUEL SOLENOID on,
MaxCrank time counter started
Cranking
Cranking
RPM> Start RPM STARTER off, PRESTART off Starting
D+ input activated or oil pressure detected or
Gen voltage > 25% Vgnom
STARTER off, PRESTART off Cranking
MaxCrank time elapsed, 1st attempt STARTER off, FUEL SOLENOID off,
STOP SOLENOID on,
CrankFail pause timer started
Crank pause
MaxCrank time elapsed, last attempt STARTER off, PRESTART off Shutdown (Start fail)
Crank Pause CrankFail pause elapsed STARTER on, FUEL SOLENOID on,
STOP SOLENOID off,
MaxCrank time counter started
Cranking
Starting 30% Nominal speed reached READY TO LOAD on,
MaxStabTime counter started
Running
Running
Stop request READY TO LOAD off,
Cooling time timer started
Cooling
RPM = 0 or any other shutdown condition READY TO LOAD off,
FUEL SOLENOID off
Shutdown
Loaded RPM = 0 or any other shutdown condition FUEL SOLENOID off, STOP SOLENOID
on, READY TO LOAD off
Shutdown
Cooling
Cooling time elapsed FUEL SOLENOID off,
STOP SOLENOID on
Stop
RPM = 0 or any other shutdown condition FUEL SOLENOID off,
STOP SOLENOID on
Shutdown
Start request READY TO LOAD on Running
Stop RPM = 0, Oil pressure not detected, Vgen < 10V Ready
60 sec. Elapsed Stop (Stop fail)
Some output conditions are optional and may require additional programming of field connection.
See appropriate wiring diagram.
Adjustment Menu
The adjustment menu, Figure 4‐10 allows setting engine and generator values such as
Passwords, Pre-Start Time, Crank Time, Cool Down Time, Alarm Conditions and values,
Shutdown Conditions and values, power transfer settings, etc.
Figure 4‐10 Adjustment Menu
> ENGINE BASIC
ENGINE PROT
GEN BASIC
GEN PROTECT
Use and to move the cursor to the desired parameter.
Press ENTER to select the parameter group.
Press PAGE to move to the next page of menu items.
Alarm List
Shows the active alarms and warnings. Press fault reset to clear the list.
ECU Alarm List
Shows the active ECU (engine control unit) fault codes. Press ENTER + fault reset to clear the
list.

4‐4 Operation MN2408
Alarms Following alarms are available:
Sensor fail (FLS) see Table 4‐10
Sensor fail is detected when measured value is 6% out of selected sensor characteristic.
Sensor fail is indicated by ##### symbol instead measured value.
Warning (WRN) see Table 4‐10
When warning comes up, only alarm outputs and common warning output are closed.
Shut down (SD) see Table 4‐10
When the shut-down alarm comes up, InteliLite opens outputs GCB CLOSE/OPEN, FUEL
SOLENOID, STARTER and PRESTART to stop the engine immediately. Alarm outputs and
common shutdown output are closed. Active or not reset protection disables start.
Table 4‐10 Possible Warnings
Events specification Protection type
Wrn Oil press WRN
Sd Oil press SD
Wrn Water temp WRN
Sd Water temp SD
Wrn Wtemp Low WRN
Wrn Fuel Level WRN
Sd Fuel Level SD
Battery voltage <, > WRN
Battery flat SD
Start fail SD
Vgen <, > SD
Vgen unbl SD
Fgen <, > SD
Igen unbl SD
Overload SD
RPM over SD
RPM under SD
PickupFault SD
Stop fail SD
WrnServiceTime WRN
Emergency Stop SD
ECU Common Warning WRN
ECU Shutdown SD

Operation 4‐5MN2408
Inputs and Outputs
Any Binary input or output can be configured to any controller terminal Inputs are BI1 - BI6,
Outputs are BO1 - BO6) or changed to different function by LiteEdit software.
There is fixed 1 sec delay when any binary input is configured as protection.
Table 4‐11 Binary Inputs
Alarm Alarm type Warning or Shut down
Alarm active All the time, or Engine running only
Rem start/stop External request for engine run. AUT mode only.
Emergency stop If the input is opened, shut down is immediately activated. Input is
inverted (normally closed).
Rem start/stop External request for engine run. AUT mode only.
Table 4‐12 Binary outputs
Starter (relay output) The closed relay energizes the starter motor.
The relay opens if:
The firing speed is reached or
Maximum time of cranking is exceeded or
Request to stop occurs
Fuel solenoid (relay output) Closed output opens the fuel solenoid and enables the engine start.
The output opens if:
Emergency stop occurs or
Cooled gen-set is stopped or
In pause between repeated starts
Prestart Output is closed prior to the engine start (Prestart) and opens when
START RPM speed is reached.
During repeated crank attempts the output is closed too.
The output could be used for pre-glow, pre-heat or prelubrication.
Common Sd Output closes when any shut-down alarm appears.
The output opens, if alarm is not active and FAULT RESET is pressed.
Used for shunt trip.

4‐6 Operation MN2408
Analog Inputs Three analog inputs for resistive sensor 0 to 2400 ohms measuring are available on IL controller.
Use LiteEdit software to modify configuration.
The Analog inputs values assignment (AI1 = Oil press, AI2 = Water temp, AI3 = Fuel level) is fix.
It is possible to configure on each Analog input:
Reading from IL Analog inputs or from Engine Control Unit via CAN bus (J1939)
Sensor characteristics - from the list,
Value dimension (e.g. psi - bars, F - C, % - l)
Number of decimal points (0, 1, 2, ...).
Note: Corresponding Analog input terminal is dead when reading is switched to ECU.
All values from ECU shall show ####, but no alarm is displayed when CAN communication
is interrupted.
Warning and shut-down limits are adjusted in Engine protection group.
Table 4‐13 Analog Inputs
AI1 Oil press Oil pressure analog input. Default VDO sensor in range 0 to 145 psi.
AI2 Water temp Water temperature analog input. Default VDO sensor in range 32 to 212F
AI3 Fuel level Fuel level analog input. Default VDO sensor 0-180R = 0-100%.
Set points
Table 4‐14 Basic Setpoints
EnterPassword Password is a four-digit number. Password enables change of relevant
protected set points Use or keys to set and ENTER key to enter the
password.
ChangePassword Use or keys to set and ENTER key to change the password.
Gen-set name User defined name, used for InteliLite identification at remote phone or
mobile connection. Gen-set name is max 14 characters long and have to
be entered using LiteEdit software.
Nomin power(3ph) Nominal power of the generator in three phases connection.
Step: 1 kW; Range: 1 - 3000 kW
Nomin power(1ph) Nominal power of the generator in single-phase connection.
Step: 1 kW; Range: 1 - 3000 kW
CT Ratio Gen-set phases current transformers ratio.
Step: 1 A; Range: 1 - 5000 A / 5A
PT ratio Gen-set potential transformers ratio.
Step: 0,1 V / V; Range: 0,1 - 500,0 V / V
Nominal freq Nominal generator frequency (usually 50 or 60 Hz )
Step: 1Hz; Range: 45 - 65 Hz
Gear teeth Number of teeth on the engine gear for the pick-up. Set to zero, if no
pick-up is used. Engine speed is counted from the generator frequency.
Step: 1; Range: 0 - 500
Note: Generator frequency can be used only when generator voltage
(min 5V) is present before reaching of the firing speed
(Starting RPM) after start.
Nominal RPM Nominal engine speed. Step: 1RPM; Range: 100 - 4000 RPM.
FLTRESGOTOMAN DISABLED: Controller stays in AUT mode after Fault reset .
ENABLED: Automatic switch from AUT (or TEST) to MAN mode after
Fault reset to avoid automatic engine start. This function is active for Shut
down protection only.
DispBackLightTO Timeout after which the display backlight is switched off.
Step: 1 min Range: 0 - 60 min
Default value: 0 = the display lights all the time
Mode IL [ OFF, MAN, AUT ] Equivalent to Controller mode changes by MODE or MODE buttons.
Note: Controller Mode change can be separately password protected.
RS232 mode
[Standard/Modbus ]
Communication protocol switch.
Standard: LiteEdit communication protocol. Modbus: Modbus protocol.
Note: For detail description see chapter Modbus protocol.
Num rings AA Number of rings prior to open modem connection. Step: 1; Range: 1 - 30
Note: NumberRings AA change is not activated immediately. It is activated
after controller is switched on or when modem is connected to controller.

Operation 4‐7MN2408
Table 4‐15 Engine Setpoints
Start RPM “Firing” speed when iL controller stops cranking (starter goes OFF).
Step: 1% of nominal RPM; Range: 5 - 50 %
Starting POil When reached controller stops cranking (starter goes OFF).
Step: 0,1 psi; Range: -100 - 10000
Note: There are three conditions for stop cranking: Starting RPM,
StartingPOil and D+ (when enabled). Starter goes off when any
of these conditions is valid.
Prestart time Time of closing of the PRE-START output prior to the engine start.
Set to zero if you want to leave the output PRE-START open.
Step: 1s; Range: 0 - 600 s
MaxCrank time Maximum time limit of cranking. Step: 1s; Range: 1 - 60 s
CrnkFail pause Pause between crank attempts. Step: 1s; Range: 5 - 60 s
Crank attemps Max number of crank attempts. Step: 1; Range: 1 - 10
Idle time Idle time delay starts when RPM exceeds Start RPM . Start fail is detected
when during Idle state RPM decreases below 2.
During the Idle time timer running the binary output IDLE/NOMINAL is
opened, when it elapses the IDLE/NOMINAL output closes.
Binary output IDLE/NOMINAL opens during Cooling period again.
Step: 1 s; Range: 0 - 600 s
Note: If the IDLE function not supported on the governor, set the Idle time
nevertheless to minimum 5s to avoid Underspeed possibly
caused by instability of the engine short after start.
GCB CloseDelay GCB can be closed earliest GCB CloseDelay after Stabil time when all
electric values are in overunder voltage and over-under frequency limits.
Step: 1 s; Range: 0 - 300 s
Stabil time Generator Nominal voltage is detected during genset start after starter is
switched off and Idle time elapses. Electric generator protections are
active since detection. Step: 1 s; Range: 0 - 300 s
MinStpValvTime Binary output Stop solenoid closes when stop sequence begins and
closes at least for MinStpValvTime. Example MinStpValvTime = 20 sec.
a) When engine stops (RPM=0) in 10 seconds, Binary output Stop
solenoid still stays closed for 10 sec.
b) When engine stops in 30 seconds, Binary output Stop solenoid opens
10 seconds after RPM=0 and Vg =0 and Oil pressure = 0. Those 10 sec is
fix time for safe stop. Step: 1s; Range: 0 - 180 s
Note: Stop of engine is detected when all following conditions are met:
RPM =0, Oil pressure < StartingPOil and Generator voltage < 10 VAC.
Stop fail is detected when is difference between those conditions, e.g
RPM=O and Generator voltage > 10V.
Start RPM
RPM
BO Starter
BO IDLE/RATED
RPM = 2
RPM
Start Fail
Idle tim e M in stab tim e
Electric protections
activ e
Idle Function
Stabil Time

4‐8 Operation MN2408
Table 4‐15 Engine Setpoints Continued
Cooling time Runtime of the unloaded gen-set to cool the engine before stop.
Step: 1s; Range: 0 - 3600 s
AfterCoolTime Runtime of engine after cooling pump. Binary output Cooling pump is
closed when the engine starts and opens AfterCool time delayed after
gen-set stops. Step: 1s Range: 0 - 3600s
CoolingSpeed Selects the function of the Binary output IDLE/NOMINAL during engine
Cooling state.
NOMINAL : Cooling is executed at Nominal speed and generator
protections are active.
IDLE: Cooling is executed at Idle speed and generator protections are
switched off.
Hint: Binary output IDLE/NOMINAL must be configured and connected to
speed governor. Engine Idle speed must be adjusted on speed governor.
D+ function ENABLED: The D+ terminal is used for both functions “running engine”
detection and charge fail detection.
CHRGFAIL: The D+ terminal is used for charge fail detection only
DISABLED: The D+ terminal is not used.
Note: Magnetization current is independent of this setpoint value.
Table 4‐16 Engine Protect Setpoints
ECUFreqSelect This setpoint should be used only for Volvo and Scania engines.
ECU Speed Adjust This setpoint should be used only for Volvo and Scania engines.
WTBF Accept RPM The WtBfAcceptRPM delay setpoint will start to count down since
cranking. Controller waits before communicating with the ECU for this
time. This is because the JD engine passes some erroneous RPM signals
during the first 500ms. Step: 0,1s Range: 0 - 3s
Eng prot del During the start of the gen-set, some engine protections have to be
blocked (e.g. Oil pressure). The protections are unblocked after the
Protection del time. The time starts after reaching Start RPM.
Step: 1s; Range: 0 - 300 s
Horn timeout Max time limit of horn sounding. Set to zero if you want to leave the output
HORN open. Step: 1s; Range: 0 - 600 s
Overspeed Threshold for over speed protection.
Step: 1% of nominal RPM; Range: 100 - 150%
Wrn Oil press Warning threshold level for ANALOG INPUT 1.
Step: 1 psi; Range: Sd Oil press - 10000
Sd Oil press Shutdown threshold level for ANALOG INPUT 1.
Step: 1 psi; Range: -100 - Wrn Oil press
Oil press del Delay for ANALOG INPUT 1. Step: 1 s; Range: 0 - 180
Sd Water temp Warning threshold level for ANALOG INPUT 2.
Step: 1 C; Range: Wrn Wtemp - 10000
Wrn Water temp Warning threshold level for ANALOG INPUT 2.
Step: 1 F; Range: Wrn Wtemp low - Sd Water temp
Wrn Wtemp low Warning threshold level for low value on ANALOG INPUT 2.
Step: 1 F; Range: -100 - Wrn Water temp
Water temp Low del Delay for ANALOG INPUT 2 Wrn Wtemp low. Step: 1 s; Range:1-180 s
Water temp del Delay for ANALOG INPUT 2 alarm. Step: 1 s; Range: 0 - 180 s
Wrn Fuel Level Warning threshold level for ANALOG INPUT 3.
Step: 1 %; Range: Sd Fuel Level - 10000
Sd Fuel Level Shutdown threshold level for ANALOG INPUT 3.
Step: 1 %; Range: -100 - Wrn Fuel Level
Fuel Level del Delay for ANALOG INPUT 3. Step: 1 s; Range: 0 - 180 s
Batt overvolt Warning threshold for high battery voltage.
Step: 0,1 V; Range: Batt undervolt - 40V
Batt undervolt Warning threshold for low battery voltage.
Step: 0,1 V; Range: 8V - Batt overvolt
Batt volt del Delay for low battery voltage alarm. Step: 1s; Range: 0 - 600 s
NextServTime Counts down when engine running. If reaches zero, an alarm appears.
Step: 1h; Range: 0 -65535h

Operation 4‐9MN2408
Table 4‐17 Generator Protect Setpoints
Overload Threshold for generator overload (in % of Nominal power)
Step: 1% of Nominal power; Range: 0 - 200%
Overload Wrn Threshold for generator overload warning (in % of Nominal power)
Step: 1% of Nominal power; Range: 0 - 200%
Overload del Delay for generator overload alarm. Step: 0.1s; Range: 0 - 60.0 s
Ishort Shutdown occurs when short circuit limit Ishort limit is reached.
Step: 1 % of Nominal current; Range: 100 - 500 %
2Inom del IDMT curve shape selection. 2Inom del is Reaction time of IDMT
protection for 200% overcurrent Igen = 2* Nominal current.
Step: 0,1 s; Range: 0,1 - 20 s
IDMT is “very inverse” generator over current protection. Reaction time is
not constant but depends on generator over current level according
following formula. Reaction time is limited up to 900 sec = 15 minutes.
IDMT protection is not active for Reaction time values longer than 15
minutes.
ReactionTime +2lnomdel * Nomincurrent
lgen * Nomincurrent
Curr unbal Threshold for generator current asymmetry (unbalance).
Step: 1% of Nominal current; Range: 1 - 100% of Nominal current
Curr unbal del Delay for generator current assymetry. Step: 0.1 s; Range: 0 - 60.0 s
Gen >V Shutdown level for generator overvoltage. All three phases are checked.
Maximum out of three is used.
Step: 1% of Nominal voltage; Range: Gen >V Wrn -200%
Gen >V Wrn Warning level for generator overvoltage. All three phases are checked.
Maximum out of three is used.
Step: 1% of Nominal voltage; Range: Gen <V Wrn - Gen >V
Gen <V Wrn Warning level for generator under voltage. All three phases are checked.
Minimum out of three is used.
Step: 1% of Nominal voltage; Range: Gen <V - Gen >V Wrn
Gen <V Shutdown level for generator under voltage. All three phases are checked.
Minimum out of three is used.
Step: 1% of Nominal voltage; Range: 0% - Gen <V Wrn
Gen V del Delay for generator under voltage and over voltage alarm
Step: 0.1s; Range: 0 - 60 s
Volt unbal Threshold for generator voltage unbalance alarm.
Step: 1% of Nominal voltage; Range: 0 - 100% of Nominal voltage
Volt unbal del Delay for generator voltage unbalance alarm.
Step: 0.1s; Range: 0 - 60.0 s
Gen >f Shutdown level for generator over frequency.
Step: 0.1% of Nominal frequency; Range: Gen > Wrn - 200.0%
Gen >f Wrn Warning level for generator over frequency.
Step: 0.1% of Nominal frequency; Range: Gen <f Wrn - Gen >V
Gen <f Shutdown level for generator under frequency.
Step: 0.1% of Nominal frequency; Range: 0.0 - Gen <f Wrn
Gen <f Wrn Warning level for generator under frequency.
Step: 0.1% of Nominal frequency; Range: Gen <f - Gen >f Wrn
Gen f del Delay for generator under frequency and over frequency alarm.
Step: 0.1s; Range: 0 - 60.0 s

4‐10 Operation MN2408
Table 4‐18 Sensor Spec Setpoints
Calibr AI1,AI2, AI3 Calibrating constant to adjust the measured value of IL analog inputs.
Physical dimension of calibrating constant is corresponding to Analog
input. Step: 1; Range: -1000 to +1000
AnOut-kW/20mA Conversion coefficient from gen-set power to iG-IOM or PTM analog
output. Step: 1; Range: 1 to 32000
Table 4‐19 IOM/PTM Module Setpoints
AnlInIOM1 lev1 The level for IOM ANALOG INPUT 1 alarm detection.
Step: 1; Range: -100 to +10000
AnlInIOM1 lev2 The level for IOM ANALOG INPUT 1 alarm detection.
Step: 1; Range: -100 to+10000
AnlInIOM1 del Delay for IOM ANALOG INPUT 1 alarm. Step: 1 s; Range: 0 - 180 s
AnlInIOM2 lev1 The level for IOM ANALOG INPUT 2 alarm detection.
Step: 1; Range: -100 to +10000
AnlInIOM2 lev2 The level for IOM ANALOG INPUT 2 alarm detection.
Step: 1; Range: -100 to +10000
AnlInIOM2 del Delay for IOM ANALOG INPUT 2 alarm. Step: 1 s; Range: 0 - 180 s
AnlInIOM3 lev1 The level for IOM ANALOG INPUT 3 alarm detection.
Step: 1; Range: -100 to +10000
AnlInIOM3 lev2 The level for IOM ANALOG INPUT 3 alarm detection.
Step: 1; Range: -100 to +10000
AnlInIOM3 del Delay for IOM ANALOG INPUT 3 alarm.
Step: 1 s; Range: 0 - 180 s
AnlInIOM4 lev1 The level for IOM ANALOG INPUT 4 alarm detection.
Step: 1; Range: -100 to +10000
AnlInIOM4 lev2 The level for IOM ANALOG INPUT 4 alarm detection.
Step: 1; Range: -100 to +10000
AnlInIOM4 del Delay for IOM ANALOG INPUT 4 alarm. Step: 1 s; Range: 0 - 180 s
The protection of IOM/PTM inputs is activated by over crossing the limits.
Calibr AInIOM 1..4 Calibrating constant to adjust the measured value of IOM/PTM analog
inputs. Physical dimension of calibrating constant is corresponding to
Analog input. Step: 1; Range: -1000 to +1000

Operation 4‐11MN2408
Digital Engine Controller Description EM0046A21 (MRS17) Continued
Figure 4‐11 Controller Connection Diagram
OIL PRESSURE
WATER TEMP
FUELLEVEL
RPM
LOAD
EMERGENCY STOP
REMOTE SSTART/STOP
DI ESE L /GASENGIN E
START ER
BATTERY
-+
FUEL SOLENOID
GENERATOR
BINARYOUTPUTS
STARTER
L1
L2
L3
N
PRESTART
PE
ALARM
BINARYINP UTS
RPM
RPM IN
COM
BO3
BO4
BO5
BO6
BO1
(START)
BO2
(FUEL)
AI1(OIL)
AI2(TEMP)
RPM GND
POWER
8- 36VDC
+-
RS232
GENER ATOR
V O LTAG E
3x230 / 400V
N
L1
L2
L3
BI1
BI2
BI3
BI4
BI5
BI6
L3l
L2l
L1l
LB 1
BI NA RY
OUTPUTS
D+
BOOT JUMPER
CO M
AI3(FUEL)
FUELSOLENOID
GENERATOR
CURRENT
0- 5A
ANALOG INPUTS
CAN
Remote
Start
TO BATTERY
G

4‐12 Operation MN2408
Digital Engine Controller Description EM0046A21 (MRS17) Continued
Figure 4‐12 Controller Connection Diagram
LOAD
EMERGENCY STOP
REMOTE SSTART/STOP
DI ESE L /GASENGIN E
START ER
BATTERY
-+
FUEL SOLENOID
GENERATOR
G
BINARYOUTPUTS
STARTER
L1
L2
L3
N
PRESTART
PE
ALARM
BINARYINP UTS
RPM
RPM IN
COM
BO3
BO4
BO5
BO6
BO1
(START)
BO2
(FUEL)
AI1(OIL)
AI2(TEMP)
RPM GND
PO W ER
8- 36VDC
+-
RS232
GENER ATOR
V O LTAG E
3x230 / 400V
N
L1
L2
L3
BI1
BI2
BI3
BI4
BI5
BI6
L3l
L2l
L1l
LB 1
BI NA RY
OUTPUTS
D+
BOOT JUMPER
CO M
AI3(FUEL)
JDIC
FUELSOLENOID
GENERATOR
CURRENT
0- 5A
ANALOG INPUTS
TO BATTERY
CAN
Remote
Start
Ground
G
TO BATTERY
+-

Operation 4‐13MN2408
Operator Control Panel (MICROPROCESSOR Engine Controller Only)
The Operator Control Panel is shown in Figure 4‐13.
WARNING: Never connect this generator to any buildings electrical system unless a licensed electrician
has installed an approved transfer switch. The National Electrical Code (NEC) requires that
connection of a generator to any electrical circuit normally powered by means of an electric
utility must be connected by means of approved transfer switch equipment so as to isolate
the electrical circuit from the utility distribution system when the generator is operating.
Failure to isolate the electrical circuits by such means may result in injury or death to utility
power workers due to backfeed of electrical energy onto the utility lines.
Figure 4‐13 Digital Operator Control Panel
DECREMENT
SILENCE RESET
SHUTDOWN
ALARM READY
SPEED SIGNAL
EMERGENCY
STOP
RUN OFF AUTO LOAD
TEST
EXIT ENTER
LAMP TEST
MICROPROCESSOR ENGINE CONTROLLER
INCREMENT
Vavg
000
Aavg
000
Freq
000
VOLTAGE
ADJUST
-+
LCD Display - Vavg (average voltage) display 0-999 volts.
Aavg (average amperage) display 0-999 amperes.
Freq (frequency) display 0-999 hertz.
Alarm LED- Flashes when a fault is detected.
Shutdown LED- Flashes when a fault is detected.
Ready LED- On when the generator set is ready for automatic operation and no Shutdown or Alarm faults are detected.
Speed Signal LED- On when the engine speed signal is detected (i.e. the engine is cranking).
Emergency Stop LED- On when the Emergency Stop Switch is used to stop the engine.
Emergency Stop Switch- When pushed, the engine is stopped immediately. The engine cannot be restarted until the controller is reset.
Programming Keys Exit pushbutton used to scroll backward through the status menus or programming prompts to the previous item.
Note: The longer the push-button is held down, the faster the menu prompts appear.
Decrement pushbutton used to reduce a programming value while in the programming mode.
Note: The longer the push-button is held down, the faster the value will be decremented.
Increase pushbutton used to increase a programming value while in the programming mode.
Note: The longer the push-button is held down, the faster the value will be incremented.
Enter pushbutton used to scroll forward through the status menus or programming prompts to the next item.
Note: The longer the push-button is held down, the faster the menu prompts appear.
Run Switch- When pushed, initiates a manual start signal to start the engine. The engine will start and operate continuously providing no
shutdown faults are active. All protective circuits are operative in this mode. There will be no cool down cycle at the end of a
manual run sequence.
Run LED- On when the Run switch is used to start the engine (generator set).
OFF Switch- When pushed, sends a stop signal to the engine to stop the engine.
OFF LED- On when the OFF Switch is used to stop the engine.

4‐14 Operation MN2408
Operator Control Panel Continued
Auto Switch - When pushed, initiates automatic operation of the engine (generator set). Starting and stopping of the engine is controlled by a
remote contact (transfer switch). When the remote start signal is removed the engine will continue to run for the cool down period
(if selected) then stop. Pushing the Off switch will stop the engine immediately, even if the cool down period is not complete.
Auto LED- On when the Auto Switch is used to start automatic operation.
Load Test Switch - When pushed, initiates a load test of the generator set with the associated transfer switch. Only operative for AMF connections or
if one of the programmable output contacts is configured for “ATS Test” and the remote transfer switch has remote testing circuitry.
When pushed, a signal is issued to the remote transfer switch to permit an automatic engine start and load transfer. Once initiated,
the engine will receive a start signal from the transfer switch and upon the generator reaching nominal voltage and frequency
levels, a load transfer will be initiated. The generator set will remain running at load until a different operating mode is selected or
the generator set develops an alarm or shutdown fault condition.
Load Test LED - On when the load test of the generator set is active.
Special Function Switches Silence Horn Silence. Press both “Exit and Decrement” at the same time.
This will silence the audible alarm horn without resetting the fail condition.
Lamp Test Press both “Decrement and Increment” at the same time.
Causes the LED's and LCD display to illuminate for approximately 2 seconds then return to their original status.
Note: The emergency stop LED is not affected by this test.
Reset Fault Reset. Press both “Increment and Enter” at the same time.
Resets the controller when in a shutdown mode.
Note: To reset after a fault, the engine must come to a complete stop and the controller's “OFF” switch must be pressed.
Voltage Adjust - Increase or Decrease the Generator output voltage (displayed on VOLTAGE meter)
Operating Procedures The engine-generator controller is designed to start and stop an engine from either a
local (“Manual”) or remote (“Automatic”) modes. When a start command is issued, the controller
issues a run and crank output signal. The controller then monitors engine speed and when crank
disconnect speed is reached, the crank signal is terminated. While the engine accelerates to
normal speed, the controller continuously monitors the engines speed signal. Should the engine
speed exceed the maximum predetermined setpoint, the overspeed shutdown fault circuit will
activate, terminating the run signal.
In addition to overspeed shutdown, the engine controller also monitors many other engine
protection circuits and should they be activated, the engine will be stopped and/or alarm initiated.
The engine will automatically stop for any shutdown condition, or when the remote and/or local
start signal is removed. The engine controller operation includes time delay circuits for normal
operating conditions such as start delays, cool down and cranking periods.
Manual Start/Stop
To manually Start the Gen-Set, push the “RUN” push-button. The following happens:
1. When the “RUN” push-button is pressed, an ENGINE START DELAY timer is initiated.
(The start sequence will not be initiated if any shutdown fault condition is present.)
2. When the engine start delay time expires, an engine RUN and CRANK output signal
will be initiated. (The RUN output may be programmed to only energize when a start
signal is initiated and an engine speed signal is detected.)
3. When the engine starts and begins to accelerate to nominal speed, the controllers
speed sensor will terminate the CRANK output when engine speed reaches
approximately 20% speed (i.e. CRANK DISCONNECT speed setpoint). Immediately
upon reaching crank disconnect speed, the controller will initiate the BYPASS DELAY
time delay function. After the BYPASS DELAY time period (typically 10 seconds) all
fault circuits programmed as BYPASS DELAY=YES are active. (All fault circuits
programmed as BYPASS DELAY=NO are continuously armed irrespective of any
operation sequence.)
To manually Stop the Gen-Set, push the “OFF” push-button. The controllers RUN output will be
immediately terminated which will initiate the engine stop sequence.
Automatic Start/Stop
To setup the generator for automatic operation, pressing the “AUTO” push-button.
The following happens:
1. The engine will automatically start upon activation of the remote start contact input. The
remote device initiates a start sequence upon contact closure.
2. When the remote start signal is activated, the engine will start as per the sequence of
operation described for the manual start sequence.
3. The automatic stop sequence will be initiated by removal of the remote start signal.
4. When the start signal is removed, a cool down delay function will be initiated.

Operation 4‐15MN2408
5. When the cool down time delay period expires (typically 5 minutes), the controllers
RUN output will be immediately terminated which will initiate the engine to stop.
Automatic Fault Shutdown
When a fault circuit is programmed as a SHUTDOWN, the engine will immediately stop when the
fault is activated. A specific shutdown fault can be programmed with a definite time transient
delay period that must expire before the shutdown is activated. The stop sequence will cause the
controllers RUN output to be immediately terminated which will cause the engine to stop. This
will prevent subsequent operation of the generator set. The Run/Stop/Auto selector switch on the
operator control panel must be momentarily placed in the “Stop” position to reset the fault.
Automatic Mains Failure (AMF)
Figure 4‐14 Auto Mains Failure (AMF) Connections
Transfer
Switch

4‐16 Operation MN2408
When the controller is applied in an Auto Mains Failure (AMF) application with a transfer switch,
it must be wired as shown in Figure 4‐14. Programmable output #3 must be selected for Utility
Ready To Load and programmable output #4 must be selected for Gen Ready To Load. After the
controller is programmed, the AMF sequence of operation will be as follows:
Utility Normal Condition:
1. Remote Start input signal (terminals 16 & 17) is not activated (i.e. normal).
2. Utility Ready To Load output is energized (i.e. signal to transfer switch to transfer to
utility power).
3. Generator Ready To Load output is de-energized.
Utility Power Failure Conditions:
1. Remote Start input signal is activated (i.e. remote start contact closes when utility
power fails, as sensed by utility voltage sensor).
2. Engine starts after the Engine Start Delay timer (Utility Ready To Load output stays
energized).
3. After the engine has started and the generator output rises above the programmed
voltage and frequency limits, a Warm-Up timer is initiated.
4. After the Warm-Up timer expires the Utility Ready to Load output de-energizes and the
NEUTRAL Delay timer is initiated.
5. After the NEUTRAL DELAY timer expires the Gen Ready to Load output energizes to
signal the transfer switch to transfer to the generator supply. Note: The neutral delay
function is only operative with an electrically-held type transfer switch mechanism
(ie. electrical contactor type).
Utility Power Restored:
1. Remote Start input signal is removed and the Return Delay timer is initiated (i.e. Utility
Voltage returns to normal and the Utility voltage sensor contact opens).
2. After the Return Delay timer expires, the Generator Ready to Load output
de-energizes and the Neutral Delay timer is initiated.
3. After the Neutral Delay timer expires the Utility Ready to Load output energizes to
signal the transfer switch to transfer to the utility supply. Note: If the generator has a
shutdown during the Return or Neutral Delay periods, the timers are bypassed, and the
Utility Ready to Load output immediately energizes.
4. The generator Cool down Timer starts after the Return Delay timer.
5. The generator stops after the Cool down Timer.
Load Test Push-button Operation
1. When the Load Test pushbutton is pressed, the logic will internally simulate receiving a
remote start input.
2. Engine starts after the Engine Start delay timer.
3. After the engine has started and the generator output rises above the programmed
voltage and frequency limits, a Warm-Up timer is initiated.
4. After the Warm-Up timer expires the Utility Ready to Load output de-energizes and the
Neutral Delay timer is initiated.
5. After the Neutral Timer expires the Gen Ready To Load output energizes to signal the
transfer switch to transfer to the generator supply.
Note: If a generator shutdown occurs during a Load Test Operation, the Load Test mode will be
de-activated.
When Auto Mode is restored (after Load Test Operation) the following occurs:
1. Simulated Remote Start input signal is removed.
2. Gen Ready To Load output de-energizes, and Neutral Delay timer is initiated.
3. After the Neutral Delay timer expires The Utility Ready To Load output energizes to
signal the transfer switch to transfer to the utility supply.
4. The generator Cool down timer starts timing following the transfer to the utility supply.
5. The generator stops after the Cool down timer.

Operation 4‐17MN2408
No Load Test
To allow a timed No Load Test of the engine/generator set while using the AMF control
application, a digital input contact from an external timer must be programmed for NO LOAD Test
The sequence of operation for a No Load Test condition is as follows:
1. With the utility supply normal and the generator stopped, a no load test sequence may
be initiated by closing an external exercise timer contact to the programmed digital
input for No Load Test.
2. After the external exercise timer contact closes, the engine will start and come-up to
normal operating speed and voltage. The controller will issue an alarm of a No Load
Test condition. The connected transfer switch will remain on the utility and the
generator will not transfer on load. Note: should the utility supply fail, the generator will
automatically transfer on load.
3. The engine will continue to run as long as the external exercise timer contact remains
closed.
4. After the external exercise timer contact opens, the engine will continue to run for its
cool down time as programmed, then it will automatically stop.
Standard Faults When a fault occurs, information about the fault is displayed. The engine controller has many
analog and digital inputs for monitoring and control operations. Three types of faults are used:
1. Internal Faults are derived from a combination of digital and analog inputs.
2. Digital Input Faults are initiated from external contact inputs.
3. Analog Input Faults are initiated from external analog signal inputs.
Figure 4‐15 shows how the controller inputs and outputs are organized.
A description of each is provided.
Internal Faults
Overspeed Shutdown Overspeed Shutdown is initiated when the engine's speed has increased above the overspeed setpoint. The overspeed fault
circuit is internally programmed as a latching shutdown fault. The overspeed shutdown fault circuit is programmable for the
percentage of nominal engine speed (i.e. overspeed setpoint) and for the transient time delay period. The programming
prompts for overspeed are located in the main menu programming loop.
Loss of Speed Loss Of Speed is initiated when the engine's speed sensing circuit does not detect a speed signal for a period more than 2
Alarm/Shutdown seconds following a run signal. The loss of speed fault may be user programmed as a latching shutdown fault or alarm only.
The programming prompts for loss of speed are located in the main menu programming loop.
Overcrank Shutdown Overcrank Shutdown is initiated when the engine fails to start after the selected crank time or number of crank cycles. The
overcrank fault circuit is internally programmed as a latching shutdown fault and is not user programmable.
Switch not in AUTO Switch not in AUTO is initiated when the controller's operating mode switch is changed from the auto position to any other
position (ON the keypad). This fault is internally programmed as a non latching alarm. In the main programming loop, this
alarm may be user programmed to initiate the common fail output relay.
Digital Input Faults Four digital faults are provided and these are user programmable. Each digital fault input circuit is activated by a remote
Digital Inputs (N/O or N/C) sensing contact that is external to the controller. Each digital fault input circuit may be programmed with a unique fault label
description as stored in the controller's non-volatile memory.
Factory settings have four standard digital faults as follows:
Fault
Name
Fault
Action
Digital Inputs
Terminal #
Low Oil Pressure Shutdown 1
High Engine Temperature Shutdown 2
Battery Charger Input Fail Alarm 3
Low Fuel Level Alarm 4
The following is a list of all digital faults:
High Bearing Temp Failed To Sync Reverse Power Bat Charger Input Fail
High Cooler Vibration Low Fuel Press Fail To Sync Bat Chrg Trouble
High Engine Temp Low Engine Temp Vent Damper Fail Bat Charger Fail
High Engine Vibration Low Oil Pressure Gen Breaker Open DC Fail
High Fuel Level Low Fuel Level Ground Fault Breaker Tripped
High Oil Level Low Oil Level No Load Test Basin Rupture
High Oil Temp Fuel Leak ATS In Bypass
High Winding Temp Low Fuel Press Remote Emerg. Stop
*Highintkmanftemp Low Coolant Level Air Damper Tripped
“Blank” (i.e. no text for unused inputs)

4‐18 Operation MN2408
Figure 4‐15 Engine Controller Inputs & Outputs

Operation 4‐19MN2408
Analog Faults Eight analog fault inputs are user programmable for 12 fault conditions. Each analog fault input requires a specific analog
signal type.
Fault
Name
Fault
Action
Inputs
Signal
Low Engine Temperature Alarm Engine Temperature
High Engine Temperature #1 Alarm Engine Temperature
High Engine Temperature # 2 Shutdown Engine Temperature
Low Oil Pressure #1 Alarm Oil Pressure
Low Oil Pressure #2 Shutdown Oil Pressure
Low Battery Voltage Alarm Battery Voltage
High Battery Voltage Alarm Battery Voltage
Weak Battery Alarm Battery Voltage
Undervoltage Shutdown Voltage
Under frequency Shutdown AC Frequency
Low Engine Temperature An analog DC signal is provided from an engine mounted sender. The low engine temperature fault is activated when engine
temperature is below a pre-determined setpoint for a specified time delay. This fault is programmable for temperature
setpoint level, transient time delay settings and other functions.
High Engine Temperature #1 An analog DC signal is provided from an engine mounted sender. The high engine temperature fault is activated when
engine temperature is above a pre-determined setpoint for a specified time delay. This fault is programmable for the level of
temperature setpoint, transient time delay settings and other functions.
High Engine Temperature # 2 An analog DC signal is provided from an engine mounted sender. The high engine temperature fault is activated when the
engine temperature rises above a pre-determined setpoint for a specified time delay. This fault is programmable for the level
of temperature setpoint, transient time delay settings and other functions.
Low Oil Pressure #1 An analog DC signal is provided from an engine mounted sender. The low oil pressure alarm fault is activated when the oil
pressure is below a pre-determined setpoint for a specified time delay. This fault is programmable for pressure setpoint level,
transient time delay settings and other functions.
Low Oil Pressure #2 An analog DC signal is provided from an engine mounted sender. The low oil pressure shutdown fault is activated when the
oil pressure is below a pre-determined setpoint for a specified time delay. This fault is programmable for pressure setpoint
level, transient time delay settings and other functions.
Low Battery Voltage The low battery voltage alarm fault is activated when the battery voltage drops below a pre-determined setpoint for a
specified time delay. This fault is programmable for the voltage setpoint level, transient time delay settings and other
functions.
High Battery Voltage The high battery voltage alarm fault is activated when the battery voltage rises above a pre-determined setpoint for a
specified time delay. This fault is programmable for voltage setpoint level, transient time delay settings and other functions.
Weak Battery The weak battery alarm fault is activated when the battery voltage drops below a pre-determined setpoint for a specified
time delay. The weak battery alarm detects a low capacity (i.e. “weak“) battery condition during the cranking cycle. The weak
battery alarm is programmed for a lower battery voltage setpoint and shorter time delay than the low battery alarm function.
This fault is programmable for voltage setpoint level, transient time delay settings and other functions.
Undervoltage All 3-phases of the generator output are monitored for an undervoltage condition. The undervoltage sensor is programmable
for type of fault action (alarm or shutdown), pickup and dropout voltage setpoints (i.e. adjustable hysteresis) and transient
time delay settings.
Under frequency The generator output is monitored for an under frequency condition. The under frequency sensor is programmable for type of
fault action (alarm or shutdown), frequency setpoint, and transient time delay settings.
Engine Speed Analog Input A magnetic pickup (engine speed sensor) measures engine speed. The engine speed sensor allows the controller to perform
the following control functions:
Overspeed shutdown
Crank Disconnect control
Loss of speed signal detection
Starter Re-engage control
RPM display

4‐20 Operation MN2408
Output Contacts All output contacts are non-powered (i.e. dry contacts) and are rated 10A/240VAC, 8A/28VDC
resistive (3A inductive, 0.4pf). Output contacts are not fused therefore external overcurrent
protection (maximum 10A) is required for all control circuits using these contacts. Contacts are
shown in a de-energized state and will change state upon activation.
Run The Run contact is a Form “A” dry contact to control the engines “Run” circuit. This typically includes external control devices
such as “Fuel Rack Solenoids” or electronic governors.
Note: An additional pilot relay will be required to energize high current devices that exceed the 10A resistive rating. The run output
control logic provides an “Energize To Run Signal“ (i.e. the run contact closes when a run condition is activated).
For energize to stop control logic, refer to the programmable output control function.
Crank The Crank output contact is a Form “A” dry contact and is used to control an external crank pilot relay that directly controls the
engine starter motor.
Note: An external crank pilot relay is required to energize the high current starter motor pinion solenoid that exceeds the 10A
resistive crank output contact rating. The crank output contact closes when a crank condition is activated and the contact will
automatically open when crank disconnect speed is obtained and/or the generators output AC voltage exceeds 10% of
nominal level. The generators output AC voltage is utilized for back-up crank disconnect protection should the speed sensor
fail.
Programmable Contacts Four (4) standard programmable output contacts are provided, #1, #2, #3 and #4. Each programmable output is a Form “C”
dry contact that is programmable for any of the following conditions:
Energize To Stop The output relay will energize when a stop signal has been activated. The output will remain energized for 10 seconds
after the engine has come to a complete stop, then de-energizes.
Switch Not In Auto The output relay will energize when the controller's operation mode switch is not in the auto position.
Engine Ready The output relay will energize when the controller's mode switch is in the auto mode and no shutdown or alarm
conditions are present.
Preheat The output relay will energize during the start delay timer period and cranking period until the engine starts and reaches
crank disconnect speed. The preheat output is typically used for an engine starting aid such as glow plugs.
Note: An external pilot relay is required to switch the high current glow plug load.
GEN Ready To Load The output relay will energize when the generators output voltage and frequency exceeds predetermined setpoints (e.g.
voltage 90% nominal, frequency 95% nominal as user programmed) and a warm-up time delay period expires. After the
output has energized, it will remain on (regardless of voltage/frequency levels) until the controller either has a
stop/shutdown signal, or the engine's speed drops below crank disconnect level. The voltage, frequency and time delay
levels are programmable. This output is typically used in an Auto Mains Failure (AMF) application.
Utility Ready To Load The output relay will energize when the remote start input has not been activated (i.e. contact on terminals 16 & 17 not
closed) and the Return Delay & Neutral Delays have expired (if programmed). The output will de-energize when the
remote start input has been activated and the Engine Start Delay & Warm-Up Delays have expired (if programmed). This
output is typically used for Auto Mains Failure (AMF) applications.
Engine Running The output relay will energize when the engine has started and has reached crank disconnect speed.
Engine Run (Fuel) The output relay will energize when the engine “RUN” (i.e. FUEL) energizes prior to the engine starting. The output will
remain on until the engine has reached a “stop” or “shutdown” command.
Airflap The output relay will energize when the engine's speed exceeds the overspeed setpoint level. The output will remain
energized until the engine's speed drops below the low speed setpoint (typically 5% of rated speed).
Note: An external pilot relay is required if the main air flap solenoid current rating exceeds the contact rating.
ATS Test This feature is only operative if the remote transfer switch is interconnected with remote testing capability.
The output relay will energize when a load test operating mode is selected by the “Load Test” keypad push-button. After
initiated, the engine will receive a start signal from the transfer switch and when the generator reaches nominal voltage
and frequency levels, a load transfer will be initiated. The generator set will remain running on load until a different
operating mode is selected or the generator set develops an alarm or shutdown condition.
Note 1: When the “Utility Ready to Load” and “Generator Ready to Load” outputs are programmed, the “Load Test”
programmable output is not required as the engine starting logic is internally initiated.
Note 2: When both “Utility Ready to Load” and “Generator Ready to Load” outputs are programmed for an AMF control
configuration, the ATS Output is not used (i.e. engine start signal is internally generated).
Oil Bypass Timer Complete The output relay will energize when the controller's oil bypass delay timer expires, following a normal start sequence.
Common Alarm The output relay will energize when any alarm fault has been activated.
Common Fail The output relay will energize when any alarm or shutdown fault has been activated.
Common Shutdown The output relay will energize when any shutdown fault has been activated.
EPS Supplying Load The output relay will energize when the engine is running and the generator is supplying current to the load more than or
equal to 10% of nominal CT ratio.

Operation 4‐21MN2408
Display Modes The controller is in the display mode at all times except when in the programming mode. The
display screens and menus may be selected by pressing the Enter or Exit keys to access
Operating Status Display, Fault Display, Timer Countdown, Generator AC Metering or
Programming Menus. The LCD display shows the status of the generator output:
Operating Status The controller will power-up into an Emergency Stop failure mode, preventing possible engine
operation. The controller must be manually reset before normal operation can be established. To
reset the Emergency Stop condition, press the “OFF” push-button first, then press both
“INCREMENT” and “ENTER” push-buttons simultaneously. The controller will then reset, if a
remote emergency stop condition is not activated. The Utility Ready to Load programmable
output will energize if the remote start contact is open. The Main LCD Display will be shown.
Action Description Display Comments
Apply Power and
Reset faults.
Main LCD Display. Vavg
000
Aavg
000
Freq
000
Press Enter key Show Operating Status screens UNIT READY Controller is in “Auto” position and there
are no active faults.
Press or key Scroll to next. SWITCH IN OFF Controller is in “OFF” position from the
front panel keypad push-button.
Press or key Scroll to next. UNIT RUNNING Engine is running and all conditions are
normal.
Press or key Scroll to next. UNIT SHUTDOWN A shutdown fault is active. The specific
fault will be automatically displayed.
Press or key Scroll to next. UNIT ALARM One or more faults are active. The
display will automatically scroll through
all active faults at a two second rate.
Fault Display The fault display menu is automatically displayed when an alarm or shutdown fault is activated.
The specific alarm or shutdown fault label will be displayed and if multiple alarm conditions are
present, the display will automatically scroll through all active faults.

4‐22 Operation MN2408
Timer Countdown Timer countdown menus are automatically displayed when a specific time delay function
occurs during a control sequence. When a time delay begins, the LCD display will show the time
delay function name (i.e. Engine Start Delay) and the current time remaining in the countdown
sequence. When the timing function has expired, the LCD display will automatically change to
either the next timing sequence countdown display or return to the original system status menu.
Action Description Display Comments
Apply Power and
Reset faults.
Main LCD Display. Vavg
000
Aavg
000
Freq
000
Show Operating Status screens ENGINE START
DELAY 45 SEC
Displays specific time delay function
name and remaining time.
Other time delay functions are:
ENGINE START
DELAY 45 SEC
CRANK PERIOD
XX SEC
REST PERIOD
XX SEC
STARTER RE-ENGAGE
DELAY XX SEC
BYPASS
DELAY XX SEC
COOLDOWN
DELAY XXXX SEC
WARMUP
DELAY XX SEC
RETURN
DELAY XX SEC
NEUTRAL
DELAY XX SEC
Note: Countdown screens only appear if Utility/Gen Ready To Load outputs are programmed.

Operation 4‐23MN2408
Generator AC Metering The controller is in the display mode at all times except when in the programming
mode. The display screens and menus may be selected by pressing the Enter or Exit keys to
access Operating Status Display, Fault Display, Timer Countdown, Generator AC Metering or
Programming Menus. The LCD display shows the status of the generator output:
Vavg
000
Aavg
000
Freq
000
Generator Average Output Display
Average Voltage Displays the average generator voltage as follows:
3-phase system: AVERAGE LINE TO LINE VOLTAGE--Phases
1-phase system: LINE TO LINE VOLTAGE--Phases A to B
Average Current Displays the average generator current as follows:
3-phase system: AVERAGE LINE CURRENT--Phases A,B,C
1-phase system: AVERAGE LINE CURRENT--Phases A,B
Frequency Displays generator frequency in hertz (HZ). The frequency is displayed with a resolution of 1/10 of a hertz.
KVA
632.23
Generator KVA Display
KVA Displays the generator's total power output in kilo-voltamperes (KVA).
Generator Phase Voltage Display
(Line to Line) Vab
600
Vbc
600
Vca
600
Vab Displays the generator's output voltage:
3-phase system: LINE TO LINE VOLTAGE--Phases A to B
1-phase system: LINE TO LINE VOLTAGE--Phases A to B
Vbc Displays the generator's output voltage:
3-phase system: LINE TO LINE VOLTAGE--Phases B to C
1-phase system: LINE TO NEUTRAL VOLTAGE--Phases A-N
Vca Displays the generator's output voltage:
3-phase system: LINE TO LINE VOLTAGE--Phases C to A
1-phase system: LINE TO NEUTRAL VOLTAGE--Phases B-N
Generator Phase/Neutral Voltage Display
(Line to Neutral) Van
347
Vbn
347
Vcn
347
Note: The generator's neutral must be connected to controller terminal TB1-VN and the “neutral connected” prompt in the main
program menu must be selected as “Yes”.
Van Displays generator voltage Phase A to Neutral.
Vbn Displays generator voltage Phase B to Neutral.
Vcn Displays generator voltage Phase C to Neutral.
Generator Phase Current Display a
408
b
451
c
415
Amps
Amps a Displays generator load current as follows:
3-phase system: PHASE A CURRENT
1-phase system: PHASE A CURRENT
Amps b Displays generator load current as follows:
3-phase system: PHASE B CURRENT
1-phase system: PHASE B CURRENT
Amps c Displays generator load current as follows:
3-phase system: PHASE C CURRENT
1-phase system: not applicable
Generator Frequency/Hourmeter Display FREQ
HOURS
60.1 Hz
56788 Hrs
FREQ Displays generator frequency in hertz (HZ). The frequency is displayed with a resolution of 1/10 of a hertz.
HOURS Displays unit operating hours.

4‐24 Operation MN2408
Engine Parameter Display Two engine operating parameter screens are provided.
Battery Voltage/Engine Speed
(Tachometer) BATTERY
SPEED
27.0 Vdc
1800 rpm
Battery Displays battery voltage in DC volts. The voltage is displayed with a resolution of 1/10 of a volt.
Speed Displays engine speed in revolutions per minute (RPM).
Engine Temperature/Oil Pressure ENG TEMP
OIL PRESS
57 Deg C
200 KPA
ENG TEMP Displays engine temperature in either degrees Celsius or Fahrenheit (as selected).
OIL PRESS Displays engine oil pressure in either pounds per square inch (PSI) or in Kilopascals (KPA) (as selected).
Program Menus The programming menu is used to change values such as time delays, analog fault settings,
digital fault settings. Access to the programming sub-menus may only be obtained with a
security password number. The sub menus are organized as follows:
Program Menu PROGRAM MENU?
NO
Displays two messages that may be toggled between YES and NO by pressing the INCREMENT push-button.
NO Programming sub-menus are disabled when NO is displayed.
YES Programming sub-menus are enabled when YES is displayed and a valid password number is entered.
PASSWORD
0
Press INCREMENT or DECREMENT to change the password. Press ENTER when the correct number is displayed.
Read Only Mode
User can view the parameters but cannot change any values. The factory setting for this level is one (1).
Read / Write Mode
User can view and modify any parameter value. The factory setting for this level is two (2).
Master Read / Write Mode
User can view and modify any parameter value and view/modify the security password level numbers.
Contact Baldor for master password if required.
The values of the parameter settings for your generator-set can be recorded for future reference
using the Configuration Data Sheet shown in Figure 4‐16.
After the correct password number is entered, the you may choose one of four programming
menus. Press INCREMENT or DECREMENT to find the desired menu then press ENTER.
MAIN MENU LOOP
ANALOG FAULT MENU LOOP
DIGITAL FAULT MENU LOOP
CALIBRATION MENU LOOP

Operation 4‐25MN2408
Navigation Hints
Programming parameters are displayed in the same order as the Programming Sheets (see
Figures 4‐17 to 4‐20). To skip over parameters that do not require changes, push and hold the
ENTER push-button until the desired parameter is displayed. The EXIT push-button may be
used to scroll backwards through the programming parameter loops.
To change a parameter value, use the INCREMENT or DECREMENT push-buttons to scroll
through the available options or to adjust a value as desired and press the ENTER to accept the
new value.
Note: If programming mode is terminated before the last change is accepted (pressing ENTER),
that parameter value will remain unchanged.
Main Menu Loop The Main Menu Loop contains general system configuration programming such as system input
voltages, currents, transformer ratios, as well as standard operating time delay functions.
System Voltage Set to nominal system voltage as expressed in phase to phase voltage (i.e. a 347/600 volt system would be entered as
600). The programmable range of values is 120V-15,000V.
System Frequency Set to nominal system frequency of either 50 HZ or 60 HZ.
System Phases Set to match the power distribution system used on the generator set (i.e. either single phase or 3 phase system).
Neutral Connected Set to Yes if generator's neutral conductor is connected to controller terminal TB1-VN and it is desired to display
line-neutral AC voltages for a 3 phase, 4 wire system.
Voltage Sensing Ratio For direct voltage sensing wiring connections from 208 to 600 volts, enter 1 (i.e. a ratio of 1:1). When potential
transformers are utilized for voltage sensing, enter the calculated transformer ratio (e.g. when using 600:120
transformers, enter a number of 5).
Current Sensing Ratio For current sensing wiring connections from current transformers (CT's), enter the calculated CT ratio (e.g. when using a
600:5 CT, enter a number of 120).
Temperature Scale Select the desired units for engine temperature display and analog setpoints: Degrees Fahrenheit or Degrees Celsius.
Note: Alarm setpoints do not automatically re-configure when changing between Fahrenheit or degrees Celsius.
Pressure Scale Select the desired units for engine pressure display and analog setpoints: Pounds per square inch (PSI) or Kilopascals
(KPA). Note: Alarm setpoints do not automatically re-configure when changing between PSI and KPA.
Start Delay Select desired engine start delay time in seconds. If engine start delay is not required, set to zero. Note: If preheat and
or prelube functions are used, the engine start delay time should be set as required for these functions.
Crank Time Select desired cranking time in seconds. If cycle cranking is selected, this time will be the crank time per attempt.
Rest Time Select desired rest time between cranking attempts. (Only valid if multiple crank attempts are selected).
Note: This value will be ignored if only one attempt has been programmed.
Starter Re-Engage Duration This feature checks for a speed signal during cranking. If no speed signal is sensed, the controller assumes that the
engine starter is not turning the engine over and disengages it after the programmed time delay, and re-engages it
again. This process will repeat until a speed signal is sensed or cranking time expires, whichever occurs first.
If a speed signal is sensed, cranking continues until the engine starts or an overcrank condition occurs.
Set time in seconds as desired (i.e. a setting of 5 seconds will attempt cranking for 5 seconds after which time if no speed
signal is detected, the crank output will be removed for a preset 1 second delay before re-engaging.)
Note: This action is more than a cycle cranking function and is independent of the number of attempts selected.
Therefore, the “crank” time should be considered. To disable this feature, set to zero.
Number Of Crank Cycles Set to the number of cranking cycles required. (Zero will default to one.)
Bypass Delay This setting is the time period that Alarm or Shutdown faults will be ignored after crank disconnect, allowing the engine to
settle into its normal operating mode (i.e. proper oil pressure, etc.). Typically 10 seconds.
Cool down Time Set to desired cool down time in seconds. Up to 9999 seconds of cool down time may be programmed. Set to zero if not
required.
Note: If the controller is used in an AMF application it is recommended to set the cool down timer to a minimum of 10
seconds to allow the generator to transfer Off Load before enabling the cool down time. (Ensures the load is transferred
off of generator prior to stopping the engine.)
Nominal Engine RPM Set to the nominal engine speed in revolutions per minute (RPM).
Flywheel Teeth Set to the number of ring gear teeth on the engine flywheel. The magnetic pick-up must be installed to sense the same
teeth for speed sensing as programmed.
Crank Disconnect Speed Set crank disconnect speed in percentage of nominal speed, i.e. 30% or 540 RPM on an 1800 RPM engine.
Overspeed Set overspeed shutdown point in percentage of nominal speed (i.e. 110% or 1980 RPM on an 1800 RPM engine).
Overspeed Transient Delay Select desired overspeed transient delay time in seconds. Time setting may be entered in tenths of seconds.
Run Output Fail-safe When enabled (factory setting), this feature inhibits the run output until the controller receives a speed sensing signal.
This prevents possible damage caused by starting the engine with no speed sensing for crank disconnect and
overspeed. If selected, ensure that the speed signal is not less than 3.0VAC from the magnetic pick up while the engine
is cranking.
Note: If this feature is disabled, no overspeed protection or crank disconnect will be provided if the speed signal fails. If
you disable this feature Baldor strongly recommends that backup crank disconnect protection and additional overspeed
protection is provided.

4‐26 Operation MN2408
Main Menu Loop Continued
Loss Of Speed Signal Select the desired action (i.e. alarm or shutdown) when a loss of speed signal is detected during operation.
Note: A loss of speed signal must be detected for longer than 2 seconds to initiate the desired action.
Common Fail For “Not In Auto” Function Selects if a common fail alarm condition is to be activated during manual operation.
Horn For Not In Auto The Horn may be programmed to sound when the controllers operating mode is switched from the Auto position. If the
Horn is not to sound, select program setting No.
Warm-up Delay The WARM-UP Delay menu appears when the Gen Ready To Load programmable output is selected (typically for AMF
application). Set to the desired time in seconds, which the generator requires to effectively “warm-up” before accepting
load. This is typically set for 3 seconds. The Warm-Up Delay is initiated after the generator is above programmed voltage
and frequency limits (per the analog programming menus).
Neutral Delay The Neutral Delay menu appears when the Utility Ready To Load programmable output is selected (typically for AMF
application). The Neutral Delay timer is used when transferring between the available power sources. When transferring
from the utility supply to the generator supply, the Neutral Delay timer will start when the Utility Ready To Load output
de-energizes. When the Neutral Delay time period expires, the Generator Ready To Load output is energized. The
purpose of the Neutral Delay timer is to prevent out of phase transfers, which may be caused by a fast transfer and the
two sources of supply are out of synchronism. The Neutral Delay timer ensures the load voltages decay before the
transfer is initiated. Set to the desired time in seconds. The Neutral Delay timer is typically set for 3 seconds.
Note: The Neutral Delay feature is only effective when an electrically held “contactor-type” transfer switch is connected.
Contact Baldor for further application information on use with other types of transfer switch mechanisms.
Return Delay The Return Delay menu appears when the Utility Ready To Load output is selected (typically for AMF application). The
Return Delay is initiated when the remote start signal is removed (signaling utility power is available). After the Return
Delay timer expires, the Generator Ready To Load output is removed, and the Utility Ready To Load output energizes to
signal transfer the load back to the utility supply. The purpose of the Return Delay timer is to ensure that the utility power
has returned to a steady state for the selected time period before the load is transferred back to the utility supply. The
Return Delay timer is typically set for 120 seconds.
Caution: The Programmable Output Contacts selection must agree with the external control wiring
prior to energizing the controller. Failure to do so may cause severe equipment damage.
Programmable Output Contacts Select the desired function that will activate the programmable relay output contact.
One of the following functions may be selected:
Energize To Stop Gen Ready To Load Air Flap Eps Supplying Load Utility Ready To Load
Oil Bypass Timer Complete Common Fail Digital Faults #1 to4 Switch Not In Auto
Overspeed Engine Ready Loss Of Speed Signal Engine Run (Fuel)
Low Bat Voltage Preheat High Bat Voltage Engine Running Weak Bat Voltage
ATS Test Low Oil Press #1 Alarm Common Alarm Common Shutdown
Low Oil Press #2 Shutdown High Eng Temp #1 Alarm High Eng Temp #1 Shutdown
Reset Run Hours The hourmeter may be reset to zero hours when yes is programmed.
Note: This programming prompt is only accessible while using the “Master” programming security password.
Analog Fault Menu Loop The controller's analog fault settings are described as follows:
Level Sets the actual analog signal setpoint at which the selected fault type will be activated.
Note: For AC voltage fault circuits, two levels (i.e. pick-up & drop-out) must be programmed.
Action Allows a fault to be either an Alarm fault or a Shutdown fault.
Alarm Latch If an fault was set as an Alarm, it may be selected as a “Latching” alarm or “Non-latching” alarm. A Latching alarm is not
cleared until a reset command clears it.
Note: This value only appears if alarm faults are programmed. Shutdown faults are automatically set as latching.
Bypass On Start Delay Allows the alarm or shutdown fault to be disabled until after the bypass timer has expired. Faults that are not delayed are
enabled at all times (i.e. engine running or stopped).
Transient Delay Times Allows the selected fault to be disabled until the delay period has expired. Delay times are 0.0 to 999.9 seconds.

Operation 4‐27MN2408
Digital Fault Menu Loop The controller's digital fault settings are described as follows:
Caution: The Digital Fault Label selection must agree with the external control wiring prior to
energizing the controller. Failure to do so may cause severe equipment damage.
Digital Fault Label Select the desired fault label, these are stored in non-volatile memory.
Air Damper Tripped High Oil Temp Bat Charger Input Fail High Winding Temp
Bat Chrg Trouble Low Coolant Level Breaker Tripped Low Engine Temp
DC Fail Low Fuel Level Failed To Sync Low Fuel Press
Gen Breaker Open Low Oil Level Ground Fault Low Oil Pressure
High Bearing Temp Remote Emerg.stop High Cooler Vibration Reverse Power
High Engine Temp Basin Rupture High Engine Vibration ATS In Bypass
High Fuel Level Fuel Leak High Oil Level Low Fuel Press
No Load Test Bat Charger Fail *Highintkmanftemp Vent Damper Fail
High Fuel Level Fail To Sync “Blank” (i.e. no text for unused inputs)
Action Allows a fault to be either an Alarm fault or a Shutdown fault.
Note: Any activated alarm or shutdown fault will energize the “Common fail” fault and sound the alarm horn.
Alarm Latch If an fault was set as an Alarm, it may be selected as a “Latching” alarm or “Non-latching” alarm. A Latching alarm is not
cleared until a reset command clears it.
Note: This value only appears if alarm faults are programmed. Shutdown faults are automatically set as latching.
Polarity Allows the digital fault circuit to be set for Open to Fail or Close to Fail sensing contacts.
Bypass On Start Delay Allows the alarm or shutdown fault to be disabled until after the bypass timer has expired. Faults that are not delayed are
enabled at all times (i.e. engine running or stopped).
Transient Delay Times Allows the selected fault to be disabled until the delay period has expired. Delay times are 0.0 to 999.9 seconds.
Idle Control Digital Input Programming When a digital input is set to Idle function, these settings must be programmed to ensure correct operation:
Action Alarm
Alarm Latch No
Polarity Close
Bypass On Start No
Transient Time 0.1
Note: The corresponding digital output must also be programmed for IDLE to enable correct operation.
No Load Test Control Digital Input Programming
The No Load Test digital input feature is typically used in an AMF application where it is required to do an automatic
timed No Load Test of the engine/generator set. A contact from an external exercise clock timer is required to be
connected to the digital input circuit which is programmed for “No Load Test”. When a digital input is programmed as No
Load Test, these settings must be programmed to ensure correct operation:
Action Alarm
Alarm Latch No
Polarity Close Or Open (dependent on external circuit used)
Bypass On Start No
Transient Time 0.1
Calibration Menu Loop AC Voltage, AC current and battery voltage analog circuits are factory calibrated and
should not require field calibration. If field calibration is required, refer to the calibration
procedure.
Voltage Sensing Calibration (Phase To Phase or Phase To Neutral)
VOLTS AB ZERO
99 600V
Displays the generator phase voltages to be calibrated.
Displays the type of calibration function, either ZERO or SPAN.
Displays the calibration correction factor number (0-255) used to obtain the correct voltage reading.
Note: To correctly calibrate any of the voltage sensors, the ZERO function must be calibrated before the SPAN function.
Displays the actual voltage measurement that will be the same value as shown on the MEC 2 display menus for
generator supply. This voltage reading may be calibrated higher or lower by changing the correction factor number.
Voltage Calibration Procedure
Note: Zero Calibration must be completed before Span Calibration.
Zero Calibration Connect an external AC voltmeter of adequate voltage range and accuracy to the MEC 2 controller terminals associated
with the voltage phases to be calibrated. With the generator stopped, confirm there is Zero volts on the phases to be
calibrated. In the programming mode, scroll to each of the desired generator supply voltage phases (i.e. phase to phase
or phase to neutral) with the ZERO function selected. Use the INCREMENT or DECREMENT push-buttons to adjust the
correction factor number to obtain zero volts on the right hand side of the display as confirmed with the external
voltmeter. The factory default correction factor is 127. Increasing this will raise the displayed value, conversely
decreasing this value will decrease the displayed value. Note: Adjusting the ZERO function with voltage applied will result
in non-linear voltage readings.
With the correct voltage displayed, press the ENTER push-button to accept the correction factor number. Record the
correction factor number on the programming sheet for future reference. Repeat this procedure for all remaining phases.

4‐28 Operation MN2408
Span Calibration Energize the generator supply voltage to the controller at nominal level. Note: It may be necessary to program the
optional under and over voltage shutdowns as alarms to ensure the generator will continue to operate during calibration.
Caution must be taken to ensure the generator output voltage is set within nominal limits. In the programming mode,
scroll to the desired generator supply voltage phases with the SPAN function selected. Connect an external AC voltmeter
of adequate voltage range and accuracy to the controller terminals associated with the voltage phases to be calibrated.
Use the INCREMENT or DECREMENT push-buttons to adjust the correction factor number while observing the
displayed voltage level. Adjust the correction factor number to obtain an identical voltage reading as measured with the
external AC voltmeter. With the correct voltage displayed, press the ENTER push-button to accept the correction factor
number. Record the correction factor number on the programming sheet for future reference.
Note: When the span calibration setting is complete, re-confirm the zero calibration points. If the zero calibration setpoint needs
further adjustment, the span calibration point must also be re-calibrated.
Current Sensing Calibration To accurately calibrate the current sensors, an external test AC ammeter and current clamp
is required, with an accuracy of 0.5% or better.
CURRENT A ZERO
99 350A
Displays the generator load current (phase A, B or C) to be calibrated.
Displays the type of calibration function, either ZERO or SPAN.
Displays the calibration correction factor number (0-255) used to obtain the correct current reading.
Note: To correctly calibrate any of the current sensors, the ZERO function must be calibrated before the SPAN function.
Displays the actual current measurement that will be the same value as shown on the MEC 2 display menus for
generator supply. This current reading may be calibrated higher or lower by changing the correction factor number.
Zero Calibration Connect an external AC ammeter with current clamp of adequate current range to the controller terminals associated with
the current phases to be calibrated. With the generator stopped, confirm there is “0” current on the phases to be
calibrated. In the programming mode, scroll to each of the desired generator supply current phases with the ZERO
function selected. Use the INCREMENT or DECREMENT push-buttons to adjust the correction factor number while
observing the displayed current level. Adjust the correction factor until “0” amps is displayed.
With the correct current displayed, press the ENTER push-button to accept the correction factor number. Record the
correction factor number on the programming sheet for future reference. Repeat for each phase.
Span Calibration Apply 50%-100% load to the generator set. It is recommended to load the generator set to 100% rated load for
calibration purposes to obtain good accuracy throughout the full span of operation. Do not exceed the current rating of
the CT. Non-linear output of the CT will result when the secondary current exceeds 5 amps and will similarly effect the
displayed values.
In the programming mode, scroll to the desired generator supply current phases with the SPAN function selected.
Connect an external AC ammeter and current clamp of adequate current range to the controller terminals associated with
the current phases to be calibrated. Use the INCREMENT or DECREMENT push-buttons to adjust the correction factor
number while observing the displayed current value. Adjust the correction factor number to obtain an identical current
reading as measured with the external AC ammeter. With the correct current displayed, press the ENTER push-button to
accept the correction factor number. Record the correction factor number on the programming sheet for future reference.
Repeat for each phase.
Note: When the span calibration setting is complete, re-confirm the zero calibration points. If the zero calibration setpoint needs
further adjustment, the span calibration point must also be re-calibrated.
Battery Voltage Calibration To accurately calibrate the MEC 2 battery voltage sensor, an external test DC voltmeter is
required, with an accuracy of 0.5% or better.
BAT VOLTS SPAN
99 24.6V
Displays the type of calibration function (SPAN).
Displays the calibration correction factor number (0-255) used to obtain the correct voltage reading.
Displays the actual battery voltage measurement that will be the same value as shown on the MEC 2 display menu.
This voltage reading may be calibrated higher or lower by changing the correction factor.
SPAN Calibration Energize the battery supply voltage to the controller and connect the external test DC voltmeter to the battery terminals,
B+ and B-. In the programming mode, scroll to the battery span calibration point. Use the INCREMENT or
DECREMENT push-buttons to adjust the correction factor number while observing the displayed battery voltage level on
the MEC 2. Adjust the correction factor number to obtain an identical voltage reading as measured with the external DC
voltmeter. With the correct voltage displayed, press the ENTER push-button to accept the correction factor number.
Record the correction factor number on the programming sheet for future reference.

Operation 4‐29MN2408
Engine Temperature & Oil Pressure Calibration
To accurately calibrate the controller's temperature sensor, an external temporary engine mounted
temperature gauge is required. The external temperature gauge should be connected as close as possible
to the temperature sender.
To accurately calibrate the controller's pressure sensor, an external temporary engine mounted pressure
gauge is required. The external pressure gauge should be connected as close as possible to the pressure
sender.
ENGINE TEMP
127 955C
Displays the type of calibration function.
Displays the calibration correction factor number (0-255) used to obtain the correct Temperature or Pressure reading.
Displays the actual temperature or pressure measurement shown on the display menus.
This reading may be calibrated higher or lower by changing the correction factor number.
Engine Temperature The engine temperature analog circuit must be calibrated with the engine temperature sender mounted on the engine.
Connect a temporary engine mounted temperature gauge of suitable accuracy and start the engine. After the engine
reaches normal operating temperature, enter the programming mode and scroll to the “Engine Temperature Offset”
calibration point. Use the INCREMENT or DECREMENT push-buttons to adjust the correction factor number while
observing the displayed temperature. Adjust the correction factor number to obtain the identical temperature reading as
measured with the external temperature gauge. With the correct temperature displayed, press the “Enter” push-button to
accept the correction factor number. Record the correction factor on the programming sheet for future reference.
Oil Pressure Connect a temporary engine mounted pressure gauge of suitable accuracy and start the engine. After the engine
reaches normal operating pressure and temperature, enter the programming mode and scroll to the “Engine Pressure
Offset” calibration point. Use the INCREMENT or DECREMENT push-buttons to adjust the correction factor number
while observing the displayed pressure. Adjust the correction factor number to obtain the identical pressure reading as
measured with the external pressure gauge. With the correct pressure displayed, press the “Enter“ push-button to
accept the correction factor. Record the correction factor on the programming sheet for future reference.
Engine
Temperature
Sender
Resistance
Oil
Pressure
Sender
Resistance
5F5COhms KPA PSI Ohms
392 200 20 1034 150 38
374 190 24 965 140 42
356 180 28 896 130 48
338 170 33 827 120 54
320 160 39 758 110 62
302 150 46 689 100 70
284 140 55 621 90 79
266 130 65 552 80 89
248 120 76 483 70 101
230 110 90 414 60 114
212 100 106 345 50 127
194 90 147 276 40 142
176 80 197 207 30 160
150 70 290 138 20 183
140 60 426 69 10 206
122 50 622
104 40 952
86 30 1486
68 20 2322
50 10 3644
32 06284
Note: Sender resistance data shown are for Oil Pressure Sender p/n-003654 (Thompson p/n), Manufacturer- Datcon, p/n
102227. Datcon Sender must be used with MEC software version 1.81 or greater (previous software versions cannot be
used).

4‐30 Operation MN2408
Figure 4‐16 Configuration Data Sheet
j
j
j
j
j
j
j
j
j

Operation 4‐31MN2408
Figure 4‐17 Main Menu Loop Parameters
Parameter Setting Range
System Voltage (Line To Line) XXXXX VAC 120-15000V AC
System Frequency 50Hz/60Hz Toggle Between 50/60 Hz
System Phases 1 Phase/3 Phase Toggle Between 1 & 3 Phase
Neutral Connected Toggle Between Yes/No
Voltage Sensing Voltage Sensing Pt Ratio
Ratio XXX Enter Number 1-208 (1=Direct)
Current Sensing Current Sensing Ct Ratio
Ratio XXX Enter Number 1-999 (1=Direct)
Temperature Scale Deg C/Deg F Toggle Between Deg C/Deg F
Pressure Scale PSI/KPA Toggle Between Psi/Kpa
Start Delay XXX Seconds 0-999 Seconds
Crank Time XX Seconds 0-99 Seconds
Rest Time XX Seconds 0-99 Seconds
Starter Re-engage Delay XX Seconds 0-99 Seconds 0=Disabled
Number Of Cranks XX Cranks 0-99 Times 0=Continuous
Bypass Delay XX Seconds 0-99 Seconds
Cool down Delay XX Seconds 0-9999 Seconds
Nominal RPM XXXX RPM 0-4000RPM
Flywheel Teeth (Engine Speed
Sensing, Magnetic Pick Up
XXX Teeth 0-999 Teeth
Crank Disconnect XX % 0-100%
Overspeed XX % 100-150%
Overspeed Transient X.X Seconds 0.0-9.9 Seconds
Run Output Fail Safe Yes/No Toggle Between Yes/No
Loss Of Speed Signal Shutdown Alarm/Shutdown Toggle Between Alarm/Shutdown
Common Fail For Not In Auto Yes/No Toggle Between Yes/No
Horn For Not In Auto Toggle Between Yes/No
Prog Output #1 Common Fail (Factory setting)
Prog Output #2 Common Fail (Factory setting)
Prog Output #3 Common Fail (Factory setting)
Prog Output #4 Common Fail (Factory setting)
Prog Output #5 Common Fail (Factory setting)
Prog Output #6 Common Fail (Factory setting)
Warm-up Delay 0-99 Seconds
Neutral Delay 0-99 Seconds
Return Delay 0-999 Seconds
Reset Run Hours Access by Master Password Only
Yes/No Toggle Between Yes/No

4‐32 Operation MN2408
Figure 4‐18 Analog Fault Menu Loop Parameters
Fault Name Input Analog
Type
Fault
E=Enable
D=Disable
Setpoint Level
(Pick-up)
Setpoint Level
(Drop-out)
Action
S=Shutdown
A=Alarm
Alarm Latch
Y=Yes
N=No
Bypass On
Start
Y=Yes
N=No
Transient
Delay (Sec)
Under Voltage AC Voltage E* S Y Y* 5.0
Under Frequency AC Frequency E* S Y Y* 5.0
Weak Battery DC Voltage E* 18.0 N/A A* YN* 3.0
Low Battery
Voltage
DC Voltage E* 25.6 N/A A* NN* 120.0
High Battery
Voltage
DC Voltage E* 30.4 N/A A* NN* 10.0
Low Engine Temp Temp Sender E* 95 FN/A A* YN* 5.0
High ENG Temp #1
Alarm
Temp Sender E* 198 FN/A A Y Y 2.0
High ENG Temp #2
Shutdown
Temp Sender E* 206 FN/A S Y Y 2.0
Low Oil Press #1
Alarm
Press Sender E* 30PSI N/A A Y Y* 2.0
Low Oil Press #2
Shutdown
Press Sender E* 20PSI N/A S Y Y* 2.0
* Indicates parameter is non-programmable.
Figure 4‐19 Digital Fault Menu Loop Parameters
Fault Name Input # Action
S=Shutdown
A=Alarm
Alarm Latch
Y=Yes
N=No
Polarity
O=Open
C=Close
Bypass On
Start
Y=Yes
N=No
Transient
Delay (Sec)
Low Oil Pressure 1 S - O Y 0.5
High ENG TEMP 2 S - O Y 1.0
Batt Chgr Input Fail 3 A Y C N 30.0
Low Fuel Level 4 A N C N 0.1
Figure 4‐20 Calibration Menu Loop Parameters
Parameter Setting
Volts A-B Zero XXX XXXVAC
Volts A-B Span XXX XXXVAC
Volts B-C Zero XXX XXXVAC
Volts B-C Span XXX XXXVAC
Volts C-A Zero XXX XXXVAC
Volts C-A Span XXX XXXVAC
Volts A-N Zero XXX XXXVAC
Volts A-N Zero XXX XXXVAC
Volts B-N Zero XXX XXXVAC
Volts B-N Zero XXX XXXVAC
Volts C-N Zero XXX XXXVAC
Volts C-N Zero XXX XXXVAC
Current A Zero XXX XXXAAC
Current A Span XXX XXXAAC
Current B Zero XXX XXXAAC
Current B Span XXX XXXAAC
Current C Zero XXX XXXAAC
Current C Span XXX XXXAAC
Battery Voltage Span XXX XX.X VDC
Engine Temperature XXX XXX C/F
Oil Pressure XXX XXXX PSI/KPA

Operation 4‐33MN2408
Figure 4‐21 Engine Control Connections
1
2
3
4
5
6
7
8
9
10
11
12
17
16
15
14
13
38
37
GRD
CR
MP2
MP1
19
18
24
23
B -
B +
+-
CRANK
RUN
25
26
27
28
29
30
31
32
33
34
24
35
36
22
21
20
PROGRAMMABLE
CONTACT #4
PROGRAMMABLE
CONTACT #3
PROGRAMMABLE
CONTACT #2
PROGRAMMABLE
CONTACT #1
COMMON FAIL CONTACT
(OPERATES ON AN ALARM OR
SHUTDOWN CONDITION)
IN
IC
IB
IA
VN
VC
VB
VA
VC
VB
VA
1A
1A
1A
N
GRD
GENERATOR OUTPUT
CURRENT SENSING
TRANSFORMERS
5 Aac SECONDARY
(DELETE PHASE C
FOR SINGLE PHASE
SYSTEMS)
10A GENERATOR
OUTPUT VOLTAGE
(DELETE PHASE VC
FOR SINGLE PHASE
SYSTEMS)
MEC 20
RUN CIRCUIT
(FUEL SOL., GOV.)
GRD
DIGITAL FAULT INPUT
CONTACTS
(MEC 2 = 1-4
MEC20 = 1-12)
REMOTE START CONTACT
REMOTE FAULT RESET
(CLOSE TO RESET)
REMOTE EMERGENCY STOP
(CLOSE TO STOP)
ENGINE TEMPERATURE SENDER
OIL PRESSURE SENDER
SPEED SENSING
MAGNETIC PICKUP
RUN CIRCUIT
CRANK PILOT RELAY
A
B
C
12VDC (24VDC)
STARTING
BATTERY
(25, 26, 27 Not used in MEC 2)
(Not used in MEC 2)

4‐34 Operation MN2408

Section 5
Troubleshooting and Maintenance
Troubleshooting and Maintenance 5‐1MN2408
Maintenance This manual contains only very minimal engine maintenance instructions. Refer to the engine
manufacturer's owner's manual for specific engine maintenance instructions for your generator
set. Any maintenance instructions or recommendations in the engine owner's manual take
precedence over any of the following general recommendations.
General:
1. Inspect the fuel system for leaks. Replace all defective components immediately.
2. Inspect and replace any fuel line that shows signs of deterioration.
3. Inspect all the fuel clamps to ensure they are tight.
4. Inspect and clean the battery posts and the associated battery cable terminals.
5. Inspect the external wire cables and connectors used with the generator set for cuts,
fraying, or loose connections. Repair or replace any problems prior to using the unit.
Engine:
1. Clean and/or replace any fuel, oil, and/or air filters per the engine manufacturers'
guidelines.
2. Check oil level regularly; at least every 5 to 8 operating hours. Maintain the proper oil
level.
3. Change the oil as is recommended in the engine manufacturer's owner's manual.
4. Replace the spark plug(s) as is recommended by the engine manufacturer.
5. Clean the cooling fins on the engine to keep the engine's heat dissipation potential at
it's maximum.
6. Inspect and clean all governor and carburetor linkages so they operate properly.
7. Inspect the recoil starting rope for any damage and replace it if necessary (if
applicable).
8. Clean the trash screen around the recoil starter or other cooling air intake.
Alternator: ( also called Generator End)
This generator set must be run at its proper speed to obtain the correct electrical power at its
output. All engines have a tendency to slow down when a load is applied to it. The engine
governor is designed to hold the operating speed as nearly constant as possible. When the
electrical load is increased, the engine is more heavily loaded and engine speed drops slightly.
This slight decrease in engine speed results in a slight decrease in generator voltage and
frequency output. This voltage and frequency variation has no appreciable effect in the operation
of motors, lights, and most appliances and tools. However, timing devices and clocks will not
keep perfect time when used on this generator.
1. Clean the generator set and remove any and all dust, dirt, or other foreign material.
2. Inspect and clean the cooling air intake and exhaust louvers of the generator end.
Make sure they are clean. Remove dirt or any buildup that may restrict the cooling air
flow.
3. Clean the generator set and its components with a damp cloth or sponge.
Never use a water hose or pressure washer as this may damage electrical
components.
4. Inspect and replace any control panel components that are broken or not working
properly (receptacles, circuit breakers, switches, etc.)

5‐2 Troubleshooting and Maintenance MN2408
Problems and Solutions
Some of the more common problems are listed in Table 5‐1. This information is intended to be a
check or verification that simple causes can be located and fixed. It is not an exhaustive “how to”
for all types of problems. Procedures that require in depth knowledge or skills (like flashing the
field) should be referred to a qualified generator service center.
Table 5‐1 General Troubleshooting Guide
Problem Possible Cause Remedy
Engine cranks but will not start No fuel.
Low Oil Level
Restricted air flow.
No spark.
No engine speed during crank
Check that fuel valves are ON. Check fuel level in fuel tank.
Low Oil Pressure Sutdown activated. Replensih oil to full.
Check/replace air filter.
Check/replace spark plug(s).
Check that engine switch is in Start position.
The magnetic pickup must be correctly adjusted and operating.
Engine will not crank (electric start) Dead battery.
Emergency Stop LED is ON
Remove battery and trickle charge or replace with new battery.
Never Jump Start.
Reset controller after an Emergency Stop.
Engine starts but will not run smoothly Fuel or ignition problem Refer to engine manual.
Engine overheats Excessive load
Debris or dirt buildup on engine
Remove one or more electrical loads.
Remove debris. Clean engine surfaces to allow cooling.
No output voltage Ciruit Breaker tripped or failed.
Internal failure of Alternator
Reset circuit breaker or replace if required.
Return to factory for repair.
Output voltage varies Irregular speed (fixed speed mode)
Fluctuating speed (fixed speed mode)
Loose terminal or load connections
Check engine for malfunction or load for fluctuation
Stabilize load. The addition of a lamp load (resistance load) may
compensate partially for load changes caused by intermittent motor
operation. Do not overload.
Verify all connections and terminal tighness.
Low output voltage Low engine speed
Excessive load
High resistance connections -
connections will be warm or hot
Internal failure of Alternator
Low power factor
Verify engine RPM.
Check engine for malfunction or system for overload. Reduce load.
Verify all connections and terminal tighness.
Return to factory for repair.
Reduce inductive (motor) load. Some AC motors use about the
same current regardless of load. Do not use motors of greater
horsepower rating than is necessary to move the mechanical load.
High output voltage Excessive speed (fixed speed mode) Check engine for malfunction. Verify engine RPM.
Electrical shock when frame is touched Static charge.
Grounded armature or field coil.
Ground generator frame at local reference ground (see Section 3).
Return to factory for repair
Mechanical noise Internal failure of Alternator
Loose or misaligned coupling
Return to factory for repair
Tighten; align coupling and alternator shaft to engine shaft.

Troubleshooting and Maintenance 5‐3MN2408
Table 5‐2 Troubleshooting Guide (Digital Controller Only)
Problem Possible Cause Remedy
Controller does not power up even with
correct DC power applied
Wiring Mistake
Overload Condition
Check that there are no wiring errors/short circuits connected to the
controller.
The MEC 20 contains an electronic fuse that trips when an overload
condition exists and does not reset until the supply voltage is
removed and reapplied after the overload condition is corrected.
LCD Display cannot be viewed Microprocessor failure
Improper Supply Voltage
Improper contrast adjustment
Check that the controller's microprocessor is running by observing a
red flashing “watchdog” LED on the rear of the PCB. Replace
controller if failed.
Check DC supply voltage at terminals B+ & B- (10-30VDC).
Adjust LCD contrast potentiometer (R115) on rear of PCB for best
display.
Controller cannot be “Reset” Engine not stopped
Controller not in OFF mode
Verify the engine is at a complete stop before trying to reset.
Set the controller to the OFF mode before trying to reset.
No “RUN” output signal “Shutdown Faults” not reset
Engine speed not detected at cranking
Run Contact not closing (terminals #18 &
#19)
All shutdown faults must be reset (red shutdown LED must be off).
Engine speed signal must be detected (speed signal green LED on)
during cranking if the “run-output fail safe” feature is enabled. Verify
correct magnetic pickup signal at cranking (2.0VAC min. during
cranking).
Check that the RUN output LED (on the rear of the PCB) is on.
If yes, verify relay contact operation on terminals #18 & #19.
Replace controller if failed.
Overspeed shutdown occurs at normal
speed
Controller programmed values are wrong
or controller has failed.
Verify the controller programmed values are correct for the number
of flywheel teeth, nominal RPM, and overspeed setpoint
percentage. Replace controller if failed.
Voltage or current metering is incorrect Controller programmed values are wrong
Ground is missing
Analog input needs to be calibrated
Voltage sensing wiring mistake
Verify the controller programmed values are correct for the voltage
sensing PT ratio and/or current sensing CT ratio.
Verify that the battery supply DC negative conductor is properly
grounded to the engine block (i.e. to a common ground point).
Verify that the controller's analog input is properly calibrated.
Verify the voltage sensing wiring connection to the MEC 20 matches
power distribution type.
Note: standard direct voltage connection requires that the
generators neutral is solidly grounded.
Engine temperature or oil pressure
display is incorrect
Analog input needs to be calibrated
Failed engine sensor
Ground is missing
Verify that the controller's analog input is properly calibrated.
Verify engine sensors.
Note: engine sensors must be factory supplied units only.
Verify that the battery supply DC negative conductor is properly
grounded to the engine block (i.e. to a common ground point).
Engine temperature or oil pressure
displays 9999
OR
Engine alarms are ON for high engine
temperature or low oil pressure when
engine is operating properly
Sending unit is disconnected (open
circuit)
Defective sending unit
Wrong Temp or pressure calibration
Verify the sending units wiring to controller terminals #37 & #38 (i.e.
wiring is not open or shorted).
Verify the engine mounted senders have correct resistance values
for corresponding input temperature or pressure.
Verify calibration.
Keypad Buttons (switches) do not
operate.
Keypad not connected to controller Verify the interconnecting ribbon cable between the lexan faceplate
and main printed circuit board is correctly connected.
Replace controller if failed.

5‐4 Troubleshooting and Maintenance MN2408
Note: See Engine Controller manual for additional information.
Table 5‐3 Troubleshooting Guide (Analog Controller Only)
Problem Possible Cause Remedy
Controller cannot be “Reset” Engine not stopped
Controller not in OFF mode
Verify the engine is at a complete stop before trying to reset.
Set the controller to the OFF mode before trying to reset.
Engine alarms are ON for high engine
temperature or low oil pressure when
engine is operating properly
Sending unit is disconnected (open
circuit)
Defective sending unit
Verify the sending units wiring to controller terminals is not open or
shorted.
Verify the engine mounted senders have correct resistance values
for corresponding input temperature or pressure.
Overspeed shutdown occurs at normal
speed
Controller has failed or input from
Magnetic pickup is incorrect.
Verify the adjustments. Replace controller if failed.
Service Service for your generator can be obtained from to a qualified generator service center.
Please have the following information available and ready:
The model number and serial number of the generator set.
A complete and accurate description of the problem.
Parts Parts for your generator can be obtained from to a qualified generator service center.
Please have the following information available and ready:
The model number and serial number of the generator set.
A complete and accurate description of the part (part number if known).
Note: Engine parts can usually be obtained from a local distributor by using the information in
the engine manufacturer's owner's manual.

Appendix A
Options & Accessories
Options & Accessories A‐1MN2408
Battery Charger
BTCGR6 Battery Charger - 12 Volt / 6 Amp Float. Includes 6 ft power cord with grounding plug
for AC input power and 4 ft power cord with ring terminals for DC output. UL Listed.
BTCGR10A Battery Charger - 12 Volt /10 Amp Float. Includes terminal strip for AC input power
and DC output.UL Listed.
Figure A‐1 Recommended Mounting Locations
GLC60-105 Battery Charger
Mounting Locations
GLC30-45 Battery Charger
Mounting Locations
BTCGR6
BTCGR10A Battery
Tray
BTCGR10A
BTCGR6
Battery
Tray
Installation Considerations:
Shore power must be available (120VAC or 240VAC) to power the battery charger and other
components that may be installed). Shore power outlets or wiring must be located close to
Battery Charger.
BTCGR6 Charger (refer to charger manual for specific details)
1. Mount charger, refer to Figure A‐1 to determine suggested location.
2. Connect charger negative wire to battery ”-” negative terminal.
3. Connect charger positive wire (with fuse) to battery ”+” positive terminal.
4. Connect charger AC power cord to shore power outlet.
BTCGR10A Charger (refer to charger manual for specific details)
1. Mount charger, refer to Figure A‐1 to determine suggested location.
2. Connect charger negative wire (Black) to battery ”-” negative terminal.
3. Connect charger positive wire (Red) to battery”+” positive terminal.
4. Connect charger AC power cord to shore power outlet.

A‐2 Series GLC MN2408
Battery Heaters Battery Heater (BTHTR81) - 120 Volt / 80 Watt. Includes 6 ft power cord.
Installation Considerations:
Shore power must be available (120VAC or 240VAC) to power the battery heater and other
components that may be installed). Shore power outlets or wiring must be located close to
battery heater.
Figure A‐2 Battery Heating Pad Installation
BTHTR81 Heater
1. Carefully disconnect the Negative battery terminal from the battery.
2. Carefully disconnect the Positive battery terminal from the battery.
3. Remove battery hold down bracket.
4. Remove battery.
5. Install Heating Pad in battery tray, refer to Figure A‐2. The ”A” and ”B” dimesions
should match the battery tray.
6. Install battery on top of Heating Pad.
7. Install battery hold down bracket.
8. Carefully install the Positive battery terminal to the battery.
9. Carefully install the Negative battery terminal to the battery.
10. Connect the AC power cord to shore power outlet.

Options & Accessories A‐3MN2408
Engine Block Heater
Installation Considerations:
Shore power must be available (120VAC or 240VAC) to power the block heater and other
components that may be installed). Shore power outlets or wiring must be located close to block
heater.
Figure A‐3
Catalog # G10A Block Heater (refer to block heater manual for specific details)
1. Mount the block heater, refer to Figure A‐3 to determine suggested location.
2. Connect the inlet hose to the inlet hose bib on the block heater.
3. Connect the outlet hose to the outlet hose bib on the block heater.
4. Connect the AC power cord to shore power outlet.

A‐4 Series GLC MN2408
Silencers Refer to enclosure procedure to install silencer when enclosure is present.
Industrial Silencer for Open Skid Mount Units - Provides silenced exhaust for up to 11 dBA
sound attenuation. Kit includes engine adapters, flex pipe, clamps, silencer, and rain cap.
Critical Silencer for Open Skid Mount Units - Provides silenced exhaust for up to 18 dBA sound
attenuation. Kit includes engine adapters, flex pipe, clamps, silencer, and rain cap.
Figure A‐4
Industrial Silencer
GLCIS-3SU- GLC10-25
GLCIS-4SU- GLC30-45
GLCIS-6SU- GLC60-90
GLCIS-7SU- GLC100-105
Critical Silencer
GLCCS-4SU- GLC30-45
GLCCS-6SU- GLC60-90
GLCCS-7SU- GLC100-105
Silencer (refer to Figure A‐4 for specific details)
1. Attach the Silencer to the Exhaust Output of the engine, refer to Figure B-4.
2. Use correct size clamp to attach extension pipe to Exhaust Output pipe from engine.
3. Be sure the Extension pipe fits securely over Exhaust Output pipe so that no exhaust
leaks can occur.

Options & Accessories A‐5MN2408
Fuel Strainers & Fuel Lines
A fuel strainer and flexible fule line can be installed at the fuel pressure regulator to make
connection to the fuel main shutoff valve easier. Either 1-1/4” or 2” fittings may be specified.
Figure A‐5 Fuel Strainer and Flex Fuel Line Connections
Fuel Strainer Fuel Flex Line
GLCFFL1 3/4” NPT Female fittings, 12” long
GLCFFL2 1 - 1/4” NPT Female fittings, 18” long
GLCFFL3 2” NPT Female fittings, 12” long
GLCFFS1- 3/4” NPT Fuel Strainer female Inlet, male outlet.
GLCFFLS3 2” NPT Fuel Strainer female Inlet, male outlet.
Installation: Use appropriate thread sealer as required by plumbing codes.
1. Thread Fuel strainer onto NPT close pipe nipple.
2. Install NPT close pipe nipple to Fuel strainer input.
3. Thread Flex Fuel Line onto NPT close pipe nipple.
4. Connect other end of Flex Fuel Line to site fuel supply pipe as required by plumbing
codes.

A‐6 Series GLC MN2408
E-Stop
E-Stop Switch Kit - Mounts to Baldor supplied Enclosure to provide easy access to shut down
engine with the press of a button. Connects to Remote Run Terminals on genset. Must be
adapted for remote mounting when used with open skid mount units.
Figure A‐6
1
3
Installation:
1. Locate and drill 4 holes shown in Figure A‐6.
2. Mount the E-Stop Switch box to the enclosure,
3. Install the E-Stop assembly into the E-Stop Switch box enclosure.
4. Connect the E-Stop Switch cable into the connections for BW0052D.

Options & Accessories A‐7MN2408
Remote Annuciators
Remote Annunciator - For use with MEC2 Controller. Provides remote anunciation of faults and
generator status. Up to 20 individual fault conditions are remotely monitored utilizing both visual
LED lights & audible alarm annunciation. Lamp test and alarm horn silence pushbuttons are
provided. Each fault is individually programmable for audible horn operation and alarm labels are
field configurable. Requires 12VDC 100mA power supply to operate (engine starting battery can
be power supply).”
Figure A‐7 MEC2 Remote Annunciator
Figure A‐8 Intelilite Remote Annunciator
Only one 120R resistor can be connected
to the CAN bus (If it is the last device on the
network (termination).
AB
DC power
supply
+
120R *
*
CAN bus Connection (200m Maximum)

A‐8 Series GLC MN2408
Radiator Duct Flange
Radiator Duct Flange for Open Skid Mount - Provides easy connection to air ducting to carry
away hot air from engine radiator. Duct flange mounts to front of engine radiator.
Add 3” to length.
Figure A‐9
Table A‐1 Mounting Dimensions
Generator A B C
GLC10-25 3.00 22.00 20.00
GLC30-60 3.00 26.00 26.70
GLC80-100 3.00 26.38 29.50

Options & Accessories A‐9MN2408
Enclosures
Weather Resistant Enclosure - Heavy-duty 12 gauge hot rolled steel with welded corners and
baked powder coat finish. Fasteners are zinc chromate plated and the locking latches are
chrome plated on the lift off access doors. Silencer is mounted on top of reinforced pitched roof.
Sound Attenuated Enclosure - Heavy-duty 12 gauge hot rolled steel with welded corners and
baked powder coat finish includes sound deadening insulation for 15 dB of attenuation.
Fasteners are zinc chromate plated and the locking latches are chrome plated on the lift off
access doors. Silencer is internally mounted in end-housing unit located in front of the engine
radiator.
Figure A‐10 Generator Lifting
GLC10-25 H1=36.0”
GLC30-45 H1=52.1”, H2=66.6”
GLC60-90 H1=64.2”, H2=76.8”
GLC100-105 H1=64.2”, H2=87.6”
GLC10-25 L1=11.75”
GLC30-45 L1=30”, H2=52.0”
GLC60-90 L1=30”, H2=64.2”
GLC100-105 L1=30”, H2=64.2”

A‐10 Series GLC MN2408

Appendix B
Series GLC Information & Wiring Diagrams
Series GLC B‐1MN2408
GLC Circuit Breaker & Electrical Data
Circuit Breaker Size Qty per Phase Min Wire Gauge OSH Plant Ampacity @125C
15 1#16 1 - #8 EPDM PER PHASE 90
20 1#16 1 - #8 EPDM PER PHASE 90
30 1#14 1 - #8 EPDM PER PHASE 90
40 1#12 1 - #8 EPDM PER PHASE 90
50 1#10 1 - #8 EPDM PER PHASE 90
60 1#8 1 - #8 EPDM PER PHASE 90
70 1#8 1 - #8 EPDM PER PHASE 90
80 1#6 1 - #8 EPDM PER PHASE 90
90 1#6 1 - #6 EPDM PER PHASE 125
100 1#6 1 - #6 EPDM PER PHASE 125
110 1#6 1 - #6 EPDM PER PHASE 125
125 1#4 1 - #4 EPDM PER PHASE 170
150 1#2 1 - #4 EPDM PER PHASE 170
175 1#2 1 - #1 EPDM PER PHASE 265
200 1#1 1 - #1 EPDM PER PHASE 265
225 11/0 1 - #1 EPDM PER PHASE 265
250 12/0 1 - #1/0 EPDM PER PHASE 305
300 14/0 1 - #2/0 EPDM PER PHASE 355
350 14/0 1 - #3/0 EPDM PER PHASE 410
400 2#1 1 - #4/0 EPDM PER PHASE 475
450 21/0 2 - #1/0 EPDM PER PHASE 610
500 21/0 2 - #1/0 EPDM PER PHASE 610
600 23/0 2 - #2/0 EPDM PER PHASE 710
700 24/0 2 - #3/0 EPDM PER PHASE 820
800 32/0 2 - #4/0 EPDM PER PHASE 950
900 33/0 3 - #2/0 EPDM PER PHASE 1065
1000 33/0 3 - #3/0 EPDM PER PHASE 1230
1200 3250 3 - #4/0 EPDM PER PHASE 1425
1400 44/0 4 - #4/0 EPDM PER PHASE 1900
1600 4250 4 - #4/0 EPDM PER PHASE 1900
2000 5250 5 - #4/0 EPDM PER PHASE 2375
2500 6250 6 - #4/0 EPDM PER PHASE 2850
3000 7250 7 - #4/0 EPDM PER PHASE 3325
4000 8300 9 - #4/0 EPDM PER PHASE 4275
Wiring Diagrams Wiring diagrams for these generators are contained on the following pages of this appendix.

B‐2 Series GLC MN2408
Figure B‐11 Customer Interface Connection Diagram
MEC20
MEC2

Series GLC B‐3MN2408
Figure B‐12 Customer Interface (w/o Breaker) Power Connection Diagram

B‐4 Series GLC MN2408
Figure B‐13 Single Phase - (w/o Breaker) Connection Diagram

Series GLC B‐5MN2408
Figure B‐14 Single Phase - One Breaker Connection Diagram

B‐6 Series GLC MN2408
Figure B‐15 Single Phase - Two Breaker Connection Diagram

Series GLC B‐7MN2408
Figure B‐16 Single Phase Connection Diagram (Wire 1/0 and Larger w/Breaker)

B‐8 Series GLC MN2408
Figure B‐17 Single Phase Connection Diagram (Wire 1/0 and Smaller w/Breaker)

Series GLC B‐9MN2408
Figure B‐18 Single Phase Connection Diagram (Wire 1/0 and Smaller w/o Breaker)

B‐10 Series GLC MN2408
Figure B‐19 Single Phase Connection Diagram (Wire Larger than 1/0 w/o Breaker)

Series GLC B‐11MN2408
Figure B‐20 Three Phase Connection Diagram

B‐12 Series GLC MN2408
Figure B‐21 Three Phase Connection Diagram with PMG

Series GLC B‐13MN2408
Figure B‐22 Three Phase Connection Diagram (Wire 1/0 and larger)

B‐14 Series GLC MN2408
Figure B‐23 Three Phase Connection Diagram (Wire Larger than 1/0 w/Breaker)

Series GLC B‐15MN2408
Figure B‐24 Three Phase Connection Diagram (Wire 1/0 and Smaller w/Breaker)

B‐16 Series GLC MN2408
Figure B‐25 Three Phase Connection Diagram (Wire Larger than 1/0 w/o Breaker)

Series GLC B‐17MN2408
Figure B‐26 Three Phase Connection Diagram (Wire 1/0 and Smaller w/o Breaker)

B‐18 Series GLC MN2408
Figure B‐27 Control Box Connections with MEC20 Controller

Series GLC B‐19MN2408
Figure B‐28 Control Box Connections with MEC20 Controller & Governor

B‐20 Series GLC MN2408
Figure B‐29 Control Box Connections with MEC2 Controller

Series GLC B‐21MN2408
Figure B‐30 Engine Wiring, Woodward 4.3L GM

B‐22 Series GLC MN2408
Figure B‐31 Engine Wiring, Woodward 5.7L GM

Series GLC B‐23MN2408
Figure B‐32 Engine Wiring, Woodward 8.1L GM

B‐24 Series GLC MN2408

Baldor District Offices

Baldor Electric Company
MN2408
All Rights Reserved. Printed in USA
2/08
WARNING:
CALIFORNIA PROPOSITION 65 WARNING:
Engine exhaust from this product contains chemicals known
to the state of California to cause cancer, birth defects and
other reproductive harm.
WARNING:
CALIFORNIA PROPOSITION 65 WARNING:
Battery posts, terminals and related accessories are known to
the state of California to cause cancer, birth defects and other
reproductive harm.
BALDOR ELECTRIC COMPANY
World Headquarters
P.O. Box 2400 Fort Smith, AR 72901-2400
(479) 646-4711 Fax (479) 648-5792
www.baldor.com