Baxi Combi 105 He Quick Start Guide 5111809 Install
2014-11-12
: Baxi Baxi-Combi-105-He-Quick-Start-Guide-106941 baxi-combi-105-he-quick-start-guide-106941 baxi pdf
Open the PDF directly: View PDF
.
Page Count: 56

© Baxi Heating UK Ltd 2011
Baxi Combi 105 HE
Gas Fired Wall Mounted
Condensing Boiler
Installation & Servicing Instructions
These instructions include the Benchmark Commissioning Checklist
and should be left with the user for safe keeping.

2© Baxi Heating UK Ltd 2011
Natural Gas
Baxi Combi 105 HE
G.C.No47 075 18
Building Regulations and the Benchmark Commissioning
Checklist
Building Regulations (England & Wales) require notification of the
installation of a heating appliance to the relevant Local Authority Building
Control Department. From 1 April 2005 this can be achieved via a
Competent Persons Self Certification Scheme as an option to notifying
the Local Authority directly. Similar arrangements will follow for Scotland
and will apply in Northern Ireland from 1 January 2006.
The Health & Safety Executive operates the ‘Gas Safe Register’, a
self-certification scheme for gas heating appliances.
These arrangements represent a change from the situation whereby
compliance with Building Regulations was accepted as being
demonstrated by completion of the Benchmark Logbook (which was
then left on site with the customer).
With the introduction of Self Certification Schemes, the Benchmark
Logbook is being withdrawn. However, a similar document in the form
of a commissioning checklist and service interval record is incorporated
at the back of these instructions.
This company is a member of the Benchmark initiative and fully supports
the aims of the programme. Its aim is to improve the standards of
installation and commissioning of central heating systems in the UK and
to encourage the regular servicing of all central heating systems to
ensure safety and efficiency.
Building Regulations require that installations should comply with
manufacturer's instructions. It is therefore important that the
commissioning checklist is completed by the installer. The relevant
section of Building Regulations only relates to dwellings. Therefore the
checklist only applies if the appliance is being installed in a dwelling or
some related structure.
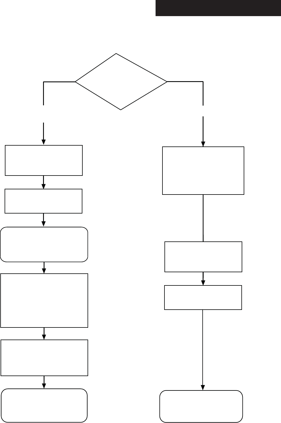
The flowchart opposite gives guidance for installers on the process
necessary to ensure compliance with Building Regulations.
Legislation 4
1.0 Introduction 6
2.0 General Layout 7
3.0 Appliance Operation 8
4.0 Technical Data 9
5.0 Dimensions and Fixings 10
6.0 System Details 11
7.0 Site Requirements 14
8.0 Flue Options 18
9.0 Plume Displacement 23
10.0 Installation 27
11.0 Commissioning the Boiler 32
12.0 Completion 34
13.0 Servicing the Boiler 35
14.0 Changing Components 37
15.0 Illustrated Wiring Diagram 47
16.0 Fault Finding 48
17.0 Short Parts List 53
Benchmark Checklist 54
Section Page
Contents
© Baxi Heating UK Ltd 2011 All rights reserved. No part of this publication may be reproduced or
transmitted in any form or by any means, or stored in any retrieval system of any nature (including in any
database), in each case whether electronic, mechanical, recording or otherwise, without the prior written
permission of the copyright owner, except for permitted fair dealing under Copyrights, Designs and
Patents Act 1988.
Applications for the copyright owner’s permission to reproduce or make other use of any part of this
publication should be made, giving details of the proposed use, to the following address:
The Company Secretary, Baxi Heating UK Limited,
Brooks House, Coventry Road, Warwick. CV34 4LL
Full acknowledgement of author and source must be given.
WARNING: Any person who does any unauthorised act in relation to a copyright work may be liable to
criminal prosecution and civil claims for damages.
0086
ISO 9001
FM 00866
The Benchmark Scheme
Benchmark places responsibilities on both manufacturers and installers. The
purpose is to ensure that customers are provided with the correct equipment for
their needs, that it is installed, commissioned and serviced in accordance with the
manufacturer’s instructions by competent persons and that it meets the
requirements of the appropriate Building Regulations. The Benchmark Checklist
can be used to demonstrate compliance with Building Regulations and should be
provided to the customer for future reference.
Installers are required to carry out installation, commissioning and servicing work
in accordance with the Benchmark Code of Practice which is available from the
Heating and Hotwater Industry Council who manage and promote the Scheme.
Visit www.centralheating.co.uk for more information.

Installer Notification Guidelines
3
© Baxi Heating UK Ltd 2011
Choose Building
Regulations Notification
Route
Contact your relevant Local
Authority Building Control
(LABC) who will arrange
an inspection or contact
a government approved
inspector
LABC will record the data
and will issue a
certificate of compliance
‘Gas Safe Register’ will issue a
Building Regulations Compliance
Certificate to the property owner
and inform the relevant LABC
You must ensure that the
certificate number issued by
the ‘Gas Safe Register’ is written
onto the Benchmark Checklist
Scheme Members only
Call ‘Gas Safe Register’ on:
0800 408 5577
or log onto:
www.GasSafeRegister.co.uk
within 10 days
If you notify via the ‘Gas Safe
Register’, the register will issue
the Building Regulations
certificate on members’ behalf
Complete the
Benchmark Checklist
Install and Commission this
appliance to manufacturer's
instructions
Competent Person's
Self Certification Scheme
Building Control
Complete the
Benchmark Checklist
Install and Commission this
appliance to manufacturer's
instructions

Legislation
4© Baxi Heating UK Ltd 2011
IMPORTANT - Installation, Commissioning, Service & Repair
This appliance must be installed in accordance with the manufacturer’s instructions and
the regulations in force. Read the instructions fully before installing or using the
appliance.
In GB, this must be carried out by a competent person as stated in the Gas Safety
(Installation & Use) Regulations.
Definition of competence: A person who works for a Gas Safe registered company
and holding current certificates in the relevant ACS modules, is deemed competent.
In IE, this must be carried out by a competent person as stated in I.S. 813 “Domestic
Gas Installations”.
The addition of anything that may interfere with the normal operation of the appliance
without express written permission from the manufacturer or his agent could invalidate
the appliance warranty. In GB this could also infringe the Gas Safety (Installation and
Use) Regulations.
Warning - Check the information on the data plate is compatible with local supply
conditions.
This company declare that no substances harmful to health
are contained in the appliance or used during appliance
manufacture.
The appliance is suitable only for installation in GB and IE and
should be installed in accordance with the rules in force, and
only used in a suitably ventilated location.
In GB, the installation must be carried out by a Gas Safe
Registered Installer. It must be carried out in accordance with
the relevant requirements of the:
• Gas Safety (Installation & Use) Regulations.
• The appropriate Building Regulations either The
Building Regulations, The Building Regulations
(Scotland), Building Regulations (Northern Ireland).
• The Water Fittings Regulations or Water Byelaws in
Scotland.
• The Current I.E.E. Wiring Regulations.
Where no specific instructions are given, reference should be
made to the relevant British Standard Code of Practice.
In IE, the installation must be carried out by a competent
Person and installed in accordance with the current edition of
I.S. 813 ‘Domestic Gas Installations’, the current Building
Regulations and reference should be made to the current ETCI
rules for electrical installation.
All systems must be thoroughly flushed and treated with
inhibitor (see section 6.2).
The boiler meets the requirements of Statutory Instrument “ The Boiler (Efficiency)
Regulations 1993 No3083” and is deemed to meet the requirements of Directive
92/42/EEC on the energy efficiency requirements for new hot water boilers fired with
liquid or gaseous fuels:-
Type test for purpose of Regulation 5 certified by:
Notified Body 0051.
Product/Production certified by:
Notified Bodies 0051 & 0086.
For GB/IE only.
All Gas Safe registered engineers carry an ID card with their licence number and a
photograph. You can check your engineer is registered by telephoning
0800 408 5500 or online at www.gassaferegister.co.uk
Codes of Practice - refer to the most recent version
In GB the following Codes of Practice apply:
Standard Scope
BS 6891 Gas Installation.
BS 5546 Installation of hot water supplies for domestic
purposes.
BS EN 12828 Heating systems in buildings.
BS EN 14336 Installation & commissioning of water based
heating systems.
BS 6798 Installation of gas fired hot water boilers.
BS 5440 Part 1 Flues.
BS 5440 Part 2 Ventilation.
BS 7074 Expansion vessels and ancillary equipment for
sealed water systems.
BS 7593 Treatment of water in domestic hot water
central heating systems.
In IE the following Codes of Practice apply:
Standard Scope
I.S. 813 Domestic Gas Installations.
The following standards give valuable additional information;
BS 5546 Installation of hot water supplies for domestic
purposes.
BS EN 12828 Heating systems in buildings.
BS EN 14336 Installation & commissioning of water based
heating systems.
BS 7074 Expansion vessels and ancillary equipment for
sealed water systems.
BS 7593 Treatment of water in domestic hot water
central heating systems.

Safe Manual Handling
5
© Baxi Heating UK Ltd 2011
General
The following advice should be adhered to, from when first handling the boiler to the final stages of installation, and also during maintenance.
Most injuries as a result of inappropriate handling and lifting are to the back, but all other parts of the body are vulnerable, particularly shoulders, arms and hands.
Health & Safety is the responsibility of EVERYONE.
There is no ‘safe’ limit for one man - each person has different capabilities. The boiler should be handled and lifted by TWO PEOPLE.
Do not handle or lift unless you feel physically able.
Wear appropriate Personal Protection Equipment e.g. protective gloves, safety footwear etc.
Preparation
Co-ordinate movements - know where, and when, you are both going.
Minimise the number of times needed to move the boiler - plan ahead.
Always ensure when handling or lifting the route is clear and unobstructed. If possible avoid steps, wet or slippery surfaces, unlit areas etc. and take special care
on ladders/into lofts.
Technique
When handling or lifting always use safe techniques - keep your back straight, bend your knees. Don’t twist - move your feet, avoid bending forwards and
sideways and keep the load as close to your body as possible.
Where possible transport the boiler using a sack truck or other suitable trolley.
Always grip the boiler firmly, and before lifting feel where the weight is concentrated to establish the centre of gravity, repositioning yourself as necessary. See the
‘Installation’ section of these instructions for recommended lift points.
Remember
The circumstances of each installation are different. Always asses the risks associated with handling and lifting according to the individual conditions.
If at any time when installing the boiler you feel that you may have injured yourself STOP !!
DO NOT ‘work through’ the pain - you may cause further injury.
IF IN ANY DOUBT DO NOT HANDLE OR LIFT THE BOILER - OBTAIN ADVICE OR ASSISTANCE BEFORE PROCEEDING !!

1.1 Description
1. The Baxi Combi 105 HE is a fully automatic gas fired
wall mounted condensing combination boiler. It is room
sealed and fan assisted, and will serve central heating and
mains fed domestic hot water.
2. The boiler is set to give a maximum output of
31.0 kW (condensing).
3. It is designed for use on Natural Gas (G20) and can be
converted to use Propane.
4. The boiler is suitable for use only on fully pumped
sealed heating systems. Priority is given to domestic hot
water.
5. The boiler data badge gives details of the model, serial
number and Gas Council number and is situated on the
control box. It is visible when the case front panel is
removed (Fig. 1).
6. The boiler is intended to be installed in residential /
commercial / light industrial E.M.C. environments on a
governed meter supply only.
7. The boiler must be installed with one of the purpose
designed flues such as the standard horizontal flue kit,
part no. 5118489.
8. All systems must be thoroughly flushed and treated
with inhibitor (see section 6.2).
1.0 Introduction
6© Baxi Heating UK Ltd 2011
Data Badge
Fig. 1
Control Box
Case Front Panel

2.0 General Layout
7
© Baxi Heating UK Ltd 2011
2.1 Layout
1. Air Pressure Switch
2. Expansion Vessel
3. Burner Manifold
4. Automatic Air Vent
5. DHW Plate Heat Exchanger
6. Circulation Pump
7. Drain Off Point
8. Pressure Relief Valve
9. Optional Integral Timer
10. Central Heating System Pressure Gauge
11. PCB
12. Control Box
13. 3-Way Valve Assembly
14. Condensate Trap
15. Flame Sensing Electrode
16. Spark Electrode
17. Burner
18. Primary Heat Exchanger
19. Fan Assembly
20. Secondary Heat Exchanger
21. On/Off/Reset Selector Switch
22. Central Heating Temperature Control
23. Hot Water Temperature Control
24. Flame Failure or Blocked Condensate Drain
25. Safety Thermostat Activated (Boiler or Flue)
26. Fault on Fan or Flue
27. Fault on Pump or Low System Pressure
28. Fault on Hot Water Sensor
29. Fault on Central Heating Sensor
30. Power On
31. Domestic Hot Water Mode
32. Central Heating Mode
33. Burner On
When neons 24 to 29 are constantly illuminated, they
indicate the temperature of the central heating water.
19
18
17
14
15
16
13
12 11
10 9
21 22 23 10 9
7
6
3
4
5
8
2
1
30o40o50o60o70o80o
Reset
bar
0
1
2
3
4
30o40o50o60o70o80o
24 25 26 27 28 29
30 31 32 33
20

3.0 Appliance Operation
8© Baxi Heating UK Ltd 2011
NOTE: All delay timers mentioned in 3.1 and 3.2 are
overridden by domestic hot water demand.
3.1 Central Heating Mode (Fig. 2)
1. With a demand for heating, the pump circulates water
through the primary circuit. At a pre-determined flow
rate the central heating flow switch operates, initiating
the ignition sequence.
2. The main burner ignites at low rate, then the gas valve
controls the gas rate to maintain the heating
temperature measured by the temperature sensor.
3. When the flow temperature exceeds the setting
temperature, a 3 minute delay occurs before the burner
relights automatically (anti-cycling). The pump continues
to run during this period.
4. When the demand is satisfied the burner is
extinguished and the pump continues to run for a
period of 3 minutes (Pump Overrun).
3.2 Domestic Hot Water Mode (Fig. 3)
1. Priority is given to the domestic hot water supply. A
demand at a tap or shower will override any central
heating requirement.
2. The flow of water will operate the DHW flow switch
which requests the 3 way valve to change position. This
will allow the pump to circulate the primary water
through the DHW plate heat exchanger.
3. The burner will light automatically and the
temperature of the domestic hot water is controlled by
the temperature sensor.
4. When the domestic hot water demand ceases the
burner will extinguish and the diverter valve will remain
in the domestic hot water mode, unless there is a
demand for central heating.
IMPORTANT: When the selector switch is in the
‘0’ (Off) position the electrical supply to the boiler
is isolated. The boiler will not operate and the
integral timer (if fitted) will require resetting once
the selector switch is set to either Position (i) or
Position (ii).
3.3 Frost Protection Mode
1. The frost protection mode is integral to the appliance
and functions only with the selector switch (see Section
2.1) in the domestic hot water and central heating
position. If the system temperature falls below 5° C then
the boiler will fire on its minimum setting until a flow
temperature of 30° C is reached. Further protection can
be incorporated by using a system frost thermostat.
3.4 Pump Protection
1. With the selector switch (see Section 2.1) in either
the central heating or central heating and domestic hot
water position the pump will automatically operate for 1
minute in every 24 hours to prevent sticking.
1
2
4
5 6
7
8
9
10
11
1213141516
17
18
19
20
21
22
23
24
25
26
3
1 Primary Heat Exchanger
2 Burner
3 Ignition Electrode
4 Flame Sensing Electrode
5 Gas Valve
6Pump
7 Automatic Air Vent
8 Plate Heat Exchanger
9 Flow Sensor with Filter
10 Pressure Relief Valve
11 Boiler Drain Point
12 Heating Return
13 Cold Water Inlet On/Off Valve and Filter
14 Gas Inlet
15 Domestic Hot Water Outlet
16 Heating Flow
17 Pressure Gauge
18 Hydraulic Differential Pressure Sensor Microswitch
19 Automatic By-Pass
20 Hydraulic Differential Pressure Sensor
21 Diverter Valve Assembly
22 Domestic Hot Water Flow Priority Assembly
23 Domestic Hot Water Flow Priority Microswitch
24 Safety Thermostat
25 Central Heating Temperature Sensor
26 Expansion Vessel
27 Domestic Hot Water Temperature Sensor
28 Secondary Heat Exchanger
Key
Central Heating Circuit
Domestic Hot Water Circuit
Fig. 3
1
2
4
5 6
7
8
9
10
11
1213141516
17
18
19
20
21
22
23
24
25
26
3
Fig. 2
27
27
28
28

4.0 Technical Data
9
© Baxi Heating UK Ltd 2011
4.1 Combi 105 HE
Flue Terminal Diameter 100mm
Dimensions Projection 125mm
Outercase Dimensions
Casing Height - 780mm
Overall Height Inc Flue
Elbow - 965mm
Casing Width - 450mm
Casing Depth - 345mm
Clearances
Above Casing 200 mm Min
Below Casing 200 mm Min
Front 450 mm Min (For Servicing)
Front 5 mm Min (In Operation)
L.H. Side 5 mm Min
R.H. Side 5 mm Min (In Operation)
20mm Min (See Note*)
*NOTE: The boiler can be operated with a
clearance of 5mm at the right. This is also
sufficient for routine maintenance. However a
clearance of 20mm is required if it is necessary to
remove the secondary heat exchanger. This
should be considered when siting the appliance
and in the event of any subsequent alterations in
the area of installation
Weights kg
Packaged Boiler Carton 54
Installation Lift Weight 44
Central Heating Primary Circuit
Pressures
bar
Safety Discharge 3
Max Operating 2.5
Min Operating 0.5
Recommend Operating 1-2
DHW Circuit bar
Pressures
Max Operating 8
Min Operating 0.2
Min Operating Pressure
at 13.2 l/min 0.96
Flow Rates l/min
DHW Flow Rate
@ 30°C Rise 14.1
DHW Flow Rate
@ 35°C Rise 12.1
Min Working
DHW Flow Rate 2.5
Pump
Available Head See graph below
Expansion Vessel - (For Central Heating
only. Integral with appliance)
bar
Min Pre-charge Pressure 0.5
litre
Max Capacity of
CH System 125
Primary Water Content 1.2
of Boiler (unpressurised)
Connections copper tails
Gas Supply - 22mm
Central Heating Flow - 22mm
Central Heating Return - 22mm
Cold Water Mains Inlet - 15mm
DHW Flow - 15mm
Pressure Relief Discharge - 15mm
Temperatures
C.H. Flow Temp (adjustable)
30°C to 85°C max (± 5°C)
D.H.W. Flow Temp (adjustable)
35°C to 65°C max (± 5°C)
dependent upon flow rate
Heat Input CH
Max Min
kW 30.5 11.9
Heat Output CH (Non-Condensing)
Max Min
kW 29.6 11
Electrical Supply 230V~ 50Hz
(Appliance must be connected to an
earthed supply)
Power Consumption 180W
External Fuse Rating 3A
Internal Fuse Rating
Fuse 2A Fast Blow to BS 4265
Appliance Category CAT II 2H 3P
Inlet Pressure (Natural Gas - G20)
mbar 20
Burner Injector (Natural Gas - G20)
15 x 1.25mm Diameter
Burner Pressure (Natural Gas - G20)
Max Rate Min Rate
mbar 12.1 ± 0.5 2.1 ± 0.2
Appliance Type C12 C32 C52
NOxClass 3
Electrical Protection IPX5D
This value is used in the UK Government’s Standard Assessment
Procedure (SAP) for energy rating of dwellings. The test data from
which it has been calculated have been certified by 0051.
SEDBUK Declaration For Combi 105 HE
The seasonal efficiency (SEDBUK) is 87.3% (89.4% LPG)
Band B
0
200 400 600 800 1000 1200
0.5
1
1.5
2
2.5
3
3.5
4
Metre (wg)
Flow Rate (l/h)
Pump - Available Head
0
5
4.5
LPG Propane - G31
Burner Injector 15 x 0.77mm diameter
Burner Pressure
Propane mbar
Inlet Pressures
mbar
Max Rate
32.3 ± 0.5
Min Rate
5.2 ± 0.2
37
Heat Output CH (Condensing)
Max Min
kW 31 11.3
Heat Input DHW
Max
kW 30.5
Heat Output DHW
Max
kW 29.6
Condensate Drain 1” BSP
Max Gas Rate (Natural Gas - G20)
(After 10 mins)
m3/h 3.22

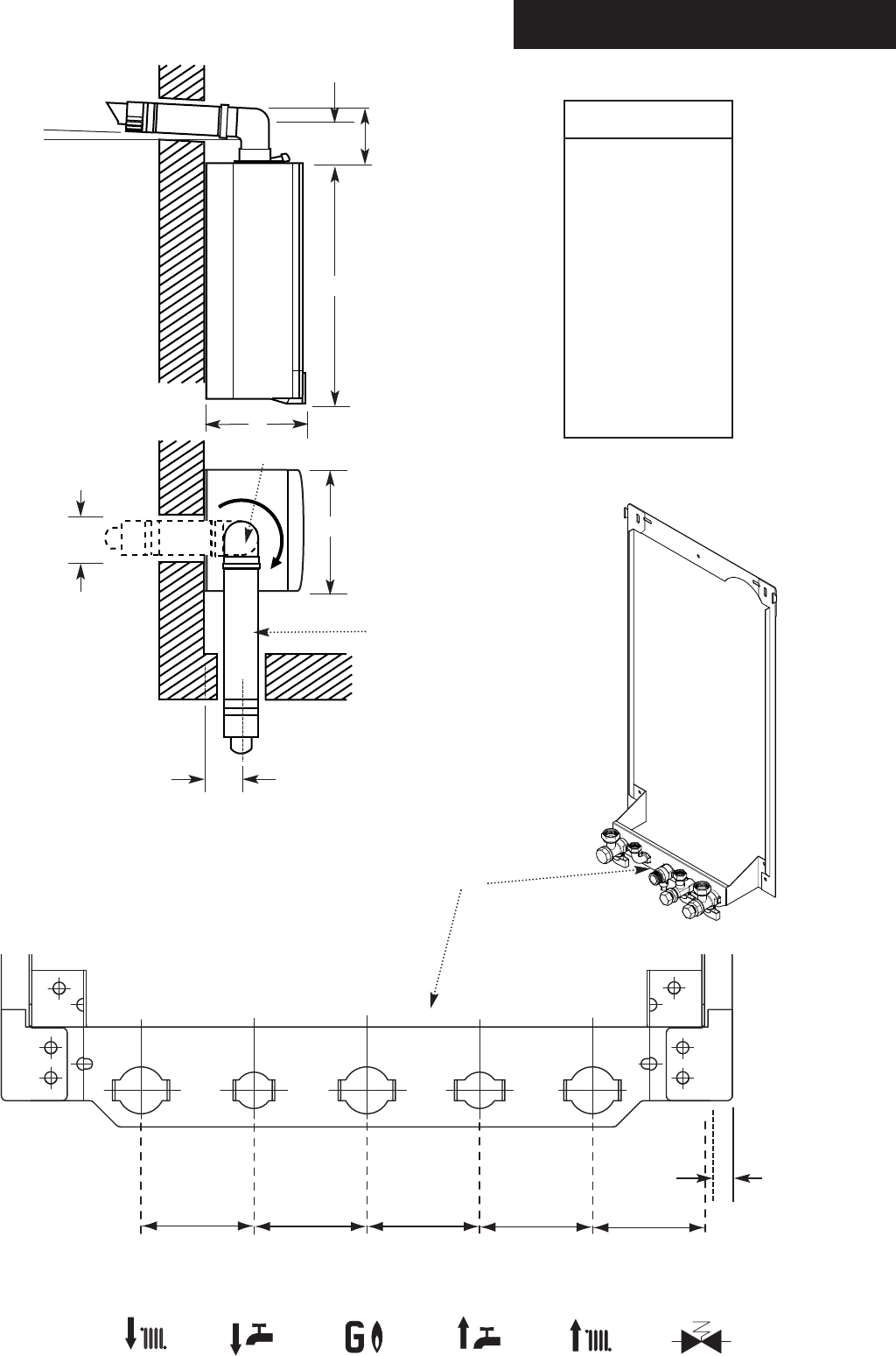
5.0 Dimensions and Fixings
10 © Baxi Heating UK Ltd 2011
Dimensions
A780mm
B345mm
C450mm
D116mm Ø Min.
E185mm
F190mm
G131mm
360° Orientation
Flue Ø 100mm
DC
B
A
E
G
F
Domestic Hot
Water Outlet
(15mm)
Cold Water
Inlet
(15mm)
Heating
Return
(22mm)
Heating
Flow
(22mm)
Pressure Relief
Valve
(15mm)
Gas
Inlet
(22mm)
65 mm 65 mm 65 mm 65 mm 65 mm
Tap Rail
At least 1.5o
28mm
Condensate
Drain

6.0 System Details
11
© Baxi Heating UK Ltd 2011
6.1 Information
1. The Baxi Combi 105 HE Condensing Combination Boiler is
‘Water Byelaws Scheme - Approved Products’.
To comply with the Water Byelaws your attention is drawn to
the following installation requirements and notes (IRN).
a) IRN 001 - See text of entry for installation
requirements and notes.
b) IRN 302 - Byelaw 14.
2. Reference to the WRc publications, ‘Water fittings and
materials directory’ and ‘Water supply byelaws guide’ give full
details of byelaws and the IRNs.
6.2 Central Heating Circuit
1. The appliance is suitable for fully pumped SEALED
SYSTEMS ONLY.
Treatment of Water Circulating Systems
• All recirculatory water systems will be subject to
corrosion unless an appropriate water treatment is
applied. This means that the efficiency of the system will
deteriorate as corrosion sludge accumulates within the
system, risking damage to pump and valves, boiler noise
and circulation problems.
• When fitting new systems flux will be evident within the
system, which can lead to damage of system components.
• All systems must be thoroughly drained and flushed out
using, for example, Sentinel X300 or X400 or Fernox F3.
They should be used following the flushing agent
manufacturer’s instructions.
• System additives - corrosion inhibitors and flushing
agents/descalers should comply to BS7593 requirements,
e.g. Sentinel X100 and Fernox MB-1 which should be used
following the inhibitor manufacturer’s instructions.
• Full instructions are supplied with the products, for
further information contact Sentinel (0800 389 4670) or
Fernox (0870 870 0362)
Failure to flush and add inhibitor to the system will
invalidate the appliance warranty.
• It is important to check the inhibitor concentration after
installation, system modification and at every service in
accordance with the manufacturer’s instructions. (Test kits
are available from inhibitor stockists.)
• For information or advice regarding any of the above
contact Technical Enquiries.
6.3 Bypass
1. The boiler is fitted with an automatic integral bypass.
6.4 System Control
1. The boiler is designed for use in a heating system that
incorporates external controls, i.e. a minimum of a timer
device.
2. Suitable timer kits are available as optional extras.
3. For optimum operating conditions and maximum
economy the fitting of a programmable room thermostat,
is recommended.

6.0 System Details
12 © Baxi Heating UK Ltd 2011
6.5 System Filling and Pressurising
1. A filling point connection on the central heating return
pipework must be provided to facilitate initial filling and
pressurising and also any subsequent water loss
replacement/refilling.
2. There are connection points on the mains cold water
inlet and central heating return isolating taps (Fig. 5) to
which the optional filling loop kit (Part No. 248221) can
be assembled.
3. The filling method adopted must be in accordance with
all relevant water supply regulations and use approved
equipment.
4. Your attention is drawn to,
for GB: guidance G24.2 and recommendation R24.2 of
the Water Regulations Guide.
for IE: the current edition of I.S. 813. “Domestic Gas
Installations”.
5. The sealed primary circuits may be filled or replenished
by means of a temporary connection between the circuit
and a supply pipe provided a ‘Listed’ double check valve
or some other no less effective backflow prevention
device is permanently connected at the inlet to the circuit
and the temporary connection is removed after use.
6.6 Expansion Vessel
(Central Heating only)
1. The appliance expansion vessel is pre-charged to 0.5
bar. Therefore, the minimum cold fill pressure is 0.5 bar.
The vessel is suitable for correct operation for system
capacities up to 125 litres. For greater system capacities an
additional expansion vessel must be fitted. For GB refer to
BS 7074 Pt 1. For IE, the current edition of
I.S. 813 “Domestic Gas Installations”.
6.7 Pressure Relief Valve (Fig. 6)
1. The pressure relief valve is set at 3 bar, therefore all
pipework, fittings, etc. should be suitable for pressures in
excess of 3 bar.
2. The pressure relief discharge pipe should be not less
than 15mm dia, run continuously downward, and
discharge outside the building, preferably over a drain. It
should be routed in such a manner that no hazard occurs
to occupants or causes damage to wiring or electrical
components. The end of the pipe should terminate facing
down and towards the wall.
3. The discharge must not be above a window, entrance
or other public access. Consideration must be given to the
possibility that boiling water/steam could discharge from
the pipe.
4. A remote relief valve kit is available to enable the boiler
to be installed in cellars or similar locations below outside
ground level (kit no. 5121379).
Fig. 4
Fig. 6
Stop
Valve
Double
Check
Valve
DHW
Mains
Inlet
CH
Return
Temporary
Hose
Pressure Relief Valve Discharge Pipe
Filling Loop
Fig. 5
Stop
Valve

6.0 System Details
13
© Baxi Heating UK Ltd 2011
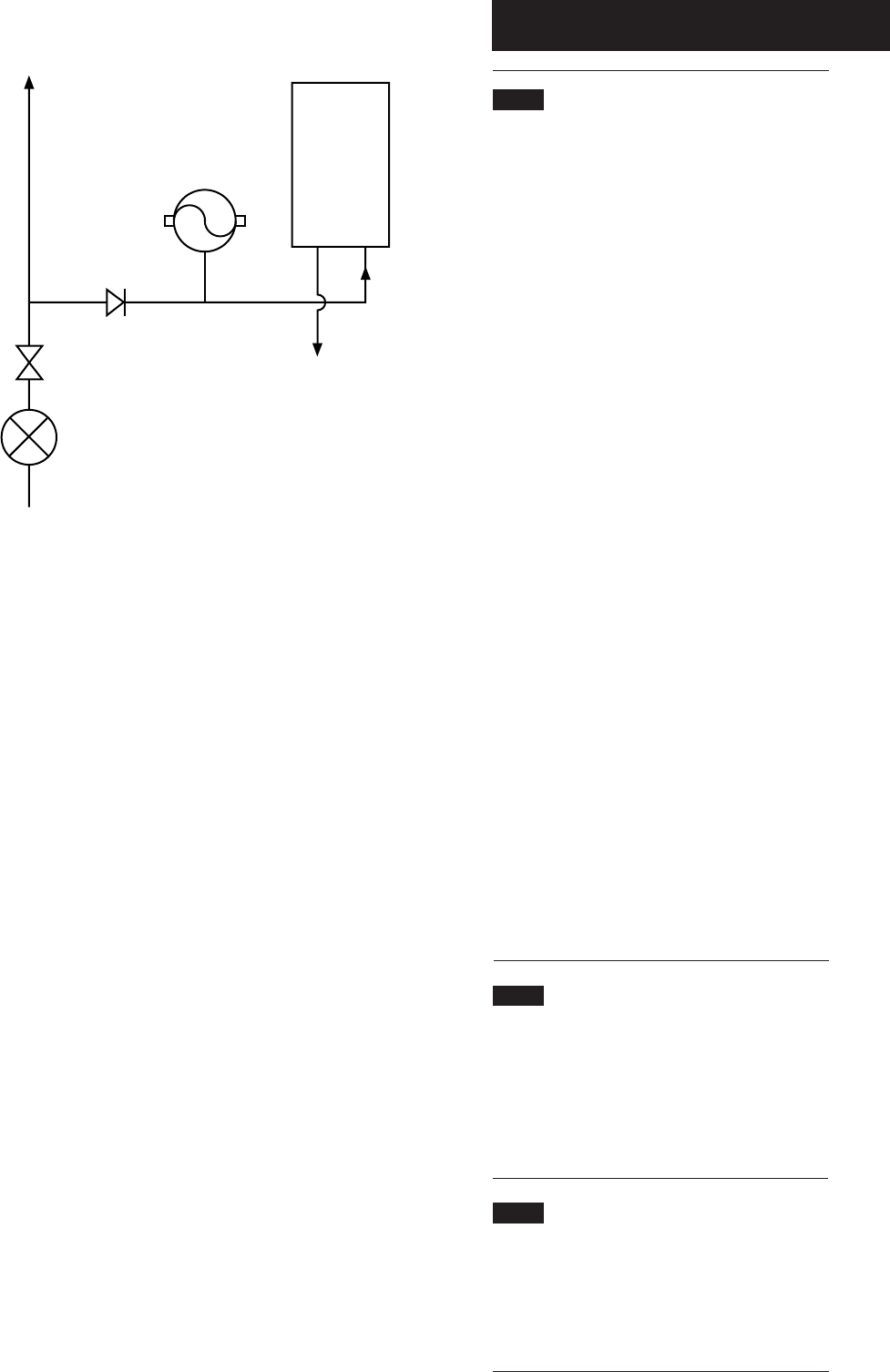
6.8 Domestic Hot Water Circuit (Fig. 7)
1. All DHW circuits, connections, fittings, etc. should be
fully in accordance with relevant standards and water
supply regulations.
2. Your attention is drawn to:
for GB: Guidance G17 to G24 and recommendation R17
to R24 of the Water Regulations Guide.
for IE: the current edition of I.S. 813. “domestic Gas
Installations”.
3. The Water Regulations recommendations for England
and Wales prohibits backflow from appliances into the
wholesome water supply due to thermal expansion.
However this type of instantaneous combination boiler,
with less than 15 litres of stored capacity, does not
require any backflow prevention device as any thermal
expansion is accommodated within the appliance.
It is possible in certain circumstances that other cold
water demands (e.g. washing machines, flushing of W.C.s)
may affect the DHW function of the boiler. In these
instances the fitting of a backflow prevention device and
expansion vessel is recommended.
4. Also if there is an existing check valve, loose jumpered
stop cock, water meter or water treatment device
already fitted to the wholesome water supply connected
to the boiler domestic hot water (DHW) inlet supply
then a suitable expansion device may be required.
5. The boiler’s maximum working mains pressure is 8 bar,
therefore all pipework, connections, fittings, etc. should
be suitable for pressures in excess of 8 bar. A pressure
reducing valve must be fitted for pressures in excess of 8
bar. The manufacturer of any outlet fittings, such as a
shower valve, may require a lower maximum pressure.
The pressure reduction must take account of all fittings
connected to the DHW system.
6.9 Showers
1. If a shower control is supplied from the appliance it
should be of the thermostatic or pressure balanced type.
Thermostatic type shower valves provide the best
comfort and guard against water at too high a
temperature. Existing controls may not be suitable - refer
to the shower valve manufacturer.
6.10 Hard Water Areas
1. If the area of the installation is recognised as a HARD
WATER AREA then a suitable device should be fitted to
treat the mains water supply to the boiler. Contact your
Water Distribution Company for advice on suitable
devices.
Boiler
Other Tap
Outlets
Expansion
Vessel*
To Hot
Taps
Check
Valve*
Pressure Reducer
Valve*
Stop Tap
Fig. 7
*See 6.8 for instances when
these items may be required

7.0 Site Requirements
14 © Baxi Heating UK Ltd 2011
7.1 Location
1. The boiler may be fitted to any suitable wall with the
flue passing through an outside wall or roof and discharging
to atmosphere in a position permitting satisfactory removal
of combustion products and providing an adequate air
supply. The boiler should be fitted within the building
unless otherwise protected by a suitable enclosure i.e.
garage or outhouse. (The boiler may be fitted inside a
cupboard-see Section 7.3).
2. If the boiler is sited in an unheated enclosure then it is
recommended to leave the ON/OFF Selector Switch in
the domestic hot water and central heating position to
give frost protection.
3. If the boiler is fitted in a room containing a bath or
shower reference must be made to the relevant
requirements.
In GB this is the current I.E.E. Wiring Regulations and
Building Regulations.
In IE reference should be made to the current edition of
I.S. 813 “Domestic Gas Installations” and the current ETCI
rules.
4. If the boiler is to be fitted into a building of timber frame
construction then reference must be made to the current
edition of Institute of Gas Engineers Publication IGE/UP/7
(Gas Installations in Timber Framed Housing).
7.2 Clearances (Figs. 8 & 9)
1. A flat vertical area is required for the installation of the
boiler.
2. These dimensions include the necessary clearances
around the boiler for case removal, access during routine
maintenance and air movement. Additional clearances may
be required for the passage of pipes around local
obstructions such as joists running parallel to the front face
of the boiler.
* NOTE: The boiler can be operated with a clearance
of 5mm at the right. This is also sufficient for routine
maintenance. However a clearance of 20mm is
required if it is necessary to remove the secondary
heat exchanger. This should be considered when
siting the appliance and in the event of any
subsequent alteration in the area of installation.
200mm Min
780mm
450mm
200mm Min
20mm/5mm Min
See * NOTE:
5mm Min
5mm Min
450mm Min
For Servicing
Purposes
Fig. 8
Fig. 9
In Operation

7.0 Site Requirements
15
© Baxi Heating UK Ltd 2011
7.3 Ventilation of Compartments
1. Where the appliance is installed in a cupboard or
compartment, no air vents are required.
2. BS 5440: Part 2 Clause 4.2 refers to room sealed
appliances installed in compartments. The appliance will
run sufficiently cool without ventilation.
7.4 Gas Supply
1. The gas installation should be in accordance with the
relevant standards. In GB this is BS 6891. In IE this is the
current edition of I.S. 813 “Domestic Gas Installations”.
2. The connection to the appliance is a 22mm copper
tail located at the rear of the gas service cock (Fig. 10).
3. Ensure that the pipework from the meter to the
appliance is of adequate size. Do not use pipes of a
smaller diameter than the boiler gas connection
(22mm).
7.5 Electrical Supply
1. External wiring must be correctly earthed, polarised
and in accordance with relevant regulations/rules. In GB
this is the current I.E.e. Wiring Regulations. In IE
reference should be made to the current edition of
ETCI rules.
2. The mains supply is 230V ~ 50Hzfused at 3A.
NOTE: The method of connection to the
electricity supply must facilitate complete electrical
isolation of the appliance.
Connection may be via a fused double-pole
isolator with a contact separation of at least 3mm
in all poles and servicing the boiler and system
controls only.
Fig. 10
Gas Service Cock

7.0 Site Requirements
16 © Baxi Heating UK Ltd 2011
7.6 Condensate Drain
FAILURE TO INSTALL THE CONDENSATE
DISCHARGE PIPEWORK CORRECTLY WILL AFFECT
THE RELIABLE OPERATION OF THE BOILER
The condensate discharge pipe MUST NOT RISE at any
point along its length. There MUST be a fall of AT LEAST
2.5° (50mm per metre) along the entire run.
1. The condensate outlet terminates in a 1” BSP nut and seal
for the connection of 21.5mm (3/4in) plastic overflow pipe
which should generally discharge internally into the household
drainage system. If this is not possible, discharge into an
outside drain is acceptable.
2. Ensure the discharge of condensate complies with any
national or local regulations in force.
BS 6798 & Part H1 of the Building Regulations give further
guidance.
3. The discharge pipe should be run in a proprietary drain pipe
material e.g. PVC, PVC-U, ABS, PVC-C or PP.
4. Metal pipework is NOT suitable for use in condensate
discharge systems.
5. The pipe should be a minimum of 21.5mm diameter and
must be supported using suitably spaced clips to prevent
sagging.
6. It is advisable to keep the condensate pipe internal.
7. External runs greater than 3 metres or runs in cold areas
should use 32mm waste pipe.
8. If the boiler is fitted in an unheated location the entire
condensate discharge pipe should be treated as an external
run.
9. In all cases discharge pipe must be installed to aid disposal
of the condensate. To reduce the risk of condensate being
trapped, as few bends and fittings as possible should be used.
10. When discharging condensate into a soil stack or waste
pipe the effects of existing plumbing must be considered. If soil
pipes or waste pipes are subjected to internal pressure
fluctuations when WC's are flushed or sinks emptied then
back-pressure may force water out of the boiler trap and
cause appliance lockout.
Examples are shown of the following methods of termination:-
i) to an internal soil & vent pipe
ii) via an internal discharge branch (e.g. sink waste)
iii) to a drain or gully
iv) to a purpose made soakaway
Boiler
2.5° Minimum fall
Termination to an internal soil and vent pipe
450mm min
Boiler
2.5° Minimum fall
External termination via internal
discharge branch
e.g sink waste - downstream
Sink
Pipe must terminate
above water level but
below surrounding
surface
Boiler Pipe must terminate above
water level but below
surrounding surface
2.5° Minimum fall
External termination to a drain or gully
Boiler
500mm min
2.5° Minimum fall
External termination to a purpose made soak-away
Holes in the soak-away must
face away from the building
50mm per metre of pipe run
50mm per metre of pipe run
50mm per metre of pipe run
50mm per metre of pipe run

7.0 Site Requirements
17
© Baxi Heating UK Ltd 2011
7.7 Flue
NOTE: Due to the nature of the boiler a plume of water
vapour will be discharged from the flue. This should be
taken into account when siting the flue terminal.
1. The following guidelines indicate the general requirements
for siting balanced flue terminals. For GB recommendations
are given in BS 5440 Pt 1. For IE recommendations are given
in the current edition of I.S. 813 “Domestic Gas
Installations”.
2. If the terminal discharges onto a pathway or passageway,
check that combustion products will not cause a nuisance
and that the terminal will not obstruct the passageway.
3. If a terminal is less than 2 metres above a balcony, above
ground or above a flat roof to which people have access,
then a suitable terminal guard must be provided.
4. * Reduction to the boundary is possible down to 25mm
but the flue deflector kit (part no. 5111068) must be fitted.
IMPORTANT:
• Under car ports we recommend the use of the plume
displacement kit.
• The terminal position must ensure the safe and
nuisance - free dispersal of combustion products.
N
I
I
G
F
M
I
AAF
H
J,K
D
E
H
Likely flue positions requiring
a flue terminal guard
C
RA
I
J,K
I
L
S
B
T
U
Fig. 11
Fig. 12
300 min
Terminal
Assembly
Top View Rear Flue
Property Boundary Line
NOTE: The distance from a fanned draught appliance terminal
installed parallel to a boundary may not be less than 300mm in
accordance with the diagram below
*
Opening Window
or Door
150mm
MIN.
IMPORTANT: If fitting a Plume
Displacement Flue Kit, the air inlet
must be a minimum of 150mm from
any opening windows or doors (see
Section 9.0).
Plume
Displacement Kit
Air Inlet
Fig. 12a
Terminal Position with Minimum Distance (Fig. 11) (mm)
A1Directly below an opening, air brick, opening
windows, etc. 300
B1Above an opening, air brick, opening window etc. 300
C1Horizontally to an opening, air brick, opening window etc. 300
D2Below gutters, soil pipes or drain pipes. 25
E2Below eaves. 25
F2Below balconies or car port roof. 25
G2From a vertical drain pipe or soil pipe. 25
H2From an internal or external corner. 25
I Above ground, roof or balcony level. 300
J From a surface or boundary line facing a terminal. 600
K From a terminal facing a terminal (Horizontal flue). 1200
From a terminal facing a terminal (Vertical flue). 600
L From an opening in carport (e.g. door, window)
into the dwelling. 1200
M Vertically from a terminal on the same wall. 1500
N Horizontally from a terminal on the same wall. 300
R From adjacent wall to flue (vertical only). 300
S From an adjacent opening window (vertical only). 1000
T Adjacent to windows or openings on pitched and flat roofs 600
U Below windows or openings on pitched roofs 2000
1In addition, the terminal should be no nearer than 150 mm to an opening in the
building fabric formed for the purpose of accommodating a built-in element such as
a window frame.
2Only ONE 25mm clearance is allowed per installation. If one of the dimensions
D, E, F, G or H is 25mm then the remainder MUST be as B.S.5440-1.

8.0 Flue Options
18 © Baxi Heating UK Ltd 2011
8.1 Horizontal Flue Systems
1. The standard flue is suitable only for horizontal
applications.
2. Maximum permissible equivalent flue lengths are:-
Horizontal Concentric 3m
3. Any additional “in line” bends in the flue system must
be taken into consideration. Their equivalent lengths
are:-
Concentric Pipes:
135° bend 0.5 metres
93° bend 1.0 metres
Twin Flue Pipe
135° bend 0.25 metres
91.5° bend 0.50 metres
The elbow supplied with the standard horizontal flue is
not included in any equivalent length calculations.
NOTE: Flue length is measured from point X to Y
as shown.
IMPORTANT: All flue systems must be securely
supported at least once every metre. Suitable pipe
supports are available as accessories.
Horizontal
Flues
Y
X
Plume Displacement Kit 60 /100 Ø
1M Extensions, 45° & 93° elbows
are also available - see Section 9.0
NOTE: Horizontal flue pipes should always be installed with at least a 1.5° fall
from the terminal to allow condensate to run back to the boiler.
Y
X
This bend is equivalent to
1 metre
Total equivalent length =
A+B+C+2x90°Bends
B
AC
This bend is equivalent to
1 metre

8.0 Flue Options
19
© Baxi Heating UK Ltd 2011
Vertical
Flues
(Twin Pipe)
Y
X
Vertical
Flues
Y
X
The total equivalent length for this example is
= 6.5 metres.
1m extension
135°bend
91.5°bend
1m
0.25m
0.5m
5
2
2
5.0m
0.5m
1.0m
AIR DUCT
Noof
fittings/pipes Sub total
Equivalent
Length Value
Equivalent Length Air Duct = 6.5m
1m extension
135°bend
91.5°bend
1m
0.25m
0.5m
5
2
2
5.0m
0.5m
1.0m
FLUE DUCT
Noof
fittings/pipes Sub total
Equivalent
Length Value
Equivalent Length Flue Duct = 6.5m
Y
X
C
Roof
Terminal
A
B
This bend is equivalent to
1 metre
Total Equivalent Length =
A+B+C+1x90°Bend
All vertical and angled runs must be included,
measured from the boiler adaptor (point X) to the
joint with the flue terminal (point Y). One 91.5°
bend or two 135° bends can be included without
reduction of the flue length.
If further elbows are required the flue length must
be reduced by the following amounts:-
1 metre for each 91.5° bend
0.5 metre for each 135° bend
8.2 Twin & Vertical Flue Systems
1. Maximum permissible equivalent flue lengths are:-
Vertical Concentric 3m
Vertical Twin Pipe 12m*
* Both the air and flue duct can be up to 12 metres
long each.
2. Any additional “in line” bends in the flue system must
be taken into consideration. Their equivalent lengths
are:-
Concentric Pipes:
135° bend 0.5 metres
93° bend 1.0 metres
Twin Flue Pipe
135° bend 0.25 metres
91.5° bend 0.50 metres
The elbow supplied with the standard horizontal flue is
not included in any equivalent length calculations
NOTE: Flue length is measured from point X to Y
as shown.
IMPORTANT: All flue systems must be securely
supported at least once every metre. Suitable pipe
supports are available as accessories.

8.0 Flue Options
20 © Baxi Heating UK Ltd 2011
Key Accessory Size Code No
FLUE GROUP A
Concentric Flue System 100mm diameter
A3 Telescopic Internal Flue Kit 315-500mm 5119654
A2 Telescopic Flue (incl elbow) 5118069
A Horizontal flue Terminal (incl elbow) 5118489
B Flue extension 1000mm 5111074
C Flue Bend 93° 5111075
D Flue Bend (pair) 135° 5111085
U Pipe support (painted) 100mm 5111080
R Vertical flue adaptor (use with 5111078) 5111070
P Wall Liner 5111067
S Flue Terminal Deflector 5111068
FLUE GROUP N
Twin Flue System 80mm diameter
E Flue extension (pair) 1000mm 5111087
F Flue Bend (pair) 90° 5111072
G Flue Bend (2 pair) 135° 5111086
J Vertical flue boiler adaptor kit 5111079
H Vertical flue adaptor 5111084
W Pipe support (pair) 80mm 5111081
FLUE GROUP A, N,
Vertical Flue Kits
K Vertical flue terminal (use with 5111070) 5111078
K1 Vertical flue terminal 5118576
L Lead tile 25°/50° 5122151
M Roof cover plate 246143
N Flat roof flashing 246144
A
B
K, K1
R
D
C
N
U,W
S
L
H
J
M
E
GF
P
8.3 Flue Accessories
A2
A3

8.0 Flue Options
21
© Baxi Heating UK Ltd 2011
For Twin Flue Systems fit the adaptors as follows:-
8.4 Flue Duct Adaptor
1. Engage the flue duct adaptor on the boiler adaptor,
making sure that it is pushed down as far as possible.
8.5 Air duct adaptor
1. Undo the screws securing the blanking plate to the boiler
top panel. Discard the plate.
2. There are three restrictor plates supplied in the kit. One
marked ‘23’ and one marked ‘27’, which can be discarded.
The third restrictor MUST be positioned as shown in the
diagram below.
3. Take one of the gaskets supplied in the kit and place on
the boiler top panel.
4. Align the appropriate restrictor as shown. Position the
second gasket over the restrictor.
5. Using the screws previously removed secure the inlet
adaptor to the top panel.
6. Continue to fit the twin flue system.
Flue Duct Adaptor
Boiler Adaptor
Air Duct Adaptor
Gasket
Restrictor
Gasket
Position of Restrictor
Blanking Plate

8.0 Flue Options
22 © Baxi Heating UK Ltd 2011
Fig. 13
Fig. 14
100mm 685mm
Push Fit Adaptor
Air Duct
Flue Duct
Cut the same
amount off the
Air Duct &
Flue Duct
Approx
1425mm
8.6 For Roof Terminals
1. In the case of a pitched roof 25 - 50 degrees, position the lead
tile to replace/flash over existing roof tiling. Make an aperture in
the roof suitable for the lower tube of the roof terminal and
ensure the integrity of the roof cover is maintained. The
adjustable plastic collar can either be positioned on the lead tile
or the lower tube of the roof terminal prior to the final
positioning of the vertical flue through the tile. Check the collar is
correctly located to suit required roof pitch (either 25° to 38° or
37° to 50°). From inside the roof adjust the flue to a vertical
position and secure to the roof structure with the clamp supplied.
2. For flat roof installations the aluminium flashing must be
incorporated into the roof covering and the appropriate aperture
made in the roof decking. The vertical flue is lowered onto the
flashing making sure the collar of the flue locates securely with the
flashing. (A mastic seal may be necessary). From inside the roof,
adjust the flue to a vertical position and secure to the roof
structure with the clamp supplied.
8.7 Flue Dimensions
The standard horizontal flue kit allows for flue lengths between
100mm and 685mm from elbow to terminal (Fig. 13).
The maximum permissible equivalent flue length is: 3 metres
NOTE: Each additional 45° of flue bend will account for an
equivalent flue length of 0.5m.
eg. 45° = 0.5m, 90° = 2 x 45° = 1m etc.
8.8 Flue Trim
1. The rubber flue trim supplied may be fitted to either the
outside wall or on the inner wall of installation.
8.9 Terminal Guard (Fig. 14)
1. When codes of practice dictate the use of terminal guards, they
can be obtained from most Plumbers’ and Builders’ Merchants.
2. There must be a clearance of at least 50mm between any part
of the terminal and the guard.
3. When ordering a terminal guard, quote the appliance name and
model number.
4. The flue terminal guard should be positioned centrally over the
terminal and fixed as illustrated.
8.10 Flue Deflector (Fig. 13a)
1. If required a flue deflector is available from your Baxi stockist.
2. Push the flue deflector over the terminal end and rotate to the
optimum angle for deflecting plume. Secure the deflector to the
terminal with screws provided.
Flue Deflector
Fig. 13a

9.0 Plume Displacement
23
© Baxi Heating UK Ltd 2011
9.1 Plume Displacement Kit (Fig. 14b)
Kit No 5118638
Content of kit
1 0.9m 60/100 Concentric Flue
1 1m 60 Dia Exhaust Flue Pipe
1 Adaptor
2 60 Dia Support Brackets
1 93° Elbow/Plume Outlet Assembly
1 Flexible Flue Trim
3 “O” Rings
1 ‘Jubilee Clip
1 Boiler Elbow
1. This kit is recommended for installations where the
condensate plume emitted from the flue may cause a nuisance
or affect the surroundings.
2. The terminal must be positioned outside the building with
the air inlet facing downward and outlet connection upwards.
3. The plume outlet must always be at least 45° to the wall,
with the ‘peak’ uppermost to prevent rain entry (Figs. 15 &
16), and be at least 2 metres above ground level. It must be
secured as shown in Fig. 12a. The plume outlet must also be
at least 500mm from the air inlet in any direction (Fig. 16).
NOTE: The outlet must be positioned so that any
condensate plume is directed away from adjacent surfaces.
There must be a constant fall along the entire length of the
flue system from the outlet back to the boiler.
4. It is possible to reduce or increase (with the addition of
extensions) the length of either or both the 60/100 concentric
and 60Ø exhaust.
5. Standard concentric flue extension kits may be added
between the boiler elbow and the terminal assembly.
6. The minimum length of the concentric flue is 100mm when
measured from the edge of the flue elbow.
IMPORTANT: The maximum equivalent length of
concentric flue is:- 1.5 metres
Additional bends may be fitted in the concentric flue, but
the equivalent length must be reduced by 1 metre (93°
elbow) or 0.5 metres (45° elbow).
7. 60Ø 1 metre extensions (including support bracket), and
additional 93° & 45° elbows are available. Any additional 93°
& 45° elbows must be accounted for when calculating flue
lengths.
NOTE: Permitted positions of the plume outlet relative to
doors, windows etc. are the same as for conventional
concentric flues as detailed in the main Installation &
Servicing Instructions and BS5440 Pt. 1. It is NOT
necessary to fit a terminal guard over the air inlet or the
plume outlet.
Air Inlet at Bottom
‘Peak’ Uppermost
Fig. 15
Fig. 16
500mm Min.
45°
45°
Outlet must be at
least 45° from
wall face
93° Elbow/Plume
Outlet Assembly
60Ø Exhaust
Flue Pipe
60Ø Support
Bracket
60Ø Support
Bracket
Flexible Flue
Trim
60/100Ø
Concentric Flue
Adaptor
O Ring
O Ring
O Ring
‘Jubilee’ Clip
0.9 metres
Fig. 14b
Fig. 14a
Elbow

9.0 Plume Displacement
24 © Baxi Heating UK Ltd 2011
Concentric 60/100 Flue
60Ø Exhaust
X
Y
Fig. 17
2
0
1
60 Ø Exhaust (metres) X
Concentric 60/100 Flue (metres) Y
0
2
1
105 HE
Fig. 18
2
0
1
60 Ø Exhaust (metres) X
Concentric 60/100 Flue (metres) Y
0
2
1
105 HE
2
0
1
60 Ø Exhaust (metres) X
Concentric 60/100 Flue (metres) Y
0
2
1
105 HE
Flue Length - Worked Example
Baxi Combi 105 HE
In Fig. 18 opposite an additional 93° elbow has been included
in the 60Ø exhaust. with 2 x 1metre extensions which have
been cut to 0.25metres and fitted. The waste is discarded.
To calculate total length:-
2 x 0.25 metre Lengths = 0.5 metres
1 x 93° Elbow = 1 metre
Total 60Ø Exhaust = 1.5 metres
After consulting the table in Example 3 it can be determined
that the concentric flue could be up to approximately 0.5
metres long.
Concentric Flue
Support
Bracket
93° Elbow
Extension
Additional Accessories
A - 93° Elbow 5117381
B - 45° Elbow (Pair) 5117382
C - 1 metre 60Ø Extension 5117380
9.2 Determining Permissible Lengths
In the graph the solid line diagonal represents the
relationship between the concentric flue assembly (and any
extensions) and the 60Ø exhaust (and any extensions or
additional bends).
Example 1 - Not Permissible
If, for instance, a concentric length of 1.25 metres was
required and the 60Ø exhaust needed to be 1 metres the
graph shows that this combination would NOT be
permissible as the intersection point would be above the
solid diagonal line.
Example 2 - Flue Lengths OK
Where both lengths have been determined they can be
applied to the graph to check that the installation is
permissible. For example, if it was known that 0.5 metres of
concentric flue and 1 metre of 60Ø exhaust were required,
the values could be applied to the graph as shown in
Example 2.. As the point of intersection of the dotted lines is
below the solid diagonal line, the combination of lengths is
shown to be acceptable.
Example 3 - Flue Lengths OK
In the example shown, assume that the concentric part of
the flue needs to be 1 metres long. Find the position of ‘1’ on
the horizontal axis of the graph and then project upwards to
the solid diagonal line. This is represented by the vertical
thick dotted line. Where this dotted line intersects with the
solid diagonal line on the graph, project across to the vertical
axis. As can be seen this corresponds with 1 metres.
Therefore, the total equivalent length of the 60Ø exhaust
can be up to 1 metres. Any elbow equivalences must be
accounted for i.e. 93° elbows are equal to 1 metre, each 45°
elbow to 0.5 metres.
Example 1
Flue Lengths - Not Permissible
Example 2
Flue Lengths - OK
Example 3
Flue Lengths - OK

9.0 Plume Displacement
25
© Baxi Heating UK Ltd 2011
Min. 2 metres
Fig. 19
Fig. 24
30mm
30mm
Fig. 21
Fig. 23
Fig. 22
Adaptor
50mm
Flue Trim
Position of ‘Jubilee’ Clip
screw
Fig. 20
Spigot
9.3 General Fitting Notes
1. Cut a hole in the external wall which the concentric flue
assembly will pass through. The hole should allow the flue
to fall back to the boiler at an angle of at least 1.5°.
2. When completed the terminal must be at least 2 metres
above ground level (Fig. 19).
3. Measure and cut to size the concentric assembly and any
extensions that are being used.
4. Insert the concentric assembly through the hole from
outside the building.
5. If required, the flexible flue trim should be fitted prior to
this as it cannot be fitted after. Use the large ‘Jubilee’ clip to
secure the trim to the flue (See Fig. 20, trim shown
dotted), with the screw part of the clip at the bottom.
6. Connect any extensions or elbows that are being used
to the concentric assembly. Engage the extension, elbow
or concentric assembly in the boiler flue elbow. Fit the
boiler flue elbow to the boiler adaptor.
7. Ensure that the concentric assembly and any extensions
fall back to the boiler at an angle of at least 1.5° and that
the external air inlet is to the bottom.
8. Use suitable brackets to support the concentric
assembly and any extensions, and make good inside and
outside.
9. The 60Ø exhaust can now be fitted. Slide the adaptor
over the plain end of the 60Ø exhaust (Fig. 22) and engage
the exhaust in the terminal. Slide the adaptor down over
the spigot. Mark and drill the adaptor, using a 2mm bit, as
shown in Fig. 21. Secure the adaptor to the spigot using
one of the screws supplied.
10. If it is necessary to shorten the 60Ø exhaust or any of
the extensions, the excess material must be cut from the
plain end of the pipe.
11. Determine the position of the 60Ø exhaust and mark
on the wall a suitable position for the support bracket. If
extensions are being used, a support bracket is supplied in
each kit.
12. Drill the wall, and fit the bracket(s) using the plug and
screw provided.
13. Mark and drill the 60Ø exhaust, using a 2mm bit, as
shown in Fig. 23. Complete the installation of the 60Ø
exhaust, securing in the brackets.
14. Fit the 93° elbow/plume outlet and secure with the
two remaining screws supplied. Ensure the plume outlet is
at least 45° to the wall and that the ‘peak’ is uppermost
(Fig. 24).

9.0 Plume Displacement
26 © Baxi Heating UK Ltd 2011
9.3 General Fitting Notes (cont.)
15. For aesthetic purposes it is permissible to route the
60Ø exhaust in an enclosed box, but the air inlet and
plume outlet MUST remain in free air.
16. It is also possible to separate the plume outlet from
the 93° elbow to allow the flue to be installed as shown
in Fig. 25.
17. To do this, first slacken the two screws retaining the
plume outlet to the elbow, and remove the outlet
(Fig. 26). The elbow can now be used to connect the
vertical to horizontal 60Ø exhaust (Fig. 25). Retighten
the screws in the elbow.
18. The outlet can now be fitted into the female end of
an 60Ø extension piece. It must be secured using two
of the screws supplied in the bag with the ‘Jubilee’ clip.
19. Mark the female end of the extension at 30mm as
shown in two positions, directly opposite each other
(Fig. 27).
20. Using a suitable bit (e.g. 2mm), drill through the
extension and outlet. Secure using two of the screws
supplied.
21. The remaining screw must be used to secure the
adaptor to the concentric terminal.
22. When the plume outlet is positioned under a
balcony or other projection (Fig. 28) it must protrude at
least 200mm (it is not necessary to extend it further
than this).
23. When under balconies or projections it is
permissible to rotate the concentric flue length up to
70°, clockwise or anti-clockwise (Fig. 29), if there is
insufficient space to connect vertically.
24.This will allow the connection of the exhaust to the
outlet spigot.
25. All other minimum & maximum dimensions must be
adhered to, and the air inlet positioned such that it will
not be subject to rain entry.
500mm Min.
200mm Min.
30mm
Fig. 26
Fig. 27
Fig. 25
Fig. 28
Plume Outlet Elbow
70°
Fig. 29
Outlet Spigot
Concentric Flue Length
(shown end-on)

10.0 Installation
27
© Baxi Heating UK Ltd 2011
10.1 Initial Preparation
The gas supply, gas type and pressure must be
checked for suitability before connection (see Section
7.4).
1. After considering the site requirements
(see Section 7.0) position the fixing template on the
wall ensuring it is level both horizontally and vertically.
2. Mark the position of the two most suitable fixing slots
for the wall plate and boiler lower fixing holes. It is
preferable to use the horizontal fixing slots.
3. Mark the position of the centre of the flue hole (rear
exit). For side flue exit, mark as shown (Fig. 30).
4. Note the shaded area on the template. Pipework
may be routed upwards behind the boiler, providing it
does not conflict with the shaded area.
5. If required, mark the position of the gas and water
pipes. Remove the template.
6. Cut the hole for the flue (minimum diameter
116mm).
7. Drill the wall as previously marked to accept the wall
plugs supplied. Secure the wall plate using the fixing
screws.
8. Using a spirit level ensure that the plate is level
before finally tightening the screws.
9. Connect the gas and water pipes to the valves on the
wall plate using the copper tails supplied. Ensure that
the sealing washers are fitted between the connections.
10.2 Flushing
1. Connect a tube to the central heating flow or return
pipe (Fig. 31).
2. Flush thoroughly (see System Details, Section 6.2).
10.3 Preparing The Boiler
1. Remove all packaging.
2. Stand the boiler on its base by using the rear lower
edge as a pivot.
NOTE: A small amount of water may drain from
the boiler in the upright position.
Fig. 30
Fig. 31
190mm
For Side Flue Exit
Central Heating Return
Flushing Tube Wall Plate

10.0 Installation
28 © Baxi Heating UK Ltd 2011
10.4 Fitting The Boiler
1. Remove the sealing caps from the boiler connections.
2. Lift the boiler using the lower edges. The boiler should
be lifted by TWO PEOPLE. Engage the slots at the top
rear of the boiler on the wall plate (Fig. 32). See ‘Safe
Manual Handling’ on page 5.
3. Insert the sealing washers between the valves and
pipes on the wall plate and the boiler connections. The
rubber washers must be used on the gas connection.
4. Tighten all the connections.
10.5 Fitting the Pressure Relief
Discharge Pipe (Fig. 33)
1. Remove the discharge pipe from the kit.
2. Determine the routing of the discharge pipe in the
vicinity of the boiler. Make up as much of the pipework as
is practical, including the discharge pipe supplied.
3. The pipework must be at least 15mm diameter and
run continuously downwards to a discharge point outside
the building. See section 6.7 for further details.
4. Utilising one of the sealing washers, connect the
discharge pipe to the adaptor and tighten the nut.
5. Complete the discharge pipework and route it to the
outside discharge point.
IMPORTANT: Make all soldered joints before
connecting to the pressure relief valve.
10.6 Condensate Drain (see section 7.6)
1. Connect the condensate drain using the 1” BSP nut
and seal supplied.
Ensure the discharge of condensate complies with any
national or local regulations in force (see British Gas
“Guidance Notes for the Installation of Domestic Gas
Condensing Boilers”.
2. The condensate outlet terminates in a 1” BSP nut and
seal for the connection of 21.5mm (3/4in) plastic overflow
pipe which should generally discharge internally into the
household drainage system. If this is not possible,
discharge into an outside drain is acceptable.
Fig. 33
Fig. 32
Pressure Relief Valve
Wall Plate
Discharge Pipe
Suggested Lifting Points
shown as shaded area

10.0 Installation
29
© Baxi Heating UK Ltd 2011
10.7 Fitting The Flue
HORIZONTAL FLUE
1. The standard flue is suitable for lengths between
100mm minimum and 685mm maximum, as measured
from the edge of the flue elbow outlet to the joint
between the terminal and air duct (Fig. 34).
2. Locate the flue elbow on the adaptor at the top of
the boiler. Set the elbow to the required orientation
(Fig. 35).
NOTE: The flue elbow is angled at 93 degrees to
ensure a fall back to the boiler.
3. Measure the distance from the outside wall face to
the elbow. This dimension will be known as ‘X’ (Fig. 36).
4. To dimension ‘X’ add 50mm. This dimension to be
known as ‘Y’.
IMPORTANT: Check all dimensions before cutting.
Wall Thickness
(X)
Wall Thickness
(X)
Fig. 36
Flue Elbow
Adaptor
Fig. 34
100mm 685mm
Fig. 35

10.0 Installation
30 © Baxi Heating UK Ltd 2011
10.7 Fitting the Flue (Cont)
5. Mark dimension ‘Y’ on the flue as shown (Fig. 37).
Carefully cut the waste material from the flue, ensuring
that the ducts are square and free from burrs.
6. The inner flue duct support bracket may be in the
waste portion of the flue. In this case retrieve the
bracket before discarding the waste.
7. Take the inner flue support bracket (if not already
fitted) and engage it over the flue duct. This will
centralise the flue and air ducts, and ease assembly
(Fig. 38).
8. Insert the flue through the hole in the wall. Fit the
elbow to the boiler adaptor, ensuring that it is pushed
fully in.
9. Draw the flue back through the wall and engage it in
the elbow. It may be necessary to use soap solution or
similar to ease assembly of the elbow adaptor and flue
(Fig. 39).
10. Make good between the wall and air duct outside
the building.
11. Fit the flue trim if required, and if necessary fit a
terminal guard (see Section 8.8 & 8.9).
VERTICAL FLUE
1. Only a flue approved with the Baxi Combi 105 HE
can be used.
Flue Elbow
Fig. 39
Inner Flue Support Bracket
Fig. 38
Y
Flue
Waste
Fig. 37

10.0 Installation
31
© Baxi Heating UK Ltd 2011
10.8 Making The Electrical Connections
To connect the mains input cable proceed as follows:-
1. Slacken the facia securing screws and lift the
outercase panel so that its locating tabs are clear of the
facia. Remove the panel.
2. Completely undo the screws securing the facia panel
and hinge it down (Fig. 40).
3. Remove the control box cover securing screws.
Disengage the barbs on the control box from the
cover. Remove the cover (Fig. 41).
4. Slacken the cable clamp on the LH side of the boiler
chassis (Fig. 42). Insert the cable through the clamp and
route it to the terminal block.
5. Slacken the screws in the terminal block, connect
the input cable, and tighten the screws.
6. If an external control is to be connected it can be
done at this point. Run the input cable from the
external control through the second cable clamp on
the boiler chassis. Refer to the instructions supplied
with the control.
7. To connect external control(s) remove the link
between terminals 1 & 2. The 230V supply at terminal
1 must be connected to the external control. The
switched output from the external control must be
connected to terminal 2 (Fig. 43).
NOTE: If the room thermostat being used
incorporates an anticipator it MUST be wired as
shown in Fig. 43
IMPORTANT: The external control MUST be
suitable for 230V switching.
8. Ensure that both mains input and, where fitted,
external control input cables have sufficient slack to
allow the control box to drop down. Tighten the cable
clamp(s) on the boiler chassis.
9. If the optional integral timer is to be used it should
be fitted at this point. Refer to the instructions supplied
with the timer. NOTE: An external frost thermostat
cannot be used with the integral timer.
10.9 Preliminary Electrical Checks
1. Prior to commissioning the boiler preliminary
electrical system checks should be carried out.
2. These should be performed using a suitable meter,
and include checks for Ground Continuity,
Resistance to Ground, Short Circuit and Polarity.
Always fit fast
blow 2A fuse
Fused supply 3A
230V ~ 50Hz
Live (brown)
Neutral (blue)
Earth (green/yellow)
1
2
230V
br
b
g/y
bk
bk
b
br
bk
bk
g/y
1
N
L
Frost Thermostat
Room Thermostat
External Clock
2
N
230 V
N
L
SL
L
230 V
Selector /
Reset Switch
External
Controls N
br b
Pump
Hydraulic Differential Pressure Switch
r
r
DHW Flow Priority Microswitch
g
g
Safety Overheat Thermostat
Flue Thermostat
b
b
Central Heating
NTC Sensor
r
r
Gas Valve
Spark Electrode
Condensate Trap
Flame Sensing Electrode
N
br b
Fan
bk
bk
b
br
bk
Pressure Switch
b
br
bk
PCB
b
b
br
r
bk
bk
br
DHW
NTC Sensor
g
g
Gas Valve Modulator
Fig. 42
Fig. 41
Fig. 43
Fig. 44
Fig. 40
Terminal Block
Fuse
Cable Clamp
Control Box Cover
Facia Panel
Functional Flow Diagram
Key to Wiring
b - blue
br - brown
bk - black
r - red
g - green
IMPORTANT: If an integral timer is fitted to the boiler
an external frost thermostat wired as shown will not
operate correctly. Only external timers may be used in
such installations, as in the diagram.

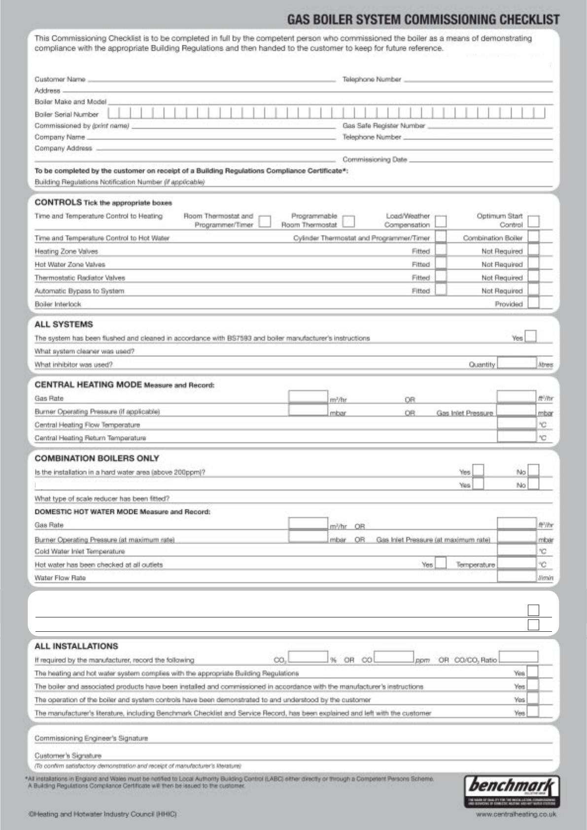
11.0 Commissioning the Boiler
32 © Baxi Heating UK Ltd 2011
11.1 Commissioning the Boiler
1. Reference should be made to BS 5449 Section 5
when commissioning the boiler.
2. At the time of commissioning, complete all relevant
sections of the Benchmark Checklist at the rear of this
publications.
3. Open the mains water supply to the boiler.
4. Open all hot water taps to purge the DHW system.
5. Ensure that the filling loop is connected and open,
then open the heating flow and return valves on the
boiler.
6. Open the screw on the automatic air vent (Fig. 45).
7. The system must be flushed in accordance with BS
7593 (see Section 6.2) and the flushing agent
manufacturers instructions.
8. Pressurise the system to 1.0 bar then close and
disconnect the filling loop.
9. Turn the gas supply on and purge according to in GB
BS 6891 and in IE I.S. 813 “Domestic Gas Installations”.
10. Test for gas soundness.
11. If at any time during commissioning it is required to
terminate a particular cycle, e.g. the pump overrun
period, turn the selector to the OFF position and then
back to either ( ) or ( ) (Fig. 47).
Automatic Air
Vent
Pressure Gauge
Screw
bar
0
1
2
3
4
Fig. 45
Selector Switch
Central Heating
Temperature Control
Hot Water
Temperature Control
Fig. 46
30o40o50o60o70o80o
Reset
bar
0
1
2
3
4
Pump
Fig. 47
Power On
Neon

11.0 Commissioning the Boiler
33
© Baxi Heating UK Ltd 2011
OUT
MIN
Pressure Test Point
Sealing Screw
Gas Valve
Fig. 48
Selector Switch
Central Heating
Temperature Control
Hot Water
Temperature Control
30o40o50o60o70o80o
Reset
bar
0
1
2
3
4
Fig. 51
Power On
Neon
Pressure Gauge
bar
0
1
2
3
4
Fig. 50
11.2 Checking the Burner Pressure
1. Turn on the gas and electrical supplies to the boiler
and ensure that all external controls are calling for heat.
2. Set the temperature controls to maximum and the
selector switch to the Off position (Fig. 51).
3. Slacken the pressure test point sealing screw on the
gas valve and connect a pressure gauge (Fig. 48).
4. Undo the screws securing the inner door panel. Lift
the panel slightly to disengage it from the studs on top
of the case.
5. Turn the selector switch fully anticlockwise against the
spring pressure to the reset position and hold for 2
seconds to reset the boiler (Fig. 51).
6. Turn the selector switch to the Cental Heating and
Domestic Hot Water position ( ). The power On
neon ( ) will illuminate (Fig. 51).
7. Turn a hot water tap on to give a flow rate of at least
10l/min.
8. The pressure should be :-
NG 12.1mbar
Propane 32.3mbar
If not, check that the gas supply pressure is correct
(Natural Gas 20mbar, and Propane 37mbar).
9. The pressure can be adjusted if required.
10. To check and set minimum pressure first remove
one of the modulator wires.
Adjusting the Pressure (Fig 49)
11. Remove the plastic protection cap from the
pressure adjustment nuts on the valve.
12. The smaller nut (5mm) adjusts minimum pressure
and the larger nut (8mm) maximum pressure.
13. Using a suitable spanner adjust the relevant nut until
the correct pressure is achieved.
14. Once the pressure has been set turn the boiler off
and disconnect the pressure gauge.
15. Tighten the pressure test screw and refit the
modulator to the valve. Reassemble in reverse order.
Fig. 49
Plastic
Protection
Cap
Modulator
Wire Maximum Rate
Adjustment Nut
Minimum Rate
Adjustment Nut
NOTE: Gas Valve Electrical
Plug/Igniter not shown for clarity.

12.0 Completion
34 © Baxi Heating UK Ltd 2011
12.1 Completion
1. Hinge the facia panel upwards and refit the case front
panel. Tighten the securing screws (Fig. 52).
2. Instruct the user in the operation of the boiler and
system, explaining the operational sequence.
3. Carefully read and complete all sections of the
Benchmark Commissioning Checklist at the rear of this
publication that are relevant to the appliance and
installation. These details will be required in the event of
any warranty work. The publication must be handed to
the user for safe keeping and each subsequent regular
service visit recorded.
4. For IE, it is necessary to complete a “Declaration of
Conformity” to indicate compliance with I.S. 813. An
example of this is given in I.S. 813 “Domestic Gas
Installations”. This is in addition to the Benchmark
Commissioning Checklist.
5. Hand over the Users Operating, Installation and
Servicing Instructions, giving advice on the necessity of
regular servicing.
Fig. 52
Facia Panel
Case Front Panel

13.0 Servicing the Boiler
35
© Baxi Heating UK Ltd 2011
13.1 Annual Servicing
1. For reasons of safety and economy, it is
recommended that the boiler is serviced annually.
Servicing must be performed by a competent person.
2. After servicing, complete the relevant Service Interval
Record section of the Benchmark Commissioning
Checklist at the rear of this publication.
3. Ensure that the boiler is cool.
4. Ensure that both the gas and electrical supplies to
the boiler are isolated.
5. Slacken the screws securing the facia panel. Lift the
outercase panel so that its securing tabs are clear of the
facia. Remove the panel (Fig. 53).
6. Remove the screws securing the inner door panel. Lift
the panel slightly to disengage it from the studs on top
of the case (Fig. 54).
7. Note the positions of the two sensing tubes on the
fan spigot and three wires on the fan motor and
remove them (Fig. 55).
8. Slacken the screws on the fan spigot outlet pipe
clamps. Ease the clamps inwards over the pipe.
9. Draw the outlet pipe away from the boiler.
10. Remove the four screws securing the combustion
box door and remove the door (Fig. 54).
Fan Wires Fan
Sensing
Tubes
Case Front Panel
Ease Fan Spigot Outlet
Pipe Clamps Inwards
Fig. 53
Facia Panel Securing
Screws
Fig. 54
Fig. 55
Inner Door
Panel
Combustion
Box Door
Fan Spigot
Outlet Pipe

13.0 Servicing the Boiler
36 © Baxi Heating UK Ltd 2011
13.1 Annual Servicing (Cont)
11. Ease the front edge of the left hand baffle upwards,
disengaging the spring clip. Disengage the tab on the
baffle from the slot in the fan hood (Fig. 56).
12. Undo the screws securing the fan and hood to the
appliance back panel. Draw the assembly forwards
(Fig. 57).
13. Undo the screws securing the burner to the injector
manifold. Draw the burner out of the combustion box,
pulling the electrode grommets from the slots in the
combustion box lower panel (Fig. 58).
14. Disconnect the electrode leads and grommets from
the electrodes. Completely remove the burner (Fig. 58).
15. Brush any deposits from the injectors. Do not use a
pin or wire to clean them.
16. Brush the burner blades and venturis and clean the
combustion box.
17. Ensure that the heat exchanger fins are clear of any
obstruction.
NOTE: If necessary the secondary heat exchanger
may be dismantled - see section 14.24.
DHW Filters (Fig. 60)
18. If the flow of domestic hot water is diminished, it
may be necessary to clean the filters.
19. Initially check the cold water inlet tap filter.
20. Turn the tap off. Undo the blanking cap and remove
the thread bush (Fig. 59).
21. Extract the filter and rinse thoroughly in clean water.
Reassemble and check the flow. If required clean the
manifold filter as described below.
22. Undo the filter cartridge from the inlet/return
manifold.
23. Dismantle the cartridge and carefully remove the
flow regulator and filter gauze. Rinse them thoroughly in
clean water and reassemble in reverse order.
24. Check that the pressure vessel charge is 0.5bar and
reassemble in reverse order of dismantling and
recommission.
25. Turn the selector switch fully anticlockwise against
the spring pressure to the reset position and hold for 2
seconds to reset the boiler.
26. Complete the relevant Service Interval Record
section of the Benchmark Commissioning Checklist at
the rear of this publication and then hand it back to the
user.
Spring Clip
Fan and Hood
Assembly
Baffle Tab
Burner
Electrode
Grommets
Fig. 56
Fig. 58
Fig. 57
Fig. 59
Threaded
Bush
Cold Water
Inlet Tap
Blanking Cap
Cartridge
Body
Filter Gauze
Flow
Regulator
Venturi
Inlet/Return Manifold
Fig. 60

14.0 Changing Components
37
© Baxi Heating UK Ltd 2011
IMPORTANT: When changing components ensure
that both the gas and electrical supplies to the
boiler are isolated before any work is started.
When the new component has been fitted turn the
selector switch fully anticlockwise against the spring
pressure to the ‘Reset’ position and hold for 2
seconds to reset the boiler before recommissioning.
See Section 13.1 “Annual Servicing” for removal of case
panel, door etc.
14.1 Fan (Figs. 62 & 63)
1. Note the positions of the two sensing tubes on the
outlet elbow and three wires on the fan motor and
remove them.
2. Slacken the screws on the fan spigot outlet pipe
clamps. Ease the clamps inwards over the pipe.
3. Draw the outlet pipe away from the boiler.
4. Remove the four screws securing the combustion box
door and remove the door.
5. Ease the front edge of the left hand baffle upwards,
disengaging the spring clip. Disengage the tab on the
baffle from the slot in the fan hood.
6. Undo the screws securing the fan hood to the
appliance back panel, and draw the fan and hood
assembly forwards.
7. Remove the screws and spring washers securing the
fan to the hood.
8. Fit the new fan to the hood using the screws and
spring washers previously removed.
9. Reassemble in reverse order of dismantling.
14.2 Pressure Switch (Fig. 61)
1. Remove the fan as described in section 14.1.
2. Note the positions of the two sensing tubes and
three wires and remove them.
3. Remove the two screws holding the pressure switch
to the bracket on the combustion box top panel.
4. Fit the new pressure switch and reassemble all
components in reverse order of dismantling.
Fan Hood
Spring Washer
Securing Screw
Pressure
Switch
Sensing
Tubes
Pressure
Switch Wires
Fig. 61
Fan Wires Fan
Sensing
Tubes
Ease Fan Spigot Outlet
Pipe Clamps Inwards
Fig. 62
Fan Spigot
Outlet Pipe
Spring Clip
Baffle Tab
Fan
Fig. 63

14.0 Changing Components
38 © Baxi Heating UK Ltd 2011
14.3 Heat Exchanger (Fig. 64)
1. Remove the fan as described in section 14.1.
2. Drain the primary circuit. Prise the three pipe
connecting clips off the joints in the flow and return
pipes. Remove the heat exchanger return pipe.
3. Lift the heat exchanger to disconnect the flow pipe
joint. Withdraw it from the appliance, taking care not to
damage the rear insulation piece.
4. Fit the new heat exchanger.
5. Reassemble in reverse order of dismantling, and
repressurise the system.
14.4 Burner (Fig. 65)
1. Remove the four screws securing the combustion box
door and remove the door.
2. Undo the screws securing the burner to the injector
manifold. Draw the burner out of the combustion box,
pulling the electrode grommets from the slots in the
combustion box lower panel.
3. Disconnect the electrode leads and grommets from
the electrodes. Completely remove the burner.
4. Undo the screws securing the electrodes to the
burner. Examine the condition of the electrodes,
replacing if necessary. Fit the electrodes to the new
burner.
5. Engage the burner location brackets over the studs on
the injector manifold and reassemble in reverse order.
Burner
Electrode
Grommets
Electrode
Leads
Electrodes
Fig. 64
Heat Exchanger
Pipe Connecting
Clips
Fig. 65
Flow Pipe
Heat Exchanger
Return Pipe

14.0 Changing Components
39
© Baxi Heating UK Ltd 2011
14.5 Injectors (Fig. 66)
1. Remove the burner as described in Section 14.4.
2. Undo the screws securing the injector manifold to
the inlet elbow and remove the manifold.
3. Unscrew and replace injectors as required and
examine the sealing gasket, replacing as necessary.
Reassemble in reverse order.
14.6 Electrodes (Fig. 66)
1. Remove the four screws securing the combustion
box door and remove the door.
2. Undo the screws securing the burner to the
injector manifold. Draw the burner out of the
combustion box, pulling the electrode grommets from
the slots in the combustion box lower panel.
3. Disconnect the lead and grommet from the
electrode being replaced. Undo the securing screw
and withdraw the electrode to the burner.
4. Reassemble in reverse order.
14.7 Insulation (Fig. 67)
1. Remove the four screws securing the combustion
box door and remove the door.
2. Slide the side insulation pieces carefully out of their
carriers.
3. To replace the rear insulation piece it is necessary
to remove the heat exchanger as described in Section
14.3 and slide out the side pieces.
4. The combustion box door insulation piece can be
replaced by carefully bending up the two retaining
tabs.
5. Replace all insulation pieces and reassemble in
reverse order.
13.8
Injector
Manifold Inlet Elbow
Gasket
Injector
Burner
Electrode
Grommets
Electrode
Leads
Side Insulation
Rear Insulation
Front Insulation
Combustion Box
Door
Side Insulation
Electrodes
Fig. 66
Fig. 67

14.0 Changing Components
40 © Baxi Heating UK Ltd 2011
14.8 Gas Valve (Fig. 68)
1. Undo the nut on the gas feed pipe under the boiler.
2. Completely undo the securing screws and hinge the
facia panel down.
3. Disconnect the wires from the valve modulator and
the ignition lead from the spark generator. Disconnect
the pressure sensing pipe from the valve. Undo the
screw securing the spark generator electrical plug to the
valve and disconnect the plug.
4. Pull the earth wire off the spade terminal on the valve.
5. Remove the screws securing the inlet pipe flange to
the boiler bottom panel and those securing the outlet
manifold to the burner manifold.
6. Remove the valve from the boiler.
7. Note the orientation of the inlet pipe and outlet
manifold. Undo the securing screws and remove the
pipe and manifold.
8. Examine the ‘O’ ring seals for damage, replacing as
necessary.
9. Fit the inlet pipe and outlet manifold to the new valve,
ensuring that the ‘O’ ring seals are in place.
10. Reassemble in reverse order and check the burner
pressure (Section 11.2).
14.9 Central Heating Temperature Sensor
(Fig. 69)
1. Ease the retaining tab on the sensor away and
disconnect the electrical plug.
2. Unscrew the sensor from it’s pocket and reassemble
in reverse order. The plug will only fit one way.
14.10 Safety Thermostat (Fig. 69)
1. Pull the electrical connections off the thermostat.
2. Remove the screws securing the thermostat to the
mounting plate on the flow pipe.
3. Reassemble in reverse order. The thermostat is not
polarised - either wire can fit either terminal on the
thermostat.
14.11 DHW Temperature Sensor (Fig. 70)
1. Turn off the mains water supply and draw off the
residual domestic hot water.
2. Ease the retaining tab on the sensor away and
disconnect the electrical plug.
3. Unscrew the sensor from the plate heat exchanger
manifold. Examine the sealing washer,replacing if
necessary.
4. Reassemble in reverse order. The plug will only fit one
way.
Gas Valve
Inlet Pipe
Gas Feed
Pipe
Electrical Plug
Central Heating
Temperature Sensor
Safety Thermostat
Flow Pipe
Fig. 68
Fig. 69
DHW Temperature
Sensor
Fig. 70
Plate Heat
Exchanger
Modulator
Wires
Ignition
Lead
Earth Wire

14.0 Changing Components
41
© Baxi Heating UK Ltd 2011
14.12 Pump - Head Only (Fig. 71)
1. Drain the primary circuit and remove the socket
head screws securing the pump head to the body and
draw the head away.
2. Undo the screw on the pump wiring cover and
remove the cover. Using a suitable flat bladed screw
driver press the cable securing levers downwards to
release each wire after noting their position.
3. A standard Grundfos 15-60 replacement head can
now be fitted. Connect the wiring to the new head.
The pump speed must be set to 3 (Fig. 72).
4. Reassemble in reverse order.
14.13 Pump - Complete (Fig. 73)
1. Drain the primary circuit and unscrew the automatic
air vent from the pump body. Undo the two screws
securing the body to the pipe and manifold and draw
the pump forwards.
2. Undo the screw on the pump wiring cover and
remove the cover. Using a suitable flat bladed screw
driver press the cable securing levers downwards to
release each wire after noting their position.
3. Connect the wiring to the new pump. Examine the
‘O’ ring seals on the return pipe and manifold, replacing
if necessary.
4. Fit the air vent to the pump body and reassemble in
reverse order.
14.14 Automatic Air Vent (Fig. 73)
1. Drain the primary circuit and unscrew the automatic
air vent from the pump body.
2. Examine the ‘O’ ring seal, replacing if necessary, and
fit it to the new automatic air vent.
3. Reassemble in reverse order.
Pump Setting
Pump Wiring
Cover
Socket Headed
Screw
Pump Head
Pump Body
Pump Wiring
Cover
Automatic Air
Vent
Fig. 71
Fig. 73
Fig. 72

14.0 Changing Components
42 © Baxi Heating UK Ltd 2011
14.15 Pressure Gauge (Figs. 74 & 75)
1. Drain the primary circuit and undo the nut on the
pressure gauge capillary.
2. Remove the timer cover and ease the timer wiring
aside. Undo the screws securing the gauge retaining
bracket.
3. Remove the bracket and gauge assembly. Depress
the barbs on the side of the gauge and remove the
retaining bracket.
4. Reassemble in reverse order.
14.16 Expansion Vessel (Fig. 76)
1. To replace the expansion vessel it is necessary to
remove the boiler from the wall.
Note: Alternatively a vessel of equivalent
capacity can be fitted on the system return
pipe as close as possible to the boiler.
2. Drain the system and undo all gas, water and
condensate drain connections. Remove the flue elbow.
3. Lift the boiler off the wall plate and lay it on it’s side
on a clean flat surface.
4. Undo the nut on the vessel outlet spigot, and
remove the locknut and spring washer securing the
spigot to the boiler chassis.
5. Undo the screws and remove the appliance upper
cross member. Slide the expansion vessel out of the
retaining clips.
6. Reassemble in reverse order. Fully recommission
the appliance and system.
14.17 Condensate Trap (Fig. 77)
1. Disconnect the two sensing wires from the trap
connections.
2. Squeeze together the wire spring clip to release and
ease the inlet pipe from the trap spigot.
3. Undo the nut securing the condensate drain pipe to
the trap. Disconnect the pipe and sealing washer.
4. From underneath the boiler remove the screws
securing the trap bracket.
5. Remove the trap and bracket from the boiler. Undo
the locknut securing the trap to the bracket.
6. Reassemble in reverse order.
Pressure Gauge
Timer Cover
Pressure Gauge
Capillary
Gauge Retaining
Bracket
Expansion Vessel
Retaining Clip
Vessel Outlet Spigot
Boiler Chassis
Lock Nut Spring
Washer
Fig. 74
Fig. 75
Fig. 76
Inlet Pipe
Sensing Wires
Condensate
Trap
Wire Spring
Clip
Bracket
Condensate
Drain Pipe
Fig. 77

14.0 Changing Components
43
© Baxi Heating UK Ltd 2011
14.18 Pressure Relief Valve (Fig. 78)
1. Drain the primary circuit.
2. Disconnect the discharge pipe from the valve. Using a
suitable hexagon key undo the grub screw sufficiently to
release the valve.
3. Note the orientation of the valve, rotate it and
withdraw it from the manifold.
4. Fit the new valve and ‘O’ ring seal and set to the
previously noted orientation. Reassemble in reverse
order.
14.19 P.C.B. (Fig. 80)
1. Note the settings of the temperature control knobs.
Rotate the knobs fully anticlockwise and carefully pull
them off the drive pins.
2. Completely undo the screws securing the control box
cover and release the cover retaining barbs from their
slots. Disengage the rear of the cover from the control
box hinge pin (Fig. 79).
3. Note the position of all plugs and wires on the P.C.B.
and disconnect them.
4. Undo the securing screws and remove the P.C.B.
Transfer the control knob drive pins to the new P.C.B.
and turn them fully anticlockwise.
5. Reassemble in reverse order, ensuring that the
temperature controllers are reset to their previous
positions.
14.20 Selector Switch (Fig. 80)
1. Note the setting of the selector switch knob and
carefully pull it off the facia.
2. Completely undo the screws securing the control box
cover and release the cover retaining barbs from their
slots. Disengage the rear of the cover from the control
box hinge pin (Fig. 79).
3. Note the position of the electrical connections and
the orientation of the switch. Remove the electrical
connections.
4. Remove the screws securing the switch to the facia
panel.
5. Fit the new switch, ensuring that it is correctly
positioned and reassemble in reverse order.
Pressure Relief Valve
Grub Screw
‘O’ ring seal
Discharge Pipe
Control Box Cover
P.C.B.
Selector
Switch
Facia
Selector Switch Knob
Temperature Control Knobs
Fig. 78
Fig. 79
Fig. 80
Drive Pins

14.0 Changing Components
44 © Baxi Heating UK Ltd 2011
14.21 Plate Heat Exchanger (Fig. 81)
1. Drain the primary circuit.
2. While supporting the heat exchanger undo the
screws securing it to the brass manifolds.
3. Withdraw the heat exchanger upwards and to the
left of the gas valve, taking care not to damage any
wires or controls.
Seals
4. There are four rubber seals between the manifolds
and heat exchanger which may need replacement.
5. Ease the seals out of the manifold. Replace carefully,
ensuring that the seal is inserted into the manifold
parallel and pushed fully in.
6. When fitting the new heat exchanger note that the
left hand location stud is offset towards the centre
more than the right hand one.
7. Reassemble in reverse order.
14.22 Diverter Valve Assembly
(Figs. 82 & 83)
The diverter valve assembly comprises of a central
heating pressure differential valve and a domestic hot
water pressure differential valve. These are connected
to a manifold which is joined to the plate heat
exchanger.
DHW Pressure Differential Valve (Fig. 83)
1. Drain the primary circuit.
2. Undo the screw securing the microswitch bracket to
the valve (Fig. 82).
3. Disconnect the two sensing pipes and slacken the
grub screws securing the valve to the diverter manifold.
4. Draw the valve away from the diverter manifold. The
valve may now be replaced or split to examine the
diaphragm.
5. To examine the diaphragm hold the valve body
securely and carefully remove the six screws. The
diaphragm spring will force apart the two halves of the
valve.
6. Remove the plastic disc and pushrod assembly.
Carefully examine the diaphragm and replace it if there
is any damage.
7. Reassemble in reverse order.
Plate Heat Exchanger
Rubber Seal
DHW Pressure
Differential Valve
Microswitch
Bracket
Grub Screws
Diverter Manifold
Sensing Pipes
Plastic Disc
Pushrod
Diaphragm
Spring
Diaphragm
Fig. 81
Fig. 82
Fig. 83

14.0 Changing Components
45
© Baxi Heating UK Ltd 2011
14.22 Diverter Valve Assembly (Cont)
Pressure Differential Valve (Fig. 84)
1. Remove the pressure differential valve as described
in 14.22.
2. From the brass diverter manifold undo the nut on
the heating flow pipe. Remove the screw securing the
diverter manifold to the appliance lower bracket.
3. Disconnect the pressure gauge capillary from the
diverter manifold and remove the two wires from the
microswitch.
4. Prise off the spring clip securing the by-pass pipe to
the diverter manifold and disconnect the sensing pipe.
5. Ease the diverter manifold out of the plate heat
exchanger manifold. Remove the assembly from the
appliance.
6. Undo the screw securing the microswitch bracket
to the valve body. The sensor may now be dismantled
to examine the diaphragm.
7. To examine the diaphragm hold the assembly
securely and carefully remove the four screws. The
diaphragm spring will force the two halves of the valve
apart.
8. Carefully examine the diaphragm and replace it if
there is any damage.
9. Reassemble in reverse order.
CH Pressure Microswitch (Fig. 84)
1. Remove the two wires from the Pressure
microswitch.
2. Undo the screw securing the microswitch bracket
to the valve body.
3. Reassemble in reverse order.
14.23 Flow Regulator (Figs. 85 & 86)
1. Undo the filter cartridge from the inlet/return
manifold.
2. Unscrew the venturi and remove the flow regulator.
3. Check the cleanliness of the filter gauze, rinsing
thoroughly in clean water as necessary. Fit the new
flow regulator and reassemble in reverse order.
Pressure Gauge
Capillary
Heating Flow
Pipe
Spring Clip
By-pass Pipe
Sensing Pipe
Diaphragm
Diverter Manifold
Microswitch / Bracket
Central Heating Pressure
Differential Valve
Fig. 84
Cartridge
Body
Filter Gauze
Flow
Regulator
Venturi
Inlet/Return Manifold
Fig. 85
Fig. 86

14.0 Changing Components
46 © Baxi Heating UK Ltd 2011
14.24 Secondary Heat Exchanger (Fig. 87)
1. Drain the primary circuit
2. Undo the four screws securing the right hand case
panel. Remove the panel.
3. Prise the connecting clips from the heat exchanger
return pipe and the boiler return pipe. Remove the
pipes.
4. Slacken the screws on the left hand fan spigot outlet
pipe clamp. Ease the clamp to the right.
5. Remove the nut securing the elbow to the secondary
heat exchanger. Draw the elbow and outlet pipe
forwards.
6. Remove the secondary heat exchanger from the
outer drum by easing it forward.
7. Reassemble in reverse order of dismantling.
14.25 Flue Overheat Thermostat (Fig. 88)
NOTE: The flue overheat thermostat includes a
reset button. Check that the thermostat will not
reset before replacing.
1. Remove the fan spigot outlet pipe from the fan and
elbow.
2. Pull the two wires off the terminals on the flue
overheat thermostat. Unscrew the thermostat from the
adaptor in the outlet elbow.
3. Reassemble in reverse order of dismantling.
Ease Fan Spigot Outlet
Pipe Clamps Inwards
Fan Spigot
Outlet Pipe
Overheat Thermostat
Fan Spigot Outlet
Pipe Clamp
Fan Spigot
Outlet Pipe
Secondary
Heat Exchanger
Outer Drum
Boiler Return Pipe
Pipe Connecting Clip
Elbow
Heat Exchanger
Return Pipe
Fig. 87
Fig. 88

15.0 Illustrated Wiring Diagram
47
© Baxi Heating UK Ltd 2011
- brown
- black
- blue
- red
br
bk
b
r
- green
- green / yellow
- white
g
g/y
w
Optional Timer
Domestic Hot Water
Temperature Sensor
Reset Selector Switch
Control PCB
A1 A2 A3
A4
A5
F2
1
bk
bk r
rg
gg
rg
r
212 3
341
1
2
3
4
5
6
10
9
8
7
6
5
4
3
2
1
2344
5
5
6789
Central Heating
Temperature Sensor
Fan
Gas Valve
Overheat Stat
Hydraulic Differential
Pressure Switch
Domestic Hot Water Flow
Priority Pressure Switch
Flame
Mains Input
Fuse
Link
g/y
g/ybbr
bk
br
b
bk
Sensing
Electrode
Pump
bb
bbk b b b
br
br
b
b
r
bk bkbr
bkbrbr
br
Flue Stat
1234
Condensate
Trap
g/y
g/y

48 © Baxi Heating UK Ltd 2011
16.0 Fault Finding
Carry out initial fault finding checks
1. Check that gas, water and electrical supplies are available at the boiler. Electrical supply = 230V ~ 50 Hz.
CH water system pressurised to 0.5 bar when the boiler is cold. The preferred minimum gas pressure is 19.5mbar (natural gas), or 36mbar (propane).
2. Carry out electrical system checks, i.e. Ground Continuity, Resistance to Ground, Short Circuit and Polarity with a suitable meter.
NOTE: These checks must be repeated after any servicing or fault finding.
3. Ensure all external controls are calling for heat and check all external and internal fuses. Before any servicing or replacement of parts ensure the gas and
electrical supplies are isolated.
Refer to Section 15.0 “Illustrated Wiring Diagram” for position of numbered terminals
Central Heating - Follow operational sequence
Turn selector to
neon illuminated
Primary flow switch operated
Fan runs at max speed
Burner goes out
Turn thermostat
to max.
Pump runs
Air pressure
switch proved
neon flashing
Burner on neon
illuminated
Burner output
modulates until set
temperature is reached
Spark at ignition electrodes
for up to 10 seconds
Go to section ‘A’
neon flashing
Go to section ‘B’
neon flashing
Go to section ‘C’
Go to sections ‘J’ & ‘M’
neons flashing
Go to section ‘D’
neon flashing
Go to section ‘E’
Replace PCB
Turn selector to the reset
position. If the neon does
not extinguish go to
sections H & K
Go to section ‘F’
neon flashing
Go to sections ‘I’ & ’L’
Go to section ‘G’
Fan stops Pump stops Operation sequence correct
neon flashing
Turn selector to reset
position. If regular resetting is
required or appliance still
does not operate
investigation is necessary
External controls and, where
fitted, integral timer calling for
heat
Ensure controls are set to
demand and verify the
contacts are closed
Burner extinguishes
after 10 seconds
YES
YES
YES
YES
YES
YES
YES
YES
YES
YES
NO
YES
YES YES YES
NO
NO NO
NO
NO
NO
NO
NO
NO
NO
YES
NO
NOTE: When instructed to turn the
selector to the reset position turn the
selector switch fully anticlockwise against
the spring pressure to ‘Reset’ position and
hold for 2 seconds to reset the boiler.

49
© Baxi Heating UK Ltd 2011
16.0 Fault Finding
Domestic Hot Water - Follow operational sequence
Turn selector to
neon illuminated
Primary flow switch operated
Fan runs at max speed
Pump runs
Turn thermostat to max.
Open DHW tap fully. DHW
flow switch operated
Primary water is diverted
from CH system to DHW
heat exchanger and flow
microswitch operated
neon illuminated
Continuity across DHW flow
microswitch terminals and
PCB - A5 connector
terminals 5 & 6
Air pressure switch proved
neon flashing
Burner on neon
illuminated
Spark at ignition electrodes
for up to 10 seconds
Go to section ‘A’
neon flashing
Go to section ‘B’
neon flashing
Go to section ‘C’
Go to sections ‘J’ & ‘M’
neons flashing
Go to section ‘D’
Replace PCB
Go to section ‘F’
neon flashing
Go to sections ‘I’ & ‘L’
DHW flow valve
senses no flow.
Primary water diverted to
CH system. DHW flow
switch released off
Close DHW tap
Burner goes out
Diverter valve spindle
assembly faulty
Pump stops Operation sequence correct
neon flashing
Turn selector to reset
position. If regular resetting is
required or appliance still
does not operate
investigation is necessary
neon flashing
Go to section ‘E’
Burner extinguishes
after 10 seconds
YES
YES
YES
YES
YES
YES
YES
YES
YES
YES
YES
YES
YES
YES
YES
YES
NO
Fan stops
NO YES YES
YES
YES
NO
NO
DHW flow rate more than
2.5l/min.
Is mains water
filter and differential
assembly clean?
DHW flow valve diaphragm
damaged
DHW flow valve rod
obstructed
Replace DHW flow
microswitch
Replace PCB
Replace diaphragm
NO
NO
NO
YES
NO
NO
NO
NO
NO
NO
NO
NO Reduce the DHW flow rate.
If burner does not modulate
clean DHW temperature
sensor and DHW heat
exchanger. If modulation
does not occur go to section
‘G’
Burner output modulates to
maintain temperature set at
thermostat
NO
NO
Turn selector to the reset
position. If the neon does
not extinguish go to
sections H & K

50 © Baxi Heating UK Ltd 2011
16.0 Fault Finding
Fault Finding Solutions Sections A to E
Is there 230V at:
Is there 230V at:
Main terminals L and N Check electrical supply
1. NO
Main terminal fuse Replace fuse
Replace PCB
neon
illuminated
2. YES
Selector terminals a & b and a
& 3. PCB - A4 connector
terminals 4 & 5
Check wiring
Replace selector
3. NO
NO
A
Pump Replace pump
1. NO
PCB - A4 connector terminals 3 & 6 Replace PCB
2. NO
Change pump supply cable
YES
B
CH system pressure 0.5 to 1.5 bar Re-pressurise system
1. NO
Primary flow valve diaphragm damaged Replace diaphragm
Flow valve rod obstructed
3. YES
Check the tap of the automatic air
vent is opened Open the automatic air vent
2. NO
NO
C
YES
Continuity across flow
microswitch and PCB - A5
connector terminals 7 & 8
Replace microswitch
1. NO
NO
Primary temperature sensor faulty.
Cold resistance approx. 11K ohms
(resistance reduces with increase in temp.)
Replace sensor
2.
YES
Fan connections correct at fan.
PCB - A2 connector, is 230V
across terminals 5 & 7
Fan jammed or faulty winding
Replace PCB
Replace fan
YES
3.
D
If pump jammed, release

51
© Baxi Heating UK Ltd 2011
16.0 Fault Finding
Check and correct if necessary
1. Electrical and pressure tube connections
2. Blockage of pressure tubes
3. Restriction in flue
4. Venturi
NO
E
Replace air pressure
switch
Gas at burner Ensure gas is on and purged
Replace PCB
Replace gas valve
neon flashing
PCB - A1 connector has 230V AC
across terminals 2 & 4
YES
Turn selector switch
to ‘Reset’ position
YES
NO
NO
NO
F
Replace PCB
G
Check and correct if necessary
1. Ignition electrode and lead
2. Electrode connection
3. Spark gap and position
230V at Main PCB - A1
connector across terminals
3 & 4. Check wiring
YES
NO
Replace gas valve
electrical plug &
igniter assembly
YES
H
YES
Check the burner setting pressure of the
gas valve
(see Section 9.2 of Commissioning)
1.
Voltage at modulating coil of gas valve is:
Max. burner press.approx 9V DC (13V DC LPG)
Min. burner press.approx 1V DC
Current at modulating coil of gas valve is:
(Use an instrument with average function for this
measure)
30 ÷ 230 mA DC (45 ÷ 310 mA DC LPG)
Replace gas valve
NO Replace PCB
2.

52 © Baxi Heating UK Ltd 2011
16.0 Fault Finding
Check and correct if necessary
1. Flame sensing electrode and lead connections
2. Electrode position
Flame current should be 1 μA approx.
Replace PCB
Replace PCB
YES
YES
Replace flame sensing electrode
NO
YES
Ensure that mains input terminal L
is Live (230V) and N is Neutral
(0V)
I
Check terminal 1 of ON/OFF/RESET selector is in
connection with PCB - A4 connector terminal 2
Check electrical continuity across terminals 1 & a of
ON/OFF/RESET selector when turned to ‘Reset’ position
Replace ON/OFF/RESET selector
NO
Replace PCB
YES
K
Replace safety
thermostat
YES
NO
Overheat thermostat operated or
faulty, i.e. continuity across
thermostat terminals
Allow to cool. Continuity
across thermostat terminals
more than 1.5 ohm
J
If checks in section I are completed successfully, blockage
of the condensate drain or trap may have occurred
L
If checks in section J are completed successfully, the flue
overheat thermostat may have operated. Press the reset
button on the flue overheat thermostat. If the boiler does
not relight or repeatedly cuts out. Check the operation of
the flue system or replace the flue overheat thermostat
M

17.0 Short Parts List
53
© Baxi Heating UK Ltd 2011
Short Parts List
Key G.C. Description Manufacturers
No. No. Part No.
22 H01106 Fan 5112430
23 E66385 Pressure Switch 5137530
32 H01070 Heat Exchanger 5112431
41 H01072 Burner 5112770
44 H01103 Injector 5112376
59 E66 408 Electrode Lead 248037
63 E66 411 Spark or Sensing
Electrode 247384
72 E66539 Pump 248042
101 E66 432 3-Way Valve Assy. 248061
131 342 571 Temperature Sensor 247394
135 E66 439 Safety Thermostat 248079
140 E94426 Gas Valve 5107339
154 H01109 PCB 5112380
169 E66 453 Pressure Gauge 248090
327 E66408 Igniter/Gas Valve Cable 5112385
A H01108 Flue Overheat
Thermostat 5112395
22 140
44
63
154
72
135
59
41
101
169
131
23
32
A
371

Failure to install and commission according to the manufacturer’s instructions and complete this Benchmark Commissioning Checklist will invalidate the warranty. This
does not affect the customer’s statutory rights.
If yes, and if required by the manufacturer, has a water scale reducer been fitted?
CONDENSING BOILERS ONLY
The condensate drain has been installed in accordance with the manufacturer’s instructions and/or BS5546/BS6798 Yes
If the condensate pipe terminates externally has the pipe diameter been increased and weatherproof insulation fitted? Yes
54

Service Record
It is recommended that your heating system is serviced regularly and that the appropriate Service Interval Record is completed.
Service Provider
Before completing the appropriate Service Record below, please ensure you have carried out the service as described in the
manufacturer’s instructions.
Always use the manufacturer’s specified spare part when replacing controls.
Date:
Engineer Name:
Company Name:
Telephone No.
Gas Safe Register No.
Comments:
Signature:
Date:
Engineer Name:
Company Name:
Telephone No.
Gas Safe Register No.
Comments:
Signature:
Date:
Engineer Name:
Company Name:
Telephone No.
Gas Safe Register No.
Comments:
Signature:
Date:
Engineer Name:
Company Name:
Telephone No.
Gas Safe Register No.
Comments:
Signature:
Date:
Engineer Name:
Company Name:
Telephone No.
Gas Safe Register No.
Comments:
Signature:
Date:
Engineer Name:
Company Name:
Telephone No.
Operative ID No.
Comments:
Signature:
Date:
Engineer Name:
Company Name:
Telephone No.
Gas Safe Register No.
Comments:
Signature:
Date:
Engineer Name:
Company Name:
Telephone No.
Gas Safe Register No.
Comments:
Signature:
Date:
Engineer Name:
Company Name:
Telephone No.
Gas Safe Register No.
Comments:
Signature:
Date:
Engineer Name:
Company Name:
Telephone No.
Gas Safe Register No.
Comments:
Signature:
Service 1 Service 2
Service 3 Service 4
Service 5 Service 6
Service 7 Service 8
Service 9 Service 10
55

© Baxi Heating UK Ltd 2011 Comp No5111809 - Iss 7 - 4/11
BAXI
A Trading Division of Baxi Heating UK Ltd (3879156)
Brooks House, Coventry Road, Warwick. CV34 4LL
After Sales Service 0844 871 1525 Technical Enquiries 0844 871 1555
Website www.baxi.co.uk
e&oe
All descriptions and illustrations provided in this leaflet have been carefully prepared
but we reserve the right to make changes and improvements in our products which
may affect the accuracy of the information contained in this leaflet. All goods are
sold subject to our standard Conditions of Sale which are available on request.