Bendix Ad Ip Integral Purge Air Dryer Users Manual ManualsLib Makes It Easy To Find Manuals Online!
2014-12-12
: Bendix Bendix-Ad-Ip-Integral-Purge-Air-Dryer-Users-Manual-119038 bendix-ad-ip-integral-purge-air-dryer-users-manual-119038 bendix pdf
Open the PDF directly: View PDF
.
Page Count: 28

1
SD-08-2414
Bendix® AD-IP™ Integral Purge Air Dryer
DESCRIPTION
The function of the Bendix® AD-IP™ integral purge air dryer
is to collect and remove air system contaminants in solid,
liquid and vapor form before they enter the brake system. It
provides clean, dry air to the components of the brake system
which increases the life of the system and reduces
maintenance costs. Daily manual draining of the reservoirs
is eliminated.
The AD-IP™ air dryer consists of a desiccant cartridge
secured to a die cast aluminum end cover with a single,
central bolt. The end cover contains a check valve assembly,
safety valve, heater and thermostat assembly, three pipe
thread air connections and the purge valve assembly. The
removable purge valve assembly incorporates the purge valve
mechanism and a turbo charger cutoff feature that is designed
to prevent loss of engine “turbo” boost pressure during the
purge cycle of the AD-IP™ air dryer. For ease of serviceability,
all replaceable assemblies can be replaced without removal
of the air dryer from its mounting on the vehicle.
FIGURE 1 - AD-IP™ INTEGRAL PURGE AIR DRYER
HEATER &
THERMOSTAT
CONNECTOR
DESICCANT
CARTRIDGE SADDLE
MOUNTING
BRACKET
CONTROL
PORT
LOWER
MOUNTING
BRACKET
SUPPLY
PORT
SAFETY VALVE
HEATER & THERMOSTAT
CONNECTOR
SUPPLY
PORT
MOUNTING
STRAP
The AD-IP™ air dryer has three female pipe thread air
connections identified as follows:
Air Connection Port ID Function/Connection
CON 4...................... Control Port (purge valve control
& turbo cutoff).
SUP 11 .................... Supply Port (air in).
DEL 2 ...................... Delivery Port (air out).
SAFETY
VALVE
CONTROL
PORT

2
OPERATION
GENERAL
The AD-IP™ air dryer alternates between two operational
modes or “cycles” during operation: the Charge Cycle and
the Purge Cycle. The following description of operation is
separated into these “cycles” of operation.
CHARGE CYCLE (refer to Figure 4)
When the compressor is loaded (compressing air)
compressed air, along with oil, oil vapor, water and water
vapor flows through the compressor discharge line to the
supply port of the air dryer body.
As air travels through the end cover assembly, its direction
of flow changes several times, reducing the temperature,
causing contaminants to condense and drop to the bottom
or sump of the air dryer end cover.
After exiting the end cover, the air flows into the desiccant
cartridge. Once in the desiccant cartridge air first flows
through an oil separator located between the outer and inner
shells of the cartridge. The separator removes water in liquid
form as well as liquid oil and solid contaminants.
FEEDBACK
LINE
SPECIAL DISCHARGE
PORT FTG. W/
FEEDBACK LINE
CONNECTION CHECK
VALVE
DISCHARGE
PORT
SPECIAL DISCHARGE
PORT FTG. W/
FEEDBACK LINE
CONNECTION END COVER
BOTTOM VIEW
LOWER
MTG. BRKT.
(PARTIAL) FEEDBACK
LINE
DISCHARGE LINE
HOLSET COMPRESSOR
SUPPLY
RES.
FIGURE A
HOLSET TYPE E & QE COMPRESSORS - NO AIR DRYER
FIGURE C
AD-IP™ DI DROP IN AIR DRYER AND
HOLSET TYPE E & QE COMPRESSORS
AD-IP™ DI DROP IN AIR
DRYER W/FEEDBACK
LINE & CHECK VALVE SUPPLY
RES.
HOLSET
COMPRESSOR
FIGURE B
STANDARD AD-IP™ AIR DRYER AND
HOLSET TYPE E & QE COMPRESSORS
FEEDBACK LINE
W/CHECK VALVE
SUPPLY
RES.
STANDARD AD-IP™ AIR
DRYER
AD-IP™ DI “DROP IN” AIR DRYER MODEL
In addition to the standard AD-IP™ air dryer, the Bendix®
AD-IP™ DI (Drop In) air dryer is also offered. It is a specialized
version designed especially for air systems that use either
the Holset (Cummins) Type E or QE air compressor. These
Holset compressors utilize an unusual unloading system
that requires that air pressure remain in the discharge line
during the entire unloaded cycle of the compressor. To
accomplish this, Holset compressors rely on air “feedback”
from the supply reservoir as shown in Figure 3B. When an
air dryer is installed the direct “feedback” from the supply
reservoir is interrupted and an alternate source for “feedback”
pressure must be provided. A standard AD-IP™ air dryer can
be installed, however a separate “feedback” line with a single
check must be installed as shown in Figure 3C.
The AD-IP™ DI drop in air dryer model incorporates the
feedback line and single check as an integral part of the
dryer and eliminates the need for these components as shown
in Figures 2 & 3C.
FIGURE 2 - AD-IP™ DI DROP IN AIR DRYER FOR HOLSET
COMPRESSORS
FIGURE 3 - AD-IP™ AIR DRYER AND HOLSET TYPE E & QE
COMPRESSORS
HOLSET
COMPRESSOR

3
FIGURE 4 - AD-IP™ INTEGRAL PURGE AIR DRYER CHARGE CYCLE
Air, along with the remaining water vapor, is further cooled
as it exits the oil separator and continues to flow upward
between the outer and inner shells. Upon reaching the top
of the cartridge the air reverses its direction of flow and enters
the desiccant drying bed. Air flowing down through the column
of desiccant becomes progressively drier as water vapor
adheres to the desiccant material in a process known as
“ADSORPTION.” The desiccant cartridge using the
adsorption process typically removes most of the water vapor
from the pressurized air.
Dry air exits the bottom of the desiccant cartridge and flows
through the center of the bolt used to secure the cartridge to
the end cover. Air flows down the center of the desiccant
cartridge bolt, through a cross drilled passage and exits the
air dryer delivery port through the delivery check valve. Note:
the early end cover designs incorporated a vertical delivery
check valve while the newer versions have a horizontal check
valve. Both have the same function, but the components
are not interchangeable. See Figure 7.
Dry air flowing through the center of the desiccant cartridge
bolt also flows out the cross drilled purge orifice and into the
purge volume.
The air dryer will remain in the charge cycle until the air
brake system pressure builds to the governor cutout setting.
PURGE CYCLE (refer to Figure 5)
As air brake system pressure reaches the cutout setting of
the governor, the governor unloads the compressor (air
compression is stopped) and the purge cycle of the air dryer
begins. When the governor unloads the compressor, it
pressurizes the compressor unloader mechanism and the
line connecting the governor unloader port to the AD-IP™ air
dryer end cover control port. The purge piston moves in
response to air pressure causing the purge valve to open to
the atmosphere and the turbo cutoff valve to close off the
supply of air from the compressor (this will be further
discussed in the Turbo Cutoff Feature section). Water and
contaminants in the end cover sump are expelled
immediately when the purge valve opens. Also, air which
was flowing through the desiccant cartridge changes direction
and begins to flow toward the open purge valve. Liquid oil
and solid contaminants collected by the oil separator are
removed by air flowing from the purge volume through the
desiccant drying bed to the open purge valve.
The initial purge and desiccant cartridge decompression lasts
only a few seconds and is evidenced by an audible burst of
air at the AD-IP™ air dryer exhaust. No purging of air should
occur after 30 seconds.
DESICCANT
BED
DELIVERY
CHECK VALVE
(OLD STYLE
SHOWN)
PURGE
VOLUME
DISCHARGE
PORT
EXHAUST
PURGE
VALVE
TURBO
CUTOFF
VALVE
ENGINE
TURBO
COMPRESSOR
GOVERNOR
PURGE
CONTROL
LINE
CONTROL
PORT
SUPPLY
PORT
OIL
SEPARATOR
PURGE
ORIFICE

4
FIGURE 5 - AD-IP™ INTEGRAL PURGE AIR DRYER PURGE CYCLE
The actual reactivation of the desiccant drying bed begins
as dry air flows from the purge volume through the purge
orifice in the desiccant cartridge bolt, then through the center
of the bolt and into the desiccant bed. Pressurized air from
the purge volume expands after passing through the purge
orifice; its pressure is lowered and its volume increased.
The flow of dry air through the drying bed reactivates the
desiccant material by removing the water vapor adhering to
it. Generally 30 seconds are required for the entire purge
volume of a standard AD-IP™ air dryer to flow through the
desiccant drying bed.
The delivery check valve assembly prevents air pressure in
the brake system from returning to the air dryer during the
purge cycle. After the 30 second purge cycle is complete
the desiccant has been reactivated or dried. The air dryer is
ready for the next charge cycle to begin. However the purge
valve will remain open and will not close until air brake
system pressure is reduced and the governor signals the
compressor to charge the system.
TURBO CUTOFF FEATURE (Refer to Figure 6)
The primary function of the turbo cutoff valve is to prevent
loss of engine turbocharger air pressure through the AD-IP™
air dryer in systems where the compressor intake is
FIGURE 6 - AD-IP™ INTEGRAL PURGE AIR DRYER TURBO
CUTOFF
DESICCANT
BED
PURGE
VOLUME
DISCHARGE
PORT
EXHAUST
PURGE
VALVE
TURBO
CUTOFF
VALVE
ENGINE
TURBO
COMPRESSOR
GOVERNOR
PURGE
CONTROL
LINE
CONTROL
PORT
SUPPLY
PORT
OIL
SEPARATOR
PURGE
ORIFICE
SUPPLY
PORT
TURBO
CUTOFF
VALVE
CONTROL
PORT
PURGE
VOLUME
PURGE
VALVE
DELIVERY
CHECK VALVE
(OLD STYLE
SHOWN)

5
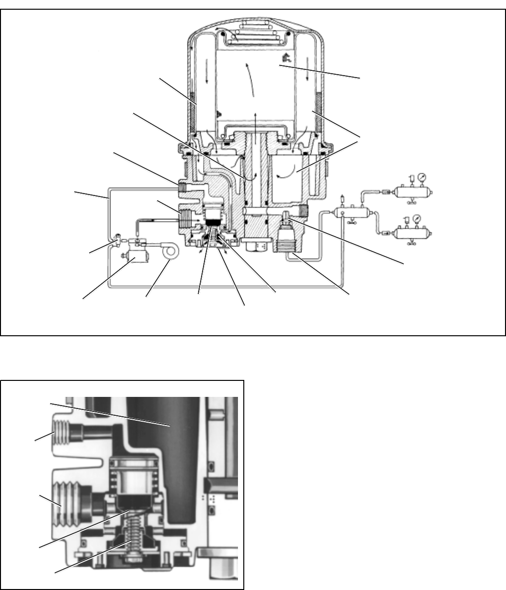
CARTRIDGE
BOLT
PURGE
VOLUME
DELIVERY
PORT
CHECK
VALVE
(BLACK)
PURGE
VALVE
TURBO
CUTOFF
VALVE
SUPPLY
PORT
CONTROL
PORT
OIL
SEPARATOR
FIGURE 7 - AD-IP™ AIR DRYER SECTIONAL VIEW
DESICCANT
BED
PURGE
ORIFICE
DESICCANT
CARTRIDGE
Every 900 operating hours, or 25,000 miles or three (3)
months:
1. Check for moisture in the air brake system by opening
reservoirs, drain cocks, or drain valves and checking for
presence of water. If moisture is present, the desiccant
cartridge may require replacement; however, the following
conditions can also cause water accumulation and
should be considered before replacing the desiccant:
A. An outside air source has been used to charge the
system. This air does not pass through the drying
bed.
B. Air usage is exceptionally high and not normal for a
highway vehicle.
This may be due to accessory air demands or some
unusual air requirement that does not allow the com-
pressor to load and unload (compressing and
non-compressing cycle) in a normal fashion. Check
for high air system leakage. If the vehicle vocation
has changed it may be necessary to upgrade the
compressor size. Refer to Appendix A, Table A and
the column entitled Vehicle Vocation.
C. The air dryer has been installed in a system that
has been previously used without an air dryer. The
system will be saturated with moisture and several
weeks of operation may be required to dry it out.
connected to the engine turbocharger. The turbo cutoff valve
also removes the “puffing” of air out the open purge exhaust
when a naturally aspirated, single cylinder compressor,
equipped with an inlet check valve, is in use.
At the onset of the purge cycle, the downward travel of the
purge piston is stopped when the turbo cutoff valve (tapered
portion of purge piston) contacts its mating metal seat in
the purge valve housing. With the turbo cutoff valve seated
(closed position), air in the compressor discharge line and
AD-IP™ air dryer inlet port cannot enter the air dryer. In this
manner the turbo cutoff effectively maintains turbocharger
boost pressure to the engine.
PREVENTIVE MAINTENANCE
Important: Review the warranty policy before performing
any intrusive maintenance procedures. An extended warranty
may be voided if intrusive maintenance is performed during
this period. Note: It is acceptable for the purge valve to be
maintained as necessary, i.e., the installation of a purge
valve maintenance kit, without voiding the warranty.
Because no two vehicles operate under identical conditions,
maintenance and maintenance intervals will vary. Experience
is a valuable guide in determining the best maintenance
interval for any one particular operation.
New Style End Cover - Horizontal Delivery Check Valve
SPRING
O-RING
PIPE PLUG
CARTRIDGE
BOLT
DELIVERY
PORT
Old Style End Cover -Vertical Delivery Check Valve
CHECK VALVE
(WHITE)

6
D. Location of the air dryer is too close to the air com-
pressor. Refer to “Locating AD-IP™ Air Dryer On
Vehicle” section and Appendix A, Table A, column 2
for discharge line length.
E. In areas where more than a 30 degree range of tem-
perature occurs in one day, small amounts of water
can temporarily accumulate in the air brake system
due to condensation. Under these conditions, the
presence of small amounts of moisture is normal
and should not be considered as an indication that
the dryer is not preforming properly.
OPERATION & LEAKAGE TESTS
1. Install a pressure gauge in the #1 reservoir. Check all
lines and fittings leading to and from the air dryer for
leakage and integrity. Test the delivery port check valve
assembly by building the air system to governor cutout
and observing a test air gauge installed in the #1 reservoir.
Note the pressure on the air gauge after governor cutout
pressure is reached, a rapid loss of pressure could
indicate a failed delivery port check valve. This can be
confirmed by shutting the engine off, draining system
pressure to a point below governor cutin (usually not
less than 95 psi), draining residual air pressure in the
compressor discharge line. Remove the discharge line
at the supply port of the dryer, and use soapy water to
determine if air is flowing out of the supply port. Make
sure there is no air pressure at the control port, by
removing the line from the control port to the governor
UNL port. The reservoir needs to have a least 50 PSIG
for this test. If a 1” bubble forms within one second, the
delivery check valve should be repaired. Remove the
test gauge before returning the vehicle to service.
AD-IP™ AIR
DRYER END
COVER
LOCKING LATCH
(MUST BE INSERTED UNTIL IT
SNAPS OVER THE MATING
CONNECTOR ON AD-IP™ AIR DRYER
TOP VIEW
SIDE VIEW
FIGURE 8 - AD-IP™ AIR DRYER HEATER AND
THERMOSTAT CONNECTOR
A two lead wire harness with attached weather resistant connector is
supplied with all replacement and retrofit AD-IP™ air dryers. One of the
two leads is connected to the engine “kill switch” or ignition while the
other must be connected to a good vehicle ground. A fuse is installed
in the lead carrying vehicle power; install a 10 amp fuse for 12 volt
heaters and a 5 amp fuse for the 24 volt heater.
Use 14 AWG wire if it is necessary to lengthen the wire harness leads.
Make certain all splices are weatherproofed. Tie wrap or support all
electrical wires leading to the AD-IP™ air dryer.
WEATHERPROOF
ACCORDIAN
SEAL
HEATER &
THERMOSTAT
CONNECTOR
Note: A small amount of oil in the system is normal and
should not be considered as a reason to replace the
desiccant cartridge; oil stained desiccant can function
adequately.
2. Visually check for physical damage to the AD-IP™ air
dryer such as chaffed or broken air and electrical lines
and broken or missing parts.
3. Check mounting bolts for tightness. Re-torque to
270- 385 in.lbs.
4. Perform the Operation & Leakage Tests listed in this
publication.
WARNING!
This air dryer is intended to remove moisture and other
contaminants normally found in the air brake system.
Do not inject alcohol, anti-freeze, or other de-icing
substances into or upstream of the air dryer. Alcohol
is removed by the dryer, but reduces the effectiveness
of the device to dry air. Use of other substances can
damage the air dryer and may void the warranty.
2. Check for excessive leakage around the purge valve.
With the compressor in loaded mode (compressing air),
apply a soap solution to the purge valve exhaust port
and observe that leakage does not exceed a 1” bubble
in 1 second. If the leakage exceeds the maximum
specified, repair the purge valve assembly.
3. Close all reservoir drain cocks. Build up system pressure
to governor cutout and note that AD-IP™ air dryer purges
with an audible escape of air. “Fan” the service brakes
to reduce system air pressure to governor cut-in. Note
that the system once again builds to full pressure and is
followed by an AD-IP™ air dryer purge.
4. Check the operation of the end cover heater and
thermostat assembly during cold weather operation as
follows:

7
109498 .............................................. CARTRIDGE BOLT KIT
Contains a replacement desiccant cartridge bolt and related
o-rings.
5003547 ............. PURGE VALVE HOUSING MAINTENANCE KIT
This kit contains the parts necessary to rebuild the purge
valve housing.
800404 ............................. PURGE VALVE REPLACEMENT KIT
This kit contains the parts necessary to replace the purge
valve.
5018313 ............................ PURGE VALVE MAINTENANCE KIT
This kit contains the parts necessary to replace and
relubricate the purge valve quad-ring and o-rings.
065626 .... SERVICE NEW PURGE VALVE HOUSING ASSEMBLY
Contains a service new assembly and related components
to accomplish replacement.
109494 .............. DELIVERY CHECK VALVE MAINTENANCE KIT
This kit contains the parts necessary to replace the delivery
port check valve.
109495 ............................. 12V HEATER & THERMOSTAT KIT
109496 ............................. 24V HEATER & THERMOSTAT KIT
Each contains a replacement heater and thermostat
assembly and related components required for replacement.
GENERAL SAFETY GUIDELINES
WARNING! PLEASE READ AND FOLLOW
THESE INSTRUCTIONS TO AVOID
PERSONAL INJURY OR DEATH:
When working on or around a vehicle, the following
general precautions should be observed at all times.
1. Park the vehicle on a level surface, apply the
parking brakes, and always block the wheels.
Always wear safety glasses.
2. Stop the engine and remove ignition key when
working under or around the vehicle. When
working in the engine compartment, the engine
should be shut off and the ignition key should be
removed. Where circumstances require that the
engine be in operation, EXTREME CAUTION should
be used to prevent personal injury resulting from
contact with moving, rotating, leaking, heated or
electrically charged components.
3. Do not attempt to install, remove, disassemble or
assemble a component until you have read and
thoroughly understand the recommended
procedures. Use only the proper tools and observe
all precautions pertaining to use of those tools.
4. If the work is being performed on the vehicle’s air
brake system, or any auxiliary pressurized air
systems, make certain to drain the air pressure from
A. Electric Power to the Dryer
With the ignition or engine kill switch in the ON posi-
tion, check for voltage to the heater and thermostat
assembly using a voltmeter or test light. Unplug the
electrical connector at the air dryer and place the
test leads on each of the pins of the connector with
the locking latch. If there is no voltage, look for a
blown fuse, broken wires, or corrosion in the vehicle
wiring harness. Check to see if a good ground path
exists.
B. Thermostat and Heater Operation
Note: These tests are not required except in cold weather
operation.
Turn off the ignition switch and cool the thermostat
and heater assembly to below 35 degrees Fahren-
heit. Using an ohmmeter, check the resistance
between the electrical pins in the air dryer connec-
tor half. The resistance should be 1.5 to 3.0 ohms
for the 12 volt heater assembly and 6.0 to 9.0 ohms
for the 24 volt heater assembly.
Warm the thermostat and heater assembly to over
90 degrees Fahrenheit and again check the resis-
tance. The resistance should exceed 1000 ohms. If
the resistance values obtained are within the stated
limits, the thermostat and heater assembly is oper-
ating properly. If the resistance values obtained are
outside the stated limits, replace the heater and ther-
mostat assembly.
REBUILDING THE AD-IP™ AIR DRYER
GENERAL
If, after completing the routine operation and leakage tests,
it has been determined that one or more components of the
air dryer requires replacement or maintenance, refer to the
following list to find the appropriate kit(s).
When rebuilding or replacing components of the air dryer
use only genuine Bendix® parts. For ease in servicing, the
AD-IP™ air dryer has been designed so that any of the
following maintenance kits can be installed without removing
the air dryer from the vehicle.
MAINTENANCE KITS AVAILABLE:
065624 ............... SERVICE NEW DESICCANT CARTRIDGE KIT
This kit contains the parts necessary to change the
desiccant cartridge only.
109493 ........REMANUFACTURED DESICCANT CARTRIDGE KIT
This kit contains the parts necessary to change the
desiccant cartridge only.
5001247 ....................................... MOUNTING BRACKET KIT
This kit contains the upper and lower brackets as well as
the necessary hardware items to mount them.

8
all reservoirs before beginning ANY work on the
vehicle. If the vehicle is equipped with an AD-IS®
air dryer system or a dryer reservoir module, be sure
to drain the purge reservoir.
5. Following the vehicle manufacturer’s recommended
procedures, deactivate the electrical system in a
manner that safely removes all electrical power from
the vehicle.
6. Never exceed manufacturer’s recommended
pressures.
7. Never connect or disconnect a hose or line
containing pressure; it may whip. Never remove a
component or plug unless you are certain all system
pressure has been depleted.
8. Use only genuine Bendix® replacement parts,
components and kits. Replacement hardware,
tubing, hose, fittings, etc. must be of equivalent size,
type and strength as original equipment and be
designed specifically for such applications and
systems.
9. Components with stripped threads or damaged parts
should be replaced rather than repaired. Do not
attempt repairs requiring machining or welding
unless specifically stated and approved by the
vehicle and component manufacturer.
10.Prior to returning the vehicle to service, make certain
all components and systems are restored to their
proper operating condition.
11.For vehicles with Antilock Traction Control (ATC),
the ATC function must be disabled (ATC indicator
lamp should be ON) prior to performing any vehicle
maintenance where one or more wheels on a drive
axle are lifted off the ground and moving.
AD-IP™ AIR DRYER REMOVAL
This air dryer removal process is presented in the event it
becomes necessary to replace the entire air dryer. Normal
service and parts replacement does not require
removal of the air dryer from the vehicle.
1. Park the vehicle on a level surface and prevent movement
by means other than the brakes.
2. Drain all reservoirs to 0 p.s.i. — Caution: Compressor
discharge line may still contain residual pressure.
3. Identify and disconnect the three air lines from the end
cover and note the position of end cover ports relative to
the vehicle.
4. Unplug the vehicle wiring harness from the heater and
thermostat assembly connector on the end cover
assembly.
5. Remove the four bolts that secure both the upper and
lower mounting brackets to the vehicle, and remove the
air dryer from the vehicle.
6. Mark the relationship of the saddle bracket (5) to the
end cover assembly (6). Remove the 5/16" cap screw
(1) and sleeve nut (3) securing the upper mounting strap
(4) to the saddle bracket (5). Earlier models used washer
and nut in place of the sleeve nut (3). Remove the upper
mounting strap (4) from the end cover assembly (6).
7. Mark the relationship of the lower bracket (9) to the end
cover assembly (6). Remove the two 3/8" end cover cap
screws (7) and two washers (8) that retain the lower
mounting bracket (9) to the end cover (6).
DISASSEMBLY
The following disassembly and assembly procedure is
presented for reference purposes and presupposes that a
major rebuild of the AD-IP™ air dryer is being undertaken.
The replacement parts and maintenance kits available
generally do not require full disassembly. The instructions
provided with these parts and kits should be followed in lieu
of the instructions presented here. Refer to Figure 9 during
disassembly.
Caution: While performing service on the AD-IP™ air dryer,
it is not recommended that a clamping device (vise, C-clamp,
etc.) be used to hold any die cast aluminum component as
damage may result. To hold the end cover, install a pipe
nipple in the supply port and clamp the nipple into a vise.
1. Using an adjustable or socket wrench, loosen the
desiccant cartridge bolt (10), then separate the desiccant
cartridge (11) from the end cover (6). Pull the desiccant
cartridge bolt out of the end cover (6).
Caution: Disassembly of the desiccant cartridge
assembly should not be attempted! Detail parts for the
cartridge are not available and the cartridge contains a
150# spring which can not be mechanically caged.
2. Remove both o-rings (12 & 13) from the desiccant
cartridge bolt.
3. Remove the retaining ring (14) that secures the purge
valve assembly (15) in the end cover (6).
4. Remove the 1/4" shoulder bolt (16) from the bottom of
the purge valve housing assembly (19) using a 3/8"
socket wrench and a large blade screw driver, inserted
in the slot on top of the purge piston (20). Remove the
exhaust diaphragm (17), and the purge valve (18) from
the purge valve housing (19).
5. Remove the o-rings (23 & 24) from the purge valve housing
(19). Discharge Line Unloader (DLU) models do not have
o-ring (23).
6. Remove the purge piston (20) and the return spring (22).
7. Remove the o-ring (21) from the purge piston (20).

9
2. Install and center the exhaust diaphragm (17) over the
shoulder bolt (16) making certain that the diaphragm ID
is over the bolt shoulder. Then install the purge valve
(18) on the shoulder bolt making certain its metal support
side is against the diaphragm (17).
3. Push the purge piston (20) into the housing (19) until it
bottoms and insert a large blade screw driver in the
piston’s slotted head. While depressing the purge piston
with the screw driver, install the shoulder bolt (16) with
exhaust diaphragm (17) and purge valve (18) in the piston.
Torque the shoulder bolt (16) to between 60-80 in. lbs.
4. Install the two o-rings (23 & 24) on the purge valve housing
(19) placing each in its appropriate location. DLU models
do not contain o-ring (23). Install the assembled purge
valve housing in the end cover (6) while making certain
the purge valve housing is fully seated against the end
cover. Secure the purge valve housing in the end cover
using the retaining ring (14). Make certain the retaining
ring is fully seated in its groove in the end cover (6).
5. Using a 9/16” wrench, install the safety valve assembly
(33) into the end cover (6).
6. Vertical check valve models: Install the o-ring (29) on
the check valve body (28) and push the o-ring down,
over the 3 guide lands until it is in the o-ring groove of
the check valve body (28). Install the check valve spring
(27) on the check valve body so that the small coils of
the spring slip over the check valve body. Install the
assembled check valve body, o-ring, and spring (27, 28
& 29) in the end cover (6) so that the o-ring rests on its
seat in the end cover (6) and the spring is visible. Install
the perforated plate (26), in the end cover (6) and secure
the check valve assembly using the retaining ring (25).
Make certain the retaining ring is fully seated in its groove
in the end cover (6).
7. Horizontal check valve models: Install o-ring (2) onto
check valve (36). Place the check valve in the delivery
check valve port of the end cover (6). Install the spring
(35) over the delivery check valve (36) and secure with
the delivery check valve plug (34).
8. Install the o-ring (32) on the heater and thermostat
assembly (31). After making certain the sponge rubber
cushion is positioned between the connector body and
thermostat, gently push the heater and thermostat
assembly (31) into the end cover (6), making certain
the heating element enters the small diameter bore in
the larger heater and thermostat bore in the end cover
(6). Secure the heater and thermostat assembly in the
body using the retaining ring (30). Make certain the
retaining ring is fully seated in its groove in the end cover
(6).
9. Install both o-rings (12 & 13) on the desiccant cartridge
bolt (10) and using a twisting motion, insert the
assembled desiccant cartridge bolt in the end cover (6).
8. Vertical check valve models: Remove the retaining
ring (25) that secures the delivery check valve assembly
in the end cover (6). Remove and separate the perforated
plate (26), spring (27), check valve body (28) and o-ring
(29).
9. Horizontal check valve models: Remove delivery
check valve plug (34) that secures the check valve
assembly in the end cover (6). Remove the spring (35),
check valve (36) and o-ring (2).
10. Remove the retaining ring (30) that secures the heater
and thermostat assembly (31) in the end cover (6). Gently
pull the heater and thermostat (31) out of the end cover
(6) and remove the o-ring (32).
11. Using a 9/16” wrench, remove the safety valve assembly
(33) from the end cover (6).
CLEANING & INSPECTION
1. Using mineral spirits or an equivalent solvent, clean and
thoroughly dry all metal parts except the desiccant
cartridge.
2. Inspect the interior and exterior of all metal parts that
will be reused for severe corrosion, pitting and cracks.
Superficial corrosion and or pitting on the exterior portion
of the end cover is acceptable.
3. Inspect the bores of both the end cover and the purge
valve housing for deep scuffing or gouges.
4. Make certain that all purge valve housing and end cover
passages are open and free of obstructions.
5. Inspect the pipe threads in the end cover. Make certain
they are clean and free of thread sealant.
6. Inspect the purge valve housing bore and seats for
excessive wear and scuffing.
7. Inspect the purge valve piston seat for excessive wear.
8. Make certain that the purge orifice in the cartridge bolt
is open and free of obstructions.
9. Inspect all air line fittings for corrosion. Clean all old
thread sealant from the pipe threads.
10. All o-rings removed should be discarded and replaced
with new o-rings provided in appropriate kit(s).
ASSEMBLY
Prior to assembly, coat all o-rings, o-ring grooves, and bores
with a generous amount of silicone grease. (Refer to Figures
9 and 10 during assembly unless otherwise advised.)
1. Install the quad ring (21) in its groove on the O.D. of the
purge piston (20). Place the return spring (22) in the
bore of the purge valve housing (19), then insert the purge
piston (20) into the I.D. of the spring (22).

10
11
16
18
19
12
13
20
22
23
10
24
15
14
7
4
6
35
1
33
32 30
31
14
8
24
17
19
16
18
34 35 36 2
DLU Style Purge Valve
17
22
20
21
21
15
9
FIGURE 9 - AD-IP™ AIR DRYER INTERNAL COMPONENTS

11
ITEM# DESCRIPTION
1 5/16” Cap Screw
2 O-ring
3 5/16” Sleeve Nut
4 Mounting Strap
5 Saddle Bracket
6 End Cover
7 3/8” Cap Screw
8 3/8” Lock Washer
9 Lower Mounting Bracket
10 Cartridge Bolt
11 Desiccant Cartridge
12 O-ring
13 O-ring
14 Retaining Ring
15 Purge Valve Cartridge Assembly
16 Shoulder Bolt
17 Exhaust Diaphragm
18 Purge Valve
19 Purge Valve Housing
20 Purge Valve Piston
21 Quad Ring
22 Piston Return Spring
23 O-ring
24 O-ring
25 Retaining Ring
26 Perforated Plate
27 Check Ring Spring
28 Check Valve
29 O-ring
30 Retaining Ring
31 Heater & Thermostat Assembly
32 O-ring
33 Safety Valve Assembly
34 Delivery Check Valve Plug
35 Spring
36 Check Valve Body (white)
29
25
26
27
Supply Port
(From Compressor)
Control Port
(From Governor
unloader port)
Delivery Port
(To Supply
Reservoir)
Air Dryer End Cover
28
Delivery Port
(To Supply Reservoir)
Pipe Plug
Old Style AD-IP End Cover - Vertical Delivery Check Valve
FIGURE 10 - AD-IP™ AIR DRYER INTERNAL COMPONENTS

12
10. Install the desiccant cartridge (11) on the end cover (6)
making certain the cartridge is properly seated and flush
on the end cover.
Note: It may be necessary to rotate the cartridge slightly
until the anti-rotation lugs are properly aligned and allow
the cartridge to rest flush against the end cover.
11. Using an adjustable wrench or a socket, tighten the
desiccant cartridge bolt (10), to secure the desiccant
cartridge (11) to the end cover (6). Torque the desiccant
cartridge bolt to 65-75 ft. lbs. (40ft. lbs. minimum).
Caution: Do not over torque.
AD-IP™ AIR DRYER INSTALLATION
1. Using the relationship marks made during step 7 of the
“AD-IP™ AIR DRYER REMOVAL”, install the lower
mounting bracket (9) on the end cover (6) and secure it
using the two 3/8” cap screws and washers (7 & 8).
Torque the cap screws to 300-360 in.lbs.
2. Using the relationship marks made during step 6 of the
AD-IP™ Air Dryer Removal Procedure, install the saddle
bracket (5) and mounting strap (4) on the end cover (6),
and using the 5/16" cap screw (1) and sleeve nut (3)
secure the strap to the saddle bracket. Tighten the
5/16" nut on the upper mounting bracket. Torque to 60-
100 in. lbs.
3. Install the AD-IP™ air dryer on the vehicle using the four
bolts that secure both the upper and lower mounting
brackets.
4. Reconnect the three airlines to the proper ports on the
end cover (identified during step 3 of the AD-IP™ Air Dryer
Removal).
5. Reconnect the vehicle wiring harness to the AD-IP™ air
dryer heater and thermostat assembly connector by
plugging it into the air dryer connector until its lock tab
snaps in place.
6. Before placing vehicle back into service, perform the
Operation and Leakage Tests stated elsewhere in this
manual.
RETROFITTING THE AD-IP™ AIR DRYER
GENERAL
The following retrofit instructions are presented for reference
purposes only since Bendix aftermarket retrofit and
replacement air dryers are packaged with the most up-to-
date installation instructions. The instructions packaged with
the AD-IP™ air dryer should be followed in lieu of those
presented here.
The preceding portion of this manual deals with “in-service”
repair and/or replacement of the AD-IP™ air dryer. The portion
of the manual that follows is concerned with installing an
AD-IP™ air dryer on a vehicle not previously equipped with
one.
VEHICLE APPLICATION REQUIREMENTS
The basic application requirements presented here apply to
a standard air dryer installation. The majority of highway
vehicles in use today will meet these basic requirements
however, some may not. Examples of vehicles that may not
meet the requirements include, refuse trucks, city coaches,
bulk trailer unloading operations and other high air
consumption systems. While the AD-IP™ air dryer can be
used on these vehicles the standard installation procedure
presented in this manual may require modification to assure
proper operation and service life. Consult your local
authorized Bendix parts outlet or sales representative for
additional information.
Charge Cycle Time — The AD-IP™ air dryer is designed to
provide clean, dry air for the brake system. When a vehicle’s
air system is used to operate non-brake air accessories it
is necessary to determine that, during normal daily operation
the compressor should recover from governor “cut-in” to
governor “cut-out” (usually 100 psi to 120 psi) in 90 seconds
or less at engine RPMs normal to the vehicle vocation. If the
recovery time consistently exceeds this limit, it may be
necessary to “bypass” the air accessory responsible for the
high air usage. Consult your local authorized Bendix parts
outlet or sales representative for additional information.
Purge Cycle Time — During normal vehicle operation, the
air compressor must remain unloaded for a minimum of 30
seconds. This minimum purge time is required to ensure
complete regeneration of the desiccant material. If the purge
time is occasionally shorter than the times specified, no
permanent ill effect should be expected, however, if the purge
time is consistently less than the minimum, an accessory
bypass system must be installed. Contact the nearest
authorized Bendix parts outlet or Bendix representative for
additional information. Note: Reservoir Volume - Total vehicle
reservoir volume can impact the Charge and Purge Cycle
time. The chart below can be used as a guide in determining
if additional help is required.
Total Vehicle Reservoir
Volume Requirement
Less than 9,000 cu. in. .................. Standard AD-IP™ Air Dryer
9,000 - 12,500 cu. in. ...........................Extended Purge AD-IP™ Air
Dryer
Greater than 12,500 cu. in. ............ Contact Bendix Rep. or
Bendix Engineering
Air Compressor Size — Although the AD-IP™ air dryer can
be used in conjunction with larger compressors, it was
designed primarily for units rated for up to 30 CFM. It is
recommended that when using the AD-IP™ air dryer with a
compressor which has a rated displacement exceeding 30
13
CFM that an authorized Bendix parts outlet or Bendix
marketing representative be contacted for assistance.
Holset “E or QE” Type Air Compressors - In order for
these Holset compressors to function properly when installed
with an AD-IP™ air dryer, the required Holset feedback line
and single check valve must be used. The standard AD-IP™
air dryer can be used with a separate feedback line and
single check OR the AD-IP™ DI (Drop In) air dryer model can
be used. With AD-IP™ DI drop in air dryer in use the separate
feed back line and single check valve can be eliminated
since these components are part of the air dryer. Refer to
Figures 2 & 3.
VEHICLE PREPARATION
1. Park the vehicle on a level surface and prevent movement
by means other than the brakes.
2. Drain all reservoirs to 0 p.s.i.
LOCATING AD-IP™ AIR DRYER ON VEHICLE
1. The AD-IP™ air dryer must be mounted vertically (purge
exhaust toward road surface) outside the engine
compartment in an area of air flow while the vehicle is in
motion. The AD-IP™ air dryer must not be exposed to
direct wheel splash. If the air dryer is located directly
behind the axle, a mud flap is required.
2. Maintain a minimum clearance of 12" between the air
dryer and any potential heat source (e.g. vehicle exhaust).
If this is not feasible, a heat shield must be used.
3. Make certain that adequate clearance from moving
components (e.g. drive shaft, suspension, pitman arm,
etc.) is provided.
4. Locate the air dryer on vehicle so that a minimum of
1/2” clearance above the air dryer is available to allow
desiccant cartridge removal. A minimum of 8” clearance
below the air dryer is required to allow for desiccant
cartridge bolt removal.
5. When choosing the mounting location for the AD-IP™ air
dryer, note the discharge line length requirements stated
under the heading Connecting the Air Lines, elsewhere
in this manual.
Important Note: Under normal operating conditions, the
maximum inlet air temperature for the AD-IP™ air dryer
is 160 degrees Fahrenheit.
6. If possible, locate the AD-IP™ air dryer so that the purge
exhaust does not expel contaminants on vehicle
components. If this is not feasible, the purge exhaust
may be redirected away from the vehicle by installing an
optional special exhaust cover (pc. no. 112609). The
exhaust cover is available as a separate item from
authorized Bendix parts outlets. A 1” ID hose can be
clamped on this special exhaust cover to allow the
exhaust to be redirected.
MOUNTING THE AD-IP™ AIR DRYER (Refer to
Figure 10)
1. Install the lower mounting bracket on the AD-IP™ air
dryer. To accomplish this, it will be necessary to choose
two, of the four available, mounting holes. To determine
which two holes to utilize to attach the lower bracket,
take into consideration the piping connections required
to install the AD-IP™ air dryer and use those that will
best position the unit for ease of installation. Utilizing
the two cap screws and washers provided with the
AD-IP™ air dryer retrofit unit, attach the lower mounting
bracket and torque to 300-360 in. lbs.
Note: The bracket mounting holes in the end cover may
not be pre-tapped. In this case the mounting bolt will
self tap the holes on initial installation.
2. Assemble the mounting strap (4) and saddle bracket (5)
as illustrated, by utilizing the 5/16" cap screw (1) and
sleeve nut (3) provided. Place the upper bracket strap in
the end cover channel provided for it, then install the
saddle bracket and secure the strap to the saddle bracket
using the cap screw (1) and sleeve nut (3) provided.
Install, but do not tighten the cap screw at this time.
Orient the strap and saddle bracket (5) so that it is in a
flat plane with the lower bracket. Torque the 5/16" nut to
60-100 in. lbs. to tighten strap onto the shell.
3. Components and location used to mount the AD-IP™ air
dryer on the vehicle must be rigid enough to minimize
air dryer vibration.
4. Mount the AD-IP™ air dryer on the vehicle using 3/8"
bolts (grade 5 min.) and washers. Torque to 25 ft. lbs.
(300 in.lbs.)
CONNECTING THE AIR LINES
PURGE CONTROL LINE
1. Install a purge control air line having a minimum inside
diameter of 3/16 inches between the AD-IP™ air dryer
end cover control port and an unused unloader port on
the governor. The control line must be connected directly
to the governor and not in series with automatic drain
valves, lubrication systems, etc.
2. The control line should slope downward to the end cover
without forming sharp bends or “dips”.
COMPRESSOR DISCHARGE LINE
GENERAL:
Refer to Appendix A, Table A for recommended discharge
line lengths and sizes for various vehicle applications and
vocations.

14
SUPPLY RES.
GOVERNOR PURGE CONTROL
LINE TO CON PORT
HEATER &
THERMOSTAT
LEAD TO
GROUND
DELIVERY LINE
FROM DEL PORT
ON AD-IP™ AIR
DRYER
AD-IP™
AIR
DRYER
FUSE
10 AMP - 12 VOLT
5 AMP - 24 VOLT
HEATER &
THERMOSTAT
LEAD TO
IGNITION
SWITCH
DISCHARGE
LINE TO SUP
PORT
FIGURE 10 - AD-IP™ AIR DRYER INSTALLATION
PURGE EXHAUST LINE
1. If it is necessary to direct AD-IP™ air dryer discharge
contaminants away from vehicle components it will be
necessary to purchase a special exhaust cover for the
AD-IP™ air dryer (Pc. No. 112609) and install on the
unit. A 1” (25.4 mm) I.D. hose can be clamped on the
special AD-IP™ air dryer exhaust cover.
WIRING THE HEATER/THERMOSTAT
1. The air dryer is available with either a 12 or 24 volt heater
which uses 90 watts of power. Determine the vehicle’s
electrical system voltage and make certain that the air
dryer that is to be installed contains the same voltage
heater. The air dryer’s part number can be used to
determine the air dryers heater voltage requirement. The
heater voltage can also be identified by the color of the
heater assembly connector as described in the table
below.
Air Dryer Heater Air Dryer Connector
Voltage Identification
12 Volts White (No other markings)
24 Volts Gray, or White w/Red Dot
2. A two lead, 24 inch, wire harness with attached weather
resistant connector is supplied with all retrofit and
replacement AD-IP™ air dryers. Connect one of the two
leads of the wire harness to the engine kill or ignition
switch. The remaining lead of the wire harness must be
connected to a good vehicle ground (not to the air dryer
or its mounting bracket). A fuse must be installed in the
power carrying wire; install a 10 amp fuse for 12 volt
heaters and a 5 amp fuse for a 24 volt heater.
3. Use 14 gauge wire if it is necessary to lengthen the wire
harness provided with the AD-IP™ air dryer. Make certain
all wire splices are waterproofed using the splice kit
provided with all aftermarket AD-IP™ air dryers.
4. Tie wrap or support all electrical wires leading to the
AD-IP™ air dryer at 6 - 8 inch intervals.
Note: Wires should have sufficient slack and not
completely taught.
INSTALLING AD-IP™ AIR DRYER WITH HOLSET
COMPRESSOR
GENERAL
The vehicle installation guidelines presented in the previous
section apply to all AD-IP™ air dryer installations. Vehicles
equipped with the Holset Type E or QE compressor require
the following additional considerations.
Standard AD-IP™ Air Dryer (Refer to Figure 3B)
If the AD-IP™ air dryer is being installed on a vehicle that did
not previously have an air dryer or air system aftercooler, a
separate feedback line and single check valve must be
installed.
If the AD-IP™ air dryer is replacing an older style air dryer or
air system aftercooler that did not incorporate an integral
“Turbo Cutoff” device, the Holset ECON valve must be
removed. The feedback line and single check valve must
remain in place.
AD-IP™ DI “Drop In” Air Dryer Model (Refer to Figure 3C)
If the AD-IP™ DI “Drop In” air dryer is being installed on a
vehicle that did not previously have an air dryer or air system
aftercooler, no additional considerations are necessary.
Install the AD-IP™ DI drop in air dryer in the manner described
in the previous section.
If the AD-IP™ DI drop in air dryer is replacing a standard
AD-IP™ air dryer or air system aftercooler which incorporated
an integral “Turbo Cutoff” device, the old feedback line and
single check valve must be removed.
If the AD-IP™ DI drop in air dryer is replacing an older style
air dryer or air system aftercooler that did not incorporate an
integral “Turbo Cutoff” device, the Holset ECON valve and
the old feedback line and single check valve must be
removed.

15
FIGURE 11 - WIRING - REMOTE POWER & LOCAL
GROUND
GROUND
LEAD
1/4" or 3/8"
EYELET
FRAME RAIL
STAR WASHER
NUT
14 GAGE POWER WIRE
FROM VEHICLE
WIRE HARNESS
CONNECTOR
(TO AIR DRYER)
WEATHERPROOF
POWER LEAD
SPLICE
TESTING THE AD-IP™ AIR DRYER
Before placing the vehicle in service, perform the following
tests.
1. Close all reservoir drain cocks.
2. Build up system pressure to governor cutout and note
that the AD-IP™ air dryer purges with an audible escape
of air.
3. “Fan” the service brakes to reduce system air pressure
to governor cut-in. Note that the system once again builds
to full pressure and is followed by a purge at the AD-IP™
air dryer exhaust.
4. It is recommended that the following items be tested for
leakage to assure that the AD-IP™ air dryer will not cycle
excessively.
(A) Total air system leakage (See Bendix publication
BW5057 “Air Brake Handbook.”)
(B) Compressor unloader mechanism.
(C) Governor.
(D) Drain cock and safety valve in first (supply) reservoir.
(E) All air connections leading to and from the first
(supply) reservoir.
(F) Delivery check valve.

16
AD-IP™ AIR DRYER TROUBLESHOOTING CHART
SYMPTOMS
1. Dryer is constantly
“cycling” or purging.
Dryer purges frequently
(every 4 minutes or less
while vehicle is idling).
A. If leakage IS SHOWN on gauges test for
excessive service brake system leakage.
Allowable leakage:
Single vehicle - 1 psi/minute either service
reservoir.
Tractor trailer - 3 psi/minute either service
reservoir. Repair and retest as required.
A. Excessive system
leakage.
IMPORTANT: Note whether
air pressure loss is shown
on dash gauge(s). Pressure
loss shown on gauges is
caused by service brake
system or component
leakage. Pressure loss NOT
SHOWN on gauges is
caused by supply system or
component leakage.
CAUSE REMEDY
B. If leakage is NOT SHOWN on gauges test for
excessive supply system leakage.
Remove drain cock or valve in supply reservoir (wet
tank) and install air gauge. Build system pressure,
allow air dryer to purge and observe air gauge in
supply reservoir. Pressure drop should not exceed 1
psi per minute.
Perform tests 1 to 6 in the order presented.

17
AD-IP™ AIR DRYER TROUBLESHOOTING CHART (Continued)
1. Test fittings, hoses, lines and connections.
Apply soap solution to detect excessive
leakage. Tighten or replace as needed then
repeat the air dryer charge-purge cycle and
observe the gauge installed in the supply
reservoir. If leakage is within limits remove gauge
from reservoir and replace drain cock or valve. If
excessive leakage is detected, continue testing.
2. Test accessories connected to supply reservoir.
Drain all air pressure from system, disconnect
all air lines leading to accessories (fan clutch,
wipers, air seats, etc.) and plug the reservoir at
disconnection point. Build air system pressure
until air dryer purges and observe supply
reservoir gauge. If leakage is no longer
excessive, repair or replace leaking accessory. If
excessive leakage is detected, continue testing.
3. Test governor leakage. Build system pressure to
governor cut-out, turn off engine and apply soap
solution to governor exhaust port and around
cap. Leakage should not exceed a 1 in. bubble
in 5 seconds. Reduce system pressure to 80 psi
or less, and re-apply soap solution. Leakage
should not exceed a 1 in. bubble in 5 seconds. If
excessive leakage is detected in either test,
repair or replace governor.
4. Test compressor unloader leakage. Drain all air
pressure from system and remove the governor
from the compressor. Temporarily plug the
governor unloader port or air line that mated with,
or connected to, the compressor. Build air
system pressure until air dryer purges then
IMMEDIATELY SHUT OFF THE ENGINE.
Observe the air gauge in the supply reservoir. If
leakage is within limits, replace the compressor
unloaders. Re-connect the governor to the
compressor (after removing plug installed in
governor) and retest while observing supply
reservoir gauge. If excessive leakage is
detected, continue testing.
5. Test air dryer purge valve and outlet (delivery)
check valve. Drain all air pressure from system,
remove the control line connection at the air
dryer and plug the end of the air line leading to
the governor (not the air dryer control port). Build
system pressure to governor cut-out and observe
air gauge. If little or no pressure drop is observed
replace the air dryer check valve. If pressure
drop continues, apply soap solution to air dryer
purge exhaust and purge control port (where the
control line was removed). Leakage should not
exceed a 1 in. bubble in 5 seconds. If leakage is
excessive repair or replace purge valve
assembly.
REMEDY
CAUSE
SYMPTOMS
1. Dryer is constantly
“cycling” or purging.
Dryer purges frequently
(every 4 minutes or less
while vehicle is idling)
(continued).

18
SYMPTOMS CAUSE REMEDY
AD-IP™ AIR DRYER TROUBLESHOOTING CHART (Continued)
6. With gauge installed at RES port of governor,
pressure should not drop below ”Cut-In” pressure
at the onset of the compressor “Unloaded”
cycle. If pressure drops, check for “kinks” or
restrictions in line connected to RES port. Line
connected to RES port on governor must be
same diameter, or preferably larger than, lines
connected to UNL port(s) on governor.
B. Test the Holset E Compressor unloader system
with feedback line and check valve for proper
operation. Make certain Holset ECON is not in
use with the drop-in version of the air dryer, if so,
remove and retest.
B. Holset “E” type
compressor.
When installing a Bendix Drop-In air dryer in a
system equipped with a Holset E or QE
compressor, remove the Holset ECON valve along
with its feedback and governor control line.
2. Water and/or Oil in
Supply or Service
Reservoir.
A. Improper discharge line
length or improper line
material. Maximum air
dryer inlet temperature is
exceeded.
B. Air system charged from
outside air source
(outside air not passing
through air dryer).
C. Air dryer not purging
(see Symptom #5).
A. Refer to section entitled Connecting the Air Lines
as well as Appendix A, Table A columns 1 & 2
then check line size and length.
B. If system must have outside air fill provision,
outside air should pass through air dryer. This
practice should be minimized.
C. See Symptom #5.
Typical Drop-In Air Dryer End Cover
1. Dryer is constantly
“cycling” or purging.
Dryer purges frequently
(every 4 minutes or less
while vehicle is idling)
(continued).
Check Valve
Feedback Line

19
AD-IP™ AIR DRYER TROUBLESHOOTING CHART (Continued)
SYMPTOMS
2. Water and/or Oil in
Supply or Service
Reservoir (continued).
CAUSE REMEDY
E. Excessive air usage,
duty cycle too high - Air
dryer not compatible
with vehicle air system
requirement (Improper air
dryer/vehicle
application).
NOTE: Duty Cycle is the
ratio of time the compressor
spends building air to total
engine running time. Air
compressors are designed
to build air (run “loaded”) up
to 25% of the time. Higher
duty cycles cause
conditions that affect air
brake charging system
performance which may
require additional
maintenance. Factors that
add to the duty cycle are: air
suspension, additional air
accessories, use of an
undersized compressor,
frequent stops, excessive
leakage from fittings,
connections, lines,
chambers or valves, etc.
D. Check causes and remedies for Symptom #1.
E. See Appendix A, Table A, column 1, for
recommended compressor sizes. If the
compressor is “too small” for the vehicle vocation
(for example, where a vehicle’s vocation has
changed or service conditions exceed the original
vehicle or engine OE spec’s) then upgrade the
compressor. Note: The costs incurred (e.g.
installing a larger capacity compressor, etc.) are
not covered under original compressor warranty.
Charge Cycle Time - The AD-IP™ air dryer is
designed to provide clean, dry air for the brake
system. When a vehicle’s air system is used to
operate non-brake air accessories it is necessary
to determine that; during normal, daily operation
the compressor should recover from governor
“cut-in” to governor “cut-out” (usually 100 psi to
120 psi) in 90 seconds or less at engine RPM’s
commensurate with the vehicle vocation. If the
recovery time consistently exceeds this limit, it
may be necessary to “bypass” the air accessory
responsible for the high air usage. An example of
where a by-pass system would be required is
when the compressor is used to pressurize a
tank trailer for purposes of off-loading product.
Consult your local authorized Bendix parts outlet
or sales representative for additional information.
Purge Cycle Time - During normal vehicle
operation, the air compressor must remain
unloaded for a minimum of 30 seconds. This
minimum purge time is required to ensure
complete regeneration of the desiccant material.
If the purge time is consistently less than the
minimum, an accessory by-pass system must be
installed. Consult your local authorized Bendix
parts outlet or sales representative for additional
information.
Air Compressor Size - Although the AD-IP™ air
dryer can be used in conjunction with larger
compressors, it was designed primarily for units
rated for up to 30 CFM. It is recommended that
when using the AD-IP™ air dryer with a
compressor which has a rated displacement
exceeding 30 CFM that an authorized Bendix
parts outlet or Bendix marketing representative
be contacted for assistance.
F. Restricted discharge line. See Appendix A, Table
A, column 1 & 2 for recommended sizes. If
discharge line is restricted or more than 1/16”
carbon build up is found, replace the discharge
line. Replace as necessary.
D. Purge (air exhaust) time
insufficient due to
excessive system
leakage (see causes for
Symptom #1).
F. Air compressor
discharge and/or air
dryer inlet temperature
too high.

20
G. Compressor malfunction.
SYMPTOMS CAUSE REMEDY
AD-IP™ AIR DRYER TROUBLESHOOTING CHART (Continued)
Discharge Line Freeze-Up. The discharge line must
maintain a constant slope down from the
compressor to the air dryer inlet fitting to avoid low
points where ice may form and block the flow. If,
instead, ice blockages occur at the air dryer inlet,
insulation may be added here, or if the inlet fitting is
a typical 90 degree fitting, it may be changed to a
straight or 45 degree fitting. For more information on
how to help prevent discharge line freeze-ups, see
Bendix Bulletins TCH-08-21 and TCH-08-22. Shorter
discharge line lengths or insulation may be required
in cold climates.
Insufficient coolant flow through compressor. Inspect
coolant line. Replace as necessary (I.D. is 1/2”
min.). Inspect the coolant lines for kinks and
restrictions and fittings for restrictions. Replace as
necessary. Verify coolant lines go from engine block
to compressor and back to the water pump. Repair
as necessary.
Restricted air inlet (not enough air to compressor).
Check compressor air inlet line for restrictions,
brittleness, soft or sagging hose conditions etc.
Repair as necessary. Inlet line size is 3/4 ID.
Maximum restriction requirement for compressors is
25 inches of water. Check the engine air filter and
service if necessary (if possible, check the air filter
usage indicator).
Poorly filtered inlet air (poor air quality to
compressor). Check for leaking, damaged or
malfunctioning compressor air inlet components
(e.g. induction line, fittings, gaskets, filter bodies,
etc.). Repair inlet components as needed. Note: Dirt
ingestion will damage compressor and is not
covered under warranty.
If you found excessive oil present in the service
reservoir and you did not find any issues above, the
compressor may be passing oil.
Replace compressor. If still under warranty, follow
normal warranty process.
G. If you found excessive oil present in the service
reservoir and you did not find any issues above,
the compressor may be passing oil. Test the
compressor using the BASIC cup method as
described in the Bendix compressor service
manual and referred to in Appendix A, Table A,
column 5.
Replace compressor. If still under warranty, follow
normal warranty process.
H. If vehicle uses Holset compressor, inspect
feedback check valve for proper installation and
operation.
H. Air by-passes desiccant
cartridge assembly.
2. Water and/or Oil in
Supply or Service
Reservoir (continued).

21
When replacing the desiccant cartridge, make
sure desiccant cartridge assembly is properly
installed and sealing rings are in place on
mounting surface of desiccant cartridge.
AD-IP™ AIR DRYER TROUBLESHOOTING CHART (Continued)
SYMPTOMS CAUSE REMEDY
Typical Drop-In Air Dryer End Cover
I. Desiccant requires
replacement.
A. Air dryers remove water and oil from the air
brake charging system. A small amount of oil is
normal. Check that regular maintenance is
being performed and that the amount of oil in the
air tanks (reservoirs) is within the acceptable
range shown on the BASIC cup (see also
column 5 of Appendix A, Table A). Replace the
air dryer cartridge as needed and return the
vehicle to service.
A. Air brake charging
system is functioning
normally.
3. Oil present at air dryer
purge exhaust or
cartridge during
maintenance.
A. Check to determine if air is reaching supply
reservoir. Inspect for kinked tubing or hose.
Check for undrilled or restricted hose or tubing
fittings and repair or replace as needed.
B. Verify relief pressure is at vehicle or component
manufacturer specifications. Replace if
malfunctioning.
C. Refer to Appendix A Table A and column 3.
Check compressor for excessive oil passing
and/or correct compressor installation. Repair or
replace as necessary. Replace desiccant
cartridge.
D. Test to determine if air is passing through check
valve. Repair or replace.
E. Increase volume in discharge line by increasing
length or diameter. Add a ping tank (small
reservoir).
4. Safety valve on air dryer
“popping off” or
exhausting air.
A. Restriction between air
dryer and supply (first)
reservoir.
B. Air dryer safety valve
malfunction.
C. Desiccant cartridge
maintenance required.
D. Malfunctioning discharge
check valve in end cover
of the AD-IP™ air dryer.
E. Excessive pressure
pulsations from
compressor. (Typical
single cylinder type).
I. Replace desiccant cartridge assembly. Refer to
Appendix A, Table A columns 3 & 4 for
recommended intervals.
2. Water and/or Oil in
Supply or Service
Reservoir (continued).
Check Valve
Feedback Line

22
D. Excessive bends in
discharge line (water
collects and freezes).
E. Refer to Symptom 4,
Causes E & F.
AD-IP™ AIR DRYER TROUBLESHOOTING CHART (Continued)
SYMPTOMS CAUSE REMEDY
F. Governor malfunction.
Missing or restricted
governor control line
installation.
F. Test governor operation and/or inspect the
control line leading from the governor UNL
(unloader) port to the air dryer control port.
5. Constant exhaust of air
at air dryer purge valve
exhaust. (Charge
mode.)
A. Air dryer purge valve
leaking excessively.
B. Compressor fails to
unload (stop compressing
air) and air dryer purge
exhaust makes
“sputtering” or “popping”
sound.
C. Purge control line
connected to reservoir
or exhaust port of
governor.
D. Purge valve frozen open -
malfunctioning heater
and thermostat, wiring,
blown fuse.
A. With compressor loaded, apply soap solution
on purge valve exhaust, to test for excessive
leakage. Refer to Technical Bulletin
TCH-008-040. Repair purge valve as necessary.
E. Excessive system
leakage.
F. Purge valve stays open
- supply air leaks to
control side.
F. Repair purge valve and housing.
6. Can not build system air
pressure.
A. Inlet and outlet air
connections reversed.
B. Check valve between air
dryer and first reservoir.
C. Kinked or blocked
(plugged) discharge line.
A. Connect compressor discharge to air dryer
supply port. Reconnect lines properly.
B. Test check valve for proper operation. Repair or
replace as necessary.
C. Check to determine if air passes through
discharge line. Check for kinks, bends,
excessive carbon deposits, or ice blockage.
D. Discharge line should be constantly sloping from
compressor to air dryer with as few bends as
possible.
E. Refer to Symptom #4, Remedies E & F.
7. Air dryer does not purge
or exhaust air.
A. Missing, broken, kinked,
frozen, plugged or
disconnected purge
control line.
A. Inspect control line from governor UNL (unloader)
port to control port of air dryer. Test to determine
if air flows through purge control line when
compressor unloaded. Check for undrilled
fittings. (See Symptom #4, Remedy C.)
B. After determining air reaches purge valve
(Remedy A above), repair purge valve.
C. Refer to Remedies B, E, G for Symptom #4.
B. Faulty air dryer purge
valve.
C. See Causes, B, E, G for
Symptom #4.
E. See Symptom #1.
D. Test heater and thermostat as described in
Preventative Maintenance Section.
C. Purge control line must be connected to
unloader port of governor.
B. Confirm failure to unload by increasing &
decreasing engine RPM and noting change in
the rate of leakage and intensity of
accompanying leakage sound. Repair/replace
compressor unloaders.
4. Safety valve on air dryer
“popping off” or
exhausting air
(continued).

23
AD-IP™ AIR DRYER TROUBLESHOOTING CHART (Continued)
SYMPTOMS CAUSE REMEDY
8. Desiccant material being
expelled from air dryer
purge valve exhaust
(may look like whitish
liquid or paste or small
beads.)
- OR -
Unsatisfactory desiccant
life.
A. This symptom is almost
always accompanied by
one or more of
Symptoms 1, 2, 3, 4 and
5. See related causes for
these symptoms above.
B. Air dryer not securely
mounted. (Excessive
vibration.)
C. Malfunctioning or
saturated desiccant
cartridge.
A. See Causes and Remedies for Symptoms 1, 2,
3, 4 and 5.
B. Vibration should be held to minimum. Add
bracket supports or change air dryer mounting
location if necessary.
C. Replace desiccant cartridge assembly.
D. Compressor passing
excessive oil.
E. Desiccant cartridge not
assembled properly to
end cover. (Loose
attachment)
D. Check for proper compressor installation; if
symptoms persist, replace compressor.
E. Check the torque on the desiccant cartridge
to end cover attachment. Refer to assembly
section of this data sheet.
A. A slight “pinging” sound may be heard during
system build up when a single cylinder
compressor is used. If this sound is deemed
objectionable, it can be reduced substantially
by increasing the discharge line volume.
This can be accomplished by adding an
additional four feet of discharge line or adding a
90 cubic inch reservoir between the compressor
and the AD-IP™ air dryer. IMPORTANT: Do not
exceed the line lengths requirements specified
in this manual.
9. “Pinging” noise
excessive during
compressor loaded
cycle.
A. Single cylinder
compressor with high
pulse cycles.
10. Constant seepage of air
at air dryer purge valve
exhaust (non-charging
mode.)
A. Defective check valve
assembly in AD-IP™ air
dryer end cover.
B. Leaking Turbo Cutoff
valve.
C. Leaking purge valve
control piston o-ring.
A. Refer to Remedy C, Symptom #1.
B. Repair or replace purge valve assembly.
C. Repair or replace purge valve assembly.
A. Compressor fails to
“unload”.
11. The air dryer purge
piston cycles rapidly in
the compressor
unloaded (non-
compressing) mode.
A. Faulty governor installation; no air line from
governor to compressor or line is kinked or
restricted. Install or repair air line.

24
Bendix® BA-922® or DuraFlo™ 596 air compressor
Compressor with up to 25% duty
cycle
Footnotes:
1 With increased air demand the air dryer cartridge needs to be replaced more often.
2 Use the drain valves to slowly drain all reservoirs to zero psi.
3 Allow the oil/water mixture to fully settle before measuring oil quantity.
4 To counter above normal temperatures at the air dryer inlet, (and resultant oil-vapor passing
upstream in the air system) replace the discharge line with one of a larger diameter and/or
longer length. This helps reduce the air's temperature. If sufficient cooling occurs, the oil-
vapor condenses and can be removed by the air dryer. Discharge line upgrades are not
covered under warranty. Note: To help prevent discharge line freeze-ups, shorter discharge
line lengths or insulation may be required in cold climates. (See Bendix Bulletins TCH-08-21
and TCH-08-22.)
5 For certain vehicles/applications, where turbo-charged inlet air is used, a smaller size
compressor may be permissible.
Recom- Recom- Acceptable
Typical Discharge mended mended Reservoir
Compressors Line Air Dryer Reservoir Oil Contents3
No. of Spec'd Cartridge Drain at Regular
Axles Replacement1Schedule2Drain Interval
High Air Use
Low Air Use
e.g. Double/triple trailer, open
highway coach/RV, (most)
pick-up & delivery, yard or
terminal jockey, off-highway,
construction, loggers, concrete
mixer, dump truck, fire truck.
e.g. Line haul single trailer
w/o air suspension, air over
hydraulic brakes.
e.g. Line haul single trailer
with air suspension,
school bus.
e.g. City transit bus, refuse,
bulk unloaders, low boys,
urban region coach, central
tire inflation.
5
or
less
5
or
less
8
or
less
12
or
less
Table A: Maintenance Schedule and Usage Guidelines
Recom-
mended
Every
Month -
Max of every
90 days
Every
Month
Every 3
Years
Every 2
Years
Every
Year
I.D.
Vehicle Used for:
Column 1 Column 2 Column 3 Column 4 Column 5
Regularly scheduled maintenance is the single most important factor in maintaining the air brake charging system.
Note: Compressor and/or air dryer
upgrades are recommended in cases
where duty cycle is greater than the
normal range (for the examples above).
For Bendix® Tu-Flo® 550 and 750
compressors, unloader service is
recommended every 250,000 miles.
Length
6 ft.
1/2 in.
9 ft.1/2 in.
12 ft.
1/2 in.
5/8 in. 12 ft.
BASIC test
acceptable
range:
5 oil units
per month.
See
appendix
A.
For oil carry-over
control4 suggested
upgrades:
3/4 in. 15 ft.
For oil carry-over
control4 suggested
upgrades:
5/8 in. 15 ft.
For oil carry-over
control4 suggested
upgrades:
5/8 in. 9 ft.
For oil carry-over
control4 suggested
upgrades:
5/8 in. 12 ft.
Compressor with less than 15% duty
cycle
Compressor with up to 25% duty
cycle
Compressor with up to 25% duty
cycle
Bendix® BA-921® air compressor
Bendix® Tu-Flo® 550 air compressor
Bendix® Tu-Flo® 750 air compressor
BASIC test
acceptable
range:
3 oil units
per month.
See
appendix
A.
For the
BASIC
Test Kit:
Order
Bendix
P/N
5013711
Appendix A

25
HOLSET TYPE
"E & QE"
COMPRESSOR
W/O ECON
VALVE
DASH
GAUGE
LOW PRESSURE
INDICATOR
Additional Troubleshooting Information
The troubleshooting procedure presented on the following pages has been excerpted from a laminated card entitled:
Troubleshooting Charging and Air Supply Systems. The complete card can be obtained from authorized Bendix parts
outlets under literature number BW1779. It is presented here because of the air dryers connection to the supply air system
and for convenience. The procedure is not all inclusive but rather represents the most commonly encountered complaints.
CONVENTIONAL
SUPPLY SYSTEM
& INTEGRAL PURGE
AIR DRYER
HOLSET TYPE
"E & QE"
COMPRESSOR
WITH ECON
VALVE
FRONT
REAR
DASH
GAUGE
STANDARD SINGLE
CHECK VALVE
LOW
PRESSURE
INDICATOR
SUPPLY
SAFETY
VALVE
AIR
DRYER
HOLSET
“E OR QE”
COMPRESSOR
SPECIAL
SINGLE CHECK
("CHOKE" IN INLET)
GOVERNOR
HOLSET
ECON VALVE
REAR
FRONT
SUPPLY
DASH
GAUGE
LOW PRESSURE
INDICATOR
STANDARD SINGLE CHECK VALVE
(USED W/INTEGRAL PURGE AIR
DRYERS)
SAFETY
VALVE
AIR DRYER
TWO CYL.
COMPRESSOR
GOVERNOR
STANDARD SINGLE
CHECK VALVE
REAR
FRONT
SUPPLY
HOLSET
“E OR QE”
COMPRESSOR
GOVERNOR
AIR DRYER
SAFETY
VALVE
SPECIAL
SINGLE CHECK
("CHOKE" IN INLET)
SINGLE CHECK -
PROTECTION VALVE
(USED W/SYSTEM
PURGE AIR DRYERS) SINGLE CHECK VALVE (USED
W/INTEGRAL PURGE AIR DRYERS)
DRAIN COCK
Appendix B
26
Complaint: Can Not Build System Pressure
• Discharge line plugged or restricted: see Common Test 1.
• Air pressure trapped between governor and compressor
unloaders: see Common Test 2.
• Blow leakage at air dryer exhaust: see Common Test 3.
Complaint: Air System Builds Too Slow
• Discharge line restricted: see Common Test 1.
• Discharge line leakage: see Common Test 5.
• Air leaking at air dryer exhaust: see Common Test 3.
• Compressor head gasket failure: apply soap solution
around cylinder head. If leakage between head and block
noted repair or replace compressor.
• Air pressure trapped between governor and compressor
unloaders: see Common Test 2.
• Air system leakage: see Common Test 4.
Complaint: Can Not Build System Pressure Above "X" psi.
• Blow leakage at compressor unloaders: remove all
hardware from compressor inlet then remove governor.
With 120 psi shop air applied to compressor unloader port
listen for leakage at inlet. If noted, repair leak or replace
compressor.
• Incorrect setting on governor: verify safety valve operation.
Drain air from system, remove or disconnect governor from
compressor and install gauge in governor unloader (UNL)
port. Build system pressure and note when pressure on
dash gauge and test gauge are equal. Should be equal at
maximum setting of governor.
• Discharge line leakage: see Common Test 5.
• Air system leakage: see Common Test 4.
• Compressor head gasket failure: apply soap solution
around cylinder head. If leakage between head and block
noted repair or replace compressor.
Complaint: Air Dryer Cycles "ON & OFF" Constantly
This complaint caused by leakage, either service system or
supply system. Service system leakage is shown on dash
gauges supply system leakage is not. Note: System purge air
dryers will purge more often than those with integral purge
volume.
Service system leakage: see Common Test 4.
Supply system component leakage: drain system, install
gauge and shop air hose in place of drain cock in supply
reservoir. Fill system to 120 psi, shut off shop air and check
leakage on following components in order presented:
• Compressor unloader leakage.
• Drain system, remove governor from compressor plug
governor UNL port and re-test. If leakage OK repair
compressor unloader mechanism or replace compressor.
If leakage NOT OK then next.
• Holset ECON valve (used with Holset Type "E & QE" comp.)
missing, malfunctioning, leaking.
COMPLAINTS COMMON TO THE CHARGING & AIR SUPPLY SYSTEM
• Is ECON valve required but missing? If YES, install, along
with special Holset check valve w/choke. If NO and ECON
valve present replace ECON valve and special check valve.
If NO and ECON not required then next.
• Air dryer leakage: Remove line from air dryer inlet and with
120 psi in supply res. soap exhaust and inlet port of air
dryer. If leakage greater than 1” bubble in 1 second at
exhaust port, repair or replace check valve (on dryers with
integral purge volume) or replace body assy. on system
purge air dryers. If leakage greater than 1” bubble in 1
second at inlet port, repair or replace purge valve assy. (on
dryers with integral purge volume) or replace turbo cut-off
valve on system purge air dryers.
Complaint: System Pressure Goes to 150+ psi
• Drain air system to 0 psi, remove/disconnect governor from
compressor. Start engine and note air pressure rise on
dash gauges. Apply 120 psi shop air to compressor
unloader port. If air pressure continues to rise, repair
compressor unloaders or replace compressor. If air ceases
to rise, repair or replace governor.
Complaint: Low Pressure Warning After Only 1 or 2
Applications
• Brakes out of adjustment: adjust brakes.
• Excessive system leakage on service (application) side of
system: Build system pressure to 120 psi and shut off
engine. With park brakes released, make full service
application and note dash gauges for 2 minutes. Pressure
drop on either gauge should not exceed 4 psi. (2 psi per
min.) If pressure drop excessive, find leakage in service
system, if OK, then next.
• Incorrect low pressure switch in use or setting incorrect:
Build system to 120 psi. Engine OFF ignition ON, slowly
drain air pressure from one service reservoir. Low pressure
warning on at minimum 60 psi, maximum 10-15 psi less
than governor cut-in pressure.
27
IMPORTANT: The Complaints, Causes and Remedies presented here should not be considered as the only situations possible.
They are only meant to represent the most commonly encountered. It may be necessary to perform additional trouble shooting using
the more detailed information presented in service manuals for the specific components.
1. Discharge plugged or restricted
• Connect temporary discharge line from comp. discharge port
to supply res. & re-check build-up. If build-up OK replace
plugged discharge line. If build-up NOT OK go to next cause.
2. Air pressure trapped between governor and compressor
• Verify safety valve operation then remove or disconnect
governor from compressor & check build-up.
• If build-up OK, repair or replace governor or line between governor
and compressor.
• If build-up NOT OK repair or replace compressor.
3. Blow Leakage at Air Dryer Exhaust
• Drain all air from supply reservoir then remove control air line
from air dryer, plug line and plug control port in air dryer. Re-
check build-up.
• If build-up OK, repair or replace governor or line between
governor and air dryer.
• If build-up NOT OK, and below 32 deg. F, turn ignition ON and
allow heater to warm air dryer then check build-up. If NOT OK,
remove wire (connector or terminal) from air dryer. Using test
light, check wire end or terminal for battery voltage with vehicle
ignition ON. If voltage OK, repair or replace air dryer heater
and thermostat. If voltage NOT OK, repair or replace the
vehicle wire connected to air dryer. Retest build-up.
• If build-up still NOT OK or temp. above 32 deg. F, replace air
dryer purge valve assembly.
4. Air system leakage
• Build system pressure to governor cut-out, wait 2 minutes for
dryer purge completion. Note pressures on dash gauges
then watch dash gauges for 2 minutes. Leakage not to
exceed 2 psi in 2 mins. for truck, bus, tractor (no trailer).
• If leakage NOT OK on gauges, find leak(s) in service and park
system and repair. Retest and if system purge air dryer in use
and still not OK repair or replace dryer.
• If leakage OK on gauges, drain air from supply reservoir,
remove drain cock and install air gauge. Build system air in
supply reservoir and note leakage. If OK continue checking.
If NOT OK find leaks and repair.
5. Discharge line leakage
• Soap cover on flex discharge line, if leakage noted replace
line.
• Soap fittings to check leakage, tighten as needed.
TESTS COMMON TO MORE THAN ONE COMPLAINT

28 BW1811 © 2007 Bendix Commercial Vehicle Systems LLC All rights reserved. 5/2007 Printed in U.S.A.