Bendix Bw1680 Users Manual Sd034516
2015-03-12
: Bendix Bendix-Bw1680-Users-Manual-651731 bendix-bw1680-users-manual-651731 bendix pdf
Open the PDF directly: View PDF
.
Page Count: 9

1
®
SD-03-4516
Bendix® SR-5™ Trailer Spring Brake Valve
FIGURE 1 SR-5™ TRAILER SPRING BRAKE VALVE
*SHOWN WITH OPTIONAL ANTI-COMPOUNDING COVER
SR-5™ VALVE
IDENTIFICATION
HOLE
1/4” NPT TRAILER
SERVICE
1/4” NPT
TRAILER SUPPLY EXHAUST
COVER*
1/4” NPT
SERVICE
RESERVOIR
(2)
3/8” NPT
DELIVERY (4)
1/2” OR 3/4” NPT
SPRING BRAKE
RESERVOIR
PRESSURE
PROTECTION
VALVE
DESCRIPTION
The SR-5™ valve is a reservoir-mounted trailer valve that can
control up to four spring brake actuators during parking or
emergency applications. It has the following capabilities:
• Automatically applies trailer spring brakes in the event of
a breakaway or trailer supply line failure.
• Protects trailer reservoir(s) air pressure in the event of a
breakaway or trailer supply line failure.
• Allows no automatic trailer spring brake application with
air pressure loss in trailer reservoir(s).
• Allows the trailer spring brakes to be applied and released
repeatedly with a failed trailer reservoir(s):
• Optional anti-compounding-prevents an overriding service
brake signal while the trailer supply line is at atmospheric
pressure.
• Does not allow service system charging if a failure occurs
in the parking brake circuit.
PORTS
1 - 1/2" or 3/4" NPT Spring Brake Reservoir Mounting
(SPR BK RES)
1 - 1/4"-18 NPT Trailer Supply (TRL SUP)
1 - 1/4"-18 NPT Trailer Service (TRL SER)
4 - 3/8"-18 NPT Delivery (DEL)
2 - 1/4"-18 Service Reservoir (SERV RES)
1 - Exhaust (EXH)
The SR-5™ valve appears very similar to the SR-2™ valve.
Both valves consist of a die-cast aluminum body and cover,
pressure protection valve, and reservoir-mounting nipple.
However, Figure 1 notes the distinguishing characteristic of
the SR-5™ valve–a hole drilled into the flat surface between
the pressure protection valve and the body.

2
FIGURE 2 TYPICAL SYSTEM SCHEMATICS WITH SR-5™ TRAILER SPRING BRAKE VALVE
TWO-TANK SYSTEM
TRAILER SERVICE
SERVICE/SPRING BRAKE
RESERVOIR
TRAILER SUPPLY
SERVICE
RELAY
VALVE
SERVICE/SPRING
BRAKE
RESERVOIR
SR-5™
VALVE
ONE-TANK SYSTEM
TRAILER SERVICE
SERVICE/SPRING BRAKE
RESERVOIR
TRAILER SUPPLY
SERVICE
RELAY
VALVE
SR-5™
VALVE

3
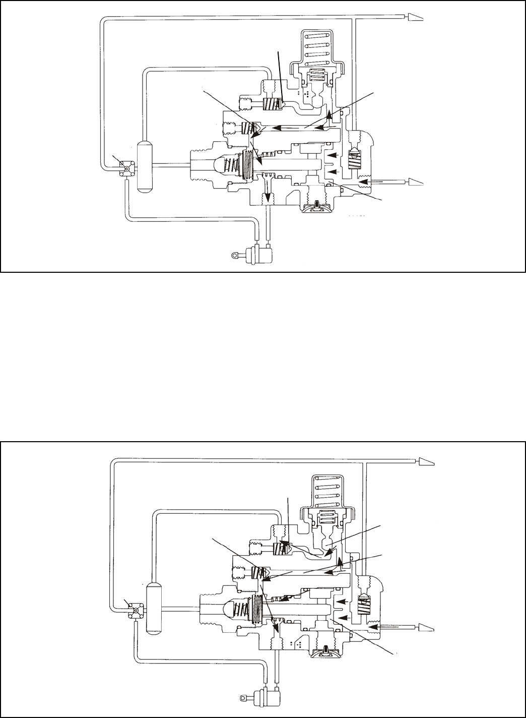
FIGURE 3 CHARGING BELOW 70 PSI
TRAILER SUPPLY
SPRING
BRAKE
CHAMBER
TRAILER SERVICE RES.
CONTROL PISTON
DELIVERY
OPERATION
CHARGING BELOW 70 PSI (SEE FIGURE 3)
Air flows through the trailer supply line, enters the SR-5™
valve trailer supply port, and moves the control piston. The
control piston contacts the control inlet/exhaust valve,
sealing off the piston’s exhaust passage.
As piston travel continues, the control inlet valve opens. Air
acting on the control piston also flows through passage A,
unseating check valve B, and flowing past the open control
inlet valve. This air flows into the spring brake cavities,
releasing the spring brakes.
CHARGING ABOVE 85 PSI (SEE FIGURE 4)
Air pressure acting on the control piston and flowing through
passage A also acts on pressure protection valve C. At
approximately 85 psi, valve C opens. This allows the air to
flow past check valve D and charge the trailer reservoir(s).
The trailer braking system is now in the normal run mode.
Service braking occurs through the trailer service relay valve.
EXHAUST
PASSAGE A
TRAILER SERVICE
CHECK
VALVE
B
SERVICE/SPRING
BRAKE RESERVOIR
CONNECTION
SERVICE
RELAY
VALVE
CHECK
VALVE
D
FIGURE 4 CHARGING ABOVE 85 PSI
CONTROL PISTON
PRESSURE
PROTECTION
VALVE C
SPRING
BRAKE
CHAMBER
TRAILER SERVICE RES.
EXHAUST
PASSAGE A
TRAILER SERVICE
CHECK
VALVE B
SERVICE/SPRING
BRAKE
RESERVOIR
CONNECTION
SERVICE
RELAY
VALVE
DELIVERY
CHECK
VALVE D

4
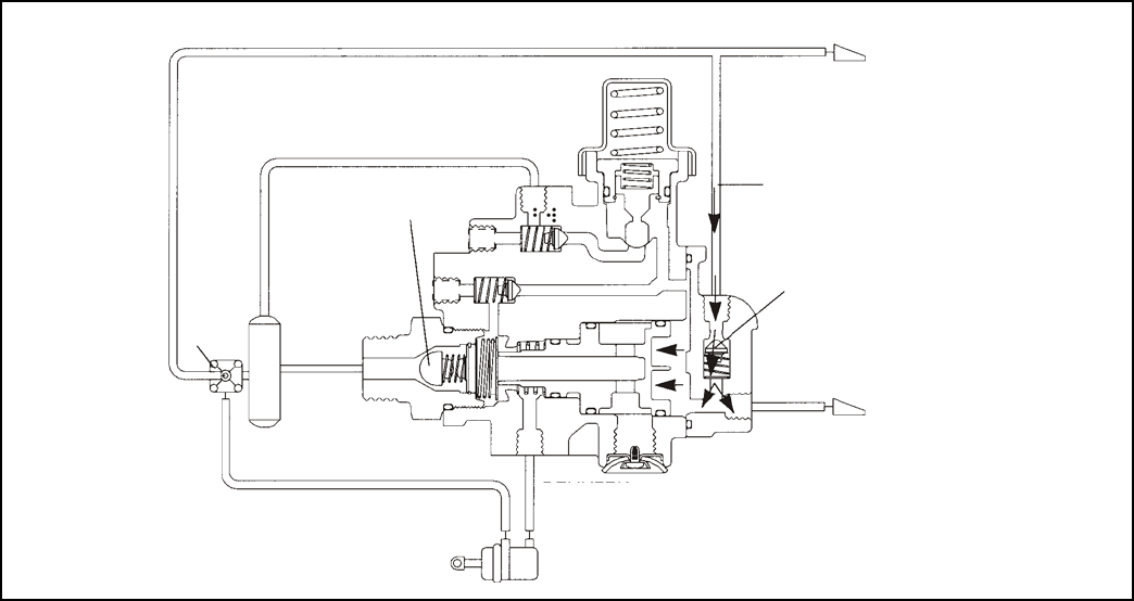
FIGURE 6 PARK RELEASE WITH TRAILER CHARGED
FIGURE 5 PARK APPLICATION
TRAILER SUPPLY
SPRING
BRAKE
CHAMBER
TRAILER SERVICE RES.
CONTROL PISTON
EXHAUST
PASSAGE
TRAILER SERVICE
CHECK
VALVE B
SERVICE/
SPRING
BRAKE
RESERVOIR
CONNECTION
SERVICE
RELAY
VALVE
PRESSURE
PROTECTION
VALVE C
SPRING
BRAKE
CHAMBER
TRAILER SERVICE RES.
EXHAUST
PASSAGE A
TRAILER SERVICE
CHECK
VALVE B
SERVICE/SPRING
BRAKE RESERVOIR
CONNECTION
SERVICE
RELAY
VALVE
CHECK
VALVE D
CONTROL PISTON
TRAILER SUPPLY
CHECK
VALVE
F
CHECK
VALVE D
PARK APPLICATION (SEE FIGURE 5)
To park the trailer, either the trailer air supply valve or the
system park control valve (in the tractor) is actuated. This
vents the trailer supply line. The control piston, no longer
under supply pressure, is moved by air pressure on its
delivery side. This allows the control piston to move to the
exhaust position. The control inlet valve closes and the
exhaust valve opens, allowing air from the spring brakes to
exhaust through the passage in the control piston and apply
the brakes. Check valves B and D close, preventing trailer
reservoir air pressure loss through passage A.
PARK RELEASE WITH TRAILER CHARGED
(SEE FIGURE 6)
To release a park application with the trailer charged, the
trailer supply valve (in the cab) is actuated. Air flows through
the trailer supply line and enters the SR-5™ valve trailer supply
port. With a minimum of 55 psi on the control piston, the
piston will move, sealing its exhaust passage. As piston
travel continues, the inlet valve opens. Reservoir air (approx.
110 psi) then flows through check valve F, past the open
inlet, and out to the spring brake chambers to release the
brakes.

5
Note that pressure protection valve C will open if trailer supply
air is greater than 70 psi. But check valves B and D will not
open unless release pressure from the tractor exceeds trailer
reservoir pressure.
ANTI-COMPOUNDING (SEE FIGURE 7)
The SR-5™ valve has an optional anti-compounding feature.
(See Figure 7.) A single check valve in the SR-5™ valve cover
prevents brake compounding (simultaneous spring brake and
service brake application), which creates extra load on
foundation brake components.
If a trailer service application is being made and at the same
instant a park application is made, air in the service line
flows through single check valve E in the SR-5™ valve cover.
Pressure is maintained on the control piston, while air also
flows out the trailer supply line and exhausts through the
tractor protection control. Future compounding is prevented
by the closed tractor protection valve.
FIGURE 7 OPTIONAL ANTI-COMPOUNDING
ANTI-COMPOUNDING
LINE
SPRING BRAKE
CHAMBER
EXHAUST
TRAILER SERVICE
CHECK
VALVE F
SERVICE/SPRING
BRAKE
RESERVOIR
CONNECTION
SERVICE
RELAY
VALVE
TRAILER SUPPLY
CHECK
VALVE E
DELIVERY

6
FIGURE 8 FAILED TRAILER RESERVOIR
PRESSURE
PROTECTION
VALVE C
SPRING
BRAKE
CHAMBER
TRAILER SERVICE RESERVOIR
EXHAUST
TRAILER SERVICE
CHECK
VALVE B
SERVICE/SPRING
BRAKE RESERVOIR
CONNECTION
SERVICE
RELAY
VALVE
TRAILER SUPPLY
FAILED TRAILER RESERVOIR (SEE FIGURE 8)
Should trailer reservoir pressure be lost, trailer service braking
is no longer available. Pressure protection valve C will close
at approximately 70 psi (minimum), retaining air pressure in
the trailer supply line.
The air held by the pressure protection valve will continue to
hold the control piston’s inlet valve open, supplying air to
the spring brakes. Thus, no automatic spring brake
application occurs. However, trailer supply line air can be
used to apply and release the trailer spring brakes repeatedly.
GENERAL SAFETY GUIDELINES
WARNING! PLEASE READ AND FOLLOW
THESE INSTRUCTIONS TO AVOID
PERSONAL INJURY OR DEATH:
When working on or around a vehicle, the following
general precautions should be observed at all times.
1. Park the vehicle on a level surface, apply the
parking brakes, and always block the wheels.
Always wear safety glasses.
2. Stop the engine and remove ignition key when
working under or around the vehicle. When
working in the engine compartment, the engine
should be shut off and the ignition key should be
removed. Where circumstances require that the
engine be in operation, EXTREME CAUTION should
be used to prevent personal injury resulting from
contact with moving, rotating, leaking, heated or
electrically charged components.
3. Do not attempt to install, remove, disassemble or
assemble a component until you have read and
thoroughly understand the recommended
procedures. Use only the proper tools and observe
all precautions pertaining to use of those tools.
4. If the work is being performed on the vehicle’s air
brake system, or any auxiliary pressurized air
systems, make certain to drain the air pressure from
all reservoirs before beginning ANY work on the
vehicle. If the vehicle is equipped with an AD-IS®
air dryer system or a dryer reservoir module, be
sure to drain the purge reservoir.
5. Following the vehicle manufacturer’s
recommended procedures, deactivate the electrical
system in a manner that safely removes all
electrical power from the vehicle.
6. Never exceed manufacturer’s recommended
pressures.
7. Never connect or disconnect a hose or line
containing pressure; it may whip. Never remove a
component or plug unless you are certain all
system pressure has been depleted.
7
8. Use only genuine Bendix® replacement parts,
components and kits. Replacement hardware,
tubing, hose, fittings, etc. must be of equivalent
size, type and strength as original equipment and
be designed specifically for such applications and
systems.
9. Components with stripped threads or damaged
parts should be replaced rather than repaired. Do
not attempt repairs requiring machining or welding
unless specifically stated and approved by the
vehicle and component manufacturer.
10. Prior to returning the vehicle to service, make
certain all components and systems are restored
to their proper operating condition.
11. For vehicles with Antilock Traction Control (ATC),
the ATC function must be disabled (ATC indicator
lamp should be ON) prior to performing any vehicle
maintenance where one or more wheels on a drive
axle are lifted off the ground and moving.
PREVENTIVE MAINTENANCE
Important: Review the Bendix Warranty Policy before
performing any intrusive maintenance procedures. A warranty
may be voided if intrusive maintenance is performed during
the warranty period.
No two vehicles operate under identical conditions, as a
result, maintenance intervals may vary. Experience is a
valuable guide in determining the best maintenance interval
for air brake system components. At a minimum, the SR-5™
valve should be inspected every 6 months or 1500 operating
hours, whichever comes first, for proper operation. Should
the SR-5™ valve not meet the elements of the operational
tests noted in this document, further investigation and service
of the valve may be required.
SERVICE CHECKS
1. Remove any accumulated contaminants. Visually inspect
the valve’s exterior for excessive corrosion or physical
damage. Repair/replace the valve as necessary.
2. Inspect all air lines connected the valve for signs of
wear or physical damage. Repair/replace as necessary.
3. Test air line fittings for excessive leakage and tighten or
replace as necessary.
OPERATIONAL AND LEAKAGE TESTS
Check the tractor dash gauge against a gauge known to be
accurate before performing these tests. Connect the tractor
air lines to the trailer on which the SR-5™ valve is to be
tested. Block all wheels or hold the vehicles by means other
than air brakes.
1. Install a gauge in the trailer reservoir(s). Build tractor
and trailer to full system pressure by placing the park
control valve and the trailer air supply valve in the charge
position. As system pressure reaches approximately
75-95 psi, the trailer spring brakes should also build up
to approximately 75- 95 psi before the reservoir(s) begin
to charge.
2. When full system pressure is reached, and the spring
brakes are fully released, apply a soap solution to the
SR-5™ valve exhaust port and the vent. A 1" bubble in 5
seconds is permissible.
3. Place the trailer air supply valve in the exhaust position.
The spring brakes should apply. Disconnect the trailer
supply line and apply a soap solution to check for leaks.
A 1" bubble in 5 seconds is permissible.
4. Reconnect the trailer supply hose coupling and recharge
the trailer system. The spring brakes should release.
Shut off the engine. Open the trailer reservoir drain cock.
The tractor air system should bleed down to
approximately 70 psi. The trailer spring brakes should
remain released. After the system is stabilized, leakage
at the open drain cock should not exceed a 1" bubble in
5 seconds.
5. If the SR-5™ valve does not function as described; or if
leakage is excessive, repair the valve, or replace with a
genuine Bendix service replacement valve.
REMOVAL
1. Identify and mark or label all air lines and their
connections on the SR-5™ valve. Then disconnect the
air lines.
2. Remove the SR-5™ valve from the reservoir.
INSTALLATION
1. Install the SR-5™ valve on the reservoir.
2. Reconnect all air lines to the valve using the identification
made in REMOVAL step 1.
3. Perform OPERATIONAL AND LEAKAGE TESTS before
placing the vehicle back in service.

8
PIPE PLUG
VALVE BODY
PIPE PLUG
11
9
12
10
17 18 7
6
8
25
5
4
2
1
3
24
23
16
15
19
20
21
22
18
17
14
13
FIGURE 9 - EXPLODED VIEW
9
DISASSEMBLY
The following procedure is for reference only. Always have
the appropriate maintenance kit on hand, and use its
instructions in lieu of those presented here. Refer to Figure
9 throughout the procedure.
1. Remove the four screws(1) that secure spring retainer(2)
to the valve body. Note that the retainer is spring-loaded.
Remove the screws while holding the retainer against
its spring load. Then slowly remove the retainer.
2. Remove spring(3) and piston assembly(4).
3. Remove piston o-ring(5). Do not remove the retaining
ring and stem from the piston. The piston is serviced as
an assembly.
4. Note and mark the position of control piston cover(7).
Then remove the four screws(6) that secure the cover
to the body.
5. Remove cover(7) and sealing ring(8), control piston(9),
and spring(10).
6. Remove o-rings(11 & 12) from piston assembly.
7. Remove reservoir fitting(13) and o-ring(14).
8. Remove spring(15) and inlet/exhaust valve(16).
9. Remove the pipe plugs that retain the three single check
valves. Two check valves are in the body, and one is in
the cover(7).
10. Remove check valve springs(17) and rubber check
valves(18).
11. With a pair of I.D. snap ring pliers, remove the snap
ring(19) in the end of the reservoir fitting check valve
assembly. Remove spring seat(20), spring(21), and
check valve(22).
12. Remove screw(23), washer(24), and diaphragm (25)
from the exhaust port.
CLEANING AND INSPECTION
1. Inspect all parts for excessive wear or deterioration.
Inspect valve seats for nicks or burrs. Check the springs
for cracks or corrosion.
2. Inspect the bores of the valve housing for deep scuffing
or gouges.
Replace all non-metallic parts and any part not found to be
serviceable during inspection, using only genuine Bendix
replacement parts.
ASSEMBLY
Before assembling the SR-5™ valve, lubricate all o-rings,
o-ring grooves, piston bores, and metal-to-metal moving
surfaces with Bendix silicone lubricant BW-650-M piece
number 291126.
NOTE: When using pipe thread sealant during assembly
and installation, take particular care to not allow
the sealant into the valve itself. Apply the sealant
beginning with the second thread back from the end.
1. Twist the springs(17) on each of the check valves(18).
Drop the assemblies into their respective bores in the
valve body and install the pipe plugs. Torque the plugs
to 140-170 inch pounds.
2. Place reservoir fitting(13) upright, pipe threads down.
Drop check valve(22) into place. Install check valve
spring(21), spring seat(20), and snap ring(19). Install
o-ring(14) into fitting.
3. Install inlet/exhaust valve(16) into valve body. NOTE: The
side with four protruding ears rests against the seat in
the body.
4. Place spring (15) in position on the inlet/exhaust valve.
Make sure the spring rests evenly on the four ears of
the inlet/exhaust valve and the rubber protrusion on the
valve fits into the spring’s inner diameter.
5. Properly align the inlet/exhaust valve springboard in the
recess at the end of the reservoir port fitting(13). Install
the fitting into the valve body. Torque to 200-300 inch
pounds.
6. Install o-rings(11 & 12) into their respective grooves in
control piston(9).
7. Drop and position spring(10) into the valve body.
8. Make sure all parts are properly aligned, and install the
control piston(9) into the valve body.
9. Install sealing ring(8) in cover(7), and install cover onto
valve body, using the identification made in
DISASSEMBLY step 4. Torque screws(6) to 40-60 inch
pounds.
10. Install o-ring(5) in its groove in the pressure protection
piston(4). Install the piston assembly into the valve body.
11. Position the spring(3) and spring retainer(2) on top of
the pressure protection piston assembly, and secure
with the four screws(1). Torque to 20-30 inch pounds.
12. Install diaphragm(25), washer(24) and screw(23) into the
exhaust port. Torque screw to 15-25 inch pounds.
NOTE: BEFORE PLACING THE VEHICLE BACK INTO
SERVICE, PERFORM “OPERATIONAL AND
LEAKAGE TESTS,” LISTED IN THIS MANUAL.
BW1680 © 2007 Bendix Commercial Vehicle Systems LLC. All rights reserved. 3/2007 Printed in U.S.A.