Blomberg BRFB1050FFBI User Manual To The 4d4a5714 8353 4b03 B9d8 2e421573fea6
User Manual: Blomberg BRFB1050FFBI to the manual
Open the PDF directly: View PDF
.
Page Count: 72

Bedienungsanleitung
Operating instructions
Refrigerator
Réfrigérateur
Refrigerador
BRFB1050FFBI
Please read this user manual first!
Dear Customer,
We hope that your product, which has been produced in modern plants and
checked under the most meticulous quality control procedures, will provide you
an effective service.
Therefore, read this entire user manual carefully before using the product and
keep it as a reference. If you handover the product to someone else, give the user
manual as well.
The user manual will help you use the product in a fast and safe way.
• Read the manual before installing and operating the product.
• Make sure you read the safety instructions.
• Keep the manual in an easily accessible place as you may need it later.
• Read the other documents given with the product.
Remember that this user manual is also applicable for several other models.
Differences between models will be identified in the manual.
Explanation of symbols
Throughout this user manual the following symbols are used:
CImportant information or useful tips.
AWarning against dangerous conditions for life and property.
BWarning against electric voltage.

EN
2
1 Your refrigerator 3
2 Important Safety Warnings 4
Intended use .....................................4
For products with a water dispenser; .6
Child safety ........................................6
Compliance with WEEE Directive and
Disposing of the Waste Product: .......6
Compliance with RoHS Directive: .....7
Package information ..........................7
HCA Warning ....................................7
Things to be done for energy saving ..8
3 Installation 9
Points to be considered when re-
transporting your refrigerator .............9
Before operating your refrigerator ......9
Open door warning ..........................10
Changing the illumination lamp .......10
Disposing of the packaging .............10
Disposing of your old refrigerator .....10
Placing and Installation ....................10
CONTENTS
4 Preparation 11
Reversing the doors ........................12
5 Using your refrigerator 14
Freezing fresh food ..........................16
Recommendations for preservation of
frozen food ......................................17
Placing the food ..............................17
Deep-freeze information ..................17
6 Maintenance and cleaning 18
Protection of plastic surfaces ..........18
7 Recommended solutions for
the problems 19

EN
3
1. Butter & Cheese sections
2. Adjustable door shelves
3. Bottle holder
4. Bottle shelf
5. Adjustable front feet
6. Freezer compartment
5
1
2
3
4
7
6
6
6
7
8
9
10
9
9
11
7. Crisper
8. Crisper cover and glass
9. Adjustable shelves
10. Fan
11. Indicator panel
C Figures that take place in this instruction manual are schematic and may not
correspond exactly with your product. If the subject parts are not included in the
product you have purchased, then it is valid for other models.
1 Your refrigerator

EN
4
2 Important Safety Warnings
Please review the following information.
Failure to observe this information may
cause injuries or material damage.
Otherwise, all warranty and reliability
commitments will become invalid.
The usage life of the unit you
purchased is 10 years. This is the period
for keeping the spare parts required for
the unit to operate as described.
Intended use
This product is intended to be used
• indoors and in closed areas such as
homes;
• in closed working environments such
as stores and offices;
• in closed accommodation areas such
as farm houses, hotels, pensions.
• This product should not be used
outdoors.
General safety
• When you want to dispose/scrap
the product, we recommend you to
consult the authorized service in order
to learn the required information and
authorized bodies.
• Consult your authorized service for
all your questions and problems
related to the refrigerator. Do not
intervene or let someone intervene to
the refrigerator without notifying the
authorised services.
• For products with a freezer
compartment; Do not eat cone ice
cream and ice cubes immediately
after you take them out of the freezer
compartment! (This may cause
frostbite in your mouth.)
• For products with a freezer
compartment; Do not put bottled and
canned liquid beverages in the freezer
compartment. Otherwise, these may
burst.
• Do not touch frozen food by hand;
they may stick to your hand.
• Unplug your refrigerator before
cleaning or defrosting.
• Vapor and vaporized cleaning
materials should never be used in
cleaning and defrosting processes of
your refrigerator. In such cases, the
vapor may get in contact with the
electrical parts and cause short circuit
or electric shock.
• Never use the parts on your
refrigerator such as the door as a
means of support or step.
• Do not use electrical devices inside
the refrigerator.
• Do not damage the parts, where
the refrigerant is circulating, with
drilling or cutting tools. The refrigerant
that might blow out when the gas
channels of the evaporator, pipe
extensions or surface coatings are
punctured causes skin irritations and
eye injuries.
• Do not cover or block the ventilation
holes on your refrigerator with any
material.
• Electrical devices must be repaired
by only authorised persons. Repairs
performed by incompetent persons
create a risk for the user.

EN
5
• In case of any failure or during a
maintenance or repair work, disconnect
your refrigerator’s mains supply by either
turning off the relevant fuse or unplugging
your appliance.
• Do not pull by the cable when pulling off
the plug.
• Place the beverage with higher proofs
tightly closed and vertically.
• Never store spray cans containing
flammable and explosive substances in
the refrigerator.
• Do not use mechanical devices or other
means to accelerate the defrosting
process, other than those recommended
by the manufacturer.
• This product is not intended to be
used by persons with physical, sensory
or mental disorders or unlearned or
inexperienced people (including children)
unless they are attended by a person
who will be responsible for their safety or
who will instruct them accordingly for use
of the product
• Do not operate a damaged refrigerator.
Consult with the service agent if you have
any concerns.
• Electrical safety of your refrigerator shall
be guaranteed only if the earth system in
your house complies with standards.
• Exposing the product to rain, snow, sun
and wind is dangerous with respect to
electrical safety.
• Contact authorized service when there is
a power cable damage to avoid danger.
• Never plug the refrigerator into the wall
outlet during installation. Otherwise, risk
of death or serious injury may arise.
• This refrigerator is intended for only
storing food items. It must not be used
for any other purpose.
• Label of technical specifications is
located on the left wall inside the
refrigerator.
• Never connect your refrigerator to
electricity-saving systems; they may
damage the refrigerator.
• If there is a blue light on the
refrigerator, do not look at the blue
light with optical tools.
• For manually controlled refrigerators,
wait for at least 5 minutes to start the
refrigerator after power failure.
• This operation manual should be
handed in to the new owner of the
product when it is given to others.
• Avoid causing damage on power
cable when transporting the
refrigerator. Bending cable may cause
fire. Never place heavy objects on
power cable. Do not touch the plug
with wet hands when plugging the
product.
• Do not plug the refrigerator if the wall
outlet is loose.
• Water should not be sprayed directly
on inner or outer parts of the product
for safety purposes.
• Do not spray substances containing
inflammable gases such as propane
gas near the refrigerator to avoid fire
and explosion risk.

EN
6
• Never place containers filled with
water on top of the refrigerator,
otherwise this may cause electric
shock or fire.
• Do not overload your refrigerator
with excessive amounts of food. If
overloaded, the food items may fall
down and hurt you and damage
refrigerator when you open the door.
Never place objects on top of the
refrigerator; otherwise, these objects
may fall down when you open or
close the refrigerator's door.
• As they require a precise
temperature, vaccines, heat-sensitive
medicine and scientific materials
and etc. should not be kept in the
refrigerator.
• If not to be used for a long time,
refrigerator should be unplugged. A
possible problem in power cable may
cause fire.
• The plug's tip should be regularly
cleaned; otherwise, it may cause fire.
• The plug’s tip should be cleaned
regularly with a dry cloth; otherwise, it
may cause fire.
• Refrigerator may move if adjustable
legs are not properly secured on the
floor. Properly securing adjustable
legs on the floor can prevent the
refrigerator to move.
• When carrying the refrigerator, do not
hold it from door handle. Otherwise, it
may be snapped.
• When you have to place your product
next to another refrigerator or freezer,
the distance between devices should
be at least 8cm. Otherwise, adjacent
side walls may be humidified.
For products with a water
dispenser;
Pressure of water mains should be
minimum 1 bar. Pressure of water
mains should be maximum 8 bars.
• Use only potable water.
Child safety
• If the door has a lock, the key should
be kept away from reach of children.
• Children must be supervised to
prevent them from tampering with the
product.
Compliance with WEEE
Directive and Disposing of
the Waste Product:
This product complies with EU WEEE
Directive (2012/19/EU). This
product bears a classification
symbol for waste electrical
and electronic equipment
(WEEE).This product has
been manufactured with
high quality parts and
materials which can be reused and are
suitable for recycling. Do not dispose of
the waste product with normal domestic
and other wastes at the end of its
service life. Take it to the collection
center for the recycling of electrical and
electronic equipment. Please consult
your local authorities to learn about
these collection centers.

EN
7
Compliance with RoHS
Directive:
The product you have purchased
complies with EU RoHS Directive
(2011/65/EU). It does not contain
harmful and prohibited materials
specified in the Directive.
Package information
Packaging materials of the product
are manufactured from recyclable
materials in accordance with our
National Environment Regulations.
Do not dispose of the packaging
materials together with the
domestic or other wastes. Take
them to the packaging material
collection points designated by the
local authorities.
ADANGER: Risk of child
entrapment. Before you throw away
your old refrigerator or freezer:
• Take off the doors.
• Leave the shelves in place so that
children may not easily climb inside.
HCA Warning
If your product's cooling system
contains R600a:
This gas is flammable. Therefore, pay
attention to not damaging the cooling
system and piping during usage and
transportation. In the event of damage,
keep your product away from potential
fire sources that can cause the product
catch a fire and ventilate the room in
which the unit is placed.
ADANGER – Risk Of Fire or
Explosion. Flammable Refrigerant
Used. Do Not Use Mechanical Devices
To Defrost Refrigerator. Do Not
Puncture Refrigerant Tubing”.
ADANGER – Risk Of Fire Or
Explosion. Flammable Refrigerant
Used. To Be Repaired Only By Trained
Service Personnel. Do Not Puncture
Refrigerant Tubing”.
ACAUTION – Risk Of Fire Or
Explosion. Flammable Refrigerant
Used. Consult Repair Manual/Owner’s
Guide Before Attempting To Service
This Product. All Safety Precautions
Must be Followed.
ACAUTION – Risk Of Fire Or
Explosion. Dispose Of Properlty In
Accordance With Federal Or Local
Regulations. Flammable Refrigerant
Used.
ACAUTION– Risk Of Fire Or
Explosion Due To Puncture Of
Refrigerant Tubing; Follow Handling
Instructions Carefully. Flammable
Refrigerant Used”.
Ignore this warning if your
product's cooling system contains
R134a.
Type of gas used in the product is
stated in the type plate which is on the
left wall inside the refrigerator.
Never throw the product in fire for
disposal.

EN
8
Things to be done for energy
saving
• Do not leave the doors of your
refrigerator open for a long time.
• Do not put hot food or drinks in your
refrigerator.
• Do not overload your refrigerator so
that the air circulation inside of it is not
prevented.
• Do not install your refrigerator
under direct sunlight or near heat
emitting appliances such as ovens,
dishwashers or radiators.
• Pay attention to keep your food in
closed containers.
• For products with a freezer
compartment; You can store
maximum amount of food items in
the freezer when you remove the
shelf or drawer of the freezer. Energy
consumption value stated for your
refrigerator has been determined
by removing freezer shelf or drawer
and under maximum load. There
is no harm to use a shelf or drawer
according to the shapes and size of
food to be frozen.
• Thawing frozen food in fridge
compartment will both provide energy
saving and preserve the food quality.

EN
9
3 Installation
B In case the information which are
given in the user manual are not
taken into account, manufacturer will
not assume any liability for this.
Points to be paid attention
to when the relocation of the
refrigerator
1. Your refrigerator should be
unplugged.Before transportation of
your refrigerator, it should be emptied
and cleaned.
2. Before it is re-packaged, shelves,
accessories, crisper, etc. inside your
refrigerator should be fixed with
adhesive tape and secured against
impacts. Package should be bound
with a thick tape or sound ropes
and the transportation rules on the
package should be strictly observed.
3. Original packaging and foam
materials should be kept for future
transportations or moving.
Before you start the
refrigerator,
Check the following before you start
to use your refrigerator:
1. Attach 2 plastic wedges as illustrated
below. Plastic wedges are intended
to keep the distance which will ensure
the air circulation between your
refrigerator and the wall. (The picture
is drawn up as a representation and it
is not identical with your product.)
2. Clean the interior of the refrigerator as
recommended in the “Maintenance
and cleaning” section.
3. Connect the plug of the refrigerator
to the wall socket. When the fridge
door is opened, fridge internal lamp
will turn on.
4. When the compressor starts to
operate, a sound will be heard. The
liquid and gases sealed within the
refrigeration system may also give rise
to noise, even if the compressor is
not running and this is quite normal.
5. Front edges of the refrigerator may
feel warm. This is normal. These
areas are designed to be warm to
avoid condensation.
Electrical connection
Connect your product to a grounded
socket which is being protected by a
fuse with the appropriate capacity.
Important:
The connection must be in compliance
with national regulations.
• The power plug must be easily
accessible after installation.
• Electrical safety of your refrigerator
shall be guaranteed only if the earth
system in your house complies with
standards.
• The voltage stated on the label
located at left inner side of your
product should be equal to your
network voltage.
• Extension cables and multi plugs
must not be used for connection.
B A damaged power cable must be
replaced by a qualified electrician.
B Product must not be operated before
it is repaired! There is the risk of
electric shock!

EN
10
Disposing of the packaging
The packing materials may be
dangerous for children. Keep the
packing materials out of the reach
of children or dispose of them by
classifying them in accordance with the
waste instructions stated by your local
authorities. Do not throw away with
regular house waste, throw away on
packaging pick up spots designated by
the local authorities.
The packing of your refrigerator is
produced from recyclable materials.
Disposing of your old
refrigerator
Dispose of your old refrigerator without
giving any harm to the environment.
• You may consult your authorized
dealer or waste collection center of
your municipality about the disposal
of your refrigerator.
Before disposing of your refrigerator,
cut out the electric plug and, if there
are any locks on the door, make them
inoperable in order to protect children
against any danger.
Placing and Installation
A If the entrance door of the room
where the refrigerator will be installed is
not wide enough for the refrigerator to
pass through, then call the authorized
service to have them remove the doors
of your refrigerator and pass it sideways
through the door.
1. Install your refrigerator to a place that
allows ease of use.
2. Keep your refrigerator away from heat
sources, humid places and direct
sunlight.
3. There must be appropriate air
ventilation around your refrigerator
in order to achieve an efficient
operation. If the refrigerator is to be
placed in a recess in the wall, there
must be at least 5 cm distance with
the ceiling and at least 5 cm with the
wall. Do not place your product on
the materials such as rug or carpet.
4. Place your refrigerator on an even
floor surface to prevent jolts.
Changing the illumination
lamp
To change the Bulb/LED used for
illumination of your refrigerator, call your
Authorized Service.
Door Open Warning
(This feature is optional)
An audio warning signal will be given
when the door of your product is left
open for at least 1 minute. This warning
will be muted when the door is closed
or any of the display buttons (if any) are
pressed.

EN
11
4 Preparation
• Your refrigerator should be installed at
least 30 cm away from heat sources
such as hobs, ovens, central heater
and stoves and at least 5 cm away
from electrical ovens and should not
be located under direct sunlight.
• The ambient temperature of
the room where you install your
refrigerator should at least be 50ºF.
Operating your refrigerator under
cooler conditions than this is not
recommended with regard to its
efficiency.
• Please make sure that the interior
of your refrigerator is cleaned
thoroughly.
• If two refrigerators are to be installed
side by side, there should be at least
2 cm distance between them.
• When you operate your refrigerator
for the first time, please observe the
following instructions during the initial
six hours.
• The door should not be opened
frequently.
• It must be operated empty without
any food in it.
• Do not unplug your refrigerator. If
a power failure occurs out of your
control, please see the warnings in
the “Recommended solutions for the
problems” section.
• Original packaging and foam
materials should be kept for future
transportations or moving.

EN
12
Reversing the doors
Proceed in numerical order
1
5
2
6
3
4
8
7
11
12
9
10
13
14
16
15
H1
H1
H2
H2
H3
H3
H4
H4
1
2
5
6
12
11
16
15

EN
13
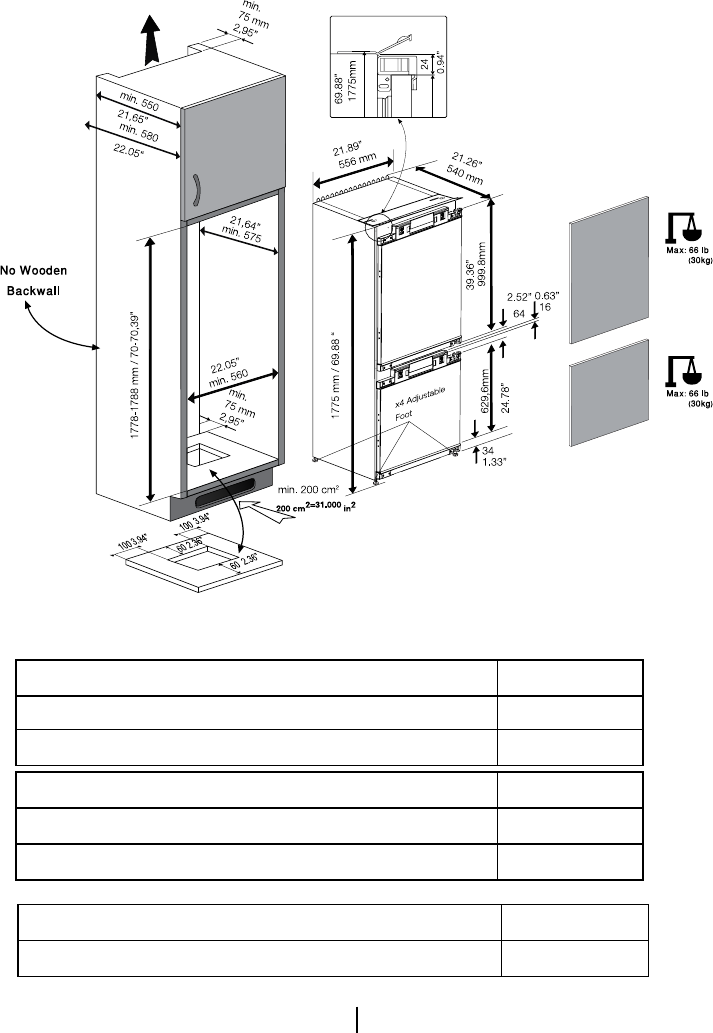
177.7 cm /69.96"
55.6 cm /21.89"
54.5 cm /21.46"
(H) Height (cm) unpacked
(W) Width (cm) unpacked
(D) Depth (cm) unpacked
(H) Height (cm)packed
185.6 cm /73.07 "
(W) Width (cm)packed
57.6 cm /22.68 "
(D) Depth (cm)packed
58.5 cm/23.03"
Gross Weight (Kg) / lbs
73 kg /160.94
Net Weight (Kg) / lbs
68.9 kg /151.9

EN
14
1- On/Off function
Press the On/Off button for 3 seconds
to turn off or turn on the fridge.
2- Quick Fridge Function
When you press Quick Fridge button,
the temperature of the compartment
will be colder than the adjusted values.
This function can be used for food
placed in the fridge compartment and
required to be cooled down rapidly.
If you want to cool large amounts of
fresh food, it is recommended to active
this feature before putting the food
into the fridge. Quick Fridge indicator
will remain lit when the Quick Fridge
function is enabled. To cancel this
function press Quick Fridge button
again. Quick Fridge indicator will turn
off and return to its normal settings.
If you do not cancel it, Quick Fridge
will cancel itself automatically after 2
hours or when the fridge compartment
reaches to the required temperature.
This function is not recalled when
power restores after a power failure.
3-Vacation Function
Press the Quick Fridge\Vacation
button for 3 seconds to activate
Vacation function.
"--" icon comes on when the function
is active. Function is deactivated by
pressing the same button for 3 seconds
again or by pressing Fridge set button.
4- Fridge Set Function
This function allows you to make
the fridge compartment temperature
setting. Press this button to set the
temperature of the fridge compartment
to 37, 40, 43, 46 °F respectively.
5- Off Indicator
Off Indicator lits when the fridge is
"Off" mode.
6- Quick Fridge Indicator
This icon lits when the Quick Fridge
function is active.
7- Fridge Compartment
Temperature Setting Indicator
Indicates the temperature set for the
Fridge Compartment.
8- Vacation Indicator
This icon lits when the Vacation
function is active.
9- High Temperature Error /
Warning Indicator
This light comes on during high
temperature failures and error warnings.
5 Using your refrigerator
1 2 3 4 5 6 7 8 9 10 11 12 13 14 15 16 17

EN
15
10- Economic Usage Indicator
Economic Usage Indicator turns on
when the Freezer Compartment is set
to 5°F. Economic Usage Indicator turns
off when the Quick Fridge or Quick
Freeze function is selected.
11- Freezer Compartment
Temperature Setting Indicator
Indicates the temperature set for the
Freezer Compartment.
12- Eco-Extra Indicator
Eco-Extra Indicator lits when the Eco
Extra function is active.
13- Quick Freeze Indicator
This indicator lits when the Quick
Freezer function is active.
14- Freezer Set Function
This function allows you to make
the freezer compartment temperature
setting. Press this button to set the
temperature of the freezer
compartment to 5, 0 ,- 5, -10 °F
respectively.
15- Quick Freeze Function
Quick Freeze indicator turns on when
the Quick Freeze function is on. To
cancel this function press Quick Freeze
button again. Quick Freeze indicator
will turn off and return to its normal
settings. If you do not cancel it, Quick
Freeze will cancel itself automatically
after 4 hours or when the freezer
compartment reaches to the required
temperature.
If you want to freeze large amounts
of fresh food, press the Quick Freeze
button before putting the food into
the freezer compartment. If you press
the Quick Freeze button repeatedly
with short intervals, the electronic
circuit protection will be activated
immediately.
This function is not recalled when
power restores after a power failure.
16- Eco-Extra (Special Economic
Usage) Function
Press the Quick Freeze\Eco Extra
button for 3 seconds to activate the
Eco Extra Function. Refrigerator will
start operating in the most economic
mode
at least 6 hours later and the economic
usage indicator will turn on when the
function is active. Press the Quick
Freeze button for 3 seconds again to
deactivate the Eco Fuzzy Function.
17- Alarm Off
When the fridge door is opened for 2
minutes or when there a sensor failure,
a sound alarm turns on. Alarm can
be turned off by pressing "Alarm Off"
button.
Sensor failure alarm will not sound till
power failure. If you close the door and
then open again "Door open alarm" will
be activated again after 2 minutes later.

EN
16
Freezer
Compartment
Adjustment
Fridge
Compartment
Adjustment
Explanations
5°F 40ºF This is the normal recommended setting.
0,-5 or -10°F 40°F These settings are recommended when
the ambient temperature exceeds 91°F.
Quick Freeze 40°F Use when you wish to freeze your food in
a short time. Your refrigerator will return to
its previous mode when the process is over.
-5°F or colder 37°F If you think that your fridge compartment
is not cold enough because of the hot
conditions or frequent opening and closing
of the door.
-5°F or colder Quick Freeze You can use it when your fridge
compartment is overloaded or if you
wish to cool down your food rapidly. It is
recommended that you activate quick
fridge function 4-8 hours before placing the
food.
Freezing fresh food
• It must be preferred to wrap or cover
the food before placing them in the
refrigerator.
• Hot food must cool down to the
room temperature before putting
them in the refrigerator.
• The foodstuff that you want to freeze
must be fresh and in good quality.
• Foodstuff must be divided into
portions according to the family’s
daily or meal based consumption
needs.
• The foodstuff must be packaged in
an airtight manner to prevent them
from drying even if they are going to
be kept for a short time.
• Materials to be used for packaging
must be tear-proof and resistant to
cold, humidity, odor, oils and acids
and they must also be airtight.
Moreover, they must be well closed
and they must be made from easy-
to-use materials that are suitable for
deep freeze usage.
• Frozen food must be used
immediately after they are thawed
and they should never be re-frozen.
• Please observe the following
instructions to obtain the best results.
1. Do not freeze too large quantities
of food at one time. The quality of
the food is best preserved when it
is frozen right through to the core as
quickly as possible.
2. Placing warm food into the freezer
compartment causes the cooling
system to operate continuously until
the food is frozen solid.
Recommended Using Temparature: FF: 4°C /40 °F Frz : -15°C/5 °F

EN
17
3. Take special care not to mix already
frozen food and fresh food.
Recommendations for
preservation of frozen food
• Prepacked commercially frozen food
should be stored in accordance
with the frozen food manufacturer's
instructions for a ( 4 star)
frozen food storage compartment.
• To ensure that the high quality
achieved by the frozen food
manufacturer and the food retailer is
maintained, the following should be
remembered:
1. Put packages in the freezer as quickly
as possible after purchase.
2. Ensure that contents are labeled and
dated.
3. Do not exceed "Use By", "Best
Before" dates on the packaging.
Defrosting
The freezer compartment defrosts
automatically.
Placing the food
Freezer
compartment
shelves
Various frozen
food such as
meat, fish, ice
cream, vegetables
and etc.
Egg tray Egg
Fridge
compartment
shelves
Food in pans,
covered plates
and closed
containers
Fridge
compartment
door shelves
Small and
packaged food
or drinks (such as
milk, fruit juice and
beer)
Crisper Vegetables and
fruits
Freshzone
compartment
Delicatessen
products (cheese,
butter, salami and
etc.)
Deep-freeze information
Food must be frozen as rapidly
as possible when they are put in a
refrigerator in order to keep them in
good quality.
It is possible to keep the food for a long
time only at 0°F or lower temperatures.
You can keep the freshness of food
for many months (at 0°For lower
temperatures in the deep freeze).
WARNING! A
• Foodstuff must be divided into
portions according to the family’s
daily or meal based consumption
needs.
• Foodstuff must be packaged in an
airtight manner to prevent them from
drying even if they are going to be
kept for a short time.
• Materials necessary for packaging:
• Cold resistant adhesive tape
• Self adhesive label
• Rubber rings
• Pen
Materials to be used for packaging
the foodstuff must be tear-proof and
resistant to cold, humidity, odor, oils
and acids.
Foodstuff to be frozen should not be
allowed to come in contact with the
previously frozen items to prevent their
partial thawing.
Frozen food must be used immediately
after they are thawed and they should
never be re-frozen.

EN
18
6 Maintenance and cleaning
A Never use gasoline, benzene or
similar substances for cleaning
purposes.
B We recommend that you unplug the
appliance before cleaning.
B Never use any sharp abrasive
instrument, soap, household
cleaner, detergent and wax polish for
cleaning.
C Use lukewarm water to clean the
cabinet of your refrigerator and wipe it
dry.
C Use a damp cloth wrung out in
a solution of one teaspoon of
bicarbonate of soda to one pint of
water to clean the interior and wipe it
dry.
B Make sure that no water enters the
lamp housing and other electrical
items.
B If your refrigerator is not going to be
used for a long period of time, unplug
the power cable, remove all food,
clean it and leave the door ajar.
C Check door seals regularly to ensure
they are clean and free from food
particles.
A To remove door racks, remove all the
contents and then simply push the
door rack upwards from the base.
ANever use cleaning agents or water
that contain chlorine to clean the
outer surfaces and chromium coated
parts of the product. Chlorine causes
corrosion on such metal surfaces.
Protection of plastic
surfaces
C Do not put the liquid oils or oil-cooked
meals in your refrigerator in unsealed
containers as they damage the
plastic surfaces of your refrigerator. In
case of spilling or smearing oil on the
plastic surfaces, clean and rinse the
relevant part of the surface at once
with warm water.

EN
19
7 Troubleshooting
Please review this list before calling the service. It will save your time and
money. This list includes frequent complaints that are not arising from defective
workmanship or material usage. Some of the features described here may not exist
in your product.
The refrigerator does not operate.
• The plug is not inserted into the socket correctly. >>>Insert the plug into the
socket securely.
• The fuse of the socket which your refrigerator is connected to or the main fuse
have blown out. >>>Check the fuse.
Condensation on the side wall of the fridge compartment (MULTIZONE, COOL
CONTROL and FLEXI ZONE).
• Ambient is very cold. >>>Do not install the refrigerator in places where the
temperature falls below 10 °C.
• Door has been opened frequently. >>>Do not open and close the door of
refrigerator frequently.
• Ambient is very humid. >>>Do not install your refrigerator into highly humid
places.
• Food containing liquid is stored in open containers. >>>Do not store food with
liquid content in open containers.
• Door of the refrigerator is left ajar. >>>Close the door of the refrigerator.
• Thermostat is set to a very cold level. >>>Set the thermostat to a suitable level.
• Compressor is not running
• Protective thermic of the compressor will blow out during sudden power
failures or plug-out plug-ins as the refrigerant pressure in the cooling system
of the refrigerator has not been balanced yet. The refrigerator will start running
approximately after 6 minutes. Please call the service if the refrigerator does not
startup at the end of this period.
• The fridge is in defrost cycle. >>>This is normal for a full-automatically defrosting
refrigerator. Defrosting cycle occurs periodically.
• The refrigerator is not plugged into the socket. >>>Make sure that the plug is fit
into the socket.
• Temperature settings are not made correctly. >>>Select the suitable temperature
value.
• There is a power outage. >>>Refrigerator returns to normal operation when the
power restores.
The operation noise increases when the refrigerator is running.
• The operating performance of the refrigerator may change due to the changes in
the ambient temperature. It is normal and not a fault.

EN
20
The refrigerator is running frequently or for a long time.
• New product may be wider than the previous one. Larger refrigerators operate
for a longer period of time.
• The room temperature may be high. >>>It is normal that the product operates
for longer periods in hot ambient.
• The refrigerator might be plugged in recently or might be loaded with food.
>>>When the refrigerator is plugged in or loaded with food recently, it will take
longer for it to attain the set temperature. This is normal.
• Large amounts of hot food might be put in the refrigerator recently. >>>Do not
put hot food into the refrigerator.
• Doors might be opened frequently or left ajar for a long time. >>>The warm air
that has entered into the refrigerator causes the refrigerator to run for longer
periods. Do not open the doors frequently.
• Freezer or fridge compartment door might be left ajar. >>>Check if the doors are
closed completely.
• The refrigerator is adjusted to a very low temperature. >>>Adjust the refrigerator
temperature to a warmer degree and wait until the temperature is achieved.
• Door seal of the fridge or freezer may be soiled, worn out, broken or not
properly seated. >>>Clean or replace the seal. Damaged/broken seal causes
the refrigerator to run for a longer period of time in order to maintain the current
temperature.
Freezer temperature is very low while the fridge temperature is sufficient.
• The freezer temperature is adjusted to a very low value. >>>Adjust the freezer
temperature to a warmer degree and check.
Fridge temperature is very low while the freezer temperature is sufficient.
• The fridge temperature is adjusted to a very low value. >>>Adjust the fridge
temperature to a warmer degree and check.
Food kept in the fridge compartment drawers is frozen.
• The fridge temperature is adjusted to a very high value. >>>Adjust the fridge
temperature to a lower value and check.
Temperature in the fridge or freezer is very high.
• The fridge temperature is adjusted to a very high value. >>>Fridge compartment
temperature setting has an effect on the temperature of the freezer. Change the
temperatures of the fridge or freezer and wait until the relevant compartments
attain a sufficient temperature.
• Doors are opened frequently or left ajar for a long time. >>>Do not open the
doors frequently.
• Door is ajar. >>>Close the door completely.
• The refrigerator is plugged in or loaded with food recently. >>>This is normal.
When the refrigerator is plugged in or loaded with food recently, it will take longer
for it to attain the set temperature.
• Large amounts of hot food might be put in the refrigerator recently. >>>Do not
put hot food into the refrigerator.

EN
21
• Vibrations or noise.
• The floor is not level or stable. >>> If the refrigerator rocks when moved slowly,
balance it by adjusting its feet. Also make sure that the floor is strong enough to
carry the refrigerator, and level.
• The items put onto the refrigerator may cause noise. >>>Remove the items on
top of the refrigerator.
There are noises coming from the refrigerator like liquid flowing, spraying, etc.
• Liquid and gas flows occur in accordance with the operating principles of your
refrigerator. It is normal and not a fault.
Whistle comes from the refrigerator.
• Fans are used in order to cool the refrigerator. It is normal and not a fault.
Condensation on the inner walls of refrigerator.
• Hot and humid weather increases icing and condensation. It is normal and not a
fault.
• Doors are opened frequently or left ajar for a long time. >>>Do not open the
doors frequently. Close them if they are open.
• Door is ajar. >>>Close the door completely.
Humidity occurs on the outside of the refrigerator or between the doors.
• There might be humidity in the air; this is quite normal in humid weather. When
the humidity is less, condensation will disappear.
Bad odour inside the refrigerator.
• No regular cleaning is performed. >>>Clean the inside of the refrigerator regularly
with a sponge, lukewarm water or carbonate dissolved in water.
• Some containers or package materials may cause the smell. >>>Use a different
container or different brand packaging material.
• Food is put into the refrigerator in uncovered containers. >>>Keep the food in
closed containers. Microorganisms spreading out from uncovered containers
can cause unpleasant odours.
• Remove the foods that have expired best before dates and spoiled from the
refrigerator.
The door is not closing.
• Food packages are preventing the door from closing. >>>Replace the packages
that are obstructing the door.
• The refrigerator is not completely even on the floor. >>>Adjust the feet to
balance the refrigerator.
• The floor is not level or strong. >>>Make sure that the floor is level and capable
to carry the refrigerator.
Crispers are stuck.
• The food is touching the ceiling of the drawer. >>>Rearrange food in the drawer.
Veuillez commencer par lire ce manuel d’utilisation!
Cher client,
Nous espérons que votre produit, qui a été fabriqué dans des usines modernes
et vérifié au terme des procédures de contrôle de qualité les plus méticuleuses,
vous donnera entière satisfaction.
Veuillez donc lire attentivement l'intégralité de ce manuel avant de commencer à
utiliser le produit et conservez-le manuel comme référence. Si vous remettez cet
appareil à quelqu'un d'autre, remettez-lui également le manuel d'utilisation.
Le présent manuel vous aidera à utiliser votre produit ent toute sécurité
et efficacement.
• Lisez le manuel avant d’installer et de faire fonctionner votre produit.
• Veillez à lire les instructions de sécurité.
• Conservez ce manuel dans un endroit facilement accessible car vous pourriez en
avoir besoin ultérieurement.
• Lisez également la documentation fournie avec le produit.
N'oubliez pas que le manuel d'utilisation est également valable pour plusieurs
autres modèles. Les différences entre les différents modèles seront identifiées
dans le manuel.
Explication des symboles
Les symboles ci-dessous sont utilisés dans le manuel d'utilisation:
C Informations importantes ou astuces.
A Avertissement relatif aux situations dangereuses pour la vie et la propriété.
B Avertissement relatif à la tension électrique.

FR
2
1 Votre congélateur/
réfrigérateur 3
2 Précautions de sécurité
importantes 4
Utilisation prévue ...............................4
Pour les appareils dotés d'une fontaine
à eau ; ...............................................6
Sécurité enfants .................................6
Conformité avec la directive DEEE et
mise au rebut des déchets : ..............7
Conformité avec la directive LdSD : .7
Informations relatives à l'emballage ....7
Avertissement HCA ...........................7
Mesures d’économie d’énergie ..........8
3 Installation 9
Points à prendre en compte lorsque
vous transportez à nouveau votre
produit. ..............................................9
Avant de faire fonctionner votre
réfrigérateur /congelateur ...................9
Mise au rebut de l’emballage ...........10
Mise au rebut de votre ancien
réfrigérateur /congelateur .................10
Disposition et Installation .................10
Remplacement de la lampe ............11
Avertissement - Porte ouverte ..........11
TABLE DES MATIÈRES
4 Préparation 12
5 Utilisation de votre
réfrigérateur 15
Système de réfrigération Dual : ........18
Congélation des produits frais .........18
Recommandations concernant la
conservation des aliments congelés 19
Disposition des denrées ..................20
Informations concernant la
congélation ......................................20
6 Entretien et nettoyage 21
Protection des surfaces en
plastique. ........................................21
7 Dépannage 22

FR
3
C Les illustrations présentées dans cette notice d’utilisation sont schématiques
et peuvent ne pas correspondre exactement à votre produit. Si des pièces
présentées ne sont pas comprises dans le produit que vous avez acheté, elles
sont valables pour d’autres modèles.
1. Sections pour Beurre et Fromages
2. Balconnets réglables
3. Porte-bouteille
4. Porte-bouteilles
5. Pieds réglables avant
6. Congélateur
7. Bac à légumes
8. Couvercle du bac à légumes
9. Tablettes réglables
10. Fan
11. Panneau indicateur
5
1
2
3
4
7
6
6
6
7
8
9
10
9
9
11
1 Votre congélateur/réfrigérateur

FR
4
2 Précautions de sécurité importantes
Veuillez examiner les informations
suivantes : Le non respect de ces
consignes peut entraîner des blessures
ou dommages matériels. Sinon, tout
engagement lié à la garantie et à la
fiabilité du produit devient invalide.
La durée de vie du produit que vous
avez acheté est de 10 ans. Il s’agit ici
de la période au cours de laquelle vous
devez conserver les pièces de rechange
nécessaires à son fonctionnement.
Utilisation prévue
Ce produit est prévu pour une
utilisation
• en intérieur et dans des zones
fermées telles que les maisons ;
• dans les environnements de travail
fermées, tels que les magasins et les
bureaux ;
• dans les lieux d'hébergement fermés,
tels que les fermes, hôtels, pensions.
• Cet appareil ne doit pas être utilisé en
extérieur.
Sécurité générale
• Avant de vous débarrasser de
votre appareil, veuillez consulter les
autorités locales ou votre revendeur
pour connaître le mode opératoire et
les organismes de collecte agréés.
• Consultez le service après-vente
agréé concernant toutes questions
ou problèmes relatifs au réfrigérateur.
N’intervenez pas ou ne laissez
personne intervenir sur le réfrigérateur
sans le communiquer au service
après-vente agréé.
• Pour les produits équipés d'un
compartiment congélateur :
ne mangez pas de cônes de
crème glacée ou des glaçons
immédiatement après les avoir sortis
du compartiment de congélation !
(Cela pourrait provoquer des
engelures dans votre bouche).
• Pour les produits équipés d'un
compartiment congélateur : ne
placez pas de boissons en bouteille
ou en cannette dans le compartiment
de congélation. Cela peut entraîner
leur éclatement.
• Ne touchez pas des produits
congelés avec les mains, ils
pourraient se coller à celles-ci.
• Débranchez votre réfrigérateur avant
de le nettoyer ou de le dégivrer.
• La vapeur et des matériaux de
nettoyage pulvérisés ne doivent
jamais être utilisés pour les processus
de nettoyage ou de dégivrage de
votre réfrigérateur. La vapeur pourrait
pénétrer dans les pièces électriques
et provoquer des courts-circuits ou
des électrocutions.
• Ne jamais utiliser les pièces de votre
réfrigérateur telles que la porte,
comme un support ou une marche.
• N’utilisez pas d’appareils électriques
à l’intérieur du réfrigérateur.
• N’endommagez pas les pièces où
circule le liquide réfrigérant avec
des outils de forage ou coupants.
Le liquide réfrigérant qui pourrait
s’échapper si les canalisations de
gaz de l’évaporateur, les rallonges de
tuyau ou les revêtements de surface
étaient percés, peut irriter la peau et
provoquer des blessures aux yeux.

FR
5
• Ne pas couvrir ou obstruer les orifices
de ventilation du réfrigérateur.
• Les appareils électriques peuvent être
réparés seulement par des personnes
autorisées. Les réparations réalisées
par des personnes ne présentant pas
les compétences requises peuvent
présenter un risque pour l’utilisateur.
• En cas de dysfonctionnement ou
lors d'opérations d’entretien ou de
réparation, débranchez l’alimentation
électrique du réfrigérateur soit en
désactivant le fusible correspondant,
soit en débranchant l’appareil.
• Ne tirez pas sur le câble lorsque vous
débranchez la prise.
• Placez les boissons alcoolisées
verticalement, dans des récipients
convenablement fermés.
• Ne conservez jamais des aérosols
contenant des substances
inflammables et explosives dans le
réfrigérateur.
• N’utilisez pas d'outils mécaniques
ou autres dispositifs pour accélérer le
processus de décongélation autres
que ceux qui sont recommandés par
le fabricant.
• Ce produit n'est pas conçu pour être
utilisé par des personnes (enfants
compris) souffrant de déficience
physique, sensorielle, mentale, ou
inexpérimentées, à moins d’avoir
obtenu une autorisation auprès des
personnes responsables de leur
sécurité.
• Ne faites pas fonctionner un
réfrigérateur endommagé. Consultez
le service agréé en cas de problème.
• La sécurité électrique du réfrigérateur
n’est assurée que si le système de
mise à la terre de votre domicile est
conforme aux normes en vigueur.
• L’exposition du produit à la pluie, la
neige, au soleil ou au vent présente
des risques concernant la sécurité
électrique.
• Contactez le service agréé quand un
câble d'alimentation est endommagé
pour éviter tout danger.
• Ne branchez jamais le réfrigérateur
à la prise murale au cours de
l’installation. Vous vous exposeriez à
un risque de mort ou à de blessures
graves.
• Ce réfrigérateur est conçu seulement
pour conserver des aliments. Par
conséquent, il ne doit pas être utilisé
à d'autres fins.
• L'étiquette avec les caractéristiques
techniques est située sur le mur
gauche à l'intérieur du réfrigérateur.
• Ne branchez jamais votre
réfrigérateur à des systèmes
d'économie d'énergie, cela peut
l'endommager.
• S'il y a une lumière bleue sur le
réfrigérateur, ne la regardez pas avec
des outils optiques.
• Pour les réfrigérateurs contrôlés
manuellement, attendez au moins 5
minutes pour allumer le réfrigérateur
après une coupure de courant.
• Si cet appareil venait à changer de
propriétaire, n'oubliez pas de remettre
la présente notice d’utilisation au
nouveau bénéficiaire.
• Evitez d'endommager le câble
d'alimentation quand vous
transportez le réfrigérateur. Tordre
le câble peut entraîner un incendie.
Ne placez jamais d'objets lourds sur
le câble d'alimentation. Évitez de
toucher à la prise avec des mains
mouillées au moment de brancher
l'appareil.

FR
6
• Évitez de brancher le réfrigérateur
lorsque la prise de courant électrique
a lâché.
• Pour des raisons d'ordre sécuritaire,
évitez de vaporiser directement
de l'eau sur les parties externes et
internes du réfrigérateur.
• Ne pulvérisez pas de substances
contenant des gaz inflammables
comme du propane près du
réfrigérateur pour éviter tout risque
d'incendie et d'explosion.
• Ne placez jamais de récipients
pleins d'eau en haut du réfrigérateur,
ils pourraient causer des chocs
électriques ou incendie.
• Ne surchargez pas votre réfrigérateur
avec des quantités de nourriture
excessives. S'il est surchargé,
les aliments peuvent tomber,
vous blesser et endommager le
réfrigérateur quand vous ouvrez la
porte. Ne placez jamais d'objets au-
dessus du réfrigérateur, ils pourraient
tomber quand vous ouvrez ou fermez
la porte du réfrigérateur.
• Les produits qui nécessitent un
contrôle de température précis
(vaccin, médicament sensible à la
chaleur, matériels scientifiques, etc.)
ne doivent pas être conservés dans le
réfrigérateur.
• Si le réfrigérateur n'est pas utilisé
pendant longtemps, il doit être
débranché. Un problème avec le
câble d'alimentation pourrait causer
un incendie.
• Le bout de la prise électrique doit être
nettoyé régulièrement, sinon il peut
provoquer un incendie.
• Le bout de la prise électrique doit être
nettoyé régulièrement à l’aide d’un
chiffon sec, sinon il peut provoquer
un incendie.
• Le réfrigérateur peut bouger si ses
pieds réglables ne sont pas bien
fixés sur le sol. Bien fixer les pieds
réglables sur le sol peut empêcher le
réfrigérateur de bouger.
• Quand vous transportez le
réfrigérateur, ne le tenez pas par la
poignée de la porte. Cela peut le
casser.
• Quand vous devez placer votre
produit près d'un autre réfrigérateur
ou congélateur, la distance entre les
appareils doit être d'au moins 8 cm.
Sinon, les murs adjacents peuvent
être humidifiés.
Pour les appareils dotés
d'une fontaine à eau ;
La pression de l'alimentation en eau
doit être au minimum de 1 bar. La
pression de l'alimentation en eau doit
être au maximum de 8 bars.
• Utilisez uniquement de l’eau potable.
Sécurité enfants
• Si la porte a un verrouillage, la clé doit
rester hors de portée des enfants.
• Les enfants doivent être surveillés
et empêchés de s'amuser avec le
produit.

FR
7
Conformité avec la directive
DEEE et mise au rebut des
déchets :
Ce produit est conforme à
la directive DEEE (2012/19/
UE) de l'Union
européenne). Ce produit
porte un symbole de
classification pour la mise
au rebut des équipements
électriques et
électroniques (DEEE). Le présent
produit a été fabriqué avec des pièces
et du matériel de qualité supérieure
susceptibles d'être réutilisés et adaptés
au recyclage. Par conséquent, nous
vous conseillons de ne pas le mettre au
rebut avec les ordures ménagères et
d'autres déchets à la fin de sa durée de
vie. Au contraire, rendez-vous dans un
point de collecte pour le recyclage de
tout matériel électrique et électronique.
Veuillez vous rapprocher des autorités
de votre localité pour plus d'informations
concernant le point de collecte le plus
proche.
Conformité avec la directive
LdSD :
L'appareil que vous avez acheté est
conforme à la directive LdSD (2011/65/
UE) de l'Union européenne. Il ne
comporte pas les matériels dangereux
et interdits mentionnés dans la directive.
Informations relatives à
l'emballage
Les matériaux d'emballage de cet
appareil sont fabriqués à partir de
matériaux recyclables, conformément
à nos réglementations nationales en
matière d'environnement. Ne mélangez
pas les matériaux d'emballage avec
les déchets domestiques ou d'autres
déchets. Amenez-les plutôt aux points
de collecte des matériaux d'emballage,
désignés par les autorités locales.
ADANGER : Risque d’enfermement
pour les enfants. Avant de jeter votre
ancien réfrigérateur ou congélateur :
• Retirez les portes.
• Laissez les étagères en place de
manière à ce que les enfants ne
puissent pas pénétrer facilement à
l'intérieur.
Avertissement HCA
Si le système de refroidissement
de votre appareil contient R600a :
Ce gaz est inflammable. Par
conséquent, veuillez prendre garde
à ne pas endommager le système de
refroidissement et les tuyauteries lors
de son utilisation ou de son transport.
En cas de dommages, éloignez votre
produit de toute source potentielle de
flammes susceptible de provoquer
l’incendie de l’appareil. De même,
placez le produit dans une pièce aérée.
ADANGER – Risque d'incendie
ou d'explosion. Réfrigérant
inflammable utilisé. N'utilisez pas
d'objets mécaniques pour dégivrer le
réfrigérateur. Ne perforez pas les tuyaux
du réfrigérant"
ADANGER – Risque d'incendie ou
d'explosion. Réfrigérant inflammable
utilisé. Ne doit être réparé que par le
personnel de service qualifié. Pas de
perforation
Tuyau du réfrigérant".

FR
8
AATTENTION – Risque d'incendie
ou d'explosion. Réfrigérant inflammable
utilisé. Reportez–vous au manuel de
réparation / guide de l'utilisateur avant
toute tentative de dépannage de cet
appareil. Toutes les précautions de
sécurité doivent être respectées.
AATTENTION – Risque d'incendie
ou d'explosion. La mise au rebut
doit se faire conformément aux
réglementations fédérales ou locales.
Réfrigérant inflammable utilisé.
AATTENTION– Risque d'incendie
ou d'explosion causée par la perforation
du tuyau du réfrigérant ; respectez
attentivement les consignes de
manutention. Réfrigérant inflammable
utilisé".
Ne tenez pas compte de cet
avertissement si le système de
refroidissement de votre appareil
contient R134a.
Le type de gaz utilisé dans l'appareil
est mentionné sur la plaque signalétique
située sur le mur gauche à l'intérieur du
réfrigérateur.
Ne jetez jamais l'appareil au feu pour
vous en débarrasser.
Mesures d’économie
d’énergie
• Ne laissez pas les portes du
réfrigérateur ouvertes pendant une
durée prolongée.
• N’introduisez pas de denrées
ou de boissons chaudes dans le
réfrigérateur.
• Ne surchargez pas le réfrigérateur
pour ne pas obstruer pas la
circulation d'air à l’intérieur.
• N’installez pas le réfrigérateur à la
lumière directe du soleil ou près
d’appareil émettant de la chaleur tels
qu’un four, un lave-vaisselle ou un
radiateur.
• Veillez à conserver vos denrées dans
des récipients fermés.
• Pour les produits équipés d'un
compartiment congélateur : vous
pouvez conserver une quantité
maximale d'aliments dans le
congélateur quand vous enlevez
l'étagère ou le tiroir du congélateur.
La consommation d'énergie
précisée pour votre réfrigérateur a
été déterminée en enlevant l'étagère
ou le tiroir du congélateur et avec la
charge maximale. Il n'y aucun risque
à utiliser une étagère ou un tiroir en
fonction des formes et tailles des
denrées à congeler.
• La décongélation des aliments dans
le compartiment réfrigérateur permet
de faire des économies d'énergie et
de préserver la qualité des aliments.

FR
9
3 Installation
B Dans l'hypothèse ou l'information
contenue dans ce manuel n'a pas
été prise en compte par l'utilisateur,
le fabricant ne sera aucunement
responsable en cas de problèmes.
Éléments à prendre en
considération lors du
déménagement de votre
réfrigérateur
1. Votre réfrigérateur doit être débranché
2. Avant le transport de votre
réfrigérateur, vous devez le vider et
le nettoyer.Avant d'emballer votre
réfrigérateur, vous devez fixer ses
étagères, bac, accessoires, etc, avec
du ruban adhésif afin de les protéger
contre les chocs.
3. L'emballage doit être solidement
attaché avec du ruban adhésif
épais ou avec un cordage solide.
La règlementation en matière
de transport et de marquage de
l'emballage doit être strictement
respectée.
4. L’emballage et les matériaux de
protection d’emballage doivent
être conservés pour les éventuels
transports ou déplacements à venir.
Avant de mettre votre
réfrigérateur en marche,
Vérifiez les points suivants avant de
commencer à utiliser votre réfrigérateur
1. Fixez les câles en plastique tel
qu'indiqué sur le schéma ci-dessous.
Les câles en plastique servent à
maintenir une distance permettant la
circulation de l'air entre le réfrigérateur
et le mur. (Cette image n'est donnée
qu'à titre indicatif ; elle n'est pas
identique à votre produit.)
2. Vous pouvez installer les 2 cales
en plastique comme illustré dans
le schéma. Les cales en plastique
maintiendront la distance nécessaire
entre votre Congélateur / réfrigérateur
et le mur pour permettre une bonne
circulation de l’air. (Le schéma
présenté est fourni à titre indicatif
et peut ne pas correspondre
exactement avec votre produit.)
3. Nettoyez l’intérieur du réfrigérateur tel
qu’indiqué dans la section « Entretien
et nettoyage ».
4. Insérez la prise du réfrigérateur dans
la prise murale. Lorsque la porte du
réfrigérateur est ouverte, la lampe
interne du réfrigérateur s'éclaire.
5. Lorsque le compresseur commence
à fonctionner, il émettra un son. Le
liquide et les gaz intégrés au système
du réfrigérateur peuvent également
faire du bruit, que le compresseur soit
en marche ou non. Ceci est tout à fait
normal.
6. Les parties antérieures du
réfrigérateur peuvent chauffer. Ce
phénomène est normal. Ces zones
doivent en principe être chaudes pour
éviter tout risque de condensation.

FR
10
Branchement électrique
Branchez votre réfrigérateur à une
prise électrique protégée par un fusible
ayant une capacité appropriée.
Important :
• Le branchement doit être conforme
aux normes en vigueur sur le territoire
national.
• La fiche du câble d’alimentation doit
être facilement accessible après
installation.
• La sécurité électrique du réfrigérateur
n’est assurée que si le système de
mise à la terre de votre domicile est
conforme aux normes en vigueur.
• La tension indiquée sur l'étiquette
située sur la paroi gauche interne de
votre produit doit correspondre à celle
fournie par votre réseau électrique.
• Les rallonges et prises multivoies
ne doivent pas être utilisés pour
brancher l’appareil.
B Un câble d’alimentation endommagé
doit être remplacé par un électricien
qualifié.
B L’appareil ne doit pas être mis en
service avant d’être réparé ! Cette
précaution permet d'éviter tout risque
de choc électrique!
Mise au rebut de l’emballage
Les matériaux d’emballage peuvent
être dangereux pour les enfants.
Tenez les matériaux d’emballage hors
de portée des enfants ou jetez-les
conformément aux consignes établies
par les autorités locales en matière
de déchets. Ne les jetez pas avec les
déchets domestiques,déposez-les
dans les centres de collecte désignés
par les autorités locales.
L’emballage de votre appareil
est produit à partir de matériaux
recyclables.
Mise au rebut de votre
ancien réfrigérateur
Débarrassez-vous de votre
ancien réfrigérateur sans nuire à
l’environnement.
• Vous pouvez consulter le service
après-vente agrée ou le centre
chargé de la mise au rebut dans votre
municipalité pour en savoir plus sur la
mise au rebut de votre produit.
Avant de procéder à la mise au rebut
de votre machine, coupez la prise
électrique et, le cas échéant, tout
verrouillage susceptible de se trouver
sur la porte. Rendez-les inopérants
afin de ne pas exposer les enfants à
d’éventuels dangers.
Disposition et Installation
A Si la porte d’entrée de la pièce
où sera installé le réfrigérateur n’est
pas assez large pour laisser passer
le réfrigérateur, appelez le service
après-vente qui retirera les portes du
réfrigérateur et le fera entrer latéralement
dans la pièce.

FR
11
1. Installez le réfrigérateur dans un
emplacement qui permette une
utilisation pratique.
2. Maintenez le réfrigérateur éloigné
de toutes sources de chaleur, des
endroits humides et de la lumière
directe du soleil.
3. Une ventilation d’air autour du
réfrigérateur doit être aménagée pour
obtenir un fonctionnement efficace.
Si le réfrigérateur est placé dans un
enfoncement du mur, il doit y avoir
un espace d’au moins 5 cm avec le
plafond et d’au moins 5 cm avec le
mur. Ne placez pas l'appareil sur des
revêtements tels qu’un tapis ou de la
moquette.
4. Placez le réfrigérateur sur une surface
plane afin d’éviter les à-coups.
Remplacement de la lampe
Pour remplacer la lampe LED du
réfrigérateur, veuillez contacter le
service après-vente agréé.
Avertissement - Porte
ouverte
(Cette caractéristique est en
option)
Un signal d'avertissement sonore
retentit lorsque la porte du réfrigérateur
reste ouverte pendant au moins 1
minute. Cet avertissement s'arrête en
refermant la porte ou en appuyant sur
n'importe quel bouton de l'affichage.

FR
12
4 Préparation
• Votre congélateur / réfrigérateur
doit être installé à au moins 30 cm
des sources de chaleur telles que
les plaques de cuisson, les fours,
appareils de chauffage ou cuisinières,
et à au moins 5 cm des fours
électriques. De même, il ne doit pas
être exposé à la lumière directe du
soleil.
• Veuillez vous assurer que l’intérieur
de votre appareil est soigneusement
nettoyé.
• La température ambiante de la pièce
où vous installez le congélateur /
réfrigérateur doit être d’au moins
50ºF. Faire fonctionner l’appareil sous
des températures inférieures n’est
pas recommandé et pourrait nuire à
son efficacité.
• Si deux congélateur / réfrigérateurs
sont installés côte à côte, ils doivent
être séparés par au moins 2 cm.
• Lorsque vous faites fonctionner le
congélateur / réfrigérateur pour la
première fois, assurez-vous de suivre
les instructions suivantes pendant les
six premières heures.
• La porte ne doit pas être ouverte
fréquemment.
• Le congélateur / réfrigérateur doit
fonctionner à vide, sans denrées à
l’intérieur.
• Ne débranchez pas le congélateur /
réfrigérateur. Si une panne de courant
se produit, veuillez vous reporter
aux avertissements dans la section
« Solutions recommandées aux
problèmes ».
• L’emballage et les matériaux de
protection d’emballage doivent
être conservés pour les éventuels
transports ou déplacements à venir.

FR
13
1
5
2
6
3
4
8
7
11
12
9
10
13
14
16
15
H1
H1
H2
H2
H3
H3
H4
H4
1
2
5
6
12
11
16
15
Réversibilité des portes
Procédez dans l’ordre numérique

FR
14
(h) Hauteur (cm)non arpenté
177.7 cm /69.96"
(l) largeur (cm)non arpenté
55.6 cm/21.89"
(p) profondeur (cm)non arpenté
54.5cm /21.46"
(h) Hauteur (cm)rythme
185.6 cm /73.07 "
(l) largeur (cm)rythme
57.6 cm /22.68 "
(p) profondeur (cm)rythme
58.5 cm/23.03"
Poids brut (Kg) / lbs
73 kg /160.94
Poids mort (Kg) / lbs
68.9 kg /151.9

FR
15
5 Utilisation de votre réfrigérateur
1 2 3 4 5 6 7 8 9 10 11 12 13 14 15 16 17
1- Fonction Marche/Arrêt
Appuyez sur la touche On/Off pendant
3 secondes pour allumer ou éteindre le
réfrigérateur.
2- Fonction de réfrigération rapide
Lorsque vous appuyez sur le bouton
Réfrigération rapide, la température du
compartiment sera plus froide que les
valeurs de réglage.
Cette fonction peut être utilisée
pour les denrées placées dans le
compartiment de réfrigération que l’on
souhaite refroidir rapidement.
Si vous souhaitez introduire de
grandes quantités de produits
frais dans le réfrigérateur, nous
vous recommandons d'activer au
préalable cette option. L'indicateur
de réfrigération rapide restera allumé
pendant que sa fonction est activée.
Pour annuler cette fonction, appuyez
à nouveau sur le bouton Réfrigération
rapide. L'indicateur de réfrigération
rapide s’éteindra et retournera à son
réglage normal.
Après 2 heures de temps, ou lorsque
le compartiment réfrigérateur atteint la
température souhaitée, cet indicateur
s’annulera automatiquement si vous ne
le faites pas. Cette fonction n'est pas
reprise lorsque le courant est rétabli
après une panne de courant.
3- Fonction Vacances
Appuyez le bouton réfrigération
rapide/vacances pendant 3 secondes
pour activer la fonction vacances.
L'icône "--" s'affiche lorsque cette
fonction est active. Pour désactiver
cette fonction, appuyez sur le même
bouton pendant 3 secondes ou sur le
bouton de réglage du réfrigérateur.
4- Fonction de réglage du
réfrigérateur
Cette fonction vous donne la
possibilité de régler la température du
compartiment réfrigérateur. Appuyez
sur ce bouton pour régler la température
du compartiment réfrigérateur à 37, 40,
43, 46 °F respectivement.
5- Indicateur d'arrêt
L'indicateur d'arrêt s'allume lorsque le
réfrigérateur est en mode « Off ».
6- Indicateur de réfrigération
rapide
Cette icône s'allume lorsque la
fonction de réfrigération rapide est
active.
7- Indicateur de réglage de
température du compartiment
réfrigérateur
Indique le réglage de température
pour le compartiment réfrigérateur.
8- Indicateur Vacances
Cette icône s'allume lorsque la
fonction Vacances est active.

FR
16
9- Température élevée/Indicateur
d’avertissement d'erreur
Cet éclairage accompagne des
échecs de température élevée et des
messages d’erreur.
10- Voyant d'économie d'énergie
Le voyant d'économie d'énergie
s'allume lorsque le compartiment
Congélateur est réglé sur 5°F, et s'éteint
lorsque la fonction Réfrigération rapide
ou la fonction Congélation rapide est
sélectionnée.
11- Compartiment congélateur
Indicateur de réglage de la température
Indique la température réglée pour le
compartiment congélateur.
12- Indicateur Eco-Extra
L'indicateur Eco-Extra s'allume
lorsque la fonction Eco Extra est active.
13- Indicateur de congélation
rapide
Cet indicateur s'allume lorsque la
fonction de congélation rapide est
active.
14- Fonction de réglage du
congélateur
Cette fonction vous donne la
possibilité de régler la température du
compartiment congélateur. Appuyez
sur ce bouton pour régler la température
du compartiment
congélateur à 5, 0 ,- 5, -10 °F
respectivement.
15- Fonction de congélation rapide
L'indicateur de congélation rapide
s'allume lorsque sa fonction est activée.
Pour annuler cette fonction, appuyez
à nouveau sur le bouton Congélation
rapide. L’indicateur de Congélation
rapide s’éteindra et retournera à son
réglage normal. Après 4 heures de
temps ou lorsque le compartiment
Congélateur atteint la température
souhaitée, cet indicateur s’annulera
automatiquement si vous ne le faites
pas.
Si vous souhaitez congeler de
grandes quantités de produits frais,
appuyez sur le bouton Congélation
rapide avant d'introduire ces produits
dans le compartiment de congélation.
Si vous appuyez sur le bouton de
Congélation rapide de façon répétée à
intervalles courts, la protection du circuit
électronique s'activera immédiatement.
Cette fonction n'est pas reprise
lorsque le courant est rétabli après une
panne de courant.
16- Fonction Eco-Extra (économie
d'énergie spéciale)
Appuyez sur le bouton Congélation
rapide/Eco Extra pendant 3 secondes
pour activer la fonction Eco Extra. Le
réfrigérateur commencera à fonctionner
dans le mode le plus économique au
moins 6 heures plus tard, et l'indicateur
d'utilisation économique s'allumera
lorsque la fonction sera active. Appuyez
à nouveau sur le bouton Congélation
rapide pendant 3 secondes pour
désactiver la fonction Eco Fuzzy.

FR
17
17- Alarme désactivée
Lorsque la porte du réfrigérateur reste
ouverte pendant 2 minutes ou lorsque
le capteur est en panne, une alarme
sonore retentit. Pour arrêter l'alarme,
appuyez sur le bouton « Alarme
désactivée ».
L'alarme de dysfonctionnement du
capteur ne retentira qu'en cas de
panne électrique. Si vous fermez et
ouvrez la porte, « l'alarme d'ouverture
de porte » s'active à nouveau au bout
de 2 minutes.

FR
18
Système de réfrigération
Dual :
Votre congélateur / réfrigérateur
est équipé de deux systèmes de
réfrigération séparés destinés à refroidir
le compartiment des aliments frais et
le compartiment congélateur.Ainsi, l’air
du compartiment des produits frais
et l’air du compartiment congélateur
ne sont pas mélangés. Grâce à ce
système de réfrigération séparée, les
vitesses de réfrigération sont beaucoup
plus élevées que pour des congélateur
/ réfrigérateurs normaux.Les odeurs
des compartiments ne sont pas
mélangées et, une économie d’énergie
supplémentaire est réalisée car la
décongélation se fait individuellement.
Congélation des produits
frais
• Enveloppez ou couvrez vos aliments
avant de les placer au congélateur /
réfrigérateur.
• Laissez refroidir les aliments à la
température ambiante avant de les
placer au congélateur / réfrigérateur.
• Les denrées que vous souhaitez
congeler doivent être fraîches et en
bon état.
• Il est conseillé de séparer les denrées
en portions en fonction des besoins
quotidiens de votre famille ou par
repas.
• Les denrées doivent être emballées
hermétiquement afin d’éviter qu’elles
ne s’assèchent, même si elles ne
doivent être conservées qu’une
courte période.
Réglage du
compartiment
de congélation
Réglage du
compartiment
de réfrigération
Explications
5°F 40°F Voici le réglage normal recommandé.
-0,-5 ou -10°F 40°F Ces réglages sont recommandés lorsque la température
ambiante dépasse 91°F
Congélation rapide 40°F
Cet indicateur est utilisé lorsque vous voulez congeler vos
denrées pendant une courte période. Le congélateur /
réfrigérateur retournera à son mode de fonctionnement
précédent lorsque le processus sera terminé.
5°F ou plus froid 37°F Si vous pensez que le compartiment de réfrigération n’est
pas assez froid à cause de la chaleur ou des ouvertures /
fermetures fréquentes de la porte.
5°F ou plus froid Réfrigération
rapide
Vous pouvez utiliser ce réglage lorsque le compartiment
de réfrigération est surchargé ou lorsque vous souhaitez
refroidir rapidement vos denrées. Il est conseillé d'activer
la fonction de réfrigération rapide pendant 4 à 8 heures de
temps avant d'introduire les denrées.
Utilisation recommandée temparature: FF: 4°C /40 °F Frz : -15°C/5 °F

FR
19
• Les matériaux utilisés pour
l’emballage doivent résister aux
déchirures, au froid, à l’humidité,
et doivent être imperméables aux
odeurs, aux graisses et aux acides
et être hermétiques. Par ailleurs, ils
doivent fermer correctement et être
composés de matériaux simples
d’utilisation et adaptés à un usage
dans un congélateur.
• Les denrées congelées doivent être
consommées immédiatement après
leur décongélation et elles ne doivent
jamais être recongelées.
• Veuillez respecter les instructions
suivantes afin d’obtenir les meilleurs
résultats.
1. Ne congelez pas une quantité trop
importante à la fois. La qualité des
aliments est préservée de façon
optimale lorsqu'ils sont entièrement
congelés aussi rapidement que
possible.
2. Le fait d’introduire des aliments
chauds dans le congélateur entraîne
le fonctionnement du système de
refroidissement en continu jusqu'à ce
que les aliments soient entièrement
congelés.
3. Faites particulièrement attention à
ne pas mélanger les produits déjà
congelés et les produits frais.
Recommandations
concernant la conservation
des aliments congelés
• Pour un compartiment destiné
aux denrées congelées (4
étoiles), les aliments préemballés
et surgelés, destinés à un usage
commercial, doivent être conservés
conformément aux instructions du
fabricant de produits congelés.
• Afin de veiller à ce que la qualité
supérieure recherchée par le fabricant
et le détaillant des produits congelés
soit atteinte, il convient de se rappeler
les points suivants :
1. Mettre les emballages dans le
congélateur aussi rapidement que
possible après achat.
2. S’assurer que le contenu est étiqueté
et daté.
3. Ne pas dépasser les dates « à
consommer avant le » et « à
consommer de préférence avant le »
figurant sur l’emballage.
Dégivrage
Le compartiment congélateur se
dégivre automatiquement.

FR
20
Disposition des denrées
Clayettes du
compartiment
congélation
Différentes denrées
congelées comme de la
viande, du poisson, des
crèmes glacées, des
légumes, etc.
Bac à œufs Œufs
Clayettes du
compartiment de
réfrigération
Nourriture dans des
casseroles, assiettes
couvertes et récipients
fermés
Balconnets
de la porte du
compartiment de
réfrigération
Produits ou boissons
de petite taille et sous
emballage (comme du
lait, des jus de fruits ou
de la bière)
Bac à légumes Fruits et légumes
Compartiment
Fraîcheur
Produits délicats
(fromage, beurre,
salami, etc.)
Informations concernant la
congélation
Les denrées doivent être congelées le
plus rapidement possible lorsqu’elles
sont placées dans un congélateur /
réfrigérateur, afin de préserver leur
qualité.
Il n’est possible de conserver des
denrées sur de longues périodes
qu’avec des températures inférieures
ou égales à -0°F.
Vous pouvez conserver la fraîcheur de
vos denrées pendant plusieurs mois (à
des températures inférieures ou égales
à -0°F. dans le surgélateur).
A AVERTISSEMENT !
• Il est conseillé de séparer les denrées
en portions en fonction des besoins
quotidiens de votre famille ou par
repas.
• Les denrées doivent être emballées
hermétiquement afin d’éviter qu’elles
ne s’assèchent, même si elles ne
doivent être conservées qu’une
courte période.
• Matériaux nécessaires à l’emballage :
• Bande adhésive résistant au froid
• Etiquette autocollante
• Elastiques en caoutchouc
• Stylo
Les matériaux utilisés pour l’emballage
des denrées doivent résister aux
déchirures, au froid, à l’humidité, et
doivent être imperméables aux odeurs,
aux graisses et aux acides.
Il faut éviter que les denrées à congeler
n’entrent en contact avec des aliments
déjà congelés afin d’empêcher le dégel
partiel de ces aliments.
Les denrées congelées doivent être
consommées immédiatement après
leur décongélation et elles ne doivent
jamais être recongelées.

FR
21
6 Entretien et nettoyage
A N’utilisez jamais d’essence, de
benzène ou de matériaux similaires
pour le nettoyage.
B Nous vous recommandons de
débrancher l’appareil avant de
procéder au nettoyage.
C N’utilisez jamais d'ustensiles
tranchants, savon, produit de
nettoyage domestique, détergent et
cirage pour le nettoyage.
C Utilisez de l’eau tiède pour nettoyer
la carrosserie du congélateur
/ réfrigérateur et séchez-la
soigneusement à l'aide d'un chiffon.
C Utilisez un chiffon humide imbibé
d’une solution composée d'une
cuillère à café de bicarbonate de
soude pour un demi litre d’eau
pour nettoyer l’intérieur et séchez
soigneusement.
B Prenez soin de ne pas faire couler
d'eau dans le logement de la
lampe et dans d’autres éléments
électriques.
B En cas de non utilisation de votre
congélateur / réfrigérateur pendant
une période prolongée, débranchez
le câble d’alimentation, sortez toutes
les denrées, nettoyez-le et laissez la
porte entrouverte.
C Inspectez les joints de porte
régulièrement pour vérifier qu’ils sont
propres et qu'il n'y a pas de résidus
de nourriture.
C Pour retirer les balconnets de portes,
sortez tout son contenu puis poussez
simplement le balconnet vers le haut
à partir de la base.
C Ne jamais utiliser des produits
nettoyants ou de l’eau contenant
du chlore pour le nettoyage des
surfaces externes et des pièces
chromées du produit. Le chlore
entraîne la corrosion de ces surfaces
métalliques.
Protection des surfaces en
plastique.
• Neplacezpasd’huilesoude
plats huileux dans le congélateur
/ réfrigérateur dans des récipients
non fermés, car les graisses
peuvent endommager les surfaces
en plastique du congélateur /
réfrigérateur. Si vous versez ou
éclaboussez de l’huile sur les
surfaces en plastique, nettoyez et
lavez les parties souillées avec de
l’eau chaude immédiatement.

FR
22
7 Dépannage
Veuillez vérifier la liste suivante avant d’appeler le service après-vente. Cela peut
vous faire économiser du temps et de l'argent. Cette liste regroupe les problèmes
les plus fréquents ne provenant pas d’un défaut de fabrication ou d’utilisation du
matériel. Il se peut que certaines des fonctions décrites ne soient pas présentes
sur votre produit.
Le réfrigérateur ne fonctionne pas.
• La fiche n'est pas insérée correctement dans la prise. >>>Insérez correctement
la fiche dans la prise.
• Est-ce que le fusible ou la douille de raccord du réfrigérateur sont connectés ou
est-ce que le fusible principal a sauté ? >>>Vérifiez le fusible.
Condensation sur la paroi intérieure du compartiment réfrigérateur. (MULTIZONE,
COOL CONTROL et FLEXI ZONE).
• La température ambiante est très froide. >>>N'installez pas le réfrigérateur dans
des endroits où la température peut être inférieure à 10 °C.
• La porte a été ouverte souvent. >>>Evitez d'ouvrir et de fermer trop
fréquemment la porte du réfrigérateur.
• L'environnement est très humide. >>>N'installez pas votre réfrigérateur dans des
endroits très humides.
• La nourriture contenant du liquide est conservée dans des récipients ouverts.
>>>Ne conservez pas de la nourriture contenant du liquide dans des récipients
ouverts.
• La porte du réfrigérateur est laissée entrouverte. >>>Fermez la porte du
réfrigérateur.
• Le thermostat est réglé à un niveau très froid. >>>Réglez le thermostat à un
niveau adapté.
• Le compresseur ne fonctionne pas.

FR
23
• Le dispositif de protection thermique du compresseur sautera en cas de
coupures soudaines du courant ou de débranchement intempestif, en effet
la pression du liquide réfrigérant du système de refroidissement ne sera pas
équilibrée. Le réfrigérateur recommencera à fonctionner normalement après 6
minutes environ. Veuillez contacter le service après-vente si le réfrigérateur ne
redémarre pas après cette période.
• Le réfrigérateur est en mode de dégivrage. >>>Cela est normal pour un
réfrigérateur à dégivrage semi-automatique. Le cycle de dégivrage se déclenche
régulièrement.
• Le réfrigérateur n’est pas branché à la prise. >>>Assurez-vous que la prise est
branchée dans la prise murale.
• Les réglages de température ne sont pas effectués correctement.
>>>Sélectionnez la température appropriée.
• Il y a une panne de courant. >>>Le réfrigérateur recommence à fonctionner
normalement après le retour du courant.
Le niveau sonore augmente lorsque le réfrigérateur est en marche.
• Les caractéristiques de performance du réfrigérateur peuvent changer en raison
des variations de la température ambiante. Cela est normal et n’est pas un
défaut.
Le réfrigérateur fonctionne fréquemment ou pendant de longue périodes.

FR
24
• Votre nouveau réfrigérateur est peut être plus large que l’ancien. Les grands
réfrigérateurs durent plus longtemps.
• La température de la pièce est probablement élevée. >>>Il est normal que
l'appareil fonctionne plus longtemps quand la température ambiante est élevée.
• Le réfrigérateur pourrait y avoir été branché tout récemment ou pourrait avoir
été chargé de denrées alimentaires. >>>Quand le réfrigérateur a été branché
ou récemment rempli avec de la nourriture, il met plus de temps à atteindre la
température réglée. Ce phénomène est normal.
• D’importantes quantités de denrées chaudes ont peut être été introduites dans
le réfrigérateur récemment. >>>Ne mettez pas de nourriture chaude dans le
réfrigérateur.
• Les portes ont peut être été ouvertes fréquemment ou laissées entrouvertes
pendant une durée prolongée. >>>L’air chaud qui entre dans l'appareil oblige
le réfrigérateur à travailler sur de plus longues périodes. N’ouvrez pas les portes
fréquemment.
• La porte du congélateur ou du réfrigérateur est probablement entrouverte.
>>>Vérifiez que les portes sont bien fermées.
• Le réfrigérateur est réglé à une température très basse. >>>Réglez la
température du réfrigérateur à un degré supérieur et attendez que la température
réglée soit atteinte.
• Le joint de la porte du réfrigérateur ou du congélateur peut être sale, déchiré,
rompu ou mal en place. >>>Nettoyez ou remplacez le joint. Tout joint
endommagé/déchiré fait fonctionner le réfrigérateur pendant une période de
temps plus longue afin de conserver la température actuelle.
La température du congélateur est très basse alors que celle du réfrigérateur
est correcte.
• La température du congélateur est réglée à une température très basse.
>>>Réglez la température du congélateur à un degré supérieur et vérifiez.
La température du réfrigérateur est très basse alors que celle du congélateur
est correcte.
• La température du réfrigérateur est réglée à une température très basse.
>>>Réglez la température du réfrigérateur à un degré supérieur et vérifiez.
Les denrées conservées dans les tiroirs du compartiment de réfrigération sont
congelées.

FR
25
• La température du réfrigérateur est réglée à une température très basse.
>>>Réglez la température du réfrigérateur à un niveau inférieur et vérifiez.
La température dans le réfrigérateur ou le congélateur est très élevée.
• La température du réfrigérateur est réglée à une température très basse. >>>Le
réglage du compartiment réfrigérant a un effet sur la température du congélateur.
Changez les températures du réfrigérateur ou du congélateur et attendez que les
compartiments atteignent une température suffisante.
• Les portes ont peut être été ouvertes fréquemment ou laissées entrouvertes
pendant une durée prolongée. >>>N’ouvrez pas les portes fréquemment.
• La porte est entrouverte. >>>Refermez complètement la porte.
• Le réfrigérateur a été récemment branché ou rempli avec de la nourriture.
>>>Ce phénomène est normal. Lorsque le réfrigérateur vient d'être branché
ou récemment rempli avec de la nourriture, il met plus de temps à atteindre la
température réglée.
• D’importantes quantités de denrées chaudes ont peut être été introduites dans
le réfrigérateur récemment. >>>Ne mettez pas de nourriture chaude dans le
réfrigérateur.
• Vibrations ou bruits
• Le sol n’est pas plat ou stable. >>>Si le réfrigérateur balance lorsqu'il est
déplacé lentement, équilibrez-le en ajustant sa base. Assurez-vous que le sol est
plat et suffisamment solide pour supporter le poids et le volume de l'appareil.
• Les éléments placés sur le réfrigérateur peuvent faire du bruit. >>>Enlevez les
éléments du haut du réfrigérateur.
Le réfrigérateur produit des bruits semblables à de l’eau qui coule, à la
pulvérisation d’un liquide, etc.
• Des écoulements de gaz et de liquides surviennent dans le réfrigérateur, de par
ses principes de fonctionnement Cela est normal et n’est pas un défaut.
Un sifflement sort du réfrigérateur.
• Les ventilateurs sont utilisés pour refroidir le réfrigérateur. Cela est normal et n’est
pas un défaut.
Condensation sur les parois intérieures du réfrigérateur.
• Un temps chaud et humide augmente la formation de givre et de condensation.
Cela est normal et n’est pas un défaut.
• Les portes ont peut être été ouvertes fréquemment ou laissées entrouvertes
pendant une durée prolongée. >>>N’ouvrez pas les portes fréquemment.
Refermez-les si elles sont ouvertes.
• La porte est entrouverte. >>>Refermez complètement la porte.
De l’humidité est présente à l’extérieur ou entre les portes du réfrigérateur.
Lea este manual antes de utilizar el frigorífico.
Estimado cliente:
Esperamos que este producto, que ha sido fabricado en plantas dotadas de
la más avanzada tecnología y sometido a los más estrictos procedimientos de
control de calidad, le preste un servicio eficaz.
Para ello, le recomendamos que lea atentamente el presente manual antes de
utilizar el producto, y que lo tenga a mano para futuras consultas.
Este manual
• Le ayudará a usar el electrodoméstico de manera rápida y segura.
• Lea el manual antes de instalar y poner en funcionamiento el producto.
• Siga las instrucciones, en particular las relacionadas con la seguridad.
• Conserve el manual en un sitio de fácil acceso, ya que podría necesitarlo en el
futuro.
• Además, lea también otros documentos suministrados junto con el producto.
• Tenga en cuenta que este manual también podría ser válido para otros modelos.
Símbolos y sus descripciones
El presente manual de instrucciones emplea los siguientes símbolos:
C Información importante o consejos útiles sobre el funcionamiento.
A Advertencia sobre situaciones peligrosas para la vida y la propiedad.
B Advertencia acerca de la tensión eléctrica.

ES
2
1 Su frigorífico 3
2 Información importante sobre
seguridad 4
Finalidad prevista ...............................4
Productos equipados con dispensador
de agua: ............................................6
Seguridad infantil ...............................6
Conformidad con la normativa WEEE
y eliminación del aparato al final de su
vida útil: ............................................7
Cumplimiento de la directiva RoHS: ...7
Información sobre el embalaje ...........7
Advertencia sobre la seguridad de la
salud .................................................7
Consejos para el ahorro de energía ...8
3 Instalación 9
Cuestiones a considerar a la hora de
transportar el frigorífico ......................9
Antes de usar el frigorífico ..................9
Conexiones eléctricas ........................9
Aviso de puerta abierta ....................10
Cambio de la bombilla de
iluminación .....................................10
Eliminación del embalaje ..................10
Eliminación de su viejo frigorífico ......10
Colocación e instalación ..................10
ÍNDICE
4 Preparación 11
Inversión de las puertas ...................12
5 Uso del frigorífico 14
Aviso de puerta abierta ....................16
Doble sistema de enfriamiento: ........16
Congelación de alimentos frescos ...17
Recomendaciones para la
conservación de alimentos
congelados ......................................18
Colocación de los alimentos ............19
Información sobre la congelación ....19
6 Mantenimiento y limpieza 20
Protección de las superficies de
plástico ............................................20
7 Sugerencias para la solución
de problemas 21

ES
3
C Las ilustraciones incluidas en el presente manual de instrucciones son
esquemáticas y puede que no se adecuen a su producto con exactitud. Si alguno
de los elementos reflejados no se corresponde con el producto que usted ha
1. Secciones de mantequillas y quesos
2. Estantes ajustables en la puerta
3. Botella titular
4. Botella estante
5. Patas ajustables delanteras
6. compartimiento del congelador
7. Chiller
8. Chiller cubierta y vidrio
9. estantes ajustables
10. ventilador
11. Indicador del panel
5
1
2
3
4
7
6
6
6
7
8
9
10
9
9
11
1 Su frigorífico

ES
4
2 Información importante sobre seguridad
Lea con atención la siguiente
información. No tener en cuenta dicha
información podría acarrear lesiones
o daños materiales. En tal caso,
las garantías y los compromisos de
fiabilidad quedarían anulados.
La vida útil de la unidad adquirida es
de 10 años. Éste es el período durante
el cual se garantiza la disponibilidad de
las piezas de repuesto para la unidad.
Finalidad prevista
Este aparato está diseñado para
usarse en los siguientes entornos:
• interiores y entornos cerrados tales
como domicilios particulares;
• entornos cerrados de trabajo tales
como almacenes u oficinas;
• zonas de servicio cerradas tales
como casas rurales, hoteles o
pensiones.
• Este aparato no se debe usar al aire
libre.
Seguridad general
• Cuando desee deshacerse del
aparato, le recomendamos que
solicite a su servicio técnico
autorizado la información necesaria
a este respecto, así como la relación
de entidades locales a las que puede
dirigirse.
• En caso de dudas o problemas,
diríjase a su servicio técnico
autorizado. No intente reparar el
frigorífico sin consultar con el servicio
técnico, ni deje que nadie lo haga.
• Para aparatos equipados con un
compartimento congelador: no
consuma los helados o cubitos
de hielo inmediatamente después
de sacarlos del compartimento
congelador, ya que podría sufrir
daños en su boca a causa del frío.
• Para aparatos equipados con un
compartimento congelador: no
deposite bebidas embotelladas
o enlatadas en el compartimento
congelador, ya que podrían estallar.
• No toque con la mano los alimentos
congelados, ya que podrían adherirse
a ella.
• Desenchufe su frigorífico antes de
proceder a su limpieza o deshielo.
• No utilice nunca materiales de
limpieza que usen vapor para limpiar
o descongelar el frigorífico. El vapor
podría entrar en contacto con
los elementos eléctricos y causar
cortocircuitos o descargas eléctricas.
• No utilice nunca elementos del
frigorífico tales como la puerta como
medio de sujeción o como escalón.
• No utilice aparatos eléctricos en el
interior del frigorífico.
• Evite dañar el circuito del refrigerante
con herramientas cortantes o de
perforación. El refrigerante que puede
liberarse si se perforan los canales de
gas del evaporador, los conductos o
los recubrimientos de las superficies
causa irritaciones en la piel y lesiones
en los ojos.
• No cubra ni bloquee los orificios
de ventilación de su frigorífico con
ningún material.

ES
5
• Deje la reparación de los aparatos
eléctricos únicamente en manos
de personal autorizado. Las
reparaciones realizadas por personas
incompetentes generan riesgos para
el usuario.
• En caso de fallo o cuando vaya
a realizar cualquier operación
de reparación o mantenimiento,
desconecte el frigorífico de la corriente
apagando el fusible correspondiente o
bien desenchufando el aparato.
• No desenchufe el aparto de la toma
de corriente tirando del cable.
• Coloque las bebidas de mayor
graduación alcohólica juntas y en
posición vertical.
• No almacene en el frigorífico aerosoles
que contengan sustancias inflamables
o explosivas.
• No utilice dispositivos mecánicos
u otros medios para acelerar el
proceso de deshielo distintos de los
recomendados por el fabricante.
• Este aparato no debe ser utilizado
por niños o por personas con sus
facultades físicas, sensoriales o
mentales reducidas o bien que
carezcan de la experiencia y los
conocimientos necesarios, a menos
que lo hagan bajo la supervisión
de personas responsables de su
seguridad o bien tras haber recibido
instrucciones de uso por parte de
dichas personas.
• No utilice un frigorífico que haya sufrido
daños. Consulte con el servicio de
atención al cliente en caso de duda.
• La seguridad eléctrica de su frigorífico
sólo estará garantizada si el sistema
de toma de tierra de su domicilio se
ajusta a los estándares.
• Desde el punto de vista de la
seguridad eléctrica, es peligroso
exponer el aparato a la lluvia, la nieve
o el viento.
• Póngase en contacto con el servicio
técnico autorizado en caso de que
el cable de alimentación principal se
dañe, para evitar cualquier peligro.
• Nunca enchufe el frigorífico en
la toma de corriente durante su
instalación. Existe peligro de lesiones
graves e incluso de muerte.
• Este frigorífico está únicamente
diseñado para almacenar alimentos.
No debe utilizarse para ningún otro
propósito.
• La etiqueta que contiene los datos
técnicos del frigorífico se encuentra
en la parte interior izquierda del
mismo.
• Jamás conecte el frigorífico a
sistemas de ahorro de electricidad,
ya que podría dañarlo.
• Si el frigorífico está equipado con
una luz azul, no la mire a través de
dispositivos ópticos.
• En los frigoríficos de control manual,
si se produce un corte del fluido
eléctrico espere al menos 5 minutos
antes de volver a ponerlo en marcha.
• Cuando entregue este aparato a
un nuevo propietario, asegúrese de
entregar también este manual de
instrucciones.
• Tenga cuidado de no dañar el cable
de alimentación al transportar el
frigorífico. Doblar el cable podría
causar un incendio. Nunca deposite
objetos pesados encima del cable
de alimentación. No toque el enchufe
con las manos mojadas para
conectar el aparato.

ES
6
• No enchufe el frigorífico si el enchufe
no encaja con firmeza en la toma de
corriente de la pared.
• Por razones de seguridad, no
pulverice agua directamente en la
partes interiores o exteriores de este
aparato.
• No rocíe cerca del frigorífico
sustancias que contengan gases
inflamables tales como gas propano
para evitar riesgos de incendio y
explosiones.
• Nunca coloque recipientes con agua
sobre el frigorífico, ya que podría
provocar una descarga eléctrica o un
incendio.
• No deposite cantidades excesivas
de alimentos en el frigorífico. Si lo
hace, al abrir la puerta del frigorífico
los alimentos podrían caerse y
provocar lesiones personales o dañar
el frigorífico. Nunca coloque objetos
sobre el frigorífico, ya que podrían
caer al abrir o cerrar la puerta.
• No guarde en el frigorífico productos
que necesiten un control preciso de
la temperatura tales como vacunas,
medicamentos sensibles al calor,
materiales científicos, etc.
• Desenchufe el frigorífico si no lo
va a utilizar durante un periodo
prolongado de tiempo. Un problema
en el cable de alimentación podría
causar un incendio.
• Limpie regularmente la punta del
enchufe, ya que de lo contrario
puede provocar un incendio.
• Limpie regularmente la punta del
enchufe con un paño seco; de lo
contrario podría provocarse un
incendio.
• El frigorífico podría moverse si los
pies no están adecuadamente
asentados en el suelo. Fijar
adecuadamente los pies del frigorífico
en el suelo puede ayudar a evitar que
se mueva.
• Cuando transporte el frigorífico, no
lo aferre del asa de la puerta. De lo
contario, podría romperla.
• Cuando tenga que colocar el
frigorífico cerca de otro frigorífico o
congelador, deberá dejar un espacio
entre ambos aparatos de 8 cm
como mínimo. De lo contrario, podría
formarse humedad en las paredes
adyacentes.
Productos equipados con
dispensador de agua:
La presión de la red de suministro
de agua debe ser de un mínimo
de 1 bar. La presión de la red de
suministro de agua debe ser de 8
bares como máximo.
• Use agua potable únicamente.
Seguridad infantil
• Si la puerta tiene cerradura,
mantenga la llave fuera del alcance
de los niños.
• Vigile a los niños para evitar que
manipulen el aparato.

ES
7
Conformidad con la
normativa WEEE y
eliminación del aparato al
final de su vida útil:
Este producto es conforme
con la directiva de la UE
sobre residuos de aparatos
eléctricos y electrónicos
(WEEE) (2012/19/UE).
Este producto incorpora el
símbolo de la clasificación
selectiva para los residuos de aparatos
eléctricos y electrónicos (WEEE).
Este aparato se ha fabricado con
piezas y materiales de primera calidad,
que pueden ser reutilizados y son
aptos para el reciclado. No se deshaga
del producto junto con sus los residuos
domésticos normales y de otros tipos al
final de su vida útil. Llévelo a un centro
de reciclaje de dispositivos eléctricos y
electrónicos. Solicite a las autoridades
locales información acerca de dichos
centros de recogida.
Cumplimiento de la directiva
RoHS:
El producto que ha adquirido es
conforme con la directiva de la UE
sobre la restricción de sustancias
peligrosas (RoHS) (2011/65/UE). No
contiene ninguno de los materiales
nocivos o prohibidos especificados en
la directiva.
Información sobre el
embalaje
El embalaje del aparato se fabrica
con materiales reciclables, de acuerdo
con nuestro Reglamento Nacional
sobre Medio Ambiente. No elimine los
materiales de embalaje junto con los
residuos domésticos o de otro tipo.
Llévelos a un punto de recogida de
materiales de embalaje designado por
las autoridades locales.
A PELIGRO: Riesgo de que los
niños queden atrapados. Antes de
deshacerse de su viejo frigorífico o
congelador:
•Retirelaspuertas.
•Dejelosestantesensusitioparaevitar
que los niños puedan meterse en el
frigorífico con facilidad.
Advertencia sobre la
seguridad de la salud
Si el sistema de refrigeración de su
aparato contiene R600a:
Este gas es inflamable. Por lo tanto,
procure no dañar el sistema de
enfriamiento ni sus conductos durante
el uso o el transporte del aparato. En
caso de daños, mantenga el aparato
alejado de fuentes potenciales de
ignición que puedan provocar que éste
sufra un incendio, y ventile la estancia
en la que se encuentre el aparato.
APELIGRO – Riesgo de incendio
o explosión. Se usa refrigerante
inflamable. No use aparatos mecánicos
para descongelar el frigorífico. Evite
perforar los tubos de refrigerante.

ES
8
APELIGRO – Riesgo de incendio
o explosión. Se usa refrigerante
inflamable. Las reparaciones deben
correr a cargo únicamente de personal
de asistencia adiestrado. Evite perforar
los tubos de refrigerante.
APELIGRO – Riesgo de incendio
o explosión. Se usa refrigerante
inflamable. Consulte el manual de
reparaciones o la guía del propietario
antes de intentar reparar este
producto. Es preciso observar todas
las precauciones de seguridad.
APELIGRO – Riesgo de incendio
o explosión. Deshágase del aparato
adecuadamente, según lo dispuesto
por las normativas nacionales o locales.
Se usa refrigerante inflamable.
APRECAUCIÓN– Riesgo de
incendio o explosión debido a la
perforación de los tubos de refrigerante;
siga las instrucciones cuidadosamente.
Se usa refrigerante inflamable.
Ignore esta advertencia si el
sistema de refrigeración de su
aparato contiene R134a.
El tipo de gas utilizado en el aparato se
indica en la placa de datos ubicada en
la pared interior izquierda del frigorífico.
Jamás arroje el aparato al fuego.
Consejos para el ahorro de
energía
• No deje las puertas del frigorífico
abiertas durante periodos largos de
tiempo.
• No introduzca alimentos o bebidas
calientes en el frigorífico.
• No sobrecargue el frigorífico, ya que
entorpecería la circulación del aire en
su interior.
• No instale el frigorífico de forma que
quede expuesto a la luz solar directa
o cerca de aparatos que irradien
calor tales como hornos, lavavajillas o
radiadores.
• Procure depositar los alimentos en
recipientes cerrados.
• Productos equipados con
compartimento congelador: puede
disponer del máximo volumen para
el depósito de alimentos retirando el
estante o el cajón del congelador. El
consumo energético que se indica
para su frigorífico se ha calculado
retirando el estante o el cajón del
congelador y en condiciones de
máxima carga. No existe ningún
riesgo en la utilización de un estante
o cajón según las formas o tamaños
de los alimentos que se van a
congelar.
• Descongele los alimentos congelados
en el compartimento frigorífico;
ahorrará energía y preservará la
calidad de los alimentos.

ES
9
3 Instalación
B Recuerde que el fabricante declina
toda responsabilidad en caso de
incumplimiento de las instrucciones
de este manual.
Cuestiones a considerar
a la hora de transportar el
frigorífico
1. El frigorífico debe estar vacío y limpio
antes de proceder a su transporte.
2. Los estantes, accesorios, el cajón
de frutas y verduras, etc., deben
sujetarse con cinta adhesiva antes de
embalar el frigorífico para evitar que
se muevan.
3. Encinte el frigorífico una vez
embalado con cinta gruesa y fíjelo
con cuerdas resistentes. Siga las
reglas de transporte que encontrará
impresas en el propio embalaje.
No olvide que:
El reciclaje de materiales es un asunto
de vital importancia para la naturaleza y
para los recursos del país.
Si desea contribuir al reciclaje de
los materiales de embalaje, solicite
más información a los responsables
medioambientales de su zona o a las
autoridades locales.
Antes de usar el frigorífico
Antes de empezar a usar el frigorífico,
verifique lo siguiente:
1. El interior del frigorífico está seco y el
aire puede circular con libertar por su
parte posterior.
2. Es posible que las aristas delanteras
del aparato se noten calientes al
tacto. cosa que es perfectamente
normal. Estas zonas deben
permanecer calientes para evitar la
condensación.El interior del frigorífico
está seco y el aire puede circular con
libertar por su parte posterior.
3. Introduzca 2 cuñas plásticas en la
ventilación trasera, como se muestra
en la figura siguiente. Las cuñas de
plástico proporcionarán la distancia
requerida entre su frigorífico y la
pared para una correcta circulación
del aire.
4. Limpie el interior del frigorífico de la
forma recomendada en la sección
“Mantenimiento y Limpieza”.
5. Enchufe el frigorífico a la toma
de corriente. Al abrir la puerta
del frigorífico, la luz interior del
compartimento frigorífico se enciende
Conexiones eléctricas
Conecte el frigorífico a una toma de
corriente provista de toma de tierra y
protegida por un fusible de la capacidad
adecuada.
Importante:
• La conexión debe cumplir con las
normativas nacionales.
• El enchufe de alimentación debe
ser fácilmente accesible tras la
instalación.
• La tensión especificada debe
corresponder a la tensión de la red
eléctrica.
• No use cables de extensión ni
enchufes múltiples para conectar la
unidad.
B Todo cable de alimentación dañado
debe ser reemplazado por un
electricista cualificado.

ES
10
B No ponga en funcionamiento el
aparato hasta que esté reparado, ya
que existe peligro de cortocircuito.
Eliminación del embalaje
Los materiales de empaque pueden ser
peligrosos para los niños. Manténgalos
fuera de su alcance o deshágase de ellos
clasificándolos según las instrucciones
para la eliminación de residuos. No los
tire junto con los residuos domésticos
normales.
El embalaje del frigorífico se ha
fabricado con materiales reciclables.
Eliminación de su viejo
frigorífico
Deshágase de su viejo frigorífico
de manera respetuosa con el medio
ambiente.
• Consulte las posibles alternativas a un
distribuidor autorizado o al centro de
recogida de residuos de su municipio.
Antes de proceder a la eliminación
del frigorífico, corte el enchufe y, si las
puertas tuvieran cierres, destrúyalos
para evitar que los niños corran riesgos.
Colocación e instalación
1. A Si la puerta de entrada a la
estancia donde va a instalar el
frigorífico no es lo suficientemente
ancha como para permitir su paso,
solicite al servicio técnico que retire
las puertas del frigorífico y lo pase de
lado a través de la puerta.
2. Instale el frigorífico en un lugar en el
que pueda utilizarse con comodidad.
3. Mantenga el frigorífico alejado de
fuentes de calor y lugares húmedos
y evite su exposición directa a la luz
solar.
4. Para que el frigorífico funcione con
la máxima eficacia, debe instalarse
en una zona que disponga de una
ventilación adecuada. Si el frigorífico
va a instalarse en un hueco de la
pared, debe dejarse un mínimo de 5
cm de separación con el techo y de 5
cm con las paredes. Si el suelo está
cubierto con una alfombra, deberá
elevar el frigorífico 2,5 cm del suelo.
5. Coloque el frigorífico sobre una
superficie lisa para evitar sacudidas.
Cambio de la bombilla de
iluminación
Para cambiar la bombilla utilizada
para iluminar el frigorífico, póngase
en contacto con el servicio técnico
autorizado.
Aviso de puerta abierta
El frigorífico emitirá una señal
acústica de aviso cuando la puerta
del compartimento del frigorífico
permanezca abierta durante un cierto
periodo de tiempo. Esta señal acústica
de aviso cesará cuando se pulse
cualquier botón del indicador o se
cierre la puerta.

ES
11
4 Preparación
• El frigorífico debe instalarse dejando
una separación no inferior a 30
cm respecto a fuentes de calor
tales como quemadores, hornos,
calefacciones o estufas y no inferior
a 5 cm con respecto a hornos
eléctricos, evitando asimismo su
exposición directa a la luz solar.
• La temperatura ambiente de la
estancia donde instale el frigorífico
no debe ser inferior a 50 ºF. A
temperaturas inferiores, el frigorífico
puede ver reducida su eficacia.
• Asegúrese de limpiar
meticulosamente el interior del
frigorífico.
• En caso de que vaya a instalar dos
frigoríficos uno al lado del otro, debe
dejar una separación no inferior a 2
cm entre ellos.
• Al utilizar el frigorífico por primera
vez, siga las siguientes instrucciones
referentes a las primeras seis horas.
• No abra la puerta con frecuencia.
• No deposite alimentos en el interior.
• No desenchufe el frigorífico. En caso
de corte del suministro eléctrico
ajeno a su voluntad, consulte
las advertencias de la sección
"Sugerencias para la solución de
problemas".
• Guarde el embalaje original para
futuros traslados.

ES
12
1
5
2
6
3
4
8
7
11
12
9
10
13
14
16
15
H1
H1
H2
H2
H3
H3
H4
H4
1
2
5
6
12
11
16
15
Inversión de las puertas
Proceder en orden numérico

ES
13
177.7 cm / 69.96"
55.6 cm / 21.89"
54.5 cm / 21.46"
(H) Altura (cm) sin paseó
(W) Ancho (cm) sin paseó
(D) Profundidad (cm) sin paseó
(H) Altura (cm) paseó 185.6 cm /73.07"
(W) Ancho (cm) paseó 57.6 cm /22.68"
(D) Profundidad (cm) paseó 58.5 cm /23.03"
Peso bruto (Kg) / lbs
73 kg /160.94
peso muerto (Kg) / lbs
68.9 kg / 151.9

ES
14
5 Uso del frigorífico
1 2 3 4 5 6 7 8 9 10 11 12 13 14 15 16 17
1- Función de encendido/apagado
Mantenga pulsado el botón de
encendido/apagado durante 3
segundos para encender o apagar el
frigorífico.
2- Función de refrigeración rápida
Al pulsar el botón de refrigeración
rápida, la temperatura del
compartimiento descenderá por debajo
del valor fijado.
Esta función puede utilizarse
para enfriar con rapidez alimentos
depositados en el compartimento
frigorífico.
Si desea enfriar grandes cantidades
de alimentos frescos, se recomienda
activar esta función antes de depositar
los alimentos en el frigorífico. El
indicador de refrigeración rápida
permanecerá encendido mientras la
función de refrigeración rápida esté
activa. Para cancelar esta función pulse
nuevamente el botón de refrigeración
rápida. El indicador de refrigeración
rápida se apagará y el electrodoméstico
volverá a sus valores normales.
Si no cancela manualmente la
función de refrigeración rápida,
ésta se cancelará automáticamente
transcurridas dos horas o bien una vez
el compartimento frigorífico alcance
la temperatura deseada. En caso de
corte del fluido eléctrico, esta función
no se activará automáticamente al
restablecerse el suministro eléctrico.
3- Función de vacaciones
Pulse el botón de refrigeración rápida/
vacaciones y manténgalo pulsado
durante 3 segundos para activar la
función Vacaciones.
El icono "--" se ilumina cuando la
función está activa. La función se
desactiva al volver a mantener el mismo
botón pulsado durante 3 segundos o al
pulsar el botón de ajuste del frigorífico.
4- Botón de ajuste del frigorífico
Esta función le permite ajustar la
temperatura del compartimento
frigorífico. Pulse este botón para ajustar
la temperatura del compartimento
frigorífico a 37, 40, 43, 46 °F
respectivamente.
5. Indicador de apagado
El indicador de apagado se ilumina
cuando el frigorífico está apagado.
6- Indicador de refrigeración
rápida
Este icono se ilumina cuando función
de refrigeración rápida está activa.

ES
15
7- Indicador de ajuste de
temperatura del compartimento
frigorífico
Indica la temperatura ajustada para el
compartimento frigorífico.
8- Indicador de la función de
vacaciones
Este icono se ilumina cuando función
de vacaciones está activa.
9- Indicador de temperatura alta /
aviso de error
Esta luz indicadora se enciende en
caso de fallo de alta temperatura o
aviso de error.
10- Indicador del modo ahorro
El indicador del modo ahorro se
enciende al ajustar el compartimento
frigorífico a 5 ºF, y se apaga al seleccionar
las funciones de congelación rápida o
refrigeración rápida.
11- Compartimiento congelador
Indicador de ajuste de temperatura
Indica la temperatura ajustada para el
compartimento congelador.
12- Indicador Eco Extra
El indicador de Eco-Extra se ilumina
cuando la función Eco Extra está activa.
13- Indicador de congelación
rápida
Este icono se ilumina cuando función
de congelación rápida está activa.
14- Función de ajuste del
congelador
Esta función le permite ajustar la
temperatura del compartimento
congelador. Pulse este botón
para ajustar la temperatura del
compartimento congelador a 5, 0 ,- 5,
-10 °F respectivamente.
15- Función de congelación rápida
El indicador de congelación rápida
se ilumina cuando la función de
congelación rápida está activa.
Para cancelar esta función pulse
de nuevo el botón de congelación
rápida. El indicador de congelación
rápida se apagará y el frigorífico
volverá a sus valores normales. Si no
cancela manualmente la función de
congelación rápida, ésta se cancelará
automáticamente transcurridas cuatro
horas o bien una vez el compartimento
congelador alcance la temperatura
deseada.
Si desea congelar grandes cantidades
de alimentos frescos, pulse el botón de
congelación rápida antes de introducir
los alimentos en el compartimento
congelador. Si pulsa el botón de
congelación rápida repetidamente
a intervalos breves, se activará
inmediatamente la protección del
circuito electrónico.
En caso de corte del fluido
eléctrico, esta función no se activará
automáticamente al restablecerse el
suministro eléctrico.
16- Función Eco-Extra (modo
especial de ahorro)
Mantenga el botón de congelación
rápida/Eco Extra pulsado durante
3 segundos para activar la función
Eco Extra. El frigorífico comenzará a
funcionar en el modo más económico
durante un mínimo de 6 horas y
el indicador de uso económico se
iluminará cuando esta función esté
activa. Pulse de nuevo el botón de
congelación rápida y manténgalo
pulsado durante 3 segundos para
desactivar la función Eco Fuzzy.

ES
16
17- Desconexión de la alarma
Cuando la puerta del frigorífico se
mantenga abierta durante 2 minutos
o en caso de corte del fluido eléctrico,
sonará una señal acústica. La señal
acústica puede apagarse pulsando el
botón "Desactivar señal acústica".
La señal acústica de fallo de sensor
no sonará hasta la interrupción de la
corriente eléctrica. Si cierra la puerta
y la vuelve a abrir, la señal acústica de
puerta abierta se activará de nuevo 2
minutos más tarde.
Aviso de puerta abierta
El frigorífico emitirá una señal
acústica de aviso cuando la puerta
del compartimento del frigorífico
permanezca abierta más de un 1
minuto. Esta señal acústica cesará
cuando se pulse cualquier botón del
indicador o se cierre la puerta.
Doble sistema de
enfriamiento:
Este frigorífico está equipado con dos
sistemas de enfriamiento separados
para enfriar el compartimento de
alimentos frescos y el compartimento
del congelador. De este modo, no se
mezclan el aire del compartimento
de alimentos frescos y el aire del
compartimento del congelador. Gracias
a estos dos sistemas de enfriamento
independientes, la velocidad de
enfriamiento es muy superior a la de
otros frigoríficos. No se mezclan los
olores de los compartimentos. Además,
se obtiene un ahorro de energía
adicional porque el desescarche se
realiza individualmente.

ES
17
Ajuste del compartimento
congelador
Ajuste del
compartimento
refrigerador Explicaciones
5°F 40°F Éstos son los valores de uso recomendados.
0,-5 o -10°F 40°F Se recomiendan estos valores cuando la temperatura
ambiente rebasa los 91 ºF.
Congelación rápida
40°F Se utiliza para congelar los alimentos rápidamente. El
frigorífico volverá a su modo de funcionamiento previo
una vez finalizado el proceso.
5°F o menos 37°F
Si usted cree que el compartimento refrigerador
no está suficientemente frío debido a las altas
temperaturas ambientales o por la frecuente apertura
y cierre de la puerta.
5°F o menos Refrigeración
rápida
Puede utilizarlo cuando haya un exceso de carga en
el compartimento o bien si desea enfriar sus alimentos
rápidamente. Se recomienda activar la función de
refrigeración rápida 4-8 horas antes de colocar los
alimentos.
Congelación de alimentos
frescos
• Es preferible envolver o cubrir los
alimentos antes de introducirlos en el
frigorífico.
• Los alimentos calientes deben dejarse
enfriar hasta alcanzar la temperatura
ambiente antes de introducirlos en el
frigorífico.
• Los alimentos que vaya a congelar
deben ser frescos y estar en buen
estado.
• Los alimentos deben dividirse
en porciones basadas en las
necesidades de consumo de la
familia.
• Los alimentos deben empaquetarse
herméticamente para evitar que se
sequen, incluso aunque vayan a
guardarse durante poco tiempo.
Recomendó el uso de Temparature: FF: 4°C /40 °F Frz : -15°C/5 °F
• Los materiales utilizados para
empaquetar alimentos deben ser a
prueba de desgarrones y resistentes
al frío, a la humedad, los olores, los
aceites y los ácidos, y además deben
ser herméticos. También deben estar
bien cerrados y estar hechos de
materiales fáciles de utilizar y aptos
para su uso en congeladores.
• Los alimentos que vayan a ser
congelados deben depositarse
en el compartimento congelador.
(No deje que entren en contacto
con los alimentos previamente
congelados para evitar que éstos
puedan descongelarse parcialmente.
La capacidad de congelación
del aparato se menciona en las
especificaciones técnicas del mismo).

ES
18
• Respete estrictamente los tiempos
de conservación de alimentos
congelados que encontrará en el
apartado de información sobre la
congelación.
• Consuma inmediatamente los
alimentos recién descongelados, y en
ningún caso los vuelva a congelar.
• Para obtener los mejores resultados,
se deben tener en cuenta las
siguientes instrucciones.
1. No congele cantidades demasiado
grandes de una sola vez. La calidad
de los alimentos se conserva mejor si
la congelación alcanza su interior lo
antes posible.
2. Si se introducen alimentos calientes
en el compartimento congelador, se
obliga al sistema de enfriamiento a
funcionar de forma continua hasta
congelarlos totalmente.
3. Ponga especial cuidado en no
mezclar alimentos ya congelados con
alimentos frescos.
Recomendaciones para la
conservación de alimentos
congelados
• Los alimentos congelados ya
envasados disponibles en los
comercios deben almacenarse
de acuerdo con las instrucciones
de su fabricante respecto de la
conservación en un compartimento
congelador de ( 4 estrellas).
• Si desea garantizar el mantenimiento
de la calidad de los alimentos
congelados proporcionada por el
fabricante y por el comercio, tenga en
cuenta lo siguiente:
1. Coloque los paquetes de alimentos
congelados en el congelador lo antes
posible tras su compra.
2. Asegúrese de que todos los
contenidos tengan etiqueta y fecha.
3. Respete las fechas de “Usar antes
de” o “Consumir antes de” indicadas
en los envases.
Si se produce un corte de corriente,
no abra la puerta del congelador.
Incluso si el corte de corriente tiene
una duración superior al “Tiempo de
aumento de temperatura” indicado
en la sección de las “Especificaciones
técnicas de su frigorífico”, los alimentos
congelados se verán afectados. En
caso de que la avería dure más, deberá
comprobar el estado de los alimentos
y en los casos necesarios consumirlos
inmediatamente o bien cocinarlos y
posteriormente volverlos a congelar.
Deshielo
El compartimento del congelador se
deshiela de manera automática.

ES
19
Colocación de los alimentos
Estantes del
compartimento
congelador
Alimentos congelados
diversos tales como
carnes, pescados,
helados, verduras, etc.
Huevera Huevos
Estantes del
compartimento
refrigerador
Alimentos en cazuelas,
platos cubiertos y
recipientes cerrados
Estantes de
la puerta del
compartimento
refrigerador
Alimentos o bebida
en envases pequeños
(leche, zumos de
frutas, cerveza, etc.)
Cajón de frutas y
verduras Verduras y frutas
Compartimento de
alimentos frescos
Productos delicados
(queso, mantequilla,
embutidos, etc.)
Información sobre la
congelación
Los alimentos deben congelarse
lo más rápido posible con el fin de
mantenerlos en las mejores condiciones
de calidad.
Los alimentos sólo pueden
conservarse durante periodos
prolongados de tiempo a temperaturas
de 0ºF o menos.
A 0ºF o menos es posible mantener
los alimentos frescos durante muchos
meses en el congelador.
ADVERTENCIA A
• Los alimentos deben dividirse
en porciones basadas en las
necesidades de consumo de la
familia.
• Los alimentos deben empaquetarse
herméticamente para evitar que se
sequen, incluso si van a guardarse
durante poco tiempo.
• Materiales necesarios para el
empaquetado:
• Cinta adhesiva resistente al frío
• Etiquetas autoadhesivas
• Gomas elásticas
• Bolígrafo
• Los materiales utilizados para
empaquetar alimentos deben ser a
prueba de desgarrones y resistentes
al frío, la humedad, los olores, los
aceites y los ácidos.
No deje que los alimentos entren en
contacto con alimentos previamente
congelados, con el fin de evitar
que éstos puedan descongelarse
parcialmente.
Respete siempre los valores
especificados en las tablas para los
periodos de conservación.
Consuma inmediatamente los
alimentos recién descongelados, y en
ningún caso los vuelva a congelar.

ES
20
6 Mantenimiento y limpieza
A No utilice nunca gasolina, benceno o
sustancias similares para la limpieza.
B Le recomendamos desenchufar
el aparato antes de proceder a su
limpieza.
C No utilice nunca para la limpieza
instrumentos afilados o sustancias
abrasivas, jabones, limpiadores
domésticos, detergentes ni ceras
abrillantadoras.
C Limpie el armario del frigorífico con
agua tibia y séquelo con un paño.
C Para limpiar el interior, utilice un paño
humedecido en un vaso grande
de agua con una cucharadita de
bicarbonato sódico disuelta y séquelo
con un trapo.
B Asegúrese de que no penetre agua
en el alojamiento de la lámpara ni en
otros elementos eléctricos.
B Si no va a utilizar el frigorífico
durante un periodo prolongado,
desenchúfelo, retire todos los
alimentos, límpielo y deje la puerta
entreabierta.
C Compruebe regularmente los
cierres herméticos de la puerta para
asegurarse de que estén limpios y sin
restos de alimentos.
C Para extraer las bandejas de la
puerta, retire todo su contenido y, a
continuación, simplemente empuje la
bandeja hacia arriba desde su base.
C Nunca use agentes de limpieza
o agua que contengan cloro para
limpiar las superficies exteriores y
los cromados del producto, ya que
el cloro corroe dichas superficies
metálicas.
Protección de las superficies
de plástico
C No deposite aceites líquidos o
alimentos aceitosos en recipientes
no cerrados ya que dañarán
las superficies de plástico de su
frigorífico. En caso de derrame
de aceite sobre las superficies de
plástico, limpie y enjuague con
agua caliente la parte afectada de
inmediato.

ES
21
7 Sugerencias para la solución de problemas
Le rogamos compruebe la siguiente lista antes de llamar al servicio técnico. Ello
puede ayudarle a ahorrar tiempo y dinero. Esta lista incluye problemas frecuentes
no achacables a defectos en materiales o manufactura. Es posible que algunas de
las características mencionadas no estén presentes en su producto.
El refrigerador no funciona
• ¿Estáelfrigoríficocorrectamenteenchufado?Inserteelenchufeenlatomade
corriente.
• ¿Estánfundidoselfusibleprincipaloelfusibledelenchufealcualhaconectado
elfrigorífico?Reviselosfusibles.
Condensación en la pared lateral del compartimento refrigerador. (MULTI
ZONE, COOL CONTROL y FLEXI ZONE)
• Condicionesambientalesmuyfrías.Frecuenteaperturaycierredelapuerta.
Nivel alto de humedad ambiental. Almacenamiento de alimentos que contienen
líquidos en recipientes abiertos. Dejar la puerta entreabierta.
• Pongaeltermostatoaunatemperaturamásbaja.
• Dejelapuertaabiertadurantemenostiempooábralaconmenorfrecuencia.
• Cubralosalimentosalmacenadosenrecipientesabiertosconunmaterial
adecuado.
• Enjugueelaguacondensadaconunpañosecoycompruebesila
condensación persiste.
El compresor no funciona
• Eldispositivotérmicoprotectordelcompresorsaltaráencasodeuncortesúbito
de energía o de idas y venidas de la corriente, ya que la presión del refrigerante
en el sistema de enfriamiento aún no se ha estabilizado.
• Sufrigoríficosepondráenmarchatranscurridosunos6minutos.Llameal
servicio técnico si su frigorífico no se pone en marcha transcurrido ese periodo.
• Elfrigoríficoseencuentraenelciclodedescongelación.Estoesnormalen
un frigorífico con descongelación automática. El ciclo de descongelación se
produce de forma periódica.
• Elfrigoríficonoestáenchufado.Compruebequeelenchufeestéfirmemente
insertado en la toma de corriente.
• ¿Estálatemperaturacorrectamentefijada?Hayuncortedelfluidoeléctrico.
Llame a su electricista.

ES
22
El frigorífico está en funcionamiento con frecuencia o durante periodos
prolongados.
• Puedequesunuevofrigoríficoseamásgrandequeelqueteníaanteriormente.
Esto es perfectamente normal. Los frigoríficos de mayor tamaño funcionan
durante más tiempo.
• Esposiblequelatemperaturaambientedelaestanciaseamásalta.Estoes
perfectamente normal.
• Esposiblequehayaenchufadoelfrigoríficoobienlohayacargadodealimentos
recientemente. Puede que el frigorífico tarde unas dos horas en enfriarse por
completo.
• Esposiblequerecientementehayadepositadograndescantidadesde
alimentos en el frigorífico. Los alimentos calientes pueden ocasionar que
el frigorífico trabaje durante más tiempo hasta alcanzar la temperatura de
almacenamiento seguro.
• Esposiblequelaspuertassehayanabiertoconfrecuenciaoquesehayan
dejado entreabiertas por un tiempo prolongado. El aire caliente que ha
penetrado en el frigorífico hace que éste funcione durante más tiempo. Abra las
puertas con menos frecuencia.
• Esposiblequelapuertadelcompartimentofrigoríficoocongeladorsehaya
dejado entreabierta. Compruebe que las puertas estén bien cerradas.
• Elfrigoríficoestáajustadoaunatemperaturamuybaja.Ajustelatemperaturadel
frigorífico a un valor más alto y espere a que se alcance dicha temperatura.
• Lajuntadelapuertadelcompartimentofrigoríficoocongeladorpuedeestar
sucia, desgastada, rota o no asentada correctamente. Limpie o sustituya la
junta. Una junta rota o dañada hace que el frigorífico funcione durante más
tiempo con el fin de mantener la temperatura actual.
La temperatura del congelador es muy baja, mientras que la del frigorífico es
correcta.
• Latemperaturadelcongeladorestáajustadaaunvalormuybajo.Ajustela
temperatura del congelador a un valor más elevado y compruebe.
La temperatura del frigorífico es muy baja, mientras que la del congelador es
correcta.
• Latemperaturadelcompartimentofrigoríficoestáajustadaaunvalormuybajo.
Ajuste la temperatura del frigorífico a un valor más elevado y compruebe.
Los alimentos depositados en los cajones del compartimento frigorífico se
están congelando.
• Latemperaturadelcompartimentofrigoríficoestáajustadaaunvalormuybajo.
Ajuste la temperatura del frigorífico a un valor más elevado y compruebe.

ES
23
La temperatura del congelador o el frigorífico es muy alta.
• Latemperaturadelfrigoríficoestáajustadaaunvalormuyalto.Elajustedela
temperatura del frigorífico afecta a la temperatura del congelador. Cambie la
temperatura del frigorífico o del congelador hasta que alcance un nivel suficiente.
• Esposiblequelapuertasehayaquedadoentreabierta.Cierrelapuertadeltodo.
• Esposiblequerecientementehayadepositadograndescantidadesde
alimentos en el frigorífico. Espere hasta que el frigorífico o el congelador alcance
la temperatura deseada.
• Esposiblequeelfrigoríficohayasidoenchufadorecientemente.Elenfriamiento
completo del frigorífico lleva un tiempo debido a su tamaño.
Puede escucharse un sonido parecido al tic tac de un reloj saliendo del
frigorífico.
• Esteruidoprocededelaelectroválvuladelfrigorífico.Laelectroválvulagarantiza
el flujo de líquido refrigerante a través del compartimento, que puede ajustarse a
temperaturas de enfriamiento o congelación así como llevar a cabo funciones de
refrigeración. Esto es perfectamente normal y no es ninguna anomalía.
El nivel de ruidos propios del funcionamiento se incrementa cuando el frigorífico
está en marcha.
• Lascaracterísticasderendimientodelfrigoríficopuedencambiarenfunciónde
las variaciones en la temperatura ambiente. Esto es perfectamente normal, no
es ninguna avería.
Vibraciones o ruidos.
• Elsuelonoestániveladoniesfirme.Elfrigoríficooscilaalmoverlolentamente.
Compruebe que el suelo esté nivelado y sea firme y capaz de soportar el peso
del frigorífico.
• Elruidopuededebersealoselementosguardadosenelfrigorífico.Talesobjetos
deben retirarse de la parte superior del frigorífico.
Pueden oírse ruidos como si un líquido se derramara o se pulverizara.
• Loslíquidosygasesfluyendeacuerdoconlosprincipiosdefuncionamientodel
frigorífico. Esto es perfectamente normal, no es ninguna avería.
Puede oírse un ruido parecido al viento.
• Seutilizanventiladoresconelfindehacerqueelfrigoríficoseenfríecon
eficiencia. Esto es perfectamente normal, no es ninguna avería.
Condensación en las paredes interiores del frigorífico.
• Eltiempocálidoyhúmedofavorecelaformacióndehieloylacondensación.
Esto es perfectamente normal, no es ninguna avería.
• Laspuertasestánentreabiertas.Asegúresedequelaspuertasestén
completamente cerradas.
• Esposiblequelaspuertassehayanestadoabriendoconfrecuenciaoquese
hayan dejado abiertas durante un periodo prolongado. Abra las puertas con
menor frecuencia.

ES
24
Hay humedad en el exterior del frigorífico o entre las puertas.
• Puedequehayahumedadambiental.Estoesperfectamentenormalen
climas húmedos. Cuando el grado de humedad descienda, la condensación
desaparecerá.
Mal olor en el interior del frigorífico.
• Elinteriordelfrigoríficodebelimpiarse.Limpieelinteriordelfrigoríficoconuna
esponja empapada en agua caliente o agua con gas.
• Esposiblequeelolorprovengadealgúnrecipienteoenvoltorio.Utiliceotro
recipiente o materiales para envolver de una marca diferente.
La puerta (o puertas) no se cierra.
• Puedequelospaquetesdealimentosdepositadosnodejenquelaspuertasse
cierren. Recoloque los paquetes que estén obstruyendo la puerta.
• Esprobablequeelfrigoríficonoestéenposicióncompletamenteverticalsobre
el suelo y que oscile si se lo mueve ligeramente. Ajuste los tornillos de elevación.
• Elsuelonoestániveladoonoesfirme.Compruebequeelsueloesténiveladoy
que sea capaz de soportar el peso del frigorífico.
Los cajones están atascados.
• Esposiblequealgúnalimentotoqueeltechodelcajón.Cambieladistribución
de los alimentos en el cajón.
57 2599 0000 / AM
EN-FR-ES