Breckwell 1991 S P24I Users Manual P24 2005
P24I to the manual 29ad5b37-a2ac-4f2a-999a-495d323ca17f
2015-02-02
: Breckwell Breckwell-1991-s-P24I-Users-Manual-420572 breckwell-1991-s-p24i-users-manual-420572 breckwell pdf
Open the PDF directly: View PDF
.
Page Count: 32

PROFESSIONAL INSTALLATION IS HIGHLY RECOMMENDED
Manufactured by
National Steelcrafters of Oregon, Inc.
DBA Breckwell Hearth Products
Eugene, Oregon
Grand Prairie, Texas
•
Warning: If your appliance is not properly installed a house fire may result. For your safety, follow
the installation directions. Contact local building or fire officials about restrictions and installation
inspection requirements in your area.
• PLEASE read this entire manual before installation and use of this pellet fuel-burning room heater.
Failure to follow these instructions could result in property damage, bodily injury, or even death.
• Save these instructions
OWNER’S MANUAL
TRADITION SERIES P24
BRECKWELL HEARTH PRODUCTS
C-L-060 1/05
P24FS P24I

Thank you for purchasing the Breckwell Pellet Burning Stove. You are now prepared to burn
wood in the most efficient, convenient way possible. To achieve the safest, most efficient and
most enjoyable performance from your stove, you must do three things: 1) Install it properly;
2) Operate it correctly; and 3) Maintain it regularly. The purpose of this manual is to help you
do all three.
PLEASE read this entire manual before installation and use of this pellet fuel-burning
room heater. Failure to follow these instructions could result in property damage,
bodily injury or even death.
Keep this manual handy for future reference.
Your Breckwell P24 comes as a fireplace insert or as a freestanding stove with a pedestal.
This stove has been independently tested to ASTM E1509-95 Standard Specification for
Room Heaters, Pellet Fuel Burning Type 1, UL 1482-1998 Standard for Solid Fuel Room
Heaters, Oregon Administrative Rules for Mobile Homes (814-23-900 through 814-23-909)
and Installation as a Stove Heater.
This pellet stove, when installed, must be electrically grounded in accordance with local
codes, or in the absence of local codes, with the National Electrical Code, ANSI/NFPA 70.
This appliance is designed specifically for use only with pelletized wood. It is designed for
residential installation according to current national and local building codes as a freestanding
room heater. It is also approved as a mobile home heater which is designed for connection to
an outside combustion air source.
The stove will not operate using natural draft or without a power source for the blower
systems and fuel feed system and must not be burned with any type of coal (see PROPER
FUEL).
This stove is designed to provide the optimum proportions of fuel and air to the fire in order to
burn free of smoke and soot. Any blockage of the air supply to or from the stove will seriously
degrade its performance and will be evidenced by a smoking exhaust and a sooting window.
For best operation the ash content of the pellet fuel should be less than 1% and the calorific
value approximately 8200 BTU/LB. Avoid high ash content fuels because this will rapidly fill
up the burn pot and eventually cut off the combustion air supply.
Commercial and industrial installations of Breckwell Pellet Stoves should not be used since
operational control is often not well managed in these settings.
INTRODUCTION
2
IMPORTANT INFORMATION
Model: _____P24___________________
Style: ____________________________
Serial Number:_____________________
Purchase Date: ____________________
Purchased From:___________________
___________________
___________________
MAIL YOUR WARRANTY CARD TODAY
To receive full warranty coverage, you will
need to show evidence of the date you
purchased your stove. We suggest that
you attach your sales invoice to this page,
and fill in the form on the left, so that you
will have all the information you need in
one place should the need for service or
information occur.

Do not operate your stove if you smell smoke
coming from it. Turn it off, monitor it, and call your
dealer.
Never try to repair or replace any part of the
stove unless instructions are given in this
manual. All other work should be done by a
trained technician.
Never use gasoline, gasoline-type lantern fuel,
kerosene, charcoal lighter fluid, or similar liquids to
start or “freshen up” a fire in this stove. Keep all
such liquids well away from the stove while in use.
Do not throw this manual away. This manual
has important operating and maintenance
instructions that you will need at a later time.
Always follow the instructions in this manual.
Never block free airflow through the open vents of
the stove.
Do not place clothing or other flammable
items on or near the stove.
Keep foreign objects out of the hopper.
The viewing door must be closed and latched
during operation.
The stove will not operate during a power outage.
If an outage does occur, check the stove for
smoke spillage and open a window if any smoke
spills into the room.
Do not operate the stove if the flame
becomes dark and sooty or if the burnpot
overfills with pellets. Turn the stove off,
periodically inspect it, and call your dealer.
Disconnect the power cord before performing any
maintenance or repairs on the stove.
NOTE: Turning the stove “off” does not disconnect
all power from the stove.
Hot while in operation. Keep children,
clothing, and furniture away. Contact may
cause skin burns. Educate all children of the
danger of a high temperature stove. Young
children should be supervised when they are
in the same room as the stove.
During the start up period; 1) DO NOT open the
viewing door; 2) DO NOT open the damper more
than ¾”; 3) DO NOT add pellets to the burnpot
by hand; 4) DO NOT use the Fuel Feed button
(unless you are priming the auger after running
out of pellets) as a dangerous condition could
result.
If the stove is installed in a room without air
conditioning, or in an area where direct
sunlight can shine on the unit, it is possible
this can cause the temperature of the stove to
rise to operational levels; one of the sensors
could then make the stove start on its own. It
is recommended that the stove be unplugged
when not in use for extended amounts of time
(i.e. during the summer months).
Do not unplug the stove if you suspect a
malfunction. Turn the stove off, periodically
inspect it, and call your dealer.
Contact your local building officials to obtain a
permit and information on any installation
restrictions or inspection requirements in your
area. Notify your insurance company of this stove
as well.
The exhaust system must be completely
airtight and properly installed. The pellet vent
joints must be sealed with RTV 500°F
(260°C) silicone sealant, and with UL-181-AP
foil tape.
This unit must be properly installed to prevent the
possibility of a house fire. The instructions must be
strictly adhered to. Do not use makeshift methods
or compromise in the installation.
Allow the stove to cool before carrying out
any maintenance or cleaning. Ashes must be
disposed in a metal container with a tight lid
and placed on a no combustible surface well
away from the home structure.
Your stove requires periodic maintenance and
cleaning. Failure to maintain your stove may lead
to smoke spillage in your home.
This stove is designed and approved for
pelletized wood fuel only. Any other type of
fuel burned in this heater will void the
warranty and safety listing.
This stove must be connected to a standard 120
V., 60 Hz grounded electrical outlet. Do not use an
adapter plug or sever the grounding plug. Do not
route the electrical cord underneath, in front of, or
over the stove.
When installed in a mobile home, the stove
must be bolted to the floor, have outside air,
and NOT BE INSTALLED IN A BEDROOM
(Per H.U.D. requirements). Check with local
building officials.
The exhaust system should be checked, at a
minimum, at least twice a year for any build up of
soot or creosote.
Breckwell Hearth Products grants no
warranty, implied or stated, for the
installation or maintenance of your stove,
and assumes no responsibility of any
consequential damage(s).
SAFETY PRECAUTIONS
3

INTRODUCTION ---------------------------------------------------------------------------------------------
2
SAFETY PRECAUTIONS ----------------------------------------------------------------------------------
3
SPECIFICATIONS -------------------------------------------------------------------------------------------
5
INSTALLATION ---------------------------------------------------------------------------------------------
5
Preparation -----------------------------------------------------------------------------------------
5
Clearances -----------------------------------------------------------------------------------------
5
Combustion Air Supply --------------------------------------------------------------------------
6
When Outside Air Is Not Used -----------------------------------------------------------------
6
Venting -----------------------------------------------------------------------------------------------
6
Freestanding Installations ----------------------------------------------------------------------
7
Insert Installations --------------------------------------------------------------------------------
11
Electrical Installation ------------------------------------------------------------------------------
14
Special Mobil Home Requirements ----------------------------------------------------------
14
OPERATION ---------------------------------------------------------------------------------------------------
15
Proper Fuel -----------------------------------------------------------------------------------------
15
Pre-Start-Up Check -------------------------------------------------------------------------------
15
Building a Fire -------------------------------------------------------------------------------------
15
The HotRod™ Automatic Fire Starter --------------------------------------------------------
15
Panel Controls -------------------------------------------------------------------------------------
15
Opening Door --------------------------------------------------------------------------------------
16
Room Air Fan --------------------------------------------------------------------------------------
16
Re-Starting a Warm Stove ----------------------------------------------------------------------
16
If Stove Runs Out Of Pellets --------------------------------------------------------------------
17
Damper Control ------------------------------------------------------------------------------------
17
Refueling ---------------------------------------------------------------------------------------------
17
Breckwell Maintenance Tool --------------------------------------------------------------------
17
Shutdown Procedure -----------------------------------------------------------------------------
17
Safety Features ------------------------------------------------------------------------------------
17
Optional Thermostat ------------------------------------------------------------------------------
18
Thermostat Installation --------------------------------------------------------------------------
18
(Please Read This) Operating Safety Precautions --------------------------------------
19
MAINTENANCE ----------------------------------------------------------------------------------------------
20
Ash Removal ----------------------------------------------------------------------------------------
20
Ash Disposal - Freestanding -------------------------------------------------------------------
20
Ash Disposal - Insert ------------------------------------------------------------------------------
20
Vacuum Use ----------------------------------------------------------------------------------------
21
Cleaning ----------------------------------------------------------------------------------------------
21
Blowers ----------------------------------------------------------------------------------------------
21
Chimney Cleaning --------------------------------------------------------------------------------
22
Recommended Maintenance Schedule -----------------------------------------------------
22
Removal & Replacement of Broken Door Glass ------------------------------------------
22
TROUBLE SHOOTING GUIDE --------------------------------------------------------------------------
24
Smoke Smell or Soot Build-Up ---------------------------------------------------------------- 29
ELECTRICAL DIAGRAM ---------------------------------------------------------------------------------
30
REPLACEMENT PARTS LIST --------------------------------------------------------------------------
31
WARRANTY ------------------------------------------------------------------------------------------------------
32
TABLE OF CONTENTS
4

SPECIFICATIONS
FREESTANDING:
Width: 26”
Height: 33 ¼”
Depth: 30 7/8” (excluding ash lip)
Weight: 325 lbs.
Flue size: 3” or 4”
Hopper Capacity: Up to 65 lbs.
(this can vary widely depending on pellet size, length, and diameter)
EPA status: exempt
Burn time: 1 lb. to 5 lbs. per hour
BTU range: 8,200 to 50,000
Approved installations: mobile home, alcove, conventional
FIREPLACE INSERT:
Width: 22” (at fireplace rear)
29 ½” (at fireplace opening)
Height: 21” (in fireplace)
Depth: 23 ½” (total)
16 3/8” (in fireplace)
Flashing Size: 44 ½” W x 28” H (medium)
48 ½” W x 32” H (large)
Weight: 250 lbs.
Flashing: 13 lbs.
Flue size: 3” or 4”
Hopper Capacity: Up to 70 lbs.
(this can vary widely depending on pellet size, length, and diameter)
EPA status: exempt
Burn time: 1 lb. to 5 lbs. per hour
BTU range: 8,200 to 50,000
Approved installations: zero-clearance, masonry, as a built-in
PREPARATION
Factory packaging must be removed, and some minor assembly work is required
prior to installation. Access to the rear of the stove is necessary.
The circuit board/control panel must be unpacked and installed in the side
flashing on the insert. (See installation instructions provided with the circuit
board)
NOTE: Normally, your dealer will perform these functions.
CLEARANCES
The Breckwell P24 Freestanding has been tested and listed for installation in
residential, mobile home and alcove applications.
The P24 Insert is approved for installation into code complying masonry
fireplaces.
The P24 Insert is also approved for use in listed factory built fireplaces (UL 127)
and standard residential built-ins (see As A Built-In Fireplace), including Mobile
Home built-in installations, of the following description: all brands at least 36”
wide and 20” high.
FLOOR PROTECTION: Freestanding installations, minimum 25” wide by 35”
deep. The stove must be placed on a continuous (grouted joints)
noncombustible material such as ceramic tile, cement board, brick, 3/8”
millboard or equivalent, or other approved or listed material suited for floor
protection.
THE MATERIAL(S) USED MUST HAVE, OR COMBINE TO HAVE, A MINIMUM
INSULATIVE RATING OF ‘R1’.
NOTE: ceramic tile, or any tile, requires a continuous sheet beneath to prevent
the possibility of embers falling through to the combustible floor if cracks or
separation should occur in the finished surface, this would include floor
protection for Built-in raised hearths. Check local codes for approved
alternatives.
Clearances are measured from the sides, back and face (door opening) or stove
body (refer to fig. 4).
DO NOT USE MAKESHIFT MATERIALS OR COMPROMISES IN THE
INSTALLATION OF THIS UNIT.
INSTALL VENT WITH CLEARANCES SPECIFIED BY THE VENT
MANUFACTURER.
INSTALLATION
5
SIDEWALL CLEARANCES
FIGURE 1
ALCOVE CLEARANCES
FIGURE 2
FIGURE 3
FLOOR PROTECTION
FIGURE 4

COMBUSTION AIR SUPPLY
For a mobile home installation the stove must be connected to an
outside source of combustion air. A 2” inside diameter metallic pipe,
either flexible or rigid, may be attached to the inlet at the stove’s rear
(refer to figures 5 & 6). A rodent guard (minimum ¼” wire
mesh)/wind hood must be used at the terminus (refer to figure 7). All
connections must be secured and airtight by either using the
appropriately sized hose clamp and/or UL-181-AP foil tape.
For mobile home installations only: 2” inside diameter pipe may
be used for the first 5 feet of combustion air supply run. From 5 to 10
feet use 2 ¾” inside diameter pipe. No combustion air supply may
exceed 10 feet.
Sources of Outside Combustion Air
a. In fireplaces
• Chimney top.
• Ash clean out door.
b. For freestanding installations
• A hole in floor near stove rear terminating only in a
ventilated crawl space.
• A hole in the wall behind the stove.
WHEN OUTSIDE AIR IS NOT USED
If outside air is not used, it is important that combustion air is easily
available to the air inlet. A closeable outside air register can be used
in tightly insulated homes. In insert installations, flashing vents
should not be restricted. The flashing should not necessarily seal the
fireplace face.
VENTING
The Breckwell P24 Freestanding is certified for use with listed TYPE
L-Vent, 3” or 4” diameter in size. The stove was tested with Simpson
Duravent brand. Class “A” chimney is not required. Refer to the
instructions provided by the vent manufacturer, especially when
passing through a wall, ceiling or roof.
This is a pressurized exhaust system. All vent connector joints must
be sealed with 500°F (260°C) RTV silicone sealant to ensure
consistent performance and avoid smoke spillage. All horizontal
connector joints must be sealed with UL-181-AP foil tape. We
recommend that all vertical vent connector joints be secured with a
minimum of 3 screws.
DO NOT CONNECT THIS UNIT TO A CHIMNEY FLUE SERVING
ANOTHER APPLIANCE.
DO NOT INSTALL A FLUE DAMPER IN THE EXHAUST VENTING
SYSTEM OF THIS UNIT.
INSTALL VENT AT CLEARANCES SPECIFIED BY THE VENT
MANUFACTURER.
INSTALLATION
6
REAR VIEW P24FSA
FIGURE 5
REAR VIEW P24I
FIGURE 6
FIGURE 7

Equivalent Vent Length (EVL)
The longer the run of pipe in your installation (both with insert and
freestanding), the more restriction there is in the system. Therefore,
larger diameter pipe should be used.
• Use 4” pipe if you have more than 15 feet of equivalent vent
length.
• Horizontal runs shall not exceed 10’ of EVL.
• Recommended vertical runs to be minimum of 8’.
• To calculate EVL, use the following conversions:
90º elbow or “T” = 5 equivalent feet
45º elbow = 3 equivalent feet
Horizontal Pipe Run = 1 equivalent foot per actual foot
Vertical Pipe Run = 0.5 equivalent foot per actual foot
NOTE: At altitudes above 3,000 feet, we suggest the use of 4”
diameter vent at an EVL of 7 feet or more.
FREESTANDING INSTALLATION
A. HORIZONTALLY THROUGH WALL (refer to Figure 8)
NOTE: Follow L-Vent chimney manufacturer’s instructions.
1. Position stove, adhering to clearances shown in Figures 1 & 2.
2. Locate position of hole in wall; directly behind stove exhaust
vent (refer to figure 5).
3. Always maintain 3” clearance from combustible materials.
4. Install L-Vent wall thimble per L-Vent manufacturer’s
instructions.
5. Attach enough piping to penetrate and extend at least 6”
beyond exterior walls. An 8-foot vertical pipe run is suggested
where possible to reduce the possibility of smoke spillage in the
event of a loss of negative pressure.
6. Attach cap and seal outside wall thimbles with non-hardening
waterproof mastic.
7. Termination should not be located so that hot exhaust gases
can ignite trees, shrubs, or grasses or be a hazard to children.
Exhaust gases can reach temperatures of 500ºF and cause
serious burns if touched.
Locate terminations: a) not less than 3 feet above any
forced air inlet located within 10 feet; b) not less than 4
feet below or horizontally from, or one foot above, any
door, window or gravity air inlet into any building; c) not
less than two feet from an adjacent building and not
less than 7 feet above grade when located adjacent to
a public walkway. Mobile home installations must use
a spark arrester.
INSTALLATION
FIGURE 8
7

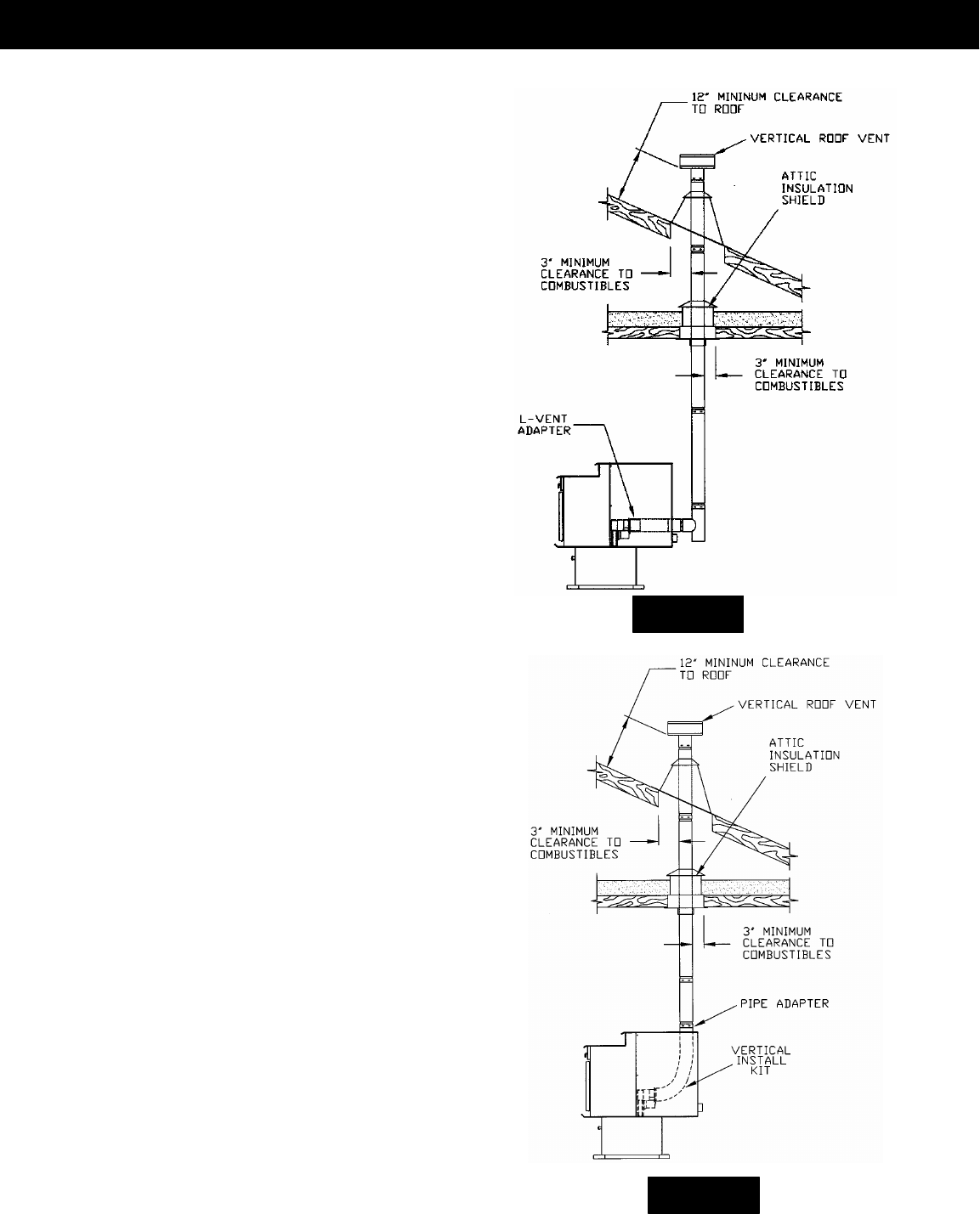
B. VERTICALLY WITH NEW CHIMNEY SYSTEM (Refer to
Figure 9a & 9b)
NOTE: Follow L-Vent chimney manufacturer’s instructions.
OPTION: To achieve a center vertical installation a 45º elbow and a
clean-out tee can be used to offset the pipe from the exhaust outlet
to the rear center of the stove (see figure 9a). You can also use the
P24FS Vertical Install Kit (part # A-VIK) (see figure 9b).
OPTION: Install L-Vent elbow in place of clean-out tee. Locate
stove. Drop plumb bob to center of tee outlet, mark point on ceiling.
Install ceiling support and L-Vent pipe per L-Vent manufacturer’s
instructions.
1. Always maintain 3” clearance from combustible materials.
When passing through additional floors or ceilings, always
install firestop spacer.
2. After lining up for hole in roof, cut either around or square hole
in roof, always 3” larger all the way around pipe. Install upper
edge and sides of flashing under roofing materials, nail to the
roof along upper edge. Do not nail lower edge. Seal nail heads
with non-hardening waterproof mastic.
3. Apply non-hardening, waterproof mastic where the storm collar
will meet the vent and flashing. Slide storm collar down until it
sits on the flashing. Seal and install cap. Mobile home
installations must use a spark arrester.
INSTALLATION
8
FIGURE 9a
FIGURE 9b

C. VERTICALLY INTO EXISTING CHIMNEY SYSTEM
Adapters are available to adapt from 3” L-Vent to 6” or 8” Class-A
chimney. (Figure 10a)
As an alternative, 3” or 4” L-Vent can be run inside existing chimney
to termination. (Figure 10b)
This is the preferred method.
Follow guidelines for equivalent vent length.
INSTALLATION
9
FIGURE 10a
FIGURE 10b

D. VERTICALLY INTO EXISTING MASONRY
FIREPLACE
NOTE: Follow L-Vent chimney manufacturer’s
instructions.
1. Have the masonry chimney inspected by a qualified
chimney sweep or installer to determine its structural
condition.
2. You will need a pipe length equal to the chimney
height from the hearth. If outside combustion air is to
be used, you will need a pipe length equal to the
chimney height plus 18 inches.
3. Install a blanking plate and the chimney pipe, and if
used the outside air pipe, as shown in Figure 11.
4. Attach the L-Vent adapter, a section of pipe and
clean out tee, making sure the clean out tee is
centered in the chimney flue area. Use RTV,
metallic tape, and a minimum of three self-taping
screws at all joint connections to ensure a tight seal.
5. Position the stove, adhering to the clearances in
Figures 1 & 2.
6. Measure and build chimney top plate. Cut out holes
for chimney pipe, and if used the outside air pipe.
Install and seal with non-hardening mastic to
prevent water leakage. Install vent cap.
E. INSTALLATION THROUGH SIDE OF MASONRY
CHIMNEY
NOTE: Follow L-Vent chimney manufacturer’s
instructions.
1. Position the stove, adhering to the clearances in
Figures 1 & 2. Mark the center of the hole where the
pipe is to pierce the masonry chimney.
2. It will be necessary to break out the masonry around
the location of the pipe center mark. Use a 4-inch
diameter hole for 3-inch pipe and 5-inch diameter
hole for 4-inch pipe.
3. Measure and build chimney top plate. Cut out holes
for chimney pipe, and if used the outside air pipe.
4. Install the tee on the bottom of the vertical pipe
system and lower it down the chimney until the
center branch of the tee is level with the center of
the hole in the masonry, as shown in Figure 12.
5. Install and seal the top plate from step 3 with non-
hardening mastic. Slip the storm collar over the pipe,
and while holding the pipe at the proper elevation,
affix the collar with a minimum of three ¼” stainless
steel sheet metal screws. Seal all joints and seams
around the collar.
6. Connect the horizontal pipe by pushing it through
the hole in the masonry and lining it up with the
branch in the tee. Push the pipe into the tee while
twisting it to lock it into the tee.
7. If desired, once the horizontal pipe is in place, the
space between the pipe and masonry may be filled
with high-temperature grout.
8. Install the trim collar. An adjustable pipe length and
adapter may be needed to finish the connection to
the stove.
INSTALLATION
10
FIGURE 11
FIGURE 12

INSERT INSTALLATIONS
Insert installations must be vented with 3” or 4” pipe.
Pipe may be single wall stainless steel flexible pipe.
Vent may terminate within chimney beyond a blanking
plate or extend to the chimney top. See
“COMBUSTION AIR SUPPLY” for outside air access
information.
The fireplace and chimney should be cleaned
thoroughly before starting the installation. We suggest
painting the interior of particularly old and dirty
fireplaces to seal any odors. In zero-clearance
fireplace installations, when the fireplace opening is
above the floor or raised hearth, the adjustable
“Breckwell P24 Z-C Skirt” (part # A-ZC-SKRT), or
“Breckwell P24 Z-C Legs” (part #A-S-ZCLEGS), can
be used to bridge the gap between the hearth and
stove bottom. (Refer to figure 13)
A. ASSEMBLING THE FLASHING SET
Follow the instructions packaged with the P24
Flashing set part C-P24-MEDFL-C or C-P24-LGFL-C.
(Refer to Figure 14)
INSTALLATION
11
FIGURE 13
FIGURE 14

B. WHEN VENT PIPE EXTENDS TO
CHIMNEY TOP
(Refer to Figure 15)
1. You will need a pipe length equal to the
chimney height (from hearth) plus 6 inches. If
outside combustion air is to be used, you will
need a pipe length (see “COMBUSTION AIR
SUPPLY”) equal to the chimney height plus
12 inches.
2. Attach cerablanket wrap to the end of vent
pipe that will connect to the stove. Use 12-
inch lengths of light gauge metal wire (not
included) or metallic tape (not included). This
is to protect interior components from excess
heat.
3. Set the insert on the hearth and slide it in far
enough to attach the vent pipe (and
combustion pipe if used).
4. Attach flashing (refer to Figure 14), route
power cord out the side nearest a 120V
receptacle. Slide in insert.
5. Measure and build chimney top. Cut out hole
for vent pipe (and combustion air intake pipe,
if used). Install and seal with a non-
hardening mastic to prevent water leakage.
Install the vent cap.
C. WHEN VENT PIPE EXTENDS THROUGH
CHIMNEY BLANKING PLATE
(Masonry Fireplaces Only)
(Refer to Figure 15)
1. You will need a pipe length that extends 12”
above the blanking plate. NOTE: This
installation is optional but not recommended.
Outside combustion air cannot be drawn
from the chimney cavity in this installation.
2. Attach cerablanket wrap to that end of vent
pipe that will connect to the stove. Use 12-
inch lengths of light gauge metal wire (not
included) or metallic tape. This is to protect
interior components from excess heat.
3. Measure and build blanking plate. Cut out
hole for vent pipe (and combustion air intake
pipe, if used). Install and carefully seal
blanking plate with non-hardening mastic.
Failure to properly seal may result in smoke
spillage.
4. Slide vent pipe (and intake pipe if used) up
through the blanking plate hole, leaving
enough to pull back down.
5. Set the insert on the hearth, adjust the
leveling bolts on the rear sides, and slide it in
far enough to attach the vent pipe (and
combustion air pipe if used). Be sure to seal
where the pipe passes through the blanking
plate.
6. Attach flashing (refer to Figure 14), route
power cord out the side nearest a 120V
receptacle. Slide in insert.
INSTALLATION
12
FIGURE 15

D. AS A BUILT-IN FIREPLACE
Figures 16 and 17 describe a P24 installation
vented into either a special chase built outside
an outer wall or a false inside wall. This is
especially suited for new construction or
remodeling.
The equipment compartment (sides and rear of
the stove in fireplace) must be enclosed per the
applicable electrical standards.
NOTE: Floor protection for Built-in raised
hearths requires a continuous sheet beneath to
prevent the possibility of embers falling through
to the combustible floor if cracks or separation
should occur in the finished surface.
The chase dimensions shown are
minimums and must be maintained.
INSTALLATION
1
3
FIGURE 16
FIGURE 17

E. INSTALLATION IN TO A FACTORY BUILT
(METAL) FIREPLACE
(Refer to figure 18)
When installing into a factory built fireplace, the firebox
must accept the insert without modification other than
removing bolted or screwed together pieces such as
smoke shelf/deflectors, ash lips, screen or door tracks
and damper assemblies. These items must be reinstalled
to restore the fireplace to its original operating condition if
the insert is removed and not replaced. The removal of
any part must not alter the integrity of the listed fireplace
in any way. In zero-clearance fireplace installations, when
the fireplace opening is above the floor or raised hearth,
the adjustable “Breckwell P24 Z-C skirt” (part # A-ZC-
SKRT), or “Breckwell P24 Z-C Legs” (part #A-S-
ZCLEGS), can be used to bridge the gap between the
hearth and stove bottom.
(Refer to figure 13)
The factory built fireplace must be listed per UL 127.
Installation must include a full height listed chimney liner
meeting type HT requirements (2100° F) per 1777 (U.S.).
The liner must be securely attached to the insert flue
collar and the chimney top. The damper area must be
sealed to prevent room air passage to chimney cavity.
Alteration of the fireplace in any manner is not permitted
except with the following exceptions:
• External trim pieces, which do not affect the
operation of the fireplace, may be removed proving
they can be stored on or within, the fireplace for re-
assembly if the insert is removed.
• The fireplace damper may be removed to install the
chimney liner.
Circulating air chambers, louvers or cooling air inlet or
outlet ports (i.e. in a steel fireplace liner or metal heat
circulator) shall not be blocked.
Means must be provided for removal of the insert to clean
the chimney flue.
A permanent metal warning label must be attached to the
back wall of the fireplace opening stating the following:
• “This fireplace has been altered to accommodate a
fireplace insert and should be inspected by a
qualified person prior to re-use as a conventional
fireplace.”
• This label is available upon request.
Final approval is contingent on the authority having
jurisdiction.
ELECTRICAL INSTALLATION
This stove is provided with a 6-foot grounded electrical cord
extending from the rear of the stove. We recommend
connecting to a good quality surge protector that is plugged
into a standard three-prong, 120V, 60 Hz electrical outlet.
Voltage variations can lead to serious performance
problems. The Breckwell electrical system is designed for
120V AC with no more than 5% variation. Breckwell cannot
accept responsibility for poor performance or damage due to
inadequate voltage. If connected to an older, two-prong
outlet, a separate ground wire should be run to a proper
ground (refer this to a qualified technician). Always route the
electrical cord so that it will not come in contact with any hot
part of the stove.
SPECIAL MOBILE HOME REQUIREMENTS
WARNING: DO NOT INSTALL IN A SLEEPING ROOM.
For installation in a mobile home, an outside source of combustion air must
be used (see “COMBUSTION AIR SUPPLY”).
The P24 must be grounded to the steel chassis of the home with 8 Ga.
copper wire using a serrated or star washer to penetrate paint or protective
coating to ensure grounding.
The P24 must be securely fastened to the floor of the mobile home through
the two holes in the rear of the stove using two ¼” lag bolts that are long
enough to go through both a hearth pad, if used, and the floor of the home.
Refer to “VENTING” for proper exhaust configurations.
CAUTION: THE STRUCTURAL INTEGRITY OF THE MOBILE HOME
FLOOR, WALL AND CEILING/ROOF MUST BE MAINTAINED.
FIGURE 18
INSTALLATION
14

PANEL CONTROLS (See Figure 19)
The blowers and automatic fuel supply are controlled from a panel on the left-hand side of the P2000.
The control panel functions are as follows.
a. ON/OFF SWITCH
• When pushed the stove will automatically ignite. No other firestarter is necessary. The igniter will
stay on for at least 10 and up to 15 minutes, depending on when Proof of Fire is reached. The
fire should start in about 5 to 7 minutes.
• The green light located above the On/Off button (in the On/Off box) will flash during the ignition
start-up period. (See figure 19)
• The Heat Level Advance is inoperable during the ignition start period. When the green light
continuously stays on the Heat Level Advance can be adjusted to achieve the desired heat
output.
NOTE: When not connected to a thermostat if the stove has been shut off, and you want to re-start it
while it is still warm, the “on/off” button must be held down for 2 seconds.
b. FUEL FEED SWITCH
• When the “Fuel Feed” button is pushed and held down the stove will feed pellets continuously
into the burnpot.
• While the stove’s auger system is feeding pellets the green light (in the “Fuel Feed” box) will be
illuminated.
(See figure 19)
CAUTION: DO NOT USE THIS CONTROL DURING NORMAL OPERATION BECAUSE IT COULD
SMOTHER THE FIRE AND LEAD TO A DANGEROUS SITUATION.
c. HIGH FAN SWITCH
• The room air fan speed varies directly with the feed rate. The “HIGH FAN” switch overrides this
variable speed function. It will set the room air blower speed to high at any feed rate setting.
• When the “HIGH FAN” button is pushed the room air fan will switch to its highest setting.
• When this button is pushed again the room air fan will return to its original setting based on the
Heat Level Advance setting.
d. RESET TRIM
Different size and quality pellet fuel, and installation altitude, may require adjustment of the “1” feed
setting on the Heat Level Advance bar graph. This is usually a one-time adjustment based on the
fuel you are using. The “RESET TRIM” button, when adjusted, will allow for 3 different feed rate
settings for the #1 feed setting only. To adjust simply push the “RESET TRIM” button while the
stove is operating at setting “1” and watch the bar graph.
• When the “1” & “3” lights are illuminated on the bar graph the low feed rate is at its “lowest”
setting.
(Approx. 0.9 pounds per hour)
• When the “1” light is illuminated on the bar graph the low feed rate is at its “normal” setting.
• When the “1” & “4” lights are illuminated on the bar graph the low feed rate is at its “highest”
setting.
(Approx. 1.1 to 1.2 pounds per hour)
NOTE: When the stove is set on “1” the “reset trim” values will be shown on the Heat Level Advance
bar graph. For example if the Reset Trim is set to its lowest setting every time the stove is set to low
the “1” and “4” lights will be illuminated on the bar graph.
e. HEAT LEVEL ADVANCE
• This button when pushed will set the pellet feed rate, hence the heat output of your stove. The
levels of heat output will incrementally change on the bar graph starting from level “1” to “5”.
NOTE: When dropping 3 or more heat level settings (4 to 1, or 5 to 2 or 1) push the ‘High Fan’ button
and allow the room air fan to run at that setting for at least 5 minutes to prevent the stove from
tripping the high temp thermodisk. If the high temp thermodisk does trip see “SAFETY FEATURES”
on the next page.
CAUTION: THE “5” SETTING IS DESIGNED FOR TEMPORARY USE ONLY. IF USED FOR
EXTENDED PERIODS, IT CAN SIGNIFICANTLY REDUCE THE LIFE EXPECTANCY OF THE
ELECTRICAL COMPONENTS. AVOID USE AT THIS SETTING FOR MORE THAN ONE OR TWO
HOURS AT A TIME.
FIGURE 19
OPERATION
15

PROPER FUEL
THIS STOVE IS APPROVED FOR BURNING PELLETIZED WOOD FUEL ONLY! Factory-approved pellets are those ¼” or 5/16” in
diameter and not over 1” long. Longer or thicker pellets sometimes bridge the auger flights, which prevents proper pellet feed. Burning
wood in forms other than pellets is not permitted. It will violate the building codes for which the stove has been approved and will
void all warranties. The design incorporates automatic feed of the pellet fuel into the fire at a carefully prescribed rate. Any additional fuel
introduced by hand will not increase heat output but may seriously impair the stoves performance by generating considerable smoke. Do not
burn wet pellets. The stove’s performance depends heavily on the quality of your pellet fuel.
Avoid pellet brands that display these characteristics:
a. Excess Fines – “Fines” is a term describing crushed pellets or loose material that looks like sawdust or sand. Pellets can be screened
before being placed in hopper to remove most fines.
b. Binders – Some pellets are produced with materials to hold them together, or “bind” them.
c. High ash content – Poor quality pellets will often create smoke and dirty glass. They will create a need for more frequent
maintenance. You will have to empty the burnpot plus vacuum the entire system more often. Poor quality pellets could damage the
auger. Breckwell cannot accept responsibility for damage due to poor quality pellets. Your dealer can recommend a good quality pellet
dealer in your area.
PRE-START-UP CHECK
Remove optional imitation log set if in use. Remove burnpot, making sure it is clean and none of the air holes are plugged. Clean the firebox,
and then reinstall burnpot. Clean door glass if necessary (a dry cloth or paper towel is usually sufficient). Never use abrasive cleaners on the
glass or door. Check fuel in the hopper, and refill if necessary.
NOTE: The P24FS Hopper can hold up to 60 lbs. of pellets, and the P24I Hopper can hold up to 70 lbs.
BUILDING A FIRE
Never use a grate or other means of supporting the fuel. Use only the Breckwell approved burnpot.
During the start up period:
1) DO NOT open the viewing door.
2) DO NOT open the damper more than ¾”.
3) DO NOT add pellets to the burnpot by hand.
4) DO NOT use the Fuel Feed button (unless you are priming the auger after running out of pellets).
A dangerous condition could result.
NOTE: During the first few fires, your stove will emit an odor as the high temperature paint cures or becomes seasoned to the metal.
Maintaining smaller fires will minimize this. Avoid placing items on stovetop during this period because paint could be affected.
THE HOTROD AUTOMATIC FIRESTARTER
a. Fill hopper and clean burnpot.
b. Press “On/Off” button. Make sure light is on.
c. Adjust damper to ½” to ¾” open (pushed in is closed). This will vary depending on your installation and elevation. Once fire is
established adjust for desired flame increasing the amount the damper is open as the heat setting is increased.
(See “DAMPER CONTROL”)
d. Adjust feed rate to desired setting by pressing “Heat Level Advance” button.
If fire doesn’t start in 15 minutes, press “On/Off”, wait a few minutes, clear the burnpot, and start procedure again.
DAMPER CONTROL
The damper control rod on the stove’s lower left side adjusts the combustion air. This control is necessary due to the varied burn
characteristics of individual installations, different pellet brands and pellet feed rates. It allows you to improve the efficiency of your stove.
Providing correct combustion air will reduce the frequency of cleaning your glass door and prevent the rapid buildup of creosote inside your
stove and chimney.
You should adjust the damper based on the fire’s appearance. A low, reddish, dirty fire can be improved by pulling the damper out slightly. A
“blow torch” fire can be improved by pushing the damper in a bit.
As a general rule, on lower feed rate settings, the damper should be in farther. On higher feed rates, the damper should be more open.
Through trial and error, you will find the best setting. Consult your dealer if you need help.
NOTE: On “1”, damper should be out approximately ½” to ¾”. If damper is out too far, it can cause the fire to go out.
OPENING DOOR
If the door is opened while the stove is in operation it must be closed within 30 seconds or the stove will shut down. If the stove shuts down
push the “On/Off” button to continue the operation of your stove.
ROOM AIR FAN
When starting your stove the Room Air Fan will not come on until the stove’s heat exchanger warms up. This usually takes about 10 minutes
from start-up.
OPERATION
16

RE-STARTING A WARM STOVE
If the stove has been shut off, and you want to re-start it while it is still warm, the “on/off” button must be held down for 2 seconds.
IF STOVE RUNS OUT OF PELLETS
The fire goes out and the auger motor and blowers will run until the stove cools. This will take 30 to 45 minutes.
After the stove components stop running the “On/Off” and the BAR GRAPH lights stay on for 10 minutes.
After the 10 minutes the “3” light on the bar graph will flash and the “On/Off” light will go off.
To restart, refill hopper and press “Fuel Feed” button until pellets begin to fall into burnpot. Press “On/Off” button.
REFUELING
We recommend that you not let the hopper drop below ¼ full.
KEEP HOPPER LID CLOSED AT ALL TIMES EXCEPT WHEN REFILLING. DO NOT OVERFILL HOPPER.
BRECKWELL MAINTENANCE TOOL
A tool has been provided to help with the following functions:
a. Stirring pellets in hopper – unlike liquids in a tank, pellets do not drain evenly into the auger. Bridging across the opening can occur.
Pellets can hang up on the sides of the hopper. Occasionally “stirring” the hopper can help.
NOTE: To help prevent bridging of pellets, common wax paper can be rubbed on the sidewalls and bottom of the hopper.
b. Cleaning heat exchanger tubes – see instructions in “CLEANING”.
c. Scrape ashes from burnpot.
SHUTDOWN PROCEDURE
Turning your Breckwell stove off is a matter of pressing the “On/Off” control panel switch. The green light will go out. The blowers will
continue to operate until internal firebox temperatures have fallen to a preset level.
SAFETY FEATURES
a. Your stove is equipped with a high temperature thermodisc. This safety switch has two functions.
1. To recognize an overheat situation in the stove and shut down the fuel feed or auger system.
2. In case of a malfunctioning convection blower, the high-temperature thermodisc will automatically shut down the auger, preventing
the stove from overheating.
NOTE: On some units, once tripped, like a circuit breaker, the reset button will have to be pushed before restarting your stove. On other
units the thermodisk has no reset button and will reset itself once the stove has cooled. The manufacturer recommends that you call
your dealer if this occurs as this may indicate a more serious problem. A service call may be required.
b. If the combustion blower fails, an air pressure switch will automatically shut down the auger.
NOTE: Opening the stove door for more than 30 seconds during operation will cause enough pressure change to activate the air switch,
shutting the fuel feed off. Close the door and press “On/Off” button to continue operation of your stove.
FIGURE 20
OPERATION
17

OPTIONAL THERMOSTAT
A thermostat may help you maintain a constant house temperature
automatically. A millivolt thermostat is required. A fixed wall mount or
Breckwell’s hand held model can be used. The control panel can be
set up two ways to operate your stove in thermostat mode.
THERMOSTAT INSTALLATION
• A MILLIVOLT THERMOSTAT IS REQUIRED.
• Unplug stove from power outlet.
• Remove control board from stove.
• The two thermostat wires connect to the terminal block on the
lower left side of the back of the control board.
(See figure 21)
• Insert the wires in the terminal side and tighten the two screws.
MODES
TO SWITCH BETWEEN ANY OF THE THREE MODES THE STOVE
MUST BE SHUT OFF, THE NEW MODE SELECTED, AND THE
STOVE RESTARTED.
MANUAL MODE
• In this mode the stove will operate only from the control panel as
detailed in the “OPERATION” section of this owner’s manual.
HIGH/LOW THERMOSTAT MODE
• When engaged in this mode the stove will automatically switch
between two settings. When warm enough, it will switch to the
#1 or low setting. The room air blower will also slow to its lowest
speed.
• The Heat Level Advance setting on the bar graph will stay
where it was initially set. When the house cools below the
thermostat setting, the stove will switch to the feed rate of the
heat level advance setting.
ON/OFF THERMOSTAT MODE
• In this mode when the home is warm enough the stove will shut
off. The fans will continue to run until the stove cools.
• When the home cools below the thermostat setting, the stove
will automatically restart and run at the last feed rate setting.
NOTE: When in “high/low” or “on/off” thermostat mode –
• Do not operate the stove higher than the #3 setting.
Set damper control rod approximately ½” to ¾” out. This will vary
depending on elevation and weather conditions. Observe stoves
operation and adjust damper as necessary.
THERMOSTAT INSTALLATION
18
FIGURE 14

OPERATING SAFETY PRECAUTIONS
PLEASE READ THIS!
a. Hot while in operation. Keep children, clothing, and furniture away. Contact may cause skin burns.
b. If you notice a smoldering fire (burnpot full but no visible flame) AND a heavy smoke buildup in firebox,
immediately TURN OFF the stove, but DO NOT unplug it. Do not open the door, change the damper
setting or tamper with any controls on the stove. Wait until firebox clears, and blowers shut down, do as
instructed in “PRE-START-UP CHECK” and “BUILDING A FIRE”, then attempt to restart the fire. If the
problem persists contact your dealer.
c. WARNING: DO NOT ADD PELLETS TO THE BURNPOT BY HAND AT ANY TIME, A DANGEROUS
CONDITION COULD RESULT.
d. WARNING: DURING THE START UP CYCLE; 1) DO NOT OPEN THE VIEWING DOOR; 2) DO NOT
OPEN THE DAMPER MORE THAN ¾”; 3) DO NOT USE THE FUEL FEED BUTTON (UNLESS PRIMING
THE AUGER AFTER RUNNING OUT OF PELLETS). A DANGEROUS CONDITION COULD RESULT.
e. Pellets should be stored in a dry place. The pellets should not be stored within 12” of the stove.
f. DO NOT STORE OR USE FLAMMABLE LIQUIDS, ESPECIALLY GASOLINE, IN THE VICINITY OF
YOUR BRECKWELL STOVE. NEVER USE A GAS OR PROPANE TORCH, GASOLINE, GASOLINE-
TYPE LANTERN FUEL, KEROSENE, CHARCOAL LIGHTER FLUID OR SIMILAR FLUIDS TO START
OR “FRESHEN UP” A FIRE IN THIS HEATER.
g. WARNING: DO NOT OVERFIRE THIS STOVE. This may cause serious damage to your stove and void
your warranty. It also may create a fire hazard in your home. IF ANY EXTERNAL PART OF THE UNIT
BEGINS TO GLOW, YOU ARE OVERFIRING. Immediately press the “POWER” switch on the control
panel.
h. KEEP ALL LOOSE OR MOVEABLE HOUSEHOLD COMBUSTIBLES, SUCH AS FURNITURE, DRAPES,
TOYS, ETC. AT LEAST THREE FEET FROM THE OPERATING STOVE.
i. Maintain proper ventilation. It is important that adequate oxygen be supplied to the fire for the combustion
process. Modern houses are often so well insulated that it may become necessary to open a window
slightly or install an outside air vent to provide sufficient combustion air.
j. Since heating with a solid fuel is potentially hazardous, even with a well made and thoroughly tested stove,
it would be wise to install strategically placed smoke detectors and have a fire extinguisher in a convenient
location, near an exit.
k. Do not open stove door when operating unless necessary. This will create a dirty, inefficient burn and could
allow smoke spillage or sparks to escape.
l. Do not permit operation by young children or those unfamiliar with stove’s operation.
m. Do not service or clean this appliance without disconnecting the power cord.
n. Do not abuse the door glass by striking, slamming or similar trauma. Do not operate the stove with the glass
removed, cracked or broken.
o. If the stove is installed in a room without air conditioning, or in an area where direct sunlight can shine on
the unit, it is possible this can cause the temperature of the stove to rise to operational levels; one of the
sensors could then make the stove start on its own. It is recommended that the stove be unplugged when
not in use for extended amounts of time (i.e. during the summer months).
OPERATION
19

FAILURE TO CLEAN AND MAINTAIN THIS UNIT AS INDICATED CAN RESULT
IN POOR PERFORMANCE AND SAFETY HAZARDS. NEVER CLEAN WHEN
HOT.
NOTE: Inspect burn pot periodically to see that holes have not become plugged, if
so, clean thoroughly.
ASH REMOVAL
Ashes should be placed in a metal container with a tight-fitting lid. The closed
container or ashes should be placed on a noncombustible surface or on the
ground, well away from all combustible materials pending final disposal. If ashes
are disposed of by soil burial or otherwise locally dispersed, they should be
retained in the closed container until all cinders have thoroughly cooled.
ASH DISPOSAL – FREESTANDING MODELS
The P24 Freestanding has an ash bin located below the firebox. To remove
ashes:
a. Make sure fire is out and firebox is cool.
b. With the door closed clean heat exchanger tubes.
(See “CLEANING” and Figure 22).
c. Open door and remove the optional imitation log set, if in use. Remove the
burnpots inner section by grasping it and pulling straight up (see Figure 23).
d. Empty ashes from inner section into the pedestal ash bin through the
opening in the bottom of the firebox. Scrape inner section with cleaning tool.
Make sure holes are not plugged.
e. Scrape ash in firebox into the pedestal ash bin through the opening in the
bottom of the firebox or vacuum to remove ashes.
WARNING: Make sure ashes are cool to the touch before
using a vacuum. See “VACUUM USE”.
f. Periodically remove and empty ash bin (see Figure 24) by unscrewing the
two knobs on the front of the pedestal below the ash lip. Dispose of ashes
properly.
(See “ASH REMOVAL” above)
g. Replace ash bin, making sure to tighten the knobs and maintaining a good
seal.
h. Replace inner section into burnpot; make sure it is level and pushed all the
way back down and that the igniter hole is to the rear when it is reinstalled
(see Figure 23).
i. Make the burnpot is level and pushed all the way back in when it is
reinstalled. If the collar on the burnpot attached to the fresh air tube is not
pushed back to meet the firebox wall, the Hot Rod will not work properly.
ASH DISPOSAL - INSERT
Remove ashes periodically as they fill the firebox. To remove ashes:
a. Make sure fire is out and firebox is cool.
b. Clean heat exchanger tubes (see “CLEANING” and Figure 22).
c. Remove optional imitation log set, if in use. Remove burn pot by grasping
and pulling straight out.
d. Empty ashes from burn pot. Scrape burn pot with cleaning tool. Make sure
burnpot holes are not plugged.
e. Use small shovel or vacuum to remove ashes. WARNING: Make sure
ashes are cool to the touch before using a vacuum. See “VACUUM
USE”.
f. Replace burn pot. Make sure it is level and pushed all the way back on. If not
reinstalled properly, the Hot Rod will not work properly.
MAINTENANCE
20
FIGURE 22
FIGURE 23
FIGURE 24
Igniter Hole

VACUUM USE
If a vacuum is used to clean your unit, we suggest using a vacuum
designed for ashes.
(We recommend LoveLess Ash Vac, 1-800-568-3949 Ext. #27)
Some regular vacuums and shop vacs leak ash into the room. Your
vacuum or shop vac may have a special filter or bag available to
eliminate this leakage.
CLEANING
a. Heat Exchange Tubes – Your Breckwell stove is designed
with a built-in heat exchange tube cleaner. This should be used
every two or three days to remove accumulated ash on the
tubes, which reduces heat transfer on the P24. Insert the
handle end (with hole) of the cleaning tool onto the cleaning
rod (refer to figure 22). The cleaner rod is located in the grill
above the stove door. Move the cleaner rod back and forth
several times to clean the heat exchanger tubes. Be sure to
leave tube cleaner at the rear of the stove.
b. Interior Chambers – Four ash doors in the firebox in the
P24FS, three in the P24I, can be removed for periodic cleaning
(refer to figures 25 & 26). These doors allow access to the
chamber surrounding the firebox.
Periodically, you must vacuum ashes from this chamber. In some
cases you will need to remove creosote, which can accumulate
rapidly under certain conditions. A small wire brush can be used. It
is important to remove this creosote because it is highly
combustible. INSPECT BEHIND THESE CLEANING PLATES AT
LEAST ONCE PER TON OF PELLETS BURNED UNTIL YOU ARE
FAMILIAR WITH HOW ASHES AND CREOSOTE ACCUMULATE
WITH YOUR OPERATING PRACTICES. Use the small wire brush
to also clean the inside of the chamber walls, above the access
doors.
BLOWERS
DANGER: RISK OF ELECTRIC SHOCK. DISCONNECT POWER
BEFORE SERVICING UNIT.
• Cleaning – Over a period of time, ashes or dust may collect on
the blades of both the combustion blower and convection
blower. Periodically the blowers should be vacuumed clean as
these ashes can impede performance. Creosote can also
accumulate in the combustion blower. This needs to be
brushed clean. The convection blower is accessed by opening
the stove’s left side panel. The combustion blower can be
accessed through door C (refer to figure 25 & 26) and by
opening the right side panel. The convection blower is on the
left (facing stove), and the combustion blower is on the right.
NOTE: When cleaning, be careful not to dislodge balancing clip
on convection blower or to bend fan blades. Some stove
owners lightly spray an anti-creosote chemical on the fire to
help reduce creosote formation within the stove.
MAINTE
NANCE
21
FIGURE 26
FIGURE 25
REAR VIEW – P24FS
FIGURE 27a
SIDE CUTAWAY – P24FS
FIGURE 27b
.
.
Air Switch Tube
Air Switch Tube
PELLET
HOPPER
HIGH TEMP
THERMODISK
POF
THERMODISK
COMBUSTION
BLOWER
CONVECTION
BLOWER
CONTROL
BOARD
AUGER
MOTOR
AUGER
SHAFT
AUGER
MOTOR
COMB.
BLOWER
AIR SWITCH

CHIMNEY CLEANING
a. Creosote Formation – When any wood is burned slowly, it produces tar and other organic vapors, which combine with expelled
moisture to form creosote. The creosote vapors condense in the relatively cool chimney flue or a newly started fire or from a slow-
burning fire. As a result, creosote residue accumulates on the flue lining. When ignited, this creosote makes an extremely hot fire,
which may damage the chimney or even destroy the house. Despite their high efficiency, pellet stoves can accumulate creosote under
certain conditions.
b. Fly Ash – This accumulates in the horizontal portion of an exhaust run. Though noncombustible, it may impede the normal exhaust
flow. It should therefore be periodically removed.
c. Inspection and Removal – The chimney connector and chimney should be inspected annually or per ton to determine if a creosote or
fly ash build-up has occurred. If creosote has accumulated, it should be removed to reduce the risk of a chimney fire. Inspect the
system at the stove connection and at the chimney top. Cooler surfaces tend to build creosote deposits quicker, so it is important to
check the chimney from the top as well as from the bottom.
The creosote should be removed with a brush specifically designed for the type of chimney in use. A qualified chimney sweep can perform
this service. It is also recommended that before each heating season the entire system be professionally inspected, cleaned and, if
necessary, repaired.
To clean the chimney, detach the vent at the combustion blower transition where it is attached to the blower. (See Fig. 29 for the P24 Insert)
RECOMMENDED MAINTENANCE SCHEDULE
Use this as a guide under average-use conditions.
Daily Weekly Annually or per Ton
Burn Pot Stirred Emptied
Glass Wiped Cleaned
Combustion Chamber Brushed
Ashes Emptied
Interior Chambers Vacuumed
Heat Exchange Tubes Two passes
Combustion Blower Blades Vacuumed / Brushed
Convection Blower Impeller Vacuumed / Brushed
Vent System Cleaned
Gaskets Inspected
Hopper (end of season) Emptied and vacuumed
Gasket around door and door glass should be inspected and repaired or replaced when necessary (see “REPLACEMENT PARTS”).
REMOVAL AND REPLACEMENT OF BROKEN DOOR GLASS
While wearing leather gloves (or any other gloves suitable for handling broken glass), carefully remove any loose pieces of glass from the
doorframe. Dispose of all broken glass properly. Return the damaged door to your Breckwell Dealer for repair or replacement.
Neither the appliance owner nor any other unauthorized person(s) should replace the door glass. An authorized Breckwell dealer must
perform all repairs involving door glass.
MAINTENANCE
22
FIGURE 28a FIGURE 28b
COMB.
BLOWER
AUGER
MOTOR
AIR
SWITCH
CONTROL
BOARD
CONV.
BLOWER
HIGH TEMP
T
HERMO
DISK
COMB.
BLOWER
POF
THERMODISK
PELLET
HOPPER
AUGER
SHAFT

MAINTENANCE
23
FIGURE 29

When your stove acts out of the ordinary, the first reaction is to call for help. This guide may save time and money by enabling you to solve
simple problems yourself. Problems can be caused by to only five factors: 1) poor fuel; 2) poor operation or maintenance; 3) poor
installation; 4) component failure; 5) factory defect. You can usually solve those problems related to 1 and 2. Your dealer can solve
problems relating to 3, 4 and 5. Refer to figures 27 - 30 to help locate indicated parts.
STOVE SHUTS OFF AND THE # 2 LIGHT FLASHES
Possible Causes: Possible Remedies: (Unplug stove first when possible)
1. Airflow switch hose or stove attachment pipes for hose are
blocked.
Unhook air hose from the air switch and blow through it. If air flows
freely, the hose and tube are fine. If air will not flow throw the hose,
use a wire coat hanger to clear the blockage.
2. The air inlet, burnpot, interior combustion air chambers,
combustion blower, or exhaust pipe are blocked with ash or
foreign material.
Follow all cleaning procedures in the maintenance section of the
owner’s manual.
3. The firebox is not properly sealed.
Make sure the door is closed and that the gasket is in good shape.
If the ash door has a latch, make sure the ash door is properly
latched and the gasket is sealing good. If the stove has just a small
hole for the ashes to fall through under the burnpot, make sure the
slider plate is in place to seal off the firebox floor.
4. Vent pipe is incorrectly installed.
Check to make sure vent pipe installation meets criteria in owner’s
manual.
5. The airflow switch wire connections are bad.
Check the connectors that attach the gray wires to the air switch.
6. The gray wires are pulled loose at the Molex connector on the
wiring harness.
Check to see if the gray wires are loose at the Molex connector.
7. Combustion blower failure.
With the stove on, check to see if the combustion blower is running.
If it is not, you will need to check for power going to the combustion
blower. It should be a full current. If there is power, the blower is
bad. If there is not, see #8.
8. Control board not sending power to combustion blower.
If there is no current going to the combustion blower, check all wire
connections. If all wires are properly connected, you have a bad
control board.
9. Control board not sending power to air switch.
There should be a 5-volt current (approximately) going to the air
switch after the stove has been on for 30 seconds.
10. Air switch has failed (very rare).
To test the air switch, you will need to disconnect the air hose from
the body of the stove. With the other end still attached to the air
switch, very gently suck on the loose end of the hose (you may want
to remove the hose entirely off the stove and the air switch first and
make sure it is clear). If you hear a click, the air switch is working.
BE CAREFUL TOO MUCH VACUUM CAN DAMAGE THE AIR
SWITCH.
TROUBLESHOOTING GUIDE
24

STOVE SHUTS OFF AND THE # 3 LIGHT FLASHES
Possible Causes: Possible Remedies: (Unplug stove first when possible)
1. The hopper is out of pellets.
Refill the hopper.
2. The air damper is too far open for a low feed setting.
If burning on the low setting, you may need to close the damper all
the way (push the knob in so it touches the side of the stove).
3. The burnpot is not pushed completely to the rear of the firebox.
Make sure that the air intake collar on the burnpot is touching the
rear wall of the firebox.
4. The burnpot holes are blocked.
Remove the burnpot and thoroughly clean it.
5. The air inlet, the interior chambers, or exhaust system has a
partial blockage.
Follow all cleaning procedures in the maintenance section of the
owner’s manual.
6. The auger shaft is jammed.
Start by emptying the hopper. Then remove the auger motor by
removing the auger pin. Remove the auger shaft inspection plate in
the hopper so that you can see the auger shaft. Gently lift the auger
shaft straight up so that the end of the auger shaft comes up out of
the bottom auger bushing. Next, remove the two nuts that hold the
top auger biscuit in. Then rotate the bottom end of the auger shaft
up towards you until you can lift the shaft out of the stove. After you
have removed the shaft, inspect it for bent flights, burrs, or broken
welds. Remove any foreign material that might have caused the
jam. Also, check the auger tube for signs of damage such as burrs,
rough spots, or grooves cut into the metal that could have caused a
jam.
7. The auger motor has failed.
Remove the auger motor from the auger shaft and try to run the unit.
If the motor will turn the shaft is jammed on something. If the motor
will not turn, the motor is bad.
8. The Proof of Fire (POF) thermodisk has malfunctioned.
Temporarily bypass the POF thermodisk by disconnecting the two
brown wires and connecting them with a short piece of wire. Then
plug the stove back in. If the stove comes on and works, you need
to replace the POF thermodisk. This is for testing only. DO NOT
LEAVE THE THERMODISC BYPASSED. Your blowers will never
shut off and if the fire went out the auger will continue to feed pellets
until the hopper is empty if you leave the POF thermodisk bypassed.
9. The high limit thermodisk has tripped or is defective.
Wait for the stove to cool for about 30 - 45 minutes. It should now
function normally. If not use the owner’s manual to locate the high
limit thermodisk. To test if the thermodisk is bad, you can bypass it
as described previously for the POF thermodisk.
10. The fuse on the control board has blown.
Remove the control board. On the back there is one fuse. If it
appears to be bad, replace it with a 5 Amp 250 Volt fuse. Plug the
stove back in and try to run the unit.
11. The control board is not sending power to the POF thermodisk
or other auger system components.
There should be a 5-volt (approximately) current going to the POF
thermodisk after the stove has been on for 10 minutes.
TROUBLE
SHOOTING GUIDE
25

STOVE FEEDS PELLETS, BUT WILL NOT IGNITE
Possible Causes: Possible Remedies:
1. Air damper open too far for ignition.
Push the air damper in closer to the side of the stove for startup. In
some situations it may be necessary to have the damper completely
closed for ignition to take place. After there is a flame, the damper
can then be adjusted for the desired feed setting.
2. Blockage in igniter tube or inlet for igniter tube.
Find the igniter housing on the backside of the firewall. The air
intake hole is a small hole located on bottom side of the housing.
Make sure it is clear. Also, look from the front of the stove to make
sure there is not any debris around the igniter element inside of the
igniter housing.
3. The burnpot is not pushed completely to the rear of the firebox.
Make sure that the air intake collar on the burnpot is touching the
rear wall of the firebox.
4. Bad igniter element.
Put power directly to the igniter element. Watch the tip of the igniter
from the front of the stove. After about 2 minutes the tip should
glow. If it does not, the element is bad.
5. The control board is not sending power to the igniter.
Check the voltage going to the igniter during startup. It should be a
full current. If the voltage is lower than full current, check the wiring.
If the wiring checks out good, the board is bad.
SMOKE SMELL COMING BACK INTO THE HOME
Possible Causes: Possible Remedies:
1. There is a leak in the vent pipe system.
Inspect all vent pipe connections. Make sure they are sealed with
RTV silicone that has a temperature rating on 500 degree F or
higher. Also, seal joints with UL-181-AP foil tape. Also, make sure
the square to round adapter piece on the combustion blower has
been properly sealed with the same RTV.
2. The gasket on the combustion blower has gone bad.
Inspect both gaskets on the combustion blower to make sure they
are in good shape.
CONVECTION BLOWER SHUTS OFF AND COMES BACK ON
Possible Causes: Possible Remedies:
1. The convection blower is overheating and tripping the internal
temperature shutoff.
Clean any dust off of the windings and fan blades. If cleaning the
blower does not help, it may be bad.
2. Circuit board malfunction.
Test the current going to the convection blower. If there is power
being sent to the blower when it is shut off, then the control board is
fine. If there is NOT power being sent to the blower when it shuts off
during operation, then you have a bad control board.
TROUBLESHOOTING GUIDE
26

STOVE WILL NOT FEED PELLETS, BUT FUEL FEED LIGHT COMES ON AS DESIGNED
Possible Causes: Possible Remedies:
1. Fuse on control board blew
Remove the control board. On the back there is one fuse. If it
appears to be bad, replace it with a 5 Amp 250 Volt fuse. Plug the
stove back in and try to run the unit.
2. High limit switch has tripped or is defective
Wait for the stove to cool for about 30 - 45 minutes. It should now
function normally. If not use the owner’s manual to locate the high
limit thermodisk. To test if the thermodisk is bad, you can bypass it
as described previously for the POF thermodisk.
3. Bad auger motor
Remove the auger motor from the auger shaft and try to run the unit.
If the motor will turn, the shaft is jammed on something. If the motor
will not turn, the motor is bad.
4. Auger jam
Start by emptying the hopper. Then remove the auger motor by
removing the auger pin. Remove the auger shaft inspection plate in
the hopper so that you can see the auger shaft. Gently lift the auger
shaft straight up so that the end of the auger shaft comes up out of
the bottom auger bushing. Next, remove the two nuts that hold the
top auger biscuit in. Then rotate the bottom end of the auger shaft
up towards you until you can lift the shaft out of the stove. After you
have removed the shaft, inspect it for bent flights, burrs, or broken
welds. Remove any foreign material that might have caused the
jam. Also, check the auger tube for signs of damage such as burrs,
rough spots, or grooves cut into the metal that could have caused a
jam.
5. Loose wire or connector
Check all wires and connectors that connector to the auger motor,
high limit switch, and the Molex connector.
6. Bad control board
If the fuse is good, the wires and connectors check out good, and
the high limit switch did not trip, test for power going to the auger
motor. If there is not a full current going to the auger motor when
the fuel feed light is on, you have a bad control board.
TROUBLESHOOTING GUIDE
27

• GLASS “SOOT’S” UP AT A VERY FAST RATE
• FLAME IS LAZY, DARK, AND HAS BLACK TIPS
• AFTER STOVE HAS BEEN ON FOR A WHILE, THE BURNPOT OVERFILLS
Possible Causes: Possible Remedies:
1. Stove or vent pipe is dirty, which restricts airflow through the
burnpot.
Follow all cleaning procedure in the maintenance section of the
owner’s manual.
2. Vent pipe installed improperly.
Check to make sure the vent pipe has been installed according to
the criteria in the owner’s manual.
3. Air damper is set too far in (closed) for a higher setting.
Pull the damper knob farther out away from the side of the stove and
try to burn the unit again.
4. Burnpot holes are blocked.
Remove the burnpot and thoroughly clean it.
5. Air damper is broken.
Visually inspect the damper assembly. Make sure the damper plate
is attached to the damper rod. When the damper rod is moved the
plate should move with it.
6. Blockage in air intake pipe.
Visually inspect the air intake pipe that leads into the burnpot for
foreign material.
7. Circuit board malfunction.
Time the fuel feed light at each setting (after the stove has
completed the startup cycle). Make sure the times match the auger
timing chart. If the auger motor runs constantly, the board is bad.
8. Combustion blower is not spinning fast enough.
Test the RPM on the blower after the blades have been cleaned.
The RPM should be approximately 3000 RPM.
9. Bad Pellets
(Applies to GLASS “SOOT’S” UP AT A VERY FAST RATE Only)
The brand of pellets or the batch of pellets that are being used may
be of poor quality. If possible, try a different brand of pellets. You
might also want to try a brand that is made from a different type of
wood (softwood vs. hardwood). Different woods have different
characteristics when being burned.
10. The trim setting on the low feed rate is to low
(Applies to GLASS “SOOT’S” UP AT A VERY FAST RATE Only)
Use the “Reset Trim” button to increase the low feed rate setting. If
the 1 & 4 are on, the stove is currently on the lowest setting. If only
the 1 light is on, the stove is in the default (medium) setting. If the 1
& 5 lights are on, the stove is in the high trim setting for the low feed
rate. If the stove is being burned on one of the two lower settings,
advance to the next trim setting and try burning the stove.
TROUBLESHOOTING GUIDE
28

HIGH LIMIT SWITCH KEEPS TRIPPING
Possible Causes: Possible Remedies:
1. The convection blower is overheating and tripping the internal
temperature shutoff.
Clean any dust off of the windings and fan blades. If cleaning the
blower does not help, it may be bad.
2. The stove is being left on the highest setting for extended
periods of time.
The highest heat level setting is designed for use over short periods
of time. Burning the stove on the highest setting for longer than 1 –
2 hours could lead to potential overheating situations.
3. Fuel other than wood pellets is being burned in the stove.
Breckwell pellet stoves are designed and tested to use wood pellets.
While it is possible to burn a corn mixture (corn mixed in with wood
pellets) in the stove, it is not recommended to burn above the
number 3 heat level. Check for signs of fuel other than wood
pellets. If there are signs of corn being used, find out what mixed
was being used and what setting. No other types of fuel have been
approved for Breckwell pellet stoves. If there are signs of other
types of fuel being used, advise the consumer to stop using them
immediately.
4. Power surge or brown out situation.
A power surge, spike, or voltage drop could cause the high limit
switch to trip. Check to see if a surge protector is being used on the
stove. If not, recommend one to the consumer.
5. High limit switch is malfunctioning.
If the other items check out ok, replace the high limit switch.
DIGITAL CIRCUIT BOARD TIMING RATES
Heat Level Setting P24
1 & 3 1.4 seconds
1 2 seconds
1 & 4 2.5 seconds
2 4 seconds
3 7 seconds
4 9 seconds
5 12 seconds
Total Cycle Time 14.5 seconds
SMOKE SMELL OR SOOT BUILD-UP
Because it is a wood-burning device, your Breckwell may emit a faint wood-burning odor. If this increases beyond normal, or if you notice an
unusual soot build-up on walls or furniture, check your exhaust system carefully for leaks. All joints should be properly sealed. Also clean
your stove, following instructions in “MAINTENANCE”. If problem persists, contact your dealer.
TROUBLESHOOTING GUIDE
29

FIGURE 30
ELECTRICAL DIAGRAM
30

Contact an Authorized Breckwell Pellet Stove Dealer to obtain any of these parts. Never use
substitute materials. Use of non-approved parts can result in poor performance and safety
hazards.
ITEM PART #
Air Switch C-E-201
Air Switch Hose C-M-340-T
Auger Motor C-E-017
Breckwell Maintenance Tool A-TOOL-96
Brick Panel Set – Freestanding – Optional A-M-BRICK24
Brick Panel Set – Insert – Optional A-M-BRICK24I
Burnpot A-S-BURNPOT
Circuit Board / Control Panel C-E-401
Combustion Blower A-E-027
Convection Blower A-E-033
Door Gasket C-G-050
Door Glass C-D-030
Exhaust Adapter 3” C-M-020
Exhaust Adapter 4” A-4-VA
Hot Rod Igniter C-E-IGN
Thermodisk, Proof of Fire C-E-090-22C
Thermodisk, High Temp C-E-090-21
Thermostat, Remote – RF – Acumen - Optional AG-RCN
Door Handle C-D-050
Damper Knob C-M-013
Window Clips C-S-1000
Window Gasket (6’-1”) C-G-033
Ceramic Log Set (imitation) - Optional A-M-LOG
Zero Clearance Skirt (P24I) - Optional A-ZC-SKRT
Zero Clearance Legs (P24I) - Optional A-S-ZCLEGS
Vertical Installation Kit (P24FS) - Optional A-VIK
Round Flange Gasket C-G-080
REPLACEMENT PARTS
31

LIFETIME LIMITED WARRANTY
Breckwell Hearth Products warrants to the original consumer purchaser that the Breckwell stove
in its original installation is free from defects in material and workmanship from the original date
of purchase as follows:
Steel fabricated components, excluding burnpot inserts, are covered for five years. Glass and
burnpot inserts are warranted for one year only for thermal damage. Electrical components,
which include the digital control board, auger motor, combustion and convection blowers,
igniter, and valves, are covered for one year. There is no warranty on gaskets or paint. After
expiration of the warranty period, any components may be purchased at 30% discount off
manufacturers suggested list price plus shipping and handling charges, as long as the original
consumer purchaser owns the product.
This warranty covers defect in materials and workmanship in covered components, provided
this product has been properly installed and operated strictly in accordance with the instructions
in this owner’s manual and any applicable local codes. This warranty does not cover damage or
breakage caused by improper handling, misuse, abuse, overfiring, disassembly, unauthorized
modification or other circumstances beyond Breckwell’s control.
If warranty service is needed during the warranty period, notify the nearest Authorized Breckwell
Dealer. Provide your name, address, phone number, serial number and model number of the
stove, date of purchase, name and address of installer and as much information as possible
about the nature of the problem.
If the dealer must examine the Breckwell stove at the consumer’s residence, a reasonable
service call charge may be incurred and is the responsibility of the consumer. If the unit must
be transported, those charges will be the consumer’s responsibility. Breckwell’s sole
responsibility is to repair or replace the defective part as stated herein. Breckwell will not be
liable for consequential or indirect damages to property or persons resulting from use of this
product. No other express warranty is given and no affirmation of Breckwell or its agents by
work or action shall constitute a warranty.
All disputes relating to this warranty shall be tried before the courts of Oregon. Venue in any
litigation arising hereunder shall be in the Circuit Court of the state of Oregon for the County of
Lane.
Warranty limitations may not apply in your area. This warranty gives you specific legal rights.
You may also have other rights which vary from state to state.
Purchased from
Date Purchased
Model
Serial Number
Installed by
4/04
PLEASE KEEP THIS FOR YOUR RECORDS