Bryant 113A Users Manual PDS113A 04
113A to the manual 8ec82d37-18bf-4b10-ab47-868bdf59a23a
2015-02-02
: Bryant Bryant-113A-Users-Manual-411797 bryant-113a-users-manual-411797 bryant pdf
Open the PDF directly: View PDF
.
Page Count: 38
- FEATURES / BENEFITS
- MODEL NUMBER NOMENCLATURE
- STANDARD FEATURES
- PHYSICAL DATA
- VAPOR LINE SIZING AND COOLING CAPACITY LOSS
- ACCESSORY THERMOSTATS
- ACCESSORIES
- ACCESSORY USAGE GUIDELINE
- ELECTRICAL DATA
- A--WEIGHTED SOUND POWER (dBA)
- A--WEIGHTED SOUND POWER WITH SOUND BLANKET (dBA)
- CHARGING SUBCOOLING
- DIMENSIONS -- ENGLISH (SIZES 018--036, 048--060)
- DIMENSIONS -- ENGLISH (SIZE 042)
- DIMENSIONS -- SI (SIZES 018--036 & 048--060)
- DIMENSIONS -- SI (SIZE 042)
- CLEARANCES
- COMBINATION RATINGS
- DETAILED COOLING CAPACITIES
- CONDENSER ONLY RATINGS
- GUIDE SPECIFICATIONS

113A
Legacy--RNC Line 13 Air Conditioner
with PuronrRefrigerant
1--1/2 to 5 Nominal Tons (Sizes 018--060)
Product Data
the environmentally sound refrigerant
Bryant’s Air Conditioners with Puronrrefrigerant provide a
collection of features unmatched by any other family of equipment.
The 113A has been designed utilizing Bryant’s Puron refrigerant.
The environmentally sound refrigerant allows you to make a
responsible decision in the protection of the earth’s ozone layer.
As an Energy StarrPartner, Bryant Heating and Cooling has
determined that this product meets the Energy Starrguidelines for
energy efficiency. Refer to the combination ratings in the Product
Data for system combinations that meet Energy Starrguidelines.
NOTE:Ratings contained in this document are subject to
change at any time. Always refer to the AHRI directory
(www.ahridirectory.org) for the most up--to--date ratings
information.
INDUSTRY LEADING
FEATURES / BENEFITS
Efficiency
S13 -- 14.5 SEER/10.55 -- 12 EER
SMicrotube Technologytrefrigeration system
SIndoor air quality accessories available
Sound
SSound level as low as 76 dBA
SSound level as low as 74 dBA with accessory sound blanket
Comfort
SSystem supports Thermidistattor standard thermostat controls
Reliability
SPuronrrefrigerant -- environmentally sound, won’t deplete the
ozone layer and low lifetime service cost.
SScroll compressor
SInternal pressure relief valve
SInternal thermal overload
SFilter drier
SBalanced refrigeration system for maximum reliability
Durability
DuraGuardtprotection package:
SSolid, durable sheet metal construction
SDense wire coil guard
SBaked--on, complete outer coverage, powder paint
Applications
SLong--line -- up to 250 feet (76.20 m) total equivalent length, up
to 200 feet (60.96 m) condenser above evaporator, or up to 80 ft.
(24.38 m) evaporator above condenser (See Longline Guide for
more information.)
SLow ambient (down to --20_F/--28.9_C) with accessory kit
Warranty
S5 year limited compressor warranty
S5 year limited parts warranty

2
MODEL NUMBER NOMENCLATURE
12 3 4 5 678910 11 12 14
N N N A A/N N N N N A/N A/N N A
11 3 A N A0360 0 0 0
Product
Family Tier SEER Major
Series Voltage Variations Cooling Capacity Open Open Open Series
1=AC
1=
Legacy
RNC
3=13 SEER A=Puron N= 208---230---1
or 208/230---1 A=Standard 0=Not
Defined
0=Not
Defined
0=Not
Defined
the environmentally sound refrigerant
REGISTERED
ISO 9001:2000
This product has been designed and manufactured
to meet Energy Star®criteria for energy efficiency
when matched with appropriate coil components.
However, proper refrigerant charge and proper air
flow are critical to achieve rated capacity and
efficiency. Installation of this product should
follow all manufacturing refrigerant charging and
air flow instructions. Failure to confirm proper
charge and air flow may reduce energy efficiency
and shorten equipment life.
STANDARD FEATURES
Feature 018 024 030 036 042 048 060
Puron Refrigerant XXXXXXX
Maximum SEER 14.5 14.5 14.5 14.0 14.0 14.5 13.5
Scroll Compressor XXXXXXX
DenseWireCoilGuard XXXXXXX
FieldInstalledFilterDrier XXXXXXX
Front Seating Service Valves XXXXXXX
Internal Pressure Relief Valve XXXXXXX
Internal Thermal Overload XXXXXXX
Long Line capability XXXXXXX
Low Ambient capability with Kit XXXXXXX
X=Standard
113A

3
PHYSICAL DATA
UNIT SIZE --- VOLTAGE, SERIES 018 --- D 024 --- D 030 --- E 036 --- E 042 --- C 048 --- E 060 --- F
Operating Weight lb (kg) 107
(48.5)
110
(49.9)
111
(50.3)
141
(64.0)
190
(86.2)
186
(84.4)
190
(86.2)
Shipping Weight lb (kg) 130
(59.0)
134
(60.8)
136
(61.7)
170
(77.1)
218
(98.9)
224
(101.6)
226
(102.5)
Compressor Type Scroll
REFRIGERANT Puron®(R--- 410A)
Control TXV (Puron®Hard Shutoff)
Charge lb (kg) 3.50
(1.60)
3.80
(1.72)
4.1
(1.86)
5.34
(2.42)
5.84
(2.65)
7.00
(3.18)
8.19
(3.71)
COND FAN Propeller Type, Direct Drive
Air Discharge Vertical
Air Qty (CFM) 1792 2218 2218 2954 3167 3644 3129
Motor HP 1/12 1/10 1/10 1/4 1/5 1/4 1/4
Motor RPM 1100 1100 1100 1100 1100 1100 800
COND COIL
Face Area (Sq ft) 8.4 8.4 9.80 13.13 17.25 19.40 12.93
Fins per In. 20 25 25 25 25 25 20
Rows 1111112
Circuits 3333455
VALVECONNECT.(In.ID)
Vapor 3/4 3/4 3/4 7/8 7/8 7/8 1 --- 1 / 8
Liquid 3/8
REFRIGERANT TUBES (In. OD)
Rated Vapor* 3/4 3/4 7/8 7/8 1 --- 1 / 8 1 --- 1 / 8 1 --- 1 / 8
Liquid 3/8
* Units are rated with 25 ft (7.6 m) of lineset length. See Vapor Line Sizing and Cooling Capacity Loss table when using other sizes and lengths of lineset.
Note: See unit Installation Instruction for proper installation.
VAPOR LINE SIZING AND COOLING CAPACITY LOSS
LONG LINE APPLICATION: An application is considered ”Long
line” when the total equivalent tubing length exceeds 80 ft. (24.38
m) or when there is more than 20 ft. (6.09 m) vertical separation
between indoor and outdoor units. These applications require
additional accessories and system modifications for reliable system
operation. The maximum allowable total equivalent length is up to
250 ft. (76.2 m). The maximum vertical separation 200 ft. (60.96
m) when outdoor unit is above indoor unit, and up to 80 ft. (24.38
m) when the outdoor unit is below the indoor unit. Refer to
Accessory Usage Guideline below for required accessories. See
Longline Application Guideline for required piping and system
modifications. Also, refer to the table below for the vapor tube
diameters based on the total length to minimize the cooling
capacity loss.
Unit
Nominal
Size (Btuh)
Maximum
Liquid Line
Diameters
(In. OD)
Vapor Line
Diameters
(In. OD)
Cooling Capacity Loss (%)
Total Equivalent Line Length ft. (m)
Standard
Application Long Line Application Requires Accessories
26 --- 50
(7.9--- 15.2)
51 --- 80
(15.5--- 24.4)
81 --- 100
(24.7--- 30.5)
101 --- 125
(30.8--- 38.1)
126 --- 150
(38.4--- 45.7)
151 --- 175
(46.0--- 53.3)
176 --- 200
(53.6--- 61.0)
201 --- 225
(61.3--- 68.6)
226 --- 250
(68.9--- 76.2)
18000
1Stage
Puron AC
3/8
1/2 1 2 3 5 6 7 8 9 11
5/8 0 1 1 1 2 2 2 3 3
3/4 0 0 0 0 1 1 1 1 1
24000
1Stage
Puron AC
3/8
5/8 0 1 2 2 3 3 4 5 5
3/4 0 0 1 1 1 1 1 2 2
7/8 0 0 0 0 0 1 1 1 1
30000
1Stage
Puron AC
3/8
5/8 1 2 3 3 4 5 6 7 8
3/4 0 0 1 1 1 2 2 2 3
7/8 0 0 0 0 1 1 1 1 1
36000
1Stage
Puron AC
3/8
5/8 1 2 4 5 6 8 9 10 12
3/4 0 1 1 2 2 3 3 4 4
7/8 0 0 0 1 1 1 1 2 2
42000
1Stage
Puron AC
3/8
3/4 0 1 2 2 3 4 4 5 6
7/8 0 0 1 1 1 2 2 2 3
11/8 0 0 0 0 0 0 0 0 0
48000
1Stage
Puron AC
3/8
3/4 0 1 2 3 4 5 5 6 7
7/8 0 0 1 1 2 2 2 3 3
11/8 0 0 0 0 0 0 0 1 1
60000
1Stage
Puron AC
3/8
3/4 1 2 4 5 6 7 9 10 11
7/8 0 1 2 2 3 4 4 5 5
11/8 0 0 0 1 1 1 1 1 1
Applications in this area are long line. Accessories are required as shown recommended on Long Line Application Guidelines
Applications in this area may have height restrictions that limit allowable total equivalent length, when outdoor unit is below indoor unit See Long Line Applica-
tion Guidelines
113A

4
ACCESSORY THERMOSTATS
THERMOSTAT / SUBBASE PKG. DESCRIPTION
T 6 --- P R H --- 0 1 Programmable Thermidistat
T 6 --- N R H --- 0 1 Non---programmable Thermidistat
T 1 --- P A C --- 0 1 Legacy RNC Series Programmable AC Stat
T 1 --- N A C --- 0 1 Legacy RNC Series Non--- programmable AC Stat
TSTATBBPRH01---B Thermidistat Control --- Programmable / Non--- Programmable Thermostat with Humidity control
TSTATBBPAC01---B T h e r m o s t a t --- A u t o C h a n g e o v e r, 7 --- D a y P r o g r a m m a b l e , _F/_C , 1 --- S t a g e H e a t , 1 --- S t a g e C o o l
TSTATBBNAC01---C T h e r m o s t a t --- A u t o C h a n g e o v e r, N o n --- P r o g r a m m a b l e , _F/_C , 1 --- S t a g e H e a t , 1 --- S t a g e C o o l
TSTATBBBAC01 ---B Builder’s Thermostat --- Manual Changeover, Non--- Programmable, _F/_C , 1 --- S t a g e H e a t , 1 --- S t a g e C o o l
TSTATBBSEN01---B Outdoor Air Temperature Sensor
TSTATXXBBP01 Backplate for Builder’s Thermostat
TSTATXXNBP01 Backplate for Non--- Programmable Thermostat
TSTATXXPBP01 Backplate for Programmable Thermostat
TSTATXXCNV10 Thermostat Conversion Kit (4 to 5 wires) --- 10 Pack
ACCESSORIES
KIT NUMBER DESCRIPTION Size --- Voltage & Series
018 --- D 024 --- D 030--- E 036 --- E 042--- C 048 --- E 060 --- F
KAAFT0101AAA FREEZE THERMOSTAT X X X X X X X
KAATD0101TDR TIME DELAY RELAY X X X X X X X
KAAWS0101AAA WINTER START X X X X X X X
KSALA0301410 LOW AMBIENT PSW X X X X X X X
KSALA0601AAA{MOTORMASTER 230V X X X X X X X
HC32GE234 MOTOR FAN BALL BEARING X
HC34GE239 MOTOR FAN BALL BEARING X X
HC40GE226 MOTOR FAN BALL BEARING X X
HC38GE219 MOTOR FAN BALL BEARING X
HC40GE228 MOTOR FAN BALL BEARING X
KSAHS1701AAA HARD START (CAP / RELAY) X X X X X X X
KSACY0101AAA CYCLE PROTECTOR X X X X X X X
KSASF0101AAA SUPPORT FEET X X X X X X X
KAACS0201PTC START ASSIST PTC X X X X X X X
KAACH1401AAA CRANKCASE HTR X X X X
KAACH1201AAA CRANKCASE HTR X X X
KSATX0201PUR TXV PURON HSO X X X
KSATX0301PUR TXV PURON HSO X X
KSATX0401PUR TXV PURON HSO X
KSATX0501PUR TXV PURON HSO X
KSASH0601COP SOUND HOOD X X X X X X
KSASH2101COP SOUND HOOD X
KAALP0401PUR LOW PRESSURE SWITCH X X X X X X X
KAAHI0501PUR HIGH PRESSURE SWITCH X X X X X X X
X = Available accessories
{Required accessories include ball bearing fan motor, compressor start assist (CAP / Relay), crankcase heater, evaporator freeze stat, hard shut ---off TXV.
113A

5
ACCESSORY USAGE GUIDELINE
ACCESSORY
REQUIRED FOR LOW---AMBI-
ENT COOLING APPLICATIONS
(Below 55°F/12.8_C)
REQUIRED FOR LONG
LINE
APPLICATIONS*
(Over 80 ft./24.38 m)
REQUIRED FOR
SEA COAST
APPLICATIONS
(Within2miles/3.22km)
Ball Bearing Fan Motor Yes{No No
Compressor Start Assist Capacitor and Relay Yes Yes No
Crankcase Heater Yes Yes No
Evaporator Freeze Thermostat Yes No No
H a r d S h u t --- O f f T X V Yes Yes Yes
Liquid Line Solenoid Valve No No No
Motor Master®Control or
L o w --- a m b i e n t P r e s s u r e S w i t c h Yes No No
Support Feet Recommended No Recommended
Winter Start Control Yes No No
* For tubing line sets between 80 and 200 ft. (24.38 and 60.96 m) and/or 20 ft. (6.09 m) vertical differential, refer to Residential Split---System Longline
Application Guideline.
{Required for Low---Ambient Controller (full modulation feature) MotorMasterrControl.
Accessory Description and Usage (Listed Alphabetically)
1. Ball--Bearing Fan Motor
A fan motor with ball bearings which permits speed reduction
while maintaining bearing lubrication.
Usage Guideline:
Required on all units when MotorMasterris used.
2. Compressor Start Assist -- Capacitor and Relay
Start capacitor and relay gives a ”hard” boost to compressor motor
at each start up.
Usage Guideline:
Required for reciprocating compressors in the
following applications:
Long line
Low ambient cooling
Hard shut off expansion valve on indoor coil
Liquid line solenoid on indoor coil
Required for single--phase scroll compressors in the
following applications:
Long line
Low ambient cooling
Suggested for all compressors in areas with a history of
low voltage problems.
3. Compressor Start Assist — PTC Type
Solid state electrical device which gives a ”soft” boost to the
compressor at each start--up.
Usage Guideline:
Suggested in installations with marginal power supply.
4. Crankcase Heater
An electric resistance heater which mounts to the base of the
compressor to keep the lubricant warm during off cycles. Improves
compressor lubrication on restart and minimizes the chance of
liquid slugging.
Usage Guideline:
Required in low ambient cooling applications.
Required in long line applications.
Suggested in all commercial applications.
5. Cycle Protector
The cycle protector is designed to prevent compressor short
cycling. This control provides an approximate 5--minute delay after
power to the compressor has been interrupted for any reason,
including power outage, protector control trip, thermostat jiggling,
or normal cycling.
6. Evaporator Freeze Thermostat
An SPST temperature--actuated switch that stops unit operation
when evaporator reaches freeze--up conditions.
Usage Guideline:
Required when low ambient kit has been added.
7. Low--Ambient Pressure Switch Kit
A long life pressure switch which is mounted to outdoor unit
service valve. It is designed to cycle the outdoor fan motor in order
to maintain head pressure within normal operating limits
(approximately 100 psig to 225 psig). The control will maintain
working head pressure at low--ambient temperatures down to 0_F
(--18_C) when properly installed.
Usage Guideline:
A Low--Ambient Pressure Switch or MotorMasterr
Low--Ambient Controller must be used when cooling operation is
used at outdoor temperatures below 55_F (12.8_C).
8. MotorMasterrLow--Ambient Controller
A fan--speed control device activated by a temperature sensor,
designed to control condenser fan motor speed in response to the
saturated, condensing temperature during operation in cooling
mode only. For outdoor temperatures down to --20_F (--28.9_C), it
maintains condensing temperature at 100_F±10_F (37.8_C±
5.5_C).
Usage Guideline:
A MotorMasterrLow Ambient Controller or
Low--Ambient Pressure Switch must be used when
cooling operation is used at outdoor temperatures
below 55_F (12.8_C).
Suggested for all commercial applications.
9. Outdoor Air Temperature Sensor
Designed for use with Bryant Thermostats listed in this
publication. This device enables the thermostat to display the
outdoor temperature. This device also
is required to enable special thermostat features such as auxiliary
heat lock out.
Usage Guideline:
Suggested for all Bryant thermostats listed in this
publication.
113A

6
Accessory Description and Usage (Listed Alphabetically) (Continued)
10. Sound Hood
Wraparound sound reducing cover for the compressor. Reduces the
sound level by about 2 dBA.
Usage Guideline:
Suggested when unit is installed closer than 15 ft (4.57 m) to
quiet areas, bedrooms, etc.
Suggested when unit is installed between two houses less
than 10 ft (3.05 m) apart.
11. Support Feet
Four stick--on plastic feet that raise the unit 4 in. (101.6 mm) above
the mounting pad. This allows sand, dirt, and other debris to be
flushed from the unit base, minimizing corrosion.
Usage Guideline:
Suggested in the following applications:
Coastal installations.
Windy areas or where debris is normally circulating.
Rooftop installations.
For improved sound ratings.
12. Thermostatic Expansion Valve (TXV)
A modulating flow--control valve which meters refrigerant liquid
flow rate into the evaporator in response to the superheat of the
refrigerant gas leaving the evaporator.
Kit includes valve, adapter tubes, and external equalizer tube. Hard
shut off types are available.
NOTE: When using a hard shut off TXV with single phase
reciprocating compressors, a Compressor Start Assist Capacitor
and Relay is required.
Usage Guideline:
Required to achieve ARI ratings in certain equipment
combinations. Refer to combination ratings.
Hard shut off TXV or LLS required in air conditioner
long line applications.
Required for use on all zoning systems.
13. Time--Delay Relay
An SPST delay relay which briefly continues operation of indoor
blower motor to provide additional cooling after the compressor
cycles off.
NOTE: Most indoor unit controls include this feature. For those
that do not, use the guideline below.
Usage Guideline:
For improved efficiency ratings for certain
combinations of indoor and outdoor units. Refer to
ARI Unitary Directory.
14. Winter Start Control
This control is designed to alleviate nuisance opening of the
low--pressure switch by bypassing it for the first 3 minutes of
operation.
113A

7
ELECTRICAL DATA
UNIT
S I Z E ---
VOLTAGE,
SERIES
V/PH
OPER VOLTS* COMPR FAN
MCA
MIN WIRE
SIZE{
MIN WIRE
SIZE{
MAX
LENGTH
(FT)}
MAX
LENGTH
(FT)}
MAX
FUSE**
or CKT
BRK
AMPS
MAX MIN LRA RLA FLA 60°C75°C60°C75°C
018 --- D
208/230/1 253 197
48.0 9.0 0.5 11.8 14 14 66 (20.1) 63 (21.0) 15
024 --- D 58.3 13.5 0.75 17.6 14 14 44 (13.4) 42 (12.8) 25
030 --- E 64.0 12.8 1.4 16.8 14 14 46 (14.0) 44 (13.4) 25
036 --- E 77.0 14.1 1.4 20.5 12 12 61 (18.6) 58 (17.7) 30
042 --- C 112.0 17.9 1.1 23.5 12 12 53 (16.2) 51 (15.5) 40
048 --- E 109.0 19.9 1.4 26.2 10 10 76 (23.2) 72 (22.2) 40
060 --- F 134.0 26.4 1.2 34.2 810 62 (18.9) 55 (16.8) 50
* Permissible limits of the voltage range at which the unit will operate satisfactorily
{If wire is applied at ambient greater than 30_C(86_F), consult table 310---16 of the NEC (ANSI/NFPA 70). The ampacity of non ---metallic---sheathed cable
(NM), trade name ROMEX, shall be that of 60_C (140_F) conditions, per the NEC (ANSI/NFPA 70) Article 336 ---26. If other than uncoated (no---plated), 60 or
75_C (140 or 167_F) insulation, copper wire (solid wire for 10 AWG or smaller, stranded wire for larger than 10 AWG) is used, consult applicable tables of the
NEC (ANSI/NFPA 70).
}Length shown is as measured one way along wire path between unit and service panel for voltage drop not to exceed 2%.
* * T i m e --- D e l a y f u s e .
FLA --- F u l l L o a d A m p s
LRA --- L o ck e d R o t o r A m p s
MCA --- Minimum Circuit Amps
RLA ---RatedLoadAmps
NOTE: Control circuit is 24---V on all units and requires external power source. Copper wire must be used from service disconnect to unit.
All motors/compressors contain internal overload protection.
A--WEIGHTED SOUND POWER (dBA)
U N I T S I Z E ---
SERIES
STANDARD
RATING
(dBA)
TYPICAL OCTAVE BAND SPECTRUM (dBA, without tone adjustment)
125 250 500 1000 2000 4000 8000
018 --- D 72 53.5 59.5 63.5 67.0 63.5 59.0 52.5
024 --- D 76 55.0 61.5 67.0 71.5 69.0 61.0 55.0
030 --- E 74 55.0 63.5 68.5 68.5 65.5 61.0 54.0
036 --- E 75 59.5 63.0 68.5 70.0 65.5 61.5 53.5
042 --- C 78 57.5 65.0 71.0 73.0 70.5 67.5 62.5
048 --- E 80 58.5 67.5 73.5 75.0 70.5 67.5 64.5
060 --- F 78 59.0 67.5 71.5 73.5 69.0 66.0 63.5
NOTE: Tested in accordance with ARI Standard 270 ---95 (not listed in ARI).
A--WEIGHTED SOUND POWER WITH SOUND BLANKET (dBA)
U N I T S I Z E ---
SERIES
STANDARD
RATING
(dBA)
TYPICAL OCTAVE BAND SPECTRUM (dBA, without tone adjustment)
125 250 500 1000 2000 4000 8000
018 --- D 71 55.5 60.5 64.0 66.0 63.0 58.5 52.0
024 --- D 74 55.5 60.5 68.5 70.0 67.0 61.0 53.6
030 --- E 73 55.5 64.0 68.0 67.0 64.0 60.0 52.5
036 --- E 74 59.5 63.0 68.0 69.5 65.0 60.5 50.5
042 --- C 77 57.5 65.0 70.5 72.0 70.0 67.0 62.0
048 --- E 79 60.5 67.5 73.5 74.5 71.0 68.0 63.5
060 --- F 78 59.0 68.0 70.5 72.5 68.0 67.0 63.0
NOTE: Tested in accordance with ARI Standard 270 ---95 (not listed in ARI).
CHARGING SUBCOOLING (TXV--TYPE EXPANSION DEVICE)
UNIT SIZE --- SERIES REQUIRED SUBCOOLING _F(_C)
018 --- D 8 (4.4)
024 --- D 13 (7.2)
030 --- E 16 (8.9)
036 --- E 14 (7.8)
042 --- C 10 (5.6)
048 --- E 15 (8.3)
060 --- F 11 (6.1)
113A

8
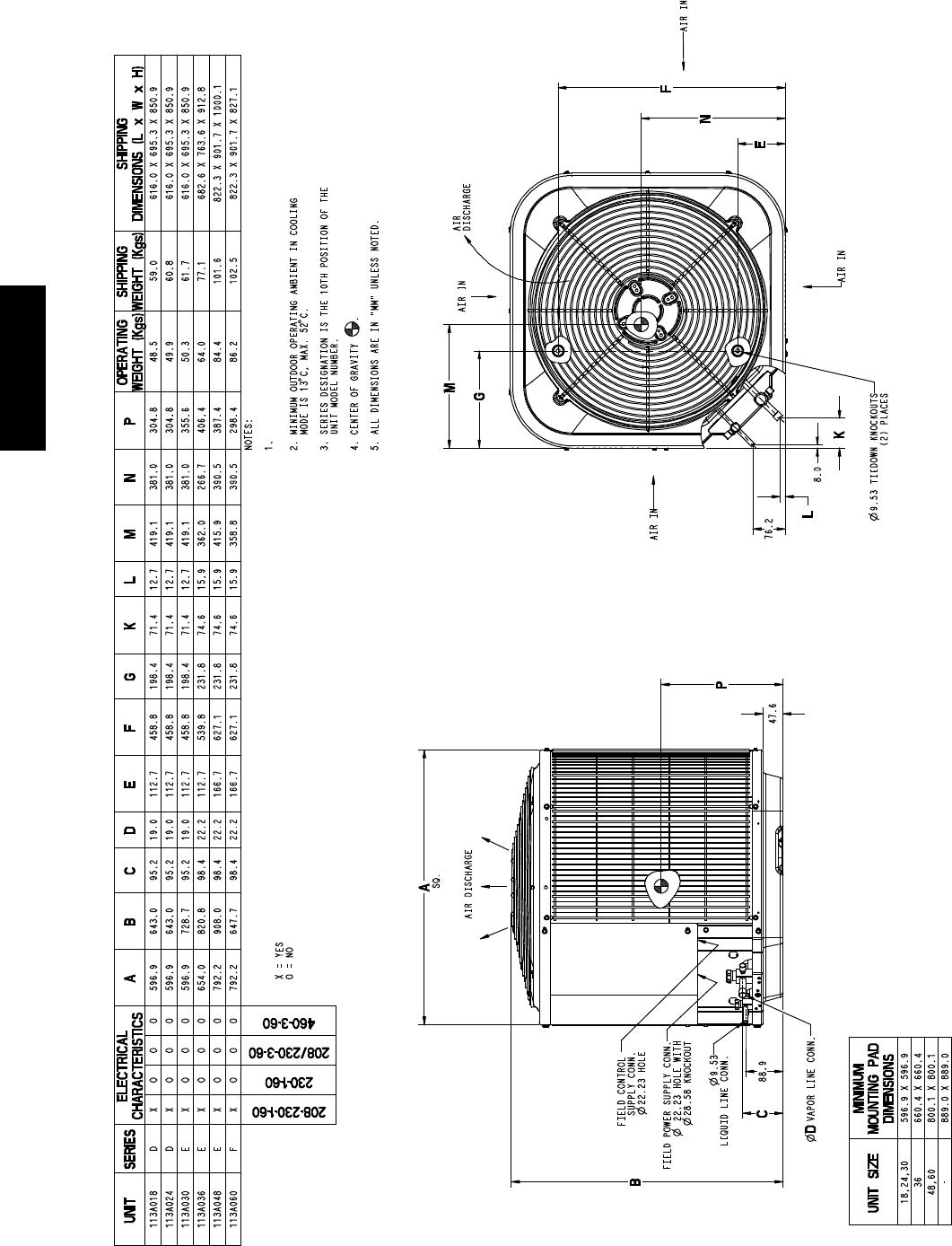
DIMENSIONS -- ENGLISH (SIZES 018--036, 048--060)
Allow 24” between units or 18” if no overhang within 12 ft.
113A

9
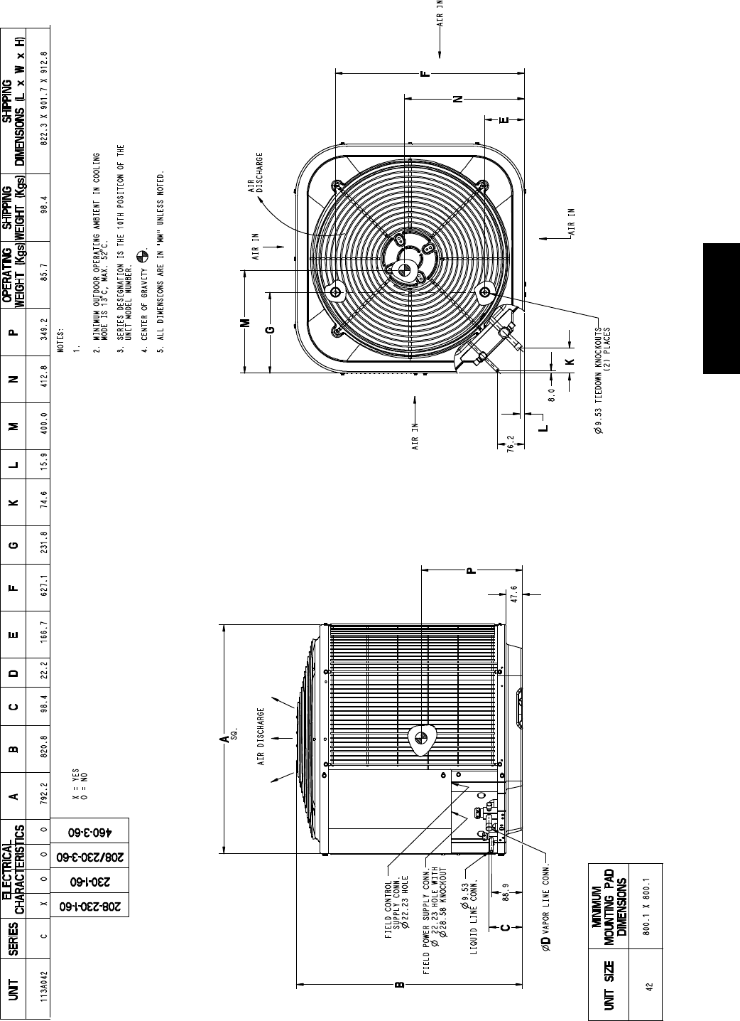
DIMENSIONS -- ENGLISH (SIZE 042)
Allow 24” between units or 18” if no overhang within 12 ft.
113A

10
DIMENSIONS -- SI (SIZES 018--036 & 048--060)
Allow 609.6 mm between units or 457.2 mm if no overhang within 3.7 m.
113A

11
DIMENSIONS -- SI (SIZE 042)
Allow 609.6 mm between units or 457.2 mm if no overhang within 3.7 m.
113A

12
CLEARANCES
Clearances (various examples)
Wall
6”
(152.4)
24”
(609.6)
Service
Wall
Wall
Wall
12”
(304.8)
12”
(304.8)
18”
(457.2)
24”
(609.6)
Service
6”
(152.4)
12”
(304.8)
24”
(609.6)
Service
24”
(609.6)
Service
24”
(609.6)
Service
Note: Numbers in ( ) = mm
18”
(457.2)
18”
(457.2)
12”
(304.8)
113A

13
COMBINATION RATINGS
ARI Ref. No. Model Number Indoor Model Furnace Model Capacity EER SEER
3163097 113ANA018---BD †CAP**1814A**+TDR 17600 10.90 13.00
3163099 113ANA018---BD CAP**1814A** 313*AV024045 17800 12.00 14.50
3163098 113ANA018---BD CAP**1814A** 315(A,J)AV036070 17500 12.00 14.50
3163102 113ANA018---BD CAP**2414A** 313*AV024045 18000 12.20 14.50
3163101 113ANA018---BD CAP**2414A** 315(A,J)AV036070 17800 12.20 14.50
3163100 113ANA018---BD CAP**2414A**+TDR 17900 11.00 13.20
3163105 113ANA018---BD CAP**2417A** 315(A,J)AV048090 17800 12.20 14.50
3163106 113ANA018---BD CAP**2417A** 353AAV036040 18000 12.50 15.00
3163107 113ANA018---BD CAP**2417A** 353AAV036060 18000 12.50 15.00
3163104 113ANA018---BD CAP**2417A** 355(A,C)AV042060 17800 12.20 14.50
3163103 113ANA018---BD CAP**2417A**+TDR 17900 11.00 13.20
3163128 113ANA018---BD CNPF*2418A**+TDR 17900 11.00 13.20
3163125 113ANA018---BD CNPH*2417A** 313*AV024045 17800 12.20 14.50
3163123 113ANA018---BD CNPH*2417A** 315(A,J)AV036070 17800 12.20 14.50
3163124 113ANA018---BD CNPH*2417A** 315(A,J)AV048090 17800 12.20 14.50
3163126 113ANA018---BD CNPH*2417A** 353AAV036040 18000 12.20 15.00
3163127 113ANA018---BD CNPH*2417A** 353AAV036060 18000 12.20 15.00
3163121 113ANA018---BD CNPH*2417A** 355(A,C)AV042060 17800 12.20 14.50
3163122 113ANA018---BD CNPH*2417A** 355(A,C)AV042080 17700 12.20 14.50
3163120 113ANA018---BD CNPH*2417A** 355AAV042040 17800 12.20 14.50
3163119 113ANA018---BD CNPH*2417A**+TDR 17900 11.00 13.20
3163110 113ANA018---BD CNPV*1814A** 313*AV024045 17800 12.00 14.50
3163109 113ANA018---BD CNPV*1814A** 315(A,J)AV036070 17500 12.00 14.50
3163108 113ANA018---BD CNPV*1814A**+TDR 17600 10.90 13.00
3163113 113ANA018---BD CNPV*2414A** 313*AV024045 18000 12.20 14.50
3163112 113ANA018---BD CNPV*2414A** 315(A,J)AV036070 17800 12.20 14.50
3163111 113ANA018---BD CNPV*2414A**+TDR 17900 11.00 13.20
3163116 113ANA018---BD CNPV*2417A** 315(A,J)AV048090 17800 12.20 14.50
3163117 113ANA018---BD CNPV*2417A** 353AAV036040 18000 12.20 15.00
3163118 113ANA018---BD CNPV*2417A** 353AAV036060 18000 12.20 15.00
3163115 113ANA018---BD CNPV*2417A** 355(A,C)AV042060 17800 12.20 14.50
3163114 113ANA018---BD CNPV*2417A**+TDR 17900 11.00 13.20
3163135 113ANA018---BD CSPH*2412A** 313*AV024045 18000 12.20 14.50
3163133 113ANA018---BD CSPH*2412A** 315(A,J)AV036070 17900 12.20 14.50
3163134 113ANA018---BD CSPH*2412A** 315(A,J)AV048090 17900 12.20 14.50
3163136 113ANA018---BD CSPH*2412A** 353AAV036040 18000 12.20 15.00
3163137 113ANA018---BD CSPH*2412A** 353AAV036060 18000 12.20 15.00
3163131 113ANA018---BD CSPH*2412A** 355(A,C)AV042060 17900 12.20 14.50
3163132 113ANA018---BD CSPH*2412A** 355(A,C)AV042080 17900 12.20 14.50
3163130 113ANA018---BD CSPH*2412A** 355AAV042040 17800 12.20 14.50
3163129 113ANA018---BD CSPH*2412A**+TDR 17900 11.00 13.20
3163142 113ANA018---BD FE4ANF002+UI 17300 12.20 14.50
3163143 113ANA018---BD FF1ENP018 17500 10.90 13.00
3163144 113ANA018---BD FF1ENP024 17500 11.00 13.20
3163145 113ANA018---BD FV4BNF002 17300 12.20 14.50
3163140 113ANA018---BD FX4CNF018 18000 12.00 14.50
3163141 113ANA018---BD FX4CNF024 18000 12.20 14.50
3163138 113ANA018---BD FY4ANF018 17700 10.90 13.00
3163139 113ANA018---BD FY4ANF024 18000 10.90 13.00
3163146 113ANA024---BD †CAP**2414A**+TDR 23000 11.00 13.00
3163148 113ANA024---BD CAP**2414A** 313*AV024045 23000 11.70 14.00
3163147 113ANA024---BD CAP**2414A** 315(A,J)AV036070 22800 12.00 14.00
3163151 113ANA024---BD CAP**2417A** 315(A,J)AV048090 23000 12.20 14.50
3163152 113ANA024---BD CAP**2417A** 353AAV036040 23400 12.20 14.50
3163153 113ANA024---BD CAP**2417A** 353AAV036060 23400 12.20 14.50
3163154 113ANA024---BD CAP**2417A** 353AAV036080 23200 12.20 14.50
3163150 113ANA024---BD CAP**2417A** 355(A,C)AV042060 23200 12.20 14.50
3163149 113ANA024---BD CAP**2417A**+TDR 23000 11.00 13.00
3163157 113ANA024---BD CAP**3014A** 313*AV024045 23400 12.00 14.00
3163156 113ANA024---BD CAP**3014A** 315(A,J)AV036070 23000 12.00 14.50
3163155 113ANA024---BD CAP**3014A**+TDR 23200 11.00 13.00
3163160 113ANA024---BD CAP**3017A** 315(A,J)AV048090 23200 12.20 14.50
3163161 113ANA024---BD CAP**3017A** 353AAV036040 23600 12.20 14.50
3163162 113ANA024---BD CAP**3017A** 353AAV036060 23800 12.20 14.50
3163163 113ANA024---BD CAP**3017A** 353AAV036080 23600 12.20 14.50
3163159 113ANA024---BD CAP**3017A** 355(A,C)AV042060 23400 12.20 14.50
3163158 113ANA024---BD CAP**3017A**+TDR 23200 11.00 13.00
3163214 113ANA024---BD CNPF*2418A**+TDR 23000 11.00 13.00
3163194 113ANA024---BD CNPH*2417A** 313*AV024045 23000 11.70 14.00
3163189 113ANA024---BD CNPH*2417A** 315(A,J)AV036070 22800 11.70 14.00
3163190 113ANA024---BD CNPH*2417A** 315(A,J)AV048090 22800 12.00 14.00
3163191 113ANA024---BD CNPH*2417A** 315(A,J)AV060110 22800 11.70 14.00
3163192 113ANA024---BD CNPH*2417A** 315(A,J)AV066135 22800 12.00 14.00
3163193 113ANA024---BD CNPH*2417A** 315(A,J)AV066155 22800 12.00 14.00
3163195 113ANA024---BD CNPH*2417A** 353AAV036040 23200 12.00 14.50
3163196 113ANA024---BD CNPH*2417A** 353AAV036060 23200 12.00 14.50
3163197 113ANA024---BD CNPH*2417A** 353AAV036080 23200 12.00 14.50
3163184 113ANA024---BD CNPH*2417A** 355(A,C)AV042060 23200 12.00 14.00
See notes on page 22
113A

14
COMBINATION RATINGS CONTINUED
ARI Ref. No. Model Number Indoor Model Furnace Model Capacity EER SEER
3163185 113ANA024---BD CNPH*2417A** 355(A,C)AV042080 22800 12.00 14.00
3163186 113ANA024---BD CNPH*2417A** 355(A,C)AV060080 22600 12.00 14.00
3163187 113ANA024---BD CNPH*2417A** 355(A,C)AV060100 22800 12.00 14.00
3163188 113ANA024---BD CNPH*2417A** 355(A,C)AV060120 23000 12.00 14.00
3163183 113ANA024---BD CNPH*2417A** 355AAV042040 22800 11.70 14.00
3163182 113ANA024---BD CNPH*2417A**+TDR 23000 11.00 13.00
3163210 113ANA024---BD CNPH*3017A** 313*AV024045 23400 12.00 14.00
3163205 113ANA024---BD CNPH*3017A** 315(A,J)AV036070 23000 12.00 14.50
3163206 113ANA024---BD CNPH*3017A** 315(A,J)AV048090 23200 12.20 14.50
3163207 113ANA024---BD CNPH*3017A** 315(A,J)AV060110 23200 12.20 14.50
3163208 113ANA024---BD CNPH*3017A** 315(A,J)AV066135 23200 12.20 14.50
3163209 113ANA024---BD CNPH*3017A** 315(A,J)AV066155 23200 12.20 14.50
3163211 113ANA024---BD CNPH*3017A** 353AAV036040 23600 12.20 14.50
3163212 113ANA024---BD CNPH*3017A** 353AAV036060 23800 12.20 14.50
3163213 113ANA024---BD CNPH*3017A** 353AAV036080 23600 12.20 14.50
3163200 113ANA024---BD CNPH*3017A** 355(A,C)AV042060 23400 12.20 14.50
3163201 113ANA024---BD CNPH*3017A** 355(A,C)AV042080 23200 12.20 14.50
3163202 113ANA024---BD CNPH*3017A** 355(A,C)AV060080 23000 12.20 14.50
3163203 113ANA024---BD CNPH*3017A** 355(A,C)AV060100 23200 12.20 14.50
3163204 113ANA024---BD CNPH*3017A** 355(A,C)AV060120 23200 12.20 14.50
3163199 113ANA024---BD CNPH*3017A** 355AAV042040 23200 12.20 14.50
3163198 113ANA024---BD CNPH*3017A**+TDR 23200 11.00 13.00
3163166 113ANA024---BD CNPV*2414A** 313*AV024045 23000 11.70 14.00
3163165 113ANA024---BD CNPV*2414A** 315(A,J)AV036070 22800 11.70 14.00
3163164 113ANA024---BD CNPV*2414A**+TDR 23000 11.00 13.00
3163169 113ANA024---BD CNPV*2417A** 315(A,J)AV048090 22800 12.00 14.00
3163170 113ANA024---BD CNPV*2417A** 353AAV036040 23200 12.00 14.50
3163171 113ANA024---BD CNPV*2417A** 353AAV036060 23200 12.00 14.50
3163172 113ANA024---BD CNPV*2417A** 353AAV036080 23200 12.00 14.50
3163168 113ANA024---BD CNPV*2417A** 355(A,C)AV042060 23200 12.00 14.00
3163167 113ANA024---BD CNPV*2417A**+TDR 23000 11.00 13.00
3163175 113ANA024---BD CNPV*3014A** 313*AV024045 23200 12.00 14.00
3163174 113ANA024---BD CNPV*3014A** 315(A,J)AV036070 23000 12.00 14.50
3163173 113ANA024---BD CNPV*3014A**+TDR 23200 11.00 13.00
3163178 113ANA024---BD CNPV*3017A** 315(A,J)AV048090 23200 12.20 14.50
3163179 113ANA024---BD CNPV*3017A** 353AAV036040 23600 12.20 14.50
3163180 113ANA024---BD CNPV*3017A** 353AAV036060 23800 12.20 14.50
3163181 113ANA024---BD CNPV*3017A** 353AAV036080 23600 12.20 14.50
3163177 113ANA024---BD CNPV*3017A** 355(A,C)AV042060 23400 12.20 14.50
3163176 113ANA024---BD CNPV*3017A**+TDR 23200 11.00 13.00
3163227 113ANA024---BD CSPH*2412A** 313*AV024045 23200 12.00 14.00
3163222 113ANA024---BD CSPH*2412A** 315(A,J)AV036070 23000 12.00 14.00
3163223 113ANA024---BD CSPH*2412A** 315(A,J)AV048090 23200 12.00 14.00
3163224 113ANA024---BD CSPH*2412A** 315(A,J)AV060110 23200 12.00 14.00
3163225 113ANA024---BD CSPH*2412A** 315(A,J)AV066135 23200 12.00 14.00
3163226 113ANA024---BD CSPH*2412A** 315(A,J)AV066155 23200 12.00 14.00
3163228 113ANA024---BD CSPH*2412A** 353AAV036040 23400 12.20 14.50
3163229 113ANA024---BD CSPH*2412A** 353AAV036060 23400 12.20 14.50
3163230 113ANA024---BD CSPH*2412A** 353AAV036080 23400 12.20 14.50
3163217 113ANA024---BD CSPH*2412A** 355(A,C)AV042060 23400 12.00 14.00
3163218 113ANA024---BD CSPH*2412A** 355(A,C)AV042080 23000 12.00 14.00
3163219 113ANA024---BD CSPH*2412A** 355(A,C)AV060080 23000 12.00 14.00
3163220 113ANA024---BD CSPH*2412A** 355(A,C)AV060100 23200 12.00 14.00
3163221 113ANA024---BD CSPH*2412A** 355(A,C)AV060120 23200 12.00 14.00
3163216 113ANA024---BD CSPH*2412A** 355AAV042040 23200 12.00 14.00
3163215 113ANA024---BD CSPH*2412A**+TDR 23000 11.00 13.00
3163243 113ANA024---BD CSPH*3012A** 313*AV024045 23400 12.00 14.00
3163238 113ANA024---BD CSPH*3012A** 315(A,J)AV036070 23000 12.00 14.50
3163239 113ANA024---BD CSPH*3012A** 315(A,J)AV048090 23200 12.20 14.50
3163240 113ANA024---BD CSPH*3012A** 315(A,J)AV060110 23200 12.20 14.50
3163241 113ANA024---BD CSPH*3012A** 315(A,J)AV066135 23200 12.20 14.50
3163242 113ANA024---BD CSPH*3012A** 315(A,J)AV066155 23200 12.20 14.50
3163244 113ANA024---BD CSPH*3012A** 353AAV036040 23600 12.20 14.50
3163245 113ANA024---BD CSPH*3012A** 353AAV036060 23800 12.20 14.50
3163246 113ANA024---BD CSPH*3012A** 353AAV036080 23600 12.20 14.50
3163233 113ANA024---BD CSPH*3012A** 355(A,C)AV042060 23600 12.20 14.50
3163234 113ANA024---BD CSPH*3012A** 355(A,C)AV042080 23200 12.20 14.50
3163235 113ANA024---BD CSPH*3012A** 355(A,C)AV060080 23000 12.20 14.50
3163236 113ANA024---BD CSPH*3012A** 355(A,C)AV060100 23200 12.20 14.50
3163237 113ANA024---BD CSPH*3012A** 355(A,C)AV060120 23400 12.20 14.50
3163232 113ANA024---BD CSPH*3012A** 355AAV042040 23200 12.20 14.50
3163231 113ANA024---BD CSPH*3012A**+TDR 23200 11.00 13.00
3163252 113ANA024---BD FE4AN(B,F)003+UI 23400 12.20 14.50
3163251 113ANA024---BD FE4ANF002+UI 22600 12.00 14.00
3163253 113ANA024---BD FF1ENP024 22600 11.00 13.00
3163254 113ANA024---BD FF1ENP030 23000 10.90 13.00
3163256 113ANA024---BD FV4BN(B,F)003 23400 12.20 14.50
3163255 113ANA024---BD FV4BNF002 22600 12.00 14.00
3163249 113ANA024---BD FX4CNF024 23200 11.70 14.00
See notes on page 22
113A

15
COMBINATION RATINGS CONTINUED
ARI Ref. No. Model Number Indoor Model Furnace Model Capacity EER SEER
3163250 113ANA024---BD FX4CNF030 23400 12.00 14.50
3163247 113ANA024---BD FY4ANF024 23000 11.00 13.00
3163248 113ANA024---BD FY4ANF030 23200 11.00 13.00
3163257 113ANA030---BE †CAP**3014A**+TDR 27400 10.80 13.00
3163268 113ANA030---BE CAP**3014A** 315(A,J)AV036070 27200 11.70 14.00
3163272 113ANA030---BE CAP**3017A** 313*AV048070 27400 11.70 14.00
3163271 113ANA030---BE CAP**3017A** 315(A,J)AV048090 27400 12.00 14.00
3163273 113ANA030---BE CAP**3017A** 353AAV036040 27600 12.00 14.50
3163274 113ANA030---BE CAP**3017A** 353AAV036060 27800 11.70 14.00
3163275 113ANA030---BE CAP**3017A** 353AAV036080 27600 12.00 14.00
3163276 113ANA030---BE CAP**3017A** 353AAV048080 27800 11.70 14.00
3163270 113ANA030---BE CAP**3017A** 355(A,C)AV042060 27400 11.70 14.00
3163269 113ANA030---BE CAP**3017A**+TDR 27400 10.80 13.00
3163278 113ANA030---BE CAP**3614A** 315(A,J)AV036070 27400 11.70 14.00
3163277 113ANA030---BE CAP**3614A**+TDR 27400 10.80 13.00
3163282 113ANA030---BE CAP**3617A** 313*AV048070 27600 11.70 14.00
3163281 113ANA030---BE CAP**3617A** 315(A,J)AV048090 27400 12.00 14.50
3163283 113ANA030---BE CAP**3617A** 353AAV036040 27800 12.00 14.50
3163284 113ANA030---BE CAP**3617A** 353AAV036060 27600 12.00 14.50
3163285 113ANA030---BE CAP**3617A** 353AAV036080 27600 12.00 14.50
3163286 113ANA030---BE CAP**3617A** 353AAV048080 28000 11.70 14.00
3163280 113ANA030---BE CAP**3617A** 355(A,C)AV042060 27600 12.00 14.00
3163279 113ANA030---BE CAP**3617A**+TDR 27600 10.80 13.00
3163292 113ANA030---BE CAP**3621A** 313*AV048090 27800 12.00 14.00
3163291 113ANA030---BE CAP**3621A** 315(A,J)AV060110 27600 12.00 14.50
3163288 113ANA030---BE CAP**3621A** 355(A,C)AV042080 27400 11.70 14.00
3163289 113ANA030---BE CAP**3621A** 355(A,C)AV060080 27400 12.00 14.00
3163290 113ANA030---BE CAP**3621A** 355(A,C)AV060100 27200 11.70 14.00
3163287 113ANA030---BE CAP**3621A**+TDR 27600 10.80 13.00
3163353 113ANA030---BE CNPF*3618A**+TDR 27400 10.80 13.00
3163329 113ANA030---BE CNPH*3017A** 313*AV048070 27400 11.50 14.00
3163330 113ANA030---BE CNPH*3017A** 313*AV048090 27600 11.70 14.00
3163324 113ANA030---BE CNPH*3017A** 315(A,J)AV036070 27200 11.70 14.00
3163325 113ANA030---BE CNPH*3017A** 315(A,J)AV048090 27400 11.70 14.00
3163326 113ANA030---BE CNPH*3017A** 315(A,J)AV060110 27400 11.70 14.00
3163327 113ANA030---BE CNPH*3017A** 315(A,J)AV066135 27400 12.00 14.00
3163328 113ANA030---BE CNPH*3017A** 315(A,J)AV066155 27400 12.00 14.00
3163331 113ANA030---BE CNPH*3017A** 353AAV036040 27600 12.00 14.00
3163332 113ANA030---BE CNPH*3017A** 353AAV036060 27800 11.70 14.00
3163333 113ANA030---BE CNPH*3017A** 353AAV036080 27600 12.00 14.00
3163334 113ANA030---BE CNPH*3017A** 353AAV048080 27800 11.70 14.00
3163319 113ANA030---BE CNPH*3017A** 355(A,C)AV042060 27600 11.70 14.00
3163320 113ANA030---BE CNPH*3017A** 355(A,C)AV042080 27200 11.70 14.00
3163321 113ANA030---BE CNPH*3017A** 355(A,C)AV060080 27400 11.70 14.00
3163322 113ANA030---BE CNPH*3017A** 355(A,C)AV060100 27200 11.70 14.00
3163323 113ANA030---BE CNPH*3017A** 355(A,C)AV060120 27400 12.00 14.00
3163318 113ANA030---BE CNPH*3017A** 355AAV042040 27400 11.70 14.00
3163317 113ANA030---BE CNPH*3017A**+TDR 27400 10.80 13.00
3163347 113ANA030---BE CNPH*3617A** 313*AV048070 27400 11.50 14.00
3163348 113ANA030---BE CNPH*3617A** 313*AV048090 27600 11.70 14.00
3163342 113ANA030---BE CNPH*3617A** 315(A,J)AV036070 27400 11.70 14.00
3163343 113ANA030---BE CNPH*3617A** 315(A,J)AV048090 27400 11.70 14.00
3163344 113ANA030---BE CNPH*3617A** 315(A,J)AV060110 27400 11.70 14.00
3163345 113ANA030---BE CNPH*3617A** 315(A,J)AV066135 27400 12.00 14.00
3163346 113ANA030---BE CNPH*3617A** 315(A,J)AV066155 27400 12.00 14.00
3163349 113ANA030---BE CNPH*3617A** 353AAV036040 27200 12.00 14.50
3163350 113ANA030---BE CNPH*3617A** 353AAV036060 27200 12.00 14.50
3163351 113ANA030---BE CNPH*3617A** 353AAV036080 27000 12.00 14.50
3163352 113ANA030---BE CNPH*3617A** 353AAV048080 27800 11.70 14.00
3163337 113ANA030---BE CNPH*3617A** 355(A,C)AV042060 27600 11.70 14.00
3163338 113ANA030---BE CNPH*3617A** 355(A,C)AV042080 27200 11.70 14.00
3163339 113ANA030---BE CNPH*3617A** 355(A,C)AV060080 27400 11.70 14.00
3163340 113ANA030---BE CNPH*3617A** 355(A,C)AV060100 27200 11.70 14.00
3163341 113ANA030---BE CNPH*3617A** 355(A,C)AV060120 27400 12.00 14.00
3163336 113ANA030---BE CNPH*3617A** 355AAV042040 27400 11.70 14.00
3163335 113ANA030---BE CNPH*3617A**+TDR 27400 10.80 13.00
3163294 113ANA030---BE CNPV*3014A** 315(A,J)AV036070 27200 11.70 14.00
3163293 113ANA030---BE CNPV*3014A**+TDR 27400 10.80 13.00
3163298 113ANA030---BE CNPV*3017A** 313*AV048070 27400 11.50 14.00
3163297 113ANA030---BE CNPV*3017A** 315(A,J)AV048090 27400 11.70 14.00
3163299 113ANA030---BE CNPV*3017A** 353AAV036040 27600 12.00 14.00
3163300 113ANA030---BE CNPV*3017A** 353AAV036060 27800 11.70 14.00
3163301 113ANA030---BE CNPV*3017A** 353AAV036080 27600 12.00 14.00
3163302 113ANA030---BE CNPV*3017A** 353AAV048080 27800 11.70 14.00
3163296 113ANA030---BE CNPV*3017A** 355(A,C)AV042060 27600 11.70 14.00
3163295 113ANA030---BE CNPV*3017A**+TDR 27400 10.80 13.00
3163306 113ANA030---BE CNPV*3617A** 313*AV048070 27400 11.50 14.00
3163305 113ANA030---BE CNPV*3617A** 315(A,J)AV048090 27400 11.70 14.00
See notes on page 22
113A

16
COMBINATION RATINGS CONTINUED
ARI Ref. No. Model Number Indoor Model Furnace Model Capacity EER SEER
3163307 113ANA030---BE CNPV*3617A** 353AAV036040 27200 12.00 14.50
3163308 113ANA030---BE CNPV*3617A** 353AAV036060 27200 12.00 14.50
3163309 113ANA030---BE CNPV*3617A** 353AAV036080 27000 12.00 14.50
3163310 113ANA030---BE CNPV*3617A** 353AAV048080 27800 11.70 14.00
3163304 113ANA030---BE CNPV*3617A** 355(A,C)AV042060 27600 11.70 14.00
3163303 113ANA030---BE CNPV*3617A**+TDR 27400 10.80 13.00
3163316 113ANA030---BE CNPV*3621A** 313*AV048090 27600 11.70 14.00
3163315 113ANA030---BE CNPV*3621A** 315(A,J)AV060110 27400 11.70 14.00
3163312 113ANA030---BE CNPV*3621A** 355(A,C)AV042080 27200 11.70 14.00
3163313 113ANA030---BE CNPV*3621A** 355(A,C)AV060080 27400 11.70 14.00
3163314 113ANA030---BE CNPV*3621A** 355(A,C)AV060100 27200 11.70 14.00
3163311 113ANA030---BE CNPV*3621A**+TDR 27400 10.80 13.00
3163366 113ANA030---BE CSPH*3012A** 313*AV048070 27600 11.50 13.50
3163367 113ANA030---BE CSPH*3012A** 313*AV048090 27600 11.70 14.00
3163361 113ANA030---BE CSPH*3012A** 315(A,J)AV036070 27200 11.70 13.50
3163362 113ANA030---BE CSPH*3012A** 315(A,J)AV048090 27400 11.70 14.00
3163363 113ANA030---BE CSPH*3012A** 315(A,J)AV060110 27600 11.70 14.00
3163364 113ANA030---BE CSPH*3012A** 315(A,J)AV066135 27600 11.70 14.00
3163365 113ANA030---BE CSPH*3012A** 315(A,J)AV066155 27600 12.00 14.00
3163368 113ANA030---BE CSPH*3012A** 353AAV036040 27800 12.00 14.00
3163369 113ANA030---BE CSPH*3012A** 353AAV036060 27800 11.70 14.00
3163370 113ANA030---BE CSPH*3012A** 353AAV036080 27600 11.70 14.00
3163371 113ANA030---BE CSPH*3012A** 353AAV048080 27800 11.70 14.00
3163356 113ANA030---BE CSPH*3012A** 355(A,C)AV042060 27600 11.70 14.00
3163357 113ANA030---BE CSPH*3012A** 355(A,C)AV042080 27400 11.70 14.00
3163358 113ANA030---BE CSPH*3012A** 355(A,C)AV060080 27400 11.70 14.00
3163359 113ANA030---BE CSPH*3012A** 355(A,C)AV060100 27200 11.70 14.00
3163360 113ANA030---BE CSPH*3012A** 355(A,C)AV060120 27600 11.70 14.00
3163355 113ANA030---BE CSPH*3012A** 355AAV042040 27400 11.70 13.50
3163354 113ANA030---BE CSPH*3012A**+TDR 27400 10.80 13.00
3163384 113ANA030---BE CSPH*3612A** 313*AV048070 27800 11.70 13.50
3163385 113ANA030---BE CSPH*3612A** 313*AV048090 27800 12.00 14.00
3163379 113ANA030---BE CSPH*3612A** 315(A,J)AV036070 27800 12.00 14.00
3163380 113ANA030---BE CSPH*3612A** 315(A,J)AV048090 27800 12.00 14.00
3163381 113ANA030---BE CSPH*3612A** 315(A,J)AV060110 27800 12.00 14.00
3163382 113ANA030---BE CSPH*3612A** 315(A,J)AV066135 27800 12.00 14.00
3163383 113ANA030---BE CSPH*3612A** 315(A,J)AV066155 27800 12.00 14.00
3163386 113ANA030---BE CSPH*3612A** 353AAV036040 27400 12.00 14.50
3163387 113ANA030---BE CSPH*3612A** 353AAV036060 27400 12.00 14.50
3163388 113ANA030---BE CSPH*3612A** 353AAV036080 27400 12.00 14.50
3163389 113ANA030---BE CSPH*3612A** 353AAV048080 27800 12.00 14.00
3163374 113ANA030---BE CSPH*3612A** 355(A,C)AV042060 28000 12.00 14.00
3163375 113ANA030---BE CSPH*3612A** 355(A,C)AV042080 27800 12.00 14.00
3163376 113ANA030---BE CSPH*3612A** 355(A,C)AV060080 27800 12.00 14.00
3163377 113ANA030---BE CSPH*3612A** 355(A,C)AV060100 27600 12.00 14.00
3163378 113ANA030---BE CSPH*3612A** 355(A,C)AV060120 28000 12.00 14.00
3163373 113ANA030---BE CSPH*3612A** 355AAV042040 27800 12.00 14.00
3163372 113ANA030---BE CSPH*3612A**+TDR 27400 10.80 13.00
3163262 113ANA030---BE FE4AN(B,F)003+UI 27600 12.20 14.50
3163263 113ANA030---BE FE4AN(B,F)005+UI 28400 12.20 14.50
3163261 113ANA030---BE FE4ANF002+UI 27600 11.70 14.00
3163264 113ANA030---BE FF1ENP036 27400 10.90 13.00
3163266 113ANA030---BE FV4BN(B,F)003 27600 12.20 14.50
3163267 113ANA030---BE FV4BN(B,F)005 28400 12.20 14.50
3163265 113ANA030---BE FV4BNF002 26800 11.70 13.50
3163260 113ANA030---BE FX4CN(B,F)036 27800 11.50 13.50
3163259 113ANA030---BE FX4CNF030 27600 11.70 14.00
3163258 113ANA030---BE FY4ANF030 27000 10.90 13.00
3019797 113ANA036---E †CAP**3617A**+TDR 33800 10.90 13.00
3019792 113ANA036---E CAP**3614A** 315(A,J)AV036070 32400 11.50 13.50
3019793 113ANA036---E CAP**3614A**+TDR 32800 10.90 13.00
3019796 113ANA036---E CAP**3617A** 313*AV048070 33400 11.20 13.50
3019794 113ANA036---E CAP**3617A** 315(A,J)AV048090 33400 11.70 14.00
3099581 113ANA036---E CAP**3617A** 353AAV036040 33600 11.70 14.00
3099582 113ANA036---E CAP**3617A** 353AAV036060 33600 11.70 14.00
3099583 113ANA036---E CAP**3617A** 353AAV036080 33600 11.70 14.00
3099584 113ANA036---E CAP**3617A** 353AAV048080 33600 11.70 14.00
3019795 113ANA036---E CAP**3617A** 355(A,C)AV042060 33600 11.50 13.50
3019802 113ANA036---E CAP**3621A** 313*AV048090 33800 12.00 14.00
3019803 113ANA036---E CAP**3621A** 313*AV060110 34000 12.00 14.00
3019798 113ANA036---E CAP**3621A** 315(A,J)AV060110 33400 11.70 14.00
3099585 113ANA036---E CAP**3621A** 353AAV060100 33600 12.00 14.00
3019799 113ANA036---E CAP**3621A** 355(A,C)AV042080 33400 11.50 13.50
3019800 113ANA036---E CAP**3621A** 355(A,C)AV060080 33400 11.70 14.00
3019801 113ANA036---E CAP**3621A** 355(A,C)AV060100 33600 11.70 14.00
3019804 113ANA036---E CAP**3621A**+TDR 33800 10.90 13.00
3019809 113ANA036---E CAP**4221A** 313*AV048090 34000 12.00 14.00
3019810 113ANA036---E CAP**4221A** 313*AV060110 34200 12.00 14.00
See notes on page 22
113A

17
COMBINATION RATINGS CONTINUED
ARI Ref. No. Model Number Indoor Model Furnace Model Capacity EER SEER
3019805 113ANA036---E CAP**4221A** 315(A,J)AV060110 33600 12.00 14.00
3099586 113ANA036---E CAP**4221A** 353AAV060100 33800 12.00 14.00
3019806 113ANA036---E CAP**4221A** 355(A,C)AV042080 33600 11.50 13.50
3019807 113ANA036---E CAP**4221A** 355(A,C)AV060080 33600 11.70 14.00
3019808 113ANA036---E CAP**4221A** 355(A,C)AV060100 33800 11.70 14.00
3019811 113ANA036---E CAP**4221A**+TDR 34000 10.90 13.00
3019812 113ANA036---E CAP**4224A** 315(A,J)AV066135 33600 12.00 14.00
3019813 113ANA036---E CAP**4224A** 315(A,J)AV066155 33800 12.00 14.00
3038785 113ANA036---E CAP**4224A** 355(A,C)AV042040 33400 11.70 13.50
3019814 113ANA036---E CAP**4224A** 355(A,C)AV060120 33600 12.00 14.00
3019815 113ANA036---E CAP**4224A** 355AAV042040 33400 11.70 13.50
3019816 113ANA036---E CAP**4224A**+TDR 33800 10.90 13.00
3019817 113ANA036---E CNPF*3618A**+TDR 33800 10.90 13.00
3019829 113ANA036---E CNPH*3617A** 313*AV048070 33200 11.00 13.50
3019830 113ANA036---E CNPH*3617A** 313*AV048090 33400 11.70 14.00
3019831 113ANA036---E CNPH*3617A** 313*AV060110 33600 11.70 14.00
3019818 113ANA036---E CNPH*3617A** 315(A,J)AV036070 33200 11.50 13.50
3019819 113ANA036---E CNPH*3617A** 315(A,J)AV048090 33200 11.50 13.50
3019820 113ANA036---E CNPH*3617A** 315(A,J)AV060110 33400 11.50 13.50
3019821 113ANA036---E CNPH*3617A** 315(A,J)AV066135 33400 11.70 14.00
3019822 113ANA036---E CNPH*3617A** 315(A,J)AV066155 33400 11.70 14.00
3099601 113ANA036---E CNPH*3617A** 353AAV036040 33400 11.70 14.00
3099602 113ANA036---E CNPH*3617A** 353AAV036060 33400 11.70 14.00
3099603 113ANA036---E CNPH*3617A** 353AAV036080 33400 11.70 14.00
3099604 113ANA036---E CNPH*3617A** 353AAV048080 33400 11.70 14.00
3099605 113ANA036---E CNPH*3617A** 353AAV060100 33200 11.70 14.00
3038786 113ANA036---E CNPH*3617A** 355(A,C)AV042040 33200 11.50 13.50
3019823 113ANA036---E CNPH*3617A** 355(A,C)AV042060 33400 11.50 13.50
3019824 113ANA036---E CNPH*3617A** 355(A,C)AV042080 33200 11.50 13.50
3019825 113ANA036---E CNPH*3617A** 355(A,C)AV060080 33200 11.50 13.50
3019826 113ANA036---E CNPH*3617A** 355(A,C)AV060100 33400 11.50 13.50
3019827 113ANA036---E CNPH*3617A** 355(A,C)AV060120 33400 11.50 13.50
3019828 113ANA036---E CNPH*3617A** 355AAV042040 33200 11.50 13.50
3019832 113ANA036---E CNPH*3617A**+TDR 33800 10.90 13.00
3019844 113ANA036---E CNPH*4221A** 313*AV048070 33600 11.20 13.50
3019845 113ANA036---E CNPH*4221A** 313*AV048090 34000 12.00 14.00
3019846 113ANA036---E CNPH*4221A** 313*AV060110 34000 12.00 14.00
3019833 113ANA036---E CNPH*4221A** 315(A,J)AV036070 33600 11.50 13.50
3019834 113ANA036---E CNPH*4221A** 315(A,J)AV048090 33600 11.70 14.00
3019835 113ANA036---E CNPH*4221A** 315(A,J)AV060110 33800 11.70 14.00
3019836 113ANA036---E CNPH*4221A** 315(A,J)AV066135 33600 12.00 14.00
3019837 113ANA036---E CNPH*4221A** 315(A,J)AV066155 33800 12.00 14.00
3099606 113ANA036---E CNPH*4221A** 353AAV036040 33800 11.70 14.00
3099607 113ANA036---E CNPH*4221A** 353AAV036060 33800 11.70 14.00
3099608 113ANA036---E CNPH*4221A** 353AAV036080 33800 11.70 14.00
3099609 113ANA036---E CNPH*4221A** 353AAV048080 33800 11.70 14.00
3099610 113ANA036---E CNPH*4221A** 353AAV060100 33800 11.70 14.00
3038787 113ANA036---E CNPH*4221A** 355(A,C)AV042040 33400 11.50 13.50
3019838 113ANA036---E CNPH*4221A** 355(A,C)AV042060 33800 11.70 14.00
3019839 113ANA036---E CNPH*4221A** 355(A,C)AV042080 33600 11.50 13.50
3019840 113ANA036---E CNPH*4221A** 355(A,C)AV060080 33600 11.70 14.00
3019841 113ANA036---E CNPH*4221A** 355(A,C)AV060100 33800 11.70 14.00
3019842 113ANA036---E CNPH*4221A** 355(A,C)AV060120 33600 11.70 14.00
3019843 113ANA036---E CNPH*4221A** 355AAV042040 33400 11.50 13.50
3019847 113ANA036---E CNPH*4221A**+TDR 34000 10.90 13.00
3019850 113ANA036---E CNPV*3617A** 313*AV048070 33200 11.20 13.50
3019848 113ANA036---E CNPV*3617A** 315(A,J)AV048090 33200 11.50 13.50
3099587 113ANA036---E CNPV*3617A** 353AAV036040 33400 11.70 14.00
3099588 113ANA036---E CNPV*3617A** 353AAV036060 33400 11.70 14.00
3099589 113ANA036---E CNPV*3617A** 353AAV036080 33400 11.70 14.00
3099590 113ANA036---E CNPV*3617A** 353AAV048080 33400 11.70 14.00
3019849 113ANA036---E CNPV*3617A** 355(A,C)AV042060 33400 11.50 13.50
3019851 113ANA036---E CNPV*3617A**+TDR 33800 10.90 13.00
3019856 113ANA036---E CNPV*3621A** 313*AV048090 33400 11.70 14.00
3019857 113ANA036---E CNPV*3621A** 313*AV060110 33600 11.70 14.00
3019852 113ANA036---E CNPV*3621A** 315(A,J)AV060110 33400 11.50 13.50
3099591 113ANA036---E CNPV*3621A** 353AAV060100 33400 11.70 14.00
3019853 113ANA036---E CNPV*3621A** 355(A,C)AV042080 33200 11.50 13.50
3019854 113ANA036---E CNPV*3621A** 355(A,C)AV060080 33200 11.50 13.50
3019855 113ANA036---E CNPV*3621A** 355(A,C)AV060100 33400 11.50 13.50
3019858 113ANA036---E CNPV*3621A**+TDR 33800 10.90 13.00
3099595 113ANA036---E CNPV*4217A** 313*AV048070 33800 11.70 14.00
3099594 113ANA036---E CNPV*4217A** 315(A,J)AV048090 33800 11.70 14.00
3099596 113ANA036---E CNPV*4217A** 353AAV036040 33800 11.70 14.00
3099597 113ANA036---E CNPV*4217A** 353AAV036060 33800 11.70 14.00
3099598 113ANA036---E CNPV*4217A** 353AAV036080 33800 11.70 14.00
3099599 113ANA036---E CNPV*4217A** 353AAV048080 33800 11.70 14.00
3099593 113ANA036---E CNPV*4217A** 355(A,C)AV042060 33800 11.70 14.00
3099592 113ANA036---E CNPV*4217A**+TDR 33800 11.00 13.00
See notes on page 22
113A

18
COMBINATION RATINGS CONTINUED
ARI Ref. No. Model Number Indoor Model Furnace Model Capacity EER SEER
3019863 113ANA036---E CNPV*4221A** 313*AV048090 34000 12.00 14.00
3019864 113ANA036---E CNPV*4221A** 313*AV060110 34000 12.00 14.00
3019859 113ANA036---E CNPV*4221A** 315(A,J)AV060110 33800 11.70 14.00
3099600 113ANA036---E CNPV*4221A** 353AAV060100 33800 11.70 14.00
3019860 113ANA036---E CNPV*4221A** 355(A,C)AV042080 33600 11.50 13.50
3019861 113ANA036---E CNPV*4221A** 355(A,C)AV060080 33600 11.70 14.00
3019862 113ANA036---E CNPV*4221A** 355(A,C)AV060100 33800 11.70 14.00
3019865 113ANA036---E CNPV*4221A**+TDR 34000 10.90 13.00
3019877 113ANA036---E CSPH*3612A** 313*AV048070 34000 11.50 13.50
3019878 113ANA036---E CSPH*3612A** 313*AV048090 34400 12.00 14.00
3019879 113ANA036---E CSPH*3612A** 313*AV060110 34400 12.00 14.00
3019866 113ANA036---E CSPH*3612A** 315(A,J)AV036070 33600 11.70 14.00
3019867 113ANA036---E CSPH*3612A** 315(A,J)AV048090 33600 12.00 14.00
3019868 113ANA036---E CSPH*3612A** 315(A,J)AV060110 33600 12.00 14.00
3019869 113ANA036---E CSPH*3612A** 315(A,J)AV066135 33600 12.00 14.00
3019870 113ANA036---E CSPH*3612A** 315(A,J)AV066155 33600 12.00 14.00
3099611 113ANA036---E CSPH*3612A** 353AAV036040 33800 11.70 14.00
3099612 113ANA036---E CSPH*3612A** 353AAV036060 33800 11.70 14.00
3099613 113ANA036---E CSPH*3612A** 353AAV036080 33800 11.70 14.00
3099614 113ANA036---E CSPH*3612A** 353AAV048080 33800 11.70 14.00
3099615 113ANA036---E CSPH*3612A** 353AAV060100 33800 11.70 14.00
3038788 113ANA036---E CSPH*3612A** 355(A,C)AV042040 33600 11.50 13.50
3019871 113ANA036---E CSPH*3612A** 355(A,C)AV042060 33600 12.00 14.00
3019872 113ANA036---E CSPH*3612A** 355(A,C)AV042080 33400 11.70 14.00
3019873 113ANA036---E CSPH*3612A** 355(A,C)AV060080 33600 11.70 14.00
3019874 113ANA036---E CSPH*3612A** 355(A,C)AV060100 33400 12.00 14.00
3019875 113ANA036---E CSPH*3612A** 355(A,C)AV060120 33600 12.00 14.00
3019876 113ANA036---E CSPH*3612A** 355AAV042040 33600 11.50 13.50
3019880 113ANA036---E CSPH*3612A**+TDR 33800 11.00 13.00
3019892 113ANA036---E CSPH*4212A** 313*AV048070 34400 11.70 14.00
3019893 113ANA036---E CSPH*4212A** 313*AV048090 34600 12.00 14.00
3019894 113ANA036---E CSPH*4212A** 313*AV060110 34800 12.00 14.00
3019881 113ANA036---E CSPH*4212A** 315(A,J)AV036070 33600 11.70 14.00
3019882 113ANA036---E CSPH*4212A** 315(A,J)AV048090 33600 12.00 14.00
3019883 113ANA036---E CSPH*4212A** 315(A,J)AV060110 33800 12.00 14.00
3019884 113ANA036---E CSPH*4212A** 315(A,J)AV066135 33600 12.00 14.00
3019885 113ANA036---E CSPH*4212A** 315(A,J)AV066155 33800 12.00 14.00
3099616 113ANA036---E CSPH*4212A** 353AAV036040 33800 11.70 14.00
3099617 113ANA036---E CSPH*4212A** 353AAV036060 33800 11.70 14.00
3099618 113ANA036---E CSPH*4212A** 353AAV036080 33800 11.70 14.00
3099619 113ANA036---E CSPH*4212A** 353AAV048080 33800 11.70 14.00
3099620 113ANA036---E CSPH*4212A** 353AAV060100 33800 11.70 14.00
3038789 113ANA036---E CSPH*4212A** 355(A,C)AV042040 33600 11.70 14.00
3019886 113ANA036---E CSPH*4212A** 355(A,C)AV042060 33800 12.00 14.00
3019887 113ANA036---E CSPH*4212A** 355(A,C)AV042080 33600 11.70 14.00
3019888 113ANA036---E CSPH*4212A** 355(A,C)AV060080 33600 12.00 14.00
3019889 113ANA036---E CSPH*4212A** 355(A,C)AV060100 33800 12.00 14.00
3019890 113ANA036---E CSPH*4212A** 355(A,C)AV060120 33600 12.00 14.00
3019891 113ANA036---E CSPH*4212A** 355AAV042040 33600 11.70 14.00
3019895 113ANA036---E CSPH*4212A**+TDR 34000 11.00 13.00
3019896 113ANA036---E FE4AN(B,F)003+UI 33600 12.00 14.00
3019897 113ANA036---E FE4AN(B,F)005+UI 34800 12.00 14.00
3019898 113ANA036---E FE4ANB006+UI 35200 12.00 14.00
3019899 113ANA036---E FE4ANF002+UI 33400 11.50 13.50
3019900 113ANA036---E FE5ANB004+UI 35000 12.00 14.00
3019901 113ANA036---E FF1ENP036 33600 10.90 13.00
3019902 113ANA036---E FV4BN(B,F)003 33600 12.00 14.00
3019903 113ANA036---E FV4BN(B,F)005 34800 12.00 14.00
3019904 113ANA036---E FV4BNB006 35200 12.00 14.00
3019905 113ANA036---E FV4BNF002 33400 11.50 13.50
3019906 113ANA036---E FX4CN(B,F)036 34000 11.70 14.00
3019907 113ANA036---E FX4CN(B,F)042 34800 11.70 14.00
3019908 113ANA036---E FY4ANF036 33200 10.90 13.00
3019909 113ANA036---E FY4ANF042 34200 11.00 13.00
3038790 113ANA042---C †CAP**4221A**+TDR 41000 11.00 13.00
3038791 113ANA042---C CAP**4221A** 313*AV048090 40500 11.70 14.00
3038792 113ANA042---C CAP**4221A** 313*AV060110 40500 12.00 14.00
3038820 113ANA042---C CAP**4221A** 315(A,J)AV060110 40500 11.20 13.50
3099512 113ANA042---C CAP**4221A** 353AAV060100 40500 11.70 14.00
3038819 113ANA042---C CAP**4221A** 355(A,C)AV042080 40000 11.20 13.50
3038793 113ANA042---C CAP**4224A** 313*AV060135 40500 12.00 14.00
3038823 113ANA042---C CAP**4224A** 315(A,J)AV066135 40500 11.50 14.00
3099513 113ANA042---C CAP**4224A** 353AAV060120 40500 12.00 14.00
3038822 113ANA042---C CAP**4224A** 355(A,C)AV042040 40000 11.20 13.50
3038821 113ANA042---C CAP**4224A**+TDR 41000 11.00 13.00
3038794 113ANA042---C CAP**4817A** 313*AV048070 39500 11.20 13.50
3038826 113ANA042---C CAP**4817A** 315(A,J)AV048090 40000 11.50 14.00
3099514 113ANA042---C CAP**4817A** 353AAV036040 41000 11.70 14.00
See notes on page 22
113A

19
COMBINATION RATINGS CONTINUED
ARI Ref. No. Model Number Indoor Model Furnace Model Capacity EER SEER
3099515 113ANA042---C CAP**4817A** 353AAV036060 41000 11.70 14.00
3099516 113ANA042---C CAP**4817A** 353AAV036080 41000 11.70 14.00
3099517 113ANA042---C CAP**4817A** 353AAV048080 41000 11.70 14.00
3038825 113ANA042---C CAP**4817A** 355(A,C)AV042060 40000 11.50 14.00
3038824 113ANA042---C CAP**4817A**+TDR 40500 11.00 13.20
3038795 113ANA042---C CAP**4821A** 313*AV048090 41000 12.00 14.00
3038796 113ANA042---C CAP**4821A** 313*AV060110 41000 12.00 14.00
3038829 113ANA042---C CAP**4821A** 315(A,J)AV060110 41000 11.50 14.00
3099518 113ANA042---C CAP**4821A** 353AAV060100 41000 12.00 14.00
3038828 113ANA042---C CAP**4821A** 355(A,C)AV042080 40500 11.20 13.50
3038827 113ANA042---C CAP**4821A**+TDR 41500 11.00 13.20
3038797 113ANA042---C CAP**4824A** 313*AV060135 41000 12.00 14.00
3038832 113ANA042---C CAP**4824A** 315(A,J)AV066135 41000 11.70 14.00
3038831 113ANA042---C CAP**4824A** 355(A,C)AV042040 41000 11.20 13.50
3038830 113ANA042---C CAP**4824A**+TDR 41500 11.00 13.20
3038848 113ANA042---C CNPF*4818A**+TDR 41500 11.00 13.20
3038803 113ANA042---C CNPH*4221A** 313*AV048070 40000 11.20 13.20
3038804 113ANA042---C CNPH*4221A** 313*AV048090 40500 11.70 14.00
3038805 113ANA042---C CNPH*4221A** 313*AV060110 40500 12.00 14.00
3038806 113ANA042---C CNPH*4221A** 313*AV060135 40500 11.70 14.00
3038844 113ANA042---C CNPH*4221A** 315(A,J)AV036070 40500 11.20 13.50
3099530 113ANA042---C CNPH*4221A** 353AAV036040 40500 11.70 14.00
3099531 113ANA042---C CNPH*4221A** 353AAV036060 40500 11.50 13.50
3099532 113ANA042---C CNPH*4221A** 353AAV036080 40500 11.70 14.00
3099533 113ANA042---C CNPH*4221A** 353AAV048080 40000 11.70 14.00
3099534 113ANA042---C CNPH*4221A** 353AAV060100 40500 11.70 14.00
3099535 113ANA042---C CNPH*4221A** 353AAV060120 40500 11.70 14.00
3038843 113ANA042---C CNPH*4221A** 355(A,C)AV042040 40000 11.20 13.50
3038842 113ANA042---C CNPH*4221A**+TDR 41000 11.00 13.00
3038807 113ANA042---C CNPH*4821A** 313*AV048070 41000 11.20 13.50
3038808 113ANA042---C CNPH*4821A** 313*AV048090 41000 12.00 14.00
3038809 113ANA042---C CNPH*4821A** 313*AV060110 41000 12.00 14.00
3038810 113ANA042---C CNPH*4821A** 313*AV060135 41000 12.00 14.00
3038847 113ANA042---C CNPH*4821A** 315(A,J)AV036070 41000 11.20 13.50
3099536 113ANA042---C CNPH*4821A** 353AAV036040 41000 11.70 14.00
3099537 113ANA042---C CNPH*4821A** 353AAV036060 41000 11.70 14.00
3099538 113ANA042---C CNPH*4821A** 353AAV036080 41000 11.70 14.00
3099539 113ANA042---C CNPH*4821A** 353AAV048080 41000 11.70 14.00
3099540 113ANA042---C CNPH*4821A** 353AAV060100 41000 12.00 14.00
3099541 113ANA042---C CNPH*4821A** 353AAV060120 41000 12.00 14.00
3038846 113ANA042---C CNPH*4821A** 355(A,C)AV042040 40500 11.20 13.50
3038845 113ANA042---C CNPH*4821A**+TDR 41500 11.00 13.20
3099522 113ANA042---C CNPV*4217A** 313*AV048070 40500 11.20 13.50
3099521 113ANA042---C CNPV*4217A** 315(A,J)AV048090 40500 11.70 14.00
3099523 113ANA042---C CNPV*4217A** 353AAV036040 41000 11.70 14.00
3099524 113ANA042---C CNPV*4217A** 353AAV036060 41000 11.70 14.00
3099525 113ANA042---C CNPV*4217A** 353AAV036080 41000 11.70 14.00
3099526 113ANA042---C CNPV*4217A** 353AAV048080 40500 11.70 14.00
3099520 113ANA042---C CNPV*4217A** 355(A,C)AV042060 40500 11.50 13.50
3099519 113ANA042---C CNPV*4217A**+TDR 41000 11.00 13.00
3038798 113ANA042---C CNPV*4221A** 313*AV048090 40500 11.70 14.00
3038799 113ANA042---C CNPV*4221A** 313*AV060110 40500 12.00 14.00
3038835 113ANA042---C CNPV*4221A** 315(A,J)AV060110 40500 11.50 14.00
3099527 113ANA042---C CNPV*4221A** 353AAV060100 40500 11.70 14.00
3038834 113ANA042---C CNPV*4221A** 355(A,C)AV042080 40000 11.20 13.50
3038833 113ANA042---C CNPV*4221A**+TDR 41000 11.00 13.00
3038800 113ANA042---C CNPV*4821A** 313*AV048090 41000 12.00 14.00
3038801 113ANA042---C CNPV*4821A** 313*AV060110 41000 12.00 14.00
3038838 113ANA042---C CNPV*4821A** 315(A,J)AV060110 41000 11.50 14.00
3099528 113ANA042---C CNPV*4821A** 353AAV060100 41000 12.00 14.00
3038837 113ANA042---C CNPV*4821A** 355(A,C)AV042080 40500 11.20 13.50
3038836 113ANA042---C CNPV*4821A**+TDR 41500 11.00 13.20
3038802 113ANA042---C CNPV*4824A** 313*AV060135 41000 12.00 14.00
3038841 113ANA042---C CNPV*4824A** 315(A,J)AV066135 41000 11.70 14.00
3099529 113ANA042---C CNPV*4824A** 353AAV060120 41000 12.00 14.00
3038840 113ANA042---C CNPV*4824A** 355(A,C)AV042040 41000 11.20 13.50
3038839 113ANA042---C CNPV*4824A**+TDR 41500 11.00 13.20
3038811 113ANA042---C CSPH*4212A** 313*AV048070 40500 11.50 13.50
3038812 113ANA042---C CSPH*4212A** 313*AV048090 40500 11.70 14.00
3038813 113ANA042---C CSPH*4212A** 313*AV060110 40500 12.00 14.00
3038814 113ANA042---C CSPH*4212A** 313*AV060135 40500 12.00 14.00
3038851 113ANA042---C CSPH*4212A** 315(A,J)AV036070 40500 11.20 13.50
3099542 113ANA042---C CSPH*4212A** 353AAV036040 41000 11.70 14.00
3099543 113ANA042---C CSPH*4212A** 353AAV036060 41000 11.70 14.00
3099544 113ANA042---C CSPH*4212A** 353AAV036080 41000 11.70 14.00
3099545 113ANA042---C CSPH*4212A** 353AAV048080 41000 11.70 14.00
3099546 113ANA042---C CSPH*4212A** 353AAV060100 41000 12.00 14.00
3099547 113ANA042---C CSPH*4212A** 353AAV060120 41000 12.00 14.00
3038850 113ANA042---C CSPH*4212A** 355(A,C)AV042040 40000 11.20 13.50
See notes on page 22
113A

20
COMBINATION RATINGS CONTINUED
ARI Ref. No. Model Number Indoor Model Furnace Model Capacity EER SEER
3038849 113ANA042---C CSPH*4212A**+TDR 41000 11.00 13.20
3038815 113ANA042---C CSPH*4812A** 313*AV048070 41000 11.20 13.50
3038816 113ANA042---C CSPH*4812A** 313*AV048090 41000 12.00 14.00
3038817 113ANA042---C CSPH*4812A** 313*AV060110 41000 12.00 14.00
3038818 113ANA042---C CSPH*4812A** 313*AV060135 41000 12.00 14.00
3038854 113ANA042---C CSPH*4812A** 315(A,J)AV036070 41000 11.20 13.50
3099548 113ANA042---C CSPH*4812A** 353AAV036040 41000 11.70 14.00
3099549 113ANA042---C CSPH*4812A** 353AAV036060 41000 11.70 14.00
3099550 113ANA042---C CSPH*4812A** 353AAV036080 41000 11.70 14.00
3099551 113ANA042---C CSPH*4812A** 353AAV048080 41000 11.70 14.00
3099552 113ANA042---C CSPH*4812A** 353AAV060100 41000 12.00 14.00
3099553 113ANA042---C CSPH*4812A** 353AAV060120 41000 12.00 14.00
3038853 113ANA042---C CSPH*4812A** 355(A,C)AV042040 41000 11.20 13.50
3038852 113ANA042---C CSPH*4812A**+TDR 41500 11.00 13.20
3038859 113ANA042---C FV4BN(B,F)003 40500 11.50 14.00
3038860 113ANA042---C FV4BN(B,F)005 41500 11.70 14.00
3038861 113ANA042---C FV4BNB006 42500 12.00 14.00
3038857 113ANA042---C FX4CN(B,F)042 41500 11.20 13.50
3038858 113ANA042---C FX4CN(B,F)048 42500 11.50 14.00
3038855 113ANA042---C FY4ANF042 41000 11.00 13.00
3038856 113ANA042---C FY4ANF048 42000 11.00 13.20
3023122 113ANA048---E †CAP**4821A**+TDR 46000 11.00 13.20
3022956 113ANA048---E CAP**4817A** 315(A,J)AV048090 45000 11.50 13.50
3099561 113ANA048---E CAP**4817A** 353AAV048080 45000 11.00 13.50
3023121 113ANA048---E CAP**4817A**+TDR 45000 11.00 13.20
3022960 113ANA048---E CAP**4821A** 313*AV048090 45000 11.70 13.50
3022961 113ANA048---E CAP**4821A** 313*AV060110 45000 11.70 14.00
3022959 113ANA048---E CAP**4821A** 315(A,J)AV060110 45000 11.70 13.50
3099562 113ANA048---E CAP**4821A** 353AAV060100 45000 11.70 14.00
3022957 113ANA048---E CAP**4821A** 355(A,C)AV060080 44500 11.50 13.50
3022958 113ANA048---E CAP**4821A** 355(A,C)AV060100 45000 11.20 13.50
3022965 113ANA048---E CAP**4824A** 313*AV060135 45500 11.70 13.50
3022963 113ANA048---E CAP**4824A** 315(A,J)AV066135 45000 11.70 14.00
3022964 113ANA048---E CAP**4824A** 315(A,J)AV066155 45000 12.00 14.00
3099563 113ANA048---E CAP**4824A** 353AAV060120 45000 11.70 14.00
3022962 113ANA048---E CAP**4824A** 355(A,C)AV060120 45000 11.50 13.50
3023123 113ANA048---E CAP**4824A**+TDR 45500 11.00 13.20
3022969 113ANA048---E CAP**6021A** 313*AV048090 46000 12.00 14.00
3022970 113ANA048---E CAP**6021A** 313*AV060110 46000 12.00 14.00
3022968 113ANA048---E CAP**6021A** 315(A,J)AV060110 46000 12.00 14.00
3099564 113ANA048---E CAP**6021A** 353AAV060100 45000 12.00 14.00
3022966 113ANA048---E CAP**6021A** 355(A,C)AV060080 45000 11.70 13.50
3022967 113ANA048---E CAP**6021A** 355(A,C)AV060100 46000 11.70 13.50
3023124 113ANA048---E CAP**6021A**+TDR 46000 11.20 13.20
3022974 113ANA048---E CAP**6024A** 313*AV060135 46000 12.00 14.00
3022972 113ANA048---E CAP**6024A** 315(A,J)AV066135 46000 12.00 14.00
3022973 113ANA048---E CAP**6024A** 315(A,J)AV066155 46000 12.20 14.50
3099565 113ANA048---E CAP**6024A** 353AAV060120 45000 12.00 14.00
3022971 113ANA048---E CAP**6024A** 355(A,C)AV060120 46000 11.70 14.00
3023125 113ANA048---E CAP**6024A**+TDR 46500 11.20 13.20
3023126 113ANA048---E CNPF*4818A**+TDR 45000 11.00 13.20
3022995 113ANA048---E CNPH*4821A** 313*AV048090 45000 11.70 13.50
3022996 113ANA048---E CNPH*4821A** 313*AV060110 45000 11.70 14.00
3022997 113ANA048---E CNPH*4821A** 313*AV060135 45500 11.70 13.50
3022991 113ANA048---E CNPH*4821A** 315(A,J)AV048090 45000 11.70 13.50
3022992 113ANA048---E CNPH*4821A** 315(A,J)AV060110 45000 11.70 13.50
3022993 113ANA048---E CNPH*4821A** 315(A,J)AV066135 45000 11.70 14.00
3022994 113ANA048---E CNPH*4821A** 315(A,J)AV066155 45500 12.00 14.00
3099569 113ANA048---E CNPH*4821A** 353AAV048080 45000 11.50 13.50
3099570 113ANA048---E CNPH*4821A** 353AAV060100 45000 11.70 14.00
3099571 113ANA048---E CNPH*4821A** 353AAV060120 45000 11.70 14.00
3022988 113ANA048---E CNPH*4821A** 355(A,C)AV060080 44500 11.50 13.50
3022989 113ANA048---E CNPH*4821A** 355(A,C)AV060100 45000 11.20 13.50
3022990 113ANA048---E CNPH*4821A** 355(A,C)AV060120 45000 11.70 13.50
3023127 113ANA048---E CNPH*4821A**+TDR 45500 11.00 13.20
3023005 113ANA048---E CNPH*6024A** 313*AV048090 46000 11.70 14.00
3023006 113ANA048---E CNPH*6024A** 313*AV060110 46000 12.00 14.00
3023007 113ANA048---E CNPH*6024A** 313*AV060135 46000 12.00 14.00
3023001 113ANA048---E CNPH*6024A** 315(A,J)AV048090 46000 11.70 14.00
3023002 113ANA048---E CNPH*6024A** 315(A,J)AV060110 46000 12.00 14.00
3023003 113ANA048---E CNPH*6024A** 315(A,J)AV066135 46000 12.00 14.00
3023004 113ANA048---E CNPH*6024A** 315(A,J)AV066155 46000 12.20 14.50
3099572 113ANA048---E CNPH*6024A** 353AAV048080 45000 11.50 13.50
3099573 113ANA048---E CNPH*6024A** 353AAV060100 45000 12.00 14.00
3099574 113ANA048---E CNPH*6024A** 353AAV060120 45000 12.00 14.00
3022998 113ANA048---E CNPH*6024A** 355(A,C)AV060080 45500 11.70 13.50
3022999 113ANA048---E CNPH*6024A** 355(A,C)AV060100 46000 11.70 13.50
3023000 113ANA048---E CNPH*6024A** 355(A,C)AV060120 46000 11.70 14.00
See notes on page 22
113A

21
COMBINATION RATINGS CONTINUED
ARI Ref. No. Model Number Indoor Model Furnace Model Capacity EER SEER
3023128 113ANA048---E CNPH*6024A**+TDR 46500 11.20 13.20
3022978 113ANA048---E CNPV*4821A** 313*AV048090 45000 11.70 13.50
3022979 113ANA048---E CNPV*4821A** 313*AV060110 45000 11.70 14.00
3022977 113ANA048---E CNPV*4821A** 315(A,J)AV060110 45000 11.70 13.50
3099566 113ANA048---E CNPV*4821A** 353AAV060100 45000 11.70 14.00
3022975 113ANA048---E CNPV*4821A** 355(A,C)AV060080 44500 11.50 13.50
3022976 113ANA048---E CNPV*4821A** 355(A,C)AV060100 45000 11.20 13.50
3023129 113ANA048---E CNPV*4821A**+TDR 45500 11.00 13.20
3022983 113ANA048---E CNPV*4824A** 313*AV060135 45500 11.70 13.50
3022981 113ANA048---E CNPV*4824A** 315(A,J)AV066135 45000 11.70 14.00
3022982 113ANA048---E CNPV*4824A** 315(A,J)AV066155 45000 12.00 14.00
3099567 113ANA048---E CNPV*4824A** 353AAV060120 45000 11.70 14.00
3022980 113ANA048---E CNPV*4824A** 355(A,C)AV060120 45000 11.50 13.50
3023130 113ANA048---E CNPV*4824A**+TDR 45500 11.00 13.20
3022987 113ANA048---E CNPV*6024A** 313*AV060135 46000 12.00 14.00
3022985 113ANA048---E CNPV*6024A** 315(A,J)AV066135 46000 12.00 14.00
3022986 113ANA048---E CNPV*6024A** 315(A,J)AV066155 46000 12.20 14.50
3099568 113ANA048---E CNPV*6024A** 353AAV060120 45000 12.00 14.00
3022984 113ANA048---E CNPV*6024A** 355(A,C)AV060120 46000 11.70 14.00
3023131 113ANA048---E CNPV*6024A**+TDR 46500 11.20 13.20
3023015 113ANA048---E CSPH*4812A** 313*AV048090 45000 11.70 13.50
3023016 113ANA048---E CSPH*4812A** 313*AV060110 45000 11.70 14.00
3023017 113ANA048---E CSPH*4812A** 313*AV060135 45500 11.70 13.50
3023011 113ANA048---E CSPH*4812A** 315(A,J)AV048090 45500 11.70 13.50
3023012 113ANA048---E CSPH*4812A** 315(A,J)AV060110 45000 11.70 13.50
3023013 113ANA048---E CSPH*4812A** 315(A,J)AV066135 45000 11.70 14.00
3023014 113ANA048---E CSPH*4812A** 315(A,J)AV066155 45000 12.00 14.00
3099575 113ANA048---E CSPH*4812A** 353AAV048080 45000 11.50 13.50
3099576 113ANA048---E CSPH*4812A** 353AAV060100 45000 11.70 14.00
3099577 113ANA048---E CSPH*4812A** 353AAV060120 45000 11.70 14.00
3023008 113ANA048---E CSPH*4812A** 355(A,C)AV060080 44500 11.50 13.50
3023009 113ANA048---E CSPH*4812A** 355(A,C)AV060100 45000 11.20 13.50
3023010 113ANA048---E CSPH*4812A** 355(A,C)AV060120 45000 11.50 13.50
3023132 113ANA048---E CSPH*4812A**+TDR 46000 11.00 13.20
3023025 113ANA048---E CSPH*6012A** 313*AV048090 46000 12.00 14.00
3023026 113ANA048---E CSPH*6012A** 313*AV060110 46000 12.00 14.00
3023027 113ANA048---E CSPH*6012A** 313*AV060135 46000 12.00 14.00
3023021 113ANA048---E CSPH*6012A** 315(A,J)AV048090 46000 12.00 14.00
3023022 113ANA048---E CSPH*6012A** 315(A,J)AV060110 46000 12.00 14.00
3023023 113ANA048---E CSPH*6012A** 315(A,J)AV066135 46000 12.00 14.00
3023024 113ANA048---E CSPH*6012A** 315(A,J)AV066155 46000 12.20 14.50
3099578 113ANA048---E CSPH*6012A** 353AAV048080 45000 11.70 14.00
3099579 113ANA048---E CSPH*6012A** 353AAV060100 45000 12.00 14.00
3099580 113ANA048---E CSPH*6012A** 353AAV060120 45000 12.00 14.00
3023018 113ANA048---E CSPH*6012A** 355(A,C)AV060080 45500 11.70 13.50
3023019 113ANA048---E CSPH*6012A** 355(A,C)AV060100 46000 11.70 13.50
3023020 113ANA048---E CSPH*6012A** 355(A,C)AV060120 46000 11.70 14.00
3023133 113ANA048---E CSPH*6012A**+TDR 46500 11.20 13.20
3023134 113ANA048---E FE4AN(B,F)005+UI 46000 12.00 14.00
3023135 113ANA048---E FE4ANB006+UI 46500 12.20 14.50
3023136 113ANA048---E FV4BN(B,F)005 46000 12.00 14.00
3023137 113ANA048---E FV4BNB006 46500 12.20 14.50
3023138 113ANA048---E FX4CN(B,F)048 46000 12.00 14.00
3023139 113ANA048---E FX4CN(B,F)060 47500 12.00 14.00
3023140 113ANA048---E FY4ANB060 46500 11.20 13.20
3023141 113ANA048---E FY4ANF048 45500 11.20 13.20
3043558 113ANA060---F †CAP**6024A**+TDR 57500 11.00 13.00
3043559 113ANA060---F CAP**6021A** 313*AV048090 55500 11.00 13.20
3043560 113ANA060---F CAP**6021A** 313*AV060110 56000 11.20 13.20
3043572 113ANA060---F CAP**6021A** 315(A,J)AV060110 56000 11.00 13.20
3099554 113ANA060---F CAP**6021A** 353AAV060100 56500 11.00 13.20
3043570 113ANA060---F CAP**6021A** 355(A,C)AV060080 56000 10.60 13.00
3043571 113ANA060---F CAP**6021A** 355(A,C)AV060100 56000 10.80 13.00
3043569 113ANA060---F CAP**6021A**+TDR 56500 11.00 13.00
3043561 113ANA060---F CAP**6024A** 313*AV060135 56000 11.00 13.20
3043574 113ANA060---F CAP**6024A** 315(A,J)AV066135 56500 11.00 13.20
3043575 113ANA060---F CAP**6024A** 315(A,J)AV066155 56500 11.20 13.50
3099555 113ANA060---F CAP**6024A** 353AAV060120 56500 11.00 13.20
3043573 113ANA060---F CAP**6024A** 355(A,C)AV060120 56500 11.00 13.00
3043563 113ANA060---F CNPH*6024A** 313*AV048090 56000 11.00 13.20
3043564 113ANA060---F CNPH*6024A** 313*AV060110 56500 11.20 13.20
3043565 113ANA060---F CNPH*6024A** 313*AV060135 56000 11.00 13.20
3043580 113ANA060---F CNPH*6024A** 315(A,J)AV066135 56000 11.20 13.50
3043581 113ANA060---F CNPH*6024A** 315(A,J)AV066155 56500 11.20 13.50
3099557 113ANA060---F CNPH*6024A** 353AAV060100 56500 11.00 13.20
3099558 113ANA060---F CNPH*6024A** 353AAV060120 56500 11.00 13.20
3043579 113ANA060---F CNPH*6024A**+TDR 57000 11.00 13.00
3043562 113ANA060---F CNPV*6024A** 313*AV060135 56000 11.00 13.20
See notes on page 22
113A

22
COMBINATION RATINGS CONTINUED
ARI Ref. No. Model Number Indoor Model Furnace Model Capacity EER SEER
3043577 113ANA060---F CNPV*6024A** 315(A,J)AV066135 56000 11.00 13.50
3043578 113ANA060---F CNPV*6024A** 315(A,J)AV066155 56500 11.20 13.50
3099556 113ANA060---F CNPV*6024A** 353AAV060120 56500 11.00 13.20
3043576 113ANA060---F CNPV*6024A**+TDR 57000 11.00 13.00
3043566 113ANA060---F CSPH*6012A** 313*AV048090 56000 11.00 13.20
3043567 113ANA060---F CSPH*6012A** 313*AV060110 56500 11.20 13.20
3043568 113ANA060---F CSPH*6012A** 313*AV060135 56000 11.00 13.20
3043583 113ANA060---F CSPH*6012A** 315(A,J)AV060110 56500 11.00 13.20
3043584 113ANA060---F CSPH*6012A** 315(A,J)AV066135 56500 11.20 13.50
3043585 113ANA060---F CSPH*6012A** 315(A,J)AV066155 56500 11.20 13.50
3099559 113ANA060---F CSPH*6012A** 353AAV060100 56500 11.00 13.20
3099560 113ANA060---F CSPH*6012A** 353AAV060120 56500 11.00 13.20
3043582 113ANA060---F CSPH*6012A**+TDR 57500 11.00 13.00
3069700 113ANA060---F FE4ANB006+UI 57500 11.50 13.50
3043587 113ANA060---F FV4BNB006 57000 11.20 13.50
3043586 113ANA060---F FX4CN(B,F)060 58000 11.00 13.20
3043588 113ANA060---F FY4ANB060 56500 11.00 13.00
* Tested combination
EER — Energy Efficiency Ratio
SEER — Seasonal Energy Efficiency Ratio
TDR — Time--- Delay Relay In most cases, only 1 method should be used to achieve TDR function. Using more than 1 method in a system may cause degradation in performance.
Use either the accessory Time--- Delay Relay KAATD0101TDR or a furnace equipped with TDR. Most Bryant furnaces are equipped with TDR.
TXV — Thermostatic Expansion Valve
NOTES:
1. Ratings are net values reflecting the effects of circulating fan motor heat. Supplemental electric heat is not included.
2. Tested outdoor/indoor combinations have been tested in accordance with DOE test procedures for central air conditioners. Ratings for other combinations are determined under DOE
computer simulation procedures.
3. Determine actual CFM values obtainable for your system by referring to fan performance data in fan coil or furnace coil literature.
4. Do not apply with capillary tube coils as performance and reliability are affected.
113A

23
DETAILED COOLING CAPACITIES#
EVAPORATOR AIR CONDENSER ENTERING AIR TEMPERATURES ° F (° C)
75 (23.9) 85 (29.4) 95 (35) 105 (40.6) 115 (46.1) 125 (51.7)
CFM EWB
°F(°C)
Capacity MBtuh To t a l
Sys.
KW**
Capacity MBtuh To t a l
Sys.
KW**
Capacity MBtuh To t a l
Sys.
KW**
Capacity MBtuh To t a l
Sys.
KW**
Capacity MBtuh To t a l
Sys.
KW**
Capacity MBtuh To t a l
Sys.
KW**
Total Sens‡ Tot a l Sens‡ Total Sens‡ Tot a l Sens‡ Total Sens‡ Tot a l Sens‡
113A*A018 Outdoor Section With CAP**1814A** Indoor Section
525
72 (22.2) 20.79 10.51 1.27 19.89 10.18 1.42 18.93 9.83 1.58 17.94 9.47 1.77 16.87 9.09 1.97 15.67 8.67 2.20
67 (19.4) 19.09 12.93 1.27 18.24 12.58 1.42 17.33 12.21 1.59 16.39 11.84 1.77 15.37 11.44 1.98 14.26 11.01 2.20
63 (17.2)†† 17.84 12.55 1.27 17.02 12.19 1.42 16.15 11.82 1.59 15.24 11.43 1.78 14.26 11.02 1.98 13.22 10.58 2.20
62 (16.7) 17.53 15.32 1.27 16.74 14.95 1.42 15.91 14.57 1.59 15.04 14.16 1.78 14.17 14.17 1.98 13.33 13.33 2.20
57 (13.9) 17.00 17.00 1.27 16.36 16.36 1.42 15.67 15.67 1.59 14.95 14.95 1.78 14.18 14.18 1.98 13.33 13.33 2.20
600
72 (22.2) 21.12 11.01 1.29 20.19 10.67 1.44 19.19 10.32 1.61 18.18 9.96 1.80 17.07 9.57 2.00 15.84 9.15 2.22
67 (19.4) 19.42 13.74 1.29 18.54 13.39 1.45 17.60 13.02 1.61 16.63 12.65 1.80 15.59 12.24 2.00 14.44 11.80 2.23
63 (17.2)†† 18.17 13.32 1.30 17.32 12.96 1.45 16.43 12.58 1.62 15.49 12.19 1.80 14.48 11.77 2.01 13.40 11.33 2.23
62 (16.7) 17.93 16.44 1.30 17.12 16.06 1.45 16.30 16.21 1.62 15.53 15.53 1.80 14.71 14.71 2.01 13.81 13.81 2.23
57 (13.9) 17.70 17.70 1.30 17.02 17.02 1.45 16.29 16.29 1.62 15.53 15.53 1.80 14.71 14.71 2.01 13.81 13.81 2.23
675
72 (22.2) 21.35 11.48 1.32 20.39 11.14 1.47 19.37 10.79 1.64 18.34 10.43 1.83 17.20 10.04 2.03 15.94 9.61 2.25
67 (19.4) 19.66 14.52 1.32 18.76 14.17 1.47 17.79 13.80 1.64 16.81 13.42 1.83 15.74 13.01 2.03 14.58 12.56 2.25
63 (17.2)†† 18.41 14.06 1.32 17.55 13.70 1.48 16.63 13.31 1.64 15.67 12.92 1.83 14.64 12.49 2.03 13.54 12.03 2.26
62 (16.7) 18.28 18.11 1.32 17.55 17.55 1.48 16.79 16.79 1.64 15.99 15.99 1.83 15.13 15.13 2.03 14.18 14.18 2.25
57 (13.9) 18.26 18.26 1.32 17.55 17.55 1.48 16.79 16.79 1.64 15.99 15.99 1.83 15.13 15.13 2.03 14.18 14.18 2.25
COOLING INDOOR
MODEL CAPACITY POWER FURNACE MODEL
*CAP**1814A** 1.00 1.00
CAP**2414A** 1.02 1.01
CAP**2417A** 1.02 1.01
CNPF*2418A** 1.02 1.01
CNPH*2417A** 1.02 1.01
CNPV*1814A** 1.00 1.00
CNPV*2414A** 1.02 1.01
CNPV*2417A** 1.02 1.01
CSPH*2412A** 1.02 1.01
FE4ANF002 0.98 0.88
FF1ENP018 0.99 0.99
FF1ENP024 0.99 0.99
FV4BNF002 0.98 0.88
FX4CNF018 1.02 0.93
FX4CNF024 1.02 0.91
FY4ANF018 1.01 1.01
FY4ANF024 1.02 1.02
CAP**1814A** 0.99 0.90 315(A,J)AV036070
CAP**2414A** 1.01 0.90 315(A,J)AV036070
CNPH*2417A** 1.01 0.90 315(A,J)AV036070
CNPV*1814A** 0.99 0.90 315(A,J)AV036070
CNPV*2414A** 1.01 0.90 315(A,J)AV036070
CSPH*2412A** 1.02 0.91 315(A,J)AV036070
CAP**2417A** 1.01 0.90 315(A,J)AV048090
CNPH*2417A** 1.01 0.90 315(A,J)AV048090
CNPV*2417A** 1.01 0.90 315(A,J)AV048090
CSPH*2412A** 1.02 0.91 315(A,J)AV048090
CAP**2417A** 1.02 0.89 353AAV036040
CNPH*2417A** 1.02 0.91 353AAV036040
CNPV*2417A** 1.02 0.91 353AAV036040
CSPH*2412A** 1.02 0.91 353AAV036040
CAP**2417A** 1.02 0.89 353AAV036060
CNPH*2417A** 1.02 0.91 353AAV036060
CNPV*2417A** 1.02 0.91 353AAV036060
COOLING INDOOR
MODEL CAPACITY POWER FURNACE MODEL
CSPH*2412A** 1.02 0.91 353AAV036060
CAP**2417A** 1.01 0.90 355(A,C)AV042060
CNPH*2417A** 1.01 0.90 355(A,C)AV042060
CNPV*2417A** 1.01 0.90 355(A,C)AV042060
CSPH*2412A** 1.02 0.91 355(A,C)AV042060
CNPH*2417A** 1.01 0.90 355(A,C)AV042080
CSPH*2412A** 1.02 0.91 355(A,C)AV042080
CNPH*2417A** 1.01 0.90 355AAV042040
CSPH*2412A** 1.01 0.90 355AAV042040
CAP**1814A** 1.01 0.92 313*AV024045
CAP**2414A** 1.02 0.91 313*AV024045
CNPH*2417A** 1.01 0.90 313*AV024045
CNPV*1814A** 1.01 0.92 313*AV024045
CNPV*2414A** 1.02 0.91 313*AV024045
CSPH*2412A** 1.02 0.91 313*AV024045
See notes on page 34
113A

24
DETAILED COOLING CAPACITIES# CONTINUED
EVAPORATOR AIR CONDENSER ENTERING AIR TEMPERATURES ° F (° C)
75 (23.9) 85 (29.4) 95 (35) 105 (40.6) 115 (46.1) 125 (51.7)
CFM EWB
°F(°C)
Capacity MBtuh To t a l
Sys.
KW**
Capacity MBtuh To t a l
Sys.
KW**
Capacity MBtuh To t a l
Sys.
KW**
Capacity MBtuh To t a l
Sys.
KW**
Capacity MBtuh To t a l
Sys.
KW**
Capacity MBtuh To t a l
Sys.
KW**
Total Sens‡ Tot a l Sens‡ Total Sens‡ Tot a l Sens‡ Total Sens‡ Tot a l Sens‡
113A*A024 Outdoor Section With CAP**2414A** Indoor Section
700
72 (22.2) 27.09 13.27 1.65 25.82 12.82 1.85 24.63 12.41 2.06 23.42 12.00 2.30 22.08 11.54 2.56 20.57 11.04 2.84
67 (19.4) 24.89 16.41 1.65 23.83 15.99 1.84 22.71 15.56 2.05 21.55 15.13 2.29 20.30 14.66 2.56 18.89 14.14 2.84
63 (17.2)†† 23.39 15.98 1.64 22.38 15.55 1.84 21.29 15.11 2.05 20.18 14.66 2.29 18.98 14.17 2.56 17.65 13.64 2.85
62 (16.7) 23.01 19.56 1.64 22.03 19.14 1.84 20.99 18.67 2.05 19.94 18.19 2.29 18.91 18.91 2.56 17.82 17.82 2.84
57 (13.9) 22.46 22.46 1.64 21.66 21.66 1.83 20.79 20.79 2.05 19.89 19.89 2.29 18.91 18.91 2.56 17.82 17.82 2.84
800
72 (22.2) 27.52 13.92 1.69 26.15 13.46 1.88 24.91 13.04 2.10 23.67 12.62 2.33 22.29 12.16 2.59 20.73 11.65 2.88
67 (19.4) 25.25 17.44 1.68 24.16 17.03 1.88 23.00 16.60 2.09 21.82 16.16 2.33 20.53 15.69 2.59 19.09 15.16 2.88
63 (17.2)†† 23.76 16.95 1.68 22.72 16.53 1.87 21.60 16.08 2.09 20.46 15.63 2.33 19.22 15.14 2.59 17.86 14.60 2.88
62 (16.7) 23.47 20.99 1.68 22.49 20.52 1.87 21.52 21.52 2.09 20.58 20.58 2.33 19.54 19.54 2.59 18.38 18.38 2.88
57 (13.9) 23.30 23.30 1.68 22.44 22.44 1.87 21.53 21.53 2.09 20.58 20.58 2.33 19.54 19.54 2.59 18.38 18.38 2.88
900
72 (22.2) 27.79 14.53 1.73 26.41 14.07 1.92 25.10 13.63 2.13 23.83 13.21 2.37 22.42 12.76 2.63 20.83 12.24 2.91
67 (19.4) 25.51 18.45 1.72 24.38 18.03 1.91 23.21 17.59 2.13 22.00 17.15 2.37 20.68 16.66 2.63 19.22 16.12 2.91
63 (17.2)†† 24.03 17.89 1.72 22.96 17.47 1.91 21.82 17.01 2.12 20.66 16.55 2.36 19.39 16.05 2.63 18.01 15.49 2.92
62 (16.7) 23.97 23.97 1.72 23.07 23.07 1.91 22.11 22.11 2.12 21.12 21.12 2.36 20.03 20.03 2.63 18.82 18.82 2.91
57 (13.9) 23.96 23.96 1.72 23.07 23.07 1.91 22.11 22.11 2.12 21.12 21.12 2.36 20.04 20.04 2.63 18.82 18.82 2.91
COOLING INDOOR
MODEL CAPACITY POWER FURNACE MODEL
*CAP**2414A** 1.00 1.00
CAP**2417A** 1.00 1.00
CAP**3014A** 1.01 1.01
CAP**3017A** 1.01 1.01
CNPF*2418A** 1.00 1.00
CNPH*2417A** 1.00 1.00
CNPH*3017A** 1.01 1.01
CNPV*2414A** 1.00 1.00
CNPV*2417A** 1.00 1.00
CNPV*3014A** 1.01 1.01
CNPV*3017A** 1.01 1.01
CSPH*2412A** 1.00 1.00
CSPH*3012A** 1.01 1.01
FE4AN(B,F)003 1.02 0.92
FE4ANF002 0.98 0.90
FF1ENP024 0.98 0.98
FF1ENP030 1.00 1.01
FV4BN(B,F)003 1.02 0.92
FV4BNF002 0.98 0.90
FX4CNF024 1.01 0.95
FX4CNF030 1.02 0.93
FY4ANF024 1.00 1.00
FY4ANF030 1.01 1.01
CAP**2414A** 0.99 0.91 315(A,J)AV036070
CAP**3014A** 1.00 0.92 315(A,J)AV036070
CNPH*2417A** 0.99 0.93 315(A,J)AV036070
CNPH*3017A** 1.00 0.92 315(A,J)AV036070
CNPV*2414A** 0.99 0.93 315(A,J)AV036070
CNPV*3014A** 1.00 0.92 315(A,J)AV036070
CSPH*2412A** 1.00 0.92 315(A,J)AV036070
CSPH*3012A** 1.00 0.92 315(A,J)AV036070
CAP**2417A** 1.00 0.90 315(A,J)AV048090
CAP**3017A** 1.01 0.91 315(A,J)AV048090
CNPH*2417A** 0.99 0.91 315(A,J)AV048090
COOLING INDOOR
MODEL CAPACITY POWER FURNACE MODEL
CNPH*3017A** 1.01 0.91 315(A,J)AV048090
CNPV*2417A** 0.99 0.91 315(A,J)AV048090
CNPV*3017A** 1.01 0.91 315(A,J)AV048090
CSPH*2412A** 1.01 0.92 315(A,J)AV048090
CSPH*3012A** 1.01 0.91 315(A,J)AV048090
CNPH*2417A** 0.99 0.93 315(A,J)AV060110
CNPH*3017A** 1.01 0.91 315(A,J)AV060110
CSPH*2412A** 1.01 0.92 315(A,J)AV060110
CSPH*3012A** 1.01 0.91 315(A,J)AV060110
CNPH*2417A** 0.99 0.91 315(A,J)AV066135
CNPH*3017A** 1.01 0.91 315(A,J)AV066135
CSPH*2412A** 1.01 0.92 315(A,J)AV066135
CSPH*3012A** 1.01 0.91 315(A,J)AV066135
CNPH*2417A** 0.99 0.91 315(A,J)AV066155
CNPH*3017A** 1.01 0.91 315(A,J)AV066155
CSPH*2412A** 1.01 0.92 315(A,J)AV066155
CSPH*3012A** 1.01 0.91 315(A,J)AV066155
CAP**2417A** 1.02 0.92 353AAV036040
CAP**3017A** 1.03 0.93 353AAV036040
CNPH*2417A** 1.01 0.92 353AAV036040
CNPH*3017A** 1.03 0.93 353AAV036040
CNPV*2417A** 1.01 0.92 353AAV036040
CNPV*3017A** 1.03 0.93 353AAV036040
CSPH*2412A** 1.02 0.92 353AAV036040
CSPH*3012A** 1.03 0.93 353AAV036040
CAP**2417A** 1.02 0.92 353AAV036060
CAP**3017A** 1.03 0.93 353AAV036060
CNPH*2417A** 1.01 0.92 353AAV036060
CNPH*3017A** 1.03 0.93 353AAV036060
CNPV*2417A** 1.01 0.92 353AAV036060
CNPV*3017A** 1.03 0.93 353AAV036060
CSPH*2412A** 1.02 0.92 353AAV036060
CSPH*3012A** 1.03 0.93 353AAV036060
CAP**2417A** 1.01 0.91 353AAV036080
COOLING INDOOR
MODEL CAPACITY POWER FURNACE MODEL
CAP**3017A** 1.03 0.93 353AAV036080
CNPH*2417A** 1.01 0.92 353AAV036080
CNPH*3017A** 1.03 0.93 353AAV036080
CNPV*2417A** 1.01 0.92 353AAV036080
CNPV*3017A** 1.03 0.93 353AAV036080
CSPH*2412A** 1.02 0.92 353AAV036080
CSPH*3012A** 1.03 0.93 353AAV036080
CAP**2417A** 1.01 0.91 355(A,C)AV042060
CAP**3017A** 1.02 0.92 355(A,C)AV042060
CNPH*2417A** 1.01 0.92 355(A,C)AV042060
CNPH*3017A** 1.02 0.92 355(A,C)AV042060
CNPV*2417A** 1.01 0.92 355(A,C)AV042060
CNPV*3017A** 1.02 0.92 355(A,C)AV042060
CSPH*2412A** 1.02 0.93 355(A,C)AV042060
CSPH*3012A** 1.03 0.93 355(A,C)AV042060
CNPH*2417A** 0.99 0.91 355(A,C)AV042080
CNPH*3017A** 1.01 0.91 355(A,C)AV042080
CSPH*2412A** 1.00 0.92 355(A,C)AV042080
CSPH*3012A** 1.01 0.91 355(A,C)AV042080
CNPH*2417A** 0.98 0.90 355(A,C)AV060080
CNPH*3017A** 1.00 0.90 355(A,C)AV060080
CSPH*2412A** 1.00 0.92 355(A,C)AV060080
CSPH*3012A** 1.00 0.90 355(A,C)AV060080
CNPH*2417A** 0.99 0.91 355(A,C)AV060100
CNPH*3017A** 1.01 0.91 355(A,C)AV060100
CSPH*2412A** 1.01 0.92 355(A,C)AV060100
CSPH*3012A** 1.01 0.91 355(A,C)AV060100
CNPH*2417A** 1.00 0.92 355(A,C)AV060120
CNPH*3017A** 1.01 0.91 355(A,C)AV060120
CSPH*2412A** 1.01 0.92 355(A,C)AV060120
CSPH*3012A** 1.02 0.92 355(A,C)AV060120
CNPH*2417A** 0.99 0.93 355AAV042040
CNPH*3017A** 1.01 0.91 355AAV042040
113A

25
DETAILED COOLING CAPACITIES# CONTINUED
113A*A024 Outdoor Section With CAP**2414A** Indoor Section
COOLING INDOOR
MODEL CAPACITY POWER FURNACE MODEL
CSPH*2412A** 1.01 0.92 355AAV042040
CSPH*3012A** 1.01 0.91 355AAV042040
CAP**2414A** 1.00 0.94 313*AV024045
CAP**3014A** 1.02 0.93 313*AV024045
CNPH*2417A** 1.00 0.94 313*AV024045
CNPH*3017A** 1.02 0.93 313*AV024045
CNPV*2414A** 1.00 0.94 313*AV024045
CNPV*3014A** 1.01 0.92 313*AV024045
CSPH*2412A** 1.01 0.92 313*AV024045
CSPH*3012A** 1.02 0.93 313*AV024045
See notes on page 34
113A

26
DETAILED COOLING CAPACITIES# CONTINUED
EVAPORATOR AIR CONDENSER ENTERING AIR TEMPERATURES ° F (° C)
75 (23.9) 85 (29.4) 95 (35) 105 (40.6) 115 (46.1) 125 (51.7)
CFM EWB
°F(°C)
Capacity MBtuh Tot a l
Sys.
KW**
Capacity MBtuh Total
Sys.
KW**
Capacity MBtuh Tot a l
Sys.
KW**
Capacity MBtuh Tot a l
Sys.
KW**
Capacity MBtuh Total
Sys.
KW**
Capacity MBtuh Tot a l
Sys.
KW**
Total Sens‡ Tot a l Sens‡ Total Sens‡ Tot a l Sens‡ Total Sens‡ Tot a l Sens‡
113A*A030 Outdoor Section With CAP**3014A** Indoor Section
875
72 (22.2) 32.18 16.57 2.04 30.84 16.09 2.25 29.42 15.59 2.49 27.93 15.07 2.76 26.28 14.50 3.05 24.43 13.86 3.36
67 (19.4) 29.70 20.70 2.03 28.44 20.20 2.25 27.08 19.68 2.49 25.67 19.13 2.75 24.11 18.54 3.04 22.39 17.88 3.35
63 (17.2)†† 27.91 20.13 2.03 26.69 19.62 2.25 25.39 19.07 2.49 24.02 18.50 2.75 22.52 17.88 3.04 20.88 17.21 3.35
62 (16.7) 27.50 24.80 2.03 26.34 24.26 2.25 25.11 23.67 2.49 23.94 23.94 2.75 22.71 22.71 3.04 21.35 21.35 3.35
57 (13.9) 27.10 27.10 2.03 26.12 26.12 2.25 25.05 25.05 2.49 23.94 23.94 2.75 22.71 22.71 3.04 21.35 21.35 3.35
1000
72 (22.2) 32.58 17.38 2.08 31.18 16.89 2.30 29.72 16.38 2.54 28.19 15.86 2.81 26.50 15.29 3.09 24.59 14.65 3.40
67 (19.4) 30.08 22.03 2.08 28.79 21.53 2.30 27.40 21.00 2.54 25.96 20.45 2.80 24.36 19.85 3.09 22.60 19.17 3.40
63 (17.2)†† 28.31 21.38 2.08 27.06 20.87 2.30 25.72 20.31 2.53 24.32 19.74 2.80 22.78 19.11 3.09 21.11 18.42 3.40
62 (16.7) 28.07 27.82 2.08 27.00 27.00 2.29 25.89 25.89 2.53 24.72 24.72 2.80 23.42 23.42 3.09 21.98 21.98 3.40
57 (13.9) 28.04 28.04 2.08 27.01 27.01 2.29 25.89 25.89 2.53 24.72 24.72 2.80 23.42 23.42 3.09 21.98 21.98 3.40
1125
72 (22.2) 32.83 18.14 2.13 31.40 17.65 2.35 29.91 17.14 2.59 28.35 16.62 2.85 26.63 16.04 3.14 24.68 15.40 3.45
67 (19.4) 30.36 23.30 2.13 29.03 22.80 2.34 27.62 22.26 2.58 26.15 21.70 2.85 24.54 21.08 3.14 22.76 20.38 3.45
63 (17.2)†† 28.59 22.57 2.12 27.32 22.05 2.34 25.95 21.49 2.58 24.53 20.90 2.85 22.98 20.26 3.13 21.29 19.53 3.44
62 (16.7) 28.79 28.79 2.12 27.71 27.71 2.34 26.54 26.54 2.58 25.33 25.33 2.85 23.98 23.98 3.13 22.47 22.47 3.44
57 (13.9) 28.79 28.79 2.12 27.71 27.71 2.34 26.55 26.55 2.58 25.33 25.33 2.85 23.98 23.98 3.13 22.47 22.47 3.44
COOLING INDOOR
MODEL CAPACITY POWER FURNACE MODEL
*CAP**3014A** 1.00 1.00
CAP**3017A** 1.00 1.00
CAP**3614A** 1.00 1.00
CAP**3617A** 1.01 1.01
CAP**3621A** 1.01 1.01
CNPF*3618A** 1.00 1.00
CNPH*3017A** 1.00 1.00
CNPH*3617A** 1.00 1.00
CNPV*3014A** 1.00 1.00
CNPV*3017A** 1.00 1.00
CNPV*3617A** 1.00 1.00
CNPV*3621A** 1.00 1.00
CSPH*3012A** 1.00 1.00
CSPH*3612A** 1.00 1.00
FE4AN(B,F)003 1.01 0.89
FE4AN(B,F)005 1.04 0.92
FE4ANF002 1.01 0.93
FF1ENP036 1.00 0.99
FV4BN(B,F)003 1.01 0.89
FV4BN(B,F)005 1.04 0.92
FV4BNF002 0.98 0.90
FX4CN(B,F)036 1.01 0.95
FX4CNF030 1.01 0.93
FY4ANF030 0.99 0.98
CAP**3014A** 0.99 0.92 315(A,J)AV036070
CAP**3614A** 1.00 0.92 315(A,J)AV036070
CNPH*3017A** 0.99 0.92 315(A,J)AV036070
CNPH*3617A** 1.00 0.92 315(A,J)AV036070
CNPV*3014A** 0.99 0.92 315(A,J)AV036070
CSPH*3012A** 0.99 0.92 315(A,J)AV036070
CSPH*3612A** 1.01 0.91 315(A,J)AV036070
CAP**3017A** 1.00 0.90 315(A,J)AV048090
CAP**3617A** 1.00 0.90 315(A,J)AV048090
CNPH*3017A** 1.00 0.92 315(A,J)AV048090
COOLING INDOOR
MODEL CAPACITY POWER FURNACE MODEL
CNPH*3617A** 1.00 0.92 315(A,J)AV048090
CNPV*3017A** 1.00 0.92 315(A,J)AV048090
CNPV*3617A** 1.00 0.92 315(A,J)AV048090
CSPH*3012A** 1.00 0.92 315(A,J)AV048090
CSPH*3612A** 1.01 0.91 315(A,J)AV048090
CAP**3621A** 1.01 0.91 315(A,J)AV060110
CNPH*3017A** 1.00 0.92 315(A,J)AV060110
CNPH*3617A** 1.00 0.92 315(A,J)AV060110
CNPV*3621A** 1.00 0.92 315(A,J)AV060110
CSPH*3012A** 1.01 0.93 315(A,J)AV060110
CSPH*3612A** 1.01 0.91 315(A,J)AV060110
CNPH*3017A** 1.00 0.90 315(A,J)AV066135
CNPH*3617A** 1.00 0.90 315(A,J)AV066135
CSPH*3012A** 1.01 0.93 315(A,J)AV066135
CSPH*3612A** 1.01 0.91 315(A,J)AV066135
CNPH*3017A** 1.00 0.90 315(A,J)AV066155
CNPH*3617A** 1.00 0.90 315(A,J)AV066155
CSPH*3012A** 1.01 0.91 315(A,J)AV066155
CSPH*3612A** 1.01 0.91 315(A,J)AV066155
CAP**3017A** 1.01 0.91 353AAV036040
CAP**3617A** 1.01 0.91 353AAV036040
CNPH*3017A** 1.01 0.91 353AAV036040
CNPH*3617A** 0.99 0.89 353AAV036040
CNPV*3017A** 1.01 0.91 353AAV036040
CNPV*3617A** 0.99 0.89 353AAV036040
CSPH*3012A** 1.01 0.91 353AAV036040
CSPH*3612A** 1.00 0.90 353AAV036040
CAP**3017A** 1.01 0.94 353AAV036060
CAP**3617A** 1.01 0.91 353AAV036060
CNPH*3017A** 1.01 0.94 353AAV036060
CNPH*3617A** 0.99 0.89 353AAV036060
CNPV*3017A** 1.01 0.94 353AAV036060
CNPV*3617A** 0.99 0.89 353AAV036060
CSPH*3012A** 1.01 0.94 353AAV036060
COOLING INDOOR
MODEL CAPACITY POWER FURNACE MODEL
CSPH*3612A** 1.00 0.90 353AAV036060
CAP**3017A** 1.01 0.91 353AAV036080
CAP**3617A** 1.01 0.91 353AAV036080
CNPH*3017A** 1.01 0.91 353AAV036080
CNPH*3617A** 0.99 0.89 353AAV036080
CNPV*3017A** 1.01 0.91 353AAV036080
CNPV*3617A** 0.99 0.89 353AAV036080
CSPH*3012A** 1.01 0.93 353AAV036080
CSPH*3612A** 1.00 0.90 353AAV036080
CAP**3017A** 1.01 0.94 353AAV048080
CAP**3617A** 1.02 0.94 353AAV048080
CNPH*3017A** 1.01 0.94 353AAV048080
CNPH*3617A** 1.01 0.94 353AAV048080
CNPV*3017A** 1.01 0.94 353AAV048080
CNPV*3617A** 1.01 0.94 353AAV048080
CSPH*3012A** 1.01 0.94 353AAV048080
CSPH*3612A** 1.01 0.91 353AAV048080
CAP**3017A** 1.00 0.92 355(A,C)AV042060
CAP**3617A** 1.01 0.91 355(A,C)AV042060
CNPH*3017A** 1.01 0.93 355(A,C)AV042060
CNPH*3617A** 1.01 0.93 355(A,C)AV042060
CNPV*3017A** 1.01 0.93 355(A,C)AV042060
CNPV*3617A** 1.01 0.93 355(A,C)AV042060
CSPH*3012A** 1.01 0.93 355(A,C)AV042060
CSPH*3612A** 1.02 0.92 355(A,C)AV042060
CAP**3621A** 1.00 0.92 355(A,C)AV042080
CNPH*3017A** 0.99 0.92 355(A,C)AV042080
CNPH*3617A** 0.99 0.92 355(A,C)AV042080
CNPV*3621A** 0.99 0.92 355(A,C)AV042080
CSPH*3012A** 1.00 0.92 355(A,C)AV042080
CSPH*3612A** 1.01 0.91 355(A,C)AV042080
CAP**3621A** 1.00 0.90 355(A,C)AV060080
CNPH*3017A** 1.00 0.92 355(A,C)AV060080
113A

27
DETAILED COOLING CAPACITIES# CONTINUED
113A*A030 Outdoor Section With CAP**3014A** Indoor Section
COOLING INDOOR
MODEL CAPACITY POWER FURNACE MODEL
CNPH*3617A** 1.00 0.92 355(A,C)AV060080
CNPV*3621A** 1.00 0.92 355(A,C)AV060080
CSPH*3012A** 1.00 0.92 355(A,C)AV060080
CSPH*3612A** 1.01 0.91 355(A,C)AV060080
CAP**3621A** 0.99 0.92 355(A,C)AV060100
CNPH*3017A** 0.99 0.92 355(A,C)AV060100
CNPH*3617A** 0.99 0.92 355(A,C)AV060100
CNPV*3621A** 0.99 0.92 355(A,C)AV060100
CSPH*3012A** 0.99 0.92 355(A,C)AV060100
CSPH*3612A** 1.01 0.91 355(A,C)AV060100
CNPH*3017A** 1.00 0.90 355(A,C)AV060120
CNPH*3617A** 1.00 0.90 355(A,C)AV060120
CSPH*3012A** 1.01 0.93 355(A,C)AV060120
CSPH*3612A** 1.02 0.92 355(A,C)AV060120
CNPH*3017A** 1.00 0.92 355AAV042040
CNPH*3617A** 1.00 0.92 355AAV042040
CSPH*3012A** 1.00 0.92 355AAV042040
CSPH*3612A** 1.01 0.91 355AAV042040
CAP**3017A** 1.00 0.92 313*AV048070
CAP**3617A** 1.01 0.93 313*AV048070
CNPH*3017A** 1.00 0.94 313*AV048070
CNPH*3617A** 1.00 0.94 313*AV048070
CNPV*3017A** 1.00 0.94 313*AV048070
CNPV*3617A** 1.00 0.94 313*AV048070
CSPH*3012A** 1.01 0.95 313*AV048070
CSPH*3612A** 1.01 0.94 313*AV048070
CAP**3621A** 1.01 0.91 313*AV048090
CNPH*3017A** 1.01 0.93 313*AV048090
CNPH*3617A** 1.01 0.93 313*AV048090
CNPV*3621A** 1.01 0.93 313*AV048090
CSPH*3012A** 1.01 0.93 313*AV048090
CSPH*3612A** 1.01 0.91 313*AV048090
See notes on page 34
113A

28
DETAILED COOLING CAPACITIES# CONTINUED
EVAPORATOR AIR CONDENSER ENTERING AIR TEMPERATURES ° F (° C)
75 (23.9) 85 (29.4) 95 (35) 105 (40.6) 115 (46.1) 125 (51.7)
CFM EWB
°F(°C)
Capacity MBtuh Tot a l
Sys.
KW**
Capacity MBtuh Total
Sys.
KW**
Capacity MBtuh Tot a l
Sys.
KW**
Capacity MBtuh Tot a l
Sys.
KW**
Capacity MBtuh Total
Sys.
KW**
Capacity MBtuh Tot a l
Sys.
KW**
Total Sens‡ Tot a l Sens‡ Total Sens‡ Tot a l Sens‡ Total Sens‡ Tot a l Sens‡
113A*A036 Outdoor Section With CAP*3617A Indoor Section
1050
72 (22.2) 40.22 21.00 2.54 38.50 20.34 2.79 36.66 19.65 3.07 34.69 18.93 3.39 32.56 18.15 3.76 30.22 17.30 4.20
67 (19.4) 36.61 25.73 2.51 35.00 25.05 2.76 33.29 24.35 3.04 31.46 23.60 3.36 29.49 22.81 3.74 27.34 21.95 4.18
63 (17.2)†† 34.02 24.88 2.49 32.50 24.20 2.74 30.89 23.49 3.02 29.17 22.73 3.35 27.32 21.94 3.73 25.29 21.07 4.18
62 (16.7) 33.42 30.44 2.49 31.97 29.75 2.74 30.45 29.01 3.02 28.86 28.20 3.35 27.29 27.29 3.73 25.64 25.64 4.18
57 (13.9) 32.55 32.55 2.48 31.38 31.38 2.73 30.12 30.12 3.02 28.77 28.77 3.35 27.29 27.29 3.73 25.65 25.65 4.18
1200
72 (22.2) 40.90 21.97 2.60 39.11 21.31 2.85 37.20 20.61 3.13 35.17 19.88 3.45 32.96 19.09 3.82 30.54 18.23 4.25
67 (19.4) 37.25 27.30 2.57 35.57 26.61 2.82 33.80 25.90 3.10 31.91 25.15 3.42 29.88 24.35 3.80 27.67 23.48 4.24
63 (17.2)†† 34.63 26.36 2.55 33.04 25.66 2.80 31.38 24.94 3.08 29.60 24.18 3.41 27.69 23.37 3.79 25.61 22.48 4.24
62 (16.7) 34.19 32.60 2.55 32.73 31.85 2.80 31.24 31.24 3.08 29.83 29.83 3.41 28.26 28.26 3.79 26.52 26.52 4.24
57 (13.9) 33.87 33.87 2.55 32.61 32.61 2.80 31.27 31.27 3.08 29.83 29.83 3.41 28.26 28.26 3.79 26.52 26.52 4.24
1350
72 (22.2) 41.40 22.89 2.66 39.55 22.22 2.91 37.60 21.52 3.19 35.50 20.77 3.51 33.24 19.97 3.88 30.75 19.10 4.31
67 (19.4) 37.72 28.79 2.63 36.00 28.11 2.88 34.19 27.39 3.16 32.26 26.63 3.48 30.19 25.81 3.86 27.93 24.92 4.30
63 (17.2)†† 35.09 27.77 2.61 33.47 27.07 2.86 31.76 26.34 3.14 29.94 25.57 3.47 27.99 24.73 3.85 25.88 23.82 4.29
62 (16.7) 34.90 34.90 2.61 33.63 33.63 2.86 32.22 32.22 3.15 30.70 30.70 3.47 29.05 29.05 3.85 27.22 27.22 4.30
57 (13.9) 34.96 34.96 2.61 33.64 33.64 2.86 32.23 32.23 3.15 30.70 30.70 3.47 29.05 29.05 3.85 27.22 27.22 4.29
Cooling Indoor
Model Capacity Power Furnace Model
*CAP**3617A** 1.00 1.00
CAP**3614A** 0.97 0.97
CAP**3621A** 1.00 1.00
CAP**4221A** 1.01 1.01
CAP**4224A** 1.00 1.00
CNPF*3618A** 1.00 1.00
CNPH*3617A** 1.00 1.00
CNPH*4221A** 1.01 1.01
CNPV*3617A** 1.00 1.00
CNPV*3621A** 1.00 1.00
CNPV*4217A** 1.00 0.99
CNPV*4221A** 1.01 1.01
CSPH*3612A** 1.00 0.99
CSPH*4212A** 1.01 1.00
FE4AN(B,F)003 0.99 0.90
FE4AN(B,F)005 1.03 0.94
FE4ANB006 1.04 0.95
FE4ANF002 0.99 0.94
FE5ANB004 1.04 0.94
FF1ENP036 0.99 0.99
FV4BN(B,F)003 0.99 0.90
FV4BN(B,F)005 1.03 0.94
FV4BNB006 1.04 0.95
FV4BNF002 0.99 0.94
FX4CN(B,F)036 1.01 0.94
FX4CN(B,F)042 1.03 0.96
FY4ANF036 0.98 0.98
FY4ANF042 1.01 1.00
CAP**3614A** 0.96 0.91 315(A,J)AV036070
CNPH*3617A** 0.98 0.93 315(A,J)AV036070
CNPH*4221A** 0.99 0.94 315(A,J)AV036070
CSPH*3612A** 0.99 0.93 315(A,J)AV036070
CSPH*4212A** 0.99 0.93 315(A,J)AV036070
CAP**3617A** 0.99 0.92 315(A,J)AV048090
Cooling Indoor
Model Capacity Power Furnace Model
CNPH*3617A** 0.98 0.93 315(A,J)AV048090
CNPH*4221A** 0.99 0.93 315(A,J)AV048090
CNPV*3617A** 0.98 0.93 315(A,J)AV048090
CNPV*4217A** 1.00 0.93 315(A,J)AV048090
CSPH*3612A** 0.99 0.90 315(A,J)AV048090
CSPH*4212A** 0.99 0.90 315(A,J)AV048090
CAP**3621A** 0.99 0.92 315(A,J)AV060110
CAP**4221A** 0.99 0.90 315(A,J)AV060110
CNPH*3617A** 0.99 0.94 315(A,J)AV060110
CNPH*4221A** 1.00 0.93 315(A,J)AV060110
CNPV*3621A** 0.99 0.94 315(A,J)AV060110
CNPV*4221A** 1.00 0.93 315(A,J)AV060110
CSPH*3612A** 0.99 0.90 315(A,J)AV060110
CSPH*4212A** 1.00 0.91 315(A,J)AV060110
CAP**4224A** 0.99 0.90 315(A,J)AV066135
CNPH*3617A** 0.99 0.92 315(A,J)AV066135
CNPH*4221A** 0.99 0.90 315(A,J)AV066135
CSPH*3612A** 0.99 0.90 315(A,J)AV066135
CSPH*4212A** 0.99 0.90 315(A,J)AV066135
CAP**4224A** 1.00 0.91 315(A,J)AV066155
CNPH*3617A** 0.99 0.92 315(A,J)AV066155
CNPH*4221A** 1.00 0.91 315(A,J)AV066155
CSPH*3612A** 0.99 0.90 315(A,J)AV066155
CSPH*4212A** 1.00 0.91 315(A,J)AV066155
CAP**3617A** 0.99 0.93 353AAV036040
CNPH*3617A** 0.99 0.92 353AAV036040
CNPH*4221A** 1.00 0.93 353AAV036040
CNPV*3617A** 0.99 0.92 353AAV036040
CNPV*4217A** 1.00 0.93 353AAV036040
CSPH*3612A** 1.00 0.93 353AAV036040
CSPH*4212A** 1.00 0.93 353AAV036040
CAP**3617A** 0.99 0.93 353AAV036060
CNPH*3617A** 0.99 0.92 353AAV036060
CNPH*4221A** 1.00 0.93 353AAV036060
Cooling Indoor
Model Capacity Power Furnace Model
CNPV*3617A** 0.99 0.92 353AAV036060
CNPV*4217A** 1.00 0.93 353AAV036060
CSPH*3612A** 1.00 0.93 353AAV036060
CSPH*4212A** 1.00 0.93 353AAV036060
CAP**3617A** 0.99 0.93 353AAV036080
CNPH*3617A** 0.99 0.92 353AAV036080
CNPH*4221A** 1.00 0.93 353AAV036080
CNPV*3617A** 0.99 0.92 353AAV036080
CNPV*4217A** 1.00 0.93 353AAV036080
CSPH*3612A** 1.00 0.93 353AAV036080
CSPH*4212A** 1.00 0.93 353AAV036080
CAP**3617A** 0.99 0.93 353AAV048080
CNPH*3617A** 0.99 0.92 353AAV048080
CNPH*4221A** 1.00 0.93 353AAV048080
CNPV*3617A** 0.99 0.92 353AAV048080
CNPV*4217A** 1.00 0.93 353AAV048080
CSPH*3612A** 1.00 0.93 353AAV048080
CSPH*4212A** 1.00 0.93 353AAV048080
CAP**3621A** 0.99 0.90 353AAV060100
CAP**4221A** 1.00 0.91 353AAV060100
CNPH*3617A** 0.98 0.92 353AAV060100
CNPH*4221A** 1.00 0.93 353AAV060100
CNPV*3621A** 0.99 0.92 353AAV060100
CNPV*4221A** 1.00 0.93 353AAV060100
CSPH*3612A** 1.00 0.93 353AAV060100
CSPH*4212A** 1.00 0.93 353AAV060100
CAP**3617A** 0.99 0.94 355(A,C)AV042060
CNPH*3617A** 0.99 0.94 355(A,C)AV042060
CNPH*4221A** 1.00 0.93 355(A,C)AV042060
CNPV*3617A** 0.99 0.94 355(A,C)AV042060
CNPV*4217A** 1.00 0.93 355(A,C)AV042060
CSPH*3612A** 0.99 0.90 355(A,C)AV042060
CSPH*4212A** 1.00 0.91 355(A,C)AV042060
113A

29
DETAILED COOLING CAPACITIES# CONTINUED
113A*A036 Outdoor Section With CAP*3617A Indoor Section
Cooling Indoor
Model Capacity Power Furnace Model
CAP**3621A** 0.99 0.94 355(A,C)AV042080
CAP**4221A** 0.99 0.94 355(A,C)AV042080
CNPH*3617A** 0.98 0.93 355(A,C)AV042080
CNPH*4221A** 0.99 0.94 355(A,C)AV042080
CNPV*3621A** 0.98 0.93 355(A,C)AV042080
CNPV*4221A** 0.99 0.94 355(A,C)AV042080
CSPH*3612A** 0.99 0.92 355(A,C)AV042080
CSPH*4212A** 0.99 0.93 355(A,C)AV042080
CAP**3621A** 0.99 0.92 355(A,C)AV060080
CAP**4221A** 0.99 0.93 355(A,C)AV060080
CNPH*3617A** 0.98 0.93 355(A,C)AV060080
CNPH*4221A** 0.99 0.93 355(A,C)AV060080
CNPV*3621A** 0.98 0.93 355(A,C)AV060080
CNPV*4221A** 0.99 0.93 355(A,C)AV060080
CSPH*3612A** 0.99 0.93 355(A,C)AV060080
CSPH*4212A** 0.99 0.90 355(A,C)AV060080
CAP**3621A** 0.99 0.93 355(A,C)AV060100
CAP**4221A** 1.00 0.93 355(A,C)AV060100
CNPH*3617A** 0.99 0.94 355(A,C)AV060100
CNPH*4221A** 1.00 0.93 355(A,C)AV060100
CNPV*3621A** 0.99 0.94 355(A,C)AV060100
CNPV*4221A** 1.00 0.93 355(A,C)AV060100
CSPH*3612A** 0.99 0.90 355(A,C)AV060100
CSPH*4212A** 1.00 0.91 355(A,C)AV060100
CAP**4224A** 0.99 0.90 355(A,C)AV060120
CNPH*3617A** 0.99 0.94 355(A,C)AV060120
CNPH*4221A** 0.99 0.93 355(A,C)AV060120
CSPH*3612A** 0.99 0.90 355(A,C)AV060120
CSPH*4212A** 0.99 0.90 355(A,C)AV060120
CAP**4224A** 0.99 0.92 355AAV042040
CNPH*3617A** 0.98 0.93 355AAV042040
CNPH*4221A** 0.99 0.94 355AAV042040
CSPH*3612A** 0.99 0.94 355AAV042040
CSPH*4212A** 0.99 0.93 355AAV042040
CAP**3617A** 0.99 0.96 313*AV048070
CAP**4817A** 1.02 0.95 313*AV048070
CNPH*3617A** 0.98 0.97 313*AV048070
CNPH*4221A** 0.99 0.97 313*AV048070
CNPV*3617A** 0.98 0.96 313*AV048070
CNPV*4217A** 1.00 0.93 313*AV048070
CSPH*3612A** 1.01 0.95 313*AV048070
CSPH*4212A** 1.02 0.95 313*AV048070
CAP**3621A** 1.00 0.91 313*AV048090
CAP**4221A** 1.01 0.91 313*AV048090
CNPH*3617A** 0.99 0.92 313*AV048090
CNPH*4221A** 1.01 0.91 313*AV048090
CNPV*3621A** 0.99 0.92 313*AV048090
CNPV*4221A** 1.01 0.91 313*AV048090
CSPH*3612A** 1.02 0.92 313*AV048090
CSPH*4212A** 1.02 0.93 313*AV048090
CAP**3621A** 1.01 0.91 313*AV060110
CAP**4221A** 1.01 0.92 313*AV060110
CNPH*3617A** 0.99 0.93 313*AV060110
CNPH*4221A** 1.01 0.91 313*AV060110
Cooling Indoor
Model Capacity Power Furnace Model
CNPV*3621A** 0.99 0.93 313*AV060110
CNPV*4221A** 1.01 0.91 313*AV060110
CSPH*3612A** 1.02 0.92 313*AV060110
CSPH*4212A** 1.03 0.94 313*AV060110
See notes on page 34
113A

30
DETAILED COOLING CAPACITIES# CONTINUED
EVAPORATOR AIR CONDENSER ENTERING AIR TEMPERATURES ° F (° C)
75 (23.9) 85 (29.4) 95 (35) 105 (40.6) 115 (46.1) 125 (51.7)
CFM EWB
°F(°C)
Capacity MBtuh To t a l
Sys.
KW**
Capacity MBtuh To t a l
Sys.
KW**
Capacity MBtuh To t a l
Sys.
KW**
Capacity MBtuh To t a l
Sys.
KW**
Capacity MBtuh To t a l
Sys.
KW**
Capacity MBtuh To t a l
Sys.
KW**
Total Sens‡ Tot a l Sens‡ Total Sens‡ Tot a l Sens‡ Total Sens‡ Tot a l Sens‡
113A*A042 Outdoor Section With 42 Indoor Section
1225
72 (22.2) 48.49 25.49 3.39 46.39 24.69 3.73 44.18 23.85 4.11 41.83 22.97 4.52 39.28 22.03 4.98 36.45 21.00 5.47
67 (19.4) 44.47 31.36 3.33 42.52 30.54 3.67 40.46 29.67 4.05 38.28 28.77 4.47 35.93 27.82 4.92 33.34 26.78 5.42
63 (17.2)†† 41.53 30.43 3.29 39.69 29.59 3.63 37.74 28.72 4.01 35.68 27.80 4.43 33.47 26.84 4.88 31.05 25.79 5.38
62 (16.7) 40.83 37.19 3.28 39.07 36.35 3.63 37.22 35.45 4.00 35.29 34.48 4.42 33.32 33.32 4.88 31.36 31.36 5.38
57 (13.9) 39.73 39.73 3.27 38.29 38.29 3.62 36.76 36.76 4.00 35.12 35.12 4.42 33.34 33.34 4.88 31.36 31.36 5.38
1400
72 (22.2) 49.21 26.62 3.47 47.02 25.80 3.81 44.73 24.95 4.19 42.30 24.06 4.61 39.67 23.11 5.06 36.75 22.07 5.55
67 (19.4) 45.16 33.20 3.42 43.14 32.37 3.76 41.00 31.49 4.13 38.75 30.59 4.55 36.34 29.63 5.01 33.67 28.57 5.50
63 (17.2)†† 42.22 32.16 3.38 40.31 31.31 3.72 38.28 30.42 4.09 36.17 29.51 4.51 33.89 28.53 4.97 31.40 27.47 5.46
62 (16.7) 41.69 39.75 3.37 39.91 38.85 3.71 38.02 38.02 4.09 36.34 36.34 4.51 34.45 34.45 4.98 32.33 32.33 5.48
57 (13.9) 41.25 41.25 3.37 39.72 39.72 3.71 38.08 38.08 4.09 36.34 36.34 4.51 34.45 34.45 4.98 32.33 32.33 5.48
1575
72 (22.2) 49.75 27.70 3.56 47.50 26.88 3.90 45.14 26.02 4.27 42.64 25.12 4.69 39.94 24.16 5.14 36.95 23.10 5.63
67 (19.4) 45.69 34.99 3.50 43.61 34.15 3.84 41.42 33.28 4.22 39.12 32.36 4.63 36.65 31.38 5.09 33.93 30.29 5.58
63 (17.2)†† 42.75 33.85 3.46 40.79 33.00 3.80 38.72 32.11 4.17 36.55 31.18 4.59 34.23 30.18 5.05 31.68 29.07 5.54
62 (16.7) 42.52 42.08 3.46 40.87 40.87 3.80 39.14 39.14 4.18 37.31 37.31 4.61 35.32 35.32 5.07 33.09 33.09 5.56
57 (13.9) 42.49 42.49 3.46 40.87 40.87 3.80 39.15 39.15 4.18 37.32 37.32 4.61 35.32 35.32 5.07 33.09 33.09 5.56
COOLING INDOOR
MODEL CAPACITY POWER FURNACE MODEL
*CAP**4221A** 1.00 1.00
CAP**4224A** 1.00 1.00
CAP**4817A** 0.99 0.99
CAP**4821A** 1.01 1.01
CAP**4824A** 1.01 1.01
CNPF*4818A** 1.01 1.01
CNPH*4221A** 1.00 1.00
CNPH*4821A** 1.01 1.01
CNPV*4217A** 1.00 1.00
CNPV*4221A** 1.00 1.00
CNPV*4821A** 1.01 1.01
CNPV*4824A** 1.01 1.01
CSPH*4212A** 1.00 1.00
CSPH*4812A** 1.01 1.01
FV4BN(B,F)003 0.99 0.94
FV4BN(B,F)005 1.01 0.95
FV4BNB006 1.04 0.95
FX4CN(B,F)042 1.01 0.99
FX4CN(B,F)048 1.04 0.99
FY4ANF042 1.00 1.00
FY4ANF048 1.02 1.02
CNPH*4221A** 0.99 0.97 315(A,J)AV036070
CNPH*4821A** 1.00 0.98 315(A,J)AV036070
CSPH*4212A** 0.99 0.97 315(A,J)AV036070
CSPH*4812A** 1.00 0.98 315(A,J)AV036070
CAP**4817A** 0.98 0.93 315(A,J)AV048090
CNPV*4217A** 0.99 0.93 315(A,J)AV048090
CAP**4221A** 0.99 0.97 315(A,J)AV060110
CAP**4821A** 1.00 0.96 315(A,J)AV060110
CNPV*4221A** 0.99 0.94 315(A,J)AV060110
CNPV*4821A** 1.00 0.96 315(A,J)AV060110
CAP**4224A** 0.99 0.94 315(A,J)AV066135
CAP**4824A** 1.00 0.94 315(A,J)AV066135
CNPV*4824A** 1.00 0.94 315(A,J)AV066135
COOLING INDOOR
MODEL CAPACITY POWER FURNACE MODEL
CAP**4817A** 1.00 0.94 353AAV036040
CNPH*4221A** 0.99 0.93 353AAV036040
CNPH*4821A** 1.00 0.94 353AAV036040
CNPV*4217A** 1.00 0.94 353AAV036040
CSPH*4212A** 1.00 0.94 353AAV036040
CSPH*4812A** 1.00 0.94 353AAV036040
CAP**4817A** 1.00 0.94 353AAV036060
CNPH*4221A** 0.99 0.94 353AAV036060
CNPH*4821A** 1.00 0.94 353AAV036060
CNPV*4217A** 1.00 0.94 353AAV036060
CSPH*4212A** 1.00 0.94 353AAV036060
CSPH*4812A** 1.00 0.94 353AAV036060
CAP**4817A** 1.00 0.94 353AAV036080
CNPH*4221A** 0.99 0.93 353AAV036080
CNPH*4821A** 1.00 0.94 353AAV036080
CNPV*4217A** 1.00 0.94 353AAV036080
CSPH*4212A** 1.00 0.94 353AAV036080
CSPH*4812A** 1.00 0.94 353AAV036080
CAP**4817A** 1.00 0.94 353AAV048080
CNPH*4221A** 0.98 0.92 353AAV048080
CNPH*4821A** 1.00 0.94 353AAV048080
CNPV*4217A** 0.99 0.93 353AAV048080
CSPH*4212A** 1.00 0.94 353AAV048080
CSPH*4812A** 1.00 0.94 353AAV048080
CAP**4221A** 0.99 0.93 353AAV060100
CAP**4821A** 1.00 0.92 353AAV060100
CNPH*4221A** 0.99 0.93 353AAV060100
CNPH*4821A** 1.00 0.92 353AAV060100
CNPV*4221A** 0.99 0.93 353AAV060100
CNPV*4821A** 1.00 0.92 353AAV060100
CSPH*4212A** 1.00 0.92 353AAV060100
CSPH*4812A** 1.00 0.92 353AAV060100
CAP**4224A** 0.99 0.91 353AAV060120
CNPH*4221A** 0.99 0.93 353AAV060120
COOLING INDOOR
MODEL CAPACITY POWER FURNACE MODEL
CNPH*4821A** 1.00 0.92 353AAV060120
CNPV*4824A** 1.00 0.92 353AAV060120
CSPH*4212A** 1.00 0.92 353AAV060120
CSPH*4812A** 1.00 0.92 353AAV060120
CAP**4224A** 0.98 0.96 355(A,C)AV042040
CAP**4824A** 1.00 0.98 355(A,C)AV042040
CNPH*4221A** 0.98 0.96 355(A,C)AV042040
CNPH*4821A** 0.99 0.97 355(A,C)AV042040
CNPV*4824A** 1.00 0.98 355(A,C)AV042040
CSPH*4212A** 0.98 0.96 355(A,C)AV042040
CSPH*4812A** 1.00 0.98 355(A,C)AV042040
CAP**4817A** 0.98 0.93 355(A,C)AV042060
CNPV*4217A** 0.99 0.94 355(A,C)AV042060
CAP**4221A** 0.98 0.96 355(A,C)AV042080
CAP**4821A** 0.99 0.97 355(A,C)AV042080
CNPV*4221A** 0.98 0.96 355(A,C)AV042080
CNPV*4821A** 0.99 0.97 355(A,C)AV042080
CAP**4817A** 0.96 0.95 313*AV048070
CNPH*4221A** 0.98 0.96 313*AV048070
CNPH*4821A** 1.00 0.98 313*AV048070
CNPV*4217A** 0.99 0.97 313*AV048070
CSPH*4212A** 0.99 0.94 313*AV048070
CSPH*4812A** 1.00 0.98 313*AV048070
CAP**4221A** 0.99 0.93 313*AV048090
CAP**4821A** 1.00 0.92 313*AV048090
CNPH*4221A** 0.99 0.93 313*AV048090
CNPH*4821A** 1.00 0.92 313*AV048090
CNPV*4221A** 0.99 0.93 313*AV048090
CNPV*4821A** 1.00 0.92 313*AV048090
CSPH*4212A** 0.99 0.93 313*AV048090
CSPH*4812A** 1.00 0.92 313*AV048090
CAP**4221A** 0.99 0.91 313*AV060110
CAP**4821A** 1.00 0.92 313*AV060110
113A

31
DETAILED COOLING CAPACITIES# CONTINUED
113A*A042 Outdoor Section With 42 Indoor Section
COOLING INDOOR
MODEL CAPACITY POWER FURNACE MODEL
CNPH*4221A** 0.99 0.91 313*AV060110
CNPH*4821A** 1.00 0.92 313*AV060110
CNPV*4221A** 0.99 0.91 313*AV060110
CNPV*4821A** 1.00 0.92 313*AV060110
CSPH*4212A** 0.99 0.91 313*AV060110
CSPH*4812A** 1.00 0.92 313*AV060110
CAP**4224A** 0.99 0.91 313*AV060135
CAP**4824A** 1.00 0.92 313*AV060135
CNPH*4221A** 0.99 0.93 313*AV060135
CNPH*4821A** 1.00 0.92 313*AV060135
CNPV*4824A** 1.00 0.92 313*AV060135
CSPH*4212A** 0.99 0.91 313*AV060135
CSPH*4812A** 1.00 0.92 313*AV060135
See notes on page 34
113A

32
DETAILED COOLING CAPACITIES# CONTINUED
EVAPORATOR AIR CONDENSER ENTERING AIR TEMPERATURES ° F (° C)
75 (23.9) 85 (29.4) 95 (35) 105 (40.6) 115 (46.1) 125 (51.7)
CFM EWB
°F(°C)
Capacity MBtuh Tot a l
Sys.
KW**
Capacity MBtuh Total
Sys.
KW**
Capacity MBtuh Tot a l
Sys.
KW**
Capacity MBtuh Tot a l
Sys.
KW**
Capacity MBtuh Total
Sys.
KW**
Capacity MBtuh Tot a l
Sys.
KW**
Total Sens‡ Tot a l Sens‡ Total Sens‡ Tot a l Sens‡ Total Sens‡ Tot a l Sens‡
113A*A048 Outdoor Section With CAP**4821A** Indoor Section
1400
72 (22.2) 54.48 26.42 3.32 52.18 25.62 3.67 49.73 24.77 4.05 47.13 23.89 4.48 44.34 22.96 4.94 41.30 21.95 5.45
67 (19.4) 49.80 32.57 3.30 47.63 31.74 3.64 45.34 30.88 4.03 42.93 29.97 4.45 40.34 29.02 4.92 37.58 28.02 5.43
63 (17.2)†† 46.41 31.55 3.28 44.36 30.70 3.63 42.19 29.82 4.01 39.89 28.90 4.44 37.46 27.94 4.91 34.91 26.94 5.42
62 (16.7) 45.58 38.68 3.28 43.61 37.81 3.62 41.55 36.89 4.01 39.45 39.21 4.43 37.47 37.47 4.91 35.38 35.38 5.42
57 (13.9) 44.55 44.55 3.27 42.94 42.94 3.62 41.23 41.23 4.01 39.42 39.42 4.43 37.47 37.47 4.91 35.39 35.39 5.42
1600
72 (22.2) 55.34 27.67 3.40 52.95 26.86 3.75 50.42 26.01 4.13 47.73 25.12 4.56 44.84 24.17 5.02 41.69 23.15 5.52
67 (19.4) 50.62 34.60 3.38 48.38 33.76 3.72 46.00 32.88 4.11 43.51 31.98 4.53 40.84 31.01 5.00 38.00 29.98 5.51
63 (17.2)†† 47.22 33.46 3.36 45.08 32.60 3.71 42.83 31.71 4.09 40.47 30.78 4.52 37.96 29.80 4.99 35.33 28.77 5.49
62 (16.7) 46.58 41.42 3.36 44.61 44.23 3.70 42.74 42.74 4.09 40.82 40.82 4.52 38.75 38.75 4.99 36.51 36.51 5.50
57 (13.9) 46.27 46.27 3.36 44.56 44.56 3.70 42.75 42.75 4.09 40.82 40.82 4.52 38.75 38.75 4.99 36.52 36.52 5.50
1800
72 (22.2) 55.96 28.85 3.48 53.51 28.03 3.83 50.90 27.17 4.21 48.15 26.28 4.64 45.18 25.32 5.10 41.94 24.28 5.60
67 (19.4) 51.21 36.53 3.46 48.91 35.69 3.80 46.48 34.81 4.19 43.93 33.88 4.61 41.20 32.89 5.08 38.30 31.83 5.58
63 (17.2)†† 47.80 35.26 3.44 45.61 34.40 3.79 43.31 33.50 4.17 40.89 32.56 4.60 38.33 31.55 5.06 35.64 30.47 5.57
62 (16.7) 47.66 47.66 3.44 45.87 45.87 3.79 43.97 43.97 4.17 41.94 41.94 4.60 39.77 39.77 5.07 37.41 37.41 5.58
57 (13.9) 47.67 47.67 3.44 45.88 45.88 3.79 43.97 43.97 4.17 41.95 41.95 4.60 39.77 39.77 5.07 37.41 37.41 5.58
Cooling Indoor
Model Capacity Power Furnace Model
*CAP**4821A** 1.00 1.00
CAP**4817A** 0.98 0.98
CAP**4824A** 0.99 0.99
CAP**6021A** 1.00 0.98
CAP**6024A** 1.01 0.99
CNPF*4818A** 0.98 0.98
CNPH*4821A** 0.99 0.99
CNPH*6024A** 1.01 0.99
CNPV*4821A** 0.99 0.99
CNPV*4824A** 0.99 0.99
CNPV*6024A** 1.01 0.99
CSPH*4812A** 1.00 1.00
CSPH*6012A** 1.01 0.99
FE4AN(B,F)005 1.00 0.92
FE4ANB006 1.01 0.91
FV4BN(B,F)005 1.00 0.92
FV4BNB006 1.01 0.91
FX4CN(B,F)048 1.00 0.92
FX4CN(B,F)060 1.03 0.95
FY4ANB060 1.01 0.99
FY4ANF048 0.99 0.97
CAP**4817A** 0.98 0.94 315(A,J)AV048090
CNPH*4821A** 0.98 0.92 315(A,J)AV048090
CNPH*6024A** 1.00 0.94 315(A,J)AV048090
CSPH*4812A** 0.99 0.93 315(A,J)AV048090
CSPH*6012A** 1.00 0.92 315(A,J)AV048090
CAP**4821A** 0.98 0.92 315(A,J)AV060110
CAP**6021A** 1.00 0.92 315(A,J)AV060110
CNPH*4821A** 0.98 0.92 315(A,J)AV060110
CNPH*6024A** 1.00 0.92 315(A,J)AV060110
CNPV*4821A** 0.98 0.92 315(A,J)AV060110
CSPH*4812A** 0.98 0.92 315(A,J)AV060110
CSPH*6012A** 1.00 0.92 315(A,J)AV060110
CAP**4824A** 0.98 0.92 315(A,J)AV066135
Cooling Indoor
Model Capacity Power Furnace Model
CAP**6024A** 1.00 0.92 315(A,J)AV066135
CNPH*4821A** 0.98 0.92 315(A,J)AV066135
CNPH*6024A** 1.00 0.92 315(A,J)AV066135
CNPV*4824A** 0.98 0.92 315(A,J)AV066135
CNPV*6024A** 1.00 0.92 315(A,J)AV066135
CSPH*4812A** 0.98 0.92 315(A,J)AV066135
CSPH*6012A** 1.00 0.92 315(A,J)AV066135
CAP**4824A** 0.98 0.90 315(A,J)AV066155
CAP**6024A** 1.00 0.90 315(A,J)AV066155
CNPH*4821A** 0.99 0.91 315(A,J)AV066155
CNPH*6024A** 1.00 0.90 315(A,J)AV066155
CNPV*4824A** 0.98 0.90 315(A,J)AV066155
CNPV*6024A** 1.00 0.90 315(A,J)AV066155
CSPH*4812A** 0.98 0.90 315(A,J)AV066155
CSPH*6012A** 1.00 0.90 315(A,J)AV066155
CAP**4817A** 0.98 0.98 353AAV048080
CNPH*4821A** 0.98 0.94 353AAV048080
CNPH*6024A** 0.98 0.94 353AAV048080
CSPH*4812A** 0.98 0.94 353AAV048080
CSPH*6012A** 0.98 0.92 353AAV048080
CAP**4821A** 0.98 0.92 353AAV060100
CAP**6021A** 0.98 0.90 353AAV060100
CNPH*4821A** 0.98 0.92 353AAV060100
CNPH*6024A** 0.98 0.90 353AAV060100
CNPV*4821A** 0.98 0.92 353AAV060100
CSPH*4812A** 0.98 0.92 353AAV060100
CSPH*6012A** 0.98 0.90 353AAV060100
CAP**4824A** 0.98 0.92 353AAV060120
CAP**6024A** 0.98 0.90 353AAV060120
CNPH*4821A** 0.98 0.92 353AAV060120
CNPH*6024A** 0.98 0.90 353AAV060120
CNPV*4824A** 0.98 0.92 353AAV060120
CNPV*6024A** 0.98 0.90 353AAV060120
CSPH*4812A** 0.98 0.92 353AAV060120
Cooling Indoor
Model Capacity Power Furnace Model
CSPH*6012A** 0.98 0.90 353AAV060120
CAP**4821A** 0.97 0.93 355(A,C)AV060080
CAP**6021A** 0.98 0.92 355(A,C)AV060080
CNPH*4821A** 0.97 0.93 355(A,C)AV060080
CNPH*6024A** 0.99 0.93 355(A,C)AV060080
CNPV*4821A** 0.97 0.93 355(A,C)AV060080
CSPH*4812A** 0.97 0.93 355(A,C)AV060080
CSPH*6012A** 0.99 0.93 355(A,C)AV060080
CAP**4821A** 0.98 0.96 355(A,C)AV060100
CAP**6021A** 1.00 0.94 355(A,C)AV060100
CNPH*4821A** 0.98 0.96 355(A,C)AV060100
CNPH*6024A** 1.00 0.94 355(A,C)AV060100
CNPV*4821A** 0.98 0.96 355(A,C)AV060100
CSPH*4812A** 0.98 0.96 355(A,C)AV060100
CSPH*6012A** 1.00 0.94 355(A,C)AV060100
CAP**4824A** 0.98 0.94 355(A,C)AV060120
CAP**6024A** 1.00 0.94 355(A,C)AV060120
CNPH*4821A** 0.98 0.92 355(A,C)AV060120
CNPH*6024A** 1.00 0.94 355(A,C)AV060120
CNPV*4824A** 0.98 0.94 355(A,C)AV060120
CNPV*6024A** 1.00 0.94 355(A,C)AV060120
CSPH*4812A** 0.98 0.94 355(A,C)AV060120
CSPH*6012A** 1.00 0.94 355(A,C)AV060120
CAP**4821A** 0.98 0.92 313*AV048090
CAP**6021A** 1.00 0.92 313*AV048090
CNPH*4821A** 0.98 0.92 313*AV048090
CNPH*6024A** 1.00 0.94 313*AV048090
CNPV*4821A** 0.98 0.92 313*AV048090
CSPH*4812A** 0.98 0.92 313*AV048090
CSPH*6012A** 1.00 0.92 313*AV048090
CAP**4821A** 0.98 0.92 313*AV060110
CAP**6021A** 1.00 0.92 313*AV060110
CNPH*4821A** 0.98 0.92 313*AV060110
CNPH*6024A** 1.00 0.92 313*AV060110
113A

33
DETAILED COOLING CAPACITIES# CONTINUED
113A*A048 Outdoor Section With CAP**4821A** Indoor Section
Cooling Indoor
Model Capacity Power Furnace Model
CNPV*4821A** 0.98 0.92 313*AV060110
CSPH*4812A** 0.98 0.92 313*AV060110
CSPH*6012A** 1.00 0.92 313*AV060110
CAP**4824A** 0.99 0.93 313*AV060135
CAP**6024A** 1.00 0.92 313*AV060135
CNPH*4821A** 0.99 0.93 313*AV060135
CNPH*6024A** 1.00 0.92 313*AV060135
CNPV*4824A** 0.99 0.93 313*AV060135
CNPV*6024A** 1.00 0.92 313*AV060135
CSPH*4812A** 0.99 0.93 313*AV060135
CSPH*6012A** 1.00 0.92 313*AV060135
See notes on page 34
113A

34
DETAILED COOLING CAPACITIES# CONTINUED
EVAPORATOR AIR CONDENSER ENTERING AIR TEMPERATURES ° F (° C)
75 (23.9) 85 (29.4) 95 (35) 105 (40.6) 115 (46.1) 125 (51.7)
CFM EWB
°F(°C)
Capacity MBtuh To t a l
Sys.
KW**
Capacity MBtuh To t a l
Sys.
KW**
Capacity MBtuh To t a l
Sys.
KW**
Capacity MBtuh To t a l
Sys.
KW**
Capacity MBtuh To t a l
Sys.
KW**
Capacity MBtuh To t a l
Sys.
KW**
Total Sens‡ Tot a l Sens‡ Total Sens‡ Tot a l Sens‡ Total Sens‡ Tot a l Sens‡
113A*A060 Outdoor Section With CAR**6034A** Indoor Section
1750
72 (22.2) 67.80 34.89 4.35 64.83 33.80 4.80 61.64 32.64 5.29 58.24 31.43 5.83 54.52 30.11 6.41 50.31 28.65 7.04
67 (19.4) 62.53 43.30 4.28 59.78 42.18 4.73 56.82 41.00 5.22 53.69 39.76 5.76 50.29 38.43 6.35 46.47 36.96 6.99
63 (17.2)†† 58.72 42.13 4.23 56.15 41.01 4.68 53.37 39.81 5.17 50.43 38.56 5.71 47.26 37.23 6.31 43.72 35.76 6.95
62 (16.7) 57.74 51.63 4.22 55.26 50.49 4.66 52.60 49.24 5.16 49.85 49.43 5.71 47.17 47.17 6.31 44.20 44.20 6.96
57 (13.9) 56.44 56.44 4.20 54.39 54.39 4.65 52.16 52.16 5.15 49.79 49.79 5.71 47.18 47.18 6.31 44.20 44.20 6.96
2000
72 (22.2) 68.70 36.53 4.46 65.64 35.43 4.91 62.33 34.26 5.40 58.81 33.03 5.94 54.97 31.69 6.52 50.63 30.21 7.14
67 (19.4) 63.42 45.98 4.39 60.56 44.86 4.83 57.50 43.66 5.33 54.27 42.41 5.87 50.76 41.06 6.46 46.84 39.55 7.09
63 (17.2)†† 59.63 44.67 4.34 56.94 43.52 4.78 54.07 42.32 5.28 51.04 41.05 5.82 47.76 39.69 6.41 44.11 38.17 7.06
62 (16.7) 58.86 55.26 4.33 56.34 55.78 4.78 53.88 53.88 5.28 51.35 51.35 5.83 48.55 48.55 6.42 45.37 45.37 7.07
57 (13.9) 58.44 58.44 4.32 56.26 56.26 4.78 53.88 53.88 5.28 51.35 51.35 5.83 48.56 48.56 6.42 45.38 45.38 7.07
2250
72 (22.2) 69.36 38.09 4.57 66.19 36.98 5.01 62.79 35.79 5.50 59.18 34.55 6.04 55.24 33.21 6.62 50.79 31.71 7.24
67 (19.4) 64.04 48.55 4.49 61.12 47.42 4.94 57.98 46.21 5.43 54.67 44.94 5.97 51.08 43.55 6.56 47.07 41.97 7.19
63 (17.2)†† 60.27 47.08 4.44 57.52 45.93 4.89 54.56 44.70 5.38 51.46 43.41 5.92 48.11 42.01 6.51 44.39 40.42 7.16
62 (16.7) 60.07 60.07 4.44 57.75 57.75 4.89 55.24 55.24 5.39 52.57 52.57 5.94 49.63 49.63 6.54 46.28 46.28 7.18
57 (13.9) 60.07 60.07 4.44 57.75 57.75 4.89 55.25 55.25 5.39 52.58 52.58 5.94 49.64 49.64 6.54 46.28 46.28 7.18
COOLING INDOOR
MODEL CAPACITY POWER FURNACE MODEL
*CAP**6024A** 1.00 1.00
CAP**6021A** 0.98 0.98
CNPH*6024A** 0.99 0.99
CNPV*6024A** 0.99 0.99
CSPH*6012A** 1.00 1.00
FV4BNB006 0.99 0.97
FX4CN(B,F)060 1.01 1.01
FY4ANB060 0.98 0.98
CAP**6021A** 0.97 0.97 315(A,J)AV060110
CSPH*6012A** 0.98 0.98 315(A,J)AV060110
CAP**6024A** 0.98 0.98 315(A,J)AV066135
CNPH*6024A** 0.97 0.96 315(A,J)AV066135
CNPV*6024A** 0.97 0.97 315(A,J)AV066135
COOLING INDOOR
MODEL CAPACITY POWER FURNACE MODEL
CSPH*6012A** 0.98 0.97 315(A,J)AV066135
CAP**6024A** 0.98 0.97 315(A,J)AV066155
CNPH*6024A** 0.98 0.97 315(A,J)AV066155
CNPV*6024A** 0.98 0.97 315(A,J)AV066155
CSPH*6012A** 0.98 0.97 315(A,J)AV066155
CAP**6021A** 0.98 0.98 353AAV060100
CNPH*6024A** 0.98 0.98 353AAV060100
CSPH*6012A** 0.98 0.98 353AAV060100
CAP**6024A** 0.98 0.98 353AAV060120
CNPH*6024A** 0.98 0.98 353AAV060120
CNPV*6024A** 0.98 0.98 353AAV060120
CSPH*6012A** 0.98 0.98 353AAV060120
CAP**6021A** 0.97 1.01 355(A,C)AV060080
COOLING INDOOR
MODEL CAPACITY POWER FURNACE MODEL
CAP**6021A** 0.97 0.99 355(A,C)AV060100
CAP**6024A** 0.98 0.98 355(A,C)AV060120
CAP**6021A** 0.97 0.97 313*AV048090
CNPH*6024A** 0.97 0.97 313*AV048090
CSPH*6012A** 0.97 0.97 313*AV048090
CAP**6021A** 0.97 0.96 313*AV060110
CNPH*6024A** 0.98 0.97 313*AV060110
CSPH*6012A** 0.98 0.97 313*AV060110
CAP**6024A** 0.97 0.97 313*AV060135
CNPH*6024A** 0.97 0.97 313*AV060135
CNPV*6024A** 0.97 0.97 313*AV060135
CSPH*6012A** 0.97 0.97 313*AV060135
* Tested combination.
{Total and sensible capacities are net capacities. Blower motor heat has been subtracted.
}Sensible capacities shown are based on 80_F(27_C) entering air at the indoor coil. For sensible capacities at other than 80_F(27_C), deduct 835 Btuh
(245 kW) per 1000 CFM (480 L/S) of indoor coil air for each degree below 80_F(27_C), or add 835 Btuh (245 kW) per 1000 CFM (480 L/S) of indoor coil air per degree above 80_F(27_C).
# Detailed cooling capacities are based on indoor and outdoor unit at the same elevation per ARI standard 210/240---94. If additional tubing length and/or indoor unit is located above outdoor unit, a slight variation in capacity may
occur.
** System kw is total of indoor and outdoor unit kilowatts.
{{ At TVA rating indoor condition (75_F edb/63_F ewb). All other indoor air temperatures are at 80_F edb.
NOTE: When the required data falls between the published data, interpolation may be performed. Extrapolation is not an acceptable practice.
EWB — Entering Wet Bulb
NOTE: When the required data fall between the published data, interpolation may be performed. Extrapolation is not an acceptable practice.
113A

35
CONDENSER ONLY RATINGS*
SST
°F(°C)
CONDENSER ENTERING AIR TEMPERATURES ° F (° C)
55 (12.78) 65 (18.33) 75 (23.89) 85 (29.44) 95 (35.0) 105 (40.56) 115 (46.11) 125 (51.67)
113A*A018 --- D
30
( --- 1.11)
TCG 16.10 15.20 14.20 13.30 12.30 11.30 10.20 9.10
SDT 70.80 80.40 89.90 99.50 109.10 118.80 128.60 138.50
KW 0.83 0.95 1.09 1.24 1.40 1.57 1.76 1.95
35
(1.67)
TCG 17.70 16.70 15.70 14.70 13.70 12.60 11.50 10.30
SDT 71.90 81.40 90.90 100.40 109.90 119.60 129.40 139.10
KW 0.83 0.95 1.09 1.24 1.40 1.58 1.77 1.97
40
(4.44)
TCG 19.50 18.40 17.40 16.20 15.10 14.00 12.80 11.50
SDT 73.00 82.50 91.90 101.30 110.80 120.40 130.10 139.70
KW 0.83 0.95 1.09 1.23 1.40 1.58 1.77 1.98
45
(7.22)
TCG 21.30 20.20 19.00 17.90 16.70 15.40 14.20 12.80
SDT 74.20 83.60 93.00 102.30 111.70 121.20 130.70 140.30
KW 0.83 0.95 1.08 1.23 1.40 1.58 1.78 1.99
50
(10.0)
TCG 23.30 22.00 20.80 19.50 18.20 16.90 15.60 14.20
SDT 75.40 84.80 94.10 103.40 112.60 122.00 131.40 140.90
KW 0.82 0.95 1.08 1.23 1.40 1.58 1.78 1.99
55
(12.78)
TCG 25.20 23.90 22.50 21.20 19.80 18.50 17.00 15.50
SDT 76.70 86.00 95.20 104.40 113.60 122.90 132.20 141.50
KW 0.82 0.94 1.08 1.23 1.39 1.58 1.78 1.99
113A*A024 --- D
30
( --- 1.11)
TCG 21.30 20.10 18.90 17.70 16.50 15.20 14.00 12.60
SDT 73.00 82.40 91.80 101.20 110.60 120.20 129.80 139.40
KW 1.06 1.21 1.37 1.56 1.77 1.99 2.24 2.51
35
(1.67)
TCG 23.40 22.10 20.90 19.60 18.20 16.90 15.50 14.10
SDT 74.40 83.60 93.00 102.30 111.70 121.10 130.60 140.20
KW 1.06 1.21 1.38 1.57 1.77 2.00 2.25 2.52
40
(4.44)
TCG 25.60 24.20 22.90 21.50 20.00 18.60 17.10 15.60
SDT 75.80 85.00 94.20 103.50 112.70 122.10 131.50 140.90
KW 1.07 1.22 1.39 1.58 1.78 2.01 2.26 2.53
45
(7.22)
TCG 27.90 26.40 24.90 23.40 21.90 20.40 18.80 17.10
SDT 77.30 86.30 95.50 104.70 113.80 123.10 132.30 141.60
KW 1.08 1.23 1.40 1.58 1.79 2.02 2.27 2.54
50
(10.0)
TCG 30.20 28.60 27.00 25.40 23.70 22.10 20.40 18.60
SDT 78.80 87.80 96.80 105.90 114.90 124.10 133.30 142.40
KW 1.09 1.24 1.40 1.59 1.80 2.03 2.28 2.55
55
(12.78)
TCG 32.60 30.80 29.10 27.30 25.60 23.90 22.10 20.20
SDT 80.30 89.20 98.20 107.10 116.10 125.20 134.20 143.10
KW 1.09 1.25 1.41 1.60 1.81 2.03 2.28 2.55
113A*A030-E
30
( --- 1.11)
TCG 25.40 24.00 22.60 21.10 19.60 18.00 16.40 14.60
SDT 74.40 83.60 92.90 102.10 111.40 120.80 130.20 139.60
KW 1.35 1.52 1.70 1.91 2.13 2.37 2.63 2.89
35
(1.67)
TCG 28.00 26.50 24.90 23.40 21.70 20.00 18.30 16.40
SDT 75.90 85.00 94.20 103.40 112.60 121.90 131.20 140.50
KW 1.35 1.52 1.71 1.92 2.15 2.39 2.65 2.92
40
(4.44)
TCG 30.70 29.10 27.40 25.70 24.00 22.20 20.30 18.40
SDT 77.40 86.50 95.60 104.70 113.80 123.00 132.20 141.40
KW 1.35 1.53 1.72 1.93 2.15 2.40 2.67 2.95
45
(7.22)
TCG 33.50 31.80 30.00 28.20 26.30 24.40 22.40 20.30
SDT 79.00 88.00 97.00 106.10 115.10 124.20 133.30 142.30
KW 1.36 1.53 1.72 1.93 2.16 2.42 2.69 2.97
50
(10.0)
TCG 36.50 34.60 32.70 30.70 28.70 26.70 24.60 22.30
SDT 80.70 89.70 98.50 107.50 116.40 125.40 134.30 143.20
KW 1.36 1.54 1.73 1.94 2.17 2.43 2.70 2.99
55
(12.78)
TCG 39.50 37.40 35.30 33.20 31.10 29.00 26.70 24.30
SDT 82.40 91.30 100.10 108.90 117.80 126.60 135.40 144.20
KW 1.37 1.54 1.74 1.95 2.18 2.44 2.71 3.00
113A*A036 --- E
30
( --- 1.11)
TCG 30.30 28.80 27.20 25.50 23.80 22.00 20.00 18.00
SDT 73.20 82.20 91.40 100.60 109.90 119.10 128.40 137.80
KW 1.65 1.85 2.07 2.30 2.57 2.88 3.25 3.68
35
(1.67)
TCG 33.50 31.80 30.10 28.30 26.40 24.40 22.30 20.10
SDT 74.80 83.80 92.80 102.00 111.10 120.30 129.50 138.70
KW 1.66 1.87 2.08 2.32 2.59 2.90 3.26 3.69
40
(4.44)
TCG 37.00 35.10 33.20 31.20 29.20 27.00 24.80 22.40
SDT 76.60 85.40 94.40 103.40 112.40 121.50 130.60 139.70
KW 1.68 1.89 2.10 2.34 2.61 2.92 3.28 3.70
45
(7.22)
TCG 40.70 38.60 36.50 34.30 32.10 29.80 27.40 24.80
SDT 78.50 87.20 96.00 104.90 113.80 122.80 131.80 140.80
KW 1.70 1.91 2.13 2.37 2.63 2.94 3.30 3.72
50
(10.0)
TCG 44.60 42.30 40.00 37.70 35.30 32.80 30.20 27.40
SDT 80.50 89.10 97.80 106.50 115.30 124.20 133.00 141.90
KW 1.73 1.94 2.16 2.40 2.66 2.97 3.32 3.73
55
(12.78)
TCG 48.80 46.30 43.80 41.30 38.70 36.00 33.20 30.20
SDT 82.60 91.10 99.60 108.20 116.90 125.60 134.30 143.00
KW 1.77 1.97 2.19 2.43 2.70 3.00 3.35 3.76
See notes on page 36
113A

36
CONDENSER ONLY RATINGS* CONTINUED
SST
°F(°C)
CONDENSER ENTERING AIR TEMPERATURES ° F (° C)
55 (12.78) 65 (18.33) 75 (23.89) 85 (29.44) 95 (35.0) 105 (40.56) 115 (46.11) 125 (51.67)
113A*A042 --- C
30
( --- 1.11)
TCG 38.00 36.00 33.90 31.90 29.70 27.60 25.30 22.90
SDT 73.20 82.30 91.40 100.60 109.80 119.10 128.40 137.70
KW 1.95 2.20 2.48 2.80 3.14 3.53 3.95 4.41
35
(1.67)
TCG 41.90 39.70 37.40 35.10 32.80 30.50 28.00 25.50
SDT 74.80 83.70 92.80 101.90 111.00 120.20 129.40 138.60
KW 1.97 2.22 2.50 2.81 3.16 3.54 3.97 4.43
40
(4.44)
TCG 46.00 43.60 41.10 38.70 36.20 33.60 30.90 28.10
SDT 76.40 85.20 94.20 103.20 112.20 121.30 130.40 139.50
KW 1.98 2.23 2.52 2.83 3.18 3.56 3.98 4.44
45
(7.22)
TCG 50.30 47.70 45.10 42.40 39.60 36.80 33.90 30.90
SDT 78.10 86.90 95.70 104.60 113.50 122.50 131.40 140.40
KW 2.01 2.26 2.54 2.85 3.19 3.58 4.00 4.45
50
(10.0)
TCG 54.90 52.10 49.20 46.20 43.20 40.20 37.00 33.60
SDT 80.00 88.60 97.20 106.00 114.80 123.70 132.50 141.30
KW 2.03 2.28 2.56 2.87 3.21 3.60 4.01 4.47
55
(12.78)
TCG 59.70 56.60 53.40 50.20 46.90 43.50 40.10 36.40
SDT 81.90 90.30 98.90 107.50 116.20 124.90 133.60 142.20
KW 2.06 2.30 2.58 2.89 3.23 3.62 4.03 4.48
113A*A048 --- E
30
( --- 1.11)
TCG 41.10 38.90 36.70 34.40 32.10 29.70 27.20 24.50
SDT 73.80 83.00 92.30 101.60 111.00 120.40 129.70 139.10
KW 2.19 2.46 2.76 3.10 3.47 3.87 4.30 4.76
35
(1.67)
TCG 45.20 42.80 40.50 38.00 35.50 32.90 30.20 27.40
SDT 75.30 84.40 93.70 102.90 112.20 121.50 130.80 140.00
KW 2.22 2.49 2.79 3.13 3.50 3.90 4.34 4.81
40
(4.44)
TCG 49.60 47.10 44.50 41.90 39.20 36.40 33.50 30.40
SDT 76.90 86.00 95.10 104.30 113.40 122.60 131.80 141.00
KW 2.24 2.51 2.82 3.15 3.53 3.93 4.38 4.85
45
(7.22)
TCG 54.30 51.60 48.80 46.00 43.10 40.10 36.90 33.60
SDT 78.50 87.50 96.60 105.70 114.70 123.80 132.90 142.00
KW 2.27 2.54 2.85 3.19 3.56 3.97 4.41 4.89
50
(10.0)
TCG 59.30 56.40 53.40 50.30 47.10 43.90 40.50 36.90
SDT 80.20 89.20 98.10 107.10 116.10 125.10 134.10 143.00
KW 2.30 2.58 2.88 3.22 3.59 4.00 4.45 4.92
55
(12.78)
TCG 64.60 61.40 58.10 54.80 51.40 47.90 44.20 40.30
SDT 82.10 91.00 99.80 108.70 117.50 126.40 135.20 144.00
KW 2.34 2.61 2.92 3.25 3.63 4.04 4.48 4.96
113A*A060 --- F
30
( --- 1.11)
TCG 57.30 54.20 51.10 47.90 44.60 41.30 37.80 34.10
SDT 77.40 86.30 95.20 104.30 113.30 122.30 131.30 140.30
KW 2.71 3.05 3.43 3.86 4.33 4.84 5.40 5.99
35
(1.67)
TCG 62.90 59.50 56.10 52.60 49.00 45.40 41.60 37.50
SDT 79.30 88.00 96.90 105.80 114.70 123.70 132.60 141.40
KW 2.76 3.11 3.49 3.92 4.39 4.90 5.46 6.06
40
(4.44)
TCG 68.70 65.00 61.30 57.50 53.60 49.60 45.50 41.00
SDT 81.30 89.90 98.70 107.50 116.20 125.00 133.80 142.50
KW 2.83 3.17 3.56 3.98 4.45 4.96 5.52 6.12
45
(7.22)
TCG 74.80 70.80 66.70 62.60 58.30 54.00 49.40 44.60
SDT 83.40 91.90 100.50 109.20 117.80 126.50 135.10 143.60
KW 2.90 3.24 3.62 4.05 4.52 5.03 5.58 6.18
50
(10.0)
TCG 81.20 76.80 72.30 67.80 63.10 58.40 53.40 48.10
SDT 85.60 94.00 102.50 111.00 119.50 128.00 136.40 144.70
KW 2.97 3.32 3.70 4.12 4.59 5.10 5.65 6.24
55
(12.78)
TCG 87.80 83.00 78.10 73.10 68.10 62.90 57.50 51.70
SDT 88.00 96.20 104.40 112.80 121.10 129.50 137.70 145.80
KW 3.05 3.40 3.78 4.20 4.66 5.17 5.72 6.30
* ARI listing applies only to systems shown in Combination Ratings table.
KW --- Outdoor Unit Kilowatts Only.
SDT --- Saturated Temperature Leaving Compressor (° F/° C)
SST --- Saturated Temperature Entering Compressor (° F/° C)
TCG --- Gross Cooling Capacity (1000 Btuh)
113A

37
GUIDE SPECIFICATIONS
GENERAL
System Description
Outdoor--mounted, air--cooled, split--system air conditioner unit
suitable for ground or rooftop installation. Unit consists of a
hermetic compressor, an air--cooled coil, propeller--type condenser
fan, and a control box. Unit will discharge supply air upward as
shown on contract drawings. Unit will be used in a refrigeration
circuit to match up to a packaged fan coil or coil unit.
Quality Assurance
— Unit will be rated in accordance with the latest edition of
ARI Standard 210.
— Unit will be certified for capacity and efficiency, and
listed in the latest ARI directory.
— Unit construction will comply with latest edition of
ANSI/ ASHRAE and with NEC.
— Unit will be constructed in accordance with UL
standards and will carry the UL label of approval. Unit
will have c--UL--us approval.
— Unit cabinet will be capable of withstanding Federal Test
Method Standard No. 141 (Method 6061) 500--hr salt
spray test.
— Air--cooled condenser coils will be leak tested at 150
psig and pressure tested at 450 psig.
— Unit constructed in ISO9001 approved facility.
Delivery, Storage, and Handling
— Unit will be shipped as single package only and is stored
and handled per unit manufacturer’s recommendations.
Warranty (for inclusion by specifying engineer)
— U.S. and Canada only.
PRODUCTS
Equipment
Factory assembled, single piece, air--cooled air conditioner unit.
Contained within the unit enclosure is all factory wiring, piping,
controls, compressor, refrigerant charge Puronr(R--410A), and
special features required prior to field start--up.
Unit Cabinet
— Unit cabinet will be constructed of galvanized steel,
bonderized, and coated with a powder coat paint.
AIR--COOLED, SPLIT--SYSTEM AIR CONDITIONER
113A
1--1/2 TO 5 NOMINAL TONS
Fans
— Condenser fan will be direct--drive propeller type,
discharging air upward.
— Condenser fan motors will be totally enclosed, 1--phase
type with class B insulation and permanently lubricated
bearings. Shafts will be corrosion resistant.
— Fan blades will be statically and dynamically balanced.
— Condenser fan openings will be equipped with coated
steel wire safety guards.
Compressor
— Compressor will be hermetically sealed.
— Compressor will be mounted on rubber vibration
isolators.
Condenser Coil
— Condenser coil will be air cooled.
— Coil will be constructed of aluminum fins mechanically
bonded to copper tubes which are then cleaned,
dehydrated, and sealed.
Refrigeration Components
— Refrigeration circuit components will include liquid--line
shutoff valve with sweat connections, vapor--line shutoff
valve with sweat connections, system charge of Puronr
(R--410A) refrigerant, and compressor oil.
— Unit will be equipped with high--pressure switch, low
pressure switch and filter drier for Puron refrigerant.
Operating Characteristics
— The capacity of the unit will meet or exceed _____ Btuh
at a suction temperature of _____ _F/_C. The power
consumption at full load will not exceed _____ kW.
— Combination of the unit and the evaporator or fan coil
unit will have a total net cooling capacity of _____ Btuh
or greater at conditions of _____ CFM entering air
temperature at the evaporator at _____ _F/_C wet bulb
and _____ _F/_C dry bulb, and air entering the unit at
_____ _F/_C.
— The system will have a SEER of _____ Btuh/watt or
greater at DOE conditions.
Electrical Requirements
— Nominal unit electrical characteristics will be _____ v,
single phase, 60 hz. The unit will be capable of
satisfactory operation within voltage limits of _____ v to
_____ v.
— Unit electrical power will be single point connection.
— Control circuit will be 24v.
Special Features
— Refer to section of this literature identifying accessories
and descriptions for specific features and available
enhancements.
113A

38
Manufacturer reserves the right to discontinue, or change at any time, specifications or designs without notice and without incurring obligations.
E2008 Bryant Heating & Cooling Systems D7310 W. Morris St. DIndianapolis, IN 46231 Printed in U.S.A. Edition Date: 09/08
Replaces: PDS113A--- 03
Catalog No. PDS113
A
--- 0 4
113A