Bryant Air Conditioner R 22 Users Manual SM01 6
R-22 to the manual 6ce580ce-2407-4bb5-9e0f-c98769c2bcb8
2015-02-02
: Bryant Bryant-Air-Conditioner-R-22-Users-Manual-411777 bryant-air-conditioner-r-22-users-manual-411777 bryant pdf
Open the PDF directly: View PDF
.
Page Count: 84

Application Guideline
and Service Manual
RESIDENTIAL AIR CONDITIONERS AND HEAT PUMPS
USING R--22 AND PURONRREFRIGERANT
TABLE OF CONTENTS
PAGE
UNIT IDENTIFICATION 2.............................
SAFETY CONSIDERATIONS 3.........................
INTRODUCTION 3...................................
INSTALLATION GUIDELINE 3........................
ACCESSORIES AND DESCRIPTIONS 4 -- 5..............
LOW--AMBIENT GUIDELINE 6 -- 7......................
LONG LINE GUIDELINE 8............................
CABINET ASSEMBLY & COMPONENTS 8 -- 11...........
ELECTRICAL 12 -- 13.................................
Aluminum Wire 12.................................
Contactor 12......................................
Capacitor 12--13...................................
Cycle Protector 13..................................
Crankcase Heater 13................................
Time--Delay Relay 13...............................
PRESSURE SWITCHES 14.............................
DEFROST THERMOSTAT 15..........................
DEFROST CONTROL BOARD 15 -- 17...................
SYSTEM FUNCTION AND
SEQUENCE OF OPERATION 17--18.....................
COPELAND SCROLL COMPRESSOR 19--22.............
Compressor Failures 19..............................
Mechanical Failures 19--20...........................
Electrical Failures 21--22.............................
REFRIGERATION SYSTEM 22--23......................
Refrigerant 22.....................................
Compressor Oil 22..................................
Servicing Systems on Roofs With Synthetic Materials 23....
Brazing 23........................................
Service Valves and Pump down 24--26..................
Liquid Line Filter Drier 27...........................
Suction Line Filter Drier 27...........................
Accumulator 28....................................
Thermostatic Expansion Valve (TXV) 29--30.............
PAGE
MAKE PIPING CONNECTIONS 30......................
REFRIGERATION SYSTEM REPAIR 31--33...............
Leak Detection 31..................................
Coil Removal 31...................................
Compressor Removal and Replacement 32...............
System Clean--Up After Burnout 32....................
Evacuation 33.....................................
CHECK CHARGE 33..................................
TROUBLESHOOTING WITH SUPERHEAT 34 -- 43.........
TWO--STAGE 286ANA, 288ANA, 180ANA, 187ANA 44 -- 56
APPLICATION GUIDELINES 44........................
MODEL PLUG 44....................................
Make Airflow Selections For 187A/286A/
180ANA024,36,48/180ANA060/288ANA024,36,48, 288ANA60
Using Non--communicating (Non--Evolution) Thermostats 45...
Airflow Selection for FV4 Fan Coils for 180A, 187A, 286A,
288A with serial number 3809 and later Using
Non--Communicating (Non--Evolution) Thermostats 45........
GENERAL INFORMATION 45--46.......................
CHECK CHARGE 46..................................
SYSTEM FUNCTION AND
SEQUENCE OF OPERATION 47--50.....................
TROUBLESHOOTING 51--55...........................
TWO--STAGE 286B/289B/180B/187B 56--66..............
APPLICATION GUIDELINES 56........................
MODEL PLUG 56....................................
Airflow Selections For 187B / 286B / 180B /289B Using
Non--Communicating (Non--Evolution) Thermostats 57........
Airflow Selection For FV4 Fan Coils For 180B / 187B / 286B /
289BUsing Non--Communicating (non--Evolution)
Thermostats 57.......................................
GENERAL INFORMATION 57--55.......................
CHECK CHARGE 58..................................
SYSTEM FUNCTION AND
SEQUENCE OF OPERATION 59--62.....................
TROUBLESHOOTING 62--66...........................

2
TABLE OF CONTENTS (CONTINUED)
TWO STAGE NON--COMMUNICATING
127A / 226A 67--69....................................
OPERATING AMBIENT 67.............................
Airflow Selections (ECM Furnaces) 67.....................
Airflow Selection for Variable Speed Furnaces
(non--communicating) 67................................
Airflow Selection for FV4C Fan Coils
(non--communicating) 67................................
SYSTEM FUNCTION AND
SEQUENCE OF OPERATION 68........................
CHECK CHARGE 69..................................
TWO STAGE COMMUNICATING
167A/266A 70--77.....................................
OPERATING AMBIENT 70.............................
MODEL PLUG 70....................................
Airflow Selections for ECM Furnaces (non--comm) 70.........
Airflow Selection for VS Furnaces (non--comm) 70...........
Airflow Selection for FV4C Fan Coils Using Non--Comm
(Non--Evolution) Thermostats 70.........................
GENERAL INFORMATION 71--72.......................
CHECK CHARGE 72..................................
MAJOR COMPONENTS 73.............................
SYSTEM FUNCTION AND SEQUENCE OF OPERATION 74.
TROUBLESHOOTING 75--77...........................
CARE AND MAINTENANCE 78........................
PURON QUICK REFERENCE GUIDE 79.................
AC TROUBLESHOOTING CHART 80....................
HP TROUBLESHOOTING CHART -- HEATING CYCLE 81..
HP TROUBLESHOOTING CHART -- COOLING CYCLE 82..
INDEX OF TABLES 83................................
UNIT IDENTIFICATION
Troubleshooting Charts for Air Conditioners and Heat Pumps are
provided in the appendix at back of this manual. They enable the
service technician to use a systematic approach to locating the
cause of a problem and correcting system malfunctions.
This section explains how to obtain the model and serial number
from unit rating plate. These numbers are needed to service and
repair the Puronrand R--22 air conditioner or heat pump. Model
and serial numbers can be found on unit rating plate.
AIR CONDITIONER AND HEAT PUMP MODEL NUMBER NOMENCLATURE
1 2 3 4 5 6 789 10 11 12
1 1 3 A N A 036 N N N
Typ e Tier SEER Major
Series Voltage Variations Cooling
Capacity (Tons) 0 0 0
1=AC
2=HP
1=LegacyRNC
2=Legacy
6 = Preferred
8=Evolution
3 = 13 SEER
4 = 14 SEER
5 = 15 SEER
6 = 16 SEER
8 = 18 SEER
A=Puron
R=R--22
N = 208/230-- 1
or 208-- 230-- 1
P = 208/230-- 3
or 208-- 230-- 3
E = 460 -- 3
T = 575 -- 3
A=Standard
C=Coastal
F = Full Featured
G=DenseGrill
018 = 1-- 1/2
024 = 2
030 = 2-- 1/2
036 = 3
042 = 3-- 1/2
048 = 4
060 = 5
Open Open Open
SERIAL NUMBER NOMENCLATURE
01 06
Week of Manufacture
Year of Manufacture
00001
Serial Number
E
Manufacturing Site
E = Collierville TN
X = Monterey Mexico

3
SAFETY CONSIDERATIONS
Installation, service, and repair of these units should be attempted
only by trained service technicians familiar with standard service
instruction and training material.
All equipment should be installed in accordance with accepted
practices and unit Installation Instructions, and in compliance with
all national and local codes. Power should be turned off when
servicing or repairing electrical components. Extreme caution
should be observed when troubleshooting electrical components
with power on. Observe all warning notices posted on equipment
and in instructions or manuals.
UNIT OPERATION AND SAFETY HAZARD
Failure to follow this warning could result in personal
injury or equipment damage.
Puronr(R--410A) systems operate at higher pressures than
standard R--22 systems. Do not use R--22 service equipment
or components on Puronrequipment. Ensure service
equipment is rated for Puronr.
!WARNING
Refrigeration systems contain refrigerant under pressure. Extreme
caution should be observed when handling refrigerants. Wear
safety glasses and gloves to prevent personal injury. During normal
system operations, some components are hot and can cause burns.
Rotating fan blades can cause personal injury. Appropriate safety
considerations are posted throughout this manual where potentially
dangerous techniques are addressed.
INTRODUCTION
This document provides required system information necessary to
install, service, repair or maintain the family air conditioners and
heat pumps using R22 or Puron refrigerant.
Refer to the unit Product Data for rating information, electrical
data, required clearances, additional component part numbers and
related pre--sale data. Installation Instructions are also available per
specific models.
INSTALLATION GUIDELINE
Residential New Construction
Specifications for these units in the residential new construction
market require the outdoor unit, indoor unit, refrigerant tubing sets,
metering device, and filter drier listed in Product Data (PD). DO
NOT DEVIATE FROM PD. Consult unit Installation Instructions
for detailed information.
Add--On Replacement (Retrofit) -- R22 to Puron
Specifications for these units in the add--on replacement/retrofit
market require change--out of outdoor unit, metering device, and
all capillary tube coils. Change--out of indoor coil is recommended.
There can be no deviation.
1. If system is being replaced due to compressor electrical
failure, assume acid is in system. If system is being replaced
for any other reason, use approved acid test kit to determine
acid level. If even low levels of acid are detected install
factory approved, 100 percent activated alumina
suction--line filter drier in addition to the factory supplied
liquid--line filter drier. Remove the suction line filter drier as
soon as possible, with a maximum of 72 hr.
2. Drain oil from low points or traps in suction--line and
evaporator if they were not replaced.
3. Change out indoor coil or verify existing coil is listed in the
Product Data Digest.
4. Unless indoor unit is equipped with a Puronrapproved
metering device, change out metering device to factory
supplied or field--accessory device specifically designed for
Puronr.
5. Replace outdoor unit with Puronroutdoor unit.
6. Install factory--supplied liquid--line filter drier.
UNIT DAMAGE HAZARD
Failure to follow this caution may result in equipment
damage or improper operation.
Never install suction--line filter drier in the liquid--line of a
Puronrsystem.
CAUTION
!
7. If suction--line filter drier was installed for system clean up,
operate system for 10 hr. Monitor pressure drop across drier.
If pressure drop exceeds 3 psig, replace suction--line and
liquid--line filter driers. Be sure to purge system with dry
nitrogen and evacuate when replacing filter driers. Continue
to monitor pressure drop across suction--line filter drier.
After 10 hr of runtime, remove suction--line filter drier and
replace liquid--line filter drier. Never leave suction--line
filter drier in system longer than 72 hr (actual time).
8. Charge system. (See unit information plate.)
Seacoast
Coastal units are available in selected models and sizes of Air
Conditioners and Heat Pumps. These units have protection to help
resist the corrosive coastal environment. Features include:
SArmor plate fins and epoxy coated coils
SComplete baked--on paint coverage
(both sides of external sheet metal and grilles)
SPaint coated screws
Coastal environments are considered to be within 2 miles of the
ocean. Salt water can be carried as far away as 2 miles from the
coast by means of sea spray, mist or fog. Line--of--sight distance
from the ocean, prevailing wind direction, relative humidity,
wet/dry time, and coil temperatures will determine the severity of
corrosion potential in the coastal environment.

4
ACCESSORIES
Table 1—Required Field--Installed Accessories for Air Conditioners
ACCESSORY
REQUIRED FOR LOW---AMBIENT
COOLING APPLICATIONS
(Below 55°F/12.8_C)
REQUIRED FOR
LONG LINE APPLICA-
TIONS*
REQUIRED FOR
SEA COAST
APPLICATIONS
(Within 2 miles/3.22 km)
Ball Bearing Fan Motor Ye s {} No No
Compressor Start Assist Capacitor and Relay Ye s * * Ye s No
Crankcase Heater Ye s }Ye s }No
Evaporator Freeze Thermostat Ye s }No No
H a r d S h u t --- O f f T X V Ye s Ye s Ye s
Liquid Line Solenoid Valve No No No
Motor Master®or Low---ambient Pressure Switch Ye s }No No
Support Feet Recommended No Recommended
Winter Start Control Ye s }No No
* For tubing line sets between 80 and 200 ft. (24.38 and 60.96 m) and/or 35 ft. (10.7 m) vertical differential, refer to Residential Piping and Longline Guideline.
{Additional requirement for Low ---Ambient Controller (full modulation feature) MotorMasterrControl.
}Evolution 2 ---stage units come standard with this accessory.
* * N o t r e q u i r e d o n 2 --- s t a g e
Table 2—Required Field--Installed Accessories for Heat Pumps
ACCESSORY
REQUIRED FOR LOW---AMBIENT
COOLING APPLICATIONS
(Below 55°F / 12.8°C)
REQUIRED FOR
LONG LINE APPLICA-
TIONS*
REQUIRED FOR
SEA COAST APPLICA-
TIONS (Within 2 miles /
3.22 km)
Accumulator Standard Standard Standard
Ball Bearing Fan Motor Ye s {} No No
Compressor Start Assist Capacitor and Relay Ye s * * Ye s No
Crankcase Heater Ye s }Ye s }No
Evaporator Freeze Thermostat Ye s }No No
Hard Shutoff TXV Ye s Ye s Ye s
Isolation Relay Ye s No No
Liquid Line Solenoid Valve No See Long ---Line Application
Guideline No
Motor Master®Control or
Low Ambient Switch Ye s }No No
Support Feet Recommended No Recommended
* For tubing line sets between 80 and 200 ft. (24.38 and 60.96 m) and/or 20 ft. (6.09 m) vertical differential, refer to Residential Piping and Longline Guideline.
{Additional requirement for Low ---Ambient Controller (full modulation feature) MotorMasterrControl.
}Evolution 2 ---stage units come standard with this accessory.
* * N o t r e q u i r e d o n 2 --- s t a g e
5
ACCESSORY DESCRIPTIONS
Refer to Table 1 for an Accessory Usage Guide for Air
Conditioners and Table 2 for Heat Pumps. Refer to the appropriate
section below for a description of each accessory and its use.
1. Crankcase Heater
An electric resistance heater which mounts to the base of the
compressor to keep the lubricant warm during off cycles. Improves
compressor lubrication on restart and minimizes the chance of
liquid slugging.
Usage Guideline:
Required in low ambient cooling applications.
Required in long line applications.
Suggested in all commercial applications.
2. Evaporator Freeze Thermostat
An SPST temperature--actuated switch that stops unit operation
when evaporator reaches freeze--up conditions.
Usage Guideline:
Required when low ambient kit has been added.
3. Isolation Relay
An SPDT relay which switches the low--ambient controller out of
the outdoor fan motor circuit when the heat pump switches to
heating mode.
Usage Guideline:
Required in all heat pumps where low ambient kit has
been added
4. Low--Ambient Pressure Switch
A fan--speed control device activated by a temperature sensor,
designed to control condenser fan motor speed in response to the
saturated, condensing temperature during operation in cooling
mode only. For outdoor temperatures down to --20_F (--28.9_C), it
maintains condensing temperature at 100_F±10_F (37.8_C±
12_C).
Usage Guideline:
A Low Ambient Controller must be used when
cooling operation is used at outdoor temperatures
below 55_F (12.8_C).
Suggested for all commercial applications.
5. Outdoor Air Temperature Sensor
Designed for use with Bryant Thermostats listed in this
publication. This device enables the thermostat to display the
outdoor temperature. This device is required to enable special
thermostat features such as auxiliary heat lock out.
Usage Guideline:
Suggested for all Bryant thermostats listed in this
publication.
6. Thermostatic Expansion Valve (TXV)
A modulating flow--control valve which meters refrigerant liquid
flow rate into the evaporator in response to the superheat of the
refrigerant gas leaving the evaporator.
Kit includes valve, adapter tubes, and external equalizer tube. Hard
shut off types are available.
Usage Guideline:
Accessory required to meet ARI rating and system
reliability, where indoor not equipped.
Hard shut off TXV or LLS required in heat pump
long line applications.
Required for use on all zoning systems.
7. Time--Delay Relay
An SPST delay relay which briefly continues operation of indoor
blower motor to provide additional cooling after the compressor
cycles off.
NOTE: Most indoor unit controls include this feature. For those
that do not, use the guideline below.
Usage Guideline:
Accessory required to meet ARI rating, where indoor
not equipped.
8. Wind Baffle
Use only in installations where high winds are prevalent to prevent
cross currents from causing abnormal control operation. For
construction, refer to Fig. 1 and Fig. 2.
NOTE: When wind baffles are used, raising unit off of mounting
pad with 4--in. support feet or unit risers is REQUIRED. This
provides better airflow for moderate and high ambient
temperatures.
9. Winter Start Control
This control is designed to alleviate nuisance opening of the
low--pressure switch by bypassing it for the first 3 minutes of
operation. This control is for AC units operating in low ambient
cooling but is not required for Heat Pumps. Heat pumps have a
loss of charge switch rather than a low pressure switch and
nuisance trips should not be an issue.

6
LOW--AMBIENT COOLING GUIDELINE
The minimum operating temperature for these units in cooling
mode is 55_F/12.7_C outdoor ambient without additional
accessories. This equipment may be operated in cooling mode at
ambient temperatures below 55_F/12.7_C when the accessories
listed in Table 1 or 2 are installed. Wind baffles are required when
operating in cooling mode at ambients below 55_F/12.7_C. Refer
to Fig. 1 for wind baffle construction details for Legacy RNC
through Legacy Line models and Fig. 2 for Deluxe models. First
production of Preferred Series units are capable of low ambient
cooling only with pressure switch or Evolution UI control. Motor
Master was not available. See most current Product Data for
updates. Evolution Series 2--Stage units are capable of low ambient
cooling only with Evolution UI control.
A06450
Entry, Mid Tier, and 4 Sided Deluxe Units (in.)
UNIT
SIZE AA UNIT HEIGHT A B C --- 1 C --- 2 C --- 3 D
Mini Base 23--- 1/8
25--- 5/16 20--- 3/8 10 --- 1/16
1--- 5/16 8 --- 1 / 4 3 --- 1 / 2 39--- 1/4
28--- 11/16 23--- 13/16 11 --- 3/4
32--- 1/8 27--- 3/16 13--- 1/2
35--- 1/2 30--- 5/8 15 --- 3/16
38--- 15/16 34 16--- 7/8
42--- 5/16 37--- 3/8 18 --- 9/16
45--- 11/16 40--- 13/16 20 --- 1/4
Small 25---3/4
25 20--- 3/8 10--- 1/16
3--- 15/16 10 --- 7/8 6 --- 1 / 8 41--- 7/8
28--- 7/16 23--- 13/16 11 --- 3/4
31--- 13/16 27--- 3/16 13 --- 1/2
35--- 1/4 30--- 5/8 15 --- 3/16
38--- 5/8 34 16--- 7/8
42 37--- 3/8 18--- 9/16
45--- 7/16 40--- 13/16 20 --- 1/4
Medium 31---1/4
25--- 1/2 20--- 3/8 10 --- 1/16
9 --- 3 / 8 16--- 5/16 11 --- 9/16 47--- 3/8
28--- 15/16 23--- 13/16 11 --- 3/4
32--- 5/16 27--- 3/16 13 --- 1/2
35--- 3/4 30--- 5/8 15 --- 3/16
39--- 1/8 34 16--- 7/8
42--- 1/2 37--- 3/8 18 --- 9/16
45--- 15/16 40--- 13/16 20 --- 1/4
Large 35
25--- 1/2 20--- 3/8 10 --- 1/16
13--- 3/16 20 --- 1/8 15--- 3/8 51---1/8
28--- 15/16 23--- 13/16 11 --- 3/4
32--- 5/16 27--- 3/16 13 --- 1/2
35--- 3/4 30--- 5/8 15 --- 3/16
39--- 1/8 34 16--- 7/8
42--- 1/2 37--- 3/8 18 --- 9/16
45--- 15/16 40--- 13/16 20 --- 1/4
Fig. 1 – Base / Mid--Tier / Deluxe (4--sided) Baffle Assembly

7
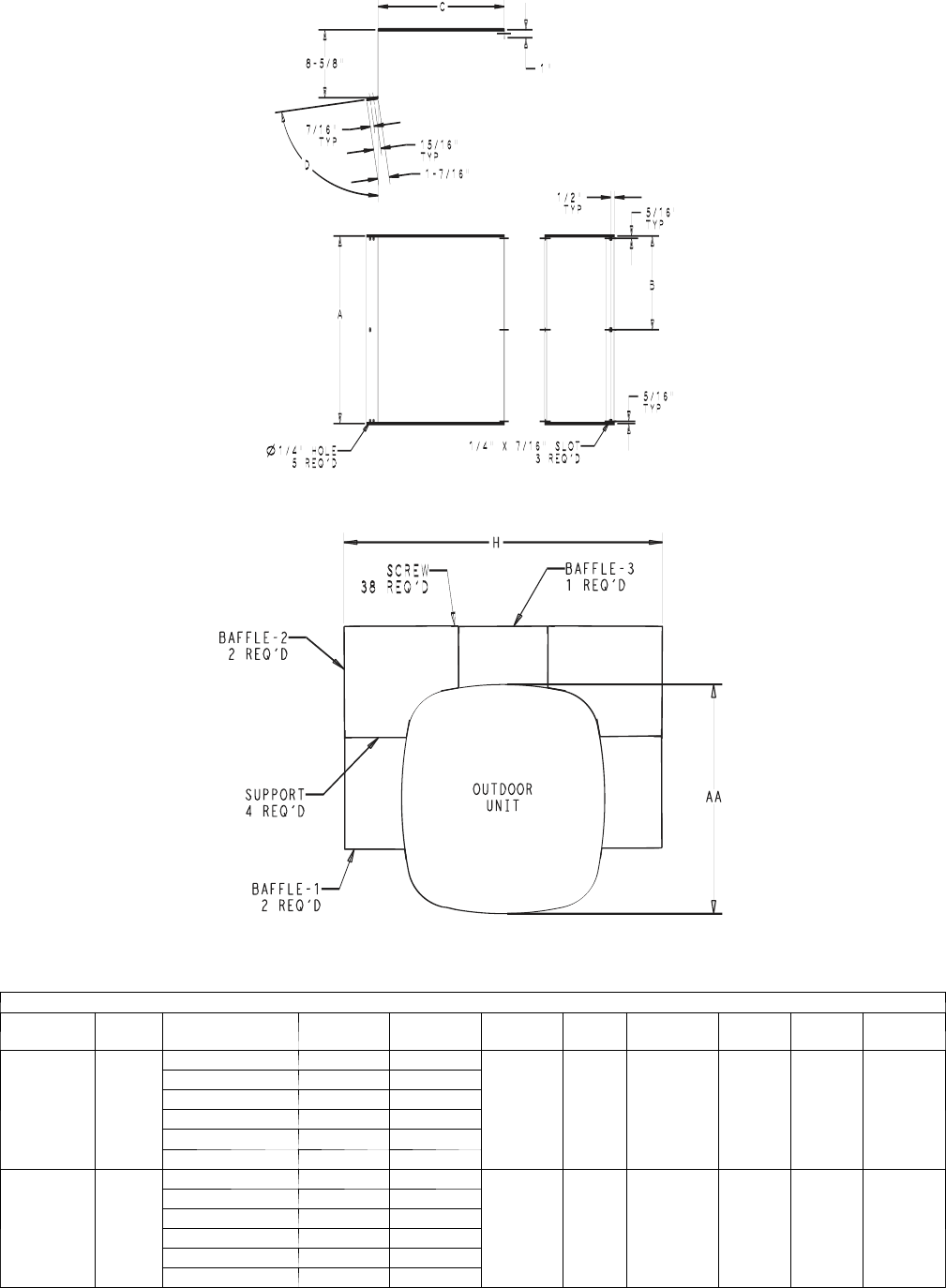
BAFFLE-1
MATL: 20 GA STEEL
A06230
3 Sided Deluxe Units (in.)
UNIT
SIZE AA UNIT HEIGHT A B C D E F G H
Medium 33
29--- 1/2 23--- 13/16 11--- 7/8
16 81.9 16--- 3/8 80.3 12 --- 3/4 45--- 7/8
32--- 15/16 27--- 3/16 13 --- 5/8
36--- 5/16 30--- 5/8 15--- 5/16
39--- 3/4 34 17
43--- 1/8 37--- 3/8 18--- 11/16
46--- 1/2 40--- 13/16 20--- 3/8
Large 40
30--- 5/16 23--- 13/16 11--- 7/8
22--- 5/16 80.2 16 --- 11/16 78.8 17--- 3/8 51--- 1/16
33--- 11/16 27--- 3/16 13 --- 5/8
37--- 1/8 30--- 5/8 15--- 5/16
40--- 1/2 34 17
43--- 7/8 37--- 3/8 18--- 11/16
47--- 5/16 40--- 13/16 20--- 3/8
Fig. 2 – Deluxe (3--sided) Baffle Assembly and Dimensions

8
LONG LINE GUIDELINE
Refer to Residential Piping and Long Line Guideline for air
conditioner and heat pump systems using Puron refrigerant or
Long Line Guideline for R--22 Air Conditioners and Heat Pumps.
CABINET ASSEMBLY
Basic Cabinet Designs
Certain maintenance routines and repairs require removal of the
cabinet panels. There are 3 basic cabinet designs for air
conditioning and heat pumps. Each design tier has options of
standard or dense grills. (See Fig. 3).
Evolution Preferred Legacy
E v o l u t i o n 2 --- S t a g e
Evolution
(no longer in production)
Preferred Legacy --- Puron with Wrap Grille
Legacy RNC --- R22 with Wrap Grille
(no longer in production) (no longer in production)
(no longer in production)
Fig. 3 – Cabinet Designs

9
Access Compressor Or Other Internal Cabinet Components
NOTE: It is not necessary to remove the top cover to gain access.
Removing the top cover may cause grill panels, corner posts,
louvers or coils to be damaged. It is recommended to protect the
top cover from damage of tools, belt buckles, etc. while servicing
from the top.
1. Should the unit height allow components to be accessed
from the top of the unit, follow procedures for removing fan
motor assembly. Access components through the top cap.
2. Large components may not be removed easily without
having access from the top and side. Side access may allow
procedures such as brazing, cutting, and removal easier.
Follow procedures below:
a. Follow procedures to remove the fan motor assembly.
b. Air conditioning units only, remove the screws from the top
of the electrical control panel. (Heat pumps will not have
screws holding the electrical control panel in place at the top
once the control box cover has been removed.)
c. Remove the base pan screws holding the control panel and
lift off the unit.
Certain maintenance routines and repairs require removal of
cabinet panels.
Remove Top Cover -- Mid--Tier / Deluxe
1. Turn off all power to outdoor and indoor units.
2. Remove access panel.
3. Remove information plate.
4. Disconnect fan motor wires and cut wire ties. Remove wires
from control box. Refer to unit wiring label.
5. Remove screws holding top cover to louver panels.
6. Lift top cover from unit.
7. Reverse sequence for reassembly.
Remove Fan Motor Assembly -- Mid--Tier / Deluxe
1. Perform items 1 through 6 from above.
2. Remove nuts securing fan motor to top cover.
3. Remove motor and fan blade assembly.
4. Reverse sequence for reassembly.
5. Prior to applying power, check that fan rotates freely.
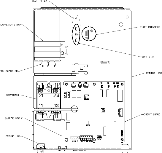
Control Box Cover—Legacy RNC Products
This panel contains much of the same information as the
information plate mentioned previously, but is designed only to
cover the control box.
Remove Top Cover—Legacy RNC Products
1. Turn off all power to outdoor an indoor units.
2. Remove 5 screws holding top cover to coil grille and coil
tube sheet.
3. Remove 2 screws holding control box cover.
4. Remove 2 screws holding information plate.
5. Disconnect fan motor wires, cut any wire ties, and move
wires out of control box and through tube clamp on back of
control box.
6. Lift top cover from unit.
7. Reverse sequence for reassembly.
Remove Fan Motor Assembly—Legacy RNC Products
1. Perform items 1, 3, 4, and 5 above. (Note: item 2 is not
required.)
2. Remove 4 screws holding wire basket to top cover.
3. Lift wire basket from unit.
4. Remove nuts holding fan motor to wire basket.
5. Remove motor and fan blade assembly.
6. Pull wires through wire raceway to change motor.
7. Reverse sequence for reassembly.
8. Prior to applying power, check that fan rotates freely.

10
Legacy RNC and Legacy Line AC Control Box
Legacy RNC and Legacy Line HP Control Box
Fig. 4 – Legacy RNC and Legacy Line Control Box Identification

11
Labeling
The wiring schematic, sub--cooling charging tables with
instructions, and warning labels. Refer to Fig. 5 for label location.
Fig. 5 – Figure Labels

12
ELECTRICAL
ELECTRICAL SHOCK HAZARD
Failure to follow this warning could result in personal injury
or death.
Exercise extreme caution when working on any electrical
components. Shut off all power to system prior to
troubleshooting. Some troubleshooting techniques require
power to remain on. In these instances, exercise extreme
caution to avoid danger of electrical shock. ONLY TRAINED
SERVICE PERSONNEL SHOULD PERFORM
ELECTRICAL TROUBLESHOOTING.
!WARNING
Aluminum Wire
UNIT OPERATION AND SAFETY HAZARD
Failure to follow this caution may result in equipment
damage or improper operation.
Aluminum wire may be used in the branch circuit (such as
the circuit between the main and unit disconnect), but only
copper wire may be used between the unit disconnect and the
unit.
CAUTION
!
Whenever aluminum wire is used in branch circuit wiring with this
unit, adhere to the following recommendations.
Connections must be made in accordance with the National
Electrical Code (NEC), using connectors approved for aluminum
wire. The connectors must be UL approved (marked Al/Cu with
the UL symbol) for the application and wire size. The wire size
selected must have a current capacity not less than that of the
copper wire specified, and must not create a voltage drop between
service panel and unit in excess of 2 of unit rated voltage. To
prepare wire before installing connector, all aluminum wire must
be “brush--scratched” and coated with a corrosion inhibitor such as
Pentrox A. When it is suspected that connection will be exposed to
moisture, it is very important to cover entire connection completely
to prevent an electrochemical action that will cause connection to
fail very quickly. Do not reduce effective size of wire, such as
cutting off strands so that wire will fit a connector. Proper size
connectors should be used. Check all factory and field electrical
connections for tightness. This should also be done after unit has
reached operating temperatures, especially if aluminum conductors
are used.
Contactor
The contactor provides a means of applying power to unit using
low voltage (24v) from transformer in order to power contactor
coil. Depending on unit model, you may encounter single-- or
double--pole contactors. Exercise extreme caution when
troubleshooting as 1 side of line may be electrically energized. The
contactor coil is powered by 24vac. If contactor does not operate:
1. With power off, check whether contacts are free to move.
Check for severe burning or arcing on contact points.
2. With power off, use ohmmeter to check for continuity of
coil. Disconnect leads before checking. A low resistance
reading is normal. Do not look for a specific value, as
different part numbers will have different resistance values.
3. Reconnect leads and apply low--voltage power to contactor
coil. This may be done by leaving high--voltage power to
outdoor unit off and turning thermostat to cooling. Check
voltage at coil with voltmeter. Reading should be between
20v and 30v. Contactor should pull in if voltage is correct
and coil is good. If contactor does not pull in, replace
contactor.
4. With high--voltage power off and contacts pulled in, check
for continuity across contacts with ohmmeter. A very low or
0 resistance should be read. Higher readings could indicate
burned or pitted contacts which may cause future failures.
Capacitor
ELECTRICAL SHOCK HAZARD
Failure to follow this warning could result in personal injury
or equipment damage.
Capacitors can store electrical energy when power is off.
Electrical shock can result if you touch the capacitor terminals
and discharge the stored energy. Exercise extreme caution
when working near capacitors. With power off, discharge
stored energy by shorting across the capacitor terminals with a
15,000--ohm, 2--watt resistor.
!WARNING
NOTE: If bleed resistor is wired across start capacitor, it must be
disconnected to avoid erroneous readings when ohmmeter is
applied across capacitor.
ELECTRICAL SHOCK HAZARD
Failure to follow this warning could result in personal injury
or equipment damage.
Always check capacitors with power off. Attempting to
troubleshoot a capacitor with power on can be dangerous.
Defective capacitors may explode when power is applied.
Insulating fluid inside is combustible and may ignite, causing
burns.
!WARNING
Capacitors are used as a phase--shifting device to aid in starting
certain single--phase motors. Check capacitors as follows:
1. With power off, discharge capacitors as outlined above.
Disconnect capacitor from circuit. Put ohmmeter on R X
10k scale. Using an analog ohmmeter, check each terminal
to ground (use capacitor case). Discard any capacitor which
measures 1/2 scale deflection or less. Place ohmmeter leads
across capacitor and place on R X 10k scale. Meter should
jump to a low resistance value and slowly climb to higher
value. Failure of meter to do this indicates an open
capacitor. If resistance stays at 0 or a low value, capacitor is
internally shorted.
2. Capacitance testers are available which will read value of
capacitor. If value is not within ±10 percent value stated on
capacitor, it should be replaced. If capacitor is not open or
shorted, the capacitance value is calculated by measuring
voltage across capacitor and current it draws.
ELECTRICAL SHOCK HAZARD
Failure to follow this warning could result in personal injury
or death.
Exercise extreme caution when taking readings while power is
on.
!WARNING

13
Use following formula to calculate capacitance:
Capacitance (mfd)= (2650 X amps)/volts
3. Remove any capacitor that shows signs of bulging, dents, or
leaking. Do not apply power to a defective capacitor as it
may explode.
Sometimes under adverse conditions, a standard run capacitor in a
system is inadequate to start compressor. In these instances, a start
assist device is used to provide an extra starting boost to
compressor motor. This device is called a positive temperature
coefficient (PTC) or start thermistor. It is a resistor wired in parallel
with the run capacitor. As current flows through the PTC at
start--up, it heats up. As PTC heats up, its resistance increases
greatly until it effectively lowers the current through itself to an
extremely low value. This, in effect, removes the PTC from the
circuit.
After system shutdown, resistor cools and resistance value returns
to normal until next time system starts. Thermistor device is
adequate for most conditions, however, in systems where off cycle
is short, device cannot fully cool and becomes less effective as a
start device. It is an easy device to troubleshoot. Shut off all power
to system.
Check thermistor with ohmmeter as described below. Shut off all
power to unit. Remove PTC from unit. Wait at least 10 minutes for
PTC to cool to ambient temperature.
Measure resistance of PTC with ohmmeter.
The cold resistance (RT) of any PTC device should be
approximately 100--180 percent of device ohm rating.
12.5--ohm PTC = 12.5--22.5 ohm resistance (beige color)
If PTC resistance is appreciably less than rating or more than 200
percent higher than rating, device is defective.
A94006
Fig. 6 – Capacitors
Cycle Protector
Bryant thermostats have anti--cycle protection built in to protect the
compressor. Should a non--Bryant stat be utilized, it is
recommended to add a cycle protector to the system. Solid--state
cycle protector protects unit compressor by preventing short
cycling. After a system shutdown, cycle protector provides for a 5
±2--minute delay before compressor restarts. On normal start--up, a
5--minute delay occurs before thermostat closes. After thermostat
closes, cycle protector device provides a 3--sec delay.
Cycle protector is simple to troubleshoot. Only a voltmeter capable
of reading 24v is needed. Device is in control circuit, therefore,
troubleshooting is safe with control power (24v) on and
high--voltage power off.
With high--voltage power off, attach voltmeter leads across T1 and
T3, and set thermostat so that Y terminal is energized. Make sure
all protective devices in series with Y terminal are closed.
Voltmeter should read 24v across T1 and T3. With 24v still
applied, move voltmeter leads to T2 and T3. After 5 ±2 minutes,
voltmeter should read 24v, indicating control is functioning
normally. If no time delay is encountered or device never times out,
change control.
Crankcase Heater
Crankcase heater is a device for keeping compressor oil warm. By
keeping oil warm, refrigerant does not migrate to and condense in
compressor shell when the compressor is off. This prevents flooded
starts which can damage compressor.
On units that have a single--pole contactor, the crankcase heater is
wired in parallel with contactor contacts and in series with
compressor. (See Fig. 7.) When contacts open, a circuit is
completed from line side of contactor, through crankcase heater,
through run windings of compressor, and to other side of line.
When contacts are closed, there is no circuit through crankcase
heater because both leads are connected to same side of line. This
allows heater to operate when system is not calling for cooling.
The heater does not operate when system is calling for cooling.
TEMP SWITCH
BLK
2111
BLKBLKBLK
CRANKCASE HTR
A97586
Fig. 7 – Wiring for Single--Pole Contactor
The crankcase heater is powered by high--voltage power of unit.
Use extreme caution troubleshooting this device with power on.
The easiest method of troubleshooting is to apply voltmeter across
crankcase heater leads to see if heater has power. Do not touch
heater. Carefully feel area around crankcase heater. If warm,
crankcase heater is probably functioning. Do not rely on this
method as absolute evidence heater is functioning. If compressor
has been running, the area will still be warm.
With power off and heater leads disconnected, check across leads
with ohmmeter. Do not look for a specific resistance reading.
Check for resistance or an open circuit. Change heater if an open
circuit is detected.
Time--Delay Relay
The TDR is a solid--state control, recycle delay timer which keeps
indoor blower operating for 90 sec after thermostat is satisfied.
This delay enables blower to remove residual cooling in coil after
compression shutdown, thereby improving efficiency of system.
The sequence of operation is that on closure of wall thermostat and
at end of a fixed on delay of 1 sec, fan relay is energized. When
thermostat is satisfied, an off delay is initiated. When fixed delay of
90 ±20 sec is completed, fan relay is de--energized and fan motor
stops. If wall thermostat closes during this delay, TDR is reset and
fan relay remains energized. TDR is a 24v device that operates
within a range of 15v to 30v and draws about 0.5 amps. If the
blower runs continuously instead of cycling off when the fan
switch is set to AUTO, the TDR is probably defective and must be
replaced.

14
Pressure Switches
Pressure switches are protective devices wired into control circuit
(low voltage). They shut off compressor if abnormally high or low
pressures are present in the refrigeration circuit. Puron pressure
switches are specifically designed to operate with Puronrsystems.
R--22 pressure switches must not be used as replacements for the
Puronrair conditioner or heat pump. Puronrpressure switches are
identified by a pink stripe down each wire.
Low--Pressure Switch (AC Only)
The low--pressure switch is located on suction line and protects
against low suction pressures caused by such events as loss of
charge, low airflow across indoor coil, dirty filters, etc. It opens on
a pressure drop at about 50 psig for Puron and about 27 for R22. If
system pressure is above this, switch should be closed. To check
switch:
1. Turn off all power to unit.
2. Disconnect leads on switch.
3. Apply ohmmeter leads across switch. You should have
continuity on a good switch.
NOTE: Because these switches are attached to refrigeration system
under pressure, it is not advisable to remove this device for
troubleshooting unless you are reasonably certain that a problem
exists. If switch must be removed, remove and recover all system
charge so that pressure gages read 0 psi. Never open system
without breaking vacuum with dry nitrogen.
PERSONAL INJURY HAZARD
Failure to follow this caution may result in personal injury.
Wear safety glasses, protective clothing, and gloves when
handling refrigerant.
CAUTION
!
To replace switch:
1. Apply heat with torch to solder joint and remove switch.
PERSONAL INJURY HAZARD
Failure to follow this caution may result in personal injury.
Wear safety glasses when using torch. Have quenching cloth
available. Oil vapor in line may ignite when switch is
removed.
CAUTION
!
2. Braze in 1/4--in. flare fitting and screw on replacement
pressure switch.
High--Pressure Switch (AC & HP)
The high--pressure switch is located in liquid line and protects
against excessive condenser coil pressure. It opens around 610 or
670 psig for Puron and 400 psig for R22 (+/-- 10 for both).
Switches close at 298 (+/-- 20) psig for R--22 and 420 or 470 (+/--
25) psig for Puron. High pressure may be caused by a dirty
condenser coil, failed fan motor, or condenser air re--circulation.
To check switch:
1. Turn off all power to unit.
2. Disconnect leads on switch.
3. Apply ohmmeter leads across switch. You should have
continuity on a good switch.
NOTE: Because these switches are attached to refrigeration system
under pressure, it is not advisable to remove this device for
troubleshooting unless you are reasonably certain that a problem
exists. If switch must be removed, remove and recover all system
charge so that pressure gauges read 0 psi. Never open system
without breaking vacuum with dry nitrogen.
PERSONAL INJURY HAZARD
Failure to follow this caution may result in personal injury.
Wear safety glasses, protective clothing, and gloves when
handling refrigerant.
CAUTION
!
To replace switch:
1. Apply heat with torch to solder joint and remove switch.
PERSONAL INJURY HAZARD
Failure to follow this caution may result in personal injury.
Wear safety glasses when using torch. Have quenching
cloth available. Oil vapor in line may ignite when switch is
removed.
CAUTION
!
2. Braze in 1/4--in. flare fitting and replace pressure switch.
Loss of Charge Switch (HP Only)
Located on liquid line of heat pump only, the liquid line pressure
switch functions similar to conventional low--pressure switch.
Because heat pumps experience very low suction pressures during
normal system operation, a conventional low--pressure switch
cannot be installed on suction line. This switch is installed in liquid
line instead and acts as loss--of--charge protector. The liquid--line is
the low side of the system in heating mode. It operates identically
to low--pressure switch except it opens at 23 (+/-- 5) psig for Puron
and 7 (+/-- 5) psig for R22 and closes at 55 (+/-- 5) psig for Puron
and 22 (+/-- 5) for R22 Two--stage heat pumps have the
low--pressure switch located on the suction line. The two--stage
control board has the capability to ignore low--pressure switch trips
during transitional (defrost) operation to avoid nuisance trips.
Troubleshooting and removing this switch is identical to
procedures used on other switches. Observe same safety
precautions.

15
Defrost Thermostat
Defrost thermostat signals heat pump that conditions are right for
defrost or that conditions have changed to terminate defrost. It is a
thermally actuated switch clamped to outdoor coil to sense its
temperature. Normal temperature range is closed at 30_±3_Fand
open at 65_±5_F. Defrost thermostats are used in Legacy RNC
and Legacy Line models, a coil temperature thermistor is used in
Preferred and Evolution series units.
FEEDER TUBE
DEFROST
THERMOSTAT
STUB TUBE
A97517
Fig. 8 – Defrost Thermostat Location
Check Defrost Thermostat
There is a liquid header with a brass distributor and feeder tube
going into outdoor coil. At the end of 1 of the feeder tubes, there is
a 3/8--in. OD stub tube approximately 3 in. long. (See Fig. 8.) The
defrost thermostat should be located on stub tube. Note that there is
only 1 stub tube used with a liquid header, and on most units it is
the bottom circuit.
NOTE: The defrost thermostat must be located on the liquid side
of the outdoor coil on the bottom circuit and as close to the coil as
possible.
Defrost Control Board
Troubleshooting defrost control involves a series of simple steps
that indicate whether or not board is defective.
NOTE: This procedure allows the service technician to check
control board and defrost thermostat for defects. First, troubleshoot
to make sure unit operates properly in heating and cooling modes.
This ensures operational problems are not attributed to the defrost
control board.
HK32EA001 Defrost Control
The HK32EA001 defrost control is used in all Legacy RNC Line
heat pump models 213ANA and 213ANC. Its features include
selectable defrost intervals of 30, 60, 90 minutes, and standard
defrost speed up capability. This section describes the sequence of
operation and trouble shooting methods for this control.
Cooling Sequence of Operation
On a call for cooling, thermostat makes R--O, R--Y, and R--G.
Circuit R--O energizes reversing valve switching it to cooling
position. Circuit R--Y sends low voltage through the safeties and
energizes the contactor, which starts the compressor and energizes
the T1 terminal on the circuit board. This will energize the OF2 fan
relay which starts the outdoor fan motor.
When the cycle is complete, R--Y is turned off and compressor and
outdoor fan should stop. With Bryant thermostats, the O terminal
remains energized in the cooling mode. If the mode is switched to
heat or Off, the valve is de--energized. There is no compressor
delay built into this control.
Heating Sequence of Operation
On a call for heating, thermostat makes R--Y, and R--G. Circuit
R--Y sends low voltage through the safeties and energizes the
contactor, which starts the compressor and energizes the T1
terminal on the circuit board. The T1 terminal energizes the defrost
logic. This will energize the OF2 fan relay start the outdoor motor.
The T1 terminal must be energized for defrost to function.
When the cycle is complete, R--Y is turned off and the compressor
and outdoor fan should stop. There is no compressor delay built
into this control.
Defrost Sequence (HK32EA001)
The defrost control is a time/temperature control that has field
selectable settings of 30, 60, and 90 minutes. These represent the
amount of time that must pass after closure of the defrost
thermostat before the defrost sequence begins.
The defrost thermostat senses coil temperature throughout the
heating cycle. When the coil temperature reaches the defrost
thermostat setting of approximately 32ºF, it will close, which
energizes the DFT terminal and begins the defrost timing sequence.
When the DTF has been energized for the selected time, the defrost
cycle begins, and the control shifts the reversing valve into cooling
position, and turns the outdoor fan off. This shifts hot gas flow into
the outdoor coil which melts the frost from the coil. The defrost
cycle is terminated when defrost thermostat opens at approximately
65_F, or automatically after 10 minutes.
OUTDOOR FAN
RELAY
Y OUTPUT TO PRESSURE
SWITCHES AND CONTACTOR
THERMOSTAT INPUTS
T1 - ENABLES DEFROST
TIMER. MUST BE
ENERGIZED FOR
DEFROST TIMER
TO START
C - COMMON
O - REVERSING VALVE
SPEEDUP
HK32EA001
DEFROST THERMOSTAT
MUST BE CLOSED BEFORE
DEFROST TIMER BEGINS
A05332
Fig. 9 – HK32EA001 Defrost Control

16
Troubleshooting (HK32EA001)
If outdoor unit will not run:
1. Does the Y input has 24 volts from thermostat? If not,
check thermostat or wire. If yes proceed to #2
2. The Y spade terminal on the circuit board should have 24
volts if Y input is energized. This output goes through the
pressure switches and to the contactor. If 24 volts is present
on the Y spade terminal, and the contactor is not closed,
check voltage on contactor coil. If no voltage is present,
check for opened pressure switch.
3. If voltage is present and contactor is open, contactor may be
defective. Replace contactor if necessary.
4. If contactor is closed and unit will still not run, check
wiring, capacitor and compressor
Defrost Speedup
To test the defrost function on these units, speed up pins are
provided on the circuit board. To force a defrost cycle, the defrost
thermostat must be closed, or the defrost thermostat pins must be
jumpered. Follow the steps below to force a defrost cycle:
1. Jumper the DFT input
2. Short the speed up pins. This speeds up the defrost timer by
a factor of 256. The longer the defrost interval setting, the
longer the pins must be shorted to speed through the timing.
For example, if interval is 90 min, the speed up will take
(90/256)min x (60seconds /minute)= 21 seconds max. This
could be shorter depending on how much time has elapsed
since the defrost thermostat closed.
3. Remove the short immediately when the unit shifts into
defrost. Failure to remove the short immediately will result
in a very short forced defrost cycle (the 10 minute timer will
be sped through in 2 seconds)
4. When defrost begins, it will continue until the defrost
thermostat opens or 10 minutes has elapsed.
NOTE: The T1 terminal on the defrost board powers the defrost
timing function. This terminal must be energized before any
defrost function will occur.
If defrost thermostat is stuck closed:
Whether the unit is in heating or cooling mode, it will run a defrost
cycle for 10 minutes each time the compressor has been energized
for the selected time interval. The board will terminate
automatically after 10 minutes of defrost time regardless of defrost
thermostat position.
If defrost thermostat is stuck open:
The unit will not defrost
NOTE: Unit will remain in defrost until defrost thermostat reopens
at approximately 65_F coil temperature at liquid line or remainder
of defrost cycle time.
5. Turn off power to outdoor unit and reconnect fan--motor
lead to OF2 on control board after above forced--defrost
cycle.
If unit will not defrost:
1. Perform the speedup function as described above to test the
defrost function of the circuit board.
2. If the unit does not go into defrost after performing the
speed up, check for 24 volts on the T1 terminal. This
terminal powers the defrost circuit, and must be energized
before any defrost function can occur. The T1 should be
energized once the Y terminal is energized and the pressure
switches are closed. Ensure the T1 wire is connected at the
contactor, and that 24 volts is present on the T1 spade
terminal.
3. If all voltages are present and unit will still not run defrost,
remove thermostat pigtail harness from board and perform
checks directly on input pins with jumper wires. The pigtail
may have a bad connection or be mis--wired.
To fully troubleshoot defrost thermostat and control function
(HK32EA001):
1. Turn thermostat to OFF. Shut off all power to outdoor unit.
2. Remove control box cover for access to electrical
components and defrost control board.
3. Disconnect defrost thermostat leads from control board, and
connect to ohmmeter. Thermostat leads are black, insulated
wires connected to DFT and R terminals on control board.
Resistance reading may be zero (indicating closed defrost
thermostat), or infinity (∞for open thermostat) depending
on outdoor temperature.
4. Jumper between DFT and R terminals on control board as
shown in Fig. 10.
5. Disconnect outdoor fan motor lead from OF2. Tape lead to
prevent grounding.
6. Turn on power to outdoor unit.
7. Restart unit in heating mode, allowing frost to accumulate
on outdoor coil.
8. After a few minutes in heating mode, liquid line
temperature at defrost thermostat should drop below closing
set point of defrost thermostat of approximately 32_F.
Check resistance across defrost thermostat leads using
ohmmeter. Resistance of zero indicates defrost thermostat is
closed and operating properly.
9. Short between the speed--up terminals using a thermostat
screwdriver. This reduces the timing sequence to 1/256 of
original time. (See Table 3.)
Table 3—Defrost Control Speed--Up Timing Sequence
PARAMETER MINIMUM
(MINUTES)
MAXIMUM
(MINUTES)
SPEED--- UP
(NOMINAL)
3 0 --- m i n u t e c y c l e 27 33 7sec
5 0 --- m i n u t e c y c l e 45 55 12 sec
9 0 --- m i n u t e c y c l e 81 99 21 sec
1 0 --- m i n u t e c y c l e 911 2sec
5 --- m i n u t e s 4.5 5.5 1sec
UNIT DAMAGE HAZARD
Failure to follow this caution may result in equipment
damage or improper operation.
Exercise extreme caution when shorting speed--up pins. If
pins are accidentally shorted to other terminals, damage to the
control board will occur.
CAUTION
!
10. Unit is now operating in defrost mode. Check between C
and W2 using voltmeter. Reading on voltmeter should
indicate 24v. This step ensures defrost relay contacts have
closed, energizing supplemental heat (W2) and reversing
valve solenoid (O).
11. Unit should remain in defrost no longer than 10 minutes.
Actual time in defrost depends on how quickly speed--up
jumper is removed. If it takes 2 sec to remove speed--up
jumper after unit has switched to defrost, the unit will
switch back to heat mode.
12. After a few minutes, in defrost (cooling) operation, liquid
line should be warm enough to have caused defrost
thermostat contacts to open. Check resistance across defrost
thermostat. Ohmmeter should read infinite resistance,
indicating defrost thermostat has opened at approximately
65_F.
13. Shut off unit power and reconnect fan lead.

17
14. Remove jumper between DFT and R terminals. Reconnect
defrost thermostat leads. Failure to remove jumper causes
unit to switch to defrost every 30, 60, or 90 minutes and
remain in defrost for full 10 minutes.
15. Replace control box cover. Restore power to unit.
If defrost thermostat does not check out following above items
or incorrect calibration is suspected, check for defective
thermostat as follows:
1. Follow items 1--5 above.
2. Route sensor or probe underneath coil (or other convenient
location) using thermocouple temperature measuring
device. Attach to liquid line near defrost thermostat. Insulate
for more accurate reading.
3. Turn on power to outdoor unit.
4. Restart unit in heating.
5. Within a few minutes, liquid line temperature drops within a
range causing defrost thermostat contacts to close.
Temperature range is from 33_Fto27_F. Notice
temperature at which ohmmeter reading goes from ∞to zero
ohms. Thermostat contacts close at this point.
6. Short between the speed--up terminals using a small slotted
screwdriver.
7. Unit changes over to defrost within 21 sec (depending on
timing cycle setting). Liquid line temperature rises to range
where defrost thermostat contacts open. Temperature range
is from 60_Fto70_F. Resistance goes from zero to ∞when
contacts are open.
8. If either opening or closing temperature does not fall within
above ranges or thermostat sticks in 1 position, replace
thermostat to ensure proper defrost operation.
NOTE: With timing cycle set at 90 minutes, unit initiates defrost
within approximately 21 sec. When you hear the reversing valve
changing position, remove screwdriver immediately. Otherwise,
control will terminate normal 10--minute defrost cycle in
approximately 2 sec.
OF2
HK32EA003
OF1
ON
QUIET
SHIFT
120
30
60
60
30
90
INTERVAL TIMER OFF
P3
DFT
O R W2 Y C
T2 C C O
DFT
T1 Y P1 J1
SPEEDUP
Speedup
Pins Defrost interval
DIP switches
Quiet
Shift
A05378
Fig. 10 – HK32EA003 Defrost Control
HK32EA003 Defrost Control
The HK32EA003 defrost control is used in all 223A and 223B
Legacy Line heat pumps with Puron refrigerant. Its features
include selectable defrost intervals of 30, 60, 90, & 120 minutes,
Quiet Shift, compressor time delay, deluxe defrost speed up
capability. This section describes the sequence of operation and
trouble shooting methods for this control.
Quiet Shift
This control has the option of shutting down the compressor for 30
seconds going in and coming out of defrost. This is accomplished
by turning DIP switch 3 to the ON position. Factory default is in
the OFF position. Enabling this feature eliminates occasional noise
complaints associated with switching into and out of defrost.
Five--Minute Compressor Delay
This control features a 5--minute time delay to protect the
compressor from short cycling. The delay begins counting when
the low voltage is interrupted, and at the end of heating or cooling
cycle.
SYSTEM FUNCTION AND
SEQUENCE OF OPERATION
On power--up (24 volts between R--C) the 5 minute cycle timer
begins counting down. The compressor will not be energized until
this timer is elapsed.
Cooling
On a call for cooling, thermostat makes R--O, R--Y, and R--G.
Circuit R--O energizes reversing valve switching it to cooling
position. Circuit R--Y sends low voltage through the safeties and
energizes the T1 terminal on the circuit board. If the compressor
has been off for 5 minutes, or power has not been cycled for 5
minutes, the OF2 relay and T2 terminal will energize. This will
close the contactor, start the outdoor fan motor and compressor.
When the cycle is complete, R--Y is turned off and compressor and
outdoor fan should stop. When using Bryant thermostats, the
reversing valve remains energized in the cooling mode until the
thermostat is switched to heat, or the mode it turned off. The
5--minute time guard begins counting. Compressor will not come
on again until this time delay expires. In the event of a power
interruption, the time guard will not allow another cycle for 5
minutes.
Heating
On a call for heating, thermostat makes R--Y, and R--G. Circuit
R--Y sends low voltage through the safeties and energizes the T1
terminal on the circuit board. T1 energizes the defrost logic circuit.
If the compressor has been off for 5 minutes, or power has not been
cycled for 5 minutes, the OF2 relay and T2 terminal will energize.
This will close the contactor, start the outdoor fan motor and
compressor.
When the cycle is complete, R--Y is turned off and the compressor
and outdoor fan should stop. The 5 minute time guard begins
counting. Compressor will not come on again until this time delay
expires. In the event of a power interruption, the time guard will
not allow another cycle for 5 minutes.
Defrost Sequence
The defrost control is a time/temperature control that has field
selectable settings of 30, 60, 90 and 120 minutes. These represent
the amount of time that must pass after closure of the defrost
thermostat before the defrost sequence begins.
The defrost thermostat senses coil temperature throughout the
heating cycle. When the coil temperature reaches the defrost
thermostat setting of approximately 32 degrees F, it will close,
which energizes the DFT terminal and begins the defrost timing
sequence. When the DTF has been energized for the selected time,
the defrost cycle begins. If the defrost thermostat opens before the
timer expires, the timing sequence is reset.
Defrost cycle is terminated when defrost thermostat opens or
automatically after 10 minutes.

18
Deluxe Defrost Speedup (HK32EA003 CONT.)
To initiate a force defrost, speedup pins (J1) must be shorted with a
flat head screwdriver for 5 seconds and RELEASED. If the defrost
thermostat is open, a short defrost cycle will be observed (actual
length depends on Quiet Shift switch position). When Quiet Shift
is off, only a short 30 second defrost cycle is observed. With Quiet
Shift ON, the speed up sequence is one minute; 30 second
compressor off period followed by 30 seconds of defrost with
compressor operation. When returning to heating mode, the
compressor will turn off for an additional 30 seconds and the fan
for 40 seconds.
If the defrost thermostat is closed, a complete defrost cycle is
initiated. If the Quiet Shift switch is turned on, the compressor will
be turned off for two 30 second intervals as explained previously.
Troubleshooting (HK32EA003)
If outdoor unit will not run:
1. Does the Y input have 24 volts from thermostat? If not,
check thermostat or wire. If yes proceed to #2
2. The Y spade terminal should have 24 volts if Y input is
energized. This output goes through the pressure switches
and back to the T1 input to energize the time delay and
defrost timing circuit. If the contactor is not closed, the time
delay may still be active. Defeat time delay by shorting
speed up pins for 1 second. Be sure not to short more than 1
second.
3. Once time delay has elapsed voltage on T2 should energize
contactor. Check voltage on contactor coil. If no voltage is
present, check for opened pressure switch.
4. If voltage is present and contactor is open, contactor may be
defective. Replace contactor
5. If contactor is closed and unit will still not run, check
capacitor and compressor.
If unit will not go into defrost:
1. Perform speedup function as described above to test the
defrost function of the circuit board.
2. If the unit will go into defrost with the speed up, but will
not on its own, the defrost thermostat may not be
functioning properly. Perform the full defrost thermostat
and board troubleshooting the same as described for the
HK32EA001 control. Other than the Quiet shift (if
selected), and the speedup timing, the troubleshooting
process is identical.
3. If unit still will not run defrost, remove thermostat pigtail
harness from board and perform checks directly on input
pins with jumper wires. The pigtail may have a bad
connection or be mis--wired.
Fan Motor
The fan motor rotates the fan blade that draws air through the
outdoor coil to exchange heat between the refrigerant and the air.
Motors are totally enclosed to increase reliability. This eliminates
the need for a rain shield. For the correct position of fan blade
assembly, the fan hub should be flush with the motor shaft.
Replacement motors and blades may vary slightly.
ELECTRICAL SHOCK HAZARD
Failure to follow this warning could result in personal injury
or death.
Turn off all power before servicing or replacing fan motor. Be
sure unit main power switch is turned off.
!WARNING
The bearings are permanently lubricated, therefore, no oil ports are
provided.
For suspected electrical failures, check for loose or faulty electrical
connections, or defective fan motor capacitor. Fan motor is
equipped with thermal overload device in motor windings which
may open under adverse operating conditions. Allow time for
motor to cool so device can reset. Further checking of motor can be
done with an ohmmeter. Set scale on R X 1 position, and check for
continuity between 3 leads. Replace motors that show an open
circuit in any of the windings. Place 1 lead of ohmmeter on each
motor lead. At same time, place other ohmmeter lead on motor case
(ground). Replace any motor that shows resistance to ground,
arcing, burning, or overheating.
Compressor Plug
The compressor electrical plug provides a quick--tight connection
to compressor terminals. The plug completely covers the
compressor terminals and the mating female terminals are
completely encapsulated in plug. Therefore, terminals are isolated
from any moisture so corrosion and resultant pitted or discolored
terminals are reduced. The plug is oriented to relief slot in terminal
box so cover cannot be secured if wires are not positioned in slot,
assuring correct electrical connection at the compressor. The plug
can be removed by simultaneously pulling while “rocking“ plug.
However, these plugs can be used only on specific compressors.
The configuration around the fusite terminals is outlined on the
terminal covers. The slot through which wires of plug are routed is
oriented on the bottom and slightly to the left. The correct plug can
be connected easily to compressor terminals and plug wires can
easily be routed through slot terminal cover.
It is strongly recommended to replace the compressor plug should
a compressor fail due to a suspected electrical failure. At a
minimum, inspect plug for proper connection and good condition
on any compressor replacement.
Low--Voltage Terminals
The low--voltage terminal designations, and their description and
function, are used on all split--system condensers.
W—Energizes first--stage supplemental heat through defrost relay
(wht).
R—Energizes 24--v power from transformer (red).
Y—Energizes contactor for first--stage cooling or first--stage
heating for heat pumps (yel).
O—Energizes reversing valve on heat pumps (orn).
C—Common side of transformer (blk).

19
COPELAND SCROLL COMPRESSOR
Scroll Gas Flow
Compression in the scroll is
created by the interaction of
an orbiting spiral and a
stationary spiral. Gas enters
an outer opening as one of the
spirals orbits.
The open passage is sealed off
as gas is drawn into the spiral.
By the time the gas arrives at
the center port, discharge
pressure has been reached.
Actually, during operation, all
six gas passages are in various
stages of compression at all
times, resulting in nearly con-
tinuous suction and discharge.
As the spiral continues to orbit,
the gas is compressed into an
increasingly smaller pocket.
1
23
54
A90198
Fig. 11 – Scroll Compressor Refrigerant Flow
The compressors used in these products are specifically designed to
operate with designated refrigerant and cannot be interchanged.
The compressor is an electrical (as well as mechanical) device.
Exercise extreme caution when working near compressors. Power
should be shut off, if possible, for most troubleshooting techniques.
Refrigerants present additional safety hazards.
PERSONAL INJURY HAZARD
Failure to follow this caution may result in personal injury.
Wear safety glasses, protective clothing, and gloves when
handling refrigerant.
CAUTION
!
The scroll compressor pumps refrigerant through the system by the
interaction of a stationary and an orbiting scroll. (See Fig. 11.) The
scroll compressor has no dynamic suction or discharge valves, and
it is more tolerant of stresses caused by debris, liquid slugging, and
flooded starts. The compressor is equipped with an internal
pressure relief port. The pressure relief port is a safety device,
designed to protect against extreme high pressure. The relief port
has an operating range between 550 to 625 psi differential pressure
for Puronrand 350 to 450 psi differential pressure for R--22.
Scrolls have a variety of shut down solutions, depending on model,
to prevent backward rotation and eliminate the need for cycle
protection.
Compressor Failures
Compressor failures are classified in 2 broad failure categories;
mechanical and electrical. Both types are discussed below.
Mechanical Failures
A compressor is a mechanical pump driven by an electric motor
contained in a welded or hermetic shell. In a mechanical failure,
motor or electrical circuit appears normal, but compressor does not
function normally.
ELECTRICAL SHOCK HAZARD
Failure to follow this warning could result in personal injury
or death.
Do not supply power to unit with compressor terminal box
cover removed.
!WARNING
ELECTRICAL SHOCK HAZARD
Failure to follow this warning could result in personal injury
or death.
Exercise extreme caution when reading compressor currents
when high--voltage power is on. Correct any of the problems
described below before installing and running a replacement
compressor.
!WARNING
Locked Rotor
In this type of failure, compressor motor and all starting
components are normal. When compressor attempts to start, it
draws locked rotor current and cycles off on internal protection.
Locked rotor current is measured by applying a clamp--on ammeter
around common (blk) lead of compressor. Current drawn when it
attempts to start is then measured. Locked rotor amp (LRA) value
is stamped on compressor nameplate.
If compressor draws locked rotor amps and all other external
sources of problems have been eliminated, compressor must be
replaced. Because compressor is a sealed unit, it is impossible to
determine exact mechanical failure. However, complete system
should be checked for abnormalities such as incorrect refrigerant
charge, restrictions, insufficient airflow across indoor or outdoor
coil, etc., which could be contributing to the failure.
Runs, Does Not Pump
In this type of failure, compressor motor runs and turns
compressor, but compressor does not pump refrigerant. A
clamp--on ampmeter on common leg shows a very low current
draw, much lower than rated load amp (RLA) value stamped on
compressor nameplate. Because no refrigerant is being pumped,
there is no return gas to cool compressor motor. It eventually
overheats and shuts off on its internal protection.

20
Noisy Compressor
Noise may be caused by a variety of internal and external factors.
Careful attention to the “type” of noise may help identify the
source. The following are some examples of abnormal conditions
that may create objectionable noise:
1. A gurgling sound may indicate a liquid refrigerant
floodback during operation. This could be confirmed if
there is no compressor superheat. A compressor superheat
of “0” degrees would indicate liquid refrigerant returning to
the compressor. Most common reasons for floodback are:
loss of evaporator blower, dirty coils, and improper airflow.
2. A rattling noise may indicate loose hardware. Inspect all
unit hardware including the compressor grommets.
3. A straining (hard start) or vibration occurring at start up but
clears quickly after could indicate an off cycle refrigerant
migration issue. Refrigerant migration can occur when a
compressor is off and refrigerant vapor transfers from other
areas of the system, settles into the compressor as it is
attracted to the oil, and then condenses into the oil. Upon
start up, the compressor draws suction from within itself
first and lowers the boiling point of the refrigerant that is
entrained in the oil. This can cause the liquid refrigerant
and oil to boil into the compression area or liquid refrigerant
to wipe off oil films that are critical for proper lubrication.
Migration is worsened by greater temperature differentials
and/or extra refrigerant in the system. Prevention of
migration can be reduced by various options but some of
the more common remedies is to verify proper charge and
add a crankcase heater where this situation is suspected.
4. Operational vibration could indicate a charge issue. Verify
charge and ensure proper piping and structural penetration
insulation. Tubing that is too rigid to building rafters
without proper insulation could transfer noise throughout
the structure. On some occasions a sound dampener or
mass weight (RCD part no. 328209--751) placed on the
vibrating tubing has been known to reduce this noise.
Utilizing compressor split post grommets (see Fig. 12) may
also reduce this vibration if piping cannot be remedied.
5. An operational high pitch frequency or “waa waa” sound
that appears to resonate through the suction line could
indicate a need to add more flex or muffling in the lines.
This has been occasional in scroll compressor applications
and is usually remedied by adding a field--fabricated suction
line loop (see Fig. 13). Reciprocating compressors may
have a noticeable discharge pulsation that could be
remedied with a field installed discharge muffler.
Recommend loop by continuous tubing with no more than
12 inches vertical and 6 inch horizontal loop.
6. An internal “thunking”, “thumping”, “grinding” or
“rattling” noise could indicate compressor internal failures
and may be verified by comparing the compressor
amperage to what the compressor should be drawing
according to a manufacturer’s performance data.
7. A whistling or squealing noise during operation may
indicate a partial blockage of the refrigerant charge.
8. A whistle on shut down could indicate a partial leak path as
refrigerant is equalizing from high to low side. On
occasion, an in--line discharge check valve has prevented
this sound.
9. If a compressor hums but won’t start it could indicate either
a voltage or amperage issue. Verify adequate voltage and
operational start components if installed. If it is drawing
excessive amperage and voltage doesn’t appear to be the
problem it may be assumed a locked condition. Ensure
refrigerant has had ample time to equalize and boil out of
the compressor before condemning.
10. When a heat pump switches into and out of defrost, a
”swooshing” noise is expected due to the rapid pressure
change within the system. However customers sometimes
complain that the noise is excessive, or it is sometimes
accompanied by a ”groaning, or howling” noise. When
receiving these complaints, Quiet Shift (if available) may
improve the noise, but will probably not eliminate it totally.
Check that the defrost thermostat or thermistor is operating
properly. Insulating the defrost sensing device may also
help. If the howling or groaning noise is intermittent,
replacing the reversing valve may or may not help.
11. Rattling that occurs during a shift into or out of defrost on a
heat pump could indicate a pressure differential issue. This
is usually a brief occurrence (under 60 seconds) and can be
remedied by incorporating quiet shift, if available. This is a
device that shuts down the compressor during the defrost
shift for 30 seconds allowing the pressures to equalize. It is
enabled by either a dip switch setting on the defrost board,
or in the User Interface on communicating systems. Verify
proper system charge as well.
A07124
Fig. 12 – Split Post Grommet part number: KA75UG100
Note: Long radius elbows recommended
A07123
Fig. 13 – Suction Line Loop

21
POWER OFF!
OHMMETER
0-10Ω SCALE
5.2Ω
0.6Ω5.8Ω
DEDUCTION:
(EXAMPLE)
TO DETERMINE INTERNAL CONNECTIONS OF SINGLE-
PHASE MOTORS (C,S,R) EXCEPT SHADED-POLE
?
?
?
1
2
2
3
1
3
12
32
1 3 (GREATEST RESISTANCE)
5.8Ω (OHM)
(SMALLEST RESISTANCE)
0.6Ω
(REMAINING RESISTANCE)
5.2Ω
2
2
3
1
IS COMMON (C)
BY ELIMINATION
IS COMMON,
THEREFORE, IS
START WINDING (S)
RUN WINDING (R)
START WINDING (S)
IS RUN WINDING (R)
A88344
Fig. 14 – Identifying Compressor Terminals
Electrical Failures
The compressor mechanical pump is driven by an electric motor
within its hermetic shell. In electrical failures, compressor does not
run although external electrical and mechanical systems appear
normal. Compressor must be checked electrically for abnormalities.
Before troubleshooting compressor motor, review this description
of compressor motor terminal identification.
Single--Phase Motors
To identify terminals C, S, and R:
1. Turn off all unit power.
2. Discharge run and start capacitors to prevent shock.
3. Remove all wires from motor terminals.
4. Read resistance between all pairs of terminals using an
ohmmeter on 0--10 ohm scale.
5. Determine 2 terminals that provide greatest resistance
reading.
Through elimination, remaining terminal must be common (C).
Greatest resistance between common (C) and another terminal
indicates the start winding because it has more turns. This terminal
is the start (S). The remaining terminal will be run winding (R).
NOTE: If compressor is hot, allow time to cool and internal line
break to reset. There is an internal line break protector which must
be closed.
All compressors are equipped with internal motor protection. If
motor becomes hot for any reason, protector opens. Compressor
should always be allowed to cool and protector to close before
troubleshooting. Always turn off all power to unit and disconnect
leads at compressor terminals before taking readings.
Most common motor failures are due to either an open, grounded,
or short circuit. When a compressor fails to start or run, 3 tests can
help determine the problem. First, all possible external causes
should be eliminated, such as overloads, improper voltage,
pressure equalization, defective capacitor(s), relays, wiring, etc.
Compressor has internal line break overload, so be certain it is
closed.
Open Circuit
UNIT PERSONAL INJURY HAZARD
Failure to follow this warning could result in personal injury.
Use caution when working near compressor terminals.
Damaged terminals have the potential to cause personal injury.
Never put face or body directly in line with terminals.
!WARNING
To determine if any winding has a break in the internal wires and
current is unable to pass through, follow these steps:
1. Be sure all power is off.
2. Discharge all capacitors.
3. Remove wires from terminals C, S, and R.
4. Check resistance from C--R, C--S, and R--S using an
ohmmeter on 0--1000 ohm scale.
Because winding resistances are usually less than 10 ohms, each
reading appears to be approximately 0 ohm. If resistance remains at
1000 ohms, an open or break exists and compressor should be
replaced.
UNIT DAMAGE HAZARD
Failure to follow this caution may result in equipment
damage or improper operation.
Be sure internal line break overload is not temporarily open.
CAUTION
!

22
Ground Circuit
To determine if a wire has broken or come in direct contact with
shell, causing a direct short to ground, follow these steps:
1. Allow crankcase heaters to remain on for several hours
before checking motor to ensure windings are not saturated
with refrigerant.
2. Using an ohmmeter on R X 10,000 ohm scale or
megohmmeter (follow manufacturer’s instructions).
3. Be sure all power is off.
4. Discharge all capacitors.
5. Remove wires from terminals C, S, and R.
6. Place one meter probe on ground or on compressor shell.
Make a good metal--to--metal contact. Place other probe on
terminals C, S, and R in sequence.
7. Note meter scale.
8. If reading of 0 or low resistance is obtained, motor is
grounded. Replace compressor.
Compressor resistance to ground should not be less than 1000
ohms per volt of operating voltage.
Example:
230 volts X 1000 ohms/volt = 230,000 ohms minimum.
Short Circuit
To determine if any wires within windings have broken through
their insulation and made contact with other wires, thereby shorting
all or part of the winding(s), be sure the following conditions are
met.
1. Correct motor winding resistances must be known before
testing, either from previous readings or from
manufacturer’s specifications.
2. Temperature of windings must be as specified, usually
about 70_F.
3. Resistance measuring instrument must have an accuracy
within ±5--10 percent. This requires an accurate ohmmeter
such as a Wheatstone bridge or null balance--type
instrument.
4. Motor must be dry or free from direct contact with liquid
refrigerant.
Make This Critical Test
(Not advisable unless above conditions are met)
1. Be sure all power is off.
2. Discharge all capacitors.
3. Remove wires from terminals C, S, and R.
4. Place instrument probes together and determine probe and
lead wire resistance.
5. Check resistance readings from C--R, C--S, and R--S.
6. Subtract instrument probe and lead resistance from each
reading.
If any reading is within ±20 percent of known resistance, motor is
probably normal. Usually a considerable difference in reading is
noted if a turn--to--turn short is present.
REFRIGERATION SYSTEM
Refrigerant
UNIT OPERATION AND SAFETY HAZARD
Failure to follow this warning could result in personal injury
or equipment damage.
Puronrrefrigerant which has higher pressures than R--22 and
other refrigerants. No other refrigerant may be used in this
system. Gauge set, hoses, and recovery system must be
designed to handle Puronr. If you are unsure consult the
equipment manufacturer.
!WARNING
In an air conditioning and heat pump system, refrigerant transfers
heat from one replace to another. The condenser is the outdoor coil
in the cooling mode and the evaporator is the indoor coil.
In a heat pump, the condenser is the indoor coil in the heating
mode and the evaporator is the outdoor coil.
In the typical air conditioning mode, compressed hot gas leaves the
compressor and enters the condensing coil. As gas passes through
the condenser coil, it rejects heat and condenses into liquid. The
liquid leaves condensing unit through liquid line and enters
metering device at evaporator coil. As it passes through metering
device, it becomes a gas--liquid mixture. As it passes through
indoor coil, it absorbs heat and the refrigerant moves to the
compressor and is again compressed to hot gas, and cycle repeats.
Compressor Oil
UNIT DAMAGE HAZARD
Failure to follow this caution may result in equipment
damage or improper operation.
The compressor in a Puronrsystem uses a polyol ester
(POE) oil. This oil is extremely hygroscopic, meaning it
absorbs water readily. POE oils can absorb 15 times as much
water as other oils designed for HCFC and CFC refrigerants.
Take all necessary precautions to avoid exposure of the oil to
the atmosphere. (See Table 4.)
CAUTION
!

23
Table 4—Oil Charging
REFRIGERANT COMPRESSOR MODEL RECHARGE (FL OZ) OIL TYPE
COPELAND
PURON ZP16---26 38 3MA POE (32 cSt)
PURON ZP32---41 42 3MA POE (32 cSt)
PURON P54 53 3MA POE (32 cSt)
P U R O N --- 2 S T A G E ZPS20, ZPS30, ZPS40 34 3 M A F --- P O E
P U R O N --- 2 S T A G E ZPS49, ZPS51 52 3 M A F --- P O E
BRISTOL
P U R O N --- 2 S T A G E T81J195 27 MOBIL 32BC
P U R O N --- 2 S T A G E T81J285, 384 37 MOBIL 32BC
P U R O N --- 2 S T A G E T81J515 62 MOBIL 32BC
SCROLL TECHNOLOGIES
PURON X G* 3 2 --- 3 8 36 H A T C O P O E 3 2 --- S T
PURON X N* 4 1 --- 5 6 53 H A T C O P O E 3 2 --- S T
COPELAND
R22 ZR16---32 19 3GS---32YMO (blended white oil)
R22 Z R 3 8 --- 34 3GS---32YMO (blended white oil)
SCROLL TECHNOLOGIES
R22 X C * 3 8 --- 4 2 36 Zerol 150---T
R22 X C * 4 3 --- 4 7 45 Zerol 150---T
R22 X R * 4 8 --- 6 0 53 Zerol 150---T
Servicing Systems on Roofs With Synthetic
Materials
POE (polyol ester) compressor lubricants are known to cause long
term damage to some synthetic roofing materials. Exposure, even if
immediately cleaned up, may cause embrittlement (leading to
cracking) to occur in one year or more. When performing any
service which may risk exposure of compressor oil to the roof, take
appropriate precautions to protect roofing. Procedures which risk
oil leakage include but are not limited to compressor replacement,
repairing refrigerants leaks, replacing refrigerant components such
as filter drier, pressure switch, metering device, coil, accumulator,
or reversing valve.
Synthetic Roof Precautionary Procedure
1. Cover extended roof working area with an impermeable
polyethylene (plastic) drop cloth or tarp. Cover an
approximate 10 x 10 ft area.
2. Cover area in front of the unit service panel with a terry
cloth shop towel to absorb lubricant spills and prevent
run--offs, and protect drop cloth from tears caused by tools
or components.
3. Place terry cloth shop towel inside unit immediately under
component(s) to be serviced and prevent lubricant run--offs
through the louvered openings in the base pan.
4. Perform required service.
5. Remove and dispose of any oil contaminated material per
local codes.
Brazing
This section on brazing is not intended to teach a technician how to
braze. There are books and classes which teach and refine brazing
techniques. The basic points below are listed only as a reminder.
Definition: The joining and sealing of metals using a nonferrous
metal having a melting point over 800_F/426.6_C.
Flux: A cleaning solution applied to tubing or wire before it is
brazed. Flux improves the strength of the brazed connection.
When brazing is required in the refrigeration system, certain basics
should be remembered. The following are a few of the basic rules.
1. Clean joints make the best joints. To clean:
⎯Remove all oxidation from surfaces to a shiny
finish before brazing.
⎯Remove all flux residue with brush and water while
material is still hot.
2. Silver brazing alloy is used on copper--to--brass,
copper--to--steel, or copper--to--copper. Flux is required
when using silver brazing alloy. Do not use low temperature
solder.
3. Fluxes should be used carefully. Avoid excessive
application and do not allow fluxes to enter into the system.
4. Brazing temperature of copper is proper when it is heated to
a minimum temperature of 800_F and it is a dull red color
in appearance.

24
Service Valves and Pumpdown
PERSONAL INJURY AND UNIT DAMAGE HAZARD
Failure to follow this warning could result in personal injury
or equipment damage.
Never attempt to make repairs to existing service valves. Unit
operates under high pressure. Damaged seats and o--rings
should not be replaced. Replacement of entire service valve is
required. Service valve must be replaced by properly trained
service technician.
!WARNING
Service valves provide a means for holding original factory charge
in outdoor unit prior to hookup to indoor coil. They also contain
gauge ports for measuring system pressures and provide shutoff
convenience for certain types of repairs. (See Fig. 15 and Fig. 16.)
Two types of service valves are used in outdoor residential
equipment. The first type is a front--seating valve, which has a
service port that contains a Schrader fitting. The service port is
always pressurized after the valve is moved off the front--seat
position.
The second type is a combination front--seating/back--seating
valve, which has a metal--to--metal seat in both the open and closed
positions. When it is fully back--seated (will no longer turn counter
clockwise), the service port is not pressurized. To pressurize the
service port, this valve must be moved off the back--seating
position (turned clockwise slightly). The gage port in this valve
does not contain a Schrader fitting. Both types of service valves are
designed for sweat connection to the field tubing.
The service valves in the outdoor unit come from the factory
front--seated. This means that the refrigerant charge is isolated from
the line--set connection ports. All heat pumps are shipped with an
adapter stub tube. This tube must be installed on the liquid service
valve. After connecting the stub tube to the liquid service valve of
a heat pump, the valves are ready for brazing. The interconnecting
tubing (line set) can be brazed to the service valves using industry
accepted methods and materials. Consult local codes.
Before brazing the line set to the valves, the belled ends of the
sweat connections on the service valves must be cleaned so that no
brass plating remains on either the inside or outside of the bell
joint. To prevent damage to the valve and/or cap “O” ring, use a
wet cloth or other acceptable heat--sinking material on the valve
before brazing. To prevent damage to the unit, use a metal barrier
between brazing area and unit.
After the brazing operation and the refrigerant tubing and
evaporator coil have been evacuated, the valve stem can be turned
counterclockwise until back--seats, which releases refrigerant into
tubing and evaporator coil. The system can now be operated.
Back--seating service valves must be back--seated (turned
counterclockwise until seated) before the service--port caps can be
removed and hoses of gauge manifold connected. In this position,
refrigerant has access from and through outdoor and indoor unit.
The service valve--stem cap is tightened to 20 ±2 ft/lb torque and
the service--port caps to 9 ±2 ft/lb torque. The seating surface of
the valve stem has a knife--set edge against which the caps are
tightened to attain a metal--to--metal seal. If accessory pressure
switches are used, the service valve must be cracked. Then, the
knife--set stem cap becomes the primary seal.
The service valve cannot be field repaired; therefore, only a
complete valve or valve stem and service--port caps are available
for replacement.
If the service valve is to be replaced, a metal barrier must be
inserted between the valve and the unit to prevent damaging the
unit exterior from the heat of the brazing operations.
PERSONAL INJURY HAZARD
Failure to follow this caution may result in personal injury.
Wear safety glasses, protective clothing, and gloves when
handling refrigerant.
CAUTION
!
Pumpdown Procedure
Service valves provide a convenient shutoff valve useful for certain
refrigeration--system repairs. System may be pumped down to
make repairs on low side without losing complete refrigerant
charge.
1. Attach pressure gauge to suction service--valve gauge port.
2. Front seat liquid--line valve.
3. Start unit in cooling mode. Run until suction pressure
reaches 5 psig (35kPa). Do not allow compressor to pump
to a vacuum.
4. Shut unit off. Front seat suction valve.
FIELD SIDE
STAINLESS
STEEL
STEM
SERVICE
PORT
ENTRANCE
BACK
SEAT
POSITION
FRONT
SEAT
POSITION
FORGED BACK SEATING VALVE
A91435
Fig. 15 – Suction Service Valve (Back Seating)
Used in Preferred and Evolution ACs and HPs.
STEM
SERVICE PORT
W/SCHRADER CORE
SEAT
BAR STOCK FRONT SEATING VALVE
FIELD
SIDE
A91447
Fig. 16 – Suction Service Valve (Front Seating)
Used in Legacy RNC and Legacy Line ACs and HPs
NOTE: All outdoor unit coils will hold only factory--supplied
amount of refrigerant. Excess refrigerant, such as in long--line
applications, may cause unit to relieve pressure through internal
pressure--relief valve (indicated by sudden rise of suction pressure)
before suction pressure reaches 5 psig (35kPa). If this occurs, shut
unit off immediately, front seat suction valve, and recover
remaining pressure.

25
Heating Piston (AccuRaterr) -- Heat Pumps Only
In this product line, AccuRater pistons are used to meter refrigerant
for heat pump heating mode only. All indoor coils are supplied
with a bi--flow TXV for metering in the cooling mode.
AccuRaterrpiston has a refrigerant metering hole through it. The
piston seats against the meters refrigerant in to the outdoor coil in
heating and allows refrigerant to flow around it in cooling mode.
There are 2 types of liquid line connections used. Flare connections
are used in R--22 systems.
1. Shut off power to unit.
2. Pump unit down using pumpdown procedure described in
this service manual.
3. Loosen nut and remove liquid line flare connection from
AccuRaterr.
4. Pull retainer out of body, being careful not to scratch flare
sealing surface. If retainer does not pull out easily, carefully
use locking pliers to remove it.
5. Slide piston and piston ring out by inserting a small soft
wire with small kinks through metering hole. Do not
damage metering hole, sealing surface around piston cones,
or fluted portion of piston.
6. Clean piston refrigerant metering hole.
7. Install a new retainer O--ring, retainer assembly, or Teflon
washer before reassembling AccuRaterr.
A05226
Fig. 17 – Front Seating Service Valve with Chatleff
Connection Used in Legacy RNC, Legacy Line, and 4--Sided
Preferred and Evolution Puron Heat Pumps.
TEFLONrSEAL
SWEAT / FLARE
ADAPTER
PISTON
BODY
PISTON
A05226
Fig. 18 – Back Seating Liquid Service Valve
Used in 3--Sided Preferred and Evolution Heat Pumps
(all Puron)
PISTON BODY
PISTON
PISTON
RETAINER
SWEAT/FLARE ADAPTER
A01019
Fig. 19 – AccuRaterrComponents
(usedinR--22HeatPumps)

26
Reversing Valve
In heat pumps, changeover between heating and cooling modes is
accomplished with a valve that reverses flow of refrigerant in
system. This reversing valve device is easy to troubleshoot and
replace. The reversing valve solenoid can be checked with power
off with an ohmmeter. Check for continuity and shorting to
ground. With control circuit (24v) power on, check for correct
voltage at solenoid coil. Check for overheated solenoid.
With unit operating, other items can be checked, such as frost or
condensate water on refrigerant lines.
The sound made by a reversing valve as it begins or ends defrost is
a “whooshing” sound, as the valve reverses and pressures in system
equalize. An experienced service technician detects this sound and
uses it as a valuable troubleshooting tool.
Using a remote measuring device, check inlet and outlet line
temperatures. DO NOT touch lines. If reversing valve is operating
normally, inlet and outlet temperatures on appropriate lines should
be close to each other. Any difference would be due to heat loss or
gain across valve body. Temperatures are best checked with a
remote reading electronic--type thermometer with multiple probes.
Route thermocouple leads to inside of coil area through service
valve mounting plate area underneath coil. Fig. 20 and Fig. 21
show test points (TP) on reversing valve for recording
temperatures. Insulate points for more accurate reading.
If valve is defective:
1. Shut off all power to unit and remove charge from system.
2. Remove solenoid coil from valve body. Remove valve by
cutting it from system with tubing cutter. Repair person
should cut in such a way that stubs can be easily re--brazed
back into system. Do not use hacksaw. This introduces
chips into system that cause failure. After defective valve is
removed, wrap it in wet rag and carefully unbraze stubs.
Save stubs for future use. Because defective valve is not
overheated, it can be analyzed for cause of failure when it is
returned.
3. Braze new valve onto used stubs. Keep stubs oriented
correctly. Scratch corresponding matching marks on old
valve and stubs and on new valve body to aid in lining up
new valve properly. When brazing stubs into valve, protect
valve body with wet rag to prevent overheating.
4. Use slip couplings to install new valve with stubs back into
system. Even if stubs are long, wrap valve with a wet rag to
prevent overheating.
5. After valve is brazed in, check for leaks. Evacuate and
charge system. Operate system in both modes several times
to be sure valve functions properly.
FROM INDOOR COIL
V
I
A
SERVICE VALVE ON
OUTDOOR COIL
TO
ACCUMULATOR
TO OUTDOOR
COIL
TP--4 TP--3 TP--2
TP--1
FROM COMPRESSOR
DISCHARGE LINE
A88342
Fig. 20 – Reversing Valve
(Cooling Mode or Defrost Mode, Solenoid Energized)
TO INDOOR COIL
VIA SERVICE VALVE
ON OUTDOOR COIL
TO
ACCUMULATOR
INSULATE
FOR
ACCURATE
READING
FROM
OUTDOOR
COIL
TP--4 TP--3 TP--2
TP--1
INSULATE FOR
ACCURATE
READING
FROM COMPRESSOR
DISCHARGE LINE
ELECTRONIC
THERMOMETER
A88341
Fig. 21 – Reversing Valve
(Heating Mode, Solenoid De--Energized)

27
Liquid Line Filter Drier
Filter driers are specifically designed for R--22 or Puronr
refrigerant. Only operate with the appropriate drier using factory
authorized components.
It is recommended that the liquid line drier be installed at the
indoor unit. Placing the drier near the TXV allows additional
protection to the TXV as the liquid line drier also acts as a strainer.
Install Liquid--line Filter Drier Indoor -- AC
CAUTION
!
UNIT DAMAGE HAZARD
Failure to follow this caution may result in equipment damage
or improper operation.
To avoid performance loss and compressor failure, installation
of filter drier in liquid line is required.
CAUTION
!
UNIT DAMAGE HAZARD
Failure to follow this caution may result in equipment damage
or improper operation.
To avoid filter drier damage while brazing, filter drier must be
wrapped in a heat--sinking material such as a wet cloth.
Refer to Fig. 22 and install filter drier as follows:
1. Braze 5--in. liquid tube to the indoor coil.
2. Wrap filter drier with damp cloth.
3. Braze filter drier to above 5” liquid tube. Flow arrow must
point towards indoor coil.
4. Connect and braze liquid refrigerant tube to the filter drier.
Install Liquid--line Filter Drier Indoor -- HP
Refer to Fig. 23 and install filter drier as follows:
1. Braze 5 in. liquid tube to the indoor coil.
2. Wrap filter drier with damp cloth.
3. Braze filter drier to 5 in. long liquid tube from step 1.
4. Connect and braze liquid refrigerant tube to the filter drier.
Suction Line Filter Drier
The suction line drier is specifically designed to operate with
Puronr, use only factory authorized components. Suction line filter
drier is used in cases where acid might occur, such as burnout. Heat
pump units must have the drier installed between the compressor
and accumulator only. Remove after 10 hours of operation. Never
leave suction line filter drier in a system longer than 72 hours
(actual time).
A05178
Fig. 22 – Liquid Line Filter Drier -- AC A05227
Fig. 23 – Liquid Line Filter Drier -- HP

28
Accumulator
The accumulator is specifically designed to operate with Puronr
or R22 respectfully; use only factory--authorized components.
Under some light load conditions on indoor coils, liquid refrigerant
is present in suction gas returning to compressor. The accumulator
stores liquid and allows it to boil off into a vapor so it can be safely
returned to compressor. Since a compressor is designed to pump
refrigerant in its gaseous state, introduction of liquid into it could
cause severe damage or total failure of compressor.
The accumulator is a passive device which seldom needs replacing.
Occasionally its internal oil return orifice or bleed hole may
become plugged. Some oil is contained in refrigerant returning to
compressor. It cannot boil off in accumulator with liquid
refrigerant. The bleed hole allows a small amount of oil and
refrigerant to enter the return line where velocity of refrigerant
returns it to compressor. If bleed hole plugs, oil is trapped in
accumulator, and compressor will eventually fail from lack of
lubrication. If bleed hole is plugged, accumulator must be changed.
The accumulator has a fusible element located in the bottom end
bell. (See Fig. 24.) This fusible element will melt at 430_F//221_C
and vent the refrigerant if this temperature is reached either internal
or external to the system. If fuse melts, the accumulator must be
replaced.
To change accumulator:
1. Shut off all power to unit.
2. Recover all refrigerant from system.
3. Break vacuum with dry nitrogen. Do not exceed 5 psig.
NOTE: Coil may be removed for access to accumulator. Refer to
appropriate sections of Service Manual for instructions.
PERSONAL INJURY HAZARD
Failure to follow this caution may result in personal injury.
Wear safety glasses, protective clothing, and gloves when
handling refrigerant.
CAUTION
!
4. Remove accumulator from system with tubing cutter.
5. Tape ends of open tubing.
6. Scratch matching marks on tubing studs and old
accumulator. Scratch matching marks on new accumulator.
Unbraze stubs from old accumulator and braze into new
accumulator.
7. Thoroughly rinse any flux residue from joints and paint
with corrosion--resistant coating such as zinc--rich paint.
8. Install factory authorized accumulator into system with
copper slip couplings.
9. Evacuate and charge system.
Pour and measure oil quantity (if any) from old accumulator. If
more than 20 percent of oil charge is trapped in accumulator, add
new POE oil to compressor to make up for this loss. (See Table 4.)
430° FUSE
ELEMENT
A88410
Fig. 24 – Accumulator

29
Thermostatic Expansion Valve (TXV)
All fan coils and furnace coils will have a factory installed
thermostatic expansion valve (TXV). The TXV will be a bi--flow,
hard--shutoff with an external equalizer and a balance port pin. A
hard shut--off TXV does not have a bleed port. Therefore,
minimal equalization takes place after shutdown. TXVs are
specifically designed to operate with Puronror R--22 refrigerant,
use only factory authorized TXV’s. Do not interchange Puron
and R--22 TXVs.
TXV Operation
The TXV is a metering device that is used in air conditioning and
heat pump systems to adjust to changing load conditions by
maintaining a preset superheat temperature at the outlet of the
evaporator coil. The volume of refrigerant metered through the
valve seat is dependent upon the following:
1. Superheat temperature is sensed by cap tube sensing bulb
on suction tube at outlet of evaporator coil. This
temperature is converted into pressure by refrigerant in the
bulb pushing downward on the diaphragm which opens the
valve via the pushrods.
2. The suction pressure at the outlet of the evaporator coil is
transferred via the external equalizer tube to the underside
of the diaphragm. This is needed to account for the indoor
coil pressure drop. Residential coils typically have a high
pressure drop, which requires this valve feature.
3. The pin is spring loaded, which exerts pressure on the
underside of the diaphragm. Therefore, the bulb pressure
works against the spring pressure and evaporator suction
pressure to open the valve.
If the load increases, the temperature increases at the bulb,
which increases the pressure on the top side of the
diaphragm. This opens the valve and increases the flow of
refrigerant. The increased refrigerant flow causes the
leaving evaporator temperature to decrease. This lowers the
pressure on the diaphragm and closes the pin. The
refrigerant flow is effectively stabilized to the load demand
with negligible change in superheat.
Install TXV
The thermostatic expansion valve is specifically designed to
operate with a refrigerant type. Do not use an R--22 TXV on a
Puron system, and do not use a Puron valve on an R--22 system.
Refer to Product Data Sheet for the appropriate TXV kit number.
CAUTION
!
UNIT OPERATION HAZARD
Failure to follow this caution may result in equipment
damage or improper operation.
Al indoor coil units must be installed with a hard shut
off PuronRTXV metering device.
IMPORTANT: The TXV should be mounted as close to the
indoor coil as possible and in a vertical, upright position. Avoid
mounting the inlet tube vertically down. The valve is more
susceptible to malfunction due to debris if inlet tube is facing
down. A factory--approved filter drier must be installed in the
liquid line at the indoor unit.
Installing TXV in Place of Piston in a Rated Indoor Coil
(pre--2006)
1. Pump system down to 2 psig and recover refrigerant.
2. Remove hex nut from piston body. Use backup wrench on
fan coils.
3. Remove and discard factory--installed piston. Be sure Teflon
seal is in place.
4. Reinstall hex nut. Finger tighten nut plus 1/2 turn.
NOTE: If the piston is not removed from the body, TXV will not
function properly.
CAUTION
!
EQUIPMENT DAMAGE HAZARD
Failure to follow this caution may result in equipment
damage or improper operation.
Use a brazing shield and wrap TXV with wet cloth or
use heat sink material
5. Install TXV on indoor coil liquid line. Sweat swivel adapter
to inlet of indoor coil and attach to TXV outlet. Use backup
wrench to avoid damage to tubing or valve. Sweat inlet of
TXV, marked “IN” to liquid line. Avoid excessive heat
which could damage valve.
6. Install vapor elbow with equalizer adapter to suction tube of
line set and suction connection to indoor coil. Adapter has a
1/4--in. male connector for attaching equalizer tube.
7. Connect equalizer tube of TXV to 1/4--in. equalizer fitting
on vapor line adapter.
8. Attach TXV bulb to horizontal section of suction line using
clamps provided. Insulate bulb with field--supplied
insulation tape. See Fig. 25 for correct positioning of
sensing bulb.
9. Proceed with remainder of unit installation.
2O’CLOCK
10 O’CLOCK
SENSING BUL
B
STRAP
SUCTION TUBE
A08083
Fig. 25 – Position of Sensing Bulb

30
Replacing TXV on an Indoor Coil (pre--2006)
1. Pump system down to 2 psig and recover refrigerant.
2. Remove coil access panel and fitting panel from front of
cabinet.
3. Remove TXV support clamp using a 5/16--in. nut driver.
Save the clamp.
4. Remove R--22 TXV using a backup wrench on flare
connections to prevent damage to tubing.
5. Using wire cutters, cut equalizer tube off flush with vapor
tube inside cabinet.
6. Remove bulb from vapor tube inside cabinet.
7. Braze equalizer stub--tube closed. Use protective barrier as
necessary to prevent damage to drain pan.
IMPORTANT: Route the equalizer tube of TXV through
suction line connection opening in fitting panel prior to
replacing fitting panel around tubing.
8. Install TXV with 3/8--in. copper tubing through small hole
in service panel. Use wrench and backup wrench, to avoid
damage to tubing or valve, to attach TXV to distributor.
9. Reinstall TXV support clamp (removed in item 3).
10. Attach TXV bulb to vapor tube inside cabinet, in same
location as original was when removed, using supplied bulb
clamps (nylon or copper). See Fig. 25 for correct
positioning of sensing bulb.
11. Route equalizer tube through suction connection opening
(large hole) in fitting panel and install fitting panel in place.
12. Sweat inlet of TXV, marked “IN” to liquid line. Avoid
excessive heat which could damage valve.
13. Install vapor elbow with equalizer adapter to vapor line of
line set and vapor connection to indoor coil. Adapter has a
1/4--in. male connector for attaching equalizer tube.
14. Connect equalizer tube of TXV to 1/4--in. equalizer fitting
on vapor line adapter. Use backup wrench to prevent
damage to equalizer fitting.
15. Proceed with remainder of unit installation.
Replacing TXV on Indoor Coil (post--2006)
1. Pump system down to 2 psig and recover refrigerant.
2. Remove coil access panel and fitting panel from front of
cabinet.
3. Remove TXV support clamp using a 5/16--in. nut driver.
Save the clamp (N coils only).
4. Remove TXV using a backup wrench on connections to
prevent damage to tubing.
5. Remove equalizer tube from suction line of coil.
Note: Some coils may have a mechanical connection. If
coil has a braze connection, use file or tubing cutter to cut
brazed equalizer line approximately 2 inches above suction
tube.
6. Remove bulb from vapor tube inside cabinet.
7. Install the new TXV using a wrench and backup wrench to
avoid damage to tubing or valve to attach TXV to
distributor.
8. Reinstall TXV support clamp (removed in item 3). (N coils
only.)
9. Attach equalizer tube to suction line. If coil has mechanical
connection, then use wrench and back up wrench to attach.
If coil has brazed connection, use file or tubing cutters to
remove mechanical flare nut from equalizer line. Then use
coupling to braze the equalizer line to stub (previous
equalizer line) in suction line.
10. Attach TXV bulb to vapor tube inside cabinet, in same
location as original was when removed, using supplied bulb
clamps (nylon or copper). See Fig. 25 for correct
positioning of sensing bulb.
11. Route equalizer tube through suction connection opening
(large hole) in fitting panel and install fitting panel in place.
12. Sweat inlet of TXV, marked “IN” to liquid line. Avoid
excessive heat which could damage valve.
13. Proceed with remainder of unit installation.
MAKE PIPING CONNECTIONS
!WARNING
PERSONAL INJURY AND ENVIRONMENTAL
HAZARD
Failure to follow this warning could result in personal injury
or death.
Relieve pressure and recover all refrigerant before system
repair or final unit disposal.
Use all service ports and open all flow--control devices,
including solenoid valves.
CAUTION
!
UNIT DAMAGE HAZARD
Failure to follow this caution may result in equipment damage
or improper operation.
Do not leave system open to atmosphere any longer than
minimum required for installation. POE oil in compressor is
extremely susceptible to moisture absorption. Always keep
ends of tubing sealed during installation.
CAUTION
!
UNIT DAMAGE HAZARD
Failure to follow this caution may result in equipment
damage or improper operation.
If ANY refrigerant tubing is buried, provide a 6 in. vertical
rise at service valve. Refrigerant tubing lengths up to 36 in.
may be buried without further special consideration. Do not
bury lines longer than 36 in.
THERMOSTATIC
EXPANSION
VALVE
EQUALIZE
R
TUBE
SENSING
BULB
COIL
A91277
Fig. 26 – Typical TXV Installation

31
REFRIGERATION SYSTEM REPAIR
Leak Detection
New installations should be checked for leaks prior to complete
charging. If a system has lost all or most of its charge, system must
be pressurized again to approximately 150 psi minimum and 375
psi maximum. This can be done by adding refrigerant using
normal charging procedures or by pressurizing system with
nitrogen (less expensive than refrigerant). Nitrogen also leaks faster
than refrigerants. Nitrogen cannot, however, be detected by an
electronic leak detector. (See Fig. 27.)
BEEP
B
EEP
A95422
Fig. 27 – Electronic Leak Detection
PERSONAL INJURY AND UNIT DAMAGE
HAZARD
Failure to follow this warning could result in personal
injury or death.
Due to the high pressure of nitrogen, it should never be
used without a pressure regulator on the tank.
!WARNING
Assuming that a system is pressurized with either all refrigerant or
a mixture of nitrogen and refrigerant, leaks in the system can be
found with an electronic leak detector that is capable of detecting
specific refrigerants.
If system has been operating for some time, first check for a leak
visually. Since refrigerant carries a small quantity of oil, traces of
oil at any joint or connection is an indication that refrigerant is
leaking at that point.
A simple and inexpensive method of testing for leaks is to use soap
bubbles. (See Fig. 28.) Any solution of water and soap may be
used. Soap solution is applied to all joints and connections in
system. A small pinhole leak is located by tracing bubbles in soap
solution around leak. If the leak is very small, several minutes may
pass before a bubble will form. Popular commercial leak detection
solutions give better, longer--lasting bubbles and more accurate
results than plain soapy water. The bubble solution must be
removed from the tubing and fittings after checking for leaks as
some solutions may corrode the metal.
LEAK
DETECTOR
SOLUTION
A95423
Fig. 29 – Bubble Leak Detection
You may use an electronic leak detector designed for specific
refrigerant to check for leaks. (See Fig. 27.) This unquestionably is
the most efficient and easiest method for checking leaks. There are
various types of electronic leak detectors. Check with manufacturer
of equipment for suitability. Generally speaking, they are portable,
lightweight, and consist of a box with several switches and a probe
or sniffer. Detector is turned on and probe is passed around all
fittings and connections in system. Leak is detected by either the
movement of a pointer on detector dial, a buzzing sound, or a light.
In all instances when a leak is found, system charge must be
recovered and leak repaired before final charging and operation.
After leak testing or leak is repaired, replace liquid line filter drier,
evacuate system, and recharge with correct refrigerant quantity.
Coil Removal
Coils are easy to remove if required for compressor removal, or to
replace coil.
1. Shut off all power to unit.
2. Recover refrigerant from system through service valves.
3. Break vacuum with nitrogen.
4. Remove top cover. (See Remove Top Cover in Cabinet
section of the manual.)
5. Remove screws in base pan to coil grille.
6. Remove coil grille from unit.
7. Remove screws on corner post holding coil tube sheet.
FIRE HAZARD
Failure to follow this warning could result in personal
injury or equipment damage.
Cut tubing to reduce possibility of personal injury and fire.
!WARNING
8. Use midget tubing cutter to cut liquid and vapor lines at
both sides of coil. Cut in convenient location for easy
reassembly with copper slip couplings.
9. Lift coil vertically from basepan and carefully place aside.
10. Reverse procedure to reinstall coil.
11. Replace filter drier, evacuate system, recharge, and check
for normal systems operation.

32
Compressor Removal and Replacement
Once it is determined that compressor has failed and the reason
established, compressor must be replaced.
PERSONAL INJURY HAZARD
Failure to follow this caution may result in personal injury.
Turn off all power to unit before proceeding. Wear safety
glasses, protective clothing, and gloves when handling
refrigerant. Acids formed as a result of motor burnout can
cause burns.
CAUTION
!
CAUTION
!
PERSONAL INJURY HAZARD
Failure to follow this caution may result in personal injury.
Wear safety glasses, protective clothing, and gloves when
handling refrigerant and when using brazing torch..
1. Shut off all power to unit.
2. Remove and recover all refrigerant from system until
pressure gauges read 0 psi. Use all service ports. Never open
a system under a vacuum to atmosphere. Break vacuum
with dry nitrogen holding charge first. Do not exceed 5
psig.
3. Disconnect electrical leads from compressor. Disconnect or
remove crankcase heater and remove compressor
hold--down bolts.
4. Cut compressor from system with tubing cutter. Do not use
brazing torch for compressor removal. Oil vapor may ignite
when compressor is disconnected.
5. Scratch matching marks on stubs in old compressor. Make
corresponding marks on replacement compressor.
6. Use torch to remove stubs from old compressor and to
reinstall them in replacement compressor.
7. Use copper couplings to tie compressor back into system.
8. Replace filter drier, evacuate system, recharge, and check
for normal system operation.
CAUTION
!
UNIT DAMAGE HAZARD
Failure to follow this caution may result in equipment
damage or improper operation.
Do not leave system open to atmosphere. Compressor oil is
highly susceptible to moisture absorption.
System Clean--Up After Burnout
Some compressor electrical failures can cause motor to burn. When
this occurs, by--products of burn, which include sludge, carbon,
and acids, contaminate system. Test the oil for acidity using POE
oil acid test to determine burnout severity. If burnout is severe
enough, system must be cleaned before replacement compressor is
installed. The 2 types of motor burnout are classified as mild or
severe.
In mild burnout, there is little or no detectable odor. Compressor
oil is clear or slightly discolored. An acid test of compressor oil
will be negative. This type of failure is treated the same as
mechanical failure. Liquid--line strainer should be removed and
liquid--line filter drier replaced.
In a severe burnout, there is a strong, pungent, rotten egg odor.
Compressor oil is very dark. Evidence of burning may be present
in tubing connected to compressor. An acid test of compressor oil
will be positive. Follow these additional steps:
1. TXV must be cleaned or replaced.
2. Drain any trapped oil from accumulator if used.
3. Remove and discard liquid--line strainer and filter drier.
4. After system is reassembled, install liquid and suction--line
Puronrfilter driers.
NOTE: On heat pumps, install suction line drier between
compressor and accumulator.
5. Operate system for 10 hr. Monitor pressure drop across
drier. If pressure drop exceeds 3 psig replace suction--line
and liquid--line filter driers. Be sure to purge system with
dry nitrogen when replacing filter driers. If suction line
driers must be replaced, retest pressure drop after additional
10 hours (run time). Continue to monitor pressure drop
across suction line filter drier. After 10 hr of run time,
remove suction--line filter drier and replace liquid--line filter
drier. Never leave suction--line filter drier in system longer
than 72 hr (run time).
6. Charge system. (See unit information plate.)
CAUTION
!
UNIT DAMAGE HAZARD
Failure to follow this caution may result in equipment
damage or improper operation.
Only suction line filter driers should be used for refrigerant
and oil clean up. Use of non--approved products could limit
system life and void unit warranty.

33
Evacuation
Proper evacuation of the system will remove non--condensibles
and assure a tight, dry system before charging. The 2 methods used
to evacuate a system are the deep vacuum method and the triple
evacuation method.
Deep Vacuum Method
The deep vacuum method requires a vacuum pump capable of
pulling a vacuum of 500 microns and a vacuum gauge capable of
accurately measuring this vacuum depth. The deep vacuum method
is the most positive way of assuring a system is free of air and
moisture. (See Fig. 30.)
500
MINUTES
01234567
1000
1500
LEAK IN
SYSTEM
VACUUM TIGH
T
TOO WET
TIGHT
DRY SYSTEM
2000
MICRONS
2500
3000
3500
4000
4500
5000
A95424
Fig. 30 – Deep Vacuum Graph
Triple Evacuation Method
The triple evacuation method should be used when vacuum pump
is only capable of pumping down to 28 in. of mercury vacuum and
system does not contain any liquid water. Refer to Fig. 31 and
proceed as follows:
1. Pump system down to 28 in. of mercury and allow pump to
continue operating for an additional 15 minutes.
2. Close service valves and shut off vacuum pump.
3. Connect a nitrogen cylinder and regulator to system and
open until system pressure is 2 psig.
4. Close service valve and allow system to stand for 1 hr.
During this time, dry nitrogen will be able to diffuse
throughout the system absorbing moisture.
5. Repeat this procedure as indicated in Fig. 31. System will
then be free of any contaminants and water vapor.
CHECK FOR TIGHT, DRY SYSTEM
(IF IT HOLDS DEEP VACUUM)
EVACUATE
BREAK VACUUM WITH DRY NITROGEN
WAIT
EVACUATE
CHARGE SYSTEM
BREAK VACUUM WITH DRY NITROGEN
EVACUATE
WAIT
A95425
Fig. 31 – Triple Evacuation Method
CHECK CHARGE
(See Charging Tables 11 & 13)
Factory charge amount and desired subcooling are shown on unit
rating plate. Charging method is shown on information plate inside
unit. To properly check or adjust charge, conditions must be
favorable for subcooling charging. Favorable conditions exist
when the outdoor temperature is between 70_F and 100_F
(21.11_C and 37.78_C), and the indoor temperature is between
70_F and 80_F (21.11_C and 26.67_C). Follow the procedure
below:
Unit is factory charged for 15ft (4.57 m) of lineset. Adjust charge
by adding or removing 0.6 oz/ft of 3/8 liquid line above or below
15ft (4.57 m) respectively.
For standard refrigerant line lengths (80 ft/24.38 m or less), allow
system to operate in cooling mode at least 15 minutes. If conditions
are favorable, check system charge by subcooling method. If any
adjustment is necessary, adjust charge slowly and allow system to
operate for 15 minutes to stabilize before declaring a properly
charged system.
If the indoor temperature is above 80_F (26.67_C), and the
outdoor temperature is in the favorable range, adjust system charge
by weight based on line length and allow the indoor temperature to
drop to 80_F (26.67_C) before attempting to check system charge
by subcooling method as described above.
If the indoor temperature is below 70_F (21.11_C), or the outdoor
temperature is not in the favorable range, adjust charge for line set
length above or below 15ft (4.57 m) only. Charge level should then
be appropriate for the system to achieve rated capacity. The charge
level could then be checked at another time when the both indoor
and outdoor temperatures are in a more favorable range.
NOTE: If line length is beyond 80 ft (24.38 m) or greater than 20
ft (6.10 m) vertical separation, See Long Line Guideline for
special charging requirements.

34
TROUBLESHOOTING WITH SUPERHEAT
This troubleshooting routine was developed to diagnose cooling
problems using superheat in TXV systems. It is effective on heat
pumps in cooling mode as well as air conditioners. The system
must utilize a TXV as the expansion device in cooling mode.
Basic Diagnostics
NOTE: When checking refrigerant charge and troubleshooting
operating systems, the indoor airflow has significant effect on the
determination. If you are at this stage, it is assumed you have
already checked the subcooling once and believe the charge is
correct. From this point, the airflow must be verified prior to
proceeding, hence step 1 below.
1. Check or verify proper indoor airflow
SIndoor air filter
SDuct dampers and supply registers are open
SIndoor coil for debris
2. Check subcooling at OD unit liquid service valve
SOutdoor airflow (debris on coil, etc.)
SSet the subcooling at value listed on rating plate if
standard lineset
SSet the subcooling at the maximum of 10°Forvalue
listed on rating plate if a long line application
3. Check superheat at OD unit vapor service valve.
SIf low (< 2°F), proceed to Low SuperHeat section.
SIf between 2 and 20°F/11_C valve is probably operating
properly.
SIf greater than 20°F/11_C, perform Pseudo Evaporator
SuperHeat Instructions check as follows:
⎯Check refrigerant pressure at vapor service valve and
refrigerant temperature at outlet of evaporator.
⎯Use suction line geometry (diameter and equivalent
length), unit capacity and Tables 7 and 8 to determine
suction pressure drop.
SFor standard lineset diameters (vapor service
valve diameters and larger) and lengths (less than
80 ft), generally no pressure adjustment (per
Table 6 or Table 7) is required.
SFor longer (greater than 80 ft) and small diameter .
linesets (less than service valve size), correct
pressure (add to gauge pressure reading) per
Table 6 and Table 7.
SIf Pseudo Superheat is greater than 15, proceed to High
SuperHeat section.
SIf Pseudo Evaporator Superheat is between 2 and 15,
TXV appears to be functioning properly.
SIf operation erratic (hunting), proceed to Hunting
Superheat °F Superheat in repetition section.
NOTE: Hunting is when the valve superheat swings more than
10_.
Low Superheat with Normal or Low Suction Pressure
NOTE: Normal or low suction pressure is considered for
R--22: < 80 psig, Puron: < 135 psig
1. Re--check airflow and then check sensing bulb tightness,
orientation on vapor tube and is properly wrapped.
SLow Superheat with Normal or Low Suction Pressure
If OK proceed to Step 2
2. Check superheat at Vapor Service Valve and Pseudo
Evaporator Superheat.
SIf both are less than 2°F, TXV likely not controlling
properly, i.e. stuck open --> REPLACE VALVE
SIf superheat is higher than 15°F, proceed to Step 3
3. Perform TXV function check.
SWith system running, place sensing bulb in ice bath for
∼1 minute --> superheat should increase.
⎯If no response, Replace Valve
⎯If OK proceed to Step 4
4. Check for even temperature distribution at outlet of each
circuit of evaporator
SIf greater than 15°F between circuits, distributor or coil
has a restriction.
SIf OK proceed to Step 5
Low Superheat with High Suction Pressure
NOTE: High suction pressure is considered for R--22: > ∼80 psig,
Puron: > ∼135 psig. An application issue or other system
component failure typically causes this condition.
5. R--22 Systems: Check that proper valve used (not an
R--410A valve)
SIf OK proceed to Step 6
6. Check airflow, sensing bulb tightness, orientation on vapor
tube and ensure bulb is properly wrapped.
SIf OK proceed to Step 7
7. Check that compressor is pumping properly
NOTE: Loose Rules of Thumb: Is discharge saturated ∼20°F
higher than ambient temperature? Is discharge superheat between
15 and 50?
SIf OK proceed to Step 8
8. Recheck Airflow and Subcooling.
SIf OK proceed to Replace Valve
High Superheat with Normal or Low Pressure
NOTE: Normal or low suction pressure is considered:
R--22 < 80 psig, Puron < 135 psig.
9. Check for restriction in liquid line (kinked line, filter drier
restricted, etc.)
SIf OK proceed to Step 10
10. Check for restriction in suction line (kink, restricted suction
filter drier etc.))
SIf OK proceed to Step 11
11. Check power element cap tube is not broken
SIf OK proceed to Step 12
12. Check that equalizer tube is not kinked or plugged
SIf OK proceed to Step 13
13. Check that inlet screen (R--22 systems) is not restricted
SIf OK proceed to Step 14
14. Replace Valve

35
High Superheat with Normal or High Suction Pressure
NOTE: Normal to High suction pressure is considered
for R--22: > ∼65 psig, Puron: > ∼110 psig. An application issue or
other system component failure typically causes this condition.
15. Check airflow, sensing bulb tightness, orientation on vapor
tube and ensure bulb is properly wrapped.
SIf OK proceed to Step 16
16. R--410A Systems: Make sure proper valve is used (Not
R--22)
SIf OK proceed to Step 17
17. Check for even temperature distribution at outlet of each
circuit of evaporator
SIf OK proceed to Step 18
18. Check for high evaporator load: Return Air Leaks, high
indoor wet bulb and/or dry bulb temp, undersized system,
etc.
SIf OK proceed to Step 19
19. Check that compressor is pumping properly
SLoose Rule of Thumb: Is discharge saturated ∼20°F
higher than ambient temperature? Is discharge superheat
between 15_F and 50_F?
Hunting Superheat
NOTE: Hunting is when the valve superheat swings more than
10°F Superheat in repetition. This is typically an application issue.
20. Check for obvious kinked or pinched distributor (capillary)
tubes causing imbalance to the circuiting.
SIf OK proceed to Step 21
21. Check that proper size valve is used per Product Literature.
SIf OK proceed to Step 22
22. Check airflow, sensing bulb tightness, orientation on vapor
tube and ensure bulb is properly wrapped.
SIf OK proceed to Step 23
23. Check for even temperature distribution (±5°difference) at
outlet of each circuit of evaporator and for even air
distribution over all evaporator slabs
SIf OK proceed to Step 24.
24. Move sensing bulb further down suction line.
SIf problem not corrected, replace valve
Pseudo Evaporator Superheat Instructions
The Pseudo Evaporator Superheat calculates the superheat at the
outlet of the evaporator with known and available information.
Because there generally is not a pressure port on the vapor line at
the indoor coil, this procedure allows the service personnel to
evaluate the evaporator superheat with the vapor pressure port at
the outdoor unit.
The method requires the following information:
SSuction line temperature at the outlet of the evaporator
(°F).
SSuction line pressure at the outdoor unit (psig).
SOutdoor nominal unit size (btuh).
SSuction line equivalent line length (ft).
SSuction line pressure drop from tables (Table 6 and Table
7).
SPressure--Temperature relationship for refrigerant used
(P--T Chart).
If system uses a vapor line the same size as vapor service valve
fitting or larger AND the line set equivalent length is 80 feet or
less, the pressure drop in vapor line of line set can be ignored.
1. Take suction line temperature at outlet of evaporator at
indoor unit.
2. Take suction service valve pressure at OD unit.
3. Determine lineset vapor line equivalent length and tube
diameter.
4. Determine suction line pressure drop from Table 6 (Puron)
or Table 7 (R--22).
5. Calculate Pseudo Evaporator Superheat.
SAdd the suction line pressure drop to the pressure
reading obtained at suction service valve.
NOTE: For nominal and larger diameter vapor lines with standard
length linesets (vapor line same size as service valve fitting size and
larger with equivalent length less than 80 ft) the pressure drop can
be ignored – use vapor service valve pressure and evaporator outlet
temperature to calculate superheat
SDetermine saturated evaporator temperature from a
refrigerant pressure temperature relationship chart (PT
chart).
SSubtract saturated evaporator from evaporator suction
line temperature to obtain evaporator superheat.
90°STD
90°LONG RAD 45°STD
A01058
Fig. 32 – Tube Fitting Geometry
Table 5—Fitting Losses in Equivalent Feet
TUBE SIZE OD
(IN.) 90°STD (A) 90°LONG RAD (B) 45°STD (C)
1/2 1.2 0.8 0.6
5/8 1.6 1.0 0.8
3/4 1.8 1.2 0.9
7/8 2.0 1.4 1.0
1 --- 1 / 8 2.6 1.7 1.3

36
Table 6—Puron System Suction Pressure Drop
Nominal
Size
(Btuh)
Suction Line
OD
(in.)
Pressure
Drop
(psi/100 ft)
Suction
Velocity
fpm
Puron Suction Line Pressure Drop (psig)
Total Equivalent Line Length (ft)
20 50 80 100 125 150 175 200 225 250
18000
18000
18000
1/2 9.9 1649 2 5 8 10 12 15 17 20 22 25
5/8 3.1 1018 1 2 2 3 4 5 5 6 7 8
3/4 1.2 678 0 1 1 1 1 2 2 2 3 3
24000
24000
24000
1/2 16.7 2199 3 8 13 17 21 25 29 33 38 42
5/8 5.2 1357 1 3 4 5 7 8 9 10 12 13
3/4 2.0 904 0 1 2 2 2 3 3 4 4 5
7/8 1.0 678 0 0 1 1 1 1 2 2 2 2
30000
30000
30000
5/8 7.8 1696 2 4 6 8 10 12 14 16 18 20
3/4 2.9 1130 1 1 2 3 4 4 5 6 7 7
7/8 1.5 848 0 1 1 1 2 2 3 3 3 4
36000
36000
36000
5/8 10.9 2036 2 5 9 11 14 16 19 22 24 27
3/4 4.1 1356 1 2 3 4 5 6 7 8 9 10
7/8 2.0 1017 0 1 2 2 3 3 4 4 5 5
42000
42000
42000
42000
5/8 14.1 2375 3 7 11 14 18 21 25 28 32 35
3/4 5.4 1582 1 3 4 5 7 8 9 11 12 14
7/8 2.7 1187 1 1 2 3 3 4 5 5 6 7
11/8 0.8 696 0 0 1 1 1 1 1 2 2 2
48000
48000
48000
3/4 6.9 1808 1 3 6 7 9 10 12 14 16 17
7/8 3.5 1357 1 2 3 3 4 5 6 7 8 9
11/8 1.0 796 0 0 1 1 1 1 2 2 2 2
60000
60000
60000
3/4 10.4 2260 2 5 8 10 13 16 18 21 23 26
7/8 5.2 1696 1 3 4 5 6 8 9 10 12 13
11/8 1.4 995 0 1 1 1 2 2 3 3 3 4
Line set application not recommended
Example 1
While on a service call, after checking for proper indoor and
outdoor airflow, Tom finds the following pressures and
temperatures at the service valves of a Puron air conditioner:
SLiquid line pressure = 340 psig
SLiquid line temperature = 97°F
SSuction line pressure = 125 psig
SSuction line temperature = 70°F
Using a Puron PT chart, the subcooling is determined to be 8°F,
which is within ±3 of the 10°F listed on the rating plate. Tom
believes the charge is correct. He calculates the superheat to be
approximately 27°F superheat. The apparently high superheat has
Tom concerned.
Tom uses the Pseudo Evaporator Superheat method to check the
TXV performance. The system is a 3--ton Puron air conditioner
with 75 feet equivalent length of 3/4” suction line. Based on Table
6, the system has approximately 3--psig pressure drop in the vapor
line. Per the instructions, he takes the suction line temperature at
the outlet of the evaporator and finds it to be 53°F. Tom adds 3
psig to the 125--psig suction pressure at the outdoor unit to get 128
psig evaporator pressure. The saturated pressure of 128 equates to
44°F. Tom calculates the evaporator superheat to be (53°F--44°F
=) 9°F. The TXV appears to be operating properly.
NOTE: The additional superheat at the compressor is due
principally to heat gain in the 75 feet of suction line with a minor
contribution by the pressure drop. Because the suction line of the
lineset was the same size as the vapor service valve fitting and less
than 80 feet, Tom could have ignored the pressure drop in the
suction line and obtained the evaporator superheat by using the
vapor service valve pressure of 125 psig (saturated temperature =
43°F) and the evaporator outlet temperature of 53°F. The
evaporator superheat is calculated to be (53°F–43°F=)10°F.

37
Table 7—R--22 System Suction Pressure Drop
Nominal
Size
(Btuh)
Line
OD
(in.)
Pressure
Drop
(psi/100 ft)
Suction
Velocity
Fpm
R---22 Suction Line Pressure Drop (psig)
Total Equivalent Line Length (ft)
20 50 80 100 125 150 175 200 225 250
18000
18000
18000
18000
5/8 13.6 2563 3 7 11 14 17 20 24 27 31 34
5/8 4.0 1539 1 2 3 4 5 6 7 8 9 10
3/4 1.5 1025 0 1 1 1 2 2 3 3 3 4
7/8 0.8 769 0 0 1 1 1 1 1 2 2 2
24000
24000
24000
5/8 6.7 2052 1 3 5 7 8 10 12 13 15 17
3/4 2.5 1367 1 1 2 3 3 4 4 5 6 6
7/8 1.3 1026 0 1 1 1 2 2 2 3 3 3
30000
30000
30000
5/8 10.1 2565 2 5 8 10 13 15 18 20 23 25
3/4 3.8 1708 1 2 3 4 5 6 7 8 9 9
7/8 1.9 1282 0 1 2 2 2 3 3 4 4 5
36000
36000
36000
3/4 5.3 2050 1 3 4 5 7 8 9 11 12 13
7/8 2.6 1538 1 1 2 3 3 4 5 5 6 7
11/8 0.7 902 0 0 1 1 1 1 1 1 2 2
42000
42000
42000
3/4 7.0 2392 1 3 6 7 9 10 12 14 16 17
7/8 3.5 1795 1 2 3 3 4 5 6 7 8 9
11/8 1.0 1053 0 0 1 1 1 1 2 2 2 2
48000
48000
48000
3/4 8.9 2733 2 4 7 9 11 13 16 18 20 22
7/8 4.4 2051 1 2 4 4 6 7 8 9 10 11
11/8 1.2 1203 0 1 1 1 2 2 2 2 3 3
60000
60000
60000
7/8 6.7 2564 1 3 5 7 8 10 12 13 15 17
11/8 1.8 1504 0 1 1 2 2 3 3 4 4 5
13/8 0.7 987 0 0 1 1 1 1 1 1 2 2
Line set application not recommended
Example 2
Jason is servicing a 5--ton R--22 air conditioner with 7/8” suction
line. As part of his basic inspection he believes he has normal
airflow because the air filters are clean, ductwork appears to be
properly sized and in good shape and the evaporator coil is clean.
He then checks the superheat and subcooling at the outdoor unit
service valves. Taking pressures and temperatures he finds the
following:
SLiquid line pressure = 260 psig
SLiquid line temperature = 110°F
SSuction line pressure = 60 psig
SSuction line temperature = 65°F
Using an R--22 PT relationship, Jason calculates the subcooling to
be approximately 10°F with 30°F superheat. Because the
subcooling is correct but the superheat appears to be high, he is
concerned and decides to perform the Pseudo Evaporator
Superheat check.
Examining the lineset, Jason finds approximately 145 ft of suction
line with 4 long radius elbows. Per Fig. 33 and Table 7, each
fitting has an equivalent length of 1.4 ft. The total equivalent
length of the suction line is (145’ + (4 * 1.4’) ≈) 150 ft. Based on
Table 9, Jason determines there should be 10--psig pressure--drop
in the suction line.
Jason now takes the suction line temperature at the outlet of the
evaporator and obtains 51°F. Per the instructions, Jason adds the
10--psig pressure--drop to the 60--psig pressure at the outdoor unit
to get 70--psig at the evaporator. Saturated pressure of 70--psig
equates to approximately 41°F. Jason determines the Evaporator
superheat to be (51°F--41°F=)10°F. Jason concludes the TXV is
functioning properly.
NOTE: In this situation, both the pressure drop and the heat gain
in the suction line are significant contributions to the superheat at
the service valve. The pressure drop contributes approximately
7°F superheat and the heat gain in the suction line contributes
13°F.
Fig. 33 – Pseudo Evaporator Superheat Pressure and Temperature Measurement Locations

38
Table 8—PuronrRefrigerant Pressure Temperature Chart
PSIGPSIG °FPSIG °FPSIG °FPSIG °FPSIG °FPSIG °F
12 --38.2 118 39.9 224 76.9 330 102.9 436 123.3 542 140.2
14 --35.3 120 40.8 226 77.4 332 103.3 438 123.6 544 140.5
16 --32.5 122 41.6 228 78.0 334 103.7 440 124.0 546 140.8
18 --29.9 124 42.5 230 78.5 336 104.1 442 124.3 548 141.1
20 --27.3 126 43.3 232 79.1 338 104.6 444 124.7 550 141.4
22 --24.9 128 44.2 234 79.7 340 105.0 446 125.0 554 141.9
24 --22.6 130 45.0 236 80.2 342 105.4 448 125.3 558 142.5
26 --20.4 132 45.8 238 80.7 344 105.8 450 125.7 560 142.8
28 --18.3 134 46.6 240 81.3 346 106.2 452 126.0 564 143.4
30 --16.2 136 47.5 242 81.8 348 106.6 454 126.4 568 143.9
32 --14.2 138 48.2 244 82.4 350 107.0 456 126.7 570 144.2
34 --12.3 140 49.0 246 82.9 352 107.5 458 127.0 574 144.8
36 --10.4 142 49.8 248 83.4 354 107.9 460 127.4 578 145.3
38 --8.6 144 50.6 250 83.9 356 108.3 462 127.7 580 145.6
40 --6.9 146 51.4 252 84.5 358 108.7 464 128.0 584 146.2
42 --5.1 148 52.1 254 85.0 360 109.1 466 128.4 588 146.7
44 --3.5 150 52.9 256 85.5 362 109.5 468 128.7 590 147.0
46 --1.9 152 53.6 258 86.0 364 109.9 470 129.0 594 147.5
48 --0.3 154 54.4 260 86.5 366 110.3 472 129.4 598 148.1
50 1.3 156 55.1 262 87.0 368 110.7 474 129.7 600 148.4
52 2.8 158 55.8 264 87.5 370 111.1 476 130.0 604 148.9
54 4.2 160 56.5 266 88.0 372 111.5 478 130.3 606 149.2
56 5.7 162 57.3 268 88.5 374 111.9 480 130.7 608 149.4
58 7.1 164 58.0 270 89.0 376 112.2 482 131.0 610 151.3
60 8.5 166 58.7 272 89.5 378 112.6 484 131.3 612 150.0
62 9.8 168 59.4 274 90.0 380 113.0 486 131.6 614 150.2
64 11.1 170 60.1 276 90.5 382 113.4 488 131.9 616 150.5
66 12.4 172 60.7 278 91.0 384 113.8 490 132.3 618 150.7
68 13.7 174 61.4 280 91.5 386 114.2 492 132.6 620 151.0
70 15.0 176 62.1 282 92.0 388 114.6 494 132.9 624 151.5
72 16.2 178 62.8 284 92.4 390 114.9 496 133.2 626 151.8
74 17.4 180 63.4 286 92.9 392 115.3 498 133.5 628 152.1
76 18.6 182 64.1 288 93.4 394 115.7 500 133.8 630 152.3
78 19.8 184 64.7 290 93.9 396 116.1 502 134.1 634 152.8
80 20.9 186 65.4 292 94.3 398 116.4 504 134.5 636 153.1
82 22.0 188 66.0 294 94.8 400 116.8 506 134.8 638 153.3
84 23.2 190 66.7 296 95.3 402 117.2 508 135.1 640 153.6
86 24.3 192 67.3 298 95.7 404 117.5 510 135.4 644 154.1
88 25.3 194 67.9 300 96.2 406 117.9 512 135.7 646 154.3
90 26.4 196 68.6 302 96.7 408 118.3 514 136.0 648 154.6
92 27.4 198 69.2 304 97.1 410 118.6 516 136.3 650 154.8
94 28.5 200 69.8 306 97.6 412 119.0 518 136.6 654 161.8
96 29.5 202 70.4 308 98.0 414 119.4 520 136.9 656 155.6
98 30.5 204 71.0 310 98.5 416 119.7 522 137.2 658 155.8
100 31.5 206 71.6 312 98.9 418 120.1 524 137.5 660 158.3
102 32.5 208 72.2 314 99.4 420 120.5 526 137.8 664 156.6
104 33.4 210 72.8 316 99.8 422 120.8 528 138.1 666 156.8
106 34.4 212 73.4 318 100.2 424 121.2 530 138.4 668 157.1
108 35.3 214 74.0 320 100.7 426 121.5 532 138.7 670 157.3
110 36.3 216 74.6 322 101.1 428 121.9 534 139.0 674 157.7
112 37.2 218 75.1 324 101.6 430 122.2 536 139.3 676 158.0
114 38.1 220 75.7 326 102.0 432 122.6 538 139.6 Critical Point
116 39.0 222 76.3 328 102.4 434 122.9 540 139.9 705 163.0
Source: Allied Signal -- Genetron for Windows version R1.0 ©1999

39
Table 9—R--22 Refrigerant Pressure Temperature Relationship
psig °Fpsig °Fpsig °Fpsig °Fpsig °Fpsig °Fpsig °F
7 --25.9 71 41.7 135 76.2 199 101.1 263 120.9 327 137.5 391 152.0
8 --24.0 72 42.3 136 76.7 200 101.4 264 121.1 328 137.8 392 152.2
9 --22.1 73 43.0 137 77.1 201 101.7 265 121.4 329 138.0 393 152.4
10 --20.4 74 43.7 138 77.6 202 102.1 266 121.7 330 138.2 394 152.6
11 --18.7 75 44.3 139 78.0 203 102.4 267 122.0 331 138.5 395 152.8
12 --17.0 76 45.0 140 78.4 204 102.8 268 122.3 332 138.7 396 153.1
13 --15.4 77 45.6 141 78.9 205 103.1 269 122.5 333 139.0 397 153.3
14 --13.8 78 46.2 142 79.3 206 103.4 270 122.8 334 139.2 398 153.5
15 --12.3 79 46.9 143 79.7 207 103.8 271 123.1 335 139.4 399 153.7
16 --10.8 80 47.5 144 80.2 208 104.1 272 123.4 336 139.7 400 153.9
17 --9.3 81 48.1 145 80.6 209 104.4 273 123.6 337 139.9 401 154.1
18 --7.9 82 48.7 146 81.0 210 104.8 274 123.9 338 140.2 402 154.3
19 --6.5 83 49.4 147 81.4 211 105.1 275 124.2 339 140.4 403 154.5
20 --5.2 84 50.0 148 81.8 212 105.4 276 124.5 340 140.6 404 154.7
21 --3.9 85 50.6 149 82.3 213 105.7 277 124.7 341 140.9 405 154.9
22 --2.6 86 51.2 150 82.7 214 106.1 278 125.0 342 141.1 406 155.1
23 --1.3 87 51.8 151 83.1 215 106.4 279 125.3 343 141.3 407 155.3
24 0.0 88 52.4 152 83.5 216 106.7 280 125.5 344 141.6 408 155.6
25 1.2 89 52.9 153 83.9 217 107.0 281 125.8 345 141.8 409 155.8
26 2.4 90 53.5 154 84.3 218 107.4 282 126.1 346 142.0 410 156.0
27 3.6 91 54.1 155 84.7 219 107.7 283 126.4 347 142.3 411 156.2
28 4.7 92 54.7 156 85.1 220 108.0 284 126.6 348 142.5 412 156.4
29 5.8 93 55.2 157 85.5 221 108.3 285 126.9 349 142.7 413 156.6
30 6.9 94 55.8 158 85.9 222 108.6 286 127.2 350 142.9 414 156.8
31 8.0 95 56.4 159 86.3 223 108.9 287 127.4 351 143.2 415 157.0
32 9.1 96 56.9 160 86.7 224 109.3 288 127.7 352 143.4 416 157.2
33 10.2 97 57.5 161 87.1 225 109.6 289 127.9 353 143.6 417 157.4
34 11.2 98 58.0 162 87.5 226 109.9 290 128.2 354 143.9 418 157.6
35 12.2 99 58.6 163 87.9 227 110.2 291 128.5 355 144.1 419 157.8
36 13.2 100 59.1 164 88.3 228 110.5 292 128.7 356 144.3 420 158.0
37 14.2 101 59.7 165 88.7 229 110.8 293 129.0 357 144.5 421 158.2
38 15.2 102 60.2 166 89.1 230 111.1 294 129.3 358 144.8 422 158.4
39 16.2 103 60.7 167 89.5 231 111.4 295 129.5 359 145.0 423 158.6
40 17.1 104 61.3 168 89.9 232 111.8 296 129.8 360 145.2 424 158.8
41 18.1 105 61.8 169 90.2 233 112.1 297 130.0 361 145.4 425 159.0
42 19.0 106 62.3 170 90.6 234 112.4 298 130.3 362 145.7 426 159.2
43 19.9 107 62.8 171 91.0 235 112.7 299 130.6 363 145.9 427 159.4
44 20.8 108 63.3 172 91.4 236 113.0 300 130.8 364 146.1 428 159.6
45 21.7 109 63.9 173 91.8 237 113.3 301 131.1 365 146.3 429 159.8
46 22.6 110 64.4 174 92.1 238 113.6 302 131.3 366 146.6 430 160.0
47 23.5 111 64.9 175 92.5 239 113.9 303 131.6 367 146.8 431 160.2
48 24.3 112 65.4 176 92.9 240 114.2 304 131.8 368 147.0 432 160.4
49 25.2 113 65.9 177 93.2 241 114.5 305 132.1 369 147.2 433 160.6
50 26.0 114 66.4 178 93.6 242 114.8 306 132.3 370 147.5 434 160.8
51 26.8 115 66.9 179 94.0 243 115.1 307 132.6 371 147.7 435 161.0
52 27.6 116 67.4 180 94.3 244 115.4 308 132.8 372 147.9 436 161.2
53 28.4 117 67.9 181 94.7 245 115.7 309 133.1 373 148.1 437 161.4
54 29.2 118 68.4 182 95.1 246 116.0 310 133.3 374 148.3 438 161.6
55 30.0 119 68.8 183 95.4 247 116.3 311 133.6 375 148.6 439 161.8
56 30.8 120 69.3 184 95.8 248 116.6 312 133.8 376 148.8 440 162.0
57 31.6 121 69.8 185 96.2 249 116.8 313 134.1 377 149.0 441 162.2
58 32.4 122 70.3 186 96.5 250 117.1 314 134.3 378 149.2 442 162.3
59 33.1 123 70.7 187 96.9 251 117.4 315 134.6 379 149.4 443 162.5
60 33.9 124 71.2 188 97.2 252 117.7 316 134.8 380 149.6 444 162.7
61 34.6 125 71.7 189 97.6 253 118.0 317 135.1 381 149.9 445 162.9
62 35.4 126 72.2 190 97.9 254 118.3 318 135.3 382 150.1 446 163.1
63 36.1 127 72.6 191 98.3 255 118.6 319 135.6 383 150.3 447 163.3
64 36.8 128 73.1 192 98.6 256 118.9 320 135.8 384 150.5 448 163.5
65 37.5 129 73.5 193 99.0 257 119.2 321 136.1 385 150.7 449 163.7
66 38.2 130 74.0 194 99.3 258 119.4 322 136.3 386 150.9 450 163.9
67 38.9 131 74.5 195 99.7 259 119.7 323 136.6 387 151.1
68 39.6 132 74.9 196 100.0 260 120.0 324 136.8 388 151.4
69 40.3 133 75.4 197 100.4 261 120.3 325 137.0 389 151.6 709 205.1
70 41.0 134 75.8 198 100.7 262 120.6 326 137.3 390 151.8
Critical

40
Table 10—Puron Subcooling Chart
2 4 6 8 10 12 14 16 18 20
200 70 68 66 64 62 60 58 56 54 52 50
210 73 71 69 67 65 63 61 59 57 55 53
220 76 74 72 70 68 66 64 62 60 58 56
230 79 77 75 73 71 69 67 65 63 61 59
240 82 80 78 76 74 72 70 68 66 64 62
250 84 82 80 78 76 74 72 70 68 66 64
260 87 85 83 81 79 77 75 73 71 69 67
270 89 87 85 83 81 79 77 75 73 71 69
280 92 90 88 86 84 82 80 78 76 74 72
290 94 92 90 88 86 84 82 80 78 76 74
300 96 94 92 90 88 86 84 82 80 78 76
310 99 97 95 93 91 89 87 85 83 81 79
320 101 99 97 95 93 91 89 87 85 83 81
330 103 101 99 97 95 93 91 89 87 85 83
340 105 103 101 99 97 95 93 91 89 87 85
350 107 105 103 101 99 97 95 93 91 89 87
360 109 107 105 103 101 99 97 95 93 91 89
370 111 109 107 105 103 101 99 97 95 93 91
380 113 111 109 107 105 103 101 99 97 95 93
390 115 113 111 109 107 105 103 101 99 97 95
400 117 115 113 111 109 107 105 103 101 99 97
410 119 117 115 113 111 109 107 105 103 101 99
420 121 119 117 115 113 111 109 107 105 103 101
430 122 120 118 116 114 112 110 108 106 104 102
440 124 122 120 118 116 114 112 110 108 106 104
450 126 124 122 120 118 116 114 112 110 108 106
460 127 125 123 121 119 117 115 113 111 109 107
470 129 127 125 123 121 119 117 115 113 111 109
480 131 129 127 125 123 121 119 117 115 113 111
490 132 130 128 126 124 122 120 118 116 114 112
500 134 132 130 128 126 124 122 120 118 116 114
510 135 133 131 129 127 125 123 121 119 117 115
520 137 135 133 131 129 127 125 123 121 119 117
530 139 137 135 133 131 129 127 125 123 121 119
540 140 138 136 134 132 130 128 126 124 122 120
550 141 139 137 135 133 131 129 127 125 123 121
560 143 141 139 137 135 133 131 129 127 125 123
570 144 142 140 138 136 134 132 130 128 126 124
580 146 144 142 140 138 136 134 132 130 128 126
590 147 145 143 141 139 137 135 133 131 129 127
600 149 147 145 143 141 139 137 135 133 131 129
610 150 148 146 144 142 140 138 136 134 132 130
Liq Press
(psig)
Liquid Line Temperature (_F)
Subcooling (_F)
P --- T
(_F)

41
Table 11—Puron Superheat Chart
2 4 6 8 10 12 14 16 18 20 22 24 26 28 30
80 21 23 25 27 29 31 33 35 37 39 41 43 45 47 49 51
82 22 24 26 28 30 32 34 36 38 40 42 44 46 48 50 52
84 23 25 27 29 31 33 35 37 39 41 43 45 47 49 51 53
86 24 26 28 30 32 34 36 38 40 42 44 46 48 50 52 54
88 25 27 29 31 33 35 37 39 41 43 45 47 49 51 53 55
90 26 28 30 32 34 36 38 40 42 44 46 48 50 52 54 56
92 27 29 31 33 35 37 39 41 43 45 47 49 51 53 55 57
94 29 31 33 35 37 39 41 43 45 47 49 51 53 55 57 59
96 30 32 34 36 38 40 42 44 46 48 50 52 54 56 58 60
98 31 33 35 37 39 41 43 45 47 49 51 53 55 57 59 61
100 32 34 36 38 40 42 44 46 48 50 52 54 56 58 60 62
102 33 35 37 39 41 43 45 47 49 51 53 55 57 59 61 63
104 34 36 38 40 42 44 46 48 50 52 54 56 58 60 62 64
106 35 37 39 41 43 45 47 49 51 53 55 57 59 61 63 65
108 35 37 39 41 43 45 47 49 51 53 55 57 59 61 63 65
110 36 384042444648505254565860626466
112 37 394143454749515355575961636567
114 38 404244464850525456586062646668
116 39 414345474951535557596163656769
118 40 424446485052545658606264666870
120 41 43 45 47 49 51 53 55 57 59 61 63 65 67 69 71
122 42 44 46 48 50 52 54 56 58 60 62 64 66 68 70 72
124 43 45 47 49 51 53 55 57 59 61 63 65 67 69 71 73
126 44 46 48 50 52 54 56 58 60 62 64 66 68 70 72 74
128 44 46 48 50 52 54 56 58 60 62 64 66 68 70 72 74
130 45 47 49 51 53 55 57 59 61 63 65 67 69 71 73 75
132 46 48 50 52 54 56 58 60 62 64 66 68 70 72 74 76
134 47 49 51 53 55 57 59 61 63 65 67 69 71 73 75 77
136 48 50 52 54 56 58 60 62 64 66 68 70 72 74 76 78
138 48 50 52 54 56 58 60 62 64 66 68 70 72 74 76 78
140 49 51 53 55 57 59 61 63 65 67 69 71 73 75 77 79
142 50 52 54 56 58 60 62 64 66 68 70 72 74 76 78 80
144 51 53 55 57 59 61 63 65 67 69 71 73 75 77 79 81
146 52 54 56 58 60 62 64 66 68 70 72 74 76 78 80 82
148 52 54 56 58 60 62 64 66 68 70 72 74 76 78 80 82
150 53 55 57 59 61 63 65 67 69 71 73 75 77 79 81 83
152 54 56 58 60 62 64 66 68 70 72 74 76 78 80 82 84
154 55 57 59 61 63 65 67 69 71 73 75 77 79 81 83 85
156 55 57 59 61 63 65 67 69 71 73 75 77 79 81 83 85
158 56 58 60 62 64 66 68 70 72 74 76 78 80 82 84 86
160 57 59 61 63 65 67 69 71 73 75 77 79 81 83 85 87
162 58 60 62 64 66 68 70 72 74 76 78 80 82 84 86 88
Vapor Line Temperature (°F)
Superheat (°F)
P--T
(°F)
Vap Press
(psig)

42
Table 12—R--22 Subcooling Chart
2 4 6 8 10 12 14 16 18 20 22 24 26
120 70 68666462605856545250484644
125 72 70686664626058565452504846
130 74 72706866646260585654525048
135 76 74727068666462605856545250
140 79 77757371696765636159575553
145 81 79777573716967656361595755
150 83 81797775737169676563615957
155 85 83817977757371696765636159
160 87 85838179777573716967656361
165 89 87858381797775737169676563
170 91 89878583817977757371696765
175 93 91898785838179777573716967
180 95 93918987858381797775737169
185 96 94929088868482807876747270
190 98 96949290888684828078767472
195 100 98 96 94 92 90 88 86 84 82 80 78 76 74
200 102 100989694929088868482807876
205 103 101999795939189878583817977
210 105 103 101 99 97 95 93 91 89 87 85 83 81 79
215 107 10510310199979593918987858381
220 108 106 104 102 100 98 96 94 92 90 88 86 84 82
225 110 1081061041021009896949290888684
230 111 1091071051031019997959391898785
235 113 111 109 107 105 103 101 99 97 95 93 91 89 87
240 114 112 110 108 106 104 102 100 98 96 94 92 90 88
245 116 114 112 110 108 106 104 102 100 98 96 94 92 90
250 117 115 113 111 109 107 105 103 101 99 97 95 93 91
255 119 117 115 113 111 109 107 105 103 101 99 97 95 93
260 120 118 116 114 112 110 108 106 104 102 100 98 96 94
265 121 119 117 115 113 111 109 107 105 103 101 99 97 95
270 123 121 119 117 115 113 111 109 107 105 103 101 99 97
275 124 122 120 118 116 114 112 110 108 106 104 102 100 98
280 126 124 122 120 118 116 114 112 110 108 106 104 102 100
285 127 125 123 121 119 117 115 113 111 109 107 105 103 101
290 128 126 124 122 120 118 116 114 112 110 108 106 104 102
295 129 127 125 123 121 119 117 115 113 111 109 107 105 103
300 131 129 127 125 123 121 119 117 115 113 111 109 107 105
305 132 130 128 126 124 122 120 118 116 114 112 110 108 106
310 133 131 129 127 125 123 121 119 117 115 113 111 109 107
315 135 133 131 129 127 125 123 121 119 117 115 113 111 109
320 136 134 132 130 128 126 124 122 120 118 116 114 112 110
325 137 135 133 131 129 127 125 123 121 119 117 115 113 111
330 138 136 134 132 130 128 126 124 122 120 118 116 114 112
Liquid
Pres
(psig)
PT (°F)
R---22 Liquid Line Temperature (_F)
Subcooling (_F)

43
Table 13—R--22 Superheat Chart
2 4 6 8 10 12 14 16 18 20 22 24 26 28 30
50 26 28 30 32 34 36 38 40 42 44 46 48 50 52 54 56
51 27 29 31 33 35 37 39 41 43 45 47 49 51 53 55 57
52 28 30 32 34 36 38 40 42 44 46 48 50 52 54 56 58
53 28 30 32 34 36 38 40 42 44 46 48 50 52 54 56 58
54 29 31 33 35 37 39 41 43 45 47 49 51 53 55 57 59
55 30 32 34 36 38 40 42 44 46 48 50 52 54 56 58 60
56 31 33 35 37 39 41 43 45 47 49 51 53 55 57 59 61
57 32 34 36 38 40 42 44 46 48 50 52 54 56 58 60 62
58 32 34 36 38 40 42 44 46 48 50 52 54 56 58 60 62
59 33 35 37 39 41 43 45 47 49 51 53 55 57 59 61 63
60 34 36 38 40 42 44 46 48 50 52 54 56 58 60 62 64
61 35 37 39 41 43 45 47 49 51 53 55 57 59 61 63 65
62 35 37 39 41 43 45 47 49 51 53 55 57 59 61 63 65
63 36 38 40 42 44 46 48 50 52 54 56 58 60 62 64 66
64 37 39 41 43 45 47 49 51 53 55 57 59 61 63 65 67
65 38 40 42 44 46 48 50 52 54 56 58 60 62 64 66 68
66 38 40 42 44 46 48 50 52 54 56 58 60 62 64 66 68
67 39 41 43 45 47 49 51 53 55 57 59 61 63 65 67 69
68 40 42 44 46 48 50 52 54 56 58 60 62 64 66 68 70
69 40 42 44 46 48 50 52 54 56 58 60 62 64 66 68 70
70 41 43 45 47 49 51 53 55 57 59 61 63 65 67 69 71
71 42 44 46 48 50 52 54 56 58 60 62 64 66 68 70 72
72 42 44 46 48 50 52 54 56 58 60 62 64 66 68 70 72
73 43 45 47 49 51 53 55 57 59 61 63 65 67 69 71 73
74 44 46 48 50 52 54 56 58 60 62 64 66 68 70 72 74
75 44 46 48 50 52 54 56 58 60 62 64 66 68 70 72 74
76 45 47 49 51 53 55 57 59 61 63 65 67 69 71 73 75
77 46 48 50 52 54 56 58 60 62 64 66 68 70 72 74 76
78 46 48 50 52 54 56 58 60 62 64 66 68 70 72 74 76
79 47 49 51 53 55 57 59 61 63 65 67 69 71 73 75 77
80 48 50 52 54 56 58 60 62 64 66 68 70 72 74 76 78
81 48 50 52 54 56 58 60 62 64 66 68 70 72 74 76 78
82 49 51 53 55 57 59 61 63 65 67 69 71 73 75 77 79
83 50 52 54 56 58 60 62 64 66 68 70 72 74 76 78 80
84 50 52 54 56 58 60 62 64 66 68 70 72 74 76 78 80
85 51 53 55 57 59 61 63 65 67 69 71 73 75 77 79 81
86 51 53 55 57 59 61 63 65 67 69 71 73 75 77 79 81
87 52 54 56 58 60 62 64 66 68 70 72 74 76 78 80 82
88 53 55 57 59 61 63 65 67 69 71 73 75 77 79 81 83
89 53 55 57 59 61 63 65 67 69 71 73 75 77 79 81 83
90 54 56 58 60 62 64 66 68 70 72 74 76 78 80 82 84
91 54 56 58 60 62 64 66 68 70 72 74 76 78 80 82 84
92 55 57 59 61 63 65 67 69 71 73 75 77 79 81 83 85
R---22 Vapor Line Temperature (_F)
Vapor
Press
(psig)
PT (°F) Superheat (_F)

44
TWO--STAGE
(286ANA, 288ANA, 180ANA, 187ANA)
Application Guidelines
Bryant designed and tested the two--stage air conditioner and heat
pump products with Puron refrigerant to operate at a minimum
outdoor operating ambient in cooling mode at 55_F without low
ambient cooling enabled and the maximum outdoor operating
ambient in cooling is 125_F/51.6_C. On Evolution
communicating systems, only low ambient cooling is available to
0_F/--17.8_C.
The maximum outdoor operating ambient in heating mode is
66_F/18.8_C on all heat pumps. Continuous operation in heating
mode is approved to --30_F/--34.4_C. Thermostat options for the
two stage units are as follows:
SBristol reciprocating two stage units can utilize either a
two stage thermostat or an Evolution communicating
User Interface.
SCopeland scroll two stage units must use the Evolution
communicating User Interface.
288A Copeland scroll units require Evolution communicating User
Interface (UI) to achieve the needed airflow for comfort and
efficiency in both low and high stage. The Copeland scroll two
stage compressor unloads to 67% of full compressor capacity
verses the Bristol reciprocating two stage compressor that decreases
to about 50% of full capacity.
Indoor units for the two stage require variable speed indoor blower
capabilities. Only unit combinations listed in the two stage
Product Data are recommended. Product Data may also include
coil only ratings but a variable speed blower is required to achieve
comfort and efficiency.
Non--communicating indoor units with properly matched airflow
are available for the 286A/187ANA models and are listed in the
Product Data. There are no non--communicating indoor units
available with the proper airflow for the 288ANA/180ANA units.
For this reason, a User Interface (Evolution Control) and Evolution
indoor unit is required with the Copeland UltraTech unit
(288ANA/180ANA).
286A/187ANA Bristol Compressor units may use a standard
2--stage thermostat, or for full utilization of features, the Evolution
zoned or non--zoned control.
Line sets for two stage units are similar to the single stage units.
However, some restrictions may apply to specific combinations in
long line applications. Refer to the Long Line Guideline for further
information.
The Tennessee Valley Authority (TVA) requires that electric strip
heat have a lockout feature. This is achieved through Bryant
thermostats required per above and must be used on all TVA
approved units.
The new control board in the two stage units with Puron refrigerant
has dip switches for defrost timing. The Evolution controls
provide these two stage units with high stage latching and Hybrid
Heatt(dual fuel) capabilities. The standard Hybrid Heatt(duel
fuel) thermostat can be used on two stage units with Bristol
reciprocating compressors only.
Model Plug
Each control board contains a model plug. The correct model plug
must be installed in order for the system to operate properly. (See
Table 14.)
The model plug is used to identify the type and size of unit to the
control. On 286A models, the model plug is also used to determine
the start sequence timing for each individual model.
On new units, the model and serial numbers are inputted into the
board’s memory at the factory. If a model plug is lost or missing at
initial installation, the unit will operate according to the
information input at the factory and the appropriate error code will
flash temporarily. An RCD replacement board contains no model
and serial information. If the factory control board fails, the model
plug must be transferred from the original board to the replacement
board for the unit to operate.
NOTE: The model plug takes priority over factory model
information input at the factory. If the model plug is removed after
initial power up, the unit will operate according to the last valid
model plug installed, and flash the appropriate fault code
temporarily.
Table 14—Model Plug Information
MODEL
NUMBER
MODEL
PLUG
NUMBER
PIN RESISTANCE
( K --- o h m s )
P i n s 1 --- 4 P i n s 2 --- 3
286ANA024 HK70EZ002 5.1 18
286ANA036 HK70EZ004 5.1 33
286ANA048 HK70EZ006 5.1 51
286ANA060 HK70EZ008 5.1 75
288ANA024 HK70EZ010 5.1 120
288ANA036 HK70EZ012 5.1 180
288ANA048 HK70EZ014 5.1 270
288ANA060 HK70EZ016 11 5.1
180ANA024 HK70EZ009 5.1 91
180ANA036 HK70EZ011 5.1 150
180ANA048 HK70EZ013 5.1 220
180ANA060 HK70EZ015 5.1 360
187ANA024 HK70EZ001 5.1 11
187ANA036 HK70EZ003 5.1 24
187ANA048 HK70EZ006 5.1 39
187ANA060 HK70EZ007 5.1 62

45
Airflow Selections for 187ANA / 286ANA /
180ANA024,36,48 / 180ANA060 /
288ANA024,36,48, 60 Using Non--Communicating
(Non--Evolution) Thermostats
Airflow Selection for 315AAV/355AAV Furnaces
The 315AAV/355AAV variable--speed furnaces provide high--and
low--stage blower operation to match the capacities of the
compressor at high and low stages. To select the recommended
airflow and for adjustments to the manual switches labeled SW1--5,
AC, and CF on the control board, refer to the furnace Installation
Instructions. The 315AAV/355AAV utilizes a control center that
allows the installing technician to select the proper airflows. The
HP switch determines the airflow during high--stage compressor
operation. Airflow for high-- and low--stage can be calculated at
either 350 CFM per ton or 400 CFM per ton, based on the
positions of SW1--5.
When using communicating (Evolution) control, dipswitch
adjustments are not necessary on furnaces. Airflows are
determined by Evolution Control setup.
Airflow Selection for FV4 Fan Coils for 180ANA,
187ANA, 286A, 288A Using Non--Communicating
(Non--Evolution) Thermostats
The FV4 provides high-- and low--stage blower operation to match
the capacities of compressor at high-- and low--stage. To select
recommended airflow, refer to FV4 Installation Instructions. The
FV4 utilizes an Easy Select control board that allows the installing
technician to select proper airflows. For adjustments to control
board, select appropriate HP SIZE and CFM ADJUST setting. This
fan coil has an adjustable blower off delay factory set at 90 sec for
high-- and low--stage blower operation.
For other combinations of equipment consult Product Data Digest.
GENERAL INFORMATION
Low Ambient Cooling
When this unit is operating below 55_F outdoor temperature,
provisions must be made for low ambient operation.
Evolution controlled low ambient cooling:
This unit is capable of low ambient cooling without a kit ONLY
when using Evolution control. A low ambient kit is not required,
and the outdoor fan motor does not need to be replaced for
Evolution controlled low ambient operation. The Evolution
Control provides an automatic evaporator coil freeze protection
algorithm that eliminates the need for an evaporator freeze
thermostat. Low ambient cooling must be enabled in the User
Interface set up. Fan may not begin to cycle until about 40_F
OAT. Fan will cycle based on coil and outdoor air temperature.
Evolution controlled low ambient mode operates as follows:
SFan is OFF when outdoor coil temp is < (outdoor air
temperature + 3_F) or outdoor fan has been ON for 30
minutes. (Fan is turned off to allow refrigerant system to
stabilize.)
SFan is ON when outdoor coil temp > (outdoor air
temperature + 25_F) or outdoor coil temp > 80_Forif
outdoor fan has been OFF for 30 minutes. (Fan is turned
on to allow refrigerant system to stabilize.)
SLow pressure switch is ignored for first 3 minutes during
low ambient start up. After 3 minutes, if LPS trips, then
outdoor fan motor is turned off for 10 minutes, with the
compressor running. If LPS closes within 10 minutes
then cooling continues with the outdoor fan cycling per
the coil temperature routine listed above for the
remainder of the cooling cycle. If the LPS does not close
within 10 minutes, then the normal LPS trip response
(shut down cooling operation and generate LPS trip
error) will occur.
For 180ANA/288ANA models, the PWM output for both high and
low stage equals the value for low stage operation below 104_F.
Defrost
This control offers 5 possible defrost interval times: 30, 60, 90, 120
minutes, or AUTO.
With non--communicating thermostats, these are selected by dip
switches on the unit control board. With communicating
thermostats, the Evolution Control User Interface. The Evolution
Control selection overrides the control board dip switch settings.
AUTO defrost adjusts the defrost interval time based on the last
defrost time as follows:
SWhen defrost time <3 minutes, the next defrost
interval=120 minutes.
SWhen defrost time 3--5 minutes, the next defrost
interval=90 minutes.
SWhen defrost time 5--7 minutes, the next defrost
interval=60 minutes.
SWhen defrost time >7 minutes, the next defrost
interval=30 minutes.
The control board accumulates compressor run time. As the
accumulated run time approaches the selected defrost interval time,
the control board monitors the coil temperature sensor for a defrost
demand. If a defrost demand exists, a defrost cycle will be initiated
at the end of the selected time interval. A defrost demand exists
when the coil temperature is at or below 32_F for 4 minutes during
the interval.
The defrost cycle is terminated when the coil temperature reaches
65_F or 10 minutes has passed.
On 286A models, defrost will occur in low-- or high--stage as
demanded by the thermostat or User Interface regardless of OAT
On 288A models, when OAT is >25_F(--3.9_C), defrost will occur
in low-- or high--stage as demanded by the thermostat or User
Interface.
On 288A models, if OAT is ≤25_F(--3.9_C), defrost will occur in
high--stage only, regardless of thermostat or User Interface demand,
and will terminate at 50_F(10_C) coil temperature with a
minimum of 2.5 minutes in defrost.
If the coil temperature does not reach 32_F(0_C) within the
interval, the interval timer will be reset and start over.
SUpon initial power up the first defrost interval is
defaulted to 30 minutes. Remaining intervals are at
selected times.
SDefrost is only allowed to occur below 50_F(10_C)
outdoor ambient temperature.
The outdoor fan output (ODF) will remain off for 20 seconds after
termination. This delay will allow time for the system to capture
the heat from the outdoor coil and reduce the “steam cloud” effect
that may occur on transition from defrost to the heating cycle. The
outdoor fan output OFF delay of 20 seconds may be defeated to
enable the fan to energize immediately at the time of termination
and 12 seconds prior to the reversing valve de--energizing, through
the User Interface setup screen available with SYSTXBBUID01--C
UI, or forced defrost pins as follows:

46
SThe ODF fan delay defeat can be toggled by shorting the
forced defrost pins for >15 seconds while in the standby
mode (status LED on solid). The LED will start to flash
when the toggle has taken place.
SStatus code 4 shows the fan delay defeat is active (no
delay)
SStatus code 3 shows that it is not active (20 second
delay)
The code will continue to be displayed until after the short is
removed. Once the short is removed, there is a 5 second wait
before the code is cancelled. The code that is flashing will finish
before going back to sold LED. the control is shipped with the
ODF fan delay defeat NOT active. the change in status is
remembered until toggled to a new status. A power down / power
up sequence will not reset the status. It may be necessary to do the
toggle twice to cycle to the desired state of defeat.
Defrost Hold
in a non--communicating system, if the thermostat becomes
satisfied (Y1 or Y1 and Y2) before the defrost cycle is terminated,
the control will “hold” in defrost mode and finish the defrost cycle
on the next call for heat.
With communicating Evolution Control, defrost hold is not needed
in a communicating system because the User Interface will
complete the defrost cycle before shutting down the system.
Forced Defrost
With non--communicating (non--Evolution) control, forced defrost
can be initiated by manually shorting the 2--pin header labeled
FORCED DEFROST (see Fig 43) on the control board for 5
seconds then releasing.
With communicating (Evolution) control, forced defrost is initiated
with the User Interface.
On all models, during a Forced Defrost:
SIf coil temperature is at defrost temperature of 32_F, and
outdoor air temperature is below 50_F, a full defrost
sequence will occur.
SIf coil temperature or outdoor air temperature does not
meet the above requirements, an abbreviated 30 second
defrost will occur.
Quiet Shift
Quiet Shift is a field--selectable defrost mode which may eliminate
occasional noise that could be heard at the start of the defrost cycle
and restarting of the heating cycle. On models with a
non--communicating system, this feature must be enabled by
selecting the 3rd position of the 3--position dip switch. For models
with communicating (Evolution) systems, it must be enabled at the
User Interface. When activated, the following sequence of
operation will occur. Reversing valve will energize and
compressor will turn off for 30 seconds, then turn back on to
complete defrost. At the end of the defrost cycle, the reversing
valve de--energizes, compressor will turn off for another 30
seconds, and the fan will turn off for 40 seconds, before starting in
the heating mode.
Liquid--Line Solenoid Accessory
In heat pump long--line applications, a liquid--line solenoid is
required to control refrigerant migration in the heating mode. The
solenoid should be installed near the outdoor unit with the arrow
facing the outdoor unit. This is the direction of flow control. See
application manual for long--line application details.
Accessory Liquid Solenoid with Evolution Communicating
Control:
When using the Evolution Control, the liquid--line solenoid output
is provided at the Y1 connection. Connect the solenoid as shown in
the wiring label diagram. This is a 24vac output that is energized
whenever the compressor is energized. It closes, in the compressor
off mode, to prevent refrigerant migration into the unit through the
liquid--line.
On Models with Accessory Liquid Solenoid Using a
Non--Communicating Thermostat:
The liquid solenoid is connect to the Y1 and C terminal
connections. The liquid solenoid closes, in the compressor off
mode, to prevent refrigerant migration into the unit through the
liquid--line.
CHECK CHARGE
All 286A units must be charged in high stage only.
Factory charge amount and desired subcooling are shown on unit
rating plate. Charging method is shown on information plate inside
unit. To properly check or adjust charge, conditions must be
favorable for subcooling charging. Favorable conditions exist
when the outdoor temperature is between 70_F and 100_F
(21.11_C and 37.78_C), and the indoor temperature is between
70_F and 80_F (21.11_C and 26.67_C). Follow the procedure
below:
Unit is factory charged for 15ft (4.57 m) of lineset. Adjust charge
by adding or removing 0.6 oz/ft of 3/8 liquid line above or below
15ft (4.57 m) respectively.
For standard refrigerant line lengths (80 ft/24.38 m or less), allow
system to operate in cooling mode at least 15 minutes. If conditions
are favorable, check system charge by subcooling method. If any
adjustment is necessary, adjust charge slowly and allow system to
operate for 15 minutes to stabilize before declaring a properly
charged system.
If the indoor temperature is above 80_F (26.67_C), and the
outdoor temperature is in the favorable range, adjust system charge
by weight based on line length and allow the indoor temperature to
drop to 80_F (26.67_C) before attempting to check system charge
by subcooling method as described above.
If the indoor temperature is below 70_F (21.11_C), or the outdoor
temperature is not in the favorable range, adjust charge for line set
length above or below 15ft (4.57 m) only. Charge level should then
be appropriate for the system to achieve rated capacity. The charge
level could then be checked at another time when the both indoor
and outdoor temperatures are in a more favorable range.
NOTE: If line length is beyond 80 ft (24.38 m) or greater than 20
ft (6.10 m) vertical separation, See Long Line Guideline for
special charging requirements.
Heating Check Chart Procedure
To check system operation during heating cycle, refer to the Heat
Pump Charging Instructions label on outdoor unit. This chart
indicates whether a correct relationship exists between system
operating pressure and air temperature entering indoor and outdoor
units. If pressure and temperature do not match on chart, system
refrigerant charge may not be correct. Do not use chart to adjust
refrigerant charge.
NOTE: In heating mode, check refrigerant charge only when
pressures are stable. If in doubt, remove charge and weigh in
correct refrigerant charge.
NOTE: When charging is necessary during heating season, charge
must be weighed in accordance with unit rating plate, ±0.6 oz./ft.
of 3/8--in. liquid--line above or below 15 ft., respectively.
EXAMPLE:
To calculate additional charge required for a 25--ft. line set:
25 ft. -- 15 ft. = 10 ft. X 0.6 oz./ft. = 6 oz. of additional charge.

47
SYSTEM FUNCTIONS AND
SEQUENCE OF OPERATION
The outdoor unit control system has special functions. The
following is an overview of the two--stage control functions:
Cooling and Heating Operation
286A/187ANA and 288ANA/180ANA (with serial numbers
starting with 3809 and later) utilize either a standard indoor
thermostat or Evolution Communication User Interface.
288ANA/180ANA utilize an Evolution communicating User
Interface only. With a call for first stage cooling, the outdoor fan,
reversing valve, and low stage compressor are energized. If
low--stage cannot satisfy cooling demand, high--stage cooling is
energized by the second stage of indoor thermostat or User
Interface. After second stage is satisfied, the unit returns to
low--stage operation until first stage is satisfied or until second
stage is required again. When both first stage and second stage
cooling are satisfied, the compressor will shut off. The reversing
valve will remain energized until the control board power is
removed or a call for heating in initiated. With a call for heating,
the outdoor fan and compressor are energized. The compressor will
operate in high or low stage operation, as needed to meet the
heating demand. When the heating demand is satisfied, the
compressor and fan will shut off. The reversing valve is
de--energized in the heating mode.
NOTE: When two--stage unit is operating at low--stage, system
vapor (suction) pressure will be higher than a standard single--stage
system or high--stage operation.
NOTE: Outdoor fan motor will continue to operate for one minute
after compressor shuts off, when outdoor ambient is greater than or
equal to 100°F. This reduces pressure differential for easier starting
on next cycle.
NOTE: On 286ANA/187ANA models, if unit has not operated
within the past 12 hours, or following a unit power--up, upon the
next thermostat high-- or low--stage demand, unit operates for a
minimum of 5 minutes in high--stage.
On 286ANA/187ANA models with non--communicating
(non--Evolution) systems, with first stage of cooling, Y1 and O are
powered on; and with second stage of cooling, Y1, Y2, and O are
on. For these systems, with first stage of heating Y1 is on and for
second stage of heating, Y1 and Y2 are on. When the reversing
valve is energized, O is powered on.
Communication and Status Function Lights For
Evolution Control only, Green communications
(COMM) Light
A green LED (COMM light) on the outdoor board indicates
successful communication with the other system products. The
green LED will remain OFF until communication is established.
Once a valid command is received, the green LED will turn ON
continuously. If no communication is received within 2 minutes,
the LED will be turned OFF until the next valid communication.
Amber Status Light
An amber colored STATUS light is used to display the operation
mode and fault codes as specified in the troubleshooting section.
See Table 17 for codes and definitions.
NOTE: Only one code will be displayed on the outdoor unit
control board (the most recent, with the highest priority).
Utility Interface With Evolution Control
The utility curtailment relay should be wired between R and Y2
connections on the control board for Evolution Communicating
systems only (see Fig. 42.) This input allows a power utility device
to interrupt compressor operation during peak load periods. When
the utility sends a signal to shut the system down, the User
Interface will display, “Curtailment Active”.
One Minute Stage Change Time Delay on
286ANA/187ANA Models
When compressor changes stages from high to low or low to high,
there is a 1--minute time delay before compressor restarts. The
outdoor fan motor remains running.
Compressor Operation on 286ANA/187ANA
Models
These units contain a Bristol 2--stage reciprocating compressor.
When the compressor operates in high stage operation, the
compressor motor rotates clockwise. Both the lower and upper
pistons are eccentric with the rotating crankshaft and both
compress refrigerant.
When the compressor operates in low stage operation, the
compressor motor reverses direction (rotates counterclockwise).
The lower piston becomes idle and the upper piston compresses
refrigerant. The start and run windings are reversed.
Crankcase Heater Operation
The two--stage reciprocating compressor does not have a
replaceable CCH available. It is recommended to disconnect,
electronically, the faulty CCH and add a belly band style CCH
should a CCH failure be determined.
Compressor Operation on 288ANA/180ANA
Models:
The basic scroll design has been modified with the addition of an
internal unloading mechanism that opens a bypass port in the first
compression pocket, effectively reducing the displacement of the
scroll. The opening and closing of the bypass port is controlled by
an internal electrically operated solenoid.
The modulated scroll uses a single step of unloading to go from
full capacity to approximately 67% capacity. A single speed, high
efficiency motor continues to run while the scroll modulates
between the two capacity steps. Modulation is achieved by venting
a portion of the gas in the first suction pocket back to the low side
of the compressor, thereby reducing the effective displacement of
the compressor. Full capacity is achieved by blocking these vents,
thus increasing the displacement to 100%. A DC solenoid in the
compressor controlled by a rectified 24 volt AC signal in the
external solenoid plug moves the slider ring that covers and
uncovers these vents. The vent covers are arranged in such a
manner that the compressor operates at approximately 67%
capacity when the solenoid is not energized and 100% capacity
when the solenoid is energized.
The loading and unloading of the two step scroll is done “on the
fly” without shutting off the motor between steps.
NOTE: 67% compressor capacity translates to approximately 80%
cooling or heating capacity at the indoor coil. The compressor will
always start unloaded and stay unloaded for five seconds even
when the thermostat is calling for high stage.

48
Fan Motor
Fan motor rotates the fan blade that either draws or blows air
through outdoor coil to exchange heat between refrigerant and air.
Motors are totally enclosed to increase reliability. This also
eliminates need for rain shield.
ELECTRICAL SHOCK HAZARD
Failure to follow this warning could result in personal
injury or death.
Turn off all power to unit before servicing or replacing fan
motor. Be sure unit main power switch is turned off.
!WARNING
The bearings are permanently lubricated; therefore, no oil ports are
provided.
For suspected electrical failures, check for loose or faulty electrical
connections, or defective fan--motor capacitor. Fan motor is
equipped with thermal overload device in motor windings which
may open under adverse operating conditions. Allow time for
motor to cool so device can reset. Further checking of motor can be
done with an ohmmeter. Set scale on R X 1 position; check for
continuity between three leads. Replace motors that show an open
circuit in any of the windings. Place 1 lead of ohmmeter on each
motor lead. At same time, place other ohmmeter lead on motor case
(ground). Replace any motor that shows resistance to ground, signs
of arcing, burning, or overheating.
Located above the compressor is a single--speed fan motor and fan.
The 180ANA/288ANA air conditioner and heat pump models use
the ECM variable speed fan motor.
The outdoor Integral Control Motor (ECM), is a variable--speed
motor which operates from 450 to 850 rpm. The motor is a dc
permanent magnet--type motor with the electronic controls
integrated into its rear cover. The control package includes a small
diode bridge, capacitors, and power switching devices. It converts
ac to dc power and switches the dc power to the motor windings on
and off at various rates to control the motor speed. The speed at
which the motor windings are thus commutated is determined by a
pulse width modulated (PWM) signal which is received from the
control board on the motor control lines.
The PWM signal is created by turning a DC signal on and off once
within a given period of time. The signal on time relative to the
signal total period defines the percent of the PWM. For example, if
the period is 5 sec and the control power is turned on for 1 sec then
off, the signal will remain off for 4 sec before turning on again to
start the next cycle. The PWM is called a 20 percent duty cycle
signal. If the on time is increased to 4 sec of the 5 sec period, the
PWM is called an 80 percent duty cycle. The ECM reads the PWM
signal and increases the motor speed linearly from minimum speed
to maximum speed with the percent duty cycle value of the
supplied PWM signal.
Outdoor Fan Motor Operation
There are two different types of motors used in the Evolution
2--stage outdoor units. The 286A models use a PSC type fan
motor, and the speed does not change between high and low speed
operation.
On 288ANA models, an ECM fan motor is used to achieve higher
efficiency ratings of the system. The outdoor unit control energizes
outdoor fan anytime compressor is operating, except for defrost or
low--ambient cooling. The outdoor fan remains energized if a
pressure switch or compressor overload should open. The outdoor
fan motor will continue to operate for one minute after the
compressor shuts off when the outdoor ambient is greater than or
equal to 100°F/37.7°C. This reduces pressure differential for easier
starting on next cycle. On 286A/187ANA models, the outdoor fan
remains energized during the 1--minute compressor staging time
delay.
On 286ANA/187ANA models, the outdoor fan motor is a PSC
type. A fan relay on the control board turns the fan off and on by
opening and closing a high voltage circuit to the motor. It does not
change speeds between low and high stage operation.
On 288ANA/180ANA models, the outdoor fan is an ECM type.
The motor control is continuously powered with high voltage. The
motor speed is determined by electrical pulses provided by the
PWM outputs on the control board. The ECM motor RPM adjusts
to outdoor conditions as described in Table 15. The PWM output
can be measured with a volt meter set to DC volts.
In low ambient cooling (below 55°F/12.7°C), the control board
cycles the fan off and on.
Table 15—Outdoor Fan Motor PWM
Outdoor Temp (DC volts, Tolerance +/-- 2%)
Model Low Stage
(OAT≤104_F/40_C)
High Stage
(OAT≤104_F/40_C)
Low & High
Stage
(OAT>104_F/40_C)
288ANA024 8.72 9.35 11.9
288ANA036 9.06 10.23 11.9
288ANA048 9.91 11.04 11.9
288ANA060 10.83 11.7 11.9
180ANA024 9.57 10.88 11.90
180ANA036 9.06 10.23 11.90
180ANA048 9.91 11.04 11.90
180ANA060 10.83 11.70 11.90
NOTE: For 288A models in low---ambient cooling, the PWM output for
b o t h h i gh --- a n d l o w --- s t a ge e q u a l s t h e v a l u e f o r l o w --- s ta g e
operation below 55_F (12.8_C).
ECM Fan Motor Troubleshooting
If the outdoor fan motor fails to start and run:
SCheck the high--voltage supply. The unit need not be
running to check high voltage, but the power must be on.
SIf the 230vac is present, use Table 15 to check for proper
control voltage output to the fan motor from the control
board. The control board sends DC voltage signals to the
motor through the terminals labeled PWM1 and PWM2
Set a voltmeter on a DC voltage scale and check across
these terminals.
SFirst check voltage with the motor disconnected. If no
control voltage is present, check control--board
connections. If connections are good, replace the control
board.
SIf voltage is present, reconnect the motor and check
again. Shut down the unit to reconnect the motor and
restart the unit to complete this troubleshooting
procedure. If control voltage is no longer present or
motor fails to respond, check motor connections.
SIf connections are good, replace the motor.

49
Time Delays
The unit time delays include:
SFive minute time delay to start cooling or heating
operation when there is a call from the thermostat or user
interface. To bypass this feature, momentarily short and
release Forced Defrost pins.
SFive minute compressor re--cycle delay on return from a
brown--out condition.
STwo minute time delay to return to standby operation
from last valid communication (with Evolution only).
SOne minute time delay of outdoor fan at termination of
cooling mode when outdoor ambient is greater than or
equal to 100_F.
SFifteen second delay at termination of defrost before the
auxiliary heat (W1) is de--energized.
STwenty second delay at termination of defrost before the
outdoor fan is energized.
SThirty second compressor delay when quiet shift
enabled.
SOn 226A, 266A, 286A models there is a 1 minute time
delay between staging from low to high and from high to
low capacity. On 288A models there is no delay; the
compressor will change from low to high and from high
to low capacity “on the fly” to meet the demand.
Pressure Switches
The Puronrtwo--stage air conditioner contains two pressure
switches to prevent system operation if the pressures get
excessively high or low. The air conditioner low pressure switch in
the suction line opens at 50 PSI and closes at 95 PSI. The high
pressure switch opens at 670 PSI and closes at 470 PSI. Both
pressure switch settings are considerably higher than on
comparably sized R--22 units. The high and low pressure switches
can be identified by their pink stripe on the switch’s electrical
wires.
The Puronrtwo--stage heat pump contains a loss of charge switch
in the suction line on 286BNA and 288ANA, and liquid line on
226A and 266A which opens at 23 PSI and closes at 55 PSI. See
troubleshooting section for sequence when a pressure switch trip
occurs.
Muffler, Accumulator, Reversing Valve (RVS)
The Puronrtwo--stage air conditioners and heat pumps have a
compressor discharge line muffler, to dampen sound pressure
pulsations.
The Puronrtwo--stage heat pumps have a specifically designed
reversing valve, for Puronrapplication and an accumulator for
storing excess liquid refrigerant during the heating mode to prevent
damaging flood--back.
Thermistors
Outdoor Ambient Thermistor
The Puronrtwo--speed air conditioner and heat pump units have
an outdoor ambient air thermistor. The control board must know
the outdoor air temperature so it can activate various functions.
These functions include:
SActivating the compressor crankcase heater when ever
the outdoor unit is in the off cycle.
SThe fan motor speed changes for both air conditioner
and heat pump on the ECM equipped units.
Outdoor Coil Thermistor(OCT)
The coil or defrost thermistor is the same thermistor used to
monitor outdoor air temperature. The control board must know the
coil temperature so it can activate various functions. These
functions include:
SFrost sensing on heat pumps
SCoil--vs--Ambient temperature relationship
SLow ambient cooling operation
Thermistor Curve
The resistance vs. temperature chart enables the service technicians
to check thermistor resistance, regardless of the temperature.
For example, at a 60_F temperature, thermistor resistance should
be around 16,000 Ohms. (See Fig. 34.)
We will talk about the thermistor in more detail when we review
the control board fault codes.
0
10
20
30
40
50
60
70
80
90
0
(-17.77)
20
(-6.67)
40
(4.44)
60
(15.56)
80
(26.67)
100
(37.78)
120
(48.89)
TEMPERATURE °F (°C)
RESISTANCE (KOHMS)
THERMISTOR CURVE
A08054
Fig. 34 – Resistance Values Versus Temperature

50
CONTROL BOX
Contactor And Capacitor
Removal of the information plate exposes the control components.
Both air conditioner and heat pump control boxes will appear to be
nearly identical. There are two contactors, two capacitors, a control
board and a compressor start assist. The contactors are identical to
those used in the standard single speed units. One controls low
capacity operation and the second controls high speed. The
capacitors also are similar to those used in standard single speed
units. You have a fan capacitor for the outdoor fan motor, and a run
capacitor for the compressor motor. The control board, start
capacitor, and start relay control the starting of the compressor.
Always replace these devices with the Factory Approved
Components.
Incoming Power
Incoming power is attached to the two power wire stripped leads.
A ground lug is also provided. Outdoor unit should always be
grounded through the ground lug to the unit disconnect and from
the disconnect to the electrical fuse box. Failure to do so can cause
serious injury or death.
Start Circuit -- 187ANA & 286ANA
These models use the same Bristol TS reciprocating compressor
that was used in previous 2--stage Puron units. A start circuit is
needed so that the reciprocating compressor will start against
elevated head pressure. The start circuit these units use is different
from previous units. The start relay is a normally open type, and is
controlled by the circuit board instead of directly sensing the
compressor voltage.
Start Circuit Sequence of Operation --
187ANA & 286ANA
On a call for high-- or low--stage compressor operation, the start
relay is closed by the control board through the Vs, Vr, and L2
terminals. This puts the start capacitor in the circuit. Compressor
voltage is sensed on the VR and VS terminals throughout the
process. As the compressor comes up to speed, the control board
senses the change in voltage across VR and VS, and opens the start
relay at the appropriate voltage. The control is programmed with
the parameters for opening the start circuit. The voltage will be
different for high-- and low--stage, and for different unit sizes.
Since the same control board is used in all 2--stage units, the model
plug determines the start circuit voltage.
Troubleshooting 187ANA & 286ANA Start
Circuit:
If starting problems are encountered, the control board will flash
fault codes to help indicate where the problem was encountered.
See Table 17 for appropriate actions by active fault code.
SFirst check that the model plug is correct for the unit
model and size, and that it is installed properly
Fig. 35 – Preferred and Evolution Series Control Box Identification

51
UTILITY RELAY *
UTILITY SIGNAL
OPEN RELAY
* SUPPLIED BY UTILITY PROVIDER
MODEL
PLUG
LLS
Liquid Line Solenoid
MODEL
PLUG
A06525/.A06526
Fig. 36 – 2--Stage Control Board
TROUBLESHOOTING
Troubleshooting (HK38EA003, 008, 010, 015)
circuit boards.
The Evolution Series outdoor units all use the same control board.
A model plug is used to identify the system type, and set the
operating parameters for airflow, start circuit timing etc. (see Model
Plug section) There were two part number changes to this board
early in 2006 due to expansion of the Evolution split system
product line, and expansion of the Evolution Small Packaged
Product (SPP) line. This circuit board is used in both Evolution
split system and Evolution SPP systems.
Replacement boards may have a different part number from the
original board. A newer board will always be backward compatible
to previous units if it is superseded at RCD. Old boards are not
always forward compatible due to new functions, or software
changes made to resolve field issues.
Systems Communication Failure
If communication with the Evolution control is lost with the User
Interface, the control will flash the appropriate fault code. (See
Table 17.) Check the wiring to the UI and the indoor and outdoor
units.
Model Plug
Each control board contains a model plug. The correct model plug
must be installed for or the system to operate properly. (See Table
14.)
The model plug is used to identify the type and size of unit to the
control. On 286A models, the model plug is also used to determine
the start sequence timing for each individual model.
On new units, the model and serial numbers are input into the
board’s memory at the factory. If a model plug is lost or missing at
initial installation, the unit will operate according to the
information input at the factory and the appropriate error code will
flash temporarily. An RCD replacement board contains no model
and serial information. If the factory control board fails, the model
plug must be transferred from the original board to the replacement
board for the unit to operate.
NOTE: The model plug takes priority over factory model
information input at the factory. If the model plug is removed after
initial power up, the unit will operate according to the last valid
model plug installed, and flash the appropriate fault code
temporarily.
Pressure Switch Protection
The outdoor unit is equipped with high-- and low--pressure
switches. If the control senses the opening of a high-- or
low--pressure switch, it will respond as follows:
1. De--energize the appropriate compressor contactor.
2. Keep the outdoor fan operating for 15 minutes.
3. Display the appropriate fault code (see Table 17).
4. After a 15 minute delay, if there is a call for cooling or
heating and LPS or HPS is reset, the appropriate
compressor contactor is energized.
5. If LPS or HPS has not closed after a 15 minute delay, the
outdoor fan is turned off. If the open switch closes anytime
after the 15 minute delay, then resume operation with a call
for cooling or heating.
6. If LPS or HPS trips 3 consecutive cycles, the unit operation
is locked out for 4 hours.
7. In the event of a high--pressure switch trip or high--pressure
lockout, check the refrigerant charge, outdoor fan operation,
and outdoor coil (in cooling) for airflow restrictions, or
indoor airflow in heating.
8. In the event of a low--pressure switch trip or low--pressure
lockout, check the refrigerant charge and indoor airflow
(cooling) and outdoor fan operation and outdoor coil in
heating.
Control Fault
If the outdoor unit control board has failed, the control will flash
the appropriate fault code (see Table 17). The control board should
be replaced.
Brown--Out Protection
If the line voltage is less than 187v for at least 4 seconds, the
appropriate compressor contactor and fan relay are de--energized.
Compressor and fan operation are not allowed until voltage is a
minimum of 190v. The control will flash the appropriate fault code
(see Table 17).
52
230v Brown--Out Protection Defeated
The brownout feature can be defeated if needed for severe noisy
power conditions. This defeat should always be a last resort to
solving the problem. Defeat is available on the User Interface
setup screen (available with SYSTXBBUID01--C UI) or can be
initiated through the forced defrost pins for non--communicating
systems as follows:
The brownout toggle is accomplished by shorting the defrost pins
from power up with the OAT and OCT sensor connector removed.
After 3 seconds, the status of the force defrost short and the
OAT/OCT as open will be checked. If correct, then the brownout
will be toggled.
SStatus code 6 shows the brownout is disabled.
SStatus code 5 shows the brownout is active.
After the brownout defeat is set, power down and reinstall the
OAT/OCT sensor and remove the short from the forced defrost
pins. As long as the short on the forced defrost remains, the OAT
and OCT faults will not be cleared. The code will continue to be
flashed.
The control is shipped with the brownout active. The change in
status is remembered until toggled to a new status. A power
down/power up sequence will not reset the status. It may be
necessary to do the toggle twice to cycle to the desired state of the
defeat.
230V Line (Power Disconnect) Detection
If there is no 230v at the compressor contactor(s) when the indoor
unit is powered and cooling or heating demand exists, the
appropriate fault code is displayed. Verify the disconnect is closed
and 230v wiring is connected to the unit.
Compressor Voltage Sensing
The control board input terminals labeled VS, VR and L2 on
286A/187ANA models and VS and L2 on 288ANA/180ANA
models (see Fig. 37) are used to detect compressor voltage status
and alert the user of potential problems. The control continuously
monitors the high voltage on the run capacitor of the compressor
motor. Voltage should be present any time the compressor
contactor is energized and voltage should not be present when the
contactor is de--energized.
Contactor Shorted Detection
If there is compressor voltage sensed when there is no demand for
compressor operation, the contactor may be stuck closed or there
may be a wiring error. The control will flash the appropriate fault
code.
286A Models -- Compressor Thermal Cutout
The control senses the compressor voltage at VR and VS. When
starting or running, a phase difference of the voltages on the inputs
will indicate the thermal protector is closed. If the phase difference
is 5_or less for 10 seconds, the internal protector is open. The
control de--energizes the appropriate compressor contactor for 15
minutes, but continues to operate the outdoor fan. The control
Status LED will flash the appropriate code shown in Table 17.
After 15 minutes, with a call for low or high stage cooling or
heating, the appropriate compressor contactor is energized. If the
thermal protector has not re--set, the outdoor fan is turned off. If
the call for cooling or heating continues, the control will energize
the compressor contactor every 15 minutes. If the thermal
protector closes, (at the next 15 minute interval check) the unit will
resume operation.
If the thermal cutout trips for three consecutive cycles, then unit
operation is locked out for 4 hours and the appropriate fault code is
displayed.
288ANA Compressor Thermal Cutout
If the control senses the compressor voltage after start--up and is
then absent for 10 consecutive seconds while cooling or heating
demand exists, the thermal protector is open. The control
de--energizes the compressor contactor for 15 minutes, but
continues to operate the outdoor fan. The control Status LED will
flash the appropriate code shown in Table 17. After 15 minutes,
with a call for low or high stage cooling or heating, the compressor
contactor is energized. If the thermal protector has not re--set, the
outdoor fan is turned off. If the call for cooling or heating
continues, the control will energize the compressor contactor every
15 minutes. If the thermal protector closes, (at the next 15 minute
interval check) the unit will resume operation.
If the thermal cutout trips for three consecutive cycles, then unit
operation is locked out for 4 hours and the appropriate fault code is
displayed.
Low or High Contactor Open (286A models) / No
230V at Compressor Contractor (288ANA models)
If the compressor voltage is not sensed when the compressor
should be starting, the appropriate contactor may be stuck open or
there is a wiring error. The control will flash the appropriate fault
code. Check the contactor and control box wiring.
286A Models Only -- Compressor Start Detection
on Models with Bristol Compressors Only
In low stage, if the specified start voltage at VR terminal is not
achieved, the start relay is de--energized after 1 second and the
control will flash the appropriate fault code.
In high stage, if the specified start voltage at VS terminal is not
achieved, the start relay is de--energized after 1 second and the
control will flash the appropriate fault code.
If the specified start voltage is not achieved for 3 consecutive low
stage starts, low stage operation is locked out for 30 minutes. If the
specified start voltage is not achieved for 3 consecutive high stage
starts, high stage operation is locked out for 30 minutes. The
control will flash the appropriate fault code.
Troubleshooting 286A units for proper switching
between low & high stages
Check the suction and liquid pressures at the service valves.
Suction pressure should be reduced by 5--10% when switching
from low to high capacity. There should be a 10--20% increase in
liquid pressure when switching from low to high capacity.
Compressor current should increase 100--250% when switching
from low to high stage.
Troubleshooting 288ANA units for proper
switching between low & high stages
Check the suction pressures at the service valves. Suction pressure
should be reduced by 3--10% when switching from low to high
capacity.
NOTE: The liquid pressures are very similar between low and
high stage operation, so liquid pressure should not be used for
troubleshooting.
Compressor current should increase 20--45% when switching from
low to high stage. The compressor solenoid when energized in
high stage, should measure 24vac.
When the compressor is operating in low stage the 24v DC
compressor solenoid coil is de--energized. When the compressor is
operating in high stage, the 24v DC solenoid coil is energized. The
solenoid plug harness that is connected to the compressor HAS an
internal rectifier that converts the 24v DC signal to 24v AC. DO
NOT INSTALL A PLUG WITHOUT AN INTERNAL
RECTIFIER.

53
Unloader Test Procedure
The unloader is the compressor internal mechanism, controlled by
the DC solenoid, that modulates between high and low stage. If it
is suspected that the unloader is not working, the following
methods may be used to verify operation.
1. Operate the system and measure compressor amperage.
Cycle the unloader on and off at 30 second plus intervals at
the UI (from low to high stage and back to low stage). Wait
5 seconds after staging to high before taking a reading. The
compressor amperage should go up or down at least 20
percent.
2. If the expected result is not achieved, remove the solenoid
plug from the compressor and with the unit running and the
UI calling for high stage, test the voltage output at the plug
with a DC voltmeter. The reading should be 4 to 18 volts.
3. If the correct DC voltage is at the control circuit molded
plug, measure the compressor unloader coil resistance. The
resistance should be 32 to 60 ohms depending on
compressor temperature. If the coil resistance is infinity,
much lower than 32 ohms, or is grounded, the compressor
must be replaced.
Temperature Thermistors
Thermistors are electronic devices which sense temperature. As the
temperature increases, the resistance decreases. Thermistors are
used to sense outdoor air (OAT) and coil temperature (OCT).
Refer to Fig. 34 for resistance values versus temperature.
If the outdoor air or coil thermistor should fail, the control will
flash the appropriate fault code. (See Table 17.)
IMPORTANT: The outdoor air thermistor and coil thermistor
should be factory mounted in the final locations. Check to
ensure thermistors are mounted properly per Fig. 38 and Fig.
39.
Thermistor Sensor Comparison
The control continuously monitors and compares the outdoor air
temperature sensor and outdoor coil temperature sensor to ensure
proper operating conditions. The comparison is:
SIn cooling if the outdoor air sensor indicates ≥10_F
warmer than the coil sensor (or) the outdoor air sensor
indicates ≥20_F cooler than the coil sensor, the sensors
are out of range.
SIn heating if the outdoor air sensor indicates ≥35_F
warmer than the coil sensor (or) the outdoor air sensor
indicates ≥10_F cooler than the coil sensor, the sensors
are out of range.
If the sensors are out of range, the control will flash the appropriate
fault code as shown in Table 17.
The thermistor comparison is not performed during low ambient
cooling or defrost operation.
Failed Thermistor Default Operation
Factory defaults have been provided in the event of failure of
outdoor air thermistor (OAT) and/or outdoor coil thermistor
(OCT).
If the OAT sensor should fail, low ambient cooling will not be
allowed and the one--minute outdoor fan off delay will not occur.
Defrost will be initiated based on coil temperature and time.
If the OCT sensor should fail, low ambient cooling will not be
allowed. Defrost will occur at each time interval during heating
operation, but will terminate after 5 minutes.
If there is a thermistor out of range error, defrost will occur at each
time interval during heating operation, but will terminate after 5
minutes.
Count the number of short and long flashes to determine the
appropriate flash code. Table 17 gives possible causes and actions
related to each error.
OAT Thermistor must be locked in
place with spherical nib end facing to-
wards the front of the control box
Fig. 38 – Outdoor Air Thermistor (OAT) Attachment
OCT Thermistor
must be secured
tight on stub tube.
Fig. 39 – Outdoor Coil Thermistor (OCT) Attachment
Table 16—Two--Stage Compressor Resistances
(Winding Resistance at 70_F±20_)
Winding 286ANA024 286ANA036 286ANA048 286ANA060
Start (S--C) 2.74 1.98 1.55 0.74
Run (R--C) 0.80 0.75 0.48 0.36
Winding 226ANA024
288ANA024 226ANA036
288ANA036 226ANA048
288ANA048 226ANA060
288ANA060
Start (S--C) 1.40 1.29 1.52 0.60
Run (R--C) 1.32 0.89 0.64 0.49

54
Status Codes
Table 17 shows the status codes flashed by the amber status light.
Most system problems can be diagnosed by reading the status code
as flashed by the amber status light on the control board.
The codes are flashed by a series of short and long flashes of the
status light. The short flashes indicate the first digit in the status
code, followed by long flashes indicating the second digit of the
error code.
The short flash is 0.25 seconds ON and the long flash is 1.0 second
ON. Time between flashes is 0.25 seconds. Time between short
flash and first long flash is 1.0 second. Time between code
repeating is 2.5 seconds with LED OFF.
EXAMPLE:
3 short flashes followed by 2 long flashes indicates a 32 code.
Table 17 shows this to be low pressure switch open.
Table 17—TROUBLESHOOTING
OPERATION FAULT
AMBER
LED FLASH
CODE
POSSIBLE CAUSE AND ACTION
Standby – no call for unit opera-
tion None On solid,
no flash Normal operation
E m e r g e n c y M o d e --- M o d e l
288A/180ANA with serial number
3709 and prior.
Standard Thermostat
Control
(288A/180ANA only)
Rapid,
continuous
flashing
Unit being controlled by standard thermostat inputs instead of Evolution
Control. Only high stage operation is available. This operating mode should
be used in emergency situations only.
Low Stage Cool/Heat Operation None 1, pause Normal operation
High Stage Cool/Heat Operation None 2, pause Normal operation
System Communica-
tions Failure 16 Communication with User Interface lost. Check wiring to UI, indoor and
outdoor units
Invalid Model Plug 25 Control does not detect a model plug or detects an invalid model plug. Unit
will not operate without correct model plug.
High Pressure Switch
Open 31* High---pressure switch trip. Check refrigerant charge, outdoor fan operation
and coils for airflow restrictions.
Low Pressure Switch
Open 32* Low ---pressure switch trip. Check refrigerant charge and indoor air flow.
Control Fault 45 Outdoor unit control board has failed. Control board needs to be replaced.
Brown Out (230v) 46 Line voltage < 187v for at least 4 seconds. Compressor and fan operation
not allowed until voltage>190v. Verify line voltage.
No 230v at Unit
Measured at L1 and
L2 on circuit board
47
There is no 230v at the contactor when indoor unit is powered and cooling/
heating demand exists. Verify the disconnect is closed and 230v wiring is
connected to the unit.
Outdoor Air Temp
Sensor Fault 53 Outdoor air sensor not reading or out of range. Ohm out sensor and check
wiring.
Outdoor Coil
Sensor Fault 55 Coil sensor not reading or out of range. Ohm out sensor and check wiring.
Thermistors out of
range 56 Improper relationship between coil sensor and outdoor air sensor. Ohm out
sensors and check wiring.
Low Stage
Thermal Cutout 71*
Compressor operation detected then disappears while low stage demand
exists. Possible causes are internal compressor overload trip or start relay
and capacitor held in circuit too long (if installed).
High Stage
Thermal Cutout 72*
Compressor operation detected then disappears while high stage demand
exists. Possible causes are internal compressor overload trip or start relay
and capacitor held in circuit too long (if installed).
Contactor Shorted 73* Compressor voltage sensed when no demand for compressor operation
exists. Contactor may be stuck closed or there is a wiring error.
No 230V at
Compressor (288A
Only)
74 Compressor voltage not sensed when compressor should be starting. Con-
tactor may be stuck open or there is a wiring error.
Low Stage Did Not
Start
(286A Only)
75 Specified start voltage at VR terminal was not achieved in low stage. Start
relay was de---energized after 1 second.
Low Stage Did Not
Start 3 times
(286AOnly)
76
For 3 consecutive low stage starts, the specified start voltage at VR terminal
was not achieved & start relay was de---energized. Low stage locked out for
30 minutes.
High Stage Did Not
Start
(286A Only)
77 Specified start voltage at VS terminal was not achieved in high stage. Start
relay was de---energized after 1 second.
High Stage Did Not
Start 3 times (286A
Only)
78
For 3 consecutive high stage starts, the specified start voltage at VS terminal
was not achieved & start relay was de---energized. High stage locked out for
30 minutes.
Low Stage
Thermal Lockout 81 Thermal cutout occurs in three consecutive low/high stage cycles. Low
stage locked out for 4 hours or until 24v power recycled.
High Stage
Thermal Lockout 82 Thermal cutout occurs in three consecutive high/low stage cycles. High
stage locked out for 4 hours or until 24v power recycled.
Low---Pressure Lock-
out 83 Low pressure switch trip has occurred during 3 consecutive cycles. Unit
operation locked out for 4 hours or until 24v power recycled.
H i g h --- P r e s s u r e
Lockout 84 High pressure switch trip has occurred during 3 consecutive cycles. Unit
operation locked out for 4 hours or until 24v power recycled.
Low Contactor Open
(286A Only) 85 Compressor voltage not sensed when compressor should be starting. Low
stage contactor may be stuck open or there is a wiring error.
High Contactor Open
(286A Only) 87 Compressor voltage not sensed when compressor should be starting. High
stage contactor may be stuck open or there is a wiring error.
*Sequence: Compressor contactor is de---energized and outdoor fan is energized for up to 15 minutes. If demand still exists, control will energize compressor
contactor after 15 minute delay. If fault is cleared, unit will resume operation. If fault still exists, fan shuts off, and error code continues to flash. Control will attempt
re---start every 15 minutes. Cycling low voltage defeats the 15 minute delay.

55
RVS/Heat Stage 2 O/B W2
Heat Stage 1 W/W1
Compressor Low Y1
Compressor High Y/Y2
Fan G
24VAC Hot Heating Rh
24VAC Hot Cooling Rc
Dry Contact 1 D1
Dry Contact 2 D2
24VAC Common C
Humidify HUM
Outdoor Air Temp OAT
Remote Room Sensor RRS
OAT/RRS Com OAT/RRS
Outdoor Sensor *
Humidifier Solenoid
Valve *
Remote Room
Sensor *
O
Y1
W1
G
W2
C
Y2
R
W1
Y1
O
Y/Y2
R
C
DH
REMOVE J2
JUMPER FOR
HEAT STAGING
REMOVE J1 FOR
DEHUMIDIFY
MODES
2 STAGE
HEAT PUMP
THERMIDISTAT
FAN
COIL
A08055
Fig. 40 – Edge Thermidistat Models T6--PRH--01 or T6--NRH--01)
Wiring with 226A, 286A, 288A
Two--Stage Heat Pump (non--communicating)
TWO-STAGE
VARIABLE SPEED
FURNACE
W1
THERMIDISTAT (TSTAT)
A08090
Fig. 41 – Thermidistat Model TSTATBBPRH01--B with Variable
Speed Furnace and 226A, 286A, 288A
Two--Stage Heat Pump (non--communicating)
D
C
B
A
User Interface
D
C
B
A
D
C
B
A
Communicating HP
OAT
RYOWCHUM
C
Humidifier
24vac
Furnace or Fan Coil
A08091
Fig. 42 – Evolution Furnace or Fan Coil Wiring with 286A OR 289B Communicating Two--Stage HP

56
TWO--STAGE 286B/289B/180B/187B
Application Guidelines
Bryant designed and tested the two--stage air conditioner and heat
pump products with Puron refrigerant to operate at a minimum
outdoor operating ambient in cooling mode at 55_F without low
ambient cooling enabled and the maximum outdoor operating
ambient in cooling is 125_F/51.6_C. On Evolution
communicating systems, only low ambient cooling is available to
0_F/--17.8_C.
The maximum outdoor operating ambient in heating mode is
66_F/18.8_C on all heat pumps. Continuous operation in heating
mode is approved to --30_F/--34.4_C. Thermostat options for the
two stage units are as follows:
SA,B,C,D four--wire connections for Evolution User
Interface.
SR,C,W,Y1,Y2, and O wire connections for standard,
non--communicating thermostat.
286BNA, 289B, 187B, and 180B units can run, and are matched
with, User Interface (UI) communicating and non--communicating
indoor fan coils and furnaces. Only unit combinations listed in the
two--stage Product Data are recommended.
Line sets for two stage units are similar to the single stage units.
However, some restrictions may apply to specific combinations in
long line applications. Refer to the Long Line Guideline for further
information.
The Tennessee Valley Authority (TVA) requires that electric strip
heat have a lockout feature. This is achieved through Bryant
thermostats required per above and must be used on all TVA
approved units.
The new control board in the two stage units with Puron refrigerant
has dip switches for defrost timing. The Evolution controls
provide these two stage units with high stage latching and Hybrid
Heatt(dual fuel) capabilities. The standard Hybrid Heatt(duel
fuel) thermostat can be used on two stage units with Bristol
reciprocating compressors only.
Model Plug
Each control board contains a model plug. The correct model plug
must be installed in order for the system to operate properly. (See
Table 18.)
The model plug is used to identify the type and size of unit to the
control. On 286BNA models, the model plug is also used to
determine the start sequence timing for each individual model.
On new units, the model and serial numbers are inputted into the
board’s memory at the factory. If a model plug is lost or missing at
initial installation, the unit will operate according to the
information input at the factory and the appropriate error code will
flash temporarily. An RCD replacement board contains no model
and serial information. If the factory control board fails, the model
plug must be transferred from the original board to the replacement
board for the unit to operate.
NOTE: The model plug takes priority over factory model
information input at the factory. If the model plug is removed after
initial power up, the unit will operate according to the last valid
model plug installed, and flash the appropriate fault code
temporarily.
Table 18—Model Plug Information
MODEL
NUMBER
MODEL
PLUG
NUMBER
PIN RESISTANCE
( K --- o h m s )
P i n s 1 --- 4 P i n s 2 --- 3
286BNA024 HK70EZ041 18 91
286BNA036 HK70EZ043 18 150
286BNA048 HK70EZ045 18 220
286BNA060 HK70EZ047 18 360
289BNA036 HK70EZ012 5.1 180
289BNA048 HK70EZ014 5.1 270
289BNA060 HK70EZ016 11 5.1
180BNA024 HK70EZ009 5.1 91
180BNA036 HK70EZ011 5.1 150
180BNA048 HK70EZ013 5.1 220
180BNA060 HK70EZ015 5.1 360
187BNA024 HK70EZ040 18 75
187BNA036 HK70EZ042 18 120
187BNA048 HK70EZ044 18 180
187BNA060 HK70EZ046 18 270

57
Airflow Selections for 187B / 286B / 180B /289B
Using Non--Communicating (Non--Evolution)
Thermostats
Airflow Selection for 315AAV/355AAV Furnaces
The 315AAV/355AAV variable--speed furnaces provide high--and
low--stage blower operation to match the capacities of the
compressor at high and low stages. To select the recommended
airflow and for adjustments to the manual switches labeled SW1--5,
AC, and CF on the control board, refer to the furnace Installation
Instructions. The 315AAV/355AAV utilizes a control center that
allows the installing technician to select the proper airflows. The
HP switch determines the airflow during high--stage compressor
operation. Airflow for high-- and low--stage can be calculated at
either 350 CFM per ton or 400 CFM per ton, based on the
positions of SW1--5.
When using communicating (Evolution) control, dipswitch
adjustments are not necessary on furnaces. Airflows are
determined by Evolution Control setup.
Airflow Selection for FV4 Fan Coils for 180B,
187B, 286B, 289B Using Non--Communicating
(Non--Evolution) Thermostats
The FV4 provides high-- and low--stage blower operation to match
the capacities of compressor at high-- and low--stage. To select
recommended airflow, refer to FV4 Installation Instructions. The
FV4 utilizes an Easy Select control board that allows the installing
technician to select proper airflows. For adjustments to control
board, select appropriate HP SIZE and CFM ADJUST setting. This
fan coil has an adjustable blower off delay factory set at 90 sec for
high-- and low--stage blower operation.
For other combinations of equipment consult Product Data Digest.
GENERAL INFORMATION
Low Ambient Cooling
When this unit is operating below 55_F outdoor temperature,
provisions must be made for low ambient operation.
Evolution Controlled low ambient cooling:
This unit is capable of low ambient cooling without a kit ONLY
when using Evolution control. A low ambient kit is not required,
and the outdoor fan motor does not need to be replaced for
Evolution controlled low ambient operation. The Evolution
Control provides an automatic evaporator coil freeze protection
algorithm that eliminates the need for an evaporator freeze
thermostat. Low ambient cooling must be enabled in the User
Interface set up. Fan may not begin to cycle until about 40_F
OAT. Fan will cycle based on coil and outdoor air temperature.
Evolution controlled low ambient mode operates as follows:
SFan is OFF when outdoor coil temp is < (outdoor air
temperature + 3_F) or outdoor fan has been ON for 30
minutes. (Fan is turned off to allow refrigerant system to
stabilize.)
SFan is ON when outdoor coil temp > (outdoor air
temperature + 25_F) or outdoor coil temp > 80_Forif
outdoor fan has been OFF for 30 minutes. (Fan is turned
on to allow refrigerant system to stabilize.)
SLow pressure switch is ignored for first 3 minutes during
low ambient start up. After 3 minutes, if LPS trips, then
outdoor fan motor is turned off for 10 minutes, with the
compressor running. If LPS closes within 10 minutes
then cooling continues with the outdoor fan cycling per
the coil temperature routine listed above for the
remainder of the cooling cycle. If the LPS does not close
within 10 minutes, then the normal LPS trip response
(shut down cooling operation and generate LPS trip
error) will occur.
For 180B/289B models, the PWM output for both high and low
stage equals the value for low stage operation below 55_F.
Defrost
This control offers 5 possible defrost interval times: 30, 60, 90, 120
minutes, or AUTO.
With non--communicating thermostats, these are selected by dip
switches on the unit control board. With communicating
thermostats, the Evolution Control User Interface. The Evolution
Control selection overrides the control board dip switch settings.
AUTO defrost adjusts the defrost interval time based on the last
defrost time as follows:
SWhen defrost time <3 minutes, the next defrost
interval=120 minutes.
SWhen defrost time 3--5 minutes, the next defrost
interval=90 minutes.
SWhen defrost time 5--7 minutes, the next defrost
interval=60 minutes.
SWhen defrost time >7 minutes, the next defrost
interval=30 minutes.
The control board accumulates compressor run time. As the
accumulated run time approaches the selected defrost interval time,
the control board monitors the coil temperature sensor for a defrost
demand. If a defrost demand exists, a defrost cycle will be initiated
at the end of the selected time interval. A defrost demand exists
when the coil temperature is at or below 32_F for 4 minutes during
the interval.
The defrost cycle is terminated when the coil temperature reaches
65_F or 10 minutes has passed.
On 286B models, defrost will occur in low-- or high--stage as
demanded by the thermostat or User Interface regardless of OAT
On 289B models, when OAT is >25_F(--3.9_C), defrost will occur
in low-- or high--stage as demanded by the thermostat or User
Interface.
On 289B models, if OAT is ≤25_F(--3.9_C), defrost will occur in
high--stage only, regardless of thermostat or User Interface demand,
and will terminate at 50_F(10_C) coil temperature with a
minimum of 2.5 minutes in defrost.
If the coil temperature does not reach 32_F(0_C) within the
interval, the interval timer will be reset and start over.
SUpon initial power up the first defrost interval is
defaulted to 30 minutes. Remaining intervals are at
selected times.
SDefrost is only allowed to occur below 50_F(10_C)
outdoor ambient temperature.
The outdoor fan output (ODF) will remain off for 20 seconds after
termination. This delay will allow time for the system to capture
the heat from the outdoor coil and reduce the “steam cloud” effect
that may occur on transition from defrost to the heating cycle. The
outdoor fan output OFF delay of 20 seconds may be defeated to
enable the fan to energize immediately at the time of termination
and 12 seconds prior to the reversing valve de--energizing, through
the User Interface setup screen available with SYSTXBBUID01--C
UI, or forced defrost pins as follows:

58
SThe ODF fan delay defeat can be toggled by shorting the
forced defrost pins for >15 seconds while in the standby
mode (status LED on solid). The LED will start to flash
when the toggle has taken place.
SStatus code 4 shows the fan delay defeat is active (no
delay)
SStatus code 3 shows that it is not active (20 second
delay)
The code will continue to be displayed until after the short is
removed. Once the short is removed, there is a 5 second wait
before the code is cancelled. The code that is flashing will finish
before going back to sold LED. the control is shipped with the
ODF fan delay defeat NOT active. the change in status is
remembered until toggled to a new status. A power down / power
up sequence will not reset the status. It may be necessary to do the
toggle twice to cycle to the desired state of defeat.
Defrost Hold
in a non--communicating system, if the thermostat becomes
satisfied (Y1 or Y1 and Y2) before the defrost cycle is terminated,
the control will “hold” in defrost mode and finish the defrost cycle
on the next call for heat.
With communicating Evolution Control, defrost hold is not needed
in a communicating system because the User Interface will
complete the defrost cycle before shutting down the system.
Forced Defrost
With non--communicating (non--Evolution) control, forced defrost
can be initiated by manually shorting the 2--pin header labeled
FORCED DEFROST (see Fig 43) on the control board for 5
seconds then releasing.
With communicating (Evolution) control, forced defrost is initiated
with the User Interface.
On all models, during a Forced Defrost:
SIf coil temperature is at defrost temperature of 32_F, and
outdoor air temperature is below 50_F, a full defrost
sequence will occur.
SIf coil temperature or outdoor air temperature does not
meet the above requirements, an abbreviated 30 second
defrost will occur.
Quiet Shift
Quiet Shift is a field--selectable defrost mode which may eliminate
occasional noise that could be heard at the start of the defrost cycle
and restarting of the heating cycle. On models with a
non--communicating system, this feature must be enabled by
selecting the 3rd position of the 3--position dip switch. For models
with communicating (Evolution) systems, it must be enabled at the
User Interface. When activated, the following sequence of
operation will occur. Reversing valve will energize and
compressor will turn off for 30 seconds, then turn back on to
complete defrost. At the end of the defrost cycle, the reversing
valve de--energizes, compressor will turn off for another 30
seconds, and the fan will turn off for 40 seconds, before starting in
the heating mode.
Liquid--Line Solenoid Accessory
In heat pump long--line applications, a liquid--line solenoid is
required to control refrigerant migration in the heating mode. The
solenoid should be installed near the outdoor unit with the arrow
facing the outdoor unit. This is the direction of flow control. See
application manual for long--line application details.
Accessory Liquid Solenoid with Evolution Communicating
Control:
When using the Evolution Control, the liquid--line solenoid output
is provided at the Y1 connection. Connect the solenoid as shown in
the wiring label diagram. This is a 24vac output that is energized
whenever the compressor is energized. It closes, in the compressor
off mode, to prevent refrigerant migration into the unit through the
liquid--line.
On Models with Accessory Liquid Solenoid Using a
Non--Communicating Thermostat:
The liquid solenoid is connect to the Y1 and C terminal
connections. The liquid solenoid closes, in the compressor off
mode, to prevent refrigerant migration into the unit through the
liquid--line.
CHECK CHARGE
All 286B units must be charged in high stage only.
Factory charge amount and desired subcooling are shown on unit
rating plate. Charging method is shown on information plate inside
unit. To properly check or adjust charge, conditions must be
favorable for subcooling charging. Favorable conditions exist
when the outdoor temperature is between 70_F and 100_F
(21.11_C and 37.78_C), and the indoor temperature is between
70_F and 80_F (21.11_C and 26.67_C). Follow the procedure
below:
Unit is factory charged for 15ft (4.57 m) of lineset. Adjust charge
by adding or removing 0.6 oz/ft of 3/8 liquid line above or below
15ft (4.57 m) respectively.
For standard refrigerant line lengths (80 ft/24.38 m or less), allow
system to operate in cooling mode at least 15 minutes. If conditions
are favorable, check system charge by subcooling method. If any
adjustment is necessary, adjust charge slowly and allow system to
operate for 15 minutes to stabilize before declaring a properly
charged system.
If the indoor temperature is above 80_F (26.67_C), and the
outdoor temperature is in the favorable range, adjust system charge
by weight based on line length and allow the indoor temperature to
drop to 80_F (26.67_C) before attempting to check system charge
by subcooling method as described above.
If the indoor temperature is below 70_F (21.11_C), or the outdoor
temperature is not in the favorable range, adjust charge for line set
length above or below 15ft (4.57 m) only. Charge level should then
be appropriate for the system to achieve rated capacity. The charge
level could then be checked at another time when the both indoor
and outdoor temperatures are in a more favorable range.
NOTE: If line length is beyond 80 ft (24.38 m) or greater than 20
ft (6.10 m) vertical separation, See Long Line Guideline for
special charging requirements.
Heating Check Chart Procedure
To check system operation during heating cycle, refer to the Heat
Pump Charging Instructions label on outdoor unit. This chart
indicates whether a correct relationship exists between system
operating pressure and air temperature entering indoor and outdoor
units. If pressure and temperature do not match on chart, system
refrigerant charge may not be correct. Do not use chart to adjust
refrigerant charge.
NOTE: In heating mode, check refrigerant charge only when
pressures are stable. If in doubt, remove charge and weigh in
correct refrigerant charge.
NOTE: When charging is necessary during heating season, charge
must be weighed in accordance with unit rating plate, ±0.6 oz./ft.
of 3/8--in. liquid--line above or below 15 ft., respectively.
EXAMPLE:
To calculate additional charge required for a 25--ft. line set:
25 ft. -- 15 ft. = 10 ft. X 0.6 oz./ft. = 6 oz. of additional charge.

59
SYSTEM FUNCTIONS AND
SEQUENCE OF OPERATION
The outdoor unit control system has special functions. The
following is an overview of the two--stage control functions:
Cooling and Heating Operation
The 286B/187B/289B/180B model utilizes either a standard
2--stage indoor thermostat or Evolution Communication User
Interface. With a call for first stage cooling, the outdoor fan,
reversing valve, and low stage compressor are energized. If
low--stage cannot satisfy cooling demand, high--stage cooling is
energized by the second stage of indoor thermostat or User
Interface. After second stage is satisfied, the unit returns to
low--stage operation until first stage is satisfied or until second
stage is required again. When both first stage and second stage
cooling are satisfied, the compressor will shut off. The reversing
valve will remain energized until the control board power is
removed or a call for heating in initiated. With a call for heating,
the outdoor fan and compressor are energized. The compressor will
operate in high or low stage operation, as needed to meet the
heating demand. When the heating demand is satisfied, the
compressor and fan will shut off. The reversing valve is
de--energized in the heating mode.
NOTE: When two--stage unit is operating at low--stage, system
vapor (suction) pressure will be higher than a standard single--stage
system or high--stage operation.
NOTE: Outdoor fan motor will continue to operate for one minute
after compressor shuts off, when outdoor ambient is greater than or
equal to 100°F. This reduces pressure differential for easier starting
on next cycle.
NOTE: If unit has not operated within the past 12 hours, or
following a unit power--up, upon the next thermostat high-- or
low--stage demand, unit operates for a minimum of 5 minutes in
high--stage.
On models with non--communicating (non--Evolution) systems,
with first stage of cooling, Y1 and O are powered on; and with
second stage of cooling, Y1, Y2, and O are on. For these systems,
with first stage of heating Y1 is on and for second stage of heating,
Y1 and Y2 are on. When the reversing valve is energized, O is
powered on.
Communication and Status Function Lights For
Evolution Control only, Green communications
(COMM) Light
A green LED (COMM light) on the outdoor board indicates
successful communication with the other system products. The
green LED will remain OFF until communication is established.
Once a valid command is received, the green LED will turn ON
continuously. If no communication is received within 2 minutes,
the LED will be turned OFF until the next valid communication.
Amber Status Light
An amber colored STATUS light is used to display the operation
mode and fault codes as specified in the troubleshooting section.
See Table 21 for codes and definitions.
NOTE: Only one code will be displayed on the outdoor unit
control board (the most recent, with the highest priority).
Utility Interface With Evolution Control
The utility curtailment relay should be wired between R and Y2
connections on the control board for Evolution Communicating
Systems only (see Fig. 49.) This input allows a power utility device
to interrupt compressor operation during peak load periods. When
the utility sends a signal to shut the system down, the User
Interface will display, “Curtailment Active”.
Compressor Operation on 289B/180B Models:
The basic scroll design has been modified with the addition of an
internal unloading mechanism that opens a bypass port in the first
compression pocket, effectively reducing the displacement of the
scroll. The opening and closing of the bypass port is controlled by
an internal electrically operated solenoid.
The modulated scroll uses a single step of unloading to go from
full capacity to approximately 67% capacity. A single speed, high
efficiency motor continues to run while the scroll modulates
between the two capacity steps. Modulation is achieved by venting
a portion of the gas in the first suction pocket back to the low side
of the compressor, thereby reducing the effective displacement of
the compressor. Full capacity is achieved by blocking these vents,
thus increasing the displacement to 100%. A DC solenoid in the
compressor controlled by a rectified 24 volt AC signal in the
external solenoid plug moves the slider ring that covers and
uncovers these vents. The vent covers are arranged in such a
manner that the compressor operates at approximately 67%
capacity when the solenoid is not energized and 100% capacity
when the solenoid is energized.
The loading and unloading of the two step scroll is done “on the
fly” without shutting off the motor between steps.
NOTE: 67% compressor capacity translates to approximately 80%
cooling or heating capacity at the indoor coil. The compressor will
always start unloaded and stay unloaded for five seconds even
when the thermostat is calling for high stage.
Fan Motor
Fan motor rotates the fan blade that either draws or blows air
through outdoor coil to exchange heat between refrigerant and air.
Motors are totally enclosed to increase reliability. This also
eliminates need for rain shield.
ELECTRICAL SHOCK HAZARD
Failure to follow this warning could result in personal injury
or death.
Turn off all power to unit before servicing or replacing fan
motor. Be sure unit main power switch is turned off.
!WARNING
The bearings are permanently lubricated; therefore, no oil ports are
provided.
For suspected electrical failures, check for loose or faulty electrical
connections, or defective fan--motor capacitor. Fan motor is
equipped with thermal overload device in motor windings which
may open under adverse operating conditions. Allow time for
motor to cool so device can reset. Further checking of motor can be
done with an ohmmeter. Set scale on R X 1 position; check for
continuity between three leads. Replace motors that show an open
circuit in any of the windings. Place 1 lead of ohmmeter on each
motor lead. At same time, place other ohmmeter lead on motor case
(ground). Replace any motor that shows resistance to ground, signs
of arcing, burning, or overheating.
Located above the compressor is a single--speed fan motor and fan.
The 180B/289B air conditioner and heat pump models use the
ECM variable speed fan motor.

60
The outdoor Integral Control Motor (ECM), is a variable--speed
motor which operates from 450 to 850 rpm. The motor is a dc
permanent magnet--type motor with the electronic controls
integrated into its rear cover. The control package includes a small
diode bridge, capacitors, and power switching devices. It converts
ac to dc power and switches the dc power to the motor windings on
and off at various rates to control the motor speed. The speed at
which the motor windings are thus commutated is determined by a
pulse width modulated (PWM) signal which is received from the
control board on the motor control lines.
The PWM signal is created by turning a DC signal on and off once
within a given period of time. The signal on time relative to the
signal total period defines the percent of the PWM. For example, if
the period is 5 sec and the control power is turned on for 1 sec then
off, the signal will remain off for 4 sec before turning on again to
start the next cycle. The PWM is called a 20 percent duty cycle
signal. If the on time is increased to 4 sec of the 5 sec period, the
PWM is called an 80 percent duty cycle. The ECM reads the PWM
signal and increases the motor speed linearly from minimum speed
to maximum speed with the percent duty cycle value of the
supplied PWM signal.
Outdoor Fan Motor Operation
There are two different types of motors used in the Evolution
2--stage outdoor units. The 286B models use a PSC type fan motor,
and the speed does not change between high and low speed
operation.
On 289B models, an ECM fan motor is used to achieve higher
efficiency ratings of the system. The outdoor unit control energizes
outdoor fan anytime compressor is operating, except for defrost or
low--ambient cooling. The outdoor fan remains energized if a
pressure switch or compressor overload should open. The outdoor
fan motor will continue to operate for one minute after the
compressor shuts off when the outdoor ambient is greater than or
equal to 100°F/37.7°C. This reduces pressure differential for easier
starting on next cycle. On 286B/187B models, the outdoor fan
remains energized during the 1--minute compressor staging time
delay.
On 286B/187B models, the outdoor fan motor is a PSC type. A fan
relay on the control board turns the fan off and on by opening and
closing a high voltage circuit to the motor. It does not change
speeds between low and high stage operation.
On 289B/180B models, the outdoor fan is an ECM type. The
motor control is continuously powered with high voltage. The
motor speed is determined by electrical pulses provided by the
PWM outputs on the control board. The ECM motor RPM adjusts
to outdoor conditions as described in Table 19. The PWM output
can be measured with a volt meter set to DC volts.
In low ambient cooling (below 55°F/12.7°C), the control board
cycles the fan off and on.
Table 19—Outdoor Fan Motor PWM
Outdoor Temp (DC volts, Tolerance +/-- 2%)
Model Low Stage
(OAT≤104_F/40_C)
High Stage
(OAT≤104_F/40_C)
Low & High
Stage
(OAT>104_F/40_C)
289BNA036 9.06 10.23 11.90
289BNA048 9.91 11.04 11.90
289BNA060 10.83 11.70 11.90
180BNA024 9.57 10.88 11.90
180BNA036 9.06 10.23 11.90
180BNA048 9.91 11.04 11.90
180BNA060 10.83 11.70 11.90
NOTE: For 289B models in low---ambient cooling, the PWM output for
b o t h h i gh --- a n d l o w --- s t a ge e q u a l s t h e v a l u e f o r l o w --- s ta g e
operation below 55_F (12.8_C).
ECM Fan Motor Troubleshooting
If the outdoor fan motor fails to start and run:
SCheck the high--voltage supply. The unit need not be
running to check high voltage, but the power must be on.
SIf the 230vac is present, use Table 19 to check for proper
control voltage output to the fan motor from the control
board. The control board sends DC voltage signals to the
motor through the terminals labeled PWM1 and PWM2
Set a voltmeter on a DC voltage scale and check across
these terminals.
SFirst check voltage with the motor disconnected. If no
control voltage is present, check control--board
connections. If connections are good, replace the control
board.
SIf voltage is present, reconnect the motor and check
again. Shut down the unit to reconnect the motor and
restart the unit to complete this troubleshooting
procedure. If control voltage is no longer present or
motor fails to respond, check motor connections.
SIf connections are good, replace the motor.
Time Delays
The unit time delays include:
SFive minute time delay to start cooling or heating
operation when there is a call from the thermostat or user
interface. To bypass this feature, momentarily short and
release Forced Defrost pins.
SFive minute compressor re--cycle delay on return from a
brown--out condition.
STwo minute time delay to return to standby operation
from last valid communication (with Evolution only).
SOne minute time delay of outdoor fan at termination of
cooling mode when outdoor ambient is greater than or
equal to 100_F.
SFifteen second delay at termination of defrost before the
auxiliary heat (W1) is de--energized.
STwenty second delay at termination of defrost before the
outdoor fan is energized.
SThirty second compressor delay when quiet shift
enabled.
SOn 226A, 266A, 286B models there is a 1 minute time
delay between staging from low to high and from high to
low capacity. On 289B models there is no delay; the
compressor will change from low to high and from high
to low capacity “on the fly” to meet the demand.
Pressure Switches
The Puronrtwo--stage air conditioner contains two pressure
switches to prevent system operation if the pressures get
excessively high or low. The air conditioner low pressure switch in
the suction line opens at 50 PSI and closes at 95 PSI. The high
pressure switch opens at 670 PSI and closes at 470 PSI. Both
pressure switch settings are considerably higher than on
comparably sized R--22 units. The high and low pressure switches
can be identified by their pink stripe on the switch’s electrical
wires.
The Puronrtwo--stage heat pump contains a loss of charge switch
in the suction line on 286B and 289B, and liquid line on 226A and
266A which opens at 23 PSI and closes at 55 PSI. See
troubleshooting section for sequence when a pressure switch trip
occurs.

61
Muffler, Accumulator, Reversing Valve (RVS)
The Puronrtwo--stage air conditioners and heat pumps have a
compressor discharge line muffler, to dampen sound pressure
pulsations.
The Puronrtwo--stage heat pumps have a specifically designed
reversing valve, for Puronrapplication and an accumulator for
storing excess liquid refrigerant during the heating mode to prevent
damaging flood--back.
Thermistors
Outdoor Ambient Thermistor
The Puronrtwo--speed air conditioner and heat pump units have
an outdoor ambient air thermistor. The control board must know
the outdoor air temperature so it can activate various functions.
These functions include:
SActivating the compressor crankcase heater when ever
the outdoor unit is in the off cycle.
SThe fan motor speed changes for both air conditioner
and heat pump on the ECM equipped units.
Outdoor Coil Thermistor(OCT)
The coil or defrost thermistor is the same thermistor used to
monitor outdoor air temperature. The control board must know the
coil temperature so it can activate various functions. These
functions include:
SFrost sensing on heat pumps
SCoil--vs--Ambient temperature relationship
SLow ambient cooling operation
Thermistor Curve
The resistance vs. temperature chart enables the service technicians
to check thermistor resistance, regardless of the temperature.
For example, at a 60_F temperature, thermistor resistance should
be around 16,000 Ohms. (See Fig. 43.)
We will talk about the thermistor in more detail when we review
the control board fault codes.
0
10
20
30
40
50
60
70
80
90
0
(-17.77)
20
(-6.67)
40
(4.44)
60
(15.56)
80
(26.67)
100
(37.78)
120
(48.89)
TEMPERATURE °F (°C)
RESISTANCE (KOHMS)
THERMISTOR CURVE
A08054
Fig. 43 – Resistance Values Versus Temperature
Control Box
Contactor And Capacitor
Removal of the information plate exposes the control components.
Both air conditioner and heat pump control boxes will appear to be
nearly identical. There are two contactors, two capacitors, a control
board and a compressor start assist. The contactors are identical to
those used in the standard single speed units. One controls low
capacity operation and the second controls high speed. The
capacitors also are similar to those used in standard single speed
units. You have a fan capacitor for the outdoor fan motor, and a run
capacitor for the compressor motor. The control board, start
capacitor, and start relay control the starting of the compressor.
Always replace these devices with the Factory Approved
Components.
Incoming Power
Incoming power is attached to the two power wire stripped leads.
A ground lug is also provided. Outdoor unit should always be
grounded through the ground lug to the unit disconnect and from
the disconnect to the electrical fuse box. Failure to do so can cause
serious injury or death.
Start Circuit Sequence of Operation -- 187B & 286B
On a call for high-- or low--stage compressor operation, the start
relay is closed by the control board through the Vs, Vr, and L2
terminals. This puts the start capacitor in the circuit. Compressor
voltage is sensed on the VR and VS terminals throughout the
process. As the compressor comes up to speed, the control board
senses the change in voltage across VR and VS, and opens the start
relay at the appropriate voltage. The control is programmed with
the parameters for opening the start circuit. The voltage will be
different for high-- and low--stage, and for different unit sizes.
Since the same control board is used in all 2--stage units, the model
plug determines the start circuit voltage.
Troubleshooting 187B & 286B Start Circuit:
If starting problems are encountered, the control board will flash
fault codes to help indicate where the problem was encountered.
See Table 21 for appropriate actions by active fault code.
SFirst check that the model plug is correct for the unit
model and size, and that it is installed properly
START CAPACITOR
MOUNTING HOLES
START RELAY
MOUNTING HOLE
TAB ON BOTTOM OF
START RELAY TO BE
PLACED IN THIS CORNER
A10157
Fig. 44 – Start Relay and Capacitor Mounting Locations
Evolution / Evolution in Cube Cabinet

62
UTILITY RELAY *
UTILITY SIGNAL
OPEN RELAY
* SUPPLIED BY UTILITY PROVIDER
MODEL
PLUG
LLS
Liquid Line Solenoid
MODEL
PLUG
A06525/.A06526
Fig. 45 – 2--Stage Control Board
TROUBLESHOOTING
Troubleshooting (HK38EA015) circuit board
The Evolution Series outdoor units all use the same control board.
A model plug is used to identify the system type, and set the
operating parameters for airflow, start circuit timing etc. (see Model
Plug section)
Replacement boards may have a different part number from the
original board. A newer board will always be backward compatible
to previous units if it is superseded at RCD. Old boards are not
always forward compatible due to new functions, or software
changes made to resolve field issues.
Systems Communication Failure
If communication with the Evolution control is lost with the User
Interface, the control will flash the appropriate fault code. (See
Table 21.) Check the wiring to the UI and the indoor and outdoor
units.
Model Plug
Each control board contains a model plug. The correct model plug
must be installed for or the system to operate properly. (See Table
18.)
The model plug is used to identify the type and size of unit to the
control. On 286B models, the model plug is also used to determine
the start sequence timing for each individual model.
On new units, the model and serial numbers are input into the
board’s memory at the factory. If a model plug is lost or missing at
initial installation, the unit will operate according to the
information input at the factory and the appropriate error code will
flash temporarily. An RCD replacement board contains no model
and serial information. If the factory control board fails, the model
plug must be transferred from the original board to the replacement
board for the unit to operate.
NOTE: The model plug takes priority over factory model
information input at the factory. If the model plug is removed after
initial power up, the unit will operate according to the last valid
model plug installed, and flash the appropriate fault code
temporarily.
Pressure Switch Protection
The outdoor unit is equipped with high-- and low--pressure
switches. If the control senses the opening of a high-- or
low--pressure switch, it will respond as follows:
1. De--energize the appropriate compressor contactor.
2. Keep the outdoor fan operating for 15 minutes.
3. Display the appropriate fault code (see Table 21).
4. After a 15 minute delay, if there is a call for cooling or
heating and LPS or HPS is reset, the appropriate
compressor contactor is energized.
5. If LPS or HPS has not closed after a 15 minute delay, the
outdoor fan is turned off. If the open switch closes anytime
after the 15 minute delay, then resume operation with a call
for cooling or heating.
6. If LPS or HPS trips 3 consecutive cycles, the unit operation
is locked out for 4 hours.
7. In the event of a high--pressure switch trip or high--pressure
lockout, check the refrigerant charge, outdoor fan operation,
and outdoor coil (in cooling) for airflow restrictions, or
indoor airflow in heating.
8. In the event of a low--pressure switch trip or low--pressure
lockout, check the refrigerant charge and indoor airflow
(cooling) and outdoor fan operation and outdoor coil in
heating.
Control Fault
If the outdoor unit control board has failed, the control will flash
the appropriate fault code (see Table 21). The control board should
be replaced.
Brown--Out Protection
If the line voltage is less than 187v for at least 4 seconds, the
appropriate compressor contactor and fan relay are de--energized.
Compressor and fan operation are not allowed until voltage is a
minimum of 190v. The control will flash the appropriate fault code
(see Table 21).
63
230v Brown--Out Protection Defeated
The brownout feature can be defeated if needed for severe noisy
power conditions. This defeat should always be a last resort to
solving the problem. Defeat is available on the User Interface
setup screen (available with SYSTXBBUID01--C UI) or can be
initiated through the forced defrost pins for non--communicating
systems as follows:
The brownout toggle is accomplished by shorting the defrost pins
from power up with the OAT and OCT sensor connector removed.
After 3 seconds, the status of the force defrost short and the
OAT/OCT as open will be checked. If correct, then the brownout
will be toggled.
SStatus code 6 shows the brownout is disabled.
SStatus code 5 shows the brownout is active.
After the brownout defeat is set, power down and reinstall the
OAT/OCT sensor and remove the short from the forced defrost
pins. As long as the short on the forced defrost remains, the OAT
and OCT faults will not be cleared. The code will continue to be
flashed.
The control is shipped with the brownout active. The change in
status is remembered until toggled to a new status. A power
down/power up sequence will not reset the status. It may be
necessary to do the toggle twice to cycle to the desired state of the
defeat.
230V Line (Power Disconnect) Detection
If there is no 230v at the compressor contactor(s) when the indoor
unit is powered and cooling or heating demand exists, the
appropriate fault code is displayed. Verify the disconnect is closed
and 230v wiring is connected to the unit.
Compressor Voltage Sensing
The control board input terminals labeled VS, VR and L2 on
286B/187B models and VS and L2 on 289B/180B models (see
Fig. 45) are used to detect compressor voltage status and alert the
user of potential problems. The control continuously monitors the
high voltage on the run capacitor of the compressor motor. Voltage
should be present any time the compressor contactor is energized
and voltage should not be present when the contactor is
de--energized.
Contactor Shorted Detection
If there is compressor voltage sensed when there is no demand for
compressor operation, the contactor may be stuck closed or there
may be a wiring error. The control will flash the appropriate fault
code.
286B Models -- Compressor Thermal Cutout
The control senses the compressor voltage at VR and VS. When
starting or running, a phase difference of the voltages on the inputs
will indicate the thermal protector is closed. If the phase difference
is 5_or less for 10 seconds, the internal protector is open. The
control de--energizes the appropriate compressor contactor for 15
minutes, but continues to operate the outdoor fan. The control
Status LED will flash the appropriate code shown in Table 21.
After 15 minutes, with a call for low or high stage cooling or
heating, the appropriate compressor contactor is energized. If the
thermal protector has not re--set, the outdoor fan is turned off. If
the call for cooling or heating continues, the control will energize
the compressor contactor every 15 minutes. If the thermal
protector closes, (at the next 15 minute interval check) the unit will
resume operation.
If the thermal cutout trips for three consecutive cycles, then unit
operation is locked out for 4 hours and the appropriate fault code is
displayed.
289B Compressor Thermal Cutout
If the control senses the compressor voltage after start--up and is
then absent for 10 consecutive seconds while cooling or heating
demand exists, the thermal protector is open. The control
de--energizes the compressor contactor for 15 minutes, but
continues to operate the outdoor fan. The control Status LED will
flash the appropriate code shown in Table 21. After 15 minutes,
with a call for low or high stage cooling or heating, the compressor
contactor is energized. If the thermal protector has not re--set, the
outdoor fan is turned off. If the call for cooling or heating
continues, the control will energize the compressor contactor every
15 minutes. If the thermal protector closes, (at the next 15 minute
interval check) the unit will resume operation.
If the thermal cutout trips for three consecutive cycles, then unit
operation is locked out for 4 hours and the appropriate fault code is
displayed.
Low or High Contactor Open (286B models) / No
230V at Compressor Contractor (289B models)
If the compressor voltage is not sensed when the compressor
should be starting, the appropriate contactor may be stuck open or
there is a wiring error. The control will flash the appropriate fault
code. Check the contactor and control box wiring.
Troubleshooting 289B/286B units for proper
switching between low & high stages
Check the suction pressures at the service valves. Suction pressure
should be reduced by 3--10% when switching from low to high
capacity.
NOTE: The liquid pressures are very similar between low and
high stage operation, so liquid pressure should not be used for
troubleshooting.
Compressor current should increase 20--45% when switching from
low to high stage. The compressor solenoid when energized in
high stage, should measure 24vac.
When the compressor is operating in low stage the 24v DC
compressor solenoid coil is de--energized. When the compressor is
operating in high stage, the 24v DC solenoid coil is energized. The
solenoid plug harness that is connected to the compressor HAS an
internal rectifier that converts the 24v DC signal to 24v AC. DO
NOT INSTALL A PLUG WITHOUT AN INTERNAL
RECTIFIER.
Unloader Test Procedure
The unloader is the compressor internal mechanism, controlled by
the DC solenoid, that modulates between high and low stage. If it
is suspected that the unloader is not working, the following
methods may be used to verify operation.
1. Operate the system and measure compressor amperage.
Cycle the unloader on and off at 30 second plus intervals at
the UI (from low to high stage and back to low stage). Wait
5 seconds after staging to high before taking a reading. The
compressor amperage should go up or down at least 20
percent.
2. If the expected result is not achieved, remove the solenoid
plug from the compressor and with the unit running and the
UI calling for high stage, test the voltage output at the plug
with a DC voltmeter. The reading should be 4 to 18 volts.
3. If the correct DC voltage is at the control circuit molded
plug, measure the compressor unloader coil resistance. The
resistance should be 32 to 60 ohms depending on
compressor temperature. If the coil resistance is infinity,
much lower than 32 ohms, or is grounded, the compressor
must be replaced.

64
Temperature Thermistors
Thermistors are electronic devices which sense temperature. As the
temperature increases, the resistance decreases. Thermistors are
used to sense outdoor air (OAT) and coil temperature (OCT).
Refer to Fig. 43 for resistance values versus temperature.
If the outdoor air or coil thermistor should fail, the control will
flash the appropriate fault code. (See Table 21.)
IMPORTANT: The outdoor air thermistor and coil thermistor
should be factory mounted in the final locations. Check to
ensure thermistors are mounted properly per Fig. 46 and Fig.
47.
Thermistor Sensor Comparison
The control continuously monitors and compares the outdoor air
temperature sensor and outdoor coil temperature sensor to ensure
proper operating conditions. The comparison is:
SIn cooling if the outdoor air sensor indicates ≥10_F
warmer than the coil sensor (or) the outdoor air sensor
indicates ≥20_F cooler than the coil sensor, the sensors
are out of range.
SIn heating if the outdoor air sensor indicates ≥35_F
warmer than the coil sensor (or) the outdoor air sensor
indicates ≥10_F cooler than the coil sensor, the sensors
are out of range.
If the sensors are out of range, the control will flash the appropriate
fault code as shown in Table 21.
The thermistor comparison is not performed during low ambient
cooling or defrost operation.
Failed Thermistor Default Operation
Factory defaults have been provided in the event of failure of
outdoor air thermistor (OAT) and/or outdoor coil thermistor
(OCT).
If the OAT sensor should fail, low ambient cooling will not be
allowed and the one--minute outdoor fan off delay will not occur.
Defrost will be initiated based on coil temperature and time.
If the OCT sensor should fail, low ambient cooling will not be
allowed. Defrost will occur at each time interval during heating
operation, but will terminate after 5 minutes.
If there is a thermistor out of range error, defrost will occur at each
time interval during heating operation, but will terminate after 5
minutes.
Count the number of short and long flashes to determine the
appropriate flash code. Table 21 gives possible causes and actions
related to each error.
OAT Thermistor must be locked in
place with spherical nib end facing to-
wards the front of the control box
Fig. 46 – Outdoor Air Thermistor (OAT) Attachment
OCT Thermistor
must be secured
tight on stub tube.
Fig. 47 – Outdoor Coil Thermistor (OCT) Attachment

65
Table 20—Two--Stage Compressor Resistances
(Winding Resistance at 70_F±20_)
Winding 286BNA024 286BNA036 286BNA048 286BNA060
Start (S--C) 1.40 1.29 1.52 0.60
Run (R--C) 1.32 0.89 0.64 0.49
Status Codes
Table 21 shows the status codes flashed by the amber status light.
Most system problems can be diagnosed by reading the status code
as flashed by the amber status light on the control board.
The codes are flashed by a series of short and long flashes of the
status light. The short flashes indicate the first digit in the status
code, followed by long flashes indicating the second digit of the
error code.
The short flash is 0.25 seconds ON and the long flash is 1.0 second
ON. Time between flashes is 0.25 seconds. Time between short
flash and first long flash is 1.0 second. Time between code
repeating is 2.5 seconds with LED OFF.
EXAMPLE:
3 short flashes followed by 2 long flashes indicates a 32 code.
Table 21 shows this to be low pressure switch open.
Table 21—TROUBLESHOOTING
OPERATION FAULT
AMBER
LED
FLASH
CODE
POSSIBLE CAUSE AND ACTION
Standby – no call for unit operation None On solid,
no flash Normal operation
Low Stage Cool/Heat Operation None 1, pause Normal operation
High Stage Cool/Heat Operation None 2, pause Normal operation
System Commu-
nications Failure 16 Communication with User Interface lost. Check wiring to UI, indoor and
outdoor units
Invalid Model Plug 25 Control does not detect a model plug or detects an invalid model plug. Unit
will not operate without correct model plug.
High Pressure
Switch Open 31* High---pressure switch trip. Check refrigerant charge, outdoor fan operation
and coils for airflow restrictions.
Low Pressure
Switch Open 32* Low---pressure switch trip. Check refrigerant charge and indoor air flow.
Control Fault 45 Outdoor unit control board has failed. Control board needs to be replaced.
Brown Out (230v) 46 Line voltage < 187v for at least 4 seconds. Compressor and fan operation
not allowed until voltage>190v. Verify line voltage.
No 230v at Unit
Measured at L1
and L2 on circuit
board
47
There is no 230v at the contactor when indoor unit is powered and cooling/
heating demand exists. Verify the disconnect is closed and 230v wiring is
connected to the unit.
Outdoor Air Temp
Sensor Fault 53 Outdoor air sensor not reading or out of range. Ohm out sensor and check
wiring.
Outdoor Coil
Sensor Fault 55 Coil sensor not reading or out of range. Ohm out sensor and check wiring.
Thermistors out of
range 56 Improper relationship between coil sensor and outdoor air sensor. Ohm out
sensors and check wiring.
Low Stage
Thermal Cutout 71*
Compressor operation detected then disappears while low stage demand
exists. Possible causes are internal compressor overload trip or start relay
and capacitor held in circuit too long (if installed).
High Stage
Thermal Cutout 72*
Compressor operation detected then disappears while high stage demand
exists. Possible causes are internal compressor overload trip or start relay
and capacitor held in circuit too long (if installed).
Contactor Shorted 73* Compressor voltage sensed when no demand for compressor operation
exists. Contactor may be stuck closed or there is a wiring error.
No 230V at
Compressor (289B
Only)
74 Compressor voltage not sensed when compressor should be starting. Con-
tactor may be stuck open or there is a wiring error.
Low Stage
Thermal Lockout 81 Thermal cutout occurs in three consecutive low/high stage cycles. Low
stage locked out for 4 hours or until 24v power recycled.
High Stage
Thermal Lockout 82 Thermal cutout occurs in three consecutive high/low stage cycles. High
stage locked out for 4 hours or until 24v power recycled.
L o w --- P r e s s u r e
Lockout 83 Low pressure switch trip has occurred during 3 consecutive cycles. Unit
operation locked out for 4 hours or until 24v power recycled.
H i g h --- P r e s s u r e
Lockout 84 High pressure switch trip has occurred during 3 consecutive cycles. Unit
operation locked out for 4 hours or until 24v power recycled.
* Sequence: Compressor contactor is de---energized and outdoor fan is energized for up to 15 minutes. If demand still exists, control will energize
compressor contactor after 15 minute delay. If fault is cleared, unit will resume operation. If fault still exists, fan shuts off, and error code continues to flash.
Control will attempt re---start every 15 minutes. Cycling low voltage defeats the 15 minute delay.

66
RVS/Heat Stage 2 O/B W2
Heat Stage 1 W/W1
Compressor Low Y1
Compressor High Y/Y2
Fan G
24VAC Hot Heating Rh
24VAC Hot Cooling Rc
Dry Contact 1 D1
Dry Contact 2 D2
24VAC Common C
Humidify HUM
Outdoor Air Temp OAT
Remote Room Sensor RRS
OAT/RRS Com OAT/RRS
Outdoor Sensor *
Humidifier Solenoid
Valve *
Remote Room
Sensor *
O
Y1
W1
G
W2
C
Y2
R
W1
Y1
O
Y/Y2
R
C
DH
REMOVE J2
JUMPER FOR
HEAT STAGING
REMOVE J1 FOR
DEHUMIDIFY
MODES
2 STAGE
HEAT PUMP
THERMIDISTAT
FAN
COIL
A08055
Fig. 48 – Thermidistat Models T6--PRH--01 or T6--NRH--01)
Wiring with 2--Stage Heat Pump (non--communicating)
O
O/B W2 W2
W/W1 W/W1 W1 *
Heat/Cool Stage 1 Y1 / W2 Y1
Heat/Cool Stage 2 Y/Y2 Y/Y2 Y2
Fan G G
24VAC Hot Heating Rh R R
24VAC Hot Cooling Rc
Dry Contact 1 D1
Dry Contact 2 D2 DHUM
24VAC Common C COM C
Humidify HUM
Outdoor Air Temp OAT
Remote Room Sensor RRS
OAT/RRS Com SRTN
Outdoor Sensor *
Humidifier Solenoid
Valve *
Remote Room
Sensor *
Variable Speed
Furnace
Thermidistat 2-Stage
Heat Pump
* Indicates connection may not be required / available.
Heat Stage 3 (furnace)
RVS Cooling
A10107
Fig. 49 – Thermidistat Model T6--PRH--01 or T6--NRH--01 with
Variable Speed Furnace and 2--Stage Heat Pump
(non--communicating)
D
C
B
A
User Interface
D
C
B
A
D
C
B
A
Communicating HP
OAT
RYOWCHUM
C
Humidifier
24vac
Furnace or Fan Coil
A08091
Fig. 50 – Variable Speed Furnace or Fan Coil Wiring with Commu-
nicating 2--Stage HP
R
*
* See Humidifier Instructions for proper wiring.
A09567
Fig. 51 – Single Stage Furnace with 2--Stage Air Conditioner
R
* See Humidifier Instructions for proper wiring.
*
A09568
Fig. 52 – 2--Stage Thermostat with Single--Stage Furnace and
2--Stage Air Conditioner
LEGEND
24v Factory Wiring
24v Field Wiring
Field Splice Connection
A09306
67
TWO STAGE NON--COMMUNICATING
127A/226A
These units are a low cost 2--stage option that is
non--communicating utilizing 2 stage scroll technology. These
units require Performance Boost furnace (313AAV, 353AAV),
variable speed furnace (355AAV, 315AAV) or new model variable
speed fan coil (FV4C). Variable speed fan coils prior to the FV4C
will NOT be rated with the new Legacy Line two stage units as
they are not capable of meeting the air flow requirements necessary
for rating. These are designed to operate with basic 24 volt
thermostat inputs.
Operating Ambient
The minimum outdoor operating ambient in cooling mode is 55_F
(12.78_C), and the maximum outdoor operating ambient in
cooling mode is 125_F (51.67_C) when operating voltage is 230v.
For 208v applications, the maximum outdoor ambient is 120_F.
NOTE: Units operating at high stage operation, 208v (or below)
line voltage and at an outdoor ambient of 120_F (or greater), may
experience compressor trip.
NOTE: This product is not approved for low ambient cooling at
this time, and no low ambient kit is available.
Airflow Selections (ECM Furnaces)
The ECM Furnaces provide blower operation to match the
capacities of the compressor during high and low stage cooling
operation. Tap selections on the furnace control board enable the
installing technician to select the proper airflows for each stage of
cooling. Below is a brief summary of the furnace airflow
configurations
1. The Y2 call for high stage cooling energizes the “Cool” tap
on the control board. The grey wire from cool tap is connec-
ted to tap 5 on the motor. Refer to the furnace Product Data
to find the corresponding airflow. If the airflow setting for
high cooling needs to be switched from tap 5 to a different
tap, jumper a connection from the cool tap to the desired tap
so that the Y2 signal is communicated via the cool tap to the
desired speed tap.
2. The Y1 call for low stage cooling energizes the “Fan” tap
on the control board. The red wire from the fan tap is con-
nected to tap 1 on the motor. Refer to the furnace Product
Data to find the corresponding airflow. If the airflow setting
for low cooling needs to be switched from tap 1 to a differ-
ent tap, jumper a connection from the Fan tap to the desired
tap so that the Y1 signal is communicated via the Fan tap to
the desired speed tap. The Y1 setting will also govern the
continuous fan airflow for the furnace.
Refer to the literature for the furnace for further details.
Airflow Selection for Variable Speed Furnaces
(non--communicating)
The variable speed furnaces provide blower operation to match the
capacities of the compressor during high and low stage cooling
operation. The furnace control board allows the installing
technician to select the proper airflows for each stage of cooling.
Below is a summary of required adjustments. See furnace
installation instructions for more details:
1. Turn SW1--5 ON for 400 CFM/ton airflow or OFF for 350
CFM/ton airflow. Factory default is OFF.
2. The A/C DIP switch setting determines airflow during high
stage cooling operation. Select the A/C DIP switch setting
corresponding to the available airflow shown in the furnace
Installation Instructions that most closely matches the re-
quired airflow shown in the air conditioning Product Data
for HIGH speed.
3. The CF DIP switch setting determines airflow during low
stage cooling operation. Select the CF DIP switch setting
corresponding to the available airflow shown in the furnace
installation instructions that most closely matches the re-
quired airflow shown in the air conditioning Product Data
for LOW speed. If a higher or lower continuous fan speed is
desired, the continuous fan speed can be changed using the
fan switch on the thermostat. Refer to the furnace Installa-
tion Instructions for details of how to use this feature.
Airflow Selection for FV4C Fan Coils
(non--communicating)
The FV4 provides high-- and low--stage blower operation to match
the capacities of the compressor at high-- and low--stage.
To select recommended airflow, refer to the FV4C Installation
Instructions. The FV4C utilizes an Easy Select control board that
allows the installing technician to select proper airflows. This fan
coil has an adjustable blower--off delay factory set at 90 sec. for
high-- and low--stage blower operation.

68
SYSTEM FUNCTION AND SEQUENCE
OF OPERATION
NOTE: Defrost control board is equipped with 5 minute lockout
timer that is initiated upon any interruption of power.
Turn on power to indoor and outdoor units. Transformer is
energized.
Cooling
On a call for cooling, thermostat makes circuits R--O, R--Y, and
R--G. Circuit R--O energizes reversing valve, switching it to
cooling position. Circuit R--Y sends low voltage through the
safeties and energizes the T1 terminal on the circuit board. If the
compressor has been off for 5 minutes, or power has not been
cycled for 5 minutes, the OF2 relay and T2 terminal will energize.
This will close the contactor, and start the outdoor fan motor and
compressor.
When the cycle is complete, R--Y is turned off, stopping the
compressor and outdoor fan. The 5 minute time guard begins
counting. Compressor will not come on again until this delay
expires. In the event of a power interruption, the time guard will
not allow another cycle for 5 minutes.
NOTE: If the indoor blower off delay is enabled, it will run up to
an additional 90 seconds to increase system efficiency.
Heating
On a call for heating, thermostat makes circuits R--Y and R--G.
Circuit R--Y sends low voltage through the safeties and energizes
the T1 terminal on the circuit board. T1 energizes the defrost logic
circuit. If the compressor has been off for 5 minutes, or power
has not been cycled for 5 minutes, the OF2 relay and T2 terminal
will energize. This will close the contactor, start the outdoor fan
motor and compressor.
When the cycle is complete, R--Y is turned off , stopping the
compressor and outdoor fan. The 5 minute time guard begins
counting. Compressor will not come on again until this time delay
expires. In the event of a power interruption, the time guard will
not allow another cycle for 5 minutes.
Compressor Operation
The basic scroll design has been modified with the addition of an
internal unloading mechanism that opens a by--pass port in the first
compression pocket, effectively reducing the displacement of the
scroll. The opening and closing of the by--pass port is controlled
by an internal electrically operated solenoid. The modulated scroll
uses a single step of unloading to go from full capacity to
approximately 67% capacity.
A single speed, high efficiency motor continues to run while the
scroll modulates between the two capacity steps. Modulation is
achieved by venting a portion of the gas in the first suction pocket
back to the low side of the compressor, thereby reducing the
effective displacement of the compressor.
Full capacity is achieved by blocking these vents, thus increasing
the displacement to 100%. A DC solenoid in the compressor
controlled by a rectified 24 volt AC signal in the external solenoid
plug moves the slider ring that covers and uncovers these vents.
The vent covers are arranged in such a manner that the compressor
operates at approximately 67% capacity when the solenoid is not
energized and 100% capacity when the solenoid is energized. The
loading and unloading of the two step scroll is done ”on the fly”
without shutting off the motor between steps.
NOTE: 67% compressor capacity translates to approximately 75%
cooling or heating capacity at the indoor coil.
The compressor will always start unloaded and stay unloaded for
five seconds even when the thermostat is calling for high stage
capacity.
Quiet Shift
Quiet shift is a field selectable defrost mode (factory set to OFF),
which will eliminate occasional noise that could be heard at the
start of defrost cycle and restarting of heating cycle. It is selected
by placing DIP switch 3 on defrost board (see Fig. 53) in the ON
position.
When Quiet Shift switch is placed in ON position, and a defrost is
initiated, the following sequence of operation will occur. Reversing
valve will energize, compressor will turn off for 30 seconds, and
then turn back on to complete defrost. At the start of heating after
conclusion of defrost, reversing valve will de--energize,
compressor will turn off for another 30 seconds, and the fan will
turn off for 40 seconds, before starting in the heating mode.
Defrost
The defrost control is a time/temperature control which has field
selectable settings of 30, 60, 90, or 120 minutes, factory set to 90
minutes. These settings represent the amount of time that must pass
after closure of the defrost thermostat before the defrost sequence
begins.
The defrost thermostat senses coil temperature throughout the
heating cycle. When the coil temperature reaches the defrost
thermostat setting of approximately 32_F(0_C), it will close,
which energizes the DFT terminal and begins the defrost timing
sequence. When the DFT has been energized for the selected time,
the defrost cycle begins. Defrost cycle is terminated when defrost
thermostat opens, or automatically after 10 minutes.
Defrost Speedup
To initiate a forced defrost, speedup pins (J1) must be shorted with
a flat head screwdriver for 5 seconds and RELEASED.Ifthe
defrost thermostat is open, a short defrost cycle will be observed
(actual length depends on Quiet Shift switch position). When Quiet
Shift is off, only a short 30 second defrost cycle is observed. With
Quiet Shift ON, the speedup sequence is one minute; 30 second
compressor off period followed by 30 seconds of defrost with
compressor operation. When returning to heating mode, the
compressor will turn off for an additional 30 seconds and the fan
for 40 seconds.
If the defrost thermostat is closed, a complete defrost cycle is
initiated. If the Quiet Shift switch is turned on, the compressor will
be turned off for two 30 second intervals as explained previously.
OF2
HK32EA003
OF1
ON
QUIET
SHIFT
120
30
60
60
30
90
INTERVAL TIMER OFF
P3
DFT
O R W
2
Y C
T2 C C O
DFT
T1 Y P1 J1
SPEEDUP
Speedup
Pins Defrost interval
DIP switches
Quiet
Shift
A05378
Fig. 53 – Defrost Control
69
CHECK CHARGE
Factory charge amount and desired subcooling are shown on unit
rating plate. Charging method is shown on information plate inside
unit. To properly check or adjust charge, conditions must be
favorable for subcooling charging. Favorable conditions exist
when the outdoor temperature is between 70_F and 100_F
(21.11_C and 37.78_C), and the indoor temperature is between
70_F and 80_F (21.11_C and 26.67_C). Follow the procedure
below:
Unit is factory charged for 15ft (4.57 m) of lineset. Adjust charge
by adding or removing 0.6 oz/ft (.018 kg/m) of 3/8 liquid line
above or below 15ft (4.57 m) respectively.
For standard refrigerant line lengths (80 ft/24.38 m or less), allow
system to operate in cooling mode at least 15 minutes. If conditions
are favorable, check system charge by subcooling method. If any
adjustment is necessary, adjust charge slowly and allow system to
operate for 15 minutes to stabilize before declaring a properly
charged system.
If the indoor temperature is above 80_F (26.67_C), and the
outdoor temperature is in the favorable range, adjust system charge
by weight based on line length and allow the indoor temperature to
drop to 80_F (26.67_C) before attempting to check system charge
by subcooling method as described above.
If the indoor temperature is below 70_F (21.11_C), or the outdoor
temperature is not in the favorable range, adjust charge for line set
length above or below 15ft (4.57 m) only. Charge level should then
be appropriate for the system to achieve rated capacity. The charge
level could then be checked at another time when the both indoor
and outdoor temperatures are in a more favorable range.
NOTE: If line length is beyond 80 ft (24.38 m) or greater than 20
ft (6.10 m) vertical separation, See Long Line Guideline for
special charging requirements.
Heating Check Chart Procedure
To check system operation during heating cycle, refer to the
Heating Check Chart on outdoor unit. This chart indicates whether
a correct relationship exists between system operating pressure and
air temperature entering indoor and outdoor units. If pressure and
temperature do not match on chart, system refrigerant charge may
not be correct. Do not use chart to adjust refrigerant charge.
Verify 226A units for proper switching between
low & high stages
Check the suction pressures at the service valves. Suction pressure
should be reduced by 3--10% when switching from low to high
capacity.
Compressor current should increase 20--45% when switching from
low to high stage. The compressor solenoid when energized in
high stage, should measure 24vac.
When the compressor is operating in low stage the 24v DC
compressor solenoid coil is de--energized. When the compressor is
operating in high stage, the 24v DC solenoid coil is energized. The
solenoid plug harness that is connected to the compressor HAS an
internal rectifier that converts the 24v DC signal to 24v AC. DO
NOT INSTALL A PLUG WITHOUT AN INTERNAL
RECTIFIER.
Unloader Test Procedure
The unloader is the compressor internal mechanism, controlled by
the DC solenoid, that modulates between high and low stage. If it
is suspected that the unloader is not working, the following
methods may be used to verify operation.
1. Operate the system and measure compressor amperage.
Cycle the unloader on and off at 30 second plus intervals at
the thermostat (from low to high stage and back to low
stage). Wait 5 seconds after staging to high before taking a
reading. The compressor amperage should go up or down
at least 20 percent.
2. If the expected result is not achieved, remove the solenoid
plug from the compressor and with the unit running and the
thermostat calling for high stage, test the voltage output at
the plug with a DC voltmeter. The reading should be 24
volts DC.
3. If the correct DC voltage is at the control circuit molded
plug, measure the compressor unloader coil resistance. The
resistance should be 32 to 60 ohms depending on com-
pressor temperature. If the coil resistance is infinite, much
lower than 32 ohms, or is grounded, the compressor must
be replaced.

70
TWO STAGE COMMUNICATING 167A/266A
These units provide an Evolution capable 2 stage product in the
Preferred line utilizing 2 stage scroll technology. These units are
designed using the full--coil cabinet with is currently used for the
Legacy Line products. Although the deluxe cabinet used in other
Preferred Series products provides excellent sound levels,
serviceability and stylish appearance, its design does not allow for
coil surface area required to achieve targeted ratings. These units
require a variable speed furnace (355AAV, 315AAV) Performance
Boost furnace (313AAV, 353AAV) or variable speed fan coil (FE4
or new FV4C) to achieve targeted ratings.
These units are capable of operating with either Evolution User
Interface or basic 24 volt thermostat inputs.
Indoor Thermostat Control Options
Model Evolution
Control
Standard 2 --- stage
Thermostat
266A Ye s Ye s
Operating Ambient
The minimum outdoor operating ambient in cooling mode is 55_F
(12.78_C) without low ambient cooling enabled, and the
maximum outdoor operating ambient in cooling mode is 125_F
(51.67_C). At line voltage of 208v (or below) and an outdoor
ambient of 120_F (48.9_C) (and above), the compressor operates
in low stage. On Evolution communicating systems ONLY, low
ambient cooling operation is possible at ambient as low as 0_F
(--17.78_C).
The maximum outdoor operating ambient in heating mode is
66°F/18.89_C on all models.
Model Plug
Each control board contains a model plug. The correct model plug
must be installed for or the system to operate properly. (See Table
22.)
Table 22—Model Plug Information
MODEL
NUMBER
MODEL PLUG
NUMBER
PIN RESISTANCE
( K --- o h m s )
P i n s 1 --- 4 P i n s 2 --- 3
266ANA024 HK70EZ041 18 91
266ANA036 HK70EZ043 18 150
266ANA048 HK70EZ045 18 220
266ANA060 HK70EZ047 18 360
167ANA024 Hk70EZ040 18 75
167ANA036 Hk70EZ042 18 120
167ANA048 Hk70EZ044 18 180
167ANA060 Hk70EZ046 18 270
The model plug is used to identify the type and size of unit to the
control.
Airflow Selections for ECM Furnaces (non
communicating)
The ECM Furnaces provide blower operation to match the
capacities of the compressor during high and low stage cooling
operation. Tap selections on the furnace control board enable the
installing technician to select the proper airflows for each stage of
cooling. Below is a brief summary of the furnace airflow
configurations
1. The Y2 call for high stage cooling energizes the “Cool” tap
on the control board. The grey wire from cool tap is connec-
ted to tap 5 on the motor. Refer to the furnace Product Data
to find the corresponding airflow. If the airflow setting for
high cooling needs to be switched from tap 5 to a different
tap, jumper a connection from the cool tap to the desired tap
so that the Y2 signal is communicated via the cool tap to the
desired speed tap.
2. The Y1 call for low stage cooling energizes the “Fan” tap
on the control board. The red wire from the fan tap is con-
nected to tap 1 on the motor. Refer to the furnace Product
Data to find the corresponding airflow. If the airflow setting
for low cooling needs to be switched from tap 1 to a differ-
ent tap, jumper a connection from the Fan tap to the desired
tap so that the Y1 signal is communicated via the Fan tap to
the desired speed tap. The Y1 setting will also govern the
continuous fan airflow for the furnace.
Refer to the furnace literature for further details.
Airflow Selection for Variable Speed Furnaces
(non--communicating)
The variable speed furnaces provide blower operation to match the
capacities of the compressor during high and low stage cooling
operation. The furnace control board allows the installing
technician to select the proper airflows for each stage of cooling.
Below is a summary of required adjustments. See furnace
installation instructions for more details:
1. Turn SW1----5 ON for 400 CFM/ton airflow or OFF for 350
CFM/ton airflow. Factory default is OFF.
2. The A/C DIP switch setting determines airflow during high
stage cooling operation. Select the A/C DIP switch setting
corresponding to the available airflow shown in the furnace
Installation Instructions that most closely matches the re-
quired airflow shown in the air conditioning Product Data
for HIGH speed.
3. The CF DIP switch setting determines airflow during low
stage cooling operation. Select the CF DIP switch setting
corresponding to the available airflow shown in the furnace
installation instructions that most closely matches the re-
quired airflow shown in the air conditioning Product Data
for LOW speed. If a higher or lower continuous fan speed is
desired, the continuous fan speed can be changed using the
fan switch on the thermostat. Refer to the furnace Installa-
tion Instructions for details of how to use this feature.
Airflow Selection for FV4C Fan Coils Using
Non--Communicating (Non--Evolution) Thermo-
stats
The FV4C provides high-- and low--stage blower operation to
match the capacities of compressor at high-- and low--stage. To
select recommended airflow, refer to FV4C Installation
Instructions. The FV4C utilizes an Easy Select control board that
allows the installing technician to select proper airflows. For
adjustments to control board, select appropriate HP SIZE and CFM
ADJUST setting. This fan coil has an adjustable blower off delay
factory set at 90 sec for high-- and low--stage blower operation.
When using a communicating (Evolution) control, dipswitch
adjustments are not necessary. Airflows are determined by
Evolution Control setup. The fan coil is the FE4A.
For other combinations of equipment consult Product Data Digest.
NOTE: Systems using only a non--communicating
(non--Evolution) thermostat, Bryant electronic thermostats are
equipped with a 15--minute staging timer. This timer prevents the
two--stage system from operating at high stage until unit has been
operating in low stage for 15 minutes, unless there is at least a ±5°F
(±2.8°C) difference between room temperature and thermostat set
point. To force high stage (after a minimum of 2 minutes in low
stage), adjust the set point at least ±5°F(±2.8°C) below room
ambient.

71
GENERAL INFORMATION
Evolution Controlled Low Ambient Cooling
This unit is capable of low ambient cooling down to 0°F (--17.8°C)
without a kit ONLY when using an Evolution Control. A low
ambient kit is not required for Evolution controlled low ambient
operation. The Evolution Control provides an automatic
evaporator freeze thermostat. Low ambient cooling must be
enabled in the User Interface setup. Fan may not begin to cycle
until about 40°F(4.4°C) OAT. Fan will cycle based on coil and
outdoor air temperature.
Evolution controlled low ambient mode operates as follows:
SFan is OFF when outdoor coil temperature is less than outdoor
air temperature (+ 3 _F/1.7_C) or outdoor fan has been ON for
30 minutes. (Fan is turned off to allow refrigerant system to
stabilize.)
SFan is ON when outdoor coil temperature is less than outdoor air
temperature (+25_F/13.9_C) or outdoor coil temperature is more
than 80_F (26.7_C) or if outdoor fan has been OFF for 30
minutes. (Fan is turned on to allow refrigerant system to
stabilize.)
SLow pressure switch is ignored for first 3 minutes during low
ambient start up. After 3 minutes, if LPS trips, then outdoor fan
motor is turned off for 10 minutes, with the compressor
running. If LPS closes within 10 minutes then cooling
continues with the outdoor fan cycling per the coil temperature
routine listed above for the remainder of the cooling cycle. If
the LPS does not close within 10 minutes, then the normal LPS
trip response (shut down cooling operation and generate LPS
trip error) will occur.
Defrost
This control offers 5 possible defrost interval times: 30, 60, 90, 120
minutes, or AUTO.
Defrost intervals are selected by dip switches on the unit control
board or by the Evolution Control User Interface. The Evolution
Control selection overrides the control board dip switch settings.
Defrost interval times: 30, 60, 90, and 120 minutes or AUTO are
selected by the Evolution Control User Interface (the dip switches
are not used.)
AUTO defrost adjusts the defrost interval time based on the last
defrost time as follows:
SWhen defrost time <3 minutes, the next defrost interval=120
minutes.
SWhen defrost time 3--5 minutes, the next defrost interval=90
minutes.
SWhen defrost time 5--7 minutes, the next defrost interval=60
minutes.
SWhen defrost time >7 minutes, the next defrost interval=30
minutes.
The control board accumulates compressor run time. As the
accumulated run time approaches the selected defrost interval time,
the control board monitors the coil temperature sensor for a defrost
demand. If a defrost demand exists, a defrost cycle will be initiated
at the end of the selected time interval. A defrost demand exists
when the coil temperature is at or below 32_F(0_C) for 4 minutes
during the interval.
The defrost cycle is terminated when the coil temperature reaches
65_F (18.33_C)or 10 minutes has passed. When OAT is > 25°F
(--3.9°C), defrost will occur in low or high stage as demanded by
the thermostat or User Interface.
If OAT is ≤25°F(3.9_C), defrost will occur in high stage only,
regardless of thermostat or User Interface demand, and will
terminate at 50_F(10_C) coil temperature with a minimum of 2.5
minutes in defrost.
If the coil temperature does not reach 32_F(0_C) within the
interval, the interval timer will be reset and start over.
SUpon initial power up the first defrost interval is defaulted to 30
minutes. Remaining intervals are at selected times.
SDefrost is only allowed to occur below 50_F(10_C) outdoor
ambient temperature.
The outdoor fan output (ODF) will remain off for 20 seconds after
termination. This delay will allow time for the system to capture
the heat from the outdoor coil and reduce the “steam cloud” effect
that may occur on transition from defrost to heating cycle. The
outdoor fan output OFF delay of 20 seconds may be defeated to
enable the fan to energize immediately at the time of termination
and 12 seconds prior to the reversing valve de--energizing through
the User Interface setup screen (available with
SYSTXCCUID01--C), or forced defrost pins as follows:
The ODF fan delay defeat can be toggled by shorting the forced
defrost pins for >15 seconds while in the standby mode (status
LED on solid). The LED will start to flash when the toggle has
taken place.
Status code 4 shows the fan delay defeat is active (no delay).
Status code 3 shows that it is not active (20 second delay).
The code will continue to be displayed until after the short is
removed. There is a 5 second wait before the code is cancelled
once the short is removed. the code that is flashing will finish
before going back to solid LED. The control is shipped with the
ODF fan delay defeat NOT active.
The change in status is remembered until toggled to a new status.
A power down/power up sequence will not reset the status. It may
be necessary to do the toggle twice to cycle to the desired state of
the defeat.
Defrost Hold
On a non--communicating system, if the thermostat becomes
satisfied (Y1 or Y1 and Y2) before the defrost cycle is terminated,
the control will “hold” in defrost mode and finish the defrost cycle
on the next call for heat.
On models with communicating Evolution Control, defrost hold is
not needed because the User Interface will complete the defrost
cycle before shutting down the system.
Forced Defrost
On a system with non--communicating (non--Evolution) control,
forced defrost can be initiated by manually shorting the 2--pin
header labeled FORCED DEFROST (see Fig 6) on the control
board for 5 seconds then releasing.
On a system with communicating (Evolution) control, forced
defrost is initiated with the User Interface.
On all models, during a Forced Defrost:
SIf coil temperature is at defrost temperature of 32_F(0_C), and
outdoor air temperature is below 50_F(10_C), a full defrost
sequence will occur.
SIf coil temperature or outdoor air temperature does not meet the
above requirements, an abbreviated 30 second defrost will
occur.

72
Quiet Shift
Quiet Shift is a field--selectable defrost mode which may eliminate
occasional noise that could be heard at the start of the defrost cycle
and restarting of the heating cycle. On a non--communicating
system, this feature must be enabled by selecting the 3rd position
of the 3--position dip switch. For communicating (Evolution)
systems, it must be enabled at the User Interface. When activated,
the following sequence of operation will occur. Reversing valve
will energize and compressor will turn off for 30 seconds, then turn
back on to complete defrost. At the end of the defrost cycle, the
reversing valve de--energizes, compressor will turn off for another
30 seconds, and the fan will turn off for 40 seconds, before starting
in the heating mode.
Liquid--Line Solenoid Accessory
In heat pump long--line applications, a liquid--line solenoid is
required to control refrigerant migration in the heating mode. The
solenoid should be installed near the outdoor unit with the arrow
facing the outdoor unit. This is the direction of flow control. See
application manual for long--line application details.
Accessory Liquid Solenoid with Evolution Communicating
Control:
When using the Evolution Control, the liquid--line solenoid output
is provided at the Y1 connection. Connect the solenoid as shown in
the wiring label diagram. This is a 24vac output that is energized
whenever the compressor is energized. It closes, in the compressor
off mode, to prevent refrigerant migration into the unit through the
liquid--line.
On Systems with Accessory Liquid Solenoid Using a
Non--Communicating Thermostat:
The liquid solenoid is connect to the Y1 and C terminal
connections. The liquid solenoid closes, in the compressor off
mode, to prevent refrigerant migration into the unit through the
liquid--line.
CHECK CHARGE
Charged in high or low stage
Factory charge amount and desired subcooling are shown on unit
rating plate for high stage. Charging method is shown on
information plate inside unit. To properly check or adjust charge,
conditions must be favorable for subcooling charging. Favorable
conditions exist when the outdoor temperature is between 70_F
and 100_F (21.11_C and 37.78_C), and the indoor temperature is
between 70_F and 80_F (21.11_C and 26.67_C). Follow the
procedure below:
Unit is factory charged for 15ft (4.57 m) of lineset. Adjust charge
by adding or removing 0.6 oz/ft (17.74 g/m) of 3/8 liquid line
above or below 15ft (4.57 m) respectively.
For standard refrigerant line lengths (80 ft/24.38 m or less), allow
system to operate in cooling mode at least 15 minutes. If conditions
are favorable, check system charge by subcooling method. If any
adjustment is necessary, adjust charge slowly and allow system to
operate for 15 minutes to stabilize before declaring a properly
charged system.
If the indoor temperature is above 80_F (26.67_C), and the
outdoor temperature is in the favorable range, adjust system charge
by weight based on line length and allow the indoor temperature to
drop to 80_F (26.67_C) before attempting to check system charge
by subcooling method as described above.
If the indoor temperature is below 70_F (21.11_C), or the outdoor
temperature is not in the favorable range, adjust charge for line set
length above or below 15ft (4.57 m) only. Charge level should then
be appropriate for the system to achieve rated capacity. The charge
level could then be checked at another time when the both indoor
and outdoor temperatures are in a more favorable range.
NOTE: If line length is beyond 80 ft (24.38 m) or greater than 20
ft (6.10 m) vertical separation, See Long Line Guideline for
special charging requirements.
Heating Check Chart Procedure
To check system operation during heating cycle, refer to the Heat
Pump Charging Instructions label on outdoor unit. This chart
indicates whether a correct relationship exists between system
operating pressure and air temperature entering indoor and outdoor
units. If pressure and temperature do not match on chart, system
refrigerant charge may not be correct. Do not use chart to adjust
refrigerant charge.
NOTE: In heating mode, check refrigerant charge only when
pressures are stable. If in doubt, remove charge and weigh in
correct refrigerant charge.
NOTE: When charging is necessary during heating season, charge
must be weighed in accordance with unit rating plate, ±0.6 oz./ft
(±17.74 g/m). of 3/8--in. liquid--line above or below 15 ft (4.57
m)., respectively.
EXAMPLE:
To calculate additional charge required for a 25--ft. line set:
25 ft. -- 15 ft. = 10 ft. X 0.6 oz./ft. = 6 oz. of additional charge.
MAJOR COMPONENTS
2--Stage Control Board
The HP control board controls the following functions:
SHigh and low stage compressor contactor operation
SOutdoor fan motor operation
SReversing valve operation
SDefrost operation
SLow ambient cooling
SCrankcase heater operation
SCompressor external protection
SPressure switch monitoring
STime Delays
Field Connections
On non--communicating (non--Evolution) system, the two--stage
control receives 24vac low--voltage control system inputs through
the R, C, Y1, Y2 and O connections located at the bottom of the
control board (see Fig. 54.) On a non--communicating system,
output W1 is connected at the bottom of the control board for
auxiliary heat.
For a communicating system, use the ABCD Evolution
connections.
Two Stage Compressor
The two stage compressor contains motor windings that provide
2--pole (3500 RPM) operation.
Compressor Internal Relief
The compressor is protected by an internal pressure relief (IPR)
which relieves discharge gas into the compressor shell when
differential between suction and discharge pressure exceeds
550--625 psi. The compressor is also protected by an internal
overload attached to motor windings.
Compressor Control Contactor
The contactor has a 24volt coil. The electronic control board
controls the operation of the contactor.

73
SYSTEM FUNCTIONS AND
SEQUENCE OF OPERATION
The 266A models utilize either an Evolution Communicating User
Interface or a 2-stage cooling indoor thermostat. With a call for
first stage cooling, the outdoor fan and low-stage compressor are
energized. If low-stage cannot satisfy cooling demand, high-stage
is energized by the second stage of indoor thermostat. After second
stage is satisfied, the unit returns to low-stage operation until first
stage is satisfied or until second stage is required again.
When both first stage and second stage cooling are satisfied, the
compressor will shut off. When a 2-stage unit is operating at
low-stage, system vapor (suction) pressure will be higher than a
standard single-stage system or high-stage operation.
When the outdoor ambient is more the 100_F (37.8_C), the
outdoor fan will continue to run for one minute after compressor
shuts off. This reduces pressure differential for easier starting in
the next cycle.
With non--communicating (non--Evolution) systems, with first
stage of cooling, Y1 and O are powered on; and with second stage
of cooling, Y1, Y2, and O are on. For these systems, with first
stage of heating Y1 is on and for second stage of heating, Y1 and
Y2 are on. When the reversing valve is energized, O is powered
on.
Communication and Status Function Lights
For Evolution Control only, Green communications (COMM)
Light
A green LED (COMM light) on the outdoor board indicates
successful communication with the other system products. The
green LED will remain OFF until communication is established.
Once a valid command is received, the green LED will turn ON
continuously. If no communication is received within 2 minutes,
the LED will be turned OFF until the next valid communication.
Amber Status Light
An amber colored STATUS light is used to display the operation
mode and fault codes as specified in the troubleshooting section.
See Table 23 for codes and definitions.
NOTE: Only one code will be displayed on the outdoor unit
control board (the most recent, with the highest priority).
Crankcase Heater Operation
The crankcase heater is energized during off cycle below 65°F
(18.33°C).
Outdoor Fan Motor Operation
The outdoor unit control energizes outdoor fan anytime
compressor is operating, except for defrost or low--ambient
cooling. The outdoor fan remains energized if a pressure switch or
compressor overload should open. Outdoor fan motor will
continue to operate for one minute after the compressor shuts off
when the outdoor ambient is greater than or equal to 100°F
(37.78°C). This reduces pressure differential for easier starting on
next cycle.
The outdoor fan motor is a PSC type. A fan relay on the control
board turns the fan off and on by opening and closing a high
voltage circuit to the motor. It does not change speeds between low
and high stage operation.
Time Delays
The unit time delays include:
SFive minute time delay to start cooling or heating operation
when there is a call from the thermostat or user interface. To
bypass this feature, momentarily short and release Forced
Defrost pins.
SFive minute compressor re--cycle delay on return from a
brown--out condition.
STwo minute time delay to return to standby operation from last
valid communication (with Evolution only).
SOne minute time delay of outdoor fan at termination of cooling
mode when outdoor ambient is greater than or equal to 100_F
(37.78_C).
SFifteen second delay at termination of defrost before the
auxiliary heat (W1) is de--energized.
STwenty second delay at termination of defrost before the
outdoor fan is energized (unless fan delay defeated).
SThirty second compressor delay when quiet shift enabled.
SThere is no delay between staging from low to high and from
high to low capacity. The compressor will change from low to
high and from high to low capacity “on the fly” to meet the
demand.
Compressor Operation
The basic scroll design has been modified with the addition of an
internal unloading mechanism that opens a by--pass port in the first
compression pocket, effectively reducing the displacement of the
scroll. The opening and closing of the by--pass port is controlled
by an internal electrically operated solenoid. The modulated scroll
uses a single step of unloading to go from full capacity to
approximately 67% capacity.
A single speed, high efficiency motor continues to run while the
scroll modulates between the two capacity steps. Modulation is
achieved by venting a portion of the gas in the first suction pocket
back to the low side of the compressor, thereby reducing the
effective displacement of the compressor.
Full capacity is achieved by blocking these vents, thus increasing
the displacement to 100%. A DC solenoid in the compressor
controlled by a rectified 24 volt AC signal in the external solenoid
plug moves the slider ring that covers and uncovers these vents.
The vent covers are arranged in such a manner that the compressor
operates at approximately 67% capacity when the solenoid is not
energized and 100% capacity when the solenoid is energized. The
loading and unloading of the two step scroll is done ”on the fly”
without shutting off the motor between steps.
NOTE: 67% compressor capacity translates to approximately 75%
cooling or heating capacity at the indoor coil.
The compressor will always start unloaded and stay unloaded for
five seconds even when the thermostat is calling for high stage
capacity.

74
UTILITY RELAY
*
UTILITY SIGNAL
OPEN RELAY
* SUPPLIED BY UTILITY PROVIDER
MODEL
PLUG
A06525
LLS
Liquid Line Solenoid
MODEL
PLUG
A06526
Fig. 54 – 2--Stage Control Board
TROUBLESHOOTING
Systems Communication Failure
If communication with the Evolution control is lost with the User
Interface, the control will flash the appropriate fault code. (See
Table 23.) Check the wiring to the User Interface and the indoor
and outdoor units.
On new units, the model and serial numbers are input into the
board’s memory at the factory. If a model plug is lost or missing at
initial installation, the unit will operate according to the
information input at the factory and the appropriate error code will
flash temporarily. An RCD replacement board contains no model
and serial information. If the factory control board fails, the model
plug must be transferred from the original board to the replacement
board for the unit to operate.
NOTE: The model plug takes priority over factory model
information input at the factory. If the model plug is removed after
initial power up, the unit will operate according to the last valid
model plug installed, and flash the appropriate fault code
temporarily.
Pressure Switch Protection
The outdoor unit is equipped with high-- and low--pressure
switches. If the control senses the opening of a high-- or
low--pressure switch, it will respond as follows:
1. De--energize the compressor contactor.
2. Keep the outdoor fan operating for 15 minutes.
3. Display the appropriate fault code (see Table 23).
4. After a 15 minute delay, if there is a call for cooling or heat-
ing and LPS or HPS is reset, the compressor contactor is
energized.
5. If LPS or HPS has not closed after a 15 minute delay, the
outdoor fan is turned off. If the open switch closes anytime
after the 15 minute delay, then resume operation with a call
for cooling or heating.
6. If LPS or HPS trips 3 consecutive cycles, the unit operation
is locked out for 4 hours.
7. In the event of a high--pressure switch trip or high--pressure
lockout, check the refrigerant charge, outdoor fan operation,
and outdoor coil (in cooling) for airflow restrictions, or in-
door airflow in heating.
8. In the event of a low--pressure switch trip or low--pressure
lockout, check the refrigerant charge and indoor airflow
(cooling) and outdoor fan operation and outdoor coil in
heating.
Control Fault
If the outdoor unit control board has failed, the control will flash
the appropriate fault code (see Table 23). The control board should
be replaced.
Brown--Out Protection
If the line voltage is less than 187v for at least 4 seconds, the
appropriate compressor contactor and fan relay are de--energized.
Compressor and fan operation are not allowed until voltage is a
minimum of 190v. The control will flash the appropriate fault code
(see Table 23).
2230V Brown--Out Protection Defeated
The brownout feature can be defeated if needed for severe noisy
power conditions. This defeat should always be a last resort to
solving the problem. Defeat is available on the User Interface
setup screen (available with SYSTXBBUID01--B), or can be
initiated through the forced defrost pins for non--communicating
systems as follows:
The brownout toggle is accomplished by sorting the defrost pins
from power up with the OAT and OCT sensor connector removed.
After 3 seconds, the status of the force defrost short and the
OAT/OCT as open will be checked. If correct, then the brownout
will be toggled.
Status code 6 shows the brownout is disabled.
Status code 5 shows the brownout is active.
After the brownout defeat is set, power down and reinstall the
OAT/OCT sensor and remove the short from the forced defrost
pins. As long as the short on the forced defrost remains, the OAT

75
and OCT faults will not be cleared. The code will continue to be
flashed.
The control is shipped with the brownout active. The change in
status is remembered until toggled to a new status. A power
down/power up sequence will not reset the status. it may be
necessary to do the toggle twice to cycle to the desired state of the
defeat.
230V Line (Power Disconnect) Detection
If there is no 230v at the compressor contactor(s) when the indoor
unit is powered and cooling or heating demand exists, the
appropriate fault code is displayed. Verify the disconnect is closed
and 230v wiring is connected to the unit.
Compressor Voltage Sensing
The control board input terminals labeled VS and L2 (see Fig. 54)
are used to detect compressor voltage status and alert the user of
potential problems. The control continuously monitors the high
voltage on the run capacitor of the compressor motor. Voltage
should be present any time the compressor contactor is energized
and voltage should not be present when the contactor is
de--energized.
Contactor Shorted Detection
If there is compressor voltage sensed when there is no demand for
compressor operation, the contactor may be stuck closed or there
may be a wiring error. The control will flash the appropriate fault
code.
If the control senses the compressor voltage after start--up and is
then absent for 10 consecutive seconds while cooling or heating
demand exists, the thermal protector is open. The control
de--energizes the compressor contactor for 15 minutes, but
continues to operate the outdoor fan. The control Status LED will
flash the appropriate code shown in Table 23. After 15 minutes,
with a call for low or high stage cooling or heating, the compressor
contactor is energized. If the thermal protector has not re--set, the
outdoor fan is turned off. If the call for cooling or heating
continues, the control will energize the compressor contactor every
15 minutes. If the thermal protector closes, (at the next 15 minute
interval check) the unit will resume operation.
If the thermal cutout trips for three consecutive cycles, then unit
operation is locked out for 4 hours and the appropriate fault code is
displayed.
No 230V at Compressor Contactor
If the compressor voltage is not sensed when the compressor
should be starting, the appropriate contactor may be stuck open or
there is a wiring error. The control will flash the appropriate fault
code. Check the contactor and control box wiring.
Troubleshooting units for proper switching
between low & high stages
Check the suction pressures at the service valves. Suction pressure
should be reduced by 3--10% when switching from low to high
capacity.
Compressor current should increase 20--45% when switching from
low to high stage. The compressor solenoid when energized in
high stage, should measure 24vac.
When the compressor is operating in low stage the 24v DC
compressor solenoid coil is de--energized. When the compressor is
operating in high stage, the 24v DC solenoid coil is energized. The
solenoid plug harness that is connected to the compressor HAS an
internal rectifier that converts the 24v DC signal to 24v AC. DO
NOT INSTALL A PLUG WITHOUT AN INTERNAL
RECTIFIER.
Unloader Test Procedure
The unloader is the compressor internal mechanism, controlled by
the DC solenoid, that modulates between high and low stage. If it
is suspected that the unloader is not working, the following
methods may be used to verify operation.
1. Operate the system and measure compressor amperage.
Cycle the unloader on and off at 30 second plus intervals at
the User Interface (from low to high stage and back to low
stage). Wait 5 seconds after staging to high before taking a
reading. The compressor amperage should go up or down
at least 20 percent.
2. If the expected result is not achieved, remove the solenoid
plug from the compressor and with the unit running and the
User Interface or thermostat calling for high stage, test the
voltage output at the plug with a DC voltmeter. The read-
ing should be 24 volts DC.
3. If the correct DC voltage is at the control circuit molded
plug, measure the compressor unloader coil resistance. The
resistance should be 32 to 60 ohms depending on com-
pressor temperature. If the coil resistance is infinite, much
lower than 32 ohms, or is grounded, the compressor must
be replaced.
Temperature Thermistors
Thermistors are electronic devices which sense temperature. As the
temperature increases, the resistance decreases. Thermistors are
used to sense outdoor air (OAT) and coil temperature (OCT).
Refer to Fig. 55 for resistance values versus temperature.
0
10
20
30
40
50
60
70
80
90
0
(-17.77)
20
(-6.67)
40
(4.44)
60
(15.56)
80
(26.67)
100
(37.78)
120
(48.89)
TEMPERATURE °F (°C)
RESISTANCE (KOHMS)
THERMISTOR CURVE
A08054
Fig. 55 – Resistance Values Versus Temperature
If the outdoor air or coil thermistor should fail, the control will
flash the appropriate fault code. (See Table 23.)
IMPORTANT: The outdoor air thermistor and coil thermistor
should be factory mounted in the final locations. Check to ensure
thermistors are mounted properly per Fig. 56 and Fig. 58.
Thermistor Sensor Comparison
The control continuously monitors and compares the outdoor air
temperature sensor and outdoor coil temperature sensor to ensure
proper operating conditions. The comparison is:
SIn cooling if the outdoor air sensor indicates ≥10_F
(≥5.6_C) warmer than the coil sensor (or) the outdoor air
sensor indicates ≥20_F(≥11_C) cooler than the coil sensor,
the sensors are out of range.
SIn heating if the outdoor air sensor indicates ≥35_F(≥19.4_C)
warmer than the coil sensor (or) the outdoor air sensor indicates
≥10_F(≥5.6_C) cooler than the coil sensor, the sensors are
out of range.
If the sensors are out of range, the control will flash the appropriate
fault code as shown in Table 23.

76
The thermistor comparison is not performed during low ambient
cooling or defrost operation.
Failed Thermistor Default Operation
Factory defaults have been provided in the event of failure of
outdoor air thermistor (OAT) and/or outdoor coil thermistor
(OCT).
If the OAT sensor should fail, low ambient cooling will not be
allowed and the one--minute outdoor fan off delay will not occur.
Defrost will be initiated based on coil temperature and time.
If the OCT sensor should fail, low ambient cooling will not be
allowed. Defrost will occur at each time interval during heating
operation, but will terminate after 5 minutes.
If there is a thermistor out of range error, defrost will occur at each
time interval during heating operation, but will terminate after 5
minutes.
Count the number of short and long flashes to determine the
appropriate flash code. Table 23 gives possible causes and actions
related to each error.
OAT Thermistor must be
locked in place with spherical
nib end facing towards the
front of the control box
Fig. 57 – Outdoor Air Thermistor (OAT) Attachment
OCT Thermistor
must be secured
tight on stub tube.
Fig. 58 – Outdoor Coil Thermistor (OCT) Attachment

77
Status Codes
Table 23 shows the status codes flashed by the amber status light.
Most system problems can be diagnosed by reading the status code
as flashed by the amber status light on the control board.
The codes are flashed by a series of short and long flashes of the
status light. The short flashes indicate the first digit in the status
code, followed by long flashes indicating the second digit of the
error code.
The short flash is 0.25 seconds ON and the long flash is 1.0 second
ON. Time between flashes is 0.25 seconds. Time between short
flash and first long flash is 1.0 second. Time between code
repeating is 2.5 seconds with LED OFF.
EXAMPLE:
3 short flashes followed by 2 long flashes indicates a 32 code.
Table 23 shows this to be low pressure switch open.
Table 23—167A / 266A TROUBLESHOOTING
OPERATION FAULT
AMBER LED
FLASH
CODE
POSSIBLE CAUSE AND ACTION
Standby – no call for unit operation None On solid, no
flash Normal operation
Low Stage Cool/Heat Operation None 1, pause Normal operation
High Stage Cool/Heat Operation None 2, pause Normal operation
System Commu-
nications Failure
16 Communication with User Interface lost. Check wiring to User Interface,
indoor and outdoor units
Invalid Model Plug 25 Control does not detect a model plug or detects an invalid model plug. Unit
will not operate without correct model plug.
High Pressure
Switch Open 31* High---pressure switch trip. Check refrigerant charge, outdoor fan operation
and coils for airflow restrictions.
Low Pressure
Switch or Dis-
charge Temp
Switch Open
32* Low---pressure switch or discharge temperature switch trip. Check refrigerant
charge and indoor air flow.
Control Fault 45 Outdoor unit control board has failed. Control board needs to be replaced.
Brown Out (230 v) 46 Line voltage < 187v for at least 4 seconds. Compressor and fan operation
not allowed until voltage>190v. Verify line voltage.
No 230v at Unit 47
There is no 230v at the contactor when indoor unit is powered and cooling/
heating demand exists. Verify the disconnect is closed and 230v wiring is
connected to the unit.
Outdoor Air Temp
Sensor Fault 53 Outdoor air sensor not reading or out of range. Ohm out sensor and check
wiring.
Outdoor Coil
Sensor Fault 55 Coil sensor not reading or out of range. Ohm out sensor and check wiring.
Thermistors out of
range 56 Improper relationship between coil sensor and outdoor air sensor. Ohm out
sensors and check wiring.
Low Stage
Thermal Cutout 71*
Compressor operation detected then disappears while low stage demand
exists. Possible causes are internal compressor overload trip or start relay
and capacitor held in circuit too long (if installed).
High Stage
Thermal Cutout 72*
Compressor operation detected then disappears while high stage demand
exists. Possible causes are internal compressor overload trip or start relay
and capacitor held in circuit too long (if installed).
Contactor Shorted 73 Compressor voltage sensed when no demand for compressor operation
exists. Contactor may be stuck closed or there is a wiring error.
No 230V at
Compressor 74 Compressor voltage not sensed when compressor should be starting. Con-
tactor may be stuck open or there is a wiring error.
Low Stage
Thermal Lockout 81 Thermal cutout occurs in three consecutive low/high stage cycles. Low
stage locked out for 4 hours or until 24v power recycled.
High Stage
Thermal Lockout 82 Thermal cutout occurs in three consecutive high/low stage cycles. High
stage locked out for 4 hours or until 24v power recycled.
L o w --- P r e s s u r e
Lockout 83 Low pressure switch trip has occurred during 3 consecutive cycles. Unit
operation locked out for 4 hours or until 24v power recycled.
H i g h --- P r e s s u r e
Lockout 84 High pressure switch trip has occurred during 3 consecutive cycles. Unit
operation locked out for 4 hours or until 24v power recycled.
* Sequence: Compressor contactor is de--- energized and outdoor fan is energized for up to 15 minutes. If demand still exists, control will energize compressor contactor after 15 minute
delay. If fault is cleared, unit will resume operation. If fault still exists, fan shuts off, and error code continues to flash. Control will attempt re--- start every 15 minutes. Cycling low voltage
defeats the 15 minute delay.

78
CARE AND MAINTENANCE
To assure high performance and minimize possible equipment
malfunction, it is essential that maintenance be performed
periodically on this equipment. The frequency with which
maintenance is performed is dependent on such factors as hours of
operation, geographic location, and local environmental
conditions.
ELECTRICAL SHOCK HAZARD
Failure to follow this warning could result in personal injury
or death.
Disconnect all electrical power to unit before performing any
maintenance or service on outdoor unit. Remember to
disconnect power supply to air handler as this unit supplies
low--voltage power to the outdoor unit.
!WARNING
The minimum maintenance that should be performed on this
equipment is as follows:
1. Check outdoor coil for cleanliness each heating and cooling
season and clean as necessary.
2. Check fan motor and blade for cleanliness each month
during cooling season and clean as necessary.
3. Check electrical connections for tightness and controls for
proper operation each cooling season and service as
necessary.
CAUTION
!
UNIT DAMAGE HAZARD
Failure to follow this caution may result in equipment
damage or improper operation.
Because of possible damage to the equipment or personal
injury, maintenance should be performed by qualified
personnel only.
Desert and Seacoast Locations
Special consideration must be given to installation and
maintenance of condensing units installed in coastal or desert
locations. This is because salt and alkali content of sand adheres to
aluminum fins of coil and can cause premature coil failure due to
corrosion.
Preventive measures can be taken during installations, such as:
1. Locate unit on side of structure opposite prevailing winds.
2. Elevate unit to height where drifting sand cannot pile up
against coil. Mounting feet, 4 in. high, are available as
accessories and can be used to elevate unit.
3. Addition of coastal filter (See Product Data Digest for
accessory listing).
Maintenance in desert and seacoast locations:
1. Frequent inspection of coil and basepan especially after
storms and/or high winds.
2. Clean coil by flushing out sand from between coil fins and
out of basepan as frequently as inspection determines
necessary.
3. In off season, cover with covering that allows air to circulate
through but prevents sand from sifting in (such as canvas
material). Do not use plastic as plastic will hold moisture
possibly causing corrosion.
Cleaning Coil
1. Remove top cover. (See Remove Top Cover in Cabinet
section of this manual.)
2. Remove coil grilles or louvers (as applicable) to gain full
access to coils for cleaning.
UNIT DAMAGE HAZARD
Failure to follow this caution may result in equipment damage
or improper operation.
Coil fin damage can result in higher operating costs or
compressor damage. Do not use flame, high--pressure water,
steam, volatile or corrosive cleaners on fins or tubing.
CAUTION
!
3. Clean coil using vacuum cleaner and its crevice tool. Move
crevice tool vertically, close to area being cleaned, making
sure tool touches only dirt on fins and not fins. to prevent
fin damage, do not scrub fins with tool or move tool
horizontally against fins.
4. If oil deposits are present, spray coil with ordinary
household detergent. Wait 10 minutes, and proceed to next
step.
5. Using garden hose, spray coil vertically downward with
constant stream of water at moderate pressure. Keep nozzle
at a 15-- to 20_angle, about 3 in. from coil face and 18 in.
from tube. Spray so debris is washed out of coil and
basepan.
6. Reinstall top cover and position blade.
7. Reconnect electrical power and check for proper operation.
Cleaning Outdoor Fan Motor and Blade
1. Remove fan motor and blade. Be careful not to bend or dent
fan blade.
2. Clean motor and blade with soft brush or cloth. Be careful
not to disturb balance weights on fan blade.
3. Check fan blade setscrew for tightness.
4. Reinstall fan motor and blade to top cover and check for
alignment.
5. Reinstall top cover and position blade.
6. Reconnect electrical power and check for proper operation.
Electrical Controls and Wiring
1. Disconnect power to both outdoor and indoor units.
2. Check all electrical connections for tightness. Tighten all
screws on electrical connections. If any connections appear
to be burned or smoky, disassemble the connection, clean
all parts and stripped wires, and reassemble. Use a new
connector if old one is burned or corroded, and crimp
tightly.
3. Reconnect electrical power to indoor and outdoor units and
observe unit through 1 complete operating cycle.
4. If there are any discrepancies in operating cycle,
troubleshoot to find cause and correct.
Refrigerant Circuit
1. Check refrigerant charge using the superheat method, and if
low on charge, check unit for leaks using an electronic leak
detector.
2. If any leaks are found, remove and reclaim or isolate charge
(pumpdown) if applicable. Make necessary repairs.
3. Evacuate, recharge, and observe unit through 1 complete
operating cycle.
79
Final Check--Out
After the unit has been operating, the following items should be
checked.
1. Check that unit operational noise is not excessive due to
vibration of component, tubing, panels, etc. If present,
isolate problem and correct.
2. Check to be sure caps are installed on service valves and are
tight.
3. Check to be sure tools, loose parts, and debris are removed
from unit.
4. Check to be sure all panels and screws are in place and tight.
PURONR(R--410A) REFRIGERANT QUICK REFERENCE GUIDE
SPuron refrigerant operates at 50--70 percent higher pressures than R--22. Be sure that servicing equipment and replacement
components are designed to operate with Puron refrigerant.
SPuron refrigerant cylinders are rose colored.
SRecovery cylinder service pressure rating must be 400 psig, DOT 4BA400 or DOT BW400.
SPuron refrigerant systems should be charged with liquid refrigerant. Use a commercial type metering device in the manifold hose
when charging into suction line with compressor operating
SManifold sets should be 700 psig high side and 180 psig low side with 550 psig low--side retard.
SUse hoses with 700 psig service pressure rating.
SLeak detectors should be designed to detect HFC refrigerant.
SPuron refrigerant, as with other HFCs, is only compatible with POE oils.
SVacuum pumps will not remove moisture from oil.
SDo not use liquid--line filter driers with rated working pressures less than 600 psig.
SDo not leave Puron refrigerant suction line filter driers in line longer than 72 hours.
SDo not install a suction--line filter drier in liquid line.
SPOE oils absorb moisture rapidly. Do not expose oil to atmosphere.
SPOE oils may cause damage to certain plastics and roofing materials.
SWrap all filter driers and service valves with wet cloth when brazing.
SA factory approved liquid--line filter drier is required on every unit.
SDo NOT use an R--22 TXV.
SIf indoor unit is equipped with an R--22 TXV or piston metering device, it must be changed to a hard shutoff Puron TXV.
SNever open system to atmosphere while it is under a vacuum.
SWhen system must be opened for service, recover refrigerant, evacuate then break vacuum with dry nitrogen and replace filter
driers. Evacuate to 500 microns prior to recharging.
SDo not vent Puron refrigerant into the atmosphere.
SDo not use capillary tube coils.
SObserve all warnings,cautions,andbold text.
SAll indoor coils must be installed with a hard shutoff Puron TXV metering device.

80
NO COOLING OR
INSUFFICIENT
COOLING
COMPRESSOR
WILL NOT RUN
CONTACTOR
OPEN
POWER SUPPLY
DEFECTIVE
LOW-VOLTAGE
TRANSFORMER
OPEN
THERMOSTAT
OPEN CONTROL
CIRCUIT
LOSS OF
CHARGE
CONTACTOR OR
COIL DEFECTIVE
LOOSE
ELECTRICAL
CONNECTION
CONTACTOR
CLOSED
COMPRESSOR
POWER SUPPLY
OPEN
LOOSE LEADS AT
COMPRESSOR
FAULTY START
GEAR (1-PH)
OPEN SHORTED
OR GROUNDED
COMPRESSOR
MOTOR
WINDINGS
COMPRESSOR
STUCK
COMPRESSOR
INTERNAL
PROTECTION
OPEN
DEFECTIVE RUN
CAPACITOR
OUTDOOR FAN
STOPPED OR
CYCLING ON
OVERLOAD
OUTDOOR AIR
RESTRICTED OR
RECIRCULATING
RESTRICTED
DISCHARGE
TUBE
OVERCHARGE
OR NON-
CONDENSABLES
IN SYSTEM
LOW
REFRIGERANT
CHARGE
LINE VOLTAGE
TOO HIGH OR
LOW
DEFECTIVE RUN
CAPACITOR
COMPRESSOR
BEARINGS
HIGH
SUPERHEAT
LOOSE LEAD
AT FAN MOTOR
MOTOR
DEFECTIVE
LOW SUCTION
PRESSURE
DIRTY AIR
FILTERS
DUCT
RESTRICTED
DAMPERS
PARTLY CLOSED
COMPRESSOR
RUNS BUT
CYCLES ON
INTERNAL
OVERLOAD
COMPRESSOR
RUNS BUT
INSUFFICIENT
COOLING
INCORRECT
OFM
CAPACITOR
INDOOR COIL
FROSTED
SLIGHTLY
LOW ON
REFRIGERANT
LIQUID LINE
SLIGHTLY
RESTRICTED
PISTON
RESTRICTED
INCORRECT
SIZE
PISTON
INDOOR COIL
STRAINER
RESTRICTED
INDOOR
BLOWER MOTOR
DEFECTIVE OR
CYCLING ON OL
HIGH SUCTION
LOW HEAD
PRESSURE
DEFECTIVE
COMPRESSOR
VALVES
INTERNAL
PRESSURE
RELIEF OPEN
HIGH SUCTION
LOW
SUPERHEAT
UNIT
OVERCHARGED
INCORRECT
SIZE
PISTON
DEFECTIVE
START
CAPACITOR
DEFECTIVE
START
CAPACITOR
FAILED
TXV
AIR CONDITIONER
TROUBLESHOOTING CHART
A90208
Fig. 59 – Air Conditioner Troubleshooting Chart

81
NO HEATING OR
INSUFFICIENT
HEATING
COMPRESSOR
WILL NOT RUN
CONTACT
OPEN
DEFECTIVE LOW-
VOLTAGE
TRANSFORMER
REMOTE
CONTROL
CENTER
DEFECTIVE
CONTACTOR
COIL OPEN OR
SHORTED
OPEN INDOOR
THERMOSTAT
LIQUID-LINE
PRESSURE
SWITCH OPEN
LOSS OF
CHARGE
OPEN CONTROL
CIRCUIT
CONTACTOR
CLOSED
COMPRESSOR
POWER SUPPLY
LOOSE LEADS AT
COMPRESSOR
FAULTY START
GEAR (1-PH)
COMPRESSOR
STUCK
COMPRESSOR
INTERNAL
OVERLOAD
OPEN
OPEN SHORTED
OR GROUNDED
COMPRESSOR
WINDINGS
DEFECTIVE RUN
CAPACITOR
DIRTY FILTERS
OR INDOOR
COIL
INDOOR FAN
STOPPED OR
CYCLING ON
OVERLOAD
DAMAGED
REVERSING
VALVE
RESTRICTION IN
DISCHARGE LINE
OVERCHARGE
OR NON-
CONDENSABLES
IN SYSTEM
LOW
REFRIGERANT
CHARGE
LINE VOLTAGE
TOO HIGH OR
LOW
DEFECTIVE RUN
CAPACITOR
(1-PH)
COMPRESSOR
BEARINGS
HIGH-LOAD
CONDITION
REVERSING
VALVE JAMMED
IN MIDPOSITION
HIGH
SUPERHEAT
DEFECTIVE FAN
MOTOR
CAPACITOR
LOOSE LEADS
AT
FAN MOTOR
FAN MOTOR
BURNED
OUT
LOW SUCTION
LOW HEAD
OUTDOOR FAN
STOPPED
LOOSE LEADS
AT OUTDOOR
FAN MOTOR
INTERNAL FAN
MOTOR KLIXON
OPEN
FAN MOTOR
BURNED OUT
DEFROST RELAY
N.C. CONTACTS
OPEN ON
CIRCUIT BOARD
REVERSING
VALVE DID NOT
SHIFT
UNIT NOT
PROPERLY
CHARGED
OUTDOOR FAN
RUNNING
REVERSING
VALVE STUCK
RESTRICTED
LIQUID LINE
PISTON
RESTRICTED OR
IS CLOGGED
UNDER-
CHARGED
OUTDOOR COIL
DIRTY
STRAINER
RESTRICTED
OUTDOOR COIL
HEAVILY
FROSTED
DEFECTIVE
DEFROST
THERMOSTAT
DEFROST
THERMOSTAT IN
POOR PHYSICAL
CONTACT WITH
TUBE
DEFECTIVE
CIRCUIT BOARD
BAD ELECTRICAL
CONNECTION
ANYWHERE IN
DEFROST
CIRCUIT
STRIP HEATERS
NOT OPERATING
OUTDOOR
THERMOSTAT
DEFECTIVE
ODT SETTING
TOO LOW
CAP TUBE
PINCHED OR
BULB NOT
SENSING TRUE
ODT
STRIP HEATER
RELAY OR
CONTACTOR
DEFECTIVE
OPENING IN
POWER CIRCUIT
TO HEATER
ELEMENTS
BROKEN FUSE
LINK
BROKEN
HEATER
ELEMENT
OPEN (KLIXON)
OVER
TEMPERATURE
THERMOSTAT
DEFECTIVE
ROOM
THERMOSTAT
(2ND STAGE)
COMPRESSOR
RUNS BUT
CYCLES ON
INTERNAL
OVERLOAD
COMPRESSOR
RUNS
INSUFFICIENT
HEATING
FAN MOTOR
CONTACTS
WELDED CLOSED
IN DEFROST
RELAY
DEFECTIVE
START
CAPACITOR
DEFECTIVE
START
CAPACITOR
HEAT PUMP
TROUBLESHOOTING HEATING CYCLE
A90206
Fig. 60 – Heat Pump Troubleshooting -- Heating Cycle

82
NO COOLING OR
INSUFFICIENT
COOLING
COMPRESSOR
WILL NOT RUN
CONTACTOR
OPEN
POWER SUPPLY
DEFECTIVE
LOW-VOLTAGE
TRANSFORMER
OPEN
THERMOSTAT
OPEN CONTROL
CIRCUIT
LOSS OF
CHARGE
CONTACTOR OR
COIL DEFECTIVE
LOOSE
ELECTRICAL
CONNECTION
CONTACTOR
CLOSED
COMPRESSOR
POWER SUPPLY
OPEN
LOOSE LEADS AT
COMPRESSOR
FAULTY START
GEAR (1-PH)
OPEN SHORTED
OR GROUNDED
COMPRESSOR
MOTOR
WINDINGS
COMPRESSOR
STUCK
COMPRESSOR
INTERNAL
PROTECTION
OPEN
DEFECTIVE RUN
CAPACITOR
OUTDOOR FAN
STOPPED OR
CYCLING ON
OVERLOAD
OUTDOOR AIR
RESTRICTED OR
RECIRCULATING
DAMAGED OR
STUCK
REVERSING
VALVE
RESTRICTED
DISCHARGE
TUBE
OVERCHARGE
OR NON-
CONDENSABLES
IN SYSTEM
LOW
REFRIGERANT
CHARGE
LINE VOLTAGE
TOO HIGH OR
LOW
DEFECTIVE RUN
CAPACITOR
COMPRESSOR
BEARINGS
HIGH
SUPERHEAT
LOOSE LEAD
AT FAN MOTOR
DEFROST RELAY
N.C. CONTACTS
OPEN
MOTOR
DEFECTIVE
LOW SUCTION
PRESSURE
DIRTY AIR
FILTERS
DUCT
RESTRICTED
DAMPERS
PARTLY CLOSED
COMPRESSOR
RUNS BUT
CYCLES ON
INTERNAL
OVERLOAD
COMPRESSOR
RUNS BUT
INSUFFICIENT
COOLING
INCORRECT
OFM
CAPACITOR
DEFECTIVE
DEFROST
THERMOSTAT
INDOOR COIL
FROSTED
SLIGHTLY
LOW ON
REFRIGERANT
LIQUID LINE
SLIGHTLY
RESTRICTED
PISTON
RESTRICTED
INCORRECT
SIZE
PISTON
INDOOR COIL
STRAINER
RESTRICTED
INDOOR
BLOWER MOTOR
DEFECTIVE OR
CYCLING ON OL
HIGH SUCTION
LOW HEAD
PRESSURE
REVERSING
VALVE HUNG UP
OR INTERNAL
LEAK
DEFECTIVE
COMPRESSOR
VALVES
INTERNAL
PRESSURE
RELIEF OPEN
HIGH SUCTION
LOW
SUPERHEAT
UNIT
OVERCHARGED
INCORRECT
SIZE
PISTON
DEFECTIVE
START
CAPACITOR
DEFECTIVE
START
CAPACITOR
FAILED
TXV
HEAT PUMP
TROUBLESHOOTING COOLING CYCLE
A90207
Fig. 61 – Heat Pump Troubleshooting -- Cooling Cycle
83
INDEX OF TABLES
DESCRIPTION TABLE #
Required Field--Installed Accessories for Air Conditioners 1...............................................................
Required Field--Installed Accessories for Heat Pumps 2..................................................................
Defrost Control Speed--Up Timing Sequence 3.........................................................................
Oil Charging 4..................................................................................................
Fitting Losses in Equivalent Feet 5..................................................................................
Puron System Suction Pressure Drop 6...............................................................................
R--22 System Suction Pressure Drop 7...............................................................................
Puron Refrigerant Pressure Temperature Chart 8........................................................................
R--22 Refrigerant Pressure Temperature Relationship Chart 9.............................................................
Puron Subcooling Chart 10........................................................................................
Puron Superheat Chart 11.........................................................................................
R--22 Subcooling Chart 12........................................................................................
R--22 Superheat Chart 13..........................................................................................
TWO--STAGE 286A/288A 180A/187A
Model Plug Information 14........................................................................................
Outdoor Fan Motor PWM Above 55_F/12.7_C Outdoor Temp (DC volts, Tolerance +/-- 2%) 15..................................
Two--Stage Compressor Resistances (Winding resistance at 70_F±20_)16...................................................
Troubleshooting 17..............................................................................................
TWO--STAGE 286B/288B 180B/187B
Model Plug Information 18........................................................................................
Outdoor Fan Motor PWM Above 55_F/12.7_C Outdoor Temp (DC volts, Tolerance +/-- 2%) 19..................................
Two--Stage Compressor Resistances (Winding resistance at 70_F±20_)20...................................................
Troubleshooting 21..............................................................................................
TWO--STAGE NON--COMMUNICATING 127A / 226A, COMMUNICATING 167A / 266A
Model Plug Information 22........................................................................................
Troubleshooting 23..............................................................................................

84
Manufacturer reserves the right to discontinue, or change at any time, specifications or designs without notice and without incurring obligations.
E2012 Bryant Heating & Cooling Systems 7310 W. Morris St. Indianapolis, IN 46231 Edition Date: 05/12
R e p l a c e s: S M 0 1 --- 5
C a t a l o g N o . S M 0 1 --- 6