Bryant Gas Furance 315Aav Users Manual II315A 70 11
315AAV to the manual 0de21fe6-94b4-417c-9bfb-f1565a914bb4
2015-02-02
: Bryant Bryant-Gas-Furance-315Aav-Users-Manual-411906 bryant-gas-furance-315aav-users-manual-411906 bryant pdf
Open the PDF directly: View PDF
.
Page Count: 60

1
Installation, Start--up, Operating and
Service and Maintenance Instructions
Series 150/F
315AAV/JAV
VARIABLE--SPEED, INDUCED--COMBUSTION DELUXE
4--WAY MULTIPOISE GAS FURNACE
SAFETY CONSIDERATIONS 2........................
INTRODUCTION 4..................................
CODES AND STANDARDS 4..........................
Safety 4...........................................
General Installation 4................................
Combustion and Ventilation Air 4......................
Duct Systems 4.....................................
Acoustical Lining and Fibrous Glass Duct 4...............
Gas Piping and Gas Pipe Pressure Testing 4...............
Electrical Connections 4..............................
Venting 4.........................................
ELECTROSTATIC DISCHARGE (ESD) PRECAUTIONS
PROCEDURE 4.....................................
LOCATION 5.......................................
AIR FOR COMBUSTION AND VENTILATION 8.........
Outdoor Combustion Air Method 9....................
The Standard Method: 9............................
Combination of Indoor and Outdoor Air 10.............
INSTALLATION 10..................................
Bottom Return Air Inlet 10..........................
Side Return Air Inlet 10.............................
Leveling Legs (If Desired) 11........................
Bottom Return Air Inlet 11..........................
Suspended Furnace Support 11.......................
Platform Furnace Support 11.........................
Roll--Out Protection 12.............................
Bottom Return Air Inlet 12..........................
Side Return Air Inlet 12.............................
Filter Arrangement 13..............................
AIR DUCTS 13......................................
General Requirements 13............................
Ductwork Acoustical Treatment 13....................
Supply Air Connections 14..........................
Upflow and Horizontal Furnaces 14...................
Downflow Furnaces 15.............................
Return Air Connections 18..........................
Downflow Furnaces 18.............................
Upflow and Horizontal Furnaces 18...................
GAS PIPING 19.....................................
ELECTRICAL CONNECTION 20.......................
ACCESSORIES 22...................................
VENTING 22.......................................
START--UP, ADJUSTMENT, AND SAFETY CHECK 34.....
General 34........................................
Start--Up Procedures 37..............................
Adjustments 37.....................................
Check Safety Controls 45.............................
Checklist 46.......................................
SERVICE AND MAINTENANCE PROCEDURES 46.......
General 46........................................
Care and Maintenance 47.............................
Sequence of Operation 52.............................
Wiring Diagram 56..................................
Troubleshooting 56..................................
Accessory List 59...................................
PARTS REPLACEMENT INFORMATION GUIDE 60.......
D
E
S
I
G
N
C
E
R
T
I
F
I
E
D
REGISTERED
ISO 9001:2000
NOTE: Read the entire instruction manual before starting the
installation.
Portions of the text and tables are reprinted from NFPA 54/ANSI
Z223.1--2009E, with permission of National Fire Protection
Association, Quincy, MA 02269 and American Gas Association,
Washington DC 20001. This reprinted material is not the
complete and official position of the NFPA or ANSI on the
referenced subject, which is represented only by the standard in
its entirety.

2
SAFETY CONSIDERATIONS
FIRE, EXPLOSION, ELECTRICAL SHOCK, AND
CARBON MONOXIDE POISONING HAZARD
Failure to follow this warning could result in dangerous
operation, personal injury, death, or property damage.
Improper installation, adjustment, alteration, service,
maintenance, or use can cause carbon monoxide poisoning,
explosion, fire, electrical shock, or other conditions which
may cause personal injury or property damage. Consult a
qualified service agency, local gas supplier, or your
distributor or branch for information or assistance. The
qualified service agency must use only factory--authorized
and listed kits or accessories when modifying this product.
!WARNING
FURNACE RELIABILITY HAZARD
Failure to follow this caution may result in unit component
damage.
Application of this furnace should be indoors with special
attention given to vent sizing and material, gas input rate,
air temperature rise, unit leveling, and unit sizing.
CAUTION
!
Installing and servicing heating equipment can be hazardous due
to gas and electrical components. Only trained and qualified
personnel should install, repair, or service heating equipment.
Untrained personnel can perform basic maintenance functions
such as cleaning and replacing air filters. All other operations
must be performed by trained service personnel. When working
on heating equipment, observe precautions in literature, on tags,
and on labels attached to or shipped with furnace and other safety
precautions that may apply.
These instructions cover minimum requirements and conform to
existing national standards and safety codes. In some instances,
these instructions exceed certain local codes and ordinances,
especially those that may not have kept up with changing
residential construction practices. We require these instructions as
a minimum for a safe installation.
CUT HAZARD
Failure to follow this caution may result in personal injury.
Sheet metal parts may have sharp edges or burrs. Use care
and wear appropriate protective clothing, safety glasses and
gloves when handling parts, and servicing furnaces.
CAUTION
!
Wear safety glasses, protective clothing and work gloves. Have
fire extinguisher available during start--up and adjustment
procedures and service calls.
This is the safety--alert symbol . When you see this symbol on
the furnace and in instructions or manuals, be alert to the potential
for personal injury.
Understand the signal words DANGER, WARNING, and
CAUTION. These words are used with the safety--alert symbol.
DANGER identifies the most serious hazards which will result in
severe personal injury or death. WARNING signifies a hazard
which could result in personal injury or death. CAUTION is used
to identify hazards which may result in minor personal injury or
product and property damage. NOTE is used to highlight
suggestions which will result in enhanced installation, reliability,
or operation.
1. Use only with type of gas approved for this furnace. Refer
to the furnace rating plate.
2. Install this furnace only in a location and position as spe-
cified in the “Location” section of these instructions.
3. Provide adequate combustion and ventilation air to the
furnace space as specified in “Air for Combustion and
Ventilation” section.
4. Combustion products must be discharged outdoors. Con-
nect this furnace to an approved vent system only, as spe-
cified in the “Venting” section of these instructions.
5. Never test for gas leaks with an open flame. Use a com-
mercially available soap solution made specifically for the
detection of leaks to check all connections, as specified in
the “Gas Piping” section.
6. Always install furnace to operate within the furnace’s in-
tended temperature--rise range with a duct system which
has an external static pressure within the allowable range,
as specified in the “Start--Up, Adjustments, and Safety
Check” section. See furnace rating plate.
7. When a furnace is installed so that supply ducts carry air
circulated by the furnace to areas outside the space con-
taining the furnace, the return air shall also be handled by
duct(s) sealed to the furnace casing and terminating out-
side the space containing the furnace. See “Air Ducts” sec-
tion.
8. A gas--fired furnace for installation in a residential garage
must be installed as specified in the warning box in the
“Location” section.
9. The furnace may be used for construction heat provided
that the furnace installation and operation complies with
the first CAUTION in the LOCATION section of these in-
structions.
10. These Multipoise Gas--Fired Furnaces are CSA (formerly
A.G.A. and C.G.A.) design--certified for use with natural
and propane gases (see furnace rating plate) and for install-
ation in alcoves, attics, basements, closets, utility rooms,
crawlspaces, and garages. The furnace is factory--shipped
for use with natural gas. A CSA (A.G.A. and C.G.A.) lis-
ted accessory gas conversion kit is required to convert fur-
nace for use with propane gas.
11. See Fig. 1 for required clearances to combustible construc-
tion.
12. Maintain a 1--in. (25 mm) clearance from combustible ma-
terials to supply air ductwork for a distance of 36 in. (914
mm) horizontally from the furnace. See NFPA 90B or loc-
al code for further requirements.
13. These furnaces SHALL NOT be installed directly on car-
peting, tile, or any other combustible material other than
wood flooring. In downflow installations, factory access-
ory floor base MUST be used when installed on combust-
ible materials and wood flooring. Special base is not re-
quired when this furnace is installed on manufacturer’s
Coil Assembly Part No. CNRV, CNPV, CAP, or CAR or
when Coil Box Part No. KCAKC is used. See Fig. 1 for
clearance to combustible construction information.
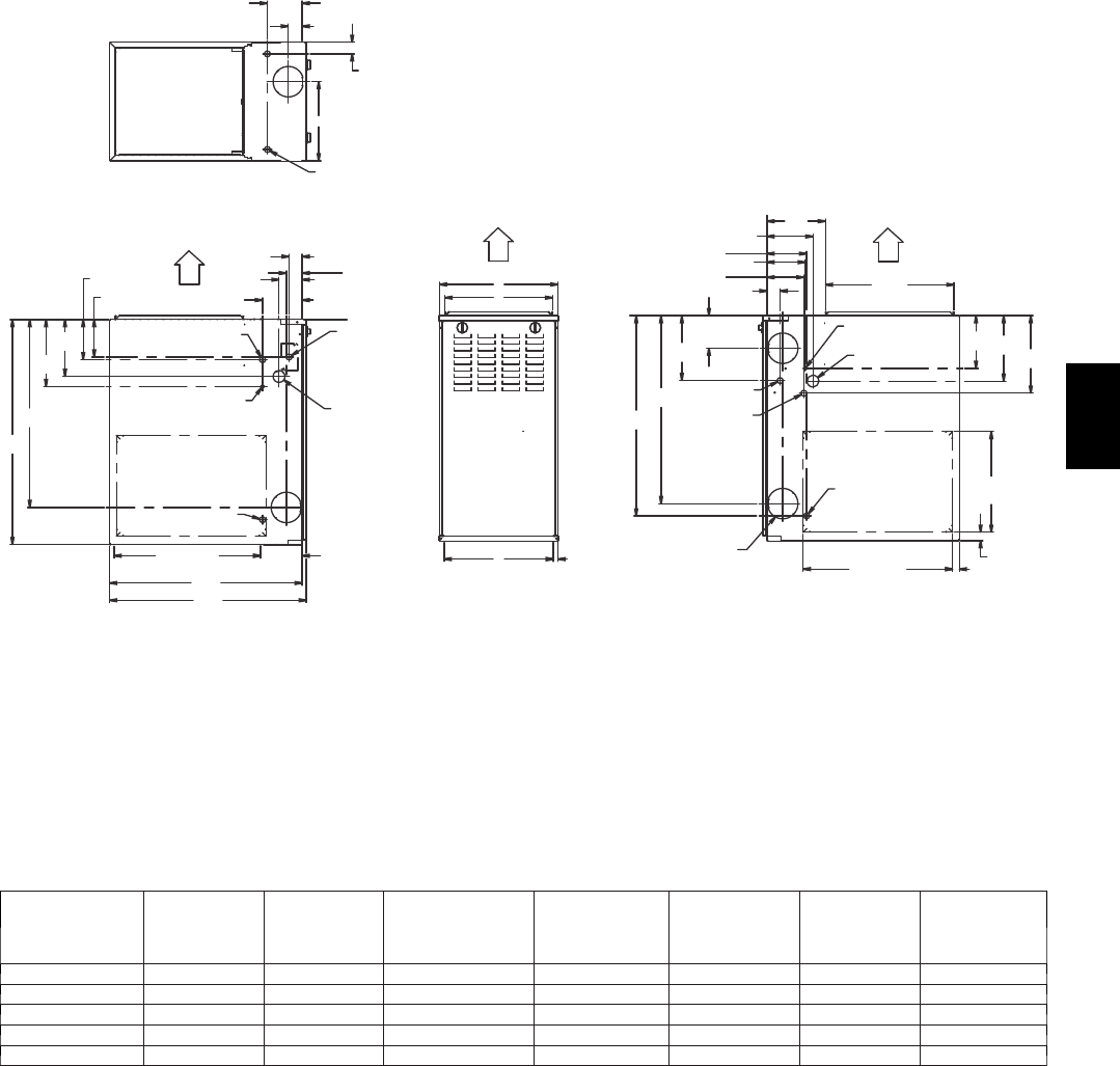
315AAV

3
A10269
Fig. 1 -- Clearances to Combustibles
315AAV

4
INTRODUCTION
The Series 150/F 4--way multipoise Category I fan--assisted
furnace is CSA (formerly A.G.A. and C.G.A.) design--certified. A
Category I fan--assisted furnace is an appliance equipped with an
integral mechanical means to either draw or force products of
combustion through the combustion chamber and/or heat
exchanger. The furnace is factory--shipped for use with natural
gas. This furnace is not approved for installation in mobile
homes, recreational vehicles, or outdoors.
60
80 / 27 C
/ 16 C
A06745
Fig. 2 -- Return Air Temperature
This furnace is designed for minimum continuous return--air
temperature of 60_F(15_C) db or intermittent operation down to
55_F(13_C)db such as when used with a night setback
thermostat. Return--air temperature must not exceed 80_F(27_C)
db. Failure to follow these return--air temperature limits may
affect reliability of heat exchangers, motors, and controls. (See
Fig. 2.)
For accessory installation details, refer to the applicable
instruction literature.
NOTE: Remove all shipping brackets and materials before
operating the furnace.
CODES AND STANDARDS
Follow all national and local codes and standards in addition
to these instructions. The installation must comply with
regulations of the serving gas supplier, local building, heating,
plumbing, and other codes. In absence of local codes, the
installation must comply with the national codes listed below and
all authorities having jurisdiction.
In the United States, follow all codes and standards for the
following:
Safety
NFPA 54/ANSI Z223.1--2009 and the Installation Standards,
Warm Air Heating and Air Conditioning Systems ANSI/NFPA
90B .
General Installation
Current edition of the NFGC and the NFPA 90B. For copies,
contact the National Fire Protection Association Inc.,
Batterymarch Park, Quincy, MA 02269; (www.NFPA.org) or for
only the NFGC, contact the American Gas Association, 400 N.
Capitol Street, N.W., Washington, DC 20001 (www.AGA.org.) .
Combustion and Ventilation Air
Section 9.3 NFPA 54/ANSI Z223.1--2009, Air for Combustion
and Ventilation .
Duct Systems
Air Conditioning Contractors Association (ACCA) Manual D,
Sheet Metal and Air Conditioning Contractors National
Association (SMACNA), or American Society of Heating,
Refrigeration, and Air Conditioning Engineers (ASHRAE) 2001
Fundamentals Handbook Chapter 34 or 2000 HVAC Systems
and Equipment Handbook Chapters 9 and 16.
Acoustical Lining and Fibrous Glass Duct
Current edition of SMACNA and NFPA 90B as tested by UL
Standard 181 for Class I Rigid Air Ducts
Gas Piping and Gas Pipe Pressure Testing
NFPA 54/ANSI Z223.1--2009 ; chapters 5, 6, and 7 and National
Plumbing Codes .
Electrical Connections
National Electrical Code (NEC) ANSI/NFPA70--2008 .
Venting
NFPA 54/ANSI Z223.1--2009; chapters 12 and 13.
ELECTROSTATIC DISCHARGE (ESD)
PRECAUTIONS PROCEDURE
FURNACE RELIABILITY HAZARD
Failure to follow this caution may result in unit component
damage.
Electrostatic discharge can affect electronic components.
Take precautions during furnace installation and servicing
to protect the furnace electronic control. Precautions will
prevent electrostatic discharges from personnel and hand
tools which are held during the procedure. These
precautions will help to avoid exposing the control to
electrostatic discharge by putting the furnace, the control,
and the person at the same electrostatic potential.
CAUTION
!
1. Disconnect all power to the furnace. Multiple disconnects
may be required. DO NOT TOUCH THE CONTROL OR
ANY WIRE CONNECTED TO THE CONTROL PRIOR
TO DISCHARGING YOUR BODY’S
ELECTROSTATIC CHARGE TO GROUND.
2. Firmly touch the clean, unpainted, metal surface of the fur-
nace chassis which is close to the control. Tools held in a
person’s hand during grounding will be satisfactorily dis-
charged.
3. After touching the chassis, you may proceed to service the
control or connecting wires as long as you do nothing to
recharge your body with static electricity (for example;
DO NOT move or shuffle your feet, do not touch un-
grounded objects, etc.).
315AAV

5
A
A
B
[736.9]
[736.9]
29
29
Ø7/8
Ø7/8
[22.2]
[22.2]
ACCESSORY
ACCESSORY
5 15/16
5 15/16
[150.7]
[150.7]
28.39
28.39
[721.2]
[721.2]
Ø7/8
Ø7/8
[22.2]
[22.2]
ACCESSORY
ACCESSORY
14 7/8
14 7/8
[337.3]
[337.3]
(BOTH SIDES)
(BOTH SIDES)
Ø7/8
Ø7/8
[22.2]
[22.2]
ACCESSORY
ACCESSORY
Ø7/8
Ø7/8
[22.2]
[22.2]
ACCESSORY
ACCESSORY
Ø1 3/4
Ø1 3/4
[44.5]
[44.5]
GAS ENTRY
GAS ENTRY
Ø1/2
Ø1/2
[12.7]
[12.7]
THERMOSTAT WIRE ENTRY
THERMOSTAT WIRE ENTRY
22 1/16
22 1/16
[560]
[560]
SIDE INLET
SIDE INLET
(BOTH SIDES)
(BOTH SIDES)
11 7/16
11 7/16
[290.7]
[290.7]
9 11/16
9 11/16
[245.4]
[245.4]
[197.8]
[197.8]
7 13/16
7 13/16
Ø7/8
Ø7/8
[22.2]
[22.2]
J.BOX PROVISION
J.BOX PROVISION
Ø7/8
Ø7/8
[22.2]
[22.2]
JUNCTION BOX
JUNCTION BOX
LOCATION
LOCATION
Ø1 3/4
Ø1 3/4
[44.5]
[44.5]
GAS ENTRY
GAS ENTRY
1 15/16
1 15/16
[49.2]
[49.2]
1
[25.4]
[25.4]
1 1/4
1 1/4
[31.8]
[31.8]
29 9/16
29 9/16
[750.7]
[750.7]
1 15/16
1 15/16
[49.2]
[49.2]
5 5/8
5 5/8
[143.3]
[143.3]
5 7/16
5 7/16
[138.5]
[138.5]
6 13/16
6 13/16
[172.3]
[172.3]
Ø1/2
Ø1/2
[12.7]
[12.7]
THERMOSTAT WIRE ENTRY
THERMOSTAT WIRE ENTRY
19
19
[481.7]
[481.7]
OUTLET
OUTLET
D
21.6
21.6
[549.5]
[549.5]
BOTTOM INLET
BOTTOM INLET
C
33 1/4
33 1/4
[843.9]
[843.9]
9 9/16
9 9/16
[243.3]
[243.3]
3/4
3/4
[19.1]
[19.1]
5 7/8
5 7/8
[148.5]
[148.5]
3 7/16
3 7/16
[86.8]
[86.8]
9 7/8
9 7/8
[250.7]
[250.7]
27 3/4
27 3/4
[704.7]
[704.7]
2 5/16
2 5/16
[59]
[59]
FRONT OF CASING
FRONT OF CASING
TOP OF CASING
TOP OF CASING
4 13/16
4 13/16
[122.2]
[122.2]
27 3/4
27 3/4
[704.7]
[704.7]
5 7/8
5 7/8
[148.5]
[148.5]
8 5/8
8 5/8
[219]
[219]
5 1/2
5 1/2
[140.3]
[140.3]
8 7/16
8 7/16
[213.5]
[213.5]
FRONT OF CASING
FRONT OF CASING
TOP OF CASING
TOP OF CASING
6.1
6.1
[155.7]
[155.7]
2 1/16
2 1/16
[51.6]
[51.6]
5.1
5.1
[130.5]
[130.5]
1.7
1.7
[43.5]
[43.5]
Ø7/8
Ø7/8
[22.2]
[22.2]
ACCESSORY (2)
ACCESSORY (2)
AIR FLOW
AIR FLOW
AIR FLOW
AIR FLOW
BOTTOM RETURN
BOTTOM RETURN
WIDTH
WIDTH
AIR FLOW
AIR FLOW
KNOCK OUTS FOR
KNOCK OUTS FOR
VENTING(5
VENTING(5
PLACES)
PLACES)
A10290
NOTES:
1. Two additional 7/8---in. (22 mm) diameter holes are located in the top plate.
2. Minimum return---air openings at furnace, based on metal duct. If flex duct is used, see flex duct manufacturer’s recommendations for equivalent diameters.
a. For 800 CFM---16---in. (406 mm) round or 14 1/2 x 12---in. (368 x 305 mm) rectangle.
b. For 1200 CFM---20 ---in. (508 mm) round or 14 1/2 x 19 1/2 ---in. (368 x 495 mm) rectangle.
c. For 1600 CFM---22 ---in. (559 mm) round or 14 1/2 x 22 1/16 ---in. (368 x 560mm) rectangle.
d. For airflow requirements above 1800 CFM, see Air Delivery table in Product Data literature for specific use of single side inlets. The use of both sideinlets,
a combination of 1 side and the bottom, or the bottom only will ensure adequate return air openings for airflow requirements above 1800 CFM.
Fig. 3 -- Dimensional Drawing
Table 1 – Dimensions -- In. (mm)
FURNACE SIZE
A
CABINET
WIDTH
B
OUTLET
WIDTH
C
TOP AND
BOTTOM FLUE
COLLAR
D
BOTTOM
INLET WIDTH
VENT
CONNECTION
SIZE
SHIP WT.
LB (KG)
ACCESSORY
FILTER MEDIA
CABINET SIZE
070---12/036070 14---3/16 (360) 12---9/16 (319) 9---5/16 (237) 12---11/16 (322) 4 (102) 115 (52) 16 (406)
090---16/048090 17---1/2 (445) 15---7/8 (403) 11---9/16 (294) 16 (406) 4 (102) 130 (59) 16 (406)
110---20/060110 21 (533) 19---3/8 (492) 13---5/16 (338) 19---1/2 (495) 4 (102) 155 (70) 20 (508)
135---22/066135 24---1/2 (622) 22---7/8 (581) 15---1/16 (383) 23 (584) 4 (102)† 166 (75) 24 (610)
155---22/066155 24---1/2 (622) 22---7/8 (581) 15---1/16 (383) 23 (584) 4 (102)† 175 (79) 24 (610)
*135 and 155 size furnaces require a 5 or 6 ---in. (127 or 152 mm) vent. Use a vent adapter between furnace and vent stack. See Installation Instructions for
complete installation requirements.
4. If you touch ungrounded objects (and recharge your body
with static electricity), firmly touch a clean, unpainted
metal surface of the furnace again before touching control
or wires.
5. Use this procedure for installed and uninstalled (ungroun-
ded) furnaces.
6. Before removing a new control from its container, dis-
charge your body’s electrostatic charge to ground to pro-
tect the control from damage. If the control is to be in-
stalled in a furnace, follow items 1 through 4 before
bringing the control or yourself in contact with the fur-
nace. Put all used and new controls into containers before
touching ungrounded objects.
7. An ESD service kit (available from commercial sources)
mayalsobeusedtopreventESDdamage.
LOCATION
GENERAL
This multipoise furnace is shipped in packaged configuration.
Some assembly and modifications are required when used in any
of the four applications shown in Fig. 4.
NOTE: For high--altitude installations, the high--altitude
conversion kit MUST be installed at or above 5500 ft. (1676 M)
above sea level. Obtain high--altitude conversion kit from your
area authorized distributor.
315AAV

6
THE BLOWER IS LOCATED
TO THE RIGHT OF THE
BURNER SECTION, AND
AIR CONDITIONED AIR IS
DISCHARGED TO THE LEFT.
THE BLOWER IS
LOCATED BELOW THE
BURNER SECTION, AND
CONDITIONED AIR IS
DISCHARGED UPWARD.
THE BLOWER IS
LOCATED ABOVE THE
BURNER SECTION, AND
CONDITIONED AIR IS
DISCHARGED DOWNWARD
THE BLOWER IS
LOCATED TO THE LEFT
OF THE BURNER SECTION,
AND CONDITIONED AIR IS
DISCHARGED TO THE RIGHT.
A02097
Fig. 4 -- Multipoise Orientations
This furnace must:
Sbe installed so the electrical components are protected
from water.
Snot be installed directly on any combustible material
other than wood flooring (refer to SAFETY
CONSIDERATIONS).
Sbe located close to the chimney or vent and attached to
an air distribution system. Refer to Air Ducts section.
Sbe provided ample space for servicing and cleaning.
Always comply with minimum fire protection clear-
ances shown on the furnace clearance to combustible
construction label.
CARBON MONOXIDE POISONING / COMPONENT
DAMAGE HAZARD
Failure to follow this warning could result in personal injury
or death and unit component damage.
Corrosive or contaminated air may cause failure of parts
containing flue gas, which could leak into the living space.
Air for combustion must not be contaminated by halogen
compounds, which include fluoride, chloride, bromide, and
iodide. These elements can corrode heat exchangers and
shorten furnace life. Air contaminants are found in aerosol
sprays, detergents, bleaches, cleaning solvents, salts, air
fresheners, and other household products. Do not install
furnace in a corrosive or contaminated atmosphere. Make
sure all combustion and circulating air requirements are met,
in addition to all local codes and ordinances.
!WARNING
The following types of furnace installations may require
OUTDOOR AIR for combustion due to chemical exposures:
SCommercial buildings
SBuildings with indoor pools
SLaundry rooms
SHobby or craft rooms, and
SChemical storage areas
If air is exposed to the following substances, it should not be used
for combustion air, and outdoor air may be required for
combustion:
SPermanent wave solutions
SChlorinated waxes and cleaners
SChlorine based swimming pool chemicals
SWater softening chemicals
SDe--icing salts or chemicals
SCarbon tetrachloride
SHalogen type refrigerants
SCleaning solvents (such as perchloroethylene)
SPrinting inks, paint removers, varnishes, etc.
SHydrochloric acid
SCements and glues
SAntistatic fabric softeners for clothes dryers
SMasonry acid washing materials
All fuel--burning equipment must be supplied with air for fuel
combustion. Sufficient air must be provided to avoid negative
pressure in the equipment room or space. A positive seal must be
made between the furnace cabinet and the return--air duct to
prevent pulling air from the burner area and from draft safeguard
opening.
FIRE, INJURY OR DEATH HAZARD
Failure to follow this warning could result in personal
injury, death and/or property damage.
When the furnace is installed in a residential garage, the
burners and ignition sources must be located at least 18 in.
(457 mm) above the floor. The furnace must be located or
protected to avoid damage by vehicles. When the furnace is
installed in a public garage, airplane hangar, or other
building having a hazardous atmosphere, the furnace must
be installed in accordance with the NFPA 54/ANSI
Z223.1--2009 . (See Fig. 5.)
!WARNING
315AAV

7
18-IN. (457.2 mm)
MINIMUM TO BURNERS
A93044
Fig. 5 -- Installation in a Garage
FIRE HAZARD
Failure to follow this warning could result in personal
injury, death and/or property damage.
Do not install the furnace on its back or hang furnace with
control compartment facing downward. Safety control
operation will be adversely affected. Never connect
return--air ducts to the back of the furnace. (See Fig. 6.)
!WARNING
LOCATION RELATIVE TO COOLING EQUIPMENT
The cooling coil must be installed parallel with, or on the
downstream side of the unit to avoid condensation in the heat
exchangers. When installed parallel with the furnace, dampers or
other flow control must prevent chilled air from entering the
furnace. If the dampers are manually operated, they must be
equipped with means to prevent operation of either unit unless
the damper is in the full--heat or full--cool position.
PERSONAL INJURY AND/OR PROPERTY
DAMAGE HAZARD
Improper use or installation of this furnace may result in
premature furnace component failure. This gas furnace may
be used for heating buildings under construction provided
that:
--The furnace is permanently installed with all electrical
wiring, piping, venting and ducting installed according to
these installation instructions. A return air duct is provided,
sealed to the furnace casing, and terminated outside the
space containing the furnace. This prevents a negative
pressure condition as created by the circulating air blower,
causing a flame rollout and/or drawing combustion
products into the structure.
--The furnace is controlled by a thermostat. It may not be
“hot wired” to provide heat continuously to the structure
without thermostatic control.
--Clean outside air is provided for combustion. This is to
minimize the corrosive effects of adhesives, sealers and
other construction materials. It also prevents the
entrainment of drywall dust into combustion air, which can
cause fouling and plugging of furnace components.
--The temperature of the return air to the furnace is
maintained between 55_F(13_C) and 80_F(27_C), with
no evening setback or shutdown. The use of the furnace
while the structure is under construction is deemed to be
intermittent operation per our installation instructions.
--The air temperature rise is within the rated rise range on
the furnace rating plate, and the gas input rate has been set
to the nameplate value. --The filters used to clean the
circulating air during the construction process must be
either changed or thoroughly cleaned prior to occupancy.
--The furnace, ductwork and filters are cleaned as necessary
to remove drywall dust and construction debris from all
HVAC system components after construction is completed.
--Verify proper furnace operating conditions including
ignition, gas input rate, air temperature rise, and venting
according to these installation instructions.
CAUTION
!
A02054
Fig. 6 -- Prohibit Installation on Back
315AAV

8
Table 2 – Minimum Free Area Required for Each Combustion Air opening of Duct to Outdoors
FURNACE
INPUT
(BTUH)
TWO HORIZONTAL DUCTS SINGLE DUCT OR OPENING TWO OPENINGS OR VERTICAL DUCTS
(1 SQ. IN./2,000 BTUH) (1,100 SQ. MM/KW) (1 SQ. IN./3,000 BTUH) (734 SQ. MM/KW) (1 SQ. IN./4,000 BTUH) (550 SQ. MM/KW)
Free Area of Opening
and Duct
Sq. In. (Sq. mm)
Round Duct
Dia.
In. (mm)
Free Area of Opening
and Duct
Sq. In. (Sq. mm)
Round Duct
Dia.
In. (mm)
Free Area of Opening
and Duct
Sq. In. (Sq. mm)
Round Duct
Dia.
In. (mm)
44,000 22 (14194) 6 (152) 14.7 (9484) 5 (127) 11 (7096) 4 (102)
66,000 33 (21290) 7 (178) 22 (14193) 6 (152) 16.5 (10645) 5 (127)
88,000 44 (28387) 8 (203) 29.3 (18903) 7 (178) 22 (14193) 6 (152)
110,000 55 (35484) 9 (229) 36.7 (23677) 7 (178) 27.5 (17742) 6 (152)
132,000 66 (42580) 10 (254) 44 (28387) 8 (203) 33 (21290) 7 (178)
154,000 77 (49677) 10 (254) 51.3 (33096) 9 (229) 38.5 (24839) 8 (203)
EXAMPLES: Determining Free Area
FURNACE WATER HEATER TOTAL INPUT
110,000 + 30,000 = (140,000 divided by 4,000) = 35.0 Sq. In. for each two Vertical Ducts or Openings
66,000 + 40,000 = (106,000 divided by 3,000) = 35.3 Sq. In. for a Single Duct or Opening
88,000 +30,000 =(118,000 divided by 2,000) =59.0 Sq. In. for each of two Horizontal Ducts
Table 3 – Minimum Space Volumes for 100% Combustion, Ventilation, and Dilution from Indoors
OTHER THAN FAN-ASSISTED TOTAL
(1,000’S BTUH GAS INPUT RATE)
FAN-ASSISTED TOTAL
(1,000’S BTUH GAS INPUT RATE)
ACH 30 40 50 44 66 88 110 132 154
Space Volume Ft3(M3)
0.60 1,050
(29.7) 1,400
(39.6) 1,750
(49.5) 1,100
(31.1) 1,650
(46.7) 2,200
(62.2) 2,750
(77.8) 3,300
(93.4) 3,850
(109.0)
0.50 1,260
(35.6) 1,680
(47.5) 2,100
(59.4) 1,320
(37.3) 1,980
(56.0) 2,640
(74.7) 3,300
(93.4) 3,960
(112.1) 4,620
(130.8)
0.40 1,575
(44.5) 2,100
(59.4) 2,625
(74.3) 1,650
(46.7) 2,475
(70.0) 3,300
(93.4) 4,125
(116.8) 4,950
(140.1) 5,775
(163.5)
0.30 2,100
(59.4) 2,800
(79.2) 3,500
(99.1) 2,200
(62.2) 3,300
(93.4) 4,400
(124.5) 5,500
(155.7) 6,600
(186.8) 7,700
(218.0)
0.20 3,150
(89.1) 4,200
(118.9) 5,250 (148.6) 3,300
(93.4) 4,950
(140.1) 6,600
(186.8) 8,250
(233.6) 9,900
(280.3) 11,550
(327.0)
0.10 6,300
(178.3) 8,400
(237.8) 10,500
(297.3) 6,600
(186.8) 9,900
(280.3) 13,200
(373.7) 16,500
(467.2) 19,800
(560.6) 23,100
(654.1)
0.00 NP NP NP NP NP NP NP NP NP
NP = Not Permitted
AIR FOR COMBUSTION AND
VENTILATION
Provisions for adequate combustion, ventilation, and dilution air
must be provided in accordance with:
SU.S. Installations: Section 9.3 of the NFPA 54/ANSI
Z223.1--2009 , Air for Combustion and Ventilation and
applicable provisions of the local building codes.
FURNACE CORROSION HAZARD
Failure to follow this caution may result in furnace damage.
Air for combustion must not be contaminated by halogen
compounds, which include fluoride, chloride, bromide, and
iodide. These elements can corrode heat exchangers and
shorten furnace life. Air contaminants are found in aerosol
sprays, detergents, bleaches, cleaning solvents, salts, air
fresheners, and other household products.
CAUTION
!
CARBON MONOXIDE POISONING HAZARD
Failure to follow this warning could result in personal
injury or death.
The operation of exhaust fans, kitchen ventilation fans,
clothes dryers, attic exhaust fans or fireplaces could create a
NEGATIVE PRESSURE CONDITION at the furnace.
Make--up air MUST be provided for the ventilation devices,
in addition to that required by the furnace. Refer to the
Carbon Monoxide Poisoning Hazard warning in the venting
section of these instructions to determine if an adequate
amount of make--up air is available.
!WARNING
The requirements for combustion and ventilation air depend upon
whether or not the furnace is located in a space having a volume
of at least 50 cubic feet per 1,000 Btuh input rating for all gas
appliances installed in the space.
SSpaces having less than 50 cubic feet per 1,000 Btuh
require the OUTDOOR COMBUSTION AIR
METHOD.
315AAV

9
1 SQ IN .
PER
4000
BTUH*
DUCTS
TO
O UTDOORS
1 SQ IN.
PER 4000
BTUH*
C IRCULA TING
AIR DUCTS
VENT
THR OUGH
R OOF
D
B
A
C
E
1 SQ IN.
PER 4000
BTUH*
DUCT
TO
OUTDOORS
CIRCULA TING AIR DUCT S
1 SQ IN.
PER 2000
BTUH*
1 SQ IN.
PER 2000
BTUH*
DUCT S
TO
OUTDOORS
12 ″ MAX
12 ″ MAX
12 ″ MAX
12 ″
MAX
12 ″
MAX
OUTDOORS
1 SQ IN .
PER
4000
BTUH*
F
G
CLEARANCE IN FRONT
OF COMB USTION AIR
OPENINGS SHALL BE
AT LEAST 3 IN .
(305mm)
(305mm)
(305mm)
(305mm)
(305mm)
(76mm)
*Minimum dimensions of 3--- in. (76 mm).
NOTE: Use any of the following combinations of openings:
A&BC&DD&EF&G
A03174
Fig. 7 -- Air for Combustion, Ventilation, and Dilution for
Outdoors
SSpaces having at least 50 cubic feet per 1,000 Btuh
may use the INDOOR COMBUSTION AIR,
STANDARD or KNOWN AIR INFILTRATION
METHOD.
Outdoor Combustion Air Method
1. Provide the space with sufficient air for proper combus-
tion, ventilation, and dilution of flue gases using perman-
ent horizontal or vertical duct(s) or opening(s) directly
communicating with the outdoors or spaces that freely
communicate with the outdoors.
2. Fig. 7 illustrates how to provide TWO OUTDOOR
OPENINGS, one inlet and one outlet combustion and
ventilation air opening, to the outdoors.
e. One opening MUST commence within 12 in. (300
mm) of the ceiling and the second opening MUST
commence within 12 in. (300 mm) of the floor.
f. Size openings and ducts per Fig. 7 and Table 2.
g. TWO HORIZONTAL DUCTS require 1 sq. in. (645
sq. mm) of free area per 2,000 Btuh (1,100 mm2/kW)
of combined input for all gas appliances in the space
per Fig. 7 and Table 2.
h. TWO OPENINGS OR VERTICAL DUCTS require 1
sq. in. (645 sq. mm) of free area per 4,000 Btuh (550
mm2/kW) for combined input of all gas appliances in
the space per Fig. 7 and Table 2.
3. ONE OUTDOOR OPENING requires:
a. 1 sq. in. (645 sq. mm) of free area per 3,000 Btuh
(734 mm2/kW) for combined input of all gas appli-
ances in the space per Table 2 and
b. Not less than the sum of the areas of all vent connect-
ors in the space.
CIRCULATING AIR
DUCTS
6" MIN
(FRONT)Ü
CIRCULATING AIR DUCTS
VENT THROUGH ROOF
1 SQ IN.
PER 1000
BTUH* IN DOOR
OR WALL
12" MAX
1 SQ IN.
PER 1000
BTUH* IN DOOR
OR WALL
12" MA X
UNCONFINED
SPACE
INTERIOR
HEATED
SPACE
CLEARANCE IN FRONT OF COMBUSTION AIR
OPENINGS SHALL BE AT LEAST 3 IN.
(305mm)
(152mm)
(305mm)
* Minimum opening size is 100 sq in. (64516 sq. mm)with minimum dimensions
of3in.(76mm)
†Minimumof3in.(76mm)whentype-B1ventisused.
A03175
Fig. 8 -- Air for Combustion, Ventilation, and Dilution from
Indoors
The opening shall commence within 12 in. (300 mm) of the
ceiling. Appliances in the space shall have clearances of at least 1
in. (25 mm) from the sides and back and 6 in. (150 mm) from the
front. The opening shall directly communicate with the outdoors
or shall communicate through a vertical or horizontal duct to the
outdoors or spaces (crawl or attic) that freely communicate with
the outdoors.
Indoor Combustion AirENFPA & AGA
Standard and Known--Air--Infiltration Rate Methods
Indoor air is permitted for combustion, ventilation, and dilution,
if the Standard or Known--Air--Infiltration Method is used.
CARBON MONOXIDE POISONING HAZARD
Failure to follow this warning could result in personal
injury or death.
Many homes require air to be supplied from outdoors
for furnace combustion, ventilation, and dilution of flue
gases.
The furnace combustion air supply must be provided in
accordance with this instruction manual.
!WARNING
The Standard Method:
1. The space has no less volume than 50 cubic feet per 1,000
Btuh of the maximum input ratings for all gas appliances
installed in the space and
2. The air infiltration rate is not known to be less than 0.40
air changes per hour (ACH).
The Known Air Infiltration Rate Method shall be used, if the
infiltration rate is known to be:
1. Less than 0.40 ACH and
2. Equal to or greater than 0.10 ACH
315AAV

10
Infiltration rates greater than 0.60 ACH shall not be used. The
minimum required volume of the space varies with the number of
ACH and shall be determined per Table 3 or Equations 1 and 2.
Determine the minimum required volume for each appliance in
the space and add the volumes together to get the total minimum
required volume for the space.
Table 3 -- Minimum Space Volumes were determined by using
the following equations from the National Fuel Gas Code ANSI
Z223.1--2009/NFPA 54--2009, 9.3.2.2:
1. For other than fan--assisted appliances, such as a draft
hood--equipped water heater:
Volume
Other
=21ft
3
ACH
I
other
1000 Btu/hr
A04002
2. For fan--assisted appliances such as this furnace:
Volume
Fan
=15ft
3
ACH
I
fan
1000 Btu/hr
A04003
If: Iother = combined input of all other than fan--assisted
appliances in Btuh/hr
Ifan = combined input of all fan--assisted appliances in Btuh/hr
ACH = air changes per hour (ACH shall not exceed 0.60.)
The following requirements apply to the Standard Method and
to the Known Air Infiltration Rate Method.
1. Adjoining rooms can be considered part of a space if:
a. There are no closeable doors between rooms.
b. Combining spaces on same floor level. Each opening
shall have free area of at least 1 in.2/1,000 Btuh (2,000
mm2/kW) of the total input rating of all gas appliances
in the space, but not less than 100 in.2(0.06 m2). One
opening shall commence within 12 in. (300 mm) of
the ceiling and the second opening shall commence
within 12 in. (300 mm) of the floor. The minimum
dimension of air openings shall be at least 3 in. (80
mm).(SeeFig.8.)
c. Combining space on different floor levels. The
volumes of spaces on different floor levels shall be
considered as communicating spaces if connected by
one or more permanent openings in doors or floors
having free area of at least 2 in.2/1,000 Btuh (4,400
mm2/kW) of total input rating of all gas appliances.
2. An attic or crawlspace may be considered a space that
freely communicates with the outdoors provided there are
adequate permanent ventilation openings directly to out-
doors having free area of at least 1--in.2/4,000 Btuh of total
input rating for all gas appliances in the space.
3. In spaces that use the Indoor Combustion Air Method,
infiltration should be adequate to provide air for combus-
tion, permanent ventilation and dilution of flue gases.
However, in buildings with unusually tight construction,
additional air MUST be provided using the methods de-
scribedintheOutdoor Combustion Air Method section.
4. Unusually tight construction is defined as Construction
with:
a. Walls and ceilings exposed to the outdoors have a con-
tinuous, sealed vapor barrier. Openings are gasketed or
sealed and
b. Doors and openable windows are weatherstripped and
c. Other openings are caulked or sealed. These include
joints around window and door frames, between sole
plates and floors, between wall--ceiling joints, between
wall panels, at penetrations for plumbing, electrical
and gas lines, etc.
Combination of Indoor and Outdoor Air
1. Indoor openings shall comply with the Indoor Combus-
tion Air Method below and,
2. Outdoor openings shall be located as required in the Out-
door Combustion Air Method mentioned previously and,
3. Outdoor openings shall be sized as follows:
a. Calculate the Ratio of all Indoor Space volume divided
by required volume for Indoor Combustion Air
Method below.
b. Outdoor opening size reduction Factor is 1 minus the
Ratio in a. above.
c. Minimum size of Outdoor openings shall be the size
required in Outdoor Combustion Air Method above
multiplied by reduction Factor in b. above. The min-
imum dimension of air openings shall be not less than
3in.(80mm).
INSTALLATION
UPFLOW INSTALLATION
Bottom Return Air Inlet
These furnaces are shipped with bottom closure panel installed in
bottom return--air opening. Remove and discard this panel when
bottom return air is used. To remove bottom closure panel,
perform the following:
1. Tilt or raise furnace and remove 2 screws holding bottom
filler panel. (See Fig. 9.)
2. Rotate bottom filler panel downward to release holding
tabs.
3. Remove bottom closure panel.
4. Reinstall bottom filler panel and screws.
Side Return Air Inlet
These furnaces are shipped with bottom closure panel installed in
bottom return--air opening. This panel MUST be in place when
only side return air is used.
Bottom
Closure Panel
Bottom Filler Panel
A10273
Fig. 9 -- Removing Bottom Closure Panel
NOTE: Side return--air openings can be used in UPFLOW and
most HORIZONTAL configurations. Do not use side return--air
openings in DOWNFLOW configuration.
Leveling Legs (If Desired)
In upflow position with side return inlet(s), leveling legs may be
used. (See Fig. 10.) Install field--supplied, 5/16 X 1--1/2 in. (8 X
38 mm) (max) corrosion--resistant machine bolts, washers and
nuts.
315AAV

11
1
3
/ 4 ″
1
3
/ 4 ″
1
3/
4 ″
1
3/
4 ″
5/
16 ″
5
/ 16 ″
5/
16 ″
5/
16 ″
(44mm)
(8mm)
(44mm)
(8mm)
(8mm)
(8mm)
(44mm)
(44mm)
A89014
Fig. 10 -- Leveling Legs
NOTE: Bottom closure must be used when leveling legs are
used. It may be necessary to remove and reinstall bottom closure
panel to install leveling legs. To remove bottom closure panel, see
Item 1 in Bottom Return Air Inlet section in Step 1 above.
To install leveling legs:
1. Position furnace on its back. Locate and drill a hole in
each bottom corner of furnace. (See Fig. 10.)
2. For each leg, install nut on bolt and then install bolt with
nut in hole. (Install flat washer if desired.)
3. Install another nut on other side of furnace base. (Install
flat washer if desired.)
4. Adjust outside nut to provide desired height, and tighten
inside nut to secure arrangement.
5. Reinstall bottom closure panel if removed.
DOWNFLOW INSTALLATION
NOTE: For downflow applications, this furnace is approved for
use on combustible flooring when any one of the following 3
accessories are used:
SSpecial Base, KGASB
SCased Coil Assembly Part No. CNPV, CNRV, CAP, or
CAR
SCoil Box Part No. KCAKC
1. Determine application being installed from Table 4.
2. Construct hole in floor per Table 4 and Fig. 11.
3. Construct plenum to dimensions specified in Table 4 and
Fig. 11.
4. If downflow subbase, KGASB is used, install as shown in
Fig. 12. If Coil Assembly Part No. CPVP, CAPMP or
CNPVP Coil Box Part No. KCAKC is used, install as
shown in Fig. 13.
NOTE: It is recommended that the perforated supply--air duct
flanges be completely folded over or removed from furnace when
installing the furnace on a factory--supplied cased coil or coil box.
To remove the supply--air duct flange, use wide duct pliers or
hand seamers to bend flange back and forth until it breaks off. Be
careful of sharp edges. (See Fig. 14.)
Bottom Return Air Inlet
These furnaces are shipped with bottom closure panel installed in
bottom return--air opening. Remove and discard this panel when
bottom return air is used. To remove bottom closure panel,
perform the following:
1. Tilt or raise furnace and remove 2 screws holding bottom
filler panel. (See Fig. 9.)
2. Rotate bottom filler panel downward to release holding
tabs.
3. Remove bottom closure panel.
4. Reinstall bottom filler panel and screws.
HORIZONTAL INSTALLATION
FIRE, EXPLOSION, AND CARBON MONOXIDE
POISONING HAZARD
Failure to follow this warning could result in personal
injury, death, or property damage.
Do not install the furnace on its back or hang furnace with
control compartment facing downward. Safety control
operation will be adversely affected. Never connect
return--air ducts to the back of the furnace.
!WARNING
The furnace can be installed horizontally in an attic or crawlspace
on either the left--hand (LH) or right--hand (RH) side. The furnace
can be hung from floor joists, rafters or trusses or installed on a
non--combustible platform, blocks, bricks or pad.
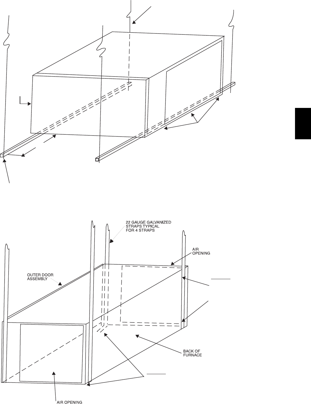
Suspended Furnace Support
The furnace may be supported under each end with threaded rod,
angle iron or metal plumber’s strap as shown. (See Fig. 15 and
16.) Secure angle iron to bottom of furnace as shown.
Heavy--gauge sheet metal straps (plumber’s straps) may be used
to suspend the furnace from each bottom corner. To prevent
screws from pulling out, use 2 #8 x in. screws into the side and 2
#8 x in. screws in the bottom of the furnace casing for each strap.
(See Fig. 15 and 16.)
If the screws are attached to ONLY the furnace sides and not the
bottom, the straps must be vertical against the furnace sides and
not pull away from the furnace sides, so that the strap attachment
screws are not in tension (are loaded in shear) for reliable support.
Platform Furnace Support
Construct working platform at location where all required furnace
clearances are met. (See Fig. 2 and 17.) For furnaces with 1--in.
(25 mm) clearance requirement on side, set furnace on
non--combustible blocks, bricks or angle iron. For crawlspace
installations, if the furnace is not suspended from the floor joists,
the ground underneath furnace must be level and the furnace set
on blocks or bricks.
315AAV

12
PLENUM
OPENING
C
A
BD
FLOOR
OPENING
A96283
Fig. 11 -- Floor and Plenum Opening Dimensions
Roll--Out Protection
Provide a minimum 17--3/4--in. X 22--in. (451 X 559 mm) piece
of sheet metal for flame roll--out protection in front of burner area
for furnaces closer than 12--in. (305 mm) above the combustible
deck or suspended furnaces closer than 12--in. (305 mm) to joists.
The sheet metal MUST extend underneath the furnace casing by
1--in. (25 mm)with the door removed.
The bottom closure panel on furnaces of widths 17--1/2--in. (445
mm) and larger may be used for flame roll--out protection when
bottom of furnace is used for return air connection. See Fig. 17
for proper orientation of roll--out shield.
Bottom Return Air Inlet
These furnaces are shipped with bottom closure panel installed in
bottom return--air opening. Remove and discard this panel when
bottom return air is used. To remove bottom closure panel,
perform the following:
1. Tilt or raise furnace and remove two screws holding bot-
tom filler panel. (See Fig. 9.)
2. Rotate bottom filler panel downward to release holding
tabs.
3. Remove bottom closure panel.
4. Reinstall bottom filler panel and screws.
Side Return Air Inlet
These furnaces are shipped with bottom closure panel installed in
bottom return--air opening. This panel MUST be in place when
side return air inlet(s) are used without a bottom return air inlet.
DOWNFLOW
SUBBASE
SHEET METAL
PLENUM
FLOOR
OPENING
FURNACE
(OR COIL CASING
WHEN USED)
COMBUSTIBLE
FLOORING
A96285
Fig. 12 -- Furnace, Plenum, and Subbase Installed on a
Combustible Floor
APPROVED
COIL ASSEMBLY
OR
COIL BOX
FURNACE
SHEET METAL
PLENUM
FLOOR
OPENING
COMBUSTIBLE
FLOORING
A08556
Fig. 13 -- Furnace, Plenum, and Coil Assembly or Coil Box
Installed on a Combustible Floor
Not all horizontal furnaces are approved for side return air
connections (See Fig. 20.)
315AAV

13
Table 4 – Opening Dimensions -- In. (mm)
FURNACE
CASING
WIDTH
IN. (mm)
APPLICATION
PLENUM OPENING FLOOR OPENING
A B C D
14–3/16
(360)
Upflow Applications on Combustible or Noncombustible Floor-
ing (KGASB subbase not required)
12--- 11/16
(322)
21--- 5/8
(549)
13--- 5/16
(338)
22--- 1/4
(565)
Downflow Applications on Noncombustible Flooring (KGASB
subbase not required)
12--- 9/16
(319)
19
(483)
13--- 3/16
(335)
19--- 5/8
(498)
Downflow applications on combustible flooring (KGASB sub-
base required)
11--- 13/16
(284)
19
(483)
13--- 7/16
(341)
20--- 5/8
(600)
Downflow Applications on Combustible Flooring with CNPV,
CNRV, CAR or CAP Coil Assembly or KCAKC coil box (KGASB
subbase not required)
12--- 5/16
(319)
19
(483)
13--- 5/16
(338)
20
(508)
17–1/2
(445)
Upflow Applications on Combustible or Noncombustible Floor-
ing (KGASB subbase not required)
16
(406)
21--- 5/8
(549)
16--- 5/8
(422)
22--- 1/4
(565)
Downflow Applications on Noncombustible Flooring (KGASB
subbase not required)
15--- 7/8
(403)
19
(483)
16--- 1/2
(419)
19--- 5/8
(498)
Downflow applications on combustible flooring (KGASB sub-
base required)
15--- 1/8
(384)
19
(483)
16--- 3/4
(425)
20--- 5/8
(600)
Downflow Applications on Combustible Flooring with CNPV,
CNRV, CAR or CAP Coil Assembly or KCAKC coil box (KGASB
subbase not required)
15--- 1/2
(394)
19
(483)
16--- 1/2
(419)
20
(508)
21
(533)
Upflow Applications on Combustible or Noncombustible Floor-
ing (KGASB subbase not required)
19--- 1/2
(495)
21--- 5/8
(549)
20--- 1/8
(511)
22--- 1/4
(565)
Downflow Applications on Noncombustible Flooring (KGASB
subbase not required)
19--- 3/8
(492)
19
(483)
20
(508)
19--- 5/8
(498)
Downflow applications on combustible flooring (KGASB sub-
base required)
18--- 5/8
(473)
19
(483)
20--- 1/4
(514)
20--- 5/8
(600)
Downflow Applications on Combustible Flooring with CNPV,
CNRV, CAR or CAP Coil Assembly or KCAKC coil box (KGASB
subbase not required)
19
(483)
19
(483)
20
(508)
20
(508)
24--- 1/2
(622)
Upflow Applications on Combustible or Noncombustible Floor-
ing (KGASB subbase not required)
23
(584)
21--- 1/8
(537)
23--- 5/8
(600)
22--- 1/4
(565)
Downflow Applications on Noncombustible Flooring (KGASB
subbase not required)
22--- 7/8
(581)
19
(483)
23--- 1/2
(597)
19--- 5/8
(498)
Downflow applications on Combustible flooring (KGASB sub-
base required)
22--- 1/8
(562)
19
(483)
23--- 3/4
(603)
20--- 5/8
(600)
Downflow Applications on Combustible Flooring with CNPV,
CNRV, CAR or CAP Coil Assembly or KCAKC coil box (KGASB
subbase not required)
22--- 1/2
(572)
19
(483)
23--- 1/2
(597)
20
(508)
Filter Arrangement
CARBON MONOXIDE POISONING HAZARD
Failure to follow this warning could result in personal
injury, or death.
Never operate a furnace without a filter or with filter access
door removed.
!WARNING
There are no provisions for an internal filter rack in these
furnaces. A field--supplied accessory external filter rack is
required.
Refer to the instructions supplied with the external filter rack for
assembly and installation options.
AIR DUCTS
General Requirements
The duct system should be designed and sized according to
accepted national standards such as those published by: Air
Conditioning Contractors Association (ACCA), Sheet Metal and
Air Conditioning Contractors National Association (SMACNA)
or American Society of Heating, Refrigerating and Air
Conditioning Engineers (ASHRAE) or consult The Air Systems
Design Guidelines reference tables available from your local
distributor. The duct system should be sized to handle the
required system design CFM at the design external static pressure.
The furnace airflow rates are provided in Table 5--Air
Delivery--CFM (With Filter). When a furnace is installed so that
the supply ducts carry air circulated by the furnace to areas
outside the space containing the furnace, the return air shall also
be handled by duct(s) sealed to the furnace casing and
terminating outside the space containing the furnace.
Secure ductwork with proper fasteners for type of ductwork used.
Seal supply-- and return--duct connections to furnace with code
approved tape or duct sealer.
NOTE: Flexible connections should be used between ductwork
and furnace to prevent transmission of vibration.
Ductwork passing through unconditioned space should be
insulated to enhance system performance. When air conditioning
is used, a vapor barrier is recommended.
Maintain a 1--in. (25 mm) clearance from combustible materials
to supply air ductwork for a distance of 36--in. (914 mm)
horizontally from the furnace. See NFPA 90B or local code for
further requirements.
Ductwork Acoustical Treatment
NOTE: Metal duct systems that do not have a 90 degree elbow
and 10 ft. (3 M) of main duct to the first branch take--off may
require internal acoustical lining. As an alternative, fibrous
ductwork may be used if constructed and installed in accordance
with the latest edition of SMACNA construction standard on
fibrous glass ducts. Both acoustical lining and fibrous ductwork
shall comply with NFPA 90B as tested by UL Standard 181 for
Class 1 Rigid air ducts.
315AAV

14
Supply Air Connections
For a furnace not equipped with a cooling coil, the outlet duct
shall be provided with a removable access panel. This opening
shall be accessible when the furnace is installed and shall be of
such a size that the heat exchanger can be viewed for possible
openings using light assistance or a probe can be inserted for
sampling the air stream. The cover attachment shall prevent leaks.
Upflow and Horizontal Furnaces
Connect supply--air duct to flanges on furnace supply--air outlet.
Bend flange upward to 90_with wide duct pliers. (See Fig. 14.)
The supply--air duct must be connected to ONLY the furnace
supply--outlet--air duct flanges or air conditioning coil casing
(when used). DO NOT cut main furnace casing side to attach
supply air duct, humidifier, or other accessories. All accessories
MUST be connected to duct external to furnace main casing.
NOTE: For horizontal applications, the top most flange may be
bent past 90_to allow the evaporator coil to hang on the flange
temporarily while the remaining attachment and sealing of the
coil are performed.
Downflow Furnaces
Connect supply--air duct to supply--air outlet on furnace. Bend
flange inward past 90_with wide duct pliers (See Fig. 14.) The
supply--air duct must be connected to ONLY the furnace supply
outlet or air conditioning coil casing (when used). When installed
on combustible material, supply--air duct must be connected to
ONLY the factory--approved accessory subbase, or a
factory--approved air conditioning coil casing. DO NOT cut main
furnace casing to attach supply side air duct, humidifier, or other
accessories. All accessories MUST be connected to duct external
to furnace casing.
UPFLOW DOWNFLOW HORIZONTAL
YES
NO NO
YES
YES
YES
NO
120°
MIN YES 120°
MIN YES
120°
MIN
90°90°
A02020
Fig. 14 -- Duct Flanges
315AAV

15
1
/
4 " (6mm) THREADED ROD
4 REQ.
SECURE ANGLE
IRON TO BOTTOM
OF FURNACE WITH
3 #8 x
3
/
4
" (19mm) SCREWS
TYPICAL FOR 2 SUPPORTS
1” (25mm) SQUARE, 1-1/4”x1-1/4”x1/8” (32x32x3mm)
ANGLE IRON OR UNI-STRUT MAY BE USED
(2) HEX NUTS, (2) WASHERS & (2) LOCK WASHERS
REQ. PER ROD
8" (203mm)
MIN
FOR DOOR REMOVAL
OUTER DOOR
A S SEMBLY
A10130
Fig. 15 -- Horizontal Unit Suspension
METHOD 2
USE (4) #8 x 3/4 (19 mm) SHEET
METAL SCREWS FOR EACH
STRAP. THE STRAPS
SHOULD BE VERTICAL
AGAINST THE FURNACE
SIDES AND NOT PULL AWAY
FROM THE FURNACE
SIDES.
METHOD 1
FOLD ALL STRAPS UNDER
FURNACE AND SECURE WTH
(4) #8 x 3/4 (19 mm) SHEET METAL SCREWS
(2 SCREWS IN SIDE AND 2 SCREWS
IN BOTTOM).
A10131
Fig. 16 -- Horizontal Suspension with Straps
315AAV

16
30-IN . (762mm)
MIN WORK AREA
6 ″ M IN
*
TYPE-B
VENT
17
3
/
4
″
22
″
SHEET
MET AL
SEDIMENT
TRAP
EQUIPMENT MANU AL
SHUT -OFF GAS VA LV E
LINE CONT A CT ONL Y PERMISSIBLE BETWEEN
LINES FORMED BY INTERSECTIONS OF
THE T OP AND TW O SIDES OF THE FURNA CE
JA CKET AND BUILDING JOISTS ,
STUDS , OR FRAMING.
GAS
ENTR Y
17
3
/
4
″
(451mm)
OVERALL
4
3
/
4
″
(121mm)
UNDER DOOR
1 ″
(25mm)
UNDER FURNACE
EXTEND OUT 12 ″
(305mm)
FR OM FA CE OF DOOR
* WHEN USED W ITH
SINGLE W ALL VEN T
CONNECTIONS
UNION
(152mm)
(451mm)
(559mm)
A10164
Fig. 17 -- Typical Attic Installation
A02075
Fig. 18 -- Upflow Return Air Configurations and Restrictions
315AAV

17
A02163
Fig. 19 -- Downflow Return Air Configurations and Restrictions
A02162
Fig. 20 -- Horizontal Return Air Configurations and Restrictions
315AAV

18
Table 5 – Air Delivery -- CFM (With Filter)*
Unit Size Operating Mode
CFM
Airflow
Setting
External
Static
Pressure
Range*
(In. W.C.)
External Static Pressure (ESP) (IN. W.C.)
0.1 0.2 0.3 0.4 0.5 0.6 0.7 0.8 0.9 1
070--- 12 AIRFLOW (CFM)
†† Low Heat 735 (615)† 0--- 0.50 735 735 735 735 725
High Heat 1180
(1060)† 0 --- 1 . 0 1160 1165 1175 1180 1180 1180 1180 1180 1180 1175
†† 1 --- 1 / 2 --- To n C o o l i n g 525 0--- 0.50‡ 515 500 500 490 485
†† 2 --- To n A / C C o o l i n g 700 0--- 0.50‡ 690 680 675 680 675
2 --- 1 / 2 --- To n A / C C o o l i n g 875 0---1.0‡ 875 875 875 870 865 855 850 835 825 820
3 --- To n A / C C o o l i n g 1050 0--- 1.0‡ 1050 1050 1050 1050 1050 1050 1045 1035 1020 1000
3 --- 1 / 2 --- To n A / C C o o l i n g 1225 0 --- 1 . 0 1220 1225 1225 1225 1225 1220 1205 1190 1185 1170
Maximum 1400 0 --- 1 . 0 1395 1400 1400 1400 1395 1385 1370 1340 1300 1245
090--- 16
Low Heat 985 (825)† 0 --- 1 . 0 950 970 985 985 985 985 985 985 985 980
High Heat 1210
(1090)† 0 --- 1 . 0 1190 1205 1210 1210 1210 1210 1210 1210 1210 1200
†† 1 --- 1 / 2 --- To n A / C C o o l i n g 525 0---0.50‡ 525 520 525 495 475
†† 2 --- To n A / C C o o l i n g 700 0--- 0.50‡ 680 680 680 675 670
2 --- 1 / 2 --- To n A / C C o o l i n g 875 0---1.0‡ 815 845 845 855 850 850 845 835 820 805
3 --- To n A / C C o o l i n g 1050 0--- 1.0‡ 1005 1005 1015 1035 1040 1040 1035 1030 1025 1010
3 --- 1 / 2 --- To n A / C C o o l i n g 1225 0 --- 1 . 0 1190 1200 1200 1205 1205 1215 1205 1200 1185 1170
4 --- To n A / C C o o l i n g 1400 0 --- 1 . 0 1350 1370 1390 1390 1400 1390 1380 1380 1360 1340
Maximum 1600 0 --- 1 . 0 1595 1600 1600 1600 1595 1555 1505 1465 1430 1390
110--- 20***
Low Heat 1320
(1110)† 0 --- 1 . 0 1275 1295 1315 1320 1320 1320 1320 1320 1320 1315
High Heat 1475
(1330)† 0 --- 1 . 0 1460 1465 1475 1475 1475 1475 1475 1475 1465 1465
†† 2 --- To n A / C C o o l i n g 700 0--- 0.50‡ 700 700 700 700 700
†† 2 --- 1 / 2 --- To n A / C C o o l i n g 875 0---0.50‡ 875 875 875 875 875
†† 3 --- To n A / C C o o l i n g 1050 0--- 0.50‡ 1050 1050 1050 1050 1050
3 --- 1 / 2 --- To n A / C C o o l i n g 1225 0---1.0‡ 1225 1225 1225 1225 1225 1225 1225 1225 1225 1225
4 --- To n A / C C o o l i n g 1400 0--- 1.0‡ 1400 1400 1400 1400 1400 1400 1400 1400 1400 1400
5 --- To n A / C C o o l i n g 1750 0--- 1.0‡ 1750 1750 1750 1750 1750 1750 1750 1750 1740 1725
6 --- To n A / C C o o l i n g 2100 0 --- 1 . 0 2100 2100 2100 2100 2090 2075 2055 2040 2005 1970
Maximum 2200 0 --- 1 . 0 2200 2190 2190 2180 2155 2145 2125 2100 2080 2020
135--- 22
Low Heat 1700
(1430)† 0 --- 1 . 0 1700 1700 1700 1700 1700 1695 1700 1695 1685 1670
High Heat 1915
(1725)† 0 --- 1 . 0 1900 1905 1915 1915 1915 1915 1915 1915 1915 1915
†† 2 --- To n A / C C o o l i n g 700 0--- 0.50‡ 700 700 700 700 665
†† 2 --- 1 / 2 --- To n A / C C o o l i n g 875 0---0.50‡ 870 870 865 865 865
†† 3 --- To n A / C C o o l i n g 1050 0--- 0.50‡ 1010 1030 1050 1050 1050
3 --- 1 / 2 --- To n A / C C o o l i n g 1225 0---1.0‡ 1155 1180 1200 1210 1220 1225 1225 1225 1225 1225
4 --- To n A / C C o o l i n g 1400 0--- 1.0‡ 1395 1400 1400 1400 1400 1400 1400 1390 1375 1355
5 --- To n A / C C o o l i n g 1750 0--- 1.0‡ 1740 1750 1750 1750 1735 1740 1735 1730 1715 1700
6 --- To n A / C C o o l i n g 2100 0 --- 1 . 0 2075 2085 2090 2100 2100 2100 2090 2080 2055 2025
Maximum 2200 0 --- 1 . 0 2180 2195 2200 2200 2200 2200 2185 2165 2140 2095
155--- 22
Low Heat 1715
(1440)† 0 --- 1 . 0 1715 1715 1715 1715 1715 1705 1710 1705 1705 1695
High Heat 1970
(1775)† 0 --- 1 . 0 1955 1965 1965 1970 1970 1970 1970 1970 1970 1960
†† 2 --- To n A / C C o o l i n g 700 0--- 0.50‡ 700 700 700 700 680
†† 2 --- 1 / 2 --- To n A / C C o o l i n g 875 0---0.50‡ 865 875 875 865 865
†† 3 --- To n A / C C o o l i n g 1050 0--- 0.50‡ 1015 1020 1035 1045 1050
3 --- 1 / 2 --- To n A / C C o o l i n g 1225 0---1.0‡ 1160 1185 1215 1225 1225 1225 1225 1225 1225 1225
4 --- To n A / C C o o l i n g 1400 0--- 1.0‡ 1385 1400 1400 1400 1400 1400 1395 1395 1380 1360
5 --- To n A / C C o o l i n g 1750 0--- 1.0‡ 1745 1750 1750 1750 1745 1740 1745 1745 1740 1735
6 --- To n A / C C o o l i n g 2100 0 --- 1 . 0 2055 2070 2080 2085 2095 2100 2100 2100 2090 2065
Maximum 2200 0 --- 1 . 0 2175 2190 2200 2200 2200 2200 2200 2200 2180 2160
*Actual external static pressure (ESP) can be determined by using the fan laws (CFM 2 proportional to ESP); such as, a system with 1180 CFM
at 0.5 ESP would operate at cooling airflow of 1050 CFM at 0.4 ESP and low--- heating airflow of 735 CFM at 0.19 ESP.
{Comfort airflow values are shown in parenthesis. Comfort airflow is selected when the low---heat rise adjustment switch (SW1---3) is OFF and
the comfort/efficiency switch (SW1 --- 4) is ON.
}Ductwork must be sized for high--- heating CFM within the operational range of ESP.
{{Operation within the blank areas of the chart is not recommended because high---heat operation will be above 1.0 ESP.
***All airflow on 110 size furnace are 5% less on side return only installations.
315AAV

19
Return Air Connections
FIRE HAZARD
A failure to follow this warning could cause personal injury,
death and/or property damage.
Never connect return--air ducts to the back of the furnace.
Follow instructions below.
!WARNING
Downflow Furnaces
The return--air duct must be connected to return--air opening
(bottom inlet) as shown in Fig. 3. DO NOT cut into casing sides
(left or right). Side opening is permitted for only upflow and
certain horizontal furnaces. Bypass humidifier connections
should be made at ductwork or coil casing sides exterior to
furnace. (See Fig. 19.)
Upflow and Horizontal Furnaces
The return--air duct must be connected to bottom, sides (left or
right), or a combination of bottom and side(s) of main furnace
casing as shown in Fig. 3. Bypass humidifier may be attached
into unused return air side of the furnace casing. (See Fig. 18 and
20.) Not all horizontal furnace models are approved for side
return air connections. (See Fig. 20.)
GAS PIPING
FIRE OR EXPLOSION HAZARD
Failure to follow this warning could result in personal
injury, death, and/or property damage.
Never purge a gas line into a combustion chamber. Never
test for gas leaks with an open flame. Use a commercially
available soap solution made specifically for the detection
of leaks to check all connections.
!WARNING
FIRE OR EXPLOSION HAZARD
Failure to follow this warning could result in personal
injury, death, and/or property damage.
Use proper length of pipe to avoid stress on gas control
manifold and a gas leak.
!WARNING
FIRE OR EXPLOSION HAZARD
Failure to follow this warning could result in personal
injury, death, and/or property damage.
Gas valve inlet and/or inlet pipe must remain capped until
gas supply line is permanently installed to protect the valve
from moisture and debris. Also, install a sediment trap in the
gas supply piping at the inlet to the gas valve.
!WARNING
Gas piping must be installed in accordance with national and
local codes. Refer to current edition of NFGC in the U.S.
Installations must be made in accordance with all authorities
having jurisdiction. If possible, the gas supply line should be a
separate line running directly from meter to furnace.
NOTE: In the state of Massachusetts:
1. Gas supply connections MUST be performed by a li-
censed plumber or gas fitter.
2. When flexible connectors are used, the maximum length
shall not exceed 36 in. (915 mm).
3. When lever handle type manual equipment shutoff valves
are used, they shall be T--handle valves.
4. The use of copper tubing for gas piping is NOT approved
by the state of Massachusetts.
Refer to Table 6 for recommended gas pipe sizing. Risers must be
used to connect to furnace and to meter. Support all gas piping
with appropriate straps, hangers, etc. Use a minimum of 1 hanger
every 6 ft. (1.8 M). Joint compound (pipe dope) should be
applied sparingly and only to male threads of joints. Pipe dope
must be resistant to the action of propane gas.
Table 6 – Maximum Capacity of Pipe
NOMINAL
IRON PIPE
SIZE
IN. (MM)
INTERNAL
DIA.
IN. (MM)
LENGTH OF PIPE --- FT (M)
10
(3.0)
20
(6.0)
30
(9.1)
40
(12.1)
50
(15.2)
1/2 (12.7) 0.622(158) 175 120 97 82 73
3/4 (19.0) 0.824 (20.9) 360 250 200 170 151
1 ( 25.4) 1.049 (26.6) 680 465 375 320 285
1-1/4
(31.8) 1.380 (35.0) 1400 950 770 660 580
1-1/2
(38.1) 1.610 (40.9) 2100 1460 1180 990 900
* Cubic ft of gas per hr for gas pressures of 0.5 psig (14--- In. W.C.) or less and
a pressure drop of 0.5 --- In. W.C. (based on a 0.60 specific gravity gas). Ref:
Ta b l e 6 a n d 9 . 2 N F G C .
FIRE OR EXPLOSION HAZARD
A failure to follow this warning could result in personal
injury, death, and/or property damage.
If local codes allow the use of a flexible gas appliance
connector, always use a new listed connector. Do not use a
connector which has previously served another gas
appliance. Black iron pipe shall be installed at the furnace
gas control valve and extend a minimum of 2--in. (51 mm)
outside the furnace.
!WARNING
FURNACE DAMAGE HAZARD
Failure to follow this caution may result in furnace damage.
Connect gas pipe to furnace using a backup wrench to
avoid damaging gas controls and burner misalignment.
CAUTION
!
An accessible manual equipment shutoff valve MUST be
installed external to furnace casing and within 6 ft. (1.8 M) of
furnace. A 1/8--in. (3 mm) NPT plugged tapping, accessible for
test gauge connection, MUST be installed immediately upstream
of gas supply connection to furnace and downstream of manual
equipment shutoff valve.
NOTE: The furnace gas control valve inlet pressure tap
connection is suitable to use as test gauge connection providing
test pressure DOES NOT exceed maximum 0.5 psig (14--In.
W.C.) stated on gas control valve. (See Fig. 50.)
Some installations require gas entry on right side of furnace (as
viewed in upflow). (See Fig. 21.)
Install a sediment trap in riser leading to furnace as shown in Fig.
22. Connect a capped nipple into lower end of tee. Capped nipple
315AAV

20
should extend below level of furnace gas controls. Place a ground
joint union between furnace gas control valve and exterior
manual equipment gas shutoff valve.
A 1/8--in. (3 mm) NPT plugged tapping, accessible for test gauge
connection, MUST be installed immediately upstream of gas
supply connection to furnace and downstream of manual
equipment shutoff valve.
Piping should be pressure and leak tested in accordance with the
current addition of the NFGC in the United States, local, and
national plumbing and gas codes before the furnace has been
connected. After all connections have been made, purge lines and
check for leakage at furnace prior to operating furnace.
If pressure exceeds 0.5 psig (14--In. W.C.), gas supply pipe must
be disconnected from furnace and capped before and during
supply pipe pressure test. If test pressure is equal to or less than
0.5 psig (14--In. W.C.), turn off electric shutoff switch located on
furnace gas control valve and accessible manual equipment
shutoff valve before and during supply pipe pressure test. After
all connections have been made, purge lines and check for
leakage at furnace prior to operating furnace.
The gas supply pressure shall be within the maximum and
minimum inlet supply pressures marked on the rating plate with
the furnace burners ON and OFF.
2” (51mm)
Street Elbow
A08551
Fig. 21 -- Burner and Manifold
UNION
SEDIMENT
TRAP
MANUAL
SHUTOFF
VALVE
(REQUIRED)
GAS
SUPPLY
A02035
Fig. 22 -- Typical Gas Pipe Arrangement
ELECTRICAL CONNECTIONS
ELECTRICAL SHOCK HAZARD
Failure to follow this warning could result in personal
injury or death.
Blower access panel door switch opens 115--v power to
control. No component operation can occur. Do not
bypass or close switch with panel removed.
!WARNING
See Fig. 25 for field wiring diagram showing typical field 115--v
wiring. Check all factory and field electrical connections for
tightness.
Field--supplied wiring shall conform with the limitations of 63_F
(33_C) rise.
ELECTRICAL SHOCK AND FIRE HAZARD
Failure to follow this warning could result in personal
injury, death, or property damage.
The cabinet MUST have an uninterrupted or unbroken
ground according to NEC ANSI/NFPA 70--2008 or local
codes to minimize personal injury if an electrical fault
should occur. This may consist of electrical wire, conduit
approved for electrical ground or a listed, grounded power
cord (where permitted by local code) when installed in
accordance with existing electrical codes. Refer to the
power cord manufacturer’s ratings for proper wire gauge.
Do not use gas piping as an electrical ground.
!WARNING
FURNACE MAY NOT OPERATE HAZARD
Failure to follow this caution may result in intermittent
furnace operation.
Furnace control must be grounded for proper operation or
else control will lock out. Control must remain grounded
through green/yellow wire routed to gas valve and manifold
bracket screw.
CAUTION
!
115--V Wiring
Verify that the voltage, frequency, and phase correspond to that
specified on unit rating plate. Also, check to be sure that service
provided by utility is sufficient to handle load imposed by this
equipment. Refer to rating plate or Table 7 for equipment
electrical specifications.
U.S. Installations: Make all electrical connections in accordance
with National Electrical Code (NEC) ANSI/NFPA 70--2008 and
any local codes or ordinances that might apply.
315AAV

21
Table 7 – Electrical Data
FURNACE
SIZE
V O LT S ---
H E R T Z ---
PHASE
OPERATING
VOLTAGE RANGE MAX. UNIT
AMPS
UNIT
AMPACITY
#
MAX. WIRE
L E N G T H --- F T ( M ) }
MAX. FUSE OR
CKT BKR AMPS {
MIN.
WIRE
GAUGE
Max. Min.
070---12/036070 1 1 5 --- 6 0 --- 1 127 104 9.0 11.99 30 (9.0) 15 14
090---16/048090 1 1 5 --- 6 0 --- 1 127 104 9.6 12.56 29 (8.8) 15 14
110---20/060110 1 1 5 --- 6 0 --- 1 127 104 15.1 19.33 29 (8.8) 20 12
135---22/066135 1 1 5 --- 6 0 --- 1 127 104 14.9 19.13 30 (9.0) 20 12
155---22/066155 1 1 5 --- 6 0 --- 1 127 104 15.0 19.23 29 (8.8) 20 12
* Permissible limits of the voltage range at which the unit operates satisfactorily.
# Unit ampacity = 125 percent of largest operating component’s full load amps plus 100 percent of all other potential operating components’ (EAC, humidifier,
etc.) full load amps.
{Time---delay type is recommended.
}Length shown is as measured 1 way along wire path between furnace and service panel for maximum 2 percent voltage drop.
FIRE HAZARD
Failure to follow this warning could result in personal
injury, death, or property damage.
Do not connect aluminum wire between disconnect
switch and furnace. Use only copper wire.
!WARNING
Use a separate, fused branch electrical circuit with a properly
sized fuse or circuit breaker for this furnace. See Table 7 for wire
size and fuse specifications. A readily accessible means of
electrical disconnect must be located within sight of the furnace.
NOTE: Proper polarity must be maintained for 115--v wiring. If
polarity is incorrect, control LED status indicator light will flash
rapidly and furnace will NOT operate.
J--Box Relocation
NOTE: If factory location of J--Box is acceptable, go to next
section (ELECTRICAL CONNECTION to J--Box).
NOTE: On 14--in. (356 mm) wide casing models, the J--Box
shall not be relocated to other side of furnace casing when the
vent pipe is routed within the casing.
1. Remove and save two screws holding J--Box. (See Fig.
23.)
NOTE: The J--Box cover need not be removed from the J--Box
in order to move the J--Box. Do NOT remove green ground
screw inside J--Box. (See Fig. 23.)
2. Cut wire tie on loop in furnace wires attached to J--Box.
3. Move J--Box to desired location.
4. Fasten J--Box to casing with the two screws removed in
Step 1.
5. Route J--Box wires within furnace away from sharp edges,
rotating parts and hot surfaces.
Electrical Connection to J--Box
Electrical Box on Furnace Casing Side (See Fig. 24.)
FIRE OR ELECTRICAL SHOCK HAZARD
Failure to follow this warning could result in personal
injury, death, or property damage.
If field--supplied manual disconnect switch is to be mounted
on furnace casing side, select a location where a drill or
fastener cannot damage electrical or gas components.
!WARNING
Factory
Factory
Installed
Installed
Alternate
Alternate
Location
Location
A10291
Fig. 23 -- Relocating J--Box
1. Select and remove a hole knockout in the casing where the
electrical box is to be installed.
NOTE: Check that duct on side of furnace will not interfere with
installed electrical box.
2. Remove the desired electrical box hole knockout and posi-
tion the hole in the electrical box over the hole in the fur-
nace casing.
3. Fasten the electrical box to casing by driving two field--
supplied screws from inside electrical box into casing
steel.
4. Remove and save two screws holding J--Box. (See Fig.
23.)
5. Pull furnace power wires out of 1/2--in. (12 mm) diameter
hole in J--Box. Do not loosen wires from strain--relief
wire--tie on outside of J--Box.
6. Route furnace power wires through holes in casing and
electrical box and into electrical box.
7. Pull field power wires into electrical box.
8. Remove cover from furnace J--Box.
9. Route field ground wire through holes in electrical box
and casing, and into furnace J--Box.
10. Reattach furnace J--Box to furnace casing with screws re-
movedinStep4.
11. Secure field ground wire to J--Box green ground screw.
12. Complete electrical box wiring and installation. Connect
line voltage leads as shown in Fig. 24. Use best practices
(NEC in U.S. for wire bushings, strain relief, etc.
13. Reinstall cover to J--Box. Do not pinch wires between
cover and bracket.
315AAV

22
A10141
Fig. 24 -- Field--Supplied Electrical Box on Furnace Casing
Power Cord Installation in Furnace J--Box
NOTE: Power cords must be able to handle the electrical
requirements listed in Table 6. Refer to power cord
manufacturer’s listings.
1. Remove cover from J--Box.
2. Route listed power cord through 7/8--in. (22 mm) diameter
hole in J--Box.
3. Secure power cord to J--Box bracket with a strain relief
bushing or a connector approved for the type of cord used.
4. Secure field ground wire to green ground screw on J--Box
bracket.
5. Connect line voltage leads as shown in Fig. 25.
6. Reinstall cover to J--Box. Do not pinch wires between
cover and bracket.
BX Cable Installation in Furnace J--Box
1. Remove cover from J--Box.
2. Route BX cable into 7/8--in. (22 mm) diameter hole in
J--Box.
3. Secure BX cable to J--Box bracket with connectors ap-
proved for the type of cable used.
4. Secure field ground wire to green ground screw on J--Box
bracket.
5. Connect line voltage leads as shown in Fig. 25.
6. Reinstall cover to J--Box. Do not pinch wires between
cover and bracket.
24--V Wiring
Make field 24--v connections at the 24--v terminal strip. (See Fig.
25 -- 34.) Connect terminal Y/Y2 as shown in Fig. 27--34 for
proper cooling operation. Use only AWG No. 18, color--coded,
copper thermostat wire.
The 24--v circuit contains an automotive--type, 3--amp. fuse
located on the control. Any direct shorts during installation,
service, or maintenance could cause this fuse to blow. If fuse
replacement is required, use ONLY a 3--amp. fuse of identical
size.
ACCESSORIES
1. Electronic Air Cleaner (EAC)
Connect an accessory Electronic Air Cleaner (if used) us-
ing 1/4--in female quick connect terminals to the two male
1/4--in quick--connect terminals on the control board
marked EAC--1 and EAC--2. The terminals are rated for
115VAC, 1.0 amps maximum and are energized during
blower motor operation. (See Fig. 26.)
2. Humidifier (HUM)
Connect an accessory 24 VAC, 0.5 amp. maximum hu-
midifier (if used) to the 1/4--in male quick--connect HUM
terminal and COM--24V screw terminal on the control
board thermostat strip. The HUM terminal is energized
when blower is energized in heating. (See Fig. 26.)
NOTE: DO NOT connect furnace control HUM terminal to
HUM (humidifier) terminal on Thermidistat, Zone Controller or
similar device. See ThermidistatE, Zone Controller, thermostat,
or controller manufacturer’s instructions for proper connection.
VENTING
The furnace shall be connected to a listed factory built chimney
or vent, or a clay--tile lined masonry or concrete chimney. Venting
into an unlined masonry chimney or concrete chimney is
prohibited.
When an existing Category I furnace is removed or replaced, the
original venting system, may no longer be sized to properly vent
the attached appliances. An improperly sized Category I venting
system could cause the formation of condensate in the furnace
and vent, leakage of condensate and combustion products, and
spillage of combustion products into the living space.
315AAV

23
115-VOLT FIELD-
SUPPLIED
FUSED
DISCONNECT
JUNCTION
BOX CONTROL
BOX
24-VOLT
TERMINAL
BLOCK
THREE-WIRE
HEATING-
ONLY
FIVE
WIRE
NOTE 2
NOTE 1
1-STAGE
THERMOSTAT
TERMINALS
FIELD-SUPPLIED
FUSED DISCONNECT
CONDENSING
UNIT
FURNACE
COM
R
WCY RG
GND
GND
FIELD 24-VOLT WIRING
FIELD 115-, 208/230-, 460-VOLT WIRING
FACTORY 24-VOLT WIRING
FACTORY 115-VOLT WIRING
Connect Y/Y2-terminal as shown for proper operation.
Some thermostats require a "C" terminal connection as shown.
If any of the original wire, as supplied, must be replaced, use
same type or equivalent wire.
208/230- OR
460-VOLT
THREE
PHASE
208/230-
VOLT
SINGLE
PHASE
WHT
BLK
WHT
BLK
W/W1
W2
Y/Y2
G
NOTES: 1.
2.
3.
A95236
Fig. 25 -- Field Wiring Diagram
24-V THERMOSTAT
TERMINALS
PL2 – HOT SURFACE
IGNITER INDUCER
MOTOR CONNECTOR
115-VAC (L2) NEUTRAL
CONNECTIONS
115-VAC (L1) LINE
VOLTAGE CONNECTIONS
EAC-1 TERMINAL
(115 -VAC 1.0 AMP MAX.)
PL1 – LOW VOLTAGE MAIN
HARNESS CONNECTOR
PL3 – ECM BLOWER
HARNESS
CONNECTOR
T
RANSFORMER 24-VAC
CONNECTIONS
3-AMP FUSE
STATUS AND COMM
LED LIGHTS
SW1 SETUP
SWITCHES AND
BLOWER OFF-
DELAY
MODEL PLUG
CONNECTOR
AIR CONDITIONING
(A/C) AIRFLOW
SETUP SWITCHES
USER INTERFACE
OR ADVANCED
PRODUCT
MONITOR
CONNECTOR
CONTINUOUS FAN
(CF) AIRFLOW
SETUP SWITCHES OAT
CONNECTOR
HUMIDIFIER
TERMINAL (24-VAC
0.5 AMP MAX.
ACRDJ – AIR
CONDITIONING
RELAY DISABLE
JUMPER
FLASH
UPGRADE
CONNECTOR
(FACTORY
ONLY)
SW4 SETUP
SWITCHES
BOARD SERIAL
NUMBER
EXAMPLE:
V14 HK42FZ022 3410
SOFTWARE
VERSION
NUMBER
DATE
CODE
PA R T
NUMBER
A10286
Fig. 26 -- Variable Speed Furnace Control for ECM Blower Motor
315AAV

24
CARBON MONOXIDE POISONING HAZARD
Failure to follow the steps outlined below for each
appliance connected to the venting system being placed into
operation could result in carbon monoxide poisoning or
death.
The following steps shall be followed for each appliance
connected to the venting system being placed into
operation, while all other appliances connected to the
venting system are not in operation:
1. Seal any unused openings in venting system.
2. Inspect the venting system for proper size and
horizontal pitch, as required in the National Fuel Gas
Code, NFPA 54/ANSI Z223.1--2009 and these
instructions. Determine that there is no blockage or
restriction, leakage, corrosion and other deficiencies,
which could cause an unsafe condition.
3. As far as practical, close all building doors and
windows and all doors between the space in which
the appliance(s) connected to the venting system are
located and other spaces of the building.
4. Close fireplace dampers.
5. Turn on clothes dryers and any appliance not
connected to the venting system. Turn on any
exhaust fans, such as range hoods and bathroom
exhausts, so they are operating at maximum speed.
Do not operate a summer exhaust fan.
6. Follow the lighting instructions. Place the appliance
being inspected into operation. Adjust the thermostat
so appliance is operating continuously.
7. Test for spillage from draft hood equipped
appliances at the draft hood relief opening after 5
minutes of main burner operation. Use the flame of a
match or candle.
8. If improper venting is observed during any of the
above tests, the venting system must be corrected in
accordance with the National Fuel Gas Code, NFPA
54/ANSI Z223.1--2009.
9. After it has been determined that each appliance
connected to the venting system properly vents when
tested as outlined above, return doors, windows,
exhaust fans, fireplace dampers and any other
gas--fired burning appliance to their previous
conditions of use.
!WARNING
Vent system or vent connectors may need to be resized. Vent
systems or vent connectors must be sized to approach minimum
size as determined using appropriate table found in the current
edition of NFGC.
General Venting Requirements
Follow all safety codes for proper vent sizing and installation
requirements, including local building codes, the National Fuel
Gas Code NFPA 54/ANSI Z223.1--2009 (NFGC), Parts 12 and
13 in the United States, the local building codes, and furnace and
vent manufacturers’ instructions.
The following information and warning must be considered in
addition to the requirements defined in the NFGC.
A00275
Fig. 27 -- Two--Stage Furnace with Single--Speed
Air Conditioner
CARBON MONOXIDE POISONING HAZARD
Failure to follow this warning could result in personal
injury or death.
Do not bypass the draft safeguard switch, as an unsafe
condition could exist which must be corrected.
!WARNING
1. If a vent (common or dedicated) becomes blocked, the fur-
nace will be shut off by the draft safeguard switch located
on the vent elbow.
2. Two--stage furnaces require Type B vent connectors out-
side the casing in all configurations. Single wall vent con-
nector may be used inside the furnace casing with the
transition to Type B vent outside the furnace casing. Size
the connector so that the FAN--Min vent connector capa-
city is equal to or lower than the low fire rate of the fur-
nace and the FAN--Max vent connector capacity is equal
to or higher than the furnace high fire rate.
3. Do not vent this Category I furnace into a single wall ded-
icated or common vent. The dedicated or common vent is
considered to be the vertical portion of the vent system
that terminates outdoors.
4. Vent connectors serving Category I furnaces shall not be
connected into any portion of a mechanical draft system
operating under positive pressure.
5. Do not vent this appliance with any solid fuel burning ap-
pliance.
6. Category I furnaces must be vented vertically or nearly
vertically unless equipped with a listed mechanical venter.
See SIDEWALL VENTING section.
7. Do not vent this appliance into an unlined masonry chim-
ney. Refer to Chimney Inspection Chart, Fig. 35.
315AAV

25
See notes 2, 5, 8, 10, 11 and 12
on the page following these figures
A03179
Fig. 28 -- Two--Stage Furnace with Two--Speed Air Condi-
tioner
See notes 1, 2, 4, 6, 7, 9, 10, 11, and 15
on the page following these figures
A03180
Fig. 29 -- Two--Stage Furnace with Single--Speed Heat Pump
(Dual Fuel)
See notes 1, 2, 3, 4, 6, 8, 9, 10, 12, 13 and 15
on the page following these figures
A03178
Fig. 30 -- Two--Stage Furnace with Two--Speed Heat Pump
(Dual Fuel)
See notes 1, 2, 4, 11, 14, 15, and 16
on the page following these figures
A03181
Fig. 31 -- Dual--Fuel Thermostat with Two--Stage Furnace
and Single--Speed Heat Pump
315AAV

26
7
See notes 1, 2, 3, 4, 12, 13, 14, 15, and 17
on the page following these figures
A03182
Fig. 32 -- Dual--Fuel Thermostat with Two--Stage Furnace
and Two--Speed Heat Pump
See notes 2, 11, and 12 on the
page following these figures
A03183
Fig. 33 -- Two--Stage Thermostat with Two--Stage Furnace
and Two--Speed Air Conditioner
See notes 1 and 2 on the page
following these figures
A03184
Fig. 34 -- Single--Stage Thermostat with Two--Stage Furnace and Two--Speed Air Conditioner
315AAV

27
NOTES FOR FIGURES 27 -- 34
1. Heat pump MUST have a high pressure switch for dual fuel applications.
2. Refer to outdoor equipment Installation Instructions for additional information and setup procedure.
3. If the heat pump date code is 1501E or earlier, select the “ZONE” position on the two--speed heat pump control. Heat pumps having
date codes 1601E and later do not have or require a “ZONE” selection.
4. Outdoor Air Temperature Sensor must be attached in all dual fuel applications.
5. Dip switch No. 1 on Thermidistat should be set in OFF position for air conditioner installations. This is factory default.
6. Dip switch No. 1 on Thermidistat should be set in ON position for heat pump installations.
7. Dip switch No. 2 on Thermidistat should be set in OFF position for single--speed compressor operation. This is factory default.
8. Dip switch No. 2 on Thermidistat should be set in ON position for two--speed compressor operation.
9. Configuration Option No. 10 “Dual Fuel Selection” must be turned ON in all dual fuel applications.
10. NO connection should be made to the furnace HUM terminal when using a Thermidistat.
11. Optional connection: If wire is connected, dip switch SW1--2 on furnace control should be set in ON position to allow Thermidistat/
Thermostat to control furnace staging.
12. Optional connection: If wire is connected, ACRDJ jumper on furnace control should be removed to allow Thermidistat/Thermostat to
control outdoor unit staging.
13. Furnace must control its own high--stage heating operation via furnace control algorithm.
14. The RVS Sensing terminal “L” should not be connected. This is internally used to sense defrost operation.
15. DO NOT SELECT the “FURNACE INTERFACE” or “BALANCE POINT” option on the two--speed heat pump control board. This
is controlled internally by the Thermidistat/Dual Fuel Thermostat.
16. Dip switch D on Dual Fuel Thermostat should be set in OFF position for single--speed compressor operation. This is factory default.
17. Dip switch D on Dual Fuel Thermostat should be set in ON position for two--speed compressor operation.
315AAV

28
A10133
Fig. 35 -- Chimney Inspection Chart
315AAV

29
Masonry Chimney Requirement
NOTE: These furnaces are CSA design--certified for use in
exterior tile--lined masonry chimneys with a factory accessory
Chimney Adapter Kit. Refer to the furnace rating plate for correct
kit usage. The Chimney Adapter Kits are for use with ONLY
furnaces having a Chimney Adapter Kit number marked on the
furnace rating plate.
If a clay tile--lined masonry chimney is being used and it is
exposed to the outdoors below the roof line, relining might be
required. Chimneys shall conform to the Standard for Chimneys,
Fireplaces, Vents, and Solid Fuel Burning Appliances
ANSI/NFPA 211--2009 in the United States and must be in good
condition.
U.S.A.--Refer to Sections 13.1.8 and 13.2.20 of the NFPA
54/ANSI Z223.1--2009 or the authority having jurisdiction to
determine whether relining is required. If relining is required, use
a properly sized listed metal liner, Type--B vent, or a listed
alternative venting design.
NOTE: See the NFPA 54/ANSI Z223.1--2009 13.1.9 and
13.2.20 regarding alternative venting design and the exception,
which cover installations such as our Chimney Adapter Kits
which are listed for use with these furnaces. See Table 17 for
accessory listing.
The Chimney Adapter Kit is a listed alternative venting system
for these furnaces. See the kit instructions for complete details.
This furnace is permitted to be vented into a clay tile--lined
masonry chimney that is exposed to the outdoors below the roof
line, provided:
1. Vent connector is Type--B double--wall, and
2. This furnace is common vented with at least 1 draft hood
equipped appliance, and
3. The combined appliance input rating is less than the max-
imum capacity given in Table 8, and
4. The input rating of each space heating appliance is greater
than the minimum input rating given in Table 9 for the
local 99% Winter Design Temperature. Chimneys having
internal areas greater than 38 sq. in. (24516 sq. mm) re-
quire furnace input ratings greater than the input ratings of
these furnaces. See footnote at bottom of Table 9, and
5. The authority having jurisdiction approves.
If all of these conditions cannot be met, an alternative venting
design shall be used, such as the listed chimney adapter kit with a
furnace listed for use with the kit, a listed chimney--lining system,
or a Type--B common vent.
Inspections before the sale and at the time of installation will
determine the acceptability of the chimney or the need for repair
and/or (re)lining. Refer to the Fig. 33 to perform a chimney
inspection. If the inspection of a previously used tile--lined
chimney:
a. Shows signs of vent gas condensation, the chimney
should be relined in accordance with local codes and
the authority having jurisdiction. The chimney should
be relined with a listed metal liner, Type--B vent, or a
listed chimney adapter kit shall be used to reduce con-
densation. If a condensate drain is required by local
code, refer to the NFPA 54/ANSI Z223.1--2009, Sec-
tion 12.10 for additional information on condensate
drains.
b. Indicates the chimney exceeds the maximum permiss-
ible size in the tables, the chimney should be rebuilt or
relined to conform to the requirements of the equip-
ment being installed and the authority having jurisdic-
tion.
A chimney without a clay tile liner, which is otherwise in good
condition, shall be rebuilt to conform to ANSI/NFPA 211 or be
lined with a UL listed metal liner or UL listed Type--B vent.
Relining with a listed metal liner or Type--B vent is considered to
be a vent--in--a--chase.
If a metal liner or Type--B vent is used to line a chimney, no other
appliance shall be vented into the annular space between the
chimney and the metal liner.
Exterior Masonry Chimney FAN + NAT
Installations with Type--B Double--Wall Vent
Connectors ENFPA & AGA
Table 8 – Combined Appliance Maximum Input
Rating in Thousands of Btuh per Hour
VENT HEIGHT
FT (M)
INTERNAL AREA OF CHIMNEY
SQ. IN. (SQ. MM)
12
(7741)
19
(12258)
28
(18064)
38
(24516)
6 (1.8) 74 119 178 257
8 (2.4) 80 130 193 279
10 (3.0) 84 138 207 299
15 (4.5) NR 152 233 334
20 (6.0) NR NR 250 368
30 (9.1) NR NR NR 404
Appliance Application Requirements
Appliance operation has a significant impact on the performance
of the venting system. If the appliances are sized, installed,
adjusted, and operated properly, the venting system and/or the
appliances should not suffer from condensation and corrosion.
The venting system and all appliances shall be installed in
accordance with applicable listings, standards, and codes.
The furnace should be sized to provide 100 percent of the design
heating load requirement plus any margin that occurs because of
furnace model size capacity increments. Heating load estimates
can be made using approved methods available from Air
Conditioning Contractors of America (Manual J); American
Society of Heating, Refrigerating, and Air--Conditioning
Engineers; or other approved engineering methods. Excessive
oversizing of the furnace could cause the furnace and/or vent to
fail prematurely.
When a metal vent or metal liner is used, the vent must be in
good condition and be installed in accordance with the vent
manufacturer’s instructions.
To prevent condensation in the furnace and vent system, the
following precautions must be observed:
1. The return--air temperature must be at least 60_F db except
for brief periods of time during warm--up from setback at
no lower than 55_F(13_C) db or during initial start--up
from a standby condition.
2. Adjust the gas input rate per the installation instructions.
Low gas input rate causes low vent gas temperatures, caus-
ing condensation and corrosion in the furnace and/or vent-
ing system. Derating is permitted only for altitudes above
2000 Ft. (610 M).
3. Adjust the air temperature rise to the midpoint of the rise
range or slightly above. Low air temperature rise can cause
low vent gas temperature and potential for condensation
problems.
4. Set the thermostat heat anticipator or cycle rate to reduce
short cycling.
BURN HAZARD
Failure to follow this caution may result in personal injury.
Hot vent pipe is within reach of small children when
installed in downflow position.
See the following instruction.
CAUTION
!
315AAV

30
Table 9 – Minimum Allowable Input Rating of
Space--Heating Appliance in Thousands of Btuh per Hour
VENT HEIGHT
FT. (M)
INTERNAL AREA OF CHIMNEY
SQ. IN. (SQ. MM)
12
(7741)
19
(12258)
28
18064)
38
(24516)
Local 99% Winter Design Temperature: 17 to 26 degrees F
6 0 55 99 141
852 74 111 154
10 NR 90 125 169
15 NR NR 167 212
20 NR NR 212 258
30 NR NR NR 362
Local 99% Winter Design Temperature: 5 to 16 degrees F*
6NR 78 121 166
8NR 94 135 182
10 NR 111 149 198
15 NR NR 193 247
20 NR NR NR 293
30 NR NR NR 377
Local 99% Winter Design Temperature: ---10 to 4 degrees F*
6NR NR 145 196
8NR NR 159 213
10 NR NR 175 231
15 NR NR NR 283
20 NR NR NR 333
30 NR NR NR NR
Local 99% Winter Design Temperature: ---11 degrees F or
lower
Not recommended for any vent configuration.
*The 99.6% heating (db) temperatures found in the 1997 or 2001
ASHRAE Fundamentals Handbook, Climatic Design Information chapter,
Table 1A (United States) and 2A (Canada) or the 2005 ASHRAE Funda-
mentals handbook, Climatic Design Information chapter, and the CD---
ROM included with the 2005 ASHRAE Fundamentals Handbook.
Air for combustion must not be contaminated by halogen
compounds which include chlorides, fluorides, bromides, and
iodides. These compounds are found in many common home
products such as detergent, paint, glue, aerosol spray, bleach,
cleaning solvent, salt, and air freshener, and can cause corrosion
of furnaces and vents. Avoid using such products in the
combustion--air supply. Furnace use during construction of the
building could cause the furnace to be exposed to halogen
compounds, causing premature failure of the furnace or venting
system due to corrosion.
Vent dampers on any appliance connected to the common vent
can cause condensation and corrosion in the venting system. Do
not use vent dampers on appliances common vented with this
furnace.
Additional Venting Requirements
A 4--in. (102 mm) round vent elbow is supplied with the furnace.
A 5--in. (127 mm) or 6-- in. (152 mm) vent connector may be
required for some model furnaces. A field--supplied 4--in. (102
mm) to 5--in. (127 mm) or 4--in. (102 mm) to 6--in. (152 mm)
sheet metal increaser fitting is required when 5--in. (127 mm) or
6--in. (152 mm) vent connector is used. See Fig. 36 -- 48, Venting
Orientation for approved vent configurations.
NOTE: Vent connector length for connector sizing starts at
furnace vent elbow. The 4--in. (102 mm) vent elbow is shipped
for upflow configuration and may be rotated for other positions.
Remove the three screws that secure vent elbow to furnace, rotate
furnace vent elbow to position desired, reinstall screws. The
factory--supplied vent elbow does NOT count as part of the
number of vent connector elbows.
The vent connector can exit the furnace through one of five
locations on the casing.
CUT HAZARD
Failure to follow this caution may result in personal injury.
Sheet metal parts may have sharp edges or burrs. Use care
and wear appropriate protective clothing, safety glasses and
gloves when handling parts, and servicing furnaces.
CAUTION
!
1. Attach the single wall vent connector to the furnace vent
elbow, and fasten the vent connector to the vent elbow
with at least two field--supplied, corrosion--resistant, sheet
metal screws located 180_apart.
NOTE: An accessory flue extension is available to extend from
the furnace elbow to outside the furnace casing. See Table 17 for
accessory listing. If flue extension is used, fasten the flue
extension to the vent elbow with at least two field--supplied,
corrosion--resistant, sheet metal screws located 180_apart. Fasten
the vent connector to the flue extension with at least two
field--supplied, corrosion resistant sheet metal screws located
180_apart.
2. Vent the furnace with the appropriate connector as shown
in Fig. 36 -- 48.
3. Determine the correct location of the knockout to be re-
moved.
4. Use a hammer and screwdriver to strike a sharp blow
between the tie points and work the slug back and forth
until the slug breaks free.
An accessory Vent Guard Kit is REQUIRED for downflow
applications for use where the vent exits through the lower
portion of the furnace casing. Refer to the Vent Guard Kit
Instructions for complete details. See Table 17 for accessory
listing.
315AAV

31
SEE NOTES: 1,2,4,7,8,9
on the page following
these figures
A03208
Fig. 36 -- Upflow Application -- Vent Elbow Up
SEE NOTES: 1,2,3,4,7,8,9
on the pages following
these figures
A03209
Fig. 37 -- Upflow Application -- Vent Elbow Right
SEE NOTES:1,2,3,4,5,7,8,9
on the page following
these figures
A03210
Fig. 38 -- Downflow Application -- Vent Elbow Up then Left
SEE NOTES: 1,2,4,5,7,8,9
on the page following
these figures
A03211
Fig. 39 -- Downflow Application -- Vent Elbow Up
315AAV

32
SEE NOTES: 1,2,4,5,6,7,8,9,10
on the page following these figures
A03207
Fig. 40 -- Downflow Application -- Vent Elbow Left then Up
SEE NOTES:1,2,3,4,5,7,8,9
on the page following
these figures.
A03212
Fig. 41 -- Downflow Application -- Vent Elbow Up then Right
SEE NOTES: 1,2,4,7,8,9 on the page
following these figures
A03213
Fig. 42 -- Horizontal Left Application -- Vent Elbow Left
SEE NOTES: 1,2,4,5,7,8,9 on the page
following these figures
A03214
Fig. 43 -- Horizontal Left Application -- Vent Elbow Right
then Up
SEE NOTES: 1,2,4,7,8,9 on the page
following these figures
A03218
Fig. 44 -- Horizontal Right Application -- Vent Elbow Right
315AAV

33
SEE NOTES: 1,2,4,5,7,8,9 on the page
following these figures
A03215
Fig. 45 -- Horizontal Left Application -- Vent Elbow Up
SEE NOTES: 1,2,4,5,7,8,9 on the page
following these figures
A03216
Fig. 46 -- Horizontal Left Application -- Vent Elbow Right
SEE NOTES: 1,2,4,5,7,8,9 on the page
following these figures
A03219
Fig. 47 -- Horizontal Right Application -- Vent Elbow Left
then Up
SEE NOTES: 1,2,4,5,7,8,9
A02068
Fig. 48 -- Horizontal Right Application--Vent Elbow Left
VENTING NOTES FOR FIG. 36 -- 48
1. For common vent, vent connector sizing and vent material: United States----use the NFGC.
2. Immediately increase to 5--in. (102 mm) or 6--in. (152 mm) vent connector outside furnace casing when 5--in. (127 mm) vent
connector is required, refer to Note 1 above.
3. Side outlet vent for upflow and downflow installations must use Type B vent immediately after exiting the furnace, except when
factory--approved Downflow Vent Guard Kit is used in the downflow position. See Table 17 for accessory listing.
4. Type--B vent where required, refer to Note 1 above.
5. A 4--in.(102 mm) single--wall (26 ga. min.) vent must be used inside furnace casing and when the factory--approved Downflow Vent
Guard Kit is used external to the furnace. See Table 17 for accessory listing.
6. Accessory Downflow Vent Guard Kit required in downflow installations with lower vent configuration. See Table 17 for accessory
listing.
7. Chimney Adapter Kit may be required for exterior masonry chimney applications. Refer to Chimney Adapter Kit for sizing and
complete application details. See Table 17 for accessory listing.
8. Secure vent connector to furnace elbow with (2) corrosion--resistant sheet metal screws, spaced approximately 180_apart.
9. Secure all other single wall vent connector joints with (3) corrosion resistant screws spaced approximately 120_apart. Secure Type--B
vent connectors per vent connector manufacturer’s recommendations.
10. The total height of the vent and connector shall be at least seven feet for the 154,000 Btuh gas input rate model when installed in a
downflow application with furnace elbow turned to left side with the connector elbow outside furnace casing pointing upward. (See
Fig. 38.)
315AAV

34
Caution!! For the following applications, use the minimum vertical heights as specified below.
For all other applications, follow exclusively the National Fuel Gas Code.
FURNACE
ORIENTATION
VENT ORIENTATION FURNACE INPUT
(BTUH/HR)
MIN. VENT
DIAMETER
IN. (mm)*
MIN. VERTICAL VENT
HEIGHT
FT. (M)**
Downflow Vent elbow left, then up
Fig. 36 154,000 132,000 110,000 5 (127) 12 (3.6)
Horizontal Left Vent elbow right, then up
Fig. 39 154,000 132,000 5 (127) 7 (2.1)
Horizontal Left Vent Elbow up
Fig. 40 154,000 132,000 5 (127) 7 (2.1)
Horizontal Left Vent elbow right
Fig. 41 154,000 5 (127) 7 (2.1)
Downflow Vent elbow up then left
Fig. 34 110,000 5 (127) 10 (3.0)
Downflow Vent elbow up, then right
Fig. 37 110,000 5 (127) 10 (3.0)
NOTE: All vent configurations must also meet National Fuel Gas Code venting requirements NFGC.
*4 --- in. (102 mm) inside casing or vent guard
**Including 4 in. (102 mm) vent section(s)
The horizontal portion of the venting system shall slope upwards
not less than 1/4--in. per linear ft. (21 mm/m) from the furnace to
the vent and shall be rigidly supported every 5 ft. (1.5 M) or less
with metal hangers or straps to ensure there is no movement after
installation.
Sidewall Venting
This furnace is not approved for direct sidewall horizontal
venting.
Per section 12.4.3 of the NFPA 54/ANSI Z223.1--2009, any
listed mechanical venter may be used, when approved by the
authority having jurisdiction.
Select the listed mechanical venter to match the Btuh input of the
furnace being vented. Follow all manufacturer’s installation
requirements for venting and termination included with the listed
mechanical venter.
START--UP, ADJUSTMENT, AND SAFETY
CHECK
General
FIRE HAZARD
Failure to follow this warning could result in personal injury,
death or property damage.
This furnace is equipped with manual reset limit switches in
the gas control area. The switches open and shut off power to
the gas valve, if a flame rollout or overheating condition
occurs in the gas control area. DO NOT bypass the switches.
Correct problem before resetting the switches.
!WARNING
1. Maintain 115--v wiring and ground. Improper polarity will
result in rapid flashing LED and no furnace operation.
2. Make thermostat wire connections at the 24--v terminal
block on the furnace control. Failure to make proper con-
nections will result in improper operation. (See Fig. 25 --
34.)
3. Gas supply pressure to the furnace must be greater than
4.5--In. W.C. (0.16 psig ) but not exceed 14--In. W.C. (0.5
psig).
4. Check all manual--reset switches for continuity.
5. Replace blower compartment door. Door must be in place
to operate furnace.
6. Setup switch descriptions The variable speed furnace con-
trol has DIP switches to select thermostat staging, blower
off delay timings, air flow selection and other operational
or service related functions. (See Fig. 26, 53 and Table
10.)
CUT HAZARD
Failure to follow this caution may result in personal injury.
Sheet metal parts may have sharp edges or burrs. Use care
and wear appropriate protective clothing, safety glasses and
gloves when handling parts, and servicing furnaces.
CAUTION
!
REGULATOR COVER SCREW
PLASTIC ADJUST SCREW
LOW STAGE
GAS PRESSURE
REGULATOR ADJUSTMENT
MANIFOLD
PRESSURE TAP
INLET
PRESSURE TAP
ON/OFF SWITCH
REGULATOR SPRING
HIGH STAGE GAS
PRESSURE REGULATOR
ADJUSTMENT
1/2˝ NPT OUTLET
1/2˝ NPT INLET
A04167
Fig. 49 -- Redundant Automatic Gas Control Valve
315AAV

35
BURNER
ORIFICE
A93059
Fig. 50 -- Orifice Hole
R Y W G
10 TURNS
THERMOSTAT SUBBASE
TERMINALS WITH
THERMOSTAT REMOVED
(ANITICIPATOR, CLOCK, ETC.,
MUST BE OUT OF CIRCUIT.)
HOOK-AROUND
AMMETER
EXAMPLE: 5.0 AMPS ON AMMETER
10 TURNS AROUND JAWS
= 0.5 AMPS FOR THERMOSTAT
ANTICIPATOR SETTING
FROM UNIT 24-V
CONTROL TERMINALS
A96316
Fig. 51 -- Amp. Draw Check with Ammeter
Start--Up Procedures
FIRE AND EXPLOSION HAZARD
Failure to follow this warning could cause personal injury,
death or property damage.
Never test for gas leaks with an open flame. Use a
commercially available soap solution made specifically for
detection of leaks to check all connections.
!WARNING
ELECTRICAL SHOCK HAZARD
Failure to follow this warning could result in personal
injury, or death.
Blower access door switch opens 115--v power to control.
No component operation can occur unless switch is closed.
Caution must be taken when manually closing this switch
for service purposes.
!WARNING
1. Purge gas lines after all connections have been made.
2. Check gas lines for leaks.
3. To Begin Component Self--Test:
Remove Blower Access Door. Disconnect the thermostat
R lead from furnace control board. Manually close blower
door switch. Turn Setup DIP switch SW1--6 ON. (See Fig.
26, 53 and Table 10.)
NOTE: The furnace control allows all components, except the
gas valve, to be run for short period of time. This feature helps
diagnose a system problem in case of a component failure.
Component test feature will not operate if any thermostat signal is
present at the control.
Refer to service label attached to furnace or See Fig. 52.
Component test sequence is as follows:
a. Inducer motor starts on high--speed and continues to
run until Step d. of component test sequence.
b. Hot surface igniter is energized for 15 sec., then off.
c. Blower motor operates for 15 sec.
d. Inducer motor goes to low--speed for 10 sec., then
stops.
e. After component test is completed, one or more status
codes (11, 25, or 41) will flash. See component test
section of service label (Fig. 52) in furnace for explan-
ation of status codes.
NOTE: To repeat component test, turn setup switch SW1--6
OFF, then back ON.
4. Turn setup DIP switch SW1--6 OFF. Reconnect R lead to
furnace control board, release blower door switch and re-
install blower access door.
5. Operate furnace per instruction on inner door.
6. Verify furnace shut down by lowering thermostat setting
below room temperature.
7. Verify furnace restarts by raising thermostat setting above
room temperature.
315AAV

36
Table 10 – Furnace Setup Switch Description
SETUP SWITCH
NO. SWITCH NAME NORMAL
POSITION DESCRIPTION OF USE
S W 1 --- 1 Status Code Recovery OFF Turn ON to retrieve up to 7 stored status codes for troubleshooting as-
sistance when R thermostat lead is disconnected.
S W 1 --- 2 Adaptive Heat Mode OFF
Allows 2--- stage operation with a single stage thermostat. Turn ON when
using 2 stage thermostat to allow Low Heat operation when R to W/W1
closes and High Heat operation when R to W/W1 and W2 close.
S W 1 --- 3 Low Heat Rise Adjust OFF Turn ON to increase Low Heat airflow by 18 percent. This compensates
for increased return air temperature caused with bypass humidifier.
S W 1 --- 4 Comfort/Efficiency Ad-
justment ON Turn ON to decrease Low Heat airflow by 16 percent and High Heat
airflow 10 percent for maximum comfort.
S W 1 --- 5 CFM per ton adjust OFF Turn ON for 400 CFM per ton. Turn OFF for 350 CFM per ton.
S W 1 --- 6 Component Self---Test OFF
Turn ON to initiate Component Self --- Test for troubleshooting assistance
when R thermostat lead is disconnected. Turn OFF when Self--- Test is
completed.
S W 1 --- 7 Blower OFF delay ON or OFF Control blower Off Delay time. Used in conjunction with SW1--- 8. See
Ta b le 11.
S W 1 --- 8 Blower OFF delay ON or OFF Control blower Off Delay time. Used in conjunction with SW1--- 7. See
Ta b le 11.
To i nitiate the component test sequence, shut
OFF the room thermostat or disconnect the "R"
thermostat lead. Reset power and then put setup
switch "SW1-6" in the ON position to start the
component test sequence. Once initiated the
furnace control will turn the inducer ON at high-
heat speed. The inducer motor will run for the
entire test. The hot surface igniter and blower
motor will be turned ON for 15 seconds each.
When the blower is turned OFF the inducer will
be switched to low-speed for 10 seconds. When
the component test is completed one or more of
the following codes will flash.
LED CODE
EACH OF THE FOLLOWING STATUS CODES IS A TWO DIGIT NUMBER WITH THE FIRST DIGIT DETERMINED BY THE NUMBER OF SHORT FLASHES AND THE SECOND DIGIT BY THE NUMBER OF LONG FLASHES.
STATUS
If status code recall is needed disconnect the "R" thermostat lead, reset power, and put setup switch "SW1-1" in the ON
position. To cl ear the status code history put setup switch "SW1-1" in the ON position and jumper thermostat terminals "R",
"W/W1", and "Y/Y2" simultaneously until status code #11 is flashed.
COMPONENT TEST
328787-101 REV. A
CODE DESCRIPTION
SERVICE
32 Cont in ued: Check for: - Low inducer voltage (115 VAC)
- Defective inducer motor - Inadequate combustion air supply
- Defective pressure switch - Low inlet gas pressure (if LGPS used)
- Low inducer voltage (115 VAC)
- Disconnected or obstructed pressure tubing
33 LIMIT CIRCUIT FAULT - Indicates a limit, draft safeguard, flame rollout, or
blocked vent switch (if used) is open or the furnace is operating in high-heat
only mode due to 2 successive low heat limit trips. Blower will run for 4
minutes or until open switch remakes whichever is longer. If open longer
than 3 minutes, code changes to lockout #13. If open less than 3 minutes
status code #33 continues to flash until blower shuts off. Flame rollout switch
and BVSS require manual reset. Check for: - Loose blower wheel
- Restricted vent - Proper vent sizing - Excessive wind
- Dirty filter or restricted duct system - Defective switch or connections
- Inadequate combustion air supply (Flame Roll-out Switch open)
34 IGNITION PROVING FAILURE - Control will try three more times before
lockout #14 occurs. If flame signal lost during blower on-delay period, blower
will come on for the selected blower off-delay. Check for:
- Oxide buildup on flame sensor (clean with fine steel wool)
- Proper flame sense microamps (.5 microamps D.C. min., 4.0 - 6.0 nominal)
- Manual valve shut-off - Low inlet gas pressure - Control ground continuity
- Gas valve defective or turned off - Flame sensor must not be grounded
- Inadequate flame carryover or rough ignition
- Green/Yellow wire MUST be connected to furnace sheet metal
41 BL OWER MOTOR FAUL T - Indicates the blower failed to reach 250 RPM
or the blower failed to communicate within the prescribed times limits. Thirty
seconds after being turned ON or ten seconds during steady-state operation.
43 LOW-HEAT PRESSURE SWITCH OPEN WHILE HIGH-HEAT PRESSURE
SWITCH IS CLOSED - Check for: - Mis-wired pressure switches
- Low-heat pressure switch stuck open - Low inlet gas pressure (if LGPS used)
- Disconnected or obstructed pressure tubing
45 CONTROL CIRCUITRY LOCKOUT Auto-reset after one hour lockout due to;
- Gas valve relay stuck open - Flame sense circuit failure - Software check error
Reset power to clear lockout. Replace control if status code repeats.
11 Indicates the blower motor tested
OK. Visual check of inducer motor
and hot surface igniter required.
25 SETUP ERROR - Same as code 25 above.
41 BL OWER MOTOR FAULT - Indicates
blower motor failed test. Check
blower, wiring, and furnace control.
To repe at component test turn setup switch
"SW1-6" OFF and then back ON. After component
test is completed put setup switch "SW1-6" in the
OFF position and reconnect the "R" thermostat
lead.
CONTINUOUS OFF - Check for 115VAC at L1 and L2, and 24VAC at SEC-1 and SEC-2.
CONTINUOUS ON - Control has 24VAC power.
RAPID FLASHING - Line voltage (115VAC) polarity reversed.
11 NO PREVIOUS CODE - Stored status codes are erased automatically after 72
hours or as specified above.
12 BL OWER ON AFTER POWER UP (115 VA C or 24 VAC) -Blower runs for 90
seconds, if unit is powered up during a call for heat (R-W/W1 closed) or
(R-W/W1 opens) during blower on-delay period.
13 LIMIT CIRCUIT LOCKOUT - Lockout occurs if a limit, draft safeguard, flame
rollout, or blocked vent switch (if used) is open longer than 3 minutes or 10
successive limit trips occurred during high-heat. Control will auto reset after
three hours. Refer to status code #33.
14 IGNITION LOCKOUT - Control will auto-reset after three hours. Refer to status
code #34.
15 BL OWER MOTOR LOCKOUT - Indicates the blower failed to reach 250 RPM or
the blower failed to communicate within 30 seconds after being turned ON in two
successive heating cycles. Control will auto reset after 3 hours.
Refer to status code #41.
21 GAS HEATING LOCKOUT - Control will NOT auto reset. Check for:
- Mis-wired gas valve -Defective control (valve relay)
22 ABNO RMAL FLAME-PROVING SIGNAL - Flame is proved while gas valve is
de-energized. Inducer will run until fault is cleared. Check for:
- Leaky gas valve - Stuck-open gas valve
23 PRESSURE SWITCH DID NOT OPEN Check for:
- Obstructed pressure tubing - Pressure switch stuck closed
24 SECONDARY VOLTAGE FUSE IS OPEN Check for: - Short circuit in secondary
voltage (24VAC) wiring.
25 INVAL ID MODEL SELECTION OR SETUP ERROR - Indicates either the model
plug is missing or incorrect or, setup switch "SW1-1" or "SW1-6" is positioned
improperly. If code flashes 4 times on power-up control is defaulting to model
selection stored in memory.Check for: -Thermostat call with SW1-1, SW1-6 or
both SW1-1 & SW1-6 ON. - Board date code 2103 or later required to recognize model
plug 007. - Proper model plug number and resistance values per wiring diagram
31 HIGH-HEAT PRESSURE SWITCH OR RELAY DID NOT CLOSE OR
REOPENED - Control relay may be defective. Refer to status code #32.
32 LOW-HEAT PRESSURE SWITCH DID NOT CLOSE OR REOPENED - If open
longer than five minutes, inducer shuts off for 15 minutes before retry. If opens
during blower on-delay period, blower will come on for the selected blower
off-delay. Check for: - Excessive wind - Restricted vent - Proper vent sizing
A04015
Fig. 52 -- Service Label
Adjustments
FIRE HAZARD
Failure to follow this warning could result in personal
injury, death and/or property damage.
DO NOT bottom out gas valve regulator adjusting screw.
This can result in unregulated manifold pressure and result
in excess overfire and heat exchanger failures.
!WARNING
FURNACE DAMAGE HAZARD
Failure to follow this caution may result in reduced furnace
life.
DO NOT redrill orifices. Improper drilling (burrs,
out--of--round holes, etc.) can cause excessive burner noise
and misdirection of burner flames. This can result in flame
impingement of heat exchangers, causing failures. (See Fig.
50.)
CAUTION
!
Furnace gas input rate on rating plate is for installations at
altitudes up to 2000 Ft. (610 M). Furnace input rate must be
within +/--2 percent of furnace rating plate input. For altitudes
above 5500 Ft. (1676 M), a field--supplied high altitude pressure
switch is required.
1. Determine the correct gas input rate.
The input rating for altitudes above 2,000 ft. (610 M) must
be reduced by 4 percent for each 1,000 ft. (305 M) above
sea level.
For installations below 2000 Ft. (610 M), refer to the unit
rating plate. For installations above 2000 Ft. (610 M),
multiply the input on the rating plate by the de--rate multi-
plier in Table 10 for the correct input rate.
2. Determine the correct orifice and manifold pressure adjust-
ment. All models in all positions except Low NOx models
in downflow and horizontal positions use Table 14
(22,000 Btuh per burner.) Low NOx models in downflow
or horizontal positions must use Table 15 (21,000 Btuh
per burner.) See input listed on rating plate.
a. Obtain average yearly gas heat value (at installed alti-
tude) from local gas supplier.
b. Obtain average yearly gas specific gravity from local
gas supplier.
315AAV

37
c. Find installation altitude in Table 14 or 15.
d. Find closest natural gas heat value and specific gravity
in Table 14 or 15.
e. Follow heat value and specific gravity lines to point of
intersection to find orifice size and low--and high--heat
manifold pressure settings for proper operation.
f. Check and verify burner orifice size in furnace.
NEVER ASSUME ORIFICE SIZE. ALWAYS
CHECK AND VERIFY.
NOTE: If orifice hole appears damaged or it is suspected to have
been redrilled, check orifice hole with a numbered drill bit of
correct size. Never redrill an orifice. A burr--free and squarely
aligned orifice hole is essential for proper flame characteristics.
g. Replace orifice with correct size, if required by Table
14 or 15. Use only factory--supplied orifices. See
EXAMPLE 1.
Table 11 – Altitude Derate Multiplier for U.S.A.
ALTITUDE
FT. (M)
PERCENT
OF DERATE
DERATE MULTIPLIER
FACTOR*
0–2000
(0--- 610) 01.00
2001–3000
(610--- 914) 8–12 0.90
3001–4000
(914--- 1219) 12–16 0.86
4001–5000
(1219--- 1524) 16–20 0.82
5001–6000
1524--- 1829) 20–24 0.78
6001–7000
(1829--- 2134) 24–28 0.74
7001–8000
(2134--- 2438) 28–32 0.70
8001–9000
(2438--- 2743) 32–36 0.66
9001–10,000
(2743--- 3048) 36–40 0.62
Table 12 – Blower Off Delay Setup Switch
DESIRED HEATING MODE
BLOWER OFF DELAY (SEC.)
SETUP SWITCH
( S W --- 7 A N D --- 8 )
POSITION
S W 1 --- 7 SW1 --- 8
90 OFF OFF
120 ON OFF
150 OFF ON
180 ON ON
EXAMPLE 1: 0–2000 ft. (0--610 M) altitude
For 22,000 Btuh per burner application use Table 14.
Heating value = 1000 Btuh/cu ft.
Specific gravity = 0.62
Therefore: Orifice No. 43*
Manifold pressure: 3.7--In. W.C. for high--heat
1.6--In. W.C. for low--heat
* Furnace is shipped with No. 43 orifices. In this example all
main burner orifices are the correct size and do
not need to be changed to obtain proper input rate.
3. Adjust manifold pressure to obtain low fire input rate. (See
Fig. 49.)
a. Turn gas valve ON/OFF switch to OFF.
b. Remove manifold pressure tap plug from gas valve.
c. Connect a water column manometer or similar device
to manifold pressure tap.
d. Turn gas valve ON/OFF switch to ON.
e. Move setup SW1—2 on furnace control to ON posi-
tion to lock furnace in low--heat operation. (See Table
10 and Fig. 24.)
f. Manually close blower door switch.
g. Jumper R and W/W1 thermostat connections on con-
trol to start furnace. (See Fig. 24.)
h. Remove regulator adjustment cap from low heat gas
valve pressure regulator (See Fig. 49.) and turn low--
heat adjusting screw (3/16 or smaller flat--tipped
screwdriver) counterclockwise (out) to decrease input
rate or clockwise (in) to increase input rate.
NOTE: DO NOT set low--heat manifold pressure less than
1.4--In. W.C. or more than 1.7--In. W.C. for natural gas. If
manifold pressure is outside this range, change main burner
orifices.
i. Install low--heat regulator adjustment cap.
j. Move setup switch SW1--2 to off position after com-
pleting low--heat adjustment.
k. Leave manometer or similar device connected and
proceed to Step 4.
4. Adjust manifold pressure to obtain high fire input rate.
(See Fig. 49.)
a. Jumper R to W/W1 and W2 thermostat connections on
furnace control. This keeps furnace locked in high--
heat operation.
b. Remove regulator adjustment cap from high--heat gas
valve pressure regulator (See Fig. 49) and turn high
heat adjusting screw (3/16--in. or smaller flat--tipped
screwdriver) counterclockwise (out) to decrease input
rate or clockwise (in) to increase input rate.
NOTE: DO NOT set high--heat manifold pressure less than
3.2--In. W.C. or more than 3.8 In. W.C. for natural gas. If
manifold pressure is outside this range, change main burner
orifices to obtain manifold pressure in this range.
c. When correct input is obtained, replace caps that con-
ceal gas valve regulator adjustment screws. Main
burner flame should be clear blue, almost transparent
(See Fig. 55.)
d. Remove jumpers R to W/W1 and R to W2.
5. Verify natural gas input rate by clocking meter.
NOTE: Gas valve regulator adjustment caps must be in place for
proper input to be clocked.
a. Turn off all other gas appliances and pilots served by
the meter.
b. Move setup switch SW1--2 to ON position. This
keeps furnace locked in low--heat operation.
c. Jumper R to W/W1.
d. Run furnace for 3 minutes in low--heat operation.
e. Measure time (in sec) for gas meter to complete 1
revolution and note reading. The 2 or 5 cubic feet dial
provides a more accurate measurement of gas flow.
f. Refer to Table 13 for cubic ft. of gas per hr.
g. Multiply gas rate cu ft./hr by heating value (Btuh/cu
ft.) to obtain input. If clocked rate does not match re-
quired input from Step 1, increase manifold pressure to
increase input or decrease manifold pressure to de-
crease input. Repeat steps b through e until correct
low--heat input is achieved. Re--install low heat regu-
lator seal cap on gas valve.
h. Move setup switch SW1--2 to OFF position and jump-
er R to W/W1, and W2. This keeps furnace locked in
high--heat operation. Repeat items d through g for
high--heat operation.
315AAV

38
6. Set Temperature Rise
NOTE: Blower access door must be installed when taking
temperature rise reading. Leaving blower access door off will
result in incorrect temperature measurements.
FURNACE DAMAGE HAZARD
Failure to follow this caution may result in shorten furnace
life.
Set air temperature rise within limits specified on the rating
plate to prevent reduced life of furnace components.
Operation is within a few degrees of the mid--point of rise
rangewhensetupswitchSW1--4isOFF.
CAUTION
!
UNIT DAMAGE HAZARD
Failure to follow this caution may result in overheating the
heat exchangers or condensing flue gases in heat exchanger
areas not designed for condensate.
Temperature rise must be within limits specified on unit
rating plate. Operation is within a few degrees of midpoint
ofriserangewhensetupswitchSW1--4isOFF.
CAUTION
!
When setup switch SW1--4 is ON, operation will be near the high
end of the rise range for improved comfort.
Furnace must operate within ranges of temperature rise specified
on the furnace rating plate. Determine air temperature rise as
follows:
a. Place thermometers in return and supply ducts as near
furnace as possible. Be sure thermometers do not see
heat exchanger so that radiant heat does not affect
readings. This practice is particularly important with
straight--run ducts.
b. When thermometer readings stabilize, subtract return--
air temperature from supply--air temperature to determ-
ine air temperature rise.
NOTE: Temperature rise can be determined for low--heat
operation by placing setup switch SW1--2 on furnace control in
ON position. For high--heat operation, place setup switch SW1--2
in OFF position and jumper R--W2 on furnace control. DO NOT
forget to return setup switch to OFF position and remove R--W2
jumper upon completion of testing.
c. This furnace is capable of automatically providing
proper airflow to maintain the temperature rise within
the range specified on furnace rating plate. If temperat-
ure rise is outside this range, proceed as follows:
(1.) Check gas input for low-- and high--heat opera-
tion.
(2.) Check derate for altitude if applicable.
(3.) Check all return and supply ducts for excessive
restrictions causing static pressure greater than
0.5--In. W.C..
(4.) Ensure Low Heat Rise Adjust switch SW1--3 on
furnace control is in ON position when a bypass
humidifier is used. (See Fig. 26 for switch loca-
tion.)
(5.) Make sure proper model plug is installed.
d. Remove thermostat jumpers and release blower access
door switch.
e. Repeat Steps a through c as required to adjust for high
heat temperature rise.
f. When correct high heat input rate and temperature rise
is achieved, turn gas valve ON/OFF switch to OFF.
g. Release blower access door switch.
h. Remove manometer or similar device from gas valve.
i. Re--install manifold pressure tap plug in gas valve.
(See Fig. 49.)
FIRE HAZARD
Failure to follow this warning could result in personal
injury, death, and/or property damage.
Reinstall manifold pressure tap plug in gas valve to prevent
gas leak.
!WARNING
j. Remove thermostat jumper wire from furnace control
board.
k. Turn gas valve ON/OFF switch to ON.
FURNACE OVERHEATING HAZARD
Failure to follow this caution may result in reduced furnace
life.
Recheck temperature rise. It must be within limits specified
on the rating plate. Recommended operation is at the
mid--point of rise range or slightly above.
CAUTION
!
l. Proceed to Step 6, “Set Blower Off Delay” before in-
stalling blower access door.
7. Set Blower Off Delay
a. Remove blower access door if installed.
b.TurnDipswitchSW--7orSW--8ONorOFFforde-
sired blower off delay. (See Table 10 and Fig. 26 and
53.)
8. Set thermostat heat anticipator.
a. Mechanical thermostat. Set thermostat heat anticipator
to match the amp. draw of the electrical components in
the R--W/W1 circuit. Accurate amp. draw readings can
be obtained at the wires normally connected to ther-
mostat subbase terminals, R and W. The thermostat
anticipator should NOT be in the circuit while measur-
ing current.
(1.) Set SW1--2 switch on furnace control board to
ON.
(2.) Remove thermostat from subbase or from wall.
(3.) Connect an amp. meter as shown in Fig. 51.
across the R and W subbase terminals or R and
W wires at wall.
(4.) Record amp. draw across terminals when furnace
is in low heat and after blower starts.
(5.) Set heat anticipator on thermostat per thermostat
instructions and install on subbase or wall.
(6.) Turn SW1--2 switch OFF.
(7.) Install blower access door.
b. Electronic thermostat: Set cycle rate for 3 cycles per
hr.
9. Set Airflow for Air Conditioning --Single Stage and High
Stage Cooling
The ECM blower can be adjusted for a range of airflow
315AAV

39
for Low Speed or High Speed cooling. See Table 5--Air
Delivery -- CFM (With Filter ). Depending on the model
size, the cooling airflow can be adjusted from 1. tons nom-
inal cooling to 3 ., to 4 or to 6 tons of nominal cooling
based on 350 cfm ton.
The cooling airflow is adjusted by turning Setup switches
SW2--1, SW2--2 and SW2--3 either ON or OFF. Select the
required airflow from Fig. 57. Fig. 57 is based on 350
CFM per ton. For airflow at 400 CFM per ton, turn Setup
SW1--5 ON (See Table 10 and Fig. 26 and 53.)
NOTE: 6 ton airflow will truncate at 2200 cfm on applicable
models. For a complete explanation of cooling airflow, refer to
the section titled “Sequence of Operation.”
10. Set Airflow For Continuous Fan/Low Speed Cooling Air-
flow The ECM blower motor can be adjusted for continu-
ous fan speeds different than heating or cooling fan speed.
See Table 5 -- Air Delivery -- CFM (With Filter). Select the
required continuous fan airflow from Fig. 57.
The continuous fan speed is also the fan speed for low
speed cooling when furnace is used with a 2--speed cool-
ing unit. Adjust the Continuous Fan CFM to match the
airflow required for low speed cooling. Select the required
airflow from Fig. 55. For airflow at 400 CFM per ton, turn
Setup SW1--5 ON (See Fig. 57.) The airflow selected for
low speed cooling will also be the airflow used for con-
tinuous fan.
The continuous fan speed can be further adjusted at the
thermostat using the “Comfort Fan” select function.
Changing the continuous fan speed at the thermostat
DOES NOT change the low speed cooling airflow selec-
ted at the control board.
315AAV

40
A08464
Fig. 53 -- Wiring Diagram
315AAV

41
Table 13 – Gas Rate (CU ft./hr)
SECONDS G
FOR 1 REVOLUTION
SIZE OF TEST DIAL SECONDS
FOR 1 REVOLUTION
SIZE OF TEST DIAL
1CuFt. 2CuFt. 5CuFt. 1CuFt. 2CuFt. 5CuFt.
10 360 720 1800 50 72 144 360
11 327 655 1636 51 71 141 355
12 300 600 1500 52 69 138 346
13 277 555 1385 53 68 136 340
14 257 514 1286 54 67 133 333
15 240 480 1200 55 65 131 327
16 225 450 1125 56 64 129 321
17 212 424 1059 57 63 126 316
18 200 400 1000 58 62 124 310
19 189 379 947 59 61 122 305
20 180 360 900 60 60 120 300
21 171 343 857 62 58 116 290
22 164 327 818 64 56 112 281
23 157 313 783 66 54 109 273
24 150 300 750 68 53 106 265
25 144 288 720 70 51 103 257
26 138 277 692 72 50 100 250
27 133 267 667 74 48 97 243
28 129 257 643 76 47 95 237
29 124 248 621 78 46 92 231
30 120 240 600 80 45 90 225
31 116 232 581 82 44 88 220
32 113 225 563 84 43 86 214
33 109 218 545 86 42 84 209
34 106 212 529 88 41 82 205
35 103 206 514 90 40 80 200
36 100 200 500 92 39 78 196
37 97 195 486 94 38 76 192
38 95 189 474 96 38 75 188
39 92 185 462 98 37 74 184
40 90 180 450 100 36 72 180
41 88 176 439 102 35 71 178
42 86 172 429 104 35 69 173
43 84 167 419 106 34 68 170
44 82 164 409 108 33 67 167
45 80 160 400 110 33 65 164
46 78 157 391 112 32 64 161
47 76 153 383 116 31 62 155
48 75 150 375 120 30 60 150
49 73 147 367
315AAV

42
Table 14 – Orifice Size and Manifold Pressure (In. W.C.) for Gas Input Rate
(Tabulated Data Based on 22,000 Btuh High--Heat/14,500 Btuh for Low--Heat per Burner, Derated 4 Percent for Each 1000 Ft.
(305 M) Above Sea Level)
ALTITUDE RANGE
FT. (M)
AVG. GAS
HEAT VALUE
(BTUH/CU FT.)
SPECIFIC GRAVITY OF NATURAL GAS
0.58 0.60 0.62 0.64
Orifice
No.
Manifold
Pressure
High/Low
Orifice
No.
Manifold
Pressure
High/Low
Orifice
No.
Manifold
Pressure
High/Low
Orifice
No.
Manifold
Pressure
High/Low
USA
0to
2000
(0 to 610)
900 42 3.5/1.5 42 3.6/1.6 42 3.7/1.6 41 3.5/1.5
925 42 3.3/1.4 42 3.4/1.5 42 3.5/1.5 42 3.7/1.6
950 43 3.8/1.7 42 3.3/1.4 42 3.4/1.5 42 3.5/1.5
975 43 3.6/1.6 43 3.8/1.6 42 3.2/1.4 42 3.3/1.4
1000 43 3.5/1.5 43 3.6/1.6 43 3.7/1.6 43 3.8/1.7
1025 43 3.3/1.4 43 3.4/1.5 43 3.5/1.5 43 3.6/1.6
1050 44 3.6/1.6 43 3.2/1.4 43 3.4/1.5 43 3.5/1.5
1075 44 3.4/1.5 44 3.5/1.5 43 3.2/1.4 43 3.3/1.4
1100 44 3.3/1.4 44 3.4/1.5 44 3.5/1.5 43 3.2/1.4
ALTITUDE RANGE
FT. (M)
AVG. GAS
HEAT VALUE
(BTUH/CU FT.)
SPECIFIC GRAVITY OF NATURAL GAS
0.58 0.60 0.62 0.64
Orifice
No.
Manifold
Pressure
High/Low
Orifice
No.
Manifold
Pressure
High/Low
Orifice
No.
Manifold
Pressure
High/Low
Orifice
No.
Manifold
Pressure
High/Low
USA
2001 to
3000 (610
to 914)
800 42 3.4/1.5 42 3.5/1.5 42 3.6/1.6 42 3.7/1.6
825 42 3.2/1.4 42 3.3/1.4 42 3.4/1.5 42 3.5/1.5
850 43 3.7/1.6 43 3.8/1.6 42 3.2/1.4 42 3.3/1.4
875 43 3.5/1.5 43 3.6/1.6 43 3.7/1.6 43 3.8/1.7
900 43 3.3/1.4 43 3.4/1.5 43 3.5/1.5 43 3.6/1.6
925 44 3.5/1.5 43 3.2/1.4 43 3.3/1.4 43 3.4/1.5
950 44 3.4/1.5 44 3.5/1.5 44 3.6/1.6 43 3.2/1.4
975 44 3.2/1.4 44 3.3/1.4 44 3.4/1.5 44 3.5/1.5
1000 45 3.7/1.6 45 3.8/1.7 44 3.2/1.4 44 3.4/1.5
ALTITUDE RANGE
FT. (M)
AVG. GAS
HEAT VALUE
(BTUH/CU FT.)
SPECIFIC GRAVITY OF NATURAL GAS
0.58 0.60 0.62 0.64
Orifice
No.
Manifold
Pressure
High/Low
Orifice
No.
Manifold
Pressure
High/Low
Orifice
No.
Manifold
Pressure
High/Low
Orifice
No.
Manifold
Pressure
High/Low
USA
3001 to
4000
(914 to
1219)
775 42 3.2/1.4 42 3.3/1.4 42 3.4/1.5 42 3.5/1.5
800 43 3.6/1.6 43 3.8/1.6 42 3.2/1.4 42 3.3/1.4
825 43 3.4/1.5 43 3.5/1.5 43 3.7/1.6 43 3.8/1.6
850 43 3.2/1.4 43 3.3/1.4 43 3.4/1.5 43 3.6/1.5
875 44 3.5/1.5 44 3.6/1.6 43 3.3/1.4 43 3.4/1.5
900 44 3.3/1.4 44 3.4/1.5 44 3.5/1.5 43 3.2/1.4
925 45 3.8/1.6 44 3.2/1.4 44 3.3/1.5 44 3.4/1.5
950 46 3.8/1.6 45 3.7/1.6 45 3.8/1.7 44 3.3/1.4
ALTITUDE RANGE
FT. (M)
SPECIFIC GRAVITY OF NATURAL GAS
AVG. GAS
HEAT VALUE
(BTUH/CU FT.)
0.58 0.60 0.62 0.64
Orifice
No.
Manifold
Pressure
High/Low
Orifice
No.
Manifold
Pressure
High/Low
Orifice
No.
Manifold
Pressure
High/Low
Orifice
No.
Manifold
Pressure
High/Low
USA
4001 to
5000
(1219 to
1524)
750 43 3.6/1.6 43 3.8/1.6 42 3.2/1.4 42 3.3/1.4
775 43 3.4/1.5 43 3.5/1.5 43 3.6/1.6 43 3.8/1.6
800 43 3.2/1.4 43 3.3/1.4 43 3.4/1.5 43 3.5/1.5
825 44 3.4/1.5 44 3.6/1.5 43 3.2/1.4 43 3.3/1.4
850 44 3.2/1.4 44 3.4/1.5 44 3.5/1.5 44 3.6/1.6
875 45 3.7/1.6 45 3.8/1.7 44 3.3/1.4 44 3.4/1.5
900 46 3.7/1.6 46 3.8/1.7 45 3.7/1.6 44 3.2/1.4
925 46 3.5/1.5 46 3.6/1.6 46 3.7/1.6 46 3.8/1.7
* Orifice numbers 43 are factory installed
315AAV

43
Table 14 -- Orifice Size and Manifold Pressure (In. W.C.) for Gas Input Rate (Con’t.)
(Tabulated Data Based on 22,000 Btuh High--Heat/14,500 Btuh for Low--Heat per Burner, Derated 4 Percent for Each 1000 Ft.
Above Sea Level)
ALTITUDE
RANGE
FT. (M)
AVG. GAS
HEAT VALUE
AT ALTITUDE
(BTUH/CU FT.)
SPECIFIC GRAVITY OF NATURAL GAS
0.58 0.60 0.62 0.64
Orifice
No.
Manifold
Pressure
High/Low
Orifice
No.
Manifold
Pressure
High/Low
Orifice
No.
Manifold
Pressure
High/Low
Orifice
No.
Manifold
Pressure
High/Low
USA
5001 to
6000
(1524
to
1829)
725 43 3.4/1.5 43 3.5/1.5 43 3.6/1.6 43 3.7/1.6
750 43 3.2/1.4 43 3.3/1.4 43 3.4/1.5 43 3.5/1.5
775 44 3.4/1.5 44 3.5/1.5 43 3.2/1.4 43 3.3/1.4
800 44 3.2/1.4 44 3.3/1.4 44 3.4/1.5 44 3.5/1.5
825 46 3.8/1.7 45 3.8/1.6 44 3.2/1.4 44 3.3/1.4
850 46 3.6/1.6 46 3.7/1.6 46 3.8/1.7 45 3.8/1.6
875 47 3.8/1.7 46 3.5/1.5 46 3.6/1.6 46 3.7/1.6
900 47 3.6/1.6 47 3.8/1.6 46 3.4/1.5 46 3.5/1.5
ALTITUDE
RANGE
FT. (M)
AVG. GAS
HEAT VALUE
AT ALTITUDE
(BTUH/CU FT.)
SPECIFIC GRAVITY OF NATURAL GAS
0.58 0.60 0.62 0.64
Orifice
No.
Manifold
Pressure
High/Low
Orifice
No.
Manifold
Pressure
High/Low
Orifice
No.
Manifold
Pressure
High/Low
Orifice
No.
Manifold
Pressure
High/Low
USA
6001 to
7000
(1829
to
2134)
675 43 3.4/1.5 43 3.5/1.5 43 3.6/1.6 43 3.7/1.6
700 44 3.6/1.6 43 3.3/1.4 43 3.4/1.5 43 3.5/1.5
725 44 3.4/1.5 44 3.5/1.5 44 3.6/1.6 43 3.2/1.4
750 45 3.8/1.7 44 3.3/1.4 44 3.4/1.5 44 3.5/1.5
775 46 3.7/1.6 45 3.7/1.6 45 3.8/1.7 44 3.2/1.4
800 46 3.5/1.5 46 3.6/1.6 46 3.8/1.6 45 3.7/1.6
825 47 3.7/1.6 46 3.4/1.5 46 3.5/1.5 46 3.6/1.6
850 47 3.5/1.5 47 3.6/1.6 47 3.8/1.6 46 3.4/1.5
ALTITUDE
RANGE
FT. (M)
AVG. GAS
HEAT VALUE
AT ALTITUDE
(BTUH/CU FT.)
SPECIFIC GRAVITY OF NATURAL GAS
0.58 0.60 0.62 0.64
Orifice
No.
Manifold
Pressure
High/Low
Orifice
No.
Manifold
Pressure
High/Low
Orifice
No.
Manifold
Pressure
High/Low
Orifice
No.
Manifold
Pressure
High/Low
USA
7001 to
8000
(2134
to
2438)
650 44 3.6/1.6 43 3.2/1.4 43 3.4/1.5 43 3.5/1.5
675 44 3.3/1.5 44 3.5/1.5 44 3.6/1.6 43 3.2/1.4
700 45 3.8/1.6 44 3.2/1.4 44 3.3/1.4 44 3.4/1.5
725 46 3.7/1.6 46 3.8/1.7 45 3.7/1.6 44 3.2/1.4
750 46 3.4/1.5 46 3.6/1.5 46 3.7/1.6 46 3.8/1.6
775 47 3.6/1.6 47 3.8/1.6 46 3.4/1.5 46 3.6/1.5
800 47 3.4/1.5 47 3.5/1.5 47 3.7/1.6 47 3.8/1.6
825 48 3.7/1.6 48 3.8/1.6 47 3.4/1.5 47 3.6/1.5
ALTITUDE
RANGE
FT. (M)
AVG. GAS
HEAT VALUE
AT ALTITUDE
(BTUH/CU FT.)
SPECIFIC GRAVITY OF NATURAL GAS
0.58 0.60 0.62 0.64
Orifice
No.
Manifold
Pressure
High/Low
Orifice
No.
Manifold
Pressure
High/Low
Orifice
No.
Manifold
Pressure
High/Low
Orifice
No.
Manifold
Pressure
High/Low
USA
8001 to
9000
(2438
to
2743)
625 44 3.3/1.5 44 3.5/1.5 44 3.6/1.6 43 3.2/1.4
650 45 3.7/1.6 44 3.2/1.4 44 3.3/1.4 44 3.4/1.5
675 46 3.6/1.6 46 3.8/1.6 45 3.7/1.6 45 3.8/1.7
700 47 3.8/1.7 46 3.5/1.5 46 3.6/1.6 46 3.7/1.6
725 47 3.6/1.6 47 3.7/1.6 47 3.8/1.7 46 3.5/1.5
750 48 3.8/1.7 47 3.5/1.5 47 3.6/1.6 47 3.7/1.6
775 48 3.6/1.5 48 3.7/1.6 48 3.8/1.7 47 3.5/1.5
USA
9001 to
10,000
2743 to
3048)
600 45 3.7/1.6 45 3.8/1.7 44 3.3/1.4 44 3.4/1.5
625 46 3.6/1.6 46 3.7/1.6 46 3.8/1.7 45 3.8/1.6
650 47 3.8/1.6 46 3.4/1.5 46 3.6/1.5 46 3.7/1.6
675 47 3.5/1.5 47 3.6/1.6 47 3.7/1.6 46 3.4/1.5
700 48 3.7/1.6 48 3.8/1.7 47 3.5/1.5 47 3.6/1.6
725 48 3.5/1.5 48 3.6/1.6 48 3.7/1.6 48 3.8/1.7
* Orifice numbers 43 are factory installed
315AAV

44
Table 15 – Orifice Size and Manifold Pressure (In. W.C.) for Gas Input Rate
(Tabulated Data Based on 21,000 Btuh High--Heat/14,500 Btuh for Low--Heat Per Burner, Derated 4 Percent for Each 1000 Ft.
(305 M) Above Sea level)
ALTITUDE RANGE
FT. (M)
AVG. GAS
HEAT VALUE
(BTUH/CU
FT.)
SPECIFIC GRAVITY OF NATURAL GAS
0.58 0.60 0.62 0.64
Orifice
No.
Manifold
Pressure
High/Low
Orifice
No.
Manifold
Pressure
High/Low
Orifice
No.
Manifold
Pressure
High/Low
Orifice
No.
Manifold
Pressure
High/Low
USA
0to
2000
(0 to 610)
900 42 3.2/1.5 42 3.3/1.6 42 3.4/1.6 42 3.5/1.7
925 43 3.7/1.8 43 3.8/1.8 42 3.2/1.5 42 3.3/1.6
950 43 3.5/1.7 43 3.6/1.7 43 3.7/1.8 43 3.8/1.8
975 43 3.3/1.6 43 3.4/1.6 43 3.5/1.7 43 3.7/1.7
1000 44 3.6/1.7 43 3.3/1.6 43 3.4/1.6 43 3.5/1.7
1025 44 3.4/1.6 44 3.6/1.7 43 3.2/1.5 43 3.3/1.6
1050 44 3.3/1.6 44 3.4/1.6 44 3.5/1.7 43 3.2/1.5
1075 45 3.8/1.8 44 3.2/1.5 44 3.3/1.6 44 3.4/1.6
1100 46 3.8/1.8 45 3.7/1.8 44 3.2/1.5 44 3.3/1.6
SPECIFIC GRAVITY OF NATURAL GAS
ALTITUDE RANGE
FT. (M)
AVG. GAS
HEAT VALUE
(BTUH/CU FT.)
0.58 0.60 0.62 0.64
Orifice
No.
Manifold
Pressure
High/Low
Orifice
No.
Manifold
Pressure
High/Low
Orifice
No.
Manifold
Pressure
High/Low
Orifice
No.
Manifold
Pressure
High/Low
USA
2001 to
3000 (610
to 914)
800 43 3.8/1.8 42 3.2/1.5 42 3.3/1.6 42 3.4/1.6
825 43 3.5/1.7 43 3.7/1.7 43 3.8/1.8 42 3.2/1.5
850 43 3.3/1.6 43 3.5/1.6 43 3.6/1.7 43 3.7/1.8
875 43 3.2/1.5 43 3.3/1.6 43 3.4/1.6 43 3.5/1.7
900 44 3.4/1.6 44 3.5/1.7 43 3.2/1.5 43 3.3/1.6
925 44 3.2/1.5 44 3.3/1.6 44 3.5/1.6 44 3.6/1.7
950 45 3.7/1.8 45 3.8/1.8 44 3.3/1.6 44 3.4/1.6
975 46 3.7/1.8 46 3.8/1.8 45 3.8/1.8 44 3.2/1.5
1000 46 3.5/1.7 46 3.6/1.7 46 3.8/1.8 45 3.7/1.8
SPECIFIC GRAVITY OF NATURAL GAS
ALTITUDE RANGE
FT. (M)
AVG. GAS
HEAT VALUE
(BTUH/CU FT.)
0.58 0.60 0.62 0.64
Orifice
No.
Manifold
Pressure
High/Low
Orifice
No.
Manifold
Pressure
High/Low
Orifice
No.
Manifold
Pressure
High/Low
Orifice
No.
Manifold
Pressure
High/Low
USA
3001 to
4000 (914
to 1219)
775 43 3.5/1.7 43 3.7/1.7 43 3.8/1.8 42 3.2/1.5
800 43 3.3/1.6 43 3.4/1.6 43 3.5/1.7 43 3.7/1.7
825 44 3.6/1.7 43 3.2/1.5 43 3.3/1.6 43 3.4/1.6
850 44 3.4/1.6 44 3.5/1.7 44 3.6/1.7 43 3.2/1.5
875 45 3.8/1.8 44 3.3/1.6 44 3.4/1.6 44 3.5/1.7
900 46 3.8/1.8 45 3.8/1.8 44 3.2/1.5 44 3.3/1.6
925 46 3.6/1.7 46 3.7/1.8 45 3.7/1.8 45 3.8/1.8
950 46 3.4/1.6 46 3.5/1.7 46 3.7/1.7 46 3.8/1.8
SPECIFIC GRAVITY OF NATURAL GAS
ALTITUDE RANGE
FT. (M)
AVG. GAS
HEAT VALUE
(BTUH/CU FT.)
0.58 0.60 0.62 0.64
Orifice
No.
Manifold
Pressure
High/Low
Orifice
No.
Manifold
Pressure
High/Low
Orifice
No.
Manifold
Pressure
High/Low
Orifice
No.
Manifold
Pressure
High/Low
USA
4001 to
5000
(1219 to
1524)
750 43 3.3/1.6 43 3.4/1.6 43 3.5/1.7 43 3.6/1.7
775 44 3.6/1.7 43 3.2/1.5 43 3.3/1.6 43 3.4/1.6
800 44 3.3/1.6 44 3.4/1.6 44 3.6/1.7 43 3.2/1.5
825 45 3.8/1.8 44 3.2/1.5 44 3.4/1.6 44 3.5/1.6
850 46 3.8/1.8 45 3.7/1.8 45 3.8/1.8 44 3.3/1.6
875 46 3.5/1.7 46 3.7/1.7 46 3.8/1.8 45 3.7/1.8
900 47 3.8/1.8 46 3.5/1.7 46 3.6/1.7 46 3.7/1.8
925 47 3.6/1.7 47 3.7/1.8 47 3.8/1.8 46 3.5/1.7
* Orifice numbers 43 are factory installed
315AAV

45
Table 15 -- Orifice Size and Manifold Pressure (In. W.C.) for Gas Input Rate (Con’t.)
(Tabulated Data Based on 21,000 Btuh High--Heat/14,500 Btuh for Low--Heat Per Burner, Derated 4 Percent for Each 1000 Ft.
(305 M) Above Sea level)
ALTITUDE RANGE
FT. (M)
AVG. GAS
HEAT VALUE
AT ALTITUDE
(BTUH/CU
FT.)
SPECIFIC GRAVITY OF NATURAL GAS
0.58 0.60 0.62 0.64
Orifice
No.
Manifold
Pressure
High/Low
Orifice
No.
Manifold
Pressure
High/Low
Orifice
No.
Manifold
Pressure
High/Low
Orifice
No.
Manifold
Pressure
High/Low
USA
5001 to
6000
(1524 to
1829)
725 44 3.5/1.7 43 3.2/1.5 43 3.3/1.6 43 3.4/1.6
750 44 3.3/1.6 44 3.4/1.6 44 3.5/1.7 43 3.2/1.5
775 45 3.7/1.8 44 3.2/1.5 44 3.3/1.6 44 3.4/1.6
800 46 3.7/1.8 46 3.8/1.8 45 3.8/1.8 44 3.2/1.5
825 46 3.5/1.7 46 3.6/1.7 46 3.7/1.8 46 3.8/1.8
850 47 3.7/1.8 47 3.8/1.8 46 3.5/1.7 46 3.6/1.7
875 47 3.5/1.7 47 3.6/1.7 47 3.7/1.8 46 3.4/1.6
900 48 3.8/1.8 47 3.4/1.6 47 3.5/1.7 47 3.7/1.7
ALTITUDE RANGE
FT. (M)
AVG. GAS
HEAT VALUE
AT ALTITUDE
(BTUH/CU FT.)
SPECIFIC GRAVITY OF NATURAL GAS
0.58 0.60 0.62 0.64
Orifice
No.
Manifold
Pressure
High/Low
Orifice
No.
Manifold
Pressure
High/Low
Orifice
No.
Manifold
Pressure
High/Low
Orifice
No.
Manifold
Pressure
High/Low
USA
6001 to
7000
(1829 to
2134)
675 44 3.5/1.7 43 3.2/1.5 43 3.3/1.6 43 3.4/1.6
700 44 3.3/1.6 44 3.4/1.6 44 3.5/1.7 43 3.2/1.5
725 45 3.7/1.8 45 3.8/1.8 44 3.3/1.6 44 3.4/1.6
750 46 3.6/1.7 46 3.8/1.8 45 3.7/1.8 45 3.8/1.8
775 46 3.4/1.6 46 3.5/1.7 46 3.6/1.7 46 3.8/1.8
800 47 3.6/1.7 47 3.8/1.8 46 3.4/1.6 46 3.5/1.7
825 47 3.4/1.6 47 3.5/1.7 47 3.6/1.7 47 3.8/1.8
850 48 3.7/1.7 48 3.8/1.8 47 3.4/1.6 47 3.5/1.7
ALTITUDE RANGE
FT. (M)
AVG. GAS
HEAT VALUE
AT ALTITUDE
(BTUH/CU FT.)
SPECIFIC GRAVITY OF NATURAL GAS
0.58 0.60 0.62 0.64
Orifice
No.
Manifold
Pressure
High/Low
Orifice
No.
Manifold
Pressure
High/Low
Orifice
No.
Manifold
Pressure
High/Low
Orifice
No.
Manifold
Pressure
High/Low
USA
7001 to
8000
(2134 to
2438)
650 44 3.3/1.6 44 3.4/1.6 44 3.5/1.7 43 3.2/1.5
675 45 3.7/1.8 45 3.8/1.8 44 3.3/1.6 44 3.4/1.6
700 46 3.6/1.7 46 3.7/1.8 46 3.8/1.8 45 3.8/1.8
725 47 3.8/1.8 46 3.5/1.7 46 3.6/1.7 46 3.7/1.8
750 47 3.5/1.7 47 3.7/1.8 47 3.8/1.8 46 3.5/1.6
775 48 3.8/1.8 47 3.4/1.6 47 3.6/1.7 47 3.7/1.7
800 48 3.6/1.7 48 3.7/1.8 48 3.8/1.8 47 3.4/1.6
825 48 3.3/1.6 48 3.5/1.6 48 3.6/1.7 48 3.7/1.8
ALTITUDE RANGE
FT. (M)
AVG. GAS
HEAT VALUE
AT ALTITUDE
(BTUH/CU FT.)
SPECIFIC GRAVITY OF NATURAL GAS
0.58 0.60 0.62 0.64
Orifice
No.
Manifold
Pressure
High/Low
Orifice
No.
Manifold
Pressure
High/Low
Orifice
No.
Manifold
Pressure
High/Low
Orifice
No.
Manifold
Pressure
High/Low
USA
8001 to
9000
(2438 to
2743)
625 45 3.7/1.8 45 3.8/1.8 44 3.3/1.6 44 3.4/1.6
650 46 3.6/1.7 46 3.7/1.8 46 3.8/1.8 45 3.8/1.8
675 47 3.8/1.8 46 3.4/1.6 46 3.5/1.7 46 3.7/1.7
700 47 3.5/1.7 47 3.6/1.7 47 3.7/1.8 46 3.4/1.6
725 48 3.7/1.8 48 3.8/1.8 47 3.5/1.7 47 3.6/1.7
750 48 3.5/1.7 48 3.6/1.7 48 3.7/1.8 48 3.8/1.8
775 49 3.8/1.8 48 3.4/1.6 48 3.5/1.7 48 3.6/1.7
USA
9001 to
10,000
(2743 to
3048)
600 46 3.6/1.7 46 3.7/1.8 46 3.8/1.8 45 3.7/1.8
625 47 3.7/1.8 47 3.8/1.8 46 3.5/1.7 46 3.6/1.7
650 47 3.4/1.6 47 3.6/1.7 47 3.7/1.8 47 3.8/1.8
675 48 3.6/1.7 48 3.8/1.8 47 3.4/1.6 47 3.5/1.7
700 48 3.4/1.6 48 3.5/1.7 48 3.6/1.7 48 3.7/1.8
725 49 3.7/1.8 49 3.8/1.8 48 3.4/1.6 48 3.5/1.7
* Orifice numbers 43 are factory installed
315AAV

46
Check Safety Controls
The flame sensor, gas valve, and pressure switch were all checked
in the Start--up procedure section as part of normal operation.
1. Check Main Limit Switch
This control shuts off combustion system and energizes
air--circulating blower motor, if furnace overheats. By us-
ing this method to check limit control, it can be established
that limit is functioning properly and will operate if there
is a restricted return--air supply or motor failure. If limit
control does not function during this test, cause must be
determined and corrected.
a. Run furnace for at least 5 minutes.
b. Gradually block off return air with a piece of card-
board or sheet metal until the limit trips.
c. Unblock return air to permit normal circulation.
d. Burners will re--light when furnace cools down.
2. Check draft safeguard switch. The purpose of this control
is to cause the safe shutdown of the furnace during certain
blocked vent conditions.
a. Verify vent pipe is cool to the touch.
b. Disconnect power to furnace and remove vent con-
nector from furnace vent elbow.
c. Restore power to furnace and set room thermostat
above room temperature.
d. After normal start--up, allow furnace to operate for 2
minutes, then block vent elbow in furnace 80 percent
of vent area with a piece of flat sheet metal.
e. Furnace should cycle off within 2 minutes. If gas does
not shut off within 2 minutes, determine reason draft
safeguard switch did not function properly and correct
condition.
f. Remove blockage from furnace vent elbow.
g. Switch will auto--reset when it cools.
h. Re--install vent connector.
NOTE: Should switch remain open longer than 3 minutes,
furnace control board will lockout the furnace for 3 hours. To
reset furnace control board, turn thermostat below room
temperature or from HEAT to OFF and turn 115--v power OFF,
then back ON.
3. Check Pressure Switch(es)
This control proves operation of the draft inducer blower.
a. Turn off 115--v power to furnace.
b. Disconnect inducer motor lead wires from wire har-
ness.
c. Turn on 115--v power to furnace.
d. Set thermostat to “call for heat” and wait 1 minute.
When pressure switch is functioning properly, hot sur-
face igniter should NOT glow and control diagnostic
light flashes a status code 32. If hot surface igniter
glows when inducer motor is disconnected, shut down
furnace immediately.
e. Determine reason pressure switch did not function
properly and correct condition.
f. Turn off 115--v power to furnace.
g. Reconnect inducer motor wires, replace outer door,
andturnon115--vpower.
h. Blower will run for 90 seconds before beginning the
call for heat again.
i. Furnace should ignite normally.
Checklist
1. Put away tools and instruments. Clean up debris.
2. Verify that switches SW1--1 and SW1--6 are OFF and oth-
er setup switches are set as desired. Verify that switches
SW1--7andSW1--8fortheblowerOFFDELAYaresetas
desired per Table 10.
3. Verify that blower and burner access doors are properly in-
stalled.
4. Cycle test furnace with room thermostat.
5. Check operation of accessories per manufacturer’s instruc-
tions.
6. Review User’s Guide with owner.
7. Attach literature packet to furnace.
SERVICE AND MAINTENANCE
PROCEDURES
FIRE, INJURY OR DEATH HAZARD
Failure to follow this warning could result in personal
injury, death and/or property damage.
The ability to properly perform maintenance on this
equipment requires certain knowledge, mechanical skills,
tools, and equipment. If you do not possess these, do not
attempt to perform any maintenance on this equipment
other than those procedures recommended in the User’s
Manual.
!WARNING
ENVIRONMENTAL HAZARD
Failure to follow this caution may result in environmental
pollution.
Remove and recycle all components or materials (i.e. oil,
refrigerant, control board, etc.) before unit final disposal.
CAUTION
!
ELECTRICAL SHOCK, FIRE OR EXPLOSION
HAZARD
Failure to follow this warning could result in personal
injury or death, or property damage.
Before installing, modifying, or servicing system, main
electrical disconnect switch must be in the OFF position and
install a lockout tag. There may be more than one
disconnect switch. Lock out and tag switch with a suitable
warning label. Verify proper operation after servicing.
!WARNING
ELECTRICAL OPERATION HAZARD
Failure to follow this caution may result in improper
furnace operation or failure of furnace.
Label all wires prior to disconnection when servicing
controls. Wiring errors can cause improper and dangerous
operation.
CAUTION
!
General
These instructions are written as if the furnace is installed in an
upflow application. An upflow furnace application is where the
blower is located below the combustion and controls section of
315AAV

47
the furnace, and conditioned air is discharged upward. Since this
furnace can be installed in any of the 4 positions shown in Fig. 4,
you must revise your orientation to component location
accordingly.
Electrical Controls and Wiring
ELECTRICAL SHOCK HAZARD
Failure to follow this warning could result in personal injury
or death.
There may be more than one electrical supply to the furnace.
Check accessories and cooling unit for additional electrical
supplies that must be shut off during furnace servicing. Lock
out and tag switch with a suitable warning label.
!WARNING
The electrical ground and polarity for 115--v wiring must be
properly maintained. Refer to Fig. 25 for field wiring information
and to Fig. 53 for furnace wiring information.
NOTE: If the polarity is not correct, the STATUS LED on the
control will flash rapidly and prevent the furnace from heating.
The control system also requires an earth ground for proper
operation of the control and flame--sensing electrode.
The 24--v circuit contains an automotive--type, 3--amp. fuse
located on the control. (See Fig. 26.) Any shorts of the 24--v
wiring during installation, service, or maintenance will cause this
fuse to blow. If fuse replacement is required, use ONLY a 3--amp.
fuse. The control LED will display status code 24 when fuse
needs to be replaced.
Proper instrumentation is required to service electrical controls.
The control in this furnace is equipped with a Status Code LED
(Light--Emitting Diode) to aid in installation, servicing, and
troubleshooting. Status codes can be viewed at the sight glass in
blower access door. The amber furnace control LED is either ON
continuously, rapid flashing, or a code composed of 2 digits. The
first digit is the number of short flashes, the second digit is the
number of long flashes.
For an explanation of status codes, refer to service label located
on blower access door or Fig. 52, and the troubleshooting guide
which can be obtained from your distributor.
See Fig. 58, a brief Troubleshooting Guide.
For 2--Stage Variable Speed ECM Controls the stored status
codes will NOT be erased from the control memory, when 115--
or 24--v power is interrupted. The control will store up to the last
7 Status Codes in order of occurrence.
1. To retrieve status codes, proceed with the following:
NOTE: NO thermostat signal may be present at control, and all
blower--OFF delays must be completed.
a. Leave 115--v power to furnace turned on.
b. Remove outer access door.
c. Look into blower access door sight glass for current
LED status.
d. Remove blower access door.
NOTE: The Status Codes cannot be retrieved by disconnecting
the limit switch or draft safeguard switch. To retrieve Status
Codes, follow the procedure below.
2. Turn Setup Switch, SW1--1 “ON.”
3. Manually close blower access door switch.
4. Control will flash up to 7 Status Codes.
5. The last Status Code, or 8th Code, will be Code 11.
6. Turn SW1--1 “OFF.”
7. A continuously--lit Amber LED will appear and indicates
proper operation.
8. Release blower access door switch, install blower access
door and replace outer door or refer to the SERVICE label
on the front of the blower access door for more informa-
tion.
Component Self--Test
Component Test can ONLY be initiated by performing the
following:
1. Remove outer access door.
2. Remove blower access door.
3. Remove the wire from the “R” terminal of the control
board.
4. Turn Setup Switch, SW--1--6 “ON.”
5. Manually close blower access door switch.
Blower access door switch opens 115--v power to control. No
component operation can occur unless switch is closed. Caution
must be taken when manually closing this switch for service
purposes.
ELECTRICAL SHOCK HAZARD
Failure to follow this warning could result in personal injury,
or death.
Blower access door switch opens 115--v power to furnace
control. No component operation can occur unless switch is
closed. Exercise caution to avoid electrical shock from
exposed electrical components when manually closing this
switch for service purposes.
!WARNING
6. Component Test sequence will function as follows:
a. Inducer motor starts on high--speed and continues to
run until Step (d.) of component test sequence.
b. Hot surface igniter is energized for 15 sec, then deen-
ergized.
c. Blower operates for 10 sec, then turns off.
d. Inducer motor goes to low--speed for 10 seconds, then
turns off.
e. After component test is completed, one or more status
codes (11, 25, or 41) will flash. See component test
section of service label for explanation of status codes.
NOTE: To repeat component test, turn setup switch SW1--6 OFF
then back ON.
f.TurnsetupswitchSW1--6OFF.
315AAV

48
7. RELEASE BLOWER ACCESS DOOR SWITCH, reat-
tach wire to “R” terminal on furnace control board, replace
blower access door, and replace outer access door.
CARE AND MAINTENANCE
FIRE OR EXPLOSION HAZARD
Failure to follow this warning could result in personal
injury, death and/or property damage.
Never store anything on, near, or in contact with the
furnace, such as:
1. Spray or aerosol cans, rags, brooms, dust mops,
vacuum cleaners, or other cleaning tools.
2. Soap powders, bleaches, waxes or other cleaning
compounds, plastic or plastic containers, gasoline,
kerosene, cigarette lighter fluid, dry cleaning fluids,
or other volatile fluids.
3. Paint thinners and other painting compounds, paper
bags, or other paper products. Exposure to these
materials could lead to corrosion of the heat
exchangers.
!WARNING
For continuing high performance and to minimize possible
furnace failure, periodic maintenance must be performed on this
furnace. Consult your local dealer about proper frequency of
maintenance and the availability of a maintenance contract.
ELECTRICAL SHOCK AND FIRE HAZARD
Failure to follow this warning could result in personal injury,
death, and/or property damage.
Turn off the gas and electrical supplies to the furnace and
install lockout tag before performing any maintenance or
service. Follow the operating instructions on the label
attached to the furnace.
!WARNING
CARBON MONOXIDE POISONING AND FIRE
HAZARD
Failure to follow this warning could result in personal
injury, death and/or property damage.
Never operate furnace without a filter or with filter access
door removed.
!WARNING
CUT HAZARD
Failure to follow this caution may result in personal injury.
Sheet metal parts may have sharp edges or burrs. Use care
and wear appropriate protective clothing, safety glasses and
gloves when handling parts, and servicing furnaces.
CAUTION
!
The minimum maintenance on this furnace is as follows:
1. Check and clean air filter each month or more frequently if
required. Replace if torn.
2. Check blower motor and wheel for cleanliness each heat-
ing and cooling season. Clean as necessary.
3. Check electrical connections for tightness and controls for
proper operation each heating season. Service as neces-
sary.
4. Inspect burner compartment before each heating season
for rust, corrosion, soot or excessive dust. If necessary,
have furnace and burner serviced by a qualified service
agency.
5. Inspect the vent pipe/vent system before each heating sea-
son for rust, corrosion, water leakage, sagging pipes or
broken fittings. Have vent pipes/vent system serviced by a
qualified service agency.
6. Inspect any accessories attached to the furnace such as a
humidifier or electronic air cleaner. Perform any service or
maintenance to the accessories as recommended in the ac-
cessory instructions.
Cleaning and/or Replacing Air Filter
The air filter arrangement will vary depending on the application.
NOTE: If the filter has an airflow direction arrow, the arrow
must point towards the blower.
CUT HAZARD
Failure to follow this caution may result in personal injury.
Sheet metal parts may have sharp edges or burrs. Use care
and wear appropriate protective clothing, safety glasses and
gloves when handling parts, and servicing furnaces.
CAUTION
!
Media cabinet filter procedures:
1. Turn off electrical supply to furnace before removing filter
access door.
2. Remove filter cabinet door.
3. Slide filter out of cabinet.
4. If equipped with permanent, washable 3/4--in. (19 mm)
filter, clean filter by spraying cold tap water through filter
in opposite direction of airflow. Rinse filter and let dry.
Oiling or coating of the filter is not recommended. See
Table 15 for size information.
5. If equipped with factory--specified disposable media filter,
replace only with media filter having the same part num-
ber and size. For expandable replacement media, refer to
the instructions included with the replacement media.
6. Slide filter into cabinet.
7. Replace filter cabinet door.
8. Turn on electrical supply to furnace.
Blower Motor and Wheel
ELECTRICAL SHOCK HAZARD
Failure to follow this warning could result in personal
injury or death.
Blower access door switch opens 115--v power to control.
No component operation can occur unless switch is closed.
Caution must be taken when manually closing this switch
for service purposes.
!WARNING
NOTE: The blower wheel should not be dropped or bent as
balance will be affected.
The following steps should be performed by a qualified
service agency.
To ensure long life and high efficiency, clean accumulated dirt
and grease from blower wheel and motor annually.
315AAV

49
Table 16 – Filter Size Information -- In. (mm)
FURNACE CASING WIDTH
FILTER SIZE
FILTER TYPESIDE
RETURN
BOTTOM
RETURN
14---1/2 (368) 16 X 25 X 3/4
(406 X 635 X 19)
14 X 25 X 3/4
(356 X 635 X 19) Washable*
17---1/2 (445) 16 X 25 X 3/4
(406 X 635 X 19)
16 X 25 X 3/4
(406 X 635 X 19) Washable*
21 (533) 16 X 25 X 3/4
(406 X 635 X 19)
20 X 25 X 3/4
(508 X 635 X 19) Washable*
24 (610) 16 X 25 X 3/4
(406 X 635 X 19)
24 X 25 X 3/4
(610 X 635 X 19) Washable*
* Recommended
The inducer and blower motors are pre--lubricated and require no
additional lubrication. These motors can be identified by the
absence of oil ports on each end of the motor.
Clean blower motor and wheel as follows:
1. Turn off electrical supply to furnace.
2. Remove outer door.
3. For downflow or horizontal furnaces having vent pipes
within the furnace that pass in front of the blower access
door:
a. Disconnect vent connector from furnace vent elbow.
b. Disconnect and remove short piece of vent pipe from
within furnace.
4. Remove 2 screws from blower access door and remove
blower access door.
5. All factory wires can be left connected, but field thermo-
stat connections may need to be disconnected depending
on their length and routing.
6. Remove 2 screws holding blower assembly to blower
deck and slide blower assembly out of furnace.
7. Clean blower wheel and motor using a vacuum with soft
brush attachment. Blower wheel blades may be cleaned
with a small paint or flux brush. Do not remove or disturb
balance weights (clips) on blower wheel blades.
8. Vacuum any loose dust from blower housing, wheel and
motor.
9. If a greasy residue is present on blower wheel, remove
wheel from the blower housing and wash it with an appro-
priate degreaser. To remove wheel:
NOTE: Before disassembly, mark blower mounting arms, motor,
and blower housing so motor and each arm is positioned at the
same location during reassembly.
a. Disconnect ground wire attached to blower housing.
b. Remove screws securing cutoff plate and remove
cutoff plate from housing.
c. Loosen set screw holding blower wheel on motor shaft
(160+/--20 in.--lb. when assembling).
d. Remove bolts holding motor to blower housing and
slide motor out of wheel (40+/--10 in.--lb. when reas-
sembling).
e. Remove blower wheel from housing.
f. Clean wheel and housing.
10. Reassemble motor and blower by reversing steps 9a,
through 9e. Be sure to reattach ground wire to the blower
housing.
11. Verify that blower wheel is centered in blower housing
and set screw contacts the flat portion of the motor shaft.
Loosen set screw on blower wheel and reposition if neces-
sary.
12. Spin the blower wheel by hand to verify that the wheel
does not rub on the housing.
13. Reinstall blower assembly in furnace.
14. Reinstall 2 screws securing blower assembly to blower
deck.
15. Reconnect blower leads to furnace control. Refer to fur-
nace wiring diagram, and connect thermostat leads if pre-
viously disconnected.
16. To check blower for proper rotation:
a. Turn on electrical supply.
ELECTRICAL SHOCK HAZARD
Failure to follow this warning could result in personal
injury, or death.
Blower access door switch opens 115--v power to furnace
control. No component operation can occur unless switch is
closed. Exercise caution to avoid electrical shock from
exposed electrical components when manually closing this
switch for service purposes.
!WARNING
b. Manually close blower access door switch.
NOTE: If R--W/W1 thermostat terminals are jumpered at the
time blower access door switch is closed, blower will run for 90
sec before beginning a heating cycle.
c. Perform component self--test as shown at the bottom
of the SERVICE label, located on the front of blower
access door.
d. Verify blower is rotating in the correct direction
17. If furnace is operating properly, RELEASE BLOWER
ACCESS DOOR SWITCH. Remove any jumpers or re-
connect any disconnected thermostat leads. Replace
blower access door.
18. Downflow or horizontal furnaces with vent pipe through
furnace only:
a. Install and connect short piece of vent pipe inside fur-
nace to existing vent.
b. Connect vent connector to vent elbow.
19. Reinstall outer door.
20. Turn on gas supply and cycle furnace through one com-
plete heating and cooling cycle. Verify the furnace temper-
ature rise as shown in Adjustments Section. Adjust tem-
perature rise as shown in Adjustments Section. If outdoor
temperature is below 70_F, turn off circuit breaker to out-
door unit before running furnace in the cooling cycle.
Turn outdoor circuit breaker on after completing cooling
cycle.
Cleaning Heat Exchanger
The following steps should be performed by a qualified
service agency:
NOTE: If the heat exchangers get a heavy accumulation of soot
and carbon, they should be replaced rather than trying to clean
them thoroughly. A build--up of soot and carbon indicates that a
problem exists which needs to be corrected, such as improper
adjustment of manifold pressure, insufficient or poor quality
combustion air, incorrect size or damaged manifold orifice(s),
improper gas, or a restricted heat exchanger. Action must be taken
to correct the problem.
315AAV

50
A05025
Fig. 54 -- Igniter Position -- Side View
1-7/8
(47.6 mm)
A05026
Fig. 55 -- Igniter Position -- Top View
If it becomes necessary to clean the heat exchangers because of
dust or corrosion, proceed as follows:
1. Turn OFF gas and electrical power to furnace.
2. Remove outer access door.
3. Disconnect vent connector from furnace vent elbow.
4. For downflow or horizontal furnace having an internal
vent pipe, remove internal vent pipe within the casing.
5. Disconnect wires to the following components. Mark
wires to aid in reconnection (be careful when disconnect-
ing wires from switches because damage may occur):
a. Draft safeguard switch.
b. Inducer motor.
c. Pressure switches.
d. Limit overtemperature switch.
e. Gas valve.
f. Hot surface igniter.
g. Flame--sensing electrode.
h. Flame rollout switches.
6. Remove screws that fasten the collector box assembly to
the cell panel. Be careful not to damage the collector box.
Inducer assembly and elbow need not be removed from
collector box.
7. Disconnect gas line from gas manifold.
8. Remove the four screws that attach the burner assembly to
the cell panel. The gas valve and individual burners need
not be removed from support assembly. Remove NOx
baffles, if installed.
NOTE: Be very careful when removing burner assembly to
avoid breaking igniter. See Fig. 54--55 for correct igniter location.
9. Using field--provided 25--caliber rifle cleaning brush,
36--in. (914 mm) long, 1/4--in. (6 mm) diameter steel
spring cable, a variable speed, follows:
a. Remove metal screw fitting from wire brush to allow
insertion into cable.
b. Insert the twisted wire end of brush into end of spring
cable, and crimp tight with crimping tool or crimp by
striking with ball--peen hammer. TIGHTNESS IS
VERY IMPORTANT.
NOTE: The materials needed in item 9 can usually be purchased
at local hardware stores.
(1.) Attach variable--speed, reversible drill to the end
of spring cable (end opposite brush).
(2.) Insert brush end of cable into the outlet opening
of cell and slowly rotate with drill. DO NOT
force cable. Gradually insert cable into upper pass
of cell. (See Fig. 57.)
(3.) Work cable in and out of cell 3 or 4 times to ob-
tain sufficient cleaning. DO NOT pull cable with
great force. Reverse drill and gradually work
cable out.
(4.) Insert brush end of cable in burner inlet opening
of cell, and proceed to clean 2 lower passes of
cell in same manner as upper pass.
(5.) Repeat foregoing procedures until each cell in
furnace has been cleaned.
(6.) Using vacuum cleaner, remove residue from each
cell.
(7.) Using vacuum cleaner with soft brush attachment,
clean burner assembly.
(8.) Clean flame sensor with fine steel wool.
(9.) Install NOx baffles (if removed).
A91252
Fig. 56 -- Cleaning Heat Exchanger Cell
(10.) Reinstall burner assembly. Center burners in cell
openings.
10. Remove old sealant from cell panel and collector box
flange.
11. Spray releasing agent on the heat exchanger cell panel
where collector box assembly contacts cell panel.
NOTE: A releasing agent such as cooking spray or equivalent
(must not contain corn or canola oil, aromatic or halogenated
hydrocarbons or inadequate seal may occur) and RTV sealant
(G.E. 162, 6702, or Dow--Corning 738) are needed before
starting installation. DO NOT substitute any other type of RTV
sealant. G.E. 162 (P771--9003) is available through RCD in 3--oz
tubes.
12. Apply new sealant to flange of collector box and attach to
cell panel using existing screws, making sure all screws
are secure.
315AAV

51
13. Reconnect wires to the following components (Use con-
nection diagram on wiring label, if wires were not marked
for reconnection locations.):
a. Draft safeguard switch.
b. Inducer motor.
c. Pressure switches.
d. Limit overtemperature switch.
e. Gas valve.
f. Hot surface igniter.
g. Flame--sensing electrode.
h. Flame rollout switches.
14. Reinstall internal vent pipe, if applicable.
15. Reinstall vent connector on furnace vent elbow. Securely
fasten vent connector to vent elbow with 2 field--supplied,
corrosion--resistant, sheet metal screws located 180_apart.
16. Replace blower access door only if it was removed.
17. Set thermostat above room temperature and check furnace
for proper operation.
18. Verify blower airflow and speed changes between heating
and cooling.
FIRE OR EXPLOSION HAZARD
Failure to follow this warning could result in personal
injury, death, and/or property damage.
Never purge a gas line into a combustion chamber. Never
test for gas leaks with an open flame. Use a commercially
available soap solution made specifically for the detection
of leaks to check all connections.
!WARNING
19. Check for gas leaks.
Sequence of Operation
NOTE: Furnace control must be grounded for proper operation
or else control will lock out. Control is grounded through
green/yellow wire routed to gas valve and burner box screw.
Using the schematic diagram in Fig. 53, follow the sequence of
operation through the different modes. Read and follow the
wiring diagram very carefully.
NOTE: If a power interruption occurs during a call for heat
(W/W1 or W/W1--and--W2), the control will start a 90--second
blower--only ON period two seconds after power is restored, if
the thermostat is still calling for gas heating. The amber LED
light will flash code 12 during the 90--second period, after which
the LED will be ON continuous, as long as no faults are detected.
After the 90--second period, the furnace will respond to the
thermostat normally.
The blower door must be installed for power to be conducted
through the blower door interlock switch ILK to the furnace
control CPU, transformer TRAN, inducer motor IDM, blower
motor BLWM, hot--surface igniter HSI, and gas valve GV.
1. Two--Stage Heating (Adaptive Mode) with Single--Stage
Thermostat
See Fig. 27 -- 34 for thermostat connections
NOTE: The low--heat only switch SW1--2 selects either the
low--heat only operation mode when ON, (see item 2. below) or
the adaptive heating mode when OFF in response to a call for
heat. (See Table 10.) When the W2 thermostat terminal is
energized it will always cause high--heat operation when the
R--to--W circuit is closed, regardless of the setting of the low--heat
only switch. This furnace can operate as a two--stage furnace with
a single--stage thermostat because the furnace control CPU
includes a programmed adaptive sequence of controlled
operation, which selects low--heat or high--heat operation. This
selection is based upon the stored history of the length of
previous gas--heating periods of the single--stage thermostat.
315AAV

52
AIR CONDITIONING AIRFLOW 070 MODEL 090 MODEL 110, 135,
TONS (12,000 BTU/HR) (CFM) & 155 MODELS
1-1/2 525 X X
2 700 X X X
2-1/2 875 X X X
3 1050 X X X
3-1/2 1225 X X X
4 1400 X X
5 1750 X
6 2100 X
X-INDICATES AN ALLOWABLE SELECTION.
AIR CONDITIONING (A/C) OR CONTINUOUS-FAN (CF) AIRFLOW SELECTION CHART
BASED ON 350 CFM/TON
SW1-5 OFF
MODEL
SIZE
070 DEF 525
2
700 875 1050
1
1225 1225 1225
090 DEF 525 700
2
875 1050 1225 1400
1
1400
110,135,155 DEF 700 875
2
1050 1225 1400 1750
1
2100
2
1
2
1
1
2
SWITCH SW3 POSITIONS
1.DEFAULT A/C AIRFLOW WHEN A/C SWITCHES ARE IN OFF POSITION (FACTORY SETTING)
2.DEFAULT CONT. FAN AIRFLOW WHEN CF SWITCHES ARE IN OFF POSITION (FACTORY SETTING)
3. SWITCH POSITIONS ARE ALSO SHOWN ON FURNACE WIRING DIAGRAM
BASED ON 400 CFM/TON
SW1-5 ON
MODEL
SIZE
070 DEF 600
2
800 1000 1200
1
1400 1400 1400
090 DEF 600 800
2
1000 1200 1400 1600
1
1600
110,135,155 DEF 800 1000
2
1200 1400 1600 2000
1
2200
SWITCH SW3 POSITIONS
OFF
321
OFF
321
OFF
321
OFF
321
OFF
321
OFF
321
OFF
321
OFF
321
OFF
321
OFF
321
OFF
321
OFF
321
OFF
321
OFF
321
OFF
321
OFF
321
COOLING TONNAGE VS. AIRFLOW (CFM)
A08470
Fig. 57 -- Cooling (A/C) or Continuous--Fan (CF) Airflow Selection Chart
The furnace will start up in either low-- or high--heat. If the
furnace starts up in low--heat, the control CPU determines the
low--heat on--time (from 0 to 16 minutes) which is permitted
before switching to high--heat.
If the power is interrupted, the stored history is erased and the
control CPU will select low--heat for up to 16 minutes and then
switch to high--heat, as long as the thermostat continues to call for
heat. Subsequent selection is based on stored history of the
thermostat cycle times.
The wall thermostat “calls for heat”, closing the R--to--W circuit.
The furnace control performs a self--check, verifies the low--heat
and high--heat pressure switch contacts LPS and HPS are open,
and starts the inducer motor IDM in high--speed.
a. Inducer Prepurge Period
(1.) If the furnace control CPU selects low--heat oper-
ation the inducer motor IDM comes up to speed,
the low--heat pressure switch LPS closes, and the
furnace control CPU begins a 15--second prepur-
ge period. If the low--heat pressure switch LPS
fails to remain closed the inducer motor IDM will
remain running at high--speed. After the low--heat
pressure switch re--closes the furnace control CPU
will begin a 15--second prepurge period, and con-
tinue to run the inducer motor IDM at high--
speed.
(2.) If the furnace control CPU selects high--heat op-
eration, the inducer motor IDM remains running
at high--speed, and the high--heat pressure switch
relay HPSR is de--energized to close the NC con-
tact. When sufficient pressure is available the
high--heat pressure switch HPS closes, and the
high--heat gas valve solenoid GV--HI is ener-
gized. The furnace control CPU begins a
15--second prepurge period after the low--heat
pressure switch LPS closes. If the high--heat pres-
sure switch HPS fails to close and the low--heat
pressure switch LPS closes, the furnace will oper-
ate at low--heat gas flow rate until the high--heat
pressure switch closes for a maximum of 2 min-
utes after ignition.
b. Igniter Warm--Up --At the end of the prepurge period,
the Hot--Surface Igniter HSI is energized for a
17--second igniter warm--up period.
c. Trial--For--Ignition Sequence --When the igniter
warm--up period is completed the main gas valve relay
contact GVR closes to energize the gas valve solenoid
GV--M. The gas valve solenoid GV--M permits gas
flow to the burners where it is ignited by the HSI. Five
315AAV

53
seconds after the GVR closes, a 2--second flame prov-
ing period begins. The HSI igniter will remain ener-
gized until the flame is sensed or until the 2--second
flame proving period begins. If the furnace control
CPU selects high--heat operation, the high--heat gas
valve solenoid GV--HI is also energized.
d. Flame--Proving -- When the burner flame is proved at
the flame--proving sensor electrode FSE, the inducer
motor IDM switches to low--speed unless the furnace
is operating in high--heat, and the furnace control CPU
begins the blower--ON delay period and continues to
hold the gas valve GV--M open. If the burner flame is
not proved within two seconds, the control CPU will
close the gas valve GV--M, and the control CPU will
repeat the ignition sequence for up to three more Tri-
als--For--Ignition before going to Ignition--Lockout.
Lockout will be reset automatically after three hours,
or by momentarily interrupting 115 vac power to the
furnace, or by interrupting 24 vac power at SEC1 or
SEC2 to the furnace control CPU (not at W/W1, G, R,
etc.). If flame is proved when flame should not be
present, the furnace control CPU will lock out of Gas--
Heating mode and operate the inducer motor IDM on
high speed until flame is no longer proved.
e. Blower--On delay -- If the burner flame is proven the
blower--ON delays for low--heat and high--heat are as
follows:
Low--heat -- 45 seconds after the gas valve GV--M is
opened the blower motor BLWM is turned ON at
low--heat airflow.
High--heat -- 25 seconds after the gas valve GV--M is
opened the BLWM is turned ON at high--heat airflow.
Simultaneously, the humidifier terminal HUM and
electronic air cleaner terminal EAC--1 are energized
and remain energized throughout the heating cycle.
f. Switching from Low-- to High--Heat -- If the furnace
control CPU switches from low--heat to high--heat, the
furnace control CPU will switch the inducer motor
IDM speed from low to high. The high--heat pressure
switch relay HPSR is de--energized to close the NC
contact. When sufficient pressure is available the high--
heat pressure switch HPS closes, and the high--heat gas
valve solenoid GV--HI is energized. The blower motor
BLWM will transition to high--heat airflow five
seconds after the furnace control CPU switches from
low--heat to high--heat.
g. Switching from High-- to Low--Heat --The furnace
control CPU will not switch from high--heat to low--
heat while the thermostat R--to--W circuit is closed
when using a single--stage thermostat.
h. Blower--Off Delay --When the thermostat is satisfied,
the R to W circuit is opened, de--energizing the gas
valve GV--M, stopping gas flow to the burners, and
de--energizing the humidifier terminal HUM. The in-
ducer motor IDM will remain energized for a
5--second post--purge period. The blower motor
BLWM and air cleaner terminal EAC--1 will remain
energized at low--heat airflow or transition to low--heat
airflow for 90, 120, 150, or 180 seconds (depending
on selection at blower--OFF delay switches). The fur-
nace control CPU is factory--set for a 120--second
blower--OFF delay.
2. Two--Stage Thermostat and Two--Stage Heating
See Fig. 27--34 for thermostat connections.
NOTE: In this mode the low--heat only switch SW1--2 must be
ON to select the low--heat only operation mode in response to
closing the thermostat R--to--W1 circuit. Closing the thermostat
R--to-- W1--and--W2 circuits always causes high--heat operation,
regardless of the setting of the low--heat only switch.
The wall thermostat “calls for heat”, closing the R--to--W1 circuit
for low--heat or closing the R--to--W1--and--W2 circuits for
high--heat. The furnace control performs a self--check, verifies the
low--heat and high--heat pressure switch contacts LPS and HPS
are open, and starts the inducer motor IDM in high--speed.
The start up and shut down functions and delays described in
item 1. above apply to the 2--stage heating mode as well, except
for switching from low-- to high--Heat and vice versa.
a. Switching from Low-- to High--Heat -- If the thermo-
stat R--to--W1 circuit is closed and the R--to--W2 cir-
cuit closes, the furnace control CPU will switch the
inducer motor IDM speed from low to high. The
high--heat pressure switch relay HPSR is de--energized
to close the NC contact. When sufficient pressure is
available the high--heat pressure switch HPS closes,
and the high--heat gas valve solenoid GV--HI is ener-
gized. The blower motor BLWM will transition to
high--heat airflow five seconds after the R--to--W2 cir-
cuit closes.
b. Switching from High-- to Low--Heat --If the thermo-
stat R--to-- W2 circuit opens, and the R--to--W1 circuit
remains closed, the furnace control CPU will switch
the inducer motor IDM speed from high to low. The
high--heat pressure switch relay HPSR is energized to
open the NC contact and de--energize the high--heat
gas valve solenoid GV--HI. When the inducer motor
IDM reduces pressure sufficiently, the high--heat pres-
sure switch HPS will open. The gas valve solenoid
GV--M will remain energized as long as the low--heat
pressure switch LPS remains closed. The blower motor
BLWM will transition to low--heat airflow five
seconds after the R--to--W2 circuit opens.
3. Cooling mode
The thermostat “calls for cooling”.
a. Single--Speed Cooling--
See Fig. 27 for thermostat connections
The thermostat closes the R--to--G--and--Y circuits. The
R--to-- Y circuit starts the outdoor unit, and the R--to--
G--and--Y/Y2 circuits start the furnace blower motor
BLWM on cooling airflow. Cooling airflow is based
on the A/C selection shown in Fig. 57. The electronic
air cleaner terminal EAC--1 is energized with 115 vac
when the blower motor BLWM is operating.
When the thermostat is satisfied, the R--to--G--and--Y
circuits are opened. The outdoor unit will stop, and the
furnace blower motor BLWM will continue operating
at cooling airflow for an additional 90 seconds. Jump-
er Y/Y2 to DHUM to reduce the cooling off--delay to
5 seconds. (See Fig. 26.)
b. Single--Stage Thermostat and Two--Speed Cooling
(Adaptive Mode) --
See Fig. 34 for thermostat connections.
This furnace can operate a two--speed cooling unit
with a single--stage thermostat because the furnace
control CPU includes a programmed adaptive se-
quence of controlled operation, which selects low--
cooling or high--cooling operation. This selection is
based upon the stored history of the length of previous
cooling period of the single--stage thermostat.
NOTE: The air conditioning relay disable jumper ACRDJ must
be connected to enable the adaptive cooling mode in response to
a call for cooling. (See Fig. 26.) When ACRDJ is in place the
furnace control CPU can turn on the air conditioning relay ACR
to energize the Y/Y2 terminal and switch the outdoor unit to
high--cooling.
315AAV

54
The furnace control CPU can start up the cooling unit in either
low-- or high--cooling. If starting up in low--cooling, the furnace
control CPU determines the low--cooling on--time (from 0 to 20
minutes) which is permitted before switching to high--cooling. If
the power is interrupted, the stored history is erased and the
furnace control CPU will select low--cooling for up to 20 minutes
and then energize the air conditioning relay ACR to energize the
Y/Y2 terminal and switch the outdoor unit to high--cooling, as
long as the thermostat continues to call for cooling. Subsequent
selection is based on stored history of the thermostat cycle times.
The wall thermostat “calls for cooling”, closing the
R--to--G--and--Y circuits. The R--to--Y1 circuit starts the outdoor
unit on low--cooling speed, and the R--to--G--and--Y1 circuits
starts the furnace blower motor BLWM at low--cooling airflow
which is the true on--board CF selection as shown in Fig. 57.
If the furnace control CPU switches from low--cooling to
high--cooling, the furnace control CPU will energize the air
conditioning relay ACR. When the air conditioning relay ACR is
energized the R--to--Y1--and--Y2 circuits switch the outdoor unit
to high--cooling speed, and the R--to--G--and--Y1--and--Y/Y2
circuits transition the furnace blower motor BLWM to
high--cooling airflow. High--cooling airflow is based on the A/C
selectionshowninFig.57.
NOTE: When transitioning from low--cooling to high--cooling
the outdoor unit compressor will shut down for 1 minute while
the furnace blower motor BLWM transitions to run at
high--cooling airflow.
The electronic air cleaner terminal EAC--1 is energized with 115
vac whenever the blower motor BLWM is operating.
When the thermostat is satisfied, the R--to--G--and--Y circuit are
opened. The outdoor unit stops, and the furnace blower BLWM
and electronic air cleaner terminal EAC--1 will remain energized
for an additional 90 seconds. Jumper Y1 to DHUM to reduce the
cooling off--delay to 5 seconds. (See Fig. 26.)
c. Two--Stage Thermostat and Two--Speed Cooling
See Fig. 33 for thermostat connections
NOTE: The air conditioning relay disable jumper ACRDJ must
be disconnected to allow thermostat control of the outdoor unit
staging. (See Fig. 26.)
The thermostat closes the R--to--G--and--Y1 circuits for
low--cooling or closes the R--to--G--and--Y1--and--Y2 circuits for
high--cooling. The R--to--Y1 circuit starts the outdoor unit on
low--cooling speed, and the R--to--G--and--Y1 circuit starts the
furnace blower motor BLWM at low--cooling airflow which is the
true on--board CF (continuous fan) selection as shown in Fig. 55.
The R--to--Y1--and--Y2 circuits start the outdoor unit on
high--cooling speed, and the R--to-- G--and--Y/Y2 circuits start the
furnace blower motor BLWM at high--cooling airflow.
High--cooling airflow is based on the A/C (air conditioning)
selectionshowninFig.57.
The electronic air cleaner terminal EAC--1 is energized with 115
vac whenever the blower motor BLWM is operating.
When the thermostat is satisfied, the R--to--G--and--Y1 or R--to--
G--and--Y1--and--Y2 circuits are opened. The outdoor unit stops,
and the furnace blower BLWM and electronic air cleaner terminal
EAC--1 will remain energized for an additional 90 seconds.
Jumper Y1 to DHUM to reduce the cooling off--delay to 5
seconds. (See Fig. 26.)
4. Thermidistat Mode
See Fig. 27--29 for thermostat connections.
The dehumidification output, DHUM on the Thermidistat
should be connected to the furnace control thermostat ter-
minal DHUM. When there is a dehumidify demand, the
DHUM input is activated, which means 24 vac signal is
removed from the DHUM input terminal. In other words,
the DHUM input logic is reversed. The DHUM input is
turned ON when no dehumidify demand exists. Once 24
vac is detected by the furnace control on the DHUM input,
the furnace control operates in Thermidistat mode. If the
DHUM input is low for more than 48 hours, the furnace
control reverts back to non--Thermidistat mode.
The cooling operation described in item 3. above also ap-
plies to operation with a Thermidistat. The exceptions are
listed below:
a. Low cooling-- W h e n t h e R -- t o -- G -- a n d -- Y 1 c i r c u i t i s
closed and there is a demand for dehumidification, the
furnace blower motor BLWM will drop the blower
airflow to 86 percent of low--cooling airflow which is
the true on--board CF (continuous fan) selection as
shown in Fig. 55.
b. High cooling-- W h e n t h e R -- t o -- G -- a n d Y / Y 2 c i r c u i t i s
closed and there is a demand for dehumidification, the
furnace blower motor BLWM will drop the blower
airflow to 86 percent of high--cooling airflow. High--
cooling airflow is based on the A/C (air conditioning)
selectionshowninFig.55.
c. Cooling off--delay--When the “call for cooling” is
satisfied and there is a demand for dehumidification,
the cooling blower--off delay is decreased from 90
seconds to 5 seconds.
5. Super--Dehumidify Mode
Super--Dehumidify mode can only be entered if the fur-
nace control is in the Thermidistat mode and there is a de-
mand for dehumidification. The cooling operation de-
scribed in item 3. above also applies to operation with a
Thermidistat. The exceptions are listed below:
a. When the R--to--Y1 circuit is closed, R--to--G circuit is
open, and there is a demand for dehumidification, the
furnace blower motor BLWM will drop the blower
airflow to 65 percent of low--cooling airflow for a
maximum of 10 minutes each cooling cycle or until
the R--to--G circuit closes or the demand for dehumidi-
fication is satisfied. Low--cooling airflow is the true
on--board CF (continuous fan) selection as shown in
Fig. 57.
b. When the R--to--Y/Y2 circuit is closed, R--to--G circuit
is open, and there is a demand for dehumidification,
the furnace blower motor BLWM will drop the blower
airflow to 65 percent of high--cooling airflow for a
maximum of 10 minutes each cooling cycle or until
the R--to--G circuit closes or the demand for dehumidi-
fication is satisfied. High--cooling airflow is based on
the A/C (air conditioning) selection shown in Fig. 57.
c. When the “call for cooling” is satisfied and there is a
demand for dehumidification, the cooling blower--off
delay is decreased from 90 seconds to 5 seconds.
6. Continuous Blower Mode
When the R--to--G circuit is closed by the thermostat, the
blower motor BLWM will operate at continuous blower
airflow. Continuous blower airflow selection is initially
based on the CF (continuous fan) selection shown in Fig.
57. Factory default is shown in Fig. 57. Terminal EAC--1
is energized as long as the blower motor BLWM is ener-
gized.
During a call for heat, the furnace control CPU will trans-
ition the blower motor BLWM to continuous blower air-
flow, low--heat airflow, or the mid--range airflow,
whichever is lowest. The blower motor BLWM will re-
main ON until the main burners ignite then shut OFF and
remain OFF for the blower--ON delay (45 seconds in low--
heat, and 25 seconds in high--heat), allowing the furnace
heat exchangers to heat up more quickly, then restarts at
the end of the blower--ON delay period at low--heat or
high--heat airflow, respectively.
The blower motor BLWM will revert to continuous--
315AAV

55
blower airflow after the heating cycle is completed. In
high--heat, the furnace control CPU will drop the blower
motor BLWM to low--heat airflow during the selected
blower--OFF delay period before transitioning to continu-
ous--blower airflow.
When the thermostat “calls for low--cooling”, the blower
motor BLWM will switch to operate at low--cooling air-
flow. When the thermostat is satisfied, the blower motor
BLWM will operate an additional 90 seconds at low--cool-
ing airflow before transitioning back to continuous--
blower airflow.
When the thermostat “calls for high--cooling”, the blower
motor BLWM will operate at high cooling airflow. When
the thermostat is satisfied, the blower motor BLWM will
operate an additional 90 seconds at high--cooling airflow
before transitioning back to continuous--blower airflow.
When the R--to--G circuit is opened, the blower motor
BLWM will continue operating for an additional 5
seconds, if no other function requires blower motor
BLWM operation.
Continuous Blower Speed Selection from Thermostat
To select different continuous--blower airflow from the
room thermostat, momentarily turn off the FAN switch or
push button on the room thermostat for 1--3 seconds after
the blower motor BLWM is operating. The furnace control
CPU will shift the continuous--blower airflow from the
factory setting to the next highest CF selection airflow as
shown in Fig. 57. Momentarily turning off the FAN switch
again at the thermostat will shift the continuous--blower
airflow up one more increment. If you repeat this proced-
ure enough you will eventually shift the continuous--
blower airflow to the lowest CF selection as shown in Fig.
57. The selection can be changed as many times as desired
and is stored in the memory to be automatically used fol-
lowing a power interruption.
NOTE: If the blower--off delay is set to the maximum, the
adjustable continuous--fan feature is locked (i.e., fan speed cannot
be changed from its current setting).
7. Heat pump
See Fig. 29 -- 32 for thermostat connections.
When installed with a heat pump, the furnace control auto-
matically changes the timing sequence to avoid long
blower off times during demand defrost cycles. Whenever
W/W1 is energized along with Y1 or Y/Y2, the furnace
control CPU will transition to or bring on the blower mo-
tor BLWM at cooling airflow, low--heat airflow, or the
mid--range airflow, whichever is lowest. The blower motor
BLWM will remain on until the main burners ignite then
shut OFF and remain OFF for 25 seconds before coming
back on at heating airflow. When the W/W1 input signal
disappears, the furnace control begins a normal inducer
post--purge period while changing the blower airflow. If
Y/Y2 input is still energized the furnace control CPU will
transition the blower motor BLWM airflow to cooling air-
flow. If Y/Y2 input signal disappears and the Y1 input is
still energized the furnace control CPU will transition the
blower motor BLWM to low--cooling airflow. If both the
Y1 and Y/Y2 signals disappear at the same time, the
blower motor BLWM will remain on at low--heat airflow
for the selected blower--OFF delay period. At the end of
the blower-- OFF delay, the blower motor BLWM will
shut OFF unless G is still energized, in which case the
blower motor BLWM will operate at continuous blower
airflow.
8. Component test
The furnace features a component test system to help dia-
gnose a system problem in the case of a component fail-
ure. To initiate the component test procedure, ensure that
there are no thermostat inputs to the control and all time
delays have expired. Turn on setup switch SW1--6. (See
Fig. 26.)
NOTE: The component test feature will not operate if the control
is receiving any thermostat signals or until all time delays have
expired.
The component test sequence is as follows:
a. The furnace control CPU turns the inducer motor ON
at high--heat speed and keeps it ON through step c.
b. After waiting 10 seconds the furnace control CPU
turns the hot surface igniter ON for 15 seconds, then
OFF.
c. The furnace control CPU then turns the blower motor
BLWM on at mid--range airflow for 15 seconds, then
OFF.
d. After shutting the blower motor OFF the furnace con-
trol CPU switches the inducer to low--heat speed for
10 seconds, then OFF.
NOTE: The EAC terminals are energized when the blower is
operating.
After the component test is completed, 1 or more status codes (11,
25, or 41) will flash. See component test section or Service Label
(Fig. 52) for explanation of status codes.
NOTE: To repeat component test, turn setup switch SW1--6 to
OFF and then back ON.
Wiring Diagram
Refer to wiring diagram Fig. 53.
Troubleshooting
Refer to the service label. (See Fig. 52—Service Label.)
The Troubleshooting Guide (See Fig. 58.) can be a useful tool in
isolating furnace operation problems. Beginning with the word
“Start,” answer each question and follow the appropriate arrow to
the next item.
The Guide will help to identify the problem or failed component.
After replacing any component, verify correct operation
sequence.
A more detailed Troubleshooting Guide is available from your
distributor.
315AAV

56
Is AMBER LED status light blinking ON/OFF
slowly with a combination of short and
long flashes?
Is AMBER LED status light blinking
rapidly without a pause?
Is AMBER LED status light on?
Determine status code. The status code is
a 2 digit number with the first digit determined
by the number of short flashes and the
second digit by the number of long flashes?
Go to section below for the status code
that was flashed.
YES
NO
YES
To recall previous status codes disconnect
the R thermostat connection, reset power,
and put setup switch SW1-1 in the ON
position. The AMBER LED will flash the
status codes in the order of occurrence.
Record status codes until status code #11
flashes (1 short and 1 long flash). After status
code #11 flashes the status codes will repeat.
Status codes are erased after 72 hours or
can be manually erased by putting setup
switch SW1-1 in the ON position and
jumpering R, W/W1, and Y/Y2 simultaneously
until status code #11 is flashed. When done
put setup switch SW1-1 in the OFF position.
Check for correct line voltage polarity.
If units are twinned, check for proper
low-voltage (24V) transformer phasing.
Was there a previous status code other
than #11?
Is door switch closed?
Is there 115V going to switch?
Replace door switch.
Replace transformer.
Does the control respond to W/W1, W2, Y1,
Y/Y2, and G (24V) thermostat signals?
Replace furnace control.
NO NO
NO
NO
Is 24V present at W/W1, W2, Y1, Y/Y2 or G
thermostat terminals on the furnace control?
NO
YES
YES
Replace furnace control.
Is there 24V at SEC-1 and SEC-2?
Is there 115V at L1 and L2?
YES
NO
YES
YES
NO
YES
NO
YES
Run system through a low-heat, high-heat,
or cooling cycle to check operation. Status
codes are erased after 72 hours or can be
manually erased by putting setup switch
SW1-1 in the ON position and jumpering R,
W/W1, and Y/Y2 simultaneously until status
code #11 is flashed.
YES
NO
Close circuit breaker and go back to START.
Check for continuity in wire from circuit
breaker to furnace.
Is circuit breaker closed?
Is door switch closed?
Check room thermostat or
interconnecting cable.
NO
YES
YES
NO
The thermostat is not compatible with the
furnace control. Either install a ballast resistor,
connect the Com24V thermostat terminal to
the thermostat, or replace the thermostat.
Does the problem repeat when using
a jumper wire?
Disconnect all the thermostat wires from the
furnace control.
START
A02108A
Fig. 58 -- Troubleshooting Guide
315AAV

57
11 NO PREVIOUS CODE – Status codes
are erased after 72 hours or can be
manually erased by putting setup switch
SW1-1 in the ON position and jumpering
R, W/W1, and Y/Y2 simultaneously until
status code #11 is flashed. Run system
through a low-heat, high-heat, or cooling
cycle to check system.
12 BLOWER ON AFTER POWER UP –
(115V OR 24V) – Normal operation.
Blower runs for 90 seconds, if unit is
powered up during a call for heat (R-
W/W1 closed) or when (R-W/W1 opens)
during the blower on-delay period.
13 LIMIT CIRCUIT LOCKOUT – Lockout
occurs if the limit, draft safeguard, flame
rollout, or blocked vent switch* (if used)
is open longer than 3 minutes or 10
successive limit trips occurred during
high-heat. Control will auto-reset after 3
hours. See code 33.
14 IGNITION LOCKOUT – System failed to
ignite gas and prove flame in 4 attempts.
Control will auto-reset after 3 hours.
See status code 34.
15 BLOWER MOTOR LOCKOUT – Indicates
the blower failed to reach 250 RPM or
the blower failed to communicate within
30 seconds after being turned ON in two
successive heating cycles. Control will
auto-reset after 3 hours. See code 41.
21 GAS HEATING LOCKOUT – Turn off
power and wait 5 minutes to retry.
Check for:
- Stuck closed gas valve relay on control.
- Miswire or short to gas valve wire.
22 ABNORMAL FLAME-PROVING SIGNAL
Flame is proved while gas valve is de-
energized. Inducer will run until fault is
cleared. Check for:
- Stuck open or leaky gas valve.
23 PRESSURE SWITCH DID NOT OPEN
Check for:
- Obstructed pressure tube.
- Pressure switch stuck closed.
24 SECONDARY VOLTAGE FUSE IS OPEN
Check for:
- Short circuit in secondary voltage
(24V) wiring including thermostat
leads. Disconnect thermostat leads
to isolate short circuit.
32 LOW-HEAT PRESSURE SWITCH DID
NOT CLOSE OR REOPENED – If open
longer than 5 minutes, inducer shuts off
for 15 minutes before retry. If opens
during blower on-delay period, blower will
come on for the selected blower off-delay.
Check for:
- Proper vent sizing.
- Low inducer voltage (115V).
- Low inlet gas pressure (if LGPS used).
- Inadequate combustion air supply.
- Disconnected or obstructed pressure
tubing.
- Defective inducer motor.
- Defective pressure switch.
- Excessive wind.
- Restricted vent.
33 LIMIT CIRCUIT FAULT – Indicates the
limit, draft safeguard, flame rollout, or
blocked vent switch* (if used) is open or
the furnace is operating in high-heat only
mode due to 2 successive low-heat limit
trips. Blower will run for 4 min. or until
open switch remakes whichever is longer.
If open longer than 3 min., code changes
to lockout #13. If open less than 3 min.
status code #33 continues to flash until
blower shuts off. Flame rollout switch and
BVSS requires manual reset. Check for:
-Dir
ty filter or restricted duct system.
- Loose blower wheel.
- Defective switch or connections.
- Inadequate combustion air supply
(flame rollout switch open).
- Restricted vent.
- Proper vent sizing.
- Excessive wind.
34 IGNITION PROVING FAILURE – If flame
is not sensed during the trial for ignition
period, the control will repeat the ignition
sequence 3 more times before lockout
#14 occurs. If flame signal is lost during
the blower on-delay period, blower will
come on for the selected blower off-delay.
Check the following items first before
proceeding to the next step.
- Gas valve turned off.
- Manual shut-off valve.
- Green/Yellow wire MUST be connected
to furnace sheet metal.
- Flame sensor must not be grounded.
To determine whether the problem is in
the gas valve, igniter, or flame sensor the
system can be operated in component
test mode. To check the igniter remove
the R thermostat connection from the
control, reset power, and put setup switch
SW1-6 in the ON position to start the
component test. Does the igniter glow
orange/white by the end of the 15 second
warm-up period?
43 LOW-HEAT PRESSURE SWITCH OPEN
WHILE HIGH-HEAT PRESSURE
SWITCH IS CLOSED - Check for:
- Low-heat pressure switch stuck open.
- Disconnected or obstructed pressure
tube.
- Miswired pressure switches.
-L
ow inlet gas pressure (if LGPS used).
Unplug igniter harness from control and
repeat component test by turning setup switch
SW1-6 OFF and then back ON. Check for
115V between pin 3 and NEUTRAL-L2 on
the control. Was 115V present for the 15
second period?
Reconnect the R thermostat lead and set
thermostat to call for heat. Connect voltmeter
across gas valve connections. Does gas
valve receive 24V?
Does gas valve open and allow gas to flow?
Do the main burners ignite?
Do the main burners stay on?
Repeat call for heat and check flame sensor
current during trial for ignition period. Is the
DC microamps below 0.5?
Clean flame sensor with fine steel wool and
recheck current. Nominal current is 4.0 to
6.0 microamps.
Is current near typical value?
Will main burners ignite and stay on?
Fixed.
45 CONTROL CIRCUITRY LOCKOUT
Auto-reset after 1 hour lockout due to:
- Flame circuit failure.
- Gas valve relay stuck open.
- Software check error.
Reset power to clear lockout.
Replace control if code repeats.
Replace furnace control.
Check for continuity in the harness and
igniter. Replace defective component.
YES
NO
YES
YES
YES
NO
YES
Check connections. If OK, replace control.
Check that all gas valves are turned on.
Replace valve.
Check for:
- Inadequate flame carryover or rough
ignition.
-L
ow inlet gas pressure.
-P
roper firing rate.
-B
locked or incorrect carry- over gap.
(.045” nominal)
Allow blower to come on and repeat test
to check for intermittent operation.
Check connections and retry. If current is
near typical value (4.0-6.0 nominal) and
burners will not stay on, repeat check in high-
heat. If burners will still not stay on replace
control. If burners operate in high-heat then
switch to low-heat,check manifold pressure.
If OK, check burner carryover and flame
sensor location.
Replace electrode.
Replace furnace control.
NO
NO
NO
YES
NO
NO
NO
NO
YES
* Blocked vent switch used in Chimney Adapter Kit
YES
YES
A02108B
315AAV

58
25 INVALID MODEL SELECTION OR
SETUP ERROR – If status code 25 only
flashes 4 times on power-up the control
is missing its model plug PL4 and is
defaulting to the model selection stored
in memory. If status code 25 flashes
continuously it could indicate any of the
following:
- Model plug PL4 is missing and there
is no valid model stored in permanent
memory. This will happen if you forget
to install the model plug PL4 on a
service replacement control.
-T
hermostat call with SW1-1 ON.
-T
hermostat call with SW1-6 ON.
- SW1-1 and SW1-6 both ON.
31 HIGH-HEAT PRESSURE SWITCH OR
RELAY DID NOT CLOSE OR
REOPENED - Check for:
- Control relay may be defective.
-Gas valve is miswired.
- See status code 32.
41 BLOWER MOTOR FAULT – Indicates the
blower failed to reach 250 RPM or the
blower failed to communicate within the
prescribed time limits. Thirty seconds
after being turned ON or ten seconds
during steady-state operation. Tur n p o we r
off and check the following items first
before proceeding to the next step.
-Rubbing blower wheel.
- Loose blower wheel.
-Wiring from furnace control to blower
motor.
Remove the R thermostat connection
from the furnace control, disconnect both
connectors from the blower motor PL13
and PL14. Does the blower wheel turn
freely?
Replace the blower control module attached
to the blower motor. Follow the instructions
with the blower control module to make sure
the entire blower motor does not need to be
replaced.
Y
ou have an open wire or bad terminal on the
BLUE wire between the furnace control and
the blower motor.
Replace the furnace control.
Connect a DC voltmeter across PL3-4 BLUE
(+) and PL3-2 GREEN (-). Does the voltage
fluctuate as described two steps back?
Does the voltage fluctuate as described in the
previous step?
Replace the blower control module attached
to the blower motor. Follow the instructions
with the blower control module to make sure
the entire blower motor does not need to be
replaced.
Tu r n power back on. Is there 115VAC at
PL14-5 and PL14-4?
Is there 12-VDC at PL13-7 RED (+) and PL13-
1 GREEN (-)?
Is there 12-VDC at PL3-1 RED (+) and PL3-
2 GREEN (-)?
Replace the furnace control.
Is there 5-VDC at PL13-16 YELLOW (+) and
PL13-1 GREEN (-)?
The voltage just measured should be very
stable and should not fluctuate more than
.02-VDC. If the voltage fluctuates more than
this get a different voltmeter before
proceeding.
Turn power off, reconnect PL13 and PL14 to
the blower motor, then turn power back on.
Connect a DC voltmeter across PL3-3
YELLOW (+) and PL3-2 GREEN (-). Does
the voltage fluctuate more than it did in the
previous step?
Turn power off, disconnect PL13 and PL14
from the blower motor, then turn power back
on. Connect a DC voltmeter across PL13-
16 BLUE (+) and PL13-1 GREEN (-). The
voltage should be near 0-VDC but it will
fluctuate briefly several times a second. If
you have an analog voltmeter the needle will
briefly go high several times a second. If you
have a digital voltmeter with a bar graph it
will show a large change in magnitude on
the bar graph several times a second. If you
have a standard digital voltmeter it will show
a brief fluctuation in voltage and the
magnitude may vary depending on the
voltmeter used.
You have an open wire or bad terminal on
either the BLACK or WHITE power leads
between the furnace control and the blower
motor. If you have a power choke disconnect
it and check continuity.
You have an open wire or bad terminal on
either the RED or GREEN wire between the
furnace control and the blower motor.
Is there 5-VDC at PL3-3 YELLOW (+) and
PL3-2 GREEN (-)?
You have an open wire or bad terminal on the
YELLOW wire between the furnace control
and the blower motor.
YES
NO
NO
NO
YES
YES
YES
YES
YES
YES
NO
NO
NO
NO
NO
YES
YES
NO
A02108C
315AAV

59
Table 17 – Accessory List
DESCRIPTION PART NUMBER NOTES
Media Filter Cabinet
FILCABXX0016 Filter cabinet 16” (406 mm) for 4” (102 mm) wide filter
FILCABXX0020 Filter cabinet 20” (508 mm) for 4” (102 mm) wide filter
FILCABXX0024 Filter cabinet 24” (610 mm) for 4” (102 mm) wide filter
Cartridge Media Filter
FILXXCAR0016 Filter Cartridge replacements for FILCAB media cabinet
FILXXCAR0020 Filter Cartridge replacements for FILCAB media cabinet
FILXXCAR0024 Filter Cartridge replacements for FILCAB media cabinet
EZ Flex Media Filter with End Caps
EXPXXUNV0016 16” (406 mm) Replacement Expandable Filter assembly
EXPXXUNV0020 20” (508 mm) Replacement Expandable Filter assembly
EXPXXUNV0024 24” (610 mm) Replacement Expandable Filter assembly
Replacement EZ Flex Filter Media
EXPXXFIL0016 16” (406 mm) Replacement filter for EXPUNV assembly
EXPXXFIL0020 20” (508 mm) Replacement filter for EXPUNV assembly
EXPXXFIL0024 24” (610 mm) Replacement filter for EXPUNV assembly
External Bottom Return Filter Rack
KGAFR0401B14 Bottom return filter rack 14” (356 mm) casing
KGAFR0501B17 Bottom return filter rack 17” (432 mm) casing
KGAFR0601B21 Bottom return filter rack 21” (533 mm) casing
KGAFR0701B24 Bottom return filter rack 24” (610 mm) casing
External Side Return Filter Rack KGAFR0801SRE E x t . S i d e f i l t e r r a c k --- a l l c a s i n g s --- i n c l u d e s f i l t e r
Unframed Filter 3/4--- in. (19 mm)
KGAWF1301UFR† (1) unframed filter 16x25x3/4 (406x635x19 mm)
KGAWF1401UFR (1) unframed filter 20x25x3/4 (508x635x19 mm)
KGAWF1501UFR (1) unframed filter 24x25x3/4 (610x635x19 mm)
KGAWF1306UFR† (6) unframed filter 16x25x3/4 (406x635x19 mm)
KGAWF1406UFR (6) unframed filter 20x25x3/4 (508x635x19 mm)
KGAWF1506UFR (6) unframed filter 24x25x3/4 (610x635x19 mm)
Flue Extension KGAFE0112UPH (12) vent extension 4” (102 mm) dia. x 3--- 1/2” (89 mm)
*Twinning Kit KGATW0601HSI Single or two stage PSC equipped units only
Combustible Floor Base KGASB0201ALL Adjustable floor base --- fits all casing sizes
Downflow Vent Guard KGBVG0101DFG Vent flue shield --- downflow venting outside casing
Vent Extension Kit KGAVE0101DNH Downflow, through casing vent extension
Chimney Adapter Kit KGACA02014FC Masonry chimney adapter 4” (102 mm)
KGACA02015FC Masonry chimney adapter 5” (127 mm)
N a t u r a l --- t o --- P r o p a n e C o n v e r s i o n K i t KGANP4601ALL Gas conversion natural to propane all
P r o p a n e --- t o --- N a t u r a l C o n v e r s i o n K i t KGAPN3901ALL Gas conversion propane to natural all
Label Kit KGALB0101KIT Downflow orientation label replacement
**ECM Motor Simulator KGASD0301FMS ECM blower and inducer simulator --- variable speed units
**Advanced Product Monitor KGAFP0301APM PC software and hardware for Troubleshooting variable speed units
* Not for ECM or variable---speed ECM models
** Variable---speed ECM models only
315AAV

60
PARTS REPLACEMENT INFORMATION GUIDE
CASING GROUP
Outer door
Blower door
Top filler plate
Bottom filler plate
Bottom enclosure
ELECTRICAL GROUP
Control bracket
Junction box
Limit switch(es)
Circuit board
Door switch
Transformer
Wiring harness 115v
Wiring harness 24v
BLOWER GROUP
Blower housing
Blower cutoff
Blower motor
Blower wheel
Capacitor (where used)
Capacitor strap (where used)
Grommet
Power choke (where used)
GAS CONTROL GROUP
Manifold
Burner assembly
Orifice
Flame sensor
Hot surface igniter
Gas valve
Manual reset limit switches
Burner support assembly
HEAT EXCHANGER GROUP
Heat exchanger cell
Cell panel
Lox NOx baffle (California models only)
INDUCER GROUP
Housing assembly
Pressure switch
Inducer motor
Inducer wheel
Vent elbow assembly
Draft safeguard switch
TO OBTAIN INFORMATION ON PARTS: Consult your installing dealer or classified section of your local telephone directory under
“Heating Equipment” or “Air Conditioning Contractors and Systems” headings for dealer listing by brand name or contact:
BRYANT HEATING & COOLING SYSTEMS
Consumer Relations Department
P.O. Box 4952
Syracuse, New York 13221--4952
1--800--428--4326
Have available the model number, series number, and serial number located on the unit rating plate to ensure correct replacement part.
Example of Model Number
MODEL VOLTAGE IGNITION
TYPE
COOLING
SIZE
(AIRFLOW)
HEATING
SIZE VARIATION SERIES VARIATION
315A A V 066 155 A F JA
WARNING: Improper installation, adjustment, alteration, service, or maintenance can cause personal injury, property damage, or death.
Consult a qualified installer, service agency, or your local gas supplier for information or assistance. The qualified installer or service agency
must use only factory--authorized replacement parts, kits, or accessories when modifying this product.
Manufacturer reserves the right to discontinue, or change at any time, specifications or designs without notice and without incurring obligations.
EBryant Heating & Cooling Systems 7310 W. Morris St. Indianapolis, IN 46231 Printed in U.S.A. Edition Date: 06/10
Replaces: II315A--- 70--- 10
Catalog No. II315
A
--- 7 0 --- 1 1
315AAV