Burnham Series 8H 8He Boiler Installation And Operation Manual
2015-06-08
: Burnham Burnham-Series-8H-8He-Boiler-Installation-And-Operation-Manual-738088 burnham-series-8h-8he-boiler-installation-and-operation-manual-738088 burnham pdf
Open the PDF directly: View PDF
.
Page Count: 84

1
81416023R5 - 4/15 Price - $5.00
Commercial Boilers
www.burnhamcommercial.com
3050579
INSTALLATION, OPERATING AND
SERVICE INSTRUCTIONS FOR
SERIES 8H / 8HE
GAS - FIRED BOILER
This manual must only be used by a qualied heating installer/service technician.
BEFORE installing, read all instructions in this manual and all other information
shipped with the boiler. Post all instructions and manuals near the boiler for
reference by service personnel. Perform steps in the order given. Failure to comply
could result in severe personal injury, death or substantial property damage.

2
IMPORTANT INFORMATION -
READ AND sAvE ThEsE INsTRucTIONs FOR REFERENcE
The following dened terms are used throughout this manual to bring attention to the presence of hazards of
various risk levels or to important information concerning the life of the product.
Indicates an imminently hazardous situation
which, if not avoided, will result in death, serious
injury or substantial property damage.
Hazard Denitions
Indicates a potentially hazardous situation which,
if not avoided, could result in death, serious injury
or substantial property damage.
Indicates a potentially hazardous situation which,
if not avoided, may result in moderate or minor
injury or property damage.
Indicates special instructions on installation,
operation, or maintenance which are important
but not related to personal injury hazards.
All boilers must be installed in accordance with National, State and Local Plumbing, Heating
and Electrical Codes and the regulations of the serving utilities. These Codes and Regulations
may differ from this instruction manual. Authorities having jurisdiction should be consulted
before installations are made.
In all cases, reference should be made to the following Standards:
USA BOILERS
A. Current Edition of American National Standard ANSI/NFPA 31, “Installation of Oil
Burning Equipment”, for recommended installation practices.
B. Current Edition of National Fuel Gas Code, NFPA 54/ANSI Z223.1.
C. Current Edition of American National Standard ANSI/NFPA 211, “Chimneys, Fireplaces,
Vents, and Solid Fuel Burning Appliances”, For Venting requirements.
D. Current Edition of American Society of Mechanical Engineers ASME CSD-1, “Controls and
Safety Devices for Automatically Fired Boilers”, for assembly and operations of controls
and safety devices.
E. All wiring on boilers installed in the USA shall be made in accordance with the National
Electrical Code and/or Local Regulations.
CANADIAN BOILERS
A. Current Edition of Canadian Standards Association CSA B139, “Installation Code for Oil
Burning Equipment", for recommended Installation Practices.
B. The equipment shall be installed in accordance with the current Installation Code for Gas
Burning Appliances and Equipment, CSA B149, and applicable Provincial Regulations for
the class; which should be carefully followed in all cases.
Authorities having jurisdiction should be consulted before installations are made.
C. All wiring on boilers installed in Canada shall be made in accordance with the Canadian
Electrical Code and/or Local Regulations.

3
This boiler requires regular maintenance and service to operate safely. Follow the instructions contained
in this manual.
Improper installation, adjustment, alteration, service or maintenance can cause property damage, personal
injury or loss of life. Read and understand the entire manual before attempting installation, start-up
operation, or service. Installation and service must be performed only by an knowledgeable, experienced,
and skilled installer or service agency.
This boiler must be properly vented.
This boiler needs fresh air for safe operation and must be installed so there are provisions for adequate
combustion and ventilation air.
The interior of the venting system must be inspected and cleaned before the start of the heating season
and should be inspected periodically throughout the heating season for any obstructions. A clean and
unobstructed venting system is necessary to allow noxious fumes that could cause injury or loss of life
to vent safely and will contribute toward maintaining the boiler’s efciency.
Installation is not complete unless a pressure relief valve is installed into the specied tapping on the
supply manifold located on top and at rear of appliance - See Section IV, Paragraph C.
This boiler is supplied with safety devices which may cause the boiler to shut down and not re-start
without service. If damage due to frozen pipes is a possibility, the heating system should not be left
unattended in cold weather; or appropriate safeguards and alarms should be installed on the heating
system to prevent damage if the boiler is inoperative.
This boiler contains very hot water under high pressure. Do not unscrew any pipe ttings nor attempt
to disconnect any components of this boiler without positively assuring the water is cool and has no
pressure. Always wear protective clothing and equipment when installing, starting up or servicing this
boiler to prevent scald injuries. Do not rely on the pressure and temperature gauges to determine the
temperature and pressure of the boiler.
This boiler contains components which become very hot when the boiler is operating. Do not touch any
components unless they are cool.
Boiler materials of construction, products of combustion and the fuel contain alumina, silica, heavy metals,
carbon monoxide, nitrogen oxides, aldehydes and/or other toxic or harmful substances which can cause
death or serious injury and which are known to the state of California to cause cancer, birth defects and
other reproductive harm. Always use proper safety clothing, respirators and equipment when servicing
or working nearby the appliance.
Failure to follow all instructions in the proper order can cause personal injury or death. Read all instructions,
including all those contained in component manufacturers manuals which are provided with the boiler
before installing, starting up, operating, maintaining or servicing.
Keep boiler area clear and free from combustible materials, gasoline and other ammable vapors or
liquids.
Do not operate boiler with control which has been subject to water.
All cover plates, enclosures and guards must be in place at all times.
DO NOT store or use gasoline or other ammable vapors or liquids in the vicinity of this or any other
appliance.
If you smell gas or fuel oil vapors, do not try to operate the burner/boiler system. Do not touch any
electrical switch or use any phone in the building. Immediately call the gas or oil supplier from a remotely
located phone.
Burner/boiler systems produce steam or hot water in a pressurized vessel by mixing extremely ammable
gaseous, liquid or solid fuels with air to produce combustion and very hot products of combustion.
Explosions, res severe personal injury, death and/or property damage will result from improper, careless
or inadequate installation, operation or maintenance of fuel-burning and boiler equipment.

4
This boiler is designed to burn natural and/or LP gas only. Do not use gasoline, crankcase drainings, or
any oil containing gasoline. Never burn garbage or paper in this boiler. Do not convert to any solid fuel
(i.e. wood, coal). All ammable debris, rags, paper, wood scraps, etc., should be kept clear of the boiler
at all times. Keep the boiler area clean and free of re hazards.
Float type low water cutoff devices require annual inspection and maintenance. Refer to instructions in
Section IX, Paragraph B.
NOTICE
All Series 8HE cast iron boilers are designed, built, marked and tested in accordance with the ASME Boiler
and Pressure Vessel Code, Section IV, Heating Boilers. An ASME Data Label is factory applied to each 8HE
jacket, which indicates the boiler Maximum Allowable working Pressure (MAWP). Each cast iron section is
permanently marked with the MAWP listed on the boiler’s ASME Data Label. The MAWP for all Series 8HE
Boiler is 50 psi (Water Only).
It is common and acceptable practice to install these boilers in lower pressure systems, below the boiler
MAWP. Therefore, in addition to Safety Relief Valves set for 50 psi, Burnham also offers Safety Relief Valves
set for 30 psi (By Special Order Only).
NOTICE
This boiler has a limited warranty, a copy of which is printed on the back of this manual. It is the
responsibility of the installing contractor to see that all controls are correctly installed and are operating
properly when the installation is complete.
USA boilers built for installation at altitudes greater than 2,000 feet above sea level have been specially
oriced to reduce gas input rate 4 percent per 1,000 feet above sea level per the National Fuel Gas Code,
NFPA 54/ANSI Z223.1, Section 8.1.2 and Appendix F. Canadian boilers’ orice sizing is indicated on the
rating label.

5
Important Product Safety Information
Refractory Ceramic Fiber Product
The Repair Parts list designates parts that contain refractory ceramic fibers
(RCF). RCF has been classified as a possible human carcinogen. When
exposed to temperatures above 1805°F, such as during direct flame contact,
RCF changes into crystalline silica, a known carcinogen. When disturbed as a
result of servicing or repair, these substances become airborne and, if inhaled,
may be hazardous to your health.
AVOID Breathing Fiber Particulates and Dust
Precautionary Measures:
Do not remove or replace RCF parts or attempt any service or repair work
involving RCF without wearing the following protective gear:
1. A National Institute for Occupational Safety and Health (NIOSH)
approved respirator
2. Long sleeved, loose fitting clothing
3. Gloves
4. Eye Protection
•Take steps to assure adequate ventilation.
•Wash all exposed body areas gently with soap and water after contact.
•Wash work clothes separately from other laundry and rinse washing
machine after use to avoid contaminating other clothes.
•Discard used RCF components by sealing in an airtight plastic bag. RCF
and crystalline silica are not classified as hazardous wastes in the United
States and Canada.
First Aid Procedures:
•If contact with eyes: Flush with water for at least 15 minutes. Seek
immediate medical attention if irritation persists.
•If contact with skin: Wash affected area gently with soap and water.
Seek immediate medical attention if irritation persists.
•If breathing difficulty develops: Leave the area and move to a location
with clean fresh air. Seek immediate medical attention if breathing
difficulties persist.
•Ingestion: Do not induce vomiting. Drink plenty of water. Seek
immediate medical attention.

6
Table of Contents
I. Pre-Installation .............................................................8
II. Boiler Assembly .........................................................10
III. Gas Control System Assembly ..................................17
(Knockdown Boilers)
IV. Water Trim and Piping ...............................................24
V. Gas Piping ..................................................................28
VI. Venting .......................................................................30
VII. Electrical ....................................................................33
VIII. System Start-up ..........................................................49
IX. Service .......................................................................57
X. Repair Parts ................................................................62

7
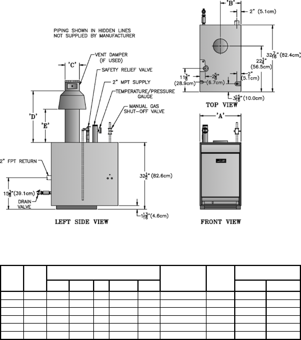
Figure 1: Dimensional Data
Boiler
Model
Input
(MBH)
Dimensions (Inches) Recommended
Chimney Size
(Round)
Water
Content
(Gallons)
Approx. Shipping Weight
(LB.)
A B C D E Packaged Knockdown
805H 252 20 10 7 24-13/16 16-1/8 7” dia. x 15 ft. 11.9 600 610
806H 315 23-3/4 11-7/8 8 27-13/16 18 8” dia. x 15 ft. 13.9 690 700
807HE 340 27-1/2 13-3/4 8 27-13/16 18 8” dia. x 15 ft. 15.9 785 870
808HE 410 31-1/4 15-5/8 9 30-13/16 20 8” dia. x 15 ft. 17.9 895 955
809HE 460 35 17-1/2 10 33-1/2 22 10” dia. x 15 ft. 19.9 985 1050
810HE 505 38-3/4 19-3/8 10 33-1/2 22 10” dia. x 15 ft. 21.9 1075 1150
Table 1: Dimensional Data

8
I. Pre-Installation
Carefully read all instructions before installing
boiler. Failure to follow all instructions in proper
order can cause personal injury or death.
A. Inspect shipment carefully for any signs of damage.
All equipment is carefully manufactured, inspected
and packed. Our responsibility ceases upon delivery
of boiler to carrier in good condition. Any claim
for damage or shortage in shipment must be led
immediately against carrier by consignee. No claims
for variances or shortages will be allowed by Boiler
Manufacturer, unless presented within sixty (60) days
after receipt of equipment.
B. Installation must conform to the requirements of
the authority having jurisdiction. In the absence of
such requirements, installation must conform to the
National Fuel Gas Code, NFPA 54/ANSI Z223.1 and/or
CAN/CSA B149.1 Installation Codes. Where required
by the authority having jurisdiction, the installation
must conform to the Standard for Controls and Safety
Devices for Automatically Fired Boilers, ANSI/ASME
No CSD-1.
C. Provide clearance between combustible material and
boiler jacket (following clearances are minimums):
1. USA, 805H-807HE: listed for Alcove installation
a. Front: 18”
b. Top: 36”
c. Draft hood, rear, sides and ue connector: 6”
Appliance is design certied for installation on
noncombustible ooring only. For installation
on combustible ooring only when installed on
special base listed in Table 2. Boiler must not be
installed on carpeting. When boiler is installed on
concrete which is over a material that is subject
to melting (PVC, PEX radiant tubing, etc.), the
special base must be used. A concrete pad is not
sufcient to protect combustible ooring.
2. USA, 808HE-810HE: for installation in room
which is large in comparison with size of boiler.
a. Front: 18”
b. Top: 51½”
c. Draft hood, rear, sides, and ue connector: 6”
3. Canada, 805H-810HE:
a. Top and front: 18” (45.7 cm)
b. Flue, rear and sides: 6” (15.2 cm)
D. Provide clearance for servicing and proper operation
(following clearances are recommended and may be
reduced to minimum clearances shown above):
1. Single boiler, 805H-807HE, Front/Top: 24” (61.0
cm)
2. Single boiler, 808HE-810HE, Front/Top: 48”
(122.0 cm)
3. Multiple/modular boiler, USA /Canada, Sides: 1”
(2.5 cm)
E. Install boiler on level oor as close to chimney as
possible. For basement installation provide a solid base
such as concrete or masonry construction if oor is not
level or if water may be encountered on oor around
boiler.
F. Protect gas ignition system components from
water (dripping, spraying, rain, etc.) during boiler
operation and service (circulator replacement, control
replacement, etc.).
G. Provide combustion and ventilation air in accordance
with applicable provisions of local building codes,
or the National Fuel Gas Code, NFPA 54/ANSI
Z223.1, Air for Combustion and Ventilation; or CAN/
CSA B149.1, Venting Systems and Air Supply for
Appliances.
Adequate combustion and ventilation air must be
provided to assure proper combustion.
The following guideline is based on the National Fuel
Gas Code, NFPA 54/ANSI Z223.1.
1. Determine volume of space (boiler room). Rooms
communicating directly with space (through
permanent openings not furnished with doors) are
considered part of space.
Volume [ft3] = Length [ft] x Width [ft] x Height [ft]
2. Determine Total Input of all appliances in space.
Round result to nearest 1,000 Btu per hour (Btuh).
3. Determine type of space. Divide Volume by Total
Input.
a. If result is greater than or equal to 50 ft3 per
1,000 Btuh, space is considered an unconned
space.
Boiler Model Special Base Part Number
805H 61816055
806H 61816065
807HE 61816075
808HE 61816085
809HE 61816095
810HE 61816105
Table 2: Special Base Required for Installation on
Combustible Flooring

9
b. If result is less than 50 ft3 per 1,000 Btuh, space
is considered a conned space.
4. Determine building type. A building of unusually
tight construction has the following characteristics:
a. Walls and ceiling exposed to outside atmosphere
have a continuous water vapor retarder with a
rating of 1 perm or less with openings gasketed
and sealed, and
b. Weather-stripping has been added on openable
windows and doors, and
c. Caulking or sealants applied in joints around
window and door frames, between sole
plates and oors, between wall-ceiling joints,
between wall panels, at plumbing and electrical
penetrations, and at other openings.
5. For boiler located in an unconned space in a
building of other than unusually tight construction,
adequate combustion and ventilation air is normally
provided by fresh air inltration through cracks
around windows and doors.
6. For boiler located in an unconned space in a
building of unusually tight construction or in
a conned space, provide outdoor air through
permanent opening(s) which communicate directly
or by duct with the outdoors or spaces (crawl or
attic) freely communicating with the outdoors.
Minimum dimension of air opening(s) is 3” (7.6
cm).
a. Two permanent openings: Locate one opening
within 12 inches (30.5 cm) of top of space.
Locate remaining opening within 12 inches
(30.5 cm) of bottom of space. Size each opening
per following:
i. Direct communication with outdoors.
Minimum free area of each opening must be
1 square inch per 4,000 Btu per hour input
of all equipment in space.
ii. Vertical ducts. Minimum free area of each
opening must be 1 square inch per 4,000
Btu per hour input of all equipment in space.
Duct cross-sectional area shall be same as
opening free area.
iii. Horizontal ducts. Minimum free area of each
opening must be 1 square inch per 2,000
Btu per hour input of all equipment in space.
Duct cross-sectional area shall be same as
opening free area.
b. One permanent opening shall be permitted where
the boiler has clearances of at least 1” (2.5 cm)
from the sides and rear and 6” (15.2 cm) from
the front. Locate the opening within 12 inches
(30.5 cm) of top of space. Size opening per
following:
i. Minimum free area of 1 square inch per
3,000 Btu per hour input of all equipment in
space.
ii. Free area shall not be less than the sum
of the areas of all vent connectors in the
conned space.
Alternate method for boiler located within conned
space. Use indoor air if two permanent openings
communicate directly with additional space(s) of
sufcient volume such that combined volume of all
spaces meet criteria for unconned space. Size each
opening for minimum free area of 1 square inch per
1,000 Btu per hour input of all equipment in spaces,
but not less than 100 square inches.
7. Ventilation Duct Louvers and Grilles. Equip outside
openings with louvers to prevent entrance of rain
and snow, and screens to prevent entrance of insects
and rodents. Louvers and grilles must be xed in
open position or interlocked with equipment to open
automatically before burner operation. Screens must
not be smaller than ¼ inch mesh.
Consider the blocking effect of louvers, grilles and
screens when calculating the opening size to provide
the required free area. If free area of louver or grille
is not known, assume wood louvers have 20-25
percent free area and metal louvers and grilles have
60-75 percent free area.
8. For Specially Engineered Installations. The above
requirements shall be permitted to be waived
where special engineering, consistent with good
engineering practice and approved by the authority
having jurisdiction, provides an adequate supply of
air for combustion, ventilation, and dilution of ue
gases.
Do not install boiler where gasoline or other
ammable vapors or liquids, or sources of
hydrocarbons (i.e. bleaches, cleaners, chemicals,
sprays, paint removers, fabric softeners, etc.) are
used or stored.
Mis-sizing of the boiler with regard to the heating
system load will result in excessive boiler cycling
and accelerated component failure. Burnham
DOES NOT warrant failures caused by mis-sized
boiler applications. DO NOT oversize the boiler
to the system. Modular/multiple boilers greatly
reduce the likelihood of boiler oversizing.

10
II. Boiler Assembly
A. Remove Crate
1. Remove all fasteners at crate skid.
2. Lift outside container and remove with all other
inside protective spacers and bracing.
B. Remove boiler from skid. See Figure 2. Exercise care
to avoid dropping boiler.
1. Place boiler in approximate location. Refer to
Section I: Pre-Installation. Remove base hold down
bolts.
2. Using pry bar under rear corner of Base End Panel,
raise boiler and install 1½” wood blocks under rear
corners. Install ¾” pipe roller between Base and
skid.
3. Remove 1½” wood blocks. Place 3” pipe roller on
oor behind skid.
4. Roll boiler off skid. Move skid out of way.
5. Roll boiler until 3” roller is located as shown. Use
pry bar to install wood blocks under front corners of
base. Remove 3” roller. Figure 2: Skid Removal
Tapping Size Purpose
A 2” Supply
B 2” Return
C 3/4” Relief Valve
D 3/4” Limit
E 3/4” Auxiliary Limit
F 3/4” Washout
G 3/4” Drain
Table 3: Purpose of Tappings
Figure 3: Tapping Locations

11
6. Lift boiler with pry bar. Remove wood blocks.
Lower boiler.
C. For Packaged Boiler only, proceed to Paragraph E.
D. Test Section Assembly for leaks before connecting to
system and installing controls, trim and jacket. Refer to
Figure 3 and Table 3.
1. Plug Tappings C & E (¾ NPT) and Return Tapping
B (2 NPT).
2. Insert ¾” NPT x ¼” NPT bushing in Tapping D.
Install pressure gauge capable of indicating 50 psi.
3. Insert 2” NPT x ¾” NPT bushing in Supply Tapping
A. Install purge valve with a hose that runs to a
drain.
4. Connect ll valve and piping to Drain Tapping G.
Do not use air to leak test boiler.
5. Fill boiler completely with water by venting air
through purge valve. Close purge valve and apply
water pressure of at least 10 psi but less than 50 psi
gauge pressure.
Figure 4: Installation of Special Base for Combustible Flooring
6. Examine boiler for leaks or damage due to shipment
or handling.
7. Remove plugs from Return Tapping B, Tapping C,
and Tapping E (if second limit or operating control
is used). Also remove ll valve and piping, purge
valve and piping, and pressure gauge.
E. Install special base if installation is on combustible
ooring. See Figure 4. Floor shield adds 4¾” to boiler
height.
1. Place special base on combustible oor with surface
marked “FRONT” in upward position.
2. Locate special base with spacing to combustible
materials as shown in Figure 4.
3. Place boiler on special base. Boiler must rest inside
locating brackets. Boiler jacket panels will overhang
special base.
4. Do not enclose boiler (including special base) on all
four sides. Models 807HE may be enclosed on three
sides (alcove) while maintaining clearances shown
in Figure 4.

12
F. Move boiler to permanent location by sliding or
walking. Do not drop.
For Packaged Boiler, proceed to Paragraph L.
G. Conrm that one (1) Flue Bafe is properly
positioned in each Boiler Flueway. Tabs at the top
of each Flue Bafe should be resting on top row of Flue
Pins on each adjoining section.
H. Install Canopy on section assembly. See Figure 5.
Canopy and hardware are located in Combination
Boiler Parts and Control Carton.
1. Position Canopy on top of Section Assembly. Locate
between end sections and sealing ledge on front and
back of each section.
2. Fasten each end with ¼” - 20 x 1” carriage bolts,
washers and nuts.
3. Seal between Canopy and Section Assembly with
furnace cement.
I. Inspect joints between sections. They were factory
sealed. If any openings resulted during shipment or
handling, reseal with furnace cement. Conrm tie rods
are only hand tight to allow for thermal expansion.
J. Install Base Front Panel. See Figure 5. Panel and
hardware located in Combination Boiler Parts and
Control Carton.
1. Attach Base Front Panel to Section Assembly using
¼” - 20 x 1¼” carriage bolts, washers and nuts.
2. Seal between top of Base Front Panel and Section
Assembly with furnace cement (shipped in
Combination Boiler Parts and Control Carton).
3. Seal between top of Base Rear Panel and Section
Assembly with furnace cement.
K. Install Pilot/Main Burner Assembly. See Figure 7.
Assembly is located in Combination Boiler Parts and
Control Carton. Verify assembly is properly located
on support bracket in Base Rear Panel, seated on Main
Burner Orice, and secured with hitch pin clip.
L. Adjust Burner Air Shutters on all Burners. See
Figure 7. (On Packaged Boilers, Front Door and
Burner Access Panel(s) must be removed to make
adjustments.) Distance between front edge of Burner
Air Shutter and burner mounting ring should be
approximately 11/16”. To adjust this distance, loosen
screw at top of air shutter and slide into correct
position. Then tighten screw. (Replace Burner Access
Panel(s) and Front Door on Packaged Boilers.)
For Packaged Boiler, proceed to Section IV: Water Trim
and Piping.
Figure 5: General Assembly (Knockdown Boilers)

13
Figure 6: Flame Roll-out Switch Installation
Figure 7: Burner/Burner Access Panel Installation
14
M. Attach Flame Roll-out Switch to Burner Access Panel.
See Figure 6. Flame Roll-out Switch and hardware
are located in Combination Boiler Parts and Control
Carton. Flame Roll-out Switch is a single use device
- do not test with heat - switch cannot be reset.
1. Cut insulation from semicircular notch at right
end of the burner access panel. Models 808HE -
810HE have two (2) burner access panels. Remove
insulation from notch of right side burner access
panel only.
2. Attach Flame Roll-out Switch Mounting Bracket to
burner access panel with (1) #8 x ½” lg. sheet metal
screw.
3. Attach Flame Roll-out Switch to mounting bracket
with (1) #8 x ¾” lg. sheet metal screw.
N. Install Burner Access Panel(s). Locate Burner Access
Panel(s) in Combination Boiler Parts and Control
Carton. Engage Burner Access Panel holes with
projections on Base Front Panel. See Figure 5.
O. Install Immersion Well(s).
1. Remove Immersion Well(s) from Combination
Boiler Parts and Control Carton..
2. Insert Immersion Well in Tapping D. See Figure 3.
3. If second limit or operating control is used, insert
immersion well in Tapping E. If vertical gas
piping is to be installed inside of boiler jacket, it
is recommended that second limit be installed in
system piping.
P. Install Jacket. See Figure 8.
1. Locate four (4) Jacket Attachment Brackets in
Combination Boiler Parts and Control Carton.
Attach to Front Base Panel and Rear Base Panels
with #8 sheet metal screws. See Figure 5.
2. Hang Left Side Panel and Right Side Panel onto
Jacket Attachment Brackets.
3. Attach Lower Rear Panel to Left and Right Side
Panels. Do not tighten sheet metal screws.
4. Attach Upper Rear Panel to Lower Rear Panel. Do
not install three (3) upper screws.
5. Remove Rating Label from envelope marked
“RATING LABEL ENCLOSED”. Remove
Combustible Clearance Label from Combination
Boiler Parts and Controls Carton. Attach to
Vestibule Panel in locations shown.
6. Attach Vestibule Panel to Left Side and Right Side
Panels.
7. Attach Lower Front Tie Bar to Left Side and Right
Side Panels.
8. Engage Upper Front Panel in slots on Left Side
and Right Side Panels. Place Top Panel in position.
Attach Top Panel to Left Side, Right Side and Upper
Rear Panels.
9. Tighten all jacket screws.
10. Afx Lighting/Operating Instructions Label and
Wiring Diagram Label to inside of Front
Removable Door. Labels are located in
Combination Boiler Parts and Control Carton.
Q. Install Junction Box. See Figure 8. Attach junction
box to inside of Left Side Panel with ¼” - 20 x ¼” lg.
machine screw (located in Combination Boiler Parts
and Control Carton).
R. Install Limit Control. Locate limit in Combination
Boiler Parts and Control Carton. Insert limit probe into
left immersion well as far as possible. Tighten set screw
(Model 805 uses Hydrostat 3200 - see Installation and
Operating Manual packed in envelope taped to top of
boiler for packaged boilers and in parts and control
carton for KD boilers for set up).
S. Install Auxiliary Limit or operating control (if used).
Insert control probe into right immersion well as far as
possible. Tighten set screw.
T. Install Gas Control Assembly. Refer to Section III,
Gas Control System Assembly (Knockdown Boilers).
U. EP System: See Figure 9.
1. Install pre-wired EP Control Cabinet Assembly to
right front corner of jacket top panel.
2. Install Honeywell RM7890 Control (located in
RM7890 Control Carton).
3. Remove RM7890’s Dust Cover. With a pair of side
cutters, carefully snip both wire leads to the brown
resistor labelled “JR2” and discard it. Replace Dust
Cover.
4. Install Honeywell R7847 Flame Amplier.
5. Install heat shield.

15
Figure 8: Jacket Assembly

16
Figure 9: EP Control Installation

17
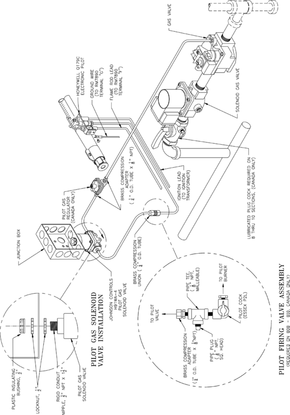
III. Gas Control System Assembly (Knockdown Boilers)
A. 24V Standing Pilot Control System
Install Gas Control System. All components are
located in Combination Boiler Parts and Control
Carton.
1. Install Gas Control Assembly on Manifold. See
Figure 10. Use thread (joint) compound (pipe dope)
resistant to action of liqueed petroleum gas.
2. Install pilot burner piping and controls. See Figure
10.
3. Connect Thermocouple Lead to Gas Valve.
4. Mount Transformer (continuous circulation) or
Control Center (intermittent circulation) to Junction
Box.
a. Canada only - loop 4” nylon cable tie between
junction box and transformer/control center.
b. Attach transformer/control center to junction
box.
B. EI (Intermittent Ignition)
Install Gas Control System. All components are
located in Combination Boiler Parts and Control
Carton.
1. Install Gas Control Assembly on Manifold. See
Figure 11. Use thread (joint) compound (pipe dope)
resistant to action of liqueed petroleum gas.
2. Install pilot burner piping and controls.
a. Honeywell EI
i. USA - See Figure 12.
ii. Canada - See Figure 13.
3. Install Ignition Module.
a. Attach Ignition Control Mounting Bracket to
Jacket Vestibule Panel using two (2) #8 x ½”
sheet metal screws.
b. Attach Honeywell Ignition Module to Mounting
Bracket using two (2) #8 x ½” sheet metal
screws.
c. Connect pilot ground wire and ignitor/sensor
lead(s) to ignition module. Refer to “Section VII:
Electrical” for connection details.
4. Mount Transformer (continuous circulation) or
Control Center (intermittent circulation) to Junction
Box. See Figure 8.
a. Canada only - loop 4” nylon cable tie between
junction box and transformer/control center.
b. Attach transformer/control center to junction
box.
C. EP Control System
Install Gas Control System. All components are
located in Combination Boiler Parts and Control
Carton.
1. Install Gas Control Assembly on Manifold. See
Figure 14.
2. Install pilot burner piping and controls. See Figure
14.
3. Install Ignition Transformer.
a. Attach Ignition Transformer to Jacket Vestibule
Panel using four (4) #8 x ½” lg. sheet metal
screws.
b. Connect Ignition Lead from Pilot to Ignition
Transformer.
4. Mount Transformer (continuous circulation) or
Control Center (intermittent circulation) to Junction
Box.
a. Canada only - loop 4” nylon cable tie between
junction box and transformer/control center.
b. Attach transformer/control center to junction
box.
D. EP-CSD-1 Control System
Install Gas Control System. All components are
located in Combination Boiler Parts and Control
Carton.
1. Install Gas Control Assembly on Manifold. See
Figure 15.
2. Install pilot burner piping and controls. See Figure
15.
3. Install Ignition Transformer.
a. Attach Ignition Transformer to Jacket Vestibule
Panel using four (4) #8 x ½” lg. sheet metal
screws.
b. Connect Ignition Lead from Pilot to Ignition
Transformer.
4. Mount Transformer (continuous circulation) or
Control Center (intermittent circulation) to Junction
Box.
a. Canada only - loop 4” nylon cable tie between
junction box and transformer/control center.
b. Attach transformer/control center to junction
box.

18
Figure 10: Schematic Gas Piping, 24V Standing Pilot, 806H - 807HE

19
Figure 11: Main Gas Piping, Intermittent Ignition (EI)

20
Figure 12: Schematic Pilot Piping (Honeywell EI), USA

21
Figure 13: Schematic Pilot Piping (Honeywell EI)
Canada: Natural Gas, 805H - 810HE; LP Gas, 806H - 807HE

22
Figure 14: Schematic Gas Piping, EP Control System (Natural Gas Only), 806H - 810HE

23
Figure 15: Schematic Gas Piping, EP-CSD-1 Control System, 808HE - 810HE

24
IV. Water Trim and Piping
A. Design and install boiler and system piping to
prevent oxygen contamination of boiler water and
frequent water additions.
1. There are many possible causes of oxygen
contamination such as:
a. Addition of excessive make-up water as a result
of system leaks.
b. Absorption through open tanks and ttings.
c. Oxygen permeable materials in the distribution
system.
2. In order to insure long product life, oxygen sources
must be eliminated. This can be accomplished by
taking the following measures:
a. Repairing system leaks to eliminate the need for
addition of make-up water.
b. Eliminating open tanks from the system.
c. Eliminating and/or repairing ttings which allow
oxygen absorption.
d. Use of non-permeable materials in the
distribution system.
e. Isolating the boiler from the system water by
installing a heat exchanger.
f. Use properly designed and operating air
elimination devices in water piping.
B. Design boiler piping and ow rate to obtain proper
temperature rise though the boiler. (See Table 4)
Pressure relief valve discharge piping must be
piped such that the potential of severe burns
is eliminated. DO NOT pipe in any area where
freezing could occur. DO NOT install any shut off
valves, plugs or caps. Consult Local Codes for
proper discharge piping arrangement.
C. Install Safety Relief Valve. See Figure 16.
Components are located in Water Trim Carton. Safety
Relief Valve must be installed with spindle in vertical
position.
1. Install ¾” NPT x 3½” lg. nipple in tapping “C”. See
Figure 3.
2. Install safety relief valve on ¾” NPT nipple.
Failure to properly pipe boiler may result in improper operation and damage to boiler or structure.
Oxygen contamination of boiler water will cause corrosion of iron and steel boiler components, and can
lead to boiler failure. Burnham’s Warranty does not cover problems caused by oxygen contamination of
boiler water or scale (lime) build-up caused by frequent addition of water.
Table 4: Flow Rate, Temperature Rise, and
Pressure Drop
Boiler
Model
Flow Rate
(GPM)
Temp. Rise
Thru Boiler
Min. Boiler
Piping NPT
Boiler
Pressure
Drop
805H
21
14
10
20° F
30° F
40° F
1½”
1¼”
1¼”
3’
2’
1’
806H
26
17
13
20° F
30° F
40° F
1½”
1½”
1¼”
3’
2’
1’
807HE
28
19
14
20° F
30° F
40° F
2”
1½”
1¼”
3’
2’
1’
808HE
34
22
17
20° F
30° F
40° F
2”
1½”
1½”
3’
2’
1’
809HE
38
25
19
20° F
30° F
40° F
2”
2”
1½”
3’
2’
1’
810HE
42
28
21
20° F
30° F
40° F
2”
2”
1½”
3’
2’
1’
Figure 16: Safety Relief Valve Installation

25
D. Install Drain Valve in rear of Left End Section,
Tapping “G”. See Figure 17. Components are located
in Water Trim Carton.
E. Install Temperature-Pressure Gauge. Components
are located in Water Trim Carton.
1. Standard Temperature - Pressure Gauge Piping. See
Figure 18.
Figure 17: Drain Piping Installation
Figure 20: Recommended Piping for Combination
Heating & Cooling (Refrigeration) System
a. Install 2” NPT x 10” lg. nipple with gauge
tapping into Supply Tapping “A”. See Figure 3.
Gauge tapping should face forward.
b. Insert Temperature-Pressure Gauge. Tighten
by applying pressure to square shank on back
of gauge. DO NOT APPLY PRESSURE ON
GAUGE CASE since this may ruin gauge
calibration.
2. Alternate Temperature-Pressure Gauge Piping. See
Figure 19.
a. Install 2 NPT x 10” Nipple into Supply Tapping
“A”. See Figure 3.
Figure 18: Temperature-Pressure Gauge
Installation
Figure 19: Alternate Temperature-Pressure Gauge
Installation
b. Install 2 NPT x ¾ NPT x 2 NPT Tee (provided)
or 2 NPT x 2 NPT x ¾ NPT Tee (installer
furnished). ¾ NPT leg should face forward.
c. Install ¾ NPT x ¼ NPT Bushing.
d. Insert Temperature-Pressure Gauge. Tighten
by applying pressure to square shank on back
of gauge. DO NOT APPLY PRESSURE ON
GAUGE CASE since this may ruin gauge
calibration.
F. Connect system supply and return piping to boiler.
See Figure 21. Also, consult I=B=R Installation
and Piping Guide No. 250. Maintain minimum ½
inch clearance from hot water piping to combustible
materials.
1. If boiler is used in connection with refrigeration
systems, boiler must be installed with chilled
medium piped in parallel with heating boiler using
appropriate valves to prevent chilled medium from

26
entering boiler. See Figure 20. Also, consult I=B=R
Installation and Piping Guide No. 250.
2. If boiler is connected to heating coils located in
air handling units where they may be exposed to
refrigerated air, boiler piping must be equipped with
ow control valves to prevent gravity circulation of
boiler water during cooling system operation.
3. The piping diagrams shown (Figure 21, Detail “A”
and Detail “B”) are recommended for optimum
operation and long term reliability.
Burnham Commercial recommends maintaining
temperature differential (drop) across the system
at 40°F or less, and return water temperature at
minimum of 135°F.
Continued boiler operation for prolonged periods of
time under conditions when temperature differential
across the system exceeds 40°F and/or return water
temperature stays below 135°F, may result in
premature boiler failure due to ue gas condensation
and/or thermal shock.
Pump ow rates and minimum boiler supply and
return pipe sizes are shown in Table 4.
Figure 21: Recommended Boiler Piping for Circulator Zoned Heating Systems
Detail “A”: Blend Pump Piping Detail “B”: Primary/Secondary Piping
with By-Pass

27
a. A boiler by-pass is recommended for any
installation for improved system temperature
balance, while serving to protect the boiler from
sustained condensing operation. The by-pass
also provides some measure of low return water
temperature protection by reducing ow through
the boiler. See Figure 21.
b. A blend pump is recommended to divert hot
supply water into the return when system return
temperatures can periodically dip below 135°F
or when delta T’s rise beyond 40°F because of
control schemes that shut off zone pumps for
extended periods. See Figure 21, Detail “A”.
c. Primary/secondary piping with a by-pass is
recommended to provide two points of mixing
when dual temperature systems are used (i.e.
baseboard and radiant heat, outdoor reset
and domestic hot water production, systems
incorporating night setback or multiple zone
pumps on clock schedules). See Figure 21,
Detail “B”.
d. If system three-way valves are used for
temperature modulation, or if the system will
continuously run below 135°F for extended
periods (due to low temperature applications
like snow melt, heat pump systems or others),
primary/secondary boiler piping with a three-
way valve and return temperature sensor is
recommended. Refer to Burnham RTC Return
Temperature Control Manual and Tekmar Essay
#021 “Mixing Methods and Sizing of Variable
Speed Injection Pumps” for more information on
mixing devices and boiler protection from low
return water temperature.
4. A hot water boiler installed above radiation level
must be provided with a low water cutoff device as
part of installation.
5. A start-up strainer is recommended for all
installations (new and replacement alike) to prevent
system debris and sediment from ending up in the
boilers where it will inhibit heat transfer and may
eventually cause a cast iron section to crack from
overheating.
G. Alliance SL™ Water Heater (if used). Refer to
Alliance SL™ Installation, Operating and Service
Instructions for additional information. Install in same
manner as space heating zone.
Burnham Commercial recommends maintaining temperature differential (drop) across the system at
40°F or less and return water temperature at minimum of 135°F.
Continued boiler operation for prolonged periods of time under conditions when temperature differential
across the system exceeds 40°F and/or return water temperature stays below 135°F, may result in premature
boiler failure due to ue gas condensation and/or thermal shock.
If the above conditions exist, to protect a boiler from sustained ue gas condensation and/or thermal
shock, the above-recommended temperatures may be maintained by employing common industry-accepted
mixing methods to provide boiler protection.
Some common methods are boiler by-pass piping, blend pumps, primary secondary piping with a by-
pass, mixing valves and/or variable speed injection pumps.
Recommended Water Quality Requirements
pH: 8.3 - 10.5
TDS: < 3500 ppm
Total alkalinity ppm as CaCO3 : < 1200
Total copper ppm: < .05
Oily matter ppm: < -1
Total harness ppm: < -3
Chlorides: < 50 ppm

28
V. Gas Piping
Failure to properly pipe gas supply to boiler may
result in improper operation and damage to the
boiler or structure. Always assure gas piping is
absolutely leak free and of the proper size and
type for the connected load.
An additional gas pressure regulator may be
needed. Consult gas supplier.
A. Size gas Piping. Design system to provide adequate gas
supply to boiler. Consider these factors:
1. Allowable pressure drop from point of delivery to
boiler. Maximum allowable system pressure is ½
psig. Actual point of delivery pressure may be less;
contact gas supplier for additional information.
Minimum allowable gas valve inlet pressure is
indicated on rating label.
2. Maximum gas demand. Table 5 lists boiler input
rate. Also consider existing and expected future gas
utilization equipment (i.e. water heater, cooking
equipment).
3. Length of piping and number of ttings. Refer to
Table 6 for maximum capacity of Schedule 40 pipe.
Table 7 lists equivalent length for standard ttings.
Boiler
Model
Rated Capacity
(cubic feet per hour) Gas
Connection
Size
Natural LP / Propane
805H 252 100.8 1
806H 315 126.0 1
807HE 340 136.0 1
808HE 410 164.0 1
809HE 460 184.0 1
810HE 505 202.0 1
Table 5: Rated Input
4. Specic gravity of gas. Gas piping systems for
gas with a specic gravity of 0.70 or less can be
sized directly from Table 6, unless authority having
jurisdiction species a gravity factor be applied.
For specic gravity greater than 0.70, apply gravity
factor from Table 8. If exact specic gravity is not
shown choose next higher value.
For materials or conditions other than those listed
above, refer to the National Fuel Gas Code,
NFPA 54/ANSI Z223.1 and/or CAN/CSA B149.1
Installation Codes, or size system using standard
engineering methods acceptable to authority having
jurisdiction.
Failure to use proper thread compounds on all
gas connectors may result in leaks of ammable
gas.
Gas supply to boiler and system must be
absolutely shut off prior to installing or servicing
boiler gas piping.
B. Connect boiler gas valve to gas supply system.
1. Use methods and materials in accordance with local
plumbing codes and requirements of gas supplier. In
absence of such requirements, follow the National
Fuel Gas Code, NFPA 54/ANSI Z223.1 and/or
CAN/CSA B149.1 Installation Codes.
2. Use thread (joint) compound (pipe dope) resistant to
action of liqueed petroleum gas.
3. Install sediment trap, ground-joint union and manual
shut-off valve upstream of boiler gas valve and
outside jacket. See Figure 22.
4. All above ground gas piping upstream from
manual gas valve must be electrically continuous
and bonded to a grounding electrode. Do not use
gas piping as a grounding electrode. Refer to the
National Electrical Code, ANSI/NFPA 70 and/or
CSA C22.1 Electrical Code.
USA boilers built for installation at altitudes greater than 2,000 feet above sea level have been specially
oriced to reduce gas input rate 4 percent per 1,000 feet above sea level per the National Fuel Gas Code,
NFPA 54/ANSI Z223.1, Section 8.1.2 and Appendix F. Canadian boilers’ orice sizing is indicated on the
rating label. High altitude boiler models are identiable by the model number’s tenth digit on the rating label.
(4=2000’ - 4500’, 5= 2000’ - 5000’)

29
Length
(Feet)
0.3 Inch w.c. Pressure Drop 0.5 Inch w.c. Pressure Drop
½ ¾ 1 1¼ ½ ¾ 1 1¼
10 132 278 520 1,050 175 360 680 1,400
20 92 190 350 730 120 250 465 950
30 73 152 285 590 97 200 375 770
40 63 130 245 500 82 170 320 660
50 56 115 215 440 73 151 285 580
60 50 105 195 400 66 138 260 530
70 46 96 180 370 61 125 240 490
80 43 90 170 350 57 118 220 460
90 40 84 160 320 53 110 205 430
100 38 79 150 305 50 103 195 400
Table 6: Maximum Capacity of Schedule 40 Pipe in CFH for Gas Pressures of 0.5 psig or Less
Table 7: Equivalent Lengths of Standard Pipe Fittings & Valves
Pipe
Size
I.D.
(Inches)
Valves (Fully Open) Threaded Fittings
Gate Globe Angle Swing
Check
90°
Elbow
45°
Elbow
90° Tee, Flow
Through Run
90° Tee, Flow
Through Branch
½” 0.622 0.35 18.6 9.3 4.3 1.6 0.78 1.0 3.1
¾” 0.824 0.44 23.1 11.5 5.3 2.1 0.97 1.4 4.1
1” 1.049 0.56 29.4 14.7 6.8 2.6 1.23 1.8 5.3
1¼” 1.380 0.74 38.6 19.3 8.9 3.5 1.6 2.3 6.9
Specic
Gravity
Correction
Factor
Specic
Gravity
Correction
Factor
0.50 1.10 1.30 1.07
0.55 1.04 1.40 1.04
0.60 1.00 1.50 1.00
0.65 0.96 1.60 0.97
0.70 0.93 1.70 0.94
0.75 0.90 --- ---
0.80 0.87 --- ---
Table 8: Specic Gravity Correction Factors
Do not use matches, candles, open ames, or
other ignition source.
Figure 22: Recommended Gas Piping
C. Pressure Test. The boiler and its gas connection must
be leak tested before placing boiler in operation.
1. Protect boiler gas valve. For all testing over ½ psig,
boiler and its individual shut-off valve must be
disconnected from gas supply piping. For testing at
½ psig or less, isolate boiler from gas supply piping
by closing boiler’s individual manual shut-off valve.
2. Locate leaks using approved combustible gas
detector, soap and water, or similar nonammable
solution.

30
A. Install vent system in accordance with local building
codes; or local authority having jurisdiction; or
National Fuel Gas Code, ANSI Z223.1/NFPA 54, Part
7, Venting of Equipment and/or CAN/CSA B149.1,
Venting Systems and Air Supply for Appliances. Install
any of the following for this Series 8HE Category I,
draft hood equipped appliance:
1. Type B or Type L gas vent. Install in accordance
with listing and manufacturer’s instructions.
2. Masonry or metal chimney. Build and install in
accordance with local building codes; or local
authority having jurisdiction; or Standard for
Chimneys, Fireplaces, Vents, and Solid Fuel
Burning Appliances, ANSI/NFPA 211 and/or
National Building Code of Canada.
Masonry chimney must be lined with approved
clay ue lining or listed chimney lining system
except as provided in ANSI Z223.1/NFPA 54,
Paragraph 7.5.4(a): Exception: Where permitted by
the authority having jurisdiction, existing chimneys
shall be permitted to have their use continued when
an appliance is replaced by an appliance of similar
type, input rating, and efciency.
3. Single wall metal vent. Allowed by ANSI Z223.1/
NFPA 54 under very restrictive conditions.
B. Inspect chimney and remove any obstructions or
restrictions. Clean chimney if previously used for solid
or liquid fuel-burning appliances or replaces.
Inspect existing chimney before installing boiler.
Failure to clean or replace perforated pipe or tile
lining will cause severe injury or death.
C. Install Draft Hood on canopy outlet. Maintain height
from Jacket Top Panel to Draft Hood skirt as shown
in Figure 1. DO NOT ALTER, CUT, OR MODIFY
DRAFT HOOD.
Do not alter boiler draft hood or place any
obstruction or non-approved damper in the
breeching or vent system. Flue gas spillage can
occur. Unsafe boiler operation will occur.
D. Install Blocked Vent Switch. The Blocked Vent
Switch Assembly consists of a strain relief bushing,
power cord, and switch attached to mounting bracket.
On Packaged boilers, the assembly is shipped attached
to top of boiler. On Knocked Down boilers, the
assembly is located in Combination Boiler Parts and
Control Carton.
1. Uncoil power cord.
2. Position mounting bracket onto lower edge of Draft
Hood skirt. Locate center tooth (with #10 sheet
metal screw) on outside and other two teeth inside
Draft Hood skirt. See Figure 23.
3. Slide mounting bracket tight against lower edge of
Draft Hood skirt. Position #10 sheet metal screw
above skirt’s stiffening rib.
4. Secure bracket in position by tightening #10 sheet
metal screw against outer surface of Draft Hood
skirt.
5. Insert excess power cord through Jacket Right Side
Panel hole. Remove slack.
6. Position strain relief bushing around power cord.
Pinch bushing’s two halves together and snap back
into hole in Jacket Right Side Panel.
7. Verify power cord, mounting bracket, and Blocked
Vent Switch are secure and located as shown in
Figure 23.
Do not operate boiler without Blocked Vent Switch
Properly installed.
VI. Venting
Figure 23: Blocked Vent Switch Installation

31
E. Boiler Equipped With Vent Damper. See Figure 24.
1. Open Vent Damper Carton and remove Installation
Instructions. Read Installation Instructions
thoroughly before proceeding.
Do not use one vent damper to control two or
more heating appliances.
2. Vent damper must be same size as draft hood
outlet. See Figure 1. Unpack vent damper carefully.
Forcing vent damper open or closed may damage
gear train and void warranty. Vent damper assembly
includes pre-wired connection harness with
polarized plug.
3. Mount vent damper assembly on draft hood without
modication to either (Refer to instructions packed
with vent damper for specic instructions). Vent
damper position indicator to be visible to users.
Provide adequate clearance for servicing -
provide 6” minimum clearance between damper
and combustible construction.
F. Install Vent Connector from draft hood or vent
damper to chimney. See Figure 25.
1. Do not connect into same leg of chimney serving an
open replace.
Figure 24: Vent Damper Installation
2. Where two or more appliances vent into a common
vent, the area of the common vent should at least
equal the area of the largest vent plus 50 % of the
area of the additional vents. Do not connect the
vent of this appliance into any portion of mechanical
draft system operating under positive pressure.
3. Vent connector should have the greatest possible
initial rise above the draft hood consistent with the
head room available and the required clearance from
adjacent combustible building structure.
4. Install vent connector above bottom of chimney to
prevent blockage - inspect chimney for obstructions
or restrictions and remove - clean chimney if
necessary.
5. Vent connector should slope upward from draft hood
to chimney not less than one inch in four feet. No
portion of vent connector should run downward or
have dips or sags. Vent connector must be securely
supported.
6. Use thimble where vent connector enters masonry
chimney - keep vent connector ush with inside of
ue liner.
7. Do not install Non-listed (AGA, CGA, CSA, ETL,
or UL) vent damper or other obstruction in vent
pipe.
8. Locate Boiler as close to Chimney as possible
consistent with necessary clearances. See Section I:
Pre-Installation.

32
Figure 25: Typical Vent System
9. Design vent system for sea level input.
10. Provide adequate ventilation of Boiler Room. See
Section I: Pre-Installation.
11. Never pass any portion of vent system through a
circulating air duct or plenum.
When an existing boiler is removed from a
common venting system, the common venting
system is likely to be too large for proper venting
of the appliances remaining connected to it.
G. If an Existing Boiler is Removed:
At the time of removal of an existing boiler,
the following steps shall be followed with each
appliance remaining connected to the common
venting system placed in operation, while the other
appliances remaining connected to the common
venting system are not in operation:
1. Seal any unused openings in the common venting
system.
2. Visually inspect the venting system for proper
size and horizontal pitch and determine there is no
blockage or restriction, leakage, corrosion, or other
deciencies which could cause an unsafe condition.
3. Insofar as is practical, close all building doors and
windows and all doors between the space in which
the appliances remaining connected to the common
venting system are located and other spaces of the
building. Turn on clothes dryers and any appliance
not connected to the common venting system.
Turn on any exhaust fans, such as range-hoods and
bathroom exhausts, so they will operate at maximum
speed. Do not operate a summer exhaust fan. Close
replace dampers.
4. Place in operation the appliance being inspected.
Follow the Lighting (or Operating) Instructions.
Adjust thermostat so appliance will operate
continuously.
5. Test for spillage at the draft hood relief opening after
5 minutes of main burner operation. Use the ame
of a match or candle, or smoke from a cigarette,
cigar or pipe.
6. After it has been determined that each appliance
remaining connected to the common venting system
properly vents when tested as outlined above, return
doors, windows, exhaust fans, replace dampers and
any other gas-burning appliance to their previous
condition of use.
7. Any improper operation of the common venting
system should be corrected so the installation
conforms with the National Fuel Gas Code, NFPA
54/ANSI Z223.1. When resizing any portion of
the common venting system, the common venting
system should be resized to approach the minimum
size as determined using the appropriate tables in
Part 7 and Part 11 in the National Fuel Gas Code,
NFPA 54/ANSI Z223.1.

33
VII. Electrical
A. Install Boiler Wiring
1. Knockdown boilers only. Locate wiring harnesses
in Combination Boiler Parts and Control Carton.
Refer to Table 10 and connect wiring as shown on
the appropriate wiring diagram.
2. Connect supply wiring and electrically ground boiler
in accordance with requirements of authority having
jurisdiction, or in absence of such requirements the
National Electrical Code, ANSI/NFPA 70 and/or
CSA C22.1 Electrical Code.
B. Wire Vent Damper (if used; optional on 806H -
810HE). See Figure 24. Vent damper harness for 805
plugs directly into Hydrostat 3200.
NOTE: Once vent damper is connected to Hydrostat
3200, control will not operate without it plugged in.
1. Attach Vent Damper Harness to mounting hole in
Jacket Left Side Panel. Install Cable Clamp around
exible conduit and attach to Jacket Top Panel.
2. Remove factory installed Jumper Plug from Vent
Damper Receptacle on Vestibule Wiring Harness
and discard.
3. Plug Vent Damper Harness Plug into Vent Damper
Receptacle. See Figure 24.
C. Install thermostat. Locate on inside wall
approximately 4 feet above oor. Do not install on
outside wall, near replace, or where inuenced
by drafts or restricted air ow, hot or cold pipes,
lighting xtures, television, or sunlight. Allow free air
movement by avoiding placement of furniture near
thermostat.
Set heat anticipator to match control system
requirements. Refer to Table 9.
D. Wire thermostat. Provide Class II circuit between
thermostat and boiler. Refer to appropriate wiring
diagram for control system being used.
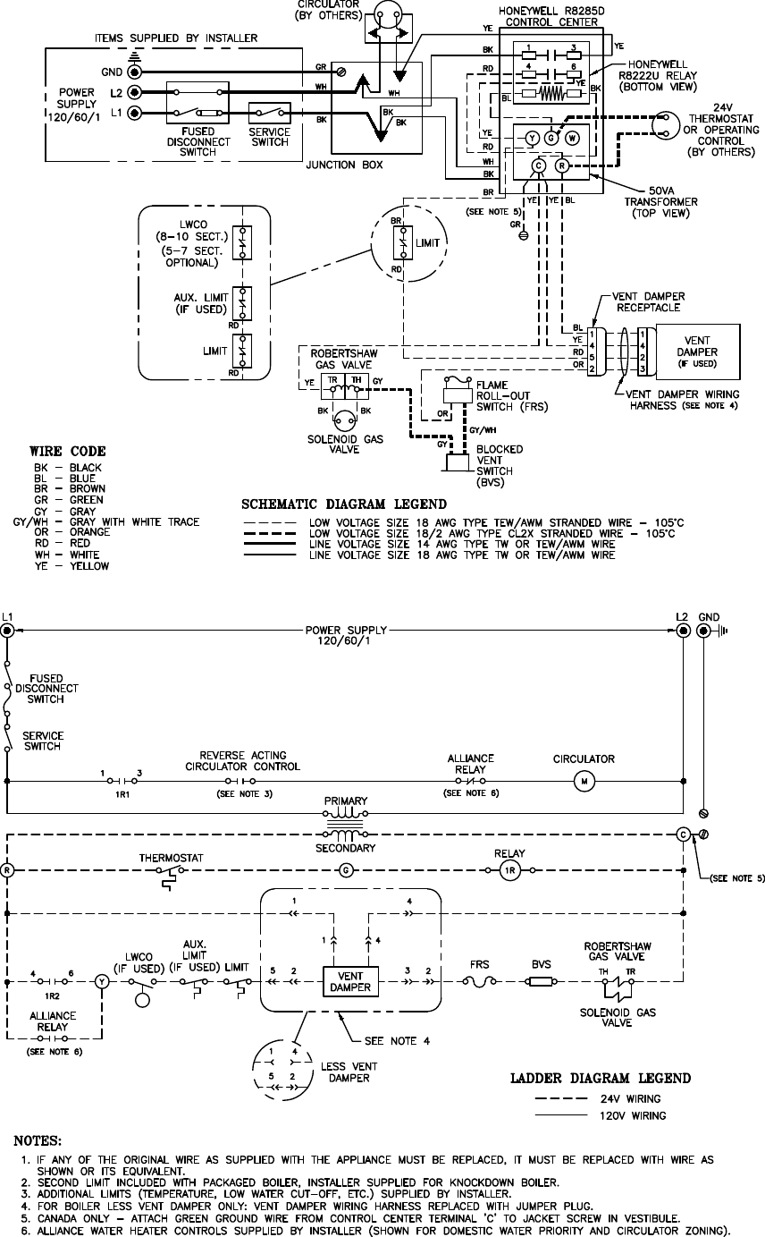
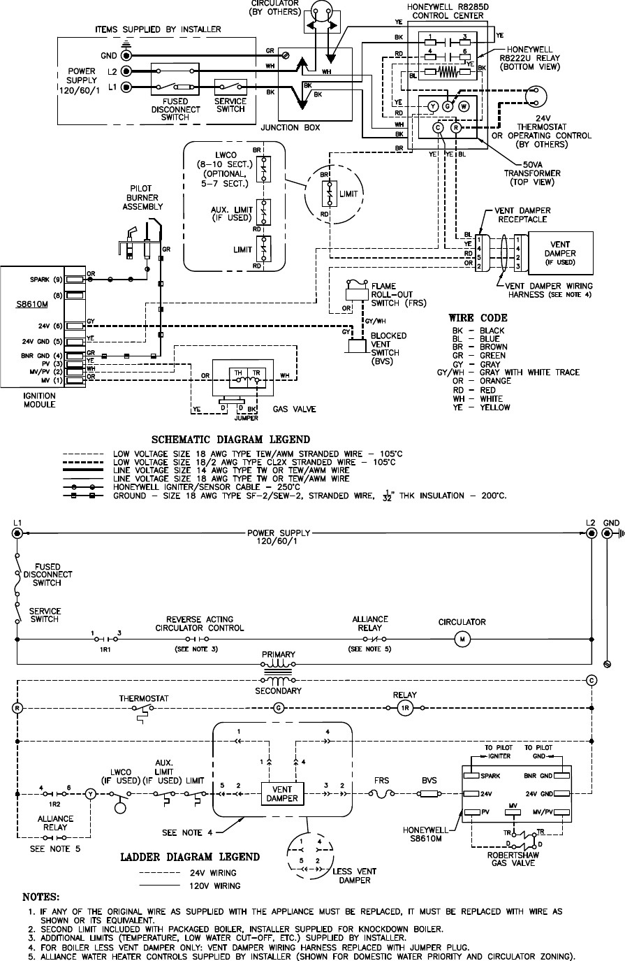
Figure 26: Vent Damper Schematic Wiring Diagram (806H - 810HE)
Failure to properly wire electrical connections to the boiler may result in serious physical harm.
Electrical power may be from more than one source. Make sure all power is off before attempting any
electrical work.
Each boiler must be protected with a properly sized fused disconnect.
Never jump out or make inoperative any safety or operating controls.
The wiring diagrams contained in this manual are for reference purposes only. Each boiler is shipped with
a wiring diagram attached to the front door. Refer to this diagram and the wiring diagram of any controls
used with the boiler. Read, understand and follow all wiring instructions supplied with the controls.
Positively assure all electrical connections are unpowered before attempting installation or service of
electrical components or connections of the boiler or building. Lock out all electrical boxes with padlock
once power is turned off.

34
E. Alliance SL™ Water Heater (if used). May be used
with Intermittent Circulation only.
Refer to Alliance SL™ Installation, Operating
and Service Instructions for wiring, piping and
additional information.
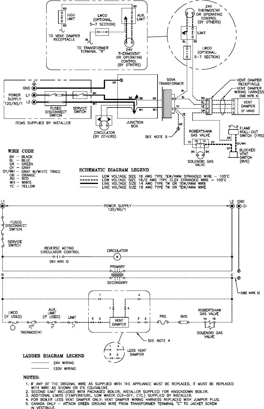
F. Vent Damper Sequence of Operation. See Figure 26
for schematic wiring diagram (806H - 810HE).
1. The Vent Damper is continuously powered at
Terminal 1.
2. When there is a call for heat, the damper relay coil
is energized through Terminal 5 if all limits ahead of
the damper are satised.
3. The relay coil closes contacts which energize the
damper motor, causing the damper to open.
4. When the damper blade reaches the fully open
position, power is sent back to the ignition circuit
through Terminal 2 and the damper motor is de-
energized.
5. When the call for heat is satised, the damper
relay coil is de-energized - closing contacts which
energize the damper motor. This causes the damper
to close. When the damper blade reaches the fully
closed position, the damper motor is de-energized.
POWER FAILURE - The damper blade will stop in the
position it was in when power failed. (Combustion
can never take place unless the damper blade is in
the fully open position).
6. For Model 805, vent damper is connected directly
to Hydrostat 3200. Once vent damper is plugged in,
Hydrostat 3200 will not run without it.
G. Sequence of Operation and Wiring. Refer to Table
10 for the appropriate control system.
H. Optional Low-Water Cut-Off Wiring. See Figures 42
through 44. For Model 805, use special Hydrostat Well,
part number 105203-01.
Table 9: Heat Anticipator Settings
Control System Heat Anticipator Setting *
Continuous Circulation Intermittent Circulation
24V Standing Pilot 1.1 0.3
24V Electronic Ignition USA: 0.9 0.3
Canada: 1.2
* If room is heated above thermostat temperature setting, reduce heat anticipator setting by 0.1 or
0.2 amps. If boiler short cycles without room reaching desired temperature, increase heat anticipator
by 0.1 or 0.2 amps.

35
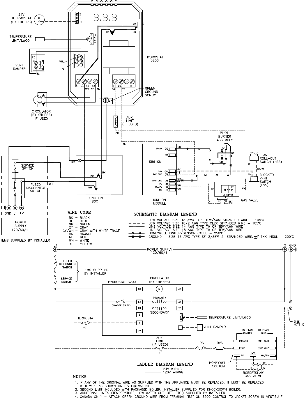
1. Standing Pilot (24) Sequence of Operation
a. Normal Operation
i. Thermostat or operating control calls for
heat. Vent Damper (if used) opens.
ii. Gas valves are energized allowing main gas
ow and ignition of main burners.
iii. Call or heat ends. Gas valves are de-
energized, extinguishing main ame. Vent
Damper (if used) closes.
b. Safety Shutdown
i. Limit: Automatically interrupts main burner
operation when water temperature exceeds
set point. Maximum allowable temperature
is 250°F. Circulator continues to operate
with call for heat, Vent Damper (if used)
closes. Normal operation resumes when
water temperature falls below set point.
ii. Blocked Vent Switch: Automatically
interrupts main burner operation when
excessive ue gas spillage occurs.
Circulator continues to operate and Vent
Damper (if used) remains open with call
for heat. If blocked vent switch is activated
do not attempt to place boiler in operation.
Correct cause of spillage and reset blocked
vent switch.
iii. Flame Roll-out Switch: Automatically
interrupts main burner operation when
ames or excessive heat are present in
vestibule. Circulator continues to operate
and Vent Damper (if used) remains open
with call for heat. Control is single use
device. If ame roll-out switch is activated,
do not attempt to place boiler in operation.
Correct cause of spillage and replace ame
roll-out switch.
iv. Thermocouple: Senses pilot ame and
causes gas valves to turn off main burner
and pilot burner gas ow should pilot burner
ame extinguish. Circulator continues to
operate and Vent Damper (if used) remains
open with call for heat.
Table 10: Sequence of Operation and Wiring Diagrams
Ignition System Country Fuel Boiler Sizes Wiring Diagram Figure Sequence of
Operation
Continuous Intermittent
Standing Pilot (24V) USA &
Canada
Natural Gas
6 & 7 Sect. Figure 27 Figure 28 Page 35
LP Gas
Intermittent Ignition
(Honeywell EI - 24V)
USA
Natural Gas
5 - 10 Sect. Figure 30 Figure 31
Page 38
LP Gas
Canada
Natural Gas 5 - 10 Sect.
Figure 32 Figure 33
LP Gas 5 - 7 Sect.
Intermittent Ignition
(EP - 120V)
USA &
Canada
Natural Gas 6 - 10 Sect. Figure 34 Figure 35 Page 44
LP Gas Not Available
Intermittent Ignition
(EP-CSD-1 - 120V) USA Natural Gas 8 - 10 Sect. Figure 34 Figure 35 Page 44

36
Figure 27: Wiring Diagram, Standing Pilot (24V), Continuous Circulation (806H - 807HE)

37
Figure 28: Wiring Diagram, Standing Pilot (24V), Intermittent Circulation (806H - 807HE)
38
2. Honeywell EI Sequence of Operation
a. Normal Operation
i. Thermostat or operating control calls for
heat. Vent Damper (if used) opens.
ii. Ignition Module Terminals PV, MV/PV
and the Ignition Terminal are energized.
Terminals PV and MV/PV power the Pilot
Valve in the Gas Valve supplying gas to
the Pilot. The Ignition Terminal supplies
voltage to the Ignition Electrode creating an
electric spark to ignite the Pilot.
iii. The sensing Circuit between the Q3481B
Pilot Burner and the IGNITION MODULE
proves the presence of the Pilot Flame
Electronically and the Ignition Terminal is
de-energized.
iv. Terminals MV and MV/PV of the
IGNITION MODULE are energized and
supply power to the Main Gas Valve. The
Gas Valve is energized allowing main gas
ow, and ignition of Main Burners.
v. Call for heat ends. Ignition module is de-
energized, de-energizing gas valve, and
extinguishing pilot and main ame. Vent
Damper (if used) closes.
b. Safety Shutdown
i. Limit: Automatically interrupts power
to the Ignition Module and Gas Valve(s),
extinguishing pilot and main ame, when
water temperature exceeds set point.
Maximum allowable temperature is 250°F.
Circulator continues to operate with call for
heat, Vent Damper (if used) closes. Normal
operation resumes when water temperature
falls below set point.
ii. Blocked Vent Switch: Automatically
interrupts main burner operation when
excessive ue gas spillage occurs.
Circulator continues to operate and Vent
Damper (if used) remains open with call
for heat. If blocked vent switch is activated
do not attempt to place boiler in operation.
Correct cause of spillage and reset blocked
vent switch.
iii. Flame Roll-out switch: Automatically
interrupts main burner operation when
ames or excessive heat are present in
vestibule. Circulator continues to operate,
Vent Damper (if used) remains open with
call for heat. Control is single use device.
If ame roll-out switch is activated, do not
attempt to place boiler in operation. Correct
cause of spillage and replace ame roll-out
switch.
iv. Pilot
– Pilot failure can occur during the start-up or
the operating cycle of the boiler. Any pilot
failure of the Q3481B Electronic Pilot, after
ignition of pilot ame will close the main
gas valve in 0.8 seconds.
– For approximately 90 seconds after failure
of the Q3481B pilot, the module through
the ignition terminal will try to reestablish
pilot ame. If no pilot ame can be sensed
by the ame rod circuit, terminals PV and
MV/PV are de-energized and the module
will lock out on safety. Five to six minutes
after shutdown, the IGNITION MODULE
restarts the ignition sequence. The ignition
trial, shutdown, and wait sequence continues
until either the pilot lights or the Thermostat
is set below room temperature (to end the
call for heat). The ignition sequence can be
reset by setting down the Thermostat for one
minute.
c. Trouble Shooting Guide. See Page 61.

39
Figure 29: Wiring Diagram, Honeywell EI, USA & Canada, 805 Only with Hydrostat 3200 Control

40
Figure 30: Wiring Diagram, Honeywell EI, USA, Continuous Circulation (806 - 810)

41
Figure 31: Wiring Diagram, Honeywell EI, USA, Intermittent Circulation (806 - 810)

42
Figure 32: Wiring Diagram, Honeywell EI, Canada, Continuous Circulation
(Natural: 806H - 810HE; LP: 806H - 807HE)

43
Figure 33: Wiring Diagram, Honeywell EI, Canada, Intermittent Circulation
(Natural: 806H - 810HE; LP: 806H - 807HE)
44
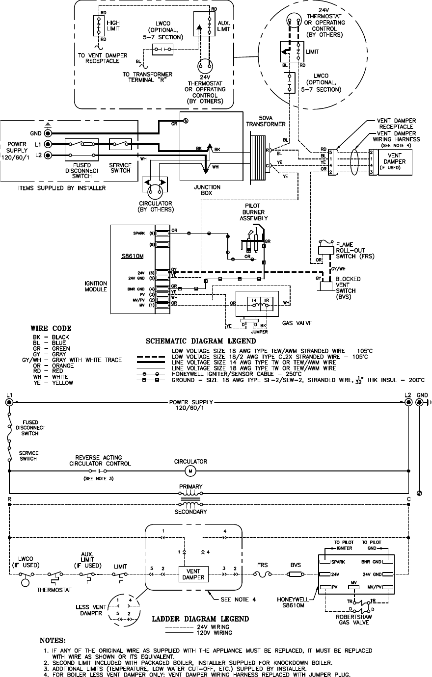
6. Electronically Supervised Intermittent Ignition
(EP/EP-CSD-1) Sequence of Operation
a. Normal Operation
i. Thermostat or operating control calls for
heat.
ii. Terminal #6 of RM7890A Burner Control
is energized, initiating a microcomputer
monitored circuit test.
iii. The pilot valve (terminal 8) and ignition
transformer (terminal 10) are energized.
The pilot valve opens and the ignition
electrode sparks, igniting the pilot.
iv. After the pilot ame is proven, the ignition
terminal (10) is de-energized and the main
valve terminal (9) is energized, allowing
main gas ow and ignition of main burners.
“Main” gas light will be illuminated.
v. When the call for heat ends, terminal #6
is de-energized, extinguishing the pilot
and main ames. “Main” gas light is de-
energized.
b. Safety Shutdown
i. Limit: Automatically interrupts main burner
operation when water temperature exceeds
set point. Maximum allowable temperature
is 250°F. Circulator continues to operate
with call for heat. Normal operation
resumes when water temperature falls below
set point.
ii. Blocked Vent Switch: Automatically
interrupts main burner operation when
excessive ue gas spillage occurs.
Circulator continues to operate with call for
heat. If blocked vent switch is activated,
do not attempt to place boiler in operation.
Correct cause of spillage and reset blocked
vent switch.
iii. Flame Roll-out Switch: Automatically
interrupts main burner operation when
ames or excessive heat are present in
vestibule. Circulator continues to operate
with call for heat. Control is single use
device. If ame roll-out switch is activated,
do not attempt to place boiler in operation.
Correct cause of spillage and replace ame
roll-out switch.
iv. RM7890A Burner Control: Automatically
interrupts main burner operation if a pilot
ame is not detected during the four or ten
second pilot ame establishing period. The
RM7890A will lockout or recycle based
on jumper settings. “Alarm” light will be
illuminated. Refer to instructions supplied
with RM7890A for additional control
information.

45
Figure 34: Wiring Diagram, EP Ignition System, Natural Gas Only, Continuous Circulation
(EP-CSD-1; Natural Gas, USA Only, 808HE - 810HE)

46
Figure 35: Wiring Diagram, EP Ignition System, Natural Gas Only, Intermittent Circulation
(EP-CSD-1; Natural Gas, USA Only, 808HE - 810HE)

47
Figure 36: McDonnell & Miller 751P-MT (120V) L.W.C.O. Wiring for Boilers with 24V Limit Circuits
(806H - 810HE)
Figure 37: McDonnell & Miller 751P-MT (120V) L.W.C.O. Wiring for Boilers with 120V Limit Circuits (EP)
(808HE - 810HE)

48
Figure 38: Hydrolevel OEM - 170/550/650/750 (120V) L.W.C.O. Wiring for Boilers with 24V Limit Circuits
(806H - 810HE)
Figure 39: Hydrolevel OEM - 170/550/650/750 (120V) L.W.C.O. Wiring for Boilers with 120V Limit Circuits
(808HE - 810HE)

49
Completely read, understand and follow all
instructions in this manual before attempting
start-up.
A. Safe operation and other performance criteria were met
with the gas manifold and control assembly provided
on boiler when boiler underwent tests specied in
American National Standard for Gas-Fired Low-
Pressure Steam and Hot Water Boilers, ANSI Z21.13.
B. Check Main Burners. Main burners must be properly
located on support bracket in Base Rear Panel, seated
on Main Burner Orices, and secured with hitch pin
clips.
C. Verify that the venting, water piping, gas piping
and electrical system are installed properly. Refer to
installation instructions contained in this manual.
D. Conrm all electrical, water and gas supplies
are turned off at the source and that vent is clear of
obstructions.
E. FILL ENTIRE HEATING SYSTEM WITH WATER
and vent air from system. Use following procedure on
a Series Loop or multi-zoned system installed as per
Figure 21 to remove air from system when lling.
The maximum operating pressure of this boiler is
50 psig. Never exceed this pressure. Do not plug
or modify pressure relief valve.
1. Close full port ball valve in boiler supply piping.
2. Isolate all zones by closing zone valves or shut-off
valves in supply and return of each zone(s).
3. Attach a hose to the vertical purge valve located
prior to the full port ball valve in the system supply
piping. (Note - Terminate hose in ve gallon bucket
at a suitable oor drain or outdoor area).
4. Starting with one circuit at a time, open zone valve
or shut-off valve in system supply and return piping.
5. Open purge valve.
6. Open ll valve (Make-up water line should be
located directly after full port ball valve in system
supply piping between air scoop and expansion
tank).
7. Allow water to overow from bucket until discharge
from hose is bubble free for 30 seconds.
8. Close the open zone valve or shut-off valve for the
zone being purged of air, then open the zone valve
or shut-off valve for the next zone to be purged.
Repeat this step until all zones have been purged. At
completion, open all zone valves or shut-off valves.
VIII. System Start-Up
9. Close purge valve, continue lling the system
until the pressure gauge reads the desired cold ll
pressure. Close ll valve.
(Note - If make-up water line is equipped with
pressure reducing valve, adjust pressure reducing
valve to desired cold ll pressure. Follow ll valve
manufacturer’s instructions).
10. Open isolation valve in boiler supply piping.
11. Remove hose from purge valve.
F. Conrm that the boiler and system have no water
leaks.
G. Prepare to check operation.
1. Obtain gas heating value (in Btu per cubic foot)
from gas supplier.
2. Connect manometer to pressure tap on gas valve.
Use 1/8 NPT tapping provided.
3. Temporarily turn off all other gas-red appliances.
4. Turn on gas supply to the boiler gas piping.
5. Conrm that the supply pressure to the gas valve is
14 in. w.c. or less.
6. Open the eld installed manual gas shut-off valve
located upstream of the gas valve on the boiler.
7. Using soap solution, or similar non-combustible
solution, electronic leak detector or other approved
method. Check that boiler gas piping, valves, and
all other components are leak free. Eliminate any
leaks.
8. Purge gas line of air.
H. Follow Lighting or Operating Instructions to place
boiler in operation. Refer to label on inside of Front
Removable Panel or appropriate Figure as listed in
Table 11.
Do not use matches, candles, open ames or
other ignition source to check for leaks.
Ignition System
Lighting or
Operating
Instructions
Pilot Flame
Illustration
Standing Pilot (24) Figure 40 Figure 44
Honeywell EI Figure 41 Figure 45
EP Figure 42 Figure 46
EP-CSD-1 Figure 43 Figure 46
Table 11: Lighting and Operating Instructions

50
Figure 40: Lighting Instructions (24V Standing Pilot)

51
Figure 41: Operating Instructions (EI)

52
Figure 42: Operating Instructions (EP)

53
BOILER OPERATING INSTRUCTIONS
TO SHUT DOWN:
1. Close manual main shut-off valve(s) and pilot
valve(s).
2. Turn off main electric switch.
TO START UP:
1. Make sure that both the main manual and the pilot
valve(s) have been off for at least ve minutes.
2. Turn room thermostat and all operating controls to
lowest setting.
3. Remove burner access panel(s).
4. Open manual pilot valve(s).
5. Turn on main electric switch.
6. Reset safety switch on ame safeguard relay.
7. Intermittent electric ignition rectication pilot(s)
Q179C light up automatically when thermostat or
operating control calls for heat.
8. Replace burner access panel(s).
9. Open manual main shut-off valve(s).
10. Adjust room thermostat and operating controls to
desired setting.
Figure 43: Lighting / Operating Instructions (EP-CSD-1)

54
I. Check pilot burner ame and main burner ames
through observation port.
1. Check pilot ame. Refer to Table 11 for appropriate
pilot detail.
2. Adjust thermostat to highest setting.
3. Check main burner ames. See Figure 47. Flame
should have clearly dened inner cones with no
yellow tipping. Orange-yellow streaks caused
by dust should not be confused with true yellow
tipping.
Yellow-tipping indicates lack of primary air.
Improper burner alignment on Main Burner Orice
will also affect primary air injection. Adjust primary
air as follows:
Figure 45: Honeywell Q3481B Pilot Flame
(24V Electronic Ignition)
Figure 44: Honeywell Q314 Pilot Flame
(24V Standing Pilot)
Figure 46: Honeywell Q179C Pilot Flame (EP)
Figure 47: Main Burner Flame
Avoid operating this boiler in an environment
where saw dust, loose insulation bers, dry wall
dust, etc. are present. If boiler is operated under
these conditions, the burner interior and ports
must be cleaned and inspected daily to insure
proper operation.
a. Loosen lock screw.
b. Close air adjustment until yellow tips appear on
ames.
c. Slowly open air adjustment until clearly dened
inner cones are visible.
d. Tighten lock screw.
4. Adjust thermostat to normal setting.

55
J. Check thermostat or operating control operation.
Raise and lower temperature setting to start and stop
boiler operation.
K. Check ignition system shut-off.
1. Standing Pilot (24V): Disconnect thermocouple
lead at Gas Valve. Gas Valve must close and pilot
and main burners extinguish. If not, replace the gas
valve.
2. Honeywell EI: Disconnect ignitor/sensor cable from
ignition module. Gas valve must close and pilot and
main burners extinguish. If not, measure voltage
across gas valve terminals “TH” and “TR”.
a. If voltage is not present, replace gas valve.
b. If voltage is present, replace ignition module.
3. EP: Refer to instructions supplied with the
Honeywell RM7890 Burner Control.
L. Check Limit(s). NOTE: If using Model 805, see
Installation and Operating manual for Hydrostat 3200,
packed in envelope taped to top of boiler for packaged
boilers and in parts and control carton for KD boilers
for maintenance.
1. Adjust thermostat to highest setting.
2. Observe temperature gauge. When temperature
exceeds limit set point main burners should
extinguish.
3. Adjust limit to setting above observed reading. Main
burners should reignite.
4. Adjust thermostat to lowest setting. Adjust limit to
desired setting.
M. Adjust gas input rate to boiler. Natural Gas.
1. Adjust thermostat to highest setting.
2. Check manifold gas pressure. Manifold pressure
is listed on rating label. Adjust gas valve pressure
regulator as necessary (turn adjustment screw
counterclockwise to decrease manifold pressure, or
clockwise to increase manifold pressure). If pressure
can not be attained, check gas valve inlet pressure.
If less than minimum gas supply pressure listed on
rating label, contact gas supplier for assistance.
3. Clock gas meter for at least 30 seconds. Use Table
12 to determine gas ow rate in Cubic Feet per
Hour.
4. Determine Input Rate. Multiply gas ow rate by gas
heating value.
Failure to properly adjust gas input rate will result
in over ring or under ring of the appliance.
Improper and unsafe boiler operation may result.
5. Compare measured input rate to input rate stated on
rating label.
Seconds
for One
Revolution
Size of Gas Meter Dial
One-Half
Cu. Ft.
One
Cu. Ft.
Two
Cu. Ft.
Five
Cu. Ft.
30 60 120 240 600
32 56 113 225 563
34 53 106 212 529
36 50 100 200 500
40 45 90 180 450
38 47 95 189 474
40 45 90 180 450
42 43 86 172 430
44 41 82 164 410
46 39 78 157 391
48 37 75 150 375
50 36 72 144 360
52 35 69 138 346
54 33 67 133 333
56 32 64 129 321
58 31 62 124 310
60 30 60 120 300
62 29 58 116 290
64 29 56 112 281
66 29 54 109 273
68 28 53 106 265
70 26 51 103 257
72 25 50 100 250
74 24 48 97 243
76 24 47 95 237
78 23 46 92 231
80 22 45 90 225
Table 12: Input Rate
a. Boiler must not be overred. Reduce input rate
by decreasing manifold pressure. Do not reduce
more than 0.3 inch w.c. If boiler is still overred,
contact your Burnham distributor or Regional
Ofce for replacement Gas Orices.
b. Increase input rate if less than 98% of rating
plate input. Increase manifold gas pressure no
more than 0.3 inch w.c. If measured input rate is
still less than 98% of rated input:
i. Remove Main Burners per procedure in
Section IX: Service.
ii. Remove gas orices. Drill one (1) drill size
larger (drill size is stamped on orice, or see
Key No. 4E).
iii. Reinstall gas orices and main burners.
Measure input rate.
6. Recheck Main Burner Flame.
7. Return other gas-red appliances to previous
conditions of use.

56
N. Adjust gas input rate to boiler. LP/Propane.
1. Set thermostat to highest setting.
2. Adjust tank regulator for gas valve inlet pressure of
13.5 inches w.c. or less.
3. Gas valve has step opening regulator which initially
opens to 1.4 or 2.5 inch w.c. and steps to full
pressure after approximately 30 seconds. Check
manifold pressure after step has occurred. Adjust gas
valve pressure regulator as necessary for 10.0 inches
w.c. (turn adjustment screw counterclockwise to
decrease manifold pressure, or clockwise to increase
manifold pressure). If 10.0 inches w.c. can not be
attained, check gas valve inlet pressure. If less than
11.0 inches w.c., contact gas supplier for assistance.
O. Clean Heating System
Oil, grease, and other foreign materials which
accumulate in new hot water boilers and a new or
reworked system should be boiled out, and then
thoroughly ushed. A qualied water treatment
chemical specialist should be consulted for
recommendations regarding appropriate chemical
compounds and concentrations which are compatible
with local environmental regulations.
P. Check Damper Operation - If boiler is equipped with
vent damper, vent damper must be in open position
when boiler main burners are operating. Start boiler,
refer to instructions on damper to determine if damper
is in full open position.
Q. Install Front Removable Panel.
1. Engage top ange (longer of 2 anges) behind
Upper Front Panel.
2. Swing lower portion of door toward boiler.
3. Lower door to engage bottom ange behind Lower
Front Tie Bar.
R. Combustion Chamber Burn-Off
1. The mineral wool combustion chamber panels
contain a cornstarch based binder that must be
burned out at installation to prevent odors during
subsequent boiler operation.
2. Ventilate the boiler room, set the high limit to its
maximum setting, set the thermostat to call for heat.
3. Allow the boiler to re for at least an hour or until
the odor from the cornstarch has dissipated.
4. Return the high limit and thermostat to their desired
settings.
S. Review User’s Information Manual and system
operation with owner or operator.
Model 805 Only:
IMPORTANT
This boiler is equipped with a feature that saves energy by reducing the boiler water temperature
as the heating load decreases. This feature is equipped with an override which is provided
primarily to permit the use of an external energy management system that serves the same
function. THIS OVERRIDE MUST NOT BE USED UNLESS AT LEAST ONE OF THE
FOLLOWING CONDITIONS IS TRUE:
• An external energy management system is installed that reduces the boiler
water temperature as the heating load decreases.
• This boiler is not used for any space heating.
• This boiler is part of a modular or multiple boiler system having a total input
of 300,000 BTU/hr or greater.
• This boiler is equipped with a tankless coil.

57
IX. Service
A. General. Inspection and service must be conducted
annually. Turn off electrical power and gas supply while
conducting service or maintenance. Follow instructions
TO TURN OFF GAS TO APPLIANCE. See Lighting/
Operating Instructions on inside of Front Removable
Door.
Label all wires prior to disconnection when
servicing controls. Wiring errors can cause
improper and dangerous operation. Verify proper
operation after servicing.
B. Maintenance of Low Water Cut-off (if used). Follow
instruction manual provided with low water cut off.
If model 805, see Installation and Operating manual
for Hydrostat 3200, packed in envelope taped to top
of boiler for packaged boilers and in parts and control
carton for KD boilers for maintenance.
C. Vent System. Check for:
1. obstructions
2. accumulations of soot
3. deterioration of vent pipe or vent accessories due to
condensation or other reasons
4. proper support—no sags, particularly in horizontal
runs
5. tightness of joints. Remove all accumulations of
soot with wire brush and vacuum
Remove all obstructions. Replace all deteriorated parts
and support properly. Seal all joints.
D. Remove Main Burners for cleaning, changing orice
plugs, or repairs.
1. Shut down gas boiler in accordance with Lighting/
Operating Instructions on inside of Front Removable
Door. Close Manual Shut-off Valve.
2. Remove Front Removable Door. Raise Lower Front
Tie Bar.
3. Disconnect ignition system.
4. Remove burner access panel(s).
5. Mark location of Main Burner with Pilot Bracket on
manifold.
6. Remove hitch pin clips from Main Burner Orices.
7. Hold Main Burner on throat. Lift slightly to raise
rear of burner. Push to rear of boiler until burner
clears Main Burner Orice. Lift burners out.
8. Check burners to be sure they do not contain foreign
matter or restrictions. Clean burners with a soft
bristle brush, blow any dirt out with compressed air
or use a vacuum cleaner. See Figure 48.
E. Clean Boiler Flueways. See Figure 48.
1. Shut down gas boiler in accordance with Lighting/
Operating Instructions on inside of Front Removable
Door. Close Manual Shut-off Valve.
2. Disconnect vent system. Remove Draft Hood.
3. Remove Jacket Top Panel.
4. Remove Canopy from top of boiler.
5. Remove ue bafes. Refer to Figure 48 for
instructions on how to remove bafes from
ueways. Remove any accumulated scale or soot.
6. Thoroughly clean ueways with ue brush,
removing all scale and soot. See Figure 48.
7. Clean boiler heating surface accessible from
combustion chamber with straight handle wire
brush.
8. Reinsert bafes into ueways by reversing steps
given in Figure 48. Tabs at top of each bafe should
rest on top of ue pins.
Service on this boiler should be undertaken only by trained and skilled personnel from a qualied service
agency. Inspections should be performed at intervals specied in this manual. Maintain manual in a
legible condition.
Keep boiler area clear and free of combustible materials, gasoline and other ammable vapors and
liquids.
Do not place any obstructions in boiler room that will hinder ow of combustion and ventilation air.
The service instructions contained in this manual are in addition to the instructions provided by the
manufacturer of the boiler components. Follow component manufacturer’s instructions. Component
manufacturer’s instructions were provided with the boiler. Contact component manufacturer for replace-
ment if instructions are missing. Do not install, start up, operate, maintain or service this boiler without
reading and understanding all of the component instructions. Do not allow the boiler to operate with
altered, disconnected or jumpered components. Only use replacement components identical to those
originally supplied by Burnham Commercial.

58
9. Install Canopy. See Section II: Boiler Assembly,
Paragraph G.
10. Install Jacket Top Panel, Draft Hood, Vent Damper
(if used) and Vent System.
F. Clean Combustion Chamber by vacuuming. Exercise
care to avoid damaging Base Insulation.
G. Install Burners by reversing procedures used to
remove burners. Verify Main Burners are properly
located on support bracket in Base Rear Panel, seated
on Main Burner Orices, and secured with hitch pin
clips. Verify Main Burner with Pilot Bracket is in
proper location. See Table 13.
H. Lubrication. Manufacturers Instruction should be
followed on all parts installed on boiler requiring
Boiler Model Pilot Located Between Burners*
805H 4 & 5
806H 5 & 6
807HE 6 & 7
808HE 6 & 7
809HE 7 & 8
810HE 8 & 9
* Burners numbered left to right as viewed from front of boiler.
Table 13: Pilot Burner Location
Figure 48: Boiler Flueway Cleaning
lubrication. This includes type of lubricant to be used,
frequency of lubrication, and points to lubricate.
I. Check operation. Refer to Section VIII: System Start-
up.

59
Yellow LED
Flash CodeaIndicates Recommended Service Action
Heartbeat Normal Flame Signal N/A
2
Weak Flame Signal -
System will operate reliably but ame signal is less than
desired.
Note: This indication may ash temporarily during or
shortly after lightoff on some applications.
Perform routine maintenance to
assure optimum ame signal.
1
Marginal Flame Signal (less than 1.1 µA) -
System may not operate reliably over time. Service call
recommended.
Note: This indication may ash temporarily during or
shortly after lightoff on some applications.
Check gas supply, pilot burner, ame
sense wiring, contamination of ame rod,
burner ground connection.
OFF No Flame or Flame Signal -
below minimum threshold for system operation. N/A
aFlash Code Descriptions
- Heartbeat: Constant ½ second bright, ½ second dim cycles.
- The ash code number signies that the LED ashes X times at 2Hz, remains off for two seconds, and then repeats
sequence.
Honeywell EI Ignition Module Yellow LED Flame Codes

60
Green LED
Flash Code
(X + Y)a
Indicates Next System Action Recommended Service Action
OFF No “Call for Heat” N/A None
Flash Fast Startup - Flame sense
calibration N/A None
Heartbeat Normal operation N/A None
2
5 minute Retry Delay-
Pilot ame not detected
during trial for ignition
Initiate new trial for ignition after
retry delay completed.
If system fails to light on next trial for
ignition check gas supply, pilot burner,
spark and ame sense wiring, ame rod
contamination or out of position, burner
ground connection.
3Recycle- Flame failed
during run
Initiate new trial for ignition. Flash
code will remain through the ignition
trial until ame is proved.
If system fails to light on next trial
for ignition check gas supply, pilot
burner, ame sense wiring, ame rod
contamination, burner ground connection.
4Flame sensed out of
sequence
If situation self corrects within 10
seconds, control returns to normal
sequence. If ame out of sequence
remains longer than 10 seconds,
control goes to Flash code 6+4 (see
below)
Check for pilot ame. Replace gas valve
if pilot ame present. If no pilot ame,
cycle “Call for Heat.” If error repeats,
replace control.
7Flame sense leakage to
ground
Control remains in wait mode.
When the fault corrects, control
resumes normal operation after a
one minute delay.
Check ame sense lead wire for damage
or shorting. Check that ame rod is in
proper position. Check ame rod ceramic
for cracks, damage or tracking.
8Low secondary voltage
supply- (below 15.5 Vac)
Control remains in wait mode.
When the fault corrects, control
resumes normal operation after one
minute delay.
Check transformer and AC line for proper
input voltage to the control. Check with
full system load on the transformer.
6 + 2
5 minute Retry Delay-
On every third retry on
same “Call for Heat”
Initiate new trial for ignition after
retry delay completed.
Check gas supply, pilot burner, spark
and ame sense wiring, ame rod
contamination or out of position, burner
ground connection.
6 + 3
On every 6th ame
failure during run on the
same “Call for Heat”
5 minute retry delay, then initiate
new trial for ignition.
Check gas supply, pilot burner, ame
sense wiring, contamination of ame rod,
burner ground connection.
6 + 4
Flame sensed out of
sequence- longer than
10 seconds
Control waits until ame is no
longer sensed and then goes to
soft lockout. Flash code continues.
Control auto resets from soft
lockout after one hour.
Check for pilot ame. Replace gas valve
if pilot ame present. If no pilot ame,
cycle “Call for Heat.” If error repeats,
replace control.
ON
Soft lockout due to error
detected during self
check sequences
Control auto resets from soft
lockout after one hour.
Reset by cycling “Call for Heat.” If error
repeats, replace the control
aFlash Code Descriptions:
- Flash Fast: rapid blinking
- Heartbeat: Constant ½ second bright, ½ second dim cycles.
- A single ash code number signies that the LED ashes X times at 2Hz, remains off for two seconds, and then
repeats the sequence.
- X + Y ash codes signify that the LED ashes X times at 2Hz, remains off for two seconds, ashes Y times at
2 Hz, remains off for three seconds, and then repeats the sequence.
Honeywell EI Ignition Module Green LED Status Codes

61
Honeywell EI Trouble Shooting Guide

62
All Series 8H / 8HE Repair Parts may be obtained through your local Burnham Wholesale distributor.
Should you require assistance in locating a Burnham Distributor in your area, or have questions regarding
the availability of Burnham products or repair parts, please contact Burnham Customer Service at:
888-791-3790 or Fax (717) 293-5803.
X. Repair Parts
,reliobnonoitamrofnignikeesnehW.rotcartnocgnitaehruoyllac,reliobotsriaperroecivresroF
.lebaLgnitaRnonwohssarebmuNlaireSdnarebmuNledoMrelioBedivorp
rebmuNledoMrelio
Br
ebmuNlaireSrelio
Be
taDnoitallatsnI
____-_____8
__
______6
rotcartnoCgnitaeH rebmuNenohP
sserddA

63
Item No. Description Part No. Quantity
805H 806H 807HE 808HE 809HE 810HE
1. Heat Exchanger Assembly
1Complete (Less Flue Bafes)
6171605 1 --- --- --- --- ---
6171606 --- 1 --- --- --- ---
6171607 --- --- 1 --- --- ---
6171608 --- --- --- 1 --- ---
6171609 --- --- --- --- 1 ---
6171610 --- --- --- --- --- 1
1A Left End Section 7171601 1 1 1 1 1 1
1B Intermediate Section 7171603 3 4 5 6 7 8
1C Right End Section 7171602 1 1 1 1 1 1
1D Tie Rod
80861032 1 --- --- --- --- ---
80861033 --- 1 --- --- --- ---
80861013 --- --- 1 --- --- ---
80861034 --- --- --- 1 --- ---
80861035 --- --- --- --- 1 ---
80861036 --- --- --- --- --- 1
1E Washer 80860600 4 4 4 4 4 4
1F Nut 80860400 4 4 4 4 4 4
1G Slip Nipple, 3” 7066002 8 10 12 14 16 18
1H Flue Bafe 7111622 4 5 --- --- --- ---
7111623 --- --- 6 7 8 9

64
Item No. Description Part No. Quantity
805H 806H 807HE 808HE 809HE 810HE
2. Canopy
2A Canopy
6111605 1 --- --- --- --- ---
6111606 --- 1 --- --- --- ---
61116071 --- --- 1 --- --- ---
6111608 --- --- --- 1 --- ---
61116091 --- --- --- --- 1 ---
61116110 --- --- --- --- --- 1
2B Bolt, Carriage, ¼ - 20 x 1” 80860115 2 2 2 2 2 2
2C Washer, ¼” Flat 80860603 2 2 2 2 2 2
2D Nut, ¼” - 20 80860407 2 2 2 2 2 2

65
Item
No. Description Part No.
Quantity
805H 806H 807HE 808HE 809HE 810HE
3. Base Assembly
3A Base End Panel 7181601 2 2 2 2 2 2
3B Base Channel Assembly
61816052 2 --- --- --- --- ---
61816062 --- 2 --- --- --- ---
61816072 --- --- 2 --- --- ---
61816082 --- --- --- 2 --- ---
61816092 --- --- --- --- 2 ---
61816102 --- --- --- --- --- 2
3C Base Rear Panel Assembly
61816051 1 --- --- --- --- ---
61816061 --- 1 --- --- --- ---
61816071 --- --- 1 --- --- ---
61816081 --- --- --- 1 --- ---
61816091 --- --- --- --- 1 ---
61816101 --- --- --- --- --- 1
3D Base Front Panel Assembly
61816053 1 --- --- --- --- ---
61816063 --- 1 --- --- --- ---
61816073 --- --- 1 --- --- ---
61816083 --- --- --- 1 --- ---
61816093 --- --- --- --- 1 ---
61816103 --- --- --- --- --- 1
3E Burner Access Panel Assembly
61816054 1 --- --- --- --- ---
61816064 --- 1 --- --- --- ---
61816074 --- --- 1 --- --- ---
61816084 --- --- --- 2 --- ---
61816094 --- --- --- --- 2 ---
61816104 --- --- --- --- --- 2
3F Jacket Attachment Bracket 7041601 4 4 4 4 4 4
3G Bolt, Carriage, ¼ - 20 x 1¼” 80860106 4 4 4 4 4 4
3H Washer, ¼” Flat 80860603 4 4 4 4 4 4
3J Nut, ¼ - 20 80860407 4 4 4 4 4 4
3K Screw, Self Tapping, ¼ - 20 x ½” 80860700 3 4 4 5 5 6
3L Screw, Cap, Hex Head, 5/16” - 18 x ¾” 80861302 2 2 2 2 2 2
3M Screw, Cap, Hex Head, 5/16 - 18 x 1¼” 80861311 6 6 6 6 6 6
3N Screw, Sheet Metal, #8 x ½” 80860000 8 8 8 8 8 8
3P Washer, 3/8” Flat 80860600 6 6 6 6 6 6
3Q Nut, 5/16” 80860403 6 6 6 6 6 6
3R Screw, Self Tapping, ¼ - 20 x ¾” 80860702 10 10 10 10 10 10

66
Item
No. Description Part No.
Quantity
805H 806H 807HE 808HE 809HE 810HE
4. Manifold and Main Burners
4A Main Burner 8231602 8 10 12 15 17 19
4B
Main Burner with Pilot Bracket, Standing Pilot (24V) 8231601 --- 1 1 1 1 1
Main burner with Pilot Bracket, Honeywell EI 8231604 1 1 1 1 1 1
Main burner with Pilot Bracket, EP 8231603 --- 1 1 1 1 1
4C Manifold
82216051 1 --- --- --- --- ---
82216061 --- 1 --- --- --- ---
82216071 --- --- 1 --- --- ---
82216081 --- --- --- 1 --- ---
82216091 --- --- --- --- 1 ---
82216101 --- --- --- --- --- 1
4D Pipe Plug, 1/8 NPT (Included with 4C) --- 1 1 1 1 1 1
4E
Main Burner Orice, #39 (Natural Gas Only)* 822603 9 11 --- --- --- ---
Main Burner Orice, #41 (Natural Gas Only) * 822627 --- --- 13 16 18 20
Main Burner Orice, #53 (LP/Propane Only) * 8226002 9 11 13 16 18 20
4F Hitch Pin Clip 822604 9 11 13 16 18 20
* Main burner orice sizes shown for normal altitude (0-2000 feet). For High Altitude consult factory.

67
Item
No. Description Part No. Size Quantity
5-1 Gas Train -- Standing Pilot (24V)
24V: USA & Canada, 6 & 7 Section, Natural & LP Gas
A
Gas Valve, Robertshaw 7000ERHC-S7C, Natural Gas, 1” NPT 81660156
806H - 810HE 1
Gas Valve, Robertshaw 7000ERHC-LP-S7C, LP Gas, 1” NPT 81660157
B
Solenoid Gas Valve, Honeywell V8295A1024, ¾” NPT 81660235 806H - 807HE 1
Solenoid Gas Valve, Honeywell V8295A1032, 1” NPT 81660236 808HE - 810HE 1
C Manual Shut-Off Valve, Conbraco #50GB501A, 1” NPT 822615 808HE - 810HE
Canada Only 1
D Hex Bushing, 1” NPT x ¾” NPT 806600501 806H & 807HE 1
E
Nipple, ¾” NPT x 2” Lg. 806600003 806H & 807HE 1
Nipple, 1” NPT x 2” Lg. 806600004 808HE - 810HE 2
F
Street Elbow, 1” NPT x ¾” NPT 806601512 806H - 807HE
1
Street Elbow, 1¼” NPT x 1” NPT 806601513 808HE - 810HE

68
Item
No. Description Part No. Size Quantity
5-2 Gas Train -- Intermittent Ignition (EI)
USA: 5 - 10 Section, Natural and LP Gas
Canada: 5 - 10 Section, Natural Gas
7 Section, LP Gas
A
Gas Valve, Robertshaw 7000DERHC, Natural Gas, 1” NPT 81660151 805H - 810HE
1
Gas Valve, Robertshaw 7000DERHC-LP, LP Gas, 1” NPT 81660158 USA: 805H - 810HE
Canada: 805H - 807HE
B Manual Shut-Off Valve, Conbraco #50GB501A, 1” NPT 822615
808HE - 810HE 1
C Nipple, 1’ NPT x 2” Lg. 806600004
D
Street Elbow, 1” NPT 806601514 805H - 807HE
1
Street Elbow, 1¼” NPT x 1” NPT 806601513 808HE - 810HE

69
Item
No. Description Part No. Size Quantity
5-3 Gas Train -- Intermittent Ignition (EP)
USA & Canada: 6 - 10 Section, Natural Gas Only
A Gas Valve, Robertshaw 7000GVERHC-S7C, Natural Gas, 1” NPT 81660168 806H - 810HE 1
B
Solenoid Gas Valve, Honeywell V8295A1024, ¾” NPT 81660235 806H - 807HE
1
Solenoid Gas Valve, Honeywell V8295A1032, 1” NPT 81660236 808HE - 810HE
C Manual Shut-Off Valve, Conbraco #50GB501A, 1” NPT 822615 806H - 810HE 1
D Hex Bushing, 1” NPT x ¾” NPT 806600501 806H - 807HE 1
E
Nipple, ¾” NPT x 2” Lg. 806600003 806H - 807HE 1
Nipple, 1” NPT x 2” Lg. 806600004 808HE-810HE 2
F
Street Elbow, 1” NPT x ¾” NPT 806601512 806H - 807HE
1
Street Elbow, 1¼” NPT x 1” NPT 806601513 808HE-810HE

70
Item
No. Description Part No. Quantity
5-4 Gas Train -- Intermittent Ignition (EP-CSD-1)
USA Only: 8 - 10 Section, Natural Gas Only
A Gas Valve, Robertshaw 7000GVERHC-S7C, Natural Gas, 1” NPT 81660168 1
B Solenoid Gas Valve, Honeywell V8295A1032, 1” NPT 81660236 1
C Manual Shut-Off Valve, Conbraco #50-403-02, 1” NPT 822615 1
D Leak Test/Shut-Off Valve, Conbraco #50GB501A, 1/8” x 1/8” 822679 2
E Pipe Plug, 1/8” 806603594 2
F Hex Bushing, 1/4” x 1/8” 806600520 1
G Nipple, 1” x 2” Long 806600004 2
H Street Elbow, 90° x 1” 806601514 1
J Close Nipple, 1” 806600033 1
K Malleable Coupling, 1-1/4” x 1” 806602502 1
L Wiring Harness, Gas Valve to Solenoid Valve 6136230 1
M Pilot Outlet Plug, Honeywell #394424 8226051 1

71
Item
No. Description Part No. Size Quantity
5-5 Pilot Assembly and Piping -- Standing Pilot (24V)
USA & Canada: 6 & 7 Section, Natural and LP Gas
A
Pilot Burner, Honeywell Q314A3687, Natural Gas 8236033
807HE 1Pilot Burner, Honeywell Q314A3828, LP Gas 8236034
B Thermocouple, Honeywell Q309A1996 w/36” Lg. Lead 8236004
C Brass Compression Union, 1/4” OD Tube 8236008 806H - 807HE 1
D Regulator, Maxitrol RV12LT, Natural Gas 8226005 Canada: 806H - 807HE
Natural Gas Only 1
E Brass Compression Adapter, 1/4” OD Tube x 1/8” NPT 822630 Canada: 806H - 807HE
Natural Gas Only 2

72
Item
No. Description Part No. Size Quantity
5-6 Pilot Assembly and Piping -- Intermittent Ignition (Honeywell EI) USA
5 - 10 Section, Natural and LP Gas
A
Pilot Burner, Honeywell Q3481B1206, Natural Gas 103704-01
805H - 810HE
1
Pilot Burner, Honeywell Q3481B1420, LP Gas 103705-01
B Brass Compression Union, 1/4” OD Tube 8236008 1

73
Item
No. Description Part No. Size Quantity
5-7 Pilot Assembly and Piping -- Intermittent Ignition (Honeywell EI) Canada
5 - 10 Section, Natural Gas
5 Section, LP Gas
APilot Burner, Honeywell Q3481B1206, Natural Gas 103704-01 805H - 810HE 1
Pilot Burner, Honeywell Q348A1010, LP Gas 103705-01 807HE
B Brass Compression Union, 1/4” OD Tube 8236008 807HE 1
C Shut-Off Valve, Essex P2L 822645
808HE - 810HE 1D Pipe Tee, 1/8” NPT, Malleable 806601005
E Pipe Plug, 1/8” NPT, Sq. Head 806603508
F Brass Compression Adapter, 1/4” OD Tube x 1/8” NPT 822630
807HE Natural Gas 2
808HE - 810HE
Natural Gas 3
807HE LP Gas 1
G Solenoid Gas Valve, Johnson H91WG-6 822666
All
1H Junction Box, 4” Sq. x 1-1/2” Deep 8136259
I Rigid Conduit Nipple, 1/2” NPT x 1-1/2” Lg. 8136019
J Conduit Locknut, 1/2” 8136220 2
K Plastic Insulating Bushing, 1/2” 8136034 1
L Regulator, Maxitrol RV12LT, Natural Gas 8226005 805H - 810HE
Natural Gas Only 1

74
Item
No. Description Part No. Size Quantity
5-8 Pilot Assembly and Piping -- Intermittent Ignition (EP)
USA & Canada: 6 - 10 Section, Natural Gas Only
A Pilot Burner, Honeywell Q179C1009, Natural Gas 8236017
806H - 810HE
1
B Flame Rod Lead, Honeywell R1298020, 4 Ft. Lg. 71362561 1
C Rajah Connector, Honeywell 37356 8236021 2
D Ignition Lead, Honeywell R1061012, 3 Ft. Lg. 7136247 1
EGround Wire Assembly 6136259 1
F Brass Compression Coupling, 1/4” OD Tube 8236008
806H - 807HE
USA & Canada
808HE - 810HE
USA Only
1
G Shut-Off Valve, Essex P2L 822645
808HE-810HE
Canada Only 1H Pipe Tee, 1/8” NPT, Malleable 806601005
J Pipe Plug, 1/8” NPT, Sq. Head 806603508
K Brass Compression Adapter, 1/4” OD Tube x 1/8” NPT 822630
806H - 807HE
Canada Only 2
808HE - 810HE
Canada Only 3
L Solenoid Gas Valve, Johnson H91WA-4 822662
806H - 810HE
1
M Junction Box, 4” Sq. x 1-1/2” Deep 8136259 1
N Rigid Conduit Nipple, 1/2” NPT x 1-1/2” Lg. 8136019 1
P Conduit Locknut, 1/2” 8136220 2
Q Plastic Insulating Bushing, 1/2” 8136034 1
R Regulator, Maxitrol RV12LT, Natural / LP Gas 8226005 806H - 810HE
Canada Only 1

75
Item
No. Description Part No. Size Quantity
5-9 Pilot Assembly and Piping -- Intermittent Ignition (EP-CSD-1)
USA Only: 8 - 10 Section, Natural Gas Only
A Pilot Burner, Honeywell Q179C1009, Natural Gas 8236017
808HE - 810HE
1
B Flame Rod Lead, Honeywell R1298020, 4 Ft. Lg. 71362561 1
C Rajah Connector, Honeywell 37356 8236021 2
D Ignition Lead, Honeywell R1061012, 3 Ft. Lg. 7136247 1
EGround Wire Assembly 6136259 1
F Brass Compression Coupling, 1/4” OD Tube 8236008 1
G Conbraco Leak Test / Shut-Off Cock, 1/8” x 1/8” 822679 1
H Brass Compression Adapter, 1/4” OD Tube x 1/8” NPT 822630 2
J Solenoid Gas Valve, Johnson H91WA-4 822662 1
K Junction Box, 4” Sq. x 1-1/2” Deep 8136259 1
L Rigid Conduit Nipple, 1/2” NPT x 1-1/2” Lg. 8136019 1
M Conduit Locknut, 1/2” 8136220 2
N Plastic Insulating Bushing, 1/2” 8136034 1
P Regulator, Maxitrol RV12LT, Natural / LP Gas 8226005 1

76

77
Item
No. Description Part No. Quantity
805H 806H 807HE 808HE 809HE 810HE
6. Jacket
6 Complete
60416111 1 --- --- --- --- ---
60416121 --- 1 --- --- --- ---
604160711 ---- --- 1 --- --- ---
604160811 --- --- --- 1 --- ---
604160911 --- --- --- --- 1 ---
604161011 --- --- --- --- --- 1
6A Jacket Top Panel
70416053 1 --- --- --- --- ---
70416063 --- 1 --- --- --- ---
70416073 --- --- 1 --- --- ---
70416083 --- --- --- 1 --- ---
70416093 --- --- --- --- 1 ---
70416103 --- --- --- --- --- 1
6B Jacket Top Panel Main Insulation
7201625 1 --- --- --- --- ---
7201627 --- 1 ---- --- --- ---
7201611 --- --- 1 --- --- ---
7201613 --- --- --- 1 --- ---
7201615 --- --- --- --- 1 ---
7201617 ---- --- --- --- --- 1
6C Jacket Upper Rear Panel
70416056 1 --- --- --- --- ---
70416066 --- 1 --- --- --- ---
70416076 --- --- 1 --- --- ---
70416086 --- --- --- 1 --- ---
70416096 --- --- --- --- 1 ---
70416106 --- --- --- --- --- 1
6D Jacket Upper Rear Panel Insulation
72016059 1 --- --- --- --- ---
72016069 --- 1 --- --- --- ---
72016079 --- --- 1 --- --- ---
72016089 --- --- --- 1 --- ---
72016099 --- --- --- --- 1 ---
72016109 --- --- --- --- --- 1
6E Jacket Lower Rear Panel
60416056 1 --- --- --- --- ---
60416066 --- 1 --- --- --- ---
60416076 --- --- 1 --- --- ---
60416086 --- --- --- 1 --- ---
60416096 --- --- --- --- 1 ---
60416106 --- --- --- --- --- 1
6F Jacket Upper Front Panel
70416051 1 --- --- --- --- ---
70416061 --- 1 --- --- --- ---
70416071 --- --- 1 --- --- ---
70416081 --- --- --- 1 --- ---
70416091 --- --- --- --- 1 ---
70416101 --- --- --- --- --- 1
6G Jacket Front Removable Panel
7041605 1 --- --- --- --- ---
7041606 --- 1 --- --- --- ---
7041607 --- --- 1 --- --- ---
7041608 --- --- --- 1 --- ---
7041609 --- --- --- --- 1 ---
7041610 --- --- --- --- --- 1

78

79
Item
No. Description Part No.
Quantity
805H 806H 807HE 808HE 809HE 810HE
6. Jacket (Continued)
6H Jacket Left Side Panel 6041601 1 1 1 1 1 1
6J Jacket Left Side Panel Main Insulation Piece 72016021 111111
6K Jacket Left Side Panel Upper Corner Insulation Piece 72016023 111111
6L Jacket Left Side Panel Lower Corner Insulation Piece 72016022 111111
6M Jacket Right Side Panel 6041602 1 1 1 1 1 1
6N Jacket Right Side Panel Main Insulation Piece 72016011 111111
6P Jacket Right Side Panel Lower Corner Insulation Piece 72016012 111111
6Q Jacket Vestibule Panel
70416055 1 --- --- --- --- ---
70416065 --- 1 --- --- --- ---
70416075 --- --- 1 --- --- ---
70416085 --- --- --- 1 --- ---
70416095 --- --- --- --- 1 ---
70416105 --- --- --- --- --- 1
6R Jacket Vestibule Panel Upper Insulation Piece
72016057 1 --- --- --- --- ---
72016067 --- 1 --- --- --- ---
72016077 --- --- 1 --- --- ---
72016087 --- --- --- 1 --- ---
72016097 --- --- --- --- 1 ---
72016107 --- --- --- --- --- 1
6S Jacket Vestibule Panel Lower Insulation Piece
72016056 1 --- --- --- --- ---
72016066 --- 1 --- --- --- ---
72016076 --- --- 1 --- --- ---
72016086 --- --- --- 1 --- ---
72016096 --- --- --- --- 1 ---
72016106 --- --- --- --- --- 1
6T Jacket Lower Front Tie Bar
70416052 1 --- --- --- --- ---
70416062 --- 1 --- --- --- ---
70416072 --- --- 1 --- --- ---
70416082 --- --- --- 1 --- ---
70416092 --- --- --- --- 1 ---
70416102 --- --- --- --- --- 1
6U Jacket Lower Rear Panel Insulation
7201623 1 --- --- --- --- ---
7201624 --- 1 --- --- --- ---
7201619 --- --- 1 --- --- ---
7201620 --- --- --- 1 --- ---
7201621 --- --- --- --- 1 ---
7201622 --- --- --- --- --- 1
6V Jacket Top Panel Front Insulation
7201626 1 --- --- --- --- ---
7201628 --- 1 --- --- --- ---
7201612 --- --- 1 --- --- ---
7201614 --- --- --- 1 --- ---
7201616 --- --- --- --- 1 ---
7201618 --- --- --- --- --- 1

80
Item
No. Description Part No.
Quantity
805H 806H 807HE 808HE 809HE 810HE
7. Trim and Miscellaneous Controls
A
Limit, 140-220°F, Honeywell
L4080D1218 (EI & Standing Pilot);
L4080B1212 (EP)
80160251
80160474
--- 1 1 1 1 1
Immersion Well, ¾” NPT x 1½” Insul. Depth 80160426 1 1 1 1 1 1
Hydrostat 3200 with Sensor (805) 104873-01 1 --- --- --- --- ---
LWCO Well for Hydrostat 3200 (if used) 105203-01 1 --- --- --- --- ---
B Limit, Manual Reset, Honeywell L4006E1133 80160703 1 1 1 1 1 1
B1 Immersion Well, ¾” NPT x 3” Insul. Depth 80160452 1 1 1 1 1 1
C Temperature - Pressure Gauge 100282-01 1 1 1 1 1 1
C1 Nipple, 2 NPT x 10” w/Gauge Tapping 8061601 1 1 1 1 1 1
D Safety Relief Valve, ¾ NPT, 50 psi 81660302 1 1 1 1 1 1
D1 Nipple, ¾ NPT x 3½” 806600038 1 1 1 1 1 1
E Drain Valve, ¾ NPT, Conbraco 35-302-03 806603061 1 1 1 1 1 1
E1 Nipple, ¾ NPT x 3½” 806600038 1 1 1 1 1 1
E2 Coupling, ¾ NPT 806602561 1 1 1 1 1 1
F Blocked Vent Switch Replacement Assembly 6016058 1 1 1 1 1 1
G Flame Roll-out Switch 80160044 1 1 1 1 1 1
G1 Flame Roll-out Switch Mounting Bracket 7181612 1 1 1 1 1 1
H Junction Box 8136010 1 1 1 1 1 1
JControl Center, Honeywell R8285D500
(Intermittent Circulation builds) 80160155U --- 1 1 1 1 1
K Transformer, 50VA (Continuous Circulation builds) 80160249 --- 1 1 1 1 1
L Ignition Module, Honeywell S8610M3009 100958-01 1 1 1 1 1 1
MVestibule Wiring Harness, Complete with Vent Damper
Bypass Plug (EI and Standing Pilot) (Not Depicted)
81316010 --- 1 1 --- --- ---
81316011 --- --- --- 1 1 1
NJ-Box to 3200 and Auxiliary Limit Wiring Harness
(not depicted) 81316017 1 --- --- --- --- ---

81
Item
No. Description Part No.
Quantity
805H 806H 807HE 808HE 809HE 810HE
8. Draft Hood and Automatic Vent Damper
8A Draft Hood
8111605 1 --- --- --- --- ---
8111604 --- 1 1 --- --- ---
8111602 --- --- --- 1 --- ---
8111601 --- --- --- --- 1 1
8B
Automatic Vent Damper, 7”
Efkal RVGP-7 8116324 1 --- --- --- --- ---
Automatic Vent Damper, 8”
Efkal RVGP-8 8116325 --- 1 1 --- --- ---
Automatic Vent Damper, 9”
Efkal RVGP-9 8116326 --- --- --- 1 --- ---
Automatic Vent Damper, 10”
Efkal RVGP-10 8116327 --- --- --- --- 1 1

82

83

84