CARRIER Air Handler (indoor Blower&evap) Manual L0410227
User Manual: CARRIER CARRIER Air Handler (indoor blower&evap) Manual CARRIER Air Handler (indoor blower&evap) Owner's Manual, CARRIER Air Handler (indoor blower&evap) installation guides
Open the PDF directly: View PDF
.
Page Count: 26

619E018,024,
40QNB,QNH018,024
High Wall Fan Coil Units
Cancels: II 619E-18-2
Installation, Start-Up
and Service Instructions
II 619E-18-3
9/1/02
CONTENTS
Page
SAFETY CONSIDERATIONS ...................... 1
GENERAL ....................................... 1,2
INSTALLATION ................................ 2-13
Step 1 -- Complete Pre-lnstallation
Checks ......................................... 2
• UNPACK UNIT
• INSPECT SHIPMENT
Step 2 -- Select Location ......................... 2
Step 3-- Attach Mounting Bracket to Wall ....... 5
Step 4 -- Connect Refrigerant Piping ............ 5
Step 5 -- Connect Condensate Drain Line ....... 11
Step 6 -- Make Electrical Connections .......... 11
Step 7 -- Make Connections to
Outdoor Unit .................................. 13
•COOLING-ONLY SYSTEMS
• HEAT PUMP SYSTEMS
Step 8 -- Install Fan Coil Unit Onto Mounting
Bracket ....................................... 13
START-UP .................................... 13-16
Control System ................................. 14
After Extended Shutdowns ...................... 14
Seasonal Changeovers .......................... 14
To Turn The Unit On and Off ..................... 14
Adjusting Airflow ................................ 14
Operating Mode Memory ........................ 15
Automatic Operation (Auto) Mode ............... 15
Operating Fault Diagnosis ....................... 15
Microprocessor Control Operation .............. 15
CLEANING AND MAINTENANCE .............. 17,18
Lubrication ...................................... 17
To Install or Replace Remote Controller
Batteries ...................................... 17
To Set the Current Time ......................... 17
To Remove and Clean or Replace Air Filters ..... 17
•TO REMOVE AIR FILTERS
• TO CLEAN OR REPLACE FILTERS
To Clean Indoor Unit Front Panel ................ 18
To Clean Indoor Coil ............................ 18
To Clean Outdoor Coil (Outdoor Unit) ........... 18
Cleaning Condensate Drains .................... 18
SERVICE ........................................ 19
Diagnostic Codes ............................... 19
System Tests .................................... 19
•THERMISTOR TESTS
• THERMISTORS
• COMPRESSOR FAILURE
• REVERSING VALVE FAILURE (Heat Pump Only)
Page
System Safeties and Interlock ................... 19
• INDOOR FAN FAILURE
• COMPRESSOR SHORT-CYCLING PROTECTION
• INDOOR COIL FREEZE PROTECTION
(Cooling or Dehumidification Mode Only)
• INDOOR COIL HIGH-TEMPERATURE
PROTECTION (Heat Pump Systems Only)
TROUBLESHOOTING ......................... 19-25
STA RT-UP CHECKLIST ................... CL- 1,CL-2
SAFETY CONSIDERATIONS
Installing and servicing air-conditioning equipment can be
hazardous due to system pressure and electrical components.
Only trained and qualified service personnel should install or
service air-conditioning equipment.
Untrained personnel can perform basic maintenance, such
as clemling and replacing tilters. All other operations should be
performed by trained selwice personnel. When working on air-
conditioning equipment, observe precautions in literature and
on tags and labels attached to unit.
Follow all safety codes. Wear safety glasses mid work
gloves. Use quenching cloth for brazing operations. Have fire
extin_isher available. Read these instructions thoroz(,_hl3<
Consult local building codes and National Electrical Code
(NEC) for special installation requirements.
Before installing or servicing system, always turn offmain
power to system. There may be more than one disconnect
switch. Turn offindoor tan coil power if applicable. Electri-
cal shock can cause personal injury.
GENERAL
The heat pump hi_l walt tan coil units (Fig. 1) come with
supplemental electric heat. If your application requires heating,
heat pump units must be used, both outdoors and indoors. See
Table 1 for recommended system combinations.
)
Fig. 1 -- Typical High Wall Fan Coil Unit
Manufacturer reserves the right to discontinue, or change at any time, specifications or designs without notice and without incurring obligations.
PC 111 Catalog No. 534-043 Printed in U.S.A. Form 40QN-6SI Pg 1 9-02 Replaces: 40QN-4SI

Table 1 -- System Combinations for Indoor and
Outdoor Units
SYSTEM INDOOR UNIT OUTDOOR UNIT
40QNB018 38HDC, HDL018
40QNB024 38HDL018, 38HDC,HDL024
Cooling Only 40QNB018 (2) 38HDS024*
Systems 619ENX0180E0 538ANX, JNX018
619ENX0240E0 538JNX018, 538ANX,JNX024
(2) 619ENX0180E0 538SNX024
40QNH018 38BK018
Heat Pump 40QNH024 38BK024
Systems 619ENX0180H0 538DNX018
619ENX0240H0 538DNX024
*Multi-split systems can accommodate fan coil units of various types
with one condensing unit. The combinations listed in this table are
those which use only high-wall units (not in combination with any
other type of fan coil unit). Refer to system presale literature or
Price Pages for more details.
NOTE: Only match systems as shown in this table.
INSTALLATION
Refer to Table 1 to make sure the correct indoor unit(s) is
installed with the correct outdoor unit.
Installation instructions for the tan coil units are contained
in this manual. Reth to this manual for proper installation of
the complete system. Note that the outdoor units are shipped
with installation and service instructions for basic installation
of the outdoor section. Be sure to make the modifications in
Make Connections to the Outdoor Unit section on page 13 of
this literature, so that the outdoor unit will operate properly
with the control system. Be sure the unit will be operated with-
in the application guidelines shown in Table 2. When installing
the outdoor unit, note that for cooling operation below 55 F, it
is necessary to equip the outdoor unit with the low ambient
control accessory. The low ambient control is standard on
ruuhi-split units.
Refer to Table 3 for all recolrnnended accessories when
installing low ambient control.
To install this system, you will need:
• Indoor t;an coil sections* with standard wireless remote
controller
• Outdoor condensing unit
• A low-ambient or winter start kit (if required t\_r your
application)
*More than one tan coil unit may be used with the muhi-split
unit. Refer to ruuhi-sptit system Price Pages for full details.
NOTE: Field-supplied refrigerant pipe, drain pipe, wire, etc.,
are also required to install unit.
Be sure you have the required parts betbre beginning instal-
lation. The indoor section uses a microprocessor control sys-
tem to deliver optimum comfort and efficiency. Be sure to fol-
low these instructions carefully to obtain proper functioning of
the unit.
Step 1 -- Complete Pre-lnstallation Checks
UNPACK UNIT Store the unit in the original packa_ng
until it is moved to the final site for installation. When remov-
ing the unit tiom the carton, lift by its 4 comers. Also, note that
there is a plastic bag containing mounting scaews taped to the
ruounting bracket.
INSPECT SHIPMENT tYpon receipt of shipment check
the unit (Fig. 1) for dmnage. Forward claim papers directly to
the transportation company. Manuthcturer is not responsible
for damage incurred in transit.
Table 2 -- Application Ranges
COOLING MODE
Maximum Minimum
Indoor Outdoor Indoor Outdoor
Unit Unit Unit Unit
95 F DB 67 F DB 55 F DB*
71 FWB 115FDB 57FWB 0°FDB1-
HEATING MODE
Maximum Minimum
Indoor Outdoor Indoor Outdoor
Unit Unit Unit Unit
80 F DB 75 F DB 55 F DB 0° F DB
71 F WB 65 F WB
LEGEND
DB -- Dry Bulb
WB -- Wet Bulb
*Single zone systems.
1-Multi-zone systems.
NOTE: Unit may be equipped with a low-ambient control or winter
start kit that will allow operation down to -20 F.
Check all items. See Table 4. If any item is missing notii_
your distributor. To prevent loss or damage, leave all parts in
their original packages until installation.
Step 2 -- Select Location -- Consult local building
codes and NEC for special installation requirements.
There are several ways to install the unit for different types
of wall construction. These instructions do not cover all instal-
lation methods. As a typical installation, these instructions
focus primarily on mounting the unit to wall studs in new con-
struction. See Fig. 2 for unit dimensions and Fig. 3 for required
clearances. Plan your installation carefully before you
begin. Listed below are some guidelines to follow when deter-
ruining a location for the unit.
1. Place the unit so it faces the nonnat location of room
occupants.
2. Allow sufficient space for airflow clearance, wiring,
reliigerant piping, and unit servicing. See Fig. 2 and 3.
3. Select walls that are:
a. Strong enough to support the unit's weight.
b. Accessible to convenient condensate drainage.
c. Free of obstacles that may block air circulation to
the fan coils.
d. Outside walls (if possible) to make piping easier.
Table 3 -- Recommended Accessories for Low Ambient Control
UNIT LOW AMBIENT CRANKCASE WINTER ISOLATION WIND BAFFLE
CONTROL HEATER START KIT RELAY
38BK, 538BNX 53DS-900---60 -- KAAWS0101AAA KHAIR0101AAA 53DS-900---070
38HDC, 538ANX 53DS-900---60 KAACH 1201AAA* KAAWS0101AAA -- 53DS-900---070
38HDL, 538JNX 53DS-900---60 -- KAAWS0101AAA -- 53DS-900---070
*Not required for 38HDC018.

4. Place the top of the fan coil unit up to 10 ft above floor
level, making sure the unit is at least 10 in. down from
the ceiling to permit proper air intake. Also, make sure
that the unit is not placed directly over anything to pre-
vent filter removal or block airflow.
5. Make sure units are easily accessible to electrical
power.
6. Refrigerant piping can enter the unit through the
prepunched holes. Refrigerant piping cml run up or
do,a_ along the wall, to the right or left along the watt,
straight through the wall, or into the wall (Fig. 4).
Once the piping is through the wall, it can run inside
walls, in ceilings, between floors, or straight to the
outside.
NOTE: Run refrigerant piping as directly as possible,
and avoid any unnecessary turns or bends.
7. Condensate piping can be directed through the inside
wall to an approved drain, or directed straight outside.
NOTE: The piping hole for the condensate line must
be sloped downward to ensure proper drainage.
See Tables 5A-5F for maximum line length.
J
14.17
[360]
I ...............1
J
/
LINFRAREO REMOTE OVERRIDE SWITCH
(BEHIND ACCESS COVER}
FOR REFR]GERANT, DRAIN,
POWER, AND SIGNAL tINES
FRIGHT SIDE VIEW]
•_NOCKOUT FOR RIGHT
x_ _DE REFRIGERANT*
A_' ORAIN, POWER•
AND SIGNAL LINES
l
I
[220]
REFRIGERANT, DRAIN, POWER,
AND EIGNAL LINEB
/ -- UNIT OUTLI_
UNIT SIZE WEIGHT
018 39 Ib (17.5 kg)
024 43 Ib (19.5 kg)
[105] [4701
[4SOl _2 Z12B3
+35 DIA (NOTE 3)
[B01
NOTES:
1. Dimensions in ( ) are in millimeters.
2. I_ Direction of airflow.
3. Refrigerant, drain, and power connections may be made in
unit rear, bottom, left side, or right side.
4. Refrigerant is metered by AccuRater® device in the fan coil unit. A
thermostatic expansion valve is used in the outdoor unit on multi-split
applications. Insulate both refrigerant lines on heat pump and multi-
split applications.
5. The 4-in. left side clearance is an absolute minimum. Clearances of
10qn. are recommended for proper unit operation.
6. Do not insert a trap in condensate drain line. The drain is internally
trapped.
Fig. 2 -- Fan Coil Dimensional Drawing

Table4-- High Wall Unit Package Contents
ITEM QUANTITY
Unit Mounting Template 1
Unit Mounting Bracket 1
1-in. Lag Screws For Unit Mounting 8
Hollow Wall Anchor Bolts For Unit Mounting 5
Wall Sleeve With Wall Cap 1
Infrared Wireless Remote Control Assembly 1
AAA Batteries (For Remote Control) 2
Remote Control Mounting Bracket 1
3/8-in. Lag Screws For Remote Mounting Bracket 2
35 ft Long High Voltage Power Wiring (2-wire with ground) 1
35 ft Long Low Voltage Thermistor Wiring (1613 wire) 1
AccuRater@ Body and Piston* 1
Owner's Manual 1
Installation Instructions 1
Warranty Registration Card 1
*For heat pumps: additional heating AccuRater body and piston shipped with outdoor unit.
t
10"*
I
m12" ,,,,,,,,,,,,,,,,,,,-D
+
36 _
!
*A clearance of 4 in. is the absolute minimum. A 10-in. clearance is recommended for proper operation.
NOTE: Remove unit front cover for control box access.
Fig. 3 -- Minimum Required Clearances
/

POSSIBLE PIPING DIRECTIONS
RIGHT __
SIDE
KNOCKOUT
_"__ LEFT
A _ SiDE
.............. II _ KNOCKOUT
BOttOM KNOCKOUT It
U
PREPUNCHED HOLES
FOR RIGHT
SIDE PiPiNG FOR
BOTTOM/REAR
PIPING
Fig. 4- Refrigerant Piping
\
FOR LEFT
SIDE PIPING
Step 3 -- Attach Mounting Bracket to Wall
1. Decide how the refrigerant wilt be piped. It'necessary,
knock out the appropriate pre-punched holes (Fig. 4)
on the unit for piping and electrical connections.
2. Remove the bracket from the fan coil unit.
3. Using a carpenter's level, fasten the mounting brackets
into the studs in the wall at least 10 in. away from the
ceiling with the 8 screws provided. Always be sure to
insert screws into the top 2 holes indicated in Fig. 5.
Make sure the attached bracket will support a 200 lb
vertical load. For a masonry wall, anchor shields can
be used to attach the bracket to the wall.
4. Temporarily hang the unit on the bracket to check
location and level.
If mounting bracket is not mourned level, the indoor section
will be mounted unevenly, and condensate drainage water
may drip onto the floor. Also, a gap between the bracket and
the wall may result in vibration mid noise from the iMoor
section.
Mark and cut condensate and piping holes.
a. For piping through the wall, mark the wall below
the condensate connection and cut a 2t/2-in. hole
into the wall at either point "A" or point "B" in
Fig. 6.
NOTE: The 21/2-in. hole must be made at a do,amward
slope to ensure proper condensate drainage. See Fig. 7.
Slope the condensate line at a minimum pitch of 1/4-in.
per foot of line. The condensate line cannot be mn up
for upper piping connections only refrigerant lines
may be mn up.
b. Push the wall sleeve (factory supplied with the
unit) through the 21/2-in. wall opening.
Step 4 -- Connect Refrigerant Piping -- Fan coil
units may be connected to the outdoor units using field-supplied
refrigerant grade piping. Refer to Tables 5A-5F for the correct
size piping. The length of reffigermlt pipe depends on the unit
placement and building structure; mn pipes as directly as possi-
ble. For piping requirelnents over 50 ft of total ran, or more
than 25 ft of lift, consult the long line application guidelines, or
contact your local representative. For multi-split systems, the
maximum pipe length is 50 ft.
DO NOT BURY MORE THAN 36 IN. OF REFRIGER-
ANT PIPE IN THE GROUND. If any section of pipe is
buried, there must be a 6-in. vertical rise to the valve con-
nections on the outdoor unit. Ifmore than the recolrnnended
length is buried, refiigerant may mi_ate to the cooler, bur-
ied section during extended periods of unit shutdown, caus-
ing reffigermlt slugging and possible colnpressor dmnage at
start-up.
q
FAN COIL
UNiT BOTTOM
BACK VIEW
TOP HOLES I
t
TOP VIEW
Fig. 5 -- Bracket Mounting
/

Use the following instructions to connect piping.
1. Install insulation. Insulate all refrigerant lines on
heat pumps and multi-split systems to prevent con-
densation. It is extremely important that all refrigerant
lines and the AccuRater,¢<)metering device be insulated
on heat pumps. On cooling only units, the liquid line
may be left uninsulated. Use any acceptable heat resis-
tant, closed-celt foam insulation (minimum 3/s-in. wall
thickaless). When insulating piping, cap the ends and
slide insulation over the piping. Insulation can also be
cut and placed over piping.
2. Run the liquid and gas refrigerant piping.
a. Run pipes as directly as possible, and avoid any
unnecessary turns and bends.
b. Suspend the refrigerant pipes so that the insula-
tion is not damaged and vibrations are not
transmitted to the structure.
c. Leave slack in the refrigerant pipe between the
structure and the unit to absorb vibrations.
d. Install the factory-supplied flare connection and
AccuRater metering device in the liquid line at the
fan coil unit (Fig. 8). Make sure the arrow on the
metering device body points AWAY FROM the
fan coil unit. Use Table 7 to verily that the correct
piston for your system has been shipped with the
unit.
NOTE: No AccuRater device is installed on
multi-split systems. Multi-split systems have a
TXV (thermostatic expansion valve) in the con-
densing unit for refrigerant metering and
control.
e. On heat pump installations, install the factory-
supplied piston in the AccuRater metering device
located in the service valve on the outdoor unit
(Fig. 9). Make sure the Teflon seal on the piston
faces toward the outdoor unit. Use Table 7 to ver-
ify the correct piston for your system has been
shipped with the unit. Refer to the outdoor installa-
tion instructions for more details.
f. Install a field-supplied liquid line filter drier near
the outdoor unit. On heat pump systems, a bi-flow
filter drier must be used. DO NOT install a filter
drier in multi-split systems.
3. Insulate and caulk the wall openings to reduce air infil-
tration and refrigerant pipe vibrations on the structure.
4. Evacuate the piping, if necessary. If either the refriger-
ant piping or the indoor coil is exposed to atmospheric
conditions, it must be evacuated to 1000 microns to
eliminate contamination and moisture in the system.
FAN COIL _ _r..-..._.L...--_
UNIT -..........._l_'_",,._____.J _ ) _/'_ _]
NOTE: Use either point "A" or point "B."
Fig. 6 -- Wall Hole Location for Rear Piping
ON SEAL_
BODY (WITH ORIFICE) SCREEN CAP
NOTE: Arrow on AccuRater body points in free flow direction away
from the coil.
Fig. 8 -- AccuRater Metering Device in Liquid Line
(Bypass Type Components); Cooling
• ° ° ," ,
_ _ _I-LOWER
WALLSLEEVE-- /
(FACTORY SUPPLIED)
(INDOOR SIDE) [" WALL .I (OUfDOOR SIDE)
Fig. 7 -- Piping Hole
_//SvAERv_ VECE TEFLON SEAL
L====J (W _'T'H_'_)RIFICE) SCREEN CAP
Fig.9 -- AccuRater Metering Device atService
Valve(Bypass Type Components); Heating

Table 5A -- Physical Data -- 38HDC, 538A Condensing Units
UNIT SIZE
NOMINAL CAPACITY (Tons)
OPERATING WEIGHT (Ib)
REFRIGERANT TYPE
Control (Cooling)
Charge (Ib)
OUTDOOR FAN
Rpm
Diameter (in,),,.No. of Blades
Pitch (Degrees)
Motor Hp
Nominal Air Cfm
OUTDOOR COIL
Face Area (sq ft).,.No, of Rows
Finstin.
CONTROLS
High-Pressure (psig)
Cut-in
Cutout
Low-Pressure (psig)
Cut-in
Cutout
Fusible Plug
Control Voltage*
REFRIGERANT LINES
Connection Type
Liquid Line OD (in.)
Vapor Line OD (in.)
Maximum Length (ft)
Maximum Lift Fan Coil (Above Outdoor) (ft)
Maximum Lift Fan Coil (Below Outdoor) (ft)
018 I 024
11/2 2
150 154
R-22
AccuRater_ Piston at Fan Coil Unit
See Table 6
Propeller, Direct Drive
850 I 850
18_.3 18...3
25 27
1/8 1/8
1720 1720
Copper Tube, Aluminum Fin
6.1 ,_1.5 I 6.1 ...2
15 I 15
320 +_20
426 _+ 7
22 _+5
7_+3
210 F
24
Sweat
3/8 I 3/8
s/8 5/8
200 200
65 65
150 150
*24 v and a minimum of 40 va is provided in the fan coil unit.
Table 5B -- Physical Data -- 38HDL, 538JNX Condensing Units
UNIT SIZE
NOMINAL CAPACITY (Btuh)
UNIT OPERATING WEIGHT (Ib)
REFRIGERANT TYPE
Control
Charge (Ib)
OUTDOOR FAN
Rpm
Diameter (in,),,,No. of Blades
Fan Pitch (Deg)
Motor Hp
Nominal Airflow (cfm)
OUTDOOR COIL
Face Area (sq ft)..,No, of Rows
Fins per inch
CONTROL PRESSURESTAT
Low Pressure
Cut-out (psig)
Cut-in. (psig)
Fusible Plug
REFRIGERANT LINES
Connection Type
Maximum Length (ft)
Maximum Lift (ft) -- Fan Coil (Above Outdoor)
Maximum Lift (ft) -- Fan Coil (Below Outdoor)
018 I 024
18,000 24,000
130 136
R-22
AccuRater_ Piston at Fan Coil Unit
See Table 6
Propeller Type, Direct Drive, Horizontal
850 I 850
18_.3 18...3
25 27
1/8 1/8
1720 1720
Copper Tube, Aluminum Plate Fin
6.1 ...1 I 6.1 ,..1.5
20 I 20
Settings
7_+3
22 _+5
210 F
Sweat
100
65
75

Table 5C -- Physical Data -- Multi-Split Condensing Units
UNIT SIZE
NOMINAL CAPACITY (Tons)
OPERATING WEIGHT (Ib)
REFRIGERANT TYPE
Control (Cooling)
Charge (Ib)*
Circuit A
Circuit B
OUTDOOR FAN
Rpm
Diameter (in,),..No. of Blades
Pitch (Degrees)
Motor Hp
Nominal Air Cfm
OUTDOOR COIL
Face Area (sq ft),..No, of Rows
Fins/in.
CONTROLS
High-Pressure (psig)
Cut-in
Cutout
Low-Pressure (psig)
Cut-in
Cutout
Fusible Plug
Control Voltage
REFRIGERANT LINES
Connection Type
Vapor Supply Line Quantity...OD (in,)
Vapor Return Line Quantity,,.OD (in.)
Maximum Length (ft)
Maximum Lift Fan Coil (Above Outdoor) (ft)
Maximum Lift Fan Coil (Below Outdoor) (ft)
EXTERNAL FINISH
O24
2
159
R-22
TXV in Condensing Unit
See Table 6
Propeller, Direct Drive
850
18...3
27
l&
1720
Copper Tube, Aluminum Fin
6.1 ...2
15
LEGEND
TXV- Thermostatic Expansion Valve
*Charge is based on 25 ft of interconnecting line.
320 _+20
426 _+ 7
22_+5
7+_3
210 F
24
Sweat
2...3/8
2...5/8
5O
301-
301-
Alpine Mist (Beige)
1-Maximum system lift is 30 ft between lowest system component and highest system component.
Table 5D -- Physical Data -- Cooling Only High Wall Fan Coil Units
UNIT SIZE
NOMINAL CAPACITY (Tons)
NOMINAL SIZE (Btuh)
OPERATING WEIGHT (ib)
MOISTURE REMOVAL RATE (Pints/Hr)
FINISH
REFRIGERANT
Control (Cooling)
System Charge Required (Ib)*
INDOOR FAN
Bpm,..Cfm High
Rpm,.,Cfm Medium
Bpm,,.Cfm Low
Motor Watts
Blowers -- No..,,Size (in.)
INDOOR COIL
Face Area (sq ft)
No. of Rows
Finstin,
Circuits
FILTERS
(Quantity) Size (in,)
AIRSWEEP
Horizontal
Vertical
CONTROLS
Remote Controller
Freeze Protection
Auto. Restart
Diagnostics
Timer Mode
Test Mode
Dehumidification Mode
Fan Mode
Control Voltage
REFRIGERANT LINES
Connection Type
Liquid Line OD (in.)
Vapor Line OD (in.)
CONDENSATE DRAIN CONNECTION (in.)
018 024
11/2 2
18,000 24,000
38.5 42.9
5.6 6.3
White
R-22
AccuRater® Metering Device
4.6 I 5.3
Direct Drive Centrifugal
1120.,,550 1470,.,570
1050, ..500 1370, ..466
950...450 1270...417
44 49
2...3.94 x 17.8 2...3.94 x 17.8
Copper Tube, Aluminum Fin
2.56 2.56
2 3
15.9 18.1
2 3
Cleanable
(3) 111/2 x 173/4
Manual
Automatic
Integrated Microprocessor
Wireless
Yes
Yes
Yes
24-Hour Startup/Shutdown Type
Yes
Yes
High/Medium/Low/Auto.
24 v
Male Flare
s/8 I 3/8
5/8 s/8
5/80D, 7/16ID
*Full factory charge shipped in outdoor unit. Charge shown is for smallest system combination and is determined based on 25 ft of line.

Table 5E -- Physical Data -- Outdoor Heat Pump Units
UNIT SIZE
NOMINAL CAPACITY (Tons)
OPERATING WEIGHT (Ib)
REFRIGERANT TYPE
Control (Cooling)
Control (Heating)
Charge (Ib)*
CRANKCASE HEATER (Watts)
OUTDOOR FAN
Rpm
Diameter (in,),..No. of Blades
Pitch (Degrees)
Motor Hp
Nominal Air Cfm
OUTDOOR COIL
Face Area (sq ft),..No, of Coils
Fins/in.
CONTROLS
High-Pressure (psig)
Cutout
Cut-in
Liquid Line Low-Pressure (psig)
Cutout
Cut-in
Fusible Plug
Defrost Method
Accumulator
Control Voltagel-
REFRIGERANT LINES
Connection Type
Liquid Line OD (in,)
Vapor Line OD (in.)
Maximum Length (ft)
Maximum Lift (Fan Coil Above) (ft)
Maximum Lift (Fan Coil Below) (ft)
018 024
11/2 2
154 167
R-22
AccuRater® Piston at Fan Coil Unit
AccuRater Piston at Outdoor Unit
See Table 6
19 I 19
Propeller, Direct Drive
850 850
18_.3 18_.3
25 27
l& 1/s
1720 1720
Copper Tube, Aluminum Fin
6.1 ...1.5 I 6.1 ...2
15 I 15
320 _+20
426 _+ 7
7_+3
22_+5
210 F
Time and Temperature Defrost
Yes
24 v
Sweat--Suction; Flare--Liquid
3/8 s/s
s/8 5/s
200 200
65 65
150 150
*These units are shipped with a holding charge only,
1-A 24-v transformer is provided in the fan coil unit; size 018 and 024 units have their own transformers.
Table 5F -- Physical Data -- Heat Pump High Wall Fan Coil Units
018 024
11/2 2
18,000 24,000
38.5 42.9
5.6 6.3
White
R-22
AccuRater® Piston in Fan Coil
AccuRater Piston in Outdoor Unit
See Table 6
Direct Drive Centrifugal
1250/530 1470/570
1150/490 1400/466
1050/430 1300/447
42.3 49
2...3.94 x 17.8 2...3.94 x 17.8
Copper Tube, Aluminum Fin
2.56 2.56
2 3
15.9 18.1
2 3
Cleanable
2,.,111/2 x 173/4
UNIT SIZE
NOMINAL CAPACITY (Tons)
NOMINAL SIZE (Btuh)
OPERATING WEIGHT (Ib)
MOISTURE REMOVAL RATE (Pints/Hr)
FINISH
REFRIGERANT
Control (Cooling)
Control (Heating)
Charge Required (Ib)
INDOOR FAN
Rpm/Cfm High
Rpm/Cfm Medium
Rpm/Cfm Low
Motor Watts
Blowers Quantity..,Size (in.)
INDOOR COIL
Face Area (sq ft)
No. of Rows
Fins/in.
Circuits
FILTERS
Quantity,..Size (in,)
AIBSWEEP
Horizontal
Vertical
CONTROLS
Remote Controller Options
Diagnostics
Defrost Method
Timer Mode
Warm Start Feature
Test Mode
Freeze Protection
Dehumidification
Auto. Changeover
Fan Mode
Auto Restart
Control Voltage
REFRIGERANT LINES
Connection Type
Liquid Line OD (in,)
Vapor Line OD (in.)
CONDENSATE DRAIN CONNECTION (in,)
Manual
Automatic
Integrated Microprocessor
Wireless
Yes
Demand Defrost
Yes
Yes
Yes
Yes
Yes
Yes
High/Medium/Low/Auto.
Yes
24 v (provided)
Flare
3/8
s/8
5/80D, 7/16ID
*Outdoor unit is shipped with a holding charge. The amount of the charge is determined based on 25 ft of line.

Table 6 -- Refrigerant Charge
HIGH WALL I ADDED CHARGE*
SYSTEM INDOOR UNIT OUTDOOR UNIT
(Btuh) (over 50 ft tubing)
Coolin_ Only
18,000
24,000
40QNB018
619ENX018
40QNB024
619ENX024
38HDC018
538ANX
38HDL018
538JNX
38HDLO18
538JNX
38HDC024
538ANX
38HDLO24
538JNX
I OPERATING CHARGE (Ib)* I
FACTORY CHARGE (25-50 ft tubing)
3.6
Operating Charge 3.8
3.8
6.01-
4.4
Operating Charge
5.3
Operating Charge
Heat Pumps
2.0 Holding Charge
.58 Oz. For each foot
over 50'
40QNH018 38BK018-3
18,000 619ENX018 538DNX 4.951- .58 Oz. For each foot
40QNH024 38BK024-3 over 50'
24,000 619ENX024 538DNX 2.0 Holding Charge 5.10t
Multi-Split
*Charge amount determined based on 25 ft of line. Check charge for longer lines using super-
heat method. See outdoor unit installation, start-up, and service instructions for system charg-
ing procedures. No additional charge is needed from 25 to 50 ft of line length.
1-Total system charge.
Table 7 -- Piston Requirements for Elevation Differences
INDOOR COIL BELOW OUTDOOR UNIT
38HDC* 38HDL018* 38HDL024* 38BK
Elevation 538ANX 538JNX018 538JNX024 538DNX
Difference Indoor Piston Indoor Piston Indoor Piston Indoor Piston Outdoor Piston
Size 018/024 Size 018/024 Size 024 Size 018/024 Size 018/024
Standard 49/57 49/53 57 51/59 47/52
26- 50' 45/53 45/49 53 47/55 47/52
51- 75' 43/52 43/47 52 45/53 51/57
76-100' 42/49 N/A N/A 43/52 53/59
101-125' 40/47 N/A N/A 42/49 55/61
126-150' 39/47 N/A N/A 41/49 57/62
INDOOR COIL ABOVE OUTDOOR UNIT
38HDC* 38HDL018* 38HDL024* 38BK
Elevation 538ANX 538JNX018 538JNX024 538DNX
Difference Indoor Piston Indoor Piston Indoor Piston Indoor Piston Outdoor Piston
Size 018/024 Size 018/024 Size 024 Size 018/024 Size 018/024
Standard 49/57 49/53 57 51/59 47/52
26-50' 53/61 53/57 61 55/63 47/52
*No piston in outdoor unit.
NOTE: The multi-split systems do not use the AccuRater'_" device. They have a TXV in the
condensing unit for refrigerant metering and control.
10

Step 5 -- Connect Condensate Drain Line -- Ob-
serve all local sanitary codes when installing condensate
drains.
1. Connect the drain line by inserting a 5/8-in. (inside
diameter) rigid PVC pipe over the drain connection.
Refer to Fig. 10.
Step 6 -- Make Electrical Connections -- Be sure
field wiring complies with local building codes and NEC, and
unit voltage is within limits shown in Table 8. Refer to Table 9
for units with electric heat.
Contact local power company to correct hnproper line
vohage.
The drain tube extension must be securely Ihstened to the
condensate drain. Failure to do so can result in condensate
water dripping onto the floor.
2. To ensure remllar flow of condensate water, the drain
pipe should be pitched toward an open drain or sump
at a downward slope of at least l/4-in, per foot. Refer to
Fig. 11.
I IMPORTANT: Be sure the drain piping has no slack
which might form a trap. Do not insert a trap in the drain
line; the drain is internally trapped.
3. Insulate the condensate drain lines that are located in
or above an occupied area with a condensate proof
material such as polyurethane or neoprene.
INDOOR
UNIT
PIPING
DRAIN CONNECTION
Fig. 10 -- Drain Connection
(Right Side Shown When Facing Fan Coil Unit)
To avoid personal injury or damage to unit, do not make
electrical connections until all power sources are shut
do,a_, locked out, and tagged off Failure to do so could
resuh in personal injury or unit damage.
Operation of unit on hnproper line voltage constitutes abuse
and could affect warranty. Refer to Table 8 for permissible
operating limits. Do not install unit in system where voltage
may fluctuate above or below permissible limits.
NOTE: Use type NM power cable only (per NEC; provided for
fro1coil units only) between disconnect switch midunit.
NOTE: Install the branch circuit disconnect (field supplied) per
NEC of adequate size to handle the unit's starting cunent.
Locate the disconnect within sight liom and readily accessible
fioln the unit, per Section 440-14 of NEC. Some codes allow
the indoor unit to share a disconnect with the outdoor unit if the
disconnect can be bcked; check local code before installing in
this manner. Tomake electrical connections:
1. Remove the screws holding the front cover of the ihn
coil unit, and remove the front cover. Save the screws
and screw covers l\_r reinstatlation.
2. Remove the control box strain relief clamp (see
Fig. 12).
3. Remove any factory test leads still connected to the
power tenninat box. These leads (if applicable) are
for factory testing only and cannot be used for power
connections.
INCORRECT INCORRECT INCORRECT CORRECT
6
6
"/777
UNIT
Fig. 11 -- Drainage System (Rear Piping Shown)
_WALL
DRAIN
'_----- PIPING
m
11

LABEL CAUTION
- SCREW
_ SFRAIN
RELIEF
CLAMP
NOTE: This shows item locations only. Front cover of fan coil unit
must be removed to access terminal boards.
Fig. 12 -- Fan Coil Unit Wiring Preparation
4. Route the factory-supplied ground and power wires
from terminal block 1 (TB1) to the field-supplied
disconnect switch.
According to NEC and most local codes, the unit must have
an uninterrupted, unbroken mou_d to minimize personal
injury if an electrical thult should occur. The _ound may
consist of electrical wire or metal conduit when installed in
accordance with existing electrical codes. Failure to follow
this warning could result in an electric shock, tire, or death.
Route the factory-supplied line power leads (see
Fig. 14) from the field-supplied, indoor unit disconnect
to the tan coil unit TB1 (see Fig. 13 and 14). Run the
wire through the strain relief on the control box (see
Fig. 12). When routing wire in the fan coil unit, keep
the wire away tiom refrigerant and condensate piping
and any sharp edges on the unit.
Do not short circuit the indoor unit's transformer it is
l'used. The transformer can be short circuited by connecting
the wrong wires or by touching a live wire to the side of a
grounded control box.
208/230 VOLT F-
SINGLE-PHASE CONN.J
INDOORoTOooNNECTL
FAN COIL UNITS
LEGEND
CONN -- Connection
EQUIP GND -- Equipment Ground
TB -- Terminal Block
TBI
t
EQUIP GND
Fig. 13 -- Line Power Connections
TERMINAL BLOCK
fiB+) CONNECTION
CORD
Fig. 14- High Voltage Connections
Table 8 -- Electrical Data
INDOOR
UNIT
Cooling 018
Only 024
Heat 018
Pump 024
V(Single-Ph,
60 Hz)
2081230
OPERATING VOLTAGE*
Max Min
253 187
FAN MAX FUSE
WATTS MCA OR HACR TYPE
LRA FLA CKT BKR AMPS
3.2 0.53 94 10.9 15
LEGEND *Permissible limits of the voltage range at which unit will operate
FLA -- Full Load Amps
HACR -- Heating, Air Conditioning, and Refrigeration
LRA -- Locked Rotor Amps
MCA -- Minimum Circuit Amps per NEC Section 430-24
NEC -- National Electrical Code
satisfactorily.
Table 9 -- Electric Heater Data
INDOOR UNIT
018
024
LEGEND
AWG -- American Wire Gage
VOLTS-Ph (60 Hz) INPUT AMPS kW AT 230 V MIN WIRE SIZE (AWG)
230-1 7.8 1.8 14
230-1 7.8 1.8 14
12

Step 7 iMake Connections to the Outdoor
Unit
COOLING ONLY SYSTEMS To connect the outdoor unit
to the tan coil unit so the system will operate correctly:
Route 2 field-supplied wires of 18-gage AWG (American
Wire Gage) therlnostat cable between the low voltage terlninal
block of the tan coil TB-2 and the outdoor unit's low voltage
terlninat block. Connect the wires between terlninals C and xA
HEAT PUMP SYSTEMS To connect the heat pump unit
to the tZancoil unit so the system will operate correctly:
Route 5 field-supplied wires of 18-gage AWG (American
Wire Gage) therlnostat cable between the low voltage terminal
block of the tan coil TB-2 and the outdoor unit's low voltage
terlninal block. Connect the wires between terlninals R, C, Y,
G, andO.
Route the factory-supplied thermistor cord fiom the low
voltage terminal board in the control box of the fan coil unit
TB-3 to the outdoor unit's low voltage terminal block. Route
the wire carefully so that it will not be damaged.
IIMPORTANT: DO NOT RUN THE THERMISTOR
CABLE 1N THE SAME CONDUIT AS THE POWER
WIRING.
Step 8 iInstall Fan Coil Unit Onto Mounting
Bracket
1. Hook the fan coil unit onto the top of the mounting
bracket. See Fig. 15.
2. Snap the fan coil unit onto the mounting bracket as
shown in Fig. 15.
I IMPORTANT: An audible snapping sound will be
heard as the hook on the unit is secured into the hole on
the mounting bracket. Be sure unit is correctly mounted.
START-UP
Complete the following checks and the Start-Up Checklist
on page CL-1 before system start-up. Refer to the outdoor unit
installation, start-up and service instructions for system start-up
procedures and retiigerant charNng methods.
1. Check the condensate drainage system.
Add water to check the drainage flow. If the water
does not flow regularly, check the pipe slope or see if
there are any pipe restrictions.
2. Make sure that all wiring connections are correct and
tight.
3. Make sure that all barriers, covers, and panels are in
place.
4. Ensure that the filters have been installed and that the
discharge louvers are correctly positioned.
Never operate unit without a filter. Damage to the unit or
personal injury may result.
5. If the unit is equipped with a crankcase heater, ener-
gize it a minilnum of 24 hours before starting the unit.
To energize the crankcase heater only set the unit in off
mode and close the outdoor unit disconnect.
6. Fully backseat (open) the liquid and vapor tube sewice
valve s.
7. The unit is shipped with valve stems frontseated and
caps factory installed. Replace the stem caps after sys-
tem is opened to refrigerant flow (backseated).
Replace the caps finger tight.
8. With the remote controller, turn on the unit and operate
it in each mode (as applicable) for 15 minutes to test
for proper operation. Do not operate in cooling mode if
the outdoor temperature is below 55 F or 0 ° F (multi-
split) unless the unit is equipped with a low ambient
control or winter start kit (multi-split). Do not operate
in heating mode (heat pump systems only) if the out-
door temperature is above 75 F.
9. Test for proper refrigerant charge using the superheat
method or subcooling method t\_r multi-split.
10. Explain basic system operation to the o,amer.
MOUNTING
BRACKET
TOP
HOOK HOLE
•,A- "R
o_
,j'_ •
•._,|
" 1
e*. _11
f l Ii
HOOK
LOCATIONS
--101/4"
r--Z
LlO 1/4".---._
Fig. 15 -- Mounting Unit to Bracket
13

ControlSystem --The indoor unit is equipped with a
microprocessor control which operates the system. This control
is located in the control box of the fan coil unit, with ther-
mistors located in the thn coil inlet and on the indoor coil. The
heat pump fan coil units also have thermistors on the outdoor
coil and in the outdoor air inlet. These thermistors monitor sys-
tem operation and control the operating mode. To change set-
tings or operation modes, use the fiactory-supplied inliared
wireless remote controller. This controller allows the fan coil
unit to operate fiom within the same room without any wire
connections to the unit.
WIRELESS REMOTE CONTROLLERS A wireless re-
mote controller is supplied for system operation of all hi_l wall
units. Each battery-operated wireless (inliared) remote control-
ler may be used to control more than one unit. The wireless
relnote controller has a maximum range of 20 feet. The fan coil
unit is equipped with an emeNency switch which allows oper-
ation if the remote contxoller malfunctions or is misplaced.
Because the controller uses inliared communication, all of the
following must be true for the controller to work properly:
1. The power to the tan coil unit must be on.
2. The batteries in the controller must be good.
3. The controller must be within range of and pointed
directly at the thn coil unit.
4. The tan coil unit's 3-position switch must be set in the
remote position.
The remote controller includes a wall-mounted bracket. To
install the bracket, attach it to the wall as shown in Fig. 16
using double-sided tape included in the remote controller
assembly. Install the thctory-supplied batteries into the remote
controller per To hlstatl or Replace Remote Controller Batter-
ies section on page 17, and place the controller into the bracket
so that it is ready to use.
After Extended Shutdowns -- If the system has been
turned off tbr more than 12 hours, turn on the indoor and
outdoor unit disconnect switches to supply power to the system
for 12 hours BEFORE starting the system.
Seasonal Changeovers--When changing the heat
pump system ftom cooling to heating or heating to cooling, or
before starting cooling only system after it has been out of use
for the winter season, perform the following steps BEFORE
starting the system:
1. Inspect and clean the outdoor unit, particularly the
coil.
2. Clean or replace the air filters in the indoor unit.
3. Clean the indoor unit drain pan and drain pipe, and
remove any obstructions.
4. Turn on the indoor and outdoor unit disconnect
switches to supply power to the system 12 hours
before starting the system.
ToTurnthe UnitOn and Off-- To turn the unit on,
press the ON/OFF button (see Fig. 17). The unit will start. To
stop unit operation, press the ON/OFF button again. The unit
wilt stop. Refer to the Owner's Manual enclosed with the tan
coil unit tbr full remote control operating details.
Adjusting Airflow- The airflow direction may be ad-
justed up and down using the remote controller tlap button, and
ftom side to side by manually moving the vents. For cooling
only units and heat pump units when in the cooling mode, set
the louvers to dischaige straight out (parallel to the floor) (see
Fig. 18). For the heat pump units operating in heating 1node, it
is recommended that the air discharge louvers be set to dis-
charge vertically (see Fig. 18).
20'
BRACKET
Fig. 16 -- Mounting Remote Controller Bracket
FLAP_
2:00
Ae® ®@
ON/OFF SET BACK
Fig. 17 -- Remote Controller
COOLING - DIRECT
LOUVERS SO AIR
CLOSE._' CLOSe/
START COOL* /HEAT*
START HEATING -DIRECT
LOUVERS SO AIR
BLOWS DOWN
VERTICAL
_ISCNARGE)
BLOWS STRAIGHT _
OUT HORIZONTAL
DISCHARGE)
SWINGtsT_yRANGE SWING 6e_ lp
RANGE
START '
COOL HEAT
*Potential range.
1-Desirable range.
NOTE: The unit is equipped with manual air vents that direct the air
from side to side. Up and down louver motion can be selected using
the remote controller. For maximum comfort, set louvers within the
swing range. See the Adjusting Airflow section on this page for more
information.
Fig. 18 -- Louver Adjustments
14

The swing range shown in Fig. 18is the range that provides
maxilnum occupant comfort in each mode. It is recolmnended
that the louvers be positioned within this range (using the
relnote controller).
NOTE: The full swing range for the mode selected will auto-
matically be used if auto. tan mode is selected.
Operating Mode Memory -- After the system is turned
offor after a power failure, the system relnains in the last oper-
ating mode selected. When the system is turned back on, or
when power is automatically restored, operation continues in
the same operating 1node as when the power shut down.
Automatic Operation (Auto) Mode-- If auto mode
is selected, the system automatically switches the operating
mode from heating (heat pump system only) to cooling, or
fiom cooling to heating (heat pmnp system only) depending on
the selected telnperature.
NOTE: Between the cooling cycle and the heating cycle there
is a neutral zone of approximately 2 F above and 2 F below the
selected temperature, when only the tanis operating.
Operating Fault Diagnosis -- The system includes an
automatic diagnosis feature that activates uMer difficuh or
unacceptable operating conditions. It"such conditions occur,
the system stops automatically, the operating fauh signal
appears (geen "UNIT ON" light on the fiont of the tan coil
unit flashes), and an analysis of the system operating coMi-
tions is initiated. If the system does not start again, the _een
"UNIT ON" light will flash an error code.
Microprocessor Control Operation-- This system
is controlled by a microprocessor designed to give optilnum
levels of comfort and operating ei_ciency. The control is locat-
ed in the indoor unit. To operate the unit, the thctory-supplied
relnote controller is required.
There are 9(cooling only) or 12 (heat pump) operating
modes (including the offmode) for the unit. Each ll_lodeoper-
ates as follows:
• Off Mode When the unit is in the Offlnode, all func-
tions (compressor, outdoor tan, indoor fan, and air
sweep) are oft; except the reversing valve (heat pump
only), which will stay energized if the unit was last oper-
ated in the Cooling mode.
• Air Circulation Mode (Fan Operation Only) When
Air Circulation mode is selected, the indoor fan wilt
operate continuously at the selected speed (high,
medium, low, or Auto.). If the Auto. mode is selected,
the indoor tan will operate at low speed. The compressor
and outdoor fan are off. The reversing valve (heat pump
only) will remain in the last operating mode.
• Cooling Mode When the Cooling mode is selected,
the indoor tan will operate continuously at the selected
speed if the speed is high, medium, or low. If the indoor
fan is in Auto. mode, the tim will change operating
speeds depending on the difference between the room
temperature and the set point. The reversing valve (heat
pmnp only) will be energized. The compressor cannot
run for 3 minutes from the time the system starts up or
for 3 minutes from the time the compressor last operated.
When the temperature of the room is equal to or _eater
than the selected telnperature, the colnpressor and out-
door fan will operate until the room temperature is 2 F
below the set point, and then shut ofl, When the room
temperature is less than the selected telnperature, the
compressor and outdoor tan remain oft'. Indoor Pan runs
according to selected mode.
• Dehumidification Mode When the Dehumidification
mode is selected the indoor tan will operate at a speed
and setting selected by the microprocessor. There is no
user interface with this mode.
• Heat Pump Heating Mode (Heat Pump Systems Only)
When the Heat Pump mode is selected, the indoor tan
will operate at the selected speed if the speed is high,
medium, or low, unless overridden by the coil tempera-
ture (to prevent cold drafts). If the indoor fan is in Auto.
mode, the tan will change operating speeds depending on
the difference between the room temperature, the set
point, and the coil telnperature. The reversing valve will
be deenergized. The compressor cannot run for 3 minutes
fiom the time the system starts up or for 3 minutes fiom
the time it last operated. When the telnperature of the
room is 8 F below the selected telnperature, the unit wilt
operate in Heat Pmnp mode until the telnperature is 6 F
above the selected telnperature, or the compressor runs
for 40 minutes (whichever comes first). If the tempera-
ture of the room is less than 7 F below or equal to the
selected telnperature, the unit operates in Heat Pmnp
mode until the selected set point telnperature plus 2 F is
reached.
• Electric Heat in Heat Pump Heating Mode Supple-
mental electric heat is enabled when the outside air ther-
mistor located in the outdoor unit is below 40 F and the
room telnperature therlnistor is equal to or less than 6 F
below set point. Electric heat will remain on until 2 F
above set point, then will turn off. Fan operation will be
the same as described previously in the heat pmnp heat-
ing mode.
NOTE: Electric heat control cannot be overridden.
• Demand Defrost Mode (Heat Pump Systems Only)
This unit uses a demand defrost system to remove fiost
froln the outdoor coil during heating operation. The
indoor and outdoor fans are shut off during Defrost
mode. See Fig. 19. For high wall heat pump units, the
electric heat is OFF during Defrost mode.
• Set Back The Set Back mode timer turns the unit off
when the timer reaches zero minutes. The durations that
can be selected are 1, 2, 3 or 7 hours. After the initial
30 minutes, the user set point shifts approximately 1° F
warmer. This sequence repeats itself every 40 minutes up
to a total of 150 minutes. When Set Back mode is
enabled, the display on the remote controller is dimmed.
•On/Off Timer Mode The on!off timer will turn the
unit on or offat a user selectable on and offtime (this is
one time event only). The unit will start in the same
mode and at the same selected temperature as when the
system shut off. If the rooln temperature is not within
approximately 5 F of the set point 40 minutes before
start-up, the unit runs before the user selected on time is
reached to achieve the set point temperature at start-up.
• Automatic Operation Mode for Cooling Only Systems
The unit samples the air in the room. Based on the
room temperature, the unit selects one of the t\_ltowing
modes:
1. Cooling Mode If the room telnperature is more than
82 F with a preset telnperature of 79 F.
2. Dry Mode If the room temperature is more than
75 F and less than 82 F with a preset temperature of
77 F.
3. Fan Only Mode If the room temperature is less than
75 F.
• Automatic Operation Mode for Heat Pump Systems
The operation mode will be determined after 20 sec-
onds of room monitoring (to determine the room temper-
ature and the outdoor air temperature).
• Test Mode The test mode can be selected by setting
the slide switch on the tan coil unit to TEST position.
The slide switch is located on the front of the unit as
shown in Fig. 20. The fan coil unit will start immediately
(there is no compressor time delay when using Test
mode) in Cooling mode with an infinitely low set point.
15

TheindoortZanspeedwillbeatthehighsetting,andthe
swinglouverswillbeon(movingupanddo,am).
NOTE:Theunitcmmotbecontrolledbytheremotecontroller
untiltheslideswitchisreturnedtotheREMOTEposition.
•Emergency Mode This mode is only to be used if the
remote controller is lost, damaged, or the batteries are
dischaNed. To initiate Emergency mode, manually move
the slide switch on the fan coil unit to the EMER position
(Fig. 20). The unit is automatically operated in Cooling
or Heating mode according to room telnperature. Emer-
gency operation settings are as follows:
1. Operation mode: AUTO.
2. Fan Speed: AUTO.
3. Cooling set point: 77 F
4. Timer Mode: Continuous
NOTE: The unit cannot be controlled by the remote controller
until the slide switch is returned to the REMOTE position.
4O
3O
2O
W
_z
CE
ul
O,_
z
ud
o
©10
O2
o
o
C2_
k-
o
DEFROST REGION THREE
DEFROST REGION TWO
(MINIMUM UNIT RUNTIME
= 6 HOURS*)
ADJUSTS IF LONG
DEFROST CYCLE
(MORE THAN
6 MINUTES)
DEFROST REGION ONE
(MINIMUM UNIT RUN TIME
= 50 MIN.*)
(NO DEFROST OPERATION)
-10
-10 0 10 20 30 40
OUTDOOR AIR TEMPERATURE (F)
*A defrost will be initiated after 30 minutes of compressor run time if the outdoor coil temperature is less than -4 ° E
ADJUSTS IF SHORT
(LESS THAN
3 MINUTES)
Fig. 19 -- Electronic Control Defrost Regions Map
TE ST-J _ LR EMOT E
EMER.
EMER -- Emergency Mode
Fig. 20 -- Slide Switch
16

CLEANING AND MAINTENANCE
To avoid the possibility of electric shock, before performing
aaly cleaning and maintenance operations, always turn off
power to the system by pressing the ON/OFF button on the
remote controller. Turn off the outdoor disconnect switch
located near the outdoor unit. It'the indoor unit is on a sepa-
rate switch, be sure it is also disconnected.
For proper system operation, perform the cleaning and
maintenance operations listed in Table 10.
Lubrication -- The indoor-tan automatic air sweep motor,
and the outdoor-tan motor are thctory lubricated and require no
oiling.
To Install or Replace Remote Controller
Batteries
Do not drop the remote controller daanage to the device
may result. Avoid getting the controller wet.
NOTE: Betbre replacing the batteries, note that the remote con-
troller signal can be affected if electronic fluorescent lights are
installed nearby. The batteries may not need to be replaced. If
you suspect this is the problem, consult your distributoi:
Batteries should be replaced once a year. Use 2 batteries
(1.5 v, de-type, AAA alkaline batteries). Never use old or
rechaNed batteries together with new ones.
Toreplace batteries:
1. Slide the battery cover off from the back of the remote
controller. See Fig. 21.
2. Insert the 2 batteries in accordance with the markings
on the remote controller, so that the poles are correct
(+ and 3.
3. Replace the cover securely.
4. Press the _ button on the fiont of the remote usin_
an instrnmen_screwdriver or similar small, pointed
tool.
Replace the remote controller batteries when the remote
controller function becomes irregular, or the system no longer
responds to commmlds given close to the unit.
When shutting down the system for an extended period of
time, it is advisable to remove the batteries from the remote
controller.
Consult your distributor if any other equipment is turned on
or shows signs of disrupted operation if you use the wireless re-
mote controller, or if the system is mined on or shows signs of
disrupted operation when the remote controller of aaly other
equipment is used.
To Set the Current Time
1. Press the [_ button (located on the front of the
remote controller; see Fig. 22) with an instrument
screwdriver or similar small, pointed tool, and the cur-
rent time indication symbol flashes.
Note that the controller comes preset from the factory
set for 6:00 a.m.
2. Set the current time with the hour and minute buttons
on the front of the remote controller (see Fig. 21) while
the current time indication is flashing. Note that a.m.
and p.m. are also indicated as the times are scrolled
through.
3. When you reach the current time, press [-_ again.
The flashing will stop and the current time will be
reset to the new setting.
To Remove and Clean or Replace Air Filters
Operating your system with dirty air filters may damage the
indoor unit and can also cause reduced cooling perfur-
mance, intermittent system operation, frost build-up on the
indoor coil, and blown fuses. Inspect and clean or replace
the air filters momhl3'.
TO REMOVE AIR FILTERS
1. Open the tan coil unit front panel (lift). See Fig. 23.
2. Pull the tilters down to remove.
Table 10 -- Cleaning
TASK ]
INDOOR UNIT
Clean Air Filters
Clean Drain Pipe
Clean Condensate Drain Pan
Replace Batteries in the Remote Controller
Clean Indoor Unit Front Panel
OUTDOOR UNIT
Clean the Fins From Outside
Open the Unit and Clean Fins Inside
Remove Dust From Electrical Parts
Check Electrical Connections are Tight
Clean Outdoor Fan
Check that Outdoor Fan Assembly is Tight
and Maintenance Schedule
MONTHLYI OUABTEBLYI YEARLY
X
X
X
X
X
X
X
X
X
X
X
Clean Drain Pan X
NOTE: Maintenance procedures for the outdoor unit are in the outdoor unit installation instructions.
17

TO CLEAN OR REPLACE FILTERS Filters should be
vacuumed and ,a_ashedwith warm water (see Fig. 23). Shake
the tilter to remove any excess ,a_atei; dry it thoroughly, and
replace it by sliding the tilter behind fiont gille until the tilter
snaps in place.
If the filter has bemm to break down or is tom, it needs to
be replaced. Replacement tilters are available through your
distributor.
To Clean Indoor Unit Front Panel- If the fiont pan-
el of the unit becomes dirty or smudged, wipe the outside of the
tlront panel with a soft dry cloth. If necessary, use a mild liquid
deteIgent and wipe off carefully with a dry cloth.
When cleaning the fiont panel, NEVER use water hotter
than 105 F, and DO NOT pour water onto the tan coil unit.
Do not use abrasive or petroleum-based cleaners dam-
age to unit appearance will result.
!e_e
REMOVECOVER INSERT NEW BATTERIES
NOTE: Be sure to insert new batteries correctly (as shown),
Fig. 21 -- Installing or Replacing Batteries
To Clean Indoor Coil -- To clean the coil, remove the
indoor unit front panel, and vacuum the coil fins. Use care not
to bend or dmnage fins.
To Clean Outdoor Coil (Outdoor Unit)
Some metal parts and sharp fins of unit coil can cause per-
sonal injury during cleaning. Clean coil carefully.
To clean the outdoor coil:
1. Remove any dirt or obstruction from the discharge
opening.
2. Use a garden hose to spray water on the coil. Debris
that collects between coil fins inhibits heat transfer
direct the water spray between coil fins to flush out
debris.
Cleaning Condensate Drains- Clean all drains and
drain pans at the start of each cooling season. Check the flow
by pouring water into the drain.
_T TA
_o o
PRESS RST /
PRESS
FRONT VIEW
HOUR
BUTTON_
PRESS TA ---....MINUTE
BUTTON
FRONT VIEW
Fig. 22 -- Setting The Current Time
REMOVE FILTER
NOTE: DO NOT lift grille past its stop point.
VACUUM CLEAN
Fig. 23 -- Air Filter Maintenance
RINSE WITH WATER
18

SERVICE
When servicing unit, turn off all electric power to unit to
avoid shock hazard or injury tiom rotating parts.
Do not vent refrigerant to atmosphere when servicing unit.
Recover reliigerant during system repair or unit relnoval.
Diagnostic Codes -- This unit is equipped with a micro-
processor control that continuously monitors the unit's opera-
tion. If an operational fault is detected, a fault is indicated by
the flashing green "UNIT ON" light on the tiont of the t'mlcoil
unit. The control wilt continue to monitor the unit and, if the
coMitions that cause the thult are cleared, the unit wilt return to
normal operation. If the thult code is present for 5 cycles of the
unit, the unit will be locked out and the alarm indicated by the
flashing green "UNIT ON" light on the front of the tan coil
unit.
To access the red LED iMicator light, remove the tiont cov-
er of the unit by relnoving the 3 screws holding it in place.
If the red LED indicator light continuously flashes on tbr
one secoM, then off for one secoM, the control is lhnctioning
properly. Table 11 lists the number of quick flashes and the
associated thult. If the system does not operate, and the LED
indicator does not flash, either the power to the control board is
oil; or the control board has tailed.
Table 11 -- System Fault Codes
NO. OF QUICK
LED FLASHES
2
3
4
7
8
LED -- Light-Emitting Diode
*Heat pump systems only.
NOTE: If the LED light continuously flashes on for one second, then
off for one second, the control is functioning properly and no fault is
present.
SYSTEM FAULT
Room Air Thermistor
Indoor Coil Thermistor
Outdoor Coil Thermistor*
Outdoor Air Thermistor*
Indoor Fan Failure
System Tests- The system tests listed below are per-
formed continuously by the microprocessor. If a fault is indi-
cated, then the system allows only lhnited operation until the
probleln is resolved. If the problem resolves itsel£ then the
code is cleared and operation resumes.
THERMISTOR TESTS Each thermistor is tested tbr high
limit out of range (shorted coMition) and low limit out of range
(open condition). If the thermistor is out of range, the fault sta-
res indicator comes on mid the green LED flashes the appropri-
ate fault code.
THERMISTORS Proper thermistor location and correct
temperature sensing are ca-iticatto unit operation. Good thennat
contact is also required. Thermistor cable asselnblies are pro-
vided with fro1coil units to run between indoor mid outdoor
units. High-voltage mid thermistor cable assemblies should not
touch each other, and cable runs may be extended up to
200 feet. With the unit running, the thermistor integrity may be
checked by measuring the d.c. voltage across the two ther-
mistor connections. Approximate telnperamre is iMicated in
Table 12.
System Safeties and Interlocks
INDOOR FAN FAILURE If the indoor t'ml rpm shows
greater than 800 rpm for 30 seconds with the tan in the off
mode, then this test indicates ml indoor tan thiture. Also, if the
iMoor tan rpm is greater than 1700 rpm for 30 seconds, then
this test indicates ml indoor tan failure.
COMPRESSOR SHORT-CYCLING PROTECTION There
is a 3-minute time delay between compressor turning off and
taming back on.
INDOOR COIL FREEZE PROTECTION (Cooling or Dehu-
midification Mode Only) If the indoor coil temperature is
less than or equal to 32 F for 10 minutes after the compressor
has started, then the compressor and outdoor tan are mined oil"
The indoor tan continues to run at the user-selected speed until
the indoor coil reaches 44 F. At that time, the colnpressor and
outdoor fan will restart.
INDOOR COIL HIGH-TEMPERATURE PROTECTION
(Heat Pump Systems Only) If the indoor coil temperature
is greater than or equal to 135 F, the outdoor fan shuts down.
The outdoor tan will restart automatically when the indoor
coil temperature drops to 120 F.
TROUBLESHOOTING
See Table 13 and Fig. 24-27 to assist in troubleshooting the
fan coil units.
19

Table 12 -- Thermistor Properties*
MINIMUM NOMINAL MAXIMUM
TEMP MINIMUM NOMINAL MAXIMUM THERMISTOR THERMISTOR THERMISTOR
(F) OHMS OHMS OHMS VOLTS -- DC VOLTS -- DC VOLTS -- DC
-40 303.300 342,700 386,200 4.80 4.82 4.84
-30 211,500 237,276 265,444 4.72 4.75 4.77
-20 149.721 166,689 185,146 4.61 4.65 4.68
-10 107.379 118,776 130,973 4.48 4.52 4.55
0 77,281 85,677 93,867 4.30 4.35 4.40
f056,567 62,617 68,205 4.09 4.16 4.21
20 42,661 46,302 50,129 3.86 3.92 3.98
30 32,043 34,580 37,220 3.59 3.66 3.72
32 30,300 32,550 35,120 3.53 3.60 3.66
40 24,061 26,118 27,960 3.28 3.36 3.43
50 18,650 19,900 21,180 2.99 3.05 3.11
60 14,402 15,312 16,219 2.67 2.73 2.79
70 11,247 11,883 12,518 2.36 2.42 2.47
80 8,820 9,299 9,779 2.06 2.11 2.16
g0 6,846 7,339 7,754 1.76 1.83 1.88
100 5,487 5,829 6,187 1.52 1.57 1.63
110 4,367 4,667 4,976 1.29 1.34 1.40
120 3,502 3,760 4,026 1.09 1.14 1.19
130 2,830 3,051 3,281 0.92 0.97 1.02
140 2,300 2,489 2,687 0.77 0.82 0.87
150 1,880 2,045 2,216 0.65 0.69 0.74
160 1,547 1,688 1,836 0.55 0.59 0.63
170 1,280 1,402 1,531 0.46 0.50 0.53
180 1,065 1,170 1,282 0.39 0.42 0.45
190 890 982 1,078 0.33 0.36 0.39
200 748 828 913 0.28 0.31 0.33
210 631 701 766 0.24 0.26 0.28
212 611 678 751 0.23 0.25 0.28
*Circuit volts = 5 vdc.
Table 13 -- Troubleshooting
PROBLEM POTENTIAL SOURCE ACTION
Circuit breaker has tripped or fuse is blown Reset the circuit breaker or replace the fuse.
Restart fan coil unit operation when power is
Unit Does Not Operate Power failure restored.
Confirm the available voltage.
Clean the air filter.
Check and reset if necessary.
Close window(s) and door(s).
Insufficient Cooling Remove the obstruction.
Change the fan speed
Change to cooling operation or reset temperature
(using remote controller),
Clean the air filter.
Check and reset if necessary.
Insufficient Heating* Close window(s) and door(s).
Remove the obstruction.
Turn off the off timer function.
Unit Stops During Operation
*Heat pump systems only.
Voltage is too low
Air filter is blocked with dust
Temperature is not set properly
Window(s) and/or door(s) are open
Outdoor unit is obstructed
Fan speed is too low
Operation mode is set to fan or auto. mode
Air filter is blocked with dust
Temperature is not set properly
Window(s) and/or door(s) are open
Outdoor unit is obstructed
Off timer is operating
Room temperature has reached the programmed
set point Normal unit operation.
2O

ii
AIRFLOW
'OUTDOOR ';;'
":' UNIT " .: _ ..,
2WIRES
(4
FUSED DISCONNECTf
_ EATHERPROOF
FUSED DISCONNECTt
PERNEC
_ _ "_- 2 WIRES
_ (+) GROUND
_ATER DEV_I_ECE*-"-__
HEAT PUMP ONLY)
(BIFLOW)t
INDICATOR
SIGHT GLASSt
AIRFLOW
THERMISTOR CABLE*
(COOLING ONL_
5 WIRES (HEAT PUMP)t
ACCURATER_
METERINGDEVICE
(INSTALLED AT
UNIT)
CONTROL POWER
PROVIDED INSIDE UNIT
,I-- CONDENSATE
DRAIN LINEt
WIRELESS
CONTROLLER*
TOOPENS*GNT -j/ //
......... _ _>_" ._" _ DRAIN (DO NOT
LEGEND NOTES:
1. All piping must follow standard refrigerant piping techniques.
NEC -- National Electrical Code 2. All wiring must comply with the applicable local and national codes.
"---------- Piping 3. Liquid line need not be insulated. Cooling units only.
.m....._ Line Voltage 4. Wiring and piping shown are general points-of-connection guides only and are
-- 24 V not intended for a specific installation.
5. Insulate condensate drain if installed in a conditioned space.
Thermistor
*Standard.
1-Field supplied.
Fig. 24 -- Typical Piping and Wiring -- High Wall Systems, 18,000 and 24,000 Btuh
2!

AGING --
AS, ASS'Y --
C
CAP
CH
CLO
CN
COMP --
CT
EMI
FL
FMC
GND
HA
HPS
HS
HTR
IDC Th --
IFM
JEM-A --
K
LLPS
LPS
LS
ODA Th --
ODC Th --
OFM
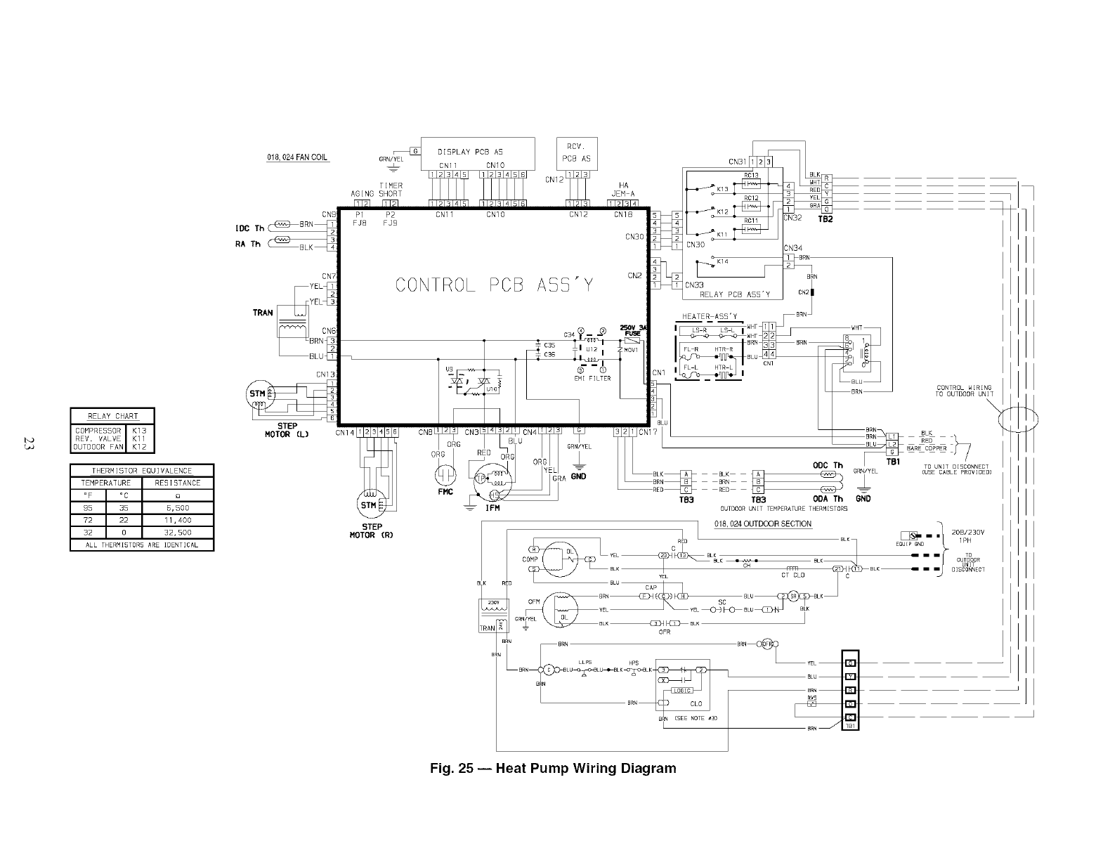
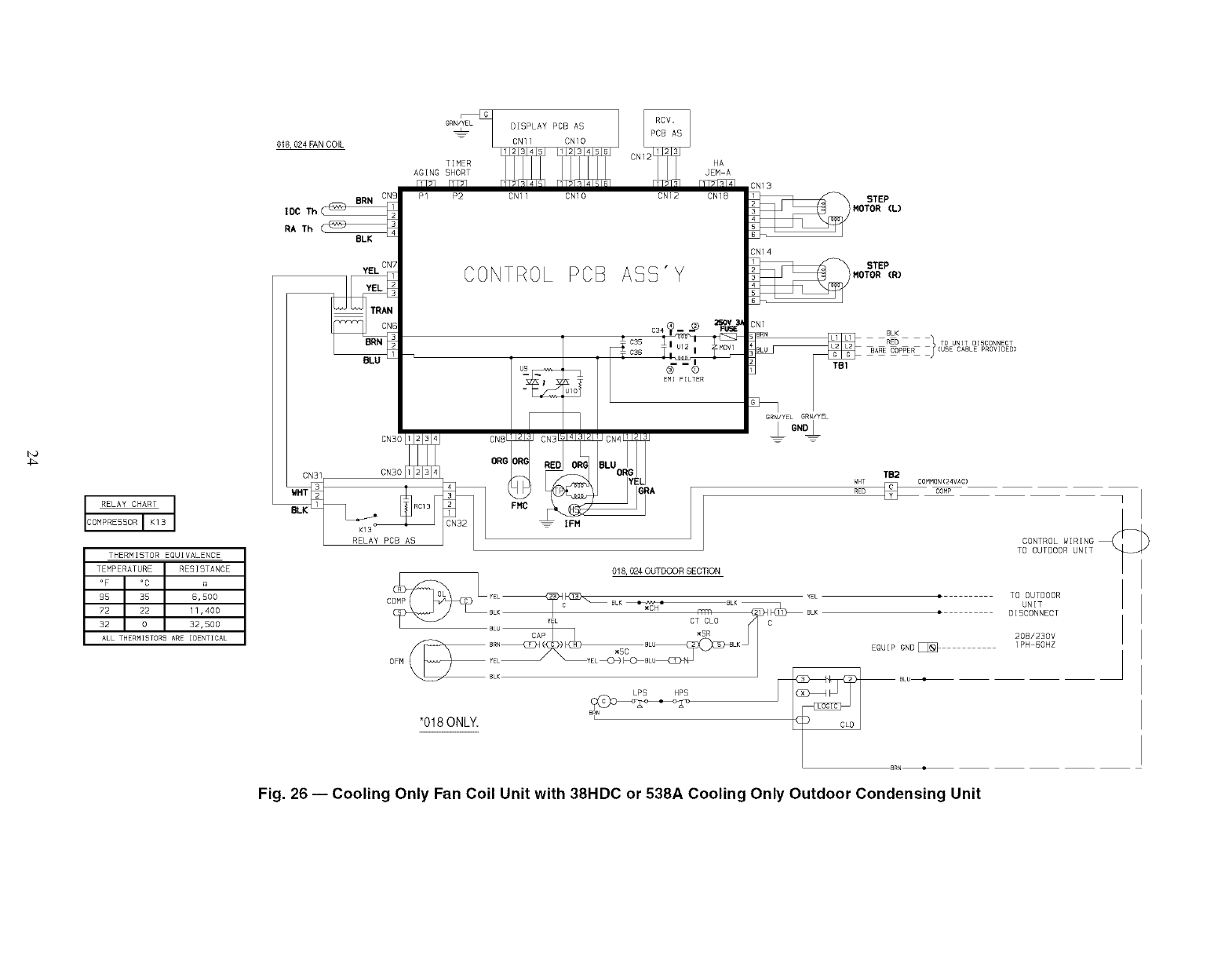
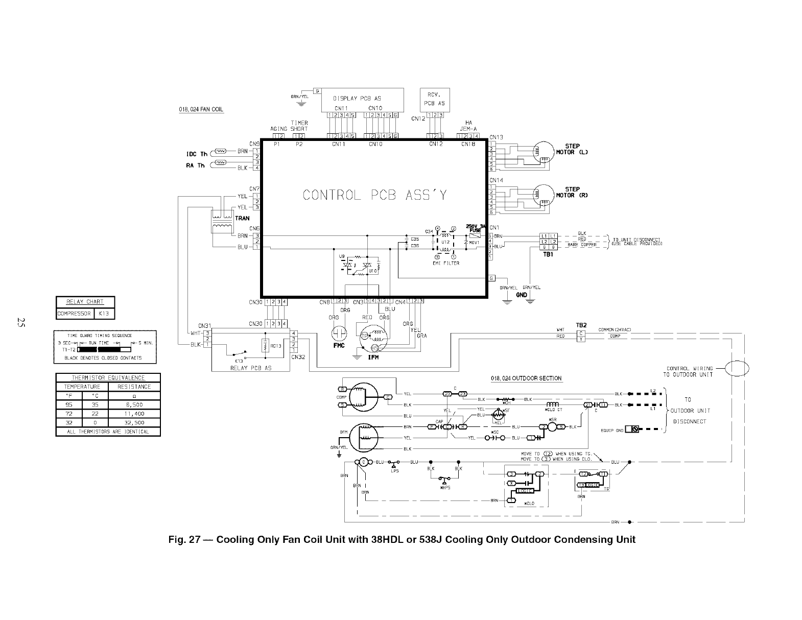
LEGEND AND NOTES FOR FIG. 25-27
For the Burn-In Test (short these terminals) OFR -- Outdoor-Fan Relay
Assembly OL -- Overload
Contactor PCB -- Printed Circuit Board
Capacitor RA Th -- Return Air Thermistor
Crankcase Heater RC -- Resistor Capacitor
Compressor Lockout RCV -- Receiver
Connector RVS -- Reversing Valve Solenoid
Compressor SC -- Start Capacitor
Current Transformer SR -- Start Relay
Electromagnetic Interference ST -- Start Thermistor
Fuse Link STM -- Step Motor
Fan Motor Capacitor TB -- Terminal Block
Ground TG -- Time Guard
Home Automation TP -- Thermal Protector
High-Pressure Switch TRAN -- Transformer
Hall (Rpm) Sensor
Heater <_) Terminal (Marked)
Indoor-Coil Temperature Thermistor (_) Terminal (Unmarked)
Indoor-Fan Motor
Japan Electric Manufacturing Q Splice
Industry Association
Relay [] Terminal Block
Liquid Low Pressure Switch Factory Wiring
Low-Pressure Switch Field Control Wiring
Limit Switch
Outdoor-Air Thermistor Field Power Wiring
Outdoor-Coil Thermistor Accessory or Optional Wiring
Outdoor-Fan Motor
1. If any of the original wire furnished must be replaced, it must be
replaced with type 90 C wire or its equivalent.
2. Wire in accordance with National Electrical Code (NEC) and local
codes.
3. The CLO locks out the compressor to prevent short cycling on com-
pressor overloads and safety devices. Before replacing CLO, check
these devices. A minimum one amp turn is required to hold contacts
closed.
4. Thermistor wiring cable 35 feet long provided with unit.
5. IFM, OFM and compressor have internal thermal protectors.
6. Transformer has a 2 amp thermal fuse on the primary side.
22

Ix3
%0
RELAY CHART
COMPRESSOR K13
OUTDOOR FAN K12
REV. VALVE Kll
THERMISTOR EQUIVALENCE
TEMPERATURE RESISTANCE
°F °C o
95 35 5,500
72 22 11,400
32 0 32,500
ALL THERMISTORS ARE IDENTICAL
018, 024 FANCOIL
CN9
I_ Th_
RA Th
CN7
CNl3
STEP
MOTOR eL)
STEP
MOTOR (R)
Fig. 25 -- Heat Pump Wiring Diagram

4_-
THERMISTOR EQUIVALENCE
TEMPERATURE RESISTANCE
°F °O a
95 35 5,500
72 22 11,400
32 0 32,500
ALL THERMISTORS ARE IDENTICAL
018 024 FANCOIL
BRN CN9
IDC Th
RA Th _
BLK
YEL c
BLU
CN3, I 2 3 4
wHCTN31 CN3O_
L R :A PDOAS
_R_F_ CNll CNlO
DISPLAY PCB AS
AGING SHORT
rTT_l r77_
P1 P2 CNll CNIO
CONTROL PCB
CN12
ASS'Y
HA
JEM A
F_
CNI8
3N13
.o#o'#%
3N14
.o#&%,
FRO
25ov 3,
J3b 3210N4123
___RAED BLUoR G
1FR
3N1
BRN # REDBLK
BARE COPPER
GRN/YEL GRN/YEL
TB2
WHT
RED _y
018, 024OUTDOOR SECTION
COMMON(24VAC)
COMP
EQUIP GND
TO OUTDOOR
UNIT
DISCONNECT
20B/230V
1PH 8OHZ
BRN_
Fig. 26 -- Cooling Only Fan Coil Unit with 38HDC or 538A Cooling Only Outdoor Condensing Unit

TIME GUARO TIMING SEQUENCE
3 SEC_ RUN TIME _ _5 M[N.
T] T2[__
BLACK DENOTES CLOSED CONTACTS
THERMISTOR EQUIVALENCE
TEMPERATURE RESISTANCE
_F _C Q
95 35 5,500
72 22 11,400
32 0 32,500
ALL THERMISTOR5 ARE IDENTICAL
018.024FAN COIL
CNE
IOC Th BRN
RA Th
ON7
GRN/YEL_ ON11 ON10
DISPLAY POD AS
AGING SHORT
FY3] []q3]
Pl P2 CNll CNlO
HA
JEM A
FT_
ON12 ON18
PCB ASS" Y
ON3 1 2 3 4 CND[
ORD
CN31 ON30
WHT__ _
BLK FMC
R_L3Ay POD AS
034
® ®
EMI FILTER
CN13
CN14
CN1
BLK
RED L fTO UNIT DISCONNECT
BARE OOPPER CUSE CABLE PROVIDED)
GRN/YEL GRN/YEL
•
TB2
COMNON(24VAC)
] COMP
C_ YEL_ 018. 024 OUTDOOR SECTION BLK{ I I[I2 I]
BLK BLK_H BLK _ _BLK_ .... TO
YEL YEL .ST _CLO CT C L] OUTDOOR UNIT
BLU /BLU
_BRN__ BLU_ _BLK_/ _ I I I_ OI5CONNECT
OFM _SC EQUIP GND _ J
v- !
O_N_.Y__ ....
_HP5
CONTROL WIRING?
TO OUTDOOR UNIT
BRN
Fig. 27-- Cooling Only Fan Coil Unit with 38HDL or 538J Cooling Only Outdoor Condensing Unit

Copyright 2002 Carrier Corporation
Manufacturer reserves the right to discontinue, or change at any time, specifications or designs without notice and without incurring obligations,
PC 111 Catalog No. 534-043 Printed in U.S,A, Form 40QN-6SI Pg 26 9-02 Replaces: 40QN-4SI