CARRIER Package Units(both Units Combined) Manual L0411028
User Manual: CARRIER CARRIER Package Units(both units combined) Manual CARRIER Package Units(both units combined) Owner's Manual, CARRIER Package Units(both units combined) installation guides
Open the PDF directly: View PDF
.
Page Count: 36

50HX
SingMe Packaged Heat Pump Units
\isit_ v_v_carrier.corn
Installation, Start-Up, and Operating
50HX Sizes 024-060
NFATUNG & COOLING
NOTE: Read the entire instruction manual belk_re starting the
installation
This symbol -->indicates a change since the last issue.
TABLE OF CONTENTS
SAFETY < ONSIDERATIONS l
Introduction .................................................................................... 2
RE( EIVING AND INSTALLATION .......................................... 2
(beck Equipment ...................................................................... 2
IDENTIFY UNIT ................................................................ 2
INSPECT SHIPMENT ........................................................ 2
Provide Unit Support ................................................................ 2
ROOF CURB & SLAB MOUNT ....................................... 2
Provide Clearances .................................................................... 2
Select and Install Ductwork ..................................................... 2
Rig and Place Unit .................................................................... 3
INSTALLATION ................................................................ 5
Connect Condensate Drain ....................................................... 6
Install Duct (onnections .......................................................... 7
CONFIGURING [NITS FOR DOVvTFLOW (VERTI°
(AL) DIS(HARGE-STANDARD UNITS (024 042) ...... 8
CONFIGURING [NITS FOR DOVvE\TLOW (VERTI°
CAL) DIS(HARGE-ECM UNITS (048 060) ................. 10
Install Electrical Connection .................................................. 12
HIGH°VOLTAGE & <ONTROL°VOLTAGE <ONNEC°
TIONS ................................................................................ 14
SPE( IAL PRO( EDURES FOR 208°V OPERATION ... 15
ERE-START-UP .......................................................................... ! 9
START-UP ................................................................................... 19
<HE(K FOR REFRIGERANT LEAKS .......................... 19
START UP AND MAKE ADJUSTMENTS .................... 20
< HE(KING COOLING ( ONTROL OPERATION ....... 20
< HE(KING HEATING ( ()NTROL OPERATION ........ 20
CHE(KING AND ADJUSTING REFRIGERANT
CHARGE ..................................... 20
INDOOR AIRFLOW AND AIRFLOW ADJUST°
MENTS ...................................... 23
For 208i230v-PS( Blower Motor ................... 23
For 208i230v-ECM Blower Motor ................... 23
COOLING SEQE EN(E OF OPERATION .......... 23
HEATING SEQUENCE OF OPERATION .......... 25
MAINTENANCE ................................... 25
AIR FILTER ................................. 25
UNIT TOP REMOVAL ......................... 26
INDOOR BLOWER AND MOTOR ................. 26
OUTDOOR COIL, INDOOR COIL, AND ( ONDENSATE
DRAIN PAN ................................... 27
OUTDOOR FAN ............................................................... 30
ELE(TRI(AL < ONTROLS AND WIRING .................. 30
REFRIGERANT < IR( UIT ............................................... 30
INDOOR AIRFLOW ........................................................ 3 ]
METERING DEVI<E A< UTP.OL DEVI<E ............. 3 ]
LIQUID LINE STRAINER .............................................. 3 ]
Trouble shooting ............................................................................ 34
Start=L p Checklist ..................................... 36
NOTE TO INSTALLER Before the installation, READ THESE
INSTRUCTIONS (AREFI_LLY AND COMPLETELY Also,
make sure the User's Manual and Replacement Guide are 1eft with
the unit after installation
SAFETY CONSJDERATmONS
Installation and servicing of air-conditioning equipment can be
hazardous due to system pressure and electrical components Only
trained and qualified persmmet should install, repair, or service
air-conditioning equipment.
Untrained personnel can perfbnn basic maintenance flmctions of
cleaning coils and filters. Al! other operations should be perIkmned
by trained service personnel. When working on air-conditioning
equipment, observe precautions in the literature, tags, and labels
attached to the unit, and other safety precautions that may apply
Follow all safety codes. Wear safety glasses and work gloves. Use
quenching cloth fbr unbrazing operations. Have fire extinguisher
available for all brazing operations. ( onsult a qualified installer or
service agency fbr information or assistance. The qualified in-
staller or agency must use only Ihctory°authorized kits or acces-
sories when modifying this product.
C95002
Fig. 1--Unit 50HX with Optional Base Rails
Manufacturer reserves the right to discontinue, or change at any time, specifications or designs without notice and without incurring obligations.
PC 101 Catalog No 535-00101 Printed in U.S.A. Form 50HX-5SI Pg 1 7-03 Replaces: 50HX-4SI

Be%re per%truing service or maintenance operations on
system, mm off power to uniL Turn off accessory heater
power switch, if applicable. Electrical shock can cause
personal injury.
Recognize safety information. This is the saf?ty-alert symbolzf_k
When you see this symbol in instructions or manuals, be alert to
the potential tbr personal injury.
Understand the signal words DANGER, WARNING, CAUTION,
and NOTE. These words are used with the saf)ty-alert symbol.
DANGER identifies the most serious hazards which will result in
severe personal ir_jm?" or death. WARNING signifies a hazard
which could result in personal injury or death. CAUTION is used
to identify unsafB practices which would result in minor personal
injury or product and property damage. NOTE is used to highlight
suggestions which will result in enhanced installation, reliability_
or operation.
These instructions cover minimum requirements and confbrm to
existing national standards and safety codes. In some instances,
these instructions exceed certain local codes and ordinances,
especially those that may not have kept up with changing residen-
tial constroction practices. We require these instl_/ctions as a
minimum for a saf_ installation.
_NTRODUCTION
The 50HX units (see Fig. 1) are fully self=contained_ and designed
%r outdoor installation. See Figs. 25%r unit dimensions_ All
units are shipped in a horizontal=discharge configuration for
installation on a ground=level slab_ All units can be converted to
down=flow discharge configurations fbr rooftop applications. (See
Fig. 6 fbr roof curb dimensions.)
RECEWING AND INSTALLATION
Step 1--Check Equipment
IDENTIFY UNIT
The unit model number and serial nurnber are stamped on the unit
identification plate. Check this infbm?ation against shipping pa-
pers.
INSPECT SHIPMENT
Inspect tk_r shipping damage while unit is still on shipping pallet.
If unit appears to be damaged or is torn loose ti'om its anchorage,
have it examined by tlansportation inspectors before removal.
Forward claim papers directly to transportation company. Manu-
fhcturer is not responsible fbr any damage incurred in transit.
Check all items against shipping list. Immediately notif}/ the
nearest distributor if any item is missing. To prevent loss or
damage, leave all parts in original packages until installation.
Step 2--Provide Unit Support
ROOF (URB & SLAB MOUNT
ROOF CURB - Install accessory roof cm:b in accordance with
instructions shipped with curb (See Fig. 6). Install insulation, cant
strips, roofing, and flashing. Ductwork must be attached to curb.
mMPORTANT: The gasketing of the unit to the roof curb is critical
%r a watertight seal. Install gaskefing material supplied with t!-_e
roof curb. Improperly applied gasketing also can result in air leaks
and poor unit perfbt_nance.
(urb should be level to within 1/4 in (See Fig. 8). This is necessa_-
fk_r unit &ain to fhnction properly. Ref?r to accessory roof curb
installation instructions fbr additional infbrmation as required.
SLAB MOUNT - Place the unit on a solid, level concrete pad that
is a minimum of 4 in. thick with 2in. above grade (See Fig. 10).
The slab should extend approximately 2in. beyond the casing on
all 4 sides of t!_e unit Install a 6-in. gravel apron in ti'ont of
outdoor coil-air inlet to prevent obstruction of airflow by grass or
shrubs Do not secure the unit to the slab except when required by
local codes.
Step 3--Provide Clearances
)'he required minimum service clearances are shown in Fig. 2-5.
Adequate ventilation and outdoor air must be provided. The
outdoor fire pushes air through ff*e outdoor coil and discharges it
through the louvers on the top cover, the decorative grille, and the
compressor access panel. Be sure that the fire discharge does not
recirculate to the outdoor coil. Do not locate the unit in either a
corner or under an overhead obstruction. The minimum clearance
under a partial overhang (such as a normal house overhang) is 48
in. above the unit top. The maximum horizontal extension of a
partial overhang must not exceed 48 in.
IMPORTANT: Do not restrict outdoor airflow. An air restliction
at either the outdoor=air inlet or the tim discharge may be
detrimental to compressor tit).
Do not place the unit where water, ice, or snow fi'orn an overhang
or roof will damage or flood the unit. Do not install the unit on
carpeting or other combustible materials. Slab-mounted units
should be at least 4 in. above the highest expected water and runoff
levels. Do not use unit if it has been under water.
Step 4--Select and hstaH Ouetwork
)'he design and installation of the duct system must be in
accordance with the standards of the NFPA (National Fire Protec-
tion Association) for installation of nonresidence-type air condi-
tioning and ventilating systems, NFPA90A or residence type,
NFPA90B: an_or local codes and residence-type, NFPAP0B;
an_or local codes and ordinances. Select and size ductwoik,
supply=air registers and return-air grilles according to ASHRAE
(American Society of Heating, Refi'igeration, and Air (ondition-
ing Engineers) recommendations. The unit has duct flanges on the
supply- and return-air openings on the side of the unit. See Fig. 2-5
for connection sizes and locations. When designing and installing
ductwork, consider the fk_llowing:
When connecting ductwork to units, do not drill deeper than
1/2 in. in shaded area shown or coil may be damaged
1_ All units should have field-supplied filters or accessory filter
rack installed in the return-air side of the unit. Recommended
sizes fbr filters are shown in Table 1.
2. Avoid abrupt duct size increases and reductions. Abrupt
change in duct size adversely affects air performance.
IMPORTANT: Use flexible connectors between ductwork and
unit to prevent tlansmission of vibration. Use suitable gaskets to
ensure weathertight and airtight seal. When electric heat is
installed, use fireproof canvas (or similar heat resistant material)
connector between ductwork and unit discharge connection. If
flexible duct is used, insert a sheet metal sleeve inside duct. Heat
resistant duct connector (or sheet metal sleeve) should extend
24-in. fi'om etectIic heater element.
3. Size ductwork %r cooling air quantity (cfh_). The minimum
air quantity fbr proper electric heater operation is listed in
Table 2. Heater limit switches may trip at air quantities below
those recommended.
NOTE: A 90-degree elbow must be provided in the supply
ductwork to comply with UL (Underwriters' Laboratories) codes
for use with electric heat.
4. Insulate and weatherproof all external ductwork. Insulate and
cover with a vapor barrier all ductwork passing through

REQ'D CLEARANCES FOR SERVICING.
INCHES Imm)
EVAP COIL ACCESS SIDE ............. 30 (?62.0)
CONTROL BOX ACCE55 SIDE ........... 30 [762.0?
(EXCEPT FOR NEC. REQUIREMENTS)
UNIT TOP ................ 36 {914.4]
SIDE OPPOSITE DUCTS.....30 [762.03
REQ'D CLEARANCES TO COMBUSTIBLE MATL.
INCHES (mm)
UNIT TOP ................ 0
DUCT SIDE OF UNIT ....... 0
SIDE OPPOSITE DUCTS.....O
BOTTOM OF UNIT .......... 0
VERTICAL DI5CHARGE
FIRST 12 INCHES (304.8) OF SUPPLY DUCT....1 (25.4)
NEC. REQ'D CLEARANCES.
INCHES (mm)
BETWEEN UNITS, CONTROL BOX SIDE .......... 42 (1066.8)
UNIT AND UNGROUNDED SURFACES, CONTROL BOX SIDE ........ 36 (914.4)
UNIT AND BLOCK OR CONCRETE WALLS AND OTHER
GROUNDED SURFACES, CONTROL BOX SIDE ........... 42 (1066.8)
BLOWER, CONTROL 50X
ACCESS PANEL
[SEE NOTE)
RIGHT SIDE VIEW
46 3/4 _15 ]/]5 i
(17] .4; (405.0)
_ IJ72!2,
0
° .Lj
B\
55NO 50[L _ (
35 3/4 =
OPTIONAL SUPPLY {933.5)
3 11/15"
(53.5)
/
1 11/16'
(42.5)
14 3/4"
(374.5)
A5CES5ORY DUCT FLANGES (20.5)
REAR VIEW WITH ACY DUCT FLANGE5
43 11/15"
(1109.5) tll
5UPPLY RETURN
_o 3/_°_2_B 5/5"_ 111/5"_
(273. O) (455.7) (251. O)
/c
14 5/15"
(363.5)
1 11/15"
(42. S)
\D
1 11/15"
(42.5)
-- EVAP COIL
NOTE: CLEARANCES MU5T BE MAINTAINED TO PREVENT RECIRCULATION OF AIR FROM
OUTDOOR FAN DISCHARGE.
UNIT
50NX024
50NX030
f
5 1/8"
11300)
14 118" 16 1/6"
8) (408. O)
i27
• • t 1
8 3/16" Z i
°,20'=0,/
, ,_\, _
\ _2.0- (51.0) DIA. _14 O" DIA
_.0. POWER ENTRY {355 6)
7/8" (22.2) DIA. DUCT OPENINGS
LOW VOLTAGE INTRY
REAR V[EW
NPT (19.0)
2 3/16" DRAIN OUTLET
[55.6)
FRONT VIEW C95003
ELECTRICAL CHARACTERBSTICS
208/230-1-60
208/230-1-60
UNIT WEIGNT
lb. kg
257 117
288 131
CORNER WT
LBtKG
A B C D
57/26 69/31 75/34 56/25
56/25 87/40 74/34 71/32
CENTER OF GRAVITY
INtMN
XYZ
20.4/519 21.1/540 11.2/286
20.3/518 21.5/547 11.2/286
Fig. 2-- BOHX024-030 Umt Dimensions (without base rails)
conditioned spaces. Follow latest Sheet Metal and Air Con-
ditioning Contractors National Association (SMACNA) and
Air ( onditioning Contractors Association (ACCA) minimum
installation standards for residential heating and air condition-
ing systems
5. Secure all ducts to building structure. Flash, weatherproo£ and
vibration-isolate duct openings in wall or roof according to
good construction practices.
Step 5--Rig and Place Unit
Use spreader bars or crate top when rigging the unit. -fhe units
must be rigged fbr lifting as shown in Fig. 7. Use extreme caution
to prevent damage when moving the unit. Unit must remain in an
upright position during all rigging and moving operations. The unit
m_mt be level fbr proper condensate drainage; the ground-level pad
or accessory roof curb must be level befDre setting the unit in
place. When a field-fabricated support is used, be sure that the
support is level and that it properly supports d_e unit
UNITS WITHOUT BASE RAILS-Accessory rigging brackets are
recommended to be used for rigging. Install brackets as follows:

REQ'D CLEARANCES FOR SERVICING,
INCHES (mm)
EVAP COIL ACCESS SIDE ............. 30 (762,0)
CONTROL BOX ACCESS SIDE ........... 30 (762,0)
(EXCEPT FOR NEC. REOUIREMENTS)
UNIT TOP ................ 3B (914.4]
SIDE OPPOSITE DUCTS,,,,,30 (762,0)
REO'D CLEARANCES TO COMBUSTIBLE NATL.
INCHES (mm)
UNIT TOP ................ 0
DUCT SIDE OF UN]T ....... 0
SIDE OPPOSITE DUCTS ..... 0
BOTTOM OF UNIT .......... 0
VERTICAL DISCHARGE
FIRST 12 INCHES (304.B) OF SUPPLY DUCT....1 (25.4)
NEC. REQ'D CLEARANCES.
INCHES (mm)
BETWEEN UNITS, CONTROL BOX SIDE .......... 42 (IOBB,8]
UNIT AND UNGROUNDED SURFACES, CONTROL BOX SIDE ........ 3B (914
UNIT AND BLOCK OR CONCRETE WALLS AND OTHER
GROUNDED SURFACEB, CONTROL BOX 51DE ........... 42 (lOBBIB)
RIGHT SIDE VIEW
15/16"_
(23.8)
®
O COIL
BLOWER CONTROL BOX
ACCESS'PANEL OPTIONAL SUppLy 35 3/4"
(SEE NOTE) AIR £NING (R3315)
40 1/4
P213)
(338.0)
0
° .L_.)
ACCE550RY DUCT FLANGES _
REAR VIEW WiTH ACY DUCT FLANGE5
3 11/16"
(93.5)
/
1 11/16_
(42,B)
14 3/4"
(374.0)
A
] L4 1we"
(I 04.8)
• 43 ll/16"
(1109.5) tN
Nt Nt Y
I I CG
5 I /
I I x //I
Nt 1N 1N
SUPPLY RETURN
_o 3x4-_ 3,8-_111wG-_
(273. O) (466,7) (281 . O)
m
EVAP COIL
14 5/IB"
(363.5)
11/16"
(42.8)
D
ll/15"
(42.8)
NOTE, CLEARANCE5 MUST BE mAINTAINED TO PREVENT REClRCULATION OF AIR FROm
OUTDOOR FAN DISCHARGE.
UNIT
50NX024
80NX030
_2.0" (51.0) DIA.
K.O. POWERENTRY
--7/8" (22.2) OIA.
LOW VOLTAGE ENTRY
REAR VIEW
1
[34,9)
C95004
ELECTRICAL CHARACTERBSTICS
208/230-1-60
208/230-1-60
UNBTWE_GNT
lb. kg
277 126
308 140
CORNER WT
LBIKG
A B C D
62/28 74/34 80/36 61/28
61/28 92/42 79/36 76/35
CENTER OF GRAVITY
IN/MM
X Y Z
20.2/515 2113/541 13.8/351
20.2/514 21.5/547 13.8/351
Fig. 3-- 80HX024-030 Unit Dimensions (with base rails)
Secure screws and paint protectors solidly against unit base to
hold lifting brackets in position. Never use lifting brackets
when the temperature is below =10 F (-23 () Never exceed
200 tbs per bracket of ti_ing fbrce Never use lifting brackets
for lifting other models of air conditioning units. Li_ling point
should be directly over the unit center of gravity. Failure to
follow this warning could result in personal injury or death.
1. Position brackets as close to the comers of unit as possible Be
sure brackets are _ell outside of center of gravity (See Fig.
2-5, and 7).
2, Position paint protectors and foam strips behveen screws and
painted surface of unit Tighten screws until they make contact
with the paint protectors.
3. Secure device or hook of sufficient strength to hole in bracket
as shown in detail "(" of Fig 7
4. If wood top is available, use it _br a spreader bar to prevent
straps flora damaging unit. If wood top is not available, use
spreader bars of sufficient length
UNITS WITH OPTIONAL BASE RAILS - Keep unit upright and
do not drop. Use spreader bars or top crate when rigging unit
Rolters may be used to move unit across roofi Level unit _br proper
condensate disposal See Fig 7 _br additional infom_ation Lifting

REQ'D CLEARANCESFOR SERVICING
INCHES (mm_
EVAP COIL ACCESS SIDE ............. 3O C762.0)
CONTROLBOX ACCESSSIOE ........... 3O C762.0)
(EXCEPT FOR NEC_ REQUIREMENTS)
UNIT TOP................ 36 (914.4)
S[BE OPPOSITE OUCTS.....30 (762.m
6 3/4
_=_171.4
B
0 14 3/4"
C374.0) COND COIL_
AIR OPENING_
14 3/4"
AF!CRvC!!! 0:_4cT2y FuDN!!!E!LNALNyG d5/=" 7
RE ES (20.9) 13 5/16"
ALT.7/8" (22.2) BIA. (338.0)
(£62. O)..... " ....... V_T ........
. 1z' 1c
6 1/2 3 o_
(165.9)_ l
L311/16"
• 3 5/8"_ _ (93.5)
IO," (92.5) A/
1 II/16 "_
[4218)
7
13 5/16" I 0
(169.5)
L
POWER AND VOLTAGE
ENTRIES DIM. "s
SAME AS 048 UNIT
,,i
7/8" (22.2) DIA.
K.O. LOW VOLTAGE ENTRY
REAR VIEW
FOR 048 g 060 UNIT ONLY
25 ll/16
C653.03
[2°
C71
3/16"
(29.9)
REQ'D CLEARANCESTO COMBUSTIBLEMATL.
INCHES (mm_
UNIT TOP................ 0
OUCT SlOE OF UNIT ....... 0
SIOE OPPOSITEDUCTS..-.O
BOTTOMOF UNIT .......... 0
VERTICAL DISCHARGE
FIRST 12 INCHES C304m OF SUPPLYOUCT 1 C2S4)
NEC. REQ'D CLEARANCES¸
INCUES Cmm_
BETWEENUNITS, CONTROLBOX SIDE .......... 42 (1066.8)
UNIT ANB UNGROUNOEOSURFACES,CONTROLBOX SIDE ........ 36 (914.4)
UNIT ANOBLOCKOR CONCRETE_ALLS ANOOTHER
GROUNBEBSURFACES,CONTROLBOX SIOE........... 42 C1066.m
43 11/16"
(1109.5)
_2d,41_ 222/#_&,, 2,J
36 3/4"
(933.5)
-- EVAP COIL
_/'15_" I _P_I _ i_ _....
ll/16 °
(42.8)
_'D
II/16"
(42. B?
NOTE, CLEARANCESMUSTBE MAINTAINEDTO PREVENTRECmCULATIONOF AI_ FROM
OUTOOORFANOISCHARGE.
ACCESSPANEL
(SEE NOTE)
RIGHT SIDE V]EW
UNIT
50NX03@
50NX042
50NX048
50NX060
14 1/8" 16 1/6"
c 2 15/16"
T [74.s) , ,
2 D" (51 O) DIA
K 0 POWERENTRY
8EB.N
I 1/8" (2e.5) OIA.
K.O POWERENTRY CG
K.O.Iale" (_SO? OIA
14 I/8
_3Se.71
28 3/16- 11 13/16"
(716.m 9 3/16
(_ao.m K.O. POWERENTRY
?/8" (22.2) DIA. REA_ VIEW
LOWVOLTAGEENTRY FOROaB _ND 042 UNIT_ ONLY
_14.0" 0[_.
OUCTO_Em_S
EVAPCOIL
COMPRESSOR
0
04"
I_ L . .
(34.9) OR_IN OUtLEt
_55.6) FRONTVIEW C95005
ELImCTRICAL CHARACTERISTICS
208/230-1-60
208/230-1-60
208/230-1-60
208/230-1-60,
UNIT WEIGHT
Ib kg
318 144
316 144
359 163
373 170
CORN[R w_r
LBIKG
A B C D
46/21 103/47 81/37 86/39
46/21 103/47 81/37 86/39
89/40 81/37 113/51 76/35
92/42 85/39 116/53 80/36
CENTER OF GRAVITY
INIMM
X
21.2/539
21.2/539
19.7/500
19.6/499
Y Z
20.4/520 13.6/347
20A/520 13.6/547
20.5/522 15.0/381
20.6/523 15.0/381
Fig. 4--- 50HX036-060 Unit Dimensions (without base raiJs)
holes are provided inbase rails as shown inFig. 7, See Detail "A"
or "B=B'L Refer to rigging inst*uctions on unit.
INSTALLATION
1, Position _he ti_ing bracket assembly around the base of the
unit. Leave the top shipping skid on the unit to act as a
spreader bar, Be sure the strap does not twist
2, Place each of the four (4) metal liking brackets into the
rigging holds in the composite pan
3. Tighten the ratchet strap unit tight Lifting brackets should be
secure in the rigging holds.
4 Attach the clevis or hook of"sufficient strength to hole in the
liking bracket (See Fig. 7).
5 Attach safew straps directly to the field supplied rigging straps
or clevis clip. Do not attach the safkty straps to the lifting
brackets
6 [se the top of the unit as a spreader bar to prevent the rigging
straps fiorn damaging the unit If the wood top is not available,

REQ'D CLEARANCESTO COHBUSTIBLEMATL.
INCHES Cmm)
UNIT TOP................ 0
DUCTSIDE OF UNIT....... 0
SIDE OPPOSITE DUCTS.....O
BOTTOMOF UNIT.......... 0
VEmICAL DISCMARGE
FIRST 12 INCMES C304.B) OF SUPPLY DUCT....1 C25.4J
EWP COIL
M_ OPEN[NO
1 11/16"
C42 B)
UNiT
50HX036
50NX042
50HX048
SONX060
REAR V]EW WITH ACY DUCT FLANGES
FOR 036 AND 542 UNITS ONLY
ACCESSPANEL
(SEE NOTE)
RIGHT SIDE VlE_
l/e" le I/e"
lS/lS"
\
2O" GI.0_ B[_.
K o PO_ERENTRY _1372" UlA
2 ! .
i 1/16 _.G
............ i /_//
1 1/2" {338.4) D
...... / / / I
OLTABE ENTRY [ _ _ ! ', _ ! I
FOR 048 & 060 UNIT ONLY
.................. _LT_/B_ _Zm m_
K.O. LOWVOLTagEENm¥
mS
1/2"
C95006
ELECTRBCAL CHARACTERISTICS
208/230-1-60
208/230-1-60
208/230-1-60
208/230-1-60,
UNIT WEIGNT
lb. kg
336 153
336 153
379 172
393 179
CORNER WT
LBIKG
A B C D
51/23 108/49 86/39 91/41
51/23 108/49 86/39 91/41
94/43 86/39 118/54 81/37
97/44 90/41 121/55 85/39
Fig. 5-- 50HX036-060 Unit Dimensions (with base rails
CENTER OF GRAVITY
_NtMN
X Y Z
21.0/535 20.5/521 16.4/418
21.0/535 20.5/521 16.4/418
19.6/498.3 20.6/524 17.3/440
19.5/497.3 20.6/524 17.3/440
use a spreader bar of sufficient length to not damage the unit
Lifting point should be directly over the center of gravity for
the unit Failure to follow this warning could result in
personal injury or death
Step 6--Connect Condensate Drain
NOTE: When installing condensate drain connection be sure to
comply with local codes and restrictions.
Unit disposes of condensate through a 3/4-in NPT fitting which
exits through the compressor access panel. See Fig. 25 (Front
View) %r location of condensate connection.
Condensate water can be drained directly onto the roof in rooftop
installations (where pem_itted) or onto a gravel apron in ground-
level installations. Install a field-supplied condensate trap at end of
condensate connection to ensure proper drainage Make sure that
the outlet of the trap is at least l-in. lower than the drain-pan
condensate connection to prevent the pan fi'om overflowing. Prime
the trap with water. When using a gravel apron, make sure it slopes
away ti'om the unit.
If the installation requires draining the condensate water away
from the unit, install a 2-in. trap using a 3/4-in. NPT connection
(See Fig. 18). Make sure that dte outlet of the trap is at least 1-in.
lower than the unit drain-pan condensate connection to prevent the

I. ROOFCURB MUST BE SET UP FOR UNIT BEING INSTALLED.
2. SEAL STRIP MUST BE APPLIED AS REQUIRED FOR UNIT BEING INSTALLED.
3. DIMENSIONS IN [ ] ARE IN MILLIMETERS.
4. ROOFCURB IS MADE OF ]B GAUGE STEEL.
5. ATTACH OUCTWORK TO CURB (FLANGES OF DUCT REST ON CURB).
B. SERVICE CLEARANCE 4 FEET ON EACH SIDE.
7. _OIRECTION OF AIR FLOW.
8. INSULATED PANELS_ 1" THK. FIBERGLASS 1# DENSITY.
!
FLAT CURB
o?
0
o°
SUPPLY AIR RETURN AIR
I"
[25.O]
16 7116" SUPPLY AIR
[417] OPENING
SEE DETAIL "A"
/
I/2"
SCREW CLEARANCE
RETURN AIR
OPENING
[400] [305]
[25] 39 3/4"
[1010]
i-
[25.0]
1
17 9/16"
[446]
[13]
SCREW CLEARANCE
[FIELD SUPPLIED)
DETAIL "A"
33 718"
Flat
Curb
ODS CATALOG NUMBER
CPRFCURB001A00
CPRFCURB002A00
CPRFCURBO03A00
Fig. 6-- Roof Curb Dimensions
pan t'rom overflowing_ Prime the trap with water_ ( onnect a &ain
robe using a minimum of 3/4-in_ PVC, 3/4-in (PVC, or 3/4-im
copper pipe (all field supplied). Do not undersize the robe. Pitch
the drain robe downward at a slope of at least 1 in for every 10 ft
of horizontal run. Be sure to check the drain robe for leaks Prime
trap at the beginning of the cooling season start-up_
C95007
Step 7--Install Duct Connections
The unit has duct flanges on the supply- and return-air openings on
the side and bottom of tlae unit_ For downshot applications the
ductwork can be connected to the roof curb. See Fig. 2-5 for
connection sizes and locations.
IMPORTANT: Use flexible connectors between ductwork and
unit to prevent transmission of vibration. Use suitable gaskets to
ensure weathertight and airtight seal. When electric heat is
installed, use fire proof canvas (or similar heat resistant material)
A
IN. (MN)
8 (203)
11 (279)
14 (356)
connector between ductwork and nnit discharge connection If
flexible duct is use& insert a sheet metal sleeve inside duct. Heat
resistant duct connector (or sheet metal sleeve) must extend 24-in_
tiom the unit discharge connection flange into the ductwork.
AC(ESSOR¥ DUCT FLANGE KIT ]NSTALLATION-
1. Mark hole locations (See instrnctions included in Flange Kit).
2 At marked locations, drill holes using a no_ 26 (.14%in) twist
drill {See Fig. 19)_
3 Partially secure duct flanges using two of the no_ 10, 1i2-in_
screws provided.

HOOK RIOOIN8 SHACKLES THROUOH HOLES IN LIFTIN8 BRACKETS AS SHOWN IN DETAIL "A 8 C'.
LIFTINO BRACKETS TO BE CENTERED AROUND THE UNIT CENTER OF 8RAVITY. USE WOODEN
TOP SKID WHEN RIGGING, TO PREVENT RIGGING STRAPS FROM DAMAGING UNIT. ON UNITS WITH
RAILS REMOVE FOUR SCREWS TO SLIDE WOOD SUPPORT THROUOH RECTANOULAR HOLE IN RAIL
C _ _ _ 0 © _ _ ALL PANELS MUST BE IN PLACE WHEN RIGGING.
/
SEE CHART "A _
914 1371
B (36" 54")
928.0
826.C SEE DETAIL C _ 36.4"
.//36.4" \,
SEE DETAIL A SEE CHART "B"
914 1371
(36" 54")
DUCT END
SEAL STRIP MUST BE IN
PLACE BEFORE PLACING
UNIT ON ROOF CURB
DETAIL C'
SECURE SCREW
AGAINST BASE PAN
TO HOLD LIFTING
BRACKET IN PLACE
UNIT
SIZE
024
030
036
042
048
060
Max
Weight
LB KG
296 134
327 148
355 161
355 161
398 180
412 187
CHART A
A
IN MM
16.1 410
16.2 411
15.4 390
15.4 390
16.9 428
16.9 429
B
IN MM
32.2 817
32.2 817
38.2 969
38.2 969
38.2 969
38.2 969
Max
Weight
LB KG
309 140
340 154
368 167
368 167
411 186
425 193
CHART B
C
iN MM
16.0 406
16.0 407
15.2 385
15.2 385
16.8 426
16.8 427
SCREWS
DETA IL A
VIEW B B
C95006
D
IN MM
28.9 733
28.9 733
34.9 885
34.9 885
34.1 867
34.1 867
Fig. 7-- 50HX Rigging Instructions
MAXIMUM ALLOWABLE
DIFFERENCE (in.)
A-B B-C A-C
1/4 1/4 1/4
Fig. 8--UNt Leveling Tolerances
C99065
4. See the %llowing caution Using remaining holes in dnct
flanges as templates, drill the remaining holes with the no 26
(.147-im) &ill.
5. Fully secure the duct flanges using the remaining screws
provided.
NOTE: The finished kit installation accommodates a 14 3/4=im x
14 3/4oim duct.
(ONFIGUREx'G UNITS FOR DO\_/EXrFLOW (VERTICAL)
DISCHAROE_STANDARD E_ITS (024 042)
Units 024 042 (Units with PSC Indoor Blower Motors) are
shipped in a horizontal configuration. To convert a horizontal unit
for downflow (vertical) discharge, perfbrm the following steps:

SOURCE _-
Fig. 9--Typical Unit Installation
REAR SIDE OF UNIT
PAD j'_"'-_ 984 mm
p(38 3/4")
UNIT OUTLINE :! _:._" _ "_
C95013
OF UNIT
WITH DUCT
CONNECTIONS
1161 mm
(4511/16")
SIDE OF UNIT WITH
ACCESS PANELS FOR
CONTROLBOXAND
INDOOR BLOWER HOUSING
NOTES:
1. Extend 6-in. gravel apron around pad.
2. Provide a3-ft service clearance at front and rear sides of unit.
Fig.10--Typicat Slab Layout
C95039
Be%re per%rming serxice or maintenance operations on the
system, turn off main power to unit and install tockout tag or
electrical shock could result,
1. Open all electrical disconnects and install lockout tag before
starting any service work.
2. Remove indoor coil access panel (See Fig. 12).
3. Locate lances in unit base insulation that are placed over the
perimeter of d'*e vertical duct opening cover (See Fig. 13)
4. Using a straight edge and sharp knife, cut and remove the
insulation around the perimeter of the cover, Remove the
screws securing the cover to the unit base and slide out the
cover. Discard the cover,
5, Remove indoor blower access panel (See Fig. 14).
6, Disconnect indoor=fan motor leads fl'om indoor fan relay and
unit contactor (See Fig. 15), Carefldly disengage wire tie
containing indoor-_hn motor leads flora the unit control box
(See Fig, 15 & 17),
7, Remove screws securing indoor blower housing to blower
shelf and careNlly slide out blower housing. There is a filler
bracket attached to the blower shell remove this filler bracket
and retain _Pr later use (See Fig. 16),
8 Locate lances in unit base insulation that are placed over the
perimeter of the vertical discharge opening cover (See Fig.
13),
9 Lsing a skaight edge and sharp knife, cut the insulation
around the perimeter of the cove*, Remove the screws
securing the cover to the unit base and slide out the cover,
Discard the cover Install filler bracket removed in Step 7,
10 If unit ductwork is to be attached to vertical opening flanges
on the unit base (jackstand applications only), do so at this
time,
11 It is recommended that the unit base insulation around the
perimeter of the vertical opening be secured to the unit base
with aluminum tape to prevent the insulation fi'om tearing or
bunching up when d_e blower housing is installed in the
ve*tical discharge position,
12 Orient blower housing _br vertical airflow (blower motor
adjacent to horizontal duct opening) and slide into vertical
opening making sure the flanges on the blower side plates
engage the tabs in the unit base (See Fig. 15), Resistance will
be felt as the blower housing contacts the unit base insulation;

959 mm
1060 mm
(413/4 in)
1©c ........... 305 mm (12 in)TO 610 mm (24 in) (4) REQ
__ 09 mm (35 3/4 in) (2) REQ
38 mm (1 1/4 in)
NOTES:
1. Material consistsof angle iron -- 31.8 mm (1-1/4 in.) to 38 mm
(1-1/2 in.) commericat standard.
2. Weldframe together.
3. Paint with zinc-rich paint (rust-proof).
Fig. ll--OptionN Heat Pump Mounting Frame
C95013
ACCESS PANEL
(REMOVE SCREWS)
Fig. 12--Indoor Coil Access Panel
C95014
this can be overcome by applying a slight %rce to the base of
the blower. Continue sliding blower in until hole in side plate
flange aligns with the hole in the unit base. Secure using screw
removed in Step 7. Reconnect indoor°lira motor leads and
insert wire tie back into unit control box.
13. (:over the horizontal duct openings. Duct covers can be
ordered as an accessory or field filbricated (See Fig. 20)
14. Reinstall the indoor coil and indoor blower access panels.
15. After completing unit installation, perform all safety checks
and power up unit.
CONFIGLTRING UNITS FOR DOVv_'FLOW (VERTI(AL)
DISCHARGE=ECM UNITS (04g 060)
tnits 048 060 (Units with ECM Indoor Blowm Motors) are
shipped in a horizontal configuration. To conveit a horizontal unit
fbr downflow (vertical) discharge, perfbrm the following steps:
Be%re per%truing serxice or maintenance operations on the
system, turn offmain power to unit and install lockout tag or
electrical shock conld result.
1. Open all electrical disconnects and install lockout tag be%re
starting any sela'ice work.
2. Remove indoor coil access panel (See Fig. 12).
3. Locate lances in unit base insulation that are placed over the
perimeter of the vertical duct opening cover (See Fig. 13).
4. Using a straight edge and sharp knife, cut and remove the
insulation around the perimeter of the cover. Remove the
screws securing the cover to the unit base and slide out the
cover. Discard the cover.
5. Remove indoor blower access panel (See Fig. 14).
10

//
//
Fig. 13--Removing Insulation and Vertical Duct Cover
C95015
INDOOR SLOWER ACCESS PANEL
(REMOVE SCREWS}
Fig. 14--Indoor Blower Access Panel
C950016
6. Disconnect d_e plug assemblies fi'om the indoor=fire motor
(See Fig. 15 & 17).
7. Remove screws securing indoor blower housing to blower
shelf and carefully slide out blower housing. There is a filler
bracket attached to the blower shell :'. remove this filler bracket
and retain for later use (See Fig. 16).
8. Locate lances in unit base insulation that are placed over the
perimeter of the vertical discharge opening cover (See Fig.
13),
9. Using a straight edge and sharp knife, cut the insulation
around the perimeter of the cover. Remove the screws
securing the cover to the unit base and slide out the cover.
Discard the cover. Install filler bracket removed in Step 6.
10. If unit ductwork is to be attached to vertical opening flanges
on the unit base (iackstand applications only), do so at this
time,
11, It is recommended that the unit base insulation around the
perimeter of the vertical opening be secured to the unit base
with aluminum tape to prevent the insulation from tearing or
bunching up when the blower housing is installed in the
ve*tical discharge position
12, Remove screws securing the high-voltage raceway to duct
panel, Temporarily place raceway on top of unit until blower
housing is installed
13 Orient blower housing _br vertical airflow (blower motor
adjacent to horizontal duct opening) and slide into vertical
opening making sure the flanges on the blower side plates
engage the tabs in the unit base (See Fig. 15). Resistance will
be felt as the blower housing contacts the unit base insulation;
this can be overcome by applying a slight force to the base of
the blower. Continue sliding blower in until hole in side plate
flange aligns with the hole in the unit base. Secure using screw
removed in Step 6.
14. Reinstall the high=voltage raceway removed in Step 12.
15. Cover the horizontal duct openings. Duct covers can be
ordered as an accessoQ" or field fabricated (See Fig. 20).
16. Reinstall the indoor coil and indoor blower access panels.
17. After completing unit installation, perfoma all safety checks
and power up unit.
11

i
BLOWER .......
SHELF .....-_
BRACKET
RACEWAY
FILLER
BRACKET
PLUG ASSEMBLIES
HORIZONTAL DUCT OPENING
Fig. 1g--Converting Blower Assembly to Vertical Airflow
C950010
REMOVE
Fig. 16--Blower She{f and Housing
Step 8--Install Emectrical Connection
The unit cabinet must have an unintetTupted, unbroken
electrical ground to minimize the possibility of personal
injuv if an electrical fimlt should occur_ This ground may
consist of an electrical wire connected to the unit ground tug
in the control compartment, or conduit approved for electrical
ground when installed in accordance with NEC (National
Electrical (?ode) ANSIiNFPA (latest edition) and local eleco
trical codes. In Canada, _bllow Canadian Electrical (?ode
CSA (Canadian Standards Association) C22.1 and local
electrical codes. Failure to adhere to this warning could result
in personal injury or death.
C95017
12

DEFROST
BOARD CONTACTOR RELAY
Fig. 17--Control Box Detait View
1" (25mm) MIN.
TRAP
OUTLET _
2" (50mm) MIN.
Fig. 18-Condensate Trap
Table 1--Physical Data--Unit 50HX
UNIT S_ZE
NOMINAL CAPACITY (ton}
OPERATING WEBGHT {lb.}
Without Base Rails
With Optiona_ Rai_s
COMPRESSOR
REFRIGERANT (R-22)
Quantity (lb.)
REFRBGERANT METERBNG DEVICE
OUTDOOR CO_L
Rows...Finslin.
Face Area (sq. ft.)
OUTDOOR FAN
NominaB Cfm
Diameter (in.)
Motor Hp (Rpm)
iNDOOR CORL
Rows...Finslin.
Face Area (sq, ft.)
INDOOR BLOWER
Motor Type
Speeds
Nominal Airflow (Cfm)
Size (in.)
Motor Hp (RPM)
RETURN-AmR FILTERS {ira)
Throwaway
024
2
309
296
O3O
2-1/2
340
327
ECM-Electronic Computated Motor.
048
4
411
398
036 642
3 3-1/2
368 368
355 355
Scroll
8.6 6.8
Acutrol TM System
2...17 2...17
8.7 8.7
2200 2400
20 20
1/4 (1100) 1/4 (1100)
4...15 4...15
4.5 4.5
PSC PSC
3 3
1300 1400
10x9 10x9
1/2 (1100) 1/2 (1100)
24x30xl 24x30xl
660
5
425
412
C95017
C99013
[
5.4 5.6 7.9 _ 8.1
2...17 2...17 2...17 2...17
7.0 7.0 8.7 8.7
2200 2200 2400 2400
20 20 20 20
1/4 (1100) 1/4 (1100) 1/3 (1100) 1/3 (1050)
3...15 3...15 4...15 4...15
3.6 3.6 4.5 4.5
PSC PSC ECM ECM
3 3 Variable Variable
800 1000 1550 1800
10x9 10x9 10x10 10x10
1/4 (1075) 1/4 (I075) 1.0 (Variable) 1.0 (Variable)
24x24xl 24x24xl 24x30x1 24x30xl
13

O
O
©
O
NOTES:
I Do not dr4]]morethan 1/2-inintoshadedarea
2 Dimensionsin [ ] are m mm C95012
Fig. 19--Area Not To Be Dritled
Failure to follow these precautions could result in damage to
the unit being installed:
I. Make all electrical connections in accordance with NEC
ANSINFPA (latest edition) and local electrical codes
governing such wiring. In (anada, nil electrical connec-
tions must be in accordance with CSA standard C22.1
Canadian Electrical {27ode Part l and applicable local
codes Refkr to unit wiring diagram.
2 Use only cop ner conductor _br connections between
field=supplied electrical disconnect switch and unit. DO
NOT USE ALUMINUM WIRE.
3. Be sure that high-voltage power to unit is within operating
voltage range indicated on unit rating plate.
4. Do not damage internal components when drilling through
any panel to mount electrical hardware, conduit, etc. ()n
3-phase units, ensure phases are balanced within 2percent.
Consult local power company fi_r correction of improper
voltage and/or phase imbalance.
HIGH-VOLTAGE & CONTROL-VOLTAGE (ONNECTIONS
The unit must have a separate electrical service with a field-
supplied, waterproof, disconnect switch mounted at, or within
sight fi'om, the unit Refer to the unit rating plate fbr maximum
fl/seicircuit breaker size and mininmm circuit anrps (ampacity) for
wire sizing. See Table 3 for electrical data.
The field=supplied disconnect switch box may be mounted on the
unit over the high=voltage inlet hole when the standard power and
low-voltage entry points are used. See Fig. 21 fbr acceptable
location.
See unit wiring label and Fig. 23, 24 &26-27 fbr refkrence when
making high voltage connections. Proceed as fbllows to complete
the high-voltage connections to the unit.
If the unit has an electric heater, asecond disconnec_ may be
required. Consult the Installation Instructions provided with
tt_e accessory heater for electrical service connections.
l. ROUTING POWER LEADS INTO UNIT=Use only copper
wire between disconnect and unit. The high=voltage leads
should be in a conduit until they enter the duct panel; conduit
termination at the duct panel must be watertight. Run the
high-voltage leads through the knockout on the duct panel (see
Fig. 21 for location and size). When the leads are inside the
unit, run leads up the high=voltage raceway to the line wiring
splice box (Fig. 22). For singlerphase units, connect leads to
the black and yellow wires (see Fig 24 &26-27).
2. CONNECTING GROUND LEAD TO WIRE-BINDING
S(REW = Refer to Fig. 22 Connect the ground lead to d_e
chassis using the wire-binding screw in the wiring splice box.
3. ROUTING CONTROL POWER WIRES - STD NON-ECM
kNITS (24 v) -Form a drip-loop with the thermostat leads
before routing them into the unit. Route the thermostat leads
through grommeted hole provided in unit (see Fig. 21) into
unit control power splice box. ( onnect thermostat leads to unit
control power leads as shown in Fig. 23.
4. ROUTING CONTROL POWER WIRES - ECM [;NITS (24
v) = Remove knockout in the duct panel (see Fig. 21). Remove
the rubber grommet fi'nm the installer's packet (included with
unit) and install it in the knockout opening. Route themaostat
wires through grommet providing a drip loop at the panel.
Connect tow-voltage leads to the thermostat as shown in Fig.
23.
The Easy Select inter_hce board is located in the return-air
section and is attached to the duct panel. The Easy Select
inter_i_ce board is fi_ctory wired to the motor and _hctoQ"
default selections are preset.
5. The unit tlansfomaer supplies 24-v power fbr complete system
including accessory electrical heater. Transfbrmer is fi_cto W
wired for 230-v operation. If supply voltage is 208 v, rewire
transformer primary as described in the Special Procedures fbr
208-v Operation section.
NOTE: Do not use any type of power-stealing thermostat. Unit
control problems may result.
Use no. 18 American Wire Gage (AWG) color=coded, insulated
(35 C minimum) wires to make the control voltage connections
between the thermostat and the unit. If the d'*ermostat is located
more than 100 ft. fi'om the unit (as measured along the control
voltage wires), use no. 16 AWG color-coded, insulated (35 C
minimmn) wires.
14

14 11/16"(372) m
13 3/4"(348) B
3 3/4"(94)--
Om
9 11/16"(245) 21 9/16"(547)
]_ _11/32"DIA (8 Places/Holes)
o o-- u
9/32" (7)TYP
105/8"(270) 19"(482) 31 3/1 "(792) 1 3/4"(43)
22-GAGE SHEET 4 ADHESIVE-BACKED SPONGE RUBBER
METAL COVER (SEE ABOVE) SEAL STRIPS-I/8" (3 2)THICK
11/16" (17)TYP
_____L
m
SEAL ALL FOUR CORNERS
WiTH SILICONE SEALER
NOTES:
1, An accessory duct cover is available as an alternative to field
fabrication,
2. Construct duct cover out of 22-gage sheet metal.
3. Dimensions in ( ) are in millimeters.
1//2qN THICK, 1-[b DENSITY FIBERGLASS INSULATION
WITH ALUMINUM FOiL BACKING; SECURE WITH ADHESIVE
Fig. 20--Fie{d-Fabricated Duct Cover
C95019
024 t 030
700 875
Table 2--Minimum Airflow for Safe Electric Heater
Operation {Cfm}
SIZE
1225 1225 1400 t 060
1750
SPE(IAL PRO(EDL RES FOR 208-V OPERATION
Make sure that the power supply to d-xeunit is switched OFF
and lockout tag installed befbre making any wiring changes
Electrical shock can cause serious injury or death.
1. Disconnect the orange trans_\_rmer-prima_ lead fi'orn the
contactor See unit wiring label
2. Remove the wire nut fi'om the tem_inal on the end of the red
transforme>primary lead.
3. Save d_e wire nut.
4. Connect the red lead to the contactor tem_inal flora which the
orange lead was disconnected.
5. Using the wire nut removed thorn the red lea& insulate the
loose terminal on the orange lead,
6 Wrap the wire nut with electrical tape so that the metal
terminal cannot be seen
NOTE: Indoor blower motor speeds may need to be changed for
208-v operation Refer to I,gdoo_'AhJ/o_ a_gdAl_;(To_A@_zstme_t
Section
15

HIGH
VOLTAGE
i ]
*Knockout on rectangular-duct panel units; entry hole on round-duct
panel units.
NOTE: For rectangular duct knockout sizes, see Fig. 2-9.
Fig. 21=Typical Duct Panel Knockouts
UNIT POWER UNIT LINE WIRE WIRE-BINDING
LEAD SPLICE BOX SCREW
C95036
CONTROLPOWER
SPLICE BOX
Fig. 22--Wiring Splice Boxes
C95022
16

--> Table3--ElectricalData--50HX
UNiT
50HX
SSZE V=PH
(=SERIES, (60 HZ)
_F
USED)
VOLTAGE ELECTRIC
COMPRESSOR OFM IFM
RANGE HEAT
Min Max RLA LRA FLA FLA kW FLA
SINGLE-POINT
POWER SUPPLY
3.75/5.00 18.1/20.8
024-311 208/230-1 187 253 112 560 14 2.0 5.60/7.50 27.1/31.3
7.50/100 36.1/41.7
3.75/5.00 18.1/20.8
024-321 208/230-1 187 253 121 540 14 2.0 5.60/7.50 27.1/31.3
7.50/100 36.1/41.7
3.75/5.00 18.1/20.8
5.60/7.50 27.1/31.3
080 208/230-1 187 253 150 730 14 2.6 7.50/100 36.1/41.7
1130/15.0 54.1/62.0
3.75/5.00 18.1/20.8
5.60/7.50 27.1/31.3
088 208/230-1 187 253 160 880 12 2.6 7.50/100 36.1/41.7
1130/15.0 54.1/62.0
3.75/5.00 18.1/20.8
5.60/7.50 27.1/31.3
042 208/230-1 187 253 200 104.0 14 3.1 7.50/100 36.1/41.7
1130/15.0 54.1/62.0
150/200 72.2/83.3
3.75/5.00 18.1/20.8
5.60/7.50 27.1/31.3
048-301 208/230-1 187 253 264 129.0 21 7.2 7.50/100 36.1/41.7
1130/15.0 54.1/62.0
150/200 72.2/83.3
3.75/5.00 18.1/20.8
5.60/7.50 27.1/31.3
048=311 208/230-1 187 253 208 109.0 21 7.2 7.50/100 36.1/41.7
1130/15.0 54.1/62.0
150/200 72.2/83.3
3.75/5.00 18.1/20.8
5.60/7.50 27.1/31.3
060 208/230-1 187 253 321 169.0 21 7.2 7.50/100 36.1/41.7
1130/15.0 54.1/62.0
15 0/28 8 72.2/83.3
Single-
Point
Single- Max Single-
Point Fuse Point
Wiring or MOCP
MCA Ckt
Bkr
403/434 45/45 --
51 0/565 60/60 --
625/695 -- 70/80
41 4/445 45/45 --
522/577 60/60 --
637/707 -- 70/80
453/488 50/50 --
566/61 8 60/- -/70
679/748 -- 70/80
904/100.3 -- 100/100
483/51 7 60/60 --
566/61 8 60/- -/70
679/748 -- 80/80
904/100.3 -- 100/110
521/555 60/60 --
633/686 -- 70/80
746/81 6 -- 80/90
971/107.0 -- 100/110
1198/133.7 -- 125/150
652/683 -- 70/70
759/81 4 -- 80/90
874/944 -- 90/100
1102/120.4 -- 125/125
1318/145.9 -- 150/150
582/61 3 60/- #70
689/744 -- 70/80
804/874 -- 90/90
1032/113.4 -- 110/125
1248/138.9 -- 125/150
720/755 -- 90/100
833/885 -- 100/100
946/101.5 -- 100/110
1171/126.9 -- 125/150
1396/153.5 -- 150/175
DUAL-POINT
POWER SUPPLY
(INCLUDING UNIT ONLY)
Heater Unit
Heater Only Only
Dual- Heater Unit Dual- Unit
Only Point Only Only Point Only
Dual- Max Dual- Dual- Max Dual
Point Fuse Point Point Fuse Point
Wiring or MOCP MCA or MOCP
MCA Ckt Ckt
Bkr Bkr
22.5/26.0 25/30 --
33.7/39.1 35/40 -- 17.4 25/25 --
45.1/50.8 50/60 --
22.5/26.0 25/30 --
33.7/39.1 35/40 -- 18.5 25/25 --
45.1/50.8 50/60 --
22.5/26.0 25/30 --
33.7/39.1 35/40 -- 22.8 30/30 --
45.1/50.1 50/60 --
67.9/78.1 -- 70/80
22.5/26.0 25/30 --
33.7/39.1 35/40 -- 23.8 35/35 --
45.1/50.1 50/60 --
67.9/78.1 -- 70/80
22.5/26.0 25/30 --
33.7/39.1 35/40 --
45.1/50.8 50/60 -- 29.5 45/45 --
67.9/78.1 -- 70/80
901/104.2 -- 100/110
22.5/26.0 25/30 --
33.7/39.1 35/40 --
45.1/50.8 50/60 -- 42.3 50/50 --
67.9/78.1 -- 70/80
901/104.2 -- 100/110
22.5/26.0 25/30 --
33.7/39.1 35/40 --
45.1/50.8 50/60 -- 35.3 45/45 --
67.9/78.1 -- 70/80
901/104.2 -- 100/110
22.5/26.0 25/30 --
33.7/39.1 35/40 --
45.1/50.8 50/60 -- 48.7 -- 80/80
67.9/78.1 -- 70/80
90 1/104.2 -- 100/110
(See legend following Electrical Data chart)
17

LEGEND
FLA -- Full Load Amps
LRA -- Locked Rotor Amps
MCA -- Minimum CircuitAmps
MOCP -- Maximum Overcurrent Protection
RLA -- Rated Load Amps
CKT BKR -- Circuit Breaker
US
NOTES:
1. tn compliance with NEC (National Electrical Code) requirements
for multimotor and combination load equipment (refer to NEC
Articles 430 and 440), the overcurrent protective device for the
unit shall be Power Supply fuse. Canadian units may be
fuse or circuit breaker.
2. Minimum wire size is based on 60 C copper wire. tf other than
60 C wire is used, or if length exceeds wire length in table,
determine size from NEC.
3. Unbalanced 3-Phase Supply 'Voltage
Never operate a motor where a phase imbalance in supply volt-
age is greater than 2%. Use the following formula to determine
the percentage of voltage imbalance.
% Vottage imbalance
= 100 x max voltage deviation from average voltage
average voltage
EXAMPLE: Supply voltage is 460-3-60.
A 8 C AB = 452 v
BC = 464 v
AC = 455 v
Average Voltage = 452 + 464 + 455
3
1371
3
= 457
Determine maximum deviation from average 'voltage.
(AB) 457 452=5v
(BC) 464 457=7v
(AC) 457 455=2v
Maximum deviation is 7 v.
Determine percent of voltage imbalance.
7
% Voltage Imbalance = 100 x --
457
: 1.53%
This amount of phase imbalance is satisfactory as it is below the
maximum allowable 2%.
IMPORTANT: tf the supply voltage phase imbalance is
more than 2%, contact your local electric utility company
immediately.
c99o24
®
©
THERMOSTAT
AND SUBBASE
------]_i
L_
Eli
UNtT CONTROL POWER
SPLICE BOX
Fig. 23--Control=Voltage Connections
C99056
lg

GROUND LUG
(IN SLP]CE BOX)
SINGLE=PHASE
CONNECTIONS
TO DISCONNECT
PER NEC
GROUND
LEAD
L1 ........ _/_-_ BLK--
L2 ........ zQ'==" YEL--
3-PHASE L3 ........
CONNECTIONS NOTE: Use copper wire only'.
LEGEND
NEC = National Electrical Code
- - - Field Wiring
Splice Connections
C99057
Fig. 24_High-VoRage Connections
PRE-START-UP
Failure to observe the %llowing warnings could result in
serious personal injury:
1 Follow recognized safety practices and wear protective
goggles when checking or servicing ref?igerant system
2 Do not operate compressor or provide any electIic power to
unit unless compressor terminal cover is in place and
secured.
3. Do not remove compressor terminal cover until all electri=
cal sources are disconnected.
4. Relieve and recover all refrigerant fiom system before
toEhing or disturbing anything inside terminal box if
re_iigerant leak is suspected around compressor terminals.
5. Never attempt to repair soldered connection while refrig=
erant system is under pressure.
6. Do not use torch to remove any component. System
contains oil and refrigerant under pressure. To remove a
component, wear protective goggles and proceed as fbl-
lows:
a. Shut off electrical power to unit.
b. Relieve and reclaim all refrigerant f?orn system using
both high- and low-pressure ports.
c Cut component connecting robing with robing cutter and
remove component fi'om unit.
d. Carefully unsweat remaining tubing stubs when neces-
sary. Oil can ignite when exposed to torch flame.
Proceed as fbllows to inspect and prepare the unit for initial
startup:
1. Remove access panel
2. Read and follow instructions on all WARNING, (AUTION,
and INFORMATION labels attached to, or shipped with, unit
3. Make the fbltowing inspections:
a Inspect for shipping and handling damages such as broken
lines, loose parts, disconnected wires, etc.
b. Inspect fbr oil at all refrigerant robing connections and on
unit base. Detecting oil generally indicates a refrigerant
leak. Leak test all refrigerant robing connections using
electronic leak detector, halide torch, or liquid-soap solu-
tion. If a refrigerant leak is detected, see Check for
Refrigerant Leaks section.
c. Inspect all field- and fhctory-wiring connections. Be sure
that connections are completed and tight.
d. Ensure electrical wiring does not contact ref?igerant robes
or sharp metal edges
e Inspect coil fins If damaged during shipping and handling,
carefldly straighten fins with a fin comb.
4. Verify the following conditions
a. Make sure that outdoor-fan blade is correctly positioned in
fan orifice. Leading edge of outdoor=fan blade should be 2
in. back fi'om inlet grille or 1/2 in. maximum fi'om the fan
deck.
b. Make sure that air filter(s) is in place.
c. Make sure that condensate &ain trap is filled with water to
ensure proper &ainage.
d. Make sure that all tools and miscellaneous loose parts have
been removed.
5 Compressors are internally spring mounted Do not loosen or
remove compressor hold=down bolts.
6 Each unit (system) has 2 Schrader-type ports, one low-side
fitting located on the suction tine, and one high=side fitting
located on d_e compressor discharge tine Be sure that caps
covering these Schrade* fittings are tight.
START-UP
(NECK FOR REFRIGERANT LEAKS
Proceed as follows to tocate and repair a rel'rigerant teak and to
charge the unit:
1 Locate leak and make sure that refi'igerant system pressure has
been relieved and reclaimed fiom both high- and low-pressure
po_ls.
2. Repair leak following accepted practices. NOTE: Install a
filter &ier whenever the system has been opened fbr repair.
3. Add a small charge of R-22 refi'igerant vapor to system and
leak-test unit.
4Recover refiigerant f?om refrigerant system and evacuate to
500 microns if' no additional teaks are not found
5 Charge unit with R-22 refi'igerant, using a volumetric-
charging cylinde* or accurate scale. Rejur to _mit rating plate
ibr req_m'ed charge Be sure to add extra refi'igerant to
compensate for internal volume of filter drier.
19

INMAX
FROM FAN DECK
MOTOR SHAFT
Fig. 2B--Fan Blade Clearance
STAR7 UP AND MAKE ADJ[ STMENTS
C95027
Complete the required procedures given in the Pre-Start= Up
section beik_re starting the unit. Do not jumper any safety
de_ices when operating the unit. Do not operate the compres-
sor when the outdoor temperature is beloxx 40°F (unless
accessory 1o_ =ambient kit is installed). Do not rapid=cycle the
compressor. Allo_s 5 minutes between "on" cycles to prex ent
compressor damage.
CHECKING COOLING CONTROL OPERATION
Start and check the unit fbr proper cooling control operation as
fbllows:
1. Place room thermostat SYSTEM switch in OFF position
Observe that blower motor starts when FAN switch is placed
in ON position and shuts down when FAN" switch is placed in
AUTO position.
2. Place SYSTEM switch in COOL position and FAN switch in
AUTO position. Set cooling control below room temperature
Observe that compressor, outdoor fhm and indoor blower
motors start. Observe that compressor and outdoor fan shut
down when control setting is satisfied and that indoor blower
shuts down after fan time delay expires.
3. When using an auto=changeover room thermostat, place both
SYSTEM and FAN' switches in AUTO positions. Observe that
unit operates in heating mode when temperatnre control is set
to "call fbr heating" (above room temperature) and operates in
cooling mode when temperatuie control is set to "call for
cooling" (below room temperature).
CHECKING HEATING CONTROL OPERATION
Start and check the unit fbr proper cooling contloi operation as
fbllows:
1. Place room thermostat SYSTEM switch in OFF position.
Observe that blower motor starts when FAN switch is placed
in ON position and shuts down when FAN" switch is placed in
AUTO position.
2. Place SYSTEM switch in HEAT position and FAN switch in
AUTO position Set cooling control above room temperature
Observe that compressor, outdoor fhm and indoor blowei
motors start. Observe that compressor and outdoor fan shut
2O
down when control setting is satisfied and that indoor blower
shuts down after fan time delay expires.
When using an auto=changeover room them_ostat, place both
SYSTEM and FAN' switches in AUTO positions. Obsma'e that
unit operates in heating mode when temperature control is set
to "call fbr heating" (above room temperature).
If system is equipped with supplemental or emergency heat
(resistance heaters), observe that when thermostat is placed in
EMERGEN(Y HEAT mode and temperature control is set
above room temperature that heaters and indoor blower come
on. Observe that heaters shut off when control setting is
satisfied and that the indoor blower shuts off after fan time
delay expires.
CHECKING AND ADJUSTING REFRIGERANT CHARGE
The refl'igerant system is fully charged with R-22 refl'igerant,
tested, and fhctow-sealed,
NOTE: Adjustment of the refrigerant cha*ge is not required
unless the unit is suspected of not having the proper R=22 charge.
A superheat charging chart is attached to the outside of the
conrpressor access panel. The chart includes the required suction
line temperature at given suction line pressures and outdoor
ambient temperatures (See Table 13A=H and Fig. 30).
An accurate superheat, thermocouple- or themaistor-type ther=
mometer, a sling psychrometer, and a gauge manifold are required
when using the superheat charging method for evaluating the unit
charge. Do swt _¢,se merczl O' or sinai7 dial-Ope thermometers
I:,eca_¢se th© are swt adeqzeate jot this 07)e of mea,suremes_t.
NOTE: Allow system to operate in the cooling mode fbr a
minimum of 10 minutes befbre checking or adiusting refrigerant
charge.
When evaluating the refiJgerant charge, an indicated adjust=
ment to the specified fhctory charge must always be vew-
minimal. If a substantial adjustment is indicated, an abnom_al
condition exists somewhere in the cooling system, such as
insufficient airflow across either coil or both coils. Failure to
adjust charge properly or correct the abnormal conditions will
cause damage to the unit.
Proceed as %llows:
1. Remove caps fiom low- and high=pressure service fittings
2. !sing hoses with valve core depressors, attach tow- and
high=pressure gauge hoses to low- and high=pressure service
fittings, respectively
3. Start unit in Cooling mode and let unit run until system
pressures stabilize.
4. Measure and record the following:
a. Outdoor ambient-air temperature (°F db).
b. Indoor coil inlet-air temperature (°F wb).
c Suction=tube temperatuie (°F) at low-side service fitting.
d. Suction (low-side) pressure (psig).
5. Using "Superheat (harging (harts" compare outdoor-air tem-
perature (°F db) with the Indoor coi! air inlet temperature (_'F
wb) to determine desired system operating superheat tempera-
ture. See Table 13_H and Fig. 30.
6. Using "Required Suction=Tube Temperature (F)" table, con>
pare desired superheat temperature with suction (low-side)
operating pressure (psig) to determine proper suction-robe
temperature. See Fig. 30.

EQUIPGND SCHEMAT I C
SINGLE POINT CONNECTION BOX
THERMOSTAT SUB BASE
{6 ON
OFF Co
I o
9J
5U L. H2
S
SUPL._
I
I
/\
m
24V SPLICE
BOX
BRN _ BRN--
BRN
'REO-- l REBel
-GRN J OEFROST BOARD GRN _-----BRN--_
,1 ,
-ORN C BLK VlO _ ViO
BLU BL BRN_
I l i
_-[-BRN BRN--
m m m
, ..... ACCESSORY ELECTRIC HEAT
mm mm mm mm mmBRN m
>OB
}
>TDR
>TDR
74V
PL]C[
]OX
tR1
COHPONENT ARRANGEHENT
DEFROST CYCLE
OFT I OPbN _ OPbN I
OFl,OF21111OOSbl]mgll []pbN
RVS I B_N_[_I/_I_ I
LAST DEFROST T=50 MAXIMUM
CYCLE T=90
--
i_ EQuipGNO I I
£IN_LE POINT CONNECTION BOX
CCESSORJ
CAP 1FM CAP
COMP
BOX
LEGEND
FIELD SPLICE C CONTACTOR,COMPRESSOR
CAP CAPACITOR
/_m_ MARKED WIRE COMP COMPRESSOR MOTOR
TERMINAL (MARKED) CTD COMPRESSOR TIME DELAY
EQUIP EQUIPMENT
0 TERMINAL (UNMARKED) FL FUSE LINK
TERMINAL CLOCK FU FUSE
GND GROUND
{[_ SPLICE HR HEATER RELAY (STRIP HEAT)
SPLICE (MARKED) DB DEFROST BOARD
-- FACTORY WIRING DFT DEFROST THERMOSTAT
DR DEFROST RELAY
11 FIELD CONTROL WIRING ]FM INDOOR FAN MOTOR
FIELD POWER WIRING IP INTERNAL PROTECTOR
LLSV LIQUID LINE SOLENOID VALVE
m mm ACCESSORY OR OPTIONAL WIRING LP5 LOW PRESSURE SWITCH
TO INDICATE COMMON LS LIMIT SWITCH
POTENTIAL ONLY= OFM OUTDOOR FAN MOTOR
NOT TO REPRESENT WIRING QT QUADRUPLE TERMINAL
NOTES TB TERMINAL BLOCK
TDR TIME DELAY RELAY
I.IF ANY OF THE ORIGINAL WIRE FURNISHED TH THERMOSTAT HEATING
MUST BE REPLACED, IT MUST BE REPLACED TRAN TRANSFORMER
WITH TYPE BO°C WIRE OR ITS EQUIVALENT. RVS REVERS(NO VALVE SOLENOID
2, THERMOSTAT: HHO7AT171
SUBBAgE_ HHB3AZ188
S.SET HEAT ANTICIPATOR AT .5
4.USE COPPER CONDUCTORS ONLY.
COMPRESSOROELAY
CTO _ II_
T ,T2 I I I I
0 .5 SEC T T+5 MIN.
01 C1
FAN SEQUENCE FOR 024 O48
TOR
(1,3) I I I
o _ T+30 (030 048)
G T+80 1024 ONLY]
ENERGIZED DE ENERGIZED
50HX50001 4
C95037
Fig. 26--Wldng Diagram-024 to 042 (2081230-60-1)
2i

Eou.._P_ SCHEMATIC 208/230 1 80 DR
GRA
ORN
BLK (7[_}_]_(7_} RED
GRA_ F7 LEGEND
CM BOARD
Pl
COMPONENT ARRANGEMENT
BOX
NOTES
FIELD SPLICE
MARKED WIRE
TERMINAL (MARKED)
O TERMINAL (UNMARKED)
[_] TERMINAL BLOCK
_ SPLICE
SPLICE (MARKED)
1.IF ANY OF THE ORIGINAL WIRE FURNISHED
MUST BE REPLACED,IT MU5T BE REPLACED
_AP CONTACTOR, COMPRESSOR
CAPACITOR
COMP COMPRESSOR MOTOR
CTD COMPRESSOR TIME DELAY
EQUIP EQUIPMENT
FL FUSE LINK
FU FUSE
GND GROUND
HR HEATER RELAY (STRIP HEAT)
DB DEFROST BOARD
DFT DEFRO5T THERMOSTAT
ICM INTEGRAL ELECTRONIC MOTOR
[FM INDOOR FAN MOTOR
LP5 LOW PRESSURE 5WITCH
LS LIMIT SWITCH
OFM OUTDOOR FAN MOTOR
RVS REVERSING VALVE SOLENOID
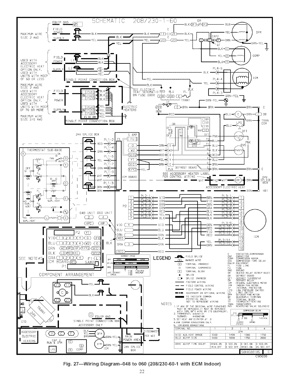
Fig. 27--Wiring Diagram-048 to 060 (208/230o80ol with ECM indoor)
22
50HX500105
C95038

TRANSFORMER CONTAINS A MANUAL
RESET OVERCURRENT PROTECTOR
tT WILL NOT AUTOMATICALLY RESET
DISCONNECT POWER AND INSTALL
LOCKOUT TAG PRIOR TO SERVICING
THIS COMPARTMENT MUST BE CLOSED
EXCEPT WHEN SERVICING
Fig. 28--Transformer Labem
7, (ompare actual suction-tube temperature with proper suction-
robe temperature. I-Ising a tolerance of +3 ° F, add refrigerant
if actual temperature is more than 3° F higher than proper
suction-robe temperature, or remove refrigerant if actual
temperature is more than 3° F lower than required suction-
tube temperature
NOTE: If the problem causing the inaccurate readings is a
refrigerant leak, refer to Check for Refiigerant Leaks section.
INDOOR AIRFLOW AND AIRFLOW ADJUSTMENTS
NOTE: For cooling operation, the recommended airflow is 350 to
450 cfm for each 12,000 Bmh of rated cooling capacity.
Table 8 shows cooling airflows at various external static pressures.
Table 9 shows Fan Only and (ooling modes fbr ECM units
(048-060). Refer to these tables to determine the airflow fbr the
system being installed.
NOTE: Be sure that all supply- and return-air grilles are opera
free fi'om obstructions, and adjusted properly.
Disconnect electrical power to the unit and install lockout tag
befbre changing blower speed Electrical shock can cause
serious injury or death
Airflow can be changed by changing the lead connections of the
blower motor
Unit 50HX three-speed motors (024 042) are fhctory wired for
tow speed operation.
FOR 208i230V-PSC BLOWER MOTOR
For color coding on the 208/230V motor leads, see Table 4
Table 4_Color Coding for 2081230-v Motor Leads
3=SPEED
Nack = high speed
b_ue = medium speed
red = _ow speed
To change the speed of the indoor fhn motor (IFM), remove the fire
motor speed leg lead from the indoor fan relay (IFR) and replace
with lead for desired blower motor speed ]ns_date the remoled
/cad to a_oid co_lact n,ith chassis paris.
FOR 208i230V-ECM BLOWER MOTOR
To configure the 50HX 048-60 unit, move the 5 Easy Select board
wires to the terminals which control the airflow. Refer to the Easy
Select interfhce board (Fig. 29) located next to the terminal.
Perfbrm the following steps fbr basic system configuration.
1. AUX HEAT RANGE (VIO) NOTE: If no heater is installed,
this step can be omitted. The airflow fbr electric heat is
selected with the AUX HEAT RANGE terminals. Refer to
Table 2and the installation instructions for electric heaters for
C95025
minimum airflow required %r safe heater operation Refer to
table below tbr d'*e avaiMble airflows Each select pin is
configured fbr a certain airflow The airflow will be supplied
in the Heating mode on air conditioners when electric heat is
the prima_ heating source. The preset factoo' default selec-
tion is the highest airflow.
2. ACiHP SIZE (BLU) - The preset fitctory defSult selection fbr
ACiHP SIZE (air conditioner heat pump) is set to 400
cfi'niton. The selection pins are configured fbr 350 cfi'niton and
400 cfi'niton,
3 TYPE (ORN) = _he _YPE is a preset fbctory defimlt selection.
The preset factoD- default setting is A( for the 50HX units.
Default setting should not be altered.
4. ACiHP CFM ADJUST (BLK) - The preset factory defimlt
selection is MED. Selections HI and LO will adjust the airflow
supplied fbr all operational modes (see table below). The
selection options allow installer to adjust airflow to meet such
individual needs as noise and static compensation, etc.
5. ACiHP TIME DELAY (GRY) - Four motor operation delay
options are provided to customize system operation. See
listing below:
Knit Controls-- All compressors have the fbllowing internal-
protection controls.
1. High=Pressure Relief Valve = This valve opens when the
pressure differential between the tow and high side becomes
excessive,
2 Compressor Overload - This eve*load intemlpts power to the
compressor when either the current or internal temperature
become excessive, and automatically resets when the internal
temperature drops to a safk level.
This overload may require up to 60 minutes (or longer) to
reset; therefbre, if the internal overload is suspected of being
open, disconnect the electrical power to the unit and check the
circuit through the overload with an ohmmeter or continuity
tester,
COOLING SEQI, ENCE OF OPERATION
PSC Blower Motor I,nits (024 042)
NOTE: With the FAIN"switch in the ON position, 24-v is supplied
to the IFR through the G terminal on the them_ostat. This voltage
energizes the coil of the contactor, closing the normally-open set of"
contacts which provide continuous power to the indoor (evapora-
tor) fire motor (IFM) Moving the FAN switch back to the AUTO.
position, providing there is not a call fbr cooling, deenergizes the
IFR, opens the IFR contacts, and deenergizes the IFM. The FAN
switch in AUTO. position cycles upon a call for cooling.
On a call fbr cooling, 24 v is supplied to the compressor contactor
(C) and IFR simuhaneously through the Y and G terminals of"the
thmmostat, respectively. On units with a compressor time delay
relay, there is a buih-in, 5-minute (+ 45 seconds) delay between
23

TERMINAL
AvailaNe
Airflow (CFM)
Tab{e 5--Terminam Configuration
1365 1470
3 4
1680 1840
0%:: 0
.... 1 G
": UXNEA I/ 6
RANGE J\AB W2 0
Vl°c l oo21c:o310o 4 - ,
AC/HP SIZE Y/Y2 SEC-1
BL I OO2!OO31004
LEGEND
IFO -- Indoor Fan On
JW -- Jumper Wire
Fig. 2g--Easy Select Interface Board for Units 048-060 with ECM Blower Motor
Table 6--CFN Adjust (Percent of CFN)
MODE FAN ONLY COOLING HEATING
-15 -10 -10
LOoAdjust
15 10 10
HI-Adjust
Table 7--ECM Board Pin Selection
OPTION DESCRIPTION
30oSee On/¢0oSec Off Delay Used when it is desirable to allow system coits time to heat
Profile (Terminal t) up or cool down prior to airflow
No Belay Option Used for servicing or when other components are used to
(TerminN 2) perform the delay function
30-See Off Belay
(Terminal 3) Preset factory setting for 50HX units
45-8ec Off Belay
(Terminal 4) Enhances system efficiency
C95024
compressor starts Energizing the contactor closes the nom_allyo
open set of contacts supplying power to both the compressor and
outdoor (condenser) fan motor (OFM). Energizing the IFR closes
the normallyoopen set of contacts providing power to the IFM. ()n
the loss of the call for cooling, 24 v is removed fi'om both the Y
and G terminals of d-le thermostat (providing the FAN" switch is in
the AI_ T(). position), deenergizing both the contactor and IFR and
opening both the contacts supplying power to compressoriOFM
and IFM.
ECM Blower Motor Units (048 060)
Indoor Fan - With the fan switch in the ON position, 24ov is
supplied to the ECM motor through the "G" terminal on the
24
thermostat This voltage provides continuous power to the indoor
(evaporator) fan motor (IFM) If the fire switch is moved back to
the AUTO position and there is not a call for heating or cooling,
24ov is removed from the "G" tem_inal and d_e indoor _im
remains energized fbr the delay timing. When the J:im switch is in
AUTO, the fan cycles with either the call for heating or cooling.
Cooling- On a call for cooling, 24 v is supplied to the compressor
contactor (C) and IFM simultaneously d_rough the "Y" and "G"
terminals of the thermostat. Energizing the contactor closes the
normally open set of contacts supplying power to both the
compressor and outdoor (condenser) fan motor (OFM). On the toss
of the call _br cooling, 24 v is removed flora the "Y" and "G"

tem_inalsof thethemaostat,deenergizingthecompressorand
OFMTheindoor_nremainsenergizedforthedelaytiming.
NOTE:Oncethecompressorhasstartedandd_enstoppe&it
cannotberestartedagainuntil5minuteshaveelapsed
HEATINGSEQUEN(EOFOPERATION
PSC Blower Motor Units (024 042)
Heat Pump Heating - On a call for heat, thermostat makes circuits
R-Y and R-G. When compressor time delay (5 +/- 2minutes) is
completed, a circuit is made to C, starting COMP and OFM.
Circuit R-G also energizes IFR and starts IFM after l°sec, delay.
Should room temperature continue to [511, circuit R°W is made
through second-stage thermostat bulb. If optional electric heat
package is used, a relay is energize& bringing on first bank of
supplemental electric heat. When thermostat is satisfied, contacts
open, deenergizing contactor and relay; motors and heaters deen°
ergize. The IFM may be controlled by a time°delay relay that will
extend IFM operation _br a matter of sec.
Defrost Mode - Defiost board (DB) is a time and temperature
control, which includes a field°selectable time period between
checks fbr defiost (30, 50 or 90 minutes). Electronic timer and
defi'ost cycle start only when contactor is energized and defi'ost
thermostat (DFT) is closed.
De_i'ost mode is identical to Cooling modQ except outdoor-fan
motor stops and a bank of optional electric heat turns on to warm
air supplying the conditioned space.
Auxiliary Heating - If accessory electric heaters are installed, on
a call for heat, circuit R=W is made through the thermostat
contacts. (ircuit R-G is made which energizes the IFR. If the
heaters are staged, then the thermostat closes a second set of
contacts W2 when second stage is required. When thmxuostat is
satisfied, contacts open, deenergizing the heater relay and the IFR.
ECM Blower Motor Units (048 060)
Heat Pump Heating - On a call for heat, thermostat makes circuits
R-Y and R-G. When compressor time delay (5 +/- 2minutes) is
completed, a circuit is made to C, starting (OMP and OFM.
Circuit R-G also energizes IFR and starts IFM after l°sec, delay.
Should room temperature continue to fhll, circuit R=W is made
through second-stage tlaermostat bulb. If optional electric heat
package is used, a relay is energized, bringing on first bank of
supplemental electric heat. At this time, the airflow (CFM) will be
either the AUX HEAT RANGE (VIO) setting or the ACiHP SIZE
(BLU) setting, whichever is greater. This may be a noticeable
change in airflow. When thern_ostat is satisfied, contacts open_
deenergizing contactor and relay; motors and heaters deenergize.
The IFM has a time delay relay that keeps the fan on fbr 30-sec.
Defrost Mode - Defi'ost board (DB) is a time and temperature
control, which includes a field°selectable time period between
checks fbr defiost (30, 50 or 90 minutes). Electronic timer and
defi'ost cycle start only when contactor is energized and defiost
thermostat (DFT) is closed.
Defrost mode is identical to Cooling modQ except outdoor-fan
motor stops and a bank of optional electric heat turns on to warm
air supplying the conditioned space.
Auxiliary Heating - If accessory electric heaters are installed, on
a call fbr heat, circuits R-W and R-G are made through the
thermostat contacts, energizing the heater relay and IFM. If the
heaters are staged, then the thermostat closes the second set of
contacts, W2, when the second stage is required. When the
thermostat is satisfied, contacts open, deenergizing the heater relay
and the IFM.
25
MAINTENANCE
To ensure continuing high per%tanance, and to minimize the
possibility of premature equipment failure, periodic maintenance
must be performed on this equipment. This cooling unit should be
inspected at least once each year by a qualified service person. To
troubleshoot cooling of units, refer to tables at the back of the
book.
NOTE TO EQUIPMENT OVv%ER: Consult your local dealer
about the availability- of a maintenance contract.
The ability to properly per%tin maintenance on this equip°
ment requires certain expertise, mechanical skills, tools, and
equipment. If you do not possess these, do not attempt to
perform any maintenance on this equipment other than those
procedures recommended in the User's Manual. FAILURE
TO HEED THIS WARNING (OULD RESULT IN SERI°
OUS PERSONAL INJURY AND POSSIBLE DAMAGE TO
THIS EQUIPMENT.
Failure to %llow these warnings could result in serious
personal injuIT:
1. Turn off electrical power to the unit and install lockout tag
be_bre perfbrming any maintenance or service on the unit.
2. Use extreme caution when removing panels and parts. As
with any mechanical equipment, personal injury can result
from sharp edges, etc.
3. Never place anything combustible either on, or in contact
with, the unit.
Errors made when reconnecting wires may cause improper
and dangerous operation. Label all wires prior to disconnec°
tion when servicing.
The minimum maintenance requirements %r this equipment are as
follows:
1. Inspect air filter(s) each month. (lean or replace when
necessary.
2. Inspect indoor coil, &ain pan, and condensate &ain at least
each cooling season tbr cleanliness. Clean when necessa_.
3. Inspect blower motor and wheel for cleanliness and check
lubrication each heating and cooling season. (?lean when
necessary.
4. Check electrical connections i\_r tightness and controls for
proper operation each heating and cooling season. Service
when necessary.
5. Ensure electric wires are not in contact with refi'igerant robing
or sharp metal edges.
AIR FILTER
Never operate the unit without a suitable air filter in tl_e
return-air duct system. Always replace the filter with the same
size as originally installed. See Table 1 for recommended
filter sizes.
Inspect air filter(s) at least once each month and replace
(throwaway-type) or clean (cteanable-type) at least twice during
each heating and cooling season or whenever the filter(s) becomes
clogged with dust and tint.

Table 8--Dry CoN Air Demivery (Deduct 10 percent for 208v)*
Horizontal and Downflow Discharge
UNt 50HX024-042
230 AND 4(;0 VOLT
Motor External Static Pressure (in. wg)
Unit Speed 0.0 0.1 0.2 0.3 0.4 0.5 0.6 0.7 0.8 0.9 1.0
Watts 280 275 265 255 250 245 240 ....
Low Cfm 820 810 755 700 660 600 560 ....
Watts 365 360 350 345 340 330 320 310 300 -- --
024 & 030 Med Cfm 1025 1010 975 940 900 850 800 720 630 -- --
Watts -- -- 490 480 470 460 445 430 410 390 380
High Cfm -- -- 1300 1255 1200 1150 1080 1005 915 790 620
Watts 520 495 474 458 445 425 .....
Low Cfm 1375 1335 1290 1240 1200 1140 .....
Watts 575 560 535 510 480 460 440 425 -- -- --
03G Med Cfm 1520 1490 1450 1400 1380 1300 1200 1080 -- -- --
Watts .... 650 614 575 540 510 480 --
High Cfm .... 1560 1500 1380 1280 1170 1060 --
Watts 490 480 470 460 450 430 410 390 -- -- --
Low Cfm 1400 1380 1340 1300 1250 1200 1140 1070 -- -- --
Watts 590 580 560 545 525 505 480 450 420 -- --
042 Med Cfm 1600 1560 1540 1470 1430 1360 1300 1220 1120 -- --
Watts ..... 700 670 640 600 560 500
High Cfm ..... 1780 1670 1600 1480 1340 1100
* Air delivery values are based on operating voltage of 230-v dry ceil, without filter or electdc heater Deduct wet coil, filter and electdc heater pressure drops to obtain
static pressure available for ducting
NOTES:
1 Do not operate the unit at a cooling airflow that is less than 350 cfm for each 12,000 Btuh of rated cooling capacity Indoor coil frosting may occur at airflows below
this point.
2 Dashes indicate portions of table that are beyond the blower motor capacity or are not recommended.
TaNe 9--048 & 060 ECM Airflow (CFM)
FAN ONLY COOLING
UNiT 50NX (CFM) (CFM)
048 1400 1600
060 1750 2000
LNIT TOP REMOVAL
NOTE: When per%truing maintenance or smwice procedures that
require removal of the unit top, be sure to perform all of the routine
maintenance procedures that require top removal, including coi!
inspection and cleaning, and condensate &ain pan inspection and
cleaning
Only qualified stun'ice personnel should perfbm_ maintenance and
service procedures that require unit top removal. Refer to the
fk_llowing top removal procedures:
1, Remove 7 screws on unit top cover surface, (Save all screws,)
2, Remove 4 screws on unit top cover flange (Save all screws,)
3, Lik top from unit caref_dly Set top on edge and make sure
that top is supported by unit side that is opposite duct (or
plenum) side.
4. (arefully replace and secure unit top to unit, using screws
removed in Steps 1 and 2, when maintenance and/or service
procedures are completed.
INDOOR BLOWER AND MOTOR
NOTE: Motors without oilers are pretubricated Do not attempt to
lubricate these motors
For longer life, operating economy, and continuing efficiency,
clean accumulated dirt and grease fiom the blower wheel and
motor annually.
Lubricate the motor eveW 5 years if the motor is used intem_it-
tently (thermostat FAN switch in AUTO. position), or ever),- 2
years if the motor is used continuously (thermostat FAN" switch in
ON position).
26
Disconnect and tag electrical power to the unit be%re
cleaning the blower motor and wheel Failure to adhere to this
warning could cause personal inju Q, or death.
To clean the blower motor and wheel:
1. Remove and disassemble blower assembly as %llows:
a Remove unit access panel
b. For PSC Blower .lIotors Disconnect motor lead from
indoor fan relay (IFR). Disconnect yellow lead from
terminal L2 of the contacto>
c. On all units remove blower assembly fiom unit. Remove
screws securing blower and slide assembly out. Be careNt
not to tear insulation in blower compa_lment.
d. Ensure proper reassembly by marking blower wheel and
motor in relation to blower housing before disassembly.
e. Loosen setscrew(s) that secures wheel to motor shaft,
remove screws that secure motor mount brackets to hous-
ing, and slide motor and motor mount out of housing.

UNiT SBZE
024
030
036
O42
O48
060
TaNe 10--Wet Coil Pressure Drop
ABRFLOW
(CFM)
600
700
8O0
900
900
1000
1200
1000
1200
1400
1800
1000
1200
1400
1800
1400
1550
1600
1800
1700
1900
2100
2300
PRESSURE DROP
(BN.WG)
0.039
0.058
0.075
0.088
0.088
0.095
0.123
0.068
0.088
0.108
0.123
0.048
0.069
0.088
0.102
0.068
0.073
0.075
0.088
0.082
0.095
0.108
0.123
HEATER
KW
5=20
600
0.030
TuNe 11--Accessory Electric Heater Pressure Drop ({n. wg)
CFM
800 1000 1200 1400 1600 1800
0.033 0.037 0.042 0.047 0.052 0.060
2000 2200
0.067 0.075
UNiT SiZE
024=036
042=060
FILTER
SiZE
(_N.)
24x24x 1
24x30x I
Table 12--FiRer Pressure Drop ({n. wg)
500 600 700 800 900 10001100 1200 1300 1400 1500 1600 1700 1800 1900 20002100 2200 2300
0.06 0.06 0.07 0.07 0.08 0.09 0.10
0.08 0.09 0.09 0.10 0.11 0.12 0.13 0.14 0.15 0.17 0.18
2. Lubricate motor as follows:
a Thoroughly clean all accumulations of dirt or grease from
motor housing.
b. Remove dust caps or plugs from oil ports located at each
end of motor.
c. Lse a good grade of SAE 20 non-detergent motor oil and
put one teaspoon (1A6 oz. or 16 to 25 drops) in each oil
port.
& Allow time for oil to be absorbed by each bearing, then
wipe excess oil from motor housing.
eReplace &st caps or plugs in oil ports
3, Remove and clean blower wheel as fbllows:
a Ensure proper reassembly by marking wheel orientation.
b. Remove screws holding cut=off plate, and remove plate
from housing.
c. Lifl wheel from housing. When handling and/or cleaning
blower wheel, be sure not to disturb balance weights (clips)
on blower wheel vanes.
27
d, Remove caked-on dirt from wheel and housing with a
brush, Remove lint and/or dirt accumulations from wheel
and housing with vacuum cleane*, using sok brush attach-
mont. Remove grease and oil with mild solvent
e Reassemble wheel and cut-off plate into housing.
£Reassemble motor into housing. Be sure setscrews are
tightened on motor shaf_ flats and not on round part of shaft,
g, Reinstall unit access panel
4Restore electrical power to unit Start unit and check fbr
proper blower rotation and motor speeds during heating and
cooling cycles
OUTDOOR (7OIL, INDOOR COIL, AND CONDENSATE
DRAIN PAN
Inspect the outdoor coil, indoor coi!, and condensate drain pan at
least once each year, See Ut*it Top Removal section.
The coils are easily cleaned when du; the*efbre, inspect and dean
the coils either befbre or after each cooling season. Remove all
obstructions, including weeds and shrubs, that interfere with the
airflow through the outdoor coil.

TEMP (F/
AIR ENT
COND
65
70
75
80
85
90 SPH
95
100
105
110
115
Ewb-Entering Wet Bu{b
TaNe 13A--Superheat Charging TaNe, Unit 024-311
EVAP ABR =CFM
8OO
EVAP AIR - Ewb (F)
56 58 60 62 64 66 68 70
-- -- 240 274 308 31.1 31.5 30.5
-- -- 195 244 293 29.9 30.4 29.5
-- -- 150 214 278 28.6 29.4 28.5
-- -- 75 144 21 4 24.5 27.6 27.1
-- -- -- 75 150 20.4 25.8 25.6
.... 75 14.0 20.4 22.3
..... 75 15.0 19.0
...... 75 13.5
....... 80
72
29.5
28.6
27.7
26.5
25.4
24.2
23.1
19.5
16.0
12.4
8.9
SPH-Superheat at Compressor (F)
--Do not attempt to charge system under these conditions as refrigerant slugging may occur
74
29.2
28.2
27.2
26.1
24.9
23.8
22.7
20.3
18.0
15.7
13.3
76
28.9
27.8
26.7
25.6
24.5
23.4
22.3
21.1
20.0
18.9
17.8
TEMP (F}
AIR ENT
COND
65
70
75
80
85
90 SPH
95
100
105
110
115
Ewb-Entering Wet Bu{b
Table 13B--Superheat Charging Table, Unit 024-321
EVAP AIR = CFM
75O
EVAP AIR - Ewb (F)
56 58 60 62 64 66 68 70 72 74 76
38.0 37.3 37.4 375 383 377 36.8 35.9 35.0 343 335
33.3 32.3 33.2 339 369 360 35.2 34.4 33.4 325 31 8
24.6 25.6 24.1 250 333 348 33.8 32.6 31.8 31 0 302
16.4 17.6 21.4 168 232 31 8 32.2 31.3 30.4 295 286
-- -- 9.4 8.6 147 21 6 29.4 29.8 28.9 278 270
..... 11 6 18.9 26.4 27.3 264 255
..... 37 10.8 18.0 24.1 250 241
....... 8.0 16.3 221 226
........ 7.2 148 201
......... 5.2 138
.......... 51
SPH-Superheat at Compressor (F)
- -Do not attempt to charge system under these conditions as refrigerant slugging may occur
TEMP (F)
AIR ENT
COND
65
70
75
80
85
90 SPH
95
100
105
110
115
Ewb-Entering Wet Bulb
TaNe 13C--Superheat Charging Table, Unit 030
EVAP AIR -CFM
1000
EVAP AIR - Ewb (F)
58 58 60 62 64 66 68 70 72 74 76
55 5.5 55 125 196 26.6 26.9 27.2 27.5 26.5 25.4
-- -- -- 105 175 24.5 24.8 25.1 25.4 25.1 24.8
-- -- -- 84 155 22.5 22.8 23.1 23.4 23.8 24.2
-- -- -- 68 129 18.9 20.3 21.5 22.9 23.0 23.0
-- -- -- 5 1 102 15.4 17.7 20.1 22.3 22.1 21.8
.... 79 11.9 15.2 18.5 21.8 21.5 21.2
.... 56 84 12.7 17.0 21.2 20.8 20.6
...... 92 14.1 191 19.5 19.9
...... 57 11.4 17.1 18.2 19.3
...... 50 10.0 15.1 16.9 18.6
....... 87 13.0 15.5 18.0
SPH-Superheat at Compressor (F)
- -Do not attempt to charge system under these conditions as refrigerant slugghsg may occur
Straighten bent fins with a fin comb, If coated with dirt or tint,
clean d'_e coils with a xacuum cleaner_ using the soft brush
attachment, Be careful not to bend the fins, If coated with oil or
grease, clean the coils with a mild detergentoand-water solution,
Rinse coils with clear water, using a garden hose Be caref_/l not to
splash water on motors, insulation, wiring, or air filter(s), For best
results, spray outdoor coil fins ti'om inside to outside the unit, On
28

TEMP (F/
AiR ENT
COND
65
70
75
80
85
90 SPH
95
100
105
110
115
Ewb-Entering Wet Bulb
Tab{e 13D--Superheat ChargBng Table, Unit 036
EVAP AiR = CFM
1150
EVAP AIR - Ewb (F)
56 58 60 62 64 66 68 70 72 74 76
286 28.6 30.4 32.1 333 343 334 32.0 30.7 29.8 289
238 23.8 25.5 27.2 295 323 320 30.9 29.7 28.6 276
190 19.1 20.6 22.2 257 304 306 29.7 28.7 27.5 263
150 15.0 15.8 16.5 21 1 265 277 27.8 27.8 26.6 253
109 10.9 10.9 10.9 166 226 248 25.9 26.9 25.6 243
77 77 7.0 8.3 126 19 1 21 5 23.4 25.3 24.4 236
.... 8.6 145 165 20.9 23.6 23.3 229
..... 113 143 17.4 20.4 21.1 218
..... 71 105 13.9 17.2 19.0 208
...... 71 11.7 16.4 18.2 199
....... 96 15.5 17.3 191
SPH-Superheat at Compressor (F)
- -Do not attempt to charge system ur_der these conditions as refrigerant s{ugging may occur.
TEMP IF)
AIR ENT
COND
65
70
75
80
85
90 SPH
95
100
105
110
115
Ewb-Entering Wet Bulb
TaNe 13E--Superheat Charging Table, Unit 042
EVAP AIR - CFM
1400
EVAP AIR - Ewb (F)
56 58 60 62 64 66 68 70 72 74 76
135 13.5 13.5 17.1 207 243 257 27.1 28.5 27.8 270
114 11.4 11.5 15.1 187 223 236 25.1 26.4 26.1 258
94 94 9.4 13.0 165 20 1 21 6 23.0 24.4 24.5 246
89 89 8.9 12.4 160 194 21 0 22.4 23.8 24.0 240
82 82 8.2 11.8 153 187 202 21.8 23.3 23.4 234
77 77 7.7 10.8 137 167 187 20.7 22.7 22.7 229
72 72 7.2 9.7 122 146 172 19.7 22.2 22.3 223
66 66 6.6 9.6 126 155 176 19.7 21.6 21.7 21 7
61 61 6.1 9.6 131 165 180 19.5 21.1 21.1 21 2
-- -- -- 7.0 9.9 130 150 17.1 19.1 19.8 206
.... 6.9 94 119 14.5 17.0 18.5 200
SPH-Superheat at Compressor (F)
- -Do not attempt to charge system ur_der these conditions as refrigerant s{ugging may occur.
TEMP IF)
AIR ENT
COND
65
70
75
80
85
90 SPH
95
100
105
110
115
Ewb-Entering Wet Bulb
Tab{e 13F--Superheat Charging Table, Unit 048-301
EVAP AIR - CFM
1600
EVAP AIR - Ewb (F)
56 58 60 62 64 66 68 70 72 74 76
263 27.0 27.6 28.6 296 305 309 31.3 31.7 31.2 307
240 23.8 23.6 25.0 264 278 284 29.0 29.7 29.6 295
197 19.7 19.7 21.4 232 250 259 26.8 27.6 27.9 282
158 15.8 15.8 17.6 194 21 2 227 24.1 25.6 26.2 269
120 12.0 12.0 13.8 156 175 195 21.5 23.5 24.5 256
75 75 7.5 9.4 11 3 132 163 19.3 22.4 23.3 242
-- -- -- 5.0 7.0 90 131 17.1 21.2 22.0 228
...... 94 14.3 19.1 20.3 214
...... 57 11.4 17.1 18.6 201
....... 90 13.5 15.8 180
....... 67 10.0 13.0 160
SPH-Superheat at Compressor (F)
- -Do not attempt to charge system under these conditions as refrigerant s{ugging may occur.
units with an outer and inner (2 row) outdoor coil, be sure to clean
between the coils. Be sure to flush all dirt and debris from the unit
base
Inspect the drain pan and condensate drain line when inspecting
the coils. Clean the drain pan and condensate drain by removing all
29
%reign matter J:'rom the pan. Flush the pan and drain tube with
clear water Do not splash water on the insulation, motor, wiring,
or air filter(s). If the drain tube is restlicted, clear it with a
"plumbers snake" or similar probe de,ice. Ensure that the auxiliary
drain port above the drain tube is also clear

TEMP IF)
AIR ENT
CONE)
65
70
75
80
85
90 SPH
95
100
105
110
115
Ewb=Entedng Wet Bu{b
Table 13G--Superheat Charging Table, Unit 048=311
EVAP AiR - CFM
1550
EVAP AIR - Ewb (F)
56 58 60 62 64 66 68 70 72 74 76
39.4 39.4 40.4 406 406 408 41.0 40.8 40.7 402 399
35.3 35.8 36.8 376 377 378 38.4 38.2 38.4 380 376
31.7 31.4 32.6 340 345 351 35.3 35.5 35.6 358 355
28.1 28.0 28.8 298 309 31 6 32.8 32.9 32.7 330 334
24.7 24.0 24.6 26 1 275 283 29.9 30.3 30.5 302 307
21.2 20.8 19.3 21 0 234 250 26.6 27.4 27.9 28 1 280
16.5 16.1 16.3 165 188 21 2 22.7 23.9 25.4 257 259
12.4 7.5 5.6 11 5 149 168 19.1 21.4 22.0 233 235
.... 97 127 15.2 18.3 19.5 202 211
..... 77 11.2 13.7 16.7 178 185
....... 7.3. 10.2 118 143
SPH-Superheat at Compressor (F)
- -Do not attempt to charge system under these condNons as refrigerant slugging may occur
TEMP (F}
AIR ENT
COND
65
70
75
80
85
90 SPH
95
100
105
110
115
Ewb-Entedng Wet Bu{b
TaNe 13H--Superheat Charging TaNe, Unit 060
EVAP AIR - CFM
1800
EVAP AIR - Ewb (F)
56 58 60 62 64 66 68 70 72 74 76
21.0 21.0 21.0 228 247 265 27.8 29.1 30.4 295 286
16.5 16.5 16.5 188 21 1 235 25.2 27.0 28.8 282 276
12.0 12.0 12.0 148 176 204 22.7 24.9 27.2 269 268
10.5 10.5 10.5 127 149 17 1 19.8 22.5 25.2 254 255
90 9.0 9.0 106 123 139 17.0 20.0 23.1 238 245
45 4.5 4.5 6.5 85 105 14.3 18.1 21.9 227 235
.... 48 72 11.7 16.2 20.7 21 6 225
..... 36 86 13.6 18.6 200 214
...... 55 11.1 16.6 185 204
....... 10.0 15.5 175 194
....... 9.2 14.7 165 185
SPH-Superheat at Compressor (F)
- -Do not attempt to charge system under these condNons as refrigerant slugging may occur
OUTDOOR FAN
Keep the outdoor fan flee fi'om all obstructions to ensure
proper cooling operation. Nexer place articles on top of the
unit Damage to unit may result.
l. Remove 2 screws at bottom of outdoor air intake grille and
remove plastic grille.
2. Inspect the fan blades fbr cracks or bends
3. If fire needs to be removed, loosen the setscrew and slide the
f_n off the motor shaft.
4. When replacing fun blade, position blade so that the leading
edge is 2-in. back from outdoor inlet grille or 1i2=im maxi=
mum fi'o fan deck (See Fig. 25).
5. Ensure that setscrew engages the flat area on the motor shaft
when tightening
6. Replace grille.
ELECTRICAL CONTROLS AND WIRING
Inspect and check the electrical contlols and wiring annually. Be
s_#'e to mrs_ Oil the electrical po_ e_'to//Te m_it and i_staT1 lochoz_t
lCt_.
3O
Remove the control/blower and compressor compartment access
panels to locate all the electrical controls and wiring. Check all
electrical connections for tightness Tighten all screw connections.
If any smoky or burned connections are noticed, disassemble the
connection, clean all the parts, restrip the wire end and reassernble
the connection properly and securely.
After inspecting the electrical controls and wiring, replace the
access panel. Start the unit, and observe at least one complete
heating cycle and one complete cooling cycle to ensure proper
operation. If discrepancies are observed in either or both operating
cycles, or if a suspected malfunction has occun'ed, check each
electrical component with the proper electrical instrumentation.
Refkr to the unit wiring label when making these checkouts.
NOTE: Refer to the heating andor cooling sequence of operation
in this publication as an aid in determining proper contlol
operation
REFRIGERANT CIRCUIT
Inspect all refrigerant robing connections and the unit base for oil
accumulations annually. Detecting oil generally indicates a refiig=
erant leak.

Required Suction Tube Temperature
SUPERHEAT SUCTION PRESSURE AT SERVICE PORT (Psig)
TEMP (F) 61.5 84.2 87.1 70 73 78 79.2 82.4 85.7
035 37 39 41 43 45 47 49 51
237 39 4! 43 45 47 49 51 53
4 39 4! 43 45 47 49 51 53 55
6 41 43 45 47 49 51 53 55 57
843 45 47 49 51 53 55 57 59
10 45 47 49 51 53 55 57 59 61
12 47 49 51 53 55 57 59 61 63
14 49 51 53 55 57 59 61 63 65
16 51 53 55 57 59 61 63 65 67
18 53 55 57 59 6! 63 65 67 69
20 55 57 59 61 63 65 67 69 7!
22 57 59 6! 63 65 67 69 7! 73
24 59 6! 63 65 67 69 71 73 75
26 61 63 65 67 69 71 73 75 77
28 63 65 67 69 7! 73 75 77 79
30 65 67 69 71 73 75 77 79 8!
32 67 69 7! 73 75 77 79 8! 83
34 69 7! 73 75 77 79 81 83 85
36 71 73 75 77 79 81 83 85 87
38 73 75 77 79 8! 83 85 87 89
40 75 77 79 81 83 85 87 89 9!
NOTE: Measure suction tube temperature with accurate superheat ther-
mometer or thermistor-type thermometer
Fig. 30--Required Suction Tube Temperature (F) *
System under pressure. Relieve pressure and recover all
refiigerant bel\_re system repair or final unit disposal to avoid
personal injury or death. Use all service ports and open all
flow-control devices, including solenoid valves.
If oil is detected or if low cooling perfom_ance is suspected,
leak=test all refi'igerant robing using an electronic leak=detector,
halide torch, or liquid-soap solution. If a refl'igerant leak is
detected, refer to Check for Refrigerant Leaks section.
If no refrigerant leaks are fbund and low cooling performance is
suspected, refer to Checking and Adjusting Reli'igerant Charge
section.
INDOOR AIRFLOW
The heating an_or cooling air-flow does not require checking
unless improper perfbrmance is suspected, tya pro])/em ea'isrs, [_e
,sz_rethat all sz/pZ_]_,-and return-air grilles are r>pes_as_d f_'ee fi'nm
ob.structions, m_d that the air filter is c[ea_. When necessm?-, refer
to Indoor Airflow and Airflow Adjustments section to check the
system airflow.
C95030
METERING DEVI(E A(UTROL DEVI(E
This unit uses metering devices that are of the fixed orifice type
(located in the header to the indoor and outdoor coils)
LIQUID LINE STRAINER
The liquid line strainer (to protect metering device) is made of wire
mesh and located in the liquid line on the inlet side of the metering
device.
TROUBLESHOOTING
Use the Tl'o_lbIe._hootmg CooIm,_ _- _:atm,_ guide (see Table 13)
if problems occur with these units.
START-UP CHECKLmST
"Use the Start-[ p checklist to ensure proper start=up procedures are
followed.
31

-m_=====^
OUTDOOR COIL
Check Valves
A Closed
B Open
C Closed
D Open
LEGEND
LCS Loss of Charge Switch
Acutrol Metering Device
Check Valve (Arrow indicates direction of flow)
LCS
COOLING CYCLE
1. Hot gas from compressor flows through the 4-way valve and is
directed to the heating liquid line check valve. It is then con-
densed and subcooled through converging circuits. Refrigerant leaves
the outdoor coil by way of the strainer and the check valve in the
cooling liquid line.
2. The refrigerant then feeds the indoor coil through the Acutrol
metering device on each circuit
3 Each circuit evaporates the refrigerant and the circuits are com-
bined in the indoor coil header with some of the circuits flowing
through the check valve.
4 The refrigerant then flows through the 4-way valve, accumulator,
and back to the compressor
Fig. 31--Typical Heat Pump Operation=Cooling Mode
C95044
32

OUTDOOR COIL
-- Z
Check Valves
A Open
B Closed
C Open
D Closed
LEGEND
LCS Loss of Charge Switch
] Acutrol Metering Device
r_ Check Valve indicates direction of
(Arrow flow)
HEATING CYCLE
1 Hot gas from compressor flows through the 4-way valve and is
directed to the cooling liquid line check valve tt is then condensed
and directed through subcoo]ing circuits and out to the strainer
and the check valve in the heating liquid line.
2 The refrigerant then feeds the outdoor coil through the Acutrol
metering device on each circuit
3. Each circuit evaporates the refrigerant and the circuits are com-
bined in the outdoor header with some of the circuits flowing through
the check valve
4. The refrigerant then flows through the 4-way valve, accumulator,
and back to the compressor.
Fig. 32--Typical Heat Pump Operation-Heating Mode
C95045
33

SYMPTOM
Compressor and outdoor fen
will not start
Compressor will not start bat condenser fan
runs
Compressor cycles (other than normally
satisfying thermostat)
Compressor operates continuously
Excessive head pressure
(Continued next page)
Table 14--Troubleshooting Chart
CAUSE
Power Failure
Fuse blown or circuit breaker tripped
Defective thermostat, contactor, transformer,
control relay, defrost board, or high pressure or loss-
of-charge/low pressure switch
Msufficient line voltage
Mcorrect or faulty wiring
Thermostat setting too high
Fau{ty widng or loose connecfions in compressor
circuit
Compressor motor burned out, seized, or
internal overload open
Defective run capacitor, overload, or PTC
(positive temperature coefficient) thermistor
Low input voltage (20 percent low)
Refrigerant overcharge or undercharge
Defective compressor
Msufficient fine voltage
Blocked outdoor coil
Defective run/start capacitor, overload or start
relay
Defective thermostat
Faulty outdoor-fan motor or capacitor
Damaged reversing valve
Restdcfion in refrigerant system
Dirty air filter
Unit undersized for load
Thermostat set too low
Low refrigerant charge
Frosted coil with incorrect defrost operation
Air in system
Outdoor coil dirty or restricted
Dirty air filter
Dirty indoor or outdoor coil
Refrigerant overcharged
Air in system
(Heat) Indoor air restricted or recirculating
Indoor or outdoor air restricted or air short-cycling
REMEDY
Call power company
Replace fuse or reset circuit breaker
Replace component
Determine cause end correct
Check wiring diagram and rewire correct{y
Lower thermostat setting below room
temperature
Check wiring and repair or replace
Determine cause
Replace compressor
Determine cause and replace
Determine cause and correct
Recover refrigerant, evacuate system, and
recharge to capacities shown on nameplate
Replace and determine cause
Determine cause and correct
Determine cause and correct
Determine cause end replace
Replace thermostat
Replace
Determine cause and correct
Locate restriction and remove
Replace filter
Decrease load or increase unit size
Reset thermostat
Locate leak, repair, and recharge
Check defrost time settings
Reset as necessary
Check defrost temperature switch
Replace as necessary
Recover refrigerant, evacuate system,
and recharge
Clean coil or remove restriction
Replace filter
Clean coil
Recover excess refrigerant
Recover refrigerant, evacuate system,
and recharge
Determine cause and correct
Uetermh'_e cause and correct
34

SYMPTOM
Head pressure too low
Excessive suction pressure
Suction pressure tQo low
Compressor rune but
outdoor fan does not
IFM does not run
IFM operation is intermittent
IFM (048=060) rune when
it should be off
IFM-Indoor Fan Motor
Table 14--Troubleshooting Chart (Cont'd)
CAUSE
Low refrigerant charge
Restriction in liquid tube
(Heat) Outdoor coil frosted
(Cool) High Heat load
Reversing valve hung up or leaking internally
Refrigerant overcharged
(Cool) Dirty air filter
(Heat) Outdoor coil frosted
Low refrigerant charge
Metering device or low side restricted
(Cool) Insufficient coil airflow
(Cool) Temperature too low in conditioned area
(Cool) Outdoor ambient below 40°F
Filter-drier restricted
NC (normally closed) contacts on defrost board
open
Blower wheel not secured to shaft
Insufficient voltage at motor
Power connectors not properly sealed
Water dripping into motor
Connectors not firmly sealed
Motor programmed with a delay profile
With thermostat in "off '_mode, the voltage on
G, Y1, Y2, W with respect to common, should be
1/2 of actual low voltage supply
REMEDY
Check for leaks, repair and recharge
Remove restriction
Move timer on control board to 30 minutes
between defrost cycles
Check for source and eliminate
Replace valve
Recover excess refrigerant
Replace filter
Move timer on control board to 30 minutes
between defrost cycles
Check for leaks, repair and recharge
Remove source of restriction
Increase air quantity
Check filter-replace if necessary
Reset thermostat
Install low-ambient kit
Replace
Check condition of relay on board
Replace if necessary
Properly tighten blower wheel to shaft
Determine cause and correct
Connectors should snap easily; do not force
Verify proper drip loops in connector wires
Gently pull wires individually to be sure they are
crimped into the housing
Allow a few minutes for motor to shut off
If measured voltage is more that 1/2, the thermostat
is incompatible with motor. If voltage is less than
1/2, the motor has failed
35

START-UPCHECKLIST
(REMOVEANDSTOREiNJOBFILE)
LPRELIMINARY INFORMATION
Model No .............................................................................................................................................................
Serial No ..............................................................................................................................................................
Date .....................................................................................................................................................................
Technician ...........................................................................................................................................................
Job/Location ...............................................................................................................................................
lB.PRE-START-UP
__ Verify that all packing materials have been removed from unit
__ Verify that condensate connection is installed per installation instructions
__ Check all electrical connections and terminals for tightness
__ Check that indoor (evaporator) air filter is clean and in place
__ Verify that unit installation is tevel
___ Check fan wheel propeller for location in housing and setscrew tightness
IH. START-UP
Supply Voltage: C-S S-R
Compressor Amps: C S
Indoor (Evaporator) Fan Amps: _____
TEMPERATURE
Outdoor (Condenser) Air Temperature:
Return-Air Temperature: DB
Cooling Supply Air: DB
PRESSURES
Refrigerant Suction psig
Suction Line Temp*
Refrigerant Discharge psig
Discharge Templ-
__ Verify Refrigerant charge using charging tables
R-C
R
DB
WB
WB
Measured at suction inlet to compressor
? Measured at liquid line leaving outdoor coil
i
Manufacturer reserves the right to discontinue, or change at any time, specifications or designs without notice and without incurring ob{igations,
PC 101 Catalog No 535-00101 Printed in U.S.A. Form 50HX-5SI Pg 3 6 7-03 Replaces: 50HX-4SI