CARRIER Home Generator Manual L0502275
User Manual: CARRIER CARRIER Home Generator Manual CARRIER Home Generator Owner's Manual, CARRIER Home Generator installation guides
Open the PDF directly: View PDF  .
.
Page Count: 8

_rn to the Expertg
Installation
Gu dei
This Installation Guide is intended to be
used in conjunction with the Owner's
Manual.
The Owner's Manual must first be read
thoroughly prior to installation of the Home
Standby generator.
Intended for outdoor installation only.
z_ Not intended for life suppo_

®
%m m the ertg
ELECTRICAL INSTALLATION DRAWING
(_(_CATEJL) IJlN T{ R{_AB _il: UNIT)
,,f
RO) ............... .......
\
ViEW

I
i
i i
¢
i
! i
i
4 PIig I[iI_
.....I LTICI
C[I 111]ii
UL L_ ; EZ/
PA ',IEt '_EbR !
T_} EXTERNAL CSNNECT]_N P N£:,
,: ;. Z ..... . sL ;s;s;s}_
............................ ;............. _;TZ;T
;i

Thankyou for purchasingthis mo@lof the CARRERp_@ct lice, This
modelksacompacthighperiormance,air-c® ed engiee_drvengenerator
designedto automaticaIlysupplyelectricalpowerto operatecdt col loads
Thisumt is fact_j installedin an aBweatller,acousticalmetalenclosure
that is intendede_clusivetyfor outdoori_stalBti® Thisgenerato_wiil
operateusin_eitheriquid propanegas(LPC)ornatura gas (NG)
REAl)THISMANUALTHOROUGHLY
If youdo not uoderstandanypotion of this manual contactCARRIERat
1o877_600_2792.
Tilrough®t this pabbcation and on tags and decals affixed to the
generator,DANGER,WARNINO,CAUTIONandNOTEbbeksare_Jsedto alert
you to special indructon about a pa_icuar operatioothat may be
hazardousf performedincorrectlyor eare/_siy.ObseP,,_ethemearduily
Thor defimtensareas follows
Afterthisheading,youcanreadinstructionsthat, if eat strictly
complied with, will result in persona] injury or prope_
damage
Afterthisheadingyoucanreadinstructionsthe, if notstrictly
compliedwith, may result in personalia_o_ or property
damage,
Afterthis heading,youcan readinstructionsthat, if notstrictly
compliedwith, couldresolt in damageto equipmentanger
property:
NOTE:Afterthis heading,youcan readexplanatorystatementsthat
requirespecialemphasis.
Thesesafetywarningscannotelimeate the hazardsthat they indicate.
Commonsenseandstrict comp]ia_cewith the specia! nstructio_swhile
pedormingthe serviceareesser_tai to preveltir4gaccidents,
Fo_Jrcommonly_Jsedsofty symbolsaccompa_'the UANGERWARNINGand
CAUTIONNecksThetypeof informationeachindicatesfoUows
This_mhol _oints out impodant _te_ information that, if not
fallowed, could endangerpersonalsafetyan{L_orpropertyof you
andothers,
Thissymbolpointsout potentialexplosionhazard
Thissymbolpointsout potentialfire hazard.
Thissymbolpointsout potentialelectricalshocbhazard,
SAVETHESEIRSTRUOTIONS- Theman,aerator suggeststhat these
rules for safe operation he copied and postednear the unit's
in_allatioa site, Safety should be stressedto all operators and
potentialoperatorsofthis equipment,
Theengineexhaustfromthis prod_etcontainsohemcatsknown
to the state of Cai ferna to causecancer,bi_h defectsor other
Theproductcontaiosor emits ohemicaBkr_oweto the state of
Californiato causeca_cer_birth defectsor other reprod_Jctive
ha_,
Study these SAFETYRULEScareMly before installing operatii_gor
se_4ch!gthis equipment.Becomefamiliar withthis !nstal!ationGuidesod
the Owr_er:sManualinclsdedwith the uoit. The generatorcan operate
safely,effioi@tlyand reliaNyonly if it kspropertyiostailed,operatedand
maintainS. Manyaccide_tsa/a causedby failing to follo_*_simple a_}d
fundamentalrulesor precautions.
CARR!ERcannot possibIyaoticipate eveq possiblecircumstancethat
mightiovoNea hazardThewand_gs[nthis maru_al,nodontagsanddeca
_saffixedto the unit;aretherdore notaHinclusive Ifyouusea procedure
work methodor operating technique CARRIERdoes not specifically
resommeId youmustsat styy,a_seUthat it is safeforyouandothersYou
also must makesurethe procedureworkmethodor operatag technique
that youchoosedoes_et renderthe £eoeratorunsafe.
Oespitethe safe design of this generator, operating this
equipmentimprudently,neglectingits maintenanceor being
careless can cause possible injury or death. Permit only
responsibleandcapablepersonsto operateor maintainthis equipment.
Potentia!ly lethal voltages are generated by these machines.
Ensoreall _eps are taken to render the machine safe before
attemptingto wor_onthe generator.
Partsof the generatorare rotating andlor hot during oper_ion,
Exercisecarenearrunninggenerators_
GENERALHAZARDZ_
For_letyreassns,CARRIERrecommendsthat the iostaiIatios intia start
upa_d maintenanceof ths equipmentis cart edout bya CARRIERdealer.
The engineexhaustfames contablcarbon monoxide,which can be
OEAOLYThs dangerousgas,if breathedin suffic e_t concentrations,
cancopseoncoosoouseessorevendeath Thisexhaustsystemmustbe
i_shlled propedy_in strict compliancewth app_eab[ecodes and
standards Follo'_inginsta]laton yo_Jmust do nothng that might
renderthe syste_ uosafeor is soncompIiancewith such codesand
standards
•Keephands f_t, c othi% etc, awayfromdrve belts,fans, andother
mc__gorhot parts.Neverremovea_ydrivebelt orfar_guardwhilethe
Adequate,unobstructedfio_i of c®iog andventUatingar is cdticai to
correctgeneratoroperation Denotalter the nstallatioe or permite:_eo
paAialblockageof ventilation provisions,as tNs ca_ seri®sty aff_t
safe operationof the £enerator.The generAor MUSTbe installed
oatd®_s.
Whenworkingonthis equipment,remaii aieAat al tim_. Ne_e_work
onDe equipmentwhe_youarephysca!lyormentallyfatigued
Inspectthe geI_eratorregua@ and contactyour t:earestCARRIER
Dealerfor pa_s needingrepairorrep/aceme_}t
Beforepedormng any maintananceon the generator,disconnectits
batteb,canesto preventacedentalstart up Dscoooectthecablefrom
the batteq postindicatedby a NEGATrE, NEGor (-) first Reconnect
that cablelast.

Neverusethegeneratororanyofitspartsas a step.Steppingonthe
unit canstressandbreakparts,and mayresultindangerousoperating
conditionsfrombaking exhaustgases,fuel bakage,oil leakage,etc.
Z_ ELECTRICALHAZARDZ_
All generatorsco_eredb},,this manualproducedangerouselectrical
voltagesand can causerata! electricalshock.Utility powerdelivers
extremelyhighanddangerousvoltagesto the transferswitchas does
the standbygeneratorwhenit is in operation.Avoidcontactwith bare
wires,terminals,connections,etc.,whib the unit is running.EnsureaII
appropriatecovers,guardsand barriersare in placebeforeoperating
the generator.If youmust,,_orkaroundanoperatingunit, standonan
insulated,drysurfaceto reduceshockhazard.
% not handb any kind of electricaldevicewifile standingin water,
whib barefoot,orwhib handsorfeetarewet. OANBEROUSELECTRICAL
SHOCKMAYRESULT.
The Nationa!Ebctricai Code@EC}requiresthe frame and externa!
e]ectrbaHyconductbepartsof the generatorto be connectedto an
appro_,_edearthground.Localebctdcal codesalsomayrequireproper
groundingof thegeneraterelectricalsystem.
Afterthe homestandbyebctrica! systemhas beeninstalledit will be
capableofcrankingandstartingat anytimewhile in the"Auto" mode.
Whenthe unit startsin "Auto"the toadcircuitsaretiansferredto the
STANDBY(generator)po_ersource.To preventpossibieinjury when
_,,,erkingon the system_ set the generator'sAuto/Off/Manual
switchto "OFF",rernovecontiolpanelfusesanddisconnectthestarting
battePj;
In caseofaccidentcausedbyelectricshock,immediat@shutdora the
sourceof electricalpower.If this is not possible,attemptto free the
victim from the !ive conductor.AVOIDDIRECTCONTACTWITHTHE
VICTIM.Usea non-conducthgimplement,suchas a ropeor beanS,to
free the victimfrom the liveconductor,if the qct[m is unconscious,
applyfirst aidandget immediatemedicalhelp.
Neveryear jeweb7when workingon this equipment,JewelPJcan
conductelectricity resultingin electricshock,or mayget caught in
movingcomponentscausinginjury,
/_ FIREHAZARDS
Forfire safebLthegeneratermust beinstalledandmaintainedpreperly
Bsta%tion alwaysmustcomplywithapp!icablecodes,standards,iaws
and regu]ations.Adherestrictly to bca], state and nationalelectrical
and buildingcodes.Complywith reguiationsthe OccupationalSafety
andHealthAdministration(OSHA)hasestabiished.Abe, ensurethatthe
generator is installed in accordance ,,,._iththe manufacturer's
[nstructbnsand recommendations.Felbw[ngproperinstallation,de
nothing that might alter a safe installationand renderthe unit in
noncompliancewith the aforementionedcodes,standards_lawsand
regulatiens.
Keepa fire extinguishernearthe generatorat all times. Extinguishers
rated"ABC"bythe NationalFireProtectionAssociationareappropriate
for useonthe standbyelectrics}_stern:Keepthe extinguisherproperly
@arcedandbefamiliarwith its use.Ifyouha,eanyquestionpertaining
to fire extinguishers,consultyourlocalfire department.
EXPLOSIONHAZARDS
De not smokearoundthe generater.Wipe up,any fuel or oil spills
immediately;Ensurethat no combustibb materialsare !eft in the
generatorcompartment,or on or near the generator,as FiREor
EXPLOSIONmayresult.Keepthe areasurroundingthe generatorclean
andfreefromdebris.
Gaseousfluids suchas natural gas and liquid pnspane(LP)gas are
extremelyEXPLOSIVE.Install the fuel supply systemaccordingto
applicablefuel-gas codes.Beforeplacingthe homestaiidby electric
systemintoser_,ice,fuels_¢temlinesmustbeproperlypurgedandleak
testedaccordingto applicablecode.Afterinstallation,youmustinspect
thefuel s?stemperiodicallyfor leaks.Noleakageis permitted.
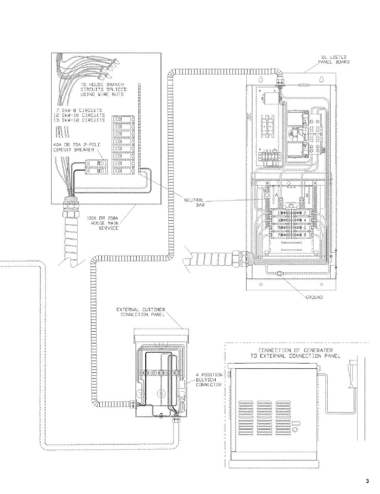
A. CARRIERHomeStandbyGenerator
B. Outdoorconnectionboxp_ewiredto
generatorcontrolsand main line circuit
breaker.
C. 3) pro-wiredflexible conduitfor
hook-upto outdoorconnectionbox. []
D. A_tomatictransfer switchwith buill in
load center.
E. :2'pro-wiredconduitfor easyconnection
to the main electrical distributionpanel.
E Flexiblefuel linefor connedioufrom
rigid gas pipeLogeneratorfuel inlet.
G. Compositemountingpad - eliminates
the needtopour concrete.
All CARRIERair-cooledgeneratorsarelistedto applicableU.S.and
Canadiansafety standards by UnderwritersLaboratoriesInc. UL
2200coverssafely standaidsfor enpjnegeneratorassembliesand
UL1008coversstandardsfor transfer switches.IlL Listing is your
only assuranceof local building inspection approval,safety and
certified kWpowerratings.

3_
5_
6.
7_
88,
8b,
it wi!! beneeessaqto paya vist to you local rnuncipal offces
to applyfor ab_liding pe[mt Bu tdi% perlnts arenecessaTyto
ensut'e p_operinsta%tion_ safety and adherenceto aii locat
buildi g code specficatans T_e ocation and p_o_e_un'_be_
can beNund in tbego'#en_mentsectonof you_local phonebook
Pfant}e !oeationof your _eeerator,NS][ 9u not place the
generator directly under a window:Selectan aea o_ts deof
yo[u'home_earestyOUlincom[]g gas servce
Arranee for insta atio_ d[gid gas piping (per loon! code
specifieatons) to the iocatienwhereyou t_ten_to positionyour
gei_erate_Fueipp% shoa!d nclu_e a fuet shutooff wve,
Optil_tly the hrmh ationdthe rigid piph_ shouWbewtbr] 8-
10"inchesof thefle inlet dthe _eneratorinolnewiththe oct,
C!ea_an area 54/2 feet by 5 feet n ninlum of g_assand
vegetationto a depthof 5 aches,Thisinektdesthe d stancetie
generaksrsi!outd beset awayf_omasyst ucture3 feet) and(_
k_cles beyondthe width aRdlengt/_or the generatorIrnoLlnt nZ
pad (48 L× 24_'W) NOT[::Localcodesmaysupercedefbese
requirements
Laybiaekpoipfilm to coverthe area
Fi!lthe areato groundlevelwtb peagravelorc_shed stone
Place_begenerater,whichis attachedto tl_ernountin_"pad on
the a!ea youbareust p_epa_e_
Drivea! 8 ft, _ro _d % rod i_to the g_ould to grade,
Attach oneend of the groutedn_ strap (No_12 AWGsb'anded
copperwire)to _oundin8_edandtile ot}_erendtothe ground%
]up{locatedat _ea_cornerot u_fit) Makesis_e£rolmdiogrodand
strap ae i_otexposedabove£roundleve_(N% codeappies to
ground;n£method)
NOTE:Generatormode switchshouldhe placed in the "off"
position, Generator male line circuit breaker should he
_wBchedto 'oft" or openposition,
PL[AS[NOT[,*Naturalgas pressureto the fuel
inlet onthe generator muA be 5 o 7" W,C_
(&18 to &25 psi),LPgas pressureto the fuel
inlet onthe generator mustbe 11 _14" WoC_
(0,4 to 0,5 psi)Aprima_ regulator must be
used if unit is connectedto an LPfuel tank
(Pfimao regulator is net supplied),
%,
%.
Make the connectiol betweenthe _gid fuel pipng a_d the
goneater usingthe suppliedtbea dedfiexihiefoe! I no.Tileflex
hosesbo_fldbesb'aght I)u n_t beud*,behosein placeof usin_
pipe elbows.Use a pipe sealant s_tabte for gaseousfuel
connections.Checkconnectionsfor leaks by o_nng manat
fuel sh t-dr rave and swabor sprayconnectionswith soapy
water, d a Ieakexsts tl_eareawil! bubb!ewith the p_'ese_ced
the soapywater.
If a leakis located shutoff fi_el,aid d scolsnectflexiblepipi%.
Dq the threadedends and_eapplyalsadequatearno_.mtof pipe
sealant Reeornect fbxibie f_e i_e, open fuel supply and
recheckfor leaks ff leakstiff exists, repeatstep9b

/[hOegret diameter of the thrsg@t osd is
gll£' (7 IW ass 12 kW)or l-S//' {15 kW)
IOa, Betemb_ewherethe flexiblecmuJtit wellpassthrouohle housefrom nsk/e to ot lside.
Whe_yOLarecertan ym h_svec earanceor_each side aid w t:hi_thr-,,wal, lrl a sal
pilot hoe Hirou£ tfe wall te ,_a_klhe bcatk.Jn
iOb. Usird a holesaw drill he appro!,riatesizeole tie Iouse'swall to allow the coidsit
lla.
lib.
lIc
lid
FrO_Lle b_sideof lie house feedtheef_dof Ibo 30-footcondui (whichis Iue-wiredfro_
transfer sw ch)thro_ih hewal te oltside.
ken ore he threadedlockHutfern the con@it couplin£.
Removetie knockout in the loweri£t come oftheexterna
col rectioa box Iromthe rearof the cormectonbox,feedwres
& 4 r.lk_p/el ate box Sir} the ock nut eve wes andpt£ sod
fiIIten seesey o_o condui co_pin6 Conrectwbes o u£s
Back to black who to whte, and red to rod. SnaptoIetbe
tie !-pin psi cm nector; Loosernut from {!retndin£ uf a_d
attach 8reu_dwire reen from cendut. Remsta tit and
ti It<i,n Ths wiIir_£,s complete
irelul
Screw
Osinl approprate fasteners mos_t externalconnectior box
overpredri/ed to/eto fsly co _ceath hole.Sea a_omFdtke
hue m_dcondutwth siconeca Ikfrom beth nsidea_d
o!Is d_of the bumm
12. locate automatc trm_sfe switd with bait-
k emcrIencyload cener withiu onefoot
main distribtJtion panel The astomatic
ransf r swFtchwFthbutt.ha loadcoit r carl
be orated to tte left or riIht of Y_a_
dislAbsto ariel. Hold t ansfer swtch
a£ai_st the _msr_tinl strface. Level tl
ran let switeh and mark tf rnosetin£
hol_,s,1il/th appropri_@sie piIol foes,
Mom:ta tomatic tfalsfm switchwit h_Alto
rt load ee_ce to mounting ssrface ¢_,th
app_opriatefasteners.
13a. Removethe man ebctdcal distr utimspaue cover.Remove
app epriatesze knockoutf m the bottomor sde of t_e isis
panel (£ 2 ft. fiexbe condut is pre-wred from be l:ransfef
switci! wth herin toad center;)Removethreaded !ock stf
flora co@it coupin£ Feedall wfes Iou£b knoekost _sto
_r/as}ass Sip ock mt over was and ti£hte_ securelyon
coedst coup in$ Removethe black (bet) wre from a cireu
breakerthat p cruetsa c fruit youwan to havepoweredinhe
eventof a powe false. -cott#fuedor_p_i,£fx8

I3b,
continue#@m pa_'e7
Wie nut the black w e to the
matcln crcul Bad woe fen the
emergencyemit breakerfinn cad
cole: in te transfe: swtch, (A/
crcut wres ae coo coded and
ahead fo easy destifcato_O, UL
ap#reved wi_e rmts a_e iec_@d ie
#sta/atioI_ kN Repeatth;s p ocesswiO re>s n nl}tirol ts to be
powe:edby the {_eerater. Whitewres (_eutral) in you mate
d stdb_:ton panelsloL_d roman co: _ectedone tral ban t s
_ot oecessaryto movethem_he ernergei_cyloadce_te_n the
transfer sw}tct sspp es the fo Iowb_£,circuits: 7 kW (5) ISA,
2OV,(h 20A 20Va_d (b 30A240V, _2 kW(3) ]SA 120V(3)
20A120V(l) 20A 240V& U) 30A240V P4odel}:5 kWwil s{ude
crc_islstedfo¢ _ he12 kWand (2}addit o_al 5AJ2OVcmu s
NOTE:Circuits te be movedmast be p_otected by same siz8
breaker: For example a 15 Ampci_caNia mais paee_m_st be
15 Ampcircuit i_ transfer swtcb
_stalli the 40 Ar_lJor 70 Anp de@b
poe crcut beake_ that you have
into _ain bclriea/
dist_bato: p!te l_s ci_xxt breaker
!m_stbe......
_!8£_dca_aliA:ibeRianPall!,, It _ay be
nw;essa_yto reposdonsma{nn£cilc_il
breake/sor :emcuecroat bankersthat
havebeendisco:nectedP_acco_modatetie inse£onof te 40Amp
or70Ampdoublepoecrcut b/eake_Conneclwhitews toIhe main
dist but o[_pane_neutra bar, Connec8teenwisio maineeci ice
pane £rouldbar, Connecttie blackandredw_'esto the40Ampor
70AmpouNe poecicut br_ake
15,
16.
NOTE:I_ areas where temperah_res regularly fall below IO°F
(-12'_1)it is rec_mme_'t@dflat a pad type battery heater be
O_staled to aid i cold climate startff_£.
Switch sewbe man crcut breake_to o_' or closed postern
Sw c_ tl_ec cui beakers in the en:er@_cydsbbutien pane to
tle as o cksed posNoe, Switchthe £enearc main linec u'uit
breakerlolhe o_ orclosedpostior_ Ved_ythe he 40 Ampor ;*0
Amp doubie pole crcidt breakerthe was nserted s he man
e/ectrca dstrbutio pa'_el is sw cbed to the on' or cased
post.ion, lace $e:erator mode switch n the 'AUlO posen
Veity that tel valveon r£id Ins pipnI is oper ?edorm stI_ i_
Pa£_a,MjsstmeaS & @N#e_a_ce f@£ual lrier to tesl_g the
Switct_servce map circut b:eake to off or openpastiche,Tbs
shnua es le ass of ulty powe_',ihe $eneraorshouldcreel<and
sta4wthn 20 secomJs load transfershoddocc_ w in ]0
secondsdBone:arc sis4 Torerun systemto a tomatc sode
swlc/ sevce man breake_lo e or dosed posdon his
simu/alesthe r_,t/_r_of [}owe frorn he ut ily. The@ne'ator wil
ur formsho£cool downpe odof severn mr_uteswietbee/tim
systemstandsreadyer the text poweroutaBe.
NIYE; Wh8_ stlity voltage se_lrceis bs_ by the ier_erater, the
slstem set light _dl flasI rapidly,
14, Raceurn@dadbatteryis automotivetype
£rsup 26 2V no@rye 8roundwth a
/_n mum 350 CCAat O_'F(7 k_,_8o
m:m_n_5256( atO (I2kWand 5
Bt=/).Th told downca:_p s _ciuded
Connect l)ositive (/_,q cabe to
posiiv (Q batery post, Connect
_e£ative (-) (Neck) £mu_8 cane to
_edative() bat erypas
WARNINOset the Ier_e[aters AOTOIIIF IIINIAL switch to
"IFR" T_ro off _tilty power s_pplI te tle traesfer switch, If tie
AITI IOFFIIANllL svdt@ is _mtset t_ its "WP' p_siiaa th_
isosrat_r cae c_a_k aal stall as soos as tle batterl Ialles a_e
COllected, If ti_ etlNy/awer saplll is l_t tweld off sparkilI
cal occur at tie battery posts aid cause al e×pBsimL
NOYI:Iieioctdc greaseshould beesedoe battery poststo aid ie
the p:e_eeOo_ of carte#am
17. Aswitch or the contm
pa_e/allows you to select
theday ad time for the
syst_?nto exercise The
_enerato wii sta4 a_d
run for
tweve m Ltesa_dter shutdo_w_on its own.:o seecl atime and
day of the weekyou rest performthe Mawr£ sequer_cet that
tree. very that I> AutdOf£Maruai swtch s %t to AU[OI*
E_e_8iserSwitch
Hod downtbr,Sol ExerciseT_meswitchtt the £ene:atorstarts
approxmaallyO seconds}ard :abase./"_e £eneate: is _owset
to exerciseor tht dayandat that time eve_*/week If the battery
s d sconaectedfor aW reasonise exen;iseti_e must bereset
NOTE:O_tl the exerciser is set al the red LEgs wil flash i_ the
Aato ar _£am:aImode,
q& mto the E£pe:[g 
Yoa[8ARRIIERl m8 Sta Iby
Ie erats  is :ealy!
P;_I # e4104 _{E4A C£_, I)O110 03/11%(} PRN El) IS Ii liSA0 OS