CARRIER Package Units(both Units Combined) Manual L0520544
User Manual: CARRIER CARRIER Package Units(both units combined) Manual CARRIER Package Units(both units combined) Owner's Manual, CARRIER Package Units(both units combined) installation guides
Open the PDF directly: View PDF
.
Page Count: 61

48TF004-007
48TM004-007
Single-Package Rooftop
Gas Heating/Electric Cooling Units
Installation, Start-Up, and
Service Instructions
CONTENTS
Page
SAFETY CONSIDERATIONS ......................... 1
INSTALLATION ................................... 1-44
Step 1-- Provide Unit Support ...................... 2
• ROOF CURB
• SLAB MOUNT
• ALTERATE UNIT SUPPORT
Step 2 -- Field Fabricate Ductwork ................... 2
Step 3 -- Install External Trap for Condensate
Drain .............................................. 2
Step 4 -- Rig and Place Unit ......................... 4
• POSITIONING
Step 5-- Install Flue Hood ......................... 11
Step 6 -- Install Gas Piping ......................... 11
Step 7 -- Make Electrical Connections ............. 12
• FIELD POWER SUPPLY
•FIELD CONTROL WIRING
• HEAT ANTICIPATOR SETTINGS
Step 8- Adjust Factory-Installed Options ......... 16
• MANUAL OUTDOOR-AIR DAMPER
• CONVENIENCE OUTLET
• NOVAR CONTROLS
• PREMIERLINK TM CONTROL
• OPTIONAL ECOMOMISER IV AND ECONOMI$ER2
• ECONOMI$ER IVSTANDARD SENSORS
• ECONOMISER IV CONTROL MODES
Step 9-- Adjust Evaporator-Fan Speed ............ 27
• DIRECT-DRIVE MOTORS
• BELT-DRIVE MOTORS
PRE-START-UP ..................................... 45
START-UP ....................................... 45-49
SERVICE ........................................ 49-54
TROUBLESHOOTING ............................ 55-59
INDEX .............................................. 60
START-UP CHECKLIST .......................... CL-I
SAFETY CONSIDERATIONS
Installation and servicing of air-conditioning equipment can
be hazardous due to system pressure and electric_d compo-
nents. Only trained and qualified service personnel should
install, repair, or service at>conditioning equipment.
Untrained personnel can perform basic maintenance func-
tions of cleaning coils and filters and replacing filters. All other
operations should be performed by trained service personnel.
When working on at>conditioning equipment, observe precau-
tions in the literature, tags and labels attached to the unit, and
other safety precautions that apply.
Follow all safety codes. Wear safety glasses and work
gloves. Use quenching cloth for unbrazing operations. Have
fire extinguishers available for all brazing operations.
Disconnect gas piping from unit when leak
testing at pressure greater than 1/2 psig. Pres-
sures greater than 1/2 psig will cause gas
valve damage resulting in hazardous condi-
tion. If gas valve is subjected to pressure
greater than 1/2 psig, it must be replaced
before use. When pressure testing field-
supplied gas piping at pressures of 1/2 psig
or less, a unit connected to such piping must
be isolated by manually closing the gas
valve.
Before performing service or maintenance operations on
unit, turn off main power switch to unit and install a lock-
out tag. Electrical shock could c_mse personal injury.
INSTALLATION
Unit is shipped in the vertical duct configuration. To convert
to horizont_d configuration, remove and save screws fi_m side
duct opening covers and remove covers. Using the same
screws, install covers on veriical duct openings with the
insulation-side down. Seals around duct openings must be
tight. See Fig. 1.
Confimt before installation of unit that voltage, mnperage
and circuit protection requirements listed on unit &tta plate
agree with power supply provided.
Step 1-- Provide Unit Support
ROOF CURB -- Assemble and install accesso Uroof curb in
accor&mce with instructions shipped with curb. See Fig. 2.
Install insulation, cant strips, roofing felt, and counter flashing
as shown. Ductwork must be attached to curb, not to the unit.
The accesso O"thru-the-boltom power and gas connection pack-
age must be installed b@re the unit is ,wt on the roo/ curb. If
field-installed (thin-the-roof curb) gas connections tue desired,
use factory-supplied 3/4-in. pipe coupling and gas plate assem-
bly to mount the thin-the-roof curb connection to the roof crag.
Gas connections and power connections to the unit must be
field installed after the unit is installed on the roof curb.
If electric and control wiring is to be routed through
the basepan, attach the accessory thru-the-bottom service
connections to the basepan in accordance with the accessory
installation instructions.
Manufacturer reserves the right to discontinue, or change at any time, specifications or designs without notice and without incurring obligations.
Catalog No. 04-53480014-01 Printed in U.S.A, Form 48T-5SI Pg 1 9-05 Replaces: 48T-3SI

IMPORTANT: Tile gasketing of tile unit to tile roof curb is ]
critical for a watertight seal. Install gasket supplied with the I
roof curb as shown in Fig. 2. hnproperly applied gasket can
result in tdr leaks and pool unit performance.
Curb should be level. Unit leveling tolerances are shown in
Fig. 3. This is necessary for unit drain to function properly.
Refer to Accessory Roof Curb Installation Instructions for
additional information as lequiled.
SLAB MOUNT (Horizontal Units Only) -- Provide a level
conclete slab that extends a minimum of 6 in. beyond unit
cabinet. Install a gravel apron in front of condenser coil air inlet
to prevent gross and foliage from obstructing airflow.
NOTE: Horizontal units may be installed on a roof curb if
required.
ALTERNATE UNIT SUPPORT (Curb or Slab Mount) -- A
non-combustible sleeper rail can be used in the unit curb sup-
port tuea. If sleeper rails cannot be used, support the long sides
of the unit with a minimum of 3 equally spaced 4-in. x 4-in.
pads on each side.
Step 2 -- Field Fabricate Ductwork -- Secure all
ducts to roof curb and building structure on vertical ducted
units. Do not connect du(_'ork to unit. For horizontal applica-
tions, field-supplied flanges should be attached to horizontal
duct openings and all ductwork should be secured to the
flanges. Insulate and weatherproof all external ductwork,
joints, and roof openings with counter flashing and mastic in
accor&mce with applicable codes.
Ducts passing through an unconditioned space must be
insulated and covered with a vapor b_uriel:
If a plenum return is used on a vertical unit, the return
should be ducted through the roof deck to comply with applica-
ble fire codes.
A minimum clearance is not required around ductwork.
Cabinet return air static pressme (a negative condition) shall
not exceed 0.35 in. wg with economizer or 0.45 in. wg without
economizeE
These units tue designed for a minimum continuous heating
return-air temperature of 50 F (dry bulb), or an intermittent
operation down to 45 F (@ bulb), such as when used with a
night set-back thermostat. To operate at lower return-air tem-
peratures, a field-supplied outdoor air temperature control must
be used to initiate both stages of heat when the temperature is
below 45 E Indoor comfort may be compromised when these
lower air temperatures are used with insufficient heating tem-
perature rise.
Step 3 -- Install External Trap for Condensate
Drain -- The unit's 3/4-in. condensate drain connections are
located on the bottom and side of the unit. Unit discharge con-
nections do not deterraine the use of drain connections; either
dnun connection can be used with vertic;d or horizont;d
applications.
When using the standard side &'ain connection, make sure
the plug (Red) in the ;alternate bottom connection is tight before
inst;dling the unit.
To use the bottom drain connection for a roof curb installa-
tion, relocate the factory-installed plug (Red) from the bottom
connection to the side connection. The center &'ain plug looks
like a stm"connection, however it can be removed with a l/2-in.
socket drive extension. See Fig. 4A. The piping for the conden-
sate &'ain and external trap can be completed after the unit is in
place. See Fig. 4B.
All units must have an exWrnal trap./(_r condensaW druin-
age. Instull a tru l) at least 4-in. deep and prowct against fi'eeze-
Ul). I/ drain line is installed downstmam /?om the exWrlml trap,
pitch the fine awayfl'om the unit at 1 in. per lOft q/run. Do not
use a pipe s£e smaller than the unit connection (J/4 in.).
\\\\\
\
\L__REMOVAOLENOOIZONTAL
SUPPLY DUCT OPENING COVER
Fig. 1 -- Horizontal Conversion Panels

POWER CONTROL
3/4"[1B]NPT 1/2"[12IT]NPT
[406] 1 1/4"[3117]
3/4"[18]NPT
CRBTMPWROO2A01 [5513
CRBTMPWROO3AOI 1
CRBTMPWROO4A01
1/2"[12.7]NPT
3/4"[19]NPT
1 1/4"[31.7]
O" 3"
[763
,l
O" 3"
[75]
k
I
1' 1 7115" i
[341] I
_l ,
T _"
O" 0 7/16"
[II]
(BOLT HEADS)
O" 0 7/16"
At_ ....
HEADS)
O" 0 1/4"[7]
O0 145.95116_
c
/
SUPPLY AIR
OPENING
_' 7 13/15B_._
[5043
o'
[75]
3" O"
[914]
0/
SUPPLY AIR ET AI
VIEW "A-A"
GASKET
(SUPPLIED WITH CURB)
DUCT
(FIELD
\
O" 7/16"
HEAD OF BOLT TO BE ON
INSIDE OF FLANGE
ROOFCURB A UNIT SIZE
ACCESSORY
CRRFCURBOO1AO1 1" 2"
[358] 48 TF, TM 004 DO7
2" 0 °
CRRFCURBOO2AO1 [S1 O]
NOTES:
II ROOFCURB ACCESSORY
IS 5HIPPED DISASSEMBLED.
2. INSULATED PANELS.
31 DIMENSIONS iN [ ] ARE IN MILLiMETERSI
I ROOFCURB: GALVANIZED £TEELI
IATTACH DUCTWORK TO CURBI
(FLANGES OF DUCT REST ON CURB)
SER ICE CLEARANCE 4 FEET ON EACH
_] _OlRECTION OF AIR FLOW. S[DEI
81 CONNECTOR PACKAGES CRBTMPWROO1AO1 AND 2AO1 ARE FOR
TBRU THE CURB TYPE GAS, PACKAGES CRBTMPWROO3AOI AND 4AOI
ARE FOR THE THRU THE BOTTOM TYPE GAB CONNECTIONS.
TYPICAL (4) SIDES
CANT STRIP
/((FIELD SUPPLIED)
o,oLsy
_oNZc c"
SCALE 1:4
SERVICE (SEE NOTE #8)
O" 2 1/2"
O" 3 1/4"
NOTE: CAMBRIDGEPORT "SURE LOCK" CORNER
FASTENING DEVICE IS ACCEPTABLE
Fig. 2 -- Roof Curb Details

MAXIMUM ALLOWABLE
DIFFERENCE (in.)
A-B B-C
0.5 1.0
B
Fig. 3 -- Unit Leveling Tolerances
A-C
1.0
HORIZONTAL DRAIN PLUG
DRAIN OUTLET
NOTE: Drain plug is shown in factory-installed position.
Fig. 4A -- Condensate Drain Pan (Side View)
Step 4 -- Rig and Place Unit -- inspect unit for
tmnspottation &mmge. File any cltdtn with transportation agen-
cy. Keep unit uptight and do not &'op. Spteader bars ate not
required if top crating is left on unit, Rollers may be used to
move unit across a roof. Level by using unit flame as a tefetence.
See Tables IA and 1B and Fig, 5 for additional information,
MINIMUM PITCH
°°%NgL%\
TO ROOF
DRAIN
DRAIN PLUG
--T--
SEE
NOTE
ROOF
CURB
NOTE: Trap should be deep enough to offset maximum unit static
difference. A 4-in. trap is recommended.
Fig. 4B -- Condensate Drain Piping Details
Lifting holes are provided in base rails as shown in Fig. 6A
and 6B. Refer to rigging instructions on unit.
All panels must be in place when rigging. Unit is not
designed for handling by fork truck. Dmnage to unit may
result.
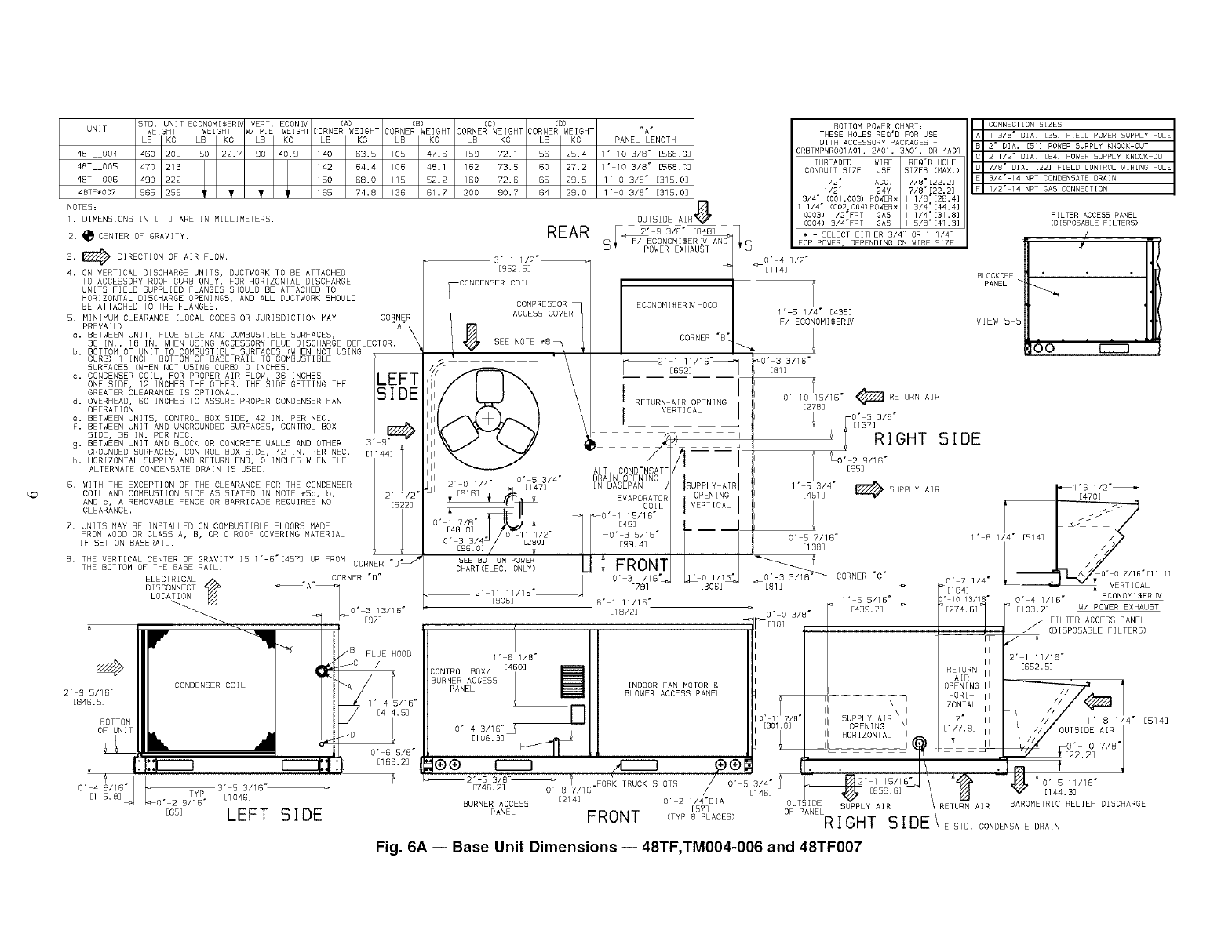
POSITIONING -- Maintain clemance around and above unit
to provide minimum distance fiom combustible materials,
proper airflow, and service access. See Fig. 6A and 6B. A prop-
erly positioned unit will have the following cleatances between
unit and roof curb: I/4-in. clearance between roof curb and base
rails on each side and duct end of unit; I/4-in. clearance be-
tween roof curb and condenser coil end of unit. (See Fig. 2,
section C-C.)
(Text continued on page 11.)
36"- 54"
(914-1371)
POSITION ALL SEAL STRIPS IN PLACE
BEFORE INSTALLING UNIT ON ROOF CURB
AS CLOSE TO THIS END AS POSSIBLE.
DUCTEND
DETAIL "A"
NOTES:
1. Dimensions in ( ) are in millimeters.
2. Hook rigging shackles through holes in base rail, as shown in detail "A."
Holes in base rails are centered around the unit center of gravity. Use
wooden top skid when rigging to prevent rigging straps from damaging unit.
3. Unit weights do not include economizer. See Tables 1A and 1B for econo-
mizer weights.
All panels must be in place when rigging. Unit is not designed for handling
by fork truck. Damage to unit may result.
UNIT
48TF, TM004
48TF, TM005
48TF, TM006
48TF007
48TM007
MAX WEIGHT
Lb Kg
510 231
520 236
540 245
615 279
665 302
"A .... B .... C"
in, mm in. mm in, mm
73.69 1872 37.50 953 33.35 845
Fig. 5 -- Rigging Details

Table1A- Physical Data- 48TF004-007
48TF UNIT SIZE E/F/H/M/N004 D/E/FIG/HIK/L/M/NO05 D/E/F/G/H/K]LIM/NO06 D/E/F007
NOMINAL CAPACITY (tone) 3 4 5 6
OPERATING WEIGHT (Ib)
Unit
AI/AI* 460 470 490 565
AI/Cu* 465 476 497 576
Cu/Cu* 466 482 505 587
Economizer
EconoMi$er IV 50 50 50 50
Roof Curbt 115 115 115 115
COMPRESSOR Reciprocating Scroll
Quantity 1 1 I 1 1
No. Cylinders (per Circuit) 2 2 I 2 2
Oil (oz) 50 50 50 54
REFRIGERANT TYPE R-22
Expansion Device AcutroF M Metering Device
Operating Charge (Ib-oz) I I
Circuit I 4-4 6-6 6-14 9-0
Circuit 2 ....
CONDENSER COIL Enhanced Copper Tubes, Aluminum Lanced Fins
Rows...Finslin, 1,..17 I2_.17 I2._17 I 2_,17
Total Face Area (sq ft) 8.36 8.36 10,42 10,42
CONDENSER FAN Propeller Type
Nominal Cfm 3500 4000 I 4000 I 4000
Quantity...Diameter (in.) 1,..22,0 1.,.22.0 I 1,..22,0 I 1,,.22.0
Motor Hp..,Rpm 1/4.,,1100 1/4,..1100 V4-. 1100 V4.-1100
Watts Input (Total) 325 325 325 325
EVAPORATOR COIL Enhanced Copper Tubes, Aluminum Double-Wavy Fins
Rows..,Fins/in, 2_.15 I2._15 I3_,15 I 4_,15
Total Face Area (sq ft) 4.17 5.5 5,5 5,5
EVAPORATOR FAN Centrifugal Type
Quantity..,Size (in.)
Type Drive
Nominal Cfm
Maximum Continuous Bhp
Motor Frame Size
Std
AIt
High-Static
Std
AIt
High-Static
Std
AIt
High-Static
Std
AIt
High-Static
Std
AIt
High-Static
Std
AIt
High-Static
Nominal Rpm High/Low (Direct Drive)
Fan Rpm Range
Motor Bearing Type
Maximum Allowable Rpm
Motor Pulley Pitch Diameter MiniMax (in.) Std
Air
High-Static
Nominal Motor Shaft Diameter (in.) Std
Air
High-Static
Fan Pulley Pitch Diameter (in.) Std
Air
High-Static
Belt, Quantity..,Type..,Length (in.) Std
Air
High-Static
Pulley Center Line Distance (in.) Std
Air
High-Static
Speed Change per Full Turn of Std
Movable Pulley Flange (rpm) AIt
High-Static
Movable Pulley Maximum Full Turns Std
From Closed Position Air
High-Static
Factory Setting Std
Air
High-Static
Factory Speed Setting (rpm) Std
Air
High-Static
Fan Shaft Diameter at Pulley (in.)
1_.10 x 10
1_.10 x 10
1_.10x 10
Direct
Belt
Belt
1200
.34
1.20
2.40
48
48
56
860/800
760-1000
1075-1455
Ball
2100
1,9/2,9
2,8/3,8
1/2
1/2
%
4.5
4.5
1...A.,.34
1...A_.39
10,0-12.4
10,0-12.4
48
65
5
6
3
31/2
856
1233
%
1.,.10 x 10
1.,.10 x 10
1.,.10 x 10
Direct
Belt
Belt
1600
.75
1,20
2,40
46
46
56
1075/970
770-1175
1075-1455
Ball
2100
1,9/2.9
2,8/3,6
s/8
4.0
4.5
1,..A..,34
1,..A..,39
10,0-12.4
10,0-12.4
7O
65
5
6
3
31/2
975
1233
s&
1,..11x 10
1,..10 x 10
1-.11x 10
Direct
Belt
Belt
2000
1,20
1.30/2.40"*
2,90
48
56
56
1075/970
875-1192
1300-1685
Ball
2100
2,4/3.4
3.4/4.4
V2
5/8
5/8
4,5
4,5
1,.,A,.,39
1,.,A,.,40
14,7-15,5
14.7-15,5
80
60
5
5
3
3V2
1060
1396
5/8
LEGEND
AI -- Aluminum
Bhp -- Brake Horsepower
Cu -- Copper
*Evaporator coil fin material/condenser coil fin material, Contact your local
Carrier representative for details about coated fins,
l-Weight of 14-in. roof curb,
**Single phase/three-phase.
ttRollout switch lockout is manually reset by interrupting power to unit or
resetting thermostat.
1148TFG, TFH, and TFK units are California compliant three-phase high heat
models.
1._10x 10
1._10 x 10
Belt
Belt
2100
2.40
2.90
56
56
1070-1460
1300-1685
Ball
2100
2.8/3.8
3.4/4.4
5/s
5/8
4.5
4.5
1...A_.40
1...A_.40
14.7-15.5
14.7-15.5
8O
6O
5
5
3
31/2
1225
1396
5/8
***Three-phase standard high heat models have heating input values as
shown. Single-phase standard high heat models have one-stage heating
with heating input values as follows:
48TFF, TMF004- 115,000 Btuh
48TFF, TMF005,006- 150,000 Btuh
tl-l-California SCAQMD compliant Low NOx models have combustion prod-
ucts that are controlled to 40 nanograms per joule or less.
¶Steady State Efficiency is 80% on all units except 48TFK004, which is
81%.
NOTE: High-static motor not available on single-phase units,

Table 1A -- Physical Data- 48TF004-007 (cent)
48TF UNIT SIZE
FURNACE SECTION
Rollout Switch Cutout
Temp (F)tt
Burner Orifice Diameter
(in...,drill size)
Natural Gas
Liquid Propane
Thermostat Heat Anticipator
Setting (amps)
208/230 v and 575 Stage 1
Stage 2
460 v Stage 1
Stage 2
Gas Input (Btuh)
E/F/H/K/M/N004
Standard Units
(Stage l/Stage 2)
195
D/EIF/GIHIK]LIMINO05 D/E/F/GIH/K]L/M/NO06 D/E/F007
No NOx Units
Low NOx Units
Efficiency (Steady
State) (%)
Temperature Rise Range
Manifold Pressure (in. wg)
Natural Gas Std
Liquid Propane AIt
Gas Valve Quantity
Gas Valve Pressure Range
Std TFD/GII
TFE/HII .113...33
TFF/KII ,113_.33
TFL
TFM ,102.38
TFN ,102.,.38
AIt TFD/GII
TFE/HII .089-.43
TFF/KII ,089,,.43
TFL
TFM ,082-.45
TFN ,082.,.45
.14
.14
.14
.14
TFD
TFE --/74,000
TFF*** 82,000/115,000
195
,113-.33
,113,..33
.129,..30
.102-.38
,102...38
,116,..32
,089.,.43
,089,..43
,104-.37
,082-.45
,082,..45
,094,..42
195
.113...33
.113...33
.129...30
.102...38
.102...38
,116,.,32
.089,..43
.089.-43
.104...37
.082...45
.082...48
.094...42
195
TFGII
TFHII 72,000
TFKII 115,000
TFLttt
TFMttt 80,000
TFNttt 90,000
80¶
TFD/GII
TFE/HII 25-55
TFF/KII 55-85
TFL
TFM 20-50
TFN 30-65
3.5
3.5
1
.14
.14
.14
.14
--/74,000
--/115,000
120,000/150,000
.14
.14
.14
.14
--/74,000
.113,.,33
.113..,33
.129.-30
.089.-43
.089..,43
.104..,37
,14
,14
,14
,14
--/74,000
7-+3
22-+7
3O-+5
45-+5
Cleanable. Screen size and quantity varies by option selected.
Throwaway
2...16 x 28 x 2
1148TFG, TFH, and TFK units are California compliant three-phase high heat
models.
***Three-phase standard high heat models have heating input values as
shown. Single-phase standard high heat models have one-stage heating
with heating input values as follows:
48TFF, TMF004 -- 115,000 Btuh
48TFF, TMF005,006 -- 150,000 Btuh
tttCalifornia SCAQMD compliant Low NO× models have combustion prod-
ucts that are controlled to 40 nanograms per joule or less.
¶Steady State Efficiency is 80% on all units except 48TFK004, which is
81%.
NOTE: High-static motor not available on single-phase units.
Psig
in. wg
Field Gas Connection
Size (in.)
HIGH-PRESSURE SWITCH (psig)
Standard Compressor
Internal Relief (Differential)
Cutout
Reset (Auto.)
LOSS-OF-CHARGE (LOW-
PRESSURE SWITCH) (psig)
Cutout
Reset (Auto.)
FREEZE PROTECTION
THERMOSTAT (F)
Opens
Closes
OUTDOOR-AIR INLET SCREENS
RETURN-AIR FILTERS
Quantity..,Size (in,)
LEGEND
AI -- Aluminum
Bhp -- Brake Horsepower
Cu -- Copper
*Evaporator coil fin material/condenser coil fin material. Contact your local
Carrier representative for details about coated fins.
tWeight of 14-in. roof curb.
**Single phase/three-phase.
l-tRollout switch lockout is manually reset by interrupting power to unit or
resetting thermostat.
0.180-0.487
5.0-13.5
1/2
450 -+50
428
320
0.180-0.487
5.0-13.5
1/2
3,5
3,5
1
72,000
115,000
150,000
60,000
90,000
120,000
8O
25-85
35-65
50-80
20-80
30-60
40-70
0.180-0.487
5.0-13.5
1/2
3.5
3.5
1
72,000
115,000
150,000
60,000
90,000
120,000
80
28-55
35-65
50-80
20-50
30-60
40-70
--/115,000
120,000/150,000
500 -+50
428
320
0.180-0.487
5.0-13.5
V2
8O
25-55
35-68
50-80
3.5
3.5
1
--/115,000
120,000/150,000

Table 1B -- Physical Data -- 48TM004-007
48TM UNIT SIZE E/F/H/K]M/N004 D/E/F/G/H/K]L/M/N005 D/E/F/G/H/K]L/M/NO06 D/F-/F007
NOMINAL CAPACITY (tons) 3 4 5 6
OPERATING WEIGHT (Ib)
Unit
AI/AI* 460 470 490 615
Economizer
EconoMi$er IV 50 50 50 50
Roof Curbt 115 115 115 115
COMPRESSOR Reciprocating Scroll
Quantity 1 I 1 1 1
No. Cylinders (per Circuit) 2 I 2 2 2
Oil (oz) 50 50 80 60
REFRIGERANT TYPE R-22
Expansion Device Acutrol TM Metering Device
Operating Charge (Ib-oz) I
Circuit 1 4-8 I 6-6 7-14 11-0Circuit 2 ....
CONDENSER COIL Enhanced Copper Tubes, Aluminum Lanced Fins
Rows,.,Fins/in. 1,..17 I 2_.17 I 2.,,17 I 2...17
Total Face Area (sq ft) 8.36 8.36 10,42 16.5
CONDENSER FAN Propeller Type
Nominal Cfm 3500 4000 4000 4100
Quantity...Diameter (in.) 1._22.0 1,_22.0 1_,22.0 1_.22.0
Motor Hp,,.Rpm V4-. 1100 1/4._1100 1/4._1100 V4-. 1100
Watts Input (Total) 325 325 325 320
EVAPORATOR COIL Enhanced Copper Tubes, Aluminum Double-Wavy Fins, Face Split
Rows.,.Finslin. 2_.15 I 2._15 I 3._15 I 4_.15
Total Face Area (eq ft) 4.17 5,5 5.5 5.5
EVAPORATOR FAN Centrifugal Type
Quantity...Size (in.)
Type Drive
Nominal Cfm
Maximum Continuous Bhp
Motor Frame Size
Nominal Rpm High/Low (Direct Drive)
Fan Rpm Range
Motor Bearing Type
Maximum Allowable Rpm
Std
AIt
High-Static
Std
AIt
High-Static
Std
AIt
High-Static
Std
AIt
High=Static
Std
AIt
High-Static
Std
AIt
High-Static
1.,.10 x 10
1,,.10 x 10
1_.10x 10
Direct
Belt
Belt
1200
.34
1.20
2.40
48
48
56
860/800
685-1045
1075-1455
Ball
2100
1._10x 10
1._10x 10
1._10x 10
Direct
Belt
Belt
1600
,75
1.20
2.40
48
48
56
1075/970
770-1175
1075-1455
Ball
2100
1_.11x 10
1,..10 x 10
1_.10x 10
Direct
Belt
Belt
2000
1,20
1.30/2.40"*
2,90
48
56
56
1075/1040
900-1300
1300-1685
Ball
2100
Motor Pulley Pitch Diameter Min/Max (in.) Std
Nominal Motor Shaft Diameter (in,)
Fan Pulley Pitch Diameter (in.)
Belt, Quantity..,Type..,Length (in,)
Pulley Center Line Distance (in.)
Speed Change per Full Turn of
Movable Pulley Flange (rpm)
Movable Pulley Maximum Full Turns
From Closed Position
Factory Setting
Factory Speed Setting (rpm)
Fan Shaft Diameter at Pulley (in.)
LEGEND
AI -- Aluminum
Bhp -- Brake Horsepower
Cu -- Copper
AIt
High-Static
Std
AIt
High-Static
Std
AIt
High-Static
Std
AIt
High-Static
Std
AIt
High-Static
Std
AIt
High-Static
Std
AIt
High-Static
Std
AIt
High-Static
Std
AIt
High-Static
1,9/2.9
2,8/3.8
V2
V2
5/8
4,5
4,5
1...A,..36
1...A,..39
10,0-12.4
10,0-12.4
48
65
5
6
3
31/2
829
1233
s/8
*Evaporator coil fin material/condenser coil fin material, Contact your local
Carrier representative for details about coated fins,
tWeight of 14-in. roof curb.
**Single phase/three-phase.
ttRollout switch lockout is manually reset by interrupting power to unit or
resetting thermostat,
IN8TMG,TMH, and TMK units are California compliant three-phase high heat
models,
1,9/2.9
2,8/3.8
1/2
1/2
5/s
4,0
4,5
1...A-.36
1...A-.39
10.0-12,4
10.0-12,4
7O
65
5
6
3
31/2
932
1233
s/8
2.8/3.8
3.4/4,4
1/2
s/8
7/s
5.5
4.5
1...A.-40
1...A.-40
14.7-15,5
14.7-15,5
80
60
5
5
3
31/2
1100
1416
s/s
1._10x 10
1._10x 10
Belt
Belt
2100
2,40
2,90
56
56
1070-1460
1300-1685
Ball
2100
2.8/3,8
3.4/4,4
s/8
7/8
4.5
4.5
1,.,A._39
1,.,A..,40
14,7-15.5
14,7-15.5
8O
6O
5
5
3
3d2
1225
1416
s&
***Three-phase standard models have heating input values as shown. Single-
phase standard models have one-stage heating with heating input values
as follows:
48TFF, TMF004- 115,000 Btuh
48TFF, TMF005,006- 150,000 Btuh
ttl-California SCAQMD compliant Low NOx models have combustion prod-
ucts that are controlled to 40 nanograms per joule or less.
']]Steady State Efficiency is 80% on all units except 48TMK004, which is
81%.
NOTE: High-static motor not available on single-phase units,

Table 1B -- Physical Data -- 48TM004-007 (cent)
48TM UNIT SIZE
FURNACE SECTION
Rollout Switch Cutout
Temp (F)tt
Burner Orifice Diameter
(in, ...drill size)
Natural Gas
Liquid Propane
Thermostat Heat Anticipator
Setting (amps)
208/230 v and 575 Stage 1
Stage 2
460 v Stage 1
Stage 2
Gas Input (Btuh) Standard Units
(Stage l/Stage 2)
EIWHIK/M/NO04
195
D/E/FIGIHIK/L/M/NO05 D/EIFIG/H/K]LIM/NO06
No NOx Units
Low NOx Units
Efficiency (Steady
State) (%)
Temperature Rise Range
Manifold Pressure (in. wg)
Natural Gas Std
Liquid Propane AIt
Gas Valve Quantity
Gas Valve Pressure Range
Std TMD/GII
TME/HII .113...33
TM F/KII .113...33
TML
TMM .102.-38
TMN .102...38
AIt TMD/GII
TME/HII .089...43
TMF/KII .089.-43
.14
.14
.14
.14
TMD
TME --/74,000
TMF*** 82,000/115,000
195
.113...33
.113.-33
.129...30
.102...38
.102.-38
.116...32
.089...43
.089...43
.104.-37
195
.113...33
.113...33
.129.-30
.102.-38
.102-.38
.116...32
.089...43
.089...43
.104-.37
TMGII
TMHII 72,000
TMKII 115,000
TMLttt
TMMttt 60,000
TMNttt 90.000
80¶
TMD/GII
TME/HII 25-55
TMF/KII 55-85
TML
TMM 20-50
TMN 30-60
3.5
3.5
1
.14
.14
.14
.14
--_4,000
.14
.14
.14
.14
--/74,000
--/115,000
120,000/150,000
7_+3
22_+7
72,000
115,000
150,000
60,000
90,000
120,000
80
25-55
35-65
50-80
20-50
30-60
40-70
3.5
3.5
1
0.180-0.487
5.0-13.5
Psig
in. wg
Field Gas Connection
Size (in,)
HIGH-PRESSURE SWITCH (psig)
Standard Compressor
Internal Relief (Differential)
Cutout
Reset (Auto.)
LOW-PRESSURE SWITCH (psig)
Cutout
Reset (Auto.)
FREEZE PROTECTION
THERMOSTAT (F)
Opens
Closes
OUTDOOR-AIR INLET SCREENS
RETURN-AIR FILTERS
Quantity.,.Size (in.)
LEGEND
AI -- Aluminum
Bhp -- Brake Horsepower
Cu -- Copper
*Evaporator coil fin material/condenser coil fin material. Contact your local
Carrier representative for details about coated fins.
tWeight of 14-in. roof curb.
**Single phase/three-phase.
ttRollout switch lockout is manually reset by interrupting power to unit or
resetting thermostat.
0.180-0.487
5.0-13.5
450 _+50
428
320
--/115,000
120,000/150,000
72,000
115,000
150,000
60,000
90,000
120,000
8O
25-55
35-85
50-80
20-50
30-60
40-70
3.5
3.5
1
0.180-0.487
5.0-13.5
V2
30_+5
45_+5
Cleanable. Screen size and quantity varies by option selected.
Throwaway
2...16 x 25 x 2
D/E/F007
195
.113-.33
.113...33
.129-.30
.089...43
.089...43
.104...37
.14
.14
.14
.14
--/74,000
--/115,000
120,000/150,000
8O
28-55
35-65
50-80
3.5
3.5
1
0.180-0.487
5.0-13.5
500 _+50
428
320
1148TMG,TMH, and TMK units are California compliant three-phase high heat
models.
***Three-phase standard models have heating input values as shown. Single-
phase standard high heat models have one-stage heating with heating
input values as follows:
48TFF, TMFO04 -- 115,000 Btuh
48TFF, TMFO05,006 -- 150,000 Btuh
tttCalifornia SCAQMD compliant Low NO× models have combustion prod-
ucts that are controlled to 40 nanograms per joule or less.
¶Steady State Efficiency is 80% on all units except 48TMKO04, which is
81%.
NOTE: High-static motor not available on single-phase units.

<.o
5TD. UNit ECONOMHGERI_ VERT. ECONN (A) (B) (C) (D)
UNIT WEIGHT WEIGHT W/ P.E. WEIGH1 CORNER WEIGHT CORNER WEIGHT CORNER WEIGHT CORNER WEIGHT
LB KG LB KG LB KG LB KG LB KG LB KG LB KG
48T 004 460 209 BO 22.7 BO 40.9 140 63.5 105 47. B 15B 72.1 56 25.4
48T 005 470 213 142 84.4 106 48.1 162 73.5 60 27.2
48T BOB 490 222 lSO 58.0 ll5 52.2 1CO 72.5 55 29.5
4BTF_O07 565 258 185 74.8 138 81 . 7 200 90.7 84 29.0
NOTES=
1. DIMENSIONS iN [ ] ARE IN MILLIMETERS.
2. _CENTER OF GRAVITY.
3. _ D[RECT[QN OF AIR FLOW.
4. ON VERTICAL DISCHARGE UNITS, DUCTWORK TO BE ATTACHED
TO ACCESSORY ROOF CURB ONLY. FOR HORIZONTAL DISCHARGE
UNITS FIELD SUPPLIED FLANGES 5WQULD BE ATTACHED TO
HORIZONTAL DISCHARGE OPENINGS, AND ALL DUCTWORK SHOULD
BE ATTACHED TO THE FLANGES.
5. MINIMUM CLEARANCE (LOCAL CODES OR JURISDICTION MAY CORNER
PREVAIL)= "A" k
o. BETWEEN UNIT, FLUE SIDE AND COMBUSTIBLE SURFACES, \
38 IN., 18 iN. WHEN USING ACCESSORY FLUE DISCHARGE DEFLECTOR. N
TLEFT
GREATER CLEARANCE [5 OPTIONAL. ISIDE
I
BOTTOM POWER CHART: SIZES
"A" THESE HOLES RED'D FOR USE
PANEL LENGTH DIA, [51] POWER SUPPLY KNOCK OUT
•]O 3/8" EBBS.Q3
• 10 3/8" [568.03
I' O 3/8" [315.03
1' 0 3/8" [315.03
OUTSIDE A[R_ FILTER ACCESS PANEL
REAR
POWER EXHAUST
3" 1 1/2"_ O" 4 1/2"
[952.5] _ECONOMISER_HOOD _ /FEl 14] l BLOCKOFF
CONDENSER COIL PANEL
COMPRESSOR
ACCE55 COVER l" S 1/4" [438]
F/ ECOiOMI_ERN VIEW 5
_8 SEE NOTE _8, CORNER "B'. _(_)0 " " p._i} -
f- " _O' 3 3/15"
/_ _ [B1 ]
\ , 0.,o,
II I RETURN AIR OPEN;N G 1 B/IS" <_1 RETURN A;R
I VEBTICALI (27B O'BBZB"
IIK _ ?J /) I _ {E137_RIGHT SIDE
E I o'2Bw'B'(GS
ALT CONDENSATE
II O" 5 3X4" DRAIN OPENING
2" O 1/4" [147] IIN BASEPAN /ISUPPLYAIRI 1" 5 3/4" _ SUPPLY 1'6 1/2"
_ _18] _ L_ I EVAPORATOR , OPENING I [451] rd!'Zd!/_Y AIR rl [470]
_I I COIL VERTICAL IP 7_F_ J1_
o _<Z_o_ _ I _ (_B_ L__
O" B 3/4" [2901 I [BBI4] 38
EBSIO]
BEE BOTTOM POWER I If _D_MT I I I_"-"--_ _ /_/'
CHART (ELEC. ONLY) I1_ IRWIn/ /16,[llIl]
I0"3 I/IG'_ LI" 0 IWlG_ LO" 3 3/18°--/_'6-"-_CORNER "C" 0" 7 IX4"
_[184] _ ECONOMISER IV
2" 11 11w15" _ [78] [306] IE3_] _ ,' VERTICAL
[BOB] 6" 1 11116" ] 1' 5 5118" D' 10 13/16" O" 4 1/1G"
[1872] _ 0" 0 3/8" r [43B'7_ _[103.2] W/ POWER EXHAUBT
_ ElI I I
, II:I I
1" 5 liB" 2' 111/1@"
CONTROL BOX/ E4BO] It U --T _ EgS2.S]
BURNER ACCESS _l_l INDOOR FAN MOTOR _" I __I
PANEL BLOWER ACCESS PANEL i_ HORI
nil II _l Kh ZBNTAL
I II I II o' _ 7/a'l 5UPPLYAIR L7" 4"
O' 4 B/1B" 30' 6 III OPENING KII
(lO8s_J _ II II ol I HORIZONTAL_ (_,4_
• 11 lJ
oo
_2 ._5 3_8" t FOR) TRUCK SLOTS /0" S3/4" _" 1 15/1
....... o-B_x,_- /,,4B_ 4_ ,BBB.B, "-G11144.BX,G"
BURNER ACCESS [214] O" 2 IW4"DIA OUT_]DE 5_PPLY AIR RETURN AIR BAROMETRIC RELIEF DISCHARGE
[57] OF PANEL
PANEL FRONT (TYP8 PLACES) R IGHT S IDE ESTD.CONDENSATEDRAIN
b. BOTTOM OF UNIT TO COMBUSTIBLE SURFACES (WHEN NOT USING
CURB) ] INCH. BOTTOM OF BASE RAIL TO COMBUSTIBLE
SURFACES (WHEN NOT USING CURB) 0 INCHES.
c. CONDENSER COIL, FOR PROPER AiR FLOW, 35 INCHES
ONE SIDE, 12 INCHES THE OTHER, THE SIDE GETTING THE
d. OVERHEAD, BO INCHES TO ASSURE PROPER CONDENSER FAN
OPERATION.
e. BETWEEN UNITS, CONTROL BOX SIDE, 42 iN. PER NEC.
F. BETWEEN UNiT AND UNGROUNDED SURFACES, CONTROL BOX
BIDE, BB IN. PER NEC.
3" BETWEEN UNIT AND BLOCK OR CONCRETE WALLS AND OTHER
GROUNDED SURFACES, CONTROL BOX SIDE, 42 IN. PER NEC.
h. HORIZONTAL SUPPLY AND RETURN END, 0 INCHES WHEN THE
ALTERNATE CONDENSATE DRAIN IS USED.
5. WITH THE EXCEPTION OF THE CLEARANCE FOR THE CONDENSER
COIL AND COMBU5TION 5IDE A5 5TATEO IN NOTE _5a, b,
AND c, A REMOVABLE FENCE OR BARRICADE REQUIRES NO
CLEARANCE.
7. UNITS MAY BE INSTALLED ON COMBUSTIBLE FLOORS MADE
FROM WOOD OR CLASS A, B, OR C ROOF COVERING MATERIAL
IF SET ON BASERAIL.
3" B"
THE VERTICAL CENTER OF GRAVITY [5 1" B'[457] UP FROM CORNER "O "/_-
THE BOTTOM QF THE BASE RAIL.
ELECTRICAL CORNER "D"
DISCONNECT _LOCATION
2' B 5/18"
EB4B. 5]
FLUE HOOD
/
1' 4 5116"
[414.5]
O" 4 8/16 1 0_2"2 3' S 3/18"[115.8] TYP [1046]
9/15"
[G5] LEFT SIDE
O" 6 5/8"
[18812]
Fig. 6A -- Base Unit Dimensions -- 48TF,TM004-006 and 48TF007

UNIT
48TM_007
NOTES=
1.
2.
DIMENSIONS IN [ ] ARE IN MILLIMETERS.
_CENTER OF GRAVITY.
DIRECTION OF AIR FLOW.
ON VERTICAL DISCHARGE UNITS, DUCTWORK TO BE ATTACHED
TO ACCESSORY ROOF CURB ONLY. FOR HORIZONTAL DISCHARGE
UNITS FIELD SUPPLIED FLANGES SHOULD BE ATTACHED TO
HORIZONTAL DISCHARGE OPENINGS, AND ALL OUCTWORK SHOULD
BE ATTACHED TO THE FLANGES.
REAR
FILTER/ECBNOMIZERIcoNDENSER8CoILACCESS PANEL_
BOTTOM POWER CHART:
THE5E HOLE5 REQ'D FOR U5E
WITH ACCESSORY PACKAGES
CRBTMPWROO1A01, 2AOl, 3A01, OR 4AOl
THREADED WIRE REQ'D HOLE
CONDUIT SIZE USE SIZES (MAX.)
1/2" ACC. 7/8"[22.2]
1/2" 24V 7/8"[22.2]
3/4" (001,003) _OWER_ 1/8"E28.43
1/4" (O02,004)_OWER_ 3/4"[44,43
(003) 1/2"FPT GAS 1/4"[31183
(DISPOSABLE FILTERS)
I BLOCKOFF
l" S l/4" [438] PANEL
FOR ECSNOMISER IV
CONNECTION SIZES
1 3/8" DIA. [35] FIELD POWER SUPPLY HOLE
O0
CORNER
5. MINIMUM CLEARANCE (LOCAL CODE5 OR JURI5DICTION MAY
PREVAIL) :
o. BETWEEN UNIT, FLUE SIDE AND COMBUSTIBLE SURFACES, l
38 [N.,18 IN. WHEN USING ACCESSORY FLUE DISCHARGE DEFLTR.
b. BOTTOM OF UNIT TO COMBUSTIBLE SURFACES [WHEN NOT USING
CURB) I INCH.
BOTTOM OF BASE RAIL TO COMBUSTIBLE SURFACES (WHEN NOT
USING CURB) 0 INCHES.
e. CONDENSER C8]L, F8R PROPER AIR FLOW, 38 INCHES
ONE 5[DE, 12 INCHES THE OTHER. THE SIDE GETTING THE
CREATER CLEARANCE I5 OPTIONAL.
d. OVERHEAD, SO INCHES TO ASSURE PROPER CONDENSER FAN
OPERATION. 3" B"
e. BETWEEN UNITS, CONTROL BOX SIDE, 42 IN. PER NEC. [1144]
£. BETWEEN UNIT AND UNGROUNDED SURFACES, CONTROL BOX
SIDE, 36 IN. PER NEC.
g' BETWEEN UNIT AND BLOCK OR CONCRETE WALLS AND OTHER
GROUNDED SURFACES, CONTROL 80X SIDE, 42 IN. PER NEC.
h. HORIZONTAL SUPPLY AND RETURN END, O INCHES WHEN THE
ALTERNATE CONDENSATE DRAIN IS USED.
G. WITH THE EXCEPTION OF THE CLEARANCE FOR THE CONDENSER
COIL AND COMBUSTION SIDE AS STATED IN NOTE #5o, b,
AND c, A REMOVABLE FENCE OR BARRICADE REQUIRES NO
CLEARANCE.
7. UNITS MAY BE INSTALLED ON COMBUSTIBLE FLOORS MADE
FROM WOOD OR CLASS A, B, OR C ROOF COVERING MATERIAL
[F SET ON BASE RAIL. CORNER
8. THE VERTICAL CENTER OF GRAVITY IS 1" 5"[457] UP FROM
FROM THE BOTTOM OF THE BASE RAIL. r o 43z,8
FACTORY 5UPPLIED
FLUE HOOD
cf_
EVAPORATOR I
COIL RETURN AIR OPENING
VERTICAL
I
' E) I----i
_0,33z_- RIGHT SIDE
[81]
O" I0 IS/IB" _._____ RETURN AIR
[278]
O' 5 3/8"
_ F[137]
_O' 2 8Z15"
2"11[BOB]
3" O"
[814]
ALT. CONDENSATE
_DRAIN OPENING
IN BASEPAN
15/18"
[48]
O" 3 5/18"
E98.4]
FRONT
O" 31/15"
[78]
G" 1 ll/1G"
[1872]
SUPPLY AIRI
OPENING
I VERTICAL I
j" 0 1/
[305]
[85]
l" 5 3/4"
[4Sl]
O' S 7/15"
[138]
"C"
_EB1]
1" 55/15"
[438.7]
O' 0 3/8"
VIEW S S
SUPPLY AIR _, [470] _1'81/2"
1' 8 l_ A
1/4" [514] /
_ Z O" 0 7/16"[11.1]
O' 7 1/4" L
[IB4] _ ECONOMISER IV
13/IE" O' 4 1/18"
W/ POWER EXHAUST
CONTROL BOX/COMPRESSOR/
BURNER ACCESS
PANEL 2' 1 11/15"
0'49/161 0_0- 2" 2
[115.83 TYP 3" 53/15"_
8/18" [1045] _ ELECTRICAL
EE5)LEFT SIDE OIBCONNECTLocATION
1" 4 5/16"
[414.5]
O" 5 5/8"
[158.2]
2' 53/8
[74G.2]
INDOOR FAN MOTOR
BLOWER ACCESS PANEL
8s/ s-
[81.0] I" 2 7/8"
,[378. G]
l eC
7/18.FORK TRUCK SLOTS O" 5 3/4"
O" 8 El 46]
[214] O" 2 1/4"D]A
[57]
FRONT (TYPB PLACES)
\1 HOR]
IIi \h ZONTAL
III SUPPLY AIR Nil 7"
OPENING
III HORIZONTAL lh
II! lh(
OUT SUPPLY AIR
OF PANEL RIGHT SIDE
[552.5]
RETURN AIR
1' 8 1/4" [514]
OUTSIDE AIR v
O" 0 7/8"
t
O" S11/18"
044.33
BAROMETRIC RELIEF DISCHARGE
E STD. CONDENSATE DRAIN
Fig. 6B -- Base Unit Dimensions -- 48TM007

Do not install unit in an indoor location. Do not locate unit
air inlets near exhaust vents or other sources of contalninated
all:
Be sure that unit is installed such that snow will not block
the combustion intake or flue outlet.
Unit may be installed directly on wood flooring or on
Class A, B, or C roof-covering material when roof curb is used.
Although unit is weatherproof, guard against water fiom
higher level runoff and overhangs.
Flue vent dischaqq, e must have a minimum hoH;ontul clear-
ance qf4 fi,fmm elecTHc and gas mewrs, gas mgulawt:_, and
gas milerequipment.
Minimum distance between unit and other electrically live
parts is 48 inches.
Flue gas can deteriorate building materials. Orient unit
such that flue gas will not affect building materials. Locate
mechanical draft system flue assembly at least 48 in. fiom an
adjacent building or combustible materi_d.
Adequate combustion-air and ventilation-air space must be
provided for proper operation of this equipment. Be sure that
installation complies with all local codes and Section 5.3, Air
for Combustion and Ventilation, NFGC (National Fuel Gas
Code), and ANSI (American National Stan&rds Institute)
Z223.1, and NFPA (National File Protection Association)
54 TIA-54-84-1. In Cana&t, installation must be in accordance
with the CANI-BI49 inst_dlation codes for gas burning
appliances.
After unit is in position, remove rigging skids and shipping
materials.
Step 5 -- Install Flue Hood -- Flue hood is shipped
screwed to the basepan beside the burner compmlment access
panel. Remove from shipping location and using screws pro-
vide& install flue hood and screen in location shown in Fig. 7.
FLUE OPENING
Fig. 7 -- Flue Hood Details
BLOWER
ACCESS
PANEL
Step 6 -- Install Gas Piping -- Unit is equipped for
use with type of gas shown on nameplate. Refer to local build-
ing codes, or in the absence of local codes, to ANSI Z223.1
entitled National Fuel Gas Code. In Cana&t, installation must
be in accordance with the CANI.BI49A and CANI.BI49.2
installation codes for gas burning appliances.
For natural gas applications, gas pressuw at unit gas con-
nection must not be less titan 4 in. wg or greaWr than
13.0 in. wg while unit is operating. On 48TF005,006,007 high
heat units, the gas pressure at unit gas connection must not be
less than 5 in. wg or greater than 13 in. wg while the unit is
operating. For propane applications, the gas pressure must not
be less than 5 in. wg or greater than 13 in. wg at the unit
connection.
Size gas supply piping .fbr 0.5 in. wg maximum pressure
drop. Do not use supply pipe smNler titan unit gas connection.
Support gas piping as shown in the table in Fig. 8. For exam-
ple, a 3h-in. gas pipe must have one field-fabricated support
beam every 8 ft. Therefore, an 18-1l long gas pipe would have a
minimum of 2 support beams, a 48-ft long pipe would have a
minimum of 6 support beams.
See Fig. 8 for typical pipe guide and locations of external
manual main shutoff valve.
When connecting the gas line to the unit gas valve, the
installer MUST use a backup wrench to prevent damage to
the v_flve.
,-, X
9" MINIMUM CLEARANCE
l_ FOR PANEL REMOVAL
MANUALGAS.GAS I
,i SHUTOFF VALVE REGULATOR*]
BASE UNIT =o=================o==o==
-._--_ 48" MINIM UM Illll li
/DRIP LEG PER NFGC !
BASE RAIL -'*'" ROOF CURB
FIELD-FABRICATED
SUPPORT*
FROM GAS METER
LEGEND
NFGC -- National Fuel Gas Code
*Field supplied.
NOTE: Follow all local codes.
SPACING OF SUPPORTS
STEEL PIPE X
NOMINAL DIAMETER DIMENSIONS
(in.) (feet)
V2 6
314or 1 8
1V4 or larger 10
Fig. 8 -- Gas Piping Guide (With Accessory
Thru-the-Curb Service Connections)
11

Step 7 -- Make Electrical Connections
Unit cabinet must have tin uninterrupted, unbroken electri-
cal ground to minimize the possibility of persomd injury if
an electrical fault should occm: This ground may consist of
electrical wire connected to unit ground lug in control com-
ptu-tment, or conduit approved for electrical ground when
insttdled in accordance with NEC (National Electrical
Code), ANSI/NFPA, latest edition, and local electrical
codes. Do not use gas piping as an electrical ground. Fail-
ure to follow this warning could result in the installer being
liable for personal injury of others.
FIELD POWER SUPPLY -- All units except 208/230-v
units are factory wired for the voltage shown on the nameplate.
If the 208/230-v unit is to be connected to a 208-v power sup-
p13; the tran_fin'mer must be rewired by moving the black wire
with the//4-in, fi, male .s)ga_e connecwr fi'om the 230-volt _on-
nection and moving to the 200-volt l/4-in, mule terminal on the
prima 0" sMe of the tran@n'mel:
Refer to unit label diagrmn for additional information. Pig-
tails are provided for field wire connections. Use factory-
supplied splices or UL (Underwriters' Laboratories) approved
copper/aluminum connector
When installing units, proffde a dis_ onnect per the NEC.
All .field wiring must comply with NEC and lotzd
requirements.
Install field wiring as follows:
1. Install conduit through side panel openings. Install con-
duit between disconnect and control box.
2. Install power lines to terminal connections as shown in
Fig. 9.
Voltage to compressor terminals during operation must be
within voltage range indicated on unit nameplate (see Tables 2A
and 2B). On 3-phase units, voltages between phases must be
bahmced within 2% and the currant within 10%. Use the formu-
la shown in the legend for Tables 2A and 2B, Note 2 to deter-
mine the percent of voltage imbalance. Operation on improper
line voltage or excessive phase imbalance constitutes abuse and
may cause dmnage to electrictd components. Such operation
would invali&tte any applicable Carrier wammty.
FIELD CONTROL WIRING -- Install a Carrier-apl)roved
acc'essoiw thermostat assembly according to installation
instructions included w#h the accessolw Locate thermostat
assembly on a solid wall in the conditione_l space to sense aver-
age temperature in accor&mce with thermostat installation in-
structions. Connect thermostat wires to terminal board.
Route thermostat cable or equivalent single leads of colored
wire from subbase terminals through connector on unit to low-
voltage connections (shown in Fig. 10).
NOTE: For wire runs up 50 ft, use no. 18 AWG (American
Wire Gage) insulated wire (35 C minimum). For 50 to 75 ft,
use no. 16 AWG insulated wire (35 C minimum). For over
75 It, use no. 14 AWG insulated wire (35 C minimum). All
wire larger than no. 18 AWG cannot be directly connected to
the thermostat and will require a junction box and splice tit the
thermostat.
Pass the control wires through the hole provided in the cor-
ner post; then feed wires through the raceway built into the
corner post to the 24-v barrier located on the left side of the
control box. See Fig. 11. The raceway provides the UL
required clearance between high and low-voltage wiring.
HEAT ANTICIPATOR SETTINGS -- Set heat anticipator
settings tit 0.14 amp for the first stage and 0.14 amp for second-
stage heating, when available.
FIELD_W_'.suPP,_
r'DISCONNECT I
I PER NEC j
208/230-1-60
LEGEND
C-- Contactor
COMP -- Compressor
IFC -- Indoor-Fan Contactor
NEC -- National Electrical Code
TB -- Terminal Block
BLK TO COMP
FI ELD POWER SUPPLY
__ .LJ.,L.__
Ir-'DISCONN ECT-I
tPER N ECC__J
208/230-3-60
460-3-60
(SIZE 007 ONLY)
Fig. 9 -- Power Wiring Connections
12

z_--_BLU'--------_ TO
TB2
I
!
I
I
I
FIELD POWER SUPPLY
-L- ____L
F DISCONNECT ]
[ PER NEC j
575-3-60
(SIZE 007 ONLY)
-BLK--
I
BLU-------4 cTOMp
I
I
I
I
FIELD POWER SUPPLY
..L.. __L_
r I
I DISCONNECT I
PER NEC I
208/230-3-60
575-3-60, 460-3-60
(SIZES 004-006)
LEGEND
C -- Contactor
COMP -- Compressor
IFC -- Indoor-Fan Contactor
NEC -- National Electrical Code
TB -- Terminal Block
Fig. 9-- Power Wiring Connections (cont)
COOL STAGE 1
FAN
HEAT STAGE 1
COOL STAGE 2
HEAT STAGE 2
24 VAC HOT
24 VAC COM
N/A
m
Y1/W2- - -I [- - R /
W/W1- - _ I q _ Y1 WIRE
i _ CONNECTIONS
Y/Y2- - - F - _- - Y2 TO
LOW-VOLTAGE
O/W2- _ I_ _1_ _Wl SECTION
-- i _ I (CONNECTION
R= -_3 _ , W2 BOARD)
IPD/X
OUTDOOR AIR Sl
SENSOR S2
THERMOSTAT DIPSWITCH SETTINGS
ON
A B C D
LEGEND
Field Wiring
NOTE: Underlined letter indicates active thermostat output when
configured for A/C operation.
Fig. 10- Low-Voltage Connections
RACEWAY LOW VOLTAGE
CONNECTIONS INTEGRATED GAS UNIT
CONTROLLER (IGC)
il
_"--m
HOLE IN END PANEL (HIDDEN)
Fig. 11 -- Field Control Wiring Raceway
13

Table 2A -- Electrical Data (Without Convenience Outlet)
UNIT
48TF,TM004
(3 Tons)
48TF,TM005
(4 Tons)
48TF,TM006
(5 Tons)
48TF007
(0 Tons)
48TM007
(6 Tons)
NOMINAL
VOLTAGE
208/230-1-60
208/230-3-60
460-3-60
575-3-60
208/230-1-60
208/230=3-60
460-3-60
575-3-60
208/230-1-60
208/230-3-60
460-3-60
575-3-60
208/230=3-60
460-3-60
575-3-60
208/230-3-60
460-8-60
575-8-60
VOLTAGE COMPR OFM COMBUSTION
IFM RANGE (ea) (ea) IFM
TYPE FAN MOTOR
MIn Max RLA LRA Hp FLA FLA FLA
Std 3.5
187 254 16.2 96.0 V4 1.4 .6
AIt 4.9
Std 3.6
AIt 187 264 10.2 75.0 V4 1.4 4.9 .6
High 5.2
Std 1.3
AIt 414 508 4.4 40.0 V4 0.8 2.1 .3
High 2.6
Std 1.3
AIt 518 632 8.7 31.0 V4 0.8 2.1 .3
High 2.6
Std 3.6
187 264 23.3 118,0 V4 1.4 .6
AIt 4.9
Std 3.6
AIt 187 264 15.4 90.0 V4 1.4 4.9 .6
High 5.2
Std 1.8
AIt 414 508 8.3 45.0 V4 0.8 2.1 .3
High 2.6
Std 1.8
AIt 518 632 6.4 86.0 V4 0.8 2.1 .3
High 2.6
Std 5.9
187 264 28.8 147,0 V4 1.4 .6
AIt 6.6
Std 5.9
AIt 187 264 16.0 114,0 V4 1.4 5.2 .6
High 7.6
Std 3.1
AIt 414 508 7.4 64.0 V4 0.8 2.6 .3
High 3.4
Std 3.1
AIt 518 632 6.2 52.0 V4 0.8 2.6 .3
High 3.4
Std 5.2
187 254 20.6 146.0 V4 1.4 .6
High 7.5
S'td 2.6
414 508 9.5 73.0 V4 0.9 .3
High 3.4
Std 2.6
518 632 7.6 58.4 V4 0.6 .3
High 3.4
Std 5.2
187 254 20.6 146.0 V4 1.4 .6
High 7.5
Std 2.6
414 508 9.5 73.0 V4 0.9 .3
High 3.4
Std 2.6
518 632 7.6 58.4 V4 0.6 .3
High 3.4
POWER SUPPLY DISCONNECT
SIZE*
MCA MOCPt FLA LRA
25.2/25.2 30/80 24/24 106/106
26.6/26.6 35/85 26/26 111/111
17.7/17.7 25/25 17/17 85/ 85
19.1/19.1 25/25 19/19 90/ 90
19.4/19.4 25/25 19/19 109/109
7.6 15 7 44
8.4 15 8 48
8.9 15 9 57
5.5 15 6 35
6.0 15 7 37
6.3 15 7 56
34.0/34.0 40/40 32/32 129/129
35.4/35.4 45/45 34/34 133/133
24.2/24.2 30/30 23/23 101/101
25.6/25.6 30/30 25/25 105/105
25.9/25.9 30/30 25/25 124/124
13.0 20 13 51
13.3 20 13 53
13.8 20 13 62
9.2 15 10 41
9.3 15 10 42
9.7 15 10 49
43.3/43.3 60/60 42/42 161/161
44.0/44.0 60/60 42/42 184/184
27.3/27.3 35/35 27/27 128/128
26.6/26.6 35/35 26/26 148/148
28.9/28.9 35/35 29/29 174/174
13.2 20 13 71
13.5 20 13 81
13.5 20 13 93
9.7 15 11 58
9.9 15 11 65
9.9 15 11 76
32.4/32.4 40/40 31/31 180/180
34.7/34.7 40/40 34/34 205/205
15.4 20 15 90
16.2 20 16 103
11.4 15 12 75
11.9 15 13 86
32.4/32.4 40/40 31/31 180/180
34.7/34.7 40/40 34/34 205/205
15.4 20 15 90
16.2 20 16 103
11.4 15 12 79
11.9 15 13 86
LEGEND
FLA -- Full Load Amps
HACR -- Heating, Air Conditioning and Refrigeration
IFM -- Indoor (Evaporator) Fan Motor
LRA -- Locked Rotor Amps C@
MCA -- Minir'aum Circuit Amps
MOCP -- Maxir'aum Overcurrent Protection
NEC -- National Electrical Code
OFM -- Outdoor (Cond ...... ) Far, Motor ..__
RLA -- Rated Load Amps
*Used to determine minimur'a disconnect per NEC.
tFuse or HAOR circuit breaker.
NOTES:
1. In compliance with NEC requirements for multimotor and combination load equipment
(refer to NEC Articles 430 and 440), the overcurrent protective device k)r the unit shall
be fuse or HAOR breaker. Canadian units may be fuse or circuit breaker.
2. Unbalanced 3-Phase Supply Voltage
Never operate a motor w6ere a phase imbalance in supply voltage is greater than 2%.
Use the following formula to determine the percent of voltage imbalance.
% Voltage Imbalance
= 100 x max voltage deviation from average voltage
average voltage
Example: Supply voltage is 460-3-60.
AB = 452 v
AB C BC =464v
AC = 455 v
Average Voltage = 462 + 464 + 455
3
1371
3
= 457
Determine r'aaximum deviation from average voltage.
(AB) 457 - 452 = 5 v
(BC) 464 - 457 = 7 v
(AC) 457 - 455 = 2 v
Maxir'aum deviation is 7 v.
Detemline percent of voltage imbalance.
7
% Voltage Imbalance = 100 x -- 457
= 1.53%
This amount of phase imbalance is satisfactory as it is below the maximum alk)wable
2%.
IIMPORTANT: If the supply voltage phase imbalance is more than 2%, contact I
your local electric utility company immediately. I
3. For units with power exhaust: If a single power source is to be used, size wire to include
power exhaust MCA and MOOR Check MCA and MOCP when power exhaust is pow-
ered through the unit (must be in accordance with NED and/or local codes). Determine
the new MCA including the power exhaust using the following formula:
MCA New = MCA unit only + MCA of Power Exhaust
For example, using a 48TF006---5 unit with MCA = 28.9 and MOCP = 35, with
CRPWREXH080A00 power exhaust.
MCA New = 28.9 amps + 1.6 amps = 30.5 amps
If the new MCA does not exceed the published MOCP, then MOCP would not change.
The MOOP in this example is 35 amps, the MCA New is below 35, therefore the MOCP
is acceptable. If "MCA New" is larger than the published MOOP, raise the MOCP to the
next larger size. For separate power, the MOCP for the power exhaust will be 15 amps
per NEC.
MOCP
POWER EXHAUST MCA MCA MCA (for separate
PART NO. (230 v) (460 v) (575 v) power source)
CRPWREXH030AO0 1.6 N/A 0.64 15
CRPWBEXH021AO0 N/A 0.9 N/A 15
CRPWREXH022A00 3.3 N/A 1.32 15
CRPWREXH023A00 N/A 1.8 N/A 15
CRPWREXH028A00 1.7 N/A 0.08 15
CRPWREXH029A00 N/A 1.0 N/A 15
14

Table 2B -- Electrical Data (With Convenience Outlet)
UNIT
48TF, TM004
(3 Tons)
48TF, TM005
(4 Tons)
48TF, TM006
(5 Tons)
48TF007
(6 Tons)
46TM007
(6 Tons)
NOMINAL
VOLTAGE
208/230-1-60
208/230-3-60
460-3-60
575-3-60
208/230-1-60
208/230-3=60
460-3-60
575-3-60
208/230-1-60
208/230-3=60
460-3-80
575-3-60
High
Std
208/230-3-60 187 254 20.6 146.0 l& 1.4
High
Std
460-3-60 414 508 9.5 73.0 l& 0.6
High
Std
575-3-60 518 632 7.6 58.4 l& 0.6
High
Std
208/230-3-60 187 254 20.6 146.0 l& 1.4
High
Std
460-3-60 414 508 9.5 73.0 l& 0.6
High
Std
575-3-60 518 632 7.6 58.4 l& 0.6
High
VOLTAGE COMPR OFM COMBUSTION
IFM RANGE (ea) (ea) IFM
TYPE FAN MOTOR
MIn Max RLA LRA Hp FLA FLA FLA
Std 3.5
187 254 16.2 96.0 1/4 1.4 .6
AIt 4.9
Std 3.5
AIt 187 254 10.2 75.0 1/4 1.4 4.9 .6
High 5.2
Std 1.3
AIt 414 508 4.4 40.0 1/4 0.8 2.1 .3
High 2.6
Std 1.3
AIt 518 632 3.7 31.0 1/4 0.8 2.1 .3
High 2.6
Std 3.5
187 254 23.3 118.0 1/4 1.4 .6
A9 4.9
Std 3.5
AIt 187 254 15.4 90.0 1/4 1.4 4.9 .6
High 5.2
Std 1.8
AIt 414 508 8.3 45.0 1/4 0.8 2.1 .3
High 2.6
Std 1.8
AIt 518 632 6.4 36.0 1/4 0.8 2.1 .3
Hitch 2.6
Std 5.9
187 254 28.8 147.0 1/4 1.4 .6
A9 6.6
Std 5.9
AIt 187 254 16.0 114.0 1/4 1.4 5.2 .6
High 7.5
Std 3.1
AIt 414 508 7.4 64.0 1/4 0.8 2.6 .3
Hitch 3.4
Std 3.1
AIt 518 632 6.2 52.0 1/4 0.8 2.6 .3
3.4
5.2 .6
7.5
2.6 .3
3.4
2.6 .3
3.4
5.2 .6
7.5
2.6 .3
3.4
2.6 .3
3.4
POWER SUPPLY DISCONNECT
SIZE*
MCA MOCPt FLA LRA
31.2/31.2 35/35 30/30 111/111
32.6/32.8 40/40 31/31 116/116
22.5/22.5 25/25 23/23 90/ 90
23.9/23.9 30/30 25/25 95/ 95
24.2/24.2 30/30 25/25 114/114
9.8 15 10 47
10.6 15 11 50
11.1 15 11 59
7.2 15 8 36
7.7 15 9 39
8.0 15 9 58
40.0/40.0 45/45 38/38 134/134
41.4/41.4 50/50 40/40 138/138
29.0/29.0 35/35 29/29 106/106
30.4/30.4 35/35 30/30 110/110
30.7/30.7 35/35 31/31 129/129
15.2 20 15 53
15.5 20 15 55
16.0 20 16 64
10.9 15 12 42
11.1 15 12 44
11.4 15 12 51
49.3/49.3 60/60 47/47 166/166
50.0/50.0 60/60 48/48 188/188
32.1/32.1 40/40 32/32 133/133
31.4/31.4 40/40 32/32 153/153
33.7/33.7 40/40 34/34 179/179
15.3 20 15 74
15.6 20 15 83
15.6 20 16 96
11.5 15 13 60
11.7 15 12 67
11.7 15 13 77
37.2/37.2 45/45 37/37 184/184
39.5/39.5 45/45 39/39 210/210
17.6 20 17 92
18.4 25 18 105
13.1 20 14 77
13.7 20 15 90
37.2/37.2 45/45 37/37 184/184
39.5/39.5 45/45 39/39 210/210
17.6 20 17 92
18.4 25 18 105
13.1 20 14 77
13.7 20 15 90
LEGEND
FLA -- Full Load Amps
HACR -- Heating, AirConditionb_gandRefrigeratk)n
IFM -- Indoor (Evaporator) Fan Mok)r
LRA -- Locked Rotor Amps C@
MCA -- Minimum Circuit Amps
MOCP -- Maximum Overcurrent Protection
NEC -- National ElectricaICode
OFM -- Outdoor (Cond ...... ) Fan Motor II II1[=1,
RLA -- Rated Load Amps UO
*Used to detemline minimum disconnect per NEC.
tFuse or HACR circuit breaker.
NOTES:
1. In compliance with NEC requirements for mugimotor and combination load equipment
(refer to NEC Articles 430 and 440), the overcurrent protective device for the unit shall
be fuse or HACR breaker. Canadian units may be fuse or circuit breaker.
2. Unbalanced 3-Phase Supply Voltage
Never operate a motor where a phase imbalance in supply voltage is greater than 2%.
Use the following formula to determine the percent of vogage imbalance.
% Voltage Imbalance
= 100 x max vogage deviation from average vogage
average voltage
Example: Supply vogage is 480-3-60.
AB = 452 v
A8 C BC =464 v
AC = 456 v
Average Voltage = 452 + 464 + 456
3
1371
3
= 457
Determine maximum deviation from average w)gage.
(AB) 457 - 452 = 5 v
(BC) 464 - 457 = 7 v
(AC) 457 - 455 = 2 v
Maximum deviation is 7 v.
Determine percent of voltage imbalance.
7
% Voltage Imbalance = 100 x 45"_"
= 1.53%
This amount o1 phase imbalance is satisfactory as it is below the maximum allowable
2%.
I IMPORTANT: If the supply voltage phase imbalance is more than 2%, contact I
your local electric utility company immediately. I
3. For units with power exhaust: If a single power source is to be used, size wire to include
power exhaust MCA and MOOR Check MCA and MOCP when power exhaust is pow-
ered through the unit (must be in accordance with NEC and/or local codes). Determine
the new MCA including the power exhaust using the foflowing formula:
MCA New = MCA unit only + MCA of Power Exhaust
For example, using a 48TF006-=-5 unit with MCA = 28.9 and MOCP = 35, with
CRPWREXH030A00 power exhaust.
MCA New = 28.9 amps + 1.6 amps = 30.5 amps
If the new MCA does not exceed the published MOOP, then MOCP would not change.
The MOCP in this example is 35 amps, the MCA New is below 35, therefore the MOCP
is acceptable. If "MCA New" is larger than the published MOCP, raise the MOCP to the
next larger size. For separate power, the MOCP for the power exhaust will be 15 amps
per NEC.
MOCP
POWER EXHAUST MCA MCA MCA (for separate
PART NO. (230 v) (480 v) (575 v) power source)
CRPWREXH030A00 1.6 N/A 0.64 15
CRPWREXH021A00 N/A 0.9 N/A 15
CRPWREXH022A00 8.3 N/A 1.32 15
CRPWREXH023A00 N/A 1.8 N/A 15
CRPWREXH028A00 1.7 N/A 0.68 15
CRPWREXH029A00 N/A 1.0 N/A 15
1.5

Step 8 -- Adjust Factory-Installed Options
MANUAL OUTDOOR-AIR DAMPER -- The outdoor-air
hood and screen are attached to the basepan at the bottom of
the unit for shipping.
Assembly5.:
1. Determine quantity of ventilation required for building.
Record amount for use in Step 8.
2. Remove and save outdoor air opening panel and screws.
See Fig. 12.
3. Remove evaporator coil access panel. Separate hood and
screen from basepan by removing the 4 screws securing
them. Save all screws.
4. Replace evaporator coil access panel.
5. Place hood on fiont of outdoor air opening panel. See
Fig. 13 for hood details. Secure top of hood with the
4 screws removed in Step 3. See Fig. 14.
6. Remove and save 6 screws (3 on each side) from sides of
the manual outdoor-air dmnpel:
7. Align screw holes on hood with screw holes on side of
manual outdoor-air dampel: See Fig. 13 and 14. Secure
hood with 6 screws from Step 6.
8. Adjust minimum position setting of the &_mper blade by
adjusting the manual outdoor-air adjustment screws on
the front of the &tmper blade. See Fig. 12. Slide blade
vertically until it is in the appropriate position determined
by Fig. 15. Tighten screws.
9. Remove and save screws cunently on sides of hood. In-
sert scleen. Secure scleen to hood using the screws. See
Fig. 14.
CONVENIENCE OUTLET -- An optional convenience out-
let provides power for rooftop use. For maintenance personnel
safety, the convenience outlet power is off when the unit dis-
connect is off. Adjacent unit outlets may be used for service
tools. An optional "Hot Outlet" is available from the factory as
a special order item.
NOVAR CONTROLS -- Optional Novar controls
(ETM 3051) are available for replacement or new construc-
tion jobs.
OUTDOOR
AIR OPENING
PANEL
H
MANUAL
OUTDOOR-AIR J
ADJUSTMENT =
SCREWS
POSITION SETTING DAMPER
SCALE BLADE
Fig. 12 -- Damper Panel with Manual Outdoor-Air
Damper Installed
SCREW
_op)
HOOD_
SCREEN
LOCATION
(SCREEN
NOT SHOWN)
Fig. 14 -- Outdoor-Air Damper with
Hood Attached
0.6
HOOD TOP SCREWS
(HIDDEN) -_
SCREWS
SCREEN HOLDERS)
HOOD SIDESAND TOP-
ASSEMBLED
0.5
_-_ 0.4
W
CC
w
0.3
t.tl
_>
0.2
z
0.1
HOOD
SIDE
Fig. 13 -- Outdoor-Air Hood Details
0
0123 4 5 6 7
OUTDOOR AIRFLOW (cfm x 100)
Fig. 15 -- Outdoor-Air Damper Position Setting
16

PREMIERLINK TM CONTROL -- The PremierLink control-
let is compatible with Carrier Comfo]l Network® (CCN) de-
vices. This control is designed to allow users file access and
ability to change factory-defined settings, thus expanding the
function of file standm'd unit control board. Career's diagnostic
standard tier display tools such as Navigator TM or Scrolling
Marquee can be used wifll the PremierLink controlle]:
The PremielLink controller (see Fig. 16A and 16B) requires
the use of a Carrier electronic thermostat or a CCN connection
for time broadcast to initiate its internal timeclock. This is
necessmy for broadcast of time of &ty functions (occupied/
unoccupied). No sensors me supplied with the field-mounted
PremierLink control. The factory-installed PremierLink con-
trol includes only the supply-air sensor (SAT) and the outdoor
air temperature sensor ((-)AT) as stan&trd. An indoor air quality
(CO2) sensor can be added as tin option. Refer to Table 3 for
sensor usage. Refer to Fig. 17 for PremierLink controller
wiring. The PmmierLink control may be mounted in file
control panel or an area below the control panel.
NOTE: PmmierLink controller versions 1.3 and later am
shipped in Sensor mode. If used with a fllermostat, the Pre-
mierLink controller must be configured to Themiostat mode.
Install the Supply Air Temperature Sensor (SAT) -- When
the unit is supplied with a factory-mounted PremierLink con-
trol, the supply-air temperature (SAT) sensor (33ZCSENSAT)
is factory-supplied and wimdi The wiring is routed from the
PmmierLink control over the control box, through a grommet,
into the fan section, down _flong the back side of the fan, and
along the fan deck over to the supply-air opening.
The SAT probe is wire-tied to the supply-air opening (on the
horizontal opening end) in its shipping position. Remove the
sensor for installation. Re-position the sensor in the flange of
the supply-air opening or in the supply air duct (as required by
local codes). Drill or punch a l/2-in, hole in the flange or duct.
Use two field-supplied, self-drilling screws to secure the sensor
probe in a horizontal orientation.
NOTE: The sensor must be mounted in the dischmge airstream
downstream of the cooling coil and any heating devices. Be
sure the probe tip does not come in contact with tiny of the unit
or heat surfaces.
Outdoor Air Temperature Sensor (OAT) -- When the unit is
supplied with a factoq-mounted PremierLink control, the
outdoor-air temperature sensor (OAT) is factory-supplied and
wired.
Install the Indoor Air Quality (COp) Sensor -- Mount the
optional indoor air quality (CO2) sensor according to manufac-
turer specifications.
A separate field-supplied transformer must be used to pow-
er the CO2 sensor
Wire the CO2 sensor to the COM and IAQI terminals of J5
on the PremierLink controflel: Refer to the PremierLink Instal-
lation, Start-up, and Configuration Instructions for detailed
wiring and configuration information.
HVAC SENSOR INPUTS O
SPACE TEMP _ h'_
SET POINT _ El"]
SUPPLY AIR TEMP _ _i]
OUTDOOR TEMP _ ]lil
INDOOR AIR QUALITY _ LT_
OUTDOOR AIR QUALITY _ _!1
DUAL MODE SENSOR/STAT ]+_,11
REMOTEOCCUPANCY (G) "_v H " I
COMP SAFETY (Y1) ""'_ H ; I
FIRE SHUTDOWN (Y2) _ r_
suPPLY FAN STATUS(Wl) ""_ H i ]
NOT USED (W2) ""_ Iq • I
ENTHALPY STATUS(ENTH) "_]_ _" _
/
CCN/LEN
PORT
OUTPUTS
Fig. 16A -- PremierLink Controller
17

PREMIERLINK
CONTROL
©©
HINGED
DOOR
PANEL
PREMIERLINK
COVER
J
Fig. 16B -- PremierLink TM Controller (Installed)
Table 3 -- PremierLink Sensor Usage
OUTDOOR AIR RETURN AIR OUTDOOR AIR RETURN AIR
APPLICATION TEMPERATURE SENSOR TEMPERATURE SENSOR ENTHALPY SENSOR ENTHALPY SENSOR
Dry Bulb
Temperature with
PremierLink* Included --
(PremierLink HH79NZ017
requires 4-20 mA
Actuator)
Differential Dry Bulb
Temperature with
PremierLink* Included -- Required --
(PremierLink HH79NZ017 33ZCT55SPT -- --
requires 4-20 mA or Equivalent
Actuator)
Single Enthalpy with
PremierLink*
(PremierLink Included -- __ Required -- _
Not Used HH57AC077
requires 4-20 mA
Actuator)
Differential Enthalpy
with PremierLink*
(PremierLink Included -- __ Required -- Required --
Not Used HH57AC077 HH57AC078
requires 4-20 mA
Actuator)
*PremierLink control requires Supply Air Temperature sensor 33ZCSENSAT and
Outdoor Air Temperature sensor HH79NZ017 -- included with factory-installed PremierLink control;
field-supplied and field-installed with field-installed PremierLink control.
NOTES:
1. CO2 Sensors (Optional):
33ZCSENCO2 -- Room sensor (adjustable). Aspirator box is required for duct mounting of the sensor.
33ZCASPCO2 -- Aspirator box used for duct-mounted CO2 room sensor.
33ZCT55CO2 -- Space temperature and CO2 room sensor with override.
33ZCT56CO2 -- Space temperature and CO2 room sensor with override and set point.
2. All units include the following Standard Sensors:
Outdoor-Air Sensor -- 50HJ540569 -- Opens at 67 F, closes at 52 F, not adjustable.
Mixed-Air Sensor -- HH97AZ001 -- (PremierLink control requires Supply Air Temperature sensor 33ZCSENSAT
and Outdoor Air Temperature Sensor HH79NZ017)
Compressor Lockout Sensor -- 50HJ540570 -- Opens at 35 E closes at 50 R
18

PNK
VIO
.....................................................................BRN................................... SAT -- Supply Air Temperature Sensor
TB -- Terminal Block
Fig. 17 -- Typical PremierLink TM Controls Wiring
Enthalpy Sensors and Control i The enthalpy control
(HH57AC077) is supplied as a t]eld-inst_dled accessory to be
used with the EconoMi$er2 damper control option. The out-
door air enthalpy sensor is pall of die enthalpy control. The
separate field-installed accessory return tdr enthalpy sensor
(HH57AC078) is required for differential enthalpy control.
NOTE: The enthalpy control must be set to the "D" setting for
diffelential enthalpy control to won properly.
The enthalpy control receives the indoor and return
enthalpy from the outdoor and return air enthalpy sensors and
provides a &y contact switch input to the PremierLinld '_'_
controllel: Ix_cate the controller in place of an existing econo-
mizer controller or near the actuator The mounting plate may
not be needed if existing bracket is used.
A closed contact indicates that outside air is preferred to the
return all: An open contact indicates that die economizer
should remain at minimum position.
Outdoor Air Enthalpy Sensor/Enthalpy Controller
(HH57AC077) i To wile the outdoor air enthalpy sensoit
perform the following (see Fig. 18 and 19):
NOTE: The outdoor air sensor can be removed from die back
of die enthalpy controller and mounted remotely.
1. Use a 4-conductor. 18 or 20 AWG cable to connect the
enthalpy control to the PlemierLink controller and power
transforme_:
2. Connect the following 4 wires from the wire harness
located in rooftop unit to the enth_dpy controller:
a. Connect the BRN wire to the 24 vac terminal (TRI)
on enthalpy control and to pin 1 on 12-pin harness.
b. Connect the RED wire to the 24 vac GND terminal
(TR) on enthalpy sensor and to pin 4 on 12-pin
harness.
c. Connect the GRAY/ORN wire to J4-2 on Premier-
Link controller and to terminal (3) on enthalpy
sensoE
d. Connect the GRAY/RED wire to J4-1 on Premier-
Link controller and to terminal (2) on enthalpy sensol:
NOTE: If installing in a Carrier roollop, use the two gray wires
provided from the control section to the economizer to connect
PremierLink controller to termimds 2 and 3 on enthalpy sensol:
Return Air Enthalpy Sensor i Mount the return-air enth_dpy
sensor (HH57AC078) in the return-air duct. The return air
sensor is wired to the enthalpy controller (HH57AC077). The
outdoor enthalpy changeover set point is set at the controllel:
To wire the return air enthalpy sensor, perform the follow-
ing (see Fig. 18):
1. Use a 2-conductor, 18 or 20 AWC_ twisted pair cable to
connect the return air enthalpy sensor to the enthalpy
controller.
2. At the enthalpy control remove the factory-installed
resistor from the (SR) and (+) terminals.
3. Connect the field-supplied RED wire to (+) spade
connector on the return air enth_dpy sensor and the (SR+)
terminal on die enthalpy controller Connect the BLK
wire to (S) spade connector on the return air enth_dpy
sensor and the (SR) termimd on die enthalpy controlle_:
19

ENTHALPY CONTROLLER RED
TRF_TRI[_- BRN
LED
sod +[:3-
sRrh __,_71
[_S (OUTDOOR
AIR
+ ENTHALPY
BLK SENSOR)
RED
[_S (RETURN AIR I
[] + ENTHALPY
SENSOR
GRAY/ORN
LWIRE HARNESS
GRAY/RED JIN UNIT
NOTES:
1. Remove factory-installed jumper across SR and + before con-
necting wires from return air sensor,
2, Switches shown in high outdoor air enthalpy state. Terminals 2
and 3 close on low outdoor air enthalpy relative to indoor air
enthalpy,
3. Remove sensor mounted on back of control and locate in out-
side airstream.
Fig. 18 -- Outside and Return Air Sensor Wiring
Connections for Differential Enthalpy Control
HH57AC077
ENTHALPY
CONTROL AND
.OUTDOOR AIR
ENTHALPY SENSOR
HH57AC078 ENTHALPY
SENSOR (USED WITH
ENTHALPY CONTROL
FOR DIFFERENTIAL
ENTHALPY OPERATION)
÷ ÷ MOUNTING PLATE
Fig. 19 -- Differential Enthalpy Control,
Sensor and Mounting Plate (33AMKITENT006)
IMPORTANT: ff the power exhaust accessory is to be
installed on the unit, the hood shipped with the unit will not
be used and must be disctuded. Save the aluminum filter
for use in the power exhaust hood assembly.
3. The indoor coil access panel will be used as the top of the
hood. Remove the sclews along the sides and bottom of
the indoor coil access panel. See Fig. 24.
4. Swing out indoor coil access panel and insert the hood
sides under the panel (hood top). Use the screws provided
to attach the hood sides to the hood top. Use screws pro-
vided to attach the hood sides to the unit. See Fig. 25.
5. Remove the shipping tape holding the economizer baro-
metric relief &_mper in place.
6. Insert the hood divider between the hood sides. See
Fig. 25 and 26. Secure hood divider with 2 screws on
each hood side. The hood divider is also used as the bot-
tom filter rock for file aluminum filter.
7. Open the filter clips which are located underneath the
hood top. Insert the aluminum filter into the bottom filter
rack (hood divider). Push the filter into position past the
open filter clips. Close the filter clips to lock the tilter into
place. See Fig. 26.
8. Caulk the ends of the joint between the unit top panel and
the hood top. See Fig. 24.
9. Replace the filter access panel.
10. Install all EconoMi$er IV accessories. EconoMi$er IV
wiring is shown in Fig. 27. EconoMi$er2 wiring is shown
in Fig. 28.
Barometric flow capacity is shown in Fig. 29. Outdoor air
leakage is shown in Fig. 30. Return air pressure &op is shown
in Fig. 31.
ECONOMI$ER IV
L_-_ -__,_ _CONTROLLER
WIRING_ /OUTSIDE AIR
HARNESS t ELMoPwER ATEt_2E? ENSOR
_i_ S _SENSOR
ACT !
OPTIONAL ECONOMISER IV AND ECONOMISER2 --
See Fig. 20 for EconoMiSer IV component locations. See
Fig. 21 for EconoMiSer2 component locations.
NOTE: These instructions are for installing the optional
EconoMiSer IV and EconoMiSer2 only. Refer to the accessory
EconoMiSer IV or EconoMiSer2 installation instructions when
field installing an EconoMiSer [V or EconoMi$er2 accessory.
1. To remove the existing unit filter access panel, nfise the
panel and swing the bottom outw_ud. Tile panel is now
disengaged from the track and can be removed. See
Fig. 22.
2. The box with the economizer hood components is
shipped in the compartment behind the economizel: The
EconoMiSer [V controller is mounted on top of the
EconoMiSer IV in the position shown in Fig. 20. The
optional EconoMiSer2 with 4 to 20 mA actuator signal
control does not include the EconoMiSer [V controllel:
To remove the component box from its shipping position,
remove the screw holding the hood box bracket to the top
of the economizer Slide the hood box out of the unit. See
Fig. 23.
0....
Fig. 20 -- EconoMi$er IV Component Locations
OUTDOOR
AIR HOOD
/
ECONOMI_
PLUG
/
BAROMETRIC
RELIEF
DAMPER
GEAR DRIVEN
DAMPER
Fig. 21 -- EconoMi$er2 Component Locations
2O

FILTER ACCESS PANEL
LEFT
SIDE
TOP
/. PANEL
INDOOR COIL
ACCESS PANEL
COMPRESSOR
ACCESS PANEL
OUTDOOR-AIR OPENING AND
INDOOR COILACCESS PANEL
Fig. 22 -- Typical Access Panel Locations
/
/
/
/
/
/
I
/
i I
i
I
I
I
I
I
I
/
/
/
/
/
/
/
/
/
/©
Fig. 23 -- Hood Box Removal
HOOD DIVIDER
Fig. 25- Outdoor-Air Hood Construction
BAROMETRIC
RELIEF
ALUMINUM
FILTER
Fig. 26 -- Filter Installation
FILTER
CLIP
SIDE
PANEL
TOP
SIDE
PANEL
INDOOR INDOOR
COIL "" COIL
ACCESS N
PANEL PANEL
Fig. 24 -- Indoor Coil Access Panel Relocation
ECONOMISER IV STANDARD SENSORS
Outdoor Air Temperature (OAT) Sensor -- The outdoor air
temperature sensor (HH57AC074) is a 10 to 20 mA device
used to measure the outdoor-air temperature. The outdoor-air
temperature is used to determine when the EconoMiSer IV can
be used for free cooling. The sensor is factory-installed on the
EconoMiSer IV in the outdoor airstream. See Fig. 20. The op-
erating range of temperature measurement is 40 to 100 E
Supply Air Temperature (SAT) Sensor -- The supply air
temperature sensor is a 3 K thermistor located at the inlet of the
indoor fan. See Fig. 32. This sensor is factory installed. The op-
erating range of temperature measurement is 0 ° to 158 E See
Table 4 for sensor temperature/resistance values.
The temperature sensor looks like an eyelet terminal with
wires running to it. The sensor is located in the "crimp end"
and is sealed from moisture.
Outdoor Air Lockout Sensor -- Tile EconomiSer IV is
equipped with an mnbient temperature lockout switch located
in the outdoor air stream which is used to lockout the compres-
sors below a 42 F ambient temperature. See Fig. 20.
21

IFIZLD
ACCESSORY1
REMOTE MIN
POSITION POT
ER[MOTE POT TI_O_)--
7"IE[__B_LLED
IAO SENSOR I(_'_
oar TEMPI [
Z_THALPY SERSOR
BL_RED-
(FIELD ACCESSORY)
RAT;ENTHALPY SENSOR
BLK 2V IOV
PO_
OPEN
_ -- I MAIE 2v IOV
_DDv DSIV
2V 10v
FOR OCCUPANCY CONTROL
REPLACE JUMPER WITH
FIELD-SUPPLIED TIME CLOCK
/PNK --
,j vlo- --
ECONOMISZR I£
BOARD
©
TAN
ECONOMIZER MOTOR
FIELD SPLICE
TO PWR EXHAUST
ACCESSORY
BLK
WHT _2_
RED
--GRY_
YEL_
BLU
FIELD SPLICE
ORY
ORG
(HOT USED)
{NOr USED)
(ROT USED)
(_OT USED)
LEGEND
DCV-- Demand Controlled Ventilation
IAQ -- Indoor Air Quality
LA -- Low Ambient Lockout Device
OAT-- Outdoor-Air Temperature
POT-- Potentiometer
RAT-- Return-Air Temperature
Potentiometer Defaults Settings: NOTES:
PL6-R
F%_TD
:I
Power Exhaust Middle
Minimum Pos. Fully Closed 1. 620 ohm, 1 watt 5% resistor should be removed only when using
enthalpy or dry bulb.
DCV Max. Middle
DCV Set Middle
Enthalpy C Setting
differential
2. If a separate field-supplied 24 v transformer is used for the IAQ sensor power
supply, it cannot have the secondary of the transformer grounded.
3. For field-installed remote minimum position POT, remove black wire jumper
between P and P1 and set control minimum position POT to the minimum
position.
Fig. 27 -- EconoMi$er IV Wiring
NOTE 1
NOTE3
J
50HJ540573
ACTUATOR
ASSEMBLY
RUN
,.It
DIRECT DRIVE
ACTUATOR
500 OHM _ 't
RESISTOR- "? •
I
I
-e_l_ _
I
+o-- I....
I
I
OPTIONAL 002
SENSOR 4 - 20 mA
OUTPUT
BLACK
VIOLET
PINK
RED
S
kU
>-
WHITE
m
4
3
5
2
8
6
7
1
10
11
9
12
ECONOMIZER2 PLUG
NOTES:
1. Switch on actuator must be in run position for economizer to operate.
2. PremierLink TM control requires that the standard 50HJ540569 outside-air sensor be replaced by either the CROASENR001A00 dry bulb sensor or HH57A077
enthalpy sensor.
3. 50HJ540573 actuator consists of the 50HJ540567 actuator and a harness with 500-ohm resistor.
Fig. 28 -- EconoMi$er2 with 4 to 20 mA Control Wiring
22

Table 4 -- Supply Air Sensor Temperature/
Resistance Values
TEMPERATURE (F) RESISTANCE (ohms)
-58 200,250
-40 100,680
-22 53,010
-4 29,091
14 16,590
32 9,795
50 5,970
68 3,747
77 3,000
86 2,416
104 1,597
122 1,080
140 746
158 525
176 376
185 321
194 274
212 203
230 153
248 116
257 102
266 89
284 70
302 55
-g 2500
w
z 2000
w 1500
W
m 1000
o
500
0
Z
-- 0
I
I
0.'05 0[ 15 0.'25
STATIC PRESSURE (in. wg)
Fig. 29 -- Barometric Flow Capacity
v 30
LU
b-
z_ 25
m 2O
LU
O_
I- 15
uJ
LU
EL 10
5
o
z 0
q
LL
0.13 0.20 0.22 0.25 0.30 0.35 0.40 0.45 0.50
STATIC PRESSURE (in. wg)
Fig. 30- Outdoor-Air Damper Leakage
ECONOMI$ER IV CONTROL MODES
IMPORTANT: The optional EconoMi$er2 does not
include a controllel: The EconoMi$er2 is operated by a 4 to
20 mA signal from an existing field-supplied controller
(such as PremierLink TM control). See Fig. 28 for wMng
information.
6ooo
IJJ
I--- 5000
z
4OOO
/3.
I- 3000
IJJ
LU
o 2000
1000
z0
jO 0.05 0.10 0.15 0.20 0.25 0.30 0.35
EL
STATIC PRESSURE (in. wg)
Fig. 31 -- Return-Air Pressure Drop
Determine the EconoMiSer IV control mode before set up of
file control. Some modes of operation may require different sen-
sors. Refer to Table 5. The EconoMiSer IV is supplied from the
facto qwith a supply air temperature sensor and an outdoor air
temperature sensol: This allows for operation of the
EconoMiSer IV with outdoor air dry bulb changeover control.
Additional accessories can be added to allow for different types
of changeover control and operation of the EconoMiSer IV and
unit.
Outdoor DLy Bulb Changeover -- The standard controller is
shipped from the facto qconfigured for outdoor @ bulb
changeover control. The outdoor air and supply air temperature
sensors me included as standmd. For this control mode, the
outdoor temperature is compared to an adjustable set point
selected on file control. If the outdoor-air temperature is above
file set point, file EconoMiSer IV will adjust the outdoor-air
dampers to minimum position. If the outdoor-air temperature is
below the set point, the position of the outdoor-air &tmpers will
be controlled to provide flee cooling using outdoor till: When
in this mode, the LED next to the free cooling set point potenti-
ometer will be on. The changeover temperature set point is
controlled by the free cooling set point potentiometer located
on the control. See Fig. 33. The sc_de on the potentiometer is A,
B, C, and D. See Fig. 34 for the corresponding temperature
changeover values.
Table 5 -- EconoMi$er IV Sensor Usage
APPLICATION
Outdoor Air
Dry Bulb
Differential
Dry Bulb
Single Enthalpy
Differential
Enthalpy
CO2 for DCV
Control using a
Wall-Mounted
CO2 Sensor
CO2 for DCV
Control using a
Duct-Mounted
CO2 Sensor
ECONOMISER IV WITH OUTDOOR AIR
DRY BULB SENSOR
Accessories Required
None. The outdoor air dry bulb sensor
is factory installed.
CRTEMPSN002A00*
HH57AC078
HH57AC078
and
CRENTDIF004A00*
33ZCSENCO2
33ZCSENCO21-
and CRCBDIOX005A001-1-
33ZCASPCO2**
*CRENTDIF004A00 and CRTEMPSN002A00 accessories are
used on many different base units. As such, these kits may con-
tain parts that will not be needed for installation.
1-33ZCSENCO2 is an accessory CO2 sensor.
**33ZCASPCO2 is an accessory aspirator box required for duct-
mounted applications.
1-1-CRCBDIOX005A00 is an accessory that contains both
33ZCSENCO2 and 33ZCASPCO2 accessories.
23

SUPPLY AIR
TEMPERATURE
SENSOR
MOUNTING
LOCATION_ \
SUPPLY AIR
TEMPERATURE
SENSOR #
Fig. 32 -- Supply Air Sensor Location
EXHAUST
FAN SET POINT
N_ ,,w,EXHS_ILED LIGHTS
WHEN EXHAUST _ _-4AIJ_ k ULWzv_l_ kULW zv_lov
CONTACT IS MADE _
MINIMUM DAMPER
POSITION SETTING _(_ _fiTI
MAXIMUM DAMPER __ [_TI T[_ _°s
DEMAND CONTROL
VENTILATION SET POINT
DEMAND CONTROL
VENTILATION INPUT
tS ABOVE SET POINT
DEMAND (
VENTILATION SET POINT
LED LIGHTS WHEN
OUTDOOR AIR IS
SUITABLE FOR
FREE COOLING
ENTHALP'_
CHANGEOVER SET POINT
Fig. 33 -- EconoMi$er IV Controller Potentiometer
and LED Locations
19
18 "_ LEDION
17 _
16---= LED OFF LED ON
13
12
11
10
9 I
40 45 50 55
LED O_
'_,_LED ON----
I
60 65 70 75 80 85 90 95 100
DEGREES FAHRENHEIT
Fig. 34-- Outdoor Air Temperature
Changeover Set Points
Differential DLy Bulb Control -- For differential dly bulb
control the stan&ud outdoor dry bulb sensor is used in conjunc-
tion with an additional accesso Uch7 bulb sensor (part number
CRTEMPSN002A00). Tile accessory sensor must be mounted
in the return airstream. See Fig. 35. Wiring is provided in the
EconoMiSer [V wiring harness. See Fig. 27.
In this mode of operation, the outdoor-tfir temperature is
compared to the leturn-air temperature and the lower tempera-
ture tfirstream is used for cooling. When using this mode of
changeover control, turn the enth_dpy setpoint potentiometer
fully clockwise to the D setting. See Fig. 33.
Outdoor Enthalpy Changeover -- For enthalpy control, ac-
cessory enthalpy sensor (p_ut number HH57AC078) is re-
quired. Replace the standard outdoor chy bulb temperature sen-
sor with the accessory enthalpy sensor in the same mounting
location. See Fig. 20. When the outdoor air enthalpy rises
above the outdoor enthalpy changeover set point, the outdoor-
air damper moves to its minimum position. The outdoor
enthalpy changeover set point is set with the outdoor enthalpy
set point potentiometer on the EconoMiSer IV controller The
set points are A, B, C, and D. See Fig. 36. The factory-installed
620-ohm jumper must be in place across terminals SR and SR+
on the EconoMiSer IV controllec See Fig. 20 and 37.
Differential Enthalpy Control -- For differential enthalpy
control, the EconoMiSer IV controller uses two enthalpy sen-
sors (HH57AC078 and CRENTDIF004A00), one in the out-
side air and one in the leturn air duct. The EconoMiSer [V
controller comptues the outdoor air enthalpy to the return air
enthalpy to determine EconoMiSer IV use. The controller
selects the lower enth_dpy air (return or outdoor) for cooling.
For example, when the outdoor tfir has a lower enthalpy than
the return tfir. the EconoMi$er IV opens to bring in outdoor air
for free cooling.
Replace the standard outside air dUbulb temperatme sen-
sor with the accessory enthalpy sensor in the same mounting
location. See Fig. 20. Mount the return air enthalpy sensor in
the leturn air duct. See Fig. 35. Wiring is provided in the
EconoMiSer IV wiring harness. See Fig. 27. The outdoor en-
thalpy changeover set point is set with the outdoor enthalpy set
point potentiometer on the EconoMiSer IV controllen When
using this mode of changeover control, turn the enthalpy set-
point potentiometer fully clockwise to the D setting.
ECONOMI$ER ]_Z
_ CONTROLLER
ECONOMI$ER _Z
Fig. 35 -- Return
Sensor
" ":"':,""":::.! 04_ _ROMMET
.,...J
i i
i i
_]___ RETURN AIR
SENSOR
RETURN DUCT
(FIELD-PROVIDED)
Air Temperature or Enthalpy
Mounting Location
24

Indoor Air Quality dAQ) Sensor Input -- Tile IAQ input
can be used for demand control ventilation control based on the
level of CO2 measm'ed in the space or return air duct.
Mount the accessory IAQ sensor according to manufactm'er
specifications. The IAQ sensor should be wired to the AQ and
AQI terminals of file controllel: Adjust the DCV
potentiometers to conespond to the DCV voltage output of the
indoor air quality sensor at the user-determined set point. See
Fig. 38.
If a separate field-supplied tmnsforlner is used to power the
IAQ sensor, the sensor must not be grounded or the
EconoMi$er IV control board will be damaged.
CONTROL CONTROLPOINT
CURVE APPROXI°F(°C)
AT 50% RH
A 73123)
B 70121)
C 67{19)
D 63(17)
85 90 95 100 105 110
(29) (32) (35) (38) (41) (43)
,/,,
\
-,,/
\
-.,/
/.
\
"-Z
\
\
\
HIGH LIMIT
\ CURVE
35 40 45 50 55 60 65 70 75 80 85 90 95 100 105 110
(2) (4) (7) (10) (13) (16) (18) (21) (24) (27) (29) (32) (35) (38) (41) (43)
APPROXIMATE DRY BULB TEMPERATURE-- °F (°C)
Fig. 36 -- Enthalpy Changeover Set Points
2V vl0V
P1V1Ex©
T _1_]1 Open
DCV
v@Max
2OV
\O1 OCV
*AOn©
9R+ Free
I oo,©
sR__.1_c
A_ D ¢'
Fig. 37 -- EconoMiSer IV Control
I Him II T_
24_4 Vac
Vac COM
HO '_
2
5
......_ 4
EF_ EF1
m
6OO0
5000
z4000
3000
E
z
2000
w
z 1000
<
0
CO2 SENSOR MAX RANGE SETTING
_+800 ppm
+900 ppm
_1000 ppm
+1100 ppm
2345678
DAMPER VOLTAGE FOR MAX VENTILATION RATE
Fig. 38 -- CO2 Sensor Maximum Range Setting
25

Exhaust Set Point Adjustment -- The exhaust set point will
determine when the exhaust fan runs based on dmnper position
(if accessory power exhaust is installed). The set point is modi-
fied with the Exhaust Fan Set Point (EXH SET) potentiometer
See Fig. 33. The set point represents the damper position above
which the exhaust fans will be turned on. When there is a call
for exhaust, the EconoMiSer IV controller provides a 45 _+15
second delay before exhaust fan activation to allow the damp-
ers to open. This delay _fllows file damper to reach the appro-
priate position to avoid unnecessaly fan overload.
Minimum Position Control -- There is a minimum damper
position potentiometer on the EconoMiSer [V controllel: See
Fig. 33. The minimum damper position maintains the mini-
mum airflow into the building during the occupied period.
When using demand ventihttion, the minimum dmnper po-
sition represents the minimum ventilation position for VOC
(volatile organic compound) ventilation requirements. The
maximum demand ventilation position is used for fully occu-
pied ventilation.
When demand ventilation control is not being used, the
minimum position potentiometer should be used to set the oc-
cupied ventilation position. The maximum demand ventilation
position should be turned fully clockwise.
Adjust the minimum position potentiometer to allow the
minimum mnount of outdoor aik as required by local codes, to
enter the building. Make minimum position adjustments with
at least 10 F temperature difference between the outdoor and
return-air temperatures.
To determine the minimum position setting, perform the
following procedure:
1. Calculate the appropriate mixed air temperature using the
following formula:
OA RA
(Tox I--F6_) +(TRx 1-Tff6-)=TM
To = Outdoor-Air Temperature
OA = Percent of Outdoor Air
TR = Return-Air Temperature
RA = Percent of Return Air
TM = Mixed-Air Temperature
As an example, if local codes require 10% outdoor tdr
during occupied conditions, outdoor-air temperature is
60 E and return-air temperature is 75 E
(60 x .10) + (75 x .90) =73.5 F
2. Disconnect the supply air sensor from terminals T and
TI.
3. Ensure that the factou-installedjumper is in place across
terminals P and PI. If remote damper positioning is being
used, make sure that the terminals am wired according to
Fig. 27 and that the minimum position potentiometer is
turned fully clockwise.
4. Connect 24 vac across terminals TR and TRI.
5. CarefiJlly adjust the minimum position potentiometer
until the measured supply air temperature matches the
calculated value.
6. Reconnect the supply _firsensor to termimds T and TI.
Remote control of the EconoMi$er IV damper is desirable
when requiring additiomd temporm-y ventilation. If a
field-supplied remote potentiometer (Honeywell part number
$963B1128) is wired to the EconoMi$er IV controllek the
minimum position of the damper can be controlled from a m-
mote location.
To control the minimum damper position remotely, remove
the factory-installed jumper on the P and PI terminals on the
EconoMi$er IV controllel: Wire the field-supplied potentiome-
ter to the P and PI terminals on the EconoMi$er IV controller.
See Fig. 37.
Damper Movement -- Damper movement trom full open to
full closed (or vice versa) takes 2112minutes.
Thermostats -- The EconoMiSer IV control works with con-
ventiomd thermostats that have a YI (cool stage 1), Y2 (cool
stage 2), Wl (heat stage 1), W2 (heat stage 2), and G (fan). The
EconoMiSer IV control does not support space temperature
sensors. Connections are made at the thermostat termimd con-
nection board located in the main control box.
Occupancy Control -- The factoUdefault configuration for
the EconoMi$er IV control is occupied mode. Occupied status
is provided by the black jumper flom terminal TR to terminal
N. When unoccupied mode is desired, inst_dl a field-supplied
timeclock function in place of the jumper between TR and N.
See Fig. 27. When the timeclock contacts are closed, the
EconoMi$er IV control will be in occupied mode. When the
timeclock contacts are open (removing the 24-v signal from
terminal N), the EconoMi$er IV will be in unoccupied mode.
Demand Controlled Ventilation (DCV) -- When using the
EconoMiSer IV for demand controlled ventilation, them are
some equipment selection criteria which should be considered.
When selecting the heat capacity and cool capacity of the
equipment, the maximum ventilation rote must be evaluated for
design conditions. The maximum damper position must be cal-
culated to provide the desired fresh ail:
Typically the maximum ventilation rate will be about 5 to
10% morn than the typical chn required per person, using nor-
mid outside air design criteria.
A proportional anticipatory strategy should be taken with
the following conditions: a zone with a large area, varied occu-
pancy, and equipment that cannot exceed the required ventila-
tion rate at design conditions. Exceeding the required ventila-
tion rate means the equipment can condition air at a maximum
ventilation rate that is greater than the required ventilation rate
for maximum occupancy. A proportional-anticipato Ustrategy
will cause the fresh air supplied to increase as the room CO2
level increases even though the CO2 set point has not been
reached. By the time the CO2 level roaches the set point, the
damper will be at maximum ventilation and should maintain
the set point.
In order to have the CO2 sensor control the economizer
damper in this manner, fil.'stdetermine the damper voltage out-
put for minimum or base ventilation. Base ventilation is the
ventilation required to remove contmninants during unoccu-
pied periods. The following equation may be used to determine
the percent of outside-air entering the building for a given
damper position. For best results there should be at least a
10 degree difference in outside and return-air temperatures.
OA RA
(To x l-T-ff_) + (TR x _ ) = TM
To = Outdoor-Air Temperature
OA = Percent of Outdoor Air
TR = Return-Air Temperature
RA = Percent of Return Air
TM = Mixed-Air Temperature
Once base ventilation has been determined, set the mini-
mum damper position potentiometer to the correct position.
The same equation can be used to deterlnine the occupied or
maximum ventilation rate to the building. For example, an out-
put of 3.6 volts to the actuator provides a base ventilation rate
of 5% and an output of 6.7 volts provides the maximum venti-
lation rate of 20% (or base plus 15 cfm per person). Use Fig. 38
to determine the maximum setting of the CO2 sensol: For ex-
ample, a 1100 ppm set point relates to a 15 cfm per person de-
sign. Use the 1100 ppm curve on Fig. 38 to find the point when
the CO2 sensor output will be 6.7 volts. Line up the point on the
graph with the left side of the chart to determine that the range
configuration for the CO2 sensor should be 1800 ppm. The
26

EconoMiSerIVcontrollerwilloutputthe6.7voltsfiomthe
CO2sensortotheactuatorwhentheCO2concentrationinthe
spaceisfit1100ppm.TheDCVsetpointmaybeleftfit2volts
sincethe CO2sensorvoltagewill be ignoredby the
EconoMiSerIVcontrolleruntilitrisesabovethe3.6voltset-
tingoftheminimumpositionpotentiometer
Oncethefullyoccupieddmnperpositionhasbeendeter-
mined,setfilemaximumdamperdemandcontrolventilation
potentiometertothisposition.Donotsettothemaximumposi-
tionasthiscanresultinover-ventilationtothespacefindpoten-
tialhigh-humiditylevels.
C02 Sensor Configuration -- The CO2 sensor has preset
standard voltage settings that can be selected anytime after the
sensor is powered up. See Table 6.
Use setting 1 or 2 for Carrier equipment. See Table 6.
1. Press Clear and Mode buttons. Hold fit least 5 seconds
until the sensor enters the Edit mode.
2. Press Mode twice. The STDSET Menu will appem:
3. Use the Up/Down button to select the preset numbel: See
Table 6.
4. Press Enter to lock in the selection.
5. Press Mode to exit and resume normfd operation.
The custom settings of the CO2 sensor can be changed any-
time after the sensor is energized. Follow the steps below to
change the non-stan&trd settings:
1. Press Clear and Mode buttons. Hold fit least 5 seconds
until the sensor enters the Edit mode.
2. Press Mode twice. The STDSET Menu will appem:
3. Use the Up/Down button to toggle to the NONSTD menu
and press Entec
4. Use the Up/Down button to toggle through each of the
nine variables, stinting with Altitude, until the desired set-
ting is reached.
5. Press Mode to move through the variables.
6. Press Enter to lock in the selection, then press Mode to
continue to the next vmiable.
Dehumidification of Fresh Air with DCV Control -- Infor-
mation from ASHRAE indicates that the largest humidity load
on any zone is the fresh air introduced. For some applications,
a device such as a 62AQ energy recovery unit is added to re-
duce the moisture content of the fresh air being brought into the
building when file enthalpy is high. In most cases, the normfd
heating and cooling processes are morn than adequae to m-
move the humidity loads for most commemial applications.
If normal rooftop heating and cooling operation is not ade-
quate for the outdoor humidity level, fin energy recovery unit
and/or a dehumidification option should be considered.
Step 9 -- Adjust Evaporator-Fan Speed -- Ad-
just evaporator-fan rpm to meet jobsite conditions. Table 7
shows ffm rpm at motor pulley settings. Table 8 shows motor
performance. See Table 9 for accessory and option static pres-
sure drops. See Table 10 for evaporator-fan motor efficiency.
Refer to Tables 11-40 to determine fan speed settings.
DIRECT-DRIVE MOTORS-- The evaporator-fan motor
factory speed setting is shown on label diagram affixed to base
unit. If other than factory setting is desired, refer to label
diagram for motor reconnection. See Fig. 39 for direct-drive
motor location.
BELT-DRIVE MOTORS- Fan motor pulleys are factory
set for speed shown in Tables IA and lB. See Fig. 40 for belt
di'ive motor location.
NOTE: Before adjusting fan speed, make sure the new ffm
speed will provide an air temperature rise range as shown in
Tables IA find lB.
To change fan speed:
1. Shut offunit power supply.
2. Ix_osen belt by loosening fan motor mounting nuts. See
Fig. 40.
3. Ix_osen movable pulley flange setscrew (see Fig. 41 ).
4. Screw movable flange toward fixed flange to increase
speed and away from fixed flange to decrease speed.
Increasing fan speed increases load on motol: Do not
exceed maximum speed specified in Tables IA find lB.
5. Set movable flange fit nearest keyway of pulley hub and
tighten setscrew. (See Tables 1A find 1B for speed change
for each fifll turn of pulley flange.)
To align fan and motor pulleys:
1. Ix_osen fan pulley setscrews.
2. Slide fan pulley along fan shaft.
Make angulm alignment by loosening motor from
mounting.
Table 6 -- 002 Sensor Standard Settings
EQUIPMENT OUTPUT ANALOG
OUTPUT
SETTING
1
2
3
4
5
6
7
8
9
Interface w/Standard
Building Control System
Economizer
Health & Safety
Parking/Air Intakes/
Loading Docks
Proportional
Proportional
Exponential
Proportional
Proportional
Exponential
Exponential
Proportional
Proportional
VENTILATION
RATE
(cfm/Person)
Any
Any
Any
15
20
15
2O
0-10V
4-20 mA
2-10V
7-20 mA
0-10V
4-20 mA
0-10V
4-20 mA
0-10V
4-20 mA
0-10V
4-20 mA
0-10V
4-20 mA
0-10V
4-20 mA
0-10V
4-20 mA
002
CONTROLRANGE
(ppm)
0-2000
0-2000
0-2000
0-1100
0- 900
0-1100
0- 900
0-9999
0-2000
OPTIONAL
RELAY SETPOINT
(ppm)
1000
1000
1100
1100
900
1100
900
5000
7OO
LEGEND
ppm -- Parts Per Million
RELAY
HYSTERESIS
(ppm)
50
50
50
50
50
50
50
500
50
27

To adjust belt tension:
1. Ix_osen fan motor mounting nuts.
2. Slide motor mounting plate away flom fan scroll for
proper belt tension (l/2-in. deflection with one finger).
3. Tighten motor mounting nuts.
4. Adjust bolt and tighten nut to secure motor in fixed
position.
@@
DIRECT DRIVE MOTOR DIMPLED HEAT EXCHANGER
Fig. 39 -- Direct Drive Motor Mounting
MOTOR MOUNTING
PLATE NUTS
Fig. 40 -- Belt Drive Motor Mounting
STRAIGHT EDGE MUST MOVABLE
FLANGE
WITH BELl"
MOTOR AND FAN
SHAFTS MUST BE
PARALLEL SETSCREWS
FIXED FLANGE
SINGLE-GROOVE
Fig. 41 -- Evaporator-Fan Pulley Adjustment
Table 7 -- Fan Rpm at Motor Pulley Settings*
UNIT MOTOR PULLEY TURNS OPEN
0 112 1 1112 2 2112 3 3112 441/2 5 51/2 6
48TF004t 1000 976 952 928 904 880 856 832 808 784 760 -- --
48T F004** 1455 1423 1392 1360 1328 1297 1265 1233 1202 1170 1138 1107 1075
48TM004t 1045 1009 973 937 901 865 829 793 757 721 685 -- --
48TM004"* 1455 1423 1392 1360 1328 1297 1265 1233 1202 1170 1138 1107 1075
48TF005t 1175 1134 1094 1053 1013 972 932 891 851 810 770 -- --
48TF005"* 1455 1423 1392 1360 1328 1297 1265 1233 1202 1170 1138 1107 1075
48TM005t 1175 1135 1094 1054 1013 973 932 892 851 811 770 -- --
48TM005"* 1455 1423 1392 1360 1328 1297 1265 1233 1202 1170 1138 1107 1075
48TF006t 1192 1163 1131 1099 1067 1035 1003 971 939 907 875 -- --
48TF006"* 1685 1589 1557 1525 1493 1460 1428 1396 1364 1332 1300 -- --
48TM006t 1300 1266 1233 1200 1166 1133 1100 1066 1033 1000 966 933 900
48TM006"* 1685 1647 1608 1570 1531 1493 1454 1416 1377 1339 1300 -- --
48TF007tt 1460 1420 1380 1345 1305 1265 1225 1185 1150 1110 1070 -- --
48TF007"* 1685 1589 1557 1525 1493 1460 1428 1396 1364 1332 1300 -- --
48TM007tt 1460 1421 1382 1343 1304 1285 1226 1187 1148 1109 1070 -- --
48TM007"* 1685 1647 1608 1570 1531 1493 1454 1416 1377 1399 1300 -- --
*Approximate fan rpm shown. **Indicates high-static motor and drive package.
I-I-Indicates standard motor and drive package.I-Indicates alternate motor and drive package.
28

UNIT
48TF, TM
O04
O05
006
O07
EVAPORATOR-FAN
MOTOR
Standard
Alternate
High Static
Standard
Alternate
High Static
Standard
Alternate
High Static
Standard
High Static
Table 8 -- Evaporator-Fan Motor Performance
UNIT
VOLTAGE
208/230
48O
575
208/230
48O
575
208/230
46O
575
208/230
46O
575
208/230
46O
575
208/230
46O
575
208/230
46O
575
208/230
46O
575
208/230
46O
575
208/230
46O
575
208/230
46O
575
LEGEND
BHP -- Brake Horsepower
*Extensive motor and electrical testing on these units ensures that
the full horsepower range of the motors can be utilized with confi-
dence, Using the fan motors up to the horsepower ratings shown in
this table will not result in nuisance tripping or premature motor fail-
ure. Unit warranty will not be affected.
tSingle phase/three-phase.
MAXIMUM ACCEPTABLE
CONTINUOUS BHP*
0.34
1.20
2.40
0.75
1.20
2.40
1.20
1.30_.40t
2.90
2.40
2.90
NOTES:
MAXIMUM ACCEPTABLE
OPERATING WATTS
44O
1000
2120
850
1000
2120
1340
2120
2562
2120
2562
MAXIMUM
AMP DRAW
2.8
1.3
1.3
4.9
2.1
2.1
6.0
3.0
3.0
3.5
1.8
1.8
4.9
2.1
2.1
6.0
3.0
3.0
5.9
3.2
3.2
6.6/5.21-
2.6
3.0
8.6
3.9
3.9
5.2
3.0
3.0
8.6
3.9
3.9
1. All indoor-fan motors 5 hp and larger meet the minimum effi-
ciency requirements as established by the Energy Policy Act of
1992 (EPACT) effective October 24, 1997.
2. High-static motor not available on single-phase units.
Table 9 -- Accessory/FlOP EconoMi$er IV and EconoMi$er2 Static Pressure* (in. wg)
COMPONENT
Vertical EconoMi$er IV and EconoMi$er2
Her zonta EconoM $er V and EconoM $er2
LEGEND
FlOP -- Factory-Installed Option
1250 I1500
0.045 I0.065
CFM
1750 2000 I 2250 I 2500 2750 3000
0.08 0.12 I0.145 I0.175 0.22 0.255
0.1 0.125 0.15 0.18 0.225 0.275
*The static pressure must be added to external static pressure, The
sum and the evaporator entering-air cfm should be used in con-
junction with the Fan Performance tables to determine indoor
blower rpm and watts.
Table 10- Evaporator-Fan Motor Efficiency
MOTOR 48TF, TM IEFFICIENCY
004,005 I 75
006 74/84"
007 84
*Single-phase/3-phase.
NOTE: Convert watts to bhp using the following formula:
watts input x motor efficiency
bhp = 746
29

Table 11 -- Fan Performance 48TF,TM004 -- Vertical Discharge Units -- Standard Motor
AIRFLOW
(Cfm)
900
1000
1100
1200
1300
1400
1500
LOW SPEED
2O8 V
ESP Bhp Watts
0.49 0.21
0.42 0.23
0.37 0.24
0.33 0.26
0.27 0.27
0.20 0.29
0.16 0.30
LEGEND
253
270
287
304
321
338
355
230,460,575 V
ESP Bhp Watts
0.50 0.23 277
0.43 0.25 292
0.38 0.26 307
0.33 0.27 323
0.28 0.29 338
0.23 0.30 354
0.18 0.31 369
HIGH SPEED
208 V 230,460,575 V
ESP Bhp Watts ESP Bhp Watts
0.51 0.26 307 0.55 0.31 363
0.43 0.27 321 0.61 0.32 374
0.39 0.28 335 0.46 0.33 385
0.34 0.29 349 0.40 0.34 397
0.28 0.31 364 0.34 0.34 408
0.25 0.32 378 -- -- --
0.20 0.33 392 -- -- --
Refer to page 41 for general Fan Performance Data notes.
Bhp -- Brake Horsepower Input to Fan
ESP -- External Static Pressure (in. wg)
Table 12 -- Fan Performance 48TF004 -- Vertical Discharge Units -- Alternate Motor (Belt Drive)*
AIRFLOW
(Cfm)
900
1000
1100
1200
1300
1400
1500
EXTERNAL STATIC PRESSURE (in. wg)
0.2 0.4 0.6 0.8 1.0
Rpm Bhp Watts Rpm Bhp Watts Rpm Bhp Watts Rpm Bhp Watts Rpm Bhp Watts
643 0.15 152 768 0.22 222 870 0.30 296 958 0.37 373 1037 0.46 454
683 0.19 191 804 0.27 268 904 0.35 348 991 0.43 430 1069 0.52 517
725 0.24 237 842 0.32 321 939 0.41 407 1025 0.50 496 1102 0.59 588
767 0.29 291 880 0.38 382 976 0.48 474 1060 0.57 570 1136 0.67 668
811 0.35 352 920 0.45 451 1013 0.55 550 1095 0.66 652 1170 0.76 756
855 0.43 423 960 0.53 529 1051 0.64 636 1132 0.75 744 1205 0.86 855
900 0.51 504 1002 0.62 617 1090 0.74 731 1169 0.85 846 1242 0.97 963
AIRFLOW
(Cfm)
90O
1000
1100
1200
1300
1400
1500
Bhp -- Brake Horsepower Input to Fan
Watts -- Input Watts to Motor
*Motor drive range: 760 to 1000 rpm. All other rpms require a field-
supplied drive.
EXTERNAL STATIC PRESSURE (in. wg)
1.2 1.4 1.6 1.8 2.0
Rpm Bhp Watts Rpm Bhp Watts Rpm Bhp Watts Rpm Bhp Watts Rpm Bhp Watts
1110 0.54 538 1177 0.63 627 1239 0.72 718 1298 0.82 813 1355 0.92 911
1141 0.61 607 1207 0.70 700 1269 0.80 796 1328 0.90 895 1384 1.00 998
1173 0.69 683 1238 0.79 781 1300 0.89 883 1358 0.99 987 1414 1.10 1094
1205 0.77 768 1270 0.88 872 1332 0.98 979 1389 1.09 1088 -- -- --
1239 0.87 863 1303 0.98 972 1364 1.09 1084 ......
1273 0.97 967 1337 1.09 1082 .........
1309 1.09 1082 ............
LEGEND Refer to page 41 for general Fan Performance Data notes.
NOTES:
1. Boldface indicates field-supplied drive is required.
2. Maximum continuous bhp is 1.20.
30

Table 13 -- Fan Performance 48TM004 -- Vertical Discharge Units -- Alternate Motor (Belt Drive)*
AIRFLOW
(Cfm)
900
1000
1100
1200
1300
1400
1500
EXTERNAL STATIC PRESSURE (in. wg)
0.2 0.4 0.6 0.8 1.0
Rpm Bhp Watts Rpm Bhp Watts Rpm Bhp Watts Rpm Bhp Watts Rpm Bhp Watts
643 0.15 152 768 0.22 222 870 0.30 296 958 0.37 373 1037 0.46 454
683 0.19 191 804 0.27 268 904 0.35 348 991 0.43 430 1069 0.52 517
725 0.24 237 842 0.32 321 939 0.41 407 1025 0.50 496 1102 0.59 588
767 0.29 291 880 0.38 382 976 0.48 474 1060 0.57 570 1136 0.67 668
811 0.35 352 920 0.45 451 1013 0.55 550 1095 0.66 652 1170 0.76 756
855 0.43 423 960 0.53 529 1051 0.64 636 1132 0.75 744 1205 0.86 855
900 0.51 504 1002 0.62 617 1090 0.74 731 1169 0.85 846 1242 0.97 963
AIRFLOW
(Cfm)
900
1000
1100
1200
1300
1400
1500
Bhp -- Brake Horsepower Input to Fan
Watts -- Input Watts to Motor
*Motor drive range: 685 to 1045 rpm. All other rpms require a field-
supplied drive.
EXTERNAL STATIC PRESSURE (in. wg)
1.2 1.4 1.6 1.8 2.0
Rpm Bhp Watts Rpm Bhp Watts Rpm Bhp Watts Rpm Bhp Watts Rpm Bhp Watts
1110 0.54 538 1177 0.63 627 1239 0.72 718 1298 0.82 813 1355 0.92 911
1141 0.61 607 1207 0.70 700 1269 0.80 796 1328 0.90 895 1384 1.00 998
1173 0.69 683 1238 0.79 781 1300 0.89 883 1358 0.99 987 1414 1.10 1094
1205 0.77 768 1270 0.88 872 1332 0.98 979 1389 1.09 1088 -- -- --
1239 0.87 863 1303 0.98 972 1364 1.09 1084 ......
1273 0.97 967 1337 1.09 1082 .........
1309 1.09 1082 ............
LEGEND Refer to page 41 for general Fan Performance Data notes.
NOTES:
1. Boldface indicates field-supplied drive is required.
2. Maximum continuous bhp is 1.20.
Table 14- Fan Performance 48TF,TM004- Vertical Discharge Units- High-Static Motor (Belt Drive)*
AIRFLOW
(Cfm)
900
1000
1100
1200
1300
1400
1500
EXTERNAL STATIC PRESSURE (in. wg)
0.2 0.4 0.6 0.8 1.0
Rpm Bhp Watts Rpm Bhp Watts Rpm Bhp Watts Rpm Bhp Watts Rpm Bhp Watts
643 0.15 152 768 0.22 222 870 0.30 296 958 0.37 373 1037 0.46 454
683 0.19 191 804 0.27 268 904 0.35 348 991 0.43 430 1069 0.52 517
725 0.24 237 842 0.32 321 939 0.41 407 1025 0.50 496 1102 0.59 588
767 0.29 291 880 0.38 382 976 0.48 474 1060 0.57 570 1136 0.67 668
811 0.35 352 920 0.45 451 1013 0.55 550 1095 0.66 652 1170 0.76 756
855 0.43 423 960 0.53 529 1051 0.64 636 1132 0.75 744 1205 0.86 855
900 0.51 504 1002 0.62 617 1090 0.74 731 1169 0.85 846 1242 0.97 963
AIRFLOW
(Cfm)
900
1000
1100
1200
1300
1400
1500
Bhp -- Brake Horsepower Input to Fan
Watts -- Input Watts to Motor
*Motor drive range: 1075 to 1455 rpm. All other rpms require a field-
supplied drive.
EXTERNAL STATIC PRESSURE (in. wg)
1.2 1.4 1.6 1.8 2.0
Rpm Bhp Watts Rpm Bhp Watts Rpm Bhp Watts Rpm Bhp Watts Rpm Bhp Watts
1110 0.54 538 1177 0.63 627 1239 0.72 718 1298 0.82 813 1355 0.92 911
1141 0.61 607 1207 0.70 700 1269 0.80 796 1328 0.90 895 1384 1.00 998
1173 0.69 683 1238 0.79 781 1300 0.89 883 1358 0.99 987 1414 1.10 1094
1205 0.77 768 1270 0.88 872 1332 0.98 979 1389 1.09 1088 1444 1.21 1200
1239 0.87 863 1303 0.98 972 1364 1.09 1084 1421 1.21 1199 1475 1.32 1316
1273 0.97 967 1337 1.09 1082 1397 1.21 1200 1453 1.33 1320 1507 1.45 1443
1309 1.09 1082 1371 1.21 1204 1430 1.33 1327 1486 1.46 1453 1540 1.59 1581
LEGEND Refer to page 41 for general Fan Performance Data notes.
NOTES:
1. Boldface indicates field-supplied drive is required.
2. Maximum continuous bhp is 2.40.
3!

Table 15- Fan Performance 48TF,TM005- Vertical Discharge Units- Standard Motor
AIRFLOW
(Cfm)
LOW SPEED
208 V230, 460, 575 V
ESP Bhp Watts ESP Bhp Watts
1200
1300
1400
1500
1600
1700
1800
1900
2000
LEGEND
Bhp -- Brake HorsepowerlnputtoFan
ESP -- External Static Pressure (in. wg)
0.68 0.41 458 0.74 0.45 506
0.61 0.42 471 0.67 0.46 521
0.53 0.45 503 0.59 0.49 556
0.45 0.47 536 0.51 0.52 593
0.36 0.49 557 0.42 0.54 616
0.26 0.52 564 0.32 0.57 646
0.15 0.54 610 0.22 0.60 674
0.04 0.58 629 0.11 0.82 696
HIGH SPEED
208 V 230,460,575 V
ESP Bhp Watts ESP Bhp Watts
0.74 0.51 572 0.85 0.56 632
0.88 0.52 589 0.78 0.56 651
0.59 0.54 616 0.70 0.60 681
0.52 0.56 631 0.63 0.82 696
0.45 0.58 654 0.58 0.84 723
0.37 0.60 678 0.48 0.86 750
0.30 0.62 698 0.41 0.68 772
0.23 0.64 720 0.34 0.70 796
0.16 0.68 744 0.28 0.73 823
Refer to page 41 for general Fan Performance Data notes.
Table 16 -- Fan Performance 48TF,TM005 -- Vertical Discharge Units -- Alternate Motor (Belt Drive)*
AIRFLOW
(Cfm)
1200
1300
1400
1500
1600
1700
1800
1900
2000
EXTERNAL STATIC PRESSURE (in. wg)
0.2 0.4 0.6 0.8 1.0
Rpm Bhp Watts Rpm Bhp Watts Rpm Bhp Watts Rpm Bhp Watts Rpm Bhp Watts
666 0.26 257 778 0.37 367 871 0.47 471 952 0.57 572 1025 0.67 670
701 0.31 306 810 0.43 426 901 0.54 540 981 0.65 651 1053 0.76 760
737 0.36 361 842 0.49 491 931 0.62 616 1010 0.74 738 1081 0.86 856
773 0.42 422 875 0.57 564 963 0.70 699 1040 0.84 831 1110 0.96 960
810 0.49 491 909 0.65 643 994 0.79 790 1070 0.94 932 1140 1.08 1070
847 0.57 567 943 0.73 730 1027 0.89 888 1101 1.05 1040 1170 1.20 1189
885 0.66 652 978 0.83 826 1060 1.00 994 1133 1.16 1157 -- -- --
923 0.75 745 1014 0.94 930 1093 1.11 1109 ......
962 0.85 847 1049 1.05 1043 .........
AIRFLOW
(Cfm)
1200
1300
1400
1500
1600
1700
1800
1900
2000
LEGEND
Bhp -- Brake Horsepower Input to Fan
Watts -- Input Watts to Motor
*Motor drive range: 770 to 1175 rpm. All other rpms require a field-
supplied drive.
EXTERNAL STATIC PRESSURE (in. wg)
1.2 1.4 1.6 1.8 2.0
Rpm Bhp Watts Rpm Bhp Watts Rpm Bhp Watts Rpm Bhp Watts Rpm Bhp Watts
1093 0.77 787 1155 0.87 681 1213 0.96 955 1268 1.05 1047 1321 1.14 1137
1119 0.87 866 1181 0.98 970 1239 1.08 1073 1294 1.18 1175 -- -- --
1147 0.96 972 1208 1.09 1086 .........
1175 1.09 1086 ............
Refer to page 41 for general Fan Performance Data notes.
NOTES:
1. Boldface indicates field-supplied drive is required.
2. Maximum continuous bhp is 1.20.
32

Table 17- Fan Performance 48TF,TM005- Vertical Discharge Units- High-Static Motor (Belt Drive)*
AIRFLOW
(Cfm)
1200
1300
1400
1500
1600
1700
1800
1900
2000
EXTERNAL STATIC PRESSURE (in. wg)
0.2 0.4 0.6 0.8 1.0
Rpm Bhp Watts Rpm Bhp Watts Rpm Bhp Watts Rpm Bhp Watts Rpm Bhp Watts
666 0.26 257 778 0.37 367 871 0.47 471 952 0.57 572 1025 0.67 670
701 0.31 306 810 0.43 426 901 0.54 540 981 0.65 651 1053 0.76 760
737 0.36 361 842 0.49 491 931 0.62 616 1010 0.74 738 1081 0.86 856
773 0.42 422 875 0.57 564 963 0.70 699 1040 0.84 831 1110 0.96 960
810 0.49 491 909 0.65 643 994 0.79 790 1070 0.94 932 1140 1.08 1070
847 0.57 567 943 0.73 730 1027 0.89 888 1101 1.05 1040 1170 1.20 1189
885 0.66 652 978 0.83 826 1060 1.00 994 1133 1.16 1157 1200 1.32 1316
923 0.75 745 1014 0.94 930 1093 1.11 1109 1165 1.29 1283 1231 1.46 1453
962 0.85 847 1049 1.05 1043 1127 1.24 1233 1198 1.42 1417 1263 1.61 1598
AIRFLOW
(Cfm)
1200
1300
1400
1500
1600
1700
1800
1900
2000
LEGEND
Bhp -- Brake Horsepower Input to Fan
Watts -- Input Watts to Motor
*Motor drive range: 1075 to 1455 rpm. All other rpme require a field-
supplied drive.
EXTERNAL STATIC PRESSURE (in. wg)
1.2 1.4 1.6 1.8 2.0
Rpm Bhp Watts Rpm Bhp Watts Rpm Bhp Watts Rpm Bhp Watts Rpm Bhp Watts
1093 0.77 767 1155 0.87 861 1213 0.96 955 1268 1.05 1047 1321 1.14 1137
1119 0.87 866 1181 0.98 970 1239 1.08 1073 1294 1.18 1175 1346 1.28 1275
1147 0.98 972 1208 1.09 1086 1265 1.21 1199 1320 1.32 1310 1371 1.43 1419
1175 1.09 1088 1235 1.22 1209 1292 1.34 1332 1348 1.46 1452 1397 1.58 1572
1204 1.21 1207 1263 1.35 1340 1320 1.48 1472 1373 1.61 1603 1424 1.74 1732
1233 1.34 1336 1292 1.49 1480 1348 1.63 1622 1401 1.77 1762 1451 1.91 1901
1262 1.48 1473 1321 1.64 1627 1376 1.79 1779 1428 1.94 1930 1479 2.09 2078
1293 1.63 1620 1350 1.79 1784 1405 1.96 1946 1457 2.12 2106 1506 2.28 2265
1323 1.79 1776 1380 1.96 1950 1434 2.13 2123 1486 2.31 2293 -- -- --
Refer to page 41 for general Fan Performance Data notes.
NOTES:
1. Boldface indicates field-supplied drive is required.
2. Maximum continuous bhp is 2.40.
Table 18 -- Fan Performance 48TF,TM006 -- Vertical Discharge Units -- Standard Motor
AIRFLOW
(Cfm)
1500
1600
1700
1800
1900
2000
2100
2200
2300
2400
2500
LOW SPEED
208 V 230,460,575 V
ESP Bhp Watts ESP Bhp Watts
0.69 0.67 750 1.01 0.71 791
0.49 0.70 780 0.85 0.74 824
0.29 0.73 810 0.70 0.77 857
0.09 0.75 839 0.54 0.80 891
LEGEND
-- 0.39 0.83 924
-- 0.23 0.86 957
-- 0.08 0.89 990
MEDIUM SPEED
208 V 230,460,575 V
ESP Bhp Watts ESP Bhp Watts
1.00 0.70 782 1.20 0.76 845
0.85 0.74 821 1.06 0.79 883
0.70 0.77 861 0.93 0.83 921
0.55 0.81 900 0.80 0.86 959
0.40 0.84 940 0.67 0.90 997
0.25 0.88 979 0.54 0.93 1035
0.10 0.91 1018 0.41 0.96 1073
-- 0.28 1.00 1111
-- 0.15 1.03 1149
-- 0.02 1.07 1187
HIGH SPEED
208 V 230,460,575 V
ESP Bhp Watts ESP Bhp Watts
1.22 0.79 875 1.28 0.85 949
1.09 0.82 913 1.17 0.89 988
0.97 0.85 950 1.06 0.92 1027
0.84 0.89 988 0.95 0.96 1066
0.72 0.92 1025 0.84 0.99 1105
0.59 0.95 1063 0.73 1.03 1144
0.46 0.99 1101 0.62 1.06 1183
0.34 1.02 1138 0.51 1.10 1222
0.21 1.06 1176 0.40 1.13 1261
0.09 1.09 1213 0.29 1.17 1300
0.18 1.20 1340
Refer to page 41 for general Fan Performance Data notes.
Bhp -- Brake Horsepower Input to Fan
ESP -- External Static Pressure (in. wg)
33

AIRFLOW
(Cfm)
1500
1600
1700
1800
1900
2000
2100
2200
2300
2400
2500
Table 19- Fan Performance 48TF006 Single-Phase- Vertical Discharge Units-
Alternate Motor (Belt Drive)*
EXTERNAL STATIC PRESSURE (in. wg)
0.2 0.4 0.6 0.8 1.0
Rpm Bhp Watts Rpm Bhp Watts Rpm Bhp Watts Rpm Bhp Watts Rpm Bhp Watts
802 0.42 370 912 0.55 489 1006 0.70 624 1088 0.87 773 1163 1.05 935
840 0.49 432 947 0.63 557 1038 0.78 696 1119 0.95 848 1193 1.14 1013
878 0.57 502 982 0.71 632 1071 0.87 776 1151 1.05 932 1224 1.24 1100
917 0.65 581 1017 0.81 716 1105 0.97 864 1183 1.15 1024 -- -- --
956 0.75 666 1053 0.91 808 1139 1.08 961 1216 1.27 1126 -- -- --
995 0.86 764 1090 1.02 910 1173 1.20 1067 ......
1035 0.98 669 1127 1.15 1021 .........
1075 1.11 984 1164 1.29 1141 .........
1115 1.25 1110 ............
AIRFLOW
(Cfm)
1500
1600
1700
1800
1900
2000
2100
2200
2300
2400
2500
EXTERNAL STATIC PRESSURE (in. wg)
1.2 1.4 1.6 1.8 2.0
Rpm Bhp Watts Rpm Bhp Watts Rpm Bhp Watts Rpm Bhp Watts Rpm Bhp Watts
1232 1.25 1109 .....
m m
m m
m m
m m
m m
m m
m m
m m
m m
m m
LEGEND
Bhp -- Brake Horsepower Input to Fan
Watts -- Input Watts to Motor
*Motor drive range: 875 to 1192 rpm. All other rpms require a field-
supplied drive.
Refer to page 41 for general Fan Performance Data notes.
NOTES:
1. Boldface indicates field-supplied drive is required.
2. Maximum continuous bhp is 1.30.
AIRFLOW
(Cfm)
1500
1600
1700
1800
1900
2000
2100
2200
2300
2400
2500
Table 20 -- Fan Performance 48TF006 Three-Phase -- Vertical Discharge Units --
Alternate Motor (Belt Drive)*
EXTERNAL STATIC PRESSURE (in. wg)
0.2 0.4 0.6 0.8 1.0
Rpm Bhp Watts Rpm Bhp Watts Rpm Bhp Watts Rpm Bhp Watts Rpm Bhp Watts
802 0.42 370 912 0.55 489 1006 0.70 624 1088 0.87 773 1163 1.05 935
840 0.49 432 947 0.63 557 1038 0.78 696 1119 0.95 848 1193 1.14 1013
878 0.57 502 982 0.71 632 1071 0.87 776 1151 1.05 932 1224 1.24 1100
917 0.65 581 1017 0.81 716 1105 0.97 864 1183 1.15 1024 1255 1.35 1197
956 0.75 666 1053 0.91 808 1139 1.08 961 1216 1.27 1126 1287 1.47 1302
995 0.86 764 1090 1.02 910 1173 1.20 1067 1249 1.39 1236 1319 1.59 1416
1035 0.98 669 1127 1.15 1021 1209 1.33 1183 1283 1.53 1357 1351 1.74 1541
1075 1.11 984 1164 1.29 1141 1244 1.47 1309 1317 1.68 1488 1385 1.89 1676
1115 1.25 1110 1202 1.43 1273 1280 1.63 1446 1352 1.83 1629 1418 2.05 1822
1155 1.40 1246 1240 1.59 1415 1316 1.79 1594 1387 2.01 1782 1452 2.23 1980
1196 1.57 1394 1278 1.77 1569 1353 1.97 1753 1422 2.19 1946 -- -- --
AIRFLOW
(Cfm)
15OO
1600
1700
1800
1900
2000
2100
2200
2300
2400
2500
LEGEND
Bhp -- Brake Horsepower Input to Fan
Watts -- Input Watts to Motor
*Motor drive range: 875 to 1192 rpm. All other rpms require a field-
supplied drive.
EXTERNAL STATIC PRESSURE(in. wg)
1.2 1.4 1.6 1.8 2.0
Rpm Bhp Watts Rpm Bhp Watts Rpm Bhp Watts Rpm Bhp Watts Rpm Bhp Watts
1232 1.25 1109 1297 1.46 1295 1357 1.68 1492 1415 1.91 1700 1469 2.16 1917
1262 1.34 1190 1325 1.55 1379 1385 1.78 1579 1442 2.01 1788 1496 2.26 2009
1291 1.44 1281 1354 1.66 1472 1414 1.89 1674 1470 2.12 1887 1524 2.37 2109
1322 1.55 1380 1384 1.77 1575 1443 2.00 1779 1499 2.25 1994 -- -- --
1352 1.68 1489 1414 1.90 1687 1472 2.13 1894 1528 2.38 2112 -- -- --
1384 1.81 1607 1445 2.04 1808 1502 2.27 2019 ......
1415 1.95 1736 1476 2.18 1940 .........
1448 2.11 1875 1507 2.35 2083 .........
1480 2.28 2025 ............
Refer to page 41 for general Fan Performance Data notes.
NOTES:
1. Boldface indicates field-supplied drive is required.
2. Maximum continuous bhp is 2.40.
.34

AIRFLOW
(Cfm)
1500
1600
1700
1800
1900
2000
2100
2200
2300
2400
2500
Table 21 -- Fan Performance 48TM006 Single-Phase -- Vertical Discharge Units --
Alternate Motor (Belt Drive)*
EXTERNAL STATIC PRESSURE (in. wg)
0.2 0.4 0.6 0.8 1.0
Rpm Bhp Watts Rpm Bhp Watts Rpm Bhp Watts Rpm Bhp Watts Rpm Bhp Watts
802 0.42 370 912 0.55 489 1006 0.70 624 1088 0.87 773 1163 1.05 935
840 0.49 432 947 0.63 557 1038 0.78 696 1119 0.95 848 1193 1.14 1013
878 0.57 502 982 0.71 632 1071 0.87 778 1151 1.05 932 1224 1.24 1100
917 0.65 581 1017 0.81 716 1105 0.97 864 1183 1.15 1024 -- -- --
956 0.75 668 1053 0.91 808 1139 1.08 961 1216 1.27 1126 -- -- --
995 0.86 764 1090 1.02 910 1173 1.20 1067 ......
1035 0.98 869 1127 1.15 1021 .........
1075 1.11 984 1164 1.29 1141 .........
1115 1.25 1110 ............
AIRFLOW
(Cfm)
1500
1600
1700
1800
1900
2000
2100
2200
2300
2400
2500
1.2
Rpm Bhp Watts
1232 1.25 1109
LEGEND
Bhp -- Brake Horsepower Input to Fan
Watts -- Input Watts to Motor
EXTERNAL STATIC PRESSURE (in. wg)
1.4 1.6 1.8 2.0
Rpm Bhp Watts Rpm Bhp Watts Rpm Bhp Watts Rpm Bhp Watts
Refer to page 41 for general Fan Performance Data notes.
NOTES:
1. Boldface indicates field-supplied drive is required,
2. Maximum continuous bhp is 1.30.
*Motor drive range: 900 to 1300 rpm. All other rpms require a field-
supplied drive.
AIRFLOW
(Cfm)
1500
1600
1700
1800
1900
2000
2100
2200
2300
2400
2500
Table 22 -- Fan Performance 48TM006 Three-Phase -- Vertical Discharge Units --
Alternate Motor (Belt Drive)*
EXTERNAL STATIC PRESSURE (in. wg)
0.2 0.4 0.6 0.8 1.0
Rpm Bhp Watts Rpm Bhp Watts Rpm Bhp Watts Rpm Bhp Watts Rpm Bhp Watts
802 0.42 370 912 0.55 489 1006 0.70 624 1088 0.87 773 1163 1.05 935
840 0.49 432 947 0.63 557 1038 0.78 696 1119 0.95 848 1193 1.14 1013
878 0.57 502 982 0.71 632 1071 0.87 778 1151 1.05 932 1224 1.24 1100
917 0.85 581 1017 0.81 716 1105 0.97 864 1183 1.15 1024 1255 1.35 1197
958 0.75 688 1053 0.91 808 1139 1.08 961 1216 1.27 1126 1287 1.47 1302
995 0.86 784 1090 1.02 910 1173 1.20 1067 1249 1.39 1236 1319 1.59 1416
1035 0.98 889 1127 1.15 1021 1209 1.33 1183 1283 1.53 1357 1351 1.74 1541
1075 1.11 984 1184 1.29 1141 1244 1.47 1309 1317 1.68 1488 1385 1.89 1676
1115 1.25 1110 1202 1.43 1273 1280 1.63 1448 1352 1.83 1629 1418 2.05 1822
1155 1.40 1246 1240 1.59 1415 1316 1.79 1594 1387 2.01 1782 1452 2.23 1980
1196 1.57 1394 1278 1.77 1569 1353 1.97 1753 1422 2.19 1946 -- -- --
AIRFLOW
(Cfm)
1500
1600
1700
1800
1900
2000
2100
2200
2300
2400
2500
EXTERNAL STATIC PRESSURE (in. wg)
1.2 1.4 1.6 1.8 2.0
Rpm Bhp Watts Rpm Bhp Watts Rpm Bhp Watts Rpm Bhp Watts Rpm Bhp Watts
1232 1.25 1109 1297 1.46 1295 1357 1.68 1492 1415 1.91 1700 1469 2.16 1917
1262 1.34 1190 1325 1.55 1379 1385 1.78 1579 1442 2.01 1788 1496 2.26 2009
1291 1.44 1281 1354 1.66 1472 1414 1.89 1674 1470 2.12 1887 1524 2.37 2109
1322 1.55 1380 1384 1.77 1575 1443 2.00 1779 1499 2.25 1994 -- -- --
1352 1.68 1489 1414 1.90 1687 1472 2.13 1894 1528 2.38 2112 -- -- --
1384 1.81 1607 1445 2.04 1808 1502 2.27 2019 ......
1415 1.95 1736 1476 2.18 1940 .........
1448 2.11 1875 1507 2.35 2083 .........
1480 2.28 2025 ............
LEGEND
Bhp -- Brake Horsepower Input to Fan
Watts -- Input Watts to Motor
Refer to page 41 for general Fan Performance Data notes.
NOTES:
1. Boldface indicates field-supplied drive is required.
2. Maximum continuous bhp is 2.40.
*Motor drive range: 900 to 1300 rpm. All other rpms require a field-
supplied drive.
35

Table 23 -- Fan Performance 48TF,TM006 -- Vertical Discharge Units -- High-Static Motor (Belt Drive)*
AIRFLOW
(Cfm)
1500
1600
1700
1800
1900
2000
2100
2200
2300
2400
2500
EXTERNAL STATIC PRESSURE (in. wg)
0.2 0.4 0.6 0.8 1.0
Rpm Bhp Watts Rpm Bhp Watts Rpm Bhp Watts Rpm Bhp Watts Rpm Bhp Watts
802 0.42 370 912 0.55 489 1006 0.70 624 1088 0.87 773 1163 1.05 935
840 0.49 432 947 0.63 557 1038 0.78 696 1119 0.95 848 1193 1.14 1013
878 0.57 502 982 0.71 632 1071 0.87 776 1151 1.05 932 1224 1.24 1100
917 0.65 581 1017 0.81 716 1105 0.97 864 1183 1.15 1024 1255 1.35 1197
956 0.75 668 1053 0.91 808 1139 1.08 961 1216 1.27 1126 1287 1.47 1302
995 0.86 764 1090 1.02 910 1173 1.20 1067 1249 1.39 1236 1319 1.59 1418
1035 0.98 869 1127 1.15 1021 1209 1.33 1183 1283 1.53 1357 1351 1.74 1541
1075 1.11 984 1164 1.29 1141 1244 1.47 1309 1317 1.68 1488 1385 1.89 1676
1115 1.25 1110 1202 1.43 1273 1280 1.63 1446 1352 1.83 1629 1418 2.05 1822
1155 1.40 1246 1240 1.59 1415 1316 1.79 1594 1387 2.01 1782 1452 2.23 1980
1196 1.57 1394 1278 1.77 1569 1353 1.97 1753 1422 2.19 1946 1488 2.42 2149
AIRFLOW
(Cfm)
1500
1600
1700
1800
1900
2000
2100
2200
2300
2400
2500
Bhp -- Brake Horsepower Input to Fan
Watts -- Input Watts to Motor
*Motor drive range: 1300 to 1685 rpm. All other rpms require a field-
supplied drive.
EXTERNAL STATIC PRESSURE(in. wg)
1.2 1.4 1.6 1.8 2.0
Rpm Bhp Watts Rpm Bhp Watts Rpm Bhp Watts Rpm Bhp Watts Rpm Bhp Watts
1232 1.25 1109 1297 1.46 1295 1357 1.68 1492 1415 1.91 1700 1469 2.16 1917
1262 1.34 1190 1325 1.55 1379 1385 1.78 1579 1442 2.01 1788 1498 2.26 2009
1291 1.44 1281 1354 1.86 1472 1414 1.89 1674 1470 2.12 1887 1524 2.37 2109
1322 1.55 1380 1384 1.77 1575 1443 2.00 1779 1499 2.25 1994 1552 2.50 2219
1352 1.68 1489 1414 1.90 1687 1472 2.13 1894 1528 2.38 2112 1580 2.63 2339
1384 1.81 1607 1445 2.04 1808 1502 2.27 2019 1557 2.52 2240 1609 2.78 2470
1415 1.95 1736 1478 2.18 1940 1533 2.43 2155 1587 2.68 2378 -- -- --
1448 2.11 1875 1507 2.35 2083 1563 2.59 2301 1617 2.85 2528 -- -- --
1480 2.28 2025 1539 2.52 2237 1595 2.77 2459 ......
1513 2.46 2187 1571 2.71 2403 .........
1547 2.66 2360 ............
LEGEND Rear _page 41 Dr gene_l Fan Performance Da_ no_s.
NOTES:
1. Boldface indicates field-supplied drive is required.
2. Maximum continuous bhp is 2.90.
Table 24 -- Fan Performance 48TF,TM007 -- Vertical Discharge Units -- Standard Motor (Belt Drive)*
AIRFLOW
(Cfm)
1800
1900
2000
2100
2200
2300
2400
2500
2600
2700
2800
2900
3000
EXTERNAL STATIC PRESSURE (in. wg)
0.2 0.4 0.6 0.8 1.0
Rpm Bhp Watts Rpm Bhp Watts Rpm Bhp Watts Rpm Bhp Watts Rpm Bhp Watts
967 0.65 579 1077 0.81 718 1172 0.98 858 1257 1.12 993 1334 1.27 1130
1007 0.75 663 1115 0.91 811 1208 1.08 957 1291 1.24 1101 1368 1.40 1248
1048 0.85 757 1153 1.03 913 1244 1.20 1066 1326 1.37 1219 1401 1.54 1371
1090 0.97 859 1191 1.15 1023 1281 1.33 1185 1361 1.51 1345 1435 1.89 1505
1131 1.09 970 1230 1.29 1143 1318 1.48 1313 1397 1.87 1481 1470 1.86 1649
1173 1.23 1091 1269 1.43 1273 1355 1.63 1451 1433 1.83 1627 1505 2.03 1803
1215 1.38 1223 1309 1.59 1413 1393 1.80 1600 1470 2.01 1784 1540 2.21 1967
1258 1.54 1365 1349 1.76 1564 1431 1.98 1759 1506 2.20 1951 -- -- --
1300 1.71 1518 1389 1.94 1726 1470 2.17 1929 1544 2.40 2130 -- -- --
1343 1.90 1683 1430 2.14 1899 1509 2.38 2111 ......
1386 2.09 1860 1471 2.35 2085 .........
1429 2.31 2050 ............
AIRFLOW
(Cfm)
1800
1900
2000
2100
2200
2300
2400
2500
2600
2700
2800
2900
3000
EXTERNAL STATIC PRESSURE (in. wg)
1.2 1.4 1.6 1.8 2.0
Rpm Bhp Watts Rpm Bhp Watts Rpm Bhp Watts Rpm Bhp Watts Rpm Bhp Watts
1406 1.43 1268 1473 1.58 1407 1535 1.74 1548 1595 1.90 1690 1652 2.06 1833
1438 1.57 1391 1504 1.73 1537 1567 1.90 1685 1626 2.06 1833 1682 2.23 1983
1471 1.72 1523 1536 1.89 1677 1598 2.06 1831 1657 2.24 1986 -- -- --
1504 1.87 1665 1569 2.06 1825 1630 2.24 1986 ......
1538 2.04 1816 1602 2.23 1984 .........
1572 2.23 1978 ............
LEGEND
Bhp -- Brake Horsepower Input to Fan
Watts -- Input Watts to Motor
*Motor drive range: 1070 to 1460 rpm. All other rpms require a field-
supplied drive.
Refer to page 41 for general Fan Performance Data notes.
NOTES:
1. Boldface indicates field-supplied drive is required.
2. Maximum continuous bhp is 2.40.
36

Table 25 -- Fan Performance 48TF,TM007 -- Vertical Discharge Units -- High-Static Motor (Belt Drive)*
AIRFLOW
(Cfm)
1800
1900
2000
2100
2200
2300
2400
2500
2600
2700
2800
2900
3000
EXTERNAL STATIC PRESSURE (in. wg)
0.2 0.4 0.6 0.8 1.0
Rpm Bhp Watts Rpm Bhp Watts Rpm Bhp Watts Rpm Bhp Watts Rpm Bhp Watts
967 0.65 579 1077 0.81 718 1172 0.96 856 1257 1.12 993 1334 1.27 1130
1007 0.75 663 1115 0.91 811 1208 1.08 957 1291 1.24 1101 1368 1.40 1246
1048 0.85 757 1153 1.03 913 1244 1.20 1066 1326 1.37 1219 1401 1.54 1371
1090 0.97 859 1191 1.15 1023 1281 1.33 1185 1361 1.51 1345 1435 1.69 1505
1131 1.09 970 1230 1.29 1143 1318 1.48 1313 1397 1.67 1481 1470 1.86 1649
1173 1.23 1091 1269 1.43 1273 1355 1.63 1451 1433 1.83 1627 1505 2.03 1803
1215 1.38 1223 1309 1.59 1413 1393 1.80 1600 1470 2.01 1784 1540 2.21 1967
1258 1.54 1365 1349 1.76 1564 1431 1.98 1759 1506 2.20 1951 1576 2.41 2142
1300 1.71 1518 1389 1.94 1726 1470 2.17 1929 1544 2.40 2130 1613 2.62 2329
1343 1.90 1683 1430 2.14 1899 1509 2.38 2111 1581 2.61 2320 1649 2.85 2527
1386 2.09 1860 1471 2.35 2085 1548 2.60 2305 1619 2.84 2522 -- -- --
1429 2.31 2050 1512 2.57 2283 1588 2.83 2512 ......
1473 2.54 2252 1553 2.81 2494 .........
AIRFLOW
(Cfm)
1800
1900
2000
2100
2200
2300
2400
2500
2600
2700
2800
2900
3000
EXTERNAL STATIC PRESSURE (in. wg)
1.2 1.4 1.6 1.8 2.0
Rpm Bhp Watts Rpm Bhp Watts Rpm Bhp Watts Rpm Bhp Watts Rpm Bhp Watts
1406 1.43 1268 1473 1.58 1407 1535 1.74 1548 1595 1.90 1690 1652 2.06 1833
1438 1.57 1391 1504 1.73 1537 1567 1.90 1685 1626 2.06 1833 1682 2.23 1983
1471 1.72 1523 1536 1.89 1677 1598 2.06 1831 1657 2.24 1986 1713 2,41 2142
1504 1.87 1665 1569 2.06 1825 1630 2.24 1986 1688 2.42 2149 1744 2.60 2312
1538 2.04 1816 1602 2.23 1984 1663 2.42 2152 1720 2.61 2321 1775 2.81 2491
1572 2.23 1978 1635 2.42 2153 1695 2.62 2328 1753 2.82 2504 -- -- --
1607 2.42 2150 1669 2.63 2332 1729 2.83 2515 ......
1642 2.63 2333 1704 2.84 2523 .........
1677 2.85 2527 ............
LEGEND
Bhp -- Brake Horsepower Input to Fan
Watts -- Input Watts to Motor
*Motor drive range: 1300 to 1685 rpm. All other rpms require a field-
supplied drive.
Refer to page 41 for general Fan Performance Data notes.
NOTES:
1. Boldface indicates field-supplied drive is required.
2. Maximum continuous bhp is 2.90.
Table 26 -- Fan Performance 48TF,TM004 -- Horizontal Discharge Units -- Standard Motor
AIRFLOW
(Cfm)
9O0
1000
1100
1200
1300
1400
1500
ESP
0.54
0.49
0.43
0.39
0.33
0.26
0.21
LEGEND
LOW SPEED
208 V 230,460,575 V
Bhp Watts ESP Bhp Watts
0.21 253 0.57 0.23 277
0.23 270 0.51 0.25 292
0.24 287 0.45 0.26 307
0.26 304 0.40 0.27 323
0.27 321 0.35 0.29 338
0.29 338 0.28 0.30 354
0.30 355 0.23 0.31 369
HIGH SPEED
208 V 230,460,575 V
ESP Bhp Watts ESP Bhp Watts
0.55 0.26 307 0.60 0.31 363
0.52 0.27 321 0.53 0.32 374
0.46 0.28 335 0.49 0.33 385
0.38 0.29 349 0.43 0.34 397
0.35 0.31 364 0.36 0.34 408
0.29 0.32 378 -- -- --
0.24 0.33 392 -- -- --
Refer to page 41 for general Fan Performance Data notes.
Bhp i Brake Horsepower Input to Fan
ESP i External Static Pressure (in. wg)
37

Table 27 -- Fan Performance 48TF004 -- Horizontal Discharge Units -- Alternate Motor (Belt Drive)*
AIRFLOW
(Cfm)
900
1000
1100
1200
1300
1400
1500
EXTERNAL STATIC PRESSURE (in. wg)
0.2 0.4 0.6 0.8 1.0
Rpm Bhp Watts Rpm Bhp Watts Rpm Bhp Watts Rpm Bhp Watts Rpm Bhp Watts
607 0.14 142 745 0.22 221 856 0.31 304 952 0.39 393 1037 0.49 485
640 0.18 174 775 0.26 261 884 0.35 351 978 0.45 446 1062 0.55 545
674 0.21 212 805 0.31 307 912 0.41 404 1005 0.51 506 1089 0.61 611
708 0.26 256 836 0.36 359 941 0.47 464 1033 0.57 572 1116 0.69 683
743 0.31 307 868 0.42 417 971 0.53 530 1062 0.65 645 1143 0.77 764
780 0.37 364 900 0.49 483 1002 0.61 603 1091 0.73 726 1172 0.86 851
816 0.43 428 934 0.56 556 1033 0.69 685 1121 0.82 815 1201 0.95 947
AIRFLOW
(Cfm)
900
1000
1100
1200
1300
1400
1500
Bhp -- Brake Horsepower Input to Fan
Watts -- Input Watts to Motor
*Motor drive range: 760 to 1000 rpm. All other rpms require a field-
supplied drive.
EXTERNAL STATIC PRESSURE (in. wg)
1.2 1.4 1.6 1.8 2.0
Rpm Bhp Watts Rpm Bhp Watts Rpm Bhp Watts Rpm Bhp Watts Rpm Bhp Watts
1114 0.59 582 1186 0.69 684 1253 0.79 789 1316 0.90 898 1375 1.02 1010
1139 0.65 648 1210 0.76 754 1277 0.87 865 1340 0.98 979 1399 1.10 1097
1165 0.72 720 1236 0.84 832 1302 0.95 948 1364 1.07 1068 1423 1.20 1191
1191 0.80 799 1261 0.92 917 1327 1.04 1039 1389 1.17 1165 -- -- --
1218 0.89 885 1288 1.02 1010 1353 1.14 1138 ......
1246 0.99 980 1315 1.12 1111 .........
1274 1.09 1083 ............
LEGEND Refer to page 41 for general Fan Performance Data notes.
NOTES:
1. Boldface indicates field-supplied drive is required.
2. Maximum continuous bhp is 1.20.
Table 28 -- Fan Performance 48TM004 -- Horizontal Discharge Units -- Alternate Motor (Belt Drive)*
AIRFLOW
(Cfm)
900
1000
1100
1200
1300
1400
1500
EXTERNAL STATIC PRESSURE (in. wg)
0.2 0.4 0.6 0.8 1.0
Rpm Bhp Watts Rpm Bhp Watts Rpm Bhp Watts Rpm Bhp Watts Rpm Bhp Watts
607 0.14 142 745 0.22 221 856 0.31 304 952 0.39 393 1037 0.49 485
640 0.18 174 775 0.26 261 884 0.35 351 978 0.45 446 1062 0.55 545
674 0.21 212 805 0.31 307 912 0.41 404 1005 0.51 506 1089 0.61 611
708 0.26 256 836 0.36 359 941 0.47 464 1033 0.57 572 1116 0.69 683
743 0.31 307 868 0.42 417 971 0.53 530 1062 0.65 645 1143 0.77 764
780 0.37 364 900 0.49 483 1002 0.61 603 1091 0.73 726 1172 0.86 851
816 0.43 428 934 0.56 556 1033 0.69 685 1121 0.82 815 1201 0.95 947
AIRFLOW
(Cfm)
900
1000
1100
1200
1300
1400
1500
Bhp -- Brake Horsepower Input to Fan
Watts -- Input Watts to Motor
*Motor drive range: 685 to 1045 rpm. All other rpms require a field-
supplied drive.
EXTERNAL STATIC PRESSURE (in. wg)
1.2 1.4 1.6 1.8 2.0
Rpm Bhp Watts Rpm Bhp Watts Rpm Bhp Watts Rpm Bhp Watts Rpm Bhp Watts
1114 0.59 582 1186 0.69 684 1253 0.79 789 1316 0.90 898 1375 1.02 1010
1139 0.65 648 1210 0.76 754 1277 0.87 865 1340 0.98 979 1399 1.10 1097
1165 0.72 720 1236 0.84 832 1302 0.95 948 1364 1.07 1068 1423 1.20 1191
1191 0.80 799 1261 0.92 917 1327 1.04 1039 1389 1.17 1165 -- -- --
1218 0.89 885 1288 1.02 1010 1353 1.14 1138 ......
1246 0.99 980 1315 1.12 1111 .........
1274 1.09 1083 ............
LEGEND Refer to page 41 for general Fan Performance Data notes.
NOTES:
1. Boldface indicates field-supplied drive is required.
2. Maximum continuous bhp is 1.20.
.38

Table 29 -- Fan Performance 48TF,TM004 -- Horizontal Discharge Units -- High-Static Motor (Belt Drive)*
AIRFLOW
(Cfm)
900
1000
1100
1200
1300
1400
1500
EXTERNAL STATIC PRESSURE (in. wg)
0.2 0.4 0.6 0.8 1.0
Rpm Bhp Watts Rpm Bhp Watts Rpm Bhp Watts Rpm Bhp Watts Rpm Bhp Watts
607 0.14 142 745 0.22 221 856 0.31 304 952 0.39 393 1037 0.49 485
640 0.18 174 775 0.26 261 884 0.35 351 978 0.45 446 1062 0.55 545
674 0.21 212 805 0.31 307 912 0.41 404 1005 0.51 506 1089 0.61 611
708 0.26 256 836 0.36 359 941 0.47 464 1033 0.57 572 1116 0.69 683
743 0.31 307 868 0.42 417 971 0.53 530 1062 0.65 645 1143 0.77 764
780 0.37 364 900 0.49 483 1002 0.61 603 1091 0.73 726 1172 0.86 851
816 0.43 428 934 0.56 556 1033 0.69 685 1121 0.82 815 1201 0.95 947
AIRFLOW
(Cfm)
900
1000
1100
1200
1300
1400
1500
Bhp -- Brake Horsepower Input to Fan
Watts -- Input Watts to Motor
*Motor drive range: 1075 to 1455 rpm. All other rpms require a field-
supplied drive.
EXTERNAL STATIC PRESSURE (in. wg)
1.2 1.4 1.6 1.8 2.0
Rpm Bhp Watts Rpm Bhp Watts Rpm Bhp Watts Rpm Bhp Watts Rpm Bhp Watts
1114 0.59 582 1186 0.69 684 1253 0.79 789 1316 0.90 898 1375 1.02 1010
1139 0.65 648 1210 0.76 754 1277 0.87 865 1340 0.98 979 1399 1.10 1097
1165 0.72 720 1236 0.84 832 1302 0.95 948 1364 1.07 1068 1423 1.20 1191
1191 0.80 799 1261 0.92 917 1327 1.04 1039 1389 1.17 1165 1448 1.30 1293
1218 0.89 885 1288 1.02 1010 1353 1.14 1138 1414 1.28 1270 1473 1.41 1404
1246 0.99 980 1315 1.12 1111 1379 1.25 1246 1440 1.39 1383 1499 1.53 1523
1274 1.09 1083 1342 1.23 1221 1406 1.37 1362 1467 1.51 1505 1525 1.66 1652
LEGEND Refer to page 41 for general Fan Performance Data notes.
NOTES:
1. Boldface indicates field-supplied drive is required.
2. Maximum continuous bhp is 2.40.
Table 30 -- Fan Performance -- 48TF,TM005 -- Horizontal Discharge Units -- Standard Motor
AIRFLOW
(Cfm)
1200
1300
1400
1500
LOW SPEED
208 V230,460,575 V
ESP Bhp Watts ESP Bhp Wa_s
0.75 0.41 458 0.81 0.45 506
0.68 0.42 471 0.74 0.46 521
0.60 0.45 503 0.66 0.49 556
0.51 0.47 536 0.58 0.52 593
HIGH SPEED
208 V 230,460,575 V
ESP Bhp Watts ESP Bhp Watts
0.87 0.51 572 0.92 0.56 632
0.79 0.52 589 0.85 0.58 651
0.71 0.54 616 0.77 0.60 681
0.64 0.56 631 0.70 0.62 698
1600 0.42 0.49 557
1700 0.32 0.52 584
1800 0.21 0.54 610
1900 0.09 0.56 629
2000 -- -- --
LEGEND
Bhp -- Brake Horsepower Input to Fan
ESP -- External Static Pressure (in. wg)
0.49 0.54
0.39 0.57
0.29 0.60
0.18 0.62
0.06 0.65
616 0.56 0.58 654 0.63 0.64
646 0.48 0.60 678 0.55 0.66
674 0.41 0.62 698 0.48 0.68
696 0.33 0.64 720 0.41 0.70
731 0.26 0.66 744 0.33 0.73
Rear _page41 _rgeneralFan Performance Da_ no_s.
723
75O
772
796
823
39

Table 31 -- Fan Performance 48TF,TM005 -- Horizontal Discharge Units -- Alternate Motor (Belt Drive)*
AIRFLOW
(Cfm)
1200
1300
1400
1500
1600
1700
1800
1900
2000
EXTERNAL STATIC PRESSURE (in. wg)
0.2 0.4 0.6 0.8 1.0
Rpm Bhp Watts Rpm Bhp Watts Rpm Bhp Watts Rpm Bhp Watts Rpm Bhp Watts
643 0.23 234
675 0.28 277
707 0.33 326
740 0.38 382
773 0.45 444
807 0.52 513
841 0.59 589
875 0.68 674
910 0.77 767 1006 0.95 944 1090 1.13 1122 -- --
762 0.34 343 859 0.46 458 944 0.58 579 1020 0.71 705
790 0.40 394 886 0.52 517 969 0.65 644 1044 0.78 777
819 0.45 452 913 0.58 581 996 0.72 716 1070 0.86 855
849 0.52 515 941 0.66 653 1023 0.80 795 1096 0.95 941
879 0.59 586 970 0.73 731 1050 0.88 880 1123 1.04 1034
910 0.67 663 999 0.82 817 1078 0.98 973 1150 1.14 1134
942 0.75 749 1029 0.91 910 1106 1.08 1074 -- -- --
974 0.85 842 1059 1.02 1012 1135 1.19 1184 -- -- --
AIRFLOW
(Cfm)
1200
1300
1400
1500
1600
1700
1800
1900
2000
LEGEND
Bhp -- Brake Horsepower Input to Fan
Watts -- Input Watts to Motor
*Motor drive range: 770 to 1175 rpm. All other rpms require a field-
supplied drive.
EXTERNAL STATIC PRESSURE (in. wg)
1.2 1.4 1.6 1.8 2.0
Rpm Bhp Watts Rpm Bhp Watts Rpm Bhp Watts Rpm Bhp Watts Rpm Bhp Watts
1089 0.84 837 1153 0.98 974 1213 1.12 1115 ......
1113 0.92 915 1177 1.06 1058 .........
1138 1.01 1000 1201 1.15 1149 .........
1163 1.10 1092 ............
1189 1.20 1191 ............
Refer to page 41 for general Fan Performance Data notes.
NOTES:
1. Boldface indicates field-supplied drive is required.
2. Maximum continuous bhp is 1.20.
Table 32 -- Fan Performance 48TF,TM005 -- Horizontal Discharge Units -- High-Static Motor (Belt Drive)*
AIRFLOW
(Cfm)
1200
1300
1400
1500
1600
1700
1800
1900
2000
EXTERNAL STATIC PRESSURE (in. wg)
0.2 0.4 0.6 0.8 1.0
Rpm Bhp Watts Rpm Bhp Watts Rpm Bhp Watts Rpm Bhp Watts Rpm Bhp Watts
643 0.23 234 762 0.34 343 859 0.46 458 944 0.58 579 1020 0.71 705
675 0.28 277 790 0.40 394 886 0.52 517 969 0.65 644 1044 0.78 777
707 0.33 326 819 0.45 452 913 0.58 581 996 0.72 716 1070 0.86 855
740 0.38 382 849 0.52 515 941 0.66 653 1023 0.80 795 1096 0.95 941
773 0.45 444 879 0.59 586 970 0.73 731 1050 0.88 880 1123 1.04 1034
807 0.52 513 910 0.67 663 999 0.82 817 1078 0.98 973 1150 1.14 1134
841 0.59 589 942 0.75 749 1029 0.91 910 1108 1.08 1074 1177 1.25 1242
875 0.68 674 974 0.85 842 1059 1.02 1012 1135 1.19 1184 1205 1.37 1360
910 0.77 767 1006 0.95 944 1090 1.13 1122 1165 1.31 1302 1234 1.49 1485
AIRFLOW
(Cfm)
1200
1300
1400
1500
1600
1700
1800
1900
2000
Bhp -- Brake Horsepower Input to Fan
Watts -- Input Watts to Motor
*Motor drive range: 1075 to 1455 rpm. All other rpms require a field-
supplied drive.
EXTERNAL STATIC PRESSURE (in. wg)
1.2 1.4 1.6 1.8 2.0
Rpm Bhp Watts Rpm Bhp Watts Rpm Bhp Watts Rpm Bhp Watts Rpm Bhp Watts
1089 0.64 637 1153 0.96 974 1213 1.12 1115 1270 1.27 1262 1324 1.42 1413
1113 0.92 915 1177 1.06 1058 1237 1.21 1205 1293 1.38 1358 1347 1.52 1514
1138 1.01 1000 1201 1.15 1149 1261 1.31 1303 1317 1.47 1461 1370 1.83 1623
1163 1.10 1092 1228 1.25 1247 1285 1.41 1407 1341 1.58 1571 1394 1.75 1740
1189 1.20 1191 1252 1.36 1353 1310 1.53 1520 1365 1.70 1690 1418 1.87 1865
1218 1.31 1299 1277 1.48 1468 1335 1.65 1640 1390 1.83 1817 1442 2.01 1998
1242 1.42 1414 1303 1.80 1590 1361 1.78 1770 1415 1.96 1953 1467 2.15 2140
1270 1.55 1538 1330 1.73 1721 1387 1.92 1908 1441 2.11 2096 1493 2.30 2292
1297 1.68 1672 1357 1.87 1862 1414 2.07 2055 1467 2.26 2252 -- -- --
LEGEND Refer to page 41 for general Fan Performance Data notes.
NOTES:
1. Boldface indicates field-supplied drive is required.
2. Maximum continuous bhp is 2.40.
4O

Table 33 -- Fan Performance -- 48TF,TM006 -- Horizontal Discharge Units -- Standard Motor
AIRFLOW
(Cfm)
1500
1600
1700
1800
1900
2000
2100
2200
2300
2400
2500
LOW SPEED
208V 230,460,575 V
ESP Bhp Watts ESP Bhp Watts
0.74 0.67 750 1.06 0.71 791
0.54 0.70 780 0.90 0.74 824
0.34 0.73 610 0.75 0.77 857
0.14 0.75 639 0.59 0.60 891
LEGEND
-- 0.44 0.83 924
-- 0.28 0.86 957
-- 0.13 0.89 990
MEDIUM SPEED
208 V 230,460,575 V
ESP Bhp Watts ESP Bhp Watts
1.07 0.70 782 1.27 0.76 845
0.92 0.74 821 1.13 0.79 883
0.77 0.77 861 1.00 0.63 921
0.62 0.81 900 0.87 0.66 959
0.47 0.84 940 0.74 0.90 997
0.32 0.88 979 0.61 0.93 1035
0.17 0.91 1018 0.48 0.96 1073
0.02 0.95 1058 0.35 1.00 1111
-- 0.22 1.03 1149
-- 0.09 1.07 1187
HIGH SPEED
208 V 230,460,575 V
ESP Bhp Watts ESP Bhp Watts
1.26 0.79 875 1.33 0.85 949
1.14 0.82 913 1.22 0.89 986
1.01 0.85 950 1.11 0.92 1027
0.69 0.88 968 1.00 0.96 1066
0.77 0.92 1025 0.89 0.99 1105
0.64 0.95 1063 0.78 1.03 1144
0.51 0.99 1101 0.67 1.06 1183
0.39 1.02 1138 0.56 1.10 1222
0.26 1.06 1176 0.45 1.13 1261
0.14 1.09 1213 0.34 1.17 1300
0.23 1.20 1340
Refer to this page for general Fan Performance Data notes.
Bhp -- Brake Horsepower Input to Fan
ESP -- External Static Pressure (in. wg)
AIRFLOW
(Cfm)
1500
1600
1700
1800
1900
2000
2100
2200
2300
2400
2500
Table 34 -- Fan Performance 48TF006 Single-Phase -- Horizontal Discharge Units --
Alternate Motor (Belt Drive)*
EXTERNAL STATIC PRESSURE (in. wg)
0.2 0.4 0.6 0.8 1.0
Rpm Bhp Watts Rpm Bhp Watts Rpm Bhp Watts Rpm Bhp Watts Rpm Bhp Watts
790 0.40
828 0.46
866 0.54
905 0.62
944 0.71
984 0.82
1024 0.93
1064 1.05
1105 1.18 1050
353 896 0.53 470 990 0.67 599 1074 0.83 738 1151 1.00 886
413 930 0.60 535 1021 0.75 669 1103 0.91 812 1179 1.09 965
479 964 0.68 607 1053 0.84 746 1133 1.01 894 1207 1.18 1051
553 1000 0.77 687 1085 0.94 831 1164 1.11 984 1236 1.29 1146
635 1036 0.87 775 1119 1.04 924 1195 1.22 1082 -- -- --
725 1072 0.98 671 1153 1.15 1025 ......
824 1109 1.10 976 1188 1.28 1136 ......
932 1147 1.23 1090 .........
AIRFLOW
(Cfm)
1500
1600
1700
1800
1900
2000
2100
2200
2300
2400
2500
EXTERNAL STATIC PRESSURE (in. wg)
1.2 1.4 1.6 1.8 2.0
Rpm Bhp Watts Rpm Bhp Watts Rpm Bhp Watts Rpm Bhp Watts Rpm Bhp Watts
1223 1.18 1045 ....
1249 1.27 1127 ....
m m m
m m m
m m m
m m m
m m
m m
m m
m m
m m
m m m
m m m
m m m
m m m
LEGEND
Bhp -- Brake Horsepower Input to Fan
Watts -- Input Watts to Motor
*Motor drive range: 875 to 1192 rpm. All other rpms require a field-
supplied drive.
Refer to this page for general Fan Performance Data notes.
NOTES:
1. Boldface indicates field-supplied drive is required,
2. Maximum continuous bhp is 1.30.
GENERAL NOTES FOR FAN PERFORMANCE DATA TABLES
1. Values include losses for filters, unit casing, and wet coils. See
Table 9 for FlOP static pressure information.
2. Performance data is based on clean filters and a wet coil.
3. Extensive motor and electrical testing on these units ensures
that the full range of the motor can be utilized with confidence.
Using the fan motors up to the wattage ratings shown will not
result in nuisance tripping or premature motor failure. Unit
warranty will not be affected. See Evaporator-Fan Motor Perfor-
mance data in Table 8 on page 29 for additional information.
4. Use of a field-supplied motor may affect wire sizing. Contact
your Carrier representative for details.
5. Interpolation is permissible. Do not extrapolate.
4!

AIRFLOW
(Cfm)
1500
1600
1700
1800
1900
2000
2100
2200
2300
2400
2500
Table 35 -- Fan Performance 48TF006 Three-Phase -- Horizontal Discharge Units --
Alternate Motor (Belt Drive)*
EXTERNAL STATIC PRESSURE (in. wg)
0.2 0.4 0.6 0.8 1.0
Rpm Bhp Watts Rpm Bhp Watts Rpm Bhp Watts Rpm Bhp Watts Rpm Bhp Watts
790 0.40 353 896 0.53 470 990 0.67 599 1074 0.83 738 1151 1.0O 886
828 0.46 413 930 0.60 535 1021 0.75 669 1103 0.91 612 1179 1.09 965
866 0.54 479 964 0.68 607 1053 0.84 748 1133 1.01 694 1207 1.18 1051
905 0.62 553 1000 0.77 687 1085 0.94 631 1164 1.11 984 1236 1.29 1146
944 0.71 635 1036 0.87 775 1119 1.04 924 1195 1.22 1082 1266 1.41 1248
964 0.62 725 1072 0.96 871 1153 1.15 1025 1227 1.34 1189 1297 1.53 1360
1024 0.93 824 1109 1.10 978 1188 1.28 1136 1260 1.47 1305 1328 1.67 1481
1064 1.05 932 1147 1.23 1090 1223 1.41 1256 1294 1.61 1430 1360 1.81 1612
1105 1.18 1050 1185 1.37 1215 1259 1.56 1386 1328 1.76 1566 1393 1.97 1752
1146 1.33 1179 1223 1.52 1349 1295 1.72 1527 1362 1.93 1711 1426 2.14 1903
1167 1.46 1317 1262 1.68 1494 1332 1.89 1677 1398 2.10 1868 1460 2.33 2065
AIRFLOW
(Cfm)
15OO
1600
1700
1800
1900
2000
2100
2200
2300
2400
2500
LEGEND
Bhp -- Brake Horsepower Input to Fan
Watts -- Input Watts to Motor
*Motor drive range: 878 to 1192 rpm. All other rpms require a field-
supplied drive.
EXTERNAL STATIC PRESSURE(in. wg)
1.2 1.4 1.6 1.8 2.0
Rpm Bhp Watts Rpm Bhp Watts Rpm Bhp Watts Rpm Bhp Watts Rpm Bhp Watts
1223 1.18 1045 1291 1.36 1212 1355 1.56 1388 1415 1.77 1573 1473 1.99 1765
1249 1.27 1127 1316 1.46 1298 1379 1.66 1478 1439 1.87 1665 1496 2.09 1860
1277 1.37 1217 1342 1.57 1392 1404 1.77 1575 1463 1.99 1766 1520 2.21 1965
1305 1.48 1316 1369 1.68 1495 1430 1.89 1681 1489 2.11 1876 1545 2.34 2078
1333 1.60 1423 1397 1.81 1606 1457 2.02 1797 1514 2.25 1995 -- -- --
1363 1.73 1540 1425 1.94 1727 1484 2.16 1922 1541 2.39 2124 -- -- --
1393 1.87 1665 1454 2.09 1857 1512 2.31 2056 ......
1424 2.03 1801 1484 2.25 1997 .........
1455 2.19 1946 ............
1487 2.37 2103 ............
Refer to page 41 for general Fan Performance Data notes.
NOTES:
1. Boldface indicates field-supplied drive is required.
2. Maximum continuous bhp is 2.40.
AIRFLOW
(Cfm)
1500
1600
1700
1800
1900
2000
2100
2200
2300
2400
2500
Table 36 -- Fan Performance 48TM006 Single-Phase -- Horizontal Discharge Units --
Alternate Motor (Belt Drive)*
EXTERNAL STATIC PRESSURE (in. wg)
0.2 0.4 0.6 0.8 1.0
Rpm Bhp Watts Rpm Bhp Watts Rpm Bhp Watts Rpm Bhp Watts Rpm Bhp Watts
790 0.40 353 896 0.53 470 990 0.67 599 1074 0.83 738 1151 1.00 886
828 0.46 413 930 0.60 535 1021 0.75 669 1103 0.91 812 1179 1.09 965
866 0.54 479 964 0.68 607 1053 0.84 746 1133 1.01 894 1207 1.18 1051
905 0.62 553 100O 0.77 687 1085 0.94 831 1164 1.11 984 1236 1.29 1146
944 0.71 635 1036 0.87 775 1119 1.04 924 1195 1.22 1082 -- -- --
964 0.62 725 1072 0.96 671 1153 1.15 1025 ......
1024 0.93 824 1109 1.10 976 1188 1.28 1136 ......
1064 1.05 932 1147 1.23 1090 .........
1105 1.18 1050 ............
AIRFLOW
(Cfm)
1500
1600
1700
1800
1900
2000
2100
2200
2300
2400
2500
EXTERNAL STATIC PRESSURE (in. wg)
1.2 1.4 1.6 1.8 2.0
Rpm Bhp Watts Rpm Bhp Watts Rpm Bhp Watts Rpm Bhp Watts Rpm Bhp Watts
1223 1.18 1045 ....
1249 1.27 1127 ....
m
m
m
m
m
m
m
m
m
m
m
m
m
m
m
m
m
m
LEGEND
Bhp -- Brake Horsepower Input to Fan
Watts -- Input Watts to Motor
*Motor drive range: 900 to 1300 rpm. All other rpms require a field-
supplied drive.
Refer to page 41 for general Fan Performance Data notes.
NOTES:
1. Boldface indicates field-supplied drive is required.
2. Maximum continuous bhp is 1.30.
42

AIRFLOW
(Cfm)
1500
1600
1700
1800
1900
2000
2100
2200
2300
2400
2500
Table 37 -- Fan Performance 48TM006 Three-Phase -- Horizontal Discharge Units --
Alternate Motor (Belt Drive)*
EXTERNAL STATIC PRESSURE (in. wg)
0.2 0.4 0.6 0.8 1.0
Rpm Bhp Watts Rpm Bhp Watts Rpm Bhp Watts Rpm Bhp Watts Rpm Bhp Watts
790 0.40 353 896 0.53 470 990 0.67 599 1074 0.83 738 1151 1.OO 886
828 0.46 413 930 0.60 535 1021 0.75 669 1103 0.91 812 1179 1.09 965
866 0.54 479 984 0.68 607 1053 0.84 748 1133 1.01 894 1207 1.18 1051
905 0.62 553 1000 0.77 687 1085 0.94 831 1154 1.11 984 1236 1.29 1148
944 0.71 635 1036 0.87 775 1119 1.04 924 1195 1.22 1082 1266 1.41 1248
984 0.82 725 1072 0.98 871 1153 1.15 1025 1227 1.34 1189 1297 1.53 1360
1024 0.93 824 1109 1.10 976 1188 1.28 1136 1260 1.47 1305 1328 1.67 1481
1064 1.05 932 1147 1.23 1090 1223 1.41 1258 1294 1.61 1430 1360 1.81 1612
1105 1.18 1050 1185 1.37 1215 1259 1.58 1388 1328 1.76 1566 1393 1.97 1752
1146 1.33 1179 1223 1.52 1349 1295 1.72 1527 1362 1.93 1711 1426 2.14 1903
1187 1.48 1317 1282 1.68 1494 1332 1.89 1677 1398 2.10 1868 1460 2.33 2065
AIRFLOW
(Cfm)
1500
1600
1700
1800
1900
2000
2100
2200
2300
2400
2500
EXTERNAL STATIC PRESSURE (in. wg)
1.2 1.4 1.6 1.8 2.0
Rpm Bhp Watts Rpm Bhp Watts Rpm Bhp Watts Rpm Bhp Watts Rpm Bhp Watts
1223 1.18 1045 1291 1.36 1212 1355 1.56 1388 1415 1.77 1573 1473 1.99 1765
1249 1.27 1127 1316 1.46 1298 1379 1.66 1478 1439 1.87 1665 1496 2.09 1860
1277 1.37 1217 1342 1.57 1392 1404 1.77 1575 1463 1.99 1766 1520 2.21 1965
1305 1.48 1316 1369 1.68 1495 1430 1.89 1681 1489 2.11 1876 1545 2.34 2078
1333 1.60 1423 1397 1.81 1606 1457 2.02 1797 1514 2.25 1995 -- -- --
1363 1.73 1540 1425 1.94 1727 1484 2.16 1922 1541 2.39 2124 -- -- --
1393 1.87 1665 1454 2.09 1857 1512 2.31 2056 ......
1424 2.03 1801 1484 2.25 1997 .........
1455 2.19 1946 ............
1487 2.37 2103 ............
LEGEND
Bhp -- Brake Horsepower Input to Fan
Watts -- Input Watts to Motor
*Motor drive range: 900 to 1300 rpm. All other rpms require a field-
supplied drive.
Refer to page 41 for general Fan Performance Data notes.
NOTES:
1. Boldface indicates field-supplied drive is required,
2. Maximum continuous bhp is 2.40.
Table 38 -- Fan Performance 48TF,TM006 -- Horizontal Discharge Units -- High-Static Motor (Belt Drive)*
AIRFLOW
(Cfm)
1500
1600
1700
1800
1900
2000
2100
2200
2300
2400
2500
EXTERNAL STATIC PRESSURE (in. wg)
0.2 0.4 0.6 0.8 1.0
Rpm Bhp Watts Rpm Bhp Watts Rpm Bhp Watts Rpm Bhp Watts Rpm Bhp Watts
790 0.40 353 896 0.53 470 990 0.67 599 1074 0.83 738 1151 1.00 886
828 0.46 413 930 0.60 535 1021 0.75 669 1103 0.91 812 1179 1.09 965
866 0.54 479 964 0.68 607 1053 0.84 746 1133 1.01 894 1207 1.18 1051
905 0.62 553 1000 0.77 687 1085 0.94 831 1164 1.11 984 1236 1.29 1146
944 0.71 635 1036 0.87 775 1119 1.04 924 1195 1.22 1082 1266 1.41 1248
984 0.82 725 1072 0.98 871 1153 1.15 1025 1227 1.34 1189 1297 1.53 1360
1024 0.93 824 1109 1.10 976 1188 1.28 1136 1260 1.47 1305 1328 1.67 1481
1064 1.05 932 1147 1.23 1090 1223 1.41 1256 1294 1.61 1430 1360 1.81 1612
1105 1.18 1050 1185 1.37 1215 1259 1.56 1386 1328 1.76 1566 1393 1.97 1752
1146 1.33 1179 1223 1.52 1349 1295 1.72 1527 1362 1.93 1711 1428 2.14 1903
1187 1.48 1317 1262 1.68 1494 1332 1.89 1677 1398 2.10 1868 1460 2.33 2065
AIRFLOW
(Cfm)
1500
1600
1700
1800
1900
2000
2100
2200
2300
2400
2500
Bhp -- Brake Horsepower Input to Fan
Watts -- Input Watts to Motor
*Motor drive range: 1300 to 1685 rpm. All other rpms require a field-
supplied drive.
EXTERNAL STATIC PRESSURE (in. wg)
1.2 1.4 1.6 1.8 2.0
Rpm Bhp Watts Rpm Bhp Watts Rpm Bhp Watts Rpm Bhp Watts Rpm Bhp Watts
1223 1.18 1045 1291 1.36 1212 1355 1.56 1388 1415 1.77 1573 1473 1.99 1765
1249 1.27 1127 1316 1.46 1298 1379 1.66 1478 1439 1.87 1665 1496 2.09 1860
1277 1.37 1217 1342 1.57 1392 1404 1.77 1575 1463 1.99 1766 1520 2.21 1965
1305 1.48 1316 1359 1.68 1495 1430 1.89 1881 1489 2.11 1876 1545 2.34 2078
1333 1.60 1423 1397 1.81 1606 1457 2.02 1797 1514 2.25 1995 1570 2.48 2200
1363 1.73 1540 1425 1.94 1727 1484 2.18 1922 1541 2.39 2124 1598 2.63 2333
1393 1.87 1665 1454 2.09 1857 1512 2.31 2058 1588 2.55 2262 1622 2.79 2475
1424 2.03 1801 1484 2.25 1997 1541 2.48 2200 1596 2.71 2411 -- -- --
1455 2.19 1946 1514 2.42 2147 1571 2.65 2355 1625 2.89 2570 -- -- --
1487 2.37 2103 1545 2.60 2308 1601 2.84 2521 ......
1520 2.56 2269 1577 2.79 2480 .........
LEGEND Refer to page 41 for general Fan Performance Data notes.
NOTES:
1. Boldface indicates field-supplied drive is required,
2. Maximum continuous bhp is 2.90.
43

Table 39 -- Fan Performance 48TF,TM007 -- Horizontal Discharge Units -- Standard Motor (Belt Drive)*
AIRFLOW
(Cfm)
1800
1900
2000
2100
2200
2300
2400
2500
2600
2700
2800
2900
3000
AIRFLOW
(Cfm)
EXTERNAL STATIC PRESSURE (in. wg)
0.2 0.4 0.6 0.8 1.0
Rpm Bhp Watts Rpm Bhp Watts Rpm Bhp Watts Rpm Bhp Watts Rpm Bhp Watts
919 0.63 561 1010 0.75 663 1095 0.87 771 1174 1.00 886 1250 1.14 1008
960 0.73 648 1047 0.85 754 1129 0.98 867 1206 1.11 986 1279 1.25 1111
1001 0.84 744 1085 0.96 855 1163 1.09 972 1238 1.23 1095 1309 1.38 1224
1043 0.96 850 1123 1.09 965 1199 1.22 1086 1271 1.37 1213 1340 1.52 1346
1085 1.09 966 1162 1.22 1086 1235 1.36 1211 1305 1.51 1342 1372 1.67 1479
1127 1.23 1092 1201 1.37 1217 1272 1.52 1347 1340 1.67 1482 1405 1.83 1623
1169 1.38 1229 1241 1.53 1359 1310 1.68 1493 1375 1.84 1633 1439 2.00 1778
1212 1.55 1378 1281 1.70 1513 1348 1.86 1652 1412 2.02 1796 1473 2.19 1945
1255 1.73 1539 1322 1.89 1678 1386 2.05 1822 1448 2.22 1970 1508 2.39 2124
1298 1.93 1713 1363 2.09 1857 1425 2.26 2005 ......
1341 2.14 1899 1404 2.31 2048 .........
1384 2.36 2099 ............
1800
1900
2000
2100
2200
2300
2400
2500
2600
2700
2800
2900
3000
LEGEND Rear _page 41 Dr general Fan Performance Da_ no_s.
Bhp -- Brake Horsepower Input to Fan NOTES:
Watts -- Input Watts to Motor 1. Boldface indicates field-supplied drive is required.
2. Maximum continuous bhp is 2.40.
*Motor drive range: 1070 to 1460 rpm. All other rpms require a field-
supplied drive.
EXTERNAL STATIC PRESSURE (in. wg)
1.2 1.4 1.6 1.8 2.0
Rpm Bhp Watts Rpm Bhp Watts Rpm Bhp Watts Rpm Bhp Watts Rpm Bhp Watts
1321 1.28 1137 1390 1.43 1273 1455 1.59 1415 1518 1.76 1563 1579 1.93 1718
1348 1.40 1243 1415 1.56 1381 1479 1.72 1526 1541 1.89 1677 1601 2.06 1834
1377 1.53 1359 1442 1.69 1500 1505 1.86 1648 1565 2.03 1801 1624 2.21 1961
1406 1.67 1485 1470 1.83 1629 1531 2.00 1780 1591 2.18 1936 1648 2.36 2098
1437 1.83 1621 1499 1.99 1769 1559 2.16 1923 1617 2.34 2082 --
1468 1.99 1769 1529 2.16 1920 1587 2.34 2077 .....
1500 2.17 1928 1559 2.35 2083 ........
1533 2.36 2098 ...........
Table 40 -- Fan Performance 48TF,TM007 -- Horizontal Discharge Units -- High-Static Motor (Belt Drive)*
AIRFLOW
(Cfm)
1800
1900
2000
2100
2200
2300
2400
2500
2600
2700
2800
2900
3000
EXTERNAL STATIC PRESSURE (in. wg)
0.2 0.4 0.6 0.8 1.0
Rpm Bhp Watts Rpm Bhp Watts Rpm Bhp Watts Rpm Bhp Watts Rpm Bhp Watts
919 0.63 561 1010 0.75 663 1095 0.87 771 1174 1.00 886 1250 1.14 1008
960 0.73 648 1047 0.85 754 1129 0.98 867 1206 1.11 986 1279 1.25 1111
1001 0.84 744 1085 0.96 855 1163 1.09 972 1238 1.23 1095 1309 1.38 1224
1043 0.96 850 1123 1.09 965 1199 1.22 1086 1271 1.37 1213 1340 1.52 1346
1085 1.09 966 1162 1.22 1086 1235 1.36 1211 1305 1.51 1342 1372 1.67 1479
1127 1.23 1092 1201 1.37 1217 1272 1.52 1347 1340 1.67 1482 1405 1.83 1623
1169 1.38 1229 1241 1.53 1359 1310 1.68 1493 1375 1.84 1633 1439 2.00 1778
1212 1.55 1378 1281 1.70 1513 1348 1.86 1652 1412 2.02 1796 1473 2.19 1945
1255 1.73 1539 1322 1.89 1678 1386 2.05 1822 1448 2.22 1970 1508 2.39 2124
1298 1.93 1713 1363 2.09 1857 1425 2.26 2005 1485 2.43 2158 1544 2.61 2315
1341 2.14 1899 1404 2.31 2048 1464 2.48 2201 1523 2.66 2358 1580 2.84 2520
1384 2.36 2099 1445 2.54 2253 1504 2.71 2410 1561 2.90 2572 -- -- --
1428 2.60 2313 1487 2.78 2471 .........
AIRFLOW
(Cfm)
1800
1900
2000
2100
2200
2300
2400
2500
2600
2700
2800
2900
3000
EXTERNAL STATIC PRESSURE (in. wg)
1.2 1.4 1.6 1.8 2.0
Rpm Bhp Watts Rpm Bhp Watts Rpm Bhp Watts Rpm Bhp Watts Rpm Bhp Watts
1321 1.28 1137 1390 1.43 1273 1455 1.59 1415 1518 1.76 1563 1579 1.93 1718
1348 1.40 1243 1415 1.56 1381 1479 1.72 1526 1541 1.89 1677 1601 2.06 1834
1377 1.53 1359 1442 1.69 1500 1505 1.86 1648 1565 2.03 1801 1624 2.21 1961
1406 1.67 1485 1470 1.83 1629 1531 2.00 1780 1591 2.18 1936 1648 2.36 2098
1437 1.83 1621 1499 1.99 1769 1559 2.16 1923 1617 2.34 2082 1673 2.53 2246
1468 1.99 1769 1529 2.16 1920 1587 2.34 2077 1644 2.52 2239 1699 2.71 2406
1500 2.17 1928 1559 2.35 2083 1616 2.53 2243 1672 2.71 2408 1726 2.90 2579
1533 2.36 2098 1591 2.54 2257 1647 2.73 2421 ......
1566 2.57 2281 1623 2.75 2444 .........
1600 2.79 2477 ............
LEGEND
Bhp -- Brake Horsepower Input to Fan
Watts -- Input Watts to Motor
*Motor drive range: 1300 to 1685 rpm. All other rpms require a field-
supplied drive.
Refer to page 41 for general Fan Performance Data notes.
NOTES:
1. Boldface indicates field-supplied drive is required.
2. Maximum continuous bhp is 2.90.
44

PRE-START-UP
Failure to observe the following warnings could result in
serious personal injury.
1. Follow recognized safety practices and wear protective
goggles when checking or the servicing refrigerant
system.
2. Do not operate the compressor or provide any electric
power to the unit unless the compressor terminal cover
is in place and secured.
3. Do not remove the compressor tenninal cover until all
electrical sources are disconnected.
4. Relieve _dl pressme from the system before touching or
disturbing anything inside the compressor tem_inal box
if refrigerant leak is suspected around the compressor
terminals.
5. Never attempt to repair a soldered connection while the
_efrigerant system is under pressure.
6. Do not use torch to remove any component. The sys-
tem contains oil and refiigerant under pressure. To
lemove a component, wear protective goggles and pro-
ceed as follows:
a. Shut off gas and then electrical power to the unit.
Install lockout tag.
b. Relieve all pressure from the system using both
high-pressure and low-plessure ports. Recover
refrigerant.
c. Cut the component connection tubing with a tubing
cuttec and remove the component from the unit.
d. Cmefully unsweat the remaining tubing stubs when
necess_uy. Oil can ignite when exposed to torch flmne.
Proceed as follows to inspect and prepare the unit for initi_fl
start-up:
1. Remove all access panels.
2. Read and follow instructions on all WARNING. CAU-
TION, and INFORMATION labels attached to, or
shipped with, the unit.
3. Make the following inspections:
a. Inspect for shipping and handling dmnages such as
broken lines, loose parts, or disconnected wires, etc.
b. Inspect for oil at all refiigerant tubing connections
and on unit base. Detecting oil generally indicates a
refrigerant leak. Leak-test all refrigerant tubing con-
nections using an electronic leak detectol; halide
torch, or liquid-soap solution.
c. Inspect all field- and factory-wiring connections. Be
sure that connections are completed and tight.
d. Inspect coil fins. If damaged during shipping and han-
dling, cm'elhlly straighten the fins with a fin comb.
4. Verify the following conditions:
a. Make sure that condenser fan blade is correctly
positioned in the fan orifice. See Condenser-Fan
Adjustment section on page 58 for more details.
b. Make sure that air filter(s) is in place.
c. Make sure that condensate di'ain trap is filled with
water to ensure proper drainage.
d. Make sine that all tools and miscellaneous loose parts
have been removed.
START-UP
Unit Preparation--Make sure that unit has been
installed in accordance with these installation instructions and
applicable codes.
Return-Air Filters--Make sure correct filters are
installed in filter tracks. See Tables IA and lB. Do not operate
unit without return-air filters.
Compressor Mounting -- Compressors m'e internally
spring mounted. Do not loosen or remove compressor hold-
down bolts.
Internal Wiring- Check all electrical connections in
unit control boxes. Tighten as required.
Gas Piping -- Check gas piping for leaks.
Disconnect gas piping from unit when leak
testing at pressure greater than 1/2 psig. Pres-
sures greater than 1/2 psig will cause gas
valve damage resulting in hazardous condi-
tion. If gas valve is subjected to pressure
greater than 1/2 psig, it must be replaced
before use. When plessure testing field-
supplied gas piping at pressures of 1/2 psig
or less, a unit connected to such piping must
be isolated by manu_flly closing the gas
valve.
Refrigerant Service Ports-- To service refiigerant
service ports, remove compressor access panel. Each unit sys-
tem has 3 Schmder-type service gage ports: one on the suction
line, one on the liquid line, and one on the compressor dis-
charge line. Be sine that caps on the ports me tight. The
Schmder-type valve on the dischmge line is located under the
low-pressure switch. Another valve is located on the dischmge
line underneath the high-pressure switch. It is screwed on a
Schmder fitting but there is no Schmder core.
High Flow Valves -- Located on the compressor hot gas
and suction tubes me High Flow Valves. Lm'ge black plastic
caps distinguish these valves with O-rings located inside the
caps. These valves cannot be accessed for service in the field.
Ensure the plastic caps me in place and tight or the possibility
of refrigerant leakage could occur
Compressor Rotation -- On 3-phase units with scroll
compressors, it is important to be certain compressor is rotating
in the proper direction. To determine whether or not compres-
sor is rotating in the proper direction:
1. Connect service gages to suction and dischmge pressure
fittings.
2. Energize the compressoc
3. The suction pressure should drop and the discharge pres-
sure should rise, as is norm;fl on any st;u't-up.
If the suction pressure does not diop and the discharge pres-
sure does not rise to normal levels:
1. Note that the evaporator fan is probably also rotating in
the wrong dilection.
2. Turn off power to the unit.
3. Reverse any two of the unit power leads.
4. Reapply power to the compressol:
The suction and discharge pressure levels should now move
to their normal start-up levels.
NOTE: When the compressor is rotating in the wrong dilec-
tion, the unit makes an elevated level of noise and does not
provide cooling.
45

Cooling -- Set space thermostat to OFF position. To st_ul
unit, turn on main power supply. Set system selector switch at
COOL position and fan switch at AUTO. position. Adjust ther-
mostat to a setting below room temperature. Compressor starts
on closure of contacto_:
Check unit chmge. Refer to Refrigerant Charge section,
page 49.
Reset thennostat at a position above room temperature.
Compressor will shut off. Evaporator fan will shut off after
30-second delay.
TO SHUT OFF UNIT -- Set system selector switch at OFF
position. Resetting thermostat at a position above room tem-
perature shuts unit off temporarily until space temperature ex-
ceeds therlnostat setting.
Main Burners -- Main burnel_ _ue factory set and should
require no adjustment.
TO CHECK ignition of main burners and heating controls,
move thermostat set point above room temperature and verify
that the burners light and evaporator fan is energized. After
ensuring that the unit continues to heat the building, lower the
thermostat setting below room temperature and verify that the
burners and evaporator fan turn off. (Fan will turn off only if
fan selector switch is in the AUTO. position.)
Refer to Tables 41A and 41B for the conect orifice to use at
high altitudes.
Table 41A -- Altitude Compensation* --
Standard and No NOx Units
ELEVATION
(ft)
0-2,000
2,000
3,000
4,000
5,000
6,000
7,000
8,000
9,000
10,000
11,000
12,000
13,000
14,000
72,000, 74,000 AND
115,000 BTUH
NOMINAL INPUT
Natural Liquid
Gas Propane
Orifice Orifice
Size]- Size]-
33 43
36 44
36 45
37 45
38 46
40 47
41 48
42 49
43 50
44 50
45 51
46 52
47 52
48 53
150,000 BTUH
NOMINAL INPUT
Natural Liquid
Gas Propane
Orifice Orifice
Size]- Size]-
30 37
31 39
31 40
32 41
32 42
34 43
35 43
36 44
37 45
39 46
41 47
42 48
43 49
44 50
*As the height above sea level increases, there is less oxygen per
cubic foot of air. Therefore, heat input rate should be reduced at
higher altitudes.
1-Orifices available through your Carrier distributor.
Table 41B -- Altitude Compensation* --
Low NOx Units
ELEVATION
(ft)
0-2,000
2,000
3,000
4,000
5,000
6,000
7,000
8,000
9,000
10,000
11,000
12,000
13,000
14,000
60,000 AND
90,000 BTUH
NOMINAL INPUT
Natural Liquid
Gas Propane
Orifice Orifice
Size1" Size1"
38 45
40 47
41 48
42 49
43 49
43 50
44 50
45 51
46 52
47 52
48 53
49 53
50 54
51 54
120,000 BTUH
NOMINAL INPUT
Natural Liquid
Gas Propane
Orifice Orifice
Size Size]-
32 42
33 43
35 43
36 44
37 45
38 45
39 46
41 47
42 48
43 49
44 50
44 51
46 52
47 52
*As the height above sea level increases, there is less oxygen per
cubic foot of air. Therefore, the input rate should be reduced at
higher altitudes.
1-Orifices are available through your local Carrier distributor.
Heating
1. Purge gas supply line of air by opening union ahead of
gas valve. If gas odor is detected, tighten union and wait
5 minutes before proceeding.
2. Turn on electrical supply and manual gas valve.
3. Set system switch selector at HEAT position and fan
switch at AUTO. or ON position. Set heating temperature
lever above room temperature.
4. The induced-draft motor will start.
5. After a call for heating, the main burnel_ should light
within 5 seconds. If the burner does not light, then there is
a 22-second delay before another 5-second try. If the
burner still does not light, the time delay is repeated. If the
burner does not light within 15 minutes, there is a lock-
out. To reset the control, break the 24-v power to WI.
6. The evaporator-fan motor will turn on 45 seconds after
the burners me ignited.
7. The evaporator-fan motor will turn off 45 seconds after
thermostat temperature is satisfied.
8. Adjust airflow to obtain a temperature rise within the
range specified on the unit nameplate.
NOTE: The default value for the evaporator-fan motor ON/
OFF delay is 45 seconds. The Integrated Gas Unit Controller
(IGC) modifies this value when abnormal limit switch cycles
occm: Based upon unit operating conditions, the ON delay can
be reduced to 0 seconds and the OFF delay can be extended to
180 seconds. When one flash of the LED is observed, the
evaporator-fan ON/OFF delay has been modified.
If the limit switch trips at the stm-t of the heating cycle dur-
ing the evaporator ON delay, the time period of the ON delay
for the next cycle will be 5 seconds less than the time at which
the switch tripped. (Example: If the limit switch trips at 30 sec-
onds, the evaporator-fan ON delay for the next cycle will occur
at 25 seconds.) To prevent short-cycling, a 5-second reduction
will only occur if a minimum of 10 minutes has elapsed since
the last call for heating.
46

Theevaporator-fanOFFdelaycanalsobemodified.Once
thecallforheatinghasended,thereis a 10-minute period dur-
ing which the modification can occm: If the limit switch trips
dining this period, the evaporator-fan OFF delay will increase
by 15 seconds. A maximum of 9 trips can occm: extending the
evaporator-fan OFF delay to 180 seconds.
To restore the original default value, reset the power to the
unit.
TO SHUT OFF UNIT -- Set system selector switch at OFF
position. Resetting heating selector lever below room tempera-
ture will temponuily shut unit off until space temperature falls
below thermostat setting.
Safety Relief --A soft solder joint at the suction service
Schmder port provides pressure relief under abnorln_d tempera-
ture and pressure conditions (i.e., fire in building).
Ventilation (Continuous Fan) -- Set fan and system
selector switches at ON and OFF positions, lespectively.
Evaporator ftm operates continuously to provide constant air
circulation. When the evaporator-fan selector switch is turned
to the OFF position, there is a 30-second delay before the fan
turns off.
Operating Sequence
COOLING. UNITS WITHOUT ECONOMIZER -- When
thermostat c_flls for cooling, terminals G and YI me energized.
The indoor-fan contactor (IFC) and compressor contactor are
energized and indoor-fan motor, compressol: and outdoor fan
staffs. The outdoor fan motor runs continuously while unit is
cooling.
HEATING. UNITS WITHOUT ECONOMIZER --When the
thermostat calls for heating, terminal Wl is energized. To pre-
vent thermostat short-cycling, the unit is locked into the
Heating mode for at least 1 minute when WI is energized. The
induced-draft motor is energized and the burner ignition
sequence begins. The indoor (evaporator) fan motor (IFM) is
energized 45 seconds after a flame is ignited. On units
equipped for two stages of heat, when additional heat is need-
ed. W2 is energized and the high-file solenoid on the main gas
valve (MGV) is energized. When the thermostat is satisfied
and WI is deenergized, the IFM stops after a 45-second time-
off delay.
COOLING UNITS WITH ECONOMISER IV -- When flee
cooling is not available, the complessors will be controlled by
the zone themlostat. When flee cooling is available, the
outdoor-air damper is modulated by the EconoMiSer IV control
to provide a 50 to 55 F supply-air temperature into the zone. As
the supply-air tempemtme fluctuates above 55 or below 50 IF.
the dampel_ will be modulated (open or close) to bring the sup-
ply-air temperature back within the set point limits.
Integrated EconoMiSer IV operation on single stage units
requires a 2-stage thermostat (YI and Y2).
For EconoMiSer IV operation, there must be a thermostat
call for the fan (G). This will move the damper to its minimum
position during the occupied mode.
If the increase in cooling capacity causes the supply-air tem-
perature to drop below 45 F, then the outdoor-air &tmper posi-
tion will be liflly closed. If the supply-air temperature contin-
ues to ftdl, the outdoor-air dmnper will close. Control leturns to
nomml once the supply-air temperature rises above 48 E
If optional power exhaust is installed, as the outdoor-air
damper opens and closes, the power exhaust fans will be ener-
gized and deenergized.
If field-installed accessory CO2 sensors are connected to the
EconoMiSer IV control, a demand controlled ventilation strate-
gy will begin to operate. As the CO2 level in the zone increases
above the CO2 set point, the minimum position of the &tmper
will be increased proportionally. As the CO2 level decreases
because of the increase in fresh ail: the outdoor-air damper will
be proportionally closed. Damper position will follow the high-
er demand condition fi_m DCV mode or free cooling mode.
Dalnper movement from full closed to full open (or vice
versa) will take between 11/2and 21/2 minutes.
If free cooling can be used as determined fi_m the appropri-
ate changeover command (switch, dry bulb, enthalpy curve,
differential dry bulb, or differential enthalpy), a call for cooling
(YI closes at the thermostat) will cause the control to modulate
the dampers open to maintain the supply air temperature set
point at 50 to 55 E
As the supply-air temperature drops below the set point
range of 50 to 55 F. the control will modulate the outdoor-air
&tmpers closed to maintain the proper supply-air temperature.
HEATING. UNITS WITH ECONOMISER IV -- When the
room temperature calls for heat, the heating controls are ener-
gized as described in the Heating, Units Without Economizer
section. When the thermostat is satisfied, the economizer
&tmper moves to the minimum position.
COOLING. UNITS WITH ECONOMISER2, PREMIER-
LINK TM CONTROL AND A THERMOSTAT -- When free
cooling is not available, the compressors will be controlled by
the PremierLink control in response to the YI and Y2 inputs
fiom the thermostat.
The PremierLink control will use the following information
to determine if flee cooling is available:
• Indoor fan has been on for at least 30 seconds.
• The SPT. SAT. and OAT inputs must have valid readings.
• OAT must be less than 75 E
• OAT must be less than SPT.
• Enthalpy must be LOW (may be jumpered if an enthalpy
sensor not available).
• Economizer position is NOT forced.
Pre-cooling occurs when the is no call from the thermostat
except G Pie-cooling is defined as the economizer modulates
to provide 70 F supply all:
When free cooling is awtilable the PremierLink control will
control the compressors and economizer to provide a supply-
air temperature determined to meet the YI and Y2 calls from
the thermostat using the following thlee routines. The three
control routines are based on OAT.
The 3 routines are based on OAT where:
SASP = Supply Air Set Point
DXCTLO = Direct Expansion Cooling Lockout Set Point
PID = Proportional Integral
Routine 1 (OAT < DXCTLO)
• YI energized - economizer maintains a SASP =
(SATLOI + 3).
• Y2 energized - economizer maintains a SASP =
(SATLO2 + 3).
Routine 2 (DXCTLO < OAT < 68 F)
• If only YI energized, the economizer maintains a SASP
= (SATLOI + 3).
• If SAT > SASP + 5 and economizer position > 80%,
economizer will go to minimum position for 3 minutes or
until SAT > 68 E
• First stage of mechanical cooling will be energized.
• Integrator resets.
• Economizer opens again and controls to current SASP
after stage one on for 90 seconds.
•With YI and Y2 energized Economizer maintains an
SASP = SATLO2 + 3.
47

•If SAT > SASP +5 and economizer position >80%,
economizer will go to minimum position for 3 minutes or
until SAT > 68 IF.
•If compressor one is on then second stage of mechanical
cooling will be energized. Otherwise the first stage will
be energized.
• Integrator resets.
• Economizer opens again and controls to SASP after
stage one on for 90 seconds.
Routine 3 ((-)AT > 68)
• Economizer is opened 100%.
•Compressors 1 and 2 are cycled based on YI and Y2
using minimum on and off times and watching the sup-
ply air temperature as compared to SATLOI and
SATLO2 set points.
If optional power exhaust is installed, as the outdoor-air
damper opens and closes, the power exhaust fans will be ener-
gized and deenergized.
If field-inst_dled accessory CO2 sensors ale connected to the
PremierLink TM control, a PlD-controlled demand ventilation
strategy will begin to operate. As the CO2 level in the zone
increases above the CO: set point, the minimum position of the
dmnper will be increased proportionally. As the CO2 level
decreases because of the increase in fresh aik the outdoor-air
dmnper will be proportionally closed.
HEATING, UNITS WITH ECONOMISER2, PREMIERLINK
CONTROL AND A THERMOSTAT -- When the thermostat
calls for heating, terminal Wl is energized. The PremierLink
control will move the economizer damper to the minimum po-
sition if there is a call for G and closed if there is a call for WI
without G In order to prevent themlostat from short cycling,
the unit is locked into the heating mode for at least 10 minutes
when WI is energized. The induced-draft motor is then ener-
gized and the burner ignition sequence begins.
On units equipped for two stages of heat, when additional
heat is needed, W2 is energized and the high-fire solenoid on
the main gas valve (MGV) is energized. When the thermostat
is satisfied and WI is deenergized, the IFM stops after a
45-second time-off delay unless G is still maintained.
COOLING. UNITS WITH ECONOMISER2, PREMIER-
LINK CONTROL AND A ROOM SENSOR -- When free
cooling is not available, the compressors will be controlled by
the PremierLink controller using a PID Error reduction calcula-
tion as indicated by Fig 42.
The PremierLink controller will use the following informa-
tion to determine if free cooling is available:
• Indoor fan has been on for at least 30 seconds.
• The SPT. SAT. and OAT inputs must have valid readings.
• OAT must be less than 75 F.
•OAT must be less than SPT.
• Enthalpy must be LOW (may be jumpered if and
enthalpy sensor is not available).
•Economizer position is NOT forced.
When free cooling is available, the outdoor-air dalnper is po-
sitioned through the use of a Proportional Integral (PlD) control
process to provide a calculated supply-air temperature into the
zone. The supply air will maintain the space temperature be-
tween the heating and cooling set points as indicated in Fig. 43.
The PremierLink control will integrate the compressol:s
stages with the economizer based on simihu logic as the three
routines listed in the previous section. The SASP will float up
and down based on the error reduction calculations that com-
ptue space temperature and space set point.
When outside-air temperature conditions require the econo-
mizer to close for a compressor stage-up sequence, the
economizer control integrator is reset to zero after the stage-up
sequence is completed. This prevents the supply-air tempera-
ture from dropping too quickly and creating a freeze condition
that would make the compressor turn off prematurely.
The high space set point is used for DX (direct expansion)
cooling control, while file economizer space set point is a
calculated value between the heating and cooling set points.
The economizer set point will always be at least one degree
below the cooling set point, allowing for a smooth transition
from mechanical cooling with economizer assist, back to
economizer cooling as the cooling set point is achieved.
The compressors may be used for initial cooling then the
PremierLink controller will modulate the economizer using an
error reduction calculation to hold the space temperature
between the heating and cooling set points. See Fig. 43.
The controller uses the following conditions to determine
economizer cooling:
• Enthalpy is Low
• SAT reading is available
• OAT reading is available
• SPT reading is available
• OAT < SPT
• Economizer Position is NOT forced
If any of the above conditions are not met, the economizer
submaster reference (ECSR) is set to maximum limit and the
damper moves to minimum position. The operating sequence
is complete. The ECSR is recalculated every 30 seconds.
If an optional power exhaust is installed, as the outdoor-air
damper opens and closes, the power exhaust fans will be
energized and deenergized.
If field-installed accessory CO2 sensors tue connected to
the PremierLink control, a PID-controlled demand ventilation
strategy will begin to operate. As the CO, level in file zone
increases above the CO2 set point, the minimum position of the
damper will be increased proportionally. As the CO2 level
decreases because of the increase in flesh aik the outdoor-air
damper will be proportionally closed.
75
LU
74
'_ 73
£I: 7a
F--
tu 70
o
co 68
TEMPERATURE CONTROL
TIME
...... SET POINT
_TEMPERATURE
NOTE: PremierLink control performs smart staging of 2 stages of DX
cooling and up to 3 stages of heat.
Fig. 42 -- DX Cooling Temperature
Control Example
TEMPERATURE CONTROL
75.
LLI
73
72 ......... _ .................................... [-"--" COOL SETPOINT
"_ 71 I _ // _ /-- TEMPERATURE
P-
LU 704- ....... _ ......................... [--- HEATSETPOINT
O694
co 68 J
TIME
Fig. 43 -- Economizer Temperature
Control Example
48

HEATING. UNIT WITH ECONOMISER2, PREMIERLINK rM
CONTROL AND A ROOM SENSOR --Every 40 seconds
the controller will calculate the required heat stages (maximum
of 3) to maintain supply-air temperature (SAT) if the following
qu_difying conditions ale met:
• Indoor fan has been on for at least 30 seconds.
• COOL mode is not active.
• OCCUPIED, TEMRCOMPENSATED START or HEAT
mode is active.
• SAT reading is available.
• Fire shutdown mode is not active.
If all of the above conditions are met, the number of heat
stages is c_dculated; otherwise file required number of heat
stages will be set to 0.
If the PremierLink controller determines that heat stages are
required, the economizer damper will be moved to minimum
position if occupied and closed if unoccupied.
Staging should be as follows:
If Heating PID STAGES=2
• HEAT STAGES=I (50% capacity) will energize HSI
• HEAT STAGES=2 (100% capacity) will energize HS2
If Heating PID STAGES=3 and AUXOUT = HS3
• HEAT STAGES=I (33% capacity) will energize HSI
• HEAT STAGES=2 (66% capacity) will energize HS2
• HEAT STAGES=3 (100% capacity) will energize HS3
In order to prevent short cycling, the unit is locked into the
Heating mode for at least 10 minutes when HS 1 is deenergizedi
When HSI is energized the induced-&aft motor is then
energized and the burner ignition sequence begins. On units
equipped for two stages of heat, when additional heat is need-
ed, HS2 is energized and the high-fire solenoid on the m_fin gas
valve (MGV) is energized. When the space condition is
satisfied and HSI is deenergized the IFM stops after a 45-sec-
ond time-off delay unless in the occupied mode. The fan will
mn continuously in the occupied mode as required by natiomfl
energy and fresh air standards.
SERVICE
When servicing unit, shut off all electrical power to unit
and install lockout tag to avoid shock hazard or injury from
rotating p_uts.
Cleaning -- Inspect unit interior at the beginning of heat-
ing and cooling season and as operating conditions require.
EVAPORATOR COIL
1. Turn unit power off and install lockout tag. Remove
evaporator coil access panel.
2. If economizer or two-position damper is installed,
remove economizer by disconnecting Molex plug and
removing mounting screws. Refer to accessory econo-
mizer instalhnion instructions for more details.
3. Slide flltel_ out of unit.
4. Clean coil using a commercial coil cleaner or dishwasher
detergent in a pressurized spray canistel: Wash both sides
of coil and flush with clean water. For best results,
backflush towm'd return-air section to remove foreign
material. Flush condensate pan after completion.
5. Reinst_dl economizer and filters.
6. Reconnect wiring.
7. Replace access panels.
CONDENSER COIL-- Inspect coil monthly. Clean con-
denser coil annu_dly, and as required by location and outdoor
air conditions.
One-Row Coils (Size 004) -- Wash coil with commercial
coil cleaner. It is not necesstuy to remove top panel.
2-Row Coils (Sizes 005-007) -- Clean coil as follows:
1. Turn off unit power and install lockout tag.
2. Remove top panel sclews on condenser end of unit.
3. Remove condenser coil corner post. See Fig. 44. To hold
top panel open, place coil corner post between top panel
and center post. See Fig. 45.
4. Remove screws securing coil to compressor plate and
compressor access panel.
5. Remove fastener holding coil sections together at return
end of condenser coil. Carefully sepmate the outer coil
section 3 to 4 in. from the inner coil section. See Fig. 46.
6. Use a water hose or other suitable equipment to flush
down between file 2 coil sections to lemove dirt and
debris. Clean the outer surfaces with a stiff brush in the
normal manneE
7. Secure inner and outer coil rows together with a field-
supplied fastenel:
8. Reposition the outer coil section and remove the coil
corner post from between the top panel and center post.
Reinstall the coil comer post and replace all screws.
CONDENSATE DRAIN- Check and clean each year at
stall of cooling season. In winter, keep drain dry or protect
against freeze-up.
FILTERS -- Clean or replace at start of each heating and cool-
ing season, or more often if operating conditions require it.
Replacement filters must be same dimensions as original
filters.
OUTDOOR-AIR INLET SCREEN -- Clean screen with
steam or hot water and a mild detergent. Do not use disposable
tilters in place of screen.
Belts -- Check belt tension at least once each heating or
cooling season or as conditions requile.
Lubrication
COMPRESSORS- Each compressor is charged with the
correct amount of oil at the factory.
FAN MOTOR BEARINGS -- Fan motor bemings me of the
permanently lubricated type. No fmlher lubrication is required.
No lubrication of condenser or evaporator fan motors is
requiled.
Manual Outdoor-Air Damper -- If outdoor-air damper
blade adjustment is required, see Manual Outdoor-Air Dmnper
section on page 16.
Economizer Adjustment -- Refer to Optional
EconoMiSer IV and EconoMi$er2 section on page 20.
Condenser-Fan Adjustment (Fig. 47) -- Shut off
unit power supply. Relnove condenser-fan assembly (grille,
motor, and fan) and loosen fan hub setscrews. Adjust fan
height as shown in Fig. 47. Tighten setscrews and replace
condenser-fan assembly.
Refrigerant Charge -- Amount of refrigerant chmge is
listed on unit nameplate (also refer to Tables IA and IB). Refer
to Carrier GTAC2-5 Charging, Recoveq, Recycling, and Rec-
lamation training manual and the following procedures.
Unit panels must be in place when unit is operating during
charging procedure.
49

TOP
PANEL\
REMOVE
SCREWS
REMOVE
SCREWS
CONDENSER
REMOVE
CONTROL POST
CORNERPOST
COILCENTER
POST
COMPRESSOR
ACCESS CONDENSER REMOVECOIL
PANEL COIL CORNERPOST
Fig. 44 -- Cleaning Condenser Coil
REMOVE
SCREWS
COIL CORNER CENTER BAFFLE
POST TOP PANEL
COMPRESSOR
ACCESS
PANEL CONDENSER COIL
Fig. 45 -- Propping Up Top Panel
TOP VIEW
_CENTER BAFFLE
CONDENSER
COIL
INNER COIL
OUTER
COIL SECTION
(4") MAX }I
/CLEAN
HAIRPIN END
Fig. 46 -- Separating Coil Sections
NO CHARGE -- Use stan&ud evacuating techniques. After
evacuating system, weigh in the specified amount of refriger-
ant. (Refer to Tables I A and lB.)
LOW-CHARGE COOLING-- Using Cooling Charging
Charts, Fig. 48-51, vary refrigerant until the conditions of the
appropriate chart are met. Note the charging charts ale different
OUTLET GRILLE
2 3/4"
MAX.
CONDENSER ___
FAN MOTOR
f
CONDENSER FAN
Fig. 47- Condenser-Fan Adjustment
from type normally used. Challs are based on charging the
units to the correct superheat for the vmious operating condi-
tions. Accurate pressure gage and temperature sensing device
are required. Connect the pressure gage to the service port on
the suction line. Mount the temperature sensing device on the
suction line and insulate it so that outdoor ambient temperature
does not affect the reading. Indoor-air cfm must be within the
noml_d operating range of the unit.
TO USE COOLING CHARGING CHART -- Take the out-
door ambient temperature and read the suction pressme gage.
Refer to chart to determine what suction temperature should
be. If suction temperature is high, add refrigerant. If suction
temperature is low. carefully lecover some of the charge.
Recheck the suction pressure as charge is adjusted.
EXAMPLE: (Fig. 49)
Outdoor Temperature .............................. 85 F
Suction Pressme ............................... 84 psig
Suction Temperature should be ..................... 76 F
(Suction Temperature may vtu'y _+5E)
Flue Gas Passageways -- To inspect the flue collec-
tor box and upper areas of the heat exchanger:
1. Remove the combustion blower wheel and motor assem-
bly according to dilections in Combustion-Air Blower
section below.
2. Remove the flue cover to inspect the heat exchangel:
3. Clean _fllsurfaces as required using a wire brush.
Combustion-Air Blower-- Clean periodically to
assure proper airflow and heating efficiency. Inspect blower
wheel every fall and periodically during heating season. For
the first heating season, inspect blower wheel bimonthly to de-
termine proper cleaning frequency.
To access burner section, slide the sliding burner partition
out of the unit.
To inspect blower wheel, shine a flashlight into draft hood
opening. If cleaning is required, remove motor and wheel as
follows:
1. Slide burner access panel out.
2. Remove the 7 screws that attach induced-draft motor
housing to vestibule plate (Fig. 52).
3. The blower wheel can be cleaned at this point. If addi-
tional cleaning is required, continue with Steps 4 and 5.
4. To remove blower from the motor shaft, remove 2
setscrews.
5O

100
90
--_ 80
69
LLI
70
6"}
LLI
LLI
Z
-- 60
,.J
Z
I.-
o
_ 50
40
3 TON UNIT CHARGING CHART
SUCTION LINE TEMPERATURE (DEG. C)
4 10 16 21
_ ._,. f __,a _w,_,*_''* _'w_'_r ..._,_ _,. -
_ uww,_v _ ,,_,_ _'_'_" _w_,_ _
I
27
276
OUTDOOR
TEMP
F C
125 52
115 46
105 41
95 35
85 29
75 24
65 18
55 13
45 7
100
3O
2O
9O
80
v,l
ff_ 70
v,l
o.
z
"i 6O
z
0
I-.
_ 50
4O
207
30 40 50 60 70 80
SUCTION LINE TEMPERATURE (DEG. F)
Fig. 48 -- Cooling Charging Chart, 48TF,TMO04
4 TON UNIT CHARGING CHART
SUCTION LINE TEMPERATURE (DEG. C)
-1 4 10 16 21 27 OUTDOOR
,,-" 115 46
"_ _ _ _ 95 35
85 29
_ 75 24
-'" !i "" .____ "" ... ___... "" "--- _ 55 13
_ _ 45 7
345 --
F-
0
276
30
20 40 50 60 70
SUCTION LINE TEMPERATURE (DEG. F)
Fig. 49 -- Cooling Charging Chart, 48TF,TMO05
2O7
8O
5!

LLI
LLI
O,,
ILl
Z
.J
Z
O
I--
O
{,*}
-7
100
90
8O
7O
6O
5O
40
5TON UNIT CHARGING CHART
SUCTION LINE TEMPERATURE (DEG. C)
4 10 16 21 27
;!!!!!!
--;
v
=,,,.,,,_,,,,_. j,t,= _''''_ y _ ,.,,_ _ ""_ "-_
_v
j i _
I
I
I
OUTDOOR
TEMP
F C
125 52
115 46
105 41
95 35
85 29
75 24
65 18
55 13
45 7
z
345 O
I-
O
t/)
276
3O
2O 30 40 50 60 70
SUCTION LINE TEMPERATURE (DEG. F)
Fig. 50 -- Cooling Charging Chart, 48TF,TMO06
207
80
6 TON UNIT (60 Hz) CHARGING CHART
SUCTION LINE TEMPERATURE (DEG. C)
4 10 16
100
90
_" 80
t.o
u,I
70
t.o
u,I
8:
13.
ILl
Z
.._% 60
Z
I-
o
_ 50
40
_ ,_, _ .,_ ---_ _ _._._ r j
=,.._v jf
I-
I
I
-j
_i I.i
jv j f
r f f
I f
f f
I I
J
I
J
I
J
I
I
OUTDOOR
TEMP
F C
125 52
115 46
105 41
95 35
85 29
75 24
65 18
55 13
45 7
Q.
414 W
Z
,--I
Z
_o
345 _
276
30
20 30 40 50 60 70
SUCTION LINE TEMPERATURE (DEG. F)
Fig. 51 -- Cooling Charging Chart, 48TF,TMO07
207
80
52

5. To remove motor, remove the 4 screws that hold the
motor to mounting plate. Remove the motor cooling fan
by removing one setscrew. Then remove nuts that hold
motor to mounting plate.
6. To reinstall, reverse the procedure outlined above.
Limit Switch- Remove blower access panel (Fig. 7).
Limit switch is located on the fan deck.
Burner Ignition -- Unit is equipped with a direct spark
ignition 100% lockout system. Integrated Gas Unit Controller
(IGC) is located in the control box (Fig. 11). The IGC contains
a self-diagnostic LED (light-emitting diode). A single LED on
the IGC provides a visual display of operational or sequenti_d
problems when the power supply is uninterrupted. When a
break in power occurs, the IGC will be reset 0esulting in a loss
of fault history) and the indoor (evaporator) fan ON/OFF times
will be reset. The LED error code can be observed through the
viewport. During servicing lefer to the label on the control
box cover or Ntble 42 for an explanation of LED error code
descriptions.
If lockout occurs, unit may be reset by interrupting power
supply to unit for at least 5 seconds.
Table 42 -- LED Error Code Description*
LED INDICATION
ON
OFF
1Flash'[
2 Flashes
3Flashes
4 Flashes
5 Flashes
6 Flashes
7 Flashes
8 Flashes
9 Flashes
LEGEND
ERROR CODE DESCRIPTION
Normal Operation
Hardware Failure
Evaporator Fan On/Off Delay Modified
Limit Switch Fault
Flame Sense Fault
4 Consecutive Limit Switch Faults
Ignition Lockout Fault
Induced-Draft Motor Fault
Rollout Switch Fault
Internal Control Fault
Software Lockout
LED -- Light-Emitting Diode
*A 3-second pause exists between LED error code flashes. If more
than one error code exists, all applicable codes will be displayed in
numerical sequence.
'[Indicates a code that is not an error. The unit will continue to oper-
ate when this code is displayed.
IMPORTANT: Refer to Troubleshooting Tables 43-45 for addi- [
tional information. I
Main Burners -- To access burners, remove burner ac-
cess panel and slide out burner partition. At the beginning of
each heating season, inspect for deterioration or blockage due
to corrosion or other causes. Observe the main burner flames
and adjust, if necessary.
Wben working on gas train, do not hit or plug orifice
spuds.
REMOVAL AND REPLACEMENT OF GAS TRAIN
(Fig. 52-54)
1. Slmt offmanual gas valve.
2. Shut off power to unit.
3. Slide out burner p_utition.
4. Disconnect gas piping at unit gas valve.
5. Remove wires connected to gas valve. Mark each wire.
6. Remove ignitor wires and sensor wires at the Integrated
Gas Unit Controller (IGC) (see Fig. 11).
7. Remove the 2 screws that attach the burner rack to the
vestibule plate (Fig. 52).
8. Slide the burner tray out of the unit (Fig. 53).
9. To reinstall, reverse the procedure outlined above.
CLEANING AND ADJUSTMENT
1. Remove burner rack from unit as described in Removal
and Replacement of Gas Train section, above.
2. Inspect burners; if dirty, remove burners tmm rack.
3. Using a soil brush clean burners and cross-over port as
required.
4. Adjust spark gap. See Fig. 54.
5. Reinstall burners on rack.
6. Reinstall burner rack as described in Removed and
Replacement of Gas Train section, above.
Replacement Parts -- A complete list of replacement
p_u'ts may be obtained from any Canier distributor upon request.
INDUCED-
DRAFT
MOTOR
PLATE
-ROLLOUT
SWITCH
BURNER
INDUCED-
DRAFT
MOTOR
EXHAUST
"VESTIBULE
PLATE
" BLOWER
HOUSING
PRESSURE "GAS
TAP VALVE
GAS
VALVE
Fig. 52 -- Burner Section Details
r_ MANIFOLD PRESSURE TAP
iii _ i
BURNERS
Fig. 53 -- Burner Tray Details
53

®1 ®
SEEDETAIL"C"
/
/
- • "1"
LOW HEAT
48TFEFFME004, 48TFH/TMH004, 48TFDFFMD005-007, 48TFG/TMGO05,006 -- 72,000 BTUH INPUT
48TFMFFMM004, 48TFL/TML005,006 --60,000 BTUH INPUT
m
®1 SEEDETAIL"C"
f \
,,J
L
SEEDETAIL"E"
MEDIUM AND HIGH HEAT
48TFE/TMEO05-007, 48TFH/TMH005,006, 48TFF/TMFO04, 48TFK/TMK004- 115,000 BTUH INPUT
48TFF/TMF005-007, 48TFK/TMK005,006- 150,000 BTUH INPUT
46TFN/TMN004, 48TFM/TMM005,006 -- 90,000 BTUH INPUT
48TFN/TMN005,006- 120,000 BTUH INPUT
SPARK GAP
.120/.141 IN. (3.05/3.56 mm) SPARK GAP MUST BE POSITIONED TO
IGNITE ON FIRSTTRY.(PLACE
SPARK GAP WITHIN BURNER
CIRCUMFERENCEAS SHOWN)
/
.181 IN. (4.60 mm)
DETAIL *C*
Fig. 54 -- Spark Adjustment
DETAIL 'E"
54

TROUBLESHOOTING
Unit Troubleshooting--Refer to tables 43-45 and
Fig. 55 and 56.
Table 43 -- Heating Service Analysis
PROBLEM
Burners Will Not Ignite.
CAUSE
Misaligned spark electrodes,
No gas at main burners.
Water in gas line.
No power to furnace.
No 24 v power supply to control circuit.
Miswired or loose connections,
Burned-out heat anticipator in thermostat.
Broken thermostat wires.
Inadequate Heating. Dirty air filter.
Gas input to unit tee low.
Unit undersized for application,
Restricted airflow,
Blower speed tee low.
Limit switch cycles main burners,
Tee much outdoor air.
Poor Flame Characteristics.
Burners Will Not Turn Off,
Incomplete combustion (lack of combustion air)
results in:
Aldehyde odors, CO, sooting flame, or floating
flame.
Unit is locked into Heating mode for a one
minute minimum.
REMEDY
Check flame ignition and sensor electrode positioning, Adjust as needed.
Check gas line for air, purge as necessary. After purging gas line of air, allow gas to
dissipate for at least 5 minutes before attempting to relight unit.
Check gas valve,
Drain water and install drip leg to trap water.
Check power supply, fuses, wiring, and circuit breaker,
Check transformer. Transformers with internal evercurrent protection require a cool
down period before resetting,
Check all wiring and wire nut connections.
Replace thermostat.
Run continuity check. Replace wires, if necessary.
Clean or replace filter as necessary.
Check gas pressure at manifold. Clock gas meter for input. If tee low, increase
manifold pressure, or replace with correct orifices,
Replace with proper unit or add additional unit.
Clean filter, replace filter, or remove any restrictions,
Use high speed tap, increase fan speed, or install optional blower, as suitable for
individual units.
Check rotation of blower, thermostat heat anticipator settings, and temperature rise
of unit, Adjust as needed.
Adjust minimum position,
Check economizer operation,
Check all screws around flue outlets and burner compartment. Tighten as
necessary.
Cracked heat exchanger.
Overtired unit -- reduce input, change orifices, or adjust gas line or manifold
%essure.
Check vent for restriction. Clean as necessary.
Check orifice to burner alignment.
Wait until mandatory one-minute time period has elapsed or reset power to unit.
Table 44 -- IGC Board LED Alarm Codes
LEDFLASH
CODE
On
Off
1Flash
2 Flashes
3Flashes
4 Flashes
5 Flashes
6Flashes
7 Flashes
8Flashes
9 Flashes
DESCRIPTION
Normal Operation
Hardware Failure
Indoor Fan On/Off Delay
Modified
Limit Switch Fault
Flame Sense Fault
Four Consecutive Limit
Switch Fault
Ignition Fault
Induced Draft Motor Fault
Rellout Switch Lockout
Internal Control Lockout
Temporary Software Lockout
ACTION TAKEN BY
CONTROL
No gas heating.
5 seconds subtracted from On
delay.
5 seconds added to Off delay
(3 rain max).
Gas valve and igniter Off.
Indoor fan and inducer On.
Indoor fan and inducer On.
No gas heating.
No gas heating.
If heat off: no gas heating.
If heat on: gas valve Off and
inducer On.
Gas valve and igniter Off.
Indoor fan and inducer On.
No gas heating.
No gas heating.
RESET METHOD
Power reset.
Limit switch closed, or heat
call (W) Off.
Flame sense normal.
Power reset for LED reset.
Heat call (W) Off.
Power reset for LED reset.
Heat call (W) Off.
Power reset for LED reset.
Inducer sense normal, or
heat call (W) Off.
Power reset.
Power reset.
1 hour auto reset, or power
reset.
PROBABLE CAUSE
Loss of power to the IGC. Check 5 amp fuse on IGC,
_ewer to unit, 24V circuit breaker, transformer, and wiring
to the IGC.
High temperature limit switch opens during heat
exchanger warm-up period before fan-on delay expires.
High temperature limit switch opens within
10 minutes of heat call (W) Off.
See Limit Switch Fault,
High temperature limit switch is open, Check the operation
3f the indoor (evaporator) fan motor, Ensure that the
supply-air temperature rise is within the range on the unit
nameplate. Check wiring and limit switch operation,
The IGC sensed a flame when the gas valve should be
slosed. Check wiring, flame sensor, and gas valve
3peratien.
4 consecutive limit switch faults within a single call for
heat. See Limit Switch Fault,
Unit unsuccessfully attempted ignition for 15 minutes,
Check igniter and flame sensor electrode spacing, gaps,
etc. Check flame sense and igniter wiring, Check gas valve
3peration and gas suppl_
Inducer sense On when heat call Off, or inducer sense Off
when heat call On. Check wiring, voltage, and operation of
IGC motor. Check speed sensor wiring to IGC.
Rollout switch has opened. Check gas valve operation.
Check induced-draft blower wheel is properly secured to
motor shaft.
IGC has sensed internal hardware or software error. If
fault is not cleared by resetting 24 v power, replace the
IGC.
Electrical interference is disrupting the IGC software.
LEGEND
IGC -- Integrated Gas Unit Control
LED -- Light-Emitting Diode
NOTES:
1. There is a 3-second pause between alarm code displays.
2. If more than one alarm code exists, all applicable alarm codes will be dis-
played in numerical sequence.
55

Table 45 -- Cooling Service Analysis
PROBLEM
Compressor and Condenser Fan
Will Not Start.
Compressor Will Not Start But
Condenser Fan Runs.
Compressor Cycles (other than
normally satisfying thermostat).
Compressor Operates
Continuously.
Excessive Head Pressure.
Head Pressure Too Low.
Excessive Suction Pressure.
Suction Pressure Too Low.
Evaporator Fan Will Not Shut Off.
Compressor Makes Excessive
Noise (48TF, TM007 scroll only).
CAUSE
Power failure.
Fuse blown or circuit breaker tripped.
Defective thermostat, contactor, transformer, or con-
trol relay.
Insufficient line voltage.
Incorrect or faulty wiring.
Thermostat setting too high.
Faulty wiring or loose connections in compressor cir-
cuit.
Compressor motor burned out, seized, or internal
overload open.
Defective run/start capacitor, overload, start relay.
One leg of three-phase power dead.
Refrigerant overcharge or undercharge.
Defective compressor.
Insufficient line voltage.
Blocked condenser.
Defective run/start capacitor, overload, or start relay.
Defective thermostat.
Faulty condenser-fan motor or capacitor.
Restriction in refrigerant system.
Dirty air filter.
Unit undersized for load.
Thermostat set too low.
Low refrigerant charge.
Leaking valves in compressor.
Air in system.
Condenser coil dirty or restricted.
Dirty air filter.
Dirty condenser coil.
Refrigerant overcharged.
Air in system.
Condenser air restricted or air short-cycling.
Low refrigerant charge.
Compressor valves leaking.
Restriction in liquid tube.
High head load.
Compressor valves leaking.
Refrigerant overcharged.
Dirty air filter.
Low refrigerant charge.
Metering device or low side restricted.
Insufficient evaporator airflow.
Temperature too low in conditioned area.
Outdoor ambient below 25 E
Time off delay not finished.
Compressor rotating in wrong direction.
REMEDY
Call power company.
Replace fuse or reset circuit breaker.
Replace component.
Determine cause and correct.
Check wiring diagram and rewire correctly.
Lower thermostat setting below room temperature.
Check wiring and repair or replace.
Determine cause. Replace compressor.
Determine cause and replace.
Replace fuse or reset circuit breaker. Determine cause.
Recover refrigerant, evacuate system, and recharge to
nameplate.
Replace and determine cause.
Determine cause and correct.
Determine cause and correct.
Determine cause and replace.
Replace thermostat.
Replace.
Locate restriction and remove.
Replace filter.
Decrease load or increase unit size.
Reset thermostat.
Locate leak; repair and recharge.
Replace compressor.
Recover refrigerant, evacuate system, and recharge.
Clean coil or remove restriction.
Replace filter.
Clean coil.
Recover excess refrigerant.
Recover refrigerant, evacuate system, and recharge.
Determine cause and correct.
Check for leaks; repair and recharge.
Replace compressor.
Remove restriction.
Check for source and eliminate.
Replace compressor.
Recover excess refrigerant.
Replace filter.
Check for leaks; repair and recharge.
Remove source of restriction.
Increase air quantity. Check filter and replace if
necessary.
Reset thermostat.
Install low-ambient kit.
Wait for 30-second off delay.
Reverse the 3-phase power leads as described in the Start-
Up section on page 45.
56

EconoMiSer IV Troubleshooting -- See Table 46
for EconoMi$er IV logic.
A functional view of the EconoMi$er is shown in Fig. 55.
Typical settings, sensor ranges, and jumper positions are
also shown. An EconoMi$er IV simulator progrmn is available
fiom Carrier to help with EconoMi$er IV training and
troubleshooting.
ECONOMI$ER IV PREPARATION -- This procedure is
used to prepare the EconoMi$er IV for troubleshooting. No
troubleshooting or testing is done by performing the following
procedure.
NOTE: This procedure _equires a 9-v battery. 1.2 kilo-ohm
resistol: and a 5.6 kilo-ohm lesistor which are not supplied
with the EconoMi$er IV.
IMPORTANT: Be sure to record the positions of all poten-tiometers before starting troubleshooting.
1. Disconnect power at TR and TRI. All LEDs should be
off. Exhaust fan contacts should be open.
2. Disconnect device at P and PI.
3. Jumper P to PI.
4. Disconnect wires at T and TI. Place 5.6 kilo-ohm resistor
across T and TI.
5. Jumper TR to 1.
6. Jumper TR to N.
7. If connected, remove sensor from terminals So and +.
Connect 1.2 kilo-ohm 4074EJM checkout resistor across
terminals So and +.
8. Put 620-ohm resistor across terminals SR and +.
9. Set minimum position, DCV set point, and exhaust
potentiometers fully CCW (counterclockwise).
10. Set DCV maximum position potentiometer fiJlly CW
(clockwise).
11. Set enthalpy potentiometer to D.
12. Apply power (24 vac) to terminals TR and TRI.
DIFFERENTIAL ENTHALPY-- To check differential
enthalpy:
1. Make sure EconoMiSer IV prepmation procedure has
been performed.
2. Place 620-ohm resistor across So and +.
3. Place 1.2 kilo-ohm resistor across SR and +. The Free
Cool LED should be lit.
4. Remove 620-ohm resistor across So and +. The Free
Cool LED should turn off.
5. Return EconoMi$er IV settings and wiring to normal
after completing troubleshooting.
SINGLE ENTHALPY -- To check single enth_dpy:
1. Make sine EconoMiSer IV plepmation procedure has
been performed.
2. Set the enthalpy potentiometer to A (fully CCW). The
Flee Cool LED should be lit.
3. Set the enthalpy potentiometer to D (fully CW). The Free
Cool LED should turn off.
4. Return EconoMiSer IV settings and wiring to norm_d
after completing troubleshooting.
DCV (Demand Controlled Ventilation) AND POWER
EXHAUST -- To check DCV and Power Exhaust:
1. Make sine EconoMiSer IV prep_uation procedure has
been performed.
2. Ensure terminals AQ and AQI are open. The LED for
both DCV and Exhaust should be off. The actuator
should be fully closed.
3. Connect a 9-v battery to AQ (positive node) and AQl
(negative node). The LED for both DCV and Exhaust
should turn on. The actuator should drive to between 90
and 95% open.
4. Turn the Exhaust potentiometer CW until the Exhaust
LED turns off. The LED should turn off when the
potentiometer is approximately 90%. The actuator should
remain in position.
5. Turn the DCV set point potentiometer CW until the DCV
LED turns off. The DCV LED should turn off when the
potentiometer is approximately 9 v. The actuator should
chive fully closed.
6. Turn the DCV and Exhaust potentiometers CCW until
the Exhaust LED turns on. The exhaust contacts will
close 30 to 120 seconds after the Exhaust LED turns on.
7. Return EconoMiSer IV settings and wiring to normal
after completing troubleshooting.
DCV MINIMUM AND MAXIMUM POSITION -- To check
the DCV minimum and maximum position:
1. Make sure EconoMiSer IV preparation procedure has
been performed.
2. Connect a 9-v battely to AQ (positive node) and AQI
(negative node). The DCV LED should turn on. The
actuator should drive to between 90 and 95% open.
3. Turn the DCV Maximum Position potentiometer to mid-
point. The actuator should drive to between 20 and 80%
open.
4. Turn the DCV Maximum Position potentiometer to fully
CCW. The actuator should drive fully closed.
5. Turn the Minimum Position potentiometer to midpoint.
The actuator should drive to between 20 and 80% open.
6. Turn the Minimum Position Potentiometer fully CW. The
actuator should drive fully open.
7. Remove the jumper from TR and N. The actuator should
chive fully closed.
8. Return EconoMiSer IV settings and wiring to normal
after completing troubleshooting.
SUPPLY-AIR INPUT -- To check supply-air input:
1. Make sure EconoMiSer IV preparation procedure has
been performed.
2. Set the Enthalpy potentiometer to A. The Free Cool LED
turns on. The actuator should drive to between 20 and
80% open.
3. Remove the 5.6 kilo-ohm resistor and jumper T to TI.
The actuator should drive fully open.
4. Remove the jumper across T and TI. The actuator should
chive fully closed.
5. Return EconoMiSer IV settings and wiring to normal
after completing troubleshooting.
ECONOMISER IV TROUBLESHOOTING COMPLE-
TION -- This procedure is used to return the EconoMiSer IV
to operation. No troubleshooting or testing is done by perform-
ing the following procedure.
1. Disconnect power at TR and TRI.
2. Set enthalpy potentiometer to previous setting.
3. Set DCV maximum position potentiometer to previous
setting.
4. Set minimum position, DCV set point, and exhaust
potentiometeLs to previous settings.
5. Remove 620-ohm resistor from terminals SR and +.
6. Remove 1.2 kilo-ohm checkout resistor from terminals
So and +. [fused, reconnect sensor from temfinals So and
+.
57

7. Remove jumper fiom TR to N.
8. Remove jumper from TR to 1.
9. Remove 5.6 kilo-ohm resistor from T and TI. Reconnect
wires at T and TI.
10. Remove jumper fiom P to PI. Reconnect device a P and
PI.
11. Apply power (24 vac) to terminals TR and TRI.
Table 46 -- EconoMi$er IV Input/Output Logic
Demand Control
Ventilation (DCV)
Below set
(DCV LED Off)
Above set
(DCV LED On)
INPUTS
Enthalpy* Compressor
Outdoor Return Y1 Y2 Stage Stage
1 2
High Low On On On On
(Free Cooling LED Off) On Off On Off
Off Off Off Off
Low High On On On Off
(Free Cooling LED On) On Off Off Off
Off Off Off Off
High Low On On On On
(Free Cooling LED Off) On Off On Off
Off Off Off Off
Low High On On On Off
(Free Cooling LED On) On Off Off Off
Off Off Off Off
*For single enthalpy control, the module compares
enthalpy to the ABCD set point.
tPower at N terminal determines Occupied/Unoccupied
24 vac (Occupied), no power (Unoccupied).
**Modulation is based on the supply-air sensor signal.
1-tModulation is based on the DCV signal.
OUTPUTS
NTerminalt
Occupied
Minimum position
Modulating** (between min.
position and full-open)
Minimum position
Modulatingl-t (between rain.
position and DCV maximum)
Modulating***
Unoccupied
Dam )er
Closed
Modulating** (between
closed and full-open)
Closed
Modulatingtl- (between
closed and DCV
maximum)
Modulatingtl-t
outdoor
setting:
***Modulation is based on the greater of DCV and supply-air sen-
sor signals, between minimum position and either maximum
position (DCV) or fully open (supply-air signal).
ttl-Modulation is based on the greater of DCV and supply-air sen-
sor signals, between closed and either maximum position (DCV)
or fully open (supply-air signal).
Fig. 55 -- EconoMi$er IV Functional View
58

PL8 R
FOR 8TD
UNIT PL8
Y
12_ i 12
SCHEMATIC
SEE NOTE #5
_ _I_--_ YEL ,
ECONOMI_ER_
-PNK REB
.YEL
.BLU
.BLK
"BRN
"REB
-GRA
FO IOVDC/42aMA CnNTRDLLER
• CONNECTIONFOR ECONOMIZER
PNK FACTORYOR FIELD
1 IN_TALLEn
m
ONNECTION
BOARD
m
-RED
.REO--
-WHT
-BLU--
.YEL--
-ORN
.PNK m --
.BRNm --
-BRN-- --
208/230 3 80
,EL
,BLK IFM
CHI 5TATIC_
"BLU
QT
3RN_
_EL IFM
BLK
IDM
(_R) RE[}
./_>J
LS
Y
O_ GRN/YEL_ BRN--BRN_
IGC;C
c_c2
TRAN;C
C;C2
C
CONN
_B[}AR[}
IFC;C2
OR C_C2
IGC
NOTES:
1. If any of the original wire furnished must be
replaced, it must be replaced with type 90 C wire or
its equivalent.
2. Three phase motors are protected under primary
single phasing conditions.
4. Use copper conductors only.
6. TRAN is wired for 230 v unit. If unit is to be run with
208 v power supply, disconnect BLK wire from
230 v tap (ORN) and connect to 208 v tap (RED).
Insulate end of 230 v tap.
C-- Contactor, Compressor
CAP -- Capacitor
CLO -- Compressor Lockout
COMP -- Compressor Motor
EQUIP -- Equipment
FPT -- Freeze Up Protection Thermostat
FU -- Fuse
GND -- Ground
GVR -- Gas Valve Relay
HPS -- High-Pressure Switch
HS -- Hall-Effect Sensor
I -- Ignitor
IDM -- Induced-Draft Motor
IFC -- Indoor Fan Contactor
IFM -- Indoor (Evaporator) Fan Motor
IGC -- Integrated Gas Unit Controller
LPS -- Low-Pressure Switch
LS -- Limit Switch
MGV -- Main Gas Valve
C0NN
BOARD
[]
[]
[]
[]
[]
[]
[]
[]
F
LEDiGcO
LEGEND
OFM -- Outdoor (Condenser) Fan Motor
OLR -- Overload Relay
P -- Plug
PL -- Plug Assembly
QT -- Quadruple Terminal
RS -- Rollout Switch
SAT -- Supply Air Temperature Sensor
TRAN -- Transformer
Field Splice
_ Marked Wire
@ Terminal (Marked)
0Terminal (Unmarked)
[_ Terminal Block
Splice
<]]]_ Splice (Marked)
Factory Wiring
Field Control Wiring
Field Power Wiring
----- Accessory or Optional Wiring
To indicate common potential only;
not to represent wiring.
Fig. 56 -- Typical Unit Wiring Diagram
59

Access panels 21
Altitude compensation 46
Barometric flow capacity 23
Burner ignition 53
Burner rack 53
Burner section 53
Burner spark gap .54
Carrier Comfort Network 17
ChaNing chart, refrigerant 51, 52
Clearance 9, 10
CO2 sensor
Configuration 27
Settings 27
Combustion blower wheel 50
Compressor
Lubrication 49
Mounting 45
Rotation 45
Condensate drain
Cleaning 49
Loc:ttion 2, 4
Condenser coil .5, 7
Cle:ming 49
Condenser fan 5, 7
Adjustment 49, 50
Control circuit
Wiring 12
Wiring raceway 13
Convenience outlet 16
Demand control ventilation 26
Dehumidification 27
Dimensions 3, 9, lO
Ductwork 2
EconoMi$er IV 20-27
Adjustment 49
Components 20
Damper position 26
Demand ventilation control 26
Troubleshooting 57, 58
Usage 23
Wiring 22
EconoMi$er2 20
Electrical connections 12
Electrical data 14, 15
Enthalpy changeover set points 25
Enthalpy sensor 19
Error codes 61
Evaporator coil .5, 7
Cleaning 49
Evaporator fan motor
Lubrication 49
Motor data 29
Mounting 28
Perfornmnce 30-44
Pulley adjustment 28
Pulley setting .5, Z 28
Speed .5,7, 27
Factory-installed options 16-27
Convenience outlet 16
EconoMi$er IV 20
EconoMi$er2 20
Manual outdoor air damper 16
Novar controls 16
PremierLink TM controls 17
Filter
Cleaning 49
Installation 21
Size 6, 8
Flue gas passageways 50
Flue hood II
Freeze protection thermostat 6, 8
Gas connection 6, 8
Gas input 6,8
Gas piping 11,45
INDEX
Gas pressure 1,6, 8, 11
Heat anticipator settings 6, 8, 12
Heat exchanger 6, 8
High flow valves 45
High-pressure switch 6,8
Horizontalunits 1,2
Indoor air quality sensor 17,25
Integrated gas controller .5.5
Error codes 53, .5.5
Leak test 45
Limit switch .5.5
Liquid propane 6,8
Low-pressure switch 6,8
Main burners 46,53
Manual outdoor air damper 16,49
Mounting
Compressor 45
Unit 2
Natural gas 6, 8
Novar controls 16
Operating limits 2
Operating seqnence 47-49
Cooling 47
EconoMi$er IV 47
EconoMi$er2 with
PmmierLink control 47-49
Heating 47
Outdoor air hood 16,21
Outdoor air temperature sensor 17,21, 23
Outdoor air inlet screens
Cleaning 49
Physical data 5-8
Power exhaust 14,15
Power supply 12
Wiring 12,13
PremierLink controls 17-19
Pressure, drop
EconoMi$er2 29
EconoMi$er IV 29
Pressure switches
High pressure 6, 8
Low pressure 6,8
Pre-Start-Up 45
Refrigerant
Charge 51, 52
Type .5,7
Refrigerant sel_.ice ports 45
Replacement parts 53
Return air filter 6, &45
Return air temperature sensor 24
Rigging unit 4
Roof curb
Assembly 1
Dimensions 3
Connector package 3
Leveling tolerances 4
Weight .5,7
Safety considerations 1
Safety relief 47
Sel_.ice 49-.54
Slab mount 2
Start-up 45-49
Start-up checklist (?L-I
Supply-air temperature sensor 17,21, 24
Thermostat 1Z 13,26
Troubleshooting 55-59
Ventilation 47
Weight
Comer 9, lO
EconoMi$er IV .5,7, 9,10
Maximum 4
Unit 5, 7,9,10
Wiring
4 to 20 mA control 22
EconoMi$er IV 22
EconoMi$er2 22
Power connections 12, 13
PremierLink 19
Thermostat 13
Unit .59
Copyright 2005 Carrier Corporation
Manufacturer reserves the right to discontinue, or change at any time, specifications or designs without notice and without incurring obligations.
Catalog No, 04-53480014-01 Printed in U.S.A. Form 48T-5SI Pg 60 9-05 Replaces: 48T-3SI

START-UP CHECKLIST
(Remove and Use in Job File)
I. PRELIMINARY INFORMATION:
MODEL NO.:
DATE:
SERIAL NO.:
TECHNICIAN:
BUILDING LOCATION:
II. PRE-START-UP (insert checkmark in box as each item is completed)
[] VERIFY THAT ALL PACKING MATERIALS HAVE BEEN REMOVED FROM UNIT
[] VERIFY THAT CONDENSATE CONNECTION IS INSTALLED PER INSTALLATION INSTRUCTIONS
[] VERIFY THAT FLUE HOOD IS INSTALLED
[] CHECK ALL ELECTRICAL CONNECTIONS AND TERMINALS FOR TIGHTNESS
[] CHECK TO ENSURE NO WIRES ARE TOUCHING REFRIGERANT TUBING OR SHARP EDGES
[] CHECK GAS PIPING FOR LEAKS
[] CHECK THAT RETURN-AIR FILTER IS CLEAN AND IN PLACE
[] VERIFY THAT UNIT INSTALLATION IS LEVEL
[] CHECK FAN WHEEL AND PROPELLER FOR LOCATION IN HOUSING/ORIFICE AND SETSCREW TIGHTNESS
[] VERIFY PULLEY ALIGNMENT AND BELT TENSION ARE CORRECT
III. START-UP:
ELECTRICAL
SUPPLY VOLTAGE LI-L2
COMPRESSOR AMPS LI
INDOOR-FAN AMP LI
TEMPERATURES
OUTDOOR-AIR TEMPERATURE
RETURN-AIR TEMPERATURE
COOLING SUPPLY AIR
GAS HEAT SUPPLY AIR
PRESSURES
GAS INLET PRESSURE
GAS MANIFOLD PRESSURE
REFRIGERANT SUCTION
REFRIGERANT DISCHARGE
L2-L3 L3-LI
L2 L3
L2 L3
DB WB
DB WB
DB WB
DB
IN. WG
IN. WG (LOW FIRE) IN. WG (HI FIRE)
PSIG TEMP ° F
PSIG TEMP °F
[] VERIFY REFRIGERANT CHARGE USING CHARGING TABLES
[] VERIFY THAT 3-PHASE SCROLL COMPRESSOR IS ROTATING IN CORRECT DIRECTION (48TF, TM007 ONLY)
Copyright 2005 Carrier Corporation
Manufacturer reserves the right to discontinue, or change at any time, specifications or designs without notice and without incurring obligations.
Book 1 14 Catalog No, 04-53480014-01 Printed in U,S.A. Form 48T-5SI Pg CL-1 9-05 Replaces: 48T-3SI
Tab 1a 16a
LU
2:
d3
LU
I--
rm
Z
o,
<
I-
o
LU
2:
rm
LU
I--
d3
Z
o,
<
I-
o