CARRIER Package Units(both Units Combined) Manual L0520551
User Manual: CARRIER CARRIER Package Units(both units combined) Manual CARRIER Package Units(both units combined) Owner's Manual, CARRIER Package Units(both units combined) installation guides
Open the PDF directly: View PDF
.
Page Count: 55

50TFQ008-012
Single-Package Rooftop
Heat Pump Units
Installation, Start-Up and
Service Instructions
CONTENTS
Page
SAFETY CONSIDERATIONS ......................... 1
INSTALLATION ................................... 1-43
Step 1-- Provide Unit Support ....................... 1
• ROOF CURB
• SLAB MOUNT
• ALTERNATE UNIT SUPPORT
Step 2 -- Field Fabricate Ductwork .................. 3
Step 3 -- Install Condensate Drain Line
and External Trap ................................. 3
Step 4 -- Rig and Place Unit ......................... 3
• POSITIONING
Step 5 -- Make Electrical Connections .............. 7
• FIELD POWER SUPPLY
• FIELD CONTROL WIRING
• DEFROST BOARD
• HEAT ANTICIPATOR SETTINGS
Step 6- Adjust Factory-Installed Options ......... 12
• DISCONNECT SWITCH
• CONVENIENCE OUTLET
• NOVAR CONTROLS
• MANUAL OUTDOOR-AIR DAMPER
• PREMIERLINK "lx_CONTROL
• OPTIONAL ECONOMISER IV AND ECONOMI$ER2
• ECONOMISER IV STANDARD SENSORS
• ECONOMISER IV CONTROL MODES
Step 7-- Adjust Indoor-Fan Speed ................. 25
PRE-START-UP ..................................... 44
START-UP ....................................... 44-47
SERVICE ........................................ 47-49
TROUBLESHOOTING ............................ 49-53
INDEX .............................................. 54
START-UP CHECKLIST .......................... CL-I
SAFETY CONSIDERATIONS
Installation and servicing of air-conditioning equipment can
be hazardous due to system pressure and electrical compo-
nents. Only trained and qualified service personnel should
install, repair, or service air-conditioning equipment.
Untrained personnel can pet-form basic maintenance func-
tions of cleaning coils and filters and replacing filters. All other
operations should be performed by trained service personnel.
When working on air-conditioning equipment, observe precau-
tions in the literature, tags and labels attached to the unit, and
other safety precautions that may apply.
Follow all safety codes. Wear safety glasses and work
gloves. Use quenching cloth for unbrazing operations. Have
fire extinguisher available for all brazing operations.
Before performing service or maintenance operations on
unit, turn off main power switch to unit and install lockout
tag. Ensure voltage listed on unit data pkite agrees with
electrical supply provided for the unit. Electrical shock
could cause personal injury.
INSTALLATION
Unit is shipped in the vegical configuration. To conveg to
hotizont_flconfiguration, remove side duct opening covers. Us-
ing the same screws, install covers on vertical duct openings
with the insulation-side down. Seals around duct openings
must be tight.
Step 1 -- Provide Unit Support
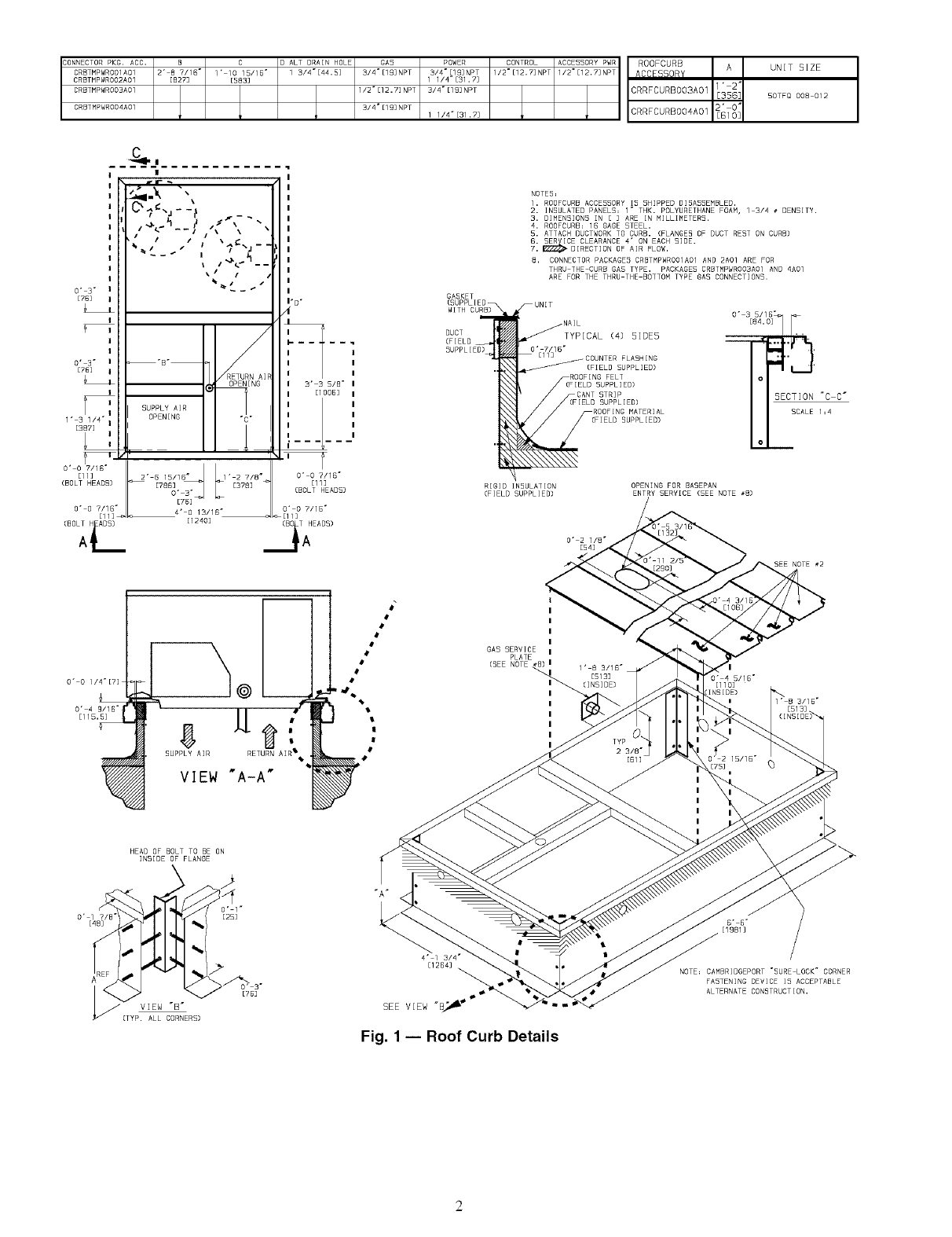
ROOF CURB -- Assemble and install the accessory roof curb
in accordance with instructions shipped with the curb. See
Fig. 1. Install insulation, cant strips, roofing felt, and counter
flashing as shown. Ductwork must be attached to curb. If
electric or control power will be routed through the basepan,
use the proper accessory kit listed in Fig. 1, available fi'om your
local distributor Attach the accessory thru-the-bottom service
connections to the basepan in accordance with the accessory
installation instructions. Connections must be installed before
the unit is set on the roof curb.
IMPORTANT: The gasketing of the unit to the roof curb is [
critical for a water-tight se_d. Install gasket supplied with I
the roof curb as shown in Fig. 1. hnproperly applied gasket
can also result in air leaks and poor unit performance.
The roof curb should be level. Unit leveling tolerances ate
shown in Fig. 2. This is necesstuy for the unit drain to function
properly. Refer to Accessory Roof Curb Installation Instruc-
tions for additional information as tequired.
Manufacturer reserves the right to discontinue, or change at any time, specifications or designs without notice and without incurring obligations.
Catalog No. 04-53500019-01 Printed in U,S.A. Form 50TFQ-9SI Pg 1 9-05 Replaces: 50TFQ-7SI

:ONNECTOR PKG. ACC. B C
CRBTMPWROO1A01 2' B 7/16" l' 10 15/15"
CRBTMPWROO2AO1 [827] [583]
CRBTMPWROO3AO1
CRBTMPWROO4A01
O ALT DRAIN HOLE
1 3/4"[44.5]
GAS
3/4"[19]NPT
1/2"[12.7]NPT
3/4"[19]NPT
POWER
3/4"[19]NPT
I 1/4"[31.7]
3/4"[I£]NPT
1 1/4"[31.7]
CONTROL ACCESSORY PWR
1/2"[12.7]NPT 1/2"[12.7]NPT ROOFCURB A UNIT SIZE
A_F_SRY
CRRFCURBOO3A01 1' 2
[356 50TFQ 008 012
CRRFCURBOO4A01 2' 0
[81 O:
o" 3"
[78]
I
I
°/7# I
1" 3 1/4"
[387] II
O, 0 7/1_B ""
[11]
(BOLT HEADS]
O" 0 7/1B"
[II]
(BOLTAD
I
I
ItII" I
,,,,) -11
_,/ / / I
I
i- D-
,4
I
Z'
I
IR I3" 3 5/8"
IEl0053
SUPPLY AIR I
OPENING "C" I
I
I
i
I
i
" 5 15/15_ O" 0 7/15"
[785] [11 ]
O"3°_J (BOLT HEADS)
[75]
4' 0 13/18" O" 0 7/15"
[12403 (B_TZEADS)
GASKET
NOTES;
li ROOFCURB ACCESSORY IS SHIPPED OISASSEMBLEDI
2. INSULATED PANELS, 1" THK. POLYURETHANE FOAM, 1 3/4 # DENSITY.
3. DIMENSIONS [N [ ] ARE IN MILLIMETERS.
4. ROOFCURB: 1B GAGE STEEL.
5. ATTACH DUCTWORK TO CURB. (FLANGE5 OF DUCT REST ON CURB)
5. 5ERyISERICE CLEARANCE 4" ON EACH SIDE.
7, _'DIRECTION OF AIR FLOW,
8, CONNECTOR PACKAGE5 CRBTMPWROO1A01 AND 2A01 ARE FOR
THRU THE CURB GAS TYPE, PACKAGES CRBTMPWROO3A01 AND 4A01
ARE FOR THE THRU THE BOTTOM TYPE GAS CONNECTIONS.
TYPICAL (4) SIDES
O" 3[ #_.1_"
SECTION "C C"
RIGID INSULATION
(FIELD SUPPLIED)
OPENING FOR BASEPAN
ENTRY SERVICE (SEE NOTE #B)
O" 2 1/8"
O" 0 I/4"[7]
8HI :
SUPPLY AIR RETURN AIR I
VIEW "A-A"
I
o" 4 5/15"
HEAD OF BOLT TO BE ON
INSIDE OF FLANGE
VIEW "B"
(TYP[ ALL CORNERS)
[75]
4' 1 3/4"
,p
SEE VIEW "B_ '_
Fig. 1 -- Roof Curb Details
NOTE; CAMBRIDGEPORT "SURE LOCK" CORNER

_1 c
MUM ALLOWABLE
A__J" DIFFERENCE (in.)
8A-B ]B-C A-C
0.5 ] 1.0 1.0
Fig. 2 -- Unit Leveling Tolerances
SLAB MOUNT (Horizontal Units Only) -- Provide a level
concrete slab that extends a minimum of 6 in. beyond the unit
cabinet on all sides. Inst_dl a grovel apron in front of the
outdoor coil air inlet to prevent grass and foliage fi_)m obstruct-
ing airflow.
NOTE: Holizont_d units may be installed on a roof curb if
required.
ALTERNATE UNIT SUPPORT -- When the curb or
adapter cannot be used, support unit with sleeper rtfils using
unit curb or adapter support mea. If sleeper rails cannot be
used, support the long sides of the unit with a minimum of
3 equ_dly spaced 4-in. x 4-in. pads on each side.
Step 2 -- Field Fabricate Ductwork -- On verti-
c:d discharge units, secure _dlducts to the roof curb and building
structure. Do not connect dm m'ork to the unit. For horizontal
applications, tield-supplied flanges should be attached to
horizontal dischmge openings and all ductwork attached to the
flanges. Insulate and weatherproof all extern_fl ductwoN, joints,
and roof openings with counter flashing and mastic in accor-
dance with applicable codes.
Ducts passing through an unconditioned space must be
insulated and covered with a vapor bamel:
If a plenum return is used on a vertical unit, the return
should be ducted through the roof deck to comply with applica-
ble fire codes.
A minimum clearance is not required around ductwoN.
Cabinet return-air static pressure (a negative condition) should
not exceed 0.35 in. wg with economizel: or 0.45 in. wg without
economizel:
Step 3 -- Install Condensate Drain Line and
External Trap -- Condensate drain connections tire locat-
ed at the bottom and end of the unit. Unit discharge connec-
tions do not determine the use of di'ain connections;
either diain connection can be used in vertic_d or horizont_d
applications.
When using the standard end di'ain connection, make sure
the plug in the alternate bottom connection is tight before in-
stalling the unit.
To use the bottom drain connection for a roof curb inst_dla-
tion, relocate the factory-inst_dled plug from the bottom connec-
tion to the end connection. The center diain plug looks like a stm
connection, bnt can be removed with a I/z-in. socket diive exten-
sion. See Fig. 3. The piping for the condensate di_dn and extermfl
trap can be completed after the unit is in place.
All units must have an extern_d trap for condensate chain-
age. Install a trap at least 4-in. deep and protect against freeze-
up. If di'ain line is installed downstream from the extern_d trap,
pitch the line away from the unit at 1/4-in. per ft of run. Do not
use a pipe size smaller than the unit connection. See Fig. 4.
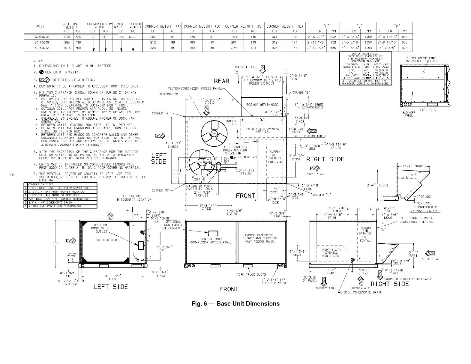
Step 4 -- Rig and Place Unit --Inspect the unit for
transportation &image. File any claim with the transpollation
agency. Keep the unit upright and do not diop it. Spreader bras
me not required if top crating is left on the unit. Rollers may be
used to move the unit across a roof. Level by using the unit
fi_lme as a reference. See Table 1 and Fig. 5 for additional
information. Operating weight is shown in Table 1 and Fig. 5.
Lifting holes are provided in the base rails as shown in
Fig. 5 and 6. Refer to rigging instructions on the unit.
POSITIONING -- Maintain clearance around and above the
unit to provide proper tdrflow and service access. See Fig. 6.
Position the unit on the roof curb so that the following clear-
traces me maintained: l/4-in, clearance between the roof curb
and base rails on each side and in front of the unit; 35/1(_-in.
clearance between the roof curb and the outdoor fan end of the
unit (see Fig. 1, section C-C).
Do not install the unit indoors. Do not locate the unit _fir
inlet near exhaust vents or other sources of contaminated all:
Although the unit is weatherproof, guard against water from
higher level runoff and overhangs.
After the unit is in position, remove the polyethylene ship-
ping wrapper and rigging skid.
HORIZONTAL DRAIN PLUG
DRAIN OUTLET
NOTE: Drain plug is shown in factory-installed position.
Fig. 3-- Condensate Drain Pan (Side View)
MINIMUM PITCH --_'_ _,._.,_._ __
\P-
\ VENT I II tl
I I _ ") DRAINPLUG
_F-
SEE
NOTE
,_ROOF
CURB
NOTE: Trap should be deep enough to offset maximum unit static
difference.A 4-in. trap is recommended,
Fig. 4- Condensate Drain Piping Details

SECURE ALL SEAL STRIPS
IN PLACE BEFORE POSITIONING
UNIT ON ROOF CURB AS CLOSE
(914-1371) TO DUCT END AS POSSIBLE.
36"-54"
_ SEE DETAIL
i//A
"DETA I L A"
NOTES:
1. Dimension in ( ) is in millimeters.
2, Hook rigging shackles through holes in base rail, as shown in detail "A."
Holes in base rails are centered around the unit center of gravity, Use
wooden top skid when rigging to prevent rigging straps from damaging
unit,
3, Unit weights de not include economizer, See Table 1 for economizer
weights.
All panels must be in place when rigging. Unit is not designed for handling
by a fork truck. Damage to unit may result.
WEIGHT A
50TFQ Lb Kg in. mm
008 940 426 77,42 1966.5
009 965 438 77,42 1966.5
012 1015 460 77,42 1966.5
Fig. 5 -- Rigging Details
B C
in, mm in, mm
41.5 1054 42.12 1070
41.5 1054 42.12 1070
41.5 1054 42.12 1070

Table 1 -- Physical Data
UNIT SIZE 50TFQ 008 009 012
NOMINAL CAPACITY (tone) 71/2 81/2 10
OPERATING WEIGHT (Ib)
Unit 940 965 1015
Economizer
EconoMi$er IV 75 75 75
Roof Curb* 143 143 143
COMPRESSOR (Hermetic) Reciprocating Scroll
Quantity 2 I 2 2
Oil (oz) 45 ea I54 ea 54 ea
REFRIGERANT TYPE R-22
Operating Charge (Ib-oz)
Circuit 1 5-14 I 8-6 I 7-14Circuit 2 5-13 8-13 8- 3
OUTDOOR COIL Enhanced Copper Tubes, Aluminum Lanced Fins, AcutroF M Feed Device
Rows...Fins/in. 1...17 I 2._17 I 2_,17
Total Face Area (sq ft) 20.50 18,00 18.30
OUTDOOR FAN Propeller Type
Nominal Cfm 6500 I 6500 6500
Quantity,,.Diameter (in.) 2._22 I 2,_22 2_.22
Motor Hp,..Rpm V4.-1100 1/4,..1100 V4.-1100
Watts Input (Total) 500 500 500
INDOOR COIL Enhanced Copper Tubes, Aluminum Double-Wavy Fins, Acutrol Feed Device
3._15 I I 3...15
8,0 11,1
Rows...Finslin.
Total Face Area (sq ft)
INDOOR FAN
Quantity.,.Size (in.)
Type Drive
Nominal Cfm
Maximum Continuous Bhp
Motor Frame Size
Nominal Rpm
Fan Rpm Range
Motor Bearing Type
Maximum Allowable Rpm
Motor Pulley Pitch Diameter Min/Max (in.)
Nominal Motor Shaft Diameter (in.)
Fan Pulley Pitch Diameter (in.)
Belt, Quantity.,.Type.,.Length (in.)
Pulley Center Line Distance (in.)
Speed Change per Full Turn of
Moveable Pulley Flange (rpm)
Moveable Pulley Maximum Full Turns
From Closed Position
Factory Setting
Factory Speed Setting (rpm)
Std
AIt
High-Static
Std
AIt
High-Static
Std
AIt
High-Static
Std
AIt
High-Static
Std
AIt
High-Static
Std
AIt
High-Static
Std
AIt
High-Static
Std
AIt
High-Static
Std
AIt
High-Static
Std
AIt
High-Static
Std
AIt
High-Static
Std
AIt
High-Static
Std
AIt
High-Static
Std
AIt
High-Static
Std
AIt
High-Static
1._15 x 15
1._15 x 15
1..,15 x 15
Belt
Belt
Belt
3000
2,40
2,40
3,70
56
56
56
1725
590- 840
685- 935
860-1080
Ball
2100
2.4/3.4
2,8/3.8
4,0/5.0
%
%
7/8
7,0
7,0
8,0
1,.,A,..53
1,.,A,..49
1.-A...65
16.75-19,25
16.75-19,25
16.75-19,25
5O
5O
6O
5
5
5
5
5
5
59O
685
86O
1
3,-15
8.0
Centrifugal Type
1,..15 x 15
1,..15 x 15
Belt
Belt
3600
2.40
3.70
56
56
1725
685- 935
860-1080
Ball
2100
2.8/3,8
4.0/5,0
%
7/8
7.0
8.0
1.,.A.-48
1.,.A.-53
16.75-19.25
16.75-19.25
5O
6O
5
5
5
5
685
88O
1
1..,15 x 15
1..,15 x 15
1...15 x 15
Belt
Belt
Belt
4000
2,40
2,90
5,25
56
56
56
1725
685- 935
835-1065
830-1130
Ball
2100
2,8/3.8
3,4/4.4
2,8/3.8
%
7/8
7/8
7.0
7,0
5,8
1_.A_,49
1_.A._51
1._BX...48
15,85-17.50
15,85-17.50
15,85-17.50
5O
5O
6O
5
5
6
5
5
5
685
835
887
1
Fan Shaft Diameter at Pulley (in,)
HIGH-PRESSURE SWITCH (psig)
Standard Compressor Internal Relief (Differential) 450 _+50
Cutout 428
Reset (Auto.) 320
LOSS-OF-CHARGE (LOW-PRESSURE) SWITCH (psig)
Cutout 7 _+3
Reset (Auto,) 22 _+5
FREEZE PROTECTION THERMOSTAT (F)
Opens 30 _+5
Closes 45 _+5
OUTDOOR-AIR INLET SCREENS Cleanable,
Screen quantity and size vary based on options selected.
RETURN-AIR FILTERS Throwaway
Quantity,..Size (in.) 4,.. 16 x 20 x 2 I4..,16 x 20 x 2 I4,,,20 x 20 x 2
LEGEND *Weight of 14-in. roof curb.
Bhp -- Brake Horsepower

STD. UNiT ECONOMIZER IV VERT. ECON IV
UNIT WEIGHT WEIGHT W/ P.E. WEIGHT CORNER WEIGHT CA) CORNER WEIGHT CB) CORNER WEIGHT (C) CORNER WEIGHT (D) "N"
LB KG LB KG LB KG LB KG LB KG LB KG LB KG FT IN. MM MM
50TFQO08 940 426 75 34.1 145 85.9 207 84 178 B1 254 115 301 136 2' 0 7/8" 832 856
SOTFQOO9 9GS 438 212 96 183 83 251 119 309 140 2' 10 2/8" 632 856
50TFGOI2 1015 450 223 101 183 88 274 124 325 147 2" 10 7/8" 885 824
NOTES;
1. DIMENSIONS IN [ ] ARE IN MILLIMETERS.
2. _CENTER OF GRAVITY.
3. _ DIRECTION OF AiR FLOW.
4. DUCTWORK TO BE ATTACHED TO ACCESSORY ROOF CURB ONLY.
5. MINIMUM CLEARANCE (LOCAL CODES OR JURISDICTION MAY
PREVAIL);
G. BOTTOM TO COMBUSTIBLE SURFACES (WHEN NOT USING CURD}
0 INCHES, ON HORIZONTAL DISCHARGE UNITS WiTH ELECTRIC
HEAT 1 INCH CLEARANCE TO DUCTWORK FOR 1 FOOT.
b. OUTDOOR COIL, FOR PROPER AIR FLOW, 3G iNCHES
ONE SIDE, 12 iNCHES THE OTHER. THE SiDE GETTING THE
GREATER CLEARANCE IS OPTIONAL.
c. OVERHEAD, 80 iNCHES TO ASSURE PROPER OUTDOOR FAN
OPERATION.
d. BETWEEN UNITS, CONTROL BOX SIDE, 42 iN. PER NEC.
e. BETWEEN UNIT AND UNGROUNDED SURFACES, CONTROL BOX
SIDE, 36 iN. PER NEC.
F. BETWEEN UNIT AND BLOCK OR CONCRETE WALLS AND OTHER
GROUNDED SURFACES, CONTROL BOX SIDE, 42 iN. PER NEC.
g. HORIZONTAL SUPPLY AND RETURN END, 0 iNCHES WHEN THE
ALTERNATE CONDENSATE DRAIN 15 U5ED,
6. WITH THE EXCEPTION OF THE CLEARANCE FOR THE OUTDOOR
COIL AS STATED IN NOTES 5a, b, AND c, A REMOVABLE
FENCE OR BARRICADE REQUIRES NO CLEARANCE,
7. UNITS MAY BE iNSTALLED ON COMBUSTIBLE FLOORS MADE
FROM WOOD OR CLASS A, B, OR C ROOF COVERING MATERIAL.
8. THE VERTICAL CENTER OF GRAVITY IS I' 7 I/2" FOR
008 8 009, 2" 0"[610] FOR 012 UP FROM THE BOTTOM OF THE
BASE RAIL.
BOTTOM
OF UNIT
O' 4 9/16"
[116]
O' 2 9/16
[G5] TYP
'6'
OPTIONAL
CONVENIENCE
C
4" 5 7/8_
[1369]
LEFT SIDE
REAR
FILTER/ECONOMIZER ACCESS PANEL
OUTDOOR COIL
[1091]
CORNER
4" 9 3/4"
[1467]
LEFT
SIDE
CORNER
ELECTRICAL
DISCONNECT LOCATION
"H_ ! <_0" 7 3/8"
_ E187]
_0" 3 13/16"
[97] OPTIONAL
NON FUSED
iB DISCONNECT
2' 0 3/8"
E6193
_3/4"
[14G]
OUTSIDE AIR _;p
5 5
F/ ECONOMISER IV AND [80]
POWER EXHAUST
CORNER "B _
ECONOMI_SER IV HOOD
0" 31/8"
[79]_
]
I@_DO0 i
COiL I ]
I RETURN AiR OPENING I
I VERTICAL I
ICONDENSATE I I
DRAIN OPENING
IN BASEPAN
1/2'_-SEE NOTE #8
1/2"
[11316]
FRONT
I SUPPLy I
I I
I I
I I
!" P"
E355]
_0" B B/
E2OB]
7" 3 3/8 _
E2219] O' 0 3/B"
O' 9 7/8"
BEE BOTTOM POWER
CHART(ELEC. ONLY)
2' 4 7/8"
1/4"
[10223
1" 10 1/4" [5653
F/ ECONOMISER IV
[140]
1' 0 5/8"
[3203
RETURN AIR
[730] RIGHT SIDE
SUPPLY A]R
CONTROL BOX/
COMPRESSOR ACCESS PANEL
INDOOR FAN MOTOR,
HEAT ACCESS PANEL
i_)® r---q
" 5 7/16"
CORNER "C"
E793
FRONT
O' 7 5/16_
"J" "K"
FT iN. MM FT iN.
3' 5 5/16" 1050 2' 9 ll/16"
3' 5 5/16" 1050 2' 9 11/16"
4" 15/16" 1253 3" O 3/8"
BOTTOMPOWERCHART=
THESE HOLES REQ'D FOR USE
WITH ACCESSORYPACKAGES
CRBTMPWROO1A01,2AOI
SELECTEITHER 3/4" OR I 1/4"
FOR POWERrDEPENDINGON WIRE SIZE.
FILTER ACCESS PANEL
(DISPOSABLE FILTERS)
r--m
VIEW S S
BLOCKOFF
PANEL
2' l _
0"[0.00]
VERTICAL
O" 4 " ECONOM]$ER iV
[101]
• 0 5/8"
[820] FILTER ACCESS PANEL
t
2" 1"
E635]
OUTSIDE AIR
E:_ /¢1 3" l" ll/I6
FORK TRUCK SLOTS [940] [178]
OUTSIDE 8 --
O' 2 1/4" E57] OF PANEL RELIEF DISCHARGE
(TYP B PLACES} R IGHT S IDE
SUPPLY AIR /RETURN AIR
LE STD. CONDENSATE DRAIN
Fig. 6 1Base Unit Dimensions

Step 5 -- Make Electrical Connections
Unit cabinet must have an uninterrupted, unbroken electri-
cal ground to minimize the possibility of personal inju Uif
an electrical fault should occm_ This ground may consist of
electrical wire connected to unit ground lug in control com-
partment, or conduit approved for electrical ground when
installed in actor&race with NEC (National Electrical
Code) ANSI (American Nation_d Stand_uds Institute)/
NFPA (National Fire Protection Association) 70 latest yetu
and local electrical codes. Failure to follow this warning
could result in the installer being liable for personal inju U
of others.
FIELD POWER SUPPLY -- All units except 208/230-v
units are factory-wired for the voltage shown on the unit name-
plate. If the 208/230-v unit is to be connected to a 208-v power
supply, the transformer must be rewired by disconnecting the
black wire from the 230-v l/4-in, male spade terminal on the
tmnsforlner and connecting it to the 208-v l/4-in, m_de spade
terminal from the transformel:
Refer to the unit label diagrmn for additional information.
Pigttfils tue provided for field wire connections. Use factory-
supplied splices or a UL Underwriters' Laboratories) approved
copper/tduminum connectoc
When inst_dling units, provide a disconnect per the NEC.
All field wiring must comply with the NEC and local re-
quirements. In Canada, electrical connections must be made in
accor&mce with CSA (Canadian Stan&trds Association) C22.1
Canadian Electric_d Code Part One.
Inst_dl field wiring as follows:
1. Inst_dl conduit through the side panel openings. For units
without electric heat, inst_dl conduit between the discon-
nect and control box.
2. Inst_dl power lines to terminal connections as shown in
Fig. 7.
3. For units with electric heat, refer to Table 2 and Accessory
Installation Instructions.
During operation, voltage to compressor terminals must be
within range indicated on unit nameplate (see Tables 3A and
3B). On 3-phase units, voltages between phases must be bal-
anced within 2%, and the current within 10%. Use the formula
shown in Tables 3A and 3B, Note 2 on page 11 to determine
the percentage of voltage imbalance. Operation on improper
line voltage or excessive phase imbalance constitutes abuse
and may cause damage to electrical components. Such opera-
tion would invalidate any applicable Carrier wammty.
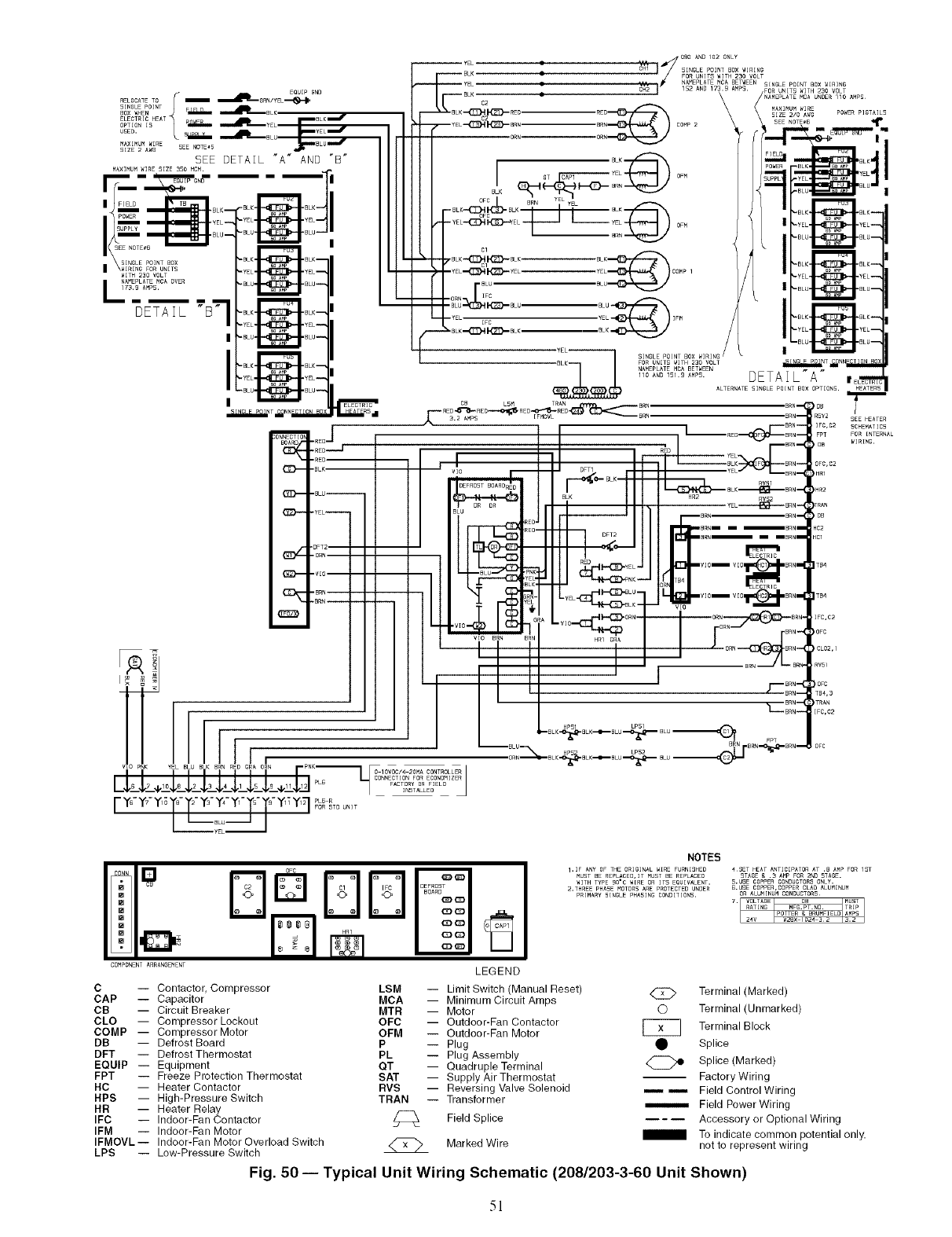
BLK Z_
TO COMP 2
BLU ORN
I
I
I
I
t
FIELD POWER SUPPLY
L J. I.
f
I DISCONNECT l ._ CABINET
I---J GROUND
t PER NEC j
208/230-3-60
460-3-60
BLK @
LEGEND
C-- Contactor
COMP- Compressor
IFC -- Indoor-Fan Contactor
NEC -- National Electrical Code
TB -- TerminalBlock
Field Wiring
Factory Wiring
Splice Connection
(Factory-Supplied)
Fig. 7 -- Power Wiring Connections
BLU
I
I
I
I
I
t
FIELD POWER SUPPLY
:TO TB2
•L J I.
r Li_ CABINETI DISCONNECT
tPER NEC _ GROUND
575-3-60

Table 2 -- Electric Heating Capacities
50TFQ UNIT VOLTAGE ACCESSORY ELECTRIC HEATER SINGLE POINT BOX
PART NUMBER PACKAGE NO,
UNIT SIZE (60 Hz) kW CRHEATER---A00 CRSINGLE---A00
7.8/ 9.6/10.4 017 007
208/230/240 12.0/14.7/16.0 010 007
18.6/22.8/24.8 011 009
(3 phase) 24.0/29.4/32.0 012 009
31.8/39.0/42.4" 012 and 017 013
12.8/13.9 016 006
008, 009 15.2/16.5 013 006
480/480 25.6/27.8 014 008
(3 phase) 30.4/33,0 015 008
38.4/41.7* 014 and 018 010
575 17.0 018 008
(3 phase) 34.0 019 006t
7.8/ 9.6/10.4 017 012
12.0/14.7/16.0 01 O 012
208/230/240 24.0/29.4/32.0 012 015
(3 phase) 31.8/39.0/42.4" 012 and 017 017
37.6/46.2/50.0" 010 and 012 017
15.2/16.5 013 011
012 460/480 25.6/27.8 014 014
30.4/33.0 015 014
(3 phase) 38.4/41.7* 014 and 016 016
45.9/50.0" 013 and 015 016
17.0 018 011
575 34.0 019 014
(3 phase) 51 .O* 018 and 019 016
*Two heater packages required to provide kW indicated.
rUse CRSINGLEOO8AOO for units with an electrical convenience outlet.
NOTES:
1. The rated heater voltage is 240,480, and 575 v. If power distribution voltage varies from rated heater voltage, heater kW will vary accordingly.
2. To determine heater kW at voltages other than those shown in table, use the following formula:
Heater kW new = Heater kW rated x (unit power distribution voltage/rated heater voltage) 2
As an example:
For a 16 kW heater rated at 240 v with a power distribution voltage of 215 v
kW new = 16 kW (218/240) 2
kW new = 12.8 kW (rating at 215 v)
Table 3A -- Electrical Data (Units Without Electrical Convenience Outlet)
50TFQ
UNIT SIZE
008
(71/2 Tons)
NOMINAL
V-PH-Hz
208/230-3-60
460-3-60
575-3-60
VOLTAGE COMPRESSOR ELECTRIC HEAT*
IFM RANGE (each) OFM IFM
TYPE Min Max RLA LRA FLA FLA Nominal
STD 187 254 13.4 91.0 1.4 5.8
HIGH-STATIC 187 254 13.4 91.0 1.4 10.6
STD 414 508 6.7 42.0 0.7 2.6
HIGH-STATIC 414 508 6.7 42.0 0.7 4.8
STD 2.6
518 632 5.4 39.0 0.7
HIGH-STATIC 4.8
POWER SUPPLY
FLA MCA
kW**
-- -- 38.8/ 38.8
7.8/10.4 21.7/25.0 65.9/ 70.0
12,0/18,0 33.3/38.5 80.4/ 86.9
18.6/24.8 51,8/ 59.7 103.3/113.4
24.0/32.0 88.8/ 77.0 122.0/135.0
31.8/42.4 88,3/102,0 149.1/188.3
-- -- 43.6/ 43.6
7.8/10.4 21.7/ 25.0 70.7/ 74.8
12.0/16.0 33.3/ 38.5 85.2/ 91.7
18.6/24.8 51.6/ 59.7 108.1/118.2
24.0/32.0 66.6/ 77.0 126.8/139.8
31.8/42.4 88.3/102.0 153.9/171.1
-- -- 19.1
13.9 16.7 40.0
16.5 19.8 43.8
27.8 33.4 60.8
33,0 39.7 68.7
41.7 50.2 81.8
-- -- 21.3
13.9 16.7 42.2
16.5 19.8 46.0
27.8 33.4 63.0
33.0 39.7 70.9
41.7 50.2 84.0
-- -- 15.4
17.0 17.1 36.7
34.0 34.1 58.0
-- -- 17.1
17.0 17.1 38.5
34.0 34.1 59.7
DISCONNECT
SIZEt
MOCP FLA LRA
40/ 40tt 41/ 41 229/229
70/ 70 68/ 89 251/254
90/ 90 79/ 85 262/288"**
110/125 100/109 281/289"**
125/150 117/129 296/308"**
150/175 142/158 317/331"**
45/ 45tt 48/ 48 273/273
80/ 80 71/ 75 294/298
90/100 85/ 91 308/311"**
110/125 108/115 324/332"**
150/150 123/135 339/350"**
175/175 148/184 381/375"**
2Ott 20 108
401-t 39 124
48tt 43 128
70 58 141
70 66 147
90 78 158
25it 23 130
48ft 42 146
S0tt 45 149
70 61 163
80 68 169
90 80 180"**
20¢t 16 97
4ott 36 114
6ott 55 131
2oft 18 114
4oft 38 132
6Ott 57 149
NOTE: Legend and Notes for Electrical Data are on page 11.

Table 3A -- Electrical Data (Units Without Electrical Convenience Outlet) (cont)
50TFQ
UNIT SIZE
009
(81_Tons)
012
(10 Tons)
NOMINAL
V-PH-Hz
208/230-3-60
460-3-60
575-3-60
208/230-3-60
460-3-60
575-3-60
VOLTAGE COMPRESSOR
IFM RANGE (each)
TYPE MIn Max RLA LRA
STD 187 254 16.0 137.0 1.4 5.8
HIGH-STATIC 187 254 16.0 137.0 1.4 10.6
STD 414 508 8.3 69.0 0.7 2.6
HIGH-STATIC 414 508 8.3 69.0 0.7 4.8
STD
518 632 6.4 58.0 0.7
HIGH-STATIC
STD 187 254 17.2 124.0 1.4 5.8
ALT 187 254 17.2 124.0 1.4 7.5
HIGH-STATIC 187 254 17.2 124.0 1.4 15.0
ELECTRIC HEAT*
OFM IFM
FLA FLA Nominal FLA
kW**
7.8/10.4 21.7/ 25.0
12.0/16.0 33.3/ 38.5
18.6/24.8 51.6/ 59.7
24.0/32.0 66.6/ 77.0
31.8/42.4 88.3/102.0
7.8/10.4 21.7/ 25.0
12.0/16.0 33.3/ 38.5
18.6/24.8 51.6/ 59.7
24.0/32.0 66.6/ 77.0
31.8/42.4 88.3/102.0
13.9 16.7
16.5 19.8
27.8 33.4
33.0 39.7
41.7 50.2
13.9 16.7
16.5 19.8
27.8 33.4
33.0 39.7
41.7 50.2
2.6 17.0 17.1
34.0 34.1
4.8 17.0 17.1
34.0 34.1
7.8/10.4 21.7/ 25.0
12.0/16.0 33.3/ 38.5
24.0/32.0 66.6/ 77.0
31.8/42.4 88.3/102.0
37.6/50.0 104.4/120.3
7.8/10.4 21.7/ 25.0
12.0/16.0 33.3/ 38.5
24.0/32.0 66.6/ 77.0
31.8/42.4 88.3/102.0
37.6/50.0 104.4/120.3
7.8/10.4 21.7/ 25.0
12.0/16.0 33.3/ 38.5
24.0/32.0 66.6/ 77.0
31.8/42.4 88.3/102.0
37.6/50.0 104.4/120.3
POWER SUPPLY
MCA MOCP
44.6/ 44.6 45/ 45tt
71.7/ 75.9 80/ 80
86.2/ 92.7 90/100
109.1/119.2 110/125
127.9/140.9 150/150
155.0/172.1 175/175
49.4/ 49.4 50/ 50tt
76.5/ 80.7 80/ 90
91.0/ 97.5 100/100
113.9/124.0 125/125
132.7/145.7 150/150
159.8/176.9 175/200
22.7 25tt
43.6 45tt
47.4 50tt
64.4 70
72.3 80
85.4 90
24.9 25tt
45.8 5ott
49.6 50tt
66.6 70
74.5 80
87.6 90
17.6 20tt
39.0 40tt
60.2 70tt
19.4 20it
40.7 45tt
62.0 70
47.3/ 47.3 50/ 50tt
74.4/ 78.6 80/ 80
88.9/ 95.4 90/100
130.6/143.6 150/150
157.7/174.8 175/175
177.8/167.6 200/175
49.0/ 49.0 50/ 50tt
76.1/ 80.8 80/ 90
90.6/ 97.1 100/100
132.3/145.3 150/150
159.4/176.5 175/200
179.5/169.3 200/200
56.5/ 56.5 60/ 60tt
83.6/ 87.8 90/ 90
98.1/104.6 100/110
139.8/152.8 150/175
166.9/184.0 175/200
187.0/176.8 200/200
DISCONNECT
SIZEt
FLA LRA
47/ 47 321/321
72/ 75 343/346
85/ 91 354/360"**
106/115 373/381"**
123/135 388/398"**
148/164 409/428"**
52/ 52 365/365
77/ 81 386/390"**
91/ 96 398/403"**
112/121 416/424"**
129/141 431/442"**
154/170 453/467"**
24 162
43 178
46 182
62 195
69 201
81 212"**
26 184
45 200
49 203
65 217
72 223
84 234***
18 135
38 152
58 169
20 152
40 170
60 187
49/ 49 295/295
74/ 78 317/320
88/ 94 328/334"**
126/138 362/372"**
151/167 383/397"**
170/188 399/415"**
51/ 51 314/314
76/ 80 336/389"**
90/ 96 347/353"**
128/140 381/391"**
153/169 402/416"**
171/190 418/434"**
60/ 60 362/362
85/ 89 384/387"**
98/104 395/401"**
137/149 429/439"**
162/177 450/464"**
180/198 466/482"**
STD 414 508 8.6
ALT 414 508 8.6
HIGH-STATIC 414 508 8.6
STD 518 632 6.9
ALT 518 632 6.9
HIGH-STATIC 518 632 6.9
16.5 19.8
27.8 33.4
59.6 0.7 2.6 33.0 39.7
41.7 50.2
50.0 60.1
16.5 19.8
27.8 33.4
59.6 0.7 3.4 33.0 39.7
41.7 50.2
50.0 60.1
16.5 19.8
27.8 33.4
59.6 0.7 7.4 33.0 39.7
41.7 50.2
50.0 60.1
17.0 17.1
49.4 0.7 2.6 34.0 34.1
51.0 51.2
17.0 17.1
49.4 0.7 3.4 34.0 34.1
51.0 51.2
17.0 17.1
49.4 0.7 7.4 34.0 34.1
51.0 51.2
23.4
48.1
65.1
73.0
86.1
83.5
24.2
48.9
65.9
73.8
86.9
84.3
28.2
52.9
69.9
77.8
90.9
88.3
18.7
40.1
61.4
69.9
19.4
40.7
62.0
70.6
22.6
43.9
65.2
73.8
28tt 24 143
5ott 47 163
70 63 176
80 70 183
90 82 193"**
90 93 203***
25tt 25 182
50tt 48 202
70 64 216
80 71 222
90 83 233***
90 94 243***
30tt 30 176
60tt 53 196
70 68 210
80 76 216
100 88 227***
100 99 237***
2Oft 20 118
45it 39 135
70 59 152
70 78 169
2Oft 20 149
45tt 40 166
70 60 183
80 79 201"**
25tt 24 145
45tt 44 162
70 63 179
80 83 196"**
NOTE: Legend and Notes for Electrical Data are on page 11.

Table 3B -- Electrical Data (Units With Electrical Convenience Outlet)
50TFQ
UNIT SIZE
O08
(71_Tons)
009
(81_Tons)
NOMINAL
V-PH-Hz
208/230-3-60
460-3-60
575-3-60
208/230-3-60
460-3-60
575-3-60
VOLTAGE COMPRESSOR ELECTRIC
IFM RANGE (each) OFM IFM HEAT*
TYPE Min Max RLA LRA FLA FLA Nominal
STD 187 254 13.4 91.0 1.4 5.8
HIGH-STATIC 187 254 13.4 91.0 1.4 10.6
STD 414 508 6.7 42.0 0.7 2.6
HIGH-STATIC 414 508 6.7 42.0 0.7 4.8
STD 518 632 5.4 39.0 0.7 2.6
HIGH-STATIC 518 632 5.4 39.0 0.7 4.8
STD 187 254 16.0 137.0 1.4 5.8
HIGH-STATIC 187 254 16.0 137.0 1.4 10.6
STD 414 508 8.3 69.0 0.7 2.6
HIGH-STATIC 414 508 8.3 69.0 0.7 4.8
STD 518 632 6.4 58.0 0.7 2.6
HIGH-STATIC 518 632 6.4 58.0 0.7 4.8
POWER SUPPLY
kW** FLA MCA
-- -- 43.6/ 43.6
7.8/10.4 21.7/ 25.0 70.7/ 74.8
12.0/18.0 33.3/ 38.5 85.2/ 91.7
18.8/24.8 51,8/ 59.7 108.1/118,2
24.0/32.0 68.6/ 77.0 126.8/139.8
31.8/42.4 88,3/102,0 153.9/171,1
-- -- 48.4/ 48.4
7.8/10.4 21.7/ 25.0 75.5/ 79.6
12.0/16.0 33.3/ 38.5 90.0/ 96.5
18.6/24.8 51.6/ 59.7 112.9/123.0
24.0/32.0 66.6/ 77.0 131.6/144.6
31.8/42.4 88.3/102.0 158.7/175.9
-- -- 21.3
13.9 16.7 42.1
16.5 19.8 46.0
27.8 33.4 63.0
33.0 39,7 70,9
41.7 50.2 84.0
-- -- 23,5
13.9 16.7 44.3
16.5 19.8 48.2
27.8 33,4 65.2
33.0 39,7 73,1
41.7 50.2 86.2
-- -- 17.1
17.0 17.1 38.5
34.0 34.1 59.7
-- -- 18,9
17.0 17.1 40.2
34.0 34.1 61.5
-- -- 49.4/ 49.4
7.8/10.4 21.7/ 25.0 76.5/ 80.7
12.0/16.0 33.3/ 38.5 91.0/ 97.5
18.6/24.8 51.6/ 89.7 113.9/124.0
24.0/32.0 66.6/ 77.0 132.7/148.7
31.8/42.4 88.3/102.0 154.8/176.9
-- -- 54.2/ 54.2
7.8/10.4 21.7/ 25.0 81.3/ 85.5
12.0/16.0 33.3/ 38.5 98.8/102.3
18.6/24.8 51.6/ 59.7 118.7/128.8
24.0/32.0 66.6/ 77.0 137.5/150.5
31.8/42.4 88.3/102.0 164.6/181.7
-- -- 24.9
13.9 16.7 45.7
16.5 19.8 49.6
27.8 33.4 66.6
33.0 39,7 74,5
41.7 50.2 87.6
-- -- 27.1
13.9 16.7 47.9
16.5 19.8 51.8
27.8 33.4 68.8
33.0 39.7 76.7
41.7 50.2 89.8
-- -- 19.3
17.0 17.1 40.7
34.0 34,1 62.0
-- -- 21.1
17.0 17.1 42.5
34.0 34.1 63.7
DISCONNECT
SIZEt
MOCP FLA LRA
45/ 451-1- 46/ 46 234/234
80/ 80 71/ 75 258/259
90/100 85/ 91 287/272"**
110/125 108/115 285/294"**
150/150 123/135 300/311"**
175/175 148/164 322/336"**
50/ 501-1- 52/ 52 277/277
80/ 80 77/ 81 299/302"**
90/100 90/ 96 311/318"**
125/125 111/120 329/337"**
150/150 128/140 344/354"**
175/200 153/169 388/379"**
28it 23 110
48tt 42 127
80it 45 130
70 61 143
80 68 150
90 80 160"**
25it 25 132
45tt 44 148
80tt 48 151
70 63 165
80 71 171
90 83 182"**
20it 18 99
40tt 38 116
60tt 87 133
20tt 20 116
48tt 4O 133
70 59 150
50/ 50_t 52/ 82 326/326
80/ 90 77/ 81 348/381
100/100 91/ 96 359/364
125/128 112/121 377/386
150/150 129/141 392/403
175/200 154/170 414/428
60/ 60_t 58/ 58 369/369
90/ 90 83/ 86 391/394"**
100/110 96/102 403/408"**
125/150 117/126 421/429"**
150/175 134/146 436/446"**
175/200 159/175 488/471"**
28it 26 164
80it 48 181
50it 49 184
70 65 197
80 72 204
90 84 214"**
30it 29 186
80if 48 202
60tt 81 2o8
70 67 219
80 74 228
90 86 236***
20tt 2o 137
48tt 4o 154
70 60 171
28it 22 154
45it 42 171
70 62 188
NOTE: Legend and Notes for Electrical Data are on page 11.
]0

58TFQ
UNIT SIZE
012
(10 Tons)
NOMINAL
V-PH-Hz
208/230-3-60
460-3=60
575-3=80
Table 3B -- Electrical Data (Units With Electrical Convenience Outlet) (cont)
VOLTAGE COMPRESSOR
IFM RANGE (each)
TYPE MIn Max RLA LRA
STD 187 254 17.2 124.0 1.4 5.8
ALT 187 254 17.2 124.0 1.4 7.5
HIGH-STATIC 187 254 17.2 124.0 1.4 15.0
ELECTRIC
OFM IFM HEAT*
FLA FLA Nominal FLA
kW**
7.8/10.4 21.7/ 25.0
12.0/16.0 33.3/ 38.5
24.0/32.0 66.6/ 77.0
31.8/42.4 88.3/102.0
37.8/50.0 104.4/120.3
7.8/10.4 21.7/ 25.0
12.0/16.0 33.3/ 38.5
24.0/32.0 66.6/ 77.0
31.8/42.4 88.3/102.0
37.6/50.0 104.4/120.3
7.8/10.4 21.7/ 25.0
12.0/16.0 33.3/ 38.5
24.0/32.0 66.6/ 77.0
31.8/42.4 88.3/102.0
37.8/50.0 104.4/120.3
POWER SUPPLY
MCA MOCP
52.1/ 52.1 60/ 60it
79.2/ 83.4 80/ 90
93.7/100.2 100/110
135.4/148.4 150/150
162.5/179.6 175/200
182.6/172.4 200/200
53.8/ 53.8 60/ 60tt
80.9/ 85.1 90/ 90
95.4/101.9 100/110
137.1/150.1 150/175
164.2/181.3 175/200
184.3/174.1 200/200
61.3/ 61.3 70/ 70
88.4/ 92.6 90/100
102.9/109.4 110/110
144.6/157.6 150/175
171.7/188.8 175/200
191.8/181.6 200/200
DISCONNECT
SIZEt
FLA LRA
55/ 55 300/300
80/ 84 322/325"**
93/ 99 333/338"**
132/144 366/377"**
157/172 388/402"**
175/193 404/420"**
57/ 57 319/319
82/ 86 341/344"**
95/101 352/357"**
134/145 385/396"**
158/174 407/421 ***
177/195 423/439"**
66/ 66 367/367
91/ 94 389/392"**
104/110 400/405"**
142/154 433/444"**
167/183 455/459"**
186/204 471/487"**
STD 414 508 8.6
ALT 414 508 8.6
HIGH-STATIC 414 508 8.6
STD 518 632 6.9
ALT 518 632 6.9
HIGH-STATIC 518 632 6.9
16.5 19.8
27.8 33.4
59.6 0.7 2.6 33.0 39.7
41.7 50.2
50.0 60.1
16.5 19.8
27.8 33.4
59.6 0.7 3.4 33.0 39.7
41.7 50.2
50.0 60.1
16.5 19.8
27.8 33.4
59.6 0.7 7.4 33.0 39.7
41.7 50.2
50.0 60.1
17.0 17.1
49.4 0.7 2.6 34.0 34.1
51.0 51.2
17.0 17.1
49.4 0.7 3.4 34.0 34.1
51.0 51.2
17.0 17.1
49.4 0.7 7.4 34.0 34.1
51.0 51.2
25.5
50.3
67.3
75.2
88.3
85.6
26.3
51.1
68.1
76.0
89.1
86.4
30.3
55.1
72.1
80.0
93.1
90.4
20.5
41.8
63.1
71.7
21.1
42.5
63.7
72.3
24.3
45.7
66.9
75.5
30it 27 145
60it 50 165
70 65 178
80 73 185
90 85 195"**
90 96 205***
30tt 28 185
60tt 51 204
70 66 218
80 73 224
90 86 235***
90 97 245***
35it 32 179
60tt 55 198
80 71 212
80 78 218
100 90 229***
100 102 239***
28it 22 120
45tt 41 137
70 61 154
80 80 171"**
25tt 22 151
45tt 42 168
70 62 185
80 81 202***
25tt 26 146
50tt 46 163
70 65 180
80 85 198"**
LEGEND
FLA -- Full Load Amps
HAOR -- Heating, Air Conditioning and Refrigeration
IFM -- Indoor Fan Motor
LRA -- Locked Rotor Amps
MCA -- Minimum Circuit Amps
MOCP -- Maximum Overcurrent Protection
NEC -- National Electrical Code
OFM -- Outdoor Fan Motor
RLA -- Rated Load Amps
*Heaters are field installed only.
tUsed to determine minimum disconnect size per NEC.
**Heater capacity (kW) is based on heater voltage of 208 v, 240 v, 480 v, and 575 v. If
power distribution voltage to unit varies from rated heater voltage, heater kW will vary
accordingl_z
ttFuse or HACR circuit breaker.
***Optional disconnect switch is unavailable.
NOTES:
1. In compliance with NED requirements for multimotor and combination load equipment
(refer to NED Articles 430 and 440), the overcurrent protective device for the unit shall
be fuse or HACR breaker.
2. Unbalanced 3-Phase Supply Voltage
Never operate a motor where a phase imbalance in supply voltage is greater than 2%.
Use the following formula to determine the percent of voltage imbalance.
% Voltage Imbalance
max voltage deviation from average voltage
=100x average voltage
Example: Supply voltage is 460-3-60.
AB = 452 v
AB C BC =464 v
(_ AC =455 v 452 + 464 + 455
Average Voltage = 3
1371
3
=457
Determine maximum deviation from average voltage.
(AB) 457 - 452 = 5 v
(BC) 464 - 457 = 7 v
(AC) 457 - 455 = 2 v
Maximum deviation is 7 v.
Determine percent of voltage imbalance.
7
% Voltage Imbalance = 100 x 45_
= 1.53%
This amount of phase imbalance is satisfactory as it is below the maximum allowable
2%.
IMPORTANT: If the supply voltage phase imbalance is more than 2°,/o,contact your local
I electric utility company immediately. I
1!

FIELD CONTROL WIRING -- Install a CmTier-approved
accessory thennostat assembly according to the installation
instructions included with the accessory. Locate file thermostat
assembly on a solid wall in the conditioned space to sense aver-
age temperature in accordance with the thermostat installation
instructions.
NOTE: If using a Carrier electronic thermostat, set the thenno-
star configuration for "non-heat pump operation." This family
of products does not require an O tenninal to energize the
reversing valve.
Route the thermostat cable or equivalent single leads of
colored wire fi_m the subbase terminals to the low-voltage
connections on the unit (shown in Fig. 8A and 8B) as described
in Steps 1 through 4 below.
NOTE: For wire runs up to 50 It, use no. 18 AWG (American
Wire Gage) insulated wire (35 Cminimum). For 51 to 75 It,
use no. 16 AWG insulated wire (35 Cminimum). For over
75 It, use no. 14 AWG insulated wire (35 Cminimum). All
wire kuger than no. 18 AWG cannot be directly connected to
the thermostat and will require a junction box and splice at the
thermostat.
1. If the unit is mounted on the roof curb and the accessory
thin-the-curb service plate connection is used, route wire
through the connection plate.
2. Pass control wires through the hole provided on the unit
(see connection D in Connection Sizes table in Fig. 6).
3. Feed wire through the raceway built into the comer post to
the 24-v bmrier located on the left side of the control box.
See Fig. 9. The raceway provides the UL required cletu-
ance between the high-voltage and low-voltage wiring.
4. Connect the thermostat wires to the screw terminals of
the low-voltage connector (see Fig. 8A and 8B).
NOTE: If the unit is mounted on a roof curb and electrical
power will be mn up "thin-the-bottom," use accessory kit
number CRBTMPWR002A01. This kit, available from your
local distributol: ensmes a watertight seal. Refer to the acces-
sory installation instructions for information on power wiring.
Refer to Fig. 6 for drilling holes in basepan.
COOL STAGE 1 Y1/W2 - - - I I
I
FAN G -IE
HEATSTAGE1 W/Wl--] l i _-
COOL STAGE 2 Y/Y2 - - r-
HEATSTAGE2 O/W2- _ m
-- i___ E
24 VAC HOT R- 5
24 VAC COM C-
N/A
OUTDOOR AIR $1
SENSOR $2
m
R
G
Y1
Y2
W1
' W2
C
IPD/X
WIRE
CONNECTIONS
TO
LOW-VOLTAGE
SECTION
(CONNECTION
BOARD)
THERMOSTAT DIPSWITCH SETTINGS
ON
A B C D
LEGEND
Field Wiring
NOTE: Underlined letter indicates active thermostat output when
configured for A/C operation.
Fig. 8A -- Low-Voltage Connections With or
Without Economizer or Two-Position Damper
DEFROST BOARD -- The deflost board timer cycle is set to
30 minutes. To change the cycle time, turn off power to the
unit and install lockout tag. Remove the wire from defrost
bo_ud connected to the 30 minute quick-connect. See Fig. 10.
Connect the wire to the 50 or 90 minute quick-connects on the
defi_mt board, depending on the desired defrost time.
HEAT ANTICIPATOR SETTINGS -- For units with electric
heat, set heat anticipator settings as shown in Table 4.
Step 6 -- Adjust Factory-Installed Options
DISCONNECT SWITCH -- The optional disconnect switch
is non-fused. The switch can be locked in place for safety
purposes.
CONTROL
CONNECTION
BOARD
([_)--24 VAC .... -.,--,,--,
<[_]) --RMTOCC---T i
CMPSAFE--"
(_--FSD .......... -:
@_--SFS
NOT USED
_)--X.
THERMOSTAT CONTROL
CONN ECTION
BOARD
........CK)
Fig. 8B -- Low Voltage Connections
(Units with PremierLink TM Controls)
DISCONNECT
BOARD /
DISCONNECT
SWITCH
(OPTIONAL)
RACEWAY
COMPRESSOR
NO. 2
CONVENIENCE
OUTLET
HOLE IN
END
PANEL
COMPRESSOR NO. 1
Fig. 9 -- Typical Field Control Wiring Raceway
12

Table 4 -- Heat Anticipator Settings
UNIT
50TFQ
208/230
Configuration
Heater 2-Stage
kW* 1-Stage Stage 1 Stage 2
10.4, 16.0 0.3 NA NA
24.8, 32.0 0.6 0.3 0.3
42.4, 50.0 0.9 0.6 0.3
Heater
kW*
13.9, 16.5
27.8, 33.0
41.7, 50.0
UNIT VOLTAGE
460
Configuration
2-Stage
1-Stage Stage 1 Stage2
0.3 NA NA
0.6 0.3 0.3
575
Configuration
Heater 2-Stage
kW* 1-Stage Stage 1 Stage 2
17.0, 34.0 0.3 NA NA
51.0 0.6 0.3 0.3
*kW is based on 240,480, or 575 v.
CONVENIENCE OUTLET -- An optiomd convenience out-
let provides power for rooftop use. For maintenance personnel
safety, the convenience outlet power is off when the unit dis-
connect is off. Adjacent unit outlets may be used for service
tools. An optional "Hot Outlet" is available from the factory as
a special order item.
NOVAR CONTROLS -- Optional Novtu controls (ETM 3051 )
ale available for replacement or new construction jobs.
MANUAL OUTDOOR-AIR DAMPER -- The outdoor-air
hood and screen tue attached to the basepan at the bottom of
the unit (for shipping).
Assembls2:
1. Determine the mnount of ventilation required for build-
ing. Record the amount for use in Step 8.
2. Remove the tilter access panel by raising the panel and
swinging it outward. The panel is now disengaged from
the track and can be removed. No tools are required to re-
move the tilter access panel. Remove the outdoor-air
opening panel. Save the panels and screws. See Fig. 11.
3. Separate the hood and screen from the basepan by remov-
ing the screws and brackets securing them. Save all
screws and disc_ud the brackets.
4. Replace the outdoor air opening panel.
5. Place the hood on the front of the outdoor air opening
panel. See Fig. 12 for hood details. Secure the top of the
hood with the 6 screws removed in Step 3. See Fig. 13.
6. Remove and save the 8 screws (4 on each side) from the
sides of the manual outdoor-air &_mpel:
7. Align the screw holes on the hood with the screw holes
on the side of the manual outdoor-air dampel: See Fig. 12
and 13. Secure the hood with the 8 screws from Step 6.
8. Adjust the minimum position setting of the damper blade
by adjusting the manual outdoor-air adjustment screws on
the front of the damper blade. See Fig. 11. Slide the blade
vertically until it is in the appropriate position determined
by Fig. 14. Tighten the screws.
9. Remove and save the screws currently on the sides of
hood. Insert the screen. Secure the screen to the hood
using the screws. See Fig. 13.
10. Replace the tilter access panel. Ensure that the filter
access panel slides along the tracks and is securely
engaged.
P1
QUICK CONNECTS
FOR DEFROST TIMER
30 50 90
Fig. 10- Defrost Board
FILTER
ACCESS
PANEL
OUTDOOR AIF
OPENING
PANEL
SCREWS
(SIDE)
MANUAL
OUTDOOR-AIR
ADJUSTMENT
SCREWS DAMPER
BLADE
Fig. 11 -- Damper Panel with Manual
Outdoor-Air Damper Installed
13

HOOD TOP SCREWS
(HIDDEN) x,_
SCREWS
(SCREEN HOLDERS)
HOOD SIDES AND TOP-
ASSEMBLED
HOOD
SIDE
Fig. 12 -- Outdoor-Air Hood Details
SCREW
HOLES
(TOP)
HOOD
HOOD
SCREEN
LOCATION
(SCREEN
NOT
SHOWN)
Fig. 13- Optional Manual Outdoor-Air
Damper with Hood Attached
w
r_
w
n_
o.
W
Z
1.0
0.8
0.6
0,4
0.2 /
/
///
:Y
2 4 6 8 10 12
OUTDOOR AIRFLOW (cfm x 100)
Fig. 14 -- Outdoor Air Damper Position Setting
PREMIERLINK TM CONTROL -- The PmmierLink control-
let is compatible with Career Comfort Network® (CCN)
devices. This control is designed to allow users the access and
ability to change factory-defined settings, fires expanding
the function of the standiud unit control board. Career's diag-
nostic stan&trd tier display tools such as Navigator TM module
or Scrolling Marquee can be used with the PremierLink
controller.
Tile PremierLink controller (see Fig. 15A and 15B) requires
a CmTier electronic thermostat or a CCN connection for time
broadcast to initiate its internal timeclock. This is necessm-y for
broadcast of time of day functions (occupied/unoccupied). Re-
fer to Fig. 16. Tile PremierLink control may be mounted in the
control panel or an area below the control panel.
NOTE: PmmierLink versions 1.3 and later am shipped in Sen-
sor mode. If used wifll a thermostat, the PremierLink control
must be configured to Thermostat mode.
The PmmierLink control includes a supply-air temperature
sensor (SAT) and an outdoor-air temperature sensor (()AT) as
standard. An indoor-air quality (CO2) sensor can be added as
an option. Refer to Table 5 for sensor usage.
Install the Supply Air Temperature (SAT) Sensor -- When
the unit is supplied with a factory-mounted PremierLink con-
trol, the supply-air temperature (SAT) sensor (33ZCSENSAT)
is factory-supplied and wired. The wiring is routed from the
PmmierLink control over the control box, through a grommet,
into the fan section, down along the back side of the fan, and
along the fan deck over to the supply-air opening.
The SAT probe is wire-tied to the supply-air opening (on the
horizontal opening end) in its shipping position. Remove the
sensor for inst¢fllation. Re-position the sensor for installation.
Re-position the sensor in the flange of the supply-air opening
or in the supply air duct (as mquiled by local codes). Drill or
punch a l/2-in, hole in the flange or duct. Use two field-
supplied, self-drilling screws to secure the sensor probe in a
horizontal orientation.
NOTE: The sensor must be mounted in the dischmge airstmam
downstream of the cooling coil and any heating devices. Be
sure that the probe tip does not come in contact with any of the
unit or heat surfaces.
Outdoor Air Temperature (OAT) Sensor -- When the unit is
supplied with a factory-mounted PremierLink control, the
outdoor-_dr temperature (OAT) sensor is factory-supplied and
wired.
Install the Indoor Air Quality (COa2 Sensor -- Mount the
optional indoor air quality (CO2) sensor according to manufac-
turer specifications.
A separate field-supplied transformer must be used to pow-
er the CO2 sensol:
Wire the CO2 sensor to the COM and IAQI terminals of J5
on the PremierLink controllel: Refer to the PremierLink Instal-
lation, Start-up, and Configuration Instructions for detailed
wiring and configuration information.
14

Table 5 -- PremierLink TM Sensor Usage
OUTDOOR AIR RETURN AIR OUTDOOR AIR RETURN AIR
APPLICATION TEMPERATURE SENSOR TEMPERATURE SENSOR ENTHALPY SENSOR ENTHALPY SENSOR
Dry Bulb
Temperature with
PremierLink TM* Included --
(PremierLink HH79NZ017
requires 4-20 mA
Actuator)
Differential Dry Bulb
Temperature with Required --
PremierLink* Included -- 33ZCT55SPT -- --
(PremierLink HH79NZ017
requires 4-20 mA or Equivalent
Actuator)
Single Enthalpy with
PremierLin k*
(PremierLink Included -- _ Required -- _
Not Used HH57AC077
requires 4-20 mA
Actuator)
Differential Enthalpy
with PremierLink*
(PremierLink Included -- _ Required -- Required --
Not Used HH57AC077 HH57AC078
requires 4-20 mA
Actuator)
*PremierLink control requires Supply Air Temperature sensor 33ZCSENSAT and
Outdoor Air Temperature Sensor HH79NZ017 -- Included with factory-installed PremierLink control;
field-supplied and field-installed with field-installed PremierLink control.
NOTES:
1. CO2 Sensors (Optional):
33ZCSENCO2 -- Room sensor (adjustable). Aspirator box is required for duct mounting of the sensor.
33ZCASPCO2 -- Aspirator box used for duct-mounted CO2 room sensor.
33ZCT55CO2 -- Space temperature and CO2 room sensor with override.
33ZCT56CO2 -- Space temperature and CO2 room sensor with override and set point.
2. All units include the following Standard Sensors:
Outdoor-Air Sensor -- 50HJ540569 -- Opens at 67 F, closes at 52 F, not adjustable.
Mixed-Air Sensor -- HH97AZ001 -- (PremierLink control requires Supply Air Temperature sensor 33ZCSENSAT
and Outdoor Air Temperature Sensor HH79NZ017)
Compressor Lockout Sensor -- 50HJ540570 -- Opens at 35 F, closes at 50 R
OUTPUTS
Fig. 15A -- PremierLink Controller
15

PREMIERLINK
CONTROL
O©
HINGED
DOOR
PANEL
PREMIERLINK
COVER
[ }
Fig. 15B -- PremierLink TM Controller (Installed)
PNK
VlO
YEL
,_BLU
-- BLK
• RED
BLU
YEL
WHT
Economi$er2
4 - 20mA
BLU ..........................
BLK
PNK
iil
RED _J
WHT
8/']]_
\_L) BLK _ B£N
LEGEND
COMMS- Communications
OAT -- Outdoor Air Temperature Sensor
PWR -- Power
SAT -- Supply Air Temperature Sensor
Fig. 16 -- Typical PremierLink Controls Wiring
16

Enthalpy Sensors and Control -- The enthalpy control
(HH57AC077) is supplied as a field-inst_flled accessory to be
used with the economizer damper control option. The outdoor
air enthalpy sensor is part of the enthalpy control. The separate
field-inst_dled accessory return aw enthalpy sensor
(HH57AC078) is required for differential enthalpy control.
NOTE: The enthalpy control must be set to the "D" setting for
differential enthalpy control to won properly.
The enthalpy control receives the indoor and return
enthalpy from the outdoor and return tfir enthalpy sensors and
provides a @ contact switch input to the PremierLinld TM
controllel: Ix)cate the controller in place of an existing econo-
mizer controller or near the actuatol: The mounting plate may
not be needed if existing bracket is used.
A closed contact indicates that outside air is preferred to the
return all: An open contact indicates that the economizer
should remain at minimum position.
Outdoor Air Enthalpy Sensor/Enthalpy Controller
(HH57AC077) -- To wire the outdoor air enthalpy sensol:
perform the following (see Fig. 17 and 18):
NOTE: The outdoor air sensor can be removed from the back
of the enthalpy controller and mounted remotely.
1. Use a 4-conductor. 18 or 20 AWG cable to connect the
enthalpy control to the PremierLink controller and power
transformeE
2. Connect the following 4 wires from the wire harness
located in rooftop unit to the enthMpy controller:
a. Connect the BRN wire to the 24 vac terminal (TRI)
on enthalpy control and to pin 1 on 12-pin harness.
b. Connect the RED wire to the 24 vac GND terminal
(TR) on enthalpy sensor and to pin 4 on 12-pin
harness.
c. Connect the GRAY/ORN wire to J4-2 on Premier-
Link controller and to terminal (3) on enthalpy
sensoE
d. Connect the GRAY/RED wire to J4-1 on Premier-
Link controller and to termimd (2) on enth_dpy sensol:
NOTE: If installing in a Carrier rooftop, use the two gray wires
provided from the control section to the economizer to connect
PremierLink controller to termimds 2 and 3 on enthalpy sensor
If NOT using Carrier equipment, wires may need to be field
supplied and inst_dled.
Return Air Enthalpy Sensor -- Mount the return-air enthalpy
sensor (HH57AC078) in the return-air duct. The return tfir
sensor is wired to the enthalpy controller (HH57AC077). The
outdoor enthalpy changeover set point is set at the controllel:
To wire the return air enthalpy sensol: perform the follow-
ing (see Fig. 17):
1. Use a 2-conductor. 18 or 20 AWG, twisted pair cable to
connect the return air enthalpy sensor to the enthalpy
controllel:
2. At the enthalpy control remove the factory-installed
resistor from the (SR) and (+) terminals.
3. Connect the field-supplied RED wire to (+) spade
connector on the return air enthalpy sensor and the (SR+)
terminal on the enthalpy controllel: Connect the BLK
wire to (S) spade connector on the return air enth_dpy
sensor and the (SR) terminal on the enthalpy controller.
ENTHALPY CONTROLLER RED
TRr']TRI[_- BRN _S (OUTDOOR
AIR
+ ENTHALPY
BLK SENSOR)
RED
@o sorh+U----
SRI-h+13-
LED
i--IS (RETURN AIR I
[] + ENTHALPY
SENSOR
GRAY/ORN
LWIRE HARNESS
GRAY/RED JIN UNIT
NOTES:
1. Remove factory-installed jumper across SR and + before con-
necting wires from return air sensor,
2. Switches shown in high outdoor air enthalpy state. Terminals 2
and 3 close on low outdoor air enthalpy relative to indoor air
enthalpy.
3. Remove sensor mounted on back of control and locate in out-
door airstream.
Fig. 17 -- Outdoor and Return Air Sensor Wiring
Connections for Differential Enthalpy Control
HH57AC077
ENTHALPY
CONTROLAND
OUTDOOR AIR
ENTHALPY
SENSOR
© ©
HH57AC078 ENTHALPY
SENSOR (USED WITH
ENTHALPY CONTROL
FOR DIFFERENTIAL
ENTHALPY OPERATION)
re
÷÷
MOUNTING PLATE
Fig. 18 -- Differential Enthalpy Control,
Sensor and Mounting Plate (33AMKITENT006)
17

OPTIONAL ECONOMI$ER IV AND ECONOMI$ER2 --
See Fig. 19 for EconoMiSer IV component locations. See
Fig. 20 for EconoMiSer2 component locations.
NOTE: These instructions are for installing the optiomd
EconoMiSer IV and EconoMiSer2 only. Refer to the accessory
EconoMiSer IV or EconoMi$er2 inst¢fllation instructions when
field installing an EconoMiSer IV or EconoMiSer2 accessory.
1. To remove the existing unit filter access panel, raise the
panel and swing the bottom outwCud. Tile panel is now
disengaged from the track and can be removed. See
Fig. 21.
2. The box with the economizer hood components is
shipped in the compartment behind the economizel: The
EconoMiSer IV controller is mounted on top of the
EconoMi$er IV in the position shown in Fig. 19. The
optional EconoMiSer2 with 4 to 20 mA actuator sigmd
control does not include the EconoMiSer [V controllel:
To remove the component box from its shipping position,
remove the screw holding the hood box bracket to the top
of the economizer Slide the hood box out of the unit. See
Fig. 22.
IMPORTANT: If the power exhaust accessory is to be ]
inst_flled on the unit, the hood shipped with the unit will not I
be used and must be discarded. Save the aluminum filter
for use in the power exhaust hood assembly.
3. The indoor coil access panel will be used as the top of the
hood. Remove the screws along the sides and bottom of
the indoor coil access panel. See Fig. 23.
4. Swing out indoor coil access panel and insert the hood
sides under the panel (hood top). Use the screws provided
to attach the hood sides to the hood top. Use screws pro-
vided to attach the hood sides to the unit. See Fig. 24.
5. Remove the shipping tape holding the economizer baro-
metric relief &_mper in place.
FILTER ACCESS PANEL
INDOOR COILACCESS PANEL
Fig. 21 -- Typical Access Panel Locations
HARNESS
ACTUATOR- _
ECONOMI$ER IV
CONTROLLER
OUTSIDE AIR
TEMPERATURE SENSOR
LOW AMBIENT
SENSOR
/
/{{'
311
Fig. 19 -- EconoMi$er IV Component Locations
/1 /
i I
I I
I
/0
/
/
/
Fig. 22- Hood Box Removal
HOODBOX
OUTDOOR
AIR HOOD
ccC)
ECONOMI$ER:
PLDG
BAROMETRIC
RELIEF
DAMPER
BRACKET
7
GEAR DRIVEN
DAMPER
Fig. 20 -- EconoMi$er2 Component Locations
SIDE
PANEL
TOP
SIDE
PANEL
INDOOR INDOOR
COIL """ COIL
ACCESS
PANEL PANEL
Fig. 23 -- Indoor Coil Access Panel Relocation
18

6. Insert the hood divider between the hood sides. See
Fig. 24 and 25. Secure hood divider with 2 screws on
each hood side. The hood divider is also used as the bot-
tom filter rock for the aluminum filter.
7. Open the filter clips which are located underneath the
hood top. Insell the aluminum filter into the bottom filter
rack (hood divider). Push the filter into position past the
open filter clips. Close the filter clips to lock the filter into
place. See Fig. 25.
TOP
PANEL
8. Caulk the ends of the joint between the unit top panel and
the hood top. See Fig. 23.
9. Replace the filter access panel.
10. Install all EconoMi$er IV accessories. EconoMi$er IV
wiring is shown in Fig. 26. EconoMiSer2 wiring is shown
in Fig. 27.
Barometric flow capacity is shown in Fig. 28. Outdoor air
leakage is shown in Fig. 29. Return air pressure drop is shown
in Fig. 30.
22 1/4"
INDOOR COIL
ACCESS PANEL
LEFT
SIDE
HOOD DIVIDER
Fig. 24 -- Outdoor-Air Hood Construction BAROMETRIC ,
RELIEF
DIVIDER
3LEANABLE "
ALUMINUM
FILTER
FILTER
CLIP
Fig. 25 -- Filter Installation
FOR OCCUPANCY CONTROL
REPLACE JUMPER WITH
FIELD-SUPPLIED TIME CLOCK
{FIELD N1 EXH I TRI
POSl T[0_ POT BLK 2V log WHT
2,{ {,,,
OPEN DCV ' J
......... I_a_
IA0SE_S0R [2_[ Q..) I zv 1or _ Irll 2lrU I
OAT TEMPI i _ ,b /\ DCV 5
_,,',.,._,',_E,,_0,,@,,0WI rAq.... s@j
RATIZNIHALPY SENSOR SR
FIELD SPLICE
-- BRN
L
TA_
GRY
ORG
TO PWR EXHAUST
ACCESSORY
{NOT USED)
{NOT USED)
{NOT USED}
(NOT USED)
LEGEND
DCV-- Demand Controlled Ventilation Power Exhaust Middle
IAQ -- Indoor Air Quality Minimum Pos. Fully Closed
LA -- Low Ambient Lockout Device DCV Max. Middle
OAT-- Outdoor-Air Temperature DCV Set Middle
POT-- Potentiometer Enthalpy C Setting
RAT-- Return-Air Temperature
Potentiometer Defaults Settings: NOTES:
PL6-R
FOR STD
UNIT
4
q
q
1. 620 ohm, 1 watt 5% resistor should be removed only when using differential
enthalpy or dry bulb,
2. If a separate field-supplied 24 v transformer is used for the IAQ sensor power
supply, it cannot have the secondary of the transformer grounded.
3. For field-installed remote minimum position POT, remove black wire jumper
between P and P1 and set control minimum position POT. to the minimum
position,
Fig. 26 -- EconoMi$er IV Wiring
19

NOTE1
NOTE3
J
50HJ540573
ACTUATOR
ASSEMBLY
RUN
/
DIRECT DRIVE
ACTUATOR
f
500 OHM _J<>l
RESISTOR?
I
I
.o_l_
I
+o-- I ....
I
I
OPTIONAL CO2
SENSOR 4 - 20 mA
OUTPUT
BLACK
VIOLET
PINK
+
+
RED
S
u i
W _
>-i
WHITE
4
3
5
2
8
6
7
1
10
11
9
12
ECONOMIZER2 PLUG
NOTES:
1. Switch on actuator must be in run position for economizer to operate.
2. PremierLink TM control requires that the standard 50HJ540569 outside-air sensor be replaced by either the CROASENR001A00 dry bulb sensor or HH57A077
enthalpy sensor.
3. 50HJ540573 actuator consists of the 50HJ540567 actuator and a harness with 500-ohm resistor.
Fig. 27 -- EconoMi$er2 with 4 to 20 mA Control Wiring
Z
LIJ
Q_
I'-
uJ
LU
LI.
o
o
z
t,i.
25OO
2000
1500
1000
5OO
00.05 0.15 0.25
STATIC PRESSURE (in. wg)
Fig. 28 -- Barometric Flow Capacity
w
F-
Z
0_
F-
w
w
I1
_o
O3
z
q
I1
200C
100C
0
600C
500C
4ooc
300¢
0.05 0.10 0.15 0.20 0.25 0.30 0.35
STATIC PRESSURE (in. wg)
Fig. 30 -- Return-Air Pressure Drop
w
M
o.
w
w
11
o
©
S
I1
30
25
20 _ _
15
10
5
0.13 0.20 0.22 0.25 0.30 0.35 0.40 0.45 0.50
STATIC PRESSURE (in. wg)
Fig. 29 -- Outdoor-Air Damper Leakage
20

ECONOMI$ER IV STANDARD SENSORS
Outdoor Air Temperature (OAT) Sensor -- The outdoor air
temperature sensor (HH57AC074) is a 10 to 20 mA device
used to measure the outdoor-air temperature. The outdoor-air
temperature is used to determine when the EconoMiSer IV can
be used for free cooling. The sensor is factory-inst_dled on the
EconoMiSer IV in the outdoor airstrealn. See Fig. 19. The op-
erating range of temperature measurement is 40 to 100 E
Supply Air Temperature (SAT) Sensor -- The supply air
temperature sensor is a 3 K thermistor located at the inlet of the
indoor fan. See Fig. 31. This sensor is factory inst_flled. The op-
erating range of temperature measurement is 0° to 158 E See
Table 6 for sensor temperature/resistance v_dues.
The temperature sensor looks like an eyelet terminal with
wires running to it. The sensor is located in the "crimp end"
and is seeded from moisture.
Table 6 -- Supply Air Sensor Temperature/
Resistance Values
TEMPERATURE (F) RESISTANCE (ohms)
-58 200,250
-40 100,680
-22 53,010
-4 29,091
14 16,590
32 9,795
50 5,970
68 3,747
77 3,000
86 2,416
104 1,597
122 1,080
140 746
158 525
176 376
185 321
194 274
212 203
230 153
248 116
257 102
266 89
284 70
302 55
Outdoor Air Lockout Sensor -- The EconomiSer IV is
equipped with an alnbient temperature lockout switch located
in the outdoor air stream which is used to lockout the compres-
sors below a 42 F ambient temperature. See Fig. 19.
ECONOM[$ER IV CONTROL MODES
IMPORTANT: The optional EconoMiSer2 does not
include a controllel: The EconoMiSer2 is operated by a 4 to
20 mA signal from an existing field-supplied controller
(such as PremierLink TM control). See Fig. 27 for wiring
information.
Determine the EconoMiSer IV control mode before set up of
the control. Some modes of operation may require different sen-
sors. Refer to Ntble 7. The EconoMiSer IV is supplied from the
factory with a supply air temperature sensor and an outdoor tdr
temperature sensol: This allows for operation of the
EconoMiSer IV with outdoor air dry bulb changeover control.
Additional accessories c_m be added to allow for different types
of changeover control and operation of the EconoMiSer IV and
unit.
Table 7 -- EconoMi$er IV Sensor Usage
APPLICATION
Outdoor Air
Dry Bulb
Differential
Dry Bulb
Single Enthalpy
Differential
Enthalpy
CO2 for DCV
Control using a
Wall-Mounted
CO2 Sensor
CO2 for DCV
Control using a
Duct-Mounted
CO2 Sensor
ECONOMISER IV WITH OUTDOOR AIR
DRY BULB SENSOR
Accessories Required
None. The outdoor air dry bulb sensor
is factory installed.
CRTEMPSN002A00*
HHS7AC078
HHS7AC078
and
CRENTDIF004A00*
33ZCSENCO2
33ZCSENCO21-
and CRCBDIOX005A001-1-
33ZCASPCO2**
*CRENTDIF004A00 and CRTEMPSN002A00 accessories are
used on many different base units. As such, these kits may con-
tain parts that will not be needed for installation.
1-33ZCSENCO2 is an accessory CO2 sensor.
**33ZCASPCO2 is an accessory aspirator box required for duct-
mounted applications.
1-1-CRCBDIOX005A00 is an accessory that contains both
33ZCSENCO2 and 33ZCASPCO2 accessories.
Outdoor DLy Bulb Changeover -- The standard controller is
shipped from the facto qconfigured for outdoor @ bulb
changeover control. The outdoor air and supply air temperature
sensors me included as standmd. For this control mode, the
outdoor temperature is compared to an adjustable set point
selected on the control. [f the outdoor-air temperature is above
the set point, the EconoMiSer IV will adjust the outdoor air
dampers to minimum position. If the outdoor-air temperature is
below the set point, the position of the outdoor air dampers will
be controlled to provide free cooling using outdoor all: When
in this mode, the LED next to the free cooling set point potenti-
ometer will be on. The changeover temperature set point is
controlled by the free cooling set point potentiometer located
on the control. See Fig. 32. The sc_fle on the potentiometer is A,
B, C, and D. See Fig. 33 for the corresponding temperature
changeover values.
J
J
SUPPLY AIR
TEMPERATURE
SENSOR
MOUNTING
LOCATION _, \
SUPPLY AIR
TEMPERATURE
SENSOR _
Fig. 31 -- Supply Air Sensor Location
21

EXHAUST
FAN SET POINT
LED LIGHTS
WHEN EXHAUST
CONTACT IS MADE
MINIMUM DAMPER
POSITION SETTING
MAXIMUM DAMPER--_
DEMAND CONTROL
VENTILATION SET POINT
LED LIGHTS WHEN_
DEMAND CONTROL
VENTILATION INPUT
iS ABOVE SET POINT
DEMAND CONTROL
VENTILATION SET POINT
LED LIGHTS WHEN
OUTDOOR AiR iS
SUITABLE FOR
FREE COOLING ENTHALPY
CHANGEOVER SET POINT
Fig. 32 -- EconoMi$er IV Controller Potentiometer
and LED Locations
19
18-
17-
16-
15
,<
E14-
13"
12
11
10
9-
40 45
I
-- -LED OFF LED ON
LED OFF- LED 0B
50 55 60 65 70 75 80
DEGREES FAHRENHEIT
LED ON- --
I
85 90 95 100
Fig. 33 -- Outside Air Temperature
Changeover Set Points
Differential Dry Bulb Control -- For differential dry bulb
control the standard outdoor dry bulb sensor is used in conjunc-
tion with an additional accessory dry bulb sensor (part number
CRTEMPSN002A00). Tile accessory sensor must be mounted
in the return _fil_tream. See Fig. 34. Wiring is provided in the
EconoMi$er [V wMng harness. See Fig. 26.
In this mode of operation, the outdoor-air temperatme is
compared to the return-tilt temperature and the lower tempera-
ture airsUeam is used for cooling. When using this mode of
changeover control, turn the enthalpy set point potenfiometer
fully clockwise to the D setting. See Fig. 32.
Outdoor Enthalpy Changeover -- For enthalpy control, ac-
cessory enthalpy sensor (part number HH57AC078) is le-
quiredi Replace the standiu'd outdoor dry bulb temperature sen-
sor with the accesso Uenthalpy sensor in the same mounting
location. See Fig. 19. When the outdoor air enthalpy rises
above the outdoor enth_dpy changeover set point, the outdoor-
air damper moves to its minimum position. Tile outdoor
enthalpy changeover set point is set with the outdoor enthalpy
set point potentiometer on the EconoMiSer IV controllel: The
set points are A, B, C, and D. See Fig. 35. The factory-installed
620-ohm jumper must be in place across terminals SR and SR+
on the EconoMi$er IV controllel: See Fig. 19 and 36.
Differential Enthalpy Control -- For differential enthalpy
control, the EconoMiSer IV controller uses two enthalpy sen-
sors (HH57AC078 and CRENTDIF004A00), one in the out-
side air and one in the leturn air duct. The EconoMiSer [V
controller comptues file outdoor air enthalpy to the return air
enthalpy to determine EconoMi$er IV use. The controller
selects the lower enthalpy air (return or outdoor) for cooling.
For example, when file outdoor air has a lower enthalpy than
the return tfir. the EconoMiSer IV opens to bring in outdoor air
for free cooling.
Replace the standard outside air dUbulb temperature sen-
sor with file accessory enthalpy sensor in the same mounting
location. See Fig. 19. Mount the return air enthalpy sensor in
the return air duct. See Fig. 34. Wiring is provided in the
EconoMiSer IV wiring harness. See Fig. 26. The outdoor en-
thalpy changeover set point is set with the outdoor enthalpy set
point potentiometer on the EconoMi$er IV controllel: When
using this mode of changeover control, turn the enthalpy set-
point potentiometer fully clockwise to the D setting.
Indoor Air Ouality (IAO) Sensor Input -- The IAQ input
can be used for demand control ventilation control based on the
level of CO2 measured in the space or leturn air duct.
Mount the accesso UIAQ sensor according to manufacturer
specifications. The IAQ sensor should be wired to file AQ and
AQI terminals of the controllel: Adjust the DCV potentiome-
ters to correspond to file DCV voltage output of the indoor air
quality sensor at the user-determined set point. See Fig. 37.
If a separate field-supplied transformer is used to power the
IAQ sensor, the sensor must not be grounded or the
EconoMi$er IV control bo_ud will be &tmaged.
ECONOMI$ER _
ECONOMISER ]_
_ CONTROLLER
-7
/
T--Ii/--GROMMET
.......RETURN AIR
/" RETURN DUCT
(FIELD-PROVIDED)
Fig. 34-- Return Air Temperature or Enthalpy
Sensor Mounting Location
22

CONTROL CONTROL POINT
CURVE APPROX °F (°C)
AT 50% RH
A 73123)
B 70 (21)
C 67 (19)
D 63 (17)
35
(2)
85 90 95 100 105 110
(29) (32) (35) (38) (41) (43)
i
i
i
i
i
i
i
i
i
i
i
i
i
i
i
i
_HIGH LIMIT
i
\ i CURVE
40 45 50 55 60 65 70 75 80 85 90 95 100 105 110
(4) (7) (10) (13) (16) (18) (21) (24) (27) (29) (32) (35) (38) (41) (43)
APPROXIMATE DRY BULB TEMPERATURE--°F (°C)
Fig. 35 -- Enthalpy Changeover Set Points
--_ _ v_1 EXH
...... _ Set
N 2 0V
FFr_I EF1
.....•-I
...... _7
2
5
....._ 4
Fig. 36 -- EconoMi$er IV Control
6000
5000
z
2 4000
3000
E
z
2000
w
z 1000
0
CO2 SENSOR MAX RANGE SEqq ING
2345678
DAMPER VOLTAGE FOR MAX VENTILATION RATE
Fig. 37 -- CO2 Sensor Maximum Range Setting
23

Exhaust Set Point Adjustment -- The exhaust set point will
determine when the exhaust fan runs based on dalnper position
(if accessory power exhaust is installed). The set point is modi-
fied with the Exhaust Fan Set Point (EXH SET) potentiometer
See Fig. 32. The set point represents the damper position above
which the exhaust fans will be turned on. When there is a call
for exhaust, the EconoMiSer IV controller provides a 45 _+15
second delay before exhaust fan activation to allow the damp-
ers to open. This delay allows file damper to reach the appro-
priate position to avoid unnecessary fan overload.
Minimum Position Control -- There is a minimum damper
position potentiometer on the EconoMiSer [V controllel: See
Fig. 32. The minimum damper position maintains the mini-
mum airflow into the building during the occupied period.
When using demand ventilation, the minimum dalnper po-
sition represents the minimum ventilation position for VOC
(volatile organic compound) ventilation requirements. The
maximum demand ventilation position is used for fully occu-
pied ventilation.
When demand ventilation control is not being used, the
minimum position potentiometer should be used to set the oc-
cupied ventilation position. The maximum demand ventilation
position should be turned fully clockwise.
Adjust the minimum position potentiometer to allow the
minimum amount of outdoor aik as required by local codes, to
enter the building. Make minimum position adjustments with
at least 10 F temperature difference between the outdoor and
return-air temperatures.
To determine the minimum position setting, perform the
following procedure:
1. Calculate the appropriate mixed air temperature using the
following formula:
OA RA
(Tox 1---_7) +(TRx 1-]Ti-(]-)=TM
To = Outdoor-Air Temperature
OA = Percent of Outdoor Air
TR = Return-Air Temperature
RA = Percent of Return Air
TM = Mixed-Air Temperature
As an example, if local codes require 10% outdoor air
during occupied conditions, outdoor-air temperature is
60 Eand return-air temperature is 75 E
(60 x .10) + (75 x .90) = 73.5 F
2. Disconnect the supply air sensor from temfinals T and
TI.
3. Ensure that the factory-installed jumper is in place across
terminals P and PI. If remote damper positioning is being
used, make sure that the terminals are wired according to
Fig. 26 and that the minimum position potentiometer is
turned fully clockwise.
4. Connect 24 vac across terminals TR and TRI.
5. Carelully adjust the minimum position potentiometer
until the measured mixed-air temperature matches the
calculated value.
6. Reconnect the supply air sensor to termimds T and TI.
Remote control of the EconoMiSer IV damper is desirable
when requiring additional tempormy ventilation. If a
field-supplied remote potentiometer (Honeywell part number
$963B1128) is wired to the EconoMiSer IV controllek the
minimum position of the damper can be controlled from a re-
mote location.
To control the minimum damper position remotely, remove
the factory-installed jumper on the P and PI terminals on the
EconoMiSer IV controllel: Wire the field-supplied potentiome-
ter to the P and PI terminals on the EconoMiSer IV controller.
See Fig. 36.
Damper Movement -- Damper movement trom full open to
full closed (or vice versa) takes 2112minutes.
Thermostats -- The EconoMi$er IV control works with con-
ventional thermostats that have a YI (cool stage 1), Y2 (cool
stage 2), Wl (heat stage 1), W2 (heat stage 2), and G (fan). The
EconoMi$er IV control does not support space temperature
sensors. Connections are made at the thermostat terminal con-
nection board located in the main control box.
Occupancy Control -- The factoUdefault configuration for
the EconoMi$er IV control is occupied mode. Occupied status
is provided by the black jumper fiom terminal TR to terminal
N. When unoccupied mode is desired, inst_dl a field-supplied
timeclock function in place of the jumper between TR and N.
See Fig. 26. When the timeclock contacts are closed, the
EconoMi$er IV control will be in occupied mode. When the
timeclock contacts are open (removing the 24-v signal from
terminal N), the EconoMi$er IV will be in unoccupied mode.
Demand Controlled Ventilation (DCV) -- When using the
EconoMi$er IV for demand controlled ventilation, them are
some equipment selection criteria which should be considered.
When selecting the heat capacity and cool capacity of the
equipment, the maximum ventilation rote must be ev_duated for
design conditions. The maximum damper position must be cal-
culated to provide the desired fresh air
Typically the maximum ventilation rate will be about 5 to
10% more than the typical cfin required per person, using
norm_doutside air design criteria.
A proportional anticipato Ustrategy should be taken with
the following conditions: a zone with a large area, varied occu-
pancy, and equipment that cannot exceed the required ventila-
tion rate at design conditions. Exceeding the required ventila-
tion rate means the equipment can condition air at a maximum
ventilation rate that is greater than the required ventilation rate
for maximum occupancy. A proportional-anticipato Ustrategy
will cause the fresh air supplied to increase as the room CO2
level increases even though the CO2 set point has not been
machedi By the time the CO2 level roaches the set point, the
damper will be at maximum ventilation and should maintain
the set point.
In order to have the CO2 sensor control the economizer
damper in this manner, fil.stdetermine the damper voltage out-
put for minimum or base ventilation. Base ventilation is the
ventilation required to remove contmninants during unoccu-
pied periods. The following equation may be used to determine
the percent of outside-air entering the building for a given
damper position. For best results there should be at least a
10 degree difference in outside and return-air temperatures.
OA RA
(To x 1--_) + (TR x 1--_) = TM
To = Outdoor-Air Temperature
OA = Percent of Outdoor Air
TR = Return-Air Temperature
RA = Percent of Return Air
TM = Mixed-Air Temperature
Once base ventilation has been determined, set the mini-
mum damper position potentiometer to the correct position.
The same equation can be used to determine the occupied or
maximum venfihttion rote to the building. For example, an out-
put of 3.6 volts to the actuator provides a base ventihttion rate
of 5% and an output of 6.7 volts provides the maximum venti-
lation rate of 20% (or base plus 15 cfm per person). Use Fig. 37
to determine the maximum setting of the CO2 sensoc For ex-
ample, a 1100 ppm set point relates to a 15 cfm per person de-
sign. Use the 1100 ppm curve on Fig. 37 to find the point when
the CO2 sensor output will be 6.7 volts. Line up the point on the
graph with the left side of the chart to determine that the range
configuration for the CO2 sensor should be 1800 ppm. The
EconoMiSer IV controller will output the 6.7 volts from the
24

CO2sensortotheactuatorwhentheCO2concentrationinthe
spaceisat1100ppm.TheDCVsetpointmaybeleftat2volts
sincethe CO2 sensor voltage will be ignored by the
EconoMiSer IV controller until it rises above the 3.6 volt set-
ting of the minimum position potentiometel:
Once the fully occupied dmnper position has been deter-
mined, set file maximum damper demand control ventilation
potentiometer to this position. Do not set to file maximum posi-
tion as fills can result in over-ventilation to the space and poten-
tial high-humidity levels.
(;02 Sensor Configuration --The CO2 sensor has preset
standard voltage settings flint can be selected anytime after the
sensor is powered up. See Table 8.
Use setting 1 or 2 for Carrier equipment. See Table 8.
1. Press Clear and Mode buttons. Hold at least 5 seconds
until the sensor enters the Edit mode.
2. Press Mode twice. The STDSET Menu will appem:
3. Use file Up/Down button to select the preset numbel: See
Table 8.
4. Press Enter to lock in the selection.
5. Pless Mode to exit and resume norm_fl operation.
The custom settings of the CO2 sensor can be changed any-
time after the sensor is energized. Follow the steps below to
change the non-stan&trd settings:
1. Pless Clear and Mode buttons. Hold at least 5 seconds
until the sensor enters the Edit mode.
2. Pleas Mode twice. The STDSET Menu will appeal:
3. Use the Up/Down button to toggle to the NONSTD menu
and press Entel:
4. Use the Up/Down button to toggle through each of the
nine variables, stinting with Altitude, until the desiled set-
ting is reached.
5. Pless Mode to move through the variables.
6. Pleas Enter to lock in the selection, then press Mode to
continue to the next vtuiable.
Dehumidification of Fresh Air with DCV Control -- Infor-
mation from ASHRAE indicates that the largest humidity load
on any zone is the fresh air introduced. For some applications,
a device such as a 62AQ energy recovery unit is added to re-
duce the moisture content of the fiesh tdr being brought into the
building when the enthalpy is high. In most cases, the normal
heating and cooling processes are more than adequate to re-
move the humidity loads for most commercial applications.
If normal rooftop heating and cooling operation is not ade-
quate for the outdoor humidity level, an energy recovery unit
and/or a dehumidification option should be considered.
Step 7 -- Adjust Indoor-Fan Speed -- Adjust the
indoor-fan speed to meet jobsite conditions.
For units with electric heat, required minimum cfin is 2250
for 50TFQ008, 2550 for 50TFQ009 and 3000 for 50TFQ012
with the following exceptions:
UNIT
UNIT VOLTAGE
208/230
208/230
50TFQ012 450
575
HEATER
kW
42.4
50.0
50.0
17.0
51.0
UNIT
CONFIG-
URATION
Horizontal
Horizontal
Horizontal or
Vertical
Horizontal or
Vertical
REQUIRED
MINIMUM
CFM
3200
3200
3200
2800
2350
Table 9 shows indoor-fan motor data. Table 10 shows fan
rpm at motor pulley settings for standard and alternate motors.
Tables 1lA and 11B show static pressure for accessories. Refer
to Tables 12-27 to determine fan speed settings. Fan motor
pulleys are factory set for speed shown in Table 1.
To change fan speeds:
1. Shut offthe unit power supply and tag disconnect.
2. Ix_osen the belt by loosening the fan motor mounting
nuts. See Fig. 38 and 39.
3. Ix_osen the movable pulley flange setscrew (see Fig. 40).
4. Screw the movable flange tow_ud file fixed flange to
increase speed or away from file fixed flange to decrease
speed. Increasing the fan speed increases the load on the
motol: Do not exceed the maximum speed specified in
Table 1.
5. Set the movable flange at nearest keyway of the pulley
hub and tighten the setscrew. (See Table 1 for speed
change for each full turn of the pulley flange.)
Table 8 -- CO2 Sensor Standard Settings
EQUIPMENTSETTING
1
2
3
4
5
6
7
8
9
Interface w/Standard
Building Control System
Economizer
Health & Safety
Parking/Air Intakes/
Loading Docks
OUTPUT
Proportional
Proportional
Exponential
Proportional
Proportional
Exponential
Exponential
Proportional
Proportional
VENTILATION
RATE
(cfm/Person)
Any
Any
Any
15
20
15
2O
ANALOG
OUTPUT
0-10V
4-20 mA
2-10V
7-20 mA
0-10V
4-20 mA
0-10V
4-20 mA
0-10V
4-20 mA
0-10V
4-20 mA
0-10V
4-20 mA
0-10V
4-20 mA
0-10V
4-20 mA
CO2
CONTROLRANGE
(ppm)
0-2000
0-2000
0-2000
0-1100
0- 900
0-1100
0- 900
0-9999
0-2000
OPTIONAL
RELAY SETPOINT
(ppm)
1000
1000
1100
1100
900
1100
900
5000
700
LEGEND
ppm -- Parts Per Million
RELAY
HYSTERESIS
(ppm)
5O
5O
5O
5O
5O
5O
5O
5OO
5O
25

To align the fan and motor pulleys:
1. I_)osen tile fan pulley setscrews,
2. Slide file fan pulley along file fan shaft.
3. Make angular alignment by loosening the motor fiOl_l the
mounting plate.
To adjust belt tension:
1. Ix)osen tile fan motor mounting nuts.
2. Si'..es 008 and 009 Slide the motor mounting plate
away froth the fan scroll for proper belt tension (1/2-in.
deflection with 5 to 10 lb of force) and tighten the mount-
ing nuts (see Fig. 38).
Sise 012 -- Slide the motor mounting plate downward to
tighten belt tension (l/2-in. deflection with 5 to 10 lb of
force). Secure the motor mounting plate nuts. See Fig. 39.
3. Adjust the bolt and nut on the mounting plate to secure
the motor in fixed position.
MOTOR
MOUNTING
PLATE NUTS
(HIDDEN)
Fig. 39 -- Typical Belt-Drive Motor Mounting for
Size 012
MOTOR MOUNTING
PLATE NUTS
STRAIGHTEDGE OR STRING
TBE PARALLEL
WITH BELT
MOTOR AND FAN
SHAFTS MUST BE
PARALLEL
MOVABLE
FLANGE
SETSCREWS_
FIXED FLANGE
SINGLE-GROOVE
Fig. 38 -- Typical Belt-Drive Motor Mounting for
Size 008 and 009 Fig. 40 -- Indoor-Fan Pulley Adjustment
Table 9- Fan Motor Performance
UNIT
50TFQ
008
009
012
INDOOR-FAN
MOTOR
Standard,
Alternate
High Static
Standard
High Static
Standard
Alternate
High Static
UNIT
VOLTAGE
208/230
460
575
208/230
460
575
208/230
480
575
208/230
480
575
208/230
480
575
208/230
480
575
208/230
480
575
MAXIMUM ACCEPTABLE
CONTINUOUS BHP*
2.40
3.70
2.40
3.70
2.40
2.90
5.25
LEGEND
BHP i Brake Horsepower
*Extensive motor and electrical testing on these units ensures that the full horsepower range of the
motors can be utilized with confidence. Using fan motors up to the horsepower ratings shown in
this table will not result in nuisance tripping or premature motor failure. Unit warranty will not be
affected.
MAXIMUM ACCEPTABLE
OPERATING WATTS
2120
3313
2120
3313
2120
2615
4400
MAXIMUM
AMP DRAW
6.0
3.0
3.0
11,7
5.5
5.5
6.0
3.0
3.0
11,7
5.5
5.5
6.0
3.0
3.0
8.6
3.9
3.9
17,3
8.5
8.5
26

Table 10 -- Fan Rpm at Motor Pulley Settings*
UNIT
50TFQ 0 16
008t 840 815
008** 935 910
008it 1080 1025
009t 935 910
009it 1080 1025
012t 935 910
012"* 1085 1060
012it 1130 1112
MOTOR PULLEY TURNS OPEN
1 116 2 216 3 316
790 765 740 715 690 665
885 880 835 810 785 760
1007 988 970 952 933 915
885 880 835 810 785 760
1007 988 970 952 933 915
885 880 835 810 785 760
1035 1010 985 960 935 910
1087 1062 1037 1012 987 982
*Approximate fan rpm shown.
I-Indicates standard motor and drive package.
4 416 5 516 6
635 615 590 -- --
735 710 685 -- --
897 878 860 -- --
735 710 685 -- --
897 878 860 -- --
735 710 685 -- --
885 860 835 -- --
937 912 887 862 830
**Indicates alternate drive package only.
I-I-Indicates high-static motor and drive package.
Table 11A -- Electric Heater Static Pressure* (in. wg) -- 50TFQ008-012
I I CFM
COMPONENT 2250 2500 3000 3500 4000 4500
1 Heater Module 0.02 0.03 0.05 0.07 0.08 0.10
2 Heater Modules 0.03 0.05 0.07 0.09 0.12 0.14
*The static pressure must be added to external static pressure. The sum and the evaporator
entering-air cfm should then be used in conjunction with the Fan Performance tables to deter-
mine blower rpm and watts.
I 000 5500 6000 6250
0.12 0.14 0.18 0.17
0.16 0.19 0.21 0.20
Table 11B -- EconoMi$er IV and EconoMi$er2 Static Pressure* (in. wg) -- 50TFQ008-012
COMPONENT 6250
Vertical EconoMi$er IV and EconoMi$er2
Horizontal EconoMi$er IV and EconoMi$er2
*The static pressure must be added to external static pressure. The sum and the outdoor
entering-air cfm should then be used in conjunction with the Fan Performance tables to
determine blower rpm and watts.
27

Table 12- Fan Performance, 50TFQ008- Vertical Discharge Units; Standard Motor and Drive*
AIRFLOW
(Cfm)
2250
2300
2400
2500
2550
2600
2700
2800
2900
3000
3100
3200
3300
3400
3500
3600
3700
3750
EXTERNAL STATIC PRESSURE (in. wg)
0.2 0.4 0.6 0.8 1.0
Rpm Bhp Watts Rpm Bhp Watts Rpm Bhp Watts Rpm Bhp Watts Rpm Bhp Watts
511 0.58 538 591 0.75 697 680 0.93 864 722 1.12 1041 779 1.32 1228
519 0.61 567 597 0.78 729 666 0.97 900 727 1.16 1079 784 1.36 1268
534 0.68 630 611 0.86 798 678 1.04 974 739 1.24 1158 794 1.45 1352
550 0.75 698 624 0.93 872 690 1.13 1053 750 1.33 1243 805 1.55 1441
557 0.79 733 631 0.98 910 697 1.17 1095 756 1.38 1287 811 1.60 1488
565 0.83 770 638 1.02 950 703 1.22 1138 762 1.43 1333 818 1.65 1536
581 0.91 848 652 1.11 1034 718 1.32 1228 774 1.53 1428 828 1.75 1636
597 1.00 932 667 1.21 1124 729 1.42 1323 786 1.84 1529 839 1.87 1742
613 1.09 1020 681 1.31 1220 743 1.53 1425 799 1.75 1636 851 1.99 1855
629 1.20 1115 696 1.42 1321 756 1.64 1532 812 1.88 1749 863 2.12 1973
646 1.30 1217 711 1.53 1428 770 1.76 1645 825 2.00 1869 875 2.25 2098
662 1.42 1324 726 1.65 1542 784 1.89 1765 838 2.14 1994 888 2.39 2229
679 1.54 1438 741 1.78 1663 798 2.03 1892 851 2.28 2126 -- -- --
695 1.67 1558 756 1.92 1790 812 2.17 2025 ......
712 1.81 1686 772 2.06 1923 827 2.32 2165 ......
729 1.95 1820 787 2.21 2065 .........
746 2.10 1962 803 2.37 2213 .........
754 2.18 2036 ............
AIRFLOW
(Cfm)
2250
2300
2400
2500
2550
2600
2700
2800
2900
3000
3100
3200
3300
3400
3500
3600
3700
3750
EXTERNAL STATIC PRESSURE (in. wg)
1.2 1.4 1.6 1.8 2.0
Rpm Bhp Watts Rpm Bhp Watts Rpm Bhp Watts Rpm Bhp Watts Rpm Bhp Watts
831 1.53 1423 880 1.74 1627 927 1.97 1840 971 2.21 2061 -- --
836 1.57 1465 885 1.79 1671 931 2.02 1886 975 2.26 2109 -- --
846 1.67 1554 895 1.89 1764 941 2.13 1982 984 2.37 2209 -- --
856 1.77 1647 905 2.00 1862 950 2.24 2085 --
862 1.82 1697 910 2.05 1913 955 2.29 2138 --
867 1.87 1747 915 2.11 1966 960 2.35 2193 --
878 1.99 1852 925 2.23 2076 --
889 2.11 1963 936 2.35 2192 --
900 2.23 2080 ....
912 2.36 2204 ....
LEGEND
Bhp -- Brake Horsepower Input to Fan
Watts -- Input Watts to Motor
*Motor drive range: 590 to 840 rpm. All other rpms require field-
supplied drive.
m
m
m
Refer to page 43 General Fan Performance Notes.
NOTES:
1. Boldface indicates field-supplied drive is required.
2. Maximum continuous bhp is 2.40.
28

Table 13- Fan Performance, 50TFQ008- Vertical Discharge Units; Alternate Motor and Drive*
AIRFLOW
(Cfm)
2250
2300
2400
2500
2550
2600
2700
2800
2900
3000
3100
3200
3300
3400
3500
3600
3700
3750
EXTERNAL STATIC PRESSURE (in. wg)
0.2 0.4 0.6 0.8 1.0
Rpm Bhp Watts Rpm Bhp Watts Rpm Bhp Watts Rpm Bhp Watts Rpm Bhp Watts
511 0.58 538 591 0.75 697 660 0.93 864 722 1.12 1041 779 1.32 1228
519 0.61 567 597 0.78 729 666 0.97 900 727 1.16 1079 784 1.36 1268
534 0.68 630 611 0.86 798 678 1.04 974 739 1.24 1158 794 1.45 1352
550 0.75 698 624 0.93 872 690 1.13 1053 750 1.33 1243 805 1.55 1441
557 0.79 733 631 0.98 910 697 1.17 1095 756 1.38 1287 811 1.60 1488
565 0.83 770 638 1.02 950 703 1.22 1138 762 1.43 1333 816 1.65 1536
581 0.91 848 652 1.11 1034 716 1.32 1228 774 1.53 1428 828 1.75 1636
597 1.00 932 667 1.21 1124 729 1.42 1323 786 1.64 1529 839 1.87 1742
613 1.09 1020 681 1.31 1220 743 1.53 1425 799 1.75 1636 851 1.99 1855
629 1.20 1115 696 1.42 1321 756 1.64 1532 812 1.88 1749 863 2.12 1973
646 1.30 1217 711 1.53 1428 770 1.76 1645 825 2.00 1869 875 2.25 2098
662 1.42 1324 726 1.65 1542 784 1.89 1765 838 2.14 1994 888 2.39 2229
679 1.54 1438 741 1.78 1663 798 2.03 1892 851 2.28 2126 -- -- --
695 1.67 1558 756 1.92 1790 812 2.17 2025 ......
712 1.81 1686 772 2.06 1923 827 2.32 2165 ......
729 1.95 1820 787 2.21 2065 .........
746 2,10 1962 803 2.37 2213 .........
784 2.18 2036 ............
AIRFLOW
(Cfm)
2250
2300
2400
2500
2550
2600
2700
2800
2900
3000
3100
3200
3300
3400
3500
3600
3700
3750
EXTERNAL STATIC PRESSURE (in. wg)
1.2 1.4 1.6 1.8 2.0
Rpm Bhp Watts Rpm Bhp Watts Rpm Bhp Watts Rpm Bhp Watts Rpm Bhp Watts
831 1.53 1423 880 1.74 1627 927 1.97 1840 971 2.21 2061 --
836 1.57 1465 885 1.79 1671 931 2.02 1886 975 2.26 2109 --
846 1.67 1554 895 1.89 1764 941 2.13 1982 984 2.37 2209 --
856 1.77 1647 905 2.00 1862 950 2.24 2085 --
862 1.82 1697 910 2.05 1913 955 2.29 2138 --
867 1.87 1747 915 2.11 1966 960 2.35 2193 --
878 1.99 1852 925 2.23 2076 --
889 2.11 1963 936 2.35 2192 --
900 2.23 2080 ....
912 2.36 2204 ....
LEGEND
Bhp -- Brake Horsepower Input to Fan
Watts -- Input Watts to Motor
*Motor drive range: 685 to 935 rpm. All other rpms require field-
supplied drive.
m m
m m
m m
Refer to page 43 General Fan Performance Notes.
NOTES:
1. Boldface indicates field-supplied drive is required.
2. Maximum continuous bhp is 2.40.
29

Table 14 -- Fan Performance, 50TFQ008 -- Vertical Discharge Units; High-Static Motor and Drive*
AIRFLOW
(Cfm)
2250
2300
2400
2500
2550
2600
2700
2800
2900
3000
3100
3200
3300
3400
3500
3600
3700
3750
EXTERNAL STATIC PRESSURE (in. wg)
0.2 0.4 0.6 0.8 1.0
Rpm Bhp Watts Rpm Bhp Watts Rpm Bhp Watts Rpm Bhp Watts Rpm Bhp Watts
511 0.58 538 591 0.75 697 660 0.93 864 722 1.12 1041 779 1.32 1228
519 0.61 567 597 0.78 729 666 0.97 900 727 1.16 1079 784 1.36 1268
534 0.68 630 611 0.86 798 678 1.04 974 739 1.24 1158 794 1.45 1352
550 0.75 698 624 0.93 872 690 1.13 1053 750 1.33 1243 805 1.55 1441
557 0.79 733 631 0.98 910 697 1.17 1095 756 1.38 1287 811 1.60 1488
565 0.83 770 638 1.02 950 703 1.22 1138 762 1.43 1333 816 1.65 1536
581 0.91 848 652 1.11 1034 716 1.32 1228 774 1.53 1428 828 1.75 1636
597 1.00 932 667 1.21 1124 729 1.42 1323 786 1.64 1529 839 1.87 1742
613 1.09 1020 681 1.31 1220 743 1.53 1425 799 1.75 1636 851 1.99 1855
629 1.20 1115 696 1.42 1321 756 1.64 1532 812 1.88 1749 863 2.12 1973
646 1.30 1217 711 1.53 1428 770 1.76 1645 825 2.00 1869 875 2.25 2098
662 1.42 1324 726 1.65 1542 784 1.89 1765 838 2.14 1994 888 2.39 2229
679 1.54 1438 741 1.78 1663 798 2.03 1892 851 2.28 2126 901 2.54 2367
695 1.67 1558 756 1.92 1790 812 2.17 2025 865 2.43 2266 913 2.69 2512
712 1.81 1686 772 2.06 1923 827 2.32 2165 878 2.59 2412 926 2.86 2664
729 1.95 1820 787 2.21 2065 841 2.48 2312 892 2.75 2565 940 3.03 2823
746 2.10 1962 803 2.37 2213 856 2.65 2467 906 2.92 2726 953 3.21 2990
754 2.18 2036 811 2.46 2290 884 2.73 2548 913 3.01 2809 960 3.30 3076
AIRFLOW
(Cfm)
2250
2300
2400
2500
2550
2600
2700
2800
2900
3000
3100
3200
3300
3400
3500
3600
3700
3750
EXTERNAL STATIC PRESSURE (in. wg)
1.2 1.4 1.6 1.8 2.0
Rpm Bhp Watts Rpm Bhp Watts Rpm Bhp Watts Rpm Bhp Watts Rpm Bhp Watts
831 1.53 1423 880 1.74 1627 927 1.97 1840 971 2.21 2061 1013 2.48 2289
836 1.57 1465 885 1.79 1671 931 2.02 1886 975 2.26 2109 1017 2.51 2340
846 1.67 1554 895 1.89 1764 941 2.13 1982 984 2.37 2209 1026 2.62 2443
856 1.77 1647 905 2.00 1862 950 2.24 2085 993 2.48 2315 1035 2.74 2553
862 1.82 1697 910 2.05 1913 955 2.29 2138 998 2.54 2370 1039 2.80 2611
867 1.87 1747 915 2.11 1966 960 2.35 2193 1003 2.60 2427 1044 2.86 2669
878 1.99 1852 925 2.23 2078 970 2.47 2307 1012 2.73 2545 1053 2.99 2791
889 2.11 1963 936 2.35 2192 980 2.60 2427 1022 2.88 2670 1063 3.13 2920
900 2.23 2080 946 2.48 2314 990 2.74 2554 1032 3.00 2800 1072 3.28 3055
912 2.36 2204 957 2.82 2442 1001 2.88 2687 1043 3.15 2938 1082 3.43 3196
923 2.50 2334 969 2.76 2577 1012 3.03 2826 1053 3.31 3082 1093 3.59 3345
935 2.65 2471 980 2.92 2718 1023 3.19 2973 1064 3.47 3233 -- --
947 2.80 2613 992 3.07 2867 1034 3.35 3126 1074 3.64 3391 -- --
960 2.96 2764 1003 3.24 3022 1045 3.52 3286 .....
972 3.13 2921 1015 3.42 3185 1057 3.70 3454 .....
985 3.31 3086 1028 3.60 3355 ........
997 3.49 3259 ...........
1004 3.59 3347 ...........
LEGEND Refer to page 43 General Fan Performance Notes.
Bhp -- Brake Horsepower Input to Fan NOTES:
Watts -- Input Watts to Motor 1. Boldface indicates field-supplied drive is required.
2. Maximum continuous bhp is 3.70.
*Motor drive range: 860 to 1080 rpm. All other rpms require field-
supplied drive.
m
m
m
m
m
m
m
3O

Table 15- Fan Performance, 50TFQ009- Vertical Discharge Units; Standard Motor and Drive*
AIRFLOW
(Cfm)
2550
2600
2700
2800
2900
3000
3100
3200
3300
3400
3500
3600
3700
3750
3800
3900
4000
4100
4200
4250
EXTERNAL STATIC PRESSURE (in. wg)
0.2 0.4 0.6 0.8 1.0
Rpm Bhp Watts Rpm Bhp Watts Rpm Bhp Watts Rpm Bhp Watts Rpm Bhp Watts
557 0.79 733 631 0.98 910 697 1.17 1095 756 1.38 1287 811 1.60 1488
565 0.83 770 638 1.02 950 703 1.22 1138 762 1.43 1333 816 1.65 1536
581 0.91 848 652 1.11 1034 716 1.32 1228 774 1.53 1428 828 1.75 1636
597 1.00 932 667 1.21 1124 729 1.42 1323 786 1.64 1529 839 1.87 1742
613 1.09 1020 681 1.31 1220 743 1.53 1425 799 1.75 1636 851 1.99 1855
629 1.20 1115 696 1.42 1321 756 1.64 1532 812 1.88 1749 863 2.12 1973
646 1.30 1217 711 1.53 1428 770 1.76 1645 825 2.00 1869 875 2.25 2098
662 1.42 1324 726 1.65 1542 784 1.89 1765 838 2.14 1994 888 2.39 2229
679 1.54 1438 741 1.78 1663 798 2.03 1892 851 2.28 2126 --
695 1.67 1558 756 1.92 1790 812 2.17 2025 --
712 1.81 1686 772 2.06 1923 827 2.32 2165 --
m m
729 1.95 1820 787 2.21 2065 .........
746 2.10 1962 803 2.37 2213 .........
754 2.18 2036 ............
763 2.26 2112 ............
AIRFLOW
(Cfm)
2550
2600
2700
2800
2900
3000
3100
3200
3300
3400
3500
3600
3700
3750
3800
3900
4000
4100
4200
4250
EXTERNAL STATIC PRESSURE (in. wg)
1.2 1.4 1.6 1.8 2.0
Rpm Bhp Watts Rpm Bhp Watts Rpm Bhp Watts Rpm Bhp Watts Rpm Bhp Watts
862 1.82 1697 910 2.05 1913 955 2.29 2138 ......
867 1.87 1747 915 2.11 1966 960 2.35 2193 ......
878 1.99 1852 925 2.23 2076 .........
889 2.11 1963 936 2.35 2192 .........
900 2.23 2080 ............
912 2.36 2204 ............
LEGEND
Bhp -- Brake Horsepower Input to Fan
Watts -- Input Watts to Motor
*Motor drive range: 685 to 935 rpm. All other rpms require field-
supplied drive.
Refer to page 43 General Fan Performance Notes.
NOTES:
1. Boldface indicates field-supplied drive is required.
2. Maximum continuous bhp is 2.40.
3!

Table 16 -- Fan Performance, 50TFQ009 -- Vertical Discharge Units; High-Static Motor and Drive*
AIRFLOW
(Cfm)
2550
2600
2700
2800
2900
3000
3100
3200
3300
3400
3500
3600
3700
3750
3800
3900
4000
4100
4200
4250
EXTERNAL STATIC PRESSURE (in. wg)
0.2 0.4 0.6 0.8 1.0
Rpm Bhp Watts Rpm Bhp Watts Rpm Bhp Watts Rpm Bhp Watts Rpm Bhp Watts
557 0.79 733 631 0.98 910 697 1.17 1095 756 1.38 1287 811 1.60 1488
565 0.83 770 638 1.02 950 703 1.22 1138 762 1.43 1333 816 1.65 1536
581 0.91 848 652 1.11 1034 716 1.32 1228 774 1.53 1428 828 1.75 1636
597 1.00 932 667 1.21 1124 729 1.42 1323 786 1.64 1529 839 1.87 1742
613 1.09 1020 681 1.31 1220 743 1.53 1425 799 1.75 1636 851 1.99 1855
629 1.20 1115 696 1.42 1321 756 1.64 1532 812 1.88 1749 863 2.12 1973
646 1.30 1217 711 1.53 1428 770 1.76 1645 825 2.00 1869 875 2.25 2098
662 1.42 1324 726 1.65 1542 784 1.89 1765 838 2.14 1994 888 2.39 2229
679 1.54 1438 741 1.78 1663 798 2.03 1892 851 2.28 2126 901 2.54 2367
695 1.67 1558 756 1.92 1790 812 2.17 2025 865 2.43 2266 913 2.69 2512
712 1.81 1686 772 2.06 1923 827 2.32 2165 878 2.59 2412 926 2.86 2664
729 1.95 1820 787 2.21 2065 841 2.48 2312 892 2.75 2565 940 3.03 2823
746 2.10 1962 803 2.37 2213 856 2.65 2467 906 2.92 2726 953 3.21 2990
754 2.18 2036 811 2.46 2290 864 2.73 2548 913 3.01 2809 960 3.30 3076
763 2.26 2112 819 2.54 2369 871 2.82 2630 920 3.10 2895 966 3.39 3164
780 2.43 2269 835 2.72 2533 886 3.00 2800 934 3.29 3070 980 3.59 3346
797 2.61 2434 851 2.90 2705 901 3.19 2978 949 3.49 3255 -- -- --
814 2.80 2607 867 3.09 2884 916 3.39 3164 963 3.70 3447 -- -- --
831 2.99 2788 883 3.29 3072 932 3.80 3358 ......
840 3.09 2883 891 3.40 3170 .........
AIRFLOW
(Cfm)
2550
2600
2700
2800
2900
3000
3100
3200
3300
3400
3500
3600
3700
3750
3800
3900
4000
4100
4200
4250
EXTERNAL STATIC PRESSURE (in. wg)
1.2 1.4 1.6 1.8 2.0
Rpm Bhp Watts Rpm Bhp Watts Rpm Bhp Watts Rpm Bhp Watts Rpm Bhp Watts
862 1.82 1697 910 2.05 1913 955 2.29 2138 998 2.54 2370 1039 2.80 2611
867 1.87 1747 915 2.11 1966 960 2.35 2193 1003 2.60 2427 1044 2.86 2669
878 1.99 1852 925 2.23 2078 970 2.47 2307 1012 2.73 2545 1053 2.99 2791
889 2.11 1963 936 2.35 2192 980 2.60 2427 1022 2.86 2670 1063 3.13 2920
900 2.23 2080 946 2.48 2314 990 2.74 2554 1032 3.00 2800 1072 3.28 3055
912 2.36 2204 957 2.82 2442 1001 2.88 2687 1043 3.15 2938 1082 3.43 3196
923 2.50 2334 969 2.76 2577 1012 3.03 2826 1053 3.31 3082 1093 3.59 3345
935 2.65 2471 980 2.92 2718 1023 3.19 2973 1064 3.47 3233 -- --
947 2.80 2613 992 3.07 2867 1034 3.35 3126 1074 3.64 3391 -- --
960 2.96 2764 1003 3.24 3022 1045 3.52 3286 --
972 3.13 2921 1015 3.42 3185 1057 3.70 3454 --
985 3.31 3086 1028 3.60 3355 ....
997 3.49 3259 .......
1004 3.59 3347 .......
1010 3.69 3438 .......
LEGEND
Bhp -- Brake Horsepower Input to Fan
Watts -- Input Watts to Motor
*Motor drive range: 860 to 1080 rpm. All other rpms require field-
supplied drive.
m
m
Refer to page 43 General Fan Performance Notes.
NOTES:
1. Boldface indicates field-supplied drive is required.
2. Maximum continuous bhp is 3.70.
32

Table 17- Fan Performance, 50TFQ012- Vertical Discharge Units; Standard Motor and Drive*
AIRFLOW
(Cfm)
3OOO
3100
3200
3300
3400
3500
3600
3700
3800
3900
4000
4100
4200
4300
4400
4500
4600
4700
4800
4900
5000
EXTERNAL STATIC PRESSURE (in. wg)
0.2 0.4 0.6 0.8 1.0
Rpm Bhp Watts Rpm Bhp Watts Rpm Bhp Watts Rpm Bhp Watts Rpm Bhp Watts
556 0.65 604 623 0.80 748 684 0.95 891 738 1.11 1034 789 1.26 1177
569 0.70 656 636 0.86 805 695 1.02 953 749 1.18 1100 799 1.34 1249
583 0.76 712 648 0.93 865 707 1.09 1018 760 1.26 1170 809 1.42 1323
597 0.83 770 661 1.00 929 718 1.17 1086 771 1.33 1244 820 1.50 1401
611 0.89 832 674 1.07 996 730 1.24 1158 782 1.42 1320 831 1.59 1483
625 0.96 898 687 1.14 1066 742 1.32 1233 794 1.50 1400 841 1.68 1567
639 1.04 967 700 1.22 1140 754 1.41 1312 805 1.59 1484 852 1.78 1656
654 1.11 1040 713 1.31 1218 767 1.50 1395 817 1.69 1571 863 1.87 1748
668 1.20 1116 726 1.39 1299 779 1.59 1481 828 1.78 1662 874 1.98 1844
683 1.28 1197 739 1.48 1385 792 1.69 1572 840 1.88 1758 886 2.08 1943
697 1.37 1281 753 1.58 1474 804 1.79 1688 852 1.99 1857 897 2.20 2048
712 1.47 1370 766 1.68 1567 817 1.89 1764 864 2.10 1960 909 2.31 2155
726 1.57 1462 780 1.79 1665 830 2.00 1866 876 2.22 2067 -- -- --
741 1.67 1559 794 1.89 1767 843 2.12 1973 889 2.34 2179 -- -- --
755 1.78 1660 807 2.01 1873 856 2.23 2084 ......
770 1,89 1766 821 2.13 1984 869 2.36 2200 ......
785 2.01 1876 835 2.25 2099 .........
800 2,14 1991 849 2.38 2219 .........
815 2,26 2111 ............
829 2.40 2235 ............
AIRFLOW
(Cfm)
3000
3100
3200
3300
3400
3500
3600
3700
3800
3900
4000
4100
4200
4300
4400
4500
4600
4700
4800
4900
5000
EXTERNAL STATIC PRESSURE (in. wg)
1.2 1.4 1.6 1.8 2.0
Rpm Bhp Watts Rpm Bhp Watts Rpm Bhp Watts Rpm Bhp Watts Rpm Bhp Watts
836 1.42 1322 881 1.57 1467 923 1.73 1613 963 1.89 1761 1001 2.05 1909
846 1.50 1398 890 1.66 1547 932 1.82 1698 972 1.98 1849 1010 2.15 2002
856 1.58 1477 899 1.75 1631 941 1.92 1786 980 2.08 1942 1018 2.25 2099
866 1.67 1559 909 1.84 1718 950 2.01 1878 989 2.19 2038 1027 2.36 2199
876 1.76 1645 919 1.94 1808 960 2.12 1972 998 2.29 2137 --
886 1.86 1734 929 2.04 1902 969 2.22 2071 1008 2.40 2240 --
897 1.96 1827 939 2.14 2000 979 2.33 2173 --
907 2.06 1924 949 2.25 2101 --
918 2.17 2025 959 2.37 2207 --
m m
m m
929 2.28 2130 ............
940 2.40 2238 ............
LEGEND
Bhp -- Brake Horsepower Input to Fan
Watts -- Input Watts to Motor
*Motor drive range: 685 to 935 rpm. All other rpms require field-
supplied drive.
Refer to page 43 General Fan Performance Notes.
NOTES:
1. Boldface indicates field-supplied drive is required.
2. Maximum continuous bhp is 2.40.
33

Table 18 -- Fan Performance, 50TFQ012 -- Vertical Discharge Units; Alternate Motor and Drive*
AIRFLOW
(Cfm)
3OOO
3100
3200
3300
3400
3500
3600
3700
3800
3900
4000
4100
4200
4300
4400
4500
4600
4700
4800
4900
5000
EXTERNAL STATIC PRESSURE (in. wg)
0.2 0.4 0.6 0.8 1.0
Rpm Bhp Watts Rpm Bhp Watts Rpm Bhp Watts Rpm Bhp Watts Rpm Bhp Watts
556 0.65 604 623 0.80 748 684 0.95 891 738 1.11 1034 789 1.26 1177
569 0.70 656 636 0.86 805 695 1.02 953 749 1.18 1100 799 1.34 1249
583 0.76 712 648 0.93 865 707 1.09 1018 760 1.26 1170 809 1.42 1323
597 0.83 770 661 1.00 929 718 1.17 1086 771 1.33 1244 820 1.50 1401
611 0.89 832 674 1.07 996 730 1.24 1158 782 1.42 1320 831 1.59 1483
625 0.96 898 687 1.14 1066 742 1.32 1233 794 1.50 1400 841 1.68 1567
639 1.04 967 700 1.22 1140 754 1.41 1312 805 1.59 1484 852 1.78 1658
654 1.11 1040 713 1.31 1218 767 1.50 1395 817 1.69 1571 863 1.87 1748
668 1.20 1116 726 1.39 1299 779 1.59 1481 828 1.78 1662 874 1.98 1844
683 1.28 1197 739 1.48 1385 792 1.69 1572 840 1.88 1758 886 2.08 1943
697 1.37 1281 753 1.58 1474 804 1.79 1666 852 1.99 1857 897 2.20 2048
712 1.47 1370 766 1.68 1567 817 1.89 1764 884 2.10 1960 909 2.31 2155
726 1.57 1462 780 1.79 1665 830 2.00 1866 876 2.22 2067 920 2.43 2268
741 1.67 1559 794 1.89 1767 843 2.12 1973 889 2.34 2179 932 2.56 2384
755 1.78 1660 807 2.01 1873 858 2.23 2084 901 2.46 2295 944 2.69 2505
770 1.89 1766 821 2.13 1984 869 2.36 2200 914 2.59 2415 956 2.82 2630
785 2.01 1876 835 2.25 2099 882 2.49 2320 926 2.72 2541 -- -- --
800 2.14 1991 849 2.38 2219 895 2.62 2445 939 2.86 2670 -- -- --
815 2.26 2111 863 2.51 2344 909 2.76 2575 ......
829 2.40 2235 877 2.65 2473 .........
844 2.54 2365 891 2.80 2608 .........
AIRFLOW
(Cfm)
3OOO
3100
3200
3300
3400
3500
3600
3700
3800
3900
4000
4100
4200
4300
4400
4500
4600
4700
4800
4900
5000
EXTERNAL STATIC PRESSURE (in. wg)
1.2 1.4 1.6 1.8 2.0
Rpm Bhp Watts Rpm Bhp Watts Rpm Bhp Watts Rpm Bhp Watts Rpm Bhp Watts
838 1.42 1322 881 1.57 1467 923 1.73 1613 983 1.89 1761 1001 2.05 1909
846 1.50 1398 890 1.66 1547 932 1.82 1698 972 1.98 1849 1010 2.15 2002
858 1.58 1477 899 1.75 1631 941 1.92 1786 980 2.08 1942 1018 2.25 2099
866 1.67 1559 909 1.84 1718 950 2.01 1878 989 2.19 2038 1027 2.36 2199
876 1.76 1645 919 1.94 1808 980 2.12 1972 998 2.29 2137 1036 2.47 2303
886 1.86 1734 929 2.04 1902 989 2.22 2071 1008 2.40 2240 1045 2.58 2410
697 1.96 1827 939 2.14 2000 979 2.33 2173 1017 2.52 2347 1054 2.70 2521
907 2.06 1924 949 2.25 2101 989 2.44 2279 1027 2.63 2457 1063 2.83 2638
918 2.17 2025 959 2.37 2207 999 2.56 2389 1036 2.76 2571 -- --
929 2.28 2130 970 2.48 2316 1009 2.68 2502 1046 2.88 2690 -- --
940 2.40 2238 980 2.61 2429 1019 2.81 2620 --
m
m
951 2.52 2351 991 2.73 2547 .........
962 2.65 2468 1002 2.86 2668 .........
973 2.78 2589 ............
LEGEND
Bhp -- Brake Horsepower Input to Fan
Watts -- Input Watts to Motor
*Motor drive range: 835 to 1085 rpm. All other rpms require field-
supplied drive.
Refer to page 43 General Fan Performance Notes.
NOTES:
1. Boldface indicates field-supplied drive is required.
2. Maximum continuous bhp is 2.90.
34

Table 19 -- Fan Performance, 50TFQ012- Vertical Discharge Units; High-Static Motor and Drive*
AIRFLOW
(Cfm)
3OOO
3100
3200
3300
3400
3500
3600
3700
3800
3900
4000
4100
4200
4300
4400
4500
4600
4700
4800
4900
5000
EXTERNAL STATIC PRESSURE (in. wg)
0.2 0.4 0.6 0.8 1.0
Rpm Bhp Watts Rpm Bhp Watts Rpm Bhp Watts Rpm Bhp Watts Rpm Bhp Watts
556 0.65 604 623 0.80 748 684 0.95 891 738 1.11 1034 789 1.26 1177
569 0.70 656 636 0.86 805 695 1.02 953 749 1.18 1100 799 1.34 1249
583 0.76 712 648 0.93 865 707 1.09 1018 760 1.26 1170 809 1.42 1323
597 0.83 770 661 1.00 929 718 1.17 1086 771 1.33 1244 820 1.50 1401
611 0.89 832 674 1.07 996 730 1.24 1158 782 1.42 1320 831 1.59 1483
625 0.96 898 687 1.14 1066 742 1.32 1233 794 1.50 1400 841 1.68 1567
639 1.04 967 700 1.22 1140 754 1.41 1312 805 1.59 1484 652 1.78 1658
654 1.11 1040 713 1.31 1218 767 1.50 1395 817 1.69 1571 863 1.87 1748
668 1.20 1116 726 1.39 1299 779 1.59 1481 828 1.78 1662 874 1.98 1844
683 1.28 1197 739 1.48 1385 792 1.69 1572 840 1.88 1758 886 2.08 1943
697 1.37 1281 753 1.58 1474 804 1.79 1666 852 1.99 1857 897 2.20 2048
712 1.47 1370 766 1.68 1567 817 1.89 1764 884 2.10 1960 909 2.31 2155
726 1.57 1462 780 1.79 1665 830 2.00 1868 876 2.22 2067 920 2.43 2268
741 1.67 1559 794 1.89 1767 843 2.12 1973 889 2.34 2179 932 2.56 2384
755 1.78 1660 807 2.01 1873 856 2.23 2084 901 2.46 2295 944 2.69 2505
770 1.89 1766 821 2.13 1984 869 2.36 2200 914 2.59 2415 956 2.82 2630
785 2.01 1876 835 2.25 2099 882 2.49 2320 926 2.72 2541 988 2.96 2760
800 2.14 1991 849 2.38 2219 895 2.62 2445 939 2.86 2670 980 3.10 2895
815 2.26 2111 863 2.51 2344 909 2.76 2575 952 3.01 2805 993 3.25 3034
829 2.40 2235 877 2.65 2473 922 2.91 2709 985 3.16 2944 1005 3.41 3178
844 2.54 2365 891 2.80 2608 936 3.06 2849 978 3.31 3089 1018 3.57 3328
AIRFLOW
(Cfm)
3000
3100
3200
3300
3400
3500
3600
3700
3800
3900
4000
4100
4200
4300
4400
4500
4600
4700
4800
4900
5000
Bhp -- Brake Horsepower Input to Fan
Watts -- Input Watts to Motor
*Motor drive range: 830 to 1130 rpm. All other rpms require field-
supplied drive.
EXTERNAL STATIC PRESSURE (in. wg)
1.2 1.4 1.6 1.8 2.0
Rpm Bhp Watts Rpm Bhp Watts Rpm Bhp Watts Rpm Bhp Watts Rpm Bhp Watts
836 1.42 1322 881 1.57 1467 923 1.73 1613 963 1.89 1761 1001 2.05 1909
846 1.50 1398 890 1.66 1547 932 1.82 1698 972 1.98 1849 1010 2.15 2002
856 1.58 1477 899 1.75 1631 941 1.92 1786 980 2.08 1942 1018 2.25 2099
866 1.67 1559 909 1.84 1718 950 2.01 1878 989 2.19 2038 1027 2.36 2199
876 1.76 1645 919 1.94 1808 960 2.12 1972 998 2.29 2137 1036 2.47 2303
886 1.86 1734 929 2.04 1902 969 2.22 2071 1008 2.40 2240 1045 2.58 2410
697 1.96 1827 939 2.14 2000 979 2.33 2173 1017 2.52 2347 1054 2.70 2521
907 2.06 1924 949 2.25 2101 989 2.44 2279 1027 2.63 2457 1063 2.83 2636
918 2.17 2025 959 2.37 2207 999 2.58 2389 1036 2.78 2571 1073 2.95 2755
929 2.28 2130 970 2.48 2316 1009 2.68 2502 1046 2.88 2690 1082 3.09 2877
940 2.40 2238 980 2.61 2429 1019 2.81 2620 1056 3.02 2812 1092 3.22 3004
951 2.52 2351 991 2.73 2547 1029 2.94 2743 1066 3.15 2939 1102 3.36 3136
962 2.65 2468 1002 2.86 2668 1040 3.08 2869 1076 3.29 3070 1112 3.51 3271
973 2.78 2589 1013 3.00 2794 1050 3.22 2999 1087 3.44 3205 1122 3.66 3411
985 2.91 2715 1024 3.14 2924 1061 3.36 3134 1097 3.59 3345 1132 3.81 3555
996 3.05 2845 1035 3.28 3059 1072 3.51 3274 1108 3.74 3489 1142 3.97 3704
1008 3.20 2979 1046 3.43 3199 1083 3.67 3418 1118 3.90 3638 1152 4.14 3857
1020 3.34 3119 1058 3.58 3343 1094 3.83 3567 1129 4.07 3792 1163 4.31 4016
1032 3.50 3263 1069 3.74 3492 1105 3.99 3721 1140 4.24 3950 1174 4.48 4179
1044 3.66 3413 1081 3.91 3646 1117 4.18 3880 1151 4.41 4113 1184 4.66 4347
1056 3.82 3566 1093 4.08 3805 1128 4.34 4044 1162 4.59 4282 1195 4.85 4520
LEGEND Rear _page43 General FanPefformance No_s.
NOTES:
1. Boldfaceindicatesfield-supplied driveis required.
2. Maximum continuous bhpis 6.25.
.3.5

Table 20 -- Fan Performance, 50TFQ008 -- Horizontal Discharge Units; Standard Motor and Drive*
AIRFLOW
(Cfm)
2250
2300
2400
2500
2550
2600
2700
2800
2900
3000
3100
3200
3300
3400
3500
3600
3700
3750
EXTERNAL STATIC PRESSURE (in. wg)
0.2 0.4 0.6 0.8 1.0
Rpm Bhp Watts Rpm Bhp Watts Rpm Bhp Watts Rpm Bhp Watts Rpm Bhp Watts
465 0.49 459 555 0.67 621 629 0.84 786 694 1.03 959 752 1.22 1138
471 0.52 483 560 0.69 648 634 0.88 817 698 1.06 992 757 1.26 1174
483 0.57 534 570 0.76 705 644 0.94 880 708 1.14 1061 765 1.34 1248
495 0.63 588 581 0.82 767 653 1.02 948 717 1.22 1134 774 1.42 1327
501 0.66 617 586 0.86 799 658 1.05 983 722 1.26 1173 779 1.47 1368
507 0.69 647 592 0.89 832 663 1.09 1020 727 1.30 1212 784 1.51 1410
519 0.76 709 603 0.97 902 674 1.18 1096 736 1.39 1294 793 1.61 1498
532 0.83 775 614 1.05 976 684 1.26 1176 746 1.48 1381 802 1.71 1590
544 0.91 846 625 1.13 1054 694 1.35 1261 756 1.58 1472 812 1.81 1687
557 0.99 922 637 1.22 1137 705 1.45 1351 766 1.68 1568 821 1.92 1789
570 1.07 1002 648 1.31 1224 716 1.55 1445 776 1.79 1669 831 2.03 1896
582 1.17 1087 680 1.41 1317 727 1.86 1545 786 1.90 1774 841 2.15 2008
595 1.26 1177 671 1.52 1414 738 1.77 1649 797 2.02 1885 851 2.28 2125
608 1.36 1271 683 1.63 1517 749 1.89 1759 807 2.15 2002 -- -- --
622 1.47 1372 695 1.74 1625 760 2.01 1874 818 2.28 2124 -- -- --
635 1.58 1477 707 1.86 1738 771 2.14 1995 ......
648 1.70 1588 720 1.99 1857 783 2.27 2121 ......
655 1.77 1646 726 2.06 1918 788 2.34 2187 ......
AIRFLOW
(Cfm)
2250
2300
2400
2500
2550
2600
2700
2800
2900
3000
3100
3200
3300
3400
3500
3600
3700
3750
EXTERNAL STATIC PRESSURE (in. wg)
1.2 1.4 1.6 1.8 2.0
Rpm Bhp Watts Rpm Bhp Watts Rpm Bhp Watts Rpm Bhp Watts Rpm Bhp Watts
806 1.42 1326 855 1.63 1521 902 1.85 1723 946 2.07 1932 988 2.30 2148
810 1.46 1363 859 1.67 1561 906 1.89 1765 950 2.12 1976 991 2.35 2194
818 1.55 1443 868 1.76 1644 914 1.99 1853 958 2.22 2068 -- --
827 1.64 1527 876 1.86 1733 922 2.09 1946 966 2.32 2165 -- --
832 1.68 1570 880 1.91 1779 926 2.14 1994 970 2.38 2215 -- --
836 1.73 1615 885 1.96 1826 931 2.19 2043 --
845 1.83 1708 893 2.06 1923 939 2.30 2146 --
854 1.94 1805 902 2.17 2026 --
863 2.05 1907 911 2.29 2134 --
872 2.16 2015 ....
882 2.28 2127 ....
LEGEND
Bhp -- Brake Horsepower Input to Fan
Watts -- Input Watts to Motor
*Motor drive range: 590 to 840 rpm. All other rpms require field-
supplied drive.
m
m
m
Refer to page 43 General Fan Performance Notes.
NOTES:
1. Boldface indicates field-supplied drive is required.
2. Maximum continuous bhp is 2.40.
36

Table 21 -- Fan Performance, 50TFQ008 -- Horizontal Discharge Units; Alternate Motor and Drive*
AIRFLOW
(Cfm)
2250
2300
2400
2500
2550
2600
2700
2800
2900
3000
3100
3200
3300
3400
3500
3600
3700
3750
EXTERNAL STATIC PRESSURE (in. wg)
0.2 0.4 0.6 0.8 1.0
Rpm Bhp Watts Rpm Bhp Watts Rpm Bhp Watts Rpm Bhp Watts Rpm Bhp Watts
465 0.49 459 555 0.67 621 629 0.84 786 694 1.03 959 752 1.22 1138
471 0.52 483 560 0.69 648 634 0.88 817 698 1.06 992 757 1.26 1174
483 0.57 534 570 0.76 705 644 0.94 880 708 1.14 1061 765 1.34 1248
495 0.63 588 581 0.82 767 653 1.02 948 717 1.22 1134 774 1.42 1327
501 0.66 617 586 0.86 799 658 1.05 983 722 1.26 1173 779 1.47 1368
507 0.69 647 592 0.89 832 663 1.09 1020 727 1.30 1212 784 1.51 1410
519 0.76 709 603 0.97 902 674 1.18 1096 736 1.39 1294 793 1.61 1498
532 0.83 775 614 1.05 976 684 1.26 1176 746 1.48 1381 802 1.71 1590
544 0.91 846 625 1.13 1054 694 1.35 1261 756 1.58 1472 812 1.81 1687
557 0.99 922 637 1.22 1137 705 1.45 1351 766 1.68 1568 821 1.92 1789
570 1.07 1002 648 1.31 1224 716 1.55 1445 776 1.79 1669 831 2.03 1896
582 1.17 1087 660 1.41 1317 727 1.66 1545 786 1.90 1774 841 2.15 2008
595 1.26 1177 671 1.52 1414 738 1.77 1649 797 2.02 1885 851 2.28 2125
608 1.36 1271 683 1.63 1517 749 1.89 1759 807 2.15 2002 -- -- --
622 1.47 1372 695 1.74 1625 760 2.01 1874 818 2.28 2124 -- -- --
635 1.58 1477 707 1.88 1738 771 2.14 1995 ......
648 1.70 1588 720 1.99 1857 783 2.27 2121 ......
655 1.77 1646 728 2.06 1918 788 2.34 2187 ......
AIRFLOW
(Cfm)
2250
2300
2400
2500
2550
2600
2700
2800
2900
3000
3100
3200
3300
3400
3500
3600
3700
3750
EXTERNAL STATIC PRESSURE (in. wg)
1.2 1.4 1.6 1.8 2.0
Rpm Bhp Watts Rpm Bhp Watts Rpm Bhp Watts Rpm Bhp Watts Rpm Bhp Watts
806 1.42 1326 855 1.63 1521 902 1.85 1723 946 2.07 1932 988 2.30 2148
810 1.46 1363 859 1.67 1561 906 1.89 1765 950 2.12 1976 991 2.35 2194
818 1.55 1443 868 1.76 1644 914 1.99 1853 958 2.22 2068 --
827 1.64 1527 876 1.86 1733 922 2.09 1946 966 2.32 2165 --
832 1.68 1570 880 1.91 1779 926 2.14 1994 970 2.38 2215 --
836 1.73 1615 885 1.96 1826 931 2.19 2043 --
845 1.83 1708 893 2.06 1923 939 2.30 2146 --
854 1.94 1805 902 2.17 2026 --
863 2.05 1907 911 2.29 2134 --
872 2.16 2015 ....
882 2.28 2127 ....
LEGEND
Bhp -- Brake Horsepower Input to Fan
Watts -- Input Watts to Motor
*Motor drive range: 685 to 935 rpm. All other rpms require field-
supplied drive.
m m
m m
m m
Refer to page 43 General Fan Performance Notes.
NOTES:
1. Boldface indicates field-supplied drive is required.
2. Maximum continuous bhp is 2.40.
37

Table 22 -- Fan Performance, 50TFQ008 -- Horizontal Discharge Units; High-Static Motor and Drive*
AIRFLOW
(Cfm)
2250
2300
2400
2500
2550
2600
2700
2800
2900
3000
3100
3200
3300
3400
3500
3600
3700
3750
EXTERNAL STATIC PRESSURE (in. wg)
0.2 0.4 0.6 0.8 1.0
Rpm Bhp Watts Rpm Bhp Watts Rpm Bhp Watts Rpm Bhp Watts Rpm Bhp Watts
465 0.49 459 555 0.67 621 629 0.84 786 694 1.03 959 752 1.22 1138
471 0.52 483 560 0.69 648 634 0.88 817 698 1.06 992 757 1.26 1174
483 0.57 534 570 0.76 705 644 0.94 880 708 1.14 1061 765 1.34 1248
495 0.63 588 581 0.82 767 653 1.02 948 717 1.22 1134 774 1.42 1327
501 0.66 617 586 0.86 799 658 1.05 983 722 1.26 1173 779 1.47 1368
507 0.69 647 592 0.89 832 663 1.09 1020 727 1.30 1212 784 1.51 1410
519 0.76 709 603 0.97 902 674 1.18 1096 736 1.39 1294 793 1.61 1498
532 0.83 775 614 1.05 976 684 1.26 1176 746 1.48 1381 802 1.71 1590
544 0.91 846 625 1.13 1054 694 1.35 1261 756 1.58 1472 812 1.81 1687
557 0.99 922 637 1.22 1137 705 1.45 1351 766 1.68 1568 821 1.92 1789
570 1.07 1002 648 1.31 1224 716 1.55 1445 776 1.79 1669 831 2.03 1896
582 1.17 1087 660 1.41 1317 727 1.66 1545 786 1.90 1774 841 2.15 2008
595 1.26 1177 671 1.52 1414 738 1.77 1649 797 2.02 1885 851 2.28 2125
608 1.36 1271 683 1.63 1517 749 1.89 1759 807 2.15 2002 861 2.41 2248
622 1.47 1372 695 1.74 1625 760 2.01 1874 818 2.28 2124 871 2.55 2378
635 1.58 1477 707 1.86 1738 771 2.14 1995 829 2.41 2252 881 2.69 2510
648 1.70 1588 720 1.99 1857 783 2.27 2121 839 2.56 2385 892 2.84 2650
655 1.77 1646 726 2.06 1918 788 2.34 2187 845 2.63 2454 897 2.92 2722
AIRFLOW
(Cfm)
2250
2300
2400
2500
2550
2600
2700
2800
2900
3000
3100
3200
3300
3400
3500
3600
3700
3750
Bhp -- Brake Horsepower Input to Fan
Watts -- Input Watts to Motor
*Motor drive range: 860 to 1080 rpm. All other rpms require field-
supplied drive.
EXTERNAL STATIC PRESSURE (in. wg)
1.2 1.4 1.6 1.8 2.0
Rpm Bhp Watts Rpm Bhp Watts Rpm Bhp Watts Rpm Bhp Watts Rpm Bhp Watts
806 1.42 1326 855 1.63 1521 902 1.85 1723 946 2.07 1932 988 2.30 2148
810 1.46 1363 859 1.67 1561 906 1.89 1765 950 2.12 1978 991 2.35 2194
818 1.55 1443 868 1.76 1644 914 1.99 1853 958 2.22 2068 999 2.48 2290
827 1.64 1527 878 1.86 1733 922 2.09 1948 986 2.32 2165 1007 2.58 2391
832 1.68 1570 880 1.91 1779 926 2.14 1994 970 2.38 2215 1011 2.82 2444
836 1.73 1615 885 1.96 1828 931 2.19 2043 974 2.43 2267 1015 2.88 2497
845 1.83 1708 893 2.08 1923 939 2.30 2148 982 2.55 2374 1023 2.80 2609
854 1.94 1805 902 2.17 2028 948 2.42 2253 991 2.67 2486 1031 2.92 2725
883 2.05 1907 911 2.29 2134 956 2.54 2368 999 2.79 2603 1040 3.05 2847
872 2.16 2015 920 2.41 2248 985 2.68 2483 1008 2.92 2728 1048 3.19 2974
882 2.28 2127 929 2.54 2365 974 2.80 2607 1016 3.08 2854 1057 3.33 3107
891 2.41 2245 938 2.87 2488 983 2.93 2735 1025 3.20 2988 1085 3.48 3246
901 2.54 2369 948 2.81 2617 992 3.08 2869 1034 3.35 3127 1074 3.84 3390
911 2.68 2497 957 2.95 2751 1001 3.23 3010 1043 3.51 3273 -- -- --
921 2.82 2632 967 3.10 2891 1011 3.38 3155 1052 3.67 3424 -- -- --
930 2.97 2772 977 3.26 3038 1020 3.55 3307 ......
941 3.13 2918 986 3.42 3190 1030 3.72 3465 ......
946 3.21 2994 991 3.50 3268 .........
LEGEND Refer to page 43 General Fan Performance Notes.
NOTES:
1. Boldface indicates field-supplied drive is required.
2. Maximum continuous bhp is 3.70.
38

Table 23 -- Fan Performance, 50TFQ009 -- Horizontal Discharge Units; Standard Motor and Drive*
AIRFLOW
(Cfm)
2550
2600
2700
2800
2900
3000
3100
3200
3300
3400
3500
3600
3700
3750
3800
3900
4000
4100
4200
4250
EXTERNAL STATIC PRESSURE (in. wg)
0.2 0.4 0.6 0.8 1.0
Rpm Bhp Watts Rpm Bhp Watts Rpm Bhp Watts Rpm Bhp Watts Rpm Bhp Watts
501 0.66 617 586 0.86 799 658 1.05 983 722 1.26 1173 779 1.47 1388
507 0.69 647 592 0.89 832 663 1.09 1020 727 1.30 1212 784 1.51 1410
519 0.76 709 603 0.97 902 674 1.18 1096 736 1.39 1294 793 1.81 1498
532 0.83 775 614 1.05 976 684 1.26 1176 746 1.48 1381 802 1.71 1590
544 0.91 846 625 1.13 1054 694 1.35 1261 756 1.58 1472 812 1.81 1687
557 0.99 922 637 1.22 1137 705 1.45 1351 766 1.68 1568 821 1.92 1789
570 1.07 1002 648 1.31 1224 716 1.55 1445 776 1.79 1669 831 2.03 1898
582 1.17 1087 660 1.41 1317 727 1.66 1545 786 1.90 1774 841 2.15 2008
595 1.26 1177 671 1.52 1414 738 1.77 1649 797 2.02 1885 851 2.28 2125
608 1.36 1271 683 1.63 1517 749 1.89 1759 807 2.15 2002 -- -- --
622 1.47 1372 695 1.74 1625 760 2.01 1874 818 2.28 2124 -- -- --
635 1.58 1477 707 1.88 1738 771 2.14 1995 ......
648 1.70 1588 720 1.99 1857 783 2.27 2121 ......
655 1.77 1646 726 2.08 1918 788 2.34 2187 ......
662 1.83 1705 732 2.13 1982 .........
675 1.96 1828 744 2.28 2112 .........
689 2.10 1957 ............
702 2,24 2092 ............
716 2,40 2234 ............
AIRFLOW
(Cfm)
2550
2600
2700
2800
2900
3000
3100
3200
3300
3400
3500
3600
3700
3750
3800
3900
4000
4100
4200
4250
EXTERNAL STATIC PRESSURE (in. wg)
1.2 1.4 1.6 1.8 2.0
Rpm Bhp Watts Rpm Bhp Watts Rpm Bhp Watts Rpm Bhp Watts Rpm Bhp Watts
832 1.68 1570 880 1.91 1779 926 2.14 1994 970 2.38 2215 -- m m
836 1.73 1615 885 1.96 1826 931 2.19 2043 ......
845 1.83 1708 893 2.06 1923 939 2.30 2146 ......
854 1.94 1805 902 2.17 2026 .........
863 2.05 1907 911 2.29 2134 .........
872 2.16 2015 ............
882 2.28 2127 ............
LEGEND
Bhp -- Brake Horsepower Input to Fan
Watts -- Input Watts to Motor
*Motor drive range: 685 to 935 rpm. All other rpms require field-
supplied drive.
Refer to page 43 General Fan Performance Notes.
NOTES:
1. Boldface indicates field-supplied drive is required.
2. Maximum continuous bhp is 2.40.
39

Table 24 -- Fan Performance, 50TFQ009 -- Horizontal Discharge Units; High-Static Motor and Drive*
AIRFLOW
(Cfm)
2550
2600
2700
2800
2900
3000
3100
3200
3300
3400
3500
3600
3700
3750
3800
3900
4000
4100
4200
4250
EXTERNAL STATIC PRESSURE (in. wg)
0.2 0.4 0.6 0.8 1.0
Rpm Bhp Watts Rpm Bhp Watts Rpm Bhp Watts Rpm Bhp Watts Rpm Bhp Watts
501 0.66 617 586 0.86 799 658 1.05 983 722 1.26 1173 779 1.47 1368
507 0.69 647 592 0.89 832 663 1.09 1020 727 1.30 1212 784 1.51 1410
519 0.76 709 603 0.97 902 674 1.18 1096 736 1.39 1294 793 1.61 1498
532 0.83 775 614 1.05 976 684 1.26 1176 746 1.48 1381 802 1.71 1590
544 0.91 846 625 1.13 1054 694 1.35 1261 756 1.58 1472 812 1.81 1687
557 0.99 922 637 1.22 1137 705 1.45 1351 766 1.68 1568 821 1.92 1789
570 1.07 1002 648 1.31 1224 716 1.55 1445 776 1.79 1669 831 2.03 1896
582 1.17 1087 660 1.41 1317 727 1.66 1545 786 1.90 1774 841 2.15 2008
595 1.26 1177 671 1.52 1414 738 1.77 1649 797 2.02 1885 851 2.28 2125
608 1.36 1271 683 1.63 1517 749 1.89 1759 807 2.15 2002 861 2.41 2248
622 1.47 1372 695 1.74 1625 760 2.01 1874 818 2.28 2124 871 2.55 2376
635 1.58 1477 707 1.86 1738 771 2.14 1995 829 2.41 2252 881 2.69 2510
648 1.70 1588 720 1.99 1857 783 2.27 2121 839 2.56 2385 892 2.84 2650
655 1.77 1646 726 2.06 1918 788 2.34 2187 845 2.63 2454 897 2.92 2722
662 1.83 1705 732 2.13 1982 794 2.42 2253 850 2.71 2524 902 3.00 2798
675 1.96 1828 744 2.26 2112 806 2.56 2392 861 2.86 2669 913 3.16 2948
689 2.10 1957 757 2.41 2249 817 2.72 2536 873 3.02 2820 924 3.33 3106
702 2.24 2092 769 2.57 2392 829 2.88 2686 884 3.19 2978 935 3.51 3271
716 2.40 2234 782 2.73 2541 841 3.05 2843 895 3.37 3143 945 3.69 3442
723 2.47 2307 788 2.81 2619 847 3.14 2924 901 3.46 3227 -- -- --
AIRFLOW
(Cfm)
2550
2600
2700
2800
2900
3000
3100
3200
3300
3400
3500
3600
3700
3750
3800
3900
4000
4100
4200
4250
EXTERNAL STATIC PRESSURE (in. wg)
1.2 1.4 1.6 1.8 2.0
Rpm Bhp Watts Rpm Bhp Watts Rpm Bhp Watts Rpm Bhp Watts Rpm Bhp Watts
832 1.68 1570 880 1.91 1779 926 2.14 1994 970 2.38 2215 1011 2.82 2444
836 1.73 1615 885 1.98 1828 931 2.19 2043 974 2.43 2267 1015 2.88 2497
845 1.83 1708 893 2.08 1923 939 2.30 2148 982 2.55 2374 1023 2.80 2609
854 1.94 1805 902 2.17 2028 948 2.42 2253 991 2.67 2486 1031 2.92 2725
863 2.05 1907 911 2.29 2134 956 2.54 2368 999 2.79 2603 1040 3.05 2847
872 2.16 2015 920 2.41 2246 965 2.66 2483 1008 2.92 2726 1048 3.19 2974
882 2.28 2127 929 2.54 2365 974 2.80 2607 1016 3.08 2854 1057 3.33 3107
891 2.41 2245 938 2.87 2488 983 2.93 2735 1025 3.20 2988 1085 3.48 3246
901 2.54 2369 948 2.81 2617 992 3.08 2869 1034 3.35 3127 1074 3.84 3390
911 2.68 2497 957 2.95 2751 1001 3.23 3010 1043 3.51 3273 -- -- --
921 2.82 2632 967 3.10 2891 1011 3.38 3155 1052 3.67 3424 -- -- --
930 2.97 2772 977 3.26 3038 1020 3.55 3307 ......
941 3.13 2918 986 3.42 3190 .........
946 3,21 2994 991 3,50 3268 .........
951 3.29 3071 996 3.59 3348 .........
961 3,46 3229 ............
971 3.64 3393 ............
LEGEND
Bhp -- Brake Horsepower Input to Fan
Watts -- Input Watts to Motor
*Motor drive range: 860 to 1080 rpm. All other rpms require field-
supplied drive.
Refer to page 43 General Fan Performance Notes.
NOTES:
1. Boldface indicates field-supplied drive is required.
2. Maximum continuous bhp is 3.70.
4O

Table 25 -- Fan Performance, 50TFQ012- Horizontal Discharge Units; Standard Motor and Drive*
AIRFLOW
(Cfm)
3OOO
3100
3200
3300
3400
3500
3600
3700
3800
3900
4000
4100
4200
4300
4400
4500
4600
4700
4800
4900
5000
EXTERNAL STATIC PRESSURE (in. wg)
0.2 0.4 0.6 0.8 1.0
Rpm Bhp Watts Rpm Bhp Watts Rpm Bhp Watts Rpm Bhp Watts Rpm Bhp Watts
523 0.58 541 592 0.73 680 657 0.88 825 718 1.05 977 775 1.22 1135
536 0.63 587 603 0.78 730 666 0.94 879 726 1.11 1035 783 1.28 1196
549 0.68 637 614 0.84 783 676 1.00 936 735 1.17 1098 790 1.35 1260
562 0.74 689 626 0.90 839 686 1.07 996 743 1.24 1159 798 1.42 1328
575 0.80 744 637 0.96 898 696 1.14 1059 752 1.31 1226 806 1.50 1398
588 0.86 802 649 1.03 961 707 1.21 1125 762 1.39 1298 815 1.58 1472
601 0.93 864 661 1.10 1026 717 1.28 1194 771 1.47 1369 823 1.86 1548
614 1.00 929 673 1.17 1095 728 1.36 1267 781 1.55 1445 832 1.75 1629
628 1.07 997 685 1.25 1167 739 1.44 1343 791 1.64 1525 841 1.84 1712
641 1.15 1069 697 1.33 1243 750 1.53 1423 801 1.72 1608 850 1.93 1799
655 1.23 1144 709 1.42 1322 761 1.61 1506 812 1.82 1695 860 2.03 1890
668 1.31 1223 722 1.51 1405 773 1.71 1593 822 1.92 1788 870 2.13 1984
682 1.40 1305 734 1.60 1492 784 1.80 1683 833 2.02 1880 880 2.23 2082
698 1.49 1392 747 1.70 1582 796 1.91 1777 844 2.12 1979 890 2.34 2184
710 1.59 1482 760 1.80 1677 808 2.01 1876 855 2.23 2081 -- -- --
723 1.69 1577 773 1.90 1775 820 2.12 1978 866 2.35 2187 -- -- --
737 1.80 1675 785 2.01 1877 832 2.24 2085 ......
751 1.91 1778 798 2.13 1984 844 2.35 2195 ......
765 2.02 1885 812 2.25 2095 .........
779 2.14 1996 825 2.37 2210 .........
793 2.26 2112 ............
AIRFLOW
(Cfm)
3000
3100
3200
3300
3400
3500
3600
3700
3800
3900
4000
4100
4200
4300
4400
4500
4600
4700
4800
4900
5000
EXTERNAL STATIC PRESSURE (in. wg)
1.2 1.4 1.6 1.8 2.0
Rpm Bhp Watts Rpm Bhp Watts Rpm Bhp Watts Rpm Bhp Watts Rpm Bhp Watts
830 1.39 1298 883 1.57 1466 934 1.76 1638 982 1.95 1815 1029 2.14 1996
837 1.46 1363 889 1.65 1534 938 1.83 1710 986 2.03 1891 1033 2.23 2075
843 1.53 1431 894 1.72 1606 944 1.91 1785 991 2.11 1969 1037 2.31 2157
850 1.61 1502 901 1.80 1680 949 2.00 1863 996 2.20 2051 1041 2.40 2242
858 1.69 1576 907 1.88 1758 955 2.09 1944 1001 2.29 2135 --
865 1.77 1653 914 1.97 1838 961 2.18 2029 1007 2.38 2223 --
873 1.88 1733 921 2.06 1922 967 2.27 2116 --
881 1.95 1816 928 2.16 2010 974 2.37 2207 --
889 2.04 1904 936 2.25 2100 --
898 2.14 1995 944 2.35 2195 --
907 2.24 2089 ....
916 2.35 2187 ....
LEGEND
Bhp -- Brake Horsepower Input to Fan
Watts -- Input Watts to Motor
*Motor drive range: 685 to 935 rpm. All other rpms require field-
supplied drive.
m m
m m
Refer to page 43 General Fan Performance Notes.
NOTES:
1. Boldface indicates field-supplied drive is required.
2. Maximum continuous bhp is 2.40.
4!

Table 26 -- Fan Performance, 50TFQ012 -- Horizontal Discharge Units; Alternate Motor and Drive*
AIRFLOW
(Cfm)
3OOO
3100
3200
3300
3400
3500
3600
3700
3800
3900
4000
4100
4200
4300
4400
4500
4600
4700
4800
4900
5000
EXTERNAL STATIC PRESSURE (in. wg)
0.2 0.4 0.6 0.8 1.0
Rpm Bhp Watts Rpm Bhp Watts Rpm Bhp Watts Rpm Bhp Watts Rpm Bhp Watts
523 0.58 541 592 0.73 680 657 0.88 825 718 1.05 977 775 1.22 1135
536 0.63 587 603 0.78 730 666 0.94 879 726 1.11 1035 783 1.28 1196
549 0.68 637 614 0.84 783 676 1.00 936 735 1.17 1096 790 1.35 1260
562 0.74 689 626 0.90 839 686 1.07 996 743 1.24 1159 798 1.42 1328
575 0.80 744 637 0.96 898 696 1.14 1059 752 1.31 1226 806 1.50 1398
588 0.86 802 649 1.03 961 707 1.21 1125 762 1.39 1296 815 1.58 1472
601 0.93 864 661 1.10 1026 717 1.28 1194 771 1.47 1369 823 1.66 1548
614 1.00 929 673 1.17 1095 728 1.36 1267 781 1.55 1445 832 1.75 1629
628 1.07 997 685 1.25 1167 739 1.44 1343 791 1.64 1525 841 1.84 1712
641 1.15 1069 697 1.33 1243 750 1.53 1423 801 1.72 1608 850 1.93 1799
655 1.23 1144 709 1.42 1322 761 1.61 1506 812 1.82 1695 860 2.03 1890
668 1.31 1223 722 1.51 1405 773 1.71 1593 822 1.92 1786 870 2.13 1984
682 1.40 1305 734 1.60 1492 784 1.80 1683 833 2.02 1880 880 2.23 2082
696 1.49 1392 747 1.70 1582 796 1.91 1777 844 2.12 1979 890 2.34 2184
710 1.59 1482 760 1.80 1677 808 2.01 1876 855 2.23 2081 900 2.46 2290
723 1.69 1577 773 1.90 1775 820 2.12 1978 866 2.35 2187 910 2.57 2400
737 1.80 1675 785 2.01 1877 832 2.24 2085 877 2.46 2297 921 2.70 2514
751 1.91 1778 798 2.13 1984 844 2.35 2195 889 2.59 2412 932 2.82 2633
765 2.02 1885 812 2.25 2095 856 2.48 2310 900 2.71 2531 -- -- --
779 2.14 1996 825 2.37 2210 869 2.61 2430 912 2.85 2654 -- -- --
793 2.26 2112 838 2.50 2330 881 2.74 2554 ......
AIRFLOW
(Cfm)
3OOO
3100
3200
3300
3400
3500
3600
3700
3800
3900
4000
4100
4200
4300
4400
4500
4600
4700
4800
4900
5000
EXTERNAL STATIC PRESSURE (in. wg)
1.2 1.4 1.6 1.8 2.0
Rpm Bhp Watts Rpm Bhp Watts Rpm Bhp Watts Rpm Bhp Watts Rpm Bhp Watts
830 1.39 1298 883 1.57 1466 934 1.76 1638 982 1.95 1815 1029 2.14 1996
837 1.46 1363 889 1.65 1534 938 1.83 1710 986 2.03 1891 1033 2.23 2075
843 1.53 1431 894 1.72 1606 944 1.91 1785 991 2.11 1969 1037 2.31 2157
850 1.61 1502 901 1.80 1680 949 2.00 1863 996 2.20 2051 1041 2.40 2242
858 1.69 1576 907 1.88 1758 955 2.09 1944 1001 2.29 2135 1046 2.50 2331
865 1.77 1653 914 1.97 1838 961 2.18 2029 1007 2.38 2223 1051 2.60 2422
873 1.86 1733 921 2.06 1922 967 2.27 2116 1012 2.48 2314 1056 2.70 2516
881 1.95 1816 928 2.16 2010 974 2.37 2207 1019 2.58 2409 1062 2.80 2615
889 2.04 1904 936 2.25 2100 981 2.47 2302 1025 2.69 2507 -- --
898 2.14 1995 944 2.35 2195 988 2.57 2399 1032 2.80 2608 -- --
907 2.24 2089 952 2.46 2293 996 2.68 2501 --
916 2.35 2187 960 2.57 2395 1004 2.80 2607 --
925 2.45 2289 969 2.68 2500 ....
934 2.57 2395 978 2.80 2610 ....
944 2.69 2504 .......
954 2.81 2618 .......
LEGEND
Bhp -- Brake Horsepower Input to Fan
Watts -- Input Watts to Motor
*Motor drive range: 835 to 1085 rpm. All other rpms require field-
supplied drive.
m
m
Refer to page 43 General Fan Performance Notes.
NOTES:
1. Boldface indicates field-supplied drive is required.
2. Maximum continuous bhp is 2.90.
42

Table 27 -- Fan Performance, 50TFQ012 -- Horizontal Discharge Units; High-Static Motor and Drive*
AIRFLOW
(Cfm)
3OOO
3100
3200
3300
3400
3500
3600
3700
3800
3900
4000
4100
4200
4300
4400
4500
4600
4700
4800
4900
5000
EXTERNAL STATIC PRESSURE (in. wg)
0.2 0.4 0.6 0.8 1.0
Rpm Bhp Watts Rpm Bhp Watts Rpm Bhp Watts Rpm Bhp Watts Rpm Bhp Watts
523 0.58 541 592 0.73 680 657 0.88 825 718 1.05 977 775 1.22 1135
536 0.63 587 603 0.78 730 666 0.94 879 726 1.11 1035 783 1.28 1196
549 0.68 637 614 0.84 783 676 1.00 936 735 1.17 1096 790 1.35 1260
562 0.74 689 626 0.90 839 686 1.07 996 743 1.24 1159 798 1.42 1328
575 0.80 744 637 0.96 898 696 1.14 1059 752 1.31 1226 806 1.50 1398
588 0.86 802 649 1.03 961 707 1.21 1125 762 1.39 1296 815 1.58 1472
601 0.93 864 661 1.10 1026 717 1.28 1194 771 1.47 1369 823 1.66 1548
614 1.00 929 673 1.17 1095 728 1.36 1267 781 1.55 1445 832 1.75 1629
628 1.07 997 685 1.25 1167 739 1.44 1343 791 1.64 1525 841 1.84 1712
641 1.15 1069 697 1.33 1243 750 1.53 1423 801 1.72 1608 850 1.93 1799
655 1.23 1144 709 1.42 1322 761 1.61 1506 812 1.82 1695 860 2.03 1890
668 1.31 1223 722 1.51 1405 773 1.71 1593 822 1.92 1786 870 2.13 1984
682 1.40 1305 734 1.60 1492 784 1.80 1683 833 2.02 1880 880 2.23 2082
696 1.49 1392 747 1.70 1582 796 1.91 1777 844 2.12 1979 890 2.34 2184
710 1.59 1482 760 1.80 1677 808 2.01 1876 855 2.23 2081 900 2.46 2290
723 1.69 1577 773 1.90 1775 820 2.12 1978 866 2.35 2187 910 2.57 2400
737 1.80 1675 785 2.01 1877 832 2.24 2085 877 2.46 2297 921 2.70 2514
751 1.91 1778 798 2.13 1984 844 2.35 2195 889 2.59 2412 932 2.82 2633
765 2.02 1885 812 2.25 2095 856 2.48 2310 900 2.71 2531 942 2.95 2756
779 2.14 1996 825 2.37 2210 869 2.61 2430 912 2.85 2654 953 3.09 2883
793 2.26 2112 838 2.50 2330 881 2.74 2554 923 2.98 2782 965 3.23 3014
AIRFLOW
(Cfm)
3000
3100
3200
3300
3400
3500
3600
3700
3800
3900
4000
4100
4200
4300
4400
4500
4600
4700
4800
4900
5000
Bhp -- Brake Horsepower Input to Fan
Watts -- Input Watts to Motor
*Motor drive range: 830 to 1130 rpm. All other rpms require field-
supplied drive.
EXTERNAL STATIC PRESSURE (in. wg)
1.2 1.4 1.6 1.8 2.0
Rpm Bhp Watts Rpm Bhp Watts Rpm Bhp Watts Rpm Bhp Watts Rpm Bhp Watts
830 1.39 1298 883 1.57 1466 934 1.76 1638 982 1.95 1815 1029 2.14 1996
837 1.46 1363 889 1.65 1534 938 1.83 1710 986 2.03 1891 1033 2.23 2075
843 1.53 1431 894 1.72 1606 944 1.91 1785 991 2.11 1969 1037 2.31 2157
850 1.61 1502 901 1.80 1680 949 2.00 1863 996 2.20 2051 1041 2.40 2242
858 1.69 1576 907 1.88 1758 955 2.09 1944 1001 2.29 2135 1046 2.50 2331
865 1.77 1653 914 1.97 1838 961 2.18 2029 1007 2.38 2223 1051 2.60 2422
873 1.86 1733 921 2.06 1922 967 2.27 2116 1012 2.48 2314 1056 2.70 2516
881 1.95 1816 928 2.16 2010 974 2.37 2207 1019 2.58 2409 1062 2.80 2615
889 2.04 1904 936 2.25 2100 981 2.47 2302 1025 2.69 2507 1068 2.91 2716
898 2.14 1995 944 2.35 2195 988 2.57 2399 1032 2.80 2608 1074 3.03 2821
907 2.24 2089 952 2.46 2293 996 2.68 2501 1038 2.91 2713 1080 3.14 2930
916 2.35 2187 960 2.57 2395 1004 2.80 2607 1046 3.03 2822 1087 3.26 3042
925 2.45 2289 969 2.68 2500 1011 2.91 2716 1053 3.15 2935 1094 3.39 3159
934 2.57 2395 978 2.80 2610 1020 3.03 2828 1061 3.27 3052 1101 3.52 3279
944 2.69 2504 986 2.92 2723 1028 3.16 2946 1068 3.40 3173 1108 3.65 3403
954 2.81 2618 996 3.05 2840 1037 3.29 3067 1076 3.54 3297 1115 3.79 3531
963 2.93 2736 1005 3.18 2962 1045 3.42 3192 1085 3.67 3426 1123 3.93 3664
974 3.07 2858 1014 3.31 3088 1054 3.56 3322 1093 3.82 3560 1131 4.08 3801
984 3.20 2985 1024 3.45 3219 1063 3.71 3456 1102 3.96 3697 1139 4.23 3943
994 3.34 3116 1034 3.60 3353 1073 3.85 3594 1111 4.12 3839 1148 4.38 4088
1005 3.49 3251 1044 3.74 3492 1082 4.01 3737 1119 4.27 3986 1156 4.55 4238
LEGEND Rear _General FanPefformance No_s belo_
NOTES:
1. Boldfaceindicatesfield-supplied drivels required.
2. Maximum continuous bhpis 5.25.
GENERAL NOTES FOR FAN PERFORMANCE DATA TABLES
1. Fan performance is based on clean filters and wet coil data.
2. Extensive motor and electrical testing on these units ensures
that the full range of the motor can be utilized with confidence.
Using fan motors up to the wattage ratings shown will not result
in nuisance tripping or premature motor failure. Unit warranty
will not be affected. For additional information on motor perfor-
mance Table 9.
3. Values include losses for filters, unit casing, and wet coils. See
Tables 11A and 11B for static pressure information.
4. Use of a field-supplied motor may affect wire sizing. Contact
your Carrier representative for details.
5. Interpolation is permissible. Do not extrapolate.
43

PRE-START-UP
F;filure to observe the following warnings could result in
serious personal injuu:
1. Follow recognized safety practices and wear protec-
tive goggles when checking or servicing refrigerant
system.
2. Do not operate the compressor or provide any electric
power to the unit unless the compressor terminal
cover is in place and secured.
3. Do not remove the compressor terminal cover until all
electrical sources are disconnected.
4. Relieve all pressure from the system before touching
or disturbing anything inside the compressor terminal
box if a refi'igerant leak is suspected around the com-
pressor terminals. Use accepted methods to recover
refrigerant.
5. Never attempt to repair a soldered connection while
the refiigerant system is under pressure.
6. Do not use a torch to remove any component. The
system contains oil and refrigerant under pressure. To
remove a component, wetu protective goggles and
proceed as follows:
a. Shut off electrical power to the unit and tag
disconnect.
b. Relieve all pressure from the system using both
the high and low-pressure ports. Use accepted
methods to recover refrigerant.
c. Cut the component connection tubing with tubing
cuttek and remove the component from the unit.
d. Carefully unsweat the remaining tubing stubs
when necessary. Oil can ignite when exposed
to a torch flame.
Proceed as follows to inspect and prepare the unit for initkd
st_ut-up:
1. Remove all access panels.
2. Read and follow instructions on all WARNING, CAU-
TION, and INFORMATION labels attached to or
shipped with unit.
3. Make the following inspections:
a. Inspect for shipping and handling damages such
as broken lines, loose parts, or disconnected wires.
b. Inspect for oil at all refrigerant tubing connections
and on the unit base. Detecting oil generally indi-
cates a refrigerant leak. Leak-test all refrigerant
tubing connections using an electronic leak detec-
tor, halide torch, or liquid-soap solution.
c. Inspect all field-wiring and factory-wiring con-
nections. Be sure that connections are completed
and tight. Ensure that electrical wires do not
contact refrigerant tubing.
d. Inspect the coil fins. If damaged during shipping
and handling, carefully straighten the fins with a
fin comb.
4. Verify the following conditions:
a. Make sure that the outdoor-fan blades are
correctly positioned in the fan orifice. Refer to
Outdoor-Fan Adjustment section on page 48 for
more details.
b. Make sure that an air filter(s) is in place.
c. Make sure that the condensate drain trap is filled
with water to ensure proper drainage.
d. Make sure that all tools and miscellaneous loose
parts have been removed.
START-UP
Unit Preparation- Make sure that the unit has been
installed in accordance with installation instructions and
applicable codes.
Return-Air Filters -- Make sure that the correct filters
are installed in the unit (see Table 1). Do not operate the unit
without return-air filters.
Outdoor-Air Inlet Screen -- The outdoor-air inlet screen
must be in place befole operating the unit.
Compressor Mounting- Compressorsareinternally
spring mounted. Do not loosen or lemove the compressor hold-
down bolts.
Internal Wiring- Check all electric_d connections in
unit control boxes; tighten as required.
Refrigerant Service Ports -- Each refiigerant system
has 3 Schmder-type service gage ports: One on the suction line,
one on the cooling mode liquid line, and one on the compressor
discharge line. Be sure that the caps on the ports are tight.
The port on the cooling mode liquid line and one port on the
discharge line have protective devices installed on them.
HIGH FLOW REFRIGERANT VALVES -- Two high flow
valves may be located on the hot gas tube coming out of the
compressor and the suction tube going into the compressol:
L;uge black plastic caps identify these valves with O-rings
inside screwing the cap and onto a brass body. No field access
to these wdves is available at this time. Ensure the plastic caps
remain on the valves and are tight or the possibility of refriger-
ant leakage could occur
Compressor Rotation -- It is important to be celtain
that the scroll compressor (size 012 only) is rotating in the
proper direction. To determine whether or not the compressor
is rotating in the proper direction:
1. Connect service gages to the suction and disch;uge pres-
sure fittings.
2. Energize the compressor
3. The suction pressure should diop and the discharge pres-
sure should rise, as is normal on any start-up.
If the suction pressure does not drop and the discharge pros-
sure does not rise to normal levels:
1. Note that the indoor fan is probably also rotating in the
wrong direction.
2. Turn off power to the unit and tag disconnect.
3. Reverse any two of the unit power leads.
4. Turn on power to the unit. Re-energize compressoc
The suction and discharge pressme levels should now move
to their normal strut-up levels.
NOTE: When the compressor is rotating in the wrong
direction, the unit makes more noise and does not provide
heating/cooling.
Cooling -- To stm-t the unit, turn on main power supply. Set
the system selector switch at COOL position and the fan switch
at AUTO position. Adjust the thermostat to a setting below room
temperature. The compressor st_uts on closure of the contactol:
Check the unit charge. Refer to Refrigerant Charge section
on page 48.
Reset the thermostat at a position above room temperature.
The compressor will shut off.
TO SHUT OFF UNIT-- Set the system selector switch at
OFF position. Resetting the thermostat at a position above
room temperature shuts the unit off temporarily until the space
temperature exceeds the thermostat setting.
The compressor restart is accomplished by manual reset at
the thermostat by turning the selector switch to OFF position
and then ON position.
44

Heating -- To start the unit, turn on tile main power supply.
Set the thermostat at HEAT position at a setting above room
temperature, the fan at AUTO position.
The first stage of the thermostat energizes the indoor-fan
motor, compressoL and outdoor fan; the second stage energizes
electric heater elements, if installed. Check the heating effects
at the air supply grille(s).
If the accessoiN electric heaters do not energize, reset limit
switch (located on indoor-fan scroll) by pressing the button
located between terminals on the switch.
TO SHUT OFF UNIT-- Set the system selector switch at
OFF position. Resetting the heating selector lever below room
temperature temporarily shuts the unit off until the space
temperature falls below the thermostat setting.
Safety Relief --A soft solder joint on the suction line at
the loss-of-chtuge/low-pressure fitting provides pressme relief
under abnoml_d temperature and pressure conditions.
Ventilation (Continuous Fan) -- Set the fan and system
selector switches at ON and OFF positions, respectively. The in-
door fan operates continuously to provide constant air circulation.
Operating Sequence
COOLING. UNITS WITHOUT ECONOMIZER -- When
thermostat c_flls for cooling, terminals G and YI ale energized.
The indoor-fan contactor (IFC), reversing valve solenoid
(RVS 1) and compressor contactor no. 1 (C 1) tue energized and
indoor-fan motor, compressor no. 1, and outdoor fan starts. The
outdoor-fan motor(s) run continuously while unit is cooling. If
the thermostat calls for a second stage of cooling by energizing
Y2, compressor contactor no. 2 (C2) and reveLsing valve sole-
noid (RVS2) tue energized and compressor no. 2 starts.
HEATING, UNITS WITHOUT ECONOMIZER -- Upon a
request for heating from the space thermostat, terminal WI will
be enelgized with 24 v. The IFC, outdoor-fan contactor (OFC),
CI, and C2 will be energized. The reversing valves switch po-
sition and the indoor fan, outdoor fan, compressor no. 1, and
compressor no. 2 are energized.
If the space temperature continues to fall while WI is ener-
gized, W2 will be energized with 24 v, and the heater contac-
tor(s) (HC) will be energized, which will energize the electric
heater(s).
When the space thermostat is satisfied, W2 will be deener-
gized first, and the electric heater(s) will be deenergized.
Upon a lilrther rise in space temperature, WI will be
deenergized, and the reversing valve solenoids (RVSI and
RVS2) will be energized.
COOLING. UNITS WITH ECONOMISER IV -- When free
cooling is not available, the compressol_ will be controlled by
the zone thermostat. When free cooling is available, the
outdoor-air damper is modulated by the EconoMiSer IV con-
trol to provide a 50 to 55 F supply-air temperature into the
zone. As the supply-air temperature fluctuates above 55 or
below 50 E the dmnpers will be modulated (open or close)
to bring the supply-air temperature back within set point limits.
For EconoMiSer IV operation, there must be a thermostat
call for the fan (G). This will move the damper to its minimum
position during the occupied mode.
Above 50 F supply-air temperature, the dmnpers will modu-
late fiom 100% open to the minimum open position. From 50 F
to 45 F supply-air temperature, the &tmpers will maintain at
the minimum open position. Below 45 F the dampers will be
completely shut. As the supply-air temperature rises, the damp-
ers will come back open to the minimum open position once
the supply-air temperature rises to 48 E
If optional power exhaust is inst_dled, as the outdoor-air
damper opens and closes, the power exhaust fans will be ener-
gized and deenergized.
If field-installed accesso UCO2 sensors gu'econnected to the
EconoMi$er IV control, a demand controlled ventilation strate-
gy will begin to operate. As the CO2 level in the zone increases
above the CO2 set point, the minimum position of the &_mper
will be increased proportiomdly. As the CO2 level decreases
because of the increase in fresh all; the outdoo>air damper will
be proportionally closed. Damper position will follow the high-
er demand condition from DCV mode or free cooling mode.
Damper movement from full closed to full open (or vice
versa) will take between I lh and 2 lh minutes.
If free cooling can be used as determined fl_)m the appropri-
ate changeover command (switch, dlN bulb, enthalpy curve,
differential din bulb, or differential enthalpy), a c_dl for cooling
(YI closes at the thermostat) will cause the control to modulate
the dampers open to maintain the supply-air temperature set
point at 50 to 55 E
As the supply-air temperature drops below the set point
range of 50 to 55 F. the control will modulate the outdoo>air
&_mpers closed to maintain the proper supply-air temperature.
HEATING. UNITS WITH ECONOMI$ER IV -- When the
room temperature calls for heat, the heating controls am ener-
gized as described in the Heating, Units Without Economizer
section. When the thermostat is satisfied, the economizer
&_mper moves to the minimum position.
COOLING. UNITS WITH ECONOMISER2, PREMIER-
LINK TM CONTROL AND A THERMOSTAT -- When free
cooling is not available, the compressors will be controlled by
the PremierLink control in response to the YI and Y2 inputs
from the thermostat.
The PremierLink control will use the following information
to determine if free cooling is available:
• Indoor fan has been on for at least 30 seconds.
• The SPT. SAT. and OAT inputs must have valid readings.
• OAT must be less than 75 E
• OAT must be less than SPT.
• Enthalpy must be LOW (may be jumpered if an enthalpy
sensor not available).
• Economizer position is NOT forced.
Pre-cooling occurs when the is no c_dl from the thermostat
except G Pre-cooling is defined as the economizer modulates
to provide 70 F supply ail:
When free cooling is awtilable the PremierLink control will
control the compressors and economizer to provide a supply-
air temperature determined to meet the YI and Y2 calls from
the thermostat using the following three routines. The three
control routines are based on OAT. where:
SASP = Supply Air Set Point
DXCTLO = Direct Expansion Cooling Lockout Set Point
Routine 1 -- (()AT < DXCTLO)
• YI energized -- economizer maintains a SASP =
(SATLOI + 3).
• Y2 energized -- economizer maintains a SASP =
(SATLO2 + 3).
Routine 2 -- (DXCTLO < OAT < 68 F)
• If only YI energized, the economizer maintains a SASP
= (SATLOI + 3).
• If SAT > SASP + 5 and economizer position > 80%,
economizer will go to minimum position for 3 minutes or
until SAT > 68 E
• First stage of mechanical cooling will be energized.
• Integrator resets.
• Economizer opens again and controls to current SASP
after stage one on for 90 seconds.
• With YI and Y2 energized Economizer maintains an
SASP = SATLO2 + 3.
45

•[f SAT > SASP +5 and economizer position >80%,
economizer will go to minimum position for 3 minutes or
until SAT > 68 IF.
•[f compressor no. 1 is on then second stage of mechani-
cal cooling will be energized. Otherwise the first stage
will be energized.
• [ntegrator resets.
• Economizer opens again and controls to SASP after
stage one on for 90 seconds.
Routine 3 -- (OAT > 68)
• Economizer is opened 100%.
•Compressors 1 and 2 are cycled based on YI and Y2
using minimum on and off times and watching the sup-
ply air temperature as compared to SATLOI and
SATLO2 set points.
If optional power exhaust is installed, as the outdoor-air
damper opens and closes, the power exhaust fans will be ener-
gized and deenergized.
If field-inst_dled accessory CO2 sensors ale connected to the
PremierLinld TM control, a PID-controlled demand ventilation
strategy will begin to operate. As the CO2 level in the zone
increases above the CO2 set point, the minimum position of the
dalnper will be increased proportionally. As the CO2 level
decreases because of the increase in fresh all: the outdoor-air
dmnper will be proportionally closed.
HEATING, UNITS WITH ECONOMI$ER2, PREMIER-
LINK CONTROL AND A THERMOSTAT -- When the
thermostat calls for heating, terminal WI is energized. The
PremierLink control will move the economizer &tmper to the
minimum position if there is a call for G and closed if there is a
c_fllfor WI without G In order to prevent thermostat from short
cycling, the unit is locked into the heating mode for at least
10 minutes when WI is energized.
COOLING. UNITS WITH ECONOMISER2, PREMIER-
LINK CONTROL AND A ROOM SENSOR -- When free
cooling is not available, the compressors will be controlled by
the PremierLink controller using a PID (proportional integr_d)
Error leduction calculation as indicated by Fig. 41.
The PremierLink controller will use the following informa-
tion to determine if fiee cooling is available:
• Indoor fan has been on for at least 30 seconds.
•The SPT. SAT. and OAT inputs must have valid readings.
• OAT must be less than 75 F.
• OAT must be less than SET.
•Enthalpy must be LOW (may be jumpered if and
enthalpy sensor is not available).
• Economizer position is NOT forced.
When free cooling is available, the outdoor-air damper is
positioned through the use of a Proportional Integral (PIE))
control process to provide a calculated supply-air temperature
into the zone. The supply air will maintain the space tempera-
ture between the heating and cooling set points as indicated in
Fig. 42.
The PremierLink control will integrate the compressor
stages with the economizer based on simiku logic as the three
routines listed in the previous section. The SASP will float up
and down based on the error reduction calculations that com-
pme space temperature and space set point.
When outside-air temperature conditions require the econo-
mizer to close for a compressor stage-up sequence, the econo-
mizer control integrator is reset to zero after the stage-up se-
quence is completed. This plevents the supply-air temperature
from c_hopping too quickly and creating a freeze condition that
would make the compressor turn off prematurely.
The high space set point is used for DX (direct expansion)
cooling control, while the economizer space set point is a
c_dculated value between the heating and cooling set points.
The economizer set point will always be at least one degree
below the cooling set point, allowing for a smooth transition
from mechanical cooling with economizer assist, back to
economizer cooling as the cooling set point is achieved.
The compressors may be used for initial cooling then the
PremierLink controller will modulate the economizer using an
error reduction calculation to hold the space temperature
between the heating and cooling set points. See Fig. 42.
The controller uses the following conditions to determine
economizer cooling:
• Enthalpy is Low
• SAT reading is available
• OAT reading is available
• SET reading is available
• OAT <SET
• Economizer Position is NOT forced
If any of the above conditions are not met, the economizer
submaster reference (ECSR) is set to maximum limit and the
damper moves to minimum position. The operating sequence
is complete. The ECSR is recalculated every 30 seconds.
If an optional power exhaust is installed, as the outdoor-air
damper opens and closes, the power exhaust fans will be
energized and deenergized.
If field-installed accessory CO2 sensors me connected to
the PremierLink control, a PID-controlled demand ventilation
strategy will begin to operate. As the CO2 level in the zone
increases above the CO2 set point, the minimum position of the
damper will be increased proportionally. As the CO2 level
decreases because of the increase in flesh all: the outdoor-air
damper will be proportionally closed.
kU
c£
,,=,
[JA
o
¢/)
75
744
734
724
71 4
704
694
68J
TEMPERATURECONTROL
...... SET POINT
--TEMPERATURE
TIME
NOTE: PremierLink control performs smart staging of 2 stages of DX
cooling and up to 3 stages of heat,
Fig. 41 i DX Cooling Temperature
Control Example
TEMPERATURE CONTROL
LU 75]__.
cc 74
......... ....................................I COOLSETPOINT
71] \ /I-- TEMPERATURE
ii] TM --HEATSETPOINT
_u L-
o
09
TIME
Fig. 42 -- Economizer Temperature
Control Example
46

HEATING.UNITWITHECONOMISER2,PREMIERLINKrM
CONTROLANDAROOMSENSOR--Every 40 seconds
thecontrollerwillcalculatetherequiredheatstages(maximum
of3)tomaintainsupplyairtemperature(SAT)if thefollowing
qualifyingconditionsalemet:
• Indoorfanhasbeenonforatleast30seconds.
• COOLmodeisnotactive.
• OCCUPIED,TEMRCOMPENSATEDSTARTorHEAT
modeisactive.
• SATreadingisavailable.
• Fireshutdownmodeisnotactive.
If alloftheaboveconditionsaremet,thenumberofheat
stagesis calculated; otherwise file required number of heat
stages will be set to 0.
If the PremierLink controller determines that heat stages are
required, the economizer damper will be moved to minimum
position if occupied and closed if unoccupied.
SERVICE
When servicing the unit, shut off all electrical power to the
unit to avoid shock hazard or injury from rotating pmts.
Cleaning -- Inspect the unit interior at the beginning of each
heating and cooling season or as operating conditions lequire.
INDOOR COIL
1. Turn off the unit power and tag disconnect. Remove the
filter access panel and indoor coil access panel.
2. If an economizer or accessory two-position &tmper is
installed, remove the economizer or two-position &unper
by disconnecting file economizer plug and lemoving the
mounting sclews.
3. Slide the filters out of the unit.
4. Clean the coil using a commercial coil cleaner or dish-
washer detergent in a pressurized spray canistel: Wash
both sides of the coil and flush with clean watel: For best
results, backflush toward the return-air section to remove
foreign material.
5. Flush the condensate pan after completion.
6. Reinstall the economizer/two-position &tmper and filters.
7. Reconnect the wiring.
8. Replace the access panels.
OUTDOOR COILS- Inspect the coils monthly. Clean
condenser coils annually, and as required by location and
outdoor-air conditions.
Clean 2-row coils as follows:
1. Turn off the unit power and tag disconnect.
2. Remove the top panel screws on the outdoor end of the
unit.
3. Remove the outdoor coil corner post. See Fig. 43. To hold
the top panel open, place the coil corner post between the
top panel and the center post. See Fig. 44.
4. Remove the device holding the coil sections together at
the leturn end of the outdoor coil. Carefully separate the
outer coil section 3 to 4 in. from the inner coil section.
See Fig. 45.
5. Use a water hose or other suitable equipment to flush
down between the 2 coil sections to remove dirt and
debris. Clean the outer surfaces with a stiff brush in the
norm_d mannel:
6. Secure file sections together Reposition the coil sections,
and remove the coil corner post from between the top
panel and center post. Install the coil corner post and coil
center post, and replace all sclews.
CONDENSATE DRAIN -- Check and clean each yetu at the
start of cooling season. In wintek keep the drain dry or protect
it against freeze-up.
TOP REMOVE
PANEL SCREWS OUTDOOR CONTROLBOX
FAN CORNER POST
COIL CENTER
POST OUTDOOR REMOVE COIL
COIL CORNER POST
Fig. 43 -- Cleaning Outdoor Coil
REMOVE
SCREWS
COILCORNER CENTER BAFFLE
POST
TOP PANEL
OUTDOOR CC
Fig. 44 -- Propping Up Top Panel
TOP VIEW TOP PANEL
Fig. 45 -- Separating Coil Sections
47

FILTERS -- Clean or replace at file start of each heating and
cooling season, or more often if operating conditions require it.
Replacement filters must be the same dimensions as original
filtel_.
OUTDOOR-AIR INLET SCREEN -- Clean the screen with
steam or hot water and a mild detergent. Do not use disposable
filters in place of screens.
Lubrication
COMPRESSORS -- Each compressor is charged with correct
amount ofoil at the factoly.
FAN MOTOR BEARINGS -- Fan motor beaH¢4s are per-
manen@ lubricawd No further lubrication of outdoor or
indoor-fan motors is required.
Outdoor Fan Adjustment (Fig. 46)
1. Shut off the unit power supply and tag disconnect.
2. Remove the outdoor-fan assembly (grille, motor, motor
cover, and fan) and loosen file tim hub setscrews.
3. Adjust the fan height as shown in Fig. 46.
4. Tighten the setscrews and replace the outdoor-fan assembly.
.__= " _ _ _,,__.
UNIT I "A"
VOLTAGE I in.
208/230 V 2.75
460 V and 575 V 3.50
Fig. 46 -- Outdoor Fan Adjustment
Unit panels must be in place when the unit is operating
during charging procedure.
NO CHARGE -- Use sttmdard evacuating techniques. After
evacuating the system, weigh in the specified mnount of refrig-
erant (refer to Table 1).
LOW CHARGE COOLING -- Use the Cooling Charging
Chmls, Fig. 47-49. Vary the refrigerant until file conditions of
the appropriate chart are met. Note that the chmging charts are
different from the type normally used. Charts are based on
chmging the units to the correct superheat for the various oper-
ating conditions. An accurate pressure gage and temperature
sensing device are required. Connect the pressure gage to the
service port on file suction line. Mount the temperature sensing
device on the suction line and insulate it so that outdoor ambi-
ent temperature does not affect the reading. Indoor-tfir cfin
must be within the norm_fl operating range of file unit.
TO USE COOLING CHARGING CHARTS -- Take the out-
door ambient temperature and read the suction pressure gage.
Refer to the appropriate chart to determine what the suction
temperature should be. If the suction temperature is high, add
refrigerant. If the suction temperature is low. cmefully recover
some of the charge. Recheck the suction pressure as charge is
adjusted.
EXAMPLE: (Fig. 47)
Outdoor Temperature ............................. 85 F
Suction Pressure ............................... 70 psig
Suction Temperature should be ..................... 49 F
(Suction Temperature may vtu'y _+5° E)
HEATING CHARGE -- Do not attempt to adjust refrigerant
chmge while the unit is operating in the heating mode. If the
chmge mnount is believed to be incorrect, recover refrigerant
and weigh in the amount listed on the unit rating plate.
Replacement Parts -- A complete list of replacement
parts can be obtained from any Carrier distributol:
Blower Belt Adjustment-- Inspect the blower belt
for were', proper belt tension, and pulley alignment as condi-
tions require or at the beginning of each heating and air condi-
tioning season.
Refer to Step 7 -- Adjust Indoor-Fan Speed on page 25 for
adjustment and alignment procedures.
High-Pressure Switch -- Located on the compressor
hot gas line is a high-pressure switch, which contains a
Schrader core depressol: This switch opens at 428 psig and
closes at 320 psig. No adjustment is necessary. Refer to
Table 1.
Loss-of-Charge Switch -- Located on file outdoor liq-
uid line is a low-pressure switch which functions as a loss-of-
charge switch. This switch contains a Schmder core depressor.
This switch opens at 7 psig and closes at 22 psig. No adjust-
ment is necessary. Refer to Table 1.
Freezestat -- Located on the "hair pin" end of the indoor
coil is a bimetal temperature sensing switch. This switch pro-
tects the evaporator coil from freeze-up due to lack of airflow.
The switch opens at 30 F and closes at 45 E No adjustment is
necessary. Refer to Table 1.
Refrigerant Charge -- The amount of refrigerant charge
is listed on the unit nameplate (also refer to Table 1). Refer to
Carrier Refrigerant Service Techniques Manual, Refrigerants
section.
758 110-
6B9 100-
Cn 90--
621
U3
0
c,.70 -
_n483 #
uJ _l
345 mS0 -
276 40
30-
30
I
€t ttt t4t-I II [II II I', I
I I I I I I I I III[I l I l I I I
I I Ill IIIIIi [lilt I[
I I I IT Ill I I I [I III I I I
I I Ill IIIII I [llIl II I
_''" _"_'_'"_'_ %_J_I
llill __ us 4a
IIIII Y'Y'''"rI'''I es _
i_rl I 11_[ I I..,F'I
I I Ill "I I IJ,-ffI 65 I0
I I I IT/ I i L..I'-i[i- [ i i i L.,.I._I
''''",.,.I -4¢1111MM'111 4s 7
llll_F" [J-.-'I_Iill_b4"]lll
IL4"ll _ lllJ,_lllllll
.--'r-llll _ [J,,,-'I_llllllllll
,,''"-".,_ ?IIIIIIIIIII]
IIJ,_ IIIIIIIIIIIIl
IIIIl iIIIiIItIIlll
IIIII IIIIIIIIIIIII
IIIII IIIIlilIIIIll
IIIII iIIIl[lIIIIli
l[Itl IIIIIIlilIlll
lilll IIIIIIIiIIIIL
IIlll IIIIIIIIIIIII
IIIII IIIIIIIIIIIII
l{lll IIIIIIIIIIIII
lilll IIIIIIIilIIII
liilI Iiiiliilllll!
40 50 60 70 BO
5UCTI_ LINE TEMPERATURE ('F)
110 116 211 2i7
S_T]ON LINE TEMPERATURE ('C)
90
3'2
I
I
I
I
I
I
I
I
I
I
Fig. 47 -- Cooling Charging Chart, 50TFQ008
48

,s0" iiiiiiiii
IIIIIIIII
68£ 1o0-H-HJPH-H -
IIIIIIIII
o_621_ 0 II{1111111
11111111,2"
ss2_o l lllll _I_1
_ 1111IIITZ
483 I I I I I I I I I
o_ _ IilIIJ/IlA _
I H-H ,
z414 ozBO II I D4"q III
345
276 _ III {I 1 1
40 It III I I
3O 4O
/
f
J
,/" /-
J
iii!!!!!
lllIIIllll
II It I I I III
II III I I III .............
I I I I I I I I I I OUTD_ TE_
/I I Itl *F _ Z_
,,._,,1111112s 's_2-
_I/5 I I I IM I I 110 5 L- --
/I I I lJ_l J_l I75 24
I 1 1.4"I L4"I I I
_,._,tt11155 18
l,_r t i ii D_ifl
55 13
45 ?
I IJ_-d_l I I I I I I I I
_MI] I I I I_I I I I I
II I_II III III
_ I I I I III III
I I I I I I I I I I I I I
HIIIIIIIIIII
lllllllllllIl
+H-H-4-H+FFHqq
IIIl{llll{lllll
lilll!lllliil
IIIIIIIIIIIII
IIIIIIIIIIIII
50 60 70 80 90
SUCTION LINE TEMPERATURE (,F)
I I I I I
4 10 116 21 27 32
SUCTION LINE TENPERATURE ('C)
Fig. 48 -- Cooling Charging Chart, 50TFQO09
7s811olIIIII_,IIIIIIIIIIIIIilll'_lllllllIIlllIll
IIIllIIIIIIIIIIIIII
I I II I I IIIi I I I I I
llllllllllIlllllllll
_?0 i i i i i i i i I I i i i i i l._,iA i
I I I I I I I I I I I J/IXI I D4fl I_
552 _" I I I I I I I I I I_PL_I I I._K'IL-'I_Iu_ 0i i i i i i i IXIIKI L-I_I _i i i.
483 __70
J_F tJ_d_l I_I"_1 I I 1_!_7 _
_414:_0 II I_!-q _ IJ,-dEI ! I I_!"4_I I!
LAIFIItlIIIIIIII
_345 50 IIIIIIIt11IIt111ttlI
lllllllllllllllllill
t I I11 I II I I I I I II 111 It
I I t I Iti iI I! I 111 II I I I
lllIlllIIIIIlllIllll I
30 40 50 50 70
SUCTION LINE TEMPERATURE ('P)
IIIII
4 10 16 21
SUCTION LINE TEMPERATURE ('C)
Fig. 49 iCooling
I IIIIII I
Ilill[l 1
I t11111
IIit111
125 52
I15 46
85 29
75 24
- 65 18
t 1t11It I
I111II I
I IIIIit I
I IIIIII I
I IIIIII I
I !!IIII I
I IIIIII I
I IIIIII I
I IIIIII I
IIIIIII I
I IIIIII I
I IIIIII I
I IIllII I
IIllII I
IIllII I
80 90
Ii
27 32
Charging Chart, 50TFQ012
TROUBLESHOOTING
Unit Troubleshooting -- For unit troubleshooting, re-
fer to Fig. 50 and Table 28.
EconoMi$er IV Troubleshooting -- See Table 29
for EconoMi$er IV logic.
A lhnctional view of the EconoMiSer IV is shown in
Fig. 51. Typical settings, sensor ranges, and jumper positions
are also shown. An EconoMiSer IV simulator program is avail-
able from Carrier to help with EconoMi$er IV training and
troubleshooting.
ECONOMISER IV PREPARATION -- This procedme is
used to prepare the EconoMiSer IV for troubleshooting. No
troubleshooting or testing is done by performing the following
procedure.
NOTE: This procedure requires a 9-v battery. 1.2 kilo-ohm
resistok and a 5.6 kilo-ohm resistor which are not supplied
wilh the EconoMi$er IV.
I MPORTANT: Be sure to record the positions of all poten-tiometers before starting troubleshooting.
1. Disconnect power at TR and TRI. All LEDs should be
off. Exhaust fan contacts should be open.
2. Disconnect device at P and PI.
3. Jumper P to PI.
4. Disconnect wires at T and TI. Place 5.6 kilo-ohm resistor
across T and TI.
5. Jumper TR to 1.
6. Jumper TR to N.
7. If connected, remove sensor from terminals So and +.
Connect 1.2 kilo-ohm 4074EJM checkout resistor across
terminals So and +.
8. Put 620-ohm resistor across terminals S_ and +.
9. Set minimum position, DCV set point, and exhaust
potentiometers fully CCW (counterclockwise).
10. Set DCV maximum position potentiometer lidly CW
(clockwise).
11. Set enthalpy potentiometer to D.
12. Apply power (24 vac) to terminals TR and TRI.
DIFFERENTIAL ENTHALPY-- To check differential
enthalpy:
1. Make sure EconoMi$er IV preparation procedure has
been performed.
2. Place 620-ohm resistor across So and +.
3. Place 1.2 kilo-ohm resistor across S_ and +. The Free
Cool LED should be lit.
4. Remove 620-ohm resistor across So and +. The Free
Cool LED should turn off.
5. Return EconoMi$er IV settings and wiring to normal
after completing troubleshooting.
SINGLE ENTHALPY -- To check single enthalpy:
1. Make sure EconoMi$er IV preparation procedure has
been performed.
2. Set the enth_flpy potentiometer to A (fully CCW). The
Free Cool LED should be lit.
3. Set the enthalpy potentiometer to D (fully CW). The Free
Cool LED should turn off.
4. Return EconoMi$er IV settings and wiring to normal
after completing troubleshooting.
DCV (DEMAND CONTROLLED VENTILATION) AND
POWER EXHAUST -- To check DCV and Power Exhaust:
1. Make sure EconoMiSer IV preparation procedure has
been performed.
2. Ensure terminals AQ and AQI are open. The LED for
both DCV and Exhaust should be off. The actuator
should be fully closed.
3. Connect a 9-v batte qto AQ (positive node) and AQI
(negative node). The LED for both DCV and Exhaust
should turn on. The actuator should drive to between 90
and 95% open.
4. Turn the Exhaust potentiometer CW until the Exhaust
LED turns off. The LED should turn off when the
potentiometer is approximately 90%. The actuator should
remain in position.
49

5. TurntheDCVsetpointpotentiometerCWuntiltheDCV
LEDturnsoff.TheDCVLEDshouldturnoffwhenthe
potentiometerisapproximately9v.Theactuatorshould
drivefullyclosed.
6. TurntheDCVandExhaustpotentiometersCCWuntil
theExhaustLEDturnson.Theexhaustcontactswill
close30to120secondsaftertheExhaustLEDturnson.
7. ReturnEconoMi$erIV settingsandwiringto normal
aftercompletingtroubleshooting.
DCVMINIMUMANDMAXIMUMPOSITION-- Tocheck
theDCVminimumandmaximumposition:
1. MakesureEconoMi$erWpreparation procedure has
been performed.
2. Connect a 9-v battery to AQ (positive node) and AQI
(negative node). The DCV LED should turn on. The
actuator should drive to between 90 and 95% open.
3. Turn the DCV Maximum Position potentiometer to mid-
point. Tile actuator should drive to between 20 and 80%
open.
4. Turn the DCV Maximum Position potentiometer to fully
CCW. The actuator should drive fully closed.
5. Turn the Minimum Position potentiometer to midpoint.
The actuator should drive to between 20 and 80% open.
6. Turn the Minimum Position Potentiometer fully CW. The
actuator should &ive fully open.
7. Remove the jumper from TR and N. The actuator should
drive fully closed.
8. Return EconoMiSer IV settings and wiring to normal
after completing troubleshooting.
SUPPLY-AIR INPUT -- To check supply-air input:
1. Make sure EconoMiSer IV preparation procedure has
been performed.
2. Set the Enthalpy potentiometer to A. The Free Cool LED
turns on. The actuator should drive to between 20 and
80% open.
3. Remove the 5.6 kilo-ohm resistor and jumper T to TI.
The actuator should &ive lially open.
4. Remove the jumper across T and TI. Tile actuator should
drive fully closed.
5. Return EconoMiSer IV settings and wiring to norm:d
after completing troubleshooting.
ECONOMISER IV TROUBLESHOOTING COMPLE-
TION -- This procedure is used to return the EconoMiSer IV
to operation. No troubleshooting or testing is done by perform-
ing the following procedure.
1. Disconnect power at TR and TRI.
2. Set enthalpy potentiometer to previous setting.
3. Set DCV maximum position potentiometer to previous
setting.
4. Set minimum position, DCV set point, and exhaust
potentiometers to previous settings.
5. Remove 620-ohm resistor from terminals SR and +.
6. Remove 1.2 kilo-ohm checkout resistor from terminals
So and +. If used, reconnect sensor from terminals So and
+.
7. Remove jumper from TR to N.
8. Remove jumper from TR to 1.
9. Remove 5.6 kilo-ohm resistor fiom T and TI. Reconnect
wires at T and TI.
10. Remove jumper from P to PI. Reconnect device at P and
PI.
11. Apply power (24 vac) to termimds TR and TRI.
5O

SEE DETAIL "A" AND "B"
SIN6LE POINT BOX WIRINg /
FORUNITS WITH 230 VOLT
NAMEPLATEMCABETWEEN
110 AND151.9 AMPS.
IA
i
_OFC
}TRAN
NOTE5
C
CAP --
CB
CLO --
COMP --
DB
DFT --
EQUIP --
FPT --
HC
HPS --
HR
IFC
IFM --
IFMOVL --
LPS --
Contactor, Compressor
Capacitor
Circuit Breaker
Compressor Lockout
Compressor Motor
Defrost Board
Defrost Thermostat
Equipment
Freeze Protection Thermostat
Heater Contactor
High-Pressure Switch
Heater Relay
Indoor-Fan Contactor
Indoor-Fan Motor
Indoor-Fan Motor Overload Switch
Low-Pressure Switch
LEGEND
LSMMcA ---- Minimum Circuit AmpsUmit Switch (Manual Reset)
MTR -- Motor 0
OFCoFM ---- Outdoor-Fan MotorOutd°°r-Fan Contactor [_
P-- Plug 0
PLQT ---- Quadruple TerminalPlug Assembly 4_
SAT -- Supply Air Thermostat
RVS -- Reversing Valve Solenoid __ __
TRAN -- Transformer
Field Splice
%/_ Marked Wire
Terminal (Marked)
Terminal (Unmarked)
Terminal Block
Splice
Splice (Marked)
Factory Wiring
Field Control Wiring
Field Power Wiring
Accessory or Optional Wiring
To indicate common potential only
not to represent wiring
Fig. 50 -- Typical Unit Wiring Schematic (208/203-3-60 Unit Shown)
51

Table 28 -- Heating and Cooling Troubleshooting
PROBLEM
Compressor and Outdoor Fan
Will Not Start.
Compressor Will Not Start But
Outdoor Fan Runs.
Compressor Cycles (Other Than
Normally Satisfying Thermostat).
Compressor Operates Continuously.
Excessive Head Pressure.
Head Pressure Too Low.
Excessive Suction Pressure.
Suction Pressure Too Low.
Compressor No. 2 Will Not Run.
CAUSE
Power failure.
Fuse blown or circuit breaker tripped.
Defective thermostat, contactor, transformer, or
control relay.
Insufficient line voltage.
Incorrect or faulty wiring.
Thermostat setting too high.
High-pressure switch tripped.
Low-pressure switch tripped.
Freeze-up protection thermostat tripped.
Faulty wiring or loose connections in compressor
circuit.
Compressor motor burned out, seized, or internal
overload open.
Defective overload.
One leg of 3-phase power dead.
Refrigerant overcharge or undercharge.
Defective compressor.
Insufficient line voltage.
Blocked outdoor coil or dirty air filter.
Defective overload.
Defective thermostat.
Faulty outdoor-fan (cooling) or indoor-fan (heating)
motor or capacitor.
Restriction in refrigerant system.
Dirty air filter.
Unit undersized for load.
Thermostat set too low.
Low refrigerant charge.
Leaking valves in compressor.
Air in system.
Outdoor coil dirty or restricted.
Dirty air filter.
Dirty outdoor coil.
Refrigerant overcharged.
Air in system.
Condensing air restricted or air short-cycling.
Low refrigerant charge.
Compressor valves leaking.
Restriction in liquid tube.
High heat load.
Compressor valves leaking.
Refrigerant overcharged.
Dirty air filter (cooling) or dirty outdoor coil
(heating).
Low refrigerant charge.
Metering device or low side restricted
Insufficient indoor airflow (cooling mode).
Temperature too low in conditioned area.
Field-installed filter drier restricted.
Outdoor ambient temperature below 25 R
Unit in economizer mode.
REMEDY
Call power company.
Replace fuse or reset circuit breaker.
Replace component.
Determine cause and correct.
Check wiring diagram and rewire correctly.
Lower thermostat setting below room
temperature.
See problem "Excessive Head Pressure."
Check for leaks, repair, and recharge.
See problem "Suction Pressure Too Low."
Check wiring and repair or replace.
Determine cause. Replace compressor.
Determine cause and replace.
Replace fuse or reset circuit breaker.
Determine cause.
Recover refrigerant, evacuate system, and
recharge to nameplate.
Replace and determine cause.
Determine cause and correct.
Determine cause and correct.
Determine cause and replace.
Replace thermostat.
Replace.
Locate restriction and remove.
Replace filter.
Decrease load or increase unit size.
Reset thermostat.
Locate leak, repair, and recharge.
Replace compressor.
Recover refrigerant, evacuate system, and
recharge.
Clean coil or remove restriction.
Replace filter.
Clean coil.
Remove excess refrigerant.
Recover refrigerant, evacuate system, and
recharge.
Determine cause and correct.
Check for leaks, repair, and recharge.
Replace compressor.
Remove restriction.
Check for source and eliminate.
Replace compressor.
Recover excess refrigerant.
Replace filter or clean coil.
Check for leaks, repair, and recharge.
Remove source of restriction.
Increase air quantity. Check filter and replace if
necessary.
Reset thermostat.
Replace.
Install low-ambient kit.
Proper operation; no remedy necessary.
52

Table 29 -- EconoMi$er IV Input/Output Logic
Demand Control
Ventilation (DCV)
Below set
(DCV LED Off)
Above set
(DCV LED On)
INPUTS
Enthalpy* Compressor
Outdoor Return Y1 Y2 Stage Stage
1 2
High Low On On On On
(Free Cooling LED Off) On Off On Off
Off Off Off Off
Low High On On On Off
(Free Cooling LED On) On Off Off Off
Off Off Off Off
High Low On On On On
(Free Cooling LED Off) On Off On Off
Off Off Off Off
Low High On On On Off
(Free Cooling LED On) On Off Off Off
Off Off Off Off
*For single enthalpy
enthalpy to the ABCD
1-Power at N terminal determines Occupied/Unoccupied
24 vac (Occupied), no power (Unoccupied).
**Modulation is based on the supply-air sensor signal.
ttModulation is based on the DCV signal.
OUTPUTS
NTerminal1-
Occupied Unoccupied
Damper
Minimum position Closed
Modulating** (between min.
3osition and full-open)
Minimum position
Modulatingl-t (between min.
3osition and DCV maximum)
Modulating***
Modulating** (between
closed and full-open)
Closed
Modulatingtl- (between
closed and DCV
maximum)
Modulatingl-l-t
control, the module compares outdoor
set point. setting:
***Modulation is based on the greater of DCV and supply-air sen-
sor signals, between minimum position and either maximum
position (DCV) or fully open (supply-air signal).
tttModulation is based on the greater of DCV and supply-air sen-
sor signals, between closed and either maximum position (DCV)
or fully open (supply-air signal).
Fig. 51 -- EconoMi$er IV Functional View
53

Access panels 18
Barometric flow capacity 20
Carrier Comfort Network 14
Cha_ing chart, refrigerant 48, 49
Clearance 3, 6
CO2 sensor
Configuration 25
Settings 23, 25
Compressor
Mounting 44
Rotation 44
Condensate drain
Cleaning 47
Location 3
Control circuit
Wiring 12
Wiring raceway 12
Convenience outlet 10, II, 13
Defrost board 12, 1.3
Demand control ventilation 24
Dehumidification 25
Dimensions 2, 6
Ductwork 3
EconoMi$er2 lt_
Components 18
4 to 20 mA control 20
Wiring 20
EconoMi$er IV 18-25
Components 18
Damper 24
Dry bulb changeover 21
Enthalpy changeover 22
Inputs and outputs 53
Troubleshooting 49, 50
Wiring 19
Electrical connections 7
Electrical data 8-11
Electric heat 8
Enthalpy changeover set points 23
Factory-installed options 12-25
Convenience outlet 13
EconoMi$er2 18-20
EconoMi$er IV 18-25
Manual outdoor air dmnper 13
Novar controls 13
PremierLink TM controls 14-16
Filter
Cleaning 48
Installation 19
Size 5
Freeze protection thermostat 5, 48
Heat anticipator settings 12, 13
High flow valves 44
High pressure switch 5, 48
Horizontal units 3
Indoor air quality 14, 22
Indoor coil 5
Cleaning 47
Indoor tim motor 5
Lubrication 48
Motor data 26
Performance 28-43
Pulley adjustment 26
Pulley setting .5,27
Speed 5
Low pressure switch .5,48
Manual outdoor air damper 13
Mounting
Compressor 44
Unit 3
Novar controls 13
INDEX
Operating sequence
Cooling 45
EconoMiSer2 45-47
EconoMi$er IV 45
Heating 45
Outdoor air hood 14,19
Outdoor air inlet screens 44
Cleaning 48
Outdoor coil 5
Cleaning 47
Outdoor fan 5
Adjnstment 48
Physical data 5
Potentiometer 22
Power supply
Wiring 7
PremierLink controls 14-16
Pressure, drop
Electric heat 27
Return air 20
Ontdoor air 20
Pre-start-up 44
Pressure switches
High pressure 5
Low pressure 5
Refrigerant
Charge .5,48, 49
Type 5
Refrigerant sel_.ice ports 44
Replacement parts 48
Return air filter .5,44
Return air temperature sensor 22
Rigging unit 3,4
Roof curb
Assembly 1
Dimensions 2
Connector package 2
Leveling tolerances 3
Weight 5
Safety considerations 1
Safety relief 45
Selwice 47-49
Selwice ports 44
Slab mount 3
Start-np 44-47
Start-np checklist (__'L-I
Supply-air temperature sensor 14,21
Thermostat 12,24
Troubleshooting 49-53
Ventilation 45
Weight
Corner 6
EconoMiSer IV .5,6
Unit 4-6
Wiring
4 to 20 mA control 20
EconoMi$er2 20
EconoMi$er IV 10
Power connections 7
PremierLink 16
Thermostat 12
Unit 51
Copyright 2005 Carrier Corporation
Manufacturer reserves the right to discontinue, or change at any time, specifications or designs without notice and without incurring obligations.
Catalog No. 04-53500019-01 Printed in U.S.A. Form 50TFQ-9SI Pg 54 9-05 Replaces: 50TFQ-7SI

PRELIMINARY INFORMATION
MODEL NO.:
DATE:
BUILDING LOCATION:
START-UP CHECKLIST
(Remove and Store in Job File)
SERIAL NO.:
TECHNICIAN:
II. PRE-START-UP (insert checkmark in box as each item is completed)
[] VERIFY THAT CONDENSATE CONNECTION IS INSTALLED PER INSTALLATION INSTRUCTIONS
[] CHECK ALL ELECTRICAL CONNECTIONS AND TERMINALS FOR TIGHTNESS
[] CHECK THAT RETURN (INDOOR) A_ FILTERS ARE CLEAN AND IN PLACE
[] VERIFY THAT UNIT INSTALLATION IS LEVEL
[] CHECK FAN WHEEL AND PROPELLER FOR LOCATION IN HOUSING/ORIFICE AND SETSCREW
TIGHTNESS
[] CHECK PULLEY ALIGNMENT AND BELT TENSION PER INSTALLATION INSTRUCTIONS
[] VERIFY INSTALLATION OF ECONOMIZER HOOD (IF EQUIPPED)
III. START-UP:
ELECTRICAL
SUPPLY VOLTAGE L 1-L2 L2-L3 L3 -LI
CIRCUIT 1 COMPRESSOR AMPS LI L2 L3
CIRCUIT 2 COMPRESSOR AMPS LI L2 L3
INDOOR-FAN AMPS LI L2 L3
TEMPERATURES
OUTDOOR-AIR TEMPERATURE
RETURN-AIR TEMPERATURE
COOLING SUPPLY AIR
DB WB
DB WB
DB WB
PRESSURES (COOLING MODE)
REFRIGERANT SUCTION, CIRCUIT 1
REFRIGERANT SUCTION, CIRCUIT 2
REFRIGERANT DISCHARGE, CIRCUIT 1
REFRIGERANT DISCHARGE, CIRCUIT 2
PSIG
PSIG
PSIG
PSIG
F
F
F
F
[] VERIFY THAT 3-PHASE SCROLL COMPRESSOR IS ROTATING IN THE CORRECT DIRECTION (SIZE 012 ONLY)
[] VERIFY REFRIGERANT CHARGE USING COOLING CHARGING CHARTS ON PAGES 48 AND 49.
GENERAL
[] SET ECONOMIZER MINIMUM VENT AND CHANGEOVER SETTINGS TO MATCH JOB REQUIREMENTS
(IF EQUIPPED)
Copyright 2005 Carrier Corporation
Manufacturer reserves the right to discontinue, or change at any time, specifications or designs without notice and without incurring obligations.
Book 1 14 Catalog No. 04-53500019-01 Printed in U.S.A, Form 50TFQ-9SI Pg CL-1 9-05 Replaces: 50TFQ-7SI
Tab 5a 15a
LU
2:
m
u
c_
LU
I--
rm
Z
q
<
I-
o
LU
2:
m
u
rm
LU
I-
c_
Z
o,
<
I-
o