CARRIER Package Units(both Units Combined) Manual L0812014
User Manual: CARRIER CARRIER Package Units(both units combined) Manual CARRIER Package Units(both units combined) Owner's Manual, CARRIER Package Units(both units combined) installation guides
Open the PDF directly: View PDF
.
Page Count: 20

I rn
®
to the Expertg
Installation Instructions
IMPORTANT: This installation instruction contains basic unit
installation information including installation of field control
devices. For information on unit start-up, service, and operation,
refer to the unit Controls, Start-Up, Operation, Service, and
Troubleshooting Instructions also enclosed in the unit literature
packet.
TABLE OF CONTENTS
SAFETY CONSIDERATIONS ......................... 1
GENERAL ......................................... 2
INSTALLATION .................................... 2
Step 1 - Provide Unit Support ......................... 3
Step 2 - Rig and Place Unit ........................... 3
Step 3 - Field Fabricate Ductwork ...................... 8
Step 4 - Make Unit Duct Connections ................... 8
Step 5 - Install External Trap for Condensate Drain ........ 8
Step 6 - Make Electrical Connections ................... 9
Step 7 - Install Outdoor-Air Hoods (Units with
Economizer ............................... 17
Step 8 - Install All Accessories ....................... 17
Step 9 - Configure Controls ......................... 17
SAFETY CONSIDERATIONS
Installation and servicing of air-conditioning equipment can be
hazardous due to system pressure and electrical components. Only
trained and qualified service personnel should install, repair, or
service air-conditioning equipment.
Untrained personnel can perform the basic maintenance functions
of replacing filters. All other operations should be performed by
trained service personnel. When working on air-conditioning
equipment, observe precautions in the literature, tags and labels
attached to the unit, and other safety precautions that may apply.
Follow all safety codes. Wear safety glasses and work gloves.
Recognize safety information. This is the safety-alert symbol /_.
When you see this symbol on the furnace and in instructions or
manuals, be alert to the potential for personal injury.
Understand the signal words DANGER, WARNING, and
CAUTION. These words are used with the safety-alert symbol.
DANGER identifies the most serious hazards which will result in
severe personal iniury or death. WARNING signifies a hazard
which could result in personal iniury or death. CAUTION is used
to identify unsafe practices which may result in minor personal
iniury or product and property damage. NOTE is used to highlight
suggestions which will result in enhanced installation, reliability, or
operation.
ELECTRICALSHOCK HAZARD
Failure to follow this warning could cause personal
iniury or death.
Before performing service or maintenance operations
on unit, turn off main power switch to unit.
UNIT OPERATION AND SAFETY HAZARD
Failure to follow this warning could cause personal
iniury, death and/or equipment damage.
Puron ® (R-410A) refrigerant systems operate at higher
pressures than standard R-22 systems. Do not use R-22
service equipment or components on Puron refrigerant
equipment.
IMPORTANT: Units have high ambient operating limits. If limits
are exceeded, the units will automatically lock the compressor out
of operation. Manual reset will be required to restart the
compressor.

GENERAL
The 50PD rooftop unit uses Puron ® (R-410A) refrigerant and
ComfortLink "_ DDC controls. It is intended to be used in either a
displacement ventilation or a single-zone variable air volume
application. The unit includes a factory installed variable capacity
compressor and variable frequency drive indoor fan motor. This
manual provides instruction for installation of the unit. Refer to
the unit Controls and Troubleshooting book for additional
information on configuring controls.
INSTALLATION
Step 1-- Provide Unit Support
Roof Curb
Assemble or install accessory roof curb in accordance with
instructions shipped with this accessory. (See Fig. 1.) Install
ginsulation, cant strips, roofing, and counter flashing as shown.
Ductwork can be installed to roof curb before unit is set in place.
Ductwork must be attached to curb and not to the unit. Curb must
be level. This is necessary to permit unit drain to flmction properly.
Unit leveling tolerance is + 1/16-in. per linear ft in any direction.
Refer to Accessory Roof Curb Installation Instructions for
additional information as required. When accessory roof curb is
used, unit may be installed on class A, B, or C roof covering
material. Carrier roof curb accessories are for flat roofs or slab
mounting.
IMPORTANT: The gasketing of the unit to the roof curb is critical
for a watertight seal. Install gasket with the roof curb as shown in
Fig. 1. Improperly applied gasket can also result in air leaks and
poor unit performance. Do not slide unit to position on roof curb.
Alternate Unit Support
When a curb cannot be used, install unit on anoncombustible
surface. Support unit with sleepers, using unit curb support area.If
sleepers cannot be used, support long sides of unit with a minimum
of 3 equally spaced 4-in. x 4-in. pads on each side.
Step 2 -- Rig and Place Unit
Inspect unit for transportation damage. See Table 1 for physical
data. See Table 2 and 3 for fan and motor drive data. File any
claim with transportation agency.
PERSONALINJURY AND PROPERTYDAMAGE HAZARD
Failure to follow this caution may result in damage to roof.
All panels must be in place when rigging. Unit is not
designed for handling by fork truck.
Do not drop unit; keep upright. Use spreader bars over unit to
prevent sling or cable damage. Rollers may be used to move unit
across a roof. Level by using unit rail as a reference. Leveling
tolerance is + 1/16-in. per linear ft in any direction.
Refer to rigging instructions on unit. See Fig. 3 for additional
information and unit rigging weight. Rigging holes are provided
in the unit base rails as shown in Fig. 3.

'1.
ALT GAS_
FOR
ELECTRICAL
DE DTAIL D_ SEE DETAIL E_
GASKET
O'T/16" [ll]_
RIGID INSULATION _
<FIELD SUPPLIED)
OETAIL D
SCALE 11:32
iiUN]T50PDSIZEI:I?CNPTI CONNECTOR
:"C" ACCESSORY
PACNAOE
i 05,06 CROASPLTROSAOO
INIY SIZE :A" ROOF CURE
50PD ACCESSORY
05,06 I' 2" [35E] CRRFCERBOEOAOO
E'-O" [RlO] CRRFCURBO32AOO
NOTES:
I ROOF CURD ACCESSORY IS SRIPPEE UNASSENBLEE
2[NSULAFEO PANELS
3 DIMENSIONS IN [ ARE IN MILLiNETERS
4 ROOF CURB GALVANIZED STEEL
S ATTACR DUCTWORK TO CURB _FLANGES ON DUCT
REST ON CURB)
6 SERVICE CLEARANCE 4 If ON EACH SIDE
7GAS SERVICE PLATE IS PART Of A SEPARATELY
SHIPPED ACCESSORY PACKAGE
NAIL
_COUNTER FLASHING
(FIELD DUPPLIEO)
ROOFING FELT
(FIELD SUPPL]ED)
CANT STRIP
IF]ELD SUPPLIED)
ROOFING MATERIAL
IFIELD SUPPLIED)
TYPICAL 4SIDES
3'-I D1/32 :'
O' 2D/8"
O1
1/2"
DETAIL [
SCALE 11:32
B GAS SERVICE PLATE CAN BE USED WITH EITHER
ACCESSORY ROOFEURB
9 DOLE READS TO BE ON INSIDE OF FLANGE
CLEARANCE iS [11] O O-T/16" TYP ALL CORNERS
'_ DIRECTION OF AIRFLOW
SEE NOTE 9_ IiEoTET T
8
SEE ROTE 2
Fig. 1 -Roof Curb Details
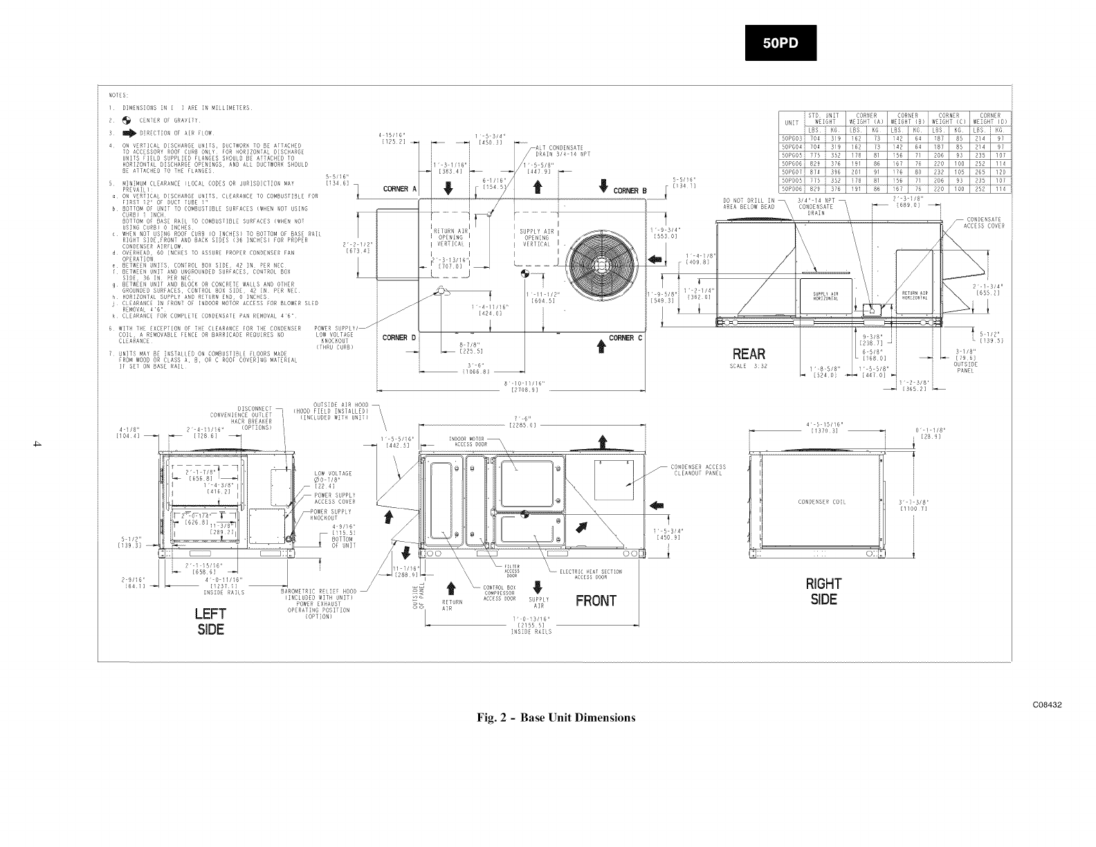
C0843 t

-b,
l DIMENSIONS iN [ ] ARE _N _I_LIMETERS
2 _I_ CENTER OF GRAVITY
3 II_I_D_RECI_ON OP AIR FLOW
4 ON VERTICAL DISCHARGE UNITS, DUCTWORK TO 8E AITACHED
TO ACCESSORY ROOF CURD ONLY FOR HORIZONTAL DISCHARGE
UNI]S FIELD SUPPL!ED FLANGES SNOU_D BE AYTACNED lO
HORIZONTAL D!SCNARGE OPENINGS, AND ALL DUCTWORK SHOULD
8E ATTACHED TO THE FLANGES
5 MINIMUM CLEARANCE [LOCAL CODES OR JURISDICTION MAY
PREVA[LI:
a ON VERTICAL DISCHARGE UN[TS, CLEARANCETO COMBUSTIBLE FOR
F[RST 12" OF DUCT TuBE I ='
b BOTTOMOF uNIT TO COMDURTIBLE SURFACES{WHEN NOT USING
CURD) i INCH
BOTTOMOF DARE RAiL TO COMBUST[BLE SURFACES [WHEN NOT
USING CURD) O _NCHES
c MNEN NOT USING ROOF CURB CO [NCNEB_ TO 80TTOM OF BASE NAIL
RIGHT SIDE,FRONT AND BACK S[DES {36 [NC_£B) FOR _RO_ER
CONDENSERA_RFLOW
d OV[RN[AD, 60 INCHES TO ASSURE PROPERCONMENSERFAN
OPERATION
e 8ETMEEN UNITS, CONTROL80X SIDE, 42 IN PER NRC
[ 8EIMEEN UNIT AND UNGROUNDEDSURFACES, CONTROL80X
SIDE, 36 !N PER NEC
g 8ETMEEN UNIT AND BLOCK OR CONCRE]E MALLS AND OTHER
GROUNDEDSURFACES, CONTROL 80X S_DE, 42 IN PER NEC
HORIZONIAL SUPPLY AND RETURNENM, O ]NCNESi CLEARANCE IN FRONT OR INDOOR MOTORACCESS FOR BLOWER SLED
REMOVAL4'6"¸
_ CLEARANCE FOR COMPLETECONDENSATEVAN REMOVAL4¸6"¸
6 WITH THE EXCEPTION OF THE CLEARANCE FOR THE CONDENSER POWER
COIL, A REMOVABLE FENCE OR BARRICADE REQUIRES NO LOM VOLTAGE
CLEARANCE KNOCKOUT
{THRU CURD>
7 UNITS MAY 8E INSTALLED ON COMBUSIIDEE [LOORS MADE
FROM WOOD OR CLASS A, 8, OR C ROOF COVERING MATERIAL
IF SET ON BASE RAIL
CORNER B_ [i54 71
4 i/8 II
[104 4]
5 //2 II
[15931
i84 1]
OUTSIDE AIR HOOD
{HOOD FIELD INSTALLED1 \
[INCLUDED WiTN UNIT}
CONOENSER ACCESS
CLEANOUT PANEL
753/4"
[4DO 9]
i STD UNiT
i L88 i KG
5OPGOSi 704 i 5i9
50PGO41 704 I 519
5OPG05i 775 i 352
DO NOT DRILL IN
AREA BELOW DEAD _ 3/4"CONDENSATE14NPT
73 142 64
75 i42 64
_i 55_ % 8o_
86 167
91 17D
2" S I/8"
[6890]
2/4 R!
2/4 9i
98 255 107
lOO 252 114
108 265 120
235 107
CONDENSAFE
_ACCESS COVER
[447 O] ,_
[365 2]
4 5 /5/16"
[13703] o _ i/8"
i [2M 9]
::L:
B' 7 3/8'
[llOO 7]
RIGHT
SIDE
Fig. 2 -Base Unit Dimensions
008432

Hook rigging shackles through holes in base rail, as shown in
Detail A. Holes in base rails are centered around the unit
center of gravity. Use wooden top skid, when rigging, to
prevent rigging straps from damaging unit.
UNiT ABCDEMAX. WEIGHT
05-06 77.9 1978 3644 914-1371 44.8 1139 42.0 1067 23.5 597 1156 525
DETAIL A
SEE
DETAIL
ALL SEAL STRIP
IN PLACE BEFORE PLACING
UNIT ON ROOF CURB
DUCT END
g
Fig. 3 -Rigging Label
C08433
Positionin_
Maintain clearance, per Fig. 2, around and above unit to provide
minimum distance from combustible materials, proper airflow, and
service access,
Do not install unit in an indoor location. Do not locate air inlets
near exhaust vents or other sources of contaminated air.For proper
unit operation, adequate combustion and ventilation air must be
provided in accordance with Section 5.3 (Air for Combustion and
Ventilation) of the National Fuel Gas Code, ANSI Z223.1
(American National Standards Institute).
Although unit is weatherproof, guard against water from higher
level runoff and overhangs.
Roof Mount
Check building codes for weight distribution requirements, Unit
operating weight is shown in Table 1,
Installation On Roof Curb
The 50PD units are designed to fit on the accessory full perimeter
curb. Correct placement of the unit onto the curb is critical to
proper operating performance. To aid in correct positioning, place
unit on roof curb to maintain 1/4-in. gap between the inside of rail
and roof curb on long sides and a 1/2-in. gap between the inside of
rail and roof curb on both duct and condenser ends. Refer to Fig. 1
and 2 to assure proper duct opening alignment.
NOTE: Before positioning unit onto curb, refer to Step 5 - Install
External Trap for Condensate Drain concerning bottom drain
connection plug.
EQUIPMENT DAMAGE HAZARD
Failure to follow this caution may result in unit damage.
Do not slide unit into position when it is sitting on the curb.
Curb gasketing material may be damaged and leaks may
result.
Slab Mount (Horizontal Units Only)
Provide a level concrete slab that extends aminimum of 6-in.
beyond unit cabinet. Install a gravel apron in front of
condenser-coil air inlet to prevent grass and foliage from
obstructing airflow.
NOTE: Horizontal units may be installed on a roof curb if
required.

Table I -Physical Data
UNIT 50PD 05 06
NOMINAL CAPACITY (TONS) 4 5
OPERATING WEIGHT (Ibs)
Base Unit 901 921
Economizer Vertical /Horizontal 40 /50 40 /50
Roof Curb 14-in /24-in 122 /184 122 /184
REFRIGERANT SYSTEM
COMPRESSOR
CONDENSER COIL
CONDENSER FAN (type)
EVAPORATOR COIL
Refrigerant
Metering Device
# Circuits /# Compressors
Charge (Ibs)
High Pressure Switch Cutout (psig)
High Pressure Switch Auto Reset (psig)
Oil Type
Oil (oz)
Circuit
Rows /FPI
Face Area (sq ft)
Quantity /Diameter (in.)
Nominal CFM (Total, all fans)
Motor Nominal Hp /Watts
Nominal RPM
Standard coil Tube /Fins
Rows /FPI
Face Area (sq ft)
Condensate drain conn. Size (in.)
EVAPORATOR FAN (see motor & drive tables)
Fan Quantity /Type
Belt Size (in.)
Blower Pulley Type
Fan type
Fan Bearing Type
Maximum Fan RPM
Blower Shaft Diameter (in.)
Motor Max HP
Motor Frame Size
FILTERS
Unit Filter Type
Unit Filter Qty /size (in)
Economizer OA inlet screen Qty /size (in)
Puron <'_(410a)
Balanced- Port TXV with Bypass
1/1
14.5
660 +/- 10
505 +/- 20
1/1
42
Outer /Inner
2/17
12.6
1/24
3500
O.125 /227
825
Cu/AI
2/15
9.3
3/4 NPT
Copeland Digital Scroll
Copeland 3MA
Round Tube Plate Fin
Pro )eller
Round Tube Plate Fin
1/Belt
12x9
Fixed
Centrifugal
Ball - Concentric Lock
2000
0.75
2.4
56HZ
16.0
660 +/- 10
5O5 +/- 2O
Fiberglass fill, non-pleated
4/16x20x2
1/25.8 x 16.4
42
Outer /Inner
2/17
12.6
1/24
6500
0.25 /651
1100
Cu/AI
3/15
9.3
3/4 NPT
1/Belt
12x9
Fixed
Centrifugal
Fiberglass fill, non-pleated
4/16x20x2
1/25.8 x 16.4
Ball - Concentric Lock
2000
0.75
2.4
56HZ

Table 2 -Fan Motor and Drive Data - Vertical Supply/Return
UNIT 50PD 05 06
Voltage (volts) 208/230 and 460 208/230 and 460
LOW STATIC DRIVE OPTION
Motor HP 2.4 2.4
Motor Nominal RPM 1725 1725
Maximum Continuous BHP 2.0 2.0
Maximum Continuous Watts 2000 2000
Motor Frame Size 56HZ 56HZ
Motor shaft diameter (in.) 5/8 5/8
Motor Pulley Pitch Diameter Min - Max (in) 1.9 - 2.9 2.4 - 3.4
Fan RPM Range 596-910 690-978
Blower Pulley Pitch Diameter (in.) 5.5 6.0
Pulley center line distance (in.) 16.2-20.2 16.2-20.2
Belt Quantity /Type /Pitch Length (in.) 1 /AX48 /49.6 1 /AX48 /49.6
Speed change per turn - moveable pulley (RPM) 63 58
Moveable pulley maximum full turns 5 5
Factory Speed setting (RPM) 596 690
HIGH STATIC DRIVE OPTION
Motor HP 2.4 2.4
Motor Nominal RPM 1725 1725
Maximum Continuous BHP 2.0 2.0
Maximum Continuous Watts 2000 2000
Motor Frame Size 56HZ 56HZ
Motor shaft diameter (in.) 5/8 5/8
Motor Pulley Pitch Diameter Min - Max (in) 2.4 - 3.4 2.8 - 3.8
Fan RPM Range 828-1173 929-1261
Blower Pulley Pitch Diameter (in.) 5.0 5.2
Pulley center line distance (in.) 16.2-20.2 16.2-20.2
Belt Quantity /Type /Pitch Length (in.) 1 /AX48 /49.6 1 /AX48 /49.6
Speed change per turn - moveable pulley (RPM) 69 67
Moveable pulley maximum full turns 5 5
Factory Speed setting (RPM) 828 929
Table 3 - Fan Motor and Drive Data - Horizontal Supply/Return
UNIT 50PD 05 06
Voltage (volts) 208/260 and 460 208/260 and 460
LOW STATIC DRIVE OPTION
Motor HP 2.4 2.4
Motor Nominal RPM 1725 1725
Maximum Continuous BHP 2.0 2.0
Maximum Continuous Watts 2000 2000
Motor Frame Size 56HZ 56HZ
Motor shaft diameter (in.) 5/8 5/8
Motor Pulley Pitch Diameter Min - Max (in) 1.9 - 2.9 2.4 - 3.4
Fan RPM Range 596-910 690-978
Blower Pulley Pitch Diameter (in.) 5.5 6.0
Pulley center line distance (in.) 16.2-20.2 16.2-20.2
Belt Quantity /Type /Pitch Length (in.) 1 /AX48 /49.6 1 /AX48 /49.6
Speed change per turn - moveable pulley (RPM) 63 58
Moveable pulley maximum full turns 5 5
Factory Speed setting (RPM) 596 690
HIGH STATIC DRIVE OPTION
Motor HP 2.4 2.4
Motor Nominal RPM 1725 1725
Maximum Continuous BHP 2.0 2.0
Maximum Continuous Watts 2000 2000
Motor Frame Size 56HZ 56HZ
Motor shaft diameter (in.) 5/8 5/8
Motor Pulley Pitch Diameter Min - Max (in) 2.4 - 3.4 2.8 - 3.8
Fan RPM Range 828-1173 929-1261
Blower Pulley Pitch Diameter (in.) 5.0 5.2
Pulley center line distance (in.) 16.2-20.2 16.2-20.2
Belt Quantity /Type /Pitch Length (in.) 1 /AX48 /49.6 1 /AX48 /49.6
Speed change per turn - moveable pulley (RPM) 69 67
Moveable pulley maximum full turns 5 5
Factory Speed setting (RPM) 828 929

/
Step 3-- Field Fabricate Ductwork
On vertical units, secure all ducts to roof curb and building
structure. Do not connect ductwork to unit. For horizontal
applications, field-supplied flanges should be attached to
horizontal discharge openings and all ductwork secured to the
flanges. Insulate and weatherproof all external ductwork, joints,
and roof openings with counter flashing and mastic in accordance
with applicable codes.
Ducts passing through an unconditioned space must be insulated
and covered with a vapor barrier.
If a plenum return is used on a vertical unit, the return should be
ducted through the roof deck to comply with applicable fire codes.
A minimum clearance is not required around ductwork. Cabinet
return-air static pressure (a negative condition) shall not exceed
0.35-in.wg with economizer or 0.45-in.wg without economizer.
These units are designed for a minimum continuous return air
temperature in heating of 50°F (dry bulb), or an intermittent
operation down to 45°F (dry bulb), such as when used with a night
set-back thermostat.
To operate at lower return-air temperatures, a field-supplied
outdoor-air temperature control must be used to initiate both stages
of heat when the temperature is below 45°F. Indoor comfort may
be compromised when these lower air temperatures are used with
insufficient heating temperature rise.
Step 4 -- Make Unit Duct Connections
Vertical Supply/Return Configuration
Unit is shipped in vertical supply/return configuration. Ductwork
openings are shown in Fig. 1 and 2. Attach the ductwork to the
roof curb. Do not attach duct directly to the unit.
UNIT DAMAGE AND PERSONAL INJURY HAZARD
Failure to follow this warning could cause equipment
damage and/or personal injury.
For vertical supply and return units, tools or parts could
drop into ductwork and cause an injury. Install a
90-degree turn in the return ductwork between the unit
and the conditioned space. If a 90-degree elbow cannot
be installed, then a grille of sufficient strength and
density should be installed to prevent objects from
falling into the conditioned space.
Horizontal Supply/Return Applications
Unit can be field-converted from vertical supply/return to
horizontal supply/return. Remove all screws securing horizontal
duct covers to duct panel. Save panels. Install duct covers in the
vertical duct openings in the basepan with the insulation side up.
Covers will drop into openings and can be secured using
field-supplied self-tapping screws. Ductwork can be attached to
duct flanges provided on unit. When securing ductwork to unit, do
not drill in area below bead or above top edge of duct opening.
Step 5-- Install External Trap for Condensate
Drain
The unit's 3/4-in. condensate drain connections are located on the
bottom and side of the unit. Unit discharge connections do not
determine the use of drain connections; either drain connection can
be used with vertical or horizontal applications. See Fig. 2 for
locations.
When using the standard side drain connection, make sure the plug
(red) in the alternate bottom connection is tight before installing the
unit. (See Fig. 5.)
To use the bottom drain connection for a roof curb installation,
relocate the factory-installed plug (red) from the bottom
connection to the side connection. A l/2-in, socket extension can
be used to remove the plug. (See Fig. 5.) The piping for the
condensate drain and external trap can be completed after the unit
is in place.
All units must have an external trap for condensate drainage. Install
a trap at least 4-in. deep and protect against freezeup. If drain line
is installed downstream from the external trap, pitch the line away
from the unit at I-in. per 10 ft of run. Do not use a pipe size
smaller than the unit connection (3/4-in.). (See Fig. 4 and 6.)
The 50PD units are provided with a removable condensate pan for
ease of cleaning. Refer to Maintenance section in Controls and
Troubleshooting book for more information. It is recommended
that a union be placed between the unit and condensate drainage to
ease the removal of the pan during servicing. Adequate clearance
should be allowed if removal of condensate pan is required. Allow
54-in. between condensate pan access panel and any obstruction
for complete removal.
\ o{> p I I L/I
DRAIN PLUG "-:
t
SEE
NOTE
-_<ROOF
CURB
NOTE: Trap should be deep enough to offset maximum unit static difference.
A 4-in. trap is recommended.
Fig. 4 - Condensate Drain Piping Details
C06291

SIDE DRAIN
PLUG
"\\\\\\\\\
x,\\ \\ \
BOTTOM DRAIN
PLUG
C06233
Fig. 5 - Condensate Drain Piping Details
OPTIONAL UNIONS
TO ALLOW FOR CONDENSATE _
PAN REMOVAL _
CONDENSATE
PAN ACCESS
PANEL
Fig. 6 -External Trap for Condensate Drain
J
C06234
Step 6-- Make Electrical Connections
Field Power Supply
(For more details, refer to the Controls, Start-Up, Operation, and
Troubleshooting manual).
All 208/230v units are factory wired for 230v power supply. If the
208/230v unit is to be connected to a 208v power supply, the
transformers (TRANI and TRAN2) must be rewired by moving
the black wire with the l/4-in, female quick connector from the
230volt connection and moving to the 200volt l/4-in, male
terminal on the primary side of the transformer.
Refer to unit label diagram for additional information. Leads are
provided for field wire connections. Use UL (Underwriters
Laboratories) approved copper/aluminum connector.
When installing units, provide safety disconnect per NEC
(National Electrical Code) Article 440 or local codes. For
non-fused disconnects, size disconnect according to the sizing data
provided in the electrical data tables. If a fused disconnect is used,
determine the minimum size for the switch based on the disconnect
sizing data provided in the electrical data tables and then
coordinate the disconnect housing size to accommodate the
Maximum OverCurrent Protection (MOCP) device size as marked
on the unit informative plate. (See Table 4 and 5.)

n
All field wiring must comply with NEC and local codes. Main wire
size must be based on MCA (Minimum Circuit Amps) on the unit
informative plate. See Fig. 7 for power wiring connection to the
unit leads and equipment ground.
Route power and ground lines through control box end panel or
unit basepan (see Fig. 2) to connections as shown on unit wiring
diagram and Fig. 7. Factory leads may be wired directly to the unit
disconnect.
o n-.
oLU
OOa-
----I
IFIELD
I
I. PowER
I w,RI.G
r
I
I
I
I
C.A1
EQUIP GND
LEGEND
C.A1 -- Compressor Contactor (A])
EQUIP -- Equipment
GND -- Ground
NEC -- National Electrical Code
NOTE:The maximum wire size for C.A1 is 2/0.
Fig. 7-Field Power Wiring Connections
C06237
UNIT DAMAGE HAZARD
Failure to follow this caution may result in damage to unit.
The correct power phasing is critical to the operation of the
scroll compressors. An incorrect phasing will result in an
alarm being generated and compressor operation lockout.
Should this occur, power phase correction must be made to
the incoming power.
ELECTRICAL SHOCK AND FIRE HAZARD
Failure to follow this warning could result in electrical
shock, fire, or death.
Unit cabinet must have an uninterrupted, unbroken
electrical ground to minimize the possibility of personal
iniury if an electrical fault should occur. This ground
may consist of electrical wire connected to unit ground
lug in control compartment or conduit approved for
electrical ground when installed in accordance with
NEC; ANSI (American National Standards
Institute)/NFPA (National Fire Protection Association),
latest edition, and local electrical codes. Do not use gas
piping as an electrical ground.
Field wiring must conform to temperature limitations for type "T"
wire. All field wiring must comply with NEC and local
requirements.
Operating voltage to compressor must be within voltage range
indicated on unit nameplate. On 3-phase units, voltages between
phases must be balanced within 2%.
Unit failure as a result of operation on improper line voltage or
excessive phase imbalance constitutes abuse and may cause
damage to electrical components.
Field Control Wiring
Unit can be controlled using aCarrier-approved space temperature
sensor. Install sensor according to the installation instructions
included with accessory. Locate space temperature sensor on a
solid interior wall in the conditioned space to sense average
temperature.
Route space temperature sensor cable or equivalent single leads of
colored wire through conduit into unit to low-voltage connections
as shown on unit label wiring diagram and in Fig. 8.
NOTE: For wire runs up to 50 ft, use no. 18 AWG (American
Wire Gauge) insulated wire (35°C minimum). For 50 to 75 ft, use
no. 16 AWG insulated wire (35°C minimum). For over 75 ft, use
no. 14 AWG insulated wire (35°C minimum). All wire larger than
no. 18 AWG cannot be directly connected at the sensor and will
require a junction box and splice.
10

Humidity Control
The 50PD unit can be used with aCarrier accessory humidistat
switch output (HL38MG029 or TSTATCCPLH01-B) in
conjunction with the space temperature sensor. The humidistat
switch is a normally open switch that closes upon a rise in space
humidity, above the setpoint value.
Upon a humidistat call the supply air temperature is lowered to
produce a colder evaporator coil and lower dew point temperature.
When humidistat is satisfied the supply air temperature is reset to
the original supply air temperature setpoint.
Install the humidity control device according to the installation
instructions included with the accessory. Locate the device on a
solid interior wall in the conditioned space to sense average
humidity. General humidistat and humidity sensor wiring
connections are shown in Fig. 8.
Configuration of the unit control is required to specify the control
input type before unit operation. Refer to the Controls, Start-Up,
Operation and Troubleshooting manual for configuration.
I
LOOPPOWERED
(24vd¢)
.UM_DIWSE.SOR OR
I
I
m i
I
I
I
I
t I
I[
i I
I
I
L.... 1
t
HUMIDISTAT
Fig. 8- Low Voltage Terminal Strip Wiring
1
I
I
I
ii
SPACE SENSOR
,\
i
I
i
i
I
1
I
I
I
C08434
H
11

F_
50PD
UNIT
SIZE
05
NOMINAL VOLTAGE RANGE COMPRESSOR
POWER
SUPPLY Min Max RLA LRA
V-Ph-Hz
208/230-3-60 187 253 16.1 110
460-3-60 414 506 6.2 52
Table 4 - Electrical Data - Units Without Optional Convenience Outlet
Qty
OFM PWR IFM
CONV EXH
FLA OUTLET (FLA) TYPE
1.0 none
0,5 none
SINGLE
POINT
FLA Heater Number FLA Nora. kW MCA MOCPt KIT FLA LRA
- - 26,3/26,3 40/40 26/26 142/142
CRHEATER208A00 10,0/11.5 3,8/5,0 26,3/26,3 40/40 - 26/26 142/142
CRHEATER209A00 15.0/17,3 5.6/7,5 26,3/28,1 40/40 - 26/26 142/142
STD 5.2 CRHEATER210A00 20,0/23,1 7,5/t0,0 31,5/35.4 40/40 - 29/33 142/142
CRHEATER211A00 30,0/34.6 11.3/15.0 44.0/49,8 45/50 - 40/46 142/142
CRHEATER212A00 40,0/46.2 15.0/20,0 56,5/64.3 60/70 031 52/59 142/142
- - 26,3/26,3 40/40 26/26 142/142
CRHEATER208A00 10,0/11,5 3,8/5,0 26,3/26,3 40/40 -26/26 142/142
CRHEATER209A00 15.0/17,3 5.6/7,5 26,3/28,1 40/40 - 26/26 142/142
ALT 5.2 CRHEATER210A00 20,0/23,1 7,5/t0,0 31,5/35.4 40/40 - 29/33 142/142
CRHEATER211A00 30,0/34.6 11.3/15.0 44.0/49,8 45/50 - 40/46 142/142
CRHEATER212A00 40,0/46,2 15.0/20,0 56,5/64.3 60/70 031 52/59 142/142
- - 27,7/27,7 40/40 27/27 144/t44
CRHEATER208A00 10,0/11,5 3,8/5,0 27,7/27,7 40/40 - 27/27 144/t44
CRHEATER209A00 15.0/17,3 5.6/7,5 27,7/29,9 40/40 - 27/27 144/t44
STD 5.2 CRHEATER210A00 20,0/23,1 7,5/t0,0 33,3/37,1 40/40 - 31/34 144/t44
CRHEATER211A00 30,0/34.6 11.3/15.0 45.8/5t .5 50/60 - 42/47 144/t 44
CRHEATER212A00 40,0/46,2 15.0/20,0 58,3/66,0 60/70 031 54/61 144/t44
1,4 - - 27,7/27,7 40/40 27/27 144/t44
CRHEATER208A00 10,0/11,5 3,8/5,0 27,7/27,7 40/40 - 27/27 144/t44
CRHEATER209A00 15.0/17,3 5.6/7,5 27,7/29,9 40/40 - 27/27 144/t44
ALT 5.2 CRHEATER210A00 20,0/23,1 7,5/t0,0 33,3/37,1 40/40 - 31/34 144/t44
CRHEATER211A00 30,0/34.6 11.3/15.0 45.8/5t .5 50/60 - 42/47 144/t 44
CRHEATER212A00 40,0/46,2 15.0/20,0 58,3/66,0 60/70 031 54/61 144/t44
- - 10,9 15 11 68
CRHEATER215A00 5.8 5.0 10,9 15 - 11 68
CRHEATER216A00 8.7 7,5 14.t 15 - 13 68
STD 2,6 CRHEATER217A00 11.5 10,0 17,6 20 - 16 68
CRHEATER218A00 17,3 15.0 24.9 25 - 23 68
CRHEATER219A00 23,1 20,0 32,1 35 - 30 68
- - 10,9 15 11 68
CRHEATER215A00 5.8 5.0 10,9 15 - 11 68
CRHEATER216A00 8.7 7,5 14.t 15 - 13 68
ALT 2,6 CRHEATER217A00 11.5 10,0 17,6 20 - 16 68
CRHEATER218A00 17,3 15.0 24.9 25 - 23 68
CRHEATER219A00 23,1 20,0 32,1 35 - 30 68
- - 11,5 15 11 69
CRHEATER215A00 5.8 5.0 11.5 15 - 11 69
CRHEATER216A00 8.7 7,5 14.9 15 - 14 69
STD 2,6 CRHEATER217A00 11.5 10,0 18.4 20 - 17 69
CRHEATER218A00 17,3 15.0 25.6 30 - 24 69
0,6 CRHEATER219A00 23,1 20,0 32,9 35 - 30 69
- - 11,5 15 11 69
CRHEATER215A00 5.8 5.0 11.5 15 - 11 69
ALT 2,6 CRHEATER216A00 8.7 7,5 14.9 15 - 14 69
CRHEATER217A00 11.5 10,0 18.4 20 - 17 69
CRHEATER218A00 17,3 15.0 25.6 30 - 24 69
CRHEATER219A00 23,1 20,0 32,9 35 - 30 69
ELECTRIC HEAT POWER SUPPLY DISCONNECT SIZE

50PD
UNIT
SIZE
O6
Table 4 - Electrical Data - Units Without Optional Convenience Outlet (cont)
NOMINAL VOLTAGE RANGE COMPRESSOR
POWER
SUPPLY Min Max RLA LRA
V-Ph-Hz
OFM PWR IFM ELECTRIC HEAT
CONV EXH
Qty FLA OUTLET (FLA) TYPE FLA Heater Number FLA
208/230-3- 60 187 253 17,9 110 1 1.5 none
460-3-60 414 506 7,8 52 1 0,8 none
STD
ALT
STD
1.4
ALT
STD
ALT
STD
0,6
ALT
SINGLE
POINT
Nom. kW MCA MOCPt KIT FLA LRA
- - 29,1/29,1 45/45 28/28 1431143
CRHEATER208A00 10,0/11.5 3,8/5,0 29,1/29,1 45/45 -28/28 1431143
CRHEATER209A00 15.0/17,3 5.6/7,5 29,1/29,1 45/45 - 28/28 143/143
5.2 CRHEATER210A00 20,0/23,1 7,5/t0,0 31.5/35.4 45/45 - 29/33 143/143
CRHEATER211A00 30,0/34.6 11.3/15.0 44.0/49,8 45/50 - 40/46 143/143
CRHEATER212A00 40,0/46.2 15.0/20,0 56.5/64.3 60/70 031 52/59 143/143
CRHEATER213A00 50,0/57,7 18.8/25.0 69.0/78.6 70/80 031 63/72 143/143
- - 29,1/29,1 45/45 28/28 143/143
CRHEATER208A00 10,0/11.5 3,8/5,0 29,1/29,1 45/45 - 28/28 143/143
CRHEATER209A00 15.0/17,3 5.6/7,5 29,1/29,1 45/45 - 28/28 143/143
5.2 CRHEATER210A00 20,0/23,1 7,5/t0,0 31.5/35.4 45/45 - 29/33 143/143
CRHEATER211A00 30,0/34.6 11.3/15.0 44.0/49,8 45/50 - 40/46 143/143
CRHEATER212A00 40,0/46.2 15.0/20,0 56.5/64.3 60/70 031 52/59 143/143
CRHEATER213A00 50,0/57,7 18.8/25.0 69.0/78.6 70/80 031 63/72 143/143
- - 30,5/30,5 45/45 30/30 145/t45
CRHEATER208A00 10,0/11.5 3,8/5,0 30,5/30,5 45/45 - 30/30 145/t45
CRHEATER209A00 15.0/17,3 5.6/7,5 30,5/30,5 45/45 - 30/30 145/t45
5.2 CRHEATER210A00 20,0/23,1 7,5/t0,0 33,3/37,1 45/45 - 31/34 145/t45
CRHEATER211A00 30,0/34.6 11.3/15.0 45.8/5t .5 50/60 - 42/47 145/t 45
CRHEATER212A00 40,0/46.2 15.0/20,0 58.3/66.0 60/70 031 54/61 145/t45
CRHEATER213A00 50,0/57,7 18.8/25.0 70,8/80,4 80/90 031 65/74 145/t45
- - 30,5/30,5 45/45 30/30 145/t45
CRHEATER208A00 10,0/11.5 3,8/5,0 30,5/30,5 45/45 - 30/30 145/t45
CRHEATER209A00 15.0/17,3 5.6/7,5 30,5/30,5 45/45 - 30/30 145/t45
5.2 CRHEATER210A00 20,0/23,1 7,5/t0,0 33,3/37,1 45/45 - 31/34 145/t45
CRHEATER211A00 30,0/34.6 11.3/15.0 45.8/5t .5 50/60 - 42/47 145/t 45
CRHEATER212A00 40,0/46.2 15.0/20,0 58.3/66.0 60/70 031 54/61 145/t45
CRHEATER213A00 50,0/57,7 18.8/25.0 70,8/80,4 80/90 031 65/74 145/t45
- - 13,2 20 13 69
CRHEATER215A00 5.8 5.0 13,2 20 - 13 69
CRHEATER216A00 8.7 7,5 14.t 20 - 13 69
2,6 CRHEATER217A00 11.5 10,0 17,6 20 - 16 69
CRHEATER218A00 17,3 15.0 24.9 25 - 23 69
CRHEATER219A00 23,1 20,0 32,1 35 - 30 69
CRHEATER220A00 28.9 25.0 39,4 40 - 36 69
- - 13,2 20 13 69
CRHEATER215A00 5.8 5.0 13,2 20 - 13 69
CRHEATER216A00 8.7 7,5 14.t 20 - 13 69
2,6 CRHEATER217A00 11.5 10,0 17,6 20 - 16 69
CRHEATER218A00 17,3 15.0 24.9 25 - 23 69
CRHEATER219A00 23,1 20,0 32,1 35 - 30 69
CRHEATER220A00 28.9 25.0 39,4 40 - 36 69
- - 13,8 20 14 70
CRHEATER215A00 5.8 5.0 13,8 20 - 14 70
CRHEATER216A00 8.7 7,5 14.9 20 - 14 70
2,6 CRHEATER217A00 11.5 10,0 18.4 20 - 17 70
CRHEATER218A00 17,3 15.0 25.6 30 - 24 70
CRHEATER219A00 23,1 20,0 32,9 35 - 30 70
CRHEATER220A00 28.9 25.0 40,1 45 - 37 70
- - 13,8 20 14 70
CRHEATER215A00 5.8 5.0 13,8 20 - 14 70
CRHEATER216A00 8.7 7,5 14.9 20 - 14 70
2,6 CRHEATER217A00 11.5 10,0 18.4 20 - 17 70
CRHEATER218A00 17,3 15.0 25.6 30 - 24 70
CRHEATER219A00 23,1 20,0 32,9 35 - 30 70
CRHEATER220A00 28.9 25.0 40,1 45 - 37 70
POWER SUPPLY DISCONNECT SIZE

50PD
UNIT
SIZE
05
NOMINAL
POWER SUPPLY
V-Ph-Hz
VOLTAGE
RANGE
Min Max
COMPRESSOR
RLA LRA
Table 5 - Electrical Data - Units With Optional Convenience Outlet
OFM CONV PWR IFM
OUTLET EXH
Qty FLA (FLA) TYPE
208/230-3-60 187 253 16.1 110 1 1.0 YES
460-3-60 414 506 6.2 52 1 0,5 YES
SINGLE
POINT
FLA Part Number FLA Nora. kW MCA MOCP KIT FLA LRA
none 3t.1/31.1 45/45 3t/31 147/t47
CRH EATER208AOO 10.0/tl.5 3.8/5.0 3t.1/31.1 45/45 3t/31 147/t47
CRH EATER209AOO 15.0/t7.3 5.6/7,5 3t.3/34.t 45/45 3t/31 147/t47
STD 5.2 CRH EATER21OAOO 20.0/23.t 7.5/10.0 37.5/4t.4 45/45 35/38 147/t47
CRH EATER211AOO 30,0/34.6 11.3/15.0 50.0/55.8 60/60 46/51 147/t 47
CRH EATER212AOO 40,0/46.2 15.0/20.0 62.5/70,3 70/80 03t 58/65 147/t47
none 3t.1/31.1 45/45 3t/31 147/t47
CRH EATER208AOO 10.0/tl.5 3.8/5.0 3t.1/31.1 45/45 3t/31 147/t47
CRH EATER209AOO 15.0/t7.3 5.6/7,5 3t.3/34.t 45/45 3t/31 147/t47
ALT 5.2 CRH EATER21OAOO 20.0/23.t 7.5/10.0 37.5/4t.4 45/45 35/38 147/t47
CRH EATER211AOO 30,0/34.6 11.3/15.0 50.0/55.8 60/60 46/51 147/t 47
CRH EATER212AOO 40,0/46.2 15.0/20.0 62.5/70,3 70/80 03t 58/65 147/t47
none 32.5/32.5 45/45 33/33 149/t 49
CRH EATER208AOO 10.0/t 1.5 3.8/5.0 32.5/32.5 45/45 33/33 149/t 49
CRH EATER209AOO 15.0/t7.3 5.6/7,5 33.0/35.9 45/45 33/33 149/t49
STD 5.2 CRH EATER21OAOO 20.0/23.t 7.5/10.0 39.3/43.t 45/45 36/40 149/t49
CRH EATER211AOO 30,0/34.6 11.3/15.0 51.8/57,5 60/60 48/53 149/t 49
CRH EATER212AOO 40,0/46.2 15.0/20.0 64.3/72.0 70/80 03t 59/66 149/t49
1.4 none 32.5/32.5 45/45 33/33 149/t 49
CRH EATER208AOO 10.0/t 1.5 3.8/5.0 32.5/32.5 45/45 33/33 149/t 49
CRH EATER209AOO 15.0/t7.3 5.6/7,5 33.0/35.9 45/45 33/33 149/t49
ALT 5.2 CRH EATER21OAOO 20.0/23.t 7.5/10.0 39.3/43.t 45/45 36/40 149/t49
CRH EATER211AOO 30,0/34.6 11.3/15.0 51.8/57,5 60/60 48/53 149/t 49
CRH EATER212AOO 40,0/46.2 15.0/20.0 64.3/72.0 70/80 03t 59/66 149/t49
none 13.t 15 13 70
CRH EATER215AOO 5.8 5.0 13.3 15 13 70
CRH EATER216AOO 8.7 7.5 16.9 20 16 70
STD 2,6 CRH EATER217AOO 11.5 1O.O 20.4 25 19 70
CRH EATER218AOO 17.3 15.0 27,6 30 25 70
CRH EATER219AOO 23.t 20.0 34.9 35 32 70
2.6 none 13.t 15 13 70
CRH EATER215AOO 5.8 5.0 13.3 15 13 70
CRH EATER216AOO 8.7 7.5 16.9 20 16 70
ALT CRH EATER217AOO 11.5 1O.O 20.4 25 19 70
CRH EATER218AOO 17.3 15.0 27,6 30 25 70
CRH EATER219AOO 23.t 20.0 34.9 35 32 70
2.6 none 13.7 20 14 71
CRH EATER215AOO 5.8 5.0 11.5 15 11 69
CRH EATER216AOO 8.7 7.5 14.9 15 14 69
STD CRH EATER217AOO 11.5 1O.O 18.4 20 17 69
CRH EATER218AOO 17.3 15.0 25.6 30 24 69
CRH EATER219AOO 23.t 20.0 32.9 35 30 69
0,6 2.6 none 13.7 20 14 71
CRH EATER215AOO 5.8 5.0 14.0 20 14 71
CRH EATER216AOO 8.7 7.5 17.6 20 16 71
ALT CRH EATER217AOO 11.5 10.0 21.1 25 19 71
CRH EATER218AOO 17.3 15.0 28.4 30 26 71
CRH EATER219AO0 23.1 20.0 35.6 40 33 71
ELECTRIC HEAT POWER SUPPLY DISCONNECT SIZE

50PD
UNIT
SIZE
06
NOMINAL
POWER SUPPLY
V-Ph-Hz
VOLTAGE
RANGE
Min Max
COMPRESSOR
RLA LRA
Table 5-Electrical Data -Units With Optional Convenience Outlet (cont)
OFM CONV PWR IFM ELECTRIC HEAT
OUTLET EXH
Qty FLA (FLA) TYPE
208/230- 3- 60 187 253 17,9 110 1 1,5 Y ES
460-3-60 414 506 7,8 52 1 0,8 YES
SINGLE
POINT
FLA Part Number FLA Nora. kW MCA MOCP KIT FLA LRA
none 33.9/33.9 50/50 34/34 148/t 48
CRH EATER208AO0 10.0/t 1.5 3.8/5.0 33.9/33.9 50/50 34/34 148/t 48
CRH EATER209AO0 15.0/t7.3 5.6/7,5 33.9/34.t 50/50 34/34 148/t48
STD 5.2 CRH EATER210AO0 20.0/23.t 7.5/10.0 37.5/4t.4 50/50 35/38 148/t48
CRH EATER211AO0 30,0/34.6 11.3/15.0 50.0/55.8 60/60 46,,'51 148/t 48
CRH EATER212AO0 40,0/46.2 15.0/20.0 62.5/70,3 70/80 03t 58/65 148/t48
CRH EATER213AO0 50.0/57,7 18.8/25.0 75.0/84.6 80/90 03t 69/78 148/t48
none 33.9/33.9 50/50 34/34 148/t 48
CRH EATER208AO0 10.0/t 1.5 3.8/5.0 33.9/33.9 50/50 34/34 148/t 48
CRH EATER209AO0 15.0/t7.3 5.6/7,5 33.9/34.t 50/50 34/34 148/t48
ALT 5.2 CRH EATER210AO0 20.0/23.t 7.5/10.0 37.5/4t.4 50/50 35/38 148/t48
CRH EATER211AO0 30,0/34.6 11.3/15.0 50.0/55.8 60/60 46,,'51 148/t 48
CRH EATER212AO0 40,0/46.2 15.0/20.0 62.5/70,3 70/80 03t 58/65 148/t48
CRH EATER213AO0 50.0/57,7 18.8/25.0 75.0/84.6 80/90 03t 69/78 148/t48
none 35.3/35.3 50/50 35/35 150/t 50
CRH EATER208AO0 10.0/t 1.5 3.8/5.0 35.3/35.3 50/50 35/35 150/t 50
CRH EATER209AO0 15.0/t7.3 5.6/7,5 35.3/35.9 50/50 35/35 150/t50
STD 5.2 CRH EATER210AO0 20.0/23.t 7.5/10.0 39.3/43.t 50/50 36,,'40 150/t50
CRH EATER211AO0 30,0/34.6 11.3/15.0 51.8/57,5 60/60 48/53 150/t 50
CRH EATER212AO0 40,0/46.2 15.0/20.0 64.3/72.0 70/80 03t 59/66 150/t50
CRH EATER213AO0 50.0/57,7 18.8/25.0 76.8/86.4 80/90 03t 71/79 150/t50
1.4 none 35.3/35.3 50/50 35/35 150/t 50
CRH EATER208AO0 10.0/t 1.5 3.8/5.0 35.3/35.3 50/50 35/35 150/t 50
CRH EATER209AO0 15.0/t7.3 5.6/7,5 35.3/35.9 50/50 35/35 150/t50
ALT 5.2 CRH EATER210AO0 20.0/23.t 7.5/10.0 39.3/43.t 50/50 36,,'40 150/t50
CRH EATER211AO0 30,0/34.6 11.3/15.0 51.8/57,5 60/60 48/53 150/t 50
CRH EATER212AO0 40,0/46.2 15.0/20.0 64.3/72.0 70/80 03t 59/66 150/t50
CRH EATER213AO0 50.0/57,7 18.8/25.0 76.8/86.4 80/90 03t 71/79 150/t50
none 15.4 20 15 71
CRH EATER215AO0 5.8 5.0 15.4 20 15 71
CRH EATER216AO0 8.7 7.5 16.9 20 16 71
STD 2,6 CRH EATER217AO0 11.5 10.0 20.4 25 19 71
CRH EATER218AO0 17.3 15.0 27,6 30 25 71
CRH EATER219AO0 23.t 20.0 34.9 35 32 71
CRH EATER220AO0 28.9 25.0 42.t 45 39 71
none 15.4 20 15 71
CRH EATER215AO0 5.8 5.0 15.4 20 15 71
CRH EATER216AO0 8.7 7.5 16.9 20 16 71
ALT 2,6 CRH EATER217AO0 11.5 10.0 20.4 25 19 71
CRH EATER218AO0 17.3 15.0 27,6 30 25 71
CRH EATER219AO0 23.t 20.0 34.9 35 32 71
CRH EATER220AO0 28.9 25.0 42.t 45 39 71
none 16.0 20 16 72
CRH EATER215AO0 5.8 5.0 16.0 20 16 72
CRH EATER216AO0 8.7 7.5 17.6 20 16 72
STD 2,6 CRH EATER217AO0 11.5 10.0 21.1 25 19 72
CRH EATER218AO0 17.3 15.0 28.4 30 26 72
CRH EATER219AO0 23.t 20.0 35.6 40 33 72
CRH EATER220AO0 28.9 25.0 42.9 45 39 72
0,6 none 16.0 20 16 72
CRH EATER215AO0 5.8 5.0 16.0 20 16 72
CRH EATER216AO0 8.7 7.5 17.6 20 16 72
ALT 2,6 CRH EATER217AO0 11.5 10.0 21.1 25 19 72
CRH EATER218AO0 17.3 15.0 28.4 30 26 72
CRH EATER219AO0 23.t 20.0 35.6 40 33 72
CRH EATER220AO0 28.9 25.0 42,9 45 39 72
POWER SUPPLY DISCONNECT SIZE

LEGEND
FLA - Full Load Amps
HACR - Heating, Air Conditioning and Refrigeration
IFM - Indoor (Evaporator) Fan Motor
LRA - Locked RotorAmps
MCA - Minimum Circuit Amps
MOCP - Maximum Overcurrent Protection
NEC - National Electrical Code
OFM - Outdoor (Condenser) Fan Motor
RLA Rated Load Amps
1" Fuse or Breaker
NOTES:
1. In compliance with NEC requirements for muttimotor and combination load equipment (refer to NEC Articles 430 and 440), the overcurrent
protective device for the unit shall be fuse or HACR breaker. Canadian units may be fuse or circuit breaker.
2. Unbalanced 3-Phase Supply Voltage
Never operate a motor where a phase imbaIance in suppIy voltage is greater than 2%. Use the following formula to determine the percent-
age of voltage imbalance.
% Voltage ImbaIance = 100 x
max voltage deviation from average voltage
average voltage
Example: Supply voltage is 230-3-60
AB = 224 v
BC = 231 v
AC = 226 v
Average VoItage = 224 + 231 + 226
3
681
3
= 227
Determine maximum deviation from average voltage.
lAB) 227 224 = 3 v
(BC) 231 227 - 4 v
(AC) 227 226 = 1 v
Maximum deviation is 4 v.
Determine percent of voltage imbaIance.
4
% Voltage ImbaIance - 100 x 227
- 1.76%
This amount of phase imbaIance is satisfactory as it is below the maximum aIIowable 2%.
IMPORTANT: If the supply voltage phase imbalance is more than 2%, contact your Iocal electric utility company immediately.

Step 7-- Install Outdoor Air Hoods (Units With
Economizer)
Perform the following procedure to install the outdoor-air hoods:
1. Economizer and barometric relief hoods are located in the
condenser section under the slanted coil for shipping. (See
Fig. 9.) Barometric relief/power exhaust hood is shipped
inside of economizer hood. Remove screws that secure the
wooden rails of the hood assemblies to the unit. Save
screws. Slide complete assembly from condenser section.
2. Remove the screws that secure the economizer and
barometric relief/power exhaust hoods to the wooden
railing. Discard or recycle wooden rails. Save screws.
NOTE: The barometric relief damper is secured to the economizer
panel for shipping.
DO NOT THROW THIS PANEL AWAY!
3. Remove the screw holding the barometric relief damper to
the panel. Damper should be free to swing open during op-
eration. (See Fig. 10)
DO NOT THROW THIS PANEL AWAY!
4, Hang the barometric relief/power exhaust hood on the
mounting flange on the economizer panel. Secure hood to
panel with screws saved from Step 2, (See Fig. 10 and 11.)
5. Align hole in flange of economizer panel with left edge of
hood, Hang economizer hood on the top flange of the
economizer panel by rotating hood until top flange of the
economizer hood engages the bent flange on the
economizer panel. Rotate hood until hood is flush with the
economizer panel. Hood will support itself from flange,
Align holes in hood with holes in panel and secure hood to
panel with screws saved from Step 2, (See Fig. 10 and 12 0
Step 8-- Install All Accessories
After all of the factory-installed options have been ac[iusted, install
all field-installed accessories. Refer to the accessory installation
instructions included with each accessory.
MOUNTING J
FLANGE
ECONOMIZER
HOOD
POWER EXHAUST/
BAROMETRIC
RELIEF HOOD
/
/\
i \
ECONOMIZER BAROMETRIC
PANEL RELIEF DAMPER SCREW
C06260
Fig. 10 - Hood Installation
POWER EXHAUST/
BAROMETRIC
RELIEF HOOD
Step 9 -- Configure Controls
Refer to unit controls and Troubleshooting book for information
on configuring controls,
POWER EXHAUST/
BAROMETRIC
RELIEF HOOD
WOODEN RAILS X ECONOMIZER
HOOD
Fig. 9 - Economizer and Barometric Relief/Power
Hoods Shipping Position
C06290
C06262
Fig. 11 - Barometric Relief/Power Exhaust Hood Flange
MOUNTING
FLANGE
ECONOMIZER
HOOD
C06263
Fig. 12 -Economizer Flange
17

g
18

g
19

Copyright 2008 Carrier Corp. • 7310 W. Morris St. • Indianapolis, IN 46231 Printed in U.S.A. Edition Date: 9/08
Manufacturer reserves the right to change, at any time, specification8 and design8 without notice and without obligations,
Catalog No:50PD-01SI
Replaces: NEW
2O