CARRIER Furnace/Heater, Gas Manual L0902516
58MVC080-F-10114 58MVC080-F-10114 CARRIER GAS FURNACE - Manuals and Guides L0902516 View the owners manual for your CARRIER GAS FURNACE #58MVC080F10114. Home:Heating & Cooling Parts:Carrier Parts:Carrier GAS FURNACE Manual
User Manual: CARRIER CARRIER Furnace/Heater, Gas Manual CARRIER Furnace/Heater, Gas Owner's Manual, CARRIER Furnace/Heater, Gas installation guides
Open the PDF directly: View PDF
.
Page Count: 62

®
Turn to the Expertg
Installation Instructions
Visit www.Carrier.com
NOTE: Read the entire instruction manual before starting
the installation.
Please retain these instructions with the furnace after installation
for future reference.
NOTE: This furnace can be installed as a (2-pipe) direct vent
or (1-pipe) non-direct vent condensing gas furnace.
ISO 9001:2000
11
Special Venting Requirements for Installations in Canada
Installation in Canada must conform to the requirements of CSA
B149 code. Vent systems must be composed of pipe, fittings,
cements, and primers listed to ULC $636. The special vent
fittings and accessory concentric vent termination kits and
accessory external drain trap have been certified to ULC $636 for
use with those IPEX PVC vent components which have been
certified to this standard. In Canada, the primer and cement must
be of the same manufacturer as the vent system - IPEX System
636, PVC/CPVC Primer, Purple Violet for Flue Gas Venting and
IPEX System 636(1) TM , PVC Cement for Flue Gas Venting, rated
Class IIA, 65 deg C. must be used with this venting system - do
not mix primers and cements from one manufacturer with a vent
system from a different manufacturer. Follow the manufacturer's
instructions in the use of primer and cement and never use primer
or cement beyond its expiration date.
The safe operation, as defined by ULC $636, of the vent system
is based on following these installation instructions, the vent
system manufacturer's installation instructions, and proper use of
primer and cement. All fire stop and roof flashing used with this
system must be UL listed material. Acceptability under Canadian
standard CSA B149 is dependent upon full compliance with all
installation instructions. Under this standard, it is recommended
that the vent system be checked once a year by qualified service
personnel.
The authority having jurisdiction (gas inspection authority,
municipal building department, fire department, etc) should be
consulted before installation to determine the need to obtain a
permit.
Consignes sp_ciales pour l'installation de ventillation au Canada
L'installation faite au Canada doit se conformer aux exigences du
code CSA B149. Ce syst_me de ventillation doit se composer de
tuyaux, raccords, ciments et appr_ts conformes au ULC $636. La
tuyauterie de ventillation des gaz, ses accessoires, le terminal
concentrique mural ainsi que l'ensemble du drain de condensat
ext_rieur ont _t_ certifies ULCS 636 pour l'application des
composantes IPEX PVC qui sont certifi_es 5. ce standard. Au
Canada l'appr_t et le ciment doivent _tre du m_me manufacturier
que le syst_me de ventillation - IPEX Syst_me 636, Appr_t
PVC/CPVC. Mauve Violette pour conduit en _vacuation des gaz
et IPEX Syst_me 636(1) TM, ciment pour PVC pour conduit en
_vacuation des gaz, _valu_ CLASSE IIA, 65 deg. C. doit _tre
utilis_ avec ce syst_eme d'_vacuation - ne pas m_langer l'appr_t
et le ciment d'un manufacturier avec le syst_me de ventillation
d'un autre manufacturier. Bien suivre les indications du
manufacturier lors de l'utilisation de l'appr_t et du ciment et ne
pas utiliser ceux-ci si la date d'expiration est atteinte.
L'op_ration s_curitaire, tel que d_finit par ULC $636, du syst_me
de ventilation est bass sur les instructions d'installation suivantes,
ainsi que l'usage appropri_ de l'appr_t et ciment. Tout arr_t feu et
solin de toit utilis_s avec ce syst_me doivent _tre des mat_riaux
list,s UL L'acceptation du standard Canadien CSA B419 est
directement reli_ 5. l'installation conforme aux instructions ci-
haut mentionn_es. Le standard Canadien recommande 1'
inspection par un personel qualifi_ et ce, une fois par annie.
Les autorit_es ayant juridiction (inspecteurs de gas, inspecteurs en
bfitiments, d@artement des incendies, etc) devraient _tre
consult_es avant l'installation afin de d_terminer si un permis est
requis.
(1) System 636 is a trademark of IPEX Inc.

Required Notice for Massachusetts Installations
IMPORTANT
The Commonwealth of Massachusetts requires compliance with regulation 248 CMR as follows:
5.08: Modifications to NFPA-54, Chapter 10
2) Revise 10.8.3 by adding the following additional requirements:
(a.)For all side wall horizontally vented gas fueled equipment installed in every dwelling, building or structure used in
whole or in part for residential purposes, including those owned or operated by the Commonwealth and where the
side wall exhaust vent termination is less than seven (7) feet above finished grade in the area of the venting,
including but not limited to decks and porches, the following requirements shall be satisfied:
1. INSTALLATION OF CARBON MONOXIDE DETECTORS. At the time of installation of the side wall horizontal vented
gas fueled equipment, the installing plumber or gasfitter shall observe that a hard wired carbon monoxide detector with an
alarm and battery back-up is installed on the floor level where the gas equipment is to be installed. In addition, the installing
plumber or gasfitter shall observe that a battery operated or hard wired carbon monoxide detector with an alarm is installed on
each additional level of the dwelling, building or structure served by the side wall horizontal vented gas fueled equipment. It
shall be the responsibility of the property owner to secure the services of qualified licensed professionals for the installation of
hard wired carbon monoxide detectors
a. In the event that the side wall horizontally vented gas fueled equipment is installed in acrawl space or an attic, the hard wired
carbon monoxide detector with alarm and battery back-up may be installed on the next adjacent floor level.
b. In the event that the requirements of this subdivision can not be met at the time of completion of installation, the owner shall
have a period of thirty (30) days to comply with the above requirements; provided, however, that during said thirty (30) day
period, a battery operated carbon monoxide detector with an alarm shall be installed.
2. APPROVED CARBON MONOXIDE DETECTORS. Each carbon monoxide detector as required in accordance with the
above provisions shall comply with NFPA 720 and be ANSI/UL 2034 listed and IAS certified.
3. SIGNAGE. A metal or plastic identification plate shall be permanently mounted to the exterior of the building at a minimum
height of eight (8) feet above grade directly in line with the exhaust vent terminal for the horizontally vented gas fueled
heating appliance or equipment. The sign shall read, in print size no less than one-half (1/2) inch in size, "GAS VENT
DIRECTLY BELOW. KEEP CLEAR OF ALL OBSTRUCTIONS".
4. INSPECTION. The state or local gas inspector of the side wall horizontally vented gas fueled equipment shall not approve the
installation unless, upon inspection, the inspector observes carbon monoxide detectors and signage installed in accordance
with the provisions of 248 CMR 5.08(2)(a)1 through 4.
5. EXEMPTIONS: The following equipment is exempt from 248 CMR 5.08(2)(a)1 through 4:
(1 .) The equipment listed in Chapter 10 entitled "Equipment Not Required To Be Vented" in the most current edition of NFPA
54 as adopted by the Board; and
(2.) Product Approved side wall horizontally vented gas fueled equipment installed in a room or structure separate from the
dwelling, building or structure used in whole or in part for residential purposes.
(c.) MANUFACTURER REQUIREMENTS - GAS EQUIPMENT VENTING SYSTEM PROVIDED. When the
manufacturer of Product Approved side wall horizontally vented gas equipment provides a venting system design or
venting system components with the equipment, the instructions provided by the manufacturer for installation of the
equipment and the venting system shall include:
1. Detailed instructions for the installation of the venting system design or the venting system components; and
2. A complete parts list for the venting system design or venting system.
(d.)MANUFACTURER REQUIREMENTS - GAS EQUIPMENT VENTING SYSTEM NOT PROVIDED. When the
manufacturer of a Product Approved side wall horizontally vented gas fueled equipment does not provide the parts
for venting the flue gases, but identifies "special venting systems", the following requirements shall be satisfied by
the manufacturer:
1. The referenced "special venting system" instructions shall be included with the appliance or equipment installation
instructions; and
2. The "special venting systems" shall be Product Approved by the Board, and the instructions for that system shall include a
parts list and detailed installation instructions.
(e.)A copy of all installation instructions for all Product Approved side wall horizontally vented gas fueled equipment,
all venting instructions, all parts lists for venting instructions, and/or all venting design instructions shall remain with
the appliance or equipment at the completion of the installation.
For questions regarding these requirements, please contact the Commonwealth of Massachusetts Board of State Examiners of Plumbers and
Gas Fitters, 239 Causeway Street, Boston, MA 02114. 617-727-9952.

TABLE OF CONTENTS
PAGE
IMPORTANT INFORMATION ........................ 2
SAFETY CONSIDERATIONS ........................ 3
CODES AND STANDARDS .......................... 7
ELECTROSTATIC DISCHARGE (ESD) PRECAUTIONS .. 7
INTRODUCTION .................................. 7
APPLICATIONS ................................... 8
Upflow ........................................ 8
Downflow ..................................... 11
Horizontal Left .................................. 12
Horizontal Right ................................ 15
LOCATION ...................................... 16
INSTALLATION .................................. 18
Air Ducts ....................................... 21
Air for Combustion and Ventilation .................. 28
Combustion Air Pipe .............................. 34
Vent Pipe ...................................... 36
Vent Termination ................................ 39
Condensate Drain ................................ 43
START-UP, ADJUSTMENTS, AND SAFETY CHECK ... 44
CHECKLIST ..................................... 60
AIRFLOW
d>
"i
©
AIRFLOW
Fig. l -Furnace Orientation
A93041
SAFETY CONSIDERATIONS
FURNACE RELIABILITY HAZARD
Failure to follow this caution may result in unit damage.
Improper installation or misapplication of furnace may
require excessive servicing or cause premature component
failure. This furnace can be vented as either a direct vent
(2-pipe) furnace or as an optional ventilated combustion air
application.
A direct vent system shall be installed in accordance with
the direct vent (2-pipe) procedures in the Combustion Air
and Vent Pipe Systems section within this instruction. For
optional ventilated combustion air applications, refer to the
ventilated combustion air option procedures in the same
section.
Application of this furnace should be indoors with special
attention given to vent sizing and material, gas input rate,
air temperature rise, unit leveling, and unit sizing.
FIRE, EXPLOSION, ELECTRICAL SHOCK AND
CARBON MONOXIDE POISONING HAZARD
Failure to follow this warning could result in personal
iniury, death, or property damage.
Improper installation, adjustment, alteration, service,
maintenance, or use can cause carbon monoxide poisoning,
explosion, fire, electrical shock, or other conditions which
may cause personal iniury or property damage. Consult a
qualified installer, service agency, local gas supplier, or your
distributor or branch for information or assistance. The
qualified installer or agency must use only
factory-authorized and listed kits or accessories when
modifying this product.
CUT HAZARD
Failure to follow this caution may result in personal iniury.
Sheet metal parts may have sharp edges or burrs. Use care
and wear appropriate protective clothing and gloves when
handling parts.
Improper installation, adjustment, alteration, service,
maintenance, or use can cause explosion, fire, electrical shock, or
other conditions which may cause death, personal iniury, or
property damage. Consult a qualified installer, service agency, or
your distributor or branch for information or assistance. The
qualified installer or agency must use factory-authorized kits or
accessories when modifying this product. Refer to the individual
instructions packaged with the kits or accessories when installing.
Follow all safety codes. Wear safety glasses, protective clothing,
and work gloves. Have a fire extinguisher available. Read these
instructions thoroughly and follow all warnings or cautions
include in literature and attached to the unit. Consult local
building codes, the current editions of the National Fuel Gas
Code (NFGC) NFPA 54/ANSI Z223.1 and the National
Electrical Code (NEC) NFPA 70.

g
1
664 ram)
2 IN (51 mm) COMBUSTION
!_lN(13mm)
GAS CONN
2IN
VENTCONN
]_INDIA(13mm)
(684 ram)
TRAP LOCATION
(DOWNFLOW &
HORIZONTAL LEFT)
;a IN D]A (22ram)
--POWER CONN
ACCESSORY
POWER ENTRY
DRAIN TRAP ]
LOCATION
(ALTERNATE
UPFLOW)
9_s" 17 _16"
TYP (439
(240 ram)
(21 ram)
TYP
(829 ram)
©
AIRFLOW
A_ (14 ram)
D-- 'l:,r,, "{POUTLET
CONDENSATE DRAIN
(DOWNFLOW &
HORIZONTAL RIGHT) "_
OR ALTERNATE
!_z IN D]A GAS CONN
1
_NLET
_E_
DRAIN LOCATION 11'!6"_ _ 1'16"
(UPFLOW) (17 ram) (17 ram)
26 i¢,, (724 mm)
_26 %6" (664 mm)
2614" (667 mm)
22 5i_" (567 mm)_
_19"(463 ram) _ _!3fl6" (21 ram)
I/COMBUSTION AIR OONN b6"|
GAS OONN
........ /
17......
T_4 E R M O S+_,]r_'T Ry /
3O 1< /+-. 2 N _/T,r,l_5 39 7S"
(......... ) f_ _'_"- _/ENTSONN (......... )
SIDE INLET ,
1
b <1
..........
DRAIN LOCATION /_ 22 11"TYP ------'_'_1 _g_6" (11 ram)
(UPFLOW) (a65 ram)
.............. J --------_OT_;_1r'47----II...... "1 ........ )
FOR HORIZONTAL
HANGING (614 ram)
NOTES: 1. Minimum return-air openings at furnace, based on metal duct. If flex duct is used,
see flex duct manufactureris recommendations for equivalent diameters.
2. Minimum return-air opening at furnace:
a. For 800 OFM 16-in. (408mm) round or 141A (388 mm)x 12-in. (305 mm) rectangle
b. For !200 CFM 20-in. (508mm) round or 141# (368mm)x 197Mn. (495mm).rectangle
c. For !600 CFM 22-in. (558mm) round or 141# (368mm)x 231/4-in,(591mm) [ectangle
d. For aidlow requirements above 1800 CFM, see Air Delivery table in Product Data
literature for specific use of single side inlets. The use of both side inlets, a
combination of 1 side and the bottom, or the bottom only will ensure adequate
return air openings for airflow requirements above 1800 CFM.
A05124
Dimensions (In. /mm)
UNIT SIZE A D E
080-14 /042080 17-1/2 /445 15-7/8 /403 16 /406
080-14 /042080 21 /533 19-3/8 /492 19-1/2 /495
080-20 /080080 21 /533 19-3/8 /492 19-1/2 /495
100-20 /080100 21 /533 19-3/8 /492 19-1/2 /495
120-20 /080120 24-1/2 /822 22-7/8 /581 23 /584
Fig. 2 -Dimensional Drawing
In Canada, refer to the current editions of the National Standards
of Canada CAN/CSA-BI49.1 and .2 Natural Gas and Propane
Installation Codes, and Canadian Electrical Code CSA C22.1
Recognize safety information. This is the safety-alert symbol/_.
When you see this symbol on the unit and in instructions or
manuals, be alert to the potential for personal iniury.
Understand the signal words DANGER, WARNING, and
CAUTION. These words are used with the safety-alert symbol.
DANGER identifies the most serious hazards which will result in
severe personal iniury or death. WARNING signifies hazards
which could result in personal iniury or death. CAUTION is
used to identify unsafe practices which may result in nfinor
personal iniury or product and property damage. NOTE is used
to highlight suggestions which will result in enhanced
installation, reliability, or operation.
ENVIRONMENTAL HAZARD
Failure to follow this caution may result in environmental
polution.
Remove and recycle all components or materials (i.e., oil,
refrigerant, control boards, etc.) before unit final disposal.
The 58MVC Condensing Gas-Fired Furnaces are CSA (formerly
AGA and CGA) design-certified for natural and propane gases
(see furnace rating plate) and for installation in alcoves, attics,
basements, closets, utility rooms, crawlspaces, and garages. The
furnace is factory-shipped for use with natural gas. A CSA listed
gas conversion kit is required to convert furnace for use with
propane gas.
See Fig. 3 for required clearances to combustibles.
Maintain a 1-in. (25 ram) clearance from combustible materials
to supply air ductwork for a distance of 36 inches (914 ram)
horizontally from the furnace. See NFPA 90B or local code for
further requirements.
These furnaces SHALL NOT be installed directly on carpeting,
tile, or any other combustible material other than wood flooring.
These furnaces are suitable for installation in a structure built on
site or a manufactured building completed at final site. The
design of this furnace line is NOT CSA design-certified for
installation in recreation vehicles, manufactured (mobile) homes
or outdoors.
This furnace is designed for continuous return-air minimum
temperature of 60 °F (16 °C) db or internfittent operation down to
55°F (13°C) db such as when used with a night setback
thermostat. Return-air temperature nmst not exceed 80°F (27 °C)
db. Failure to follow these return air linfits may affect reliability
of heat exchangers, motors and controls. (See Fig. 4.)
These furnaces are shipped with the drain and pressure tubes
connected for UPFLOW applications. Minor modifications are
required when used in DOWNFLOW, HORIZONTAL RIGHT,
or HORIZONTAL LEFT (supply-air discharge direction)
applications as shown in Fig. 1. See details in Applications
section.

Install this furnace only in a location and position as specified in
LOCATION and INSTALLATION sections of these instructions.
Combustion products must be discharged outdoors. Connect this
furnace to an approved vent system only, as specified in the
Combustion Air and Vent piping sections of these instructions.
Never test for gas leaks with an open flame. Use a commercially
available soap solution made specifically for detection of leaks to
check all connections as specified in the GAS PIPING section of
these instructions.
Always install the furnace to operate within the furnace's
intended rise range with a duct system which has an external
static pressure within the allowable range as specified in the SET
TEMPERATURE RISE section of these instructions.
When a furnace is installed so that supply ducts carry air
circulated by the furnace to areas outside the space containing the
furnace, the return air shall also be handled by ducts sealed to the
furnace casing and terminating outside the space containing the
furnace.
A gas-fired furnace for installation in a residential garage must be
installed as specified in the Hazardous Locations section of these
instructions and Fig. 5.
The furnace may be used for construction heat provided that the
furnace installation and operation complies with the first
CAUTION in the LOCATION section of these instructions.
This gas furnace may be used for construction heat provided that:
• The furnace is permanently installed with all electrical
wiring, piping, air filters, venting and ducting installed
according to these installation instructions. A return air
duct is provided, sealed to the furnace casing, and ter-
minated outside the space containing the furnace. This
prevents a negative pressure condition as created by the
circulating air blower, causing a flame rollout and/or
drawing combustion products into the structure.
• The furnace is controlled by a thermostat. It may not be
"hot wired" to provide heat continuously to the struc-
ture without thermostatic control.
• Clean outside air is provided for combustion. This is to
minimize the corrosive effects of adhesives, sealers and
other construction materials. It also prevents the en-
trainment of drywall dust into combustion air, which
can cause fouling and plugging of furnace components.
• The temperature of the return air to the furnace is main-
tained between 55°F (13°C) and 80°F (27°C), with no
evening setback or shutdown. The use of the furnace
while the structure is under construction is deemed to
be intermittent operation per our installation instruc-
tions.
• The air temperature rise is within the rated rise range on
the furnace rating plate, and the firing rate has been set
to the nameplate value.
• The filters used to clean the circulating air during the
construction process must be either changed or thor-
oughly cleaned prior to occupancy.
• The furnace, ductwork and filters are cleaned as neces-
sary to remove drywall dust and construction debris
from all HVAC system components after construction
is completed.
• After construction is complete, verify furnace operating
conditions including ignition, input rate, temperature
rise and venting, according to the manufacturer's in-
structions.
If this furnace is installed with a direct-vent (combustion air and
flue) system, a factory accessory termination kit must be installed.
In a direct-vent system, all air for combustion is taken directly
from the outside atmosphere and all flue products are discharged
to the outside atmosphere. See furnace and factory accessory
termination kit instructions for proper installation.
These furnaces are shipped with the following materials to assist
in proper furnace installation. These materials are shipped in the
main blower compartment.
Installer Packet Includes:
Installation, Start-up, and Operating Instructions
Service and Maintenance Instructions
User's Information Manual
Warranty Certificate
Loose Parts Bag includes: Quantity
Collector Box or Condensate trap extension tube 1
Inducer housing drain tube 1
1/2-in CPVC street elbow 2
Drain tube coupling 1
Drain tube coupling grommet 1
Gas line grommet 1
Vent pipe grommet 1
Combustion-air pipe grommet 1
Gas line entry hole filler plug 1
Power entry hole filler plug 2
Condensate trap hole filler plug 3
Vent and combustion-air intake hole filler plug 2
Combustion-air pipe perforated disk assembly 1

g
INSTALLATION
e This forced air fumace is equipped for use with natural gas at altitudes 0 - 10,000 ft (0 - 3,050m), except 140 size furnaces are only approved for altitudes 0 - 7,000 fL
(0 - 2,135m).
• An accessory kit, supplied by the manufacturer, shah be used to convert to propane gas use or may be Pequired for some natural gas applicetions.
• This famace is for indoor installation in a building constructed on site. This furnace may be instated in a manufactured (mobile) home when stated on rating plate and
using factory authorized kit..
• This furnace may be instated on combustible floodng in alsove or closet at Minimum Inches Clearance To Combustible Construction as described below.
eThis _mace requires a special venting system. Refer to the installation instructions for parts list and method of installation. In the US this furnace is for use with
schedule=40 PVC, PVC-DWV, CPVC, or AB,S-DWV pipe, and must not be vented in common with other gas-fired appliances. In Canada, refer to installation instructions
for vent materials. Construction through which vent/air intake pipes may be installed is maximum 24 inches (610 ram), minimum 3/4 inches (19 mm) thickness (including
roofing materials).
e Cette foumaise _ air puis6 est 6quip6e pour utilisation avec gaz naturem et altitudes comprises entre 0 - 3,050m (0 - 10,000 pi),except6 queles foumaises de 140 taifle
sont pour altitudes comprises entre 0 - 2,135m (0 - 7,000pi).
® Utiiiser une trousse de conversion, foumie par le fabdcant, pour passer au gaz propane ou pour certaines installations au gaz natureL
e Cette foumaise & air pulse est pour installation a I'intedeur dans un b_timent construit sur place. Cette foumaise a air pulse peut 6tre install6e dans une maison
prCfabdqu6e (maison mobile) si prescrit par la plaque signal6tique et si'l on utilise une trousse specifi6e par le fabrleant.
•C.ette foumaise pout 6tre install6e sur un plancher combustible dans un enfoncement ou un placerd en observant les D6gagernent Minimum En Pouces Avec
EI6ments De Construction Combustibles.
• Cette foumaise n6cessite un syst_me d'6vacuation sp6cial. La m6thode d'instaliation et la iiste des pi_ces n6cessaires figurent dana les instructions d"installation. Aux
Etats-Unis, cette foumaise dolt s'utiliser avec la tuyautede des nomenclatures 40 PVC, PVC-DWV, CPVC, ou ,ABS-DWV et elle ne peut pas _tre ventil6e conjointment
avec d'autres appareils & gaz. Au Canada, referer aux instructions d'installation pour lax matedaux a ventiler. Epaisseur de la construction au travers de laquene il est
possible de faire passer les tuyaux d'aeration (admission/evacuation): 24 po (610 mm) maximum, 3/4 pc (19mm) minimum (y compds la toiture).
For up&3w and downflow applications, furnace must be installed level, or pitched within 1/2" (12.7ram) of level. For a LEVEL 0" ( 0 ) TO _,. MINI 14" (6.35mm) TO
horizonfal application, the furnace must be pitched minimum 1/4" (6.35mm) to maximum of 1/Z' (12.7mm) forward for 1/2" (12.7mm) MAXj ¢_L-_-_ 1/2" (12.7mm)MAX
proper drainage. See Installation Manual for IMPORTANT unit support details on horizontal applications.
Pour des applications de flux ascendant et descendant, la foumaise doit ¢¢e install6e de niveau ou indin6e _ T ............. !
pas plus de 1/2" (12.7mm) du niveau. Pour une application hodzontale, la fOumaise dOlt &'Ire inclle_-_eenli'e minimum UPFLOW OR F_ORON_ )
1/4" (6.35mm) et maximum 1/2" (12.7ram) du niveau pour le drainage appropn& En cas d'installation en position DOWN FLOW
hodzootale, consulter les renseignements mMPORTANTS sur le support dans le manuel d'instaHation. HORIZONTAL
MINIMUM INCHES CLEARANCE TO COMBUSTIBLE CONSTRUCTION
ALL POSiTiONS:
*Minimum front clearance for service 24 inches (610mm).
t 1 140 size furnaces require I inch back clearance to combustible materials.
DOWNFLOW POSITIONS:
t For installation on combustible 11oors only when instated on special base No. KGASB0201ALL or
NAHA01101SB, CoilAssembly, Part No. CAR, CAP, CNPV, CNRV or Coil Casing, Part No. KCAKC,
or WENC or WTNC.
HORIZONTAL POSITIONSi
Line contact is permissible only between lines formed by intersections of top and two sides of
furnace jacket, and building joists, studs, or framing.
§ Clearance shown is for air inlet and air ou_et ends.
O 120 and 140 size furnaces require 1 inch bottom clearance to combustible materials.
DEGAGEMENT MINfl_UIVIEN POUCESAVEC I_LleMENTSDE CONSTRUCTION COMBUSTIBLES
POUR TOUS LES POSITIONS:
D@jagement avant minimum de 24 po (610mm ) pour l'entretien.
1- t Pour les foumaises de 140 taifle, 1 pc (25mm) d6gagement des mat6riaux combustibles est
requis au-arriere.
POUR LA POSITION COURANT DESCENDANT:
1 Pour Ilnstaflation sur le plancher combustible seulement quand on utilise la base sp_ciale, piece
n° KGASB0201ALL ou NAHA01101SB, I'ensemble serpentin, pi_:e n ° CAR, CAP, CNPV, CNRV, ou
le carter de serpentin, piece n ° KCAKC ou WENC ou WTNC.
POUR LA POSmON HORIZONTALE:
Le contact n'est permis qQentre les lignes form6es par les intersec_ons du dessus et des
deuxottes de la chemise de la foumaise, et des solives, des montants ou de la charpente du
batiment.
§ La distance indiqu_e conceme I'extr_mit6 du tuyau d'ardv_e d'air et I'extr_mit_ du tuyau de sortie
d'aic
Pour les foumaises de 120 et 140 taifie, 1 pc (25mm) d6gagement des materiaux combustibles
est requis au-dessous.
This furnace is approved for UPFLOW, DOWNFLOW and
HORIZONTAL installations.
Cette foumaise est approuv_e pour I'installation HORIZONTALE
et la circulation d'air VERS LE HAUT et VERS LE BAS.
Clearance arrows Les _hes de degagement
do not change with ne change pas avec
I'orientation de la
furnace orientation, gen#rateur d'air chaud.
Vent dearance to
combustibles 0".
Clearancein inches 0 (pc)D_Jagement
D6gagement(pc). d'_vent aveccombustibles.
A08435
Fig. 3 - Clearances to Combustibles
FRONT o
! MAX80°F/27C
_ MIN60°F /16 C
Fig. 4 - Return-Air Temperature
A06745
18-IN. (457.2 mm)
MINIMUM TO BURNERS
A93044
Fig. 5- Installation in a Garage

Thefurnaceshallbeinstalledsothat the electrical components are
protected from water.
For accessory installation details, refer to applicable installation
literature.
CODES AND STANDARDS
Follow all national and local codes and standards in addition
to these instructions. The installation must comply with
regulations of the serving gas supplier, local building, heating,
plumbing, and other codes. In absence of local codes, the
installation must comply with the national codes listed below and
all authorities having jurisdiction in Canada.
In the United States and Canada, follow all codes and standards
for the following:
General
US: National Fuel Gas Code (NFGC) NFPA
54-2006/ANSI Z223.1-2006 and the Installation
Standards, Warm Air Heating and Air Conditioning
Systems ANSI/NFPA 90B
CANADA: National Standard of Canada, Natural Gas
and Propane Installation Code (CAN/CSA-
B149.1-05) CSA B149.1-05
Installation
•US: NFGC and the NFPA 90B. For copies, contact the
National Fire Protection Association Inc., Batterymarch
Park, Quincy, MA 02269; or for only the NFGC con-
tact the American Gas Association, 400 N. Capitol,
N.W, Washington DC 20001.
• A manufactured (Mobile) home installation nmst con-
form with the Manufactured Home Construction and
Safi, ty Standard, Title 24 CFR, Part 3280, or when this
standard is not applicable, the Standard for Manufac-
tured Home Installation (Manufactured Home Suites,
Communities, and Set-Ups), ANSI/NCS A225.1, and/
or CAN/CSA-z240, MH Series Mobile Homes.
• CANADA: CAN/CSA-B149.1-05. For a copy, con-
tact Standard Sales, CSA International, 178 Rexdale
Boulevard, Etobicoke (Toronto), Ontario, M9W 1R3,
Canada.
Combustion and Ventilation Air
• US: Section 9.3 NFPA 54/ANSI Z223.1-2006, Air for
Combustion and Ventilation.
• CANADA: Part 8 of the CAN/CSA-B149.1-05, Vent-
ing Systems and Air Supply for Appliances.
Duct Systems
• US and CANADA: Air Conditioning Contractors As-
sociation (ACCA) Manual D, Sheet Metal and Air
Conditioning Contractors National Association
(SMACNA), or American Society of Heating, Refriger-
ation, and Air Conditioning Engineers (ASHRAE)
2005 Fundamentals Handbook Chapter 35.
Acoustical Lining and Fibrous Glass Duct
•US and CANADA: current edition of SMACNA,
NFPA 90B as tested by UL Standard 181 for Class I
Rigid Air Ducts.
Gas Piping and Gas Pipe Pressure Testing
• US: Section 9.3 NFPA 54/ANSI Z223A-2006 NFGC;
chapters 5, 6, 7, and 8 and national plumbing codes.
• CANADA: CAN/CSA-BI49.1-05 Parts 4, 5, 6, and 9.
In the state of Massachusetts:
• This product must be installed by a licensed plumber or
gas fitter.
• When flexible connectors are used, the maximum
length shall not exceed 36 inches (914 ram).
• When lever type gas shutoffs are used they shall be
T-handle type.
• The use of copper tubing for gas piping is not approved
by the state of Massachusetts.
Electrical Connections
• US: National Electrical Code (NEC) ANSI/NFPA
70-2008.
• CANADA: Canadian Electrical Code CSA C22.1.
ELECTROSTATIC DISCHARGE (ESD)
PRECAUTIONS
[]NIT DAMAGE HAZARD
Failure to follow this caution may result in damage to unit
components.
Electrostatic discharge can affect electronic components.
Take precautions during furnace installation and servicing
to protect the furnace electronic control. Precautions will
prevent electrostatic discharges from personnel and hand
tools which are held during the procedure. These
precautions will help to avoid exposing the control to
electrostatic discharge by putting the furnace, the control,
and the person at the same electrostatic potential.
3. Disconnect all power to the furnace. Multiple disconnects
may be required. DO NOT TOUCH THE CONTROL OR
ANY WIRE CONNECTED TO THE CONTROL PRIOR
TO DISCHARGING YOUR BODY'S
ELECTROSTATIC CHARGE TO GROUND.
4. Firmly touch a clean, unpainted, metal surface of the fur-
nace chassis which is close to the control. Tools held in a
person's hand during grounding will be satisfactorily dis-
charged.
5. After touching the chassis, you may proceed to service the
control or connecting wires as long as you do nothing that
recharges your body with static electricity (for example;
DO NOT move or shuffle your feet, DO NOT touch un-
grounded objects, etc.).
6. If you touch ungrounded objects (recharge your body with
static electricity), firmly touch furnace again before touch-
ing control or wires.
7. Use this procedure for installed and uninstalled (ungroun-
ded) furnaces.
8. Before removing a new control from its container, dis-
charge your body's electrostatic charge to ground to pro-
tect the control from damage. If the control is to be in-
stalled in a furnace, follow items 1 through 5 before
bringing the control or yourself into contact with the fur-
nace. Put all used AND new controls into containers be-
fore touching ungrounded objects.
9. An ESD service kit (available from commercial sources)
may also be used to prevent ESD damage.
INTRODUCTION
The model 58MVC Direct Vent, Upflow, Gas-Fired, Category
IV, condensing furnace is available in model sizes ranging in
input capacities of 60,000 to 120,000 Btuh.
g

APPLICATIONS
General
Some assembly and modifications are required for furnaces
installed in any of the four applications shown in Fig. 1. All
drain and pressure tubes are connected as shown in Fig. 7. See
appropriate application instructions for these procedures.
PROPERTY DAMAGE HAZARD
Failure to follow this caution may result in property
damage.
Local codes may require a drain pan under entire furnace
and condensate trap when a condensing furnace is used in
an attic application or over a finished ceiling.
NOTE: In Canada, installations shall be in accordance with
current CAN/CSA-B149.1-05 and/or local codes.
UPFLOW APPLICATION
An upflow furnace application is where furnace blower is located
below combustion and controls section of furnace, and
conditioned air is discharged upwards.
Condensate Trap (Factory-Shipped Orientation)
The condensate trap is factory installed in the blower shelf and
factory connected for UPFLOW applications, A factory-supplied
tube is used to extend the condensate trap drain connection to the
desired furnace side for field drain attachment. See Condensate
Trap Tubing section for drain tube extension details, (See Fig. 6.)
Condensate Trap Tubing (Factory-Shipped Orientation)
NOTE: See Fig. 7 or tube routing label on main furnace door to
confirm location of these tubes.
1. Collector Box Drain, Inducer Housing Drain, Relief Port,
and Pressure Switch Tubes.
These tubes should be factory attached to condensate trap
and pressure switch ready for use in UPFLOW applica-
tions. These tubes can be identified by their connection
location and also by a color label on each tube. These
tubes are identified as follows: collector box drain tube
(blue label), inducer housing drain tube (violet label or
molded), relief port tube (green label), and pressure switch
tube (pink label).
2, Condensate Trap Drain Tube
The condensate trap drain connection must be extended
for field attachment by doing the following:
f. Determine location of field drain connection, (See Fig.
2 or 7.)
NOTE: If internal filter or side filter/media cabinet is used, drain
tube should be located to opposite side of casing from return duct
attachment to assist in filter removal.
g. Remove and discard casing drain hole plug button from
desired side.
h. Install drain tube coupling grommet (factory-supplied in
loose parts bag) in selected casing hole.
i. Slide drain tube coupling (factory-supplied in loose parts
bag) through grommet so long end of coupling faces
blower.
j. Cement 2 factory-supplied 1/2-in. (13 mm) street CPVC
elbows to rigid drain tube connection on condensate trap.
(See Fig. 7.) These elbows must be cemented together
and cemented to condensate trap drain connection.

/_ _TERNATE DRAIN
TUBE LOCATION
CONDENSATE TRAP --
DRAIN TUBE LOCATION
m BLOWER SHELF &-- FURNACE
\DOOR
FIELD ,..._
DRAIN
CONN
UPFLOW APPLICATIONS
f_ CONDENSATE
/TRA;uRNACE -7
jSIDe,,,"
,:_3 ......
_'/ /I 47/8(124mm)
21 J l iie
261/4 /2
(667mm) (38mm)
SIDE VIEW FRONT VIEW
DOWNFLOW AND ALTERNATE
EXTERNAL UPFLOW APPLICATIONS
FURNACE
DOOR
4
(102mm)
%2972 /4
FIELD (667mm)
DRAIN
CONN
END VIEW
FURNACE
SIDE
!
4(146mm)
(102ram'
3/4
(19ram)
FRONT Vl EW
HORIZONTAL
APPLICATIONS
SLOT FOR SCREW --j
HORIZONTAL /
APPLICATION
(OPTIONAL) /
11/2 (88mm)]
Uq --- ;
GUIDES -- _1 ,!
(WHEN USED) (57mm)
FRONT VIEW SIDE VIEW
1/40D
COLLECTOR BOX TO
TRAP RELIEF PORT
1/20D
INDUCER HOUSING
DRAIN CONNECTION
5/80D
COLLECTOR BOX
DRAIN CONNECTION
SCREW HOLE FOR
UPFLOW OR DOWN-
FLOW APPLICATIONS
(OPTIONAL)
1/2 IN. PVC OR CPVC
Fig. 6 - Condensate Trap
A07459
NOTE: Failure to use CPVC elbows may allow drain to kink,
preventing draining.
k. Connect larger diameter drain tube and clamp (factory-
supplied in loose parts bag) to condensate trap and clamp
securely.
1. Route tube to coupling and cut to appropriate length.
m. Attach tube to coupling and clamp securely.
Condensate Trap (Alternate Upflow Orientation)
An alternate location for the condensate trap is the left-hand side
of casing. (See Fig. 2 and 8.)
NOTE: If the alternate left-hand side of casing location is used,
the factory-connected drain and relief port tubes must be
disconnected and modified for attachment. See Condensate Trap
Tubing (Alternate Upflow Orientation) section for tubing
attachment.
To relocate condensate trap to the left-hand side, perform the
following:
1. Remove three tubes connected to condensate trap.
2. Remove trap from blower shelf by gently pushing tabs in-
ward and rotating trap.
3. Install casing hole filler cap (factory-supplied in loose
parts bag) into blower shelf hole where trap was removed.
CARBON MONOXIDE POISONING HAZARD
Failure to follow this warning could result in personal
iniury or death.
Casing hole filler cap must be installed in blower shelf
hole when condensate trap is relocated to prevent
combustion products being drawn in from appliances in
the equipment room.
4. Install condensate trap into left-hand casing hole by in-
serting tube connection stubs through casing hole and ro-
tating until tabs snap into locking position.
5. Fill unused condensate trap casing holes with plastic filler
caps (factory-supplied in loose parts bag).
Condensate Trap 3klbing (Alternate Uptlow Orientation)
NOTE: See Fig. 8 or tube routing label on main furnace door to
confirm location of these tubes.

PLUG
COLLECTOR BOX
DRAIN TUBE (BLUE &
WHITE STRIPED)
CAP
COLLECTOR BOX
TUBE (PINK)
INDUCER HOUSING
(MOLDED) DRAIN
TUBE (BEHIND
COLLECTOR BOX
DRAIN TUBE)
COLLECTOR BOX
DRAIN TUBE (BLUE)
COLLECTOR BOX
TUBE (GREEN
ROUTES BEHIND
INDUCER)
CONDENSATE
TRAP
FIELD-INSTALLED
FACTORY-SUPPLIED
DRAIN TUBE
COUPLING (LEFT
DRAIN OPTION)
FIELD-INSTALLED
FACTORY-SUPPLIED
DRAIN TUBE
FIELD-INSTALLED
FIELD-INSTALLED FACTORY-SUPPLIED
FACTORY-SUPPLIED DRAIN TUBE
1/2- IN. CPVC STREET COUPLING (LEFT
ELBOWS (2) FOR DRAIN OPTION)
LEFT DRAIN OPTION
Fig. 7 -Factory-Shipped Trap Location
(Shown with Blower Access Panel Removed)
A07274
1. Collector Box Drain Tube
Connect collector box drain tube (blue label) to condens-
ate trap.
NOTE: On 17-1/2-in. (445 ram) wide furnaces ONLY, cut tube
between corrugated sections to prevent kinks.
2. Inducer Housing Drain Tube
a. Remove and discard LOWER (molded) inducer housing
drain tube which was previously connected to condensate
trap.
b. Use inducer housing drain extension tube (violet label
and factory-supplied in loose parts bag) to connect
LOWER inducer housing drain connection to condens-
ate trap.
c. Deternfine appropriate length, then cut and connect tube.
d. Clamp tube to prevent any condensate leakage.
3. Relief Port Tube
a. Connect relief port tube (green label) to condensate trap.
b. Extend this tube (if required) by splicing to small diamet-
er tube (factory-supplied in loose parts bag).
c. Deternfine appropriate length, then cut and connect tube.
Condensate Trap Field Drain Attachment
Refer to Condensate Drain section for recommendations and
procedures.
PLUG
COLLECTOR BOX
DRAIN TUBE (BLUE &
WHITE STRIPED)
CAP
COLLECTOR BOX
TUBE (PINK)
COLLECTOR BOX
DRAIN TUBE (BLUE)
COLLECTOR BOX
TUBE (GREEN) _
CONDENSATE
TRAP
INDUCER HOUSING
(MOLDED) DRAIN
TUBE (VIOLET)
A07281
Fig. 8 -Alternate Trap Location
Pressure Switch Tubing
The LOWER collector box pressure tube (pink label) is factory
connected to the pressure switch and should not require any
modification.
NOTE: See Fig. 7 or 8 or tube routing label on main furnace
door to check for proper connections.
Upper Collector Box and Inducer Housing (Unused) Drain
Connections
Upper Collector Box Drain Connection
Attached to the UPPER collector box drain connection is a
factory-installed corrugated, plugged tube (blue and white
striped label). This tube is plugged to prevent condensate leakage
in this application. Ensure this tube is plugged.
NOTE: See Fig. 7 or 8 or tube routing label on main furnace
door to check for proper connections.
Upper Inducer Housing Drain Connection
Attached to the UPPER (unused) inducer housing drain
connection is a cap and clamp. This cap is used to prevent
condensate leakage in this application. Ensure this connection is
capped.
NOTE: See Fig. 7 or 8 or tube routing label on main furnace
door to check for proper connections.
Condensate Trap Freeze Protection
Refer to Condensate Drain Protection section for
recommendations and procedures.
10

COLLECTORBOX =
DRAIN TUBE(BLUE)
PLUG
CAP
COLLECTORBOX
TUBE(GREEN)
COLLECTORBOX
TUBE(PINK)
COLLECTORBOX _
DRAIN TUBE(BLUE&
WHITESTRIPED)
COLLECTORBOX
TUBE EXTENS,ON _i i_ _
CONDENSATETRAP __q •
INDUCERHOUSING . _ •
(MOLDED)DRAIN
TUBE(VIOLET)
Fig. 9 -Downflow Tube Configuration
(Left-hand Trap Installation)
A07276
DOWNFLOW APPLICATIONS
Adownflow furnace application is where furnace blower is
located above combustion and controls section of furnace, and
conditioned air is discharged downwards.
Condensate Trap Location
The condensate trap must be removed from the factory-installed
blower shelf location and relocated in selected application
location as shown in Fig. 2, 9, or 10.
To relocate condensate trap from the blower shelf to desired
location, perform the following:
1. Remove three tubes connected to condensate trap.
2. Remove trap from blower shelf by gently pushing tabs in-
ward and rotating trap.
3. Remove casing hole filler cap from casing hole. (See Fig.
2 and 10.)
4. Install casing hole filler cap (factory-supplied in loose
parts bag) into blower shelf hole where trap was removed.
CARBON MONOXIDE POISONING HAZARD
Failure to follow this warning could result in personal
iniury or death.
Casing hole filler cap must be installed in blower shelf hole
when condensate trap is relocated to prevent combustion
products being drawn in from appliances in the equipment
room.
5. Install condensate trap into left-hand side casing hole by
inserting tube connection stubs through casing hole and
rotating until tabs snap into locking position.
6. Fill unused condensate trap casing holes with plastic filler
caps (factory-supplied in loose parts bag).
11
/
Z DRAIN TUBE
COUPLING
COLLECTOR BOX
TUBE (GREEN)
CAP
COLLECTOR BOX
DRAIN TUBE (BLUE)
COLLECTOR BOX
S TUBE (PINK)
PLUG
F COLLECTOR BOX
DRAIN TUBE (BLUE &
WHITE STRIPED)
COLLECTOR BOX
TUBE EXTENSION
INDUCER HOUSING
-- (MOLDED) DRAIN
TUBE (VIOLET)
CONDENSATE
TRAP
COLLECTOR BOX
EXTENSION
DRAIN TUBE
A07277
Fig. 10 - Downflow Tube Configuration
(Right-Hand Trap Configuration)
Condensate Trap Tubing
NOTE: See Fig. 9 or 10 or tube routing label on main furnace
door to check for proper connections.
1. Collector Box Drain Tube
a. Remove factory-installed plug from LOWER collector
box drain tube (blue and white striped label).
b. Install removed clamp and plug into UPPER collector
box drain tube (blue label) which was connected to con-
densate trap.
c. Connect LOWER collector box drain connection to con-
densate trap.
(3.) Condensate Trap Located on Left Side of Casing
(a.)Connect LOWER collector box drain tube (blue
and white striped label) to condensate trap.
Tube does not need to be cut.
(b.)Clamp tube to prevent any condensate leakage.
(4.) Condensate Trap Located on Right Side of Casing
(a.)Install drain tube coupling (factory-supplied in
loose parts bag) into collector box drain tube
(blue and white striped label) which was previ-
ously plugged.
(b.) Connect larger diameter drain tube (factory-sup-
plied in loose parts bag) to drain tube coupling,
extending collector box drain tube for connec-
tion to condensate trap.
(c.)Route extended collector box drain tube
between gas valve and inlet housing as shown in
Fig. 10.
(d.)Determine appropriate length and cut.
(e.)Connect to condensate trap.
2. Inducer Housing Drain Tube
a. Remove factory-installed cap and clamp from LOWER
inducer housing drain connection.

AUXILIARY "J" BOX
PLUG
CAP COLLECTOR BOX
DRAIN TUBE (BLUE &
WHITE STRIPED)
CONDENSATE
TRAP
COLLECTOR BOX
TUBE EXTENSION
COLLECTOR BOX
EXTENSION
DRAIN TUBE
DRAIN TUBE
COUPLING
COLLECTOR BOX
TUBE (GREEN)
INDUCER HOUSING
(MOLDED) DRAIN
TUBE (VIOLET)
COLLECTOR BOX
DRAIN TUBE (BLUE)
COLLECTOR BOX
TUBE (PINK)
Fig. 11 - Horizontal Left Tube Configuration
A07278
b. Remove and discard UPPER (molded) inducer housing
drain tube which was previously connected to condensate
trap.
c. Install cap and clamp on UPPER inducer housing drain
connection where molded drain tube was removed.
d. Use inducer housing drain tube (violet label and factory-
supplied in loose parts bag) to connect LOWER inducer
housing drain connection to the condensate trap,
e. Connect inducer housing drain connection to condensate
trap.
(1.) Condensate Trap Located on Left Side of Casing
(a.)Determine appropriate length and cut.
(b.)connect tube to condensate trap.
(c.)Clamp tube to prevent any condensate leakage.
(2.) Condensate Trap Located on Right Side of Casing
(a.)Route inducer housing drain tube (violet label)
directly from inducer housing to condensate
trap.
(b.)Determine appropriate length and cut.
(c.)Connect tube to condensate trap.
(d.)Clamp tube to prevent any condensate leakage,
3. Relief Port Tube
Refer to Pressure Switch Tubing section for connection
procedure,
Condensate Trap Field Drain Attachment
Refer to Condensate Drain section for recommendations and
procedures.
Pressure Switch Tubing
One collector box pressure tube (pink label) is factory connected
to the pressure switch for use when furnace is installed in
UPFLOW or HORIZONTAL LEFT applications. The tube
MUST be disconnected and used or the condensate trap relief
port tube, The other collector box pressure tube (green label)
which was factory connected to the condensate trap relief port
connection MUST be connected to the pressure switch in
DOWNFLOW or HORIZONTAL RIGHT applications.
NOTE: See Fig. 9 or 10 or tube routing label on man furnace
door to check for proper connections.
Relocate tubes as described below.
1. Disconnect collector box pressure tube (pink label) at-
tached to pressure switch.
2. Extend collector box pressure tube (green label) which
was previously connected to condensate trap relief port
connection by splicing to small diameter tube (factory-
supplied in loose parts bag).
3. Connect collector box pressure tube (green label) to pres-
sure switch connection labeled COLLECTOR BOX.
4. Extend collector box pressure tube (pink label) which was
previously connected to pressure switch by splicing to re-
maining small diameter tube (factory-supplied in loose
parts bag).
5. Route this extended tube (pink label) to condensate trap
relief port connection.
6. Determine appropriate length, cut, and connect tube.
7. Clamp tube to relief port connection.
Condensate Trap Freeze Protection
Refer to Condensate Drain Protection section for
recommendations and procedures.
HORIZONTAL LEFT (SUPPLY-AIR DISCHARGE)
APPLICATIONS
A horizontal left furnace application is where furnace blower is
located to the right of combustion and controls section of furnace,
and conditioned air is discharged to the left,
12

COMBUSTION -
INTAKE
MAN1
SHUTOFF
GAS VALVE
(I46 mm)
A 12qN. (305 mm) MIN HORIZONTAL PIPE
SECTION IS RECOMMENDED WITH
(5 TO 8 FT/1.5 TO 2.4 M) VENT
SYSTEMS TO REDUCE EXCESSIVE
CONDENSATE DROPLETS FROM
EXITING THE VENT PIPE.
30" (762 mm)MIN
)RK AREA
SEDIMENT
TRAP CONDENSATE
TRAP
DRAIN
ACCESS OPENING
FOR TRAP
NOTE: LOCAL CODES MAY REQUIRE A DRAIN PAN UNDER THE
FURNACE AND CONDENSATE TRAP WHEN A CONDENSING
FURNACE IS INSTALLED ABOVE FINISHED CEILINGS.
Fig. 12 -Attic Location and Working Platform for Direct Vent (2-Pipe) Application
A93031
g
A 3-IN (76mm) MINIMUM CLEARANCE
TO COMBUSTION-AIR INTAKE
IS REQUIRED.
COMBUSTI{
INTAKE
(146mm)
A 12-IN. (305mm) MIN HORIZONTAL PIPE
SECTION IS RECOMMENDED WITH
SHORT (5 TO 8 FT /1.5 TQ 2AM) VENT
SYSTEMS TO REDUCE EXCESSIVE
CONDENSATE DROPLETS FROM
EXITING THE VENT PIPE.
30qN. (762mm) MIN
WORK AREA
MAN[
SHUTOFF
GAS VALVE
SEDIMENT
TRAP CONDENSATE
TRAP
DRAIN
NOTE: LOCAL CODES MAY REQUIRE A DRAIN PAN UNDER THE
FURNACE AND CONDENSATE TRAP WHEN A CONDENSING
FURNACE IS INSTALLED ABOVE FINISHED CEILINGS.
Fig. 13 -Attic Location and Working Platform for
Ventilated Combustion Air Applications
ACCESS OPENING
FOR TRAP
A96184
13

g
PROPERTY DAMAGE
Failure to follow this caution may result in property
damage.
Local codes may require a drain pan under entire furnace
and condensate trap when a condensing furnace is used in
an attic application or over a finished ceiling.
NOTE: In Canada, installations shall be in accordance with
current NSCNGPIC and/or local codes.
Condensate Trap Location
The condensate trap nmst be removed from the factory-installed
blower shelf location and relocated in selected application
location as shown in Fig. 2 or 11.
To relocate condensate trap from the blower shelf to desired
location, perform the following:
1. Remove three tubes connected to condensate trap.
2. Remove trap from blower shelf by gently pushing tabs in-
ward and rotating trap.
3. Remove casing hole filler cap from casing hole. (See Fig.
2 or 11.)
4. Install casing hole filler cap (factory-supplied in loose
parts bag) into blower shelf hole where trap was removed.
CARBON MONOXIDE POISONING HAZARD
Failure to follow this warning could result in personal
injury or death.
Casing hole filler cap must be installed in blower shelf hole
when condensate trap is relocated to prevent combustion
products being drawn in from appliances in the equipment
room.
5, Install condensate trap into left-hand side casing hole by
inserting tube connection stubs through casing hole and
rotating until tabs snap into locking position.
6. Fill unused condensate trap casing holes with plastic filler
caps (factory-supplied in loose parts bag).
Condensate Trap _bing
NOTE: See Fig. 11 or tube routing label on main furnace door
to check for proper connections.
1. Collector Box Drain Tube
a. Install drain tube coupling (factory-supplied in loose
parts bag) into collector box drain tube (blue label) which
was previously connected to condensate trap.
b. Connect large diameter drain tube and clamp (factory-
supplied in loose parts bag) to drain tube coupling, ex-
tending collector box drain tube.
c. Route extended tube (blue label) to condensate trap and
cut to appropriate length.
d. Clamp tube to prevent any condensate leakage.
2. Inducer Housing Drain Tube
(a.)Remove and discard LOWER (molded) inducer
housing drain tube which was previously con-
nected to condensate trap.
(b.)Use inducer housing drain extension tube (violet
label and factory-supplied in loose parts bag) to
connect LOWER inducer housing drain connec-
tion to condensate trap.
(c.)Deternfine appropriate length, cut and connect
tube.
(d.)Clamp tube to prevent any condensate leakage.
3. Relief Port Tube
a. Extend collector box tube (green label) which was previ-
ously connected to condensate trap by splicing to small
diameter tube (factory-supplied in loose parts bag).
b. Route extended collector box pressure tube to relief port
connection on condensate trap.
c. Deternfine appropriate length, cut, and connect tube.
d. Clamp tube to prevent any condensate leakage.
Condensate Trap Field Drain Attachment
Refer to Condensate Drain section for recommendations and
procedures.
Pressure Switch Tubing
The LOWER collector box pressure tube (pink label) is factory
connected to the High Pressure Switch for use when furnace is
installed in UPFLOW applications. This tube MUST be
disconnected, extended rerouted, and then reconnected to the
pressure switch in HORIZONTAL LEFT applications for 060
and 080 heating input furnaces.
NOTE: See Fig. 11 or tube routing label on main furnace door
to check for proper connections.
Modify tube as described below.
1. Disconnect collector box pressure tube (pink label) at-
tached to High Pressure Switch.
2. Use smaller diameter tube (factory-supplied in loose parts
bag) to extend tube disconnected in Item 1.
3. Route extended tube:
a. Behind inducer housing.
b. Between blower shelf and inducer housing.
4. Deternfine appropriate length, cut, and reconnect tube to
High Pressure Switch connections labeled COLLECTOR
BOX.
Condensate Trap Freeze Protection
Refer to Condensate Drain Protection section for
recommendations and procedures.
Construct aWorking Platform
Construct working platform where all required furnace clearances
are met, (See Fig. 3 and 12 or 130
[]NIT OPERATION HAZARD
Failure to follow this caution may result in internfittent unit
operation.
The condensate trap MUST be installed below furnace. See
Fig. 6 for dimensions. The drain connection to condensate
trap must also be properly sloped to an open drain.
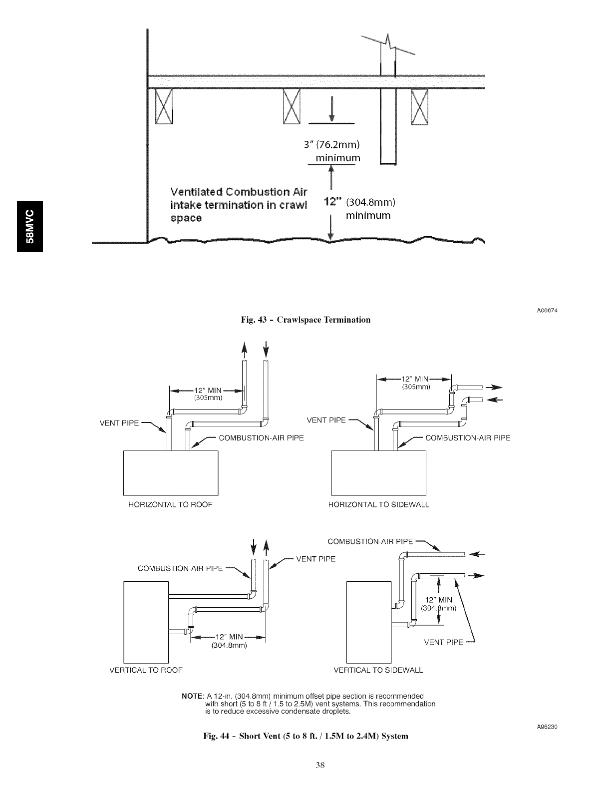
NOTE: A 12-in. (305 ram) nfininmm offset pipe section is
recommended with short (5 to 8 ft. or 1.5M to 2.4M) vent
systems. This recommendation is to reduce excessive condensate
droplets from exiting the vent pipe. (See Fig. 12, 13, or 44.)
14

HORIZONTALRIGHT
(SUPPLY-AIR DISCHARGE) APPLICATIONS
A horizontal right furnace application is where furnace blower is
located to the left of combustion and controls section of furnace,
and conditioned air is discharged to the right.
PROPERTY DAMAGE HAZARD
Failure to follow this caution may result in property
damage.
Local codes may require a drain pan under entire furnace
and condensate trap when a condensing furnace is used in
an attic application or over a finished ceiling.
NOTE: In Canada, installations shall be in accordance with
current NSCNGPIC and/or local codes.
NOTE: The auxiliary junction box (J-box) MUST be relocated
to opposite side of furnace casing. (See Fig. 14.) See Electrical
Connection section for J-box relocation.
Condensate Trap Location
PLUG
COLLECTOR BOX COLLECTOR BOX
DRAIN TUBE (BLUE) TUBE (GREEN)
CAP
COLLECTOR BOX TUBE (PINK)
AUXILIARY "J" BOX RELOCATED HERE
COLLECTOR BOX [J _ CONDENSATE
DRAIN TUBE (BLUE & t]_]3 TRAP
WHITE STRIPED)
INDUCER HOUSING
(MOLDED) DRAIN
TUBE (VIOLET)
COLLECTOR BOX
EXTENSION TUBE
Fig. 14 -Horizontal Right 1hbe Configuration
A07279
The condensate trap must be removed from the factory-installed
blower shelf location and relocated in selected application
location as shown in Fig. 2 or 14.
To relocate condensate trap from the blower shelf to desired
location, perform the following:
1. Remove three tubes connected to condensate trap.
2. Remove trap from blower shelf by gently pushing tabs in-
ward and rotating trap.
CARBON MONOXIDE POISONING HAZARD
Failure to follow this warning could result in personal
injury or death.
Casing hole filler cap must be installed in blower shelf hole
when condensate trap is relocated to prevent combustion
products being drawn in from appliances in the equipment
room.
3. Install casing hole filler cap (factory-supplied in loose
parts bag) into blower shelf hole where trap was removed.
4. Install condensate trap into right-hand side casing hole by
inserting tube connection tabs through casing hole and ro-
tating until tabs snap into locking position.
5. Fill unused condensate trap casing holes with plastic filler
caps (factory-supplied in loose parts bag).
UPFLOW OR DOWNFLOW
MIN I/4" (7[l_Lm _
TO 1/2" (13mm)
MAX HORIZONTAL
A02146
Fig. 15 -Proper Condensate Drainage
Condensate Trap Tubing
NOTE: See Fig. 14 or tube routing label on main furnace door
to check for proper connections.
1. Collector Box Drain Tube
a. Remove factory-installed plug from LOWER collector
box drain tube (blue and white striped label).
b. Install removed clamp and plug into UPPER collector
box drain tube (blue label) which was previously connec-
ted to condensate trap.
c. Connect LOWER collector box drain tube (blue and
white striped label) to condensate trap. Tube does not
need to be cut.
d. Clamp tube to prevent any condensate leakage.
2. Inducer Housing Drain Tube
(a.)Remove factory-installed cap and clamp from
LOWER inducer housing drain connection.
(b.)Remove and discard UPPER (molded) inducer
housing drain tube which was previously con-
nected to condensate trap.
(c.)Install cap and clamp on UPPER inducer hous-
ing drain connection where molded drain tube
was removed.
(d.)Use inducer housing drain extension tube (violet
label and factory-supplied in loose parts bag) to
connect LOWER inducer housing drain connec-
tion to condensate trap.
(e.)Deternfine appropriate length, cut, and connect
tube to condensate trap.
(f.)Clamp tube to prevent any condensate leakage.
3. Relief Port Tube
Refer to Pressure Switch Tubing section for recommenda-
tions and procedures.
Condenste Trap Field Drain Attachment
Refer to Condensate Drain section for recommendations and
procedures.
Pressure Switch 1hbing
One collector box pressure tube (pink label) is factory connected
to the pressure switch for use when furnace is installed in
UPFLOW or HORIZONTAL LEFT applications. This tube
MUST be disconnected and used for the condensate trap relief
port tube, The other collector box pressure tube (green label)
which was factory connected to the condensate trap relief port
connection MUST be connect to the pressure switch in
DOWNFLOW or HORIZONTAL RIGHT applications,
15

NOTE:SeeFig.14ortuberoutinglabelonmainfurnacedoor
tocheckforproperconnections.
Relocatetubesasdescribedbelow.
1.Disconnectcollectorboxpressuretube(pinklabel)at-
tachedtopressureswitch.
2.Extendcollectorboxpressuretube(greenlabel)which
waspreviouslyconnectedtocondensatetrapreliefport
connectionbysplicingtosmalldiametertube(factory-
suppliedinloosepartsbag.)
3.Connectcollectorboxpressuretube(greenlabel)topres-
sureswitchconnectionlabeledCOLLECTORBOX.
4.Useremainingsmalldiametertube(factory-suppliedin
loosepartsbag)toextendcollectorboxpressuretube
(pinklabel)whichwaspreviouslyconnectedtopressure
switch.
5.Routethisextendedtube(pinklabel)tocondensatetrap
reliefportconnection.
6.DetermineappropriateLength,cut,andconnecttube.
7.Clamptubetoreliefportconnection.
Condensate Trap Freeze Protection
Refer to condensate Drain Protection section for
recommendations and procedures.
Construct aWorking Platform
Construct working platform where all required furnace clearances
are met. (See Fig. 3 and 12 or 13.)
UNIT OPERATION HAZARD
Failure to follow this caution may result in intermittent unit
operation.
The condensate trap MUST be installed below furnace. See
Fig. 6 for dimensions. The drain connection to condensate
trap must also be properly sloped to an open drain.
NOTE: A 12-in. (305 ram) n_ininmm offset pipe section is
recommended with short (5 to 8 ft. or 1.5M to 2.4M) vent
systems. This recommendation is to reduce excessive condensate
droplets from exiting the vent pipe. (See Fig. 12, 13, or 44.)
LOCATION
General
This furnace nmst
• be installed so the electrical components are protected
from water.
• not be installed directly on any combustible material
other than wood flooring (refer to SAFETY
CONSIDERATIONS).
• be located so combustion-air and vent pipe maximum
lengths are not exceeded. Refer to Table 7.
• be located where available electric power and gas sup-
plies meet specifications on the furnace rating plate.
• be attached to an air distribution system and be located
as close to the center of the distribution system as pos-
sible. Refer to Air Ducts section.
• be provided with ample space for servicing and clean-
ing. Always comply with minimum fire protection
clearances shown on the furnace clearance-to-com-
bustibles label. (See Fig. 3.)
This furnace may be located in a confined space without special
provisions for dilution or ventilation air.
NOTE: For upflow/downflow applications install furnace so that
it is level or pitched and forward within 1/2-in. (13 ram) for
proper furnace operation. For horizontal applications pitch
1/4-in. (6 mm) n_ininmm to 1/2-in. (13 mm) n_axinmm forward
to ensure proper condensate drainage from secondary heat
exchangers. (See Fig. 15.)
When a furnace is installed so that supply ducts carry air
circulated by the furnace to areas outside the space containing the
furnace, the return air shall also be handled by ducts sealed to
furnace casing. The ducts terminate outside the space containing
the furnace to ensure there will not be a negative pressure
condition within equipment room or space.
BACK
Fig. 16 - Prohibit Installation on Back
A93043
16

[]NIT DAMAGE HAZARD
This gas furnace may be used for construction heat
provided that:
-The furnace is permanently installed with all electrical
wiring, piping, air filters, venting and ducting installed
according to these installation instructions. A return air duct
is provided, sealed to the furnace casing, and ternfinated
outside the space containing the furnace. This prevents a
negative pressure condition as created by the circulating air
blower, causing a flame rollout and/or drawing combustion
products into the structure.
-The furnace is controlled by a thermostat. It may not be
"hot wired" to provide heat continuously to the structure
without thermostatic control.
-Clean outside air is provided for combustion. This is to
nfininfize the corrosive effects of adhesives, sealers and
other construction materials. It also prevents the
entrainment of drywall dust into combustion air, which can
cause fouling and plugging of furnace components.
-The temperature of the return air to the furnace is
maintained between 55°F (13°C) and 80°F (27°C), with
no evening setback or shutdown. The use of the furnace
while the structure is under construction is deemed to be
internfittent operation per our installation instructions.
-The air temperature rise is within the rated rise range on
the furnace rating plate, and the firing rate has been set to
the nameplate value.
-The filters used to clean the circulating air during the
construction process nmst be either changed or thoroughly
cleaned prior to occupancy.
-The furnace, ductwork and filters are cleaned as necessary
to remove drywall dust and construction debris from all
HVAC system components after construction is completed.
-After construction is complete, verify furnace operating
conditions including ignition, input rate, temperature rise
and venting, according to the manufacturer's instructions.
FIRE OR DEATH HAZARD
Failure to follow this warning could result in property
damage, personal injury, or death.
Do not install furnace on its back. (See Fig. 16.) Safety
control operation will be adversely affected. Never connect
return-air ducts to back of furnace.
The furnace and its return air system shall be designed and
installed so that negative pressure created by the air circulating
fan cannot affect another appliance's combustion air supply or act
to nfix products of combustion with circulating air, and that the
air circulating fan of the furnace, if installed in an enclosure
communicating with another fuel-burning appliance not of the
direct-vent type, shall be operable only when any door or panel
covering an opening in the furnace fan compartment or in a return
air plenum on ducts is in the closed position.
UNIT DAMAGE HAZARD
Failure to follow this caution may result in nfinor property
or unit damage.
If these furnaces are installed in an unconditioned space
where ambient temperatures may be 32°F (0°C) or lower,
freeze protection measures must be taken. See Condensate
Drain Protection section and Fig. 17.
_3/ff/ 2MFfONCg4NFIMgMZI#STALLED
_ PROTECTION REQUIRED
Fig. 17 -Freeze Protection
/
A07911
Furnace Location Relative to Cooling Equipment
The cooling coil must be installed parallel with or on downstream
side of furnace to avoid condensation in heat exchanger. When
installed parallel with a furnace, dampers or other means used to
control flow of air shall be adequate to prevent chilled air from
entering furnace. If dampers are manually operated, they nmst be
equipped with a means to prevent operation of either unit unless
damper is in full-heat or full-cool position.
Hazardous Locations
FIRE, EXPLOSION, INJURY OR DEATH
HAZARD
Improper location or inadequate protection could result in
fire or explosion,
When furnace is installed in a residential garage, it nmst be
installed so that burners and ignition sources are located a
nfininmm of 18 in. (457 ram) above floor. The furnace nmst
be located or protected to avoid physical damage by
vehicles. When furnace is installed in a public garage,
airplane hangar, or other building having a hazardous
atmosphere, unit must be installed in accordance with
requirements of National Fire Protection Association, Inc.
(See Fig. 5.)
g
17

(8ram)
and forth until it breaks off. Be careful of sharp edges. (See Fig.
22.)
g
13/4
(44ram)
(8ram)
5/16"
1 3/4"
(44ram)
(8mm)
(44mm) 1 3/4"
(44mm) 1
A89014
Fig. 18 -Leveling Legs
INSTALLATION
Levelin_ Le_s (If Desired)
When furnace is used in upflow position with side inlet(s),
leveling legs may be desired. (See Fig. 18.) Install field-supplied,
corrosion-resistant 5/16-in. (8 ram) machine bolts and nuts.
NOTE: The maximum length of bolt should not exceed 1-1/2
in. (38 mm).
1. Position furnace on its back. Locate and drill a 5/16-in. (8
ram) diameter hole in each bottom corner of furnace. (See
Fig. 18.) Holes in bottom closure panel may be used as
guide locations.
2. For each hole, install nut on bolt and then install bolt and
nut in hole. (Install flat washer if desired.)
3. Install another nut on other side of furnace base. (Install
flat washer if desired.)
4. Adjust outside nut to provide desired height, and tighten
inside nut to secure arrangement.
NOTE: Bottom closure nmst be used when leveling legs are
used. See Bottom Closure Panel section.
Installation in Upflow or Downflow Applications
NOTE: For downflow applications, this furnace is approved for
use on combustible flooring when special base (available from
Manufacturer) Part No. KGB is used. Special base is not required
when this furnace is installed on Manufacturer's Cased Coil
Assembly or when Manufacturer's Coil Box is used.
1. Determine application being installed from Table 1.
2. Construct hole in floor per dimensions specified in Table 1
and Fig. 19.
3. Construct plenum to dimensions specified in Table 2 and
Fig. 19.
4. If special base (KGASB) is used, install as shown in Fig.
20.
5. If Manufacturer's Cased Coil Assembly or Manufacturer's
Coil Box is used, install as shown in Fig. 21.
NOTE: Remove furnace perforated discharge duct flanges when
they interfere with mating flanges on coil on downflow subbase.
To remove furnace perforated discharge duct flange, use hand
scanners, wide duct pliers or duct flange tool to bend flange back
[]NIT MAY NOT OPERATE HAZARD
Failure to follow this caution may result in intermittent unit
operation or performance satisfaction.
Do not bend duct flanges inward as shown in Fig. 22. This
will affect airflow across heat exchangers and may cause
limit cycling or premature heat exchanger failure. Remove
duct flange completely or bend it inward a minimum of
210°F (99°C) as shown in Fig. 22.
Installation in Horizontal Applications
These furnaces can be installed in either horizontal left or right
discharge position. In a crawlspace, furnace can either be hung
from floor joist or installed on suitable blocks or pad. Furnace
can be suspended from each corner by hanger bolts and angle
iron supports. (See Fig. 23.) Cut hanger bolts (4 each 3/8-in.
all-thread rod) to desired length. Use 1 X 3/8-in. flat washers,
3/8-in. lock washers, and 3/8-in. nuts on hanger rods as shown
in Fig. 23. Dimples are provided for hole locations. (See Fig. 2.)
[]NIT MAY NOT OPERATE HAZARD
Failure to follow this caution may result in intermittent unit
operation or performance satisfaction.
The entire length of furnace MUST be supported when
furnace is used in a horizontal position to ensure proper
draining. When suspended, bottom brace supports sides
and center blower shelf. When unit is supported from the
ground, blocks or pad should support sides and center
blower shelf area.
A96283
Fig. 19 - Floor and Plenum Opening Dimensions
18

FURNACE
(OR OTHER MANUFACTURER'S
COIL CASING WHEN USED)
COMBUSTIBLE
FLOORING
SUBBASE
SHEET METAL
PLENUM
FLOOR
OPENING
FURNACE
FACTORY SUPPLIED
CASED COIL OR COIL BOX
/_ COMBUSTIBLE
FLOORING
SHEET METAL
PLENUM
FLOOR -_
OPENING
A07585
Fig. 20 -Furnace, Plenum, and Subbase Installed on a
Combustible Floor
A07586
Fig. 21 -Furnace, Plenum, and Coil Assembly or Coil Box
Installed on a Combustible Floor
DISCHARGE DUCT
FLANGE
210 DEG.
MIN
NO
YES
YES
Fig. 22 -Duct Flanges
A93029
19

COMBUSTION-AIRINTAKE
(NON-DIRECTVENT/1
ICATION)
_3-1N. MINIMUM CLEARANCE TO ' '
COMBUSTION-AIR INTAKE IS REQUIRED _'_
_ (NON-DIRECT VENT/1-PIPE
APPLICATION,) ill
:II
COMBUSTION-AIR PIPE
DIRECT VENT/2-PIPE
ALL SIZES)
3/8-1N. (10mm) ROD
ANGLE
IRON OR
EQU
(B)
(A) ROD LOCATION
USING DIMPLE
LOCATORS
(SEE DIMENSIONAL
DWG FOR
LOCATIONS)
3/8-1N.HEX
& WASHER (4)
REQD PER ROD
5 3/4' (146mm)
) (B) J
13/16-1N.(21mm) MAX
(B) ALTERNATE SUPPORT
LOCATION FROM BACK
ALTERNATE SUPPORT
LOCATION 4-IN. (102mm) MIN
8-IN. (203mm) MAX
(A) PREFERRED ROD LOCATION
(B) ALTERNATE ROD LOCATION
NOTES: 1. A 1 In. (25mm) clearance minimum between
top of furnace and combustible material.
2. The entire length of furnace must be
supported when furnace is used in horizontal
position to ensure proper drainage.
3. For non-direct vent/1 -pipe application,
bottom side combustion-air entry cannot be
used when furnace is installed with hangers
as shown.
A93304
Fig. 23 - Crawlspace Horizontal Application for Direct Vent /2-Pipe Installation and for Ventilated Combustion Air Installation
20

FURNACE
CASING
WIDTH
In. (mm)
PLENUM OPENING FLOOR OPENING
Table 1 - Opening Dimensions
APPLICATION
(APPROVED FACTORY SUPPLIED CASED COILS AND
COiL BOX: CD5, CKR, CAPVP, CARVP, CAPMR CARMR
CNPVR CNRVR AND KCAKC)
Upflow Applications on Combustible or Noncombustible
Flooring (KGASB subbase not required)
Downflow Applications on Noncombustible Flooring (KGASB
subbase not required)
Downflow applications on combustible flooring (KGASB sub-
base required)
Downflow Applications on Combustible Flooring with Factory
supplied cased coil or Factory supplied coil box (KGASB
subbase not required)
Upflow Applications on Combustible or Noncombustible
Flooring (KGASB subbase not required)
Downflow Applications on Noncombustible Flooring (KGASB
subbase not required)
Downflow applications on combustible flooring (KGASB sub-
base required)
Downflow Applications on Combustible Flooring with Factory
supplied cased coil or Factory supplied coil box (KGASB
subbase not required)
Upflow Applications on Combustible or Noncombustible
Flooring (KGASB subbase not required)
Downflow Applications on Noncombustible Flooring (KGASB
subbase not required)
Downflow applications on Combustible flooring (KGASB
subbase required)
Downflow Applications on Combustible Flooring with Factory
supplied cased coil or Factory supplied coil box (KGASB
subbase not required)
ABCD
16 24-1/8 16- 5/8 24- 3/4
(406) (613) (422) (629)
15- 7/8 19 16-1/2 19- 5/8
(403) (483) (419) (498)
17 ½ 15-1/8 19 16-3/4 20-3/8
(445) (384) (483) (425) (518)
15-1/2 19 16-1/2 20
(394) (483) (419) (508)
19-1/2 24-1/8 20-1/8 24-3/4
(495) (613) (511 ) (629)
19-3/8 19 20 19-5/8
21 (492) (483) (508) (498)
(533) 18- 5/8 19 20-1/4 20- 3/8
(473) (483) (514) (518)
19 19 20 20
(483) (483) (508) (508)
23 24-1/8 23 - 5/8 24- 3/4
(584) (613) (600) (629)
22 - 7/8 19 23 - 1/2 19- 5/8
24 - 1/2 (581) (483) (597) (498)
(622) 22 -1/8 19 23 - 3/4 20- 3/8
(562) (483) (603) (518)
22-1/2 19 23-1/2 20
(572) (483) (597) (508)
AIR DUCTS
General Requirements
The duct system should be designed and sized according to
accepted national standards such as those published by: Air
Conditioning Contractors Association (ACCA), Sheet Metal and
Air Conditioning Contractors National Association (SMACNA)
or American Society of Heating, Refrigerating and Air
Conditioning Engineers (ASHRAE) or consult The Air Systems
Design Guidelines reference tables available from your local
distributor. The duct system should be sized to handle the
required system design CFM at the design static pressure.
When a furnace is installed so that the supply ducts carry air
circulated by the furnace to areas outside the space containing the
furnace, the return air must also be handled by a duct(s) sealed to
the furnace casing and ternfinating outside the space containing
the furnace.
Secure ductwork with proper fasteners for type of ductwork used.
Seal supply- and return-duct connections to furnace with code
approved tape or duct sealer.
Flexible connections should be used between ductwork and
furnace to prevent transnfission of vibration. Ductwork passing
through unconditioned space should be insulated to enhance
system performance. When air conditioning is used, a vapor
barrier is recommended.
Maintain a 1-in. (25 ram) clearance from combustible materials
to supply air ductwork for a distance of 36 in. (914 ram)
horizontally from the furnace. See NFPA 90B or local code for
further requirements.
For a furnace not equipped with a cooling coil, the outlet duct
shall be provided with a removable access panel. This opening
shall be accessible when the furnace is installed and shall be of
such a size that the heat exchanger can be viewed for possible
openings using light assistance or a probe can be inserted for
sampling the air stream. The cover attachment shall prevent leaks.
Ductwork Acoustical Treatment
Metal duct systems thatdo not have a 90 degree elbow and 10 ft.
(3M) of main duct to the first branch take-off may require
internal acoustical lining. As an alternative, fibrous ductwork may
be used if constructed and installed in accordance with the latest
edition of SMACNA construction standard on fibrous glass
ducts. Both acoustical lining and fibrous ductwork shall comply
with NFPA 90B as tested by UL Standard 181 for Class 1 Rigid
air ducts.
Supply Air Connections
Upflow Furnaces
Connect supply-air duct to 3/4-in. (19 ram)flange on furnace
supply-air outlet. The supply-air duct attachment nmst ONLY be
connected to furnace supply-/outlet-air duct flanges or air
conditioning coil casing (when used). DO NOT cut main furnace
casing to attach supply side air duct, hunfidifier, or other
accessories. All accessories MUST be connected external to
furnace main casing.
Downflow Furnaces
Connect supply-air duct to supply-air opening on furnace. The
supply-air duct attachment nmst ONLY be connected to furnace
supply/outlet or air conditioning coil casing (when used) when
installed on non-combustible material When installed on
combustible material, supply air duct attachment nmst ONLY be
connected to an accessory subbase or factory approved air
conditioning coil casing. DO NOT cut main furnace casing to
attach supply side air duct, hunfidifier, or other accessories. All
accessories MUST be connected external to furnace main casing.
Supply air opening duct flanges must be modified per Fig. 22.
Horizontal Furnaces
Connect supply-air duct to supply-air opening on furnace. The
supply-air duct attachment must ONLY be connected to furnace
supply/outlet or air conditioning coil casing (when used). DO
NOT cut main furnace casing to attach supply side air duct,
21

g
humidifier, or other accessories. All accessories MUST be
connected external to furnace main casing.
Return Air Connections
FIRE HAZARD
Failure to follow this warning could result in personal injury,
death or property damage.
Never connect return-air ducts to the back of the furnace.
Return air duct connections on furnace side(s) permitted in
upflow applications only.
Upflow Furnaces
The return-air duct must be connected to bottom, sides (left or
right), or a combination of bottom and side(s) of main furnace
casing. Bypass humidifier may be attached into unused side
return air portion of the furnace casing. DO NOT connect any
portion of return-air duct to back of furnace casing.
Downflow and Horizontal Furnaces
The return-air duct nmst be connected to return-air opening
provided. DO NOT cut into casing sides or back to attach any
portion of return-air duct. Bypass humidifier connections should
be made at ductwork or coil casing sides exterior to furnace.
Filter Arrangement
FIRE, CARBON MONOXIDE AND POISONING
HAZARD
Failure to follow this warning could result in personal
injury, death or property damage.
Never operate unit without a filter or with filter access door
removed.
The air filter arrangement will vary due to application, furnace
orientation and filter type. The filter may be installed in an
external Filter/Media cabinet (if provided) or the furnace blower
compartment. Factory supplied washable filters are shipped in the
blower compartment.
If a factory-supplied external Filter/Media cabinet is provided,
instructions for its application, assembly, and installation are
packaged with the cabinet. The Filter/Media cabinet can be used
with the factory-supplied washable filter or a factory-specified
high-efficiency disposable filter (see cabinet instructions).
If installing the filter in the furnace blower compartment,
determine location for filter and relocate filter retaining wire, if
necessary. See Table 2 to determine correct filter size for desired
filter location. Table 2 indicates filter size, location, and quantity
shipped with this furnace. See Fig. 2 for location and size of
bottom and side return-air openings.
CUT HAZARD
Failure to follow this caution may result in personal injury.
Use care when cutting support rods in filters to protect
against flying pieces and sharp rod ends. Wear safety
glasses, gloves, and appropriate protective clothing.
[]NIT MAY NOT OPERATE
Failure to follow this caution may result in intermittent unit
operation or performance satisfaction.
For airflow requirements above 1800 CFM, see Air
Delivery table in Product Data literature for specific use of
single side inlets. The use of both side inlets, a combination
of one side and the bottom, or the bottom only will ensure
adequate return air openings for airflow requirements above
1800 CFM.
Table 2-Filter Information - In. (mm)
AIR FILTER LOCATED IN BLOWER COMPARTMENT
Filter Size
Furnace
Casing Width Side
Return
Bottom
Return*
Filter Type
Framed
17-1/2 (1) 16x 25 x 3/4 t (1) 16 x 25 x 3/4t Washable
(445) (406 x 635 x 19) (406 x 635 x 19)
2t (1) 16 x 25 x 3/4" (1) 20 x 25 x 3/4t Washable
(533) (406 x 635 x 19) (508 x 635 x 19)
24-1/2 (1 or 2)
t6 x 25 x 3/4" (1) 24 x 25 x 3/4t Washable
(622) (406 x 635 x 19) (610 x 635 x 19)
* Filters may be field modified by cutting filter material and support rods (3) in filters.
Alternate sizes can be ordered from your distributor or dealer
t Factory-provided with the furnace
FILTER
RETAINER
Fig. 24 - Filter Installed for Side Inlet
A93045
22

NOTE: Side return-air openings can ONLY be used in Upflow
configurations. Install filter(s) as shown in Fig. 24.
For bottom return-air applications, filter may need to be cut to fit
some furnace widths. Install filter as shown in Fig. 25.
21-iN. (533mm) WIDE
171/2-1N.(444mm) WIDE CASINGS ONLY:
CASINGS ONLY: SUPPORT RODS (3)
INSTALL FIELD-SUPPLIED EXTEND 1/4" (6mm) ON
FILTER FILLER STRIP EACH SIDE OF FILTER AND
INDER FILTER. REST ON CASING FLANGE
WASHABLE
FILTER
2. Rotate front filler panel downward to release holding tabs.
3. Remove bottom closure panel.
4. Reinstall front filler panel and screws.
Gas PiDin_
Gas piping nmst be installed in accordance with national and
local codes. Refer to NFGC in the U.S. Canadian installations
must be made in accordance with CAN/CSA-B149.1-05 and all
authorities having jurisdiction. Gas supply line should be a
separate line running directly from meter to furnace, if possible.
Refer to Table 3 for recommended gas pipe sizing. Risers nmst be
used to connect to furnace and to meter. Support all gas piping
with appropriate straps, hangers, etc. Use a minimum of one
hanger every 6 ft. (1.8M). Joint compound (pipe dope) should be
applied sparingly and only to male threads of joints. Pipe dope
must be resistant to propane gas.
FIRE OR EXPLOSION HAZARD
Failure to follow this warning could result in personal
iniury, death, or property damage.
- Connect gas pipe to furnace using a backup wrench to
avoid damaging gas controls.
- Gas valve shutoff switch MUST be facing forward or
tilted upward.
- Never purge a gas line into a combustion chamber.
Never test for gas leaks with an open flame. Use a
commercially available soap solution made specifically
for the detection of leaks to check all connections.
- Use proper length of pipe to avoid stress on gas
control manifold.
- If a flexible connector is required or allowed by
authority having jurisdiction, black iron pipe shall be
installed at furnace gas valve and extend a minimum
of 2 in. (51 ram) outside furnace casing.
-Protect gas valve from water and debris. Gas valve
inlet and/or inlet piping nmst remain capped until gas
supply line is permanently installed to protect the valve
from moisture and debris. Also, install a sediment trap
in the gas supply piping at the inlet to the gas valve.
FILTER
FILTER RETAINER
SUPPORT
Fig. 25 -Bottom Filter Arrangement
A00290
NOTE: Remove and discard bottom closure panel when bottom
inlet is used.
Bottom Closure Panel
These furnaces are shipped with bottom closure panel installed in
bottom return-air opening. This panel MUST be in place when
side return air is used.
To remove bottom closure panel, perform following:
1. Tilt or raise furnace and remove two screws holding front
filler panel. (See Fig. 26.)
Install a sediment trap in riser leading to furnace. Trap can be
installed by connecting a tee to riser leading to furnace so
straight-through section of tee is vertical. Then connect a capped
nipple into lower end of tee. Capped nipple should extend below
level of gas controls. Place a ground joint union between gas
control manifold and manual gas shutoff valve. (See Fig. 27.)
An accessible manual shutoff valve MUST be installed external
to furnace casing and within 6 ft. (1.8M) of furnace. A l/8-in.
NPT (3 ram) plugged tapping, accessible for test gauge
connection, MUST be installed immediately upstream of gas
supply connection to furnace and downstream of manual shutoff
valve.
Gas line grommet (factory-supplied loose parts bag) should be
used when installing gas piping. Gas line entry hole filler plug
should be installed in unused gas line entry hole. (See Fig. 28.)
23

g
I
I
II
I I
i
PANEL
BOTTOM
CLOSURE
PANEL
Fig. 26 -Removing Bottom Closure Panel
SUPPLY _
MANUAL _/ II
SHUTOFF ._ _
VALVE
SEDIMENT /
TRAP /
UNION -J
A93047
Fig. 27 - Typical Gas Pipe Arrangement
A93324
COMBUSTION-AIR PIPE GROMMET
J UNUSED 1-3/4 -IN. (44 mm)
DIAMETER GAS
/)--I'°_'%T'_GIsL_ ,. _ /CONN.HOLE
GAS LINE GROMMET
----_4--- GAS LINE ENTRY
____WJ HOLE FILLER PLUG
VENT PIPE GROMMET
NOTE: PIPE GROMMETS AND ENTRY HOLE FILLER
PLUGS ARE INCLUDED IN FACTORY-SUPPLIED
LOOSE PARTS BAG
Fig. 28 - Casing Pipe Grommets
A05057
24

Table 3- Maximum Capacity of Pipe*
NOMINAL
IRON
PIPE
SIZE
IN. (MM)
1/2 (13)
3/4 (19)
1 (25)
1-1/4 (32)
1-1/2 (38)
INTERNAL LENGTH OF PIPE - FT (M)
DIA.
IN. (MM) 10 20 30 40 50
(3.0) (6.0) (9.1) (12.1) (15.2)
0.622 (158) 175 120 97 62 73
0.824 (21) 360 250 200 170 151
1.049 (27) 680 465 375 320 285
1.380 (35) 1400 950 770 660 580
1.610 (41) 2100 1460 1180 990 900
* Cubic ft, of gas per hr for gas pressure of 0.5 psig (14-in, wc) or less, and a
pressure drop of O,5-in, wc (based on a 0.60 specific gravity gas). Ref: Table 9-2
NFPA 54-2002,
NOTE: The gas valve inlet pressure tap connection is suitable to
use as test gauge connection providing test pressure DOES NOT
exceed maximum 0.5 psig (14-in. wc) stated on gas valve. (See
Fig. 60.)
Piping should be pressure and leak tested in accordance with
NFGC in the United States or CAN/CSA-B149.1-05 in Canada,
local, and national plumbing and gas codes before the furnace has
been connected. If pressure exceeds 0.5 psig (14-in. wc), gas
supply pipe must be disconnected from furnace and capped
before pressure test.
If test pressure is equal to or less than 0.5 psig (14-in. wc), turn
off electric shutoff switch located on gas valve before test. It is
recommended that ground joint union be loosened before
pressure testing. After all connections have been made, purge
lines and check for leakage at furnace prior to placing it into
service.
The gas supply pressure shall be within the maximum (13.6-in.
wc) and minimum (4.5-in. wc) inlet supply pressures marked on
the rating plate with the furnace burners ON at HI-HEAT and
OFF.
Electrical Connections
See Fig. 29 for field wiring diagram showing typical field l15-v
and 24-v wiring. Check all factory and field electrical
connections for tightness.
ELECTRICALSHOCK HAZARD
Failure to follow this warning could result in personal
injury or death,
Blower access door switch opens 115-v power to furnace
control. No component operation can occur. Do not bypass
or close switch with panel removed,
UNIT MAY NOT OPERATE
Failure to follow this caution may result in intermittent
unit operation,
Furnace control must be grounded for proper operation
or control will lock out. Control is grounded through
green/yellow wire connected to gas valve and burner
box screw,
llS-v Wiring
Before proceeding with electrical connections, make certain that
voltage, frequency, and phase correspond to that specified on
furnace rating plate. Also, check to be sure that service provided
by power supply is sufficient to handle load imposed by this
equipment. Refer to rating plate or Table 4 for equipment
electrical specifications.
Make all electrical connections in accordance with National
Electrical Code (NEC) ANSI/NFPA 70-2008 and any local codes
or ordinances that might apply. For Canadian installations, all
electrical connections must be made in accordance with Canadian
Electrical Code CSA C22.1 or authorities having jurisdiction.
Field-supplied wiring shall conform with the limitations of 63 °F
(33 °C) rise.
The furnace must be electrically grounded in accordance with
local codes; or in the absence of local codes, with the National
Electric Code ANSI/NFPA 70 and/or the Canadian Electric Code,
CSA C22.1, Part I, if an external electrical source is utilized.
Use a separate branch electrical circuit containing a properly sized
fuse or circuit breaker for this furnace. See Table 4 for wire size
and fuse specifications. A disconnecting means must be located
within sight from and readily accessible to furnace.
NOTE: Proper polarity must be maintained for 115-v wiring. If
polarity is incorrect or furnace is not grounded properly, furnace
control status code indicator light will flash rapidly and furnace
will NOT operate.
FIRE HAZARD
Failure to follow this warning could result in personal iniury,
death, or property damage.
Do not connect aluminum wire between disconnect switch
and furnace. Use only copper wire. (See Fig. 30.)
25

B
115-V f
SINGLE
PHASE
.... FIELD 24-V WIRING
.... FIELD 115-, 208/280-, 460-V WIRING
-- FACTORY 24-V WIRING
FACTORY 115-, 208/230-, 460-V WIRING
115-V AUXILIARY
FIELD-SUPPLIED J-BOX
DISCONNECT
SWITCH
FURNACE
CONTROL
CENTER
NOTE 5 , _ _ I THERMOSTAT
WIRE _ ' I I I I tDISCONNECT
IIJ I ..........................
THREE-W,RE-----' ' '11
HEATING _L_---I I I
ONLY _'-
-- I I
, 11 I
I }N;NN{i {
@ NOTE',
3 *
f_ tr-J--A--e----eh o-4l-e.==_o=== ;_ SINGLE
f-J ', ', { } _ .... 4_______L==J PHASE
(_ .... NOTE1 J Ii [-_--O---_ND r-_ -]------_NDI
/ 1 ............. ....... I _, CONDENSING
L_Y \ UNIT
24-V TWO Wl RE
TERMINAL
BLOCK NOTES:
1. Connect Y or Y/Y2 terminal as shown for proper cooling operation.
2. Proper polarity must be maintained for 115-v wiring.
8. Use W2 with 2-stage thermostat when zoning.
4. If any of the original wire, as supplied, must be replaced, use
same type or equivalent wire.
5. Some thermostats require a "C" terminal connection as shown.
208/230- OR
460-V
THREE PHASE
Fig. 29 -Heating and Cooling Application Wiring Diagram
A98325
Table 4-Electrical Data
UNIT SIZE
VOLTS-
HERTZ-
PHASE
OPERATING VOYAGE
RANGE MAXIMUM
UNIT
AMPS
Maximum*
127
127
127
127
127
Minimum*
104
104
104
104
104
MINIMUM
WIRE SIZE
060-14/042060 115-60-1 8.96 14
080-14/042080 115-60-1 8.96 14
080-20/060080 115-60-1 14.06 12
100-20/060100 115-60-1 14.06 12
120-20/060120 115-60-1 14.06 12
MAXIMUM
WIRE
LENGTH
FT (M)_
30 (9.1)
60 (9.1)
31 (9.4)
31 (9.4)
31 (9.4)
MAXIMUM
FUSE OR CKT
BKR
AMPS**
15
15
2O
2O
2O
*Permissible limits of voltage range at which unit will operate satisfactorily.
1- Unit ampacity = 125 percent of largest operating component's full load amps plus 100 percent of all other potential operating components' (EAC,
humidifier, etc.) full load amps.
$ Length shown is as measured 1 way along wire path between unit and service panel for maximum 2 percent voltage drop.
** Time-delay type is recommended.
ELECTRICAL SHOCK AND FIRE HAZARD
Failure to follow this warning could result in electrical
shock, fire, or death.
The cabinet MUST have an uninterrupted or unbroken
ground according to NEC ANSI/NFPA 70-2008 and
Canadian Electrical Code CSA C22.1 or local codes to
nfininfize personal injury if an electrical fault should occur.
This may consist of electrical wire or conduit approved for
electrical ground when installed in accordance with existing
electrical codes. Do not use gas piping as an electrical
ground.
ELECTRIC
DISCONNECT
SWITCH
Q
Fig. 30 -Disconnect Switch and Furnace
A93033
Install power entry hole filler plugs (factory-supplied in loose
parts bag) in unused power entry holes. (See Fig. 31.)
26

INSTALED
LOCATION
POWER ENTRY HOLE
FILLER PLUG (FACTORY
SUPPLIED LOOSE PARTS BAG)
A05113
Fig. 31 - Factory Installed J-Box Location
J-Box Relocation
1. Remove two screws holding auxiliary J-box. (See Fig.
32.)
2. Rotate J-box 180 ° and attach box to left side, using holes
provided.
ALTERNATE--
FIELD
LOCATION
...........OLE_
FILLER PLUG (FACTORY U
SUPPLIED LOOSE PARTS BAG)
/
UNUSED 7/8 IN DIAMETER
POWER ENTRY HOLES
///NoSoATTA LEND
i/ POWERENTRYNOLE
• L SUPPLIED LOOSE PARTS BAG)
POWER ENTRY HOLES
POWER ENTRY HOLE
FILLER PLUG (FACTORY-
SUPPLIED LOOSE PARTS BAG)
POWER ENTRY HOLE
(FACTORY-
SUPPUED LOOSE PARTS BAG)
Fig. 32 - J-Box Relocation
A05058
3. Install power entry hole filler plugs (factory-supplied
loose parts bag) in unused power entry holes. (See Fig.
31.)
24-v wiring
Make field 24-v thermostat connections at 24-v terminal block
on furnace control. Y wire from thermostat MUST be connected
to Y/Y2 ternfinal on control, as shown in Fig. 19, for proper
cooling operation. The 24-v ternfinal block is marked for easy
connection of field wiring. (See Fig. 33.) The 24-v circuit
contains a 3-amp, automotive-type fuse located on furnace
control. (See Fig. 33.)
Any electrical shorts of 24-v wiring during installation, service,
or maintenance may cause fuse to blow. If fuse replacement is
required, use only a fuse of identical size (3 amp) and type. The
furnace control will flash status code 24 when fuse needs
replacement.
NOTE: Use AWG No. 18 color-coded copper thermostat wire
for lengths up to 100 ft. (30.4M). For wire lengths over 100 ft.,
(30.4M) use AWG No. 16 wire.
NOTE: For additional thermostat connection diagrams,
reference Fig. 52-59.
Accessories
1. Electronic Air Cleaner (EAC)
The furnace control EAC ternfinals are energized with
115v (1.0-amp naaxinmm) during blower operation.
Connect an accessory Electronic Air Cleaner (if used) us-
ing 1/4-in. female quick connect ternfinals to the two male
1/4-in. quick-connect ternfinals on the control board
marked EAC-1 and EAC-2. The ternfinals are rated for
115VAC, 1.0 amps maximum and are energized during
blower motor operation. (See Fig. 33.)
NOTE: Low stage airflow may slightly increase the trace
amount of ozone created by an electronic air cleaner. Individual
sensitivity levels to ozone, along with other operating
characteristics of electronic air cleaners may affect the amount
noticed by an individual. Refer to the air cleaner manufacturer's
installation instructions for more information regarding ozone
and ozone reduction methods available for your air cleaner.
UNIT DAMAGE HAZARD
Failure to follow this caution may result in unit component
damage.
DO NOT connect furnace control HUM ternfinal to HUM
(hunfidifier) ternfinal on Thernfidistat :_, Zone Controller or
sinfilar device. See Thermidistat :_,Zone Controller,
thermostat, or controller manufacturer's instructions for
proper connection.
FIRE OR ELECTRICAL SHOCK HAZARD
Failure to follow this warning could result in personal
injury, death, or property damage.
If manual disconnect switch is to be mounted on furnace,
select a location where a drill or fastener will not contact
electrical or gas components.
NOTE: If modulating dampers are used, blower motor
automatically compensates for modulating dampers. If manual
disconnect switch is to be mounted on furnace, select a location
where a drill or fastener will not contact electrical or gas
components.
2. Hunfidifier (HUM)
Connect an accessory 24 VAC, 0.5 amp maximum hunfid-
ifier (if used) to the 1/4-in. male quick-connect HUM ter-
nfinal and COM-24V screw ternfinal on the control board
thermostat strip. The HUM ternfinal is energized when
blower is energized in heating. (See Fig. 33.)
Removal of Existing Furnaces from Common Vent Systems
When an existing Category I furnace is removed or replaced, the
original venting system may no longer be sized to properly vent
the remaining attached appliances. An improperly sized Category
I venting system could cause the formation of condensate in the
furnace and vent, leakage of condensate and combustion
products, spillage of combustion products into the living space,
etc.
27

g
AIR FOR COMBUSTION AND VENTILATION
FURNACE RELIABILITY HAZARD
Failure to follow this caution may result in premature
component failure.
This furnace can be vented as either a direct vent (2-pipe)
furnace or as an optional ventilated combustion air
application. A direct vent system shall be installed in
accordance with the direct vent (2- pipe) procedures in the
Combustion Air and Vent Pipe Systems section within this
supplemental instruction. For optional ventilated
combustion air applications, refer to the ventilated
combustion air option procedures in the same section.
Application of this furnace should be indoors with special
attention given to vent sizing and material, gas input rate,
air temperature rise, unit leveling, and unit sizing.
Combustion-Air and Vent Pipe Systems
For additional venting information contact www.Carrier.com.
General
Vent system or vent connectors of other appliances may need to
be re-sized. For any other appliances when resizing vent systems
or vent connectors, system or connector must be sized to
approach minimum size as determined using appropriate table
found in the NFGC or CAN/CSA-BI49.1-05.
The 58MVC furnaces can be vented as either a direct vent furnace
or as an optional ventilated combustion air application. A direct
vent system shall be installed in accordance with the direct vent
(2-pipe) procedures in the following Combustion Air and Vent
Pipe Systems section. For optional ventilated combustion air
applications, refer to the ventilated combustion air option
procedures in the same section. Common venting prohibited.
Direct Vent /2-Pipe System
In a direct-vent (2-pipe) system, all air for combustion is taken
directly from outdoor atmosphere, and all flue products are
discharged to outdoor atmosphere. Combustion-air and vent
pipes must terminate together in the same atmospheric pressure
zone, either through the roof or a sidewall (roof termination
preferred). A factory accessory vent termination kit MUST be
used in a direct vent (2-pipe) system. See Fig. 34 for required
clearances.
Ventilated Combustion Air Option Materials
In a ventilated combustion air option, the vent terminates and
discharges the flue products directly to the outdoors similar to a
direct vent system. See Fig. 35 for required clearances. All air for
combustion is piped directly to the furnace from a space that is
well ventilated with outdoor air (such as an attic or crawl space)
and the space is well isolated from the living space or garage.
Materials
Combustion-air and vent pipe, fittings, primers, and solvents
nmst conform to American National Standards Institute (ANSI)
standards and American Society for Testing and Materials
(ASTM) standards. See Table 5 for approved materials for use in
the USA.
FIRE AND EXPLOSION HAZARD
Failure to follow this warning could result in personal
iniury, death, or property damage.
Solvent cements are combustible. Keep away from heat,
sparks, and open flame. Use only in well ventilated areas.
Avoid breathing in vapor or allowing contact with skin or
e}zes.
In Canada, construct all combustion-air and vent pipes for this
unit of CSA or ULC listed schedule-40 PVC, PVC-DWV or
ABSDWV pipe and pipe cement. SDR pipe is NOT approved in
Canada.
CARBON MONOXIDE POISONING HAZARD
Failure to follow this warning could result in personal
iniury, death, or property damage.
All combustion-air and vent pipes must be airtight and
watertight. Pipes must also terminate exactly as shown in
Fig. 36 for direct vent (2-pipe) system or Fig. 37 for
ventilated combustion air option.
An abandoned masonry chinmey may be used as a raceway for
properly insulated and supported combustion-air (when
applicable) and vent pipes. Each furnace must have its own set of
combustion-air and vent pipes and be terminated individually, as
shown in Fig. 36 for Direct Vent (2-Pipe) system or Fig. 37 for
ventilated combustion air option.
A furnace shall not be connected to a chinmey flue serving a
separate appliance designed to burn solid fuel.
Other gas appliances with their own venting system may also use
the abandoned chinmey as a raceway providing it is permitted by
local code, the current edition of the National Fuel Gas Code and
the vent or liner manufacturer's installation instructions. Care
must be taken to prevent the exhaust gases from one appliance
from contaminating the combustion air of other gas appliances.
Do not take combustion air from inside the chinmey when using
the Ventilated Combustion Air option.
[]NIT MAY NOT OPERATE HAZARD
Failure to follow this caution may result in intermittent unit
operation.
When vent pipe is exposed to temperatures below freezing,
such as when it passes through an unheated space or when a
chinmey is used as a raceway, pipe nmst be insulated as
shown in Table 6 with Armaflex-type insulation.
Furnace combustion air and vent pipe connections are sized for
2- in. pipe. Any pipe size change should be made outside furnace
casing in vertical pipe. The transition has to be made as close to
the furnace as reasonably possible. (See Fig. 380
28

ASTM
SPECIFICATION
(MARKED ON
MATERIAL)
D1527
D1785
D2235
D2241
D2466
D2468
D2564
D2661
D2665
F438
F441
F442
F493
F628
F656
F891
Table 5-Approved Combustion-Air and Vent Pipe, Fitting and Cement Materials
MATERIAL PIPE FITTINGS
Fittings
Fittings
Fittings
Fittings
Fittings
SOLVENT
CEMENT
AND PRIMERS
Solvent
Cement
Solvent
Cement
Solvent
Cement
Primer
ABS Pipe
PVC Pipe
For ABS
PVC Pipe
PVC
ABS
For PVC
ABS Pipe
PVC Pipe
CPVC
CPVC Pipe
CPVC Pipe
For CPVC
ABS Pipe
For PVC
PVC Pipe
DESCRIPTION
Schedule40
Schedule40
For ABS
SDR21 & SDR26
Schedule40
Schedule40
For PVC
DWV at Schedule40 IPS sizes
DWV
Schedule40
Schedule40
SDR
For CPVC
Cellular Core DWV at Schedule40
IPS sizes
For PVC
Cellular Core Schedule 40 & DWV
Installation Guidelines for Combustion Air Pipe and Vent
It is recommended that all pipes be cut, prepared, and
preassembled before permanently cementing any joint.
1. Attach combustion air pipe and vent pipe per instructions
in sections "Combustion Air Pipe" and "Vent Pipe."
2. Working from furnace to outside, cut pipe to required
length(s).
3. Deburr inside and outside of pipe.
4. Chamfer outside edge of pipe for better distribution of
primer and cement.
5. Clean and dry all surfaces to be joined.
6. Check dry fit of pipe and mark insertion depth on pipe.
7. After pipes have been cut and preassembled, apply gener-
ous layer of cement primer to pipe fitting socket and end
of pipe to insertion mark. Quickly apply approved cement
to end of pipe and fitting socket (over primer). Apply ce-
ment in a light, unifom_ coat on inside of socket to prevent
buildup of excess cement. Apply second coat.
8. While cement is still wet, twist pipe into socket with 1/4
turn. Be sure pipe is fully inserted into fitting socket.
9. Wipe excess cement from joint. A continuous bead of ce-
ment will be visible around perimeter of a properly made
joint.
10. Handle pipe joints carefully until cement sets.
11. Horizontal portions of the venting system shall be suppor-
ted to prevent sagging. Support combustion air piping and
vent piping a n_ininmm of every 5ft. (1.5M)(3 ft. (.91M)
for SDR-21 or -26 PVC) using perforated metal hanging
strap.
12. Slope combustion air piping and vent piping downward
towards furnace a minimum of l/4-in, per linear ft. with
no sags between hangers.
13. Horizontal portions of the venting system shall be installed
so as to prevent the accumulation of condensate.
14. Use appropriate methods to seal openings where combus-
tion air pipe and vent pipe pass through roof or sidewall.
Combustion-Air and Vent Pipe Diameter
Determine combustion-air and vent pipe diameter.
1. Using Table 7, individually determine the diameter of the
combustion-air and vent pipe allowed. If different, pick
the larger of these two diameters and use this diameter for
both combustion-air and vent pipes.
2. When installing vent systems of short pipe length, use the
smallest allowable pipe diameter. Do not use pipe size
greater than required or incomplete combustion, flame dis-
turbance, or flame sense lockout may occur.
NOTE: Do not count elbows or pipe sections in terminations or
within furnace.
NOTE: A 2-in. diameter pipe must be used within furnace
casing. Make all pipe diameter transitions outside furnace casing.
29

MODEL PLUG
CONNECTOR
SWl SETUP
SWITCHESAND
BLOWER OFF-
DELAY
AIR CONDITIONING
(A/C) AIRFLOW
SETUP SWITCHES
24-V THERMOSTAT
TERMINALS
STATUS AND COMM --------------
LED LIGHTS
3-AMP FUSE
TRANSFORMER24-VAC
CONNECTIONS
11S-VAC (L2) NEUTRAL
CONNECTIONS
USERINTERFACE
OR ADVANCED
PRODUCT
MONITOR
CONNECTOR
\
PL4
CONTINUOUS FAN SW4 SETUP
(CF) AIRFLOW OAT SWITCHES
SETUPSWITCHES CONNECTOR
OAT
EAC-1 TERMINAL
(11S -VAC 1.0AMP MAX,)
[]
[]
[]
[]
[]
m
PL1 - LOW VOLTAGE MAIN EXAMPLE:
HARNESS CONNECTOR
SOFTWARE PART DATE
VERSION NUMBER CODE
NUMBER
/ AMP@ 1/5 VAC
EAC-1
PL2
VS HSI HI LOK,,
115-VAC (L1) LINE
VOLTAGE CONNECTIONS
Fig. 33 - Furnace Control
HUMIDIFIER
-----'- TERMINAL (24-VAC
O.SAMP MAX,
I ACRDJ - AIR
CONDITIONING
RELAYDISABLE
JUMPER
FLASH
UPGRADE
CONNECTOR
(FACTORY
ONLY)
\PL3-ECM BLOWER
HARNESS
CONNECTOR
BOARD SERIAL
NUMBER
PL2 - HOT SURFACE
IGNITER& INDUCER
MOTOR CONNECTOR
A07422
3O

/
/
/,
/
/
2_24_=2
_=_,000 B_uh(30 kW), 36 _50,000 _uh (_Skw"), 12 _r_ (_)for a_r_ >
(91 cm) _ _es >100,_ Bt_ (30 _W) 5O,OOOBtuh (_SkW)
C_,E_:e _oa per_ar_ closed _r_
J _r_n_e _o n_-me_ar_lcal air s_pi'y _nlet to l_J_idit_ or 12 inches (30 cm) for applieances >10,000 Btuh(3 kW)
the _,_t _nl_ I0 _t ap_ and <_ 100,000 Btuh(30kW), 36 inches (91cm) for
appliances > 100,000 Btuh(30kW)
9 inches (23 _) _, app_ > 10._ Btuh (3P,W) and
50i000 Btuh (i 5k_V), 12 troches(30_)_'or _
>50,000 _h (_SkW)
Fig. 34 -Direct Vent Termination Clearance
A08600
31

O _- //
/
/
//
/
[]VENTTERMINAL \\ _ AIR SUPPLY INLET
25-24-65-2
AREA WHERE TERMINAL IS NOT PERMITED
Item Clearance Descriptions Canadian Installation (1) U.S. Installation (2)
A Clearance above grade, veranda, porch, deck, balcony, or 12 inches (30cm) # 12 inches (30 cm)
anticipated snow level
B Clearance to a window or door that may be opened 6 inches (15 cm) for appliances <_ 10,000 Btuh (3 kW) 4 feet(l.2 m) below or to the side of the opening. 1 foot(30 cm
12 inches ( 30 cm) for appliances > 10,000 Btuh (3 kW0) above the opening.
and -< 100,000 Btuh (30 kW), 36 inches (9t cm) for
appliances > 100,000 Btuh (30 kW)
C Clearance to a permanently closed window
D Vertical clearance to a ventilated soffit located above the
terminal within a horizontal distance of 2"(61cm) from the
centerline of the terminal
E Clearance to an unventilated soffit
F Clearance to an outside corner
G Clearance to an inside corner
H Clearance to each side of the centerline extended above 3 feet (91 cm) within 15 feet(4.5 m) above the meter/regulator 3 feet (91 cm) _iithin 15 feet (4.5 m) above the meter/regulator
electrical meter or gas service regulator assembly assembly assembly
I Clearance to service regulator vent outlet 3 feet (91 cm)
J Clearance to non-mechanical air supply inlet to building or 6 inches (15 cm) for appliances -< 10,000 Btuh (3 kW) 4 feet(t .2 m) below or to the side of opening: 1 foot (30 cm)
the combustion air inlet to any other appliance 12 inches ( 30 cm) for appliances > 10,000 Btuh (3 kW0) above opening.
and -< 100,000 Btuh (30 kW)
36 inches (91 cm) for appliances > t00,000 Btuh (30 kW)
K Clearance to a mechanical air supply inlet 6 feet (1.83 m) 3 feet (91 cm) above if within 10 feet (3 m horizontally)
L Clearance under a veranda, porch, deck, or balcony 12 inches(30 cm) +
M
7 feet (2.13m)
Clearance to each side of the centerline extended above or
below vent terminal of the furnace to a dryer or water heater
vent, or other appliance's direct vent intake or exhaust.
N Clearance to the vent terminal of a dryer vent, water heater
vent, or other appliances direct vent intake or exhaust.
O Clearance from a plumbing vent stack
p Clearance above paved sidewalk or paved 7 feet (2.13m)**
driveway located on public property
(1.) In accordance with the current CSA B149.1, Natural Gas and Propane Installation Code
(2.) In accordance with the current ANSI Z223.1/NFPA 54, National Fuel Gas Code
# 18" (46 cm) above roof surface
+ Permitted only if veranda, porch, deck, or balcony is fully open on a minimum of two sides beneath the floor.
For clearances not specified in ANSI Z223.1/NFPA 54 or CSA B149.t, clearances shall be in accordance with local installation codes and the requirements of the gas supplier and the
Manufacturer's installation instructions.
** A vent shall not terminate above a sidewalk or paved driveway that is located between two single family dwellings and serves both dwellings.
Notes:
1. The vent for this appliance shall not terminate
a. Over public walkways; or
b. Near soffit vents or crawl space vents or other areas where condensate or vapor could create a nusiance or hazard or property damage; or
c. Where condensate vapor could cause damage or could be detrimental to the operation of regulators, relief valves, or other equipment.
2. When locating vent terminations, consideration must be given to prevailing winds, location, and other c onditions which may cause recirculation of the combustiob products of adjacent vents.
Recirculation can cause poor combustion, inlet condensate problems, and accelerated corrosion of the heat exchangers.
3 Avoid venting under a deck or large overhang. Recirculation could occur and cause performance or system problems.
A08601
Fig. 35 - Ventilated Combustion Air Vent Termination Clearance
32

Roof Te rmLnation (Preferred)
between combustbn
aErand vent
8 3/4 in (222ram)for 3 in (76ram)kit
Maintain 12 in (305mm)_n
clearance above
....... hslghwe__e_aenI.......
Concwntric Vent and Combustion Air
Roof [urmination (pm_rmd) ......
Fig. 36 - Combustion Air and Vent Termination for Direct Vent (2-pipe) System
R_f Term_natbn (Preferred)
A05090
_._-f _"_" _'_'_ aboveMaintainminimumh_hest12 ciearanceinanticipated(305ram) ......... _": i[
snow level maximum of
24 in (610ram) abova roof ....... _--. [
Abandoned masonry
used as raceway
(per code)
Side wall termination
X\\x\\x\ \ with 2 elbows (preferred)
12 in (3O5 ram) rain from
overhang or roof
Maintain 12in 305ram
minimum c earance
above highest anticipated
s_qow leve[ or glade
",_hichever is greate_
12 in rain (305 mm)fron
overhang or r_f
6 in (152ram) minimum cieara_e
between waiJ and end of vent pipe
10 in (254mm) maximum pipe Jen_[h
305ram)
minimum clearance
above highest anticipated
snow leveJ or grade
whichever is greater
Sidewall Tel minat_n
with Stra_Jht Pipe (preferred)
Fig. 37 -Vent Pipe Termination for Ventilated Combustion Air System
A05091
33

(FURNACE
J
NOT IN
HORIZONTAL
SECTION
TRANSITION IN
VERTICAL SECTION
A93034
Fig. 38 - Combustion Air and Vent Pipe Transition
Location and Elbow Configuration
UNIT OPERATION HAZARD
Failure to follow this caution may result in internfittent unit
operation.
When installing combustion air and vent system of short
pipe length, the smallest allowable pipe diameter must be
used.
UNIT CORROSION HAZARD
Failure to follow this caution may result in unit component
damage.
Excessive exposure to contaminated combustion air may
result in safety and performance related problems.
Combustion air nmst not be taken from inside structure
because that air is frequently contaminated by halogens,
which include fluorides, chlorides, bromides, and iodides.
These elements are found in aerosols, detergents, bleaches,
cleaning solvents, salts, air fresheners, adhesives, paint, and
other household products. Locate combustion-air inlet as
far as possible from swimming pool and swimming pool
pump house.
EXAMPLE: This 80,000 BTUH furnace located in Indianapolis,
elevation 650 ft. (198.1M) above sea level, could be installed as a
direct Vent /2-pipe system that requires 3 elbows and 17 ft.
(5.1M) of vent pipe, along with 5 elbows and 16 ft. (4.8M) of
combustion-air pipe. Table 7 indicates this application would
allow a l-l/2-in, diameter vent pipe, but require a 2-in. diameter
combustion air pipe. According to Table 7, l-l/2-in, diameter
pipe is good for 20 ft. (6.0M) with 3 elbows, but only 10 ft.
(3.0M) with 5 elbows. Therefore, 2-in. diameter pipe nmst be
used for both vent and combustion-air pipes since the largest
required diameter nmst always be used for both pipes. If the same
installation was made in Albuquerque, elevation 5250 ft.
(1600.2M) above sea level, installation would require 2- in.
diameter vent pipe and combustion-air pipe. At 5001 to 6000-ft
(1524M - 1828M) elevation, l-l/2-in, pipe is not allowed with
5 elbows, but 2-in. pipe is good for 68 ft. (20.7M) with 5 elbows
are required.
COMBUSTION AIR PIPE
General
Furnace combustion-air connection nmst be attached as shown in
Fig. 39. Combustion-air intake housing plug may need to be
relocated in some applications.
NOTE: Select 1 vent pipe connection and
1 combustion-air pipe connection.
AIR
COMBUSTION-AIR _ COMBUSTION-AIR
UPFLOW
COMBUSTION-
AIR VENT
HORIZONTAL-LEFT DISCHARGE
NOTE: Select 1 vent pipe connection and
1 combustion-air pipe connection.
VENT
COMBUSTION- @ COMBUSTION-
AIR AIR AIR
FLOW
DOWNFLOW
COMBUSTION-
AIR
VENT
HORIZONTAL-RIGHT DISCHARGE
A96187
Fig. 39 - Combustion Air and Vent Pipe Connections
NOTE: All pipe joints nmst be cemented except attachment of
combustion-air pipe to inlet housing connection, since it may be
necessary to remove pipe for servicing.
NOTE: A 2-in. diameter pipe nmst be used within the furnace
casing. Make all pipe diameter transitions outside furnace casing.
Attachment of Combustion Air Pipe
NOTE: Combustion air pipe system has the same diameter and
same length as the vent pipe as mentioned in section
"Combustion- -Air and Vent Pipe Diameter."
1. Deternfine location of combustion-air intake pipe connec-
tion to combustion-air intake housing as shown in Fig. 39
for application.
2. Verify combustion-air intake housing plug fitting is in-
stalled in appropriate unused intake housing connection.
3. Install combustion-air pipe grommet (factory-supplied in
loose parts bag) into selected furnace casing combustion
air pipe hole.
4. Deternfine the number of combustion air disk halves to be
installed in the combustion air intake housing. Insert per-
forated disk half or assembly (factory supplied in loose
parts bag) in intake housing where combustion-air intake
pipe will be connected.
5. Insert assembled combustion air inlet pipe into intake
housing as shown in Fig. 39.
NOTE: Do not cement combustion air intake pipe permanently
to combustion air intake housing since it may be necessary to
remove pipe for service of igniter or flame sensor.
6. Drill a l/8-in, hole in 2-in, combustion air pipe using the
hole in intake housing as a guide.
7. Install a field-supplied No. 6 or No. 8 sheet metal screw
into combustion air pipe.
34

AIR
INTAKE HOUSING
3/8" ID TUBE
3/16"
DRILL
TO OPEN
DRAIN
BURNER
BOX
_COMBUSTION
AIR PIPE
A93035
Fig. 40 -Intake Housing Plug Fitting Drain
8. Install casing hole filler cap (factory-supplied in loose
parts bag) in unused combustion air pipe casing hole.
Attachment of Combustion Air Intake Housing Plug Fitting
The combustion-air intake plug fitting nmst be installed in
unused combustion air intake housing. This fitting nmst be
attached by using RTV sealant, or by drilling a 1/8-in. hole in
fitting, using hole in intake housing as a guide. Install a
field-supplied No. 6 or No. 8 sheet metal screw.
NOTE: DO NOT OVER-TIGHTEN SCREW. Breakage of
intake housing or fitting may cause air leakage to occur.
A plugged drain connection has been provided on this fitting for
use when moisture is found in combustion air intake pipe and
combustion box.
If use of this drain connection is desired, drill out fitting's tap
plug with 3/16-in. drill and connect a field-supplied 3/8-in. tube.
This tube should be routed to open condensate drain for furnace
and A/C (if used), and should be trapped, as shown in Fig. 40.
NOTE: (Direct Vent /2-Pipe System ONLY). Moisture in
combustion air intake may be a result of improper ternfination.
Ensure combustion air pipe ternfination is sinfilar to those as
shown in Fig. 36 so that it will not be susceptible to area where
light snow or others sources of moisture could be pulled in.
Combustion Air Termination - Ventilated Combustion Air
Option
Provisions for adequate combustion, ventilation, and dilution air
must be provided in accordance with:
• U.S. Installations: Section 9.3 NFPA 54/ANSI
Z223.1-2006, Air for Combustion and Ventilation and
applicable provisions of the local building codes.
• Canadian Installations: Part 8 of CAN/CS-B149.1-05.
Venting Systems and Air Supply for Appliances and all
authorities having jurisdiction.
Combustion air is piped directly to the burner box on furnace
using the same materials used to vent the furnace. (See Table 5.)
The combustion air pipe is ternfinated in an attic or crawl space
that is well ventilated with OUTDOOR AIR and is well isolated
from the living space or garage. If the furnace is installed in a well
ventilated attic, crawlspace or other enclosure, the combustion air
pipe can be ternfinated in the same space.
[]NIT CORROSION HAZARD
Failure to follow this caution may result in reduced furnace
component life.
Air for combustion nmst not be contanfinated by halogen
compounds, which include fluoride, chloride, bronfide, and
iodide. These elements may corrode heat exchangers and
shorten furnace life. Air contanfinants are found in aerosol
sprays, detergents, bleaches, cleaning solvents, salts, air
fresheners, and other household products.
The combustion air pipe cannot be ternfinated in attics or
crawlspaces that use ventilation fans designed to operate during
the heating season. If ventilation fans are present in these areas,
the combustion air pipe must ternfinate outdoors as a Direct Vent/
2-Pipe system.
CARBON MONOXIDE POISONING HAZARD
Failure to follow this warning could result in personal
iniury or death.
The operation of exhaust fans, kitchen ventilation fans,
clothes dryers, attic exhaust fans or fireplaces could create a
NEGATIVE PRESSURE CONDITION at the furnace.
Makeup air MUST be provided for the ventilation devices,
in addition to that required by the furnace. Refer to the
Carbon Monoxide Poisoning Hazard warning at the end of
this section to deternfine if an adequate amount of make-up
air is available.
NOTE: Combustion air pipe must have the same diameter as
vent pipe.
An attic or crawlspace may be considered a space that freely
communicates with the outdoors provided there are adequate
permanent ventilation openings directly to outdoors having free
area of at least 1-in.2/4,000 Btuh of total input rating for all gas
appliances in the space.
NOTE: In deternfining the free area of an opening, the blocking
effect of the louvers, grilles, and screens nmst be considered. If
the free area of a louver or grille design is unknown, it may be
assumed that wood louvers have a 20 percent free area, and metal
louvers or grilles have a 60 percent free area. Screens, when used,
must not be smaller than l/4-in, mesh. Louvers and grilles must
be constructed so they cannot be closed.
CARBON MONOXIDE POISONING HAZARD
Failure to follow this warning could result in personal
iniury or death.
Many homes require air to be supplied from outdoors for
furnace combustion, ventilation, and dilution of flue gases.
The furnace combustion air supply must be provided in
accordance with this instruction manual.
g
Attic terminations require at least (1) 90 degree elbow, with the
open end pointing horizontally or downward. The open end of
the elbow must be at least 12-in. (305 ram) above any insulation
35

g
or other materials. Screen the elbow with a wire mesh screen no
smaller than 3/8-inch square. (See Fig. 41.)
Crawlspace ternfinations require the open end of the combustion
air intake pipe to point downward. Maintain 3 inches (76 ram) of
clearance below the floor joist insulation and 12 inches (305 ram)
above the grade. Screen the elbow with a wire mesh screen no
smaller than 3/8-in. (10 ram) square. (See Fig. 42 and 43.)
CARBON MONOXIDE POISONING HAZARD
Failure to follow the steps outlined below for each
appliance connected to the venting system being placed into
operation could result in carbon monoxide poisoning or
death.
The following steps shall be followed for each appliance
connected to the venting system being placed into
operation, while all other appliances connected to the
venting system are not in operation:
1. Seal any unused openings in venting system.
2. Inspect the venting system for proper size and
horizontal pitch, as required in the National Fuel Gas
Code, ANSI Z223.1-2006/NFPA 54-2006 or the
CSA B149.1-05, Natural Gas and Propane
Installation Code and these instructions. Deternfine
that there is no blockage or restriction, leakage,
corrosion and other deficiencies, which could cause
an unsafe condition.
3. As far as practical, close all building doors and
windows and all doors between the space in which
the appliance(s) connected to the venting system are
located and other spaces of the building.
4. Close fireplace dampers.
5. Turn on clothes dryers and any appliance not
connected to the venting system. Turn on any
exhaust fans, such as range hoods and bathroom
exhausts, so they are operating at maximum speed.
Do not operate a summer exhaust fan.
6. Follow the lighting instructions. Place the appliance
being inspected into operation. Adjust the thermostat
so appliance is operating continuously.
7. Test for spillage from draft hood equipped
appliances at the draft hood relief opening after 5
nfinutes of main burner operation. Use the flame of a
match or candle.
8. If improper venting is observed during any of the
above tests, the venting system must be corrected in
accordance with the National Fuel Gas Code, ANSI
Z223.1-2006/NFPA 54-2006 and/or CSA
B149.1-05, Natural Gas and Propane Installation
Code.
9. After it has been deternfined that each appliance
connected to the venting system properly vents when
tested as outlined above, return doors, windows,
exhaust fans, fireplace dampers and any other
gas-fired burning appliance to their previous
conditions of use.
Combustion Air Termination-Direct Vent /2-Pipe System
Combustion air pipe must terminate outside the structure with the
vent pipe as shown in Fig. 36. Follow the clearance requirements
shown in Fig. 39. Refer to Vent Termination section for complete
details on ternfination options.
VENT PIPE
General
Furnace vent connection must be attached as shown in Fig. 39.
CARBON MONOXIDE POISONING AND
PROPERTY DAMAGE HAZARD
Failure to follow this warning could result in personal
iniury or death.
Vent pipes must be airtight.
NOTE: A 2-in. (51 ram) diameter pipe nmst be used within the
furnace casing. Make all pipe diameter transitions outside furnace
casing per Fig. 38.
The nfininmm vent pipe length for these furnaces is 5 ft. (I.5M)
Short pipe lengths (5-8 ft. or 1.5M-2.4M) may discharge
condensate droplets. These condensate droplets may be
undesirable. A 12-in. (305 ram) nfininmm offset pipe section is
recommended to reduce excessive condensate droplets from
exiting vent pipe outlet. (See Fig. 44.)
Attachment of Vent Pipe
NOTE: Vent pipe system has the same diameter and same length
as combustion air pipe as mentioned in section "Combustion Air
Pipe and Vent Pipe Diameter."
[]NIT DAMAGE HAZARD
Failure to follow this caution may result in unit component
damage.
Inducer housing outlet cap nmst be installed and fully
seated against inducer housing. Clamp must be tightened to
prevent any condensate leakage.
Vent pipe must be installed and fully seated against inducer
housing. Clamp must be tightened to prevent any
condensate leakage.
1. Deternfine location of vent pipe connection to inducer
housing as shown in Fig. 39 for application.
2. Verify synthetic rubber inducer housing outlet cap and
clamp are installed on appropriate unused inducer housing
connection and that clamp is tight.
3. Install vent pipe grommet (factory-supplied in loose parts
bag) into selected furnace casing vent pipe hole. (See Fig.
28.)
4. Be certain that mating surfaces of inducer housing connec-
tion synthetic rubber coupling, and 2-in. diameter vent
pipe are clean and dry. Assemble the synthetic rubber vent
coupling (with 2 loose clamps) onto inducer housing con-
nection. Insert the 2-in. diameter vent pipe through the
synthetic rubber coupling and fully into inducer housing
connection until it touches a stop inside the inducer hous-
ing outlet. Tighten the screws on both clamps to 15-in lb.
of torque.
5. Install casing hole filler cap (factory-supplied in loose
parts bag) in unused vent pipe casing hole.
36

B
Fig. 41 -Attic Termination
A06672
Pipe hangar
Ventilated Combustion Air
intake termination in crawl
3" (76.2 mm)
minimum
t
(304.8 mm)
Fig. 42 - Crawlspace Termination
A06673
37

3" (76.2mm)
minimum
Ventilated Combustion Air |
intake termination in crawl 12" (304.8mm)
space i minimum
Fig. 43 -Crawlspace Termination
A06674
/ _3osmm__:_H
VENTP'PE--'_II __
!! !If c°MBusm'°"-A'RP'PE
VENT PIPE
-t_---- 12" MIN---_
(305mm_ _
if r- COMBUSTION-AIR PIPE
HORIZONTAL TO ROOF HORIZONTAL TO S IDEWALL
COMBUSTION-AIR
COMBUSTION-AIR PIPE
F VENT PIPE
VENT PIPE
VERTICAL TO ROOF VERTICAL TO SIDEWALL
NOTE: A 12-in. (304.8mm) minimum offset pipe section is recommended
with short (5 to 8 ft /1.5 to 2.5M) vent systems. This recommendation
is to reduce excessive condensate droplets.
Fig. 44 - Short Vent (5 to 8 ft. /1.5M to 2.4M) System
A96230
38

NOTE: Starting at furnace, slope vent pipe a minimum of
1/4-in. (6 ram) per linear ft. back toward furnace with no sags
between hangers.
VENT TERMINATION
General
Combustion-air (direct Vent /2-pipe system only) and vent pipe
must terminate outside structure, either through sidewall or roof.
For vent termination clearance, refer to Fig. 34 for Direct Vent /
2- Pipe system and Fig. 35 for Ventilated Combustion Air
option.
Roof termination is preferred since it is less susceptible to damage
or contamination, and it has less visible vent vapors. Sidewall
termination require sealing or shielding of building surfaces with
a corrosive resistance material due to corrosive combustion
products of vent system.
NOTE: (Direct Vent /2-Pipe system ONLY) A factory
accessory termination kit MUST be used. See section "Vent
Termination Kit (Direct Vent /2-Pipe System Only)" in this
instruction.
When determining appropriate location for termination, consider
the following guidelines:
1. Comply with all clearance requirements stated in Fig. 34
or Fig. 35 per application.
2. Termination or termination kit should be positioned where
vent vapors will not damage plants/shrubs or air condi-
tioning equipment.
3. Termination or termination kit should be positioned so that
it will not be affected by wind eddy, such as inside build-
ing corners, nor by recirculation of flue gases, airborne
leaves, or light snow.
4. Termination or termination kit should be positioned where
it will not be damaged by or subjected to foreign objects
such as stones, balls, etc.
5. Termination or termination kit should be positioned where
vent vapors are not objectionable.
Extended Exposed Sidewall Pipes
Sidewall combustion air pipe termination (direct Vent /2-pipe
system only) and vent pipe termination may be extended beyond
area shown in Fig. 36 or in Fig. 37 per application in outside
ambient by insulating pipe as indicated in Table 6.
1. Determine combustion air pipe diameter (direct Vent /
2-pipe system only) and vent pipe diameter, as stated
above, using total pipe length and number of elbows.
2. Using winter design temperature (used in load calcula-
tions), find appropriate temperature for your application
and furnace model.
3. Determine required insulation thickness for exposed pipe
length(s).
NOTE: Pipe length (ft /M) specified for n_axinmm pipe lengths
located in unconditioned spaces cannot exceed total allowable
pipe length as specified in Table 6.
Vent Termination Kit (Direct Vent /2-Pipe System Only)
NOTE: Always refer to the instructions in termination kit for the
latest version.
Combustion air and vent pipes MUST terminate outside structure.
A factory accessory termination kit must be installed as shown in
Table 8. There are four options of vent/combustion air
termination kits available as shown in Table 8.
NOTE: Combustion air pipe must have the same diameter as
vent pipe.
Concentric Vent /Combustion Air Termination Kit (Direct
Vent /2-Pipe System Only
Determine an appropriate location for termination kit using the
guidelines provided in section "Vent Termination: General" in
this instruction.
1. Cut one 4-in. diameter hole for 2-in. kit, or one 5-in. dia-
meter hole for 3-in. kit.
2. Loosely assemble concentric vent/combustion air termina-
tion components together using instructions in kit.
3. Slide assembled kit with rain shield REMOVED through
hole.
NOTE: Do not allow insulation or other materials to accumulate
inside of pipe assembly when installing it through hole.
Roof terminations-Locate assembly through roof to
appropriate height as shown in Fig. 36 or Fig. 37.
Sidewall terminations-Locate assembly through sidewall
with rain shield positioned no more than 1-in (25 ram).
from wall as shown in Fig. 36 and Fig. 37.
4. Disassemble loose pipe fittings. Clean and cement using
same procedures as used for system piping.
5. Check required dimensions as shown.
Two-Pipe Termination Kit (Direct Vent /2-Pipe System
Determine an appropriate location for termination kit using the
guidelines provided in section "Vent Termination: General" in
this instruction.
1. Cut 2 holes, 1 for each pipe, of appropriate size for pipe
size being used.
2. Loosely install elbow in bracket and place assembly on
combustion-air pipe.
Roof terminations-Loosely install pipe coupling on
properly cut vent pipe. Coupling nmst be positioned so
bracket will mount as shown in Fig. 38.
For applications using combustion-air pipe option, indic-
ated by dashed lines in Fig. 36, install 90 ° street elbow
into 90 ° elbow, making a U-fitting. A 180 ° U-fitting may
be used.
Sidewall terminations-Install bracket as shown in Fig.
36.
For applications using vent pipe option indicated by dashed lines
in Fig. 36, rotate vent elbow 90 ° from position shown in Fig. 36.
3. Disassemble loose pipe fittings. Clean and cement using
same procedures as used for system piping.
4. Check required dimensions as shown in Fig. 36.
(Direct Vent /2-Pipe System ONLY)-When 2 or more 58MVC
furnaces are vented near each other, 2 vent terminations may be
installed as shown in Fig. 36, but next vent termination must be at
least 36 in. (914 ram) away from first 2 terminations. It is
important that vent terminations be made as shown in Fig. 36 to
avoid recirculation of flue gases.
39

Table6-Maximum Allowable Exposed Vent Pipe Length with Insulation in
Winter Design Temperature Ambient*
UNIT SIZE WINTER DESIGN
TEMPERATURE
20OF/-7oc
060 O°F/-18°C
-20 ° F /-29 ° C
20OF/-7oc
080 O°F/-18°C
-20 ° F /-29 ° C
20OF/-7oc
100 O°F/-18°C
-20 ° F /-29 ° C
20OF/-7oc
OOF/-18oc
-20 ° F /-29 ° C
MAXIMUM PIPE
DIAMETER IN.
(MM)
2 (51)
2 (51)
2 (51)
2 (51)
2 (51)
2 (51)
2-1/2 (64)
2-1/2 (64)
2-1/2 (64)
3 (76)
3 (76)
3 (76)
0
28 (8.5)
11 (6.4)
4 (1.2)
36 (11.0)
16 (4.9)
8 (2.4)
42 (12.8)
18 (5.5)
9 (2.7)
44 (13.4)
18 (5.5)
8 (2.4)
12O
Pipe length (if/m) specified for maximum pipe lengths located in unconditioned spaces.
pipe length as specified in Table 7.
1qnsulation thickness based on R value of 3.5 per in.
INSULATION THICKNESS1"
3/8
50 (15.2)
25 (7.6)
15 (4.6)
65 (19.8)
34 (10.4)
21 (6.4)
70 (21.6)
38 (11.6)
26 (7.0)
70 (21.6)
38 (11.6)
26 (7.0)
1/2
56 (17.1)
29 (8.8)
18 (5.5)
70 (21.3)
69 (11.9)
25 (7.6)
70 (21.3)
43 (13.1)
27 (8.2)
70 (21.3)
44 (13.4)
27 (8.2)
6/4
66 (20.1)
35 (10.7)
26 (7.0)
70 (21.3)
47 (14.6)
31 (9.4)
70 (21.3)
53 (16.2)
34 (10.4)
70 (21.3)
54 (16.5)
35 (10.7)
1
70 (21.6)
41 (12.5)
27 (8.2)
70 (21.6)
55 (16.8)
37 (11.6)
70 (21.6)
61 (18.6)
41 (12.5)
70 (21.3)
63 (19.2)
41 (12.5)
Pipes located in unconditioned space cannot exceed total allowable
40

Table 7 - Maximum Allowable Pipe Length - Ft (M)
UNIT SIZE
ALTITUDE (BTUH)
80,000
80,000
0 to 2000
(0 to 610) 100,000
120,000
UNIT SIZE
ALTITUDE (BTUH)
60,000
80,000
2001 to 3000
(610 to 914) 100,000
120,000
UNIT SIZE
ALTITUDE (BTUH)
60,000
80,000
3001 to 4000
(914 to 1219) 100,000
120,000
UNIT SIZE
ALTITUDE (BTUH)
60,000
80,000
4001 to 5000
(1219 to 1524)$ 100,000
120,000
UNIT SiZE
ALTITUDE (BTUH)
60,000
80,000
5001 to 6000
(1524 to 1829)$ 100,000
120,000
*See notes on next page.
Direct Vent (2-Pipe Only)
Termination
Type
2 Pipe or 2-In. (51)
Concentric
2 Pipe or 2-In. (51)
Concentric
2 Pipe or 2-In. (51)
Concentric
2 Pipe or 3-In. (76)
Concentric
Termination
Type
2 Pipe or 2-In. (51)
Concentric
2 Pipe or 2-In. (51)
Concentric
2 Pipe or 2-In. (51)
Concentric
2 Pipe or 3-In. (76)
Concentric
Termination
Type
2 Pipe or 2-In. (51)
Concentric
2 Pipe or 2-In. (51)
Concentric
2 Pipe or 2-In. (51)
Concentric
2 Pipe or 3-In.
Concentric
Termination
Type
2 Pipe or 2-In. (51)
Concentric
2 Pipe or 2-In. (51)
Concentric
2 Pipe or 2-In. (51)
Concentric
2 Pipe or 3-In. (76)
Concentric
Termination
Type
2 Pipe or 2-In. (51)
Concentric
2 Pipe or 2-In. (51)
Concentric
2 Pipe or 2-In. (51)
Concentric
2 Pipe or 3-In. (76)
Concentric
Pipe Dia
In, (ram)*
1-1/2 (38)
2 (51)
1-1/2 (38)
2 (51)
2 (51)
2 - 1/2 (84)
2-1/2 one disk
3 (76) one disk
3 (76) one disM-
Pipe Dia
In, (ram)*
1-1/2 (38)
2 (51)
1-1/2 (38)
2 (51)
2 (51)
2 - 1/2 (84)
3 (78) one disk
3 (76) one
diskl-
Pipe Dia
In, (ram)*
1-1/2 (38)
2 (51)
1-1/2 (38)
2 (51)
2 (51)
2 - 1/2 (84)
3 (78) one disk
3 (76) one
diskl-
Pipe Dia
In, (ram)*
1-1/2 (38)
2 (51)
1-1/2 (38)
2 (51)
2 (51)
2 - 1/2 (84)
3 (76) one
diskl-
Pipe Dia
In, (ram)*
1-1/2 (38)
2 (51)
1-1/2 (38)
2 (51)
2 (51)
2 - 1/2 (84)
3 (76) one
disk1-
NUMBER OF 90 ° ELBOWS
123456
50 (15.2) 45 (13.7) 40 (12.9) 35 (10.7) 30 (9.1) 25 (7.6)
70 (21.3) 70 (21.3) 70 (21.3) 70 (21.3) 70 (21.3) 70 (21.3)
30 (9.14) 25 (7.6) 20 (8.1) 15 (4.6) 10 (3.0) 5 (1.5)
70 (21.3) 70 (21.3) 70 (21.3) 70 (21.3) 70 (21.3) 70 (21.3)
45 (13.7) 40 (12.9) 35 (10.7) 30 (9.1) 25 (7.6) 20 (6.1)
70 (21.3) 70 (21.3) 70 (21.3) 70 (21.3) 70 (21.3) 70 (21.3)
10 (3.0) NA NA NA NA NA
35 (10.7) 30 (9.1) 15 (4.8) NA NA NA
70 (21.3) 70 (21.3) 70 (21.3) 70 (21.3) 70 (21.3) 70 (21.3)
NUMBER OF 90 ° ELBOWS
123456
45 (13.7) 40 (12.9) 35 (10.7) 30 (9.14) 25 (7.6) 20 (8.1)
70 (21.3) 70 (21.3) 70 (21.3) 70 (21.3) 70 (21.3) 70 (21.3)
26 (7.9) 21 (8.4) 18 (4.9) 11 (3.4) 8 (1.8) NA
70 (21.3) 70 (21.3) 70 (21.3) 70 (21.3) 70 (21.3) 70 (21.3)
40 (12.2) 35 (10.7) 30 (9.1) 25 (7.6) 20 (6.1) 15 (4.6)
70 (21.3) 70 (21.3) 70 (21.3) 70 (21.3) 70 (21.3) 70 (21.3)
31 (9.4) 26 (7.9) 12 (3.7) NA NA NA
63 (19.2) 62 (18.9) 62 (18.9) 61 (18.6) 61 (18.6) 61 (18.6)
NUMBER OF 90 ° ELBOWS
123456
42 (12.8) 37 (11.2) 32 (9.8) 27 (8.2) 22 (8.7) 17 (5.2)
70 (21.3) 70 (21.3) 70 (21.3) 70 (21.3) 70 (21.3) 70 (21.3)
25 (7.6) 20 (6.1) 15 (4.6) 10 (3.0) 5 (1.5) NA
70 (21.3) 70 (21.3) 70 (21.3) 70 (21.3) 70 (21.3) 70 (21.3)
38 (11.6) 33 (10.1) 28 (8.5) 23 (7.0) 18 (5.5) 13 (4.0)
70 (21.3) 70 (21.3) 70 (21.3) 70 (21.3) 70 (21.3) 70 (21.3)
29 (8.8) 24 (7.3) 10 (3.0) NA NA NA
59 (18.0) 59 (18.0) 58 (17.8) 57 (17.4) 57 (17.4) 56 (17.0)
NUMBER OF 90 ° ELBOWS
123456
40 (12.2) 35 (10.7) 30 (9.1) 25 (7.6) 20 (8.1) 15 (9.6)
70 (21.3) 70 (21.3) 70 (21.3) 70 (21.3) 70 (21.3) 70 (21.3)
23 (7.0) 18 (5.5) 13 (4.0) 8 (2.4) NA NA
70 (21.3) 70 (21.3) 70 (21.3) 70 (21.3) 70 (21.3) 88 (20.7)
36 (11.0) 31 (9.4) 26 (7.9) 21 (8.4) 18 (4.8) 11 (3.4)
70 (21.3) 70 (21.3) 70 (21.3) 70 (21.3) 70 (21.3) 70 (21.3)
56 (17.1) 55 (18.8) 54 (18.5) 53 (8.2) 52 (15.8) 52 (15.8)
NUMBER OF 90 ° ELBOWS
123456
37 (11.3) 32 (9.8) 27 (8.2) 22 (8.7) 17 (5.2) 12 (3.7)
70 (21.3) 70 (21.3) 70 (21.3) 70 (21.3) 70 (21.3) 70 (21.3)
22 (6.7) 17 (5.2) 12 (3.7) 7 (2.1) NA NA
70 (21.3) 70 (21.3) 70 (21.3) 70 (21.3) 88 (20.7) 83 (19.2)
33 (10) 28 (8.5) 23 (7.0) 18 (5.5) 13 (4.0) 8 (2.4)
70 (21.3) 70 (21.3) 70 (21.3) 70 (21.3) 70 (21.3) 70 (21.3)
53 (16.2) 52 (15.8) 50 (15.2) 49 (14.9) 48 (14.6) 47 (14.3)
41

Table 7 -- Maximum Allowable Pipe Length - Ft (M) (Continued)
UNIT SIZE
ALTITUDE (BTUH)
80,000
80,000
6001 to 7000
(1829 to 2134)$
100,000
120,000
UNIT SIZE
ALTITUDE (BTUH)
80,000
80,000
7001 to 8000
(2134 to 2438):[: 100,000
120,000
UNIT SIZE
ALTITUDE (BTUH)
60,000
80,000
800! to 9000
(2438 to 2743)$ 100,000
120,000
UNIT SiZE
ALTITUDE (BTUH)
60,000
80,000
9001 to 10000
(2743 to 3048)$ 100,000
120,000
Disk usage-Unless otherwise stated
Wide radius elbow.
Direct Vent (2-Pipe Only)
Termination
Type
2 Pipe or 2-In. (51)
Concentric
2 Pipe or 2-In. (51)
Concentric
2 Pipe or 2-In. (51)
Concentric
2 Pipe or 3-In. (78)
Concentric
Termination
Type
2 Pipe or 2-In. (51)
Concentric
2 Pipe or 2-In. (51)
Concentric
2 Pipe or 2-In. (51)
Concentric
2 Pipe or 3-In. (78)
Concentric
Termination
Type
2 Pipe or 2-In. (51)
Concentric
2 Pipe or 2-In. (51)
Concentric
2 Pipe or 2-In. (51)
Concentric
2 Pipe or 3-In. (78)
Concentric
Termination
Type
2 Pipe or 2-In. (51)
Concentric
2 Pipe or 2-In. (51)
Concentric
2 Pipe or 2-In. (51)
Concentric
2 Pipe or 3-In. (78)
Concentric
use perforated disk as!
Pipe Dia
In. (ram)*
1-1/2 (38)
2 (51)
1-1/2 (38)
2 (51)
2 (51)
2- 1/2 (64)
3 (76) one disk1-
Pipe Dia
In. (ram)*
1-1/2 (38)
2 (51)
1-1/2 (38)
2 (51)
2 (51)
2- 1/2 (64)
3 (76) one disk1-
Pipe Dia
In. (ram)*
1-1/2 (38)
2 (51)
1-1/2 (38)
2 (51)
2 (51)
2- 1/2 (64)
3 (76) one disk1-
Pipe Dia
In. (ram)*
1-1/2 (38)
2 (51)
1-1/2 (38)
2 (51)
2 (51)
2- 1/2 (64)
3 (76) one diskl-
embly (factory-sup
NUMBER OF 90 ° ELBOWS
123456
35 (10.7) 30 (9.1) 25 (7.8) 20 (6.1) 15 (4.8) 10 (3.0)
70 (21.3) 70 (21.3) 68 (20.7) 87 (20.4) 86 (20.1) 84 (19.5)
20 (6.1) 15 (4.8) 10 (3.0) 5 (1.5) NA NA
62
70 (21.3) 70 (21.3) 88 (20.7) 87 (20.4) (18.9) 57 (17.4)
31 (9.4) 26 (7.9) 21 (8.4) 18 (4.9) 11 (3.4) 6 (1.8)
70 (21.3) 70 (21.3) 88 (20.7) 87 (20.4) 68 (20.1) 84 (19.5)
49 (14.9) 48 (14.6) 47 (14.3) 45 (13.7) 44 (13.4) 43 (13.1)
NUMBER OF 90 ° ELBOWS
123456
32 (9.8) 27 (8.2) 22 (8.7) 17 (5.2) 12 (3.7) 7 (2.1)
68 (20.1) 85 (19.8) 83 (19.2) 82 (18.9) 60 (18.3) 59 (18.0)
18 (5.5) 13 (4.0) 8 (2.4) NA NA NA
68 (20.1) 85 (19.8) 83 (19.2) 82 (18.9) 57 (17.4) 52 (15.8)
29 (8.8) 24 (7.3) 19 (5.8) 14 (4.3) 9 (2.7) NA
86 (20.1) 85 (19.8) 83 (19.2) 82 (18.9) 60 (18.3) 59 (18.0)
48 (14.0) 44 (13.4) 43 (13.1) 41 (12.5) 40 (12.2) 38 (11.6)
NUMBER OF 90 ° ELBOWS
123456
30 (9.1) 25 (7.6) 20 (8.1) 15 (4.6) 10 (3.0) 5 (1.5)
82 (18.9) 80 (17.8) 58 (17.7) 56 (17.1) 55 (18.8) 53 (18.2)
17 (5.2) 12 (3.1) 7 (2.1) NA NA NA
82 (18.9) 80 (18.3) 58 (17.7) 56 (17.1) 51 (15.5) 48 (14.0)
27 (8.2) 22 (6.7) 17 (5.2) 12 (3.7) 7 (2.1) NA
82 (18.9) 80 (18.3) 58 (17.7) 56 (17.1) 55 (18.8) 53 (18.2)
43 (13.1) 41 (12.5) 39/11.9) 37 (11.3) 35 (10.7) 34 (10.4)
NUMBER OF 90 ° ELBOWS
123456
27 (8.2) 22 (8.7) 17 (5.2) 12 (3.7) 7 (2.1) NA
57 (17.4) 55 (18.8) 53 (18.2) 51 (15.5) 49 (14.9) 47 (14.3)
15 (4.6) 10 (3.0) 5 (1.5) NA NA NA
57 (17.4) 55 (18.8) 53 (18.2) 51 (15.5) 48 (14.0) 41 (12.5)
24 (7.3) 19 (5.8) 14 (4.3) 9 (2.7) NA NA
57 (17.4 55 (18.8) 53 (18.2) 51 (15.5) 49 (14.9) 47 (14.3)
39 (11.9) 37 (11.3) 35 (10.7) 33 (10.1) 31 (9.5) 29 (8.8)
parts bag).
Vent sizing for Canadian installations over 4500 ft. (1370M) above sea level are subject to acceptance by the local authorities having jurisdiction.
NA-Not Allowed; pressure switch will not make.
NOTES:
1. Do not use pipe size greater than those specified in table or incomplete combustion, flame disturbance, or flame sense lockout may occur.
2. Size both the combustion -air and vent pipe independently, determine the smallest diameter allowed by the table for each pipe, then use the larger diameter for both pipes.
3. Assume two 45 ° elbows equal one 90 ° elbow. Long radius elbows are desirable and may be required in some cases.
4. Elbows and pipe sections within the furnace casing and at the vent termination should not be included in vent length or elbow count.
5. The minimum pipe length is 5 ft. (1.5M) for all applications.
42

Table 8- Vent Termination Kit for Direct Vent/2-Pipe System
DIRECT VENT (2-PIPE) TERMINATION KIT TERMINATION SYSTEM DIAM. OF COMBUSTION AIR AND VENT
PIPES - IN (mm)
2-in. (51 mm) Concentric Vent Kit Single Penetration of Wall or Roof 1, 1-1/2, 2, or 2-1/2 (25, 38, 51,64 mm)
3-in. (76 ram)Concentric Vent Kit Single Penetration of Wall or Roof 2-1/2, 3 or 4 (64, 76, 102 mm)
2-in. (51 ram)Termination Bracket Kit 2- Pipe Termination System 1, 1- 1/2 or 2 (25, 38, 51 mm)
3-in. (76 ram) Termination Bracket Kit 2-Pipe Termination System 2-1/2, 3 or 4 (64, 76, 102 mm)
Multi-venting and Vent Terminations
When 2 or more 58MVC Furnaces are vented near each other,
each furnace must be individually vented. NEVER common vent
or breach vent 58MVC furnaces,
/\
OPEN STAND y
PiPE FOR
A/C OR
HUMIDIFIER
DRAIN
TE
A94054
Fig. 45 -Example of Field Drain Attachment
CONDENSATE DRAIN
General
Condensate trap is shipped installed in the blower shelf and
factory connected for UPFLOW applications. Condensate trap
must be RELOCATED for use in DOWNFLOW and
HORIZONTAL applications.
Condensate trap MUST be used for all applications.
An external trap is not required when connecting the field drain
to this condensate trap.
The field drain connection (condensate trap or drain tube
coupling) is sized for l/2-in. CPVC, l/2-in. PVC, or 5/8-in. ID
tube connection.
Drain pipe and fittings must conform to ANSI standards and
ASTM D1785, D2466, or D2846. CPVC or PVC cement must
conform to ASTM D2564 or F493. Primer nmst conform to
ASTM F656. In Canada, use CSA or ULC certified schedule 40
CPVC or PVC drain pipe, fittings, and cement.
When a condensate pump is required, select a pump which is
approved for condensing furnace applications. To avoid
condensate spillage, select a pump with an overflow switch.
Furnace condensate is mildly acidic, typically in the pH range of
3.2 to 4.5. Due to corrosive nature of this condensate, a
condensate pH neutralizing filter may be desired. Check with
local authorities to determine if a pH neutralizer is required.
Application
The furnace, A/C, and humidifier drains may be combined and
drained together. The A/C drain must have an external,
field-supplied trap prior to the furnace drain connection. All
drain connections (furnace, A/C, or humidifier) nmst be
terminated into an open or vented drain as close to the respective
equipment as possible to to prevent siphoning of the
equipment's drain.
CONDENSATE
WIRE TIE4
HEAT TAPE_
(3WRAPS MINIMUM)_
Fig. 46 - Condensate Trap Heat Tape
A93036
See Fig. 45 for example of possible field drain attachment using
l/2-in. CPVC or PVC tee for vent and A/C or humidifier drain
connection.
Outdoor draining of the furnace is permissible if allowed by local
codes. Caution should be taken when freezing ambient may
freeze drain pipe and prohibit draining.
PERSONAL INJURY HAZARD
Failure to follow this warning could result in personal
iniury or death.
Caution should be taken to prevent draining where slippery
conditions may cause personal iniuries. Excessive
condensate draining may cause saturated soil conditions
which may result in damage to plants.
Condensate Drain Protection
Freezing condensate left in condensate trap and drain line may
cause cracks, and possible water damage may occur. If freeze
protection is required, use condensate freeze protection accessory
or equivalent 3 to 6 watt per ft. (.3M) at 120v and 40°F (4.4 ° C)
self-regulating, shielded, and waterproof heat tape. See
Installation Instructions supplied with accessory or heat tape
manufacturer's recommendations.
43

g
1. Fold heat tape in half and wrap on itself 3 times.
2. Locate heat tape between sides of condensate trap back.
(See Fig. 46.)
3. Use wire ties to secure heat tape in place. Wire ties can be
positioned in notches of condensate trap sides. (See Fig.
46.)
4. Wrap field drain pipe with remaining heat tape, approxim-
ately 1 wrap per ft. (.3M).
5. When using field-supplied heat tape, follow heat tape
manufacturer's instructions for all other installation
guidelines.
START-UP, ADJUSTMENT AND SAFETY
CHECK
Step 1-- General
1. Furnace must have a 115-v power supply properly con-
nected and grounded.
NOTE: Proper polarity must be maintained for 115-v wiring. If
polarity is incorrect, control status indicator light flashes rapidly
and furnace does not operate.
2. Thermostat wire connections at terminals R, W/W1, G,
and Y/Y2 must be made at 24-v terminal block on furnace
control.
3. Natural gas service pressure must not exceed 0.5 psig (14-
in. wc), but must be no less than 0.16 psig (4.5-in. wc).
4. Blower access panel must be in place to complete 115-v
electrical circuit to furnace.
UNIT MAY NOT OPERATE
Failure to follow this caution may result in intermittent unit
operation or ped\,rmance satisfaction.
These furnaces are equipped with a manual reset limit
switch in burner box. This switch opens and shuts off
power to the gas valve if an overheat condition (flame
rollout) occurs in burner enclosure. Correct inadequate
combustion-air supply or improper venting condition
before resetting switch. DO NOT jumper this switch.
Before operating furnace, check flame rollout manual reset switch
for continuity. If necessary, press button to reset switch.
Step 2 -- Select Setup Switch Positions
Air Conditioning (A/C) Setup Switches
The air conditioning setup switches are used to match furnace
airflow to cooling unit used.
To set the desired cooling airflow:
1. Remove main furnace door and blower access panel.
2. Locate A/C setup switches on furnace control. (See Fig.
33.)
3. Determine air conditioning tonnage used.
4. Use Fig. 47 or wiring schematic to determine proper setup
position of A/C switches. (See Fig. 48 and Fig. 49.)
NOTE: Excessive airflow caused by improper A/C switch setup
may cause condensate blow-off in cooling mode.
5. Replace main furnace door and blower access panel.
NOTE: EAC-1 terminal is energized whenever blower operates.
HUM terminal is only energized when blower is energized in
heating.
Continuous Fan (CF) Setup Switches
The CF setup switches are used to select desired airflow when
thermostat is in continuous fan mode or to select low-cooling
airflow for two-speed cooling units. This setup feature allows
continuous fan airflow or low-cooling airflow to be adjusted. To
set desired continuous fan airflow or low-cooling airflow:
1. Remove main furnace door and blower access panel.
2. Locate CF setup switches on furnace control. (See Fig.
33.)
3. Determine desired continuous fan airflow or low-cooling
airflow.
4. Use Fig. 47 or wiring schematic to determine proper setup
position of CF switches. (See Fig. 48 and Fig. 49.)
5. Replace main furnace door and blower access panel.
AIR CONDITIONING (A/C) OR CONTINUOUS-FAN (CF)
AIRFLOW SELECTION CHART
BASED ON 350 CFM/TON (SETUP SWITCH SW1-5 OFF)
SETUP SWITCH SW3 POSITIONS
MODEL
m_-'-i_ mll:_o, mll:_co mll:_co ml---l_ mr,,-l_ mr-leo mr,,-l¢_
060, 3.5T080 DEF. 5252 700 875 10501 1225 1225 1225
5T080, 100 DEF. 7002 875 1050 1225 1400 1750_ 1750
120 DEF. 700 8752 1050 1225 1400 17501 2100
BASED ON 400 CFM/TON (SETUP SWITCH SWl-5 ON)
SETUP SWITCH SW3 POSITIONS
MODEL
q,---,,_%--,,,.,°E::a_.o,_..,,_
mi._i_ ml,--i_ _l--ic,_ ml'--i¢..,o ml[_lc,: mr--i_, _l'--io_ mr--ioj
060, 3.5T080 DEF. 6002 800 1000 1200_ 1400 1400 1400
5T080, 100 DEF. 8002 1000 1200 1400 1600 2000_ 2000
120 DEF. 800 10002 1200 1400 1600 2000_ 2100
DEFAULT A/C AIRFLOW WHEN A/C SWITCHES ARE IN OFF POSITION
DEFAULT CONT. FAN AIRFLOW WHEN CF SWITCHESARE IN OFF POSITION
SWITCH POSITIONS ARE ALSO SHOWN ON FURNACE WIRING DIAGRAM
A07424
Fig. 47 - A/C or CF Airflow Selection Chart Based on 350
and 400 CFM/Ton
Setup Switches (SW1)
The furnace control has 8 setup switches that may be set to meet
the application requirements. To set these setup switches for the
@propriate requirement:
1. Remove main furnace door and blower access panel.
2. Locate setup switches on furnace control. (See Fig. 33.)
3. See Table 9 for setup switch description. (See Fig. 48 and
Fig. 49.)
4. Replace main furnace door and blower access panel.
NOTE: If a bypass humidifier is used, setup switch SW1-3
(Low Heat Rise Adjust) should be in ON position. This
compensates for the increased temperature in return air resulting
from bypass.
NOTE: If modulating dampers are used, blower motor
automatically compensates for modulating dampers.
Additional Setup Switches (SW4)
The furnace control has 3 additional setup switches labeled SW4.
(See Fig. 33.) Setup switch SW4-2 can be used to lock the
furnace into medium heat. When setup switch SW4-2 is ON the
furnace will remain at medium heat until W/W1 is de-energized
to end a heating cycle or when both W/W1 and W2 are energized.
When both W/W1 and W2 are energized the furnace will run at
high heat. The other 2 setup switches are currently not used for
anything. When setup switch SW4-2 is ON it will over ride setup
switch SW1-2 if it is ON. To activate setup switch SW4-2:
1. Remove main furnace door and blower access panel.
44

2.Locate setup switch SW4 on furnace control. (See Fig.
33.)
3. See Table 5 for setup switch description. (See Fig. 40 and
Fig. 49.)
4. Replace main Nrnace door and blower access panel.
Prime Condensate Trap with Water
UNIT OPERATION HAZARD
Failure to follow this caution may result in internfittent unit
operation or performance satisfaction.
Condensate trap must be PRIMED or proper draining may
not occur. The condensate trap has two internal chambers
which can ONLY be primed by pouring water into the
inducer drain side of condensate trap.
A04001
Fig. 48 - Example of Setup Switch in Off Position
45

i
E
o>
8
TO 11SVAC [INN_ N_ SCHN'I]C N I
_---_ ::::::: ........................................................................................................................................
[I.....I :
.......K_, _;_ ............._,
...............................................................................2 _/ \
.........................................................;_I _ -\
/L.... z
I
: ....................._,_._ ...............................................

Fig. 50 - Inducer Housing Drain 1hbe
A99118 A01050
Fig. 51 - Filling Condensate Trap
Table 9 -Furnace Setup Switch Description
SETUP SWITCH NORMAL
SWITCH NAME DESCRIPTION OF USE
NO. POSITION
Turn ON to retrieve up to 7 stored status codes for troubleshooting
SW1 - 1 Status Code Recovery OFF assistance when R thermostat lead is disconnected.
When SW1-2 and SW4-2 are OFF allows step-modulating opera-
Low Heat Only tion with a single stage thermostat. Turn ON when using 2 stage
SW1-2 (Adaptive Heat Mode when OFF
OFF) thermostat to allow Low Heat operation when R to W/W1 closes and
High Heat operation when R to W/W1 and W2 close.
Turn ON to increase Low and Medium Heat airflow by 18 percent.
This compensates for increased return air temperature caused with
SW1-3 Low/Medium Heat Rise Adjust OFF bypass humidifier. This also increases the Low and Medium Heat
inducer speed 15 percent
Turn ON to decrease Low Heat airflow 9 percent,
Comfort/Efficiency Adjust- ON Medium Heat airflow 7 percent,
SW1-4 ment and High Heat airflow 15 percent for maximum comfort.
SW1-5 CFM per ton adjust OFF Turn ON for 400 CFM per ton. Turn OFF for 350 CFM per ton.
Turn ON to initiate Component Self Test for troubleshooting
SW1-6 Component Self Test OFF assistance when R thermostat lead is disconnected. Turn OFF
when Self Test is completed.
SW1-7 Blower OFF delay ON or OFF Blower Off Delay time.
and SW1-8 See Table 6.
Medium Heat Only (Adaptive When SW1-2 and SW4-2 are OFF allows step-modulating opera-
tion with a single stage thermostat. Turn ON when using 2 stage
SW4-2 Heat Mode OFF
when OFF) thermostat to allow Medium Heat operation when R to W/W1 closes
and High Heat operation when R to W/W1 and W2 close.
1. Remove upper inducer housing drain connection cap. (See
Fig. 500
2. Connect field-supplied 1/2-in. ID tube to upper inducer
housing drain connection.
3. Insert field-supplied flmnel into tube.
4. Pour 1 quart of water into flmnel/tube. Water should run
through inducer housing, overfill condensate trap, and
flow into open field drain. (See Fig. 51.)
47

Purge Gas Lines
If not previously done, purge the lines after all connections have
been made and check for leaks.
FIRE AND EXPLOSION HAZARD
Failure to follow this warning could result in a fire,
explosion, personal iniury, or death.
Never purge a gas line into a combustion chamber. Never
test for gas leaks with an open flame. Use a commercially
available soap solution made specifically for the detection
of leaks to check all connections.
Step 3 -- Sequence of Operation
UNIT OPERATION HAZARD
Failure to follow this caution may result in intermittent unit
operation.
Furnace control must be grounded for proper operation, or
control will lock out. Control is grounded through
green/yellow wire routed to gas valve and burner box
screw.
Using the schematic diagram (See Fig. 48), follow the sequence
of operation through the different modes. Read and follow the
wiring diagram very carefully. ! !
NOTE: If a power interruption occurs during a call for heat
(W/W1 or W/Wl-and-W2), the control will start a 90-second
blower-only ON period two seconds after power is restored, if
the thermostat is still calling for gas heating. The amber LED
light will flash code 12 during the 90-second period, after which
the LED will be ON continuous, as long as no faults are detected.
After the 90-second period, the furnace will respond to the
thermostat normally.
The blower door nmst be installed for power to be conducted
through the blower door interlock switch ILK to the furnace
control CPU, transformer TRAN, inducer motor IDM, blower
motor BLWM, hot surface igniter HSI, throttling valve TV, and
gas valve GV.
Sin_le-Sta_e Thermostat and Steo-Modulatin_ Heatin_
(Adaptive Mode)
See Fig. 29 or Fig. 59 for thermostat connections.
NOTE: Low-heat only switch SWl-2 selects the low-heat only
operation mode when ON. Medium-heat only switch SW4-2
selects medium-heat only operation mode when ON. If both
switches are ON the furnace control will default to medium-heat.
If either or both switches are ON the furnace control will operate
at two-stages only as referenced in Section 2 below. If both
switches are OFF the furnace control will operate in the adaptive
heating mode in response to a call for heat. (See Fig. 33.) When
the W2 thermostat terminal is energized it will always cause
high-heat operation as long as the R to W circuit is closed,
regardless of the setting of the low-heat or medium-heat only
switches.
This furnace can operate as a step-modulating furnace with a
single-stage thermostat because the furnace control CPU includes
a programmed adaptive sequence of controlled operation, which
selects low-heat, medium-heat, or high-heat operation. This
selection is based upon the stored history of the length of
previous gas-heating periods of the single-stage thermostat.
The furnace will start up in either medium-, or high-heat. The
furnace will operate in low-heat after starting and operating for 1
minute at medium-heat before transitioning to low-heat. The
furnace control CPU determines the combined low-heat and
medium-heat on-time (from 0 to 16 minutes) which is permitted
before switching to high heat.
If the power is interrupted, the stored history is erased and the
furnace control CPU will select medium-heat for 1 minute,
low-heat for 15 minutes and then switch to high-heat, as long as
the thermostat continues to call for heat. Subsequent selection is
based on stored history of the thermostat cycle times.
The wall thermostat "calls for heat", closing the R to W circuit.
The furnace control CPU performs a self-check, verifies the
low-heat and medium-heat pressure switch contacts LPS and
MPS are open, then de-energizes the HPSR relay to close the NC
contact.
1. Inducer Prepurge Period - The furnace control CPU turns
on inducer motor IDM and slowly increases the inducer
motor speed. After the low-heat pressure switch LPS
closes the furnace control CPU continues to increase the
inducer motor speed until the medium-heat pressure
switch MPS closes. When the medium-heat pressure
switch MPS closes, throttling valve TV is energized, in-
ducer motor RPM is noted by the furnace control CPU,
and a 25-second prepurge period begins. The RPM is
used to evaluate vent system resistance. This evaluation is
then used to determine the required RPM necessary to op-
erate the inducer motor during medium-heat prepurge, the
first minute of medium-heat mode, and low-heat mode.
NOTE: The heat cycle can start in either high- or medium-heat.
If a high-heat cycle is initiated, the furnace control CPU will
continue to increase the inducer motor speed after the
medium-heat pressure switch MPS closes. When the
medium-heat pressure switch closes, throttling valve TV is
energized, inducer motor RPM is noted by the furnace control
CPU, and a 25-second prepurge period begins. The RPM is used
to evaluate vent system resistance. This evaluation is then used to
determine the required RPM necessary to operate the inducer
motor in high-heat pre-purge, and high-heat mode.
2. Igniter Warm-Up -- At the end of the prepurge period,
the Hot-Surface Igniter HSI is energized for a 17-second
igniter warm-up period.
3. Trial-For-Ignition Sequence -- When the igniter warm-
up period is completed the main gas valve relay contact
GVR closes to energize the gas valve solenoid GV-M.
The gas valve solenoid GV-M permits gas flow to the
burners where it is ignited. Five seconds after the GVR
closes, a 2- second Flame-Proving period begins. The
HSI igniter will remain energized until flame is sensed or
until the 2-second flame proving period begins.
If the furnace control CPU selects high-heat operation, the
high-heat gas valve solenoid GV-HI is energized when
the high-heat pressure switch HPS closes.
4. Flame-Proving -- When the burner flame is proved at the
flame-proving sensor electrode FSE, the furnace control
CPU begins the blower-ON delay period and continues to
hold the gas valve GV-M open. If the burner flame is not
proved within two seconds, the furnace control CPU will
close the gas valve GV-M, and the furnace control CPU
will repeat the ignition sequence for up to three more Tri-
als-For-Ignition before going to Ignition-Lockout. Lock-
out will be reset automatically after three hours, by mo-
mentarily interrupting 115 vac power to the furnace, or by
interrupting 24 vac power at SEC1 or SEC2 to the furnace
control CPU (not at W/Wl, G, R, etc.).
If flame is proved when flame should not be present, the
furnace control CPU will lock out of Gas-Heating mode
48

andoperatethe inducer motor IDM at full speed until
flame is no longer proved.
5. Inducer Speed Change -- If the cycle starts in medium
heat, the furnace control CPU reduces the inducer speed
slightly after flame sense. If cycle starts in high-heat, the
furnace control CPU increases the inducer speed after
flame sense. The reduction in speed in medium-heat is to
optimize combustion for maximum efficiency.
6. Blower-On delay -- If the burner flame is proven the
blower-ON delay for medium-heat and high-heat are as
follows:
Medium-heat -- 60 seconds after the gas valve GV-M is
opened the blower motor BLWM is turned ON at low- or
medium-heat airflow.
High-heat -- 35 seconds after the gas valve GV-M is
opened the BLWM is turned ON at high-heat airflow.
Simultaneously, the humidifier terminal HUM and elec-
tronic air cleaner terminal EAC-I are energized and re-
main energized throughout the heating cycle.
7. Switching from Medium- to Low-Heat -- If the fur-
nace control switches from medium-heat to low-heat, the
furnace control will turn the blower ON at low-heat air-
flow, energize the HPSR relay to open the NC contact, and
slowly decrease the inducer motor speed. When the HPSR
relay is energized and the NC contact opens the throttling
valve TV is deenergized and the gas flow reduces to low-
heat rate.
Switching from Low- to Medium-Heat -- If the fur-
nace control CPU switches from low-heat to medium-
heat, the furnace control CPU will de-energize the HPSR
relay to close the NC contact and slowly increase the in-
ducer motor speed until the medium-heat pressure switch
MPS closes. When the medium-heat pressure switch MPS
closes, the throttling valve solenoid TV is energized and
the inducer motor RPM is noted by the furnace control
CPU. The RPM is used to evaluate vent system resistance.
This evaluation is then used to determine the required
RPM necessary to operate the inducer motor in medium-
heat and high-heat mode. The blower motor BLWM will
transition to medium-heat airflow five seconds after the
furnace control CPU switches from low-heat to medium-
heat.
Switching from Low- to High-Heat -- If the furnace
control CPU switches from low-heat to high-heat, the fur-
nace control CPU will de-energize the HPSR relay to
close the NC contact and slowly increase the inducer mo-
tor speed until the medium-heat pressure switch MPS
closes. When the medium-heat pressure switch MPS
closes, the throttling valve solenoid TV is energized and
the inducer motor RPM is noted by the furnace control
CPU. The RPM is used to evaluate vent system resistance.
This evaluation is then used to determine the required
RPM necessary to operate the inducer motor in medium-
and high-heat mode. The blower motor BLWM will trans-
ition to high-heat airflow five seconds after the furnace
control CPU switches from low-heat to high-heat. As the
inducer RPM gradually increases the high-heat pressure
switch HPS closes and the gas valve solenoid GV-HI is
energized.
Switching from Medium- to High-Heat -- If the fur-
nace control CPU switches from medium-heat to high-
heat, the furnace control CPU will gradually increase the
inducer motor speed to the required high-heat RPM. The
blower motor BLWM will transition to high-heat airflow
five seconds after the furnace control CPU switches from
medium-heat to high heat. As the inducer RPM gradually
increases the high-heat pressure switch HPS closes and
the gas valve solenoid GV-HI is energized.
Switching from High- to Medium- or Low-Heat --
The furnace control CPU will not switch from high-heat
to medium- or low-heat while the thermostat R to W cir-
cuit is closed when using a single-stage thermostat.
8. Blower-Off Delay -- When the thermostat is satisfied,
the R to W circuit is opened, de-energizing the gas valve
GV-M, stopping gas flow to the burners, and de-energiz-
ing the throttling valve TV, and humidifier terminal HUM.
The inducer motor IDM will remain energized for a
15-second post-purge period. The blower motor BLWM
and air cleaner terminal EAC-I will remain energized at
low-heat airflow or transition to low-heat airflow for 90,
120, 150, or 180 seconds (depending on selection at
blower-OFF delay switches). The furnace control CPU is
factory-set for a 120-second blower- OFF delay.
Two-Stage Thermostat and Two-Stage Low /High Heating
See Fig. 58 for thermostat connections.
NOTE: In this mode the low-heat only switch SWI-2 must be
ON to select the low-heat only operation mode in response to
closing the thermostat R to WI circuit. Closing the thermostat R
to Wl-and-W2 circuits always causes high-heat operation,
regardless of the setting of the low-heat only switch.
The furnace will start up in either medium-, or high-heat. The
furnace will operate in low-heat after starting and operating for 1
minute at medium-heat before transitioning to low-heat.
The wall thermostat "calls for heat", closing the R to WI circuit
for low-heat or closing the R to Wl-and-W2 circuits for
high-heat. The furnace control performs a self-check, and
verifies the low-heat and medium-heat pressure switch contacts
LPS and MPS are open, then de-energizes the HPSR relay to
close the NC contact.
The start up and shut down functions and delays described above
apply to the 2-stage low/high heating mode as well, except for
switching from high- to low-heat.
1. Switching from High- to Low-Heat -- If the thermostat
R to W2 circuit opens, and the R to Wl circuit remains
closed, the furnace control CPU will gradually decrease
the inducer motor speed to the required medium-heat
RPM. When the inducer motor IDM reduces pressure suf-
ficiently, the high heat pressure switch HPS will open and
the high-heat gas valve solenoid GV-HI will be de-ener-
gized. The gas valve solenoid GV-M will remain ener-
gized as long as the low-heat pressure switch LPS remains
closed. When the inducer motor speed gets within 15% of
the required medium-heat RPM the furnace control CPU
will start a 5 second blower airflow change delay. After the
5 second blower airflow change delay is completed the
blower airflow will transition to low-heat airflow. At this
point the furnace control CPU will energize the HPSR re-
lay to open the NC contact and slowly decrease the in-
ducer motor speed to the required low-heat RPM. When
the HPSR relay is energized and the NC contact opens the
throttling valve TV is de-energized and the gas flow re-
duces to low-heat rate. When the inducer motor IDM re-
duces pressure sufficiently, the medium-heat pressure
switch MPS will open.
Two-Stage Thermostat and Two-Stage Medium/High
Heating
See Fig. 58 for thermostat connections.
NOTE: In this mode the medium-heat only switch SW4-2 must
be ON to select the medium-heat only operation mode in
response to closing the thermostat R to WI circuit. Closing the
thermostat R to Wl-and-W2 circuits always causes high-heat
operation, regardless of the setting of the medium-heat only
switch.
The wall thermostat "calls for heat", closing the R to WI circuit
for medium-heat or closing the R to Wl-and-W2 circuits for
49

high-heat.Thefurnacecontrolperformsa self-check,and
verifiesthelow-heatandmedium-heatpressureswitchcontacts
LPSandMPSareopen,thende-energizestheHPSRrelayto
closetheNCcontact.
Thestartupandshutdownfunctionsanddelaysdescribedabove
applytothe2-stagemedium/highheatingmodeaswell,except
forswitchingfromhigh-tomedium-heat.
1.SwitchingfromHigh-to Medium-Heat -- If the ther-
mostat R to W2 circuit opens, and the Rto Wl circuit re-
mains closed, the furnace control CPU will gradually de-
crease the inducer motor speed to the required
medium-heat RPM. When the inducer motor IDM re-
duces pressure sufficiently, the high heat pressure switch
HPS will open and the high-heat gas valve solenoid GV-
HI will be de-energized. The gas valve solenoid GV-M
will remain energized as long as the low-heat pressure
switch LPS remains closed. When the inducer motor speed
gets within 15% of the required medium-heat RPM the
furnace control CPU will start a 5 second blower airflow
change delay. After the 5 second blower airflow change
delay is completed the blower airflow will transition to
medium-heat airflow.
Cooling Mode
The thermostat "calls for cooling."
2. Single-Speed Cooling
See Fig. 29 for thermostat connections.
The thermostat closes the R to G-and-Y circuits. The R to
Y circuit starts the outdoor unit, and the R to G-and-Y/Y2
circuits start the furnace blower motor BLWM on cooling
airflow. Cooling airflow is based on the A/C selection
shown in Fig. 47.
The electronic air cleaner ternfinal EAC-1 is energized
with 115 vac when the blower motor BLWM is operating.
When the thermostat is satisfied, the R to G-and-Y cir-
cuits are opened. The outdoor unit will stop, and the fur-
nace blower motor BLWM will continue operating at
cooling airflow for an additional 90 seconds. Jumper
Y/Y2 to DHUM to reduce the cooling off-delay to 5
seconds. (See Fig. 33.)
3. Single-Stage Thermostat and Two-Speed Cooling (Ad-
aptive Mode)
See Fig. 59 for thermostat connections.
This furnace can operate a two-speed cooling unit with a
single-stage thermostat because the furnace control CPU
includes a programmed adaptive sequence of controlled
operation, which selects low-cooling or high-cooling op-
eration. This selection is based upon the stored history of
the length of previous cooling period of the single-stage
thermostat.
NOTE: The air conditioning relay disable jumper ACRDJ nmst
be connected to enable the adaptive cooling mode in response to
a call for cooling. (See Fig. 33.) When in place the furnace
control CPU can turn on the air conditioning relay ACR to
energize the Y/Y2 ternfinal and switch the outdoor unit to
high-cooling.
The furnace control CPU can start up the cooling unit in either
low- or high-cooling. If starting up in low-cooling, the furnace
control CPU deternfines the low-cooling on-time (from 0 to 20
nfinutes) which is pernfitted before switching to high-cooling.
If the power is interrupted, the stored history is erased and the
furnace control CPU will select low-cooling for up to 20 nfinutes
and then energize the air conditioning relay ACR to energize the
Y/Y2 ternfinal and switch the outdoor unit to high-cooling, as
long as the thermostat continues to call for cooling. Subsequent
selection is based on stored history of the thermostat cycle times.
The wall thermostat "calls for cooling", closing the R to G and-
Y circuits. The R to Y1 circuit starts the outdoor unit on
5O
low-cooling speed, and the R to G-and-Y1 circuits starts the
furnace blower motor BLWM at low-cooling airflow which is the
true on-board CF selection as shown in Fig. 47.
If the furnace control CPU switches from low-cooling to high
cooling, the furnace control CPU will energize the air
conditioning relay ACR. When the air conditioning relay ACR is
energized the R to Yl-and-Y2 circuits switch the outdoor unit to
high-cooling speed, and the R to G-and-Y1- and-Y/Y2 circuits
transition the furnace blower motor BLWM to high-cooling
airflow. High-cooling airflow is based on the A/C selection
shown in Fig. 47.
NOTE: When transitioning from low-cooling to high-cooling
the outdoor unit compressor will shut down for 1 nfinute while
the furnace blower motor BLWM transitions to run at
high-cooling airflow.
The electronic air cleaner ternfinal EAC-1 is energized with 115
vac whenever the blower motor BLWM is operating.
When the thermostat is satisfied, the R to G-and-Y circuit are
opened. The outdoor unit stops, and the furnace blower BLWM
and electronic air cleaner ternfinal EAC-1 will remain energized
for an additional 90 seconds. Jumper Y1 to DHUM to reduce the
cooling off-delay to 5seconds. (See Fig. 33.)
4. Two-Stage Thermostat and Two-Speed Cooling
See Fig. 58 for thermostat connections.
NOTE: The air conditioning relay disable jumper ACRDJ nmst
be disconnected to allow thermostat control of the outdoor unit
staging. (See Fig. 33.)
The thermostat closes the R to G-and-Y1 circuits for low cooling
or closes the R to G-and-Yl-and-Y2 circuits for high cooling.
The R to Y1 circuit starts the outdoor unit on low cooling speed,
and the R to G-and-Y1 circuit starts the furnace blower motor
BLWM at low-cooling airflow which is the true on-board CF
selection as shown in Fig. 47. The R to Yl-and-Y2 circuits start
the outdoor unit on high-cooling speed, and the R to
G-and-Y/Y2 circuits start the furnace blower motor BLWM at
high-cooling airflow. High-cooling airflow is based on the A/C
selection shown in Fig. 47.
The electronic air cleaner ternfinal EAC-1 is energized with 115
vac whenever the blower motor BLWM is operating.
When the thermostat is satisfied, the R to G-and-Y1 or R to
G-and-Yl-and-Y2 circuits are opened. The outdoor unit stops,
and the furnace blower BLWM and electronic air cleaner ternfinal
EAC-1 will remain energized for an additional 90 seconds.
Jumper Y1 to DHUM to reduce the cooling off-delay to 5
seconds. (See Fig. 33.)
Thermidistat Mode
See Fig. 52-55 for thermostat connections.
The dehumidification output, DHUM on the Thermidistat should
be connected to the furnace control thermostat terminal DHUM.
When there is a dehumidify demand, the DHUM input is
activated, which means 24 vac signal is removed from the
DHUM input terminal. In other words, the DHUM input logic is
reversed. The DHUM input is turned ON when no dehumidify
demand exists. Once 24 vac is detected by the furnace control on
the DHUM input, the furnace control operates in Thernfidistat
mode. If the DHUM input is low for more than 48 hours, the
furnace control reverts back to non-Thernfidistat mode.
The cooling operation described above also applies to operation
with a Thernfidistat. The exceptions are listed below:
1. Low cooling - When the R to G-and-Yl circuit is closed
and there is a demand for dehunfidification, the furnace
blower motor BLWM will drop the blower airflow to 86%
of low cooling airflow which is the true on-board CF se-
lection as shown in Fig. 47.
2. High cooling - When the R to G-and Y/Y2 circuit is
closed and there is a demand for dehunfidification, the fur-

naceblowermotorBLWMwilldroptheblowerairflowto
86%of high-coolingairflow.High-coolingairflowis
basedontheA/CselectionshowninFig.47.
3.Coolingoff-delay- Whenthe"callforcooling"issatis-
fiedandthereisademandfordehumidification,thecool-
ingblower-offdelayisdecreasedfrom90secondsto5
seconds.
Super Dehumidify Mode
Super-Dehumidify mode can only be entered if the furnace
control is in the Thermidistat mode and there is a demand for
dehumidification. The cooling operation described in item 4.
above also applies to operation with a Thermidistat. The
exceptions are listed below:
1. Low cooling - When the R to Y1 circuit is closed, R to G
circuit is open, and there is a demand for dehumidification,
the furnace blower motor BLWM will drop the blower air-
flow to 65% of low-cooling airflow for a maximum of 10
minutes each cooling cycle or until the R to G circuit
closes or the demand for dehumidification is satisfied.
Low-cooling airflow is the true on-board CF selection as
shown in Fig. 47.
2, High cooling - When the R to Y/Y2 circuit is closed, R to
G circuit is open, and there is a demand for dehumidifica-
tion, the furnace blower motor BLWM will drop the
blower airflow to 65% of high-cooling airflow for a max-
imum of 10 minutes each cooling cycle or until the R to G
circuit closes or the demand for dehumidification is satis-
fied. High-cooling airflow is based on the A/C selection
shown in Fig. 47.
3. Cooling off-delay - When the "call for cooling" is satis-
fied and there is a demand for dehumidification, the cool-
ing blower-off delay is decreased from 90 seconds to 5
seconds.
Continuous Blower Mode
When the Rto G circuit is closed by the thermostat, the blower
motor BLWM will operate at continuous blower airflow.
Continuous blower airflow selection is initially based on the CF
selection shown in Fig. 47. Factory default is shown in Fig. 47.
Terminal EAC-1 is energized as long as the blower motor
BLWM is energized.
During a call for heat, the furnace control CPU will transition the
blower motor BLWM to continuous blower airflow, low-heat
airflow, or the mid-range airflow, whichever is lowest. The
blower motor BLWM will remain ON until the main burners
ignite then shut OFF and remain OFF for the blower-ON delay
(60 seconds in medium heat, and 35 seconds in high-heat),
allowing the furnace heat exchangers to heat up more quickly,
then restarts at the end of the blower-ON delay period at
low-heat, medium-heat, or high-heat airflow respectively.
The blower motor BLWM will revert to continuous-blower
airflow after the heating cycle is completed. In high-heat, the
furnace control CPU will drop the blower motor BLWM to
low-heat airflow during the selected blower-OFF delay period
before transitioning to continuous-blower airflow.
When the thermostat "calls for low-cooling", the blower motor
BLWM will operate at low-cooling airflow. When the thermostat
is satisfied, the blower motor BLWM will operate an additional
90 seconds at low-cooling airflow before transitioning back to
continuous-blower airflow.
When the thermostat "calls for high-cooling", the blower motor
BLWM will operate at high cooling airflow. When the thermostat
is satisfied, the blower motor BLWM will operate an additional
90 seconds at high-cooling airflow before transitioning back to
continuous-blower airflow.
When the R to G circuit is opened, the blower motor BLWM will
continue operating for an additional 5seconds, if no other
flmction requires blower motor BLWM operation.
Continuous Blower Speed Selection from Thermostat
To select different continuous-blower airflows from the room
thermostat, momentarily turn off the FAN switch or push button
on the room thermostat for 1-3 seconds after the blower motor
BLWM is operating. The furnace control CPU will shift the
continuous-blower airflow from the factory setting to the next
highest CF selection airflow as shown in Fig. 47. Momentarily
turning off the FAN switch again at the thermostat will shift the
continuous-blower airflow up one more increment. If you repeat
this procedure enough you will eventually shift the continuous
blower airflow to the lowest CF selection as shown in Fig. 47.
The selection can be changed as many times as desired and is
stored in the memory to be automatically used following a power
interruption.
Heat Pump
See Fig. 54-57 for thermostat connections. When installed with
a heat pump, the furnace control automatically changes the timing
sequence to avoid long blower off times during demand defrost
cycles. Whenever W/W1 is energized along with Y1 or Y/Y2, the
furnace control CPU will transition to or bring on the blower
motor BLWM at cooling airflow, low-heat airflow, or the
mid-range airflow, whichever is lowest. The blower motor
BLWM will remain on until the main burners ignite then shut
OFF and remain OFF for 25 seconds before coming back on at
heating airflow. When the W/W1 input signal disappears, the
furnace control begins a normal inducer post-purge period while
changing the blower airflow. If Y/Y2 input is still energized the
furnace control CPU will transition the blower motor BLWM
airflow to cooling airflow. If Y/Y2 input signal disappears and
the Y1 input is still energized the furnace control CPU will
transition the blower motor BLWM to low-cooling airflow. If
both the Y1 and Y/Y2 signals disappear at the same time, the
blower motor BLWM will remain on at low-heat airflow for the
selected blower-OFF delay period. At the end of the
blower-OFF delay, the blower motor BLWM will shut OFF
unless G is still energized, in which case the blower motor
BLWM will operate at continuous blower airflow.
Component Test
The furnace features a component test system to help diagnose a
system problem in the case of a component failure. To initiate the
component test procedure, ensure that there are no thermostat
inputs to the control and all time delays have expired. Turn on
setup switch SWl-6. (See Fig. 33)
NOTE: The component test feature will not operate if the control
is receiving any thermostat signals or until all time delays have
expired.
The component test sequence is as follows:
1. The furnace control CPU turns the inducer motor IDM
ON at medium speed and keeps it ON through step 3.
2. After waiting 15 seconds the furnace control CPU turns
the hot surface igniter ON for 15 seconds, then OFF.
3. The furnace control CPU then turns the blower motor
BLWM ON at mid-range airflow for 15 seconds, then
OFF.
4. After shutting the blower motor BLWM OFF the furnace
control CPU shuts the inducer motor IDM OFF.
NOTE: The EAC terminals are energized when the blower is
operating.
After the component test is completed ,1 or more status codes
(11, 25, 41, or 42) will flash. See Service Label on blower access
panel or Service/Status Code Instructions for explanation of
status codes.
NOTE: To repeat component test, turn setup switch SWl-6 to
OFF and then back ON.
51

'H4ERMIDISTAT STEP M©D S NGLD-SPEED
FURNACE AIR C©NOtTIONER
HEAT STAGE 1 ................
COOL STAGE I
I
HU:M ©IP;ER I_._ "
(24 VAC) ....
O{JTDOOR
SEI';SOR
See motes 2i 5 7 10 a_d II
A06678
Fig. 52 - Step-Modulating Furnace with Single-Speed Air
Conditioning
TH£RM: DIS_'AT STEP, MOD, TW%_,SP_ED
_ URNACE AR CONOH iONER
4_AiT STAGE 2
COOL STAGE
H_AT STAGE
COOL STAGE 2
AN
24 ",/AC H©*[
OEHUM_D_:Y
24 VAC CGMM
J '7¢2 t
j ........
.4_ I
.4_ iI
SENSOR
See r_otes 2 5 8, I0, i I, a#d 12
SH£RN DISTAT 8TSP-MOD
?URNACE
$aNGLE SPE_D
_q£AT PUMP
,_2_oTE!.
H£AT STAGE 2.......................................
PAN _ .....................
24 VAC HOT _ ..............
CONNBCSIO .,
See noes I 2 4, 6, 7, 9, 10, 1t _nd _5
A06680
Fig. 54 - Step Modulating Furnace with Single-Speed Heat
Pump (Dual Fuel)
TH_RM DiS rA'l srsP_Moo TWO-SPEED
FURNAC_ HEAT PUMP
A06679
Fig. 53 -Step Modulating Furnace with Two-Speed Air
Conditioner
A06681
Fig. 55 -Step Modulating Furnace with Two-Speed Heat
Pump (Dual Fuel)
52

DUAL _-UEL
T_ RMOSTAT
STEP,MOD Sling8_S_EED TWOSTAGE STEP,,MOD_ TWOSPEED
FUR:NAC£ HEAT FUMP THERMOSTAT FURNACE AiRCONDITIONER
Seenet_si,2 4, 11 I4 15 ae16
A06682
Fig. 56 - Step Modulating Furnace with Single-Speed Heat
Pump
NOTE11 ).
NOTEi2 "'_]
Seenoie_2, _1.an_12
A06684
Fig. 58 - Two-Stage Thermostat with Step Modulating
Furnace and Two-Speed Air Conditioner
DUAL F_Et ST_P.MOD T¢/,O_BPE_D
fHERMO TAT FURNACE HEAl P_J_P
A06683
Fig. 57 - Dual Fuel thermostat with Step-Modulating
Furnace and Two-Speed Heat Pump
SINGLEoSTAGE STEP,MOD TWOoSPEED
THERMOSTAT FURNACE AIRCONDITIONER
HUN
See_'_ote2
A06685
Fig. 59 - Single-Stage Thermostat with Step Modulating
Furnace and Two-Speed Air Conditioner
53

NOTE: Reference Fig. 52-59:
1. Heat pump MUST have a high pressure switch for dual
fuel applications.
2. Refer to outdoor equipment Installation Instructions for
additional information and setup procedure.
3. Select the "ZONE" position on the two-speed heat pump
control.
4. Outdoor Air Temperature Sensor must be attached in all
dual fuel applications.
5. Dip switch No.l on Thermidistat should be set in OFF po-
sition for air conditioner installations. This is factory de-
fault.
6. Dip switch No. 1 on Thermidistat should be set in ON po-
sition for heat pump installations.
7. Dip switch No. 2 on Thermidistat should be set in OFF
position for single-speed compressor operation. This is
factory default.
8. Dip switch No. 2 on Thermidistat should be set in ON po-
sition for two-speed compressor operation.
9. Configuration Option No. 10 "Dual Fuel Selection" must
be turned ON in all dual fuel applications.
10. NO connection should be made to the furnace HUM ter-
minal when using a Thermidistat.
11. Optional connection. If wire is connected to W2 on fur-
nace control board, either dip switch SWI-2 or SW4-2 on
furnace control should be set in ON position to allow
Thernaidistat/Thernmstat to control furnace at 2 stages
Low/High or Medium/High.
12. Optional connection. If wire is connected, ACRDJ jumper
on furnace control should be removed to allow Thermidis-
tat/Thermostat to control outdoor unit staging.
13. Furnace nmst control its own staging operation via furnace
control algorithm. This is factory default.
14. The RVS Sensing terminal "L" should not be connected.
This is internally used to sense defrost operation.
15. DO NOT SELECT the "FURNACE INTERFACE" or
"BALANCE POINT" option on the two-speed heat pump
control board. This is controlled internally by the Thermi-
distat/Dual Fuel Thermostat.
16. Dip switch D on Dual Fuel Thermostat should be set in
OFF position for single-speed compressor operation. This
is factory default.
17. Dip switch D on Dual Fuel Thermostat should be set in
ON position for two-speed compressor operation.
Step 4 -- Adjustments
Set Gas Input Rate
Furnace gas input rate on rating plate is for installations at
altitudes up to 2000 ft. (609.6M).
In the USA., the input rating for altitudes above 2000 ft.
(609.6M) nmst be reduced by 2 percent for each 1000 ft.
(304.8M) above sea level.
In Canada, the input rating must be derated by 5percent for
altitudes of 2000 ft. (609.6M) to 4500 ft. (1371.6M) above sea
level.
Adjust manifold pressure to obtain input rate.
Furnace input rate must be within +2 percent of input rate on
furnace rating plate.
1. Determine natural gas orifice size and manifold pressure
for correct input.
a. Obtain average heat value (at installed altitude) from local
gas supplier.
b. Obtain average specific gravity from local gas supplier.
c. Verify furnace model. Table 10 can only be used for mod-
el 58MVC Furnaces.
d. Find installation altitude in Table 10.
NOTE: For Canadian altitudes of 2000 to 4500 ft. (609.6 to
1371.6M), use USA. altitudes of 2001 to 3000 ft. (609.6 to
914.4M) in Table 10.
e. Find closest natural gas heat value and specific gravity
in Table 10.
f. Follow heat value and specific gravity lines to point of
intersection to find orifice size and low-, medium-, and
high-heat manifold pressure settings for proper opera-
tion.
EXAMPLE: 0 - 2000 ft. (0 - 609.6M) altitude
Heating value = 1050 Btu/cu ft.
Specific gravity = 0.62
Therefore: Orifice No. 45
Manifold pressure: 3.8-in. wc for high heat 1.6-in. wc for medium
heat 0.6-in. wc for low heat
* Furnace is shipped with No. 45 orifices. In this example, all main
burner orifices are the correct size and do not need to be changed to
obtain proper input rate.
g. Check and verify burner orifice size in furnace. NEVER
ASSUME ORIFICE SIZE; ALWAYS CHECK AND
VERIFY.
2. Adjust manifold pressure to obtain input rate.
HIGH-HEAT
ON/OFF (UNDERCAP)
INLET
_i PRE_SAU_E
BURNER
ENCLOSURE
REFERENCE
TAP
MEDIUM-HEAT
ADJUSTMENT
(UNDERCAP) LOW-HEAT
ADJUSTMENT
(UNDERCAP) MANIFOLDJ
PRESSURE
TAP
Fig. 60 - Redundant Automatic Gas Valve
A07280
a. Remove burner enclosure front.
NOTE: Manifold pressure MUST always be measured with the
burner box cover REMOVED.
b. Remove regulator seal caps that conceal adjustment
screws for medium- and high-heat gas valve regulators.
(See Fig. 60.)
c. Move setup switch SW4-2 on control center to ON posi-
tion. (See Fig. 33.) This keeps furnace locked in medium-
heat operation.
54

d.JumperRand W/W1 thermostat connections on control
to start furnace.
e. Turn medium-heat adjusting screw counterclockwise
(out) to decrease manifold pressure or clockwise (in) to
increase manifold pressure.
NOTE: DO NOT set medium-heat manifold pressure less than
1.3- in. wc or more than 1.7-in. wc for natural gas.
UNIT DAMAGE HAZARD
Failure to follow this caution may result in reduced furnace
life.
DO NOT bottom out gas valve regulator adjusting screws.
This can result in unregulated manifold pressure and result
in excess over-fire and heat exchanger failures,
NOTE: If orifice hole appears damaged or it is suspected to have
been redrilled, check orifice hole with a numbered drill bit of
correct size. Never redrill an orifice. A burr-free and squarely
aligned orifice hole is essential for proper flame characteristics.
(See Fig. 61.)
f. Move setup switch SW4-2 to OFF position after com-
pleting medium-heat adjustment.
g. Jumper R and W/WI and W2 thermostat connections on
furnace control. (See Fig. 33.) This keeps furnace locked
in high-heat operation.
h. Turn high-heat adjusting screw counterclockwise (out)
to decrease manifold pressure or clockwise (in) to in-
crease manifold pressure.
NOTE: DO NOT set high-heat manifold pressure less than
3.2-in. wc or more than 3.8-in. wc for natural gas.
i. Remove jumpers R to W/WI and R to W2.
j. Wait for blower off-delay to finish then reset l15-v
power to furnace.
k. Jumper R and W/WI thermostat connections on control
to start furnace.
1. Wait for the blower to turn ON then check low-heat mani-
fold pressure. It should be between .5 to .6-in. wc. This
setting should not require adjustment but if it does re-
move the low-heat adjustment cap (See Fig. 60) and turn
the low-heat adjusting screw clockwise (in) to decrease
manifold pressure or counterclockwise (out) to increase
manifold pressure. You will only have 15 minutes to
make an adjustment if needed. If you need more time then
move setup switch SW1-2 on control center to ON posi-
tion (See Fig. 33).
NOTE: DO NOT set low-heat manifold pressure before setting
medium-heat manifold pressure. DO NOT set low-heat manifold
pressure less than .5-in. wc or more than .6-in. wc for natural
gas.
m. When correct manifold pressures are obtained, replace
caps that conceal gas valve adjustment screws. Main
burner flame should be clear blue, almost transparent.
(See Fig. 62.)
n. Remove jumper across R and W/Wl. If necessary move
setup switch SWI-2 to the OFF position.
3. Verify natural gas input rate by clocking gas meter.
NOTE: Be sure all pressure tubing, combustion-air and vent
pipes, and burner enclosure front are in place when checking
input by clocking gas meter.
a. Calculate high-altitude adjustment (if required).
UNITED STATES
At altitudes above 2000 ft. (609.6M), this furnace has
been approved for 2 percent derate for each 1000 ft.
(304.8M) above sea level. See Table 11 for derate multi-
plier factor and example.
CANADA
At installation altitudes from 2000 to 4500 ft. (609.6 to
1371.6M), this furnace must be derated 5 percent by an
authorized Gas Conversion Station or Dealer. To determ-
ine correct input rate for altitude, see example and use
0.95 as derate multiplier factor.
EXAMPLE: 80,000 BTUH HIGH-HEAT INPUT
FURNACE INSTALLED AT 4,300 ft. (1310.6M).
Furnace Input Rate at Sea Level X Derate Multiplier Fact-
or = Furnace Input Rate at Installation Altitude
80,000 X 0.91 = 72,800
b. Reinstall burner box cover.
NOTE: Clocking gas input rate MUST always be performed
with the burner box cover INSTALLED.
c. Check that gas valve adjustment caps are in place for
proper input to be clocked.
d. Obtain average heat value (at altitude) from local gas sup-
plier.
NOTE: Be sure heating value of gas used for calculations is
correct for your altitude. Consult local gas utility for altitude
adjustment of gas heating value.
e. Check and verify orifice size in furnace. NEVER
ASSUME THE ORIFICE SIZE. ALWAYS CHECK
AND VERIFY.
f. Turn off all other gas appliances and pilots.
g. Move setup switch SW4-2 to ON position. (See Fig. 33.)
This keeps furnace locked in medium-heat operation.
BURNER
ORIFICE
Fig. 61 - Burner Orifice
A93059
55

Table 10 -Orifice Size* and Manifold Pressures for Gas Input Rate
(Tabulated Data Based on 20,000 BTUH High Heat /13,000 Btuh Med-Heat /8,000 Btuh Low-Heat per Burner.
Derated 2% /1000 Ft. (304.8M) Above Sea Level)
ALTITUDE AVG. GAS
RANGE HEAT VALUE
AT ALTITUDE Orifice
ff lml (Btu/cu ft INo.
900 43
0 925 44
(0) 950 44
975 44
to 1000 44
_.. 1025 45
cn 2000 1050 45
"_ (610) 1075 45
1100 45
U.S.A. 800 43
2001 (611) 825 43
to 850 43
3000 (914) 875 44
900 44
Canada 925 44
_n 2001 (611) 950 45
to 975 45
450011372/ 1000 45
1 1
775 43
3001 800 43
--_ (915) 825 44
I_ 850 44
to 875 44
4000 900 44
(1219) 925 45
950 45
750 43
4001 775 43
--_ (1220) 800 44
I_ 825 44
4 to 850 44
"_ 5000 875 45
(1524) 900 45
925 45
725 43
5001 750 43
(1525) 775 44
I_ 800 44
4 to 825 44
"_ 6000 850 45
(1829) 875 45
900 45
675 42
6001 700 43
--_ (1830) 725 44
I_ 750 44
4 to 775 44
"_ 7000 800 45
(2133) 825 45
850 45
0.58
Mnfld Press
Hiclh/Med/Low
3.5 /1.5 /0.55
3.8 /1.6 /0.60
3.6 /1.5 /0.60
3.4 /1.5 /0.55
3.3 /1.4 /0.50
3.8 /1.6 /0.60
3.6 /1.5 /0.60
3.4 /1.4 /0.55
3.3 /1.4 /0.50
3.8 /1.6 /0.60
3.6 /1.5 /0.55
3.4 /1.4 /0.55
3.7 /1.5 /0.60
3.5 /1.5 /0.55
3.3 /1.4 /0.50
3.7 /1.6 /0.60
3.6 /1.5 /0.55
3.4 /1.4 /0.55
3.7 /1.6 /0.60
3.5 /1.5 /0.55
3.8 /1.6 /0.60
3.6 /1.5 /0.55
3.4 /1.4 /0.55
3.2 /1.3 /0.50
3.7 /1.5 /0.60
3.5 /1.5 /0.55
3.7 /1.6 /0.60
3.5 /1.5 /0.55
3.7 /1.6 /0.60
3.5 /1.5 /0.55
3.3 /1.4 /0.55
3.8 /1.6 /0.60
3.6 /1.5 /0.55
3.4 /1.4 /0.55
3.6 /1.5 /0.60
3.4 /1.4 /0.55
3.7 /1.5 /0.60
3.4 /1.5 /0.55
3.2 /1.4 /0.50
3.7 /1.6 /0.60
3.5 /1.5 /0.55
3.3 /1.4 /0.50
3.2 /1.3 /0.50
3.6 /1.5 /0.55
3.8 /1.6 /0.60
3.6 /1.5 /0.55
3.4 /1.4 /0.55
3.8 /1.6 /0.60
3.6 /1.5 /0.55
3.4 /1.4 /0.55
SPECIFIC GRAVITY OF NATURAL GAS
0.60
Orifice Mnfld Press Orifice
No. Hiclh/Med/Low No.
43 3.6 /1.5 /0.60 43
43 3.5 /1.5 /0.55 43
44 3.8 /1.6 /0.60 43
44 3.6 /1.5 /0.55 44
44 3.4 /1.4 /0.55 44
44 3.2 /1.4 /0.50 44
45 3.7 /1.6 /0.60 45
45 3.5 /1.5 /0.55 45
45 3.4 /1.4 /0.55 45
42 3.2 /1.4 /0.50 42
43 3.7 /1.6 /0.60 43
43 3.5 /1.5 /0.55 43
44 3.8 /1.6 /0.60 43
44 3.6 /1.5 /0.55 44
44 3.4 /1.4 /0.55 44
44 3.2 /1.4 /0.50 44
45 3.7 /1.6 /0.60 45
45 3.5 /1.5 /0.55 45
42 3.2 /1.3 /0.50 42
43 3.6 /1.5 /0.60 43
43 3.4 /1.4 /0.55 43
44 3.7 /1.6 /0.60 44
44 3.5 /1.5 /0.55 44
44 3.3 /1.4 /0.55 44
45 3.8 /1.6 /0.60 44
45 3.6 /1.5 /0.55 45
43 3.8 /1.6 /0.60 42
43 3.6 /1.5 /0.55 43
43 3.4 /1.4 /0.55 43
44 3.6 /1.5 /0.60 44
44 3.4 /1.4 /0.55 44
44 3.2 /1.4 /0.50 44
45 3.7 /1.6 /0.60 45
45 3.5 /1.5 /0.55 45
43 3.8 /1.6 /0.60 42
43 3.5 /1.5 /0.55 43
44 3.8 /1.6 /0.60 43
44 3.6 /1.5 /0.55 44
44 3.3 /1.4 /0.55 44
45 3.8 /1.6 /0.60 44
45 3.6 /1.5 /0.55 45
45 3.4 /1.4 /0.55 45
42 3.3 /1.4 /0.55 42
43 3.7 /1.6 /0.60 43
43 3.5 /1.5 /0.55 43
44 3.7 /1.6 /0.60 44
44 3.5 /1.5 /0.55 44
44 3.3 /1.4 /0.50 44
45 3.7 /1.6 /0.60 45
45 3.5 /1.5 /0.55 45
0.62
Mnfld Press
Hiclh/Med/Low
3.8 /1.6 /0.60
3.6 /1.5 /0.55
3.4 /1.4 /0.55
3.7 /1.6 /0.60
3.5 /1.5 /0.55
3.3 /1.4 /0.55
3.8 /1.6 /0.60
3.7 /1.5 /0.60
3.5 /1.5 /0.55
3.3 /1.4 /0.55
3.8 /1.6 /0.60
3.6 /1.5 /0.60
3.4 /1.4 /0.55
3.7 /1.6 /0.60
3.5 /1.5 /0.55
3.3 /1.4 /0.55
3.8 /1.6 /0.60
3.6 /1.5 /0.60
3.3 /1.4 /0.55
3.8 /1.6 /0.60
3.5 /1.5 /0.55
3.8 /1.6 /0.60
3.6 /1.5 /0.60
3.4 /1.4 /0.55
3.2 /1.4 /0.50
3.7 /1.6 /0.60
3.2 /1.4 /0.50
3.7 /1.6 /0.60
3.5 /1.5 /0.55
3.7 /1.6 /0.60
3.5 /1.5 /0.55
3.3 /1.4 /0.55
3.8 /1.6 /0.60
3.6 /1.5 /0.60
3.2 /1.4 /0.50
3.6 /1.5 /0.60
3.4 /1.4 /0.55
3.7 /1.6 /0.60
3.4 /1.5 /0.55
3.2 /1.4 /0.50
3.7 /1.6 /0.60
3.5 /1.5 /0.55
3.4 /1.4 /0.55
3.8 /1.6 /0.60
3.6 /1.5 /0.55
3.8 /1.6 /0.60
3.6 /1.5 /0.55
3.4 /1.4 /0.55
3.8 /1.6 /0.60
3.6 /1.5 /0.60
Orifice
No.
42
43
43
44
44
44
44
45
45
42
42
43
43
44
44
44
44
45
42
42
43
43
44
44
44
45
42
43
43
43
44
44
44
45
42
43
43
44
44
44
45
45
42
42
43
43
44
44
44
45
0.64
Mnfld Press
Hiclh/Med/Low
3.2 /1.3 /0.50
3.7 /1.6 /0.60
3.5 /1.5 /0.55
3.8 /1.6 /0.60
3.6 /1.5 /0.60
3.4 /1.5 /0.55
3.3 /1.4 /0.50
3.8 /1.6 /0.60
3.6 /1.5 /0.60
3.5 /1.5 /0.55
3.2 /1.4 /0.50
3.7 /1.6 /0.60
3.5 /1.5 /0.55
3.8 /1.6 /0.60
3.6 /1.5 /0.60
3.4 /1.4 /0.55
3.2 /1.4 /0.50
3.7 /1.6 /0.60
3.4 /1.4 /0.55
3.2 /1.3 /0.50
3.7 /1.5 /0.60
3.4 /1.5 /0.55
3.7 /1.6 /0.60
3.5 /1.5 /0.55
3.3 /1.4 /0.55
3.8 /1.6 /0.60
3.3 /1.4 /0.55
3.8 /1.6 /0.60
3.6 /1.5 /0.55
3.4 /1.4 /0.55
3.6 /1.5 /0.60
3.4 /1.5 /0.55
3.2 /1.4 /0.50
3.7 /1.6 /0.60
3.3 /1.4 /0.55
3.8 /1.6 /0.60
3.5 /1.5 /0.55
3.8 /1.6 /0.60
3.6 /1.5 /0.55
3.4 /1.4 /0.55
3.8 /1.6 /0.60
3.6 /1.5 /0.60
3.5 /1.5 /0.55
3.3 /1.4 /0.50
3.7 /1.6 /0.60
3.5 /1.5 /0.55
3.7 /1.6 /0.60
3.5 /1.5 /0.55
3.3 /1.4 /0.50
3.7 /1.6 /0.60
* Orifice numbers shown in BOLD are factory-installed.
A08202
56

Table 10 - Orifice Size* and Manifold Pressures for Gas Input Rate (Continued)
(Tabulated Data Based on 20,000 BTUH High Heat /13,000 Btuh Meal-Heat /8,000 Btuh Low-Heat per Burner,
Derated 2% /1000 Ft. (304.8M) Above Sea Level)
ALTITUDE AVG. GAS
RANGE HEAT VALUE
AT ALTITUDE Orifice
(m) (Btu/cu R} No.
650 43
7001 675 43
-->' (2134) 700 44
725 44
_ to 750 44
8000 775 45
(2438) 800 45
825 45
625 43
8001 650 43
= (2439) 675 44
O
--_ to 700 44
725 44
9000 750 45
(27431 775 45
9001 600 43
(2744) 625 43
650 44
_ to 675 44
10000 700 44
(3048) 725 45
0.58
Mnfld Press
Hiqh/Med/Low
3.8 /1.6 /0.60
3.5 /1.5 /0.55
3.8 /1.6 /0.60
3.5 /1.5 /0.55
3.3 /1.4 /0.55
3.7 /1.6 /0,60
3.5 /1.5 /0,55
3.3 /1.4 /0.55
3.8 /1.6 /0.60
3.5 /1.5 /0.55
3.7 /1.6 /0.60
3.5 /1.5 /0.55
3.2 /1.4 /0.50
3.7 /1.5 /0,60
3.4 /1.5 /0.55
3.8 /1.6 /0.60
3.5 /1.5 /0.55
3.7 /1.6 /0.60
3.4 /1.4 /0.55
3.2 /1.3 /0.50
3.6 /1.5 /0.55
Orifice
No.
42
43
43
44
44
44
45
45
42
43
43
44
44
45
45
42
43
44
44
44
45
SPECIFIC GRAVITY OF NATURAL GAS
0.60
Mnfld Press
Hiqh/Med/Low
3.2 /1.4 /0.50
3.7 /1.6 /0.60
3.4 /1.4 /0.55
3.6 /1.5 /0.60
3.4 /1.4 /0.55
3.2 /1.3 /0.50
3.6 /1.5 /0,60
3.4 /1.4 /0.55
3.2 /1.4 /0.50
3.6 /1.5 /0.60
3.4 /1.4 /0.55
3.6 /1.5 /0.60
3.4 /1.4 /0.55
3.8 /1.6 /0,60
3.6 /1.5 /0.55
3.2 /1.4 /0.50
3.6 /1.5 /0.60
3.8 /1.6 /0.60
3.5 /1.5 /0.55
3.3 /1.4 /0.55
3.7 /1.6 /0.60
0.62
Orifice Mnfld Press
No. Hiqh/Med/Low
42 3.4 /1.4 /0.55
43 3.8 /1.6 /0.60
43 3.5 /1.5 /0.55
44 3.8 /1.6 /0.60
44 3.5 /1.5 /0.55
44 3.3 /1.4 /0.55
45 3.7 /1.6 /0.60
45 3.5 /1.5 /0.55
42 3.3 /1.4 /0.55
43 3.8 /1.6 /0.60
43 3.5 /1.5 /0.55
44 3.7 /1.6 /0.60
44 3.5 /1.5 /0.55
44 3.2 /1.4 /0.50
45 3.7 /1.6 /0.60
42 3.3 /1.4 /0.55
43 3.7 /1.6 /0.60
43 3.4 /1.5 /0.55
44 3.7 /1.5 /0.60
44 3.4 /1.4 /0.55
45 3.8 /1.6 /0.60
Orifice
No.
42
42
43
43
44
44
44
45
42
42
43
44
44
44
45
42
43
43
44
44
44
0.64
Mnfld Press
Hiqh/Med/Low
3.5 /1.5 /0.55
3.2 /1.4 /0.50
3.6 /1.5 /0.60
3.4 /1.4 /0.55
3.6 /1.5 /0.60
3.4 /1.4 /0.55
3.2 /1.4 /0.50
3.6 /1.5 /0.60
3.4 /1.5 /0.55
3.2 /1.3 /0.50
3.6 /1.5 /0.60
3.8 /1.6 /0.60
3.6 /1.5 /0.55
3.3 /1.4 /0.55
3.8 /1.6 /0.60
3.4 /1.4 /0.55
3.8 /1.6 /0.60
3.6 /1.5 /0.55
3.8 /1.6 /0.60
3.5 /1.5 /0.55
3.3 /1.4 /0.50
* Orifice numbers shown in BOLD are factory-installed.
A08203
57

UNIT DAMAGE HAZARD
Failure to follow this caution may result in component
damage.
DO NOT redrill orifices. Improper drilling (burrs,
out-of-round holes, etc.) can cause excessive burner noise
and misdirection of burner flames. (See Fig. 61.)
h. Jumper R to W/W1.
i. Let furnace run for 3 minutes in medium-heat operation.
j. Measure time (in sec) for gas meter to complete I revolu-
tion. Note reading.
k. Refer to Table 12 for cubic ft. of gas per hr.
1. Multiply gas rate cu ft/hr by heating value (Btu/cu ft).
m. Move setup switch SW4-2 to OFF position and jumper
R and W/WI and W2 thermostat connections. (See Fig.
33.) This keeps furnace locked in high-heat operation.
Repeat items i through 1 for high-heat operation.
EXAMPLE: High-heat operation at 0 - 2000 ft. (0-609.6M)
altitude
Furnace input from rating plate is 80,000 Btuh
Btuh heating input = Btuh/cu ft. X cu ft/hr
Heating value of gas = 975 Btuh/cu ft.
Time for 1 revolution of 2-cu ft. dial = 88 sec
Gas rate = 82 cu ft/hr (from Table 12)
Btuh heating input = 103 X 975 = 79,950 Btuh
In this example, the orifice size and manifold pressure adjustment
is within +/- 2 percent of the furnace input rate.
n. Remove jumper across R, W/WI, and W2 thermostat
connections to terminate call for heat.
o. Wait for blower off-delay to finish then reset l15-v
power to furnace.
p. Wait for blower off-delay to finish then reset l15-v
power to furnace.
q. Jumper R and W/WI thermostat connections on control
to start furnace.
r. Wait for the blower to turn ON then repeat items i through
1for low-heat operation. This setting should not require
adjustment but if it does you will only have 15 minutes
to make the adjustment. If you need more time then move
setup switch SWI-2 on control center to ON position
(See Fig. 33).
NOTE: Measured gas inputs (high heat, medium heat, and low
heat) nmst be within +/-2 percent of that stated on furnace rating
plate when installed at sea level or derated as stated above when
installed at higher altitudes.
Table 11 -Altitude Derate Multiplier for USA
ALTITUDE % OF DERATE MULTIPLIER
FT (M) DERATE FACTOR FOR USA.*
0--2000 (0--61 O) 0 1.00
2001 --3000 4--6 0.95
(610--914)
3001 --4000 6--8 0.93
(914--1219)
4001 --5000 8--10 0.91
(1219--1524)
5001 --6000 10--12 0.89
(1524--1829)
6001 --7000 12--14 0.87
(1829--2134)
7001 --8000 14--16 0.85
(2134--2438)
8001 --9000 16--18 0.86
(2438--2743)
9001 --10,000 18--20 0.81
(2746--3048)
*Derate multiplier factor is based on midpoint altitude for altitude range.
BURNER FLAME
/_," r- BURNER
MANIFOLD J
Fig. 62 -Burner Flame
A89020
58

Table 12 - Gas Rate cu Ft/Hr
SECONDS SIZE OF TEST DIAL SECONDS
FOR 1 1 2 5 FOR 1
REVOLUTION REVOLUTION
cu _. cu _. cu _.
10 360 720 1800 50
11 327 655 1636 51
12 300 600 1500 52
13 277 555 1385 53
14 257 514 1286 54
15 240 480 1200 55
16 225 450 1125 56
17 212 424 1059 57
18 200 400 1000 58
19 189 379 947 59
20 180 360 900 60
21 171 343 857 62
22 164 327 818 64
23 157 313 783 66
24 150 300 750 68
25 144 288 720 70
26 138 277 692 72
27 133 267 667 74
28 129 257 643 76
29 124 248 621 78
30 120 240 600 80
31 116 232 581 82
32 113 225 563 84
33 109 218 545 86
34 106 212 529 88
35 103 206 514 90
36 100 200 500 92
37 97 195 486 94
38 95 189 474 96
39 92 185 462 98
40 90 180 450 100
41 88 176 439 102
42 86 172 429 104
43 84 167 419 106
44 82 164 409 108
45 80 160 400 110
46 78 157 391 112
47 76 153 383 116
48 75 150 375 120
49 73 147 367
SIZE OF TEST DIAL
125
cu _. cu_. cu _.
72 144 360
71 141 355
69 138 346
68 136 340
67 133 333
65 131 327
64 129 321
63 126 316
62 124 310
61 122 305
60 120 300
58 116 290
56 112 281
54 109 273 1
U
53 106 265
51 103 257
50 100 250
48 97 243
47 95 237
46 92 231
45 90 225
44 88 220
43 86 214
42 84 209
41 82 205
40 80 200
39 78 196
38 76 192
38 75 188
37 74 184
36 72 180
35 71 178
35 69 173
34 68 170
33 67 167
33 65 164
32 64 161
31 62 155
30 60 150
Set Temperature Rise
UNIT DAMAGE HAZARD
Failure to follow this caution may result in component
damage.
Temperature rise must be within limits specified on unit
rating plate. Operation is within a few degrees of midpoint
of rise range when setup switch SWI-4 is OFF.
Furnace must operate within ranges of temperature rise specified
on the furnace rating plate. Determine air temperature rise as
follows:
1. Place thermometers in return and supply ducts as near fur-
nace as possible. Be sure thermometers do not see heat ex-
changer so that radiant heat does not affect readings. This
practice is particularly important with straight-run ducts.
2. When thermometer readings stabilize, subtract return-air
temperature from supply-air temperature to determine air
temperature rise.
NOTE: Temperature rise can be determined for low-heat
operation by placing setup switch SWI-2 on furnace control in
ON position. Temperature rise can be determined for
medium-heat operation by placing setup switch SW4-2 on
furnace control in ON position. For high-heat operation, place
setup switch SWl-2 and SW4-2 in OFF position and jumper
R-W2 on furnace control. DO NOT forget to return setup switch
to OFF position and remove R-W2 jumper upon completion of
testing. (See Fig. 33 for switch and terminal location.)
3. This furnace is capable of automatically providing proper
airflow to maintain the temperature rise within the range
specified on furnace rating plate. If temperature rise is out-
side this range, proceed as follows:
a. Check gas input for low-, medium-, and high-heat oper-
ation.
b. Check derate for altitude if applicable.
c. Check all return and supply ducts for excessive restric-
tions causing static pressure greater than 0.5-in. wc.
d. Ensure Low Heat Rise Adjust switch SWI-3 on furnace
control is in ON position when a bypass humidifier is
used. (See Fig. 33 for switch location.)
e. Check Troubleshooting Guide for Variable-Speed Step
Modulating Condensing Furnaces.
Set Thermostat Heat Anticipator
When using a non-electronic thermostat, the thermostat heat
anticipator must be set to match the amp draw of components in
59

the R-W/W1 circuit. Accurate amp draw measurements can be
obtained only at the thermostat subbase terminals R and W.
The thermostat and anticipator should NOT be in the circuit while
measuring current. If thermostat has no subbase, the thermostat
must be disconnected from R and W/WI wires during current
measurement.
Fig. 63 illustrates an easy method of obtaining thermostat amp
draw measurements. The amp reading should be taken after
blower motor has started and furnace is operating in low-heat.
1. To operate furnace in low-heat, turn setup switch SWl-2
to ON position (See Fig. 33) and connect ammeter leads
across thermostat subbase R-W.
2. See thermostat manufacturer's instructions for adjusting
the heat anticipator and for varying heating cycle length.
NOTE: When using an electronic thermostat, set cycle rate for 3
cycles per hr.
3. Return setup switch SWI-2 to OFF position and replace
thermostat on subbase.
Check Safety Controls
This section covers the safety controls that nmst be checked
before the installation is complete. The flame sensor, gas valve,
and pressure switches were all checked in the Start-up procedure
section as part of normal operation.
Check Primary Limit Control
This control shuts off the gas control system and energizes the
air-circulating blower motor if furnace overheats.
1. The recommended method of checking this limit control is
to gradually block off return air after furnace has been op-
erating for a period of at least 5 minutes.
2. As soon as limit control has shut off burners, a status code
33 will appear on furnace control.
3. The return-air opening should be unblocked to permit
normal air circulation.
By using this method to check the limit control, it can be
established that the limit is functioning properly and the furnace
will operate safely if there is a restricted return-air duct or motor
failure. If the limit control does not function during this test, the
cause nmst be determined and corrected.
Check Pressure Switches
This control proves operation of the draft inducer. Check switch
operation as follows:
1. Turn off l15-v power to furnace.
2. Remove control access door and disconnect inducer motor
12-pin wire harness at inducer motor.
3. Turn on l15-v power to furnace.
4. Set thermostat to "call for heat." When pressure switches
are functioning properly, status code 42 will flash on fur-
nace control approximately 20 sec after thermostat switch
is closed. If either a status code 31 or 32 is flashed when
inducer motor is disconnected, the furnace will shut itself
down immediately. Determine the reason pressure
switches did not function properly and correct the condi-
tion.
5. Turn off l15-v power to furnace.
6. Reconnect inducer motor wire harness. Reinstall furnace
access door.
7. Turn on l15-v power to furnace.
8. Reset thermostat to desired temperature.
CHECKLIST
1. Put away tools and instruments. Clean up debris.
2. Verify flame rollout manual reset switch has continuity.
3. Verify that blower and main access doors are properly in-
stalled.
4. Cycle test furnace with room thermostat.
5. Check operation of accessories per manufacturer's instruc-
tions.
6. Review User's Manual with owner.
7. Leave literature packet near furnace.
THERMOSTAT SUBBASE
TERMINALS WITH
THERMOSTAT REMOVED
(ANITICIPATOR, CLOCK, ETC.,
MUST BE OUT OF CIRCUIT.)
HOOK-AR(
AMMETER
FROM UNIT 24-V
CONTROL TERMINALS
EXAMPLE: 5.0 AMPS ON AMMETER = 0.5 AMPS FOR THERMOSTAT
10 TURNS AROUND JAWS ANTICIPATOR SETTING
Fig. 63 -Amp Draw with Ammeter
A96316
60

CHECKLIST-INSTALLATION
LOAD CALCULATION
Heating Load (Btuh)
Cooling Load (Btuh)
Furnace Model Selection
COMBUSTION AND VENT PIPING
Termination Location
Vent
Roof
Sidewall
Combustion -Air
Roof
Sidewall
Attic
Crawl Space
Termination Kit-2 Pipe or
Concentric
Combustion-Air Pipe Length
Combustion-Air Pipe Elbow
Quantity
Vent Pipe Length
Vent Pipe Elbow Quantity
Pipe Diameter Determined from
Sizing Table
Pipe Sloped To Furnace
Pipe Insulation
Over Ceilings
Low-Ambient Exposed Pipes
Condensate Drain
Unit Level or Pitched Forward
Internal Tubing Connections
Free of Kinks and Traps
External Drain Connection Leak
Tight and Sloped
Condensate Trap Primed before
Start- Up
Heat Tape Installed if Required
CHECKLIST - START-UP
Gas Input Rate (Set Within 2
percent of Rating Plate)
Temperature Rise Adjusted
Thermostat Anticipator
Anticipator Setting Adjusted or
Cycle Rate (3 Cycles per Hr)
Selected
Safety Controls Check Operation
CHECKLIST - START-UP
Gas Input Rate (Set Within 2
percent of Rating Plate)
Temperature Rise Adjusted
Thermostat Anticipator
Anticipator Setting Adjusted or
Cycle Rate (3 Cycles per Hr)
Selected
Safety Controls Check Operation
Primary Limit
Pressure Switches
51

Copyright 2008 Carrier Corp. • 7310 W. Morris St. • Indianapolis, IN 46231 Printed in USA. Edition Date: 12/08
Manufacturer reserves the right to change, at any time, specification8 and design8 without notice and without obligations,
62
Catalo_ No: 58MVC-4SI
Replaces: 58MV( 3SI