COMPUTIME RC713A Receiver Part of Radio Receiver User Manual
Computime Limited Receiver Part of Radio Receiver
User Manual

RC SERIES
REMOTE CONTROLS
INSTALLATION
OPERATION &
SERVICE MANUAL
SINGLE CHANNEL RADIO RECEIVERS
Model: RC713L Switching Module / Model: RC715L Timer Override Module
For indoor and outdoor use, suitable for Pool/Spa equipment control
ELECTRICAL RATING: 15 Amp Resistive, 1200 Watt Tungsten, 1 HP Motor Load - 120 Volt.
FCC Information
NOTE: This equipment has been tested and found to comply with the limits for a Class B digital device, pursuant to part 15 of the FCC rules.
These limits are designed to provide reasonable protection against harmful interference in a residential installation. This equipment generates, uses
and can radiate radio frequency energy and, if not installed and used in accordance with the instructions, may cause harmful interference to radio or
television reception, which can be determined by turning the equipment off and on, the user is encouraged to try to correct the interference by one
or more of the following measures:
•Reorient or relocate the receiving antenna.
•Increase the separation between the equipment and receiver.
•Connect the equipment into an outlet on a circuit different from that to which the receiver is connected.
•Consult the dealer or an experienced radio/TV technician for help.
Caution: Changes or modifications not expressly approved by Intermatic Inc. could void the user’s authority to operate this equipment.
These Modular Radio Receivers are one half of a two part remote control system.
They operate as ordinary ON/OFF switches but they also respond to the signals of
a hand held transmitter - the other half of the system. The modules are designed for
indoor or outdoor use, and can handle a variety of switching applications, typical
around the house or farm. By the push of a button on the face of the transmitter, the
user is able to turn ON/OFF the connected load (lights, pump, etc.) from any remote
location*, safely and conveniently. In addition, a single transmitter can operate up to
four Receivers and is able to “teach” each Module a different code. (Transmitters are
sold separately).
Model RC713L Receiver Module comes with its own manual ON/OFF button and
it is intended to be installed at the location of the load. The connected load may be
turned ON/OFF using the hand-held transmitter or turned ON/OFF by pushing the red
button on the face of the Receiver.
Model RC715L Receiver Module is the same as the RC713L Module above,
except it has no manual ON/OFF button on its face. This Module is designed to be
connected to a timer and will override its pre-set program, without affecting the next
automatic operation. At-site control of the load is possible by the ON/OFF switch of
the timer.
* The open field range is 100 feet but depends on many factors like the age of the battery, proximity of
large metal objects, the location of the receiver and environmental conditions at the time of transmission.
1
IMPORTANT SAFETY INSTRUCTIONS
1. This Control must be installed by a qualified electrician, according to National and Local Electrical Codes.
2. USE COPPER CONDUCTORS ONLY. If applicable, install this Control not less than 5 feet (3 meters for Canadian
installations) of inside edge of pool or spa.
3. Do not exceed the maximum ratings of individual components, wiring devices, and current carrying capacity of conductors.
4. For grounding of the installation, refer to section 250 and 680 of the National Electrical Code.
5. This Control should not operate any equipment which would cause bodily injury or property damage should it be
activated unexpectedly.
6. Always disconnect electricity at main panel before servicing this Control or the equipment(s) connected to it.
THIS CONTROL IS NOT TO BE USED AS A POWER DISCONNECT.
READ, FOLLOW AND SAVE THIS INSTRUCTION MANUAL
GENERAL INFORMATION
Because of our commitment to continuing research and improvements, Intermatic Incorporated reserves the right to make changes, without notice, in the specifications and material
contained herein and shall not be responsible for any damages, direct or consequential, caused by reliance on the material presented.
INTERMATIC INCORPORATED, SPRING GROVE, IL 60081
158RC10518 4
ONE YEAR LIMITED WARRANTY
If within the warranty period specified, this product fails due to a defect in material or workmanship, Intermatic Incorporated will repair or replace it, at its
sole option, the unit free of charge. This warranty applies only to the original purchaser and is not transferable. This warranty does not apply to: (a) damage
caused by accident, abuse, mishandling, dropping, acts of God, or any negligent use; (b) units which have been subject to unauthorized repair, opened, taken
apart, or otherwise modified; (c) units not used in accordance with instructions (d) damages exceeding the cost of the product. Some stated do not allow a lim-
itation of damages, so the foregoing limitation may not apply to you. this warranty gives you specific legal rights and you may have other rights that vary from
state to state.
INTERMATIC INCORPORATED WILL NOT BE LIABLE FOR INCIDENTAL OR CONSEQUENTIAL DAMAGES. THIS WARRANTY IS IN LIEU OF ALL OTHER EXPRESS
OR IMPLIED WARRANTIES. ALL IMPLIED WARRANTIES, INCLUDING THE WARRANTY OF MERCHANTABILITY AND THE WARRANTY OF FITNESS FOR A PAR-
TICULAR PURPOSE, ARE HEREBY MODIFIED TO EXIST ONLY AS CONTAINED IN THIS LIMITED WARRANTY, AND SHALL BE OF THE SAME DURATION AT THE
WARRANTY PERIOD STATED ABOVE.
This warranty service is available by either (a) returning the product to the dealer from whom the unit was purchase, or (b) mailing postage prepaid to the near-
est authorized service center listed. Please be sure to wrap the product securely when mailing to avoid shipping damage. This warranty is made by: Intermatic
Incorporated/After Sales Service, 7777 Winn Rd., Spring Grove, IL 60081-9698/8150675-7000
http://www.intermatic.com
LIST OF AVAILABLE MODELS AND COMPONENTS
Model Description Specifications
RC713L Single Channel Receiver 15 Amp Resistive, 10 Amp (1200 Watt) Tungsten,
3-way switching module 1 HP - 120 Volt, Single Pole Single Throw Contacts.
with 36 in. Lead
RC713R Heavy-Duty Receiver 30 Amp Resistive - 120/240 Volt, 12.5 Amp (1500 Watt)
and Relay Assembly Tungsten - 120 Volt, 1.5 HP - 120 Volt, 3 HP - 240 Volt
Double Pole Single Throw Contacts.
RC715L Single Channel Receiver 15 Amp Resistive, 10 Amp (1200 Watt) Tungsten
Timer Override Module 1 HP Motor Load - 120 Volt, Single Pole, Single Throw contacts.
with 36 in. Leads
RC949 4 Channel Transmitter Operates on 9 Volt Battery
P1103ME 24 hr. Timer Electronic Timer Mechanism -
Mechanism Only replaces Intermatic T100 Series timers and compatible
with RC715L Receiver. Same rating as RC713R.
P1101R7 Portable Outdoor 15 Amp Resistive, 10 Amp (1200 Watt) Tungsten
Timer with Radio Override 1 HP Motor Load - 120 Volt.
TROUBLESHOOTING
Symptom Possible Cause(s) Corrective Action
No response to transmitter No power . . . . . . . . . . . . . . . . . . . . . . . . . . . . . . . . . . . . .Turn ON power at main panel
signal at anytime Loose connection(s) at receiver and/or load . . . . . . . . . .Check connections
Transmitter battery dead . . . . . . . . . . . . . . . . . . . . . . . . .Replace battery
Receiver and transmitter are on two different codes . . . .Change code settings (see page 3)
Faulty transmitter . . . . . . . . . . . . . . . . . . . . . . . . . . . . . . .Check battery connections, replace transmitter
Faulty receiver . . . . . . . . . . . . . . . . . . . . . . . . . . . . . . . . .Replace Receiver Module
No response to transmitter Weak Battery . . . . . . . . . . . . . . . . . . . . . . . . . . . . . . . . . .Replace battery
signal some of the time Appliance with brush type motor is in use . . . . . . . . . . .Relocate appliance and/or connect to another circuit
Receiver is at edge of range . . . . . . . . . . . . . . . . . . . . . . .Mount Receiver closer or higher
Insufficient Range Weak battery . . . . . . . . . . . . . . . . . . . . . . . . . . . . . . . . . .Replace battery
Antenna too close to ground . . . . . . . . . . . . . . . . . . . . . .Relocate Receiver Module
Transmitter is held too close to ground . . . . . . . . . . . . . .Hold transmitter at least 3 ft. above ground
Weak signal due to obstruction . . . . . . . . . . . . . . . . . . . .Remote/relocate Receiver Module
Nuisance operation Fluctuating supply voltage due to surge, etc. . . . . . . . . .If frequent - install surge suppressor
Faulty receiver . . . . . . . . . . . . . . . . . . . . . . . . . . . . . . . . .Replace receiver module

SPECIFICATIONS AND OTHER INFORMATION
INSTALLATION
USEFUL INFORMATION
1. Radio Receivers are sensitive to heat. Avoid
mounting them above heater, air conditioner
or exposed to afternoon sun.
2. The higher the Receiver Module, the longer its
range. For good range and reliable reception, install
modules as high as practical above ground level with
antenna at top.
3. Large metal objects divert radio signals. Avoid
mounting Receiver Modules on metal wall, fence
or near large metal objects.
4. Environmental conditions could effect the operation
of the remote control system. For example, in rain
the range may be less than normal.
5. Certain electric equipment like brush type motors
or electronic gas heater igniters emit radio signals
and can effect the function of the Receiver Module.
Avoid mounting modules near such equipment.
6. Antenna orientation may increase or decrease the
radio range. For best results, keep the antenna
straight and adjust for better radio reception by
bending the antenna near its base.
A. ON/OFF Switching Application
- use Model RC713L
Make sure the intended load is within the capacity of the
Module, see ratings on page 1 and other choices on page 4.
1. Attach RC713L Receiver Module to the top of an outdoor grade
junction box. Make sure the assembly is raintight.
2. Select the proper location (see Useful Information above) and
install Receiver assembly on a vertical surface or other support,
using hardware, suitable for the purpose.
3. Prepare the necessary conduit runs as required by the installation
layout and pull-in the specified conductors.
4. Follow wiring diagram A on the right, make wire connections
as shown.
5. Turn ON power and test installation, using the ON/OFF button
on face of the Receiver Module. Replace junction box cover,
make sure the installation is secure and raintight.
6. Set code, see Operating Instructions on page 3.
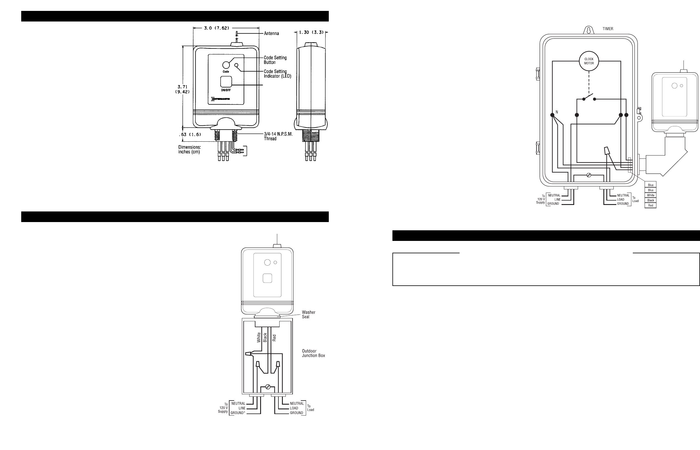
2
OPERATION
B. Timer Override Application
- use Model RC715L
An existing timer can only be upgraded if the
load connected to the timer is within the
capacity of the Receiver Module. Otherwise,
the timer mechanism must be replaced with
Intermatic Model P1103ME, see also other
choices
on page 4.
1. Select the proper location (see Useful
Information on page 2) and install a radio
compatible timer on a vertical surface or
other support, using hardware, suitable for
the purpose.
2. Prepare the necessary conduit runs as required
by the installation layout and pull-in the
specified conductors.
3. Use one of the side knock-outs and a suitable
conduit-L, attach Model RC715L Receiver
Module to timer enclosure.
4. Follow wiring diagram B on the right,
make wire connections as shown.
5. Turn ON power, and test installation,
using the ON/OFF control of the timer.
A. To Set Code
Receiver Modules have the capacity to “learn” and remember a unique code, generated by a Transmitter.
The Transmitter will operate only the designated Receiver. In addition, each Transmitter can “teach” and
operate up to four different of Receivers.
1. Turn ON the main power and manually operate the load a few times, then turn load OFF.
2. Press the “Code Set” button on the face of the Receiver Module. The green light next to the button should now be
lit and stay lit for 30 seconds.
3. Hold the Transmitter close to the Receiver Module, press and hold the push button on the Transmitter that you
choose to operate that particular Module. the red light on the Transmitter will light to indicate that it is
transmitting. On the Receiver Module, the green light will flash rapidly after it is programmed.
To operate more than one Receiver Module with the same Transmitter button, in step 2 press the :”Code Set” button
for each Receiver Module to be controlled. The green light next to the button will turn on. Press and hold the desired
transmitter button until all Receiver Module green lights begin to flash.
To operate Receiver Modules independently, program the Modules as shown in steps 2 and 3 but use a different
transmitter button for each Module.
3
In case this device is used to operate pool/spa equipment...
DANGER! To Reduce the Risk of Injury:
... do not permit children to operate the Control Unit or use the Pool/Spa unless they are closely supervised at all times.
... test GROUND FAULT protection regularly. If it fails to reset, DO NOT USE THE POOL or SPA! Contact a qualified service technician.
Manual ON/OFF
Button (Model
RC713L Only)
Override Connections
(Model RC715L Only)
7. To prevent electronic interference, install Receiver
Modules as far apart as practical.
Figure 1
*Ground connections may or may not be as shown.
Diagram A
*Ground connections may or may not be as shown.
Diagram B
*
RC713L
Receiver
Module
RC715L
Receiver
Module
