Carrier 25Hcd Quick Start Guide 25HBB C HCD 03SI
2014-08-26
: Carrier Carrier-25Hcd-Quick-Start-Guide carrier-25hcd-quick-start-guide carrier pdf
Open the PDF directly: View PDF
.
Page Count: 12

Installation Instructions
25HBB, 25HBC, 25HCD
ComforttSeries Heat Pumps
with PuronrRefrigerant
1–1/2 To 5 Nominal Tons
NOTE: Read the entire instruction manual before starting the
installation.
SAFETY CONSIDERATIONS
Improper installation, adjustment, alteration, service, maintenance,
or use can cause explosion, fire, electrical shock, or other
conditions which may cause death, personal injury, or property
damage. Consult a qualified installer, service agency, or your
distributor or branch for information or assistance. The qualified
installer or agency must use factory–authorized kits or accessories
when modifying this product. Refer to the individual instructions
packaged with the kits or accessories when installing.
Follow all safety codes. Wear safety glasses, protective clothing,
and work gloves. Use quenching cloth for brazing operations.
Have fire extinguisher available. Read these instructions
thoroughly and follow all warnings or cautions included in
literature and attached to the unit. Consult local building codes and
current editions of the National Electrical Code (NEC) NFPA 70.
In Canada, refer to current editions of the Canadian electrical code
CSA 22.1.
Recognize safety information. This is the safety–alert symbol !!.
When you see this symbol on the unit and in instructions or
manuals, be alert to the potential for personal injury.
Understand these signal words; DANGER, WARNING, and
CAUTION. These words are used with the safety–alert symbol.
DANGER identifies the most serious hazards which will result in
severe personal injury or death. WARNING signifies hazards
which could result in personal injury or death. CAUTION is used
to identify unsafe practices which may result in minor personal
injury or product and property damage. NOTE is used to highlight
suggestions which will result in enhanced installation, reliability, or
operation.
!WARNING
ELECTRICAL SHOCK HAZARD
Failure to follow this warning could result in personal injury
or death.
Before installing, modifying, or servicing system, main
electrical disconnect switch must be in the OFF position.
There may be more than 1 disconnect switch. Lock out and
tag switch with a suitable warning label.
EXPLOSION HAZARD
Failure to follow this warning could
result in death, serious personal injury,
and/or property damage.
Never use air or gases containing
oxygen for leak testing or operating
refrigerant compressors. Pressurized
mixtures of air or gases containing
oxygen can lead to an explosion.
!WARNING
INSTALLATION RECOMMENDATIONS
NOTE: In some cases noise in the living area has been traced to
gas pulsations from improper installation of equipment.
1. Locate unit away from windows, patios, decks, etc. where
unit operation sound may disturb customer.
2. Ensure that vapor and liquid tube diameters are appropriate
for unit capacity.
3. Run refrigerant tubes as directly as possible by avoiding un-
necessary turns and bends.
4. Leave some slack between structure and unit to absorb vi-
bration.
5. When passing refrigerant tubes through the wall, seal open-
ing with RTV or other pliable silicon–based caulk (see Fig.
1).
6. Avoid direct tubing contact with water pipes, duct work,
floor joists, wall studs, floors, and walls.
7. Do not suspend refrigerant tubing from joists and studs with
a rigid wire or strap which comes in direct contact with
tubing (see Fig. 1).
8. Ensure that tubing insulation is pliable and completely sur-
rounds vapor tube.
9. When necessary, use hanger straps which are 1 in. wide and
conform to shape of tubing insulation (see Fig. 1).
10. Isolate hanger straps from insulation by using metal sleeves
bent to conform to shape of insulation.
INSULATION
SUCTION TUBE
LIQUID TUBE
OUTDOOR WALL INDOOR WALL
LIQUID TUBE
SUCTION TUBE
INSULATION
CAULK
HANGER STRAP
(AROUND SUCTION
TUBE ONLY)
JOIST
1” (25.4 mm)
MIN
THROUGH THE WALL
SUSPENSION
A07588
Fig. 1 -- Connecting Tubing Installation
When outdoor unit is connected to factory–approved indoor unit,
outdoor unit contains system refrigerant charge for operation with
AHRI rated indoor unit when connected by 15 ft. (4.57 m) of
field–supplied or factory accessory tubing. For proper unit
operation, check refrigerant charge using charging information
located on control box cover and/or in the Check Charge section of
this instruction.
IMPORTANT: Maximum liquid–line size is 3/8–in. OD for all
residential applications including long line.
IMPORTANT: Always install the factory–supplied liquid–line
filter drier. Obtain replacement filter driers from your distributor or
branch.

2
INSTALLATION
CUT HAZARD
Failure to follow this caution may result in personal injury.
Sheet metal parts may have sharp edges or burrs. Use care and
wear appropriate protective clothing and gloves when handling
parts.
CAUTION
!
Check Equipment and Job Site
Unpack Unit
Move to final location. Remove carton taking care not to damage
unit.
Inspect Equipment
File claim with shipping company prior to installation if shipment
is damaged or incomplete. Locate unit rating plate on unit corner
panel. It contains information needed to properly install unit.
Check rating plate to be sure unit matches job specifications.
Install on a Solid, Level Mounting Pad
If conditions or local codes require the unit be attached to pad, tie
down bolts should be used and fastened through knockouts
provided in unit base pan. Refer to unit mounting pattern in Fig. 2
to determine base pan size and knockout hole location.
For hurricane tie downs, contact distributor for details and PE
Certification (Professional Engineer), if required.
On rooftop applications, mount on level platform or frame. Place
unit above a load–bearing wall and isolate unit and tubing set from
structure. Arrange supporting members to adequately support unit
and minimize transmission of vibration to building. Consult local
codes governing rooftop applications.
Roof mounted units exposed to winds above 5 mph may require
wind baffles. Consult the Service Manual – Residential Split
System Air Conditioners and Heat Pumps for wind baffle
construction.
NOTE: Unit must be level to within ±2°(3/8 in/ft,9.5 mm/m)
per compressor manufacturer specifications.
Clearance Requirements
When installing, allow sufficient space for airflow clearance,
wiring, refrigerant piping, and service. Allow 24 in. (609.6 mm)
clearance to service end of unit and 48 in. (1219.2 mm) (above
unit. For proper airflow, a 6–in. (152.4 mm) clearance on 1 side of
unit and 12–in. (304.8 mm) on all remaining sides must be
maintained. Maintain a distance of 24 in. (609.6 mm) between
units or 18 in. (457.2 mm) if no overhang within 12 ft. (3.66 m).
Position so water, snow, or ice from roof or eaves cannot fall
directly on unit.
NOTE:18” (457.2 mm) clearance option described above is
approved for outdoor units with wire grille coil guard only.
Units with louver panels require 24” (609.6 mm) between units.
On rooftop applications, locate unit at least 6 in. above roof
surface.
3/8–in. (9.53 mm) Dia.
Tiedown Knockouts in
Basepan(2) Places
View From Top
UNIT BASE PAN
Dimension in. (mm)
TIEDOWN KNOCKOUT LOCATIONS in. (mm)
A B C
23 X 23
(585 X 585) 7–3/4 (196.8) 4–13/32 (111.9) 18–1/32 (457.9)
26 X 26
(660 X 660) 9–1/8 (231.8) 4–7/16 (112.7) 21–1/4 (539.8)
31–1/2 X 31–1/2
(800 X 800) 9–1/8 (231.8) 6–9/16 (166.7) 24–11/16 (627.1)
35 X 35
(889 X 889) 9–1/8 (231.8) 6–9/16 (166.7) 28–7/16 (722.3)
A05177
Fig. 2 -- Tiedown Knockout Locations
Operating Ambient
The minimum outdoor operating ambient in cooling mode without
accessory is 55°F (12.78°C), and the maximum outdoor operating
ambient in cooling mode is 125°F (51.67°C). The maximum
outdoor operating ambient in heating mode is 66 °F (18.89°C).
Check Defrost Thermostat
Check defrost thermostat to ensure it is properly located and
securely attached. There is a liquid header with a distributor and
feeder tube going into outdoor coil. At the end of the one of the
feeder tubes, there is a 3/8 in. O.D. stub tube approximately 2 in.
(50.8 mm) long (see Fig. 3). The defrost thermostat should be
located on stub tube. Note that there is only one stub tube used
with liquid header, and on most units it is the bottom circuit.
FEEDER TUBE
DEFROST
THERMOSTAT
STUB TUBE
A97517
Fig. 3 -- Defrost Thermostat Location
25HBB / 25HBC / 25HCD

3
Table 1 – Accessory Usage
Accessory
REQUIRED FOR LOW–AMBIENT
COOLING APPLICATIONS
(Below 55F / 12.8C)
REQUIRED FOR
LONG LINE APPLICATIONS*
REQUIRED FOR
SEA COAST APPLICATIONS
(Within 2 miles / 3.22 km)
Accumulator Standard Standard Standard
Ball Bearing Fan Motor Ye s {No No
Compressor Start Assist Capacitor and
Relay Ye s Ye s No
Crankcase Heater Ye s Ye s No
Evaporator Freeze Thermostat Ye s No No
Hard Shutoff TXV Ye s Ye s Ye s
Isolation Relay Ye s No No
Liquid Line Solenoid Valve No See Long–Line Application Guideline No
Motor MasterControl or
Low Ambient Switch Ye s No No
Support Feet Recommended No Recommended
* For tubing line sets between 80 and 200 ft. (24.38 and 60.96 m) and/or 20 ft. (6.09 m) vertical differential, refer to Residential Piping and Longline Guideline. .
{Additional requirement for Low–Ambient Controller (full modulation feature) MotorMasterrControl.
Make Piping Connections
!WARNING
PERSONAL INJURY AND ENVIRONMENTAL
HAZARD
Failure to follow this warning could result in personal injury
or death.
Relieve pressure and recover all refrigerant before system
repair or final unit disposal.
Use all service ports and open all flow–control devices,
including solenoid valves.
CAUTION
!
UNIT DAMAGE HAZARD
Failure to follow this caution may result in equipment damage
or improper operation.
If ANY refrigerant tubing is buried, provide a 6–in (152.4
mm). vertical rise at service valve. Refrigerant tubing lengths
up to 36–in (914.4 mm). may be buried without further special
consideration. Do not bury lines longer than 36 in (914.4 mm).
Outdoor units may be connected to indoor section using accessory
tubing package or field–supplied refrigerant grade tubing of correct
size and condition. For tubing requirements beyond 80 ft,
substantial capacity and performance losses can occur. Following
the recommendations in the Residential Piping and Long Line
Guideline will reduce these losses. Refer to Table 1 for accessory
requirements. Refer to Table 2 for field tubing diameters.
There are no buried–line applications greater than 36 in. (914.4
mm)
If refrigerant tubes or indoor coil are exposed to atmosphere, they
must be evacuated to 500 microns to eliminate contamination and
moisture in the system.
Outdoor Unit Connected To Factory Approved Indoor
Unit
Outdoor unit contains approximate system refrigerant charge for
operation with approved AHRI rated indoor unit when connected
by 15 ft (4.57 m) of field–supplied or factory–accessory tubing,
and factory supplied filter drier. Some indoor units require
additional subcooling to achieve optimal heating performance.
Using Table 5 or 6– Additional Subcooling Required, check
refrigerant charge for maximum efficiency
Refrigerant Tubing and Sweat Connections
Connect vapor tube to fitting on outdoor unit vapor service valves
(see Table 2). Connect liquid tubing to adapter tube on liquid
service valve. Use refrigerant grade tubing.
CAUTION
!
UNIT DAMAGE HAZARD
Failure to follow this caution may result in equipment
damage or improper operation.
Service valves must be wrapped in a heat–sinking material
such as a wet cloth while brazing.
Remove plastic retainer holding outdoor piston in liquid service
valve, leaving the piston and piston retainer inside the valve.
Connect sweat/flare adapter provided, to valve. (See Fig. 4.)
Connect refrigerant tubing to fittings on outdoor unit vapor and
liquid service valves. Service valves are closed from factory and
ready for brazing. After wrapping service valve with a wet cloth,
tubing set can be brazed to service valve using either silver bearing
or non–silver bearing brazing material. Do not use soft solder
(materials which melt below 800°F/427°C). Consult local code
requirements. Refrigerant tubing and indoor coil are now ready for
leak testing. This check should include all field and factory joints.
NOTE: Some outdoor units contain a mechanical fitting at the
liquid distributor. This connection is not field serviceable and
should not be disturbed.
A05226
Fig. 4 -- Liquid Service Valve
25HBB / 25HBC / 25HCD
Always Ask For

4
Table 2 – Refrigerant Connections and Recommended Liquid
and Vapor Tube Diameters (In.)
UNIT SIZE
LIQUID RATED VAPOR
Connection
Diameter
Tube
Diameter
Connection
Diameter
Tube
Diameter
18, 24 3/8 3/8 5/8 5/8
30, 36 3/8 3/8 3/4 3/4
42, 48 3/8 3/8 7/8 7/8
60 3/8 3/8 7/8 1–1/8
* Units are rated with 25 ft. (7.6 m) of lineset. See Product Data sheet for performance
data when using different size and length linesets.
Notes:
1. Do not apply capillary tube indoor coils to these units.
2. For Tubing Set lengths between 80 and 200 ft. (24.38 and 60.96 m) horizontal or
20 ft. (6.09 m) vertical differential 250 ft. (76.2 m) Total Equivalent Length, refer to
the Residential Piping and Longline Guideline – Air Conditioners and Heat Pumps
using Puron refrigerant.
Installing with Indoor Piston
Outdoor Unit Connected to Factory Approved Indoor Unit
Check piston size shipped with indoor unit to see if it matches
required indoor piston size. If it does not match, replace indoor
piston with correct piston size.
NOTE: Correct pistons are shipped with outdoor units in the
accessory bag and are only qualified for piston fan coils. Example
fan coils with piston: FB4C and FY5B (1.5 through 4 ton)
When changing indoor piston, use a back−up wrench. Hand
tighten hex nut, then tighten with wrench 1/2 turn. Do not exceed
30 ft−lbs. The indoor piston contains a Teflon ring (or seal) which
is used to seat against the inside of distributor body, and must be
installed properly to ensure proper seating. See Fig. 5.
13/16” BRASS HEX NUT
TEFLON® SEAL
TEFLON®
RINGS
3/4” BRASS HEX BOD
Y
“H” DISTRIBUTOR
PISTON RETAINER
PISTON
A10342
Fig. 5 -- Indoor Piston Installation
Install Liquid Line Filter Drier Indoor
Refer to Fig. 6 and install filter drier as follows:
1. Braze 5 in. (127 mm) liquid tube to the indoor coil.
2. Wrap filter drier with damp cloth.
3. Braze filter drier to 5 in. (127 mm) long liquid tube from
step 1.
4. Connect and braze liquid refrigerant tube to the filter drier.
A05227
Fig. 6 -- Liquid Line Filter Drier
CAUTION
!
UNIT DAMAGE HAZARD
Failure to follow this caution may result in equipment damage
or improper operation.
Installation of filter drier in liquid line is required.
Evacuate Refrigerant Tubing and Indoor Coil
CAUTION
!
UNIT DAMAGE HAZARD
Failure to follow this caution may result in equipment
damage or improper operation.
Never use the system compressor as a vacuum pump.
Refrigerant tubes and indoor coil should be evacuated using the
recommended deep vacuum method of 500 microns. The alternate
triple evacuation method may be used (see triple evacuation
procedure in service manual). Always break a vacuum with dry
nitrogen.
Deep Vacuum Method
The deep vacuum method requires a vacuum pump capable of
pulling a vacuum of 500 microns and a vacuum gage capable of
accurately measuring this vacuum depth. The deep vacuum method
is the most positive way of assuring a system is free of air and
liquid water. A tight dry system will hold a vacuum of 1000
microns after approximately 7 minutes. (See Fig. 7.)
500
MINUTES
01234567
1000
1500
LEAK IN
SYSTEM
VACUUM TIGHT
TOO WET
TIGHT
DRY SYSTEM
2000
MICRONS
2500
3000
3500
4000
4500
5000
A95424
A95424
Fig. 7 -- Deep Vacuum Graph
Final Tubing Check
IMPORTANT: Check to be certain factory tubing on both indoor
and outdoor unit has not shifted during shipment. Ensure tubes are
not rubbing against each other or any sheet metal. Pay close
attention to feeder tubes, makings sure wire ties on feeder tubes are
secure and tight.
Be sure field wiring complies with local and national fire, safety,
and electrical codes, and voltage to system is within limits shown
on unit rating plate. Contact local power company for correction of
improper voltage. See unit rating plate for recommended circuit
protection device.
NOTE: Operation of unit on improper line voltage constitutes
abuse and could affect unit reliability. See unit rating plate. Do not
install unit in system where voltage may fluctuate above or below
permissible limits.
25HBB / 25HBC / 25HCD

5
Make Electrical Connections
!WARNING
ELECTRICAL SHOCK HAZARD
Failure to follow this warning could result in personal injury or
death.
Do not supply power to unit with compressor terminal box
cover removed.
NOTE: Use copper wire only between disconnect switch and unit.
NOTE: Install branch circuit disconnect of adequate size per NEC
to handle unit starting current. Locate disconnect within sight from
and readily accessible from unit, per Section 440–14 of NEC.
Route Ground and Power Wires
Remove access panel to gain access to unit wiring. Extend wires
from disconnect through power wiring hole provided and into unit
control box.
Connect Ground and Power Wires
!WARNING
ELECTRICAL SHOCK HAZARD
Failure to follow this warning could result in personal injury or
death.
The unit cabinet must have an uninterrupted or unbroken
ground to minimize personal injury if an electrical fault should
occur. The ground may consist of electrical wire or metal
conduit when installed in accordance with existing electrical
codes.
Connect ground wire to ground connection in control box for
safety. Connect power wiring to contactor as shown in Fig. 8.
DISCONNECT
PER N.E.C. AND/OR
LOCAL CODES
CONTACTOR
GROUND
LUG
FIELD GROUND
WIRING
FIELD POWER
WIRING
BLUE
3 PHASE ONLY
A94025
Fig. 8 -- Line Connections
A00010
Fig. 9 -- 3–Phase Monitor Control
(Applies to 3–Phase Units Only)
Table 3 – 3–Phase Monitor LED Indicators
LED STATUS
OFF Nocallforcompressoroperation
FLASHING Reversed phase
ON Normal
Connect Control Wiring
Route 24v control wires through control wiring grommet and
connect leads to control wiring. See Thermostat Installation
Instructions for wiring specific unit combinations. (See Fig. 10.)
Use No. 18 AWG color–coded, insulated (35°C minimum) wire. If
thermostat is located more than 100 ft (30.5 m) from unit, as
measured along the control voltage wires, use No. 16 AWG
color–coded wire to avoid excessive voltage drop.
All wiring must be NEC Class 1 and must be separated from
incoming power leads.
Use furnace transformer, fan coil transformer, or accessory
transformer for control power, 24v/40va minimum.
NOTE: Use of available 24v accessories may exceed the
minimum 40va power requirement. Determine total transformer
loading and increase the transformer capacity or split the load with
an accessory transformer as required.
24 VAC HOT R
C
W2
Y
G
R
C
RVS COOLING
C
W2
HP THERMOSTAT TYPICAL
FAN COIL HEAT
PUMP
G
O
E
W2
E
W3
R
Y
24 VAC COM
HEAT STAGE 2
COOL/HEAT
STAGE 1
INDOOR FAN
EMERGENCY
HEAT
O
*
*
*
IF AVAILABLE
*
LEGEND
24-V FACTORY WIRING
24-V FIELD WIRING
FIELD SPLICE CONNECTION
OUTDOOR THERMOSTAT
EMERGENCY HEAT RELAY
SUPPLEMENTAL HEAT RELAY
SHR
EHR
ODT
A02325 / A97413
Fig. 10 -- Generic Wiring Diagrams
(See thermostat Installation Instructions
for specific unit combinations)
25HBB / 25HBC / 25HCD

6
Final Wiring Check
IMPORTANT: Check factory wiring and field wire connections
to ensure terminations are secured properly. Check wire routing to
ensure wires are not in contact with tubing, sheet metal, etc.
CompressorCrankcaseHeater
When equipped with a crankcase heater, furnish power to heater a
minimum of 24 hr before starting unit. To furnish power to heater
only, set thermostat to OFF and close electrical disconnect to
outdoor unit.
A crankcase heater is required if refrigerant tubing is longer than
80 ft (23.4 m), or when outdoor unit is 20 ft (6.09 m) below indoor
unit. Refer to the Residential Piping and Long Line Guideline.
Install Electrical Accessories
Refer to the individual instructions packaged with kits or
accessories when installing.
Start–Up
CAUTION
!
PERSONAL INJURY HAZARD
Failure to follow this caution may result in personal injury.
Wear safety glasses, protective clothing, and gloves when
handling refrigerant and observe the following:
SFront seating service valves are equipped with Schrader valves.
CAUTION
!
ENVIRONMENTAL HAZARD
Failure to follow this caution may result in environmental
damage.
Federal regulations require that you do not vent refrigerant to
the atmosphere. Recover during system repair or final unit
disposal.
CAUTION
!
UNIT OPERATION AND SAFETY HAZARD
Failure to follow this caution may result in personal injury,
equipment damage or improper operation.
SDo not overcharge system with refrigerant.
SDo not operate unit in a vacuum or at negative pressure.
SDo not disable low pressure switch in scroll compressor
applications.
SCompressor dome temperatures may be hot.
Follow these steps to properly start up system:
1. After system is evacuated, fully open liquid and vapor ser-
vice valves.
2. Unit is shipped with valve stem(s) front seated (closed) and
caps installed. Replace stem caps after system is opened to
refrigerant flow (back seated). Replace caps finger–tight and
tighten with wrench an additional 1/12 turn.
3. Close electrical disconnects to energize system.
4. Set room thermostat at desired temperature. Be sure set
point is below indoor ambient temperature.
5. Set room thermostat to HEAT or COOL and fan control to
ON or AUTO mode, as desired. Operate unit for 15
minutes. Check system refrigerant charge.
Sequence of Operation
Turn on power to indoor and outdoor units. Transformer is
energized.
Cooling
On a call for cooling, thermostat makes circuits R–O and R–Y, and
R–G. Circuit R–O energizes reversing valve, switching it to
cooling position. Circuit R–Y energizes contactor, starting outdoor
fan motor and compressor circuit. R–G energizes indoor unit
blower relay, starting indoor blower motor on high speed.
When thermostat is satisfied, its contacts open, de–energizing
contactor and blower relay. Compressor and motors should stop.
NOTE: If indoor unit is equipped with a time–delay relay circuit,
the indoor blower will run an additional 90 seconds to increase
system efficiency.
Heating
On a call for heating, thermostat makes circuits R–Y and R–G.
Circuit R–Y energizes contactor, starting outdoor fan motor and
compressor. Circuit R–G energizes indoor blower relay, starting
blower motor on high speed.
Should temperature continue to fall, R–W2 is made through
second–stage room thermostat. Circuit R–W2 energizes a relay,
bringing on first bank of supplemental electric heat and providing
electrical potential to second heater relay (if used). If outdoor
temperature falls below setting of outdoor thermostat (field
installed option), contacts close to complete circuit and bring on
second bank of supplemental electric heat.
When thermostat is satisfied, its contacts open, de–energizing
contactor and relay. All heaters and motors should stop.
Defrost
The defrost control is a time/temperature control which includes a
field selectable (quick–connects located at board edge) time period
between defrost cycles (30, 60, or 90 minutes), factory set to either
60 or 90 minutes.
The electronic defrost timer sequence is enabled when the T1 input
on the board is energized. The timer starts only when the defrost
thermostat is closed and the contactor is energized.
Defrost mode is identical to cooling mode except that outdoor fan
motor stops and second–stage heat is turned on to continue
warming conditioned spaces.
To initiate defrost, the defrost thermostat must be closed. This can
be accomplished as follows:
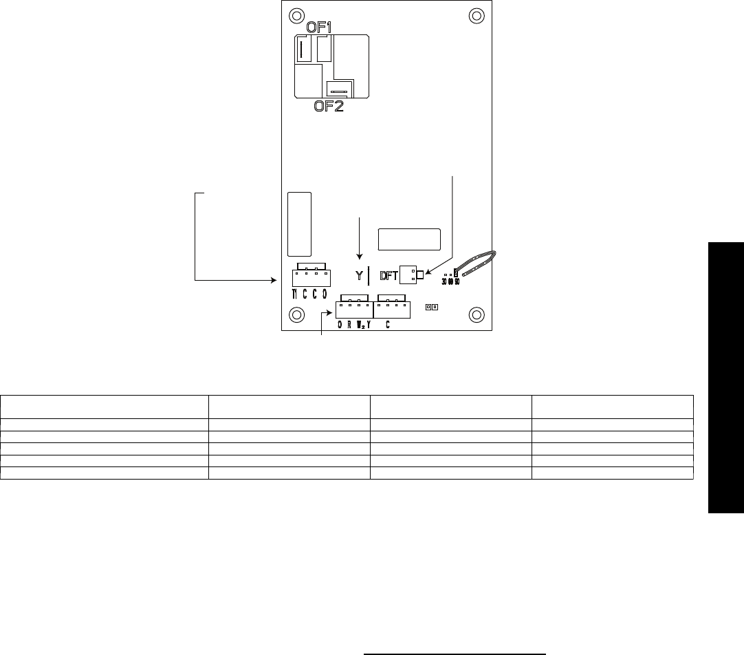
1. Turn off power to outdoor unit.
2. Disconnect outdoor fan motor lead from OF2 on control
board (see Fig. 11). Tape lead to prevent grounding.
3. Restart unit in heating mode, allowing frost to accumulate
on outdoor coil.
4. After a few minutes in heating mode, liquid line temperat-
ure should drop below closing point of defrost thermostat
(approximately 30°F/–1.11°C).
5. Short between speedup terminals with a flat–blade screw-
driver. This reduces the timing sequence to 1/25th of origin-
al time. (See Table 4.)
6. When you hear reversing valve change position, remove
screwdriver immediately; otherwise, control will terminate
normal 10–minute defrost cycle in approximately 2
seconds.
NOTE: Length of defrost cycle is dependent upon length of time
it takes to remove screwdriver from test pins after reversing valve
has shifted.
7. Unit will remain in defrost for remainder of defrost cycle
time or until defrost thermostat reopens at approximately
65°F (18.33°C) coil temperature of liquid line.
8. Turn off power to outdoor unit and reconnect fan motor
lead to OF2 on control board.
25HBB / 25HBC / 25HCD

7
OUTDOOR FAN
RELAY
Y OUTPUT TO PRESSURE
SWITCHES AND CONTACTOR
THERMOSTAT INPUTS
T1 - ENABLES DEFROST
TIMER.MUST BE
ENERGIZED FOR
DEFROST TIMER
TO START
C - COMMON
O - REVERSING VALVE
SPEEDUP
HK32EA001
DEFROST THERMOSTAT
MUST BE CLOSED BEFORE
DEFROST TIMER BEGINS
A05332
Fig. 11 -- Defrost Control
Table 4 – Defrost Control Speedup–Timing Sequence
PARAMETER MINIMUM
(MINUTES)
MAXIMUM
(MINUTES)
SPEEDUP
(NOMINAL)
30–minute cycle 27 33 7sec
50–minute cycle 45 55 12 sec
90–minute cycle 81 99 21 sec
10–minute cycle 911 2sec
5 minutes 4.5 5.5 1sec
Check Charge
Factory charge amount and desired subcooling are shown on unit
rating plate. Additional subcooling may be required to achieve
optimal heating performance based on the installed indoor unit.
(see Table 5 or 6).
Charging method is shown on information plate inside unit. For
TXV, use subcooling method. For piston, use superheat method.
To properly check or adjust charge, conditions must be favorable
for subcooling or superheat charging. Favorable conditions exist
when the outdoor temperature is between 70_F and 100_F
(21.11_C and 37.78_C), and the indoor temperature is between
70_F and 80_F (21.11_C and 26.67_C). Follow the procedure
below:
Unit is factory charged for 15ft (4.57 m) of lineset. Adjust charge
by adding or removing 0.6 oz/ft (.018 kg/m) of 3/8 liquid line
above or below 15ft (4.57 m) respectively.
For standard refrigerant line lengths (80 ft/24.38 m or less), allow
system to operate in cooling mode at least 15 minutes. If conditions
are favorable, check system charge by super heat method for fixed
metering device and subcooling method for TXV. If any
adjustment is necessary, adjust charge slowly and allow system to
operate for 15 minutes to stabilize before declaring a properly
charged system. Refer to Table 5 or 6 for additional subcooling
required.
If the indoor temperature is above 80_F (26.67_C), and the
outdoor temperature is in the favorable range, adjust system charge
by weight based on line length and allow the indoor temperature to
drop to 80_F (26.67_C) before attempting to check system charge
by subcooling method as described above.
If the indoor temperature is below 70_F (21.11_C), or the outdoor
temperature is not in the favorable range, adjust charge for line set
length above or below 15ft (4.57 m) only. Charge level should then
be appropriate for the system to achieve rated capacity. The charge
level could then be checked at another time when the both indoor
and outdoor temperatures are in a more favorable range.
NOTE: If line length is beyond 80 ft (24.38 m) or greater than 20
ft (6.10 m) vertical separation, See Residential Piping and Long
Line Guideline for special charging requirements.
Units with Cooling Mode TXV
Units installed with cooling mode TXV require charging by the
subcooling method.
1. Operate unit a minimum of 10 minutes before checking
charge.
2. Measure liquid service valve pressure by attaching an accur-
ate gage to service port.
3. Measure liquid line temperature by attaching an accurate
thermistor type or electronic thermometer to liquid line near
outdoor coil.
4. Refer to unit rating plate for required subcooling temperat-
ure.
5. Refer to Table 7. Find the point where required subcooling
temperature intersects measured liquid service valve pres-
sure.
6. To obtain required subcooling temperature at a specific li-
quid line pressure, add refrigerant if liquid line temperature
is higher than indicated or reclaim refrigerant if temperature
is lower. Allow a tolerance of 3_F.
25HBB / 25HBC / 25HCD

8
Units with Indoor Pistons
Units installed with indoor pistons require charging by the
superheat method.
The following procedure is valid when indoor airflow is within
21 percent of its rated CFM.
1. Operate unit a minimum of 10 minutes before checking
charge.
2. Measure suction pressure by attaching an accurate gage to
suction valve service port.
3. Measure suction temperature by attaching an accurate ther-
mistor type or electronic thermometer to suction line at ser-
vice valve.
4. Measure outdoor air dry–bulb temperature with thermomet-
er.
5. Measure indoor air (entering indoor coil) wet–bulb temper-
ature with a sling psychrometer.
6. Refer to Table 8. Find outdoor temperature and evaporator
entering air wet–bulb temperature. At this intersection, note
superheat. Where a dash (––) appears on the table, do not
attempt to charge system under these conditions or refriger-
ant slugging may occur. Charge must be weighted in,
adding or removing 0.6 oz/ft of 3/8 liquid line above or be-
low 15 ft (4.57 m) respectively.
7. Refer to Table 9. Find superheat temperature located in item
6 and suction pressure. At this intersection, note suction line
temperature.
8. If unit has a higher suction line temperature than charted
temperature, add refrigerant until charted temperature is
reached.
9. If unit has a lower suction line temperature than charted
temperature, reclaim refrigerant until charted temperature is
reached.
10. When adding refrigerant, charge in liquid form into suction
service port using a flow–restricting device.
11. If outdoor air temperature or pressure at suction valve
changes, charge to new suction line temperature indicated
on chart.
12. Optimum performance will be achieved when the operating
charge produces 5_to 6_F suction superheat at suction
service valve with 82_F outdoor ambient and 80_F
(26.7_C) dry bulb (67_F / 19.4_C) wet bulb) indoor
temperature (DOE “B” test conditions) at rated airflow.
Heating Check Chart Procedure
To check system operation during heating cycle, refer to the
Heating Check Chart on outdoor unit. This chart indicates whether
a correct relationship exists between system operating pressure and
air temperature entering indoor and outdoor units. If pressure and
temperature do not match on chart, system refrigerant charge may
not be correct. Do not use chart to adjust refrigerant charge.
25HBB / 25HBC / 25HCD

9
Table 5 – Additional Subcooling Required – 13 & 14 SEER Units
Indoor Unit
Subcooling Delta from Rating Plate Value
Outdoor Unit Tonnage
018 024 030 036 042 048 060
CAP**1814A** ––
CNPV*1814A** ––
FB4CNF018+TXV ––
FF1ENP(018/019) ––
FX4DNF019 +3
CAP**24**A** +3 +3
CNP**24**A** +3 +3
CSPH*2412A** +5 +5
FB4CNF024+TXV –– ––
FF1ENP(024/025) +5 +3
(FV4C/FE4A)NF002 +5 +3 +3
FX4DNF025 +5 +3
CAP**30**A** +3 ––
CNP**30**A** +3 +3
CSPH*3012A** +3 +3
FB4CNF030+TXV +3 ––
FF1ENP030 +3 ––
FF1ENP031 +3 ––
FX4DN(B,F)031 +5 +5
CAP**36**A** +5 +3
CNP**36**A** +3 ––
CSPH*3612A** +5 +3
FB4CNF036+TXV –– ––
(FV4C/FE4A)N(B,F)003 +5 +5 +3 ––
FF1ENP036 +5 +3
FF1ENP037 +5 +3
FX4DN(B,F)037 +5 +5
CAP**42**A** +3 ––
CNP**4221A** +3 ––
CNPV*4217A** +3 ––
CSPH*4212A** +5 ––
FB4CNF042+TXV +5 ––
FX4DN(B,F)043 +5 ––
CAP**4817A** +5 +3
CAP**48(21,24)A** +3 ––
CNP**48**A** –– ––
CSPH*4812A** +3 ––
FB4CNF048+TXV –– ––
(FV4C/FE4A)N(B,F)005 +5 +5 +3 –– ––
FX4DN(B,F)049 +3 ––
CAP**60**A** +5 +3
CNP**6024A** +3 ––
CSPH*6012A** +5 +3
FB4CNF060 +5 ––
(FV4C/FE4A)NB006 +5 +5 +5 +3
FX4DN(B,F)061 +5 +3
25HBB / 25HBC / 25HCD

10
Table 6 – Additional Subcooling Required – 15 SEER Units
Indoor Unit
Subcooling Delta from Rating Plate Value
OUTDOOR UNIT TONNAGE
018 024 030 036 042 048 060
CAP**1814A** ––
CNPV*1814A** ––
FB4CNF018+TXV ––
FF1ENP(018/019) ––
FX4DNF019 ––
CAP**24**A** –– ––
CNP**24**A** –– ––
CSPH*2412A** –– ––
FB4CNF024+TXV –– ––
FF1ENP(024/025) –– ––
(FV4C/FE4A)NF002 +3 –– ––
FX4DNF025 –– ––
CAP**30**A** –– ––
CNP**30**A** –– ––
CSPH*3012A** –– ––
FB4CNF030+TXV –– ––
FF1ENP030 –– ––
FF1ENP031 –– ––
FX4DN(B,F)031 +3 ––
CAP**36**A** –– ––
CNP**36**A** –– ––
CSPH*3612A** –– ––
FB4CNF036+TXV –– ––
(FV4C/FE4A)N(B,F)003 –– –– –– ––
FF1ENP036 –– ––
FF1ENP037 –– ––
FX4DN(B,F)037 +5 ––
CAP**42**A** –– ––
CNP**4221A** –– ––
CNPV*4217A** –– ––
CSPH*4212A** –– ––
FB4CNF042+TXV –– ––
FX4DN(B,F)043 –– ––
CAP**4817A** +5 ––
CAP**48(21,24)A** +3 ––
CNP**48**A** –– ––
CSPH*4812A** –– ––
FB4CNF048+TXV –– ––
(FV4C/FE4A)N(B,F)005 +3 +3 +3 –– ––
FX4DN(B,F)049 +3 ––
CAP**60**A** +5 ––
CNP**6024A** –– ––
CSPH*6012A** +3 ––
FB4CNF060 –– ––
(FV4C/FE4A)NB006 +5 +5 +3 ––
FX4DN(B,F)061 +3 ––
25HBB / 25HBC / 25HCD

11
Table 7 – Required Liquid Line Temperatures _F
LIQUID PRESSURE AT
SERVICE VALVE (PSIG)
REQUIRED SUBCOOLING TEMPERATURE (° F)
810 12 14 16 18
251 76 74 72 70 68 66
259 78 76 74 72 70 68
266 80 78 76 74 72 70
274 82 80 78 76 74 72
283 84 82 80 78 76 74
291 86 84 82 80 78 76
299 88 86 84 82 80 78
308 90 88 86 84 82 80
317 92 90 88 86 84 82
326 94 92 90 88 86 84
335 96 94 92 90 88 86
345 98 96 94 92 90 88
354 100 98 96 94 92 90
364 102 100 98 96 94 92
374 104 102 100 98 96 94
384 106 104 102 100 98 96
395 108 106 104 102 100 98
406 110 108 106 104 102 100
416 112 110 108 106 104 102
427 114 112 110 108 106 104
439 116 114 112 110 108 106
450 118 116 114 112 110 108
462 120 118 116 114 112 110
474 122 120 118 116 114 112
486 124 122 120 118 116 114
499 126 124 122 120 118 116
511 128 126 124 122 120 118
Table 8 – Superheat Charging (Heat Pump Only)
OUTDOOR TEMP (° F) EVAPORATOR ENTERING AIR TEMPERATURE (° F WB)
50 52 54 56 58 60 62 64 67 68 70 72 74 76
55 11 11 12 12 12 13 17 20 24 24 25 25 25 25
60 66777712 16 21 22 23 23 23 23
65 –––––3712 18 19 21 21 22 22
70 –––––––714 16 18 20 20 20
75 –––––––311 13 16 18 18 19
82 ––––––––*6 812 15 16 17
85 ––––––––4711 14 15 16
90 –––––––––4812 14 15
95 ––––––––––610 12 14
100 ––––––––––4811 12
105 ––––––––––36911
110 –––––––––––5710
115 –––––––––––368
*Optimum performance point, 82° F outdoor ambient and (80° F dry bulb),( 67° F wet bulb) indoor conditions. (DOE B Test Conditions)
Where a dash (––) appears do not attempt to charge system under these conditions or refrigerant slugging may occur. Charge must be weighed in.
Note: Superheat ° F is at low–side service port, Allow a tolerance of ± 3° F
Note: Indoor dry bulb between 70° F and 80° F
Table 9 – Required Suction–Line Temperature
SUPERHEAT TEMP (° F) SUCTION PRESSURE AT SERVICE PORT (PSIG)
107.8 112.2 116.8 121.2 126 130.8 138.8 140.8 145.8
035 37 39 41 43 45 47 49 51
237 39 41 43 45 47 49 51 53
439 41 43 45 47 49 51 53 55
641 43 45 47 49 51 53 55 57
843 45 47 49 51 53 55 57 59
10 45 47 49 51 53 55 57 59 61
12 47 49 51 53 55 57 59 61 63
14 49 51 53 55 57 59 61 63 65
16 51 53 55 57 59 61 63 65 67
18 53 55 57 59 61 63 65 67 69
20 55 57 59 61 63 65 67 69 71
22 57 59 61 63 65 67 69 71 73
24 59 61 63 65 67 69 71 73 75
26 61 63 65 67 69 71 73 75 77
28 63 65 67 69 71 73 75 77 79
30 65 67 69 71 73 75 77 79 81
25HBB / 25HBC / 25HCD

12
FINAL CHECKS
IMPORTANT: Before leaving job, be sure to do the following:
1. Ensure that all wiring is routed away from tubing and sheet
metal edges to prevent rub–through or wire pinching.
2. Ensure that all wiring and tubing is secure in unit before
adding panels and covers. Securely fasten all panels and
covers.
3. Tighten service valve stem caps to 1/12–turn past finger
tight.
4. Leave Owner’s Manual with owner. Explain system opera-
tion and periodic maintenance requirements outlined in
manual.
5. Fill out Dealer Installation Checklist and place in customer
file.
CARE AND MAINTENANCE
For continuing high performance and to minimize possible
equipment failure, periodic maintenance must be performed on this
equipment.
Frequency of maintenance may vary depending upon geographic
areas, such as coastal applications. See Users Manual for
information.
PURONR(R–410A) QUICK REFERENCE GUIDE
SPuron refrigerant operates at 50–70 percent higher pressures than R–22. Be sure that servicing equipment and replacement
components are designed to operate with Puron
SPuron refrigerant cylinders are rose colored.
SRecovery cylinder service pressure rating must be 400 psig, DOT 4BA400 or DOT BW400.
SPuron systems should be charged with liquid refrigerant. Use a commercial type metering device in the manifold hose when
charging into suction line with compressor operating
SManifold sets should be 700 psig high side and 180 psig low side with 550 psig low–side retard.
SUse hoses with 700 psig service pressure rating.
SLeak detectors should be designed to detect HFC refrigerant.
SPuron, as with other HFCs, is only compatible with POE oils.
SVacuum pumps will not remove moisture from oil.
SDo not use liquid–line filter driers with rated working pressures less than 600 psig.
SDo not leave Puron suction line filter driers in line longer than 72 hours.
SDo not install a suction–line filter drier in liquid line.
SPOE oils absorb moisture rapidly. Do not expose oil to atmosphere.
SPOE oils may cause damage to certain plastics and roofing materials.
SWrap all filter driers and service valves with wet cloth when brazing.
SA factory approved liquid–line filter drier is required on every unit.
SDo NOT use an R–22 TXV.
SIf indoor unit is equipped with an R–22 TXV or piston metering device sized for R--22 application, it must be changed to a hard
shutoff Puron TXV or properly sized Puron piston metering device.
SNever open system to atmosphere while it is under a vacuum.
SWhen system must be opened for service, recover refrigerant, evacuate then break vacuum with dry nitrogen and replace filter
driers. Evacuate to 500 microns prior to recharging.
SDo not vent Puron into the atmosphere.
SDo not use capillary tube coils.
SObserve all warnings,cautions,andbold text.
Copyright 2013 Carrier Corp. S7310 W. Morris St. SIndianapolis, IN 46231 Edition Date: 06/13
Manufacturer reserves the right to change, at any time, specifications and designs without notice and without obligations.
Catalog No: 25HBB–C–HCD---03SI
Replaces: 25HBB–C–HCD---02SI
25HBB / 25HBC / 25HCD