Carrier 30Gt 911 062 Users Manual 30_48_50 6SI

30GT-911---062 to the manual 3e10dea0-48d2-47b7-af67-6d10161fd75a

2015-01-24

: Carrier Carrier-30Gt-911-062-Users-Manual-311003 carrier-30gt-911-062-users-manual-311003 carrier pdf

Open the PDF directly: View PDF PDF.
Page Count: 12

Manufacturer reserves the right to discontinue, or change at any time, specifications or designs without notice and without incurring obligations.
Catalog No. 533-00078 Printed in U.S.A. Form 30/48/50-6SI Pg 1 10-06 Replaces: 30G,H,R-1SI
Book 11244
Tab 1a1b5c6a6b
Installation Instructions
Part Number 30GT-911---062
Read these instructions completely before attempting to in-
stall the Navigator Accessory Display Module. The Navigator
module is used on the following units:
CONTENTS
SAFETY CONSIDERATIONS . . . . . . . . . . . . . . . . . . . . . . 1
GENERAL . . . . . . . . . . . . . . . . . . . . . . . . . . . . . . . . . . . . . . . . 1
INSTALLATION . . . . . . . . . . . . . . . . . . . . . . . . . . . . . . . . 1-10
OPERATION . . . . . . . . . . . . . . . . . . . . . . . . . . . . . . . . . . 10, 11
CLEANING, SERVICE, AND MAINTENANCE . . . . . 12
SAFETY CONSIDERATIONS
Installation of this accessory can be hazardous due to sys-
tem pressures, electrical components, and equipment location
(such as a roof or elevated structure).
Only trained, qualified installers and service technicians
should install, start up, and service this equipment.
When installing this accessory, observe precautions in the
literature, labels attached to the equipment, and any other
safety precautions that apply.
Follow all safety codes.
Wear safety glasses and work gloves.
Use care in handling and installing this accessory.
GENERAL
Check Package Contents — Check the accessory
package for missing parts or shipping damage. If damage is
found, or any part is missing, file a claim with the shipper
immediately. The package contains these instructions, carrying
bag, and the Navigator display module.
The Navigator module is a portable display that conforms to
NEMA (National Electrical Manufacturers Association) 4
specifications for outdoor use in temperatures ranging from
–22 F (–30 C) to 158 F (70 C). The Navigator module can be
used to configure and perform service diagnostics on machines
equipped with Carrier ComfortLink controls.
The Navigator module keypad (see Fig. 1) contains eleven
menu LEDs and one Alarm Status LED, all of which are
red. The Navigator module is capable of displaying four
24-character lines of information on a back-lit liquid crystal
display. The Navigator module has four functional keys: the up
arrow ( ), down arrow ( ), , and
keys.
NOTE: The Navigator module should be removed after use.
There is not sufficient space to store the module in the unit
control panel. The module will NOT fit between the inner
panel and outer cover.
INSTALLATION
1. The Navigator display module is intended to be a mobile
device, so there are no holes in the device for permanent
mounting. The module has a magnetic mount that is
strong enough to hold the device in place on any clean,
dry metal surface.
2. The Navigator module is powered through the
ComfortLink Main Base Board (MBB). The Navigator
module has a modular telephone style (RJ14) connector
and should be connected to a specific terminal block in
the control box as found in Table 1. This device is intend-
ed for use on the LEN (Local Equipment Network) com-
munications bus only. Do NOT connect the Navigator
module to the CCN (Carrier Comfort Network®) con-
nector, as it may damage the device.
3. See Fig. 2-8 for Navigator LEN connection locations in
the units.
4. See Fig. 9 for Communication board details.
UNIT SIZE
30HK 040-060
30HL 050-060
30HW 018-040
30RB 060-390
48AJ,AK,AW,AY 020-060
50AJ,AK,AW,AY 020-060
48PG 03-28
50PG 03-28
48ZG,ZN 030-105
48ZT,ZW,Z6,Z8 075-105
50ZG,ZN,Z2,Z3 030-105
50ZT,ZW,ZX,ZZ,Z6,Z7,Z8,Z9 075-105
To avoid the possibility of electrical shock, open and tag
all disconnects before installing this equipment. Be
aware that there may be more than one disconnect.
ENTER ESCAPE
Air-Cooled Chillers with ComfortLink™ Controls
Water-Cooled Chillers with ComfortLink™ Controls
Rooftop Units with ComfortLink™ Controls
Navigator™ Accessory Display Module
Run Status
Service Test
Temperatures
Pressures
Setpoints
Inputs
Outputs
Configuration
Time Clock
Operating Modes
Alarms
ENTER
ESC
MODE
Alarm Status
ComfortLink
Fig. 1 — Navigator in Display Mode
a30-3924
2
Table 1 — Terminal Block (TB) Locations Containing LEN Connector
Table 2 — 30RB315-390 Modular Unit Combinations
UNIT MODEL LOCATION DESCRIPTION OF TB CONTAINING LEN CONNECTOR
30HK,HL040-060 TB3 can be accessed without opening the control box door. It is located at the upper right corner
of the control box.
30HW018-040 TB3 can be accessed without opening the control box door. It is located at the upper right corner
of the control box.
30RB060-120 TB3 can be accessed by opening the control box door. It is located at the right side of the hinged
display door.
30RB130-300 TB3 can be accessed by opening the left hand (smaller) door of the fan control panel. It is
located at the right side of the display panel.
30RB315-390 Unit sizes 30RB315-390 are modular units and thus, accept two Navigator™ modules, one on
each unit module. See Table 2.
48PG03-16 (TB1) 48PG20-28 (TB2)
50PG03-16 (TB1) 50PG20-28 (TB2)
Both TBs are accessed by opening the control box door. TB1 (PG03-16) or TB2 (PG20-28) is
located in the lower right of the control box.
48AJ,AK,AW,AY020-060
50AJ,AK,AW,AY020-060
TB3 can be accessed by opening the control box door. It is located in the lower center of the
control box.
NOTE: If the unit is equipped with an Economizer Circuit Board (ECB), the ECB provides an
auxiliary RJ14 LEN connector. See product documentation for more detail.
48ZG,ZN,ZT,ZW,Z6,Z8
50ZG,ZN,ZT,ZW,ZX,ZZ,Z2,Z3,Z6,Z7,Z8,Z9
TB3 can be accessed by opening the control box door. It is located to the left of the Scrolling
Marquee (display).
NOTE: These units provide an auxiliary RJ14 LEN connection on the corner post on the enter-
ing air end of the unit. See product documentation for more detail.
UNIT SIZE Module A Module B
30RBA315 30RBA160 30RBA160
30RBA330 30RBA170 30RBA160
30RBA345 30RBA170 30RBA170
30RBA360 30RBA190 30RBA170
30RBA390 30RBA190 30RBA190
LEGEND FOR FIG. 2 - FIG. 8
A—Alarm
AUX Auxiliary
C—Contactor, Compressor
CAP Capacitor
CB Circuit Breaker
CB-FN Circuit Breaker Fan Circuit
CB-HT Circuit Breaker Cooler Heater
CB-P Circuit Breaker Pump
CCB Control Circuit Board
CCN Carrier Comfort Network
CLHR Cooler Heater Relay
CR Control Relay
CS Current Sensor
CSB Current Sensor Board
DS Disconnect Switch
ECB Economizer Circuit Board
EMM Energy Management Module
EQUIP Equipment
EXV Electronic Expansion Valve
EXVB EXV Board
FB Fuse Block
FB1 Fan Board 1
FC Fan Contactor
GCS Ground Current Sensing
GND Ground
HACR Heating, Air Conditioning, and Refrigeration
IDR Inducer Draft Relay
IFC Indoor Fan Contactor
IFCB Indoor Fan Circuit Breaker
MMC Motormaster® Contactor
MMR Motormaster Relay
OFC Outdoor Fan Contactor
PLP Phase Loss Protection
RCB Rooftop Control Board
LEN Local Equipment Network
MBB Main Base Board
NEC National Electrical Code
PMP Pump Contactor
POT Potentiometer
RRB Reverse Rotation Board
SW Switch
TB Te r min al B loc k
TDR Time-Delay Relay
TRAN Transformer
TXV Thermostatic Expansion Value
Terminal Block Connection
Field Power Wiring
Factory Wiring
Field Wiring
Accessory or Option Wiring
To indicate common potential only, not to
represent wiring
3
CCN
CONNECTIONS
FIELD POWER SUPPLY
SEE OTHER
LABELS
SETPOINT POTENTIOMETER
(EXPORT ONLY)
MARQUEE DISPLAY
(DOMESTIC-STANDARD)
(EXPORT-OPTIONAL)
NAVIGATOR
LEN
CONNECTION
ENABLE
ON/OFF
CONTACT SWITCH
EMERGENCY
ON/OFF
SWITCH
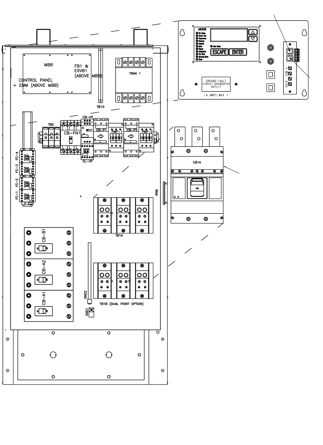
Fig. 2 — 30HK,HL040-060 Units Navigator™ LEN Connection
a30-4460
4
MARQUEE DISPLAY LOCATION NAVIGATOR LEN
CONNECTION
CCN
Fig. 3 — 30HW018-040 Units Navigator™ LEN Connection
a30-4461
5
NON-FUSED
DISCONNECT
OPTION
NAVIGATOR LEN
CONNECTION
CCN
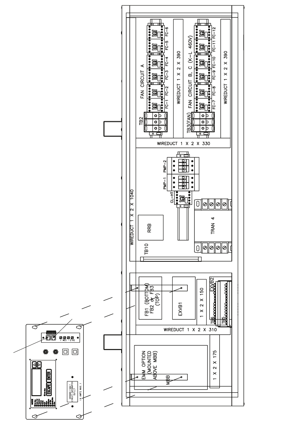
Fig. 4 — 30RB060-120 Units Navigator™ LEN Connection
a30-4462
6
NAVIGATOR LEN
CONNECTION
CCN
Fig. 5 — 30RB130-300 Units Navigator™ LEN Connection
a30-4463
7
NAVIGATOR LEN CONNECTION
CCN
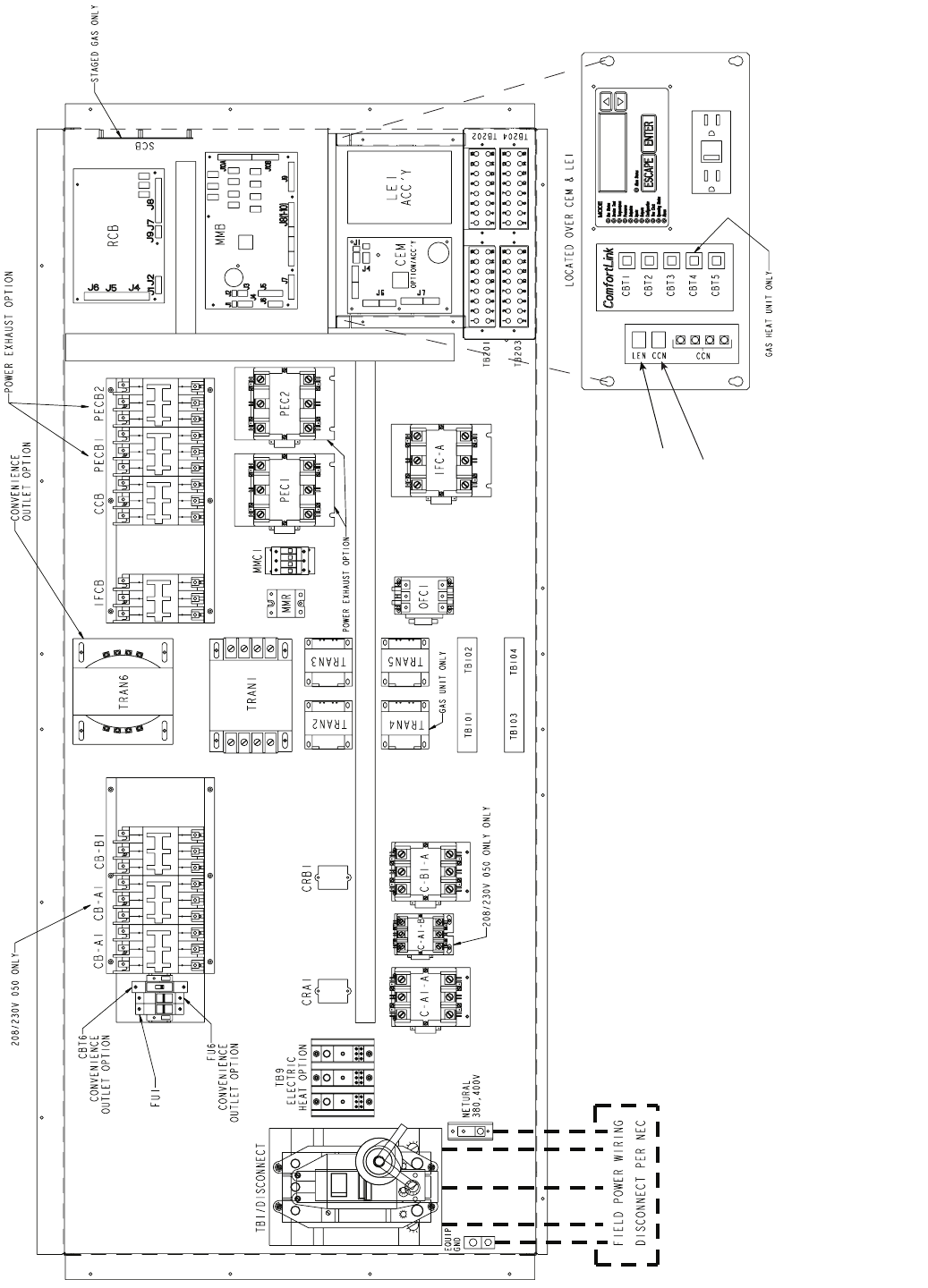
Fig. 6 — Typical 48/50PG Series Navigator™ LEN Connection
a48-8278
8
CONTROLS OPTION BOARD
CCN
NAVIGATOR LEN
CONNECTION
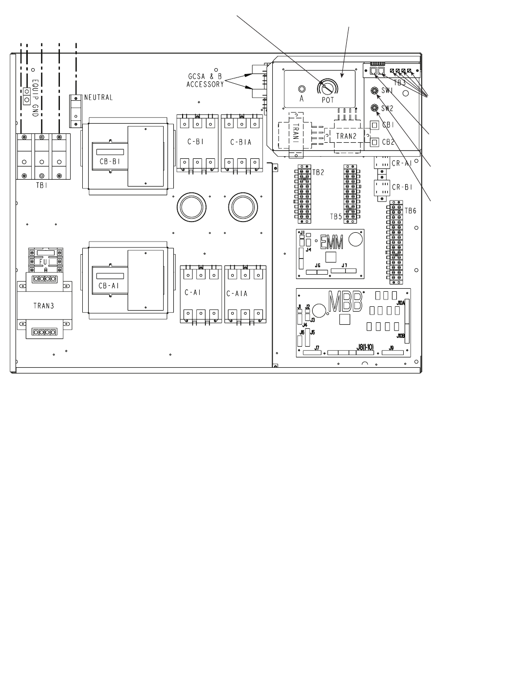
Fig. 7 — Typical 48/50A Series Navigator™ LEN Connection
a48-8279
9
NAVIGATOR LEN
CONNECTION
CCN
Fig. 8 — Typical 48/50Z Series Navigator™ LEN Connection
a48-8280
10
OPERATION
To use the Navigator™ module, plug the RJ14 connector
into the LEN port. On power up, the Navigator module
displays:
ComfortLink
Navigator
By
Carrier
The Navigator module will upload the appropriate display
tables from the Main Base Board (MBB) that it is connected to.
A ‘Communication failure’ message will be displayed if any
errors are encountered. Check the wiring at the connector and
the MBB-J5 plug if necessary. After successful upload of
information, the Navigator module begins its default display.
An example of the display in the default mode is:
EWT 54.2 °F
ENTERING FLUID TEMP
The entire local display command structure can be accessed
with the Navigator module. Pressing any key while in the de-
fault display mode will cause the Navigator module to enter its
manual mode. In this mode, all sub-modes and items of the
local display command structure, denoted on the display
screen, can be accessed. The Navigator module automatically
returns to the default display mode after 60 seconds of no
keypad activity. Pressing the and keys
simultaneously while the unit displays “Select a menu item”
will also return the device to its default display mode.
Navigating through Menu Structures — The ar-
row keys are used to scroll through the tiered command menu
structure. See the base unit Controls, Start-Up, Operation, and
Service Guide for menu structure. The key is used to
select a menu item or to accept data entry. The key
is used to exit to the next highest command level (mode) or to
cancel data entry. The sub-mode and item displays will wrap
around with the last and first items separated by a line of dashes
on the display. The ‘>’ symbol is the pointer and is located at
the left side of the display.
At any time, press the key repeatedly as needed
to display “Select a menu item” on the screen. This is the top
level and the arrow keys are used to move the red LED to one
of the 11 desired modes. Press to display the sub-
modes within a top level mode.
Use the arrow keys to move the pointer (‘>’) to the desired
sub-mode. Up to four sub-modes will be displayed on the
Navigator module at one time. Continue pressing the arrow
keys as needed to find the desired sub-mode.
ENTER ESCAPE
ENTER
ESCAPE
ESCAPE
ENTER
CCN
CCN LEN
(+) (-)(COM) SHIELD
1 8
PLUG TERMINAL
TERMINAL BLOCK DETAIL
Fig. 9 — Communication Board Detail
30 Series Chillers (HK,HL,HW,RB) Packaged Rooftop Units (PG,A,Z)
PLUG TERMINAL TRACE TO PLUG TERMINAL TRACE TO
PIN 1 LEN PLUG, PIN 2 PIN 1 CCN SCREW ‘-’
PIN 2 LEN PLUG, PIN 3 PIN 1 CCN PLUG, PIN 5
PIN 3 LEN PLUG, PIN 5 PIN 2 CCN SCREW ‘COM’
PIN 4 LEN PLUG, PIN 1 PIN 2 CCN PLUG, PIN 3’
PIN 4 CCN PLUG, PIN 1 PIN 3 CCN SCREW ‘+’
PIN 5 LEN PLUG, PIN 6 PIN 3 CCN PLUG, PIN 2
PIN 5 CCN PLUG, PIN 6 PIN 4 CCN PLUG, PIN 6
PIN 6 CCN PLUG, PIN 5 PIN 4 LEN PLUG, PIN 6
PIN 6 CCN SCREW ‘-’ PIN 5 CCN PLUG, PIN 1
PIN 7 CCN PLUG, PIN 3’ PIN 5 LEN PLUG, PIN 1
PIN 7 CCN SCREW ‘COM’ PIN 6 LEN PLUG, PIN 5
PIN 8 CCN PLUG, PIN 2 PIN 7 LEN PLUG, PIN 3
PIN 8 CCN SCREW ‘+’ PIN 8 LEN PLUG, PIN 2
a30-4464
11
Password Protection — If an area is entered that is
password protected or an item is selected for change that is
password protected, the Navigator™ module will display:
Enter Password
The first digit of the password will be flashing. Hold either
of the arrow keys down to change the value of the first digit (if
necessary) and press to accept. Repeat the process for
the remaining three digits.
Password for 30RB units is 0111.
Password for all other units is 1111.
The message “Invalid Password” is displayed if the pass-
word is not correct. The password can be disabled from the
Navigator module, and can be changed.
Forcing Values and Configuring Items — Cer-
tain items are allowed to be forced and other items are
user-configurable. Both of these changes can be made using
the Navigator module. See the unit’s Control, Start-Up, Service
and Troubleshooting Guide for a list of forcible and config-
urable values.
To force an item, position the pointer at the item. Press the
key and if the point can be forced or configured, its
current value will flash. Use the arrow keys to adjust the tem-
perature to the desired value. Press the key when
finished. The Navigator module will display a lowercase ‘f’ to
the right of the value if it has been forced. If no ‘fis displayed,
the item was configurable. To clear a force, press so
that the value is again flashing. Simultaneously press the up
and down arrow keys. The value will stop flashing, the ‘f’ will
be removed, and the parameter will revert to its corresponding
input channel value.
To edit a user-configurable item, operate the unit in
Service Test mode, or reset current alarms or history, and use
the key to make the value flash. Next, use the arrow
keys to adjust the item to the desired value and press .
Adjusting the Contrast — The contrast of the display
can be adjusted to suit ambient conditions. To adjust the con-
trast of the Navigator module, press the key until
the display reads, “Select a menu item.” Using the arrow keys,
scroll to the Configuration mode and press . Using the
arrow keys, scroll to “DISP” (display) and press . The
display will read:
>TEST OFF
METR OFF
LANG ENGLISH
Pressing will cause the “OFF” to flash. Use the up
or down arrow to change “OFF” to “ON”. Pressing
will illuminate all LEDs and display all pixels in the view
screen. Pressing and simultaneously al-
lows the user to adjust the display contrast. The display will
read:
Adjust Contrast
- - - + - - - - - - - - - - - -
Use the up or down arrows to adjust the contrast. The
screen’s contrast will change with the adjustment. Press
to accept the change. The Navigator module will
keep this setting as long as it is plugged in to the LEN bus.
Adjusting the Backlight and Brightness — The
backlight of the display can be adjusted to suit ambient lighting
conditions. The factory default is set to the highest level. To ad-
just the backlight of the Navigator module, press the
key until the display reads, “Select a menu item.”
Using the arrow keys, scroll to the Configuration mode
and press . Using the arrow keys, scroll to “DISP”
(display) and press . The display will read:
>TEST OFF
METR OFF
LANG ENGLISH
ADJUSTING BRIGHTNESS — Pressing will
cause the “OFF” to flash. Use the up or down arrow keys to
change “OFF” to “ON”. Pressing will illuminate all
LEDs and display all pixels in the view screen. Pressing
and simultaneously allows the user to adjust the display
brightness. The display will read:
Adjust Brightness
- - - - - - - - - - - - - - - +
Use the up or down arrow keys to adjust the brightness. The
screen’s brightness will change with the adjustment. Press
to accept the change. The Navigator module will
keep this setting as long as it is plugged in to the LEN bus.
ENTER
ENTER
ENTER
ENTER
ENTER
ENTER
ESCAPE
ENTER
ENTER
ENTER
ENTER
ENTER ESCAPE
ENTER
ESCAPE
ENTER
ENTER
ENTER
ENTER
ENTER
Manufacturer reserves the right to discontinue, or change at any time, specifications or designs without notice and without incurring obligations.
Catalog No. 533-00078 Printed in U.S.A. Form 30/48/50-6SI Pg 12 10-06 Replaces: 30G,H,R-1SI
Book11244
Tab 1a1b5c6a6b
Copyright 2006 Carrier Corporation
CLEANING, SERVICE, AND MAINTENANCE
Cleaning — The Navigator™ module can be cleaned with
a mild detergent. Isopropyl alcohol or a glass cleaner can be
used on all Navigator module surfaces.
Connection Cord/Plug Assembly Replace-
ment — If the RJ14 plug is damaged, it can be replaced. If it
is replaced, the wiring to the plug must be identical to the origi-
nal plug. Use Fig. 10 to record wire color. The wire sequence
should be the same for both ends of the cable as shown in
Fig. 10.
The connection cable (P/N 912-990010-2) can be replaced
if damaged. Replacement cables are available from
Replacement Components Division. Remove the Navigator
module from the LEN connection before proceeding.
1. Remove the 6 screws from the back of the case to gain
access to the internal plug for the device, and keep
them for installation later.
2. The back cover is connected to the touch pad by a ribbon
cable. The ribbon cable is not long enough to allow the
two halves to be completely separated. To be able to ac-
cess the plug connection, slightly offset the back cover.
Be careful not to damage the ribbon cable.
3. Unplug the damaged cable.
4. Plug in the new cable.
5. Insert the rubber grommet (included with new cable as-
sembly) into the cable entrance hole.
6. Realign the two halves of the Navigator module. Be sure
that the grommet is properly seated in the cable entrance
hole.
7. Reinstall the 6 screws previously removed.
NOTE: Failure to properly seal the Navigator module with the
screws and grommet will compromise the watertight integrity
of the device.
PIN 1 23456
TAB
Fig. 10 — Pin/Plug Assembly
PIN 123456
Wire Color

Navigation menu