Carrier 40Rm Users Manual
40RMS to the manual 17f1dbc9-e8c7-4b4f-9e73-1a08f0daee12
2015-01-24
: Carrier Carrier-40Rm-Users-Manual-310349 carrier-40rm-users-manual-310349 carrier pdf
Open the PDF directly: View PDF
.
Page Count: 44

Installation, Start-Up and
Service Instructions
CONTENTS Page
SAFETY CONSIDERATIONS ................. 1
PRE-INSTALLATION ........................ 1
Moving and Storage ........................ 1
Rigging .................................... 1
INSTALLATION ........................... 1-23
General .................................... 1
Uncrating .................................. 1
Accessories ................................ 1
Unit Positioning ............................ 11
Unit Isolation .............................. 12
Refrigerant and Chilled Water
Piping Access ............................. 12
Refrigerant Piping .......................... 12
Chilled Water Piping ....................... 17
Condensate Drain .......................... 18
Fan Motors and Drives ..................... 18
Power Supply and Wiring ................... 19
Connecting Ductwork ...................... 22
Return-Air Filters .......................... 22
START-UP ................................. 23
SERVICE ................................. 23-39
Panels ..................................... 23
Fan Motor Lubrication ...................... 23
Fan Shaft Bearings ......................... 23
Centering Fan Wheel ....................... 24
Fan Shaft Position Adjustment .............. 24
Individual Fan Wheel Adjustment ........... 24
Fan Belts .................................. 24
Fan Rotation ............................... 24
Fan Pulley Alignment ....................... 25
Pulley and Drive Adjustment ................ 25
Condensate Drains ......................... 25
Return-Air Filters .......................... 25
Chilled Water Coil Freeze Protection ........ 25
Coil Removal .............................. 25
Cleaning Cooling Coil ...................... 25
Cleaning Insulation ........................ 25
Replacing Filters ........................... 39
START-UP CHECKLIST ................ CL-1,CL-2
SAFETY CONSIDERATIONS
Installing, starting up, and servicing this equipment can
be hazardous due to system pressures, electrical components
and equipment location (elevated structures, etc.).
Only trained, qualified installers and service mechanics
should install, start up, and service this equipment.
Untrained personnel can perform basic maintenance func-
tions such as cleaning coils, and cleaning and replacing
filters. All other operations should be performed by trained
service personnel.
When working on the equipment, observe precautions in
the literature and on tags, stickers, and labels attached to the
equipment.
• Follow all safety codes.
• Wear safety glasses and work gloves.
• Use care in handling, rigging, and setting bulky
equipment.
Be sure all power to equipment is shut off before per-
forming maintenance or service. More than one discon-
nect may be present.
PRE-INSTALLATION
Moving and Storage — To transfer unit from truck to
storage site, use a fork truck. Do not stack units more than
2 high during storage. If unit is to be stored for more than
2 weeks before installation, choose a level, dry storage site
free from vibration. Do not remove plastic wrap or skid from
unit until final installation.
Rigging — All 40RM Series units can be rigged by us-
ing the shipping skid. Units are shipped fully assembled. Do
not remove shipping skids or protective covering until unit
is ready for final placement; damage to bottom panels can
result. Use slings and spreader bars as applicable to lift unit.
INSTALLATION
General — Allow 2
1
⁄
2
ft at front and side of unit for
service clearance and airflow. For units equipped with an econo-
mizer, refer to the accessory installation instructions for ad-
ditional clearance requirements. Be sure floor, wall, or ceil-
ing can support unit weight (Tables 1A-1F). See
Fig. 1A-1C for dimensions.
Uncrating — Move unit as near as possible to final lo-
cation before removing shipping skid.
Remove metal banding, top skid, and plastic wrap. Ex-
amine unit for shipping damage. If shipping damage is
evident, file claim with transportation agency. Remove base
skid just prior to actual installation.
Check nameplate information against available power
supply and model number description in Fig. 2.
Accessories — Refer to instructions shipped with each
accessory for specific information.
40RM
40RMQ
40RMS
Packaged Air-Handling Units
50/60 Hz
Manufacturer reserves the right to discontinue, or change at any time, specifications or designs without notice and without incurring obligations.
Book 1 4
Tab 3c 2e
PC 111 Catalog No. 534-053 Printed in U.S.A. Form 40RM-9SI Pg 1 11-95 Replaces: 40RM-1SI

Table 1A — 40RM Physical Data, English
UNIT 40RM 007 008 012 014 016 024 028 034
NOMINAL CAPACITY (Tons) 67
1
⁄
2
10 12
1
⁄
2
15 20 25 30
OPERATING WEIGHT (lb)
Base Unit with TXV 381 385 405 670 685 690 1020 1030
Plenum 97 97 97 140 140 140 180 180
FANS
Qty...Diam. (in.) 1...15 1...15 1...15 2...15 2...15 2...15 2...18 2...18
Nominal Airflow (cfm) 2400 3000 4000 5000 6000 8,000 10,000 12,000
Airflow Range (cfm) 1800-
3000 2250-
3750 3000-
5000 3750-
6250 4500-
7500 6,000-
10,000 7,500-
12,500 9,000-
15,000
Nominal Motor Hp (Standard Motor)
208/230-1-60 1.3 2.4 — — — — — —
208/230-3-60 and 460-3-60 2.4 2.4 2.4 2.9 3.7 5.0 7.5 10.0
575-3-60 1.0 2.0 2.0 3.0 3.0 5.0 7.5 10.0
230-3-50, 400-3-50 2.4 2.4 2.9 2.9 2.9 5.0 7.5 10.0
Motor Speed (rpm)
208/230-1-60 1725 1725 — — — — — —
208/230-3-60 and 460-3-60 1725 1725 1725 1725 1725 1745 1745 1745
575-3-60 1725 1725 1725 1725 1725 1745 1755 1755
230-3-50, 400-3-50 1425 1425 1425 1425 1425 1425 1425 1425
REFRIGERANT R-22
Operating charge (lb)
(approx per circuit)* 3.0 3.0 1.5/1.5 2.0/2.0 2.5/2.5 3.5/3.5 4.5/4.5 5.0/5.0
DIRECT-EXPANSION COIL Enhanced Copper Tubes, Aluminum Sine-Wave Fins
Max Working Pressure (psig) 435
Face Area (sq ft) 6.67 8.33 10.0 13.25 17.67 19.88 24.86 29.83
No. of Splits 11222 2 2 2
No. of Circuits per Split 12 15 9 9 12 13 15 18
Split Type...Percentage — — Face...50/50
Rows...Fins/in. 3...15 3...15 3...17 3...15 3...15 3...17 3...15 3...15
STEAM COIL
Max Working Pressure (psig at 400 F) 175
Total Face Area (sq ft) 6.67 6.67 6.67 13.33 13.33 13.33 15.0 15.0
Rows...Fins/in. 1...9 1...9 1...9 1...10 1...10 1...10 1...10 1...10
HOT WATER COIL
Max Working Pressure (psig) 150
Total Face Area (sq ft) 6.67 6.67 6.67 13.33 13.33 13.33 15.0 15.0
Rows...Fins/in. 2...8.5 2...8.5 2...8.5 2...8.5 2...8.5 2...8.5 2...12.5 2...12.5
Water Volume
(gal) 8.3 13.9 14.3
(ft
3
)1.1 1.85 1.90
PIPING CONNECTIONS,
Quantity...Size (in.)
DX Coil — Suction (ODF) 1...1
1
⁄
8
1...1
1
⁄
8
2...1
1
⁄
8
2...1
1
⁄
8
2...1
1
⁄
8
2...1
1
⁄
8
2...1
3
⁄
8
2...1
3
⁄
8
DX Coil — Liquid Refrigerant (ODF) 1...
5
⁄
8
2...
5
⁄
8
Steam Coil, In (MPT) 1...2
1
⁄
2
1...2
1
⁄
2
Steam Coil, Out (MPT) 1...1
1
⁄
2
1...1
1
⁄
2
Hot Water Coil, In (MPT) 1...1
1
⁄
2
1...1
1
⁄
2
1...2
Hot Water Coil, Out (MPT) 1...1
1
⁄
2
1...1
1
⁄
2
1...2
Condensate (PVC) 1...1
1
⁄
4
ODM/1 IDF
FILTERS Throwaway — Factory Supplied
Quantity...Size (in.) 4...16 x 24 x 2 4...16 x 20 x 2
4...16 x 24 x 2 4...20 x 24 x 2
4...20 x 25 x 2
Access Location Either Side
LEGEND
TXV — Thermostatic Expansion Valve
*Units are shipped without refrigerant charge.
2

Table 1B — 40RMQ Physical Data, English
UNIT 40RMQ 008 012 016
NOMINAL CAPACITY (Tons) 7
1
⁄
2
10 15
OPERATING WEIGHT (lb)
Base Unit with TXV 385 427 713
Plenum 97 97 140
FANS
Qty...Diam. (in.) 1...15 1...15 2...15
Nominal Airflow (cfm) 3000 4000 6000
Airflow Range (cfm) 2250-3750 3000-5000 4500-7500
Nominal Motor Hp (Standard Motor)
208/230-1-60 2.4 — —
208/230-3-60 and 460-3-60 2.4 2.4 3.7
575-3-60 2.0 2.0 3.0
230-3-50, 400-3-50 2.4 2.9 2.9
Motor Speed (rpm)
208/230-1-60 1725 — —
208/230-3-60 and 460-3-60 1725 1725 1725
575-3-60 1725 1725 1725
230-3-50, 400-3-50 1425 1425 1425
REFRIGERANT R-22
Operating charge (lb)
(approx per circuit)* 3.0 2.0/2.0 3.0/3.0
DIRECT-EXPANSION COIL Enhanced Copper Tubes, Aluminum Sine-Wave Fins
Max Working Pressure (psig) 435
Face Area (sq ft) 8.33 10.0 17.67
No. of Splits 12 2
No. of Circuits per Split 15 9 16
Split Type...Percentage — Face...50/50
Rows...Fins/in. 3...15 4...15 4...15
STEAM COIL
Max Working Pressure (psig at 400 F) 175
Total Face Area (sq ft) 6.67 6.67 13.33
Rows...Fins/in. 1...9 1...9 1...10
HOT WATER COIL
Max Working Pressure (psig) 150
Total Face Area (sq ft) 6.67 6.67 13.33
Rows...Fins/in. 2...8.5 2...8.5 2...8.5
Water Volume
(gal) 8.3 13.9
(ft
3
)1.1 1.85
PIPING CONNECTIONS,
Quantity...Size (in.)
DX Coil — Suction (ODF) 1...1
1
⁄
8
2...1
1
⁄
8
2...1
1
⁄
8
DX Coil — Liquid Refrigerant (ODF) 1...
5
⁄
8
2...
5
⁄
8
2...
5
⁄
8
Steam Coil, In (MPT) 1...2
1
⁄
2
1...2
1
⁄
2
Steam Coil, Out (MPT) 1...1
1
⁄
2
1...1
1
⁄
2
Hot Water Coil, In (MPT) 1...1
1
⁄
2
1...1
1
⁄
2
1...2
Hot Water Coil, Out (MPT) 1...1
1
⁄
2
1...1
1
⁄
2
1...2
Condensate (PVC) 1...1
1
⁄
4
ODM/1 IDF
FILTERS Throwaway — Factory Supplied
Quantity...Size (in.) 4...16 x 24 x 2 4...16 x 20 x 2
4...16 x 24 x 2
Access Location Either Side
LEGEND
TXV — Thermostatic Expansion Valve
*Units are shipped without refrigerant charge.
3

Table 1C — 40RMS Physical Data, English
UNIT 40RMS 008 010 012 014 016 024 028 034
NOMINAL CAPACITY (Tons) 7
1
⁄
2
8
1
⁄
2
10 12
1
⁄
2
15 20 25 30
OPERATING WEIGHT (lb)
Base Unit 390 391 391 661 677 683 1035 1042
Plenum 97 97 97 140 140 140 180 180
FANS
Qty...Diam. (in.) 1...15 1...15 1...15 2...15 2...15 2...15 2...18 2...18
Nominal Airflow (cfm) 3000 3400 4000 5000 6000 8000 10,000 12,000
Airflow Range (cfm) 2250-3750 2250-4250 3000-5000 3750-6250 4500-7500 6000-10,000 7500-12,500 9000-15,000
Nominal Motor Hp
(Standard Motor)
208/230-1-60 2.4 2.4 — — — — — —
208/230-3-60 and 460-3-60 2.4 2.4 2.4 2.9 3.7 5.0 7.5 10.0
575-3-60 2.0 2.0 2.0 3.0 3.0 5.0 7.5 10.0
230-3-50 and 400-3-50 2.4 2.4 2.9 2.9 2.9 5.0 7.5 10.0
Motor Speed (rpm)
208/230-1-60 1725 1725 — — — — — —
208/230-3-60 and 460-3-60 1725 1725 1725 1725 1725 1745 1745 1745
575-3-60 1725 1725 1725 1725 1725 1745 1755 1755
230-3-50 and 400-3-50 1425 1425 1425 1425 1425 1425 1425 1425
CHILLED WATER COIL Enhanced Copper Tubes, Aluminum Sine-Wave Fins
Max Working Pressure
(psig) 435
Face Area (sq ft) — Upper 8.3 9.0 4.9 8.3 8.3 11.0 12.4 15.5
Face Area (sq ft) — Lower — — 4.9 5.5 8.3 8.3 12.4 12.4
Rows...Fins/in. 3...15
STEAM COIL
Max Working Pressure
(psig at 400 F) 175
Total Face Area (sq ft) 6.67 6.67 6.67 13.33 13.33 13.33 15.0 15.0
Rows...Fins/in. 1...9 1...9 1...9 1...10 1...10 1...10 1...10 1...10
HOT WATER COIL
Max Working Pressure
(in. wg) 150
Total Face Area (sq ft) 6.67 6.67 6.67 13.33 13.33 13.33 15.0 15.0
Rows...Fins/in. 2...8.5 2...8.5 2...8.5 2...8.5 2...8.5 2...8.5 2...12.5 2...12.5
Water Volume
(gal) 8.3 13.9 14.3
(ft
3
)1.1 1.85 1.90
PIPING CONNECTIONS,
Quantity...Size (in.)
Chilled Water — In 1...1
3
⁄
8
ODF 1...1
3
⁄
8
ODF 2...1
3
⁄
8
ODF 2...1
3
⁄
8
ODM 2...1
3
⁄
8
ODM 2...1
3
⁄
8
ODM 2...2
1
⁄
8
ODM 2...2
1
⁄
8
ODM
Chilled Water — Out 1...1
3
⁄
8
ODF 1...1
3
⁄
8
ODF 2...1
3
⁄
8
ODF 2...1
3
⁄
8
ODM 2...1
3
⁄
8
ODM 2...1
3
⁄
8
ODM 2...2
1
⁄
8
ODM 2...2
1
⁄
8
ODM
Steam Coil, In (MPT) 1...2
1
⁄
2
1...2
1
⁄
2
Steam Coil, Out (MPT) 1...1
1
⁄
2
1...1
1
⁄
2
Hot Water Coil, In (MPT) 1...1
1
⁄
2
1...1
1
⁄
2
1...2
Hot Water Coil, Out (MPT) 1...1
1
⁄
2
1...1
1
⁄
2
1...2
Condensate (PVC) 1...1
1
⁄
4
ODM/1 IDF
FILTERS Throwaway — Factory Supplied
Quantity...Size (in.) 4...16 x 24 x 2 4...16 x 20 x 2
4...16 x 24 x 2 4...20 x 24 x 2
4...20 x 25 x 2
Access Location Either Side
4

Table 1D — 40RM Physical Data, SI
UNIT 40RM 007 008 012 014 016 024 028 034
NOMINAL CAPACITY (kW) 21 26 35 43 52 70 87 105
OPERATING WEIGHT (kg)
Base Unit with TXV 173 175 184 304 311 313 463 467
Plenum 44 44 44 63 63 63 82 82
FANS
Qty...Diam. (mm) 1...381 1...381 1...381 2...381 2...381 2...381 2...457 2...457
Nominal Airflow (L/s) 1133 1604 1888 2360 2831 3775 4719 5663
Airflow Range (L/s) 850-1416 1203-2006 1416-2360 1770-2949 2124-3539 2831-4719 3539-5899 4247-7079
Nominal Motor kW (Standard Motor)
208/230-1-60 0.97 1.79 ——————
208/230-3-60 and 460-3-60 1.79 1.79 1.79 2.16 2.76 3.73 5.60 7.46
575-3-60 0.75 1.49 1.49 2.24 2.24 3.73 5.60 7.46
230-3-50, 400-3-50 1.79 1.79 2.16 2.16 2.16 3.73 5.60 7.46
Motor Speed (r/s)
208/230-1-60 28.8 28.8 ——————
208/230-3-60 and 460-3-60 28.8 28.8 28.8 28.8 28.8 29.1 29.1 29.1
575-3-60 28.8 28.8 28.8 28.8 28.8 29.1 29.3 29.3
230-3-50, 400-3-50 23.8 23.8 23.8 23.8 23.8 23.8 23.8 23.8
REFRIGERANT R-22
Operating charge (kg)
(approx per circuit)* 1.36 1.36 0.68/0.68 0.90/0.90 1.13/1.13 1.59/1.59 2.04/2.04 2.27/2.27
DIRECT-EXPANSION COIL Enhanced Copper Tubes, Aluminum Sine-Wave Fins
Max Working Pressure (kPag) 2999
Face Area (sq m) 0.62 0.77 0.93 0.93 1.64 1.85 2.30 2.77
No. of Splits 11222222
No. of Circuits per Split 12 15 9 9 12 13 15 18
Split Type...Percentage — — Face...50/50
Rows...Fins/m 3...591 3...591 3...670 3...591 3...591 3...670 3...591 3...591
STEAM COIL
Max Working Pressure (kPag at 204.4 C) 1207
Total Face Area (sq m) 0.62 0.62 0.62 1.24 1.24 1.24 1.39 1.39
Rows...Fins/m 1...355 1...355 1...355 1...394 1...394 1...394 1...394 1...394
HOT WATER COIL
Max Working Pressure (kPag) 1034
Total Face Area (sq m) 0.62 0.62 0.62 1.24 1.24 1.24 1.39 1.39
Rows...Fins/m 2...335 2...335 2...335 2...335 2...335 2...335 2...493 2...493
Water Volume
(L) 31.4 52.6 54.1
(m
3
)0.031 0.052 0.054
PIPING CONNECTIONS,
Quantity...Size (in.)
DX Coil — Suction (ODF) 1...1
1
⁄
8
1...1
1
⁄
8
2...1
1
⁄
8
2...1
1
⁄
8
2...1
1
⁄
8
2...1
1
⁄
8
2...1
3
⁄
8
2...1
3
⁄
8
DX Coil — Liquid Refrigerant (ODF) 1...
5
⁄
8
2...
5
⁄
8
Steam Coil, In (MPT) 1...2
1
⁄
2
1...2
1
⁄
2
Steam Coil, Out (MPT) 1...1
1
⁄
2
1...1
1
⁄
2
Hot Water Coil, In (MPT) 1...1
1
⁄
2
1...1
1
⁄
2
1...2
Hot Water Coil, Out (MPT) 1...1
1
⁄
2
1...1
1
⁄
2
1...2
Condensate (PVC) 1...1
1
⁄
4
ODM/1 IDF
FILTERS Throwaway — Factory Supplied
Quantity...Size 4...406 x 610 x 51 4...406 x 508 x 51
4...406 x 610 x 51 4...508 x 610 x 51
4...508 x 635 x 51
Access Location Either Side
LEGEND
TXV — Thermostatic Expansion Valve
*Units are shipped without refrigerant charge.
5

Table 1E — 40RMQ Physical Data, SI
UNIT 40RMQ 008 012 016
NOMINAL CAPACITY (kW) 26 35 52
OPERATING WEIGHT (kg)
Base Unit with TXV 175 194 323
Plenum 44 44 63
FANS
Qty...Diam. (mm) 1...381 1...381 2...381
Nominal Airflow (L/s) 1604 1888 2831
Airflow Range (L/s) 1203-2006 1416-2360 2124-3539
Nominal Motor kW (Standard Motor)
208/230-1-60 1.79 — —
208/230-3-60 and 460-3-60 1.79 1.79 2.76
575-3-60 1.49 1.49 2.24
230-3-50, 400-3-50 1.79 2.16 2.16
Motor Speed (r/s)
208/230-1-60 28.8 — —
208/230-3-60 and 460-3-60 28.8 28.8 28.8
575-3-60 28.8 28.8 28.8
230-3-50, 400-3-50 23.8 23.8 23.8
REFRIGERANT R-22
Operating charge (kg)
(approx per circuit)* 1.36 0.91/0.91 1.36/1.36
DIRECT-EXPANSION COIL
Max Working Pressure (kPag) 2999
Face Area (sq m) 0.77 0.93 1.64
No. of Splits 12 2
No. of Circuits per Split 15 9 16
Split Type...Percentage — Face...50/50
Rows...Fins/m 3...591 4...591 4...591
STEAM COIL
Max Working Pressure (kPag at 204.4 C) 1207
Total Face Area (sq m) 0.62 0.62 1.24
Rows...Fins/m 1...355 1...355 1...394
HOT WATER COIL
Max Working Pressure (kPag) 1034
Total Face Area (sq m) 0.62 0.62 1.24
Rows...Fins/m 2...335 2...335 2...335
Water Volume
(L) 31.4 52.6
(m
3
)0.031 0.052
PIPING CONNECTIONS,
Quantity...Size (in.)
DX Coil — Suction (ODF) 1...1
1
⁄
8
2...1
1
⁄
8
2...1
1
⁄
8
DX Coil — Liquid Refrigerant (ODF) 1...
5
⁄
8
2...
5
⁄
8
2...
5
⁄
8
Steam Coil, In (MPT) 1...2
1
⁄
2
1...2
1
⁄
2
Steam Coil, Out (MPT) 1...1
1
⁄
2
1...1
1
⁄
2
Hot Water Coil, In (MPT) 1...1
1
⁄
2
1...1
1
⁄
2
1...2
Hot Water Coil, Out (MPT) 1...1
1
⁄
2
1...1
1
⁄
2
1...2
Condensate (Male PVC) 1...1
1
⁄
4
ODM/1 IDF
FILTERS Throwaway — Factory Supplied
Quantity...Size 4...406 x 610 x 51 4...406 x 508 x 51
4...406 x 610 x 51
Access Location Either Side
LEGEND
TXV — Thermostatic Expansion Valve
*Units are shipped without refrigerant charge.
6

Table 1F — 40RMS Physical Data, SI
UNIT 40RMS 008 010 012 014 016 024 028 034
NOMINAL CAPACITY (kW) 26 29 35 43 52 70 87 105
OPERATING WEIGHT (kg)
Base Unit 177 177 177 300 307 310 469 473
Plenum 44 44 44 63 63 63 82 82
FANS
Qty...Diam. (mm) 1...381 1...381 1...381 2...381 2...381 2...381 2...457 2...457
Nominal Airflow (L/s) 1416 1605 1888 2360 2831 3775 4719 5663
Airflow Range (L/s) 1062-
1770 1204-
2006 1416-
2360 1770-
2949 2124-
3539 2831-
4719 3539-
5899 4247-
7079
Nominal Motor kW
(Standard Motor)
208/230-1-60 1.79 1.79 — —————
208/230-3-60, 460-3-60 1.79 1.79 1.79 1.79 2.76 3.73 5.60 7.46
575-3-60 1.49 1.49 1.49 1.49 2.24 3.73 5.60 7.46
230-3-50, 400-3-50 1.79 1.79 2.16 2.16 2.16 3.73 5.60 7.46
Motor Speed (r/s)
208/230-1-60 28.8 28.8 — —————
208/230-3-60, 460-3-60 28.8 28.8 28.8 28.8 28.8 29.1 29.1 29.1
575-3-60 28.8 28.8 28.8 28.8 28.8 29.1 29.3 29.3
230-3-50, 400-3-50 23.8 23.8 23.8 23.8 23.8 23.8 23.8 23.8
CHILLED WATER COIL
Max Working Pressure
(kPag) 2999
Face Area (sq m) — Upper 0.77 0.84 0.91 0.77 0.77 1.02 1.15 1.44
Face Area (sq m) — Lower — — — 0.51 0.77 0.77 1.15 1.15
Rows...Fins/m 3...591 3...591 3...591 3...591 3...591 3...591 3...591 3...591
STEAM COIL
Max Working Pressure
(kPag at 204.4 C) 1207
Total Face Area (sq m) 0.62 0.62 0.62 1.24 1.24 1.24 1.39 1.39
Rows...Fins/m 1...355 1...355 1...355 1...355 1...394 1...394 1...394 1...394
HOT WATER COIL
Max Working Pressure
(kPag) 1034
Total Face Area (sq m) 0.62 0.62 0.62 1.24 1.24 1.24 1.39 1.39
Rows...Fins/m 2...335 2...335 2...335 2...335 2...335 2...335 2...493 2...493
Water Volume
(L) 31.4 52.6 54.1
(m
3
)0.031 0.052 0.054
PIPING CONNECTIONS,
Quantity...Size (in.)
Chilled Water — In 1...1
3
⁄
8
ODF 1...1
3
⁄
8
ODF 2...1
3
⁄
8
ODF 2...1
3
⁄
8
ODM 2...1
3
⁄
8
ODM 2...1
3
⁄
8
ODM 2...2
1
⁄
8
ODM 2...2
1
⁄
8
ODM
Chilled Water — Out 1...1
3
⁄
8
ODF 1...1
3
⁄
8
ODF 2...1
3
⁄
8
ODF 2...1
3
⁄
8
ODM 2...1
3
⁄
8
ODM 2...1
3
⁄
8
ODM 2...2
1
⁄
8
ODM 2...2
1
⁄
8
ODM
Steam Coil, In (MPT) 1...2
1
⁄
2
1...2
1
⁄
2
Steam Coil, Out (MPT) 1...1
1
⁄
2
1...1
1
⁄
2
Hot Water Coil, In (MPT) 1...1
1
⁄
2
1...1
1
⁄
2
1...2
Hot Water Coil, Out (MPT) 1...1
1
⁄
2
1...1
1
⁄
2
1...2
Condensate (PVC) 1...1
1
⁄
4
ODM/1 IDF
FILTERS Throwaway — Factory Supplied
Quantity...Size (mm) 4...406 x 610 x 51 4...406 x 508 x 51
4...406 x 610 x 51 4...508 x 610 x 51
4...508 x 635 x 51
Access Location Either Side
7

TXV — Thermostatic Expansion Valve
NOTES:
1. Dimensions in [ ] are in millimeters.
2. Direction of airflow.
3. Recommended clearance:
• Rear: 3 in. (76 mm )
• Front: 2 ft, 6 in. (762 mm)
• Right Side: 2 ft, 6 in. (762 mm)
• Left Side: 2 ft, 6 in. (762 mm)
• Local codes or jurisdiction may prevail.
4. Liquid piping not supplied by Carrier.
5. Duct flange is factory supplied and field
installed.
6. 40RMS units may require alternate or ad-
ditional field-fabricated piping access holes.
Fig. 1A — Dimensions — Sizes 007-012
UNIT UNIT WEIGHT
lb (kg)
40RM007 381 (173)
40RM008 385 (175)
40RM012 405 (184)
40RMQ008 385 (175)
40RMQ012 427 (194)
40RMS008 390 (177)
40RMS010 391 (177)
40RMS012 391 (177)
8

Fig. 1B — Dimensions — Sizes 014-024
TXV — Thermostatic Expansion Valve
NOTES:
1. Dimensions in [ ] are in millimeters.
2. Direction of airflow.
3. Recommended clearance:
• Rear: 3 in. (76 mm)
• Front: 2 ft, 6 in. (762 mm)
• Right Side: 2 ft, 6 in. (762 mm)
• Left Side: 2 ft, 6 in. (762 mm)
• Local codes or jurisdiction may
prevail.
4. Liquid piping not supplied by Carrier.
5. Duct flange is factory supplied and field
installed.
6. 40RMQ016 and 40RMS units may re-
quire alternate or additional field-fabricated
piping access holes.
UNIT UNIT WEIGHT
lb (kg)
40RM014 670 (304)
40RM016 685 (311)
40RM024 690 (313)
40RMQ016 713 (323)
40RMS014 661 (300)
40RMS016 677 (307)
40RMS024 683 (310)
9

Fig. 1C — Dimensions — Sizes 028,034
UNIT UNIT WEIGHT
lb (kg)
40RM028 1020 (463)
40RM034 1030 (467)
40RMS028 1035 (469)
40RMS034 1042 (473)
TXV — Thermostatic Expansion Valve
NOTES:
1. Dimensions in [ ] are in millimeters.
2. Direction of airflow.
3. Recommended clearance:
• Rear: 3 in. (76 mm)
• Front: 2 ft, 6 in. (762 mm)
• Right Side: 2 ft, 6 in. (762 mm)
• Left Side: 2 ft, 6 in. (762 mm)
• Local codes or jurisdiction may
prevail.
4. Liquid piping not supplied by Carrier.
5. Duct flange is factory supplied and field
installed.
6. 40RMS units may require alternate or
additional field-fabricated piping ac-
cess holes.
10

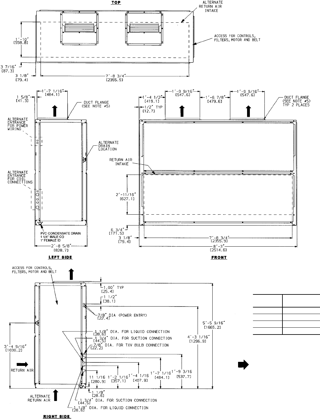
Unit Positioning — The unit can be mounted on the
floor for vertical application with return air entering the face
of the unit and supply air discharging vertically through the
top of the unit. The unit can also be applied in a horizontal
arrangement with return air entering horizontally and the sup-
ply air discharging horizontally. When applying the unit in
a horizontal arrangement, ensure the condensate drain pan is
located at the bottom center of the unit for adequate con-
densate disposal. See Fig. 3 for condensate connections for
each unit position.
Typical positioning and alternate return air locations are
shown in Fig. 3. Alternate return air locations can be used by
moving the unit panel from the alternate return air location
to the standard return air location.
IMPORTANT: Do NOT attempt to install unit with
return air entering top panel of unit. Condensate will
not drain from unit.
*YC and WD option codes for all 034 size units and 008, 010 units with 208/230-1-60
power designate standard motor and high-static drive.
NOTE: See the following table for the sizes available for each unit.
UNIT 007 008 010 012 014 016 024 028 034
40RM XX XXXXXX
40RMQ XXX
40RMS XXXXXXXX
Fig. 2 — Model Number Nomenclature
LEGEND
Accessory Line
Alternate Air Intake and Discharge
Air Intake and Discharge
Fig.3—Typical Unit Positioning
11

Unit Isolation — Where extremely quiet operation is
essential, install isolators between floor and base of unit, or
between ceiling and top section of unit.
Be sure that unit is level and adequately supported. Use
channels at front and sides of unit for reference points when
leveling.
Refrigerant and Chilled Water Piping Access —
The 40RM Series units come with standard knockouts for
refrigerant and chilled water piping. These knockouts are lo-
cated on both sides of the unit for installation flexibility. The
standard knockouts provide sufficient access to the unit’s coils
for all 40RM and some 40RMQ units, however, for 40RMQ016
and 40RMS units, additional holes must be field-fabricated
to accommodate the piping. See Fig. 4 for the positions and
dimensions of the additional access holes required for these
units, including hole diameters and drilling dimensions. Rec-
ommended access hole use is also listed for all units. Note
that Fig. 4 shows the access holes on the control-box side of
the unit; this is the side of the unit with the coil headers, so
it is used most often for piping access.
Refrigerant Piping — See Tables 1A, 1B, 1D, 1E for
refrigerant pipe connection sizes. For ease in brazing, it is
recommended that all internal solder joints be made before
unit is placed in final position.
The 40RM and 40RMQ direct-expansion units have
internal factory-installed thermostatic expansion valves (TXVs),
distributors, and nozzles for use with R-22. See Table 2 for
part numbers. Knockouts are provided in the unit corner posts
for 40RM and 40RMQ008 and 012 refrigerant piping. The
40RMQ016 unit requires additional field-fabricated piping
access holes. See Fig. 4, which also lists recommended knock-
outs and access holes to use for each 40RM and 40RMQ
unit size. Recommended fittings are listed in Table 3.
The sensor bulb capillary tubes must be routed from the
TXVs inside the unit through one of the piping access holes.
Clamp the TXV sensor bulb on a vertical portion of the suc-
tion line, outside the unit. See Fig. 5.
UNIT USE HOLE
NUMBERS
FIELD-FABRICATED HOLE DIAMETERS,
in. (mm) FIELD-FABRICATED HOLE POSITION
DIMENSIONS, in. (mm)
No. 5 No. 6 No. 7 No. 8 A B C D
40RM007,008
40RMQ008 1,3———— — — — —
40RM012-034
40RMQ012 1,2,3,4———— — — — —
40RMS008-012 4, 5 1
3
⁄
4
(44.5) — — — 6.25 (158.8) — — —
40RMS014-024 4, 5, 6, 7 1
3
⁄
4
(44.5) 1
3
⁄
4
(44.5) 1
3
⁄
4
(44.5) — 3.0 (76.2) 6.0 (152.4) 10.5 (266.7) —
40RMQ016 3*, 5, 6, 7 1
1
⁄
8
(28.6) 1
1
⁄
8
(28.6) 1
3
⁄
4
(44.5) — 3.25 (82.6) 6.125 (155.6) 10.38 (263.7) —
40RMS028,034 5, 6, 7, 8 2
1
⁄
2
(63.5) 2
1
⁄
2
(63.5) 2
1
⁄
2
(63.5) 2
1
⁄
2
(63.5) 6.0 (152.4) 9.625 (244.5) 13.38 (339.9) 17.0 (431.8)
*Must be enlarged from 1
1
⁄
8
in. to 1
3
⁄
4
inches.
NOTE: Access hole knockouts 1-4 are factory-supplied.
Fig. 4 — Refrigerant and Chilled Water Piping Access Holes
12

IMPORTANT: Never attach the sensor to the suction
manifold. Do NOT mount the sensor on a trapped por-
tion of the suction line.
40RM Series evaporator coils have a face-split design. En-
sure that lower circuit of coil is first on/last off when con-
nected to the condensing unit and/or system controls. See
Fig. 6.
External TXVequalizer connections are provided and factory-
brazed into the coil suction manifolds.
If suction line must be horizontal, clamp bulb to suction
line at least 45 degrees above bottom, at approximately the
4 o’clock or 8 o’clock position. See Fig. 7.
NOTE: The 40RMQ units are supplied with factory-installed
thermostatic expansion valves and check valve bypasses.
No extra piping connections or kits are required to install the
40RMQ with a 38AQS condensing unit in a heat pump
system, however, some field supplied components may be
required. See the following two sections.
FIRST ON/LAST OFF=B
VERTICAL INSTALLATION
FIRST ON/LAST OFF=A
HORIZONTAL INSTALLATION
Fig.6—Typical Evaporator Coil Connections
(40RM, 40RMQ)
LEGEND
TXV — Thermostatic Expansion Valve
NOTE: The 8 o’clock position is shown above.
Fig. 7 — TXV Sensing Bulb Location
LEGEND
TXV — Thermostatic Expansion Valve
NOTE: Component location arrangement shown for field installation
of sight glasses, solenoid valves, filter driers, and TXV sensing bulbs.
The TXVs and equalizer lines are factory installed.
Fig. 5 — Face-Split Coil Suction and
Liquid Line Piping (Typical)
13

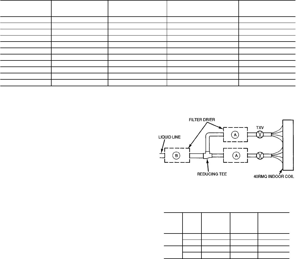
Table 2 — Factory-Installed Nozzle and Distributor Data
UNIT TXV
Qty...Part No. DISTRIBUTOR
Qty...Part No.
FEEDER TUBES
PER DISTRIBUTOR*
Qty...Size (in.)
NOZZLE
Qty...Part No.
40RM007 1...XVE-5 1...1116 12 1...E5
40RM008 1...SVE-8 1...1126 15 1...C6
40RMQ008 1...SVE-8 1...1657 15 1...C6
40RM012 2...XVE-4 2...1115 9 2...E4
40RMQ012 2...XVE-4 2...1655 9 2...E4
40RM014 2...XVE-5 2...1115 9 2...E5
40RM016 2...XVE-8 2...1116 12 2...E6
40RMQ016 2...SVE-8 2...1126 16 2...C6
40RM024 2...XVE-10 2...1116 13 2...E8
40RM028 2...EBSVE-11 2...1126 15 2...C10
40RM034 2...SVE-15 2...1126 18 2...C12
* Feeder tube size is
1
⁄
4
in. (6.35 mm).
NOTE: Hot gas bypass applications require field-supplied auxiliary side connector.
38AQS008/40RMQ008 HEAT PUMP SYSTEM PIPING —
Addition of a liquid solenoid valve (LLSV) is recommended
when the piping system length exceeds 75 feet. The LLSV
must be a bi-flow type suited for use in heat pump systems.
The recommended valve is Sporlan model CB14S2 (5/8-in.
ODF, 7/8-in. ODM) available from the Replacement Com-
ponents Division as part number EF23JS-214. This solenoid
valve requires Sporlan part no. MKC-2 coils that must be
purchased locally. Wire the solenoid valve in parallel with
the compressor contactor coil.
The LLSV must be installed at the outdoor unit with the
flow arrow pointed toward the outdoor unit (in-flow
direction for the heating mode.)
FILTER DRIER REQUIREMENTS FOR 38AQS012/
40RMQ012 AND 38AQS016/40RMQ016 HEAT PUMP
SYSTEMS — The 38AQS012 and 016 units do not in-
clude filter driers. Filter driers must be field-supplied
and installed in 38AQS012/40RMQ012 and 38AQS016/
40RMQ016 systems. The filter driers used with these sys-
tems must be bi-flow types suited for use in heat pump
applications. The Replacement Component Division part num-
bers listed in Fig. 8 are recommended and available for field
installation.
LEGEND
TXV — Thermostatic Expansion Valve
RECOMMENDED FILTER DRIERS*
(38AQS012,016/40RMQ SYSTEMS)
UNIT
38AQS
LIQUID
LINE
SIZE
(in.)
PART NO. QUANTITY
REQUIRED FIGURE
REFERENCE
012
1
⁄
2
P504-8084S 2 A
5
⁄
8
P504-8165S 1 B
016
1
⁄
2
P504-8084S 2 A
5
⁄
8
P504-8085S 2 A
*Available from Carrier Replacement Components Division.
Fig. 8 — Filter Drier Requirements —
38AQS012/40RMQ012 and 38AQS016/40RMQ016
Heat Pump Systems
14

Table 3 — Fitting Requirements
UNIT ACCESS
HOLE NO.* CONNECTION
TYPE CIRCUIT FITTINGS REQUIRED†
(in.)
40RM
007
1 Suction — 1
1
⁄
8
Street Elbow
1
1
⁄
8
Nipple, 10
5
⁄
8
L
1
1
⁄
8
Long Radius Elbow
3 Liquid —
5
⁄
8
Street Elbow
5
⁄
8
Nipple, 8
5
⁄
8
L
5
⁄
8
Long Radius Elbow
40RM
40RMQ
008
1 Suction — 1
1
⁄
8
Street Elbow
1
1
⁄
8
Nipple, 8
5
⁄
8
L
1
1
⁄
8
Long Radius Elbow
3 Liquid —
5
⁄
8
Street Elbow
5
⁄
8
Nipple, 8
5
⁄
8
L
5
⁄
8
Long Radius Elbow
40RMS
008-012
4 Return —
1
3
⁄
8
Nipple, 4
3
⁄
8
L
1
3
⁄
8
Long Radius Elbow
1
3
⁄
8
Nipple, 7
3
⁄
8
L
1
3
⁄
8
Long Radius Elbow
5 Supply — 1
3
⁄
8
Nipple, 6
5
⁄
8
L
1
3
⁄
8
Long Radius Elbow
40RM
012
1 Suction Lower (2) 1
1
⁄
8
Street Elbow
2 Liquid Lower
5
⁄
8
Street Elbow
5
⁄
8
Nipple, 8
1
⁄
2
L
5
⁄
8
Long Radius Elbow
3 Liquid Upper
5
⁄
8
Street Elbow
5
⁄
8
Nipple, 13
1
⁄
2
L
5
⁄
8
Long Radius Elbow
4 Suction Upper
1
1
⁄
8
Nipple, 5
3
⁄
4
L
1
1
⁄
8
Long Radius Elbow
1
1
⁄
8
Nipple, 12 L
1
1
⁄
8
Long Radius Elbow
40RMQ
012
1 Suction Lower (2) 1
1
⁄
8
Street Elbow
2 Liquid Lower
5
⁄
8
Street Elbow
5
⁄
8
Nipple, 5
1
⁄
2
L
5
⁄
8
Long Radius Elbow
3 Liquid Upper
5
⁄
8
Street Elbow
5
⁄
8
Nipple, 10
1
⁄
2
L
5
⁄
8
Long Radius Elbow
4 Suction Upper
1
1
⁄
8
Nipple, 5
5
⁄
8
L
1
1
⁄
8
Long Radius Elbow
1
1
⁄
8
Nipple, 12 L
1
1
⁄
8
Long Radius Elbow
40RM
014
1 Suction Lower 1
1
⁄
8
Street Elbow
1
1
⁄
8
Nipple, 7
5
⁄
8
L
1
1
⁄
8
Long Radius Elbow
2 Liquid Lower
5
⁄
8
Street Elbow
5
⁄
8
Nipple, 1
7
⁄
16
L
5
⁄
8
Long Radius Elbow
3 Liquid Upper
5
⁄
8
Street Elbow
5
⁄
8
Nipple, 11
1
⁄
2
L
5
⁄
8
Long Radius Elbow
4 Suction Upper
1
1
⁄
8
Nipple, 5
5
⁄
8
L
1
1
⁄
8
Long Radius Elbow
1
1
⁄
8
Nipple, 13 L
1
1
⁄
8
Long Radius Elbow
40RMS
014-024
4 Supply Lower 1
3
⁄
8
Long Radius Elbow
1
3
⁄
8
Nipple, 3
3
⁄
4
L
1
3
⁄
8
Long Radius Elbow
5 Return Lower 1
3
⁄
8
Long Radius Elbow
1
3
⁄
8
Nipple, 3
3
⁄
8
L
1
3
⁄
8
Long Radius Elbow
6 Return Upper 1
3
⁄
8
Long Radius Elbow
1
3
⁄
8
Nipple, 7 L
1
3
⁄
8
Long Radius Elbow
7 Supply Upper 1
3
⁄
8
Long Radius Elbow
1
3
⁄
8
Nipple, 11
3
⁄
4
L
1
3
⁄
8
Long Radius Elbow
*See Fig. 4 for access hole location by number.
†Fittings are listed in order from header or tee stub connection out to access hole in corner support post.
15

Table 3 — Fitting Requirements (cont)
UNIT ACCESS
HOLE NO.* CONNECTION
TYPE CIRCUIT FITTINGS REQUIRED†
(in.)
40RM
016
1 Suction Lower 1
1
⁄
8
Street Elbow
1
1
⁄
8
Nipple, 2
3
⁄
4
L
1
1
⁄
8
Long Radius Elbow
2 Liquid Lower
5
⁄
8
Street Elbow
5
⁄
8
Nipple, 1
3
⁄
8
L
5
⁄
8
Long Radius Elbow
3 Liquid Upper
5
⁄
8
Street Elbow
5
⁄
8
Nipple, 11
1
⁄
2
L
5
⁄
8
Long Radius Elbow
4 Suction Upper
1
1
⁄
8
Nipple, 5
5
⁄
8
L
1
1
⁄
8
Long Radius Elbow
1
1
⁄
8
Nipple, 13 L
1
1
⁄
8
Long Radius Elbow
40RMQ
016
3 Suction Lower 1
1
⁄
8
Nipple, 3 L
1
1
⁄
8
Long Radius Elbow
5 Liquid Lower
5
⁄
8
Nipple, 2
7
⁄
8
L
5
⁄
8
45° Elbow
5
⁄
8
Nipple, 1
5
⁄
8
L
5
⁄
8
Long Radius Elbow
6 Liquid Upper
5
⁄
8
Nipple, 2
7
⁄
8
L
5
⁄
8
45° Elbow
5
⁄
8
Nipple, 4
1
⁄
4
L
5
⁄
8
Long Radius Elbow
7 Suction Upper
1
1
⁄
8
Nipple, 5 L
1
1
⁄
8
45° Elbow
1
1
⁄
8
Nipple, 8
3
⁄
4
L
1
1
⁄
8
Long Radius Elbow
40RM
024
1 Suction Lower 1
1
⁄
8
Street Elbow
1
1
⁄
8
Nipple, 7
5
⁄
8
L
1
1
⁄
8
Long Radius Elbow
2 Liquid Lower
5
⁄
8
Street Elbow
5
⁄
8
Nipple, 6
1
⁄
2
L
5
⁄
8
Long Radius Elbow
3 Liquid Upper
5
⁄
8
Street Elbow
5
⁄
8
Nipple, 9
1
⁄
2
L
5
⁄
8
Long Radius Elbow
4 Suction Upper
1
1
⁄
8
Nipple, 5
5
⁄
8
L
1
1
⁄
8
Long Radius Elbow
1
1
⁄
8
Nipple, 11 L
1
1
⁄
8
Long Radius Elbow
40RM
028
1 Suction Lower 1
3
⁄
8
Street Elbow
1
3
⁄
8
Nipple, 11 L
1
3
⁄
8
Long Radius Elbow
2 Liquid Lower
5
⁄
8
Street Elbow
5
⁄
8
Nipple, 1
1
⁄
2
L
5
⁄
8
Long Radius Elbow
3 Liquid Upper
5
⁄
8
Street Elbow
5
⁄
8
Nipple, 19
3
⁄
4
L
5
⁄
8
Long Radius Elbow
4 Suction Upper
1
3
⁄
8
Nipple, 4
3
⁄
16
L
1
3
⁄
8
Long Radius Elbow
1
3
⁄
8
Nipple, 23
1
⁄
4
L
1
3
⁄
8
Long Radius Elbow
*See Fig. 4 for access hole location by number.
†Fittings are listed in order from header or tee stub connection out to access hole in corner support post.
16

Table 3 — Fitting Requirements (cont)
UNIT ACCESS
HOLE NO.* CONNECTION
TYPE CIRCUIT FITTINGS REQUIRED†
(in.)
40RMS
028, 034
5 Supply Lower 2
1
⁄
8
Long Radius Elbow
2
1
⁄
8
Nipple, 3
1
⁄
2
L
2
1
⁄
8
Long Radius Elbow
6 Return Lower 2
1
⁄
8
Long Radius Elbow
2
1
⁄
8
Nipple, 3 L
2
1
⁄
8
Long Radius Elbow
7 Return Upper 2
1
⁄
8
Long Radius Elbow
2
1
⁄
8
Nipple, 6
7
⁄
8
L
2
1
⁄
8
Long Radius Elbow
8 Supply Upper 2
1
⁄
8
Long Radius Elbow
2
1
⁄
8
Nipple, 11
7
⁄
8
L
2
1
⁄
8
Long Radius Elbow
40RM
034
1 Suction Lower 1
3
⁄
8
Street Elbow
1
3
⁄
8
Nipple, 3 L
1
3
⁄
8
Long Radius Elbow
2 Liquid Lower
5
⁄
8
Street Elbow
5
⁄
8
Nipple, 7
3
⁄
4
L
5
⁄
8
Long Radius Elbow
3 Liquid Upper
5
⁄
8
Street Elbow
5
⁄
8
Nipple, 18
1
⁄
2
L
5
⁄
8
Long Radius Elbow
4 Suction Upper
1
3
⁄
8
Nipple, 4
3
⁄
16
L
1
3
⁄
8
Long Radius Elbow
1
3
⁄
8
Nipple, 19
1
⁄
4
L
1
3
⁄
8
Long Radius Elbow
*See Fig. 4 for access hole location by number.
†Fittings are listed in order from header or tee stub connection out to access hole in corner support post.
Chilled Water Piping — See Tables 1C and 1F for
chilled water connection sizes. For ease in brazing, it is rec-
ommended that all internal solder joints be made before unit
is placed in final position.
Knockouts are provided in the unit corner posts for 40RM
and 40RMQ refrigerant piping; additional field-fabricated ac-
cess holes are required for 40RMS chilled water piping. See
Fig. 4, which lists recommended knockouts and access holes
to use for each 40RMS unit size.
To size, design, and install chilled water piping, consult
the Carrier System Design manual. See Fig. 9 for an ex-
ample of a typical installation. Recommended fittings are listed
in Table 3.
To access 40RMS coil vents and drains, remove the unit
side panel over the coil header. Vent and drain plugs are on
the top and bottom of header, respectively. See the Service
section for information on preventing coil freeze-up during
winter.
Fig.9—Typical 40RMS Chilled Water Piping
17

Condensate Drain — Install a trapped condensate drain
line to unit connection as shown in Fig. 10. The unit drain
connection is a PVC stub. See Fig. 11. Some areas may re-
quire an adapter to connect to either galvanized steel or
copper pipe. For these applications, install a field-supplied
threaded PVC adapter.
NOTE: A trap must be installed in the condensate drain line
to ensure that the static pressure of fans is balanced with the
water column in the drain line and that condensate can drain
completely from pan. Without a trap, air can be drawn up
drain line until water level in condensate pan becomes equal
to static pressure created by fans, preventing complete drain-
age. Conditions will worsen as filters become dirty.
Install clean-out plugs in trap. Pitch drain line downward
to an open floor drain or sump. Provide service clearance
around drain line to permit removal of unit panels. Observe
all local sanitary codes.
As shipped, the unit’s condensate drain pan is NOT sloped
towards the drain connection. The pan slope must be changed
to pitch towards the side of the unit with the drain con-
nection. See Fig. 11. Loosen the 2 screws next to the drain
outlet at both ends of the unit, push drain pan down in
the slots near the drain connection, and up in the slots
on the opposite end. Retighten screws. The pan should
have a pitch of at least
1
⁄
4
-in. over its length toward the drain
connection.
Fan Motors and Drives — Motor and drive pack-
ages are factory installed in all units. The standard motor
and drive packages consist of the following items:
1 — fan motor
1 — adjustable motor pulley
1 — fan pulley
1 —fan belt (40RM007-016, 40RMQ008-016, 40RMS
008-016 units)
2 —matched fan belts (40RM024-034, 40RMS024-034
units)
For instructions on changing fan rotation, changing drive
speeds and adjusting drives, see Pulley and Drive Adjust-
ment in the Service section.
NOTE: Dimensions in [ ] are in millimeters.
Fig. 10 — Condensate Drains
Fig. 11 — Drain Pan Slope Adjustment
18

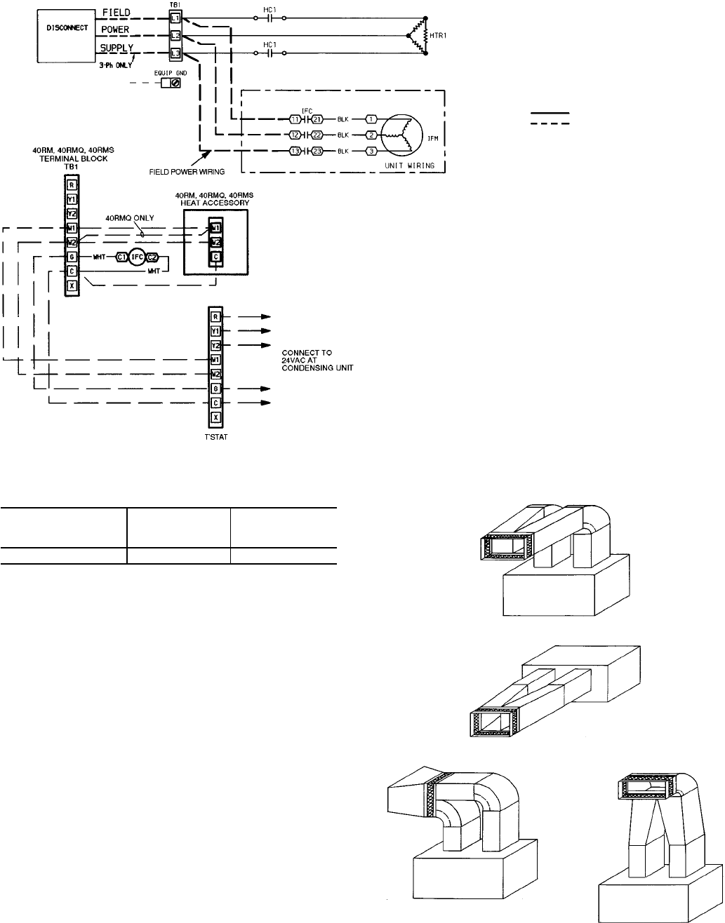
Power Supply and Wiring — Check the unit data
plate to ensure that available power supply matches electri-
cal characteristics of the unit. Provide a disconnect switch of
size required to provide adequate fan motor starting current.
See Tables4-6forunit electrical data.
Install disconnect switch and power wiring in accordance
with all applicable local codes. See Fig. 12-14 and the unit
label diagram. For units with motor sizes less than 5 Hp
(3.7 kW), connect power wiring to unit with no. 10 ring ter-
minal. For units with motor sizes of 5 Hp (3.7 kW) or more,
connect power wiring with
1
⁄
4
-in. ring terminal.
The 40RM, 40RMQ and 40RMS size 007-016 units (ex-
cept 40RM016 with YC or WD option) that have motors wired
for 460-v, 3-ph, 60 Hz operation can be field-converted to
230-v, 3-ph, 60 Hz operation. Rewire the motor according to
the diagram plate on the motor. After reconfiguring the mo-
tor, place the sticker specifying 230-v operation (supplied in
installation packet) over the 460-v sticker on the units cor-
ner post.
Fan motors are factory installed on all units. Indoor-fan
contactors are located in the fan contactor box behind the
side access panel (see Fig. 12 and 13). Wire the thermostat
to the 24-v control circuit terminal block located in the side
of the fan contactor control box, according to Fig. 14 or the
unit label diagram. If the air handler is part of a split system,
complete the wiring from the condensing unit to the ther-
mostat shown in Fig. 14.
FAN
CONTACTOR
BOX
CONDENSATE
DRAIN
CONNECTION
(HORIZONTAL)
WIRING
ACCESS
COIL
REFRIGERANT/
CHILLED WATER
PIPING ACCESS
CONDENSATE
DRAIN
CONNECTION
(VERTICAL)
MOTOR
AND DRIVE
FAN SCROLL
FILTER
ELEMENTS
FILTER
RETAINER
CLIP
TXV BULB
ACCESS
FAN DRIVE
PULLEY
TXV — Thermostatic Expansion Valve
Fig. 12 — Wiring and Service Access
(Side Panel Removed)
23
22
21
13
12
11
105°C 600V RJ AW
FAN
CONTACTOR
24V
TERMINAL
BLOCK
POWER
WIRING
KNOCKOUT
Fig. 13 — Fan Contactor Box and Terminal Block
(Cover Removed) (Typical)
19

Table 4 — Electrical Data, Standard Motors
UNIT V*-PH-HZ VOLTAGE
LIMITS
FAN MOTOR POWER SUPPLY
Hp FLA Minimum
Circuit Amps MOCP
40RM
007
208/230-1-60 187-253 1.3 7.6 9.5 15
208/230-3-60 187-253 2.4 5.8 7.3 15
460-3-60 414-528 2.4 2.6 3.3 15
575-3-60 518-632 1.0 1.35 1.7 15
230-3-50 207-253 2.4 5.8 7.3 15
400-3-50 360-440 2.4 2.6 3.3 15
40RM
40RMQ
40RMS
008
208/230-1-60 187-253 2.4 11.0 13.8 20
208/230-3-60 187-253 2.4 5.8 7.3 15
460-3-60 414-528 2.4 2.6 3.3 15
575-3-60 518-632 2.0 2.4 3.0 15
230-3-50 207-253 2.4 5.8 7.3 15
400-3-50 360-440 2.4 2.6 3.3 15
40RMS
010
208/230-1-60 187-253 2.4 11.0 13.8 20
208/230-3-60 187-253 2.4 5.8 7.3 15
460-3-60 414-528 2.4 2.6 3.3 15
575-3-60 518-632 2.0 2.4 3.0 15
230-3-50 207-253 2.4 5.8 7.3 15
400-3-50 360-440 2.4 2.6 3.3 15
40RM
40RMQ
40RMS
012
208/230-3-60 187-253 2.4 5.8 7.3 15
460-3-60 414-528 2.4 2.6 3.3 15
575-3-60 518-632 2.0 2.4 3.0 15
230-3-50 207-253 2.9 7.5 9.4 15
400-3-50 360-440 2.9 3.4 4.3 15
40RM
40RMS
014
208/230-3-60 187-253 2.9 7.5 9.4 15
460-3-60 414-528 2.9 3.4 4.3 15
575-3-60 518-632 3.0 3.8 4.8 15
230-3-50 207-253 2.9 7.5 9.4 15
400-3-50 360-440 2.9 3.4 4.3 15
40RM
40RMQ
40RMS
016
208/230-3-60 187-253 3.7 10.6 13.3 20
460-3-60 414-528 3.7 4.8 6.0 15
575-3-60 518-632 3.0 3.8 4.8 15
230-3-50 207-253 2.9 7.5 9.4 15
400-3-50 360-440 2.9 3.4 4.3 15
40RM
40RMS
024
208/230-3-60 187-253 5.0 15.2/14.4 19.0/18.0 30/30
460-3-60 414-528 5.0 7.2 9.0 15
575-3-60 518-632 5.0 5.6 7.0 15
230-3-50 207-253 5.0 14.4 18.0 30
400-3-50 360-440 5.0 7.2 9.0 15
40RM
40RMS
028
208/230-3-60 187-253 7.5 22.0/21.0 27.5/26.3 45/45
460-3-60 414-528 7.5 10.5 13.1 20
575-3-60 518-632 7.5 7.6 9.5 15
230-3-50 207-253 7.5 21.0 26.3 45
400-3-50 360-440 7.5 10.5 13.1 20
40RM
40RMS
034
208/230-3-60 187-253 10.0 26.4/25.0 33.0/31.3 55/55
460-3-60 414-528 10.0 12.5 15.6 25
575-3-60 518-632 10.0 9.6 12.0 20
230-3-50 207-253 10.0 25.0 31.3 55
440-3-50 360-440 10.0 12.5 15.6 25
See Legend and Notes on page 21.
20

Table 5 — Electrical Data, Alternate Motors
UNIT V*-PH-HZ VOLTAGE
LIMITS
FAN MOTOR POWER SUPPLY
Hp FLA Minimum
Circuit Amps MOCP
40RM
007
208/230-1-60 187-253 2.4 11.0 13.8 20
208/230-3-60 187-253 2.9 7.5 9.4 15
460-3-60 414-528 2.9 3.4 4.3 15
575-3-60 518-632 2.0 2.4 3.0 15
40RM
40RMQ
40RMS
008
208/230-3-60 187-253 2.9 7.5 9.4 15
460-3-60 414-528 2.9 3.4 4.3 15
575-3-60 518-632 3.0 3.8 4.8 15
230-3-50 207-253 2.9 7.5 9.4 15
400-3-50 360-440 2.9 3.4 4.3 15
40RMS
010
208/230-3-60 187-253 2.9 7.5 9.4 15
460-3-60 414-528 2.9 3.4 4.3 15
575-3-60 518-632 3.0 3.8 4.8 15
230-3-50 207-253 2.9 7.5 9.4 15
400-3-50 360-440 2.9 3.4 4.3 15
40RM
40RMQ
40RMS
012
208/230-3-60 187-253 3.7 10.6 13.3 20
460-3-60 414-528 3.7 4.8 6.0 15
575-3-60 518-632 3.0 3.8 4.8 15
230-3-50 207-253 5.0 14.4 18.0 30
400-3-50 360-440 5.0 7.2 9.0 15
40RM
40RMS
014
208/230-3-60 187-253 3.7 10.6 13.3 20
460-3-60 414-528 3.7 4.8 6.0 15
575-3-60 518-632 5.0 5.6 7.0 15
230-3-50 207-253 5.0 14.4 18.0 30
400-3-50 360-440 5.0 7.2 9.0 15
40RM
40RMQ
40RMS
016
208/230-3-60 187-253 5.0 15.2/14.4 19.9/18.0 30/30
460-3-60 414-528 5.0 7.2 9.0 15
575-3-60 518-632 5.0 5.6 7.0 15
230-3-50 207-253 5.0 14.4 18.0 30
400-3-50 360-440 5.0 7.2 9.0 15
40RM
40RMS
024
208/230-3-60 187-253 7.5 22.0/21.0 27.5/26.3 45/45
460-3-60 414-528 7.5 10.5 13.1 20
575-3-60 518-632 7.5 7.6 9.5 15
230-3-50 207-253 7.5 21.0 26.3 45
400-3-50 360-440 7.5 10.5 13.1 20
40RM
40RMS
028
208/230-3-60 187-253 10.0 26.4/25.0 33.0/31.3 55/55
460-3-60 414-528 10.0 12.5 15.6 25
575-3-60 518-632 10.0 9.6 12.0 20
230-3-50 207-253 10.0 25.0 31.3 55
400-3-50 360-440 10.0 12.5 15.6 25
LEGEND
FLA — Full Load Amps
MOCP — Maximum Overcurrent Protection
*Motors are designed for satisfactory operation within 10% of nomi-
nal voltages shown. Voltages should not exceed the limits shown in
the Voltage Limits column.
NOTES:
1. Minimum Circuit Amp and MOCP values are calculated in
accordance with NEC (National Electrical Code) (U.S.A. stand-
ard), Article 440.
2. Motor FLA values are established in accordance with UL (Under-
writers’ Laboratories) Standard 1995 (U.S.A. standard).
3. Unbalanced 3-Phase Supply Voltage
Never operate a motor where a phase imbalance in supply volt-
age is greater than 2%.
Use the following formula to determine
the percentage of voltage imbalance.
% Voltage Imbalance
max voltage deviation from average voltage
= 100 x average voltage
EXAMPLE: Supply voltage is 400-3-50.
AB = 393 v
BC = 403 v
AC = 396 v 393 + 403 + 396
Average Voltage = 3
1192
=3
= 397
Determine maximum deviation from average voltage.
(AB) 397 − 393 = 4 v
(BC) 403 − 397 = 6 v
(AC) 397 − 396 = 1 v
Maximum deviation is 6 v.
Determine percent voltage imbalance.
6
% Voltage Imbalance = 100 x 397
= 1.5%
This amount of phase imbalance is satisfactory as it is below the
maximum allowable 2%.
IMPORTANT: If the supply voltage phase imbalance is more than
2%, contact your local electric utility company immediately.
21

Table 6 — Fan Contactor Coil Data
UNIT
40RM, 40RMQ
40RMS
VOLTAGE
(vac)
MAXIMUM
HOLDING
VA
007-034 24 10
Connecting Ductwork — Refer to the Carrier Sys-
tem Design Manual for the recommended design and layout
of ductwork. Figure 15 shows recommended duct connec-
tion to units with 2 fans.
DISCHARGE CONNECTIONS — Duct flanges are factory
supplied; they are shipped inside the unit attached to the hair-
pin end of the coil tube sheet for field installation. Using the
existing screws, install the duct flanges on the unit’s fan deck.
Each fan discharge requires 2 flanges; each flange must be
bent in the middle to conform to the discharge opening. See
Fig. 16. After flanges are installed, connect them to the sup-
ply duct using a canvas connection to prevent vibration. It is
important that this connection be properly fabricated to pre-
vent high air friction losses and air noise.
RETURN CONNECTION — When using return-air duct-
work, route return-air duct to the unit’s return air inlet near
the filter rack, using a canvas connection to prevent trans-
mission of unit vibration. If the duct blocks off the unit’s
access panel, provide a slip joint in the ductwork to permit
removal for servicing.
OUTDOOR-AIR INLET CONNECTION — Connect outdoor-
air inlet to field-installed accessory economizer. Refer to econo-
mizer Installation Instructions.
Return-Air Filters — Type and size of filters are
shown in Tables 1A-1F and are factory-supplied and in-
stalled. In all units with 2 fans, a filter replacement tool (hook)
is shipped inside the unit for field use when replacing filters.
See the Service section for instructions on filter element
replacement.
Fig. 14 — Unit Wiring
LEGEND
CB — Circuit Breaker
HC — Heating Contactor
HTR — Electric Heater
IFC — Indoor-Fan Contactor
IFM — Indoor-Fan Motor
NEC — National Electrical Code
TB — Terminal Block
T’STAT — Thermostat
Factory Wiring
Field Control Wiring
NOTE: Use copper conductors only.
Fig. 15 — Typical Fan Discharge Connections
for Multiple Fan Units
596 22
→

START-UP
Before starting unit, check the following and correct as
necessary:
• Is unit solidly supported?
• Is fan adjusted for speed and pulley alignment?
• Are pulleys, motor, and bearings securely mounted?
• Are there any loose parts that will rattle or vibrate?
• Is condensate drain pan pitched for correct drainage?
• Are coil baffle plates tight against coil to prevent air
bypass?
• Are all panels securely fastened?
• Are all electrical connections correct and tight?
Also refer to condensing unit instructions before starting
a split system. A split system start-up checklist is provided
in the back of these instructions.
SERVICE
Inspection and maintenance should be performed at
regular intervals and should include the following:
• Complete cleaning of cabinet, fan wheel, cooling coil, con-
densate pan and drain, heating coils, and return-air grille
(if present).
• Inspection of panels and sealing of unit against air
leakage.
• Adjustment of fan motor, belt, bearings, and wheels.
• Cleaning or replacement of filters.
• Testing for cooling/heating system leaks.
• Checking of all electrical connections.
Most unit service can be performed by removing one or
both of the unit’s side panels. Coil cleaning or removal or
insulation cleaning may require removal of a rear, top, or
bottom panel, depending on the unit’s orientation. When serv-
ice is completed, replace unit panels.
Panels — Panels are fastened to unit frame with sheet
metal screws. Fan and coil compartment must be sealed tightly
after service to prevent air from bypassing the cooling coil.
Fan Motor Lubrication — Fan motor supplied with
unit is permanently lubricated and requires no further
lubrication.
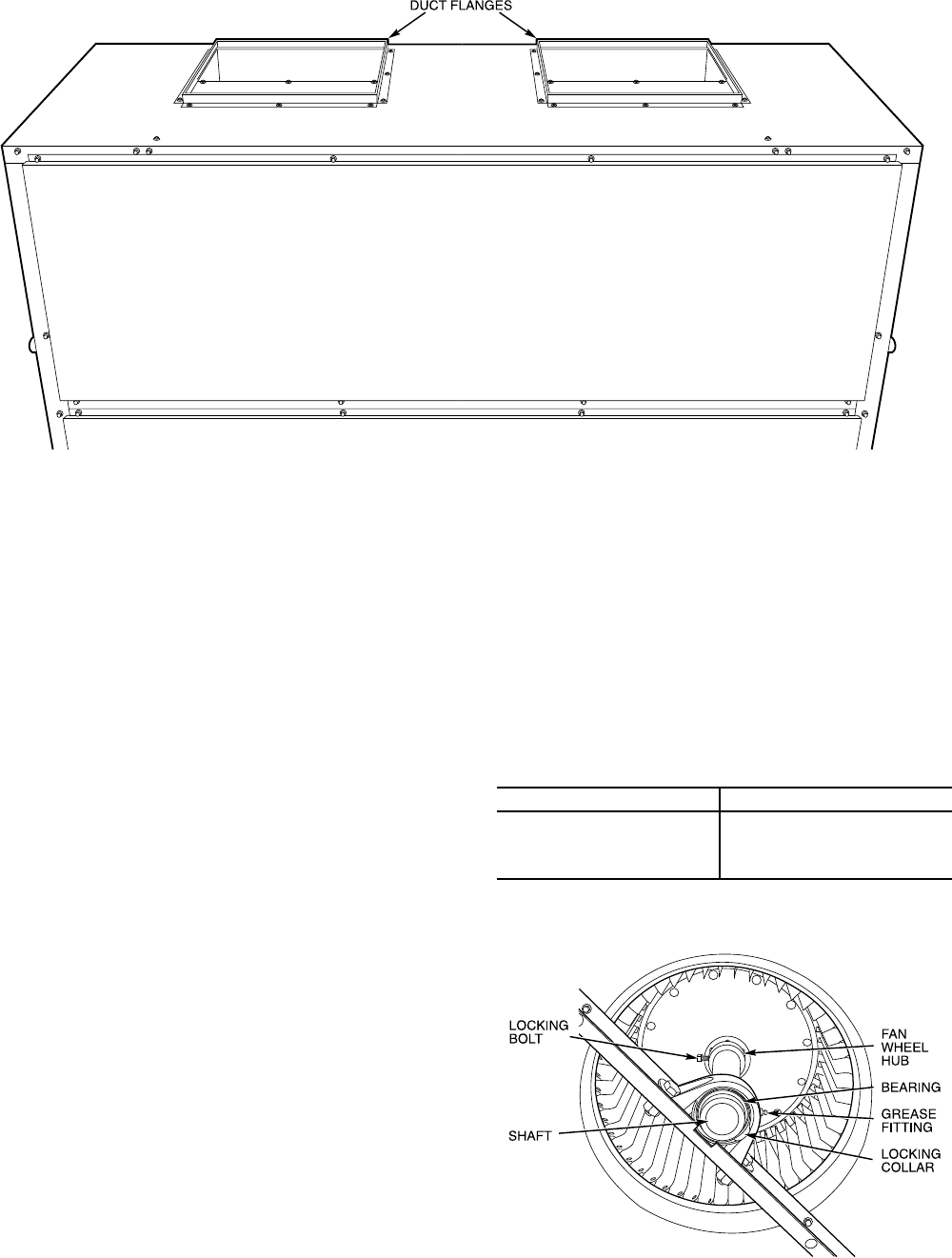
Fan Shaft Bearings — Bearings on 007-012 size units
are sealed, permanently lubricated bearings that require no
further lubrication. Size 014-034 units have pillow-block bear-
ings (Fig. 17) that must be lubricated with suitable bearing
grease approximately every 3 months. See Table 7 for suit-
able lubricants.
Table 7 — Lubricant Data
MANUFACTURER LUBRICANT
Sunoco Prestige 42
Texaco Multifak 2
Texaco Regal AFB-2*
Mobil Mobilplex EP No. 2
*Preferred lubricant because it contains rust and oxidation
inhibitors.
Fig. 16 — Duct Flange Installation
Fig. 17 — Fan Shaft, Bearings, and Fan Wheel
(Typical)
23

Centering Fan Wheel — If fan and fan shaft assem-
bly are not properly centered, blades may scrape against scroll
or may create an objectionable whistling noise. It may be
necessary to adjust individual fan wheels or move entire fan
shaft. See the following two sections.
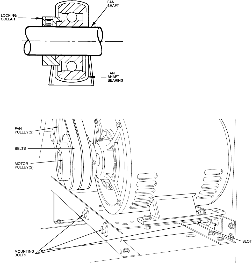
Fan Shaft Position Adjustment — Loosen set-
screw or locking collar of each fan shaft bearing. Slide shaft
into correct position and replace locking collar (Fig. 18). To
replace locking collar, push collar up against inner face of
bearing. Turn collar in direction of fan rotation until tight,
and tighten setscrew. Tightening locking collar in direction
of fan rotation results in further tightening of collar should
setscrew work itself loose.
Individual Fan Wheel Adjustment — Loosen the
2 locking bolts holding fan wheel hub to shaft. See Fig. 17.
Position fan wheel in center of the fan housing and tighten
locking bolts. Clearance between wheel and housing should
be the same on both sides.
Fan Belts — Motor mounting plate and motor support
angles are slotted to permit both vertical and horizontal
adjustment. Adjust belt(s) for correct deflection by loosen-
ing motor plate mounting bolts, moving motor/plate assem-
bly forward or back, and retightening bolts. Press down on
belt with one finger midway between fan and motor pulleys
to check deflection. For units with motor sizes up to and
including 3.7 Hp (2.76 kW), correct deflection is
3
⁄
16
-in.
(4.8 mm) For larger motor sizes, correct deflection is
1
⁄
8
-in.
(3.2 mm). See Fig. 19.
NOTE: The 028 and 034 size units with 60 Hz motors are
shipped with an extra set of matching belts. Use the pre-
installed belts or extra belts depending on the adjustable
pulley setting.
If complete belt replacement is required during serv-
icing, loosen the motor plate mounting bolts (Fig. 19), move
motor/plate assembly towards fan pulley, and pull belt(s) off
pulleys. Reverse the procedure with new bolts and readjust
deflection.
Fan Rotation — Correct fan rotation with respect to
fan outlet is shown in Fig. 20.
To reverse the direction of rotation of a 3-phase fan mo-
tor, reverse any 2 of the power leads. Refer to the connection
diagram on the inside of motor terminal box cover for proper
reversing procedure of single-phase motor.
Fig. 18 — Fan Shaft Bearing
Fig. 19 — Fan Motor Mounting
24

Fan Pulley Alignment — Align as follows:
1. Loosen setscrews on pulleys.
2. Align pulleys visually and tighten setscrews on fan pul-
ley to lock it in place.
3. Use the methods shown in Fig. 21 to check proper pulley
alignment.
4. If pulleys are not in correct alignment, loosen the motor
holddown bolts and slide the motor axially until the pul-
leys are aligned.
5. Tighten motor holddown bolts.
Pulley and Drive Adjustment — To obtain desired
fan speed, refer to the fan motor and drive data in
Tables 8A-10D and adjust fan motor pulley as follows:
1. Remove belt from fan motor pulley after loosening mo-
tor from motor base.
2. Loosen setscrew in moveable flange of pulley. Screw move-
able flange toward fixed flange to increase the fan speed
and away from fixed flange to reduce speed. Before tight-
ening setscrew, make certain that setscrew is over nearest
flat surface of pulley hub (Fig. 21).
Increasing fan speed produces a greater load on mo-
tor. Do not exceed rated capacity of motor.
Condensate Drains — Keep condensate drains free of
dirt and foreign matter.
Return-Air Filters — Refer to Replacing Filters sec-
tion, page 39, for filter accessibility and removal. Replace
with clean filters of the sizes listed in Tables 1A-1F.
Chilled Water Coil Freeze Protection — Shut off
water supply to unit. Remove side panel of unit and remove
vent and drain plugs in top and bottom of coil header. Drain
coil and blow out remaining water. Reinstall plugs and side
panel.
Alternative freeze protection methods follow:
• Circulate hot water within the water coil’s supply main or
supplementary space heating.
• Close off supply lines to unit and open a union or field-
supplied drain valve in the return line.
IMPORTANT: Draining from return line will not
completely drain water from coils.
After draining as much water as possible from coils, add
sufficient antifreeze to prevent residual water in the coil
from freezing.
• Add a sufficient quantity of non-corrosive antifreeze to the
entire system to prevent all water within the system from
freezing.
Coil Removal — Remove unit panels and corner posts
as required. Disconnect coil connections and remove fasten-
ing screws. Remove coil through end or side sections of unit.
Cleaning Cooling Coil — Remove return-air filters.
Remove any heavy dirt that may have accumulated on un-
derside of coil. Coil can be cleaned more easily with a stiff
brush, vacuum cleaner, or compressed air when coil is dry.
If coil is wet or if water is to be used for cleaning, guard
against splashing water on electrical components or dam-
aging surrounding area. Clean coil baffles as applicable and
check for tight fit to be sure air does not bypass coil.
Cleaning Insulation — The insulation contains an
immobilized antimicrobial agent that helps prevent the
growth of bacteria and fungi. Clean the inner surface of the
insulation according to the separate maintenance instruc-
tions shipped with the unit.
Fig. 20 — Fan Rotation
Fig. 21 — Fan Pulley Adjustments
25

Table 8A — Fan Motor Data, Standard Motor — English
UNIT 40RM
007
40RM
40RMQ
40RMS
008
40RMS
010
40RM
40RMQ
40RMS
012
40RM
40RMS
014
40RM
40RMQ
40RMS
016
40RM
40RMS
024
40RM
40RMS
028
40RM
40RMS
034
208/230-1-60
Speed (rpm) 1725 1725 1725 — — — — — —
Hp 1.3 2.4 2.4 — — — — — —
Frame (NEMA) 56Y 56Y 56Y — — — — — —
Shaft Dia (in.)
5
⁄
85
⁄
85
⁄
8
——————
208/230-3-60 and 460-3-60
Speed (rpm) 1725 1725 1725 1725 1725 1725 1745 1745 1745
Hp 2.4 2.4 2.4 2.4 2.9 3.7 5.0 7.5 10.0
Frame (NEMA) 56Y 56Y 56Y 56Y 56Y 56Y S184T S213T S215T
Shaft Dia (in.)
5
⁄
85
⁄
85
⁄
85
⁄
87
⁄
87
⁄
8
1
1
⁄
8
1
3
⁄
8
1
3
⁄
8
575-3-60
Speed (rpm) 1725 1725 1725 1725 1725 1725 1745 1755 1755
Hp 1.0 2.0 2.0 2.0 3.0 3.0 5.0 7.5 10.0
Frame (NEMA) 56 56HZ 56HZ 56HZ 56HZ 56HZ 184T S213T D215T
Shaft Dia (in.)
5
⁄
87
⁄
87
⁄
87
⁄
87
⁄
87
⁄
8
1
1
⁄
8
1
3
⁄
8
1
3
⁄
8
230-3-50 and 400-3-50
Speed (rpm) 1425 1425 1425 1425 1425 1425 1425 1425 1425
Hp 2.4 2.4 2.4 2.9 2.9 2.9 5.0 7.5 10.0
Frame (NEMA) 56Y 56Y 56Y 56Y 56Y 56Y 184T S213T S215T
Shaft Dia (in.)
5
⁄
85
⁄
85
⁄
87
⁄
87
⁄
87
⁄
8
1
1
⁄
8
1
3
⁄
8
1
3
⁄
8
NEMA — National Electrical Manufacturers Association
Table 8B — Fan Motor Data, Alternate Motor — English
UNIT 40RM
007
40RM
40RMQ
40RMS
008
40RMS
010
40RM
40RMQ
40RMS
012
40RM
40RMS
014
40RM
40RMQ
40RMS
016
40RM
40RMS
024
40RM
40RMS
028
208/230-1-60
Speed (rpm) 1725 ———————
Hp 2.4———————
Frame (NEMA) 56Y———————
Shaft Dia (in.)
5
⁄
8
———————
208/230-3-60 and 460-3-60
Speed (rpm) 1725 1725 1725 1725 1725 1725 1745 1745
Hp 2.9 2.9 2.9 3.7 3.7 5.0 7.5 10.0
Frame (NEMA) 56Y 56Y 56Y Y56Y Y56Y S184T S213T S215T
Shaft Dia (in.)
7
⁄
87
⁄
87
⁄
87
⁄
87
⁄
8
1
1
⁄
8
1
3
⁄
8
1
3
⁄
8
575-3-60
Speed (rpm) 1725 1725 1725 1725 1745 1745 1755 1750
Hp 2.0 3.0 3.0 3.0 5.0 5.0 7.5 10.0
Frame (NEMA) 56HZ 56HZ 56HZ 56HZ 184T 184T S213T D215T
Shaft Dia (in.)
7
⁄
87
⁄
87
⁄
87
⁄
8
1
1
⁄
8
1
1
⁄
8
1
3
⁄
8
1
3
⁄
8
230-3-50 and 400-3-50
Speed (rpm) — 1425 1425 1425 1425 1425 1425 1425
Hp — 2.9 2.9 5.0 5.0 5.0 7.5 10.0
Frame (NEMA) — 56Y 56Y S184T S184T S184T S213T S215T
Shaft Dia (in.) —
7
⁄
87
⁄
87
⁄
8
1
1
⁄
8
1
1
⁄
8
1
3
⁄
8
1
3
⁄
8
NEMA — National Electrical Manufacturers Association
26

Table 8C — Fan Motor Data, Standard Motor — SI
UNIT 40RM
007
40RM
40RMQ
40RMS
008
40RMS
010
40RM
40RMQ
40RMS
012
40RM
40RMS
014
40RM
40RMQ
40RMS
016
40RM
40RMS
024
40RM
40RMS
028
40RM
40RMS
034
208/230-1-60
Speed (r/s) 28.75 28.75 28.75 — — — — — —
Shaft kW 0.97 1.79 1.79 — — — — — —
Frame (NEMA) 56Y 56Y 56Y — — — — — —
Shaft Dia (mm) 15.9 15.9 15.9 — — — — — —
208/230-3-60 and 460-3-60
Speed (r/s) 28.75 28.75 28.75 28.75 28.75 28.75 29.08 29.08 29.08
Shaft kW 1.79 1.79 1.79 1.79 2.16 2.76 3.73 5.60 7.46
Frame (NEMA) 56Y 56Y 56Y 56Y 56Y 56Y S184T S213T S215T
Shaft Dia (mm) 15.9 15.9 15.9 15.9 22.2 22.2 28.6 34.9 34.9
575-3-60
Speed (r/s) 28.75 28.75 28.75 28.75 28.75 28.75 29.08 29.25 29.25
Shaft kW 0.746 1.49 1.49 1.49 2.24 2.24 3.73 5.60 7.46
Frame (NEMA) 56 56HZ 56HZ 56HZ 56HZ 56HZ 184T S213T S215T
Shaft Dia (mm) 15.9 22.2 22.2 22.2 22.2 22.2 28.6 34.9 34.9
230-3-50 and 400-3-50
Speed (r/s) 23.75 23.75 23.75 23.75 23.75 23.75 23.75 23.75 23.75
Shaft kW 1.79 1.79 1.79 2.16 2.16 2.16 3.73 5.60 7.46
Frame (NEMA) 56Y 56Y 56Y 56Y 56Y 56Y 184T S213T S215T
Shaft Dia (mm) 15.9 15.9 15.9 22.2 22.2 22.2 28.6 34.9 34.9
NEMA — National Electrical Manufacturers Association
Table 8D — Fan Motor Data, Alternate Motor — SI
UNIT 40RM
007
40RM
40RMQ
40RMS
008
40RMS
010
40RM
40RMQ
40RMS
012
40RM
40RMS
014
40RM
40RMQ
40RMS
016
40RM
40RMS
024
40RM
40RMS
028
208/230-1-60
Speed (r/s) 28.75 — — — — — — —
Shaft kW 1.79 — — — — — — —
Frame (NEMA) 56Y———————
Shaft Dia (mm) 15.9 — — — — — — —
208/230-3-60 and 460-3-60
Speed (r/s) 28.75 28.75 28.75 28.75 28.75 29.08 29.08 29.17
Shaft kW 2.16 2.16 2.16 2.76 2.76 3.73 5.60 7.46
Frame (NEMA) 56Y 56Y 56Y Y56Y Y56Y S184T S213T S215T
Shaft Dia (mm) 22.2 22.2 22.2 22.2 22.2 28.6 34.9 34.9
575-3-60
Speed (r/s) 28.75 28.75 28.75 28.75 29.08 29.08 29.25 29.17
Shaft kW 1.49 2.24 2.24 2.24 3.73 3.73 5.60 7.46
Frame (NEMA) 56HZ 56HZ 56HZ 56HZ 184T 184T S213T D215T
Shaft Dia (mm) 22.2 22.2 22.2 22.2 28.6 28.6 34.9 34.9
230-3-50 and 400-3-50
Speed (r/s) — 23.75 23.75 23.75 23.75 23.75 23.75 23.75
Shaft kW — 2.16 2.16 3.73 3.73 3.73 5.60 7.46
Frame (NEMA) — 56Y 56Y S184T S184T S184T S213T S215T
Shaft Dia (mm) — 22.2 22.2 22.2 28.6 28.6 34.9 34.9
NEMA — National Electrical Manufacturers Association
27

Table 9A — Standard Drive Data, 60 Hz — English
UNIT 40RM
007
40RM
40RMQ
40RMS
008
40RMS
010
40RM
40RMQ
40RMS
012
40RM
40RMS
014
40RM
40RMQ
40RMS
016
40RM
40RMS
024
40RM
40RMS
028
40RM
40RMS
034
MOTOR DRIVE
Motor Pulley Pitch Diameter
(in.) 2.4-3.4 2.8-3.8 2.8-3.8 3.4-4.4 2.8-3.8 2.8-3.8 3.7-4.7 4.3-5.3 4.3-5.3
Pulley Factory Setting
Full Turns Open 2.5 2.5 2.5 2.5 2.5 2.5 3.0 3.0 3.0
FAN DRIVE
Pulley Pitch Dia (in.) 8.8 8.8 8.8 8.8 9.0 9.0 9.4 11.0 11.0
Pulley Bore (in.) 11111
7
⁄
16
1
7
⁄
16
1
7
⁄
16
1
15
⁄
16
1
15
⁄
16
Belt No. — Section 1—A 1—A 1—A 1—A 1—A 1—A 2—B 2—B* 2—B*
Belt Pitch (in.) 40.3 41.3 41.3 42.3 42.3 42.3 41.8 (2) 42.8
(2) 43.8 (2) 42.8
(2) 43.8
FAN SPEEDS (rpm)
Factory Setting 568 647 647 764 632 632 771 752 752
Range 470-666 549-745 549-745 666-863 537-728 537-728 679-863 682-841 674-831
Max Allowable Speed (rpm) 1200 1200 1200 1200 1200 1200 1200 1100 1100
Change per
1
⁄
2
Turn of
Moveable Motor Pulley
Flange 19.6 19.6 19.6 19.7 19.1 19.1 15.3 13.1 13.1
MAX FULL TURNS FROM
CLOSED POSITION 555555666
SHAFTS CENTER DISTANCE
(in.) 10.44-
12.32 10.44-
12.32 10.44-
12.32 10.44-
12.32 10.44-
12.32 10.44-
12.32 9.12-
10.99 6.67-
9.43 6.67-
9.43
*Four belts shipped with unit. Use correct set of 2 belts sized according to the pulley setting.
Table 9B — Medium-Static Drive Data, 60 Hz — English
UNIT 40RM
007
40RM
40RMQ
40RMS
008
40RMS
010
40RM
40RMQ
40RMS
012
40RM
40RMS
014
40RM
40RMQ
40RMS
016
40RM
40RMS
024
40RM
40RMS
028
40RM
40RMS
034
MOTOR DRIVE
Motor Pulley Pitch Diameter
(in.) 3.4-4.4 3.4-4.4 3.4-4.4 3.4-4.4 3.4-4.4 3.7-4.7 4.3-5.3 4.3-5.3 4.3-5.3
Pulley Factory Setting
Full Turns Open 2.5 2.5 2.5 2.5 2.5 3.0 3.0 3.0 3.0
FAN DRIVE
Pulley Pitch Dia (in.) 8.8 8.0 8.0 8.0 8.2 8.6 9.4 9.4 9.4
Pulley Bore (in.) 11111
7
⁄
16
1
7
⁄
16
1
7
⁄
16
1
15
⁄
16
1
15
⁄
16
Belt No. — Section 1—A 1—A 1—A 1—A 1—A 1—B 2—B 2—B* 2—B*
Belt Pitch (in.) 42.3 40.3 40.3 40.3 41.3 41.8 41.8 (2) 38.8
(2) 39.8 (2) 38.8
(2) 39.8
FAN SPEEDS (rpm)
Factory Setting 764 841 841 841 820 842 881 881 881
Range 666-863 733-949 733-949 733-949 715-926 742-943 798-984 798-984 798-984
Max Allowable Speed (rpm) 1200 1200 1200 1200 1200 1200 1200 1100 1100
Change per
1
⁄
2
Turn of
Moveable Motor Pulley
Flange 19.7 21.6 21.6 21.6 21.1 16.7 15.3 15.3 15.3
MAX FULL TURNS FROM
CLOSED POSITION 555556666
SHAFTS CENTER DISTANCE
(in.) 10.44-
12.32 10.44-
12.32 10.44-
12.32 10.44-
12.32 10.44-
12.32 10.44-
12.32 9.16-
10.99 6.67-
9.43 6.67-
9.43
*Four belts shipped with unit. Use correct set of 2 belts sized according to the pulley setting.
28

Table 9C — High-Static Drive Data, 60 Hz — English
UNIT 40RM
007
40RM
40RMQ
40RMS
008
40RMS
010
40RM
40RMQ
40RMS
012
40RM
40RMS
014
40RM
40RMQ
40RMS
016
40RM
40RMS
024
40RM
40RMS
028
40RM
40RMS
034
MOTOR DRIVE
Motor Pulley Pitch Diameter
(in.) 3.4-4.4 3.4-4.4 3.4-4.4 3.4-4.4 3.7-4.7 4.3-5.3 4.3-5.3 4.3-5.3 4.3-5.3
Pulley Factory Setting
Full Turns Open 2.5 2.5 2.5 2.5 3.0 3.0 3.0 3.0 3.0
FAN DRIVE
Pulley Pitch Dia (in.) 7.0 6.0* 6.0 6.0 7.4 7.9 7.4 8.6 8.6
Pulley Bore (in.) 11111
7
⁄
16
1
7
⁄
16
1
7
⁄
16
1
15
⁄
16
1
15
⁄
16
Belt No. — Section 1—A 1—A 1—A 1—A 1—B 1—B 2—B 2—B 2—B
Belt Pitch (in.) 41.3 37.3 37.3 37.3 39.8 39.8 36.8 37.8 37.8
FAN SPEEDS (rpm)
Factory Setting 961 1121 1121 1121 979 1060 1118 1024 1024
Range 838-
1084 978-
1200*† 978-
1200† 978-
1200† 873-
1096 950-
1171 1014-
1200† 873-
1075 873-
1075
Max Allowable Speed (rpm) 1200 1200 1200 1200 1200 1200 1200 — —
Change per
1
⁄
2
Turn of
Moveable Motor Pulley
Flange 24.6 28.7 28.7 28.7 19.4 18.4 19.4 16.7 16.7
MAX FULL TURNS FROM
CLOSED POSITION 555566666
SHAFTS CENTER DISTANCE
(in.) 10.44-
12.32 10.44-
12.32 10.44-
12.32 10.44-
12.32 10.44-
12.32** 9.16-
10.99 8.16-
10.02 6.67-
9.43 6.67-
9.43
*Valves for 3-phase motor shown. For single-phase motor, pulley pitch diameter is 7 in.
and resulting fan speed is 837-1096 rpm.
†It is possible to adjust drive so that fan speed exceeds maximum allowable. DO NOT
exceed 1200 rpm.
**575-v unit has a center distance of 9.16-10.99.
Table 9D — Standard Drive Data, 50 Hz — English
UNIT 40RM
007
40RM
40RMQ
40RMS
008
40RMS
010
40RM
40RMQ
40RMS
012
40RM
40RMS
014
40RM
40RMQ
40RMS
016
40RM
40RMS
024
40RM
40RMS
028
40RM
40RMS
034
MOTOR DRIVE
Motor Pulley Pitch Diameter
(in.) 2.4-3.4 2.8-3.8 2.8-3.8 3.4-4.4 3.4-4.4 3.4-4.4 4.3-5.3 4.3-5.3 4.3-5.3
Pulley Factory Setting
Full Turns Open 2.5 2.5 2.5 2.5 2.5 2.5 3.0 3.0 3.0
FAN DRIVE
Pulley Pitch Dia (in.) 8.0 8.0 8.0 8.0 9.0 9.0 8.6 11.0 11.0
Pulley Bore (in.) 11111
7
⁄
16
1
7
⁄
16
1
7
⁄
16
1
15
⁄
16
1
15
⁄
16
Belt No. — Section 1—A 1—A 1—A 1—A 1—A 1—A 1—B 2—B 2—B
Belt Pitch (in.) 39.3 39.3 39.3 40.3 42.3 42.3 41.8 43.8 43.8
FAN SPEEDS (rpm)
Factory Setting 517 588 588 695 618 618 795 622 622
Range 428-606 499-677 449-677 606-784 538-697 538-697 713-878 557-687 557-687
Max Allowable Speed (rpm) 1200 1200 1200 1200 1200 1200 1200 1100 1100
Change per
1
⁄
2
Turn of
Moveable Motor Pulley
Flange 17.8 17.8 17.8 17.8 15.9 15.9 13.8 10.8 10.8
MAX FULL TURNS FROM
CLOSED POSITION 555555666
SHAFTS CENTER DISTANCE
(in.) 10.44-
12.32 10.44-
12.32 10.44-
12.32 10.44-
12.32 10.44-
12.32 10.44-
12.32 9.12-
10.99 6.67-
9.43 6.67-
9.43
29

Table 9E — Medium-Static Drive Data, 50 Hz — English
UNIT 40RM
007
40RM
40RMQ
40RMS
008
40RMS
010
40RM
40RMQ
40RMS
012
40RM
40RMS
014
40RM
40RMQ
40RMS
016
40RM
40RMS
024
40RM
40RMS
028
40RM
40RMS
034
MOTOR DRIVE
Motor Pulley Pitch Diameter
(in.) 3.4-4.4 3.4-4.4 3.4-4.4 3.4-4.4 3.4-4.4 3.7-4.7 4.0-5.0 4.3-5.3 4.3-5.3
Pulley Factory Setting
Full Turns Open 2.5 2.5 2.5 2.5 2.5 3.0 2.5 3.0 3.0
FAN DRIVE
Pulley Pitch Dia (in.) 8.0 7.0 7.0 6.0 7.5 7.9 7.0 9.4 9.4
Pulley Bore (in.) 111 11
7
⁄
16
1
7
⁄
16
1
7
⁄
16
1
15
⁄
16
1
15
⁄
16
Belt No. — Section 1—A 1—A 1—A 1—A 1—A 1—B 2—A 2—B 2—B
Belt Pitch (in.) 40.3 41.3 41.3 37.3 39.3 39.8 36.8 39.8 39.8
FAN SPEEDS (rpm)
Factory Setting 695 794 794 926 741 756 916 728 728
Range 606-784 692-896 692-896 808-1045 646-836 667-848 814-1018 652-803 652-803
Max Allowable Speed (rpm) 1200 1200 1200 1200 1200 1200 1200 1100 1100
Change per
1
⁄
2
Turn of
Moveable Motor Pulley
Flange 17.8 20.4 20.4 23.7 19.0 15.1 20.4 12.6 12.6
MAX FULL TURNS FROM
CLOSED POSITION 555556566
SHAFTS CENTER DISTANCE
(in.) 10.44-
12.32 10.44-
12.32 10.44-
12.32 10.44-
12.32 10.44-
12.32 9.16-
10.99 9.16-
10.99 6.67-
9.43 6.67-
9.43
Table 9F — High-Static Drive Data, 50 Hz — English
UNIT 40RM
007
40RM
40RMQ
40RMS
008
40RMS
010
40RM
40RMQ
40RMS
012
40RM
40RMS
014
40RM
40RMQ
40RMS
016
40RM
40RMS
024
40RM
40RMS
028
40RM
40RMS
034
MOTOR DRIVE
Motor Pulley Pitch Diameter
(in.) 3.4-4.4 3.4-4.4 3.4-4.4 4.0-5.0 3.4-4.4 4.0-5.0 4.0-5.0 4.3-5.3 4.3-5.3
Pulley Factory Setting
Full Turns Open 2.5 2.5 2.5 3.0 2.5 3.0 3.0 3.0 3.0
FAN DRIVE
Pulley Pitch Dia (in.) 6.0 5.5 5.5 5.5 6.0 7.0 6.4 8.0 8.6
Pulley Bore (in.) 11111
7
⁄
16
1
7
⁄
16
1
7
⁄
16
1
15
⁄
16
1
15
⁄
16
Belt No. — Section 1—A 1—A 1—A 1—A 2—A 2—A 2—A 2—B 2—B
Belt Pitch (in.) 37.3 37.3 37.3 36.3 36.3 39.3 34.3 36.8 37.8
FAN SPEEDS (rpm)
Factory Setting 926 1010 1010 1166 926 916 1002 855 795
Range 808-
1045 881-
1140 881-
1140 1036-
1200* 808-
1045 814-
1018 891-
1113 766-
944 713-
878
Max Allowable Speed (rpm) 1200 1200 1200 1200 1200 1200 1200 1100 1100
Change per
1
⁄
2
Turn of
Moveable Motor Pulley
Flange 23.7 25.9 25.9 21.6 23.7 17.0 18.5 14.8 13.8
MAX FULL TURNS FROM
CLOSED POSITION 555656666
SHAFTS CENTER DISTANCE
(in.) 10.44-
12.32 10.44-
12.32 10.44-
12.32 916-
10.99 9.16-
10.99 9.16-
10.99 8.16-
10.02 6.67-
9.43 6.67-
9.43
*It is possible to adjust drive so that fan speed exceeds maximum allowable. DO NOT
exceed 1200 rpm.
30

Table 9G — Standard Drive Data, 60 Hz — SI
UNIT 40RM
007
40RM
40RMQ
40RMS
008
40RMS
010
40RM
40RMQ
40RMS
012
40RM
40RMS
014
40RM
40RMQ
40RMS
016
40RM
40RMS
024
40RM
40RMS
028
40RM
40RMS
034
MOTOR DRIVE
Motor Pulley Pitch Diameter
(mm) 61.0-
86.4 71.1-
96.5 71.1-
96.5 86.4-
111.8 71.1-
96.5 71.1-
96.5 94.0-
119.4 109.2-
134.6 109.2-
134.6
Pulley Factory Setting
Full Turns Open 2.5 2.5 2.5 2.5 2.5 2.5 3.0 3.0 3.0
FAN DRIVE
Pulley Pitch Dia (mm) 224 224 224 224 229 229 239 279 279
Pulley Bore (mm) 25.4 25.4 25.4 25.4 36.5 36.5 36.5 49.2 49.2
Belt No. — Section 1—A 1—A 1—A 1—A 1—A 1—A 2—B 2—B* 2—B*
Belt Pitch (mm) 1024 1049 1049 1074 1074 1074 1062 (2) 1087
(2) 1113 (2) 1087
(2) 1113
FAN SPEEDS (r/s)
Factory Setting 9.5 10.8 10.8 12.7 10.5 10.5 12.9 12.5 12.5
Range 7.8-11.1 9.2-12.4 9.2-12.4 11.1-14.4 9.0-12.1 9.0-12.1 11.3-14.4 11.4-14.0 11.2-13.9
Max Allowable Speed (r/s) 20.0 20.0 20.0 20.0 20.0 20.0 20.0 18.3 18.3
Change per
1
⁄
2
Turn of
Moveable Motor Pulley
Flange 0.327 0.327 0.327 0.328 0.318 0.318 0.255 0.218 0.218
MAX FULL TURNS FROM
CLOSED POSITION 555555666
SHAFTS CENTER DISTANCE
(mm) 265-313 265-313 265-313 265-313 265-313 265-313 232-279 169-240 169-240
*Four belts shipped with unit. Use correct set of 2 belts sized according to the pulley setting.
Table 9H — Medium-Static Drive Data, 60 Hz — SI
UNIT 40RM
007
40RM
40RMQ
40RMS
008
40RMS
010
40RM
40RMQ
40RMS
012
40RM
40RMS
014
40RM
40RMQ
40RMS
016
40RM
40RMS
024
40RM
40RMS
028
40RM
40RMS
034
MOTOR DRIVE
Motor Pulley Pitch Diameter
(mm) 86.4-
111.8 86.4-
111.8 86.4-
111.8 86.4-
111.8 86.4-
111.8 94.0-
119.4 109.2-
134.6 109.2-
134.6 109.2-
134.6
Pulley Factory Setting
Full Turns Open 2.5 2.5 2.5 2.5 2.5 3.0 3.0 3.0 3.0
FAN DRIVE
Pulley Pitch Dia (mm) 224 203 203 203 208 218 239 239 239
Pulley Bore (mm) 25.4 25.4 25.4 25.4 36.5 36.5 36.5 49.2 49.2
Belt No. — Section 1—A 1—A 1—A 1—A 1—A 1—B 2—B 2—B* 2—B*
Belt Pitch (mm) 1074 1024 1024 1024 1049 1062 1062 (2) 986
(2) 1011 (2) 986
(2) 1011
FAN SPEEDS (r/s)
Factory Setting 12.7 14.0 14.0 14.0 13.7 14.0 14.7 14.7 14.7
Range 11.1-
14.4 12.2-
15.8 12.2-
15.8 12.2-
15.8 11.9-
15.4 12.4-
15.7 13.3-
16.4 13.3-
16.4 13.3-
16.4
Max Allowable Speed (r/s) 20.0 20.0 20.0 20.0 20.0 20.0 20.0 18.3 18.3
Change per
1
⁄
2
Turn of
Moveable Motor Pulley
Flange 0.328 0.360 0.360 0.360 0.352 0.278 0.255 0.255 0.255
MAX FULL TURNS FROM
CLOSED POSITION 555556666
SHAFTS CENTER DISTANCE
(mm) 265-313 265-313 265-313 265-313 265-313 265-313 232-279 169-240 169-240
*Four belts shipped with unit. Use correct set of 2 belts sized according to the pulley setting.
31

Table 9I — High-Static Drive Data, 60 Hz — SI
UNIT 40RM
007
40RM
40RMQ
40RMS
008
40RMS
010
40RM
40RMQ
40RMS
012
40RM
40RMS
014
40RM
40RMQ
40RMS
016
40RM
40RMS
024
40RM
40RMS
028
40RM
40RMS
034
MOTOR DRIVE
Motor Pulley Pitch Diameter
(mm) 86.4-
111.8 86.4-
111.8 86.4-
111.8 86.4-
111.8 94.0-
119.4 109.2
134.6 109.2-
134.6 109.2-
134.6 109.2-
134.6
Pulley Factory Setting
Full Turns Open 2.5 2.5 2.5 2.5 3.0 3.0 3.0 3.0 3.0
FAN DRIVE
Pulley Pitch Dia (mm) 178 152* 152 152 188 201 188 203 203
Pulley Bore (mm) 25.4 25.4 25.4 25.4 36.5 36.5 36.5 49.2 49.2
Belt No. — Section 1—A 1—A 1—A 1—A 1—B 1—B 2—B 2—B 2—B
Belt Pitch (mm) 1049 947 947 947 1011 1011 935 935 960
FAN SPEEDS (r/s)
Factory Setting 16.0 18.7 18.7 18.7 16.3 17.7 18.6 17.1 17.1
Range 14.0-
18.1 16.3-
20.0*† 16.3-
20.0† 16.3-
20.0† 14.4-
18.3 15.8-
19.5 16.9-
20.0† 14.6-
17.9 14.6-
17.9
Max Allowable Speed (r/s) 20.0 20.0 20.0 20.0 20.0 20.0 20.0 18.3 18.3
Change per
1
⁄
2
Turn of
Moveable Motor Pulley
Flange 0.410 0.478 0.478 0.478 0.323 0.307 0.323 0.278 0.278
MAX FULL TURNS FROM
CLOSED POSITION 5555 6 6666
SHAFTS CENTER DISTANCE
(mm) 265-313 265-313 265-313 265-313 265-313** 232-279 207-255 169-240 169-240
*Values for 3-phase motor shown. For single-phase motor, pulley pitch diameter is 178 mm and
resulting fan speed is 14.0-18.3 r/s.
†It is possible to adjust drive so that fan speed exceeds maximum allowable. DO NOT exceed
20 r/s.
**575-v unit has a center distance of 233-279.
Table 9J — Standard Drive Data, 50 Hz — SI
UNIT 40RM
007
40RM
40RMQ
40RMS
008
40RMS
010
40RM
40RMQ
40RMS
012
40RM
40RMS
014
40RM
40RMQ
40RMS
016
40RM
40RMS
024
40RM
40RMS
028
40RM
40RMS
034
MOTOR DRIVE
Motor Pulley Pitch Diameter
(mm) 61.0-
86.4 71.1-
96.5 71.1-
96.5 86.4-
111.8 86.4-
111.8 86.4-
111.8 109.2-
134.6 109.2-
134.6 109.2-
134.6
Pulley Factory Setting
Full Turns Open 2.5 2.5 2.5 2.5 2.5 2.5 3.0 3.0 3.0
FAN DRIVE
Pulley Pitch Dia (mm) 203 203 203 203 229 229 218 279 279
Pulley Bore (mm) 25.4 25.4 25.4 25.4 36.5 36.5 36.5 49.2 49.2
Belt No. — Section 1—A 1—A 1—A 1—A 1—A 1—A 1—B 2—B 2—B
Belt Pitch (mm) 998 998 998 1024 1074 1074 1062 1113 1113
FAN SPEEDS (r/s)
Factory Setting 8.6 9.8 9.8 11.6 10.3 10.3 13.3 10.4 10.4
Range 7.1-
10.1 8.3-
11.3 8.3-
11.3 10.1-
13.1 9.0-
11.6 9.0-
11.6 11.9-
14.6 9.3-
11.5 9.3-
11.5
Max Allowable Speed (r/s) 20.0 20.0 20.0 20.0 20.0 20.0 20.0 18.3 18.3
Change per
1
⁄
2
Turn of
Moveable Motor Pulley
Flange 0.297 0.297 0.297 0.297 0.265 0.265 0.230 0.180 0.180
MAX FULL TURNS FROM
CLOSED POSITION 555555666
SHAFTS CENTER DISTANCE
(mm) 265-313 265-313 265-313 265-313 265-313 265-313 232-279 169-240 169-240
32

Table 9K — Medium-Static Drive Data, 50 Hz — SI
UNIT 40RM
007
40RM
40RMQ
40RMS
008
40RMS
010
40RM
40RMQ
40RMS
012
40RM
40RMS
014
40RM
40RMQ
40RMS
016
40RM
40RMS
024
40RM
40RMS
028
40RM
40RMS
034
MOTOR DRIVE
Motor Pulley Pitch Diameter
(mm) 86.4-
111.8 86.4-
111.8 86.4-
111.8 86.4-
111.8 86.4-
111.8 94.0-
119.4 101.6-
127.0 109.2-
134.6 109.2-
134.6
Pulley Factory Setting
Full Turns Open 2.5 2.5 2.5 2.5 2.5 3.0 2.5 3.0 3.0
FAN DRIVE
Pulley Pitch Dia (mm) 203 178 178 152 191 201 178 239 239
Pulley Bore (mm) 25.4 25.4 25.4 25.4 36.5 36.5 36.5 49.2 49.2
Belt No. — Section 1—A 1—A 1—A 1—A 1—A 1—B 2—A 2—B 2—B
Belt Pitch (mm) 1024 1049 1049 947 998 1011 922 1011 1011
FAN SPEEDS (r/s)
Factory Setting 11.6 13.2 13.2 15.4 12.4 12.6 15.3 12.1 12.1
Range 10.1-
13.1 11.5-
14.9 11.5-
14.9 13.5-
17.4 10.8-
13.9 11.1-
14.1 13.6-
17.0 10.9-
13.4 10.9-
13.4
Max Allowable Speed (r/s) 20.0 20.0 20.0 20.0 20.0 20.0 20.0 18.3 18.3
Change per
1
⁄
2
Turn of
Moveable Motor Pulley
Flange 0.297 0.340 0.340 0.395 0.317 0.252 0.340 0.210 0.210
MAX FULL TURNS FROM
CLOSED POSITION 555556566
SHAFTS CENTER DISTANCE
(mm) 265-313 265-313 265-313 265-313 265-313 232-279 232-279 169-240 169-240
Table 9L — High-Static Drive Data, 50 Hz — SI
UNIT 40RM
007
40RM
40RMQ
40RMS
008
40RMS
010
40RM
40RMQ
40RMS
012
40RM
40RMS
014
40RM
40RMQ
40RMS
016
40RM
40RMS
024
40RM
40RMS
028
40RM
40RMS
034
MOTOR DRIVE
Motor Pulley Pitch Diameter
(mm) 86.4-
111.8 86.4-
111.8 86.4-
111.8 101.6-
127.0 86.4-
111.8 101.6-
127.0 101.6-
127.0 109.2-
134.6 109.2-
134.6
Pulley Factory Setting
Full Turns Open 2.5 2.5 2.5 3.0 2.5 3.0 3.0 3.0 3.0
FAN DRIVE
Pulley Pitch Dia (mm) 152 140 140 140 152 178 163 203 218
Pulley Bore (mm) 25.4 25.4 25.4 25.4 36.5 36.5 36.5 49.2 49.2
Belt No. — Section 1—A 1—A 1—A 1—A 2—A 2—A 2—A 2—B 2—B
Belt Pitch (mm) 947 947 947 922 922 998 871 935 960
FAN SPEEDS (r/s)
Factory Setting 15.4 16.8 16.8 19.4 15.4 15.3 16.7 14.3 13.3
Range 13.5-
17.4 14.7-
19.0 14.7-
19.0 17.3-
20.0* 13.5-
17.4 13.6-
17.0 14.9-
18.6 12.8-
15.7 11.9-
14.6
Max Allowable Speed (r/s) 20.0 20.0 20.0 20.0 20.0 20.0 20.0 18.3 18.3
Change per
1
⁄
2
Turn of
Moveable Motor Pulley
Flange 0.395 0.432 0.432 0.360 0.395 0.283 0.308 0.247 0.230
MAX FULL TURNS FROM
CLOSED POSITION 555656666
SHAFTS CENTER DISTANCE
(mm) 265-313 265-313 265-313 234-279 232-279 232-279 207-255 169-240 169-240
*It is possible to adjust drive so that fan speed exceeds maximum allowable. DO NOT
exceed 20 r/s.
33

Table 10A — Fan Performance Data — 0.0-1.2 in. wg ESP — English
UNIT AIRFLOW
(Cfm)
EXTERNAL STATIC PRESSURE (in. wg)
0.0 0.2 0.4 0.6 0.8 1.0 1.2
Rpm Bhp Rpm Bhp Rpm Bhp Rpm Bhp Rpm Bhp Rpm Bhp Rpm Bhp
40RM
007
1,800 320 0.22 442 0.32 534 0.42 611 0.52 678 0.61 739 0.70 795 0.80
2,100 373 0.31 483 0.42 569 0.53 642 0.63 708 0.73 767 0.82 821 0.92
2,400 427 0.42 526 0.53 606 0.64 676 0.75 739 0.86 796 0.96 849 1.06
2,700 480 0.54 570 0.67 646 0.78 712 0.89 773 1.00 828 1.11 880 1.21
3,000 533 0.69 616 0.82 687 0.94 750 1.05 808 1.16 862 1.28 912 1.39
40RM
40RMQ
40RMS
008
2,250 359 0.32 472 0.44 560 0.55 634 0.65 700 0.75 759 0.86 814 0.96
2,600 415 0.45 516 0.57 599 0.68 669 0.79 732 0.90 790 1.01 843 1.11
3,000 478 0.62 569 0.75 645 0.86 712 0.98 773 1.09 828 1.20 879 1.32
3,400 542 0.82 624 0.95 695 1.08 758 1.20 815 1.31 869 1.43 918 1.55
3,750 598 1.03 673 1.17 740 1.29 800 1.42 855 1.60 906 1.66 954 1.78
40RMS
010
2,550 396 0.42 502 0.54 586 0.65 658 0.76 722 0.87 780 0.97 833 1.08
2,975 462 0.60 556 0.72 634 0.84 701 0.95 762 1.06 818 1.18 870 1.29
3,400 527 0.80 612 0.93 684 1.06 748 1.18 806 1.30 860 1.41 910 1.53
3,825 593 1.05 670 1.18 737 1.31 797 1.44 852 1.56 904 1.68 952 1.80
4,250 659 1.33 729 1.47 791 1.60 848 1.73 901 1.86 950 1.98 997 2.11
40RM
40RMS
012
3,000 444 0.58 541 0.71 621 0.83 691 0.94 753 1.05 809 1.17 862 1.28
3,500 518 0.82 604 0.95 677 1.08 742 1.20 801 1.32 855 1.44 906 1.56
4,000 592 1.11 669 1.25 736 1.38 797 1.51 853 1.63 904 1.75 953 1.88
4,500 666 1.44 735 1.59 797 1.72 854 1.86 907 1.99 956 2.12 1003 2.24
5,000 740 1.83 803 1.98 861 2.12 914 2.26 964 2.39 1010 2.53 1055 2.66
40RMQ
012
3,000 471 0.61 564 0.74 642 0.86 710 0.97 771 1.09 827 1.20 878 1.31
3,500 550 0.87 632 1.00 703 1.13 766 1.25 824 1.37 877 1.49 926 1.60
4,000 628 1.17 701 1.31 766 1.44 825 1.57 879 1.69 930 1.82 978 1.94
4,500 706 1.53 772 1.67 832 1.81 887 1.94 938 2.07 987 2.20 1032 2.33
5,000 785 1.93 845 2.08 900 2.22 952 2.36 1000 2.50 1045 2.63 1089 2.76
40RM
40RMS
014
3,750 363 0.37 475 0.58 566 0.80 645 1.02 715 1.24 779 1.47 839 1.69
4,300 416 0.53 517 0.78 601 1.02 676 1.26 743 1.50 805 1.74 862 1.99
5,000 484 0.81 573 1.08 650 1.35 719 1.62 782 1.89 841 2.16 896 2.44
5,700 552 1.17 631 1.47 702 1.76 766 2.06 826 2.36 881 2.66 934 2.96
6,250 605 1.51 678 1.83 744 2.15 805 2.47 862 2.79 915 3.11 966 3.43
40RM
40RMS
016
4,500 391 0.51 495 0.75 581 1.00 657 1.25 725 1.50 787 1.76 845 2.02
5,300 460 0.80 551 1.08 629 1.35 700 1.63 764 1.91 823 2.20 878 2.48
6,000 521 1.13 602 1.43 675 1.73 741 2.04 801 2.34 858 2.65 911 2.96
6,800 590 1.60 663 1.93 730 2.26 791 2.59 847 2.92 901 3.26 951 3.60
7,500 651 2.10 718 2.45 779 2.81 837 3.16 890 3.52 941 3.88 990 4.24
40RMQ
016
4,500 405 0.54 507 0.79 592 1.03 667 1.28 735 1.54 797 1.80 854 2.06
5,300 476 0.85 566 1.13 643 1.40 713 1.68 776 1.97 835 2.26 890 2.55
6,000 539 1.20 620 1.50 691 1.81 756 2.11 816 2.42 872 2.73 924 3.05
6,800 611 1.69 683 2.03 748 2.36 809 2.69 865 3.03 918 3.37 968 3.71
7,500 674 2.22 740 2.58 800 2.93 857 3.29 910 3.65 960 4.02 1008 4.38
40RM
40RMS
024
6,000 503 1.07 587 1.37 661 1.67 727 1.97 789 2.28 846 2.59 900 2.90
7,000 586 1.64 660 1.98 726 2.31 787 2.65 844 2.99 898 3.33 948 3.67
8,000 670 2.37 735 2.74 795 3.12 851 3.49 904 3.86 954 4.23 1001 4.61
9,000 754 3.28 812 3.69 867 4.09 918 4.50 967 4.90 1014 5.31 1059 5.72
10,000 838 4.39 891 4.83 941 5.27 988 5.70 1034 6.14 1077 6.85 1120 7.02
40RM
40RMS
028
7,500 412 1.15 492 1.53 568 2.00 640 2.56 710 3.22 776 3.98 840 4.83
8,750 481 1.76 550 2.17 616 2.66 680 3.22 742 3.86 802 4.58 860 5.38
10,000 549 2.55 610 2.99 669 3.50 726 4.07 782 4.70 836 5.40 889 6.17
11,250 618 3.52 672 4.00 725 4.53 777 5.12 827 5.76 876 6.45 925 7.21
12,500 687 4.71 735 5.22 783 5.78 830 6.38 876 7.04 922 7.74 966 8.49
40RM
40RMS
034
9,000 471 1.78 539 2.17 604 2.63 667 3.17 728 3.78 788 4.46 845 5.22
10,500 550 2.72 608 3.15 665 3.64 720 4.18 774 4.79 827 5.45 878 6.18
12,000 628 3.93 679 4.40 730 4.92 779 5.48 827 6.09 874 6.76 921 7.47
13,500 707 5.44 752 5.94 797 6.49 841 7.08 885 7.71 928 8.38 970 9.10
15,000 785 7.27 826 7.81 867 8.39 907 9.01 947 9.66 986 10.35 1024 11.07
See Legend and Notes on page 36.
34

Table 10B — Fan Performance Data — 1.4-2.4 in. wg ESP — English
UNIT AIRFLOW
(Cfm)
EXTERNAL STATIC PRESSURE (in. wg)
1.4 1.6 1.8 2.0 2.2 2.4
Rpm Bhp Rpm Bhp Rpm Bhp Rpm Bhp Rpm Bhp Rpm Bhp
40RM
007
1,800 847 0.89 896 0.98 942 1.07 986 1.16 1027 1.25 — —
2,100 872 1.02 920 1.11 965 1.21 1008 1.30 1050 1.40 — —
2,400 899 1.16 946 1.26 990 1.36 1033 1.46 1073 1.55 — —
2,700 928 1.32 974 1.42 1018 1.52 1059 1.63 1099 1.73 — —
3,000 959 1.49 1004 1.60 1046 1.71 1087 1.81 1126 1.92 — —
40RM
40RMQ
40RMS
008
2,250 865 1.06 913 1.16 958 1.27 1001 1.37 1042 1.47 — —
2,600 893 1.22 940 1.33 984 1.43 1027 1.54 1067 1.65 — —
3,000 928 1.43 973 1.54 1017 1.65 1058 1.76 1098 1.87 — —
3,400 965 1.66 1010 1.78 1052 1.89 1092 2.00 1131 2.12 — —
3,750 1000 1.90 1043 2.02 1084 2.13 1124 2.25 1162 2.37 — —
40RMS
010
2,550 884 1.18 931 1.29 975 1.40 1018 1.50 1059 1.61 — —
2,975 919 1.40 965 1.51 1009 1.62 1050 1.73 1090 1.84 — —
3,400 957 1.64 1002 1.76 1044 1.87 1085 1.98 1124 2.10 — —
3,825 998 1.92 1041 2.04 1082 2.16 1122 2.27 1160 2.39 — —
4,250 1041 2.23 1083 2.35 1123 2.48 1161 2.60 1199 2.72 — —
40RM
40RMS
012
3,000 911 1.39 958 1.50 1002 1.61 1044 1.72 1084 1.83 1123 1.94
3,500 953 1.67 998 1.79 1041 1.90 1082 2.02 1122 2.13 1159 2.25
4,000 999 2.00 1042 2.12 1084 2.24 1124 2.36 1162 2.48 1199 2.60
4,500 1047 2.37 1089 2.50 1129 2.62 1168 2.74 — — — —
5,000 1097 2.79 1138 2.92 1177 3.05 — — — — — —
40RMQ
012
3,000 927 1.43 973 1.54 1017 1.65 1058 1.76 1098 1.87 1137 1.98
3,500 973 1.72 1018 1.84 1060 1.95 1101 2.07 1139 2.18 1177 2.30
4,000 1023 2.06 1066 2.19 1107 2.31 1146 2.43 1184 2.55 — —
4,500 1075 2.45 1116 2.58 1156 2.71 1194 2.83 — — — —
5,000 1130 2.90 1170 3.03 — — — — — — — —
40RM
40RMS
014
3,750 894 1.91 947 2.14 996 2.37 1044 2.60 1089 2.83 — —
4,300 916 2.23 967 2.48 1016 2.73 1062 2.98 1107 3.24 — —
5,000 948 2.71 997 2.98 1044 3.26 1089 3.53 1133 3.81 — —
5,700 984 3.25 1031 3.55 1076 3.86 1120 4.16 1162 4.46 — —
6,250 1014 3.75 1060 4.07 1104 4.39 1147 4.71 1188 5.03 — —
40RM
40RMS
016
4,500 899 2.29 951 2.56 999 2.84 1046 3.12 1091 3.41 1133 3.70
5,300 930 2.78 980 3.08 1027 3.38 1072 3.68 1116 3.99 1157 4.30
6,000 961 3.28 1009 3.60 1055 3.92 1098 4.24 1141 4.57 1181 4.91
6,800 999 3.94 1045 4.28 1089 4.63 1132 4.98 1173 5.33 — —
7,500 1036 4.60 1080 4.97 1123 5.34 1164 5.71 — — — —
40RMQ
016
4,500 908 2.33 959 2.61 1008 2.89 1054 3.17 1098 3.46 1141 3.75
5,300 941 2.84 991 3.14 1038 3.45 1082 3.75 1126 4.06 1167 4.38
6,000 974 3.36 1022 3.69 1067 4.01 1111 4.34 1153 4.67 1193 5.00
6,800 1015 4.05 1061 4.40 1104 4.75 1146 5.10 1187 5.46 — —
7,500 1054 4.75 1098 5.12 1140 5.49 1181 5.86 — — — —
40RM
40RMS
024
6,000 950 3.21 999 3.53 1045 3.85 1089 4.17 1131 4.50 1172 4.83
7,000 996 4.02 1042 4.37 1086 4.72 1129 5.07 1169 5.43 — —
8,000 1047 4.99 1091 5.37 1133 5.75 1173 6.13 — — — —
9,000 1102 6.13 1143 6.54 1183 6.96 — — — — — —
10,000 1160 7.46 1200 7.91 — — — — — — — —
40RM
40RMS
028
7,500 903 5.79 963 6.83 1021 7.98 1078 9.21 — — — —
8,750 917 6.26 972 7.22 1025 8.26 1078 9.38 — — — —
10,000 941 7.01 991 7.91 1040 8.89 1089 9.93 — — — —
11,250 972 8.02 1019 8.89 1064 9.83 — — — — — —
12,500 1010 9.29 1053 10.15 1095 11.05 — — — — — —
40RM
40RMS
034
9,000 901 6.07 955 6.98 1008 7.98 1060 9.05 — — — —
10,500 928 6.98 978 7.84 1026 8.76 1073 9.74 — — — —
12,000 966 8.24 1011 9.07 1055 9.95 1098 10.88 — — — —
13,500 1011 9.86 1052 10.67 1092 11.52 — — — — — —
15,000 1062 11.84 — — — — — — — — — —
See Legend and Notes on page 36.
35

Legend and Notes for Table 10A and 10B
LEGEND
Bhp — Brake Horsepower Input to Fan
ESP — External Static Pressure
NOTES:
1. Maximum allowable fan speed is 1100 rpm for unit sizes 028 and
034; 1200 rpm for all other sizes.
2. Fan performance is based on deductions for wet coil, clean 2-in.
filters, and unit casing. See right for factory-supplied filter pres-
sure drop.
3. Refer to fan motor and drive tables for additional data.
Factory-Supplied Filter Pressure Drop — English
UNIT AIRFLOW
(Cfm) PRESSURE DROP
(in. wg)
40RM
007
1,800
2,400
3,000
0.05
0.08
0.11
40RM
40RMQ
40RMS
008
2,250
3,000
3,750
0.07
0.11
0.15
40RMS
010
2,550
3,400
4,250
0.09
0.13
0.18
40RM
40RMQ
40RMS
012
3,000
4,000
5,000
0.11
0.17
0.23
40RM
40RMS
014
3,750
5,000
6,250
0.06
0.10
0.13
40RM
40RMQ
40RMS
016
4,500
6,000
7,500
0.08
0.12
0.17
40RM
40RMS
024
6,000
8,000
10,000
0.12
0.19
0.26
40RM
40RMS
028
7,500
10,000
12,500
0.15
0.22
0.30
40RM
40RMS
034
9,000
12,000
15,000
0.19
0.29
0.40
36

Table 10C — Fan Performance Data — 0-300 Pa ESP — SI
UNIT AIRFLOW
(L/s)
EXTERNAL STATIC PRESSURE (Pa)
0 50 100 150 200 250 300
r/s kW r/s kW r/s kW r/s kW r/s kW r/s kW r/s kW
40RM
007
850 5.34 0.17 7.38 0.25 8.91 0.32 10.20 0.39 11.30 0.46 12.30 0.53 13.30 0.60
1000 6.28 0.24 8.10 0.32 9.53 0.40 10.80 0.48 11.80 0.55 12.80 0.63 13.70 0.70
1150 7.22 0.33 8.86 0.41 10.20 0.50 11.40 0.58 12.40 0.66 13.40 0.73 14.20 0.81
1300 8.17 0.43 9.64 0.52 10.90 0.61 12.00 0.69 13.00 0.77 13.90 0.85 14.80 0.93
1450 9.11 0.55 10.50 0.64 11.60 0.73 12.70 0.82 13.60 0.91 14.50 0.99 15.40 1.07
40RM
40RMQ
40RMS
008
1000 5.63 0.22 7.61 0.30 9.11 0.38 10.40 0.45 11.50 0.53 12.50 0.61 13.40 0.68
1200 6.76 0.32 8.49 0.41 9.88 0.50 11.10 0.57 12.10 0.66 13.10 0.74 14.00 0.82
1400 7.89 0.46 9.42 0.55 10.70 0.64 11.80 0.72 12.80 0.81 13.80 0.89 14.60 0.97
1600 9.01 0.62 10.40 0.71 11.60 0.80 12.60 0.89 13.60 0.98 14.50 1.07 15.30 1.16
1800 10.10 0.80 11.40 0.90 12.50 0.10 13.50 1.09 14.40 1.18 15.20 1.27 16.00 1.36
40RMS
010
1200 6.58 0.31 8.35 0.40 9.76 0.49 11.00 0.57 12.00 0.65 13.00 0.73 13.90 0.81
1400 7.67 0.44 9.25 0.54 10.60 0.63 11.70 0.71 12.70 0.80 13.60 0.88 14.50 0.96
1600 8.77 0.60 10.20 0.70 11.40 0.79 12.50 0.88 13.40 0.97 14.30 1.05 15.20 1.14
1800 9.86 0.78 11.10 0.88 12.30 0.98 13.30 1.07 14.20 1.16 15.10 1.25 15.90 1.34
2000 11.0 0.99 12.10 1.09 13.20 1.19 14.10 1.29 15.00 3.38 15.80 1.48 16.60 1.57
40RM
40RMS
012
1450 7.58 0.46 9.18 0.56 10.50 0.65 11.60 0.73 12.70 0.82 13.60 0.90 14.50 0.99
1670 8.73 0.63 10.20 0.73 11.40 0.83 12.50 0.92 13.40 1.01 14.30 1.10 15.20 1.18
1900 9.93 0.84 11.20 0.95 12.30 1.05 13.30 1.14 14.30 1.24 15.10 1.33 15.90 1.42
2120 11.10 1.08 12.20 1.18 13.30 1.29 14.20 1.39 15.10 1.48 15.90 1.58 16.70 1.68
2350 12.30 1.36 13.30 1.17 14.30 1.57 15.20 1.68 16.00 1.78 16.80 1.88 17.60 1.98
40RMQ
012
1450 8.04 0.49 9.57 0.58 10.90 0.67 12.00 0.76 13.00 0.85 13.90 0.93 14.80 1.02
1670 9.26 0.67 10.60 0.77 11.80 0.86 12.90 0.95 13.80 1.04 14.70 1.13 15.50 1.22
1900 10.50 0.89 11.80 0.99 12.80 1.09 13.80 1.19 14.70 1.28 15.60 1.38 16.40 1.47
2120 11.80 1.14 12.90 1.24 13.90 1.35 14.80 1.45 15.60 1.55 16.40 1.64 17.20 1.74
2350 13.00 1.43 14.00 1.54 15.00 1.65 15.80 1.75 16.60 1.85 17.40 1.95 18.10 2.05
40RM
40RMS
014
1750 5.99 0.27 7.88 0.43 9.41 0.59 10.70 0.75 11.90 0.92 13.00 1.08 14.00 1.25
2050 7.01 0.41 8.68 0.60 10.10 0.78 11.30 0.96 12.40 1.14 13.50 1.33 14.40 1.51
2350 8.04 0.60 9.53 0.81 10.80 1.01 12.00 1.21 13.00 1.41 14.00 1.61 14.90 1.82
2650 9.07 0.84 10.40 1.06 11.60 1.28 12.70 1.50 13.70 1.72 14.60 1.94 15.50 2.16
2950 10.10 1.13 11.30 1.37 12.40 1.61 13.40 1.85 14.40 2.08 15.30 2.32 16.10 2.56
40RM
40RMS
016
2100 6.43 0.37 8.19 0.55 9.65 0.73 10.90 0.92 12.10 1.11 13.10 1.30 14.10 1.50
2450 7.51 0.57 9.06 0.77 10.40 0.97 11.60 1.18 12.70 1.39 13.70 1.60 14.60 1.81
2800 8.58 0.82 9.96 1.05 11.20 1.27 12.30 1.49 13.30 1.72 14.30 1.95 15.10 2.18
3150 9.65 1.14 10.90 1.38 12.00 1.63 13.10 1.87 14.00 2.12 14.90 2.36 15.80 2.61
3500 10.70 1.52 11.90 1.78 12.90 2.05 13.90 2.31 14.80 2.58 15.60 2.84 16.40 3.11
40RMQ
016
2100 6.65 0.39 8.39 0.58 9.83 0.76 11.10 0.95 12.20 1.13 13.30 1.31 14.20 1.50
2450 7.76 0.60 9.30 0.81 10.60 1.01 11.80 1.22 12.90 1.43 13.80 1.63 14.80 1.84
2800 8.87 0.86 10.20 1.09 11.50 1.32 12.50 1.55 13.60 1.78 14.50 2.01 15.40 2.24
3150 9.98 1.19 11.20 1.44 12.30 1.70 13.40 1.95 14.30 2.20 15.20 2.45 16.00 2.70
3500 11.10 1.59 12.20 1.86 13.20 2.14 14.20 2.41 15.10 2.68 15.90 2.95 16.70 3.22
40RM
40RMS
024
2900 8.58 0.86 9.96 1.09 11.20 1.32 12.30 1.55 13.30 1.78 14.20 2.01 15.10 2.25
3350 9.91 1.28 11.10 1.53 12.20 1.79 13.20 2.04 14.20 2.30 15.10 2.55 15.90 2.81
3800 11.30 1.81 12.30 2.09 13.30 2.37 14.30 2.64 15.10 2.93 16.00 3.21 16.80 3.49
4250 12.60 2.46 13.60 2.76 14.50 3.07 15.30 3.37 16.10 3.67 16.90 3.98 17.70 4.28
4700 13.90 3.24 14.80 3.57 15.60 3.90 16.40 4.22 17.20 4.55 17.90 4.88 18.60 5.21
40RM
40RMS
028
3500 6.79 0.84 8.14 1.12 9.42 1.47 10.70 1.89 11.80 2.39 12.90 2.96 14.00 3.61
4100 7.95 1.29 9.12 1.60 10.20 1.96 11.30 2.38 12.40 2.86 13.40 3.40 14.30 4.00
4700 9.12 1.88 10.10 2.21 11.10 2.59 12.10 3.02 13.00 3.49 13.90 4.02 14.80 4.60
5300 10.30 2.62 11.20 3.00 12.10 3.37 12.90 3.81 13.80 4.29 14.60 4.82 15.40 5.38
5900 11.40 3.52 12.30 3.90 13.10 4.32 13.90 4.77 14.60 5.26 15.40 5.79 16.10 6.35
40RM
40RMS
034
4250 7.86 1.33 8.99 1.63 10.10 1.97 11.10 2.37 12.20 2.83 13.20 3.34 14.10 3.92
4950 9.15 2.03 10.10 2.35 11.10 2.72 12.00 3.12 12.90 3.58 13.80 4.08 14.70 4.62
5650 10.40 2.92 11.30 3.27 12.20 3.66 13.00 4.08 13.80 4.54 14.60 5.04 15.40 5.57
6350 11.70 4.02 12.50 4.40 13.30 4.81 14.00 5.25 14.70 5.72 15.50 6.23 16.20 6.77
7050 13.00 5.37 13.70 5.77 14.40 6.21 15.10 6.66 15.70 7.15 16.40 7.67 17.10 8.21
See Legend and Notes on page 39.
37

Table 10D — Fan Performance Data — 350-600 Pa ESP — SI
UNIT AIRFLOW
(L/s)
EXTERNAL STATIC PRESSURE (Pa)
350 400 450 500 550 600
r/s kW r/s kW r/s kW r/s kW r/s kW r/s kW
40RM
007
850 14.10 0.67 15.00 0.74 15.70 0.81 16.50 0.87 17.20 0.94 — —
1000 14.60 0.77 15.40 0.84 16.10 0.91 16.90 0.98 17.60 1.06 — —
1150 15.10 0.88 15.90 0.96 16.60 1.03 17.30 1.11 18.00 1.18 — —
1300 15.60 1.01 16.40 1.09 17.10 1.17 17.80 1.25 18.40 1.32 — —
1450 16.10 1.15 16.90 1.24 17.60 1.32 18.30 1.40 18.90 1.48 — —
40RM
40RMQ
40RMS
008
1000 14.30 0.76 15.10 0.83 15.80 0.91 16.60 0.99 17.30 1.06 — —
1200 14.80 0.90 15.60 0.98 16.40 1.05 17.10 1.13 17.80 1.21 — —
1400 15.40 1.06 16.20 1.14 16.90 1.22 17.60 1.30 18.30 1.39 — —
1600 16.10 1.24 16.80 1.33 17.50 1.41 18.20 1.50 18.90 1.58 — —
1800 16.80 1.45 17.50 1.54 18.20 1.63 18.90 1.72 19.50 1.80 — —
40RMS
010
1200 14.70 0.89 15.50 0.97 16.30 1.05 17.00 1.12 17.70 1.20 — —
1400 15.30 1.05 16.10 1.13 16.80 1.21 17.50 1.29 18.20 1.37 — —
1600 16.00 1.23 16.70 1.31 17.40 1.40 18.10 1.48 18.80 1.57 — —
1800 16.60 1.43 17.40 1.52 18.10 1.61 18.70 1.70 19.40 1.79 — —
2000 17.30 1.66 18.00 1.76 18.70 1.85 19.40 1.94 — — — —
40RM
40RMS
012
1450 15.30 1.07 16.10 1.15 16.80 1.24 17.50 1.32 18.20 1.40 18.80 1.48
1670 16.00 1.27 16.70 1.36 17.40 1.44 18.10 1.53 18.80 1.62 19.40 1.70
1900 16.70 1.51 17.40 1.60 18.10 1.69 18.80 1.78 19.40 1.87 — —
2120 17.50 1.77 18.20 1.86 18.80 1.96 19.50 2.05 — — — —
2350 18.30 2.07 19.00 2.17 19.60 2.27 — — — — — —
40RMQ
012
1450 15.60 1.10 16.30 1.18 17.10 1.27 17.80 1.35 18.40 1.43 19.10 1.52
1670 16.30 1.31 17.00 1.40 17.80 1.48 18.40 1.57 19.10 1.66 19.70 1.74
1900 17.10 1.56 17.80 1.65 18.50 1.74 19.20 1.83 19.80 1.92 — —
2120 17.90 1.83 18.60 1.93 19.30 2.02 19.90 2.11 — — — —
2350 18.80 2.15 19.50 2.25 — — — — — — — —
40RM
40RMS
014
1750 14.90 1.42 15.80 1.58 16.60 1.75 17.40 1.93 18.20 2.10 — —
2050 15.30 1.70 16.20 1.88 17.00 2.07 17.80 2.26 18.50 2.45 — —
2350 15.80 2.02 16.60 2.22 17.40 2.43 18.20 2.64 18.90 2.84 — —
2650 16.30 2.39 17.10 2.61 17.90 2.83 18.60 3.06 19.30 3.28 — —
2950 16.90 2.80 17.70 3.04 18.40 3.28 19.10 3.53 19.80 3.77 — —
40RM
40RMS
016
2100 15.00 1.70 15.80 1.90 16.70 2.11 17.40 2.32 18.20 2.53 18.90 2.74
2450 15.50 2.03 16.30 2.25 17.10 2.47 17.80 2.70 18.60 2.93 19.30 3.16
2800 16.00 2.42 16.80 2.66 17.60 2.90 18.30 3.14 19.00 3.38 19.70 3.63
3150 16.60 2.87 17.40 3.12 18.10 3.38 18.80 3.64 19.50 3.90 — —
3500 17.20 3.38 18.00 3.65 18.70 3.93 19.40 4.20 — — — —
40RMQ
016
2100 15.10 1.68 16.00 1.87 16.80 2.06 17.50 2.24 18.30 2.43 19.00 2.62
2450 15.60 2.05 16.40 2.25 17.20 2.46 18.00 2.67 18.70 2.88 19.40 3.09
2800 16.20 2.47 17.00 2.69 17.80 2.92 18.50 3.15 19.20 3.38 19.80 3.61
3150 16.80 2.95 17.60 3.19 18.30 3.44 19.00 3.69 19.70 3.94 — —
3500 17.50 3.49 18.20 3.76 19.00 4.03 19.60 4.30 — — — —
40RM
40RMS
024
2900 16.00 2.49 16.80 2.73 17.50 2.97 18.30 3.22 19.00 3.47 19.70 3.72
3350 16.70 3.08 17.50 3.34 18.20 3.61 18.90 3.87 19.60 4.14 — —
3800 17.50 3.77 18.20 4.06 18.90 4.35 19.60 4.64 — — — —
4250 18.40 4.59 19.10 4.90 19.80 5.21 — — — — — —
4700 19.30 5.54 20.00 5.87 — — — — — — — —
40RM
40RMS
028
3500 15.10 4.33 16.10 5.12 17.10 5.98 18.00 6.92 — — — —
4100 15.30 4.67 16.20 5.39 17.10 6.18 18.00 7.02 — — — —
4700 15.70 5.23 16.50 5.91 17.40 6.64 18.20 7.43 — — — —
5300 16.20 5.99 17.00 6.65 17.80 7.35 — — — — — —
5900 16.90 6.95 17.60 7.59 18.30 8.27 — — — — — —
40RM
40RMS
034
4250 15.00 4.55 16.00 5.24 16.80 5.99 17.70 6.79 — — — —
4950 15.50 5.22 16.30 5.86 17.10 6.56 17.90 7.30 — — — —
5650 16.10 6.16 16.90 6.77 17.60 7.43 18.30 8.13 — — — —
6350 16.90 7.34 17.50 7.94 18.20 8.58 — — — — — —
7050 17.70 8.79 18.30 9.39 — — — — — — — —
See Legend and Notes on page 39.
38

Legend and Notes for Tables 10C and 10D
LEGEND
ESP — External Static Pressure
NOTES:
1. Maximum allowable fan speed is 18.3 r/s for unit sizes 028 and
034; 20 r/s for all other sizes.
2. Fan performance is based on deductions for wet coil, clean 51-mm
filters, and unit casing. See right for factory-supplied filter pres-
sure drop.
3. Refer to fan motor and drive tables for additional data.
Factory-Supplied Filter Pressure Drop — SI
UNIT AIRFLOW
(L/s) PRESSURE DROP
(Pa)
40RM
007
850
1150
1450
13
20
28
40RM
40RMQ
40RMS
008
1000
1400
1800
17
27
38
40RMS
010
1200
1600
2000
21
32
45
40RM
40RMQ
40RMS
012
1450
1900
2350
28
42
56
40RM
40RMS
014
1750
2350
2950
15
24
33
40RM
40RMQ
40RMS
016
2100
2800
3500
20
30
42
40RM
40RMS
024
2900
3800
4700
32
47
64
40RM
40RMS
028
3500
4700
5900
36
55
76
40RM
40RMS
034
4250
5650
7050
47
71
98
Replacing Filters — Filters can be removed and in-
stalled from either side of the unit. Install new filters in units
that have one fan as follows:
1. Remove the side access panel (retain screws).
2. Remove the filter retainer clip.
3. Remove old filters by tilting them and lifting them out of
the filter track. See Fig. 12 and 22.
4. Reverse the procedure to install new filters.
To install new filters in larger units that have 2 fans, fol-
low the preceding steps, but use the factory-supplied
filter hook to slide filters within reach for removal. The
filter hook is shipped inside the unit in the baserail.
Do not operate unit without air filters.
Fig. 22 — Filter Removal/Replacement
39

Copyright 1995 Carrier Corporation
Manufacturer reserves the right to discontinue, or change at any time, specifications or designs without notice and without incurring obligations.
Book 1 4
Tab 3c 2e
PC 111 Catalog No. 534-053 Printed in U.S.A. Form 40RM-9SI Pg 42 596 11-95 Replaces: 40RM-1SI

START-UP CHECKLIST
(SPLIT SYSTEMS WITH 40RM/RMQ/RMS UNITS)
A. Preliminary Information
OUTDOOR: MODEL NO. SERIAL NO.
INDOOR: MODEL NO. SERIAL NO.
ADDITIONAL ACCESSORIES
B. Pre-Start-Up
OUTDOOR UNIT
IS THERE ANY SHIPPING DAMAGE? (Y/N)
IF SO, WHERE:
WILL THIS DAMAGE PREVENT UNIT START-UP? (Y/N)
CHECK POWER SUPPLY. DOES IT AGREE WITH UNIT? (Y/N)
HAS THE GROUND WIRE BEEN CONNECTED? (Y/N)
HAS THE CIRCUIT PROTECTION BEEN SIZED AND INSTALLED PROPERLY? (Y/N)
ARE THE POWER WIRES TO THE UNIT SIZED AND INSTALLED PROPERLY? (Y/N)
HAVE COMPRESSOR HOLDDOWN BOLTS BEEN LOOSENED? (Y/N)
CONTROLS
ARE THERMOSTAT(S) AND INDOOR FAN CONTROL WIRING
CONNECTIONS MADE AND CHECKED? (Y/N)
ARE ALL WIRING TERMINALS (including main power supply) TIGHT? (Y/N)
HAVE OUTDOOR UNIT CRANKCASE HEATERS BEEN ENERGIZED FOR 24 HOURS? (Y/N)
INDOOR UNIT
HAS WATER BEEN PLACED IN DRAIN PAN TO CONFIRM PROPER DRAINAGE? (Y/N)
ARE PROPER AIR FILTERS IN PLACE? (Y/N)
HAVE FAN AND MOTOR PULLEYS BEEN CHECKED FOR PROPER ALIGNMENT? (Y/N)
DO THE FAN BELTS HAVE PROPER TENSION? (Y/N)
PIPING
40RM,RMQ
ARE LIQUID LINE SOLENOID VALVES LOCATED AT THE INDOOR UNIT COILS AS REQUIRED? (Y/N)
HAVE LEAK CHECKS BEEN MADE AT COMPRESSORS, CONDENSERS, INDOOR COILS,
TXVs (Thermostatic Expansion Valves) SOLENOID VALVES, FILTER DRIERS, AND FUSIBLE PLUGS
WITH A LEAK DETECTOR? (Y/N)
LOCATE, REPAIR, AND REPORT ANY LEAKS.
HAVE ALL COMPRESSOR SERVICE VALVES BEEN FULLY OPENED (BACKSEATED)? (Y/N)
ARE THE COMPRESSOR OIL SIGHT GLASSES SHOWING CORRECT LEVELS? (Y/N)
40RMS
HAS AIR BEEN BLED FROM SYSTEM? (Y/N)
HAVE LEAK CHECKS BEEN MADE AT COMPRESSORS, CHILLERS, VALVES, AND INDOOR COILS? (Y/N)
LOCATE, REPAIR, AND REPORT ANY LEAKS.
CUT ALONG DOTTED LINE CUT ALONG DOTTED LINE
----------------------------------------------------------------------------------------
Manufacturer reserves the right to discontinue, or change at any time, specifications or designs without notice and without incurring obligations.
Book 1 4
Tab 3c 2e
PC 111 Catalog No. 534-053 Printed in U.S.A. Form 40RM-9SI CL-1 11-95 Replaces: 40RM-1SI

CHECK VOLTAGE IMBALANCE
LINE-TO-LINE VOLTS: AB VAC VBC V
(AB + AC + BC)/3 = AVERAGE VOLTAGE = V
MAXIMUM DEVIATION FROM AVERAGE VOLTAGE = V
VOLTAGE IMBALANCE = 100 X (MAX DEVIATION)/(AVERAGE VOLTAGE) = %
IF OVER 2% VOLTAGE IMBALANCE, DO NOT ATTEMPT TO START SYSTEM!
CALL LOCAL POWER COMPANY FOR ASSISTANCE.
C. Start-Up
CHECK EVAPORATOR FAN SPEED AND RECORD.
AFTER AT LEAST 10 MINUTES RUNNING TIME, RECORD THE FOLLOWING MEASUREMENTS:
COMP A1 COMP B1
OIL PRESSURE
SUCTION PRESSURE
SUCTION LINE TEMP
DISCHARGE PRESSURE
DISCHARGE LINE TEMP
ENTERING OUTDOOR UNIT AIR TEMP
LEAVING OUTDOOR UNIT AIR TEMP
INDOOR UNIT ENTERING AIR DB TEMP
INDOOR UNIT ENTERING AIR WB TEMP
INDOOR UNIT LEAVING AIR DB TEMP
INDOOR UNIT LEAVING AIR WB TEMP
OUTDOOR UNIT ENTERING WATER TEMP
(40RMS ONLY)
OUTDOOR UNIT LEAVING WATER TEMP
(40RMS ONLY)
INDOOR UNIT ENTERING WATER TEMP
(40RMS ONLY)
INDOOR UNIT LEAVING WATER TEMP
(40RMS ONLY)
COMPRESSOR AMPS (L1/L2/L3) / / / /
CHECK THE COMPRESSOR OIL LEVEL SIGHT GLASSES; ARE THE SIGHT GLASSES SHOWING
OIL LEVEL AT
1
⁄
8
TO
1
⁄
3
FULL? (Y/N)
NOTES:
Copyright 1995 Carrier Corporation
Manufacturer reserves the right to discontinue, or change at any time, specifications or designs without notice and without incurring obligations.
Book 1 4
Tab 3c 2e
PC 111 Catalog No. 534-053 Printed in U.S.A. Form 40RM-9SI CL-2 596 11-95 Replaces: 40RM-1SI