Carrier 48Ak Users Manual 48ae 1si Rep107
48AW to the manual a4597ee2-c071-4b75-b03a-64fa28e7cae6
2015-01-24
: Carrier Carrier-48Ak-Users-Manual-310544 carrier-48ak-users-manual-310544 carrier pdf
Open the PDF directly: View PDF
.
Page Count: 118 [warning: Documents this large are best viewed by clicking the View PDF Link!]

Manufacturer reserves the right to discontinue, or change at any time, specifications or designs without notice and without incurring obligations.
PC 111 Catalog No. 534-739 Printed in U.S.A. Form 48A,E-1SI Pg 1 107 11-01 Replaces: 48E-6SI
Book 1
Ta b 1 a
Installation, Start-Up and
Service Instructions
CONTENTS
Page
SAFETY CONSIDERATIONS . . . . . . . . . . . . . . . . . . . . . . 1
INSTALLATION . . . . . . . . . . . . . . . . . . . . . . . . . . . . . . . . 1-58
Step 1 — Provide Unit Support . . . . . . . . . . . . . . . . . . . 1
• ROOF CURB
• ALTERNATE UNIT SUPPORT
Step 2 — Rig and Place Unit . . . . . . . . . . . . . . . . . . . . . 2
• POSITIONING
• ROOF MOUNT
Step 3 — Field Fabricate Ductwork. . . . . . . . . . . . . . . 2
Step 4 — Make Unit Duct Connections . . . . . . . . . . . 2
Step 5 — Install Flue Hood . . . . . . . . . . . . . . . . . . . . . . 28
Step 6 — Trap Condensate Drain . . . . . . . . . . . . . . . . 28
Step 7 — Install Gas Piping . . . . . . . . . . . . . . . . . . . . . 28
Step 8 — Controls Options . . . . . . . . . . . . . . . . . . . . . . 29
• STAGED GAS UNIT APPLICATIONS
• THERMISTORS
• CONSTANT VOLUME APPLICATIONS
• VARIABLE AIR VOLUME (VAV) APPLICATIONS
Step 9 — Make Electrical Connections . . . . . . . . . . 33
•POWER WIRING
• FIELD POWER SUPPLY
• FIELD CONTROL WIRING
Step 10 — Make Outdoor-Air Inlet
Adjustments . . . . . . . . . . . . . . . . . . . . . . . . . . . . . . . . . . 48
• ECONOMIZER
• ECONOMIZER SETTINGS
Step 11 — Position Power Exhaust/Barometric
Relief Damper Hood. . . . . . . . . . . . . . . . . . . . . . . . . . . 52
Step 12 — Install All Accessories . . . . . . . . . . . . . . . 54
Step 13 — Field Modifications. . . . . . . . . . . . . . . . . . . 57
START-UP . . . . . . . . . . . . . . . . . . . . . . . . . . . . . . . . . . . . 58-89
SERVICE . . . . . . . . . . . . . . . . . . . . . . . . . . . . . . . . . . . . 89-102
TROUBLESHOOTING. . . . . . . . . . . . . . . . . . . . . . . 103-115
START-UP CHECKLIST . . . . . . . . . . . . . . . . . . . CL-1,CL-2
SAFETY CONSIDERATIONS
Installation and servicing of air-conditioning equipment can
be hazardous due to system pressure and electrical compo-
nents. Only trained and qualified service personnel should in-
stall, repair, or service air-conditioning equipment.
Untrained personnel can perform the basic maintenance
functions of cleaning coils and filters and replacing filters. All
other operations should be performed by trained service per-
sonnel. When working on air-conditioning equipment, observe
precautions in the literature, tags and labels attached to the unit,
and other safety precautions that may apply.
Follow all safety codes. Wear safety glasses and work
gloves. Use quenching cloth for unbrazing operations. Have
fire extinguishers available for all brazing operations.
INSTALLATION
Step 1 — Provide Unit Support
Before performing service or maintenance operations on
unit, turn off main power switch to unit. Electrical shock
could cause personal injury.
1. Improper installation, adjustment, alteration, service,
or maintenance can cause property damage, personal
injury, or loss of life. Refer to the User’s Information
Manual provided with this unit for more details.
2. Do not store or use gasoline or other flammable va-
pors and liquids in the vicinity of this or any other
appliance.
What to do if you smell gas:
1. DO NOT try to light any appliance.
2. DO NOT touch any electrical switch, or use any
phone in your building.
3. IMMEDIATELY call your gas supplier from a neigh-
bor’s phone. Follow the gas supplier’s instructions.
4. If you cannot reach your gas supplier, call the fire
department.
Disconnect gas piping from unit when pressure testing at
pressure greater than 0.5 psig. Pressures greater than
0.5 psig will cause gas valve damage resulting in hazardous
condition. If gas valve is subjected to pressure greater than
0.5 psig, it must be replaced before use. When pressure
testing field-supplied gas piping at pressures of 0.5 psig or
less, a unit connected to such piping must be isolated by
closing the manual gas valve(s).
1. All panels must be in place when rigging.
2. Unit is not designed for handling by fork truck.
48AJ,AK,AW,AY020-060
with Reciprocating Compressor
48EJ,EK,EW,EY024-068
Single Package Rooftop Units
Electric Cooling/Gas Heating

2
ROOF CURB — For vertical discharge units, assemble or in-
stall accessory roof curb in accordance with instructions
shipped with this accessory. See Fig. 1-4. Install insulation,
cant strips, roofing, and counter flashing as shown. Ductwork
can be installed to roof curb before unit is set in place. Curb
should be level. This is necessary to permit unit drain to func-
tion properly. Unit leveling tolerance is shown in Fig. 1-3.
Refer to Accessory Roof Curb Installation Instructions for
additional information as required. When accessory roof curb
is used, unit may be installed on class A, B, or C roof covering
material.
ALTERNATE UNIT SUPPORT — When the preferred curb
or slab mount cannot be used, support unit with sleepers on pe-
rimeter, using unit curb support area. If sleepers cannot be
used, support long sides of unit (refer to Fig. 5-16) with a mini-
mum number of 4-in. x 4-in. pads spaced as follows:
48AJ,AK,AW,AY020-030 and 48EJ,EK,EW,EY024-034 units
require 3 pads on each side; 48AJ,AK,AW,AY035-050 and
48EJ,EK,EW,EY038-048 units require 4 pads on each side;
48AJ,AK,AW,AY060 and 48EJ,EK,EW,EY054-068 units re-
quire 6 pads on each side. Unit may sag if supported by corners
only.
Step 2 — Rig and Place Unit — Inspect unit for
transportation damage. See Tables 1A and 1B for physical data.
File any claim with transportation agency.
Do not drop unit; keep upright. Use spreader bars over unit
to prevent sling or cable damage. Level by using unit frame as
a reference; leveling tolerance is shown in Fig. 1-3. See Fig. 17
for additional information. Unit operating weight is shown in
Table 2.
NOTE: On retrofit jobs, ductwork may be attached to old unit
instead of roof curb. Be careful not to damage ductwork when
removing old unit. Attach existing ductwork to roof curb
instead of unit.
Four lifting lugs are provided on the unit base rails as shown
in Fig. 5-16. Refer to rigging instructions on unit.
POSITIONING — Maintain clearance, per Fig. 5-16, around
and above unit to provide minimum distance from combustible
materials, proper airflow, and service access.
Do not install unit in an indoor location. Do not locate unit
air inlets near exhaust vents or other sources of contaminated
air. For proper unit operation, adequate combustion and venti-
lation air must be provided in accordance with Section 5.3 (Air
for Combustion and Ventilation) of the National Fuel Gas
Code, ANSI Z223.1 (American National Standards Institute).
Although unit is weatherproof, guard against water from
higher level runoff and overhangs.
Locate mechanical draft system flue assembly at least 4 ft
from any opening through which combustion products could
enter the building, and at least 4 ft from any adjacent building.
When unit is located adjacent to public walkways, flue assem-
bly must be at least 7 ft above grade.
ROOF MOUNT — Check building codes for weight distribu-
tion requirements. See Fig. 17. Unit operating weight is shown
in Table 2.
Step 3 — Field Fabricate Ductwork — Secure all
ducts to building structure. Use flexible duct connectors be-
tween unit and ducts as required. Insulate and weatherproof all
external ductwork, joints, and roof openings with counter
flashing and mastic in accordance with applicable codes.
NOTE: Due to width of the horizontal supply/return ductwork,
provisions should be made for servicing of the outdoor air fil-
ters (i.e., catwalk over ductwork).
Ducts passing through an unconditioned space must be in-
sulated and covered with a vapor barrier. Outlet grilles must not
lie directly below unit discharge. The return duct must have a
90-degree elbow before opening into the building space if the
unit is equipped with power exhaust.
To attach ductwork to roof curb, insert duct approximately
10 to 11 in. up into roof curb. Connect ductwork to 14-gage
roof curb material with sheet metal screws driven from inside
the duct.
Step 4 — Make Unit Duct Connections
48AJ,AK,EJ,EK UNITS — Unit is shipped for through-the-
bottom duct connections. Field-fabricated ductwork should be
attached to the roof curb. Supply and return duct dimensions
are shown in Fig. 5-7 and 11-13. Air distribution is shown in
Fig. 18 and 19. Refer to installation instructions shipped with
roof curb for more information.
48AW,AY,EW,EY UNITS — Remove shipping covers from
supply and return air openings. Attach field-supplied ductwork
to unit. Connect to the unit with a single duct for all supply
openings and with a single duct for all return openings. Split-
ting of the airflow into branch ducts should not be done at the
unit. Sufficient duct length should be used prior to branching to
ensure the air temperatures are well mixed within the duct-
work. See Fig. 8-10 and 14-16 for duct opening dimensions.
Secure all ducts to building structure. Air distribution is shown
in Fig. 8-10 and 14-16.
Install accessory barometric relief or power exhaust in the
field-fabricated return ductwork. Refer to Step 11 — Position
Power Exhaust/Barometric Relief Damper Hood section on
page 52 for more information.
Instructions continued on page 28.
IMPORTANT: The gasketing of the unit to the roof curb is
critical for a watertight seal. Install gasket with the roof
curb as shown in Fig. 1-3. Improperly applied gasket can
also result in air leaks and poor unit performance.
For vertical supply and return units, tools or parts could
drop into ductwork and cause an injury. Install a 90-degree
elbow turn in the supply and return ductwork between the
unit and the conditioned space. If a 90-degree elbow cannot
be installed, then a grille of sufficient strength and density
should be installed to prevent objects from falling into the
conditioned space.

3
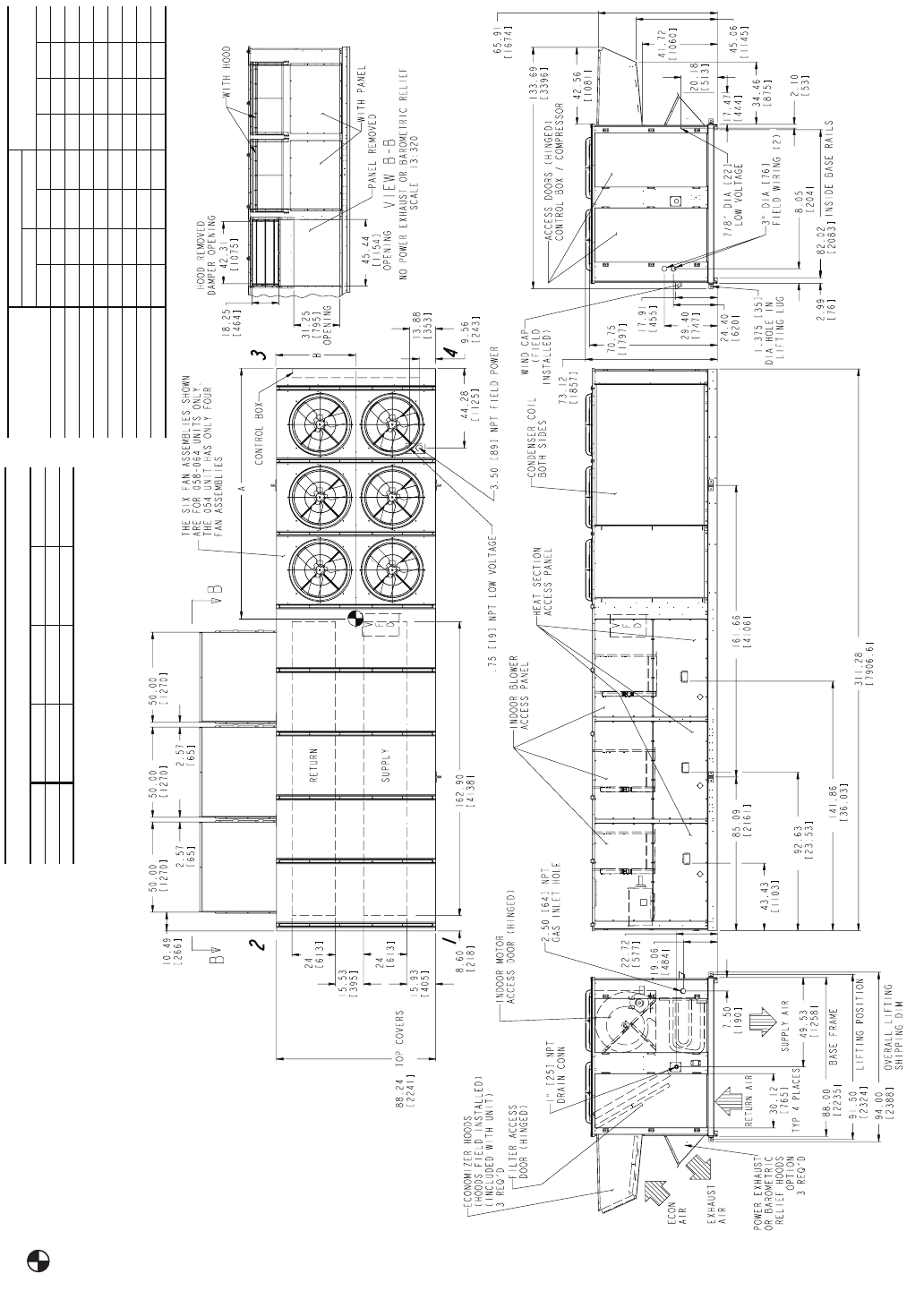
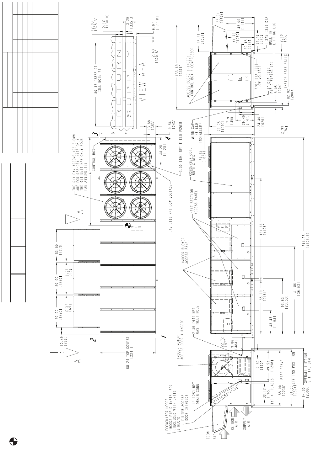
Fig. 1 — Roof Curb — 48AJ,AK020-030 and 48EJ,EK024-034 Units

4
Fig. 2 — Roof Curb — 48AJ,AK034-050 and 48EJ,EK038-048 Units

5
Fig. 3 — Roof Curb — 48AJ,AK060 and 48EJ,EK054-068 Units

6
Fig. 4 — Roof Curb Adapter — (48AJ,AK060 and 48EJ,EK054-068 Units on 48DD,DF054-064 Retrofit, Part No. CRRCADPT005A00)
NOTES:
1. Unless otherwise specified, all dimensions are to outside of part.
2. Seal strip to be placed covering reference holes.
3. Phantom lines represent seal strip. Total length required is 75 linear ft.
4. If existing seal strip around roof curb seems damaged, replace it. Total
length required is 62 linear ft.
5. Five crossrails are field located per dimensions shown and secured using
self-tapping screws.
6. 48A and 48E series units will overhang existing “DD” or “DF” roof curbs by
2.98″ at indoor motor end and 15.08″ at compressor end.
7. Ductwork (field supplied) must be notched to clear three crossrails.
8. Dimensions in [ ] are millimeters.

7
Fig. 5 — Base Unit Dimensions — 48AJ,AK020-030
NOTES:
1. Weights include economizer (standard).
2. Center of Gravity.
3. Do not locate adjacent units with flue discharge facing economizer
inlet.
Min Clearances to be:
Adjacent Units: 15′-0″ [4572].
Top of Units: No Overhang.
Condenser Coil: 4′-0″ [1219].
Economizer Side: 6′-0″ [1829].
Heat Side: 4′-0″ [1219].
Filter Access Side: 10′-0″ [3048]. (For removal of evaporator coil.)
4. For smaller service and operational clearances contact Carrier Appli-
cation Engineering Department.
5. Bottom ducts designed to be attached to accessory roof curb. If unit is
mounted on dunnage, it is recommended the ducts must be sup-
ported by cross braces as done on accessory roof curb.
6. Dimensions are in inches [mm].
UNIT SIZE
OPERATING
WEIGHT*
(lbs)
A
(ft-in.)
B
(ft-in.)
CORNER WEIGHT (lbs)
1234
48AJ/AK (Low Heat) 020 5142 6- 03/83-63/16 1082 1174 1502 1384
48AJ (High Heat) 020 5222 6- 15/16 3-611/16 1126 1194 1494 1408
48AJ/AK (Low Heat) 025 5228 5- 95/83-8 1103 1103 1511 1511
48AJ (High Heat) 025 5308 5-103/32 3-85/16 1135 1120 1516 1537
48AJ/AK (Low Heat) 027 5325 5- 95/83-8 1123 1123 1539 1539
48AJ (High Heat) 027 5405 5-103/32 3-85/16 1156 1140 1544 1565
48AJ/AK (Low Heat) 030 5325 5- 95/83-8 1123 1123 1539 1539
48AJ (High Heat) 030 5405 5-103/32 3-85/16 1156 1140 1544 1565
UNIT SIZE
OPERATING
WEIGHT*
(kg)
A (mm) B (mm) CORNER WEIGHT (kg)
1234
48AJ/AK (Low Heat) 020 2332 1839 1072 491 533 681 628
48AJ (High Heat) 020 2369 1862 1085 511 542 678 639
48AJ/AK (Low Heat) 025 2371 1768 1118 500 500 686 686
48AJ (High Heat) 025 2408 1781 1125 515 508 688 697
48AJ/AK (Low Heat) 027 2415 1768 1118 509 509 698 698
48AJ (High Heat) 027 2452 1781 1125 524 517 700 710
48AJ/AK (Low Heat) 030 2415 1768 1118 509 509 698 698
48AJ (High Heat) 030 2452 1781 1125 524 517 700 710

8
Fig. 6 — Base Unit Dimensions — 48AJ,AK035-050
NOTES:
1. Weights include economizer (standard).
2. Center of Gravity.
3. Do not locate adjacent units with flue discharge facing economizer
inlet.
Min Clearances to be:
Adjacent Units: 15′-0″ [4572].
Top of Units: No Overhang.
Condenser Coil: 4′-0″ [1219].
Economizer Side: 6′-0″ [1829].
Heat Side: 4′-0″ [1219].
Filter Access Side: 10′-0″ [3048]. (For removal of evaporator coil.)
4. For smaller service and operational clearances contact Carrier Appli-
cation Engineering Department.
5. Bottom ducts designed to be attached to accessory roof curb. If unit is
mounted on dunnage, it is recommended the ducts must be supported
by cross braces as done on accessory roof curb.
6. Dimensions are in inches [mm].
UNIT SIZE
OPERATING
WEIGHT*
(lbs)
A
(ft-in.)
B
(ft-in.)
CORNER WEIGHT (lbs)
1234
48AJ/AK (Low Heat) 035 6004 7-811/16 3-107/81380 1209 1595 1820
48AJ (High Heat) 035 6164 7-101/83-113/16 1447 1251 1607 1859
48AJ/AK (Low Heat) 040 6514 7-55/16 3-107/81442 1264 1779 2030
48AJ (High Heat) 040 6674 7-613/16 3-113/16 1512 1307 1787 2068
48AJ/AK (Low Heat) 050 6725 7-311/16 3-101/21449 1294 1878 2104
48AJ (High Heat) 050 6885 7-53/16 3-1013/16 1519 1337 1886 2142
UNIT SIZE
OPERATING
WEIGHT*
(kg)
A (mm) B (mm) CORNER WEIGHT (kg)
123 4
48AJ/AK (Low Heat) 035 2723 2355 1191 626 548 723 826
48AJ (High Heat) 035 2796 2390 1199 656 567 729 843
48AJ/AK (Low Heat) 040 2955 2268 1191 654 573 807 921
48AJ (High Heat) 040 3027 2306 1199 686 593 811 938
48AJ/AK (Low Heat) 050 3050 2228 1181 657 587 852 954
48AJ (High Heat) 050 3123 2266 1189 689 607 856 972

9
Fig. 7 — Base Unit Dimensions — 48AJ,AK060
NOTES:
1. Weights include economizer (standard).
2. Center of Gravity.
3. Do not locate adjacent units with flue dis-
charge facing economizer inlet.
Min Clearances to be:
Adjacent Units: 15′-0″ [4572].
Top of Units: No Overhang.
Condenser Coil: 4′-0″ [1219].
Economizer Side: 6′-0″ [1829].
Heat Side: 4′-0″ [1219].
Filter Access Side: 15′-0″ [4572]. (For
removal of evaporator coil.)
4. For smaller service and operational clear-
ances contact Carrier Application Engineer-
ing Department.
BASE UNIT WEIGHTS
(See Note 6) lbs (kg)
060
48AJD/AKD 8930 (4051)
48AJE 9170 (4159)
UNIT SIZE
CENTER OF GRAVITY % OF TOTAL WEIGHT
AT EACH CORNER
ft-in. Millimeters
A B A B1234
48AJD/AKD060 10-711/16 3-1019/32 3242 1184 21.7 19.3 27.7 31.2
48AJE060 11-211/16 4-19/32 3422 1235 23.9 19.4 25.4 31.3
5. Bottom ducts designed to be attached to accessory roof curb. If unit is mounted
on dunnage, it is recommended the ducts must be supported by cross braces as
done on accessory roof curb.
6. Base unit weights include outdoor air hoods and filters (indoor fan motor is not
included). Add indoor motor, FIOPs and accessories for total operating weight.
7. VAV motor weights include indoor motor, VFD, compressor electric unloaders,
VFD transducer and associated wiring.
8. Dimensions are in inches [mm].

10
Fig. 8 — Base Unit Dimensions — 48AW,AY020-030
NOTES:
1. Weights include economizer (standard).
2. Center of Gravity.
3. Do not locate adjacent units with flue discharge facing economizer
inlet.
Min Clearances to be:
Adjacent Units: 15′-0″ [4572].
Top of Units: No Overhang.
Condenser Coil: 4′-0″ [1219].
Economizer Side: 6′-0″ [1829].
Heat Side: 4′-0″ [1219].
Filter Access Side: 10′-0″ [3048]. (For removal of evaporator coil.)
4. For smaller service and operational clearances contact Carrier
Application Engineering Department.
5. Dimensions are in inches [mm].
UNIT SIZE
OPERATING
WEIGHT*
(lbs)
A
(ft-in.)
B
(ft-in.)
CORNER WEIGHT (lbs)
1234
48AW/AY (Low Heat) 020 5182 6- 03/83-63/16 1090 1183 1514 1395
48AW (High Heat) 020 5262 6- 15/16 3-611/16 1134 1203 1505 1419
48AW/AY (Low Heat) 025 5268 5- 95/83-8 1111 1111 1523 1523
48AW (High Heat) 025 5348 5-101/83-85/16 1144 1128 1527 1548
48AW/AY (Low Heat) 027 5365 5- 95/83-8 1132 1132 1551 1551
48AW (High Heat) 027 5445 5-101/83-85/16 1165 1149 1555 1577
48AW/AY (Low Heat) 030 5365 5- 95/83-8 1132 1132 1551 1551
48AW (High Heat) 030 5445 5-101/83-85/16 1165 1149 1555 1577
UNIT SIZE
OPERATING
WEIGHT*
(kg)
A (mm) B (mm) CORNER WEIGHT (kg)
1234
48AW/AY (Low Heat) 020 2351 1839 1072 495 537 687 633
48AW (High Heat) 020 2387 1862 1085 515 546 683 644
48AW/AY (Low Heat) 025 2390 1768 1118 504 504 691 691
48AW (High Heat) 025 2426 1781 1125 519 512 693 702
48AW/AY (Low Heat) 027 2434 1768 1118 513 513 704 704
48AW (High Heat) 027 2470 1781 1125 528 521 705 715
48AW/AY (Low Heat) 030 2434 1768 1118 513 513 704 704
48AW (High Heat) 030 2470 1781 1125 528 521 705 715

11
Fig. 9 — Base Unit Dimensions — 48AW,AY035-050
NOTES:
1. Weights include economizer (standard).
2. Center of Gravity.
3. Do not locate adjacent units with flue discharge facing economizer inlet.
Min Clearances to be:
Adjacent Units: 15′-0″ [4572].
Top of Units: No Overhang.
Condenser Coil: 4′-0″ [1219].
Economizer Side: 6′-0″ [1829].
Heat Side: 4′-0″ [1219].
Filter Access Side: 10′-0″ [3048]. (For removal of evaporator coil.)
4. For smaller service and operational clearances contact Carrier Application Engineering Department.
5. Dimensions are in inches [mm].
UNIT SIZE
OPERATING
WEIGHT*
(lbs)
A
(ft-in.)
B
(ft-in.)
CORNER WEIGHT (lbs)
1234
48AW/AY (Low Heat) 035 6044 7- 811/16 3-107/81389 1217 1606 1832
48AW (High Heat) 035 6204 7-101/83-113/16 1456 1259 1617 1871
48AW/AY (Low Heat) 040 6554 7- 311/16 3-107/81451 1271 1790 2042
48AW (High Heat) 040 6714 7- 613/16 3-113/16 1521 1315 1798 2080
48AW/AY (Low Heat) 050 6765 7- 311/16 3-101/21458 1301 1889 2117
48AW (High Heat) 050 6925 7- 53/16 3-1013/16 1528 1345 1897 2155
UNIT SIZE
OPERATING
WEIGHT*
(kg)
A (mm) B (mm) CORNER WEIGHT (kg)
1234
48AW/AY (Low Heat) 035 2741 2355 1191 630 552 728 831
48AW (High Heat) 035 2814 2390 1199 661 571 734 849
48AW/AY (Low Heat) 040 2973 2268 1191 658 577 812 926
48AW (High Heat) 040 3045 2306 1199 690 596 816 944
48AW/AY (Low Heat) 050 3069 2228 1181 661 590 857 960
48AW (High Heat) 050 3141 2266 1189 693 610 860 977

12
Fig. 10 — Base Unit Dimensions — 48W,AY060
NOTES:
1. Weights include economizer (standard).
2. Center of Gravity.
3. Do not locate adjacent units with flue dis-
charge facing economizer inlet.
Min Clearances to be:
Adjacent Units: 15′-0″ [4572].
Top of Units: No Overhang.
Condenser Coil: 4′-0″ [1219].
Economizer Side: 6′-0″ [1829].
Heat Side: 4′-0″ [1219].
Filter Access Side: 15′-0″ [4572]. (For
removal of evaporator coil.)
4. For smaller service and operational clear-
ances contact Carrier Application Engineer-
ing Department.
BASE UNIT WEIGHTS
(See Note 6) lbs (kg)
060
48AWD/AYD 8970 (4069)
48AWE 9210 (4178)
UNIT SIZE
CENTER OF GRAVITY % OF TOTAL WEIGHT
AT EACH CORNER
ft-in. Millimeters
A B A B1234
48AWD/AYD060 10-711/16 3-1019/32 3242 1184 21.7 19.3 27.7 31.2
48AWE060 11-211/16 4-19/32 3422 1235 23.9 19.4 25.4 31.3
5. Base unit weights include outdoor air hoods and filters (indoor fan motor is not
included). Add indoor motor, FIOPs and accessories for total operating weight.
6. VAV motor weights include indoor motor, VFD, compressor electric unloaders, VFD
transducer and associated wiring.
7. Dimensions are in inches [mm].
8. For side-supply/return applications, a single return and supply ductwork connection
is recommended for covering all three return and all three supply openings. The
entire area around the duct openings is available for a 1.5″ duct flange attachment.

13
Fig. 11 — Base Unit Dimensions — 48EJ,EK024-034
NOTES:
1. Weights include economizer (standard).
2. Center of Gravity.
3. Do not locate adjacent units with flue discharge facing economizer
inlet.
Min Clearances to be:
Adjacent Units: 15′-0″ [4572].
Top of Units: No Overhang.
Condenser Coil: 4′-0″ [1219].
Economizer Side: 6′-0″ [1829].
Heat Side: 4′-0″ [1219].
Filter Access Side: 10′-0″ [3048]. (For removal of evaporator coil.)
4. For smaller service and operational clearances contact Carrier Appli-
cation Engineering Department.
5. Bottom ducts designed to be attached to accessory roof curb. If unit is
mounted on dunnage, it is recommended the ducts must be supported
by cross braces as done on accessory roof curb.
6. Dimensions are in inches [mm].

14
Fig. 12 — Base Unit Dimensions — 48EJ,EK038-048
NOTES:
1. Weights include economizer (standard).
2. Center of Gravity.
3. Do not locate adjacent units with flue discharge facing economizer
inlet.
Min Clearances to be:
Adjacent Units: 15′-0″ [4572].
Top of Units: No Overhang.
Condenser Coil: 4′-0″ [1219].
Economizer Side: 6′-0″ [1829].
Heat Side: 4′-0″ [1219].
Filter Access Side: 10′-0″ [3048]. (For removal of evaporator coil.)
4. For smaller service and operational clearances contact Carrier Appli-
cation Engineering Department.
5. Bottom ducts designed to be attached to accessory roof curb. If unit is
mounted on dunnage, it is recommended the ducts must be supported
by cross braces as done on accessory roof curb.
6. Dimensions are in inches [mm].

15
Fig. 13 — Base Unit Dimensions — 48EJ,EK054-068
NOTES:
1. Weights include economizer (standard).
2. Center of Gravity.
3. Do not locate adjacent units with flue discharge facing econo-
mizer inlet.
Min Clearances to be:
Adjacent Units: 15′-0″ [4572].
Top of Units: No Overhang.
Condenser Coil: 4′-0″ [1219].
Economizer Side: 6′-0″ [1829].
Heat Side: 4′-0″ [1219].
Filter Access Side: 15′-0″ [4572]. (For removal of evaporator
coil.)
4. For smaller service and operational clearances contact Carrier
Application Engineering Department.
5. Bottom ducts designed to be attached to accessory roof curb. If
unit is mounted on dunnage, it is recommended the ducts must
be supported by cross braces as done on accessory roof curb.
6. Base unit weights include outdoor air hoods and filters (indoor
fan motor is not included). Add indoor motor, FIOPs and acces-
sories for total operating weight.
7. VAV motor weights include indoor motor, VFD, compressor
electric unloaders, VFD transducer and associated wiring.
8. Dimensions in are in inches [mm].
BASE UNIT WEIGHTS
(See Note 6) lbs (kg)
054 058 064 068
48EJD/EKD 6805 (3087) 7055 (3200) 7305 (3314) 7480 (3393)
48EJE 7045 (3196) 7295 (3309) 7545 (3422) 7720 (3502)
UNIT SIZE
CENTER OF GRAVITY % OF TOTAL WEIGHT
AT EACH CORNER
Inches Millimeters
ABAB1234
48EJD/EKD054 130.9 46.9 3325 1192 22.4 19.6 27.0 30.9
48EJE054 133.8 47.4 3397 1204 23.1 19.8 26.3 30.7
48EJD/EKD058 132.1 47.5 3354 1207 22.9 19.5 26.5 31.1
48EJE058 139.5 49.6 3544 1260 25.3 19.6 24.1 31.1
48EJD/EKD064 125.3 45.2 3181 1149 20.7 19.6 29.1 30.7
48EJE064 132.2 47.2 3359 1199 22.8 19.7 26.7 30.8
48EJD/EKD068 127.7 46.6 3242 1184 21.7 19.3 27.7 31.2
48EJE068 134.7 48.6 3422 1235 23.9 19.4 25.4 31.3

16
Fig. 14 — Base Unit Dimensions — 48EW,EY024-034
NOTES:
1. Weights include economizer (standard).
2. Center of Gravity.
3. Do not locate adjacent units with flue discharge facing econo-
mizer inlet.
Min Clearances to be:
Adjacent Units: 15′-0″ [4572].
Top of Units: No Overhang.
Condenser Coil: 4′-0″ [1219].
Economizer Side: 6′-0″ [1829].
Heat Side: 4′-0″ [1219].
Filter Access Side: 15′-0″ [4572]. (For removal of evaporator
coil.)
4. For smaller service and operational clearances contact Carrier
Application Engineering Department.
5. Dimensions in are in inches [mm].

17
Fig. 15 — Base Unit Dimensions — 48EW,EY038-048
NOTES:
1. Weights include economizer (standard).
2. Center of Gravity.
3. Do not locate adjacent units with flue discharge facing econo-
mizer inlet.
Min Clearances to be:
Adjacent Units: 15′-0″ [4572].
Top of Units: No Overhang.
Condenser Coil: 4′-0″ [1219].
Economizer Side: 6′-0″ [1829].
Heat Side: 4′-0″ [1219].
Filter Access Side: 15′-0″ [4572]. (For removal of evaporator
coil.)
4. For smaller service and operational clearances contact Carrier
Application Engineering Department.
5. Dimensions in are in inches [mm].

18
Fig. 16 — Base Unit Dimensions — 48EW,EY054-068
NOTES:
1. Weights include economizer (standard).
2. Center of Gravity.
3. Do not locate adjacent units with flue discharge
facing economizer inlet.
Min Clearances to be:
Adjacent Units: 15′-0″ [4572].
Top of Units: No Overhang.
Condenser Coil: 4′-0″ [1219].
Economizer Side: 6′-0″ [1829].
Heat Side: 4′-0″ [1219].
Filter Access Side: 15′-0″ [4572]. (For
removal of evaporator coil.)
4. For smaller service and operational clearances
contact Carrier Application Engineering Depart-
ment.
5. Base unit weights include outdoor air hoods
and filters (indoor fan motor is not included).
Add indoor motor, FIOPs and accessories for
total operating weight.
6. VAV motor weights include indoor motor, VFD,
compressor electric unloaders, VFD transducer
and associated wiring.
7. For side-supply/return applications, a single
return and supply ductwork connection is rec-
ommended for covering all three return and all
three supply openings. The entire area around
the duct openings is available for a 1.5″ duct
flange attachment
8. Dimensions in are in inches [mm].
BASE UNIT WEIGHTS
(See Note 6) lbs (kg)
054 058 064 068
48EWD/EYD 6845 (3105) 7095 (3218) 7345 (3332) 7520 (3411)
48EWE 7085 (3214) 7335 (3327) 7585 (3441) 7760 (3520)
UNIT SIZE
CENTER OF GRAVITY % OF TOTAL WEIGHT
AT EACH CORNER
Inches Millimeters
ABAB1234
48EWD/EYD054 130.9 46.9 3325 1192 22.4 19.6 27.0 30.9
48EWE054 133.8 47.4 3397 1204 23.1 19.8 26.3 30.7
48EWD/EYD058 132.1 47.5 3354 1207 22.9 19.5 26.5 31.1
48EWE058 139.5 49.6 3544 1260 25.3 19.6 24.1 31.1
48EWD/EYD064 125.3 45.2 3181 1149 20.7 19.6 29.1 30.7
48EWE064 132.2 47.2 3359 1199 22.8 19.7 26.7 30.8
48EWD/EYD068 127.7 46.6 3242 1184 21.7 19.3 27.7 31.2
48EWE068 134.7 48.6 3422 1235 23.9 19.4 25.4 31.3

19
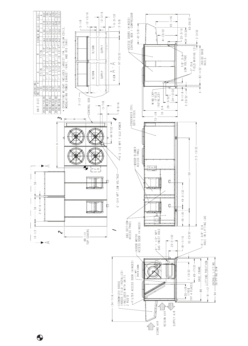
48AJ,AK,AW,AY UNITS
Fig. 17 — Rigging Information
UNIT
CENTER OF GRAVITY PERCENT OF TOTAL WEIGHT
AT EACH CORNER (%)
Inches Millimeters
ABAB1 2 3 4
48AJ,AKD020 72.4 42.2 1839 1072 21.0% 22.8% 29.2% 26.9%
48AJE020 73.3 42.7 1862 1085 21.6% 22.9% 28.6% 27.0%
48AW,AYD020 72.4 42.2 1839 1072 21.0% 22.8% 29.2% 26.9%
48AWE020 73.3 42.7 1862 1085 21.6% 22.9% 28.6% 27.0%
48AJ,AKD025 69.6 44.0 1768 1118 21.1% 21.1% 28.9% 28.9%
48AJE025 70.1 44.3 1781 1125 21.4% 21.1% 28.6% 29.0%
48AW,AYD025 69.6 44.0 1768 1118 21.1% 21.1% 28.9% 28.9%
48AWE025 70.1 44.3 1781 1125 21.4% 21.1% 28.6% 29.0%
48AJ,AKD027 69.6 44.0 1768 1118 21.1% 21.1% 28.9% 28.9%
48AJE027 70.1 44.3 1781 1125 21.4% 21.1% 28.6% 29.0%
48AW,AYD027 69.6 44.0 1768 1118 21.1% 21.1% 28.9% 28.9%
48AWE027 70.1 44.3 1781 1125 21.4% 21.1% 28.6% 29.0%
48AJ,AKD030 69.6 44.0 1768 1118 21.1% 21.1% 28.9% 28.9%
48AJE030 70.1 44.3 1781 1125 21.4% 21.1% 28.6% 29.0%
48AW,AYD030 69.6 44.0 1768 1118 21.1% 21.1% 28.9% 28.9%
48AWE030 70.1 44.3 1781 1125 21.4% 21.1% 28.6% 29.0%
48AJ,AKD035 92.7 46.9 2355 1191 23.0% 20.1% 26.6% 30.3%
48AJE035 94.1 47.2 2390 1199 23.5% 20.3% 26.1% 30.2%
48AW,AYD035 92.7 46.9 2355 1191 23.0% 20.1% 26.6% 30.3%
48AWE035 94.1 47.2 2390 1199 23.5% 20.3% 26.1% 30.2%
48AJ,AKD040 89.3 46.9 2268 1191 22.1% 19.4% 27.3% 31.2%
48AJE040 90.8 47.2 2306 1199 22.7% 19.6% 26.8% 31.0%
48AW,AYD040 89.3 46.9 2268 1191 22.1% 19.4% 27.3% 31.2%
48AWE040 90.8 47.2 2306 1199 22.7% 19.6% 26.8% 31.0%
48AJ,AKD050 87.7 46.5 2228 1181 21.6% 19.2% 27.9% 31.3%
48AJE050 89.2 46.8 2266 1189 22.1% 19.4% 27.4% 31.1%
48AW,AYD050 87.7 46.5 2228 1181 21.6% 19.2% 27.9% 31.3%
48AWE050 89.2 46.8 2266 1189 22.1% 19.4% 27.4% 31.1%
48AJ,AKD060 125.3 45.2 3181 1149 21.7% 19.3% 27.7% 31.2%
48AJE060 132.2 47.2 3359 1199 23.9% 19.4% 25.4% 31.3%
48AW,AYD060 127.7 46.6 3242 1184 21.7% 19.3% 27.7% 31.2%
48AWE060 134.7 48.6 3422 1235 23.9% 19.4% 25.4% 31.3%
A
B
3
4
2
1

20
48EJ,EK,EW,EY UNITS
RIGGING WEIGHTS
48AJ,AK,AW,AY UNITS
*Includes outdoor-air hoods, filters, largest available indoor-fan
motor, modulating power exhaust, and the largest available variable
frequency drive (VFD).
NOTES:
1. Center of gravity.
2. On 020-050 includes 500 lbs and on 060 725 lbs for modulating
power exhaust.
3. On 020-050 includes 170 lbs and on 060 55 lbs for economizer
hoods. Includes 45 lbs for the economizer hood packaging.
4. Add 220 lbs for copper coil on the 020-030 size.
5. Add 284 lbs for copper coil on the 035 size.
6. Add 380 lbs for copper coil on the 040-050 size.
7. Add 651 lbs for copper coil on the 060 size.
48EJ,EK,EW,EY UNITS
*Includes outdoor-air hoods, filters, largest available indoor-fan
motor, modulating power exhaust, and the largest available variable
frequency drive (VFD).
NOTES:
1. Center of gravity.
2. Sizes 024-048 includes 500 lb and sizes 054-068 includes
725 lb for modulating power exhaust.
3. Sizes 024-048 includes 170 lb and sizes 054-068 includes
255 lb for economizer hoods.
4. Economizer hood packaging includes 45 lb.
5. For sizes 024-034 add 220 lb for copper coil.
6. For sizes 038-044 add 284 lb for copper coil.
7. For 048 size add 380 lb for copper coil.
8. For 054 size add 271 lb for copper coil.
9. For 058 size add 407 lb for copper coil.
10. For 064 size add 489 lb for copper coil.
11. For 068 size add 651 lb for copper coil.
Fig. 17 — Rigging Information (cont)
UNIT
CENTER OF GRAVITY PERCENT OF TOTAL WEIGHT
AT EACH CORNER (%)
Inches Millimeters
ABAB1 2 3 4
48EJ,EW,EK,EYD024 72.4 42.2 1839 1072 21.0 22.8 29.2 26.9
48EJ,EWE024 73.3 42.7 1862 1085 21.6 22.9 28.6 27.0
48EJ,EW,EK,EYD028 69.6 44.0 1768 1118 21.1 21.1 28.9 28.9
48EJ,EWE028 70.1 44.3 1781 1125 21.4 21.1 28.6 29.0
48EJ,EW,EK,EYD030 69.6 44.0 1768 1118 21.1 21.1 28.9 28.9
48EJ,EWE030 70.1 44.3 1781 1125 21.4 21.1 28.6 29.0
48EJ,EW,EK,EYD034 69.6 44.0 1768 1118 21.1 21.1 28.9 28.9
48EJ,EWE034 70.1 44.3 1781 1125 21.4 21.1 28.6 29.0
48EJ,EW,EK,EYD038 92.7 46.9 2355 1191 23.0 20.1 26.6 30.3
48EJ,EWE038 94.1 47.2 2390 1199 23.5 20.3 26.1 30.2
48EJ,EW,EK,EYD044 89.3 46.9 2268 1191 22.1 19.4 27.3 31.2
48EJ,EWE044 90.8 47.2 2306 1199 22.7 19.6 26.8 31.0
48EJ,EW,EK,EYD048 87.7 46.5 2228 1181 21.6 19.2 27.9 31.3
48EJ,EWE048 89.2 46.8 2226 1189 22.1 19.4 27.4 31.1
48EJ,EW,EK,EYD054 130.9 46.9 3325 1192 22.4 19.6 27.0 30.9
48EJ,EWE054 133.8 47.4 3397 1204 23.1 19.8 26.3 30.7
48EJ,EW,EK,EYD058 132.1 47.5 3354 1207 22.9 19.5 26.5 31.1
48EJ,EWE058 139.5 49.6 3544 1260 25.3 19.6 24.1 31.1
48EJ,EW,EK,EYD064 125.3 45.2 3181 1149 20.7 19.6 29.1 30.7
48EJ,EWE064 132.2 47.2 3359 1199 22.8 19.7 26.7 30.8
48EJ,EW,EK,EYD068 127.7 46.6 3242 1184 21.7 19.3 27.7 31.2
48EJ,EWE068 134.7 48.6 3422 1235 23.9 19.4 25.4 31.3
UNIT MAXIMUM UNIT WEIGHTS (lb)*
020 025 027 030 035 040 050 060
48AJ,AKD 5142 5228 5325 5325 6004 6514 6725 8930
48AJ,AKE 5222 5308 5405 5405 6164 6674 6885 9170
48AW,AYD 5182 5268 5365 5365 6044 6554 6765 8970
48AW,AYE 5262 5348 5445 5445 6204 6714 6925 9210
UNIT MAXIMUM UNIT WEIGHTS (lb)*
024 028 030 034 038 044 048 054 058 064 068
48EJ,EKD 5142 5228 5304 5304 5943 6237 6622 8029 8377 8755 8930
48EJE 5222 5384 5384 5384 6103 6397 6782 8269 8617 8995 9170
48EW,EYD 5182 5404 5344 5344 5983 6277 6662 8069 8417 8795 8970
48EWE 5262 5492 5424 5424 6143 6437 6822 8309 8657 9035 9210

21
Table 1A — Physical Data — 48AJ,AK,AW,AY Units
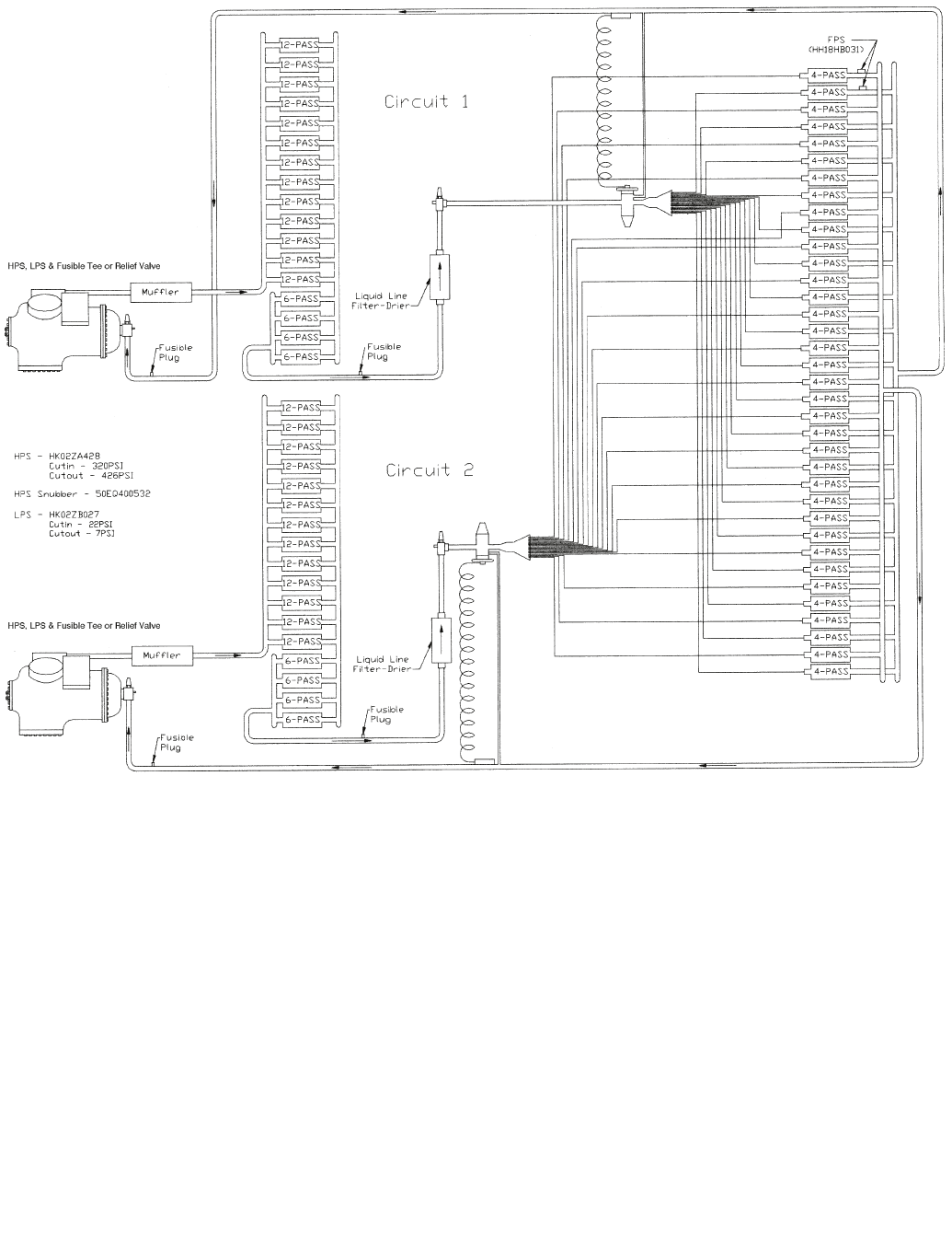
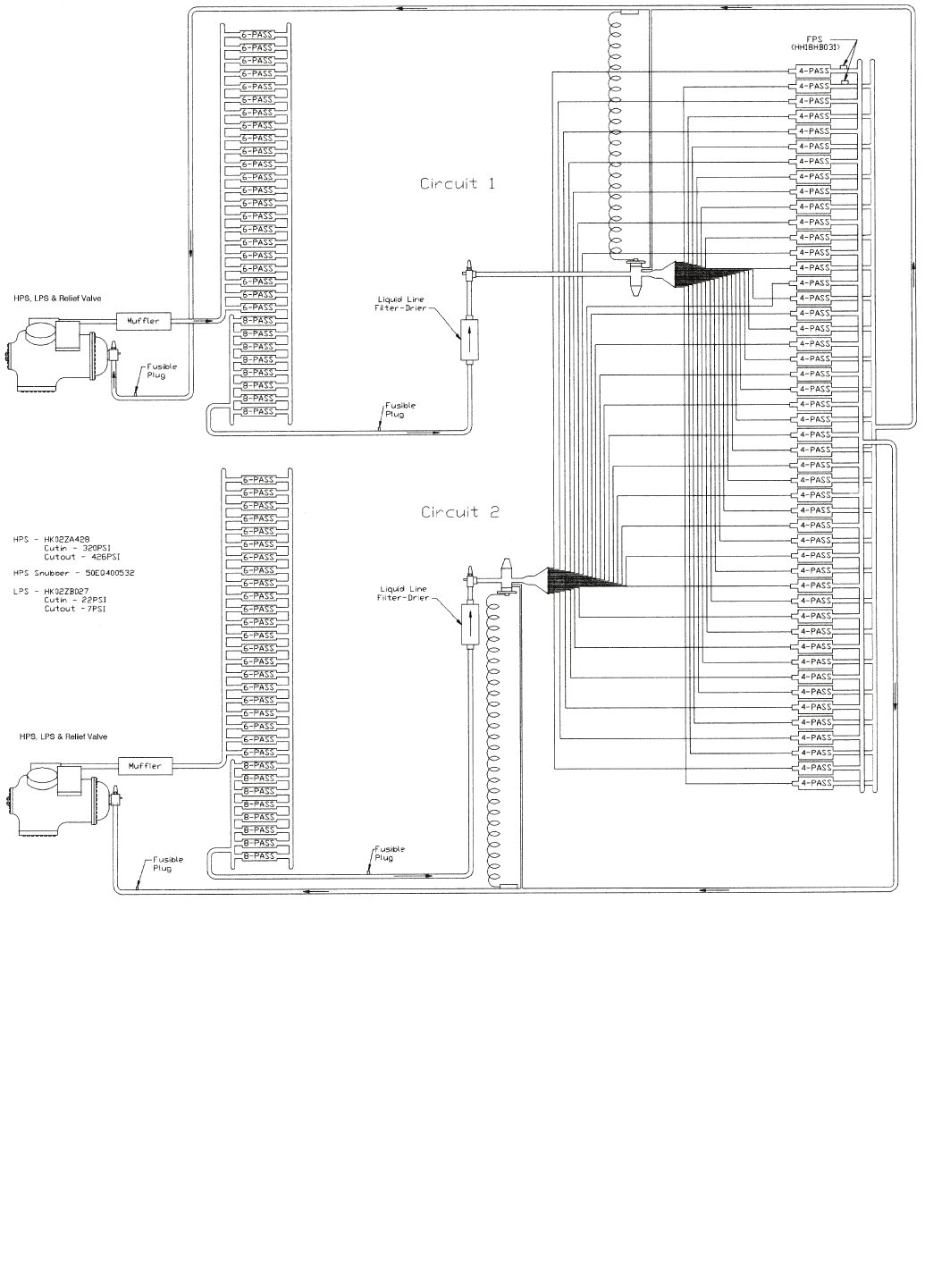
LEGEND *Sizes 020-030: Circuit 1 uses the lower portion of condenser coil, Circuit 2 uses the upper
portion.
Sizes 035-050: Circuit 1 uses the left condenser coil, Circuit 2 the right. All units have
intertwined evaporator coils.
†Rollout switch is manual reset.
NOTE: High heat is for 48AJ,AW only.
UNIT 48AJ,AK,AW,AY 020D/E 025D/E 027D/E 030D/E
NOMINAL CAPACITY (tons) 20 25 27 30
BASE UNIT OPERATING WEIGHT (lb) See Operating Weights Table 2.
COMPRESSOR
Quantity...Type (Ckt 1 , Ckt 2) 1...06D328, 1...06D818 2...06D328 2...06D328 1...06D537, 1…06D328
Number of Refrigerant Circuits 2222
Oil (oz) (Ckt 1 , Ckt 2) 115, 88 115 ea. 115 ea. 115 ea.
REFRIGERANT TYPE R-22
Operating Charge (lb-oz)
Circuit 1 25-0 25-0 29-0 27-0
Circuit 2 31-0 25-0 28-0 29-0
CONDENSER COIL * Cross-Hatched 3/8" Copper Tubes, Aluminum Lanced, Aluminum Pre-Coated, or Copper Plate Fins
Quantity 1111
Rows...Fins/in. 4...15 4...15 4...15 4...15
Total Face Area (sq ft) 33.333.333.333.3
CONDENSER FAN Propeller Type
Nominal Cfm 13,420 13,420 13,420 13,420
Quantity...Diameter (in.) 2...30 2...30 2...30 2...30
Motor Hp 1111
EVAPORATOR COIL Cross-Hatched Copper Tubes, Aluminum Plate Fins
Tube Size (in.) 3/83/83/83/8
Rows...Fins/in. 4...15 4...15 4...15 4... 5
Total Face Area (sq ft) 31.731.734.734.7
EVAPORATOR FAN Centrifugal Type
Quantity...Size (in.) 2...20 X 15 2... 20 X 15 2... 20 X 15 2... 20 X 15
Type Drive Belt Belt Belt Belt
Nominal Cfm 8,000 10,000 11,000 12,000
Motor Hp 5 10 15 7.5 10 15 10 15 20 10 15 20
Motor Frame Size 184T 215T 254T 213T 215T 254T 215T 254T 256T 215T 254T 256T
Motor Bearing Type Ball Ball Ball Ball
Maximum Allowable Rpm 1200 1200 1200 1200
Motor Pulley Pitch Diameter 4.9 4.4 5.7 5.4 6.1 5.5 4.4 4.9 5.9 4.4 5.7 5.9
Nominal Motor Shaft Diameter (in.) 11/813/813/813/813/815/813/815/815/813/815/815/8
Fan Pulley Pitch Diameter (in.) 12.4 8.6 9.1 12.4 11.1 8.7 9.4 8.1 8.7 9.0 9.1 8.7
Nominal Fan Shaft Diameter (in.) 115/16 115/16 115/16 115/16
Belt Quantity 122112222222
Belt Type BX56 BX50 5VX530 BX56 5VX590 5VX570 BX50 5VX500 5VX530 BX50 5VX530 5VX530
Belt Length (in.) 56 63 53 56 59 57 50 50 53 50 53 53
Pulley Center Line Distance (in.) 16.0-18.7 15.6-18.4 15.0-17.9 15.6-18.4 15.6-18.4 15.0-17.9 15.6-18.4 15.0-17.9 15.0-17.9 15.6-18.4 15.0-17.9 15.0-17.9
Factory Speed Setting (rpm) 717 924 1096 773 962 1106 848 1059 1187 884 1096 1187
FURNACE SECTION
Rollout Switch Cutout
Temp (F) † 225 225 225 225
Burner Orifice Diameter (in. ...drill size)
Natural Gas Std .111...34 .111...34 .111...34 .111...34
Liquid Propane Alt .089...43 .089...43 .089...43 .089...43
Thermostat Heat Anticipator Setting
Stage 1 (amps) 0.10.10.10.1
Stage 2 (amps) 0.10.10.10.1
Gas Input (Btuh) Stage 1 262,500/394,000 262,500/394,000 262,500/394,000 262,500/394,000
S t a g e 2 350,000/525,000 350,000/525,000 350,000/525,000 350,000/525,000
Efficiency (Steady State) (%) 82 82 82 82
Temperature Rise Range 15-45/35-65 15-45/35-65 15-45/35-65 15-45/35-65
Manifold Pressure (in. wg)
Natural Gas Std 3.53.53.53.5
Liquid Propane Alt 3.53.53.53.5
Gas Valve Quantity 2222
HIGH-PRESSURE SWITCH (psig)
Cutout 426 426 426 426
Reset (Auto.) 320 320 320 320
LOW-PRESSURE SWITCH (psig)
Cutout 27 27 27 27
Reset (Auto.) 67 67 67 67
RETURN-AIR FILTERS
Quantity...Size (in.) 10...20 x 24 x 2 10...20 x 24 x 2 10...20 x 24 x 2 10...20 x 24 x 2
OUTDOOR AIR FILTERS 8...16 x 25 8...16 x 25 8...16 x 25 8...16 x 25
Quantity...Size (in.) 4...20 x 25 4...20 x 25 4..20 x 25 4...20 x 25
Al — Aluminum
Bhp — Brake Horsepower
Cu — Copper

22
Table 1A — Physical Data — 48AJ,AK,AW,AY Units (cont)
LEGEND *Sizes 020-030: Circuit 1 uses the lower portion of condenser coil, Circuit 2 uses the upper
portion.
Sizes 035-050: Circuit 1 uses the left condenser coil, Circuit 2 the right. All units have
intertwined evaporator coils.
†Rollout switch is manual reset.
NOTE: High heat is for 48AJ,AW only.
UNIT 48AJ,AK,AW,AY 035D/E 040D/E 050D/E 060D/E
NOMINAL CAPACITY (tons) 35 40 50 60
BASE UNIT OPERATING WEIGHT (lb) See Operating Weights Table 2.
COMPRESSOR
Quantity...Type (Ckt 1 , Ckt 2) 2...06D537 1...06D537, 1...06EA250 2…06EA250 2...06EA265
Number of Refrigerant Circuits 2222
Oil (oz) (Ckt 1 , Ckt 2) 115 ea. 115, 224 224 ea. 304 ea.
REFRIGERANT TYPE
Operating Charge (lb-oz)
Circuit 1 34-8 51-8 50-0 79-8
Circuit 2 34-8 49-8 50-0 79-8
CONDENSER COIL * Cross-Hatched 3/8" Copper Tubes, Aluminum Lanced, Aluminum Pre-Coated, or Copper Plate Fins
Quantity 2222
Rows...Fins/in. 3...15 4...15 4...15 4…15
Total Face Area (sq ft) 58.3 66.7 66.7 100
CONDENSER FAN Propeller Type
Nominal Cfm 27,064 27,064 27,064 43,900
Quantity...Diameter (in.) 4...30 4...30 4...30 6...30
Motor Hp 1111
EVAPORATOR COIL Cross-Hatched Copper Tubes, Aluminum Plate Fins
Tube Size (in.) 3/81/21/21/2
Rows...Fins/in. 4...15 6...15 6...15 4...17
Total Face Area (sq ft) 34.7 31.3 31.3 48.1
EVAPORATOR FAN Centrifugal Type
Quantity...Size (in.) 2...20 X 15 2...20 X 15 2...20 X 15 3...20 X 15
Type Drive Belt Belt Belt Belt
Nominal Cfm 14,000 16,000 20,000 24,000
Motor Hp 10 15 20 15 20 25 20 25 30 25 30 40
Motor Frame Size 215T 254T 256T 254T 256T 284T 256T 284T 286T 284T 286T 324T
Motor Bearing Type Ball Ball Ball Ball
Maximum Allowable Rpm 1200 1200 1300 1200
Motor Pulley Pitch Diameter 6.1 5.3 5.7 5.3 5.7 7.5 6.3 8.1 7.5 5.3 8.1 9.4
Nominal Motor Shaft Diameter (in.) 13/815/815/815/815/817/815/817/817/817/817/821/8
Fan Pulley Pitch Diameter (in.) 13.7 9.5 9.5 9.5 9.5 11.1 11.1 12.5 11.1 9.1 12.5 13.6
Nominal Fan Shaft Diameter (in.) 115/16 115/16 115/16 115/16
Belt Quantity 122222222332
Belt Type 5VX610 5VX530 5VX550 5VX530 5VX550 5VX590 5VX570 5VX630 5VX590 5VX530 5VX630 5VX650
Belt Length (in.) 61 53 55 53 55 59 57 63 59 53 63 65
Pulley Center Line Distance (in.) 15.6-18.4 15.0-17.9 15.0-17.9 15.0-17.9 15.0-17.9 14.6-17.6 15.0-17.9 14.6-17.6 14.6-17.6 15.2-17.5 14.7-17.2 14.2-17.0
Factory Speed Setting (rpm) 779 976 1050 976 1050 1182 993 1134 1182 1019 1134 1214
FURNACE SECTION
Rollout Switch Cutout
Temp (F) † 225 225 225 225
Burner Orifice Diameter (in. ...drill size)
Natural Gas Std .120...31 .120...31 .120...31 .120...31
Liquid Propane Alt .096...41 .096...41 .096...41 .096...41
Thermostat Heat Anticipator Setting
Stage 1 (amps) 0.1 0.1 0.1 0.1
Stage 2 (amps) 0.1 0.1 0.1 0.1
Gas Input (Btuh) Stage 1 300,000/600,000 300,000/600,000 300,000/600,000 582,000/ 873,000
S t a g e 2 400,000/800,000 400,000/800,000 400,000/800,000 776,000/1,164,000
Efficiency (Steady State) (%) 82 82 82 82
Temperature Rise Range 10-40/30-60 10-40/30-60 10-40/30-60 10-40/30-60
Manifold Pressure (in. wg)
Natural Gas Std 3.5 3.5 3.5 3.3
3.3 Liquid Propane Alt 3.5 3.5 3.5
Gas Valve Quantity 2223
HIGH-PRESSURE SWITCH (psig)
Cutout 426 426 426 426
Reset (Auto.) 320 320 320 320
LOW-PRESSURE SWITCH (psig)
Cutout 27 27 27 27
Reset (Auto.) 67 67 67 67
RETURN-AIR FILTERS
Quantity...Size (in.) 10...20 x 24 x 2 10...20 x 24 x 2 10...20 x 24 x 2 16...20 x 24 x 2
OUTDOOR AIR FILTERS 8...16 x 25 8...16 x 25 8...16 x 25 12...16 x 25
Quantity...Size (in.) 4...20 x 25 4...20 x 25 4...20 x 25 6...20 x 25
Al — Aluminum
Bhp — Brake Horsepower
Cu — Copper

23
Table 1B — Physical Data — 48EJ,EK,EW,EY Units
*Sizes 024-034: Circuit 1 uses the lower portion of condenser coil, Circuit 2 uses the upper portion.
Sizes 038-048: Circuit 1 uses the left condenser coil, Circuit 2 the right. All units have intertwined evaporator coils.
†Motor and drive shown will deliver approximately 2.5 in. wg net external static. For more information, see Table 3.
**Rollout switch is manual reset.
NOTE: High heat is for 48EJ,EW only.
UNIT 48EJ,EK,EW,EY 024D/E 028D/E 030D/E 034D/E
NOMINAL CAPACITY (tons) 20 25 27.5 30
OPERATING WEIGHT (lb) For Operating Weights see Table 2.
COMPRESSOR
Type Ckt 1 06D328 06D328 06D537 06D537
Ckt 2 06D818 06D328 06D328 06D537
Number of Refrigerant Circuits 22 2 2
Oil (oz) (Ckt 1, Ckt 2) 115, 88 115 ea. 115 ea. 115 ea.
REFRIGERANT TYPE R-22
Operating Charge (lb-oz)
Circuit 1* 25-0 25-0 25-0 25-0
Circuit 2 31-0 25-0 25-0 25-0
CONDENSER COIL Cross-Hatched 3/8″ Copper Tubes, Aluminum Lanced, Aluminum Pre-Coated, or Copper Plate Fins
Quantity 11 1 1
Rows...Fins/in. 4...15 4...15 4...15 4...15
Total Face Area (sq ft) 33.3 33.3 33.3 33.3
CONDENSER FAN Propeller Type
Nominal Cfm 13,420 13,420 13,420 13,420
Quantity...Diameter (in.) 2...30 2...30 2...30 2...30
Motor Hp (1075 Rpm) 11 1 1
EVAPORATOR COIL Cross-Hatched 3/8″ Copper Tubes, Aluminum Plate Fins, Intertwined Circuits
Rows...Fins/in. 4...15 4...15 4...15 4...15
Total Face Area (sq ft) 31.7 31.7 31.7 31.7
EVAPORATOR FAN Centrifugal Type
Quantity...Size (in.) 2...20x15 2...20x15 2...20x15 2...20x15
Type Drive Belt Belt Belt Belt
Nominal Cfm 8,000 10,000 11,000 12,000
Motor Hp 5 10† 15 7.5 10† 15 10 15† 20 10 15† 20
Motor Frame Size (Standard) S184T S215T D254T S213T S215T D254T S215T D254T S256T S215T D254T S256T
(High Efficiency) S184T S215T S254T S213T S215T S254T S215T S254T S256T S215T S254T S256T
Motor Bearing Type Ball Ball Ball Ball
Maximum Allowable Rpm 1200 1200 1200 1200
Motor Pulley Pitch Diameter 4.9 4.4 5.7 5.4 6.1 5.5 4.4 4.9 5.9 4.4 5.7 5.9
Nominal Motor Shaft Diameter (in.) 11/813/815/813/813/815/813/815/815/813/815/815/8
Fan Pulley Pitch Diameter (in.) 12.4 8.6 9.1 12.4 11.1 8.7 9.4 8.1 8.7 9.0 9.1 8.7
Nominal Fan Shaft Diameter (in.) 115/16 115/16 115/16 115/16
Belt, Quantity...Type 1...BX56 2...BX50 2...5VX530 1...BX56 1...5VX570 2...5VX530 2...BX50 2...5VX500 2...5VX530 2...BX50 2...5VX530 2...5VX530
Belt, Length (in.) 56 50 53 56 59 57 50 50 53 50 53 53
Pulley Center Line Distance (in.) 16.0-18.7 15.6-18.4 15.0-17.9 15.6-18.4 15.0-17.9 15.6-18.4 15.0-17.9 15.6-18.4 15.0-17.9
Factory Speed Setting (rpm) 717 924 1096 773 962 1106 848 1059 1187 884 1096 1187
FURNACE SECTION
Rollout Switch Cutout Temp (F)** 225 225 225 225
Burner Orifice Diameter
(in. ...drill size)
Natural Gas Std .111...34 .111...34 .111...34 .111...34
Liquid Propane Alt .089...43 .089...43 .089...43 .089...43
Thermostat Heat Anticipator
Setting (amps)
Stage 1 0.1 0.1 0.1 0.1
Stage 2 0.1 0.1 0.1 0.1
Gas Input (Btuh) Stage 1 Low 265,600 265,600 265,600 265,600
High 398,400 398,400 398,400 398,400
Stage 2 Low 350,000 350,000 350,000 350,000
High 525,000 525,000 525,000 525,000
Efficiency (Steady State) (%) 82 82 82 82
Temperature Rise Range 15-45/35-65 15-45/35-65 15-45/35-65 15-45/35-65
Gas Pressure to Unit Range (in. wg) 5-13.5 5-13.5 5-13.5 5-13.5
Manifold Pressure (in. wg)
Natural Gas Std 3.5 3.5 3.5 3.5
Liquid Propane Alt 3.5 3.5 3.5 3.5
Gas Valve Quantity 22 2 2
Field Gas Connection Size
(in.-FPT) 1.5 1.5 1.5 1.5
HIGH-PRESSURE SWITCH (psig)
Cutout 426 426 426 426
Reset (Auto.) 320 320 320 320
LOW-PRESSURE SWITCH (psig)
Cutout 77 7 7
Reset (Auto.) 22 22 22 22
RETURN-AIR FILTERS (W x H x T)
Quantity...Size (in.) 10...20 x 24 x 2 10...20 x 24 x 2 10...20 x 24 x 2 10...20 x 24 x 2
OUTDOOR-AIR FILTERS 8...16 x 25 8...16 x 25 8...16 x 25 8...16 x 25
Quantity...Size (in.) 4...20 x 25 4...20 x 25 4...20 x 25 4...20 x 25
POWER EXHAUST Direct Drive, 3-Speed, Single-Phase Motor (Factory-Wired for High Speed) and Forward Curved Fan
Motor, Quantity...Hp 4...1
Fan, Diameter...Width (in.) 11...10

24
Table 1B — Physical Data — 48EJ,EK,EW,EY Units (cont)
*Sizes 024-034: Circuit 1 uses the lower portion of condenser coil, Circuit 2 uses the upper portion.
Sizes 038-048: Circuit 1 uses the left condenser coil, Circuit 2 the right. All units have intertwined evaporator coils.
†Motor and drive shown will deliver approximately 2.5 in. wg net external static. For more information, see Table 3.
**Rollout switch is manual reset.
NOTE: High heat is for 48EJ,EW only.
UNIT 48EJ,EK,EW,EY 034D/E 044D/E 048D/E
NOMINAL CAPACITY (tons) 35 40 45
OPERATING WEIGHT (lb) For Operating Weights see Table 2.
COMPRESSOR
Type Ckt 1 06D537 06EA250 06EA265
Ckt 2 06D537 06EA250 06EA250
Number of Refrigerant Circuits 22 2
Oil (oz) (Ckt 1, Ckt 2) 115 ea. 224 ea. 304, 224
REFRIGERANT TYPE R-22
Operating Charge (lb-oz)
Circuit 1* 34-0 35-0 41-0
Circuit 2 34-0 35-0 41-0
CONDENSER COIL Cross-Hatched 3/8″ Copper Tubes, Aluminum Lanced, Aluminum Pre-Coated, or Copper Plate Fins
Quantity 2211
Rows...Fins/in. 4...15 4...15 4...15 3...15
Total Face Area (sq ft) 58.3 58.3 66.7
CONDENSER FAN Propeller Type
Nominal Cfm 27,064 27,064 27,064
Quantity...Diameter (in.) 4...30 4...30 4...30
Motor Hp (1075 Rpm) 11 1
EVAPORATOR COIL Cross-Hatched 3/8″ Copper Tubes, Aluminum Plate Fins, Intertwined Circuits
Rows...Fins/in. 3...15 3...15 4...15
Total Face Area (sq ft) 34.7 34.7 34.7
EVAPORATOR FAN Centrifugal Type
Quantity...Size (in.) 2...20x15 2...20x15 2...20x15
Type Drive Belt Belt Belt
Nominal Cfm 14,000 16,000 18,000
Motor Hp 10 15† 20 15 20† 25 20 25† 30
Motor Frame Size (Standard) S215T D254T S256T D254T S256T S284T S256T S284T S286T
(High Efficiency) S215T S254T S256T S254T S256T S284T S256T S284T S286T
Motor Bearing Type Ball Ball Ball
Maximum Allowable Rpm 1200 1200 1200
Motor Pulley Pitch Diameter 6.1 5.3 5.7 5.3 5.7 7.5 6.3 8.1 7.5
Nominal Motor Shaft Diameter (in.) 13/815/815/815/815/817/815/817/817/8
Fan Pulley Pitch Diameter (in.) 13.7 9.5 9.5 9.5 9.5 11.1 11.1 12.5 11.1
Nominal Fan Shaft Diameter (in.) 115/16 115/16 115/16
Belt, Quantity...Type 1...5VX610 2...5VX530 2...5VX550 2...5VX530 2...5VX550 2...5VX590 2...5VX570 2...5VX630 2...5VX590
Belt, Length (in.) 61 53 55 53 55 59 57 63 59
Pulley Center Line Distance (in.) 15.6-18.4 15.0-17.9 15.0-17.9 14.6-17.6 15.0-17.9 14.6-17.6
Factory Speed Setting (rpm) 779 976 1050 976 1050 1182 993 1134 1182
FURNACE SECTION
Rollout Switch Cutout Temp (F)** 225 225 225
Burner Orifice Diameter
(in. ...drill size)
Natural Gas Std .120...31 .120...31 .120...31
Liquid Propane Alt .096...41 .096...41 .096...41
Thermostat Heat Anticipator
Setting (amps)
Stage 1 0.1 0.1 0.1
Stage 2 0.1 0.1 0.1
Gas Input (Btuh) Stage 1 Low 303,500 303,500 303,500
High 607,000 607,000 607,000
Stage 2 Low 400,000 400,000 400,000
High 800,000 800,000 800,000
Efficiency (Steady State) (%) 82 82 82
Temperature Rise Range 10-40/30-60 10-40/30-60 10-40/30-60
Gas Pressure to Unit Range (in. wg) 5-13.5 5-13.5 5-13.5
Manifold Pressure (in. wg)
Natural Gas Std 3.5 3.5 3.5
Liquid Propane Alt 3.5 3.5 3.5
Gas Valve Quantity 22 2
Field Gas Connection Size
(in.-FPT) 1.5 1.5 1.5
HIGH-PRESSURE SWITCH (psig)
Cutout 426 426 426
Reset (Auto.) 320 320 320
LOW-PRESSURE SWITCH (psig)
Cutout 77 7
Reset (Auto.) 22 22 22
RETURN-AIR FILTERS (W x H x T)
Quantity...Size (in.) 10...20 x 24 x 2 10...20 x 24 x 2 10...20 x 24 x 2
OUTDOOR-AIR FILTERS 8...16 x 25 8...16 x 25 8...16 x 25
Quantity...Size (in.) 4...20 x 25 4...20 x 25 4...20 x 25
POWER EXHAUST Direct Drive, 3-Speed, Single-Phase Motor (Factory-Wired for High Speed) and Forward Curved Fan
Motor, Quantity...Hp 4...1
Fan, Diameter...Width (in.) 11...10

25
Table 1B — Physical Data — 48EJ,EK,EW,EY Units (cont)
*Circuit 1 uses the left condenser coil. Circuit 2 the right. All units have intertwined evaporator coils.
†Motor and drive shown will deliver approximately 2.5 in. wg net external static pressure. For more information see Table 3.
**Rollout switch is manual reset.
NOTE: High heat is for 48EJ,EW.
UNIT 48EJ,EK,EW,EY 054D/E 058D/E 064D/E 068D/E
NOMINAL CAPACITY (tons) 50 55 60 65
OPERATING WEIGHT (lb) For Operating Weights see Table 2.
COMPRESSOR
Quantity...Type (Ckt 1, Ckt 2) 1...06EA265, 1...06EA250 1...06EA275, 1...06EA250 1...06EA275, 1...06EA265 2...06EA275
Number of Refrigerant Circuits 2222
Oil (oz) (Ckt 1, Ckt 2) 304, 224 304, 224 304, 304 304, 304
REFRIGERANT TYPE R-22
Operating Charge (lb-oz)
Circuit 1* 50-11 57-0 68-0 81-0
Circuit 2 46-8 48-6 68-0 73-0
CONDENSER COIL Cross-Hatched 3/8″-in. Copper Tubes, Aluminum Lanced, Aluminum Pre-Coated, or Copper Plate Fins
Quantity 1 1 1 1 2 2
Rows...Fins/in. 3...15 2...15 3...15 2...15 3...15 4...15
Total Face Area (sq ft) 66.6 100.0 100 100
CONDENSER FAN Propeller Type
Nominal Cfm 30,000 43,900 43,900 43,900
Quantity...Diameter (in.) 4...30 6...30 6...30 6...30
Motor Hp (1075 Rpm) 1111
EVAPORATOR COIL Cross-Hatched 1/2″-in. Copper Tubes, Aluminum Plate Fins, Intertwined Circuits
Rows...Fins/in. 4...17 4...17 4...17 4...17
Total Face Area (sq ft) 45.0 45.0 48.1 48.1
EVAPORATOR FAN Centrifugal Type
Quantity...Size (in.) 3...20x15 3...20x15 3...20x15 3...20x15
Type Drive Belt Belt Belt Belt
Nominal Cfm 20,000 22,000 24,000 26,000
Motor Hp 15 20† 25 20 25† 30 25 30† 40 25 30† 40
Motor Frame Size S254T S256T S284T S256T S284T S286T S284T S286T S324T S284T S286T S324T
Motor Bearing Type Ball Ball Ball Ball
Maximum Allowable Rpm 1200 1200 1200 1200
Motor Pulley Pitch Diameter 4.7 6.1 8.1 5.9 6.7 7.5 5.3 8.1 9.4 6.7 5.9 9.4
Nominal Motor Shaft Diameter (in.) 15/815/817/815/817/817/817/817/821/817/817/821/8
Fan Pulley Pitch Diameter (in.) 11.1 11.1 12.5 11.1 11.1 11.1 9.1 12.5 13.6 12.5 9.5 13.6
Nominal Fan Shaft Diameter (in.) 115/16 115/16 115/16 115/16
Belt, Quantity...Type 2...5VX550 2...5VX570 2...5VX630 2...5VX570 2...5VX590 2...5VX590 3...5VX530 2...5VX630 2...5VX650 2...5VX610 3...5VX550 2...5VX650
Length (in.) 55 57 63 57 59 59 53 63 65 61 55 59
Pulley Center Line Distance (in.) 15.2-17.5 15.2-17.5 14.7-17.2 15.2-17.5 14.7-17.2 14.7-17.2 14.7-17.2 14.7-17.2 14.2-17.0 14.7-17.2 14.7-17.2 14.3-17.0
Factory Speed Setting (rpm) 741 962 1134 930 1056 1182 1019 1134 1214 938 1087 1214
FURNACE SECTION
Rollout Switch Cutout Temp (F)** 225 225 225 225
Burner Orifice Diameter
(in. ...drill size)
Natural Gas Std .120...31 .120...31 .120...31 .120...31
Liquid Propane Alt .096...41 .096...41 .096...41 .096...41
Thermostat Heat Anticipator
Setting (amps)
Stage 1 0.1 0.1 0.1 0.1
Stage 2 0.1 0.1 0.1 0.1
Gas Input (Btuh) Stage 1 441,000/ 873,000 441,000/ 873,000 441,000/ 873,000 441,000/ 873,000
Stage 2 662,400/1,164,000 662,400/1,164,000 662,400/1,164,000 662,400/1,164,000
Efficiency (Steady State) (%) 82 82 82 82
Temperature Rise Range 10-40/30-60 10-40/30-60 10-40/30-60 10-40/30-60
Gas Pressure to Unit Range (in. wg) 5 - 13.5 5 - 13.5 5 - 13.5 5 - 13.5
Manifold Pressure (in. wg)
Natural Gas Std 3.3 3.3 3.3 3.3
Liquid Propane Alt 3.3 3.3 3.3 3.3
Gas Valve Quantity 3333
Field Gas Connection Size
(in.-FPT) 2.5 2.5 2.5 2.5
HIGH-PRESSURE SWITCH (psig)
Cutout 426 426 426 426
Reset (Auto.) 320 320 320 320
LOW-PRESSURE SWITCH (psig)
Cutout 7777
Reset (Auto.) 22 22 22 22
RETURN-AIR FILTERS (W x H x T)
Quantity...Size (in.) 16...20 x 24 x 2 16...20 x 24 x 2 16...20 x 24 x 2 16...20 x 24 x 2
OUTDOOR-AIR FILTERS 12...16 x 25 12...16 x 25 12...16 x 25 12...16 x 25
Quantity...Size (in.) 6...20 x 25 6...20 x 25 6...20 x 25 6...20 x 25
POWER EXHAUST Direct Drive, 3-Speed, Single-Phase Motor (Factory-Wired for High Speed) and Forward Curved Fan
Motor, Quantity...Hp 6...1
Fan, Diameter...Width (in.) 11...10

26
Table 2 — Operating Weights
48AJ,AK,AW,AY Units
48EJ,EK,EW,EY Units
LEGEND
*Outdoor-air hoods and filters included in base unit weights; indoor-
fan motors are NOT included.
NOTES:
1. Base unit weight includes outdoor-air hoods. Base unit weight
does NOT include indoor-fan motor. ADD indoor-fan motor,
FIOPs, and accessories for TOTAL operating weight.
2. The VAV motor weights include indoor fan motor and the VFD
(variable frequency drive), compressor electric unloaders, VFD
transducers, and associated wiring.
UNIT BASE UNIT WEIGHTS (Lb)*
020 025 027 030 035 040 050 060
48AJD,AKD 4287 4373 4394 4394 5073 5515 5628 7480
48AJE 4367 4453 4474 4474 5233 5675 5788 7720
48AWD,AYD 4327 4413 4434 4434 5113 5555 5668 7520
48AWE 4407 4493 4514 4514 5273 5715 5828 7760
OPTION/
ACCESSORY
OPTION/ACCESSORY WEIGHTS (Lb)
020 025 027 030 035 040 050 060
Barometric Relief 300 300 300 300 300 300 300 450
Power Exhaust 450 450 450 450 450 450 450 675
Modulating Power Exhaust 500 500 500 500 500 500 500 725
Cu Tubing/Cu Fin Condenser Coil 220 220 220 220 285 285 380 651
Roof Curb (14-in. curb) 365 365 365 365 410 410 410 585
UNIT BASE UNIT WEIGHTS (Lb)*
024 028 030 034 038 044 048 054 058 064 068
48EJ,EKD 4287 4373 4373 4373 5012 5238 5525 6805 7055 7305 7480
48EJE 4367 4453 4453 4453 5172 5398 5685 7045 7295 7545 7720
48EW,EYD 4327 4413 4413 4413 5052 5278 5565 6845 7095 7345 7520
48EWE 4407 4493 4493 4493 5212 5438 5725 7085 7335 7585 7760
OPTION/
ACCESSORY
OPTION/ACCESSORY WEIGHTS (Lb)
024 028 030 034 038 044 048 054 058 064 068
Barometric Relief 300 300 300 300 300 300 300 450 450 450 450
Power Exhaust 450 450 450 450 450 450 450 675 675 675 675
Modular Power Exhaust 500 500 500 500 500 500 500 725 725 725 725
Cu Tubing/Cu Fin Condenser Coil 220 220 220 220 285 285 380 271 407 489 651
Roof Curb (14-in. curb) 365 365 365 365 410 410 410 585 585 585 585
CV MOTOR WEIGHTS (Lb)
MOTOR
HP
UNIT
VOLTAGE
STANDARD
EFFICIENCY
IFM
HIGH
EFFICIENCY
IFM
5230/460 78 94
575 78 92
7.5 230/460 107 135
575 107 136
10 230/460 118 164
575 118 156
15 230/460 150 217
575 150 220
20 230/460 212 250
575 212 258
25 230/460 240 309
575 240 319
30 230/460 283 355
575 283 359
40 230/460 372 415
575 372 410
Cu — Copper
CV — Constant Volume
FIOP — Factory-Installed Option
HP — Horsepower
IFM — Indoor Fan Motor
VAV — Variable Air Volume
VFD — Variable Frequency Drive
VAV MOTOR WEIGHTS (Lb)
MOTOR
HP
UNIT
VOLTAGE
STANDARD
EFFICIENCY
IFM
HIGH
EFFICIENCY
IFM
5230/460 125 141
575 163 177
7.5 230/460 183 211
575 193 222
10 230/460 204 250
575 204 242
15 230/460 238 305
575 240 310
20 230/460 348 386
575 304 350
25 230/460 377 446
575 375 454
30 230/460 480 552
575 418 494
40 230/460 637 680
575 587 625

27
Table 3 — Evaporator Fan Motor Data
NOTES:
1. Motor shaft speed is 1750 rpm. The fan shaft diameter is 115/16 inches.
2. All indoor fan motors meet the minimum efficiency requirements
as established by the Energy Policy Act of 1992 (EPACT), effective
October 24, 1997.
UNIT
SIZE
48AJ,AK,
AW,AY
UNIT
SIZE
48EJ,EK,
EW,EY
MOTOR
HP
MOTOR
SHAFT DIA.
(in.)
FAN
SHAFT
SPEED
(rpm)
MOTOR
SHEAVE
MOTOR
SHEAVE
PITCH
DIAMETER
(in.)
BUSHING
DIAMETER
(in.)
FAN
SHEAVE
FAN
SHEAVE
PITCH
DIAMETER
(in.)
BUSHING
DIAMETER
(in.)
BELT
(Quantity)
BELT
TENSION
(lb at .25 in.)
020 024 5 1.125 717 BK55 4.9 NONE — 1.125 1B5V124 12.4 B—1.9375 BX56 8
10 1.375 924 2BK50 4.4 NONE — 1.375 2B5V86 8.6 B—1.9375 (2) BX50 8
15 1.625 1096 2B5V56 5.7 B — 1.625 2B5V90 9.1 B—1.9375 (2) 5VX530 9
025 028 7.5 1.375 773 BK60H 5.4 H — 1.375 1B5V124 12.4 B—1.9375 BX56 10
10 1.375 962 1B5V60 6.1 H — 1.375 1B5V110 11.1 B—1.9375 5VX570 11
15 1.625 1106 2B5V54 5.5 B — 1.625 2B5V86 8.7 B—1.9375 (2) 5VX530 9
027 030 10 1.375 848 2BK50 4.4 NONE — 1.375 2B5V94 9.4 B—1.9375 (2) BX50 8
15 1.625 1059 2B5V48 4.9 B — 1.625 2B5V80 8.1 B—1.9375 (2) 5VX500 10
20 1.625 1187 2B5V58 5.9 B — 1.625 2B5V86 8.7 B—1.9375 (2) 5VX530 11
030 034 10 1.375 884 2BK50 4.4 H — 1.375 2B5V90 9.0 B—1.9375 (2) BX50 8
15 1.625 1096 2B5V56 5.7 B — 1.625 2B5V90 9.1 B—1.9375 (2) 5VX530 9
20 1.625 1187 2B5V58 5.9 B — 1.625 2B5V86 8.7 B—1.9375 (2) 5VX530 11
035 038 10 1.375 779 1B5V60 6.1 NONE — 1.375 1B5V136 13.7 B—1.9375 5VX610 12
15 1.625 976 2B5V52 5.3 B — 1.625 2B5V94 9.5 B—1.9375 (2) 5VX530 10
20 1.625 1050 2B5V56 5.7 B — 1.625 2B5V94 9.5 B—1.9375 (2) 5VX550 11
040 044 15 1.625 976 2B5V52 5.3 B — 1.625 2B5V94 9.5 B—1.9375 (2) 5VX530 10
20 1.625 1050 2B5V56 5.7 B — 1.625 2B5V94 9.5 B—1.9375 (2) 5VX550 11
25 1.875 1182 2B5V74 7.5 B — 1.875 2B5V110 11.1 B—1.9375 (2) 5VX590 11
050 048 20 1.625 993 2B5V62 6.3 B — 1.625 2B5V110 11.1 B—1.9375 (2) 5VX570 11
25 1.875 1134 2B5V80 8.1 B — 1.875 2B5V124 12.5 B—1.9375 (2) 5VX630 11
30 1.875 1182 2B5V74 7.5 B — 1.875 2B5V110 11.1 B—1.9375 (2) 5VX590 13
— 054 15 1.625 741 2B5V46 4.7 B — 1.625 2B5V110 11.1 B—1.9375 (2) 5VX550 11
20 1.625 962 2B5V60 6.1 B — 1.625 2B5V110 11.1 B—1.9375 (2) 5VX570 12
25 1.875 1134 2B5V80 8.1 B — 1.875 2B5V124 12.5 B—1.9375 (2) 5VX630 12
— 058 20 1.625 930 2B5V58 5.9 B — 1.625 2B5V110 11.1 B—1.9375 (2) 5VX570 13
25 1.875 1056 2B5V66 6.7 B — 1.875 2B5V110 11.1 B—1.9375 (2) 5VX590 14
30 1.875 1182 2B5V74 7.5 B — 1.875 2B5V110 11.1 B—1.9375 (2) 5VX590 14
060 064 25 1.875 1019 3B5V52 5.3 B — 1.875 3B5V90 9.1 B—1.9375 (3) 5VX530 12
30 1.875 1134 2B5V80 8.1 B — 1.875 2B5V124 12.5 B—1.9375 (2) 5VX630 14
40 2.125 1214 2B5V94 9.4 B — 2.125 2B5V136 13.6 B—1.9375 (2) 5VX650 15
— 068 25 1.875 938 2B5V66 6.7 B — 1.875 2B5V124 12.5 B—1.9375 (2) 5VX610 14
30 1.875 1087 3B5V58 5.9 B — 1.875 3B5V94 9.5 B—1.9375 (3) 5VX550 13
40 2.125 1214 2B5V94 9.4 B — 2.125 2B5V136 13.6 B—1.9375 (2) 5VX650 15
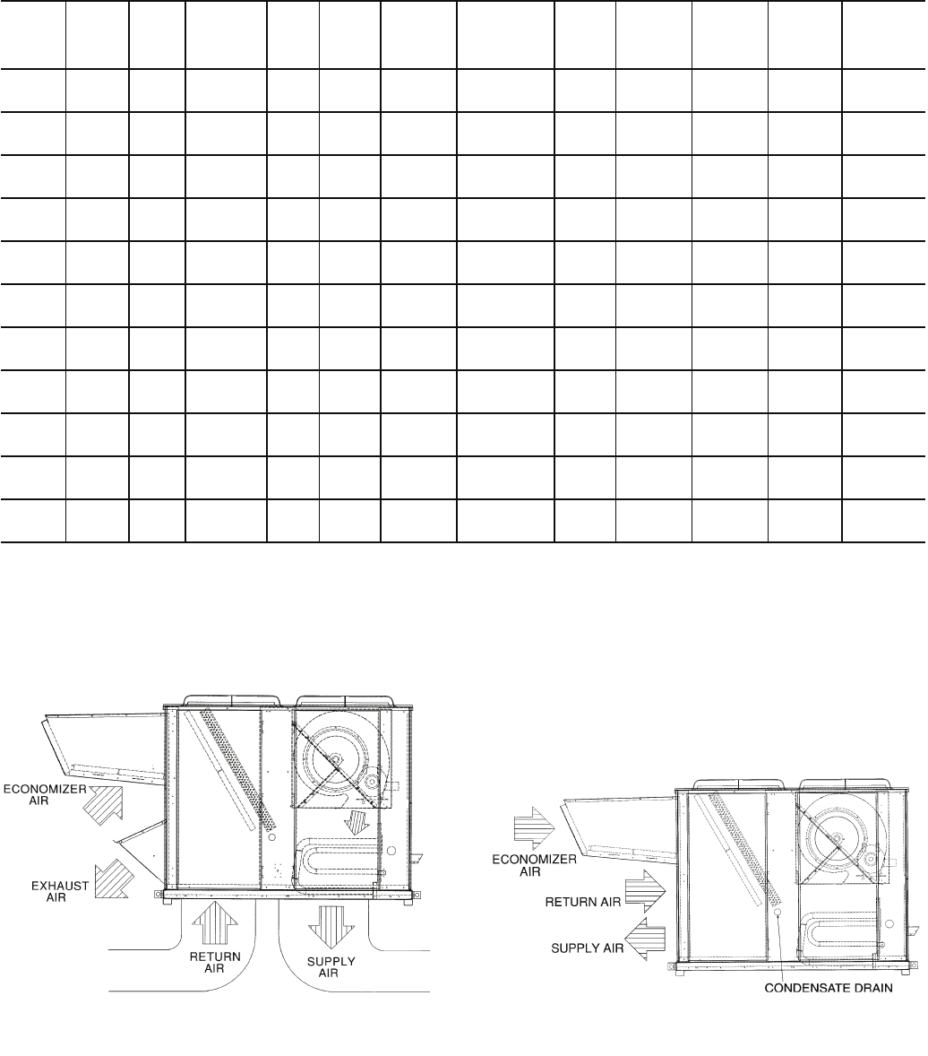
Fig. 18 — Air Distribution — Thru-the-Bottom Fig. 19 — Air Distribution — Thru-the-Side

28
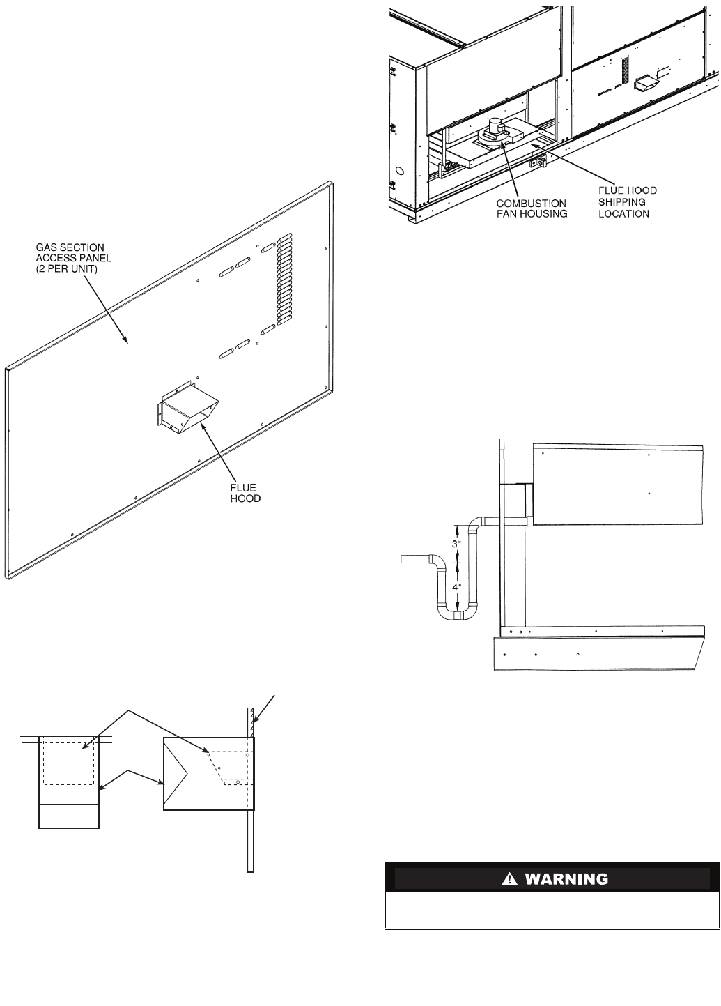
Step 5 — Install Flue Hood
48AJ,AK,AW,AY020-050 AND 48EJ,EK,EW,EY024-048
UNITS — Flue hood is shipped inside gas section of unit. To
install, secure flue hood to access panel. See Fig. 20A.
48AJ,AK,AW,AY060 AND 48EJ,EK,EW,EY054-068
UNITS — Flue hood and wind baffle are shipped inside gas
section of unit. To install, secure flue hood to access panel. In-
stall the two pieces of the wind baffle over the flue hood. See
Fig. 20B.
NOTE: When properly installed, flue hood will line up with
combustion fan housing. See Fig. 21.
Step 6 — Trap Condensate Drain — See Fig. 5-16
for drain location. Condensate drain is open to atmosphere and
must be trapped. Install a trapped drain at the drain location.
One 1-in. FPT coupling is provided inside the unit evaporator
section for condensate drain connection. A trap at least 4-in.
deep must be used. See Fig. 22. Trap must be installed to pre-
vent freeze-up.
Condensate pans are sloped so that water will completely
drain from the condensate pan to comply with indoor air quali-
ty guidelines. The condensate drain pans are not insulated.
Step 7 — Install Gas Piping — Unit is equipped for
use with natural gas. Installation must conform with local
building codes or, in the absence of local codes, with the Na-
tional Fuel Gas Code, ANSI Z223.1.
Install manual gas shutoff valve with a 1/8-in. NPT pressure
tap for test gage connection at unit. Field gas piping must in-
clude sediment trap and union. See Fig. 23. An 1/8-in. NPT is
also located on the gas manifold adjacent to the gas valve.
Do not pressure test gas supply while connected to unit.
Always disconnect union before servicing.
FLUE HOOD
GAS SECTION
ACCESS PANEL
WIND
BAFFLE
TOP VIEW SIDE VIEW
Fig. 20A — Flue Hood Location
(48AJ,AK,AW,AY020-050 and
48EJ,EK,EW,EY024-048 Units)
Fig. 20B — Flue Hood Location
(48AJ,AK,AW,AY060 and
48EJ,EK,EW,EY054-068 Units)
Fig. 21 — Combustion Fan Housing Location
Fig. 22 — Condensate Drain Trap Piping Details
(Typical Roof Curb or Slab Mount Shown)

29
Size gas-supply piping for 0.5-in. wg maximum pressure
drop. Do not use supply pipe smaller than unit gas connection.
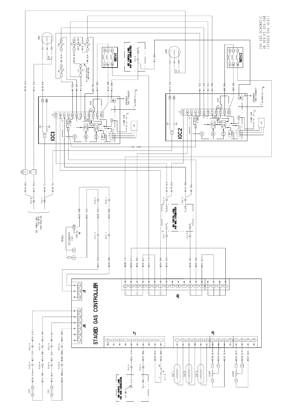
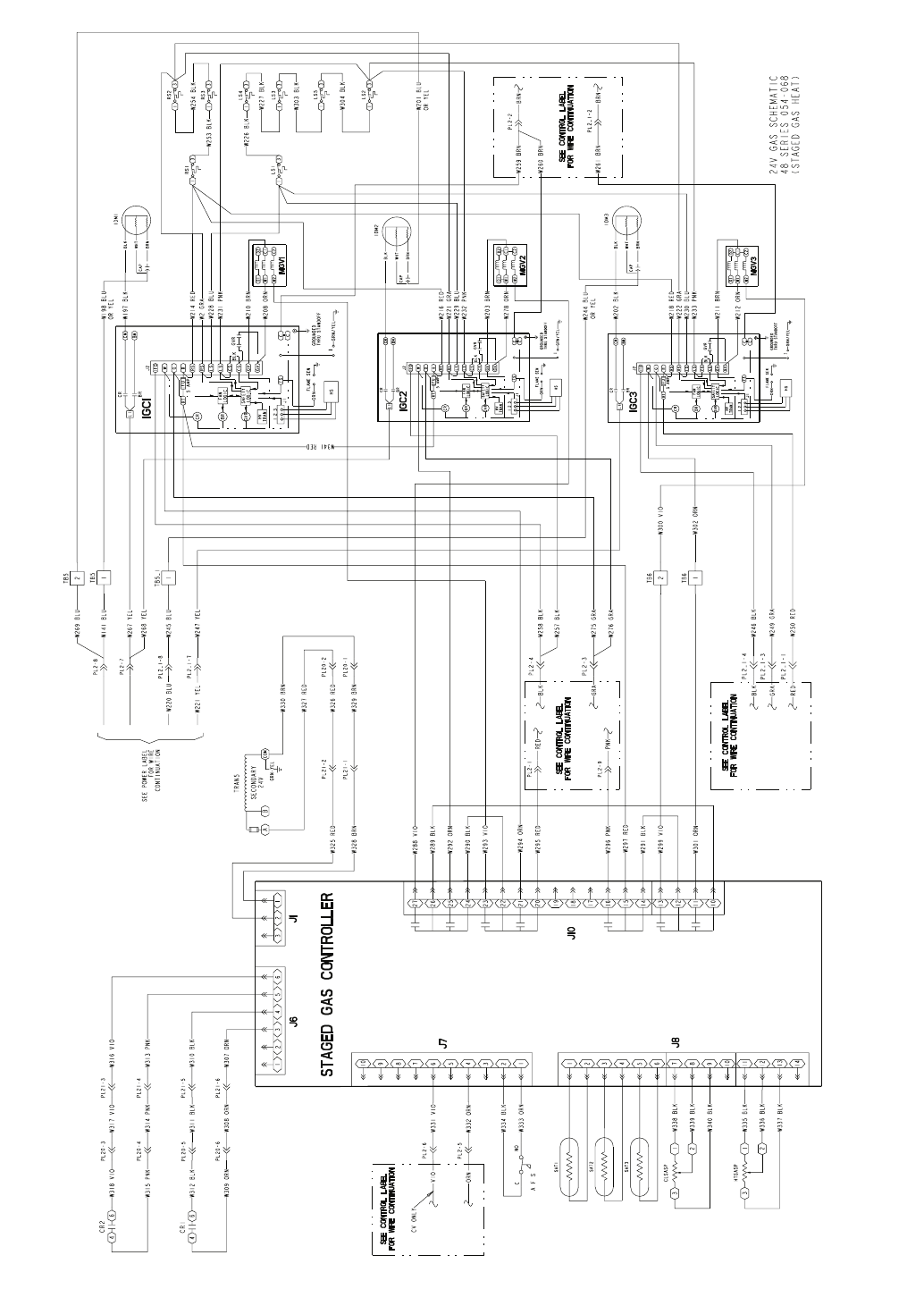
OPTIONAL STAGED GAS UNITS — The staging pattern
is selected based on Heat Stage Type (HTSTGTYP). Max
Capacity per changes default value is selected based on Capac-
ity Maximum Stage (CAPMXSTG). See Table 4.
For complete information and service instructions for
Staged Gas Control Units, see Control Operation and Trouble-
shooting literature.
Step 8 — Controls Options — The control options
that the units can provide are based on the following parame-
ters: CV (constant volume) or VAV (variable air volume) oper-
ation; stand-alone unit with field-supplied sensors installed
(CV or VAV); as a system via Carrier Comfort System (TEMP
or VVT® [Variable Volume and Temperature]); optional elec-
tronic expansion board installed (CV or VAV); linked to the
Carrier Comfort Network; availability of a computer and soft-
ware (ComfortWORKS® Building Supervisor, and Service
Tool) or remote enhanced display accessory installed to access
the base control board; and optional factory-installed staged
gas control. See Table 5.
NOTE: Access to the base control board allows unit occu-
pancy schedules, unit timeclock, and various set points to be
changed from their factory-defined default settings.
Table 4 — 48A,E Series Staged Gas Implementation
IMPORTANT: Natural gas pressure at unit gas connection
must not be less than 5 in. wg or greater than 13.5 in. wg.
NUMBER OF STAGES MODEL NUMBER POSITION POSITION HEAT SIZE
3 5 6,7,8 HTSTGTYP CAPMXSTG
5 stages
ES
024
028
030
034
038
044
048
Default=1 Default=20 Low
AS
020
025
027
030
035
040
050
Default=1 Default=20 Low
ET
038
044
048
Default=1 Default=20 High
AT
035
040
050
Default=1 Default=20 High
7 stages
ET
024
028
030
034
Default=2 Default=15 High
AT
020
025
027
030
Default=2 Default=15 High
9 stages ET
054
058
064
068
Default=3 Default=15 High
A T 060 Default=3 Default=15 High
11 stages ES
054
058
064
068
Default=4 Default=15 Low
A S 060 Default=4 Default=15 Low
Fig. 23 — Field Gas Piping

30
Table 5 — Controls Options and Configurations (Non-Thermostat Applications)
LEGEND
*With DIP Switch No. 5 configured to OPEN (Occupied Heat Enabled).
NOTE: Space temperature sensor and remote start/stop switch are field-supplied.
STAGED GAS UNIT APPLICATIONS — The rooftop units
may be ordered with an optional factory-installed staged gas
control system that monitors heating operation of the rooftop
unit.
Install Supply-Air Thermistors (Staged Gas Units Only) —
Supply-air thermistors are a field-installed factory-provided
component. Three supply-air thermistors are shipped with
staged gas units and are inside the heating section. Thermistor
wires must be connected to SGC (staged gas controller) in the
heating section. See Table 6 and Fig 24. The supply-air ther-
mistors should be located in the supply duct with the following
criteria:
• downstream of the heat exchanger cells
• equally spaced as far as possible from the heat exchanger
cells
• a duct location where none of the supply air thermistors
are within sight of the heat exchanger cells
• a duct location with good mixed supply air portion of the
unit.
THERMISTORS — All units are equipped with a supply air
thermistor (SAT) located in the supply fan discharge and an
outdoor air thermistor (OAT) located in the outdoor air hood.
Variable air volume (VAV) units are supplied with a return air
thermistor (RAT) located on the return air damper support.
CONSTANT VOLUME APPLICATIONS — The units, as
shipped, are operable as stand-alone units, using either a stan-
dard (mechanical or electronic) 2-stage heat, 2-stage cool ther-
mostat, or with an electronic room sensor and a timeclock to
establish unit start and stop times.
With a standard thermostat (programmable is optional),
heating and cooling operation is set by space temperature.
With a space sensor and timeclock, the machine will operate
at default values unless they are changed using appropriate in-
put devices. The space sensor senses space temperature and
may be equipped with a timed override feature, which allows
unit operation during unoccupied periods.
The space sensors may be used in multiples of 4 or 9 to
achieve space temperature averaging. The use of a space sensor
also allows the unit to be turned on and off from a remote
signal.
Table 6 — Thermistor Designations
UNIT CONFIGURATION DEFAULT COOLING DEFAULT HEATING
CV or VAV Unit with SPT Sensor Unoccupied Cooling — 90 F (32 C) (SPT)
Occupied Cooling — NA
Unoccupied Heating — 55 F (13 C) (SPT)
Occupied Heating — NA
CV Unit with SPT Sensor and Remote
Start/Stop Switch
Unoccupied Cooling — 90 F (32 C) (SPT)
Occupied Cooling — 78 F (26 C) (SPT)
Unoccupied Heating — 55 F (13 C) (SPT)
Occupied Heating — 68 F (20 C) (SPT)
VAV Unit Remote Start/Stop Switch Only Unoccupied Cooling — 90 F (32 C)(SPT)
Occupied Cooling — 55 F (13 C) SPT)
Unoccupied Heating — 55 F (13 C) (RAT)
Occupied Heating — 68 F (20 C) (RAT)*
VAV Unit with SPT Sensor and Remote
Start/Stop Switch
Unoccupied Cooling — 90 F (32 C) (SPT)
Occupied Cooling — 55 F (13 C) (SAT)
Unoccupied Heating — 55 F (13C) (SPT)
Occupied Heating — 68 F (20 C) (RAT)*
CV — Constant Volume
NA — Not Available
RAT — Return-Air Temperature
SAT — Supply-Air Temperature
SPT Space Temperature
VAV — Variable Air Volume
IMPORTANT: An accessory field-supplied Navigator dis-
play module is required for all staged gas control units.
THERMISTOR
PIN
CONNECTION
POINT
FUNCTION AND LOCATION
PART NO.
Thermistors
SAT 1 J8 – 1,2 (SGC) Supply Air Thermistor (SAT) — Inserted into supply section
underneath the gas heat section (factory-provided, field-installed)
HH79NZ016SAT 2 J8 – 3,4 (SGC) Supply Air Thermistor (SAT) — Inserted into supply section
underneath the gas heat section (factory-provided, field-installed)
SAT 3 J8 – 5,6 (SGC) Supply Air Thermistor (SAT) — Inserted into supply section
underneath the gas heat section (factory-provided, field-installed)

31
Features with Thermostat Control of Unit
• two-stage heating
• two-stage cooling
• control of unit using Y1, Y2, W1, W2, and G thermostat
inputs
• control of the indoor fan
• outdoor-air temperature/supply-air temperature
monitoring
• control of an outdoor air condenser fan based on out-
door-air temperature
• control of modulating economizer damper to provide
free cooling when outdoor conditions are suitable, using
supply-air temperature as a control point
• control of the economizer damper and indoor fan to
obtain unoccupied free cooling
• provide power exhaust output to an external power
exhaust controller
• support a field test for field checkout
• control of 2 stages of CV power exhaust
• compressor Time Guard® (power up, minimum off and
on times)
• compressor lockout during low supply-air temperature
Additional features are provided by accessing the standard
unit control board via software with a computer. These features
are:
• electronic expansion board features (if installed)
• control board diagnostics
• ability to change supply air set point (economizer control)
• ability to change high outdoor temperature lockout set
point (economizer control)
• ability to change power exhaust set points
NOTE: A CV unit without a thermostat requires a field-
supplied sensor for operation.
Features with Sensor Control of Unit (Stand-Alone Applica-
tions — Unit control is limited to CV unoccupied default set
points, 90 F for cooling, 55 F for heating unless a computer has
been used to change the set points. There are 2 sensor options
available:
• T-55 sensor will monitor room temperature and provide
unoccupied override capability (1 hour)
• T-56 sensor will monitor room temperature, provide
unoccupied override capability (1 hour), and provide a
temperature offset of 5° F.
Standard features are:
• support of remote occupied/unoccupied input to start and
stop the unit
• cooling capacity control of 3 stages using economizer
and 2 compressors to maintain space temperature to an
occupied or unoccupied set point
• enable heating or cooling during unoccupied periods as
required to maintain space temperature within the unoc-
cupied set points
• adjustment of space temperature set points of ±5° F when
using a T-56 sensor
• provides CCN (Carrier Comfort Network) IAQ (Indoor-
Air Quality) participation
• control of modulating economizer damper to maintain
indoor air quality (IAQ) when outdoor conditions are
suitable (this function is provided in the base unit con-
trols on units with serial number 0600F or later)
NOTE: The IAQ sensor must be set for current output (4 to
20 mA), not voltage output. Ensure the jumper on the sensor is
in the upper position. See Fig. 25.
Additional features with sensor control of unit (with com-
puter access or Remote Enhanced Display) are:
• 365-day timeclock with backup (supports minute, hour,
day of week, date, month, and year)
• daylight savings time function
• occupancy control with 8 periods for unit operation
• holiday table containing up to 18 holiday schedules
• ability to initiate timed override from T-55 or T-56 sen-
sors for a timed period of 1 to 4 hours
• ability to use multiple space temperature sensors to aver-
age the space temperature
• supply-air temperature reset for the supply-air tempera-
ture set point
• temperature compensated start to calculate early start
times before occupancy
• access to the Display, Maintenance, Configuration, Ser-
vice, and Set Point data tables through network software
• loadshed and demand limiting
When the unit is equipped with a field-supplied space tem-
perature sensor and a remote contact closure (remote start/
stop) on the base control board, the occupied default set points
will monitor unit operation. The occupied default set points are
78 F cooling and 68 F heating (if heating is present). See
Fig. 26 for remote start/stop wiring.
NOTE: For units with a field-supplied space temperature sen-
sor which have not had the base unit control board accessed
via software to set an occupancy schedule, the remote start/
stop closure will allow the unit to operate in the pre-configured
occupied default set points of 78 F cooling and 68 F heating.
Without this feature, the unit will control to the unoccupied
default set points of 90 F cooling and 55 F heating.
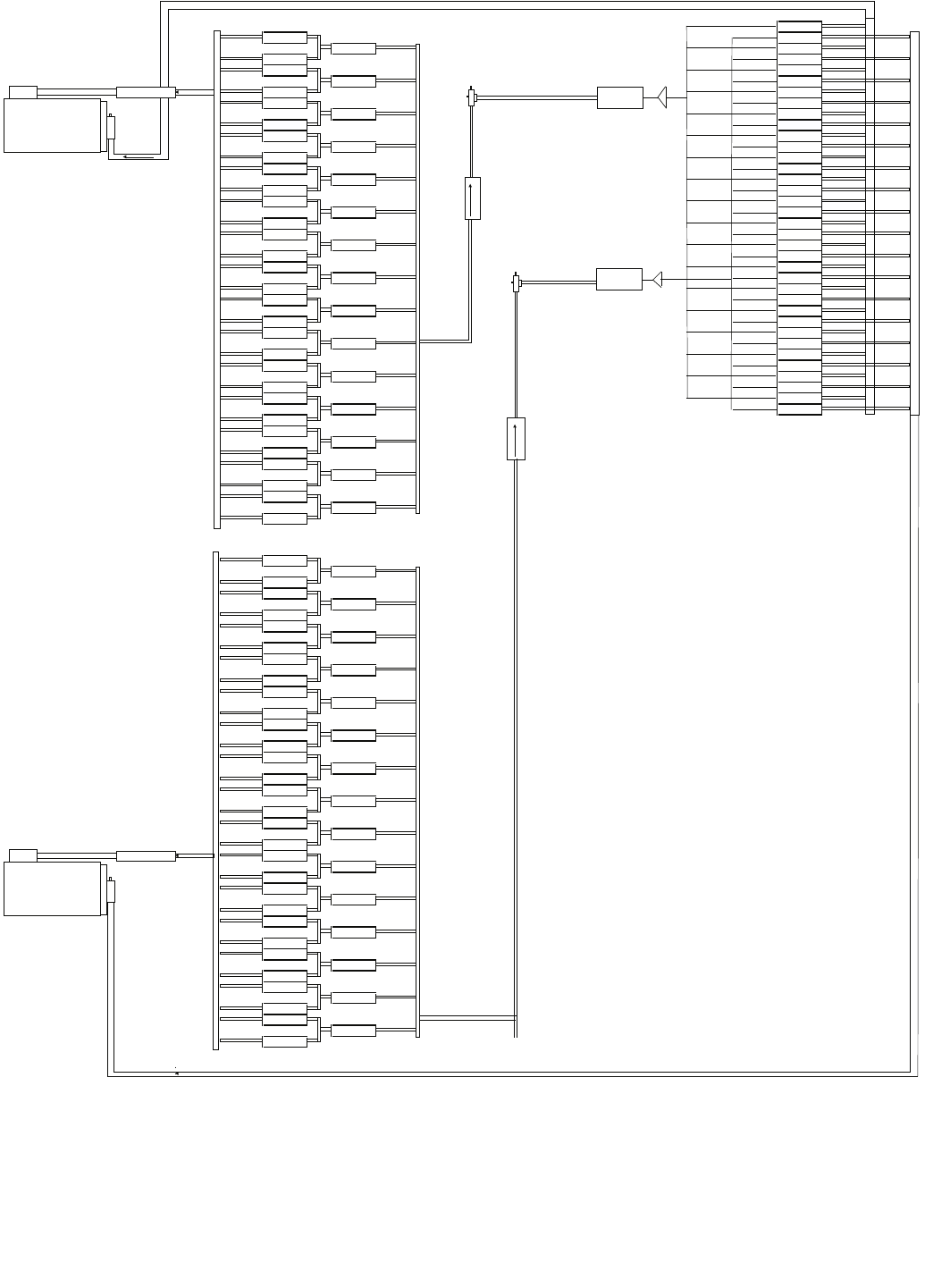
Fig. 24 — Supply-Air Thermistor Connections

32
An electronic expansion board may be field-installed to pro-
vide the following features:
• provide discrete inputs for fan status, filter status, field-
applied status, and demand limit
• provide an output for the external alarm light indicator
• provide power exhaust fire outputs for direct control of
modulated power exhaust stages during fire or smoke
modes
• control of smoke control modes including evacuation,
smoke purge, pressurization, and fire shutdown (modu-
lating power exhaust required)
When the unit is connected to the CCN (Carrier Comfort
Network), the following expansion board features can be
utilized:
• perform Demand Limit functions based on CCN load-
shed commands or the state of the discrete input
• alarm monitoring of all key parameters
• CCN protocol
See Carrier TEMP or VVT® (Variable Volume and Tem-
perature) literature for complete TEMP (single zone) or VVT
(multi-zone) application information.
Features with Sensor Control of Unit (Network Applica-
tions) — The base control board provides, as standard, a con-
nection for use with a Carrier VVT system and can also be in-
tegrated into a Carrier Comfort Network.
When the unit is accessed via a PC equipped with
ComfortWORKS®, Building Supervisor, Service Tool soft-
ware, or accessory Remote Enhanced Display, the following
features can be accessed:
• on-board timeclock can be programmed
• occupancy schedules can be programmed
• unit set points can be changed
• alarms can be monitored
This access is available on the base control board via a
RJ-11 phone jack or a 3-wire connection to the communication
bus. See Fig. 27. The timeclock has a 10-hour minimum back-
up time to provide for unit power off for servicing unit or dur-
ing unexpected power outages. For complete Carrier Comfort
System (CCS) or Carrier Comfort Network (CCN) features
and benefits, refer to the product literature.
VARIABLE AIR VOLUME (VAV) APPLICATIONS
Features with Stand-Alone Applications — The units, as
shipped, are operable as stand-alone units with the addition of a
timeclock to establish unit start and stop times.
Heating and cooling in both on and off modes is controlled
to default values by the base unit control. Set points may be
changed with appropriate input devices.
The control has an on-board occupancy schedule which can
be set using an input device and eliminates the need for an ex-
ternal timeclock.
During both the on and off periods, cooling operation is
controlled to the supply air setting and heating is controlled to
the return air setting (or to the optional space temperature sen-
sor). During the on period, the supply fan runs continuously.
During the off period, the supply fan will be activated if the re-
turn air sensor is outside of the set points and will run long
enough to accurately sample the space temperature. The supply
fan will then continue to run until any heating or cooling load is
satisfied, at which point it will turn off.
The use of a space sensor will allow for supply air reset to
conserve energy and maintain comfort. If equipped with an
override feature, the sensor will allow operation during the off
period for a fixed length of time.
Base unit control supports a Heat Interlock Relay (field sup-
plied) to fully open the VAV terminal devices during heating
operation.
Standard features of a VAV unit with a remote start/stop
switch are:
• control board diagnostics
• control of an outdoor condenser fan based upon outdoor
air temperature
• control of modulating economizer to provide free cool-
ing when outdoor conditions are suitable, using supply-
air temperature as a set point
• support of remote occupied/unoccupied input to start or
stop the unit
• provide power exhaust output to an external power
exhaust controller
• support supply-air temperature reset to offset supply air
set point
• support a field test for field check out
• support linkage to DAV (digital air volume) systems
• cooling capacity control of up to 6 stages plus econo-
mizer with compressors and unloaders to maintain sup-
ply air temperature set point during occupied periods
JUMPER CONNECTION
FOR VOLTAGE OUTPUT
JUMPER CONNECTION
FOR CURRENT OUTPUT
R
Y1
Y2
W1
W2
G
C
X
CONTROL
BOX
REMOTE
START/STOP
SWITCH
(FIELD-SUPPLIED)
Fig. 25 — Indoor Air Quality Sensor Configuration
LEGEND
Fig. 26 — Field Control Remote Start/Stop
Field Supplied Wiring

33
• control of one stage of heat to maintain return-air tem-
perature at heating set point during occupied periods
• provide a variable frequency drive high voltage relay
output to enable VFD
• control of heat interlock relay
• IAQ (Indoor Air Quality) sensor
• OAQ (Outdoor Air Quality) sensor
• DX compressor lockout occurs at 45 F outdoor air tem-
perature and is factory-enabled on units with serial num-
ber 0600F or later. This feature may be disabled through
the use of a computer
• compressor Time Guard® override (power up, minimum
off and on times)
With the addition of a remote start/stop switch heating or
cooling is enabled during unoccupied periods as required to
maintain space temperature to within unoccupied set points.
Occupied heating is enabled or disabled by the position of
DIP (dual in-line package) switch no. 5.
Additional features may be provided with Electronic Ac-
cess to Unit Control Board. These features are:
• additional control board diagnostics
• electronic expansion board features (if installed)
• control of the economizer damper and indoor fan to
obtain unoccupied free cooling
• 365-day timeclock with backup (supports minute, hour,
day, month, and year)
• holiday table containing up to 18 holiday schedules
• occupancy control with 8 periods for unit operation
• support a set of display, maintenance, configuration, ser-
vice, and set point data tables for interface with Building
Supervisor, ComfortWORKS®, or Service Tool software
or accessory remote enhanced display
• CCN IAQ/OAQ (outdoor air quality) participation
When a VAV unit with a space temperature sensor is access-
ed via a computer, the following additional features are
available:
• ability to initiate timed override from T-55 sensors
• temperature compensated start to calculate early start
time before occupancy
• provide space temperature reset to reset the supply air set
point upward when the temperature falls below the occu-
pied cooling set point
An electronic expansion board may be field-installed to pro-
vide the following features:
• fan status
• filter status
• field-applied status
• demand limiting
• alarm light
• fire unit shutdown
• fire pressurization
• fire evacuation
• fire smoke purge
When the unit is connected to the CCN (Carrier Comfort
Network), the following features can be utilized:
• CCN demand limit participation
• modulated power exhaust override
• ability to use multiple space temperature sensors (multi-
ples of 4 and 9 only) to average space temperature (CV
and VAV only)
A field-supplied T-55 space temperature sensor can be add-
ed to monitor room temperature and provide unoccupied over-
ride capability (1 hour).
When the unit is equipped with a field-supplied space
temperature sensor and a remote contact closure (remote
start/stop) the occupied default set points will monitor unit
operation. The occupied default set points are 55 F (supply-air
temperature) cooling and 68 F (return-air temperature) heating.
See Fig. 26 for remote start/stop wiring.
NOTE: For units without a space temperature sensor and
which have not had the base unit control board accessed via
software to set an occupancy schedule, the remote start/stop
closure will allow the unit to operate in the pre-configured
occupied default set points of 55 F (supply-air temperature)
cooling and 68 F (return-air temperature) heating. Without an
occupancy schedule, the unit will control to the unoccupied
default set points of 90 F (return-air temperature) cooling and
55 F (return-air temperature) heating.
Features with Network Applications — The base control
board provides, as standard, a connection for use with a Carrier
Comfort System and can also be integrated into a Carrier Com-
fort Network (CCN). When the unit is accessed via a PC
equipped with ComfortWORKS, Building Supervisor, or Ser-
vice Tool software or Remote Enhanced Display accessory, the
following features can be accessed:
• on-board timeclock can be programmed
• occupancy schedules can be programmed
• unit set points can be changed
• alarms can be monitored
This access is available on the base control board via a
RJ-11 phone jack or a 3-wire connection to the communication
bus. See Fig. 27. The internal timeclock has a 10-hour mini-
mum back-up time to provide for unit power off for servicing
unit or during unexpected power outages. For complete Carrier
Comfort System (CCS) or Carrier Comfort Network (CCN)
features and benefits, refer to the product literature.
Step 9 — Make Electrical Connections
POWER WIRING — Units are factory wired for the voltage
shown on the unit nameplate.
When installing units, provide a disconnect per NEC
(National Electrical Code) of adequate size (MOCP [maximum
overcurrent protection] of unit is on the informative plate). All
field wiring must comply with NEC and all local codes and re-
quirements. Size wire based on MCA (minimum circuit amps)
on the unit informative plate. See Fig. 28 for power wiring con-
nections to the unit power terminal block and equipment
ground.
The main power terminal block is suitable for use with alu-
minum or copper wire. See Fig. 28. Units have circuit breakers
for compressors, fan motors, and control circuit. If required by
local codes, provide an additional disconnect switch. Whenev-
er external electrical sources are used, unit must be electrically
grounded in accordance with local codes, or in absence of local
codes, with NEC, ANSI (American National Standards Insti-
tute) C1-latest year.
FIELD POWER SUPPLY — Unit is factory wired for volt-
age shown on unit nameplate. See Table 7 and 8 for electrical
data.
Field wiring can be brought into the unit from bottom
(through basepan and roof curb) or through side of unit (corner
post next to control box).
A 31/2-in. NPT coupling for field power wiring and a 3/4-in.
NPT coupling for 24-v control wiring are provided in basepan.
In the side post, there are two 21/2-in. (48A020-030 and
48E024-034) or 3-in. (48A035-060 and 48E038-068) knock-
outs for the field power wiring. See Fig. 5-16. If control wiring
is to be brought in through the side of unit, a 7/8-in. diameter
hole is provided in the condenser side post next to the control
box.
If disconnect box is mounted to corner post, be careful not
to drill any screws into the condenser coil.

34
LEGEND
*Where X is the unit control software version number.
Fig. 27 — Control Board Diagram
CCN — Carrier Comfort Network N.O. — Normally Open
COM — Common R—Relay
D—Diode SIO — Serial Input/Output
DIP — Dual In-Line Package SW — Switch
LED — Light-Emitting Diode T—Terminal
N.C. — Normally Closed

35
Table 7 — Electrical Data — 48AJ,AK,AW,AY Units
LEGEND
*Fuse or HACR circuit breaker per NEC.
NOTES:
1. In compliance with NEC requirements for multimotor and combi-
nation load equipment (refer to NEC Articles 430 and 440), the
overcurrent protective device for the unit shall be fuse or HACR
breaker. The Canadian units may be fuse or circuit breaker.
2. Unbalanced 3-Phase Supply Voltage
Never operate a motor where a phase imbalance in supply volt-
age is greater than 2%. Use the following formula to determine
the percent of voltage imbalance.
% Voltage imbalance
Example: Supply voltage is 460-3-60.
AB = 452 v
BC = 464 v
AC = 455 v
= 457
Determine maximum deviation from average voltage.
(AB) 457 – 452 = 5 v
(BC) 464 – 457 = 7 v
(AC) 457 – 455 = 2 v
Maximum deviation is 7 v.
Determine percent of voltage imbalance.
% Voltage Imbalance = 100 x
= 1.53%
This amount of phase imbalance is satisfactory as it is below the
maximum allowable 2%.
UNIT SIZE
48AJ,AK,
AW,AY
NOMINAL
VOLTAGE
(3 PH, 60 Hz)
VOLTAGE RANGE COMPRESSOR OFM IFM POWER
EXHAUST
POWER
SUPPLY
No. 1 No. 2
Min Max RLA LRA RLA LRA Qty FLA Hp FLA FLA
(total) MCA MOCP*
020
208/230 187 253 39.1 228 25.6 160 2 5.3
(ea)
5 16.7/15.2 — 101.8/100.3 125/125
23.6/23.6 125.4/123.9 150/150
10 30.8/28.0 — 115.9/113.1 150/150
23.6/23.6 139.5/136.7 175/175
15 46.2/42.0 — 133.1/127.8 175/150
23.6/23.6 156.7/151.4 200/175
460 414 508 19.9 114 11.5 80 2 2.7
(ea)
57.6 —49.460
12.6 62.0 80
10 14 —55.870
12.6 68.4 80
15 21 —63.180
12.6 75.7 90
575 518 632 16 91 9.6 64 2 2.4
(ea)
56.1 —40.550
12.6 53.1 60
10 11 —45.460
12.6 58.0 70
15 17 —51.760
12.6 64.3 80
025
208/230 187 253 39.1 228 39.1 256 2 5.3
(ea)
7.5 24.2/22.0 — 122.8/120.6 150/150
23.6/23.6 146.4/144.2 175/175
10 30.8/28.0 — 129.4/126.6 150/150
23.6/23.6 153.0/150.2 175/175
15 46.2/42.0 — 146.6/141.3 175/175
23.6/23.6 170.2/164.9 200/200
460 414 508 19.9 114 19.9 114 2 2.7
(ea)
7.5 11 —61.280
12.6 73.8 90
10 14 —64.280
12.6 76.8 90
15 21 —71.590
12.6 84.1 100
575 518 632 16 91 16 91 2 2.4
(ea)
7.5 9 —49.860
12.6 62.4 70
10 11 —51.860
12.6 64.4 80
15 17 —58.170
12.6 70.7 80
FLA — Full Load Amps
HACR — Heating, Air Conditioning and Refrigeration
IFM — Indoor (Evaporator) Fan Motor
LRA — Locked Rotor Amps
MCA — Minimum Circuit Amps
MOCP— Maximum Overcurrent Protection
NEC — National Electrical Code
OFM — Outdoor (Condenser) Fan Motor
RLA — Rated Load Amps
= 100 x max voltage deviation from average voltage
average voltage
Average Voltage = 452 + 464 + 455
3
= 1371
3
IMPORTANT: If the supply voltage phase imbalance is
more than 2%, contact your local electric utility company
immediately.
7
457

36
Table 7 — Electrical Data — 48AJ,AK,AW,AY Units (cont)
LEGEND
*Fuse or HACR circuit breaker per NEC.
NOTES:
1. In compliance with NEC requirements for multimotor and combi-
nation load equipment (refer to NEC Articles 430 and 440), the
overcurrent protective device for the unit shall be fuse or HACR
breaker. The Canadian units may be fuse or circuit breaker.
2. Unbalanced 3-Phase Supply Voltage
Never operate a motor where a phase imbalance in supply volt-
age is greater than 2%. Use the following formula to determine
the percent of voltage imbalance.
% Voltage imbalance
Example: Supply voltage is 460-3-60.
AB = 452 v
BC = 464 v
AC = 455 v
= 457
Determine maximum deviation from average voltage.
(AB) 457 – 452 = 5 v
(BC) 464 – 457 = 7 v
(AC) 457 – 455 = 2 v
Maximum deviation is 7 v.
Determine percent of voltage imbalance.
% Voltage Imbalance = 100 x
= 1.53%
This amount of phase imbalance is satisfactory as it is below the
maximum allowable 2%.
UNIT SIZE
48AJ,AK,
AW,AY
NOMINAL
VOLTAGE
(3 PH, 60 Hz)
VOLTAGE RANGE COMPRESSOR OFM IFM POWER
EXHAUST
POWER
SUPPLY
No. 1 No. 2
Min Max RLA LRA RLA LRA Qty FLA Hp FLA FLA
(total) MCA MOCP*
027
208/230 187 253 39.1 256 39.1 256 2 5.3
(ea)
10 30.8/28.0 — 129.4/126.6 150/150
23.6/23.6 153.0/150.2 175/175
15 46.2/42.0 — 146.6/141.3 175/175
23.6/23.6 170.2/164.9 200/200
20 59.4/54.0 — 163.1/156.3 200/200
23.6/23.6 186.7/179.9 225/225
460 414 508 19.9 114 19.9 114 2 2.7
(ea)
10 14 — 64.2 80
12.6 76.8 90
15 21 — 71.5 90
12.6 84.1 100
20 27 — 79.0 100
12.6 91.6 110
575 518 632 16 91 16 91 2 2.4
(ea)
10 11 — 51.8 60
12.6 64.4 80
15 17 — 58.1 70
12.6 70.7 80
20 22 — 64.3 80
12.6 76.9 90
030
208/230 187 253 57.1 266 39.1 228 2 5.3
(ea)
10 30.8/28.0 — 151.9/149.1 200/200
23.6/23.6 175.5/172.7 225/225
15 46.2/42.0 — 167.3/163.1 200/200
23.6/23.6 190.9/186.7 225/225
20 59.4/54.0 — 181.1/175.1 225/225
23.6/23.6 204.7/198.7 250/250
460 414 508 25.6 120 19.9 114 2 2.7
(ea)
10 14 — 71.3 90
12.6 83.9 100
15 21 — 78.3 100
12.6 90.9 110
20 27 — 84.7 110
12.6 97.3 110
575 518 632 20.5 96 16 91 2 2.4
(ea)
10 11 — 57.4 70
12.6 70.0 90
15 17 — 63.4 80
12.6 76.0 90
20 22 — 68.8 90
12.6 81.4 100
FLA — Full Load Amps
HACR — Heating, Air Conditioning and Refrigeration
IFM — Indoor (Evaporator) Fan Motor
LRA — Locked Rotor Amps
MCA — Minimum Circuit Amps
MOCP— Maximum Overcurrent Protection
NEC — National Electrical Code
OFM — Outdoor (Condenser) Fan Motor
RLA — Rated Load Amps
= 100 x max voltage deviation from average voltage
average voltage
Average Voltage = 452 + 464 + 455
3
= 1371
3
IMPORTANT: If the supply voltage phase imbalance is
more than 2%, contact your local electric utility company
immediately.
7
457

37
Table 7 — Electrical Data — 48AJ,AK,AW,AY Units (cont)
LEGEND
*Fuse or HACR circuit breaker per NEC.
NOTES:
1. In compliance with NEC requirements for multimotor and combi-
nation load equipment (refer to NEC Articles 430 and 440), the
overcurrent protective device for the unit shall be fuse or HACR
breaker. The Canadian units may be fuse or circuit breaker.
2. Unbalanced 3-Phase Supply Voltage
Never operate a motor where a phase imbalance in supply volt-
age is greater than 2%. Use the following formula to determine
the percent of voltage imbalance.
% Voltage imbalance
Example: Supply voltage is 460-3-60.
AB = 452 v
BC = 464 v
AC = 455 v
= 457
Determine maximum deviation from average voltage.
(AB) 457 – 452 = 5 v
(BC) 464 – 457 = 7 v
(AC) 457 – 455 = 2 v
Maximum deviation is 7 v.
Determine percent of voltage imbalance.
% Voltage Imbalance = 100 x
= 1.53%
This amount of phase imbalance is satisfactory as it is below the
maximum allowable 2%.
UNIT SIZE
48AJ,AK,
AW,AY
NOMINAL
VOLTAGE
(3 PH, 60 Hz)
VOLTAGE RANGE COMPRESSOR OFM IFM POWER
EXHAUST
POWER
SUPPLY
No. 1 No. 2
Min Max RLA LRA RLA LRA Qty FLA Hp FLA FLA
(total) MCA MOCP*
035
208/230 187 253 57.1 266 57.1 266 4 5.3
(ea)
10 30.8/28.0 — 180.5/177.7 225/225
23.6/23.6 204.1/201.3 250/250
15 46.2/42.0 — 195.9/191.7 250/225
23.6/23.6 219.5/215.3 250/250
20 59.4/54.0 — 209.7/203.7 250/250
23.6/23.6 233.3/227.3 250/250
460 414 508 25.6 120 25.6 120 4 2.7
(ea)
10 14 — 82.4 100
12.6 95.0 110
15 21 — 89.4 110
12.6 102.0 125
20 27 — 95.8 110
12.6 108.4 125
575 518 632 20.5 96 20.5 96 4 2.4
(ea)
10 11 — 66.7 80
12.6 79.3 90
15 17 — 72.7 90
12.6 85.3 100
20 22 — 78.1 100
12.6 90.7 110
040
208/230 187 253 57.1 266 69.2 345 4 5.3
(ea)
15 46.2/42.0 — 211.0/206.8 250/250
23.6/23.6 234.6/230.4 300/250
20 59.4/54.0 — 224.2/218.8 250/250
23.6/23.6 247.8/242.4 300/300
25 74.8/68.0 — 241.0/232.8 300/300
23.6/23.6 264.6/256.4 300/300
460 414 508 25.6 120 28.8 173 4 2.7
(ea)
15 21 — 93.4 110
12.6 106.0 125
20 27 — 99.4 125
12.6 112.0 125
25 34 — 107.7 125
12.6 120.3 150
575 518 632 20.5 96 26.7 120 4 2.4
(ea)
15 17 — 80.5 100
12.6 93.1 110
20 22 — 85.5 110
12.6 98.1 110
25 27 — 90.6 110
12.6 103.2 125
FLA — Full Load Amps
HACR — Heating, Air Conditioning and Refrigeration
IFM — Indoor (Evaporator) Fan Motor
LRA — Locked Rotor Amps
MCA — Minimum Circuit Amps
MOCP— Maximum Overcurrent Protection
NEC — National Electrical Code
OFM — Outdoor (Condenser) Fan Motor
RLA — Rated Load Amps
= 100 x max voltage deviation from average voltage
average voltage
Average Voltage = 452 + 464 + 455
3
= 1371
3
IMPORTANT: If the supply voltage phase imbalance is
more than 2%, contact your local electric utility company
immediately.
7
457

38
Table 7 — Electrical Data — 48AJ,AK,AW,AY Units (cont)
LEGEND
*Fuse or HACR circuit breaker per NEC.
NOTES:
1. In compliance with NEC requirements for multimotor and combi-
nation load equipment (refer to NEC Articles 430 and 440), the
overcurrent protective device for the unit shall be fuse or HACR
breaker. The Canadian units may be fuse or circuit breaker.
2. Unbalanced 3-Phase Supply Voltage
Never operate a motor where a phase imbalance in supply volt-
age is greater than 2%. Use the following formula to determine
the percent of voltage imbalance.
% Voltage imbalance
Example: Supply voltage is 460-3-60.
AB = 452 v
BC = 464 v
AC = 455 v
= 457
Determine maximum deviation from average voltage.
(AB) 457 – 452 = 5 v
(BC) 464 – 457 = 7 v
(AC) 457 – 455 = 2 v
Maximum deviation is 7 v.
Determine percent of voltage imbalance.
% Voltage Imbalance = 100 x
= 1.53%
This amount of phase imbalance is satisfactory as it is below the
maximum allowable 2%.
UNIT SIZE
48AJ,AK,
AW,AY
NOMINAL
VOLTAGE
(3 PH, 60 Hz)
VOLTAGE RANGE COMPRESSOR OFM IFM POWER
EXHAUST
POWER
SUPPLY
No. 1 No. 2
Min Max RLA LRA RLA LRA Qty FLA Hp FLA FLA
(total) MCA MOCP*
050
208/230 187 253 69.2 345 69.2 345 4 5.3
(ea)
20 59.4/54.0 — 236.3/230.9 300/300
23.6/23.6 259.9/254.5 300/300
25 74.8/68.0 — 253.1/244.9 300/300
23.6/23.6 276.7/268.5 350/300
30 88/80.0 — 269.6/259.6 350/300
23.6/23.6 293.2/283.2 350/350
460 414 508 28.8 173 28.8 173 4 2.7
(ea)
20 27 — 102.6 125
12.6 115.2 125
25 34 — 110.9 125
12.6 123.5 150
30 40 — 118.4 150
12.6 131.0 150
575 518 632 26.7 120 26.7 120 4 2.4
(ea)
20 22 — 91.7 110
12.6 104.3 125
25 27 — 96.8 110
12.6 109.4 125
30 32 — 103.0 125
12.6 115.6 125
060
208/230 187 253 82.1 446 82.1 446 6 5.3
(ea)
25 74.8/68.0 — 291.3/284.5 350/350
35.4/35.4 326.7/319.9 400/400
30 88/80.0 — 306.0/296.5 350/350
35.4/35.4 341.4/331.9 400/400
40 114/104 — 338.5/326.0 450/400
35.4/35.4 373.9/361.4 450/450
460 414 508 43.6 223 43.6 223 6 2.7
(ea)
25 34 — 148.3 175
18.9 167.2 200
30 40 — 154.3 175
18.9 173.2 200
40 52 — 168.4 200
18.9 187.3 225
575 518 632 34.6 164 34.6 164 6 2.4
(ea)
25 27 — 119.3 150
18.9 138.2 150
30 32 — 124.3 150
18.9 143.2 175
40 41 — 134.9 175
18.9 153.8 175
FLA — Full Load Amps
HACR — Heating, Air Conditioning and Refrigeration
IFM — Indoor (Evaporator) Fan Motor
LRA — Locked Rotor Amps
MCA — Minimum Circuit Amps
MOCP— Maximum Overcurrent Protection
NEC — National Electrical Code
OFM — Outdoor (Condenser) Fan Motor
RLA — Rated Load Amps
= 100 x max voltage deviation from average voltage
average voltage
Average Voltage = 452 + 464 + 455
3
= 1371
3
IMPORTANT: If the supply voltage phase imbalance is
more than 2%, contact your local electric utility company
immediately.
7
457

39
Table 8 — Electrical Data — 48EJ,EK,EW,EY Units
See Legend and Notes on page 42.
UNIT
SIZE
48EJ,EK,
EW,EY
NOMNAL
VOLTAGE
(3 Ph,
60 Hz)
VOLTAGE
RANGE
COMPRESSOR OFM IFM POWER
EXHAUST
COMBUSTION
FAN MOTOR POWER SUPPLY
No. 1 No. 2
Min Max RLA LRA RLA LRA Qty Hp FLA
(ea) Hp FLA FLA LRA FLA MCA MOCP*
024
208/230 187 254 39.1 228 25.6 160 2 1 5.3
516.7/
15.2
— — 0.96 101.8/100.3 125/125
23.6 41.6 0.96 125.4/123.9 150/150
10 30.8/
28.0
— — 0.96 115.9/113.1 150/150
23.6 41.6 0.96 139.5/136.7 175/175
15 46.2/
42.0
— — 0.96 131.3/127.1 150/150
23.6 41.6 0.96 154.9/150.7 175/175
460 414 508 19.9 114 11.5 80 2 1 2.7
57.6 — — 0.5 49.4 60
12.6 23.6 0.5 62.0 80
10 14.0 — — 0.5 55.8 70
12.6 23.6 0.5 68.4 80
15 21.0 — — 0.5 62.8 80
12.6 23.6 0.5 75.4 90
575 518 632 16.0 91 9.6 64 2 1 2.4
56.1 — — 0.5 40.5 50
12.6 23.6 0.5 53.1 60
10 11.0 — — 0.5 45.4 60
12.6 23.6 0.5 58.0 70
15 17.0 — — 0.5 51.4 60
12.6 23.6 0.5 64.0 80
028
208/230 187 254 39.1 228 39.1 228 2 1 5.3
7.5 24.2/
22.0
— — 0.96 122.8/120.6 150/150
23.6 41.6 0.96 146.4/144.2 175/175
10 30.8/
28.0
— — 0.96 129.4/126.6 150/150
23.6 41.6 0.96 153.0/150.2 175/175
15 46.2/
42.0
— — 0.96 144.8/140.6 175/175
23.6 41.6 0.96 168.4/164.2 200/200
460 414 508 19.9 114 19.9 114 2 1 2.7
7.5 11.0 — — 0.5 61.2 80
12.6 23.6 0.5 73.8 90
10 14.0 — — 0.5 64.2 80
12.6 23.6 0.5 76.8 90
15 21.0 — — 0.5 71.2 90
12.6 23.6 0.5 83.8 100
575 518 632 16.0 91 16.0 91 2 1 2.4
7.5 9.0 — — 0.5 49.8 60
12.6 23.6 0.5 62.4 70
10 11.0 — — 0.5 51.8 60
12.6 23.6 0.5 64.4 80
15 17.0 — — 0.5 57.8 70
12.6 23.6 0.5 70.4 80
030
208/230 187 254 57.1 266 39.1 228 2 1 5.3
10 30.8/
28.0
— — 0.96 151.9/149.1 200/200
23.6 41.6 0.96 175.5/172.7 225/225
15 46.2/
42.0
— — 0.96 167.3/163.1 225/225
23.6 41.6 0.96 190.9/186.7 225/225
20 59.4/
54.0
— — 0.96 180.5/175.1 225/225
23.6 41.6 0.96 204.1/198.7 250/250
460 414 508 25.6 120 19.9 114 2 1 2.7
10 14.0 — — 0.5 71.3 90
12.6 23.6 0.5 83.9 100
15 21.0 — — 0.5 78.3 100
12.6 23.6 0.5 90.9 110
20 27.0 — — 0.5 84.3 100
12.6 23.6 0.5 96.9 110
575 518 632 20.5 96 16.0 91 2 1 2.4
10 11.0 — — 0.5 57.4 70
12.6 23.6 0.5 70.0 90
15 17.0 — — 0.5 63.4 80
12.6 23.6 0.5 76.0 90
20 22.0 — — 0.5 68.4 80
12.6 23.6 0.5 81.0 100

40
Table 8 — Electrical Data — 48EJ,EK,EW,EY Units (cont)
See Legend and Notes on page 42.
UNIT
SIZE
48EJ,EK,
EW,EY
NOMNAL
VOLTAGE
(3 Ph,
60 Hz)
VOLTAGE
RANGE
COMPRESSOR OFM IFM POWER
EXHAUST
COMBUSTION
FAN MOTOR POWER SUPPLY
No. 1 No. 2
Min Max RLA LRA RLA LRA Qty Hp FLA
(ea) Hp FLA FLA LRA FLA MCA MOCP*
034
208/230 187 254 57.1 266 57.1 266 2 1 5.3
10 30.8/
28.0
— — 0.96 169.9/167.1 225/200
23.6 41.6 0.96 193.5/190.7 250/225
15 46.2/
42.0
— — 0.96 185.3/181.1 200/200
23.6 41.6 0.96 208.9/204.7 250/250
20 59.4/
54.0
— — 0.96 198.5/193.1 250/250
23.6 41.6 0.96 222.1/216.7 275/250
460 414 508 25.6 120 25.6 120 2 1 2.7
10 14.0 — — 0.5 77.0 100
12.6 23.6 0.5 89.6 110
15 21.0 — — 0.5 84.0 100
12.6 23.6 0.5 96.6 110
20 27.0 — — 0.5 90.0 110
12.6 23.6 0.5 102.6 125
575 518 632 20.5 96 20.5 96 2 1 2.4
10 11.0 — — 0.5 61.9 80
12.6 23.6 0.5 74.5 90
15 17.0 — — 0.5 67.9 80
12.6 23.6 0.5 80.5 100
20 22.0 — — 0.5 72.9 90
12.6 23.6 0.5 85.5 100
038
208/230 187 254 57.1 266 57.1 266 4 1 5.3
10 30.8/
28.0
— — 0.96 180.5/177.7 225/225
23.6 41.6 0.96 204.1/201.3 250/250
15 46.2/
42.0
— — 0.96 195.9/191.7 250/225
23.6 41.6 0.96 219.5/215.3 275/250
20 59.4/
54.0
— — 0.96 209.1/203.7 250/250
23.6 41.6 0.96 232.7/227.3 275/275
460 414 508 25.6 120 25.6 120 4 1 2.7
10 14.0 — — 0.5 82.4 100
12.6 23.6 0.5 95.0 110
15 21.0 — — 0.5 89.4 110
12.6 23.6 0.5 102.0 125
20 27.0 — — 0.5 95.4 110
12.6 23.6 0.5 108.0 125
575 518 632 20.5 96 20.5 96 4 1 2.4
10 11.0 — — 0.5 66.7 80
12.6 23.6 0.5 79.3 90
15 17.0 — — 0.5 72.7 90
12.6 23.6 0.5 85.3 100
20 22.0 — — 0.5 77.7 90
12.6 23.6 0.5 90.3 110
044
208/230 187 254 69.2 345 69.2 345 4 1 5.3
15 46.2/
42.0
— — 0.96 223.1/218.9 275/275
23.6 41.6 0.96 246.7/242.5 300/300
20 59.4/
54.0
— — 0.96 236.3/230.9 300/300
23.6 41.6 0.96 259.9/254.5 300/300
25 74.8/
68.0
— — 0.96 251.7/244.9 300/300
23.6 41.6 0.96 275.3/268.5 300/300
460 414 508 28.8 173 28.8 173 4 1 2.7
15 21.0 — — 0.5 96.6 125
12.6 23.6 0.5 109.2 125
20 27.0 — — 0.5 102.6 125
12.6 23.6 0.5 115.2 125
25 34.0 — — 0.5 109.6 125
12.6 23.6 0.5 122.2 150
575 518 632 26.7 120 26.7 120 4 1 2.4
15 17.0 — — 0.5 86.7 110
12.6 23.6 0.5 99.3 125
20 22.0 — — 0.5 91.7 110
12.6 23.6 0.5 104.3 125
25 27.0 — — 0.5 96.7 110
12.6 23.6 0.5 109.3 125

41
Table 8 — Electrical Data — 48EJ,EK,EW,EY Units (cont)
See Legend and Notes on page 42.
UNIT
SIZE
48EJ,EK,
EW,EY
NOMNAL
VOLTAGE
(3 Ph,
60 Hz)
VOLTAGE
RANGE
COMPRESSOR OFM IFM POWER
EXHAUST
COMBUSTION
FAN MOTOR POWER SUPPLY
No. 1 No. 2
Min Max RLA LRA RLA LRA Qty Hp FLA
(ea) Hp FLA FLA LRA FLA MCA MOCP*
048
208/230 187 254 82.1 446 69.2 345 4 1 5.3
20 59.4/
54.0
— — 0.96 252.4/247.0 300/300
23.6 41.6 0.96 276.0/270.6 300/300
25 74.8/
68.0
— — 0.96 267.8/261.0 300/300
23.6 41.6 0.96 291.4/284.6 300/300
30 88.0/
80.0
— — 0.96 281.0/273.0 300/300
23.6 41.6 0.96 304.6/296.6 350/300
460 414 508 42.3 223 28.8 173 4 1 2.7
20 27.0 — — 0.5 119.5 150
12.6 23.6 0.5 132.1 150
25 34.0 — — 0.5 126.5 150
12.6 23.6 0.5 139.1 175
30 40.0 — — 0.5 132.5 150
12.6 23.6 0.5 145.1 175
575 518 632 34.6 164 26.7 120 4 1 2.4
20 22.0 — — 0.5 101.6 125
12.6 23.6 0.5 114.2 125
25 27.0 — — 0.5 106.6 125
12.6 23.6 0.5 119.2 150
30 32.0 — — 0.5 111.6 125
12.6 23.6 0.5 124.2 150
054
208/230 187 254 82.1 446 69.2 345 4 1 5.3
15 46.2/
42.0
— — 1.44 239.2/235.0 300/300
35.4 62.4 1.44 274.6/270.4 350/350
20 59.4/
54.0
— — 1.44 252.4/247.0 300/300
35.4 62.4 1.44 287.8/282.4 350/350
25 74.8/
68.0
— — 1.44 267.8/261.0 300/300
35.4 62.4 1.44 303.2/296.4 350/350
460 414 508 43.6 223 30.8 173 4 1 2.7
15 21.0 — — 0.75 117.1 150
18.9 35.4 0.75 136.0 175
20 27.0 — — 0.75 123.1 150
18.9 35.4 0.75 142.0 175
25 34.0 — — 0.75 130.1 150
18.9 35.4 0.75 149.0 175
575 518 632 34.6 164 26.9 120 4 1 2.4
15 17.0 — — 0.75 96.8 125
18.9 35.4 0.75 115.7 150
20 22.0 — — 0.75 101.8 125
18.9 35.4 0.75 120.7 150
25 27.0 — — 0.75 106.8 125
18.9 35.4 0.75 125.7 150
058
208/230 187 254 106.4 506 69.2 345 6 1 5.3
20 59.4/
54.0
— — 1.44 293.4/288.0 350/350
35.4 62.4 1.44 328.8/323.4 400/400
25 74.6/
68.0
— — 1.44 308.6/302.0 400/400
35.4 62.4 1.44 344.0/337.4 450/400
30 88.0/
80.0
— — 1.44 322.0/314.0 400/400
35.4 62.4 1.44 357.4/349.4 450/450
460 414 508 52.6 253 30.8 173 6 1 2.7
20 27.0 — — 0.75 139.7 175
18.9 35.4 0.75 158.6 200
25 34.0 — — 0.75 146.7 175
18.9 35.4 0.75 165.6 200
30 40.0 — — 0.75 152.7 200
18.9 35.4 0.75 171.6 200
575 518 632 40.4 176 26.9 120 6 1 2.4
20 22 — — 0.75 113.8 150
18.9 35.4 0.75 132.7 150
25 27 — — 0.75 118.8 150
18.9 35.4 0.75 137.7 175
30 32 — — 0.75 123.8 150
18.9 35.4 0.75 142.7 175

42
Table 8 — Electrical Data — 48EJ,EK,EW,EY Units (cont)
LEGEND
*Fuse or HACR circuit breaker per NEC.
NOTES:
1. In compliance with NEC requirements for multimotor and combi-
nation load equipment (refer to NEC Articles 430 and 440), the
overcurrent protective device for the unit shall be fuse or HACR
breaker. The Canadian units may be fuse or circuit breaker.
2. Unbalanced 3-Phase Supply Voltage
Never operate a motor where a phase imbalance in supply volt-
age is greater than 2%. Use the following formula to determine
the percent of voltage imbalance.
% Voltage imbalance
Example: Supply voltage is 460-3-60.
AB = 452 v
BC = 464 v
AC = 455 v
= 457
Determine maximum deviation from average voltage.
(AB) 457 – 452 = 5 v
(BC) 464 – 457 = 7 v
(AC) 457 – 455 = 2 v
Maximum deviation is 7 v.
Determine percent of voltage imbalance.
% Voltage Imbalance = 100 x
= 1.53%
This amount of phase imbalance is satisfactory as it is below the
maximum allowable 2%.
UNIT
SIZE
48EJ,EK,
EW,EY
NOMNAL
VOLTAGE
(3 Ph,
60 Hz)
VOLTAGE
RANGE
COMPRESSOR OFM IFM POWER
EXHAUST
COMBUSTION
FAN MOTOR POWER SUPPLY
No. 1 No. 2
Min Max RLA LRA RLA LRA Qty Hp FLA
(ea) Hp FLA FLA LRA FLA MCA MOCP*
064
208/230 187 254 106.4 506 82.1 446 6 1 5.3
25 74.6/
68.0
— — 1.44 321.5/314.9 400/400
35.4 62.4 1.44 356.9/350.3 450/450
30 88.0/
80.0
— — 1.44 334.9/326.9 400/400
35.4 62.4 1.44 370.3/362.3 450/450
40 114.0/
104.0
— — 1.44 360.9/350.9 450/450
35.4 62.4 1.44 396.3/386.3 500/450
460 414 508 52.6 253 43.6 223 6 1 2.7
25 34.0 — — 0.75 159.5 200
18.9 35.4 0.75 178.4 225
30 40.0 — — 0.75 165.5 200
18.9 35.4 0.75 184.4 225
40 52.0 — — 0.75 177.5 225
18.9 35.4 0.75 196.4 225
575 518 632 40.4 176 34.6 164 6 1 2.4
25 27.0 — — 0.75 126.5 150
18.9 35.4 0.75 145.4 175
30 32.0 — — 0.75 131.5 150
18.9 35.4 0.75 150.4 175
40 41.0 — — 0.75 140.5 175
18.9 35.4 0.75 159.4 175
068
208/230 187 254 106.4 506 106.4 506 6 1 5.3
25 74.6/
68.0
— — 1.44 345.8/339.2 450/400
35.4 62.4 1.44 381.2/374.6 450/450
30 88.0/
80.0
— — 1.44 359.2/351.2 450/450
35.4 62.4 1.44 394.6/386.6 500/450
40 114.0/
104.0
— — 1.44 385.2/375.2 450/450
35.4 62.4 1.44 420.6/410.6 500/500
460 414 508 52.6 253 52.6 253 6 1 2.7
25 34.0 — — 0.75 168.5 200
18.9 35.4 0.75 187.4 225
30 40.0 — — 0.75 174.5 225
18.9 35.4 0.75 193.4 225
40 52.0 — — 0.75 186.5 225
18.9 35.4 0.75 205.4 250
575 518 632 40.4 176 40.4 176 6 1 2.4
25 27 — — 0.75 132.3 150
18.9 35.4 0.75 151.2 175
30 32 — — 0.75 137.3 175
18.9 35.4 0.75 156.2 175
40 41 — — 0.75 146.3 175
18.9 35.4 0.75 165.2 200
FLA — Full Load Amps
HACR — Heating, Air Conditioning and Refrigeration
IFM — Indoor (Evaporator) Fan Motor
LRA — Locked Rotor Amps
MCA — Minimum Circuit Amps
MOCP— Maximum Overcurrent Protection
NEC — National Electrical Code
OFM — Outdoor (Condenser) Fan Motor
RLA — Rated Load Amps
= 100 x max voltage deviation from average voltage
average voltage
Average Voltage = 452 + 464 + 455
3
= 1371
3
IMPORTANT: If the supply voltage phase imbalance is
more than 2%, contact your local electric utility company
immediately.
7
457
or

43
Routing Through Bottom of Unit — If wiring is brought in
through bottom of unit, use field-supplied watertight conduit to
run power wiring from basepan out through bottom 31/2-in.
hole to the disconnect box and back into unit to the main con-
trol box.
Use strain relief going into control box through 21/2-in. di-
ameter hole provided. After wires are in unit control box, con-
nect to power terminal block (see Power Wiring section on
page 33).
Low-voltage wiring must be run in watertight conduit from
the basepan to control box and through 7/8-in. diameter hole
provided in bottom of unit control box. Field-supplied strain re-
lief must be used going into the box. After wiring is in control
box, make connections to proper terminals on terminal blocks
(see Field Control Wiring section on this page).
Install conduit connector in unit basepan as shown in
Fig. 5-16. Route power and ground lines through connector to
terminal connections in unit control box as shown on unit wir-
ing diagram and Fig. 28.
Routing Through Side of Unit — Route power wiring in
field-supplied watertight conduit into unit through 21/2-in. or
3-in. hole. See Fig. 28.
Use field-supplied strain relief going into control box
through 21/2-in. or 3-in. diameter hole provided. After wires are
in unit control box, connect to power terminal block (see Pow-
er Wiring section on page 33).
Bring low-voltage control wiring through factory-drilled
7/8-in. diameter hole in condenser side post. Use strain relief
going into 7/8-in. diameter hole in bottom of unit control box.
After wiring is in control box, make connection to proper
terminals on terminal blocks (see Field Control Wiring section
below).
Affix crankcase heater sticker (located in the installers pack-
et) to unit disconnect switch.
Voltage to compressor terminals during compressor opera-
tion must be within the voltage range indicated on the unit
nameplate. On 3-phase units, phases must be balanced within
2%.
Use the formula in Tables 7 and 8 to determine the percent-
age of voltage imbalance.
Unit failure as a result of operation on improper line voltage
or excessive phase imbalance constitutes abuse and may cause
damage to electrical components.
On 208/230-v units, transformer no. 1 is wired for 230-v. If
208/230-v unit is to be run with 208-v power supply, the trans-
former must be rewired as follows:
1. Remove cap from red (208 v) wire.
2. Remove cap from spliced orange (230 v) wire. Discon-
nect orange wire from black unit power wire.
3. Cap orange wire.
4. Splice red wire and black unit power wire. Cap wires.
FIELD CONTROL WIRING — Install either a Carrier-
approved thermostat or a CCN (Carrier Comfort Network)
compatible temperature sensor. Thermostats are used on CV
(constant volume) units only. Control box diagrams are shown
in Fig. 29-31.
IMPORTANT: The VAV (variable air volume) units use
variable frequency drives, which generate, use and can
radiate radio frequency energy. If units are not installed and
used in accordance with these instructions, they may cause
radio interference. They have been tested and found to
comply with limits of a Class A computing device as
defined by FCC (Federal Communications Commission)
regulations, Subpart J of Part 15, which are designed to
provide reasonable protection against such interference
when operated in a commercial environment.
The unit must be electrically grounded in accordance with
local codes and NEC ANSI/NFPA 70 (National Fire Pro-
tection Association).
IMPORTANT: If the supply voltage phase imbalance is
more than 2%, contact your local electric utility company
immediately.
IMPORTANT: BE CERTAIN UNUSED WIRES ARE
CAPPED. Failure to do so may damage the transformers.
Fig. 28 — Field Power Wiring Connections
LEGEND
GND — Ground
NEC — National Electrical Code
TB — Terminal Block

44
SEE DETAIL A
DIP SWITCHES
(FAR SIDE)
SENSOR CONNECTION
LOCATION
R Y1 Y2 W1 W2 G C X
DETAIL A
(THERMOSTAT CONNECTION
LOCATION)
TB3
Fig. 29 — Control Box Diagram (48AJ,AK,AW,AY020-030 and 48EJ,EK,EW,EY024-034 Units)
LE
G
END
C—Compressor/
Contactor
CB — Circuit Breaker
CCB — Control Circuit
Breaker
CR — Control Relay
DIP — Dual In-Line Package
EQUIP — Equipment
FU — Fuse
GND — Ground
HR — Heater Relay
IFC — Indoor-Fan Circuit
IFCB — Indoor-Fan
Circuit Breaker
IFR — Indoor-Fan Relay
NEC — National Electrical
Code
OFC — Outdoor-Fan
Contactor
PEC — Power Exhaust
Controller
PES — Power Exhaust
Sequencer
PESC — Power Exhaust
Sequencer Controller
TB — Terminal Block
TRAN — Transformer

45
Thermostat Wiring (CV Only) — Install a Carrier-approved
accessory thermostat assembly (per current price pages)
according to the installation instructions included with the ac-
cessory or these instructions. Locate the thermostat on a solid
interior wall in the conditioned space to sense the average
temperature.
Route the thermostat cable or equivalent single leads of
colored wire from the subbase terminals to the low-voltage
connection as shown on unit label wiring diagram and in
Fig. 32.
NOTE: For wire runs up to 50 ft, use no. 18 AWG (American
Wire Gage) insulated wire (35 C minimum). For 50 to 75 ft,
use no. 16 AWG insulated wire (35 C minimum). For over
75 ft, use no. 14 AWG insulated wire (35 C minimum). All
wire larger than no. 18 AWG cannot be directly connected at
the thermostat and will require a junction box and splice at the
thermostat.
Set heat anticipators to 0.1 for all voltages. Settings may be
changed slightly to provide a greater degree of comfort for a
particular installation.
Sensor Wiring (CV or VAV) — The temperature sensor is
wired into the unit control board. See Fig. 33.
The unit is controlled with a T-55 or T-56 (CV only) zone
sensor. Terminal TH (T-56) or T1 (T-55) on the sensor is con-
nected to T1 of the base control board. Terminal COM (T-56)
or T2 (T-55) on the sensor is connected to T2 on the base con-
trol board. If a T-56 set point override sensor is used, the over-
ride connection SW on the sensor is connected to T3 on the
base control board.
If more than sensor is being used and averaged, sensors
must be wired in multiples of 4 or 9. See Fig. 34.
Heat Interlock Relay — VAV units require a field-supplied
heat interlock relay (HIR) to drive the air terminal wide open
when in heat mode. Heat Interlock relay part number is
HN61KK040. See Fig. 35 for HIR wiring.
Remote Field Control — A switch closure across terminals R
and W1 on TB-3 will initiate the Occupied mode. This can be
done manually as well as through a field-supplied timeclock.
Service Tool, Building Supervisor, and ComfortWORKS®
Software — Access to the control board can be achieved
through the terminal marked CCN via a 3-wire bus.
Carrier Comfort Network Interface — The rooftop units can
be connected to the CCN. The communication bus wiring is
supplied and installed in the field. Wiring consists of shielded,
3-conductor cable with drain wire.
The system elements are connected to the communication
bus in a daisy chain arrangement. The positive pin of each sys-
tem element communication connector must be wired to the
positive pins of the system element on either side of it, the neg-
ative pins must be wired to the negative pins, and the signal
pins must be wired to signal ground pins. Wiring connections
for CCN should be made at the 3-pin plug (CCN located at the
base board). Consult CCN literature for further information.
IMPORTANT: The default bus address is 0. The default
element number is 1. Refer to CCN literature for informa-
tion on network addressing or changing CCN communica-
tion defaults.
SEE DETAIL B
R Y1 Y2 W1 W2 G C X
DETAIL A
(THERMOSTAT CONNECTION
LOCATION)
TB3 SEE DETAIL A
DETAIL B
(SENSOR CONNECTION
LOCATION)
TI T2 T3
LEGEND
C—Compressor/Contactor FU — Fuse OFC — Outdoor-Fan Contactor
CB — Circuit Breaker GND — Ground PEC — Power Exhaust Controller
CCB — Control Circuit Breaker HR — Heater Relay PES — Power Exhaust Sequencer
CCN — Carrier Comfort Network IFC — Indoor-Fan Circuit PESC — Power Exhaust Sequencer Control-
ler
CR — Control Relay IFCB — Indoor-Fan Circuit Breaker SIO — Serial Input/Output
DIP — Dual In-Line Package IFR — Indoor-Fan Relay TB — Terminal Block
EQUIP — Equipment NEC — National Electrical Code TRAN — Transformer

46
LEGEND
C—Compressor/Contactor FU — Fuse OFC — Outdoor-Fan Contactor
CB — Circuit Breaker GND — Ground PEC — Power Exhaust Controller
CCB — Control Circuit Breaker HR — Heater Relay PES — Power Exhaust Sequencer
CCN — Carrier Comfort Network IFC — Indoor-Fan Circuit PESC — Power Exhaust Sequencer Control-
ler
CR — Control Relay IFCB — Indoor-Fan Circuit Breaker SIO — Serial Input/Output
DIP — Dual In-Line Package IFR — Indoor-Fan Relay TB — Terminal Block
EQUIP — Equipment NEC — National Electrical Code TRAN — Transformer

47
Conductors and drain wire must be 20 AWG minimum
stranded, tinned copper. Individual conductors must be insulat-
ed with PVC, PVC/nylon, vinyl, Teflon, or polyethylene. An
aluminum/polyester 100% foil shield and an outer jacket of
PVC, PVC/nylon, chrome vinyl, or Teflon with a minimum op-
erating temperature range of -20 C to 60 C (-4 F to 140 F) is re-
quired. Table 9 lists cables that meet the requirements.
Table 9 — CCN Connection Approved
Shielded Cables
Table 10 — Color Code Recommendations
NOTE: If a cable with a different color scheme is selected, a
similar color code should be adopted for the entire network.
At each system element, the shields of the communication
bus cables must be tied together. If the communication bus is
entirely within one building, the resulting continuous shield
must be connected to a ground at one point only. If the com-
munication bus cable exits from one building and enters anoth-
er, the shields must be connected to grounds at the lightning
suppressor in each building where the cable enters or exits the
building (one point per building only).
To connect the unit to the network:
1. Turn off power to the control box.
2. Cut the CCN wire and strip the ends of the red (+), white
(ground), and black (-) conductors. (If a different network
color scheme is used, substitute appropriate colors.)
3. Remove the 3-pin male plug from the base control board
in the main control box, and connect the wires as follows:
a. Insert and secure the red (+) wire to terminal 1 of
the 3-pin plug.
b. Insert and secure the white (ground) wire to termi-
nal 2 of the 3-pin plug.
c. Insert and secure the black (-) wire to terminal 3 of
the 3-pin plug.
4. Insert the plug into the existing 3-pin mating connector
on the base module in the main control box.
MANUFACTURER CABLE PART NO.
Alpha 2413 or 5463
American A22503
Belden 8772
Columbia 02525
IMPORTANT: When connecting the CCN communica-
tion bus to a system element, use a color coding system for
the entire network to simplify installation and checkout.
See Table 10.
SIGNAL
TYPE
CCN BUS CONDUCTOR
INSULATION COLOR
CCN PLUG
PIN NO.
Positive (+) RED 1
Ground WHITE 2
Negative (-) BLACK 3
Fig. 32 — Field Control Thermostat Wiring
NOTE: Sensor part numbers are as follows:
T-55 — CEC0121448-01
T-56 — CEC0121448-01
Fig. 33 — Field Control Temperature Sensor
Wiring (CV or VAV Units)

48
Step 10 — Make Outdoor-Air Inlet Adjustments
ECONOMIZER
NOTE: If accessory power exhaust or barometric relief pack-
ages are being added to the unit, install power exhaust or baro-
metric relief before installing economizer hoods.
Economizer Hood Assembly — The economizer hood is
shipped in a package secured to the outside of the unit, behind
the indoor access panel. The hood assemblies must be field-
assembled. The 48AW,AY and 48EW,EY units are side supply
and side return. The return duct limits access to economizer fil-
ters from below. Filter tracks (mounting angle without tabs)
must be installed correctly to allow access to economizer filters
from each side.
The 48AJ,AK,AW,AY020-050 and 48EJ,EK,EW,EY024-
048 units have two hoods on every unit. Each hood has two
lower filter tracks, one slotted side and one side without slots.
Construct the assembly so that the slotted side is adjacent to the
other hood when mounted on the unit.
The 48AJ,AK,AW,AY060 and 48EJ,EK,EW,EY054-068
units have 3 hoods on every unit. Each hood has two lower fil-
ter tracks, one slotted side and one side without slots. Construct
the two outer hood assemblies so that the slotted sides are adja-
cent to the center hood when mounted on the unit.
NOTE: Before assembly of the economizer hood, check along
the outer edges of the economizer assembly for any seal strip
protruding past the flanges. Trim the excess seal strip so that it
is flush with the economizer assembly flanges.
SPACE TEMPERATURE AVERAGING — 9 SENSOR APPLICATION
Fig. 34 — Space Temperature Averaging Wiring
SPACE TEMPERATURE AVERAGING — 4 SENSOR APPLICATION
BASE BOARD
T30
TB2
2
HIR
Fig. 35 — Field HIR (Heat Interlock Relay) Wiring

49
Perform the following procedure to assemble the economiz-
er hood.
1. Apply black seal strip (provided in package) to outside
top-edge of hood sides. Wrap seal strip over edge to cover
top flange (6 hood sides). Make sure seal strip covers
screw holes. Allow strip to overhang 1/8-in. past the end
opposite the mounting flange. See Fig. 36.
2. Assemble hood sides, top, and cross member with
gasketed screws provided. See Fig. 37.
3. Attach 15 green speed clips (provided) to hood top.
4. Apply black seal strip (provided) to mounting flanges of
hood sides being sure to cover mounting holes. See
Fig. 38.
NOTE: Each hood assembly has one hood side with slots and
one hood side without slots. On the 48AJ,AK,AW,AY020-050
and 48EJ,EK,EW,EY024-048 units, the two outer hood assem-
blies must have the hood sides with the slots located adjacent
to each other when mounted on the unit. On the
48AJ,AK,AW,AY060 and 48EJ,EK,EW,EY054-068 units, the
two outer hood assemblies must have the hood sides with the
slots located adjacent to the center hood. The center hood
assembly should have hood side with slots located on the left
side.
5. Apply black seal strip (provided) to back of hood top
mounting flange. Seal strip of hood top mounting flange
must press tightly against seal strip of hood side mount-
ing flanges. See Fig. 39.
6. Add gray foam strip (provided in package) to cross mem-
bers on bottom tray. See Fig. 40.
7. Place gray foam strip (provided) on inside of slotted hood
side between filter and cross member opposite the mount-
ing end. See Fig. 41.
8. Attach gray foam strip (provided) to block-off baffle on
outer face of flange. See Fig. 42.
9. Remove the screws on each end and along top of damper
assembly of unit. Remove top 4 screws on each side of
filter panel under damper assembly. Set hood assembly in
place and attach to unit using these screws.
10. Attach the outside-air thermostat (OAT) that is supplied
from the factory or accessory field-supplied enthalpy sen-
sor onto the hood side furthest from the control box. The
OAT or enthalpy sensor is installed on the inside upper
right-hand corner using the mounting bracket and mount-
ing holes provided. Attach wiring to unit controls. If ac-
cessory enthalpy sensor is used, quick connects must be
attached to enthalpy sensor wires.
11. Remove screws along bottom of damper assembly. Lo-
cate and mount blockoff baffle using these screws.
12. Assemble 2 filter tracks side-by-side with the assembled
ends together.
13. Attach mounting angle (without tabs) to the assembled
end of the filter track. See Fig. 43.
14. Attach 9 green speed clips (provided) to hood side panels
without slots. Engagement section of clip faces up and to-
wards the outside of the hood side panels.
15. Attach remaining mounting angle (with tabs) to other end
of the filter track with no. 10 screws provided. See
Fig. 44.
16. Place filter track assembly in bottom of hood by placing
tabbed end into slotted side (with tab on bottom) and
attaching opposite end to hood with speed clips and
gasketed screws provided. Tabs can be hand bent after
they have been inserted into the side.
NOTE: The filter track assembly end with screws should face
away from the other hood when mounted on the unit. Be sure
the filters are installed with the airflow in the correct direction.
NOTE: Tabs from both filter tracks will be in the same space.
After one filter track has been inserted into hood side, bend the
tabs so they will not interfere with installation of the second/
center hood.
17. Attach black seal strip (provided) to filter cover. Seal strip
should be applied centered over the holes of the one
flange, making sure to fully cover holes and centered over
the other large flange. See Fig. 45.
18. Slide two 20 x 25-in. filters into cross members of hood
assembly. Attach filter cover over filters with screws and
speed clips provided.
HOOD SIDE
TOP
FLANGE
SEAL
STRIP
BLACK
Fig. 36 — Adding Seal Strip to Top of Hood Sides
NOTE: Left side economizer hood has mounting angle without tabs
and filter rack assembled end on the opposite side.
Fig. 37 — Economizer Hood Assembly
(Right Side/Center Economizer Hood Shown)

50
Minimum Damper Position (MDP) Setting — Setting of the
outdoor air damper position is performed in conjunction with a
shortened version of the field run test. This is performed by
first opening DIP (Dual In-line Package) switch no. 4 then
no. 6. See Fig. 27 and Direct Digital Controls DIP Switch Con-
figuration section on page 63.
The outdoor-air damper closes. The control allows 90 sec-
onds for the damper to close in case it is in the full open
position. Next, the indoor-fan contactor will energize. The
outdoor-air damper will remain at 0% for 30 seconds. It will
then move to the 10% damper motor travel position for another
30 seconds. This will be repeated at every 10% increment for
30 seconds until the damper reaches 100% open. Close DIP
switch no. 4 during the 30 seconds immediately after the de-
sired outdoor air minimum damper position. The 30-second
time period is to allow time where DIP switch no. 4 can be
closed. The default value of the minimum outdoor air damper
position is 20%. If the desired minimum position is 30%, al-
lows the damper position to go to 10% for 30 seconds, then
20% for 30 seconds, and when it reaches 30% close DIP switch
no. 4 during the 30-second period following the 30% position.
The minimum outdoor air damper position is now set. Close
DIP switch no. 6.
HOOD SIDE
MOUNTING
FLANGE
HOOD TOP
HOOD SIDE
CROSS MEMBER
GRAY FOAM STRIP
Fig. 38 — Adding Seal Strip to Sides of Hood Top
Mounting Flange
Fig. 39 — Adding Seal Strip to Back of Hood Top
Mounting Flange
Fig. 40 — Adding Foam Strip to Cross Member
HOOD SIDE
(SLOTTED)
HOOD
TOP
Fig. 41 — Adding Foam Strip to Hood Side
BLOCKOFF BAFFLE
GRAY FOAM STRIP
Fig. 42 — Adding Seal Strip to
Blockoff Baffle

51
ECONOMIZER SETTINGS
Accessory Enthalpy Control (Fig. 46) — The control
(HH57AC077) is mounted in the economizer hood. See
Fig. 37. The enthalpy setting adjustment is on the enthalpy con-
trol. For maximum benefit of outdoor air, set enthalpy control
to A. See Fig. 47 and 48.
The enthalpy controls operation of the economizer outdoor-
air damper to provide free cooling on a signal form the cooling
thermostat.
Enthalpy Control Installation — The outdoor air enthalpy
control is installed on the inside panel of the outdoor air hood.
The enthalpy control should be mounted when the outdoor air
hoods are assembled. To install the control, perform the follow-
ing procedure:
1. Turn off all power. Ensure disconnect is locked out.
2. Remove the economizer inlet filters from the bottom of
the right hand economizer hood. See Fig. 37. See Fig. 49
for economizer details.
3. Mount the outdoor air enthalpy sensor inside the right
economizer hood on the right side panel of the hood, ad-
jacent to the outdoor-air thermistor.
4. Locate the red, violet, and brown wires near the outdoor
air thermistor. Remove the splice from the red and violet
wires. Remove the cap from the brown wire.
5. Install a 1/4-in. push on terminal (field-supplied) on the vi-
olet and brown wires.
6. Connect a 1/4-in. push on terminal (field-provided) to one
end of a 18-gage, 6-in. jumper wire (field-provided).
Connect the other end to the red wire and attach a 1/4-in.
push on connector (field-provided).
7. Connect the red wire with the jumper to terminal TR1.
Connect the jumper to terminal 2. Connect the brown wire
to terminal TR. Connect the violet wire to terminal 3. All
connections are on the enthalpy control.
8. Replace the economizer filters.
9. Return power to unit.
Accessory Differential Enthalpy Control (Fig. 46) — The
control (HH57AC077), in conjunction with the accessory en-
thalpy sensor (HH57AC078), controls economizer operation
according to the differential enthalpy. The control is mounted
in the economizer hood. The sensor is mounted in the return
duct (48AJ,AK and 48EJ,EK) or return air plenum (48AW,AY
and 48EW,EY).
Differential Enthalpy Sensor Installation — To install the
control, perform the following procedure:
1. Turn off all power. Ensure disconnect is locked out.
2. Remove the economizer inlet filters from the bottom of
the right hand economizer hood. See Fig. 37 and 49.
3. Remove the factory-installed, 620-ohm jumper between
terminals SR and + on the enthalpy control located inside
the outdoor air hood.
4. Connect the violet wire from the enthalpy sensor kit to
the + terminal on the enthalpy control. Connect the blue
wire from the enthalpy sensor kit to the SR terminal on
the enthalpy control.
5. Turn the enthalpy control set point potentiometer clock-
wise past the ‘‘D’’ setting on the enthalpy control to con-
figure the control to operate on differential enthalpy. See
Fig. 47.
6. Remove the return-air enthalpy sensor from the accessory
package. Using the screws provided, mount the sensor in-
side the return duct near the unit. Do not locate the control
too far from the unit, or the wires will not reach from the
sensor to the control. On 48AW,AY and 48EW,EY units,
the enthalpy sensor can be installed in the return air sec-
tion of the unit, under the return air dampers.
MOUNTING ANG
L
(WITHOUT TABS)
FILTER TRACK
ASSEMBLY
BLACK SEAL STRIP
(CENTERED)
FILTER COVER
MOUNTING ANGLE
(WITH TABS)
Fig. 43 — Mounting Angle (Without Tabs)
Attached to Filter Track Assembly
Fig. 44 — Mounting Angle (With Tabs) Attached to
Filter Track Assembly
Fig. 45 — Attaching Seal Strip to Filter Cover

52
7. Route the wires from the enthalpy sensor to the return air
enthalpy control through the holes on the inside of the
hinged filter access panel. The holes are blocked by plug
buttons which should be removed.
8. Use field-supplied wire ties to attach the violet wire to the
+ terminal and the blue wire to the SR terminal.
9. Replace economizer filters.
10. Return power to unit.
Disable Economizer — For applications where the economiz-
er will not be used (areas of high humidity), the economizer
should be disabled. To disable the economizer, perform the
following:
1. Turn of power. Ensure disconnect is locked out.
2. Locate the OAT (Outdoor Air Thermostat) in the right
hand outdoor air damper area.
3. Locate the splice connecting the violet wire coming from
T24 on the base control board to the red wire coming
from T29 on the base control board. Remove the wire nut
and break the red to violet wire splice.
4. Cap off both wires. When the connection is broken the
base control board is fooled into thinking that the
enthalpy is not acceptable and economizer operation is
disabled.
5. Return power to unit.
NOTE: When the economizer is disabled, the damper
will function as a 2-position damper.
Step 11 — Position Power Exhaust/Barometric
Relief Damper Hood — All electrical connections have
been made and adjusted at the factory. The power exhaust
blowers and barometric relief dampers are shipped assembled
and tilted back into the unit for shipping. Brackets and extra
screws are shipped in shrink wrap around the dampers. If
ordered, each unit will have 4 (48AJ,AK,AW,AY020-050 and
48EJ,EK,EW,EY024-048 units) or 6 (48AJ,AK,AW,AY060
and 48EJ,EK,EW,EY054-068 units) power exhaust blowers
and motors or 4 (48AJ,AK,AW,AY020-050 and 48EJ,EK,EW,
EY024-048 units) or 6 (48AJ,AK,AW,AY060 and 48EJ,EK,
EW,EY054-068 units) barometric relief dampers.
1. Remove 9 screws holding each damper assembly in
place. See Fig. 50. Each damper assembly is secured with
3 screws on each side and 3 screws along the bottom.
Save screws.
2. Pivot each damper assembly outward until edges of
damper assembly rest against inside wall of unit.
3. Secure each damper assembly to unit with 6 screws
across top (3 screws provided) and bottom (3 screws
from Step 1) of damper.
4. With screws saved from Step 1, install brackets on each
side of damper assembly.
5. Remove tape from damper blades.
VAV DUCT PRESSURE TRANSDUCER — The VAV duct
pressure transducer (VAV inverter pressure transducer) is locat-
ed behind the filter access door on the lower inner panel. See
Fig. 51. A section of field-supplied 1/4-in. plastic tubing must
be run from the high pressure tap on the differential pressure
switch and connected to a field-supplied tap in the supply-air
duct. The tap is usually located 2/3 of the way out on the main
supply duct. Remove plug button in panel to route tubing.
VAV BUILDING PRESSURE TRANSDUCER — The VAV
building pressure transducer (modulating power exhaust pres-
sure transducer) is located behind the filter access door on the
lower inner panel. See Fig. 51. A section of field-supplied
1/4-in. plastic tubing must be run from the high pressure tap on
the differential pressure switch to the conditioned space. The
pressure tube must be terminated in the conditioned space
where a constant pressure is required. This location is usually
in an entrance lobby so that the building exterior doors will
open and close properly. Remove plug button in panel to route
tubing.
The low pressure tap is factory-routed to the atmosphere.
For a positive-pressure building, route the high tap to building
air and low tap to atmosphere. For a negative-pressure build-
ing, route the high tap to atmosphere and the low tap to build-
ing air.
Be careful when tilting blower assembly. Hoods and blow-
ers are heavy and can cause injury if dropped.
+
C7400A1004
HH57AC077
ENTHALPY
CONTROL
HH57AC078
ENTHALPY SENSOR
(USED WITH ENTHALPY
CONTROL FOR DIFFERENTIAL
ENTHALPY OPERATION)
Fig. 46 — Differential Enthalpy Control and Sensor
NOTE: Switches shown in high enthalpy state. Terminals 2 and 3
close on enthalpy decrease.
Fig. 47 — Wiring Connections for Solid-State
Enthalpy Control (HH57AC077)

53
LEGEND
RH — Relative Humidity
Fig. 48 — Psychrometric Chart for Enthalpy Control
NOTE: Partitions shown indicate both side supply (AW,AY,EW,EY) and vertical supply (AJ,AK,EJ,EK) units.
Fig. 49 — Economizer Details
CONTROL
CURVE
CONTROL POINT
(APPROX. DEG.)
AT 50% RH F (C)
A73 (23)
B70 (21)
C67 (19)
D63 (17)

54
Step 12 — Install All Accessories — After all the
factory-installed options have been adjusted, install all field-in-
stalled accessories. Refer to the accessory installation instruc-
tions included with each accessory.
MOTORMASTER® III CONTROL INSTALLATION
Install Field-Fabricated Wind Baffles — Wind baffles must
be field-fabricated for all units to ensure proper cooling cycle
operation at low-ambient temperatures. See Fig. 52 for baffle
details. Use 20-gage, galvanized sheet metal, or similar corro-
sion-resistant metal for baffles. Use field-supplied screws to at-
tach baffles to unit. Screws should be 1/4-in. diameter and 5/8-in.
long. Holes for wind baffles are pre-punched in the unit sheet
metal.
The wind baffles attach to flanges formed on the outer sheet
metal of the unit corner post. The other end of the baffle is at-
tached to the center panel between the condenser coil and the
indoor section. Two baffles are required.
To avoid damage to the refrigerant coils and electrical com-
ponents, use recommended screw sizes only.
NOTES:
1. Unless otherwise specified, all dimensions are to outside of part.
2. Dimensions are in inches.
3. On 48AW,AY and 48EW,EY units, accessory barometric relief or power exhaust must be mounted in the field-supplied return ductwork.
Fig. 50 — Barometric Relief Damper and Power Exhaust Mounting Details
LEGEND
VAV — Variable Air Volume
Fig. 51 — Pressure Transducer Locations
(48AJ,AK,AW,AY060 and 48EJ,EK,EW,EY054-068)

55
Install Motormaster® III Controls — Only one Motormaster
III control is required per unit.
Motor — One outdoor-fan motor (OFM) must be changed out
in the field to accommodate the Motormaster III accessory.
The replacement motor part no. is HD52AK652.
For 48AJ,AK,AW,AY020-030 and 48EJ,EK,EW,EY024-
034 units, the Motormaster controlled OFM is the no. 2 OFM
and is located at the left side of the unit looking from the com-
pressor end. The no. 1 OFM is controlled to shut off at 55 F and
on at 65 F outdoor-air temperature and does NOT need to be
changed out.
For 48AJ,AK,AW,AY035-050 and 48EJ,EK,EW,EY038-
054 units, the Motormaster controlled OFM is no. 1 OFM and
is located at the left side of the unit looking from the compres-
sor end and the second motor back. The no. 3 and 4 OFM are
controlled to shut off at 55 F and on at 65 F outdoor-air temper-
ature and do NOT need to be changed out. The no. 2 OFM is
intended to run at all ambient temperatures.
For 48AJ,AK,AW,AY060 and 48EJ,EK,EW,EY058-068
units, the Motormaster controlled OFM is no. 3 OFM and is lo-
cated at the left side of the unit looking from the compressor
end and the second motor back.
The no. 4, 5, and 6 OFMs are controlled to shut off at 55 F
and on at 65 F outdoor-air temperature and do NOT need to be
changed out. The no. 1 and 2 OFMs are intended to run at all
ambient temperatures.
Sensor — Install the sensor for thermistor input control in the
location shown in Fig. 53A-53E. Connect sensor leads to the
violet and gray control signal leads on the Motormaster III
control.
Signal Selection Switch — Remove the cover of the Motor-
master III control. Set the switch to accept the thermistor
sensor input signal. Set the frequency to match the unit power
supply (60 Hz).
Motormaster III Control — The recommended mounting loca-
tion is in the indoor fan section, mounted on the panel that sep-
arates the indoor and outdoor sections. On VAV units, this
location is next to the VFD (variable frequency drive).
Do not route the Motormaster III control wiring next to the
VFD on VAV units. Use a separate connector through the parti-
tion when wiring to the OFM.
Electrical Connections
When replacing the OFM, reconnect the black, yellow, and
blue wires form the outdoor fan contactor to the black, yellow,
and blue wires of the Motormaster III control. Run new wires
from the red, orange, and brown wires to the leads of the new
OFM. Connect the green wire from the control to ground.
NOTE: On all 575-v units, 2 transformers (part no.
HT01AH851) must be used for each Motormaster III control
to lower the supply voltage to the control to 460-v. Transform-
ers can be mounted anywhere outside the control box.
To avoid possibility of electrical shock and personal
injury, turn off all power to unit before making electrical
connections.
18
1BOTH SIDES
CROSS-BREAK
0.5
61
4.62
17.167
BETWEEN
HOLES
(TYPICAL)
0.312 DIA
HOLES
B
A
NOTE: All dimensions are in inches. Material: 20 gage galvanized
steel or other non-corrosive material.
Fig. 52 — Motormaster III Control Baffle Details
UNIT SIZE A B
48AJ,AK,AW,AY020-050 and
48EJ,EK,EW,EY024-054 80.5 79.5
48AJ,AK,AW,AY060 and
48EJ,EK,EW,EY058-068 120.5 119.5
Fig. 53A — Motormaster III Sensor Location
(48AJ,AK,AW,AY020-030 and
48EJ,EK,EW,EY024-034)

56
Fig. 53B — Motormaster® III Sensor Location
(48AJ,AK,AW,AY035 and
48EJ,EK,EW,EY038, 044)
Fig. 53C — Motormaster III Sensor Location
(48AJ,AK,AW,AY040, 050 and
48EJ,EK,EW,EY048)
Fig. 53D — Motormaster III Sensor Location
(48EJ,EK,EW,EY054-064)
Fig. 53E — Motormaster III Sensor Location
(48AJ,AK,AW,AY060 and
48EJ,EK,EW,EY068)

57
Step 13 — Field Modifications
DUCTWORK
Bottom Return Units (48AJ,AK,EJ,EK) Field-Modified for
Side Return — 48AJ,AK and 48EJ,EK units with bottom re-
turn air connections may be field-modified to accommodate
side return air connections.
Conversion to horizontal return requires that the bottom re-
turn openings of the unit must be sealed with airtight panels ca-
pable of supporting the weight of a person. The return duct-
work connection locations on the side of the unit are higher
than normal (31-in. high). Unit-mounted power exhaust or
barometric relief cannot be used because of return air ductwork
will cover the power exhaust or barometric relief installation
locations. Power exhaust or barometric relief may be installed
in the return air ductwork.
To convert the unit, perform the following:
1. Seal the bottom return openings of the unit with airtight
panels capable of supporting the weight of a person.
2. Remove the panels located below the economizer out-
door air dampers. These openings will be used for the re-
turn air ductwork. There are 2 panels on 48AJ,AK020-
050 and 48EJ,EK024-048 units. There are 3 panels on
48AJ,AK060 and 48EJ,EK054-068 units. These open-
ings are normally used for power exhaust or barometric
relief.
3. Run the return air ductwork up to the openings. One sin-
gle duct is recommended to connect to the unit over the
return air openings. See Fig. 54. The return duct must in-
corporate a minimum 3/4-in. flange for connection to the
unit cabinet. The unit does not have duct flanges for this
conversion.
Side Supply and Return Units (48AW,AY,EW,EY) With
Field-Installed Power Exhaust in Return Duct — Space must
be available in the return duct to mount the power exhaust fan
(gravity relief) modules. Dimensions and suggested locations
are shown in Fig. 55. These instructions are a guideline and not
a comprehensive procedure. The design contractor must pro-
vide some design initiative.
The wiring harness that is provided with the power exhaust
accessory is not long enough for the fan modules to be mount-
ed in the return air duct. Field-supplied wiring must be spliced
into the harness. Use a junction box at each splice. The wiring
may be run in the return duct as shown in Fig. 55, or externally
in conduit. A service access panel will be needed near each
power exhaust fan.
ELECTRIC UNLOADERS (Constant Volume Units
Only) — The rooftop units with version 4.0 control software
and later are capable of controlling electronic unloaders when
in the constant volume (CV) operating mode. The unloaders
may be installed in the field and wired to the control box as
shown in Fig. 56.
IMPORTANT: The following section is a guideline and not
a comprehensive procedure to field modify the units. The
installing contractor must provide some design initiative.
Field-conversion is complex and is not recommended.
Units with electric heat must not be converted because of
potential heating mode operating problems.
31.25”
INSIDE
RA
97.78” (020-050)(024-048), 150.47” (060)(054-068)
INSIDE DIMENSION
Fig. 54 — Side Return Air Conversion

58
START-UP
Use the following information and Start-Up Checklist on
pages CL-1 and CL-2 to check out unit PRIOR to start-up.
Unit Preparation — Check that unit has been installed in
accordance with these installation instructions and applicable
codes.
Compressor Mounting — Loosen the compressor
hold-down bolts until sidewise movement of the washer under
each holddown bolt head can be obtained. Do not loosen com-
pletely as bolts are self-locking and will maintain adjustment.
Service Valves — Ensure that the suction, discharge, and
liquid line service valves are open. Damage to the compressor
could result if they are left closed.
Internal Wiring — Check all electrical connections in
unit control boxes; tighten as required.
Refrigerant Service Ports — Each refrigerant system
has one suction port located in the top of the compressor motor
casing. All units also have one service port on the liquid line
valve and one on the compressor discharge valve. Be sure that
caps on the ports are tight.
42.56”
42” MIN.
S/A
R/A
ECONOMIZER
HOOD
ECONOMIZER
HOOD
J BOX
PLENUM RATED
CABLE
(FIELD SUPPLIED)
12.94
(UNIT
OPENING)
NOTE: 024-048, 020-050 SIZES SHOWN (2 POWER EXHAUST FANS)
060, 054-068 SIZES HAVE 3 POWER EXHAUST FANS. ALL
UNIT SIZES HAVE THE SAME SIZE POWER EXHAUST.
“END #2”
“END #1”
ALTERNATE
LOCATION
(END)
23.28”
TYP
42.62
TYP
LOCATION
BAROMETRIC RELIEF
OR POWER EXHAUST
“SIDE #2”
23.28”
“SIDE #1”
42.62”
J BOX
R/A S/A
Fig. 55 — Power Exhaust Relocated to Side Return Duct
BASE MODULE
UL2
UL1
COMP #2 UNLOADER
COM
COMP #1 UNLOADER
CYCLIC COND FAN
COM
CONT COND FAN
POWER EXHAUST
COM
POWER EXHAUST
ELEC HEAT 2
COM
ELEC HEAT 1
ECONOMIZER
4-20 mA OUPUT T26
T28
T29
T30
T33
T39
T38
T37
T36
T35
T34
T31
T32
DISCRETE
OUTPUTS
Fig. 56 — Wiring Field-Supplied Unloaders for
Constant Volume Units

59
Crankcase Heaters — Crankcase heaters are energized
as long as there is power to the unit, except when the compres-
sors are operating.
Variable Frequency Drive (VFD) — The variable
frequency drives are factory set. These settings include factory-
installed jumpers and software configurations. The only field
configured set point is duct static pressure. A Toshiba Opera-
tion Manual is shipped with each VAV unit. This manual
should be used if the drive needs to be customized for a partic-
ular application.
NOTE: The VFD will always provide the proper phase
sequence to the indoor-fan motor. The indoor-fan motor oper-
ates in proper rotation regardless of the phase sequence to the
unit. If, upon start-up, the outdoor fans operate backwards but
the indoor fan operates in the correct direction, reverse any two
leads to the main terminal block. All fans will then operate in
the correct direction.
A factory-supplied 2-wire duct pressure transducer is sup-
plied and wired complete with cable ground to reduce electrical
noise. A 1/4-in. air pressure tube must be routed to a location in
the supply air ductwork where it can sense supply air duct pres-
sure. The recommended location is about 2/3 of the way out on
the supply ductwork, so that a steady pressure will be provided
for the transducer.
To set the duct static pressure, perform the following steps.
The factory setting is zero. The duct transducer has a range
from 0 to 5 in. wg. The transducer output is 4 to 20 mA, there-
fore, 0 to 5 in. wg is proportional to the 4 to 20 mA and must be
expressed to the VFD in terms of percentage of the frequency
range. Refer to Table 11. The set point value is a percentage of
the maximum output frequency. Locate the duct static pressure
closest to that desired and use the corresponding set point val-
ue. If necessary, interpolation between duct static pressures is
permissible.
Table 11 — Toshiba TOSVERT VFD Set Point
(Frequency Command) for Supply Duct Pressure
TOSHIBA TOSVERT130-E3 VFD — The VFD must be
powered up, however, since it is located near the indoor fan,
operation of the fan is not desirable. To disable the fan and set
the duct static pressure, perform the following procedure:
1. Open the Indoor Fan Circuit Breaker (IFCB). This will
shut off power to the VFD.
2. Wait for the VFD display to go blank and remove VFD
cover without touching any interior components. Make
sure that the charge indicator lamp is out, indicating that
the VFD is discharged. The lamp is located on the upper
right hand corner of the terminal block. It may take sever-
al minutes for the VFD to fully discharge.
3. Remove jumper between ST and CC on the terminal
block and replace the VFD cover. This will disable the
running of the VFD. Refer to Fig. 57.
4. Close the IFCB and energize the Indoor Fan Contactor
(IFC). The VFD is now powered but the fan will not
operate.
5. On the front of the VFD is a keypad, which is used to
change the VFD set point. At this point the drive should
be disabled and the display read “OFF”. If the current
output frequency is displayed then verify that the ST and
CC jumpers have been removed.
6. Press either the “DOWN ARROW” or “UP ARROW”
key once, this will display the current frequency set point.
7. Press either the “DOWN ARROW” or “UP ARROW”
key to change set point to the appropriate duct static set
point desired. This number may be adjusted based on
the amount of static pressure (in. wg) required. Refer to
Table 11 to identify the VFD Set Point.
IMPORTANT: Unit power must be on for 24 hours prior to
start-up. Otherwise, damage to compressor may result.
PRESSURE CONTROL SIGNAL
(mA)
VFD SET POINT
(Hz)
in. wg kPa
0.0 0.000 4.0 0
0.25 0.062 4.8 3
0.50 0.124 5.6 6
0.75 0.187 6.4 9
1.00 0.249 7.2 12
1.25 0.311 8.0 15
1.50 0.373 8.8 18
1.75 0.435 9.6 21
2.00 0.498 10.4 24
2.25 0.560 11.2 27
2.50 0.622 12.0 30
2.75 0.684 12.8 33
3.00 0.747 13.6 36
3.25 0.809 14.4 39
3.50 0.871 15.2 42
A high voltage potential can exist with the indoor fan cir-
cuit breaker open. The charge LED, located in the top
right-hand corner of the Toshiba TOSVERT130-E3 VFD
control board, will indicate charged capacitors. DO NOT
TOUCH internal high voltage parts if LED is lit.
FLA
LOW
LOWP24 RCH S4 S3 S2 S1 RFRRRESP24
FLBFLCFPIVPPRXCCCCAMFM
ST
DP
DP
+
NOTES:
1. Drive enable (ST to CC made).
2. No emergency off command (S4 to CC made).
3. Direction command (F or R to CC made).
4. Frequency reference (4-20mA signal at IV terminal).
Fig. 57 — Toshiba TOSVERT130-E3 VFD
Factory-Installed Jumpers

60
8. Press “READ/WRITE” key, to enter the new value. The
desired set point value will alternately flash to indicate
that the new value has been stored.
9. Fire-speed override mode is available by contact closure
between terminals S1 and CC.
10. If the VFD is to be controlled by an external control sys-
tem, other than the factory-supplied duct static pressure
transducer, follow these steps:
a. Install a jumper between S2 and CC. This jumper
will disable the PID (Proportional Integral Deriva-
tive) control loop in the VFD. The VFD is set to
follow an external speed reference signal from the
control system.
b. Connect the field-supplied speed reference (4-20
mA) signal across terminals IV and P24.
11. Once all the changes have been made, open the IFCB.
12. Wait for the VFD display to go blank and remove VFD
cover without touching any interior components. Make
sure that the charge indicator lamp is out. If still lit, wait
until lamp goes completely out. This may take several
minutes.
13. Replace jumper across terminals ST and CC.
14. Replace VFD cover.
15. Close the IFCB. The VFD is now powered and the fan
will operate.
Table 12 — Carrier Default Program Parameter Values
*These settings differ from the Toshiba defaults and are required for Carrier applications.
IMPORTANT: The Carrier factory default values for the
VFD may be different than the default values of the manu-
facturer. Refer to the Carrier literature when checking
default values. The following default values have been
changed from the manufacturer settings to closely match
the VFD operation with a Carrier VAV unit. Refer to
Tables 12 and 13.
PARAMETER GROUP PARAMETER DEFAULT VALUE
SetP
(Setup)
ACC1 60.0 Sec
DEC1 60.0 Sec
UL 60.0 Hz
LL 10.0 Hz*
Luln 1
P3 20%
F-P3 0.0 Hz
P4 100%
F-P4 60 Hz
tHr1 See Table 13
StC1 0
StL1 110%
OLN 1
tYP 5*
Gr.F
(Fundamental)
FH 60 Hz
Pt 2
Gr.Fb
(Feedback)
FbP1 1*
Fbln 2
GP .30
Gl 2 sec
GA 0
GFS 80
P1LL 10
PuL 1
PuUl 10
PuLL 10
Gr.SF
(Frequency Settings) Fsor 60 Hz
Gr.Pn
(Panel Control) Fr 0*
Gr.St
(Terminal Selection)
1t 1
1t0 0
1t1 56
1t2 13
1t3 3
1t4 10
Gr.Pr
(Protection)
UuC 1*
UuCt 2
ArSt 3
Gr.Ut
(Utility)
Cnod 1*
Fnod 2*
bLPn 1*

61
Table 13 — Motor Electronic Thermal Protection (tHr) for Toshiba TOSVERT 130-E3 VFD
*IFM Letter refers to the 15th digit (Motor Option) of the unit model number
TOSHIBA TOSVERT VF-S9 VFD — The VFD must be
powered up, however, since it is located near the indoor fan,
operation of the fan is not desirable. To disable the fan and set
the duct static pressure, perform the following procedure:
1. Open the Indoor Fan Circuit Breaker (IFCB). This will
shut off power to the VFD.
2. Wait for the VFD display to go blank and the charge
lamplight to go out. Remove the VFD cover without
touching any interior components. It may take several
minutes for the VFD to fully discharge.
3. Remove jumper between R and CC on the terminal block
and replace the VFD cover. This will disable the running
of the VFD. Refer to Fig. 58.
4. Close the IFCB and energize the Indoor Fan Contactor
(IFC). The VFD is now powered but the fan will not
operate.
5. On the front of the VFD is a keypad, which is used to
change the VFD set point. At this point the drive should
be disabled and the display read “OFF”. If the current
output frequency is displayed then verify that the R and
CC jumpers have been removed.
6. Press either the “DOWN ARROW” or “UP ARROW”
key once, this will display the current frequency set point.
7. Press either the “DOWN ARROW” or “UP ARROW”
key to change set point to the appropriate duct static set
point desired. This number may be adjusted based on the
amount of static pressure (in. wg) required. Refer to the
Table 8 to identify the VFD Set Point.
8. Press “ENT” key, to enter the new value. The desired set
point value will alternately flash to indicate that the new
value has been stored.
9. Fire-speed override mode is available by contact closure
between terminals S1 and CC.
10. If the VFD is to be controlled by an external control sys-
tem, other than the factory-supplied duct static pressure
transducer, follow these steps:
a. Install a jumper between S2 and CC. This jumper
will disable the PID (Proportional Integral Deriva-
tive) control loop in the VFD. The VFD is set to
follow an external speed reference signal from the
control system.
b. Connect the field-supplied speed reference
(4-20 mA) signal across terminals II and P24. See
Fig. 58.
11. Once all the changes have been made, open the IFCB.
12. Wait for the VFD display to go blank and the charge
lamplight to go out. Remove the VFD cover without
touching any interior components. It may take several
minutes for the VFD to fully discharge.
13. Replace jumper across terminals R and CC.
14. Replace VFD cover.
15. Close the IFCB. The VFD is now powered and the fan
will operate.
MOTOR STANDARD EFFICIENCY HIGH EFFICIENCY
Hp kW IFM
Letter*
230 V
Setting
380V
Setting
460V
Setting
575V
Setting
IFM
Letter*
230V
Setting
460V
Setting
53.73A 66 100 72 89 L 72 72
7.5 5.60 B 100 100 80 76 M 100 80
10 7.46 C 96949791N 96100
15 11.19 D 78 94 100 100 P 78 100
20 14.92 E 87 94 100 95 Q 82 100
25 18.65 F 868494100R 8691
30 22.38 G 99 — 92 100 S 86 80
40 29.84 H 89 — 85 85 T 89 85
A high voltage potential can exist with the indoor fan cir-
cuit breaker open. The charge lamp LED, located on the
upper left corner of the Toshiba TOSVERT VF-S9 VFD
front cover, will indicate charged capacitors. DO NOT
TOUCH internal high voltage parts if LED is lit.
IMPORTANT: The Carrier factory default values for the
VFD may be different than the default values of the manu-
facturer. Refer to the Carrier literature when checking
default values. The following default values have been
changed from the manufacturer settings to closely match
the VFD operation with a Carrier VAV unit. Refer to
Tables 14 and 15.

62
Table 14 — Carrier VFD (Toshiba TOSVERT VF-S9) Program Parameter Values
*These settings differ from the Toshiba defaults and are required for Carrier applications.
Table 15 — Motor Electronic Thermal Protection (tHr) for Toshiba TOSVERT VF-S9 VFD
*IFM Letter refers to the 15th digit (Motor Option) of the unit model number.
PARAMETER GROUP COMMUNICATION NO. DESCRIPTION CARRIER DEFAULT SETTINGS
Basic Parameters
CNOd 0003 Command Mode Selection 0*
FNOd 0004 Frequency Setting Mode Selection 1*
Fr 0008 Forward/Reverse Run Selection 1*
ACC 0009 Acceleration Time 1 10.0 sec
dEC1 0010 Deceleration Time 1 10.0 sec
FH 0011 Maximum Frequency 60.0 Hz*
UL 0012 Upper Limit Frequency 60.0 Hz*
LL 0013 Lower Limit Frequency 10.0 Hz*
Pt 0015 V/f Control Mode Selection 1*
tHr 0041 Motor Electronic Thermal Protection Level 1 See Table 15*
Sr1 0018 Preset-Speed Operation Frequency 1 60.0 Hz*
Extended Parameters
F115 0115 Input Terminal Selection 5 (S2) 14*
F116 0116 Input Terminal Selection 6 (S3) 11*
Frequency Parameters
F201 0201 VIA/II Input Point 1 Setting 20%*
F202 0202 VIA/II Input Point 1 Frequency 0.0 Hz
F203 0203 VIA/II Input Point 2 Setting 100%
F204 0204 VIA/II Input Point 2 Frequency 60.0 Hz*
Operation Mode Parameters
F300 0300 PWM Carrier Frequency 4 KHz*
F301 0301 Auto-Restart Control Selection 3*
F302 0302 Regenerative Power Ride-through Control 1*
F303 0303 Retry Selection (Number of Times) 2*
F360 0360 PI Control 1*
F362 0362 Proportional Gain 0.30
F363 0363 Integral Gain 0.20
MOTOR STD EFFICIENCY HIGH EFFICIENCY
HP kW IFM Letter* 230V Setting 380V Setting 460V Setting IFM Letter* 230V Setting 460V Setting
53.73 A837783L9083
7.5 5.60 B808884M8084
10 7.46 C857586N8588
15 11.19 D819879P8179
20 14.92 E94 — 87Q88 87
CC VIA VIB PP II FM FR RST S1 S2 S3 CC OUT P24
TWO-WIRE
TRANSDUCER
4-20mA
-+
FIRE SPEED
OVER-RIDE
E-STOP
LEGEND
Typical Factory Wiring
Optional Field Wiring
Fig. 58 — Toshiba TOSVERT VF-S9 VFD Factory-Installed Jumpers

63
Power Exhaust — The optional non-modulating power
exhaust (CV only) is a two-stage design where the operation of
the exhaust fans is linked to economizer position. When the
supply fan is running and the economizer is 25% open, the base
control board closes contacts, activating 2 (48AJ,AK,AW,
AY020-050 and 48EJ,EK,EW,EY024-048) or 3 (48AJ,AK,
AW,AY060 and 48EJ,EK,EW,EY054-068) exhaust fans.
When the economizer position reaches 75% open, the base
module activates the other 2 (48AJ,AK,AW,AY020-050 and
48EJ,EK,EW,EY024-048) or 3 (48AJ,AK,AW,AY060 and
48EJ,EK,EW,EY054-068) exhaust fans. The fans will turn off
when the economizer closes below the same points. The econ-
omizer position set points that trigger the exhaust fans can be
modified, but only through use of the Service Tool, Comfort-
WORKS®, or Building Supervisor software. If single-stage
operation is desired, adjust the economizer set points to identi-
cal values at the desired point to activate all exhaust fans.
The optional modulating power exhaust (VAV standard, CV
optional) is controlled by a modular electronic sequencer sys-
tem. This system consists of a model R353 signal input module
and 4 model S353 staging modules (for 48AJ,AK,AW,AY060
and 48EJ,EK,EW,EY054-068, 6 model S353 staging mod-
ules). The signal input module receives a 0 to 10 vdc signal
from the building pressure transducer, which is mounted adja-
cent to the supply static transducer behind the filter access pan-
el. The modules are mounted just below the unit control board.
The left module is the R353, and the 4 or 6 modules on the
right are S353 modules for stages 1 through 4 or 6. On the unit
wiring label, the R353 is designated PESC, and the S353
modules are designated PES1 through PES4 (PES6 for
48AJ,AK,AW,AY060 and 48EJ,EK,EW,EY054-068).
The building pressure transducer range is -0.5 to + 0.5 in.
wg. It is powered by a 0 to 10 vdc signal. A factory-installed
hose at the ‘‘Lo’’ connection leads to atmosphere, and a field-
supplied hose must be connected to the ‘‘Hi’’ connection and
led into the building to a point where building pressure is to be
controlled. There is a plug button in the bulkhead just above the
transducers, for use in leading the hoses into the building via
the return air ductwork.
There are 3 adjustments at the R353 module, all of which
have been factory set. In the center of the circuit board is a set
of 4 pins with a jumper, labeled J2. This determines the mode
of operation. The bottom two pins must be jumpered for direct
operation. Direct operation means that the staging modules are
activated in sequence as the input signal increases.
At the upper right corner of the board is a set of 5 pins and
jumper, which determines the time constant for the control.
The time constant is the delay in response built into the con-
trols. The jumper should be on the middle or bottom two pins,
for the maximum time constant. The delay can be decreased, if
desired, by moving the jumper progressively upward, always
jumpering adjacent pins.
At the lower left corner of the board below the terminal strip
is a resistor marked R27. This must be removed in order to ob-
tain the 0 to 10 vdc signal output. There will not be a resistor on
a factory-supplied module, but a resistor may be present on a
replacement module and must be removed.
The R353 module has a terminal block with 7 connections
available for wiring. The 2 right-hand terminals are for the
24 vac and common connections. The next 2 terminals are for
the 0 to 10 vdc signal. Consult the wiring label for wire identi-
fication if replacing the module. The 3 left-hand terminals are
not used for this application.
The S353 module has an LED (light-emitting diode), a set
of 4 jumper pins, and 2 potentiometers. The LED will light
whenever the module is activated, providing a visual indication
of the number of exhaust fans running. The jumper pins are ar-
ranged in a square format. Two jumpers are used to determine
the mode of operation (direct or reverse). The 2 jumpers must
be arranged horizontally for direct action (factory set).
At the top of the module are two potentiometers. The left
potentiometer adjusts the offset. The right potentiometer ad-
justs the differential. The potentiometers are factory set for a
nominal 0 in. wg building pressure.
The offset set point is defined as the point at which a mod-
ule turns off a fan, and is measured in terms of percent of the
input signal. For control purposes, 0 offset is at an arbitrary
‘‘floor’’ which is established at 10% of the input signal, or
1 vdc. In this example, the first stage will turn off at 30%
(3 vdc), and the offset potentiometer will be set at 20%. The
second stage will turn off at 50% signal (5 vdc), and the offset
potentiometer will be set at 40%. The fourth stage is at the
maximum 75% offset, which equates to 85% signal or 8.5 vdc.
The offset potentiometer is calibrated in 10% increments.
See below for building pressure to signal level.
If the building pressure is controlled at 0 in. wg, offset of the
first stage should be set at 50%, which equates to 60% of the
input signal, or 6 vdc. The other stages can then be set as de-
sired between 50% and 75%.
The default offset set points for modulating power exhaust
are shown in Tables 16A and 16B.
The differential set point is the difference between the turn
off point and the turn on point for each module. It also is cali-
brated in terms of percent of input signal, and has a range of
1% to 7%. The differential potentiometer is calibrated in 1%
increments, and is factory set at approximately 3%. It is recom-
mended to leave the set point at 3%, to minimize cycling of the
fans.
The offset and differential potentiometers have been factory
set for atmospheric pressure. Do not change these settings until
there is some experience with the building. In most cases the
factory settings will be satisfactory. However, if the building
pressure is not being maintained as desired, then some minor
adjusting on a trial and error basis can be made.
Direct Digital Controls DIP Switch Configura-
tion — The Direct Digital Control (DDC) board must be
configured for each application. The DDC board is configured
through the DIP (Dual In-Line Package) switches located on
the board. There are 8 DIP switches which configure 8 differ-
ent applications of the DDC. See Table 17. DIP switch 1 is on
the left of the block. DIP switch 8 is on the right of the block.
To open a DIP switch, push the switch up with suitable tool
(small-blade screwdriver). To close a DIP switch, push the
switch down. Factory settings are shown in Table 18.
The DIP switch configurations are as follows:
• DIP switch 1 configures the unit to operate as a VAV or
CV unit
• DIP switch 2 configures the unit to use a space sensor
(VAV units) or a thermostat (CV units)
• DIP switch 3 configures the DDC for use with an elec-
tronic expansion board
• DIP switch 4 is used to field test the unit
• DIP switch 5 is used to enable occupied heating (VAV
units) or specify the type of power exhaust (CV units)
BUILDING PRESSURE SIGNAL LEVEL
(in. wg) (vdc)
-0.50 2
-0.25 4
0.00 6
0.25 8
0.50 10

64
• DIP switch 6 configures the Time Guard® override and,
when used with the field test function, sets the minimum
damper position
• DIP switch 7 configures the unit for gas heat or electric
heat
• DIP switch 8 configures the unit for heat pump or air
conditioner operation.
Crankcase Heater — Units are equipped with crank-
case heaters. Crankcase heaters are energized as long as there is
power supplied to unit. Crankcase heaters deenergize while
compressors are running.
Evaporator Fan — Fan belt and fixed pulleys are
factory-installed. See Tables 19-33 for fan performance and
motor limitations data. Remove tape from fan pulley, and be
sure that fans rotate in the proper direction. See Table 34 for air
quantity limits. Static pressure drop for power exhaust is negli-
gible. To alter fan performance, see Evaporator Fan Perfor-
mance Adjustment section on page 91.
Condenser Fans and Motors — Condenser fans and
motors are factory set. Refer to Condenser-Fan Adjustment
section on page 92 as required. Be sure that fans rotate in the
proper direction. Fan no. 2 (48AJ,AK,AW,AY020-030 and
48EJ,EK,EW,EY024-034), fans no. 3 and 4 (48AJ,AK,AW,
AY035-050 and 48EJ,EK,EW,EY038-054), and fans no. 4, 5,
and 6 (48AJ,AK,AW,AY060 and 48EJ,EK,EW,EY058-068)
are cycled on the outdoor-air temperature.
The VFD will always provide the proper phase sequence to
the indoor-fan motor to operate in the proper rotation regard-
less of the phase sequence to the unit. If on start-up, the outdoor
fans operate backwards but the indoor fan operates in the cor-
rect direction, reverse any two leads to the unit main terminal
block and all fans will operate in the correct direction.
Table 16A — Power Exhaust Default Set Points (48AJ,AK,AW,AY020-050 and 48EJ,EK,EW,EY024-048)
Table 16B — Power Exhaust Default Set Points (48AJ,AK,AW,AY060 and 48EJ,EK,EW,EY054-068)
Table 17 — DIP Switch Configuration
LEGEND
NOTES:
1. The OPEN side of the DIP switch is marked ‘‘OPEN.’’ When the
rocker switch is on the ‘‘OPEN’’ side of the switch, the switch is
OPEN.
2. The configuration of DIP switches 2 and 5 are dependent on
DIP switch 1. If DIP switch 1 is set to OPEN (VAV operation),
then DIP switches 2 and 5 will configure VAV functions.
3. When the unit is field-tested (DIP switch 4 to OPEN), the func-
tion of DIP switch 6 changes and it is used to set the minimum
damper position.
4. Recycle power to unit after modifying DIP switches. This will
allow the unit to access the new configurations and update its
tables.
IMPORTANT: To prevent damage to compressors, crank-
case heater should be energized 24-hours prior to start-up.
STAGE OFFSET DIFFERENTIAL OFF VOLTAGE ON VOLTAGE OFF STATIC PRESSURE
(in.wg)
150% 3% 6.0 6.3 0.00
255% 3% 6.5 6.8 0.06
360% 3% 7.0 7.3 0.12
464% 3% 7.4 7.7 0.18
STAGE OFFSET DIFFERENTIAL OFF VOLTAGE ON VOLTAGE OFF STATIC PRESSURE
(in.wg)
150% 3% 6.0 6.3 0.00
255% 3% 6.5 6.8 0.06
360% 3% 7.0 7.3 0.12
465% 3% 7.5 7.8 0.19
570% 3% 8.0 8.3 0.25
675% 3% 8.5 8.8 0.31
SETTING 1 2 3 4 5 6 7 8
OPEN VAV
VAV — Space Sensor
Installed
Expansion
Board
Field Test
ON
VAV —
Occupied
Heat
Enabled
Time Guard® Override
ON
Gas Heat Heat Pump
Operation
CV — CCN or Sensors
Used
CV —
Modulated
Power
Exhaust
IN CONJUNCTION
WITH FIELD TEST
— Set Minimum
Damper Position
CLOSED CV
VAV — No Space Sensor
Base Control
Board Only
Field Test
OFF
VAV —
Occupied
Heat
Disabled Time Guard Override
OFF Electric Heat Air Conditioner
Operation
CV — Thermostat
CV —
Constant
Volume
Power
Exhaust
CCN — Carrier Comfort Network
CV — Constant Volume
VAV — Variable Air Volume

65
Table 18 — DIP Switch Factory Settings
*On 48EJ,EW,AJ,AW units equipped with staged gas option, DIP switch 7 should be closed.
Table 19 — Fan Performance, 48AJ,AK020-030 — Vertical Discharge Units
LEGEND
Bhp — Brake Horsepower
NOTES:
1. Fan performance is based on wet coils, economizer, roof curb,
cabinet losses, and clean 2-in. filters.
2. Conversion — Bhp to watts:
3. Variable Air Volume units will operate down to 70 cfm/ton. Per-
formance at 70 cfm/ton is limited to unloaded operation and
may be additionally limited by edb (entering dry bulb) and ewb
(entering wet bulb) conditions.
UNIT 12345678
48AJ,AW and 48EJ,EW Closed Closed Closed Closed Closed Closed Open* Closed
48AK,AY and 48EK,EY Open Closed Closed Closed Closed Closed Open Closed
AIRFLOW
(Cfm)
AVAILABLE EXTERNAL STATIC PRESSURE (in. wg)
0.20.40.60.81.01.21.41.6
Rpm Bhp Rpm Bhp Rpm Bhp Rpm Bhp Rpm Bhp Rpm Bhp Rpm Bhp Rpm Bhp
4,000 394 1.06 416 1.17 481 1.53 538 1.91 590 2.30 637 2.71 680 3.12 721 3.55
5,000 388 1.26 453 1.61 512 1.99 566 2.39 616 2.80 662 3.23 704 3.66 745 4.11
6,000 433 1.80 495 2.18 549 2.58 600 3.00 646 3.43 690 3.87 731 4.32 770 4.79
7,000 484 2.49 540 2.91 591 3.33 637 3.76 681 4.21 722 4.66 761 5.13 799 5.61
8,000 537 3.34 589 3.79 635 4.23 678 4.69 719 5.15 758 5.62 795 6.10 831 6.59
9,000 590 4.35 638 4.83 682 5.31 723 5.78 761 6.26 798 6.75 833 7.24 867 7.75
10,000 645 5.53 690 6.05 731 6.56 769 7.05 805 7.55 840 8.06 873 8.57 905 9.09
11,000 700 6.90 742 7.46 781 7.99 817 8.51 851 9.04 884 9.56 916 10.09 946 10.62
12,000 755 8.46 795 9.05 832 9.61 866 10.17 899 10.71 930 11.26 960 11.81 989 12.36
13,000 811 10.23 849 10.85 884 11.44 917 12.02 948 12.59 978 13.16 1006 13.73 1034 14.30
14,000 868 12.20 904 12.86 937 13.48 968 14.08 998 14.68 1026 15.27 1054 15.86 1081 16.45
15,000 924 14.40 959 15.08 990 15.73 1020 16.37 1049 16.99 1076 17.61 1103 18.22 1128 18.83
AIRFLOW
(Cfm)
AVAILABLE EXTERNAL STATIC PRESSURE (in. wg)
1.82.02.22.42.62.83.03.2
Rpm Bhp Rpm Bhp Rpm Bhp Rpm Bhp Rpm Bhp Rpm Bhp Rpm Bhp Rpm Bhp
4,000 759 3.97 795 4.40 829 4.84 862 5.29 893 5.73 923 6.18 952 6.64 980 7.09
5,000 782 4.56 818 5.02 853 5.49 885 5.96 917 6.43 947 6.91 976 7.39 1004 7.88
6,000 807 5.26 843 5.74 876 6.23 909 6.72 940 7.22 970 7.72 999 8.23 1028 8.74
7,000 835 6.09 869 6.59 902 7.09 934 7.60 965 8.12 994 8.64 1023 9.17 1051 9.70
8,000 865 7.09 898 7.60 930 8.12 961 8.64 991 9.17 1020 9.71 1049 10.25 1076 10.80
9,000 899 8.26 931 8.78 962 9.31 992 9.84 1021 10.39 1049 10.94 1076 11.49 1103 12.05
10,000 936 9.61 967 10.15 996 10.69 1025 11.24 1053 11.79 1080 12.35 1107 12.92 1133 13.49
11,000 976 11.16 1005 11.71 1033 12.26 1060 12.82 1087 13.39 1114 13.96 1139 14.54 1165 15.12
12,000 1018 12.91 1045 13.47 1072 14.04 1099 14.61 1125 15.19 1150 15.77 1175 16.36 1199 16.96
13,000 1061 14.87 1088 15.45 1114 16.03 1139 16.62 1164 17.21 1188 17.80 — — — —
14,000 1107 17.05 1132 17.64 1157 18.23 1181 18.84 — — — — — — — —
15,000 1153 19.44 1178 20.05 — — ——————————
AIRFLOW
(Cfm)
AVAILABLE EXTERNAL STATIC PRESSURE (in. wg)
3.43.63.84.0
Rpm Bhp Rpm Bhp Rpm Bhp Rpm Bhp
4,000 1007 7.55 1033 8.02 1058 8.48 1083 8.95
5,000 1032 8.37 1058 8.86 1084 9.36 1109 9.86
6,000 1055 9.25 1081 9.77 1107 10.29 1132 10.82
7,000 1078 10.23 1105 10.77 1131 11.32 1156 11.86
8,000 1103 11.35 1129 11.90 1155 12.47 1180 13.03
9,000 1130 12.62 1155 13.19 1180 13.76 — —
10,000 1158 14.07 1183 14.65 — — — —
11,000 118915.71——————
12,000 ————————
13,000 ————————
14,000 ————————
15,000 ————————
Watts = Bhp x 746
Motor Efficiency

66
Table 20 — Fan Performance, 48AJ,AK035 — Vertical Discharge Units
LEGEND
Bhp — Brake Horsepower
NOTES:
1. Fan performance is based on wet coils, economizer, roof curb,
cabinet losses, and clean 2-in. filters.
2. Conversion — Bhp to watts:
3. Variable Air Volume units will operate down to 70 cfm/ton. Per-
formance at 70 cfm/ton is limited to unloaded operation and
may be additionally limited by edb (entering dry bulb) and ewb
(entering wet bulb) conditions.
AIRFLOW
(Cfm)
AVAILABLE EXTERNAL STATIC PRESSURE (in. wg)
0.20.40.60.81.01.21.41.6
Rpm Bhp Rpm Bhp Rpm Bhp Rpm Bhp Rpm Bhp Rpm Bhp Rpm Bhp Rpm Bhp
7,000 433 2.01 488 2.38 539 2.76 587 3.14 633 3.54 677 3.94 719 4.36 759 4.79
8,000 480 2.73 529 3.12 576 3.53 620 3.94 662 4.35 703 4.77 742 5.21 780 5.65
9,000 528 3.59 573 4.01 615 4.44 656 4.88 695 5.32 733 5.76 769 6.21 805 6.67
10,000 577 4.62 618 5.07 657 5.52 695 5.98 731 6.44 766 6.91 800 7.38 834 7.86
11,000 627 5.83 664 6.29 700 6.77 735 7.25 769 7.74 802 8.23 834 8.73 866 9.22
12,000 677 7.22 711 7.70 745 8.20 778 8.71 810 9.22 841 9.73 871 10.25 901 10.77
13,000 728 8.80 760 9.30 791 9.82 822 10.35 852 10.89 881 11.42 910 11.96 938 12.51
14,000 779 10.59 809 11.11 838 11.65 867 12.20 895 12.75 923 13.31 950 13.87 977 14.44
15,000 831 12.60 858 13.13 886 13.68 913 14.25 940 14.83 966 15.41 992 15.99 1017 16.58
16,000 883 14.82 909 15.37 934 15.94 960 16.53 985 17.12 1010 17.72 1034 18.33 1059 18.94
17,000 935 17.28 959 17.85 983 18.43 1007 19.04 1031 19.65 1055 20.27 1078 20.89 1101 21.52
18,000 987 19.98 1010 20.56 1033 21.16 1056 21.78 1078 22.41 1101 23.05 — — — —
AIRFLOW
(Cfm)
AVAILABLE EXTERNAL STATIC PRESSURE (in. wg)
1.82.02.22.42.62.83.03.2
Rpm Bhp Rpm Bhp Rpm Bhp Rpm Bhp Rpm Bhp Rpm Bhp Rpm Bhp Rpm Bhp
7,000 797 5.22 834 5.67 869 6.12 902 6.57 934 7.04 965 7.50 995 7.98 1024 8.45
8,000 816 6.10 852 6.56 886 7.03 919 7.50 951 7.99 982 8.47 1011 8.97 1040 9.46
9,000 839 7.14 873 7.61 906 8.10 938 8.59 969 9.08 999 9.59 1028 10.10 1057 10.61
10,000 866 8.35 898 8.84 929 9.33 960 9.84 990 10.35 1019 10.87 1047 11.39 1075 11.92
11,000 897 9.73 927 10.24 956 10.75 985 11.27 1014 11.79 1041 12.33 1069 12.86 1096 13.41
12,000 930 11.29 958 11.82 986 12.35 1014 12.89 1041 13.43 1067 13.97 1093 14.53 1119 15.08
13,000 965 13.05 992 13.60 1019 14.15 1045 14.70 1071 15.26 1096 15.82 1121 16.39 1146 16.96
14,000 1003 15.00 1028 15.57 1054 16.14 1078 16.72 1103 17.29 1127 17.87 1151 18.45 1175 19.04
15,000 1042 17.17 1066 17.76 1090 18.35 1114 18.94 1138 19.54 1161 20.13 1184 20.74 — —
16,000 1082 19.54 1106 20.16 1129 20.77 1151 21.38 1174 22.00 1196 22.61 — — — —
17,000 1124 22.15 1146 22.78 — — ——————————
18,000 ————————————————
AIRFLOW
(Cfm)
AVAILABLE EXTERNAL STATIC PRESSURE (in. wg)
3.43.63.84.0
Rpm Bhp Rpm Bhp Rpm Bhp Rpm Bhp
7,000 1052 8.93 1079 9.42 1105 9.90 1131 10.39
8,000 1068 9.97 1096 10.47 1122 10.98 1148 11.50
9,000 1085 11.13 1112 11.66 1138 12.19 1164 12.72
10,000 1102 12.46 1129 13.00 1155 13.54 1181 14.09
11,000 1122 13.96 1148 14.51 1173 15.07 1198 15.64
12,000 1145 15.65 1170 16.21 1194 16.79 — —
13,000 1170 17.53 1194 18.12 — — — —
14,000 119819.64——————
15,000 ————————
16,000 ————————
17,000 ————————
18,000 ————————
Watts = Bhp x 746
Motor Efficiency

67
Table 21 — Fan Performance, 48AJ,AK040,050 — Vertical Discharge Units
LEGEND
Bhp — Brake Horsepower
NOTES:
1. Fan performance is based on wet coils, economizer, roof curb,
cabinet losses, and clean 2-in. filters.
2. Conversion — Bhp to watts:
3. Variable Air Volume units will operate down to 70 cfm/ton. Per-
formance at 70 cfm/ton is limited to unloaded operation and
may be additionally limited by edb (entering dry bulb) and ewb
(entering wet bulb) conditions.
AIRFLOW
(Cfm)
AVAILABLE EXTERNAL STATIC PRESSURE (in. wg)
0.20.40.60.81.01.21.41.6
Rpm Bhp Rpm Bhp Rpm Bhp Rpm Bhp Rpm Bhp Rpm Bhp Rpm Bhp Rpm Bhp
8,000 512 2.98 560 3.38 604 3.79 647 4.20 688 4.62 728 5.05 766 5.49 803 5.94
9,000 561 3.90 604 4.33 645 4.77 685 5.20 723 5.65 760 6.10 796 6.55 831 7.02
10,000 611 5.00 651 5.45 689 5.91 725 6.37 761 6.84 795 7.31 829 7.79 861 8.27
11,000 662 6.27 699 6.75 734 7.23 768 7.72 801 8.21 833 8.71 865 9.20 895 9.71
12,000 714 7.74 748 8.24 780 8.75 812 9.26 843 9.77 873 10.29 903 10.81 932 11.33
13,000 766 9.41 798 9.93 828 10.46 858 11.00 887 11.54 916 12.08 944 12.62 971 13.16
14,000 819 11.29 848 11.84 877 12.39 905 12.95 932 13.51 959 14.07 986 14.63 1012 15.20
15,000 872 13.40 899 13.96 926 14.54 953 15.11 979 15.70 1004 16.28 1029 16.87 1054 17.46
16,000 925 15.74 951 16.32 976 16.91 1001 17.51 1026 18.12 1050 18.72 1074 19.33 1097 19.94
17,000 979 18.32 1003 18.92 1027 19.53 1051 20.15 1074 20.77 1097 21.40 1120 22.03 1142 22.66
18,000 1032 21.15 1055 21.77 1078 22.40 1100 23.04 1123 23.68 1145 24.33 1166 24.98 1188 25.63
19,000 1086 24.24 1108 24.88 1129 25.52 1151 26.18 1172 26.84 1193 27.51 1214 28.18 1234 28.85
20,000 1140 27.60 1161 28.25 1181 28.92 1202 29.59 1222 30.27 1242 30.95 1262 31.64 1281 32.33
AIRFLOW
(Cfm)
AVAILABLE EXTERNAL STATIC PRESSURE (in. wg)
1.82.02.22.42.62.83.03.2
Rpm Bhp Rpm Bhp Rpm Bhp Rpm Bhp Rpm Bhp Rpm Bhp Rpm Bhp Rpm Bhp
8,000 839 6.40 874 6.86 907 7.34 940 7.81 971 8.30 1001 8.79 1030 9.29 1059 9.79
9,000 864 7.49 897 7.97 930 8.46 961 8.95 991 9.46 1021 9.97 1050 10.48 1078 11.00
10,000 893 8.76 925 9.26 955 9.76 985 10.27 1014 10.79 1043 11.31 1071 11.84 1098 12.37
11,000 925 10.21 955 10.73 984 11.25 1012 11.77 1040 12.30 1068 12.84 1095 13.38 1121 13.93
12,000 960 11.86 988 12.39 1016 12.93 1043 13.47 1069 14.02 1095 14.57 1121 15.13 1147 15.69
13,000 998 13.71 1024 14.26 1050 14.82 1076 15.38 1101 15.94 1126 16.51 1151 17.08 1175 17.66
14,000 1037 15.77 1062 16.34 1087 16.92 1111 17.49 1136 18.07 1159 18.66 1183 19.25 1206 19.84
15,000 1078 18.05 1102 18.64 1126 19.23 1149 19.83 1172 20.43 1195 21.03 1217 21.64 1239 22.25
16,000 1121 20.55 1143 21.17 1166 21.78 1188 22.40 1210 23.01 1232 23.64 1253 24.26 1275 24.89
17,000 1164 23.29 1186 23.93 1208 24.56 1229 25.20 1250 25.84 1271 26.48 1291 27.12 — —
18,000 1209 26.28 1230 26.93 1250 27.59 1271 28.25 1291 28.91 — — — — — —
19,000 1255 29.52 1275 30.19 1294 30.87 ——————————
20,000 ————————————————
AIRFLOW
(Cfm)
AVAILABLE EXTERNAL STATIC PRESSURE (in. wg)
3.43.63.84.0
Rpm Bhp Rpm Bhp Rpm Bhp Rpm Bhp
8,000 1086 10.29 1113 10.80 1139 11.31 1164 11.83
9,000 1105 11.52 1131 12.05 1157 12.58 1183 13.12
10,000 1125 12.91 1151 13.46 1177 14.01 1202 14.56
11,000 1147 14.49 1172 15.05 1197 15.61 1222 16.18
12,000 1172 16.26 1196 16.83 1220 17.41 1244 18.00
13,000 1199 18.24 1223 18.83 1246 19.42 1269 20.02
14,000 1229 20.44 1252 21.04 1274 21.64 1296 22.25
15,000 1261 22.86 1283 23.48 — — — —
16,000 129625.52——————
17,000 ————————
18,000 ————————
19,000 ————————
20,000 ————————
Watts = Bhp x 746
Motor Efficiency

68
Table 22 — Fan Performance, 48AJ,AK060 — Vertical Discharge Units
LEGEND
Bhp — Brake Horsepower
NOTES:
1. Fan performance is based on wet coils, economizer, roof curb,
cabinet losses, and clean 2-in. filters.
2. Conversion — Bhp to watts:
3. Variable Air Volume units will operate down to 70 cfm/ton. Per-
formance at 70 cfm/ton is limited to unloaded operation and
may be additionally limited by edb (entering dry bulb) and ewb
(entering wet bulb) conditions.
AIRFLOW
(Cfm)
AVAILABLE EXTERNAL STATIC PRESSURE (in. wg)
0.20.40.60.81.01.21.41.6
Rpm Bhp Rpm Bhp Rpm Bhp Rpm Bhp Rpm Bhp Rpm Bhp Rpm Bhp Rpm Bhp
12,000 476 4.33 534 5.04 585 5.78 632 6.56 674 7.39 714 8.24 751 9.12 786 10.02
14,000 536 6.19 588 6.96 636 7.74 680 8.56 720 9.41 758 10.30 793 11.21 827 12.15
15,000 566 7.28 617 8.09 662 8.90 704 9.73 744 10.59 781 11.50 816 12.42 849 13.38
16,000 597 8.48 645 9.34 689 10.17 730 11.02 768 11.90 804 12.82 839 13.76 871 14.73
17,000 628 9.80 674 10.71 717 11.58 756 12.45 793 13.34 829 14.27 862 15.23 894 16.21
18,000 659 11.25 704 12.21 745 13.11 783 14.00 819 14.91 853 15.85 886 16.82 918 17.82
19,000 691 12.82 734 13.84 773 14.77 810 15.69 845 16.62 879 17.58 911 18.56 942 19.57
20,000 723 14.53 764 15.60 802 16.57 838 17.52 872 18.47 905 19.44 936 20.44 966 21.45
21,000 755 16.37 794 17.49 831 18.51 866 19.49 899 20.47 931 21.46 961 22.47 991 23.50
22,000 787 18.35 825 19.53 861 20.59 894 21.60 927 22.61 958 23.62 987 24.64 1016 25.69
23,000 819 20.48 856 21.71 890 22.81 923 23.87 954 24.90 985 25.93 1014 26.97 1042 28.03
24,000 851 22.75 887 24.04 920 25.19 952 26.28 983 27.34 1012 28.40 1041 29.46 1068 30.54
25,000 883 25.17 918 26.52 951 27.72 982 28.84 1011 29.94 1040 31.02 1068 32.11 1095 33.21
26,000 916 27.76 950 29.15 981 30.40 1011 31.57 1040 32.70 1068 33.81 1095 34.92 1122 36.04
27,000 948 30.49 981 31.95 1012 33.24 1041 34.46 1070 35.62 1097 36.76 1123 37.90 1149 39.04
AIRFLOW
(Cfm)
AVAILABLE EXTERNAL STATIC PRESSURE (in. wg)
1.82.02.22.42.62.83.03.2
Rpm Bhp Rpm Bhp Rpm Bhp Rpm Bhp Rpm Bhp Rpm Bhp Rpm Bhp Rpm Bhp
12,000 819 10.93 851 11.85 881 12.78 911 13.72 939 14.67 967 15.62 993 16.58 1019 17.54
14,000 859 13.11 890 14.08 920 15.06 948 16.06 976 17.07 1003 18.08 1029 19.11 1054 20.13
15,000 881 14.36 911 15.35 940 16.36 968 17.38 996 18.41 1022 19.45 1048 20.50 1073 21.56
16,000 902 15.72 932 16.73 961 17.76 989 18.80 1016 19.86 1042 20.92 1067 22.00 1092 23.08
17,000 925 17.21 954 18.24 983 19.28 1010 20.34 1036 21.42 1062 22.51 1087 23.60 1112 24.71
18,000 948 18.84 977 19.88 1005 20.94 1032 22.01 1058 23.11 1083 24.21 1108 25.33 1132 26.46
19,000 971 20.60 1000 21.65 1027 22.72 1054 23.81 1080 24.92 1105 26.04 1129 27.18 1153 28.33
20,000 995 22.50 1023 23.57 1050 24.65 1076 25.76 1102 26.88 1126 28.01 1151 29.17 1174 30.33
21,000 1019 24.55 1047 25.63 1073 26.73 1099 27.84 1124 28.97 1149 30.13 1173 31.29 1196 32.47
22,000 1044 26.76 1071 27.84 1097 28.95 1123 30.08 1147 31.22 1172 32.39 1195 33.56 — —
23,000 1069 29.11 1096 30.21 1122 31.33 1147 32.47 1171 33.63 1195 34.80 — — — —
24,000 1095 31.63 1121 32.74 1146 33.87 1171 35.02 1195 36.19 — — — — — —
25,000 1121 34.31 1147 35.44 1171 36.58 1196 37.74 — — — — — — — —
26,000 1147 37.16 1172 38.30 1197 39.46 ——————————
27,000 1174 40.18 1199 41.34 — — ——————————
AIRFLOW
(Cfm)
AVAILABLE EXTERNAL STATIC PRESSURE (in. wg)
3.43.63.84.0
Rpm Bhp Rpm Bhp Rpm Bhp Rpm Bhp
12,000 1045 18.51 1069 19.48 1093 20.45 1117 21.43
14,000 1079 21.17 1103 22.21 1126 23.26 1149 24.31
15,000 1097 22.63 1121 23.70 1144 24.78 1167 25.86
16,000 1116 24.17 1140 25.28 1162 26.38 1185 27.49
17,000 1135 25.83 1159 26.95 1181 28.09 — —
18,000 1156 27.60 1178 28.74 — — — —
19,000 1176 29.48 1199 30.65 — — — —
20,000 119731.50——————
21,000 ————————
22,000 ————————
23,000 ————————
24,000 ————————
25,000 ————————
26,000 ————————
27,000 ————————
Watts = Bhp x 746
Motor Efficiency

69
Table 23 — Fan Performance, 48AW,AY020-030 — Horizontal Discharge Units
LEGEND
Bhp — Brake Horsepower
NOTES:
1. Fan performance is based on wet coils, economizer, roof curb,
cabinet losses, and clean 2-in. filters.
2. Conversion — Bhp to watts:
3. Variable Air Volume units will operate down to 70 cfm/ton. Per-
formance at 70 cfm/ton is limited to unloaded operation and
may be additionally limited by edb (entering dry bulb) and ewb
(entering wet bulb) conditions.
AIRFLOW
(Cfm)
AVAILABLE EXTERNAL STATIC PRESSURE (in. wg)
0.20.40.60.81.01.21.41.6
Rpm Bhp Rpm Bhp Rpm Bhp Rpm Bhp Rpm Bhp Rpm Bhp Rpm Bhp Rpm Bhp
4,000 394 1.06 424 1.21 488 1.57 544 1.96 595 2.35 642 2.76 685 3.17 725 3.59
5,000 398 1.32 465 1.68 523 2.06 576 2.46 625 2.88 670 3.31 712 3.75 751 4.19
6,000 451 1.90 511 2.29 564 2.70 613 3.12 659 3.55 702 4.00 742 4.45 780 4.92
7,000 506 2.65 560 3.07 609 3.49 654 3.93 697 4.38 737 4.84 776 5.31 813 5.79
8,000 562 3.56 612 4.01 657 4.46 699 4.91 739 5.38 777 5.86 814 6.34 848 6.84
9,000 620 4.65 666 5.13 707 5.60 747 6.08 784 6.57 820 7.06 855 7.56 888 8.07
10,000 679 5.93 721 6.44 760 6.94 797 7.44 832 7.94 866 8.45 898 8.97 930 9.50
11,000 738 7.40 777 7.94 814 8.47 849 9.00 882 9.52 914 10.05 944 10.59 974 11.13
12,000 798 9.09 835 9.66 869 10.22 902 10.77 933 11.32 963 11.86 993 12.42 1021 12.98
13,000 859 11.01 893 11.60 925 12.18 956 12.75 986 13.33 1015 13.90 1042 14.47 1070 15.04
14,000 920 13.14 952 13.76 982 14.37 1011 14.97 1040 15.56 1067 16.16 1094 16.75 1120 17.34
15,000 981 15.52 1011 16.17 1040 16.80 1068 17.42 1095 18.04 1121 18.65 1146 19.27 1171 19.88
AIRFLOW
(Cfm)
AVAILABLE EXTERNAL STATIC PRESSURE (in. wg)
1.82.02.22.42.62.83.03.2
Rpm Bhp Rpm Bhp Rpm Bhp Rpm Bhp Rpm Bhp Rpm Bhp Rpm Bhp Rpm Bhp
4,000 763 4.01 799 4.44 833 4.87 865 5.31 896 5.75 926 6.20 955 6.64 983 7.09
5,000 789 4.64 824 5.10 858 5.56 891 6.03 922 6.50 952 6.98 981 7.46 1009 7.94
6,000 817 5.39 851 5.87 885 6.36 917 6.85 948 7.34 978 7.85 1006 8.35 1034 8.86
7,000 848 6.28 881 6.78 914 7.29 945 7.80 975 8.31 1005 8.84 1033 9.36 1061 9.89
8,000 882 7.35 914 7.86 946 8.38 976 8.90 1005 9.44 1034 9.98 1062 10.52 1089 11.07
9,000 920 8.59 951 9.12 981 9.65 1010 10.19 1038 10.74 1066 11.29 1093 11.85 1119 12.41
10,000 960 10.03 990 10.57 1019 11.12 1047 11.67 1074 12.23 1101 12.79 1127 13.37 1152 13.94
11,000 1003 11.68 1032 12.23 1059 12.79 1086 13.36 1113 13.93 1138 14.51 1163 15.09 1188 15.68
12,000 1049 13.54 1076 14.11 1102 14.68 1128 15.26 1153 15.85 1178 16.43 — — — —
13,000 1096 15.63 1122 16.21 1147 16.80 1172 17.39 1196 17.99 — — — — — —
14,000 1145 17.94 1170 18.54 1194 19.15 ——————————
15,000 119520.50——————————————
AIRFLOW
(Cfm)
AVAILABLE EXTERNAL STATIC PRESSURE (in. wg)
3.43.63.84.0
Rpm Bhp Rpm Bhp Rpm Bhp Rpm Bhp
4,000 1010 7.55 1036 8.00 1061 8.46 1086 8.92
5,000 1036 8.42 1062 8.91 1088 9.40 1113 9.89
6,000 1061 9.37 1088 9.88 1113 10.40 1138 10.92
7,000 1087 10.42 1114 10.96 1139 11.50 1164 12.05
8,000 1115 11.62 1141 12.18 1166 12.74 1191 13.30
9,000 1145 12.98 1170 13.55 1195 14.13 — —
10,000 117714.52——————
11,000 ————————
12,000 ————————
13,000 ————————
14,000 ————————
15,000 ————————
Watts = Bhp x 746
Motor Efficiency

70
Table 24 — Fan Performance, 48AW,AY035 — Horizontal Discharge Units
LEGEND
Bhp — Brake Horsepower
NOTES:
1. Fan performance is based on wet coils, economizer, roof curb,
cabinet losses, and clean 2-in. filters.
2. Conversion — Bhp to watts:
3. Variable Air Volume units will operate down to 70 cfm/ton. Per-
formance at 70 cfm/ton is limited to unloaded operation and
may be additionally limited by edb (entering dry bulb) and ewb
(entering wet bulb) conditions.
AIRFLOW
(Cfm)
AVAILABLE EXTERNAL STATIC PRESSURE (in. wg)
0.20.40.60.81.01.21.41.6
Rpm Bhp Rpm Bhp Rpm Bhp Rpm Bhp Rpm Bhp Rpm Bhp Rpm Bhp Rpm Bhp
7,000 455 2.15 508 2.52 558 2.90 605 3.29 650 3.69 693 4.10 734 4.52 774 4.95
8,000 505 2.92 553 3.32 598 3.73 641 4.14 682 4.56 722 4.99 761 5.43 798 5.87
9,000 556 3.85 599 4.28 641 4.72 680 5.15 719 5.60 756 6.04 792 6.50 827 6.96
10,000 608 4.96 648 5.42 686 5.87 723 6.34 758 6.81 793 7.28 826 7.75 859 8.24
11,000 661 6.26 698 6.74 733 7.22 767 7.71 800 8.20 832 8.70 864 9.19 895 9.70
12,000 715 7.76 749 8.25 781 8.76 813 9.27 844 9.79 874 10.31 904 10.83 933 11.35
13,000 769 9.46 800 9.98 831 10.51 861 11.05 890 11.59 918 12.13 946 12.67 974 13.22
14,000 824 11.39 853 11.92 881 12.48 909 13.03 937 13.60 964 14.16 990 14.73 1016 15.30
15,000 879 13.54 906 14.10 933 14.67 959 15.25 985 15.84 1010 16.42 1035 17.01 1060 17.60
16,000 934 15.94 959 16.52 984 17.11 1009 17.70 1034 18.31 1058 18.92 1082 19.53 1105 20.14
17,000 989 18.58 1013 19.18 1037 19.79 1060 20.41 1084 21.03 1107 21.66 1129 22.29 1151 22.92
18,000 1044 21.49 1067 22.10 1090 22.73 1112 23.37 — — — — — — — —
AIRFLOW
(Cfm)
AVAILABLE EXTERNAL STATIC PRESSURE (in. wg)
1.82.02.22.42.62.83.03.2
Rpm Bhp Rpm Bhp Rpm Bhp Rpm Bhp Rpm Bhp Rpm Bhp Rpm Bhp Rpm Bhp
7,000 811 5.39 847 5.83 882 6.29 915 6.75 947 7.21 977 7.68 1007 8.15 1035 8.63
8,000 834 6.33 869 6.79 902 7.26 935 7.74 966 8.22 997 8.71 1026 9.21 1055 9.71
9,000 861 7.44 894 7.92 926 8.40 957 8.90 988 9.40 1017 9.90 1046 10.42 1075 10.94
10,000 891 8.73 922 9.22 953 9.72 983 10.23 1012 10.75 1041 11.27 1069 11.80 1096 12.33
11,000 925 10.20 954 10.72 983 11.24 1012 11.76 1040 12.29 1067 12.83 1094 13.37 1120 13.92
12,000 961 11.88 989 12.41 1017 12.95 1044 13.49 1070 14.04 1096 14.59 1122 15.15 1147 15.71
13,000 1000 13.76 1027 14.32 1053 14.87 1078 15.43 1104 16.00 1129 16.57 1153 17.14 1177 17.72
14,000 1041 15.86 1066 16.44 1091 17.01 1116 17.59 1140 18.18 1163 18.76 1187 19.35 — —
15,000 1084 18.19 1108 18.79 1131 19.38 1155 19.98 1178 20.58 — — — — — —
16,000 1128 20.75 1151 21.37 1173 21.98 1196 22.60 — — — — — — — —
17,000 ————————————————
18,000 ————————————————
AIRFLOW
(Cfm)
AVAILABLE EXTERNAL STATIC PRESSURE (in. wg)
3.43.63.84.0
Rpm Bhp Rpm Bhp Rpm Bhp Rpm Bhp
7,000 1063 9.11 1090 9.60 1115 10.09 1141 10.58
8,000 1082 10.21 1109 10.72 1135 11.23 1161 11.75
9,000 1102 11.46 1129 11.99 1155 12.52 1180 13.05
10,000 1123 12.87 1149 13.42 1175 13.97 1200 14.52
11,000 1146 14.47 1172 15.03 1197 15.60 — —
12,000 1172 16.28 1197 16.85 — — — —
13,000 ————————
14,000 ————————
15,000 ————————
16,000 ————————
17,000 ————————
18,000 ————————
Watts = Bhp x 746
Motor Efficiency

71
Table 25 — Fan Performance, 48AW,AY040,050 — Horizontal Discharge Units
LEGEND
Bhp — Brake Horsepower
NOTES:
1. Fan performance is based on wet coils, economizer, roof curb,
cabinet losses, and clean 2-in. filters.
2. Conversion — Bhp to watts:
3. Variable Air Volume units will operate down to 70 cfm/ton. Per-
formance at 70 cfm/ton is limited to unloaded operation and
may be additionally limited by edb (entering dry bulb) and ewb
(entering wet bulb) conditions.
AIRFLOW
(Cfm)
AVAILABLE EXTERNAL STATIC PRESSURE (in. wg)
0.20.40.60.81.01.21.41.6
Rpm Bhp Rpm Bhp Rpm Bhp Rpm Bhp Rpm Bhp Rpm Bhp Rpm Bhp Rpm Bhp
8,000 536 3.18 582 3.58 626 3.99 668 4.41 708 4.83 747 5.27 785 5.71 821 6.16
9,000 588 4.17 630 4.60 670 5.04 709 5.48 746 5.93 782 6.38 818 6.84 852 7.31
10,000 642 5.35 680 5.80 717 6.27 753 6.73 787 7.20 821 7.68 854 8.16 886 8.65
11,000 696 6.72 732 7.20 766 7.69 799 8.18 831 8.67 863 9.17 893 9.68 923 10.18
12,000 751 8.29 784 8.80 816 9.32 847 9.83 877 10.35 906 10.87 935 11.40 964 11.92
13,000 807 10.09 837 10.62 867 11.16 896 11.70 924 12.24 952 12.78 979 13.33 1006 13.88
14,000 863 12.12 891 12.67 919 13.23 946 13.79 973 14.36 999 14.92 1025 15.49 1050 16.06
15,000 919 14.38 946 14.96 972 15.54 997 16.12 1023 16.71 1047 17.30 1072 17.89 1096 18.48
16,000 975 16.90 1000 17.49 1025 18.09 1049 18.70 1073 19.31 1097 19.92 1120 20.53 1143 21.15
17,000 1032 19.67 1056 20.29 1079 20.91 1102 21.54 1125 22.17 1147 22.80 1169 23.44 1191 24.07
18,000 1089 22.71 1111 23.35 1134 23.99 1155 24.64 1177 25.29 1198 25.95 1219 26.60 1240 27.26
19,000 1146 26.04 1167 26.69 1188 27.35 1209 28.02 1230 28.69 1250 29.37 1270 30.04 1290 30.72
20,000 1203 29.65 1224 30.32 1244 31.00 1263 31.69 1283 32.38 — — — — — —
AIRFLOW
(Cfm)
AVAILABLE EXTERNAL STATIC PRESSURE (in. wg)
1.82.02.22.42.62.83.03.2
Rpm Bhp Rpm Bhp Rpm Bhp Rpm Bhp Rpm Bhp Rpm Bhp Rpm Bhp Rpm Bhp
8,000 857 6.63 891 7.09 923 7.57 955 8.05 986 8.54 1016 9.03 1045 9.53 1073 10.03
9,000 885 7.79 918 8.28 949 8.77 980 9.27 1010 9.77 1039 10.28 1067 10.80 1095 11.32
10,000 917 9.14 948 9.65 978 10.15 1008 10.67 1036 11.19 1064 11.72 1092 12.25 1119 12.79
11,000 953 10.70 982 11.21 1010 11.74 1038 12.27 1066 12.81 1093 13.35 1119 13.90 1145 14.45
12,000 991 12.46 1019 12.99 1046 13.53 1072 14.08 1098 14.63 1124 15.19 1149 15.76 1174 16.32
13,000 1032 14.43 1058 14.99 1084 15.55 1109 16.11 1134 16.68 1158 17.26 1182 17.84 1206 18.42
14,000 1075 16.64 1100 17.21 1124 17.79 1148 18.38 1171 18.97 1195 19.55 1218 20.15 1241 20.75
15,000 1120 19.08 1143 19.68 1166 20.27 1189 20.88 1211 21.49 1234 22.09 1256 22.71 1277 23.32
16,000 1165 21.76 1188 22.38 1210 23.00 1231 23.62 1253 24.25 1274 24.88 1295 25.51 — —
17,000 1213 24.71 1234 25.35 1255 25.99 1276 26.63 1296 27.27 — — — — — —
18,000 1261 27.92 1281 28.58 — — ——————————
19,000 ————————————————
20,000 ————————————————
AIRFLOW
(Cfm)
AVAILABLE EXTERNAL STATIC PRESSURE (in. wg)
3.43.63.84.0
Rpm Bhp Rpm Bhp Rpm Bhp Rpm Bhp
8,000 1100 10.54 1126 11.05 1152 11.56 1177 12.08
9,000 1122 11.85 1148 12.38 1174 12.91 1199 13.45
10,000 1145 13.33 1171 13.88 1196 14.43 1221 14.99
11,000 1171 15.01 1196 15.57 1220 16.14 1245 16.72
12,000 1199 16.90 1223 17.48 1247 18.06 1270 18.65
13,000 1230 19.01 1253 19.60 1276 20.20 1299 20.80
14,000 1263 21.35 1285 21.96 — — — —
15,000 129923.94——————
16,000 ————————
17,000 ————————
18,000 ————————
19,000 ————————
20,000 ————————
Watts = Bhp x 746
Motor Efficiency

72
Table 26 — Fan Performance, 48AW,AY060 — Horizontal Discharge Units
LEGEND
Bhp — Brake Horsepower
NOTES:
1. Fan performance is based on wet coils, economizer, roof curb,
cabinet losses, and clean 2-in. filters.
2. Conversion — Bhp to watts:
3. Variable Air Volume units will operate down to 70 cfm/ton. Per-
formance at 70 cfm/ton is limited to unloaded operation and
may be additionally limited by edb (entering dry bulb) and ewb
(entering wet bulb) conditions.
AIRFLOW
(Cfm)
AVAILABLE EXTERNAL STATIC PRESSURE (in. wg)
0.20.40.60.81.01.21.41.6
Rpm Bhp Rpm Bhp Rpm Bhp Rpm Bhp Rpm Bhp Rpm Bhp Rpm Bhp Rpm Bhp
12,000 516 4.81 569 5.54 617 6.30 660 7.10 701 7.93 739 8.79 774 9.68 808 10.59
14,000 584 6.90 632 7.69 676 8.50 716 9.33 754 10.20 790 11.10 824 12.02 857 12.97
15,000 619 8.13 664 8.96 706 9.79 745 10.65 782 11.53 817 12.44 850 13.38 882 14.35
16,000 654 9.49 697 10.36 737 11.22 775 12.10 811 13.00 845 13.93 877 14.88 908 15.86
17,000 689 10.99 730 11.90 769 12.79 806 13.69 840 14.61 873 15.56 904 16.53 935 17.52
18,000 725 12.64 764 13.58 801 14.51 837 15.43 870 16.38 902 17.34 933 18.32 962 19.33
19,000 760 14.43 798 15.41 834 16.37 868 17.32 900 18.29 932 19.27 961 20.27 990 21.29
20,000 796 16.37 833 17.39 867 18.39 900 19.37 931 20.36 962 21.36 991 22.38 1019 23.42
21,000 832 18.47 867 19.54 901 20.56 932 21.57 963 22.59 992 23.61 1020 24.65 1048 25.71
22,000 869 20.74 902 21.84 934 22.90 965 23.94 995 24.98 1023 26.03 1051 27.09 1077 28.17
23,000 905 23.17 937 24.31 968 25.40 998 26.48 1027 27.55 1055 28.62 1081 29.70 1107 30.79
24,000 942 25.78 973 26.95 1003 28.08 1032 29.18 1059 30.28 1086 31.38 1113 32.48 1138 33.59
25,000 978 28.56 1008 29.77 1037 30.93 1065 32.07 1092 33.20 1119 34.32 1144 35.44 1169 36.58
26,000 1015 31.52 1044 32.76 1072 33.96 1099 35.13 1125 36.29 1151 37.44 1176 38.59 — —
27,000 1052 34.66 1080 35.94 1107 37.18 1133 38.38 1159 39.57 1184 40.75 — — — —
AIRFLOW
(Cfm)
AVAILABLE EXTERNAL STATIC PRESSURE (in. wg)
1.82.02.22.42.62.83.03.2
Rpm Bhp Rpm Bhp Rpm Bhp Rpm Bhp Rpm Bhp Rpm Bhp Rpm Bhp Rpm Bhp
12,000 841 11.52 872 12.46 901 13.42 930 14.38 958 15.36 985 16.34 1011 17.33 1036 18.33
14,000 888 13.94 917 14.92 946 15.92 974 16.94 1001 17.97 1027 19.01 1052 20.06 1077 21.12
15,000 912 15.33 941 16.34 970 17.36 997 18.40 1024 19.45 1049 20.51 1074 21.58 1099 22.67
16,000 938 16.86 966 17.88 994 18.93 1021 19.98 1047 21.05 1072 22.14 1097 23.23 1121 24.34
17,000 964 18.54 992 19.58 1019 20.63 1045 21.70 1071 22.79 1096 23.89 1120 25.01 1144 26.13
18,000 990 20.36 1018 21.41 1045 22.48 1070 23.57 1096 24.67 1120 25.79 1144 26.93 1167 28.07
19,000 1018 22.34 1045 23.40 1071 24.49 1096 25.59 1121 26.71 1145 27.84 1169 28.99 1192 30.16
20,000 1046 24.48 1072 25.56 1098 26.66 1123 27.77 1147 28.90 1171 30.05 1194 31.21 — —
21,000 1074 26.78 1100 27.87 1125 28.99 1150 30.12 1173 31.26 1197 32.42 — — — —
22,000 1103 29.26 1129 30.36 1153 31.49 1177 32.63 — — — — — — — —
23,000 1133 31.90 1157 33.02 1181 34.16 ——————————
24,000 1163 34.72 1187 35.86 — — ——————————
25,000 119337.72——————————————
26,000 ————————————————
27,000 ————————————————
AIRFLOW
(Cfm)
AVAILABLE EXTERNAL STATIC PRESSURE (in. wg)
3.43.63.84.0
Rpm Bhp Rpm Bhp Rpm Bhp Rpm Bhp
12,000 1061 19.33 1085 20.34 1108 21.35 1131 22.36
14,000 1101 22.18 1125 23.25 1148 24.33 1170 25.42
15,000 1122 23.76 1146 24.86 1168 25.97 1191 27.08
16,000 1144 25.45 1167 26.58 1190 27.71 — —
17,000 1167 27.27 1190 28.42 — — — —
18,000 119029.23——————
19,000 ————————
20,000 ————————
21,000 ————————
22,000 ————————
23,000 ————————
24,000 ————————
25,000 ————————
26,000 ————————
27,000 ————————
Watts = Bhp x 746
Motor Efficiency

73
Table 27 — Fan Performance, 48EJ,EK024,034 — Vertical Discharge Units
(For EW,EY units, reduce net available external static pressure by 0.3 in. wg)
LEGEND
Bhp — Brake Horsepower
NOTES:
1. Fan performance is based on wet coils, economizer, roof curb,
cabinet losses, and clean 2-in. filters.
2. Conversion — Bhp to watts:
3. Variable Air Volume units will operate down to 70 cfm/ton. Per-
formance at 70 cfm/ton is limited to unloaded operation and
may be additionally limited by edb (entering dry bulb) and ewb
(entering wet bulb) conditions.
AIRFLOW
(Cfm)
AVAILABLE EXTERNAL STATIC PRESSURE (in. wg)
0.20.40.60.81.01.21.41.6
Rpm Bhp Rpm Bhp Rpm Bhp Rpm Bhp Rpm Bhp Rpm Bhp Rpm Bhp Rpm Bhp
4,000 340 0.83 416 1.17 480 1.52 537 1.90 588 2.29 635 2.69 679 3.11 720 3.53
5,000 384 1.25 453 1.61 513 1.99 566 2.39 615 2.79 660 3.21 703 3.64 742 4.08
6,000 432 1.79 495 2.19 550 2.59 600 3.01 647 3.43 690 3.87 730 4.31 769 4.77
7,000 483 2.48 540 2.91 591 3.33 638 3.77 682 4.22 723 4.67 762 5.14 799 5.61
8,000 536 3.33 588 3.78 635 4.23 679 4.69 720 5.16 759 5.64 797 6.12 832 6.61
8,250 549 3.57 600 4.02 646 4.48 690 4.95 730 5.42 769 5.90 806 6.39 841 6.88
9,000 590 4.34 637 4.82 681 5.30 722 5.78 762 6.27 799 6.77 834 7.27 868 7.77
10,000 645 5.54 689 6.04 729 6.54 768 7.04 805 7.56 840 8.07 874 8.59 906 9.12
11,000 701 6.92 741 7.44 779 7.96 816 8.49 850 9.03 884 9.56 916 10.10 947 10.65
12,000 757 8.49 795 9.04 830 9.59 865 10.14 898 10.69 929 11.25 960 11.81 990 12.37
12,500 786 9.36 822 9.92 856 10.47 890 11.03 922 11.60 953 12.16 983 12.73 1012 13.31
13,000 814 10.28 849 10.84 883 11.41 915 11.98 946 12.56 976 13.13 1006 13.71 1034 14.30
13,750 857 11.75 890 12.34 922 12.92 953 13.51 983 14.10 1012 14.69 1041 15.28 1068 15.88
14,000 871 12.27 904 12.86 936 13.45 966 14.05 996 14.64 1025 15.23 1053 15.83 1080 16.43
15,000 929 14.50 960 15.10 990 15.71 1019 16.33 1047 16.94 1074 17.55 1101 18.17 1127 18.79
AIRFLOW
(Cfm)
AVAILABLE EXTERNAL STATIC PRESSURE (in. wg)
1.82.02.22.42.62.83.03.2
Rpm Bhp Rpm Bhp Rpm Bhp Rpm Bhp Rpm Bhp Rpm Bhp Rpm Bhp Rpm Bhp
4,000 759 3.97 796 4.42 831 4.87 865 5.34 897 5.81 929 6.30 959 6.79 988 7.28
5,000 780 4.53 816 4.99 851 5.45 884 5.93 916 6.41 946 6.90 976 7.40 1005 7.91
6,000 805 5.23 840 5.70 874 6.18 906 6.67 937 7.16 968 7.66 997 8.17 1025 8.69
7,000 834 6.09 868 6.57 901 7.07 932 7.56 962 8.07 992 8.58 1020 9.10 1048 9.63
8,000 866 7.10 899 7.60 930 8.11 961 8.62 990 9.14 1019 9.67 1047 10.20 1074 10.74
8,250 874 7.38 907 7.89 938 8.40 968 8.92 998 9.44 1026 9.97 1054 10.50 1081 11.04
9,000 901 8.29 932 8.80 963 9.33 992 9.86 1021 10.39 1049 10.93 1076 11.48 1102 12.03
10,000 938 9.65 968 10.18 997 10.72 1026 11.27 1054 11.82 1081 12.37 1107 12.93 1133 13.49
11,000 977 11.19 1006 11.75 1035 12.30 1062 12.87 1089 13.43 1115 14.00 1141 14.57 1166 15.15
12,000 1019 12.94 1047 13.51 1074 14.08 1100 14.66 1126 15.24 1152 15.83 1177 16.42 1201 17.01
12,500 1040 13.88 1067 14.46 1094 15.05 1120 15.63 1146 16.22 1171 16.82 1195 17.41 — —
13,000 1062 14.88 1089 15.47 1115 16.06 1140 16.66 1166 17.25 1190 17.86 — — — —
13,750 1095 16.48 1121 17.08 1147 17.68 1172 18.29 1196 18.90 — — — — — —
14,000 1106 17.04 1132 17.64 1157 18.25 1182 18.86 — — — — — — — —
15,000 1152 19.41 1177 20.04 1200 20.66 ——————————
AIRFLOW
(Cfm)
AVAILABLE EXTERNAL STATIC PRESSURE (in. wg)
3.4 3.6 3.8
Rpm Bhp Rpm Bhp Rpm Bhp
4,000 1017 7.79 1045 8.30 1072 8.82
5,000 1033 8.42 1061 8.94 1087 9.46
6,000 1053 9.21 1080 9.73 1106 10.27
7,000 1075 10.16 1102 10.69 1127 11.24
8,000 1100 11.28 1126 11.83 1151 12.38
8,250 1107 11.59 1133 12.14 1158 12.69
9,000 1128 12.58 1153 13.14 1178 13.70
10,000 1158 14.06 1183 14.63 — —
11,000 1190 15.74 ————
12,000 ——————
12,500 ——————
13,000 ——————
13,750 ——————
14,000 ——————
15,000 ——————
Watts = Bhp x 746
Motor Efficiency

74
Table 28 — Fan Performance, 48EJ,EK038,044 — Vertical Discharge Units
(For EW,EY units, reduce net available external static pressure by 0.5 in. wg)
LEGEND
Bhp — Brake Horsepower
NOTES:
1. Fan performance is based on wet coils, economizer, roof curb,
cabinet losses, and clean 2-in. filters.
2. Conversion — Bhp to watts:
3. Variable Air Volume units will operate down to 70 cfm/ton. Per-
formance at 70 cfm/ton is limited to unloaded operation and
may be additionally limited by edb (entering dry bulb) and ewb
(entering wet bulb) conditions.
AIRFLOW
(Cfm)
AVAILABLE EXTERNAL STATIC PRESSURE (in. wg)
0.20.40.60.81.01.21.41.6
Rpm Bhp Rpm Bhp Rpm Bhp Rpm Bhp Rpm Bhp Rpm Bhp Rpm Bhp Rpm Bhp
7,000 429 1.70 484 2.40 536 2.70 584 3.10 630 3.50 674 3.90 716 4.30 756 4.80
8,000 475 2.36 525 3.09 571 3.49 616 3.90 658 4.31 699 4.74 738 5.17 776 5.61
9,000 523 3.11 567 3.97 610 4.39 651 4.82 690 5.26 728 5.71 765 6.16 801 6.62
10,000 571 4.00 612 5.01 651 5.46 689 5.91 725 6.37 761 6.84 795 7.31 829 7.79
11,000 620 5.04 658 6.22 694 6.69 729 7.17 763 7.65 796 8.14 829 8.64 860 9.14
12,000 670 6.24 705 7.61 738 8.10 771 8.60 803 9.11 834 9.62 865 10.13 894 10.65
13,000 720 7.61 752 9.19 784 9.70 814 10.23 844 10.75 874 11.29 902 11.82 931 12.36
14,000 771 9.15 801 10.97 830 11.51 859 12.05 887 12.60 915 13.15 942 13.71 969 14.27
15,000 822 10.88 850 12.95 877 13.52 904 14.08 931 14.65 957 15.22 983 15.80 1008 16.38
16,000 873 12.80 899 15.16 925 15.74 951 16.33 976 16.92 1001 17.51 1025 18.11 1049 18.71
17,000 924 14.91 949 17.59 974 18.20 998 18.80 1022 19.41 1045 20.03 1069 20.64 1092 21.26
18,000 976 17.24 999 20.26 1023 20.88 1046 21.51 1068 22.14 1091 22.77 1113 23.41 1135 24.05
19,000 1027 19.77 1050 23.17 1072 23.82 1094 24.46 1115 25.11 1137 25.76 1158 26.42 1179 27.07
20,000 1079 22.53 1100 26.33 1122 27.00 1142 27.66 1163 28.33 1183 29.00 — — — —
AIRFLOW
(Cfm)
AVAILABLE EXTERNAL STATIC PRESSURE (in. wg)
1.82.02.22.42.62.83.03.2
Rpm Bhp Rpm Bhp Rpm Bhp Rpm Bhp Rpm Bhp Rpm Bhp Rpm Bhp Rpm Bhp
7,000 794 5.20 832 5.62 868 6.06 903 6.52 937 6.98 971 7.44 1003 7.92 1035 8.40
8,000 813 6.06 848 6.52 883 6.98 916 7.45 949 7.92 981 8.40 1012 8.89 1042 9.38
9,000 835 7.09 869 7.56 902 8.04 934 8.53 965 9.02 995 9.52 1025 10.02 1054 10.53
10,000 862 8.28 893 8.77 925 9.27 955 9.77 985 10.28 1014 10.79 1043 11.31 1071 11.84
11,000 891 9.64 921 10.15 951 10.67 980 11.19 1008 11.71 1036 12.24 1064 12.78 1090 13.32
12,000 924 11.18 952 11.71 980 12.24 1008 12.78 1035 13.32 1062 13.87 1088 14.42 1114 14.98
13,000 958 12.91 986 13.45 1012 14.01 1039 14.56 1064 15.13 1090 15.69 1115 16.26 1140 16.83
14,000 995 14.83 1021 15.40 1046 15.97 1071 16.55 1096 17.13 1120 17.71 1144 18.29 1168 18.89
15,000 1033 16.96 1058 17.55 1082 18.14 1106 18.73 1130 19.33 1153 19.93 1176 20.54 1199 21.14
16,000 1073 19.31 1097 19.92 1120 20.52 1143 21.14 1165 21.75 1188 22.37 — — — —
17,000 1114 21.88 1137 22.51 1159 23.13 1181 23.76 — — — — — — — —
18,000 1156 24.69 1178 25.33 1199 25.98 ——————————
19,000 ————————————————
20,000 ————————————————
AIRFLOW
(Cfm)
AVAILABLE EXTERNAL STATIC PRESSURE (in. wg)
3.4 3.6 3.8
Rpm Bhp Rpm Bhp Rpm Bhp
7,000 1066 8.88 1096 9.38 1125 9.88
8,000 1072 9.88 1101 10.39 1130 10.90
9,000 1083 11.04 1111 11.56 1139 12.08
10,000 1098 12.37 1125 12.90 1152 13.44
11,000 1117 13.86 1143 14.41 1169 14.96
12,000 1139 15.54 1164 16.11 1189 16.68
13,000 1164 17.41 1188 17.99 — —
14,000 1191 19.48 ————
15,000 ——————
16,000 ——————
17,000 ——————
18,000 ——————
19,000 ——————
20,000 ——————
Watts = Bhp x 746
Motor Efficiency

75
Table 29 — Fan Performance, 48EJ,EK048 — Vertical Discharge Units
(For EW,EY units, reduce net available external static pressure by 0.5 in. wg)
LEGEND
Bhp — Brake Horsepower
NOTES:
1. Fan performance is based on wet coils, economizer, roof curb,
cabinet losses, and clean 2-in. filters.
2. Conversion — Bhp to watts:
3. Variable Air Volume units will operate down to 70 cfm/ton. Per-
formance at 70 cfm/ton is limited to unloaded operation and
may be additionally limited by edb (entering dry bulb) and ewb
(entering wet bulb) conditions.
AIRFLOW
(Cfm)
AVAILABLE EXTERNAL STATIC PRESSURE (in. wg)
0.20.40.60.81.01.21.41.6
Rpm Bhp Rpm Bhp Rpm Bhp Rpm Bhp Rpm Bhp Rpm Bhp Rpm Bhp Rpm Bhp
9,000 528 3.20 572 4.00 615 4.40 656 4.90 695 5.30 733 5.80 769 6.20 805 6.70
10,000 577 4.10 617 5.10 657 5.50 694 6.00 731 6.40 766 6.90 801 7.40 834 7.90
11,000 627 5.10 664 6.30 700 6.80 735 7.30 769 7.70 802 8.20 835 8.70 866 9.20
12,000 677 6.30 711 7.70 745 8.20 778 8.70 809 9.20 841 9.70 871 10.20 901 10.80
13,000 728 7.71 760 9.31 791 9.83 822 10.35 851 10.88 881 11.42 909 11.95 938 12.50
14,000 779 9.28 809 11.11 838 11.65 867 12.20 895 12.75 923 13.31 950 13.87 976 14.43
15,000 830 11.03 858 13.13 886 13.69 913 14.26 939 14.83 966 15.41 991 15.99 1017 16.57
16,000 882 12.97 908 15.36 934 15.95 960 16.54 985 17.13 1010 17.73 1034 18.33 1058 18.93
17,000 934 15.12 959 17.83 983 18.44 1008 19.05 1031 19.66 1055 20.28 1078 20.89 1101 21.52
18,000 986 17.47 1010 20.53 1033 21.16 1056 21.79 1078 22.42 1101 23.06 1123 23.70 1145 24.34
19,000 1038 20.05 1061 23.49 1083 24.13 1105 24.78 1126 25.44 1147 26.09 1169 26.75 1190 27.41
20,000 1091 22.84 1112 26.69 1133 27.36 1154 28.03 1174 28.70 1195 29.37 — — — —
AIRFLOW
(Cfm)
AVAILABLE EXTERNAL STATIC PRESSURE (in. wg)
1.82.02.22.42.62.83.03.2
Rpm Bhp Rpm Bhp Rpm Bhp Rpm Bhp Rpm Bhp Rpm Bhp Rpm Bhp Rpm Bhp
9,000 839 7.10 873 7.62 905 8.10 937 8.59 968 9.08 999 9.57 1028 10.08 1057 10.58
10,000 866 8.40 898 8.85 929 9.34 959 9.85 989 10.36 1018 10.87 1047 11.39 1075 11.91
11,000 897 9.70 927 10.24 956 10.76 985 11.28 1013 11.81 1041 12.34 1068 12.87 1095 13.41
12,000 930 11.30 958 11.82 986 12.36 1014 12.90 1041 13.44 1067 13.99 1093 14.54 1119 15.10
13,000 965 13.04 992 13.59 1019 14.15 1045 14.71 1071 15.27 1096 15.84 1121 16.41 1146 16.98
14,000 1002 14.99 1028 15.56 1054 16.14 1079 16.71 1103 17.30 1127 17.88 1151 18.47 1175 19.06
15,000 1041 17.15 1066 17.74 1090 18.34 1114 18.93 1138 19.53 1161 20.13 1184 20.74 — —
16,000 1082 19.52 1105 20.14 1128 20.75 1151 21.37 1174 21.99 1196 22.61 — — — —
17,000 1124 22.14 1146 22.77 1168 23.40 1190 24.03 — — — — — — — —
18,000 1166 24.98 1188 25.63 — — ——————————
19,000 ————————————————
20,000 ————————————————
AIRFLOW
(Cfm)
AVAILABLE EXTERNAL STATIC PRESSURE (in. wg)
3.4 3.6 3.8
Rpm Bhp Rpm Bhp Rpm Bhp
9,000 1086 11.10 1114 11.61 1141 12.14
10,000 1102 12.44 1129 12.97 1155 13.51
11,000 1122 13.96 1147 14.51 1173 15.06
12,000 1144 15.66 1169 16.23 1194 16.80
13,000 1170 17.56 1194 18.14 — —
14,000 1198 19.66 ————
15,000 ——————
16,000 ——————
17,000 ——————
18,000 ——————
19,000 ——————
20,000 ——————
Watts = Bhp x 746
Motor Efficiency

76
Table 30 — Fan Performance, 48EJ,EK054-068 — Vertical Discharge Units
LEGEND
Bhp — Brake Horsepower
NOTES:
1. Fan performance is based on dry coils, economizer, roof curb,
cabinet losses, and clean 2-in. filters.
2. Conversion — Bhp to watts:
3. Variable Air Volume units will operate down to 70 cfm/ton in the
cooling mode. Performance at 70 cfm/ton is limited to unloaded
operation and may be additionally limited by edb (entering dry
bulb) and ewb (entering wet bulb) conditions.
AIRFLOW
(Cfm)
AVAILABLE EXTERNAL STATIC PRESSURE (in. wg)
0.20.40.60.81.01.21.41.6
Rpm Bhp Rpm Bhp Rpm Bhp Rpm Bhp Rpm Bhp Rpm Bhp Rpm Bhp Rpm Bhp
10,000 420 2.89 486 3.60 539 4.27 584 4.93 624 5.59 660 6.25 694 6.91 725 7.57
12,000 473 4.27 537 5.10 589 5.87 633 6.62 673 7.36 709 8.10 742 8.83 773 9.56
15,000 556 7.05 616 8.06 666 8.99 709 9.89 748 10.76 783 11.62 816 12.47 846 13.31
16,000 584 8.18 643 9.25 692 10.24 735 11.19 773 12.11 808 13.01 841 13.90 871 14.78
17,000 612 9.42 670 10.56 718 11.60 760 12.60 799 13.56 833 14.51 866 15.44 896 16.36
18,000 640 10.78 697 11.98 745 13.08 786 14.12 824 15.13 859 16.12 891 17.10 921 18.06
19,000 669 12.26 724 13.51 771 14.67 813 15.77 850 16.83 884 17.86 916 18.87 946 19.88
20,000 698 13.86 752 15.17 798 16.38 839 17.53 876 18.64 910 19.72 942 20.78 972 21.82
21,000 726 15.58 780 16.96 825 18.22 866 19.42 902 20.58 936 21.71 968 22.81 997 23.89
22,000 756 17.44 808 18.87 853 20.19 892 21.45 929 22.65 962 23.82 993 24.97 1023 26.10
23,000 785 19.43 836 20.92 880 22.30 919 23.60 955 24.86 988 26.08 1019 27.27 1049 28.44
24,000 814 21.56 864 23.11 907 24.54 946 25.90 982 27.20 1015 28.47 1045 29.70 1074 30.91
25,000 843 23.83 892 25.44 935 26.92 973 28.33 1008 29.68 1041 31.00 1072 32.28 1100 33.53
26,000 873 26.25 921 27.91 963 29.45 1001 30.91 1035 32.31 1068 33.67 1098 35.00 1127 36.29
27,000 903 28.82 950 30.53 991 32.12 1028 33.63 1062 35.09 1094 36.49 1124 37.86 1153 39.21
AIRFLOW
(Cfm)
AVAILABLE EXTERNAL STATIC PRESSURE (in. wg)
1.82.02.22.42.62.83.03.2
Rpm Bhp Rpm Bhp Rpm Bhp Rpm Bhp Rpm Bhp Rpm Bhp Rpm Bhp Rpm Bhp
10,000 755 8.24 783 8.92 809 9.60 835 10.29 859 10.98 883 11.68 905 12.39 927 13.10
12,000 802 10.30 830 11.04 857 11.78 882 12.52 906 13.27 930 14.03 953 14.79 974 15.55
15,000 875 14.15 903 14.99 929 15.83 954 16.67 978 17.51 1002 18.35 1024 19.19 1046 20.04
16,000 900 15.65 927 16.53 954 17.40 979 18.27 1003 19.14 1026 20.01 1048 20.89 1070 21.76
17,000 925 17.27 952 18.18 978 19.09 1003 19.99 1027 20.90 1050 21.80 1072 22.70 1094 23.61
18,000 950 19.01 977 19.95 1003 20.90 1028 21.84 1051 22.77 1075 23.71 1097 24.64 1118 25.58
19,000 975 20.87 1002 21.85 1028 22.83 1052 23.80 1076 24.77 1099 25.74 1121 26.71 1143 27.67
20,000 1000 22.85 1027 23.87 1052 24.89 1077 25.90 1101 26.90 1124 27.90 1146 28.90 1167 29.90
21,000 1025 24.96 1052 26.02 1077 27.07 1102 28.12 1126 29.16 1148 30.19 1170 31.23 1192 32.26
22,000 1051 27.21 1077 28.31 1103 29.40 1127 30.48 1151 31.55 1173 32.62 1195 33.69 — —
23,000 1076 29.59 1103 30.73 1128 31.85 1152 32.97 1176 34.08 1198 35.19 — — — —
24,000 1102 32.11 1128 33.28 1153 34.45 1178 35.61 1201 36.75 — — — — — —
25,000 1128 34.77 1154 35.99 1179 37.19 ——————————
26,000 1154 37.57 1180 38.83 — — ——————————
27,000 118040.53——————————————
AIRFLOW
(Cfm)
AVAILABLE EXTERNAL STATIC PRESSURE (in. wg)
3.4 3.6 3.8
Rpm Bhp Rpm Bhp Rpm Bhp
10,000 949 13.81 970 14.54 990 15.26
12,000 996 16.31 1016 17.09 1037 17.86
15,000 1067 20.88 1088 21.73 1108 22.59
16,000 1091 22.64 1112 23.52 1131 24.40
17,000 1115 24.51 1136 25.42 1156 26.33
18,000 1139 26.51 1160 27.45 1180 28.39
19,000 1164 28.64 1184 29.60 — —
20,000 1188 30.90 ————
21,000 ——————
22,000 ——————
23,000 ——————
24,000 ——————
25,000 ——————
26,000 ——————
27,000 ——————
Watts = Bhp x 746
Motor Efficiency

77
Table 31 — Fan Performance, 48EW,EY054-068 — Horizontal Discharge Units
LEGEND
Bhp — Brake Horsepower
NOTES:
1. Fan performance is based on dry coils, economizer, roof curb,
cabinet losses, and clean 2-in. filters.
2. Conversion — Bhp to watts:
3. Variable Air Volume units will operate down to 70 cfm/ton in the
cooling mode. Performance at 70 cfm/ton is limited to unloaded
operation and may be additionally limited by edb (entering dry
bulb) and ewb (entering wet bulb) conditions.
AIRFLOW
(Cfm)
AVAILABLE EXTERNAL STATIC PRESSURE (in. wg)
0.20.40.60.81.01.21.41.6
Rpm Bhp Rpm Bhp Rpm Bhp Rpm Bhp Rpm Bhp Rpm Bhp Rpm Bhp Rpm Bhp
10,000 447 2.9 508 3.6 558 4.2 601 4.8 640 5.4 675 6.0 707 6.6 738 7.3
12,000 509 4.4 567 5.1 615 5.8 657 6.5 695 7.2 729 7.9 761 8.6 791 9.3
15,000 606 7.3 659 8.2 704 9.0 744 9.9 780 10.7 813 11.5 844 12.2 874 13.0
16,000 639 8.5 690 9.4 734 10.3 773 11.2 809 12.0 842 12.9 873 13.7 902 14.5
17,000 672 9.8 721 10.8 765 11.7 803 12.6 838 13.5 871 14.4 901 15.3 930 16.1
18,000 705 11.2 753 12.3 795 13.3 833 14.2 868 15.1 900 16.1 930 17.0 959 17.8
19,000 738 12.8 785 13.9 826 14.9 864 15.9 898 16.9 929 17.8 959 18.8 987 19.7
20,000 772 14.5 817 15.6 858 16.7 894 17.7 928 18.8 959 19.7 989 20.7 1016 21.7
21,000 806 16.3 850 17.5 889 18.6 925 19.7 958 20.8 989 21.8 1018 22.8 1046 23.8
22,000 840 18.3 883 19.5 921 20.7 956 21.8 989 22.9 1019 24.0 1048 25.0 1075 26.1
23,000 874 20.4 915 21.7 953 22.9 987 24.1 1019 25.2 1049 26.3 1078 27.4 1105 28.5
24,000 908 22.7 948 24.0 985 25.3 1019 26.5 1050 27.6 1080 28.8 1108 29.9 1135 31.0
25,000 942 25.1 982 26.5 1018 27.8 1051 29.0 1082 30.2 1111 31.4 1138 32.6 1165 33.7
26,000 976 27.7 1015 29.1 1050 30.4 1083 31.7 1113 33.0 1142 34.2 1169 35.4 1195 36.6
27,000 1011 30.4 1048 31.9 1083 33.2 1115 34.6 1145 35.9 1173 37.1 1200 38.4 — —
AIRFLOW
(Cfm)
AVAILABLE EXTERNAL STATIC PRESSURE (in. wg)
1.82.02.22.42.62.83.03.2
Rpm Bhp Rpm Bhp Rpm Bhp Rpm Bhp Rpm Bhp Rpm Bhp Rpm Bhp Rpm Bhp
10,000 766 7.9 794 8.50 820 9.13 844 9.76 868 10.40 891 11.04 914 11.69 935 12.34
12,000 820 9.9 847 10.62 872 11.30 897 11.99 921 12.68 943 13.37 965 14.07 987 14.77
15,000 901 13.8 928 14.59 953 15.36 977 16.14 1001 16.92 1023 17.69 1045 18.47 1066 19.26
16,000 929 15.3 955 16.14 981 16.95 1005 17.75 1028 18.56 1050 19.37 1072 20.18 1093 20.98
17,000 957 17.0 983 17.81 1008 18.65 1032 19.49 1055 20.33 1077 21.16 1099 22.00 1120 22.84
18,000 986 18.7 1011 19.60 1036 20.48 1060 21.35 1083 22.22 1105 23.08 1126 23.95 1147 24.82
19,000 1014 20.6 1040 21.53 1064 22.43 1088 23.34 1110 24.24 1132 25.14 1154 26.03 1174 26.93
20,000 1043 22.6 1068 23.58 1092 24.52 1116 25.46 1138 26.39 1160 27.32 1181 28.25 — —
21,000 1072 24.8 1097 25.78 1121 26.75 1144 27.72 1167 28.68 1188 29.64 — — — —
22,000 1101 27.1 1126 28.11 1150 29.12 1173 30.12 1195 31.11 — — — — — —
23,000 1130 29.5 1155 30.58 1179 31.62 ——————————
24,000 1160 32.1 1184 33.20 — — ——————————
25,000 119034.9——————————————
26,000 ————————————————
27,000 ————————————————
AIRFLOW
(Cfm)
AVAILABLE EXTERNAL STATIC PRESSURE (in. wg)
3.4 3.6 3.8
Rpm Bhp Rpm Bhp Rpm Bhp
10,000 956 12.99 976 13.66 996 14.32
12,000 1008 15.48 1028 16.19 1047 16.90
15,000 1087 20.04 1106 20.82 1126 21.61
16,000 1113 21.80 1133 22.61 1152 23.42
17,000 1140 23.68 1160 24.52 1179 25.36
18,000 1167 25.68 1187 26.55 — —
19,000 1195 27.82 ————
20,000 ——————
21,000 ——————
22,000 ——————
23,000 ——————
24,000 ——————
25,000 ——————
26,000 ——————
27,000 ——————
Watts = Bhp x 746
Motor Efficiency

78
Table 32A — Fan Performance — Power Exhaust, 48AJ,AK,AW,AY020-050 and 48EJ,EK,EW,EY024-048
LEGEND
Table 32B — Fan Performance — Power Exhaust, 48AJ,AK,AW,AY060 and 48EJ,EK,EW,EY054-068
LEGEND
AIRFLOW
(Cfm)
LOW SPEED MEDIUM SPEED HIGH SPEED
208 v 230, 460, 575 v 208 v 230, 460, 575 v 208 v 230, 460, 575 v
ESP Bhp Watts ESP Bhp Watts ESP Bhp Watts ESP Bhp Watts ESP Bhp Watts ESP Bhp Watts
6,500 0.32 2.82 3160 0.70 2.98 3340 — — — — — — — — — — — —
6,700 0.23 2.87 3220 0.63 3.03 3400 0.60 3.01 3380 0.82 3.23 3620 — — — — — —
6,900 0.17 2.92 3270 0.59 3.09 3460 0.55 3.07 3440 0.78 3.28 3680 — — — — — —
7,100 0.13 2.93 3290 0.56 3.11 3490 0.49 3.12 3500 0.73 3.34 3740 — — — — — —
7,300 0.09 2.97 3330 0.53 3.15 3530 0.43 3.18 3560 0.68 3.39 3800 — — — — — —
7,500 — — — 0.51 3.19 3580 0.39 3.24 3630 0.64 3.44 3860 — — — — — —
7,700 — — — 0.48 3.23 3620 0.33 3.27 3670 0.59 3.48 3900 0.60 3.69 4140 0.73 3.98 4460
7,900 — — — 0.45 3.27 3670 0.27 3.32 3720 0.54 3.52 3950 0.56 3.74 4190 0.69 4.02 4510
8,100 — — — 0.40 3.33 3730 0.22 3.36 3770 0.49 3.57 4000 0.51 3.78 4240 0.65 4.07 4560
8,500 — — — — — — 0.17 3.47 3890 0.40 3.67 4120 0.41 3.83 4290 0.56 4.12 4620
8,900 — — — — — — 0.00 3.58 4010 0.30 3.77 4230 0.31 3.93 4410 0.47 4.23 4740
9,300 — — — — — — — — — 0.22 3.87 4340 0.20 4.07 4560 0.37 4.37 4900
9,700 — — — — — — — — — 0.16 3.95 4430 0.11 4.17 4670 0.30 4.47 5010
10,100 — — — — — — — — — 0.12 4.03 4520 0.04 4.25 4770 0.23 4.56 5110
10,500 ———————————————0.174.665220
10,900 ———————————————0.124.755330
11,300 ———————————————0.074.805380
11,700 ———————————————0.044.835420
Bhp — Brake Horsepower
ESP — External Static Pressure (in. wg)
Watts — Input Watts to Motor
AIRFLOW
(Cfm)
LOW SPEED MEDIUM SPEED HIGH SPEED
208 v 230, 460, 575 v 208 v 230, 460, 575 v 208 v 230, 460, 575 v
ESP Bhp Watts ESP Bhp Watts ESP Bhp Watts ESP Bhp Watts ESP Bhp Watts ESP Bhp Watts
9,750 0.32 4.23 4740 0.70 4.47 5010 — — — — — — — — — — — — —
10,050 0.23 4.31 4830 0.63 4.55 5100 0.60 4.52 5070 0.82 4.84 5430 — — — — — —
10,350 0.17 4.37 4905 0.59 4.63 5190 0.55 4.60 5160 0.78 4.92 5520 — — — — — —
10,650 0.13 4.40 4935 0.56 4.67 5235 0.49 4.68 5250 0.73 5.00 5610 — — — — — —
10,950 0.09 4.46 4995 0.53 4.72 5295 0.43 4.76 5340 0.68 5.08 5700 — — — — — —
11,250 — — — 0.51 4.79 5370 0.39 4.86 5445 0.64 5.16 5790 — — — — — —
11,550 — — — 0.48 4.84 5430 0.33 4.91 5505 0.59 5.22 5850 0.60 5.54 6210 0.73 5.97 6690
11,850 — — — 0.45 4.91 5505 0.27 4.98 5580 0.54 5.28 5925 0.56 5.61 6285 0.69 6.03 6765
12,150 — — — 0.40 4.99 5595 0.22 5.04 5655 0.49 5.35 6000 0.51 5.67 6360 0.65 6.10 6840
12,750 — — — — — — 0.17 5.20 5835 0.40 5.51 6180 0.41 5.74 6435 0.56 6.18 6930
13,350 — — — — — — 0.00 5.36 6015 0.30 5.66 6345 0.31 5.90 6615 0.47 6.34 7110
13,950 — — — — — — — — — 0.22 5.81 6510 0.20 6.10 6840 0.37 6.56 7350
14,550 — — — — — — — — — 0.16 5.93 6645 0.11 6.25 7005 0.30 6.70 7515
15,150 — — — — — — — — — 0.12 6.05 6780 0.04 6.38 7155 0.23 6.84 7665
15,750 ———————————————0.176.987830
16,350 ———————————————0.127.137995
16,950 ———————————————0.077.208070
17,550 ———————————————0.047.258130
Bhp — Brake Horsepower
ESP — External Static Pressure (in. wg)
Watts — Input Watts to Motor

79
Table 33 — Motor Limitations
LEGEND
Bhp — Brake Horsepower
NOTES:
1. Extensive motor and electrical testing on the Carrier units has
ensured that the full horsepower range of the motor can be
utilized with confidence. Using your fan motors up to the
horsepower ratings shown in the Motor Limitations table will not
result in nuisance tripping or premature motor failure. Unit war-
ranty will not be affected.
2. All motors comply with Energy Policy Act (EPACT) Standards
effective October 24, 1997.
Table 34 — Air Quality Limits
LEGEND NOTE: Variable Air Volume units will operate down to 70 cfm/ton in
Cooling mode. Performance at 70 cfm/ton is limited to unloaded
operation and may be additionally limited to edb and ewb conditions.
STANDARD EFFICIENCY MOTORS
Nominal Bhp Maximum Bhp Maximum Amps Maximum
Watts
Maximum
Efficiency
230 v 460 v 575 v
55.9 14.6 7.9 6.0 5,030 87.5
7.5 8.7 22.0 — — 7,717 84.1
9.5 — 12.0 10.0 8,008 88.5
10 10.2 28.0 — — 8,502 89.5
11.8 — 14.6 12.0 9,836 89.5
15 15.3 43.8 — — 12,543 91.0
18.0 — 21.9 19.0 14,756 91.0
20 22.4 62.0 — — 18,363 91.0
23.4 — 28.7 23.0 19,183 91.0
25 28.9 72.0 — — 23,511 91.7
29.4 — 37.4 31.0 23,918 91.7
30 35.6 95.0 — — 28,742 92.4
34.7 — 48.0 47.0 28,015 92.4
40 42.0 110.0 55.0 48.8 33,690 93.0
HIGH EFFICIENCY MOTORS
Nominal Bhp Maximum Bhp Maximum Amps Maximum
Watts
Maximum
Efficiency
230 v 460 v
55.9 15.8 7.9 4,918 89.5
7.5 8.7 22.0 — 7,078 91.7
9.5 — 12.0 7,728 91.7
10 10.2 28.0 — 8,298 91.7
11.8 — 15.0 9,600 91.7
15 15.3 43.8 — 12,273 93.0
18.0 21.9 14,439 93.0
20 22.4 58.2 — 17,853 93.6
23.4 — 28.7 18,650 93.6
25 28.9 73.0 — 23,034 93.6
29.4 — 36.3 23,432 93.6
30 35.6 82.6 — 28,374 93.6
34.7 — 41.7 27,656 93.6
40 42.0 110.0 55.0 33,156 94.5
UNIT
48AJ,AK,AW,A
Y
UNIT
48EJ,EK,EW,EY
MINIMUM HEATING
AIRFLOW
(Low Heat)
MINIMUM HEATING
AIRFLOW
(High Heat)
MINIMUM COOLING
AIRFLOW (VAV)
AT FULL LOAD OPERATION
MINIMUM COOLING
AIRFLOW
(CV
MAXIMUM
AIRFLOW
020 024 5,900 6,100 4,000 6,000 10,000
025 028 5,900 6,100 5,000 7,500 12,500
027 030 5,900 6,100 5,400 8,100 13,500
030 034 5,900 6,100 6,000 9,000 15,000
035 038 7,600 10,100 7,000 10,500 17,500
040 044 7,600 10,100 8,000 12,000 20,000
— 048 7,600 10,100 9,000 13,500 22,500
050 — 7,600 10,100 10,000 15,000 22,500
— 054 11,000 14,700 10,000 15,000 25,000
— 058 11,000 14,700 11,000 16,500 27,000
060 064 11,000 14,700 12,000 18,000 27,000
— 068 11,000 14,700 13,000 19,500 27,000
CV — Constant Volume
edb — Entering Dry Bulb
ewb — Entering Wet Bulb
VAV — Variable Air Volume
80
Return-Air Filters — Check that correct filters are in-
stalled in filter tracks (see Tables 1A and 1B). Do not operate
unit without return-air filters.
Filter Replacement — To replace filters, open filter ac-
cess door (marked with label). Remove inner access panel. Re-
move plastic filter retainer in between filter tracks by sliding
and pulling outward. Remove first filter by sliding it out of the
opening in filter track. Locate filter removal tool, which is
shipped next to the return air dampers. Use the filter removal
tool to remove the rest of the filters.
Outdoor-Air Inlet Screens — Outdoor-air inlet screens
must be in place before operating unit.
Economizer Adjustment — Remove filter access
panel. Check that outdoor-air damper is closed and return-air
damper is open.
Economizer operation and adjustment are described in
Sequence of Operation section on this page; and Step 10 —
Make Outdoor Air Inlet Adjustments section on page 48.
Gas Heat — Verify gas pressures before turning on heat as
follows:
1. Turn off field-supplied manual gas stop, located external
to unit.
2. Connect pressure gage to supply gas tap, located on field-
supplied manual shutoff valve (see Fig. 23 on page 29).
3. Connect pressure gage to manifold pressure tap on unit
gas valve.
4. Supply gas pressure must not exceed 13.5 in. wg. Check
pressure at field-supplied shut-off valve.
5. Turn on manual gas stop and initiate a heating demand.
Jumper R to W1 in the control box to initiate heat. On
VAV units, the RAT (return-air temperature) must be less
than or equal to 68 F for heating to be energized.
6. Use the field test procedure to verify heat operation.
7. After the unit has run for several minutes, verify that in-
coming pressure is 6.0 in. wg or greater, and that the man-
ifold pressure is 3.5 in. wg. If manifold pressure must be
adjusted refer to Gas Valve Adjustment section on
page 93.
Sequence of Operation
NOTE: Unit is shipped with default values that can be changed
through Service Tool, Building Supervisor, or Comfort-
WORKS® software or using an accessory Remote Enhanced
Display. See Table 35 for default values.
COOLING, CONSTANT VOLUME (CV) UNITS — On
power up, the control module will activate the initialization
software of the control board. The initialization software then
reads DIP switch no. 1 position to determine CV or VAV oper-
ation. Next, DIP switch no. 2 is read to determine if the control
is thermostat or sensor type operation. If switch 2 is open, then
sensors are employed. If switch no. 2 is closed, thermostat is
employed. Initialization sequence clears all alarms and alerts,
remaps the input/output database for CV operation, sets maxi-
mum heat stages to 2, and sets maximum cool stages to 3. The
control module reads DIP switch no. 3 and determines if the
unit will use expansion board operation.
The first time power is sent to the control board after a
power outage, power up takes 5 minutes plus a random 1 to
63 seconds.
The TSTAT function performs a thermostat based control
by monitoring Y1, Y2, W1, W2, and G inputs. These functions
control stages cool1, cool2, heat1, heat2, and indoor fan, re-
spectively. If TSTAT function is NOT selected, the control de-
termines the occupancy state on the Time Schedules or with re-
mote occupied/unoccupied input. If Temperature Compensated
Start is active, the unit will be controlled as in the Occupied
mode. User-defined set points are shown in Table 35.
Table 36 lists the software link points addressable by
DataPort™ and DataLINK™, Carrier devices that allow ac-
cess to unit control by non-Carrier energy management sys-
tems (EMS).
The occupied or unoccupied comfort set points must be se-
lected and the space temperature offset input will be used, if
present. The Occupied Heat set point default value is 68 F. The
Occupied Cool set point default value is 78 F. The Unoccupied
Heat set point default value is 55 F. The Unoccupied Cool set
point value is 90 F. The control board will set appropriate oper-
ating mode and fan control. The control board will turn on in-
door fan, if in Occupied mode, or determine if unit is in Unoc-
cupied mode and the space temperature is outside of the unoc-
cupied comfort set points, (Unoccupied Heat or Unoccupied
Cool).
The control board will then monitor space temperature
against comfort set points and control heating or cooling stages
as required. If system is in the Occupied mode, the economizer
will operate as required. If the system is in Unoccupied mode,
the system will perform nighttime free cool and IAQ (indoor
air quality) pre-occupancy purge as required (when functions
are enabled via software). Whenever the DX (direct expansion)
cooling is requested, the outdoor fan will operate.
The control board will operate economizer, run diagnostics
to monitor alarms/alerts at all times, and respond to CCN com-
munications to perform any configured network POC (product
outboard control) functions such as time and outdoor-air tem-
perature broadcast and Global occupancy broadcast. When the
optional expansion I/O board is employed, it will: perform pe-
riodic scan and maintain database of expanded I/O points, per-
form Fire/Smoke control (power exhaust required); and if in
Occupied mode perform IAQ control and monitor fan, filter,
demand limit, and field-applied status (with accessories).
If thermostats are used to energize the G input, the control
will turn on indoor fan without delay and open economizer
dampers to minimum position. If thermostats are used to deen-
ergize the G input, the control board will turn off indoor fan
without any delay and close economizer dampers.
When cooling, G must be energized before cooling can op-
erate. The control board determines if outdoor conditions are
suitable for economizer cooling using the standard outdoor air
thermistor. For economizer to function for free cooling, the en-
thalpy must be low, the outdoor air must equal to or less than
the High Outdoor Air Temperature Lockout (default is 65 F),
the SAT (supply-air temperature) thermistor is NOT in alarm,
and outdoor air reading is available. When these conditions are
satisfied, the control board will use economizer as the first
stage of cooling.
When Y1 input is energized, the economizer will be modu-
lated to maintain SAT at the defined set point. The default is
55 F. When SAT is above the set point, the economizer will be
100% open. When SAT is below the set point, the economizer
will modulate between minimum and 100% open position.
When Y2 is energized, the control module will turn on com-
pressor no. 1 and continue to modulate economizer as de-
scribed above. If the Y2 remains energized and the SAT read-
ing remains above the set point for 15 minutes, compressor
no. 2 will turn on. If Y2 is deenergized at any time, only the last
stage of compression that was energized will be turned off. If
outdoor conditions are not suitable for economizer cooling, the
economizer will go to minimum position and cycle compressor
no. 1 and 2 based on demand from Y1 and Y2 respectively.
The compressors will be locked out when the SAT temperature
is too low (less than 40 F for compressor no. 1 and less than
45 F for compressor no. 2.) After a compressor is locked out, it
can restart after normal time guard period.

81
Table 35 — User Defined Set Points
LEGEND
Table 36 — Software Control Link Points
LEGEND
SET POINT
NAME FORMAT DESCRIPTION LIMITS DEFAULT
OHSP xx.xF Occupied Heat Set Point 55 to 80 F 68 F
OCSP xx.xF Occupied Cool Set Point 55 to 80 F 78 F
UHSP xx.xF Unoccupied Heat Set Point 35 to 80 F 55 F
UCSP xx.xF Unoccupied Cool Set Point 75 to 110 F 90 F
SASP xx.xF Supply Air Set Point 45 to 70 F 55 F
OATL xx.xF Hi OAT Lockout Temperature 55 to 75 F 65 F
NTLO xx.xF Unoccupied OAT Lockout Temperature 40 to 70 F 50 F
RTIO xx.x Reset Ratio 0 to 10 3
LIMT xx.xF Reset Limit 0 to 20° F 10° F
MDP xxx% Minimum Damper Position 0 to 100% 20%
LOWMDP xxx% Low Temperature Minimum
Damper Position Override 0 to 100% 100%
IAQS xxxx IAQ Set Point 1 to 5000 PPM 650 PPM
UHDB xx.xF Unoccupied Heating Deadband 0 to 10° F 1° F
UCDB xx.xF Unoccupied Cooling Deadband 0 to 10° F 1° F
LTMP xxx% Low Temp. Min. Position 0 to 100% 10%
HTMP xxx% High Temp. Min. Position 0 to 100% 35%
PES1 xxx% CV Power Exhaust Stage 1 Point 0 to 100% 25%
PES2 xxx% CV Power Exhaust Stage 2 Point 0 to 100% 75%
CV — Constant Volume
IAQ — Indoor Air Quality
OAT — Outdoor-Air Temperature
SET POINT DESCRIPTION SET POINT DESCRIPTION
CV Data
SPT Space Temperature HS2 Heat Stage 2
SAT Supply-Air Temperature STO Space Temp. Offset
RAT Return-Air Temperature CVPE1 CV Power Exhaust Stg 1
OAT Outside-Air Temperature CVPE2 CV Power Exhaust Stg 2
CLSP Control Set Point VAV Data
CCAP Cooling % Total Capacity HIR Heat Interlock Relay
HCAP Heating % Total Capacity SPTRESET Space Temp. Reset
ECOS Economizer Active CMP1 Compressor 1
SFSTAT Supply Fan Status CMP1SAFE Compressor 1 Safety
SF Fan Relay CMP2 Compressor 2
ECONPOS Economizer Position CMP2SAFE Compressor 2 Safety
IQMP Min. Damper Position ULD1 Unloader 1
PEXE Power Exhaust Enable ULD2 Unloader 2
FLTS Filter Status OFC1 Outdoor Fan 1
FAS Field Applied Status OFC2 Outdoor Fan 2
RMTOCC Remote Occupied Mode Y1 Y1 — Call for Cool 1
General Data Y2 Y2 — Call for Cool 2
HS1 Heat Stage 1 W1 W1 — Call for Heat 1
ENTH Enthalpy W2 W2 — Call for Heat 2
IAQI Indoor Air Quality GG — Call for Fan
IAQO Outdoor Air Quality CDEVCODE CONQUEST DEVICE CODE
SATRES SAT Reset CDEVURST CONQUEST UNIT RESET
ALMLIGHT Alarm Warning Light CDEVBCAK CONQUEST BROADCAST ACK
DL Demand Limit Switch PE1 Mod. Power Exhaust Stg 1
EVAC Evacuation PE2 Mod. Power Exhaust Stg 2
PRES Pressurization PE3 Mod. Power Exhaust Stg 3
PURG Smoke Purge PE4 Mod. Power Exhaust Stg 4
FSD Fire Shutdown PE5 Mod. Power Exhaust Stg 5
PE6 Mod. Power Exhaust Stg 6
CV — Constant Volume
VAV — Variable Air Volume
82
The Time Guard® function maintains a minimum off
time of 5 minutes, a minimum ON time of 10 seconds, and a
minimum delay before starting the second compressor of
10 seconds.
If the compressors have been off for more than 15 minutes
and the OAT (outdoor-air temperature) is less than 45 F, then
the safeties will be ignored for 5 minutes. At all times, safeties
will be used.
Heating and cooling will be mutually locked out on demand
on a first call basis. The heating and the cooling functions can-
not be operating simultaneously.
COOLING, VARIABLE AIR VOLUME (VAV) UNITS —
On power up, the control module will activate the initialization
software of the control board. The initialization software then
reads DIP switch no. 1 position to determine CV or VAV oper-
ation. Initialization clears all alarms and alerts, re-maps the in-
put/output database for VAV operation, sets maximum heat
stages to 1 and sets maximum cool stages to 6. The control
module reads DIP switch no. 3 and determines if the unit will
use expansion board operation. Power up takes a random time
of 1 to 63 seconds plus 5 minutes the first time power is sent to
the control board after a power outage.
The control module will determine if an interface (linkage)
is active and if the unit will operate in a Digital Air Volume
(DAV) mode. In a DAV system, the room terminals are
equipped with microprocessor controls that give commands to
the base unit module. If an interface is active, the control will
replace local comfort set points, space and return air tempera-
tures and occupancy status with the linkage data supplied.
The control module will determine occupancy status from
Time Schedules (if programmed), Remote Occupied/Unoccu-
pied input, global occupancy, or DAV. If Temperature Com-
pensated Start is active, the unit will be controlled as in the
Occupied mode.
NOTE: The temperature compensated start is a period of time
calculated to bring the unit on while in Unoccupied mode to
reach the occupied set point when occupancy occurs.
The control module will set the appropriate operating mode
and fan control. The control module will turn VFD on if Occu-
pied mode is evident.
For units equipped with a start/stop switch only (no space
temperature sensor), if in Unoccupied mode and valid return-
air temperature reading is available (either from a sensor or
DAV), the control will monitor return-air temperature against
Unoccupied Heat and Cool set points.
For units with a start/stop switch and a space temperature
sensor, the control module will start the VFD whenever SPT is
outside of the set points (Unoccupied Heat or Unoccupied
Cool). The VFD may also be started by nighttime thermostat
via remote Occupied/Unoccupied input or by a Temperature
Compensated Start algorithm. When VFD is running in a nor-
mal mode, the control will start heating or cooling as required
to maintain supply-air temperature at the supply air set point
(SASP) plus the reset (when enabled). The reset value is deter-
mined by SAT (supply-air temperature) reset and/or space tem-
perature reset algorithms. The space temperature reset is only
available when enabled through software.
When cooling, the control will energize the power exhaust
enable output to the external power exhaust controller, when
power exhaust is used.
If in Occupied mode, the control module will perform econ-
omizer control (economizer control same as described above
for CV units). If in Unoccupied mode, the control module will
perform nighttime free cool and IAQ pre-occupancy purge as
required (when enabled through software). When DX (direct
expansion) cooling is called, the outdoor fans will always
operate.
The control will run continuous diagnostics for alarms/
alerts; respond to CCN communications and perform any con-
figured network POC (product outboard controls) functions
such as time and outdoor-air temperature broadcast and global
broadcast; and perform Fire/Smoke control if equipped with
power exhaust.
GAS HEATING, CONSTANT VOLUME (CV) UNITS —
The gas heat units incorporate 2 (48AJ,AK,AW,AY020-050
and 48EJ,EK,EW,EY024-048) or 3 (48AJ,AK,AW,AY060 and
48EJ,EK,EW,EY054-068) separate systems to provide gas
heat. Each system incorporates its own induced-draft motor, In-
tegrated Gas Control (IGC) board, 2 stage gas valve, manifold,
etc. The systems are operated in parallel; for example, when
there is a call for first stage heat, all induced-draft motors oper-
ate, all gas valves are energized, and both IGC boards initiate
spark.
All of the gas heating control is performed through the IGC
boards (located in the heating section). The control module
board serves only to initiate and terminate heating operation.
The control module board is powered by 24 vac. When the
thermostat or room sensor calls for heating, power is sent from
the control module board to W on each of the IGC boards. An
LED on the IGC board will be on during normal operation. A
check is made to ensure that the rollout switches and limit
switches are closed and the induced-draft motors are not run-
ning. The induced-draft motors are then energized, and when
speed is proven with the hall effect sensor on the motor, the
ignition activation period begins. The burners will ignite within
5 seconds.
When ignition occurs the IGC board will continue to moni-
tor the condition of the rollout and limit switches, the hall effect
sensor, as well as the flame sensor. If the unit is controlled
through a room thermostat set for fan auto., 45 seconds after
ignition occurs, the indoor-fan motor will be energized and the
outdoor-air dampers will open to their minimum position. If for
some reason the overtemperature limit opens prior to the start
of the indoor fan blower, on the next attempt, the 45-second de-
lay will be shortened to 5 seconds less than the time from initi-
ation of heat to when the limit tripped. Gas will not be inter-
rupted to the burners and heating will continue. Once modified,
the fan on delay will not change back to 45 seconds unless
power is reset to the control. If the unit is controlled through a
room sensor, the indoor fan will be operating in the Occupied
mode and the outdoor-air dampers will be in the minimum
position.
If the unit is controlled with a room sensor in the Unoccu-
pied mode, the indoor fan will be energized through the IGC
board with a 45-second delay and the outside-air dampers will
move to the IAQ position (generally set to zero in the Unoccu-
pied mode). The IAQ feature is enabled through system soft-
ware. If IAQ is not enabled, dampers will move to the mini-
mum position.
When additional heat is required, W2 closes and initiates
power to the second stage of the main gas valves. When the
thermostat is satisfied, W1 and W2 open and the gas valves
close interrupting the flow of gas to the main burners. If the call
for W1 lasted less than 1 minute, the heating cycle will not ter-
minate until 1 minute after W1 became active. If the unit is
controlled through a room thermostat set for fan auto., the
indoor-fan motor will continue to operate for an additional
45 seconds then stop and the outdoor-air dampers will close. If
the overtemperature limit opens after the indoor motor is
stopped within 10 minutes of W1 becoming inactive, on the
next cycle the time will be extended by 15 seconds. The maxi-
mum delay is 3 minutes. Once modified, the fan off delay will
not change back to 45 seconds unless power is reset to the con-
trol. If the unit is controlled through a room sensor, the indoor
fan will be operating in the Occupied mode and turned off after
45 seconds in the Unoccupied mode.

83
GAS HEATING, VARIABLE AIR VOLUME (VAV)
UNITS — All of the gas heating control is performed through
the integrated gas control (IGC) board. The control module
board serves only to initiate and terminate heating operation.
NOTE: The unit is factory-configured for disabled occupied
heating. DIP switch 5 is used to enable occupied heating (DIP
switch 5 set to OPEN).
Variable Air Volume (VAV) occupied heat is controlled by
return-air temperature (RAT) using a 5k thermistor located just
below the outdoor-air dampers. A VAV unit without a space
temperature sensor is also controlled by RAT. A VAV unit with
a space temperature sensor has Unoccupied Heat controlled by
space temperature (SPT).
The control module board is powered by 24 vac. When
there is a call for heating (either Morning Warm-Up, Unoccu-
pied, or Occupied modes), power is sent from the control mod-
ule board to W on each of the IGC boards and W2 of the main
gas valve. When heating, the control module board will ener-
gize a field-supplied heat interlock relay output to drive the
VAV terminal boxes wide open. The HIR is not required on a
DAV system. See Fig. 59. In the Occupied mode the indoor-fan
motor will be operating and the outdoor-air dampers will be in
the minimum position. In the Unoccupied mode the indoor-fan
motor will be off, but will energize 45 seconds after the call for
heat and the outdoor-air dampers will move to the IAQ
Unoccupied position (generally set to zero in the Unoccupied
mode). The duct pressure sensor will signal to the variable fre-
quency drive to operate at full speed since all terminals have
been driven open. An LED on the IGC board will be on during
normal operation. A check is made to ensure that the rollout
switches and limit switches are closed and the induced-draft
motors are not running. The induced-draft motors are then en-
ergized and when speed is proven with the hall effect sensor on
the motor, the ignition activation period begins. The burners
will ignite within 5 seconds.
When ignition occurs the IGC board will continue to moni-
tor the condition of the rollout and limit switches, the hall effect
sensor, and the flame sensor.
If the call for heat lasted less than 1 minute, the heating cy-
cle will not terminate until 1 minute after heat became active.
When heating is satisfied, the power will be interrupted to the
IGC board and W1 and W2 of the main gas valve. If the unit is
controlled through a room sensor, the indoor fan will be operat-
ing in the Occupied mode and turned off after 45 seconds in the
Unoccupied mode.
STAGED GAS UNIT HEATING — The Staged Gas Control
option offered on 48EJ,EK,EW,EY024-068 and 48AJ,AK,AW,
AY020-060 units adds the capability to control the rooftop
unit’s gas heating system to a specified Supply Air Tempera-
ture Set Point for purposes of tempering a cool mixed-air con-
dition. The gas heating system employs multiple heating sec-
tions. Each section is equipped with a two-stage gas valve. The
gas valves are sequenced by a factory-installed staged gas con-
troller (SGC) as required to maintain the user-specified Supply
Air Set Point. Up to eleven stages of heating control are avail-
able, based on quantity and heating capacity sizes of the indi-
vidual heat exchanger sections provided in the base unit. In
addition to providing system control for tempering heat opera-
tion, the new SGC also controls Demand Heat sequences
for both First-Stage (W1) and Second-Stage (W2 or full-fire)
operation.
Tempering of supply air is desirable when rooftop units are
operating in ventilation mode (economizer only operation) at
low outdoor temperatures. At low outdoor temperatures, the
mixed air temperature (combination of return-from-space tem-
perature and outdoor/ventilation air temperature) may become
too low for the comfort of the occupants or for the terminal
reheat systems. The tempering function adds incremental steps
of heat capacity to raise the temperature of the mixed air up to
levels suitable for direct admission into the occupied space or
to levels consistent with reheat capabilities of the space termi-
nals. Refer to Table 37 for the staged gas heating control sys-
tem components. Refer to Table 38 for the heating system con-
troller (SGC) inputs. The heating system controller (SGC) out-
puts consist of six relays (K1 through K6) which control the
individual gas valves.
BASE MODULE
CONTROL BOARD
T
30
T29
T
28
COM
COM
B
TRAN2
SECONDARY
24 VOLT
CB4
3.2 AMPS
INDOOR FAN RELAY
HIR
FIELD
INSTALLED
(HN61KK040)
(24V, 9.5VA)
Fig. 59 — Heat Interlock Relay Wiring
LEGEND
CB — Circuit Breaker
COM — Common
HIR — Heat Interlock Relay
T—Terminal
TRAN — Transformer

84
Table 37 — Staged Gas System Components
Table 38 — Stage Gas System Inputs/Outputs
Operating Modes — The SGC will operate the unit in one of
the following operating modes:
• no mode
• Cooling Mode
• Heating1 Mode
• Heating2 Mode
No Mode — In this mode, none of the heat stages are turned
on. No mode occurs if the Cool, Heat or Fan inputs are off or
the Cool input(s) are on.
Tempering (Cool) Mode — In this mode, the SGC tempers in
incoming supply air to maintain the cooling supply air set
point. Tempering mode occurs if the Fan input is ON and all
Cool and Heat inputs are off.
When the SGC determines that the fan is on and the base
unit control is not calling for heat or mechanical cooling, the
SGC will stage heat to maintain the cooling set point which is
set on the CLSASP potentiometer of the SGC. This set point
should be slightly below the supply air set point of the base unit
VAV control. Note that the supply-air temperature will still be
in the “cooling range.”
Heat1 Mode — Heat1 mode is used on VAV applications as
they have one heat stage on the base unit control. CV units
have two heat stages and will not operate under Heat1 mode.
In this mode, heat is staged to control supply air temperature
to HTSASP. Heat1 mode occurs only if Heat1 is ON and Heat2
is OFF and Cool1 and Cool2 are OFF.
When the base unit control calls for first stage of heat, the
SGC will stage heat to maintain the heating set point set on the
potentiometer of the SGC. The HIR will be energized to com-
mand the zone terminals to open to maintain minimum heating
airflow.
Heat2 Mode — Heat2 mode is used on CV applications as
they have 2 heat stages on the base unit control. VAV units
have only 1 heat stage and will not operate under Heat2 mode.
In this mode, when the base unit calls for the second stage
of heat, the SGC will turn on all available heat stages. This
mode only occurs if Heat1 and Heat2 are ON and Cool1 and
Cool2 are OFF.
Accessory Navigator Display — The Navigator Display is a
field-installed accessory. See Fig. 60. Navigator Display is to
be connected to LEN connections at communication board
which is attached to the heating and cooling supply air set point
potentiometers in heating section. The Navigator Display ac-
cessory is required for all units with staged gas control.
The display module provides the user interface to the Staged
Gas control system. See Fig. 60. The display has up and down
arrow keys, an key, and an key. These
keys are used to navigate through the different levels of the dis-
play structure. See Table 39. Press the ESCAPE key until the
display is blank to move through the top 11 mode levels indi-
cated by LEDs on the bottom left side of the display.
Pressing the and keys simultaneously
will scroll a text description across the display indicating the
full meaning of each display acronym. Pressing the
and keys when the display is blank (Mode LED lev-
el) will return the display to its default menu of rotating display
items. In addition, the password will be disabled requiring that
it be entered again before changes can be made to password
protected items.
When a specific item is located, the display will flash show-
ing the operator, the item, item value, and then the item units (if
any). Press the key to stop the display at the item val-
ue. Items in the Configuration and Service Test modes are
password protected. The display will flash PASS and WORD
when required. Use the and arrow keys to enter the 4
digits of the password. The default password is 1111.
Changing item values or testing outputs is accomplished in
the same manner. Locate and display the desired item. Press
the key to stop the display at the item value. Press the
key again so that the item value flashes. Use the ar-
row keys to change the value or state of an item and press the
key to accept it. Press the key and the
item, value, or units display will resume. Repeat the process as
required for other items.
The unit alarms can be cleared through Navigator display.
To check the current alarms, enter the Alarms menu. The first
submenu is the CRNT submenu. The CRNT function displays
the list of current alarms (maximum of 25). The second sub-
menu item is the RCRN (Reset All Current Alarms) function.
Press to reset the current alarms. The next submenu
item, HIST, displays the list of cleared alarms (maximum of
20). The HIST function can be cleared with the RHIS function.
ITEM FUNCTION LOCATION
Heating Controller (SGC) Logic and Output Relays Heating section
Supply-Air Thermistors (SAT) Sense unit leaving-air temperature Supply duct (factory-provided,
field-installed)
Cooling Supply Air Set Point
Potentiometer (CLSASP)
Specify set point for
tempering heat control
Set Point Range: 35 to 70 F
Heating section, next to SGC
Heating Supply Air Set Point
Potentiometer (HTSASP)
Specify set point for First-Stage
Heating control
Set Point Range: 80 to 125 F
Heating section, next to SGC
Air Flow Switch (AFS) Prove Supply Fan operation Fan supply air plenum
(factory-installed)
INPUT DESCRIPTION
Cool1 Relay in parallel with Compressor #1 contactor
Cool2 Relay in parallel with Compressor #2 contactor
Heat1 24V input from Base Unit control
Heat2 24V input from Base Unit control
Fan Air proving switch (contact closure on rise in static pressure)
Cool Supply Set Point Potentiometer, (range 35-70 F)
Heat Supply Set Point Potentiometer, (range 80-125 F)
Supply Air Thermistor (1, 2 and 3) Field-installed in supply ductwork (P/N HH79NZ016)
ESCAPE ENTER
ESCAPE ENTER
ESCAPE
ENTER
ENTER
ENTER
ENTER
ENTER
ENTER ESCAPE
ENTER

85
MORNING WARM-UP (VAV only with PC Accessed/CCN
Operation) — Morning warm-up occurs when the control has
been programmed to turn on heat prior to the Occupied mode
to be ready for occupancy mode. Morning warm-up is a condi-
tion in VAV systems that occurs when the Temperature Com-
pensated Start algorithm calculates a biased occupied start time
and the unit has a demand for heating. The warm-up will con-
tinue into the occupied period as long as there is a need for
heat. During warm-up, the unit can continue heating into the
occupied period, even if occupied heating is disabled. When
the heating demand is satisfied, the warm-up condition will ter-
minate. To increase or decrease the heating demand, use
Service Tool software to change the Occupied Heating set
point.
NOTE: To utilize Morning Warm-Up mode, the unit occu-
pancy schedule must be accessed via Service Tool, Building
Supervisor, or ComfortWORKS® software or accessory
Remote Enhanced Display. The PC can access the base control
board via the 3-wire communication bus or via an RJ-11 con-
nection to the CCN terminal on the base control board. See
Fig. 27.
For current software (version 3.0 or later), the Low Tem-
perature Minimum Damper Position Override (LOWMDP)
has a 0 to 100% limit, with a default of 100%. Think of the
LOWMDP as a second minimum damper position. This
LOWMDP limit change requires access to the unit software
with a computer equipped with Building Supervisor, Ser-
vice Tool, or ComfortWORKS Software.
When the LOWMDP is in effect the outdoor dampers will
remain at the LOWMDP position (typically set to 0% closed)
during heating, even in the Occupied period. For the LOW-
MDP to be in effect the LOWMDP must be less than the mini-
mum damper position (MDP) and the RAT (return-air tempera-
ture) must be less than the OHSP (occupied heat set point)
minus 2.5° F. Table 40 summarizes the operational require-
ments and controlling factors for occupied heat and morning
warm-up.
MORNING WARM-UP (VAV Only with Stand-Alone
Operation) — When the unit operates in stand-alone mode,
morning warm-up occurs when the unit is energized in Occu-
pied mode and return-air temperature (RAT) is below 68 F.
Warm-up will not terminate until the RAT reaches 68 F. The
heat interlock relay output is energized during morning warm-
up. (A field-installed 24-vdc heat interlock relay is required.)
The output will be energized until the morning warm-up cycle
is complete. Refer to Fig. 59 for heat interlock relay wiring.
Table 39 — Navigator Display Menu Structure
RUN
STATUS
SERVICE
TEST TEMPERATURES PRESSURES SET
POINTS INPUTS OUTPUTS CONFIGURATION TIME CLOCK OPERATING
MODES ALARMS
Auto Display
(VIEW)
SERVICE
TEST
SUPPLY AIR
TEMPERATURE N/A SETPOINT
SELECT
COOL
INPUT#1
HEAT
OUTPUT
1
Display
Configuration
(DISP)
Time
(TIME) N/A
Currently
Active
Alarms
(CRNT)
Software
Version
(VERS)
HEAT
OUTPUT#1
SUPPLY AIR
TEMPERATURE 1 N/A
COOLING
SETPOINT
1
COOL
INPUT#2
HEAT
OUTPUT
2
CCN
Configuration
(CCN)
Date
(DATE) N/A
Reset all
Current
Alarms
(RCRN)
HEAT
OUTPUT#2
SUPPLY AIR
TEMPERATURE 2 N/A
COOLING
SETPOINT
2
HEAT
INPUT#1
HEAT
OUTPUT
3
Stage Gas
Configuration
(CNFG)
Occupancy
and
Unoccupancy
Schedule
Number
(SCHD)
Alarm
History
(HIST)
HEAT
OUTPUT#3
SUPPLY AIR
TEMPERATURE 3
HEATING
SETPOINT
1
HEAT
INPUT#1
HEAT
OUTPUT
4
Reset
Alarm
History
(RHIS)
HEAT
OUTPUT#4
HEATING
SETPOINT
2
SUPPLY
FAN
STATUS
HEAT
OUTPUT
5
HEAT
OUTPUT#5
HEAT
OUTPUT
6
HEAT
OUTPUT#6
Run Status
Service Test
Temperatures
Pressures
Setpoints
Inputs
Outputs
Configuration
Time Clock
Operating Modes
Alarms
ENTER
ESC
MODE
Alarm Status
NAVIGATOR™
ComfortLink
Fig. 60 — Navigator Display

86
Table 40 — Occupied Heat and Morning Warm-Up
Operation and Controlling Factors
LEGEND
SPACE TEMPERATURE SENSOR CONTROL — If the unit
is equipped with a field-supplied space sensor and a remote
start/stop switch, constant volume (CV) cooling will operate as
follows: Stage 1 cooling begins when there exists a 1.5° F
demand and ends when the demand returns back to 0.5° F.
Stage 2 cooling begins when there is a 2.0° F demand and will
continue until the demand returns 1.0° F. Stage 2 cannot be en-
ergized until a minimum of eight minutes of Stage 1 operation
or as long as stage 1 is making a reduction in the space temper-
ature trend. If the temperature trends stop improving but the
demand still exceeds 2.0° F, then Stage 2 cooling will be
energized.
When economizer operation is suitable, the control will use
economizer, as the first stage of cooling will bring on the com-
pressor 1 when Stage 2 demand is called for. If supply-air tem-
perature (SAT) remains above supply-air set point (SASP) for
15 minutes after energizing compressor 1, then compressor 2
shall be started. When Stage 2 is satisfied, the last stage of
compression shall be dropped. When Stage 1 is satisfied, the
control will drop all DX cooling.
If the unit is equipped with a field-supplied space sensor and
a remote start/stop switch, CV heating will operate as follows:
Stage 1 heating begins when there exists 1.5° F demand and
ends when the demand returns back to 0.5° F. Stage 2 heating
begins when there is a 2.0° F demand and will continue until
the demand returns to 1.0° F. Stage 2 cannot be energized until
a minimum of eight minutes of Stage 1 operation or as long as
Stage 1 is making an increase in the space temperature trend. If
the temperature trends stop improving but the demand still ex-
ceeds 2.0° F, then Stage 2 heating will be energized
SPACE TEMPERATURE RESET SENSOR (VAV Only) —
An accessory space temperature sensor (T-55 or T-56 without
offset) is required. Space temperature reset is used to reset the
supply-air temperature set point of a VAV system higher, as the
space temperature falls below the Occupied Cool set point. As
the space temperature falls below the Occupied Cool set point,
the supply-air temperature will be reset upward as a function of
the reset ratio. (Default is 3.) Reset ratio is expressed in degrees
change in supply-air temperature per degree of space tempera-
ture change. A reset limit will exist which will limit the maxi-
mum number of degrees the supply-air temperature may be
raised. (Default is 10 F.) Both the reset ratio and the reset limit
are user definable. The sequence of operation is as follows:
1. The on/off status of the unit supply fan is determined.
2. If the fan is ‘‘on,’’ the sequence will check if the system is
occupied.
3. If the system is in Occupied mode, the sequence will de-
termine if the reset option is enabled.
4. If the reset option is enabled, the sequence will read the
space temperature and compare it to the Occupied Cool
set point. If the temperature is below the Occupied Cool
set point, the algorithm will compute the reset value and
compare this value against the reset limit. If it is greater
than the reset limit, the sequence will use the reset limit as
the reset value. See Fig. 61.
NOTE: A computer equipped with Carrier network access
software (ComfortWORKS®, Building Supervisor, or Service
Tool) or an accessory Remote Enhanced Display is required to
enable this function.
Space Temperature Reset Example — The occupied cooling
set point is set to 73 F. The Reset Ratio is set to 5. The Reset
Limit is set to 20 F. The Reset Ratio determines how many de-
grees F the temperature is reset. At 72 F, the supply tempera-
ture will be reset 5 degrees higher. At 71 F, the supply tempera-
ture will be reset 10 degrees higher. At 70 F, the supply temper-
ature will be reset 15 degrees higher. At 69 F, the supply
temperature will be reset 20 degrees higher and the Reset Limit
will have been reached.
SOFTWARE
VERSION
OCCUPIED
HEAT
ENABLED
VIA
MORNING
WARM-UP
MAY START
DURING
TEMPERATURE
CONDITION
FOR HEAT
TO START
3.0 and Later DIP switch no. 5
Smart start or
within
10 minutes
RAT < OHSP
OHSP — Occupied Heat Set Point
RAT — Return-Air Temperature
BASE MODULE
CONTROL BOARD
(+) T11
(-) T12
4-20 mA
INPUT
FIELD
SUPPLIED
INPUT DEVICE
Fig. 61 — Space Temperature Reset Wiring
mA INPUT DEG. F RESET
40.00
51.25
62.50
73.75
85.00
96.25
10 7.50
11 8.75
12 10.00
13 11.25
14 12.50
15 13.75
16 15.00
17 16.25
18 17.50
19 18.75
20 20.00
LEGEND
T — Te r m i n a l
NOTE: The 4 to 20 mA input is a field-supplied non-Carrier EMS
(Energy Management System) device.

87
SUPPLY AIR TEMPERATURE RESET — Supply air tem-
perature reset is used to reset the supply-air temperature utility.
A 4 to 20 mA signal (field-supplied) is required. The reset op-
tion does not require enabling.
POWER EXHAUST OPERATION — Power exhaust has
two options (constant volume and modulating) that have the
following sequence of operation:
The constant volume power exhaust stage 1 (CVPE1) is en-
abled when the indoor fan has been energized and the desired
outdoor-air damper position for the economizer increases
above the first constant volume (CV) power exhaust stage
1 point (PES1). The PES1 factory default value is set at 25%.
The constant volume power exhaust stage 2 (CVPE2) is en-
abled when the desired outdoor-air damper position for the
economizer increases above the second CV power exhaust
stage 2 point (PES2). The PES2 factory default value is set at
75%. Each stage is disabled when the desired damper position
decreases below the respective set points.
The modulating power exhaust is enabled when the indoor
fan is energized and the building pressure has exceeded the in-
dividual sequencer set points. The default set points are 0.04 in.
wg (6.3 vdc) for stage 1, 0.10 in wg (6.8 vdc) for stage 2,
0.16 in wg (7.3 vdc) for stage 3, and 0.23 in. wg (7.8 vdc) for
stage 4, 0.29 in. wg (8.3 vdc) for stage 5, and 0.35 in. wg
(8.8 vdc) for stage 6 power exhaust sequencer. Each stage also
requires that the building pressure is reduced until it drops be-
low the disable set point. The default set points are 0 in wg.
(6.0 vdc) for stage 1, 0.060 in. wg (6.5 vdc) for stage 2, 0.13 in.
wg (7.0 vdc) for stage 3, 0.19 in. wg (7.4 vdc) for stage 4,
0.25 in. wg (8.0 vdc) for stage 5, and 0.31 in. wg (8.5 vdc) for
stage 6 power exhaust sequencer. Both of these set points are
changed at the specific controlling sequencer. It is not forcible
from CCN.
If the indoor fan is on, then PEXE = ON. If the indoor fan is
off, then PEXE = OFF. In addition, on units equipped with the
Expansion I/O module, the control module board may have di-
rect access 4 to 6 Modulated Power Exhausted stages bypass-
ing an external sequencer device. These stages will be con-
trolled directly in fire/smoke modes.
SMOKE CONTROL MODES — The 48AJ,AK,AW,AY and
48EJ,EK,EW,EY units with an optional expansion board per-
form fire and smoke control modes. The expansion board pro-
vides 4 modes which can be used to control smoke within the
conditioned area. The modes of operation are fire shutdown,
pressurization, evacuation, and smoke purge. See Table 41.
SMOKE DETECTOR — A smoke detector can be used to
initiate fire shutdown. This can be accomplished by a set of
normally closed pilot relay contacts which will interrupt power
from the 24-v transformer, secondary ‘‘B’’ terminal to the con-
trol circuit breaker (CB4). See Fig. 62. The wire that connects
these two points is white and labeled ‘‘W78.’’
NOTE: On standard gas models, the indoor fan will continue
to run 45 seconds after the call for heat has been terminated. If
fire shutdown is initiated the fan will stop immediately. No
45-second delay will occur.
The smoke detector may be mounted in the return air duct or
the supply duct. Carrier does not make recommendations as to
specific smoke detector location due to liability considerations.
INDOOR AIR QUALITY (IAQ) CONTROL — The acces-
sory IAQ sensor is required for IAQ control on the base control
board. The Carrier sensors operate with a 4 to 20 mA signal.
The 4 to 20 mA signal is connect to T13 (+) and T14 (-) on the
base control board for the IAQ sensor, and T15 (+) and T16 (-)
on the base control board for the OAQ (Outdoor Air Quality)
sensor. The sensor is field-mounted and wired to the base con-
trol board installed in the unit main control box. The IAQ sen-
sor must be powered by a field-supplied 24-V power supply
(ungrounded). Do not use the unit 24-V power supply to power
sensor.
NOTE: The Carrier IAQ/OAQ sensors are shipped configured
for a 0 to 10 Vdc signal for use on previously designed PIC
(Product Integrated Control) products. This signal must be
changed to the 4 to 20 mA signal to be used on these products,
which is accomplished through a jumper change. The IAQ/
OAQ input signals are also polarized, with (+) connecting to
the odd numbered terminals and (-) connected to the even
numbered terminals. Refer to Indoor-Air Quality Section in the
Controls, Operation, and Troubleshooting Manual for further
sequence of operation.
NOTE: The IAQ Control function was incorporated onto the
base control board on these units with serial number of 0600F
and later.
Once installed, the sensor must be enabled. The sensor is
configured with default values which may be changed through
network access software. To work properly, the IAQ sensor
high and low reference points for the sensor that is used must
match the configured values. The base control board reacts to a
4 to 20 mA signal from the IAQ sensor. The low reference
(4 mA output) must be configured to the minimum IAQ sensor
reading. The high reference (20 mA output) must be config-
ured to the maximum IAQ sensor reading.
The IAQ sensor can be configured to either low or high
priority. The priority value can be changed by the user. The
default is low.
Low priority — When the priority is set to low, the initial con-
trol is to the IAQ set point, but the outside air damper position
will change to its minimum position when the following condi-
tions occur:
• CV units with sensor — when the space temperature is
greater than the occupied cooling set point plus 2° F or
when the space temperature is less than the occupied
heating set point minus 2° F.
• VAV units and CV units with thermostat — when the
supply-air temperature is less than the supply-air temper-
ature set point minus 8° F or when the supply-air temper-
ature is greater than the supply air temperature set point
plus 5° F for 4 minutes.
• When the outdoor air quality is greater than the outdoor
air quality set point (ppm)
High priority — When the priority is set to high, the IAQ set
point controls the outside air damper exclusively, with no re-
gard to comfort conditioning.
TIME GUARD® CIRCUIT — The Time Guard function
(built into the rooftop control module board) maintains a mini-
mum off time of 5 minutes, a minimum on time of 10 seconds,
and a 10-second delay between compressor starts.
CRANKCASE HEATER — Unit main power supply must
remain on to provide crankcase heater operation. The crank-
case heater in each compressor keeps oil free of refrigerant
while compressor is off.
Fig. 62 — Field-Supplied Smoke Detector Wiring

88
Table 41 — Smoke Control Modes
LEGEND
HEAD PRESSURE CONTROL — Each unit has a fan cy-
cling, outdoor thermostat to shut off the outdoor-fan motor(s) at
55 F (one outdoor-fan motor on 48AJ,AK,AW,AY020-030 and
48EJ,EK,EW,EY024-034 units, 2 outdoor-fan motors on
48AJ,AK,AW,AY035-050 and 48EJ,EK,EW,EY038-048 units
and 3 outdoor-fan motors on 48AJ,AK,AW,AY060 and
48EJ,EK,EW,EY054-068 units). The head pressure control
permits unit to operate with correct condensing temperatures
down to 35 F outdoor-air temperature.
MOTORMASTER® III CONTROL — The Motormaster III
Solid-State Head Pressure Control is a field-installed accessory
fan speed control device actuated by a temperature sensor. It
is specifically designed for use on Carrier equipment and con-
trols the condenser-fan motor speed in response to the saturated
condensing temperature. For outdoor temperatures down to
–20 F, it maintains condensing temperature at 100 F. Refer to
the accessory Motormaster installation instructions for more
information.
CAPACITY CONTROL, COOLING — The cooling capaci-
ty staging tables are shown in Tables 42 and 43.
Table 42 — Cooling Capacity Staging Table, CV
Units with 2 Compressors
NOTE: On CV units that require additional unloading, add suction
pressure unloaders to Compressor 1 only.
Table 43 — Cooling Capacity Staging Table VAV
Units with 2 Compressors and 2 Unloaders*
*40 ton units have only one unloader.
It is often desirable to use a variable air volume (VAV) unit
in a variable volume and temperature (VVT) control system
because of the greater unloading capability. A VAV unit (with
software version 4.0 and later) can easily be configured in the
field to run off of either space thermostat (VVT® relay pack)
input or a space sensor. When configured in this manner, the
unit control will turn on compressors based upon load in the
space. If the supply-air falls below predefined limits, the con-
trol will unload the compressor in order to maintain the mini-
mum supply-air limit. If unloading is not successful in main-
taining the minimum supply-air temperature (SAT), then the
compressors will be turned off. An alarm will be issued when
the compressors are turned off.
A VAV unit configured to run off thermostat input or a
space sensor will have the capability for two stages of heating,
however, modification to the control wiring will be required to
make this available. The Variable Frequency Drive (VFD) for
the supply fan will still be active, varying the supply air fan
speed to maintain supply duct pressure.
Upon a call for Y1 (or Y2_SPT) cooling, the compressor 1
will start after appropriate Time Guard® functions. Thirty sec-
onds after the SAT drops below the “SAT1TRIP” the compres-
sor will be unloaded. The unloading sequence will be as
follows:
The “Y1 Low SAT Limit” has an adjustable range from
50 F to 65 F, with a factory setting of 53 F. If the temperature of
the SAT rise above the “Y1 Low SAT Limit” plus 2° F, the
compressor will be loaded in the reverse order in which it was
unloaded following the pre-described time guards. There will
be a 90-second time guard between any change in unloaded
state, and the normal 5-minute time guard for change in com-
pressor On/Off state.
If compressor no. 1 is forced off due to “Y1 LOW SAT
Limit” an alert will be issued. If economizer is suitable, the
economizer mode will remain active. The alert will be cleared
after the 5-minute time guard has expired and the compressor is
restarted. With Y1 (or Y1_SPT) input, only compressor no. 1
can be running.
Upon a call for Y1 (or Y1_SPT) and Y2 (or Y2_SPT) cool-
ing both compressor no. 1 and 2 will start after appropriate time
guards. Thirty seconds after SAT drops below the “Y2 Low
SAT Limit” the compressor will be unloaded. The unloading
sequence will be as follows:
The “Y2 Low SAT Limit” has an adjustable range from
45 F to 55 F, with a factory default setting of 48 F. If the tem-
perature of the SAT rise above the “Y2 Low SAT Limit” plus
2° F, the compressor will be loaded in the reverse order in
which it was unloaded following the pre-described Time Guard
functions. There will be a 90-second time guard between any
change in unloaded state, and the normal 5-minute time guard
for change in compressor On/Off state.
DEVICE PRESSURIZATION SMOKE PURGE EVACUATION FIRE SHUTDOWN
Economizer 100% 100% 100% 0%
Indoor Fan/VFD ON ON OFF OFF
Power Exhaust (all outputs) OFF ON ON OFF
Heat Stages OFF OFF OFF OFF
Cool Stages OFF OFF OFF OFF
HIR ON ON OFF OFF
HIR — Heat Interlock Relay
VFD — Variable Frequency Drive
Stages
01
Economizer 23
Compressor 1 off off on on
Compressor 2 off off off on
STAGES
0123456
Compressor 1 offonononononon
Unloader 1 off on on off on on off
Unloader 2 offonoffoffonoffoff
Compressor 2 off off off off on on on
Compressor no. 1 On, Full Load Unloader no. 1 and no. 2 Off
Compressor no. 1 On, 2/3 Load Unloader no. 1 Off, Unloader no. 2 On
Compressor no. 1 On, 1/3 Load Unloader no. 1 and no. 2 On
Compressor no. 1 Off Unloader no. 1 and no. 2 Off
Compressor no. 1
On, Full Load
Unloader no. 1 and no. 2 Off Compressor no. 2 On
Compressor no. 1
On, 2/3 Load
Unloader no. 1 Off,
Unloader no. 2 On
Compressor no. 2 On
Compressor no. 1
On, 1/3 Load
Unloader no. 1 and no. 2 On Compressor no. 2 On
Compressor no. 1
On, Full Load
Unloader no. 1 and no. 2 Off Compressor no. 2 Off
Compressor no. 1
On, 2/3 Load
Unloader no. 1 Off,
Unloader no. 2 On
Compressor no. 2 Off
Compressor no. 1
On, 1/3 Load
Unloader no. 1 and no. 2 On Compressor no. 2 Off
Compressor no. 1 Off Unloader no. 1 and no. 2 Off Compressor no. 2 Off

89
If a Y2 (or Y2_SPT) call begins while the unit was under
“Y1 cooling” control, compressor no. 2 will not be started until
“Y1 cooling” control has ended.
If the Y2 (or Y2_SPT) call ends, with compressor 1 in an
unloaded state and compressor 2 ON, then compressor 1 will
be immediately brought up to the fully loaded state. If however,
the Y2 (or Y2_SPT) call ends, with compressor 1 in an unload-
ed state and compressor 2 OFF, then compressor 1 will be left
in its unloaded state. In either case the compressor 1 will be
loaded/unloaded as appropriate to the “Y1 Low Limit”.
The control shall lockout compressors if SAT becomes too
low and an alarm shall be issued.
Compressor no. 1 lockout at SAT < 53 F.
Compressor no. 2 lockout at SAT < 48 F.
If SAT sensor fails the control will energize compressor
no. 1 fully loaded (unloaders off), whenever there is a Y1 (or
Y1_SPT) call. Compressor no. 2 will be energized whenever
there is a call for Y2 (or Y2_SPT).
NOTE: When a VAV unit with software version 4.0 and later is
configured to operate from a space thermostat (VVT® relay
pack) or a space sensor, compressors start loaded and then
unload as needed. This is the opposite of the normal VAV
unloading sequence. When operating from supply-air tempera-
ture (SAT) sensor, VAV units will unload in the reverse
sequence.
FIELD TEST — The field test program is initiated by moving
up DIP switch no. 4 to the OPEN position. The outdoor-air
damper will close. The control allows 90 seconds for the damp-
er to close in case it was in the full open position. Next, the
indoor-fan contactor will be energized, and the outside-air
damper will begin to open to its default value of 20% and stay
at that position for a short period of time. The outdoor-air
damper will then open to its full open position and stay at that
position for a short period of time. The outdoor-air damper will
then close.
If the unit is equipped with power exhaust, stage 1 will be
energized for 5 seconds. If the unit is configured for stage 2 of
power exhaust, stage 2 will be energized for 5 seconds after the
first stage is deenergized.
The first stage of heat will be energized for 30 seconds, after
which the second stage heat will be energized for an additional
30 seconds. Heat is then deenergized.
The last step is the Cooling mode. Outdoor-fan contactor
no. 1 is energized. This is followed by each stage of cooling
energized with a 10-second delay between stages. After this
is complete, outdoor-fan contactor no. 2 is energized for
10 seconds.
The compressors will now deenergize, followed by the out-
door-fan contactors and indoor-fan contactors. If the unit is
equipped with the Integrated Gas Control (IGC) board, the in-
door fan will continue to operate for an additional 30 seconds
after deenergizing the circuit.
The field test is then complete.
SERVICE
Service Access — All unit components can be reached
through clearly labelled hinged access doors. These doors are
not equipped with tiebacks, so if heavy duty servicing is need-
ed, either remove them or prop them open to prevent accidental
closure.
Each door is held closed with 3 latches. The latches are se-
cured to the unit with a single 1/4-in. - 20 x 1/2-in. long bolt. See
Fig. 63.
To open, loosen the latch bolt using a 7/16-in. wrench. Pivot
the latch so it is not in contact with the door. Open the door. To
shut, reverse the above procedure.
NOTE: Disassembly of the top cover may be required under
special service circumstances. It is very important that the ori-
entation and position of the top cover be marked on the unit
prior to disassembly. This will allow proper replacement of the
top cover onto the unit and prevent rainwater from leaking into
the unit.
Cleaning — Inspect unit interior at beginning of each heat-
ing and cooling season and as operating conditions require.
Remove unit side panels and/or open doors for access to unit
interior.
MAIN BURNERS — At the beginning of each heating sea-
son, inspect for deterioration or blockage due to corrosion or
other causes. Observe the main burner flames and adjust if nec-
essary. Check spark gap. See Fig. 64. Refer to Main Burners
section on page 94.
FLUE GAS PASSAGEWAYS — The flue collector box and
heat exchanger cells may be inspected by removing gas section
access panel (Fig. 5-16), flue box cover, collector box, and
main burner assembly (Fig. 65 and 66). Refer to Main Burners
section on page 94 for burner removal sequence. If cleaning is
required, clean all parts with a wire brush. Reassemble using
new high-temperature insulation for sealing.
COMBUSTION-AIR BLOWER — Clean periodically to as-
sure proper airflow and heating efficiency. Inspect blower
wheel every fall and periodically during heating season. For the
first heating season, inspect blower wheel bi-monthly to deter-
mine proper cleaning frequency.
Before performing service or maintenance operations on
unit, turn off main power switch to unit. Electrical shock
could cause personal injury.
IMPORTANT: After servicing is completed, make sure
door is closed and relatched properly, and that the latches
are tight. Failure to do so can result in water leakage into
the evaporator section of the unit.
Fig. 63 — Door Latch
Fig. 64 — Spark Gap Adjustment

90
To inspect blower wheel, remove heat exchanger access
panel. Shine a flashlight into opening to inspect wheel. If clean-
ing is required, remove motor and wheel assembly by remov-
ing screws holding motor mounting plate to top of combustion
fan housing (Fig. 65 and 66). The motor, scroll, and wheel
assembly can be removed from the unit. Remove scroll from
plate. Remove the blower wheel from the motor shaft and
clean with a detergent or solvent. Replace motor and wheel
assembly.
EVAPORATOR COIL — Remove access panels and clean as
required with commercial coil cleaner.
CONDENSER COIL — Clean condenser coil annually and
as required by location and outdoor-air conditions. Inspect coil
monthly; clean as required.
CONDENSATE DRAIN — Check and clean each year at
start of cooling season. In winter, keep drains and traps dry.
FILTERS — Clean or replace at start of each heating and cool-
ing season, or more often if operating conditions require. Refer
to Tables 1A and 1B for type and size.
NOTE: The unit requires industrial grade throwaway filters
capable of withstanding face velocities up to 625 fpm.
OUTDOOR-AIR INLET SCREENS — Clean screens with
steam or hot water and a mild detergent. Do not use disposable
filters in place of screens. See Fig. 37 for location of screens
(filter track assembly).
NOTES:
1. Torque set screws on blower wheel to 70 in. lbs ± 2 in. lbs.
2. Torque set screw on propeller fan to 15 in. lbs ± 2 in. lbs.
3. Dimensions are in inches.
Fig. 65 — Typical Gas Heating Section
Fig. 66 — Gas Heat Section Details

91
Lubrication
COMPRESSORS — Each compressor is charged with the
correct amount of oil at the factory. The correct oil charge is
shown in Tables 1A and 1B. If oil is visible in the compressor
sight glass, check unit for operating readiness as described in
Start-Up section, then start the unit. Observe oil level and add
oil, if required, to bring oil level in compressor crankcase up to
between 1/4 and 1/3 of sight glass during steady operation.
If oil charge is above 1/3 sight glass, do not remove any oil
until the compressor crankcase heater has been energized for at
least 24 hours with compressor off.
When additional oil or a complete charge is required, use
only Carrier-approved compressor oil:
Petroleum Specialties, Inc. . . . . . . . . . . . . . . . . . . . . . Cryol 150
Texaco, Inc. . . . . . . . . . . . . . . . . . . . . . . . . . . . . Capella WF-32
Witco Chemical Corp . . . . . . . . . . . . . . . . . . . . . . . Suniso 3GS
FAN SHAFT BEARINGS — Lubricate bearings at least ev-
ery 6 months with suitable bearing grease. Do not over grease.
Typical lubricants are given below:
*Preferred lubricant because it contains rust and oxidation inhibitors.
CONDENSER- AND EVAPORATOR-FAN MOTOR
BEARINGS — The condenser- and evaporator-fan motors
have permanently-sealed bearings, so no field lubrication is
necessary.
Evaporator Fan Performance Adjustment
(Fig. 67) — Fan motor pulleys are designed for speed
shown in Tables 1A and 1B (factory speed setting).
To change fan speeds, change pulleys.
To align fan and motor pulleys:
1. Shut off unit power supply.
2. Loosen fan shaft pulley bushing.
3. Slide fan pulley along fan shaft.
4. Make angular alignment by loosening motor from
mounting plate.
5. Retighten pulley.
6. Return power to the unit.
Evaporator Fan Coupling Assembly — If the cou-
pling has been removed for other blower assembly component
repair or replacement, it is critical that the coupling be reassem-
bled and aligned correctly to prevent premature failures.
REASSEMBLING THE COUPLING INTO THE UNIT
(Fig. 68)
1. Prior to reassembling the coupling, loosen the 4 bearing
mounting bolts, which secure the 2 bearings on either side
of the coupling. Remove the drive belts.
2. Reassemble the coupling with the bearings loose. This al-
lows the coupling to find its own self-alignment position.
3. Check the hub-to-shaft fit for close fitting clearances.
Replace hubs if high clearances are determined.
4. Check the key for close-fitted clearances on the sides and
0.015 in. clearance over the top of the key. Replace key if
necessary.
IMPORTANT: Do not use reclaimed oil or oil that has
been exposed to the atmosphere. Refer to Carrier Standard
Service Techniques Manual, Chapter 1, Refrigerants sec-
tion, for procedures to add or remove oil.
MANUFACTURER LUBRICANT
Texaco Regal AFB-2*
Mobil Mobilplex EP No. 1
Sunoco Prestige 42
Texaco Multifak 2
IMPORTANT: Check to ensure that the unit drive matches
the duct static pressure using Tables 19-31.
Fig. 67 — Evaporator-Fan Alignment
and Adjustment
CENTER DRIVE
SHAFT
FLEX
MEMBER
SHAFT
FLANGE
BEARINGSSHAFT
Fig. 68 — Evaporator Fan Coupling

92
5. Be sure that hub flanges, flex members, spacer, and hard-
ware are clean and free of oil.
6. Place the flanges onto the shafts with the hub facing out-
ward. Do not tighten the set screws at this time.
7. Outside of the unit, assemble the flex members to the cen-
ter drive shaft with 4 bolts and nuts. The flex members
have collars that need to be inserted into the smaller hole
of the drive shaft flange.
8. Assemble the flex member/drive shaft assembly to one of
the shaft flanges, using 2 bolts and nuts. Slide the other
shaft flange towards the assembly and assemble using 2
bolts and nuts. If the shafts are not misaligned, the collar in
the flex member should line up with the shaft flange holes.
9. Torque nuts properly to 95 to 100 ft-lb. Do not turn a cou-
pling bolt. Always turn the nut. Always use thread lubri-
cant or anti-seize compound to prevent thread galling.
10. The ends of the shafts should be flush with the inside of
the shaft flange. Torque the set screws to 25 ft-lb.
11. After assembly is complete, slowly rotate the shafts by
hand for 30 to 60 seconds.
12. Tighten the bearing mounting bolts, using care not to
place any loads on the shaft which would cause flexure to
the shafts.
13. Reinstall drive belts. (Refer to Belt Tension Adjustment
section below.)
14. Visually inspect the assembly. If the shafts are overly mis-
aligned, the drive shaft flange will not be parallel with the
shaft flanges.
15. Recheck nut torque after 1 to 2 hours of operation. Bolts
tend to relax after being initially torqued.
Evaporator Fan Service and Replacement
1. Turn off unit power supply.
2. Remove supply-air section panels.
3. Remove belt and blower pulley.
4. Loosen setscrews in blower wheels.
5. Remove locking collars from bearings.
6. Remove shaft.
7. Remove venturi on opposite side of bearing.
8. Lift out wheel.
9. Reverse above procedure to reinstall fan.
10. Check and adjust belt tension as necessary.
11. Restore power to unit.
Belt Tension Adjustment — To adjust belt tension:
1. Turn off unit power supply.
2. Loosen motor mounting nuts and bolts. See Fig. 69.
3. Loosen fan motor nuts.
4. Turn motor jacking bolts to move motor mounting plate
left or right for proper belt tension. A slight bow should
be present in the belt on the slack side of the drive while
running under full load.
5. Tighten nuts.
6. Adjust bolts and nut on mounting plate to secure motor in
fixed position. Recheck belt tension after 24 hours of
operation. Adjust as necessary. See Table 3 for proper
tension values.
7. Restore power to unit.
Evaporator-Fan Motor Replacement
1. Turn off unit power supply.
2. Remove upper outside panel and open hinged door to
gain access to motor.
3. Fully retract motor plate adjusting bolts.
4. Loosen the 2 rear (nearest the evaporator coil) motor plate
nuts.
5. Remove the 2 front motor plate nuts and carriage bolts.
6. Slide motor plate to the rear (toward the coil) and remove
fan belt(s).
7. Slide motor plate to the front and hand tighten one of the
rear motor plate nuts (tight enough to prevent the motor
plate from sliding back but loose enough to allow the
plate to pivot upward).
8. Pivot the front of the motor plate upward enough to allow
access to the motor mounting hex bolts and secure in
place by inserting a prop.
9. Remove the nuts from the motor mounting hex bolts and
remove motor.
10. Reverse above steps to install new motor.
Condenser-Fan Adjustment
1. Turn off unit power supply.
2. Remove fan guard.
3. Loosen fan hub setscrews.
4. Adjust fan height on shaft using a straightedge placed
across venturi and measure per Fig. 70.
5. Fill hub recess with permagum if rubber hubcap is
missing.
6. Tighten setscrews and replace panel(s).
7. Turn on unit power.
Fig. 69 — Belt Tension Adjustment
Fig. 70 — Condenser-Fan Adjustment

93
Power Failure — The economizer damper motor is a
spring return design. In event of power failure, dampers will re-
turn to fully closed position until power is restored.
Refrigerant Charge — Amount of refrigerant charge is
listed on unit nameplate and in Tables 1A and 1B. Refer to
Carrier GTAC II; Module 5; Charging, Recovery, Recycling,
and Reclamation section for charging methods and procedures.
Unit panels must be in place when unit is operating during
charging procedure.
NOTE: Do not use recycled refrigerant as it may contain
contaminants.
NO CHARGE — Use standard evacuating techniques. After
evacuating system, weigh in the specified amount of refriger-
ant (refer to Tables 1A and 1B).
LOW CHARGE COOLING — Using appropriate cooling
charging chart (see Fig. 71-74), add or remove refrigerant until
conditions of the appropriate chart are met. Note that charging
chart is different from those normally used. An accurate pres-
sure gage and temperature sensing device are required. Mea-
sure liquid line pressure at the liquid line service valve using
pressure gage. Connect temperature sensing device to the liq-
uid line near the liquid line service valve and insulate it so that
outdoor ambient temperature does not affect reading.
Using the above temperature and pressure readings, find the
intersect point on the appropriate cooling charging chart. If in-
tersection point on chart is above line, add refrigerant. If inter-
section point on chart is below line, carefully reclaim some of
the charge. Recheck suction pressure as charge is adjusted.
NOTE: Indoor-air cfm must be within normal operating range
of unit. All outdoor fans must be operating.
Thermostatic Expansion Valve (TXV) — Each circuit
has a TXV. The TXV is nonadjustable and is factory set to main-
tain 10 to 13° F superheat leaving the evaporator coil. The TXV
controls flow of liquid refrigerant to the evaporator coils.
Gas Valve Adjustment
NATURAL GAS — The 2-stage gas valve opens and closes
in response to the thermostat or limit control.
When power is supplied to valve terminals 3 and 4, the pilot
valve opens to the preset position. When power is supplied to
terminals 1 and 2, the main valve opens to its preset position.
The regular factory setting is stamped on the valve body
(3.5 in. wg).
To adjust regulator:
1. Set thermostat at setting for no call for heat.
2. Turn main gas valve to OFF position.
3. Remove 1/8-in. pipe plug from manifold. Install a water
manometer pressure-measuring device.
4. Set main gas valve to ON position.
5. Set thermostat at setting to call for heat (high fire).
6. Remove screw cap covering regulator adjustment screw
(See Fig. 75).
7. Turn adjustment screw clockwise to increase pressure or
counterclockwise to decrease pressure.
8. Once desired pressure is established, set unit to no call for
heat (3.3-in. wg high fire).
9. Turn main gas valve to OFF position.
10. Remove pressure-measuring device and replace 1/8-in.
pipe plug and screw cap.
11. Turn main gas valve to ON position and check heating
operation.
Fig. 71 — Cooling Charging Chart,
48EJ,EK,EW,EY024-034
Fig. 72 — Cooling Charging Chart,
48EJ,EK,EW,EY038-048

94
Main Burners — For all applications, main burners are
factory set and should require no adjustment.
MAIN BURNER REMOVAL (Fig. 76)
1. Shut off (field-supplied) manual main gas valve.
2. Shut off power supply to unit.
3. Remove heating access panel.
4. Disconnect gas piping from gas valve inlet.
5. Remove wires from gas valve.
6. Remove wires from rollout switch.
7. Remove sensor wire and ignitor cable from IGC board.
8. Remove 2 screws securing manifold bracket to basepan.
9. Remove 4 screws that hold the burner support plate
flange to the vestibule plate.
10. Lift burner assembly out of unit.
11. Reverse procedure to re-install burners.
Liquid Pressure at Liquid Valve (PSIG)
CHARGING CHART
BOTH CIRCUITS
ALL OUTDOOR FANS MUST BE OPERATING
Liquid Temperature at Liquid Valve (deg F)
140
120
100
80
60
40
50 100 150 200 250 300 350 400
Add Charge if Above Curve
Reduce Charge if Below Curve
Fig. 73 — Cooling Charging Chart,
48EJ,EK,EW,EY054-068
Fig. 74 — Cooling Charging Chart,
48AJ,AK,AW,AY020-060
OFF
ON
W-1
W-2
D-1 D-2
C1
C2
PILOT
ADJ.
INLET PRESSURE TAP
(PLUGGED)
1/8 - 27 N.P.T. THDS.
2 LEADS, #18 WIRE 1/32 INSULATION,
600V. MAX., 105°C
REGULATOR
ADJUSTMENT SCREW
(REMOVE COVER)
OUTLET PRESSURE
TAP (PLUGGED)
1/8-27 N.P.T. THDS.
PILOT CONNECTION
FOR 1/4” O.D. TUBING
(PLUGGED)
RECEPTACLE AND
TAB COMBINATION
TERMINAL
RECEPTACLE TERMINAL
Fig. 75 — Gas Valve (Part Number EF33CB271)
Fig. 76 — Main Burner Removal

95
Filter Drier — Replace whenever refrigerant system is ex-
posed to atmosphere.
Protective Devices
COMPRESSOR PROTECTION
Overcurrent — Each compressor has one manual reset, cali-
brated trip, magnetic circuit breaker. Do not bypass connec-
tions or increase the size of the circuit breaker to correct trou-
ble. Determine the cause and correct it before resetting the
breaker.
Overtemperature — Each 06D type compressor (48AJ,AK,
AW,AY020-035 and 48EJ,EK,EW,EY024-038 units only) has
an internal protector to protect it against excessively high dis-
charge gas temperatures.
Crankcase Heater — Each compressor has a crankcase heater
to prevent absorption of liquid refrigerant by oil in the crank-
case when the compressor is idle. Since power for the crank-
case heaters is drawn from the unit incoming power, main unit
power must be on for the heaters to be energized.
EVAPORATOR FAN MOTOR PROTECTION — A manu-
al reset, calibrated trip, magnetic circuit breaker protects
against overcurrent. Do not bypass connections or increase the
size of the breaker to correct trouble. Determine the cause and
correct it before resetting the breaker. If the evaporator-fan
motor is replaced with a different horsepower motor, resizing
of the circuit breaker is required. Contact Carrier Application
Engineering.
CONDENSER-FAN MOTOR PROTECTION — Each
condenser-fan motor is internally protected against
overtemperature.
HIGH- AND LOW-PRESSURE SWITCHES — If either
switch trips, or if the compressor overtemperature switch
activates, that refrigerant circuit will be automatically
locked out. See Compressor Lockout Logic section on this
page.
FREEZE PROTECTION THERMOSTAT (FPT) — Freeze
protection thermostats are located on the evaporator coil for
each circuit. One is located at the top and bottom of each coil. It
detects frost build-up and turns off the compressor, allowing
the coil to clear. Once the frost has melted, the compressor can
be reenergized.
Relief Devices — All units have relief devices to protect
against damage from excessive pressures (i.e., fire). These de-
vices are installed on the suction line, liquid line, and on the
compressor.
Power Circuit — A typical power wiring schematic is
shown in Fig. 77.
Control Circuit, 24-V — This control circuit is protect-
ed against overcurrent by a 3.2 amp circuit breaker (CB4).
Breaker can be reset. If it trips, determine cause of trouble be-
fore resetting. A typical 24-v control wiring schematic is
shown in Fig. 78 and 79.
Control Circuit, 115-V — This control circuit is pro-
tected against overcurrent by a 5.2 amp circuit breaker (CB3).
Breaker can be reset. If it trips, determine cause of trouble be-
fore resetting. A typical 115-v control wiring schematic is
shown in Fig. 80 and 81.
Compressor Lockout Logic — If any of the safeties
trip, the circuit will automatically reset (providing the safety
has reset) and restart the compressor in 15 minutes. If any of
the safeties trip 3 times within a 90-minute period, then the cir-
cuit will be locked out and will require manual resetting by
turning off either the unit disconnect or the control circuit
breaker, or opening the thermostat.
If the compressors have bee off for more than 15 minutes
and the outdoor-air temperature (OAT) is less than 45 F then
safeties will be ignored for 5 minutes.
Replacement Parts — A complete list of replacement
parts may be obtained from any Carrier distributor upon
request.
LEGEND for Fig. 77-83 — Typical Wiring Schematics
IMPORTANT: After a prolonged shutdown or service job,
energize the crankcase heaters for 24 hours before starting
the compressors.
AFS —Airflow Switch
AHA —Adjustable Heat Anticipator
BP —Building Pressure
BR —Burner Relay
C—Contactor, Compressor
CAP —Capacitor
CB —Circuit Breaker
CC —Cooling Compensator
CCB —Controller Circuit Breaker
CCH —Crankcase Heater
CLSASP —Cooling Supply Air
Set Point Potentiometer
COM —Communication
COMP —Compressor Motor
CR —Control Relay
CV —Constant Volume
DM —Damper Motor
DP —Duct Pressure
EC —Enthalpy Control
FLA —Full Load Amps
FPT —Freeze Protection Thermostat
FU —Fuse
GVR —Gas Valve Relay
HPS —High-Pressure Switch
HS —Hall Effect Sensor
HTSASP—Heating Supply Air Set Point
Potentiometer
HV —High Voltage
IDM —Induced-Draft Motor
IFC —Indoor Fan Contactor
IFCB —Indoor Fan Circuit Breaker
IFM —Indoor-Fan Motor
IFR —Indoor-Fan Relay
IGC —Integrated Gas Unit Controller
IP —Internal Protector
L—Light
LPS —Low-Pressure Switch
LS —Limit Switch
MGV —Main Gas Valve
NC —Normally Closed
NO —Normally Open
OAT —Outdoor-Air Thermostat
OD —Outdoor
OFC —Outdoor-Fan Contactor
OFM —Outdoor-Fan Motor
PEC —Power Exhaust Contactor
PEM —Power Exhaust Motor
PES —Power Exhaust Sequencer
PESC —Power Exhaust Sequencer Controller
PL —Plug Assembly
LEGEND
RAT —Return-Air Thermistor
RS —Rollout Switch
SAT —Supply-Air Thermostat
SEN —Sensor
SW —Switch
TB —Terminal Block
TC —Thermostat, Cooling
TH —Thermostat, Heating
TRAN —Transformer
UL —Compressor Unloader
VFD —Variable Frequency Drive
Terminal (Marked)
Terminal (Unmarked)
Terminal Block
Splice
Factory Wiring
Field Wiring
To indicate common potential only.
Not to represent wiring.

96
Fig. 77 — Typical Power Schematic 48EJ,EK,EW,EY024-034; 208/230-3-60 and 460-3-60
NOTES:
1. Connect TRAN1 to H4 for 460 v units. Connect to
H3 for 230 v. If 208/230 v units are run with a
208-v power supply, connect to H2.
2. Connect TRAN2 to black lead for 460 v units.
Connect to orange lead for 230 v units. If 208/230
v units are run with a 208-v power supply, con-
nect to red lead.
3. Circuit breaker must trip amps are equal to or
less than 156% FLA for CB1 and CB2. All others
are 140%.
4. If any of the original wire furnished must be
replaced, it must be replaced with Type 90 C wire
or its equivalent.
5. Compressors and/or fan motors are thermally
protected.
6. Three phase motors are protected against pri-
mary single phasing conditions.
TABLE 1A
The following compressors have two
parallel wires run from TB1 to the
compressors.
Compressor
Model Voltage Wire
Quantity
06D-537 208/230-3-60 2
TABLE 2B
The following fan motors have two
parallel wires run from
TB1 to the fan motors.
Indoor
Motor Voltage Wire
Quantity
20 HP 208/230-3-60 2

97
Fig. 78 — Typical 48EK VAV 24-V Control Circuit

98
NOTE: Red wire and violet wire are spliced together at the factory. The brown wire has a wire nut added at the factory.
Fig. 79 — Typical CV 24-V Control Circuit

99
Fig. 80 — Typical 48EK VAV 115-V Control Circuit

100
Fig. 81 — Typical 48EJ CV 115-V Control Circuit

101
Fig. 82 — Label Diagram — Staged Gas Heat — 48AJ,AK,AW,AY020-050 and 48EJ,EK,EW,EY024-048 Units

102
Fig. 83 — Label Diagram — Staged Gas Heat — 48AJ,AK,AW,AY060 and 48EJ,EK,EW,EY054-068 Units

103
TROUBLESHOOTING
Typical refrigerant circuiting diagrams are shown in Fig. 84-93. An algorithm diagram of the IGC (Integrated Gas Unit Controller)
control is shown in Fig. 94.
LEGEND
Fig. 84 — Typical Refrigerant Circuiting (48AJ,AK,AW,AY020,025 and 48EJ,EK,EW,EY024-034)
FPS — Freeze Protection Switch
HPS — High-Pressure Switch
LPS — Low-Pressure Switch

104
4-Pass
4-Pass 4-Pass
4-Pass 4-Pass
4-Pass 4-Pass
4-Pass 4-Pass
4-Pass 4-Pass
4-Pass 4-Pass
4-Pass 4-Pass
4-Pass 4-Pass
4-Pass 4-Pass
4-Pass 4-Pass
4-Pass 4-Pass
4-Pass 4-Pass
4-Pass 4-Pass
4-Pass 4-Pass
4-Pass 4-Pass
4-Pass 4-Pass
4-Pass 4-Pass
4-Pass 4-Pass
4-Pass 4-Pass
4-Pass 4-Pass
4-Pass 4-Pass
4-Pass 4-Pass
4-Pass 4-Pass
4-Pass 4-Pass
4-Pass 4-Pass
4-Pass 4-Pass
4-Pass 4-Pass
4-Pass 4-Pass
4-Pass 4-Pass
4-Pass 4-Pass
4-Pass
4-Pass
4-Pass
4-Pass
4-Pass
4-Pass
4-Pass
4-Pass
4-Pass
4-Pass
4-Pass
4-Pass 4-Pass
4-Pass 4-Pass
4-Pass 4-Pass
4-Pass 4-Pass
4-Pass 4-Pass
4-Pass 4-Pass
4-Pass
4-Pass
4-Pass
4-Pass
4-Pass
4-Pass
4-Pass
4-Pass
4-Pass
4-Pass
4-Pass
4-Pass
4-Pass
4-Pass
4-Pass
4-Pass
4-Pass
4-Pass
4-Pass
4-Pass
4-Pass
4-Pass
4-Pass
4-Pass
TXV #1
TXV #2
Compressor #1
Muffler
Compressor #1
Muffler
HPS & LPS mounted on
compressor
HPS & LPS mounted on
compressor
HPS- HK02ZA428
Cut-In - 320 PSI
Cut-out - 420 PSI
LPS - HK02ZB027
Cut -In - 22 PSI
Cut-out - 7 PSI
LEGEND
Fig. 85 — Typical Refrigerant Circuiting (48AJ,AK,AW,AY027,030)
FPS — Freeze Protection Switch
HPS — High-Pressure Switch
LPS — Low-Pressure Switch
TXV — Thermostatic Expansion Valve

105
12-Pass 4-Pass
12-Pass 4-Pass
12-Pass 4-Pass
12-Pass 4-Pass
12-Pass 4-Pass
12-Pass 4-Pass
12-Pass 4-Pass
12-Pass 4-Pass
12-Pass 4-Pass
12-Pass 4-Pass
12-Pass 4-Pass
12-Pass 4-Pass
12-Pass 4-Pass
4-Pass
6-Pass 4-Pass
4-Pass
6-Pass 4-Pass
4-Pass
6-Pass 4-Pass
4-Pass
6-Pass 4-Pass
4-Pass
4-Pass
4-Pass
4-Pass
4-Pass
4-Pass
4-Pass
4-Pass
4-Pass
4-Pass
4-Pass
4-Pass
4-Pass
4-Pass
4-Pass
4-Pass
4-Pass
4-Pass
12-Pass 4-Pass
12-Pass 4-Pass
12-Pass 4-Pass
12-Pass 4-Pass
12-Pass 4-Pass
12-Pass 4-Pass
12-Pass 4-Pass
12-Pass 4-Pass
12-Pass 4-Pass
12-Pass
12-Pass
12-Pass
12-Pass
6-Pass
6-Pass
6-Pass
6-Pass
TXV #1
TXV #2
Compressor #1
Muffler
HPS & LPS mounted on
compressor
HPS- HK02ZA428
Cut-In - 320 PSI
Cut-out - 420 PSI
LPS - HK02ZB027
Cut -In - 22 PSI
Cut-out - 7 PSI
Compressor #1
Muffler
HPS & LPS mounted on
compressor
LEGEND
Fig. 86 — Typical Refrigerant Circuiting (48AJ,AK,AW,AY035)
FPS — Freeze Protection Switch
HPS — High-Pressure Switch
LPS — Low-Pressure Switch
TXV — Thermostatic Expansion Valve

106
LEGEND
Fig. 87 — Typical Refrigerant Circuiting (48EJ,EK,EW,EY038,044)
FPS — Freeze Protection Switch
HPS — High-Pressure Switch
LPS — Low-Pressure Switch

107
8-Pass 4-Pass
8-Pass 4-Pass
8-Pass 4-Pass
8-Pass 4-Pass
8-Pass 4-Pass
8-Pass 4-Pass
8-Pass 4-Pass
8-Pass 4-Pass
8-Pass 4-Pass
8-Pass 4-Pass
8-Pass 4-Pass
8-Pass 4-Pass
8-Pass 4-Pass
8-Pass 4-Pass
8-Pass 4-Pass
8-Pass 4-Pass
8-Pass 4-Pass
8-Pass 4-Pass
8-Pass 4-Pass
8-Pass 4-Pass
8-Pass 4-Pass
8-Pass 4-Pass
8-Pass 4-Pass
4-Pass
8-Pass 4-Pass
4-Pass
8-Pass 4-Pass
4-Pass
8-Pass 4-Pass
4-Pass
8-Pass 4-Pass
4-Pass
8-Pass 4-Pass
4-Pass
8-Pass 4-Pass
4-Pass
8-Pass
8-Pass
8-Pass
8-Pass
8-Pass
8-Pass
8-Pass
8-Pass
8-Pass
8-Pass
8-Pass
8-Pass
8-Pass
8-Pass
8-Pass
8-Pass
8-Pass
8-Pass
8-Pass
8-Pass
8-Pass
8-Pass
8-Pass
8-Pass
8-Pass
8-Pass
8-Pass
8-Pass
8-Pass
8-Pass
8-Pass
TXV #1
TXV #2
Compressor #1
Muffler
Compressor #1
Muffler
HPS & LPS mounted on
compressor
HPS & LPS mounted on
compressor
HPS- HK02ZA428
Cut-In - 320 PSI
Cut-out - 420 PSI
LPS - HK02ZB027
Cut -In - 22 PSI
Cut-out - 7 PSI
LEGEND
Fig. 88 — Typical Refrigerant Circuiting (48AJ,AK,AW,AY040,050)
FPS — Freeze Protection Switch
HPS — High-Pressure Switch
LPS — Low-Pressure Switch
TXV — Thermostatic Expansion Valve

108
LEGEND
Fig. 89 — Typical Refrigerant Circuiting (48EJ,EK,EW,EY048)
FPS — Freeze Protection Switch
HPS — High-Pressure Switch
LPS — Low-Pressure Switch

109
LEGEND
Fig. 90 — Typical Refrigerant Circuiting (48EJ,EK,EW,EY054 and 058)
HPS — High-Pressure Switch
LPS — Low-Pressure Switch
TXV — Thermostatic Expansion Valve

110
4-Pass
6-Pass 4-Pass
4-Pass 4-Pass
6-Pass 4-Pass
6-Pass 4-Pass
4-Pass 4-Pass
6-Pass 4-Pass
6-Pass 4-Pass
4-Pass 4-Pass
6-Pass 4-Pass
6-Pass 4-Pass
4-Pass 4-Pass
6-Pass 4-Pass
6-Pass 4-Pass
4-Pass 4-Pass
6-Pass 4-Pass
6-Pass 4-Pass
4-Pass 4-Pass
6-Pass 4-Pass
6-Pass 4-Pass
4-Pass 4-Pass
6-Pass 4-Pass
6-Pass 4-Pass
4-Pass 4-Pass
6-Pass 4-Pass
6-Pass 4-Pass
4-Pass 4-Pass
6-Pass 4-Pass
6-Pass 4-Pass
4-Pass 4-Pass
6-Pass 4-Pass
6-Pass 4-Pass
4-Pass 4-Pass
6-Pass 4-Pass
6-Pass 4-Pass
4-Pass 4-Pass
6-Pass
6-Pass
4-Pass
6-Pass
6-Pass
4-Pass
6-Pass
6-Pass
4-Pass
6-Pass
6-Pass
4-Pass
6-Pass
6-Pass
4-Pass
6-Pass
6-Pass
4-Pass
6-Pass
6-Pass
4-Pass
6-Pass
6-Pass
4-Pass
6-Pass
6-Pass
4-Pass
6-Pass
6-Pass
4-Pass
6-Pass
6-Pass
4-Pass
6-Pass
6-Pass
4-Pass
6-Pass
6-Pass
4-Pass
6-Pass
6-Pass
4-Pass
6-Pass
6-Pass
4-Pass
6-Pass
6-Pass
4-Pass
6-Pass
6-Pass
4-Pass
6-Pass
6-Pass
4-Pass
6-Pass
TXV #1
TXV #2
Compressor #1
Muffler
Compressor #1
Muffler
HPS & LPS mounted on
compressor
HPS & LPS mounted on
compressor
HPS- HK02ZA428
Cut-In - 320 PSI
Cut-out - 420 PSI
LPS - HK02ZB027
Cut -In - 22 PSI
Cut-out - 7 PSI
LEGEND
Fig. 91 — Typical Refrigerant Circuiting (48AJ,AK,AW,AY060)
HPS — High-Pressure Switch
LPS — Low-Pressure Switch
TXV — Thermostatic Expansion Valve

111
LEGEND
Fig. 92 — Typical Refrigerant Circuiting (48EJ,EK,EW,EY064)
HPS — High-Pressure Switch
LPS — Low-Pressure Switch
TXV — Thermostatic Expansion Valve

112
Fig. 93 — Typical Refrigerant Circuiting (48EJ,EK,EW,EY068)
LEGEND
HPS — High-Pressure Switch
LPS — Low-Pressure Switch
TXV — Thermostatic Expansion Valve

113
LEGEND
NOTE: Thermostat Fan Switch in the “AUTO” position or sensor-equipped unit.
Fig. 94 — IGC Control (Heating and Cooling)
IDM — Induced-Draft Motor
IGC — Integrated Gas Unit Controller

114
The alarm codes for the IGC control board are shown in
Table 44.
Table 44 — IGC Control Board LED Alarms
Diagnostic LEDs — There are 3 LEDs (red, yellow, and
green) on the lower right hand side of the control board. The
red light is used to check unit operation and alarms. A constant
pulse is normal unit operation. A series of quick blinks indi-
cates an alarm. Refer to Table 45 below for a description of
alarms. The yellow LED blinks during transmission with the
CCN (Carrier Comfort Network). The green LED blinks dur-
ing transmission with the expansion board.
Table 45 — Control Board LED Alarms
LEGEND
INDICATION ERROR MODE
ON Normal Operation
OFF Hardware Failure
1 FLASH Fan ON/OFF Delay Modified
2 FLASHES Limit Switch Fault
3 FLASHES Flame Sense Fault
4 FLASHES 4 Consecutive Limit Switch Faults
5 FLASHES Ignition Lockout Fault
6 FLASHES Induced Draft Motor Fault
7 FLASHES Rollout Switch Fault
8 FLASHES Internal Control Fault
9 FLASHES Software Lockout
LED
BLINKS
ERROR
CODE DESCRIPTION RESET
METHOD
ACTION TAKEN
BY CONTROL TROUBLESHOOTING COMMENTS
1— Normal Operation — None The expansion board and control board flash the red LED
in one-second intervals when the board is operating properly.
2HF-13 Compressor 1 Safety Automatic
and
Manual
Cooling disabled.
Automatic reset after
15 minutes. Manual if
repeated 3 times in
90 minutes.
The high or low pressure safety switch for compressor no. 1
has opened for 3 seconds. The error will be cleared and
compressor no. 1 will be allowed to turn on in 15 minutes.
If the safeties have been tripped 3 times in 90 minutes,
compressor no. 1 will be locked out until the control
board has been manually reset.
3HF-14 Compressor 2 Safety Automatic
and
Manual
Cooling disabled.
Automatic reset after
15 minutes. Manual if
repeated 3 times in
90 minutes.
The high or low pressure safety switch for compressor no. 2
has opened for 3 seconds. The error will be cleared and
compressor no. 2 will be allowed to turn on in 15 minutes.
If the safeties have been tripped 3 times in 90 minutes,
compressor no. 2 will be locked out until the control
board has been manually reset.
4HF-15 Thermostat Failure Automatic Alarm generated. The thermostat is calling for both heating and cooling
at the same time. The unit will operate on a first call basis
and will automatically reset.
5HF-05 SAT Thermistor Failure Automatic Heating, cooling, and
economizer disabled.
The supply-air temperature (SAT) sensor has failed.
First check for wiring errors, then replace sensor.
6HF-06 OAT Thermistor Failure Automatic NTFC, IAQ purge,
economizer, and low
ambient DX cooling
locked out disabled.
The outside air temperature (OAT) sensor has failed.
First check for wiring errors, then replace sensor.
7HF-03 Space Temp. Sen. Failure Automatic Disables unoccupied
cooling/heating, CV
economizer, and CV
cooling/heating.
The space temperature sensor has failed.
First check for wiring errors, then replace sensor.
8HF-12 RAT Thermistor Failure Automatic VAV heating
disabled.
The return-air temperature (RAT) sensor has failed.
Ensure that the unit is a VAV unit. If NOT a VAV unit set
DIP switch position 1 to the closed position and reset power.
Then check for wiring errors. Finally, replace sensor.
9SE-05 Loss of Communications
with Expansion Board
Automatic Algorithms in
expansion board are
bypassed.
Communications between the expansion board and the
control board have been interrupted. Ensure that an
expansion board is installed and wired using the
wire harness supplied with the expansion module. If an
expansion board is not used ensure that DIP switch position
3 is in the closed position, and reset power.
10 HF-16 Control Board Failure None Control uses default
values. (May seem
as normal operation)
Generated when hardware has failed on control board.
Replace the control board.
Analog to Digital
Conversion
None All outputs turned off.
11 HF-17 Expansion Board Failure None All outputs turned off. Generated when hardware has failed on the
expansion board. Replace the expansion board.
12 SE-23 Cooling SAT Low
Limit Shutdown
Automatic Alarm generated. CV operation. When SAT low limits are below range and
compressor shut off.
DIP — Dual In-Line Package
VAV — Variable Air Volume

115
Tables 46-48 show the input and output channel designations.
Table 46 — I/O Channel Designations Base Module — CV
Table 47 — I/O Channel Designations Base Module — VAV
Table 48 — I/O Channel Designations Expansion Module (Field-Installed) — CV and VAV
LEGEND (Tables 46-48) NOTE: All even numbered terminals are negative (–) polarity and all
odd numbered terminals are positive (+) polarity.
TERMINAL NO. ASSIGNMENT TERMINAL NO. ASSIGNMENT
T1-2 SPT (CCN) — 10KV Thermistor T23-25 Compressor 2 Safety — DI (24 vac)
T3-4 STO (CCN) — 10KV Thermistor T24-25 Outside Air Enthalpy — DI (24 vac)
T5-6 OAT — 5KV Thermistor T26-27 Economizer Pos. — AO (4-20 mA)
T7-8 SAT — 5KV Thermistor T28-29 Heat 1 Relay — DO (24 vac)
T9-10 —T30-29 Heat 2 Relay — DO (24 vac)
T11-12 SAT Reset — AI (4 to 20 mA) T31-32 CV Power Exhaust 1/Modulating Power Exhaust — DO (115 vac)
T13-14 IAQ Indoor — AI (4 to 20 mA) T33-32 CV Power Exhaust 2 — DO (115 vac)
T15-16 IAQ Outdoor — AI (4 to 20 mA) T34-35 Condenser Fan — DO (115 vac)
T17-25 Y1 or Remote Start/Stop — DI (24 vac) T36-35 OFC2 — DO (115 vac)
T18-25 Y2 — DI (24 vac) T37-38 —
T19-25 W1 — DI (24 vac) T39-38 —
T20-25 W2 — DI (24 vac) K1 Indoor Fan Relay — DO (LV)
T21-25 G — DI (24 vac) K2 Compr. 1 — DO (HV)
T22-25 Compressor 1 Safety — DI (24 vac) K3 Compr. 2 — DO (HV)
TERMINAL NO. ASSIGNMENT TERMINAL NO. ASSIGNMENT
T1-2 SPT (CCN) — 10KV Thermistor T23-25 Compressor 2 Safety — DI (24 vac)
T3-4 RAT — 5KV Thermistor T24-25 Outside Air Enthalpy — DI (24 vac)
T5-6 OAT — 5KV Thermistor T26-27 Economizer Pos. — AO (4-20 mA)
T7-8 SAT — 5KV Thermistor T28-29 Heat 1 Relay - DO (24 v)
T9-10 —T30-29 Heat Interlock Relay — DO (24 v)
T11-12 SAT Reset — AI (4 to 20 mA) T31-32 Modulated Power Exhaust — DO (24 vac)
T13-14 IAQ Indoor — AI (4 to 20 mA) T33-32 —
T15-16 IAQ Outdoor — AI (4 to 20 mA) T34-35 Condenser Fan — DO (115 vac)
T17-25 Remote Start/Stop — DI (24 vac) T36-35 OFC2 — DO (115 vac)
T18-25 —T37-38 Unloader 1 — DO (115 vac)
T19-25 —T39-38 Unloader 2 — DO (115 vac)
T20-25 —K1 Indoor Fan Relay — DO (LV)
T21-25 —K2 Compr. 1 — DO (HV)
T22-25 Compressor 1 Safety — DI (24 vac) K3 Compr. 2 — DO (HV)
TERMINAL NO. ASSIGNMENT TERMINAL NO. ASSIGNMENT
T1-2 —T23 and TB2-1 Fire — Evacuation — DI (24 vac)
T3-4 —T24 and TB2-1 Fire — Smoke Purge — DI (24 vac)
T5-6 —T26-27 —
T7-8 —T28-29 —
T9-10 —T30 and TB2-2 Alarm Light Indicator — DO (24 vac)
T11-12 —T31 Power Exhaust Fire No. 1 — DO (115 vac)
T13-14 —T33 Power Exhaust Fire No. 2 — DO (115 vac)
T15-16 —T34 Power Exhaust Fire No. 3 — DO (115 vac)
T17 and TB2-1 Fan Status — DI (24 vac) T36 Power Exhaust Fire No. 4 — DO (115 vac)
T18 and TB2-1 Filter Status - DI (24 vac) T37 —
T19 and TB2-1 Field Applied Status — DI (24 vac) T39 —
T20 and TB2-1 Demand Limit — DI (24 vac) K1 —
T21 and TB2-1 Fire — Unit Shutdown — DI (24 vac) K2 —
T22 and TB2-1 Fire — Pressurization — DI (24 vac) K3 —
AI — Analog Input OAT — Outdoor-Air Temperature
AO — Analog Output OFC — Outdoor Fan Contactor
CCN — Carrier Comfort Network RAT — Return-Air Temperature
CV — Constant Volume SAT — Supply-Air Temperature
DI — Direct Input SPT — Space Temperature
DO — Direct Output STO — Space Temperature Offset
HV — High Voltage T—Terminal
IAQ — Indoor Air Quality TB — Terminal Block
KV — Kilo-Ohms VAV — Variable Air Volume
LV — Low Voltage

Manufacturer reserves the right to discontinue, or change at any time, specifications or designs without notice and without incurring obligations.
PC 111 Catalog No. 534-739 Printed in U.S.A. Form 48A,E-1SI Pg 116 107 11-01 Replaces: 48E-6SI
Book 1
Ta b 1 a
Copyright 2001 Carrier Corporation
SERVICE TRAINING
Packaged Service Training programs are an excellent way to increase your knowledge of the equipment
discussed in this manual, including:
• Unit Familiarization • Maintenance
• Installation Overview • Operating Sequence
A large selection of product, theory, and skills programs are available, using popular video-based formats
and materials. All include video and/or slides, plus companion book.
Classroom Service Training which includes “hands-on” experience with the products in our labs can
mean increased confidence that really pays dividends in faster troubleshooting and fewer callbacks. Course
descriptions and schedules are in our catalog.
CALL FOR FREE CATALOG 1-800-962-9212
[ ] Packaged Service Training [ ] Classroom Service Training
CL-1
START-UP CHECKLIST
MODEL NO.: _________________________________ SERIAL NO.: ______________________________________
SOFTWARE VERSION (SEE FIG. 27): ____________ TECHNICIAN: ____________________________________
DATE: _______________________________________
PRE-START-UP:
VERIFY THAT DIP SWITCH SETTINGS ARE CORRECT
VERIFY THAT ALL PACKING MATERIALS HAVE BEEN REMOVED FROM UNIT
REMOVE ALL COMPRESSOR SHIPPING HOLDDOWN BOLTS AND BRACKETS PER INSTRUCTIONS
VERIFY INSTALLATION OF ECONOMIZER HOOD
VERIFY INSTALLATION OF ALL OPTIONS AND ACCESSORIES
VERIFY THAT ALL ELECTRICAL CONNECTIONS AND TERMINALS ARE TIGHT
CHECK GAS PIPING FOR LEAKS
CHECK THAT RETURN-AIR FILTER AND OUTDOOR-AIR FILTERS ARE CLEAN AND IN PLACE
VERIFY THAT UNIT IS LEVEL WITHIN TOLERANCES FOR PROPER CONDENSER DRAINAGE
CHECK FAN WHEELS AND PROPELLERS FOR LOCATION IN HOUSING/ORIFICE, AND SETSCREW IS TIGHT
VERIFY THAT FAN SHEAVES ARE ALIGNED AND BELTS ARE PROPERLY TENSIONED
VERIFY THAT SUCTION, DISCHARGE, AND LIQUID SERVICE VALVES ON EACH CIRCUIT ARE OPEN
VERIFY THAT CRANKCASE HEATERS HAVE BEEN ON 24 HOURS BEFORE START-UP.
START-UP:
ELECTRICAL
SUPPLY VOLTAGE L1-L2 __________ L2-L3 __________ L3-L1 __________
COMPRESSOR AMPS — COMPRESSOR NO. 1 L1 __________ L2 __________ L2 _________
COMPRESSOR AMPS — COMPRESSOR NO. 2 L1 __________ L2 __________ L2 _________
SUPPLY FANS AMPS (CV) ________ EXHAUST FAN AMPS __________
(VAV) ________ *
*VAV fan supply amps reading must be taken with a true RMS meter for accurate readings.
TEMPERATURES
OUTDOOR-AIR TEMPERATURE __________ F DB (Dry Bulb)
RETURN-AIR TEMPERATURE __________ F DB__________ F WB (Wet Bulb)
COOLING SUPPLY AIR __________ F
GAS HEAT SUPPLY AIR __________ F
PRESSURES
GAS INLET PRESSURE __________ IN. WG
GAS MANIFOLD PRESSURE STAGE NO. 1 __________ IN. WG STAGE NO. 2 __________ IN. WG
REFRIGERANT SUCTION CIRCUIT NO. 1 __________ PSIG CIRCUIT NO. 2 __________ PSIG
REFRIGERANT DISCHARGE CIRCUIT NO. 2 __________ PSIG CIRCUIT NO. 2__________ PSIG
VERIFY REFRIGERANT CHARGE USING CHARGING CHARTS ON PAGES 93 AND 94.

Manufacturer reserves the right to discontinue, or change at any time, specifications or designs without notice and without incurring obligations.
PC 111 Catalog No. 534-739 Printed in U.S.A. Form 48A,E-1SI CL-2 107 11-01 Replaces: 48E-6SI
Book 1
Ta b 1 a
Copyright 2001 Carrier Corporation
-
- - - - - - - - - - - - - - - - - - - - - - - - - - - - - - - - - - - - - - - - - - - - - - - - - - - - - - - - - - - - - - - - - - - - - - - - - - - - - - - - - - - - - - - - - - - - - - - - - - - - - - - - - - - - - - - - - - - - - - - - - - - - - - - - - - - - - - - - - - - - - - - - - - - - - - - - - - - - - - - - - - - - - - - - - - - - -- - - - - - - - - - - - - - - - - - - -
CUT ALONG DOTTED LINE CUT ALONG DOTTED LINE
GENERAL
SET ECONOMIZER MINIMUM VENT POSITION TO JOB REQUIREMENTS
ENSURE DRIVES OPERATE WITH LIMITS OF FAN PERFORMANCE TABLES
ADDITIONAL NOTES:
________________________________________________________________________________________________________
________________________________________________________________________________________________________
________________________________________________________________________________________________________
________________________________________________________________________________________________________
________________________________________________________________________________________________________
________________________________________________________________________________________________________
HIGH PRESSURE SWITCH SETTING psig
LOW PRESSURE SWITCH SETTING psig
MOTOR PULLEY PART NUMBER
FAN PULLEY PART NUMBER
BELT PART NUMBER
BELT SIZE in.
FILTER QUANTITY
FILTER SIZES in.