Carrier 48Hjd005 007 Users Manual
48HJD005-007 to the manual be03386c-2268-40fe-8feb-39045f522a08
2015-01-24
: Carrier Carrier-48Hjd005-007-Users-Manual-310580 carrier-48hjd005-007-users-manual-310580 carrier pdf
Open the PDF directly: View PDF
.
Page Count: 48

Manufacturer reserves the right to discontinue, or change at any time, specifications or designs without notice and without incurring obligations.
PC 111 Catalog No. 534-767 Printed in U.S.A. Form 48HJ-18SI Pg 1 9-00 Replaces: 48HJ-17SI
Book 1 4
Ta b 1 a 6 a
Installation, Start-Up and
Service Instructions
CONTENTS Page
SAFETY CONSIDERATIONS . . . . . . . . . . . . . . . . . . . . . . 1
INSTALLATION . . . . . . . . . . . . . . . . . . . . . . . . . . . . . . . . 1-28
Step 1 — Provide Unit Support . . . . . . . . . . . . . . . . . . . 1
•ROOF CURB
• SLAB MOUNT
Step 2 — Field Fabricate Ductwork . . . . . . . . . . . . . . . 3
Step 3 — Install External Trap for
Condensate Drain. . . . . . . . . . . . . . . . . . . . . . . . . . . . . . 3
Step 4 — Rig and Place Unit . . . . . . . . . . . . . . . . . . . . . 3
• POSITIONING
Step 5 — Install Flue Hood . . . . . . . . . . . . . . . . . . . . . . . 4
Step 6 — Install Gas Piping . . . . . . . . . . . . . . . . . . . . . . 4
Step 7 — Make Electrical Connections . . . . . . . . . . . 4
• FIELD POWER SUPPLY
• FIELD CONTROL WIRING
• HEAT ANTICIPATOR SETTINGS
Step 8 — Adjust Factory-Installed Options . . . . . . . 8
• MOISTUREMISER DEHUMIDIFCATION
PACKAGE
• APOLLO CONTROL
• DISCONNECT SWITCH
• OPTIONAL DURABLADE ECONOMIZER
• OPTIONAL ECONOMI$ER
Step 9 — Adjust Evaporator-Fan Speed . . . . . . . . . 19
• BELT-DRIVE MOTORS
PRE-START-UP . . . . . . . . . . . . . . . . . . . . . . . . . . . . . . . . . . 29
START-UP . . . . . . . . . . . . . . . . . . . . . . . . . . . . . . . . . . . . 29-32
SERVICE . . . . . . . . . . . . . . . . . . . . . . . . . . . . . . . . . . . . . 33-38
TROUBLESHOOTING. . . . . . . . . . . . . . . . . . . . . . . . . 39-45
START-UP CHECKLIST . . . . . . . . . . . . . . . . . . . . . . . . CL-1
SAFETY CONSIDERATIONS
Installation and servicing of air-conditioning equipment can
be hazardous due to system pressure and electrical compo-
nents. Only trained and qualified service personnel should
install, repair, or service air-conditioning equipment.
Untrained personnel can perform basic maintenance func-
tions of cleaning coils and filters and replacing filters. All other
operations should be performed by trained service personnel.
When working on air-conditioning equipment, observe precau-
tions in the literature, tags and labels attached to the unit, and
other safety precautions that may apply.
Follow all safety codes. Wear safety glasses and work
gloves. Use quenching cloth for unbrazing operations. Have
fire extinguishers available for all brazing operations.
INSTALLATION
Unit is shipped in the vertical discharge configuration. To
convert to horizontal discharge application, remove duct open-
ing covers. Using the same screws, install covers on duct open-
ings in basepan of unit with insulation-side down. Seals around
openings must be tight.
NOTE: Any combination of supply and return ducting is per-
missible, i.e., vertical supply combined with horizontal return.
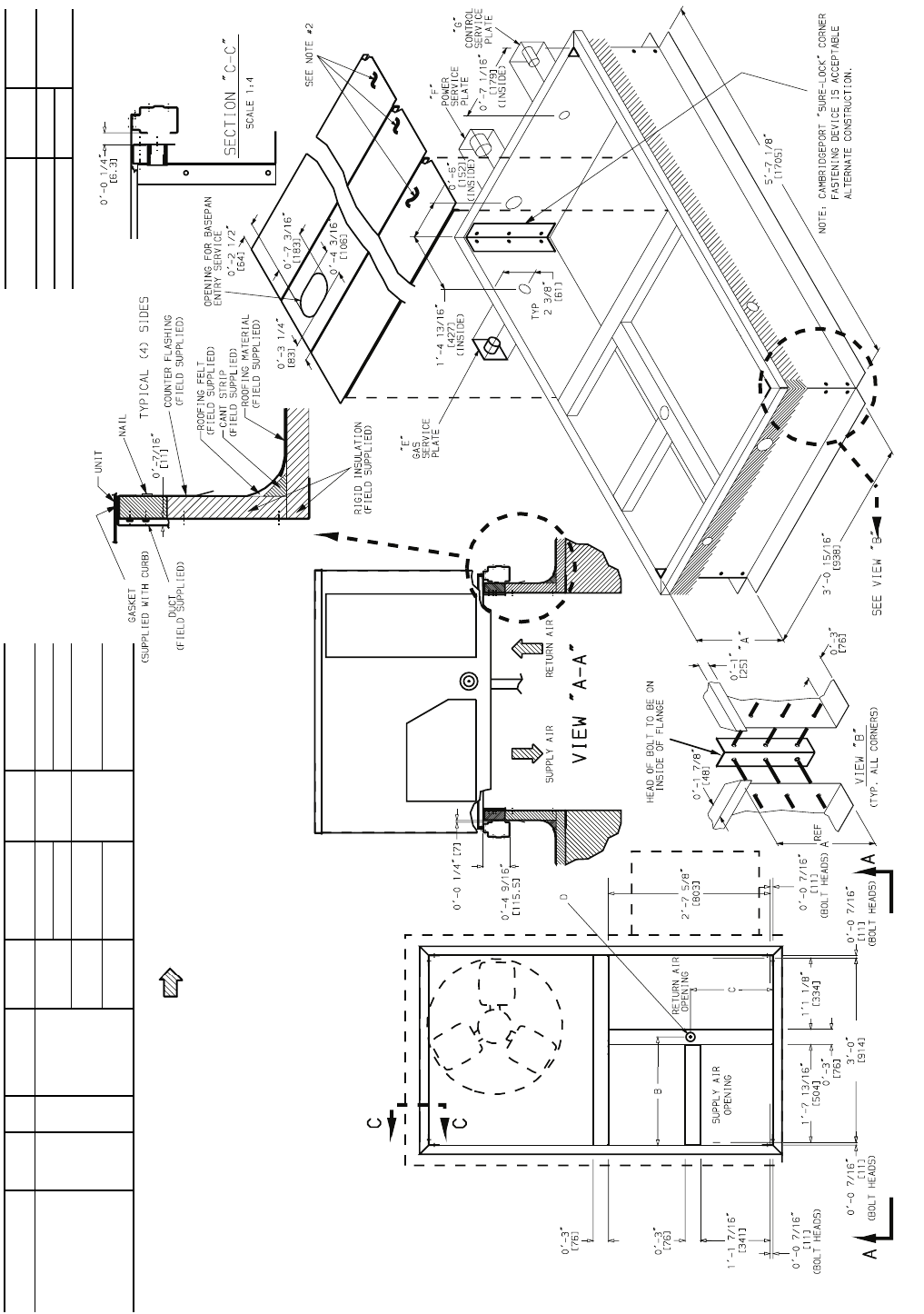
Step 1 — Provide Unit Support
ROOF CURB — Assemble and install accessory roof curb in
accordance with instructions shipped with curb. See Fig. 1. In-
stall insulation, cant strips, roofing felt, and counter flashing as
shown. Ductwork must be attached to curb, not to the unit.
If electric control power or gas service is to be routed through
the basepan, attach the accessory thru-the-bottom service con-
nections to the basepan in accordance with the accessory instal-
lation instructions. Connections must be installed before unit is
set on roof curb.
Curb should be level. Unit leveling tolerances are shown in
Fig. 2. This is necessary for unit drain to function properly. Re-
fer to Accessory Roof Curb Installation Instructions for addi-
tional information as required.
SLAB MOUNT (Horizontal Units Only) — Provide a level
concrete slab that extends a minimum of 6 in. beyond unit cab-
inet. Install a gravel apron in front of condenser-coil air inlet to
prevent grass and foliage from obstructing airflow.
NOTE: Horizontal units may be installed on a roof curb if
required.
Before performing service or maintenance operations on
unit, turn off main power switch to unit and install lockout
tag. Ensure electrical service to rooftop unit agrees with
voltage and amperage listed on the unit rating plate. Elec-
trical shock could cause personal injury.
Disconnect gas piping from unit when leak
testing at pressure greater than 1/2 psig. Pres-
sures greater than 1/2 psig will cause gas valve
damage resulting in hazardous condition. If
gas valve is subjected to pressure greater than
1/2 psig, it must be replaced before use. When
pressure testing field-supplied gas piping at
pressures of 1/2 psig or less, a unit connected
to such piping must be isolated by manually
closing the gas valve(s).
IMPORTANT: The gasketing of the unit to the roof curb
is critical for a watertight seal. Install gasket supplied
with the roof curb as shown in Fig. 1. Improperly
applied gasket can result in air leaks and poor unit
performance.
48HJD005-007, 48HJE/HJF004-007
48HJL/HJM/HJN/HJG/HJH/HJK004-006 (LOW NOx)
Single-Package Rooftop Heating/Cooling

2
ROOF CURB
ACCESSORY “A” UNIT SIZE
48/50HJ
CRRFCURB001A00 1′-2″ [356] 004-007
CRRFCURB002A00 2′-0″ [610]
NOTES:
1. Roof curb accessory is shipped
disassembled.
2. Insulated panels.
3. Dimensions in [ ] are in millimeters.
4. Roof curb: galvanized steel.
5. Attach ductwork to curb (flanges of duct
rest on curb).
UNIT SIZE B C D ALT
DRAIN HOLE
“E”
GAS
“F”
POWER
“G”
CONTROL
CONNECTOR
PKG. ACCY.
48HJD004-007
50HJF004-007
1′-911/16″
[551]
1′-4″
[406]
13/4″
[44.5]
3/4″
[19] NPT
3/4″ [19] NPT 1/2″
[12.7] NPT
CRBTMPWR001A00
11/4″ [31.7] CRBTMPWR002A00
1/2″
[12.7] NPT 3/4″ [19] NPT 1/2″
[12.7] NPT
CRBTMPWR003A00
3/4″
[19] NPT 11/4″ [31.7] CRBTMPWR004A00
6. Service clearance 4 ft on each side.
7. Direction of airflow.
8. Connector packages CRBTMPWR001A00
and 002A00 are for thru-the-curb connec-
tions. Packages CRBTMP003A00 and
004A00 are for thru-the-bottom connections.
Fig. 1 — Roof Curb Details

3
Step 2 — Field Fabricate Ductwork — Secure all
ducts to roof curb and building structure on vertical discharge
units. Do not connect ductwork to unit. For horizontal applica-
tions, field-supplied isolation flanges should be attached to hor-
izontal discharge openings and all ductwork should be secured
to the flanges. Insulate and weatherproof all external ductwork,
joints, and roof openings with counter flashing and mastic in
accordance with applicable codes.
Ducts passing through an unconditioned space must be in-
sulated and covered with a vapor barrier.
If a plenum return is used on a vertical unit, the return
should be ducted through the roof deck to comply with applica-
ble fire codes.
A minimum clearance is not required around ductwork.
Cabinet return-air static shall not exceed –.35 in. wg with
Durablade economizer, or –.30 in. wg with EconoMi$er, or
–.45 in. wg without economizer.
These units are designed for a minimum continuous return-
air temperature in heating of 50 F (dry bulb), or an intermittent
operation down to 45 F (dry bulb), such as when used with a
night setback thermostat.
Step 3 — Install External Trap for Condensate
Drain — The unit’s 3/4-in. condensate drain connections are
located on the bottom and side of the unit. Unit discharge
connections do not determine the use of drain connections;
either drain connection can be used with vertical or horizontal
applications.
When using the standard side drain connection, ensure the
plug (Red) in the alternate bottom connection is tight before in-
stalling the unit.
To use the bottom drain connection for a roof curb installa-
tion, relocate the factory-installed plug (Red) from the bottom
connection to the side connection. See Fig. 3. The piping for
the condensate drain and external trap can be completed after
the unit is in place.
All units must have an external trap for condensate drain-
age. Install a trap 4-in. deep and protect against freeze-up. If
drain line is installed downstream from the external trap, pitch
the line away from the unit at 1 in. per 10 ft of run. Do not use a
pipe size smaller than the unit connection (3/4 in.).
Step 4 — Rig and Place Unit — Inspect unit for
transportation damage, and file any claim with transportation
agency. Keep unit upright and do not drop. Spreader bars are
not required if top crating is left on unit, and rollers may be
used to move unit across a roof. Level by using unit frame as a
reference. See Table 1 and Fig. 4 for additional information.
Operating weight is shown in Table 1 and Fig. 4.
Lifting holes are provided in base rails as shown in Fig. 5.
Refer to rigging instructions on unit.
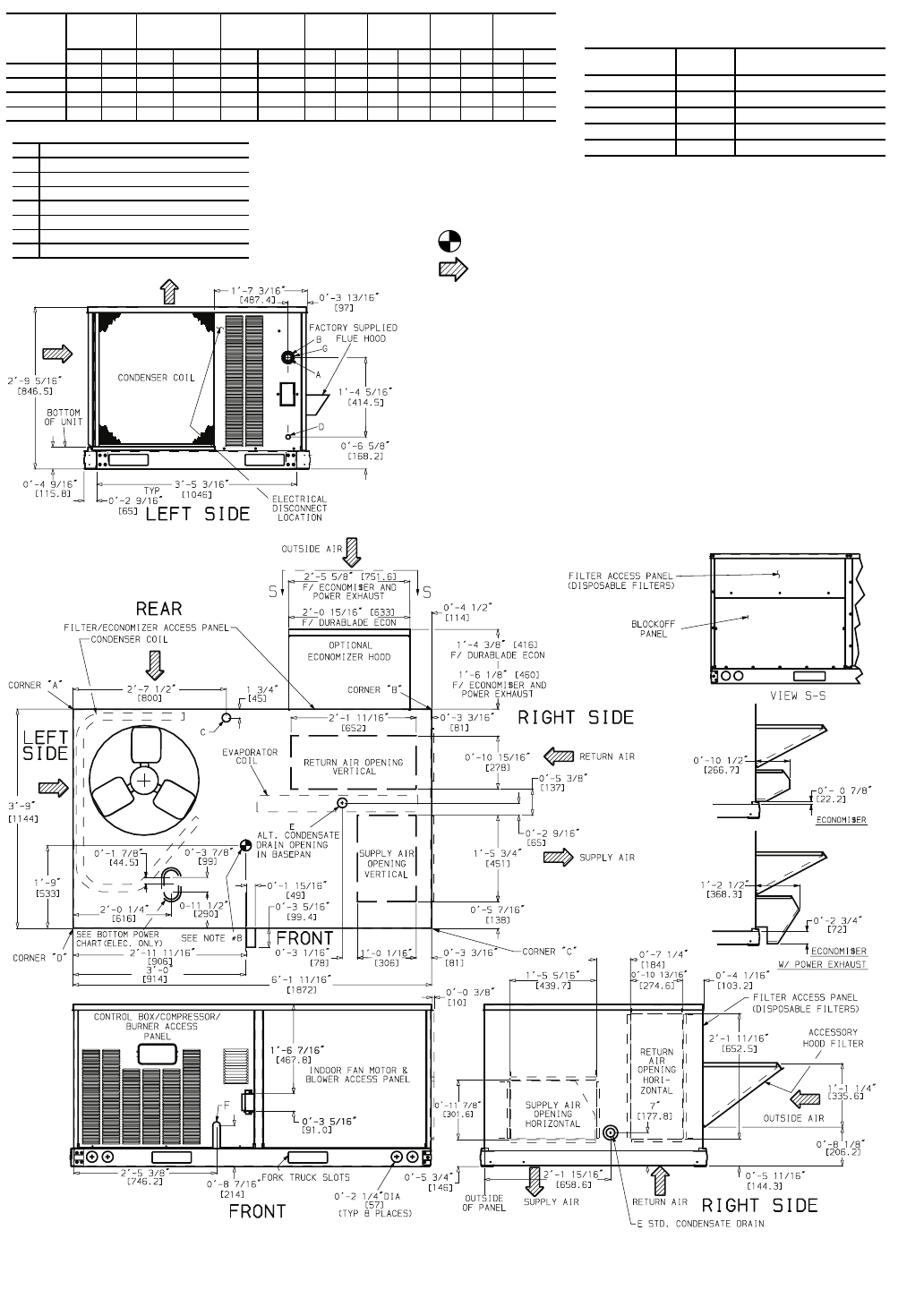
POSITIONING — Maintain clearance around and above unit
to provide minimum distance from combustible materials, prop-
er airflow, and service access. See Fig. 5. A properly positioned
unit will have the following clearances between unit and roof
curb; 1/4-in. clearance between roof curb and base rails on each
side and duct end of unit; 1/4 in. clearance between roof curb and
condenser coil end of unit. (See Fig. 1, section C-C.)
Do not install unit in an indoor location. Do not locate unit
air inlets near exhaust vents or other sources of contaminated
air.
Be sure that unit is installed such that snow will not block
the combustion intake or flue outlet.
Unit may be installed directly on wood flooring or on Class
A, B, or C roof-covering material when roof curb is used.
Although unit is weatherproof, guard against water from
higher level runoff and overhangs.
Locate mechanical draft system flue assembly at least 48 in.
from any opening through which combustion products could
enter the building, and at least 48 in. from an adjacent building.
When unit is located adjacent to public walkways, flue assem-
bly must be at least 7 ft above grade.
NOTE: When unit is equipped with an accessory flue dis-
charge deflector, allowable clearance is 18 inches.
Flue gas can deteriorate building materials. Orient unit such
that flue gas will not affect building materials.
Adequate combustion-air space must be provided for proper
operation of this equipment. Be sure that installation complies
with all local codes and Section 5.3, Air for Combustion and
Ventilation, NFGC (National Fuel Gas Code), ANSI (Ameri-
can National Standards Institute) Z223.1-1984 and addendum
Z223.1a-1987. In Canada, installation must be in accordance
with the CAN1.B149.1 and CAN1.B149.2 installation codes
for gas burning appliances.
Flue vent discharge must have a minimum horizontal clear-
ance of 4 ft from electric and gas meters, gas regulators, and
gas relief equipment.
After unit is in position, remove shipping materials and rig-
ging skids.
All panels must be in place when rigging and lifting.
MAXIMUM ALLOWABLE
DIFFERENCE (in.)
A-B B-C A-C
0.5 1.0 1.0
Fig. 2 — Unit Leveling Tolerances
DRAIN PLUG
CONDENSATE PAN (SIDE VIEW)
NOTE: Drain plug is shown in factory-installed position.
Fig. 3 — Condensate Drain Pan

4
Step 5 — Install Flue Hood — Flue hood is shipped
screwed to the burner compartment access panel. Remove
from shipping location and, using screws provided, install flue
hood in location shown in Fig. 5 and 6.
For units being installed in California Air Quality Manage-
ment Districts which require NOx emissions of 40 nanograms/
joule or less, kit CRLOWNOX001A00 must be installed.
Step 6 — Install Gas Piping — Unit is equipped for
use with type of gas shown on nameplate. Refer to local
building codes, or in the absence of local codes, to
ANSI Z223.1-1984 and addendum Z223.1A-1987 entitled
National Fuel Gas Code. In Canada, installation must be in
accordance with the CAN1.B149.1 and CAN1.B149.2 instal-
lation codes for gas burning appliances.
For natural gas applications, gas pressure at unit gas con-
nection must not be less than 4 in. wg or greater than 13 in. wg
while the unit is operating. On 48HJ005-007 high-heat units,
the gas pressure at unit gas connection must not be less than
5 in. wg or greater than 13 in. wg while the unit is operating.
For propane applications, the gas pressure must not be less than
5 in. wg or greater than 13 in. wg at the unit connection.
Size gas supply piping for 0.5 in. wg maximum pressure
drop. Do not use supply pipe smaller than unit gas connection.
Support gas piping as shown in the table in Fig. 7. For ex-
ample, a 3/4-in. gas pipe must have one field-fabricated support
beam every 8 ft. Therefore, an 18-ft long gas pipe would have a
minimum of 3 support beams, and a 48-ft long pipe would
have a minimum of 6 support beams.
See Fig. 7 for typical pipe guide and locations of external
manual gas shutoff valve.
Step 7 — Make Electrical Connections
FIELD POWER SUPPLY — All units except 208/230-v
units are factory wired for the voltage shown on the nameplate.
If the 208/230-v unit is to be connected to a 208-v power sup-
ply, the transformer must be rewired by moving the black wire
from the 230-v terminal on the transformer and connecting it to
the 200-v terminal from the transformer.
Refer to unit label diagram for additional information.
Pigtails are provided for field service. Use factory-supplied
splices or UL (Underwriters’ Laboratories) approved copper
connector.
When installing units, provide a disconnect per NEC.
All field wiring must comply with NEC and local
requirements.
Unit cabinet must have an uninterrupted, unbroken electri-
cal ground to minimize the possibility of personal injury if
an electrical fault should occur. This ground may consist of
electrical wire connected to unit ground lug in control com-
partment, or conduit approved for electrical ground when
installed in accordance with NEC (National Electrical
Code), ANSI/NFPA (National Fire Protection Associa-
tion), latest edition, and local electrical codes. Do not use
gas piping as an electrical ground. Failure to follow this
warning could result in the installer being liable for per-
sonal injury of others.
NOTES:
1. Place unit on curb as close as possible to the duct end.
2. Dimension in ( ) is in millimeters.
3. Hook rigging shackles through holes in base rail as shown in
detail ‘‘A.’’ Holes in base rails are centered around the unit cen-
ter of gravity. Use wooden top skid when rigging to prevent rig-
ging straps from damaging unit.
4. Weights include base unit without economizer. See Table 1 for
unit operating weights with accessory economizer.
All panels must be in place when rigging.
Fig. 4 — Rigging Details
UNIT
48HJ
MAX
WEIGHT “A” “B” “C”
lb kg in. mm in. mm in. mm
004 530 240 73.69 1872 35.50 902 33.31 847
005 540 245 73.69 1872 35.50 902 33.31 847
006 560 254 73.69 1872 35.50 902 33.31 847
007 615 279 73.69 1872 35.50 902 33.31 847

5
Table 1 — Physical Data
LEGEND *Single phase/three phase.
†Indicates automatic reset.
**48HJD005-007 and 48HJE004 (72,000 Btuh heat input) units have 2 burners.
48HJE005-007 and 48HJF004 (115,000 Btuh heat input) units and 48HJF005-
007 (150,000 Btuh Heat input) units have 3 burners.
††An LP kit is available as an accessory.
||Three-phase standard models have heating inputs as shown. Single-phase
standard models have one-stage heating with heating input values as follows:
48HJE004, 48HJD005,006 — 72,000 Btuh
48HJF004, 48HJE005,006 — 115,000 Btuh
48HJF005,006 — 150,000 Btuh
***California compliant three-phase models.
†††California SCAQMD compliant low NOx models have combustion products that
are controlled to 40 nanograms per joule or less.
BASE UNIT 48 HJE/F/H/K/M/N004 HJD/E/F/G/H/K/L/M/N005 HJD/E/F/G/H/K/L/M/N006 HJD/HJE/HJF007
NOMINAL CAPACITY 34 5 6
OPERATING WEIGHT (lb)
Unit 530 540 560 615
With Durablade Economizer 564 574 594 649
With EconoMi$er 577 587 607 662
With MoistureMiser Dehumidification Package 548 558 578 633
Roof Curb 115 115 115 115
COMPRESSOR Scroll
Quantity 11 1 1
Oil (oz) 42 53 50 60
REFRIGERANT TYPE R-22
Operating Charge (lb-oz)
Standard Unit 5- 8 8-6 10- 0 9-10
Unit With MoistureMizer Dehumidification Package 8-13 11-2 12-13 13- 6
CONDENSER FAN Propeller
Quantity...Diameter (in.) 1...22 1...22 1..22 1...22
Nominal Cfm 3500 3500 4100 4100
Motor Hp...Rpm 1/4...825 1/4...825 1/4...1100 1/4...1100
Watts Input (Total) 180 180 320 320
CONDENSER COIL Enhanced Copper Tubes, Aluminum Lanced Fins
Standard Unit
Rows...Fins/in. 1...17 2..17 2...17 2...17
Total Face Area (sq ft) 14.6 16.5 16.5 16.5
Unit with MoistureMiser Dehumidification Package
Rows...Fins/in. 1...17 1...17 1...17 1...17
Total Face Area (sq ft) 3.9 3.9 3.9 3.9
EVAPORATOR FAN Centrifugal Type, Belt Drive
Quantity...Size (in.) 1...10 x 10 1...10 x 10 1...10 x 10 1...10 x 10
Nominal Cfm 1200 1600 2000 2400
Maximum Continuous Bhp Std 1.20 1.20 1.30/2.40* 2.40
Hi-Static 2.40 2.40 2.90 2.90
Motor Frame Size Std 48 48 48/56* 56
Hi-Static 56 56 56 56
Fan Rpm Range Std 760-1090 840-1185 1020-1460/1120-1585* 1120-1585
Hi-Static 1075-1455 1075-1455 1300-1685 1300-1685
Motor Bearing Type Ball Ball Ball Ball
Maximum Fan Rpm 2100 2100 2100 2100
Motor Pulley Pitch Diameter
A/B (in.)
Std 1.9/2.9 1.9/2.0 2.4/3.4 2.4/3.4
Hi-Static 2.8/3.8 2.8/3.8 3.4/4.4 3.4/3.4
Nominal Motor Shaft Diameter (in.) Std 1/21/25/85/8
Hi-Static 5/85/85/85/8
Fan Pulley Pitch Diameter (in.) Std 4.5 4.0 4.0 4.0
Hi-Static 4.5 4.0 4.5 4.5
Belt — Type...Length (in.) Std 1...A...33 1...A...33 1....4...40 1...A...38
Hi-Static 1...A...39 1...A...39 1...A...40 1...A...40
Pulley Center Line Distance (in.) 10.0-12.4 10.0-12.4 14.7-15.5 14.7-15.5
Speed Change per Full Turn of
Movable Pulley Flange (rpm)
Std 65 70 75 95
Hi-Static 65 65 60 60
Movable Pulley Maximum Full
Turns from Closed Position
Std 55 6 5
Hi-Static 66 5 5
Factory Setting — Full Turns Open Std 33 3 3
Hi-Static 31/231/231/231/2
Factory Speed Setting (rpm) Std 890 980 1240 1304
Hi-Static 1233 1233 1396 1396
Fan Shaft Diameter at Pulley (in.) 5/85/85/85/8
EVAPORATOR COIL Enhanced Copper Tubes, Aluminum Double-Wavy Fins, Acutrol™ Metering Device
Rows...Fins/in. 2...15 2...15 4...15 4...15
Total Face Area (sq ft) 5.5 5.5 5.5 5.5
Bhp — Brake Horsepower

6
Table 1 — Physical Data (cont)
LEGEND *Single phase/three phase.
†Indicates automatic reset.
**48HJD005-007 and 48HJE004 (72,000 Btuh heat input) units have 2 burners.
48HJE005-007 and 48HJF004 (115,000 Btuh heat input) units and 48HJF005-
007 (150,000 Btuh Heat input) units have 3 burners.
††An LP kit is available as an accessory.
||Three-phase standard models have heating inputs as shown. Single-phase
standard models have one-stage heating with heating input values as follows:
48HJE004, 48HJD005,006 — 72,000 Btuh
48HJF004, 48HJE005,006 — 115,000 Btuh
48HJF005,006 — 150,000 Btuh
***California compliant three-phase models.
†††California SCAQMD compliant low NOx models have combustion products that
are controlled to 40 nanograms per joule or less.
BASE UNIT 48 HJE/F/H/K/M/N004 HJD/E/F/G/H/K/L/M/N005 HJD/E/F/G/H/K/L/M/N006 HJD/HJE/HJF007
FURNACE SECTION
Rollout Switch Cutout Temp (F)† 195 195 195 195
Burner Orifice Diameter (in. ...drill size)**
Natural Gas — Std HJE .113...33 HJD .113...33 HJD .113...33 HJD .113...33
HJF .113...33 HJE .113...33 HJE .113...33 HJE .113...33
—HJF .129...30 HJF .129...30 HJF .129...30
HJH .113...33 HJG .113...33 HJG .113...33 —
HJK .113...33 HJH .113...33 HJH .113...33 —
—HJK .129...30 HJK .129...30 —
HJM .102...38 HJL .102...38 HJL .102...38 —
HJN .102...38 HJM .102...38 HJM .102...38 —
—HJN .116...32 HJN .116...32 —
Liquid Propane — Alt†† HJE .089...43 HJD .089...43 HJD .089...43 HJD .089...43
HJF .089...43 HJE .089...43 HJE .089...43 HJE .089...43
—HJF .102...38 HJF .102...38 HJF .102...38
HJH .082...45 HJG .089...43 HJG .089...43 —
HJK .082...45 HJH .089...43 HJH .089...43 —
—HJK .102...38 HJK .102...38 —
HJM .082...45 HJL .082...45 HJL .082...45 —
HJN .082...45 HJM .082...45 HJM .082...45 —
—HJN .094...42 HJN .094...42 —
Thermostat Heat Anticipator Setting (amps) 208/230/460 v
First Stage .14 .14 .14 .14
Second Stage .14 .14 .14 .14
Gas Input (Btuh)
First Stage/Second Stage HJE|| 50,000/ 72,000 HJD|| 50,000/ 72,000 HJD|| 50,000/ 72,000 HJD|| 50,000/ 72,000
HJF|| 82,000/115,000 HJE|| 82,000/115,000 HJE|| 82,000/115,000 HJE|| 82,000/115,000
—HJF|| 120,000/150,000 HJF|| 120,000/150,000 HJF|| 120,000/150,000
HJH*** —/ 72,000 HJG*** —/ 72,000 HJG*** —/ 72,000 —
HJK***—/115,000 HJH*** —/115,000 HJH*** —/115,000 —
—HJK*** —/150,000 HJK*** —/150,000 —
HJM††† —/ 60,000 HJL††† —/ 60,000 HJL††† —/ 60,000 —
HJN††† —/ 90,000 HJM††† —/ 90,000 HJM†††—/ 90,000 —
—HJN††† —/120,000 HJN††† —/120,000 —
Efficiency (Steady State) (%) HJE 82 HJD 82 HJD 82 HJD 82
HJF 81 HJE 81 HJE 81 HJE 81
—HJF 80 HJF 80 HJF 80
HJH 82 HJG 82 HJG 82 —
HJK 81 HJH 81 HJH 81 —
—HJK 80 HJK 80 —
HJM 81 HJL 81 HJL 81 —
HJN 81 HJM 81 HJM 81 —
—HJN 82 HJN 82 —
Temperature Rise Range HJE 15-45 HJD 15-45 HJD 15-45 HJD 15-45
HJF 55-85 HJE 35-65 HJE 35-65 HJE 35-65
—HJF 50-80 HJF 50-80 HJF 50-80
HJH 15-45 HJG 15-45 HJG 15-45 —
HJK 55-85 HJH 35-65 HJH 35-65 —
—HJK 50-80 HJK 50-80 —
HJM 20-50 HJL 20-50 HJL 20-50 —
HJN 30-60 HJM 30-60 HJM 30-60 —
—HJN 40-70 HJN 40-70 —
Manifold Pressure (in. wg)
Natural Gas — Std 3.5 3.5 3.5 3.5
Liquid Propane — Alt†† 3.5 3.5 3.5 3.5
Maximum Static Pressure (in. wg) 1.0 1.0 1.0 1.0
Field Gas Connection Size (in.) 1/21/21/21/2
HIGH-PRESSURE SWITCH (psig)
Standard Compressor Internal Relief 450 ± 50
Cutout 428
Reset (Auto.) 320
LOSS-OF-CHARGE SWITCH/LOW-PRESSURE
SWITCH (Liquid LIne) (psig)
Cutout 7 ± 3
Reset (Auto.) 22 ± 5
FREEZE PROTECTION THERMOSTAT
Opens (F) 30 ± 5
Closes (F) 45 ± 5
OUTDOOR-AIR INLET SCREENS Cleanable
Quantity...Size (in.) 1...20 x 24 x 1
RETURN-AIR FILTERS Throwaway
Quantity...Size (in.) 2...16 x 25 x 2
Bhp — Brake Horsepower

7
UNIT
48HJ
STANDARD
UNIT
WEIGHT
DURABLADE
ECONOMIZER
WEIGHT
ECONOMI$ER
WEIGHT
CORNER
WEIGHT
(A)
CORNER
WEIGHT
(B)
CORNER
WEIGHT
(C)
CORNER
WEIGHT
(D)
Lb Kg Lb Kg Lb Kg Lb Kg Lb Kg Lb Kg Lb Kg
004 530 240 34 15.4 47 21.3 127 57.6 122 55.3 138 62.6 143 64.9
005 540 245 34 15.4 47 21.3 129 58.5 124 56.2 141 64.0 146 66.2
006 560 254 34 15.4 47 21.3 134 60.8 129 58.5 146 66.2 151 68.5
007 615 279 34 15.4 47 21.3 147 66.7 142 64.4 160 72.6 166 75.3
CONNECTION SIZES
A13/8″
″″
″ Dia [35] Field Power Supply Hole
B2″
″″
″ Dia [51] Power Supply Knockout
C13/4″
″″
″ Dia [44] Charging Port Hole
D7/8″
″″
″ Dia [22] Field Control Wiring Hole
E3/4″
″″
″-14 NPT Condensate Drain
F5/8″
″″
″-14 NPT Gas Connection
G21/2″
″″
″ Dia [64] Power Supply Knockout
NOTES:
1. Dimensions in [ ] are in millimeters.
2. Center of gravity.
3. Direction of airflow.
4. On vertical discharge units, ductwork to be attached to accessory roof curb only. For horizontal dis-
charge units, field-supplied flanges should be attached to horizontal discharge openings, and all
ductwork should be attached to the flanges.
5. Minimum clearance (local codes or jurisdiction may prevail):
a. Between unit, flue side and combustible surfaces, 48 inches. (18 in. when using accessory flue
discharge deflector.)
b. Bottom of unit to combustible surfaces (when not using curb), 1 inch.
Bottom of base rail to combustible surfaces (when not using curb) 0 inches.
c. Condenser coil, for proper airflow, 36 in. one side, 12 in. the other. The side getting the greater
clearance is optional.
d. Overhead, 60 in. to assure proper condenser fan operation.
e. Between units, control box side, 42 in. per NEC (National Electrical Code).
f. Between unit and ungrounded surfaces, control box side, 36 in. per NEC.
g. Between unit and block or concrete walls and other grounded surfaces, control box side, 42 in.
per NEC.
h. Horizontal supply and return end, 0 inches.
6. With the exception of the clearance for the condenser coil and combustion side as stated in notes
5a, b and c, a removable fence or barricade requires no clearance.
7. Units may be installed on combustible floors made from wood or Class A, B, or C roof covering
material if set on base rail.
8. The vertical center of gravity is 1′-6″ [457] up from the bottom of the base rail.
BOTTOM POWER CHART, THESE HOLES REQUIRED FOR
USE WITH ACCESSORY PACKAGES — CRBTMPWR001A00
THROUGH CRBTMPWR004A00
*Select either 3/4″ or 11/4″ for power, depending on wire size.
†Select either 1/2″ or 3/4″ for gas depending on gas connection.
THREADED
CONDUIT SIZE
WIRE
USE
REQURED
HOLE SIZES (MAX.)
1/2″
″″
″24 V 7/8″
″″
″ [22.2]
3/4″
″″
″Power* 11/8″
″″
″ [28.4]
11/4″
″″
″Power* 13/4″
″ ″
″ [44.4]
1/2″
″″
″ NPT Gas† 11/4″
″″
″ [31.8]
3/4″
″″
″ NPT Gas† 15/8″
″″
″ [41.3]
Fig. 5 — Base Unit Dimensions — 48HJ004-007

8
Install conduit through side panel openings indicated in
Fig. 5. Route power lines through connector to terminal con-
nections as shown in Fig. 8.
Voltage to compressor terminals during operation must be
within voltage range indicated on unit nameplate (also see
Tables 2A-2D). On 3-phase units, voltages between phases
must be balanced within 2% and the current within 10%. Use
the formula shown in Tables 2A-2D, Note 2 to determine the
percent voltage imbalance. Operation on improper line voltage
or excessive phase imbalance constitutes abuse and may cause
damage to electrical components. Such operation would invali-
date any applicable Carrier warranty.
NOTE: If accessory thru-the-bottom connections and roof curb
are used, refer to the Thru-the-Bottom Accessory Installation
Instructions for information on power wiring and gas connec-
tion piping. The power wiring, control wiring and gas piping
can be routed through field-drilled holes in the basepan. The
basepan is specially designed and dimpled for drilling the
access connection holes.
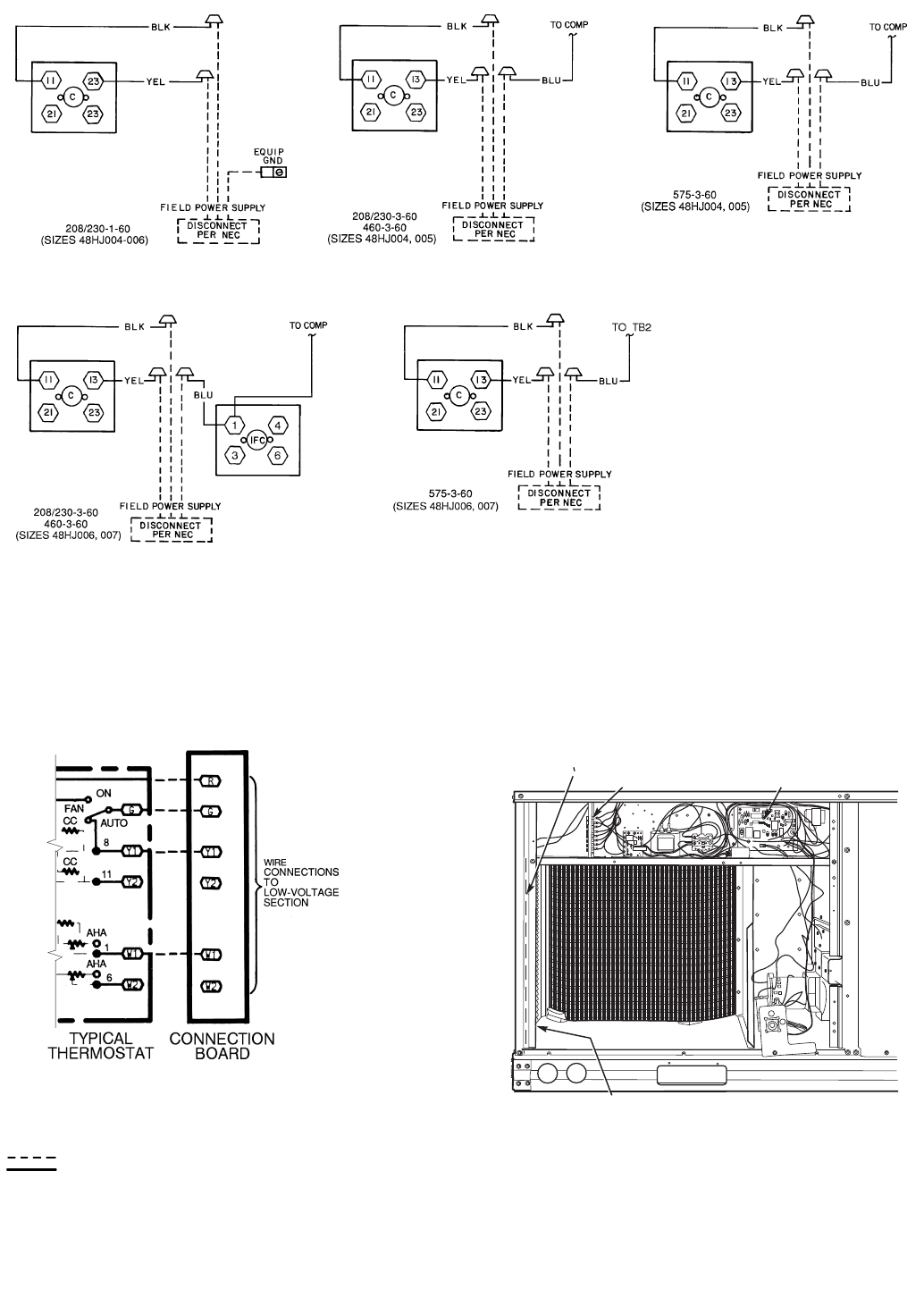
FIELD CONTROL WIRING — Install a Carrier-approved
accessory thermostat assembly according to installation in-
structions included with the accessory. Locate thermostat
assembly on a solid wall in the conditioned space to sense aver-
age temperature in accordance with thermostat installation
instructions.
Route thermostat cable or equivalent single leads of colored
wire from subbase terminals through connector on unit to low-
voltage connections (shown in Fig. 9).
Connect thermostat wires to matching screw terminals of
low-voltage connection board. See Fig. 9.
NOTE: For wire runs up to 50 ft, use no. 18 AWG (American
Wire Gage) insulated wire (35 C minimum). For 50 to 75 ft,
use no. 16 AWG insulated wire (35 C minimum). For over
75 ft, use no. 14 AWG insulated wire (35 C minimum). All
wire larger than no. 18 AWG cannot be directly connected to
the thermostat and will require a junction box and splice at the
thermostat.
Pass the control wires through the hole provided in the cor-
ner post; then feed wires through the raceway built into the cor-
ner post to the 24-v barrier located on the left side of the control
box. See Fig. 10. The raceway provides the UL required clear-
ance between high- and low-voltage wiring.
HEAT ANTICIPATOR SETTINGS — Set heat anticipator set-
tings at .14 amp for first stage and .14 for second stage heating,
when available.
Step 8 — Adjust Factory-Installed Options
MOISTUREMISER DEHUMIDIFICATION PACKAGE —
MoistureMiser package operation can be controlled by field
installation of a Carrier-approved humidistat (Fig. 11). To
install the humidistat:
1. Route humidistat cable through hole provided in unit cor-
ner post.
2. Feed wires through the raceway built into the corner post
to the 24-v barrier located on the left side of the control
box. See Fig. 10. The raceway provides the UL-required
clearance between high- and low-voltage wiring.
3. Use a wire nut to connect humidistat cable into low-
voltage wiring as shown in Fig. 12.
APOLLO CONTROL — The optional Apollo control is used
to actively monitor all modes of operation as well as indoor
(evaporator) fan status, filter status, and indoor-air quality. The
Apollo control is designed to work with Carrier TEMP and
VVT® systems.
The thermostat must be wired to the Apollo Control before
starting the unit. Refer to the Apollo Control installation
instructions for information on installing the thermostat.
DISCONNECT SWITCH — The optional disconnect switch
is non-fused. The switch has the capability of being locked in
place for safety purposes.
Fig. 7 — Gas Piping Guide (With Accessory
Thru-the-Curb Service Connections)
LEGEND
*Field supplied.
NOTE: Follow all local codes.
SPACING OF SUPPORTS
NFGC — National Fuel Gas Code
STEEL PIPE
NOMINAL DIAMETER
(in.)
SPACING OF SUPPORTS
X DIMENSION
(ft)
1/2
3/4 or 1
11/4 or larger
6
8
10
Fig. 6 — Flue Hood Details

9
RACEWAY LOW VOLTAGE
CONNECTIONS
INTEGRATED GAS UNIT
CONTROLLER (IGC)
HOLE IN END PANEL (HIDDEN)
Fig. 8 — Power Wiring Connections
LEGEND
C—
Contactor
COMPS — Compressors
EQUIP — Equipment
GND — Ground
IFC — Indoor (Evaporator)
Fan Contactor
NEC — National Electrical Code
TB — Terminal Block
Fig. 9 — Low-Voltage Connections With or
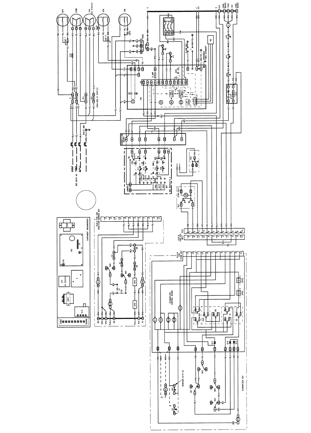
Without Economizer
LEGEND
NOTE: Connect Y2 when unit is equipped with an integrated
economizer.
AHA — Adjustable Heat Anticipator
CC — Cooling Compensator
TC — Thermostat-Cooling
TH — Thermostat-Heating
Field Wiring
Factory Wiring
Fig. 10 — Field Control Wiring Raceway

10
Table 2A — 48HJ Electrical Data Standard Motor (Units Without Electrical Convenience Outlet)
Table 2B — 48HJ Electrical Data Standard Motor (Units With Electrical Convenience Outlet)
LEGEND
*Used to determine minimum disconnect per NEC.
†Fuse or HACR circuit breaker.
NOTES:
1. In compliance with NEC requirements for multimotor and combi-
nation load equipment (refer to NEC Articles 430 and 440), the
overcurrent protective device for the unit shall be fuse or HACR
breaker. UL, Canada units may be fuse or circuit breaker.
2. Unbalanced 3-Phase Supply Voltage
Never operate a motor where a phase imbalance in supply volt-
age is greater than 2%. Use the following formula to determine
the percent of voltage imbalance.
Example: Supply voltage is 460-3-60.
AB = 452 v
BC = 464 v
AC = 455 v
= 457
Determine maximum deviation from average voltage.
(AB) 457 – 452 = 5 v
(BC) 464 – 457 = 7 v
(AC) 457 – 455 = 2 v
Maximum deviation is 7 v.
Determine percent of voltage imbalance.
% Voltage Imbalance= 100 x
= 1.53%
This amount of phase imbalance is satisfactory as it is below the
maximum allowable 2%.
UNIT
48HJ
NOMINAL
VOLTAGE
(V-Ph-Hz)
VOLTAGE
RANGE COMPRESSOR OFM IFM COMBUSTION
FAN MOTOR
POWER
SUPPLY
WITH OUTLET
MINIMUM UNIT
DISCONNECT
SIZE*
Min Max RLA LRA FLA FLA FLA MCA MOCP† FLA LRA
004
(3 Tons)
208/230-1-60 187 254 16.0 88.0 0.7 4.9 .57 25.6/25.6 35/35 25/25 101/101
208/230-3-60 187 254 10.3 77.0 0.7 4.9 .57 18.5/18.5 25/25 18/18 90/ 90
460-3-60 414 508 5.1 39.0 0.4 2.2 .30 9.0 15 9 46
575-3-60 518 632 4.2 31.0 0.4 2.2 .30 7.3 15 7 36
005
(4 Tons)
208/230-1-60 187 254 23.7 129.0 0.7 4.9 .57 35.2/35.2 45/45 34/34 142/142
208/230-3-60 187 254 13.5 99.0 0.7 4.9 .57 22.5/22.5 30/30 22/22 112/112
460-3-60 414 508 7.4 49.5 0.4 2.2 .30 11.9 15 12 56
575-3-60 518 632 5.8 40.0 0.4 2.2 .30 9.3 15 9 45
006
(5 Tons)
208/230-1-60 187 254 28.8 169.0 1.5 8.8 .57 46.3/46.3 60/60 45/45 216/216
208/230-3-60 187 254 17.3 123.0 1.5 5.8 .57 28.9/28.9 35/35 28/28 168/168
460-3-60 414 508 9.0 62.0 0.8 2.6 .30 14.7 20 14 84
575-3-60 518 632 7.1 50.0 0.8 2.6 .30 11.6 15 11 67
007
(6 Tons)
208/230-3-60 187 254 20.5 156.0 1.4 5.8 .57 32.8/32.8 40/40 32/32 200/200
460-3-60 414 508 9.6 70.0 0.6 2.6 .30 15.2 20 15 92
575-3-60 518 632 7.7 56.0 0.6 2.6 .30 12.2 15 13 78
UNIT
48HJ
NOMINAL
VOLTAGE
(V-Ph-Hz)
VOLTAGE
RANGE COMPRESSOR OFM IFM COMBUSTION
FAN MOTOR
POWER
SUPPLY
WITH OUTLET
MINIMUM UNIT
DISCONNECT
SIZE*
Min Max RLA LRA FLA FLA FLA MCA MOCP† FLA LRA
004
(3 Tons)
208/230-1-60 187 254 16.0 88.0 0.7 4.9 .57 31.6/31.6 40/40 30/30 106/106
208/230-3-60 187 254 10.3 77.0 0.7 4.9 .57 24.5/24.5 30/30 24/24 95/95
460-3-60 414 508 5.1 39.0 0.4 2.2 .30 11.7 15 11 48
575-3-60 518 632 4.2 31.0 0.4 2.2 .30 9.5 15 9 38
005
(4 Tons)
208/230-1-60 187 254 23.7 129.0 0.7 4.9 .57 41.2/41.2 50/50 39/39 147/147
208/230-3-60 187 254 13.5 99.0 0.7 4.9 .57 28.5/28.5 35/35 27/27 117/117
460-3-60 414 508 7.4 49.5 0.4 2.2 .30 14.6 20 14 58
575-3-60 518 632 5.8 40.0 0.4 2.2 .30 11.5 15 11 47
006
(5 Tons)
208/230-1-60 187 254 28.8 169.0 1.5 8.8 .57 52.3/52.3 60/60 50/50 221/221
208/230-3-60 187 254 17.3 123.0 1.5 5.8 .57 34.9/34.9 40/40 34/34 173/173
460-3-60 414 508 9.0 62.0 0.8 2.6 .30 17.4 20 17 86
575-3-60 518 632 7.1 50.0 0.8 2.6 .30 13.8 20 13 69
007
(6 Tons)
208/230-3-60 187 254 20.5 156.0 1.4 5.8 .57 38.8/38.8 45/45 37/37 205/205
460-3-60 414 508 9.6 70.0 0.6 2.6 .30 17.9 20 17 94
575-3-60 518 632 7.7 56.0 0.6 2.6 .30 14.3 20 15 79
FLA — Full Load Amps
HACR — Heating, Air Conditioning and Refrigeration
IFM — Indoor (Evaporator) Fan Motor
LRA — Locked Rotor Amps
MCA — Minimum Circuit Amps
MOCP— Maximum Overcurrent Protection
NEC — National Electrical Code
OFM — Outdoor (Condenser) Fan Motor
RLA — Rated Load Amps
UL — Underwriters’ Laboratories
= 100 x max voltage deviation from average voltage
average voltage
Average Voltage = 452 + 464 + 455
3
= 1371
3
IMPORTANT: If the supply voltage phase imbalance is
more than 2%, contact your local electric utility company
immediately.
7
457

11
Table 2C — 48HJ High-Static Motor Units Without Electrical Convenience Outlet
Table 2D — 48HJ High-Static Motor Units With Electrical Convenience Outlet
LEGEND
*Used to determine minimum disconnect per NEC.
†Fuse or HACR circuit breaker.
NOTES:
1. In compliance with NEC requirements for multimotor and combi-
nation load equipment (refer to NEC Articles 430 and 440), the
overcurrent protective device for the unit shall be fuse or HACR
breaker. UL, Canada units may be fuse or circuit breaker.
2. Unbalanced 3-Phase Supply Voltage
Never operate a motor where a phase imbalance in supply volt-
age is greater than 2%. Use the following formula to determine
the percent of voltage imbalance.
Example: Supply voltage is 460-3-60.
AB = 452 v
BC = 464 v
AC = 455 v
= 457
Determine maximum deviation from average voltage.
(AB) 457 – 452 = 5 v
(BC) 464 – 457 = 7 v
(AC) 457 – 455 = 2 v
Maximum deviation is 7 v.
Determine percent of voltage imbalance.
% Voltage Imbalance= 100 x
= 1.53%
This amount of phase imbalance is satisfactory as it is below the
maximum allowable 2%.
UNIT
48HJ
NOMINAL
VOLTAGE
(V-Ph-Hz)
VOLTAGE
RANGE
COMPRESSOR
(each) OFM IFM COMBUSTION
FAN MOTOR
POWER
SUPPLY
MINIMUM UNIT
DISCONNECT
SIZE*
Min Max RLA LRA FLA FLA RLA MCA MOCP† FLA LRA
004
208/230-3-60 187 254 10.3 77.0 0.7 5.8 0.6 19.4/19.4 25/25 19/19 120/120
460-3-60 414 508 5.1 39.0 0.4 2.6 0.3 9.4 15 9 60
575-3-60 518 632 4.2 31.0 0.4 2.6 0.3 7.7 15 8 48
005
208/230-3-60 187 254 13.5 99.0 0.7 5.8 0.6 23.4/23.4 30/30 23/23 142/142
460-3-60 414 508 7.4 49.5 0.4 2.6 0.3 12.3 15 12 71
575-3-60 518 632 5.8 40.0 0.4 2.6 0.3 9.7 15 9 57
006
208/230-3-60 187 254 17.3 123.0 1.5 7.5 0.6 30.6/30.6 35/35 30/30 187/187
460-3-60 414 508 9.0 62.0 0.8 3.4 0.3 15.5 20 15 94
575-3-60 518 632 7.1 50.0 0.8 3.4 0.3 12.2 15 12 76
007
208/230-3-60 187 254 20.5 156.0 1.4 7.5 0.6 30.6/30.6 35/35 30/30 187/187
460-3-60 414 508 9.6 70.0 0.6 3.4 0.3 15.5 20 15 94
575-3-60 518 632 7.7 56.0 0.6 3.4 0.3 12.2 15 12 76
UNIT
48HJ
NOMINAL
VOLTAGE
(V-Ph-Hz)
VOLTAGE
RANGE
COMPRESSOR
(each) OFM IFM COMBUSTION
FAN MOTOR
POWER
SUPPLY
MINIMUM UNIT
DISCONNECT
SIZE*
Min Max RLA LRA FLA FLA RLA MCA MOCP† FLA LRA
004
208/230-3-60 187 254 10.3 77.0 0.7 5.8 0.6 25.4/25.4 30/30 25 124/124
460-3-60 414 508 5.1 39.0 0.4 2.6 0.3 12.1 15 12 63
575-3-60 518 632 4.2 31.0 0.4 2.6 0.3 9.8 15 10 50
005
208/230-3-60 187 254 13.5 99.0 0.7 5.8 0.6 29.4/29.4 35/35 29 146/146
460-3-60 414 508 7.4 49.5 0.4 2.6 0.3 15.0 20 14 73
575-3-60 518 632 5.8 40.0 0.4 2.6 0.3 11.8 15 11 59
006
208/230-3-60 187 254 17.3 123.0 1.5 7.5 0.6 36.6/36.6 40/40 36 192/192
460-3-60 414 508 9.0 62.0 0.8 3.4 0.3 18.2 20 18 96
575-3-60 518 632 7.1 50.0 0.8 3.4 0.3 14.4 20 14 77
007
208/230-3-60 187 254 20.5 156.0 1.4 7.5 0.6 40.5/40.5 45/45 39 224/224
460-3-60 414 508 9.6 70.0 0.6 3.4 0.3 18.7 25 18 104
575-3-60 518 632 7.7 56.0 0.6 3.4 0.3 15.0 20 15 89
FLA — Full Load Amps
HACR — Heating, Air Conditioning and Refrigeration
IFM — Indoor (Evaporator) Fan Motor
LRA — Locked Rotor Amps
MCA — Minimum Circuit Amps
MOCP— Maximum Overcurrent Protection
NEC — National Electrical Code
OFM — Outdoor (Condenser) Fan Motor
RLA — Rated Load Amps
UL — Underwriters’ Laboratories
= 100 x max voltage deviation from average voltage
average voltage
Average Voltage = 452 + 464 + 455
3
= 1371
3
IMPORTANT: If the supply voltage phase imbalance is
more than 2%, contact your local electric utility company
immediately.
7
457

12
OPTIONAL DURABLADE ECONOMIZER — The option-
al economizer hood assembly is packaged and shipped in the
filter section. Damper blades and control boards are installed at
the factory and the economizer is shipped in the vertical dis-
charge position.
NOTE: Horizontal discharge block-off plate is shipped with
the air hood package. If unit is to be used for vertical discharge
application, discard this plate.
Assembly:
1. Determine if ventilation air is required in building. If so,
determine the minimum amount to be supplied by each
unit and record quantity of ventilation air needed for use
in Step 7.
2. Remove filter access panel by raising panel and swinging
panel outward. Panel is now disengaged from track and
can be removed. No tools are required to remove filter ac-
cess panel. Remove outdoor-air opening panel. Save pan-
els and screws. See Fig. 13. Remove economizer, and re-
move optional outdoor-air damper hood package from
filter section (located behind economizer).
3. Assemble outdoor-air hood top and side plates as shown
in Fig. 14. Install seal strips on hood top and sides. Put
aside screen retainer and retainer screw for later assem-
bly. Do not attach hood to unit at this time.
4. Slide economizer into unit and secure with screws. See
Fig. 15.
NOTE: Be sure to engage rear economizer flange under
tabs in vertical return-air opening.
5. To convert to horizontal discharge application:
a. Rotate economizer 90 degrees until the econo-
mizer motor faces the condenser section (see
Fig. 16).
b. Remove tape and shipping screw, rotate the baro-
metric relief damper cover 90 degrees.
c. Install horizontal discharge block-off plate over
the opening on the access panel. (Block-off plate
MUST be installed before installing hood assem-
bly.) See Fig. 17.
6. Remove 12-pin blue and yellow wire jumper plug from
factory wiring harness and store. Insert economizer plug
into 12-pin plug of factory wiring harness. Remove tape
and shipping screw from barometric relief damper. See
Fig.18.
7. If ventilation air is not required, proceed to Step 8. If ven-
tilation air is required, determine minimum position set-
ting for required airflow. See Fig. 19. Adjust minimum
position setting by adjusting the screws on the position
setting bracket. Slide bracket until the top screw is in the
position determined by Fig. 19. Tighten screws.
8. Remove tape from outdoor-air thermostat (OAT). Fasten
OAT to inside of hood using screws and speed clips pro-
vided. See Fig. 20. Make sure OAT terminals are posi-
tioned up.
MOISTUREMISER
% RELATIVE HUMIDITY
Fig. 11 — Accessory Field-Installed Humidistat
LEGEND
C—Contactor (Compressor)
CCH —Crankcase Heater
COMP —Compressor
FU —Fuse
HU —Humidistat
IFM —Indoor (Evaporator) Fan Motor
LLSV —Liquid Line Solenoid Valve
S-LPS —Low-Pressure Switch (Subcooler Only)
TRAN —Transformer
Factor y Wir ing
Accessory or Optional Wiring
Fig. 12 — Typical MoistureMiser Dehumidification Package Humidistat Wiring
(208/230-V Unit Shown)

13
9. Replace outdoor-air opening panel using screws from
Step 2. Replace filter access panel. Ensure the filter ac-
cess panel slides along the tracks and is securely engaged.
10. Fasten hood top and side plate assembly (Fig. 14) to
outdoor-air opening panel with screws provided.
11. Place knob supplied with economizer on OAT. See
Fig. 20. Set for 3° F below indoor room thermostat set-
ting. If accessory enthalpy control (EC) is used in place of
OAT, see instructions shipped with EC for installation
and adjustment. See Fig. 20.
12. Connect OAT per Fig. 21.
13. Slide outdoor-air inlet screen into screen track on hood
side plate. While holding screen in place, fasten screen re-
tainer to hood using screws provided.
NOTE: Refer to Fig. 22 for economizer barometric relief
damper characteristics.
ECONOMIZER
CONTROL BOARD
ECONOMIZER
PLUG
ECONOMIZER
MOTOR
TOP
SCREW
SHIPPING
SCREW
ECONOMIZER
CONTROL
BOARD
BAROMETRIC
RELIEF
DAMPER
ECONOMIZER
PLUG
ECONOMIZER
MOTOR
BLOCK-OFF PLATE
Fig. 15 — Durablade Economizer Installed in Unit
Fig. 16 — Horizontal Durablade Economizer
Installation
Fig. 17 — Horizontal Discharge Block-Off Plate
COMPRESSOR
ACCESS
PANEL
OUTDOOR-AIR
OPENING
FILTER
ACCESS
PANEL
Fig. 13 — Typical Access Panel Locations
Fig. 14 — Outdoor-Air Hood Details

14
U-SHAPED
HOLE
(NOT SHOWN)
ECONOMIZER
PLUG
WIRING
HARNESS
43210
5
6
7
8
9
UNIT
TOP
OAT
(TERMINALS ARE UP)
OUTSIDE AIR
SCREEN
MINIMUM
POSITION
OPEN
3
1
T
P
P1
T1
4
2
5
S
S
O
D
C
TR
B
REV.B
198818A
%
H
U
M
I
D
I
T
Y
90
70
60
30
10
DCBA
60 65 70
75
55
50 85
80
DAMPER
DAMPER
CLOSED
OPEN
OUTDOOR TEMP.°F
REV
.
97-3672
CW–SETPOINTS–CCW
CONTACTS SHOWN IN HIGH ENTHALPY
RUSHAT 24VAC
3 mA MIN. AT 11 VDC
CONTACT RATINGS: 1.5A RUN, 3.5A IN
OR UNPOWERED STATE
1
2
3
TR
TR1
24V
AC
ENTHALPY CONTROL
ENTHALPY
CONTROL
HOOD
Fig. 18 — Typical Durablade Economizer and
Wiring Harness
Example:
Given —
Negative Pressure . . . . . . . . . . . . . . . . . . . . . . . . . . .0.1 in. wg
Outdoor Airflow . . . . . . . . . . . . . . . . . . . . . . . . . . . . . 1100 cfm
Determine —
Setting = 6
Fig. 19A — Durablade Economizer Damper
Minimum Position Setting
Fig. 19B — Durablade Economizer Minimum
Position Damper Setting Fig. 21 — Wiring Connections for
Outdoor-Air Thermostat
Fig. 20 — Outdoor-Air Thermostat/
Enthalpy Control Installation

15
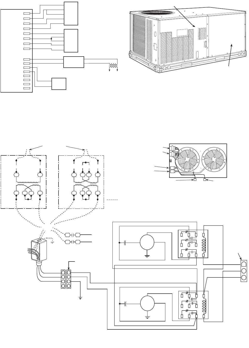
OPTIONAL ECONOMI$ER — See Fig. 23 for EconoMi$er
component locations.
1. To remove the existing unit filter access panel, raise the
panel and swing the bottom outward. The panel is now
disengaged from the track and can be removed. Remove
the indoor coil access panel and discard. See Fig. 24.
If installing an optional Power Exhaust Assembly, refer to
the EconoMi$er Power Exhaust Installation Instructions.
Controller should be mounted in vertical position as
shown in Fig. 23.
2. Assemble the hood assembly as follows:
Remove the EconoMi$er hood from its packaging. Re-
move shipping brackets holding hood package to
EconoMi$er. Locate the outdoor-air opening panel. See
Fig. 25. Remove hood assembly shipping brackets locat-
ed on the back (sloped) side of the EconoMi$er assembly.
These brackets are used to retain the hood assembly dur-
ing shipping only.
3. Install the 1/8 x 3/4-in. seal strip on the exhaust air hood
side panels and the bottom bracket. Assemble the exhaust
air hood to the outdoor-air opening panel as shown in
Fig. 25, using the screws provided. Do not attach hood
assembly to unit at this time.
4. Install the 1/8 x 3/4 in. seal strip on the outdoor-air hood
top and side panels. Assemble the outdoor-air hood to the
outdoor-air opening panel as shown in Fig. 26, using the
screws provided. Do not attach hood assembly to the unit
at this time.
5. Slide the outdoor-air inlet screens into the screen track on
the hood side panels. While holding the screens in place,
fasten the screen retainer to the hood using the screws
provided. Repeat the process for the barometric exhaust
air screen. Do not attach completed (Fig. 27) hood as-
sembly to unit at this time.
6. Install the EconoMi$er assembly into the rooftop unit.
See Fig. 28 and 29.
NOTE: Be sure to engage rear EconoMi$er flange under
tabs in return-air opening of the unit base. See Fig. 28.
7. Install the outdoor-air block-off plate, then secure the
EconoMi$er with the screws provided. See Fig. 29.
8. Remove and discard the 12-pin jumper plug from the unit
wiring harness located int he upper left corner and insert
the EconoMi$er plug into the unit wiring harness. Refer
to wiring diagram Fig. 30 and 31. Also refer to Fig. 32 if
installing an accessory power exhaust.
9. Install the complete hood assembly on the unit and secure
using the screws provided.
10. Remove the indoor fan motor access panel. See Fig. 33.
11. Mount the supply-air temperature sensor to the lower left
portion of the indoor blower housing with the two
(2) screws provided (see Fig. 34). Connect the violet and
pink wires to the corresponding connections on the
supply-air temperature sensor. Replace the indoor fan
motor access panel.
0.90
0.80
0.70
0.60
0.50
0.40
0.30
0.20
0.10
0.00 100 200 300 400 500 600 700 800
CFM
PRESSURE DROP (in. wg)
Fig. 22 — Durablade Economizer Barometric
Relief Damper Characteristics
BAROMETRIC RELIEF DAMPERS
CONTROLLER
ECONOMI$ER
PLUG GEAR-DRIVEN
DAMPER
OUTDOOR AIR
TEMPERATURE
SENSOR
ACTUATOR
OUTDOOR-AIR
OPENING PANEL
FILTER ACCESS
PANEL
OUTDOOR AIR
OPENING PANEL
SEAL STRIP
EXHAUST AIR SCREEN
EXHAUST AIR
HOOD TOP
SCREEN
RETAINER
EXHAUST AIR
HOOD SIDES
EXHAUST AIR
BOTTOM BRACKET
Fig. 23 — Economizer Component Locations
Fig. 24 — Typical Access Panel Locations
Fig. 25 — Exhaust Air Hood Assembly

16
SEAL STRIP
SEAL STRIP
OUTDOOR AIR
HOOD TOP
SCREEN
RETAINER
OUTDOOR AIR
INLET
SCREENS
OUTDOOR AIR
HOOD SIDES
ASSEMBLED
EXHAUST HOOD
OUTDOOR AIR
OPENING
PANEL
ECONOMIZER
ECONOMIZER REAR
FLANGE
UNIT BASE
UNIT FILTER
RACK
ECONOMIZER CLIP
HVAC UNIT
WIRING
HARNESS
OUTDOOR
AIR
BLOCK-OFF
PLATE
Fig. 26 — Outdoor-Air Hood Assembly
Fig. 27 — Completed Hood Assembly
Fig. 28 — Rear EconoMi$er Flange Installation
Fig. 29 — EconoMi$er Installed
Fig. 30 — EconoMi$er Wiring
LEGEND
OAT —Outdoor-Air Thermostat

17
OUTDOOR
AIR
SENSOR
TEMP
TEMP
COM
OUT
PWR
BROWN
VIOLET
WHITE
RED
BROWN TEMP
TEMP
COM
OUT
PWR
RETURN
AIR
SENSOR
VIOLET
WHITE
RED
OAT
COM
OAH
-15 V
RAT
COM
RAH
+15 V
ECONOMI$ER
CONTROLLER
PINK TEMP
TEMP
VIOLET
SUPPLY AIR
TEMPERATURE SENSOR
V+ 24
COM VAC
SENSOR
CO2
(+)
COM
DAT
COM
REM POT
COM
LED
COM
CO2
CO2
CONTROL BOX/BURNER
ACCESS PANEL
INDOOR FAN MOTOR
ACCESS PANEL AND BLOWER
4-PIN
CONNECTOR
PLUG
L1
L2
GREEN
1
1
22
33
44
GND
230 VAC
1 PHASE
GREEN/
YELLOW
3
2
1
58
69B
A
7
4
LT. BLUE
BLACK
BROWN
C1
BLUE
GREEN/
YELLOW
3
2
1
58
69B
A
7
4
LT. BLUE
BLACK
BROWN
C1
BLUE
FAN 2
FAN 1
BLACK
BLACK
BLACK
R1
24 VAC
R2
24 VAC
BLACK
BLUE
1
2
3
BROWN
ORANGE
3-PIN
CONNECTOR
PLUG
YELLOW
RED YEL
H1
BLU GRAY
H4
SECONDARY
230VAC
X4 X1
HT01AH850
(460 VAC)
RED
H1
GRAY
H2
SECONDARY
230VAC
X4 X1
HT01AH859
(575 VAC)
23
13
11 21 230VAC
OR
BLACK L1
BLUE L2
COMPRESSOR 1
CONTACTOR
FIELD SUPPLIED
WIRING
GREEN GND
2 x 4 IN.
HANDY BOX
X3
X2
H2
H3
X2 X3
TO FUSED
DISCONNECT
Fig. 31 — EconoMi$er Sensor Wiring
Fig. 33 — Typical Access Panel Locations
(Standard Efficiency Unit Shown)
Fig. 32 — Wiring Diagram for Power Exhaust System
FAN 1 FAN 2
CAPACITOR 2
CAPACITOR 1
RELAY 2
RELAY 1
4-PIN
CONNECTOR PLUG
(HIGH VOLTAGE)
3-PIN
CONNECTOR PLUG
(LOW VOLTAGE)
POWER EXHAUST SYSTEM (HIGH VOLTAGE)

18
CO2 Control Setup — If a CO2 sensor is not being used, pro-
ceed to the next section. If a CO2 sensor is being used, perform
the following:
1. Determine the value at which you want the minimum po-
sition of the dampers to begin opening to allow a greater
amount of outdoor air to enter. The range is 800 to
1,400 ppm.
2. Locate the CO2 SP (PPM) potentiometer and adjust to the
desired set point. See Fig. 35.
Mechanical Cooling Lockout — Determine the outdoor-air
temperature at which you want the mechanical cooling (com-
pressors) to be disabled. Locate the mechanical cooling lockout
(MECH CLG LOCKOUT) potentiometer. To disable this fea-
ture, turn the potentiometer counterclockwise (CCW) to the
OFF position. Otherwise, set the value between 10 and 60 F.
Mechanical cooling will not operate when the outdoor air
temperature is below this value. See Fig. 35.
Dry Bulb Changeover Set Up — Determine the dry bulb
changeover set point from Table 3. The settings are A, B, C and
D. Locate the ECON SP potentiometer and set the dry bulb
changeover set point. See Fig. 35. When the OAT is above this
set point, the damper is limited to minimum position setting.
Table 3 — Changeover Set Points
*Field-installed accessory.
If a potentiometer fails, its setting will default to the values
in Table 4.
Table 4 — Default Potentiometer Settings
Ventilation Air (Minimum Position Set Up) — If ventilation
air is not required, proceed to Step 5. If ventilation air is re-
quired, perform the following:
1. The indoor fan must be on to set the ventilation air. Either
put the thermostat in the continuous fan mode or jumper
the R and G terminals at the rooftop unit connection
board.
2. Locate the minimum position (MIN POS) potentiometer.
Turn the potentiometer full CCW to fully close the out-
door air dampers. Turn the potentiometer gradually
clockwise (CW) to the desired position. See Fig. 35.
3. Replace the filter access panel. See Fig. 24. Ensure the fil-
ter access panel slides along the tracks and is securely
engaged.
4. Calculate the minimum airflow across the EconoMi$er.
a. Calculate % of outside air using the following
formula.
% Outdoor air through EconoMi$er
b. Divide total CFM by percentage outdoor air, this
gives outdoor air volume in CFM.
5. Turn on base unit power.
NOTE: The EconoMi$er begins operation three minutes after
power up.
6. See Fig. 36 for barometric relief damper characteristics.
SETTINGS ABCD
Dry Bulb (°F) 73 69 66 63
Single Enthalpy* (Btu/lb) 27 25 24 22
Differential Temperature* (°F, Not Adjustable) 2222
Differential Enthalpy* (Btu/lb, Not Adjustable) 1111
POTENTIOMETER DEFAULT SETTING
CO2 SP (PPM) 1,000
MECH CLG LOCKOUT 47°
ECON SP D
MIN POS (%) 20
% Outdoor air =
Mixture Temp –
Return Air Temp
Outdoor Temp –
Return Air Temp
Personal Injury Hazard. Avoid possible injury by keep-
ing fingers away from damper blades.
SUPPLY AIR
TEMPERATURE
SENSOR
MOUNTING
LOCATION
SUPPLY AIR
TEMPERATURE
SENSOR
Fig. 34 — Supply-Air Sensor Placement
0400 800 1200 1600 2000 2400
FLOW (CUBIC FEET/MINUTE)
0.5
0.4
0.3
0.2
0.1
0
STATIC PRESSURE (IN.WG)
Fig. 35 — EconoMi$er Control Adjustment
Potentiometers (Factory Settings)
Fig. 36 — Barometric Relief Capacity

19
Step 9 — Adjust Evaporator-Fan Speed — Ad-
just evaporator-fan speed to meet jobsite conditions.
Tables 5A and 5B show fan rpm at motor pulley settings.
Tables 6 and 7 show maximum amp draw of belt-drive motor.
Table 8 shows motor nominal horsepower for evaporator-fan
motors. Refer to Tables 8-25 for performance data. See Tables
26 and 27 for accessory and option static pressure drops.
BELT-DRIVE MOTORS — Fan motor pulleys are factory set
for speed shown in Table 1. Check pulley alignment and belt
tension prior to start-up.
NOTE: Before adjusting fan speed, make sure the new fan
speed will provide an air temperature rise range as shown in
Table 1.
To change fan speed:
1. Shut off unit power supply, tag disconnect.
2. Loosen belt by loosening fan motor mounting nuts. See
Fig. 37.
3. Loosen movable pulley flange setscrew (see Fig. 38).
4. Screw movable flange toward fixed flange to increase
speed and away from fixed flange to decrease speed. In-
creasing fan speed increases load on motor. Do not ex-
ceed maximum speed specified in Table 1.
5. Set movable flange at nearest keyway of pulley hub and
tighten setscrew. (See Table 1 for speed change for each
full turn of pulley flange.)
To align fan and motor pulleys, loosen fan pulley setscrews
and slide fan pulley along fan shaft. Make angular alignment
by loosening motor from mounting.
To adjust belt tension:
1. Loosen fan motor mounting nuts.
2. Slide motor mounting plate away from fan scroll for
proper belt tension (1/2-in. deflection with 8 to 10 lbs of
force) and tighten mounting nuts.
3. Adjust lock bolt and nut on mounting plate to secure mo-
tor in fixed position.
MOTOR MOUNTING
PLATE NUTS
Fig. 37 — Belt-Drive Motor Mounting
Fig. 38 — Evaporator-Fan Pulley Adjustment

20
Table 5A — 48HJ Fan Rpm at Motor Pulley Setting With Standard Motor
*Approximate fan rpm shown (standard motor/drive).
Table 5B — 48HJ Fan Rpm at Motor Pulley Setting With High Static Motor
Table 6 — Evaporator-Fan Motor Data — Standard Motor
LEGEND
Bhp — Brake Horsepower
*Extensive motor and electrical testing on these units ensures that
the full horsepower and watts range of the motors can be utilized
with confidence. Using your fan motors up to the ratings shown in
this table will not result in nuisance tripping or premature motor fail-
ure. Unit warranty will not be affected.
Table 7 — Evaporator-Fan Motor Data — High-Static Motors
LEGEND
Bhp — Brake Horsepower
*Extensive motor and electrical testing on these units ensures that
the full horsepower and watts range of the motors can be utilized
with confidence. Using your fan motors up to the ratings shown in
this table will not result in nuisance tripping or premature motor fail-
ure. Unit warranty will not be affected.
STANDARD MOTOR*
UNIT
48HJ
MOTOR PULLEY TURNS OPEN
01/211
1/222
1/233
1/244
1/255
1/26
004 1090 1055 1025 990 960 925 890 860 825 795 760 ——
005 1185 1150 1115 1080 1045 1015 980 945 910 875 840 ——
006
(single-phase) 1460 1425 1385 1350 1315 1275 1240 1205 1165 1130 1095 1055 1020
006 (3-phase)
and 007 1585 1540 1490 1445 1400 1350 1305 1260 1210 1165 1120 ——
HIGH-STATIC MOTOR
UNIT
48HJ
MOTOR PULLEY TURNS OPEN
01/211
1/222
1/233
1/244
1/255
1/26
004 1455 1423 1392 1360 1328 1297 1265 1233 1202 1170 1138 1107 1075
005 1455 1423 1392 1360 1328 1297 1265 1233 1202 1170 1138 1107 1075
006 1685 1589 1557 1525 1493 1460 1428 1396 1364 1332 1300 ——
007 1685 1589 1557 1525 1493 1460 1428 1396 1364 1332 1300 ——
UNIT
48HJ
UNIT
PHASE
MAXIMUM
CONTINUOUS BHP*
MAXIMUM
OPERATING WATTS* UNIT VOLTAGE MAXIMUM
AMP DRAW
004
Single 1.20 1000 208/230 5.4
Three 1.20 1000
208/230 5.4
460 2.4
575 2.4
005
Single 1.20 1000 208/230 5.4
Three 1.20 1000
208/230 5.4
460 2.4
575 2.4
006
Single 1.30 1650 208/230 9.7
Three 2.40 2120
208/230 6.4
460 2.9
575 2.9
007 Three 2.40 2120
208/230 6.4
460 2.9
575 2.9
UNIT
48HJ
UNIT
PHASE
MAXIMUM
CONTINUOUS BHP*
MAXIMUM
OPERATING WATTS* UNIT VOLTAGE MAXIMUM
AMP DRAW
004 Three 2.40 2120
208/230 6.4
460 2.9
575 2.9
005 Three 2.40 2120
208/230 6.4
460 2.9
575 2.9
006 Three 2.90 2615
208/230 7.9
460 3.6
575 3.6
007 Three 2.90 2615
208/230 6.4
460 3.6
575 3.6

21
Table 8 — Motor Nominal Horsepower
Table 9 — Outdoor Sound Power (Total Unit)
LEGEND
Table 10 — 48HJ004 Fan Performance — Vertical Discharge Units With Standard Motor
Table 11 — 48HJ004 Fan Performance — Vertical Discharge Units With High-Static Motor
LEGEND AND NOTES FOR TABLES 10 AND 11
LEGEND
NOTES:
1. Boldface indicates field-supplied drive required. (See Note 2.)
2. Motor drive range is 760 to 1090 rpm for standard motor; 1075 to 1455
rpm for high-static motor. All other rpms require a field-supplied drive.
3. Values include losses for filters, unit casing, and wet coils. See page 28
for accessory/FIOP static pressure information.
4. Maximum continuous bhp is 1.20 for standard motor, 2.40 for high-static
motor. Extensive motor and electrical testing on these units ensures that
the full range of the motor can be utilized with confidence. Using your
fan motors up to the ratings shown will not result in nuisance tripping
or premature motor failure. Unit warranty will not be affected. See
Evaporator-Fan Motor Data tables on page 20 for additional information.
5. Use of a field-supplied motor may affect wire sizing. Contact your Carrier
representative to verify.
6. Interpolation is permissible. Do not extrapolate.
UNIT 48HJ MOTOR NOMINAL HORSEPOWER
004 All 1.00
005 All 1.00
006 Single Phase 1.50
Three Phase 2.00
007 All 2.00
UNIT
48HJ
ARI
RATING
(Bels)
OCTAVE BANDS
63 125 250 500 1000 2000 4000 8000
004,005 7.6 55.9 66.0 64.0 66.2 68.4 64.5 61.7 57.3
006,007 8.0 59.1 68.9 68.7 71.9 74.0 68.9 65.7 59.0
ARI —Air Conditioning and Refrigeration Institute
Bels —Sound Levels (1 bel = 10 decibels)
AIRFLOW
(Cfm)
EXTERNAL STATIC PRESSURE (in. wg)
0.1 0.2 0.3 0.4 0.5 0.6
Rpm Bhp Rpm Bhp Rpm Bhp Rpm Bhp Rpm Bhp Rpm Bhp
900 581 0.12 673 0.18 736 0.22 805 0.25 865 0.29 911 0.34
1000 644 0.19 709 0.22 782 0.28 835 0.30 900 0.35 937 0.38
1100 687 0.22 746 0.26 806 0.30 867 0.35 929 0.40 964 0.40
1200 733 0.26 785 0.32 843 0.35 903 0.41 960 0.47 994 0.50
1300 754 0.29 826 0.38 891 0.43 942 0.48 991 0.53 1047 0.60
1400 810 0.35 868 0.45 937 0.51 984 0.57 1032 0.62 1067 0.67
1500 841 0.42 911 0.53 985 0.61 1029 0.66 1073 0.72 1109 0.77
AIRFLOW
(Cfm)
EXTERNAL STATIC PRESSURE (in. wg)
0.7 0.8 0.9 1.0 1.1 1.2
Rpm Bhp Rpm Bhp Rpm Bhp Rpm Bhp Rpm Bhp Rpm Bhp
900 957 0.39 988 0.43 1039 0.47 1061 0.51 1083 0.54 1105 0.58
1000 992 0.44 1039 0.49 1061 0.55 1088 0.60 1111 0.66 1136 0.72
1100 1013 0.49 1068 0.55 1091 0.61 1109 0.66 1127 0.73 1145 0.80
1200 1045 0.56 1090 0.64 1109 0.68 1156 0.73 1203 0.81 1250 0.86
1300 1075 0.64 1122 0.70 1152 0.76 1190 0.82 1228 0.87 1266 0.94
1400 1110 0.73 1160 0.78 1181 0.83 1237 0.88 1293 0.94 1349 0.99
1500 1150 0.78 1190 0.84 1225 0.89 1271 0.95 1371 1.00 1383 1.05
AIRFLOW
(Cfm)
EXTERNAL STATIC PRESSURE (in. wg)
0.2 0.4 0.6 0.8 1.0
Rpm Bhp Rpm Bhp Rpm Bhp Rpm Bhp Rpm Bhp
900 673 0.18 805 0.25 911 0.34 988 0.43 1061 0.47
1000 709 0.22 835 0.30 937 0.38 1039 0.49 1086 0.55
1100 746 0.28 867 0.35 964 0.40 1068 0.55 1109 0.61
1200 785 0.32 903 0.41 994 0.50 1090 0.64 1156 0.68
1300 826 0.38 942 0.48 1047 0.60 1122 0.70 1190 0.76
1400 868 0.45 984 0.57 1087 0.67 1160 0.84 1237 0.85
1500 911 0.53 1029 0.66 1109 0.77 1190 1.00 1271 0.95
AIRFLOW
(Cfm)
EXTERNAL STATIC PRESSURE (in. wg)
1.2 1.4 1.6 1.8 2.0
Rpm Bhp Rpm Bhp Rpm Bhp Rpm Bhp Rpm Bhp
900 1105 0.57 1140 0.63 1170 0.68 1198 0.73 1224 0.77
1000 1136 0.63 1172 0.69 1203 0.75 1232 0.80 1258 0.86
1100 1145 0.67 1181 0.73 1213 0.80 1242 0.85 1268 0.91
1200 1210 0.74 1248 0.81 1282 0.88 1312 0.94 1340 1.01
1300 1266 0.84 1306 0.92 1341 1.00 1373 1.07 1402 1.14
1400 1349 0.93 1391 1.02 1429 1.11 1463 1.19 1494 1.26
1500 1363 1.05 1406 1.15 1465 1.25 1500 1.34 1532 1.43
Bhp —Brake Horsepower Input to Fan
FIOP —Factory-Installed Option

22
Table 12 — 48HJ005 Fan Performance — Vertical Discharge Units With Standard Motor
Table 13 — 48HJ005 Fan Performance — Vertical Discharge Units With High-Static Motor
LEGEND AND NOTES FOR TABLES 12 AND 13
LEGEND
NOTES:
1. Boldface indicates field-supplied drive required. (See Note 3.)
2. indicates field-supplied motor and drive required.
3. Motor drive range is 840 to 1185 rpm for standard motor; 1075 to
1455 rpm for high-static motor. All other rpms require a field-supplied
drive.
4. Values include losses for filters, unit casing, and wet coils. See page 28
for accessory/FIOP static pressure information.
5. Maximum continuous bhp is 1.2 for standard motor, 2.4 for high-static
motor. Extensive motor and electrical testing on these units ensures that
the full range of the motor can be utilized with confidence. Using your
fan motors up to the ratings shown will not result in nuisance tripping or
premature motor failure. Unit warranty will not be affected. See Evapora-
tor-Fan Motor Data tables on page 20 for additional information.
6. Use of a field-supplied motor may affect wire sizing. Contact your Carrier
representative to verify.
7. Interpolation is permissible. Do not extrapolate.
AIRFLOW
(Cfm)
EXTERNAL STATIC PRESSURE (in. wg)
0.1 0.2 0.3 0.4 0.6 0.7 0.8
Rpm Bhp Rpm Bhp Rpm Bhp Rpm Bhp Rpm Bhp Rpm Bhp Rpm Bhp
1200 596 0.20 665 0.25 722 0.31 779 0.36 872 0.48 915 0.54 957 0.60
1300 633 0.24 699 0.30 754 0.36 809 0.42 902 0.55 943 0.61 984 0.67
1400 672 0.30 735 0.36 788 0.42 840 0.48 933 0.62 972 0.69 1011 0.75
1500 711 0.35 770 0.42 822 0.49 873 0.55 963 0.69 1002 0.77 1041 0.84
1600 751 0.42 835 0.49 871 0.56 907 0.63 993 0.77 1033 0.85 1072 0.93
1700 791 0.49 873 0.57 907 0.65 941 0.72 1024 0.87 1064 0.96 1103 1.04
1800 831 0.58 881 0.66 929 0.74 976 0.81 1057 0.97 1095 1.06 1132 1.14
1900 872 0.67 919 0.75 965 0.84 1011 0.92 1091 1.08 1127 1.17 1162 1.25
2000 913 0.77 958 0.86 1002 0.95 1046 1.03 1125 1.21 1160 1.30 1195 1.38
AIRFLOW
(Cfm)
EXTERNAL STATIC PRESSURE (in. wg)
0.9 1.0 1.1 1.2 1.4 1.6 1.8
Rpm Bhp Rpm Bhp Rpm Bhp Rpm Bhp Rpm Bhp Rpm Bhp Rpm Bhp
1200 993 0.65 1028 0.69 1056 0.72 1083 0.74 1134 0.80 1185 0.88 1331 0.99
1300 1021 0.74 1058 0.80 1090 0.85 1121 0.89 1171 0.94 1219 1.00 1268 1.10
1400 10490.8210860.8911200.9611531.0012101.1212571.171307 1.25
1500 10770.9211130.9911471.0611801.131241 1.27 1295 1.37 1339 1.43
1600 11071.0011411.0911741.171207 1.25 1269 1.40 1326 1.54 1376 1.65
1700 11371.1211711.201203 1.29 1235 1.37 1296 1.53 1354 1.70 1407 1.84
1800 1167 1.23 1202 1.32 1233 1.41 1263 1.49 1323 1.67 1381 1.85 1436 2.02
1900 1197 1.35 1232 1.45 1263 1.54 1294 1.63 1351 1.81 1408 2.00 1463 2.19
2000 1229 1.48 1262 1.58 1294 1.68 1325 1.78 1362 1.97 1436 2.16 1489 2.36
AIRFLOW
(Cfm)
EXTERNAL STATIC PRESSURE (in. wg)
0.2 0.4 0.6 0.8 1.0
Rpm Bhp Rpm Bhp Rpm Bhp Rpm Bhp Rpm Bhp
1200 665 0.25 779 0.36 872 0.48 957 0.60 1028 0.69
1300 699 0.30 809 0.42 902 0.55 984 0.67 1058 0.80
1400 735 0.36 840 0.48 933 0.62 1011 0.75 1086 0.89
1500 770 0.42 873 0.55 963 0.69 1041 0.84 1113 0.99
1600 835 0.49 907 0.63 993 0.77 1072 0.93 1141 1.09
1700 873 0.57 941 0.72 1024 0.87 1103 1.04 1171 1.20
1800 881 0.66 976 0.81 1057 0.97 1132 1.14 1202 1.32
1900 919 0.75 1011 0.92 1091 1.08 1162 1.25 1232 1.45
2000 958 0.86 1046 1.03 1125 1.21 1195 1.38 1262 1.58
AIRFLOW
(Cfm)
EXTERNAL STATIC PRESSURE (in. wg)
1.2 1.4 1.6 1.8 2.0
Rpm Bhp Rpm Bhp Rpm Bhp Rpm Bhp Rpm Bhp
1200 1083 0.74 1134 0.80 1185 0.88 1331 0.99 1374 1.09
1300 1121 0.89 1171 0.94 1219 1.00 1268 1.10 1309 1.21
1400 1153 1.00 1210 1.12 1257 1.17 1307 1.25 1349 1.37
1500 1180 1.13 1241 1.27 1295 1.37 1339 1.43 1382 1.57
1600 1207 1.25 1269 1.40 1326 1.54 1376 1.65 1420 1.81
1700 1235 1.37 1296 1.53 1354 1.70 1407 1.84 1452 2.02
1800 1263 1.49 1323 1.67 1381 1.85 1436 2.02 1482 2.22
1900 1294 1.63 1351 1.81 1408 2.00 1463 2.19 ——
2000 1325 1.78 1362 1.97 1436 2.16 1489 2.36 ——
Bhp —Brake Horsepower Input to Fan
FIOP —Factory-Installed Option

23
Table 14 — 48HJ006 Fan Performance — Vertical Discharge Units With Standard Motor
Single-Phase Units
3-Phase Units
Table 15 — 48HJ006 Fan Performance — Vertical Discharge Units With High-Static Motor
LEGEND AND NOTES FOR TABLES 14 AND 15
LEGEND
NOTES:
1. Boldface indicates field-supplied drive required. (See Note 3.)
2. indicates field-supplied motor and drive required.
3. Motor drive range is 1020 to 1460 rpm for single-phase standard
motors, 1120 to 1585 for 3-phase standard motors, and 1300 to 1685 for
high-static motors. All other rpms require a field-supplied drive.
4. Values include losses for filters, unit casing, and wet coils. See page 28
for accessory/FIOP static pressure information.
5. Maximum continuous bhp is 1.30 for single-phase standard motors, 2.40
for 3-phase standard motors, and 2.90 for high-static motors. Extensive
motor and electrical testing on these units ensures that the full range of
the motor can be utilized with confidence. Using your fan motors up to
the ratings shown will not result in nuisance tripping or premature motor
failure. Unit warranty will not be affected. See Evaporator-Fan Motor
Data tables on page 20 for additional information.
6. Use of a field-supplied motor may affect wire sizing. Contact your Carrier
representative to verify.
7. Interpolation is permissible. Do not extrapolate.
AIRFLOW
(Cfm)
EXTERNAL STATIC PRESSURE (in. wg)
0.1 0.2 0.4 0.6 0.8 1.0 1.2 1.4 1.6
Rpm Bhp Rpm Bhp Rpm Bhp Rpm Bhp Rpm Bhp Rpm Bhp Rpm Bhp Rpm Bhp Rpm Bhp
1500 771 0.37 828 0.44 935 0.58 1027 0.73 1107 0.88 1185 1.04 1257 1.20 1330 1.38 1411 1.59
1600 816 0.45 869 0.51 968 0.66 1056 0.81 1127 0.97 1215 1.14 1286 1.31 1353 1.49 1421 1.68
1700 902 0.61 940 0.60 1007 0.75 1094 0.91 1175 1.09 1245 1.26 1315 1.44 1381 1.52 1443 1.69
1800 942 0.70 978 0.66 1063 0.82 1147 0.97 1248 1.20 1322 1.33 1395 1.46 1475 1.56 1542 1.71
1900 982 0.80 1023 0.78 1097 0.91 1175 1.11 1266 1.29 1356 1.47 1430 1.58 1504 1.69 1556 1.82
2000 1022 0.91 1068 0.90 1132 1.01 1218 1.23 1303 1.41 1397 1.52 1459 1.67 1532 1.82 1588 1.97
2100 1063 0.99 1115 1.00 1180 1.17 1261 1.35 1340 1.53 1428 1.66 1489 1.80 1567 1.99 1626 2.16
2200 1104 1.13 1159 1.15 1214 1.28 1310 1.52 1375 1.63 1459 1.80 1528 1.95 1603 2.17 1666 2.37
2300 1130 1.26 1202 1.29 1248 1.38 1358 1.69 1410 1.72 1488 1.93 1561 2.13 1637 2.35 1710 2.54
2400 1174 1.37 1237 1.41 1292 1.55 1392 1.81 1460 1.90 1532 2.14 1584 2.28 1671 2.55 1756 2.70
2500 1201 1.48 1272 1.53 1335 1.71 1427 1.94 1518 2.16 1575 2.35 1633 2.53 1698 2.72 ——
AIRFLOW
(Cfm)
EXTERNAL STATIC PRESSURE (in. wg)
0.1 0.2 0.4 0.6 0.8 1.0 1.2 1.4 1.6
Rpm Bhp Rpm Bhp Rpm Bhp Rpm Bhp Rpm Bhp Rpm Bhp Rpm Bhp Rpm Bhp Rpm Bhp
1500 771 0.37 828 0.44 935 0.58 1027 0.73 1107 0.88 1185 1.04 1257 1.20 1330 1.38 1411 1.59
1600 816 0.45 869 0.51 968 0.66 1056 0.81 1127 0.97 1215 1.14 1286 1.31 1353 1.49 1421 1.68
1700 902 0.61 940 0.60 1007 0.75 1094 0.91 1175 1.09 1245 1.26 1315 1.44 1381 1.52 1443 1.69
1800 942 0.70 978 0.66 1063 0.82 1147 0.97 1248 1.20 1322 1.33 1395 1.46 1475 1.56 1542 1.71
1900 982 0.80 1023 0.78 1097 0.91 1175 1.11 1266 1.29 1356 1.47 1430 1.58 1504 1.69 1556 1.82
2000 1022 0.91 1068 0.90 1132 1.01 1218 1.23 1303 1.41 1397 1.52 1459 1.67 1532 1.82 1588 1.97
2100 1063 0.99 1115 1.00 1180 1.17 1261 1.35 1340 1.53 1428 1.66 1489 1.80 1567 1.99 1626 2.16
2200 1104 1.13 1159 1.15 1214 1.28 1310 1.52 1375 1.63 1459 1.80 1528 1.95 1603 2.17 1666 2.37
2300 1130 1.26 1202 1.29 1248 1.38 1358 1.69 1410 1.72 1488 1.93 1561 2.13 1637 2.35 1710 2.54
2400 1174 1.37 1237 1.41 1292 1.55 1392 1.81 1460 1.90 1532 2.14 1584 2.28 1671 2.55 1756 2.70
2500 1201 1.48 1272 1.53 1335 1.71 1427 1.94 1518 2.16 1575 2.35 1633 2.53 1698 2.72 ——
AIRFLOW
(Cfm)
EXTERNAL STATIC PRESSURE (in. wg)
0.2 0.4 0.6 0.8 1.0
Rpm Bhp Rpm Bhp Rpm Bhp Rpm Bhp Rpm Bhp
1500 808 0.42 914 0.56 1001 0.69 1084 0.85 1168 1.01
1600 846 0.49 950 0.64 1034 0.78 1111 0.94 1194 1.11
1700 884 0.57 983 0.72 1068 0.88 1145 1.03 1218 1.21
1800 924 0.66 1018 0.82 1105 0.98 1179 1.13 1246 1.32
1900 965 0.76 1057 0.92 1143 1.10 1212 1.26 1280 1.43
2000 1008 0.87 1096 1.04 1177 1.22 1247 1.40 1300 1.57
2100 1051 0.99 1136 1.17 1210 1.35 1284 1.54 1347 1.72
2200 1095 1.12 1173 1.30 1245 1.49 1322 1.70 1380 1.89
2300 1140 1.26 1210 1.47 1284 1.65 1356 1.80 1418 2.07
2400 1185 1.41 1249 1.61 1323 1.80 1389 2.03 1456 2.26
2500 1231 1.57 1289 1.78 1363 2.00 1424 2.22 1500 2.45
AIRFLOW
(Cfm)
EXTERNAL STATIC PRESSURE (in. wg)
1.2 1.4 1.6 1.8 2.0
Rpm Bhp Rpm Bhp Rpm Bhp Rpm Bhp Rpm Bhp
1500 1199 1.19 1126 1.46 1250 1.69 1301 1.91 1349 2.12
1600 1263 1.28 1275 1.49 1299 1.78 1352 2.01 1401 2.23
1700 1295 1.39 1351 1.58 1352 1.80 1407 2.03 1459 2.26
1800 1319 1.52 1389 1.71 1435 1.91 1494 2.15 1548 2.40
1900 1343 1.64 1415 1.80 1478 2.05 1538 2.31 1594 2.57
2000 1374 1.77 1438 1.99 1505 2.21 1566 2.49 1624 2.77
2100 1409 1.91 1465 2.14 1533 2.45 1596 2.77 1654 3.08
2200 1442 2.08 1498 2.30 1568 2.64 1632 2.97 1691 3.31
2300 1475 2.26 1554 2.64 1627 3.03 1693 3.42 1755 3.81
2400 1565 2.47 1649 2.89 1726 3.31 ————
2500 1596 2.95 1682 3.45 1760 3.96 ————
Bhp —Brake Horsepower Input to Fan
FIOP —Factory-Installed Option

24
Table 16 — 48HJ007 Fan Performance — Vertical Discharge Units With Standard Motor
Table 17 — 48HJ007 Fan Performance — Vertical Discharge Units With High-Static Motor
LEGEND AND NOTES FOR TABLES 16 AND 17
LEGEND
NOTES:
1. Boldface indicates field-supplied drive required. (See Note 3.)
2. indicates field-supplied motor and drive required.
3. Motor drive range is 1120 to 1585 rpm for standard motors, 1130 to
1685 rpm for high-static motors. All other rpms require a field-supplied
drive.
4. Values include losses for filters, unit casing, and wet coils. See page 28
for accessory/FIOP static pressure information.
5. Maximum continuous bhp is 2.40 for standard motors, 2.90 for high-
static motors. Extensive motor and electrical testing on these units
ensures that the full range of the motor can be utilized with confidence.
Using your fan motors up to the ratings shown will not result in nuisance
tripping or premature motor failure. Unit warranty will not be affected.
See Evaporator-Fan Motor Data tables on page 20 for additional infor-
mation.
6. Use of a field-supplied motor may affect wire sizing. Contact your Carrier
representative to verify.
7. Interpolation is permissible. Do not extrapolate.
AIRFLOW
(Cfm)
EXTERNAL STATIC PRESSURE (in. wg)
0.1 0.2 0.4 0.6 0.8 1.0 1.2 1.4 1.6
Rpm Bhp Rpm Bhp Rpm Bhp Rpm Bhp Rpm Bhp Rpm Bhp Rpm Bhp Rpm Bhp Rpm Bhp
1800 942 0.70 978 0.66 1063 0.82 1147 0.97 1248 1.20 1322 1.33 1395 1.46 1475 1.56 1542 1.71
1900 982 0.80 1023 0.78 1097 0.91 1175 1.11 1266 1.29 1356 1.47 1430 1.58 1504 1.69 1556 1.82
2000 1022 0.91 1068 0.90 1132 1.01 1218 1.23 1303 1.41 1397 1.52 1459 1.67 1532 1.82 1588 1.97
2100 1063 0.99 1115 1.00 1180 1.17 1261 1.35 1340 1.53 1428 1.66 1489 1.80 1567 1.99 1626 2.16
2200 1104 1.13 1159 1.15 1214 1.28 1310 1.52 1375 1.63 1459 1.80 1528 1.95 1603 2.17 1666 2.37
2300 1130 1.26 1202 1.29 1248 1.38 1358 1.69 1410 1.72 1488 1.93 1561 2.13 1637 2.35 1710 2.54
2400 1174 1.37 1237 1.41 1292 1.55 1392 1.81 1460 1.90 1532 2.14 1584 2.28 1671 2.55 1756 2.70
2500 1201 1.48 1272 1.53 1335 1.71 1427 1.94 1518 2.16 1575 2.35 1633 2.53 1698 2.72 ——
2600 1246 1.62 1320 1.68 1368 1.81 1458 2.06 1562 2.42 1620 2.59 1675 2.77 ————
2700 1285 1.75 1361 1.82 1400 1.91 1490 2.19 1602 2.64 1666 2.85 ——————
2800 1304 1.87 1402 1.95 1439 2.08 1543 2.43 1642 2.86 ————————
2900 1345 2.07 1446 2.16 1477 2.16 1585 2.65 ——————————
3000 1378 2.26 1489 2.36 1529 2.52 1598 2.73 ——————————
AIRFLOW
(Cfm)
EXTERNAL STATIC PRESSURE (in. wg)
0.2 0.4 0.6 0.8 1.0
Rpm Bhp Rpm Bhp Rpm Bhp Rpm Bhp Rpm Bhp
1800 978 0.66 1063 0.82 1147 0.97 1248 1.20 1322 1.33
1900 1023 0.78 1097 0.91 1175 1.11 1266 1.29 1356 1.47
2000 1068 0.90 1132 1.01 1218 1.23 1303 1.41 1397 1.52
2100 1115 1.00 1180 1.17 1261 1.35 1340 1.53 1428 1.66
2200 1159 1.15 1214 1.28 1310 1.52 1375 1.63 1459 1.80
2300 1202 1.29 1248 1.38 1358 1.69 1410 1.72 1488 1.93
2400 1237 1.41 1292 1.55 1392 1.81 1460 1.90 1532 2.14
2500 1272 1.53 1335 1.71 1427 1.94 1518 2.16 1575 2.35
2600 1320 1.68 1368 1.81 1458 2.06 1562 2.42 1620 2.59
2700 1361 1.82 1400 1.91 1490 2.19 1602 2.64 1666 2.85
2800 1402 1.95 1439 2.08 1543 2.43 1642 2.86 1775 3.62
2900 1446 2.16 1477 2.16 1585 2.65 1753 3.58 ——
3000 1489 2.36 1529 2.52 1598 2.73 1767 3.69 ——
AIRFLOW
(Cfm)
EXTERNAL STATIC PRESSURE (in. wg)
1.2 1.4 1.6 1.8 2.0
Rpm Bhp Rpm Bhp Rpm Bhp Rpm Bhp Rpm Bhp
1800 1395 1.46 1475 1.56 1542 1.71 1607 1.94 1667 2.16
1900 1430 1.58 1504 1.69 1556 1.82 1621 2.06 1682 2.30
2000 1459 1.67 1532 1.82 1588 1.97 1655 2.23 1717 2.49
2100 1489 1.80 1567 1.99 1626 2.16 1694 2.44 1758 2.73
2200 1528 1.95 1603 2.17 1666 2.37 1736 2.68 ——
2300 1561 2.13 1637 2.35 1710 2.54 1782 2.87 ——
2400 1584 2.28 1671 2.55 1756 2.70 ————
2500 1633 2.53 1698 2.72 1779 3.13 ————
2600 1675 2.77 1768 3.26 ——————
2700 1776 3.45 ————————
2800 ——————————
2900 ——————————
3000 ——————————
Bhp —Brake Horsepower Input to Fan
FIOP —Factory-Installed Option

25
Table 18 — 48HJ004 Fan Performance — Horizontal Discharge Units With Standard Motor
Table 19 — 48HJ004 Fan Performance — Horizontal Discharge Units With High-Static Motor
LEGEND AND NOTES FOR TABLES 18 AND 19
LEGEND
NOTES:
1. Boldface indicates field-supplied drive required. (See Note 3.)
2. Motor drive range is 760 to 1090 rpm for standard motors; 1075 to
1455 rpm for high-static motors. All other rpms require a field-supplied
drive.
3. Values include losses for filters, unit casing, and wet coils. See page 28
for accessory/FIOP static pressure information.
4. Maximum continuous bhp is 1.20 for standard motors; 2.40 for high-static
motors. Extensive motor and electrical testing on these units ensures that
the full range of the motor can be utilized with confidence. Using your fan
motors up to the ratings shown will not result in nuisance tripping or pre-
mature motor failure. Unit warranty will not be affected. See Evaporator-
Fan Motor Data tables on page 20 for additional information.
5. Use of a field-supplied motor may affect wire sizing. Contact your Carrier
representative to verify.
6. Interpolation is permissible. Do not extrapolate.
AIRFLOW
(Cfm)
EXTERNAL STATIC PRESSURE (in. wg)
0.1 0.2 0.3 0.4 0.5 0.6
Rpm Bhp Rpm Bhp Rpm Bhp Rpm Bhp Rpm Bhp Rpm Bhp
900 526 0.06 584 0.08 656 0.12 734 0.22 818 0.25 875 0.27
1000 570 0.09 627 0.13 738 0.19 800 0.26 848 0.29 895 0.31
1100 614 0.13 670 0.16 758 0.23 812 0.29 863 0.32 914 0.35
1200 658 0.16 710 0.23 780 0.28 840 0.32 889 0.36 938 0.40
1300 703 0.20 752 0.27 808 0.32 868 0.37 916 0.41 963 0.45
1400 725 0.29 776 0.31 845 0.38 891 0.42 937 0.47 983 0.51
1500 755 0.33 816 0.38 870 0.43 924 0.48 969 0.53 1014 0.58
AIRFLOW
(Cfm)
EXTERNAL STATIC PRESSURE (in. wg)
0.7 0.8 0.9 1.0 1.1 1.2
Rpm Bhp Rpm Bhp Rpm Bhp Rpm Bhp Rpm Bhp Rpm Bhp
900 924 0.32 953 0.35 989 0.38 1028 0.42 1074 0.45 1120 0.50
1000 936 0.35 977 0.39 1020 0.44 1064 0.48 1124 0.52 1185 0.55
1100 960 0.39 1005 0.43 1052 0.49 1100 0.52 1163 0.56 1225 0.60
1200 988 0.45 1038 0.50 1076 0.53 1136 0.59 1201 0.61 1266 0.64
1300 1012 0.51 1061 0.56 1094 0.61 1172 0.65 1239 0.69 1306 0.72
1400 1027 0.56 1071 0.60 1108 0.67 1208 0.70 1278 0.75 1347 0.79
1500 1056 0.63 1097 0.68 1117 0.70 1245 0.74 1315 0.80 1385 0.85
AIRFLOW
(Cfm)
EXTERNAL STATIC PRESSURE (in. wg)
0.2 0.4 0.6 0.8 1.0
Rpm Bhp Rpm Bhp Rpm Bhp Rpm Bhp Rpm Bhp
900 584 0.08 734 0.22 875 0.27 953 0.36 1028 0.42
1000 627 0.13 800 0.26 895 0.31 977 0.39 1064 0.48
1100 670 0.16 812 0.29 914 0.35 1005 0.43 1100 0.52
1200 710 0.23 840 0.32 938 0.40 1038 0.50 1136 0.59
1300 752 0.27 868 0.37 963 0.45 1061 0.56 1172 0.65
1400 776 0.31 891 0.42 983 0.51 1071 0.60 1208 0.70
1500 816 0.38 924 0.48 1014 0.58 1097 0.68 1245 0.74
AIRFLOW
(Cfm)
EXTERNAL STATIC PRESSURE (in. wg)
1.2 1.4 1.6 1.8 2.0
Rpm Bhp Rpm Bhp Rpm Bhp Rpm Bhp Rpm Bhp
900 1120 0.54 1155 0.59 1186 0.64 1215 0.69 1240 0.73
1000 1185 0.60 1222 0.66 1255 0.71 1285 0.77 1312 0.82
1100 1225 0.65 1263 0.71 1298 0.77 1328 0.83 1357 0.88
1200 1266 0.72 1306 0.79 1341 0.86 1373 0.92 1402 0.98
1300 1306 0.79 1347 0.87 1383 0.94 1416 1.01 1446 1.07
1400 1347 0.87 1389 0.95 1427 1.03 1461 1.11 1492 1.18
1500 1385 0.96 1428 1.05 1467 1.14 1502 1.22 1534 1.30
Bhp —Brake Horsepower Input to Fan
FIOP —Factory-Installed Option

26
Table 20 — 48HJ005 Fan Performance — Horizontal Discharge Units With Standard Motor
Table 21 — 48HJ005 Fan Performance — Horizontal Discharge Units With High-Static Motor
LEGEND AND NOTES FOR TABLES 20 AND 21
LEGEND
NOTES:
1. Boldface indicates field-supplied drive required. (See Note 3.)
2. indicates field-supplied motor and drive required.
3. Motor drive range is 840 to 1185 rpm for standard units; 1075 to 1455 rpm
for high-static motors. All other rpms require a field-supplied drive.
4. Values include losses for filters, unit casing, and wet coils. See page 28
for accessory/FIOP static pressure information.
5. Maximum continuous bhp is 1.20 for standard motors; 2.40 for high-static
motors. Extensive motor and electrical testing on these units ensures that
the full range of the motor can be utilized with confidence. Using your fan
motors up to the ratings shown will not result in nuisance tripping or pre-
mature motor failure. Unit warranty will not be affected. See Evaporator-
Fan Motor Data tables on page 20 for additional information.
6. Use of a field-supplied motor may affect wire sizing. Contact your Carrier
representative to verify.
7. Interpolation is permissible. Do not extrapolate.
AIRFLOW
(Cfm)
EXTERNAL STATIC PRESSURE (in. wg)
0.1 0.2 0.3 0.4 0.6 0.7 0.8
Rpm Bhp Rpm Bhp Rpm Bhp Rpm Bhp Rpm Bhp Rpm Bhp Rpm Bhp
1200 569 0.18 641 0.23 701 0.29 761 0.34 859 0.46 901 0.52 943 0.58
1300 604 0.22 673 0.28 731 0.34 788 0.39 887 0.52 928 0.59 968 0.65
1400 640 0.27 705 0.33 761 0.39 817 0.45 914 0.59 955 0.66 996 0.72
1500 676 0.32 738 0.38 793 0.45 8470.51 9400.65 9820.7310240.81
1600 713 0.38 772 0.44 825 0.51 877 0.58 967 0.73 1009 0.81 1051 0.89
1700 750 0.45 806 0.51 857 0.59 908 0.66 997 0.81 1037 0.90 1077 1.01
1800 788 0.52 841 0.59 890 0.67 939 0.75 1026 0.91 1065 1.01 1104 1.07
1900 826 0.60 876 0.68 924 0.76 971 0.84 1056 1.01 1094 1.10 1132 1.18
2000 864 0.70 912 0.77 958 0.86 1004 0.94 1087 1.12 1125 1.21 1162 1.30
AIRFLOW
(Cfm)
EXTERNAL STATIC PRESSURE (in. wg)
0.9 1.0 1.1 1.2 1.4 1.6 1.8
Rpm Bhp Rpm Bhp Rpm Bhp Rpm Bhp Rpm Bhp Rpm Bhp Rpm Bhp
1200 9870.6410300.7010680.7911060.8711340.981189 1.12 1245 1.21
1300 10060.7110440.7710860.8411280.9111831.101226 1.23 1297 1.35
1400 10330.7910690.8611040.9311391.011218 1.14 1286 1.34 1320 1.48
1500 10600.8810950.9511291.0211621.091228 1.24 1303 1.40 1343 1.60
1600 10871.0111231.0511561.1311851.201250 1.35 1319 1.51 1382 1.68
1700 11141.0711511.151183 1.23 1215 1.31 1276 1.48 1334 1.64 1398 1.80
1800 1141 1.17 1178 1.26 1211 1.35 1243 1.43 1303 1.61 1359 1.78 1418 1.95
1900 1168 1.28 1204 1.37 1238 1.47 1271 1.56 1330 1.74 1386 1.93 1439 2.11
2000 1197 1.39 1231 1.48 1265 1.59 1298 1.69 1358 1.89 1413 2.08 1466 2.27
AIRFLOW
(Cfm)
EXTERNAL STATIC PRESSURE (in. wg)
0.2 0.4 0.6 0.8 1.0
Rpm Bhp Rpm Bhp Rpm Bhp Rpm Bhp Rpm Bhp
1200 641 0.23 761 0.34 859 0.46 943 0.58 1030 0.70
1300 673 0.28 788 0.39 887 0.52 968 0.65 1044 0.77
1400 705 0.33 817 0.45 914 0.59 996 0.72 1069 0.86
1500 738 0.38 847 0.51 940 0.65 1024 0.81 1095 0.95
1600 772 0.44 877 0.58 967 0.73 1051 0.89 1123 1.05
1700 806 0.51 908 0.66 997 0.81 1077 1.01 1151 1.15
1800 841 0.59 939 0.75 1026 0.91 1104 1.07 1178 1.26
1900 876 0.68 971 0.84 1056 1.01 1132 1.18 1204 1.37
2000 912 0.77 1004 0.94 1087 1.12 1162 1.30 1231 1.48
AIRFLOW
(Cfm)
EXTERNAL STATIC PRESSURE (in. wg)
1.2 1.4 1.6 1.8 2.0
Rpm Bhp Rpm Bhp Rpm Bhp Rpm Bhp Rpm Bhp
1200 1106 0.87 1134 0.98 1189 1.12 1245 1.21 1292 1.35
1300 1128 0.91 1183 1.10 1226 1.23 1297 1.35 1346 1.51
1400 1139 1.01 1218 1.14 1286 1.34 1320 1.48 1370 1.65
1500 1162 1.09 1228 1.24 1303 1.40 1343 1.60 1393 1.79
1600 1185 1.20 1250 1.35 1319 1.51 1382 1.68 1434 1.88
1700 1215 1.31 1276 1.48 1334 1.64 1398 1.80 1451 2.01
1800 1243 1.43 1303 1.61 1359 1.78 1418 1.95 1471 2.18
1900 1271 1.56 1330 1.74 1386 1.93 1439 2.11 1493 2.36
2000 1298 1.69 1358 1.89 1413 2.08 1466 2.27 15.21 2.54
Bhp —Brake Horsepower Input to Fan
FIOP —Factory-Installed Option

27
Table 22 — 48HJ006 Fan Performance — Horizontal Discharge Units With Standard Motor
Single-Phase Units
3-Phase Units
Table 23 — 48HJ006 Fan Performance — Horizontal Discharge Units With High-Static Motor
LEGEND AND NOTES FOR TABLES 22 AND 23
LEGEND
NOTES:
1. Boldface indicates field-supplied drive required. (See Note 3.)
2. indicates field-supplied motor and drive required.
3. Motor drive range is 1020 to 1460 rpm for single-phase standard units,
1120 to 1585 for 3-phase standard units, and 1300 to 1685 for high-static
units. All other rpms require a field-supplied drive.
4. Values include losses for filters, unit casing, and wet coils. See page 28
for accessory/FIOP static pressure information.
5. Maximum continuous bhp is 1.30 for single-phase standard units, 2.40 for
3-phase standard motors, and 2.90 for high-static motors. Extensive
motor and electrical testing on these units ensures that the full range of
the motor can be utilized with confidence. Using your fan motors up to the
ratings shown will not result in nuisance tripping or premature motor fail-
ure. Unit warranty will not be affected. See Evaporator-Fan Motor Data
tables on page 20 for additional information.
6. Use of a field-supplied motor may affect wire sizing. Contact your Carrier
representative to verify.
7. Interpolation is permissible. Do not extrapolate.
AIRFLOW
(Cfm)
EXTERNAL STATIC PRESSURE (in. wg)
0.10.20.40.60.81.0 1.2 1.4 1.6
Rpm Bhp Rpm Bhp Rpm Bhp Rpm Bhp Rpm Bhp Rpm Bhp Bhp Rpm Bhp Rpm Bhp Rpm
1500 741 0.38 798 0.43 895 0.54 990 0.67 1073 0.80 1154 0.95 1218 1.12 1295 1.36 1360 1.40
1600 783 0.45 838 0.51 933 0.63 1016 0.75 1102 0.90 1182 1.04 1251 1.20 1310 1.40 1385 1.49
1700 825 0.53 878 0.60 969 0.72 1049 0.84 1134 1.00 1206 1.14 1281 1.31 1342 1.48 1398 1.53
1800 885 0.63 942 0.73 1047 0.90 1139 1.05 1193 1.14 1276 1.30 1341 1.40 1413 1.55 1474 1.58
1900 928 0.73 982 0.83 1084 1.02 1160 1.11 1223 1.24 1301 1.38 1374 1.53 1437 1.62 1490 1.67
2000 971 0.84 1022 0.94 1121 1.12 1188 1.22 1254 1.36 1329 1.44 1396 1.66 1460 1.68 1509 1.77
2100 1015 0.97 1063 1.10 1140 1.18 1196 1.27 1272 1.45 1354 1.58 1413 1.75 1475 1.73 1529 1.92
2200 1060 1.10 1104 1.20 1159 1.23 1229 1.41 1306 1.53 1363 1.70 1434 1.81 1487 1.85 1554 2.07
2300 1104 1.25 1130 1.27 1196 1.37 1264 1.56 1340 1.66 1397 1.86 1459 1.88 1520 2.07 1576 2.24
2400 1138 1.30 1174 1.37 1245 1.57 1305 1.63 1373 1.84 1440 1.95 1502 2.06 1552 2.24 1604 2.42
2500 1183 1.43 1201 1.50 1284 1.65 1338 1.75 1402 1.99 1469 2.04 1524 2.24 1585 2.42 1638 2.60
AIRFLOW
(Cfm)
EXTERNAL STATIC PRESSURE (in. wg)
0.10.20.40.60.81.0 1.2 1.4 1.6
Rpm Bhp Rpm Bhp Rpm Bhp Rpm Bhp Rpm Bhp Rpm Bhp Bhp Rpm Bhp Rpm Bhp Rpm
1500 741 0.38 798 0.43 895 0.54 990 0.67 1073 0.80 1154 0.95 1218 1.12 1295 1.36 1360 1.40
1600 783 0.45 838 0.51 933 0.63 1016 0.75 1102 0.90 1182 1.04 1251 1.20 1310 1.40 1385 1.49
1700 825 0.53 878 0.60 969 0.72 1049 0.84 1134 1.00 1206 1.14 1281 1.31 1342 1.48 1398 1.53
1800 885 0.63 942 0.73 1047 0.90 1139 1.05 1193 1.14 1276 1.30 1341 1.40 1413 1.55 1474 1.58
1900 928 0.73 982 0.83 1084 1.02 1160 1.11 1223 1.24 1301 1.38 1374 1.53 1437 1.62 1490 1.67
2000 971 0.84 1022 0.94 1121 1.12 1188 1.22 1254 1.36 1329 1.44 1396 1.66 1460 1.68 1509 1.77
2100 1015 0.97 1063 1.10 1140 1.18 1196 1.27 1272 1.45 1354 1.58 1413 1.75 1475 1.73 1529 1.92
2200 1060 1.10 1104 1.20 1159 1.23 1229 1.41 1306 1.53 1363 1.70 1434 1.81 1487 1.85 1554 2.07
2300 1104 1.25 1130 1.27 1196 1.37 1264 1.56 1340 1.66 1397 1.86 1459 1.88 1520 2.07 1576 2.24
2400 1138 1.30 1174 1.37 1245 1.57 1305 1.63 1373 1.84 1440 1.95 1502 2.06 1552 2.24 1604 2.42
2500 1183 1.43 1201 1.50 1284 1.65 1338 1.75 1402 1.99 1469 2.04 1524 2.24 1585 2.42 1638 2.60
AIRFLOW
(Cfm)
EXTERNAL STATIC PRESSURE (in. wg)
0.2 0.4 0.6 0.8 1.0
Rpm Bhp Rpm Bhp Rpm Bhp Rpm Bhp Rpm Bhp
1500 789 0.40 896 0.53 990 0.67 1072 0.83 1153 1.00
1600 826 0.46 931 0.61 1020 0.75 1101 0.91 1178 1.09
1700 865 0.54 966 0.69 1051 0.84 1133 1.01 1205 1.18
1800 905 0.62 1002 0.78 1084 0.93 1163 1.10 1235 1.29
1900 945 0.72 1037 0.88 1119 1.04 1194 1.21 1266 1.40
2000 984 0.82 1072 0.98 1154 1.16 1226 1.33 1297 1.53
2100 1024 0.93 1108 1.10 1192 1.29 1259 1.47 1327 1.66
2200 1064 1.05 1145 1.22 1225 1.43 1294 1.62 1359 1.80
2300 1104 1.18 1183 1.36 1260 1.57 1330 1.78 1392 1.97
2400 1145 1.32 1222 1.45 1296 1.73 1365 1.94 1426 2.15
2500 1186 1.48 1262 1.68 1331 1.89 1400 2.12 1461 2.34
AIRFLOW
(Cfm)
EXTERNAL STATIC PRESSURE (in. wg)
1.2 1.4 1.6 1.8 2.0
Rpm Bhp Rpm Bhp Rpm Bhp Rpm Bhp Rpm Bhp
1500 1221 1.17 1256 1.30 1283 1.32 1303 1.22 1345 1.34
1600 1252 1.27 1311 1.45 1340 1.58 1330 1.61 1373 1.77
1700 1278 1.37 1345 1.57 1397 1.76 1424 1.89 1470 2.08
1800 1303 1.48 1371 1.69 1433 1.90 1480 2.09 1528 2.30
1900 1330 1.59 1396 1.80 1460 2.03 1517 2.25 1566 2.47
2000 1362 1.73 1422 1.94 1485 2.16 1544 2.40 1594 2.64
2100 1393 1.87 1452 2.08 1510 2.31 1570 2.55 1620 2.80
2200 1423 2.02 1483 2.24 1538 2.46 1594 2.71 1645 2.98
2300 1454 2.18 1515 2.41 1571 2.64 1623 2.88 1676 3.17
2400 1485 2.36 1544 2.59 1604 2.84 1657 3.07 1710 3.38
2500 1518 2.55 1574 2.78 1633 3.03 1692 3.28 1746 3.61
Bhp —Brake Horsepower Input to Fan
FIOP —Factory-Installed Option

28
Table 24 — 48HJ007 Fan Performance — Horizontal Discharge Units With Standard Motor
Table 25 — 48HJ007 Fan Performance — Horizontal Discharge Units With High-Static Motor
LEGEND AND NOTES FOR TABLES 24 AND 25
LEGEND
NOTES:
1. Boldface indicates field-supplied drive required. (See Note 3.)
2. indicates field-supplied motor and drive required.
3. Motor drive range is 1120 to 1585 rpm for standard motors; 1300 to
1685 rpm for high-static motors. All other rpms require a field-supplied
drive.
4. Values include losses for filters, unit casing, and wet coils. See below for
accessory/FIOP static pressure information.
5. Maximum continuous bhp is 2.4 for standard motors; 2.9 for high-static
motors. Extensive motor and electrical testing on these units ensures that
the full range of the motor can be utilized with confidence. Using your fan
motors up to the ratings shown will not result in nuisance tripping or pre-
mature motor failure. Unit warranty will not be affected. See Evaporator-
Fan Motor Data tables on page 20 for additional information.
6. Use of a field-supplied motor may affect wire sizing. Contact your Carrier
representative to verify.
7. Interpolation is permissible. Do not extrapolate.
Table 26 — Economizer Static Pressure Drop
(in. wg)
Table 27 — FIOP MoistureMiser Dehumidification
Package Static Pressure Drop (in. wg)
LEGEND
AIRFLOW
(Cfm)
EXTERNAL STATIC PRESSURE (in. wg)
0.1 0.2 0.4 0.6 0.8 1.0 1.2 1.4 1.6
Rpm Bhp Rpm Bhp Rpm Bhp Rpm Bhp Rpm Bhp Rpm Bhp Rpm Bhp Rpm Bhp Rpm Bhp
1800 885 0.63 942 0.73 1047 0.90 1139 1.05 1193 1.14 1276 1.30 1341 1.40 1413 1.55 1474 1.58
1900 928 0.73 982 0.83 1084 1.02 1160 1.11 1223 1.24 1301 1.38 1374 1.53 1437 1.62 1490 1.67
2000 971 0.84 1022 0.94 1121 1.12 1188 1.22 1254 1.36 1329 1.44 1396 1.66 1460 1.68 1509 1.77
2100 1015 0.97 1063 1.10 1140 1.18 1196 1.27 1272 1.45 1354 1.58 1413 1.75 1475 1.73 1529 1.92
2200 1060 1.10 1104 1.20 1159 1.23 1229 1.41 1306 1.53 1363 1.70 1434 1.81 1487 1.85 1554 2.07
2300 1104 1.25 1130 1.27 1196 1.37 1264 1.56 1340 1.66 1397 1.86 1459 1.88 1520 2.07 1576 2.24
2400 1138 1.30 1174 1.37 1245 1.57 1305 1.63 1373 1.84 1440 1.95 1502 2.06 1552 2.24 1604 2.42
2500 1183 1.43 1201 1.50 1284 1.65 1338 1.75 1402 1.99 1469 2.04 1524 2.24 1585 2.42 1638 2.60
2600 1210 1.58 1243 1.67 1312 1.76 1366 1.96 1435 2.10 1494 2.19 1552 2.40 1616 2.63 1671 2.80
2700 1254 1.76 1285 1.80 1354 1.95 1403 2.14 1474 2.21 1536 2.46 1584 2.61 1646 2.83 1706 2.97
2800 1274 1.82 1304 1.85 1374 2.12 1459 2.25 1514 2.42 1570 2.66 1624 2.85 1677 2.99 ——
2900 1318 1.95 1345 2.05 1412 2.32 1496 2.45 1529 2.61 1603 2.87 1671 3.03 ————
3000 1362 2.20 1378 2.30 1451 2.40 1534 2.66 1560 2.81 1611 3.01 ——————
AIRFLOW
(Cfm)
EXTERNAL STATIC PRESSURE (in. wg)
0.2 0.4 0.6 0.8 1.0 1.2 1.4 1.6 1.8 2.0
Rpm Bhp Rpm Bhp Rpm Bhp Rpm Bhp Rpm Bhp Rpm Bhp Rpm Bhp Rpm Bhp Rpm Bhp Rpm Bhp
1800 942 0.73 1047 0.90 1139 1.05 1193 1.14 1276 1.30 1341 1.40 1413 1.55 1474 1.58 1522 1.74 1566 1.89
1900 982 0.83 1084 1.02 1160 1.11 1223 1.24 1301 1.38 1374 1.53 1437 1.62 1490 1.67 1538 1.84 1583 2.00
2000 10220.9411211.1211881.2212641.361329 1.44 1396 1.66 1460 1.68 1509 1.77 1558 1.95 1603 2.12
2100 10631.1011401.1811961.2712721.451354 1.58 1413 1.75 1475 1.73 1529 1.92 1578 2.11 1624 2.30
2200 1104 1.20 1159 1.23 1229 1.41 1306 1.53 1363 1.70 1434 1.81 1487 1.85 1554 2.07 1604 2.28 1651 2.48
2300 1130 1.27 1196 1.37 1264 1.56 1340 1.66 1397 1.86 1459 1.88 1520 2.07 1576 2.24 1627 2.46 1674 2.68
2400 1174 1.37 1245 1.57 1305 1.63 1373 1.84 1440 1.95 1502 2.06 1552 2.24 1604 2.42 1656 2.66 1704 2.90
2500 1201 1.50 1284 1.65 1338 1.75 1402 1.99 1469 2.04 1524 2.24 1585 2.42 1638 2.60 1691 2.86 1740 3.12
2600 1246 1.67 1312 1.76 1366 1.96 1435 2.10 1494 2.19 1552 2.40 1616 2.63 1671 2.80 1726 3.09 1775 3.35
2700 1285 1.80 1354 1.95 1403 2.14 1474 2.21 1536 2.46 1584 2.61 1646 2.83 1706 2.97 1761 3.27 ——
2800 1304 1.85 1374 2.12 1459 2.25 1514 2.42 1570 2.66 1624 2.85 1677 2.99 1739 3.33 1795 3.67 ——
2900 1345 2.05 1412 2.32 1496 2.54 1529 2.61 1603 2.87 1671 3.03 1742 3.43 ——————
3000 1378 2.30 1451 2.40 1534 2.66 1560 2.81 1611 3.01 1692 3.49 1764 3.95 ——————
Bhp —Brake Horsepower Input to Fan
FIOP —Factory-Installed Option
UNIT CFM
900 1200 1400 1600 1800 2000 2200 2400 2600
Durablade .05 .05 .05 .05 .05 .05 .05 .05 .05
EconoMi$er .05 .10 .13 .17 .22 .27 .32 .39 .45
UNIT SIZE
48HJ
UNIT
NOMINAL TONS
CFM PER TON
300 400 500
E/F004 3 .04 .07 .09
D/E/F005 4 .07 .12 .15
D/E/F006 5 .09 .15 .21
D/E/F007 6 .12 .20 .28
FIOP —Factory-Installed Option

29
PRE-START-UP
Proceed as follows to inspect and prepare the unit for initial
start-up:
1. Remove all access panels.
2. Read and follow instructions on all WARNING, CAU-
TION, and INFORMATION labels attached to, or
shipped with, unit.
3. Make the following inspections:
a. Inspect for shipping and handling damages such as
broken lines, loose parts, or disconnected wires, etc.
b. Inspect for oil at all refrigerant tubing connections
and on unit base. Detecting oil generally indicates
a refrigerant leak. Leak-test all refrigerant tubing
connections using electronic leak detector, halide
torch, or liquid-soap solution.
c. Inspect all field- and factory-wiring connections.
Be sure that connections are completed and tight.
Be sure that wires are not in contact with refriger-
ant tubing or sharp edges.
d. Inspect coil fins. If damaged during shipping and
handling, carefully straighten fins with a fin comb.
4. Verify the following conditions:
a. Make sure that condenser-fan blade are correctly
positioned in fan orifice. See Condenser-Fan
Adjustment section on page 34 for more details.
b. Make sure that air filter(s) is in place.
c. Make sure that condensate drain trap is filled with
water to ensure proper drainage.
d. Make sure that all tools and miscellaneous loose
parts have been removed.
START-UP
Unit Preparation — Make sure that unit has been in-
stalled in accordance with installation instructions and applica-
ble codes.
Return-Air Filters — Make sure correct filters are in-
stalled in unit (see Table 1). Do not operate unit without return-
air filters.
Outdoor-Air Inlet Screens — Outdoor-air inlet screen
must be in place before operating unit.
Compressor Mounting — Compressors are internally
spring mounted. Do not loosen or remove compressor hold-
down bolts.
Internal Wiring — Check all electrical connections in
unit control boxes. Tighten as required.
Refrigerant Service Ports — Each unit system has
3 Schrader-type service ports: one on the suction line, one on
the liquid line, and one on the compressor discharge line. Be
sure that caps on the ports are tight. Two additional Schrader
valves are located under the high-pressure and low-pressure
switches, respectively.
HIGH FLOW REFRIGERANT VALVES — Two high flow
valves are located on the hot gas tube coming out of the com-
pressor and the suction tube going into the compressor. Large
black plastic caps identify these valves. These valves have
O-rings inside which screw the cap onto a brass body to pre-
vent leaks. No field access to these valves is available at this
time. Ensure the plastic caps remain on the valves and are tight
or the possibility of refrigerant leakage could occur.
Compressor Rotation — On 3-phase units with scroll
compressors, it is important to be certain compressor is rotating
in the proper direction. To determine whether or not compres-
sor is rotating in the proper direction:
1. Connect service gages to suction and discharge pressure
fittings.
2. Energize the compressor.
3. The suction pressure should drop and the discharge pres-
sure should rise, as is normal on any start-up.
If the suction pressure does not drop and the discharge pres-
sure does not rise to normal levels:
1. Note that the evaporator fan (006 and 007 only) is proba-
bly also rotating in the wrong direction.
2. Turn off power to the unit, tag disconnect.
3. Reverse any two of the unit power leads.
4. Reenergize to the compressor. Check pressures.
The suction and discharge pressure levels should now move
to their normal start-up levels.
Failure to observe the following warnings could result in
serious personal injury:
1. Follow recognized safety practices and wear protec-
tive goggles when checking or servicing refrigerant
system.
2. Do not operate compressor or provide any electric
power to unit unless compressor terminal cover is in
place and secured.
3. Do not remove compressor terminal cover until all
electrical sources are disconnected.
4. Relieve all pressure from system before touching or
disturbing anything inside terminal box if refrigerant
leak is suspected around compressor terminals.
5. Never attempt to repair soldered connection while re-
frigerant system is under pressure.
6. Do not use torch to remove any component. System
contains oil and refrigerant under pressure. To remove
a component, wear protective goggles and proceed as
follows:
a. Shut off electrical power and then gas to unit.
b. Reclaim refrigerant to relieve all pressure from
system using both high- and low-pressure ports.
c. Cut component connection tubing with tubing
cutter and remove component from unit.
d. Carefully unsweat remaining tubing stubs
when necessary. Oil can ignite when exposed
to torch flame.

30
NOTE: When the compressor is rotating in the wrong direc-
tion, the unit will make an elevated level of noise and will not
provide cooling.
Cooling — Set space thermostat to OFF position. To start
unit, turn on main power supply. Set system selector switch at
COOL position and fan switch at AUTO. position. Adjust ther-
mostat to a setting below room temperature. Compressor starts
on closure of contactor.
Check unit charge. Refer to Refrigerant Charge section on
page 34.
Reset thermostat at a position above room temperature.
Compressor will shut off. Evaporator fan will shut off after a
30-second delay.
TO SHUT OFF UNIT — Set system selector switch at OFF
position. Resetting thermostat at a position above room tem-
perature shuts unit off temporarily until space temperature ex-
ceeds thermostat setting. Units are equipped with Cycle-
LOC™ protection device. Unit shuts down on any safety trip,
and indicator light on thermostat comes on. Check reason for
all safety trips.
Compressor restart is accomplished by manual reset at the
thermostat by turning the selector switch to OFF and then to
ON position.
Main Burners — Main burners are factory set and should
require no adjustment.
TO CHECK ignition of main burners and heating controls,
move thermostat set point above room temperature and verify
that the burners light and evaporator fan is energized. Check
heating effect, then lower the thermostat setting below the
room temperature and verify that the burners and evaporator
fan turn off.
Refer to Table 28 for the correct orifice to use at high
altitudes.
Table 28 — Altitude Compensation*
*As the height above sea level increases, there is less oxygen per
cubic foot of air. Therefore, heat input rate should be reduced at
higher altitudes.
†Orifices available through your local Carrier distributor.
Heating
1. Purge gas supply line of air by opening union ahead of
the gas valve. If gas odor is detected, tighten union and
wait 5 minutes before proceeding.
2. Turn on electrical supply and manual gas valve.
3. Set system switch selector at HEAT position and fan
switch at AUTO. or ON position. Set heating temperature
lever above room temperature.
4. The induced-draft motor will start.
5. After a call for heating, the main burners should light
within 5 seconds. If the burner does not light, then there is
a 22-second delay before another 5-second try. If the
burner still does not light, the time delay is repeated. If the
burner does not light within 15 minutes, there is a lock-
out. To reset the control, break the 24 v power to W1.
6. The evaporator-fan motor will turn on 45 seconds after
burner ignition.
7. The evaporator-fan motor will turn off in 45 seconds after
the thermostat temperature is satisfied.
8. Adjust airflow to obtain a temperature rise within the
range specified on the unit nameplate.
NOTE: The default value for the evaporator-fan motor on/off
delay is 45 seconds. The Integrated Gas Unit Controller (IGC)
modifies this value when abnormal limit switch cycles occur.
Based upon unit operating conditions, the on delay can be
reduced to 0 seconds and the off delay can be extended to
180 seconds. When one flash of the LED (light-emitting diode)
is observed, the evaporator-fan on/off delay has been modified.
If the limit switch trips at the start of the heating cycle dur-
ing the evaporator on delay, the time period of the on delay for
the next cycle will be 5 seconds less than the time at which the
switch tripped. (Example: If the limit switch trips at 30 sec-
onds, the evaporator-fan on delay for the next cycle will occur
at 25 seconds.) To prevent short-cycling, a 5-second reduction
will only occur if a minimum of 10 minutes has elapsed since
the last call for heating.
The evaporator-fan off delay can also be modified. Once the
call for heating has ended, there is a 10-minute period during
which the modification can occur. If the limit switch trips dur-
ing this period, the evaporator-fan off delay will increase by
15 seconds. A maximum of 9 trips can occur, extending the
evaporator-fan off delay to 180 seconds.
To restore the original default value, reset the power to the
unit.
TO SHUT OFF UNIT — Set system selector switch at off po-
sition. Resetting heating selector lever below room temperature
will temporarily shut unit off until space temperature falls be-
low thermostat setting.
Safety Relief — A soft-solder joint at the suction service
Schrader port provides pressure relief under abnormal tempera-
ture and pressure conditions.
Ventilation (Continuous Fan) — Set fan and system
selector switches at ON and OFF positions, respectively.
Evaporator fan operates continuously to provide constant air
circulation. When the evaporator-fan selector switch is turned
to the OFF position, there is a 30-second delay before the fan
turns off.
Operating Sequence
COOLING, UNITS WITHOUT ECONOMIZER — When
thermostat calls for cooling, terminals G and Y1 and the com-
pressor contactor (C) are energized. The indoor (evaporator) fan
motor (IFM), compressor, and outdoor (condenser) fan motor
(OFM) start. The OFM runs continuously while the unit is in
cooling. When the thermostat is satisfied, C is deenergized and
the compressor and OFM shut off. After a 30-second delay, the
(IFM) shuts off. If the thermostat fan selector switch is in the
ON position, the evaporator motor will run continuously.
ELEVATION
(ft)
72,000 AND 115,000
BTUH NOMINAL
INPUT
150,000 BTUH
NOMINAL INPUT
Natural
Gas
Orifice
Size†
Liquid
Propane
Orifice
Size†
Natural
Gas
Orifice
Size†
Liquid
Propane
Orifice
Size†
0-2,000 33 43 30 38
2,000 34 43 30 39
3,000 35 44 31 40
4,000 36 44 32 41
5,000 36 44 33 42
6,000 37 45 34 43
7,000 37 45 35 43
8,000 38 46 36 44
9,000 39 47 37 44
10,000 41 48 38 45
11,000 43 48 39 45
12,000 44 49 40 46
13,000 44 49 41 47
14,000 45 50 42 47
31
HEATING, UNITS WITHOUT ECONOMIZER — When
the thermostat calls for heating, terminal W1 is energized. The
induced-draft motor is energized and the burner ignition se-
quence begins. The indoor (evaporator) fan motor (IFM) is en-
ergized 45 seconds after a flame is ignited. When additional
heat is needed, W2 is energized and the high-fire solenoid on
the main gas valve (MGV) is energized. When the thermostat
is satisfied and W1 is deenergized, the IFM stops after a
45-second time-off delay.
COOLING, UNITS WITH DURABLADE ECONO-
MIZER — When the outdoor-air temperature is above the out-
door-air thermostat (OAT) setting and the room thermostat
calls for cooling, compressor contactor is energized to start
compressor and the outdoor (condenser) fan motor (OFM).
The indoor (evaporator) fan motor (IFM) is energized and the
economizer damper moves to the minimum position. After the
thermostat is satisfied, there is a 30-second delay before the
evaporator fan turns off. The damper then moves to the fully-
closed position. When using continuous fan, the damper moves
to the minimum position.
When the outdoor-air temperature is below the OAT setting
and the thermostat calls for cooling, the economizer damper
move to the minimum position. If the supply-air temperature is
above 57 F, the damper continues to open until it reaches the
fully-open position or until the supply-air temperature drops
below 52 F.
When the supply-air temperature falls between 57 F and
52 F, the damper will remain at an intermediate open position.
If the supply-air temperature falls below 52 F, the damper will
modulate closed until it reaches the minimum position or until
the supply-air temperature is above 52 F. When the thermostat
is satisfied, the damper moves to the fully closed position when
using AUTO. fan or to the minimum position when using con-
tinuous fan.
If the outdoor air alone cannot satisfy the cooling require-
ments of the conditioned space, economizer cooling is integrat-
ed with mechanical cooling, providing two stages of cooling.
Compressor and the condenser fan will be energized and the
position of the economizer damper will be determined by the
supply-air temperature. When the second stage of cooling is
satisfied, the compressor and OFM will be deenergized. The
damper position will be determined by the supply-air tempera-
ture. When the first stage of cooling is satisfied, there is a
30-second delay before the evaporator fan shuts off. The damp-
er then moves to the fully closed position. When using a con-
tinuous fan, the damper moves to the minimum position.
COOLING, UNITS WITH ECONOMI$ER — When the
Outdoor Air Temperature (OAT) is above the ECON SP set
point and the room thermostat calls for Stage 1 cooling (R to
G +Y1), the indoor-fan motor (IFM) is energized and the
EconoMi$er damper modulates to minimum position. The
compressor contactor is energized starting the compressor and
outdoor-fan motor (OFM). After the thermostat is satisfied, the
damper modulates to the fully closed position when the IFM is
deenergized.
When the OAT is below the ECON SP set point and the
room thermostat calls for Stage 1 cooling (R to G + Y1), the
EconoMi$er modulates to the minimum position when the
IFM is energized. The EconoMi$er provides Stage 1 of cooling
by modulating the return and outdoor air dampers to maintain a
55 F supply air set point. If the supply-air temperature (SAT) is
greater than 57 F, the EconoMi$er modulates open, allowing a
greater amount of outdoor air to enter the unit. If the SAT drops
below 53 F, the outdoor-air damper modules closed to reduce
the amount of outdoor air. When the SAT is between 53 and
57 F, the EconoMi$er maintains its position.
HEATING, UNITS WITH ECONOMIZER — When the ther-
mostat calls for heating, terminal W1 is energized. The
induced-draft motor is energized and the burner ignition se-
quence begins. The indoor (evaporator) fan motor (IFM) is en-
ergized 45 seconds after a flame is ignited and the damper
moves to the minimum position. When additional heat is need-
ed, W2 energized and the high-fire solenoid on the main gas
valve (MGV) is energized. When the thermostat is satisfied
and W1 is deenergized, the IFM stops after a 45-second time-
off delay. The economizer damper then moves to the fully
closed position. When using continuous fan, the damper will
remain in the minimum position.
UNITS WITH MOISTUREMISER DEHUMIDIFICATION
PACKAGE — When thermostat calls for cooling, terminals G
and Y1 and the compressor contactor C1 is energized. The in-
door (evaporator) fan motor (IFM), compressor, and outdoor
(condenser) fan motor (OFM) start. The OFM runs continuous-
ly while the unit is in cooling. As shipped from the factory,
MoistureMiser dehumidification circuit is always energized. If
MoistureMiser circuit modulation is desired, a field-installed,
wall-mounted humidistat is required.
If the MoistureMiser humidistat is installed and calls for the
MoistureMiser subcooler coil to operate, the humidistat inter-
nal switch closes. This energizes and closes the liquid line sole-
noid valve coil (LLSV) of the MoistureMiser circuit, forcing
the hot liquid refrigerant of the liquid line to enter the subcooler
coil (see Fig. 39). As the hot liquid passes through the subcool-
er coil, it is exposed to the cold supply airflow coming off from
the evaporator coil and the liquid is further cooled to a temper-
ature approaching the evaporator coil leaving-air temperature.
The state of the refrigerant leaving the subcooler coil is a high-
ly subcooled liquid refrigerant. The liquid then enters a thermo-
static expansion valve (TXV) where the liquid is dropped to a
lower pressure. The TXV does not have a pressure drop great
enough to change the liquid to a 2-phase fluid. The TXV can
throttle the pressure drop of the liquid refrigerant and maintain
proper conditions at the compressor suction valve over a wide
range of operating conditions. The liquid then enters a second
fixed restrictor expansion device for a second pressure drop to
a 2-phase fluid. The liquid proceeds to the evaporator coil at a
temperature lower than normal cooling operation. This lower
temperature is what increases the latent capacity of the rooftop.
The 2-phase refrigerant passes through the evaporator and is
changed into a vapor. The air passing over the evaporator coil
will become colder than during normal operation as a result of
the colder refrigerant temperatures. However, as it passes over
the subcooler coil, the air will be warmed slightly.
As the refrigerant leaves the evaporator, the refrigerant
passes a low-pressure switch in the suction line. This low-
pressure switch will de-activate the MoistureMiser package
when the suction pressure reaches 60 psig. The low-pressure
switch is an added safety device to protect against evaporator
coil freeze-up. The low-pressure switch will only de-activate
and open the liquid line solenoid valve in the MoistureMiser
circuit. The compressors will continue to run as long as there is
a call for cooling, regardless of the position of the low-pressure
switch. The solenoid valve and the MoistureMiser package will
be re-activated only when the call for cooling has been satis-
fied, the low-pressure switch has closed, and a new call for
cooling exists. The crankcase heaters on the scroll compressor
provide additional protection for the compressor due to the ad-
ditional refrigerant charge in the subcooler.
When the humidistat is satisfied, the humidistat internal
switch opens cutting power to and opening the LLSV. The re-
frigerant is routed back through the evaporator and the sub-
cooler coil is removed from the refrigerant loop.
When the thermostat is satisfied, C1 is deenergized and the
compressor and OFM shut off. After a 30-second delay, the
IFM shuts off. If the thermostat fan selector switch is in the ON
position, the IFM will run continuously.

32
Fig. 39 — MoistureMiser Option Operation

33
SERVICE
Cleaning — Inspect unit interior at the beginning of heat-
ing and cooling season and as operating conditions require.
EVAPORATOR COIL
1. Turn unit power off, tag disconnect. Remove evaporator
coil access panel.
2. If economizer or two-position damper is installed, re-
move economizer by disconnecting Molex plug and re-
moving mounting screws. Refer to accessory economizer
installation instructions or Optional Economizer sections
on pages 12 and 15 for additional information.
3. Slide filters out of unit.
4. Clean coil using a commercial coil cleaner or dishwasher
detergent in a pressurized spray canister. Wash both sides
of coil and flush with clean water. For best results,
back-flush toward return-air section to remove foreign
material. Flush condensate pan after completion.
5. Reinstall economizer and filters.
6. Reconnect wiring.
7. Replace access panels.
CONDENSER COIL — Inspect coil monthly. Clean con-
denser coil annually, and as required by location and outdoor
air conditions.
One-Row Coil — Wash coil with commercial coil cleaner. It
is not necessary to remove top panel.
2-Row Coils
Clean coil as follows:
1. Turn off unit power, tag disconnecct.
2. Remove top panel screws on condenser end of unit.
3. Remove condenser coil corner post. See Fig. 40. To hold
top panel open, place coil corner post between top panel
and center post. See Fig. 41.
4. Remove screws securing coil to compressor plate and
compressor access panel.
5. Remove fastener holding coil sections together at return
end of condenser coil. Carefully separate the outer coil
section 3 to 4 in. from the inner coil section. See Fig. 42.
6. Use a water hose or other suitable equipment to flush
down between the 2 coil sections to remove dirt and de-
bris. Clean the outer surfaces with a stiff brush in the nor-
mal manner.
7. Secure inner and outer coil rows together with a field-
supplied fastener.
8. Reposition the outer coil section and remove the coil cor-
ner post from between the top panel and center post. Re-
install the coil corner post and replace all screws.
CONDENSATE DRAIN — Check and clean each year at
start of cooling season. In winter, keep drain dry or protect
against freeze-up.
FILTERS — Clean or replace at start of each heating and cool-
ing season, or more often if operating conditions require it. Re-
placement filters must be same dimensions as original filters.
OUTDOOR-AIR INLET SCREENS — Clean screen with
steam or hot water and a mild detergent. Do not use disposable
filters in place of screen.
Lubrication
COMPRESSORS — Each compressor is charged with correct
amount of oil at the factory.
FAN MOTOR BEARINGS — Fan motor bearings are of the
permanently lubricated type. No further lubrication is required.
No lubrication of condenser- or evaporator-fan motors is
required.
When servicing unit, shut off all electrical power to unit to
avoid shock hazard or injury from rotating parts.
Fig. 40 — Cleaning Condenser Coil
Fig. 41 — Propping Up Top Panel
Fig. 42 — Separating Coil Sections

34
Condenser-Fan Adjustment (Fig. 43) — Shut off
unit power supply. Remove condenser-fan assembly (grille,
motor, motor cover, and fan) and loosen fan hub setscrews.
Adjust fan height as shown in Fig. 43. Tighten setscrews and
replace condenser-fan assembly.
Economizer Adjustment — Refer to Optional Econo-
mizer sections on pages 12 and 15.
Evaporator Fan Belt Inspection — Check condition
of evaporator belt or tension during heating and cooling inspec-
tions or as conditions require. Replace belt or adjust as necessary.
High-Pressure Switch — The high-pressure switch
contains a Schrader core depressor, and is located on the com-
pressor hot gas line. This switch opens at 428 psig and closes at
320 psig. No adjustments are necessary.
Loss-of-Charge Switch — The loss-of-charge switch
contains a Schrader core depressor, and is located on the com-
pressor liquid line. This switch opens at 7 psig and closes at
22 psig. No adjustments are necessary.
Freeze-Stat — The freeze-stat is a bimetal temperature-
sensing switch that is located on the “hair-pin” end of the evap-
orator coil. The switch protects the evaporator coil from freeze-
up due to lack of airflow. The switch opens at 30 F and closes
at 45 F. No adjustments are necessary.
Refrigerant Charge — Amount of refrigerant charge is
listed on unit nameplate (also refer to Table 1). Refer to Carrier
GTAC2-5 Charging, Recovery, Recycling, and Reclamation
training manual and the following procedures.
Unit panels must be in place when unit is operating during
charging procedure. Unit must operate a minimum of 10 min-
utes before checking or adjusting referigerant charge.
An accurate superheat, thermocouple- or thermistor-type
thermometer, and a gage manifold are required when using the
superheat charging method for evaluating the unit charge. Do
not use mercury or small dial-type thermometers because they
are not adequate for this type of measurement.
NO CHARGE — Use standard evacuating techniques. After
evacuating system, weigh in the specified amount of refriger-
ant. (Refer to Table 1.)
LOW CHARGE COOLING — Using Cooling Charging
Charts, Fig. 44-47, vary refrigerant until the conditions of the
charts are met. Note the charging charts are different from type
normally used. Charts are based on charging the units to the
correct superheat for the various operating conditions. Accu-
rate pressure gage and temperature sensing device are required.
Connect the pressure gage to the service port on the suction
line. Mount the temperature sensing device on the suction line
and insulate it so that outdoor ambient temperature does not af-
fect the reading. Indoor-air cfm must be within the normal op-
erating range of the unit.
MOISTUREMISER SYSTEM CHARGING — The system
charge for units with the MoistureMiser option is greater than
that of the standard unit alone. The charge for units with this
option is indicated on the unit nameplate drawing. Also refer
to Fig. 48-51. To charge systems using the MoistureMiser
Dehumidification package, fully evacuate, recover, and re-
charge the system to the nameplate specified charge level.
To check or adjust refrigerant charge on systems using the
MoistureMiser Dehumidification package, charge per Fig. 48-
51. The subcooler MUST be energized to use the charging
charts. The charts reference a liquid pressure (psig) and
temperature at a point between the condenser coil and the
subcooler coil. A tap is provided on the unit to measure liquid
pressure entering the subcooler.
IMPORTANT: The subcooler charging charts (Fig. 48-
51) are to be used ONLY with units having the optional
MoistureMiser subcooling option. DO NOT use standard
charge (Fig. 44-47) for units with MoistureMiser option,
and DO NOT use Fig. 48-51 for standard units.
Fig. 43 — Condenser-Fan Adjustment
UNIT 48HJ FAN HEIGHT — “A” (in.)
004-006 and 007 (208/230 V) 2.75
007 (460 and 575 V) 3.50
Fig. 45 — Cooling Charging Chart,
Standard 48HJ005
Fig. 44 — Cooling Charging Chart,
Standard 48HJ004

35
TO USE COOLING CHARGING CHART, STANDARD
UNIT — Take the outdoor ambient temperature and read
the suction pressure gage. Refer to charts to determine what
suction temperature should be. If suction temperature is high,
add refrigerant. If suction temperature is low, carefully recover
some of the charge. Recheck the suction pressure as charge is
adjusted.
Example (Fig. 46):
Outdoor Temperature. . . . . . . . . . . . . . . . . . . . . . . . . . . . . . .75 F
Suction Pressure. . . . . . . . . . . . . . . . . . . . . . . . . . . . . . . . 70 psig
Suction Temperature should be. . . . . . . . . . . . . . . . . . . . . . .48 F
(Suction temperature may very ± 5 F.)
If a charging device is used, temperature and pressure read-
ings must be accomplished using the charging charts.
TO USE COOLING CHARGING CHARTS, UNITS
WITH MOISTUREMISER DEHUMIDIFICTION PACK-
AGE — Refer to charts (Fig. 48-51) to determine the proper
leaving condenser pressure and temperature.
Example (Fig. 48):
Leaving Condenser Pressure. . . . . . . . . . . . . . . . . . . . . 250 psig
Leaving Condenser Temperature . . . . . . . . . . . . . . . . . . . 105 F
NOTE: The MoistureMiser subcooler MUST be energized to
use the charging charts.
Flue Gas Passageways — To inspect the flue collec-
tor box and upper areas of the heat exchanger:
1. Remove the combustion blower wheel and motor assem-
bly according to directions in Combustion-Air Blower
section below.
2. Remove the 3 screws holding the blower housing to the
flue cover.
3. Remove the flue cover to inspect the heat exchanger.
4. Clean all surfaces as required using a wire brush.
Combustion-Air Blower — Clean periodically to en-
sure proper airflow and heating efficiency. Inspect blower
wheel every fall and periodically during heating season. For the
first heating season, inspect blower wheel bimonthly to deter-
mine proper cleaning frequency.
To inspect blower wheel, remove draft hood and screen.
Shine a flashlight into opening to inspect wheel. If cleaning is
required, remove motor and wheel as follows:
1. Slide burner access panel out.
2. Remove the 5 screws that attach induced-draft motor as-
sembly to the vestibule cover.
3. Slide the motor and blower wheel assembly out of the
blower housing. The blower wheel can be cleaned at this
point. If additional cleaning is required, continue with
Steps 4 and 5.
4. To remove blower from the motor shaft, by remove
2 setscrews.
5. To remove motor, remove the 4 screws that hold the mo-
tor to mounting plate. Remove the motor cooling fan by
removing one setscrew. Then remove nuts that hold mo-
tor to mounting plate.
6. To reinstall, reverse the procedure outlined above.
Limit Switch — Remove blower access panel (Fig. 5).
Limit switch is located on the fan deck.
Fig. 47 — Cooling Charging Chart,
Standard 48HJ007
Fig. 46 — Cooling Charging Chart,
Standard 48HJ006

36
Fig. 48 — Cooling Charging Chart, 48HJ004 with
Optional MoistureMiser Dehumidification Package
Fig. 49 — Cooling Charging Chart, 48HJ005 with
Optional MoistureMiser Dehumidification Package
Fig. 50 — Cooling Charging Chart, 48HJ006 with
Optional MoistureMiser Dehumidification Package
Fig. 51 — Cooling Charging Chart, 48HJ007 with
Optional MoistureMiser Dehumidification Package
CONDENSER FAN MUST BE OPERATING CONDENSER FAN MUST BE OPERATING
CONDENSER FAN MUST BE OPERATING CONDENSER FAN MUST BE OPERATING

37
Burner Ignition — Unit is equipped with a direct spark
ignition 100% lockout system. Integrated Gas Unit Controller
(IGC) is located in the control box (Fig. 10). A single LED on
the IGC provides a visual display of operational or sequential
problems when the power supply is uninterrupted. The LED
can be observed through the viewport. When a break in power
occurs, the IGC will be reset (resulting in a loss of fault history)
and the evaporator fan on/off times delay will be reset. During
servicing, refer to the label on the control box cover or Table 29
for an explanation of LED error code descriptions.
If lockout occurs, unit may be reset by interrupting power
supply to unit for at least 5 seconds.
Table 29 — LED Error Code Description*
LEGEND
LED — Light-Emitting Diode
*A 3-second pause exists between LED error code flashes. If more
than one error code exists, all applicable codes will be displayed in
numerical sequence.
†Indicates a code that is not an error. The unit will continue to oper-
ate when this code is displayed.
Main Burners — At the beginning of each heating sea-
son, inspect for deterioration or blockage due to corrosion or
other causes. Observe the main burner flames and adjust, if
necessary.
REMOVAL AND REPLACEMENT OF GAS TRAIN
(See Fig. 52 and 53)
1. Shut off manual gas valve.
2. Shut off power to unit, tag disconnect.
3. Remove compressor access panel.
4. Slide out burner compartment side panel.
5. Disconnect gas piping at unit gas valve.
6. Remove wires connected to gas valve. Mark each wire.
7. Remove induced-draft motor, ignitor, and sensor wires at
the Integrated Gas Unit Controller (IGC).
8. Remove the 2 screws that attach the burner rack to the
vestibule plate.
9. Remove the gas valve bracket.
10. Slide the burner tray out of the unit (Fig. 53).
11. To reinstall, reverse the procedure outlined above.
CLEANING AND ADJUSTMENT
1. Remove burner rack from unit as described above.
2. Inspect burners and, if dirty, remove burners from rack.
3. Using a soft brush, clean burners and cross-over port as
required.
4. Adjust spark gap. See Fig. 54.
5. Reinstall burners on rack.
6. Reinstall burner rack as described above.
Replacement Parts — A complete list of replace-
ment parts may be obtained from any Carrier distributor
upon request. Refer to Fig. 55 for a typical unit wiring
schematic.
LED INDICATION ERROR CODE DESCRIPTION
ON Normal Operation
OFF Hardware Failure
1 Flash†Evaporator Fan On/Off Delay Modified
2 Flashes Limit Switch Fault
3 Flashes Flame Sense Fault
4 Flashes 4 Consecutive Limit Switch Faults
5 Flashes Ignition Lockout Fault
6 Flashes Induced-Draft Motor Fault
7 Flashes Rollout Switch Fault
8 Flashes Internal Control Fault
IMPORTANT: Refer to Troubleshooting Tables 30-36 for addi-
tional information.
When servicing gas train, do not hit or plug orifice spuds.
INDUCED-
DRAFT
MOTOR
MOUNTING
PLATE
INDUCED-
DRAFT
MOTOR
MANIFOLD
PRESSURE
TAP
VESTIBULE
PLATE
FLUE
EXHAUST
ROLLOUT
SWITCH
BLOWER
HOUSING
GAS
VALVE
BURNER
SECTION
Fig. 52 — Burner Section Details
Fig. 53 — Burner Tray Details

38
Fig. 54 — Spark Gap Adjustment
LOW HEAT
48HJE004, 48HJD005-007 — 72,000 BTUH INPUT
MEDIUM AND HIGH HEAT
48HJE005-007, 48HJF004 — 115,000 BTUH INPUT
48HJF005-007 — 150,000 BTUH INPUT

39
TROUBLESHOOTING
Refer to Tables 30-36 for troubleshooting details.
Table 30 — LED Error Code Service Analysis
LEGEND
SYMPTOM CAUSE REMEDY
Hardware failure.
(LED OFF)
Loss of power to control module (IGC). Check 5 amp fuse on IGC, power to unit, 24-v circuit breaker, and
transformer. Units without a 24-v circuit breaker have an internal
overload in the 24-v transformer. If the overload trips, allow
10 minutes for automatic reset.
Fan ON/OFF delay modified
(LED/FLASH)
High limit switch opens during heat
exchanger warm-up period before fan-on
delay expires.
Limit switch opens within three minutes
after blower-off delay timing in Heating mode.
Ensure unit is fired on rate and temperature rise is correct.
Ensure units’ external static pressure is within application guidelines.
Limit switch fault.
(LED 2 flashes)
High temperature limit switch is open. Check the operation of the indoor (evaporator) fan motor.
Ensure that the supply-air temperature rise is in accordance with
the range on the unit nameplate.
Flame sense fault.
(LED 3 flashes)
The IGC sensed flame that should not be
present.
Reset unit. If problem persists, replace control board.
4 consecutive limit
switch faults.
(LED 4 flashes)
Inadequate airflow to unit. Check operation of indoor (evaporator) fan motor and that supply-air
temperature rise agrees with range on unit nameplate information.
Ignition lockout.
(LED 5 flashes)
Unit unsuccessfully attempted ignition for
15 minutes.
Check ignitor and flame sensor electrode spacing, gaps, etc.
Ensure that flame sense and ignition wires are properly
terminated. Verify that unit is obtaining proper amount of gas.
Induced-draft motor fault.
(LED 6 flashes)
IGC does not sense that induced-draft
motor is operating.
Check for proper voltage. If motor is operating, check the
speed sensor plug/IGC Terminal J2 connection. Proper
connection: PIN 1— White, PIN 2 — Red, PIN 3 — Black.
Rollout switch fault.
(LED 7 flashes)
Rollout switch has opened. Rollout switch will automatically reset, but IGC will continue to
lock out unit. Check gas valve operation. Ensure that induced-
draft blower wheel is properly secured to motor shaft.
Reset unit at unit disconnect.
Internal control fault.
(LED 8 flashes)
Microprocessor has sensed an error in the
software or hardware.
If error code is not cleared by resetting unit power, replace the IGC.
If the IGC must be replaced, be sure to ground yourself to dissi-
pate any electrical charge that may be present before handling
new control board. The IGC is sensitive to static electricity and
may be damaged if the necessary precautions are not taken.
IMPORTANT: Refer to heating troubleshooting for additional
heating section troubleshooting information.
IGC —Integrated Gas Unit Controller
LED —Light-Emitting Diode

40
Table 31 — Heating Service Analysis
Table 32 — Durablade Economizer Service Analysis
LEGEND
PROBLEM CAUSE REMEDY
Burners will not
ignite.
Misaligned spark electrodes. Check flame ignition and sensor electrode positioning. Adjust as
needed.
No gas at main burners. Check gas line for air purge as necessary. After purging gas line of
air, allow gas to dissipate for at least 5 minutes before attempting to
relight unit.
Check gas valve.
Water in gas line. Drain water and install drip leg to trap water.
No power to furnace. Check power supply, fuses, wiring, and circuit breaker.
No 24 v power supply to control circuit. Check transformer. Transformers with internal overcurrent protection
require a cool-down period before resetting. Check 24-v circuit
breaker; reset if necessary.
Miswired or loose connections. Check all wiring and wirenut connections.
Burned-out heat anticipator in thermostat. Replace thermostat.
Broken thermostat wires. Run continuity check. Replace wires, if necessary.
Inadequate heating. Dirty air filter. Clean or replace filter as necessary.
Gas input to unit too low. Check gas pressure at manifold. Clock gas meter for input. If too low,
increase manifold pressure or replace with correct orifices.
Unit undersized for application. Replace with proper unit or add additional unit.
Restricted airflow. Clean filter, replace filter, or remove any restrictions.
Blower speed too low. Use high speed tap, increase fan speed, or install optional blower, as
suitable for individual units, Adjust pulley.
Limit switch cycles main burners. Check rotation of blower, thermostat heat anticipator settings, and
temperature rise of unit. Adjust as needed.
Too much outdoor air. Adjust minimum position.
Check economizer operation.
Poor flame
characteristics.
Incomplete combustion (lack of
combustion air) results in:
Aldehyde odors, CO (carbon monoxide),
sooting flame, or floating flame.
Check all screws around flue outlets and burner compartment.
Tighten as necessary.
Cracked heat exchanger.
Overfired unit — reduce input, change orifices, or adjust gas line or
manifold pressure.
Check vent for restriction. Clean as necessary.
Check orifice to burner alignment.
Burners will not
turn off.
Unit is locked into Heating mode for a
one minute minimum.
Wait until mandatory one minute time period has elapsed or reset
power to unit.
PROBLEM CAUSE REMEDY
Damper does not
open.
Evaporator fan not on. Check wiring between G on connection board and evaporator-fan
contactor.
No power to economizer motor. 1. Check that SW3 is making proper contact with the damper blade.
2. Check continually across R1 coil. If not connect, replace relay R1.
3. Check diode D18. If diode is not functioning properly, replace D18.
4. Check wiring in economizer relay pack. (See unit label diagram.)
Economizer motor failure. If there is 24 vac power at the motor terminals, but motor is not operat-
ing, replace motor.
Economizer
operation limited to
minimum position.
OAT or EC set too high. 1. Set at correct temperature (3 F below indoor space temperature).
2. Check OAT or EC by setting set point above outdoor temperature or
humidity level. If switch does not close, replace OAT or EC.
Check wiring of economizer relay packs. 1. Check continuity across relay R2 coil. If not connected, replace R2
relay.
2. Check continuity across relay R3 coil. If not connected, replace R3
relay.
Check SAT. If supply-air temperature is over 57 F, switch T2 should be closed. If
not, replace SAT.
Damper does not
close.
Incorrect wiring or wiring defects. 1. Check switches 2 and 4. If non-operational, replace.
2. Check diode D19. If diode D19 is not functioning properly, replace.
3. Check wiring on economizer and on economizer relay pack. (See
unit label diagram.)
Check SAT. If supply-air thermostat is below 52 F, switch T1 should be closed. If
not, replace SAT.
Economizer motor failure. If there is 24 vac power at motor terminals, but motor is not operating,
replace the motor.
EC —Enthalpy Control
OAT —Outdoor-Air Thermostat
SAT —Supply-Air Thermostat
SW —Switch

41
Table 33 — EconoMi$er Flash Code Identification
Table 34 — EconoMi$er Troubleshooting
LEGEND
FLASH CODE CAUSE ACTION TAKEN BY ECONOMI$ER
Constant On Normal operation Normal operation.
Constant Off No power No operation.
Continuous
Flash
CONFIG button pushed and held
between 3 and 9 seconds
Outdoor air damper is stroked fully open, then closed
(automatic test procedure takes 3 minutes to complete).
Critical Fault
Flash One Control board fault System shutdown.
Flash Two Thermostat fault (i.e., Y2 without Y1) System shutdown until corrected.
Flash Three Actuator fault Revert to mechanical cooling only.
Flash Four Supply air temperature sensor fault Continue operation with damper at minimum position.
Revert to mechanical cooling only.
Flash Five Outdoor air temperature sensor fault Continue operation with damper at minimum position.
Disable mechanical cooling lockout.
Non-Critical Fault
Flash Six Outdoor air humidity sensor fault Continue operation with dry bulb or dry bulb differential switchover.
Flash Seven Return air temperature sensor fault
Continue operation with single enthalpy EconoMi$er
switchover or dry bulb EconoMi$er switchover (without
humidity sensor).
Flash Eight Return air humidity sensor fault Continue operation with single enthalpy, differential dry
bulb, or dry bulb EconoMi$er switchover.
Flash Nine Carbon Dioxide (CO2) sensor fault Continue operation without ventilation control.
Flash Ten Onboard adjustment potentiometer fault Continue operation with default potentiometer settings.
PROBLEM POTENTIAL CAUSE REMEDY
Damper Does Not
Open
Indoor (Evaporator) Fan is
Off
Check to ensure that 24 vac is present at Terminal C1 (Common Power)
on the IFC (Indoor Evaporator Fan Contactor) or that 24 vac is present at
the IFO (Indoor Evaporator Fan On) terminal. Check whether 24 vac is
present at PL 6-1 (red wire) and/or PL6-3 (black wire). If 24 vac is
not present, check wiring (see unit label diagram).
Check proper thermostat connection to G on the connection board.
No Power to EconoMi$er
Controller
Check to ensure that 24 vac is present across Terminals 24 VAC and
24 V COM on the EconoMi$er control. If 24 vac is not present, check wiring
(see unit label diagram). If 24 vac is present, STATUS light should be on
constantly.
No Power to G Terminal If IFM is on, check to ensure 24 vac is present on G Terminal of the
EconoMi$er controller. If 24 vac is not present, check wiring (see unit
label diagram).
Controller Fault If STATUS light is flashing one flash, the EconoMi$er controller is
experiencing a fault condition. Cycle power to the controller. If condition
continues, replace the EconoMi$er controller.
Thermostat Fault If STATUS light is flashing two flashes, the EconoMi$er controller senses
the thermostat is wired incorrectly. Check wiring between the thermostat
and the connection board in the electrical panel. The fault condition is
caused by Y2 being energized before Y1.
Actuator Fault Check the wiring between the EconoMi$er controller and the actuator.
Hold CONFIG button between 3 and 10 seconds to verify the
actuator’s operation. (This process takes 3 minutes to complete.)
EconoMi$er
Operation Limited to
Minimum Position
Minimum Position Set
Incorrectly
Verify that the MIN POS (%) is set greater than zero. Adjust MIN POS (%)
to 100% to verify operation, and then set to correct setting.
EconoMi$er Changeover
Set Point Set Too High or
Too Low
Set at correct value. See Table 3.
Supply Air Temperature
Sensor Faulty
If STATUS light is flashing 4 flashes, Supply Air Temperature Sensor is
faulty. Check wiring or replace sensor.
Outdoor Air Temperature
Sensor Faulty
If STATUS light is flashing 5 flashes, Outdoor Air Temperature Sensor is
faulty. Check wiring or replace sensor.
Damper Position
Less than Minimum
Position Set Point
Supply Air Low Limit
Strategy Controlling
The supply-air temperature is less than 45 F, causing the minimum
position to be decreased. Refer to the Start-Up instructions. Verify correct
setting of MIN POS (%). If correct, EconoMi$er is operating correctly.
Damper Does Not
Return to Minimum
Position
CO2 Ventilation Strategy
Controlling
If a CO2 sensor is being used, and the damper position is greater than
minimum position, the ventilation control strategy is controlling. Refer to
the Start-Up instructions. EconoMi$er is operating correctly.
Damper Does Not
Close on Power Loss
Damper Travel is
Restricted
Check to ensure the damper is not blocked.
IFM —Indoor Fan Motor
PL —Plug

42
Table 35 — MoistureMiser Dehumidification Subcooler Service Analysis
PROBLEM CAUSE REMEDY
Subcooler will not energize. No power to control transformer from
evaporator-fan motor.
Check power source and evaporator-fan relay. Ensure
all wire connections are tight.
No power from control transformer to liquid line
solenoid valve
1. Fuse open; check fuse. Ensure continuity of wiring.
2. Low-pressure switch open. Cycle unit off and allow
low-pressure switch to reset. Replace switch if it will
not close.
3. Transformer bad; check transformer.
Liquid line solenoid valve will not operate. 1. Solenoid coil defective; replace.
2. Solenoid valve stuck open; replace.
Subcooler will not deenergize. Liquid line solenoid valve will not open. Valve is stuck closed; replace valve.
Low system capacity. Low refrigerant charge or frosted evaporator
coil.
1. Check charge amount. Charge per Fig. 47-51.
2. Evaporator coil frosted; check and replace low-
pressure switch if necessary.
Loss of compressor superheat
conditions with subcooler
energized.
Thermostatic expansion valve (TXV). 1. Check TXV bulb mounting, and secure tightly to
suction line.
2. Replace TXV if stuck open or closed.

43
Table 36 — Cooling Service Analysis
PROBLEM CAUSE REMEDY
Compressor and condenser fan
will not start.
Power failure. Call power company.
Fuse blown or circuit breaker tripped. Replace fuse or reset circuit breaker.
Defective thermostat, contactor, transformer,
or control relay.
Replace component.
Insufficient line voltage. Determine cause and correct.
Incorrect or faulty wiring. Check wiring diagram and rewire correctly.
Thermostat setting too high. Lower thermostat setting below room temperature.
Compressor will not start
but condenser fan runs.
Faulty wiring or loose connections in com-
pressor circuit.
Check wiring and repair or replace.
Compressor motor burned out, seized, or
internal overload open.
Determine cause. Replace compressor.
Defective run/start capacitor, overload, start
relay.
Determine cause and replace.
One leg of 3-phase power dead. Replace fuse or reset circuit breaker. Determine
cause.
Compressor cycles (other than
normally satisfying thermostat).
Refrigerant overcharge or undercharge. Recover refrigerant, evacuate system, and
recharge to nameplate.
Defective compressor. Replace and determine cause.
Insufficient line voltage. Determine cause and correct.
Blocked condenser. Determine cause and correct.
Defective run/start capacitor, overload, or
start relay.
Determine cause and replace.
Defective thermostat. Replace thermostat.
Faulty condenser-fan motor or capacitor. Replace.
Restriction in refrigerant system. Locate restriction and remove.
Compressor operates continuously. Dirty air filter. Replace filter.
Unit undersized for load. Decrease load or increase unit size.
Thermostat set too low. Reset thermostat.
Low refrigerant charge. Locate leak, repair, and recharge.
Leaking valves in compressor. Replace compressor.
Air in system. Recover refrigerant, evacuate system, and
recharge.
Condenser coil dirty or restricted. Clean coil or remove restriction.
Excessive head pressure. Dirty air filter. Replace filter.
Dirty condenser coil. Clean coil.
Refrigerant overcharged. Recover excess refrigerant.
Air in system. Recover refrigerant, evacuate system, and
recharge.
Condenser air restricted or air short-cycling. Determine cause and correct.
Head pressure too low. Low refrigerant charge. Check for leaks, repair, and recharge.
Compressor valves leaking. Replace compressor.
Restriction in liquid tube. Remove restriction.
Excessive suction pressure. High heat load. Check for source and eliminate.
Compressor valves leaking. Replace compressor.
Refrigerant overcharged. Recover excess refrigerant.
Suction pressure too low. Dirty air filter. Replace filter.
Low refrigerant charge. Check for leaks, repair, and recharge.
Metering device or low side restricted. Remove source of restriction.
Insufficient evaporator airflow. Increase air quantity. Check filter and replace if
necessary.
Temperature too low in conditioned area. Reset thermostat.
Outdoor ambient below 25 F. Install low-ambient kit.
Evaporator fan will not shut off. Time off delay not finished. Wait for 30-second off delay.

44
Fig. 55 — Typical Wiring Schematic and Component Arrangement
(208/230 3-Phase Unit Shown)

45
LEGEND AND NOTES FOR FIG. 55
AHA —Adjustable Heat Anticipator
C—Contactor, Compressor
CAP —Capacitor
CC —Cooling Compensator
CLO —Compressor Lockout
COMP —Compressor Motor
D—Diode
EC —Enthalpy Control
ECON —Economizer
EPS —Emergency Power Supply
EQUIP —Equipment
ER —Economizer Relay
FPT —Freeze-Protection Thermostat
FSS —Filter-Status Switch
FU —Fuse
GND —Ground
GVR —Gas Valve Relay
HPS —High-Pressure Switch
HS —Hall-Effect Sensor
HV —High Voltage
I—Ignitor
IDM —Induced-Draft Motor
IFC —Indoor (Evaporator) Fan Contactor
IFM —Indoor (Evaporator) Fan Motor
IGC —Integrated Gas Unit Controller
LED —Light-Emitting Diode
LPS —Low-Pressure/Loss-of-Charge Switch
LS —Limit Switch
MGV —Main Gas Valve
MTR —Motor
OAT —Outdoor-Air Thermostat
OFM —Outdoor (Condenser) Fan Motor
P—Plug
PL —Plug Assembly
QT —Quadruple Terminal
R—Relay
RS —Rollout Switch
SAT —Supply-Air Thermostat
SEN —Sensor
SW1 —Switch Fully Open
SW2 —Switch Fully Closed
SW3 —Switch Minimum Vent Position
SW4 —Switch Maximum Vent Position
TC —Thermostat-Cooling
TH —Thermostat-Heating
TRAN —Transformer
Field Splice
Marked Wire
Terminal (Marked)
Terminal (Unmarked)
Terminal Block
Splice
Splice (Marked)
Factory Wiring
Field Control Wiring
Field Power Wiring
Accessory or Optional Wiring
To indicate common potential only.
Not to represent wiring.
NOTES FOR FIG. 55
1. If any of the original wire furnished must be replaced, it must be replaced with Type 90 C wire or its
equivalent.
2. Three-phase motors are protected under primary single-phasing conditions.
3. Thermostats: HH07AT170, 172
Subbase: HH93AZ176, 177, 178 and 179
4. Set heat anticipator at .14 amp for first stage and .14 amp for second stage.
5. Use copper conductors only.
6. TRAN is wired for 230 v unit. If unit is to be run with 208 v power supply, disconnect BLK wire from
230 v tap and connect to 208 v tap (RED). Insulate end of 230 v tap.

Manufacturer reserves the right to discontinue, or change at any time, specifications or designs without notice and without incurring obligations.
PC 111 Catalog No. 534-767 Printed in U.S.A. Form 48HJ-18SI Pg 46 9-00 Replaces: 48HJ-17SI
Book 1 4
Ta b 1 a 6 a
Copyright 2000 Carrier Corporation

Manufacturer reserves the right to discontinue, or change at any time, specifications or designs without notice and without incurring obligations.
PC 111 Catalog No. 534-767 Printed in U.S.A. Form 48HJ-18SI Pg CL-1 9-00 Replaces: 48HJ-17SI
Book 1 4
Ta b 1 a 6 a
Copyright 2000 Carrier Corporation
- - - - - - - - - - - - - - - - - - - - - - - - - - - - - - - - - - - - - - - - - - - - - - - - - - - - - - - - - - - - - - - - - - - - - - - - - - - - - - - - - - - - - - - - - - - - - - - - - - - - - - - - - - - - - - - - - - - - - - - - - - - - - - - - - - - - - - - - - - - - - - - - - - - - - - - - - - - - - - - - - - - - - - - - - - - - -- - - - - - - - - - - - - - - - - - - -
CUT ALONG DOTTED LINE CUT ALONG DOTTED LINE
START-UP CHECKLIST
(Remove and Store in Job File)
I. PRELIMINARY INFORMATION
MODEL NO.:________________________________ SERIAL NO.: ________________________________________
DATE:______________________________________ TECHNICIAN: _______________________________________
BUILDING LOCATION: _______________________________
II. PRE-START-UP (insert checkmark in box as each item is completed)
VERIFY THAT ALL PACKING MATERIALS HAVE BEEN REMOVED FROM UNIT
REMOVE ALL SHIPPING HOLDDOWN BOLTS AND BRACKETS PER INSTALLATION INSTRUCTIONS
VERIFY THAT CONDENSATE CONNECTION IS INSTALLED PER INSTALLATION INSTRUCTIONS
CHECK ALL ELECTRICAL CONNECTIONS AND TERMINALS FOR TIGHTNESS
CHECK GAS PIPING FOR LEAKS
CHECK THAT RETURN INDOOR-AIR FILTER IS CLEAN AND IN PLACE
VERIFY THAT UNIT INSTALLATION IS LEVEL
CHECK FAN WHEEL AND PROPELLER FOR LOCATION IN HOUSING/ORIFICE AND SETSCREW TIGHTNESS
III. START-UP
ELECTRICAL
TEMPERATURES
PRESSURES
VERIFY REFRIGERANT CHARGE USING CHARGING TABLES
VERIFY THAT 3-PHASE SCROLL COMPRESSOR ROTATING IN CORRECT DIRECTION
SUPPLY VOLTAGE L1-L2 L2-L3 L3-L1
COMPRESSOR AMPS L1 L2 L3
INDOOR-FAN AMPS L1 L2 L3
OUTDOOR-AIR TEMPERATURE DB
RETURN-AIR TEMPERATURE DB WB
COOLING SUPPLY AIR
GAS HEAT SUPPLY AIR
GAS INLET PRESSURE IN. WG
GAS MANIFOLD PRESSURE IN. WG (HI FIRE)
REFRIGERANT SUCTION PSIG °F
REFRIGERANT DISCHARGE PSIG °F