Carrier 50Ss018 060 Users Manual
50SX024-060 to the manual 2e6bbecd-c64a-4e61-b4a3-ac5f53212b32
2015-01-24
: Carrier Carrier-50Ss018-060-Users-Manual-310433 carrier-50ss018-060-users-manual-310433 carrier pdf
Open the PDF directly: View PDF
.
Page Count: 48

Installation, Start-Up and
Service Instructions
CONTENTS Page
SAFETY CONSIDERATIONS .................1-12
General ......................................1
RECEIVING AND INSTALLATION ...........13-26
Step 1 — Check Equipment ..................13
• IDENTIFY UNIT
• INSPECT SHIPMENT
Step 2 — Provide Unit Support ..............13
• ROOF CURB
• SLAB MOUNT
Step 3 — Provide Clearances ................13
Step 4 — Rig and Place Unit .................13
• UNITS WITHOUT BASE RAILS
• UNITS WITH OPTIONAL BASE RAILS
Step 5 — Select and Install Ductwork ........16
• CONVERTING HORIZONTAL DISCHARGE
UNITS TO DOWNFLOW (VERTICAL) DISCHARGE
— STD (NON-ICM) UNITS
• CONVERTING HORIZONTAL DISCHARGE UNITS
TO DOWNFLOW (VERTICAL) DISCHARGE
— ICM UNITS
• ACCESSORY DUCT FLANGE KIT INSTALLATION
Step 6 — Provide for Condensate Disposal ...20
Step 7 — Install Electrical Connections ......21
• HIGH-VOLTAGE CONNECTIONS
• ROUTING POWER LEADS INTO UNIT
• CONNECTING GROUND LEAD TO
WIRE-BINDING SCREW
• ROUTING CONTROL POWER WIRES — STD
NON-ICM UNITS (24 V)
• ROUTING CONTROL POWER WIRES — ICM
UNITS (24 V)
• SPECIAL PROCEDURES FOR 208-V
OPERATION
PRE-START-UP ............................26,27
START-UP ................................27-39
Check for Refrigerant Leaks .................27
Start-Up Cooling Section and
Make Adjustments ........................27
MAINTENANCE ............................40,41
Air Filter ....................................40
Unit Top Removal ...........................40
Evaporator Blower and Motor ................40
Condenser Coil, Evaporator Coil,
and Condensate Drain Pan ................41
Condenser Fan .............................41
Electrical Controls and Wiring ...............41
Refrigerant Circuit ..........................41
Evaporator Airflow ..........................41
Metering Devices ...........................41
Liquid Line Strainer .........................41
TROUBLESHOOTING COOLING CHART .....42,43
START-UP CHECKLIST .....................CL-1
NOTE TO INSTALLER — Before the installation, READ
THESE INSTRUCTIONS CAREFULLY AND COM-
PLETELY. Also, make sure the Owner’s Manual and Serv-
ice Instructions are left with the unit after installation.
SAFETY CONSIDERATIONS
Installation and servicing of air-conditioning equipment
can be hazardous due to system pressure and electrical com-
ponents. Only trained and qualified personnel should install,
repair, or service air-conditioning equipment.
Untrained personnel can perform basic maintenance func-
tions of cleaning coils and filters. All other operations should
be performed by trained service personnel. When working
on air-conditioning equipment, observe precautions in the
literature, tags and labels attached to the unit, and other safety
precautions that may apply.
Follow all safety codes. Wear safety glasses and work gloves.
Use quenching cloth for unbrazing operations. Have fire ex-
tinguisher available for all brazing operations.
Before performing service or maintenance operations on
system, turn off main power to unit. Turn off accessory
heater power switch if applicable. Electrical shock can
cause personal injury.
General — 50SS,SX cooling units are fully self-contained
and designed for outdoor installation. See Fig. 1. As shown
in Fig. 2-9, both small- and large-cabinet units are shipped
in a horizontal-discharge configuration for installation on
a ground-level slab. All units can be converted to down-
flow discharge configurations for rooftop applications. See
Fig. 10 for roof curb dimensions.
Instructions continued on page 13.
Fig. 1 — Unit 50SX With Optional Base Rail Shown
50SS018-060
50SX024-060
Single-Package Cooling Units
Manufacturer reserves the right to discontinue, or change at any time, specifications or designs without notice and without incurring obligations.
Book 1 4
Tab 1b 6b
PC 111 Catalog No. 535-022 Printed in U.S.A. Form 50SS,SX-4SI Pg 1 5-95 Replaces: 50SS,SX-3SI

REQUIRED CLEARANCES TO COMBUSTIBLE MATERIAL — in. (mm)
Unit Top ................................14(356)
Duct Side of Unit ............................2(51)
Side Opposite Ducts ........................14(356)
Bottom of Unit .................................0
Vertical Discharge First 12 in. (305) of Supply Duct .......1(25)
NECESSARY REQUIRED CLEARANCES — in. (mm)
Between Units, Control Box Side ................42(1067)
Unit and Ungrounded Surfaces, Control Box Side ......36(914)
Unit and Block or Concrete Walls and Other Grounded
Surfaces, Control Box Side ...................42(1067)
REQUIRED CLEARANCES FOR SERVICING — in. (mm)
Evaporator Coil Access Side ...................30(762)
Control Box Access Side ......................30(762)
(Except for Necessary Requirements)
Unit Top ................................36(914)
Side Opposite Ducts ........................30(762)
UNIT
50SS CENTER OF GRAVITY (in./mm)
XYZ
018 19.6/499 21.7/551 10.6/269
024 22.5/570 20.9/530 10.0/254
030 22.1/561 20.3/516 10.0/253
036 21.2/538 19.9/506 9.9/251
042 21.3/540 19.9/506 11.3/286
LEGEND
CG — Center of Gravity NEC — National Electrical Code
COND — Condenser REQ’D — Required
MAT’L — Material
NOTES:
1. Clearances must be maintained to prevent recirculation of air from
outdoor-fan discharge.
2. Dimensions in ( ) are in millimeters.
UNIT
50SS ELECTRICAL
CHARACTERISTICS UNIT WT CORNER WT (Lb/Kg) UNIT HEIGHT
(in./mm) DIMENSION
(in./mm)
Lb Kg A B C D E F
018 208/230-1-60 208 95 61/28 43/20 69/31 35/16 24.1/613 18.2/462
024 208/230-1-60 237 108 60/27 54/25 92/42 31/14 24.1/613 18.2/462
030 208/230-1-60, 208/230-3-60 254 115 61/28 58/26 96/44 39/18 24.1/613 18.2/462
036 208/230-1-60, 208/230-3-60, 460-3-60 270 123 75/35 48/22 109/50 37/17 24.1/613 18.2/462
042 208/230-1-60, 208/230-3-60, 460-3-60 300 135 81/40 57/26 117/53 45/20 28.1/714 22.2/563
Fig. 2 — Dimensions; Units 50SS018-042 Without Base Rail
2

REQUIRED CLEARANCES TO COMBUSTIBLE MATERIAL — in. (mm)
Unit Top ................................14(356)
Duct Side of Unit ............................2(51)
Side Opposite Ducts ........................14(356)
Bottom of Unit .................................0
Vertical Discharge First 12 in. (305) of Supply Duct .......1(25)
NECESSARY REQUIRED CLEARANCES — in. (mm)
Between Units, Control Box Side ................42(1067)
Unit and Ungrounded Surfaces, Control Box Side ......36(914)
Unit and Block or Concrete Walls and Other Grounded
Surfaces, Control Box Side ...................42(1067)
REQUIRED CLEARANCES FOR SERVICING — in. (mm)
Evaporator Coil Access Side ...................30(762)
Control Box Access Side ......................30(762)
(Except for Necessary Requirements)
Unit Top ................................36(914)
Side Opposite Ducts ........................30(762)
UNIT
50SS CENTER OF GRAVITY (in./mm)
XYZ
018 19.5/495 21.7/551 12.9/328
024 22.1/562 20.9/532 12.3/313
030 21.8/554 20.4/519 12.3/312
036 21.0/533 20.1/509 12.2/310
042 21.0/532 20.1/510 13.6/344
LEGEND
CG — Center of Gravity NEC — National Electrical Code
COND — Condenser REQ’D — Required
MAT’L — Material
NOTES:
1. Clearances must be maintained to prevent recirculation of air from
outdoor-fan discharge.
2. Dimensions in ( ) are in millimeters.
UNIT
50SS ELECTRICAL
CHARACTERISTICS UNIT WT CORNER WT (Lb/Kg) UNIT HEIGHT
(in./mm) DIMENSION
(in./mm)
Lb Kg A B C D E F
018 208/230-1-60 228 104 66/30 48/22 74/34 40/18 27.4/697 21.5/546
024 208/230-1-60 257 117 65/30 59/27 97/44 36/16 27.4/697 21.5/546
030 208/230-1-60, 208/230-3-60 274 125 66/30 63/29 101/46 44/20 27.4/697 21.5/546
036 208/230-1-60, 208/230-3-60, 460-3-60 290 132 81/37 53/24 114/52 42/19 27.4/697 21.5/546
042 208/230-1-60, 208/230-3-60, 460-3-60 320 146 86/39 62/28 122/55 50/23 31.4/798 25.5/648
Fig. 3 — Dimensions; Units 50SS018-042 with Optional Base Rail
3

REQUIRED CLEARANCES TO COMBUSTIBLE MATERIAL — in. (mm)
Unit Top ....................................14(356)
Duct Side of Unit .................................2(51)
Side Opposite Ducts .............................14(356)
Bottom of Unit .....................................0
Vertical Discharge First 12 in. (305) of Supply Duct ...............1(25)
NECESSARY REQUIRED CLEARANCES — in. (mm)
Between Units, Control Box Side ......................42(1067)
Unit and Ungrounded Surfaces, Control Box Side ..............36(914)
Unit and Block or Concrete Walls and Other Grounded
Surfaces, Control Box Side .........................42(1067)
REQUIRED CLEARANCES FOR SERVICING — in. (mm)
Evaporator Coil Access Side .........................30(762)
Control Box Access Side ...........................30(762)
(Except for Necessary Requirements)
Unit Top ....................................36(914)
Side Opposite Ducts .............................30(762)
UNIT
50SS CENTER OF GRAVITY (in./mm)
XYZ
048 21.9/555 19.6/498 13.4/341
060 22.2/565 19.8/503 13.4/340
LEGEND
CG — Center of Gravity NEC — National Electrical Code
COND — Condenser REQ’D — Required
MAT’L — Material
NOTES:
1. Clearances must be maintained to prevent recirculation of air from outdoor-fan dis-
charge.
2. Dimensions in ( ) are in millimeters.
UNIT
50SS ELECTRICAL
CHARACTERISTICS UNIT WT CORNER WT (Lb/Kg)
Lb Kg A B C D
048 208/230-1-60, 208/230-3-60, 460-3-60 332 151 82/37 68/31 131/60 51/23
060 208/230-1-60, 208/230-3-60, 460-3-60 359 163 65/30 99/45 120/55 75/34
Fig. 4 — Dimensions; Units 50SS048,060 Without Base Rail
4

REQUIRED CLEARANCES TO COMBUSTIBLE MATERIAL — in. (mm)
Unit Top ..................................14(356)
Duct Side of Unit ..............................2(51)
Side Opposite Ducts ...........................14(356)
Bottom of Unit ..................................0
Vertical Discharge First 12 in. (305) of Supply Duct ............1(25)
NECESSARY REQUIRED CLEARANCES — in. (mm)
Between Units, Control Box Side ....................42(1067)
Unit and Ungrounded Surfaces, Control Box Side ............36(914)
Unit and Block or Concrete Walls and Other Grounded
Surfaces, Control Box Side ......................42(1067)
REQUIRED CLEARANCES FOR SERVICING — in. (mm)
Evaporator Coil Access Side .......................30(762)
Control Box Access Side .........................30(762)
(Except for Necessary Requirements)
Unit Top ..................................36(914)
Side Opposite Ducts ...........................30(762)
UNIT
50SS CENTER OF GRAVITY (in./mm)
XYZ
048 21.7/550 19.7/501 15.7/400
060 22.0/560 19.9/506 15.7/399
LEGEND
CG — Center of Gravity NEC — National Electrical Code
COND — Condenser REQ’D — Required
MAT’L — Material
NOTES:
1. Clearances must be maintained to prevent recirculation of air from outdoor-fan dis-
charge.
2. Dimensions in ( ) are in millimeters.
UNIT
50SS ELECTRICAL
CHARACTERISTICS UNIT WT CORNER WT (Lb/Kg)
Lb Kg A B C D
048 208/230-1-60, 208/230-3-60, 460-3-60 352 160 87/40 73/33 136/62 56/25
060 208/230-1-60, 208/230-3-60, 460-3-60 379 172 70/32 104/47 125/57 80/36
Fig. 5 — Dimensions; Units 50SS048,060 With Optional Base Rail
5

REQUIRED CLEARANCES TO COMBUSTIBLE MATERIAL — in. (mm)
Unit Top ................................14(356)
Duct Side of Unit ............................2(51)
Side Opposite Ducts ........................14(356)
Bottom of Unit .................................0
Vertical Discharge First 12 in. (305) of Supply Duct .......1(25)
NECESSARY REQUIRED CLEARANCES — in. (mm)
Between Units, Control Box Side ................42(1067)
Unit and Ungrounded Surfaces, Control Box Side ......36(914)
Unit and Block or Concrete Walls and Other Grounded
Surfaces, Control Box Side ...................42(1067)
REQUIRED CLEARANCES FOR SERVICING — in. (mm)
Evaporator Coil Access Side ...................30(762)
Control Box Access Side ......................30(762)
(Except for Necessary Requirements)
Unit Top ................................36(914)
Side Opposite Ducts ........................30(762)
NOTES:
1. Clearances must be maintained to prevent recirculation of air from
outdoor-fan discharge.
2. Dimensions in ( ) are in millimeters.
UNIT
50SX CENTER OF GRAVITY (in./mm)
XYZ
024 21.7/552 20.7/527 12.7/321
030 21.9/556 20.7/525 12.7/321
036 20.8/528 20.0/507 12.7/321
LEGEND
CG — Center of Gravity NEC — National Electrical Code
COND — Condenser REQ’D — Required
MAT’L — Material
UNIT
50SX ELECTRICAL
CHARACTERISTICS UNIT WT CORNER WT (Lb/Kg)
Lb Kg A B C D
024 208/230-1-60 270 123 67/30 62/28 99/45 42/19
030 208/230-1-60 273 124 66/30 64/29 100/45 43/20
036 208/230-1-60, 208/230-3-60, 460-3-60 291 132 80/36 54/25 112/51 45/20
Fig. 6 — Dimensions; Units 50SX024-036 Without Base Rail
6

REQUIRED CLEARANCES TO COMBUSTIBLE MATERIAL — in. (mm)
Unit Top ................................14(356)
Duct Side of Unit ............................2(51)
Side Opposite Ducts ........................14(356)
Bottom of Unit .................................0
Vertical Discharge First 12 in. (305) of Supply Duct .......1(25)
NECESSARY REQUIRED CLEARANCES — in. (mm)
Between Units, Control Box Side ................42(1067)
Unit and Ungrounded Surfaces, Control Box Side ......36(914)
Unit and Block or Concrete Walls and Other Grounded
Surfaces, Control Box Side ...................42(1067)
REQUIRED CLEARANCES FOR SERVICING — in. (mm)
Evaporator Coil Access Side ...................30(762)
Control Box Access Side ......................30(762)
(Except for Necessary Requirements)
Unit Top ................................36(914)
Side Opposite Ducts ........................30(762)
NOTES:
1. Clearances must be maintained to prevent recirculation of air from
outdoor-fan discharge.
2. Dimensions in ( ) are in millimeters.
LEGEND
CG — Center of Gravity NEC — National Electrical Code
COND — Condenser REQ’D — Required
MAT’L — Material
UNIT
50SX CENTER OF GRAVITY (in./mm)
XYZ
024 21.5/546 20.8/528 15.0/380
030 21.7/550 20.7/527 15.0/380
036 20.6/524 20.1/510 15.0/380
UNIT
50SX ELECTRICAL
CHARACTERISTICS UNIT WT CORNER WT (Lb/Kg)
Lb Kg A B C D
024 208/230-1-60 290 132 72/33 67/30 104/47 47/21
030 208/230-1-60 293 133 71/32 69/31 105/48 48/22
036 208/230-1-60, 208/230-3-60, 460-3-60 311 142 85/39 59/27 117/53 50/23
Fig. 7 — Dimensions; Units 50SX024-036 With Optional Base Rail
7

Fig. 8 — Dimensions; Units 50SX042-060 Without Base Rail
8

REQUIRED CLEARANCES TO COMBUSTIBLE MATERIAL — in. (mm)
Unit Top ........................................14(356)
Duct Side of Unit ...................................2(51)
Side Opposite Ducts ...............................14(356)
Bottom of Unit .........................................0
Vertical Discharge First 12 in. (305) of Supply Duct ...........1(25)
NECESSARY REQUIRED CLEARANCES — in. (mm)
Between Units, Control Box Side .....................42(1067)
Unit and Ungrounded Surfaces, Control Box Side ...........36(914)
Unit and Block or Concrete Walls and Other Grounded
Surfaces, Control Box Side .........................42(1067)
REQUIRED CLEARANCES FOR SERVICING — in. (mm)
Evaporator Coil Access Side .........................30(762)
Control Box Access Side ............................30(762)
(Except for Necessary Requirements)
Unit Top ........................................36(914)
Side Opposite Ducts ...............................30(762)
NOTES:
1. Clearances must be maintained to prevent recirculation of air from outdoor-
fan discharge.
2. Dimensions in ( ) are in millimeters.
LEGEND
CG — Center of Gravity NEC — National Electrical Code
COND — Condenser REQ’D — Required
MAT’L — Material
UNIT
50SX ELECTRICAL
CHARACTERISTICS UNIT WT CORNER WT (Lb/Kg)
Lb Kg A B C D
042 208/230-1-60, 208/230-3-60, 460-3-60 309 140 84/38 59/27 119/54 47/21
048 208/230-1-60, 208/230-3-60, 460-3-60 340 155 84/38 70/32 133/60 53/24
060 208/230-1-60, 208/230-3-60 359 163 65/30 99/45 120/55 75/34
UNIT
50SX CENTER OF GRAVITY (in./mm)
XYZ
042 21.0/533 20.1/510 15.4/390
048 21.8/553 19.7/499 15.4/390
060 22.2/565 19.8/503 13.4/340
Fig. 8 — Dimensions; Units 50SX042-060 Without Base Rail (cont)
9

Fig. 9 — Dimensions; Units 50SX042-060 With Optional Base Rail
10

REQUIRED CLEARANCES TO COMBUSTIBLE MATERIAL — in. (mm)
Unit Top ........................................14(356)
Duct Side of Unit ...................................2(51)
Side Opposite Ducts ...............................14(356)
Bottom of Unit .........................................0
Vertical Discharge First 12 in. (305) of Supply Duct ...........1(25)
NECESSARY REQUIRED CLEARANCES — in. (mm)
Between Units, Control Box Side .....................42(1067)
Unit and Ungrounded Surfaces, Control Box Side ...........36(914)
Unit and Block or Concrete Walls and Other Grounded
Surfaces, Control Box Side .........................42(1067)
REQUIRED CLEARANCES FOR SERVICING — in. (mm)
Evaporator Coil Access Side .........................30(762)
Control Box Access Side ............................30(762)
(Except for Necessary Requirements)
Unit Top ........................................36(914)
Side Opposite Ducts ...............................30(762)
NOTES:
1. Clearances must be maintained to prevent recirculation of air from outdoor-
fan discharge.
2. Dimensions in ( ) are in millimeters.
UNIT
50SX CENTER OF GRAVITY (in./mm)
XYZ
042 20.8/529 20.2/512 17.3/440
048 21.6/548 19.8/502 17.3/440
060 22.0/560 19.9/506 15.7/399
LEGEND
CG — Center of Gravity NEC — National Electrical Code
COND — Condenser REQ’D — Required
MAT’L — Material
UNIT
50SX ELECTRICAL
CHARACTERISTICS UNIT WT CORNER WT (Lb/Kg)
Lb Kg A B C D
042 208/230-1-60, 208/230-3-60, 460-3-60 329 150 89/40 64/29 124/56 52/24
048 208/230-1-60, 208/230-3-60, 460-3-60 360 164 89/40 75/34 138/63 58/26
060 208/230-1-60, 208/230-3-60 379 172 70/32 104/47 125/57 80/36
Fig. 9 — Dimensions; Units 50SX042-060 With Optional Base Rail (cont)
11

PART NUMBER ‘‘A’’
FLAT
CURB
CPRFCURB001A00 89[203]
CPRFCURB002A00 119[279]
CPRFCURB003A00 149[356]
NOTES:
1. Roof curb must be set up for unit being installed.
2. Seal strip must be applied as required for unit being installed.
3. Dimensions in [ ] are in millimeters.
4. Roof curb is made of 16 gage steel.
5. Attach ductwork to curb (flanges of duct rest on curb).
6. Service clearance 4 ft on each side.
7. direction of airflow.
8. Insulated panels, 1-in. thick, fiberglass 1-lb density.
Fig. 10 — Roof Curb Dimensions
12

RECEIVING AND INSTALLATION
Step 1 — Check Equipment
IDENTIFY UNIT — The unit model number and serial num-
ber are stamped on the unit identification plate. Check this
information against shipping papers.
INSPECT SHIPMENT — Inspect for shipping damage while
unit is still on shipping pallet. If unit appears to be damaged
or is torn loose from its anchorage, have it examined by trans-
portation inspectors before removal. Forward claim papers
directly to transportation company. Manufacturer is not re-
sponsible for any damage incurred in transit.
Check all items against shipping list. Immediately notify
the nearest Carrier Air Conditioning office if any item is
missing.
To prevent loss or damage, leave all parts in original pack-
ages until installation.
Step 2 — Provide Unit Support
ROOF CURB — Install accessory roof curb in accordance
with instructions shipped with curb. See Fig. 10. Install in-
sulation, cant strips, roofing, and flashing. Ductwork must
be attached to curb.
IMPORTANT: The gasketing of the unit to the roof
curb is critical for a watertight seal. Install gasketing
material supplied with the roof curb. Improperly ap-
plied gasketing also can result in air leaks and poor
unit performance.
Curb should be level to within
1
⁄
4
inch. This is necessary
for unit drain to function properly. Refer to accessory roof
curb installation instructions for additional information as
required.
SLAB MOUNT — Place the unit on a solid, level concrete
pad that is a minimum of 4 in. thick with 2 in. above grade.
The slab should extend approximately 2 in. beyond the cas-
ing on all 4 sides of the unit. Install a 6-in. gravel apron in
front of condenser-air inlet to prevent obstruction of airflow
by grass or shrubs. Do not secure the unit to the slab except
when required by local codes.
Step 3 — Provide Clearances — The required mini-
mum service clearances and clearances to combustibles are
shown in Fig. 2-9. Adequate ventilation and condenser air
must be provided.
The condenser fan pushes air through the condenser coil
and discharges it through louvers on the top cover, the deco-
rative grille, and the compressor access panel. Be sure that
the fan discharge does not recirculate to the condenser coil.
Do not locate the unit in either a corner or under an over-
head obstruction. The minimum clearance under a partial over-
hang (such as a normal house overhang) is 48 in. above the
unit top. The maximum horizontal extension of a partial over-
hang must not exceed 48 inches.
Do not restrict condenser airflow. An air restriction at
either the outdoor-air inlet or the fan discharge can be
detrimental to compressor life.
Do not place the unit where water, ice, or snow from
an overhang or roof will damage or flood the unit. Do not
install the unit on carpeting, tile, or other combustible ma-
terials. The unit may be installed on wood flooring or on
Class A, B, or C roof covering materials.
Step 4 — Rig and Place Unit — Use spreader bars
or crate top when rigging the unit. The units must be rigged
for lifting as shown in Fig. 11 and 12. Refer to Fig. 11 and
12 for rigging weights and Tables 1 and 2 for operating weights.
Use extreme caution to prevent damage when moving the
unit. Unit must remain in an upright position during all rig-
ging and moving operations.The unit must be level for proper
condensate drainage; the ground-level pad or accessory roof
curb must be level before setting the unit in place. When a
field-fabricated support is used, be sure that the support is
level and that it properly supports the unit.
UNITS WITHOUT BASE RAILS —Accessory rigging brack-
ets are recommended to be used for rigging. Install brackets
as follows:
Secure screws and paint protectors solidly against unit
basepan to hold lifting brackets in position.
Never use lifting brackets when the temperature is be-
low −10 F (−23 C).
Never exceed 200 lbs per bracket of lifting force.
Never use lifting brackets for lifting other models of air
conditioning units.
Lifting point should be directly over the unit center of
gravity.
1. Position brackets as close to the corners of unit as pos-
sible. Be sure brackets are well outside of center of grav-
ity. (See Fig. 2, 4, 6, 8, and 11.)
2. Position paint protectors and foam strips between screws
and painted surface of unit. Tighten screws until they make
contact with the paint protectors.
3. Secure device or hook of sufficient strength to hole in bracket
as shown in detail ‘‘A’’ of Fig. 11.
4. If wood top is available, use it for a spreader bar to pre-
vent straps from damaging unit. If wood top is not avail-
able, use spreader bars of sufficient length.
UNITS WITH OPTIONAL BASE RAILS — Keep unit up-
right and do not drop. Use spreader bars or top crate when
rigging unit. Rollers may be used to move unit across roof.
Level unit for proper condensate disposal. See Fig. 3, 5, 7,
and 9 for additional information. Lifting holes are provided
in base rails as shown in Fig. 12. Refer to rigging instruc-
tions on unit.
13

NOTICE TO RIGGERS
Hook rigging shackles through holes in lifting brackets, as shown in
Detail ‘‘A,’’ lifting brackets to be centered around the unit center of gravity. Use
wood top skid when rigging, to prevent rigging straps from damaging unit. All panels must be in place when rigging.
UNIT SIZE
50SS SHIPPING WEIGHT A B C
Lb Kg in. mm in. mm in. mm
018 260 118 36
3
⁄
4
934 18 457 24
1
⁄
8
613
024 289 131 36
3
⁄
4
934 16
3
⁄
4
426 24
1
⁄
8
613
030 306 139 36
3
⁄
4
934 16
5
⁄
16
415 24
1
⁄
8
613
036 322 146 36
3
⁄
4
934 16
1
⁄
4
412 24
1
⁄
8
613
042 333 151 36
3
⁄
4
934 16
7
⁄
16
416 28
1
⁄
8
714
048 384 174 36
3
⁄
4
934 16
1
⁄
4
412 34
1
⁄
8
867
060 411 186 36
3
⁄
4
934 16
1
⁄
4
412 34
1
⁄
8
867
UNIT SIZE
50SX SHIPPING WEIGHT A B C
Lb Kg in. mm in. mm in. mm
024 322 146 36
3
⁄
4
934 14
3
⁄
4
375 28
1
⁄
8
714
030 325 147 36
3
⁄
4
934 14
1
⁄
2
368 28
1
⁄
8
714
036 343 155 36
3
⁄
4
934 15
5
⁄
8
397 28
1
⁄
8
714
042 361 164 36
3
⁄
4
934 15
1
⁄
2
394 34
1
⁄
8
867
048 392 178 36
3
⁄
4
934 14
11
⁄
16
373 34
1
⁄
8
867
060 411 186 36
3
⁄
4
934 16
1
⁄
4
412 34
1
⁄
8
867
NOTICE TO RIGGERS
Hook rigging shackles through holes in lifting brackets, as shown in Detail ‘‘A,’’
lifting brackets to be centered around the unit center of gravity. Use wood top
skid when rigging, to prevent rigging straps from damaging unit. Remove 4 screws
to slide wood support through rectangular hole in rail.
UNIT SIZE
50SS
SHIPPING
WEIGHT ABC
Lb Kg in. mm in. mm in. mm
018 247 112 36.5 926.0 17.0 431 28.2 715
024 276 125 36.5 926.0 14.3 364 28.2 715
030 293 133 36.8 926.0 14.7 372 28.2 715
036 309 140 36.5 926.0 15.5 393 28.2 715
042 339 154 36.5 926.0 15.5 394 32.2 817
048 371 168 36.5 926.0 14.8 376 38.2 969
060 398 180 36.5 926.0 14.4 366 38.2 969
All panels must be in place when rigging.
UNIT SIZE
50SX
SHIPPING
WEIGHT ABC
Lb Kg in. mm in. mm in. mm
024 309 140 36.5 926.0 15.0 380 32.2 817
030 312 141 36.5 926.0 14.8 376 32.2 817
036 330 150 36.5 926.0 15.8 402 32.2 817
042 348 158 36.5 926.0 15.6 397 38.2 969
048 379 172 36.5 926.0 14.9 378 38.2 969
060 398 180 36.5 926.0 14.4 366 38.2 969
Fig. 12 — Suggested Rigging for Units with Optional Base Rail
Fig. 11 — Suggested Rigging for Units Without Base Rail
14

Table 1 — Physical Data — Unit 50SS
UNIT 50SS 018 024 030 036 042 048 060
REFRIGERANT R-22
Metering Device Acutrol™ System
Charge (lb) 2.60 2.75 3.40 4.30 5.20 6.50 7.00
OPERATING WEIGHT (lb)
Without Base Rails 208 237 254 270 300 332 359
With Optional Base Rails 228 257 274 290 320 352 379
COMPRESSOR TYPE Rotary Reciprocating Reciprocating Reciprocating Reciprocating Scroll Scroll
EVAPORATOR FAN Centrifugal — Direct Drive
Speeds 2333222
Nominal Rpm 825 1075 1100 1100 1100 1100 1100
Diameter (in.) 10 10 10 10 10 10 10
Width (in.) 9999999
Nominal Airflow (Cfm) 600 800 1000 1200 1400 1600 1995
Motor Hp
1
⁄
41
⁄
41
⁄
21
⁄
23
⁄
43
⁄
4
1
EVAPORATOR COIL
Rows...Fins/in. 3...15 3...15 3...15 3...15 3...15 3...15 4...15
Face Area (sq ft) 1.83 2.29 2.29 3.06 3.60 4.44 4.44
CONDENSER FAN Propeller — Direct Drive
Cfm 1700 1700 1900 1900 1900 2400 2400
Nominal Rpm 850 850 1050 1050 1050 1050 1050
Diameter (in.) 18 18 18 18 18 20 20
Motor Hp
1
⁄
81
⁄
81
⁄
41
⁄
41
⁄
41
⁄
31
⁄
3
CONDENSER COIL
Rows...Fins/in. 1...17 1...17 2...17 2...17 2...17 2...17 2...17
Face Area (sq ft) 5.95 5.95 5.95 5.95 7.00 8.66 8.66
FILTER SIZE (in.)*
Throwaway 20x20 20x20 20x24 20x24 24x24 24x30 24x30
*Recommended field-supplied filters are 1 in. thick.
Table 2 — Physical Data — Unit 50SX
UNIT 50SX 024 030 036 042 048 060
REFRIGERANT R-22
Metering Device Acutrol™ System
Charge (lb) 3.9 4.5 5.4 5.7 5.8 6.5
OPERATING WEIGHT (lb)
Without Base Rails 270 273 291 309 340 359
With Optional Base Rails 290 293 311 329 360 379
COMPRESSOR TYPE Scroll
EVAPORATOR FAN Centrifugal — Direct Drive
Motor Type Std Std Std Std Std* ICM ICM
Speeds 33332Variable Variable
Nominal Rpm 1075 1075 1100 1100 1125 — —
Diameter (in.) 10 10 10 10 10 10 10
Width (in.) 99999 9 9
Nominal Airflow (Cfm) 800 1000 1200 1400 1600 1600 1995
Motor Hp
1
⁄
41
⁄
41
⁄
21
⁄
23
⁄
4
11
EVAPORATOR COIL
Rows...Fins/in. 2...15 3...15 4...15 3...15 4...15 4...15
Face Area (sq ft) 3.60 2.70 3.60 4.44 4.44 4.44
CONDENSER FAN Propeller — Direct Drive
Cfm 2200 2200 2200 2400 2400 2400
Nominal Rpm 1100 1100 1100 1100 1100 1050
Diameter (in.) 20 20 20 20 20 20
Motor Hp
1
⁄
41
⁄
41
⁄
41
⁄
41
⁄
41
⁄
3
CONDENSER COIL
Rows...Fins/in. 2...17 2...17 2...17 2...17 2...17 2...17
Face Area (sq ft) 7.00 7.00 7.00 8.66 8.66 8.66
FILTER SIZE (in.)†
Throwaway 24x24 24x24 24x24 24x30 24x30 24 x 30
LEGEND
ICM — Integrated Control Motor
*460 v only.
†Recommended field-supplied filters are 1 in. thick.
NOTE: Standard motors are non-integrated control motors.
15

Step 5 — Select and Install Ductwork — The de-
sign and installation of the duct system must be in accor-
dance with the standards of the NFPA (National Fire Protec-
tion Association) for installation of nonresidence-type air
conditioning and ventilating systems, NFPA 90A or residence-
type,NFPA90B;and/orlocalcodesandresidence-type,NFPA90B;
and/or local codes and ordinances.
Select and size ductwork, supply-air registers and
return-air grilles according to ASHRAE (American Society
of Heating, Refrigeration, and Air Conditioning Engineers)
recommendations.
The unit has duct flanges on the supply- and return-air
openings on the side of the unit. See Fig. 2-9 for connection
sizes and locations.
When designing and installing ductwork, consider the
following:
When connecting ductwork to units, do not drill deeper
than
1
⁄
2
inch in shaded area shown in Fig. 13 or coil may
be damaged.
• All units should have field-supplied filters or accessory fil-
ter rack installed in the return-air side of the unit. Rec-
ommended sizes for filters are shown in Tables 1 and 2.
• Avoid abrupt duct size increases and reductions. Abrupt
change in duct size adversely affects air performance.
IMPORTANT: Use flexible connectors between
ductwork and unit to prevent transmission of vibra-
tion. Use suitable gaskets to ensure weathertight and
airtight seal. When electric heat is installed, use fire-
proof canvas (or similar heat resistant material) con-
nector between ductwork and unit discharge connec-
tion. If flexible duct is used, insert a sheet metal sleeve
inside duct. Heat resistant duct connector (or sheet metal
sleeve) should extend 24-in. from electric heater
element.
• Size ductwork for cooling air quantity (cfm). The mini-
mum air quantity for proper electric heater operation is
listed in Table 3. Heater limit switches may trip at air quan-
tities below those recommended.
• Insulate and weatherproof all external ductwork. Insulate
and cover with a vapor barrier all ductwork passing through
conditioned spaces. Follow latest Sheet Metal and Air Con-
ditioning Contractors National Association (SMACNA)
andAir Conditioning ContractorsAssociation (ACCA) mini-
mum installation standards for residential heating and air
conditioning systems.
• Secure all ducts to building structure. Flash, weather-
proof, and vibration-isolate duct openings in wall or roof
according to good construction practices.
Figure 14 shows a typical duct system with 50SS,SX
installed.
Table 3 — Minimum Airflow for Safe Electric
Heater Operation (Cfm)
SIZE
018* 024 030 036 042 048 060
700 700 875 1200 1225 1400 1750
*Unit 50SS only.
CONVERTING HORIZONTAL DISCHARGE UNITS TO
DOWNFLOW (VERTICAL) DISCHARGE — STD (Non-
Integrated Control Motor [Non-ICM] UNITS — Units are
shipped in a horizontal configuration. To convert a horizon-
tal unit for downflow (vertical) discharge, perform the fol-
lowing steps:
Before performing service or maintenance operations on
system, turn off main power to unit. Turn off accessory
heater power switch if applicable. Electrical shock can
cause personal injury.
1. Open all electrical disconnects before starting any serv-
ice work.
2. Remove evaporator coil access panel (Fig. 15).
3. Locate lances in basepan insulation that are placed over
the perimeter of the vertical duct opening cover
(Fig. 16).
4. Using a straight edge and sharp knife, cut and remove
the insulation around the perimeter of the cover. Re-
move the screws securing the cover to the basepan and
slide out the cover. Discard the cover (Fig. 17).
Fig. 13 — Area Not To Be Drilled
Power Wiring
Control Wiring
Condenser Airflow
Evaporator Airflow
*Separate disconnect per NEC
(National Electrical Code) required
for electric heater when single-
point connection is not used.
Fig. 14 — Typical Installation
16

5. Remove indoor blower access panel (Fig. 18).
6. Disconnect evaporator-fan motor leads from evaporator-
fan relay and unit contactor. Carefully disengage wire
tie containing evaporator-fan motor leads from the unit
control box (Fig. 19).
7. Remove screws (Fig. 20) securing evaporator blower hous-
ing to blower shelf and carefully slide out blower hous-
ing. There is a filler bracket attached to the blower shelf;
remove this filler bracket and retain for later use.
8. Locate lances in basepan insulation that are placed over
the perimeter of the vertical discharge opening cover
(Fig. 21).
9. Using a straight edge and sharp knife, cut the insulation
around the perimeter of the cover. Remove the screws
securing the cover to the basepan and slide out the cover
(Fig. 22). Discard the cover. Install filler bracket re-
moved in Step 7.
10. If unit ductwork is to be attached to vertical opening
flanges on the unit basepan (jackstand applications only),
do so at this time.
11. It is recommended that the basepan insulation around
the perimeter of the vertical opening be secured to the
basepan with aluminum tape to prevent the insulation
from tearing or bunching up when the blower housing is
installed in the vertical discharge position.
12. Orient blower housing for vertical airflow (blower mo-
tor adjacent to horizontal duct opening) and slide into
vertical opening making sure the flanges on the blower
side plates engage the tabs in the unit basepan.
Resistance will be felt as the blower housing contacts
the basepan insulation; this can be overcome by apply-
ing a slight force to the base of the blower. Continue
sliding blower in until hole in side plate flange aligns
with the hole in the basepan.
Secure using screw removed in Step 7. Reconnect
evaporator-fan motor leads and insert wire tie back into
unit control box (Fig. 19).
13. Cover the horizontal duct openings. Duct covers can be
ordered as an accessory or be field-fabricated as shown
in Fig. 23.
14. Reinstall the evaporator coil and indoor blower access
panels.
15. After completing unit installation, perform all safety checks
and power up unit.
ACCESS PANEL
(REMOVE SCREWS)
Fig. 15 — Evaporator Coil Access Panel Fig. 16 — Basepan Insulation Over
Vertical Duct Opening
Fig. 17 — Insulation and Cover Removed
from Vertical Duct Opening
17

CONVERTING HORIZONTAL DISCHARGE UNITS TO
DOWNFLOW (VERTICAL) DISCHARGE — ICM (Inte-
grated Control Motor) UNITS — Units are shipped in a hori-
zontal configuration. To convert a horizontal unit for down-
flow (vertical) discharge, perform the following steps:
Before performing service or maintenance operations on
system, turn off main power to unit. Turn off accessory
heater power switch if applicable. Electrical shock can
cause personal injury.
1. Open all electrical disconnects before starting any serv-
ice work.
2. Remove evaporator coil access panel (Fig. 15).
3. Locate lances in basepan insulation that are placed over
the perimeter of the vertical duct opening cover
(Fig. 16).
4. Using a straight edge and sharp knife, cut and remove
the insulation around the perimeter of the cover. Re-
move the screws securing the cover to the basepan and
slide out the cover. Discard the cover (Fig. 17).
5. Remove evaporator blower access panel (Fig. 18).
6. Remove screws (Fig. 20) securing evaporator blower hous-
ing to blower shelf and carefully slide out blower hous-
ing. Disconnect the plug assemblies (Fig. 24) from the
evaporator-fan motor. There is a filler bracket attached
to the blower shelf; remove this filler bracket and retain
for later use. (See Fig. 24).
INDOOR BLOWER ACCESS PANEL
(REMOVE SCREWS)
Fig. 18 — Indoor Blower Access Panel
RELAYCONTACTORWIRE TIE
Fig. 19 — Fan Motor Leads
Fig. 20 — Blower Shelf and Housing
Fig. 21 — Basepan Insulation Over
Vertical Discharge Opening
Fig. 22 — Insulation and Cover Removed
from Vertical Discharge Opening
18

7. Remove screws securing blower shelf to duct panel. Dis-
card the blower shelf.
8. Locate lances in basepan insulation that are placed over
the perimeter of the vertical discharge opening cover
(Fig. 21).
9. Using a straight edge and sharp knife, cut the insulation
around the perimeter of the cover. Remove the screws
securing the cover to the basepan and slide out the cover
(Fig. 22). Discard the cover. Install filler bracket re-
moved in Step 6.
10. If unit ductwork is to be attached to vertical opening
flanges on the unit basepan (jackstand applications only),
do so at this time.
11. It is recommended that the basepan insulation around
the perimeter of the vertical opening be secured to the
basepan with aluminum tape to prevent the insulation
from tearing or bunching up when the blower housing is
installed in the vertical discharge position.
12. Remove screws securing the high-voltage raceway to duct
panel. See Fig. 24. Temporarily place raceway on top of
unit until blower housing is installed.
13. Orient blower housing for vertical airflow (blower mo-
tor adjacent to horizontal duct opening). See Fig. 25.
Reconnect the plug assemblies. Slide blower housing into
vertical opening making sure the flanges on the blower
side plates engage the tabs in the unit basepan.
Resistance will be felt as the blower housing contacts
the basepan insulation; this can be overcome by apply-
ing a slight force to the base of the blower. Continue
sliding blower in until hole in side plate flange aligns
with the hole in the basepan. Secure using screws re-
moved in Step 6.
14. Reinstall the high-voltage raceway removed in Step 12.
15. Cover the horizontal duct openings. Duct covers can be
ordered as an accessory or be field-fabricated.
16. Reinstall the evaporator coil and evaporator blower ac-
cess panels.
17. After completing unit installation, perform all safety checks
and power up unit.
NOTES:
1. An accessory duct cover is available as an alternative to field
fabrication.
2. Construct duct cover out of 22-gage sheet metal.
3. Dimensions in ( ) are in millimeters.
Fig. 23 — Field-Fabricated Duct Cover
19

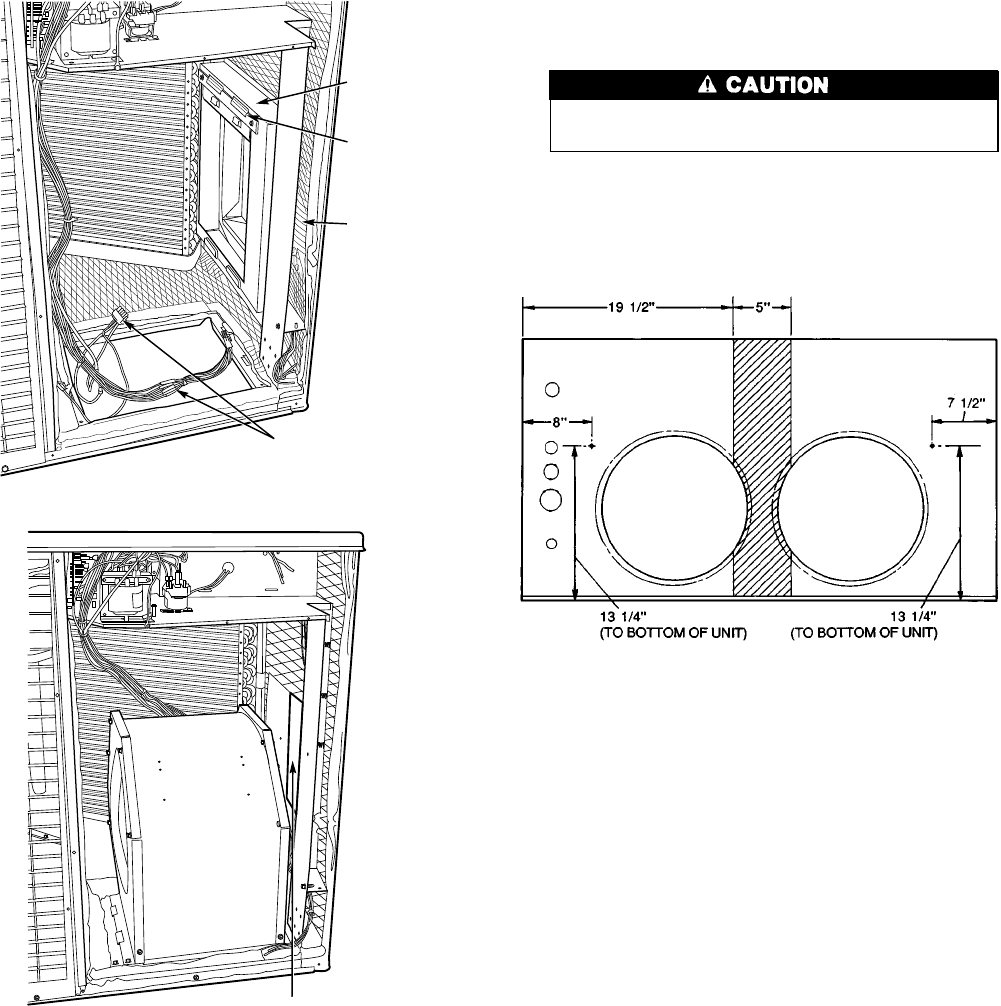
ACCESSORY DUCT FLANGE KIT INSTALLATION —
Refer to Fig. 26 for duct adapter dimensions and hole
locations.
1. Mark hole locations shown in Fig. 26.
2. At marked locations, drill holes using a no. 26 (.147-in.)
twist drill.
3. Partially secure duct flanges using two of the no. 10,
1
⁄
2
-in.
screws provided.
4. See the following caution. Using remaining holes in duct
flanges as templates, drill the remaining holes with the
no. 26 (.147-in.) drill.
Do not drill deeper than
1
⁄
2
-in. into shaded area shown
in Fig. 26. Damage to refrigerant coil could result.
5. Fully secure the duct flanges using the remaining screws
provided.
The finished kit installation accommodates a 14
3
⁄
4
-in. x
14
3
⁄
4
-in. duct.
Step 6 — Provide for Condensate Disposal
NOTE: Be sure that condensate-water disposal methods com-
ply with local codes, restrictions, and practices.
Unit disposes of condensate through a
3
⁄
4
-in. NPT fitting
which exits through the compressor access panel. See
Fig. 2-9 for location of condensate connection.
Condensate water can be drained directly onto the roof in
rooftop installations (where permitted) or onto a gravel apron
in ground-level installations. Install a field-supplied conden-
sate trap at end of condensate connection to ensure proper
drainage. Make sure that the outlet of the trap is at least
1 in. lower than the drain-pan condensate connection to pre-
vent the pan from overflowing. See Fig. 27. Prime the trap
with water. When using a gravel apron, make sure it slopes
away from the unit.
If the installation requires draining the condensate water
away from the unit, install a 2-in. trap using a
3
⁄
4
-in. FPT
connection. See Fig. 27. Make sure that the outlet of the trap
is at least 1 in. lower than the unit drain-pan condensate con-
nection to prevent the pan from overflowing. Prime the trap
with water. Connect a drain tube using a minimum of
3
⁄
4
-in.
PVC,
3
⁄
4
-in. CPVC, or
3
⁄
4
-in. copper pipe (all field supplied).
Do not undersize the tube. Pitch the drain tube downward at
a slope of at least 1 in. for every 10 ft of horizontal run. Be
sure to check the drain tube for leaks. Prime trap at the be-
ginning of the cooling season start-up.
PLUG ASSEMBLIES
RACEWAY
FILLER
BRACKET
BLOWER
SHELF
Fig. 24 — Filler Bracket and Blower Shelf
HORIZONTAL DUCT OPENING
Fig. 25 — Housing Placed for Vertical Airflow
NOTE: Do not drill more than
1
⁄
2
-in. deep in shaded area.
Fig. 26 — Duct Flange Kit — Locating Holes
(Typical)
20

Step 7 — Install Electrical Connections
The unit cabinet must have an uninterrupted, unbroken
electrical ground to minimize the possibility of personal
injury if an electrical fault should occur. This ground
may consist of an electrical wire connected to the unit
wire-binding screw in the control compartment, or con-
duit approved for electrical ground when installed in ac-
cordance with NEC (National Electrical Code), ANSI/
NFPA (latest edition) (in Canada, Canadian Electrical
Code CSA C22.1) and local electrical codes. Failure to
adhere to this warning could result in personal injury or
death.
Failure to follow these precautions could result in dam-
age to the unit being installed:
1. Make all electrical connections in accordance with
NEC ANSI/NFPA (latest edition) and local elec-
trical codes governing such wiring. In Canada, all
electrical connections must be in accordance with CSA
Standard C22.1 Canadian Electrical Code Part 1
and applicable local codes. Refer to unit wiring
diagram.
2. Use only copper conductor for connections between
field-supplied electrical disconnect switch and unit.
DO NOT USE ALUMINUM WIRE.
3. Be sure that high-voltage power to unit is within op-
erating voltage range indicated on unit rating plate.
On 3-phase units, ensure that phases are balanced within
2%. Consult local power company for correction of
improper voltage and/or phase imbalance.
4. Insulate low-voltage wires for highest voltage con-
tained within conduit when low-voltage control wires
are run in same conduit as high-voltage wires.
5. Do not damage internal components when drilling
through any panel to mount electrical hardware, con-
duit, etc.
HIGH-VOLTAGE CONNECTIONS — The unit must have
a separate electrical service with a field-supplied, water-
proof disconnect switch mounted at, or within sight from the
unit. Refer to the unit rating plate for maximum fuse/circuit
breaker size and minimum circuit amps (ampacity) for wire
sizing. See Tables 4A and 4B for electrical data.
The field-supplied disconnect may be mounted on the unit
over the high-voltage inlet hole. See Fig. 2-9.
If the unit has an electric heater, a second disconnect may
be required. Consult the Installation, Start-Up and Service
Instructions provided with the accessory for electrical serv-
ice connections.
Operation of unit on improper line voltage constitutes
abuse and may cause unit damage that could affect
warranty.
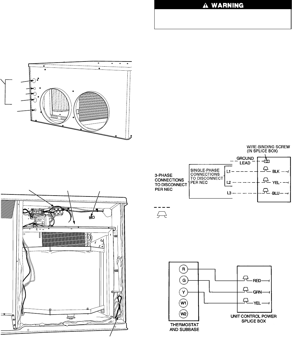
ROUTING POWER LEADS INTO UNIT — Use only cop-
per wire between disconnect and unit. The high-voltage leads
should be in a conduit until they enter the duct panel; con-
duit termination at the duct panel must be watertight. Run
the high-voltage leads through the knockout on the duct panel
(see Fig. 28 for location and size). When the leads are inside
the unit, run leads up the high-voltage raceway to the line
wiring splice box (Fig. 29). For single-phase units, connect
leads to the black and yellow wires; for 3-phase units,
connect the leads to the black, yellow, and blue wires (see
Fig. 30).
CONNECTING GROUND LEAD TO WIRE-BINDING
SCREW — Refer to Fig. 29 and 30. Connect the ground
lead to the chassis using the wire-binding screw in the wir-
ing splice box.
ROUTING CONTROL POWER WIRES — STD NON-
ICM UNITS (24 v) — For all units except 50SS060, form
a drip-loop with the thermostat leads before routing them
into the unit. Route the thermostat leads through grommeted
hole provided in unit (see Fig. 28) into unit control power
splice box. Connect thermostat leads to unit control power
leads as shown in Fig. 31.
For 50SS060 units, remove knockout in the duct panel (see
Fig. 28).
Remove the rubber grommet from the installer’s packet
(included with unit) and install it in the knockout opening.
Route thermostat wires through grommet providing a drip
loop at the panel. Connect low-voltage leads to the thermo-
stat as shown in Fig. 31.
The unit transformer supplies 24-v power for complete
system including accessory electrical heater. Transformer is
factory wired for 230-v operation. If supply voltage is 208 v,
rewire transformer primary as described in the Special Pro-
cedures for 208-v Operation section on page 24.
Fig. 27 — Condensate Trap
21

Table 4A — Electrical Data — 50SS Units
UNIT SIZE
50SS V-PH-Hz VOLTAGE RANGE COMPRESSOR OUTDOOR-
FAN
MOTOR
INDOOR-
FAN
MOTOR POWER SUPPLY AWG 60C
MIN WIRE
SIZE
MAX WIRE
LENGTH (ft)
Min Max RLA LRA FLA FLA MCA MOCP*
018 208/230-1-60 187 253 8.3 45.0 0.7 1.8 12.0 15 14 75
024 208/230-1-60 187 253 12.4 61.0 0.7 2.0 18.2 30 12 80
030 208/230-1-60 187 253 14.4 82.0 1.4 2.3 21.8 30 10 100
208/230-3-60 187 253 9.4 65.5 1.4 2.3 15.5 25 12 80
036
208/230-1-60 187 253 18.0 96.0 1.4 2.8 26.7 40 10 90
208/230-3-60 187 253 11.7 75.0 1.4 2.8 18.8 30 12 65
460-3-60 414 506 5.6 40.0 0.8 1.4 9.2 10 14 100
042
208/230-1-60 187 253 20.4 104.0 1.4 4.0 30.9 50 8 100
208/230-3-60 187 253 14.0 91.0 1.4 4.0 22.9 35 10 85
460-3-60 414 506 6.4 42.0 0.8 2.0 10.8 15 14 100
048
208/230-1-60† 187 253 21.8 124.0 2.1 5.0 40.1 60 6 100
208/230-1-60** 187 253 26.4 129.0 2.1 5.0 40.1 60 6 100
208/230-3-60† 187 253 12.8 93.0 2.1 5.0 23.1 35 10 75
208/230-3-60** 187 253 15.0 99.0 2.1 5.0 25.9 40 10 75
460-3-60† 414 506 16.0 125.0 2.1 6.8 33.0 40 8 90
460-3-60** 414 506 19.3 123.0 2.1 6.8 33.0 50 8 90
060
208/230-1-60† 187 253 28.9 165.0 2.1 6.8 49.0 60 6 100
208/230-1-60** 187 253 32.1 169.0 2.1 6.8 49.0 60 6 100
208/230-3-60† 187 253 6.4 46.5 1.1 2.3 11.4 15 14 100
208/230-3-60** 187 253 8.2 49.5 1.1 2.3 13.7 20 14 100
460-3-60† 414 506 8.0 66.5 1.1 3.2 16.8 20 12 100
460-3-60** 414 506 10.0 62.0 1.1 3.2 16.8 25 12 100
LEGEND
AWG — American Wire Gage
BRKR — Breaker
CUL — Canadian Underwriters’ Laboratories
FLA — Full Load Amps
HACR — Heating, Air Conditioning and
Refrigeration
LRA — Locked Rotor Amps
MCA — Minimum Circuit Amps
MOCP — Maximum Overcurrent Protection
NEC — National Electrical Code
RLA — Rated Load Amps
*Fuse or HACR Breaker.
†Carrier Scroll Compressor.
**Copeland Scroll Compressor.
NOTES:
1. In compliance with NEC requirements for multimotor and combi-
nation load equipment (refer to NEC Articles 430 and 440), the
overcurrent protective device for the unit shall be fuse or HACR
breaker. The CUL units may be fuse or circuit breaker.
2. Minimum wire size is based on 60 C copper wire. If other than
60 C wire is used, or if length exceeds wire length in table, de-
termine size from NEC.
3. Unbalanced 3-Phase Supply Voltage
Never operate a motor where a phase imbalance in supply volt-
age is greater than 2%.
Use the following formula to determine
the percentage of voltage imbalance.
% Voltage Imbalance
max voltage deviation from average voltage
= 100 x average voltage
EXAMPLE: Supply voltage is 460-3-60.
AB = 452 v
BC = 464 v
AC = 455 v
452 + 464 + 455
Average Voltage = 3
1371
=3
= 457
Determine maximum deviation from average voltage.
(AB) 457 – 452=5v
(BC) 464 – 457=7v
(AC) 457 – 455=2v
Maximum deviation is 7 v.
Determine percent of voltage imbalance.
7
% Voltage Imbalance = 100 x 457
= 1.53%
This amount of phase imbalance is satisfactory as it is below the
maximum allowable 2%.
IMPORTANT: If the supply voltage phase imbalance is more than 2%,
contact your local electric utility company immediately.
22

Table 4B — Electrical Data — 50SX Units
UNIT SIZE
50SX V-PH-Hz VOLTAGE RANGE COMPRESSOR OUTDOOR-
FAN
MOTOR
INDOOR-
FAN
MOTOR POWER SUPPLY AWG 60C
MIN WIRE
SIZE
MAX WIRE
LENGTH (ft)
Min Max RLA LRA FLA FLA MCA MOCP*
024 208/230-1-60 187 253 12.9 62.5 1.4 2.0 19.5 30 12 75
030 208/230-1-60 187 253 15.0 76.0 1.4 2.6 22.8 30 10 100
036
208/230-1-60 187 253 16.7 95.0 1.4 2.8 25.1 30 10 95
208/230-3-60 187 253 10.9 75.0 1.4 2.8 17.8 25 12 70
460-3-60 414 506 5.4 40.0 0.8 1.4 9.0 10 14 100
042
208/230-1-60 187 253 20.0 104.0 1.4 3.1 29.5 45 10 80
208/230-3-60 187 253 13.9 88.0 1.4 3.1 21.9 30 10 60
460-3-60 414 506 6.8 44.0 0.8 1.6 10.9 15 14 100
048
208/230-1-60 187 253 26.4 129.0 1.4 7.2 41.6 60 6 100
208/230-3-60 187 253 15.0 99.0 1.4 7.2 27.4 40 10 70
460-3-60 414 506 8.2 49.5 0.8 2.3 13.4 20 14 100
060 208/230-1-60 187 253 32.1 169.0 2.1 7.2 49.4 60 6 100
208/230-3-60 187 253 19.3 123.0 2.1 7.2 33.4 50 8 90
LEGEND
AWG — American Wire Gage
BRKR — Breaker
CUL — Canadian Underwriters’ Laboratories
FLA — Full Load Amps
HACR — Heating, Air Conditioning and
Refrigeration
LRA — Locked Rotor Amps
MCA — Minimum Circuit Amps
MOCP — Maximum Overcurrent Protection
NEC — National Electrical Code
RLA — Rated Load Amps
*Fuse or HACR Breaker.
†Carrier Scroll Compressor.
**Copeland Scroll Compressor.
NOTES:
1. In compliance with NEC requirements for multimotor and combi-
nation load equipment (refer to NEC Articles 430 and 440), the
overcurrent protective device for the unit shall be fuse or HACR
breaker. The CUL units may be fuse or circuit breaker.
2. Minimum wire size is based on 60 C copper wire. If other than
60 C wire is used, or if length exceeds wire length in table, de-
termine size from NEC.
3. Unbalanced 3-Phase Supply Voltage
Never operate a motor where a phase imbalance in supply volt-
age is greater than 2%.
Use the following formula to determine
the percentage of voltage imbalance.
% Voltage Imbalance
max voltage deviation from average voltage
= 100 x average voltage
EXAMPLE: Supply voltage is 460-3-60.
AB = 452 v
BC = 464 v
AC = 455 v
452 + 464 + 455
Average Voltage = 3
1371
=3
= 457
Determine maximum deviation from average voltage.
(AB) 457 – 452=5v
(BC) 464 – 457=7v
(AC) 457 – 455=2v
Maximum deviation is 7 v.
Determine percent of voltage imbalance.
7
% Voltage Imbalance = 100 x 457
= 1.53%
This amount of phase imbalance is satisfactory as it is below the
maximum allowable 2%.
IMPORTANT: If the supply voltage phase imbalance is more than 2%,
contact your local electric utility company immediately.
23

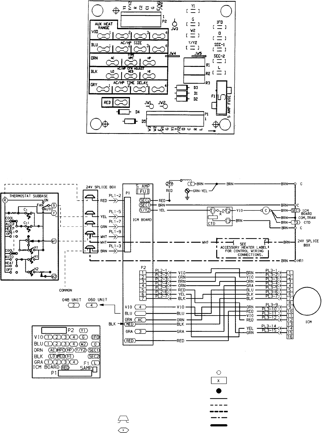
ROUTING CONTROL POWER WIRES — ICM UNITS
(24 v) — Remove knockout in the duct panel (see Fig. 28).
Remove the rubber grommet from the installer’s packet (in-
cluded with unit) and install it in the knockout opening. Route
thermostat wires through grommet providing a drip loop at
the panel. Connect low-voltage leads to the thermostat as
shown in Fig. 31-34.
The Easy Select interface board is located in the return-air
section and is attached to the duct panel. The Easy Select
interface board is factory wired to the motor and factory de-
fault selections are preset.
SPECIAL PROCEDURES FOR 208-V OPERATION
Make sure that the power supply to the unit is switched
OFF before making any wiring changes. Electrical shock
can cause personal injury or death.
1. Disconnect the orange transformer-primary lead from the
contactor. See unit wiring label.
2. Remove the wirenut from the terminal on the end of the
red transformer-primary lead.
3. Save the wirenut.
4. Connect the red lead to the contactor terminal from which
the orange lead was disconnected.
5. Using the wirenut removed from the red lead, insulate
the loose terminal on the orange lead.
6. Wrap the wirenut with electrical tape so that the metal
terminal cannot be seen.
Indoor blower-motor speeds may need to be changed for
208-v operation. Refer to Indoor Airflow and Airflow Ad-
justments section on page 34.
1 3/8″ DIA.
1 1/8″ DIA.
HIGH
VOLTAGE
POWER
ENTRY
(KNOCKOUT)
2″ DIA.
2″ DIA.
7/8″ DIA.
CONTROL
POWER
ENTRY*
*Knockout on rectangular-duct panel units; entry hole on round-duct
panel units.
NOTE: For rectangular duct knockout sizes, see Fig. 2-9.
Fig. 28 — Typical Duct Panel Knockouts
UNIT LINE WIRE
SPLICE BOX
UNIT POWER
LEAD WIRE-BINDING
SCREW
CONTROL POWER
SPLICE BOX
Fig. 29 — Wiring Splice Boxes
Field Wiring
Splice Connections
NEC — National Electrical Code
NOTE: Use copper wire only.
Fig. 30 — Line Power Connections
Fig. 31 — Control Connections
24

LEGEND
IFO — Indoor Fan On
JW — Jumper Wire
C—Contactor, Compressor
COM — Common
CTD — Compressor Time Delay
FU — Fuse
HR — Heater Relay
ICM — Integrated Control Motor
IFO — Indoor Fan On
PL — Plug
TRAN — Transformer
Field Splice
Terminal (Marked)
Fig. 33 — Units 50SX048,060 — 208/230-1-60, Integrated Control Motor Wiring Schematic
Fig. 32 — Easy Select Interface Board
LEGEND
Terminal (Unmarked)
Terminal Block
Splice
Factory Wiring
Field Control Wiring
Field Power Wiring
Accessory or Optional Wiring
To Represent Common Potential Only.
Not to Represent Wiring
25

PRE-START-UP
Failure to observe the following warnings could result
in serious personal injury:
1. Follow recognized safety practices and wear protec-
tive goggles when checking or servicing refrigerant
system.
2. Do not operate compressor or provide any electric
power to unit unless compressor terminal cover is in
place and secured.
3. Do not remove compressor terminal cover until all
electrical sources are disconnected.
4. Relieve all pressure from both high- and low-
pressure sides of the system before touching or dis-
turbing anything inside terminal box if refrigerant leak
is suspected around compressor terminals. Use ac-
cepted methods to recover refrigerant.
5. Never attempt to repair soldered connection while re-
frigerant system is under pressure.
6. Do not use torch to remove any component. System
contains oil and refrigerant under pressure. To re-
move a component, wear protective goggles and pro-
ceed as follows:
a. Shut off electrical power to unit.
b. Relieve all pressure from system using both high-
and low-pressure ports. Use accepted methods to
recover refrigerant.
c. Cut component connecting tubing with tubing cut-
ter and remove component from unit.
d. Carefully unsweat remaining tubing stubs when
necessary. Oil can ignite when exposed to torch
flame.
Use the Start-Up Checklist supplied at the end of this book
and proceed as follows to inspect and prepare the unit for
initial start-up:
1. Remove all access panels.
2. Read and follow instructions on all WARNING, CAU-
TION, and INFORMATION labels attached to, or shipped
with, unit.
Make the following inspections:
a. Inspect for shipping and handling damages such as bro-
ken lines, loose parts, disconnected wires, etc.
b. Inspect for oil at all refrigerant tubing connections and
on unit base. Detecting oil generally indicates a re-
frigerant leak. Leak-test all refrigerant tubing connec-
tions using electronic leak detector, or liquid-soap so-
lution. If a refrigerant leak is detected, see following
Check for Refrigerant Leaks section.
c. Inspect all field- and factory-wiring connections. Be
sure that connections are completed and tight.
d. Inspect coil fins. If damaged during shipping and han-
dling, carefully straighten fins with a fin comb.
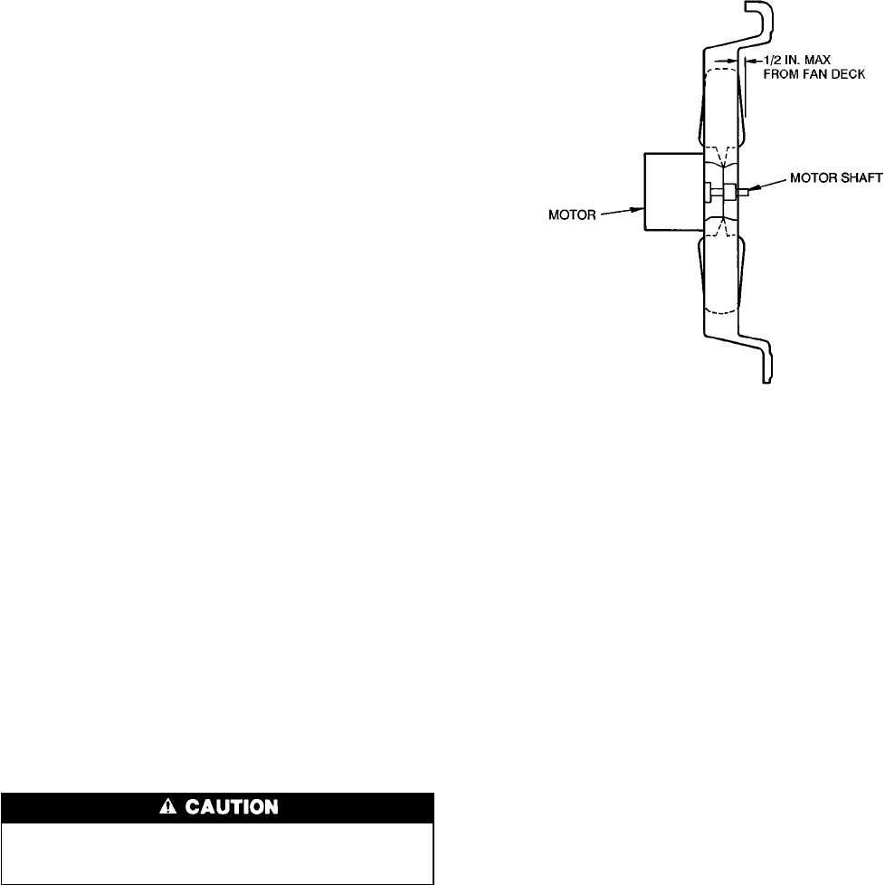
3. Verify the following conditions:
a. Make sure that outdoor-fan blade is correctly posi-
tioned in fan orifice. Leading edge of blade should be
2 in. back from condenser inlet grille or
1
⁄
2
in. maxi-
mum from fan deck.
b. Make sure that air filter(s) is in place.
c. Make sure that condensate drain pan and trap are filled
with water to ensure proper drainage.
d. Make sure that all tools and miscellaneous loose parts
have been removed.
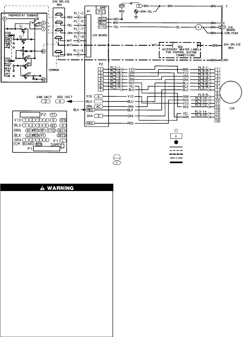
C—Contactor, Compressor
COM — Common
CTD — Compressor Time Delay
FU — Fuse
HR — Heater Relay
ICM — Integrated Control Motor
IFO — Indoor Fan On
PL — Plug
TRAN — Transformer
Field Splice
Terminal (Marked)
Fig. 34 — Unit 50SX048,060 — 208/230-3-60 Integrated Control Motor Wiring Schematic
Terminal (Unmarked)
Terminal Block
Splice
Factory Wiring
Field Control Wiring
Field Power Wiring
Accessory or Optional Wiring
To Indicate Common Potential Only.
Not to Represent Wiring
LEGEND
26

4. If the unit is equipped with a crankcase heater, start the
heater 24 hours before starting the unit. To start the heater
only, turn the thermostat to the OFF position and ener-
gize the electrical disconnect to the unit.
START-UP
Use the Start-Up Checklist supplied at the end of this book,
and proceed as follows:
Check for Refrigerant Leaks — Locate and repair
refrigerant leaks and charge the unit as follows:
1. Using both high- and low-pressure ports, locate leaks and
reclaim remaining refrigerant to relieve system
pressure.
2. Repair leak following accepted practices.
NOTE: Install a filter drier whenever the system has been
opened for repair.
3. Check system for leaks using an approved method.
4. Evacuate refrigerant system and reclaim refrigerant if no
additional leaks are found.
5. Charge unit with R-22 refrigerant, using a volumetric-
charging cylinder or accurate scale. Refer to unit rating
plate for required charge. Be sure to add extra refrigerant
to compensate for internal volume of filter drier.
Start-Up Cooling Section and Make
Adjustments
Complete the required procedures given in the Pre-
Start-Up section page 25 before starting the unit.
Do not jumper any safety devices when operating the
unit.
Do not operate the compressor when the outdoor tem-
perature is below 40 F (unless accessory low-ambient
kit is installed).
Do not rapid-cycle the compressor. Allow 5 minutes be-
tween ‘‘on’’ cycles to prevent compressor damage.
CHECKING COOLING CONTROL OPERATION — Start
and check the unit for proper cooling control operation as
follows:
1. Place room thermostat SYSTEM switch in OFF position.
Observe that blower motor starts when FAN switch is placed
in ON position and shuts down when FAN switch is placed
in AUTO. position.
2. Place SYSTEM switch in COOL position and FAN switch
in AUTO. position. Set cooling control below room tem-
perature. Observe that compressor, condenser fan, and evapo-
rator blower motors start. Observe that cooling cycle shuts
down when control setting is satisfied.
3. When using an automatic changeover room thermostat,
place both SYSTEM and FAN switches in AUTO. posi-
tions. Observe that unit operates in Cooling mode when
temperature control is set to ‘‘call for cooling’’ (below
room temperature).
IMPORTANT: Three-phase, scroll compressors in
the 50SS048,060 and 50SX036-060 units are
direction-oriented. These units must be checked to
ensure proper compressor 3-phase power lead ori-
entation. If not corrected within 5 minutes, the in-
ternal protector will shut off the compressor. The
3-phase power leads to the unit must be reversed to
correct rotation. When turning backwards, scroll com-
pressors emit elevated noise levels, and the differ-
ence between compressor suction and discharge
pressures may be dramatically lower than normal.
CHECKINGAND ADJUSTING REFRIGERANT CHARGE
— The refrigerant system is fully charged with R-22 refrig-
erant, and is tested and factory sealed.
NOTE: Adjustment of the refrigerant charge is not required
unless the unit is suspected of not having the proper R-22
charge.
A superheat charging label is attached to the outside of
the compressor access door. The label includes a ‘‘Superheat
Charging Table’’ and a ‘‘Required Suction-Tube Tempera-
ture (F)’’ chart.
An accurate superheat, thermocouple-, or thermistor-type
thermometer, a sling psychrometer, and a gage manifold are
required when using the superheat charging method for evalu-
ating the unit charge. Do not use mercury or small dial-type
thermometers, because they are not adequate for this type of
measurement.
When evaluating the refrigerant charge, an indicated ad-
justment to the specified factory charge must always be
very minimal. If a substantial adjustment is indicated,
an abnormal condition exists somewhere in the cooling
system, such as insufficient airflow across either coil or
both coils.
Proceed as follows:
1. Remove caps from low- and high-pressure service
fittings.
2. Using hoses with valve core depressors, attach low- and
high-pressure gage hoses to low- and high-pressure serv-
ice fittings, respectively.
3. Start unit in cooling mode and let unit run until system
pressures stabilize.
4. Measure and record the following:
a. Outdoor ambient-air temperature (F db).
b. Evaporator inlet-air temperature (F wb).
27

c. Suction-tube temperature (F) at low-side service
fitting.
d. Suction (low-side) pressure (psig).
5. Using ‘‘Superheat Charging Table,’’ compare outdoor-air
temperature (F db) with evaporator inlet-air temperature
(F wb) to determine desired system operating superheat
temperature. See Tables 5A-5I and 6A-6F.
6. Using ‘‘Required Suction-Tube Temperature (F)’’
table, compare desired superheat temperature with suc-
tion (low-side) operating pressure (psig) to determine proper
suction-tube temperature. See Table 7.
7. Compare actual suction-tube temperature with proper
suction-tube temperature. Using a tolerance of ±3° F, add
refrigerant if actual temperature is more than 3° F higher
than proper suction-tube temperature, or remove refrig-
erant if actual temperature is more than 3° F lower than
required suction-tube temperature.
NOTE: If the problem causing the inaccurate readings is a
refrigerant leak, refer to Check for Refrigerant Leaks sec-
tion on page 27.
Table 5A — Superheat Charging Table, 50SS018
TEMP (F)
AIR ENT
COND
EVAP AIR — CFM
600
Evap Air — Ewb (F)
54 56 58 60 62 64 66 68 70 72 74 76
65 SPH 17.3 18.5 19.6 20.8 24.2 27.7 28.5 29.3 29.3 29.3 29.3 29.3
70 SPH 13.8 14.9 16.1 17.3 20.7 24.1 25.7 27.3 27.3 27.3 27.3 27.3
75 SPH 10.2 11.4 12.5 13.7 17.1 20.6 22.9 25.2 25.2 25.2 25.2 25.2
80 SPH 8.2 8.8 9.5 10.2 13.6 17.0 20.1 23.1 23.9 24.1 25.4 26.1
85 SPH 6.1 6.2 6.5 6.6 10.0 13.5 17.3 21.1 22.6 24.1 25.6 27.1
90 SPH * * * 5.0 8.1 11.4 15.2 19.0 20.5 22.0 23.5 25.0
95 SPH ****6.29.413.2 17.0 18.5 20.0 21.5 23.0
100 SPH *****7.311.114.9 17.2 19.5 21.7 24.0
105 SPH *****5.39.112.9 15.9 18.9 21.9 24.9
110 SPH ******6.710.8 13.8 16.8 19.8 22.8
115 SPH *******8.811.814.8 17.8 20.8
LEGEND
Ewb — Entering Wet Bulb
SPH — Superheat at Compressor (F)
*Do not attempt to charge system under these conditions — refrigerant slugging may occur.
Table 5B — Superheat Charging Table, 50SS024
TEMP (F)
AIR ENT
COND
EVAP AIR — CFM
800
Evap Air — Ewb (F)
54 56 58 60 62 64 66 68 70 72 74 76
65 SPH 18.2 19.0 19.9 20.7 22.5 24.2 25.1 25.9 26.6 27.2 27.9 28.6
70 SPH 17.1 17.6 18.1 18.6 20.4 22.1 23.0 23.9 24.9 26.0 27.1 28.1
75 SPH 16.0 16.2 16.4 16.6 18.3 20.1 21.0 21.8 23.3 24.8 26.2 27.7
80 SPH 14.8 14.7 14.6 14.5 16.3 18.0 19.7 21.3 22.4 23.5 24.6 25.8
85 SPH 13.7 13.3 12.9 12.5 14.3 16.0 18.4 20.7 21.5 22.3 23.1 23.8
90 SPH 11.1 10.9 10.7 10.4 12.2 13.9 16.3 18.7 19.9 21.0 22.2 23.4
95 SPH 8.5 8.4 8.4 8.4 10.1 11.9 14.3 16.6 18.2 19.8 21.4 23.0
100 SPH 7.3 7.5 7.7 7.9 8.9 9.9 12.2 14.6 16.6 18.6 20.6 22.6
105 SPH 6.2 6.6 6.9 7.3 7.6 7.8 10.2 12.5 14.9 17.3 19.7 22.1
110 SPH * * * 5.3 5.5 5.8 8.1 10.5 13.3 16.1 18.9 21.7
115 SPH ******6.18.411.614.9 18.1 21.3
LEGEND
Ewb — Entering Wet Bulb
SPH — Superheat at Compressor (F)
*Do not attempt to charge system under these conditions — refrigerant slugging may occur.
28

Table 5C — Superheat Charging Table, 50SS030
TEMP (F)
AIR ENT
COND
EVAP AIR — CFM
1000
Evap Air — Ewb (F)
54 56 58 60 62 64 66 68 70 72 74 76
65 SPH 14.2 15.1 16.1 17.1 19.2 21.3 23.3 24.7 25.9 27.2 27.8 28.5
70 SPH 13.6 14.1 14.6 15.0 17.1 19.2 21.3 22.8 24.2 25.7 26.3 26.9
75 SPH 13.0 13.0 13.0 13.0 15.1 17.2 19.2 20.9 22.6 24.2 24.8 25.4
80 SPH 10.9 11.0 11.0 10.9 13.6 16.1 18.7 20.1 21.4 22.7 23.6 24.4
85 SPH 8.9 8.9 8.9 8.9 12.0 15.1 18.2 19.2 20.2 21.2 22.4 23.5
90 SPH 8.3 8.4 8.4 8.3 10.9 13.6 16.2 17.7 19.2 20.8 21.6 22.5
95 SPH 7.8 7.8 7.8 7.8 9.9 12.0 14.1 16.1 18.2 20.2 20.9 21.7
100 SPH 7.3 7.3 7.3 7.3 9.3 11.4 13.6 15.6 17.6 19.7 20.2 20.7
105 SPH 6.7 6.7 6.7 6.7 8.8 10.9 13.0 15.0 17.1 19.1 19.4 19.8
110 SPH ****6.78.910.9 13.0 15.0 17.1 18.0 18.9
115 SPH *****6.88.910.9 13.0 15.0 16.5 18.0
LEGEND
Ewb — Entering Wet Bulb
SPH — Superheat at Compressor (F)
*Do not attempt to charge system under these conditions — refrigerant slugging may occur.
Table 5D — Superheat Charging Table, 50SS036
TEMP (F)
AIR ENT
COND
EVAP AIR — CFM
1200
Evap Air — Ewb (F)
54 56 58 60 62 64 66 68 70 72 74 76
65 SPH 8.4 8.4 8.4 8.4 12.5 16.7 18.7 20.7 22.0 23.4 24.8 26.1
70 SPH 5.0 5.0 5.0 5.0 9.0 13.1 15.9 18.6 20.0 21.3 22.7 24.0
75 SPH ****5.49.613.1 16.6 17.9 19.3 20.6 22.0
80 SPH **** * 6.010.3 14.5 15.9 17.3 18.6 20.0
85 SPH **** * * 7.512.5 13.9 15.2 16.5 17.9
90 SPH **** * * 5.410.4 12.5 14.6 16.8 18.8
95 SPH **** * * * 8.411.314.1 17.0 19.8
100 SPH **** * * * 6.410.0 13.5 17.1 20.7
105 SPH **** ****8.713.0 17.3 21.7
110 SPH **** ****9.312.4 15.6 18.7
115 SPH **** ****10.0 11.9 13.8 15.8
LEGEND
Ewb — Entering Wet Bulb
SPH — Superheat at Compressor (F)
*Do not attempt to charge system under these conditions — refrigerant slugging may occur.
Table 5E — Superheat Charging Table, 50SS042
TEMP (F)
AIR ENT
COND
EVAP AIR — CFM
1400
Evap Air — Ewb (F)
54 56 58 60 62 64 66 68 70 72 74 76
65 SPH 11.0 11.0 11.0 14.0 17.0 20.0 22.0 24.0 26.0 26.0 27.7 28.6
70 SPH 7.5 7.5 7.5 10.4 13.4 16.4 18.9 21.4 24.0 25.0 26.1 27.1
75 SPH * * * 6.9 9.9 12.9 15.9 18.9 21.9 23.2 24.4 25.7
80 SPH * * * 5.9 8.4 10.8 13.8 16.8 19.8 21.3 22.8 24.3
85 SPH * * * 5.0 6.9 8.8 11.8 14.8 17.8 19.5 21.1 22.8
90 SPH * * * * 6.0 6.8 10.2 13.7 17.3 18.6 20.0 21.4
95 SPH * * * * * 5.0 8.7 12.7 16.7 17.8 18.9 20.0
100 SPH ******6.510.5 14.6 16.4 18.2 20.0
105 SPH *******8.412.6 15.1 17.6 20.0
110 SPH *******8.012.0 14.2 16.4 18.6
115 SPH *******7.711.513.4 15.3 17.2
LEGEND
Ewb — Entering Wet Bulb
SPH — Superheat at Compressor (F)
29

Table 5F — Superheat Charging Table, 50SS048 (Carrier Scroll Compressor)
TEMP (F)
AIR ENT
COND
EVAP AIR — CFM
1600
Evap Air — Ewb (F)
54 56 58 60 62 64 66 68 70 72 74 76
65 SPH 15.5 15.5 15.6 15.6 17.6 19.6 21.6 22.8 24.0 25.2 25.2 25.3
70 SPH 11.7 11.8 11.8 11.8 13.9 16.0 18.0 20.1 22.2 24.3 24.3 24.3
75 SPH 8.0 8.0 8.0 8.0 10.2 12.3 14.5 17.4 20.4 23.3 23.3 23.3
80 SPH 6.0 6.0 6.0 6.0 8.7 11.3 13.9 16.3 18.6 20.9 21.5 22.0
85 SPH ****7.210.3 13.4 15.1 16.8 18.5 19.7 20.8
90 SPH ****5.67.79.912.4 15.0 17.6 18.7 19.8
95 SPH *****5.26.39.813.2 16.7 17.7 18.8
100 SPH ******5.89.112.5 15.8 17.1 18.4
105 SPH ******5.28.411.714.9 16.5 18.1
110 SPH ******6.28.811.414.0 15.9 17.8
115 SPH ******7.19.111.113.1 15.3 17.5
LEGEND
Ewb — Entering Wet Bulb
SPH — Superheat at Compressor (F)
*Do not attempt to charge system under these conditions — refrigerant slugging may occur.
Table 5G — Superheat Charging Table, 50SS048 (Copeland Scroll Compressor)
TEMP (F)
AIR ENT
COND
EVAP AIR — CFM
1600
Evap Air — Ewb (F)
54 56 58 60 62 64 66 68 70 72 74 76
65 SPH 19.0 19.0 19.0 19.0 21.7 24.3 26.0 27.7 27.9 28.2 28.4 28.6
70 SPH 15.4 15.4 15.4 15.4 18.1 20.8 22.5 24.1 25.1 26.1 27.1 28.1
75 SPH 11.9 11.9 11.9 11.9 14.6 17.2 18.9 20.6 22.3 24.0 25.8 27.5
80 SPH 8.4 8.4 8.4 8.4 11.0 13.7 15.4 17.0 19.5 22.0 24.5 27.0
85 SPH 5.0 5.0 5.0 5.0 7.5 10.1 11.8 13.5 16.7 20.0 23.2 26.4
90 SPH *****6.69.011.414.7 17.9 21.1 24.4
95 SPH ******6.29.412.6 15.9 19.1 22.3
100 SPH *******7.310.6 13.8 17.0 20.3
105 SPH *******5.38.511.815.0 18.2
110 SPH ********6.911.215.5 19.8
115 SPH ********5.310.6 16.0 21.3
LEGEND
Ewb — Entering Wet Bulb
SPH — Superheat at Compressor (F)
*Do not attempt to charge system under these conditions — refrigerant slugging may occur.
Table 5H — Superheat Charging Table, 50SS060 (Carrier Scroll Compressor)
TEMP (F)
AIR ENT
COND
EVAP AIR — CFM
1600
Evap Air — Ewb (F)
54 56 58 60 62 64 66 68 70 72 74 76
65 SPH 8.9 8.9 9.0 9.0 12.1 15.2 18.3 20.4 22.4 24.5 24.5 24.5
70 SPH 5.0 5.0 5.0 5.0 7.4 11.1 14.7 17.3 19.9 22.5 22.9 23.3
75 SPH **** * 6.911.214.3 17.3 20.4 21.3 22.1
80 SPH **** * * 5.69.413.1 16.8 18.4 19.9
85 SPH **** ****8.913.3 15.4 17.6
90 SPH **** ****6.411.313.3 15.3
95 SPH **** * * * * * 9.211.113.1
100 SPH **** *****7.29.712.3
105 SPH **** *****5.18.311.5
110 SPH **** ******6.910.8
115 SPH **** ******5.510.0
LEGEND
Ewb — Entering Wet Bulb
SPH — Superheat at Compressor (F)
*Do not attempt to charge system under these conditions — refrigerant slugging may occur.
30

Table 5I — Superheat Charging Table, 50SS060 (Copeland Scroll Compressor)
TEMP (F)
AIR ENT
COND
EVAP AIR — CFM
1995
Evap Air — Ewb (F)
54 56 58 60 62 64 66 68 70 72 74 76
65 SPH 20.1 20.1 20.1 20.1 20.1 20.1 22.6 25.2 25.6 26.1 26.6 27.0
70 SPH 16.5 16.5 16.5 16.5 17.3 18.0 20.6 23.1 24.0 24.8 25.6 26.5
75 SPH 13.0 13.0 13.0 13.0 14.5 16.0 18.5 21.1 22.3 23.5 24.7 25.9
80 SPH 10.9 10.9 10.9 10.9 12.4 13.9 16.5 19.0 20.6 22.2 23.8 25.4
85 SPH 8.9 8.9 8.9 8.9 10.4 11.9 14.4 17.0 18.9 20.9 22.9 24.9
90 SPH 6.9 6.9 6.9 6.9 8.4 9.9 12.4 14.9 17.3 19.6 22.0 24.3
95 SPH 5.0 5.0 5.0 5.0 6.3 7.8 10.3 12.9 15.6 18.3 21.1 23.8
100 SPH *****5.88.310.8 13.9 17.0 20.1 23.2
105 SPH ******6.28.812.3 15.7 19.2 22.7
110 SPH *******6.710.6 14.4 18.3 22.2
115 SPH ********8.913.1 17.4 21.6
LEGEND
Ewb — Entering Wet Bulb
SPH — Superheat at Compressor (F)
*Do not attempt to charge system under these conditions — refrigerant slugging may occur.
Table 6A — Superheat Charging Table, 50SX024
TEMP (F)
AIR ENT
COND
EVAP AIR — CFM
800
Evap Air — Ewb (F)
54 56 58 60 62 64 66 68 70 72 74 76
65 SPH 22.1 22.1 22.8 23.2 25.3 27.4 29.5 29.8 30.2 30.5 31.3 32.1
70 SPH 18.5 18.9 19.3 19.6 22.2 24.8 27.5 28.3 29.1 30.0 30.0 30.0
75 SPH 15.0 15.4 15.7 16.1 19.2 22.3 25.4 26.7 28.1 29.4 28.7 28.0
80 SPH 9.2 9.5 9.7 9.9 14.4 18.9 23.3 24.7 26.0 27.3 27.4 27.4
85 SPH ****9.615.5 21.3 22.6 24.0 25.3 26.1 26.8
90 SPH ****7.212.5 17.8 20.1 22.4 24.8 25.1 25.5
95 SPH *****9.414.2 17.5 20.9 24.2 24.2 24.2
100 SPH *****7.110.6 14.5 18.3 22.1 22.9 23.6
105 SPH ******7.111.415.8 20.1 21.6 23.1
110 SPH *******8.413.2 18.0 19.5 21.0
115 SPH *******5.310.7 16.0 17.5 19.0
LEGEND
Ewb — Entering Wet Bulb
SPH — Superheat at Compressor (F)
*Do not attempt to charge system under these conditions — refrigerant slugging may occur.
Table 6B — Superheat Charging Table, 50SX030
TEMP (F)
AIR ENT
COND
EVAP AIR — CFM
1000
Evap Air — Ewb (F)
54 56 58 60 62 64 66 68 70 72 74 76
65 SPH 11.2 11.2 11.2 11.2 14.9 18.6 22.3 22.4 22.5 22.7 22.9 23.1
70 SPH 7.6 7.7 7.7 7.7 12.1 16.6 21.1 21.6 22.0 22.4 22.5 22.5
75 SPH ****9.414.7 20.0 20.7 21.4 22.1 22.1 22.0
80 SPH ****8.513.5 18.5 19.3 20.2 21.0 21.6 22.1
85 SPH ****7.612.3 17.0 18.0 18.9 19.9 21.1 22.3
90 SPH *****10.0 14.2 16.0 17.8 19.6 20.7 21.8
95 SPH *****7.711.514.1 16.7 19.2 20.2 21.2
100 SPH * * * * * * 5.7 9.9 14.0 18.2 19.4 20.6
105 SPH *******5.711.417.1 18.6 20.1
110 SPH ********8.913.5 15.8 18.0
115 SPH *********10.0 13.0 16.0
LEGEND
Ewb — Entering Wet Bulb
SPH — Superheat at Compressor (F)
*Do not attempt to charge system under these conditions — refrigerant slugging may occur.
31

Table 6C — Superheat Charging Table, 50SX036
TEMP (F)
AIR ENT
COND
EVAP AIR — CFM
1200
Evap Air — Ewb (F)
54 56 58 60 62 64 66 68 70 72 74 76
65 SPH 21.3 21.3 21.3 21.3 22.0 22.6 23.3 23.5 23.7 23.8 23.3 22.8
70 SPH 19.3 19.3 19.3 19.3 20.2 21.2 22.2 22.3 22.5 22.6 22.0 21.5
75 SPH 17.2 17.2 17.2 17.2 18.5 19.7 21.0 21.1 21.3 21.4 20.7 20.1
80 SPH 13.6 13.6 13.6 13.6 15.1 16.6 18.0 18.5 18.9 19.3 19.4 19.5
85 SPH 10.1 10.1 10.1 10.1 11.7 13.4 15.0 15.8 16.5 17.3 18.1 19.0
90 SPH 6.5 6.5 6.5 6.5 8.8 11.2 13.5 14.6 15.7 16.8 17.2 17.6
95 SPH ****6.09.012.0 13.4 14.8 16.2 16.2 16.2
100 SPH ******6.08.711.414.1 14.9 15.6
105 SPH ********8.012.1 13.6 15.1
110 SPH *********10.0 11.5 13.0
115 SPH *********8.09.511.0
LEGEND
Ewb — Entering Wet Bulb
SPH — Superheat at Compressor (F)
*Do not attempt to charge system under these conditions — refrigerant slugging may occur.
Table 6D — Superheat Charging Table, 50SX042
TEMP (F)
AIR ENT
COND
EVAP AIR — CFM
1400
Evap Air — Ewb (F)
54 56 58 60 62 64 66 68 70 72 74 76
65 SPH 23.9 23.9 23.9 23.9 24.4 24.9 25.5 25.8 26.1 26.5 25.6 24.7
70 SPH 21.9 21.9 21.9 21.9 22.4 22.9 23.4 23.7 24.1 24.5 24.0 23.5
75 SPH 19.8 19.8 19.8 19.8 20.3 20.8 21.3 21.7 22.0 22.4 22.4 22.4
80 SPH 16.3 16.3 16.3 16.3 17.9 19.6 21.3 21.5 21.7 21.8 21.8 21.8
85 SPH 12.7 12.7 12.7 12.7 15.6 18.4 21.3 21.3 21.3 21.3 21.3 21.3
90 SPH 9.2 9.2 9.2 9.2 12.0 14.9 17.8 18.7 19.7 20.8 20.8 20.8
95 SPH 5.6 5.6 5.6 5.6 8.5 11.3 14.2 16.2 18.2 20.2 20.2 20.2
100 SPH *****8.010.6 13.1 15.6 18.1 18.9 19.6
105 SPH ******7.110.1 13.1 16.1 17.6 19.1
110 SPH *******7.010.5 14.0 15.5 17.0
115 SPH ********8.012.0 13.5 15.0
LEGEND
Ewb — Entering Wet Bulb
SPH — Superheat at Compressor (F)
*Do not attempt to charge system under these conditions — refrigerant slugging may occur.
Table 6E — Superheat Charging Table, 50SX048
TEMP (F)
AIR ENT
COND
EVAP AIR — CFM
1600
Evap Air — Ewb (F)
54 56 58 60 62 64 66 68 70 72 74 76
65 SPH 27.2 27.2 27.2 27.2 27.0 26.7 26.5 26.0 25.6 25.1 24.5 24.0
70 SPH 25.0 25.0 25.0 25.0 24.8 24.6 24.5 24.5 24.5 24.6 23.8 23.1
75 SPH 22.8 22.8 22.8 22.8 22.7 22.5 22.4 22.9 23.5 24.0 23.1 22.2
80 SPH 20.6 20.6 20.6 20.6 20.5 20.4 20.3 21.4 22.4 23.5 22.4 21.4
85 SPH 18.3 18.3 18.3 18.3 18.3 18.3 18.3 19.8 21.4 22.9 21.8 20.6
90 SPH 13.3 13.3 13.3 13.3 14.2 15.2 16.3 17.8 19.3 20.9 20.4 19.9
95 SPH 8.2 8.2 8.2 8.2 10.2 12.2 14.2 15.7 17.3 18.8 19.0 19.2
100 SPH ****6.38.410.6 12.9 15.2 17.5 18.1 18.7
105 SPH ******7.110.1 13.1 16.1 17.1 18.2
110 SPH *******7.110.5 14.0 15.3 16.6
115 SPH ********8.012.0 13.5 15.0
LEGEND
Ewb — Entering Wet Bulb
SPH — Superheat at Compressor (F)
*Do not attempt to charge system under these conditions — refrigerant slugging may occur.
32

Table 6F — Superheat Charging Table, 50SX060
TEMP (F)
AIR ENT
COND
EVAP AIR — CFM
1995
Evap Air — Ewb (F)
54 56 58 60 62 64 66 68 70 72 74 76
65 SPH 20.1 20.1 20.1 20.1 20.1 20.1 22.6 25.2 25.6 26.1 26.6 27.0
70 SPH 16.5 16.5 16.5 16.5 17.3 18.0 20.6 23.1 24.0 24.8 25.6 26.5
75 SPH 13.0 13.0 13.0 13.0 14.5 16.0 18.5 21.1 22.3 23.5 24.7 25.9
80 SPH 10.9 10.9 10.9 10.9 12.4 13.9 16.5 19.0 20.6 22.2 23.8 25.4
85 SPH 8.9 8.9 8.9 8.9 10.4 11.9 14.4 17.0 18.9 20.9 22.9 24.9
90 SPH 6.9 6.9 6.9 6.9 8.4 9.9 12.4 14.9 17.3 19.6 22.0 24.3
95 SPH 5.0 5.0 5.0 5.0 6.3 7.8 10.3 12.9 15.6 18.3 21.1 23.8
100 SPH *****5.88.310.8 13.9 17.0 20.1 23.2
105 SPH ******6.28.812.3 15.7 19.2 22.7
110 SPH *******6.710.6 14.4 18.3 22.2
115 SPH ********8.913.1 17.4 21.6
LEGEND
Ewb — Entering Wet Bulb
SPH — Superheat at Compressor (F)
*Do not attempt to charge system under these conditions — refrigerant slugging may occur.
Table 7 — Required Suction-Tube Temperature (F)*
SUPERHEAT
TEMP (F) SUCTION PRESSURE AT SERVICE PORT (psig)
61.5 64.2 67.1 70.0 73.0 76.0 79.2 82.4 85.7
035 37 39 41 43 45 47 49 51
237 39 41 43 45 47 49 51 53
439 41 43 45 47 49 51 53 55
641 43 45 47 49 51 53 55 57
843 45 47 49 51 53 55 57 59
10 45 47 49 51 53 55 57 59 61
12 47 49 51 53 55 57 59 61 63
14 49 51 53 55 57 59 61 63 65
16 51 53 55 57 59 61 63 65 67
18 53 55 57 59 61 63 65 67 69
20 55 57 59 61 63 65 67 69 71
22 57 59 61 63 65 67 69 71 73
24 59 61 63 65 67 69 71 73 75
26 61 63 65 67 69 71 73 75 77
28 63 65 67 69 71 73 75 77 79
30 65 67 69 71 73 75 77 79 81
32 67 69 71 73 75 77 79 81 83
34 69 71 73 75 77 79 81 83 85
36 71 73 75 77 79 81 83 85 87
38 73 75 77 79 81 83 85 87 89
40 75 77 79 81 83 85 87 89 91
*Temperature at suction service valve.
33

INDOOR AIRFLOW AND AIRFLOW ADJUSTMENTS
For cooling operation, the recommended airflow is
350 to 450 cfm per each 12,000 Btuh of rated cooling
capacity.
Tables 8-11 show airflows at several external static pres-
sures. Table 12 shows airflow for Fan Only and Cooling modes
for ICM units. Tables 13-15 show accompanying pressure
drops for wet coils, electric heaters, and filters. Refer to these
tables to determine the airflow for the system being
installed.
NOTE: Be sure that all supply- and return-air grilles are open,
free from obstructions, and adjusted properly.
Disconnect electrical power to the unit before changing
blower speed. Electrical shock can cause personal in-
jury or death.
Airflow can be changed by changing the lead connections
of the blower motor.
Unit 50SS two- or 3-speed motors are factory wired for
low speed operation. Units 50SX024, 036 and 048 (460 v)
two- or 3-speed motors are factory wired for low speed. Units
50SX030 and 042 are factory wired for medium speed.
For 208/230-v and A.O. Smith 460-v Blower Motors:
The motor leads are color-coded as follows:
3-SPEED 2-SPEED
black = high speed black = high speed
blue = medium speed red = low speed
red = low speed
To change the speed of the blower motor, remove the fan
motor speed leg lead from the indoor (evaporator) fan relay
(IFR) and replace with lead for desired blower motor speed.
Insulate the removed lead to avoid contact with chassis parts.
For 460-v GE Motors:
The motor leads are color coded as follows:
3-SPEED 2-SPEED
black = high black = high
blue = jumper blue = jumper
orange = medium red = low
red = low
To change the speed of the blower motor, remove red fan
motor speed lead from the indoor (evaporator) fan relay (IFR).
The motor speed lead is attached to terminal BM. Insulate
removed lead end to avoid contact with chassis parts. On
3-speed motors only, connect orange lead to IFR. To select
high speed, separate the black (female QC) from the blue
lead (male QC) and connect the black lead to IFR. Insulate
the blue lead to avoid contact with any chassis parts.
For Integrated Control Motors (ICM) — To configure the 50SX
unit, move the 5 Easy Select board wires to the terminals
which control the airflow. Refer to the Easy Select interface
board (Fig. 32) located next to the terminal and to Fig. 33
and 34.
Perform the following steps for basic system
configuration.
AUX HEAT RANGE (VIO)
NOTE: If no heater is installed, this step can be omitted.
The airflow for electric heat is selected with theAUX HEAT
RANGE terminals. Refer to Table 3 and the installation in-
structions for electric heaters for minimum airflow required
for safe heater operation. Refer to table below for the avail-
able airflows. Each select pin is configured for a certain air-
flow. The airflow will be supplied in the Heating mode on
air conditioners when electric heat is the primary heating source.
The preset factory default selection is the highest airflow.
TERMINAL 1234
Available
Airflow (Cfm) 1365 1470 1680 1840
AC/HP SIZE (BLU) — The preset factory default selection
for AC/HP SIZE (air conditioner/heat pump) is set to
400 cfm/ton. The selection pins are configured for 350 cfm/
ton and 400 cfm/ton.
TYPE (ORN) — The TYPE is a preset factory default se-
lection. The preset factory default setting isAC for the 50SX
units. Default setting should not be altered.
AC/HP CFM ADJUST (BLK) — The preset factory default
selection is MED. Selections HI and LO will adjust the air-
flow supplied for all operational modes (see table below).
The selection options allow installer to adjust airflow to meet
such individual needs as noise and static compensation, etc.
MODE FAN
ONLY COOLING HEATING
LO - Adjust −15% −10% −10%
HI - Adjust 15% 10% 10%
AC/HP TIME DELAY (GRY) — Four motor operation delay
options are provided to customize system operation. See list-
ing below:
OPTION DESCRIPTION
30-Sec On/60-Sec
Off Delay
Profile (Terminal 1)
Used when it is desirable to allow system
coils time to heat up or cool down prior to
airflow.
No Delay Option
(Terminal 2)
Used for servicing or when other compo-
nents are used to perform the delay
function.
30-Sec Off Delay
(Terminal 3) Preset factory default setting for 50SX
units.
45-Sec Off Delay
(Terminal 4) Enhances system efficiency.
UNIT CONTROLS — All compressors have the following
internal-protection controls.
High-Pressure Relief Valve — This valve opens when the
pressure differential between the low and high side becomes
excessive.
Compressor Overload — This overload interrupts power to
the compressor when either the current or internal tempera-
ture become excessive, and automatically resets when the
internal temperature drops to a safe level.
This overload may require up to 60 minutes (or longer) to
reset; therefore, if the internal overload is suspected of being
open, disconnect the electrical power to the unit and check
the circuit through the overload with an ohmmeter or con-
tinuity tester.
34

SEQUENCE OF OPERATION — STD NON-ICM UNITS
Cooling
NOTE: With the FAN switch in the ON position, 24 v is
supplied to the IFR through the G terminal on the thermo-
stat. This voltage energizes the coil of the contactor, closing
the normally-open set of contacts which provide continuous
power to the indoor (evaporator) fan motor (IFM). Moving
the FAN switch back to the AUTO. position, providing there
is not a call for cooling, deenergizes the IFR, opens the IFR
contacts, and deenergizes the IFM. The FAN switch in AUTO.
position cycles upon a call for cooling.
On a call for cooling, 24 v is supplied to the compressor
contactor (C) and IFR simultaneously through the Y and G
terminals of the thermostat, respectively. On units with a
compressor time delay relay, there is a built-in, 5-minute
(± 45 seconds) delay between compressor starts. Energizing
the contactor closes the normally-open set of contacts sup-
plying power to both the compressor and outdoor (con-
denser) fan motor (OFM). Energizing the IFR closes the
normally-open set of contacts providing power to the IFM.
On the loss of the call for cooling, 24 v is removed from
both the Y and G terminals of the thermostat (providing the
FAN switch is in the AUTO. position), deenergizing both
the contactor and IFR and opening both the contacts sup-
plying power to compressor/OFM and IFM.
Heating — If accessory electric heaters are installed, on a
call for heat, circuit R-W is made through the thermostat con-
tacts. Circuit R-G is made which energizes the IFR. If the
heaters are staged, then the thermostat closes a second set of
contacts W2 when second stage is required. When thermo-
stat is satisfied, contacts open, deenergizing the heater relay
and the IFR.
SEQUENCE OF OPERATION — ICM UNITS
Evaporator Fan — With the fan switch in the ON position,
24 v is supplied to the ICM motor through the ‘‘G’’ terminal
on the thermostat. This voltage provides continuous power
to the indoor (evaporator) fan motor (IFM). If the fan switch
is moved back to the AUTO position and there is not a call
for heating or cooling, 24 v is removed from the ‘‘G’’ ter-
minal and the evaporator fan remains energized for the de-
lay timing. When the fan switch is in AUTO, the fan cycles
with either the call for heating or cooling.
Cooling — On a call for cooling, 24 v is supplied to the com-
pressor contactor (C) and IFM simultaneously through the
‘‘Y’’ and ‘‘G’’ terminals of the thermostat. Energizing the
contactor closes the normally open set of contacts supplying
power to both the compressor and outdoor (condenser) fan
motor (OFM). On the loss of the call for cooling, 24 v is
removed from the ‘‘Y’’and ‘‘G’’ terminals of the thermostat,
deenergizing the compressor and OFM. The evaporator fan
remains energized for the delay timing.
NOTE: Once the compressor has started and then stopped,
it cannot be restarted again until 5 minutes have elapsed.
Heating — If accessory electric heaters are installed, on a
call for heat, circuits R-W and R-G are made through the
thermostat contacts, energizing the heater relay and IFM. If
the heaters are staged, then the thermostat closes the second
set of contacts, W2, when the second stage is required. When
the thermostat is satisfied, contacts open, deenergizing the
heater relay and the IFM.
35

Table 8 — Dry Coil Air Delivery* — Horizontal Discharge (Deduct 10% for 208 v) — Unit 50SS
UNIT
SIZE MOTOR
SPEED
230 AND 460 V HORIZONTAL DISCHARGE
External Static Pressure (in. wg)
0.0 0.1 0.2 0.3 0.4 0.5 0.6 0.7 0.8 0.9 1.0
018
Low Watts 230 225 220 210 195 170 —————
Cfm760745725695640540—————
High Watts ————270235200————
Cfm————850700450————
024
Low Watts 280 275 265 255 250 245 240 ————
Cfm820810755700660600560————
Med Watts 365 360 350 345 340 330 320 310 300 — —
Cfm 1025 1010 975 940 900 850 800 720 630 — —
High Watts — — 490 480 470 460 445 430 410 390 380
Cfm — — 1300 1255 1200 1150 1080 1005 915 790 620
030
Low Watts — 460 450 420 400 380 360 335 — — —
Cfm — 1240 1190 1125 1060 995 920 840 — — —
Med Watts — — — 480 460 435 410 375 — — —
Cfm — — — 1280 1200 1115 1020 910 — — —
High Watts —————560530510490460—
Cfm—————1270 1180 1080 1000 870 —
036
Low Watts 470 460 455 445 430 415 400 380 350 — —
Cfm 1280 1250 1230 1200 1150 1100 1050 980 890 — —
Med Watts 550 535 520 500 480 460 440 410 385 — —
Cfm 1500 1450 1400 1330 1270 1190 1120 1030 940 — —
High Watts ————625595550520500470425
Cfm————1540 1440 1325 1220 1110 1000 800
042
Low Watts 730 700 680 645 615 580 535 490 430 — —
Cfm 1620 1590 1550 1510 1460 1390 1310 1210 1050 — —
High Watts —————850800750700650610
Cfm—————1780 1670 1550 1400 1230 1050
048
Low Watts 1080 1040 1020 970 910 840 785 730 680 620 540
Cfm 2100 2090 2080 2060 1980 1900 1810 1710 1590 1450 1200
High Watts 1230 1190 1125 1060 1010 940 880 820 760 710 660
Cfm 2390 2340 2280 2210 2150 2030 1900 1770 1630 1480 1300
060
Low Watts 1150 1100 1050 1010 950 900 850 800 730 650 —
Cfm 2500 2410 2330 2260 2170 2080 1990 1880 1750 1580 —
High Watts —————117011101050 990 920 880
Cfm—————2470 2340 2200 2040 1870 1700
*Air delivery values are based on operating voltage of 230 v or
460 v, dry coil, without filter or electric heater. Deduct wet coil, filter,
and electric heater pressure drops to obtain external static pressure
available for ducting.
NOTES:
1. Do not operate the unit at a cooling airflow that is less than
350 cfm for each 12,000 Btuh of rated cooling capacity. Evapo-
rator coil frosting may occur at airflows below this point.
2. Dashes indicate portions of table that are beyond the blower mo-
tor capacity or are not recommended.
36

Table 9 — Dry Coil Air Delivery* — Vertical Discharge (Deduct 10% for 208 v) — Unit 50SS
UNIT
SIZE MOTOR
SPEED
230 AND 460 V VERTICAL DISCHARGE
External Static Pressure (in. wg)
0.0 0.1 0.2 0.3 0.4 0.5 0.6 0.7 0.8 0.9 1.0
018
Low Watts 230 225 220 210 195 170 —————
Cfm760745725695640540—————
High Watts ————270235200————
Cfm————850700450————
024
Low Watts 280 275 265 255 250 245 240 ————
Cfm820810755700660600560————
Med Watts 365 360 350 345 340 330 320 310 300 — —
Cfm 1025 1010 975 940 900 850 800 720 630 — —
High Watts — — 490 480 470 460 445 430 410 390 380
Cfm — — 1300 1255 1200 1150 1080 1005 915 790 620
030
Low Watts — 460 450 420 400 380 360 335 — — —
Cfm — 1240 1190 1125 1060 995 920 840 — — —
Med Watts — — — 480 460 435 410 375 — — —
Cfm — — — 1280 1200 1115 1020 910 — — —
High Watts —————560530510490460—
Cfm—————1270 1180 1080 1000 870 —
036
Low Watts 470 460 455 445 430 415 400 380 350 — —
Cfm 1280 1250 1230 1200 1150 1100 1050 980 890 — —
Med Watts 550 535 520 500 480 460 440 410 385 — —
Cfm 1500 1450 1400 1330 1270 1190 1120 1030 940 — —
High Watts ————625595550520500470425
Cfm————1540 1440 1325 1220 1110 1000 800
042
Low Watts 730 700 680 645 615 580 535 490 430 — —
Cfm 1620 1590 1550 1510 1460 1390 1310 1210 1050 — —
High Watts —————850800750700650610
Cfm—————1780 1670 1550 1400 1230 1050
048
Low Watts 1080 1040 1020 970 910 840 785 730 680 620 540
Cfm 2100 2090 2080 2060 1980 1900 1810 1710 1590 1450 1200
High Watts 1230 1190 1125 1060 1010 940 880 820 760 710 660
Cfm 2390 2340 2280 2210 2150 2030 1900 1770 1630 1480 1300
060
Low Watts 890 850 810 780 740 710 660 630 580 — —
Cfm 2500 2410 2330 2260 2170 2080 1970 1860 1700 — —
High Watts — — — 1000 960 910 870 830 790 750 —
Cfm — — — 2480 2370 2250 2120 2000 1850 1690 —
Table 10 — Dry-Coil Air Delivery* — Horizontal Discharge (Deduct 10% for 208 V) — Unit 50SX
UNIT
50SX MOTOR
SPEED AIR
DELIVERY
230 AND 460 VOLT HORIZONTAL DISCHARGE
External Static Pressure (in. wg)
0.0 0.1 0.2 0.3 0.4 0.5 0.6 0.7 0.8 0.9 1.0
024,
030
Low Watts 280 275 265 255 250 245 240 ————
Cfm 820810755700660600560————
Med Watts 365 360 350 345 340 330 320 310 300 — —
Cfm 1025 1010 975 940 900 850 800 720 630 — —
High Watts — — 490 480 470 460 445 430 410 390 380
Cfm — — 1300 1255 1200 1150 1080 1005 915 790 620
036
Low Watts 520 495 474 458 445 425 —————
Cfm 1375 1335 1290 1240 1200 1140 —————
Med Watts 575 560 535 510 480 460 440 425 — — —
Cfm 1520 1490 1450 1400 1380 1300 1200 1080 — — —
High Watts ————650614575540510480—
Cfm ————1560 1500 1380 1280 1170 1060 —
042
Low Watts 490 480 470 460 450 430 410 390 — — —
Cfm 1400 1380 1340 1300 1250 1200 1140 1070 — — —
Med Watts 590 580 560 545 525 505 480 450 420 — —
Cfm 1600 1560 1540 1470 1430 1360 1300 1220 1120 — —
High Watts —————700670640600560500
Cfm —————1780 1670 1600 1480 1340 1100
048†
Low Watts 1050 1000 970 930 870 810 750 680 600 — —
Cfm 1850 1830 1800 1785 1750 1700 1640 1500 1330 — —
High Watts — — — 1050 1000 930 870 810 740 665 —
Cfm — — — 2000 1940 1850 1750 1635 1500 1300 —
LEGEND AND NOTES FOR TABLES 9 AND 10
*Air delivery values are based on operating voltage of 230 v or
460 v, dry coil, without filter or electric heater. Deduct wet coil, filter,
and electric heater pressure drops to obtain external static pressure
available for ducting.
†Size 048 is 460 v.
NOTES:
1. Do not operate the unit at a cooling airflow that is less than
350 cfm for each 12,000 Btuh of rated cooling capacity. Evaporator-
coil frosting may occur at airflows below this point.
2. Dashes indicate portions of the table that are beyond the blower
motor capacity or are not recommended.
37

Table 11 — Dry-Coil Air Delivery* — Vertical Discharge (Deduct 10% for 208 V) — Unit 50SX
UNIT
SIZE
50SX
MOTOR
SPEED AIR
DELIVERY
230 AND 460 VOLT VERTICAL DISCHARGE
External Static Pressure (in. wg)
0.0 0.1 0.2 0.3 0.4 0.5 0.6 0.7 0.8 0.9 1.0
024,
030
Low Watts 280 275 265 255 250 245 240 ————
Cfm 820810755700660600560————
Med Watts 365 360 350 345 340 330 320 310 300 — —
Cfm 1025 1010 975 940 900 850 800 720 630 — —
High Watts — — 490 480 470 460 445 430 410 390 380
Cfm — — 1300 1255 1200 1150 1080 1005 915 790 620
036
Low Watts 520 495 474 458 445 425 —————
Cfm 1375 1335 1290 1240 1200 1140 —————
Med Watts 575 560 535 510 480 460 440 425 — — —
Cfm 1520 1490 1450 1400 1380 1300 1200 1080 — — —
High Watts ————650614575540510480—
Cfm ————1560 1500 1380 1280 1170 1060 —
042
Low Watts 490 480 470 460 450 430 410 390 — — —
Cfm 1400 1380 1340 1300 1250 1200 1140 1070 — — —
Med Watts 590 580 560 545 525 505 480 450 420 — —
Cfm 1600 1560 1540 1470 1430 1360 1300 1220 1120 — —
High Watts —————700670640600560500
Cfm —————1780 1670 1600 1480 1340 1100
048†
Low Watts 1050 1000 970 930 870 810 750 680 600 — —
Cfm 1850 1830 1800 1785 1750 1700 1640 1500 1330 — —
High Watts — — — 1050 1000 930 870 810 740 665 —
Cfm — — — 2000 1940 1850 1750 1635 1500 1300 —
*Air delivery values are based on operating voltage of 230 v or
460 v, dry coil, without filter or electric heater. Deduct wet coil, filter,
and electric heater pressure drops to obtain external static pressure
available for ducting.
†Size 048 is 460 v.
NOTES:
1. Do not operate the unit at a cooling airflow that is less than
350 cfm for each 12,000 Btuh of rated cooling capacity. Evapo-
rator coil frosting may occur at airflows below this point.
2. Dashes indicate portions of table that are beyond the blower mo-
tor capacity or are not recommended.
Table 12 — Dry-Coil Air Delivery* — Fan Only and
Cooling; Horizontal and Vertical Discharge for
Integrated Control Motor Units at 230 V
(Deduct 10% from Cfm for 208-V Operation)
UNIT 50SX FAN ONLY
(Cfm) COOLING
(Cfm)
048 1400 1600
060 1750 2000
*Air delivery values are for dry coil at 230 v. Airflow is independent of
external static pressure within 65% of table values up to
0.8 in. wg.
NOTE: Do not operate the unit at a cooling airflow that is less than
350 cfm for each 12,000 Btuh of rated cooling capacity. Evaporator-
coil icing may occur at airflows below this point. Water blow-off may
occur at airflows above 450 cfm per 12,000 Btuh of rated cooling
capacity.
38

Table 13 — Wet Coil Pressure Drop
UNIT SIZE AIRFLOW
(cfm) PRESSURE DROP
(in. wg)
018*
600 0.069
700 0.082
800 0.102
900 0.116
024
600 0.039
700 0.058
800 0.075
900 0.088
030
900 0.088
1000 0.095
1200 0.123
036
1000 0.068
1200 0.088
1400 0.108
1600 0.123
042
1000 0.048
1200 0.069
1400 0.088
1600 0.102
048
1400 0.068
1600 0.075
1800 0.088
060
1700 0.082
1900 0.095
2100 0.108
2300 0.123
*Unit 50SS only.
Table 14 — Accessory Electric Heater Pressure Drop (in. wg)
HEATER
kW CFM
600 800 1000 1200 1400 1600 1800 2000 2200
5-20 0.030 0.033 0.037 0.042 0.047 0.052 0.060 0.067 0.075
Table 15 — Filter Pressure Drop (in. wg)
UNIT
SIZE
50SS
FILTER
SIZE
(in.)
CFM
500 600 700 800 900 1000 1100 1200 1300 1400 1500 1600 1700 1800 1900 2000 2100 2200 2300
018, 024 20 x 20 0.05 0.07 0.08 0.10 0.12 0.13 — ————————————
030, 036 20x24—————0.10 0.11 0.13 0.14 ——————————
042 24x24————— — — —0.110.12 0.14 0.15 ———————
048, 060 24x30—————— — — — —0.09 0.10 0.11 0.12 0.13 0.14 0.15 0.17 0.18
UNIT
SIZE
50SX
FILTER
SIZE
(in.)
CFM
500 600 700 800 900 1000 1100 1200 1300 1400 1500 1600 1700 1800 1900 2000 2100 2200 2300
024-036 24 x 24 — — 0.06 0.06 0.07 0.07 0.08 0.09 0.10 ——————————
042-060 24 x 30 — — — — — — — — 0.08 0.09 0.09 0.10 0.11 0.12 0.13 0.14 0.15 0.17 0.18
39

MAINTENANCE
To ensure continuing high performance, and to minimize
the possibility of premature equipment failure, periodic main-
tenance must be performed on this equipment. This cooling
unit should be inspected at least once each year by a quali-
fied service person. To troubleshoot cooling of units, refer to
Troubleshooting chart in back of book.
NOTE TO EQUIPMENT OWNER: Consult your local dealer
about the availability of a maintenance contract.
The ability to properly perform maintenance on this
equipment requires certain expertise, mechanical skills,
tools and equipment. If you do not possess these, do not
attempt to perform any maintenance on this
equipment, other than those procedures recommended
in the User’s Manual. FAILURE TO HEED THIS WARN-
ING COULD RESULT IN SERIOUS PERSONAL IN-
JURY AND POSSIBLE DAMAGE TO THIS EQUIP-
MENT.
The minimum maintenance requirements for this equip-
ment are as follows:
1. Inspect air filter(s) each month. Clean or replace when
necessary.
2. Inspect indoor coil, drain pan, and condensate drain each
cooling season for cleanliness. Clean when necessary.
3. Inspect blower motor and wheel for cleanliness and check
lubrication each cooling season. Clean and lubricate (if
required) when necessary. For first heating season, in-
spect blower wheel bimonthly to determine proper clean-
ing frequency.
4. Check electrical connections for tightness and controls
for proper operation each cooling season. Service when
necessary.
Failure to follow these warnings could result in serious
personal injury:
1. Turn off electrical power to the unit before perform-
ing any maintenance or service on the unit.
2. Use extreme caution when removing panels and parts.
As with any mechanical equipment, personal injury
can result from sharp edges.
3. Never place anything combustible either on, or in con-
tact with, the unit.
Air Filter
Never operate the unit without a suitable air filter in the
return-air duct system. Always replace the filter with the
same dimensional size and type as originally installed.
See Tables 1 and 2 for recommended filter sizes.
Inspect air filter(s) at least once each month and replace
(throwaway-type) or clean (cleanable-type) at least twice dur-
ing each cooling season or whenever the filters become clogged
with dust and lint.
Replace filters with the same dimensional size and type as
originally provided, when necessary.
Unit Top Removal
NOTE: When performing maintenance or service proce-
dures that require removal of the unit top, be sure to
perform all of the routine maintenance procedures that re-
quire top removal, including coil inspection and cleaning,
and condensate drain pan inspection and cleaning.
Only qualified service personnel should perform mainte-
nance and service procedures that require unit top removal.
Refer to the following top removal procedures:
1. Remove 7 screws on unit top cover surface. (Save all screws.)
2. Remove 4 screws on unit top cover flange. (Save all screws.)
3. Lift top from unit carefully. Set top on edge and make
sure that top is supported by unit side that is opposite
duct (or plenum) side.
4. Carefully replace and secure unit top to unit, using screws
removed in Steps 1 and 2, when maintenance and/or serv-
ice procedures are completed.
Evaporator Blower and Motor
NOTE: Motors without oilers are prelubricated. Do not at-
tempt to lubricate these motors.
For longer life, operating economy, and continuing effi-
ciency, clean accumulated dirt and grease from the blower
wheel and motor annually.
Lubricate the motor every 5 years if the motor is used in-
termittently (thermostat FAN switch in AUTO. position), or
every 2 years if the motor is used continuously (thermostat
FAN switch in ON position).
Disconnect and tag electrical power to the unit before
cleaning and lubricating the blower motor and wheel.
Failure to adhere to this warning could cause personal
injury or death.
To clean and lubricate the blower motor and wheel:
1. Remove and disassemble blower assembly as follows:
a. Remove blower access door.
b. For standard non-ICM units, disconnect motor lead from
IFR. Disconnect yellow motor lead from terminal L2
of the contactor.
c. Remove blower assembly from all units. Be careful
not to tear insulation in blower compartment.
d. Ensure proper reassembly by marking blower wheel
and motor in relation to blower housing before
disassembly.
e. Loosen setscrew(s) which secure wheel to motor shaft.
Remove screws that secure motor mount brackets to
housing and slide motor and motor mount out of
housing.
2. Lubricate motor as follows:
a. Thoroughly clean all accumulations of dirt or grease
from motor housing.
b. Remove dust caps or plugs from oil ports located at
each end of motor.
c. Use a good grade of SAE 20 nondetergent motor oil
and put one teaspoon (
1
⁄
16
oz. or 16 to 25 drops) in
each oil port.
d. Allow time for oil to be absorbed by each bearing,
then wipe excess oil from motor housing.
e. Replace dust caps or plugs in oil ports.
3. Remove and clean blower wheel as follows:
a. Ensure proper reassembly by marking wheel orienta-
tion and cutoff plate location.
b. Remove screws holding cut-off plate, and remove plate
from housing.
40

c. Lift wheel from housing. When handling and/or clean-
ing blower wheel, be sure not to disturb balance weights
(clips) on blower wheel vanes.
d. Remove caked-on dirt from wheel and housing with a
brush. Remove lint and/or dirt accumulations from wheel
and housing with vacuum cleaner, using soft brush at-
tachment. Remove grease and oil with mild solvent.
e. Reassemble wheel and cut-off plate into housing.
f. Reassemble motor into housing. Be sure setscrews are
tightened on motor-shaft flats and not on round part of
shaft.
Condenser Coil, Evaporator Coil, and Conden-
sate Drain Pan — Inspect the condenser coil, evapo-
rator coil, and condensate drain pan at least once each year.
Proper inspection and cleaning requires the removal of the
unit top. See Unit Top Removal section on page 40.
The coils are easily cleaned when dry; therefore, inspect
and clean the coils either before or after each cooling sea-
son. Remove all obstructions (including weeds and shrubs)
that interfere with the airflow through the condenser coil.
Straighten bent fins with a fin comb. If coated with dirt or
lint, clean the coils with a vacuum cleaner, using a soft brush
attachment. Be careful not to bend the fins. If coated with oil
or grease, clean the coils with a mild detergent-and-water
solution. Rinse coils with clear water, using a garden hose.
Be careful not to splash water on motors, insulation, wiring,
or air filter(s). For best results, spray condenser-coil fins from
inside to outside the unit. On units with an outer and inner
condenser coil, be sure to clean between the coils. Be sure
to flush all dirt and debris from the unit base.
Inspect the drain pan and condensate drain line when in-
specting the coils. Clean the drain pan and condensate drain
by removing all foreign matter from the pan. Flush the pan
and drain tube with clear water. Do not splash water on the
insulation, motor, wiring, or air filter(s). If the drain tube is
restricted, clear it with a ‘‘plumbers snake’’ or similar probe
device. Ensure that the auxiliary drain port above the drain
tube is also clear.
Condenser Fan
Keep the condenser fan free from all obstructions to en-
sure proper cooling operation. Never place articles on
top of the unit. Damage to unit may result.
1. Remove 2 screws at bottom of condenser air intake grille
and remove plastic grille.
2. Inspect the fan blades for cracks or bends.
3. If fan needs to be removed, loosen the setscrew and slide
the fan off the motor shaft.
4. When replacing fan blade, position blade so that lead-
ing edge is 2 in. back from condenser inlet grille or
1
⁄
2
in. maximum from fan deck. See Fig. 35.
5. Ensure that setscrew engages the flat area on the motor
shaft when tightening.
Electrical Controls and Wiring — Inspect and check
the electrical controls and wiring annually. Be sure to turn
off the electrical power to the unit.
Remove the control/blower and compressor compartment
access panels to locate all the electrical controls and wiring.
Check all electrical connections for tightness. Tighten
all screw connections. If any smoky or burned connections
are noticed, disassemble the connection, clean all the parts,
restrip the wire end and reassemble the connection properly
and securely.
After inspecting the electrical controls and wiring, re-
place all the panels. Start the unit, and observe at least one
complete cooling cycle to ensure proper operation. If dis-
crepancies are observed in operating cycle, or if a suspected
malfunction has occurred, check each electrical component
with the proper electrical instrumentation. Refer to the unit
wiring label when making these checkouts.
NOTE: Refer to the Cooling Sequence of Operation section
on page 35, as an aid in determining proper control
operation.
Refrigerant Circuit — Inspect all refrigerant tubing con-
nections and the unit base for oil accumulations annually.
Detecting oil generally indicates a refrigerant leak.
If oil is detected or if low cooling performance is sus-
pected, leak-test all refrigerant tubing using an electronic leak-
detector, or liquid-soap solution. If a refrigerant leak is
detected, refer to Check for Refrigerant Leaks section on
page 27.
If no refrigerant leaks are found and low cooling perfor-
mance is suspected, refer to Checking and Adjusting Refrig-
erant Charge section on page 27.
Evaporator Airflow — The cooling airflow does not
require checking unless improper performance is suspected.
If a problem exists, be sure that all supply- and return-air
grilles are open and free from obstructions, and that the air
filter is clean. When necessary, refer to Indoor Airflow and
Airflow Adjustments section on page 34 to check the system
airflow.
Metering Devices — Refrigerant metering devices are
fixed orifices and are located in the inlet header to the evapo-
rator coil.
Liquid Line Strainer — The liquid line strainer
(to protect metering device) is made of wire mesh and is
located in the liquid line on the inlet side of the metering
device.
Fig. 35 — Fan Blade Clearance
41

TROUBLESHOOTING COOLING CHART
SYMPTOM CAUSE REMEDY
Compressor and con-
denser fan will not
start.
Power failure Call power company.
Fuse blown or circuit breaker tripped Replace fuse or reset circuit breaker.
Defective thermostat, contactor, transformer,
or control relay Replace component.
Insufficient line voltage Determine cause and correct.
Incorrect or faulty wiring Check wiring diagram and rewire correctly.
Thermostat setting too high Lower thermostat setting below room temperature.
Single-phase units with scroll compressor
(50SS048,060 and 50SX) have a 5-minute time delay DO NOT bypass this compressor time delay — wait
for 5 minutes until time-delay relay is deenergized.
Compressor will not
start but condenser
fan runs.
Faulty wiring or loose connections in
compressor circuit Check wiring and repair or replace.
Compressor motor burned out, seized, or
internal overload open Determine cause. Replace compressor.
Defective run/start capacitor, overload,
or start relay Determine cause and replace.
One leg of 3-phase power dead Replace fuse or reset circuit breaker.
Determine cause.
Three-phase scroll
compressor
(50SS048, 060;
50SX036-060
units only) makes ex-
cessive noise, and
there may be a low
pressure differential.
Scroll compressor is rotating in the
wrong direction Correct the direction of rotation by reversing the
3-phase power leads to the unit.
Compressor cycles
(other than normally
satisfying thermostat).
Refrigerant overcharge or undercharge Reclaim refrigerant, evacuate system, and recharge
to capacities shown on nameplate.
Defective compressor Replace and determine cause.
Insufficient line voltage Determine cause and correct.
Blocked condenser Determine cause and correct.
Defective run/start capacitor, overload
or start relay Determine cause and replace.
Defective thermostat Replace thermostat.
Faulty condenser-fan motor or capacitor Replace.
Restriction in refrigerant system Locate restriction and remove.
Compressor operates
continuously. Dirty air filter Replace filter.
Unit undersized for load Decrease load or increase unit size.
Thermostat set too low Reset thermostat.
Low refrigerant charge Locate leak, repair and recharge.
Leaking valves in compressor Replace compressor.
Air in system Reclaim refrigerant, evacuate system and recharge.
Condenser coil dirty or restricted Clean coil or remove restriction.
Excessive head
pressure. Dirty air filter Replace filter.
Dirty condenser coil Clean coil.
Refrigerant overcharged Reclaim excess refrigerant.
Air in system Reclaim refrigerant, evacuate system and recharge.
Condenser air restricted or air short-cycling Determine cause and correct.
Head pressure too low. Low refrigerant charge Check for leaks, repair and recharge.
Compressor valves leaking Replace compressor.
Restriction in liquid tube Remove restriction.
Excessive suction
pressure. High heat load Check for source and eliminate.
Compressor valves leaking Replace compressor.
Refrigerant overcharged Reclaim excess refrigerant.
Suction pressure too
low. Dirty air filter Replace filter.
Low refrigerant charge Check for leaks, repair and recharge.
Metering device or low side restricted Remove source of restriction.
Insufficient evaporator airflow Increase air quantity. Check filter — replace if
necessary.
Temperature too low in conditioned area Reset thermostat.
Outdoor ambient below 40 F Install low-ambient kit.
Field-installed filter-drier restricted Replace.
42

TROUBLESHOOTING COOLING CHART (cont)
SYMPTOM CAUSE REMEDY
Integrated control motor
(units 50SX048 208/230 v
and 50SX060)
IFM does not run.
Blower wheel not secured to shaft. Properly tighten blower wheel to shaft.
Insufficient voltage at motor Determine cause and correct.
Power connectors not properly seated Connectors should snap easily; do not force.
Integrated control motor (units
50SX048 208/230 v
and 50SX060)
IFM runs when it should be off.
Motor programmed with a delay profile Allow a few minutes for motor to shut off.
With thermostat in OFF the voltage on
G,Y1,Y/Y2,W with respect to common,
should be less than
1
⁄
2
of actual low
voltage supply
If measured voltage is more than
1
⁄
2
, the ther-
mostat is incompatible with motor. If voltage is
less than
1
⁄
2
, the motor has failed.
Integrated control motor (units
50SX048 208/230 v
and 50SX060)
IFM operation is intermittent.
Water dripping into motor Verify proper drip loops in connector wires.
Connectors not firmly seated Gently pull wires individually to be sure they
are crimped into the housing.
IFM — Indoor (Evaporator) Fan Motor
43

PACKAGED SERVICE TRAINING
Our packaged service training programs provide an excellent way to increase your knowledge of the
equipment discussed in this manual. Product programs cover:
• Unit Familiarization
• Installation Overview • Maintenance
• Operating Sequence
A large selection of product, theory, and skills programs is available. All programs include a video
cassette and/or slides and a companion booklet. Use these for self teaching or to conduct full training
sessions.
For a free Service Training Material Catalog (STM), call 1-800-962-9212. Ordering instructions are
included.
Copyright 1995 Carrier Corporation
Manufacturer reserves the right to discontinue, or change at any time, specifications or designs without notice and without incurring obligations.
Book 1 4
Tab 1b 6b
PC 111 Catalog No. 535-022 Printed in U.S.A. Form 50SS,SX-4SI Pg 46 5-95 Replaces: 50SS,SX-3SI

START-UP CHECKLIST
(Remove and Store in Job File)
I. PRELIMINARY INFORMATION
MODEL NO.:
DATE:
SERIAL NO.:
TECHNICIAN:
II. PRE-START-UP (insert checkmark in box as each item is completed)
MVERIFY THAT ALL PACKING MATERIALS HAVE BEEN REMOVED FROM UNIT
MREMOVE ALL SHIPPING HOLDDOWN BOLTS AND BRACKETS PER INSTALLATION INSTRUCTIONS
MVERIFY THAT CONDENSATE CONNECTION IS INSTALLED PER INSTALLATION INSTRUCTIONS
MCHECK ALL ELECTRICAL CONNECTIONS AND TERMINALS FOR TIGHTNESS
MCHECK THAT INDOOR AIR FILTER IS CLEAN AND IN PLACE
MVERIFY THAT UNIT INSTALLATION IS LEVEL
MCHECK FAN WHEEL AND PROPELLER FOR LOCATION IN HOUSING/ORIFICE AND SETSCREW
TIGHTNESS
III. START-UP
ELECTRICAL
SUPPLY VOLTAGE L1-L2 L2-L3 L3-L1
COMPRESSOR AMPS L1 L2 L3
INDOOR FAN AMPS
TEMPERATURES
OUTDOOR-AIR TEMPERATURE DB
RETURN-AIR TEMPERATURE DB WB
COOLING SUPPLY AIR
PRESSURES
REFRIGERANT SUCTION PSIG
REFRIGERANT DISCHARGE PSIG
MVERIFY THAT 3-PHASE SCROLL COMPRESSOR (50SS048,060; 50SX036-060 UNITS ONLY) IS ROTATING
IN CORRECT DIRECTION
MVERIFY REFRIGERANT CHARGE USING CHARGING CHARTS ON PAGES 28-33.
----------------------------------------------------------------------------------------
CUT ALONG DOTTED LINE
Copyright 1995 Carrier Corporation
Manufacturer reserves the right to discontinue, or change at any time, specifications or designs without notice and without incurring obligations.
Book 1 4
Tab 1b 6b
PC 111 Catalog No. 535-022 Printed in U.S.A. Form 50SS,SX-4SI Pg CL-1 5-95 Replaces: 50SS,SX-3SI