Carrier 50Tj016 028 Users Manual
50TJ016-028 to the manual 545c823f-e874-4567-93b4-7a1ac17ea64f
2015-01-24
: Carrier Carrier-50Tj016-028-Users-Manual-310368 carrier-50tj016-028-users-manual-310368 carrier pdf
Open the PDF directly: View PDF
.
Page Count: 36

Manufacturer reserves the right to discontinue, or change at any time, specifications or designs without notice and without incurring obligations.
PC 111 Catalog No. 535-034 Printed in U.S.A. Form 50TJ-17SI Pg 1 2-01 Replaces: 50TJ-14SI
Book 1
Ta b 1 b
Installation, Start-Up and
Service Instructions
CONTENTS Page
SAFETY CONSIDERATIONS . . . . . . . . . . . . . . . . . . . . . . . . .1
INSTALLATION . . . . . . . . . . . . . . . . . . . . . . . . . . . . . . . . . . . 1-18
Step 1 — Provide Unit Support . . . . . . . . . . . . . . . . . . . . . .1
• ROOF CURB
• ALTERNATE UNIT SUPPORT
Step 2 — Rig and Place Unit . . . . . . . . . . . . . . . . . . . . . . . . .1
• POSITIONING
• ROOF MOUNT
Step 3 — Field Fabricate Ductwork . . . . . . . . . . . . . . . . . .7
Step 4 — Make Unit Duct Connections . . . . . . . . . . . . . . .7
Step 5 — Trap Condensate Drain . . . . . . . . . . . . . . . . . . . .7
Step 6 — Make Electrical Connections . . . . . . . . . . . . . .8
• FIELD POWER SUPPLY
• FIELD CONTROL WIRING
• OPTIONAL NON-FUSED DISCONNECT
• OPTIONAL CONVENIENCE OUTLET
Step 7 — Make Outdoor-Air Inlet
Adjustments. . . . . . . . . . . . . . . . . . . . . . . . . . . . . . . . . . . . . . .11
• MANUAL OUTDOOR-AIR DAMPER
• OPTIONAL ECONOMI$ER
Step 8 — Install Outdoor-Air Hood. . . . . . . . . . . . . . . . . .12
Step 9 — Install All Accessories . . . . . . . . . . . . . . . . . . . .15
• MOTORMASTER® I CONTROL INSTALLATION
• MOTORMASTER III CONTROL INSTALLATION
Step 10 — Install Humidistat for Optional
MoistureMiser Dehumidification Package . . . . . . . . .16
START-UP . . . . . . . . . . . . . . . . . . . . . . . . . . . . . . . . . . . . . . . 18-24
SERVICE . . . . . . . . . . . . . . . . . . . . . . . . . . . . . . . . . . . . . . . . 24-31
TROUBLESHOOTING . . . . . . . . . . . . . . . . . . . . . . . . . . . . 32,33
START-UP CHECKLIST . . . . . . . . . . . . . . . . . . . . . . . . . . CL-1
SAFETY CONSIDERATIONS
Installation and servicing air-conditioning equipment can be
hazardous due to system pressure and electrical components.
Only trained and qualified service personnel should install, re-
pair, or service air-conditioning equipment.
Untrained personnel can perform basic maintenance func-
tions of cleaning coils and filters and replacing filters. All other
operations should be performed by trained service personnel.
When working on air-conditioning equipment, observe precau-
tions in the literature, tags and labels attached to the unit, and
other safety precautions that may apply.
Follow all safety codes. Wear safety glasses and work
gloves. Use quenching cloth for unbrazing operations. Have
fire extinguishers available for all brazing operations.
INSTALLATION
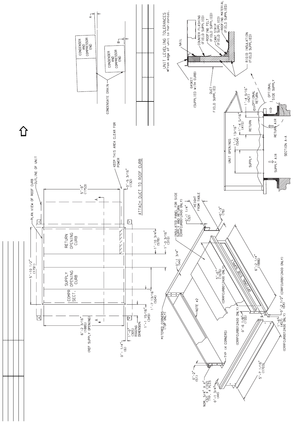
Step 1 — Provide Unit Support
ROOF CURB — Assemble and install accessory roof curb or
horizontal adapter roof curb in accordance with instructions
shipped with the curb or horizontal adapter. Accessory roof
curb and horizontal adapter roof curb and information required
to field fabricate a roof curb or horizontal adapter roof curb are
shown in Fig. 1 and 2. Install insulation, cant strips, roofing,
and counter flashing as shown. Ductwork can be secured to
roof curb before unit is set in place.
Curb or adapter roof curb should be level. This is necessary
to permit unit drain to function properly. Unit leveling toler-
ance is ± 1/16 in. per linear ft in any direction. Refer to Accesso-
ry Roof Curb or Horizontal Adapter Roof Curb Installation In-
structions for additional information as required.
ALTERNATE UNIT SUPPORT — When the curb or adapter
cannot be used, support unit with sleepers using unit curb or
adapter support area. If sleepers cannot be used, support long
sides of unit with a minimum of 3 equally spaced 4-in. x 4-in.
pads on each side.
Step 2 — Rig and Place Unit — Inspect unit for
transportation damage. File any claim with transportation
agency. Keep unit upright, and do not drop. Use spreader bars
over unit to prevent sling or cable damage. Rollers may be used
to move unit across a roof. Level by using unit frame as a refer-
ence; leveling tolerance is ± 1/16 in. per linear ft in any direc-
tion. See Fig. 3 for additional information. Unit weight is
shown in Table 1.
Four lifting holes are provided in ends of unit base rails as
shown in Fig. 3. Refer to rigging instructions on unit.
POSITIONING — Provide clearance around and above unit
for airflow, safety, and service access (Fig. 4 and 5).
Do not install unit in an indoor location. Do not locate air in-
lets near exhaust vents or other sources of contaminated air.
Although unit is weatherproof, guard against water from
higher level runoff and overhangs.
ROOF MOUNT — Check building codes for weight distribu-
tion requirements.
Before performing service or maintenance operations on
unit, turn off main power switch to unit. Electrical shock
could cause personal injury.
IMPORTANT: Units have high ambient operating lim-
its. If limits are exceeded, the unit will automatically
lock the compressor out of operation. Manual reset will
be required to restart the compressor.
IMPORTANT: The gasketing of the unit to the roof curb
or adapter roof curb is critical for a leak-proof seal.
Install gasket supplied with the roof curb or adapter roof
curb as shown in Fig. 1. Improperly applied gasket can
result in air leaks and poor unit performance.
50TJ016-028
Single-Package Rooftop Units
Electric Cooling with Electric Heat Option

2
NOTES:
1. Roof curb accessory is shipped disassembled.
2. Insulated panels: 1″ thick neoprene coated 11/2 lb density.
3. Dimensions in ( ) are in millimeters.
4. Direction of airflow.
5. Roof curb: 16 ga. (VA03-56) stl.
6. A 90 degree elbow must be installed on the supply ductwork
below the unit discharge for units equipped with electric
heaters.
NOTE: To prevent the hazard of stagnant water build-up in the drain
pan of the indoor section, unit can only be pitched as shown.
DIMENSIONS* (degrees and inches)
UNIT AB
Deg.in.Deg.in.
ALL .28 .45 .28 .43
PKG. NO. REF. CURB HEIGHT DESCRIPTION
CRRFCURB010A00 1′-2″ (305) Standard Curb 14″ High
CRRFCURB011A00 2′-0″ (610) Standard Curb for Units Requiring High Installation
CRRFCURB012A00 2′-0″ (610) Side Supply and Return Curb for High Installation
Fig. 1 — Roof Curb Details

3
NOTE: For preassembled horizontal adapter roof curb part no.
CRRFCURB013A00, the accessory kit includes a factory-designed,
high-static, transition duct. For horizontal curb part no.
CRRFCURB012A00, a field-supplied transition duct is required.
Fig. 2 — Horizontal Adapter Roof Curb
and Roof Curb
NOTES:
1. Dimensions in ( ) are in millimeters.
2. Refer to Fig. 4 and 5 for unit operating weights.
3. Remove boards at ends of unit and runners prior to rigging.
4. Rig by inserting hooks into unit base rails as shown. Use corner
post from packaging to protect coil from damage. Use bumper
boards for spreader bars.
5. Weights do not include optional EconoMi$er. See Fig. 4 and 5 for
EconoMi$er weight. See Table 1 for MoistureMiser weight.
6. Weights given are for aluminum evaporator and condenser coil
plate fins.
Fig. 3 — Rigging Details
UNIT
50TJ
MAXIMUM
SHIPPING WEIGHT
DIMENSIONS
AB
Lb Kg Ft-in. mm Ft-in. mm
016 1550 703 6-111/22121 4- 0 1219
020 1650 748 6-111/22121 3-10 1168
024 1700 771 6-111/22121 3- 7 1092
028 1850 839 6-111/22121 3- 5 1041
All panels must be in place when rigging.

4
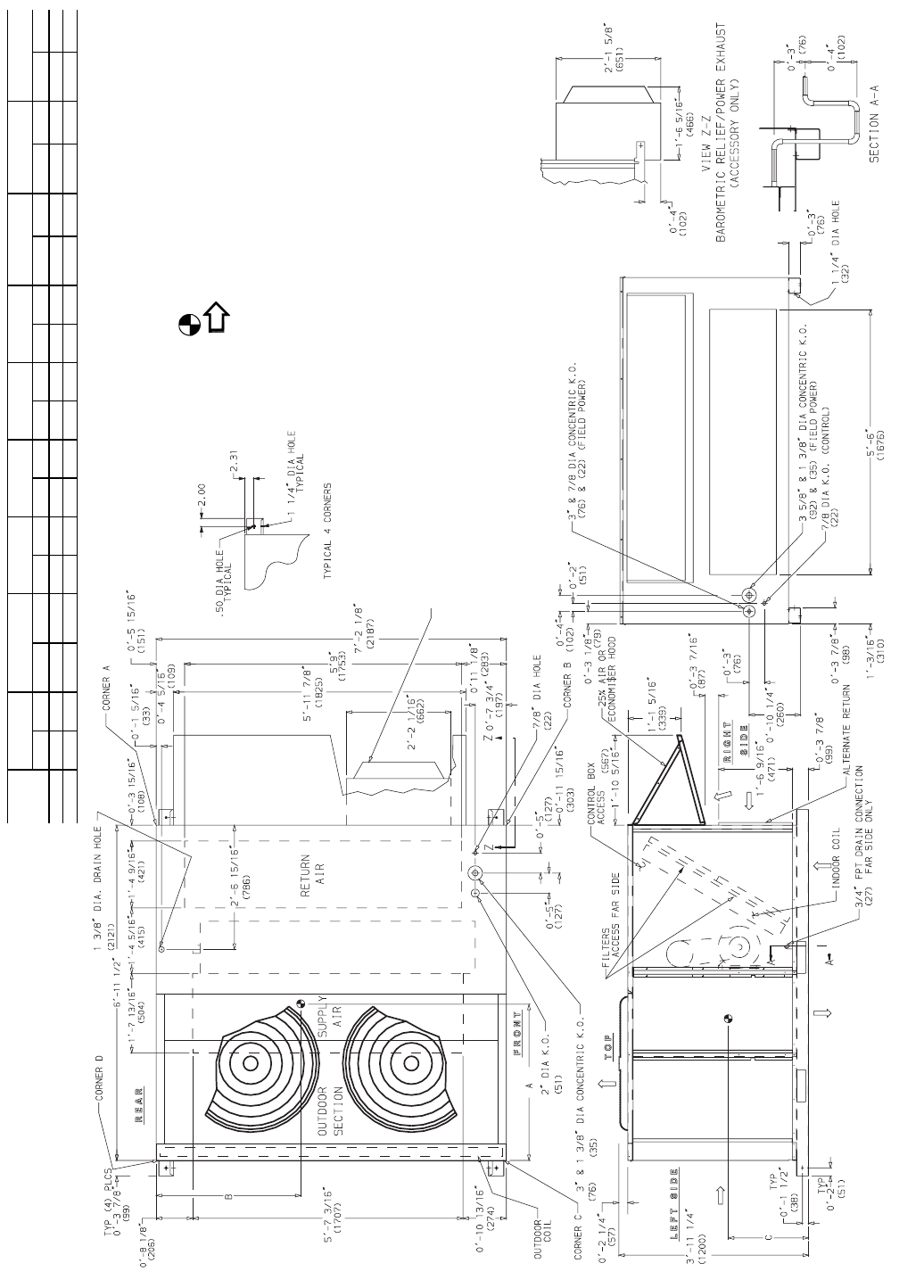
POWER EXHAUST/BAROMETRIC RELIEF
(ACCESSORY ONLY)
Fig. 4 — Base Unit Dimensions, 50TJ016,020
UNIT
STD UNIT
WEIGHT
ECONOMI$ER
WEIGHT
CORNER
(A)
CORNER
(B)
CORNER
(C)
CORNER
(D) DIM A DIM B DIM C
Lb Kg Lb Kg Lb Kg Lb Kg Lb Kg Lb Kg Ft-in. mm Ft-in. mm Ft-in. mm
50TJ016 1550 703 80 36.3 391 177 365 166 384 174 410 186 3-5 1041 3-6 1067 1-10 559
50TJ020 1650 748 80 36.3 399 181 384 174 402 182 439 199 3-4 1016 3-6 1067 1- 8 508
NOTES:
1. Refer to print for roof curb accessory dimensions.
2. Dimensions in [ ] are in millimeters.
3. Center of gravity.
4. Direction of airflow.
5. Ductwork to be attached to accessory roof curb only.
6. Minimum clearance:
•Rear: 7′-0″ (2134) for coil removal. This dimension can be
reduced to 4′-0″ (1219) if conditions permit coil removal from the
top.
•Left side: 4′-0″ (1219) for proper condenser coil airflow.
•Front: 4′-0″ (1219) for control box access.
•Right side: 4′-0″ (1219) for proper operation of damper and
power exhaust if so equipped.
•Top: 6′-0″ (1829) to assure proper condenser fan operation.
•Local codees or jurisdiction may prevail.
7. With the exception of clearance for the condenser coil and the
damper/power exhaust as stated in Note #6, a removable fence or
barricade requires no clearance.
8. Dimensions are from outside of corner post. Allow 0′-5/16″ (8) on
each side for top cover drip edge.
9. See drawing 50TJ500352 for service option details.

5
POWER EXHAUST/BAROMETRIC RELIEF
(ACCESSORY ONLY)
Fig. 5 — Base Unit Dimensions, 50TJ024,028
UNIT
STD UNIT
WEIGHT
ECONOMI$ER
WEIGHT
CORNER
(A)
CORNER
(B)
CORNER
(C)
CORNER
(D) DIM ADIM BDIM C
Lb Kg Lb Kg Lb Kg Lb Kg Lb Kg Lb Kg Ft-in. mm Ft-in. mm Ft-in. mm
50TJ024 1700 771 80 36.3 419 190 394 179 425 193 463 210 3-4 1016 3-5 1041 1-8 508
50TJ028 1850 839 80 36.3 428 194 412 187 511 232 499 226 3-2 965 3-7 1092 1-8 508
NOTES:
1. Refer to print for roof curb accessory dimensions.
2. Dimensions in [ ] are in millimeters.
3. Center of gravity.
4. Direction of airflow.
5. Ductwork to be attached to accessory roof curb only.
6. Minimum clearance:
•Rear: 7′-0″ (2134) for coil removal. This dimension can be
reduced to 4′-0″ (1219) if conditions permit coil removal from the
top.
•Left side: 4′-0″ (1219) for proper condenser coil airflow.
•Front: 4′-0″ (1219) for control box access.
•Right side: 4′-0″ (1219) for proper operation of damper and
power exhaust if so equipped.
•Top : 6 ′-0″ (1829) to assure proper condenser fan operation.
•Local codees or jurisdiction may prevail.
7. With the exception of clearance for the condenser coil and the
damper/power exhaust as stated in Note #6, a removable fence or
barricade requires no clearance.
8. Dimensions are from outside of corner post. Allow 0′-5/16″ (8) on
each side for top cover drip edge.
9. See drawing 50TJ500352 for service option details.

6
Table 1 — Physical Data
LEGEND
*Circuit 1 uses the lower portion of condenser coil and lower portion of evap-
orator coils; and Circuit 2 uses the upper portion of both coils.
†The 50TJ028 units requires 2-in. industrial-grade filters capable of handling
face velocities of up to 625 ft/min (such as American Air Filter no. 5700 or
equivalent).
NOTE: The 50TJ016-028 units have a low-pressure switch (standard) located
on the suction side.
UNIT 50TJ 016 020 024 028
208/230, 460 v 575 v
NOMINAL CAPACITY (tons) 15 18 20 25
OPERATING WEIGHT 1550 1650 1700 1850
EconoMi$er 80 80 80 80
MoistureMiser Dehumidification
Package 40 40 40 40
COMPRESSOR/MANUFACTURER Scroll, Copeland
Quantity...Model (Ckt 1, Ckt 2) 2...ZR94KC
50, 50
2
81, 81
1...ZR108KC,
1...ZR94KC
1...ZR125KC,
1...ZR108KC
1...ZR16M3,
1...ZR125KC
Capacity Stages (%) 55, 45 55, 45 60, 40
Number of Refrigerant Circuits 22 2
Oil (oz) (Ckt 1, Ckt 2) 106, 81 106,106 136, 106
REFRIGERANT TYPE R-22
Expansion Device TXV
Operating Charge (lb-oz)
Circuit 1* 10-10
10-10
15-5 16-0 20-13
Circuit 2 12-3 13-6 13- 0
CONDENSER COIL Cross-Hatched 3/8-in. Copper Tubes, Aluminum Lanced,
Aluminum Pre-Coated, or Copper Plate Fins
Rows...Fins/in. 2...17
21.7
3...15 3...15 4...15
Total Face Area (sq ft) 21.7 21.7 21.7
CONDENSER FAN Propeller Type
Nominal Cfm 10,500 10,500 14,200 14,200
Quantity...Diameter (in.) 3...22 3...22 2...30 2...30
Motor Hp...Rpm 1/2...1050 1/2...1050 1...1075 1...1075
Watts Input (Total) 1100 1100 3400 3400
EVAPORATOR COIL Cross-Hatched 3/8-in. Copper Tubes, Aluminum Lanced or
Copper Plate Fins, Face Split
Rows...Fins/in. 2...17 3...15 3...15 4...15
Total Face Area (sq ft) 17.5 17.5 17.5 17.5
EVAPORATOR FAN Centrifugal Type
Quantity...Size (in.) 2...10 x 10 2...10 x 10 2...12 x 12 2...12 x 12 2...12 x 12
Type Drive Belt Belt Belt Belt Belt
Nominal Cfm 6000 6000 7200 8000 10,000
Motor Hp 3.7 3.0 5 7.5 10
Motor Nominal Rpm 1725 1725 1745 1745 1740
Maximum Continuous Bhp 4.25 3.45 5.90 8.7 [208/230, 575 v]
9.5 [460 v]
10.2 [208/230, 575 v]
11.8 [380, 460 v]
Motor Frame Size 56H 56H 184T 213T 215T
Nominal Rpm High/Low ——— — —
Fan r/s Range Low-Medium Static 891-1179 1159-1429 910-1095 1002-1225 1066-1283
High Static 1227-1550 — 1069-1287 1193-1458 1332-1550
Motor Bearing Type Ball Ball Ball Ball Ball
Maximum Allowable Rpm 1550 1550 1550 1550 1550
Motor Pulley Pitch Diameter Low-Medium Static 3.1/4.1 4.3/5.3 4.9/5.9 5.4/6.6 4.9/5.9
Min/Max (in.) High Static 3.7/4.7 — 4.9/5.9 5.4/6.6 4.9/5.9
Nominal Motor Shaft Diameter (in.) 7/87/811/813/813/8
Fan Pulley Pitch Diameter (in.) Low-Medium Static 6.0 6.4 9.4 9.4 8.0
High Static 5.2 — 8.0 7.9 6.4
Nominal Fan Shaft Diameter (in.) 13/16 13/16 17/16 17/16 17/16
Belt, Quantity...Type...Length (in.) Low-Medium Static 1...BX...42 1...BX...45 1...BX...50 1...BX...53 2...BX...50
High Static 1...BX...42 — 1...BX...48 1...BX...50 2...BX...47
Pulley Center Line Distance (in.) 13.5-15.5 13.5-15.5 13.3-14.8 14.6-15.4 14.6-15.4
Speed Change per Full Turn of
Movable Pulley Flange (rpm)
Low-Medium Static 48 44 37 37 36
High Static 55 — 34 44 45
Movable Pulley Maximum Full Turns
From Closed Position 666 6 6
Factory Speed 3.5 3.5 3.5 3.5 3.5
Factory Speed Setting (rpm Low-Medium Static 1035 1296 1002 1120 1182
High Static 1389 — 1178 1328 1470
Fan Shaft Diameter at Pulley (in.) 13/16 13/16 17/16 17/16 17/16
HIGH-PRESSURE SWITCH (psig)
Cutout 426
Reset (Auto) 320
LOW-PRESSURE SWITCH (psig)
Cutout 27
Reset (Auto) 44
FREEZE PROTECTION THERMOSTAT (F)
Opens 30 ± 5
Closes 45 ± 5
OUTDOOR-AIR INLET SCREENS Cleanable
Quantity...Size (in.) 2...20 x 25 x 1
1...20 x 20 x 1
RETURN-AIR FILTERS Throwaway†
Quantity...Size (in.) 4...20 x 20 x 2
4...16 x 20 x 2
POWER EXHAUST 1/2 Hp, 208/230-460 v Motor Direct Drive, Propeller-Fan (Factory-Wired for 460 v)
Bhp — Brake Horsepower
TXV — Thermostatic Expansion Valve

7
Step 3 — Field Fabricate Ductwork — Secure all
ducts to building structure. Use flexible duct connectors be-
tween unit and ducts as required. Insulate and weatherproof all
external ductwork, joints, and roof openings with counter
flashing and mastic in accordance with applicable codes.
Ducts passing through an unconditioned space must be in-
sulated and covered with a vapor barrier.
The 50TJ units with electric heat require a 1-in. clearance
for the first 24 in. of ductwork.
Outlet grilles must not lie directly below unit discharge.
NOTE: A 90-degree elbow must be provided in the ductwork
to comply with UL (Underwriters’ Laboratories) codes for use
with electric heat.
Step 4 — Make Unit Duct Connections — Unit
is shipped for through-the-bottom duct connections. Ductwork
openings are shown in Fig. 6. Field-fabricated concentric duct-
work may be connected as shown in Fig. 7 and 8. Attach all
ductwork to roof curb and roof curb basepans. Refer to installa-
tion instructions shipped with accessory roof curb for more
information.
Step 5 — Trap Condensate Drain — See Fig. 4, 5,
and 9 for drain location. Plug is provided in drain hole and
must be removed when unit is operating. One 3/4-in. half-
coupling is provided inside unit evaporator section for conden-
sate drain connection. An 81/2 in. x 3/4-in. diameter nipple and a
2-in. x 3/4-in. diameter pipe nipple are coupled to standard
3/4-in. diameter elbows to provide a straight path down through
holes in unit base rails (see Fig. 10). A trap at least 4-in. deep
must be used.
For vertical supply and return units, tools or parts could
drop into ductwork and cause an injury. Install a 90 degree
turn in the return ductwork between the unit and the condi-
tioned space. If a 90 degree elbow cannot be installed, then
a grille of sufficient strength and density should be installed
to prevent objects from falling into the conditioned space.
Due to electric heater, supply duct will require 90 degree
elbow.
NOTE: Do not drill in this area; damage to basepan may result in
water leak.
Fig. 6 — Air Distribution — Thru-the-Bottom
(50TJ020-028 Shown)
NOTE: Do not drill in this area; damage to basepan may result in
water leak.
Fig. 7 — Concentric Duct Air Distribution
(50TJ020-028 Shown)
3/4" FPT DRAIN
CONNECTION
1-3/8"
DRAIN HOLES
Shaded area indicates block-off panels.
NOTE: Dimensions A, A′, and B, B′ are obtained from field-supplied
ceiling diffuser.
Fig. 8 — Concentric Duct Details
Fig. 9 — Condensate Drain Details
(50TJ016,020 Shown)

8
Step 6 — Make Electrical Connections
FIELD POWER SUPPLY — Unit is factory wired for volt-
age shown on nameplate.
When installing units, provide a disconnect, per NEC
(National Electrical Code) requirements, of adequate size
(Table 2).
All field wiring must comply with NEC and local
requirements.
Route power lines through control box access panel or unit
basepan (Fig. 4 and 5) to connections as shown on unit wiring
diagram and Fig. 11.
Operating voltage to compressor must be within voltage
range indicated on unit nameplate. On 3-phase units, voltages
between phases must be balanced within 2% and the current
must be balanced within 10%.
Use the following formula to determine the percentage of
voltage imbalance.
Percentage of Voltage Imbalance
EXAMPLE: Supply voltage is 460-3-60.
AB = 452 v
BC = 464 v
AC = 455 v
Determine maximum deviation from average voltage:
(AB) 457 – 452 = 5 v
(BC) 464 – 457 = 7 v
(AC) 457 – 455 = 2 v
Maximum deviation is 7 v.
Determine percent voltage imbalance:
= 1.53%
This amount of phase imbalance is satisfactory as it is be-
low the maximum allowable 2%.
Unit failure as a result of operation on improper line voltage
or excessive phase imbalance constitutes abuse and may cause
damage to electrical components.
FIELD CONTROL WIRING — Install a Carrier-approved
accessory thermostat assembly according to the installation in-
structions included with the accessory. Locate thermostat as-
sembly on a solid wall in the conditioned space to sense aver-
age temperature.
Route thermostat cable or equivalent single leads of no. 18
AWG (American Wire Gage) colored wire from subbase termi-
nals through conduit in unit to low-voltage connections as
shown on unit label wiring diagram and in Fig. 12.
NOTE: For wire runs up to 50 ft, use no. 18 AWG insulated
wire (35 C minimum). For 50 to 75 ft, use no. 16 AWG insu-
lated wire (35 C minimum). For over 75 ft, use no. 14 AWG
insulated wire (35 C minimum). All wire larger than no. 18
AWG cannot be directly connected to the thermostat and will
require a junction box and splice at the thermostat.
Set heat anticipator settings as indicated in Table 3. Settings
may be changed slightly to provide a greater degree of comfort
for a particular installation.
The correct power phasing is critical in the operation of the
scroll compressors. An incorrect phasing will cause the
compressor to rotate in the wrong direction. This may lead
to premature compressor failure.
= 100 x max voltage deviation from average voltage
average voltage
Average Voltage = 455 + 464 + 455
3
= 1371
3
= 457
Percentage of Voltage Imbalance = 100 x 7
457
IMPORTANT: If the supply voltage phase imbalance is
more than 2%, contact your local electric utility com-
pany immediately.
Fig. 10 — Make Electrical Connections
TB1 MAXIMUM WIRE SIZE
LEGEND
Fig. 11 — Field Power Wiring Connections
UNIT
50TJ
VOLTAGE
208/230,380 460 575
All 350 kcmil 2/0 2/0
EQUIP — Equipment
GND — Ground
kcmil — Thousand Circular Mils
NEC — National Electrical Code
TB — Terminal Block
RH RC Y1 Y2 W1 W2 GCX
L
X
C
G
W2
W1Y2
Y1
R
REMOVABLE JUMPER
RED
BLU
PNK
ORN
VIO
BLK
BRN
WHT
THERMOSTAT ASSEMBLY
UNIT LOW-VOLTAGE CONNECTIONS
Fig. 12 — Field Control Thermostat Wiring

9
Table 2 — Electrical Data
UNIT
50TJ
NOMINAL
VOLTAGE
(3 Ph,
60 Hz)
VOLTAGE
RANGE
COMPRESSOR OFM IFM POWER
EXHAUST
ELECTRIC
HEAT*
POWER
SUPPLY
No. 1 No. 2
Min Max RLA LRA RLA LRA Qty Hp FLA (ea) Hp FLA FLA LRA kW FLA MCA MOCP†
016
(15 Tons)
208/230 187 253 28.8 195 28.8 195 3 0.5 1.7 3.7 10.5/11.0
—— — — 81/81 100/100
4.6 18.8 ——85/86 110/110
——26/34 71/82 102/116 110/125
4.6 18.8 26/34 71/82 108/122 110/125
——42/56 117/135 159/149 175/175
4.6 18.8 42/56 117/135 165/155 175/175
——56/75** 156/180 169/194 200/225
4.6 18.8 56/75** 156/180 175/200 200/225
380 342 418 15.0 123 15.0 123 3 0.5 1.7 3.7 3.9
—— — — 43 50
2.3 6.0 —— 45 60
—— 20 30 43 50
2.3 6.0 20 30 46 60
—— 35 52 70 80
2.3 6.0 35 52 73 80
460 414 508 14.7 95 14.7 95 3 0.5 0.8 3.7 4.8
—— — — 40 50
2.3 6.0 —— 43 50
—— 32 39 55 60
2.3 6.0 32 39 58 60
—— 55 66 72 80
2.3 6.0 55 66 75 80
—— 80** 96 102 110
2.3 6.0 80** 96 105 110
575 518 633 10.8 80 10.8 80 3 0.5 0.75 3.0 3.9
—— — — 30 40
2.1 4.8 —— 32 40
—— 50** 48 67 70
2.1 4.8 50** 48 70 70
020
(18 Tons)
208/230 187 253 30.1 225 28.8 195 3 0.5 1.7 5.0 15.8/15.8
—— — — 87/87 110/110
4.6 18.8 ——92/92 110/110
——26/34 71/82 109/122 110/125
4.6 18.8 26/34 71/82 114/128 125/150
——42/56 117/135 166/155 175/175
4.8 18.8 42/56 117/135 172/161 175/175
——56/75** 156/180 176/200 200/225
4.6 18.8 56/75** 156/180 182/206 200/225
460 414 508 15.5 114 14.7 95 3 0.5 0.8 5.0 7.9
—— — — 44 50
2.3 6.0 —— 47 60
—— 32 39 59 60
2.3 6.0 32 39 61 70
—— 55 66 76 90
2.3 6.0 55 66 79 90
—— 80** 96 106 125
2.3 6.0 80** 96 109 125
575 518 633 12.1 80 10.8 80 3 0.5 0.75 5.0 6.0 —— — — 34 40
2.1 4.8 —— 36 40
024
(20 Tons)
208/230 187 253 37.8 239 30.1 225 2 1 6.6 7.5 25.0/25.0
—— — — 116/116 150/150
4.6 18.8 ——120/120 150/150
——26/34 71/82 120/134 150/150
4.6 18.8 26/34 71/82 126/140 150/150
——42/56 117/135 178/166 200/175
4.6 18.8 42/56 117/135 183/172 200/175
——56/75** 156/180 187/211 200/225
4.6 18.8 56/75** 156/180 193/217 200/225
380 342 418 21.2 145 16.7 140 2 1 3.9 7.5 15.0
—— — — 66 80
2.3 6.0 —— 68 80
—— 20 30 66 80
2.3 6.0 20 30 68 80
—— 35 52 84 90
2.3 6.0 35 52 87 90
460 414 508 17.2 125 15.5 114 2 1 3.3 7.5 13.0
—— — — 57 70
2.3 6.0 —— 59 70
—— 32 39 65 70
2.3 6.0 32 39 68 70
—— 55 66 82 90
2.3 6.0 55 66 85 90
—— 80** 96 112 125
2.3 6.0 80** 96 115 125
575 518 633 12.4 80 12.1 80 2 1 3.4 7.5 10.0 —— — — 44 50
2.1 4.8 —— 46 50

10
Table 2 — Electrical Data (cont)
LEGEND
*Heater capacity (kW) is based on heater voltage of 208 v, 240 v,
380 v, 480 v, and 575 v. Heaters are rated at 240 v, 380 v, 480 v, or
600 v. If power distribution voltage to unit varies from rated heater
voltage, heater kW will vary accordingly.
†Fuse or HACR circuit breaker.
**Heaters are field installed only.
NOTES:
1. In compliance with NEC requirements for multimotor and combi-
nation load equipment (refer to NEC Articles 430 and 440), the
overcurrent protective device for the unit shall be fuse or HACR
breaker. Canadian units may be fuse or circuit breaker.
2. Unbalanced 3-Phase Supply Voltage
Never operate a motor where a phase imbalance in supply volt-
age is greater than 2%. Use the following formula to determine
the percent of voltage imbalance.
% Voltage Imbalance
Example: Supply voltage is 460-3-60.
AB = 452 v
BC = 464 v
AC = 455 v
= 457
Determine maximum deviation from average voltage.
(AB) 457 – 452 = 5 v
(BC) 464 – 457 = 7 v
(AC) 457 – 455 = 2 v
Maximum deviation is 7 v.
Determine percent of voltage imbalance.
% Voltage Imbalance = 100 x
= 1.53%
This amount of phase imbalance is satisfactory as it is below the
maximum allowable 2%.
3. MCA calculation for units with electric heaters over 50 kW =
(1.25 x IFM amps) + (1.00 x heater FLA).
UNIT
50TJ
NOMINAL
VOLTAGE
(3 Ph,
60 Hz)
VOLTAGE
RANGE
COMPRESSOR OFM IFM POWER
EXHAUST
ELECTRIC
HEAT*
POWER
SUPPLY
No. 1 No. 2
Min Max RLA LRA RLA LRA Qty Hp FLA (ea) Hp FLA FLA LRA kW FLA MCA MOCP†
028
(25 Tons)
208/230 187 253 41.0 350 37.8 239 2 1 6.6 10.0 28.0/28.0
—— — — 130/130 150/150
4.6 18.8 ——135/135 175/175
——26/34 71/82 130/138 150/150
4.6 18.8 26/34 71/82 135/143 175/175
——42/56 117/135 181/170 200/175
4.6 18.8 42/56 117/135 187/176 200/200
—- 56/75** 156/180 191/215 200/225
4.6 18.8 56/75** 156/180 197/221 200/225
380 342 418 21.8 151 21.2 145 2 1 3.9 10.0 17.0
—— — — 73 90
2.3 6.0 —— 76 90
—— 20 30 73 90
2.3 6.0 20 30 76 90
—— 35 52 87 90
2.3 6.0 35 52 90 90
460 414 508 21.8 158 17.2 125 2 1 2.8 10.0 14.6
—— — — 66 80
2.3 6.0 —— 68 80
—— 32 39 67 80
2.3 6.0 32 39 70 80
—— 55 66 84 90
2.3 6.0 55 66 87 100
—— 80** 96 114 125
2.3 6.0 80** 96 117 125
575 518 633 17.3 125 12.4 80 2 1 3.4 10.0 13.0 —— — — 54 70
2.1 4.8 —— 56 70
FLA — Full Load Amps
HACR — Heating, Air Conditioning and Refrigeration
IFM — Indoor (Evaporator) Fan Motor
LRA — Locked Rotor Amps
MCA — Minimum Circuit Amps
MOCP— Maximum Overcurrent Protection
NEC — National Electrical Code
OFM — Outdoor (Condenser) Fan Motor
RLA — Rated Load Amps
= 100 x max voltage deviation from average voltage
average voltage
Average Voltage = 452 + 464 + 455
3
= 1371
3
IMPORTANT: If the supply voltage phase imbalance is
more than 2%, contact your local electric utility company
immediately.
7
457

11
OPTIONAL NON-FUSED DISCONNECT — On units with
the optional non-fused disconnect, incoming power will be
wired into the disconnect switch. Refer to Fig. 13 for wiring
for 100 and 200 amp disconnect switches. Units with an
MOCP under 100 will use the 100 amp disconnect switch.
Units with an MOCP over 100 will use the 200 amp discon-
nect switch. Refer to the applicable disconnect wiring diagram.
To prevent breakage during shipping, the disconnect han-
dle and shaft are shipped and packaged inside the unit control
box. Install the disconnect handle before unit operation. To in-
stall the handle and shaft, perform the following procedure:
1. Open the control box door and remove the handle and
shaft from shipping location.
2. Loosen the Allen bolt located on the disconnect switch.
The bolt is located on the square hole and is used to hold
the shaft in place. The shaft cannot be inserted until the
Allen bolt is moved.
3. Insert the disconnect shaft into the square hole on the dis-
connect switch. The end of the shaft is specially cut and
the shaft can only be inserted in the correct orientation.
4. Tighten the Allen bolt to lock the shaft into position.
5. Close the control box door.
6. Attach the handle to the external access door with the two
screws provided. When the handle is in the ON position,
the handle will be vertical. When the handle is in the OFF
position, the handle will be horizontal.
7. Turn the handle to the OFF position and close the door.
The handle should fit over the end of the shaft when the
door is closed.
8. The handle must be in the OFF position to open the con-
trol box door.
OPTIONAL CONVENIENCE OUTLET — On units with
optional convenience outlet, a 115-v GFI (ground fault inter-
rupt) convenience outlet receptacle is provided for field wiring.
Field wiring should be run through the 7/8-in. knockout pro-
vided in the basepan near the return air opening.
Step 7 — Make Outdoor-Air Inlet Adjustments
MANUAL OUTDOOR-AIR DAMPER — All units (except
those equipped with a factory-installed economizer) have a
manual outdoor-air damper to provide ventilation air. Damper
can be preset to admit up to 25% outdoor air into return-air
compartment. To adjust, loosen securing screws and move
damper to desired setting. Then retighten screws to secure
damper (Fig. 14).
OPTIONAL ECONOMI$ER
EconoMi$er Motor Control Module (Fig. 15-17) — Set the
ECONSP dial to the ‘‘D’’ setting (Fig. 16). The control module
is located on the EconoMi$er motor. See Fig. 15 and 17.
Damper Vent Position Setting
1. Set fan switch at ON position (continuous fan operation)
and close night switch if used.
2. Set system selector switch to OFF position.
3. Turn Min Pos (%) dial slowly until dampers assume de-
sired vent position. Do not manually operate EconoMi$er
motor since damage to motor will result.
CONTROL
MODULE
ACTUATOR
ECONOMI$ER
Fig. 14 — 25% Outdoor-Air Section Details
Fig. 15 — EconoMi$er Damper Assembly
— End View
5L3 3L2 1L1 LINE
6T3 4T2 2T1 LOAD
NOTE: The disconnect takes the place of TB-1 as shown on the unit
wiring diagram label and the component arrangement label.
Fig. 13 — Optional Non-Fused Disconnect Wiring

12
Table 3 — Heat Anticipator Settings
*Heater kW is based on heater voltage of 208 v, 240 v, 380 v, 480 v,
and 575 v.
Step 8 — Install Outdoor-Air Hood — The same
type of factory-installed hood is used on units with 25% air
ventilation and units with an EconoMi$er.
NOTE: The hood top panel, upper and lower filter retainers,
hood drain pan, baffle (028), and filter support bracket are
secured opposite the condenser end of the unit. The screens,
hood side panels, remaining section of filter support bracket,
seal strip, and all other hardware are in a package located
inside the return-air filter access panel (Fig. 18).
1. Attach seal strip to upper filter retainer. See Fig. 19.
2. Assemble hood top panel and side panels, upper filter re-
tainer, and hood drain pan (Fig. 20).
3. Secure lower filter retainer and long section of filter sup-
port bracket to unit. See Fig. 20. Leave screws loose on
028 units.
4. Slide baffle (size 028 unit) behind lower filter retainer and
tighten screws.
5. Loosen sheet metal screws for base unit top panel located
above outdoor-air inlet opening, and remove screws for
hood side panels located on the sides of the outdoor-air
inlet opening.
6. Match notches in hood top panel to unit top panel screws.
Insert hood flange between unit top panel flange and unit.
Tighten screws.
7. Hold hood side panel flanges flat against unit, and install
screws removed in Step 5.
8. Insert outdoor-air inlet screens and spacer in channel cre-
ated by lower filter retainer and filter support bracket.
9. Attach remaining short section of filter support bracket.
OUTDOOR AIR ENTHALPY SENSOR INSTALLA-
TION — Perform the following procedure to install the out-
door air enthalpy sensor (part no. CROUTENT001A00).
1. Remove the outdoor air temperature sensor cover. See
Fig. 21. Save cover and screws.
2. Disconnect the wiring from the installed outdoor air tem-
perature sensor. See Fig. 22.
3. Use a 1/4-in. nut driver to remove the 2 screws securing
the outdoor air temperature sensor to the sheet metal.
4. Mount the outdoor air enthalpy sensor in the outdoor air
temperature sensor location using the screws removed in
Step 3.
5. Connect the outdoor air enthalpy sensor wiring harness to
the EconoMi$er control module and sensor.
6. Re-install sensor cover saved from Step 1.
RETURN AIR TEMPERATURE SENSOR OR RETURN
AIR ENTHALPY SENSOR INSTALLATION — Perform the
following procedure to install the return air temperature sensor
(part no. CRRETTMP001A00) or return air enthalpy sensor
(part no. CRRETENT001A00).
1. Attach the sensor to the mounting bracket using 2 self-
tapping 1/2-in. screws provided.
2. Mount the bracket to the inside of the return air opening
flange using a 1/4-in. nut driver and 2 no. 6 sheet metal
screws.
NOTE: The sensor must be mounted in an upright position.
3. Feed the sensor wiring through the bushing in
EconoMi$er to secure wires.
4. Route sensor wiring harness from sensor to EconoMi$er
control module. Secure wiring harness to the original har-
ness using tie wraps.
5. Wire the sensor to the EconoMi$er control module. See
Fig. 23 and 24.
UNIT
50TJ
UNIT
VOLTAGES kW* STAGE 1 STAGE 2
016-028
208/230-3-60
26/34 .40 .66
42/56 .66 .40
56/75 .66 .66
380-3-60 20 .40 .40
35 .40 .66
460-3-60 32 .40 .40
55 .40 .66
575-3-60 80 .66 .66
50 .66 .66
Fig. 18 — Outdoor-Air Hood Component Location
Fig. 16 — EconoMi$er Control Module
Adjustment Potentiometers
CONTROL MODULE ACTUATOR
Fig. 17 — EconoMi$er Control Module Location

13
COMMISSIONING — The EconoMi$er saves energy when
it uses outdoor air to provide free cooling instead of mechani-
cal air conditioning. The EconoMi$er switchover strategy de-
termines if the outdoor air is suitable for free cooling. The
EconoMi$er chooses the switchover strategy with the most en-
ergy savings, provided that the required sensors are connected
and functioning normally.
Refer to Table 4 to determine the sensors required for each
strategy.
Differential Enthalpy Switchover Strategy — The differen-
tial enthalpy switchover strategy must be selected manually, if
required. To enable, press and hold the CONFIG button for 30
seconds, then release. The LED will flash twice to indicate the
change of configuration.
To return to single enthalpy mode, press and hold the CON-
FIG button for 30 seconds. The LED will flash once to indicate
the change of configuration.
DISCHARGE AIR THERMISTOR (DAT) — The discharge
air thermistor is factory-mounted on the supply-fan housing in
the fan section of the unit. The DAT is factory-wired to the
EconoMi$er Control Module.
CO2 CONTROL SETUP — If a CO2 sensor is not being
used, proceed to the next section. If a CO2 sensor is being used,
perform the following:
1. Determine the value at which you want the minimum
position of the dampers to begin opening to allow a
greater amount of outdoor air to enter. The range is
800 to 1,400 ppm.
2. Locate the CO2 SP (PPM) potentiometer and adjust to the
desired set point. See Fig. 16.
IMPORTANT: If a sensor stops functioning nor-
mally (becomes unreliable), the EconoMi$er
switches to the next best strategy.
SENSOR
COVER
OUTSIDE AIR SENSOR
MOUNTING
SCREW
MOUNTING SCREW
WIRING
HARNESS
SENSOR
WIRING
CONNECTIONS
Fig. 22 — Outdoor-Air Sensor Details
Fig. 21 — Outdoor-Air Sensor Location
Fig. 19 — Seal Strip Location
(Air Hood Cross-Sectional View)
NOTE: The outdoor-air hood comes with a baffle which is used on
028 units only; discard baffle for 016-024 units.
Fig. 20 — Outdoor-Air Hood Details
HOOD TOP
PANEL
HOOD SIDE
PANELS (2)
BAFFLE
(028 ONLY)
LOWER
FILTER
RETAINER
FILTER SUPPORT
BRACKET
HOOD DRAIN PAN
UPPER FILTER RETAINER
BAFFLE (028 ONLY)
LOWER FILTER
RETAINER
FILTER SUPPORT
BRACKET

14
MECHANICAL COOLING LOCKOUT — Determine the
outdoor-air temperature at which you want the mechanical
cooling (compressors) to be disabled. Locate the mechanical
cooling lockout (MECH CLG LOCKOUT) potentiometer. To
disable this feature, turn the potentiometer counterclockwise
(CCW) to the OFF position. Otherwise, set the value between
10 and 60 F. Mechanical cooling will not operate when the out-
door air temperature is below this value. See Fig. 16.
DRY BULB CHANGEOVER SET UP — Determine the dry
bulb changeover set point from Table 5. The settings are A, B,
C and D. Locate the ECON SP potentiometer and set the dry
bulb changeover set point. See Fig. 16. When the OAT is above
this set point, the damper is limited to minimum position
setting.
If a potentiometer fails, its setting will default to the values
in Table 6.
Table 4 — EconoMi$er Switchover Control Strategy
*Must be selected manually.
Table 5 — Changeover Set Points
*Field-installed accessory.
Table 6 — Default Potentiometer Settings
ECONOMI$ER SWITCHOVER
STRATEGY
SENSORS REQUIRED
Outdoor Air Temperature Outdoor Air Enthalpy Return Air Temperature Return Air Enthalpy
Dry Bulb X
Single Enthalpy X
Differential Temperature XX
Differential Enthalpy* XX
SETTINGS ABCD
Dry Bulb (°F) 73 69 66 63
Single Enthalpy* (Btu/lb) 27 25 24 22
Differential Temperature*
(°F, Not Adjustable) 2222
Differential Enthalpy*
(Btu/lb, Not Adjustable) 1111
POTENTIOMETER DEFAULT SETTING
CO2 SP (PPM) 1,000
MECH CLG LOCKOUT 50 F
ECON SP D
MIN POS (%) 20
LEGEND
*OAT sensor shipped with economizer option. OAH, RAT, RAH and CO2 are field-installed accessories.
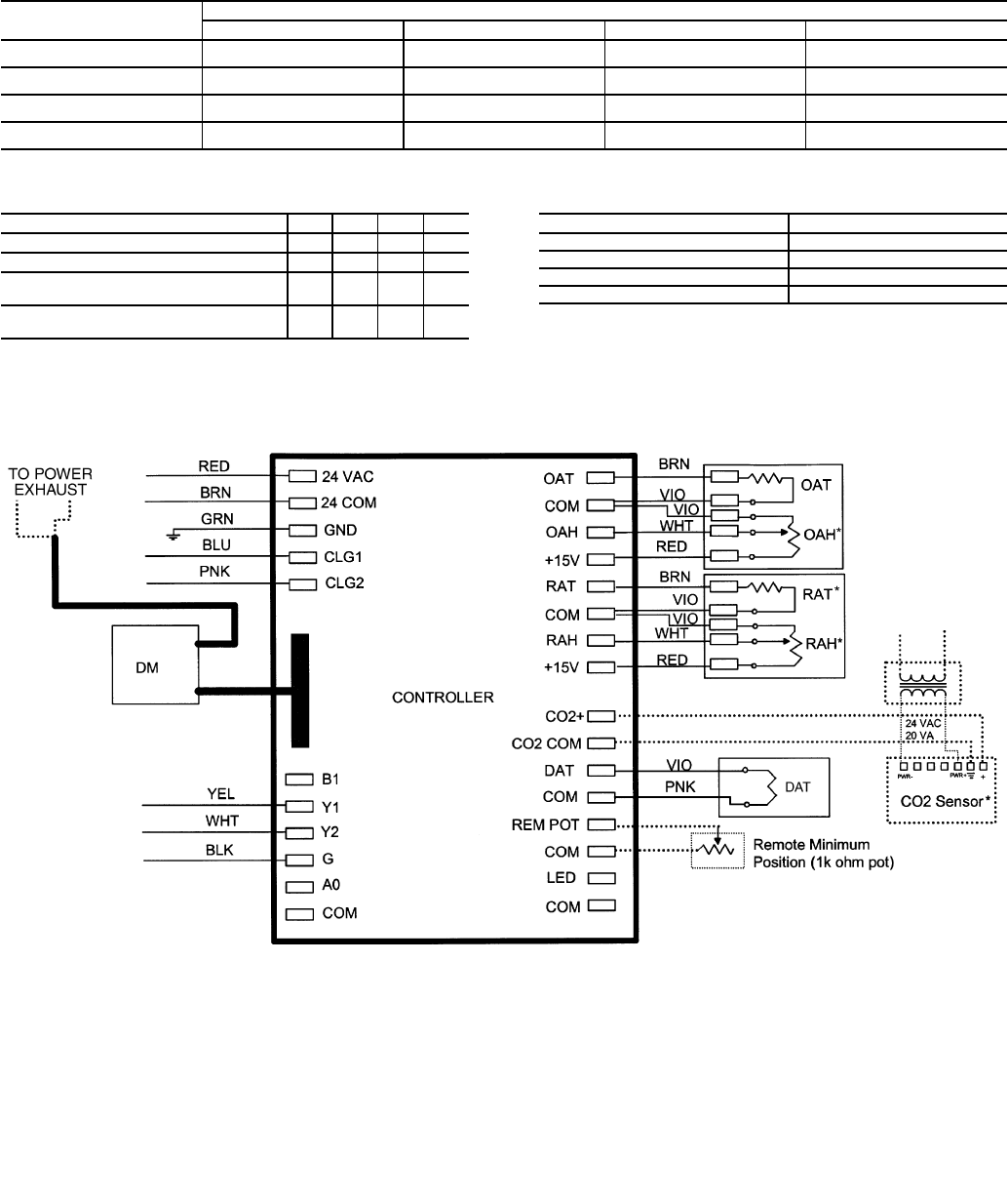
Fig. 23 — Typical EconoMi$er Sensor Wiring
COM — Common
DAT — Discharge Air Thermistor
DM — Damper Motor
GND — Ground
OAH — Outdoor-Air Enthalpy Sensor
OAT — Outdoor-Air Temperature Sensor
POT — Potentiometer
RAH — Return-Air Enthalpy Sensor
RAT — Return-Air Temperature Sensor
REM — Remote

15
VENTILATION AIR (Minimum Position Set Up) — If ven-
tilation air is not required, skip this section. If ventilation air is
required, perform the following:
1. The indoor fan must be on to set the ventilation air.
Either put the thermostat in the continuous fan mode or
jumper the R and G terminals at the rooftop unit con-
nection board.
2. Locate the minimum position (MIN POS) potentiometer.
Turn the potentiometer full CCW to fully close the out-
door air dampers. Turn the potentiometer gradually
clockwise (CW) to the desired position. See Fig. 16.
3. Replace the filter access panel. See Fig. 18. Ensure the fil-
ter access panel is securely engaged.
4. Calculate the minimum airflow across the EconoMi$er.
a. Calculate % of outside air using the following
formula.
% Outdoor air through EconoMi$er
b. Multiply total CFM by percentage outdoor air, this
gives outdoor air volume in CFM.
Step 9 — Install All Accessories — After all the
factory-installed options have been adjusted, install all field-
installed accessories. Refer to the accessory installation instruc-
tions included with each accessory.
MOTORMASTER® I CONTROL INSTALLATION
(50TJ016 and 020 Only)
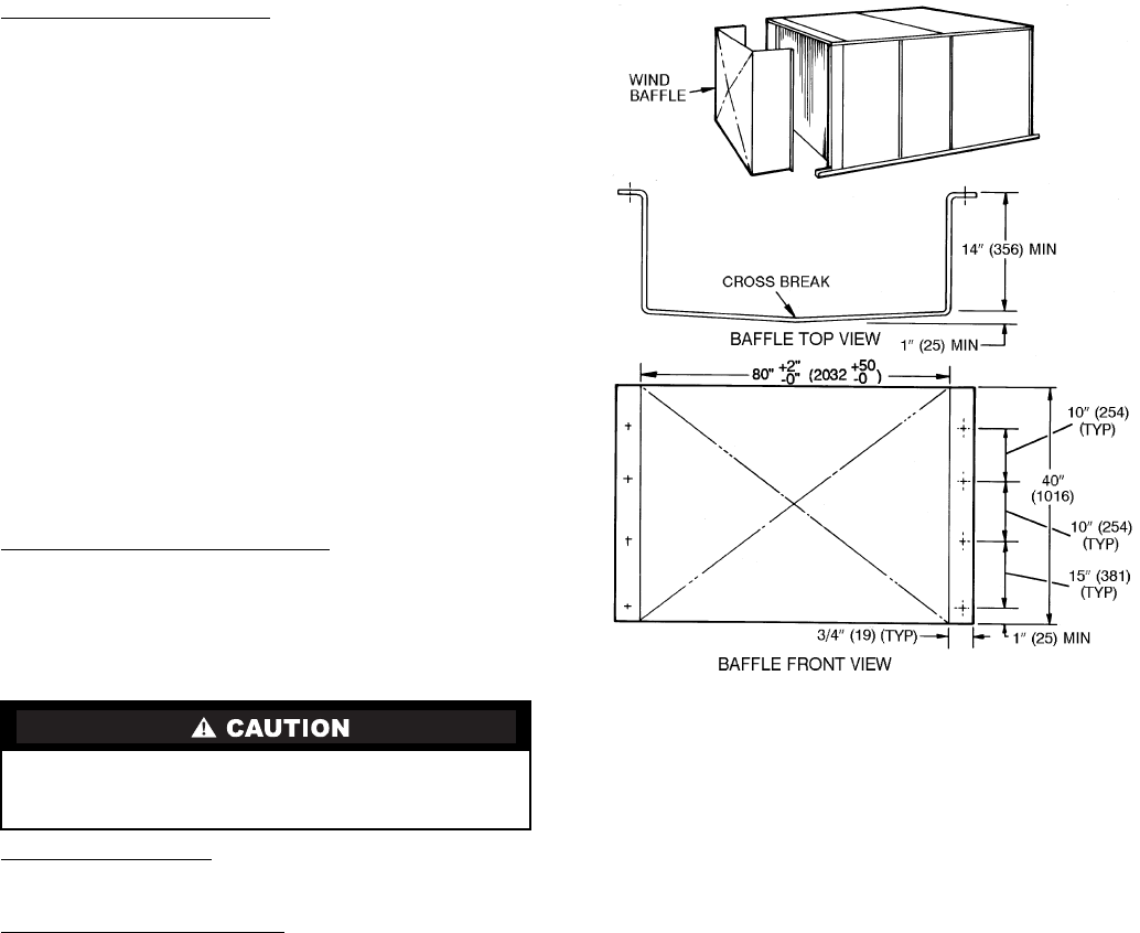
Install Field-Fabricated Wind Baffles — Wind baffles must
be field-fabricated for all units to ensure proper cooling cycle
operation at low ambient temperatures. See Fig. 25 for baffle
details. Use 20-gage, galvanized sheet metal, or similar
corrosion-resistant metal for baffles. Use field-supplied screws
to attach baffles to unit. Screws should be 1/4-in. diameter and
5/8-in. long. Drill required screw holes for mounting baffles.
% Outdoor air = Mixture Temp – Return Air Temp
Outdoor Temp – Return Air Temp
Personal Injury Hazard. Avoid possible injury by keep-
ing fingers away from damper blades.
To avoid damage to the refrigerant coils and electrical com-
ponents, use recommended screw sizes only. Use care
when drilling holes.
20 mA LED
1k ohm Potentiometer
2to10VDCat
0 to 2000 ppm
CO2 Sensors:
Remote
Minimum Position
Remote
LED
Outdoor Air Enthalpy
CROUTENT001A00
Return Air Enthalpy
CRRETENT001A00
Line
Voltage
CO
CO
COM
DAT
COM
REM
POT
COM
LED
COM
2
2
OAT
COM
OAH
+15V
RAT
COM
RAH
+15V
C
O
MPW
O
U
TT
T
Violet
C
O
MPW
O
U
TT
TViolet
Field-supplied Wiring Wiring Included
470 ohm
5watt
Resistor
24 VAC must be present
on BI for the system to be
unoccupied.
Unoccupied Control
(Part number on the control
must be AD-DME1701-1
or AD-DME1711-1.)
Unoccupied
Contact
Tan
Violet
White
Red
Tan
Violet
White
Red
24 VAC
20 VA
NOT
USED
12
-
(+)
323ZCSENCO
Fig. 24 — Typical EconoMi$er Sensor Wiring

16
Install Motormaster I Controls — Only one Motormaster I
control is required per unit. The Motormaster I control must be
used in conjunction with the Accessory 0° F Low Ambient Kit
(purchased separately). The Motormaster I device controls out-
door fan no. 1 while outdoor fans no. 2 and 3 are sequenced off
by the Accessory 0° F Low Ambient Kit.
Accessory 0° F Low Ambient Kit — Install the Accessory 0° F
Low Ambient Kit per instruction supplied with accessory.
Sensor Assembly — Install the sensor assembly in the location
shown in Fig. 26.
Motor Mount — To ensure proper fan height, replace the exist-
ing motor mount with the new motor mount provided with
accessory.
Transformer (460 and 575-v Units Only) — On 460 and
575-volt units a transformer is required. The transformer is
provided with the accessory and must be field-installed.
Motormaster I Control — Recommended mounting location is
on the inside of the panel to the left of the control box. The
control should be mounted on the inside of the panel, verti-
cally, with leads protruding from bottom of extrusion.
MOTORMASTER® III CONTROL INSTALLATION
(50TJ024 and 028 Only)
Install Field-Fabricated Wind Baffles — Wind baffles must
be field-fabricated for all units to ensure proper cooling cycle
operation at low ambient temperatures. See Fig. 25 for baffle
details. Use 20-gage, galvanized sheet metal, or similar
corrosion-resistant metal for baffles. Use field-supplied screws
to attach baffles to unit. Screws should be 1/4-in. diameter and
5/8-in. long. Drill required screw holes for mounting baffles.
Replace Outdoor Motor — Replace outdoor fan motor no. 1
with motor included in accessory kit. Existing motor is not
Motormaster® III compatible.
Install Motormaster III Controls — Only one Motormaster
III control is required per unit.
Sensor — Install the sensor for thermistor input control in the
location shown in Fig. 27. Connect sensor leads to the purple
and grey control signal leads on the Motormaster III control.
Signal Selection Switch — Remove the cover of the Motor-
master III control. Set the switch to accept the thermistor sen-
sor input signal. Set the frequency to match the unit power sup-
ply (60 Hz).
Motormaster III Control — Recommended mounting location
is beneath the control box, mounted to the partition that sepa-
rates the control box section from the indoor section.
NOTE: If unit power is supplied through the roof curb and
basepan of the unit, mount the Motormaster III control on the
corner post adjacent to the conduit running from the basepan to
the bottom of the control box.
Step 10 — Install Humidistat for Optional
MoistureMiser Dehumidification Package —
MositureMiser dehumidification package operation can be
controlled by field installation of a Carrier-approved humidis-
tat. To install the humidistat perform the following procedure:
1. Locate humidistat on a solid interior wall in the condi-
tioned space. Location should be a well ventilated area
to sense average humidity.
2. Route thermostat cable or equivalent single leads of col-
ored wire from Humidistat terminals through conduit in
unit to the low voltage connection on the 2-pole terminal
strip (TB3) as shown in Fig. 28 and Fig. 29.
To avoid damage to the refrigerant coils and electrical com-
ponents, use recommended screw sizes only. Use care
when drilling holes.
NOTE: Dimensions in ( ) are in mm.
Fig. 25 — Wind Baffle Details

17
SENSOR
LOCATION
HAIRPIN END
SENSOR
LOCATION
HAIRPIN END
NOTE: All sensors are located on the eighth hairpin up from the
bottom.
Fig. 26 — Motormaster® I Sensor Locations
SENSOR
LOCATION
HAIRPIN END
SENSOR
LOCATION
HAIRPIN END
NOTE: All sensors are located on the eighth hairpin up from the
bottom.
Fig. 27 — Motormaster III Sensor Locations
Fig. 28 — Typical MoistureMiser Dehumidification Package
Humidistat Wiring Schematic (460V Unit Shown)
LEGEND
LLSV — Liquid Line Solenoid Valve
LPS — Low Pressure Switch
TB — Terminal Block
TRAN — Transformer
50TJ016 50TJ020 50TJ024 50TJ028

18
START-UP
Use the following information and Start-Up Checklist on
page CL-1 to check out unit PRIOR to start-up.
Unit Preparation — Check that unit has been installed in
accordance with these installation instructions and all applica-
ble codes.
Internal Wiring — Check all electrical connections in
unit control boxes; tighten as required.
Crankcase Heater (Size 028 and Units with
MoistureMiser Dehumidification Package
Only) — Heater is energized as long as there is power to unit
and compressor is not operating.
Compressor Mounting — Compressors are internally
spring mounted. Do not loosen or remove compressor hold-
down bolts.
Refrigerant Service Ports — Each refrigerant sys-
tem has a total of 3 Schrader-type service gage ports. One port
is located on the suction line, one on the compressor discharge
line, and one on the liquid line. In addition Schrader-type
valves are located underneath the low-pressure switches. Be
sure that caps on the ports are tight.
Compressor Rotation — It is important to be certain
the compressors are rotating in the proper direction. To deter-
mine whether or not compressors are rotating in the proper di-
rection:
1. Connect service gages to suction and discharge pressure
fittings.
2. Energize the compressor.
3. The suction pressure should drop and the discharge pres-
sure should rise, as is normal on any start-up.
If the suction pressure does not drop and the discharge pres-
sure does not rise to normal levels:
1. Note that the evaporator fan is probably also rotating in
the wrong direction.
2. Turn off power to the unit.
3. Reverse any two of the incoming power leads.
4. Turn on power to the compressor.
The suction and discharge pressure levels should now move
to their normal start-up levels.
NOTE: When compressors are rotating in the wrong direction,
the unit will have increased noise levels and will not provide
heating and cooling.
After a few minutes of reverse operation, the scroll com-
pressor internal overload protection will open, which will acti-
vate the unit’s lockout and requires a manual reset. Reset is ac-
complished by turning the thermostat on and off.
Evaporator Fan — Fan belt and variable pulleys are fac-
tory installed. Remove tape from the fan pulley. See Table 7 for
Air Quantity Limits. See Tables 8-10 for Fan Performance
data. Be sure that fans rotate in the proper direction. See
Tables 11-13 for Static Pressure information for accessories
and options. See Table 14 for fan rpm at various fan motor pul-
ley settings. To alter fan performance, see Evaporator-Fan Per-
formance Adjustment section, page 25.
Table 7 — Air Quantity Limits
Condenser Fans and Motors — Fans and motors
are factory set. Refer to Condenser-Fan Adjustment section
(page 26) as required.
Return-Air Filters — Check that correct filters are in-
stalled in filter tracks. See Table 1. Do not operate unit without
return-air filters.
Outdoor-Air Inlet Screens — Outdoor-air inlet screens
must be in place before operating unit.
Accessory EconoMi$er Adjustment — Remove fil-
ter access panel. Check that outdoor-air damper blades are
closed and return-air damper blades are open.
EconoMi$er operation and adjustment is described in Base
Unit Operation and EconoMi$er Adjustment sections
(pages 23 and 27), respectively.
IMPORTANT: Unit power must be on for 24 hours prior
to start-up. Otherwise, damage to compressor may
result.
UNIT
50TJ MINIMUM CFM MAXIMUM CFM
016 4500 7,500
020 5400 9,000
024 6000 10,000
028 7000 11,250
Fig. 29 — Typical MoistureMiser Dehumidification
Package Control Box

19
Table 8 — Fan Performance — 50TJ016
LEGEND
*Standard low-medium static drive range is 891 to 1179 rpm (for
208/230, 380 and 460 v units) or 1159 to 1429 rpm (for 575-v
units). Alternate high-static drive range is 1227 to 1550 (for 208/
230, 380, and 460 v units). The alternate high-static drive is not
available for 50TJ016 575-v units. Other rpms require a field-sup-
plied drive.
NOTES:
1. Maximum continuous bhp is 4.25 (208/230, 380 and 460 v) or
3.45 (575 v) and the maximum continuous watts are 3775 (208/
230, 380, and 460 v) or 3065 (575 v). Do not adjust motor rpm
such that motor maximum bhp and/or watts is exceeded at the
maximum operating cfm.
2. Static pressure losses (i.e., EconoMi$er) must be added to
external static pressure before entering Fan Performance table.
3. Interpolation is permissible. Do not extrapolate.
4. Fan performance is based on wet coils, clean filters, and
casing losses. See Table 11 for accessory/FIOP static pressure
information.
5. Extensive motor and drive testing on these units ensures that
the full horsepower and watts range of the motor can be utilized
with confidence. Using your fan motors up to the watts or bhp
rating shown will not result in nuisance tripping or premature
motor failure. Unit warranty will not be affected.
6. Use of a field-supplied motor may affect wiring size. Contact
your Carrier representative for details.
50TJ016 (15 TONS)*
Airflow
(Cfm)
Available External Static Pressure (in. wg)
0.2 0.4 0.6 0.8 1.0 1.2
Rpm Bhp Watts Rpm Bhp Watts Rpm Bhp Watts Rpm Bhp Watts Rpm Bhp Watts Rpm Bhp Watts
4500 684 1.28 1102 791 1.49 1283 887 1.70 1466 977 1.92 1652 1061 2.13 1841 1139 2.36 2034
4800 715 1.47 1265 817 1.68 1451 910 1.90 1638 997 2.12 1828 1078 2.34 2021 1155 2.57 2217
5100 747 1.67 1442 844 1.89 1633 934 2.12 1825 1018 2.34 2019 1097 2.57 2216 1171 2.80 2416
5400 779 1.90 1635 872 2.12 1831 959 2.35 2027 1040 2.58 2226 1117 2.81 2426 1189 3.05 2629
5700 812 2.14 1844 901 2.37 2044 985 2.60 2245 1063 2.84 2448 1138 3.07 2652 1209 3.31 2858
6000 845 2.40 2068 931 2.64 2273 1011 2.87 2478 1087 3.11 2685 1160 3.35 2893 1229 3.60 3103
6300 878 2.68 2309 961 2.92 2518 1039 3.16 2728 1112 3.41 2939 1183 3.65 3151 1250 3.90 3365
6600 912 2.98 2566 992 3.22 2780 1067 3.47 2994 1138 3.72 3209 1207 3.97 3425 1273 4.22 3642
6900 946 3.29 2841 1023 3.55 3059 1096 3.80 3277 1165 4.05 3496 1232 4.31 3716 —— —
7200 981 3.63 3133 1055 3.89 3355 1125 4.15 3578 —— — —— — —— —
7500 1016 3.99 3443 1087 4.25 3669 —— — —— — —— — —— —
50TJ016 (15 TONS)* (cont)
Airflow
(Cfm)
Available External Static Pressure (in. wg)
1.4 1.6 1.8 1.9 2.0
Rpm Bhp Watts Rpm Bhp Watts Rpm Bhp Watts Rpm Bhp Watts Rpm Bhp Watts
4500 1214 2.59 2230 1285 2.82 2430 1353 3.05 2633 1386 3.17 2736 1418 3.29 2839
4800 1228 2.80 2417 1297 3.04 2619 1364 3.27 2825 1396 3.40 2928 1428 3.52 3033
5100 1243 3.04 2618 1311 3.27 2823 1376 3.51 3031 1408 3.64 3136 1439 3.76 3242
5400 1259 3.29 2835 1326 3.53 3043 1390 3.77 3254 1421 3.90 3360 1452 4.02 3467
5700 1277 3.56 3067 1342 3.80 3278 1405 4.05 3492 1435 4.17 3600 1466 4.30 3708
6000 1295 3.84 3316 1359 4.09 3530 1421 4.34 3746 —— — —— —
6300 1315 4.15 3580 —— — —— — —— — —— —
6600 —— — —— — —— — —— — —— —
6900 —— — —— — —— — —— — —— —
7200 —— — —— — —— — —— — —— —
7500 —— — —— — —— — —— — —— —
Bhp — Brake Horsepower
FIOP — Factory-Installed Option
Watts — Input Watts to Motor

20
Table 9 — Fan Performance — 50TJ020 and 024
LEGEND
*Standard low-medium static drive range for the 020 size is 910 to
1095 rpm. Standard low-medium static drive range for the 024 size
is 1002 to 1225 rpm. Alternate high-static drive range for the
020 size is 1069 to 1287. Alternate high-static drive range for the
024 size is 1193 to 1458 rpm. Other rpms require a field-supplied
drive.
NOTES:
1. Maximum continuous bhp for the 020 size is 5.90. Maximum
continuous bhp for the 024 size is 8.7 (208/230, 575 v) or 9.5
(380, 460 v). The maximum continuous watts for the 020 size is
5180. The maximum continuous watts for the 024 size is 7915
(208/230, 575 v) or 8640 (380, 460 v). Do not adjust motor rpm
such that motor maximum bhp and/or watts is exceeded at the
maximum operating cfm.
2. Static pressure losses (i.e., EconoMi$er) must be added to
external static pressure before entering Fan Performance table.
3. Interpolation is permissible. Do not extrapolate.
4. Fan performance is based on wet coils, clean filters, and casing
losses. See Table 12 for accessory/FIOP static pressure
information.
5. Extensive motor and drive testing on these units ensures that
the full horsepower and watts range of the motor can be utilized
with confidence. Using your fan motors up to the watts or bhp
rating shown will not result in nuisance tripping or premature
motor failure. Unit warranty will not be affected.
6. Use of a field-supplied motor may affect wiring size. Contact
your Carrier representative for details.
50TJ020, 024 (18 and 20 TONS)*
Airflow
(Cfm)
Available External Static Pressure (in. wg)
0.2 0.4 0.6 0.8 1.0 1.2
Rpm Bhp Watts Rpm Bhp Watts Rpm Bhp Watts Rpm Bhp Watts Rpm Bhp Watts Rpm Bhp Watts
5,500 682 1.99 1675 760 2.29 1922 832 2.59 2177 901 2.90 2441 965 3.22 2712 1027 3.56 2990
6,000 730 2.38 2005 802 2.68 2257 871 2.99 2516 935 3.31 2783 997 3.63 3057 1056 3.97 3337
6,500 778 2.82 2373 846 3.13 2630 911 3.44 2893 972 3.76 3164 1031 4.09 3440 1087 4.43 3722
7,000 828 3.31 2780 892 3.62 3042 953 3.94 3310 1011 4.26 3583 1067 4.59 3863 1121 4.93 4148
7,500 878 3.84 3227 938 4.15 3494 996 4.48 3766 1051 4.81 4043 1105 5.14 4326 1156 5.49 4613
8,000 928 4.42 3715 985 4.74 3986 1040 5.07 4263 1093 5.40 4544 1144 5.74 4830 1194 6.09 5120
8,500 979 5.05 4245 1033 5.38 4521 1085 5.71 4801 1136 6.05 5086 1185 6.39 5375 1232 6.74 5669
9,000 1030 5.73 4817 1082 6.06 5098 1131 6.40 5382 1180 6.74 5671 1227 7.09 5964 1272 7.44 6260
9,500 1082 6.46 5433 1131 6.80 5718 1178 7.14 6007 1225 7.49 6299 1270 7.84 6595 1313 8.20 6895
10,000 1134 7.25 6093 1180 7.59 6382 1226 7.94 6675 1270 8.29 6971 1313 8.65 7271 1356 9.01 7574
50TJ020, 024 (18 and 20 TONS)* (cont)
Airflow
(Cfm)
Available External Static Pressure (in. wg)
1.4 1.6 1.8 1.9 2.0
Rpm Bhp Watts Rpm Bhp Watts Rpm Bhp Watts Rpm Bhp Watts Rpm Bhp Watts
5,500 1086 3.89 3275 1142 4.24 3567 1197 4.59 3864 1223 4.77 4015 1249 4.96 4167
6,000 1112 4.31 3623 1167 4.66 3915 1219 5.01 4213 1245 5.19 4364 1270 5.37 4516
6,500 1142 4.77 4010 1194 5.12 4304 1245 5.47 4602 1270 5.65 4754 1294 5.83 4906
7,000 1173 5.28 4438 1224 5.63 4733 1273 5.98 5033 1296 6.17 5184 1320 6.35 5337
7,500 1207 5.83 4906 1255 6.19 5203 1302 6.55 5504 1326 6.73 5657 1348 6.91 5810
8,000 1242 6.44 5415 1289 6.80 5714 1334 7.16 6018 1357 7.34 6171 1379 7.52 6325
8,500 1279 7.10 5966 1324 7.45 6268 1368 7.82 6573 1389 8.00 6728 1411 8.18 6883
9,000 1317 7.80 6561 1360 8.16 6865 1403 8.53 7173 1424 8.71 7328 1445 8.90 7484
9,500 1356 8.56 7198 1398 8.93 7505 1440 9.29 7815 1460 9.48 7972 1480 9.67 8129
10,000 1397 9.37 7881 1438 9.74 8190 1477 10.11 8503 —— — —— —
Bhp — Brake Horsepower
FIOP — Factory-Installed Option
Watts — Input Watts to Motor

21
Table 10 — Fan Performance — 50TJ028
LEGEND
*Standard low-medium static drive range is 1066 to 1283 rpm. Alter-
nate high-static drive range is 1332 to 1550. Other rpms require a
field-supplied drive.
NOTES:
1. Maximum continuous bhp is 10.2 (208/230, 575 v) or 11.8 (380,
460 v) and the maximum continuous watts are 9510 (208/230,
575 v) or 11,000 (380, 460 v). Do not adjust motor rpm such
that motor maximum bhp and/or watts is exceeded at the maxi-
mum operating cfm.
2. Static pressure losses (i.e., EconoMi$er) must be added to
external static pressure before entering Fan Performance table.
3. Interpolation is permissible. Do not extrapolate.
4. Fan performance is based on wet coils, clean filters, and casing
losses. See Table 12 for accessory/FIOP static pressure
information.
5. Extensive motor and drive testing on these units ensures that
the full horsepower and watts range of the motor can be utilized
with confidence. Using your fan motors up to the watts or bhp
rating shown will not result in nuisance tripping or premature
motor failure. Unit warranty will not be affected.
6. Use of a field-supplied motor may affect wiring size. Contact
your Carrier representative for details.
50TJ028 (25 TONS)*
Airflow
(Cfm)
Available External Static Pressure (in. wg)
0.2 0.4 0.6 0.8 1.0 1.2
Rpm Bhp Watts Rpm Bhp Watts Rpm Bhp Watts Rpm Bhp Watts Rpm Bhp Watts Rpm Bhp Watts
7,000 845 3.26 2693 909 3.60 2979 969 3.96 3272 1028 4.32 3574 1083 4.70 3883 1137 5.08 4,200
7,500 896 3.82 3156 956 4.17 3450 1014 4.54 3752 1069 4.91 4060 1123 5.29 4375 1174 5.68 4,698
8,000 948 4.43 3667 1005 4.80 3969 1060 5.17 4278 1112 5.56 4593 1163 5.94 4915 1213 6.34 5,243
8,500 1001 5.11 4226 1054 5.49 4537 1106 5.87 4853 1156 6.26 5175 1205 6.66 5504 1253 7.06 5,838
9,000 1053 5.85 4836 1104 6.23 5155 1154 6.63 5478 1202 7.02 5808 1248 7.43 6142 1294 7.84 6,483
9,500 1106 6.65 5498 1155 7.04 5824 1202 7.44 6155 1248 7.85 6492 1293 8.26 6833 1336 8.68 7,179
10,000 1159 7.52 6214 1206 7.92 6547 1251 8.33 6886 1295 8.74 7229 1338 9.16 7577 1380 9.59 7,929
10,500 1213 8.45 6984 1257 8.86 7325 1300 9.28 7671 1342 9.70 8020 1384 10.13 8375 1424 10.56 8,733
11,000 1266 9.45 7810 1309 9.87 8159 1350 10.29 8511 1391 10.73 8868 1431 11.16 9229 1470 11.60 9,594
11,250 1293 9.97 8245 1334 10.40 8597 1375 10.83 8953 1415 11.26 9313 1454 11.70 9677 1493 12.15 10,045
50TJ028 (25 TONS)* (cont)
Airflow
(Cfm)
Available External Static Pressure (in. wg)
1.4 1.6 1.8
Rpm Bhp Watts Rpm Bhp Watts Rpm Bhp Watts
7,000 1189 5.47 4,524 1239 5.87 4,854 1288 4.91 5191
7,500 1224 6.08 5,026 1272 6.48 5,362 1320 5.56 5703
8,000 1261 6.75 5,577 1307 7.16 5,917 1353 6.26 6263
8,500 1299 7.47 6,177 1344 7.89 6,523 1388 7.02 6873
9,000 1338 8.26 6,828 1382 8.68 7,179 1424 7.85 7534
9,500 1379 9.11 7,530 1421 9.54 7,887 1462 8.74 8247
10,000 1421 10.02 8,286 1461 10.46 8,648 1501 9.70 9014
10,500 1464 11.00 9,096 1503 11.45 9,464 1541 10.73 9835
11,000 1508 12.05 9,963 1546 12.50 10,336 —— —
11,250 1530 12.60 10,417 —— ————
Bhp — Brake Horsepower
FIOP — Factory-Installed Option
Watts — Input Watts to Motor

22
Table 11 — Accessory/FIOP Static Pressure (in. wg) — 50TJ016
LEGEND NOTES:
1. The static pressure must be added to external static pressure.
The sum and the evaporator entering-air cfm should then be
used in conjunction with the Fan Performance tables to deter-
mine blower rpm and watts.
2. Heaters are rated at 240 v, 380 v, 480 v, and 600 v.
Table 12 — Accessory/FIOP Static Pressure (in. wg) — 50TJ020-028
LEGEND
FIOP — Factory-Installed Option
NOTES:
1. The static pressure must be added to external static pressure.
The sum and the evaporator entering-air cfm should then be
used in conjunction with the Fan Performance tables to deter-
mine blower rpm and watts.
2. Heaters are rated at 240 v, 380 v, and 480 v. There are no
575-v heaters.
Table 13 — MoistureMiser Dehumidification
Package Static Pressure Drop (in. wg)
Table 14 — Fan Rpm at Motor Pulley Settings*
*Approximate fan rpm shown.
†Indicates standard drive package.
**Indicates alternate drive package.
††Due to belt and pulley size, pulley cannot be set to this number of
turns open.
COMPONENT CFM
4500 5000 6000 7200 7500
EconoMi$er 0.04 0.05 0.07 0.09 0.10
Glycol Coil 0.22 0.26 0.35 0.44 0.46
Electric Heat (kW)
20 0.06 0.07 0.09 0.11 0.12
26/34 0.06 0.07 0.09 0.11 0.12
32 0.06 0.07 0.09 0.11 0.12
35 0.07 0.08 0.12 0.15 0.17
42/56 0.07 0.08 0.12 0.16 0.17
50 0.09 0.10 0.15 0.20 0.21
55 0.07 0.08 0.12 0.15 0.17
56/75 0.09 0.10 0.15 0.20 0.21
80 0.09 0.10 0.15 0.20 0.21
FIOP — Factory-Installed Option
COMPONENT CFM
5400 6000 7200 9000 10,000 11,250
EconoMi$er 0.06 0.07 0.09 0.11 0.12 0.14
Glycol Coil 0.30 0.35 0.44 0.58 0.66 0.77
Electric Heat (kW)
20, 26/34 0.08 0.09 0.11 0.15 0.17 0.20
32 0.08 0.09 0.11 0.15 0.17 0.20
35, 42/56 0.11 0.12 0.15 0.19 0.21 0.24
55 0.11 0.12 0.15 0.19 0.21 0.24
56/75 0.14 0.15 0.20 0.24 0.26 0.29
80 0.14 0.15 0.20 0.24 0.26 0.29
UNIT SIZE
50TJ
UNIT NOMINAL
TONS
CFM PER TON
300 400 500
016 15 .040 .071 .111
020 18 .058 .102 .160
024 20 .071 .126 .197
028 25 .111 .197 .308
UNIT
50TJ
MOTOR PULLEY TURNS OPEN
01/211
1/222
1/233
1/244
1/255
1/26
016 (208/230, 380, 460 v)† †† †† 1179 1150 1121 1093 1064 1035 1006 978 949 920 891
016 (208/230, 380, 460 v)** †† †† 1559 1522 1488 1455 1422 1389 1356 1323 1289 1256 1227
016 (575 v)† †† †† 1429 1403 1376 1349 1323 1296 1269 1242 1215 1188 1159
020† †† †† 1095 1077 1058 1040 1021 1002 984 965 947 928 910
020** †† †† 1287 1265 1243 1222 1200 1178 1156 1134 1112 1091 1069
024† †† †† 1225 1209 1187 1165 1143 1120 1098 1076 1053 1031 1002
024** †† †† 1458 1434 1407 1381 1354 1328 1301 1275 1248 1222 1193
028† †† †† 1283 1269 1247 1225 1203 1182 1160 1138 1116 1095 1066
028** †† †† — — 1551 1524 1497 1470 1443 1415 1388 1361 1332
23
Base Unit Operation
COOLING, UNITS WITHOUT ECONOMI$ER — When
thermostat calls for cooling, terminals G and Y1 are energized.
The indoor (evaporator) fan contactor (IFC), and compressor
contactor no. 1 (C1) are energized and evaporator-fan motor,
compressor no. 1 and condenser fans start. The condenser-fan
motors run continuously while unit is cooling. If the thermostat
calls for a second stage of cooling by energizing Y2, compres-
sor contactor no. 2 (C2) is energized and compressor no. 2
starts.
HEATING, UNITS WITHOUT ECONOMI$ER (If Acces-
sory or Optional Heater is Installed) — Upon a call for heat-
ing through terminal W1, IFC and heater contactor no. 1 (HC1)
are energized. On units equipped for 2 stages of heat, when ad-
ditional heat is needed, HC2 is energized through W2.
COOLING UNITS WITH ECONOMI$ER — When the
OAT is above the ECON SP set point and the room thermostat
calls for Stage 1 cooling (R to G + Y1), the indoor-fan motors
(IFM) is energized and the EconoMi$er damper modulates to
minimum position. The compressor contactor and OFC are
energized to start the compressor and outdoor-fan motor
(OFM). After the thermostat is satisfied, the damper modulates
to the fully closed position when the IFM is deenergized.
When the OAT is below the ECON SP setting and the room
thermostat calls for Stage 1 cooling (R to G + Y1), the
EconoMi$er modulates to the minimum position when the
IFM is energized. The EconoMi$er provides Stage 1 of cooling
by modulating the return and outdoor air dampers to maintain a
55 F supply air set point. If the supply-air temperature (SAT) is
greater than 57 F, the EconoMi$er modulates open, allowing a
greater amount of outdoor air to enter the unit. If the SAT drops
below 53 F, the outdoor air damper modulates closed to reduce
the amount of outdoor air. When the SAT is between 53 and
57 F, the EconoMi$er maintains its position.
If outdoor air alone cannot satisfy the cooling requirements
of the conditioned space, and the OAT is above the MECH
CLG LOCKOUT set point, the EconoMi$er integrates free
cooling with mechanical cooling. This is accomplished by the
strategies below.
NOTE: Compressors have a two-minute Minimum On and
Minimum Off, which are accomplished by the strategies
below.
1. If Y1 is energized, and the room thermostat calls for Y2
(2-stage thermostat), the compressor and OFC are ener-
gized. The position of the EconoMi$er damper is main-
tained at its current value.
2. If Y1 is energized for more than 20 minutes, and Y2 is
not energized (whether or not a 2-stage thermostat is
used), the compressor and OFC are energized. The posi-
tion of the EconoMi$er damper is maintained at its cur-
rent value.
3. If Y1 is energized, and compressor no. 1 is already ener-
gized (see Step 2) and the room thermostat calls for Y2,
compressor no. 1 continues to operate. If Y2 remains
energized for more than 20 minutes, compressor no. 2 is
energized.
NOTE: Compressor no. 2 cannot be energized unless there is a
signal for Y2 from the space thermostat.
4. If compressor no. 2 is energized, and the Y2 signal from
the thermostat is satisfied, compressors 1 and 2 are deen-
ergized. Re-asserting Y2 will start compressor no. 1 and
(after a 20-minute interstage delay) compressor no. 2.
5. If compressor no. 1 is energized and the thermostat is sat-
isfied, compressor no. 1, the OFM, and IFM are deener-
gized and the EconoMi$er modulates closed.
When the OAT is below the MECH CLG LOCKOUT set
point, the compressors remain off.
FREEZE PROTECTION THERMOSTAT(S) — A freeze
protection thermostat (FPT) is located on the top and bottom of
the evaporator coil. It detects frost build-up and turns off the
compressor, allowing the coil to clear. Once frost has melted,
the compressor can be reenergized by resetting the compressor
lockout.
HEATING, UNITS WITH ECONOMI$ER (If Accessory or
Optional Heater is Installed) — When the room thermostat
calls for heat, the heating controls are energized as described in
the Heating, Units Without EconoMi$er section. The IFM is
energized and the EconoMi$er damper modulates to the mini-
mum position. When the thermostat is satisfied, the damper
modulates closed.
UNITS WITH MOISTUREMISER DEHUMIDIFICATION
PACKAGE — When thermostat calls for cooling, terminals G
and Y1 and/or Y2 and the compressor contactor C1 and/or C2
are energized. The indoor (evaporator) fan motor (IFM), com-
pressors, and outdoor (condenser) fan motors (OFM) start. The
OFMs run continuously while the unit is in cooling. As shipped
from the factory, both MoistureMiser dehumidification circuits
are always energized.
If MoistureMiser circuit modulation is desired, a field-
installed, wall-mounted humidistat is required. If the Mois-
tureMiser humidistat is installed and calls for the Mois-
tureMiser subcooler coil to operate, the humidistat internal
switch closes. This energizes the 3-way liquid line solenoid
valve coils (LLSV1 for circuit 1 and LLSV2 for circuit 2) of
the MoistureMiser circuits, forcing the warm liquid refrigerant
of the liquid line to enter the subcooler coils. See Fig. 30.
As the warm liquid passes through the subcooler coils, it is
exposed to the cold supply airflow coming off the evaporator
coils and the liquid is further cooled to a temperature approach-
ing the evaporator coil leaving-air temperature. The state of the
refrigerant leaving the subcooler coils is a highly subcooled liq-
uid refrigerant. The liquid then enters a thermostatic expansion
valve (TXV) where the liquid is dropped to the evaporator
pressure. The TXVs can throttle the pressure drop of the liquid
refrigerant and maintain proper conditions at the compressor
suction valves over a wide range of operating conditions. The
liquid proceeds to the evaporator coils at a temperature lower
than normal cooling operation. This lower temperature is what
increases the latent and sensible capacity of the evaporator
coils.
The 2-phase refrigerant passes through the evaporators and
is changed into a vapor. The air passing over the evaporator
coils will become colder than during normal operation as a re-
sult of the colder refrigerant temperatures. However, as it pass-
es over the subcooler coils, the air will be warmed, decreasing
the sensible capacity and reducing the sensible heat of the roof-
top unit.
As the refrigerant leaves the evaporator, the refrigerant
passes a subcooler control low-pressure switch (S-LPS1 for
circuit 1 or S-LPS2 for circuit 2) in the suction line. This low-
pressure switch will deactivate the MoistureMiser package
when the suction pressure reaches 60 psig. The subcooler con-
trol low-pressure switch is an added safety device to protect
against evaporator coil freeze-up during low ambient opera-
tion. The subcooler control low-pressure switch will only
deactivate the 3-way liquid line solenoid valve in the Mois-
tureMiser circuit. The compressors will continue to run as long
as there is a call for cooling, regardless of the position of the
subcooler control low-pressure switch. The 3-way solenoid
valve and the MoistureMiser package will be reactivated only
when the call for cooling has been satisfied, the subcooler con-
trol low-pressure switch has closed above 80 psig, and a new
call for cooling exists. The crankcase heaters on the scroll com-
pressors provide additional protection for the compressors due
to the additional refrigerant charge in the subcooler.

24
When the humidistat is satisfied, the humidistat internal
switch opens, cutting power to and deenergizing the LLSVs.
The refrigerant is routed back through the evaporators and the
sub-cooler coils are removed from the refrigerant loops. When
the thermostat is satisfied, C1 and C2 are deenergized and the
compressors, IFM, and OFMs shut off. If the thermostat
fan selector switch is in the ON position, the IFM will run
continuously.
SERVICE
Cleaning — Inspect unit interior at beginning of each heat-
ing and cooling season and as operating conditions require.
Remove unit top panel and/or side panels for access to unit
interior.
EVAPORATOR COIL — Clean as required with a commer-
cial coil cleaner.
NOTE: The 50TJ028 unit has a mist eliminator screen attached
to the evaporator coil to prevent condensate runoff at high wet-
bulb conditions. Check periodically and clean as necessary.
CONDENSER COIL — Clean condenser coil annually and
as required by location and outdoor-air conditions. Inspect coil
monthly — clean as required.
CONDENSATE DRAIN — Check and clean each year at
start of cooling season.
FILTERS — Clean or replace at start of each heating and cool-
ing season, or more often if operating conditions require. Refer
to Table 1 for type and size.
NOTE: The 50TJ028 unit requires industrial grade throwaway
filters capable of withstanding face velocities up to 625 fpm.
Ensure that replacement filters for the 50TJ028 units are rated
for 625 fpm.
OUTDOOR-AIR INLET SCREENS — Clean screens with
steam or hot water and a mild detergent. Do not use throwaway
filters in place of screens.
Lubrication
COMPRESSORS — Each compressor is charged with the
correct amount of oil at the factory. Conventional white oil
(Sontext 200LT) is used. White oil is compatible with 3GS oil,
and 3GS oil may be used if the addition of oil is required. See
compressor nameplate for original oil charge. A complete re-
charge should be four ounces less than the original oil charge.
When a compressor is exchanged in the field it is possible that
a major portion of the oil from the replaced compressor may
still be in the system. While this will not affect the reliability of
the replacement compressor, the extra oil will add rotor drag
and increase power usage. To remove this excess oil, an access
valve may be added to the lower portion of the suction line at
Before performing service or maintenance operations on
unit, turn off main power switch to unit. Turn off accessory
heater power switch if applicable. Electrical shock could
cause personal injury.
Fig. 30 — MoistureMiser Operation Diagram

25
the inlet of the compressor. The compressor should then be run
for 10 minutes, shut down, and the access valve opened until
no oil flows. This should be repeated twice to make sure the
proper oil level has been achieved.
FAN SHAFT BEARINGS — For size 016 units, bearings are
permanently lubricated. No field lubrication is required. For
size 020-028 units, the bearings are of the pillow block type
and have grease fittings. The bearing opposite the motor end
has an extended tube line so it can be lubricated from the motor
side. Lubricate the bearings twice annually.
Typical lubricants are given below:
*Preferred lubricant because it contains rust and oxidation inhibitors.
CONDENSER AND EVAPORATOR-FAN MOTOR
BEARINGS — The condenser and evaporator-fan motors
have permanently-sealed bearings, so no field lubrication is
necessary.
Evaporator Fan Performance Adjustment
(Fig. 31-33) — Fan motor pulleys are factory set for speed
shown in Table 1.
To change fan speeds:
1. Shut off unit power supply.
2. a. Size 016 Only: Loosen belt by loosening fan motor
mounting plate nuts.
b. Size 020-028 Only: Loosen nuts on the 2 carriage
bolts in the motor mounting base. Install jacking
bolt and plate under motor base (bolt and plate are
shipped in installer’s packet). See Fig. 33. Using
bolt and plate, raise motor to top of slide and
remove belt. Secure motor in this position by tight-
ening the nuts on the carriage bolts.
3. Loosen movable-pulley flange setscrew (see Fig. 31).
4. Screw movable flange toward fixed flange to increase
speed and away from fixed flange to decrease speed. In-
creasing fan speed increases load on motor. Do not ex-
ceed maximum speed specified in Table 1.
See Table 7 for air quantity limits.
5. Set movable flange at nearest keyway of pulley hub and
tighten setscrew. (See Table 1 for speed change for each
full turn of pulley flange.)
6. Replace and tighten belts. See Belt Tension Adjustment
section on page 26.
To align fan and motor pulleys:
1. Loosen fan pulley setscrews.
2. Slide fan pulley along fan shaft.
3. Make angular alignment by loosening motor from
mounting plate.
Evaporator Fan Service and Replacement
50TJ016 UNITS (See Fig. 32)
NOTE: To remove belts only, follow Steps 1-6.
1. Remove filter and supply-air section panels.
2. Remove unit top panel.
3. Loosen carriage nuts A and B holding motor mount as-
sembly to fan scroll side plates.
4. Loosen screw C.
5. Rotate motor mount assembly (with motor attached) as
far as possible away from evaporator coil.
6. Remove belt.
7. Rotate motor mount assembly back past original position
toward evaporator coil.
8. Remove motor mounting nuts D and E (both sides).
9. Lift motor up through top of unit.
10. Reverse above procedure to reinstall motor.
11. Check and adjust belt tension as necessary.
50TJ020-028 UNITS (See Fig. 33) — The 50TJ020-028
units use a fan motor mounting system that features a slide-out
motor mounting plate. To replace or service the motor, slide out
the bracket.
1. Remove the evaporator-fan access panel and the heating
control access panel.
2. Remove the center post (located between the evaporator
fan and heating control access panels) and all screws se-
curing it.
3. Loosen nuts on the two carriage bolts in the motor mount-
ing base.
4. Using jacking bolt under motor base, raise motor to top of
slide and remove belt. Secure motor in this position by
tightening the nuts on the carriage bolts.
5. Remove the belt drive.
6. Remove jacking bolt and tapped jacking bolt plate.
7. Remove the 2 screws that secure the motor mounting
plate to the motor support channel.
8. Remove the 3 screws from the end of the motor support
channel that interfere with the motor slide path.
9. Slide out the motor and motor mounting plate.
10. Disconnect wiring connections and remove the 4 mount-
ing bolts.
11. Remove the motor.
12. To install the new motor, reverse Steps 1-11.
MANUFACTURER LUBRICANT
Texaco Regal AFB-2*
Mobil Mobilplex EP No. 1
Sunoco Prestige 42
Texaco Multifak 2
Fig. 31 — Evaporator-Fan Pulley Alignment
and Adjustment

26
Belt Tension Adjustment — To adjust belt tension:
1. Loosen fan motor bolts.
2. Adjust belt tension:
a. Size 016 Units: Move motor mounting plate up or
down for proper belt tension (1/2 in. deflection with
one finger).
b. Size 020-028 Units: Turn motor jacking bolt to move
motor mounting plate up or down for proper belt ten-
sion (3/8 in. deflection at midspan with one finger [9
lb force]).
3. Tighten nuts.
4. Adjust bolts and nut on mounting plate to secure motor in
fixed position.
Condenser-Fan Adjustment
50TJ016,020 UNITS (Fig. 34)
1. Shut off unit power supply.
2. Remove access panel(s) closest to the fan to be adjusted.
3. Loosen fan hub setscrews.
4. Adjust fan height on shaft using a straightedge placed
across the fan orifice.
5. Tighten setscrews and replace panel(s).
6. Turn on unit power.
50TJ024,028 UNITS (Fig. 35)
1. Shut off unit power supply.
2. Remove fan top-grille assembly and loosen fan hub
screws.
3. Adjust fan height on unit, using a straightedge placed
across the fan orifice.
4. Tighten setscrews and replace rubber hubcap to prevent
hub from rusting to motor shaft.
5. Fill hub recess with permagum if rubber hubcap is
missing.
Fig. 32 — 50TJ016 Evaporator-Fan
Motor Section
NOTE: A 31/2-in. bolt and threaded plate are included in the
installer’s packet. They should be added to the motor support chan-
nel below the motor mounting plate to aid in raising the motor. The
plate part number is 50DP503842. The adjustment bolt is 3/8-16 x
13/4 in.-LG.
Fig. 33 — 50TJ020-028 Evaporator-Fan
Motor Section
NOTE: Dimensions are in inches.
Fig. 35 — Condenser-Fan Adjustment,
50TJ024,028
NOTE: Dimensions are in inches).
Fig. 34 — Condenser-Fan Adjustment,
50TJ016,020

27
EconoMi$er Adjustment
LED INDICATION — The EconoMi$er controller features
an onboard diagnostic LED (light-emitting diode) that flashes
to indicate its status. See Table 15 for flash codes. The control-
ler also has terminal connections (REM LED) for remotely
mounting an LED, if desired. The flash code priorities are as
follows:
1. On/Off or continuous flash
2. Critical fault
3. Non-critical fault
If any sensors are opened, shorted, or removed, the
EconoMi$er determines whether the failure is critical or non-
critical and flashes the appropriate code. If a non-critical sensor
fault occurs (i.e., outdoor air humidity), the EconoMi$er auto-
matically reconfigures its control strategy to a more appropriate
mode. If a critical sensor fault occurs (i.e., supply air sensor),
the EconoMi$er reverts to a safe mode of operation until the
sensor problem is resolved.
MANUAL CONFIGURATION PUSHBUTTON — The
EconoMi$er controller also features an onboard button (CON-
FIG) to help troubleshoot the system. See Fig. 16. The button
can perform 3 different functions.
Pressing the CONFIG button for more than three seconds,
but less than ten seconds and then releasing will start the auto-
matic test procedure. The damper will modulate fully open,
wait, and modulate closed. This process takes three minutes to
complete. Use this feature to determine if the actuator can be
commanded.
If the CONFIG button is pressed and held for ten seconds
and less than 30 seconds then released, the EconoMi$er con-
troller reconfigures its mode of operation based on the sensors
that are connected and functioning normally, and cancels the
automatic test procedure.
If the EconoMi$er controller recognized a non-critical
sensor fault, and flashed a code (i.e., FLASH 6, outdoor air
humidity sensor fault) the FLASH CODE will be cleared, and
normal operation begins. Ensure faulty sensor is removed
before clearing faults.
If the EconoMi$er controller recognizes a critical sensor
fault, and flashes a code (i.e., FLASH 4, discharge air thermo-
stat fault) the FLASH code will not be cleared, and the
EconoMi$er will remain in the safe operation mode. The
sensor fault must be corrected to enable EconoMi$er to revert
to normal operation.
If the CONFIG button is pressed and held for more than
30 seconds and released, the EconoMi$er controller will enable
the enthalpy comparison strategy (with outdoor air enthalpy
and return air enthalpy sensors installed).
Power Failure — Dampers have a spring return. In event
of power failure, dampers will return to fully closed position
until power is restored. Do not manually operate damper
motor.
Refrigerant Charge — Amount of refrigerant charge is
listed on unit nameplate and in Table 1. Refer to Carrier GTAC
II; Module 5; Charging, Recovery, Recycling, and Reclamation
section for charging methods and procedures. Unit panels must
be in place when unit is operating during charging procedure.
NOTE: Do not use recycled refrigerant as it may contain con-
taminants.
NO CHARGE — Use standard evacuating techniques. After
evacuating system, weigh in the specified amount of refriger-
ant (refer to Table 1).
LOW CHARGE COOLING — Using cooling charging chart
(see Fig. 36), add or remove refrigerant until conditions of the
chart are met. Note that charging chart is different from those
normally used. An accurate pressure gage and temperature-
sensing device is required. Charging is accomplished by ensur-
ing the proper amount of liquid subcooling. Measure liquid line
pressure at the liquid line service valve using pressure gage.
Connect temperature sensing device to the liquid line near the
liquid line service valve and insulate it so that outdoor ambient
temperature does not affect reading.
TO USE THE COOLING CHARGING CHART — Use the
above temperature and pressure readings, and find the intersec-
tion point on the cooling charging chart. If intersection point on
chart is above line, add refrigerant. If intersection point on
chart is below line, carefully recover some of the charge. Re-
check suction pressure as charge is adjusted. NOTE: Indoor-air
CFM must be within normal operating range of unit. All out-
door fans must be operating.
The TXV (thermostatic expansion valve) is set to maintain
between 15 and 20 degrees of superheat at the compressors.
The valves are factory set and should not require re-adjustment.
Table 15 — EconoMi$er Control Module Flash Code Identification
FLASH CODE CAUSE ACTION TAKEN BY ECONOMI$ER
Constant On Normal operation Normal operation.
Constant Off No power No operation.
Continuous
Flash
CONFIG button pushed and held
between 3 and 9 seconds
Outdoor air damper is stroked fully open, then closed
(automatic test procedure takes 3 minutes to complete).
Critical Fault
Flash One Control board fault System shutdown.
Flash Two Thermostat fault (i.e., Y2 without Y1) System shutdown until corrected.
Flash Three Actuator fault Revert to mechanical cooling only.
Flash Four Discharge air thermistor fault Continue operation with damper at minimum position.
Revert to mechanical cooling only.
Flash Five Outdoor air temperature sensor fault Continue operation with damper at minimum position.
Disable mechanical cooling lockout.
Non-Critical Fault
Flash Six Outdoor air humidity sensor fault Continue operation with dry bulb or dry bulb differential switchover.
Flash Seven Return air temperature sensor fault
Continue operation with single enthalpy EconoMi$er
switchover or dry bulb EconoMi$er switchover (without
humidity sensor).
Flash Eight Return air humidity sensor fault Continue operation with single enthalpy, differential dry
bulb, or dry bulb EconoMi$er switchover.
Flash Nine Carbon Dioxide (CO2) sensor fault Continue operation without ventilation control.
Flash Ten Onboard adjustment potentiometer fault Continue operation with default potentiometer settings.

28
MOISTUREMISER SYSTEM CHARGING — The system
charge for units with the MoistureMiser option is greater than
that of the standard unit alone. The charge for units with this
option is indicated on the unit nameplate drawing. To charge
systems using the MoistureMiser Dehumidification package,
fully evacuate, recover, and re-charge the system to the name-
plate specified charge level. To check or adjust refrigerant
charge on systems using the MoistureMiser Dehumidification
package, charge per the standard subcooling charts. The sub-
cooler MUST be deenergized to use the charging charts. The
charts reference a liquid pressure (psig) and temperature at a
point between the condenser coil and the subcooler coil. A tap
is provided on the unit to measure liquid pressure entering the
subcooler (leaving the condenser).
Filter Drier — Replace whenever refrigerant system is ex-
posed to atmosphere.
Protective Devices
COMPRESSOR PROTECTION
Overcurrent — Each compressor has internal line break motor
protection, except the circuit no. 1 on the 50TJ028 unit. Com-
pressor no. 1 on the 50TJ028 unit uses an electronic module lo-
cated with the compressor junction box, to provide motor pro-
tection. This electronic module monitors winding and dis-
charge temperatures. If these temperatures reach the trip
values, the module interrupts the control line and causes the
compressor to switch off.
Crankcase Heater — Only the 50TJ028 unit and units with
the optional MoistureMiser Dehumidification system are
equipped with a 70-watt crankcase heater to prevent absorption
of liquid refrigerant by oil in the crankcase when the compres-
sor is idle. The crankcase heater is energized whenever there is
a main power to the unit and the compressor is not energized.
Compressor Lockout — If any of the safeties (high-pressure,
low-pressure, freeze protection thermostat, compressor internal
thermostat) trip, or if there is loss of power to the compressors,
the CLO (compressor lockout) will lock the compressors off.
To reset, manually move the thermostat setting.
EVAPORATOR FAN MOTOR PROTECTION — A manu-
al reset, calibrated trip, magnetic circuit breaker protects
against overcurrent. Do not bypass connections or increase the
size of the breaker to correct trouble. Determine the cause and
correct it before resetting the breaker.
CONDENSER-FAN MOTOR PROTECTION — Each
condenser-fan motor is internally protected against
overtemperature.
HIGH- AND LOW-PRESSURE SWITCHES — If either
switch trips, or if the compressor overtemperature switch acti-
vates, that refrigerant circuit will be automatically locked out
by the CLO. To reset, manually move the thermostat setting.
FREEZE PROTECTION THERMOSTAT (FPT) — An FPT
is located on the top and bottom of the evaporator coil. It de-
tects frost build-up and turns off the compressor, allowing the
coil to clear. Once the frost has melted, the compressor can be
reenergized.
Relief Devices — All units have relief devices to protect
against damage from excessive pressures (e.g., fire). These de-
vices protect the high and low side.
Control Circuit, 24-V — This control circuit is protect-
ed against overcurrent by a 3.2-amp circuit breaker. Breaker
can be reset. If it trips, determine cause of trouble before
resetting.
Replacement Parts — A complete list of replacement
parts may be obtained from any Carrier distributor upon
request.
EconoMi$er LEDs — The EconoMi$er control module
has an LED for diagnostic purposes. The flash code identifica-
tion is shown in Table 15.
Optional Hinged Access Doors — When the optional
service package is ordered or the if the hinged access doors
option is ordered, the unit will be provided with external and
internal hinged access doors to facilitate service.
Four external hinged access doors are provided. All external
doors are provided with 2 large 1/4 turn latches with folding
bail-type handles. (Compressor access doors have one latch.) A
single door is provided for filter and drive access. One door is
provided for control box access. The control box access door is
interlocked with the non-fused disconnect which must be in the
OFF position to open the door. Two doors are provided for ac-
cess to the compressor compartment.
Two internal access doors are provided inside the filter/
drive access door. The filter access door (on the left) is secured
by 2 small 1/4 turn latches with folding bail-type handles. This
door must be opened prior to opening the drive access door.
The drive access door is shipped with 2 sheet metal screws
holding the door closed. Upon initial opening of the door, these
screws may be removed and discarded. The door is then held
shut by the filter access door, which closes over it.
IMPORTANT: After prolonged shutdown or servicing,
energize the crankcase heaters for 24 hours before start-
ing the compressors.
50
40 100 150 200 250 300 350 400
60
80
100
120
140
ALL OUTDOOR FANS MUST BE OPERATING
LIQUID PRESSURE AT LIQUID VALVE (PSIG)
LIQUID TEMPERATURE AT LIQUID VALVE (DEG F)
BOTH CIRCUITS
REDUCE CHARGE IF BELOW CURVE
ADD CHARGE IF ABOVE CURVE
Fig. 36 — Cooling Charging Chart

29
Fig. 37 — Typical Wiring Schematic (50TJ024, 208/230-3-60 Shown)
ELECTRIC HEAT
208/240 v Amps 200/230 v kW
A71.3/82.3 25.7/34.2
B117/135 42.2/56.1
C156/180 56.2/74.8

30
Fig. 37 — Typical Wiring Schematic (50TJ024, 208/230-3-60 Shown) (cont)
Fig. 38 — Typical Component Arrangement (50TJ024 Shown)

31
LEGEND AND NOTES FOR FIG. 37 AND 38
LEGEND
AHA —Adjustable Heat Anticipator
BRK W/AT —Breaks with Amp Turns
C—Contactor, Compressor
CB —Circuit Breaker
CC —Cooling Compensator
CH —Crankcase Heater
CLO —Compressor Lockout
COMP —Compressor Motor
CR —Control Relay
DAT —Discharge Air Thermistor
DM —Damper Motor
DU —Dummy Terminal
EC —Enthalpy Control
EQUIP —Equipment
FL —Fuse Link
FLA —Full Load Amps
FPT —Freeze Protection Thermostat
FU —Fuse
GND —Ground
HC —Heater Contactor
HPS —High-Pressure Switch
HTR —Heater
IFC —Indoor-Fan Contactor
IFCB —Indoor-Fan Circuit Breaker
IFM —Indoor-Fan Motor
IFR —Indoor-Fan Relay
L—Light
LOR —Lockout Relay
LPS —Low-Pressure Switch
LS —Limit Switch
NEC —National Electrical Code
OAT —Outdoor-Air Thermostat
OFC —Outdoor-Fan Contactor
OFM —Outdoor-Fan Motor
OP —Overcurrent Protection
PL —Plug Assembly
PRI —Primary
TB —Te r m i n a l B l o c k
TC —Thermostat Cooling
TH —Thermostat Heating
TRAN —Transformer
Terminal (Marked)
Terminal (Unmarked)
Te r m i n a l B l o c k
Splice
Factory Wiring
Field Control Wiring
Option/Accessory Wiring
To indicate common potential
only; not to represent wiring.
NOTES:
1. Compressor and fan motor(s) thermally protected; 3-phase motors protected
against primary single-phasing conditions.
2. If any of the original wire furnished must be replaced, it must be replaced with
type 90 C wire or its equivalent.
3. TRAN1 is wired for 230 v (60 Hz) or 220 v (50 Hz) operation. If unit is 208 v, dis-
connect the black wires from the ORN TRAN wire and reconnect to the RED
TRAN wire, apply wirenuts to wires.
5. IFCB must trip amps is equal to or less than 140% FLA.
6. The CLO locks out the compressor to prevent short cycling on compressor over-
load and safety devices. Before replacing CLO, check these devices.
7. Jumpers are omitted when unit is equipped with EconoMi$er.
8. Number(s) indicates the line location of used contacts. A bracket over (2) num-
bers signifies a single-pole, double-throw contact. An underlined number sig-
nifies a normally closed contact. Plain (no line) number signifies a normally open
contact.

32
TROUBLESHOOTING
Refer to Tables 16-18 for troubleshooting details.
Table 16 — Cooling Service Analysis
LEGEND
TXV — Thermostatic Expansion Valve
PROBLEM CAUSE REMEDY
Compressor and
condenser fan
will not start.
Power failure. Call power company.
Fuse blown or circuit breaker tripped. Replace fuse or reset circuit breaker.
Defective thermostat, contactor, transformer, or control
relay.
Replace component.
Insufficient line voltage. Determine cause and correct.
Incorrect or faulty wiring. Check wiring diagram and rewire correctly.
Thermostat setting too high. Lower thermostat setting below room temperature.
Compressor will not start
but condenser fan runs.
Faulty wiring or loose connections in compressor circuit. Check wiring and repair or replace.
Compressor motor burned out, seized, or internal over-
load open.
Determine cause. Replace compressor.
Defective overload. Determine cause and replace.
Compressor locked out Determine cause for safety trip and reset lockout.
One leg of 3-phase power dead. Replace fuse or reset circuit breaker.
Determine cause.
Compressor cycles
(other than normally
satisfying thermostat).
Refrigerant overcharge or undercharge. Recover refrigerant, evacuate system, and recharge
to nameplate.
Defective compressor. Replace and determine cause.
Insufficient line voltage. Determine cause and correct.
Blocked condenser. Determine cause and correct.
Defective overload. Determine cause and replace.
Defective thermostat. Replace thermostat.
Faulty condenser-fan motor. Replace.
Restriction in refrigerant system. Locate restriction and remove.
Compressor operates
continuously.
Dirty air filter. Replace filter.
Unit undersized for load. Decrease load or increase unit size.
Thermostat set too low. Reset thermostat.
Low refrigerant charge. Locate leak, repair, and recharge.
Air in system. Recover refrigerant, evacuate system, and recharge.
Condenser coil dirty or restricted. Clean coil or remove restriction.
Excessive head pressure. Dirty air filter. Replace filter.
Dirty condenser coil. Clean coil.
Refrigerant overcharged. Recover excess refrigerant.
Faulty TXV. 1. Check TXV bulb mounting and secure tightly to
suction line.
2. Replace TXV if stuck open or closed.
Air in system. Recover refrigerant, evacuate system, and recharge.
Condenser air restricted or air short-cycling. Determine cause and correct.
Head pressure too low. Low refrigerant charge. Check for leaks, repair, and recharge.
Restriction in liquid tube. Remove restriction.
Excessive suction
pressure.
High heat load. Check for source and eliminate.
Faulty TXV. 1. Check TXV bulb mounting and secure tightly to
suction line.
2. Replace TXV if stuck open or closed.
Refrigerant overcharged. Recover excess refrigerant.
Suction pressure too low. Dirty air filter. Replace filter.
Low refrigerant charge. Check for leaks, repair, and recharge.
Metering device or low side restricted. Remove source of restriction.
Faulty TXV. 1. Check TXV bulb mounting and secure tightly to
suction line.
2. Replace TXV if stuck open or closed.
Insufficient evaporator airflow. Increase air quantity. Check filter and replace if
necessary.
Temperature too low in conditioned area. Reset thermostat.
Field-installed filter drier restricted. Replace.

33
Table 17 — EconoMi$er Troubleshooting
LEGEND
Table 18 — MoistureMiser Dehumidification Subcooler Service Analysis
PROBLEM POTENTIAL CAUSE REMEDY
Damper Does Not
Open
Indoor (Evaporator) Fan is
Off
Check to ensure that 24 vac is present at Terminal C1 (Common Power)
on the IFC (Indoor [Evaporator] Fan Contactor) or that 24 vac is present at
the IFO (Indoor [Evaporator] Fan On) terminal. Check whether 24 vac is
present at PL6-1 (red wire) and/or PL6-3 (black wire). If 24 vac is
not present, check wiring (see unit label diagram).
Check proper thermostat connection to G on the connection board.
No Power to EconoMi$er
Controller
Check to ensure that 24 vac is present across Terminals 24 VAC and
24 V COM on the EconoMi$er control. If 24 vac is not present, check wiring
(see unit label diagram). If 24 vac is present, STATUS light should be on
constantly.
No Power to G Terminal If IFM is on, check to ensure 24 vac is present on G Terminal of the
EconoMi$er controller. If 24 vac is not present, check wiring (see unit
label diagram).
Controller Fault If STATUS light is flashing one flash, the EconoMi$er controller is
experiencing a fault condition. Cycle power to the controller. If condition
continues, replace the EconoMi$er controller.
Thermostat Fault If STATUS light is flashing two flashes, the EconoMi$er controller senses that
the thermostat is wired incorrectly. Check wiring between the thermostat
and the connection board in the electrical panel. The fault condition is
caused by Y2 being energized before Y1.
Actuator Fault Check the wiring between the EconoMi$er controller and the actuator.
Hold CONFIG button between 3 and 10 seconds to verify the
actuator’s operation. (This process takes 3 minutes to complete.)
EconoMi$er
Operation Limited to
Minimum Position
Minimum Position Set
Incorrectly
Verify that the MIN POS (%) is set greater than zero. Adjust MIN POS (%)
to 100% to verify operation, and then set to correct setting.
EconoMi$er Changeover
Set Point Set Too High or
Too Low
Set at correct value. See Table 5.
Discharge Air
Thermistor Faulty
If STATUS light is flashing 4 flashes, Discharge Air Thermistor is
faulty. Check wiring or replace sensor.
Outdoor Air Temperature
Sensor Faulty
If STATUS light is flashing 5 flashes, Outdoor Air Temperature Sensor is
faulty. Check wiring or replace sensor.
Damper Position
Less than Minimum
Position Set Point
Supply Air Low Limit
Strategy Controlling
The supply-air temperature is less than 45 F, causing the minimum
position to be decreased. Refer to the Start-Up instructions. Verify correct
setting of MIN POS (%). If correct, EconoMi$er is operating correctly.
Damper Does Not
Return to Minimum
Position
CO2 Ventilation Strategy
Controlling
If a CO2 sensor is being used, and the damper position is greater than
minimum position, the ventilation control strategy is controlling. Refer to
The Start-Up instructions. EconoMi$er is operating correctly.
Damper Does Not
Close on Power Loss
Damper Travel is
Restricted
Check to ensure the damper is not blocked.
IFM —Indoor Fan Motor
PL —Plug
PROBLEM CAUSE REMEDY
Subcooler will not energize No power to subcooler
control transformer.
Check power source. Ensure all wire connections
are tight.
No power from subcooler
control transformer to liquid line three way valve.
1. Fuse open; check fuse. Ensure continuity of wiring.
2. Subcooler control low pressure switch open.
Cycle unit off and allow low-pressure switch
to reset. Replace switch if it will not close.
3. Transformer bad; check transformer.
Liquid line three-way valve
will not operate.
1. Solenoid coil defective; replace.
2. Solenoid valve stuck closed; replace.
Subcooler will not deenergize Liquid Line three-way valve
will not close.
Valve is stuck open; replace.
Low system capacity Low refrigerant charge or
frosted coil.
1. Check charge amount. See system charging
section.
2. Evaporator coil frosted; check and replace
subcooler control low pressure switch if necessary.

Manufacturer reserves the right to discontinue, or change at any time, specifications or designs without notice and without incurring obligations.
PC 111 Catalog No. 535-034 Printed in U.S.A. Form 50TJ-17SI Pg 34 2-01 Replaces: 50TJ-14SI
Book 1
Ta b 1 b
Copyright 2001 Carrier Corporation
SERVICE TRAINING
Packaged Service Training programs are an excellent way to increase your knowledge of the equipment
discussed in this manual, including:
• Unit Familiarization • Maintenance
• Installation Overview • Operating Sequence
A large selection of product, theory, and skills programs are available, using popular video-based formats
and materials. All include video and/or slides, plus companion book.
Classroom Service Training which includes “hands-on” experience with the products in our labs can
mean increased confidence that really pays dividends in faster troubleshooting and fewer callbacks. Course
descriptions and schedules are in our catalog.
CALL FOR FREE CATALOG 1-800-962-9212
[ ] Packaged Service Training [ ] Classroom Service Training

Manufacturer reserves the right to discontinue, or change at any time, specifications or designs without notice and without incurring obligations.
PC 111 Catalog No. 535-034 Printed in U.S.A. Form 50TJ-17SI Pg CL-1 2-01 Replaces: 50TJ-14SI
Book 1
Ta b 1 b
Copyright 2001 Carrier Corporation
- - - - - - - - - - - - - - - - - - - - - - - - - - - - - - - - - - - - - - - - - - - - - - - - - - - - - - - - - - - - - - - - - - - - - - - - - - - - - - - - - - - - - - - - - - - - - - - - - - - - - - - - - - - - - - - - - - - - - - - - - - - - - - - - - - - - - - - - - - - - - - - - - - - - - - - - - - - - - - - - - - - - - - - - - - - - -- - - - - - - - - - - - - - - - - - - -
CUT ALONG DOTTED LINE CUT ALONG DOTTED LINE
START-UP CHECKLIST
PRE-START-UP:
VERIFY THAT ALL PACKING MATERIALS HAVE BEEN REMOVED FROM UNIT
VERIFY INSTALLATION OF INDOOR FAN MOTOR ADJUSTMENT BOLT (016 UNITS) OR ADJUSTMENT
BOLT AND PLATE (020-028 UNITS)
VERIFY INSTALLATION OF ECONOMI$ER HOOD
VERIFY THAT CONDENSATE CONNECTION IS INSTALLED PER INSTRUCTIONS
VERIFY THAT ALL ELECTRICAL CONNECTIONS AND TERMINALS ARE TIGHT
CHECK THAT FILTERS AND SCREENS ARE CLEAN AND IN PLACE
VERIFY THAT UNIT IS LEVEL
CHECK FAN WHEEL AND PROPELLER FOR LOCATION IN HOUSING/ORIFICE, AND VERIFY SETSCREW
IS TIGHT
VERIFY THAT FAN SHEAVES ARE ALIGNED AND BELTS ARE PROPERLY TENSIONED
VERIFY THAT SCROLL COMPRESSOR IS ROTATING IN THE CORRECT DIRECTION
VERIFY THAT CRANKCASE HEATER HAS BEEN ENERGIZED FOR 24 HOURS (SIZE 028 AND UNITS WITH
OPTIONAL MOISTUREMISER DEHUMIDIFICATION SYSTEM ONLY)
START-UP:
ELECTRICAL
SUPPLY FAN AMPS EXHAUST FAN AMPS
TEMPERATURES
OUTDOOR-AIR TEMPERATURE F DB (Dry-Bulb)
RETURN-AIR TEMPERATURE F DB F WB (Wet-Bulb)
COOLING SUPPLY AIR F
ELECTRIC HEAT SUPPLY AIR (IF SO EQUIPPED) F
PRESSURES
VERIFY REFRIGERANT CHARGE USING CHARGING CHART ON PAGE 28.
GENERAL
ECONOMI$ER MINIMUM VENT AND CHANGEOVER SETTINGS TO JOB REQUIREMENTS
VERIFY INSTALLATION OF ALL OPTIONS AND ACCESSORIES
MODEL NO.: SERIAL NO.:
DATE: TECHNICIAN:
SUPPLY VOLTAGE L1-L2 L2-L3 L3-L1
COMPRESSOR AMPS — COMPRESSOR NO. 1 L1 L2 L3
—COMPRESSOR NO. 2 L1 L2 L3
ELECTRIC HEAT AMPS (IF SO EQUIPPED) L1 L2 L31
REFRIGERANT SUCTION CIRCUIT NO. 1 PSIG CIRCUIT NO. 2 PSIG
REFRIGERANT DISCHARGE CIRCUIT NO. 1 PSIG CIRCUIT NO. 2 PSIG