Carrier Premierlink 33Cspremlk Users Manual
33CSPREMLK to the manual d6e80e36-851a-4031-9c99-758c4112eb45
2015-01-24
: Carrier Carrier-Premierlink-33Cspremlk-Users-Manual-310606 carrier-premierlink-33cspremlk-users-manual-310606 carrier pdf
Open the PDF directly: View PDF
.
Page Count: 44

Manufacturer reserves the right to discontinue, or change at any time, specifications or designs without notice and without incurring obligations.
PC 111 Catalog No. 533-80072 Printed in U.S.A. Form 38-54SI Pg 1 11-02 Replaces: 38-52SI
Book 1 4
Ta b 3 a 2 a
Installation, Start-Up and
Configuration Instructions
Part Number 33CSPREMLK
CONTENTS Page
SAFETY CONSIDERATIONS . . . . . . . . . . . . . . . . . . . . . . 1
GENERAL . . . . . . . . . . . . . . . . . . . . . . . . . . . . . . . . . . . . . . .1,2
INSTALLATION . . . . . . . . . . . . . . . . . . . . . . . . . . . . . . . . 2-26
Inspection. . . . . . . . . . . . . . . . . . . . . . . . . . . . . . . . . . . . . . . . 2
PremierLink Controller Hardware. . . . . . . . . . . . . . . . . 2
Field-Supplied Hardware . . . . . . . . . . . . . . . . . . . . . . . . . 2
• SPACE TEMPERATURE (SPT) SENSOR
• SUPPLY AIR TEMPERATURE (SAT) SENSOR
• INDOOR AIR QUALITY CO2 SENSOR
• OUTDOOR AIR QUALITY CO2 SENSOR
• OUTDOOR AIR TEMPERATURE SENSOR
• OUTDOOR AIR ENTHALPY SWITCH
• RETURN AIR ENTHALPY SENSOR
Mount PremierLink Control. . . . . . . . . . . . . . . . . . . . . . . 2
•LOCATION
• MOUNTING
PremierLink Controller Inputs and Outputs . . . . . . 3
Control Wiring. . . . . . . . . . . . . . . . . . . . . . . . . . . . . . . . . . . . 3
Install Sensors . . . . . . . . . . . . . . . . . . . . . . . . . . . . . . . . . . . 9
• SPACE TEMPERATURE (SPT) SENSOR
INSTALLATION
• SUPPLY AIR TEMPERATURE (SAT) SENSOR
INSTALLATION
• INDOOR AIR QUALITY CO2 SENSOR
INSTALLATION
• OUTDOOR AIR QUALITY CO2 SENSOR
INSTALLATION
• OUTDOOR AIR TEMPERATURE SENSOR
Connect to CCN Communication Bus . . . . . . . . . . . 18
• COMMUNICATIONS BUS WIRE SPECIFICATIONS
Enthalpy and Differential Enthalpy Control . . . . . . 18
• ENTHALPY SWITCH/RECEIVER
• OUTDOOR AND RETURN AIR ENTHALPY
SENSOR
Economizer . . . . . . . . . . . . . . . . . . . . . . . . . . . . . . . . . . . . . 21
• Q769B
• Q769C
Economizer with Johnson 4 to 20 mA
Actuator . . . . . . . . . . . . . . . . . . . . . . . . . . . . . . . . . . . . . . 24
• DRIVE DIRECTION
• SWITCH SELECTION
•WIRING
START-UP . . . . . . . . . . . . . . . . . . . . . . . . . . . . . . . . . . . . 26-28
Perform System Check-Out . . . . . . . . . . . . . . . . . . . . . 26
Initial Operation and Test. . . . . . . . . . . . . . . . . . . . . . . . 26
Install Navigator™ Display Module . . . . . . . . . . . . . 26
Password Protection . . . . . . . . . . . . . . . . . . . . . . . . . . . . 28
Forcing Values and Configuring Items . . . . . . . . . . 28
Page
CONFIGURATION . . . . . . . . . . . . . . . . . . . . . . . . . . . . 28-42
Points Display Screen . . . . . . . . . . . . . . . . . . . . . . . . . . . 28
Thermostat Control Input Screen. . . . . . . . . . . . . . . . 30
Alarm Service Configuration Screen . . . . . . . . . . . . 30
Controller Identification Screen . . . . . . . . . . . . . . . . . 31
Holiday Configuration Screen . . . . . . . . . . . . . . . . . . . 31
Occupancy Configuration Screen . . . . . . . . . . . . . . . 32
Set Point Screen . . . . . . . . . . . . . . . . . . . . . . . . . . . . . . . . 32
Service Configuration Selection Screen. . . . . . . . . 33
PremierLink Configuration Screen . . . . . . . . . . . . . . 37
Occupancy Maintenance Screen . . . . . . . . . . . . . . . . 39
Maintenance Screen . . . . . . . . . . . . . . . . . . . . . . . . . . . . 40
SAFETY CONSIDERATIONS
GENERAL
The PremierLink Controller is a field retrofit split system
control compatible with the Carrier Comfort Network (CCN).
This control is designed to allow users the access and ability to
change factory-defined settings thus expanding the function of
the standard unit control board. The complete PremierLink
package (part number 33CSPREMLK) consists of a control
circuit board with plastic cover and label, wire harnesses, spade
connectors, wire nuts and 4 mounting screws.
SAFETY NOTE
Air-handling equipment will provide safe and reliable service
when operated within design specifications. The equipment
should be operated and serviced only by authorized person-
nel who have a thorough knowledge of system operation,
safety devices and emergency procedures.
Good judgement should be used in applying any manufac-
turer’s instructions to avoid injury to personnel or damage to
equipment and property.
Disconnect all power to the unit before performing mainte-
nance or service. Unit may automatically start if power is
not disconnected. Electrical shock and personal injury
could result.
Damage to equipment may result. An individual field-
supplied 24-vac power transformer is required for each
PremierLink controller. The transformer must be less than
100 va to meet UL (Underwriters’ Laboratories) Class 2.
PremierLink™
Retrofit Split System
Controller

2
Carrier’s diagnostic standard tier display tools such as
Navigator or Scrolling Marquee can be used with the Premier-
Link controller. Access is available via an RJ-11 connection or
a 3-wire connection to the communication bus. User interfaces
available for use with the CCN system are PC’s equipped with
Carrier user interface software such as Service Tool, Comfort-
VIEW™, or ComfortWORKS® software. When used as part
of the CCN, other devices such as the CCN data transfer,
Linkage Thermostat, or Comfort Controller can read data from
or write data to the PremierLink retrofit controller.
INSTALLATION
Inspection — Inspect package contents for visual defects
that may have occurred during shipping. If there is any dam-
age, contact your local representative before proceeding.
PremierLink Controller Hardware — The Premier-
Link package consists of the following hardware:
• control module (with plastic cover and label)
• 7 wire harnesses
• 10 spade connectors
• wire nuts
• 4 no. 6x1-in. self-drilling Phillips pan head mounting screws
Field-Supplied Hardware — PremierLink controller is
configurable with the following field-supplied sensors:
• space temperature sensor (33ZCT55SPT, 33ZCT56SPT, or
33ZCT58SPT) in sensor mode or thermostat mode for
economizer control
• supply air temperature sensor (33ZCSENSAT) required for
all applications
• indoor air quality sensor (33ZCSENCO2, 33ZCT55CO2,
33ZCT56CO2) required only for demand control ventilation
• outdoor air quality sensor (33ZCTSENCO2) required only
for demand control ventilation
• outdoor air temperature sensor (HH79NZ017)
• outdoor air enthalpy switch (33CSENTHSW)
• return air enthalpy sensor (33CSENTSEN)
For specific details about sensors, refer to the literature
supplied with the sensor.
SPACE TEMPERATURE (SPT) SENSOR — A field-supplied
Carrier space temperature sensor is required to maintain space
temperature in sensor mode. There are three sensors available for
this application:
• 33ZCT55SPT, Space Temperature Sensor with Override
Button
• 33ZCT56SPT, Space Temperature Sensor with Override
Button and Set Point Adjustment
• 33ZCT58SPT, T58 Communicating Room Sensor with
Override Button, Set Point Adjustment, and Manual Fan
control
If controlling an economizer in the thermostat mode, a duct
sensor must be mounted in the return air duct and wired to SPT
input.
SUPPLY AIR TEMPERATURE (SAT) SENSOR — The
PremierLink controller must be connected to a field-supplied
supply air temperature (SAT) sensor (part number
33ZCSENSAT) to monitor the temperature of the air delivered.
The SAT consists of a thermistor encased within a stainless
steel probe. The probe is 6 in. nominal length. The SAT sensor
has 114 in. of unshielded, plenum-rated cable (2 conductors,
22 AWG [American Wire Gage]). The sensor range is –40 to
185 F with a nominal resistance of 10,000 ohms at 77 F. The
sensor measures temperature with an accuracy of ±0.36 F.
Ideally, the SAT sensor should be located in the supply air
duct downstream from unit heat source to control.
INDOOR AIR QUALITY CO2 SENSOR — An indoor air
quality sensor is required for CO2 level monitoring. Three
different CO2 sensors are available for this application:
• 33ZCSENCO2 sensor is an indoor, wall-mounted sensor
with an LED (light-emitting diode) display
• 33ZCT55CO2 sensor is an indoor, wall-mounted sensor
without display. The CO2 sensor also includes a space tem-
perature sensor with override button
• 33ZCT56CO2 sensor is an indoor, wall-mounted sensor
without display. The CO2 sensor also includes a space tem-
perature sensor with override button and temperature offset
OUTDOOR AIR QUALITY CO2 SENSOR — The outdoor
air CO2 sensor (33ZCTSENCO2) is designed to monitor car-
bon dioxide (CO2) levels found in diesel exhaust and control
ventilation systems. It comes with an outdoor enclosure. This
sensor provides an outdoor baseline for differential DCV (De-
mand Control Ventilation) control.
OUTDOOR AIR TEMPERATURE SENSOR — The outdoor
air temperature sensor (HH79NZ017) monitors the tempera-
ture outside of the outside air entering the equipment.
OUTDOOR AIR ENTHALPY SWITCH — The outdoor air
enthalpy switch (33CSENTHSW) monitors outdoor air
enthalpy and dry bulb temperature to determine when free
cooling can be used.
RETURN AIR ENTHLAPY SENSOR — The return air en-
thalpy sensor (33CSENTSEN), when used in conjunction with
the outdoor air enthalpy switch, compares the outdoor air and
return air to determine when free cooling can be used.
Mount PremierLink Control
LOCATION — The PremierLink controller should be
located inside one of the available service access panels of the
indoor unit. Be sure the location selected prevents moisture
and rain from coming into contact with the circuit board.
Select a location which will be safe from water damage and
allow sufficient access for service and wiring. For service
access, there should be at least 6 in. of clearance between the
front of the PremierLink controller and adjacent surfaces. Be
sure to leave 1/2-in. clearance in front of RJ-14 connector
for attaching RJ-14 cable from CCN or Navigator™ display
module. A field-supplied right angle 6-pin RJ-14 connector can
be attached if necessary.
NOTE: If the PremierLink controller must be installed in a
location where there is not easy access to CCN connectors,
a remote connection kit (part number 33CSREMCCN) can
be ordered.
MOUNTING — Refer to Mounting Sheet included with
controller for additional detailed mounting instructions.
1. Ensure all power to unit is removed.
2. Locate a space in the unit control panel or a space inside
the equipment that is free from dirt and dust.
3. Remove plastic cover by gently squeezing the middle of
longer sides of the cover and pull away from the board.
This will release the locking tabs inside.
4. Mount the PremierLink controller to the desired location
by holding the controller firmly in place. Be sure all
standoffs are in contact with mounting surface and board
DOES NOT flex! Attach controller to unit using 4 screws
provided ensuring a secure grip to unit surface. See Fig. 1.
5. Provide 24 v power to the circuit board from the unit
transformer or an isolated power transformer. Use the
appropriate conductors for voltage per base unit name-
plate. See Fig. 2A-2I. Board will require 10 va at 24 vac.
6. Replace plastic cover to protect circuit board.
7. Restore power to unit.
IMPORTANT: PremierLink™ part number
33CSPREMLK should only be used in applications
where the integrity of the Underwriters Laboratories rat-
ing will be maintained.

3
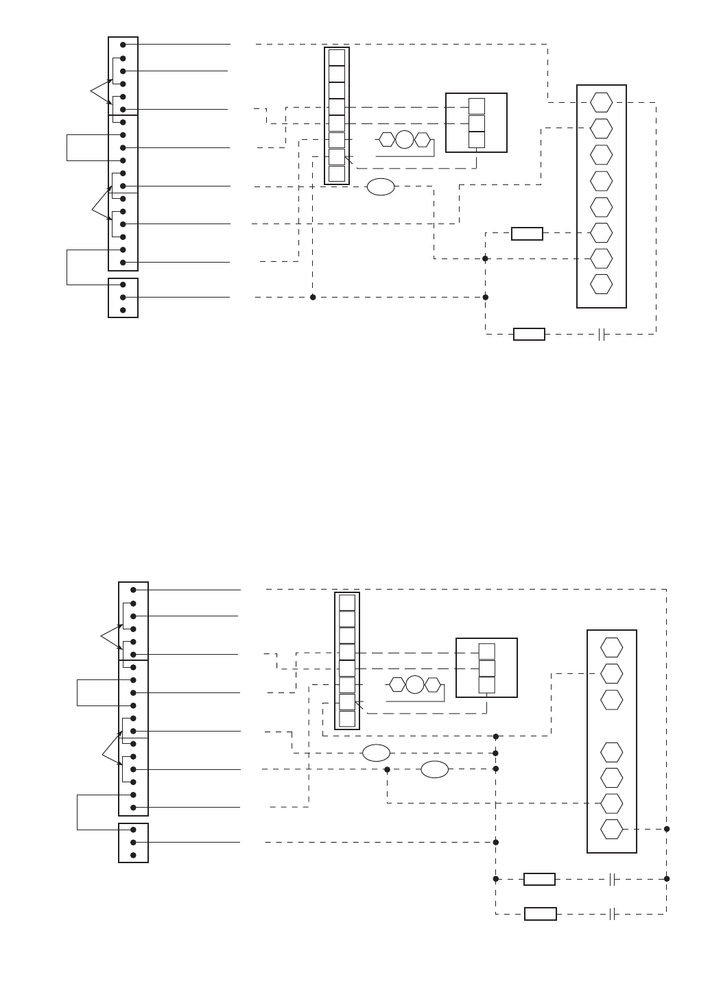
PremierLink Controller Inputs and Outputs —
The PremierLink controller inputs and outputs are shown in
Table 1.
Control Wiring — The PremierLink controller can be
connected to either a Carrier-approved thermostat or CCN
compatible temperature sensor.
1. Turn off power to the control box.
2. Strip the ends of the red, white, and black conductors of
the communication bus cable.
NOTE: When connecting the communication bus cable, a
color code system for the entire network is recommended to
simplify installation and checkout. See Table 2 for the
recommended color code.
3. Use 4-connector Molex with red, white and black wires
to connect the communication wires. Verify the color
codes in Table 2 to ensure the Red (+) wire connects to
Terminal 1. Connect the White (ground) wire to Terminal
2. Connect the Black (–) wire to Terminal 3.
4. Secure all connections in Step 3 with wire nuts.
5. Insert the plug into the existing 4-pin mating connector
on the base module in the main control box (Terminal
J-2).
6. Restore power.
Disconnect electrical power before wiring the Premier-
Link controller. Electrical shock, personal injury, or
damage to the PremierLink controller can result.
*To restore factory default settings, the unit must be in the unpowered state. Move Switch 4 to Position 1 and then restore unit power.
Fig. 1 — PremierLink™ Control Module

4
RED
RED
BRN
GRN
FAN
CMP1
CMP2
HS2
HS1
PWR
HS3/EXH/RVS
RED
RED
J8
J1
PWR
CUT TO
ISOLATE
CONTROLLER
POWER
CUT FOR DUAL
TRANSFORMER
EQUIPTMENT
RELAYS
WHT
BLU
YEL
RED
ORN
PNK
PremierLink Connections 40RM Connections 38AK, AKS, ARZ, ARS
Terminal
Board (TB)
W2
R
Y1
Y2
W1
G
C
X
WHT
WHT
IFC C2
C1
CCR
40RM, 40RMQ, 40RMS
HEAT ACCESSORY
W2
W1
C
W2
R
Y1
Y2
W1
G
C
X
LLSV
CCSV
CCR
RED
RED
BRN
GRN
FAN
CMP1
CMP2
HS2
HS1
PWR
HS3/EXH/RVS
RED
RED
J8
J1
PWR
CUT TO
ISOLATE
CONTROLLER
POWER
CUT FOR DUAL
TRANSFORMER
EQUIPTMENT
RELAYS
WHT
BLU
YEL
RED
ORN
PNK
PremierLink Connections 40RM Connections 38AKS
Terminal
Board (TB2)
W2
R
Y1
Y2
W1
G
C
X
WHT
WHT
IFC C2
C1
40RM, 40RMQ, 40RMS
HEAT ACCESSORY
W2
W1
C
4
10
9
8
3
2
1
CCSV
CCR
CR2
CCR
LLSV
CR2
LEGEND
NOTE: Configure AC to “0”.
Fig. 2A — Typical PremierLink™ Control Wiring — 38AK,AKS,ARZ,ARS007-012 Units
CCR —Capacity Control Relay (If Equipped)
CCSV —Capacity Control Valve, Indoor Coil (If Equipped)
IFC —Indoor-Fan Contactor
LLSV —Liquid Line Solenoid Valve
LEGEND
Fig. 2B — Typical PremierLink Control Wiring — 38AKS013-024 Units
CCR —Capacity Control Relay (If Equipped)
CCSV —Capacity Control Valve, Indoor Coil (If Equipped)
CR2 —Control Relay No. 2 (Liquid Line Solenoid Valve)
IFC —Indoor-Fan Contactor
LLSV —Liquid Line Solenoid Valve

5
RED
RED
BRN
GRN
FAN
CMP1
CMP2
HS2
HS1
PWR
HS3/EXH/RVS
RED
RED
J8
J1
PWR
CUT TO
ISOLATE
CONTROLLER
POWER
CUT FOR DUAL
TRANSFORMER
EQUIPTMENT
RELAYS
WHT
BLU
YEL
RED
ORN
PNK
PremierLink Connections 40RM Connections 38ARD
Terminal
Board (TB)
W2
R
Y1
Y2
W1
G
C
X
WHT
WHT
IFC C2
C1
40RM, 40RMQ, 40RMS
HEAT ACCESSORY
W2
W1
C
W2
R
Y1
Y2
W1
G
C
X
LLSV
CCSV
CCR
CCR
RED
RED
BRN
GRN
FAN
CMP1
CMP2
HS2
HS1
PWR
HS3/EXH/RVS
RED
RED
J8
J1
PWR
CUT TO
ISOLATE
CONTROLLER
POWER
CUT FOR DUAL
TRANSFORMER
EQUIPTMENT
RELAYS
WHT
BLU
YEL
RED
ORN
PNK
PremierLink Connections 40RM Connections 38AKS
Terminal
Board (TB3)
W2
R
Y1
Y2
W1
G
C
X
WHT
WHT
IFC C2
C1
CCR
40RM, 40RMQ, 40RMS
HEAT ACCESSORY
W2
W1
C
W2
R
Y1
Y2
W1
G
C
X
CCSV
CCR
LEGEND
NOTE: Configure AC to “0”.
Fig. 2C — Typical PremierLink™ Control Wiring — 38ARD012 Units
CCR —Capacity Control Relay (If Equipped)
CCSV —Capacity Control Valve, Indoor Coil (If Equipped)
IFC —Indoor-Fan Contactor
LLSV —Liquid Line Solenoid Valve
LEGEND
Fig. 2D — Typical PremierLink Control Wiring — 38AKS028-044 Units
CCR —Capacity Control Relay (If Equipped)
CCSV —Capacity Control Valve, Indoor Coil (If Equipped)
IFC —Indoor-Fan Contactor

6
RED
RED
BRN
GRN
FAN
CMP1
CMP2
HS2
HS1
PWR
HS3/EXH/RVS
RED
RED
J8
J1
PWR
CUT TO
ISOLATE
CONTROLLER
POWER
CUT FOR DUAL
TRANSFORMER
EQUIPTMENT
RELAYS
WHT
BLU
YEL
RED
ORN
PNK
PremierLink Connections 40RM Connections 38AH
Terminal
Board (TB2)
W2
R
Y1
Y2
W1
G
C
X
WHT
WHT
IFC C2
C1
40RM, 40RMQ, 40RMS
HEAT ACCESSORY
W2
W1
C
4
5
3
2
1
RED
RED
BRN
GRN
FAN
CMP1
CMP2
HS2
HS1
PWR
HS3/EXH/RVS
RED
RED
J8
J1
PWR
CUT TO
ISOLATE
CONTROLLER
POWER
CUT FOR DUAL
TRANSFORMER
EQUIPTMENT
RELAYS
WHT
BLU
YEL
RED
ORN
PNK
PremierLink Connections 38AH Connections
ACCESSORY
RELAY
PACKAGE
IFR
CR2
IFRRED
YEL
24V
CR2
VIO
BRN
CR1
3
4
5
CR1
1
2
1
TB3
23 4 5 6 7 8 1
TB4
23 4 5 6 7 8
IFC
LLS
-B1
LLS
-A1
LEGEND
Fig. 2E — Typical PremierLink™ Control Wiring — 38AH024-034 Units
IFC —Indoor-Fan Contactor
LEGEND
Fig. 2F — Typical PremierLink Control Wiring — 38AH004-104 Units
CR —Control Relay
IFC —Indoor-Fan Contactor
IFR —Indoor-Fan Relay
LLS —Liquid Line Solenoid
TB —Terminal Block

7
RED
RED
BRN
GRN
FAN
CMP1
CMP2
HS2
HS1
PWR
HS3/EXH/RVS
RED
RED
J8
J1
PWR
CUT TO
ISOLATE
CONTROLLER
POWER
CUT FOR DUAL
TRANSFORMER
EQUIPTMENT
RELAYS
WHT
BLU
YEL
RED
ORN
PNK
PremierLink Connections 40RMQ Connections
CR
W2
R
Y1
Y2
W1
G
C
X
WHT
WHT
IFC C2
C1
40RM, 40RMQ, 40RMS
HEAT ACCESSORY
W2
W1
C
38AQ007
Control
Connections
CR
R
O
W
BL
Y
RED
RED
BRN
GRN
FAN
CMP1
CMP2
HS2
HS1
PWR
HS3/EXH/RVS
RED
RED
J8
J1
PWR
CUT TO
ISOLATE
CONTROLLER
POWER
CUT FOR DUAL
TRANSFORMER
EQUIPTMENT
RELAYS
WHT
BLU
YEL
RED
ORN
PNK
PremierLink Connections 40RM Connections 38AQS008
Terminal
Board (TB)
W2
R
Y1
Y2
W1
G
C
X
WHT
WHT
IFC C2
C1
40RM, 40RMQ, 40RMS
HEAT ACCESSORY
W2
W1
C
W2
R
Y1
Y2
W1
G
C
X
LLSV
CR
CR
LEGEND
NOTES:
1. Configure AC to “1” for heat pump units.
2. Configure AUXOUT to “3’ for reversing valve.
3. Configure PremierLink control for 2-stage heat and single-stage cool.
4. If IAQ is high priority, wire HS2 to W1. If not, wire HS1 to W1.
Fig. 2G — Typical PremierLink™ Control Wiring — 38AQ007 Units
CR —Control Relay (Field-Supplied)
IAQ —Indoor-Air Quality
IFC —Indoor-Fan Contactor
LEGEND
NOTES:
1. Configure AC to “1” for heat pump units.
2. Configure AUXOUT to “3” for reversing valve.
3. Configure PremierLink control for 2-stage heat and single-stage cool.
4. When using controller for DCV, if IAQ priority is set to HIGH, the controller will use a stage of heat for temperature tempering.
If priority is set to LOW, no tempering will occur. If IAQ is high priority, wire HS2 to W1. If not, wire HS1 to W1.
Fig. 2H — Typical PremierLink Control Wiring — 38AQS008 and 38ARQ008,012 Units
CR —Control Relay (Field-Supplied)
IFC —Indoor-Fan Contactor
IAQ —Indoor-Air Quality
LLSV —Liquid LIne Solenoid Valve

8
Table 1 — PremierLink Controller Inputs and Outputs
LEGEND
INPUTS POWER TERMINAL(S)
SPACE TEMPERATURE (SPT) AI (10K Thermistor) J6-7, J6-6
SET POINT ADJUSTMENT (STO) AI (10K Thermistor) J6-5, J6-6
SUPPLY AIR TEMPERATURE (SAT) AI (10K Thermistor) J6-3, J6-4
OUTDOOR AIR TEMPERATURE (OAT) AI (10K Thermistor) J6-1, J6-2
IAQ SENSOR (IAQI) (4-20 mA) J5-5, J5-6
OUTDOOR AQ SENSOR (OAQ) (4-20 mA) J5-2, J5-3
REMOTE TIME CLOCK (RMTOCC) DI (24 VAC) J4-11, J4-12
COMPRESSOR LOCKOUT (CMPSAFE) DI (24 VAC) J4-9, J4-10
FIRE SHUTDOWN (FSD) DI (24 VAC) J4-7, J4-8
SUPPLY FAN STATUS (SFS) DI (24 VAC) J4-5, J4-6
NOT USED
ENTHALPY STATUS (ENTH) DI (24 VAC) J4-1, J4-2
OUTPUTS POWER TERMINAL(S)
ECONOMIZER (ECONPOS) 4-20 mA J9-1, J9-2
FAN (SF) DO Relay (24 VAC, 1A) J8-18
COOL STAGE 1 (CMP1) DO Relay (24 VAC, 1A) J8-15
COOL STAGE 2 (CMP2) DO Relay (24 VAC, 1A) J8-12
HEAT STAGE 1 (HS1) DO Relay (24 VAC, 1A) J8-9
HEAT STAGE 2 (HS2) DO Relay (24 VAC, 1A) J8-6
HEAT 3/EXHAUST/REVERSING VALVE (HS3/EXH/RVS) DO Relay (24 VAC, 1A) J8-3
AI —Analog Input
DI —Digital Input
DO —Digital Output
RED
RED
BRN
GRN
FAN
CMP1
CMP2
HS2
HS1
PWR
HS3/EXH/RVS
RED
RED
J8
J1
PWR
CUT TO
ISOLATE
CONTROLLER
POWER
CUT FOR DUAL
TRANSFORMER
EQUIPTMENT
RELAYS
WHT
BLU
YEL
RED
ORN
PNK
PremierLink Connections 40RMQ Connections 38AQS012-016
Terminal
Board (TB2)
W2
R
Y1
Y2
W1
G
C
X
WHT
WHT
IFC C2
C1
40RM, 40RMQ, 40RMS
HEAT ACCESSORY
W2
W1
C
Y1
R
B
Y2
W1
G
C
CAPORREMOVE
THIS END OF
JUMPER
LEGEND
NOTES:
1. Configure AC to “1” for heat pump or “0” for air conditioner.
2. When using controller for DCV, if IAQ priority is set to HIGH, the controller will use a stage of heat for temperature tempering.
If priority is set to LOW, no tempering will occur.
3. For air conditioners, use HS1 for IAQ tempering.
4. For heat pumps, use HS2 for IAQ tempering.
Fig. 2I — Typical PremierLink™ Control Wiring — 38AQS012-016 Units
IAQ —Indoor-Air Quality
IFC —Indoor-Fan Contactor

9
Table 2 — Color Code Recommendations
Install Sensors (See Fig. 3-10) — The PremierLink™
controller can be used with either the T58 Communicating sen-
sor or any combination of CO2 and space temperature sensors.
Refer to the instructions supplied with each sensor for electrical
requirements.
NOTE: All sensors are field-installed accessories.
SPACE TEMPERATURE (SPT) SENSOR INSTALLA-
TION — There are three types of SPT sensors available from
Carrier: The 33ZCT55SPT space temperature sensor with
timed override button, the 33ZCT56SPT space temperature
sensor with timed override button and set point adjustment, and
the 33ZCT58SPT T58 communicating room sensor with
timed override button, set point adjustment, and manual fan
control.
The space temperature sensors are used to measure the
building interior temperature. The T58 communicating room
sensors measure and maintain room temperature by communi-
cating with the controller. Sensors should be located on an
interior building wall. The sensor wall plate accommodates the
NEMA (National Electrical Manufacturers Association)
standard 2 x 4 junction box. The sensor can be mounted direct-
ly on the wall surface if acceptable by local codes.
Do not mount the sensor in drafty locations such as near air
conditioning or heating ducts, over heat sources such as base-
board heaters, radiators, or directly above wall-mounted light-
ing dimmers. Do not mount the sensor near a window which
may be opened, near a wall corner, or a door. Sensors mounted
in these areas will have inaccurate and erratic sensor readings.
The sensor should be mounted approximately 5 ft from the
floor, in an area representing the average temperature in the
space. Allow at least 4 ft between the sensor and any corner
and mount the sensor at least 2 ft from an open doorway. The
SPT sensor wires are to be connected to terminals in the unit
main control board.
Install the sensor as follows:
1. Locate the two Allen type screws at the bottom of the
sensor.
2. Turn the two screws clockwise to release the cover from
the sensor wall mounting plate.
3. Lift the cover from the bottom and then release it from
the top fasteners.
4. Feed the wires from the electrical box through the open-
ing in the center of the sensor mounting plate.
5. Using two no. 6-32 x 1 mounting screws (provided with
the sensor), secure the sensor to the electrical box.
NOTE: Sensor may also be mounted directly on the
wall using 2 plastic anchors and 2 sheet metal screws
(field-supplied).
6. Use 20 gage wire to connect the sensor to the controller.
The wire is suitable for distances of up to 500 ft. Use a
three-conductor shielded cable for the sensor and set
point adjustment connections. The standard CCN
communication cable may be used. If the set point adjust-
ment (slidebar) is not required, then an unshielded, 18 or
20 gage, two-conductor, twisted pair cable may be used.
The CCN network service jack requires a separate,
shielded CCN communication cable. Always use sepa-
rate cables for CCN communication and sensor wir-
ing. (Refer to Fig. 5 for wire terminations.)
7. Replace the cover by inserting the cover at the top of the
mounting plate first, then swing the cover down over the
lower portion. Rotate the two Allen head screws counter-
clockwise until the cover is secured to the mounting plate
and locked in position.
NOTE: See Table 3 for thermistor resistance vs temperature
values.
Wiring the Space Temperature Sensor — To wire the sensor,
perform the following (see Fig. 3-5):
1. Identify which cable is for the sensor wiring.
2. Strip back the jacket from the cables for at least 3 inches.
Strip 1/4-in. of insulation from each conductor. Cut the
shield and drain wire from the sensor end of the cable.
3. Connect the sensor cable as follows:
a. Connect one wire from the cable to (BLU) wire on
J6-7 analog connector on the controller. Connect
the other end of the wire to the left terminal on the
SEN terminal block of the sensor.
b. Connect another wire from the cable to (BRN)
J6-6 analog connector on the controller. Connect
the other end of the wire to the remaining open ter-
minal on the SEN terminal block.
c. On 33ZCT56SPT thermostats, connect the remain-
ing wire to the (BLK) STO on J6-5 connector on
the controller. Connect the other end of the wire to
the SET terminal on the sensor.
d. In the control box, install a no. 10 ring type crimp
lug on the shield drain wire. Install this lug under
the mounting screw of the PremierLink controller.
e. On 33ZCT56SPT thermostats install a jumper
between the two center terminals (right SEN and
left SET). See Fig. 4.
f. Refer to Fig. 5 for 33ZCT58SPT thermostat wir-
ing. Once the T58 sensor is powered up, all of the
graphic icons on the LCD (liquid crystal display)
display will be energized for a few seconds. The
graphical icons will then turn off and the T58 sen-
sor will energize the three-digit numeric display.
The value “58” will be displayed for two seconds.
After 2 seconds, the LCD will display the default
space temperature value.
NOTE: See Fig. 6 for space temperature sensor averaging.
SIGNAL TYPE CCN BUS WIRE
COLOR
CCN PLUG PIN
NUMBER
+Red 1
Ground White 2
–Black 3

10
Table 3 — Thermistor Resistance vs Temperature
Values for Space Temperature Sensor,
Supply Air Temperature Sensor, and
Outdoor Air Temperature Sensor
SUPPLY AIR TEMPERATURE (SAT) SENSOR INSTAL-
LATION — The 33ZCSENSAT supply air temperature sensor
is required for controller operation. The sensor consists of a
thermistor encased within a stainless steel probe. The SAT
sensor probe is 6-in. nominal length with 114 in. of unshielded,
2-conductor 18 AWG twisted-pair cables. The sensor tempera-
ture range is –40 to 245 F with a nominal resistance of
10,000 ohms at 77 F. The sensor measures accuracy of ±0.36 F.
The SAT sensor is supplied with a gasket and 2 self-drilling
mounting screws.
NOTE: The sensor must be mounted in the discharge of the
unit, downstream of the cooling coil and heat exchanger. Be
sure the probe tip does not come in contact with any of the
unit surfaces. See Fig. 11 for mounting location.
Do not run sensor or relay wires in the same conduit or race-
way with Class 1 AC service wiring. Do not abrade, cut, or
nick the outer jacket of the cable. Do not pull or draw cable
with a force that may harm the physical or electrical properties.
Avoid splices in any control wiring.
Perform the following steps to connect the SAT sensor to
the PremierLink™ controller:
1. Locate the opening in the control box. Pass the sensor
probe through the hole.
2. Drill or punch a 1/2-in. hole in the supply air duct.
3. Use two field-supplied, self-drilling screws to secure the
sensor probe to the duct.
4. Connect the sensor leads to the PremierLink controller’s
wiring harness J6-3,4 board at the terminals labeled SAT
(ORN) and GND (BRN).
TEMP
(C)
TEMP
(F)
RESISTANCE
(Ohms)
–40 –40 335,651
–35 –31 242,195
–30 –22 176,683
–25 –13 130,243
–20 –4 96,974
–15 5 72,895
–10 14 55,298
–5 23 42,315
0 32 32,651
5 41 25,395
10 50 19,903
15 59 15,714
20 68 12,494
25 77 10,000
30 86 8,056
35 95 6,530
40 104 5,325
45 113 4,367
50 122 3,601
55 131 2,985
60 140 2,487
65 149 2,082
70 158 1,752
2345 61
SW1
SEN SET
Cool Warm
BRN (GND)
BLU (SPT)
RED(+)
WHT(GND)
BLK(-) CCN COM
SENSOR WIRING
JUMPER
TERMINALS
AS SHOWN
BLK
(T56)
Fig. 4 — Space Temperature Sensor
Typical Wiring (33ZCT56SPT)
2345 61
SW1
SEN
BRN (GND)
BLU (SPT)
RED(+)
WHT(GND)
BLK(-) CCN COM
SENSOR WIRING
Fig. 3 — Space Temperature Sensor
Typical Wiring (33ZCT55SPT)

11
Perform the following steps if state or local code requires
the use of conduit, or if your installation requires a cable length
of more than 8 ft:
1. Secure the probe to the duct with two field-supplied self-
drilling screws.
2. If you are extending cable length beyond 8 ft, use plenum
rated, 20 AWG, twisted pair wire.
3. Connect the sensor leads to the PremierLink™ control-
ler’s wiring harness terminal board at the terminals la-
beled SAT (ORN) and GND (BRN).
4. Neatly bundle and secure excess wire.
INDOOR AIR QUALITY CO2 SENSOR INSTALLATION
(IAQ) — The indoor air quality sensor accessory monitors
carbon dioxide (CO2) levels. This information is used to moni-
tor IAQ levels. Three types of sensors are provided. The wall
sensor can be used to monitor the conditioned air space.
Sensors use infrared technology to measure the levels of CO2
present in the air. The wall sensor is available with or without
an LCD readout to display the CO2 level in ppm.
The CO2 sensors are all factory set for a range of 0 to
2000 ppm and a linear mA output of 4 to 20. Refer to the
instructions supplied with the CO2 sensor for electrical require-
ments and terminal locations.
To accurately monitor the quality of the air in the condi-
tioned air space, locate the sensor near a return air grille (if
present) so it senses the concentration of CO2 leaving the
space. The sensor should be mounted in a location to avoid
direct breath contact.
Do not mount the IAQ sensor in drafty areas such as near
supply ducts, open windows, fans, or over heat sources. Allow
at least 3 ft between the sensor and any corner. Avoid mounting
the sensor where it is influenced by the supply air; the sensor
gives inaccurate readings if the supply air is blown directly onto
the sensor or if the supply air does not have a chance to mix
with the room air before it is drawn into the return airstream.
Wiring the Indoor Air Quality Sensor — To wire the sensors
after they are mounted in the conditioned air space or outdoor
location, see Fig. 7 and 8 and the instructions shipped with the
sensors. For each sensor, use two 2-conductor 18 AWG
(American Wire Gage) twisted-pair cables (unshielded) to con-
nect the separate isolated 24 vac power source to the sensor and
to connect the sensor to the control board terminals. To connect
the sensor to the control, identify the positive (4 to 20 mA) and
ground (SIG COM) terminals on the sensor. Connect the
4-20 mA terminal to terminal IAQ (RED) and connect the
SIG COM terminal to terminal GND (BRN).
OUTDOOR AIR QUALITY CO2 SENSOR INSTALLA-
TION (OAQ) — The Outdoor Air CO2 sensor is designed to
monitor carbon dioxide (CO2) levels in the air and interface
with the ventilation damper in an HVAC system. The OAQ
sensor is packaged with an outdoor cover. See Fig. 12 and 13.
The outdoor air CO2 sensor must be placed in an area that is
representative of the entire conditioned space. A mounting
height of 6 feet is recommended. For installation where it is not
necessary to reach the control, it may be mounted higher on the
wall or on the ceiling, provided the location represents a good
sampling of air.
Wiring the Outdoor Air CO2 Sensor — Power requirements
are 18 to 36 vac RMS 50/60 Hz; 18 to 42 vdc polarity protected/
dependent; and 70 mA average, 100 mA peak at 24 vdc. All
system wiring must be in compliance with all applicable local
and national codes. A dedicated power supply is required for
this sensor. A two-wire cable is required to wire the dedicated
power supply for the sensor. The two wires should be connected
to the power supply and terminals 1 and 2. To connect the sen-
sor to the control, identify the positive (4 to 20 mA) and ground
(SIG COM) terminals on the sensor. Connect the 4 to 20 mA
terminal OAQ (BLU) terminal J5-2. Connect the SIG COM ter-
minal to terminal GND (BRN) terminal J5-3. See Fig. 12.
OUTDOOR AIR TEMPERATURE SENSOR (Fig. 14-17) —
The OAT sensor must be located properly. The sensor must be
installed immediately upstream from outdoor air damper
where it will accurately sense the temperature of the outdoor
air entering the mixing box. See Fig. 14 and 15. For applica-
tions without economizer, the sensor may be located in the out-
door air duct near the outdoor air intake (Fig. 15) or on the
exterior of the building. The thermistor has a range of –40 to
245 F and a resistance of 10,000 ohms at 77 F.
Do not mount the sensor in direct sunlight. Inaccurate read-
ings may result. Do not mount the sensor near the exhaust from
air-handling units or compressors, near leakage drafts of indoor
air, or near shrubbery or trees, or under direct water runoff.
If the sensor is to be mounted in the outdoor air duct, a field-
supplied 2 x 4-in. by 11/2-in. deep electrical box is required.
Remove the cover and enter the knockout from the rear of the
box. Install the sensor through the opening so that the sensor
leads are inside the electrical box. Secure the sensor to the elec-
trical box using a field-supplied 1/2-in. conduit nut. Drill a
13/16-in. hole in the outdoor air duct about a foot upstream of
the outdoor air damper. Apply a 1/4-in. bead of silicone type
sealer around the opening and install the sensor through the
hole. Secure the electrical box to the duct using 2 field-
supplied, No. 10 sheet metal screws. See Fig. 17.
If the sensor is installed outdoors, a field-supplied 1/2-in. LB
type conduit body, gasket, cover, and 1/2-in. EMT compression
connector are required. Install the OAT sensor into the opening
at the end of the LB conduit body. Install the 1/2-in. EMT
connector into the rear opening. Tighten each securely to
prevent water leakage into the assembly. Mount the assembly
onto the 1/2-in. EMT conduit and secure by tightening the
compression connector nut. After the sensor wiring is complet-
ed, secure the gasket and cover in place using the screws
provided with the cover. See Fig. 16.
VAC
24 VAC
BLACK (-)
WHITE (GND)
RED (+)
BLACK (-)
WHITE (GND)
RED (+)
CCN
COM
J2
(COM)
COM
CCN-
GND
CCN+
T58 SENSOR
J6-6 SDT (COM)
J4-3 (24 VAC)
FIELD WIRING
Fig. 5 — T58 Communicating Sensor
Typical Wiring (33ZCT58SPT)

12
J6
6
7
RED
BLK
RED RED
BLK BLK
BLK
RED
BLK
RED
SENSOR 1 SENSOR 2 SENSOR 3 SENSOR 4
J6
6
7
RED
BLK
RED
BLK
SENSOR 2
SENSOR 1
RED
RED
BLK
SENSOR 3
SENSOR 4
BLK
BLK
RED
RED RED
BLK BLK
SENSOR 8 SENSOR 9
SENSOR 5
RED
BLK
SENSOR 6
SENSOR 7
BLK
RED
SPACE TEMPERATURE AVERAGING — 4 SENSOR APPLICATION
SPACE TEMPERATURE AVERAGING — 9 SENSOR APPLICATION
Fig. 6 — Space Temperature Averaging
LEGEND
Factory Wiring
Field Wiring

13
LEGEND
Fig. 7 — PremierLink™ Controller and Sensor Wiring — 33ZCT55SPT, 33ZCT56SPT, 33ZCT58SPT
Space Temperature Sensors; 33ZCSENSAT Supply Air Temperature Sensor;
33ZCSENCO2 (Outdoor), and 33ZCT55CO2, 33ZCT56CO2 (Indoor) Air Quality Sensors
OAT —Outdoor Air Temperature Sensor
SAT —Supply Air Temperature Sensor
SPT —Space Temperature Sensor

14
Fig. 8 — PremierLink™ Controller Wiring — Combination Temperature and CO2 Sensor —
33ZCT55CO2, 33ZCT56CO2
NOTE: No wire is connected to connector J-5 pin 4. You must relocate a wire from
an unused terminal. Typically one of the red wires from connector J-4 may be used
for this purpose. This pin on J-5 provided 24 VDC power to the combo sensor.

15
NOTE: Remove all unused red wires from J4 connector to prevent 24 vac shorting other components or ground. Inputs on J4 are 24 vac. Red leads are voltage source.
Fig. 9 — PremierLink™ Controller Sensor Wiring —
With Programmable or Non-Programmable Thermostat

16
NOTE: Remove red wire from J4-9 to prevent 24 vac shorting out other components or ground. Inputs on J4 are 24 vac. Red leads are voltage source.
Fig. 10 — PremierLink™ Field-Installed Controller Sensor Wiring — Discrete Input

17
Fig. 11 — Typical Mounting Location for
Supply Air Temperature (SAT) Sensor
On Split System Units
87654321
21
HG
24 VAC
OR
24 VDC
NC ALARM
RELAY
CONTACTS
COM
NO
}
0-10VDC
SIG COM (J5-3)
4-20mA (J5-2)
+
+
-
+-
Fig. 12 — Outdoor Air Quality (CO2) Sensor
(33ZCSENCO2) — Typical Wiring Diagram
Fig. 13 — Outdoor Air Quality Sensor Cover
Fig. 14 — Outdoor Air Temperature Sensor
(P/N HH79NZ017)
Fig. 15 — OAT Sensor Location
in Outside Air Duct

18
Connect to CCN Communication Bus — The
PremierLink™ controller connects to the bus in a daisy chain
arrangement. Negative pins on each component must be
connected to respective negative pins and likewise positive pins
on each component must be connected to respective positive
pins. The controller signal pins must be wired to the signal
ground pins. Wiring connections for CCN must be made at the
3-pin plug.
At any baud (9600, 19200, 38400 baud), the number of con-
trollers is limited to 239 devices maximum. Bus length may not
exceed 4000 ft, with no more than 60 total devices on any
1000-ft section. Optically isolated RS-485 repeaters are
required every 1000 ft.
NOTE: Carrier device default is 9600 baud.
COMMUNICATION BUS WIRE SPECIFICATIONS —
The CCN Communication Bus wiring is field-supplied and
field-installed. It consists of shielded three-conductor cable
with drain (ground) wire. The cable selected must be identical
to the CCN Communication Bus wire used for the entire net-
work. See Table 4 for recommended cable.
Table 4 — Recommended Cables
NOTE: Conductors and drain wire must be at least 20 AWG
(American Wire Gage), stranded, and tinned copper. Individual
conductors must be insulated with PVC, PVC/nylon, vinyl,
Teflon, or polyethylene. An aluminum/polyester 100% foil
shield and an outer jacket of PVC, PVC/nylon, chrome vinyl,
or Teflon with a minimum operating temperature range of
–20 C to 60 C is required.
The communication bus shields must be tied together at
each system element. If the communication bus is entirely
within one building, the resulting continuous shield must be
connected to ground at only one single point. If the communi-
cation bus cable exits from one building and enters another
building, the shields must be connected to the grounds at a
lightning suppressor in each building (one point only).
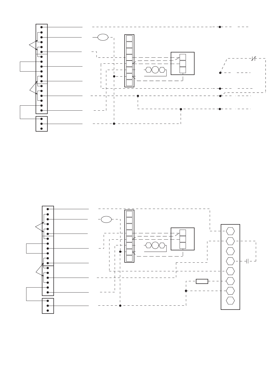
Enthalpy and Differential Enthalpy Control
(Fig. 18-23) — There are two options for field-supplied
enthalpy and differential enthalpy control: the enthalpy switch/
receiver option, and the outdoor and return air sensor option.
Either option can be used to indicate when the outdoor air is
suitable for free cooling.
ENTHALPY SWITCH/RECEIVER — The accessory en-
thalpy switch/receiver (33CSENTHSW) senses temperature
and humidity of the air surrounding the device and calculates
the enthalpy when used without an enthalpy sensor. The relay
is energized when enthalpy is high and deenergized when
enthalpy is low (based on ASHRAE 90.1 criteria). If an acces-
sory enthalpy sensor (33CSENTSEN) is attached to the return
air sensor input, then differential enthalpy is calculated. The
relay is energized when the enthalpy detected by the return air
enthalpy sensor is less than the enthalpy at the enthalpy switch/
receiver. The relay is deenergized when the enthalpy detected
by the return air enthalpy sensor is greater than the enthalpy at
the enthalpy switch/receiver (differential enthalpy control). See
Fig. 18 and 19.
Outdoor Enthalpy Control Installation (Fig. 20) — Outdoor
enthalpy control requires only an enthalpy switch/receiver
(33CSENTHSW). The enthalpy switch/receiver is mounted in
the outdoor air inlet and calculates outdoor air enthalpy. The
enthalpy switch/receiver energizes the relay output when the
outdoor enthalpy is above 28 BTU/lb OR dry bulb temperature
is above 75 F and is deenergized when the outdoor enthalpy is
below 27 BTU/lb AND dry bulb temperature is below 74.5 F.
The relay output is wired to the unit economizer which will
open or close depending on the output of the switch.
NOTE: The enthalpy calculation is done using an average alti-
tude of 1000 ft above sea level.
MANUFACTURER CABLE PART NO.
Alpha 2413 or 5463
American A22503
Belden 8772
Columbia 02525
Fig. 16 — Outdoor Air Temperature Sensor
Installation — Located in Building Wall
DUCT MOUNTED (EXPLODED VIEW)
1/4" BEAD
SILICONE
SEALER
1.125"
DIA.
HOLE
OA
DUCT
OAT SENSOR
1/2" CONDUIT NUT
2 #10 DRILL/TAP
SCREWS
(FIELD SUPPLIED)
2 x 4 x 1.5 IN. ELECTRICAL BOX
(FIELD SUPPLIED)
OUTSIDE AIR DUCT
LEGEND
Fig. 17 — Outdoor Air Temperature Sensor
Installation — Located in Outdoor Air Duct
OA —Outdoor Air
OAT —Outdoor Air Temperature

19
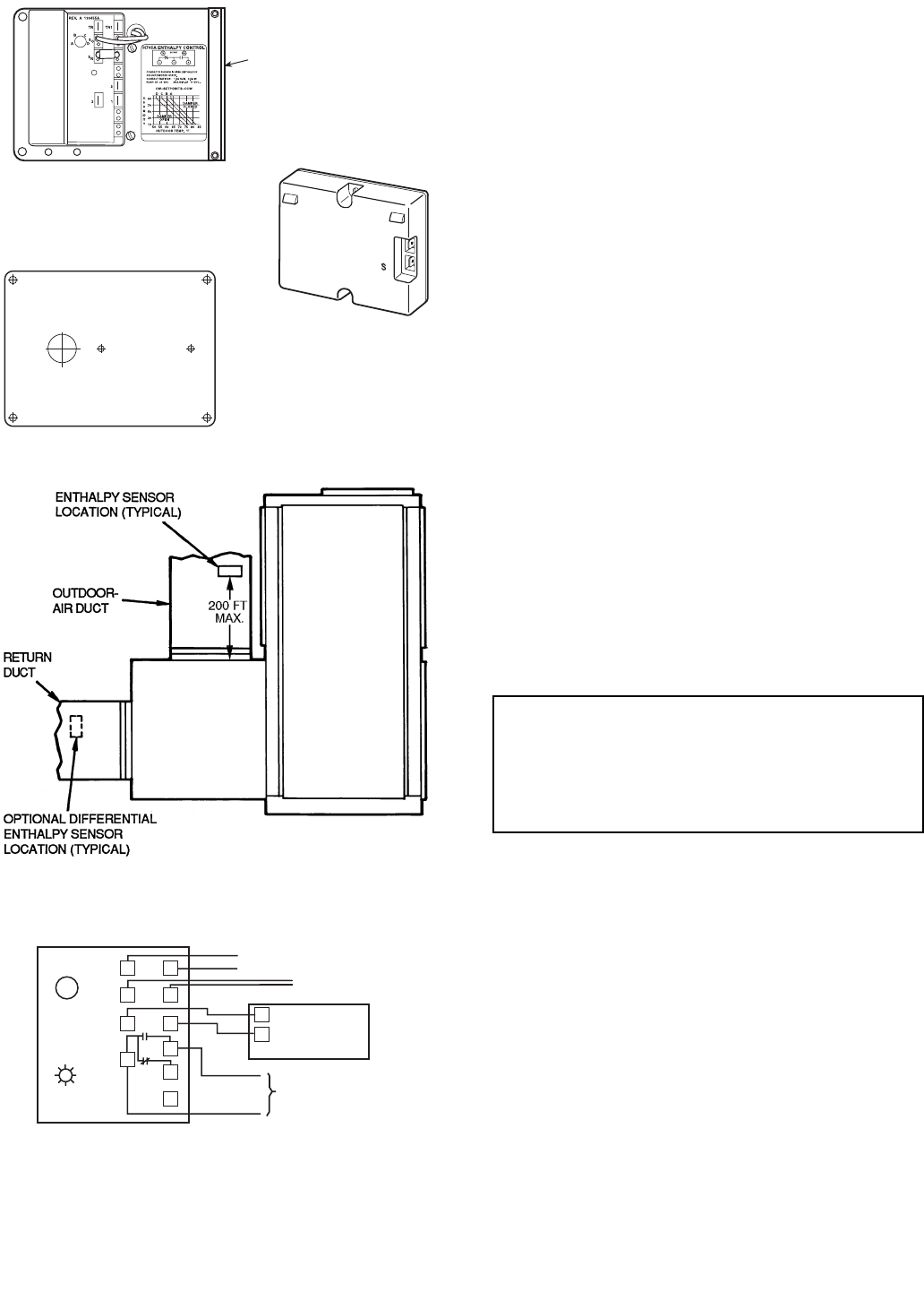
Mounting — Mount the enthalpy switch/receiver in a location
where the outdoor air can be sampled (such as the outdoor air
intake). The enthalpy switch/receiver is not a NEMA 4 enclo-
sure and should be mounted in a location that is not exposed to
outdoor elements such as rain or snow. Use two field-supplied
no. 8 x 3/4-in. TEK screws. Insert the screws through the holes
in the sides of the enthalpy switch/receiver.
Wiring — Carrier recommends the use of 18 to 22 AWG
twisted pair or shielded cable for all wiring. All connections
must be made with 1/4-in. female spade connectors.
A 24 vac transformer is required to power the enthalpy
switch/receiver; as shown in Fig. 20, the PremierLink™ board
provides 24 vac. Connect the GND and 24 VAC terminals on
the enthalpy switch/receiver to the terminals on the transform-
er. On some applications, the power from the economizer har-
ness can be used to power the enthalpy switch/receiver. To
power the enthalpy switch/receiver from the economizer har-
ness, connect power of the enthaply switch/receiver to the red
and brown wires (1 and 4) on the economizer harness.
For connection to split systems units with PremierLink con-
trol, connect the LOW Enthalpy terminal on the enthalpy
switch/receiver to J4 — pin 2 of the PremierLink control on the
unit. The switch can be powered through the PremierLink con-
trol board if desired. Wire the 24 VAC terminal on the enthalpy
switch/receiver to J4 — pin 1 on the PremierLink control. Wire
the GND terminal on the enthalpy switch/receiver to J1 —
pin 2 on the PremierLink control. The HI Enthalpy terminal is
not used. See Fig. 20.
Differential Enthalpy Control Installation (Fig. 21) — Dif-
ferential enthalpy control requires both an enthalpy switch/
receiver (33CSENTHSW) and an enthalpy sensor
(33CSENTSEN). The enthalpy switch/receiver is mounted in
the outdoor air inlet and calculates outdoor air enthalpy. The
enthalpy sensor is mounted in the return airstream and calcu-
lates the enthalpy of the indoor air.
The enthalpy switch/receiver energizes the HI Enthalpy re-
lay output when the outdoor enthalpy is greater than the indoor
enthalpy. The LOW Enthalpy terminal is energized when the
outdoor enthalpy is lower than the indoor enthalpy. The relay
output is wired to the unit economizer which will open or close
depending on the output of the switch.
NOTE: The enthalpy calculation is done using an average alti-
tude of 1000 ft above sea level.
Mounting — Mount the enthalpy switch/receiver in a location
where the outdoor air can be sampled (such as the outdoor air
intake). The enthalpy switch/receiver is not a NEMA 4 enclo-
sure and should be mounted in a location that is not exposed to
outdoor elements such as rain, snow, or direct sunlight. Use
two field-supplied no. 8 x 3/4-in. TEK screws. Insert the screws
through the holes in the sides of the enthalpy switch/receiver.
Mount the enthalpy sensor in a location where the indoor air
can be sampled (such as the return air duct). The enthalpy
sensor is not a NEMA 4 enclosure and should be mounted in a
location that is not exposed to outdoor elements such as rain or
snow. Use two field-supplied no. 8 x 3/4-in. TEK screws. Insert
the screws through the holes in the sides of the enthalpy sensor.
Wiring — Carrier recommends the use of 18 to 22 AWG
twisted pair or shielded cable for all wiring. All connections
must be made with 1/4-in. female spade connectors.
The PremierLink board provides 24 vac to power the
enthalpy switch/receiver. Connect the GND and 24 VAC
terminals on the enthalpy switch/receiver to the terminals on
the transformer. On some applications, the power from the
economizer harness can be used to power the enthalpy switch/
receiver. To power the enthalpy switch/receiver from the econ-
omizer harness, connect power of the enthaply switch/receiver
to the red and brown wires (1 and 4) on the economizer
harness.
Connect the LOW Enthalpy terminal on the enthalpy
switch/receiver to J4 — pin 2 of the PremierLink control on the
unit. The switch can be powered through the PremierLink con-
trol board if desired. Wire the 24 VAC terminal on the enthalpy
switch/receiver to J4 — pin 1 on the PremierLink control. Wire
the GND terminal on the enthalpy switch/receiver to J1 — pin
2 on the PremierLink control. The HI Enthalpy terminal is not
used. See Fig. 20.
Fig. 18 — Enthalpy Switch/Receiver Dimensions
(33CSENTHSW)
Fig. 19 — Enthalpy Sensor Dimensions
(33CSENTSEN)

20
Connect the 4-20 mA In terminal on the enthalpy switch/
receiver to the 4-20 mA Out terminal on the return air enthalpy
sensor. Connect the 24-36 VDC Out terminal on the enthalpy
switch/receiver to the 24-36 VDC In terminal on the return air
enthalpy sensor. See Fig. 21.
Enthalpy Switch/Reciever Jumper Settings — There are two
jumpers. One jumper determines the mode of the enthalpy
switch/receiver. The other jumper is not used. To access the
jumpers, remove the 4 screws holding the cover on the
enthalpy switch/receiver and then remove the cover. The fac-
tory settings for the jumpers are M1 and OFF.
The mode jumper should be set to M2 for differential en-
thalpy control. The factory test jumper should remain on OFF
or the enthalpy switch/receiver will not calculate enthalpy.
Enthalpy Sensor Jumper Settings — There are two jumpers.
One jumper determines the mode of the enthalpy sensor. The
other jumper is not used. To access the jumpers, remove the 4
screws holding the cover on the enthalpy sensor and then
remove the cover. The factory settings for the jumpers are M3
and OFF.
The mode jumper should be set to M3 for 4 to 20 mA
output. The factory test jumper should remain on OFF or the
enthalpy sensor will not calculate enthalpy.
OUTDOOR AND RETURN AIR ENTHALPY SEN-
SORS — The differential enthalpy control is supplied as a
field-installed accessory to be used with the Economizer damp-
er control option. The differential enthalpy control provides
two enthalpy sensors for sensing the outdoor air and return air
conditions, and a differential enthalpy controller.
NOTE: The differential enthalpy control must be set to the “D”
setting for differential enthalpy control to work properly.
The differential enthalpy control senses the outdoor and
return air sensors and provides a dry contact switch input to the
PremierLink Controller. Locate the controller in place of an
existing economizer controller or near the actuator. The mount-
ing plate may not be needed if existing bracket is used.
A closed contact indicates that outside air is preferred to the
return air. An open contact indicates that the economizer
should remain at minimum position.
The solid-state return air enthalpy sensor senses and com-
bines the temperature and humidity levels of outdoor and re-
turn air. The sensors provide information for comparison of
outdoor temperature and humidity to return air temperature and
humidity in order to determine the most economical mixture of
air.
Fig. 20 — Typical Wiring Schematic — Carrier Rooftop Unit with PremierLink™ Controls
*Used with Differential Enthalpy Control only.

21
Wiring Enthalpy Sensors — To wire the enthalpy sensor, per-
form the following (see Fig. 24 and 25):
NOTE: To mount outdoor air sensor remotely, remove it from
back of enthalpy control and follow steps 3 and 6.
1. Use a 2-conductor, 18 or 20 AWG, twisted pair cable to
connect the return air enthalpy sensor to the differential
enthalpy control. Use a 4-conductor, 18 or 20 AWG cable
to connect the enthalpy control to the PremierLink con-
troller and power transformer.
2. At the differential enthalpy control remove the factory-
installed resistor from the SR and (+) terminals.
3. Connect the RED wire from the 2-conductor cable which
originates from the return air enthalpy sensor to the
SR (+) terminal. Connect the BLK wire to the SR (–)
terminal.
4. Connect the following 4 wires from the 4-wire conduc-
tive cable to the differential enthalpy controller:
a. Connect the RED wire to the 24 vac terminal
(TR1) on enthalpy control and to pin 1 on 12-pin
harness.
b. Connect the BRN wire to the 24 vac GND terminal
(TR) on enthalpy sensor and to pin 4 on 12-pin
harness.
c. Connect the ORN wire to J4-2 on PremierLink
controller and to terminal 3 on enthalpy sensor.
d. Connect the RED wire to J4-1 on PremierLink
controller and to terminal 2 on enthalpy sensor.
5. At the return air enthalpy sensor, strip 3 in. of jacket from
the cable and remove 1/2 in. of insulation from each
conductor.
6. Connect the RED wire to (+) spade connector on the
sensor. Connect the BLK wire to (S) spade connector on
the sensor. Use wire nuts or closed-end crimp-type con-
nectors to fasten the connections securely. See Fig. 22.
Economizer — The PremierLink™ controller will inter-
face with the 40RM economizer. Economizers will contain a
Honeywell actuator (Honeywell part number M7415).
An adapter (Honeywell part number Q769B or Q769C is
preferred) must be used to enable the 4 to 20 mA signal from
the PremierLink controller to control the position of the econo-
mizer. Refer to Honeywell Q769B and Q769C accessory in-
stallation instructions for wiring details.
Disconnect power supply before making wiring connec-
tions to prevent electrical shock and equipment damage.
To avoid permanent damage to the PremierLink 4 to
20 mA connection, a signal loop isolator must be installed
when using the Q769B adapter.
24 VAC OUTPUT FROM N/C CONTACT WHEN THE
OUTDOOR ENTHALPY IS LESS THAN THE
INDOOR ENTHALPY
(ENABLE ECONOMIZER)
24 VAC OUTPUT FROM N/O CONTACT WHEN THE
OUTDOOR ENTHALPY IS GREATER THAN THE
OUTDOOR ENTHALPY
(ENABLE ENERGY RECYCLER)
24 VAC
SECONDARY
HI LOW GND 24
VAC
ENTHALPY
4-20
mA
IN
24-36
VDC
OUT
120 VAC LINE VOLTAGE
JUMPER SETTINGS FOR 33CSENTHSW
M1
M2
M3
0%
50%
100%
OFF
33CSENTHSW
JUMPER SETTINGS FOR 33CSENTSEN
M1
M2
M3
0%
50%
100%
OFF
33CSENTSEN
4-20
mA
OUT
24-36
VDC
IN
Fig. 21 — Differential Enthalpy Control Wiring
LEGEND
N/C —Normally Closed
N/O —Normally Open

22
Q769B — Because the Honeywell adapter is designed for a
negative 4 to 20 mA input instead of a positive signal, the
Q769B adapter requires a separate transformer and a current
loop isolator to perform properly. Connecting the adapter
directly to the PremierLink controller could cause the 4 to
20 mA output on the controller to be permanently dam-
aged. This condition is followed by a constant 36 vdc output
from the PremierLink™ economizer output (J-9).
The Q769B adapter is supplied with female quick-connect
terminal that fits over the male quick-connect P1 and P on the
actuator.
To connect the Q769B adapter to the actuator, follow these
steps and refer to Fig. 26:
1. Remove power from unit.
2. Remove the logic module from the actuator and discard.
3. Mount the adapter on the actuator by gently pushing the
adapter onto the P1 and P terminals on actuator.
NOTE: Be sure the plus (+) terminal on the adapter con-
nects to P1 on the actuator and the minus (–) terminal on
the adapter connects to P terminal on the actuator. See
Fig. 26.
4. Using field-supplied wire, connect the plus (+) terminal
on the adapter to the plus (+) terminal on the loop isolator.
Connect the minus (–) terminal on the adapter to the
minus (–) terminal on the loop isolator.
5. Using the transformer supplied with the 40RM econo-
mizer, connect 24 vac to actuator terminals TR and TR1.
6. Connect the plus (+) terminal from the loop isolator to
J9-1 terminal on the PremierLink Controller. Connect the
minus (–) terminal from the loop isolator to J9-2 terminal
on the PremierLink Controller.
7. Restore power to unit.
Q769C — The Q769C adapter incorporates a female quick-
connect terminal that attaches to P1 and P male quick-connects
on the actuator.
To connect the Q769C adapter to the actuator, follow the steps
below and refer to Fig. 27:
1. Remove power from unit.
2. Remove the logic module from the actuator and discard.
3. Mount the adapter onto the actuator by gently pushing the
adapter onto terminals P1 and P of actuator.
4. NOTE: Be sure the plus (+) terminal on the adapter
connects to P1 on the actuator and the minus (–) terminal
on the adapter connects to P terminal on the actuator.
See Fig. 27.
5. Using the transformer supplied with the 40RM econo-
mizer, connect 24 vac to actuator terminals TR and TR1.
6. Connect 500-ohm resistor (field supplied) to the plus (+)
and minus (–) terminals on adapter.
7. Connect the plus (+) terminal from the adapter to J9-1
terminal on the PremierLink Controller. Connect the
minus (–) terminal from the adapter to J9-2 terminal on
the PremierLink Controller.
8. Restore power to unit.
IMPORTANT: It is recommended that the Q769C adapter
be used with a field-supplied 500-ohm resistor across the
terminals. Using the Q769C with actuator requires a sepa-
rate, field-supplied transformer because the actuator with
Q769C is a positive ground device. The PremierLink con-
trol is a negative ground device. The positive P1 terminal
on the Q769C goes to ground. See Fig. 27.
BRACKET
+
C7400A1004
Fig. 22 — Differential Enthalpy Control,
Sensor and Mounting Plate (33AMKITENT006)
HH57AC077
ENTHALPY
CONTROL
HH57AC078 ENTHALPY
SENSOR (USED WITH
ENTHALPY CONTROL
FOR DIFFERENTIAL
ENTHALPY OPERATION)
MOUNTING PLATE
Fig. 23 — Location of Differential Enthalpy
Controller and Return Air Enthalpy Sensor
(40RM Unit Shown)
LED
ABC
D
TR TR1
SO
SR
23
1
+
+S
+
(RETURN AIR
ENTHALPY
SENSOR)
BRN
RED
GRAY
GRAY
WIRE HARNESS
IN UNIT
BLK
RED
NOTES:
1. Remove factory-installed jumper across SR and + before con-
necting wires from return air sensor.
2. Switches shown in high outdoor air enthalpy state. Terminals 2
and 3 close on low outdoor air enthalpy relative to indoor air
enthalpy.
3. Remove sensor mounted on back of control and locate in out-
side airstream.
Fig. 24 — Outside and Return Air Sensor Wiring
Connections for Differential Enthalpy Control

23
NOTE: If PremierLink™ Controller is grounded and actuator is grounded on common side, then common wire from PremierLink controller J9-2 is not
needed.
Fig. 25 — PremierLink Controller Wiring — Differential Enthalpy Control (33AMKITENT000)

24
Economizer with Johnson 4 to 20 mA Actua-
tor — The PremierLink Controller can be connected to an
economizer that uses a Johnson 4 to 20 mA actuator.
DRIVE DIRECTION — The actuator drive direction is
dependent upon the position of Switch 3 and the spring return
direction. See Table 5. The actuator is factory set for Direct
Acting (DA) operation with Switch 3 in the DA position. An
increasing control signal drives the actuator away from the
spring return position in DA mode. The actuator should be
installed in the DA mode so damper will close automatically
on power shut down.
If Reverse Acting (RA) operation is desired, move Switch 3
to the RA position. An increasing control signal drives the
actuator toward the spring return position in RA mode.
SWITCH SELECTION — The type of input control signal is
determined by the position of Switch 5. With Switch 5 in the
VDC position (factory setting), the signal is DC voltage. With
Switch 5 min the mA position, the input signal changes to
current input. See Fig. 28 and Table 6. The switch should be set
to mA for use with PremierLink controller.
NOTE: To change the factory setting, use a 1/8-in. (3-mm)
flat-blade screwdriver to position the mode switch to the alter-
nate setting.
Table 5 — Actuator Drive Direction Settings
LEGEND
Table 6 — Mode Selection Information
NOTE: The 6 to 9 VDC setting of Switch 1 overrides switch 4.
WIRING (See Fig. 29-30B) — The wires for power and
signal transmission from PremierLink to economizer are field-
supplied. To connect the Economizer Johnson Actuator to
PremierLink controller, connect the pink wire on actuator to
purple wire on PremierLink J9-1. See Fig. 30A.
For the Belimo Actuator, connect the white wire on the ac-
tuator to J9-1 on the PremierLink controller. See Fig. 30B.
NOTE: To retrofit PremierLink Controller to older 4 to 20 mA
actuator, connect the red wire on the actuator wire harness to
the purple wire on the PremierLink J9-1. Connect the yellow
and white wires from the actuator wire harness to the 24-volt
AC transformer on equipment. See Fig. 29.
POSITION OF
SWITCH 3 AND THE
DIRECTION OF
SPRING RETURN
DRIVE
DRIVE DIRECTION
WITH A MINIMUM
INPUT SIGNAL
DRIVE DIRECTION
WITH A MAXIMUM
INPUT SIGNAL
DA/CCW CCW CW
RA/CCW CW CCW
DA/CW CW CCW
RA/CW CCW CW
CCW —Counterclockwise
CW —Clockwise
DA —Direct Action
RA —Reverse Action
MODE
SWITCHES SWITCH FUNCTIONS FACTORY
SETTINGS
5VDC or mA VDC
40 to 10 VDC (0 to 20 mA or
2 to 10 VDC (4 to 20 mA) 0 to 10
3Direct Acting (DA) or
Reverse Acting (RA) DA
2FIXED or AUTO FIXED
1— or 6 to 9 VDC —
IMPORTANT: Make sure the common side is grounded
for both the PremierLink power and the actuator power.
This is especially important if separate transformers are
used.
24 VAC
SENSOR
MIN.
POS
TR
P1
P
T1
T
TR1
24 VAC
TRANSFORMER
Q769B
ADAPTER
21
-+
+
-
+
+
-
-
LOOP
ISOLATOR
PREMIERLINK
CONTROL
J9
M7415
ACTUATOR
24 VAC
SENSOR
MIN.
POS
TR
P1
P
T1
T
TR1
24 VAC
TRANSFORMER
(SEPARATE,
FIELD-SUPPLIED)
500 OHM
RESISTOR 21
-+
+
-
PREMIERLINK
CONTROL
J9
M7415
ACTUATOR
Q769C
ADAPTER
Fig. 26 — PremierLink™ Control Wiring to
Q769B Adapter and Actuator
Fig. 27 — PremierLink Control Wiring to
Q769C Adapter and Actuator
5 4 3 2 1
VDC
0-10
DA
FIXED
—
mA
2-10
RA
AUTO
6-9
MOVE TO LEFT
FOR 4-20mA CONTROL
WITH PREMIERLINK
CONTROLLER
Fig. 28 — Position of Actuator Mode Switches
(Factory Default)

25
Output 20 VDC at 25 mA
Feedback 0 (2)-10 or 6-9 VDC
Input 0 (2)-10 or 6-9 VDC, 0 (4)-20 mA
24 VAC/VDC
COM
(3)
(5)
(4)
(2)
(1)
J9-1
TO 24V
TRANSFORMER
Gray
White/Red
Red
Yellow
White
WIRE HARNESS
FROM ACTUATOR
ACTUATOR
50TJ400812
M9206-GGC-2
ECONOMIZER
12-PIN HARNESS
RED 24 VAC
1
2
3
4
5
BRN TRANSFORMER
GROUND
6
7
8
9
10
11
12
PNK
PL6
4-20mA TO
J9-1 ON
PREMIERLINK
CONTROLLER
12-PIN
FEMALE
MOLEX
CONNECTOR
12 84
11 73
2
1
6
10
95
CONNECTOR CABLE
Fig. 29 — PremierLink™ Controller Wiring to
Johnson Actuator With Wire Harness
(M9206-GGC-2)
Fig. 30A — PremierLink Control Wiring to Johnson Actuator Economizer Harness

26
START-UP
Use the Carrier network communication software to start up
and configure the PremierLink™ controller.
Changes can be made using the ComfortWORKS® soft-
ware, ComfortVIEW™ software, or Network Service Tool.
The Network Service Tool is a portable interface device that
allows the user to change system set-up and set points from a
zone sensor or terminal control module. During start-up, the
Carrier software can also be used to verify communication
with PremierLink controller.
NOTE: All set-up and set point configurations are factory-
set and field-adjustable.
For specific operating instructions, refer to the literature
provided with user interface software.
Perform System Check-Out
1. Check correctness and tightness of all power and
communication connections.
2. At the unit, check fan and system controls for proper
operation.
3. At the unit, check electrical system and connections of
any optional electric heat.
NOTE: If optional electric heat is installed, Heat Type
must be changed to “1” (electric heat) from default of “0”
(gas heat).
4. Check to be sure the area around the unit is clear of
construction dirt and debris.
5. Check that final filters are installed in the unit. Dust and
debris can adversely affect system operation.
6. Verify that the PremierLink controls are properly
connected to the CCN bus.
Initial Operation and Test — Perform the following
procedure:
1. Apply 24 vac power to the control.
2. Connect the Service Tool to the phone jack service port of
the controller.
3. Using the Service Tool, upload the controller from
address 0, 31 at 9600 baud rate. The address may be set at
this time. Make sure that Service Tool is connected to
only one unit when changing the address.
MEMORY RESET — DIP switch 4 causes a non-volatile
(E-squared) memory reset to factory defaults after the switch
has been moved from position 0 to position 1 and the power
has been restored. To enable the feature again, the switch must
be put back to the 0 position and power must be restored; this
prevents subsequent resets to factory defaults if the switch is
left at position 1.
To cause a reset of the non-volatile memory (to factory
defaults), turn the controller power off if it is on, move the
switch from position 1 to position 0, and then apply power to
the controller for a minimum of 5 seconds. At this point, no
action occurs, but the controller is now ready for the memory
to reset. Remove power to the controller again and move the
switch from position 0 to position 1. This time, when power is
applied, the memory will reset to factory defaults. The control-
ler address will return to bus 0 element 31, indicating that
memory reset occurred.
Install Navigator™ Display Module — The Navi-
gator is a portable display module that conforms to NEMA 4
specifications for outdoor use in temperatures ranging from
–22 F (–30 C) to 158 F (70 C). The Navigator can be used
to configure and perform service diagnostics on machines
equipped with the PremierLink Controller. See Fig. 31.
The Navigator keypad contains eleven menu LEDs and one
Alarm Status LED, all of which are red. The Navigator is capa-
ble of displaying four 24-character lines of information on a
backlit liquid crystal display. The Navigator has four functional
The unit must be electrically grounded in accordance with
local codes and NEC ANSI/NFPA 70 (American National
Standards Institute/National Fire Protection Association).
4
3
5
2
8
6
7
1
10
11
9
12
PINK
VIOLET
BLACK
BLUE
YELLOW
NOTE 1
NOTE 2
RUN
500 OHM
RESISTOR
50HJ540573
ACTUATOR
ASSEMBLY
RED
WHITE
ECONOMISER2 PLUG
DIRECT DRIVE
ACTUATOR
4-20 mA TO J9 ON
PREMIERLINK
BOARD
24 VAC
TRANSFORMER
GROUND
WIRES FOR
OAT SENSOR
4-20 mA SIGNAL
NOTES:
1. Switch on actuator must be in run position for economizer to operate.
2. 50HJ540573 actuator consists of the 50HJ540567 actuator and a harness with 500-ohm resistor.
Fig. 30B — PremierLink™ Control Wiring to Belimo-Style Actuator EconoMi$er2 Harness

27
keys which are the up arrow ( ), down arrow ( ),
and keys.
INSTALLATION — The Navigator display module is intend-
ed to be a mobile device, so there are no holes in the device for
permanent mounting. The module has a magnetic mount that is
strong enough to hold the device in place on any clean, dry
metal surface.
To enter LEN (local equipment network) mode:
1. Remove power by removing connection to J1.
2. Remove connection to J2 (to avoid communication prob-
lems with equipment).
3. Position DIP switch to 0 (ON) position.
4. Restore power by reconnecting J1.
5. Plug in Navigator.
Controller is now in LEN mode and will support the
Navigator device.
To return CCN mode:
1. Remove power to controller by removing connection
to J1.
2. Remove connection to J2 (to avoid communication
problems with equipment).
3. Position DIP switch to 1 (OFF) position.
4. Reconnect J2.
5. Restore power by reconnecting J1.
Controller is now in CCN mode at the previously config-
ured address and baud rate.
The Navigator module is powered through the PremierLink
controller. The Navigator has a modular telephone style (RJ14)
connector and should be connected to terminal block TB3 in
the control box. This device is intended for use on the LEN
communications bus only. Do NOT connect to the Navigator
while in CCN mode. Communication problems may occur.
OPERATION — To use the Navigator, plug the RJ14 connec-
tor into the RJ14 port. On power up, the Navigator displays:
PremierLink
Navigator
By
Carrier
The Navigator will upload the appropriate display tables
from PremierLink™ controller. A ‘Communication failure’
message will be displayed if any errors are encountered. Check
the wiring at the connector. After successful upload of informa-
tion, the Navigator begins its default display. All items in the
Run Status menu are displayed one at a time in this mode. An
example of the display in the default mode is:
SAT 54.2 °F
SUPPLY AIR TEMPERATURE
The different levels of modes can be accessed with the
Navigator. See the base unit controls and troubleshooting guide
for more information.
Pressing any key while in the default display mode will
cause the Navigator to enter its manual mode. In this mode, all
sub-modes and items within the eleven top level configuration
modes, denoted on the display screen, can be accessed. The
Navigator automatically returns to the default display mode af-
ter 60 minutes of no keypad activity. Pressing the and
keys simultaneously while the unit displays “Select
a menu item” will also log the device out and return it to its de-
fault display mode.
NAVIGATING THROUGH MENU STRUCTURES — The
arrow keys are used to scroll up and down to select sub-modes
within a mode or items within a sub-mode. See the base unit
troubleshooting guide for menu structure. The key is
used to select a menu item or to accept data entry. The
key is used to exit to the next highest mode or to
cancel data entry. The sub-mode and item displays will wrap
around with the last and first items separated by a line of dashes
on the display. The ‘>’ symbol is the pointer and is located at
the left side of the display.
Press the key to display “Select a menu item” on
the screen. This is the top level and the arrow keys are used to
move the red LED to the one of the 11 desired modes. Pressing
will display the sub-modes within a top level mode.
Once in a sub-mode, use the arrow keys to move the pointer
(‘>’) to the desired sub-mode. Up to four sub-modes will be
displayed on the Navigator at one time. Continue pressing the
arrow keys as needed to find the desired sub-mode.
As an example, Press the key to display “Select
a menu item” on the screen. Press the down arrow until the red
LED is lit for the Setpoints menu. Press the key to
display the first four sub-modes in the Setpoints menu:
>SETP
OATL
NTLO
UHDB
ENTER ESCAPE
ENTER
ESCAPE
ENTER
ESCAPE
ESCAPE
ENTER
ESCAPE
ENTER
Run Status
Service Test
Temperatures
Pressures
Setpoints
Inputs
Outputs
Configuration
Time Clock
Operating Modes
Alarms
ENTER
ESC
MODE
Alarm Status
TIME
EWT
LWT
SETP
12.58
54.6°F
44.1°F
44.0°F
NAVIGATOR
ComfortLink
Fig. 31 — Navigator™ Module in Display Mode

28
To access the sub-mode to change the Unoccupied OAT
Lockout Setpoint, press the down arrow to scroll down until
the Navigator™ module display reads:
SETP
OATL
>NTLO
UHDB
To view an expansion of the sub-mode, press the
and keys simultaneously and the Navigator will
display:
>NTLO
UNOCC. OAT LOCKOUT
TEMP
The Navigator will remain in the expanded display mode
until the key is pressed. Use the arrow keys to view
expansions for any of the other sub-modes within the Setpoint
mode.
Password Protection — If an area is entered that is
password protected or an item is selected for change that is
password protected, the Navigator will display:
Enter Password
1111 (default password)
The first digit of the password will be flashing. Hold either
of the arrow keys down to change the value of the first digit (if
necessary) and press to accept. Repeat the process for
the remaining three digits.
The message “Invalid Password” is displayed if the pass-
word is not correct. The password can not be disabled from the
Navigator, nor can it be changed.
Forcing Values and Configuring Items — Cer-
tain items are allowed to be forced and other items are user-
configurable. Both of these changes can be made using the
Navigator.
CONFIGURATION
The following sections describe the computer configuration
screens which are used to configure the PremierLink™ con-
troller. The screens shown may be displayed differently when
using different Carrier software.
Points Display Screen — The Points Display screen is
used to monitor and change the PremierLink controller set
points. See Table 7.
SPACE TEMPERATURE — This point displays the space
temperature from the 10K thermistor (Type III) located in the
space.
Space
Temperature: Display Units: Degrees F (Degrees C)
Default Value: –40.0
Display Range: –40.0 to 245.0
Network Access: Read/Write
SUPPLY AIR TEMPERATURE — The Supply Air Temper-
ature point displays the temperature of the air leaving the unit,
downstream of any cool or heat sources. Temperature is mea-
sured by a 10K thermistor (Type III). This sensor is required
for proper function of the heating, cooling, and the economizer.
Supply Air
Temperature: Display Units: Degrees F (Degrees C)
Default Value: 0.0
Display Range: –40.0 to 245.0
Network Access: Read/Write
OUTDOOR AIR TEMPERATURE — Temperature of the
air leaving the unit downstream of any cool or heat sources,
measured by a 10K thermistor (Type III). This sensor is
required for proper function of the heating, cooling, and the
economizer.
Outdoor Air
Temperature: Display Units: Degrees F (Degrees C)
Default Value: 0.0
Display Range: –40.0 to 245.0
Network Access: Read/Write
CONTROL SET POINT — This point displays the current
controlling set point when a heat or cool mode is active. If there
is not an active heat or cool set point, the set point of the last
mode is displayed. Upon reset or start-up, the proper cooling
set point is displayed, depending on occupancy. In the thermo-
stat mode, this point is not used for equipment control.
Control Set Point: Display Units: Degrees F (Degrees C)
Default Value: Unoccupied Cool
Setpoint
Display Range: 35 to 110
Network Access: Read Only
COOLING PERCENT TOTAL CAPACITY — The Cooling
Percent Total Capacity point is used to display the current
Cooling Capacity. When cooling is enabled, the percent of
cooling being delivered is determined by the following formula
for the number of compressor stages confirmed:
% Output Capacity = (# of active stages/Total stages) * 100.
Cooling Percent
Total Capacity: Display Units: % output capacity
Default Value: 0
Display Range: 0 to 100
Network Access: Read Only
HEATING PERCENT TOTAL CAPACITY — The Heating
Percent Total Capacity point is used to display the current
Heating Capacity.
When heat is enabled, the percent of heat being delivered is
determined by the following formula for electric heat:
% Output Capacity = (# of active stages/Total stages) * 100
Heating Percent
Total Capacity: Display Units: % output capacity
Default Value: 0
Display Range: 0 to 100
Network Access: Read Only
ECONOMIZER ACTIVE — The Economizer Active point
displays the status of the economizer for free cooling. When
the outdoor conditions match the desired indoor conditions, the
economizer will be enabled for outdoor air assisted cooling.
Economizer
Active: Display Units: Discrete ASCII
Default Value: No
Display Range: No/Yes
Network Access: Read Only
SUPPLY FAN RELAY — This point displays the command-
ed state of the Supply Fan Relay.
Supply Fan
Relay: Display Units: Discrete ASCII
Default Value: Off
Display Range: Off/On
Network Access: Read/Write
ENTER
ESCAPE
ESCAPE
ENTER

29
Table 7 — Points Display
NOTE: Bold values indicate points that can be forced through communications.
SUPPLY FAN STATUS — This point displays the Supply
Fan status if controller is configured to receive input from the
Supply Fan. Otherwise this point will display the output state
of the Supply Fan Relay. This mode can only be used when the
controller is in sensor control mode.
Supply Fan
Status: Display Units: Discrete ASCII
Default Value: Off
Display Range: Off/On
Network Access: Read Only
ECONOMIZER DAMPER POSITION — This point dis-
plays the current commanded damper position of the
economizer 4 to 20 mA on the J-9 connector. The 4 to 20 mA
signal is scaled linearly over the range of 0 to 100% of the Sup-
ply Fan Relay.
Economizer
Position: Display Units: % Open
Default Value: 0
Display Range: 0 to 100
Network Access: Read/Write
CURRENT MINIMUM DAMPER POSITION — This point
displays the current minimum damper position if an Indoor Air
Quality routine is not active. If an Indoor Air Quality sensor is
installed and the differential air quality set point has been
exceeded, this point will display the current calculated mini-
mum position deemed necessary to maintain the air quality in
the space.
Current Minimum
Damper Position: Display Units: % Open
Default Value: 0
Display Range: 0 to 100
Network Access: Read Only
FILTER STATUS — The filter status point will be shown as
“CLEAN” until the run time of the fan exceeds the configured
Filter Timer Hours. When the user-configured Filter Timer
Hours has been exceeded, the Filter Status will display
“DIRTY” and a CCN alarm will be generated. Forcing the
point to “CLEAN” will clear the alarm condition and will reset
the timer. (Setting the configured filter timer value to zero will
provide the same function.) The value of the timer is stored in
EEPROM to protect it in the event of a power failure. This is
done periodically every 24 hours. The filter timer function only
operates if the configured filter timer value (FLTTMR) is a
non-zero number.
Filter Status: Display Units: Discrete ASCII
Default Value: Clean
Display Range: Clean/Dirty
Network Access: Read/Write
REMOTE OCCUPIED MODE — This point displays the
status of the remote time clock input. This input is only avail-
able when the controller is being used in sensor control mode.
When the Remote Start point is on, and the zone controller is
not controlled by a Linkage Thermostat, the controller will
function in an occupied mode. When the Remote Start point is
off, the controller will revert to its own occupancy schedule.
Remote
Occupied Mode: Display Units: Discrete ASCII
Default Value: Off
Display Range: Off/On
Network Access: Read/Write
HEAT STAGE 1 — The Heat Stage 1 point provides the state
of the Heating 1 output.
Heating Stage 1: Display Units: Discrete ASCII
Default Value: Off
Display Range: Off/On
Network Access: Read Only
DESCRIPTION VALUE UNITS STATUS FORCE NAME
Space Temperature 72.2 dF SPT
Supply Air Temperature 67.1 dF SAT
Outdoor Air Temperature 48.8 dF OAT
Control Setpoint 0.0 dF CLSP
Cooling % Total Capacity 0 % CCAP
Heating % Total Capacity 0 % HCAP
Economizer Active Yes ECOS
Supply Fan Relay On SF
Supply Fan Status On SFS
Economizer Position 26.2 %ECONPOS
Current Min Damper Pos 20 % IQMP
Filter Status Clean FLTS
Remote Occupied Mode Off RMTOCC
Heat Stage 1 Off HS1
Heat Stage 2 Off HS2
Heat 3/Exhaust/Rev Valve Off H3_EX_RV
Enthalpy Low ENTH
Indoor Air Quality 367.9 IAQI
Indoor Air Quality Setpt 1050.0 IAQS
Outdoor Air Quality 0.0 Sensor failure OAQ
Fire Shutdown Normal FSD
SPT Offset 0.0 ^F STO
Compressor 1 Off CMP1
Compressor 2 Off CMP2
Compressor Safety Off CMPSAFE
30
HEAT STAGE 2 — The Heat Stage 2 point provides the state
of the Heating 2 output.
Heating Stage 2: Display Units: Discrete ASCII
Default Value: Off
Display Range: Off/On
Network Access: Read Only
HEAT STAGE 3, EXHAUST FAN, OR REVERSING
VALVE — This point displays the commanded state of auxil-
iary output. This output can be configured to control a third
stage of heat, an exhaust fan or a reversing valve on some heat
pump units.
In the exhaust fan mode with continuous exhaust con-
figured, this point may control a bank of lights or another
indicator that should remain ON whenever the controller is in
the occupied mode.
Heat 3, Exhaust,
Rev Valve: Display Units: Discrete ASCII
Default Value: Off
Display Range: Off/On
Network Access: Read Only
ENTHALPY — This point displays the current status of an
outdoor air or differential enthalpy input. This point may be
broadcast to other controllers or received from a controller
which supports global broadcast of the ENTH variable.
Enthalpy: Display Units: Discrete ASCII
Default Value: High
Display Range: High/Low
Network Access: Read/Write
INDOOR AIR QUALITY (IAQ) — The Air Quality point
displays the indoor air quality reading from a CO2 sensor
installed in the space. The CO2 sensor maintains differential
indoor air quality for demand control ventilation per ASHRAE
Standard 62-1999. The controller can be configured to generate
an alarm when the control is in occupied mode and the CO2
level exceeds the high or low limit set.
Indoor Air
Quality (ppm): Display Units: None shown (parts per
million implied)
Default Value: 0
Display Range: 0 to 5000
Network Access: Read/Write
INDOOR AIR QUALITY SET POINT — This point dis-
plays the current Indoor Air Quality set point. The set point is
determined by the configured Indoor Air Quality differential
and the current outdoor air quality value. If an outdoor air
quality value is not received, the controller will assume a
default outdoor level of 400 ppm and calculate the set point
using that value.
Indoor Air Quality
Set Point: Display Units: None shown (parts per
million implied)
Default Value: 0
Display Range: 0 to 5000
Network Access: Read Only
OUTDOOR AIR QUALITY — This point displays the read-
ing from an outdoor air quality sensor. This point supports
global broadcast of outdoor air quality on a network.
Outdoor Air Quality
Set Point: Display Units: None shown (parts per
million implied)
Default Value: 0
Display Range: 0 to 5000
Network Access: Read/Write
FIRE SHUTDOWN — While in sensor control mode, this
point can be used to receive a signal from a smoke detector or
fire panel to shut down the Supply Fan, all heating and cooling
stages, and to close the economizer.
Fire Shutdown: Display Units: Discrete ASCII
Default Value: Normal
Display Range: Normal/Alarm
Network Access: Read/Write
SPT OFFSET — This point displays the value of the Space
Temperature offset calculated from the input of a T56 sensor
slide bar.
SPT Offset: Display Units: Delta Degrees F
(Delta Degrees C)
Default Value: 0.0
Display Range: –15 to 15
Network Access: Read/Write
COMPRESSOR 1 — This point displays the commanded
state of the compressor 1 output.
Compressor 1: Display Units: Discrete ASCII
Default Value: Off
Display Range: Off/On
Network Access: Read Only
COMPRESSOR 2 — This point displays the commanded
state of the compressor 2 output.
Compressor 2: Display Units: Discrete ASCII
Range: Off/On
Default Value: Off
Network Access: Read Only
COMPRESSOR SAFETY — When the controller is in
sensor mode, this point can be used to monitor the status of the
compressor trouble output supplied with some equipment.
When the input is detected, the controller will energize all
available stages to satisfy the demand and issue a compressor
trouble alert on the communications network.
Compressor
Safety: Display Units: Discrete ASCII
Display Range: Off/On
Default Value: Off
Network Access: Read Only
Thermostat Control Input Screen — The Thermo-
stat Control Input Display is used to display the input status of
equipment requests from the thermostat (TSTAT). See Table 8.
Alarm Service Configuration Screen — The Alarm
Service Configuration is used to configure the alarms used on
the PremierLink™ controller. See Table 9.
ALARM ROUTING CONTROL — The Alarm Routing
Control indicates which CCN system software or devices will
receive and process alarms sent by the PremierLink controller.
This decision consists of eight digits which can be set to zero or
one. A setting of one indicates alarms should be sent to this
device. A setting of zero disables alarm processing for that
device. Currently the corresponding digits are configured for
the following devices: first digit is for user interface software
(ComfortWORKS®, ComfortVIEW™, etc.); second digit is
for Autodial Gateway or Telink; fourth digit is for Alarm Print-
er Interface Module, DataLINK™ module; digits 3 and 5
through 8 are unused.
Alarm Routing
Control: Range: 00000000 to 1111111
Default Value: 00000000

31
Table 8 — Thermostat Control Input Display
ALARM RE-ALARM TIME — This decision is used to con-
figure the number of minutes that will elapse between
re-alarms. A re-alarm occurs when the condition that caused
the initial alarm continues to persist for the number of minutes
specified. Re-alarming continues to occur at the specified
interval until the alarm condition no longer exists.
Re-Alarm Time: Display Units: Minutes
Display Range: 0 to 1440
Default Value: 0 (Disabled)
CONTROL TEMPERATURE HYSTERESIS — This con-
figuration defines the range above the high set point and below
the low set point the space temperature must exceed for an
alarm condition to exist during occupied hours.
For example, if the current setpoint is 75 F and the hystere-
sis value is 5° F, an alarm will be generated if space tempera-
ture exceeds the low limit of 70 F or the high limit of 80 F.
Control
Temperature
Hysteresis: Display Units: Delta Degrees F
(Delta Degrees C)
Range: 1.0 to 100.0
Default Value: 5.0
SUPPLY AIR TEMPERATURE — HIGH LIMIT — The
Supply Air Temperature High Limit alarm is used to monitor
the value of the supply air temperature within a specified range.
If the supply air temperature becomes too high, an alarm condi-
tion will exist.
Supply Air
Temperature
High Limit: Display Units: Degrees F (Degrees C)
Display Range: –40.0 to 245.0
Default Value: 150.0
SUPPLY AIR TEMPERATURE — LOW LIMIT — The
Supply Air Temperature Low Limit alarm is used to monitor
the value of the supply air temperature within a specified range.
If the supply air temperature becomes too low, an alarm condi-
tion will exist.
Supply Air
Temperature
Low Limit: Display Units: Degrees F (Degrees C)
Display Range: –40.0 to 245.0
Default Value: 45.0
INDOOR AIR QUALITY ALERT LIMIT — The Indoor-
Air Quality Alert Limit alarm defines the allowable CO2 levels
during occupied periods. If the CO2 levels become too low or
too high during occupied periods, an alarm condition will exist.
Indoor Air Quality
Low Limit: Display Units: PPM (implied)
Display Range: 0.0 to 5000.0
Default Value: 0.0
Indoor Air Quality
High Limit: Display Units: PPM (implied)
Display Range: 0.0 to 5000.0
Default Value: 1200.0
Table 9 — Alarm Service Configuration
Controller Identification Screen — The controller
identification screen contains reference information used to
identify the PremierLink™ controller. See Table 10.
DESCRIPTION — The Description point displays the type of
device.
LOCATION — The Location point shows the location of the
device.
SOFTWARE PART NUMBER — The Software Part Num-
ber indicates the part number of the software being used.
MODEL NUMBER — The Model Number indicates the
model number of the device being used.
SERIAL NUMBER — The Serial Number indicates the serial
number of the device being used.
REFERENCE NUMBER — The Reference Number indi-
cates the version of the software being used.
Table 10 — Controller Identification
*Software part number CESR131269-03 is version 1.2.
Holiday Configuration Screen — The Holiday Con-
figuration screen is used by the PremierLink controller to store
configuration fields for up to twelve holidays. See Table 11.
START MONTH — The Start Month field is used to config-
ure the month that the holiday will start. The numbers 1
through 12 are used to indicate which month is specified.
Start Month: Range: 1 to 12
Default Value: 1 (January)
START DAY — The Start Day field is used to determine
which day the holiday will start.
Start Day: Range: 1 to 31
Default Value: 1
DESCRIPTION VALUE UNITS STATUS FORCE NAME
Y1 - Call for Cool 1 On Y1
Y2 - Call for Cool 2 On Y2
W1 - Call for Heat 1 Off W1
W2 - Call for Heat 2 Off W2
G - Call for Fan On G
DESCRIPTION VALUE UNITS NAME
Alarm Control
Alarm Routing Control 00000000 ALRMCNT
Realarm Time 0min REALARM
Control Temp Hysteresis 5.0 ^F SPTHYS
Supply Air Temperature
Low Limit 45.0 dF LOWLIM
High Limit 150.0 dF HIGHLIM
IAQ High Alert Limit
Low Limit 0.0 LOWLIM
High Limit 1200.0 HIGHLIM
DESCRIPTION VALUE UNITS NAME
Description: Rooftop Control DevDesc
Location: Location
Software Part Number: CESR131269-04* PartNum
Model Number: ModelNum
Serial Number: SerialNo
Reference Number: Version 1.3 RefNum

32
DURATION — The Duration field indicates how long the
holiday will last (in days).
Duration: Range: 0 to 365
Default Value: 0
As an example, if a Holiday is configured for Month 2,
Day 5, Duration 2, then the Holiday will start February 5 and
end February 7.
Table 11 — Holiday Configuration
Occupancy Configuration Screen — The Occu-
pancy Configuration Screen is used to configure the occupancy
schedule for the PremierLink™ controller. See Table 12.
MANUAL OVERRIDE HOURS — The Manual Override
Hours point is used to command a timed override by entering
the number of hours the override will be in effect. If the occu-
pancy schedule is occupied when this number is downloaded,
the current occupancy period will be extended by the number
of hours downloaded.
If the current occupancy period is unoccupied when the
occupancy override is initiated, the mode will change to occu-
pied for the duration of the number of hours downloaded. If the
occupancy override is due to end after the start of the next
occupancy period, the mode will transition from occupancy
override to occupied without becoming unoccupied and the
occupancy override timer will be reset.
An active occupancy override or a pending occupancy
override may be canceled by downloading a zero to this
configuration. Once a number other than zero has been down-
loaded to this configuration, any subsequent downloads of any
value other than zero will be ignored by the controller.
Manual Override
Hours: Units: Hours
Range: 0 to 4
Default Value: 0
OCCUPANCY SCHEDULE — For flexibility of scheduling,
the occupancy programming is broken into eight separate peri-
ods. For each period the schedule contains the following fields:
Day of Week, Occupied From, and Occupied To.
DAY OF WEEK — The Day of Week configuration consists
of eight fields corresponding to the seven days of the week and
a holiday field in the following order: Monday, Tuesday,
Wednesday, Thursday, Friday, Saturday, Sunday, Holiday.
It is displayed as:
M T W Th Fr Sa Su Hol
0 0 0 0 0 0 0 0
If a 1 is configured in the corresponding place for a certain
day of the week, the related “Occupied from” and “Occupied
to” times for that period will take effect on that day of the
week. If a 1 is placed in the holiday field, the related times will
take effect on a day configured as a holiday. A zero means the
schedule period will not apply to that day.
Day of week: Range: 0 or 1
Default Values: 11111111 for period 1,
00000000 for the rest of
the periods
OCCUPIED FROM — This field is used to configure the
hour and minute, in military time, that the mode for the
PremierLink controller will switch to occupied.
Occupied From: Units: Hours:Minutes
Range: 00:00 to 24:00
(Minutes 00 to 59)
Default Value: 00:00
OCCUPIED TO — This field is used to configure the hour
and minute, in military time, that the mode for the PremierLink
controller switches from occupied to unoccupied.
Occupied To: Units: Hours:Minutes
Range: 00:00 to 24:00
(Minutes 00 to 59)
Default Value: 24:00
Table 12 — Occupancy Configuration
Set Point Screen — The Set Point screen is used to con-
figure the occupied and unoccupied set points. See Table 13.
OCCUPIED LOW — The Occupied Low set point describes
the low temperature limit of the space during Occupied mode.
Occupied Low: Units: Degrees F (Degrees C)
Range: 40.0 to 90.0
Default Value: 70.0
OCCUPIED HIGH — The Occupied High set point describes
the high temperature limit of the space during Occupied mode.
Occupied High: Units: Degrees F (Degrees C)
Range: 45.0 to 99.9
Default Value: 74.0
UNOCCUPIED LOW — The Unoccupied Low set point
describes the low temperature limit of the space during
Unoccupied mode.
Unoccupied Low: Units: Degrees F (Degrees C)
Range: 40.0 to 90.0
Default Value: 75.0
DESCRIPTION VALUE UNITS NAME
Start Month 1MONTH
Start Day 1DAY
Duration 0DURATION
DESCRIPTION VALUE UNITS NAME
Manual Override Hours 0hours OVRD
Period 1: Day of Week 11111111 DOW1
Period 1: Occupied from 00:00 OCC1
Period 1: Occupied to 24:00 UNOCC1
Period 2: Day of Week 00000000 DOW2
Period 2: Occupied from 00:00 OCC2
Period 2: Occupied to 24:00 UNOCC2
Period 3: Day of Week 00000000 DOW3
Period 3: Occupied from 00:00 OCC3
Period 3: Occupied to 24:00 UNOCC3
Period 4: Day of Week 00000000 DOW4
Period 4: Occupied from 00:00 OCC4
Period 4: Occupied to 24:00 UNOCC4
Period 5: Day of Week 00000000 DOW5
Period 5: Occupied from 00:00 OCC5
Period 5: Occupied to 24:00 UNOCC5
Period 6: Day of Week 00000000 DOW6
Period 6: Occupied from 00:00 OCC6
Period 6: Occupied to 24:00 UNOCC6
Period 7: Day of Week 00000000 DOW7
Period 7: Occupied from 00:00 OCC7
Period 7: Occupied to 24:00 UNOCC7
Period 8: Day of Week 00000000 DOW8
Period 8: Occupied from 00:00 OCC8
Period 8: Occupied to 24:00 UNOCC8

33
UNOCCUPIED HIGH — The Unoccupied High set point de-
scribes the high temperature limit of the space during Unoccu-
pied mode.
Unoccupied High: Units: Degrees F (Degrees C)
Range: 45.0 to 99.9
Default Value: 90.0
HIGH OAT LIMIT FOR IAQ PRE-OCCUPANCY
PURGE — The High OAT unit for IAQ Pre-Occupancy Purge
function determines the Economizer Damper position used for
IAQ Pre-Occupancy Purge.
High OAT
Limit: Units: Degrees F (Degrees C)
Range: 55.0 to 75.0
Default Value: 65.0
UNOCCUPIED OAT LOCKOUT TEMPERATURE —
The Unoccupied OAT Lockout Temperature describes the low-
est Outdoor Air Temperature allowed for Unoccupied Free
Cooling operation. This function is also used by IAQ Pre-
Occupancy Purge control to determine the minimum damper
position for IAQ Purge.
Unoccupied
OAT Lockout: Units: Degrees F (Degrees C)
Range: 40.0 to 70.0
Default Value: 50.0
UNOCCUPIED HEATING DEADBAND — The Unoccu-
pied Heating Deadband describes the space temperature value
which has to be achieved while unoccupied Heating before the
unoccupied Heating mode will turn off.
Unoccupied
Heating
Deadband: Units: Degrees F (Degrees C)
Range: 0.0 to 10.0
Default Value: 1.0
UNOCCUPIED COOLING DEADBAND — The Unoccu-
pied Cooling Deadband describes the space temperature value
which has to be achieved while unoccupied Cooling before the
unoccupied Cooling mode will turn off.
Unoccupied
Cooling
Deadband: Units: Delta Degrees F
(Delta Degrees C)
Range: 0.0 to 10.0
Default Value: 1.0
LOW TEMPERATURE MINIMUM POSITION — The Low
Temperature Minimum Position describes the low temperature
limit for Low Outdoor Air Temperature conditions.
IAQ Pre-Occupancy Purge Algorithm will use this value
whenever Outdoor Air Temperature is below Unoccupied OAT
Lockout Temperature.
Low Temperature
Minimum
Position: Units: Percent
Range: 0 to 100
Default Value: 10.0
HIGH TEMPERATURE MINIMUM POSITION — The High
Temperature Minimum Position specifies the value for Purge
Minimum Damper Position for High Outdoor Air temperature
conditions.
IAQ Pre-Occupancy Purge Algorithm shall use this value
whenever Outdoor Air Temperature is above or at Unoccupied
OAT Lockout Temperature, and also OAT is above Occupied
Cool Set Point or Enthalpy is High. Whenever OAT>=NTLO
and OAT<=OCSP and Enthalpy is Low, the Purge algorithm
will set Purge Minimum Damper Position to 100%.
High Temperature
Minimum
Position: Units: Percent
Range: 0 to 100
Default Value: 35.0
POWER EXHAUST SET POINT — The Power Exhaust Set
Point describes the minimum damper position that the Econo-
mizer Damper must be before the power exhaust fan will be
energized.
Power Exhaust
Set Point: Units: Percent
Range: 0 to 100
Default Value: 50.0
Table 13 — Set Point Configuration
Service Configuration Selection Screen — The
Service Configuration Selection screen is used to configure
the service set points of the PremierLink™ controller. See
Table 14.
COOLING PID — The PremierLink controller reads the
space temperature sensor and compares the temperature to he
current high set point. If it exceeds the set point, and cooling is
configured and available, the controller then calculates the re-
quired supply air temperature to satisfy the given conditions.
The Cooling PID (Proportional/Integral/Derivative) in-
cludes the following set points: Proportional Gain, Integral
Gain, Derivative Gain, and Starting Value.
Proportional Gain: Range: 0.0 to 40.0
Default Value: 6.0
Integral Gain: Range: 0.0 to 10.0
Default Value: 3.0
Derivative Gain: Range: 0.0 to 20.0
Default Value: 5.0
Starting Value: Units: Degrees F
Range: 40.0 to 90.0
Default Value: 70.0
DESCRIPTION VALUE UNITS NAME
Setpoints
Occupied Low Setpoint 70.0 dF OHSP
Occupied High Setpoint 74.0 dF OCSP
Unoccupied Low Setpoint 69.0 dF UHSP
Unoccupied High Setpoint 75.0 dF UCSP
Hi OAT Limit for
IAQ Pre-Occ Purge 65.0 dF OATL
Unocc. OAT Lockout TEMP 50.0 dF NTLO
Unocc. Heating Deadband 1.0 ^F UHDB
Unocc. Cooling Deadband 1.0 ^F UCDB
Low Temp. Min. Position 10 %LTMP
Hi Temp. Min. Position 35 %HTMP
Power Exhaust Setpoint 50 %PES

34
Table 14 — Service Configuration Selection
STAGED COOLING — The staging function is used for DX
cooling (1 or 2 stages). The staging function uses the cooling
submaster reference from the PID and compares the value to
the supply air temperature to calculate the required number of
output stages to energize.
Time Guard delays are provided to allow for up to 2 stages
of compression. Also, a DX Lockout will prevent operation
of the DX cooling if the outdoor air temperature is below this
value.
The cooling algorithm controls the valve or stages of DX
cooling to prevent the space temperature from exceeding the
current cooling set point (which includes any calculated offset
value from a T56 sensor slide bar during occupied periods).
Also, the cooling is controlled so that the supply air tempera-
ture does not fall below 50 F when cooling is active.
If number of stages is set to 1, then the SAT CMP2 LOCK-
OUT TEMP will be used as the low supply air set point.
Number of Stages: Range: 1 to 3
Default Value: 2
The Time Guards must be set to Enable for output to a
compressor, and set to Disable for output to a valve or
compressor unloader.
Stage 1
Time Guard: Range: Disable/Enable
Default Value: Enable
Stage 2
Time Guard: Range: Disable/Enable
Default Value: Enable
Stage 3
Time Guard: Range: Disable/Enable
Default Value: Disable
HEATING PID — The PremierLink™ controller determines
if a heating demand exists in the space. The controller reads the
space temperature sensor and compares the temperature to the
current low set point (including any calculated offset value
from a T56 or T57 sensor) during occupied periods. If it is
below the set point, and heating is configured and available, it
then calculates the required supply air temperature to satisfy
the given conditions. The calculated value (heating submaster
reference) is compared to the actual supply-air temperature and
the output is then adjusted to satisfy conditions by using a
Proportional/Integral/Derivative (PID) loop.
The Heating PID includes the following set points: Propor-
tional Gain, Integral Gain, Derivative Gain, and Starting Value.
Proportional Gain: Range: –100.0 to 100.0
Default Value: 6.0
Integral Gain: Range: –5.0 to 5.0
Default Value: 3.0
Derivative Gain: Range: –20.0 to 20.0
Default Value: 5.0
Starting Value: Units: Degrees F
Range: 40.0 to 120.0
Default Value: 75.0
STAGED HEATING — The Staged Heating function is used
for two-position valves or for electric heat (1 or 2 stages). The
staging function uses the heating submaster reference value
from the PID and compares it to the supply air temperature to
calculate the required number of output stages to energize.
Number of Stages: Range: 1 to 3
Default Value: 2
Stage 1
Time Guard: Range: Disable/Enable
Default Value: Enable
Stage 2
Time Guard: Range: Disable/Enable
Default Value: Enable
Stage 3
Time Guard: Range: Disable/Enable
Default Value: Enable
IAQ PID — The proportional gain affects the response of PID
calculations for staged control. The gain is also used for two-
position control to establish the hysteresis between on and off.
A larger gain speeds response time or reduces the hysteresis,
while a smaller gain requires a larger error to generate the same
response to changes in Indoor Air Quality. Enter the desired
proportional gain for the Indoor Air Quality control algorithm.
DESCRIPTION VALUE UNITS NAME
Cooling PID
Proportional Gain 6.0 KP
Integral Gain 3.0 KI
Derivative Gain 5.0 KD
Starting Value 70.0 dF STARTVAL
Staged Cooling
Total Number of Stages 2STAGES
Stage 1 Time Guard Enable TG1
Stage 2 Time Guard Enable TG2
Stage 3 Time Guard Disable TG3
Heating PID
Proportional Gain 6.0 KP
Integral Gain 3.0 KI
Derivative Gain 5.0 KD
Starting Value 75.0 dF STARTVAL
Staged Heating
Total Number of Stages 2STAGES
Stage 1 Time Guard Enable TG1
Stage 2 Time Guard Enable TG2
Stage 3 Time Guard Enable TG3
IAQ PID
Proportional Gain 0.1 KP
Integral Gain 0.0 KI
Derivative Gain 0.0 KD
Starting Value 0.0 %STARTVAL
Economizer PID
Proportional Gain -4.0 KP
Integral Gain -2.0 KI
Derivative Gain -3.0 KD
Starting Value 70.0 dF STARTVAL
Submaster Gain Limit -5.5 ESG
Submaster Center Value 60 %CTRVAL
Damper Movement Band 0% ECONBAND
OAT Temp Band 25 ^F TEMPBAND
Minimum Damper Position 20 %MDP
Low Temp MDP Override 100 %LOWMDP
DX Cooling Lockout On DXCTLO
DX Cooling Lockout Temp 45.0 dF DXLOCK
SAT CMP1 Lockout Temp 55.0 dF SATL01
SAT CMP2 Lockout Temp 50.0 dF SATL02
Time Guard Override Off TGO
Continuous Power Exhaust Disable MODPE
Supply Fan Status Enable Disable SFSENABL
Max Offset Adjustment 2.0 ^F LIMT
Space Temp Trim 0.0 ^F RATTRIM
Supply Air Temp Trim 0.0 ^F SATTRIM

35
The integral gain affects the PID calculation; an increase
will make the IAQ submaster reference change greater as the
error in indoor air quality increases. The integral gain should be
selected to eliminate proportional droop without overshoot.
Enter the desired integral gain for the Indoor Air Quality con-
trol algorithm.
The Derivative Gain is typically not required for Indoor Air
Quality operation and should be left at the default value.
The Starting Value is used to establish the starting value for
the IAQ PID calculation.
The IAQ PID includes the following set points: Proportion-
al Gain, Integral Gain, Derivative Gain, and Starting Value.
Proportional Gain:Range: –100.0 to 40.0
Default Value: 1.0
Integral Gain: Range: –5.0 to 5.0
Default Value: 0.5
Derivative Gain: Range: –20.0 to 20.0
Default Value: 0.0
Starting Value: Units: Percent
Range: 0.0 to 100.0
Default Value: 0.0
ECONOMIZER PID — The proportional gain determines the
response of the PID temperature control loop; a larger gain
increases the amount of damper movement while a smaller
gain requires a larger error to achieve the same results.
The integral gain affects the response of a PID calculation;
an increase in gain will compensate more quickly for propor-
tional control droop. Too large of an integral gain will cause
excessive damper positioning and instability. Enter the desired
integral gain for the damper control algorithm.
The economizer derivative gain has been tested for ideal
operation in sensor mode and should be left at the default value.
NOTE: In thermostat mode, the modulation may appear to
regularly change. However, it will precisely control leaving-air
temperature.
The economizer Starting Value is used to establish the start-
ing value for the damper PID calculation. The value entered is
determined by the mass of the zone. Typically a value of 10%,
the default, will be adequate for most applications. For higher
mass areas, such as a stone lobby, the value may be increased
to 20 to 25%.
The Economizer PID includes the following set points:
Proportional Gain, Integral Gain, Derivative Gain, and Starting
Va l u e .
Proportional Gain: Range: –100.0 to 100.0
Default Value: –4.0
Integral Gain: Range: –5.0 to 5.0
Default Value: –2.0
Derivative Gain: Range: –20.0 to 20.0
Default Value: –3.0
Starting Value: Units: Degrees F
(Degrees C)
Range: 48.0 to 120.0
Default Value: 70.0
SUBMASTER GAIN LIMIT — The Submaster Gain Limit
is used to define the submaster gain limit that is multiplied by
the Submaster Error and added to the Submaster Center Value
to produce the output value that will be sent to the device. The
sign of the submaster gain limit determines the direction in
which the output will be driven in response to a given error.
The gain is expressed in percent change in output per
degree of error.
Submaster Gain
Limit Reference: Range: –20.0 to 20.0
Default Value: –5.5
SUBMASTER CENTER VALUE — The Submaster Center
Value is used to define the submaster loop center value which
defines the starting point of the loop. This value typically repre-
sents the midpoint of the range of the device being controlled.
Submaster Center
Value Reference: Units: Percent
Range: 0 to 100
Default Value: 60
DAMPER MOVEMENT BAND — The Damper Movement
Band is used to define what the minimum desired range of
change in economizer damper position that is required before
the controller will attempt to open/close the economizer.
Damper Movement
Reference: Units: Percent
Range: 0 to 5
Default Value: 0
OAT TEMP BAND — The OAT Temp Band is used to slow
the response of the economizer damper based on the value of
OAT. In other words, the colder OAT gets the slower the rate of
change in the economizer.
OAT Temp
Reference: Range: 0 to 40 Delta
Degrees F
(Delta Degrees C)
Default Value: 25.0
MINIMUM DAMPER POSITION — The minimum damper
position (MDP) specifies user configured occupied minimum
economizer damper position. The control selects the greatest
value between MDP and IAQ calculated Minimum Position.
The resulting value is the Final Minimum Damper Position
IQMP for Occupied mode.
Economizer Damper is limited to IQMP in Occupied mode,
or whenever Supply Fan is ON in units with Thermostat
control.
Minimum Damper
Position: Units: Percent
Range: 0 to 100
Default Value: 20.0
LOW TEMP MINIMUM DAMPER POSITION OVER-
RIDE — The Low Temperature Minimum Damper Position
(MDP) specifies the value for purge minimum damper position
for low outdoor air temperature conditions.
The IAQ Pre-Occupancy Purge Algorithm shall use this
value for the minimum damper position whenever Outdoor Air
Temperature is below Unoccupied OAT Lockout Temperature.
The Low Temperature MDP must be lower than the config-
ured Minimum Damper Position.
Low Temperature
MDP Override: Units: Percent
Range: 0 to 100
Default Value: 100
DX COOLING LOCKOUT — The DX (Direct Expansion)
Cooling Lockout function Enables/Disables Low Ambient DX
Cooling Lockout option.
For Version 1.2 — When DX Cooling Lockout is enabled,
Cooling control will compare OAT against the DX Cooling
Lockout Temperature. Whenever OAT <= the DX Cooling
Lockout Temperature and current DX stages are 0, the control
will set Cooling Submaster Reference (CCSR) to 150 F. That
will prevent the unit from staging up.
If the OAT sensor is not installed (OAT point reads –40 F
and “Sensor Failure”), the cooling stages ARE locked out if
DXCTLO is On.

36
The DXCTLO should be turned OFF (to ignore the
DXLOCK setpoint) in applications where there is either no
OAT sensor (local or broadcast) or the OAT sensor has failed.
For Version 1.3 — If there is a valid OAT sensor reading and
DXCTLO is set to “OFF”, compressor cooling will NOT be
allowed. Please note that this functionality was NOT by design,
and was an unintended consequence of the update to 1.3. This
will be changed in a future version of PremierLink™ control.
Users that do NOT require the cooling lockout function have
instinctively set DXCTLO to Off; unfortunately, this will dis-
able cooling if a valid OAT reading is present. If a valid OAT
sensor reading is present, DXCTLO must be set to On, or
compressor cooling will NOT be allowed.
If the OAT sensor is not installed (OAT point reads –40 F
and “Sensor Failure”), the cooling stages are NOT locked out
regardless of the setting of DXCTLO.
If there is a valid OAT sensor reading, and DXCTLO is
“ON”, cooling will be allowed when the OAT value is above
the DXLOCK setpoint.
Cooling will NOT be allowed when the OAT value is
below the DXLOCK setpoint and DXCTLO is “ON”.
To ensure that cooling will occur when there is no OAT
sensor installed, be sure to short the OAT sensor leads together.
DX Cooling
Lockout: Range: On/Off
Default Value: On
DX COOLING LOCKOUT TEMPERATURE — The DX
Cooling Lockout Temperature specifies Low Ambient DX
Cooling Lockout Temperature that is compared against OAT to
determine if the unit can stage up or not.
DX Cooling
Lockout Temp: Units: Degrees F (Degrees C)
Range: 40.0 to 60.0
Default Value: 45.0
SAT CMP1 LOCKOUT TEMP — The SAT CMP1 Lockout
Temperature displays the low supply temperature set point for
compressor no. 1 supply air during cooling. If compressor no. 1
is on during Cooling mode, the economizer will assist the cool-
ing and work to maintain a discharge air temperature slightly
above lockout temperature set point. If the economizer is at
minimum and the supply air temperature goes below Lockout
Temperature set point, the compressor will cycle to maintain
the supply air set point. The minimum on and off times will
still be in effect.
SAT CMP1
Lockout Temp: Units: Degrees F (Degrees C)
Range: 50.0 to 65.0
Default Value: 55.0
SAT CMP2 LOCKOUT TEMP — The SAT CMP2 Lockout
Temperature displays the low supply temperature set point for
compressor no. 2 supply air during cooling. If compressor no. 2
is on during Cooling mode, the economizer will assist the cool-
ing and work to maintain a discharge air temperature slightly
above lockout temperature set point. If the economizer is at
minimum and the supply air temperature goes below Lockout
Temperature set point, the compressor will cycle to maintain
the supply air set point. The minimum on and off times and
stage-up and down timers will still be in effect.
NOTE: If the staged cooling number of stages value is con-
figured to 1, then the SAT CMP2 is used for the low supply
air set point.
SAT CMP2
Lockout Temp: Units: Degrees F (Degrees C)
Range: 45.0 to 55.0
Default Value: 50.0
TIME GUARD OVERRIDE — The Time Guard Override
function will reset the Time Guard. Whenever this option is
changed from OFF to ON, the control will evaluate the amount
of time left in Compressor Time Guards.
If the time in a Time Guard is more than 30 seconds, it will
be replaced with 30 seconds.
NOTE: Changing this decision from OFF to ON will only
result in one-time Time Guards override.
To perform the override again, the override must be
changed from OFF to ON again.
Time Guard
Override: Range: On/Off
Default Value: Off
CONTINUOUS POWER EXHAUST — The Continuous
Power Exhaust function defines the operation of the Power
Exhaust Fan.
If disabled, the Power Exhaust Fan will operate during
economizer purge cycles when the economizer damper posi-
tion is above the configured minimum value. If enabled, the
Power Exhaust Fan will follow the supply fan's operation.
Continuous
Power
Exhaust: Range: Disable/Enable
Default Value: Disable
SUPPLY FAN STATUS ENABLE — The Supply Fan Status
Enable function is enabled when an actual sensor input is used
to determine that the supply fan is on. This will prevent certain
algorithms to run if the controller does not see that the supply
fan is functioning properly.
If this decision is disabled, the Supply Fan Status will fol-
low the state of the Supply Fan Relay in order to allow the
algorithms to run that depend on the Supply Fan Status to be
ON before executing.
Supply Fan
Status Enable: Range: Disable/Enable
Default Value: Disable
MAXIMUM OFFSET ADJUSTMENT — Maximum Offset
Adjustment value determines the degree in which the occupied
heating and cooling set points can be adjusted by the setpoint
adjustment slide bar on the space temperature sensor.
Max Offset
Adjustment: Units: Delta Degrees F
(Delta Degrees C)
Range: 0.0 to 15.0
Default Value: 2.0
SPACE TEMPERATURE TRIM — The Space Temperature
Trim configuration is used to calibrate the temperature display
for a sensor that does not appear to be reading correctly.
Space Temperature
Trim: Units: Delta Degrees F
(Delta Degrees C)
Range: –9.9 to 9.9
Default Value: 0.0
SUPPLY AIR TEMPERATURE TRIM — The Supply Air
Temperature Trim configuration is used to calibrate the temper-
ature display for a sensor that does not appear to be reading
correctly.
Supply Air
Temperature
Trim: Units: Delta Degrees F
(Delta Degrees C)
Range: –9.9 to 9.9
Default Value: 0.0

37
PremierLink™ Configuration Screen — The
PremierLink Configuration screen allows the user to configure
all functions. See Table 15.
OPERATING MODE — The Operating Mode function
determines the operating mode of the PremierLink controller.
There are two operating modes from which to choose: TSTAT
and CCN Sensor.
The TSTAT mode allows PremierLink controller to operate
as a stand-alone thermostat control by monitoring Y1 (cooling
stage 1), Y2 (cooling stage 2), W1 (heating stage 1), W2 (heat-
ing stage 2), and G (indoor fan) inputs.
The CCN mode allows the controller to integrate into a
Carrier Comfort Network.
Operating Mode: Range: 0 for TSTAT
1 for CCN
Default Value: 1 (CCN Sensor*)
*Default value for Version 1.1 and 1.2 is 0 (TSTAT).
HEAT TYPE — The Heat Type mode determines the type of
heat equipment the controller uses. There are two choices: gas
or electric.
Heat Type: Range: 0 for Gas (not used)
1 for Electric Heat
Default Value: 0 (Gas)
UNIT TYPE — The Unit Type mode determines the type of
heating/cooling equipment the controller is attached to. There
are two choices: AC or Heat Pump.
The AC mode is primarily used for units using the compres-
sors for cooling only.
The Heat Pump mode is primarily used for units using a
heat pump (for example, compressors for heating and cooling).
Unit Type: Range: 0 for AC
1 for Heat Pump
Default Value: 0 (AC)
AUXILIARY OUTPUT — The Auxiliary Output function is
used to define the specific use of the Auxiliary Output on the
controller board.
The output will be energized or deenergized by the appro-
priate algorithm that uses that specific output.
Auxiliary Output is displayed as one of the following:
0 = None 2 = Heat Stage
1 = Exhaust Fan 3 = Reversing Valve
Auxiliary Output: Range: 0 to 3
Default Value: 0
UNOCCUPIED FREE COOL — The Unoccupied Free Cool
function is used during unoccupied periods to pre-cool the
space using outside air when outside conditions are suitable.
Unoccupied
Free Cool: Range: Disable/Enable
Default Value: Disable
DEMAND LIMITING — The Demand Limiting function is
used to limit operating capacity of the unit to prevent system
overloads. Both Heating and Cooling capacity is limited.
When Demand Limit option is enabled, the control will re-
spond to the Loadshed Controller commands, such as Redline
Alert, Shed, Unshed, and Redline Cancel.
Demand
Limiting: Range: Disable/Enable
Default Value: Disable
Table 15 — PremierLink Control Configuration
LOADSHED GROUP NUMBER — The Loadshed Group
Number function defines the Loadshed table number (LDSH-
DxxS, where xx is the configured loadshed group number) that
the controller will respond to when a broadcast for Redline/
Loadshed has been detected on the CCN bus.
Unoccupied
Free Cool: Range: 1 to 16
Default Value: 1
CCN, BROADCAST OAT, ENTHALPY, OAQ — Config-
ures the controller to CCN broadcast any or all of the point
values for Outside Air Temperature (OAT), Enthalpy (ENTH),
and Outdoor Air Quality (OAQ).
Example: To broadcast OAQ and ENTH but not OAT, the cor-
responding bitmap is 110; the binary equivalent of the decimal
number 6. The configuration decision would then be set to a 6.
CCN Broadcast, OAT, Enthalpy,
OAQ Allowable Entries:
0 — None 5 — OAT and OAQ
1 — OAT Only 6 — ENTH and OAQ
2 — ENTH Only 7 — OAT, ENTH and OAQ
3 — OAT and ENTH
4 — OAQ Only
Default Value: 0 (disabled, no broadcasts performed)
IMPORTANT: When used with split system units, Heat
Type must be set to 1 (electric heat).
DESCRIPTION VALUE UNITS NAME
Operating Mode: 0=TSTAT,
1=CCN Sensor
1TSTATCFG
Heat Type: 0=Gas,
1=Electric Heat
0HEATTYPE
Unit Type: 0=AC Unit,
1=Heat Pump
0AC
Auxiliary Output 0AUXOUT
0=None
1=Exhaust Fan
2=Heat Stage
3=Reversing Valve
Unoccupied Free Cool Disable NTEN
Demand Limiting Disable DLEN
Loadshed Group Number 1LSGP
CCN Broadcast OAT, ENTH,OAQ 0OATBC
Global Schedule Broadcast No GSBC
Broadcast Acknowledge No BCACK
Schedule Number 64 SCHEDNUM
Timed Override Hours 0hours TIMOVRID
Linkage Thermostat
Cool Strt Bias(min/deg) 10 min KCOOL
Heat Strt Bias(min/deg) 10 min KHEAT
Filter Timer hrs* 100 15 FIL_TIMR
IAQ Priority Level Low IAQP
IAQ Pre-Occupancy Purge Disable IAQPURGE
IAQ Purge Duration 5min IQPD
IAQ Delta Setpoint 650 IAQD
IAQ Maximum Damper Pos. 50 % IAQMAXP
Indoor AQ Low Ref. 0.0 IIAQREFL
Indoor AQ High Ref. 2000.0 IIAQREFH
Outdoor AQ Low Ref. 0.0 OIAQREFL
Outdoor AQ High Ref. 2000.0 OIAQREFH
Outdoor AQ Lockout Point 0OIAQLOCK
Service Password 1111 PA S S W O R D
Password Enable Disable PA S S _ E B L
Metric Display Off DISPUNIT
38
GLOBAL SCHEDULE BROADCAST — The Global Sched-
ule Broadcast setting configures the controller to broadcast or
receive a global schedule. If set to Yes, the controller will act as
a global schedule master and its schedule will be broadcast to
the CCN. If set to No, the controller will not broadcast a global
schedule and it will receive the configured schedule number.
Global Schedule
Master: Range: No/Yes
Default Value: No
BROADCAST ACKNOWLEDGER — The Broadcast Ac-
knowledger setting configures the controller to recognize
broadcast messages that appear on its CCN bus.
NOTE: For proper CCN bus operation, there should be only
one device per CCN bus that is configured as the Broadcast
Acknowledger.
Acknowledger: Range: No/Yes
Default Value: No
SCHEDULE NUMBER — The Schedule Number deter-
mines which Global Occupancy Schedule that the controller
will follow. A value of 64 disables global occupancy from
CCN and will decide Occupancy from its local schedule. A
value between 65 and 99 will allow the controller to follow the
global occupancy schedule of the number broadcast over CCN.
Occupancy Schedule
Number Range: 64 to 99
Default Value: 64
TIMED OVERRIDE HOURS — The Timed Override Hours
function is used to configure a timed override duration by
entering the number of hours the override will be in effect.
Pressing the override button on a space temperature sensor will
cause an override.
Timed Override
Hours: Range: 0 to 4
Default Value: 0
LINKAGE THERMOSTAT — The Linkage Thermostat start
time biases allow the installer to configure the time per degree
the space should take to recover in the Heat and Cool modes
for optimum start with a Linkage Thermostat. These numbers
will be used to calculate the Start Bias time.
Cool Start Bias: Units: Minutes/Degree
Range: 0 to 60
Default Value: 10
Heat Start Bias Units: Minutes/Degree
Range: 0 to 60
Default Value: 10
FILTER TIMER HOURS — The Filter Timer Hours config-
uration determines when the filter status will display a “Dirty”
alarm. When the Filter Timer Hours is configured to a value
other than zero and fan run time exceeds the value configured,
the filter status will display “Dirty” and a CCN alarm will be
generated. Setting the configured Filter Timer Hours value to
zero will disable the alarm condition. The value of the timer is
stored in EEPROM to protect it in the event of a power failure.
The value is stored every 24 hours.
Filter Timer
Hours: Range: 0 to 99
Default Value: 15 (where 15*100=1500)
INDOOR AIR QUALITY PRIORITY LEVEL — The Indoor
Air Quality Priority Level, when set to Low, ensures that com-
fort is not being compromised by bringing in too much outdoor
air to maintain IAQ set point. When an override condition
takes place, IAQ control is disabled, and Economizer Mini-
mum Position is set to the user configured value MDP. When
set to High, IAQ control is always active regardless of indoor
comfort conditions. The controller will temper cold air OAT
<55 F to prevent cold blow.
Indoor Air Quality
Priority Level: Range: High/Low
Default Value: Low
INDOOR AIR QUALITY PREOCCUPANCY PURGE —
The Indoor Air Quality Preoccupancy Purge brings in fresh
outdoor air before the Occupied mode begins. The IAQ Pre-
Occupancy Purge is used to lower carbon dioxide levels below
the IAQ set point before Occupied mode starts.
The Purge is started two hours before the occupied time and
lasts for the specified duration.
Indoor Air Quality
Preoccupancy
Purge: Range: Disable/Enable
Default Value: Disable
INDOOR AIR QUALITY PURGE DURATION — The
Indoor Air Quality Purge Duration specifies the duration of
IAQ Pre-Occupancy purge. The Purge is started two hours
before the occupied time and lasts for the specified duration.
Indoor Air Quality
Purge Duration: Display Units: Minutes
Display Range: 0 to 60
Default Value: 5
INDOOR AIR QUALITY DELTA SET POINT — The
Indoor Air Quality Delta Set Point specifies the highest Indoor
Air Quality level (measured in ppm) allowed within the space
whenever unit is in Occupied mode (or Supply Fan On for
units with Thermostat control) and Indoor Air Quality sensor is
installed.
Indoor Air Quality
Delta Set Point: Display Units: PPM (parts per million)
Display Range: 1 to 5000
Default Value: 650
INDOOR AIR QUALITY MAXIMUM DAMPER POSI-
TION — This point displays upper limit of the Indoor Air
Quality minimum damper position calculated by the IAQ
control.
For example, IAQ is calculating 100% Minimum Damper
Position, but this decision is set to 50%, IAQ Minimum Damp-
er Position will be clamped to 50%.
NOTE: When IAQ priority is set to HIGH, this value must
reflect the maximum outdoor air percent that the equipment
can heat or cool at worst conditions.
Indoor Air Quality
Maximum Damper
Position: Display Units: % Open
Display Range: 0 to 100
Default Value: 50
INDOOR AIR QUALITY SENSOR — The Indoor Air Qual-
ity sensor defines the value in parts per million (ppm) which
correlate to the low and high voltage readings from the sensor.
Low Reference specifies Low Point of the Indoor IAQ
Sensor Range in ppm.
Low Reference: Units: PPM (parts per million)
Range: 0 to 5000
Default Value: 0
High Reference specifies High Point of the Indoor IAQ
Sensor Range in ppm.
High Reference: Units: PPM (parts per million)
Range: 0 to 5000
Default Value: 2000
OUTDOOR AIR QUALITY SENSOR — The Outdoor Air
Quality sensor defines the value in parts per million (ppm)
which correlate to the low and high voltage readings from the
sensor.
39
Low Reference specifies Low Point of the Outdoor IAQ
Sensor Range in ppm.
Low Reference: Units: PPM (parts per million)
Range: 0 to 5000
Default Value: 0
High Reference specifies High Point of the Outdoor IAQ
Sensor Range in ppm.
High Reference: Units: PPM (parts per million)
Range: 0 to 5000
Default Value: 2000
OUTDOOR AIR QUALITY LOCKOUT POINT — When
set to non-zero value, the IAQ algorithm will compare Outdoor
IAQ reading against this decision and disable IAQ control
whenever the value of OAQ exceeds this configured value.
Outdoor Air
Quality Lockout
Point: Range: 0 to 5000
Default Value: 0
SERVICE PASSWORD — The Service Password function
defines the password needed to access the controller via the
Navigator interface.
Service Password: Range: 0000 to 9999
Default Value: 1111
PASSWORD ENABLE — The Password Enable function is
used to require a password to be entered when attempting
to access the controller via the Navigator™ display module
interface.
Password
Enable: Range: Enable/Disable
Default Value: Disable
METRIC DISPLAY — The Metric Display function is used
to toggle the display for the Navigator between US and Metric
units.
Metric Display: Range: On/Off
Default Value: Off
Occupancy Maintenance Screen — The Occupan-
cy Maintenance screen is used to check the occupied schedule.
Information concerning the current occupied period is dis-
played. See Table 16.
MODE — The Mode point displays the current occupied
mode for the controller. If the controller is following its own
local schedule this is the result of the local schedule status. If
the controller is configured to follow a global schedule, this
point displays the mode last received from a global schedule
broadcast.
Mode: Display Range: 0 to 1
Default Value: 0
Network Access: None
CURRENT OCCUPIED PERIOD — If the controller is con-
figured to determine occupancy locally, the Current Occupied
Period point is used to display the current period determining
occupancy.
Current Occupied
Period: Display Range: 1 to 8
Default Value: 0
Network Access: None
OVERRIDE IN PROGRESS — The Override in Progress
point is used to display if an occupancy override is in progress.
The point will display “Yes” if an override is in progress, or
“No” if there is no override.
Override In
Progress: Display Range: Yes/No
Default Value: No
Network Access: None
OVERRIDE DURATION — The Override Duration point
displays the number of minutes remaining for an occupancy
override which is in effect. If the override duration value down-
loaded is in hours, the value will be converted to minutes. If the
occupancy schedule is occupied when override is initiated, the
current occupancy period will be extended by the number of
hours/minutes requested.
If the current occupancy period is unoccupied when the oc-
cupancy override is initiated, the mode will change to occupied
for the duration of the number of hours/minutes downloaded. If
the occupancy override is due to end after the start of the next
occupancy period, the mode will transition from occupancy
override to occupied without becoming unoccupied, and the
occupancy override timer will be reset.
Override
Duration: Display Units: Minutes
Display Range: 0 to 240
Default Value: 0
Network Access: None
OCCUPIED START TIME — The Occupied Start Time
point shows the time that the current occupied mode began. If
the current mode is unoccupied or the controller is following a
global schedule, the value displayed by this point will remain at
default.
Occupied
Start Time: Display Range: 00:00 to 24:00
Default Value: 00:00
Network Access: None
UNOCCUPIED START TIME — The Unoccupied Start
Time point shows the time that the current occupied mode will
end. This will also be the beginning of the next unoccupied
mode. If the current mode is unoccupied or the controller is
following a global schedule, the value displayed by this point
will remain at default.
Unoccupied
Start Time: Display Range: 00:00 to 24:00
Default Value: 00:00
Network Access: None
NEXT OCCUPIED DAY — The Next Occupied Day point
displays the day of week when the next occupied period will
begin. This point is used with the Next Occupied Time so the
user will know when the next occupied period will occur. If the
controller is following a global schedule this point will remain
at default.
Next Occupied
Day: Display Range: MON, TUE, WED,
THU, FRI, SAT, SUN
Default Value: No display (Blank)
Network Access: None
NEXT OCCUPIED TIME — The Next Occupied Time point
displays the time day when the next occupied period will
begin. This point is used with the Next Occupied Day so the
user will know when the next occupied period will occur. If the
PremierLink™ controller is following a global schedule this
point will remain at default.
Next Occupied
Time: Display Range: 00:00 to 24:00
Default Value: 00:00
Network Access: None

40
NEXT UNOCCUPIED DAY — The Next Unoccupied Day
point displays the day of week when the next unoccupied peri-
od will begin. This point is used with the Next Unoccupied
Time so the user will know when the next unoccupied period
will occur. If the controller is following a global schedule this
point will remain at default.
Next Unoccupied
Day: Display Range: MON, TUE, WED,
THU, FRI, SAT, SUN
Default Value: No display (Blank)
Network Access: None
NEXT UNOCCUPIED TIME — The Next Unoccupied Time
point displays the time day when the next unoccupied period
will begin. This point is used with the Next Unoccupied Day
so the user will know when the next unoccupied period will
occur. If the controller is following a global schedule this point
will remain at default.
Next Unoccupied
Time: Display Range: 00:00 to 24:00
Default Value: 00:00
Network Access: None
LAST UNOCCUPIED DAY — The Last Unoccupied Day
point displays the day of week when the controller last changed
from occupied to the Unoccupied mode. This point is used in
conjunction with the Last Unoccupied Time to know the last
time and day when the controller became unoccupied. If the
controller is following a global schedule this point will remain
at default.
Last Unoccupied
Day: Display Range: MON, TUE, WED,
THU, FRI, SAT, SUN
Default Value: No display (Blank)
Network Access: None
LAST UNOCCUPIED TIME — The Last Unoccupied Time
point displays the time of day when the controller last changed
from occupied to the Unoccupied mode. This point is read in
conjunction with the Last Unoccupied Day to know the last
time and day when the controller became unoccupied. If the
controller is following a global schedule this point will remain
at default.
Last Unoccupied
Time Display Range: 00:00 to 24:00
Default Value: 00:00
Network Access: None
Table 16 — Occupancy Maintenance
Maintenance Screen — The Maintenance Screen is
used to service the PremierLink™ controller. See Table 17.
THERMOSTAT CONTROL — Indicates the result of the
configuration decision to control in the thermostat or sensor
mode.
Thermostat
Control: Display Range: No/Yes
Default Value: Yes
Network Access: Read Only
OCCUPIED — The Occupied point indicates whether or not
the controller is operating in the Occupied mode.
Occupied: Display Range: No/Yes
Default Value: No
Network Access: Read/Write
TIMED OVERRIDE IN EFFECT — The Timed Override In
Effect point shows if a timed override is currently in effect.
Timed Override
in Effect: Display Range: No/Yes
Default Value: No
Network Access: Read Only
START BIAS TIME — The Start Bias Time, in minutes, is
calculated during the unoccupied period by the controller as
needed to bring the temperature up or down to the set point un-
der the optimum start routine. The start time bias for heat and
cool are configurable. This value will be reported to the Link-
age Thermostat if it is used. It cannot be used with Global
Scheduling.
Start Bias Time: Display Units: minutes
Display Range: 0 to 180
Default Value: 0
Network Access: Read only
HEAT — The Heat point shows if there is a demand for heat in
the space. The space temperature must be below the Occupied
Low or Unoccupied Low set point.
NOTE: When a control mode ends, “NO” mode must be com-
pleted before opposite mode can begin.
Heat: Display Range: No/Yes
Default Value: No
Network Access: None
COOL — The Cool point shows if there is a demand for cool-
ing in the space. The space temperature must be above the Oc-
cupied High or Unoccupied High set point.
NOTE: When a control mode ends, “NO” mode must be com-
pleted before opposite mode can begin.
Cool: Display Range: No/Yes
Default Value: No
Network Access: None
IAQ CONTROL — Indicates weather or not IAQ control is
active in the controller. IAQ control of the minimum damper
position is active whenever the configured parameters for the
IAQ PID calculate a minimum position greater than the config-
ured economizer minimum position.
IAQ Control: Display Range: No/Yes
Default Value: No
Network Access: Read Only
DEMAND LIMIT — Indicates that a command has been
received to limit capacity or reduce capacity of the heating or
cooling.
Demand Limit: Display Range: No/Yes
Default value: No
Network Access: Read Only
TEMP COMPENSATED START — Indicates that the con-
troller has started the equipment prior to occupancy in order to
be at the occupied set points at the start of occupancy.
Temp
Compensated
Start: Display Range: No/Yes
Default Value: No
Network Access: Read Only
DESCRIPTION VALUE UNITS NAME
Mode 0 MODE
Current Occupied Period 0 PERIOD
Override in Progress No OVERLAST
Override Duration 0 min OVERDURA
Occupied Start Time 00:00 OCCSTART
Unoccupied Start Time 00:00 UNSTART
Next Occupied Day NXTOCCD
Next Occupied Time 00:00 NXTOCCT
Next Unoccupied Day NXTUNOD
Next Unoccupied Time 00:00 NXTUNOT
Last Unoccupied Day PRVUNOD
Last Unoccupied Time 00:00 PRVUNOT
41
IAQ PRE-OCCUPANCY PURGE — Indicates that the pre-
occupancy purge mode is currently active.
IAQ
Pre-occupancy
Purge: Display Range: No/Yes
Default Value: No
Network Access: Read Only
UNOCCUPIED FREE COOLING — Indicates that unoccu-
pied free cooling is in effect.
Unoccupied Free
Cooling: Display Range: No/Yes
Default Value: No
Network Access: Read Only
FIRE SHUTDOWN — Indicates in a sensor mode that the
Fire shutdown input has been sensed. This will cause the
supply fan and heating and cooling to be turned off also.
Fire Shutdown: Display Range: No/Yes
Default Value: No
Network Access: Read/Write
LINKAGE CONTROL — Indicates if the controller is
receiving linkage communication.
Linkage Control: Display Range: No/Yes
Default Value: No
Network Access: Read/Write
FIELD/STARTUP TEST — This point is used to enable field
test of the controller. When forced to Yes, the controller will
perform a test of all outputs and reset to “NO” at end of test.
The test may be aborted at any time by forcing value to NO.
Field/Startup
Test: Display Range: No/Yes
Default Value: No
Network Access: Read/Write
HEAT SUBMASTER REFERENCE — When in sensor
mode, the Heat Submaster Reference point displays the supply
air temperature calculated by the heating PID loop. This value
is compared to the actual supply air temperature to determine
the number of required stages. When in the thermostat mode,
the value displayed is zero.
Heat Submaster
Reference: Display Units: Degrees F (Degrees C)
Display Range: 40.0 to 150.0
Default Value: 40
Network Access: Read Only
COOL SUBMASTER REFERENCE — The Cool Submas-
ter Reference point displays the supply air temperature calcu-
lated by the cooling PID loop when in sensor mode. This value
is compared to the actual supply air temperature to determine
the number of required stages. When in the thermostat mode,
the value displayed is zero.
Cool Submaster
Reference: Display Units: Degrees F (Degrees C)
Display Range: 40.0 to 150.0
Default Value: 150
Network Access: Read Only
ECONOMIZER SUBMASTER REFERENCE — This point
displays the supply air temperature determined by the
Economizer PID calculation.
Economizer
Submaster
Reference: Display Units: Degrees F (Degrees C)
Display Range: 48 to 120
Default Value: 120
Network Access: Read Only
ECONOMIZER SUBMASTER GAIN — Displays the cur-
rent Submaster gain multiplier in use to calculate the econo-
mizer damper position. At temperatures below 45 F this
number will decrease to slow the rate of movement of the
economizer damper.
Economizer
Submaster Gain: Display Range: –20 to 20
Default Value: –5.5
Network Access: Read Only
COMPRESSOR STARTS — Displays the total number of
compressor starts.
Compressor
Starts: Default Value: 0
Network Access: Read Only
COMPRESSOR 1 RUN TIME — Displays the number of
run hours of compressor no. 1.
NOTE: The clock must be set for run times to accumulate.
Compressor 1
Run Time: Display Units: Hours
Default Value: 0
Network Access: Read Only
COMPRESSOR 2 RUN TIME — Displays the number of
run hours of compressor 2.
NOTE: The clock must be set for run times to accumulate.
Compressor 2
Run Time: Display Units: Hours
Default Value: 0
Network Access: Read Only
SUPPLY FAN RUN TIME — Displays the number of run
hours of the supply fan.
NOTE: The clock must be set for run times to accumulate.
This is not the same timer used for the filter status. A sepa-
rate timer is used to keep track of the run hours since the last
filter change.
Supply Fan
Run Time: Display Units: Hours
Default Value: 0
Network Access: Read Only
LINKAGE THERMOSTAT — The following Linkage Ther-
mostat points display the standard values received from a
Linkage Thermostat (if one is being used to provide space
temperature, set point and occupancy information).
Linkage
Status: Display Range: 0 to 3
Default Value: 2
Network Access: None
The Supervisory Element displays the address of the device
sending the linkage supervisory table to the PremierLink™
controller.
Supervisory
Element: Default Value: 0
Network Access: Read Only
The Supervisory Bus displays the bus number of the device
sending the linkage supervisory table to the PremierLink
controller.
Supervisory Bus: Default Value: 0
Network Access: Read Only
The Supervisory Block displays the block or table
number of the linkage table occurrence in the supervisory
device. Some linkage supervisory devices may contain
more than one linkage table for different air sources.
Supervisory
Block: Default Value: 0
Network Access: Read Only

42
The Average Occupied Heat Set Point displays the
Occupied Heat set point from the Linkage Thermostat.
Average Occupied
Heat Set Point: Display Units: Degrees F (Degrees C)
Display Range: 0.0 to 99.9
Default Value: 0.0
Network Access: None
The Average Occupied Cool Set Point displays the Occu-
pied Cool set point from the Linkage Thermostat.
Average Occupied
Cool Set Point: Display Units: Degrees F (Degrees C)
Display Range: 0.0 to 99.9
Default Value: 0.0
Network Access: None
The Average Unoccupied Heat Set Point displays the Unoc-
cupied heat set point from the Linkage Thermostat.
Average Unoccupied
Heat Set Point: Display Units: Degrees F (Degrees C)
Display Range: 0.0 to 99.9
Default Value: 0.0
Network Access: None
The Average Unoccupied Cool Set Point displays the Unoc-
cupied cool set point from the Linkage Thermostat.
Average Unoccupied
Cool Set Point: Display Units: Degrees F (Degrees C)
Display Range: 0.0 to 99.9
Default Value: 0.0
Network Access: None
The Average Zone Temperature displays the space tempera-
ture from the Linkage Thermostat.
Average Zone
Temperature: Display Units: Degrees F (Degrees C)
Display Range: 0.0 to 99.9
Default Value: 0.0
Network Access: None
The Average Occupied Zone Temperature displays the
space temperature from the Linkage Thermostat during occu-
pied periods.
Average Occupied
Zone Temperature: Display Units: Degrees F (Degrees C)
Display Range: 0.0 to 99.9
Default Value: 0.0
Network Access: None
The Occupancy Status point displays a 1 if occupancy is re-
ported by the Linkage Thermostat. The Occupancy Status
point displays a 0 if occupancy is not reported by the Linkage
Thermostat.
Occupancy
Status: Display Range: 0, 1
Default Value: 0
Network Access: None
Table 17 — Maintenance
NOTE: Bold values indicate points that can be forced through communications.
DESCRIPTION VALUE UNITS STATUS FORCE NAME
Thermostat Control No TSTAT
Occupied Yes OCCUP
Timed Override in Effect No TIMOV
Start Bias Time 0 min STRTBIAS
Heat No HEAT
Cool No COOL
IAQ Control No IAQCL
Demand Limit No DEMLT
Temp Compensated Start No TCSTR
IAQ Pre-Occupancy Purge No IQPRG
Unoccupied Free Cool No NTFCL
Fire Shutdown No FIRES
Linkage Control No DAVCL
Field/Startup Test No FIELD
Heat Submaster Ref 40.0 dF SHSR
Cool Submaster Ref 150.0 dF CCSR
Economizer Submaster Ref 120.0 dF ECONSR
Economizer Submastr Gain 0.00 ECONGN
Compressor Starts 0.00 CMPST
Compressor 1 Runtime 0.00 HOURS CM1RT
Compressor 2 Runtime 0.00 HOURS CM2RT
Supply Fan Runtime 17.00 HOURS FANRT
Linkage Thermostat
Linkage Status 2 LINKSTAT
Supervisory Element 0 SUPE-ADR
Supervisory Bus 0 SUPE-BUS
Supervisory Block 0 BLOCKNUM
Average Occ Heat Setpt 0.0 dF OCLOSTPT
Average Occ Cool Setpt 0.0 dF OCHISTPT
Average Unoc Heat Setpt 0.0 dF UNLOSTPT
Average Unoc Cool Setpt 0.0 dF UNHISTPT
Average Zone Temp 0.0 dF AZT
Average Occ Zone Temp 0.0 dF AOZT
Occupancy Status(1=occ) 1 OCCSTAT

Manufacturer reserves the right to discontinue, or change at any time, specifications or designs without notice and without incurring obligations.
PC 111 Catalog No. 533-80072 Printed in U.S.A. Form 38-54SI Pg 44 11-02 Replaces: 38-52SI
Book 1 4
Ta b 3 a 2 a
Copyright 2002 Carrier Corporation