Carrier Weathermaker 8000 58Zav Users Manual
58ZAV to the manual b9b639f4-fb84-4331-badc-46757fda0f54
2015-01-24
: Carrier Carrier-Weathermaker-8000-58Zav-Users-Manual-310781 carrier-weathermaker-8000-58zav-users-manual-310781 carrier pdf
Open the PDF directly: View PDF
.
Page Count: 20

WeatherMaker 8000™
58ZAV
Downflow/Horizontal Induced-Combustion Furnaces
Installation, Start-Up, and Operating Instructions
Sizes 050—135, Series 140
NOTE: Read the entire instruction manual before starting the
installation.
This symbol →indicates a change since the last issue.
Index Page
SAFETY CONSIDERATIONS.....................................................1
ELECTROSTATIC DISCHARGE (ESD) PRECAUTIONS
PROCEDURE...........................................................................2
INTRODUCTION.......................................................................3-4
Dimensional Drawing...............................................................2
Clearances From Combustible Materials.................................3
LOCATION....................................................................................4
General ......................................................................................4
Location Relative to Cooling Equipment ................................4
Hazardous Locations.................................................................4
AIR FOR COMBUSTION AND VENTILATION...................4-5
Unconfined Space..................................................................4-5
Confined Space.........................................................................5
AIR DUCTS................................................................................5-6
General Requirements...............................................................5
Ductwork Acoustical Treatment...............................................5
Supply-Air Connections ........................................................5-6
Return-Air Connections............................................................6
DOWNFLOW INSTALLATION..................................................6
HORIZONTAL ATTIC INSTALLATION...................................7
Construct a Working Platform .................................................7
Install Furnace...........................................................................7
HORIZONTAL CRAWLSPACE INSTALLATION....................7
FILTER ARRANGEMENT...........................................................8
GAS PIPING.............................................................................8-10
ELECTRICAL CONNECTIONS ................................................10
115-v Wiring...........................................................................10
24-v Wiring.............................................................................11
Accessories..............................................................................11
VENTING ....................................................................................11
START-UP, ADJUSTMENT, AND SAFETY CHECK.......11-20
General...............................................................................11-13
Sequence Of Operation...........................................................13
Heating Mode..........................................................................13
Cooling Mode .........................................................................13
Continuous Blower Mode.......................................................13
Heat Pump Mode....................................................................13
Start-up Procedures.................................................................13
Adjustments .......................................................................15-20
Set Gas Input Rate..................................................................15
Set Temperature Rise ............................................................ 18
Set Thermostat Heat Anticipator............................................19
Check Safety Controls............................................................20
Checklist..................................................................................20
SAFETY CONSIDERATIONS
Installing and servicing heating equipment can be hazardous due to
gas and electrical components. Only trained and qualified person-
nel should install, repair, or service heating equipment.
Untrained personnel can perform basic maintenance functions
such as cleaning and replacing air filters. All other operations must
be performed by trained service personnel. When working on
heating equipment, observe precautions in the literature, on tags,
and on labels attached to or shipped with the unit and other safety
precautions that may apply.
In the United States, follow all safety codes including the National
Fuel Gas Code (NFGC) NFPA 54-1996/ANSI Z223.1-1996 and
the Installation Standards, Warm Air Heating and Air Condition-
ing Systems (NFPA 90B) ANSI/NFPA 90B.
In Canada, refer to the CAN/CGA-B149.1- and .2-M95 National
Standard of Canada, Natural Gas and Propane Installation Codes
(NSCNGPIC).
Wear safety glasses and work gloves. Have fire extinguisher
available during start-up and adjustment procedures and service
calls.
Recognize safety information. This is the safety-alert symbol .
When you see this symbol on the furnace and in instructions or
manuals, be alert to the potential for personal injury.
Understand the signal words DANGER, WARNING, CAUTION,
and NOTE. These words are used with the safety-alert symbol.
DANGER identifies the most serious hazards which will result in
severe personal injury or death. WARNING signifies a hazard
which could result in personal injury or death. CAUTION is used
to identify unsafe practices which would result in minor personal
injury or product and property damage. NOTE is used to highlight
suggestions which will result in enhanced installation, reliability,
or operation.
These instructions cover minimum requirements and conform to
existing national standards and safety codes. In some instances,
these instructions exceed certain local codes and ordinances,
especially those that may not have kept up with changing residen-
tial construction practices. We require these instructions as a
minimum for a safe installation.
®
ama
CANADIAN GAS ASSOCIATION
APPROVED
R
REGISTERED QUALITY SYSTEM
Visit www.carrier.com
Manufacturer reserves the right to discontinue, or change at any time, specifications or designs without notice and without incurring obligations.
Book 1 4
Tab 6a 8a PC 101 Catalog No. 535-729 Printed in U.S.A. Form 58ZAV-10SI Pg 1 8-99 Replaces: 58ZAV-9SI
→
→
→

ELECTROSTATIC DISCHARGE (ESD) PRECAUTIONS
PROCEDURE
Electrostatic discharge can affect electronic components.
Take precautions during furnace installation and servicing to
protect the furnace electronic control. Precautions will pre-
vent electrostatic discharges from personnel and hand tools
which are held during the procedure. These precautions will
help to avoid exposing the control to electrostatic discharge
by putting the furnace, the control, and the person at the same
electrostatic potential.
1. Disconnect all power to the furnace. DO NOT TOUCH THE
CONTROL OR ANY WIRE CONNECTED TO THE CON-
TROL PRIOR TO DISCHARGING YOUR BODY’S ELEC-
TROSTATIC CHARGE TO GROUND.
2. Firmly touch a clean, unpainted, metal surface of the furnace
chassis which is close to the control. Tools held in a person’s
hand during grounding will be satisfactorily discharged.
3. After touching the chassis you may proceed to service the
control or connecting wires as long as you do nothing that
recharges your body with static electricity (for example; DO
NOT move or shuffle your feet, DO NOT touch ungrounded
objects, etc.).
4. If you touch ungrounded objects (recharge your body with
static electricity), firmly touch furnace again before touching
control or wires.
5. Use this procedure for installed and uninstalled (ungrounded)
furnaces.
6. Before removing a new control from its container, discharge
your body’s electrostatic charge to ground to protect the
control from damage. If the control is to be installed in a
furnace, follow items 1 through 5 before bringing the control
or yourself into contact with the furnace. Put all used AND
new controls into containers before touching ungrounded
objects.
7. An ESD service kit (available from commercial sources) may
also be used to prevent ESD damage.
Table 1—Dimensions (In.)
UNIT SIZE A D E VENT CONN SHIP. WT (LB)
050-08 14-3/16 12-9/16 12-11/16 4 124
050-12 14-3/16 12-9/16 12-11/16 4 128
070-08 14-3/16 12-9/16 12-11/16 4 129
070-12 14-3/16 12-9/16 12-11/16 4 137
096-12 17-1/2 15-7/8 16 4 146
096-16 17-1/2 15-7/8 16 4 151
115-16 17-1/2 15-7/8 16 4 159
115-20 21 19-3/8 19-1/2 4 174
115-22 21 19-3/8 19-1/2 4 176
135-20 24-1/2 22-7/8 23 5 193
→Fig. 1—Dimensional Drawing A99288
4 3⁄16†2†
2 15⁄16†
13⁄16†
11⁄16†
9 1⁄8†
10 1⁄4†
1 1⁄16†
2 1⁄8†
8 1⁄4†10 1⁄4†1 1⁄16†
2 1⁄8†
16 1⁄16†
13 5 ⁄16†
19†11⁄16†
13⁄16†
11⁄16†
20†
28 1⁄2†
39 7⁄8†
D
5⁄8† TYP
1† TYP
E
A
AIRFLOW
OUTLET
INLET
1⁄2† DIA
THERMOSTAT
WIRE ENTRY
7⁄8† DIA
ACCESSORY
7⁄8† DIA
ACCESSORY
DIMPLES TO DRILL HOLES
FOR HANGER BOLTS (4 PLACES)
IN HORIZONTAL POSITION
ADDITIONAL 7⁄8† DIA K.O.’s ARE
LOCATED IN THE TOP PLATE
AND BOTTOM PLATE
NOTE:
7⁄8† DIA HOLE
POWER ENTRY
1 1⁄2† DIA
R.H. GAS ENTRY
7⁄8† DIA
ACCESSORY
1 3⁄4† DIA HOLE
GAS ENTRY
VENT CONNECTION
Minimum return-air openings at furnace, based on metal duct. If flex duct is used,
see flex duct manufacturer's recommendations for equivalent diameters.
a. For 800 CFM–16-in. round or 141⁄2 x 12-in. rectangle.
b. For 1200 CFM–20-in. round or 141⁄2 x 191⁄2-in. rectangle.
c. For 1600 CFM–22-in. round or 141⁄2 x 231⁄4-in. rectangle.
d. For airflow requirements above 1800 CFM, must use entire return air opening.
NOTE:
2

INTRODUCTION
The model 58ZAV Series 140 Furnaces are available in sizes
46,000 through 135,000 Btuh input capacities.
The design of the downflow/horizontal gas-fired furnace is
A.G.A./C.G.A. certified for natural and propane gases and for
installation on noncombustible flooring. The furnace is factory-
shipped for use with natural gas. A factory accessory gas conver-
sion kit, as listed on the furnace rating plate is required to convert
furnace for use with propane gas.
These furnaces SHALL NOT be installed directly on carpeting,
tile, or any other combustible material other than wood flooring. In
downflow installations, a factory accessory floor base, as listed on
the furnace rating plate MUST be used when installed on com-
bustible materials and wood flooring. A factory base is not
required when this furnace is installed on manufacturer’s Coil
Assembly Part No. CD5 or CK5, or when Coil Box Part No.
KCAKC is used. This furnace is for installation in alcoves, attics,
crawlspaces, basements, closets, or utility rooms. The design of
this furnace line is not A.G.A./C.G.A. certified for installation in
mobile homes, recreation vehicles, or outdoors.
Before installing the furnace in the United States, refer to the
current edition of the NFGC and the NFPA 90B. For further
information, the NFGC and NFPA 90B are available from Na-
tional Fire Protection Association Inc., Batterymarch Park,
Quincy, MA 02269; or the American Gas Association, 400 N.
Capitol St., NW, Washington DC 20001.
Before installing the furnace in Canada, refer to the current edition
of the NSCNGPIC. For a copy of the NSCNGPIC, contact
Standard Sales, CSA International, 178 Rexdale Boulevard, Eto-
bicoke (Toronto), Ontario, M9W 1R3 Canada.
Installation must comply with regulations of serving gas supplier
and local building, heating, plumbing or other codes in effect in the
area in which installation is made. In absence of local building
codes, installation must conform with NFGC in the United States
and the NSCNGPIC and all authorities having jurisdiction in
Canada.
These instructions cover minimum requirements for a safe instal-
lation and conform to existing national standards and safety codes.
In some instances, these instructions exceed certain local codes
and ordinances, especially those that may not have kept pace with
changing residential construction practices. We require these
instructions as a minimum for a safe installation.
Application of this furnace should be indoors with special
attention given to vent sizing and material, gas input rate, air
temperature rise, and unit sizing. Improper installation or
misapplication of the furnace can require excessive servicing
or cause premature component failure.
NOTE: These furnaces are designed for a minimum continuous
return-air temperature of 60°F or intermittent operation down to
55°F such as when used with a night setback thermostat. Return-air
temperature must not exceed a maximum of 85°F. Failure to
follow these return-air temperature limits may affect reliability of
heat exchangers, motors, and controls.
Fig. 2—Clearances to Combustibles A99262
322286-101 REV. F (LIT)
MINIMUM INCHES CLEARANCE TO COMBUSTIBLE CONSTRUCTION
This forced air furnace is equipped for use with natural
gas at altitudes 0-10,000 ft (0-3,050m).
An accessory kit, supplied by the manufacturer,shall be
used to convert to propane gas use or may be required for
some natural gas applications.
This furnace is for indoor installation in a building
constructed on site.
This furnace may be installed on combustible flooring in
alcove or closet at minimum clearance from combustible
material.
This furnace may be used with a Type B-1 Vent and may
be vented in common with other gas-fired appliances.
Ø
*
For installation on non-combustible floors only.
For installation on combustible flooring only when
installed on special base, Part No. KGASB0201ALL,
Coil Assembly, Part No. CD5 or CK5, or Coil Casing,
Part No. KCAKC.
For furnaces wider than 14.25 inches (362mm) may
be 0 inches.
18 inches front clearance required for alcove.
Indicates supply or return sides when furnace is in
the horizontal position. Line contact only permissible
between lines formed by intersections of the Top and
two Sides of the furnace jacket, and building joists,
studs or framing.
For single wall vent type 6 inches.
For Type B-1 vent type 3 inches.
Clearance to Back 0 inches in downflow and
horizontal (attic/alcove & crawlspace) positions and
3 inches in horizontal closet positions.
#
Clearance in inches
Clearance arrows
do not change with
furnace orientation.
1"#
##
1" #
0"
1"
1"
30"
MIN
SIDE
FRONT
BCK
A
SERVIE
C
FRONT
SIE
U
FRNACE
##
#
Ø
Vent Clearance to combustibles:
For Single Wall vents 6 inches.
For Type B-1 vent type 1 inch .
D
*
*
This furnace is approved for DOWNFLOW and HORIZONTAL
installations.
BOTTOM
TOP / PLENUM
†
†
†
††
†
3
→

Improper installation, adjustment, alteration, service, mainte-
nance, or use can cause carbon monoxide poisoning, explo-
sion, fire, electrical shock, or other conditions which may
cause personal injury, loss of life, or property damage.
Consult a qualified installer, service agency, local gas sup-
plier, or your distributor or branch for information or assis-
tance. The qualified installer or agency must use only
factory-authorized and listed kits or accessories when modi-
fying this product. Failure to follow this warning could result
in electrical shock, fire, personal injury, or death.
For accessory installation details, refer to the applicable installa-
tion literature.
NOTE: Remove all shipping brackets and materials before oper-
ating the furnace.
Step 1—Location
GENERAL
Do not install furnace in a corrosive or contaminated atmo-
sphere. Make sure all combustion and circulating air require-
ments are followed, in addition to all local codes and
ordinances.
Do not use this furnace during construction when adhesives,
sealers, and/or new carpets are being installed. If the furnace
is required during construction, use clean outside air for
combustion and ventilation. Compounds of chlorine and
fluorine when burned with combustion air form acids which
cause corrosion of the heat exchangers and metal vent system.
Some of these compounds are found in paneling and dry wall
adhesives, paints, thinners, masonry cleaning materials, and
many other solvents commonly used in the construction
process.
Excessive exposure to contaminated combustion air will
result in safety and performance related problems.
Do not install the furnace on its back; safety control operation
will be adversely affected. Failure to follow this warning
could result in fire, personal injury, or death.
This furnace must be installed so the electrical components are
protected from water.
Locate the furnace as close to the chimney/vent and as near the
center of the air distribution system as possible. The furnace
should be installed as level as possible.
Provide ample space for servicing and cleaning. Always comply
with the minimum fire protection clearances shown on the unit
rating plate. This furnace shall not be installed directly on
carpeting, tile, or any combustible material other than wood
flooring. The furnace may be installed on combustible flooring
when installed with the accessory downflow subbase, which is
available from your distributor or branch when required.
LOCATION RELATIVE TO COOLING EQUIPMENT — The
cooling coil must be installed parallel with or on the downstream
side of the furnace to avoid condensation in the heat exchangers.
When installed parallel with a furnace, dampers or other means
used to control the flow of air must prevent chilled air from
entering the unit. If the dampers are manually operated, they must
be equipped with means to prevent operation of either unit unless
the damper is in the full-heat or full-cool position.
HAZARDOUS LOCATIONS
Step 2—Air For Combustion and Ventilation
Provisions for adequate combustion and ventilation air must be
provided in accordance with Section 5.3 of the NFGC, Air for
Combustion and Ventilation, or applicable provisions of the local
building codes.
Canadian installations must be installed in accordance with NSC-
NGPIC and all authorities having jurisdiction.
Air for combustion must not be contaminated by halogen
compounds, which include fluoride, chloride, bromide, and
iodide. These elements are found in aerosol sprays, deter-
gents, bleaches, cleaning solvents, salts, air fresheners, and
other household products.
A93042
FRONT
RETURN
AIR
MAX 85°F MIN 55°F
°F °F
When furnace is installed in a residential garage, it must be
installed so that burners and ignition sources are located a
minimum of 18 in. above floor. The furnace must be located
or protected to avoid physical damage by vehicles. When
furnace is installed in a public garage, airplane hangar, or
other building having a hazardous atmosphere, unit must be
installed in accordance with requirements of National Fire
Protection Association, Inc.
A93044
18-IN. MINIMUM
TO BURNERS
4

The operation of exhaust fans, kitchen ventilation fans,
clothes dryers, or fireplaces could create a NEGATIVE
PRESSURE CONDITION at the furnace. Make-up air MUST
be provided for the ventilation devices, in addition to that
required by the furnace.
All fuel-burning equipment must be supplied with air for combus-
tion of the fuel. Sufficient air MUST be provided to ensure there
will not be a negative pressure in the equipment room or space. In
addition, a positive seal MUST be made between the furnace
cabinet and the return-air duct to avoid pulling air from the burner
area and blocked vent safeguard opening.
The requirements for combustion and ventilation air depend upon
whether the furnace is located in an unconfined or confined space.
UNCONFINED SPACE — An unconfined space must have at
least 50 cu ft for each 1000 Btuh of input for all the appliances
(such as furnaces, clothes dryer, water heaters, etc.) in the space.
If the unconfined space is of unusually tight construction, air for
combustion and ventilation MUST come from either the outdoors
or spaces freely communicating with the outdoors. Combustion
and ventilation openings must be sized the same as for a confined
space as defined below. Return air must not be taken from the
room unless an equal or greater amount of air is supplied to the
room.
CONFINED SPACE
A confined space is defined as a space whose volume is less than
50 cu ft per 1000 Btuh of total input ratings of all appliances
installed in that space. A confined space MUST have provisions
for supplying air for combustion, ventilation, and dilution of flue
gases using 1 of the following methods. (See Fig. 3 and 4 and
Table 2.)
NOTE: In determining free area of an opening, the blocking
effect of louvers, grilles, and screens must be considered. If free
area of louver or grille design is unknown, assume that wood
louvers have a 20 percent free area and metal louvers or grilles
have a 60 percent free area. Screens, when used, must not be
smaller than 1/4-in. mesh. Louvers and grilles must be constructed
so they cannot be closed.
The size of the openings depends upon whether air comes from
outside of the structure or an unconfined space inside the structure.
1. All air from inside the structure requires 2 openings (for
structures not usually tight):
a. Each opening MUST have at least 1 sq in. of free area per
1000 Btuh of total input for all equipment within the
confined space, but not less than 100 sq in. per opening.
(See Fig. 3 and Table 2.) The minimum dimension of air
openings shall not be less than 3 in.
b. If building is constructed unusually tight, a permanent
opening directly communicating with the outdoors shall be
provided. See item 2 below.
c. If furnace is installed on a raised platform to provide a
return-air plenum, and return air is taken directly from
hallway or space adjacent to furnace, all air for combustion
must come from outdoors.
2. Air from outside the structure requires 1 of the following
methods:
a. If combustion air is taken from outdoors through 2 vertical
ducts, the openings and ducts MUST have at least 1 sq in.
of free area per 4000 Btuh of total input for all equipment
within the confined space. (See Fig. 4 and Table 2.)
b. If combustion air is taken from outdoors through 2 hori-
zontal ducts, the openings and ducts MUST have at least 1
sq in. of free area per 2000 Btuh of total input for all
equipment within the confined space. (See Fig. 4 and Table
2.)
c. If combustion air is taken from outdoors through a single
opening or duct (horizontal or vertical) commencing within
12 in. of the top of the confined space, opening and duct
MUST have at least 1 sq in. of free area per 3000 Btuh of
the total input for all equipment within the confined space
and not less than the sum of the areas of all vent connectors
in the confined space. (See Fig. 4 and Table 2.) Equipment
clearances to the structure shall be at least 1 in. from the
sides and back and 6 in. from the front of the appliances.
When ducts are used, they must be of the same cross-sectional area
as the free area of the openings to which they connect. The
minimum dimension of ducts must not be less than 3 in. (See Fig.
4.)
AIR DUCTS
Step 1—General Requirements
The duct system should be designed and sized according to
accepted national standards such as those published by: Air
Conditioning Contractors Association (ACCA), Sheet Metal and
Air Conditioning Contractors National Association (SMACNA) or
American Society of Heating, Refrigerating and Air Conditioning
Engineers (ASHRAE). Or consult factory The Air Systems Design
Guidelines reference tables available from your local distributor.
The duct system should be sized to handle the required system
design CFM at the design static pressure.
When a furnace is installed so that the supply ducts carry air to
areas outside the space containing the furnace, the return air must
also be handled by a duct(s) sealed to the furnace casing and
terminating outside the space containing the furnace.
Secure ductwork with proper fasteners for type of ductwork used.
Seal supply- and return-duct connections to furnace with code
approved tape or duct sealer.
Flexible connections should be used between ductwork and
furnace to prevent transmission of vibration. Ductwork passing
through unconditioned space should be insulated to enhance
system performance. When air conditioning is used, a vapor
barrier is recommended.
Maintain a 1-in. clearance from combustible materials to supply air
ductwork for a distance of 36 in. horizontally from the furnace. See
NFPA 90B or local code for further requirements.
Step 2—Ductwork acoustical treatment
Metal duct systems that do not have a 90 degree elbow and 10 ft
of main duct to the first branch take-off may require internal
acoustical lining. As an alternative, fibrous ductwork may be used
if constructed and installed in accordance with the latest edition of
SMACNA construction standard on fibrous glass ducts. Both
acoustical lining and fibrous ductwork shall comply with NFPA
90B as tested by UL Standard 181 for Class 1 Rigid air ducts.
For Example:
58ZAV FURNACE
INPUT BTUH
MINIMUM SQ FT
WITH
7-1/2 FT CEILING
46,000 307
69,000 460
92,000 613
115,000 767
135,000 920
5

Step 3—Supply Air Connections
DOWNFLOW FURNACES
Connect supply-air duct to supply-air opening on furnace. The
supply-air duct attachment must ONLY be connected to furnace
supply/outlet or air conditioning coil casing (when used), when
installed on non-combustible material. When installed on combus-
tible material, supply-air duct attachment must ONLY be con-
nected to an accessory subbase or factory approved air condition-
ing coil casing. DO NOT cut main furnace casing to attach supply
side air duct, humidifier, or other accessories. All accessories
MUST be connected external to furnace main casing.
HORIZONTAL FURNACES
Connect supply-air duct to supply air opening on furnace. The
supply-air duct attachment must ONLY be connected to furnace
supply/outlet or air conditioning coil casing (when used). DO NOT
cut main furnace casing to attach supply side air duct, humidifier,
or other accessories. All accessories MUST be connected external
to furnace main casing.
Step 4—Return Air Connections
Do not install the furnace on its back or sides. Safety control
operation will be adversely affected. Never connect return-air
ducts to the back of the furnace. A failure to follow this
warning can cause a fire, personal injury, or death.
The return-air duct must be connected to return-air opening
provided as shown in Fig. 1. DO NOT cut into casing sides or back
Fig. 3—Confined Space: Air for Combustion and
Ventilation from an Unconfined Indoor Space
A93387
RETURN
AIR
6″ MIN
(FRONT) †
SUPPLY AIR
VENT THROUGH ROOF
(CATEGORY I)
1 SQ IN.
PER 1000
BTUH* IN DOOR
OR WALL
12″ MAX
1 SQ IN.
PER 1000
BTUH* IN DOOR
OR WALL
12″ MAX
INTERIOR
HEATED
SPACE
* Minimum opening size is 100 sq in. with
minimum dimensions of 3 in.
† Minimum of 3 in. when type B-1 vent is used.
UNCONFINED
SPACE
Fig. 4—Confined Space: Air for Combustion and
Ventilation from Outdoors
A93388
DUCTS TO
OUTDOORS
1 SQ IN.
PER 4000
BTUH*
RETURN
AIR VENT
THROUGH
ROOF
(CATEGORY I)
D
B
A
C
E
1 SQ IN.
PER 4000
BTUH
DUCT
TO
OUTDOORS
SUPPLY AIR
1 SQ IN.
PER 2000
BTUH*
DUCTS
TO
OUTSIDE
12″ MAX
12″ MAX
CONFINED
SPACE
12″
MAX
12″
MAX
1 SQ IN.
PER 4000
BTUH*
OUTDOORS
1 SQ IN.
PER 4000
BTUH*
1 SQ IN.
PER 2000
BTUH*
12″ MAX
Use any of the following
combinations of openings:
A & B C & D D & E F & G
NOTE:
*Minimum dimensions of 3 in.
F
G
→Table 2—Minimum Free Area Of Combustion Air Opening
58ZAV
FURNACE
INPUT
(BTUH)
AIR FROM UNCON-
FINED INDOOR
SPACE
OUTDOOR AIR THROUGH
VERTICAL DUCTS OUTDOOR AIR THROUGH
HORIZONTAL DUCTS OUTDOOR AIR THROUGH
SINGLE DUCT
Free Area
of Opening
(Sq In.)
Free Area of
Opening and Duct
(Sq In.)
Round
Pipe
(In. Dia)
Free Area of
Opening and Duct
(Sq In.)
Round
Pipe
(In. Dia)
Free Area of
Opening and Duct
(Sq In.)
Round
Pipe
(In. Dia)
46,000 100 11.50 4 23.0 6 15.33 5
69,000 100 17.25 5 34.5 7 23.00 6
92,000 100 23.00 6 46.0 8 30.67 7
115,000 115 28.75 7 57.5 9 38.33 7
135,000 135 33.75 7 67.5 10 45.00 8
* Free area shall be equal to or greater than the sum of the areas of all vent connectors in the confined space. Opening area must be increased if other gas appliances
in the space require combustion air.
6

to attach any portion of return-air duct. Bypass humidifier connec-
tions should be made at ductwork or coil casing sides exterior to
furnace.
Step 5—Downflow Installation
NOTE: This furnace is approved for use on combustible materials
or wood flooring. A factory accessory floor base, as listed on the
furnace rating plate, MUST be used. A factory accessory floor
base is not required when this furnace is installed on manufactur-
er’s Coil Assembly Part No. CD5 or CK5, or Coil Box Part No.
KCAKC is used.
1. Determine application being installed from Table 3.
2. Construct hole in floor per dimensions specified in Table 3
and Fig. 5.
3. Construct plenum to dimensions specified in Table 3.
4. If downflow subbase (KGASB) is used, install as shown in
Fig. 6.
If coil assembly CD5, CK5, or Coil Box KCAKC is used,
install as shown in Fig. 7.
Step 6—Horizontal Attic Installation
Do not install the furnace on its back; safety control operation
will be adversely affected. Never connect return-air ducts to
the sides or back of the furnace. Failure to follow this warning
could result in fire, personal injury, or death.
The furnace can be installed horizontally on either the left-hand
(LH) or right-hand (RH) side. A typical attic installation is shown
in Fig. 8.
CONSTRUCT A WORKING PLATFORM
Construct working platform on location where all required furnace
clearances are met. (See Fig. 2 and 8.)
Table 3—Opening Dimensions (In.)
FURNACE
CASING
WIDTH APPLICATION PLENUM OPENING FLOOR OPENING
ABCD
14-3/16
Non-Combustible Flooring 12-11/16 19 13-3/8 19-5/8
Combustible Flooring Using KGASB Subbase 11-13/16 19 13-7/16 20-3/8
Combustible Flooring with CD5 or CK5 Coil Assembly or
KCAKC Coil Box 12-5/16 19 13-5/16 20
17-1/2
Non-Combustible Flooring 16 19 16-5/8 19-5/8
Combustible Flooring Using KGASB Subbase 15-1/8 19 16-3/4 20-3/8
Combustible Flooring with CD5 or CK5 Coil Assembly or
KCAKC Coil Box 15-1/2 19 16-1/2 20
21
Non-Combustible Flooring 19-1/2 19 20-1/8 19-5/8
Combustible Flooring Using KGASB Subbase 18-5/8 19 20-1/4 20-3/8
Combustible Flooring with CD5 or CK5 Coil Assembly or
KCAKC Coil Box 19 19 20 20
24-1/2
Non-Combustible Flooring 23 19 23-5/8 19-5/8
Combustible Flooring Using KGASB Subbase 22-1/8 19 23-3/4 20-3/8
Combustible Flooring with CD5 or CK5 Coil Assembly or
KCAKC Coil Box 22-1/2 19 23-1/2 20
Fig. 5—Floor and Plenum Opening Dimensions A96283
PLENUM
OPENING
C
A
BD
FLOOR
OPENING
7

Fig. 6—Furnace, Plenum, and Subbase Installed
on a Combustible Floor
A96285
DOWNFLOW
SUBBASE
SHEET METAL
PLENUM
FLOOR
OPENING
FURNACE
(OR COIL CASING
WHEN USED)
COMBUSTIBLE
FLOORING
Fig. 7—Furnace, Plenum, and Coil Assembly or
Coil Box Installed on a Combustible Floor
A96284
CD5 OR CK5
COIL ASSEMBLY
OR KCAKC
COIL BOX
FURNACE
SHEET METAL
PLENUM
FLOOR
OPENING
COMBUSTIBLE
FLOORING
Fig. 8—Typical Attic Installation A97516
30-IN. MIN
WORK AREA
6″ MIN
TYPE-B
VENT
GAS
ENTRY
24
″
24
″
SHEET
METAL
SEDIMENT
TRAP
MANUAL SHUTOFF
GAS VALVE
LINE CONTACT ONLY PERMISSIBLE BETWEEN
LINES FORMED BY INTERSECTIONS OF
THE TOP AND TWO SIDES OF THE FURNACE
JACKET AND BUILDING JOISTS,
STUDS, OR FRAMING.
Fig. 9—Horizontal Installation on Blocks A95235
8

INSTALL FURNACE
1. Position furnace in desired location.
2. Connect gas supply pipe. See Fig. 8 for typical piping entry.
3. Install field-supplied filter retainers as indicated in Fig. 11 and
Table 4 before connecting return-air duct to furnace.
4. Connect supply- and return-air ducts.
5. Install 24- X 24-in. sheet metal shield on platform in front of
louvered control panel as shown in Fig. 8.
Step 7—Horizontal Crawlspace Installation
The furnace can be installed horizontally with either the LH or RH
side up. In a crawlspace, furnace can either be hung from floor
joist (see Fig. 10) or installed on suitable blocks or pad. (See Fig.
9.) The furnace can be suspended from each corner by hanger bolts
(4 each 3/8-in. all-thread rod) cut to desired length, 1- X 3/8-in. flat
washer, 3/8-in. lockwasher, and 3/8-in. nut. Dimples are provided
for hole locations. (See Fig. 1.)
Since horizontal crawlspace installation is very similar to attic
installation, refer to Step 6. The installation of a sheet metal shield
in front of louvered control panel is covered in Step 6. For a
crawlspace installation, this same sheet metal shield must be
installed above louvered control panel. Extend sheet metal shield
over furnace top far enough to cover gas pipe entry hole.
Step 8—Filter Arrangement
Never operate unit without a filter or with filter access door
removed. Failure to follow this warning could result in fire,
personal injury, or death.
The 2 factory-supplied filters are shipped in the blower compart-
ment. After return-air duct has been connected to furnace, install
filters in a V-formation inside return-air plenum. See Fig. 11 and
Table 4 for horizontal applications. Horizontal filter retainers must
be field supplied. See Fig. 12 for downflow applications.
Step 9—Gas Piping
Gas piping must be installed in accordance with national and local
codes. Refer to the current edition of the NFGC.
Canadian installations must be installed in accordance with NSC-
NGPIC and all authorities having jurisdiction.
Refer to Table 5 for recommended gas pipe sizing. Risers should
be used to connect to the furnace and to the meter.
If a flexible connector is required or allowed by the authority
having jurisdiction, black iron pipe shall be installed at the
gas valve and extend a minimum of 2 in. outside the furnace
casing.
Fig. 10—Horizontal Crawlspace Installation on Hanger Rods A96633
NOTES:
ANGLE
IRON OR
EQUIVALENT
ROD LOCATION
USING DIMPLE
LOCATORS
(SEE DIMENSIONAL
DWG FOR
LOCATIONS)
3⁄8-IN. ROD
1. A 1 In. clearance minimum between top of
furnace and combustible material.
2. The entire length of furnace must be
supported when furnace is used in horizontal
position.
3/8-IN. HEX NUT
& WASHER (4)
REQD PER ROD
(A) PREFERRED ROD LOCATION
(B) ALTERNATE ROD LOCATION
(A)
(B)
(A)
(B)
(B)
(A)
(A) (B)
9

Use the proper length of pipes to avoid stress on the gas
control manifold. Failure to follow this warning could result
in a gas leak, causing fire, explosion, personal injury, or
death.
Connect the gas pipe to the furnace using a backup wrench to
avoid damaging gas controls.
Never purge a line into a combustion chamber. Never use
matches, candles, flame, or other sources of ignition to check
for gas leakage. Use a soap-and-water solution to check for
gas leaks. Failure to follow this warning could result in fire,
explosion, personal injury, or death.
Joint compounds (pipe dope) should be applied sparingly and only
to the male threads of the joints. This pipe dope must be resistant
to the action of propane gas.
An accessible manual shutoff valve MUST be installed upstream
of the furnace gas controls and within 72 in. of the furnace. A
1/8-in. NPT plugged tapping, accessible for test gage connection,
MUST be installed immediately upstream of the gas supply
connection to the furnace and downstream of the manual shutoff
valve. Place a ground joint union between the gas control manifold
and the manual shutoff.
Install a sediment trap in the riser leading to the furnace. The trap
can be installed by connecting a tee to the riser leading from the
furnace. Connect a capped nipple into the lower end of the tee. The
capped nipple should extend below the level of the gas controls.
(See Fig. 13.)
Piping should be pressure tested in accordance with local and
national plumbing and gas codes before the furnace has been
attached. If the pressure exceeds 0.5 psig (14-in. wc), the gas
supply pipe must be disconnected from the furnace and capped
before the pressure test. If the test pressure is equal to or less than
0.5 psig (14-in. wc), turn off electric shutoff switch located on the
gas valve before the test. It is recommended that the ground joint
union be loosened before pressure testing.
After all connections have been made, purge the lines and check
for gas leakage with regulated gas supply pressure.
Step 10—Electrical Connections
115-V WIRING
Refer to the unit rating plate or Table 6 for equipment electrical
requirements. The control system requires an earth ground for
proper operation.
Do not connect aluminum wire between disconnect switch
and furnace. Use only copper wire.
Make all electrical connections in accordance with the current
edition of the National Electrical Code (NEC) ANSI/NFPA
70-1999, and any local codes or ordinances that might apply. For
Table 4—Filter Retainer (In.)
FURNACE CASING
WIDTH FILTER SIZE AND
QUANTITY D
14-3/16 (2) 14 X 20 X 1 14-3/8
17-1/2 (2) 14 X 20 X 1 13-3/8
21 (2) 16 X 20 X 1 11-5/8
24-1/2 (2) 16 X 20 X 1 10-1/4
Fig. 11—Horizontal Filter Arrangement A82173
FIELD-SUPPLIED
FILTER RETAINERS
AIRFLOW
D
12″
4″
Fig. 12—Downflow Filter Arrangement A88486
RETURN-AIR
PLENUM
AIRFLOW
ACCESS DOOR
INSTALLATION
POSITION
OF FILTERS
Table 5—Maximum Capacity of Gas Pipe *
NOMINAL IRON
PIPE SIZE
(IN.)
INTERNAL
DIAMETER
(IN.)
LENGTH OF PIPE (FT)
10 20 30 40 50
1/2 0.622 175 120 97 82 73
3/4 0.824 360 250 200 170 151
11.049 680 465 375 320 285
1-1/4 1.380 1400 950 770 660 580
1-1/2 1.610 2100 1460 1180 990 900
* Cubic ft of gas per hr for gas pressures of 0.5 psig (14-in. wc) or less, and a
pressure drop of 0.5-in. wc (based on a 0.60 specific gravity gas). Ref: Table
10-2 NFPA 54/ANSI Z223.1-1996.
10

Canadian installations, all electrical connections must be made in
accordance with Canadian Electrical Code CSA C22.1, or authori-
ties having jurisdiction.
NOTE: Proper polarity must be maintained for 115-v wiring. If
polarity is incorrect, control status code indicator light will flash
rapidly and furnace will not operate.
The cabinet MUST have an uninterrupted or unbroken ground
according to NEC ANSI/NFPA 70-1999 and Canadian Elec-
trical Code CSA C22.1 or local codes to minimize personal
injury if an electrical fault should occur. This may consist of
electrical wire or conduit approved for electrical ground when
installed in accordance with existing electrical codes. Do not
use gas piping as an electrical ground. Failure to follow this
warning could result in electrical shock, fire, or death.
24-V WIRING
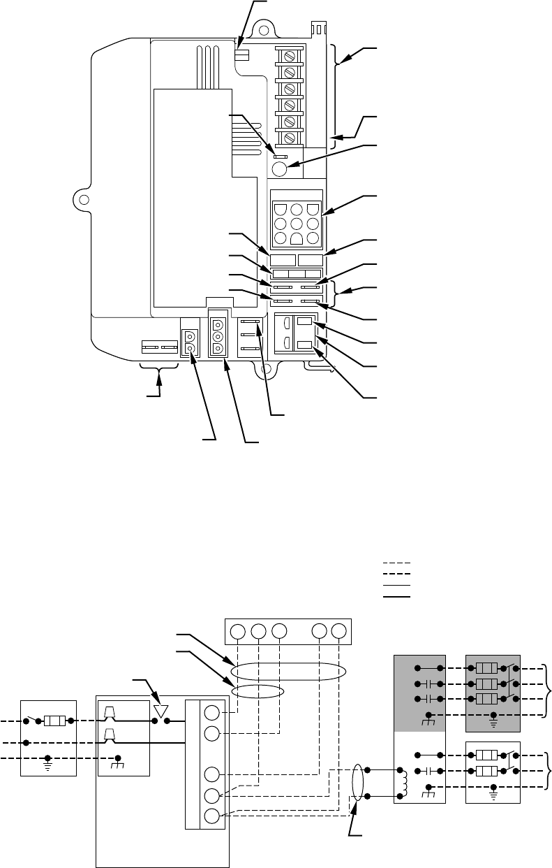
Make field 24-v connections at the 24-v terminal strip. (See Fig.
14.) Connect terminal Y as shown in Fig. 15 for proper operation
in cooling mode. Use AWG No. 18 color-coded wire only.
The 24-v circuit contains an automotive-type, 3-amp fuse located
on the main control board. Any direct shorts during installation,
service, or maintenance could cause this fuse to blow. If fuse
replacement is required, use ONLY a 3-amp fuse of identical size.
ACCESSORIES
1. Electronic Air Cleaner (EAC)
Two spring clamp terminals (for 12 gage maximum, solid or
stranded wire), marked EAC-1 and EAC-2, are provided for
EAC connection. (See Fig. 14.) These terminals are energized
with 115v (1.5-amp maximum) during blower motor opera-
tion. To connect EAC power leads to furnace control board,
strip approximately 1/8 in. of insulation from wire. Open
terminal by depressing switch arm with a screwdriver or
finger, and insert wire as shown in Fig. 16.
2. Humidifier (HUM)
Screw terminals (HUM and COM-24V) are provided for 24-v
humidifier connection. The terminals are energized with 24v
(0.5-amp maximum) after inducer motor prepurge period.
Do not connect furnace control HUM terminal to HUM
(humidifier) terminal on Thermidistat™, Zone Controller, or
similar device. See Thermidistat, Zone Controller, thermostat,
or controller manufacturer’s instructions for proper connec-
tion. A failure to follow this warning could result in fire.
NOTE: A field-supplied, 115-v controlled relay connected to
EAC terminals may be added if humidifier operation is desired
during blower operation.
Step 11—Venting
Refer to the national or local installation code such as NFGC in the
United States, or the NSCNGPIC in Canada for proper vent sizing
and installation requirements. Use the enclosed Installation In-
structions (Single-Stage Vent Tables for Category I Fan-Assisted
Furnaces) for a quick, easy reference.
After fully assembling the vent connector to the furnace flue collar,
securely fasten the vent connector to the collar with two field-
supplied, corrosion-resistant, sheet metal screws located 180° apart
and midway up the collar.
The horizontal portion of the venting system shall maintain a
minimum of 1/4-in. upward slope per linear ft and it shall be
rigidly supported every 5 ft or less with hangers or straps to ensure
that there will be no movement after installation.
Table 6—Electrical Data
UNIT SIZE VOLTS—
HERTZ—
PHASE
OPERATING VOLTAGE RANGE MAXIMUM
UNIT AMPS MINIMUM
WIRE GAGE MAXIMUM WIRE
LENGTH FT‡
MAXIMUM
FUSE OR CKT BKR
AMPS†
Maximum* Minimum*
050-08 115—60—1 127 104 6.6 14 42 15
050-12 115—60—1 127 104 8.1 14 34 15
070-08 115—60—1 127 104 6.7 14 42 15
070-12 115—60—1 127 104 8.4 14 33 15
096-12 115—60—1 127 104 9.2 14 30 15
096-16 115—60—1 127 104 10.2 14 28 15
115-16 115—60—1 127 104 10.1 14 28 15
115-20 115—60—1 127 104 13.3 12 33 20
115-22 115—60—1 127 104 15.2 12 29 20
135-20 115—60—1 127 104 14.3 12 31 20
* Permissible limits of the voltage range at which the unit will operate satisfactorily.
† Time-delay type is recommended.
‡ Length shown is as measured 1 way along wire path between unit and service panel for maximum 2 percent voltage drop.
Fig. 13—Typical Gas Pipe ArrangementA89414
GAS
SUPPLY
MANUAL
SHUTOFF
VALVE
(REQUIRED)
SEDIMENT
TRAP
UNION
11
→
→
→

Fig. 15—Heating and Cooling Application Wiring Diagram A98521
115-V FIELD-
SUPPLIED
DISCONNECT
AUXILIARY
J-BOX
24-V
TERMINAL
BLOCK
THREE-WIRE
HEATING-ONLY
FIVE WIRE
NOTE 1
NOTE 2
FIELD-SUPPLIED
DISCONNECT
CONDENSING
UNIT
TWO
WIRE
FURNACE
C
O
N
T
R
O
L
R
G
C
WCR GY
GND
GND
FIELD 24-V WIRING
FIELD 115-, 208/230-, 460-V WIRING
FACTORY 24-V WIRING
FACTORY 115-V WIRING
208/230- OR
460-V
THREE
PHASE
208/230-V
SINGLE
PHASE
BLOWER DOOR SWITCH
WHT
BLK
WHT
BLK
NOTES: Connect Y-terminal in furnace as shown for proper blower operation.
Some thermostats require a "C" terminal connection as shown.
If any of the original wire, as supplied, must be replaced, use
same type or equivalent wire.
W
Y
GND
THERMOSTAT
TERMINALS
1.
2.
3.
Fig. 14—Furnace Control A99258
G
R
Y
W
3-AMP FUSE
C
OM
24V
HUMIDIFIER TERMINAL
(24-VAC 0.5 AMP MAX)
LED OPERATION &
STATUS LIGHT
HARNESS CONNECTOR
24V TRANSFORMER SEC-2
SPARE 1
SPARE 2
EAC 1 (BLACK)
EAC-ELECTRONIC AIR CLEANER
TERMINALS (115-VAC 1.0 AMP MAX)
EAC 2 (WHITE)
115-VAC (L2) NEUTRAL
CONNECTION
24V THERMOSTAT
TERMINALS
BLOWER SPEED
SELECTION TERMINALS
INDUCER MOTOR
CONNECTOR
115-VAC (L1)
POWER
SUPPLY
HOT SURFACE
IGNITER
CONNECTOR
HEAT
COOL
BLOWER OFF DELAY
ADJUSTMENT SWITCH
SEC-1
TEST/TWIN
HUM
12

Step 12—Start-up, Adjustment, and Safety Check
GENERAL
NOTE: Proper polarity must be maintained for 115-v wiring. If
polarity is incorrect, control status indicator light will flash rapidly
and furnace will not operate.
The furnace must have a 115-v power supply properly connected
and grounded. Proper polarity must be maintained for correct
operation. Thermostat wire connections at R, W, C, and Y must be
made at the furnace 24-v terminal block on the control. The gas
service pressure must not exceed 0.5 psig (14-in. wc), but must be
no less than 0.16 psig (4.5-in. wc).
Before operating the furnace, check each manual reset switch for
continuity. If necessary, press the button to reset the switch.
The blower compartment door must be in place to complete the
115-v circuit to the furnace.
This furnace is equipped with 2 manual reset limit switches in
the gas control area. The switches will open and shut off
power to the gas valve if a flame rollout or an overheating
condition occurs in the gas control area. DO NOT bypass the
switches. Correct inadequate combustion air supply problem
and reset the switches.
SEQUENCE OF OPERATION
Furnace control must be grounded for proper operation or
control will lockout. Control is grounded through green wire
routed to gas valve and burner bracket screw.
Using the schematic diagram shown in Fig. 16, follow the
sequence of operation through the different modes. Read and
follow the wiring diagram very carefully.
NOTE: If there is a power interruption and any thermostat call,
the control will initiate a 90-sec blower only on period before
starting another cycle.
1. Heating mode
When the thermostat "calls for heat," R-W circuit closes. The
furnace control performs a self-check, verifies the pressure
switch contacts are open, and starts the inducer motor.
a. Prepurge period—As the inducer motor comes up to speed,
the pressure switch contacts close to begin a 15-sec
prepurge period.
b. Igniter warm-up—At the end of the prepurge period, the
igniter is energized for a 17-sec igniter warm-up period.
c. Ignition sequence—When the igniter warm-up period is
completed, the gas valve opens, permitting gas flow to the
burners where it is ignited. After 5 sec, the igniter is
de-energized and a 2-sec flame-sensing period begins.
d. HUM terminal is energized with the gas valve. See
Accessories in Electrical Connections section.
e. Flame-sensing—When burner flame is sensed, the control
begins the blower on delay period and continues holding
the gas valve open. If burner flame is not sensed, the
control closes the gas valve and repeats the ignition cycle.
NOTE: Ignition sequence will repeat 3 additional times before a
lockout occurs. Lockout automatically resets after 3 hr, or can be
manually reset by turning 115v off (not at thermostat) for 3 sec
minimum, then on again.
f. Blower on delay—Forty-five sec after burner flame is
proven, the blower motor is energized on heating speed.
Simultaneously, terminals HUM and COM-24V for humidi-
fier, and EAC-1 and EAC-2 for EAC are energized. If
jumper is on pin 6 and pin 9, the blower on delay period is
66 sec.
g. Blower off delay—When the thermostat is satisfied, the
circuit between R and W is broken, de-energizing the gas
valve and stopping gas flow to the burners. The blower
motor, and EAC remain energized 90, 135, 180, or 225 sec
(depending on the blower off time selection). The furnace
is factory set for a 135-sec blower off delay period.
h. Post-purge—The inducer motor remains energized 5 sec
after the burners are extinguished. If jumper is on pin 6 and
pin 9, the post-purge period is 15 sec.
2. Cooling mode
When the thermostat "calls for cooling," R-G and R-Y circuits
close. The R-Y circuit starts the outdoor condensing unit and
combined R-Y and R-G circuits start the furnace blower motor
on cooling speed. The EAC-1 terminal is energized with 115v
whenever the blower is operating on cooling speed.
When the thermostat is satisfied, R-G and R-Y circuits are
broken. Furnace blower and EAC continue operating on
cooling speed for an additional 90 sec.
3. Continuous blower mode
NOTE: EAC-1 terminal is energized with 115v whenever blower
is operating.
When the R-G circuit is made, the blower motor operates on
heating speed. During a call for heat, the blower stops,
allowing the furnace heat exchangers to heat up more quickly,
then restarts at the end of the 45-sec blower on delay period.
If jumper is on pin 6 and pin 9, the blower on delay period is
66 sec.
The blower reverts to continuous operation after the heating
cycle is completed.
When the thermostat "calls for cooling," the blower operates
on cooling speed. When the thermostat is satisfied, the blower
operates an additional 90 sec before reverting back to con-
tinuous operation on heating speed.
4. Heat pump mode
When installed with a heat pump, the furnace control auto-
matically changes the timing sequence to avoid long blower
off time during demand defrost cycles. When the W-Y or
W-Y-G thermostat inputs are received at the same time, the
control changes the blower to heating speed or starts the
blower if it was off, and begins a heating cycle. The blower
remains on until the end of the prepurge period, then shuts off
Fig. 16—EAC Terminals on Furnace Control
A93053
EAC2
EAC1
13
→
→

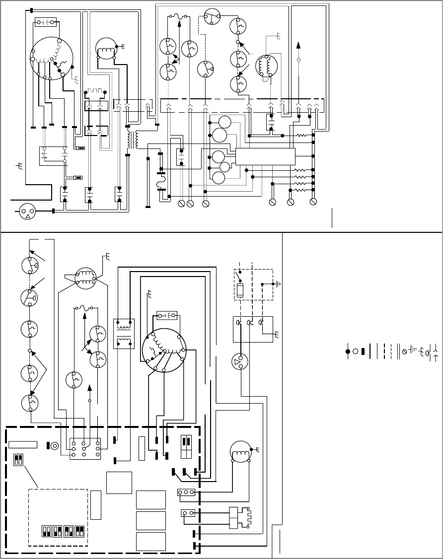
Fig. 17—Furnace Wiring Diagram A98200e
PCB
BLOWER OFF DELAY
SELECTION CHART
90 SEC
135 SEC
180 SEC
225 SEC
GVR
HI/LO
RELAY
SEC-1 SEC-2
PL1 321
654
987
LED
TEST/TWIN
BLOWER
OFF
DELAY
G
R
Y
W
C
HUM
HSIR IDR BLWR
BLOWER
SPEED
SELECT
FU1
COOL
HEAT
L2
PL3
PL2
VAC
120
L1 PR1 1
2
1
2
3
PR2
24 VAC-3A
FUSE
SPARE-2
SPARE-1
EAC-1
EAC-2
C
1.5 AMP
12
PL5 WHT
BLK
WHT
WHT
BLK
BLK
HSI
BLK
WHT
WHT (COM)
RED (LO)
BLU (MED LO)
NOTE #7
OL
START
BLWM
YEL (MED HI)
BLK (HI)
BRN
BRN
TRAN
BLU
RED
BLK
WHT
WHT (COM)
GRN
CAP
RED
NOTE #5
RED
ORN
FUSED DISCONNECT
SWITCH (WHEN REQ'D)
NOTE #4
FU2
BLK
WHT
GRN
GRN
JB
LEGEND
ALS AUXILIARY LIMIT SWITCH, OVERTEMP. -MANUAL RESET, SPST-(N.C.)
BLWR BLOWER MOTOR RELAY, SPST-(N.O.)
BLWM BLOWER MOTOR
BVSS BLOCKED VENT SHUTOFF SWITCH, SPST - (N.C.)
CAP CAPACITOR
CPU MICROPROCESSOR AND CIRCUITRY
DSS DRAFT SAFEGUARD SWITCH
EAC-1 ELECTRONIC AIR CLEANER CONNECTION (115 VAC 1.5 AMP MAX.)
EAC-2 ELECTRONIC AIR CLEANER CONNECTION (COMMON)
FL FUSIBLE LINK
FRS FLAME ROLLOUT SW. -MANUAL RESET, SPST-(N.C.)
FSE FLAME PROVING ELECTRODE
FU1 FUSE, 3 AMP, AUTOMOTIVE BLADE TYPE, FACTORY INSTALLED
FU2 FUSE OR CIRCUIT BREAKER CURRENT INTERRUPT DEVICE
(FIELD INSTALLED & SUPPLIED)
GV GAS VALVE-REDUNDANT OPERATORS
GVR GAS VALVE RELAY, DPST-(N.O.)
HI/LO BLOWER MOTOR SPEED CHANGE RELAY, SPDT
HSI HOT SURFACE IGNITOR (115 VAC)
HSIR HOT SURFACE IGNITOR RELAY, SPST-(N.O.)
HUM 24VAC HUMIDIFIER CONNECTION (.5 AMP. MAX.)
IDM INDUCED DRAFT MOTOR
IDR INDUCED DRAFT RELAY, SPST-(N.O.)
ILK BLOWER ACCESS PANEL INTERLOCK SWITCH, SPST-(N.O.)
JB JUNCTION BOX
LED LIGHT-EMITTING DIODE FOR STATUS CODES
LGPS LOW GAS PRESSURE SWITCH, SPST-(N.O.)
LS LIMIT SWITCH, AUTO RESET, SPST(N.C.)
OL AUTO-RESET INTERNAL MOTOR OVERLOAD TEMP. SW.
PCB PRINTED CIRCUIT BOARD
PL1 9-CIRCUIT CONNECTOR
PL2 2-CIRCUIT PCB CONNECTOR
PL3 3-CIRCUIT IDM CONNECTOR
PL5 2-CIRCUIT HSI/PCB CONNECTOR
PRS PRESSURE SWITCH, SPST-(N.O.)
TEST/TWIN COMPONENT TEST & TWIN TERMINAL
TRAN TRANSFORMER-115VAC/24VAC
JUNCTION
UNMARKED TERMINAL
PCB TERMINAL
FACTORY WIRING (115VAC)
FACTORY WIRING (24VAC)
FIELD WIRING (115VAC)
FIELD WIRING (24VAC)
CONDUCTOR ON PCB
FIELD WIRING TERMINAL
FIELD GROUND
EQUIPMENT GROUND
FIELD SPLICE
PLUG RECEPTACLE
L1 NEUTRAL
L1 BLWR
HI/LO
TO 115VAC FIELD DISCONNECT
NOTE #4
EQUIPMENT GROUND
SPARE-2
HEAT
SPARE-1
COOL NOTE #7
COM
HSIR
EAC-1
START
OL
COM
HI
MED HI
MED LO
LO
BLWM
SCHEMATIC DIAGRAM
(NATURAL GAS & PROPANE)
EAC-2
11HSI
2
PL52
PL2
3PL3
PR2
115VAC
PR1
TRAN
24VAC
1
2
IDR
TEST/TWIN
FU1 NOTE #6
CAP
L2
PL1
8
FSE
9
6
5
CPU
HSIR
IDR
BLWR
Y
G
C
R
W
GVR-2
SEC-1
HI/LO
GVR
SEC-2
NOTES:
322869-101 REV. E
1. If any of the original equipment wire is replaced use wire rated for 105˚C.
2. Inducer (IDM) and blower (BLWM) motors contain internal auto-reset thermal overload switches (OL).
3. Blower motor speed selections are for average conditions, see installation instructions for details on
optimum speed selection.
4. Use only copper wire between the disconnect switch and the furnace junction box (JB).
5. This wire must be connected to furnace sheetmetal for control to detect flame.
6. Replace only with a 3 amp fuse.
7. Yellow lead not on all motors.
8. Blower-on delay, gas heating 45 seconds, cooling or heat pump 2 seconds.
9. Blower-off delay, gas heating 90, 135, 180 or 225 seconds, cooling or heat pump 90 seconds.
(135 seconds only on some models)
10. Ignition-lockout will occur after four consecutive unsuccessful trials-for-ignition. Control will auto-reset
after three hours.
11. When used, auxiliary limit switch (ALS) is on some downflow models only. When used, FL is on upflow
models only.
12. Some models may have spade quick connect terminals.
13. Factory connected when LGPS is not used.
14. Factory connected when BVSS is not used. BVSS used when Chimney Adapter Accessory Kit is
installed.
BLK
OM
SW2
SW1
OM
3
4
7
1
OM
HUM
IDM
ILK
DSS BVSS
PRS
ILK
L1
NEUTRAL
IDM
(WHEN USED)
NOTE #14
NOT USED
NOT USED
NOT USED
GRN 2-C
FSE
1-M 3-P
GV
BLU
PRS
DSS
BVSS
(WHEN USED)
NOTE #14
WHT
LS
FL
(NOT ON ALL MODELS)
NOTE #9
FRS1 FRS2
LS FL
NOTE #12
ORN ORN ORN
ALS
(WHEN USED)
ORN
NOTE #11
LGPS
(WHEN USED)
NOTE #13
NOTE #14
NOTE #11
2
GVR-1
NOTE #5
1-M 2-C
GV
3-P
NOTE #14
ALS
(WHEN USED)
(WHEN USED)
NOTE #13 LGPS
(WHEN USED)
NOTE #13
NOTE #11
YEL
FRS1 FRS2
(WHEN USED) NOTE #11
14

until the end of the ignition warm up and trial for ignition
periods (a total of 24 sec). The blower then comes back on at
heating speed.
When the W input signal disappears, the control begins the
normal inducer post-purge period and the blower changes to
cooling speed after a 1-sec delay. If the W-Y-G signals
disappear at the same time, the blower remains on for the
selected heating blower off delay period and the inducer goes
through its normal post-purge period. If the W-Y inputs
should disappear, leaving the G signal input, the control goes
into continuous blower and the inducer remains on for the
normal post-purge period.
Anytime the control senses false flame, the control locks out
of the heating mode. This occurs because the control cannot
sense the W input due to the false flame signal and, as a result,
sees only the Y input and goes into cooling mode blower off
delay. All other control functions remain in standard format.
NOTE: EAC-1 terminal is energized whenever blower operates.
HUM terminal is only energized when gas valve is energized.
START-UP PROCEDURES
1. Purge gas lines—After all connections have been made, purge
the lines and check for leaks.
Never purge a line into a combustion chamber. Never use
matches, candles, flame, or other sources of ignition to check
for gas leakage. Use a soap-and-water solution to check for
gas leaks. Failure to follow this warning could result in fire,
explosion, personal injury, or death.
2. Component test—The furnace control allows all components,
except gas valve, to be run for a short period of time.
This feature helps diagnose a system problem in case of a
component failure. To initiate component test procedure, short
(jumper) the TEST 3/16-in. quick connect terminal on control
(adjacent to diagnostic light) and the COM-24V terminal on
furnace thermostat connection block for approximately 2 sec.
(See Fig. 14.)
NOTE: Component test feature will not operate if any thermostat
signal is present at control.
Component test sequence is as follows.
a. Momentarily jumper TEST and COM-24V terminals until
LED goes off.
b. LED will display previous status 4 times.
c. Inducer motor starts and continues to run for entire com-
ponent test.
d. Hot surface igniter is energized for 15 sec, then de-
energized.
e. Blower motor operates on cooling speed for 10 sec, then
stops.
f. Blower motor operates on heating speed for 10 sec, then
stops.
g. Inducer motor stops.
3. To operate furnace, follow procedures on operating instruction
label attached to furnace.
4. With furnace operating, set thermostat below room tempera-
ture and observe that furnace goes off. Set thermostat above
room temperature and observe that furnace restarts.
ADJUSTMENTS
1. Set gas input rate
Furnace gas input rate on rating plate is for installations at
altitudes up to 2000 ft. Furnace input rate must be within ±2
percent of input on furnace rating plate.
a. Determine natural gas orifice size and manifold pressure
for correct input.
(1.) Obtain average yearly gas heat value (at installed
altitude) from local gas supplier.
(2.) Obtain average yearly gas specific gravity from local
gas supplier.
(3.) Verify furnace model. Table 7 can only be used for
model 58ZAV Furnaces.
(4.) Find installation altitude in Table 7.
NOTE: For Canada altitudes of 2000 to 4500 ft, use U.S.A.
altitudes of 2001 to 3000 ft in Table 7.
(5.) Find closest natural gas heat value and specific gravity
in Table 7.
(6.) Follow heat value and specific gravity lines to point of
intersection to find orifice size and manifold pressure
settings for proper operation .
EXAMPLE: (0—2000 ft altitude)
Heating value = 1050 Btu/cu ft
Specific gravity = 0.62
Therefore: Orifice No. 43*
Manifold pressure 3.6-in. wc
* Furnace is shipped with No. 43 orifices. In this example
all main burner orifices are the correct size and do not need
to be changed to obtain proper input rate.
(7.) Check and verify burner orifice size in furnace.
NEVER ASSUME ORIFICE SIZE. ALWAYS
CHECK AND VERIFY.
b. Adjust manifold pressure to obtain input rate.
(1.) Remove regulator adjustment seal cap. (See Fig. 18.)
(2.) Turn adjusting screw, counterclockwise (out) to de-
crease manifold pressure or clockwise (in) to increase
manifold pressure.
NOTE: This furnace has been approved for a manifold pressure
of 3.2-in. wc to 3.8-in. wc when installed at altitudes up to 2000 ft.
For altitudes above 2000 ft, the manifold pressure can be adjusted
from 2.0-in. wc to 3.8-in. wc.
DO NOT bottom out gas valve regulator adjusting screw.
This can result in unregulated manifold pressure and result in
excess overfire and heat exchanger failures.
15
→
→
→

→Table 7—Model 58ZAV Orifice Size† and Manifold Pressure for Correct Input
(Tabulated Data Based on 23,000 BTUH Per Burner, Derated 4 Percent per 1000 Ft Above Sea Level)*
ALTITUDE
RANGE
(FT)
AVG GAS
HEAT VALUE
AT ALTITUDE
(BTU/CU FT)
SPECIFIC GRAVITY OF NATURAL GAS
0.58 0.60 0.62 0.64 0.66
Orifice
No. Manifold
Pressure Orifice
No. Manifold
Pressure Orifice
No. Manifold
Pressure Orifice
No. Manifold
Pressure Orifice
No. Manifold
Pressure
U.S.A. and Canada
850 41 3.6 41 3.7 41 3.8 40 3.6 40 3.8
875 42 3.8 41 3.5 41 3.6 41 3.7 41 3.8
900 42 3.5 42 3.7 42 3.8 41 3.5 41 3.6
0 925 42 3.4 42 3.5 42 3.6 42 3.7 42 3.8
950 42 3.2 42 3.3 42 3.4 42 3.5 42 3.6
to 975 43 3.7 43 3.8 42 3.2 42 3.3 42 3.4
1000 43 3.5 43 3.6 43 3.7 42 3.2 42 3.3
2000 1025 43 3.3 43 3.4 43 3.6 43 3.7 43 3.8
1050 43 3.2 43 3.3 43 3.4 43 3.5 43 3.6
1075 44 3.5 44 3.6 43 3.2 43 3.3 43 3.4
1100 44 3.3 44 3.4 44 3.5 43 3.2 43 3.3
ALTITUDE
RANGE
(FT)
AVG GAS
HEAT VALUE
AT ALTITUDE
(BTU/CU FT)
SPECIFIC GRAVITY OF NATURAL GAS
0.58 0.60 0.62 0.64 0.66
Orifice
No. Manifold
Pressure Orifice
No. Manifold
Pressure Orifice
No. Manifold
Pressure Orifice
No. Manifold
Pressure Orifice
No. Manifold
Pressure
U.S.A. and Canada
U.S.A 775 42 3.7 42 3.8 41 3.5 41 3.6 41 3.8
Altitudes 800 42 3.4 42 3.6 42 3.7 42 3.8 41 3.5
2001 825 42 3.2 42 3.3 42 3.5 42 3.6 42 3.7
to 850 43 3.7 43 3.8 42 3.3 42 3.4 42 3.5
3000 875 43 3.5 43 3.6 43 3.7 42 3.2 42 3.3
or 900 43 3.3 43 3.4 43 3.5 43 3.7 43 3.8
Canada 925 43 3.1 43 3.2 43 3.4 43 3.5 43 3.6
Altitudes 950 43 3.0 43 3.1 43 3.2 43 3.3 43 3.4
2000 975 43 2.8 43 2.9 43 3.0 43 3.1 43 3.2
to 1000 43 2.7 43 2.8 43 2.9 43 3.0 43 3.1
4500 1025 43 2.6 43 2.6 43 2.7 43 2.8 43 2.9
ALTITUDE
RANGE
(FT)
AVG GAS
HEAT VALUE
AT ALTITUDE
(BTU/CU FT)
SPECIFIC GRAVITY OF NATURAL GAS
0.58 0.60 0.62 0.64 0.66
Orifice
No. Manifold
Pressure Orifice
No. Manifold
Pressure Orifice
No. Manifold
Pressure Orifice
No. Manifold
Pressure Orifice
No. Manifold
Pressure
U.S.A. Only
750 42 3.4 42 3.6 42 3.7 42 3.8 41 3.5
775 42 3.2 42 3.3 42 3.5 42 3.6 42 3.7
800 43 3.7 43 3.8 42 3.2 42 3.3 42 3.4
3001 825 43 3.5 43 3.6 43 3.7 43 3.8 42 3.2
850 43 3.3 43 3.4 43 3.5 43 3.6 43 3.7
to 875 43 3.1 43 3.2 43 3.3 43 3.4 43 3.5
900 43 2.9 43 3.0 43 3.1 43 3.2 43 3.3
4000 925 43 2.8 43 2.9 43 3.0 43 3.0 43 3.1
950 43 2.6 43 2.7 43 2.8 43 2.9 43 3.0
975 43 2.5 43 2.6 43 2.7 43 2.7 43 2.8
1000 43 2.4 43 2.4 43 2.5 43 2.6 43 2.7
ALTITUDE
RANGE
(FT)
AVG GAS
HEAT VALUE
AT ALTITUDE
(BTU/CU FT)
SPECIFIC GRAVITY OF NATURAL GAS
0.58 0.60 0.62 0.64 0.66
Orifice
No. Manifold
Pressure Orifice
No. Manifold
Pressure Orifice
No. Manifold
Pressure Orifice
No. Manifold
Pressure Orifice
No. Manifold
Pressure
U.S.A. Only
725 42 3.2 42 3.3 42 3.5 42 3.6 42 3.7
750 43 3.7 43 3.8 42 3.2 42 3.3 42 3.4
775 43 3.4 43 3.6 43 3.7 43 3.8 42 3.2
4001 800 43 3.2 43 3.3 43 3.5 43 3.6 43 3.7
825 43 3.0 43 3.1 43 3.2 43 3.4 43 3.5
to 850 43 2.9 43 3.0 43 3.1 43 3.2 43 3.3
875 43 2.7 43 2.8 43 2.9 43 3.0 43 3.1
5000 900 43 2.6 43 2.6 43 2.7 43 2.8 43 2.9
925 43 2.4 43 2.5 43 2.6 43 2.7 43 2.8
950 43 2.3 43 2.4 43 2.5 43 2.5 43 2.6
* For size 135-20 only, input is 22,500 Btuh per burner. Deduct 0.1-in. wc from manifold pressure shown in table. Change orifice size if manifold pressure falls below
3.2-in. wc on altitudes up to 2000 ft, otherwise change orifice size if manifold pressure falls below 2.0-in. wc.
† Orifices sizes shown in BOLD are factory installed.
16

→Table 7—Model 58ZAV Orifice Size† and Manifold Pressure for Correct Input (Continued)
(Tabulated Data Based on 23,000 BTUH Per Burner, Derated 4 percent per 1000 Ft Above Sea Level)*
ALTITUDE
RANGE
(FT)
AVG GAS
HEAT VALUE
AT ALTITUDE
(BTU/CU FT)
SPECIFIC GRAVITY OF NATURAL GAS
0.58 0.60 0.62 0.64 0.66
Orifice
No. Manifold
Pressure Orifice
No. Manifold
Pressure Orifice
No. Manifold
Pressure Orifice
No. Manifold
Pressure Orifice
No. Manifold
Pressure
U.S.A. Only
700 43 3.7 43 3.8 42 3.2 42 3.3 42 3.4
725 43 3.4 43 3.6 43 3.7 43 3.8 42 3.2
750 43 3.2 43 3.3 43 3.4 43 3.5 43 3.6
775 43 3.0 43 3.1 43 3.2 43 3.3 43 3.4
5001 800 43 2.8 43 2.9 43 3.0 43 3.1 43 3.2
825 43 2.7 43 2.7 43 2.8 43 2.9 43 3.0
to 850 43 2.5 43 2.6 43 2.7 43 2.8 43 2.8
875 43 2.4 43 2.4 43 2.5 43 2.6 43 2.7
6000 900 43 2.2 43 2.3 43 2.4 43 2.5 43 2.5
925 43 2.1 43 2.2 43 2.3 43 2.3 43 2.4
950 48 3.8 43 2.1 43 2.1 43 2.2 43 2.3
975 48 3.6 48 3.7 43 2.0 43 2.1 43 2.2
1000 48 3.4 48 3.5 48 3.6 48 3.7 43 2.1
ALTITUDE
RANGE
(FT)
AVG GAS
HEAT VALUE
AT ALTITUDE
(BTU/CU FT)
SPECIFIC GRAVITY OF NATURAL GAS
0.58 0.60 0.62 0.64 0.66
Orifice
No. Manifold
Pressure Orifice
No. Manifold
Pressure Orifice
No. Manifold
Pressure Orifice
No. Manifold
Pressure Orifice
No. Manifold
Pressure
U.S.A. Only
650 43 3.7 43 3.8 42 3.2 42 3.3 42 3.5
675 43 3.4 43 3.5 43 3.7 43 3.8 42 3.2
700 43 3.2 43 3.3 43 3.4 43 3.5 43 3.6
6001 725 43 3.0 43 3.1 43 3.2 43 3.3 43 3.4
750 43 2.8 43 2.9 43 3.0 43 3.1 43 3.2
to 775 43 2.6 43 2.7 43 2.8 43 2.9 43 3.0
800 43 2.4 43 2.5 43 2.6 43 2.7 43 2.8
7000 825 43 2.3 43 2.4 43 2.5 43 2.5 43 2.6
850 43 2.2 43 2.2 43 2.3 43 2.4 43 2.5
875 43 2.0 43 2.1 43 2.2 43 2.3 43 2.3
ALTITUDE
RANGE
(FT)
AVG GAS
HEAT VALUE
AT ALTITUDE
(BTU/CU FT)
SPECIFIC GRAVITY OF NATURAL GAS
0.58 0.60 0.62 0.64 0.66
Orifice
No. Manifold
Pressure Orifice
No. Manifold
Pressure Orifice
No. Manifold
Pressure Orifice
No. Manifold
Pressure Orifice
No. Manifold
Pressure
U.S.A. Only
625 43 3.4 43 3.6 43 3.7 43 3.8 42 3.2
650 43 3.2 43 3.3 43 3.4 43 3.5 43 3.6
675 43 3.0 43 3.1 43 3.2 43 3.3 43 3.4
7001 700 43 2.7 43 2.8 43 2.9 43 3.0 43 3.1
725 43 2.6 43 2.6 43 2.7 43 2.8 43 2.9
to 750 43 2.4 43 2.5 43 2.6 43 2.6 43 2.7
775 43 2.2 43 2.3 43 2.4 43 2.5 43 2.5
8000 800 43 2.1 43 2.2 43 2.2 43 2.3 43 2.4
825 48 3.7 43 2.0 43 2.1 43 2.2 43 2.2
850 48 3.5 48 3.6 48 3.7 43 2.1 43 2.1
ALTITUDE
RANGE
(FT)
AVG GAS
HEAT VALUE
AT ALTITUDE
(BTU/CU FT)
SPECIFIC GRAVITY OF NATURAL GAS
0.58 0.60 0.62 0.64 0.66
Orifice
No. Manifold
Pressure Orifice
No. Manifold
Pressure Orifice
No. Manifold
Pressure Orifice
No. Manifold
Pressure Orifice
No. Manifold
Pressure
U.S.A. Only
600 43 3.2 43 3.3 43 3.4 43 3.5 43 3.6
625 43 3.0 43 3.1 43 3.2 43 3.3 43 3.4
8001 650 43 2.7 43 2.8 43 2.9 43 3.0 43 3.1
675 43 2.5 43 2.6 43 2.7 43 2.8 43 2.9
to 700 43 2.4 43 2.4 43 2.5 43 2.6 43 2.7
725 43 2.2 43 2.3 43 2.3 43 2.4 43 2.5
9000 750 43 2.0 43 2.1 43 2.2 43 2.3 43 2.3
775 48 3.6 48 3.7 43 2.1 43 2.1 43 2.2
800 48 3.4 48 3.5 48 3.6 48 3.7 43 2.0
* For size 135-20 only, input is 22,500 Btuh per burner. Deduct 0.1-in. wc from manifold pressure shown in table. Change orifice size if manifold pressure falls below
3.2-in. wc on altitudes up to 2000 ft, otherwise change orifice size if manifold pressure falls below 2.0-in. wc.
† Orifice sizes shown in BOLD are factory installed.
17

NOTE: If orifice hole appears damaged or it is suspected to have
been redrilled, check orifice hole with a numbered drill bit of
correct size. Never redrill an orifice. A burr-free and squarely
aligned orifice hole is essential for proper flame characteristics.
(3.) After correct manifold pressure is obtained, replace
gas valve regulator adjustment screw cap and verify
adjusted gas input rate using method outlined in item
c.
(4.) Burner flame should be clear blue, almost transparent.
(See Fig. 19.)
c. Verify natural gas input rate by clocking gas meter.
NOTE: High-Altitude Adjustment
United States
At installation altitudes above 2000 ft, this furnace has been
approved for a 4 percent derate for each 1000 ft above sea level.
See Table 8 for derate multiplier factor.
EXAMPLE:
92,000 Btuh input furnace installed at 4300 ft.
Furnace Input
Rate at
Sea Level XDerate
Multiplier
Factor =Furnace Input Rate
at Installation
Altitude
92,000 0.82 75,440
Canada
At installation altitudes from 2000 to 4500 ft, this furnace must be
derated 10 percent by an authorized Gas Conversion Station. To
determine correct input rate for altitude, see example above and
use 0.90 as derate multiplier factor.
a. Turn off all other gas appliances and pilots.
b. Start furnace and let operate for 3 minutes.
c. Measure time (in sec) for gas meter test dial to complete 1
revolution.
d. Refer to Table 9 for cu ft of gas per hr.
e. Multiply gas rate (cu ft/hr) X heating value (Btu/cu ft)
using natural gas heating value from local gas
utility/supplier.
→Table 7—Model 58ZAV Orifice Size† and Manifold Pressure for Correct Input (Continued)
(Tabulated Data Based on 23,000 BTUH Per Burner, Derated 4 percent per 1000 Ft Above Sea Level)*
ALTITUDE
RANGE
(FT)
AVG GAS
HEAT VALUE
AT ALTITUDE
(BTU/CU FT)
SPECIFIC GRAVITY OF NATURAL GAS
0.58 0.60 0.62 0.64 0.66
Orifice
No. Manifold
Pressure Orifice
No. Manifold
Pressure Orifice
No. Manifold
Pressure Orifice
No. Manifold
Pressure Orifice
No. Manifold
Pressure
U.S.A. Only
575 43 3.0 43 3.1 43 3.2 43 3.3 43 3.4
600 43 2.7 43 2.8 43 2.9 43 3.0 43 3.1
9001 625 43 2.5 43 2.6 43 2.7 43 2.8 43 2.8
650 43 2.3 43 2.4 43 2.5 43 2.6 43 2.6
to 675 43 2.1 43 2.2 43 2.3 43 2.4 43 2.4
700 48 3.8 43 2.1 43 2.1 43 2.2 43 2.3
10,000 725 48 3.5 48 3.6 48 3.7 43 2.1 43 2.1
750 49 3.8 48 3.4 48 3.5 48 3.6 48 3.7
775 49 3.6 49 3.7 49 3.8 48 3.4 48 3.5
* For size 135-20 only, input is 22,500 Btuh per burner. Deduct 0.1-in. wc from manifold pressure shown in table. Change orifice size if manifold pressure falls below
3.2-in. wc on altitudes up to 2000 ft, otherwise change orifice size if manifold pressure falls below 2.0-in. wc.
† Orifice sizes shown in BOLD are factory installed.
DO NOT redrill orifices. Improper drilling (burrs, out-of-
round holes, etc.) can cause excessive burner noise and
misdirection of burner flames. This can result in flame
impingement of burners and heat exchangers, causing
failures.
A93059
BURNER
ORIFICE
Table 8—Altitude Derate Multiplier for U.S.A.
ALTITUDE
(FT) %OF
DERATE DERATE MULTIPLIER
FACTOR FOR U.S.A*
0—2000 0 1.00
2001—3000 8—12 0.90
3001—4000 12—16 0.86
4001—5000 16—20 0.82
5001—6000 20—24 0.78
6001—7000 24—28 0.74
7001—8000 28—32 0.70
8001—9000 32—36 0.66
9001—10,000 36—40 0.62
* Derate multiplier factor is based on midpoint altitude for altitude range.
18

EXAMPLE: (0—2000 ft altitude)
Btu heating input = Btu/cu ft X cu ft/hr
Heating value of gas = 1050 Btu/cu ft
Time for 1 revolution of 2-cu ft dial = 82 sec
Gas rate = 88 cu ft/hr (from Table 9)
Btu heating input = 88 X 1050 = 92,400 Btuh
In this example, the orifice size and manifold pressure
adjustment is within ±2 percent of the furnace input
rate.
2. Set temperature rise.
Furnace must operate within range of temperature rise speci-
fied on the unit rating plate. Determine the air temperature rise
as follows.
a. Place duct thermometers in return and supply ducts as near
furnace as possible. Be sure thermometers do not "see" heat
exchangers so that radiant heat does not affect thermometer
readings. This is particularly important with straight-run
ducts.
b. When thermometer readings stabilize, subtract return-air
temperature from supply-air temperature to determine tem-
perature rise.
c. Adjust air temperature rise by adjusting blower speed.
Increase blower speed to reduce temperature rise. Decrease
blower speed to increase temperature rise.
Disconnect the electrical power before changing the speed
tap. Failure to follow this warning could result in personal
injury.
d. To change blower motor speed selections for heating mode
remove blower motor lead from control board HEAT
terminal. (See Fig. 14.) Select desired blower motor speed
lead from 1 of the other terminals and relocate it to HEAT
terminal. See Table 10 for lead color identification. Recon-
nect original lead on SPARE terminal.
Follow this same procedure for proper selection of COOL
speed selection.
If Model 58ZAV 115-22 is installed in 0.50-in. wc or lower
static pressure ductwork, evaporator coil condensate blow off
can occur during cooling operation. When installed in this
manner, do not use high blower speed tap for cooling.
Table 9—Gas Rate (Cu Ft/Hr)
SECONDS
FOR 1
REVOLUTION
SIZE OF TEST DIAL SECONDS
FOR 1
REVOLUTION
SIZE OF TEST DIAL
1
cu ft 2
cu ft 5
cu ft 1
cu ft 2
cu ft 5
cu ft
10
11
12
13
14
360
327
300
277
257
720
655
600
555
514
1800
1636
1500
1385
1286
50
51
52
53
54
72
71
69
68
67
144
141
138
136
133
360
355
346
340
333
15
16
17
18
19
240
225
212
200
189
480
450
424
400
379
1200
1125
1059
1000
947
55
56
57
58
59
65
64
63
62
61
131
129
126
124
122
327
321
316
310
305
20
21
22
23
24
180
171
164
157
150
360
343
327
313
300
900
857
818
783
750
60
62
64
66
68
60
58
56
54
53
120
116
112
109
106
300
290
281
273
265
25
26
27
28
29
144
138
133
129
124
288
277
267
257
248
720
692
667
643
621
70
72
74
76
78
51
50
48
47
46
103
100
97
95
92
257
250
243
237
231
30
31
32
33
34
120
116
113
109
106
240
232
225
218
212
600
581
563
545
529
80
82
84
86
88
45
44
43
42
41
90
88
86
84
82
225
220
214
209
205
35
36
37
38
39
103
100
97
95
92
206
200
195
189
185
514
500
486
474
462
90
92
94
96
98
40
39
38
38
37
80
78
76
75
74
200
196
192
188
184
40
41
42
43
44
90
88
86
84
82
180
176
172
167
164
450
439
429
419
409
100
102
104
106
108
36
35
35
34
33
72
71
69
68
67
180
178
173
170
167
45
46
47
48
49
80
78
76
75
73
160
157
153
150
147
400
391
383
375
367
110
112
116
120
33
32
31
30
65
64
62
60
164
161
155
150
Fig. 18—Redundant Automatic Gas Control Valve
A95618
MANIFOLD
PRESSURE TAP
GAS
PRESSURE
REGULATOR
ADJUSTMENT
INLET
PRESSURE TAP
ON AND
OFF SWITCH
Fig. 19—Burner Flame A89020
BURNER FLAME
BURNER
MANIFOLD
→Table 10—Speed Selector
COLOR SPEED FACTORY-
ATTACHED TO
Black High COOL
Yellow (When present) Medium-High SPARE
Blue Medium-Low HEAT
Red Low SPARE
White Common L2/COM
19

Recheck temperature rise. It must be within limits specified
on unit rating plate. Recommended operation is at midpoint of
rise or above.
3. Set thermostat heat anticipator.
The thermostat heat anticipation must be set to match the amp
draw of the electrical components in the R-W circuit. Accurate
amp draw readings can be obtained at thermostat subbase
terminals R and W. Fig. 20 illustrates an easy method of
obtaining the actual amp draw. The amp reading should be
taken after the blower motor has started. See the thermostat
manufacturer’s instructions for adjusting the heat anticipator
and for varying the heating cycle length.
NOTE: When using an electronic thermostat, set cycle rate for 3
cycles per hr.
CHECK SAFETY CONTROLS
The flame sensor, gas valve, and pressure switch were all checked
in the Start-up Procedures section as part of normal operation.
1. Check primary limit control.
This control shuts off the combustion control system and
energizes the circulating-air blower motor if the furnace
overheats.
The preferred method of checking the limit control is to
gradually block off the return air after the furnace has been
operating for a period of at least 5 minutes. As soon as the
limit has shut off the burners, the return-air opening should be
unblocked. By using this method to check the limit control, it
can be established that the limit is functioning properly and
operates if there is a motor failure.
2. Check blocked vent safeguard switch.
The purpose of this control is to permit the safe shutdown of
the furnace during certain blocked vent conditions.
a. Disconnect power to furnace and remove vent connector
from furnace outlet collar. Be sure to allow time for vent
pipe to cool down before removing.
b. Restore power to furnace and set room thermostat above
room temperature.
c. After normal start-up, allow furnace to operate for 2
minutes, then block flue outlet 100 percent. Furnace should
cycle off within 2 minutes.
d. Remove blockage and reconnect vent pipe to furnace outlet
collar.
e. Wait 5 minutes and then reset blocked vent safeguard
switch.
3. Check pressure switch.
This control proves operation of draft inducer blower.
a. Turn off 115-v power to furnace.
b. Remove control door and disconnect inducer motor lead
wires from wire harness.
c. Turn on 115-v power to furnace.
d. Set thermostat to "call for heat" and wait 1 minute. When
pressure switch is functioning properly, hot surface igniter
should NOT glow and control diagnostic light flashes a
status code 31. If hot surface igniter glows when inducer
motor is disconnected, shut down furnace immediately.
Determine reason pressure switch did not function properly
and correct condition.
e. Turn off 115-v power to furnace.
f. Reconnect inducer motor wires, replace control door, and
turn on 115-v power to furnace.
4. Check auxiliary limits (when used).
a. Turn off 115-v power to furnace.
b. Remove blower access door.
c. Disconnect red motor lead at blower speed selector. Mark
terminal for proper reconnection.
d. Replace blower access door.
e. Turn on 115-v power to furnace. Be sure room thermostat
is calling for heat.
f. Allow furnace to operate until auxiliary limit activates, but
DO NOT operate furnace longer than 4 minutes.
g. If furnace operates for 4 minutes, check/replace limit
switch(es).
h. Turn off 115-v power to furnace.
i. Remove blower access door.
j. Reconnect red motor lead, reset switch, and replace door.
k. Turn on 115-v power to furnace.
CHECKLIST
1. Put away tools, instruments, and clean up debris.
2. Verify manual reset switches have continuity.
3. Ensure blower and control access doors are properly installed.
4. Cycle test furnace with room thermostat.
5. Check operation of accessories per manufacturer’s instruc-
tions.
6. Review User’s Manual with owner.
7. Leave literature packet near furnace.
Fig. 20—Amp Draw Check With Ammeter
A96316
R Y W G
10 TURNS
THERMOSTAT SUBBASE
TERMINALS WITH
THERMOSTAT REMOVED
(ANITICIPATOR, CLOCK, ETC.,
MUST BE OUT OF CIRCUIT.)
HOOK-AROUND
AMMETER
EXAMPLE: 5.0 AMPS ON AMMETER
10 TURNS AROUND JAWS = 0.5 AMPS FOR THERMOSTAT
ANTICIPATOR SETTING
FROM UNIT 24-V
CONTROL TERMINALS
Copyright 1999 CARRIER Corp. • 7310 W. Morris St. • Indianapolis, IN 46231 58zav10s
Manufacturer reserves the right to discontinue, or change at any time, specifications or designs without notice and without incurring obligations.
Book 1 4
Tab 6a 8a PC 101 Catalog No. 535-729 Printed in U.S.A. Form 58ZAV-10SI Pg 20 8-99 Replaces: 58ZAV-9SI