Chamberlain 2500D Users Manual GARAGE DOOR OPENER
2500D 114A2933
2500D to the manual 2b163c65-41af-d2d4-8d95-ef8f040ebe44
2015-01-25
: Chamberlain Chamberlain-2500D-Users-Manual-213770 chamberlain-2500d-users-manual-213770 chamberlain pdf
Open the PDF directly: View PDF
.
Page Count: 36
- English
- GARAGE DOOR OPENER Model 2500B
- TABLE OF CONTENTS
- INTRODUCTION
- ASSEMBLY
- INSTALLATION
- INSTALLATION STEP 1 Determine the Header Bracket Location
- INSTALLATION STEP 2 Install the Header Bracket
- INSTALLATION STEP 3 Attach the Rail to the Header Bracket
- INSTALLATION STEP 4 Position the Opener
- INSTALLATION STEP 5 Hang the Opener
- INSTALLATION STEP 6 Install the Door Control
- INSTALLATION STEP 7 Install the Lights and Lens
- INSTALLATION STEP 8 Attach the Emergency Release Rope and Handle
- INSTALLATION STEP 9 Electrical Requirements
- INSTALLATION STEP 10 Install The Protector System®
- INSTALLATION STEP 11 Fasten the Door Bracket
- INSTALLATION STEP 12 Connect Door Arm to Trolley
- ADJUSTMENT
- OPERATION
- CARE OF YOUR OPENER
- HAVING A PROBLEM?
- PROGRAMMING
- REPAIR PARTS
- ACCESSORIES
- LIFTMASTER SERVICE IS ON CALL
- WARRANTY
- Spanish

Owner’s Manual
■Please read this manual and the enclosed safety materials carefully!
■Fasten the manual near the garage door after installation.
■The door WILL NOT CLOSE unless The Protector System®is connected
and properly aligned.
■Periodic checks of the opener are required to ensure safe operation.
■The model number label is located on the front of your opener.
GARAGE DOOR OPENER
Model 2500D
For Residential Use Only
The Chamberlain Group, Inc.
845 Larch Avenue
Elmhurst, Illinois 60126-1196
www.liftmaster.com
®
®
New!
Optional Accessory
Available
See Page 35 for the New

2
Introduction 2-5
Safety symbol review and signal word review ............2
Preparing your garage door ........................................3
Tools ............................................................................3
Planning .....................................................................4
Carton inventory ..........................................................5
Hardware inventory .....................................................5
Assembly 6-7
Fasten rail to the motor unit ........................................6
Set the belt tension .....................................................6
Attach the belt cap retainer .........................................7
Installation 7-23
Installation safety instructions .....................................7
Determine the header bracket location....................8-9
Install the header bracket..........................................10
Attach the rail to the header bracket .........................11
Position the opener ...................................................12
Hang the opener .......................................................13
Install the door control...............................................14
Install the lights and lens...........................................15
Attach the emergency release rope and handle .......15
Electrical requirements..............................................16
Install The Protector System®..............................17-19
Fasten the door bracket .......................................20-21
Connect the door arm to the trolley .....................22-23
Adjustment 24-26
Program the travel limits ...........................................24
Setting the force ........................................................25
Test the safety reversal system.................................26
Test The Protector System®......................................26
Operation 27-30
Operation safety instructions.....................................27
Using your garage door opener ................................27
Using the door control ...............................................28
To open the door manually........................................28
Care of your garage door opener..............................29
Having a problem?...............................................29-30
Programming 31-32
To add or reprogram a hand-held remote control .....31
To erase all codes .....................................................31
3-Button Remotes .....................................................31
To add, reprogram or change
a Keyless Entry PIN ..................................................32
Repair Parts 33-34
Rail assembly parts...................................................33
Installation parts ........................................................33
Motor unit assembly parts .........................................34
Accessories 35
Repair Parts and Service 36
Warranty 36
TABLE OF CONTENTS
INTRODUCTION
Safety Symbol Review
and Signal Word Review
When you see these Safety Symbols and Signal
Words on the following pages, they will alert you to
the possibility of serious injury or death if you do
not comply with the warnings that accompany them.
The hazard may come from something mechanical
or from electric shock. Read the warnings carefully.
When you see this Signal Word on the following
pages, it will alert you to the possibility of damage to
your garage door and/or the garage door opener if
you do not comply with the cautionary statements
that accompany it. Read them carefully.
This garage door opener has been designed and tested to offer safe service provided it is installed, operated,
maintained and tested in strict accordance with the instructions and warnings contained in this manual.
Mechanical
Electrical
WARNING
CAUTION WARNING
WARNING
WARNING
CAUTION WARNING
WARNING
WARNING
CAUTION
WARNING
WARNING

3
Preparing your garage door
Before you begin:
• Disable locks.
• Remove any ropes connected to garage door.
• Complete the following test to make sure your
garage door is balanced and is not sticking or
binding:
1. Lift the door about halfway as shown. Release
the door. If balanced, it should stay in place,
supported entirely by its springs.
2. Raise and lower the door to see if there is any
binding or sticking.
If your door binds, sticks, or is out of balance, call
a trained door systems technician.
To prevent damage to garage door and opener:
• ALWAYS disable locks BEFORE installing and operating
the opener.
• ONLY operate garage door opener at 120V, 60 Hz to
avoid malfunction and damage.
To prevent possible SERIOUS INJURY OR DEATH:
• ALWAYS call a trained door systems technician if
garage door binds, sticks, or is out of balance. An
unbalanced garage door may not reverse when
required.
• NEVER try to loosen, move or adjust garage door, door
springs, cables, pulleys, brackets or their hardware, all
of which are under EXTREME tension.
• Disable ALL locks and remove ALL ropes connected to
garage door BEFORE installing and operating garage
door opener to avoid entanglement.
WARNING
CAUTION WARNING
WARNING
WARNING
CAUTION
WARNING
WARNING
Tools needed
During assembly, installation and adjustment of the
opener, instructions will call for hand tools as
illustrated below.
Pliers
Wire Cutters
Claw Hammer
Hack Saw
Screwdriver Adjustable End Wrench
1/2" and 7/16" Sockets
and Wrench
Drill
Tape Measure
2
1
Stepladder
Pencil
3/16", 5/16" and
5/32" Drill Bits
Carpenter's
Level (Optional)
Sectional Door
One-Piece Door

Safety
Reversing Sensor
Horizontal and vertical reinforcement
is needed for lightweight garage doors
(fiberglass, steel, aluminum, door with
glass panels, etc.). See page 20 for details.
Header Wall
Safety
Reversing
Sensor
Support bracket &
fastening hardware
is required. See page 13.
FINISHED CEILING
Extension Spring
OR Torsion Spring
Motor unit
Wall-mounted
Door Control
Rail
Access Door
Gap between floor
and bottom of door must not exceed 1/4".
Vertical
Centerline
of Garage Door
4
SECTIONAL DOOR INSTALLATION
Planning
Identify the type and height of your garage door. Survey your garage area to see if any of the conditions below
apply to your installation. Additional materials may be required. You may find it helpful to refer back to this page
as you proceed with the installation of your opener.
Safety Reversing Sensor
FINISHED CEILING
Support bracket &
fastening hardware
is required. See page 13.
Safety
Reversing
Sensor
Header Wall
Access Door
Gap between floor
and bottom of door
must not exceed 1/4".
Motor unit
Wall-mounted
Door Control
Rail
Access
Door
Safety
Reversing Sensor
Safety
Reversing
Sensor
Gap between floor
and bottom of door
must not exceed 1/4".
ONE-PIECE DOOR WITHOUT TRACK
ONE-PIECE DOOR WITH TRACK

5
Straight Door
Arm Section
Curved Door
Arm Section
Header Bracket
UP
CEILING MOUNT ONLY
2-Conductor Bell Wire
White & White/Red
Safety Labels
and
Literature
Remote Control
Transmitter Visor Clip
Door Bracket
SECURITY✚®
3-Button Remote Control
(2) Safety Reversing Sensors
(1 Sending Eye and 1 Receiving Eye)
with 2-Conductor White & White/Black
Bell Wire attached
Safety Sensor
Bracket (2)
Belt Cap Retainer
One-Piece
T-rail
Styrofoam
Belt
Pulley Bracket
Belt
Trolley
Motor Unit with Light Lens
Rail Grease
LOCKLIGHT
Motion Detecting
Door Control Panel
Your garage door opener is packaged in two cartons
which contain the motor unit and the parts illustrated
below. Note that accessories will depend on the
model purchased. If anything is missing, carefully
check the packing material. Parts may be stuck in the
foam. KEEP THE FOAM INTACT (see page 6.)
Carton Inventory
Hardware Inventory
INSTALLATION HARDWARE
Hex Screw #8x3/8" (3)
Hex Bolt 5/16"-18x7/8" (4)
Lag Screw 5/16"-9x1-5/8" (2)
Lag Screw 5/16"-18x1-7/8" (2)
Self-Threading Screw 1/4"-14x5/8" (2)
Clevis Pin 5/16"x2-3/4" (1)
Clevis Pin 5/16"x1-1/4" (1)
Clevis Pin 5/16"x1" (1)
Nut 5/16"-18 (4)
Lock Washer 5/16" (4)
Screw 6ABx1-1/4" (2)
Screw 6-32x1" (2)
Insulated Staples (30)
Ring Fastener (3)
Handle
Drywall Anchors (2)
Rope
Carriage Bolts 1/4"-20x1/2" (2)
Wing Nut 1/4"x20 (2)

ASSEMBLY STEP 1
Attach the Rail to the Motor Unit
To avoid installation difficulties, do not run the
garage door opener until instructed to do so.
• Remove the two washered bolts mounted in top of
motor unit.
• Align rail and styrofoam over sprocket. Cut tape
from rail, belt and styrofoam.
• REMOVE STYROFOAM.
• Insert both washered bolts through the rail into the
motor unit. Tighten bolts securely.
Use only these bolts! Use of any other bolts
will cause serious damage to door opener.
• Position belt over the motor unit sprocket.
6
Motor Unit
Sprocket
Foam Packaging
Washered Bolts
5/16"-18x1/2"
ASSEMBLY STEP 2
Set the Belt Tension
• By hand, thread the spring trolley nut on the
threaded shaft until it is finger tight against the
trolley (Figure 1). Do not use any tools.
• Insert a screwdriver tip into one of the nut ring slots
and brace it firmly against the trolley (Figure 2).
• Place a 7/16" open end wrench on the square
end. Rotate about 1/4 turn until the spring releases
and snaps the nut ring against the trolley (Figure 3).
This extends the spring for optimum belt tension.
Trolley
Threaded
Shaft
Spring/Trolley Nut
Nut
Ring
Trolley
Threaded
Shaft
Nut Ring
Slots
Square
End
Figure 1
Figure 2
Nut RingTrolleyNut Ring
Trolley
1" (2.5 cm) 1-1/4" (3.18 cm)
BEFORE AFTER RELEASE
Figure 3
To avoid SERIOUS damage to garage door opener,
use ONLY those bolts/fasteners mounted in the top of
the opener.
WARNING
CAUTION
WARNING
WARNING

ASSEMBLY STEP 3
Attach the Belt Cap Retainer
• Position the belt cap retainer over the opener
sprocket so the two holes in cap align with the two
holes in mounting plate. Attach with #8x3/8" hex
screws provided.
You have now finished assembling your garage
door opener. Please read the following warnings
before proceeding to the installation section.
7
Hex Screws
#8x3/8"
Belt Cap
Retainer
Opener Sprocket
Mounting
Plate
IMPORTANT INSTALLATION INSTRUCTIONS
1. READ AND FOLLOW ALL INSTALLATION WARNINGS
AND INSTRUCTIONS.
2. Install garage door opener only on properly balanced
and lubricated garage door. An improperly balanced
door may not reverse when required and could result in
SEVERE INJURY or DEATH.
3. All repairs to cables, spring assemblies and other
hardware MUST be made by a trained door systems
technician BEFORE installing opener.
4. Disable all locks and remove all ropes connected to
garage door BEFORE installing opener to avoid
entanglement.
5. Install garage door opener 7 feet or more above floor.
6. Mount emergency release handle 6 feet above floor.
7. NEVER connect garage door opener to power source
until instructed to do so.
8. NEVER wear watches, rings or loose clothing while
installing or servicing opener. They could be caught in
garage door or opener mechanisms.
9. Install wall-mounted garage door control:
• within sight of the garage door.
• out of reach of children at minimum height of 5 feet.
• away from all moving parts of the door.
10. Place entrapment warning label on wall next to garage
door control.
11. Place manual release/safety reverse test label in plain
view on inside of garage door.
12. Upon completion of installation, test safety reversal
system. Door MUST reverse on contact with a
1-1/2" high object (or a 2x4 laid flat) on the floor.
To reduce the risk of SEVERE INJURY or DEATH:
WARNING
WARNING
WARNING
INSTALLATION
Hex Screw
#8x3/8"
HARDWARE SHOWN ACTUAL SIZE
To avoid possible SERIOUS INJURY to fingers from
moving garage door opener:
• ALWAYS keep hand clear of sprocket while operating
opener.
• Securely attach sprocket cover BEFORE operating.
WARNING
CAUTION WARNING
WARNING

8
INSTALLATION STEP 1
Determine the Header Bracket
Location
Installation procedures vary according to garage door
types. Follow the instructions which apply to your
door.
SECTIONAL DOOR
AND ONE-PIECE DOOR WITH TRACK
1. Close the door and mark the inside vertical
centerline of the garage door.
2. Extend the line onto the header wall above the
door.
You can fasten the header bracket within 4 feet
of the left or right of the door center only if a
torsion spring or center bearing plate is in the
way; or you can attach it to the ceiling (see
page 10) when clearance is minimal. (It may be
mounted on the wall upside down if necessary,
to gain approximately 1/2".)
If you need to install the header bracket on a 2x4
(on wall or ceiling), use lag screws (not provided)
to securely fasten the 2x4 to structural supports as
shown here and on page 10.
3. Open your door to the highest point of travel as
shown. Draw an intersecting horizontal line on the
header wall 2" above the high point. This height
will provide travel clearance for the top edge of the
door.
Proceed to Step 2, page 10.
To prevent possible SERIOUS INJURY or DEATH:
• Header bracket MUST be RIGIDLY fastened to
structural support on header wall or ceiling, otherwise
garage door might not reverse when required. DO NOT
install header bracket over drywall.
• Concrete anchors MUST be used if mounting header
bracket or 2x4 into masonry.
• NEVER try to loosen, move or adjust garage door,
springs, cables, pulleys, brackets, or their hardware, all
of which are under EXTREME tension.
• ALWAYS call a trained door systems technician if
garage door binds, sticks, or is out of balance. An
unbalanced garage door might not reverse when
required.
WARNING
CAUTION WARNING
WARNING
Header Wall
Sectional door with curved track
Track
Highest Point
of Travel
Door
2" (5 cm)
One-piece door with horizontal track
Door
Track
Header Wall
Highest Point
of Travel
2" (5 cm)
Unfinished
Ceiling
2x4
OPTIONAL
CEILING
MOUNT
FOR
HEADER
BRACKET
Header Wall
2x4 Structural
Supports
Vertical Centerline
of Garage Door
Level
(optional)

9
ONE-PIECE DOOR WITHOUT TRACK
1. Close the door and mark the inside vertical
centerline of your garage door. Extend the line
onto the header wall above door, as shown.
If headroom clearance is minimal, you can install
the header bracket on the ceiling. See page 10.
If you need to install the header bracket on a 2x4
(on wall or ceiling), use lag screws (not provided)
to securely fasten the 2x4 to structural supports
as shown. If installing into masonry, use concrete
anchors (not provided).
2. Open your door to the highest point of travel as
shown. Measure the distance from the top of the
door to the floor. Subtract the actual height of the
door. Add 8" to the remainder. (See Example).
3. Close the door and draw an intersecting horizontal
line on the header wall at the determined height.
NOTE: If the total number of inches exceeds the
height available in your garage, use the maximum
height possible, or refer to page 10 for ceiling
installation.
EXAMPLE
Distance from top of door
(at highest point of travel) to floor ...................... 92"
Actual height of door .......................................... -88"
Remainder.......................................................... 4"
Add..................................................................... +8"
Bracket height on header wall............................ =12"
(Measure UP from top of CLOSED door.)
Proceed to Step 2, page 10.
Header Wall
Vertical
Centerline
of Garage
Door
2x4
Unfinished
Ceiling
2x4
OPTIONAL
CEILING MOUNT
FOR
HEADER BRACKET
Structural
Supports
Door
Pivot
8" (20 cm)
One-piece door without track:
pivot hardware
Highest
Point
of Travel
Header Wall
Door
Jamb
Hardware
One-piece door without track:
jamb hardware
8" (20 cm)
Highest
Point
of Travel
Header Wall

10
INSTALLATION STEP 2
Install the Header Bracket
You can attach the header bracket either to the wall
above the garage door, or to the ceiling. Follow the
instructions which will work best for your particular
requirements. Do not install the header bracket
over drywall. If installing into masonry, use
concrete anchors (not provided).
WALL HEADER BRACKET INSTALLATION
• Center the bracket on the vertical centerline with
the bottom edge of the bracket on the horizontal
line as shown (with the arrow pointing toward the
ceiling).
• Mark the vertical set of bracket holes (do not use
the holes designated for ceiling mount). Drill 3/16"
pilot holes and fasten the bracket securely to a
structural support with the hardware provided.
Lag Screws
5/16"x9x1-5/8"
Highest Point of
Garage Door Travel
Vertical
Centerline of
Garage Door
Header
Wall
Garage
Door
UP
CEILING MOUNT ONLY
Wall Mounting Holes
Optional
Wall Mounting Holes
The nail hole is for
positioning only.
You must use lag screws
to mount the header bracket.
UP
CEILING MOUNT ONLY
Door Spring
Header
Bracket
2x4
Structural
Support
Vertical
Centerline of
Garage Door
Horizontal
Line
UP
CEILING MOUNT ONLY
Ceiling Mounting Holes
The nail hole is for
positioning only.
You must use lag screws
to mount the header bracket.
UP
Lag Screws
5/16"-9x1-5/8"
Garage Door
Vertical
Centerline
of Garage Door
Header Wall
– Finished Ceiling –
Header
Bracket
6" (15 cm)
Maximum
Vertical
Centerline
of Garage Door
Door
Spring
CEILING HEADER BRACKET INSTALLATION
• Extend the vertical centerline onto the ceiling as
shown.
• Center the bracket on the vertical mark, no more
than 6" from the wall. Make sure the arrow is
pointing toward the wall. The bracket can be
mounted flush against the ceiling when clearance
is minimal.
• Mark the side holes. Drill 3/16" pilot holes and
fasten bracket securely to a structural support with
the hardware provided.
Lag Screw
5/16"-9x1-5/8"
HARDWARE SHOWN ACTUAL SIZE

Header Bracket
Belt Pulley Bracket
Opener Carton or
Temporary
Support
Header Wall
Garage
Door
Clevis Pin
5/16"x2-3/4" Ring Fastener
Torsion
Spring
Rail
Clevis Pin
5/16"x2-3/4"
Ring Fastener
Header Bracket
Belt Pulley
Bracket
Foam Packaging
Rail
11
HARDWARE SHOWN ACTUAL SIZE
INSTALLATION STEP 3
Attach the Rail to the Header
Bracket
• Position the opener on the garage floor below the
header bracket. Use packing material as a
protective base. NOTE: If the door spring is in the
way you’ll need help. Have someone hold the
opener securely on a temporary support to allow
the rail to clear the spring.
• Position the rail bracket against the header
bracket.
• Align the bracket holes and join with a clevis pin
as shown.
• Insert a ring fastener to secure.

12
ONE-PIECE DOOR WITHOUT TRACK
A 2x4 on its side is convenient for setting an ideal
door-to-rail distance.
• Remove foam packaging.
• Raise the opener onto a stepladder. You will need
help at this point if the ladder is not tall enough.
• Open the door all the way and place a 2x4 on its
side on the top section of the door beneath the rail.
• The top of the door should be level with the top of
the motor unit. Do not position the opener more
than 4" above this point.
INSTALLATION STEP 4
Position the Opener
Follow instructions which apply to your door type as
illustrated.
SECTIONAL DOOR OR ONE-PIECE DOOR WITH
TRACK
A 2x4 laid flat is convenient for setting an ideal
door-to-rail distance.
• Remove foam packaging.
• Raise the opener onto a stepladder. You will need
help at this point if the ladder is not tall enough.
• Open the door all the way and place a 2x4 laid flat
on the top section beneath the rail.
• If the top section or panel hits the trolley when you
raise the door, pull down on the trolley release arm
to disconnect inner and outer sections. Slide the
outer trolley toward the motor unit. The trolley can
remain disconnected until Installation Step 12
is completed.
Rail
2x4 is used to determine
the correct mounting height
from ceiling.
Door
Header
Bracket
Top of Door
2x4 is used to determine
the correct mounting height
from ceiling.
To prevent damage to garage door, rest garage door
opener rail on 2x4 placed on top section of door.
WARNING
CAUTION
WARNING
WARNING
Trolley
Release Arm
ENGAGED RELEASED

13
INSTALLATION STEP 5
Hang the Opener
Three representative installations are shown. Yours
may be different. Hanging brackets should be
angled, Figure 1, to provide rigid support. On
finished ceilings, Figure 2, attach a sturdy metal
bracket to structural supports before installing the
opener. This bracket and fastening hardware are not
provided.
Existing brackets from a previous installation may be
fastened to the sides of the motor unit as in Figures
1 and 2, or to the mounting tabs as shown in
Figure 3. Then continue with step 5 below.
1. Measure the distance from each side of the motor
unit to the structural support.
2. Cut both pieces of the hanging bracket to required
lengths.
3. Drill 3/16" pilot holes in the structural supports.
4. Attach one end of each bracket to a support with
5/16"-18x1-7/8" lag screws.
5. Fasten the opener to the hanging brackets with
5/16"-18x7/8" hex bolts, lock washers and nuts.
6. Check to make sure the rail is centered over the
door (or in line with the header bracket if the
bracket is not centered above the door).
7. Remove the 2x4. Operate the door manually. If
the door hits the rail, raise the header bracket.
8. Grease the top and underside of the rail surface
where the trolley slides with rail grease.
Lag Screw 5/16"-18x1-7/8"
Hex Bolt
5/16"-18x7/8"Nut 5/16"-18Lock Washer 5/16"
HARDWARE SHOWN ACTUAL SIZE
Measure
Distance
Lag Screws
5/16"- 18x1-7/8"
Bracket
(Not Provided)
Lag Screws
5/16"-18x1-7/8"
(Not Provided)
Hex Bolts
5/16"-18x7/8"
Lock Washers 5/16"
Nuts 5/16"-18
— FINISHED CEILING —
Hex Bolts
5/16"-18x7/8"
Lock Washers 5/16"
Nuts 5/16"-18
Hex Bolts
5/16"-18x7/8"
Lock Washers 5/16"
Nuts 5/16"-18
Hidden
Support
Structural
Supports
Preferred range of
bracket placement
Preferred range of
bracket placement
Utilizing existing top mount installation
Existing Brackets
Bracket
(Provided)
Figure 1
Figure 2
Figure 3
To avoid possible SERIOUS INJURY from a falling
garage door opener, fasten it SECURELY to structural
supports of the garage. Concrete anchors MUST be used
if installing any brackets into masonry.
WARNING
CAUTION WARNING
WARNING

To prevent possible SERIOUS INJURY or DEATH from
electrocution:
• Be sure power is not connected BEFORE installing door
control.
• Connect ONLY to 24 VOLT low voltage wires.
To prevent possible SERIOUS INJURY or DEATH from a
closing garage door:
• Install door control within sight of garage door, out of
reach of children at a minimum height of 5 feet, and away
from all moving parts of door.
• NEVER permit children to operate or play with door
control push buttons or remote control transmitters.
• Activate door ONLY when it can be seen clearly, is
properly adjusted, and there are no obstructions to door
travel.
• ALWAYS keep garage door in sight until completely
closed. NEVER permit anyone to cross path of closing
garage door.
Red Grey
White
To release wire, push in
tab with screwdriver tip
Door Control
Connections
7/16"
Strip wire 7/16"
14
INSTALLATION STEP 6
Install the Door Control
Locate door control within sight of the door at a
minimum height of 5 feet where small children cannot
reach, and away from moving parts of the door and
door hardware. The installation surface must be
smooth and flat. If installing into drywall (Figure 1),
drill 5/32" holes and use anchors provided. For
pre-wired installations (as in new home construction),
it may be mounted to a single gang box (Figure 2).
NOTE: After installation, a green or amber indicator
light behind the cover will indicate proper connection.
If not lit, the Lock and Light features will not function
(reverse wires to correct).
1. Strip 7/16" of insulation from one end of bell wire
and connect to the two screw terminals on back of
door control by color: white wire to WHT and
white/red wire to the RED (Figure 3).
2. Remove white cover by gently prying at slot in top
of the cover with a small flat head screwdriver.
Fasten with 6ABx1-1/4" self-tapping screws (drywall
installation) or 6-32x1" machine screws (into gang
box) as follows:
• Drill and install bottom screw, allowing 1/8" (3 mm)
to protrude above wall surface.
• Position bottom of door control on screw head and
slide down to secure. Adjust screw for snug fit.
• Install top screw with care to avoid cracking plastic
housing. Do not overtighten.
• Insert top tabs and snap on cover.
NOTE: The push bar may stick if the door control is
not mounted on a smooth surface. If a click is not
heard when pressing the push bar, loosen the two
mounting screws or relocate the door control to a
smoother surface.
3. (Standard installation only) Run bell wire up wall
and across ceiling to motor unit. Use insulated
staples to secure wire in several places. Do not
pierce wire with a staple, creating a short or open
circuit.
4. Strip 7/16" of insulation from end of bell wire.
Connect bell wire to the quick-connect terminals as
follows: white to white and white/red to red (Figure 4).
5. Use tacks or staples to permanently attach
entrapment warning label to wall near door control,
and manual release/safety reverse test label in a
prominent location on inside of garage door.
NOTE: DO NOT connect the power and operate the
opener at this time. The trolley will travel to the full
open position but will not return to the close
position until the sensor beam is connected and
properly aligned. See Safety Reversing Sensor
Instructions beginning on page 17.
Figure 4
WARNING
CAUTION
WARNING
WARNING
Drywall Anchors
Insulated
Staples
Screw 6ABx1-1/4"
(std installation)
Screw 6-32x1"
(pre-wired installation)
HARDWARE SHOWN ACTUAL SIZE
Figure 2
LOCKLIGHT
To Replace
Insert Top
Tabs First
STANDARD WALL MOUNT
Detector
Switch
Push Bar Cover
ON
OFF
Figure 1
24 Volt Bell Wire
PRE-WIRED INSTALLATION
LOCKLIGHT
To Replace
Insert Top
Tabs First
Detector
Switch
Push Bar Cover
ON
OFF
1
RED
2
WHITE
Door
Control
Terminal
Screws
24 Volt
Bell Wire
(BACK VIEW)
Bottom
Mounting
Hole
Top
Mounting
Hole
Figure 3

15
INSTALLATION STEP 7
Install the Lights and Lens
Press the release tabs on both sides of lens. Gently
rotate lens back and downward until the lens hinge
is in the fully open position. Do not remove the lens.
• Install up to a 100 watt maximum light bulb in each
socket. The lights will turn ON and remain lit for
approximately 4-1/2 minutes when power is
connected. Then the lights will turn OFF.
• Reverse the procedure to close the lens.
• If the bulbs burn out prematurely due to vibration,
replace with a Garage Door Opener bulb.
NOTE: Use only standard light bulbs. The use of
short neck or speciality light bulbs may overheat the
endpanel or light socket.
INSTALLATION STEP 8
Attach the Emergency Release
Rope and Handle
• Thread one end of the rope through the hole in the
top of the red handle so “NOTICE” reads right side
up as shown. Secure with an overhand knot at
least 1" from the end of the rope to prevent
slipping.
• Thread the other end of the rope through the hole
in the release arm of the outer trolley.
• Adjust rope length so the handle is 6 feet above
the floor. Secure with an overhand knot.
NOTE: If it is necessary to cut the rope, heat seal
the cut end with a match or lighter to prevent
unraveling.
Release Tab
Lens Hinge
Lens Hinge Slots
Lens
Release
Tab Slot
Release Tab
Release
Tab Slot
100 Watt (Max)
Standard Light Bulb
NOTICE
Overhand
Knot
Emergency
Release Handle
Overhand
Knot
Trolley
Release
Arm
Rope
To prevent possible SERIOUS INJURY or DEATH from a
falling garage door:
• If possible, use emergency release handle to disengage
trolley ONLY when garage door is CLOSED. Weak or
broken springs or unbalanced door could result in an
open door falling rapidly and/or unexpectedly.
• NEVER use emergency release handle unless garage
doorway is clear of persons and obstructions.
• NEVER use handle to pull door open or closed. If rope
knot becomes untied, you could fall.
WARNING
CAUTION WARNING
WARNING
To prevent possible OVERHEATING of the endpanel or
light socket,
• DO NOT use short neck or specialty light bulbs.
• DO NOT use halogen bulbs. Use ONLY incandescent.
WARNING
CAUTION
WARNING
WARNING

INSTALLATION STEP 9
Electrical Requirements
To avoid installation difficulties, do not run the
opener at this time.
To reduce the risk of electric shock, your garage door
opener has a grounding type plug with a third
grounding pin. This plug will only fit into a grounding
type outlet. If the plug doesn't fit into the outlet you
have, contact a qualified electrician to install the
proper outlet.
If permanent wiring is required by your local
code, refer to the following procedure.
To make a permanent connection through the 7/8"
hole in the top of the motor unit (according to local
code):
• Remove the motor unit cover screws and set the
cover aside.
• Remove the attached 3-prong cord.
• Connect the black (line) wire to the screw on the
brass terminal; the white (neutral) wire to the
screw on the silver terminal; and the ground wire
to the green ground screw. The opener must be
grounded.
• Reinstall the cover.
To avoid installation difficulties, do not run the
opener at this time.
RIGHT WRONG
Ground Tab
Green
Ground Screw
Ground Wire
Black Wire
PERMANENT WIRING
CONNECTION
White Wire
Black
Wire
To prevent possible SERIOUS INJURY or DEATH from
electrocution or fire:
• Be sure power is not connected to the opener, and
disconnect power to circuit BEFORE removing cover to
establish permanent wiring connection.
• Garage door installation and wiring MUST be in
compliance with all local electrical and building codes.
• NEVER use an extension cord, 2-wire adapter, or
change plug in any way to make it fit outlet. Be sure
the opener is grounded.
WARNING
CAUTION WARNING
WARNING
16

17
Invisible Light Beam
Protection Area
Sensor Beam
6" (15 cm) max.
above floor
Sensor Beam
6" (15 cm) max.
above floor
Facing the door from inside the garage
INSTALLATION STEP 10
Install The Protector System®
The safety reversing sensor must be connected
and aligned correctly before the garage door
opener will move in the down direction. This is a
required safety device and cannot be disabled.
IMPORTANT INFORMATION ABOUT THE SAFETY
REVERSING SENSOR
When properly connected and aligned, the safety
reversing sensor will detect an obstacle in the path of
its electronic beam. The sending eye (with an amber
indicator light) transmits an invisible light beam to the
receiving eye (with a green indicator light). If an
obstruction breaks the light beam while the door is
closing, the door will stop and reverse to full open
position, and the opener lights will flash 10 times.
The units must be installed inside the garage so that
the sending and receiving eyes face each other
across the door, no more than 6" above the floor.
Either can be installed on the left or right of the door
as long as the sun never shines directly into the
receiving eye lens.
The mounting brackets are designed to clip onto the
track of sectional garage doors without additional
hardware.
If it is necessary to mount the units on the wall, the
brackets must be securely fastened to a solid
surface such as the wall framing. Extension brackets
(see accessories) are available if needed. If
installing in masonry construction, add a piece of
wood at each location to avoid drilling extra holes in
masonry if repositioning is necessary.
The invisible light beam path must be unobstructed.
No part of the garage door (or door tracks, springs,
hinges, rollers or other hardware) may interrupt the
beam while the door is closing.
Be sure power is not connected to the garage door
opener BEFORE installing the safety reversing sensor.
To prevent SERIOUS INJURY or DEATH from a closing
garage door:
• Correctly connect and align the safety reversing sensor.
This required safety device MUST NOT be disabled.
• Install the safety reversing sensor so beam is NO
HIGHER than 6" above garage floor.
WARNING
CAUTION WARNING
WARNING

18
DOOR TRACK MOUNT (RIGHT SIDE)
Indicator
Light
Lens
Lip
Sensor
Bracket
Door
Track
FLOOR MOUNT (RIGHT SIDE)
WALL MOUNT (RIGHT SIDE)
Indicator
Light
Sensor
Bracket
Lens
Extension
Bracket
(See Accessories)
Inside
Garage
Wall
(Provided with
Extension
Bracket)
(Provided with
Extension Bracket)
Figure 1
Figure 2
Figure 3
Figure 4
WALL MOUNT (RIGHT SIDE)
Attach with
Concrete Anchors
(Not Provided)
Inside
Garage
Wall
Sensor
Bracket
Lens
Indicator
Light
Inside
Garage
Wall
Indicator
LightSensor
Bracket
Lens
Lag Screws
(Not Provided)
Fasten Wood Block to Wall with
Lag Screws (Not Provided)
INSTALLING THE BRACKETS
Be sure power to the opener is disconnected.
Install and align the brackets so the sensors will face
each other across the garage door, with the beam no
higher than 6" above the floor. They may be installed
in one of three ways, as follows.
Garage door track installation (preferred)
(Figure 1):
• Slip the curved arms over the rounded edge of
each door track, with the curved arms facing the
door. Snap into place against the side of the track.
It should lie flush, with the lip hugging the back
edge of the track, as shown in Figure 1.
If your door track will not support the bracket
securely, wall installation is recommended.
Wall installation (Figure 2 and 3):
• Place the bracket against the wall with curved arms
facing the door. Be sure there is enough clearance
for the sensor beam to be unobstructed.
• If additional depth is needed, an extension bracket
(See Accessories) or wood blocks can be used.
• Use bracket mounting holes as a template to locate
and drill (2) 3/16" diameter pilot holes on the wall at
each side of the door, no higher than 6" above the
floor.
• Attach brackets to wall with lag screws
(Not Provided).
• If using extension brackets or wood blocks, adjust
right and left assemblies to the same distance out
from the mounting surface. Make sure all door
hardware obstructions are cleared.
Floor installation (Figure 4):
• Use wood blocks or extension brackets (See
Accessories) to elevate sensor brackets so the
lenses will be no higher than 6" above the floor.
• Carefully measure and place right and left
assemblies at the same distance out from the wall.
Be sure all door hardware obstructions are cleared.
• Fasten to the floor with concrete anchors as shown.
Wing Nut
1/4"-20
Staples
Carriage Bolt
1/4"-20x1/2"
HARDWARE SHOWN ACTUAL SIZE

19
Invisible Light Beam
Protection Area
Sensor
Sensor
Bell Wire
Bell Wire Finished
Ceiling
Quick-Connect Terminals
Strip wire 7/16"
7/16"
Sensor
Connections
Connect Wire to
Quick-Connect Terminals
White/black
wire
White
wire
Red Grey
White
Carriage Bolt
1/4"-20x1/2" Lens
Wing Nut
Figure 5
Figure 6
MOUNTING AND WIRING THE SAFETY SENSORS
• Slide a 1/4"-20x1/2" carriage bolt head into the slot
on each sensor. Use wing nuts to fasten sensors to
brackets, with lenses pointing toward each other
across the door. Be sure the lens is not obstructed
by a bracket extension (Figure 5).
• Finger tighten the wing nuts.
• Run the wires from both sensors to the opener. Use
insulated staples to secure wire to wall and ceiling.
• Strip 7/16" of insulation from each set of wires.
Separate white and white/black wires sufficiently to
connect to the opener quick-connect terminals: white
to white and white/black to grey (Figure 6).
ALIGNING THE SAFETY SENSORS
• Plug in the opener. The indicator lights in both the
sending and receiving eyes will glow steadily if
wiring connections and alignment are correct.
The sending eye amber indicator light will glow
regardless of alignment or obstruction. If the green
indicator light in the receiving eye is off, dim, or
flickering (and the invisible light beam path is not
obstructed), alignment is required.
• Loosen the sending eye wing nut and readjust,
aiming directly at the receiving eye. Lock in place.
• Loosen the receiving eye wing nut and adjust sensor
until it receives the sender’s beam. When the green
indicator light glows steadily, tighten the wing nut.
TROUBLESHOOTING THE SAFETY SENSORS
1. If the sending eye indicator light does not glow
steadily after installation, check for:
• Electric power to the opener.
• A short in the white or white/black wires. These
can occur at staples, or at opener connections.
• Incorrect wiring between sensors and opener.
• A broken wire.
2. If the sending eye indicator light glows steadily but
the receiving eye indicator light doesn't:
• Check alignment.
• Check for an open wire to the receiving eye.
3. If the receiving eye indicator light is dim, realign
either sensor.
NOTE: When the invisible beam path is obstructed
or misaligned while the door is closing, the door will
reverse. If the door is already open, it will not close.
The opener lights will blink 10 times. (If bulbs are not
installed, 10 clicks can be heard.) See page 17.

20
INSTALLATION STEP 11
Fasten the Door Bracket
Follow instructions which apply to your door type
as illustrated below or on the following page.
A horizontal reinforcement brace should be long
enough to be secured to two or three vertical
supports. A vertical reinforcement brace should
cover the height of the top panel.
Figure 1 shows one piece of angle iron as the
horizontal brace. For the vertical brace, 2 pieces of
angle iron are used to create a U-shaped support.
The best solution is to check with your garage door
manufacturer for an opener installation door
reinforcement kit.
NOTE: Many door reinforcement kits provide for
direct attachment of the clevis pin and door arm. In
this case you will not need the door bracket; proceed
to Step 12.
SECTIONAL DOORS
1. Center the door bracket on the previously marked
vertical centerline used for the header bracket
installation. Note correct UP placement, as
stamped inside the bracket.
2. Position the top edge of the bracket 2"-4" below
the top edge of the door, OR directly below any
structural support across the top of the door.
3. Mark, drill holes and install as follows, depending
on your door’s construction:
Metal or light weight doors using a vertical angle
iron brace between the door panel support and
the door bracket:
• Drill 3/16" fastening holes. Secure the door bracket
using the two 1/4"-14x5/8" self-threading screws.
(Figure 2A)
• Alternately, use two 5/16" bolts, lock washers and
nuts (not provided). (Figure 2B)
Metal, insulated or light weight factory reinforced
doors:
• Drill 3/16" fastening holes. Secure the door bracket
using the self-threading screws (Figure 3).
Wood Doors:
• Use top and bottom or side to side door bracket
holes. Drill 5/16" holes through the door and secure
bracket with 5/16"x2" carriage bolts, lock washers
and nuts (not provided). (Figure 4)
NOTE: The 1/4"-14x5/8"
self-threading screws are
not intended for use on
wood doors.
To prevent damage to garage door, reinforce inside of
door with angle iron both vertically and horizontally.
WARNING
CAUTION
WARNING
WARNING
Vertical
Centerline
of Garage
Door
Door
Bracket
Location
Header
Bracket
HORIZONTAL AND VERTICAL
REINFORCEMENT IS NEEDED
FOR LIGHTWEIGHT GARAGE
DOORS (FIBERGLASS,
ALUMINUM, STEEL, DOORS
WITH GLASS PANEL, ETC.).
(NOT PROVIDED)
Door
Bracket
Vertical
Centerline
of Garage Door
UP
Vertical
Reinforcement
Self-Threading
Screw
1/4"-14x5/8"
Door
Bracket
Nut
5/16"-18
Bolt
5/16"-18x2"
Lock Washer
5/16"
UP
Vertical
Reinforcement
(Not Provided)
Vertical
Centerline
of Garage Door
UP
Self-Threading
Screw
1/4"-14x5/8"
Vertical
Centerline
of Garage Door
UP
Inside Edge
of Door or
Reinforcement Board
Bolt
5/16"x2"
(Not Provided)
Vertical
Centerline
of Garage
Door
Figure 1
Figure 2A
Figure 2B
Figure 3
Figure 4
Self-Threading
Screw
1/4"-14x5/8"
HARDWARE
SHOWN
ACTUAL SIZE

21
ONE-PIECE DOORS
Please read and comply with the warnings and
reinforcement instructions on the previous page.
They apply to one-piece doors also.
• Center the door bracket on the top of the door, in
line with the header bracket as shown. Mark either
the left and right, or the top and bottom holes.
•Metal Doors: Drill 3/16" pilot holes and fasten the
bracket with the 1/4"-14x5/8" self-threading screws
provided.
•Wood Doors: Drill 5/16" holes and use 5/16"x2"
carriage bolts, lock washers and nuts (not
provided) or 5/16"x1-1/2" lag screws (not
provided) depending on your installation needs.
NOTE: The door bracket may be installed on the top
edge of the door if required for your installation.
(Refer to the dotted line optional placement
drawing.)
Header Wall
Vertical
Centerline of
Garage Door
Finished Ceiling
Optional
Placement
of Door
Bracket
Header
Bracket
Door
Bracket
2x4 Support
For a door with no exposed framing,
or for the optional installation, use
lag screws 5/16"x1-1/2" (Not Provided)
to fasten door bracket.
METAL DOOR
Top of Door
(Inside
Garage)
Door
Bracket
Optional
Placement
Top Edge
of Door
Self-Threading
Screw
1/4"-14x5/8"
Door
Bracket
Top of Door
(Inside
Garage)
Carriage Bolt
5/16"x2"
(Not Provided)
Optional
Placement
Lock
Washer
5/16"
Nut
5/16"-18
Top Edge
of Door
WOOD DOOR
HORIZONTAL AND VERTICAL
REINFORCEMENT IS NEEDED
FOR LIGHTWEIGHT GARAGE
DOORS (FIBERGLASS,
ALUMINUM, STEEL, DOORS
WITH GLASS PANEL, ETC.).
(NOT PROVIDED)
Self-Threading Screw
1/4"-14x5/8"
HARDWARE SHOWN
ACTUAL SIZE

INSTALLATION STEP 12
Connect Door Arm to Trolley
Follow instructions which apply to your door type as
illustrated below and on the following page.
SECTIONAL DOORS ONLY
Make sure garage door is fully closed. Pull the
emergency release handle to disconnect the outer
trolley from the inner trolley. Slide the outer trolley
back (away from the door) about 2" as shown in
Figures 1, 2 and 3.
• Figure 1:
– Fasten straight door arm section to outer trolley
with the 5/16"x1" clevis pin. Secure the
connection with a ring fastener.
– Fasten curved section to the door bracket in the
same way, using the 5/16"x1-1/4" clevis pin.
• Figure 2:
– Bring arm sections together. Find two pairs of
holes that line up and join sections. Select holes
as far apart as possible to increase door arm
rigidity.
• Figure 3, Hole alignment alternative:
– If holes in curved arm are above holes in straight
arm, disconnect straight arm. Cut about 6" from
the solid end. Reconnect to trolley with cut end
down as shown.
– Bring arm sections together.
– Find two pairs of holes that line up and join with
bolts, lock washers and nuts.
• Pull the emergency release handle toward the
opener at a 45° angle so that the trolley release
arm is horizontal. Proceed to Adjustment Step 1,
page 24. Trolley will re-engage automatically when
opener is operated.
22
Lock Washer 5/16"
Nut 5/16"-18 Ring Fastener
Hex Bolt
5/16"-18x7/8"
Clevis Pin
5/16"x1" (Trolley)
Clevis Pin
5/16"x1-1/4" (Door Bracket)
HARDWARE SHOWN ACTUAL SIZE
Ring
Fastener
Door
Bracket
Clevis Pin
5/16"x1-1/4"
Curved
Door Arm
Straight
Door Arm
Clevis Pin
5/16"x1"
Inner Trolley
Outer Trolley
Lock
Washers
5/16"
Nuts
5/16"-18
Door Bracket
Bolts
5/16"-18x7/8"
Emergency
Release
Handle
Lock
Washers
5/16"
Nuts
5/16"-18
Bolts
5/16"-18x7/8"
Cut This End
Figure 1
Figure 2
Figure 3

ALL ONE-PIECE DOORS
1. Assemble the Door Arm:
• Fasten the straight and curved door arm sections
together to the longest possible length (with a 2
or 3 hole overlap).
• Make sure the garage door is fully closed.
Connect the straight door arm section to the door
bracket with the 5/16"x1-1/4" clevis pin.
• Secure with a ring fastener.
• Pull the emergency release handle,
disconnecting the outer trolley from the inner
trolley by pulling straight down on the emergency
release handle and sliding the outer trolley back
toward the motor unit.
• Connect the curved door arm section to the
trolley using the 5/16"x1-1/4" clevis pin and ring
fastener.
NOTE: Adjusting the limits on the following page:
• The trolley will automatically connect. If not,
review the trolley lockout feature on page 28.
• When setting the up limit on the following page,
the door should not have a “backward” slant
when fully open as illustrated below. A slight
backward slant will cause unnecessary bucking
and/or jerking operation as the door is being
opened or closed from the fully open position.
23
Nuts
5/16"-18
Lock
Washers
5/16"
Ring
Fastener
Straight
Arm
Bolts
5/16"-18x7/8
Door
Bracket
Clevis Pin
5/16"x1-1/4"
Curved
Door Arm
Door Arm
Door Arm
Connector Hole
Closed
Door
Outer Trolley
Emergency Release Handle
Inner Trolley
Outer Trolley
Open Door
Door Arm
Correct Angle
Door with
Backward Slant (Incorrect)
Inner Trolley

4. Open and close the door with the remote control or
door control 2 or 3 times.
• If the door does not stop in the desired UP
(open) position or reverses before the door stops
at the DOWN (close) position, proceed to
Adjustment Step 2 Setting the Force.
• If the door stops in both the desired UP (open)
and DOWN (close) positions, proceed to
Adjustment Step 3, Test the Safety Reversal
System.
24
Without a properly installed safety reversal system,
persons (particularly small children) could be
SERIOUSLY INJURED or KILLED by a closing garage
door.
• Incorrect adjustment of garage door travel limits will
interfere with proper operation of safety reversal
system.
• NEVER use force adjustments to compensate for a
binding or sticking garage door.
• If one control (force or travel limits) is adjusted, the
other control may also need adjustment.
• After ANY adjustments are made, the safety reversal
system MUST be tested. Door MUST reverse on
contact with 1-1/2" high object (or 2x4 laid flat) on
floor.
WARNING
CAUTION WARNING
WARNING
To prevent damage to vehicles, be sure fully open door
provides adequate clearance.
WARNING
CAUTION
WARNING
WARNING
ADJUSTMENT STEP 1
Program the Travel Limits
Travel limits regulate the points at which the
door will stop when moving up or down. Follow
the steps below to set the limits.
To program the travel limits:
1. Press and hold the black button until the yellow
indicator light starts flashing slowly then release.
2. Push and hold the black button until the door
reaches the desired UP (open) position (Figure 2).
Adjust the position of the door by using the black
and orange buttons. Black moves the door UP
(open) and orange moves the door DOWN (close).
Check to be sure the door opens high enough for
your vehicle.
NOTE: Refer to previous page for correct door
position for one-piece door.
3. Push the remote control or door control (Figure 3).
This sets the UP (open) limit and begins closing
the door. Press either the black or orange button
before the door hits the floor. The door will stop.
Adjust the desired DOWN (close) limit position
using the black and orange buttons (Figure 4).
Check to be sure the door is fully closed without
applying excessive pressure on the rail (rail should
not bow upwards and the belt should not sag or
droop below the rail). Push the remote control or
door control (Figure 3). This sets the DOWN
(close) limit and begins opening the door.
NOTE: If neither the black or the orange button is
pressed, the door will reverse off the floor and the
DOWN travel limit will be set automatically.
BLACK ORANGE
Push and hold
until the door
is at desired UP
position
Figure 2
Orange
Button
Black
Button
Antenna
Indicator
Light
Figure 1
Figure 3
BLACK ORANGE
Push either
button to stop
door at desired
DOWN position
Figure 4
or
LOCKLIGHT

ADJUSTMENT STEP 2
Setting the Force
The force setting button is located on the back
panel of the motor unit. The force setting
measures the amount of force required to open
and close the door.
1. Locate the orange button on the back panel of unit
(Figure 1).
2. Push the orange button twice to enter unit into
Force Adjustment Mode (Figure 2). The LED
(Indicator Light) will flash quickly.
3. Push the remote control or door control (Figure 3).
The door will travel to the DOWN (close) position.
Push the remote control or door control again, the
door will travel to the UP (open) position. Push the
remote control or door control a third time to send
the door to the DOWN (close) position.
The LED (Indicator Light) will stop flashing when the
force has been learned.
The unit has learned the forces required to open and
close your door.
The door must travel through a complete cycle, UP
and DOWN, in order for the force to be set properly.
If the unit cannot open and close your door fully,
inspect your door to insure that it is balanced
properly and is not sticking or binding. See page 3,
“Preparing your garage door.”
25
Without a properly installed safety reversal system,
persons (particularly small children) could be
SERIOUSLY INJURED or KILLED by a closing garage
door.
• Too much force on garage door will interfere with
proper operation of safety reversal system.
• NEVER increase force beyond minimum amount
required to close garage door.
• NEVER use force adjustments to compensate for a
binding or sticking garage door.
• If one control (force or travel limits) is adjusted, the
other control may also need adjustment.
• After ANY adjustments are made, the safety reversal
system MUST be tested. Door MUST reverse on
contact with 1-1/2" high object (or 2x4 laid flat) on
floor.
WARNING
CAUTION WARNING
WARNING
Orange
Button
Black
Button
Antenna
Indicator
Light
BLACK ORANGE
Push Orange button
twice to enter
unit into Force
Adjustment Mode
Figure 3
Figure 2
Figure 1
or
LOCKLIGHT

ADJUSTMENT STEP 3
Test the Safety Reversal System
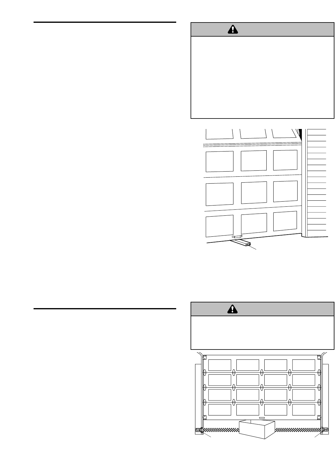
TEST
• With the door fully open, place a 1-1/2" board (or a
2x4 laid flat) on the floor, centered under the
garage door.
• Operate the door in the down direction. The door
must reverse on striking the obstruction. Upon
successful safety reversal test proceed to
Adjustment Step 4.
ADJUST
• If the door stops on the obstruction, it is not
traveling far enough in the down direction.
Complete Adjustment Steps 1 and 2 Programming
the Limits and Forces.
NOTE: On a sectional door, make sure limit
adjustments do not force the door arm beyond a
straight up and down position. See Figure 3,
page 22.
• Repeat the test.
• When the door reverses on the 1-1/2" board (or
2x4 laid flat), remove the obstruction and run the
opener through 3 or 4 complete travel cycles to
test adjustment.
• If the unit continues to fail the Safety Reverse Test,
call for a trained door systems technician.
IMPORTANT SAFETY CHECK:
Test the Safety Reverse System after:
• Each adjustment of door arm length, limits, or
force controls.
• Any repair to or adjustment of the garage door
(including springs and hardware).
• Any repair to or buckling of the garage floor.
• Any repair to or adjustment of the opener.
ADJUSTMENT STEP 4
Test The Protector System®
• Press the remote control push button to open the
door.
• Place the opener carton in the path of the door.
• Press the remote control push button to close the
door. The door will not move more than an inch,
and the opener lights will flash.
The garage door opener will not close from a remote
if the indicator light in either sensor is off (alerting
you to the fact that the sensor is misaligned or
obstructed).
If the opener closes the door when the safety
reversing sensor is obstructed (and the sensors
are no more than 6" above the floor), call for a
trained door systems technician.
26
Safety Reversing Sensor Safety Reversing Sensor
1-1/2" (3.8 cm) board
(or a 2x4 laid flat)
Without a properly installed safety reversal system,
persons (particularly small children) could be
SERIOUSLY INJURED or KILLED by a closing garage
door.
• Safety reversal system MUST be tested every month.
• If one control (force or travel limits) is adjusted, the
other control may also need adjustment.
• After ANY adjustments are made, the safety reversal
system MUST be tested. Door MUST reverse on
contact with 1-1/2" high object (or 2x4 laid flat) on the
floor.
Without a properly installed safety reversing sensor,
persons (particularly small children) could be
SERIOUSLY INJURED or KILLED by a closing garage
door.
WARNING
CAUTION WARNING
WARNING
WARNING
CAUTION WARNING
WARNING
1-1/2" board (or a 2x4
laid flat)

OPERATION
27
Using Your Garage Door Opener
Your Security✚®opener and hand-held remote
control have been factory programmed to a matching
code which changes with each use, randomly
accessing over 100 billion new codes. Your opener
will operate with several Security✚®remote controls
utilizing up to 12 functions, and one Security✚®
Keyless Entry System. If you purchase a new
remote, or if you wish to deactivate any remote,
follow the instructions in the Programming section.
Activate your opener with any of the following:
•The hand-held Remote Control: Hold the large
push button down until the door starts to move.
•The wall-mounted Door Control: Hold the push bar
down until the door starts to move.
•The Keyless Entry (See Accessories): If provided
with your garage door opener, it must be
programmed before use. See Programming.
When the opener is activated (with the safety
reversing sensor correctly installed and aligned)
1. If open, the door will close. If closed, it will open.
2. If closing, the door will reverse.
3. If opening, the door will stop.
4. If the door has been stopped in a partially open
position, it will close.
5. If obstructed while closing, the door will reverse. If
the obstruction interrupts the sensor beam, the
opener lights will blink for five seconds.
6. If obstructed while opening, the door will stop.
7. If fully open, the door will not close when the beam
is broken. The sensor has no effect in the opening
cycle.
If the sensor is not installed, or is misaligned, the
door won't close from a hand-held remote. However,
you can close the door with the Door Control, the
Outside Keylock, or Keyless Entry, if you activate
them until down travel is complete. If you release
them too soon, the door will reverse.
The opener lights will turn on under the following
conditions: when the opener is initially plugged in;
when power is restored after interruption; when the
opener is activated.
They will turn off automatically after 4-1/2 minutes or
provide constant light when the Light feature on the
Motion Detecting Control Panel is activated. Bulb
size is 100 watts maximum.
Security✚®light feature: Lights will also turn on
when someone walks through the open garage door.
With a Motion Detecting Control Panel, this feature
may be turned off as follows: Push and hold the light
button for 10 seconds and the incandescent light
bulbs will blink once signifying the feature is turned
OFF. To turn the feature back ON push and hold the
light button and the incandescent light bulbs will blink
once signifying the feature is turned ON.
IMPORTANT SAFETY INSTRUCTIONS
To reduce the risk of SEVERE INJURY or DEATH:
WARNING
WARNING
WARNING
1. READ AND FOLLOW ALL WARNINGS AND
INSTRUCTIONS.
2. ALWAYS keep remote controls out of reach of children.
NEVER permit children to operate or play with garage
door control push buttons or remote controls.
3. ONLY activate garage door when it can be seen clearly, it
is properly adjusted, and there are no obstructions to
door travel.
4. ALWAYS keep garage door in sight until completely
closed. NO ONE SHOULD CROSS THE PATH OF THE
MOVING DOOR.
5. NO ONE SHOULD GO UNDER A STOPPED, PARTIALLY
OPEN DOOR.
6. If possible, use emergency release handle to disengage
trolley ONLY when garage door is CLOSED. Weak or
broken springs or unbalanced door could result in an
open door falling rapidly and/or unexpectedly.
7. NEVER use emergency release handle unless garage
doorway is clear of persons and obstructions.
8. NEVER use handle to pull garage door open or closed. If
rope knot becomes untied, you could fall.
9. If one control (force or travel limits) is adjusted, the
other control may also need adjustment.
10. After ANY adjustments are made, the safety reversal
system MUST be tested.
11. Safety reversal system MUST be tested every month.
Garage door MUST reverse on contact with 1-1/2" high
object (or a 2x4 laid flat) on the floor.
12. ALWAYS KEEP GARAGE DOOR PROPERLY BALANCED
(see page 3). An improperly balanced door may not
reverse when required and could result in SEVERE
INJURY or DEATH.
13. All repairs to cables, spring assemblies and other
hardware, all of which are under EXTREME tension,
MUST be made by a trained door systems technician.
14. ALWAYS disconnect electric power to garage door
opener BEFORE making any repairs or removing
covers.
15. SAVE THESE INSTRUCTIONS.

28
Using the Wall-Mounted Door
Control
THE MOTION DETECTING DOOR CONTROL
Press the push bar to open or close
the door. Press again to reverse the
door during the closing cycle or to
stop the door while it's opening.
This door control contains a motion
detector that will automatically turn
on the light when it detects a person
entering the garage. This feature
can be easily turned off for
extended work light use.
Light feature
Press the Light button to turn the opener light on or off.
It will not control the opener lights when the door is in
motion. If you turn it on and then activate the opener,
the light will remain on for 4-1/2 minutes. Press again to
turn it off sooner. The 4-1/2 minute interval can be
changed to 1-1/2, 2-1/2, or 3-1/2 minutes as follows:
Press and hold the Lock button until the light blinks
(about 10 seconds). A single blink indicates that the
timer is reset to 1-1/2 minutes. Repeat the procedure
and the light will blink twice, resetting the timer to 2-1/2
minutes. Repeat again for a 3-1/2 minute interval, etc.,
up to a maximum of four blinks and 4-1/2 minutes.
When using the opener lights as working lights, we
recommend that you first disable the motion sensor See
Automatic Light Feature, following.
Automatic Light Feature: The opener light will turn
on automatically when a person enters the garage.
When a person walks in front of the door control, the
light will come on for five minutes, then shut off. This
feature works by detecting body heat and may not
work in temperatures around 100ûF.
To disable this feature, slide the Detector Switch on
the right side of the door control down (off).
We recommend that you disable the motion sensor
when using the opener lights as working lights.
Otherwise, they will turn off automatically if you are
working beyond the sensor’s range.
Lock feature
Designed to prevent operation of the door from
hand-held remote controls. However, the door will open
and close from the Door Control, the Outside Keylock
and the Keyless Entry Accessories.
To activate, press and hold the Lock button for 2
seconds. The push bar light will flash as long as the
Lock feature is on.
To turn off, press and hold the Lock button again for
2 seconds.The push bar light will stop flashing. The
Lock feature will also turn off whenever the “Learn”
button on the motor unit panel is activated.
Additional features when used with the 3-Button
hand-held remote
A) To control the opener lights:
In addition to operating the door, you may
program the remote to operate the lights.
1. With the door closed, press and hold a small remote
button that you want to control the light.
2. Press and hold the Light button on the door control.
3. While holding the Light button, press and hold the
Lock button on the door control.
4. After the opener lights flash, release all buttons.
B) To operate one door using all three buttons on the
hand-held remote:
You may program the remote to
open the door with the large
button, close it with the middle
button, and stop the door’s
movement with the third button.
NOTE: If remote is already
programmed, you must first erase
all codes. See Programming.
1. With the door closed, press and hold the large
remote push button.
2. Press and hold the Lock button on the door control
for a minimum of one second before proceeding to
next step.
3. Press and hold the door control push bar.
4. After the opener lights flash, release all buttons.
To Open the Door Manually
The door should be fully
closed if possible. Pull down
on the emergency release
handle and lift the door
manually. To reconnect the
door to the opener, press the
door control push bar.
The lockout feature prevents
the trolley from reconnecting
automatically, Pull the
emergency release handle
down and back (toward the
opener). The door can then be
raised and lowered manually
as often as necessary. To
disengage the lockout feature,
pull the handle straight down.
The trolley will reconnect on
the next UP or DOWN
operation.
Open
Close
Stop
To prevent possible SERIOUS INJURY or DEATH from a
falling garage door:
• If possible, use emergency release handle to disengage
trolley ONLY when garage door is CLOSED. Weak or
broken springs or unbalanced door could result in an
open door falling rapidly and/or unexpectedly.
• NEVER use emergency release handle unless garage
doorway is clear of persons and obstructions.
• NEVER use handle to pull door open or closed. If rope
knot becomes untied, you could fall.
WARNING
CAUTION WARNING
WARNING
Trolley
Release
Arm
NOTICE
Emergency
Release
Handle
(Pull Down)
Trolley
Release
Arm
NOTICE
Emergency
Release Handle
(Down and Back)
LOCKOUT POSITION
MANUAL DISCONNECT
POSITION
LOCKLIGHT
Push
Bar
Lock
Button
Light
Button
Detector
Switch

29
CARE OF YOUR OPENER
MAINTENANCE SCHEDULE
Once a Month
• Manually operate door. If it is unbalanced or
binding, call a trained door systems technician.
• Check to be sure door opens & closes fully. Adjust
limits and/or force if necessary. (See pages 24
and 25)
• Repeat the safety reverse test. Make any
necessary adjustments. (See Adjustment Step 3)
Once a Year
• Oil door rollers, bearings and hinges. The opener
does not require additional lubrication. Do not
grease the door tracks.
THE REMOTE CONTROL BATTERY
The lithium battery should
produce power for up to
5 years. To replace battery,
use the visor clip or
screwdriver blade to pry open
the case as shown. Insert
battery positive side up.
Dispose of old battery properly.
Battery
positive
side up (+)
3. The door operates from the Door Control, but
not from the remote control:
• Is the door push bar flashing? If your model has
the Lock feature, make sure it is off.
• Program the opener to match the remote control
code. (Refer to instructions on the motor unit
panel.) Repeat with all remotes.
4. The remote control has short range:
• Change the location of the remote control in your
car.
• Check to be sure the antenna on the side or back
panel of motor unit extends fully downward.
• Some installations may have shorter range due to
a metal door, foil backed insulation, or metal
garage siding.
5. Opener noise is disturbing in living quarters of
home:
• If operational noise is a problem because of
proximity of the opener to the living quarters, the
Vibration Isolator Kit 89LM can be installed. This
kit was designed to minimize vibration to the house
and is easy to install.
HAVING A PROBLEM?
1. The opener doesn't operate from either the
Door Control or the remote control:
• Does the opener have electric power? Plug a
lamp into the outlet. If it doesn't light, check the
fuse box or the circuit breaker. (Some outlets are
controlled by a wall switch.)
• Have you disabled all door locks? Review
installation instruction warnings on page 7.
• Is there a build-up of ice or snow under the door?
The door may be frozen to the ground. Remove
any restriction.
• The garage door spring may be broken. Have it
replaced.
2. Opener operates from the remote, but not from
the Door Control:
• Is the door control lit? If not, reverse the wires. If
the opener runs, check for a faulty wire connection
at the door control, a short under the staples, or a
broken wire.
• Are the wiring connections correct? Review
Installation Step 6, page 14.
NOTICE: To comply with FCC and or Industry Canada (IC) rules, adjustment or
modifications of this receiver and/or transmitter are prohibited, except for changing the
code setting or replacing the battery. THERE ARE NO OTHER USER SERVICEABLE PARTS.
Tested to Comply with FCC Standards FOR HOME OR OFFICE USE. Operation is subject to
the following two conditions: (1) this device may not cause harmful interference, and
(2) this device must accept any interference received, including interference that may
cause undesired operation.
To prevent possible SERIOUS INJURY or DEATH:
• NEVER allow small children near batteries.
• If battery is swallowed, immediately notify doctor.
WARNING
CAUTION WARNING
WARNING

30
Having a Problem? (Continued)
6. The garage door opens and closes by itself:
• Be sure that all remote control push buttons are
off.
• Remove the bell wire from the door control
terminals and operate from the remote only. If this
solves the problem, the door control is faulty
(replace), or there is an intermittent short on the
wire between the door control and the motor unit.
• Clear memory and re-program all remote controls.
7. The door doesn't open completely:
• Is something obstructing the door? Is it out of
balance, or are the springs broken? Remove the
obstruction or repair the door.
8. The door opens but won't close:
• If the opener lights blink, check the safety
reversing sensor. See Installation Step 10.
• If the opener lights don’t blink and it is a new
installation. See Adjustment Step 2. For an
existing installation, see below.
Repeat the safety reverse test after the adjustment
is complete.
9. The door reverses for no apparent reason and
opener lights don’t blink:
• Is something obstructing the door? Pull the
emergency release handle. Operate the door
manually. If it is unbalanced or binding, call a
trained door systems technician.
• Clear any ice or snow from the garage floor area
where the door closes.
• Review Adjustment Step 2.
Repeat safety reverse test after adjustments.
10. The door reverses for no apparent reason and
opener lights blink for 5 seconds after
reversing:
• Check the safety reversing sensor. Remove any
obstruction or align the receiving eye. See
Installation Step 10.
11. The opener lights don't turn on:
• Replace the light bulbs (100 watts maximum). Use
a standard neck garage door opener bulb if regular
bulb burns out.
12. The opener lights don't turn off:
• Is the Light feature on? Turn it off.
13. The opener strains to operate door:
• The door may be out of balance or the springs
may be broken. Close the door and use the
emergency release handle to disconnect the
trolley. Open and close the door manually. A
properly balanced door will stay in any point of
travel while being supported entirely by its springs.
If it does not, disconnect the opener and call a
trained door systems technician.
14. The opener motor hums briefly, then won't
work:
• The garage door springs may be broken. See
above.
• If the problem occurs on the first operation of the
opener, door may be locked. Disable the door lock.
15. The opener won't operate due to power
failure:
• Use the emergency release handle to disconnect
the trolley. The door can be opened and closed
manually. When power is restored, press the Door
Control push bar and trolley will automatically
reconnect (unless trolley is in lockout position.)
See page 28.
• The Outside Quick Release accessory (for use on
garages with no service door) disconnects the
trolley from outside the garage in case of power
failure.

*3-Button Remotes
If provided with your garage door opener, the large
button is factory programmed to operate it. Additional
buttons on any
Security✚®3-Button
remote or mini-remote
can be programmed to
operate other
Security✚®garage
door openers.
To Erase All Codes From Motor
Unit Memory
To deactivate any unwanted remote,
first erase all codes:
Press and hold the “learn” button on
motor unit until the learn indicator light
goes out (approximately 6 seconds).
All previous codes are now erased. Reprogram each
remote or keyless entry you wish to use.
Your garage door opener has already been programmed at the factory to operate with your hand-held remote
control. The door will open and close when you press the large push button.
Below are instructions for programming your opener to operate with additional Security✚®remote controls.
1. Press and hold the button on the
hand-held remote*that you wish
to operate your garage door.
2. While holding the remote button,
press and hold the LIGHT button
on the Motion Detecting Control
Panel.
3. Continue holding both buttons
while you press the push bar on
the Motion Detecting Control
Panel (all three buttons are held).
4. Release buttons when the motor
unit lights blink. It has learned the
code. If light bulbs are not
installed, two clicks will be heard.
— — — — — — — —
1. Press and release the orange
“learn” button on the motor unit.
The learn indicator light will glow
steadily for 30 seconds.
2. Within 30 seconds, press and
hold the button on the hand-held
remote*that you wish to operate
your garage door.
3. Release the button when the
motor unit lights blink. It has
learned the code. If light bulbs
are not installed, two clicks will
be heard.
To Add or Reprogram a Hand-held Remote Control
USING THE “LEARN” BUTTON USING THE MOTION DETECTING
CONTROL PANEL
— — — — — — — —
LOCK
LIGHT
PROGRAMMING
31
NOTICE: If this Security
✚
®garage door opener is operated with a non-rolling code transmitter, the technical
measure in the receiver of the garage door opener, which provides security against code-theft devices, will be
circumvented. The owner of the copyright in the garage door opener does not authorize the purchaser or
supplier of the non-rolling code transmitter to circumvent that technical measure.
LOCKLIGHT
LOCK LIGHT
LOCK LIGHT

1. Enter a four digit personal
identification number (PIN) of your
choice on the keypad. Then press
and hold ENTER.
2. While holding the ENTER button,
press and hold the LIGHT button
on the Motion Detecting Control
Panel.
3. Continue holding the ENTER and
LIGHT buttons while you press
the push bar on the Motion
Detecting Control Panel (all three
buttons
are held).
4. Release buttons when the motor
unit lights blink. It has learned the
code. If light bulbs are not
installed, two clicks will be heard.
— — — — — — — —
1. Press and release the orange
“learn” button on motor unit. The
learn indicator light will glow
steadily for 30 seconds.
2. Within 30 seconds, enter a four
digit personal identification
number (PIN) of your choice on
the keypad. Then press and hold
the ENTER button.
3. Release the button when the
motor unit lights blink. It has
learned the code. If light bulbs are
not installed, two clicks will be
heard.
To Add, Reprogram or Change a Keyless Entry PIN
NOTE: Your new Keyless Entry must be programmed to operate your garage door opener.
USING THE “LEARN” BUTTON USING THE MOTION DETECTING
CONTROL PANEL
— — — — — — — —
LOCK
LIGHT
NOTE: This method requires two people if the Keyless
Entry is already mounted outside the garage.
To change an existing, known PIN
If the existing PIN is known, it may be changed by one
person without using a ladder.
1. Press the four buttons for the present PIN, then
press and hold the # button.
The opener light will blink twice. Release the #
button.
2. Press the new 4-digit PIN you have chosen, then
press Enter.
The motor unit lights will blink once when the PIN has
been learned.
Test by pressing the new PIN, then press Enter. The
door should move.
To set a temporary PIN
You may authorize access by visitors or service people
with a temporary 4-digit PIN. After a programmed
number of hours or number of accesses, this temporary
PIN expires and will no longer open the door. It can be
used to close the door even after it has expired. To set
a temporary PIN:
1. Press the four buttons for your personal entry PIN
(not the last temporary PIN), then press and hold the
✽button.
The opener light will blink three times. Release the
button.
2. Press the temporary 4-digit PIN you have chosen,
then press Enter.
The opener light will blink four times.
3. To set the number of hours this temporary PIN will
work, press the number of hours (up to 255), then
press ✽.
OR
3. To set the number of times this temporary PIN will
work, press the number of times (up to 255), then
press #.
The opener light will blink once when the temporary PIN
has been learned.
Test by pressing the four buttons for the temporary PIN,
then press Enter. The door should move. If the
temporary PIN was set to a certain number of openings,
remember that the test has used up one opening.To
clear the temporary password, repeat steps 1-3, setting
the number of hours or times to 0 in step 3.
32
LOCK LIGHT
LOCK LIGHT
LOCK LIGHT

7
10
11
6
5
NOTICE
UP
CEILING MOUNT ONLY
8
1
4
2
3
9
12
LOCKLIGHT
2
1
5
6
3
7
8
4
Rail Assembly Parts
Installation Parts
33
KEY PART
NO. NO. DESCRIPTION
1 4A1008 Master link kit
2 41A5424 Belt pulley bracket
3 41B3869-1 Complete trolley assembly
4 109B33 Trolley clip
5 183B99 One-piece T-rail
6 41A5434-11 Full belt assembly
7 41B4103 Tensioner assembly
8 83A11-2 Rail grease
REPAIR PARTS
KEY PART
NO. NO. DESCRIPTION
1 98LM Motion Detecting control panel
2 973LM 3-Button remote control
3 10A20 3V2032 Lithium battery
4 29B137 Remote control visor clip
5 41A2828 Emergency release rope & handle
assembly
6 41B4494-1 2-Conductor bell wire - white &
white/red
7 41A5047-1 Door bracket w/clevis pin & fastener
8 41A4353-1 Header bracket w/clevis pin & fastener
9 41A5034 Safety sensor kit (receiving and
sending eyes) with 3' 2-conductor
bell wire attached
10 178B34 Straight door arm section
11 178B35 Curved door arm section
12 41A5266-1 Safety sensor brackets (2)
NOT SHOWN
41A2770-5 Installation hardware bag
(includes hardware listed on page 5)
114A2933 Owner’s manual
114A2933SP Owner’s manual - Spanish

Motor Unit Assembly Parts
34
2
3
4
5
6
7
8
9
10
11
12
1
KEY PART
NO. NO. DESCRIPTION
1 41C76 Belt cap and sprocket
2 41B4245-1 Line cord
3 41B4375-3 Terminal block w/screws
4 41C5317-1 Wire harness (logic)
41C5839 High voltage wire harness
41B5806-1 DC motor wire harness
41C5418 Light socket wire harness
5 41D605-1 Motor 80kg/100kg
KEY PART
NO. NO. DESCRIPTION
6 41A5507-6 Receiver logic board assembly
with end panel
41D182-1 End panel only
7 41B5351-7 Power supply
8 41C168 Transformer and harness
9 41D630-2 Bracket: light socket, limit switch
10 41A5490-10 Cover
11 175C147 Light socket
12 108D78 Light lens

35
LOCK LIGHT
CLOSED
OPEN
ACCESSORIES
974LM
970LM
995LM
2778BD
41A5281
1702LM Outside Quick Release:
Required for a garage with NO
access door.
8 Foot Complete Rail:
To allow an 8 foot door to open fully.
Remote Light Control:
Enables homeowner to turn on a
lamp, television or other appliance
from their car with their garage door
opener remote or from anywhere in
their home with an additional
LiftMaster Security✚®remote.
4-Button Security✚®Remote Control:
Includes visor clip.
10 Foot Complete Rail:
To allow a 10 foot door to open fully.
2770BD
976LM
Extension Brackets:
(Optional) For safety sensor
installation onto the wall or floor.
Keyless Entry with Security✚®:
Enables homeowner to operate garage
door opener from outside by entering a
password on a specially designed
keyboard. Also can add a temporary
password for visitors or service
persons. This temporary password can
be limited to a programmable number
of hours or entries.
3-Button Mini-Remote Control with
Security✚®:
With key ring.
902LM/903LM 2 & 3 Door Multi-Function Wall
Control:
Ideal for homes with up to three
garage doors. Combine up to three
controls into one wall control panel for
a neat compact appearance.
Enhanced functions include Lock
Feature to lock out outside radio
signals while you are away from
home and turn opener lights on or
off from the control panel.
Garage Door Monitor:
Security for the largest door of your home!
Tells you if your garage door is open or
closed. Monitors up to 4 garage doors by
adding additional sensor modules.
915LM
Garage Door Monitor Sensor:
Additional accessory sensor for homes with
multiple garage doors.
916LM
EverCharge™ Battery Backup System:
Provides backup power to the model
2500D garage door opener.
475LM
973LM 3-Button Security✚®Remote Control:
Includes visor clip.
Motion Detecting Control Panel:
Multi-Function door control with motion
sensor that automatically turns opener lights
on for 5 minutes when it detects a person
entering the garage. Sensor can be easily
deactivated when desired.
98LM
973W Designer Burled Walnut 3-Button
Remote Control with Security✚®:
Includes visor clip.

© 2004, The Chamberlain Group, Inc.
114A2933B All Rights Reserved Printed in Mexico
LIFTMASTER SERVICE IS
ON CALL
OUR LARGE SERVICE ORGANIZATION
SPANS AMERICA
INSTALLATION AND SERVICE INFORMATION IS AS
NEAR AS YOUR TELEPHONE SEVEN DAYS A WEEK.
SIMPLY DIAL OUR TOLL FREE NUMBER:
1-800-528-2817
HOURS: (Central Standard Time)
6:00 A.M. TO 7:00 P.M. - Monday through Friday
8:00 A.M. TO 6:00 P.M. - Saturday
8:00 A.M. To 4:30 P.M. - Sunday
www.liftmaster.com
For professional installation, parts and service,
contact your local LIFTMASTER/CHAMBERLAIN
dealer. Look for him in the Yellow Pages, or call our
Service number for a list of dealers in your area.
HOW TO ORDER
REPAIR PARTS
Selling prices will be furnished on request or parts will
be shipped at prevailing prices and you will be billed
accordingly.
WHEN ORDERING REPAIR PARTS, ALWAYS GIVE
THE FOLLOWING INFORMATION:
• PART NUMBER
• PART NAME
• MODEL NUMBER
ADDRESS ORDERS TO:
THE CHAMBERLAIN GROUP, INC.
Technical Support Group
6020 S. Country Club Road
Tucson, Arizona 85706
SERVICE INFORMATION
TOLL FREE NUMBER:
1-800-528-2817
LIFTMASTER GARAGE DOOR OPENER FIVE-YEAR LIMITED WARRANTY
LIFETIME MOTOR AND BELT LIMITED WARRANTY
The Chamberlain Group, Inc. (“Seller”) warrants to the first retail purchaser of this product, for the residence in which this
product is originally installed, that it is free from defect in materials and/or workmanship for a period of five years from the date
of purchase and that the motor is free from defect in materials and/or workmanship for the lifetime of the product. The proper
operation of this product is dependent on your compliance with the instructions regarding installation, operation, maintenance
and testing. Failure to comply strictly with those instructions will void this warranty in its entirety.
If, during the limited warranty period, this product appears to contain a defect covered by this limited warranty, call
1-800-528-2817, toll free, before dismantling this product. Then send this product, pre-paid and insured, to our service center
for warranty repair. You will be advised of shipping instructions when you call. Please include a brief description of the problem
and a dated proof-of-purchase receipt with any product returned for warranty repair. Products returned to Seller for warranty
repair, which upon receipt by Seller are confirmed to be defective and covered by this limited warranty, will be repaired or
replaced (at Seller’s sole option) at no cost to you and returned pre-paid. Defective parts will be repaired or replaced with new
or factory-rebuilt parts at Seller’s sole option.
THIS LIMITED WARRANTY IS IN LIEU OF ANY OTHER WARRANTIES, EXPRESS OR IMPLIED, INCLUDING ANY
IMPLIED WARRANTY OF MERCHANTABILITY OR FITNESS FOR A PARTICULAR PURPOSE OR OTHERWISE, AND OF
ANY OTHER OBLIGATIONS OR LIABILITY ON SELLER’S PART. THIS LIMITED WARRANTY DOES NOT COVER NON-
DEFECT DAMAGE, DAMAGE CAUSED BY IMPROPER INSTALLATION, OPERATION OR CARE (INCLUDING, BUT NOT
LIMITED TO ABUSE, MISUSE, FAILURE TO PROVIDE REASONABLE AND NECESSARY MAINTENANCE,
UNAUTHORIZED REPAIRS OR ANY ALTERATIONS TO THIS PRODUCT), LABOR CHARGES FOR REINSTALLING A
REPAIRED OR REPLACED UNIT, REPLACEMENT OF BATTERIES AND LIGHT BULBS OR UNITS INSTALLED FOR NON-
RESIDENTIAL USE.
THIS LIMITED WARRANTY DOES NOT COVER ANY PROBLEMS WITH, OR RELATING TO, THE GARAGE DOOR OR
GARAGE DOOR HARDWARE, INCLUDING BUT NOT LIMITED TO THE DOOR SPRINGS, DOOR ROLLERS, DOOR
ALIGNMENT OR HINGES. ANY SERVICE CALL THAT DETERMINES THE PROBLEM HAS BEEN CAUSED BY ANY OF
THESE ITEMS COULD RESULT IN A FEE TO YOU.
UNDER NO CIRCUMSTANCES SHALL SELLER BE LIABLE FOR CONSEQUENTIAL, INCIDENTAL OR SPECIAL
DAMAGES ARISING IN CONNECTION WITH USE, OR INABILITY TO USE, THIS PRODUCT. IN NO EVENT SHALL
SELLER’S LIABILITY FOR BREACH OF WARRANTY, BREACH OF CONTRACT, NEGLIGENCE OR STRICT LIABILITY
EXCEED THE COST OF THE PRODUCT COVERED HEREBY. NO PERSON IS AUTHORIZED TO ASSUME FOR US ANY
OTHER LIABILITY IN CONNECTION WITH THE SALE OF THIS PRODUCT.
Some states do not allow the exclusion or limitation of consequential, incidental or special damages, so the above limitation or
exclusion may not apply to you. This limited warranty gives you specific legal rights, and you may also have other rights which
vary from state to state.