Chamberlain 3265 1 2 Hp Users Manual 114A3044FEN
3265 12 HP to the manual 37aafd1f-6aa7-467a-9bb7-9342c668edcf
2015-01-25
: Chamberlain Chamberlain-3265-1-2-Hp-Users-Manual-213801 chamberlain-3265-1-2-hp-users-manual-213801 chamberlain pdf
Open the PDF directly: View PDF 
.
Page Count: 36
- ENGLISH
- Model 3265 1/2 HP
 - TABLE OF CONTENTS
 - INTRODUCTION
 - ASSEMBLY
 - INSTALLATION
- STEP 1 Determine the Header Bracket Location
 - STEP 2 Install the Header Bracket
 - STEP 3 Attach the Rail to the Header Bracket
 - STEP 4 Position the Opener
 - STEP 5 Hang the Opener
 - STEP 6 Install the Door Control
 - STEP 7 Install the Light
 - STEP 8 Attach the Emergency Release Rope and Handle
 - STEP 9 Electrical Requirements
 - STEP 10 Install The Protector System®
 - STEP 11 Fasten the Door Bracket
 - STEP 12 Connect Door Arm to Trolley
 
 - ADJUSTMENT
 - OPERATION
 - CARE OF YOUR OPENER
 - HAVING A PROBLEM?
 - PROGRAMMING
 - REPAIR PARTS
 - ACCESSORIES
 - LIFTMASTER® SERVICE IS ON CALL
 - HOW TO ORDER REPAIR PARTS
 - WARRANTY
 
 - SPANISH
 

The Chamberlain Group, Inc.
845 Larch Avenue
Elmhurst, Illinois 60126-1196
www.liftmaster.com
GARAGE DOOR OPENER
Model 3265 1/2 HP
For Residential Use Only 
Owner’s Manual
■Please read this manual and the enclosed safety materials carefully!
■Fasten the manual near the garage door after installation.
■The door WILL NOT CLOSE unless the Protector System®is connected and properly
aligned.
■Periodic checks of the opener are required to ensure safe operation.
■The model number label is located on the front panel of your opener.
®

2
Introduction 2-5
Safety symbol and signal word review . . . . . . . . . . . . . . . .2
Preparing your garage door  . . . . . . . . . . . . . . . . . . . . . . . .3
Tools needed  . . . . . . . . . . . . . . . . . . . . . . . . . . . . . . . . . . .3
Planning   . . . . . . . . . . . . . . . . . . . . . . . . . . . . . . . . . . . . . .4
Carton inventory . . . . . . . . . . . . . . . . . . . . . . . . . . . . . . . . .5
Installation hardware  . . . . . . . . . . . . . . . . . . . . . . . . . . . . .5
Assembly 6-7
Attach the rail to the motor unit  . . . . . . . . . . . . . . . . . . . . .6
Attach the chain to the sprocket  . . . . . . . . . . . . . . . . . . . .6
Tighten the chain  . . . . . . . . . . . . . . . . . . . . . . . . . . . . . . . .7
Installation 7-22
Installation safety instructions  . . . . . . . . . . . . . . . . . . . . . .7
Determine the header bracket location  . . . . . . . . . . . . . . .8
Install the header bracket . . . . . . . . . . . . . . . . . . . . . . . . . .9
Attach the rail to the header bracket  . . . . . . . . . . . . . . . .10
Position the opener  . . . . . . . . . . . . . . . . . . . . . . . . . . . . .11
Hang the opener  . . . . . . . . . . . . . . . . . . . . . . . . . . . . . . .12
Install the door control  . . . . . . . . . . . . . . . . . . . . . . . . . . .13
Install the light  . . . . . . . . . . . . . . . . . . . . . . . . . . . . . . . . .14
Attach the emergency release rope and handle  . . . . . . .14
Electrical requirements . . . . . . . . . . . . . . . . . . . . . . . . . . .15
Install the Protector System® . . . . . . . . . . . . . . . . . . . .16-18
Fasten the door bracket  . . . . . . . . . . . . . . . . . . . . . . .19-20
Connect the door arm to the trolley  . . . . . . . . . . . . . .21-22
Adjustment 23-25
Adjust the travel limits  . . . . . . . . . . . . . . . . . . . . . . . . . . .23
Adjust the force  . . . . . . . . . . . . . . . . . . . . . . . . . . . . . . . .24
Test the safety reversal system  . . . . . . . . . . . . . . . . . . . .25
Test the Protector System® . . . . . . . . . . . . . . . . . . . . . . . .25
Operation   26-30
Operation safety instructions  . . . . . . . . . . . . . . . . . . . . . .26
Using your garage door opener  . . . . . . . . . . . . . . . . . . . .26
Using the wall-mounted door control  . . . . . . . . . . . . . . . .27
To open the door manually . . . . . . . . . . . . . . . . . . . . . . . .27
Care of your garage door opener  . . . . . . . . . . . . . . . . . .28
Having a problem?  . . . . . . . . . . . . . . . . . . . . . . . . . . . . . .29
Diagnostic chart  . . . . . . . . . . . . . . . . . . . . . . . . . . . . . . . .30
Programming 31-32
To add or reprogram a hand-held remote control  . . . . . .31
To erase all codes  . . . . . . . . . . . . . . . . . . . . . . . . . . . . . .31
3-Button remotes  . . . . . . . . . . . . . . . . . . . . . . . . . . . . . . .31
To add, reprogram or change 
a Keyless Entry PIN  . . . . . . . . . . . . . . . . . . . . . . . . . . . . .32
Repair Parts   33-34
Rail assembly parts  . . . . . . . . . . . . . . . . . . . . . . . . . . . . .33
Installation parts  . . . . . . . . . . . . . . . . . . . . . . . . . . . . . . . .33
Motor unit assembly parts  . . . . . . . . . . . . . . . . . . . . . . . .34
Accessories 35
Repair Parts and Service 36
Warranty 36
TABLE OF CONTENTS
When you see these Safety Symbols and Signal Words on
the following pages, they will alert you to the possibility of
serious injury or death if you do not comply with the
warnings that accompany them. The hazard may come
from something mechanical or from electric shock. Read
the warnings carefully.
When you see this Signal Word on the following pages, it
will alert you to the possibility of damage to your garage
door and/or the garage door opener if you do not comply
with the cautionary statements that accompany it. Read
them carefully.
INTRODUCTION
Safety Symbol 
and Signal Word Review
This garage door opener has been designed and tested to offer safe service provided it is installed, operated,
maintained and tested in strict accordance with the instructions and warnings contained in this manual.
Mechanical
Electrical
WARNING
CAUTION WARNING
WARNING
WARNING
CAUTION WARNING
WARNING
WARNING
CAUTION WARNING
WARNING

3
To prevent damage to garage door and opener:
• ALWAYS disable locks BEFORE installing and operating the
opener. 
• ONLY operate garage door opener at 120V, 60 Hz to avoid
malfunction and damage.
To prevent possible SERIOUS INJURY or DEATH:
• ALWAYS call a trained door systems technician if garage
door binds, sticks or is out of balance. An unbalanced garage
door may not reverse when required.
• NEVER try to loosen, move or adjust garage door, door
springs, cables, pulleys, brackets or their hardware, ALL of
which are under EXTREME tension.
• Disable ALL locks and remove ALL ropes connected to
garage door BEFORE installing and operating garage door
opener to avoid entanglement.
Preparing your garage door 
Before you begin:
• Disable locks.
• Remove any ropes connected to garage door.
•Complete the following test to make sure your garage
door is balanced and is not sticking or binding: 
1. Lift the door about halfway as shown. Release the
door. If balanced, it should stay in place, supported
entirely by its springs.
2. Raise and lower the door to see if there is any
binding or sticking. 
If your door binds, sticks, or is out of balance, call a
trained door systems technician.
Tools needed
During assembly, installation and adjustment of the
opener, instructions will call for hand tools as illustrated
below.
WARNING
CAUTION WARNING
WARNING
WARNING
CAUTION WARNING
WARNING
Pliers
Wire Cutters
Claw Hammer
Hack Saw
Screwdriver Adjustable End Wrench
1/2" and 7/16" Sockets
and Wrench
Drill
Tape Measure
2
1
Stepladder
Pencil
3/16", 5/16" and
5/32" Drill Bits
Carpenter’s
Level (Optional)
Sectional Door
One-Piece Door

FINISHED CEILING
Support bracket
& fastening
hardware is required.
See page 12.
Slack in chain tension
is normal when
garage door is closed.
Safety
Reversing Sensor
Header
Wall
Access 
Door
Safety 
Reversing Sensor
Gap between floor and bottom of
door must not exceed 1/4" (6 mm).
Wall-
mounted
Door 
Control
Motor Unit
ONE-PIECE DOOR WITHOUT TRACK 
4
Planning
Identify the type and height of your garage door. Survey
your garage area to see if any of the conditions below
apply to your installation. Additional materials may be
required.
You may find it helpful to refer back to this page and the
accompanying illustrations as you proceed with the
installation of your opener.
Access
Door
Safety
Reversing Sensor
Safety 
Reversing Sensor
Slack in chain tension is normal when 
garage door is closed.
Gap between floor 
and bottom of door 
must not exceed 1/4" (6 mm).
ONE-PIECE DOOR WITH TRACK
Safety Reversing Sensor
Horizontal and vertical reinforcement
is needed for lightweight garage doors
(fiberglass, steel, aluminum,
door with glass panels, etc.).
See page 19 for details.
 — — —        — — —        — —
Header Wall
Safety
Reversing
Sensor
Gap between floor and bottom of door
 must not exceed 1/4" (6 mm).
Extension Spring
Torsion Spring
Access Door
OR
Slack in chain tension
is normal when
garage door is closed.
Wall-
mounted
Door 
Control
Motor Unit
FINISHED CEILING
Support bracket & 
fastening hardware
is required.
See page 12.
Vertical Centerline 
of Garage Door
SECTIONAL DOOR INSTALLATION

5
Your garage door opener is packaged in two cartons
which contain the motor unit and all parts illustrated
below. Accessories will depend on the model purchased.
If anything is missing, carefully check the packing
material. Parts may be stuck in the foam. Hardware for
installation is also listed below. 
Carton Inventory
Straight Door
Arm Section
Curved Door
Arm Section
Safety Labels
and
Literature
Header Bracket
UP
CEILING MOUNT ONLY
Sprocket Cover
2 Conductor Bell Wire
White & White/Red?
Remote Control
Transmitter Visor Clip
Door Bracket
SECURITY® 
3-Button Remote Control
Multi-Function
Door Control Panel
LOCK
LIGHT
The Protector System®
(2) Safety Reversing Sensors
(1 Sending Eye and 1 Receiving Eye)
with 2-Conductor White & White/Black 
Bell Wire attached
Safety Sensor
Bracket (2)
One-Piece
T-rail
Styrofoam
Chain
Pulley Bracket
 Trolley
Chain
Motor Unit with Light Lenses
INSTALLATION HARDWARE
Hex Bolt 5/16"-18x7/8" (4)
Lag Screw 5/16"-9x1-5/8" (2)
Lag Screw 5/16"-18x1-7/8" (2)
Clevis Pin 5/16"x2-3/4" (1)
Clevis Pin 5/16"x1-1/4" (1)
Clevis Pin 5/16"x1" (1)
Nut 5/16"-18 (4)
Lock Washer 5/16" (4)
Screw 6ABx1-1/4" (2)
Screw 6-32x1" (2)
Self-Threading Screw 1/4"-14x5/8" (2) 
Insulated Staples (30)
Ring Fastener (3)
Drywall Anchors (2)
Rail Grease
Carriage Bolt 1/4"-20x1/2" (2)
Wing Nut 1/4"-20 (2)
Rope
Handle

6
ASSEMBLY STEP 1
Attach the Rail to the Motor Unit
To avoid installation difficulties, do not run the garage
door opener until instructed to do so.
• Remove the two washered bolts mounted in top of
motor unit.
• Position rail at a 45˚ angle to opener so one hole in rail
and motor unit line up.
• Thread one of the washered bolts part way in.
Use only these bolts! Use of any other bolts will cause
serious damage to door opener.
• Align rail and styrofoam over sprocket. Cut tape from
rail, chain and styrofoam.
• REMOVE STYROFOAM.
ASSEMBLY STEP 2
Attach the Chain to the Sprocket and
Install the Sprocket Cover
• Position chain over the sprocket. If necessary, loosen
the outer nut on the trolley to obtain more chain slack.
• Insert the second washered bolt. CAUTION: Use only
the bolt previously removed from motor unit! 
• Tighten both bolts securely through the rail into the
motor unit as shown.
• Install the sprocket cover: Insert the back tab in the slot.
Squeeze the cover slightly and insert the front tab in the
slot on the mounting plate.
To avoid possible SERIOUS INJURY to fingers from moving
garage door opener:
• ALWAYS keep hand clear of sprocket while operating opener.
• Securely attach sprocket cover BEFORE operating.
WARNING
CAUTION WARNING
WARNING
To avoid SERIOUS damage to garage door opener, use ONLY
those bolts/fasteners mounted in the top of the opener.
WARNING
CAUTION WARNING
WARNING
USE ONLY THIS
TYPE AND SIZE 
BOLT
Washered Bolt 
5/16"-18x1/2"
Styrofoam
Rail Hole
USE ONLY THIS
TYPE AND SIZE 
BOLT
Washered Bolts
5/16"-18x1/2" Sprocket
Mounting
Plate
Front Tab Slot
Back Tab Slot
Sprocket Cover

7
Lock
Washer
To Tighten Outer Nut
Inner Nut
Trolley
To Tighten
Inner Nut
Outer Nut
INSTALLATION
ASSEMBLY STEP 3
Tighten the Chain 
• Spin the inner nut and lock washer down the trolley
threaded shaft, away from the trolley.
• To tighten the chain, turn outer nut in the direction
shown (Figure 1).
• When the chain is approximately 1/2" (13 mm) above
the base of the rail at its midpoint, re-tighten the inner
nut to secure the adjustment.
Sprocket noise can result if chain is too loose.
When installation is complete, you may notice some chain
droop with the door closed. This is normal. If the chain
returns to the position shown in Figure 2 when the door is
open, do not re-adjust the chain.
NOTE: During future maintenance, ALWAYS pull the
emergency release handle to disconnect trolley before
adjusting chain. You may notice loosening of chain after
Adjustment Step 3 (Test the Safety Reversal System).
Check for proper tension and readjust chain if necessary.
Then repeat Adjustment Step 3.
You have now finished assembling your garage door
opener. Please read the following warnings before
proceeding to the installation section.
To reduce the risk of SEVERE INJURY or DEATH:
WARNING
WARNING
WARNING
1. READ AND FOLLOW ALL INSTALLATION WARNINGS AND
INSTRUCTIONS.
2. Install garage door opener ONLY on properly balanced and
lubricated garage door. An improperly balanced door may
not reverse when required and could result in SEVERE
INJURY or DEATH. 
3. ALL repairs to cables, spring assemblies and other hardware
MUST be made by a trained door systems technician
BEFORE installing opener.
4. Disable ALL locks and remove ALL ropes connected to
garage door BEFORE installing opener to avoid
entanglement.
5. Install garage door opener 7 feet (2.13 m) or more above
floor.
6. Mount emergency release handle 6 feet (1.83 m) above floor.
7. NEVER connect garage door opener to power source until
instructed to do so. 
8. NEVER wear watches, rings or loose clothing while
installing or servicing opener. They could be caught in
garage door or opener mechanisms.
9. Install wall-mounted garage door control:
• within sight of the garage door. 
• out of reach of children at minimum height of 5 feet
(1.5 m).
• away from ALL moving parts of the door.
10. Place entrapment warning label on wall next to garage door
control.
11. Place manual release/safety reverse test label in plain view
on inside of garage door.
12. Upon completion of installation, test safety reversal system.
Door MUST reverse on contact with a 1-1/2" (3.8 cm) high
object (or a 2x4 laid flat) on the floor.
Figure 1
Chain
Base of Rail
1/2" (13 mm)
Mid Length of Rail
Figure 2
IMPORTANT INSTALLATION INSTRUCTIONS

8
INSTALLATION STEP 1
Determine the Header Bracket
Location
Installation procedures vary according to garage door
types. Follow the instructions which apply to your door.
1. Close the door and mark the inside vertical centerline of
the garage door.
2. Extend the line onto the header wall above the door.
You can fasten the header bracket within 4 feet
(1.22 m) of the left or right of the door center only if
a torsion spring or center bearing plate is in the
way; or you can attach it to the ceiling (see page 9)
when clearance is minimal. It may be mounted on
the wall upside down if necessary, to gain
approximately 1/2" (1 cm).
If you need to install the header bracket on a 2x4
(on wall or ceiling), use lag screws (not provided)
to securely fasten the 2x4 to structural supports as
shown here and on page 9.
3. Open your door to the highest point of travel as shown.
Draw an intersecting horizontal line on the header wall
above the high point:
• 2" (5 cm) above the high point for sectional door and
one-piece door with track.
• 8" (20 cm) above the high point for one-piece door
without track.
This height will provide travel clearance for the top edge
of the door.
NOTE: If the total number of inches exceeds the height
available in your garage, use the maximum height
possible, or refer to page 9 for ceiling installation.
To prevent possible SERIOUS INJURY or DEATH:
• Header bracket MUST be RIGIDLY fastened to structural
support on header wall or ceiling, otherwise garage door
might not reverse when required. DO NOT install header
bracket over drywall.
• Concrete anchors MUST be used if mounting header bracket
or 2x4 into masonry.
• NEVER try to loosen, move or adjust garage door, springs,
cables, pulleys, brackets, or their hardware, ALL of which
are under EXTREME tension. 
• ALWAYS call a trained door systems technician if garage
door binds, sticks, or is out of balance. An unbalanced
garage door might not reverse when required.
Header Wall
Sectional door with curved track
Highest Point
of Travel
Door
2" (5 cm)
One-piece door with horizontal track
Door
Track
Header Wall
Highest Point
of Travel
2" (5 cm)
Track
Header Wall
Vertical Centerline
of Garage Door
Level
(optional)
2x4
2x4
Structural
Supports
OPTIONAL
CEILING
MOUNT
FOR
HEADER
BRACKET
Unfinished
Ceiling
WARNING
CAUTION WARNING
WARNING
Door
Jamb
Hardware
One-piece door without track: 
jamb hardware
8" (20 cm)
Highest 
Point
of Travel Door
Pivot
8" (20 cm)
One-piece door without track: 
pivot hardware
Highest 
Point
of Travel
Header Wall
Header Wall

9
INSTALLATION STEP 2
Install the Header Bracket
You can attach the header bracket either to the wall above
the garage door, or to the ceiling. Follow the instructions
which will work best for your particular requirements. Do
not install the header bracket over drywall. If installing
into masonry, use concrete anchors (not provided).
WALL HEADER BRACKET INSTALLATION
• Center the bracket on the vertical centerline with the
bottom edge of the bracket on the horizontal line as
shown (with the arrow pointing toward the ceiling). 
• Mark the vertical set of bracket holes (do not use the
holes designated for ceiling mount). Drill 3/16" pilot
holes and fasten the bracket securely to a structural
support with the hardware provided.
Lag Screw
5/16"-9x1-5/8"
HARDWARE SHOWN ACTUAL SIZE
Lag Screws
5/16"-9x1-5/8"
Highest Point of 
Garage Door Travel
Vertical
Centerline of
Garage Door
Header
Wall
Garage
Door
UP
CEILING MOUNT ONLY
Wall Mounting Holes
Optional 
Wall Mounting Holes
The nail hole is for
positioning only. 
You must use lag screws 
to mount the header bracket.
UP
CEILING MOUNT ONLY
Door Spring
Header
Bracket
2x4
Structural
Support
Vertical
Centerline of
Garage Door
Horizontal
Line
UP
CEILING MOUNT ONLY
Ceiling Mounting Holes
The nail hole is for 
positioning only.
You must use lag screws 
to mount the header bracket.
UP
Lag Screws
5/16"-9x1-5/8"
Garage Door
Vertical
Centerline
of Garage Door
Header Wall
– Finished Ceiling –
Header
Bracket
6" (15 cm) 
Maximum
Vertical
Centerline
of Garage Door
Door
Spring
CEILING HEADER BRACKET INSTALLATION
• Extend the vertical centerline onto the ceiling as shown.
• Center the bracket on the vertical mark, no more than 6"
(15 cm) from the wall. Make sure the arrow is pointing
toward the wall. The bracket can be mounted flush
against the ceiling when clearance is minimal.
• Mark the side holes. Drill 3/16" pilot holes and fasten
bracket securely to a structural support with the
hardware provided.

10
Clevis Pin
5/16"x2-3/4" Ring Fastener
INSTALLATION STEP 3
Attach the Rail to the Header Bracket
• Position the opener on the garage floor below the
header bracket. Use packing material as a protective
base. NOTE: If the door spring is in the way you will
need help. Have someone hold the opener securely on
a temporary support to allow the rail to clear the spring.
• Position the rail bracket against the header bracket.
• Align the bracket holes and join with a clevis pin
as shown.
• Insert a ring fastener to secure.
HARDWARE SHOWN ACTUAL SIZE
Header Bracket
Chain Pulley
Bracket
Temporary
Support
Header Wall
Garage
Door
Rail
Clevis Pin
5/16"x2-3/4"
Ring Fastener
Header Bracket
Chain
Pulley
Bracket
Rail

11
ONE-PIECE DOOR WITHOUT TRACK
A 2x4 on its side is convenient for setting an ideal door-to-
rail distance. 
• Remove foam packaging.
• Raise the opener onto a stepladder. You will need help
at this point if the ladder is not tall enough.
• Open the door all the way and place a 2x4 on its side
on the top section of the door beneath the rail.
• The top of the door should be level with the top of the
motor unit. Do not position the opener more than 4"
(10 cm) above this point.
INSTALLATION STEP 4
Position the Opener
Follow instructions which apply to your door type as
illustrated.
SECTIONAL DOOR OR ONE-PIECE DOOR WITH
TRACK
A 2x4 laid flat is convenient for setting an ideal door-to-rail
distance.
• Remove foam packaging.
• Raise the opener onto a stepladder. You will need help
at this point if the ladder is not tall enough.
• Open the door all the way and place a 2x4 laid flat on
the top section beneath the rail.
• If the top section or panel hits the trolley when you raise
the door, pull down on the trolley release arm to
disconnect inner and outer sections. Slide the outer
trolley toward the motor unit. The trolley can remain
disconnected until Installation Step 12 is completed.
Trolley  
Release Arm 
ENGAGED RELEASED
To prevent damage to garage door, rest garage door opener
rail on 2x4 placed on top section of door.
WARNING
CAUTION WARNING
WARNING
Rail
Door 2x4 is used to determine 
the correct mounting height 
from ceiling.
Header
Bracket
Top of Door
2x4 is used to determine 
the correct mounting height 
from ceiling.

Measure
Distance Lag Screws
5/16"-18x1-7/8"
Structural
Supports
Bracket
(Not Provided)
Lag Screws
5/16"-18x1-7/8"
(Not Provided)
Bolt 5/16"-18x7/8" 
Lock Washer 5/16" 
Nut 5/16"-18 
FINISHED CEILING
Hidden 
Support
Bolt 5/16"-18x7/8" 
Lock Washer 5/16" 
Nut 5/16"-18 
Bolt 5/16"-18x7/8" 
Lock Washer 5/16" 
Nut 5/16"-18 
Bolt 5/16"-18x7/8" 
Lock Washer 5/16" 
Nut 5/16"-18 
Lag Screws
5/16"-18x1-7/8"
(Not Provided)
Bolt 5/16"-18x7/8" 
Lock Washer 5/16" 
Nut 5/16"-18 
FINISHED CEILING
12
INSTALLATION STEP 5
Hang the Opener
Three representative installations are shown. Yours may
be different. Hanging brackets should be angled (Figure 1)
to provide rigid support. On finished ceilings (Figure 2 and
Figure 3), attach a sturdy metal bracket to structural
supports before installing the opener. This bracket and
fastening hardware are not provided.
1. Measure the distance from each side of the motor unit
to the structural support.
2. Cut both pieces of the hanging bracket to required
lengths.
3. Drill 3/16" pilot holes in the structural supports.
4. Attach one end of each bracket to a support with
5/16"-18x1-7/8" lag screws.
5. Fasten the opener to the hanging brackets with
5/16"-18x7/8" hex bolts, lock washers and nuts.
6. Check to make sure the rail is centered over the door
(or in line with the header bracket if the bracket is not
centered above the door).
7. Remove the 2x4. Operate the door manually. If the door
hits the rail, raise the header bracket.
8. Grease the top and underside of the rail surface where
the trolley slides with rail grease.
NOTE: DO NOT connect power to opener at this time.
To avoid possible SERIOUS INJURY from a falling garage door
opener, fasten it SECURELY to structural supports of the
garage. Concrete anchors MUST be used if installing ANY
brackets into masonry.
Lag Screw 5/16"-18x1-7/8"
Hex Bolt
5/16"-18x7/8"Nut 5/16"-18Lock Washer 5/16"
HARDWARE SHOWN ACTUAL SIZE
Figure 1
Figure 2
WARNING
CAUTION WARNING
WARNING
Figure 3

13
To prevent possible SERIOUS INJURY or DEATH from
electrocution:
• Be sure power is not connected BEFORE installing door
control.
• Connect ONLY to 24 VOLT low voltage wires.
To prevent possible SERIOUS INJURY or DEATH from a closing
garage door:
• Install door control within sight of garage door, out of reach
of children at a minimum height of 5 feet (1.5 m), and away
from ALL moving parts of door.
• NEVER permit children to operate or play with door control
push buttons or remote control transmitters.
• Activate door ONLY when it can be seen clearly, is properly
adjusted, and there are no obstructions to door travel.
• ALWAYS keep garage door in sight until completely closed.
NEVER permit anyone to cross path of closing garage door.
WARNING
CAUTION WARNING
WARNING
INSTALLATION STEP 6
Install the Door Control
Locate door control within sight of door at a minimum
height of 5 feet (1.5 m) where small children cannot reach,
and away from moving parts of door and door hardware.
The installation surface must be smooth and flat. If
installing into drywall (Figure 1), drill 5/32" holes and use
anchors provided. For pre-wired installations (as in new
home construction), it may be mounted to a single gang
box (Figure 2). NOTE: After installation, a green or amber
indicator light behind the cover will indicate proper
connection. If not lit, the Lock and Light features will not
function (reverse wires to correct).
1. Strip 7/16" (11 mm) of insulation from one end of bell
wire and connect to the two screw terminals on back of
door control by color: white wire to WHT and white/red
wire to the RED (Figure 3).
2. Remove cover by gently prying at slot in the top of the
cover with a small flat head screwdriver (Figure 4).
Fasten with 6ABx1-1/4" self-tapping screws (drywall
installation) or 6-32x1" machine screws (into gang box)
as follows:
• Drill and install bottom screw, allowing 1/8"(3 mm) to
protrude above wall surface.
• Position bottom of door control on screw head and
slide down to secure. Adjust screw for snug fit.
• Install top screw with care to avoid cracking plastic
housing. Do not overtighten.
• Insert bottom tabs and snap on cover. 
NOTE: The push bar may stick if the door control is not
mounted on a smooth surface. If a click is not heard
when pressing the push bar, loosen the two mounting
screws or relocate the door control to a smoother
surface.
3. (Standard installation only) Run bell wire up wall and
across ceiling to motor unit. Use insulated staples to
secure wire in several places. Do not pierce wire with a
staple, creating a short or open circuit.
4. Strip 7/16" (11 mm) of insulation from end of bell wire.
Connect bell wire to the quick-connect terminals as
follows: white to white and white/red to red (Figure 5).
NOTE: When connecting multiple door controls to the
opener, twist same color wires together. Insert wires into
quick-connect holes: white to white and red/white to red.
5. Use tacks or staples to permanently attach entrapment
warning label to wall near door control, and manual
release/safety reverse test label in a prominent location
on inside of garage door.
NOTE: DO NOT connect power and operate opener at
this time. The trolley will travel to the full open position but
will not return to the close position until the sensor beam is
connected and properly aligned.
To release wire, push in tab
with screwdriver tip
Door Control
Connections
7/16" (11 mm)
Strip wire 7/16" (11 mm)
Red Grey
White
LOCK 
LIGHT 
Figure 4 
 REMOVE COVER 
 Bell Wire
Terminal 
Screws
 Bottom Mounting Hole
 Top Mounting Hole
Drywall Anchors
Insulated
Staples 
Screw 6ABx1-1/4"
(standard installation)
Screw 6-32x1" 
(pre-wired)
HARDWARE SHOWN ACTUAL SIZE
Figure 2
To Replace
Insert Bottom Tabs First
PRE-WIRED 
INSTALLATION
LOCK
LIGHT
LOCK
LIGHT
To Replace
Insert Bottom Tabs First
Figure 1 STANDARD 
INSTALLATION
24 Volt
2-Conductor
Bell Wire in 
Gang Box
Figure 5
KG
1
3
9
7
5
KG
1
3
9
7
5
Figure 3 MULTI-FUNCTION
DOOR CONTROL (BACK)

14
INSTALLATION STEP 7
Install the Light 
• Press the release tabs on both sides of lens. Gently
rotate lens back and downward until the lens hinge is in
the fully open position. Do not remove the lens.
• Install up to a 100 watt maximum light bulb in each
socket. Light bulb size should be A19, standard neck
only. The light will turn ON and remain lit for
approximately 4-1/2 minutes when power is connected.
Then the lights will turn OFF.
• Reverse the procedure to close the lens.
• If the bulbs burn out prematurely due to vibration,
replace with a Garage Door Opener bulb.
• Use A19, standard neck garage door opener bulbs for
replacement.
NOTE: Use only standard light bulbs. The use of short
neck or speciality light bulbs may overheat the endpanel
or light socket.
INSTALLATION STEP 8
Attach the Emergency Release Rope
and Handle
• Thread one end of the rope through the hole in the top
of the red handle so “NOTICE” reads right side up as
shown. Secure with an overhand knot at least 1"
(2.5 cm) from the end of the rope to prevent slipping.
• Thread the other end of the rope through the hole in the
release arm of the outer trolley.
• Adjust rope length so the handle is 6 feet (1.83 m)
above the floor. Ensure that the rope and handle clear
the tops of all vehicles to avoid entanglement. Secure
with an overhand knot.
NOTE: If it is necessary to cut the rope, heat seal the cut
end with a match or lighter to prevent unraveling.
Trolley
NOTICE
Overhand
Knot
Emergency
Release Handle
Rope
Trolley
Release Arm
To prevent possible SERIOUS INJURY or DEATH from a falling
garage door:
• If possible, use emergency release handle to disengage
trolley ONLY when garage door is CLOSED. Weak or broken
springs or unbalanced door could result in an open door
falling rapidly and/or unexpectedly.
• NEVER use emergency release handle unless garage
doorway is clear of persons and obstructions.
• NEVER use handle to pull door open or closed. If rope knot
becomes untied, you could fall.
WARNING
CAUTION WARNING
WARNING
Lens
Hinge
100 Watt (Max)
Standard Light Bulb
Release Tab
100 Watt (Max)
Standard Light Bulb
To prevent possible OVERHEATING of the endpanel or light
socket:
• DO NOT use short neck or specialty light bulbs.
• DO NOT use halogen bulbs. Use ONLY incandescent.
To prevent damage to the opener:
• DO NOT use bulbs larger than 100W.
• ONLY use A19 size bulbs.
WARNING
CAUTION WARNING
WARNING

15
INSTALLATION STEP 9
Electrical Requirements
To avoid installation difficulties, do not run the opener
at this time.
To reduce the risk of electric shock, your garage door
opener has a grounding type plug with a third grounding
pin. This plug will only fit into a grounding type outlet. If
the plug does not fit into the outlet you have, contact a
qualified electrician to install the proper outlet.
If permanent wiring is required by your local code,
refer to the following procedure.
To make a permanent connection through the 7/8" hole in
the top of the motor unit:
• Remove the motor unit cover screws and set the cover
aside.
• Remove the attached 3-prong cord.
• Connect the black (line) wire to the screw on the brass
terminal; the white (neutral) wire to the screw on the
silver terminal; and the ground wire to the green ground
screw. The opener must be grounded.
• Reinstall the cover.
To avoid installation difficulties, do not run the opener
at this time.
RIGHT WRONG
To prevent possible SERIOUS INJURY or DEATH from
electrocution or fire:
• Be sure power is not connected to the opener, and
disconnect power to circuit BEFORE removing cover to
establish permanent wiring connection.
• Garage door installation and wiring MUST be in compliance
with ALL local electrical and building codes.
• NEVER use an extension cord, 2-wire adapter, or change plug
in ANY way to make it fit outlet. Be sure the opener is
grounded.
Ground Tab
Green 
Ground Screw
Ground Wire
Black Wire
PERMANENT WIRING
CONNECTION
White Wire
Black
Wire
WARNING
CAUTION WARNING
WARNING

16
Invisible Light Beam
Protection Area
Safety Reversing Sensor
6" (15 cm) max. above floor Safety Reversing Sensor
6" (15 cm) max. above floor
Facing the door from inside the garage
INSTALLATION STEP 10
Install The Protector System®
The safety reversing sensor must be connected and
aligned correctly before the garage door opener will
move in the down direction.
IMPORTANT INFORMATION ABOUT THE SAFETY
REVERSING SENSOR
When properly connected and aligned, the sensor will
detect an obstacle in the path of its electronic beam. The
sending eye (with an amber indicator light) transmits an
invisible light beam to the receiving eye (with a green
indicator light). If an obstruction breaks the light beam
while the door is closing, the door will stop and reverse to
full open position, and the opener lights will flash 10 times.
The units must be installed inside the garage so that the
sending and receiving eyes face each other across the
door, no more than 6" (15 cm) above the floor. Either can
be installed on the left or right of the door as long as the
sun never shines directly into the receiving eye lens.
The mounting brackets are designed to clip onto the track
of sectional garage doors without additional hardware.
If it is necessary to mount the units on the wall, the
brackets must be securely fastened to a solid surface
such as the wall framing. Extension brackets
(see Accessories) are available if needed. If installing in
masonry construction, add a piece of wood at each
location to avoid drilling extra holes in masonry if
repositioning is necessary.
The invisible light beam path must be unobstructed. No
part of the garage door (or door tracks, springs, hinges,
rollers or other hardware) may interrupt the beam while
the door is closing.
Be sure power is not connected to the garage door opener
BEFORE installing the safety reversing sensor.
To prevent SERIOUS INJURY or DEATH from a closing garage
door:
• Correctly connect and align the safety reversing sensor. This
required safety device MUST NOT be disabled.
• Install the safety reversing sensor so beam is NO HIGHER
than 6" (15 cm) above garage floor.
WARNING
CAUTION WARNING
WARNING

17
DOOR TRACK MOUNT (RIGHT SIDE)
Indicator
Light
Lens
Lip 
Sensor
Bracket
Door
Track
FLOOR MOUNT (RIGHT SIDE)
WALL MOUNT (RIGHT SIDE)
Indicator
Light
Sensor
Bracket
Lens
Extension
Bracket
(See Accessories)
Inside
Garage
Wall
(Provided with
Extension 
Bracket)
(Provided with
Extension Bracket)
Figure 1
Figure 2
Figure 3
Figure 4
WALL MOUNT (RIGHT SIDE)
Attach with 
Concrete Anchors
(Not Provided)
Inside
Garage
Wall
Sensor
Bracket
Lens
Indicator
Light
Inside
Garage
Wall
Indicator
Light Sensor
Bracket
Lens
Lag Screws
(Not Provided)
Fasten Wood Block to Wall with
Lag Screws (Not Provided)
INSTALLING THE BRACKETS
Be sure power to the opener is disconnected. Install
and align the brackets so the sensors will face each other
across the garage door, with the beam no higher than 6"
(15 cm) above the floor. They may be installed in one of
three ways, as follows.
Garage door track installation (preferred) (Figure 1):
• Slip the curved arms over the rounded edge of each
door track, with the curved arms facing the door. Snap
into place against the side of the track. It should lie
flush, with the lip hugging the back edge of the track, as
shown in Figure 1.
If your door track will not support the bracket securely, wall
installation is recommended.
Wall installation (Figure 2 & 3): 
• Place the bracket against the wall with curved arms
facing the door. Be sure there is enough clearance for
the sensor beam to be unobstructed. 
• If additional depth is needed, an extension bracket
(see Accessories) or wood blocks can be used.
• Use bracket mounting holes as a template to locate and
drill (2) 3/16" diameter pilot holes on the wall at each
side of the door, no higher than 6" (15 cm) above the
floor. 
• Attach brackets to wall with lag screws (not provided).
• If using extension brackets or wood blocks, adjust right
and left assemblies to the same distance out from the
mounting surface. Make sure all door hardware
obstructions are cleared.
Floor installation (Figure 4): 
• Use wood blocks or extension brackets
(see Accessories) to elevate sensor brackets so the
lenses will be no higher than 6" (15 cm) above the floor.
• Carefully measure and place right and left assemblies at
the same distance out from the wall. Be sure all door
hardware obstructions are cleared.
• Fasten to the floor with concrete anchors as shown.
Wing Nut
1/4"-20
Staples
Carriage Bolt
1/4"-20x1/2" 
HARDWARE SHOWN ACTUAL SIZE

Invisible Light Beam
Protection Area
Safety Reversing Sensor
Connect Wire to 
Opener Quick-Connect Terminals 
Bell Wire 
Bell Wire  Finished 
Ceiling 
Quick-Connect Terminals
3.  Insert into 
     appropriate terminals
1.  Strip wire 7/16"
     (11 mm)
2.  Twist like colored 
     wires together
Red Grey
White
7/16" (11 mm)
Safety Reversing Sensor
18
Carriage Bolt 
1/4"-20x1/2" Lens
Wing Nut
1/4"-20
Figure 5MOUNTING AND WIRING THE SAFETY REVERSING
SENSORS
• Slide a 1/4"-20x1/2" carriage bolt head into the slot on
each sensor. Use wing nuts to fasten sensors to
brackets, with lenses pointing toward each other across
the door. Be sure the lens is not obstructed by a bracket
extension (Figure 5).
• Finger tighten the wing nuts.
•Run the wires from both sensors to the opener. Use
insulated staples to secure wire to wall and ceiling.
• Strip 7/16" (11 mm) of insulation from each set of wires.
Separate white and white/black wires sufficiently to
connect to the opener quick-connect terminals. Twist
like colored wires together. Insert wires into
quick-connect holes: white to white and white/black to
grey (Figure 6).
ALIGNING THE SAFETY REVERSING SENSORS
•Plug in the opener. The indicator lights in both the
sending and receiving eyes will glow steadily if wiring
connections and alignment are correct.
The sending eye amber indicator light will glow regardless
of alignment or obstruction. If the green indicator light in
the receiving eye is off, dim, or flickering (and the invisible
light beam path is not obstructed), alignment is required.
• Loosen the sending eye wing nut and readjust, aiming
directly at the receiving eye. Lock in place.
• Loosen the receiving eye wing nut and adjust sensor
until it receives the sender’s beam. When the green
indicator light glows steadily, tighten the wing nut.
TROUBLESHOOTING THE SAFETY REVERSING
SENSORS
1. If the sending eye indicator light does not glow steadily
after installation, check for:
• Electric power to the opener.
• A short in the white or white/black wires. These can
occur at staples, or at opener connections.
• Incorrect wiring between sensors and opener.
• A broken wire.
2. If the sending eye indicator light glows steadily but the
receiving eye indicator light does not:
• Check alignment.
• Check for an open wire to the receiving eye.
3. If the receiving eye indicator light is dim, realign either
sensor.
NOTE: When the invisible beam path is obstructed or
misaligned while the door is closing, the door will reverse.
If the door is already open, it will not close. The opener
lights will blink 10 times. See page 16.
Figure 6 

19
Fiberglass, aluminum or lightweight steel garage doors WILL
REQUIRE reinforcement BEFORE installation of door bracket.
Contact your door manufacturer for reinforcement kit.
WARNING
CAUTION WARNING
WARNING
INSTALLATION STEP 11
Fasten the Door Bracket 
Follow instructions which apply to your door type as
illustrated below or on the following page.
A horizontal reinforcement brace should be long
enough to be secured to two or three vertical
supports. A vertical reinforcement brace should cover
the height of the top panel.
Figure 1 shows one piece of angle iron as the horizontal
brace. For the vertical brace, 2 pieces of angle iron are
used to create a U-shaped support. The best solution is to
check with your garage door manufacturer for an opener
installation door reinforcement kit.
NOTE: Many door reinforcement kits provide for direct
attachment of the clevis pin and door arm. In this case you
will not need the door bracket; proceed to Step 12.
SECTIONAL DOORS
1. Center the door bracket on the previously marked
vertical centerline used for the header bracket
installation. Note correct UP placement, as stamped
inside the bracket.
2. Position the top edge of the bracket 2"-4" (5-10 cm)
below the top edge of the door, OR directly below any
structural support across the top of the door.
3. Mark, drill holes and install as follows, depending on
your door’s construction:
Metal or light weight doors using a vertical angle iron
brace between the door panel support and the door
bracket: 
• Drill 3/16" fastening holes. Secure the door bracket
using the two 1/4"-14x5/8" self-threading screws
(Figure 2A).
• Alternately, use two 5/16" bolts, lock washers and nuts
(not provided) (Figure 2B).
Metal, insulated or light weight factory reinforced
doors: 
• Drill 3/16" fastening holes. Secure the door bracket
using the self-threading screws (Figure 3).
Wood Doors:
• Use top and bottom or side to side door bracket holes.
Drill 5/16" holes through the door and secure bracket
with 5/16"x2" carriage bolts, lock washers and nuts
(not provided) (Figure 4).
NOTE: The 1/4"-14x5/8" self-threading screws are not
intended for use on wood doors.
Vertical
Centerline
of Garage 
Door
Door
Bracket
Location
Header
Bracket
HORIZONTAL AND VERTICAL    
REINFORCEMENT IS NEEDED 
FOR LIGHTWEIGHT GARAGE 
DOORS (FIBERGLASS, 
ALUMINUM, STEEL, DOORS 
WITH GLASS PANEL, ETC.). 
(NOT PROVIDED)
Door
Bracket
Vertical
Centerline 
of Garage Door
UP
Vertical
Reinforcement
Self-Threading
Screw
1/4"-14x5/8"
Self-Threading
Screw
1/4"-14x5/8"
Door
Bracket
Nut
5/16"-18
Bolt
5/16"-18x2"
Lock  Washer
5/16"
UP
Vertical
Reinforcement
(Not Provided)
Vertical
Centerline 
of Garage Door
UP
Self-Threading
Screw
1/4"-14x5/8"
Vertical
Centerline 
of Garage Door
UP
Inside Edge
of Door or
Reinforcement Board
Bolt
5/16"x2"
(Not Provided)
Vertical
Centerline 
of Garage 
Door
Figure 1
Figure 2A
Figure 3
Figure 4
Figure 2B
HARDWARE
SHOWN
ACTUAL SIZE

20
Header Wall
Vertical
Centerline of
Garage Door
Finished Ceiling
Optional
Placement
of Door
Bracket
Header
Bracket
Door
Bracket
2x4 Support
For a door with no exposed framing,
or for the optional installation, use 
lag screws 5/16"x1-1/2" (Not Provided)
to fasten door bracket.
METAL DOOR
Top of Door
(Inside 
Garage)
Door
Bracket
Optional
Placement
Top Edge
of Door
Self-Threading 
Screw 
1/4"-14x5/8"
Door
Bracket
Top of Door
(Inside
 Garage)
Carriage Bolt
5/16"x2"
(Not Provided)
Optional
Placement
Lock 
Washer
5/16"
Nut
5/16"-18
Top Edge
of Door
WOOD DOOR
HORIZONTAL AND VERTICAL    
REINFORCEMENT IS NEEDED 
FOR LIGHTWEIGHT GARAGE 
DOORS (FIBERGLASS, 
ALUMINUM, STEEL, DOORS 
WITH GLASS PANEL, ETC.). 
(NOT PROVIDED)
ONE-PIECE DOORS 
Please read and comply with the warnings and
reinforcement instructions on the previous page. They
apply to one-piece doors also.
• Center the door bracket on the top of the door, in line
with the header bracket as shown. Mark either the left
and right, or the top and bottom holes.
•Metal Doors: Drill 3/16" pilot holes and fasten the
bracket with the 1/4"-14x5/8" self-threading screws
provided.
•Wood Doors: Drill 5/16" holes and use 5/16"x2"
carriage bolts, lock washers and nuts (not provided) or
5/16"x1-1/2" lag screws (not provided) depending on
your installation needs.
NOTE: The door bracket may be installed on the top edge
of the door if required for your installation. (Refer to the
dotted line optional placement drawing.)
Self-Threading Screw
1/4"-14x5/8"
HARDWARE SHOWN 
ACTUAL SIZE

21
INSTALLATION STEP 12
Connect Door Arm to Trolley
Follow instructions which apply to your door type as
illustrated below and on the following page.
SECTIONAL DOORS ONLY
• Make sure garage door is fully closed. Pull the
emergency release handle to disconnect the outer trolley
from the inner trolley. Slide the outer trolley back (away
from the door) about 2" (5 cm) as shown in Figures 1, 2
and 3.
• Figure 1:
– Fasten straight door arm section to outer trolley with
the 5/16"x1" clevis pin. Secure the connection with a
ring fastener.
– Fasten curved section to the door bracket in the same
way, using the 5/16"x1-1/4" clevis pin.
• Figure 2:
– Bring arm sections together. Find two pairs of holes
that line up and join sections. Select holes as far apart
as possible to increase door arm rigidity.
• Figure 3, Hole alignment alternative:
– If holes in curved arm are above holes in straight arm,
disconnect straight arm. Cut about 6" (15 cm) from the
solid end. Reconnect to trolley with cut end down as
shown.
– Bring arm sections together.
– Find two pairs of holes that line up and join with bolts,
lock washers and nuts.
• Pull the emergency release handle toward the opener at
a 45° angle so that the trolley release arm is horizontal.
Proceed to Adjustment Step 1, page 23. Trolley will
re-engage automatically when opener is operated.
Ring 
Fastener
Door
Bracket
Clevis Pin
5/16"x1-1/4"
Curved
Door Arm
Straight
Door Arm
Clevis Pin
5/16"x1"
Inner Trolley
Outer Trolley
Lock
Washers
5/16"
Nuts
5/16"-18
Door Bracket
Bolts
5/16"-18x7/8"
Emergency
Release
Handle
Lock
Washers
5/16"
Nuts
5/16"-18
Bolts
5/16"-18x7/8"
Cut This End
Figure 1
Figure 2
Figure 3
Lock Washer 5/16"
Nut 5/16"-18 Ring Fastener
Hex Bolt
5/16"-18x7/8"
Clevis Pin
5/16"x1" (Trolley)
Clevis Pin
5/16"x1-1/4" (Door Bracket)
HARDWARE SHOWN ACTUAL SIZE

22
ALL ONE-PIECE DOORS
1. Assemble the door arm, Figure 4:
• Fasten the straight and curved door arm sections
together to the longest possible length (with a 2 or 3
hole overlap).
• With the door closed, connect the straight door arm
section to the door bracket with the 5/16"x1-1/4" clevis
pin.
• Secure with a ring fastener.
2. Adjustment procedures, Figure 5:
• On one-piece doors, before connecting the door arm
to the trolley, the travel limits must be adjusted. Limit
adjustment screws are located on the left side panel
as shown on page 23. Follow adjustment procedures
below.
• Open door adjustment: decrease UP travel limit
- Turn the UP limit adjustment screw counter-clockwise
4 turns.
- Press the Door Control push button. The trolley will
travel to the fully open position.
- Manually raise the door to the open position (parallel
to the floor), and lift the door arm to the trolley. The
arm should touch the trolley just in back of the door
arm connector hole. Refer to the fully open
trolley/door arm positions in the illustration. If the arm
does not extend far enough, adjust the limit further.
One full turn equals 2" (5 cm) of trolley travel.
• Closed door adjustment: decrease DOWN travel
limit
- Turn the DOWN limit adjustment screw clockwise
4 complete turns.
Nuts
5/16"-18
Lock
Washers
5/16"
Ring
Fastener
Straight
Arm
Bolts
5/16"-18x7/8
Door
Bracket
Clevis Pin
5/16"x1-1/4"
Curved
Door Arm
- Press the Door Control push button. The trolley will
travel to the fully closed position.
- Manually close the door and lift the door arm to the
trolley. The arm should touch the trolley just ahead of
the door arm connector hole. Refer to the fully closed
trolley/door arm positions in the illustration. If the arm
is behind the connector hole, adjust the limit further.
One full turn equals 2" (5 cm) of trolley travel.
3. Connect the door arm to the trolley:
• Close the door and join the curved arm to the
connector hole in the trolley with the remaining clevis
pin. It may be necessary to lift the door slightly to make
the connection.
• Secure with a ring fastener.
• Run the opener through a complete travel cycle. If the
door has a slight “backward” slant in full open position
as shown in the illustration, decrease the UP limit until
the door is parallel to the floor.
NOTE: When setting the up limit on the following page, the
door should not have a “backward” slant when fully open
as illustrated below. A slight backward slant will cause
unnecessary bucking and/or jerking operation as the door
is being opened or closed from the fully open position. 
Figure 4
Door Arm
Door Arm
Connector Hole
Closed
Door
Outer Trolley
Emergency Release Handle
Inner Trolley
Outer Trolley
Open Door
Door Arm
Correct Angle
Door with
Backward Slant (Incorrect)
Inner Trolley
Figure 5

23
ADJUSTMENT STEP 1
Adjust the UP and DOWN Travel Limits
Limit adjustment settings regulate the points at which the
door will stop when moving up or down.
To operate the opener, press the Door Control push bar.
Run the opener through a complete travel cycle.
• Does the door open and close completely?
• Does the door stay closed and not reverse
unintentionally when fully closed?
If your door passes both of these tests, no limit
adjustments are necessary unless the reversing test fails
(Adjustment Step 3, page 25).
Adjustment procedures are outlined below. Read the
procedures carefully before proceeding to Adjustment Step
2. Use a screwdriver to make limit adjustments. Run the
opener through a complete travel cycle after each
adjustment. 
NOTE: Repeated operation of the opener during
adjustment procedures may cause the motor to overheat
and shut off. Simply wait 15 minutes and try again. If
anything interferes with the door’s upward travel, it will
stop. If anything interferes with the door’s downward travel
(including binding or unbalanced doors), it will reverse.
HOW AND WHEN TO ADJUST THE LIMITS
• If the door does not open completely but opens at
least five feet (1.5 m):
Increase up travel. Turn the UP limit adjustment screw
clockwise. One turn equals 2" (5 cm) of travel.
NOTE: To prevent the trolley from hitting the cover
protection bolt, keep a minimum distance of 2-4" 
(5 cm - 10 cm) between the trolley and the bolt.
• If door does not open at least 5 feet (1.5 m): 
Adjust the UP (open) force as explained in Adjustment
Step 2.
• If the door does not close completely:
Increase down travel. Turn the down limit adjustment
screw counterclockwise. One turn equals 2" (5 cm) of
travel.
If door still will not close completely and the trolley
bumps into the pulley bracket (page 4), try lengthening
the door arm (page 21) and decreasing the down limit.
• If the opener reverses in fully closed position:
Decrease down travel. Turn the down limit adjustment
screw clockwise. One turn equals 2" (5 cm) of travel.
Without a properly installed safety reversal system, persons
(particularly small children) could be SERIOUSLY INJURED or
KILLED by a closing garage door.
• Incorrect adjustment of garage door travel limits will
interfere with proper operation of safety reversal system. 
• If one control (force or travel limits) is adjusted, the other
control may also need adjustment.
• After ANY adjustments are made, the safety reversal system
MUST be tested. Door MUST reverse on contact with 1-1/2"
high (3.8 cm) object (or 2x4 laid flat) on floor.
• If the door reverses when closing and there is no
visible interference to travel cycle:
If the opener lights are flashing, the Safety Reversing
Sensors are either not installed, misaligned, or
obstructed. See Troubleshooting, page 18.
Test the door for binding: Pull the emergency release
handle. Manually open and close the door. If the door is
binding or unbalanced, call for a trained door systems
technician. If the door is balanced and not binding,
adjust the DOWN (close) force. See Adjustment Step 2.
WARNING
CAUTION WARNING
WARNING
To prevent damage to vehicles, be sure fully open door
provides adequate clearance.
WARNING
CAUTION WARNING
WARNING
Left Side Panel Limit Adjustment Screws
Cover Protection
Bolt
Adjustment Label
2-4"
(5-10 cm)

ADJUSTMENT STEP 2
Adjust the Force
Force adjustment controls are located on the back panel
of the motor unit. Force adjustment settings regulate the
amount of power required to open and close the door.
If the forces are set too light, door travel may be
interrupted by nuisance reversals in the down direction
and stops in the up direction. Weather conditions can
affect the door movement, so occasional adjustment may
be needed.
The maximum force adjustment range is about 3/4 of a
complete turn. Do not force controls beyond that
point. Turn force adjustment controls with a screwdriver.
NOTE: If anything interferes with the door’s upward travel,
it will stop. If anything interferes with the door’s downward
travel (including binding or unbalanced doors), it will
reverse.
HOW AND WHEN TO ADJUST THE FORCES
1. Test the DOWN (close) force
• Grasp the door bottom when the door is about halfway
through DOWN (close) travel. The door should reverse.
Reversal halfway through down travel does not
guarantee reversal on a 1-1/2" (3.8 cm) obstruction. See
Adjustment Step 3, page 25. If the door is hard to
hold or does not reverse, DECREASE the DOWN
(close) force by turning the control counterclockwise.
Make small adjustments until the door reverses
normally. After each adjustment, run the opener through
a complete cycle.
• If the door reverses during the down (close) cycle
and the opener lights are not flashing, INCREASE
DOWN (close) force by turning the control clockwise.
Make small adjustments until the door completes a close
cycle. After each adjustment, run the opener through a
complete travel cycle. Do not increase the force beyond
the minimum amount required to close the door.
2. Test the UP (open) force
• Grasp the door bottom when the door is about halfway
through UP (open) travel. The door should stop. If the
door is hard to hold or does not stop, DECREASE
UP (open) force by turning the control counterclockwise.
Make small adjustments until the door stops easily and
opens fully. After each adjustment, run the opener
through a complete travel cycle.
• If the door does not open at least 5 feet (1.5 m),
INCREASE UP (open) force by turning the control
clockwise. Make small adjustments until door opens
completely. Readjust the UP limit if necessary. After
each adjustment, run the opener through a complete
travel cycle.
24
Without a properly installed safety reversal system, persons
(particularly small children) could be SERIOUSLY INJURED or
KILLED by a closing garage door.
• Too much force on garage door will interfere with proper
operation of safety reversal system.
• NEVER increase force beyond minimum amount required to
close garage door. 
• NEVER use force adjustments to compensate for a binding
or sticking garage door.
• If one control (force or travel limits) is adjusted, the other
control may also need adjustment.
• After ANY adjustments are made, the safety reversal system
MUST be tested. Door MUST reverse on contact with 1-1/2"
high (3.8 cm) object (or 2x4 laid flat) on floor.
WARNING
CAUTION WARNING
WARNING
Force
Adjustment
Controls
Back Panel
FORCE ADJUSTMENT LABEL
KG KG
1
3
9
7
5
1
3
9
7
5
KG KG
Antenna
Open Force Close Force

Without a properly installed safety reversal system, persons
(particularly small children) could be SERIOUSLY INJURED or
KILLED by a closing garage door. 
• Safety reversal system MUST be tested every month.
• If one control (force or travel limits) is adjusted, the other
control may also need adjustment.
• After ANY adjustments are made, the safety reversal system
MUST be tested. Door MUST reverse on contact with 1-1/2"
high (3.8 cm) object (or 2x4 laid flat) on the floor.
25
ADJUSTMENT STEP 3
Test the Safety Reversal System
TEST
• With the door fully open, place a 1-1/2" (3.8 cm) board
(or a 2x4 laid flat) on the floor, centered under the
garage door.
• Operate the door in the down direction. The door must
reverse on striking the obstruction.
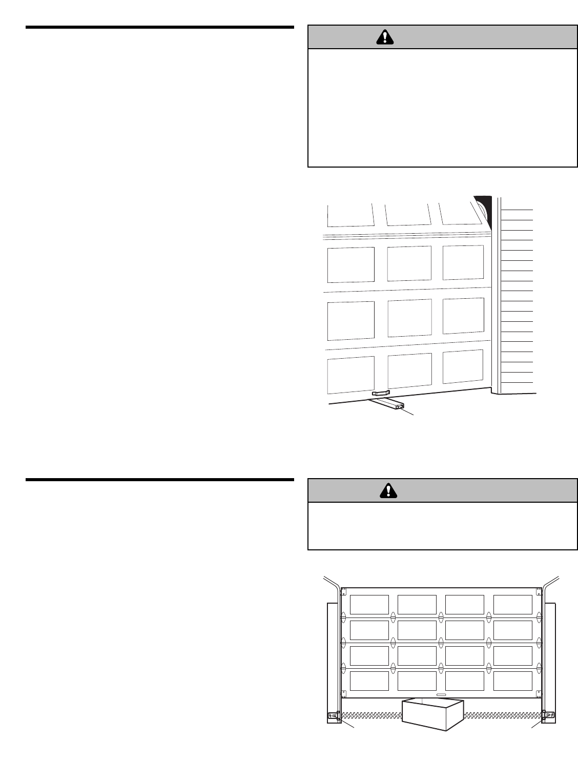
ADJUST
• If the door stops on the obstruction, it is not traveling far
enough in the down direction. Increase the DOWN limit
by turning the DOWN limit adjustment screw
counterclockwise 1/4 turn.
NOTE: On a sectional door, make sure limit adjustments
do not force the door arm beyond a straight up and
down position. See the illustration on page 21.
• Repeat the test.
• When the door reverses on the 1-1/2" (3.8 cm) board,
remove the obstruction and run the opener through 3 or
4 complete travel cycles to test adjustment.
• If the unit continues to fail the Safety Reverse Test, call
for a trained door systems technician.
IMPORTANT SAFETY CHECK:
Test the Safety Reverse System after:
• Each adjustment of door arm length, limits, or force
controls.
• Any repair to or adjustment of the garage door
(including springs and hardware).
• Any repair to or buckling of the garage floor.
• Any repair to or adjustment of the opener.
ADJUSTMENT STEP 4
Test The Protector System®
• Press the remote control push button to open the door.
• Place the opener carton in the path of the door.
• Press the remote control push button to close the door.
The door will not move more than an inch (2.5 cm), and
the opener lights will flash.
The garage door opener will not close from a remote if the
indicator light in either sensor is off (alerting you to the fact
that the sensor is misaligned or obstructed).
If the opener closes the door when the safety
reversing sensor is obstructed (and the sensors are
no more than 6" (15 cm) above the floor), call for a
trained door systems technician.
Safety Reversing Sensor Safety Reversing Sensor
Without a properly installed safety reversing sensor, persons
(particularly small children) could be SERIOUSLY INJURED or
KILLED by a closing garage door. 
1-1/2" (3.8 cm) board 
(or a 2x4 laid flat)
WARNING
CAUTION WARNING
WARNING
WARNING
CAUTION WARNING
WARNING

OPERATION
26
To reduce the risk of SEVERE INJURY or DEATH:
Using Your Garage Door Opener
Your Security✚®opener and hand-held remote control
have been factory-set to a matching code which changes
with each use, randomly accessing over 100 billion new
codes. Your opener will operate with up to eight Security✚®
remote controls and one Security✚®Keyless Entry System.
If you purchase a new remote, or if you wish to deactivate
any remote, follow the instructions in the Programming
section.
Activate your opener with any of the following:
•The hand-held Remote Control: Hold the large push
button down until the door starts to move.
•The wall-mounted Door Control: Hold the push button or
bar down until the door starts to move.
•The Keyless Entry (See Accessories): If provided with
your garage door opener, it must be programmed before
use. See Programming.
When the opener is activated (with the safety
reversing sensor correctly installed and aligned)
1. If open, the door will close. If closed, it will open.
2. If closing, the door will reverse.
3. If opening, the door will stop.
4. If the door has been stopped in a partially open position,
it will close.
5. If obstructed while closing, the door will reverse. If the
obstruction interrupts the sensor beam, the opener lights
will blink for five seconds.
6. If obstructed while opening, the door will stop.
7. If fully open, the door will not close when the beam is
broken. The sensor has no effect in the opening cycle.
If the sensor is not installed, or is misaligned, the door will
not close from a hand-held remote. However, you can
close the door with the Door Control, the Outside Keylock,
or Keyless Entry, if you activate them until down travel is
complete. If you release them too soon, the door will
reverse. 
The opener lights will turn on under the following
conditions: when the opener is initially plugged in; when
power is restored after interruption; when the opener is
activated. 
They will turn off automatically after 4-1/2 minutes or
provide constant light when the Light feature on the
Multi-Function Door Control is activated. Bulb size is A19.
Bulb power is 100 watts maximum.
Security
✚
®light feature: Lights will also turn on when
someone walks through the open garage door. With a
Multi-Function Door Control, this feature may be turned off
as follows: With the opener lights off, press and hold the
light button for 10 seconds, until the light goes on, then off
again. To restore this feature, start with the opener lights
on, then press and hold the light button for 10 seconds
until the light goes off, then on again.
WARNING
WARNING
WARNING
1. READ AND FOLLOW ALL WARNINGS AND INSTRUCTIONS.
2. ALWAYS keep remote controls out of reach of children.
NEVER permit children to operate or play with garage door
control push buttons or remote controls. 
3. ONLY activate garage door when it can be seen clearly, it is
properly adjusted, and there are no obstructions to door
travel.
4. ALWAYS keep garage door in sight until completely closed.
NO ONE SHOULD CROSS THE PATH OF THE MOVING DOOR.
5. NO ONE SHOULD GO UNDER A STOPPED, PARTIALLY OPEN
DOOR.
6. If possible, use emergency release handle to disengage
trolley ONLY when garage door is CLOSED. Weak or broken
springs or unbalanced door could result in an open door
falling rapidly and/or unexpectedly.
7. NEVER use emergency release handle unless garage doorway
is clear of persons and obstructions.
8. NEVER use handle to pull garage door open or closed. If rope
knot becomes untied, you could fall.
9. If one control (force or travel limits) is adjusted, the other
control may also need adjustment.
10. After ANY adjustments are made, the safety reversal system
MUST be tested.
11. Safety reversal system MUST be tested every month.
Garage door MUST reverse on contact with 1-1/2" high
(3.8 cm) high object (or a 2x4 laid flat) on the floor.
12. ALWAYS KEEP GARAGE DOOR PROPERLY BALANCED
(see page 3). An improperly balanced door may not reverse
when required and could result in SEVERE INJURY or
DEATH.
13. ALL repairs to cables, spring assemblies and other
hardware, ALL of which are under EXTREME tension, MUST
be made by a trained door systems technician.
14. ALWAYS disconnect electric power to garage door opener
BEFORE making ANY repairs or removing covers.
15. SAVE THESE INSTRUCTIONS.
IMPORTANT SAFETY INSTRUCTIONS

To Open the Door Manually
The door should be fully closed if
possible. Pull down on the
emergency release handle and lift
the door manually. To reconnect
the door to the opener, press the
door control push bar.
The lockout feature prevents the
trolley from reconnecting
automatically. Pull the emergency
release handle down and back
(toward the opener). The door can
then be raised and lowered
manually as often as necessary.
To disengage the lockout feature,
pull the handle straight down. The
trolley will reconnect on the next
UP or DOWN operation, either
manually or by using the door
control or remote.
To prevent possible SERIOUS INJURY or DEATH from a falling
garage door:
• If possible, use emergency release handle to disengage
trolley ONLY when garage door is CLOSED. Weak or broken
springs or unbalanced door could result in an open door
falling rapidly and/or unexpectedly.
• NEVER use emergency release handle unless garage
doorway is clear of persons and obstructions.
• NEVER use handle to pull door open or closed. If rope knot
becomes untied, you could fall.
27
Trolley
Release 
Arm
NOTICE
Emergency
Release 
Handle
(Pull Down)
Trolley
Release 
Arm
NOTICE
Emergency
Release Handle
(Down and Back)
WARNING
CAUTION WARNING
WARNING
LOCKOUT POSITION
MANUAL DISCONNECT
POSITION
Using the Wall-Mounted 
Door Control
THE MULTI-FUNCTION DOOR CONTROL
Press the push button to open or close the
door. Press again to reverse the door
during the closing cycle or to stop the door
while it’s opening.
Light feature
Press the Light button to turn the opener
light on or off. It will not control the opener lights when the
door is in motion. If you turn it on and then activate the
opener, the light will remain on for 4-1/2 minutes. Press
again to turn it off sooner. The 4-1/2 minute interval can be
changed to 1-1/2, 2-1/2, or 3-1/2 minutes as follows: Press
and hold the Lock button until the light blinks (about 10
seconds). A single blink indicates that the timer is reset to
1-1/2 minutes. Repeat the procedure and the light will blink
twice, resetting the timer to 2-1/2 minutes. Repeat again
for a 3-1/2 minute interval, etc., up to a maximum of four
blinks and 4-1/2 minutes.
Lock feature
Designed to prevent operation of the door from 
hand-held remote controls. However, the door will open
and close from the Door Control, the Outside Keylock and
the Keyless Entry Accessories.
To activate, press and hold the Lock button for 2 seconds.
The push bar light will flash as long as the Lock feature is
on.
To turn off, press and hold the Lock button again for
2 seconds.The push bar light will stop flashing. The Lock
feature will also turn off whenever the “learn” button on the
motor unit panel is activated.
Additional features when used with the 3-Button 
hand-held remote
A) To control the opener lights:
In addition to operating the door, you may program the
remote to operate the lights.
1. With the door closed, press and hold a small remote
button that you want to control 
the light.
2. Press and hold the Light button on the Multi-
Function door control.
3. While holding the Light button, press and
hold the Lock button on the door control.
4. After the opener lights flash, release all buttons.
LOCK 
LIGHT 
Push 
Button
Lock 
Button
Light
Button
B) To operate one door using all three buttons on the
hand-held remote:
You may program the remote to open the
door with the large button, close it with
the middle button, and stop the door’s
movement with the third button.
NOTE: If remote is already programmed,
you must first erase all codes. See Programming.
1. With the door closed, press and hold the large remote
push button.
2. Press and hold the Lock button on the door control.
3. Press and hold the door control push bar.
4. After the opener lights flash, release all buttons.
Open
Close
Stop

CARE OF YOUR OPENER
LIMIT AND FORCE ADJUSTMENTS:
Weather conditions may cause
some minor changes in door
operation requiring some re-
adjustments, particularly during
the first year of operation.
Pages 23 and 24 refer to the limit
and force adjustments. Only a
screwdriver is required. Follow
the instructions carefully.
Repeat the safety reverse test
(Adjustment Step 3, page 25)
after any adjustment of limits or force.
28
NOTICE: To comply with FCC and or Industry Canada (IC) rules, adjustment or modifications of this
receiver and/or transmitter are prohibited, except for changing the code setting or replacing the
battery. THERE ARE NO OTHER USER SERVICEABLE PARTS.
Tested to Comply with FCC Standards FOR HOME OR OFFICE USE. Operation is subject to the
following two conditions: (1) this device may not cause harmful interference, and (2) this device
must accept any interference received, including interference that may cause undesired operation.
MAINTENANCE SCHEDULE
Once a Month
• Manually operate door. If it is unbalanced or binding, call
a trained door systems technician.
• Check to be sure door opens and closes fully. Adjust
limits and/or force if necessary (see pages 23 and 24).
• Repeat the safety reverse test. Make any necessary
adjustments (see Adjustment Step 3).
Twice a Year
• Check chain tension. Disconnect trolley first. Adjust if
necessary (see page 7).
Once a Year
• Oil door rollers, bearings and hinges. The opener does
not require additional lubrication. Do not grease the door
tracks.
FORCE CONTROLS
1
3
9
7
5
1
3
9
7
5
LIMIT CONTROLS
KG KG
THE REMOTE CONTROL BATTERY
The lithium battery should produce power for up to
5 years.
To prevent possible SERIOUS INJURY or DEATH:
• NEVER allow small children near batteries.
• If battery is swallowed, immediately notify doctor.
WARNING
CAUTION WARNING
WARNING
To reduce risk of fire, explosion or chemical burn:
• Replace ONLY with 3V2032 coin batteries.
• Do NOT recharge, disassemble, heat above 100°C (212°F) or
incinerate.
WARNING
CAUTION WARNING
WARNING
To replace battery, use the visor
clip or screwdriver blade to pry
open the case as shown. Insert
battery positive side up (+).
Dispose of old battery properly.
Replace the battery with only
3V2032 coin cell batteries.
Battery 
positive 
side up (+)

29
HAVING A PROBLEM?
1. My door will not close and the light bulbs blink on
my motor unit: The safety reversing sensor must be
connected and aligned correctly before the garage door
opener will move in the down direction.
•Verify the safety sensors are properly installed,
aligned and free of any obstructions. Refer to
Installation Step 10: Install The Protector System®.
• Check diagnostic LED for flashes on the motor unit
then refer to the Diagnostic Chart on the following
page.
2. My remotes will not activate the door:
•Verify your door control is not blinking. If it is blinking,
deactivate the Lock Mode following the instructions for
Using the Wall Mounted Door Control.
• Reprogram remotes following the programming
instructions. Refer to Programming. 
• If remote will still not activate your door, check
diagnostic LED for flashes on motor unit then refer to
Diagnostic Chart on the following page.
3. My door reverses for no apparent reason: Repeat
safety reverse test after adjustments to force or travel
limits. The need for occasional adjustment for the force
and limit settings is normal. Weather conditions in
particular can affect door travel.
• Manually check door for balance or any binding
problems. 
• Refer to Adjustment Step 2, Adjust the Force.
4. My door reverses for no apparent reason after fully
closing and touching the floor: Repeat safety reverse
test after adjustments to force or travel limits. The need
for occasional adjustment for the force and limit settings
is normal. Weather conditions in particular can affect
door travel.
• Refer to Adjustment Step 1, Adjust the UP and DOWN
Travel Limits. Decrease down travel by turning down
limit adjustment screw clockwise.
5. My lights will not turn off when door is open:
• The garage door opener is equipped with a security
light feature. This feature activates the light on when
the safety sensor beam has been obstructed. Refer to
Operation section; Using the Wall Mounted Door
Control, Light Feature.
Receiving Eye Safety Reversing
Sensor (Green Indicator Light)
Sending Eye Safety Reversing
Sensor (Amber Indicator Light)
6. My motor unit hums briefly:
• First verify that the trolley is against the stop bolt.
• Release the door from the opener by pulling the
Emergency Release Rope.
• Manually bring the door to a closed position.
• Loosen the chain by adjusting the outer nut 4 to 5
turns. This relieves the tension.
• Run the motor unit from the remote control or door
control. The trolley should travel towards the door and
stop. If the trolley re-engages with the door, pull the
Emergency Release Rope to disengage.
• Decrease the UP travel by turning the UP Travel
adjustment screw 2 full turns away from the arrow.
• Re-tighten the outer nut so the chain is a 1/2" (13 mm)
above the base of the rail. (When the door is
reconnected and closed, the chain will sag. This is
normal.)
• If the trolley does not move away from the bolt, repeat
the steps above.
Bell Wire 
Safety Reversing Sensor
“Learn”  
Button  
LED or  
Diagnostic  
LED 

Bell Wire 
Safety Reversing Sensor
Diagnostics 
Located On  
Motor Unit 
LED or  
Diagnostic  
LED 
“Learn”  
Button  
30
Installed 
Safety Reversing 
Sensor
Your garage door opener is programmed with 
self-diagnostic capabilities. The “Learn” button/diagnostic LED
will flash a number of times then pause signifying it has found
a potential issue. Consult Diagnostic Chart below.
Diagnostic Chart
Symptom: One or both of the Indicator lights on the safety sensors do 
not glow steady.
• Inspect sensor wires for a short (staple in wire), correct wiring polarity
(black/white wires reversed), broken or disconnected wires, replace/attach 
as needed.
• Disconnect all wires from back of motor unit.
• Remove sensors from brackets and shorten sensor wires to 1-2 ft. (30-60 cm)
from back each of sensor.
• Reattach sending eye to motor unit using shortened wires. If sending eye
indicator light glows steadily, attach the receiving eye. 
• Align sensors, if the indicator lights glow replace the wires for the sensors. If the
sensor indicator lights do not light, replace the safety sensors.
Symptom: LED is not lit on door control.
• Inspect door control/wires for a short (staple in wire), replace as needed.
• Disconnect wires at door control, touch wires together. If motor unit activates,
replace door control.
• If motor unit does not activate, disconnect door control wires from motor unit.
Momentarily short across red and white terminals with jumper wire. If motor unit
activates, replace door control wires.
Symptom: Sending indicator light glows steadily, receiving indicator light is
dim or flashing.
• Realign receiving eye sensor, clean lens and secure brackets. 
•Verify door track is firmly secured to wall and does not move.
Symptom: Motor has over heated; the motor unit does not operate or trolley
is stuck on stop bolt = Motor unit hums briefly; RPM Sensor = 
Short travel 6-8" (15-20 cm). 
• Unplug unit to reset. Try to operate motor unit, check diagnostic code.
• If it is still flashing 5 times and motor unit moves 6-8" (15-20 cm), replace RPM
sensor. 
• If motor unit does not operate, motor unit is overheated. Wait 30 minutes and
retry. If motor unit still will not operate replace logic board.
Symptom: Motor unit does not operate.
• Replace logic board because motor rarely fails.
Motor Circuit Failure.
Replace Receiver 
Logic Board.
Motor overheated or
possible RPM sensor
failure. Unplug to reset.
Safety Sensors
slightly misaligned
(dim or flashing LED).
Door control or 
wire shorted. 
Safety sensors wire
shorted or black/white
wire reversed.
Safety sensors wire open
(broken or disconnected). 
1 FLASH
2 FLASHES
3 FLASHES
4 FLASHES
5 FLASHES
6 FLASHES
OR

*3-Button Remotes
If provided with your garage door opener, the large
button is factory programmed to operate it. Additional
buttons on any
Security✚®3-Button remote
or compact remote can be
programmed to operate
other Security✚®garage
door openers.
To Erase All Codes From Motor Unit
Memory
To deactivate any unwanted remote, first
erase all codes:
Press and hold the “learn” button on
motor unit until the learn indicator light
goes out (approximately 6 seconds). All
previous codes are now erased. Reprogram each
remote or keyless entry you wish to use.
1. Press and hold the button on the
hand-held remote*that you wish to
operate your garage door.
2. While holding the remote button,
press and hold the LIGHT button on
the Multi-Function Door Control.
3. Continue holding both buttons while
you press the push bar on the Multi-
Function Door Control (all three
buttons are held).
4. Release buttons when the motor unit
lights blink. It has learned the code.
If light bulbs are not installed, two
clicks will be heard.
1. Press and release the “learn” button
on the motor unit. The learn
indicator light will glow steadily for
30 seconds.
2. Within 30 seconds, press and hold
the button on the hand-held remote*
that you wish to operate your garage
door.
3. Release the button when the motor
unit lights blink. It has learned the
code. If light bulbs are not installed,
two clicks will be heard.
To Add or Reprogram a Hand-held Remote Control
USING THE “LEARN” BUTTON USING THE MULTI-FUNCTION DOOR CONTROL
LOCK
LIGHT
LOCK
LIGHT
PROGRAMMING
Your garage door opener has already been programmed at the factory to operate with your hand-held remote control.
The door will open and close when you press the large push button.
Below are instructions for programming your opener to operate with additional Security✚®remote controls.
NOTICE: If this Security
✚
®garage door opener is operated with a non-rolling code transmitter, the technical measure in
the receiver of the garage door opener, which provides security against code-theft devices, will be circumvented. The
owner of the copyright in the garage door opener does not authorize the purchaser or supplier of the non-rolling code
transmitter to circumvent that technical measure.
KG
1
3
9
7
5
KG
1
3
9
7
5
LOCK
LIGHT
31

LOCK
LIGHT
1. Enter a four digit personal
identification number (PIN) of your
choice on the keypad. Then press
and hold ENTER.
2. While holding the ENTER button,
press and hold the LIGHT button on
the Multi-Function Door Control.
3. Continue holding the ENTER and
LIGHT buttons while you press the
push bar on the Multi-Function
Door Control (all three buttons are
held).
4. Release buttons when the motor
unit lights blink. It has learned the
code. If light bulbs are not installed,
two clicks will be heard.
1. Press and release the “learn” button
on motor unit. The learn indicator
light will glow steadily for 30
seconds.
2. Within 30 seconds, enter a four digit
personal identification number (PIN)
of your choice on the keypad. Then
press and hold the ENTER button.
3. Release the button when the motor
unit lights blink. It has learned the
code. If light bulbs are not installed,
two clicks will be heard.
To Add, Reprogram or Change a Keyless Entry PIN
NOTE: Your new Keyless Entry must be programmed to operate your garage door opener.
USING THE “LEARN” BUTTON USING THE MULTI-FUNCTION DOOR CONTROL
NOTE: This method requires two people if the Keyless
Entry is already mounted outside the garage. 
LOCK
LIGHT
LOCK
LIGHT
To change an existing, known PIN
If the existing PIN is known, it may be changed by one
person without using a ladder.
1. Press the four buttons for the present PIN, then press
and hold the # button.
The opener light will blink twice. Release the # button.
2. Press the new 4-digit PIN you have chosen, then
press ENTER.
The motor unit lights will blink once when the PIN has
been learned.
Test by pressing the new PIN, then press ENTER. The
door should move.
To set a temporary PIN
You may authorize access by visitors or service people
with a temporary 4-digit PIN. After a programmed number
of hours or number of accesses, this temporary PIN
expires and will no longer open the door. It can be used to
close the door even after it has expired. To set a
temporary PIN:
1. Press the four buttons for your personal entry PIN (not
the last temporary PIN), then press and hold the ✽
button.
The opener light will blink three times. Release the
button.
2. Press the temporary 4-digit PIN you have chosen, then
press ENTER.
The opener light will blink four times.
3. To set the number of hours this temporary PIN will
work, press the number of hours (up to 255), then
press ✽.
OR
3. To set the number of times this temporary PIN will work,
press the number of times (up to 255), then press #.
The opener light will blink once when the temporary PIN
has been learned.
Test by pressing the four buttons for the temporary PIN,
then press ENTER. The door should move. If the
temporary PIN was set to a certain number of openings,
remember that the test has used up one opening.To clear
the temporary password, repeat steps 1-3, setting the
number of hours or times to 0 in step 3.
32
One Button Close: Opener can be closed by pressing only the ENTER button if the one button close feature has been
activated. This feature has been activated at the factory. To activate or deactivate this feature press and hold buttons 1
and 9 for 10 seconds. The keypad will blink twice when the one button close is active. The keypad will blink four times
when one button close is deactivated.

1
34
5
 6
2
33
REPAIR PARTS
Rail Assembly Parts
KEY PART
NO. NO. DESCRIPTION
1 4A1008 Master link kit
2 41A4813 Chain pulley bracket
3 41A3489 Complete trolley assembly
4 1707LM One-piece rail
5 41D3484 Full chain assembly
6 83A11-2 Rail grease
7
10
11
5
NOTICE
UP
CEILING MOUNT ONLY
8
6
1
4
3
2
LOCK
LIGHT
9
12
Installation Parts
KEY PART
NO. NO. DESCRIPTION
1 41A5273-1 Multi-function door control panel
2 373LM 3 Button remote control
3 10A20 3V2032 Lithium battery
4 29B137 Remote control visor clip
5 41A2828 Emergency release rope & handle assembly
6 41B4494-1 2-Conductor bell wire, white & white/red
7 41A5047 Door bracket w/clevis pin & fastener
8 41A4353 Header bracket w clevis pin & fastener
9 41A5034 Safety sensor kit (receiving and sending
eyes) with 3' (.9 m) 
2-conductor bell wire
10 178B34 Straight door arm section
11 178B35 Curved door arm section
12 41A5266-1 Safety sensor brackets (2)
NOT SHOWN
41A2770-6 Installation hardware bag 
(includes hardware listed on page 5).
114A3044 Owner’s manual
114A3044SP Owner’s manual - Spanish

Motor Unit Assembly Parts
34
2
10
8
13
14
15
5
19
3
9
4
16
12
7
18
11
17
6
6
7
DN
UP
Brown
Wire
(Down)
Contact LIMIT SWITCH
ASSEMBLY
Grey
Wire
Yellow
Wire
(Up)
Contact
Center Limit
Contact
Drive
Gear
1
KEY PART
NO. NO. DESCRIPTION
1 31D380 Sprocket cover
2 41C4220A Gear and sprocket assembly
Complete with: Spring washer,
thrust washer, retaining ring,
bearing plate, roll pins (2), drive
gear and worm gear, helical gear
w/retainer and grease
3 41A2817 Drive/worm gear kit w/grease, 
roll pins (2)
4 41B4245 Line cord
5 41A5484-1 End panel w/all labels 
6 4A1344 Light socket
7 108D79 Lens 
8 30B532 Capacitor - 1/2 HP
9 12A373 Capacitor bracket
10 41A3150 Terminal block w/screws
11 41D3058 Universal replacement motor &
bracket assembly
Complete with: Motor, worm,
bracket, bearing assembly, RPM
sensor
KEY PART
NO. NO. DESCRIPTION
12 41A5525-1 Cover 
13 41A2818 Limit switch drive & retainer
14 41D3452 Limit switch assembly
15 41A2822-1 Interrupter cup assembly
16 41C4398A RPM sensor assembly
17 41AC050 Receiver logic board assy.
Complete with: Logic board,
end panel w/all labels, light
socket
18 41C5498 Low voltage wire harness assy. 
41C5497 High voltage wire harness assy. 
19 41D180-1 End panel w/all labels
NOT SHOWN
41A2826 Motor shaft bearing kit
41A2825 Opener assembly hardware kit
(includes screws not
designated by a number in
illustration)

35
LOCK
LIGHT
ACCESSORIES 
374LM
370LM
395LM
1708LM
41A5281
1702LM Outside Quick Release:
Required for a garage with NO access
door. Enables homeowner to open
garage door manually from outside by
disengaging trolley.
8 Foot (2.4 m) Complete Rail: 
To allow an 8 foot (2.4 m) door to open
fully.
Remote Light Control:
Enables homeowner to turn on a lamp,
television or other appliance from their
car with their garage door opener
remote or from anywhere in their home
with an additional LiftMaster Security✚®
remote.
Designer Burled Walnut 3-Button
Remote Control with Security✚®:
Includes visor clip.
4-Button Security✚®Remote Control:
Includes visor clip.
10 Foot (3 m) Complete Rail: 
To allow a 10 foot (3 m) door to open
fully.
Multi-Function Door Control Panel:
Provides a Lock Feature which
prevents operation of garage door
opener from portable remotes and a
Light Feature for constant light.
1710LM
377LM
Extension Brackets:
(Optional) For safety sensor installation
onto the wall or floor.
373W
Wireless Keyless Entry with
Security✚®:
Enables homeowner to operate garage
door opener from outside by entering a
password on a specially designed
keyboard. Also can add a temporary
password for visitors or service
persons. This temporary password can
be limited to a programmable number
of hours or entries.
78LM 3-Button Mini-Remote Control with
Security✚®:
With key ring and fastening strip.
902LM/903LM 2 & 3 Door Multi-Function Wall
Control:
Ideal for homes with up to three garage
doors. Combine up to three controls
into one wall control panel for a neat
compact appearance. Enhanced
functions include Lock Feature to lock
out outside radio signals while you are
away from home and turn opener lights
on or off from the control panel.
Garage Door Monitor:
Security for the largest door of your
home!
Tells you if your garage door is open or
closed. Monitors up to 4 garage doors
by adding additional sensor modules.
915LM
Garage Door Monitor Sensor:
Additional accessory sensor for homes
with multiple garage doors.
916LM
373LM 3-Button Security✚®Remote Control:
Includes visor clip.
CLOSED
OPEN

© 2007, The Chamberlain Group, Inc.
114A3044F All Rights Reserved
LIFTMASTER®SERVICE IS
ON CALL
OUR LARGE SERVICE ORGANIZATION
SPANS AMERICA
INSTALLATION AND SERVICE INFORMATION IS AS NEAR
AS YOUR TELEPHONE. SIMPLY DIAL OUR TOLL FREE
NUMBER:
1-800-528-9131
www.liftmaster.com
For professional installation, parts and service, contact
your local LIFTMASTER/CHAMBERLAIN dealer. Look for him
in the Yellow Pages, or call our Service number for a list of
dealers in your area.
HOW TO ORDER
REPAIR PARTS
Selling prices will be furnished on request or parts will be
shipped at prevailing prices and you will be billed accordingly.
WHEN ORDERING REPAIR PARTS, ALWAYS GIVE THE
FOLLOWING INFORMATION:
• PART NUMBER
• PART NAME
• MODEL NUMBER
ADDRESS ORDERS TO:
THE CHAMBERLAIN GROUP, INC.
Technical Support Group
6020 S. Country Club Road
Tucson, Arizona 85706
SERVICE INFORMATION
TOLL FREE NUMBER:
1-800-528-9131
LIFTMASTER ONE-YEAR LIMITED WARRANTY
LIFETIME MOTOR LIMITED WARRANTY
The Chamberlain Group, Inc. (“Seller”) warrants to the first retail purchaser of this product, for the residence in which this product is originally
installed, that it is free from defect in materials and/or workmanship for a period of one year from the date of purchase [and that the motor is free
from defect in materials and/or workmanship for the lifetime of the product]. The proper operation of this product is dependent on your compliance
with the instructions regarding installation, operation, maintenance and testing. Failure to comply strictly with those instructions will void this
limited warranty in its entirety.
If, during the limited warranty period, this product appears to contain a defect covered by this limited warranty, call 1-800-528-9131, toll free,
before dismantling this product. Then send this product, pre-paid and insured, to our service center for warranty repair. You will be advised of
shipping instructions when you call. Please include a brief description of the problem and a dated proof-of-purchase receipt with any product
returned for warranty repair. Products returned to Seller for warranty repair, which upon receipt by Seller are confirmed to be defective and
covered by this limited warranty, will be repaired or replaced (at Seller’s sole option) at no cost to you and returned pre-paid. Defective parts will
be repaired or replaced with new or factory-rebuilt parts at Seller’s sole option.
ALL IMPLIED WARRANTIES FOR THE PRODUCT, INCLUDING BUT NOT LIMITED TO ANY IMPLIED WARRANTIES OF
MERCHANTABILITY AND FITNESS FOR A PARTICULAR PURPOSE, ARE LIMITED IN DURATION TO THE ONE YEAR LIMITED
WARRANTY PERIOD SET FORTH ABOVE [EXCEPT THE IMPLIED WARRANTIES WITH RESPECT TO THE MOTOR, WHICH ARE LIMITED
IN DURATION TO THE LIFETIME LIMITED WARRANTY PERIOD FOR THE MOTOR], AND NO IMPLIED WARRANTIES WILL EXIST OR
APPLY AFTER SUCH PERIOD.  Some States do not allow limitations on how long an implied warranty lasts, so the above limitation may
not apply to you. THIS LIMITED WARRANTY DOES NOT COVER NON-DEFECT DAMAGE, DAMAGE CAUSED BY IMPROPER
INSTALLATION, OPERATION OR CARE (INCLUDING, BUT NOT LIMITED TO ABUSE, MISUSE, FAILURE TO PROVIDE REASONABLE
AND NECESSARY MAINTENANCE, UNAUTHORIZED REPAIRS OR ANY ALTERATIONS TO THIS PRODUCT), LABOR CHARGES FOR
REINSTALLING A REPAIRED OR REPLACED UNIT, REPLACEMENT OF BATTERIES AND LIGHT BULBS OR UNITS INSTALLED FOR
NON-RESIDENTIAL USE.
THIS LIMITED WARRANTY DOES NOT COVER ANY PROBLEMS WITH, OR RELATING TO, THE GARAGE DOOR OR GARAGE DOOR
HARDWARE, INCLUDING BUT NOT LIMITED TO THE DOOR SPRINGS, DOOR ROLLERS, DOOR ALIGNMENT OR HINGES. THIS LIMITED
WARRANTY ALSO DOES NOT COVER ANY PROBLEMS CAUSED BY INTERFERENCE. ANY SERVICE CALL THAT DETERMINES THE
PROBLEM HAS BEEN CAUSED BY ANY OF THESE ITEMS COULD RESULT IN A FEE TO YOU. 
UNDER NO CIRCUMSTANCES SHALL SELLER BE LIABLE FOR CONSEQUENTIAL, INCIDENTAL OR SPECIAL DAMAGES ARISING IN
CONNECTION WITH USE, OR INABILITY TO USE, THIS PRODUCT. IN NO EVENT SHALL SELLER’S LIABILITY FOR BREACH OF
WARRANTY, BREACH OF CONTRACT, NEGLIGENCE OR STRICT LIABILITY EXCEED THE COST OF THE PRODUCT COVERED
HEREBY. NO PERSON IS AUTHORIZED TO ASSUME FOR US ANY OTHER LIABILITY IN CONNECTION WITH THE SALE OF THIS
PRODUCT.
Some states do not allow the exclusion or limitation of consequential, incidental or special damages, so the above limitation or exclusion may not
apply to you. This limited warranty gives you specific legal rights, and you may also have other rights which vary from state to state.