Citizen Cl S621 Users Manual S621/CL S631 User's
S621 CL-S-631-uputstvo
CL-S621 JM74983-10F_UM_CL-S621_631
CL-S621 to the manual 171fc37d-6b6b-48e6-bd16-29a9567cdbd5
cls621-631_um
2015-01-05
: Citizen Citizen-Cl-S621-Users-Manual-203759 citizen-cl-s621-users-manual-203759 citizen pdf
Open the PDF directly: View PDF
.
Page Count: 66
- COVER
- CONTENTS
- Before Operation
- Setup
- Printer Operation
- Printer Adjustments
- Troubleshooting
- Appendixes

CL-S621 & CL-S631
Thermal Transfer Barcode & Label Printer
USER'S MANUAL

2
CONTENTS
Before Operation
INTRODUCTION -------------------------------------------------------------------- 3
COMPLIANCE STATEMENT FOR EUROPEAN USERS----------------------------- 4
GS MARK STATEMENT -------------------------------------------------------------- 4
FCC COMPLIANCE STATEMENT FOR AMERICAN USERS ----------------------- 4
EMI COMPLIANCE STATEMENT FOR CANADIAN USERS------------------------ 5
ETAT DE CONFORMITE EMI A L’USAGE DES UTILISATEURS CANADIENS ----- 5
IMPORTANT SAFETY INSTRUCTIONS--------------------------------------------- 6
NOTICE ------------------------------------------------------------------------------- 7
SAFETY INSTRUCTIONS ------------------------------------------------------------ 8
Chapter 1 Setup
Confirmation of Carton Contents -------------------------------------------------10
Part Names and Functions---------------------------------------------------------- 11
Connection to Power ---------------------------------------------------------------17
Driver Installation -------------------------------------------------------------------17
Connection to a Computer --------------------------------------------------------18
Chapter 2 Printer Operation
Power ON/OFF ----------------------------------------------------------------------19
Normal Operating Mode ---------------------------------------------------------- 20
Setting the Media ------------------------------------------------------------------ 22
Setting the Ribbon ----------------------------------------------------------------- 26
Mode Settings ---------------------------------------------------------------------- 29
Quick Setup of the Print Method ------------------------------------------------- 42
Selecting the Ribbon Winding Direction ----------------------------------------- 43
Emulation Auto Detect: Cross-EmulationTM -------------------------------------- 43
Manually Selecting the Printer Emulation ---------------------------------------- 44
Chapter 3 Printer Adjustments
Sensor Adjustments --------------------------------------------------------------- 45
Media Thickness Adjustment ----------------------------------------------------- 48
Media Width Adjustment ---------------------------------------------------------- 49
Adjusting the Ribbon -------------------------------------------------------------- 50
Cleaning ---------------------------------------------------------------------------- 52
Chapter 4 Troubleshooting --------------------- 53
Appendixes
Specifications ---------------------------------------------------------------------- 55
Interfaces --------------------------------------------------------------------------- 59

3
❚❚❚ Main Features ❚❚❚
<High-speed, high-quality printing>
This printer can be used for high-speed high-quality printing thanks to its direct thermal method
and thermal transfer method that use a line thermal printhead together with its 32 bit RISC CPU
and its 'history control IC'.
<Easy operation>
•It is easy to change the printer’s settings on the operation panel, thanks to its unique and
simple VuePrint menu system.
•Its high-lift printhead and mechanism means that media and ribbon can be loaded with ease
and it is constructed for easy thermal printhead cleaning, etc.
•Media width adjustment, media thickness adjustment, and media sensor adjustment can all be
made easily by the user using the colour-coded operator controls.
<Dual Programming Language>
This printer contains both the Datamax® and Zebra® emulations and will automatically detect
the language using the Cross-EmulationTM feature.
<Interface>
An industry standard RS232 serial port and USB1.1 port are standard equipment, for quick data
transfer and printing.
<Optional interface>
Additional connectivity is available with an optional internally-housed IEEE1284 parallel port,
an Ethernet interface and a wireless LAN print server.
<Optional auto-cutter / peeler unit>
The auto-cutter and peeler units are designed so that they can be installed easily.
<Adjustable sensors>
The adjustable media sensors - which allow the sensors to be positioned in different locations
across the media - are standard features making the printer ideal for use with special media.
<Installation>
The interface, power switch etc. are installed towards the back and the top cover opens and
closes vertically so that the sides of the printer are not restricted.
INTRODUCTION
Thank you for purchasing a Citizen CL-series label printer offering high performance thermal transfer printing
on media up to 4.1 inches wide.

4
COMPLIANCE STATEMENT
FOR EUROPEAN USERS
CE marking shows conformity to the following criteria and provisions:
Low Voltage Directive (2006/95/EC, formerly 73/23/EEC)/EN60950-1
EMC Directive (2004/108/EC, formerly 89/336/EEC)/EN55022, EN55024, EN61000-3-2 &
EN61000-3-3
GS MARK STATEMENT
This product has been tested under EN ISO 7779 and has an acoustic level output no higher than
55db(A).
This device is not intended for use at a video workstation in compliance with Bildscharb V.
This device is not intended for use in the direct field of view at visual display workplaces. To avoid
incommoding reflections at visual display workplaces this device must not be placed in the direct field
of view.
FCC COMPLIANCE STATEMENT
FOR AMERICAN USERS
This equipment has been tested and found to comply with the limits for a Class A digital device,
pursuant to Part 15 of the FCC Rules. These limits are designed to provide reasonable protection
against harmful interference when the equipment is operated in a commercial environment. This
equipment generates, uses, and can radiate radio frequency energy and, if not installed and used in
accordance with the instruction manual, may cause harmful interference to radio communications.
Operation of this equipment in a residential area is likely to cause harmful interference in which case
the user will be required to correct the interference at his own expense.
∗The model name printed on the CL-S621 rating label is JM40-M01.
The model name printed on the CL-S631 rating label is JM43-M01.

5
EMI COMPLIANCE STATEMENT
FOR CANADIAN USERS
This Class A digital apparatus complies with Canadian ICES-003.
This equipment generates and uses radio frequency energy and if not installed and used properly,
that is, in strict accordance with the manufacturer's instructions, may cause interference to radio and
television reception. This digital apparatus does not exceed the Class A limits for radio noise emissions
from digital apparatus set out in the Radio Interference Regulations of the Canadian Department of
Communications. This equipment is designed to provide reasonable protection against such
interference in a residential installation. However, there is no guarantee that interference will not
occur in a particular installation. If this equipment does cause interference to radio or television
reception, which can be determined by turning the equipment off and on, the user is encouraged to
try to correct the interference by one or more of the following measures:
•Reorient or relocate the receiving antenna.
•Increase the separation between the equipment and receiver.
•Connect the equipment into an outlet on a circuit different from that to which the receiver is
connected.
•Consult the dealer or an experienced radio/TV technician for help.
CAUTION: Use shielded cables to connect this device to computers.
Any changes or modifications not expressly approved by the grantee of this device could
void the user's authority to operate the equipment.
ETAT DE CONFORMITE EMI A L’USAGE
DES UTILISATEURS CANADIENS
Cet appareil numérique de la classe A est conforme à la norme NMB-003 du Canada.
Cet équipment produit et utilise l’énergie à radiofréquences et s’iln’est pas installé et utilisé correctment,
c’esst à dire en accord strict avec les instructions du fabricant, il risque de provoquer des intérferences
avec la réception de la radio et de latélévision.
Le présent appareil numérique n’émet pas de bruite radio électriques dépassant les limites applicables
aux appareils numériques de la classe A prescrites dans le Réglement sur le brouillage radioélectrique
édicté par le ministère des Communications du Canada.
Cet équipment est conçu pour fournir une protection satisfaisante contre de telles interférences dans
une installation résidentielle. Cependant, il n’y a pas de garantie contre les interférences avec les
réceptions radio ou télévision, provoquées par la mise en et hors circuit de l’équipment; aussi, il est
demandé a l’utilisateur d’essayer de corriger l’interférence par l’une ou plus des mesures suivantes:
•Réorienter l’antenne de réception.
•Installer l’ordinateur autre part, par égard pour le récepteur.
•Brancher l’ordinateur dans une prise de courant différente de façon à ce que l’ordinateur et le
récepteur soient branchés sur des circuits différents.

6
IMPORTANT SAFETY INSTRUCTIONS
•Read all of these instructions and save them for later reference.
•Follow all warnings and instructions marked on the product.
•Unplug this product from the wall outlet before cleaning. Do not use liquid or aerosol cleaners. Use a damp
cloth for cleaning.
•Do not use this product near water.
•Do not place this product on an unstable cart, stand or table. The product may fall, causing serious damage
to the product.
•Slots and openings on the cabinet and the back or bottom are provided for ventilation.
To ensure reliable operation of the product and to protect it from overheating, do not block or cover these
openings. The openings should never be blocked by placing the product on a bed, sofa, rug or other similar
surface. This product should never be placed near or over a radiator or heat register. This product should
not be placed in a built-in installation unless proper ventilation is provided.
•This product should be operated from the type of power source indicated on the marking label.
If you are not sure of the type of power available, consult your dealer or local power company.
•This product is equipped with a three-pronged plug, a plug having a third (grounding) pin. This plug will
only fit into a grounding-type power outlet. This is a safety feature. If you are unable to insert the plug into
the outlet, contact your electrician to replace your obsolete outlet. Do not defeat the safety purpose of
the grounding-type plug.
•Do not allow anything to rest on the power cord. Do not locate this product where the cord will be walked
on.
•If an extension cord is used with this product, make sure that the total of the ampere ratings on the
products plugged into the extension cord do not exceed the extension cord ampere rating. Also, make sure
that the total of all products plugged into the wall outlet does not exceed 15 amperes for 120V outlet and
7.5 amperes for 220V-240V outlet.
•Never push objects of any kind into this product through cabinet slots as they may touch dangerous
voltage points or short out parts that could result in a risk of fire or electric shock. Never spill liquid of any
kind on the product.
•Except as explained elsewhere in this manual, don't attempt to service this product yourself. Opening and
removing those covers that are marked "Do Not Remove" may expose you to dangerous voltage points or
other risks. Refer all servicing on those compartments to service personnel.
•The mains plug on this equipment must be used to disconnect mains power. Please ensure that the socket
outlet is installed near the equipment and shall be easily accessible.
•Unplug this product from the wall outlet and refer servicing to qualified service personnel under the following
conditions:
A. When the power cord or plug is damaged or frayed.
B. If liquid has been spilled into the product.
C. If the product has been exposed to rain or water.
D. If the product does not operate normally when the operating instructions are followed. Adjust only
those controls that are covered by the operating instructions since improper adjustment of other controls
may result in damage and will often require extensive work by a qualified technician to restore the product
to normal operation.
E. If the product has been dropped or the cabinet has been damaged.
F. If the product exhibits a distinct change in performance, indicating a need for service.

7
NOTICE
•Before use, be sure to read this manual. And keep it handy for reference when needed.
•The contents of this manual may change without prior notice.
•Reproduction, transfer, or transmission of the contents of this manual without prior consent is strictly
prohibited.
•We are not liable for any damage resulting from the use of the information contained herein, regardless of
errors, omissions, or misprints.
•We are not liable for any problems resulting from the use of optional products and consumable supplies
other than the designated products contained herein.
•Do not handle, disassemble or repair the parts other than those specified in this manual.
•We are not liable for any damage caused by user's erroneous use of the printer and inadequate environment.
•Data residing in the printer is temporary. Therefore, all data will be lost if power is lost. We are not liable for
any damage or loss of profits caused by data loss due to failures, repairs, inspections, etc.
•Please contact us if there are any mistakes or ambiguities within this manual.
•If there are missing or incorrectly collated pages in this manual, contact us to obtain a new manual.
CITIZEN is a registered trademark of CITIZEN HOLDINGS CO., Japan.
CITIZEN es una marca registrada de CITIZEN HOLDINGS CO., Japón.
Copyright © 2010 by CITIZEN SYSTEMS JAPAN CO., LTD.

8
Indicates a situation which, if not observed and handled
properly, could result in death or serious injury.
Indicates a situation which, if not observed and handled
properly, could result in injury.
SAFETY INSTRUCTIONS
which must be strictly observed !
Caution
•To prevent personal injury or property damage, the following shall be strictly observed.
•The degree of possible injury and damage due to incorrect use or improperly following
instructions is described below.
Warning
Never perform the following. If not avoided, these may cause damage or trouble to the
printer or cause the printer to overheat and release smoke and cause burns or an electrical
shock. If the printer is damaged or is malfunctioning, be sure to turn the printer off
immediately and remove the power cord from the outlet, then consult our service
personnel.
•Do not place the printer in a poorly ventilated area, or shut off the air vent of the printer.
•Do not place the printer where chemical reactions occur, such as in laboratories or where air is mixed
with salt or gas.
•Do not use a power voltage or frequency other than those specified.
•Do not plug/unplug the power cord or attach/detach the interface cable by simply grabbing the
power cord or interface cable. Do not pull or carry the printer when the tension of the power cord or
interface cable is increased.
•Do not drop or put foreign matter such as clips and pins into the printer. This may cause problems.
•Do not plug the power cord into an outlet with many loads.
•Do not spill drinks such as tea, coffee and juice on the printer or spray insecticide on the printer. If
drink or water is spilled, first be sure to turn the power off and remove the power cord from the
outlet, then consult our service personnel.
•Do not disassemble or modify the printer.
Discard or safely store the plastic packing bag. This bag should be kept away from children.
If the bag is pulled over a child’s head, it may cause suffocation.
Warning
: This is a mark to call attention to the reader.

9
•Prior to operation, read the safety instructions carefully and observe them.
•Do not drop or put foreign matter such as clips and pins into the printer. This may cause problems.
•Be careful when moving or carrying the printer. Dropping the printer may cause injury or property
damage.
•Make sure if you open the top cover, it is opened all the way. If only partially open, the cover could
slam shut, possibly causing injury.
•When the cover is open, be careful of the corners of the cover. They could cause injury.
•Do not open the printer during printing.
•When cleaning the surface of the printer case, do not use the cloth that is soaked in thinner,
trichloroethylene, benzine, ketone or similar chemicals.
•Do not use the printer where there is a lot of oil, iron particles, or dust.
•Do not spill liquids or spray insecticide on the printer.
•Do not jolt or impact to the printer by stepping on, dropping or hitting the printer.
•Operate the control panel properly. A careless, rough handling may cause problems or malfunction.
Do not use such sharp-edged tool as a ballpoint pen for operation.
•Be careful of the edges of the plates so injury or property damage is possible.
•If a problem occurs during printing, stop the printer immediately and unplug the power cord from
the outlet.
•When printer trouble occurs, do not try to dissemble it. Instead, consult our service personnel.
•Prior to operation, read the safety instructions carefully and observe them.
•Do not use or store the printer near fire, excessive moisture, in direct sunlight, near an air conditioner
or heater or other source of unusually high or low temperature or humidity or excessive dust.
•Do not place the printer where chemical reactions occur, such as in a laboratory.
•Do not place the printer where air is mixed with salt or gas.
•The printer must sit on a firm, level surface where there is ample ventilation. Never allow the
printer's air vent to be blocked by a wall or other object.
•Do not put anything on the top of printer.
•Do not place the printer near a radio or television, and do not use the same wall outlet for the
printer and radio or television. Radio or television reception could be adversely affected.
•Do not put anything on the power cord or step on it.
•Do not drag or carry the printer with the power cord or interface cable.
•Avoid plugging the power cord into an outlet with many loads.
•Do not bundle the power cord when inserting the plug.
•Always grip the plug housing, not the cord, to plug/unplug the power cord.
•Make certain the power is turned off before connecting/disconnecting the interface cable.
•Avoid lengthening the signal cable or connecting it to any noise-producing device. If it is unavoidable,
use the shielded cable or twisted pair for each signal.
•Place the printer near the outlet where the power cord can be unplugged easily to shut off power.
•Use the AC outlet that accepts a three-pronged plug. Otherwise, static electricity may be generated
and there will be danger of electric shock.
Caution
Caution
General Precautions
Precautions When Installing the Printer

1
Setup
10
Confirmation of Carton Contents
Note: The empty carton and packing materials should be stored for future
shipping of the printer.
Removing the Packing Material
The printer is shipped with adhesive tape in place to hold the top cover
closed. Simply remove the two pieces of tape on either side of the top cover.
Then simply open the cover by lifting up and tipping it backwards.
There is another strip of adhesive tape that must be removed which holds
the mechanism closed for shipping. Remove the tape and attached paper by
carefully peeling from the plastic case.
Retain the tape should you need to transport the printer again.
CD-ROM Quick-start Guide
Media holder barMedia holder guide
Head cleaner
Paper CoreSample RibbonRibbon Holder
Test label media Power cord
Printer
CL-S521, CL-S621 & CL-S631
Thermal Transfer Barcode & Label Printer
QUICK-START GUIDE
This Quick-Start Guide covers basic operation.
For detailed operating instructions, please see the User's Manual on the
supplied CD-ROM.
CL-S521CL-S621
CL-S631
Check that the following accessories are included with the printer
in the carton.

11
Setup
Part Names and Functions
Front View
3
1
2
4
5
Operation Panel (p.15)
1Top cover
Is opened vertically to set media or ribbon.
2Heat discharge vent
It allows warm air to vent from the printer.
Be sure not to block it with media etc.
3Operation panel
This is used to make changes and adjustments to the printer and its
configuration.
4Ribbon window
The amount of ribbon remaining can be checked through this window.
5Media window
The amount of media remaining can be checked through this window.
•Be careful when moving or carrying the printer and when taking the
printer out of the carton. The printer may cause injury or property
damage if dropped. Be sure to grip the printer housing firmly when
taking it out of the carton. Do not grip the printer by the foam packing
material which may break, causing the printer to drop.
•When opening the cover, open it all the way. If only part way open,
the cover could slam shut, possibly causing injury.
•Be careful of the edge of the cover when the cover is opened. It may
cause injury or property damage.
•Be careful of the edges of the metal plates so injury or property
damage is possible.
Caution

1
Setup
12
2
1
4
3
Part Names and Functions
1Ribbon drive unit
2Head close knob
Push the head close knob to lock the mechanism closed. If you push on
another part of the mechanism, the printer may not lock closed correctly.
3Ribbon holder
It is used to attach the ribbon and paper core.
4Front cover
It is removed to install optional units such as the peeler or cutter.
Inside the printer

13
Setup
3
25
6
7
4
1
Part Names and Functions
1Front (winding side) ribbon tension adjustment knob
This is adjusted according to the width of the ribbon that is used. It is
also used when the ribbon is wrinkled or slips.
2Front (winding side) ribbon left-right balance adjustment knob
It is used to perform an adjustment when the ribbon is wrinkled. Normally
set it to the center position.
3Media width adjustment dial
It is adjusted to match the width of the media.
4Back (feeding side) ribbon tension adjustment knob
This is adjusted according to the width of the ribbon that is used. Use it
basically in the same way as the front adjustment knob.
5Back (feeding side) ribbon left-right balance adjustment knob
It is used to perform an adjustment when the ribbon is wrinkled. Normally
set it to the center position.
6Media thickness adjustment dial
It is adjusted to match the thickness of the media.
7Large blue-head open lever
The head unit can be raised to install media by pushing this lever.
It locks the head unit during printing.
Media Width Adjustment
(p.49)
Media Thickness Adjustment
(p.48)
Ribbon Tension Adjustment
(p.50)
Ribbon Balance Adjustment
(p.51)
Ribbon Tension Adjustment
(p.50)
Ribbon Balance Adjustment
(p.51)

1
Setup
14
-1
-1
-2
-2
2
3
4
1
3
4
57
8
6
Part Names and Functions
1Thermal printhead
This is the printhead. Avoid touching this with your fingertips and leaving
grease or dirt on the printhead surface.
2Sensor arm
The media can be installed by raising this arm.
The media can be held in place by lowering this arm.
3Upper sensor (3-1) and bottom sensor (3-2)
When used as a transparent sensor (for labels and tags with notches), it
is used by matching the sensor markings of the upper sensor and the
bottom sensor. When used as a reflective sensor, it is used by matching
the sensor marking on the bottom sensor with the position of the black
mark on the liner or media backing.
4Media guides
(Left fixed media guide (4-1) and right movable media guide (4-2))
The end of the media is matched to the left fixed media guide, then the
right side movable media guide is moved horizontally to match it to the
media size. And the movable media guide is used as a guide to match the
upper sensor and bottom sensor when using the transparent sensors.
5Platen
Interlocked with the thermal printhead, it feeds media backwards or
forwards.
6Optional unit connector cover
It is opened when the cables of the cutter unit and the peeler unit are
connected. Do not remove during normal use.
7Media holder guide
This guide is moved horizontally to match the media size.
The guide can be sliding it from the holder bar.
8Media holder bar
The media is supported by the media holder bar when installed in the
printer.
Setting sensor positions
(p.24)
Sensor Adjustments (p.45)
Installing the Media (p.25)

15
Setup
Part Names and Functions
Operation Panel
1
2
3
4
5
6
8
7
1POWER LED
This is lit when the printer power is on. (green)
2PRINT LED
This is lit when the printer is able to print. (green)
3CONDITION LED
This is on when selecting settings. (orange)
4ERROR LED
This is lit or flashes when the printer is in an alarm or error status. (red)
5PAUSE key
This temporarily stops printing.
6FEED key
This key feeds the media to the top of the next label or form.
7STOP key
This stops printing or cancels the alarm.
8MODE/REPEAT key
This key exits current status in the menu setting mode or reprints the
final label, depending on printer status.
LED Functions (p.21)
Normal Operating Mode
(p.20)

1
Setup
16
Part Names and Functions
1
2
3
4
Rear View
1Serial interface (RS232C)
This receives serial transmission of data from a host computer.
2USB interface
This receives USB transmission of data from a host computer.
3Power switch
The is the power switch for the printer.
4Power cord inlet
The connector of the enclosed power cord is connected here.
Serial Interface (p.59)
USB Interface (p.61)
Power ON/OFF (p.19)
Connection to Power (p.17)

17
Setup
Connection to Power
1. Check that the power switch to the printer is turned OFF.
2. Connect the connector of the power cord to the power cord
inlet on the printer.
3. Insert the plug of the power cord in the AC outlet.
Caution
Use an AC outlet that accepts a three-pronged plug. Otherwise, static
electricity may be generated and there will be danger of electric shock.
AC Outlet
Power Cord Inlet
Power Switch
Driver Installation
The computer may automatically detect the presence of the new printer when
it is first started, depending on the computer type, interface and operating
system. Follow any on-screen instruction and also instructions supplied with
any additional CD-ROM or floppy disk included with your printer.
Your supplier will assist you with the correct drivers and software which are
compatible with your particular computer system.

1
Setup
18
Connection to a Computer
This product has two interfaces that can be used to receive printing data: a
serial port (RS232C) and a USB port (USB1.1). An optional internal
Ethernet, an IEEE1284 Parallel or Wireless LAN port can be added by your
dealer.
With the exception of a wireless LAN connection, an interface cable is
necessary to connect the printer to a computer.
To connect the cable, proceed as follows:
1. Turn OFF both power switches of the printer and the computer.
2. Connect one end of the interface cable to the interface
connector on the back of the printer and secure it with locks or
locking screws, where available.
3. Connect the other end of the interface cable to the interface
connector on the computer and secure it with locks or locking
screws, where available.
Serial Interface Cable
USB Interface Cable
Note: If an optional Ethernet, an IEEE1284 Parallel or Wireless LAN port is
used, contact your Citizen Systems dealer.
Serial Interface (p.59)
USB Interface (p.61)

19
Printer Operation
Power ON/OFF
Turning on the power
1. Turn on the power switch on the back of the printer.
2. The POWER and PRINT LED are lit.
Turning off the power
1. Turn off the power switch on the back of the printer.
2. The POWER and PRINT LED go off.
Power Switch
Power Switch
Operation Panel
2
Printer Operation

2
Printer Operation
20
1PAUSE key: Temporarily pauses printing
•When this key is pushed once, the PRINT LED turns off and the printer
temporarily pauses.
•When it is pushed during printing, the printer pauses after the label
currently being printed is issued. Pressing the key a second time restarts
printing and the remaining number of designated labels are printed.
2FEED key: Feeds media
•Pressing this key feeds media to the print start position. The distance
it is fed is determined by automatically detecting the front end of the
media when using label media, and when continuous media has been
designated, a fixed quantity is fed, then feeding stops.
•When the TEAR OFF setting is effective, feeding stops when the media
has been fed to the TEAR OFF location.
•When the optional cutter unit is installed, the media is fed to the cut
position then it is cut.
•If the optional peeler unit is installed, the media is fed to the peeling
location. When the media is pausing at the peeling position, feeding
does not occur, even if the FEED key is pushed.
3STOP key: It stops printing and cancels the alarm
Pushing this key once during printing puts the printer in pause mode
after the label is issued. It is possible to cancel 1 batch of label issuing
data by pressing the STOP key for 4 seconds or longer in pause status.
(The PRINT LED flashes at high speed during cancel.)
4MODE/REPEAT key:
Pressing this key reprints the last label in PRINT status (when the PRINT
LED is lit) The last label issued depends on the selection of the”MODE/
REPEAT key” menu.
Normal Operating Mode
When the power is turned on, the printer enters normal operating mode.
The control keys activate the following functions.
1
2
4
3
Menu Setup Mode (p.31)

21
Printer Operation
LED Functions
1POWER LED
It lights up when printer power is
turned on. (green)
2PRINT LED
This is lit when the printer is able to
print. (green)
3CONDITION LED
This is on when selecting settings.
(orange)
4ERROR LED
This is lit or flashes when the printer is
in error status. (red)
Table of Alarm and Error Indications
In addition to normal operating mode, when an abnormal condition is detected
in the printer, an alarm sounds and each LED either lights up or flashes to
indicate the type of error.
Time Axis : ON, : OFF
1
2
3
4
ON OFF ON OFF
ON OFF ONOFF
ON OFF
ON OFF ON OFF
ON OFF ONOFF
ON OFF
Auto cutter abnormality
(jamming etc.)
PRINT
LED
ERROR
LED
CONDITION
LED
When the STOP key has been pushed
OFF OFF
OFF
OFF
OFF
OFF
OFF
OFF
OFF
OFF OFF ON
OFF
OFF
OFF
ON OFF
ONOFF
OFF
Media out
(media location cannot be detected)
Abnormal head temperature
Abnormal motor temperature
Head open
Media end
Abnormal head resistance
Communication error
(reception buffer overrun)
Communication error
(parity, framing)
Communication error
(transmission buffer overflow)
OFF
Auto cutter temperature abnormal
Item
Ribbon feed error
Ribbon end OFF
OFF
Normal Operating Mode
Wide on/off marks indicate slow LED flashing.
Small circle on/off marks indicate quick LED flashing.

2
Printer Operation
22
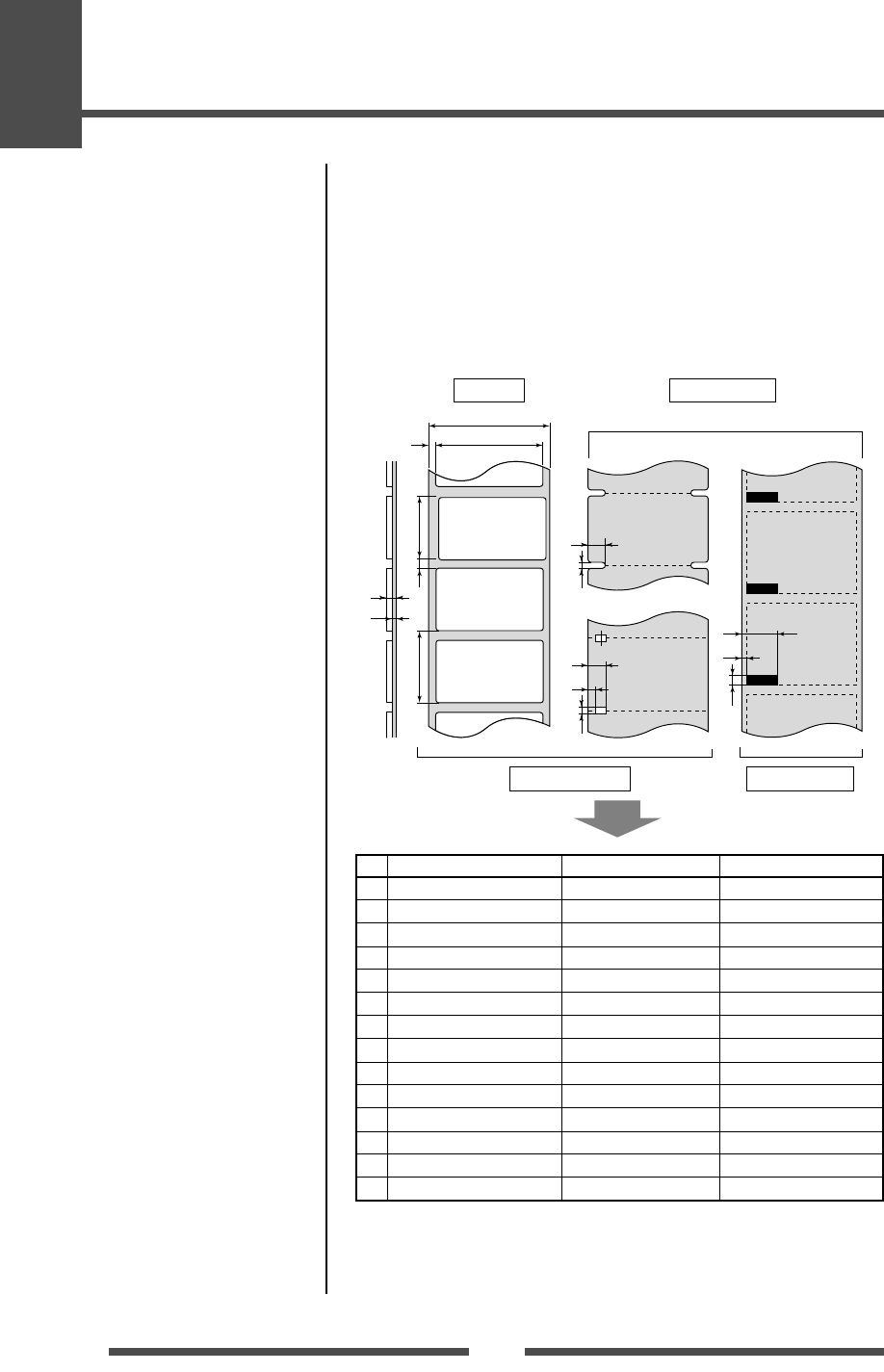
Setting the Media
Media Sizes
The position of label and tag media is sensed by either a transparent sensor
or a reflective sensor.
Transparent sensor: Detects the gaps between label media and notches of
tag media
Reflective sensor: Detects the black mark
* Use a transparent sensor for label media gaps and media with black marks.
*Use a transparent sensor for fan fold media.
*If the label pitch is 1 inch or less, set the Small Media Adjustment menu to ON and
match it to the label that uses the value of the Small Media Length menu.
A
C
I
I
G
H
D
KK
FE
B
J
L
N
M
Notch detection Black mark detection
Transparent sensor
Continuous media
Label
Label
Label
Printed area
Reflective sensor
Media direction
Label media
Menu Setting Table (p.36)
Min. value mm (inches) Max. value mm (inches)
ALabel width 19.50 (0.77) 118.00 (4.65)
BLiner width 19.50 (0.77) 118.00 (4.65)
CLabel left edge position 0 (0) 2.54 (0.10)
D
Length of gap between labels
2.54 (0.10) 812.8 (32.00)
ELabel length 6.35 (0.25) 812.8 (32.00)
FLabel pitch 6.35 (0.25) 812.8 (32.00)
GLiner thickness 0.06 (0.0025) 0.125 (0.0049)
HTotal media thickness 0.06 (0.0025) 0.25 (0.01)
I
Position of right edge of notch
3.60 (0.14) 60.80 (2.39)
J
Position of left edge of notch
0 (0) 57.20 (2.25)
KNotch length 2.54 (0.10) 17.80 (0.70)
LRight edge of black mark 15.00 (0.59) 66.50 (2.62)
MLeft edge of black mark 0 (0) 51.5 (2.02)
NBlack mark width 3.18 (0.125) 17.80 (0.70)

23
Printer Operation
Media holder bar
Media holder guide
Sensor arm
Large blue-head open lever
Head unit
2. Firstly, slide the two black plastic parts of the media holder
assembly together. Ensure correct alignment of the guide with
the bar as it can only be installed in one direction.
3. Slide the roll of media over the media bar. The media guide
must be on the right side of the roll of media (as viewed from
the front of the printer) with the ribbed surface of the media
guide touching the media roll as shown in the illustration.
Installing the Media
1. Push the large blue-head open lever to release the head unit,
and then lift the sensor arm by hand as shown below.
Media Sizes (p.22)
Setting the Media
4. Set the media roll and media holder in to the printer as shown
above. It is advisable to pull a length of media forwards and
through the mechanism ready for later positioning.
5. Move the media roll so it is touching the leftside of the housing.
Then slide the black media guide so it is touching the media on
the right side.
Note: Do not try to hold the media too tightly with these guides as it will
cause the printer to jam during printing.

2
Printer Operation
24
6. Setting sensor positions.
When using a transparent sensor
Move the bottom sensor close to the center of the width of the media,
then align the upper sensor marker and the bottom sensor marker (white)
using the movable media guide.
When using media that is 4 inches wide, position the upper sensor and
the bottom sensor all the way to the right (large blue-head open lever
side).
Movable
media guide
Upper sensor
Bottom sensor
Transparent
sensor marker
Upper sensor marker
Front
Aligned with the marker
Platen
When using a reflective sensor
Adjust the position of the sensor so that the reflective sensor marker of
the bottom sensor is at the center of the black mark of the media as
shown below.
Front
Black mark
Media
Bottom sensor
Reflective sensor marker
Black mark
Platen
Quick Sensor Selection
Method
(Transparent ↔ Reflective)
(p.45)
Adjusting the Transparent
sensor (p.46)
Adjusting the Reflective
sensor (p.47)
Setting the Media

25
Printer Operation
7. Align the media with the left fixed media guide, align the right
movable media guide with the media width, and lower the sensor
arm.
8. Push the head close knob to lower and lock the head unit. Be
sure to always push the head close knob to lock the head unit.
Align it with the width of the media that has been set, then set
the media width and media thickness adjustment dials.
See “Chapter 3 Printer Adjustments”.
Head close knob
Media width adjustment
Media thickness adjustment
Head unit
Fixed media guide
Sensor arm
Movable media
guide
9. With the power switched on, push the FEED key to feed the
media.
It will halt at the next print start position.
Media Thickness Adjustment
(p.48)
Media Width Adjustment
(p.49)
Setting the Media

2
Printer Operation
26
Setting the Ribbon
The following kinds and sizes of ribbons can be used.
Types ...................................................... Inside wound and outside wound ribbon
Max. ribbon width ............................... 114.0 mm (4.50 inch)
Min. ribbon width ................................ 25.4 mm (1.00 inch)
Max. ribbon length.............................. 360.0 m (1,181 ft)
Max. roll diameter ............................... 74.0 mm (2.90 inch)
Inner diameter of the paper core ....25.4 ± 0.25 mm (1.00 ± 0.01 inch)
Lead tape length.................................. Less than 80.0 mm
Setting method
1. Check the kind of ribbon used and set the ribbon winding
direction using menu setup mode or operation panel. This is
the method for installing an outside wound ribbon (also known
as “ink out”).
Remember, the inked surface should be facing AWAY from the printhead
surface!
2. Place the attached ribbon and paper core separately on one of
the two attached ribbon holders. Insert the two ribbon holders
into the ribbon and paper cores ensuring that they are pushed
in all the way.
Ribbon holders
Paper core
Ribbon
Selecting the ribbon winding
direction (p.36, p43)

27
Printer Operation
4. Push the large blue-head open lever to release the head unit.
Pull out the ribbon from the bottom of the head unit to the
ribbon winding side.
Winding side
ribbon holder
Winding side
ribbon holder
3. Install the unused ribbon and holder in to the rear ribbon drive
unit. The splines on the ribbon drive gear mechanism engage
with the end of the ribbon holder.
12
Setting the Ribbon
5. Using the adhesive leader of the ribbon or some adhesive tape,
fix the ribbon that you have pulled out on the ribbon holder on
which the paper core has been set and wind it on the ribbon
holder.

2
Printer Operation
28
7. Push the head close knob to lower and lock the head unit. Be
sure to always push the head close knob to lock the head unit.
If the ribbon is wrinkled, push the FEED key until the wrinkles
disappear. If the wrinkles do not disappear or if it slips, perform
ribbon balance adjustment and ribbon tension adjustment. See
“Chapter 3 Printer Adjustments” for these adjustment methods.
Head close knob
6. Set the ribbon holder on which the paper core has been set in
the ribbon drive unit, then rotate it in the direction shown by
the arrow to remove slack and wrinkles from the ribbon.
Ribbon Tension Adjustment
(p.50)
Ribbon Balance Adjustment
(p.51)
Setting the Ribbon

29
Printer Operation
Mode Settings
Mode Key operation
HEX dump mode Turning power on while pushing the STOP key.
Self print mode Turning power on while pushing the FEED key.
Menu setting mode Turning power on while pushing the MODE/REPEAT key.
HEX Dump Mode
When using label media
Turn on printer power while pushing the STOP key. If the PRINT LED has
begun to flash slowly, release the STOP key, and then the printer enters
HEX DUMP mode.
When using continuous media
Turn on printer power while pushing the STOP key. If the PRINT LED has
stopped flashing slowly and begun to flash rapidly, release the STOP key,
and then the printer enters HEX dump mode.
DUMP LIST
Turning on the power while pressing keys in the following combinations starts
various functions.
Operation Panel (p.15)
*To exit HEX Dump Mode, turn off the power to the printer then turn the power on
again (restart).

2
Printer Operation
30
Self Print Mode
Performing a self test print is an easy way to check on the state of printer
setting and printing quality. Install the media as explained in “Installing the
Media” and then operate the printer as follows.
Case of label media
Turn on printer power while
pushing the FEED key. When the
PRINT LED has begun to flash
slowly, release the FEED key. After
it enters TEST MODE and media
has fed, two labels print then
printing stops.
To restart printing, press the
FEED key once more.
Case of continuous media
Turn on printer power while
pushing the FEED key. When the
PRINT LED has stopped flashing
slowly and has begun to flash
rapidly, release the FEED key.
After it enters TEST MODE and
it prints then printing stops.
To restart printing, press the
FEED key once more.
Setting the Media (p.22)
Mode Settings
Media Adjustments
Using the Self Test Print shown above, you can make adjustments to the
printer settings such as media width and media thickness (printhead pressure).
The location of these two adjustments is explained in Chapter 3 and also
shown on the labels on the printer's mechanism.
The first sample, left, shows an incorrectly set “media
thickness adjustment”. For standard label media, it
is recommended you set the blue dial to the “0”
position.
The second sample, left, shows an incorrectly set
“media width adjustment”. For 4-inch or 100mm
wide media, the adjuster should be set to the “9”
position on the blue dial.
The settings shown above are for general label media
and may not apply to specialist media.
Media Thickness Adjustment
(p.48)
Media Width Adjustment
(p.49)
Self print pattern
Media
feed
direction

31
Printer Operation
Menu Setup Mode
If the printer power is turn on while the MODE/REPEAT key is pressed, the
printer enters menu setup mode. In this mode, the printer’s configuration
can be changed using the VuePrint Menu System. During menu setting mode,
the PRINT LED and CONDITION LED are on. Media must be installed in the
printer to use the VuePrint menu system.
YES/Select/Save
Next digit
Exit to previous menu
NO/Next Item/Change Value
Light up
Caution
Functions of the keys
After each menu item is printed, the printer will also print the function of
each of the buttons at that time. They vary slightly depending on the menu
selected but generally fit the following guidelines:
PAUSE key (YES/Select/Save):
It is pushed to either select the current menu option or to save the
new setting after which it advances to the next menu.
STOP key (NO/Next Item/Change Value):
Whilst changing a menu value (such as head temperature), pressing
this key displays the next menu value available but does not save the
setting.
In the “main menu“, pressing this key moves to the next menu available.
FEED key (Next digit):
With some menu options such as head temperature, there is more than
one “digit” than can be changed.
This key moves the cursor to the next digit.
MODE/REPEAT key (Exit to previous menu):
Exits the current menu or the VuePrint menu system.
Mode Settings
When you are changing a menu value, pressing the "PAUSE" key (YES)
causes the printer to save the currently selected parameter. The
CONDITION LED flashes briefly. Do not turn off the power to the
printer at this time as this may cause a malfunction.
If the power is accidentally turned off, first reset the printer to factory
defaults.

2
Printer Operation
32
Menu Setting Flow Chart
The following is a flow chart showing the CL-S621/CL-S631 VuePrint menu system.
7 Datamax® Emulation
YES
Press FEED key
for 3 seconds
NO NO
NO
YES
YES
NO
NO SAVE
SAVE
SAVE
SAVE
SAVE
SAVE
YES
YES / Select / Save NO / Next Item / Change Value
Next Digit
Exit to previous menu
NO
EXIT
EXIT
EXIT
EXIT
EXIT
EXIT
EXIT
EXIT
EXIT
EXIT
YES
YES
Change
Value
Change
Value
Change
Value
NO
NO
YES
NO
YES
• Darkness Adjust
• Print Method
• Ribbon Winding
• Continuous Media Length
• Vertical Position
• Horizontal Shift
• Vertical Image Shift
• Media Sensor
• Small Media Adjustment
• Sensor Level
• Paper End Level
• Error Reporting
• Buzzer Select
• Metric/Inch
• Max Media Length
• Settings Lock
• Keyboard Lock
• Control Code
• Emulation Select
• Emulation Auto Detect
• AutoConfigure
• Function Select
• Cutter Action
• Paper Position
• Mode/Repeat Key
• RS-232C Baud
• RS-232C Parity
• RS-232C Length
• RS-232C Stop bit
• RS-232C X-ON
• IEEE1284
• Web Monitor
• USB Device Class
• USB VCOM Protocol
EXIT
EXIT EXIT
EXIT
EXIT
• Config Set
MODE/REPEAT key + Power on
Are you sure?
Do you want to
print the current menu
settings?
Changing the
parameter
Completed
Do you want to
change the
menu
settings?
Do you want
to print the current
menu settings?
Print Speed
Print Darkness
Small Media Length
Do you want to
change "Page Setup
Menu" items?
Do you want to
change "System Setup
Menu" items?
YES
NO
Do you want to
change "Global Config
Menu" items?
Do you want to
change "After Print
Menu" items?
Do you want to
change "Interface Menu"
items?
Operation Panel
Initialization of the
content of the settings
(Initialization to the
settings when the printer
was shipped.)
Printing the contents of
the present setting
Printing the
content of
the changes
Changing the
parameter
Changing the
parameter
Do you
want to reset this
printer to factory
settings?
Menu Setup Mode (p.31)
Printing during top menu
setting (p.34)
Printing of contents of
settings (p.35)
Printing during sub menu
setting (p.34)
Mode Settings [Datamax® Emulation]

2
Printer Operation
33
7 Zebra® Emulation
YES
Press FEED key
for 3 seconds
NO NO
NO
YES
YES
NO
NO SAVE
SAVE
SAVE
SAVE
SAVE
SAVE
YES
YES / Select / Save NO / Next Item / Change Value
Next Digit
Exit to previous menu
NO
EXIT
EXIT
EXIT
EXIT
EXIT
EXIT
EXIT
EXIT
EXIT
EXIT
YES
YES
Change
Value
Change
Value
Change
Value
NO
NO
YES
NO
YES
• Darkness Adjust
• Print Method
• Ribbon Winding
• Continuous Media Length
• Vertical Position
• Horizontal Shift
• Vertical Image Shift
• Media Sensor
• Small Media Adjustment
• Sensor Level
• Paper End Level
• Error Reporting
• Buzzer Select
• Metric/Inch
• Max Media Length
• Settings Lock
• Keyboard Lock
• Media Power Up
• CI Lock
• Emulation Select
• Emulation Auto Detect
• AutoConfigure
• Function Select
• Cutter Action
• Paper Position
• Mode/Repeat Key
• RS-232C Baud
• RS-232C Parity
• RS-232C Length
• RS-232C Stop bit
• RS-232C X-ON
• IEEE1284
• Web Monitor
• USB Device Class
• USB VCOM Protocol
EXIT
EXIT EXIT
EXIT
EXIT
• Config Set
MODE/REPEAT key + Power on
Are you sure?
Do you want to
print the current menu
settings?
Changing the
parameter
Completed
Do you want to
change the
menu
settings?
Do you want
to print the current
menu settings?
Print Speed
Print Darkness
Small Media Length
Do you want to
change "Page Setup
Menu" items?
Do you want to
change "System Setup
Menu" items?
YES
NO
Do you want to
change "Global Config
Menu" items?
Do you want to
change "After Print
Menu" items?
Do you want to
change "Interface Menu"
items?
Operation Panel
Initialization of the
content of the settings
(Initialization to the
settings when the printer
was shipped.)
Printing the contents of
the present setting
Printing the
content of
the changes
Changing the
parameter
Changing the
parameter
Do you
want to reset this
printer to factory
settings?
Menu Setup Mode (p.31)
Printing during top menu
setting (p.34)
Printing of contents of
settings (p.35)
Printing during sub menu
setting (p.34)
Mode Settings [Zebra® Emulation]

2
Printer Operation
34
Printing during sub menu setting
Printing during top menu setting
This particular example is changing the print speed and print darkness then
continues through the remainder of the “Print Setup” menu.
The actual output from the printer is "vertically reversed" due to the way the
printer outputs the menu options. Please look at the example below to see
how the output changes.
Menu Setting Flow Chart
(p.32)
Menu Setting Flow Chart
(p.32)
Mode Settings
<Example of CL-S631 Datamax® emulation selected>
<Example of CL-S631 Datamax® emulation selected>

35
Printer Operation
Machine Information
Model Number : CL-S631
Boot Version : X.X
ROM Version : XXXXXXXX
ROM Date (DD//MM//YY) : XX/XX/XX
ROM Check Sum : XXXX
Head Check : OK
Print Counter : 0000.872 km
Service Counter : 0000.872 km
Cut Counter : 83
Sensor Monitor : 2.56 V
Option Interface : None
Current Menu Setting
[Global Config Menu]
Config Set : 1
[Page Setup Menu]
Print Speed : 4 IPS
Print Darkness : 10
Darkness Adjust : 00
Print Method : Thermal Transfer
Continuous Media Length : 4.00 inch
Vertical Position : 0.00 inch
Horizontal Shift : 0.00 inch
Vertical Image Shift : 0.00 inch
Media Sensor : See Through
Small Media Adjustment : Off
Small Media Length : 1.00 inch
Symbol Set : PM
[System Setup Menu]
Sensor Level : 1.5 V
Paper End Level : 2.80 V
Error Reporting : On Printing
Buzzer Select : On
Metric/Inch : Inch
Max Media Length : 10.00 inch
Settings Lock : Off
Keyboard Lock : Off
Control Code : STD
Emulation Select : DM4
Emulation Auto Detect : On
[After Print Menu]
AutoConfigure : On
Function Select : Tear
Cutter Action : Backfeed
Paper Position : 0.00 inch
Mode/Repeat Key : Disabled
[Interface Menu]
RS-232C Baud rate : 9600 bps
RS-232C Parity : None
RS-232C Length : 8 bit
RS-232C Stop bit : 1 bit
RS-232C X-ON : Yes
IEEE 1284 : On
USB Device Class : Printer
USB VCOM Protocol : Auto
*
Printing of contents of settings
Menu Setting Flow Chart
(p.32)
Mode Settings
Note: Citizen continually enhances its printers with new options and settings
based on our customer's requests. Extra or changed menu items may
appear on the above print out in some case.
* The settings of the Symbol Set can be changed only by a command.
<Example of CL-S631 Datamax® emulation selected>

2
Printer Operation
36
Menu Setting Table
Global Config menu - allows you to switch between 3 complete ‘config sets’ contained within the printer.
Page Setup Menu - allows you to change settings related to the media or print quality.
System Setup Menu - allows you to change settings for the printer hardware and basic control systems.
After Print Menu - changes how the printer reacts after the label has been printed.
Interfaces - changes interface parameters such as baud rate.
Menu Setting
7 Datamax® Emulation
Top Menu Sub Menu Default Menu Remarks
Global –Config Set 1 Config Set 1 Sets the Config Set.
configuration Config Set 2
Config Set 3
Page Setup Print Speed 4 IPS 2 to 6 IPS [For CL-S621]
Printing speed setting.
(5 or 6 IPS only in Direct Thermal mode.)
(2 to 4 IPS with optional peeler.)
4 IPS 2 to 4 IPS [For CL-S631]
Printing speed setting.
Print Darkness 10 00 to 30 Print darkness setting
(printhead temperature)
Darkness Adjust 0 -10 to 10 Darkness command adjustment
Print Method Thermal transfer Thermal transfer Selecting thermal transfer (ribbon)
Direct thermal /direct thermal media
Ribbon Winding Outside Outside Selecting the ribbon winding direction.
Inside
Continuous Media 4.00 IN 0.25 to 32.00 IN Setting default length of continuous
Length 101.6mm 6.40 to 812.8mm media, if selected. ; the lower line is in metric
mode.
Vertical Position 0.00 IN -1.00 to 1.00 IN Print start position adjustment
0.0mm -25.4 to 25.4mm
Horizontal Shift 0.00 IN -1.00 to 1.00 IN Horizontal printing location adjustment
0.0mm -25.4 to 25.4mm
Vertical Image Shift 0.00 IN 0.00 to 32.00 IN Adjust the off set value in vertical when
0.0mm 0.0 to 812.8mm mapping data on a RAM.
Media Sensor See Through See Through Label sensor selection
Reflect
None
Small Media OFF ON Setting for small labels
Adjustment OFF
Small Media 1.00 IN 0.25 to 1.00 IN Setting length of small label media
Length 25.4mm 6.40 to 25.4mm
System Setup Sensor Level 1.5V 0.0V to 3.3V Setting the threshold of the sensor
Paper End Level 2.80V 0.01V to 3.00V Sets the paper end level.
Error Reporting On Printing On Printing Setting for error report.
Immediate
Buzzer Select ON ON Setting buzzer sounding conditions
OFF
Metric/Inch Inch Inch Setting the units used
mm
Max Media Length 10.00 IN 1.00 to 50.00 IN Setting the maximum label length
254.0mm 25.4 to 1270.0mm
Settings Lock Off On When on, prevents software commands from
Off changing the values set by the VuePrint menu
Mode Settings
[Datamax® Emulation]

37
Printer Operation
Top Menu Sub Menu Default Menu Remarks
Keyboard Lock Off On Prevents the control panel from affecting
Off the printer's configuration. (User "lock-out")
Control Code STD STD Selects between the Standard STX control
ALT code or the "Alternative" code. Sometimes
ALT-2 called "AS400 mode".
Emulation Select DM4 DMI Selects DataMax®/Zebra® compatibility
DM4 DMI: DataMax® IClass
DPP DM4: DataMax® 400 like
ZPI2 DPP: DataMax® Prodigy Plus®
ZPI2: Zebra® Emulation
Emulation Auto On On Selects the detection of Datamax® and
Detect Off Zebra® emulation.
Full Auto
After Print AutoConfigure On On Optional auto configure
Off On .... Auto configure effective.
If a peeler unit or auto-cutter is
installed, each mode is automatically
set regardless of the “function select”
setting.
Off ... Auto configure ineffective.
When a peeler unit or auto-cutter is
installed but has not been started, it is
off and the operation is selected by
“Function select”.
Function Select Tear Off Selects the type of options installed and
Tear adjusts the "paper stop" position accordingly.
Peel On* For example, the position where the label
Cut On* stops in "Tear" mode is different to that in
"Peel On" mode.
Cutter Action* Backfeed Backfeed Cutter operating method setting
Through Backfeed: it feeds back after each cutting
operation.
Through: when the number copied = n, the
back end of sheet 1 to n-1 passes through,
and the back end of the final page that is a
single sheet is copied and fed back.
Paper Position 0.00IN Peel/Cut/Tear Off The stop position can be fine tuned using
0.00mm 0.00 to 2.00 IN this menu setting. The general stop position
0.0 to 50.8mm is selected depending on the "Function"
Peel/Cut/Tear On selected above.
-1.00 to 1.00 IN
-25.4 to 25.4mm
Mode/Repeat Key Disabled LabelSet Repeat method selection
LastOne LabelSet:
Disabled Reissues multiple labels.
LastOne:
Issues only the final page.
In count case, it issues only 1 label while
continuing.
Disabled:
Makes the repeat key invalid.
Interface RS-232C Baud 9600 115200 Sets the baud rate of the serial interface.
57600•Interface related settings are effective
38400 after the power is turned on again.
19200
9600
4800
2400
Mode Settings
[Datamax® Emulation]
* Effective only when the optional unit is attached.

2
Printer Operation
38
Top Menu Sub Menu Default Menu Remarks
RS-232C Parity None None Sets the communication parity of the serial
Odd interface.
Even
RS-232C Length 8 bits 8 bits Sets the character length of the serial
7 bits interface.
RS-232C Stop bit 1 bit 1 bit Sets the stop bit of the serial interface.
2 bits
RS-232C X-ON Yes Yes Selects the X-ON flow control of the serial
No interface.
IEEE1284 ON ON Enable or disables the 'enhanced' features of
OFF the IEEE1284 parallel interface.
Web Monitor* Auto Auto Selecting the web monitor function.
On
Off
USB Device Class Printer Printer Selects the USB device class.
VCOM
USB VCOM Protocol Auto Auto Selects the protocol (flow control) when
DTR operating USB VCOM.
X-ON
Mode Settings
[Datamax® Emulation]
* Displayed only when an optional LAN board is connected to a printer.

39
Printer Operation
7 Zebra® Emulation
Mode Settings
[Zebra® Emulation]
Top Menu Sub Menu Default Menu Remarks
Global –Config Set 1 Config Set 1 Sets the Config Set.
configuration Config Set 2
Config Set 3
Page Setup Print Speed 4 IPS 2 to 6 IPS [For CL-S621]
Printing speed setting.
(5 or 6 IPS only in Direct Thermal mode.)
(2 to 4 IPS with optional peeler.)
4 IPS 2 to 4 IPS [For CL-S631]
Printing speed setting.
Print Darkness 10 00 to 30 Print darkness setting
(printhead temperature)
Darkness Adjust 0 -10 to 10 Darkness command adjustment
Print Method Thermal transfer Thermal transfer Selecting thermal transfer (ribbon)
Direct thermal /direct thermal media
Ribbon Winding Outside Outside Selecting the ribbon winding direction.
Inside
Continuous Media 4.00 IN 0.25 to 32.00 IN Setting default length of continuous
Length 101.6mm 6.40 to 812.8mm media, if selected. ; the lower line is in metric
mode.
Vertical Position 0.00 IN -1.00 to 1.00 IN Print start position adjustment
0.0mm -25.4 to 25.4mm
Horizontal Shift 0.00 IN -1.00 to 1.00 IN Horizontal printing location adjustment
0.0mm -25.4 to 25.4mm
Vertical Image Shift 000dots -120 to 120 dots Adjust the off set value in vertical when
mapping data on a RAM.
Media Sensor See Through See Through Label sensor selection
Reflect
None
Small Media OFF ON Setting for small labels
Adjustment OFF
Small Media 1.00 IN 0.25 to 1.00 IN Setting length of small label media
Length 25.4mm 6.40 to 25.4mm
System Setup Sensor Level 1.5V 0.0V to 3.3V Setting the threshold of the sensor
Paper End Level 2.80V 0.01V to 3.00V Sets the paper end level.
Error Reporting On Printing On Printing Setting for error report.
Immediate
Buzzer Select ON ON Setting buzzer sounding conditions
OFF
Metric/Inch Inch Inch Setting the units used
mm
Max Media Length 10.00 IN 1.00 to 50.00 IN Setting the maximum label length
254.0mm 25.4 to 1270.0mm
Settings Lock Off On When on, prevents software commands from
Off changing the values set by the VuePrint menu
Keyboard Lock Off On Prevents the control panel from affecting
Off the printer's configuration. (User "lock-out")
Media Power Up Off On Selects whether or not to initiate media
Off measurement when the power in ON.
CI Lock Off On Activates/deactivates the CI command.
Off

2
Printer Operation
40
Top Menu Sub Menu Default Menu Remarks
Emulation Select ZPI2 DM4 Selects DataMax®/Zebra® compatibility
DMI DM4: DataMax® 400
DPP DMI: DataMax® IClass
ZPI2 DPP: DataMax® Prodigy Plus®
ZPI2: Zebra® Emulation
Emulation Auto On On Selects the detection of Datamax® and
Detect Off Zebra® emulation.
Full Auto
After Print AutoConfigure On On Optional auto configure
Off On .... Auto configure effective.
If a peeler unit or auto-cutter is
installed, each mode is automatically
set regardless of the “function select”
setting.
Off ... Auto configure ineffective.
When a peeler unit or auto-cutter is
installed but has not been started, it is
off and the operation is selected by
“Function select”.
Function Select Tear Off Selects the type of options installed and
Tear adjusts the "paper stop" position accordingly.
Peel On* For example, the position where the label
Cut On* stops in "Tear" mode is different to that in
"Peel On" mode.
Cutter Action* Backfeed Backfeed Cutter operating method setting
Through Backfeed: it feeds back after each cutting
operation.
Through: when the number copied = n, the
back end of sheet 1 to n-1 passes through,
and the back end of the final page that is a
single sheet is copied and fed back.
Paper Position 0.00IN Peel/Cut/Tear Off The stop position can be fine tuned using
0.00mm 0.00 to 2.00 IN this menu setting. The general stop position
0.0 to 50.8mm is selected depending on the "Function"
Peel/Cut/Tear On selected above.
-1.00 to 1.00 IN
-25.4 to 25.4mm
Mode/Repeat Key Disabled LabelSet Repeat method selection
LastOne LabelSet:
Disabled Reissues multiple labels.
LastOne:
Issues only the final page.
In count case, it issues only 1 label while
continuing.
Disabled:
Makes the repeat key invalid.
Interface RS-232C Baud 9600 115200 Sets the baud rate of the serial interface.
57600•Interface related settings are effective
38400 after the power is turned on again.
19200
9600
4800
2400
RS-232C Parity None None Sets the communication parity of the serial
Odd interface.
Even
RS-232C Length 8 bits 8 bits Sets the character length of the serial
7 bits interface.
Mode Settings
[Zebra® Emulation]
* Effective only when the optional unit is attached.

41
Printer Operation
Mode Settings
[Zebra® Emulation]
Top Menu Sub Menu Default Menu Remarks
RS-232C Stop bit 1 bit 1 bit Sets the stop bit of the serial interface.
2 bits
RS-232C X-ON Yes Yes Selects the X-ON flow control of the serial
No interface.
IEEE1284 ON ON Enable or disables the 'enhanced' features of
OFF the IEEE1284 parallel interface.
Web Monitor* Auto Auto Selecting the web monitor function.
On
Off
USB Device Class Printer Printer Selects the USB device class.
VCOM
USB VCOM Protocol Auto Auto Selects the protocol (flow control) when
DTR operating USB VCOM.
X-ON
* Displayed only when an optional LAN board is connected to a printer.

2
Printer Operation
42
Quick Setup of the Print Method
The print method (thermal transfer method/direct thermal method) can be
set using operation panel in addition to menu setting mode.
Setting method
Each time you push the PAUSE key while pushing the MODE/REPEAT key, a
buzzer sounds and the printer switches between thermal transfer method
and direct thermal method.
If thermal transfer method has been selected, the buzzer sounds once
and the CONDITION LED flashes.
If direct thermal method has been selected, the buzzer sounds twice and
the CONDITION LED flashes.
The change is complete when the CONDITION LED goes out.
Changes will remain in effect even after the power is turned off.
Menu Setup Mode (p.31)
Be sure to always shut off the operation of print before changing a
setting. You cannot change a setting during printing (including pause).
Caution

43
Printer Operation
Menu Setting Table
(p.37, p.40)
Selecting the Ribbon Winding Direction
Besides the Menu Setup Mode, you can also select the ribbon winding
direction (outside-wound / inside-wound) by using the keys on the Operation
Panel.
Outside-wound and inside-wound will switch from one to another each time
you press the PAUSE key for 4 seconds or more while pressing the MODE/
REPEAT key when not printing.
If the outside-wound (also known as “ink out”) gets selected, the buzzer
will sound 3 times, and CONDITION LED will flash.
If the inside-wound (also known as “ink in”) gets selected, the buzzer will
sound 4 times, and CONDITION LED will flash.
When the lights go out on the CONDITION LED, selection is finalized.
Changes will remain in effect even after the power is turned off.
Note: The winding direction cannot be changed when printing.
Emulation Auto Detect: Cross-Emulation
TM
A different emulation will be detected when the Emulation Auto Detect of
the System Setup is set to On or Full Auto. (Detects Zebra® when Datamax®
is selected, and Datamax® when Zebra® is selected.)
If the “Emulation Auto Detect” is set to “On”
If the “Emulation Auto-Detect” is set to “On”, this will cause the
CONDITION LED to flash when it detects an alternative emulation. By
selecting MODE/REPEAT KEY, the printer will restart and emulation will
automatically make a switch. By selecting another KEY, detection will be
canceled, and CONDITION LED will turn Off.
If the “Emulation Auto Detect” is set to “Full Auto”
If the “Emulation Auto Detect” is set to “Full Auto”, this will cause the
printer to restart when it detects an alternative emulation, and emulation
will automatically make a switch.

2
Printer Operation
44
Manually Selecting the Printer Emulation
To manually choose between Datamax® and Zebra® emulations, you can use
the VuePrint menu system. The Emulation Select option in the System Setup
menu allows you to do this.
Alternatively, you can use the “Quick Switch” option as follows:
1. Turn on the printer holding down PAUSE and FEED keys together.
The printer will beep three times and the CONDITION LED will
flash.
2. Press FEED key once for Datamax® emulation.
3. Press FEED key two times for Zebra® emulation.
The printer beeps each time the feed key is pressed.
4. To save the new selection, press MODE/REPEAT key. The printer
will beep three times and then restarts.
Menu Setting Table
(p.37, p.40)

45
Printer Adjustments
Sensor Adjustments
The sensing level of both the transparent (see thru) and reflective sensors is
adjusted separately and independently. Firstly, the sensor type must be
selected either using the VuePrint menu system or the Sensor Method
Selection shown below. Then the adjustment and calibration of the sensor
can be made.
Entering Sensor Adjustment Mode
1. Turn on the power while pushing the PAUSE key, FEED key, and
STOP key simultaneously.
Power Switch
2. After the PRINT LED and CONDITION LED light up, release the
keys to change the printer to sensor adjustment setting mode.
Quick Sensor Selection Method
(Transparent ↔ Reflective)
To switch from transparent to reflective sensor, ensure the CONDITION LED
is lit then hold down the MODE/REPEAT key and then press the STOP key.
Each time you press the STOP key, you switch to back and forth between the
two sensor types.
If the transparent sensor is selected, the PRINT LED lights up and the buzzer
sounds once. If the reflective sensor is selected, the PRINT LED flashes
slowly and the buzzer sounds twice.
Installing the Media (p.24)
3
Printer Adjustments

3
Printer Adjustments
46
Adjusting the Transparent sensor
1. Push the large blue-head open lever to open the head unit and
sensor arm, then return only the sensor arm to its original
position. Align the upper sensor marker and the bottom sensor
marker (white) using the movable media guide.
Upper sensor
Bottom sensor
Movable media guide
Upper sensor marker
Alignment of markers
Transparent sensor marker
Label Media gap
Bottom sensor
Upper sensor
Liner media
Installing the Media (p.24)
Sensor Adjustments
Quick Sensor Selection
Method
(Transparent ↔ Reflective)
(p.45)
2. Select the transparent sensor, and open the sensor arm.
3. Install only the liner media (label backing paper) with the label
media removed so that it will pass between the platen roller and
the media sensor. (Be careful that media with black marks does
not pass the media sensor.) Then close the sensor arm and the
printhead.
4. If the PAUSE key is pressed and released while the MODE/
REPEAT key is pressed, the PRINT LED goes off, after the
CONDITION LED switches from lit to rapid flashing, media
feeding starts, and the sensor is automatically adjusted.
5. If automatic adjustment stops normally, the PRINT LED and
CONDITION LED return to their original status. If it stops
abnormally (adjustment impossible), the CONDITION LED and
ERROR LED flash.
6. If the STOP key is pushed, it exits sensor adjustment mode.

47
Printer Adjustments
Adjusting the Reflective sensor
1. Open the printhead and the sensor arm, then align the position
of the sensor marker of the bottom sensor is at the center of
the black mark on the media.
Black mark
Media
Bottom sensor
Reflective sensor marker
Black mark
Black mark
Label
Liner media
Bottom sensor
4. If the PAUSE key is pressed and released while the MODE/
REPEAT key is pressed, PRINT LED goes off, the CONDITION
LED switches from lit to rapid flashing, media feeding starts,
and the sensor is automatically adjusted.
5. If automatic adjustment stops normally, the PRINT LED and
CONDITION LED return to their original status. If it does not
stop normally (adjustment impossible), the CONDITION LED
and ERROR LED flash.
6. If the STOP key is pushed, it exits sensor adjustment mode.
2. Select the reflective sensor.
3. With the reflective sensor selected, install the label media so
that it is between the platen roller and the media sensor.
(Be careful that black mark and media gap do not pass the media
sensor.) Then close the sensor arm and the printhead.
Sensor Adjustments
Quick Sensor Selection
Method
(Transparent ↔ Reflective)
(p.45)

3
Printer Adjustments
48
Media Thickness Adjustment
It may be necessary to adjust the printer according to the thickness of the
media being used. This can be done easily by rotating the media adjustment
dial to improve the print quality.
•Poor print quality across the complete printout means wrongly set media
thickness. See this section.
•Poor print quality on one side of a printout means wrongly set media width.
See next section.
When using standard label media, high quality media or direct
thermal media
Adjust while performing test printing by turning the dial from the smallest
number on the dial to the largest number on the dial one step at a time.
When using thicker media (tags, card, etc.)
Adjust while performing test printing by turning the dial from the smallest
number on the dial to the largest number on the dial one step at a time.
•When shipped from the factory, it is set at dial 1.
•The offset adjustment varies according to the thickness and the hardness
of the media.
Media thickness adjustment dial
Installing the Media (p.25)
Self Print Mode (p.30)
Media Thickness Suggested media type
Dial Position
0Direct thermal media (thin media)
1Standard Label media, Direct thermal media
3-5 Thicker backing paper labels
6-9 Cards, tags, thicker media stock.
*These values are guidelines. The exact media being used must be matched
with the correct media thickness adjustment position.

49
Printer Adjustments
Media Width Adjustment
Caution
When using narrow media, be sure to MAKE this adjustment. (If you do
not, the head may be damaged by jamming, etc.)
9
Media width adjustment dial
The head pressure varies according to the width of the media being printed.
The head pressure balance must be adjusted according to media width so
that constant head pressure is applied to the head. With this printer, it can
be adjusted easily by turning the media width adjustment dial.
If the printing is blurred or lightly printed on one side or the media moves in
a zigzag pattern adjust the head pressure balance.
After making an adjustment, confirm the output quality with a test print.
Dial position Media width mm (inches) Head pressure
019.5 to 23.0mm (0.77 to 0.90)
123.0 to 30.0mm (0.90 to 1.18) Low
230.0 to 39.0mm (1.18 to 1.53)
339.0 to 49.0mm (1.53 to 1.92)
449.0 to 62.0mm (1.92 to 2.44)
562.0 to 76.0mm (2.44 to 2.99)
676.0 to 88.0mm (2.99 to 3.46)
788.0 to 99.0mm (3.46 to 3.89)
899.0 to 108mm (3.89 to 4.25) High
9108 to 118mm (4.25 to 4.65)
(setting when shipped)
The following values are criteria.
Installing the Media (p.25)
Self Print Mode (p.30)

3
Printer Adjustments
50
Front ribbon left-right
balance adjustment knob
Back ribbon left-right
balance adjustment knob
Front ribbon tension
adjustment knob
Back ribbon tension
adjustment knob
Adjusting the Ribbon
When using narrow-width ribbons or very specialist thermal ribbon material,
it may be necessary to adjust the ribbon tension and ribbon balance
adjustments to avoid ribbon wrinkle or slippage.
Ribbon Tension Adjustment
The ribbon tension has three adjustment positions on both the feeding side
(back side) and winding side (front side).
Weak
Stron
g
Strong Weak
Front Back
Adjustment criteria
Ribbon width of 4 inches: strong
Ribbon width of 3 inches: medium
Ribbon width of 2 inches: weak
Setting the Ribbon (p.26)
First make a test print and then adjust the printer as required:
•Slippage of the ribbon causes a dirty film to be seen on the media.
Reduce the tension adjusters
•Ribbon wrinkle (diagonal lines across printout): Increase the ribbon tension.
After making any adjustments, print another test print or two to make sure
the ribbon is feeding correctly.
Self Print Mode (p.30)

51
Printer Adjustments
Ribbon Balance Adjustment
Do this adjustment by turning the front and back balance adjustment knobs.
If the ribbon is wrinkled, adjust it as follows. The scale is usually aligned with
the center.
Adjustment procedure
1. Check between the supply side ribbon and the back balance
adjustment knob to find out on which side the ribbon is loose.
Self Print Mode (p.30)
Case of looseness on the side opposite the adjustment knob
2. Turn the front adjustment knob to the right to remove the
looseness, then make a test print to ensure that the ribbon is
not wrinkled.
If it is wrinkled, turn the back adjustment knob to the right and do the
test printing again and check to make sure that the ribbon is not wrinkled.
Case of looseness on the adjustment knob side
3. Turn the front adjustment knob to the left to remove the
looseness, then make a test print to ensure that the ribbon is
not wrinkled.
If it is wrinkled, turn the back adjustment knob to the left and do the
test printing again and check to make sure that the ribbon is not wrinkled.
Front balance adjustment knob Back balance adjustment knob
In case the ribbon
is wrinkled
Checking which
side is loose.
Front balance ad
j
ustment knob Back balance ad
j
ustment knob
In case the ribbon
is wrinkled
Adjusting the Ribbon

3
Printer Adjustments
52
Cleaning
Wipe off any foreign matter such as media dust, dirt and adhesive substances
built up around the printhead with the head cleaning pen (head cleaner)
provided, and use a soft cloth soaked in ethyl alcohol for the platen etc.
It is particularly important to clean the thermal printhead after printing on
thermal media for long periods, which will guarantee the print quality and
extend the life of the thermal printhead.
Note: Always use the head cleaner when cleaning the thermal printhead.
Head cleaner
Thermal printhead
Caution
Do not use any solvent other than ethyl alcohol. Solvents such as
benzene, acetone and thinner will dissolve plastic parts and destroy
the thermal printhead, platen and much of the printer!
Try to avoid using "excessive amounts" of ethyl alcohol to clean the
platen. Excessive use will harden the platen surface prematurely.
Platen
Ribbon guide roller
Guide shaft

53
Troubleshooting
Indication
The LED do not light
up when printer
power is connected.
Paper is feeding, but
nothing is printed.
The printer is not
printing neatly.
Corrective action
1) Insert the plug of the power cord
correctly in the electric outlet.
2) Insert the connector of the power cord
correctly into the power inlet of the
printer.
3) Replace the power cord. Consult with
the dealer where the printer was
purchased to make sure you obtain a
cord made especially for the printer.
Note: Do not use any power cord
except one made especially for the
printer.
4) Check to make sure power is supplied
to the outlet. If there are any problems,
make sure power is supplied to the
building. Or find out if a power failure
has occurred.
5) If necessary, replace the main fuse in
the building’s fuse box, and reset the
main breaker. Ask a qualified
serviceman to carry out the
replacement.
1) If it is dirty, remove the dirt with the
attached head cleaner.
If a label is stuck to the thermal
printhead remove it.
Note: Do not use a metal object to
remove a label stuck to the inside of
the printer. (This may damage the
thermal printhead.) If adhesive label
material is stuck to the thermal
printhead, remove it with a soft cloth
soaked in ethyl alcohol.
2) Use the recommended ribbon or a
ribbon of the same type.
1) Correctly set the media and the ribbon.
2) Set the appropriate printing density
using the menu or control software.
3) If it is dirty, clean it with ethyl alcohol.
If it is deformed, replace it.
Note: Consult with the dealer that
supplied the printer concerning the
replacement.
This chapter explains corrective actions taken when the printer malfunctions or when
an error message is displayed.
Items to check when a malfunction occurs
When the printer malfunctions during operation, take corrective action with reference
to the following table. If the corrective action does not solve the problem, consult
with the service personnel at the dealer where you purchased the printer.
Check
1) Is the plug of the power
cord correctly inserted into
the electric outlet?
2) Is the connector of the
power cord correctly
inserted into the power
inlet of the printer?
3) Is the power cord
damaged?
4) Is power supplied to the
electric outlet the printer
is connected to?
5) Is the main fuse in the
building’s fuse box burnt
out?
1) Is the thermal printhead
dirty?
Is a label stuck to the
head?
2) Is the recommended
ribbon or a ribbon of the
same type used?
1) Are the media and the
ribbon correctly set?
2) Is the printing density too
high or too low?
3) Is the platen dirty?
Is it deformed?
Connection to Power
(p.17)
Cleaning (p.52)
Setting the Ribbon
(p.26)
Installing the Media (p.23)
Setting method (p.26)
Menu Setting Table
(p.36)
Cleaning (p.52)
4
Troubleshooting

4
Troubleshooting
54
Indication
The printer is not
printing neatly.
The printing position
changes.
The ribbon is wrinkled
The ribbon slips
(ribbon dirt is
produced.)
The ribbon does not
wind.
Check
4) Is the thermal printhead
dirty?
Is a label stuck to the head.
5) Is the recommended
ribbon or a ribbon of the
same type used?
6) Is the thermal printhead in
the correct position for the
media that is used?
7) Is the printer’s head
pressure balance correct
for the width of the media
that is used?
1) Are the media and the
ribbon correctly set?
2) Is the platen dirty?
Is it deformed?
3) Are the data contents and
the command signals from
the host appropriate?
4) Are the menu values set
appropriately?
5) Are the sensitivities of the
media sensors appropriate
for the media that is used?
1) Is the ribbon tension
suitable for the ribbon that
is used?
2) Is the ribbon used correctly
balanced to the right and
left?
3) Is the printing density too
high?
4) Are the media and ribbon
the recommended
products or equivalent
products?
1) Is the ribbon tension
suitable for the ribbon that
is used?
1) Is the ribbon set in the
correct course?
2) Is the ribbon winding
direction reversed?
Corrective action
4) If it is dirty, remove the dirt with the
attached head cleaner.
If a label is stuck to the head, remove
it.
Note: Do not use a metal object to
remove a label stuck to the inside of
the printer. (This may damage the
thermal printhead .) If adhesive label
material is stuck to the print head,
remove it with a soft cloth soaked in
ethyl alcohol.
5) Use the recommended ribbon or a
ribbon of the same type.
6) Adjust the offset of the thermal
printhead with the media thickness
adjustment dial.
7) Adjust the thermal printhead pressure
with the media width adjustment dial.
1) Correctly set the media and the ribbon.
2) If it is dirty, clean it with ethyl alcohol.
If it is deformed, replace it.
Note: Consult with the dealer that
supplied the printer concerning the
replacement.
3) If an error message is displayed, check
the content of the software and the
communication status set by the host
computer.
4) Set the correct menu values using the
operating panel or the host computer.
5) Set the media sensitivity to appropriate
values.
If this does not solve the problem,
change the “Sensor level” that is set in
the “System setup.”
1) Adjust the tension with the ribbon
tension adjustment knob.
2) Adjust the left - right balance with the
ribbon balance adjustment knob.
3) Set the appropriate printing density
using the menu or control software.
4) Use the recommended products or
equivalent products. If this does not
correct the problem, contact a service
representative.
1) Adjust the tension with the ribbon
tension adjustment knob.
1) Set the ribbon in the correct course.
2) Set the correct winding direction.
Media Thickness
Adjustment (p.48)
Media Width
Adjustment (p.49)
Installing the Media (p.23)
Setting method (p.26)
Cleaning (p.52)
LED Functions (p.21)
Menu Setting Table
(p.36)
Ribbon Balance
Adjustment (p.51)
Ribbon Tension
Adjustment (p.50)
Setting the Ribbon
(p.26)
Ribbon Tension
Adjustment (p.50)
Setting the Ribbon
(p.26)

55
Appendixes
Item Description
Printing Printing method Thermal transfer/Direct thermal
Resolution Main scanning line density: 203 dots/inch (8 dots/mm) (CL-S621)
300 dots/inch (11.8 dots/mm) (CL-S631)
Sub- scanning line density: 203 dots/inch (8 dots/mm) (CL-S621)
300 dots/inch (11.8 dots/mm) (CL-S631)
Head 864 dots (printable dots: 832 dots) (CL-S621)
Head 1275 dots (printable dots: 1240 dots) (CL-S631)
Max. print width 104 mm (CL-S621) 4.1 inch
10 5 mm (CL-S631)
Max. print length 812.8 mm 32 inch
Print density Print density is adjustable with software
Printing speed Printing speed setting [For CL-S621]
6, 5, 4, 3 or 2 inches per second (Direct thermal)
4, 3 or 2 inches per second (Thermal transfer)
• 4, 3 or 2 inches per second when the optional peeler is used.
[For CL-S631]
4, 3 or 2 inches per second
Print mode Batch mode Normal printing (single or multiple sheets)
Tear off mode Feeds back media to the tear-off position after printing is completed.
Cut mode *1 Prints while cutting at designated sheet units.
The following two kinds of cut mode operations are done.
• Backfeed
• Cut through
(Cut through refers to stopping present printing to cut the previous label
when it reaches the cut position. After cutting, printing restarts but a gap
may be created at the seam of the printing at this time.)
Peel mode*1 Peels labels from the liners after printing them.
Media Types of media Roll, fanfold
(continuous media, die-cuts, continuous tags. paper or tickets)
Recommended media Thermal transfer: label media (RPR-W Ricoh)
Direct thermal media: label media (150LA-1 Ricoh), tag media (TB2E0V,
Mitsubishi Paper)
Max. media width 118.0 mm 4.65 inch
Min. media width 19.5 mm 0.77 inch
Min. label width 19.5 mm 0.77 inch
Min. label pitch*2 6.35 mm 0.25 inch
Max. media thickness 0.254 mm 0.01 inch
Max. media length 812.8 mm 32 inch
Min. media length 6.35 mm 0.25 inch
Min. media thickness 0.0635 mm 0.0025 inch
On-board roll media Max. external diameter: 127mm 5 inch
diameter Media core: 25.4 to 76 mm 1 to 3 inch
Ribbon Recommended ribbon B110A Ricoh
Max. ribbon width 114.0 mm 4.50 inch
Min. ribbon width 25.4 mm 1.00 inch
Max. ribbon length 360.0 m 1,181 ft
Max. roll diameter 74.0 mm 2.90 inch
Inner diameter of the 25.4 ± 0.25 mm 1.00 ± 0.01 inch
paper core
Ribbon end tape length Max. 80.0 mm 3.15 inch
Ribbon end detection Ribbon out detection by a tension sensor
Specifications
Appendixes

Appendixes
56
Specifications
Item Description
Bar code One-dimension • Code 3 of 9 • UPC-A • UPC-E • EAN-13 (JAN-13)
(for Datamax® emulation) • EAN-8 (JAN-8) • Interleaved 2 of 5 • Code 128
• HIBC (Modulus 43-used code 3 of 9) • Codabar (NW-7)
• Int 2 of 5 (Modulus10-used Interleaved 2 of 5) • Plessey
• Case Code • UPC 2DIG ADD • UPC 5DIG ADD
• Code 93 • Telepen • ZIP • UCC/EAN128
• UCC/EAN128 (for K-MART)
• UCC/EAN128 Random Weight • FIM
Two-dimension • UPS Maxi Code • PDF-417 • Data Matrix • QR Code • Aztec • RSS
Bar code One-dimension • Code 11 • Interleaved 2 of 5 • Code 39 • EAN-8 • UPC-E • Code 93
(for Zebra® emulation) • Code 128 • EAN-13 • Industrial 2 of 5 • Standard 2 of 5
• ANSI CODABAR • LOGMARS • MSI • Plessey • UPC/EAN Extensions
• UPC-A • POSTNET • Planet
Two-dimension • Code 49 • PDF-417 • CODA BLOCK • UPS Maxi Code
• Micro PDF-417 • Data Matrix • QR Code • RSS • TLC39
Font 1. Seven kinds of fixed pitch font
(for Datamax® emulation) • Overseas, English fonts and European fonts
2. OCR fonts OCR-A*3, OCR-B*3
3. Proportional fonts
CG Triumvirate smooth font
CG Triumvirate Bold smooth font
(6, 8, 10, 12, 14, 18, 24, 30, 36, 48 points: CL-S621)
(4, 5, 6, 8, 10, 12, 14, 18, 24, 30, 36, 48 points: CL-S631)
• Character set: Conforms with code page 850 standards
4. True type™ rasterizer*4
Font 1. Five kinds of fixed pitch font
(for Zebra® emulation) • Overseas, English fonts and European fonts
2. OCR fonts
OCR-A*3, OCR-B*3
3. Proportional font
CG Triumvirate Condensed Bold
4. True type™ rasterizer*4
Symbol set PC866U Ukraina*5, PC Cyrillic, ISO 60 Danish/Norwegian, DeskTop, ISO
8859/1 Latin 1, ISO 8859/2 Latin 2, ISO 8859/9 Latin 5, ISO 8859/10
Latin 6, ISO 8859/7 Latin/Greek, ISO 8859/15 Latin 9, ISO 8859/5
Latin/Cyrillic, ISO 69: French, ISO 21: German, ISO 15: Italian, Legal,
Math-8, Macintosh, Math, PC-858 Multilingual, Microsoft Publishing,
PC-8, Code Page 437, PC-8 D/N, Code Page 437N, PC-852 Latin 2,
PC-851 Latin/Greek, PC-862 Latin/Hebrew, Pi Font, PC-850 Multilingual,
PC-864 Latin/Arabic, PC-8 TK, Code Page 437T, PC-1004, PC-775
Baltic, Non-UGL, Generic Pi Font, Roman-8, Roman-9, ISO 17: Spanish,
ISO 11: Swedish, Symbol, PS Text, ISO 4: United Kingdom, ISO 6: ASCII,
Ventura International, Ventura Math, Ventura US, Windows 3.1 Latin 1,
Wingdings, Windows 3.1 Latin 2, Windows 3.1 Baltic (Latv, Lith), Windows
3.0 Latin 1, Windows Latin/Cyrillic, Windows 3.1 Latin 5
Control language Conforms to Datamax® programming language*6 and Zebra® programming
language*7
Outline of electronic CPU 32Bit RISC CPU
devices ROMStandard equipment: FLASH ROM 4MBbytes (User area: 1MByte)
RAM
(for Datamax
®
emulation)
Standard equipment: SDRAM 16MBytes (User area: 1MByte)
RAM
(for Zebra
®
emulation)
Standard equipment: SDRAM 16MBytes (User area: 4MByte)

57
Appendixes
Specifications
0535
30
40
80
40
Humidity %
Operating assurance temperature
Printing assurance temperature
Temperature °C
-20 60
5
85
Humidity %
Temperature °C
Conditions assuring operation and printing Storage assurance temperature
Item Description
Media detection Transparent sensor Detects media gap between labels, notches on tags, and media out
sensors Reflective sensor Detects reflective mark on back of media and media out
Label peeling sensor*1
Communication Serial 2400 4800 9600 19200 38400 57600 115200bps
interfaces USB FULL Speed USB1.1
Communication Parallel*8 IEEE1284 (compatible, Nibble, ECP mode)
interface options Network Wired ethernet (10-BASE-T/100-BASE-TX) or wireless LAN
Indications and switches LED POWER, PRINT, CONDITION, ERROR
Buzzer Alarms, errors, etc.
Operating panel keys PAUSE, FEED, STOP, MODE/REPEAT
Head-up detection sensor Detects head open
Power switch Turns power on and off
Accoustic noise 55 dB (by EN ISO7779)
Power (standards) 100V version 100V, 50/60Hz (Japan)
120V (-10%+6%), 2.5A, 60Hz (U.S.A., Canada)
UL60950-1, CSA No. 950, FCC Part 15 Subpart B (Class A)
220V version 220V-240V (-10%+6%), 1.5A, 50/60Hz (Europe)
EN60950-1, EN 55022 (Class A), EN55024, EN61000-3-2,
EN61000-3-3
Environment Operating temperature Operating temp. 0 to 40°C, humidity 30 to 80%, condensation free
conditions: (Conditions: ventilation, and natural convection)
Storage temperature Temp. –20 to 60°C, humidity 5 to 85%
conditions: (Conditions: ventilation, and natural convection)
External dimensions Approx. 231(W) X 289 (D) X 263 (H) mm
9.1(W) X 11.4 (D) X 10.3 (H) inch

Appendixes
58
Item Description
Weight Approx. 4.9 kg (10.8 lb.)
Accessories Test label media, Test ribbon, CD-ROM (User’s Manual), Quick start
guide, Head cleaner, Power cord, Media holder bar and Media holder
guide, Ribbon holder, Paper core
Option Auto-cutter unit, Peeler unit, IEEE1284 Parallel interface board, Ethernet
interface board and wireless LAN interface board.
*1: Options can be separately purchased.
*2: When a media pitch of less than 1 inch is used, activate the "Small Media Adjustment" setting in the "Page Setup."
*3: The OCR font may have a low recognition rate according to the reader.
*4: It is equipped with UFSTTM and TrueTypeTM rasterizer that are licensed from Agfa Corporation.
TrueTypeTM is a trademark of Apple Computer.
UFSTTM and TrueTypeTM rasterizer are licensed from Agfa Corporation.
UFSTTM is a trademark of Agfa Corporation. TrueTypeTM is a trademark of Apple Computer.
*5: "PC866U Ukraina" is available for Datamax® emulation only.
*6: Datamax® is a registered trade mark of Datamax Bar Code Products Corporation.
*7: Zebra® is a registered trade mark of ZIH corp.
*8: This interface is Non-L. P. S. (Limited Power Source).

59
Appendixes
Interfaces
This printer is connected to a computer and prints according to commands
sent from the computer.
There are three types of computer interfaces, and these are connected to
devices suited to each type of interface. The printer can also be connected
to a computer by the optional Ethernet.
System Start/stop asynchronous duplex communication
Signal level RS-232C
Baud rate 2400, 4800, 9600, 19200, 38400,57600, 115200bps
Bit length 7Bit, 8Bit
Stop bit 1Bit, 2Bit
Parity Odd, even, none
Connector D-SUB 25PIN
Serial Interface
Specifications
Pin No. Signal code Signal name Function
1FGProtective Protective grounding
grounding
2TXD Transmitted data Signal line that transmits data from the
printer to other devices
3 RXD Received data Signal line that transmits data from
other devices to the printer
4RTS Transmission Pull up to +12V through 3.3kΩ
request
5NC ------ Not used
6DSR Data set relay Signal line that is active when an external
device can interface with the printer
7SGND Signal line Shows the ground level of the signal line
ground
8-13 NC ------ Not used
14 VCC +5V (FACTRY USE ONLY )
15-19 NC ------ Not used
20 DTRData terminal Signal line that is active when an external
relay device can interface with the printer
21-25 NC ------ Not used
Signal line and pin arrangement

Appendixes
60
Interfaces
XON/XOFF Protocol
Requirements to output X-ON code
•Communication is possible when the power is on.
•When the receive buffer has less than 128 byte available, XOFF code is
output, then the receive buffer has at least 1024 bytes available.
Requirements to output the X-OFF code
•When the receive buffer has less than 128 bytes available
16Kbyte
XON
XOFF
Receive buffer
1024 byte
128byte
DTR Protocol
Conditions when the DTR signal is “Ready (High)”
All the following conditions are satisfied.
•The receive buffer is 128 byte or more available capacity.
*When the receive buffer has less than 128 byte available and the DTR
signal has changed to BUSY (Low) status, BUSY status is maintained until
the capacity of the receive buffer has reached 1024 bytes or more.
Conditions when DTR signal is “Busy (Low)”
•When the receive buffer has fallen to less than 128 byte available.

61
Appendixes
USB Interface
Specifications
Standards Complies with Universal Serial Bus Specification
Transmission speed Compatible with 12Mbps (full speed) transmission
Receive buffer 16kB
Connector DUSB DUSB-BRA42-T11(DDK)
Pin No. Signal code Signal Function
1VBUS USB power USB power (+5V)
2D+Signal line + + signal line
3D–Signal line – – signal line
4GND GND GND
Signal line and pin arrangement
Interfaces

Appendixes
62
Parallel Interface (Option)
Specifications
Transmission mode 8-bit parallel data
Receive buffer size 16kB
Transmission modes Compatible mode
It is an asynchronous forward direction of the byte width
(from host to printer) channel, and the interface line of
the data is operated in accordance with signal line
definitions of Centronics.
NIBBLE mode
Nibble mode is asynchronous reverse channel
communication with data transmission controlled by the
host computer. In reverse channel transmission, the data is
nibble transmitted in two parts using four status lines (Fault,
Select, PE, and Busy). And nibble mode can be used along
with compatible mode to send data in two directions.
ECP mode
ECP mode permits bi-directional asynchronous data
transmission, and thanks to its interlock handshake, it does
not require the timing necessary with compatible mode.
Signal level IEEE1284 standard
Pin No. Signal name I/O Function
1*STROBE Input Strobe signal to read in 8-bit data
2-9 DATA1-8 Input 8-bit parallel signal
10 *ACKNLG Output 8-bit data request signal
11 BUSY Output Signal specifying printer busy
12 PERROR Output Signal specifying media out
13 SELECT Output Signal specifying if the printer is on-line (printing
enabled) or off-line (pausing)
14 AUTOFD Input Invalid (ignored)
15 NC --- Not used
16 GND --- Signal ground
17 FGND --- Frame ground
18 P.L.H Output Peripheral logic high (pull up to +5V at 1kΩ)
19-30 GND --- Ground for twisted pair return
31 *INIT Input Printer reset
32 *FAULT Output Signal specifying printer error
33-35 NC --- Not used
36 SELECTIN Input Invalid (ignored)
Signal line and pin assignment table
Interfaces

63
Appendixes
Interfaces
Error Change in the status of a signal line in
compatible mode
Paper end Busy : L H
PError : L H
Select : H L
nFault : H L
Error other than paper end
Busy : L H
• Head open PError : L unchanged
• Other Select : H L
nFault : H L
Conditions for Busy • Receive buffer full
• Data being read
• Error
Parallel port status signals when an error occurs
The status of a signal line will not be changed in bi-directional mode such as
nibble or ECP mode.
Compatible timing specification
[When power is on] (Time it goes off-line)
[While receiving data]
Note: Busy rises when *Strobe signal starts, and data is latched with *Strobe
signal starts.
Data0-7
*Strobe
BUSY
0.5µs 0.5µs 0.5µs
Reset
BUSY
*ACK
SELECT
PowerOn

Appendixes
64
Relation of the timing of the BUSY signal and the *ACK signal
[Center – ACK]
[While receiving INIT signal]
Note: If the *Init signal does not have width of 10 to 15
µ
sec or more, it
cannot act as an Init signal. If it is lower, the *Init signal is ignored.
BUSY starts up when the *Init signal is perceived.
BUSY
*ACK
2 µsec
BUSY
*Init
*Ack
*Fault
SELECT
Min. 10 to 15µsec
Interfaces

65

JM74983-10F
PMC-1011
363 Van Ness Way, Suite 404
Torrance, CA 90501. USA
Tel: (310) 781-1460
Fax:(310) 781-9152
http://www.citizen-systems.com
Mettinger Strasse 11 Park House, 643-651 Staines Road
D-73728, Esslingen Feltham, Middlesex, TW14 8PA
Germany United Kingdom
Tel: +49 (0) 711 3906 400 Tel: +44 (0) 20 8893 1900
Fax:+49 (0) 711 3906 405 Fax:+44 (0) 20 8893 0080
http://www.citizen-europe.com
6-1-12, Tanashi-cho, Nishi-Tokyo-shi
Tokyo, 188-8511. Japan
Tel: +81 (0) 42 468 4608
Fax:+81 (0) 42 468 4996
http://www.citizen-systems.co.jp