Scotsman HD30
2014-11-10
: Coffee Scotsman Hd30 Scotsman_HD30 images
Open the PDF directly: View PDF
.
Page Count: 2

30 INCH WIDE HOTEL/MOTEL ICE CUBE DISPENSER AND CUBER
30” HOTEL DISPENSER
WITH ICE MACHINE
SCOTSMAN
This product qualifies for the following listings:
Rated in accordance with ARI standard 820-95
HD30 shown with CME256 Cuber
HD30 HOTEL DISPENSER
•Stores up to 180 lbs. of contour cube ice.
•New simple push chute for easy ice dispensing.
•Modern, stylish design in a stainless steel cabinet.
•Removeable top panel allows access to the bin for easy cleaning without
having to remove the ice cube machine.
•Deep sink to accommodate almost every size hotel ice bucket.
•Available with water glass filler and coin/token options.
•Equipped with 11 ft. power cord.
CM3 ICE MACHINES: CME256, CME506, CME656
•CM3 series offers the lowest lifetime operating costs based on lower
water and electrical usage. Combine that with a competitive purchase
price and the best warranty in the industry and you have the lowest
lifetime ownership cost. Period.
•AutolQ™ Control System monitors and controls the ice machine’s func-
tions to ensure consistent ice production and reduce operating costs.
•CM3 Evaporator is a hot tin-dipped, molecularly bonded plate that has
been field tested and proven 99.4% reliable over 5 years.
•Rust-free Polyethylene Base & Food Zone is insulated with 1-1/2" of foam
which keeps water and food zone cool to reduce operating costs and is
backed by a Lifetime Rust-free Warranty.
DISPENSER WARRANTY See your dealer for complete warranty details.
•3 years parts and labor on all components.
CUBER WARRANTY See your dealer for complete warranty details.
•Limited Lifetime Rust Free Warranty on Food Zone.
•3 years parts and labor on all components.
•5 years parts and labor on the CME evaporator.
•5 years parts on the compressor and condensor.
Approx. Cube Size:
13
/8˝x 13
/8˝x 5
/8˝Thick
Easy Push Chute
for Ice dispensing
Coin Option Water filler
Option

Hotel Dispenser/Ice Machine Specifications
Machine requires voltage indicated on rating name plate. Failures caused by improper voltage are not considered
factory defects. Extended periods of operation at temperatures exceeding limitations constitutes misuse under the
terms of Scotsman Manufacturer’s Limited Warranty, resulting in a loss of warranty coverage. Specifications and
design are subject to change without notice.
Scotsman’s ice machines are not designed for outdoor installations. Scotsman remote condensers are
designed for outdoor installations.
OPTIONS:
KTOKN: 500 tokens for use with HD30N-1A, 984” diameter.
SD-30 Hotel 5M 12-04
775 Corporate Woods Parkway • Vernon Hills, IL 60061 •1-800-SCOTSMAN • Fax: (847) 913-9844
Visit our website at: www.scotsman-ice.com • E-mail: customer.service@scotsman-ice.com
YOU’LL VALUE THE DIFFERENCE.
TM
IMPORTANT OPERATING REQUIREMENTS:
Minimum Maximum
Air Temperatures 500F (100C) 1000F (37.70C)
Water Temperatures 400F (4.40C) 1000F (37.70C)
Remote Cond. Temps -200F (-28.90C) 1200F (48.90C)
Water Pressures 20 PSIG 120 PSIG
Dispenser Electrical Voltage -10% +10%
ARI Bin Minimum Ship
Capacity No. of Circuit Weight
Model Number Actuation Ibs/kg Electrical Wires Amp Max Fuse lb./kg
HD30B-1A Push 180/81 115/60/1 2 2.1 15 220/99
HD30W-1A* Push 180/81 115/60/1 2 2.1 15 224/101
HD30N-1A Coin or Token 180/81 115/60/1 2 2.1 15 220/99
Ice Dispenser Specifications
* Unit comes with a water spout next to ice chute
Overall Dimension (WxDxH) of the Cuber with the Dispenser is 30" x 33.5" x 80.75"
ICE MACHINE
DISPENSER
FRONT
RIGHT
SIDE
17.75 in
45.15 cm
BACK
VIEW
ICE
HEAD
ICE
HEAD
1 in
2.41 cm
17.5 in
44.44 cm
7.5 in
18.97 cm
30 in
76.24 cm
28 in
71.12 cm
53.25 in
135.13 cm
10 in
25.48 cm
6 in
15.24 cm
33.5 in
84.94 cm
81.25 in
206.25 cm
24 in
60.96 cm
25.62 in
65.05cm
7.5 in
18.94 cm
7in
17.91 cm
(2) 5/16-18 UNC
ICE HEAD
POWER
CORD
WATER INLET
3/8 FLARE
(WATER FILLER ONLY)
3/4 FPT
DRAIN
WATER
VALVE
HEIGHT
(WATER
FILLER
ONLY)
ICE FILL STATION
8 3/4 [22.15] HEIGHT
13 1/2 [34.29] WIDTH
8 1/2 [21.59] DEPTH
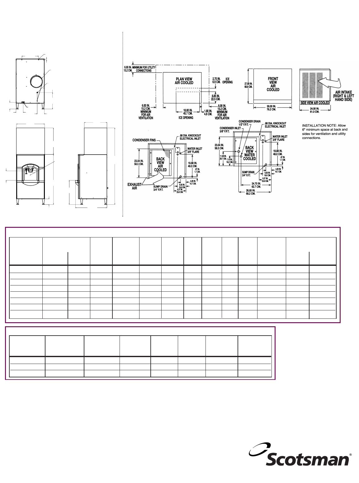
INSTALLATION NOTE: Allow 6” minimum space at back and sides for ventilation and utility connections.
Power Water Usage
ARI Minimum Consumption Gallons / 100lbs.
70°/50° F 90°/70° F Circuit Circuit Ship KWH/100 lbs. Potable Condenser
Model Number lbs. /kg. lbs. /kg. Condenser Electrical Max Fuse Comp HP Wires Amp BTUs Weight 90°/70° F 90°/70° F 90°/70° F
CME256AS-1F 307/139 240/109 Air 115/60/1 20 1/2 2 16.0 5,100 185/84 9.5 27.0 N/A
CME256AS-32F 307/139 240/109 Air 208-230-60/1 15 1/2 2 7.9 5,100 185/84 9.5 27.0 N/A
CME256WS-1F 320/145 260/118 Water 115/60/1 20 1/2 2 16.0 5,100 185/84 7.7 25.0 190
CME506AS-1F 500/227 410/186 Air 115/60/1 20 3/4 2 19.0 6,275 205/93 7.4 23.0 N/A
CME506AS-32F 500/227 410/186 Air 208-230/60/1 15 3/4 2 8.9 6,275 205/93 7.4 23.0 N/A
CME506WS-1F 510/231 413/188 Water 115/60/1 20 3/4 2 19.0 6,275 205/93 6.8 28.0 170
CME656AS-32F 705/320 555/252 Air 208-230/60/1 15 1-1/2 2 13.6 12,500 225/102 6.6 24.0 N/A
CME656WS-32F 645/293 560/255 Water 208-230/60/1 15 1-1/2 2 12.7 12,500 225/102 6.0 26.0 130
Modular Cuber Specifications
Ice Production -24 Hr.
Dimensions: W x D x H 30˝ x 24˝ x 27˝ Shipping Carton: 31
1
/
2
” x 28” x 32
1
/
2
”
Dimensions: W x D x H 30˝ x 33.5˝ x 53.25˝ Includes 6” legs Shipping Carton: 33.25” x 36.50” x 57.75”