Coleman Eb12B Installation Manual ManualsLib Makes It Easy To Find Manuals Online!
2014-12-12
: Coleman Coleman-Eb12B-Installation-Manual-119492 coleman-eb12b-installation-manual-119492 coleman pdf
Open the PDF directly: View PDF
.
Page Count: 20

DOWNFLOW/UPFLOW
ELECTRIC FURNACE
MODELS: EB SERIES
Incorrect installation may create condition
where the operation of the product could
cause personal injury or property damage.
The furnace shah be installed so the electri-
cal components are protected from water.
CAUTION]
This product must be installed in strict
compliance with the enclosed installation
instructions and any applicable Local, State
and National Codes including, but not lim-
ited to building, electrical, and mechanical
codes. Improper installation will void the
warranty.
66669 035-15266-003 Rev. A (0804)

035-15266-003Rev.A(0804)
GENERAL INFORMATION
EB FURNACE NOTES
The following list includes important facts and information
regarding the EB furnace and its packaging inclusions:
1. Furnace is rated at 240 volts, 60 Hz, single phase.
2. Heating and Cooling thermostat is packed with furnace.
3. Filters are furnished with each model.
4. Filter size is universal to all models - 16 x 20 x 1.
THERMOSTAT
WIRING
ENTRY
FIELD
WIRING
ENTRY
19-5/8 A 1-7/8
B 2-5/8
C 3-1/2
D 1
E 5-1/16
F 5-1/2
G 5-13/16
H 1
J 1-3/4
K 7-13-16
L 8-5/8
M 9-7/16
SUB-BASE, IF USED,
ADDS 7/8" MORE TO
TOTAL HEIGHTAND
3/8" TO WIDTH. N 16-1/2
N
OPTIONAL BOTTOM FIELD
M
WIRING ENTRY
FIGURE 1: FURNACE DIMENSIONS
5. Furnace size is the same for all models. See Figure 1.
6. Four-wire thermostat operation for heating and cooling.
7. Coil cavity built into furnace.
8. All furnaces are equipped with an air conditioner blower
and is AiC or Heat Pump ready.
9. Holding strap furnished on top rear of furnace.
10. This furnace is designed for downflow application; how-
ever, it may be converted to an upflow application. (See
Page 6 for upflow conversion instruction.)
11. This furnace must not be operated without the front
panel installed.
NOTE: This furnace and its components listed on the A/C
and Heat Pump equipment sticker were listed in
combination as a system by Underwriter's Laborato-
ries for the United States and Canada.
CODES
The electric furnace must be installed in accordance with the
following codes:
Standard for the Installation of Air Conditioning and Ven-
tilating Systems (NFPA 90A)
Standard for the Installation of Warm Air Heating and Air
Conditioning Systems (NFPA 90B)
National Electric Code (NFPA 70)
Canadian Electrical Code, Part l (CSA C22.1)
All local codes (state/county/township).
NOTE: All applicable codes take precedence over any rec-
ommendation made in these instructions.
LOCATION
Access for servicing is an important factor in the location of
any furnace. Provide a minimum of 24 inches in front of the
furnace for access to the heating elements and controls. This
access may be provided by a closet door or by locating the
furnace 24 inches from a facing wall or partition.
FURNACE CLEARANCE
Electric furnace is approved for zero (0) in. clearance to com-
bustible material on all or any part of the furnace exterior and
the inlet or outlet duct work. Clearances must be provided
above the furnace for a minimum of 200 sq. inches free open-
ing for return air. For clearances other than shown above see
paragraph on Return Air.
RETURN AIR
In order for the furnace to work properly, a closet or alcove
must have acertain total free area opening for return air.
FOR HEATING ONLY FURNACE
Minimum 200 in 2 free area opening.
Use Return Grille 7900-287P/B,
Or any Return Grille with minimum 200 in 2 free area opening.
FOR A/C UP TO 4-TONS AND HP UP TO 3 1/2-TONS
Minimum 250 in 2 free area opening.
Use Return Grille 7900-287P/B, 1FG0620BK (hinged),
Or Louvered Door 3500-1581,3500-5851 (bulk pack),
Or any Return Grille with minimum 250 in 2 free area opening.
FOR A/C UP TO 5-TONS AND HP UP TO 4-TONS
Minimum 330 in 2 free area opening.
Use Return Grille 1 RF1025BK, 1FG0125 (hinged),
Or Louvered Door 3500-1591,3500-5861 (bulk pack),
Or any Return Grille with minimum 330 in 2 free area opening.
The return air opening can be located in a closet front door or
a sidewall above the furnace casing, or in a Iouvered door on
the furnace. If opening for the return air is located in the floor,
side walls or closet door anywhere below furnace casing
height, 6 inches minimum clearance must be provided on the
furnace side where return is located to provide for proper air
flow. See Figure 2. The 6 " minimum clearance is not required
if there is a return grille installed above the furnace height.
This return grille cannot start more than three feet above the
furnace height.
2 Unitary Products Group

035-15266-003Rev.A(0804)
23" MIN.
_ 20" _
There must be at least
2 ft. of space available
in front of furnace for
servicing the furnace
when necessary.
24" MIN.
/
f-
A 6 in. clearance is
required if the space
between furnace and
J enclosure is used for
return air,
FIGURE 2 : ALCOVE & CLOSET CLEARANCES
For Upflow installations, a closet 32 inches wide by 30 inches
deep with a 30-inch wide door is necessary. See Figure 3.
When installing furnace in a separate closet or room which is
accessible only through an outside door, a minimum of 200
sq. in. free opening for return air must be provided. The sup-
ply and return air must be ducted, securely attached and be
sealed to the furnace casing if there are grilles in the outside
door to the closet. Openings where ducts pass through walls,
the floor or the ceiling must be sealed to prevent air leakage
into or from closet and the living area.
30"
32"
1-5/8" MIN., 2-3/8 MAX. _
RETURN AIR
PASS THROUGH
FRAME WIDTH
25-1/2 ....
I
30" _1 CLOSET
WIDE DOOR
FIGURE 3 • UPFLOW CLOSET CLEARANCE
Provisions shall be made to permit the return of circulating air
from all rooms and living spaces, except the bathroom(s) to
the circulating air supply inlet of the furnace. Failure to com-
ply may cause improper heating and may cause the furnace
to cycle on the limit.
DUCT SYSTEM DESIGN
Electric furnace is designed to operate at a given static pres-
sure.
In order to assure proper air flow through the furnace, the dis-
tribution system must be designed so that the static pressure
external to the furnace does not exceed the static pressure
rating shown on the furnace rating plate. See Table 3.
The number, size and placement of registers should be such
that even distribution of heat is provided throughout the
home.
DOWNFLOW FURNACE INSTALLATION
(WITH 7900 SERIES DUCT CONNECTOR)
We have redesigned our duct connector to eliminate the sub-
base requirement. Table 1 will help you in deciding the part
number of the new duct connector you need.
If you are installing a new duct connector (7900 Series), refer
to the following instructions. Read carefully the instructions
provided before starting the installation.
Provide adequate clearance for servicing.
1. Locate furnace conveniently away from wall facing or
partitions to permit easy removal of components.
2. A minimum of six (6) inches should be maintained
between the furnace and closet door when door is used
for return air. See Figure 2.
3. Two (2) feet of space must be available in front of fur-
nace for future servicing (blower or element removal, fur-
nace removal, etc.).
Table 1: DUCT CONNECTOR FOR ELECTRIC
FURNACES
FLOOR TO
DUCT DIMENSIONS
1"
2"
3"
4"
5"
6"
7"
8"
9"
10"
11"
12"
13"
14"
15"
FINGERED
STYLE
7990-6211
7990-6221
14,
7990-6241
14,
7990-626!
7990-6271
7990-628!
14,
7990-6301
14,
7990-6321
1?
NA
NA
SCREW
TAB STYLE
7990-60! 1
7990-6021
14,
7990-6041
14,
7999-6961
7990-6071
7990-6081
14,
7990-6101
14,
7990-6121
1?
NA
NA
1"4,- Indicates connector above or below could be used
depending on tolerance in floor to duct dimension.
1"1"-Indicates connector above could be used depending
on tolerance in floor to duct dimension.
4,4,- Indicates connector below could be used depending
on tolerance in floor to duct dimension.
Unitary Products Group 3

035-15266-003 Rev. A (0804)
DUCT CONNECTORS (7990 SERIES)
These duct connectors are for connecting the furnace to an under the floor supply duct system.
The furnace may be installed on combustible flooring without a separate sub-base.
DUCT CONNECTORS FOR
SCREW ATTACHMENT
18 42_434
_14_
o
_L
_13
11
o_o
DUCT CONNECTORS FOR
TAB ATTACHMENT
18¼
14_
_DUCT 11
CUTOUT _°
_DIMENSIONS o
_o °
FIGURE 4: DUCT CONNECTOR DIMENSIONS (7990 SERIES)
REAR WALL CEILING CUT-OUT
OF ENCLOSURE ........ /FOR ROOF JACK
W___ .................. // FLOOR CUT*OUT
"_ ,,': , , , ,FOR DUCT
I _/ I CONNECTOR
m _ i /i
& i , ,
| _ _ FURNACE
/_ (5)JN °UTL'NE
i i i OPT ONAL
"!_ i _ _ ...... ELECTRIC
2_1/8,,, !l I
FUTURE REFRIGERANT
LINE ENTRANCE
[_4- ENTRANCE
lq/8
FLOOR
FIGURE 5 : RECOMMENDED FLOOR CUT-OUT (7990
SERIES)
DUCT CONNECTOR
DEPTH
j_FLOOR
SUPPLY DUCT
FIGURE 6 : DUCT CONNECTOR DEPTH
(7990 SERIES)
4 Unitary Products Group

035-15266-003Rev.A(0804)
LOCATORBRACKET
NAILS,FLATHEADSCREWS
OR STAPLES
_ SCREWS
!
SUPPLY DUCT
LOCATOR BRACKET
NAILS, FLAT HEAD SCREWS
OR STAPLES
BENDTABSUNDER
DUCT OPENING TO
SECURE TO THE
SUPPLY DUCT.
FLOOR
SUPPLY DUCT
FIGURE 7 • DUCT CONNECTOR SCREW
ATTACHMENT (7990 SERIES)
INSTALLATION OF SCREW ATTACHMENT DUCT
CONNECTOR (7990 SERIES)
1. Make floor cut out as shown in Figure 5.
2. Determine the depth of the floor cavity from the surface
of the floor to the top of the supply air duct and select the
appropriate duct connector from the chart.
3. Place locating bracket (supplied with the duct connector)
to the back edge of the floor opening. See Figure 7.
4. Apply a water based duct sealant to the 1/2" supply duct
attachment flange of the duct connector.
5. Determine which of the four positions the duct connector
best centers over the supply duct and insert it through
the floor cutout.
6. When properly aligned with the supply duct, secure the
duct connector to the floor with nails, fiat head screws or
staples.
7. Use screws as required to secure the duct connector to
the supply duct.
8. Cut out the opening to the supply duct. If sealant was not
used, the installer should tape the mating flanges to pro-
vide a good air seal.
NOTE: Duct sealant and tape must be classified as meeting
HUD Standard 3280.715, U.L. Standard 181A. Tape
used to provide a better air seal should be approved
by the applicable National or Local Code.
FIGURE 8 : DUCT CONNECTOR TAB
ATTACHMENT (7990 SERIES)
INSTALLATION OF TAB ATTACHMENT DUCT
CONNECTOR (7990 SERIES)
1. Make floor cut out as shown in Figure 5.
2. Determine the depth of the floor cavity from the surface
of the floor to the top of the supply air duct and select the
appropriate duct connector from the chart.
3. Place locating bracket (supplied with the duct connector)
to the rear of the floor area for the furnace. See Figure 8.
4. Determine which of the four positions the duct connector
best centers over the supply duct and insert it through
the floor cutout.
5. Mark cut-out location on the supply duct and remove the
duct connector.
6. Cut out the opening to the supply duct.
7. Bend tabs down through and back up under the supply
duct.
8. Secure the duct connector to the floor with nails, flat
head screws or staples.
The duct connector is designed for use on ducts down to 12"
in width. When using the connector on smaller width ducts,
there will not be sufficient clearance to bend the tabs on two
sides of the duct connector.
In such cases the tabs may be attached to the sides of the
duct by using sheet metal screws or other suitable fasteners.
Holes for sheet metal screws are provided in three (3) tabs on
each side of the duct connector. If more than 3 tabs need to
be used to provide a more secure and air tight connection,
the remaining tabs can also be fastened to the duct with
screws after drilling the required screw holes.
Unitary Products Group 5

035-15266-003Rev.A(0804)
PARALLELDUCTSYSTEM
TheEBDuctConnectorInsert37323716001maybeusedon
EBSeriesElectricManufacturedHousingFurnaceswhere
theductsystemrunsparallelto thefurnace.SeeFigure9.
TheEBDuctConnectorInsertshouldnotbeusediftheduct
systemrunsperpendiculartothefurnaceorif theductsys-
temextendsonlyonedirectionfromthefurnace.
TheDuctConnectorInsertcannotbeusedwith 1" and 2"
Duct Connectors (7990-6011, 7990-6021, 7990-6211, and
7990-6221 ).
Follow Accessory Kit Installation Instruction 035-20632-001
provided with the Duct Connector Insert.
JRNACE DOO
PERPENDICULAR LAYOUT
PARALLEL LAYOUT
FIGURE 9 : DUCT SYSTEM CONFIGURATION
FURNACE CONVERSION TO UPFLOW
APPLICATION
Upfiow furnace conversion is easily accomplished by follow-
ing the steps listed below:
Provide adequate clearance for servicing:
1. Before Conversion, locate the furnace conveniently
away from wall facing or partitions to permit easy
removal and installation of components.
2. Two (2) feet of space must be available in front of fur-
nace for future servicing (blower or element removal, fur-
nace removal, etc.).
3500-5451" Adapter Box and/or 3500-7211" Upflow Flange
Plate Kit are needed prior to following steps below:
1. Assemble the 3500-5451 filter box per installation pro-
vided with kit.
2. Remove furnace panel.
3. Remove air filter.
4. Remove strap on the top of the unit, saving the screw
and strap for later use.
5. Turn entire unit upside-down, so the filter box is on the
floor.
6. Remove two (2) screws that are on the front of the unit at
the top. Obtain front panel hanger angle from the upflow
kit 3500-7211 *. Secure the hanger angle with two (2)
screws removed from the furance casing See Figure 11.
FURNACE SEATED
AGAINST THE
LOCATOR BRACKET
FIGURE 10 : INSTALLATIONOF FURNACE
INSTALLATION OF THE FURNACE
1. Remove the front panels and set the furnace onto the
duct connector. Slide it back until the rear of the unit
engages the Iocator bracket.
2. Secure the front of the furnace with two screws at the
mounting holes provided. See Figure 10.
3. Secure the top of the furnace to a structural member
using screw through the strap at the top of the furnace.
Strap may be moved to any of the holes located along
the top back of the furnace. Installer may provide an
equivalent method, such as screws through the casing
side.
7.
8.
9.
HANGER ANGLE _.
SCREW x 2
FIGURE 11 : HANGER ANGLE ATTACHMENT
Attach the strap that was removed in Step 4 to the top,
side or back of the furnace.
Install the duct flange plate on top of the inverted furnace
as shown in Figure 12.
If installaing POS, Standard or Deluxe Air Systems, pro-
ceed to Step 10.
Optional start collar for the Economy POS system
shipped with 3500-7211" can be used for blend air flex
duct installation. Punch the lineset knockout out and
position the start collar over it. Duct connector edge can
be pushed under the casing flange and screws provided
can be used to capture the other end of duct connector.
Secure collar to top of furnace.
6 Unitary Products Group

035-15266-003Rev.A(0804)
10.Flangeplateshippedwith3500-7211"ismountedtothe
furnacewitheight(8)screwsprovided.Two(2)blunt
screwsarefortheholesinthefrontofthefurnace.See
Figure12.
11.Ifupflowadapterboxkit3500-5451"isnotused,then
ouroptionalfilterbracketisprovidedwith3500-7211"kit.
Thisfilterbracketmaybeusedtoretainfilterinsideits
originallocationinthefurnace.
12.Securethetopofthefurnacetoastructuralmember
usingscrewsandthestrapontopofthefurnace.The
mobilehomemanufacturermayprovideanequivalent
strap,ifrequired,tosecurethefurnace.
13.Ifexcessivemovementisexpected,thensomeblower
supportisrecommended.
FLANGE
PLATE
(MOUNTED WITH
SCREWS)
USE BLUNT
DUCT
JCONNECTOR
LINESET
KNOCKOUT
EB SERIES
_(UPFLOW
FURNACE)
WIRING
Furnace wiring is complete except for the power supply and
the thermostat wires. See wiring diagram (or Table 2) for wire
and fuse size. See Table 2 for ground wire sizes. Thermostat
wires connect through side of furnace and should also be no
smaller than 22 gauge. Power wires can enter through the
side of the unit or through the auxiliary entrance, located in
the bottom of the unit. (See Figure 1). When bringing wiring
through the bottom of the furnace, cable connectors must be
installed to hold wiring in place and to relieve any strain on
the wiring. These connectors will also serve as a seal
between the furnace and the floor. Thus, additional sealing is
not required.
(Refer to the National Electrical Code, Canadian Electrical
Code and local codes for wiring material requirements.
NOTE: The furnaces are equipped with either one or two 60
amp circuit breakers. These circuit breakers protect
the wiring inside of the furnace in the event of a
short circuit. Additionally, these breakers provide a
means of disconnecting the power to the unit. The
circuit breakers in the furnace are not meant to pro-
tect the branch circuit wiring between the furnace
and the home's breaker panel. General wire and
breaker sizes are shown in Table 2. If sheathed
cable is used, refer to National Electrical Code,
Canadian Electrical Code and local codes for addi-
tional requirements concerning supply circuit wiring.
Electrical Data can be found in Table 4.
IMPORTANT - All installation on field wiring must be
rated at 60°C or higher. Please refer to the wiring diagrams
on the furnace or this book for more information.
FIGURE 12 : BLOWER BRACKET AND DUCT FLANGE
ATTACHMENT
Table 2:
MODELS
Single Branch Circuit Service *
Nominal Circuit Load - AMPS
Minimum Wire Size (90 ° )
Minimum Wire Size (75 ° )
Minimum Wire Size (60 ° )
Ground Wire Size +
Max. Fuse (or C.B.) - AMPS
Dual Branci_ £;ircult service
Branch Circuit Load - AMPS
Branch Circuit Min. - AMPS
Minimum Wire Size (90 ° )
Minimum Wire Size (75 ° )
Minimum Wire Size (60 ° )
Ground Wire Size +
Max. Fuse (or C.B.) - AMPS
EB23B
94.0
#2
#1
#0
#6
125
C:K.I #1 C:K.I #Z
47.3 46.7
59.2 58.4
#6 #6
#6 #6
#4 #4
#10 #10
60 60
EB20B
84.0
#3
#2
#1
#6
110
C:K.I #1 C:K.I #Z
44.0 40.0
55.0 50.0
#8 #8
#6 #8
#6 #6
#!0 #10
60 50
EB17B
2 L__ads + 1 Ground CK [#!
70.7
#4
#3
#2
#8
90
C:K.I #1 C:K.I #Z
47.3 23.4
59.2 29.3
#6 #!0
#6 #!0
#4 #10
#!0 #10
60 30
* Requires Jumper Bars (P/N 3500-3781") - Dual Supply for U.S. Only.
Refer to National Electrical Code. Table 310-16 for Non-Sheathed Conductors.
+ Refer to National Electrical Code. Table 250-95 for Non-Sheathed Conductor Ground Wire.
EB15B
64.1
#4
#4
#3
#8
90
C:K.I #1 C:K.I #Z
44.0 20.1
55.0 25.2
#8 #!0
#6 #!0
#6 #!0
#!0 #10
60 30
IEB12BI EB10B
50.7 44.0
#6 #8
#6 #6
#4 #6
#8 #10
70 60
NOT
APPROVED
Unitary Products Group 7

035-15266-003Rev.A(0804)
Table 3: EB SERIES BLOWER PERFORMANCE
Low Speed Static Pressure .0 .! .2 .3 .4 .5 .6 .7 .8
Heating Speed (Inches of WC)
Models EB10, 12, 15 CFM (STD. Air) 945 936 936 924 915 889 870 813 705
Medium Speed Static Pressure .0 .! .2 .3 .4 .5 .6 .7 .8
Heating Speed (Inches of WC)
Models EB17, 20, 23 CFM (STD. Air) 1160 1145 !145 1140 !129 1109 1073 !027 935
Static Pressure
Medium High (inches of WC) .0 .1 .2 .3 .4 .5 .6 .7 .8
with A-Coil in place CFM (STD. Air) 1340 1317 1290 !252 1208 1158 1095 !021 876
Static Pressure
High (inches of WC) .0 .! .2 .3 .4 .5 .6 .7 .8
with A-Coil in place CFM (STD. Air) 1573 !534 1490 !435 1369 !309 1237 1135 10!9
Table 4: ELECTRICAL DATA
D.O.E.
Output
OUTPUT
CAPACITY
MODEL NUMBER
240 VAC
60 Hz.
1 Phase
230 VAC
60 Hz.
1 Phase
220 VAC
60 Hz.
1 Phase
EIement Capacity
@ 240 VAC
Motor AMPS @ 240 V.
Circuit Load AMPS
@ 240 V.
BTU
KW
BTU
KW
BTU
KW
KW
AMPS
CKT 1
CKT 2
EB23B
77,000
22.6
7! ,000
20.8
65,000
!9.1
21.6
90.0
47.3
46.7
EB20B
67,000
19.6
61,000
17.9
57,000
16.7
19.2
80.0
44.0
40.0
EB17B EB15B
56,000 51,000
16.4 15.0
52,000 47,000
15.2 13.8
48,000 43,000
14.1 12.6
16.0 14.4
86.7 60.0
4.0 Maximum
47.3 44.0
23.4 20.0
EB12B
39,000
11.4
36,000
!0.6
33,000
9.7
11.2
46.7
EBIOB
34,000
10.0
31,000
9.1
29,000
8.5
9.6
40.0
50.7* 44.01
1. Approved for Single Branch Circuit Service Only
Casing or Cabinet must be Permanently Grounded in Accordance with National Electrical Code or other Applicable Codes.
Models for EB23B, EB20B, EB17B and EB15B may be con-
nected to a single or dual branch circuit. (See Table 2.)
These units are shipped from the factory set up for dual
power supply connections. For single power supply connec-
tions, jumper bars (P/N 3500-378P*) are required and are
available from the factory. Model for EB12B is factory shipped
with jumper bars in place.
8 Unitary Products Group

035-15266-003Rev.A(0804)
SEQUENCERSCIRCUITBREAKERS THERMOSTAT
WIRES
J
TRANSFORMER
L
LIMIT
SWITCHES
J
®
/
/
II ,L
@
®
® _ OI } O0
@
3500-378P* JUMPER
BARS (FOR SINGLE
J BRANCH CIRCUIT
SERVICE)
NOTE:
AS SHIPPED, THE JUMPER BAR
ASSEMBLY IS SET-UP FOR
BOTTOM ENTRY. FOR SiDE
ENTRY, THE TOP LUG CAN BE
REMOVED AND RE-POSITIONED,
AS SHOWN, TO PROVIDE
PROPER WIRE BENDtNG
CLEARANCES,
_GROUND
LUGS
FIGURE 13 : CONTROL BOX
_WARNING
For personal safety be sure to turn the electrical
power "OFF" at the household service box and at
the furnace circuit breakers before attempting any
service or maintenance operations. Homeowners
should never perform any maintenance which
requires opening electric box door.
Furnace is equipped with a protective shield over
field wiring connection. When field wiring is com-
pleted, shield must be replaced to prevent hazard of
electrical shock when using furnace disconnect.
(See Figure 14.)
BLOWER
CIRCUIT
BREAKERS
ELECTRIC
//PANEL
FIELD WIRING
J PROTECTIVE
SHIELD
THERMOSTAT INSTALLATION
The adjustable heat anticipator in the thermostat is pre-set at
0.4 Amps. This setting should be checked at the time of
installation
In some cases the thermostat may be a "self-setting" type in
which case no Amp. setting will be found on the thermostat,
eliminating the need for any field adjustment.
Thermostat should be located on an inside wall in an open
area to more closely regulate average room air, preferably,
where there is air movement back to furnace. Care should be
used to locate thermostat away from hot air discharge open-
ings, lights, etc. Locating height of thermostat is important.
Thermostat should be located 52 to 66 inches above the
floor. This is sometimes called the comfort zone.
If a condenser with its own Transformer shares a Heat/Cool
Thermostat with this furnace, use a thermostat with isolating
contacts to prevent interconnection of Class II 24 Volt Sys-
tems.
Cycle furnace to make sure it will operate correctly.
Maintenance and operating instructions are in the customer
envelope accompanying the furnace.
Give the customer envelope to the home owner.
FIGURE 14 : FIELD WIRING SHIELD
Unitary Products Group 9

035-15266-003Rev.A(0804)
CAUTION
When using separate thermostats, a thermostat
interlock system must be provided to prevent simul-
taneous operation of the furnace and air conditioner.
Simultaneous operation can result in coach over-
heating, equipment damage and energy waste. (See
Figures 15 and 16.)
Do not connect Yellow wire to thermostat until an
outdoor unit is instafled.
COOLING HEATING
THERMOSTAT THERMOSTAT
DOUB %L o% ,TCH
TO TO
AiR CONDITIONER FURNACE
FIGURE 15 : THERMOSTATWIRING
The EB*B* Furnaces are A/C ready.
All furnaces installations should include aminimum of four conductor thermostat
wiring to accommodate future air conditioning installations,
THERMOSTAT WiRiNG SCHEMATIC FOR: BLEND AIR AND FURNACE
RED
NOT FACTORY
INSTALLED
Z
uJ
uJ
©
WIRES FROM FURNACE
STANDARD OR DELUXE
BLEND AIR CONTROL BOX
Four-conductor wire is required for thermostat connection,
Attach the 4 low voltage wires extending from the control box as follows:
1. RED wire from Furnace to thermostat RED wire.
2. WHITE wire from Furnace to thermostat WHITE wire.
3. GREEN wire from Furnace to thermostat GREEN wire.
4. BLACK wire from Furnace to condensing unit contactor.
5. Thermostat YELLOW wire to condensing unit contactor.
FIGURE 16 : THERMOSTATWIRING
OPTIONAL AIR CONDITIONING
ACCESSORIES
Failure to install this insulation and coil shelf kit
could result in damage to equipment and/or per-
sonal injury. Liability and warranty from the manu-
facturer could also be void.
This furnace is already equipped with a blower and control
system to add-on air conditioning up to 4 tons and heat pump
up to 3-1t2 tons. Insulation and coil shelf kit (3500-8941" for
downflow or 3500-8961" for upflow) must be installed when
adding on such remote air conditioning systems.
10 Unitary Products Group

035-15266-003Rev.A(0804)
HIGH PERFORMANCE BLOWER ACCESSORY
PACKAGE
CAUTIONI
All areas around the line sets, drain hoses and other
openings in the coil sheff should be sealed air tighL
Use some moldable compound or caulking to seal
the area. Failure to do so may result in loss of per-
formance and premature compressor failure.
All EB furnaces are already equipped with a blower and con-
trol system to add-on air conditioning up to 4-tons and heat
pump up to 3 1/2-tons. If the requirement is to achieve more
than specified than the production blower inside the furnace
would have to be replaced with an accessory blower package
3500-7901". This accessory blower package would deliver air
conditioning up to 5-tons, and heat pump up to 4-tons. Acces-
sory package (3500-7901")includes blower, insulation, coil
shelf, trap, clamps, etc. Please refer to the installation instruc-
tions packed with the accessory package for more informa-
tion.
WIRING DIAGRAMS
A
2 SPADE (]NSUL) TERMINALS
USED WHEN CHANGING SPEEDS
BLOWER
4-SPEED BLOWER
EB SERIES FURNACES
BLEND A]i
CONTROL BOX
Z HEAT/COOL
T'STAT
COND UNIT
CONTACTOR
TRANSFORMER
A
CIRCUIT #1
BREAKER
[_ t 24°VAC
60 Hz
I PHASE
GND
LUG MODEL: EB10B
SINGLE BRANCH
CfRCUfT SERVICE
ELEMENTS LIMIT
SWITCHES
NOTE:IF ANY OF THE ORIGINAL WIRE SUPPLIED
WITH THIS UNIT MUST BE REPLACED, IT
MUST BE REPLACED WITH TYPE 105°C
THERMOPLASTIC OR ITS EQUIVALENT.
FACTORY WIRING SHOWN SOLID, FIELD
WIRING SHOWN BROKEN,
WIRING MUST CONFORM TO LOCAL CODES
APPROVED FOR CU CONDUCTORS ONLY,
240 VAC - 60 Hz - 1 PHASE
D,O,E, OUTPUT CAPACITY - BTU 34,000
MAX, MOTOR-FLA 4,0
SINGLE BRANCH 2 LEADS + 1 GROUND
CIRCUIT SERVICE
NOMINAL CIRCUIT LOAD-AMPS 44,0
WIRE SIZE (75/' C) COPPER #6
WIRE SIZE (60 ° C) COPPER #6
MAX, FUSE SIZE (OR CB) -AMPS 60
FIGURE 17 : EB10B WIRING DIAGRAM
Unitary Products Group 11

035-15266-003 Rev. A (0804)
A
E13
2 SPADE (INSUL)TERMINALS
USED WHEN CHANGING SPEEDS
BLOWER
RELAY
CAPACITOR
4-SPEED BLOWER
EB SERIES FURNACES
GRN
WHT
BLK
YEL
FUSE
BLK
CIRCUIT #1
BREAKER
BLEND AIR
CONTROL BOX
HEAT/COOL
T'STAT
CONDUNIT
CONTACTOR A
240 VAC
• 60 Hz
I PHASE
SINGLE BRANCH
C]RCUIT SERVICE
GND
LUG MODEL: EB12B
ELEMENTS
NOTE:IF ANY OF THE ORIGINAL WIRE SUPPLIED
WITH THIS UNIT MUST BE REPLACED, IT
MUST BE REPLACED WITH TYPE 105°C
THERMOPLASTIC OR ITS EQUIVALENT.
FACTORY WIRING SHOWN SOLID, FIELD
WIRING SHOWN BROKEN,
WIRING MUST CONFORM TO LOCALCODES
APPROVED FOR CU CONDUCTORS ONL_
LIMIT
SWITCHES
3,O,E, OUTPUT CAPACITY - BTU
V_AX, MOTOR-FLA
BINGLE BRANCH
31RCUIT SERVICE
qOMINAL CIRCUIT LOAD-AMPS
NIRE SIZE (75 ° C) COPPER
NIRE SIZE (60 ° C) COPPER
V_AX, FUSE SIZE (OR CB) -AMPS
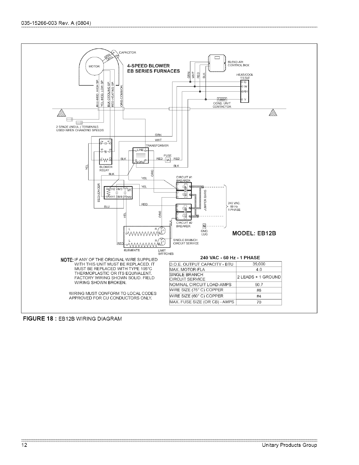
240 VAC - 60 HZ - 1 PHASE
39,000
4,0
2 LEADS + 1 GROUND
50,7
#6
#4
7O
FIGURE 18 : EB12BWIRING DIAGRAM
12 Unitary Products Group

035-15266-003Rev.A(0804)
2 SPADE (INSUL)
TERMINALS USED WHEN
NOTE: IF ANY OF THE ORIGINAL WIRE SUPPLIED WITH
THIS UNIT MUST BE REPLACED. IT MUST BE
REPLACED WITH TYPE 105°C THERMOPLASTIC
OR ITS EQUIVALENT. FACTORY WIRING SHOWN
SOLID, FIELD WIRING SHOWN BROKEN,
WIRING MUST CONFORM TO LOCAL CODES
APPROVED FOR CU CONDUCTORS ONLY,
CAPACfTOR
_F_ BLEND AIR
4-SPEED BLOWER CONTROLBOX
EB SERIES FURNACES z m _ v
MODEL: EB15B
IT
CONTACTOR
CIRCU]T #1
BREAKER SINGLE BRANCH
CIRCUIT SERVICE
/GRN WHT £_
TRANSFORMER__ _ILINE, RED FUSE _ 240160pHAsEVACHz
F BREAKER[]
CIRCUIT #2
BLK y[ GND LUG
RED CRCL h. L_ -1
, YEL \ OR_',_ER C,RCO,T_
GND LUG 24EOVAzC
DUAL BRANCH
CIRCUIT SERVICE
C'RDU'T% LO0
L _ = D.O.E. OUTPUT CAPACITY- BTU 51,000
_AL^ ^ ^^ ^_1_ MAX. MOTOR-FLA 4.0
_VVVVVV4_RI SINGLE BRANCH $ 2 LEADS +
ELEMENTS LIMIT CIRCUIT SERVICE
SWITCHES NOMINAL CIRCUIT LOAD-AMPS
WIRE SIZE (75 ° C) COPPER
WIRE SIZE (60 ° C) COPPER
MAX. FUSE SIZE
(OR CB) - AMPS
DUAL BRANCH
CIRCUIT SERVICE
BRANCH CKT. LOAD-AMPS
BRANCH CKT. MIN. AMPACITY
WIRE SIZE (75 ° C) COPPER
WIRE SIZE (60 ° C) COPPER
MAX. FUSE SIZE
(OR CB) - AMPS 60 30
$ REQUIRES JUMPER BARS (PIN 3500-378/*)
1 GROUND
64.0
#4
#3
9O
4 LEADS +
2 GROUNDS
CKT #1 - CKT #2
44 20.1
55 25.2
#6 #10
#6 #10
FIGURE 19 : EB15B WIRING DIAGRAM
Unitary Products Group 13

035-15266-003Rev.A(0804)
MODEL: EB17B
2 SPADE (INSUL)
TERMINALS USED WHEN
CHANGING SPEEDS
BLOWER
CIRCUIT #1
..... I _ BREAKER _ [_ _] CIRCUIT1
TJ LUND LUG 240 VAC
' d PHASE
DUAL BRANCH
I RED f# _---,._-_ CIRCUIT SERVICE
1
- OK ._r9 240 VAC
0 60 Hz
[_ I PHASE
L_ BREAKER GND LUG--
BREAKER 240 VAC - 60 Hz - 1 PHASE
•| D.O.E. OUTPUT CAPACITY - BTU 56,000
ELEMENTS LIMIT MAX. MOTOR-FLA 4.0
SWITCHES
NOTE: IF ANY OF THE ORIGINAL WIRE SUPPLIED WITH
THIS UNIT MUST BE REPLACED. IT MUST BE
REPLACED WITH TYPE 105°C THERMOPLASTIC
OR ITS EQUIVALENT. FACTORY WIRING SHOWN
SOLID, FIELD WIRING SHOWN BROKEN,
WIRING MUST CONFORM TO LOCAL CODES
APPROVED FOR CU CONDUCTORS ONLY,
SINGLE BRANCH $
CIRCUIT SERVICE
NOMINAL CIRCUIT LOAD-AMPS
WIRE SIZE (75 ° C) COPPER
WIRE SIZE (60 ° C) COPPER
MAX, FUSE SIZE
(OR CB) - AMPS
DUAL BRANCH
CIRCUIT SERVICE
BRANCH CKT. LOAD-AMPS
BRANCH CKT. MIN. AMPACITY
WIRE SIZE (75 ° C) COPPER
WIRE SIZE (60 ° C) COPPER
MAX, FUSE SIZE
OR CB) - AMPS
SREQUtRES JUMPER BARS (P/N 3500-378/*)
2 LEADS +
1 GROUND
70.7
#3
#2
9O
4 LEADS +
2 GROUNDS
CKT #1 - CKT #2
47.3 23.4
59.2 29.3
#6 #10
#4 #10
60 30
FIGURE 20 : EB17B WIRING DIAGRAM
14 Unitary Products Group

035-15266-003Rev.A(0804)
A[Z_
2 SPADE (INSUL) TERMINALS
USED WHEN CHANGING
SPEEDS
ELEMENTS UMIT
SWITCHES
NOTE: IF ANY OF THE ORIGINAL WIRE SUPPLIED WITH
THIS UNIT MUST BE REPLACED. IT MUST BE
REPLACED WITH TYPE 105°C THERMOPLASTIC
OR ITS EQUIVALENT. FACTORY WIRING SHOWN
SOLID. FIELD WIRING SHOWN BROKEN.
WIRING MUST CONFORM TO LOCAL CODES
APPROVED FOR CU CONDUCTORS ONLY.
BLENDAIR
CONTROL BOX
HEAT/COOL
T'STAT
MODEL: EB20B
CONTACTOR
CIRCUIT #1 SINGLE BRANCH
BREAKER CIRCUIT SERVICE
124OVAcI PHASE
CIRCUIT #2
BREAKER [_
GND LUG
CIRCUIT #1 F_ CfRCUff 1
GND LUG 240 VAC
60 Hz
I PHASE
DUAL BRANCH
CIRCUIT SERVICE
CIRCU]T 2
240 VAC
] 60 Hz
CIRCU]T #2 r_ 1 PHASE
BREAKER GNDLUG
240 VAC - 60 Hz - 1 PHASE
D.O.E. OUTPUT CAPACITY - BTU
MAX. MOTOR-FLA
SINGLE BRANCH $
CIRCUIT SERVICE
NOMINAL CIRCUIT LOAD-AMPS
WIRE SIZE (75 ° C) COPPER
WIRE SIZE (60 I,C) COPPER
MAX, FUSE SIZE
(OR CB) -AMPS
DUAL BRANCH
CIRCUIT SERVICE
BRANCH CKT. LOAD-AMPS
BRANCH CKT. MIN. AMPACITY
WIRE SIZE (75 ° C) COPPER
WIRE SIZE (60 I,C) COPPER
MAX, FUSE SIZE
(OR CB) -AMPS
$ REQUIRES JUMPER BARS (P/N 3500478/*)
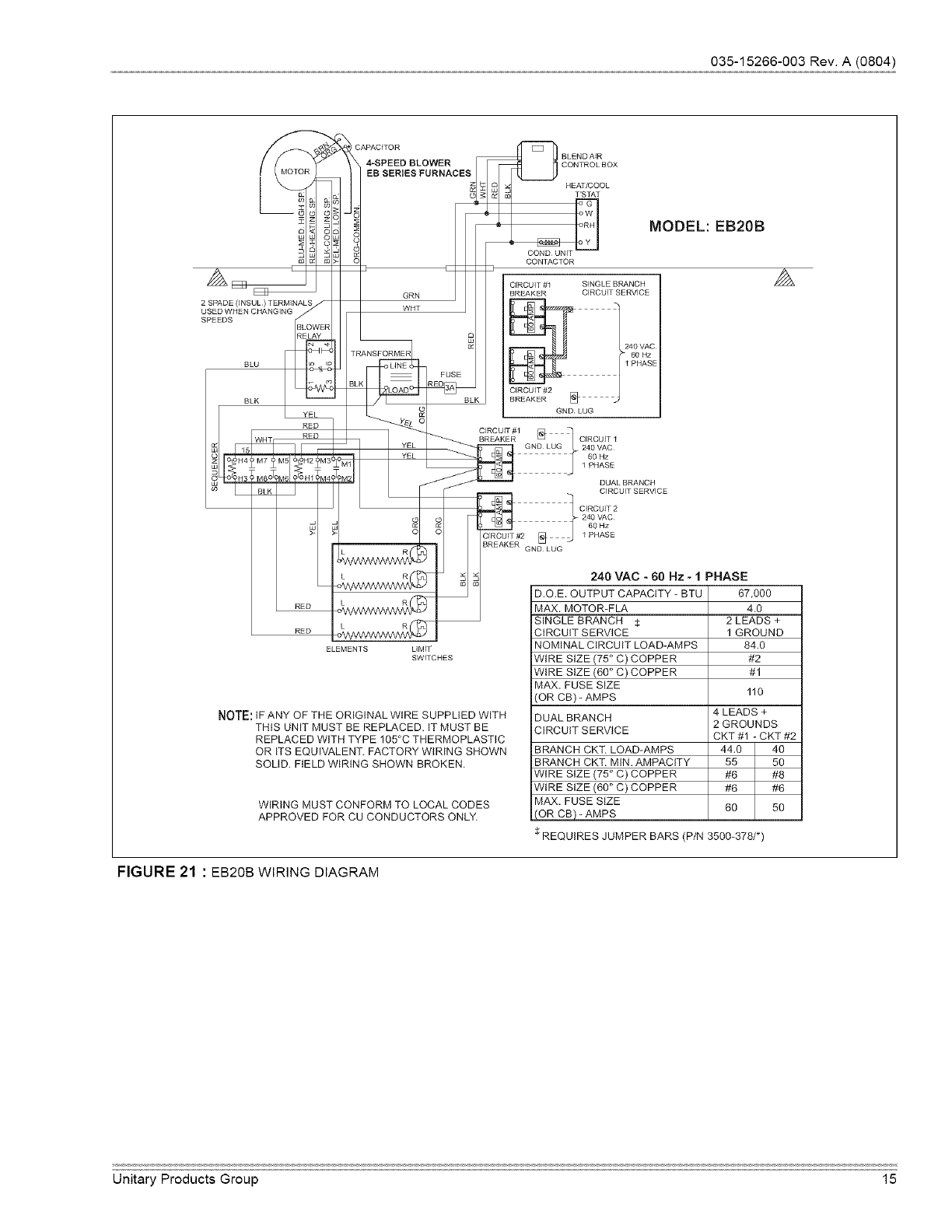
67,000
4.0
,A
2 LEADS +
1 GROUND
84.0
#2
#1
110
4 LEADS +
2 GROUNDS
CKT #1 - CKT #2
44.0 40
55 50
#6 #8
#6 #6
60 50
FIGURE 21 : EB20B WIRING DIAGRAM
Unitary Products Group 15

035-15266-003Rev.A(0804)
CAPACITOR
4-SPEED BLOWER
EB SERIES FURNACES
BLENDAIR
CONTROL BOX
HEAT/COOL
T'STAT
CONTACTOR
MODEL: EB23B
A
2 SPADE (INSUL) TERMINALS
USED WHEN CHANGING
SPEEDS
RELAY
GRN
CIRCUIT #1 SINGLE BRANCH
CfRCUiT SERVICE
CIRCUIT #2
BREAKER _] j
GND LUG
A
CIRCUIT #1
BREAKER
ELEMENTS L]MIT
SWITCHES
NOTE:IF ANY OF THE ORIGINAL WIRE SUPPLIED WITH
THIS UNIT MUST BE REPLACED. IT MUST BE
REPLACED WITH TYPE 105°C THERMOPLASTIC
OR ITS EQUIVALENT. FACTORY WIRING SHOWN
SOLID. FIELD WIRING SHOWN BROKEN.
WIRING MUST CONFORM TO LOCAL CODES
APPROVED FOR CU CONDUCTORS ONLY.
GND LUG
[_ CIRCUIT 1
Z
240 VAC
60 Hz
I PHASE
DUALBRANCH
CIRCU]T SERVICE
CIRCUIT 2
240 VAC
60 Hz
I PHASE
D.O.E. OUTPUT CAPACITY - BTU
MAX, MOTOR-FLA
SINGLE BRANCH :I:
CIRCUIT SERVICE
NOMINAL CIRCUIT LOAD-AMPS
WIRE SIZE (75 ° C) COPPER
WIRE SIZE (60 I' C) COPPER
MAX, FUSE SIZE
(OR CB) - AMPS
DUAL BRANCH
CIRCUIT SERVICE
BRANCH CKT. LOAD-AMPS
BRANCH CKT. MIN. AMPACITY
WIRE SIZE (75 ° C) COPPER
WIRE SIZE (60 I' C) COPPER
MAX, FUSE SIZE
(OR CB) - AMPS
240 VAC - 60 Hz - 1 PHASE
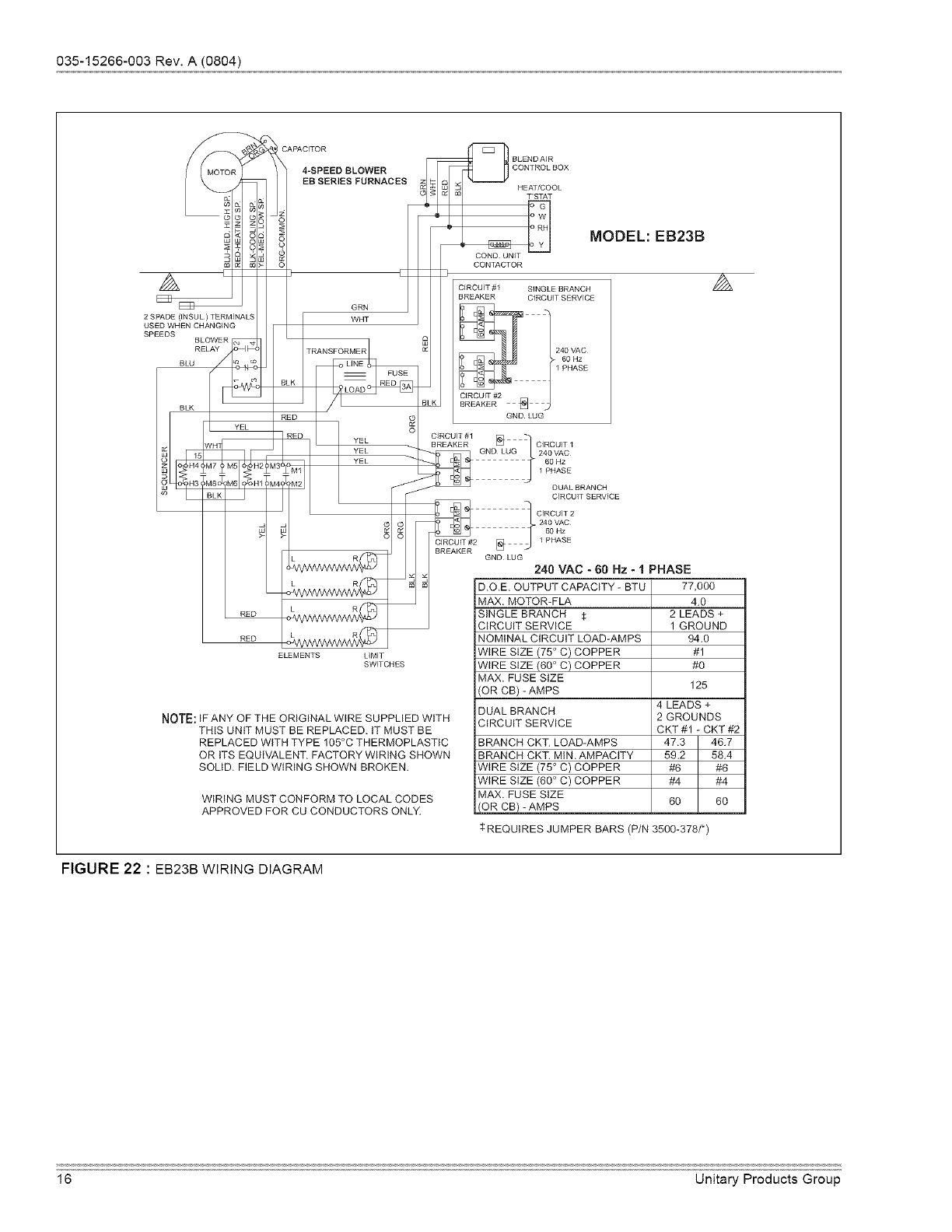
77,000
4.0
2 LEADS +
1 GROUND
94.0
#1
#0
125
4 LEADS +
2 GROUNDS
CKT #1 - CKT #2
47.3 48.7
59.2 58.4
#6 #6
#4 #4
60 60
:I:REQUIRES JUMPER BARS (P/N 3500-378/*)
FIGURE 22 : EB23BWIRING DIAGRAM
16 Unitary Products Group

035-15266-003Rev.A(0804)
REPAIR PARTS LIST
J
ii IIS
iii
iii
iii uI
MODELS
E8108
EB128
E8158
E8178
E82OB
E823B
" °r
[v
Unitary Products Group 17

035-15266-003 Rev. A (0804)
ITEIV DESCRIPTION
1 Thermostat (Heat!Cool)
2 Front Panel
Front Panel (Front Return 4-Ton)
Front Panel (Front Return 5-Ton)
3 Filter (16 x 20 x 1)
Filter (2o x 2o x 1) (Front Return Panel)
4 Support Angle
5 Cover, Electric Box
6 Cover (Service Entrance)
7 Sub-base (Optional)
8* Sub-base (M10)(Optional)
9 Blower Motor (For furnaces produced
before 2/99)
10 Blower Motor (For furnaces produced
after 2/99)
11 Capacitor (7.5MFD/370V)
Relay
Motor Mount Assembly (! PC) (Kit)
12
13
14
15
16"
17
Blower Wheel
Limit Baffle (For furnaces produced
before 3/98)
Heater Element (For furnaces pro-
duced before 3/98)
18 Heater Element (See Note 3)
19 Transformer (240/24V-40A)
20 Sequencer
21 Bracket (Circuit Breaker)
22 Limit Switch (For furnaces produced
before 3/98)
EB10B
025-38746-000
3500-!751/B
3500-1581
3500-1591
12!4-2511
12!4-2521
3500-1861
3500-2351/A
3500-!271
3500-1071/B
3500-5221
1488-243P/A
024-27651-000
!499-4461
3110-3301
373-19831-09!
1472-2831
3500-!29
(9.6Kw)
3500-4101
(9.6Kw)
3500-419 P/A
3300-3861
3110-3571
3500-!28
2 ea. 7142-3091
(Open 150, Close 110)
EBI2B
025-38746-000
3500-1751/B
3500-1581
3500-159!
1214-2511
1214-2521
3500-1861
3500-2361/A
3500-1271
3500-1071/B
3500-5221
1488-243P/A
024-27651-000
1499-4461
3110-3301
373-19831-001
1472-2831
3500-!01
(11.2Kw)
3500-412!
(11.2Kw)
3500-412 P/A
3390-3861
3!10-3571
3500-!28
2 ea. 3500-3121
(Open150, Ctose120)
23
24
25
26
27
28
29
30
31"
32*
33*
34*
35*
36*
Circuit Breaker (1 Req'd)
Circuit Breaker (2 Req'd)
Buss Bar (See Note 2)
Ground Lug (Large)
Ground Lug (Small)
Drain Tube (See Note 1)
Condensate Trap (See Note 1)
Coil Shelf (See Note 1)
Coil Shelf Panel (See Note 1)
Insulation, Cover Panel (See Note !)
3500-377P/A
3500-378P
1216-231
029-22!84-001
3240-3051
3500-174
3500-!71
9!0-69111-001
3500-377P/A
3500-378P
1216-231
029-22!84-001
3240-3051
3500-174
3500-171
9!0-6911!-001
See Page 20 Field Fix Kits
EBISB
025-38746-000
3500-1751/B
3500-1581
3500-159!
1214-2511
1214-2521
3500-1861
3500-2361/A
3500-1271
3500-1071/B
3500-522!
1468-243P/A
024-27651-000
1499-446!
3110-3301
373-19831-001
1472-2831
3500-101
(4.8Kw) & (9.6Kw)
3500-405! &
3500-419!
(4.8Kw) & (9.6Kw)
3500-405P/A&
3500-410P/A
3390-3861
3!10-357!
3500-!28
3 ea. 3500-3151/A
(Open 150, Close 110)
3500-377P/A
3500-378P
1216-231
12!6-229
029-22184-001
3240-3051
3500-174
3500-171
010-6911!-001
Wiring diagram 035-!5274-001 035-!5275-001 035-!5276-001
Fuse 925-32746-026 925-32746-026 025-32746-026
NOTE: *Not Shown
Major components and suggested stocking items are shown with shaded item number.
--- Not applicable to specified model.
All parts with three digit suffix numbers are "Special Order" parts These parts are subject to factory
avaitabitity and require extra time for detivery
1 Not Standard with furnace, contained in accessory kit no. 3500-8941.
2 Standard on EB12B.
18 Unitary Products Group

035-15266-003Rev.A(0804)
ITEM DESCRIPTION
1 Thermostat (Heat/Cool)
2 Front Panel
Front Panel (Front Return 4-Ton)
Front Panel (Front Return 5-Ton)
3 Filter (16 x 20 x 1)
Filter (20 x 2o x 1) (Front Return Panel)
4 Support Angle
5 Cover, Electric Box
6 Cover (Service Entrance)
7 Sub-base (Optional)
8 Sub-base (M10) (Optional)
9 Blower Motor (For furnaces produced
before 2/99)
10 Blower Motor (For furnaces produced
after 2/99)
11 Capacitor (7.5MFD/370V)
Relay
Motor Mount Assembly (1PC) (Kit)
12
13
14
15
16
17
Blower Wheel
Limit Baffle (For furnaces produced
before 3/98)
Heater Element (For furnaces produced
before 3/98)
18 Heater Element (See Note 3)
19 Transformer (240/24V-40A)
20 Sequencer
21 Bracket (Circuit Breaker)
22 Limt Switch (For furnaces produced
before 3/98)
EB17B
025-38746-000
3500-!751/B
3500-!581
3500-!591
1214-2511
12!4-2521
3500-186!
3500-236!/A
3500-1271
3500-!071/B
3500-5221
1468-243P/A
024-27651-000
!499-4461
3110-3301
373-19831-001
1472-283!
3500-!29
(4.8Kw) & (11.2Kw)
3500-4051 &
3500-4121
(5.6Kw) & (!0.4Kw)
3500-406P/A &
3500-411P/A
3300-3861
3115-3571
3500-128
3 ea. 7142-3091
(Open 158, Close 110)
EB20B
025-38746-000
3500-1751/B
3500-1581
3500-1591
1214-2511
12!4-2521
3500-1861
3500-236!/A
3500-1271
3500-1071/B
3500-5221
1468-243P/A
024-27651-000
1499-4461
3!10-3301
373-19831-001
1472-2831
3500-!29
2 Ea.(9.6Kw)
3500-4101
2 Ea. (9.6Kw)
3500-410P/A
3300-3861
3!20A3571
3500-!28
4 ea. 7142-3091
(Open150, Close 110)
EB23B
025-38746-000
3500-1751/B
3500-!581
3500-!59!
1214-2511
1214-252!
3500-1881
3500-2361/A
3500-127!
3500-1071/B
3500-5221
1488-243P/A
024-27651-000
1499-446!
3110-3301
373-19831-001
1472-2831
3500-129
(10.4Kw) & (11.2Kw)
3500-4111 &
3500-4121
(10.4Kw) & (11.2Kw)
3500-411P/A &
3500-412P/A
3300-3861
3129A3571
3500-128
4 ea. 7142-3091
(Open 150, Ctose 110)
23
24
25
26
27
28
29
30
31"
32*
33*
348
35*
36*
Circuit Breaker (2 Req'd) (See Note 2)
Buss Bar
Ground Lug (Large)
Ground Lug (Small)
Drain Tube (See Note 1)
Condensate Trap (See Note 1)
Coil Shelf (See Note 1)
Coil Shelf Panel (See Note 1)
Insulation, Cover Panel (See Note !)
3500-377P/A
3500-378P
1216-231
1216-229
029-22!84-001
3240-3051
3500-!74
3500-17!1
010-691!1-001
3500-377P/A
3500-378P
12!6-231
12!6-229
029-22!84-001
3240-3051
3500-174
3500-1711
010-691!1-001
3500-377P/A
3500-378P
1216-231
1216-229
029-22184-001
3240-3051
3500-174
3500-!71!
0!0-6911!-001
See Page 20 For Field Fix Kits
Wiring diagram 035-!5277-001 035-!5278-901 035-15279-001
Fuse 025-32746-026 025-32746-026 025-32746-026
<
<
<
NOTE: *Not Shown
Major components and suggested stocking items are shown with shaded item number.
--- Not applicable to specified model.
All parts with three digit suffix numbers are "Special OrdeP parts. These parts are subject to factory
availability and require extra time for delivery
1 Not Standard with furnace, contained in accessory kit no. 3500-8941
2 Standard on EB12B.
Unitary Products Group 19

FIELD FIX KIT FOR EB12 (A&B) MANUFACTURED PRIOR TO AUGUST 1995
FIELD FIX KT 3500-7121 CONTAINS:
ITEM DESCRIPTION PART NO.
31" ! Each Limit Baffle 3500-101
32* 2 Each Limit Switch 3500-3121
FIELD FIX KIT FOR EB15 (A&B) MANUFACTURED PRIOR TO AUGUST 1995
FIELD FIX KT 3500-7151 CONTAINS:
ITEM DESCRIPTION PART NO.
33* ! Each Limit Baffle 3500-101
34* 2 Each Limit Switch 3500-3151/A
Subject to change without notice. Printed in U.S.A.
Copyright t-: by York International Corp. 2004. All rights reserved.
Unitary
Products
Group
RO.
Box
19014
035-15266-003 Rev. A (0804)
Supersedes: 035-15266-002 Rev. D (0304)
Wichita
KS
67204-9014