Compare Electronics CP316 Wireless USB Module User Manual CP316 V1 1A SPEC
Shenzhen Compare Electronics Co.,Ltd. Wireless USB Module CP316 V1 1A SPEC
User manual
IEEE 802.11 b/g/n WLAN –USB
Product Specifications
Model: CP316
VER:1.1A
DATE:2012/05
1 Introduction
CP316 is a WLAN module supporting IEEE 802.11 b/g/n standards with PH
connector supporting USB 2.0 . This is a low cost compact WLAN module
designed in the product with embedded system for the wireless connectivity.
CP316 both support RT5370
1.1 Scope:
CP316 WLAN Module is designed to operate in 2.4GHz ISM frequency
band. This Module complies with IEEE 802.11b/g/n standards.
1.2 Features
1T1R mode with 150Mbps with PHY rates for both transmit and receiving
Dynamic data rate: Maximum data rate up to 150Mbps. 11n: Legacy, Mixed and Green Field
modes, 11g: 54/48/36/24/12/9/6 Mbps (Auto Sensing); 11b:11/5.5/2/1 Mbps (Auto Sensing)
support 20MHz/40MHz Bandwidth
Security support for 64/128 bit WEP, WPA/WPA2, WPA-PSK/WPA2-PSK (TKIP/AES)
Reverse Direction Grant Data Flow and Frame Aggregation
Cisco CCX Support
USB2.0
Operating Frequency 2.412GHz~ 2.4GHz
Transmit Output Power: 802.11g +/-1dBm
Receive Sensitivity 11b: -78dBm @ 11Mbps (Typical)11g: -68dBm @ 54Mpbs (Typical)
Operating Voltage 5V
Antenna Port Impedance 50ohm

2 Hardware Information
Block Diagram
RT5370:
Figure 1: System Block Diagram of CP316 V1.1A WLAN Module
4 Operating System
Windows 2000 /XP/VISTA/Win7
Wince 5.0 & 6.0
Linux 2.6.x
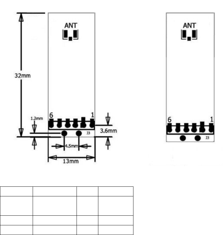
5 Mechanical Information
5.1 Dimensions
Size: 33mm(Length)x 13mm (Width) x8.5mm(Height)
Weight: 3g

Mechanical Drawing:
Pin Definition
15GND
2 3.3V/5V 6 LED/RF
ENABLE
3 D-
4 D+
Remark:
The sixth feet for LED by default.
5.2 USB Connection Information
6 pin (pin to pin=2.54mm)
5.3 Antenna Connection Information
Internal ceramic antenna

6 Environment
Operating Temperature 0~60
Operating Voltage DC 5V
Storage Temperature -40~70
Operating Humidity 10%~90% non-condensing
Storage Humidity 5%~90% non-condensing
7.Product ordering information
CP316 V1.1A RT5370 CHIPSET, only support 802.11b/g/n, 5V voltage support
Regulatory Information
The devices must be installed and used in strict accordance with the instructions as
described in the user documentation that comes with the product.
This device complies with Part 15 of the FCC Rules. Operation is subject to the following
two conditions:(1) This device may not cause harmful interference, and (2) This device
must accept any interference received, including interference that may cause undesired
operation.
Changes or modifications not expressly approved by the party responsible for compliance
could void the user's authority to operate the equipment.
The antenna(s) used for this transmitter must not be co-located or operating in conjunction
with any other antenna or transmitter.
If the FCC identification number is not visible when the module is installed inside another
device, then the outside of the device into which the module is installed must also display a
label referring to the enclosed module.
This exterior label can use wording such as the following: “Contains Transmitter Module
FCC ID: A2TCP316”
When the module is installed inside another device, the user manual of this device must
contain below warning statements:
This device complies with Part 15 of the FCC Rules. Operation is subject to the following
two conditions:
(1) This device may not cause harmful interference, and (2) This device must accept any
interference received, including interference that may cause undesired operation.
Changes or modifications not expressly approved by the party responsible for compliance
could void the user's authority to operate the equipment.