Craftsman 351214191 User Manual BAND SAW Manuals And Guides 1106175L
User Manual: Craftsman 351214191 351214191 CRAFTSMAN BAND SAW - Manuals and Guides View the owners manual for your CRAFTSMAN BAND SAW #351214191. Home:Tool Parts:Craftsman Parts:Craftsman BAND SAW Manual
Open the PDF directly: View PDF
.
Page Count: 24

perator's nual
®
tP
BENCH TOP BAND SAW
Model No.
351.214191
CAUTION: Read and follow
all Safety Rules and Operating
instructions before First Use
of this Product.
Sears Brands Management Corporation, Hoffman Estates, IL 60179 U.S.A.
www.sears.comlcraftsman
31829.00 Draft (12/23/09)

Warranty.................................... 2
SafetyRules............................... 2-3
Unpacking.................................. 3
Assembly................................... 3
Installation................................. 3-4
Operation................................. 4-8
Maintenance................................. 8
Troubleshooting.............................. 9
PartsIllustrationsandLists.................. 10-13
Espa5ol................................. 14-23
ONE-YEAR FULL WARRANTY ON
CRAFTSMAN PROFESSIONAL TOOL
If this Craftsman tool fails due to a defect in material or
workmanship within one year from the date of purchase,
call 1-800-4-MY-HOME® TO ARRANGE FOR FREE
REPAIR (or replacement if repair proves impossible).
This warranty does not include expendable parts, such
as lamps, batteries, bits or blades.
If this tool is ever used for commercial or rental purposes,
this warranty will apply for only 90 days from the date of
purchase.
This warranty gives you specific legal rights and you may
also have other rights which vary from state to state.
Sears, Roebuck and Co., 817WA, Hoffman Estates,
IL 60179
PROPOSITION 65 WARNING: Some dust created
by power sanding, sawing, grinding, drilling and other
construction activities contains chemicals known to the
state of California to cause cancer, birth defects or
other reproductive harm.
Some examples of these chemicals are:
• Lead from lead-based paints.
• Crystalline silica from bricks and cement and other
masonry products.
• Arsenic and chromium from chemically-treated lumber.
Your risk from these exposures vary, depending on how
often you do this type of work. To reduce your exposure
to these chemicals: work in a well ventilated area and
work with approved safety equipment. Always wear
OSHA/NIOSH approved, properly fitting face mask or
respirator when using such tools.
WARNING: For your own safety, read all of the
instructions and precautions before operating tool.
CAUTION: Always follow proper operating procedures
as defined in this manual -- even if you are familiar
with use of this or similar tools. Remember that being
careless for even a fraction of a second can result in
severe personal injury.
BE PREPARED FOR JOB
• Wear proper apparel. Do not wear loose clothing,
gloves, neckties, rings, bracelets or other jewelry
which may get caught in moving parts of machine.
• Wear protective hair covering to contain long hair.
• Wear safety shoes with non-slip soles.
• Wear safety glasses complying with United States
ANSi Z87.1. Everyday glasses have only impact
resistant lenses. They are NOT safety glasses.
• Wear face mask or dust mask if operation is dusty.
• Be alert and think clearly. Never operate power tools
when tired, intoxicated or when taking medications
that cause drowsiness.
PREPARE WORK AREA FOR JOB
• Keep work area clean. Cluttered work areas invite
accidents.
• Do not use power tools in dangerous environments.
Do not use power tools in damp or wet locations. Do
not expose power tools to rain.
• Work area should be properly lighted.
• Proper electrical receptacle should be available for
tool. Three-prong plug should be plugged directly
into properly grounded, three-prong receptacle.
• Extension cords should have a grounding prong and
the three wires of the extension cord should be of
the correct gauge.
• Keep visitors at a safe distance from work area.
• Keep children out of workplace. Make workshop
childproof. Use padlocks, master switches or remove
switch keys to prevent any unintentional use of
power tools.
TOOL SHOULD BE MAINTAINED
• Always unplug tool prior to inspection.
• Consult manual for specific maintaining and adjust-
ing procedures.
• Keep tool lubricated and clean for safest operation.
• Remove adjusting tools. Form habit of checking to
see that adjusting tools are removed before switch-
ing machine on.
• Keep all parts in working order. Check to determine
that the guard or other parts will operate properly
and perform their intended function.
• Check for damaged parts. Check for alignment of
moving parts, binding, breakage, mounting and any
other condition that may affect a tool's operation.
• A guard or other part that is damaged should be
properly repaired or replaced. Do not perform
makeshift repairs. (Use parts list provided to order
replacement parts.)
KNOW HOW TO USE TOOL
• Use right tool for job. Do not force tool or attachment
to do a job for which it was not designed.
• Disconnect tool when changing blade.
© Sears, Roebuck and Co. 2

• Avoid accidental start-up. Make sure that the tool is
in the OFF position before plugging in.
• Do not force tool. It will work most efficiently at the
rate for which it was designed.
Keep hands away from moving parts and cutting
surfaces.
• Never leave tool running unattended. Turn the power
off and do not leave tool until it comes to a complete
stop.
• Do not overreach. Keep proper footing and balance.
Never stand on tool. Serious injury could occur if tool
is tipped or if blade is unintentionally contacted.
Know your tool. Learn the tool's operation, applica-
tion and specific limitations.
Use of improper accessories increases the risk of
injury to persons.
Handle workpiece correctly. Protect hands from pos-
sible injury.
Turn machine off if it jams. Blade jams when it digs
too deeply into workpiece. (Motor force keeps it
stuck in the work.) Do not remove jammed or cut off
pieces until the saw is turned off, unplugged and the
blade has stopped.
WARNING: The operation of any power tool can result in
foreign objects being thrown into the eyes, which can
result in severe eye damage. Always wear safety goggles
complying with United States ANSI Z87.1 (shown on
package) before commencing power tool operation.
Safety goggles are available through your Sears catalog.
Check for shipping damage. If damage has occurred, a
claim must be filed with carrier. Check for complete-
ness. Immediately report missing parts to dealer.
The band saw comes assembled as one unit. Additional
parts which need to be fastened to the saw should be
located and accounted for before assembling:
A Miter Gauge Assembly
B Table Assembly
C Locking Handle with Washer
D Table Locking Insert Assembly
A B
Figure 1 =Unpacking
C
iMPORTANT: Table is coated with a protectant. To
ensure proper fit and operation, remove coating.
Coating is easily removed with mild solvents, such as
mineral spirits, and a soft cloth. Avoid getting solution
on paint or any of the rubber or plastic parts. Solvents
may deteriorate these finishes. Use soap and water on
paint, plastic or rubber components. After cleaning,
cover all exposed metal surfaces with a light coating of
oil. Paste wax is recommended for table top.
WARNING: Never use highly volatile solvents. Non
flammable solvents are recommended to avoid possible
fire hazard.
CAUTION: Do not attempt assembly if parts are miss-
ing. Use operator's manual to order replacement parts.
MOUNT BAND SAW TO WORK SURFACE
• Band saw' is designed to be portable so it can be
moved to job site, but should be mounted to stable,
level bench or table.
Base of band saw has four mounting holes.
If predrilled holes do not exist on work surface, drill
four holes.
Securely mount band saw to work surface by bolting
(hardware not supplied) it through the holes.
NOTE: The blade must be tensioned and tracked, and
the blade guides must be adjusted before operation of
the saw. Refer to "Tracking Blade" and "Blade Guides" in
the OPERATION section, page 6.
iNSTALL TABLE
Refer to Figure 10.
Remove knob assembly (Key No. 18) from saw
frame.
• Position table assembly on saw frame. Re-install
knob assembly.
Secure table in position with locking handle assem-
bly (Key Nos. 14 and 15).
• Using a combination square, set table perpendicular
to blade. Adjust table stop (Key Nos. 12 and 13) if
necessary.
• Set pointer at 0° (Key No. 21).
• Install table locking insert assembly (Key Nos. 4, 5, 6
and 16).
Refer to Figures 2 and 3.
MOTOR
The 120 Volt AC motor has the following specifications:
Horsepower (Continuous Duty) ..................
Voltage ................................... 120
Amps ..................................... 2.5
Hertz ..................................... 60
Phase .................................. Single
RPM .................................... 1725
POWER SOURCE
The motor is designed for operation on the voltage and
frequency specified. Normal loads will be handled safe-
ly on voltages not more than 10% above or below the
specified voltage.
3

Running the unit on voltages which are not within the
range may cause overheating and motor burn-out.
Hea Wloads require that the voltage at motor terminals
be no less than the voltage specified. Power supply to
the motor is controlled by a double pole locking rocker
switch. Remove the key to prevent unauthorized use.
GROUNDING INSTRUCTIONS
WARNING: Improper connection of equipment
grounding conductor can result in the risk of electrical
shock. Equipment should be grounded while in use to
protect operator from electrical shock.
Check with a qualified electrician if grounding instruc-
tions are not understood or if in doubt as to whether the
tool is properly grounded.
This tool is equipped with an approved 3 conductor
cord rated at 150V and a three prong grounding type
plug for your protection against shock hazards.
Grounding plug should be plugged directly into a prop-
erly installed and grounded 3-prong grounding-type
receptacle, as shown (Figure 2).
Properly Grounded Outlet
Grounding Prong
3-Prong
Figure 2=3=Prong Receptacle
Do not remove or alter grounding prong in any manner.
In the event of a malfunction or breakdown, grounding
provides a path of least resistance for electrical shock.
WARNING: Do not permit fingers to touch the termi-
nals of plug when installing or removing from outlet.
Plug must be plugged into matching outlet that is prop-
erly installed and grounded in accordance with all local
codes and ordinances. Do not modify plug provided. If it
will not fit in outlet, have proper outlet installed by a
qualified electrician.
Inspect tool cords periodically, and if damaged, have
them repaired by an authorized service facility.
Green (or green and yellow) conductor in cord is the
grounding wire. If repair or replacement of the electric
cord or plug is necessary, do not connect the green (or
green and yellow) wire to a live terminal.
Where a 2-prong wall receptacle is encountered, it
must be replaced with a properly grounded 3-prong
receptacle installed in accordance with National Electric
Code and local codes and ordinances.
WARNING: This work should be performed by a quali-
fied electrician.
A temporary 3-prong to 2-prong grounding adapter (see
Figure 3) is available for connecting plugs to a two pole
outlet if it is properly grounded.
Grounding Lug
Make Sure
Adapter This Is
3-Prong Connected To
A Known
Ground
2-Prong Receptacle
Figure 3=2=Prong Receptacle with Adapter
Do not use a 3-prong to 2-prong grounding adapter
unless permitted by local and national codes and ordi-
nances. (A 3-prong to 2-prong grounding adapter is not
permitted in Canada.) Where permitted, the rigid green
tab or terminal on the side of the adapter must be
securely connected to a permanent electrical ground
such as a properly grounded water pipe, a properly
grounded outlet box or a properly grounded wire system.
Many cover plate screws, water pipes and outlet boxes
are not properly grounded. To ensure proper ground,
grounding means must be tested by a qualified electri-
cian.
EXTENSION CORDS
• The use of any extension cord will cause some drop
in voltage and loss of power.
• Wires of the extension cord must be of sufficient size
to carry the current and maintain adequate voltage.
• Use the table to determine the minimum wire size
(A.W.G.) extension cord.
Use only 3-wire extension cords having 3-prong
grounding type plugs and 3-pole receptacles which
accept the tool plug.
If the extension cord is worn, cut or damaged in any
way, replace immediately.
EXTENSION CORD LENGTH
Wire Size A.W.G.
Up to 50 ft.................................. 16
NOTE: Using extension cords over 50 ft. long is not
recommended.
Refer to Figures 4 -7, pages 5 and 6.
The Craftsman 9" Bench Top Band Saw features weld-
ed steel frame construction and a solid cast iron table
surface to insure durability. It is designed for cutting
hard and soft woods, as well as nonferrous metals and
plastics. The saw is equipped with a miter gauge for
performing many different operations. A convenient
quick tensioning and comprehensive tracking mecha-
nism makes blade changing quick and easy. Saw also
features a blade tracking window and dust collection
port.
4

SPECIFICATIONS
Depth of throat at 90° ......................... 9"
Maximum depth of cut at 90° . ................. 3%"
Maximum depth of cut at 45 ° . .................. 2"
Table size .......................... 113/4x 113/4"
Table tilt .............................. 0° to 45°
Wheel diameter ............................ 9.4"
Blade length ............................... 62"
Blade width ............................. _/+_3/+.
Blade speed ......................... 2460 FPM
Overall dimensions .................. 20 x 13 x 29"
Shipping weight .......................... 49 Ibs
Dust collection port ....................... 2.086"
CAUTION: Always observe the following safety
precautions:
+ Make sure that blade guides and thrust bearings are
positioned and adjusted correctly to prevent side-
ways and rearward movement of the blade. Adjust
upper guide to just clear workpiece.
+ Check to make sure blade is tensioned and tracking
properly. Do not over tension the blade in order to
prevent premature blade wear and breakage. Avoid
under tensioning to eliminate back and forth, side to
side blade movement as it cuts.
+ Use proper blade for the cutting operation.
+ After turning saw on, allow blade to come to full
speed before attempting any cutting operation.
+ Support workpiece firmly against table and use a
smooth steady feed to guide work through the cut.
Use push sticks or push blocks when required.
+ Keep hands away and out of line with moving parts.
+ Always wear eye protection.
+ Do not remove jammed cutoff pieces until blade has
stopped.
ON/OFF SWITCH
Refer to Figure 4.
The ON/OFF switch is located on the left front of the
saw column. To turn saw ON, pull the switch to the up
position. To turn saw OFF, push the switch to the down
position.
The saw can be locked from unauthorized use by lock-
ing the switch. To lock the switch:
+ Turn the switch to OFF position and disconnect saw
from power source.
+ Pull the key out. The switch cannot be turned on with
the key removed.
NOTE: Should the key be removed from the switch at
the ON position, the switch can be turned off but cannot
be turned on again.
+ To replace key, slide key into the slot on switch until it
snaps.
Figure 4- Locking Switch in OFF Position
REMOVING BLADE
WARNING: Disconnect band saw from power source
when changing or adjusting blades. Wear leather gloves
when handling band saw blades. Never wear gloves
when operating saw.
+ Turn blade tension lever on the back of the tool
counterclockwise all the way until it locks in position
to release blade tension (see Figure 5).
Tension Knob_
Blade Tension
Lever
Tracking
Window
Upper
Guide
Adjusting
Knob
Figure 5 = Blade Tensioning Lever
+ Release two latches on the side of the tool and open
upper and lower doors.
NOTE: When opening doors, make sure latches are
completely free from tabs on frame.
5

• Lower the upper blade guide completely and unsnap
guide panel to access the blade (see Figure 6).
Figure 6 = Open upper Blade Guide to Access Blade
• Remove table locking insert located in the front of
the table slot, take out the released blade and
replace with another blade.
INSTALLING BLADE
• Although most of the adjustments are not changed
when blade is removed, every adjustment should be
checked prior to using a newly installed blade.
• Make sure blade teeth are pointing down towards
table. Turn blade inside out if necessary.
• Slip new blade into table slot and over the upper and
lower blade wheels. Slide blade in between blade
guards.
• Tension blade by turning blade tensioning lever
clockwise, as far as it will go (see Figure 5). This is a
spring loaded, tensioning mechanism and it will
automatically apply required tension to the blade.
• Use the tension knob to make fine adjustments to
blade tension
Close the doors and fasten latches.
NOTE: When closing doors, make sure that the edges
of the doors and frame are firmly fitted together before
attempting to secure door. This is necessary for proper
operation of dust collection system. The latches will not
pull the doors and frame together.
• Install table insert.
Track blade as described in the following sections.
TRACKING BLADE
Refer to Figures 5 and 11.
WARNING: Be very careful; improperly tracked blade
may spring out from wheels causing serious injury. Do
not perform tracking adjustment while band saw is
running.
• Disconnect band saw from power source.
• To check the blade tracking, rotate drive wheel by
hand in clockwise direction. View blade through
tracking window.
Proper tracking is achieved when drive and idler
wheels are aligned. Tracking knob (Key No. 11) on
the back of the tool frame is used to tilt upper wheel
and align blade wheels.
If blade rides away from cabinet, turn knob
clockwise. If blade rides toward cabinet, turn knob
counterclockwise.
BLADE GUIDES
NOTE: Adjust blade guides only after blade has been
properly tensioned and tracked.
• Blade guides support blade at sides and rear of
blade, and prevent twisting or deflection.
Blade guides should not touch blade when no work-
piece is in contact with blade. Adjust guides as
described in following section.
UPPER BLADE GUIDES
= Upper blade guides employ guide pins for side
support and a ball bearing for rear support.
Loosen screws and adjust guide pins to sides of the
blade (see Figure 7). Use a feeler gauge to check
that guide pins are 0.002" away from blade.
.Bearing
Guide Pin
Screw
Figure 7 =Upper Blade Guides
Lock adjustment by tightening screws.
6

• Adjust ball bearing at rear of blade by loosening
socket head bolt and repositioning shaft
(see Figure 8).
Head
o
o
Figure 8 =Upper Blade Guide
Position ball bearing 0.002" away from back of blade.
Secure position of bearing by tightening socket head
bolt.
Adjust the height of upper guide to clear the work-
piece by ¼". Loosen upper guide knob (Figure 10,
Key No. 25) and adjust height of upper guide until it
clears workpiece by ¼".Tighten upper guide knob.
LOWER BLADE GUIDES
• Lower blade guides employ guide pins for side sup-
port and bearing for rear support.
• Loosen screws (see Figure 9) and move guide pins
away from blade sides.
Loosen socket head bolts (Figure 10, Key No. 61)
and adjust lower guide bracket position so that rear
of blade is positioned 0.002" away from bearing.
Tighten socket head bolts.
Adjust guide pins (see Figure 9) to sides of the
blade. Use a feeler gauge to check that guide pins
are 0.002" away from blade.
Lock adjustment by tightening screws.
BLADE SELECTION
• Blades vary depending on type of material, size of
workpiece and type of cut that is being performed.
Characteristics which make blades different are
width, thickness and pitch.
BLADE WIDTH
Width of blade describes distance from tip of a tooth
to back of blade.
Width of blade affects rigidity of blade. A wider blade
wanders less and produces a straighter cut.
Width of blade also limits the smallest radius which can
be cut. A 1A"wide blade can cut about a Y2"radius.
BLADE THICKNESS
• Blade thickness describes the distance between
sides of blade. A thicker blade has more rigidity and
stronger teeth.
A narrow thick blade is used to cut curves while a
wide thin blade is used to make long, straight cuts.
BLADE PITCH
Pitch describes number of teeth per inch or tooth
size. A blade with more teeth per inch produces a
smoother cut.
The type of material being cut determines number of
teeth which should be in contact with work.
® For soft materials, the proper blade has between 6 to
8 teeth per inch.
When cutting hard materials, where shocking is
more detrimental, use a blade with 8 to 12 teeth per
inch.
• There should always be at least three teeth in
contact with cut to avoid shocking blade.
Blade shocking occurs when pitch is too large and
blade tooth encounters too much material. This can
strip teeth from blade.
• Blade manufacturers are prepared to supply
information about blades for specific applications.
TYPE OF CUT
• Contour cutting is done by guiding workpiece
free-handed to produce curved shapes.
• Beveled cutting is done by tilting saw table and using
proper work guide method.
Regardless of which work guiding method is used, a
workpiece which overhangs table by more than 5"
needs proper support.
CONTOUR SAWING
When contour sawing, use both hands to keep work-
piece flat against table and guided along desired
path.
Avoid positioning hands in line with blade. If hands
slip, they could contact blade.
• Try to stand to front of the saw and use hands over
7

the portion of table which is to right of blade and
before cut.
Cut small corners by sawing around them. Saw to
remove scrap until desired shape is obtained.
BEVEL CUTTING
Refer to Figure 10.
•Perform bevel cutting by tilting table to desired
degree.
•Unlock table by loosening locking handle located on
the backside of the unit (Key No. 14).
•Tilt table to desired position by rotating knob
(Key No. 18).
•Lock table in position by tightening locking handle.
MITER GAUGE
= Use miter gauge for securing and holding workpiece
at desired angle to produce angled cuts. Use scale
to adjust gauge to desired angle.
WARNING: Never use miter gauge and rip fence at
the same time. The blade might bind in the workpiece.
Operator could be injured and/or workpiece could be
damaged.
BLADE CLEANING BRUSH
Refer to Figure 10.
•Make sure that brush (Key No. 57) is in contact with
blade to properly remove foreign particles from drive
wheel.
WARNING: Make certain that unit is disconnected
from power source before attempting to service or
remove any component.
CLEANING
•Keep machine and workshop clean. Do not allow
sawdust to accumulate on band saw.
• Keep wheels clean. Debris on wheels will cause
poor tracking and blade slippage.
•Keep mechanisms and threaded or sliding surfaces
clean and free of foreign particles.
•Operate band saw with a dust collector to minimize
clean up.
LUBRICATION
•The shielded ball bearings are permanently lubricat-
ed and require no further lubrication.
•Small amounts of machine oil can be applied to belt
tension mechanisms and threaded or sliding sur-
faces.
• Occasionally apply a coat of paste wax to table top
to keep it slick and corrosion free.
KEEP BAND SAW IN REPAIR
•If power cord is worn or cut in any way, have it
replaced.
• Replace any damaged or missing part.
• Use parts list to order parts.
8

SYMPTO M
Excessive blade breakage
Premature blade dulling
Crooked cuts
CORRECTIVE ACTION
•Squarely place work on table
Use finer pitch blade
Place blade in contact with work after saw is
started and has reached full speed
Adjust blade guides properly
Use thinner blade
Replace blade
•Use finer tooth blade
Gently increase pressure
Reduce speed; increase rate of feed for
scale and change blades for hard spots
Remove blade, twist inside out and reinstall
blade
Use miter gauge; adjust tilt of table at 90 °
Reduce rate of feed
Move both guide blocks within .002" from
blade (use gauge)
Adjust upper guide to just clear workpiece
byW'
Replace blade
Tighten blade thrust bearing within •002"
behind blade back
Rough cuts Reduce feed
Replace with finer blade
POSSIBLE CAUSE(S)
1. Material not secure on table 1
2. Blade too coarse for material 2.
3. Teeth in contact with work before 3.
sawing
4. Misaligned guides 4.
5. Blade too thick for wheel diameter 5.
6. Cracking at weld 6.
1. Blade too coarse 1
2. Inadequate feed pressure 2.
3. Hard spots or scale in or on 3.
material
4. Blade installed backwards 4.
1. Work not square 1.
2. Rate of feed too great 2.
3. Blade guides not adjusted properly 3.
4. Upper blade guide too far 4.
from workpiece
5. Dull blade 5.
6. Blade guide assembly loose or 6.
blade thrust bearing loose
1. Too much feed 1.
2. Blade too coarse 2.
1. Cut is binding blade 1.
2. Blade guides or bearing worn 2.
3. Blade guides or bearings not 3.
adjusted properly
4. Blade guide brackets loose 4.
1. Teeth too coarse for work 1.
2. Rate of feed too great 2.
3. Vibrating workpiece 3.
4. Teeth filling with material 4.
1. Blade too coarse for work
(typical when cutting pipe)
2. Blade too fine for work (typical
when cutting slick or soft material)
3. Excessive dirt and chips
Loose electrical connections
Blade is twisting or unusual
wear on side/back of blade
Teeth ripping from blade
Motor running too hot
Decrease feed pressure
Replace
Adjust blade guides; see "Operation"
Tighten properly
Use blade with finer teeth
Decrease feed rate
Hold workpiece firmly
Use blade with coarser teeth
1. Use blade with finer teeth
2. Use blade with coarser teeth
3. Clean thoroughly
Saw will not start Have qualified electrician check electrical
connections
9

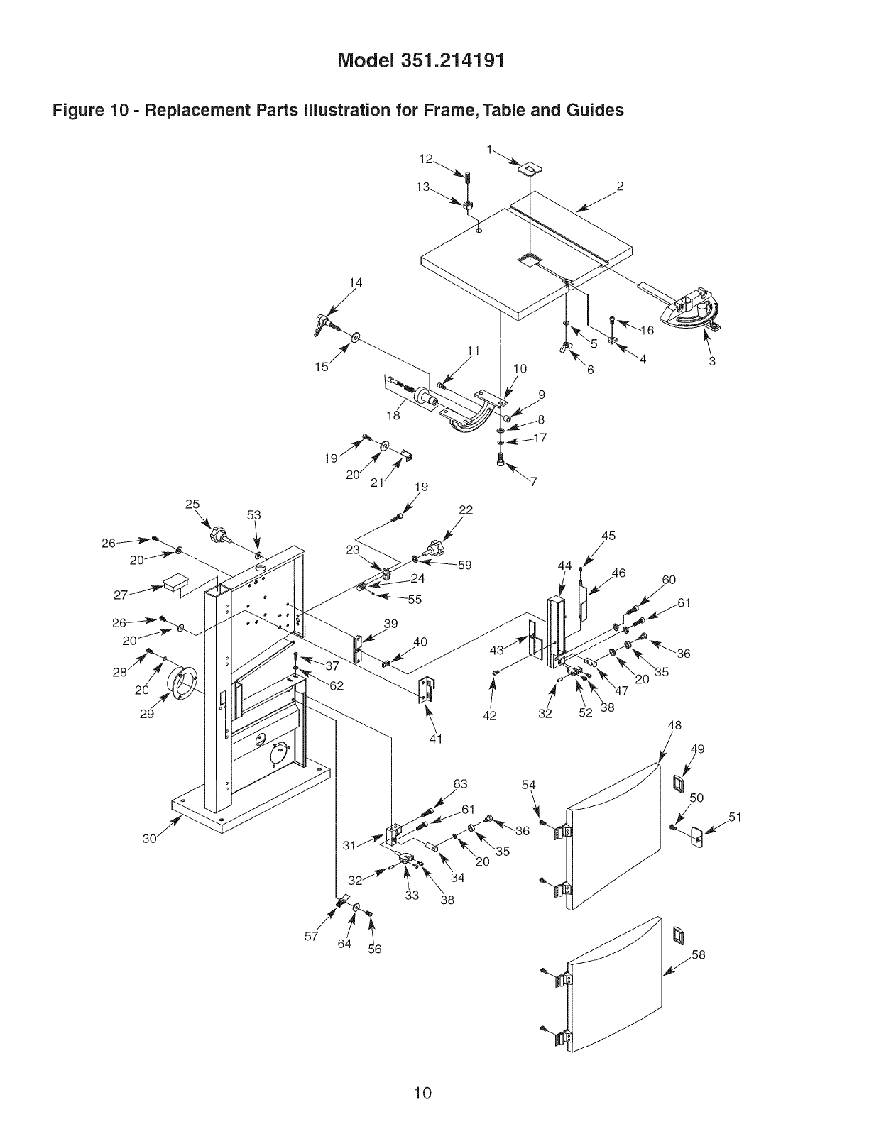
iVlodel 351.21 4191
Figure 10 - Replacement Parts illustration for Frame, Table and Guides
1
1
14
2o
20
29
53
18
19
11
22
10
9
59 44
55
39
4O
42 32
41
6
45
2 38
3
6O
48
49
5O
10

KEY
NO. PART NO,
1 31830.00
2 31831.00
3 31832.00
4 31833.00
5 STD852006
6 STD844610
7 STD870816
8 STD851008
9 25067.00
10 31834.00
11 STD870520
12 31835.00
13 STD840610
14 31836.00
15 STD851010
16 STD863625
17 STD852008
18 31837.00
19 STD870510
20 STD851005
21 31838.00
22 25074.00
23 25075.00
24 25076,00
25 25077.00
26 STD863506
27 25078.00
28 STD863512
29 25079.00
30 N/A
31 25080.00
32 25767.00
DESCRIPTION QTY.
Table Insert 1
Table 1
Miter Gauge Assembly 1
Table Locking Insert 1
6mm Lock Washer* 1
6-1.0mm Wing Nut* 1
8-1.25 x 16mm Socket 4
Head Bolt*
8mm Flat Washer* 4
Spacer 2
Trunnion 1
5-0.8 x 20mm Socket 2
Head Bolt*
6-1.0 x 36mm Set Screw 1
6-1.0mm Hex Nut* 1
Locking Handle 1
10mm Flat Washer* 1
6-1.0 x 25mm Pan Head 1
Screw*
8mm Lock Washer* 4
Knob Assembly 1
5-0.8 x 10mm Pan Head 3
Screw*
5mm Flat Washer* 12
Pointer 1
Knob 1
Bracket 1
Pinion 1
Knob 1
5-0.8 x 6mm Pan Head 4
Screw*
Plug 1
5-0.8 x 12mm Pan Head 3
Screw*
Dust Chute 1
Cabinet 1
Lower Guide Mount 1
5 x 14ram Dowel Pin 4
KEY
NO.
33
34
35
36
37
38
39
40
41
42
43
44
45
46
47
48
49
50
51
52
53
54
55
56
57
58
59
60
61
62
63
64
PART NO.
31839.00
31840.00
STD315488
25083.00
31841.00
i05474.00
25084.00
25085.00
25086.00
31842.00
25087.00
31843.00
25089.00
31844.00
i25091.00
31845.00
25093.00
STD861395
25094.00
25095.00
16716.00
05167.00
15107.00
25099.00
25100.00
31846.00
09725.00
STD870516
STD870510
00652.00
iSTD870512
iSTD851004
DESCRIPTION QTY.
Lower Guide Block 1
Lower Bearing Bracket 1
606ZZ Ball Bearing* 2
Bearing Stud 2
Screw 2
4-0.7 x 6mm Set Screw 4
Mount 1
Nut 1
Limit Plate 1
Threadforming Screw 1
Guard 1
Upper Blade Guide 1
Spring 1
Blade Guard 1
Upper Bearing Bracket 1
Upper Door Assembly 1
Latch 2
4.2 x 9.5mm Threadforming 1
Screw*
Window 1
Upper Guide Block 1
8mm Flat Washer (W) 1
4-0.7 x 10mm Flat Head 8
Screw
4-0.7 x 4mm Set Screw 1
4.8 x 9.5mm Threadforming 1
Screw
Brush 1
Lower Door Assembly 1
6mm Wavy Washer 1
5-0.8 x 16mm Socket Head 1
Bolt*
5-0.8 x 10mm Socket Head 2
Bolt*
6mm Flat Washer (W) 2
5-0.8 x 12mm Socket Head 1
Bolt*
4mm Flat Washer* 1
* Standard hardware item available locally.
N/A Not available as replacement part. Recommended Accessories Model No.
A Blade 62"x W'x 14TPI Hook 26245.00
A Blade 62"x W'x 6TPI Hook 26246.00
A Blade 62"x %"x 4TPI Hook 26247.00
11

Model 351.21 4191
Figure 11 - Replacement Parts illustration for Drive
7
8
2O
23
24
25
26 28
29
52
48
11
46
14
26
30
35
40
31 33 26
39
38
37
34 !
29
26 !
3O
45
12

KEY
NO. PART NO. DESCRIPTION QTY.
1 STD863510 8
2 01474.00
3 STD870825
4 STD851008
5 31847.00
6 25103.00
7 01601.00
8 08066.00
9 31848.00
10 STD863508
11 25105.00
12 25106.00
13 16716.00
14 25107.00
15 STD870510
16 25108.00
17 25109.00
18 25110.00
19 25111.00
20 31849.00
21 31850.00
22 STD841015
23 25113,00
24 25114,00
25 31851,00
26 STD315511
5-0.8 x lOmm Pan Head
Screw*
5mm Serrated Washer 4
8-1.25 x 25mm Socket Head 2
Bolt*
8ram Flat Washer* 3
Motor 1
Line Cord 1
Strain Relief 2
Switch 1
Switch Box 1
5-0.8 x 8mm Pan Head 6
Screw*
Knob 1
Spring 1
8mm Flat Washer (W) 2
Blade Tensioning Cam 1
Assembly
5-0,8 x lOmm Socket Head 2
Bolt*
Knob 1
Spring 1
8-1.25 x 80mm Carriage Bolt 1
Tension Bracket 1
Push Nut 2
Pin 1
lOmm Hex Nut* 1
Upper Cabinet Support 1
Tracking Adjustment Bracket 1
Idler Shaft 1
6001ZZ Ball Bearing* 4
* Standard hardware item available locally.
A Not shown.
N/A Not available as replacement part.
KEY
NO.
27
28
29
30
31
32
33
34
35
36
37
38
39
40
41
42
43
44
45
46
47
48
49
5O
51
52
A
A
A
PART NO.
STD852010
31852.00
31853.00
00221.00
STD833020
31854,00
31855.00
31856,00
31857,00
25121.00
03835,00
31858.00
25123.00
N/A
31859.00
STD840610
25296.00
STD870506
STD852008
STD851005
STD840612
31860.00
31861.00
01640.00
01900.00
31862.00
31829.00
31863.00
31864.00
DESCRIPTION QTY.
lOmm Lock Washer* 1
Idler Wheel 1
Wheel Band 2
3AMI-IO Retaining Ring 2
6-1.0 x 20mm Hex Head Bolt* 4
Driven Shaft 1
Driven Pulley 1
Lower Wheel 1
4.2 x 13mm Tapping Screw 3
Belt 1
5-0.8 x 12mm Flat Head 1
Screw
Washer 1
Motor Pulley 1
Cabinet 1
Blade 62" Lg 1
6-1.0mm Hex Nut* 4
Seal 1
5-0.8 x 6mm Socket 1
Head Bolt*
8mm Lock Washer* 2
5mm Flat Washer* 6
12-1.75mm Hex Nut* 1
Sleeve Nut 1
Spacer Sleeve 1
6-1.0 x 16mm Set Screw 2
3AMI-25 Retaining Ring 1
Spherical Bearing 1
Operator's Manual 1
Hex wrench 1
Open end wrench 1
13

SIERRA DE BANDA
DE BANCO DE 9"
Modelo No.
351.214191
PRECAUCION: Lea y siga todas las Reglas
de Seguridad y las Instrucciones de Operaci6n
antes de usar este producto por primera vez.
Ingles ......................................... 2-9
Ilustraciones y Listas de Partes ................... 10-13
Garantia ........................................ 14
Reglas de Seguridad ........................... 14-15
Desempaque .................................... 15
Montaje ...................................... 15-16
Instalaci6n .................................... 16-17
Operaci6n .................................... 17-19
Mantenimiento ................................... 20
Identificaci6n de Problemas ......................... 21
GARANTIA COMPLETA DE UN ANO PARA
HERRAMIENTA CRAFTSMAN
Siesta herramienta Craftsman fallara por causa de defectos
en el material o en la mano de obra en un lapso de un aSo a
partir de la fecha de compra, LLAME al 1-800-4-MY-HOME®
PARA SOLICITAR LA REPARACION GRATUITA DEL
PRODUCTO (o su reemplazo si no se puede reparar
la unidad). Esta garantia no incluye partes fungibles, tales
como IAmparas, baterias, barrenas o cuchillas.
Siesta herramienta se usa alguna vez para fines comerciales
o de alquiler, esta garantia es vAlida 0nicamente por 90 dias
a partir de la fecha de compra.
Esta garantia le otorga derechos legales especificos y
tambi_n puede usted tener otros derechos que varien
de estado aestado.
Sears, Roebuck and Co., 817WA, Hoffman Estates, IL 60179
ADVERTENCIA DE LA PROPOSICION 65: Parte del
polvo producido por el lijado mecAnico,serrado, esmerilado,
taladrado y otras tareas de construcci6n contiene sustancias
quimicas que el estado de California reconoce como cau-
santes de c&ncer, malformaciones cong6nitas u otros daSos
reproductivos.
Algunos ejemplos de estas sustancias quimicas son:
• Plomo proveniente de pinturas con base de plomo.
• SilJce crJstalino provenJente de ladrJllos, cemento y
otro material de mamposteria.
• Arsenico y cromo proveniente de madera quimica-
mente tratada.
El riesgo debido a la exposici6n de estas sustancias quimicas
depende de la frecuencia con la cual realice este tipo de tra-
bajo. Para reducir la exposici6n a estas sustancias quimicas:
trabaje en un b,rea bien ventilada y utilice equipo de seguri-
dad aprobado. Cuando trabaje con este tipo de herramientas,
utilice siempre una m&scara para la cara o respirador ade-
cuadamente ajustados, aprobados por OSHA/NIOSH.
ADVERTENClA: Para su propia seguridad, lea todas
las instrucciones y las precauciones antes de operar la
herramienta.
PRECAUClON: Siempre siga los procedimientos de
operaci6n correctos, tal como se definen en este manual,
aun cuando est6 familiarizado con el uso de 6sta o de otras
herramientas similares. Recuerde que descuidarse aunque
s61o sea por una fracci6n de segundo puede ocasionarle
graves lesiones.
EL OPERADOR DEBE ESTAR PREPARADO PARA
EL TRABAJO
• Use ropa apropiada. No use ropa holgada, guantes,
corbatas, anillos, pulseras ni otras joyas que puedan
atascarse en las piezas m6viles de la m&quina.
Use una cubierta protectora para el cabello, para sujetar
el cabello largo.
Use zapatos de seguridad con suelas antideslizantes.
• Use galas de seguridad que cumplan con la norma
ANSI Z87.1 de los Estados Unidos. Los anteojos comunes
tienen lentes que s61o son resistentes al impacto. No son
anteojos de seguridad.
Use una m&scara para la cara o una m_scara contra el
polvo, sial utilizar la herramienta se produce mucho polvo.
Est_ alerta y piense claramente. Nunca opere herramientas
mec_nicas cuando est6 cansado, intoxicado o bajo la
influencia de medicaci6n que produzca somnolencia.
PREPARE EL AREA DE TRABAJO PARA
LA TAREA AREALIZAR
• Mantenga el &rea de trabajo limpia. Las &reas de trabajo
desordenadas atraen accidentes.
No use herramientas mec&nicas en ambientes peligrosos.
No use herramientas mec_nicas en lugares h0medos o
mojados. No exponga las herramientas mec&nicas a la Iluvia.
El &rea de trabajo debe estar iluminada adecuadamente.
Debe haber disponible una toma de corriente adecuada
para la herramienta. El enchufe de tres puntas se tiene
que enchufar directamente en un recept_culo de tres
puntas conectado a tierra correctamente.
Los cordones de extensi6n deben tener una punta de
conexi6n a tierra y los tres alambres del cord6n de
extensi6n deben ser del calibre correcto.
Mantenga a los visitantes a una distancia prudente del
&rea de trabajo.
= Mantenga a los niSos fuera del lugar de trabajo. Haga que
su taller sea a prueba de niSos. Use candados, interruptores
maestros y remueva las Ilaves del arrancador para impedir
cualquier uso involuntario de las herramientas mec&nicas.
SE DEBE DAR MANTENIMIENTO A
LA HERRAMIENTA
• Desenchufe siempre la herramienta antes de inspeccionarla.
• Consulte el manual para informarse sobre los procedi-
mientos de mantenimiento y ajuste especificos.
14

• Mantenga la herramienta lubricada y limpia de modo que
funcione de la manera m_.s segura.
Retire las herramientas de ajuste. Desarrolle el habito
de verificar que hayan sido retiradas las herramientas
de ajuste antes de encender la m_.quina.
Mantenga todas las partes listas para funcionar. Revise
el protector u otras piezas para determinar si funcionan
correctamente y hacen el trabajo que deben hacer.
Revise que no haya partes da_adas. Verifique el alinea-
miento de las partes m6viles, si hay atascamiento, roturas
y montaje o cualquier otra condici6n que pudiera afectar
el funcionamiento de la herramienta.
Si hay una protecci6n o cualquier otra parte da_ada, _stas
deber_.n repararse correctamente o ser reemplazadas. No
haga reparaciones provisionales (vAIgase de la lista de
piezas incluida para solicitar piezas de reemplazo).
EL OPERADOR DEBE SABER COMO USAR
LA HERRAMIENTA
• Use la herramienta correcta para cada trabajo. No fuerce
la herramienta o el accesorio ni los use para una tarea
para la que no fueron diseSados.
Cuando cambie la hoja, desconecte la herramienta.
Evite que la herramienta se encienda pot accidente.
Cerci6rese de que la herramienta est6 en la posici6n
OFF (apagado) antes de enchufarla.
No fuerce la herramienta. Funcionara en la forma m&s
eficiente a la velocidad para la cu_l se dise56.
Mantenga las manos alejadas de las partes movibles y
de las superficies cortadoras.
Nunca deje desatendida una herramienta en funciona-
miento. Descon6ctela y no abandone el lugar hasta que
se haya detenido por completo.
No trate de alcanzar demasiado lejos. Mant6ngase firme
y equilibrado.
Nunca se pare sobre la herramienta. Se pueden producir
lesiones graves si la herramienta se vuelca o hace
contacto con la cuchilla sin intenci6n.
Conozca su herramienta. Aprenda a manejar la herramienta,
su aplicaci6n y limitaciones especificas.
Si se usan accesorios incorrectos, aumenta el riesgo de
sufrir lesiones o lesionar a alguien.
Maneje la pieza de trabajo en forma correcta. Prot6jase
las manos de posibles lesiones.
Apague la mAquina si se atasca. La hoja se atasca si
se introduce muy profundamente en la pieza de trabajo
(la fuerza del motor la mantiene trabada en la pieza de
trabajo). No quite las piezas atascadas o cortadas hasta
que se haya apagado y desconectado la sierra y la hoja
se haya detenido.
ADVERTENOIA: La operaci6n de toda herramienta mec_,ni-
ca puede hacer que salgan arrojados objetos extraSos hacia
los ojos y les causen graves heridas. Siempre use gafas de
seguridad que cumplan con los requisitos de la norma esta-
dounidense ANSI Z87.1 (se indica en el paquete) antes de
comenzar a usar la herramienta mecanica. Puede obtener
gafas de seguridad a trav6s de su cat_.logo de Sears.
15
Verifique que no hayan ocurrido daSos durante el envio. Si
hay daSos, se debera presentar un reclamo a la compaSia
de transporte. Verifique que est_ completa. Avise inmediata-
mente al distribuidor si faltan partes.
La sierra de banda viene armada como una unidad. Ser_.
necesario Iocalizar y ver que no falten las partes adicionales
que deben montarse en la sierra, antes de instalarlas:
A Conjunto de la guia de ingletes
B Conjunto de la mesa
C Manilla de fijaci6n con arandela
D Conjunto del inserto de fijaci6n de la mesa
co'
Figura 1 - Desempaque
IMPORTANTE: La mesa viene revestida con un protector.
Para garantizar un ajuste y un funcionamiento correctos,
retire dicho revestimiento, t2ste se puede eliminar f_cilmente
mediante solventes suaves, tales como esencias minerales, y
un paso suave. Evite dejar caer esta soluci6n en la pintura o
en cualquier parte de goma o pl_stico. Los solventes pueden
deteriorar estos acabados. Use agua y jab6n en la pintura y
en los componentes de pl_stico o goma. Despu6s de limpiar-
la, cubra todas las superficies de met_.lico expuestas con una
capa ligera de aceite. Se recomienda el uso de cera en pasta
para la parte superior de la mesa.
ADVERTENClA: Nunca use solventes muy vol&tiles. Se
recomienda utilizar solventes no inflamables para evitar
posibles incendios.
PRECAUCION: No intente hacer el montaje si hay partes
que faltan. V_lgase del manual de operador para solicitar
partes de repuesto.
MONTAJE DE LA SIERRA DE BANDA
EN LA SUPERFICIE DE TRABAJO
• La sierra de banda ha sido diseSada para ser port_til de
modo que pueda Ilevarse al lugar de trabajo, pero se debe
montar en un banco o mesa estable y nivelada.
= La base de la sierra de banda tiene cuatro agujeros de
montaje.
• Si la superficie de trabajo no tiene ya hechos los agujeros,
perfore cuatro con un taladro.
• Monte firmemente la sierra de banda en la superficie de
trabajo apern_.ndola (pernos no incluidos) a trav6s de los
agujeros.
AVlSO: La hoja debe estar tensa y alineada, y las guias de la
hoja deben ajustarse antes de poner en funcionamiento la
sierra. Consulte "Alineaci6n de la hoja" y "Guias de la hoja" en
la secci6n OPERACION, p_.ginas 18.

INSTALE LA MESA
Consulte la Figura 10.
• Remueva el conjunto de la manilla (Clave No. 18) del
bastidor de la sierra.
Coloque el conjunto de la mesa sobre el bastidor de la
sierra. Vuelva a instalar el conjunto de la manilla.
Asegure la mesa en su posici6n con el conjunto de la
manivela de fijaci6n (Claves No. 14 y 15).
Utilizando una escuadra de combinaci6n, coloque la mesa
perpendicular a la hoja. Ajuste el tope de la mesa (Claves
No. 12 y 13) de ser necesario.
Ajuste el indicador en 0 ° (Clave No. 21).
Instale el conjunto del inserto de fijaci6n de la mesa
(Claves No. 4, 5, 6 y 16).
Consulte las Figuras 2 y 3.
MOTOR
El motor de CA de 120 voltios tiene las siguientes
especificaciones:
Caballaje (servicio continuo) .........................
Voltaje ........................................ 120
Amperaje ....................................... 2.5
Frecuencia (Hz) .................................. 60
Fase .................................... MonofAsico
RPM ......................................... 1725
FUENTE DE ALIMENTACION
El motor ha sido diseSado para funcionar al voltaje y frecuencia
especificados. Las cargas normales se pueden manejar con
seguridad con voltajes no mayores de 10% por encima o por
debajo del voltaje especificado.
El hacer funcionar la unidad en voltajes fuera del rango
especificado puede sobrecalentar la herramienta y quemar
el motor. Para cargas pesadas es necesario que el voltaje en
los terminales del motor no sea inferior al voltaje especificado.
La fuente de alimentaci6n del motor se controla mediante un
interruptor oscilante de enclavamiento bipolar. Extraiga la
Ilave para evitar el uso no autorizado.
INSTRUCCIONES PARA LA CONEXION ATIERRA
ADVERTENCJA: Si no se conecta correctamente el conductor
a tierra del equipo, se corre el riesgo de un electrochoque. El
equipo debe estar conectado a tierra mientras se usa para
proteger al operador de un electrochoque.
Si no comprende las instrucciones de conexi6n a tierra o
tiene dudas en cuanto a si la herramienta estA correctamente
conectada a tierra, consulte a un electricista calificado.
A fin de protegerlo contra una descarga el_ctrica, esta herra-
mienta estA equipada con un cord6n de tres conductores,
aprobado y clasificado para 150 V, y con un enchufe de tres
puntas del tipo de conexi6n a tierra.
El enchufe de conexi6n a tierra debera conectarse directa-
mente a un z6calo para 3 clavijas instalado y conectado
debidamente a tierra, tal como se muestra en la Figura 2.
No retire ni modifique en forma alguna la punta de conexi6n a
tierra. En caso de un mal funcionamiento o una descompos-
tura, la conexi6n a tierra proporciona una ruta de menor
resistencia para la descarga el6ctrica.
Tomacorriente_puestoa
tierra adecuadamente
a tierra
Punta de conexi6n -,4_,,%,_..9._ l
Enchufe de 3 puntas
Figura 2 - Receptaculo para 3 Puntas
ADVERTENCJA: AI conectar o desconectar el enchufe del
tomacorriente, no permita que los dedos toquen los termi-
nales o el enchufe.
El enchufe debe conectarse en el tomacorriente correspon-
diente que haya sido instalado y conectado a tierra debida-
mente, de acuerdo con todos los c6digos y regulaciones
locales. No modifique el enchufe que se incluye. Si no cabe
en el tomacorriente, solicite a un electricista calificado que
instale un tomacorriente adecuado.
Revise peri6dicamente los cordones de la herramienta, y si
estAn daSados, II_velos a un centro de servicio autorizado
para que los reparen.
El conductor verde (o verde y amarillo) del cord6n es el cable
de conexi6n a tierra. Si es necesario reparar o reemplazar el
cord6n el_ctrico o el enchufe, no conecte el cable verde (o
verde y amarillo) a un terminal cargado.
Si se cuenta Onicamente con un tomacorriente de dos pun-
tas, 6ste debera ser reemplazado con un tomacorriente de
tres puntas debidamente conectado a tierra e instalado de
acuerdo con las Normas para Instalaciones El_ctricas
(National Electric Code) y los c6digos y regulaciones locales.
ADVERTENClA: Esta tarea debera ser realizada por un
electricista calificado.
Se puede usar temporalmente un adaptador de 3 puntas a
2 puntas con conexi6n a tierra (v6ase la Figura 3) para
conectar los enchufes a un tomacorriente bipolar que est6
correctamente puesto a tierra.
Orejeta terminal de tierra
Asegurese que
Adaptador este conectado
Enchufe de 3 a una tierra
conocida
Receptb,culo para 2 puntas
Figura 3- Receptaculo para 2Puntas con Adaptador
No utilice este tipo de adaptadores a menos que est6 permitido
por los c6digos y regulaciones nacionales y locales. (En Canada
no se permite usar adaptadores de conexi6n a tierra de 3 puntas
a 2 puntas). Cuando est_ permitido utilizar este tipo de adapta-
dores, la lengQeta rigida de color verde o el terminal en el lado
del adaptador deberAn estar bien conectados a una tierra per-
manente, como seria una tuberia de agua debidamente conec-
tada a tierra, un tomacorriente debidamente conectado a tierra
o un sistema de cables debidamente conectado a tierra.
Muchos de los tornillos de la plancha de cubierta, las tuberias
de agua y las cajas de tomacorriente no estAn debidamente
conectados a tierra. Para garantizar que la conexi6n a tierra
sea efectiva, un electricista calificado debe verificar los medios
de conexi6n a tierra.
CORDONES DE EXTENSION
El uso de cualquier tipo de cord6n de extensi6n ocasionarA
una caida en el voltaje y una p@dida de potencia.
16

• Los cables del cord6n de extensi6n deben tener el tama_o
suficiente para conducir la corriente adecuada y mantener
el voltaje correcto.
Utilice la tabla para determinar el tama_o minimo del
cord6n de extensi6n (AWG).
Utilice 0nicamente cordones de extensi6n trifilares que ten-
gan enchufes tipo conexi6n a tierra de tres puntas y recep-
tAculos tripolares que acepten el enchufe de la herramienta.
Si el cord6n de extensi6n estA desgastado, roto o da_ado
en cualquier forma, reemplAcelo inmediatamente.
LONGITUD DEL CORDON DE EXTENSION
TamaSo del alambre Norma AWG
Hasta 50 pies .................................... 16
AVISO: No se recomienda utilizar cordones de extensi6n de
mAs de 50 pies de largo.
Consulte las Figuras 4-17 en las pAginas 17-19.
La sierra de banda de 9" Craftsman cuenta con un bastidor
de acero y una s61ida superficie de mesa de hierro fundido
para garantizar su duraci6n. EstA di-seSada para cortar
maderas duras y blandas asi como me-tales no ferrosos y
plAstico. La sierra estA equipada con una guia de ingletes
para realizar diferentes operaciones. Su prActico mecanismo
de tensi6n rApida y alineaci6n total aligera y facilita el cambio
de las hojas. La banda cortadora cuenta con una puerta de
polvo y ventana de alineaci6n de la hoja.
ESPECIFICACIONES
Profundidad de la garganta a 90 ° .................... 9"
Profundidad de corte maxima a 90 ° ................. 3%"
Profundidad de corte maxima a 45 ° .................. 2"
TamaSo de la mesa ....................... 113/4x 113/4"
Inclinaci6n de la cabeza ....................... 0° a 45 °
DiAmetro de la rueda ............................. 9.4"
Longitud de la hoja ............................... 62"
Ancho de la hoja .............................. 1/8- 3/8"
Velocidad de la hoja ........................ 2460 PPM
Dimensiones generales ................... 20 x 13 x 29"
Peso de embarque ............................. 49 Ibs
Orificio colector de polvo ........................ 2.086"
PRECAUCION: Tenga siempre en cuenta las siguientes
precauciones:
Aseg0rese de que las guias de las hojas y los rodamientos
de empuje est_n colocados y ajustados correctamente
para evitar que la hoja se mueva hacia un lado y hacia
atras. Ajuste la guia superior para que apenas quede
separada de la pieza de trabajo.
• Verifique que la hoja tenga la tensi6n y alineaci6n correctas.
No ponga demasiada tensi6n en la hoja para evitar que
se desgaste prematuramente y se rompa. Evite que se
aplique una tensi6n insuficiente en la hoja para impedir
que se mueva de atras hacia delante y de lado a lado a
medida que corta.
Utilice la hoja adecuada para la operaci6n de corte.
Despu6s de encender la sierra, permita que la hoja
alcance la velocidad completa antes de intentar Ilevar a
cabo ninguna operaci6n de corte.
Soporte la pieza de trabajo correctamente y use una
alimentaci6n uniforme y constante para guiar el trabajo
a trav6s del corte. Use palos o bloques de empuje cuando
sea necesario.
Mantenga las manos alejadas y fuera de la trayectoria de
las partes m6viles.
Utilice siempre protecci6n para los ojos.
INTERRUPTOR DE ON/OFF (ENCENDIDO/APAGADO)
Consulte la Figura 4, la pAgina 19.
El interruptor de Encendido/Apagado se halla en la parte
delantera izquierda de la columna de la sierra. Para encender
la sierra, cambie la posici6n del interruptor a la posici6n supe-
rior. Para apagar la sierra, cambie la posici6n del interruptor a
la posici6n inferior.
Se puede bloquear el interruptor para impedir el uso no autor-
izado de la sierra. Para bloquear el interruptor:
Abra el interruptor y desconecte la saw de la fuente de
alimentaci6n.
Extraiga la Ilave. No se puede Ilevar el interruptor a la
posici6n ON (encendido) sin la Ilave.
AVlSO: Si se extrae la Ilave con el interruptor en la posici6n
ON (encendido), se puede Ilevar 6ste a la posici6n OFF
(apagado) pero no a la de encendido.
Para volver a insertar la Ilave, deslicela al interior de la
ranura del interruptor hasta que se acople.
Figura 4 - Interruptor Enclavado en la Posici6n OFF (Apagado)
EXTRACCION DE LA HOJA
ADVERTENCIA: Desconecte la sierra de banda de la
fuente de alimentaci6n al cambiar o ajustar las hojas. Utilice
guantes de cuero cuando trabaje con las hojas de la sierra de
banda. Nunca utilice guantes cuando opere la sierra.
Gire la palanca de tensi6n de la hoja ubicada en la parte
posterior de la herramienta en el sentido de las manecillas
del reloj hasta que se fije en posici6n para liberar la ten-
si6n de la hoja (yea la Figura 5).
17

Manilla de tensi6n
Ventanilla
de
alineaci6n
Palanca de ten-
si6n de la hoja
Manilla de Manilla de
Ajuste de alJneaci6n
la Guia
Figura 5 -Palanca de Tensi6n de la Hoja
• Suelte dos pestillos a un lado de la herramienta y abra las
puertas de superior y inferior.
AVJSO: AI abrir la puerta, aseg0rese que los pestillos no
topen con las leng0etas en el bastidor.
Baje la guia superior de la hoja completamente y
destrabe el panel de la guia para Iograr acceso a la hoja
Figura 6 = Open Upper Blade Guide to Access Blade
(consulte la Figura 6).
Retire el inserto de fijaci6n de la mesa ubicado en la parte
delantera de la ranura de la mesa, extraiga la hoja liberada
y reemplAcela con otra hoja.
INSTALACJON DE LA HOJA
Aunque mAs de los ajustes no estAn modificar cuando se
ha extraido la hoja, se debe revisar cada ajuste antes de
usar una hoja reci6n instalada.
Asegt3rese de que los dientes de la hoja est6n seSalando
hacia abajo, hacia la mesa. D6 vuelta a la hoja de adentro
hacia afuera si es necesario.
Deslice la hoja nueva en la ranura de la mesa y sobre las
ruedas superior y inferior de la hoja. Deslice la hoja entre
sus protecciones.
Tense la hoja girando la palanca de tensi6n de la hoja en el
senfido de las manecillas del reloj, hasta que tope (vea la
Figura 5). Este es un mecanismo tensor accionado por resorte
y aplicar_, autom_.ticamente la tensi6n requerida a la hoja.
Utilice la manilla de tensi6n para realizar ajustes finos a la
tensi6n de la hoja.
Cierre las puertas y coloque los pestillos.
AVJSO: AI cerrar las puertas, asegOrese que los bordes de
las puertas y el bastidor queden firmemente acoplados antes
de intentar fijar la puerta. Los pestillos no tiraran de las
puertas y el bastidor a la vez.
Instale el inserto de la mesa.
Alinee la hoja tal como se describe en las secciones
siguientes.
ALINEACJON DE LA HOJA
Consulte las Figuras 5 y 11.
ADVERTENCJA: Tenga mucho cuidado; una hoja alineada
incorrectamente puede saltar de las ruedas y causar lesiones
personales graves. No realice ajustes de alineaci6n mientras
la sierra de banda est,. funcionando.
Desenchufe la sierra de banda de la fuente de alimentaci6n.
Para verificar la alineaci6n de la banda gire la rueda
impulsora manualmente en el sentido de las manecillas
del reloj. Use la ventana ver la hoja.
La alineaci6n correcta se Iogra cuando la rueda impulsora
y la rueda Ioca estan alineadas. La manilla de alineaci6n
(Clave No. 11) ubicada en la parte posterior del bastidor
de la herramienta se usa para inclinar la rueda superior y
alinear las ruedas de la hoja.
Si la hoja avanza en direcci6n contraria al armario, gire la
manilla en el sentido de las manecillas del reloj. Si la hoja
avanza hacia el armario, gire la manilla en sentido con-
trario alas manecillas del reloj.
GUIAS DE LA HOJA
AVJSO: Ajuste las guias de la hoja s61o despu6s de que 6sta
haya sido tensada y alineada correctamente.
Las guias de la hoja la soportan por los lados y la parte
posterior e impiden que se tuerza o desvie.
Las guias de la hoja no deben tocar la hoja si no hay
ninguna pieza de trabajo en contacto con la hoja. Ajuste
las guias como se describe en las secciones siguientes.
GUIAS SUPERIORES DE LA HOJA
Las guias superiores de la hoja emplean pasadores de
guia para soporte lateral y un rodamiento de bola para
soporte posterior.
Afloje los tornillos y ajuste los pasadores de guia a
los lados de la hoja (vea la Figura 7). Use un calibrador
de cinta para verificar que los pasadores de guia est6n a
0.002" de la hoja.
18

Rodamiento
Pasador
de guia
Figura 7 - Guias Superiores de la Hoja
Asegure el ajuste apretando los tornillos.
• Ajuste el rodamiento de bola en la parte posterior de la
hoja aflojando el perno de cabeza hueca y cambiando la
posici6n el eje del rodamiento (vea la Figura 8).
Figura 8- Guia Superior de la Hoja
Ponga el rodamiento de bola a 0.002" de la parte posterior
de la hoja.
Asegure la posici6n del rodamiento de empuje apretando
el perno de cabeza hueca.
Ajuste la altura de la guia superior para que quede a 1/4"
de la pieza de trabajo. Afloje la manilla de la guia superior
(vea la Figura 10, Clave No. 25) y ajuste la altura de la
guia superior hasta que quede a W' de la pieza de traba-
jo. Apriete la manilla de la guia superior.
GUIAS INFERIORES DE LA HOJA
Las guias inferiores de la hoja emplean pasadores de
guia para soporte lateral y rodamiento para soporte poste-
rior.
Afloje los tornillos (vea la Figura 9) y mueva los pasadores
de guia en direcci6n opuesta a los lados de la hoja.
Figura 9-
o
Guias Inferiores de la Hoja
Afloje los pernos de cabeza hueca (vea la Figura 10,
Clave No. 61) y ajuste la posici6n del puntal de la guia
inferior de manera que la parte posterior de la hoja quede
ubicada a una distancia de 0.002 pulg. del rodamiento
Apriete los pernos de cabeza hueca.
Ajuste los pasadores de guia (vea la Figura 9) a los lados
de la hoja. Use un calibrador de cinta para verificar que
los pasadores de guia est6n a 0.002" de la hoja.
Asegure el ajuste apretando los tornillos.
SELECCION DE LA HOJA
Las hojas varian seg_n el tipo de material, tamaSo de la
pieza de trabajo y tipo de corte que se vaya a realizar.
Las caracteristicas que diferencian alas hojas son el
ancho, el espesor y el paso.
ANCHO DE LA
o
HOJA
El ancho de la hoja es la distancia desde la punta del
diente hasta la parte posterior de la hoja.
El ancho de la hoja afecta la regidez de la hoja. Una hoja
m&s ancha se desvia menos y produce un corte m&s
recto.
El ancho de la hoja tambi_n limita el radio m_.s pequeSo
que se puede cortar. Una hoja de 1/4"de ancho puede
cortar alrededor de 1/2"de radio.
ESPESOR DE LA HOJA
El espesor de la hoja es la distancia entre sus lados.
Mientras mayor es su espesor, mayor es su rigidez y m&s
fuertes sus dientes.
Una hoja angosta y de mayor espesor se utiliza para cor-
tar curvas mientras que una hoja ancha y de menor espe-
sor se utiliza para hacer cortes largos y rectos.
PASO DE LA HOJA
El paso es el n_mero de dientes por pulgada o el tamaSo
del diente. Una hoja con m&s dientes por pulgada
produce un corte m&s suava.
El tipo de material que se est& cortando determina el
nOmero de dientes que tienen que estar en contacto con
el trabajo.
En el caso de materiales blandos, la hoja adecuada debe
tener entre 6 y 8 dientes por pulgada.
19

• Cuando se corten materiales m_.s duros, en cuyo caso el
golpe es mAs nocivo, se recomienda una hoja de 8 a 12
dientes por pulgada.
Siempre debe haber al menos tres dientes en contacto
con el corte para evitar el golpe de la hoja.
La hoja se golpea cuando el paso es muy grande y el
diente encuentra demasiado material. Esto puede des-
garrar los dientes de la hoja.
Los fabricantes de hojas est_n en capacidad de suministrar
informaci6n sobre las hojas para aplicaciones especificas.
TIPO DE CORTE
• El corte de contorno se hace guiando la pieza de trabajo
a mano libre para producir las formas curvas.
• El corte biselado se hace inclinando la mesal de la sierra
y aplicando la t6cnica adecuada para guiar la pieza de tra-
bajo.
• Independientemente de la t_cnica de guia de la pieza de
trabajo que se est6 aplicando, si la pieza sobrepasa la
mesa en m&s de 5", necesita el apoyo adecuado.
SERRADO DE CONTORNO
Cuando se sierre el contorno use ambas manos para
mantener la pieza de trabajo horizontal sobre la mesa y
guiarla por la trayectoria deseada.
• Evite poner las manos en linea con la hoja. Si se le res-
balan, pueden hacer contacto con la hoja.
Trate de pararse hacia la parte delantera de la sierra y
ponga las manos sobre la parte de la mesa que est& a la
derecha de la hoja y antes del corte.
Corte las esquinas pequeSas aserrando a su alrededor.
Sierre para eliminar el material residual hasta Iograr la
forma deseada.
CORTE BISELADO
Consulte la Figura 10.
• Realice el corte biselado inclinando la mesa al grado
deseado.
• Desbloquee la mesa aflojando la manija de fijaci6n ubica-
da en la parte posterior de la unidad (Clave No. 14).
• Incline la mesa a la posici6n deseada rotando la manilla
(Clave No. 18).
• Fije la mesa en posici6n apretando la manija de fijaci6n.
GUJA DE JNGLETES
Use la guia de ingletes para asegurar y sujetar la pieza de
trabajo en el &ngulo deseado y producir asi cortes en _,ngu-
Io. Use la escala para ajustar la guia en el &ngulo deseado.
ADVERTENCIA: No use nunca simultaneamente la guia de
ingletes y el reborde para serrar a Io largo. La hoja se puede
atascar en la pieza de trabajo. El operador puede lesionarse
y/o la pieza de trabajo se puede daSar.
ESCOBILLA PARA UMPIAR LA HOJA
Consulte la Figura 10.
• Aseg0rese de que la escobilla (Clave No. 57) haga con-
tacto con la hoja para eliminar adecuadamente los cuer-
pos extraSos que pueda tener la rueda impulsora.
ADVERTENClA: Aseg0rese de que la unidad est6 des-
conectada de la fuente de alimentaci6n el_ctrica antes de
tratar de dar servicio o retirar cualquier componente.
UMPIEZA
• Mantenga la m_quina y el taller limpios. No permita que el
aserrin se acumule en la sierra de banda.
• Mantenga las ruedas limpias. Los residuos en las ruedas
har_.n que la hoja se desalinee y resbale.
• Mantenga los mecanismos y superficies roscadas o
deslizantes limpios y sin cuerpos extraSos.
• Haga funcionar la sierra de banda cortadora con un
colector de polvo para minimizar la limpieza.
LUBRICACJON
• Los rodamientos de bola protegidos estan permanente-
mente lubricados y no necesitan m&s lubricaci6n.
• Se puede aplicar un poco de aceite de m_quina a los
mecanismos de tensi6n de la hoja y alas superficies
deslizantes o roscadas.
• De vez en cuando aplique una capa de cera en pasta a la
parte superior de la mesa para mantenerla pulida y sin
corrosi6n.
MANTENGA LA SIERRA DE BANDA EN BUENAS
CONDJCIONES
•Si el cord6n el_ctrico est,, desgastado, cortado o da_ado
en cualquier manera, reempl&celo inmediatamente.
Reemplace toda parte que est6 daSada o que falte.
V&lgase de la lista de piezas incluida para solicitar piezas
de repuesto.
2O

SINTOMA
Las hojas se rompen
excesivamente
La hoja se desafila
prematuramente
Cortes chuecos
Cortes &speros
La hoja se est& torciendo
o est& desgastada
anormalmente en su
parte lateral/posterior
Los dientes se est&n
desgarrando de la hoja
El motor esta funcionando
muy caliente
CAUSAS(S) POSIBLE(S)
1. El material no est,. seguro en la mesa
2. Los dientes son demasiado gruesos
para el material
3. Los dientes entran en contacto con la
pieza de trabajo antes de serrar
4. Las guias estan desalineadas
5. El espesor de la hoja es excesivo para
el di_.metro de la rueda
6. Partiduras en la soldadura
1. La hoja es muy gruesa
2. Presi6n de alimentaci6n inadecuada
3. Puntos duros o escamas en el material
o sobre 61
4. La hoja est,. instalada de atr_.s para
adelante
1. El trabajo no est& cuadrado
2. La velocidad de alimentaci6n es muy
alta
3. Las guias de la hoja no est_.n ajustadas
correctamente
4. La guia de la hoja superior est,.
demasiado alejada de la pieza de
trabajo
5. Hoja desafilada
6. El conjunto de la guia de la hoja esta
suelto o el rodamiento de empuje de la
hoja est,. suelto
1. Demasiada alimentaci6n
2. La hoja es muy gruesa
1. El corte est,. atascando la hoja
2. Las guias de la hoja o el rodamiento
est_n desgastados
3. Las guias de la hoja o los rodamientos
no est_.n ajustados correctamente
4. Los puntales de la guia de la hoja est_.n
sueltos
1. Los dientes son demasiado gruesos
para el trabajo
2. La velocidad de alimentaci6n es muy alta
3. La pieza de trabajo esta vibrando
4. Los dientes se est_.n Ilenando de
material
1. La hoja es demasiado gruesa para
la pieza de trabajo (tipico cuando se
cortan tubos)
2. La hoja es muy fina para el trabajo
(tipico cuando se corta material pulido
o blando)
MEDIDA CORRECTIVA
1. Cuadre el material sobre la mesa
2. Use una hoja de paso mAs fino
3. Ponga la hoja en contacto con la pieza de
trabajo despu6s de que la sierra haya arrancado
y alcanzado su velocidad maxima
4. Ajuste las guias de la hoja correctamente
5. Use una hoja de menor espesor
6. Cambie la hoja
1. Use una hoja de dientes mAs finos
2. Aumente la presi6n poco a poco
3. Reduzca la velocidad; si se trata de escamas,
aumente la velocidad de alimentaci6n y, si se
trata de puntos duros, cambie las hojas
4. Retire la hoja, d6blela de adentro hacia afuera
y vu61vala a instalar
1. Use la guia de ingletes; ajuste la inclinaci6n de
la mesa a 90°
2. Reduzca la velocidad de alimentaci6n
3. Mueva ambos bloques de guia dentro de 0.002"
de la hoja (use calibrador)
4. Ajuste la guia superior para que apenas quede
separada de la pieza de trabajo 1/4"
5. Cambie la hoja
6. Apriete el rodamiento de empuje de la hoja dentro
de 0.002" detr_.s de la parte posterior de la hoja
1. Reduzca la alimentaci6n
2. CAmbiela por una hoja m&s fina
1. Disminuya la presi6n de alimentaci6n
2. Reempl&celos
3. Ajuste las guias de la hoja; vea "Operaci6n"
4. Apriete correctamente
1. Use una hoja de dientes m_.s finos
2. Disminuya la velocidad de alimentaci6n
3. Sujete la pieza de trabajo firmemente
4. Use una hoja de dientes m_.s gruesos
1. Use una
2. Use una
hoja de dientes m_.s finos
hoja de dientes m_.s gruesos
3. Exceso de mugre y virutas 3. Limpie a fondo
La sierra no arranca Conexiones el6ctricas sueltas Haga que un electricista profesional revise las
conexiones el6ctricas
21

Registro de Servicios
Sierra de Banda de Banco de 9" Craftsman
i FECHA IVIANTENllVIIENTO EFECTUADO PARTES DE REPUESTO NECESARIAS i
22

NOTAS
23

Your Home
For expert troubleshooting and home solutions advice:
www.managemyhome.com
For repair - in your home - of all major brand appliances,
lawn and garden equipment, or heating and cooling systems,
no matter who made it, no matter who sold it!
For the replacement parts, accessories and
owner's manuals that you need to do-it-yourself.
For Sears professional installation of home appliances
and items like garage door openers and water heaters.
1-800-4-MY-HOME ®(1-800-469-4663)
Call anytime, day or night (U.S.A. and Canada)
www.sears.com www.sears.ca
Our Home
For repair of carry-in items like vacuums, lawn equipment,
and electronics, call anytime for the location of your nearest
Sears Parts & Repair Service Center
1-800-488-1222 (U.S.A.) 1-800-469-4663 (Canada)
www.sears.com www.sears.ca
To purchase a protection agreement on a product serviced by Sears:
1-800-827-6655 (U.S.A.) 1-800-361-6665 (Canada)
Para pedir servicio de reparaci6n
a domicilio, y para ordenar piezas:
1-888-SU-HOGAR ®
(1-888-784-6427)
Au Canada pour service en fran(_ais:
1-800-LE-FOYER Mc
(1-800-533-6937)
www. se a rs. ca
TM SM
® Registered Trademark /Trademark /Service Mark of Sears Brands, LLC
rM
® Marca Registrada /Marca de Fabrica /SM Marca de Servicio de Sears Brands, LLC
MCMarque de commerce /MDMarque d6posee de Sears Brands, LLC © Sears Brands, LLC