Craftsman 580326311 User Manual GENERATOR Manuals And Guides L0712455
CRAFTSMAN Generator Manual L0712455 CRAFTSMAN Generator Owner's Manual, CRAFTSMAN Generator installation guides
User Manual: Craftsman 580326311 580326311 CRAFTSMAN GENERATOR - Manuals and Guides View the owners manual for your CRAFTSMAN GENERATOR #580326311. Home:Tool Parts:Craftsman Parts:Craftsman GENERATOR Manual
Open the PDF directly: View PDF
.
Page Count: 60

Operator'sManual
®
ectricStart
ACGenerator
Model No.
580.326311
HOURS: Mnn. - Fri. 8 a.m. to 5 p.m. (CT)
WARNING
Before using this product, readthis
manual and follow all Safety Rules
add Operating Instructions.
ADVEBTENCIA
Antes de utilizar el producto, lea este
manual y siga todas las Reglasde
Seguridade Instrucciones de Uso.
Sears, Roebuckand Co., Roffrnan Estates,IL 60179 U.S.A.
Visit our Craftsman website:www.craftsman.com
Part No. 201492GS Draft C (11/07/2007)
,, Safety
• Assembly
• Operation
oMaintenance
,, Parts
,, Espafiol,p. 36

WARRANTY.................................... 2
SAFETYRULES ............................... 3-5
FEATURESAND CONTROLS....................... 6
ASSEMBLY................................... 7-9
OPERATION................................ 10-14
SPECIFICATIONS............................... 15
MAINTENANCE.............................. 16-19
STORAGE .................................... 20
TROUBLESHOOTING............................ 21
SCHEMATIC/WIRINGDIAGRAM ................ 22-23
REPLACEMENTPARTS ....................... 24-32
NOTES....................................... 33
EMISSIONSSYSTEMWARRANTY............... 34-35
ESPANOL.................................. 36-59
HOWTO ORDERPARTS ................. BACKPAGE
One-YearFullWarrantyon CraftsmanGenerator
If this generator fails dueto a defect in material or workmanship within oneyear from the date of purchase, return it to any
Sears store, other Craftsman outlet, or Sears Parts & Repair Center in the United States for free repair (or replacement if
repair proves impossible).
AdditionalOne-YearLimited Warrantyon Craftsman Generator
For the second year from the date of purchase, if any part of this generator fails dueto a defect in material or workmanship, a
new part will be supplied free of charge. You must pay the labor cost if you wish to have it installed.
All warranty coverageapplies for only 90 days from date of purchase if this generator is used for commercial or rental
purposes. Oncea generator has experiencedcommercial or rental use, it shall thereafter be considered a commercial or rental
generator for the purpose of this warranty.
This warranty gives you specific legal rights, and you may also have other rights which vary from state to state.
Sears, Roebuckand Co., D/817WA, HoffmanEstates, IL 60179 U.S.A.
© Sears Brands, LLC

_IL This is the safetyalert symbol,it is used to alert youto potential personalinjuryhazards.
Obeyall safetymessagesthat follow this symbolto avoid possibleinjury ordeath.
[ _-!] Read thismanual carefully and become familiar
...................withyour generator. Knowits applications,its
limitations, and any hazardsinvolved.
The safety alert symbol (A,) is used with a signal word
(DANGER,CAUTION,WARNING),a pictorial and/oFa safety
messageto alert you to hazards. DANGERindicates a hazard
which, if not avoided, will result in death or serious injury.
WARNINGindicates a hazardwhich, if not avoided, could
result in death or serious injury. CAUTIONindicates a hazard
which, if not avoided, might result in minor or moderate
injury. NOTICE,indicates a situation that could result in
equipment damage.Follow safety messagesto avoid or
reducethe risk of injury or death.
WARNING
The engine exhaustfrom this productcontains chemicals
known to the State of California to cause cancer, birth
defects, or other reproductive harm.
HazardSymbolsand Meanings
DANGER
Contentsare HARMFULOR FATALIF
SWALLOWED.Avoid contact to eyes, skin or
clothing. DONOTtake internally. Avoid breathing
the mist or vapor. Overexposureto eyes or skin
can cause irritation. Keepstabilizer out of the
reach of children.
Fuelstabilizer is a hazardouschemical.**
• FreshStartTM fuel capis designedto holdacartridgewhich
containsfuelstabilizer.
. IfSWALLOWED,callphysicianimmediately.DONOTinduce
vomiting.If inhaled,removeto freshair. In caseof eyeor skin
contact,flushwithwaterfor 15minutes.
• Storeunopenedcartridgesina cool,dry,wellventilatedarea.
Keepopencartridgeinfuel cap,andfuel capclosedonfueltank
whennotin use.
Inthe caseof anemergency,contacta physicianimmediately
andcall 1-808-424-9308for materialsafetyinformation.
• *Fuel stabilizer contaies: 2,6-di-tret-butylpheeol (128-39-2) and aliphatie petroleum
distillate (64742-47-8).
A-Explosion
B-Fire
C-Electric Shock
D-Toxic Fumes
E- Kickback
F-Hot Surface
©
G-Flying Objects
H-Explosive Pressure
J-ChemicalBum
K-HazardousChemical
L-Moving Parts
M-Read Manual
Using a generator indoors CAN KiLL YOU iN MINUTES,
Generator exhaust contains carbon monoxide. This is
a poison you cannot see or smell.
NEVER use inside ahome
or garage, EVEN IF doors
and windows are open.
A_
Only use OUTSIDE and
far away from windows,
doors, and vents.
WARNING
Running enginegives off carbon monoxide, an
odorless, colorless, poison gas.
_ reathing carbon monoxide can cause headache,
fatigue, dizziness,vomiting, confusion, seizures,
nausea,fainting or death.
• OperategeneratorONLYoutdoors.
Installabatteryoperatedcarbonmonoxidealarmnearthe
bedrooms.
Keepexhaustgasfromenteringa confinedareathrough
windows,doors,ventilationintakes,or otheropenings.
DONOTstartor runengineindoorsor in anenclosedarea,
(evenif windowsanddoorsareopen),includingthe generator
compartmentof arecreationalvehicle(RV).

WARNING
Generatorproduces hazardousvoltage.
_¢ Failureto isolate generator from power utility can
result in death or injury to electric utility workers
due to backfeed of electrical energy.
•When using generator for backup power, notify utility company.
Use approvedtransfer equipment to isolate generator from
electric utility.
•Use a ground fault circuit interrupter (GFCI)in any damp or
highly conductive area, such as metal decking or steel work.
•DO NOTtouch barewires or receptacles.
. DO NOTuse generator with electrical cords which are worn,
frayed, bareor otherwise damaged.
.DO NOToperate generator in the rain or wet weather.
•DO NOThandle generator or electrical cords while standing in
water, while barefoot, or while hands or feet are wet.
•DO NOTallow unqualified persons or children to operate or
service generator.
WARNING
_,,,_ ontact with muffler areacan result in serious
burns.
_ Exhaust heat/gases can ignite combustibles,
structures or damagefuel tank causing a fire.
.DONOTtouch hot parts and AVOIDhot exhaustgases.
•Allow equipment to cool before touching.
•Keep at least 5 feet (1.5 m) of clearance on all sides of
generator including overhead.
•Codeof FederalRegulation (CFR) Title 36 Parks, Forests, and
Public Property require equipment powered by an internal
combustion engineto have a spark arrester, maintainedin
effective working order, complying to USDAForest service
standard 5100-1C or later revision. In the State of California a
spark arrester is required under section 4442 of the California
Public resourcescode. Otherstates may havesimilar laws.
WARNING
Starter and other rotating parts can entangle
hands, hair, clothing, or accessories.
•NEVERoperate generator without protective housing or covers.
.DO NOTwear loose clothing, jewelry or anything that may be
caught in the starter or other rotating parts.
.Tie up long hair and remove jewelry.
WARNING
Starter cord kickback (rapid retraction) can result
in bodily injury. Kickback will pull hand and arm
I1_< toward engine faster than you can let go.
Broken bones, fractures, bruises, or sprains
could result.
•When starting engine, pull cord slowly until resistanceis felt and
then pull rapidly to avoid kickback.
•NEVERstart or stop enginewith electrical devices plugged in
and turned on.
WARNING
Fueland its vapors are extremely flammable and
explosive.
Fire or explosion can cause severe burns ordeath.
WHEN ADDING OR DRAINING FUEL
.Turn generator OFFand let it cool at least2 minutes before
removing fuel cap. Loosen cap slowly to relieve pressure in
tank.
•Fill or drain fuel tank outdoors.
.DONOToverfill tank. Allow space for fuel expansion.
•If fuel spills, wait until it evaporatesbefore starting engine.
.Keep fuel away from sparks, open flames, pilot lights, heat, and
other ignition sources.
•DONOTlight a cigarette or smoke.
WHEN STARTING EQUIPMENT
•Ensure spark plug, muffler, fuel cap, and air cleanerare in place.
.DONOTcrank enginewith spark plug removed.
WHEN OPERATING EQUIPMENT
•DONOTtip engine or equipment at angle which causesfuel to
spill.
.This generator is not for use in mobile equipment or marine
applications.
WHEN TRANSPORTING OR REPAIRINGEQUIPMENT
• Transport/repair with fuel tank EMPTYor with fuel shutoff valve
OFF.
•Disconnect spark plug wire.
WHEN STORING FUEL OR EQUIPMENT WITH FUEL INTANK
.Store away from furnaces, stoves,water heaters, clothes dryers,
or other appliances that havepilot light or other ignition source
becausethey can ignite fuel vapors.
WARNING
This generator does not meetU. S. CoastGuard Regulation
33CFR-183and should not be used on marine applications.
Failure to use the appropriate U. S. Coast Guard approved
generator could result in death or serious injury and/or
property damage.

WARNING
_ Unintentional sparking can result in fire OF
_¢ electric shock.
WHENADJUSTINGOR MAKINGREPAIRSTOYOUR GENERATOR
. Disconnect the spark plug wire from the spark plug and place
the wire where it cannot contact spark plug.
WHENTESTINGFORENGINESPARK
• Use approved spark plug tester.
. DO NOTcheck for spark with spark plug removed.
CAUTION
Excessively high operating speeds increase risk of injury
and damage to generator.
Excessively low speeds impose a heavy load.
DO NOTtamper with governed speed.Generatorsupplies
correct rated frequency and voltage when running at governed
speed.
DO NOTmodify generator in anyway.
NOTICE
Exceeding generators wattage/amperage capacity can
damage generator and/or electrical devices connected to it.
DONOTexceedthe generator's wattage/amperage capacity. See
Don't OverloadGeneratorin the Operationsection.
Start generator and let engine stabilize before connecting
electrical loads.
Connect electrical loads in OFFposition, then turn ONfor
operation.
Turn electrical loads OFFand disconnect from generator before
stopping generator.
NOTICE
Improper treatment of generator can damage it and
shorten its life.
Use generator only for intended uses.
If you havequestions about intended use,ask dealeror contact
local service center.
Operategenerator only on level surfaces.
DONOTexpose generator to excessivemoisture, dust, dirt, or
corrosive vapors.
DONOTinsert any objects through cooling slots.
If connected devices overheat,turn them off and disconnect
them from generator.
Shut off generator if:
-electrical output is lost;
-equipment sparks, smokes, or emits flames;
-unit vibrates excessively.

KNOWYOUROEHERATOR
I!__-!i] Read the Operator'sManual and safety rules before operating your generator.
Comparethe illustrations with your generator to familiarize yourself with the locations of various controls and
adjustments. Savethis manual for future reference.
FuelTank
120 Volt AC, 20 Amp
Duplex Receptacles
SparkArrester Muffler
120/240 Volt AC,
30 Amp Receptacle
CircuitBreakers(AC)
DoublePoleCircuit
Breaker(AC) StatStationTM
Grounding
Fastener
DataTag AirCleaner
Choke
120 VoltAC, 20 Amp, DuplexReceptacles-- May beused to
supply electricalpowerfor the operationof 120Volt AC,
20 Amp,single phase,60 Hzelectrical,lighting, appliance,tool
andmotor loads.
120/240 VoltAC, 30 AmpLockingReceptacle-- May beused
to supplyelectrical powerfor the operationof 120and/or
240 Volt AC,30 Amp,single phase,60 Hzelectrical,lighting,
appliance,tool and motor loads.
Air Cleaner-- Protectsengineby filtering dust and debrisout
of intakeair.
Battery FloatChargerJack-- Usebatteryfloat chargerto keep
the starting batterychargedand readyfor use.
ChokeLever-- Usedwhen starting a cold engine.
CircuitBreakers(AC)-- Pushto resetcircuit breakersare
providedto protectthe 120VAC,20A duplexreceptaclesagainst
electricaloverload.
DataTag -- Providesmodel,revisionandserial numberof
generator.Pleasehavethese readilyavailablewhen calling for
assistance.
EngineRocker
Switch
Recoil Starter Oil Fill Cap
Lever Battery Float
Start Switch ChargerJack
DoublePoleCircuitBreaker(AC)-- A doublepolecircuit
breakeris providedto protectall the receptaclesand generator
againstelectricaloverload.
EngineRockerSwitch -- Setthis switchto "On"beforestarting
engine.Set switch to "Off"to stop engine.
Fuel Tank-- Capacityof seven(7) U.S.gallons.
GroundingFastener-- Consultyour localagencyhaving
jurisdiction for groundingrequirementsin your area.
Oil Fill Cap-- Checkandfill enginewith oil here.Seepage17
for oil recommendationsandfilling instructions.
Recoil Starter -- Usedto start the engine.
SparkArrester Muffler -- Exhaustmuffler lowersenginenoise
and is equippedwith a sparkarresterscreen.
StartSwitch -- Pushand hold in "Start" positionfor a
maximumof 15 secondsduringeach start attempt, until engine
starts.
StatStationTM -- Displaysthe nominal loadon generatorbased
on outputfrequency.It also has a built in maintenancereminder.

YourCraftsmangeneratorrequiressomeassemblyandis
readyforuseonlyafterit hasbeenproperlyservicedwiththe
recommendedoilandfuel.
If you have any problemswith the assembly of your
generator, please call the generator helpline at
1-800-222-3136.
Unpacking the Generator
f. Set the carton on a rigid fiat surface.
2. Removeeverything from carton except generator.
3. Opencarton completely by cutting each corner from top
to bottom.
4. Leavegenerator on carton to install wheel kit.
Carton Contents
Check all contents against those listed below:
• Main unit
• Engineoil
• Oil bottle funnel
• Operator's manual
• Wheel kit
• Adapter cord set
If any parts are missing or damaged,call the generator
helpline at 1-800-222-3135.
install WheelKit
NOTE:Wheel kit is not intended for over-the-road use. DO
NOTtow this unit with a motorized vehicle.
You will needthe following tools to install these
components:
• 13mmwrench
• Socket wrench with a 13ram socket
• Pliers
• Safety glasses
install the Wheel Kit as Follows:
IMPORTANT: Installing the wheel kit must be completed
prior to adding any oil or fuel.
1. Tip generator so that engine end is up.
2. Slide axle through both mounting brackets.
3. Place a wheel on each side as shown.
4. Place a washer on axle and then place an e-ring in axle
groove.
5. Install e-ring with pliers, squeezingfrom top of e-ring to
bottom of axle.
CAUTION
E-tings can cause eye injury.
.,_ E-rings can spring back and become airborne
when installing or removing.
•Alwaysweareyeprotectionwheninstalling/removinge-rings.
6. Repeatstep 4 and 5 to securesecond wheel.
7. Tip generator so that engine side is down.
8. Attach support legwith M8 x 20 mm cap screws and M8
hex nuts.
9. Return generator to normal operating position (resting
on wheels and support leg).
10. Raise handles and insert handle pins to move generator.
HandlePin Your unit may vary slightly
from that shown here
Wheel
Support Leg
Axle
20 mmCapScrew
_Nut
FlatWasher
.<
\
E-Ring

Check Battery /Attach Negative Battery Wire
The sealed battery on the generator is fully charged and
pre-installed except for the negative(black) battery cable.
You will need an 8mm wrench to install the negativebattery
cable.
Toinstall:
1. Cut off tie wrap securing loose end of negative (black)
cable.
2. Remove screw, lock washer and flat washer on negative
battery terminal.
3. Slide lock washer (B), flat washer (C) and negative
battery cable (D) over screw (A).
,
5.
Positive battery cable
Reattachscrew to negativebattery terminal and tighten.
Verify that connections to battery and generator aretight
and secure.
BEFORESTARTINGTHE GEHERATOR
Add Engine OiJ
1. Place generator on a flat, level surface.
2. Cleanarea around oil fill and remove yellow oil fill cap.
NOTE:Seethe section Oi/to review oil recommendations.
Verify provided oil bottle is correct viscosity for current
ambient temperature.
3. Using oil funnel (optional), slowly pour contents of
provided oil bottle into oil fill opening.
NOTICE
Improper treatment of generator can damage it and
shorten its life.
DONOTattemptto crankor startthe enginebeforeit hasbeen
properlyservicedwiththe recommendedoil.Thismayresultin
anenginefailure.
4. Replaceoil fill cap and fully tighten.
Add Fuel
Fuel must meet these requirements:
*Cban, fresh, unleadedgasoline.
* A minimum of 87 octane/87 AK] (91 RON). Highaltitude
use, see High Altitude.
* Gasolinewith up to 10% ethanol (gasoho]) or upto f 5%
MTBE(methyl tertiary butyl ether) is acceptable.
NOTICE
Avoid generator damage.
Failureto follow Operator's Manual for fuel
recommendations voids warranty.
DONOTuseunapprovedgasolinesuchas E85.
DONOTmixoil in gasoline.
DONOTmodifyengineto runonalternatefuels.
To protect the fuel system from gum formation, mix in a fuel
stabilizer when adding fuel. See Storage.All fuel is not the
same. if you experiencestarting or performance problems
after using fuel, switch to a different fuel provider or change
brands. This engine is certified to operate on gasoline. The
emission control system for this engine is EM (Engine
Modifications).
WARNING
_fl_ Fueland its vapors are extremely flammable and
explosive.
Fireor explosion can cause severe burns ordeath.
WHEN ADDINGFUEL
• TurngeneratorOFFandlet it cool at least2 minutesbefore
removingfuel cap.Loosencapslowlyto relievepressurein
tank.
. Fillfueltankoutdoors.
• DONOToverfilltank.Allowspacefor fuel expansion.
. Iffuel spills,waituntil it evaporatesbeforestartingengine.
• Keepfuelawayfrom sparks,openflames,pilot lights,heat,and
otherignitionsources.
• DONOTlight acigaretteor smoke.
1. Cleanareaaround fuel fill cap, removecap.
2. Slowly add unleadedgasoline (E)to fuel tank (F). Be
careful not to overfill. Allow about 1.5" (4 cm) of tank
space (G)for fuel expansion.
3. Install fuel cap and let any spilled fuel evaporate before
starting engine.

Fresh StartTM Fuel Cap
Adding fuel preserver helps keepfuel fresh and carburetors
clean for easier starting, all season long. This new fuel cap
automatically drips concentrated fuel preserver into your fuel
tank.
DANGEB
Contentsare HARMFULOR FATALIF
_ WALLOWED.Avoid contact to eyes, skin or
clothing. DO NOTtake internally. Avoid breathing
the mist or vapor. Overexposureto eyesor skin
can cause irritation. Keepstabilizer out of the
reach of children.
Fuelstabilizer is a hazardouschemical.**
. If SWALLOWED,callphysicianimmediately.
• Inthe caseof anemergency,contacta physicianimmediately
andcall 1-808-424-9380for materialsafetyinformation.
• *Fuel stabilizer contains: 2,6-di-tret-butylphenol (128-39-2) and alipbatic petroleum
distillate (64742-47-8).
1. Place cartridge into fuel cap.
2. Push to "snap" cartridge into place.
3. Removetab to expose membrane.
IMPORTANT:DONOTremove the silver foil seal on the
opposite side.
4. Reinstall fuel cap on fuel tank.
5. Periodically check the cartridge to ensure there is still
fuel preserver inside. If it is empty, removecartridge
and replace.
HighAltitude
At altitudes over 5,000 feet (1524 meters), a minimum
85 octane /85 AKI (89 RON)gasoline is acceptable.To
remain emissions compliant, high altitude adjustment is
required. Operationwithout this adjustment will cause
decreasedperformance, increasedfuel consumption, and
increasedemissions. Seea qualified Sears dealerfor high
altitude adjustment information. Operation of the engine at
altitudes below 2,500 feet (762 meters) with the high altitude
kit is not recommended.

HOWTO USEYOURGENERATOR Generator Location
If you haveany problems operating your generator after GeneratorClearance
readingthe manual, please call the generator heipline at
1-800-222-3136.
System Ground
The generator has a system ground that connects the
generator frame components to the ground terminals on the
AOoutput receptacles.The system ground is connected to
the AOneutral wire (the neutral is bonded to the generator
frame).
Special Requirements
There may be Federalor StateOccupational Safety and
HealthAdministration (OSHA)regulations, local codes, or
ordinancesthat apply to the intended use of the generator.
Pleaseconsult a qualified electrician, electrical inspector, or
the local agency having jurisdiction.
• Insome areas,generators are requiredto be registered
with local utility companies.
• If the generator is used at a construction site, there may
be additional regulations which must be observed.
Connecting to aBuilding's Electrical System
Oonnectionsfor standby power to a buiiding's electrical
system must be made by a qualified electrician. The
connection must isolatethe generator power from utility
power, and must comply with all applicable laws and
electrical codes.
WARNING
iGeneratorproduces hazardousvoltage.
_¢ Failureto isolate generator from power utility can
result in death or injury to electric utility workers
dueto backfeedof electrical energy.
•Whenusinggeneratorfor backuppower,notifyutilitycompany.
Useapprovedtransferequipmentto isolategeneratorfrom
electricutility.
•Useagroundfaultcircuit interrupter(GFCI)in anydampor
highlyconductivearea,suchasmetaldeckingor steelwork.
•DONOTtouchbarewiresor receptacles.
, DONOTusegeneratorwithelectricalcordswhichareworn,
frayed,bareor otherwisedamaged.
, DONOToperategeneratorinthe rainorwetweather.
•DONOThandlegeneratoror electricalcordswhilestandingin
water,whilebarefoot,or whilehandsorfeetarewet.
•DONOTallowunqualifiedpersonsor childrento operateor
servicegenerator.
WARNING
Exhaustheat/gases can ignite combustibles,
structures or damage fuel tank causing a fire.
Keepat least5 ft. (1.5 m)clearanceonall sidesof generator
includingoverhead.
Placegenerator outdoors in an areathat wiil not accumulate
deadly exhaust gas. DO NOTplace generator where exhaust
gas (A) could accumulate and enter inside or be drawn into a
potentially occupied building. Ensure exhaust gas is kept
away from any windows, doors, ventilation intakes, or other
openings that can allow exhaust gas to collect in a confined
area. Prevailing winds and air currents should be taken into
consideration when positioning generator.
Using agenerator indoors CAN KiLL YOU iN MINUTES.
Generator exhaust contains carbon monoxide. This is
apoison you cannot see or smeJL
NEVERuse inside a home
or garage,EVEN IF doors
and windowsare open.
A
OnJy use OUTSIDE and
far away from windows,
doors, and vents.
10

To Start The Engine
Disconnectall electrical loads from the generator. NEVER
start or stop engine with electrical devices plugged in and
turned ON. Follow start instruction steps in numerical order:
1. Make sure unit is on a level surface.
IMPORTANT:Failureto start and operate unit on a level
surface will cause the unit not to start or shut down during
operation.
2. Turn fuel valve to "On" position. Fuelvalve handle
should be vertical (pointing toward the ground) for fuel
to flow.
FuelValve is shown in
the On position
3. Place choke lever in "Choke" position.
4. Set engine rocker switch to "On" position.
EngineRockerSwitch is
shown in On position
5A. For electric starting, push and hold the start switch in
"Start" position untilgenerator starts. To prolong the life
of starter components, DONOTholdstart switch in
"Start" position for morethan 15 seconds, and pause
for at least ] minute between starting attempts.
START
• If engine starts, proceedto step 7.
• If engine fails to start, proceedto step 6.
NOTE:If battery is discharged, use manual starting
instructions.
5B. For manual starting, grasp recoil handleand pull slowly
until slight resistance is felt. Then pull rapidly one time
only to start engine.
WARNING
Startercord kickback (rapid retraction) can result
in bodily injury. Kickbackwill pull hand and arm
_< toward engine faster than you can let go.
T-" Broken bones, fractures, bruises, or sprains
could result.
• Whenstartingengine,pullcordslowlyuntil resistanceis feltand
thenpullrapidlyto avoidkickback.
, NEVERstartor stopenginewith electricaldevicespluggedin
andturnedon.
• If engine starts, proceed to step 7.
• If engine fails to start, proceed to step 6.
6. Move choke lever to "Half" choke position, and pull
recoil handletwice.
• If engine fails to start, repeatsteps 5 thru 7.
7. Slowly move choke lever to "Run" position. If engine
falters, movechoke lever to "Half" choke position until
engine runs smoothly, and then to "Hun" position.
IMPORTANT:If engine floods, place choke lever in "Run"
_osition and crank until engine starts.
WARNING
s_ Contactwith muffler areacan result in serious
burns.
_ Exhaust heat/gases can ignite combustibles,
structures or damage fuel tank causing a fire.
®
o
o
DONOTtouch hot parts and AVOIDhot exhaust gases.
Allow equipment to cool before touching.
Keep at least 5 feet (1.5 m) of clearanceon all sides of
generator including overhead.
Codeof FederalRegulation(CFR)Title 36 Parks, Forests, and
Public Property require equipment powered by an internal
combustion engineto have a spark arrester, maintained in
effective working order, complying to USDAForest service
standard 5100-10 or later revision. In the State of California a
spark arrester is required under section 4442 of the California
Public resources code. Otherstates may have similar laws.
NOTE:If engine starts after 3 pulls but fails to run, or if unit
shuts down during operation, makesure unit is on a level
surface and check for proper oil level in crankcase. This unit
may be equipped with a low oil protection device. If so, oil
must be at proper level for engine to start.
11

Connecting Electrical Loads
• Let the engine stabilize and warm up for a few minutes
after starting.
DONOTconnect240Voltloadsto 120Volt receptacles.
DO NOTconnect 3-phase loadsto the generator.
DO NOTconnect 50 Hz loadsto the generator.
Plug in andturn on the desired 120 Volt AC,single phase,
60 Hertz electrical loads.
• DO NOTOVERLOADTHEGENERATOR.SeeDon't
Overload Generator.
NOTICE
Exceedinggenerators wattage/amperagecapacitycan
damagegenerator and/or electrical devicesconnected to it.
DONOTexceedthe generator'swattage/amperagecapacity.See
Don'tOverloadGeneratorinthe Operationsection.
Startgeneratorandletenginestabilizebeforeconnecting
electricalloads.
ConnectelectricalloadsinOFFposition,thenturn ONfor
operation.
TurnelectricalloadsOFFanddisconnectfromgeneratorbefore
stoppinggenerator.
Stopping the Engine
1. Turnoff andunplugall electricalloadsfrom unit.NEVER
start or stop engine with electrical devices plugged in
and turned on.
2. Let engine run at no-load for two minutes to stabilize
unit's internal temperatures.
3. Move engine rocker switch to "Off" position.
WARNING
Backfire,fire or engine damagecould occur.
DONOTstopenginebymovingchokeleverto "Cheke"position.
4. Move fuel valve to "Off" position.
CORDSETSAND RECEPTACLES
Useonly high quality, well-insulated, grounded extension
cords with the generator's 120 Volt duplex receptacle.
Inspect extension cords before each use.
Checkthe ratings of all extension cords before you use them.
Extensioncord sets used should be rated for 125 Volt AC
loads at 20 Amps or greater for most electrical devices.
Some devices, however, may not requirethis type of
extension cord. Checkthe operator's manualsof those
devicesfor the manufacturer's recommendations.
Keepextension cords as short as possible to minimize
voltage drop.
WARNING
_ verloaded electrical cords can overheat, arc,
and burn resulting in death, bodily injury, and/or
property damage.
• ONLYusecordsratedfor your loads.
. Followallsafetieson electricalcords.
120/240 Volt AC, 30 Amp,LockingReceptacle
Usea NEMAL14-30 plug with this receptacle.Connect a
4-wire cord set rated for 250 Volt AC loads at 30 Amps (or
greater). You can use the same 4-wire cord if you plan to
run a 120 Volt load.
4-WireCordSet
:Neutral)
Y (Hot) | X (Hot)
NEMAL14-30 /-7L/ Ground(Green)
This receptacle powers 120/240 Volt AC,60 Hz,single phase
loads requiring up to 6,300 watts of power (6.3 kW) at
26.2 Amps for 240 Volts or two independent 120 Volt loads
at 26.2 Amps each.The outlet is protected by a double pole
rocker switch circuit breaker.
NOTICE
Receptaclesmay be marked with rating value greater than
generator output capacity.
NEVERattemptto poweradevicerequiringmoreamperage
thangeneratoror receptaclecansupply.
DONOToverloadthe generator.SeeDon'tOverloadGenerator.
12

120 Volt AC, 20 Amp, Duplex Receptacles
Eachdupbx receptacleis protected against overload by a
double pole rocker switch circuit breaker.
Useeach receptacleto operate 120 Volt AC,single-phase,
60 Hzelectrical loads requiring up to 2,400 watts (2.4 kW) at
20 Amps of current. Usecord sets that are rated for 125 Volt
AOloads at 20 Amps (or greater).
Generator Adapter Cord Set
The generator comes with a 25' generator adapter cord set
designed to provide two sets of 120 Volt, 20 Amp outlets
from one 120 Volt, 20 Amp duplex receptacle.
How to Use the Battery Charger
Usebattery charger jack to keepthe starting battery charged
and ready for use. Battery charging should be done in a dry
location, such as inside a garage.
1. Plug charger into unit's "12V DO Battery Charger" jack,
which is located on the start switch bracket. Plug battery
charger into a 120 Volt AC wall receptacle.
----4 _ _
_ j
2. Unplug charger from unit and wall outlet when generator
is being started and while in operation.
3. Keepcharger plugged in when generator is not in useto
prolong battery life. The charger has a built in float
equalizer and will not overcharge battery, even when
plugged in for an extendedperiod of time.
IMPORTANT:See Battery Maintenancefor additional
information.
The maximum load on each outlet is 20 Amps. The maximum
total load on both black wire outlets or white stripe wire
outlets is 20 Amps.
NOTE:Follow all safety precautions when connecting any
extension cord or deviceto the generator.
13

DOH'TOVERLOADGENERATOR
Capacity
You must make sure your generator can supply enough rated
(running) and surge (starting) watts for the itemsyou will
power at the sametime. Followthese simple steps:
1. Selectthe itemsyou will power at the same time.
2. Total the rated (running) watts of these items.This isthe
amount of power your generator must produce to keep
your items running.
3. Estimate how manysurge (starting) watts you will need.
Surge wattage is the short burst of power neededto
start electric motor-driven tools or appliancessuch as a
circular saw or refrigerator. Becausenot all motors start
at the sametime, total surge watts can be estimated by
adding only the item(s) with the highest additional surge
watts to the total rated watts from step 2.
Rated (Running)
Watts
1200
Example:
800
500
500
75
3075 Total
Running Watts
Tool or Appliance
Window Air
Conditioner
Refrigerator 1600
Deep Freezer 500
Television
Light (75 Watts)
Total Rated(Running) Watts
HighestAdditional SurgeWatts
Total Generator Output Required
AdditionalSurge
(Starting) Watts
1800
1800 Highest
Surge Watts
= 3075
= 1800
= 4875
NOTE:The rated (running) watts cannot exceed6300. Also,
given the 6300 watt rated limit, additional surge (starting)
watts cannot exceed9100.
Power Management
To prolong the life of your generator and attached devices, it
is important to take care when adding electrical loads to your
generator. There should be nothing connected to the
generator outlets before starting it's engine. The correct and
safe way to managegenerator power is to sequentially add
loads as follows:
1. With nothing connected to the generator, start the
engine as described in this manual.
2. Plug in and turn on the first load, preferablythe largest
load you have.
3. Permit the generator output to stabilize (engine runs
smoothly and attached deviceoperates properly).
4. Plug in and turn on the next load.
5. Again, permit the generator to stabilize.
6. Repeatsteps 4 and 5 for each additional load.
NEVERadd more loads than the generator capacity. Take
special care to consider surge loads in generator capacity, as
describedabove.
Wattage Reference Guide
Rated* Additional
Tool or Appliance (Running) Surge
Watts (Starting)
Watts
Essentials
Light Bulb - 75 watt 75 --
Deep Freezer 500 500
Sump Pump 800 1200
Refrigerator/Freezer- 18 cf 800 1600
Water Well Pump - 1/3 hp 1000 2000
Heating/Cooling
Window AC - 10,000 BTU 1200 1800
Window Fan 300 600
FurnaceFan Blower - 1/2 hp 800 1300
Kitchen
Microwave Oven- 1000 Watt 1000 --
Coffee Maker 1500 --
Electric Stove - Single Element 1500 --
Hot Plate 2500 --
Family Room
DVD/CDPlayer 100 --
VCR 100 --
Stereo Receiver 450 --
Color Television - 27 in 500 --
Personal Computer w/17 in moni- 800 --
tor
Other
Security System 180 --
AlVl/FlVlClock Radio 300 --
GarageDoor Opener- 1/2 hp 480 520
Electric Water Heater- 40 gallon 4000 --
OlY/JobSite
Quartz HalogenWork Light 1000 --
Airless Sprayer - 1/3 hp 600 1200
Reciprocating Saw 960 960
Electric Drill - 1/2 hp 1000 1000
Circular Saw - 7-1/4 in 1500 1500
Miter Saw - 10 in 1800 1800
Table Planer- 6 in 1800 1800
Table Saw/RadialArm Saw - 10 in 2000 2000
Air Compressor - 1-1/2 hp 2500 2500
*Wattages listed are approximate only. Checktool or
appliance for actual wattage.
14

EHGINETECHNICALIHFORMATION
This is a single cylinder, overhead vaive(OHV),air coobd
engine, it is alow emissions engine.
Inthe Stateof California, Model 210000 engines are certified
by the California Air Resources Boardto meet emissions
standards for 250 hours. Such certification does not grant
the purchaser, owner or operator of this engine any
additional warranties with respectto the performance or
operational life of this engine. The engine is warranted solely
according to the product and emissions warranties stated
elsewherein this manual.
Power Ratings
The gross power rating for individual gas engine models is
labeledin accordance with SAE(Society of Automotive
Engineers)code J1940 (Small Engine Power & Torque
Rating Procedure),and rating performance has been
obtained andcorrected in accordancewith SAEJ1995
(Revision 2002-05). Torque values are derived at 3060 RPM;
horsepower values are derived at 3600 RPM. Actual gross
engine power will be lower and is affected by, among other
things, ambient operating conditions and engine-to-engine
variability. Given both the wide array of products on which
engines are placed and the variety of environmental issues
applicable to operating the equipment, the gas engine will not
develop the rated gross power when used in a given piece of
power equipment (actual "on-site" or net power). This
difference is due to a variety of factors including, but not
limited to, accessories (air cleaner, exhaust,charging,
cooling, carburetor, fuel pump, etc.), application limitations,
ambient operating conditions (temperature,humidity,
altitude), and engine-to-engine variability. Due to
manufacturing and capacity limitations, Briggs & Stratton
maysubstitute an engine of higher rated power for this
Series engine.
This generator is rated in accordancewith CSA (Canadian
Standards Association) standard C22.2 No. 100-04 (motors
and generators).
PRODUCTSPECIFICATIOHS
Generator Specifications
Wattage ........................ 6300 Watts (6.3 kW)
Starting Wattage ................. 9100 Watts (9.1 kW)
RatedAC Voltage ...................... 120/240 Volts
RatedAC Current
at 240 Volts ........................ 26.2 Amperes
at 120 Volts ........................ 52.5 Amperes
RatedFrequency ................... 60 Hzat 3600 rpm
Phase ................................ Single Phase
FuelCapacity ......................... 7 U.S. gallons
Unit Weight ............................... 198 Ibs.
Engine Specifications
Bore ............................ 3.3 in. (83.81 mm)
Stroke ......................... 2.438 in. (61.67 mm)
Displacement ...................... 20.85 in. (342 cc)
Spark Plug
Type: .................... Briggs & Stratton 491055
Set GapTo: ................... O.030inch(0.76mm)
Armature Air Gap: ........ 0.008-0.012 in. (0.20-0.30mm)
Valve clearancewith valvesprings installed and piston 1/4 in.
(6 mm) past top dead center (check when engine is cold).
Intake ................. 0.004-0.006 in. (0.10-0.15 mm)
Exhaust ............... 0.004-0.006 in. (0.10-0.15 mm)
Oil Capacity ............................... 28 fl. oz.
NOTE:For practical operation, the generator load should not
exceed 85% of rated wattage. Enginegross power will
decrease3-1/2% for each 1,000 feet (300 meters) above sea
level and 1% for each 10° F (5.6° C) above 77° F (25° C). It
should operate satisfactorily at an angle up to 15° .
15

MAINTENANCESCHEDULE
Followthe hourly or calendar intervals, whichever occurs
first.
More frequent service is required when operating in adverse
conditions noted below.
*Changeengine oil
* Clean debris
Checkengine oil level
Service engineair cleaner'
* Changeengine oil'
* Service spark plug
* Service spark arrester
* Cleancooling systemr
* Checkvalve clearance
Service more often under dirty or dusty conditions.
General Recommendations
Regular maintenancewill improve the performance and
extendthe life of the generator. Seea Sears or other qualified
dealerfor service.
The generator's warranty does not cover items that have
been subjected to operator abuse or negligence.To receive
full value from the warranty, the operator must maintain
generator as instructed in this manual.
Some adjustments will needto be made periodically to
properly maintain your generator.
All service and adjustments should be made at least once
each season. Follow the requirements in the "Maintenance
Schedule" chart above.
NOTE:Oncea year you should clean or replace the spark
plug and replace the air filter. A new spark plug and clean air
filter assure proper fuel-air mixture and help your engine run
better and last longer.
EmissionsControl
Maintenance, replacement, or repair of the emissionscon-
trol devicesand systemsmay be performedby any non-
road engine repair establishmentor individual. However,
to obtain "no charge" emissions control service, the work
must be performed by a factory authorized dealer. Seethe
Emissions Warranty.
GEHERATORMAINTENANCE
Generator maintenanceconsists of keepingthe unit clean and
dry. Operateand store the unit in a clean dry environment
where it will not beexposedto excessivedust, dirt, moisture
or any corrosive vapors. Cooling air slots in the generator
must not becomeclogged with snow, leaves, or any other
foreign material.
Checkthe cleanliness of the generator frequently and clean
when dust, dirt, oil, moisture or other foreign substances are
visible on its exterior surface.
NOTE:DO NOTuse a garden hose to clean generator. Water
can enter the engine fuel system and causeproblems, in
addition, if water enters the generator through cooling air
slots, some of the water will be retained in voids and cracks
of the rotor and stator winding insulation. Water and dirt
buildup on the generator internal windings will eventually
decreasethe insulation resistance of these windings.
Generator Cleaning
Daily or before use, clean accumulated debris from
generator. Keeplinkage,spring and controls clean. Keeparea
around and behind muffler free from any combustible debris.
Inspect cooling air slots and openings on the generator.
Theseopenings must be kept clean and unobstructed.
Generator parts should be kept clean to reducethe risk of
overheating and ignition of accumulated debris.
* Usea damp cloth to wipe exterior surfaces clean.
NOTICE
Improper treatment of generator can damage it and
shorten its life.
DONOTexposegeneratorto excessivemoisture,dust,dirt, or
corrosivevapors.
DONOTinsertanyobjectsthroughcoolingslots.
*Usea soft bristle brush to loosen caked on dirt, oil, etc.
* Usea vacuumcleanerto pick uploose dirt and debris.
16

BatteryMaintenance
Other than trickle charging, describedelsewhere, no
maintenanceis required for the battery. Keepthe battery and
terminals clean and dry.
IMPORTANT:Battery charging should be performed in a dry
location, such as inside a garage.
StatStation TM
The StatStationTM displays the nominal load on generator
based on output frequency. It also has a built in maintenance
reminder.
Wattage Monitor Operation
The display is two seven-segment LEDsthat provide an easy-
to-read indication of the amount of power being supplied by
the generator. The load monitor displays the generator's
output as a percentage.
As generator load increases,the display values will increase.
When the displayedvalues begin flashing, the user should
stop adding electrical loads to the generator.
If the power usage becomestoo high, the letters "OL" (for
Over Load)will flash on the display. The user should reduce
the amount of load attached to the generator.
Maintenance Reminder
The LEDwill displaycertain codesto alert you to check oil,
changeoil, check or replaceair filter and check or replace
spark plug. The following codes will display:
"C1" Check oil at 8 hour increments
"62" Changeoil at 50 hour increments
"63" Check or replaceair filter at 25 hour increments
"C4" Check or replacespark plug at 100 hour increments
To take advantage of the StatStation "maintenance reminder"
capabilities, the user must press the resetbutton after
completing the maintenancecalled for in the displayedcode
(Cl, C2, 03, or C4). This results in a display of "Co" or "CA",
depending on how long the button is pressed:
1) "Co" - Pressingthe reset button once quickly will display
"Co"(clearing to zero). This will clear any maintenance
codes that have elapsed up to that point and they will
begin timing again from zero.
2) "CA" - Pressing and holding the reset button for
2 seconds will display "CA"(clearing all). This clears all
maintenancecodes, even if they have not yet reached
their service point, and they will begin timing again from
ze re.
If nominal load and maintenancecodes appear
simultaneously, the LEDshall display, alternately, the
nominal load and code as follows:
The code will display for 3 seconds, then 1/2 second off. The
load will display for 6 seconds and then 1/2 second off.
ENGINEMAINTENANCE
WARNING
_ Unintentional sparking can result in fire or
_¢ electric shock.
WHEN ADJUSTINGOR MAKINGREPAIRSTOYOUR GENERATOR
.Disconnectthe sparkplugwirefromthe sparkplugandplace
thewirewhereit cannotcontactsparkplug.
WHEN TESTINGFORENGINESPARK
•Useapprovedsparkplugtester.
.DONOTcheckfor sparkwithsparkplugremoved.
Oil
OiJ Recommendations
We recommend the use of Briggs & Stratton Warranty
Certified oils for best performance. Other high-quality
detergentoils are acceptableif classified for service SF,SG,
SH,SJ or higher. DO NOTuse special additives.
Outdoor temperatures determinethe proper oil viscosity for
the engine. Usethe chart to select the best viscosity for the
outdoor temperature range expected.
oF
104 --., __
86 o _.,
68 -- cu _'
14
-4
-22 '
°C
2
_ _ 0
! 1o.o
L-- o
* Below40°F(4°C)the useof SAE30will resultinhardstarting.
** Above80°F(27°0)the useof 10W30maycauseincreasedoil
consumption.Checkoil levelmorefrequently.
_ OTE:Synthetic oil meeting ILSACGF-2,API
certification mark and API serv,!cesymbol with
"SJ/CF ENERGYCONSERVING or higher, is an
acceptableoil at all temperatures. Use of synthetic oil
does not alter required oil change intervals.
17

CheckingOil Level
Oil levelshould bechecked prior to each use or at leastevery
8 hours of operation.Keepoil levelmaintained.
1. Make sure generator is on a levelsurface.
2. Cleanarea around oil fiil and remove oil fiil cap.
3. Verify oil is at the point of overflowing at oil fill opening.
4. Replaceand tighten oil fill cap.
AddingEngineOil
1. Make sure generator is on a level surface.
2. Check oil level as described in Checking Oil Level
3. If needed, slowly pour oil into oil fill opening to the point
of overflowing at oil fill.
4. Replaceand tighten oil fill cap.
Service Air Cleaner
Your enginewill not run properly and may be damagedif you
run it with a dirty air cleaner.
Replacethe air cleaner every 25 hours of operation or once
each year, whichever comes first. Replacemore often if
operating under dirty or dusty conditions.
To servicethe air cleaner, folJew these steps:
1. Loosen screws (A) and removeair cleaner cover (B).
2. Carefully removecartridge (C) from base (D).
3. Install clean (or new) air cleaner assembly inside cover.
Dispose of old filter properly.
4. Assemble air cleaner cover onto base and tighten screws.
NOTE:You can purchase new air cleaner elements by calling
1-SOO-4-MY-HOME(46g-4663).
ChangingEngineOil
Changethe oil after the first 5 hours of operation. Changeoil
every 50 hours thereafter. If you are using your generator
under extremely dirty or dusty conditions, or in extremely hot
weather, change the oil more often.
CAUTION
Avoid prolonged or repeatedskin contact with used motor
oil.
Usedmotoroil hasbeenshownto causeskincancerin certain
laboratoryanimals.
Thoroughlywashexposedareaswith soapandwater.
KEEPOUTOF REACHOF CHILDREN.DON'T
POLLUTE.CONSERVERESOURCES.RETURN
USEDOIL TO COLLECTIONCENTERS.
Changethe oil while the engine is still warm from running, as
follows:
1. Makesure unit is on a level surface.
2. Disconnect the spark plug wire from the spark plug and
placethe wire where it cannot contact spark plug.
3. Cleanareaaround oil drain plug. The oil drain plug is
locatedat base of engine, opposite carburetor.
4. Remove oil drain plug and drain oil completely into a
suitable container.
5. Reinstall oil drain plug and tighten securely. Removeoil
fill cap.
6. Slowly pour oil (about 28 oz.) into oil fill opening to the
point of overflowing at oil fill. DONOToverfill.
7. Reinstall oil fill cap. Fingertighten cap securely.
8. Wipe up any spilled oil.
CleanlReplace Spark Plug
Changethe spark plug every 100 hours of operation or once
each year, whichever comes first. This will help your engine
to start easierand run better.
1. Cleanareaaround spark plug.
2. Removeand inspect spark plug.
3. Checkelectrode gap with wire feeler gauge and set spark
plug gap to 0.030 inch (0.76ram) if necessary.
jjJ -- -. f .....
4. Replacespark plug if electrodes are pitted, burned or
porcelain is cracked. Usea recommended replacement
plug.
5. install spark plug and tighten firmly.
NOTE:You can purchase a new spark plug by calling
1-800-4-NIY-HOME(469-4663).
18

Clean Spark Arrester Screen
The engine exhaust muffler has a spark arrester screen.
Inspectand clean the screen every 100 hours of operation or
once eachyear, whichever comes first.
NOTE:You can purchasea new spark arrester screen by
calling 1-800-4-MY-HOME (46g-4663).
If you useyour generator on any forest-covered, brush-
covered, or grass-coveredunimproved land, it must have a
spark arrester. The spark arrester must be maintainedin good
condition by the owner/operator.
WARNING
_ ontact with muffler areacan result in serious
burns.
_ Exhaust heat/gases can ignite combustibles,
structures or damagefuel tank causing a fire.
• DONOTtouch hot parts and AVOIDhot exhaustgases.
Allow equipment to cool before touching.
• Keep at least 5 feet (1.5 m) of clearance on all sides of
generator including overhead.
• Codeof FederalRegulation (CFR) Title 36 Parks, Forests, and
Public Property require equipment powered by an internal
combustion engineto have a spark arrester, maintainedin
effective working order, complying to USDAForest service
standard 5100-1C or later revision. In the State of California a
spark arrester is required under section 4442 of the California
Public resourcescode. Otherstates may havesimilar laws.
Clean and inspect the spark attester as follows:
1. To remove muffler heat shield (A) from muffler (B),
remove four screws that connect guard to muffler
bracket.
2. Remove four screws that attach spark arrester screen
(C).
3. Inspect screen and obtain a replacement if torn,
perforated or otherwise damaged. DO NOTuse a
defective screen. If screen is not damaged,clean it with
commercial solvent.
4. Reattachscreen and muffler guard.
Air Coofing System
Overtime debris may accumulate in cylinder cooling fins and
cannot be observed without partial engine disassembly. For
this reason,we recommend you have a Sears or other
qualified service dealerclean the cooling system (A) per
recommended intervals (see Maintenance Schedule).Equally
important is to keeptop of engine free from debris. See
Generator Cleaning.
Check VaJve Clearance
Regular valveclearancecheck and adjustment will improve
performance and extend engine life. This procedure cannot
be done without partial engine disassembly andthe use of
special tools. For this reason we recommend that you have a
Searsor other qualified service dealercheck and adjust valve
clearanceat recommended intervals.
Carburetor Adjustment
The carburetor on this engine is low emission, it is equipped
with a non-adjustable idle mixture valve and governed idle, if
equipped. Governedidle and top speed have beenset at the
factory. If adjustment is required, see a Sears or other
ualified service dealer.
CAUTION
Excessivelyhigh operating speeds increase risk of injury
and damageto generator.
Excessivelylow speeds impose a heavyload.
DONOTtamperwithgovernedspeed.Generatorsupplies
correctratedfrequencyandvoltagewhenrunningat governed
speed.
DONOTmodifygeneratorinanyway.
19

GENERAL
The generator should be started at least once every seven
days and allowed to run at least30 minutes, if this cannot be
done and you must store the unit for more than 30 days, use
the following information as a guide to prepare it for storage.
LongTerm Storage Instructions
It is important to prevent gum deposits from forming in
essential fuel system parts, such as the carburetor, fuel filter,
fuel hose or tank during storage. Also, experienceindicates
that alcohol-blended fuels (called gasoho], ethanol or
methanol) can attract moisture, which leads to separation
and formation of acids during storage. Acidic fuel can
damagethe fuel system of an engine while in storage.
WARNING
_Fuel and its are extremely flammable and
vapors
explosive.
_j_ ire or explosion can causesevere burns or
death.
WHEN STORINGFUELOR EQUIPMENTWITH FUELINTANK
• Storeawayfrom furnaces,stoves,waterheaters,clothesdryers
or otherappliancesthat havepilotlight or otherignitionsource
becausetheycanignitefuel vapors.
WHEN DRAININGFUEL
•TurngeneratorOFFandlet it coolat least2 minutesbefore
removingfuel cap.Loosencapslowlyto relievepressurein
tank.
. Drainfueltankoutdoors.
. Keepfuel awayfromsparks,openflames,pilot lights,heat,and
otherignitionsources.
• DONOTlighta cigaretteorsmoke.
Protect Fuel System
Fuel Preserver:
ChangeOil
While engine is still warm, drain oil from crankcase. Refill
with recommended grade.
Oil CylinderBore
* Removespark plug and pour about 1 ounce (30ml) of
clean engine oil into the cylinder.
. Install spark plug and crank slowly to distribute oil.
WARNING
_ Unintentional sparking can result in fire or
_¢ electric shock.
•NEVERcrankenginewith sparkplugremoved.
Generator
1. Cleangenerator as outlined in Generator Cleaning.
2. Checkthat cooling air slots and openings on generator
are openand unobstructed.
Other Storage Tips
1. DO NOTstore fuel from one seasonto another unless it
has beentreated as described in Protect Fuel System.
2. Replacefuel can if it starts to rust. Contaminatedfuel
will cause engine problems.
If possible, store unit indoors and cover it to give
protection from dust and dirt.
Coverunit with a suitable protective cover that does not
retain moisture.
WARNING
Storagecovers can be flammable.
Fillthe fuel tank with fresh fuel allowing at least 1.5"of tank
spacefor fuel expansion as shown on page8, when using a
fuel preserver cartridge with the fresh start fuel cap. If only
partially filled, air in the tank will promote fuel deterioration
during storage. Engineand fuel can be stored upto 6 months
with fuel preserver.
• Checklevel of fuel preserver cartridge. Fuelpreserver is
dark in color.
• If cartridge is almost empty or empty, replace with a new
fuel preserver cartridge following the instructions in Fresh
StarY Fuel Cap.
If fuel preserver is not used, remove all fuel from tank and
run engine until it stops from lack of fuel.
DONOTplace a storage cover over a hot generator.
Let equipment cool for a sufficient time before placing the cover
on the equipment.
Store generator in clean, dry area.
2O

Problem
Engineis running,hutno A€ outputis
available.
Engine runs goodat no-load hut "hogs
down" when loads are connected.
Engine will not start; or starts and runs
Csuse
1. One of the circuit breakers is open.
2. Faultin generator.
3. Poor connection or defective cord
set.
4. Connected device is bad.
1. Short circuit in a connected load.
2. Enginespeed is too slow.
3. Generator is overloaded.
4. Shorted generator circuit.
1. Rocker Switch set to "Off".
2. FuelValve is in "Off" position.
3. Dirty air cleaner.
4. Out of fuel.
5. Stale fuel.
6. Spark plug wire not connected to
Cerreciien
1. Reset circuit breaker.
2. Contact Searsor other qualified
service dealer.
3. Checkand repair.
4. Connectanother device that is in
good condition.
1. Disconnect shorted electrical load.
2. Contact Searsor other qualified
service dealer.
3. SeeDon't OverloadGenerator.
4. Contact Searsor other qualified
service dealer.
1. Set switch to "On".
2. Turn fuel valveto "Open"position.
3. Cleanor replace air cleaner.
4. Fill fuel tank.
5. Drain fuel tank and carburetor; fill
with fresh fuel.
6. Connectwire to spark plug.
rough. spark plug.
7. Badspark plug.
8. Water in fuel.
9. Flooded.
7. Replacespark plug.
8. Drain fuel tank and carburetor; fill
with fresh fuel.
9. Wait 5 minutes and re-crank engine.
Engine shutsdown when running.
Engine lacks power.
Engine"hunts" (speed constantly
fluctuates) or falters.
10. Excessivelyrich fuel mixture.
Out of fuel.
1. Loadis too high.
2. Dirty air filter.
Carburetor is running too rich or too
lean.
10. Contact Searsor other qualified
service dealer.
Fill fuel tank.
1. SeeDon't OverloadGenerator.
2. Replaceair filter.
ContactSears or other qualified service
dealer.
21

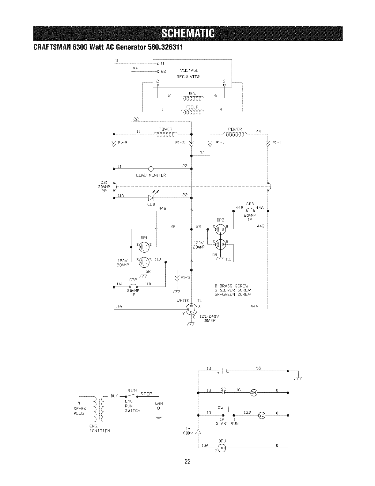
CRAFTSMAH6300 Watt AC Generator 580.326311
CBI
30AMP
2P
PI-2
IIA
120V
20AMP
o Ii L
22 VOLTAGE
__ -_ _REGULATOR 6 I
22
PDWER
li _EEOE_
PI-3
0
LDAD MDNITOR
22
CC2
20AMP
IR
IIA
// 2e
LED
44B
DPI 1 22
S_IIC
/_GR
liB
WHITE
PDWER
22
120V
20AMP
CB3
44C _ 44A
20AMP
DP2 IP
B 44C
B-BRASS SCREW
S-SILVER SCREW
GR-GREEN SCREW
TL
X44A
120/240V
30AMP
P_-4
SPARK
PLUG
ENG,
IGNITIDN
RUN
BLK __
ENG, GRN
RUN 0
SWITCH
55
IA
600V
22
sw L
i3 -- _ O
1g 1
START RUN
DCJ

CRAFTSMAH6300 Watt AC Generator 580.326311
LQA/) M_N/T_R
23

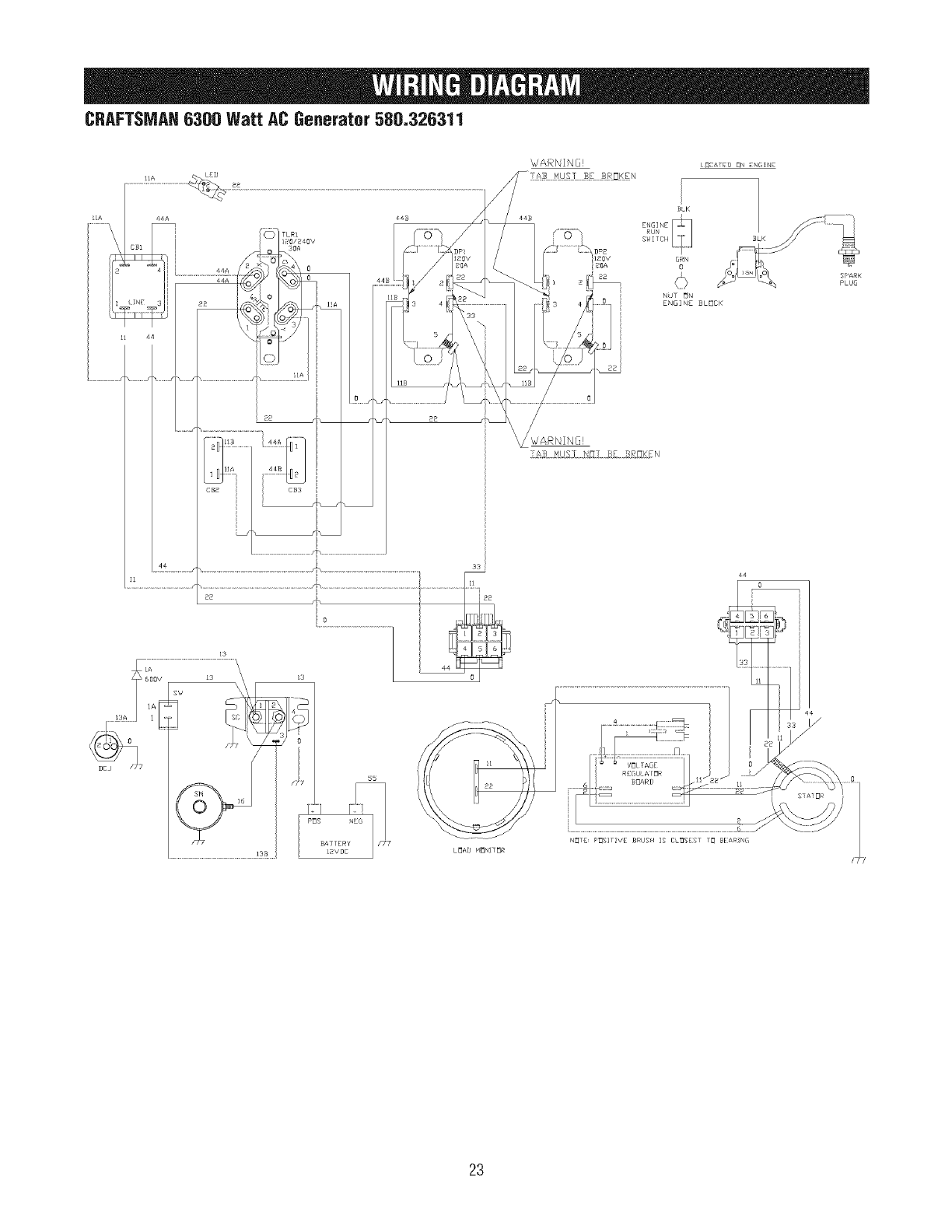
CRAFTSMAH6310 Watt AC Generator 580.326311
Main Unit -- Exploded View
6O
/
69
75
44
55
\
62 52
51
T--40
54
41
32
53
DETAIL OF JACK
ASSEMBLY COAXIAL DC
tl
34
26
25
9
13\
20
21
6
10
\
1
2_
31
DETAIL OF
BATTERY TRAY
5
J
J
_------14
24

CRAFTSMAN6300 Watt ACGenerator580.326311
IVlain Unit -- Parts List
Item Part #
1 B198566GS
2 194150GS
3 67989GS
4 190220GS
5 NSP
6 *
7 195398GS
8 96796GS
9 *
10 190274DGS
11 187365FGS
12 189302JGS
13 *
14 189009GS
15 695398
16 *
17 189008GS
18 *
19 83083GS
20 B4986GS
21 194153GS
22 86494GS
23 86292GS
24 194390GS
25 191190GS
26 74908GS
30 90388GS
31 196830GS
32 *
33 *
34 195422GS
35 791745
36 192376GS
37 56893GS
38 B2153GS
39 198757GS
40 199256GS
41 192980GS
43 691656
44 194217GS
45 198912GS
Description
Cradle (includes Items 20, 31 & 55)
KIT,Vibration Mount, 45°
NUT,M8 FlangeSerrated
ADAPTER,Engine
ASSY,Alternator (see page27)
NUT,HexM8 - 1.25
TPHMS, M8 1.25 x 35
WASHER,8.4 x 22.2 x 3
WASHER,5/16- M8 Lock
SBHC,3/8-16 x 7/8"
HHCS,5/16- 24 x 7.44
ASSY,Wire, #16, Red
HHCS,MS- 1.25 x 25
BRACKET,Muffler
GASKET,Exhaust
HHCS,M6- 1.0x 12
MUFFLER
SHCS,5/16-18 x 7/8
SCREEN,Spark Arrest
DECAL,Ground
KIT,Vibration Mount
SCREW,Wing M6 - 1.0 x 16
SCREW,10- 16 x 3/4, Self Drill
ASSY, HeatShield
CAP
TAPTITE,M5 -0.8 x 10
SCREW,M6 - 1 x 12 Taptite
DECAL,Warning, Exhaust
NUT,1/4 - 20
WASHER,1/4 Lock
COVER,RBCPlasticwith Cap
KIT, Hose, Fuel(cut to fit)
SCREW,12 - 24 x 1/2 Thread
Forming
CRIMPTITE,10-24 x 1/2
SCREW,Self Driller, 12-14 x 7/8
BRACKET,Switch/Jack
BOLT,Shoulder, M6- 1.0 w/washer
VALVE,Fuel
SOLENOID
ASSY,Tank Fuel (includes Items 41,
50, 51,52 & 62)
FUELCAP,FreshStartTM
Item Part #
46 B4135GS
47 77395GS
48 195373GS
49 *
50 188333GS
51 194799GS
52 189235GS
53 194034GS
54 194448GS
55 197789GS
56 196908GS
57 *
58 200301GS
59 189164GS
60 195537GS
62 202997GS
68 198760GS
69 193043GS
70 87799GS
71 199152GS
73 192351GS
74 193347GS
75 198871GGS
76 185939KGS
77 198871HGS
78 189302MGS
85 B193200GS
86 198669GS
900 NSP
Description
PIN, Handle
NUT,M6 Flange Lock
WIRE, Ground
WASHER,Shakeproof, Ext
DECAL,Instruction FuelLevel
DECAL,Danger
DECAL,Start instructions
KIT, Folddown Handle Hardware
KIT, Insulation w/clip
DECAL,Fuel Shutoff
LOADMONITOR
HHCS,M6-1.0x 12
ASSY, Control Panel(see page26)
PALNUT,3/16
HEATSHEILD
DECAL,Warning, CO
ASSY, Battery Tray w/Studs
BATTERY
SWITCH,Rocker On/Off
ASSY, Jack, Coax, DC
LUG,1/4, #22/18
KIT, Hardware Battery
ASSY, Wire, #13 Red
ASSY, Wire, #55 BIk
ASSY, Wire, #13B Red
ASSY, Wire, #13 Red
ASSY, Fold Down Handle
GRIP, Handle
ENGINE(210415-0138-E1) (see
pages29-32)
Parts Not illustrated
201492GS
AB3061GS
B4177GS
5097D
202180GS
197474GS
199389GS
MANUAL,Operator's
BOTTLE,Oil
CHARGER,Battery
CARTRIDGE,Fresh Fuel
DECAL,Family, CAEVP
CORDSET,Storm
KIT, DecalService
* - Items without part numbers are common fasteners and
are available at local hardware stores.
25

CRAFTSMAH6300 Watt AC Generator 580.326311
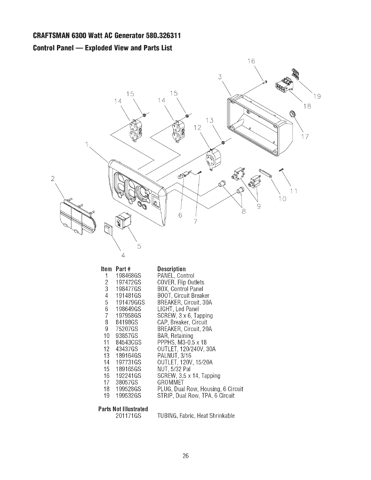
Control PaneJ_Exploded View and Parts List
16
1
2\
15 15
4 14
item Part #
1 198468GS
2 197472GS
3 198477GS
4 191481GS
5 191479GGS
6 198649GS
7 197958GS
8 84198GS
9 75207GS
10 93857GS
11 845436GS
12 43437GS
13 189164GS
14 197731GS
15 189165GS
16 192241GS
17 3BO57GS
18 199528GS
19 199532GS
Parts Not illustrated
201171GS
67
Description
PANEL,Control
COVER,Flip Outlets
BOX,Control Panel
BOOT,Circuit Breaker
BREAKER,Circuit, 30A
LIGHT,Led Panel
SCREW,3 x 6, Tapping
CAP,Breaker,Circuit
BREAKER,Circuit, 20A
BAR,Retaining
PPPHS,M3-0.5 x 18
OUTLET,120/240V, 30A
PALNUT,3/16
OUTLET,120V, 15/20A
NUT,5/32 Pal
SCREW,3.5 x 14, Tapping
GROMMET
PLUG,Dual Row, Housing, 6 Circuit
STRIP, Dual Row, TPA,6 Circuit
TUBING,Fabric, HeatShrinkable
\11
10
19
26

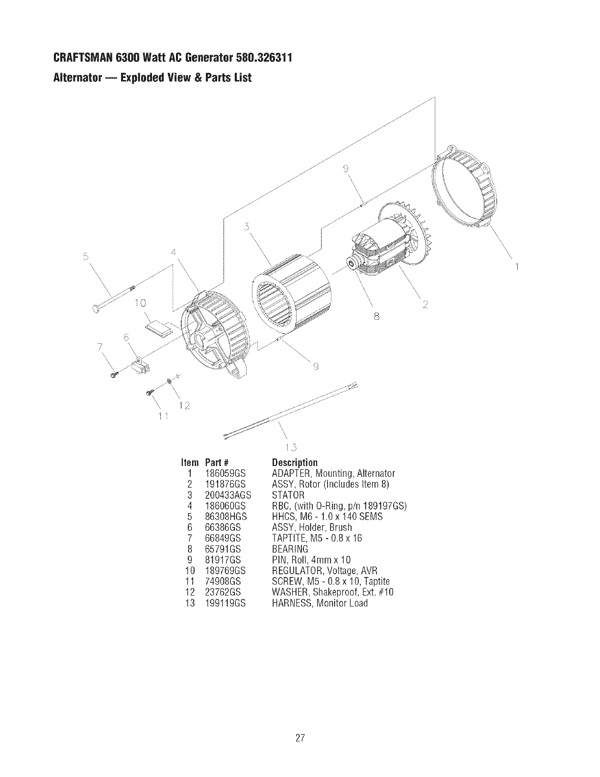
CRAFTSMAH6300 Watt AC Generator 580°326311
Alternator -- Exploded View & Parts List
5\
\
7
\\
\\\
\\ 1 2
item
1
2
3
4
5
6
7
8
9
10
11
12
13
\\\
\\ \
8
\\
\\\
\\
\\
"\\\\\\ 9
==============================.......
13
Part#
186059GS
191876GS
200433AGS
186060GS
86308HGS
66386GS
66849GS
65791GS
81917GS
189769GS
74908GS
23762GS
199119GS
Description
ADAPTER,Mounting, Alternator
ASSY, Rotor (Includes Item 8)
STATOR
RBC, (with O-Ring, p/n 189197GS)
HHCS,M6- 1.0 x 140 SEMS
ASSY, Holder, Brush
TAPTITE,M5 - 0.8 x 16
BEARING
PIN, Roll, 4ram x 10
REGULATOR,Voltage, AVR
SCREW,M5 - 0.8 x 10, Taptite
WASHER,Shakeproof, Ext.#10
HARNESS,Monitor Load
\2
\\\\
\\
\\
27

CRAFTSMAH6300 Watt AC Generator 580.326311
Wheel lit -- Exploded View and Parts List
Item Part # Description
1 196517GS WHEEL
2 * WASHER,5/8"
3 191267RGS AXLE
4 191265GS E-RING
5*HHCS,M81.25x20
6 67989GS NUT,M8, FlangeSerrated
8 198629GS ASSY, Supportw/Mounts
Parts Net illustrated
196157GS SUBKIT,Hardware
* - Items without part numbers are common fasteners and are
available at local hardware stores.
28

EHGIHE, BrJggsand Stratto., 210415 - Exploded View
718A
_o
@
529
415
21 @ 12
21
725
742
746 _
89
3O7 _'
24 _
741 146
725A
728 _
622 _
1298
5O5
®
337
635
%
334
2g

EHGIHE, BrJggsand Stratto., 210415 - ExpJodedView
331
798 _:_
1100_
1022
4s
1230
222_
604
633 @
914
356
1171
356A
914A_ 118@ 2o9
1404 0
564 %
633 ®
633 ®
_ _ 1270
130
221 51A_ 95 135
105 [_
117_
369 _
1O4
137
1127_
30

EHGIHE, Briggs and Stratto., 210415 - Exploded View
8o2 - 697
121 CARBURETOROVERHAUL KIT
137
981
117 @ lo50
127(_
163 %
104_
6330
358 ENGINEGASKET SET
868_ 20
163 %
883
304
305q_ 732
459
1095 VALVEGASKETSET
883__11 _ 51A_._@_>
1022 868_ 51 @
977 CARBURETOR GASKET SET
7 _
633 @
163
31

13
16
18
19
20
21
22
23
24
25
26
27 69(
2B 691
29 69
30 69
32 6c"
33 4c"
34 6(
35 6'
36 6
42 4
45 (
46
51
51A
53
55
58
59
60
65
B9
95
97
98
104
105
108
109
117
118
121
122
125
127
130
133
135
137
146
161
163
185
188
192
209
219
220
222
227
304
305
306
307
309
310
311
332
333
334
337
Item
347
356
356A
35B
369
415
6' _4;
6 26
64
445 #1_
455 94
456 ,92
459 _B1
462 _9_
503 59"
505 69
510 69
513 69
529 7_
544
552
562 6
564 6
579
597
604
60B
615
616
622
632
633
635
689
697
718
71BA
725
72B
746
783
797
79B
801
802
803
851
868
883
914
914A
951
96B
975
977
102
105
117
121
121
32
OB
ocker
ingine
BoW/
r Cleanercartridge
whee
awl Riction
archer
r (Starter Cabte}
Starter
_overnorControl Lever}
Drive-Starter
Clutch-Drive
ontro
ter Cable}
,awl Friction plate)
rive
CoveO
Starter
-_errnina .Spark ug
£ Seal-\ _/veaust
£ Gask_-Exh
Screw _ _ockerCoVeO
_ockerCover}
Screw
Lever-{ noke
,it Cleaner
Cover-
BoW/-f at
Gaske et.Carburetor
Fan-F1 thee/
£ _-G _et-RockerCover
cker
_LiSh
ng
heelFan)

33

Sears, Roebuckand Co., U.S.A. (Sears),the CaliforniaAir ResourcesBoard(CARD)and
the UnitedStates EnvironmentaJProtectionAgency(U.S.EPA}
EmissionsControlSystemWarrantyStatement
(Owner'sDefectWarrantyRightsand Obligations)
TheCalifornia Air Resources Board (CARB), U.S. EPAand Sears are
pleasedto explain the Emissions Control System Warranty on your
small offroad engine (SORE).In California, new small offroad
engines model year 2006 and later must be designed, built and
equipped to meet the State's stringent anti-smog standards.
Elsewherein the UnitedStates, new non-road,spark-ignition engines
certifiedfor model year 1997and later must meet similar standardsset
forth bythe U.S.EPA.Sears must warrant the emissions control
system on your enginefor the periodsof time listed below, provided
there has beenno abuse,neglector improper maintenanceof your
small off-road engine.
Your emissions control system includes parts such as the
carburetor, air cleaner, ignition system, fuel line, muffler and
catalytic converter. Also included may beconnectors and other
emissions related assemblies.
Where a warrantable condition exists, Sears will repair your small
off-road engine at no cost to you including diagnosis, parts and
labor.
Sears, Roebuck and Co, Emissinns Contrnl Defects Warranty
Coverage
Small off-road enginesare warranted relative to emissions control
parts defects for a period of two years, subject to provisions set
forth below. If any covered part on your engine is defective,the part
will be repaired or replaced by Sears.
Owner's Warranty Responsibilities
As the small off-road engine owner, you are responsible for the
performance of the required maintenance listed in your Operating
and Maintenance Instructions. Searsrecommends that you retain all
your receiptscovering maintenance on your small off-road engine,
but Searscannot deny warranty solely for the lack of receipts or for
your failure to ensurethe performance of all scheduled maintenance.
As the small off-road engine owner, you should however be aware
that Sears may deny you warranty coverage if your small off-road
engine or a part has failed due to abuse, neglect, improper
maintenanceor unapproved modifications.
You are responsible for presenting your small off-road engineto an
Authorized Sears Service Dealer as soon as a problem exists.
The undisputed warranty repairs should be completed in a
reasonable amount of time, not to exceed30 days.
If you have any questions regarding your warranty rights and
responsibilities, you should contact a Sears Service Representative
at 1-800-469-4663.
The emissions warranty is a defects warranty. Defects are judged
on normal engine performance. The warranty is not related to an in-
use emissions test.
Sears, Roebuck and Co, Emissinns Contrni Defects Warranty
Provisions
Thefollowing are specific provisions relative to your Emissions
Control DefectsWarranty Coverage.It is in addition to the Sears
enginewarranty for non-regulated enginesfound in the Operatingand
MaintenanceInstructions.
1. Warranted Parts
Coverageunder this warranty extendsonly to the parts listed
below (the emissions control systems parts) to the extent these
parts were present on the enginepurchased.
a. Fuel Metering System
*Cold start enrichment system
*Carburetor and internal parts
*Fuel Pump
*Fuelline, fuel line fittings, clamps
.Fueltank, cap and tether
.Carbon canister
b. Air Induction System
*Air cleaner
.Intakemanifold
.Purge and vent line
c. Ignition System
.Spark plug(s)
.Magneto ignition system
d. Catalyst System
*Catalytic converter
.Exhaustmanifold
.Air injection system, Pulsevalve
e. Miscellaneous Items
.Vacuum, temperature, position, time sensitive valves and
switches
.Connectors and assemblies
2. Lengthof Coverage
Searswarrants to the initial owner and eachsubsequent
purchaser that the Warranted Parts shall befree from defects in
materials and workmanship which caused the failure of the
Warranted Parts for a period of two years from the date the
engineis deliveredto a retail purchaser.
3. NeCharge
Repair or replacementof any Warranted Part will be performed
at no charge to the owner, including diagnostic labor which
leads to the determination that a Warranted Part is defective if
the diagnostic work is performed at an Authorized Sears
Service Dealer.
4. Claims and Coverage Exclusions
Warranty claims shall befiled in accordance with the provisions
of the Sears Engine Warranty Policy. Warranty coverageshall
be excludedfor failures ofWarranted Parts which are not
original Searsparts or becauseof abuse, neglect or improper
maintenanceas set forth in the SearsEngineWarranty Policy.
Searsis not liable to cover failures of Warranted Parts caused
by the useof add-on, non-original, or modified parts.
5. Maintenance
Any Warranted Part which is not scheduled for replacementas
required maintenanceor which is scheduled only for regular
inspection to the effect of "repair or replaceas necessary"shall
bewarranted asto defectsfor the warranty period. Any
Warranted Part which is scheduledfor replacementas required
maintenanceshall be warranted as to defects only for the period
of time up to the first scheduled replacementfor that part. Any
replacementpartthat is equivalent in performance and
durabilitymay be used in the performance of any maintenanceor
repairs. The owner is responsible for the performance of all
required maintenance,as defined in the Sears Operatingand
MaintenanceInstructions.
6. Censequential Coverage
Coverage hereunder shall extend to the failure of any engine
components caused by the failure of any Warranted Part still
under warranty.
In the USAandCanada,a24-hourhotline,1-800-469-4663,hasa menuof pre-recordedmessagesofferingyou productmaintenance
information.
34

Emissions information
Enginesthat are certified to meetthe CaliforniaAir Resources
Board(CARB) Emission Standards must display information
regardingthe Emissions Durability Periodand Air Index. The
engine manufacturer makesthis information availableto the
consumer on emission labels. The engine emission labelwill
indicate certification information.
The EmissionsDurabilityPeriod describes the number of
hours of actual running time for which the engine is certified
to beemissions compliant, assuming proper maintenancein
accordancewith the Operating & Maintenance Instructions.
The following categories are used:
Moderate: Engineis certified to be emission compliant for
125 hours of actual engine running time.
Intermediate: Engineis certified to beemission compliant
for 250 hours of actual engine running time.
Extended:Engineis certified to beemission compliant for
500 hours of actual engine running time.
Forexample, a typical walk-behind lawn mower is used 20 to
25 hours per year. Therefore, the EmissionsDurability
Period of an engine with an intermediate rating would
equateto 10to 12 years.
Certainengines will be certified to meetthe United States
Environmental Protection Agency (USEPA)Phase 2 emission
standards. For phase 2 certified engines, the Emissions
Compliance Period referred to on the Emissions Compliance
label indicates the number of operating hours for which the
engine has been shown to meet Federalemission
requirements.
For engines less than 225 cc displacement:
CategoryC = 125 hours
Category B = 250 hours
CategoryA = 500 hours
For engines of 225 cc or more:
CategoryC = 250 hours
Category B = 500 hours
CategoryA = 1000 hours
35

GARANTiA .................................... 36
REGLASDESEGURIDAD ...................... 37-39
CONOZCASU GENERADOR........................ 40
MONTAJE .................................. 41-43
FUNCiONAMiENTO........................... 44-48
ESPECIFiCACIONES............................. 49
MANTENIMIENTO ........................... 50-53
ALMACENAMIENTO............................. 54
REPARACIONDEAVERIAS ....................... 55
NOTAS ..................................... 56-57
GARANTIADEL SISTEMADECONTROL
DE EMiSIONES .............................. 58-59
COMOORDENARPARTES ............ ULTIMA PAGINA
Garantiacompietade an afio del generador Craftsman
Si el generador falla debido a defectos de materiales o mano de obra en el plazo de un afio a partir de la fecha de compra,
devu61valoa cualquier almac6n Sears,punto de venta de Craftsman o centro de reparaci6ny repuestos de Sears de los
Estados Unidos para su reparaci6n gratuita o, en caso de que 6sta no sea posible, parasu sustituci6n.
Garantialimitada de un ano adicional del generador Craftsman
Duranteel segundo a_o a partir de ia fechade compra, si cualquier pieza del generador faiia debido a defectos de materiales o
mano de obra, se suministrarA gratuitamente una nuevapieza. Si desea quese instale la pieza,deberApagar la mano de obra.
El periodo de garantia se reducirA a 90 dias desde la fecha de compra si el generadorse utiliza con fines comerciales o de
alquiler. Una vez que el generador se haya usado con fines comerciales o de alquiler, se considerarAcomo equipo de uso
comercial o alquiler a efectos de esta garantia.
Estagarantia le otorga determinados derechos legalesyes posible que tenga otros derechosque puedenvariar de un pais o
estado a otro.
Sears, Roebuckand Co., D/817WA, RoffmanEstates, IL 60179 U.S.A.
36

Estees el simboio de aierta de seguridad. Esusado paraindicarie situaciones con peiigrospotenciaiesde lesionpara elpersonal. Siga las instruccionesde todos los mensajes de seguridad que aparecen despuesde estesimhoio para evitar posihies
lesioneso muerte.
Lea estemanual de manera cuidadosay famiiiaricese con
....... su generador. Conozca sus uses, sus limitacionesy
cuaiquier peiigro reiacionado conel mismo.
El sirnbolo de alerta de seguridad (_! es usado con una palabra
(PELIGRO,ADVERTENCIA,PRECAUCION),un mensaje per escrito o
una ilustraciOn, para alertarlo acerca de cualquier situaci6n de
peligro que puedaexistir. PELIGROindica un riesgo el cual, si no se
evita, causar#la muerte o una herida grave. ADVERTENOIAindica
un riesgo el cual, si no se evita, puede causar la muerte o una
herida grave. PRECAUCI(iNindica un riesgo, el cual, si no se evita,
puede causar heridas menores o moderadas. AVISO, indica una
situaci6n que podria resultar en el da_o del equipo. Siga los
mensajes de seguridad paraevitar o reducir los riesgos de heridas e
inclusive la muerte.
ADVERTENCIA
El escapedel meter de este producte¢entiene
elementes quirnices reconocides en el Estadede
California per preducirc_ncer, defectes de nacimiente u
otres daffosde tipe reproductive.
Simbolos de Peiigro y Significados
r.,qr,J=1! [_]_[o]
A-Explosi6n
B-Fuego
C-DescargaEbctrica
D-Gases T6xicos
E- Retroceso
®
G-Objets volant
H-Presi6n Explosiva
J-Ouemaduras Qufmica
K-Qufmico Peligroso
L-Partes en Movimiento
PELIGRO
Su Contenidoes NOCIVO0 F_
SERINGERIDO.Eviteel contacto con los ojos, la
piel o la ropa. No tomar internamente. Evite
respirar la niebla o el vapor. La exposici6n
excesivade los ojos o la piel puede causar
irritaci6n. Mantengael estabilizador fuera del
alcancede los ni_os.
El estabilizador de combustible es un quimico
peligroso.**
La tapa de combustible FreshStartTM est,. disefiadaparasostener
un cartucho el cualcontiene el estabilizadorde combustible.
ENCASODESER INGERIDO,Ilame un medico inmediatamente.
No induzcael v6mito. En case de inhalaci6nsalir al aire libre. En
case de contacto con los ojos o con la piel, lavar
abundantementecon aguadurante 15 minutes.
Almacene los cartuchos sin abrir en un Areafresca, seca y bien
ventilada. Mantenga el cartucho abierto en la tapa de
combustible, y la tapa de combustible cerradaen el tanque de
combustible cuando no est_ en use.
Encase de la emergencia,contacte a un m_dico
inmediatamentey llama 1-800-424-9300 para la informaci6n
material de la seguridad.
*El estabilizador de combustible contiene 2,6-di-tert-butilfenol (128-39-2) y destilado
de petr61eoalif_tico (64742-47-8).
El use de un generador en un espacio interior PUEDE
PROVOCAR LA MUERTE EN POCOS MINUTES.
Los gases de escape del generador contienen
rnon6xido de carbono, un veneno invisible e inodoro.
NUNCA utilice un generador
en el interior de una casa o
un garaje, AUNQUE haya
ventanas y puertas abiertas.
Utilicelo solo en e!
EXTERIOR, alejado de
ventanas, puertas y
aberturas de ventiJacibn.
F-Superficie Cafiente M -Manual del Operario
37

ADVERTENCIA
&l motor funcionar, se produce mon6xido de
sarbono, un gas inodoro y venenoso.
_ espirar mon6xido de carbono puede provocar
dolor de cabeza,fatiga, mareos, v6mitos,
sonfusi6n, ataques, n_useas,desmayos o incluso
jla muerte.
• OpereelgeneradorSOLAMENTEalairelibre.
, Instaleunaalarmademon6xidodecarbonocon bateriacerca
delos dormitorios.
Aseg_resedequelos gasesdeescapenopuedanentrarpor
ventanas,puertas,tomasdeairedeventilaci6nu otrasaberturas
enunespaciocerradoenel quepuedanacumularse.
• NOarranqueni dejefuncionarel motoreninterioresni enzonas
cerradas,(aunquehayaventanasy puertasabiertas),incluyendo
elcompartimientodelgeneradorenunvehiculorecreativoo RV.
• Cuando
®
ADVERTENCIA
El retroceso (repliegue r_pido) del cable del
arrancador puede producir lesiones. El retroceso
impedir_ que el usuario suelte el cable a tiempo y
tirarA de su mano y brazo hacia el motor.
Como resultado, podrian producirse fracturas,
contusiones o esguinces.
arranqueelmotor,tire lentamentedelcablehastasentir
unaresistenciay, acontinuaci6n,tire r_.pidamentede61para
evitarsu retroceso.
NUNCAarranqueo pareelmotorcuandohayaaparatos
el_ctricosconectadosyen funcionamiento.
ADVERTENCIA
iLos generadores producen un voltaje muy
poderoso.
_¢ Si no aisla el generador de utilidades de energia,
ipuedehacer que los trabajadores de electricidad
_ufran heridas graves e inclusive la muerte,
debido a la retroalimentaci6n de la energia
_16ctrica.
, Cuandouseungeneradorcomopoderdeenergiaauxiliar,
notifiqueala compa_iadeutilidades.Useelequipode
transferenciaaprobadoparaaislarelgeneradordeotra utilidad
el6ctrica.
• Useuninterruptorparalafalladelcircuitodetierra(GFCI)en
cualquierAreabastanteh[imedao queseaaltamenteconductiva,
talescomoterrazasdemetalo trabajohechoconacero.
, NOtoquelosalambrespeladoso recept_.culos.
• NOuseungeneradorconcablesel_ctricosqueest6n
malgastados,rotos,peladoso dafiadosdecualquierforma.
• NOopereel generadorbajolaIluvia.
, NOmanejeelgeneradoro cablesel_ctricosmientrasest6
paradoenagua,descalzoo cuandolasmanosy los piesest6n
mojados.
, NOpermitaquepersonasdescalificadaso ni_osopereno sirvan
algenerador.
ADVERTENCIA
La combustible y sus vapores son
extremadamente inflamables y explosivos.
El fuego o una explosi6n pueden causar
quemaduras severas e inclusive la muerte.
CUANDOANADACOMBUSTIBLE0 vACJEEL DEPOSIT0:
', Apague el generador (posici6nOFF)y d_jelo enfriar al menos
por 2 minutos antes de remover la tapa de la combustible.
Afloje la tapa lentamente para dejar que la presi6n salga del
tanque.
• Llene o vacie el dep6sito de combustible a la intemperie.
NOIlene demasiado eltanque. Permita al menos espacio parala
expansi6n del combustible.
Si se haderramado combustible, esperea que se evaporeantes
de arrancarel motor.
Mantenga la combustible alejadade chispas, llamas abiertas,
pilotos, calory otras fuentes de igniciOn.
NOencienda un cigarrillo o fume.
CUANDOPONGAENFUNCIONAMIENTOELEQUIPO:
, Compruebe que la bujia, el silenciador, el tap6n deldep6sito de
combustible y el filtro de aire est_n instalados.
, NO arranque el motor sin la bujia instalada.
CUANDOOPEREEL EQUIPO:
, NO incline el motor o el equipo, detal maneraque la
combustible se puedaderramar.
, Estegenerador no es apto parael uso en equipos m6viles ni en
aplicaciones marinas.
CUANDOTRANSPORTE0 REPAREELEQUIPO:
, Transporte o repareel equipo con el tanque de combustible
vacio, o con la v_lvula para apagarel combustible, apagada
(posici6n OFF).
• Desconecteel cable de la bujia.
CUANDOALIVIACENE0GUARDEELEQUIPOCONCOIVIBUSTIBLE
ENELTANQUE:
, Almacene alejado de calderas,estufas, calentadoresde agua,
secadorasde ropa u otros aparatos electrodom6sticos que
posean pilotos u otras fuentes de ignici6n, porque ellos pueden
encender los vapores de la combustible.
ADVERTENCIA
Estegenerador no cumple la norma 336FR-183 del cuerpo de
guardacostasde EE.UU.y no debe utilizarse en aplicaciones
marinas.
El uso de un generador no homologado por cuerpo de
guardacostasde EE.UU.puede provocar lesiones y da_os
materiales.
38

ADVERTENCIA
El contacto con la zona del silenciador puede
producir quemaduras graves.
Los gases y el calor de escape pueden inflamar
f_los materiales combustibles y las estructuras o
da_ar el dep6sito de combustible y provocar un
incendio.
•NOtoque las superficies calientes y evite los gases del escape a
altatemperatura.
•Permita que el equipo se enfrie antes de tocarlo.
Deje un espacio minimo de 1.5 m (5 pies) alrededor del
generador, incluida la parte superior.
El C6digo de Normativa Federal(CFR,Titulo 36: Parques,
Bosquesy Propiedad PQblica)obliga a instalar una pantalla
apagachispasen los equipos con motor de combusti6n interno
y a mantenerlaen buenascondiciones de funcionamiento,
conforme a la norma 5100-1C (o posterior) del Servicio Forestal
de la USDA. En el Estadode California, la ley exigeel uso de una
pantallaapagachispas (Secci6n4442 del C6digo de Recursos
P_blicos de California). En otros estados puede haber leyes
similares envigor.
ADVERTENCIA
_. l arrancador y otras piezas que rotan pueden
enredar las manos, el pelo, la ropa, o los
•_ accesorios.
•NUNCAutilice la generador sin sus carcasaso tapas de
protecci6n.
, NO use ropasuelta, joyas o elementos que puedan quedar
atrapados en el arranque o en otras partes rotatorias.
, Ate paraarriba el pelo largo y quite la joyeria.
ADVERTENCIA
Chispearinvoluntariopuede tener como
_¢ resultado el fuego o el golpe el6ctrico.
CUANDOAJOSTE0 HAGAREPARACIONESASUIVIAQUINA
GENERADOR
,Siempredesconecteel alambredela bujiay col6quelodondeno
puedaentrarencontactocon labujia.
CUANDOPRUEBELABUJJADELMOTOR
•Utiliceuncornprobadorde bujiashomologado.
, NOcompruebalachispasin labujiainstalada.
PRECAU€ION
Las velocidades de operaci6n en exceso, aumentan los
riesgos de heridas y da_ios al generador.
Las velocidades bajan en exceso, imponen una carga muy
}esada.
NOcambie ninguna velocidad determinada. El generador
suministra unafrecuencia y un voltaje calificado cuando
funciona a una velocidad determinada.
NOmodifique al generador en ninguna forma.
AViSO
El sobrepasar la capacidad del amperaje y vataje del
lenerador, puede da_ar al generador y los aparatos
el6ctricos conectados al mismo.
Yea No sobrecargue generador.
Enciendasu generadory deje que el motor se estabiliceantes
de conectar las cargasel_ctricas.
Conectelas cargasel_ctricas en la posici6n de apagado(OFF),
luego encienda (ON) parasu operaciOn.
Apague (OFF)las cargasel_ctricas y descon_ctelasdel
generador antes de parar el generador.
AViSO
El tratamiento inadecuado del generador puede da_arlo y
acortar su vida productiva.
Use el generador solamente con la finalidad para el cual fue
disefiado.
Encaso de dudas sobre su uso, dirijase al distribuidor.
Opereel generador solamente en superficies niveladas.
NOexponga al generador a una humedad excesiva,polvo,
suciedad o vapores corrosivos.
NOinserte cualquier objeto a trav_s de las ranuras de
enfriamiento.
Si los aparatosconectados se sobrecalientan, ap_guelosy
descon_ctelosdel generador.
Apague el generador si:
-Se pierde la salidael_ctrica;
-El equipo produce chispas, humo o emite llamas;
-La unidadvibra de una maneraexcesiva.
39

CONOZCASUGEHERADOR
[_ _1 Lea este manual del eperarie y las reglas de seguridadantes de eperar su generader.
......... Compare las ilustraciones con su generadorpara familiarizarse con la ubicaciCnde los diferentes controles y ajustes.
Conserveeste manual para referenciasfuturas.
Tanque de Combustible
Tomacorrientes Doble de
120 Voltios AC,
20 Amp SilenciadorApagacbispas
Tomacorrientescon
DispositivodeSeguridadde
120/240VoltiosAC,
30Amp
Cortacircuitos(AC)
Disyuntor
Basculante StatStationTM
Conector
deTierra
Etiqueta
de Dates
Depurador
deAire
PalancadelCebador
Cargader de FletaciCn de la Bater[a -- Utilice el enchufe hembra del
cargador de flotaci6n de la bateria para mantener la bateria de arranque
cargada y preparada para el use.
Cortacircuites (AC} -- Cada tomacorriente posee un cortacircuito para
proteger el generador contra sobrecargas el_ctricas. Los cortacircuitos son
del tipo "oprimir para reposicionar".
Cenecter de TJerra - Consulte con el organismo responsable de la
normativa vigente de conexi6n a tierra.
Culataze el Principle -- Us6 para comenzar motor.
Depurader de Aire -- Filtra el aire de entrada a medida que penetra en
el motor.
DJsyuntorBascuEante - Un disyuntor basculante que protege el
generador contra sobrecargas el6ctricas.
Etiqueta de Dates -- Proporciona el modelo, revisi6n y el nLimero de
serie de generador. Tenga per favor estos prontamente disponible
cuAndo Ilamar para la ayuda.
Interrupter BalancJn del Meter -- Deber_ estar en la posici6n "On" (En)
para darle arranque al motor. Col6quelo en la posici6n "Off" (Apagado)
para detener un motor en funcionamiento.
Interrupter de Arranque -- Mantenga pulsado el interrupter en la posici6n
"Start" (Arranque) durante un mAximo de 15 segundos cada vez que
intente arrancar, hasta conseguirlo.
Culatazoel
Principio
Interrupter
Balancin del
Motor
Tapa del Dep6sito
del Aceite
Interrupter de Cargador de
Arranque FlotaciCn de la Bateria
Palaaca del Cebader -- Usada cuando se esterdando arranque a un
motor frio.
Silenciadet Apagachispas -- El silenciador disminuye el ruido del
motor y est_ equipado con una pantalla apagachispas.
StatStatien TM -Muestra la carga nominal del generador en funci6n de
la frecuencia de salida. Tambi_n incluye una funci6n de aviso de
mantenimiento integrada.
Tapa del DepCsito del AceJte -Llene el motor con aceite aqui. Vea la
pAgina 51 para las recomendaciones del aceite.
Tanque del Cembustible -- El tanque tiene una capacidad de 7 galones
americanos de gasolina sin contenido de plomo.
TemacerrJente BoNes de 120 VoltJes AC, 20 Amp -- Pueden ser
utilizados para suministrar alimentaci6n el6ctrica para el funcionamiento
de cargas del motor, herramientas, aparatos especiales e iluminaci6n
el6ctrica de 120 Voltios AC a 20 Amperios, monofAsica de 60 Hz.
Temacorriente con DJspesitJvede SegurJdad de 120/240 Velties, 30
Amp -- Puede ser utilizado para suministrar alimentaci6n elCctrica para el
funcionamiento de cargas del motor, herramientas, aparatos especiales e
iluminaci6n elCctrica de 120 y/o 240 Voltios AC a 30 Amperios,
monofAsica de 60 Hz.
4O

Su generadorrequierede ciertos procedimientosde montajey solo
estarAlisto paraserutilizadodespu_sdehaberlesuministradoservicio
conel combustibley aceiterecomendados.
Si usted tiene prohlemas con el mentaje de su generader, per
favor Ilame ala linea de ayuda para generadoresal
1-800-222-3136.
Desembalaje del Generador
1. Coloquela caja de cart6n en unasuperficie rigida y plan&
2. Saquetodo el contenido de la caja de cart6n, a excepci6n del
generador.
3. Abra completamente la caja de cart6n cortando cada una de
sus esquinas de arriba abajo.
4. Mantenga el generador sobre el cart6n para instalar el juego de
ruedas.
Contenido de la Caja
Revise todo el contenido compar_.ndolocon la lista a continuaci6n:
* Unidad Principal
° Aceite del Motor
° Tube para la Carga de Aceite
° Manual del Operario
° Juego de Ruedas
° Juego de Cables del Adaptador
Si cualquier parte falta o est,. da_ada, Ilame a la Linea de Ayuda del
Generadoral 1-808-222-3136.
Instale el Juegode Ruedas
NOTA: Eljuego de ruedas no est_ dise_ado para use en carretera.
NO remolque la unidad con un vehiculo con tracci6n mec_.nica.
Necesitar_.las siguientes herramientas para instalar estos
componentes:
° Llave de 13 mm
° Llave de cube de 13 mm
°Alicates
=Galasdeseguridad
Instaleel juegederuedasconformea lasinstrucciones
siguientes:
llVlPORTANTE:Elmontajedeljuegoderuedasse debecompletar
antesdea_adiraceiteo combustible.
1. Delelavueltaal generadordeformaqueel motorquedearriba.
2. Introduzcaelejeatrav_sdelosdossoportesdemontaje.
3. Coloqueunaruedaencadaextremecuandomostrado.
4. Introduzcaunaarandelaperelejey coloqueunaanillaen"e"
enlaranuradeleje.
5. Paraello,aprieteconunosalicatesdesdelapartesuperiorde
laanillaen"e" haciala parteinferiordeleje.
PRECAUCION
Las anillas en "e" pueden provocar lesiones
oculares.
' Las anillas en "e" pueden salir disparadas
durante el montaje o el desmontaje.
° Utilicesiempreprotecci6nocularparamontarodesmontar
anillasen"e'.
6. Repitalos pasos4 y 5 paraasegurarlasegundarued&
7. Delelavueltaal generadordeformaqueel ladedelmotor
quedeabajo.
8. Monteelotro ladedela patadeapoyocontornillosdecabeza
M8x 20 mmy tuercasM8.
9. Vuelvaa colocarel generadoren laposici6nnormalde
funcionamiento(apoyadoenlasruedasy lapatadeapoyo).
10. Levantelasasase insertepasadoresparamoverel generador.
AsadePasador Su unidad puede
variar levemente de
que mostrado aqui
Segmento de Soporte
Eje
Tornillode20mm
__Tuerca
Rueda
Arandela Plana
E-Ring
41

Verifique la bateria /Conecte el cable negativo
de la bateria
La bateria sellada en el generador esta completamente cargaday ha
sido pre-instalada, excepto por el cable negativo (negro) de bateria.
Necesitar_.una Ilaveinglesa de 8mm para instalar el cable negativo
de la bateria.
Para instalar:
1. Corte el cablecito que est,. aguantando el cable negro, para
poderlo usar.
2. Remuevala tornillo, arandelade cerradura y arandelasde
piano en el terminal negativo de la bateria.
3. Deslice la arandela de cerradura (B), arandelas depiano (C)y
el cable negativo (ID)de la bateria sobre el tornillo (A).
4.
5.
Cable Positivo
Reconecte la tornillo en el terminal negativoy apriOtela.
AsegOreseque las conexiones a la bateria y al generador est_.n
apretadas y aseguradas.
ANTESDEDARLEARRANQUEAL
GENERADOR
AgregarAceJteal Motor
1. Coloquela generadoren una superficie plana y nivelada.
2. Limpie la zona de alrededor del orificio de Ilenado de aceite y
quite el tap@ amarillo.
NOTA:Consulte la secciOn Aceite, paraver las recomendaciones
relativas al aceite. Compruebe que la botella de aceite suministrada
tiene la viscosidad adecuadapara la temperatura ambienteactual.
3. Con la ayuda de un embudo (opcional), vierta lentamente todo
el contenido de la botella de aceite (0,77 I - 26 onzas) por el
orificio de Ilenado de aceite.
AVISO
El tratamiento inadecuado del generador puede da_arlo y
acortar su vida productiva.
NO procure acodar ni empezarel motor antes ha sido atendido a
apropiadamentecon el aceite recomendado. Estopuede tener
como resultado unaaveria del motor.
4. Vuelva a colocar el tap@ y apri_telo firmemente.
Agregue combustible
El combustibledehe reunir los siguientee requisites:
oGasolina sin plomo lirnpia y nueva.
o Un minimo de 87 octanos/87 AKI (91 RON). Para uso a gran
altitud, consulte Granalfitud.
o El motor admite gasolina con hasta un 10% de etanol (gasohol)
o hasta un 15% de MTBE (Otermetil terbutilico).
AViSO
Evite el da_o del generador.
El fracaso para seguir Manual de Operario para el
combustible reccomendations garantia de vacios.
NOutilice gasolina no autorizada; por ejemplo, E85.
NOmezcle aceite con gasolina.
NOmodifique el motor para hacerlofuncionar con otros
combustibles.
Paraevitar la formaciOn de carbonilla en el circuito de combustible,
siempre que a_adacombustible, m_zclelo con un estabilizador.
Consulte Almacenamiento. No todos los combustibles son iguales.
Si detecta problemas de arranque o de rendimiento despuOsde
utilizar un combustible, pruebe a cambiar de proveedor o de marca.
Estemotor est,. certificado para funcionar con gasolina. Su sistema
de control de emisiones es EM (Modificaciones del motor).
ADVERTENCIA
,_La combustible y sus vapores son
extremadamente inflamabbs y explosivos.
El fuego o una explosion pueden causar
quemaduras severas e inclusive la muerte.
CUANDOANADACOMBUSTIBLE
*Apague el generador (posiciOn OFF)y d_jelo enfriar al menos
por 2 minutos antes de remover la tapa de la combustible.
Afloje la tapa lentamente para @jar que la presiOnsalga del
tanque.
.Llene o vacie el depOsitode combustible a la intemperie.
.NOIlene demasiado eltanque. Permita al menos espacio parala
expansion del combustible.
.Si se haderramado combustible, esperea que se evaporeantes
de arrancarel motor.
.Mantenga la combustible alejadade chispas, llamas abiertas,
pilotos, calory otras fuentes de igniciOn.
. NO encienda un cigarrillo o fume.
1. Limpie el Areaalrededor de la tapa de Ilenado del combustible,
retire la tapa.
2. A_ada lentamente gasolina sin plomo (E) al depOsitode
combustible (F). NOa_ada combustible en exceso. Deje
aproximadamente4 cm (1,5") de espacio en el depOsito(G)
para permitir la expansion del combustible, como se muestra
3. Instale la tapa del tanque de combustible y la espera para
al@n combustible rociado para evaporar.
42

Tap6nde CombustibleparaMejerarel Arranque
Elusedeconservantedecombustiblemantieneelcombustibleen
buenestadoy limpialos carburadores,Io quefacilitaelarranqueen
todaslasestacionesdela_o.Elnuevotap6ndecombustiblegotea
automAticamenteconservanteconcentradoenel dep6sitode
combustible.
PELIGRO
-Su Contenido es NOCIVO0
SERINGERIDO.Eviteel contacto con los ojos, la
_ielo la ropa. No tomar intemamente. Evite
)irar la niebla o el vapor. La exposici6n
excesiva de los ojos o la piel puede causar
irritaci6n. Mantengael estabilizador fuera del
_jalcancede los ni_os.
IEIestabilizador de combustible es un quimico
peligroso.**
ENCASODESERINGERIDO,Ilameunmedicoinmediatamente.
Encasedelaemergencia,contactea unm_dico
inmediatamentey llama1-800-424-9300paralainformaci6n
materialdela seguridad.
*El estabilizador de combustible contiene 2 }-di-tert-butilfenol (128-39-2) y destilado
de petr61eoalif_tico (64742-47-8).
1. Introduzca el cartucho en el tapon.
2. Presionehastaqueel cartuchoencajeensu posiciOn.
3. Retirela lengiJetaparadejarla membranaaldescubierto.
ilVIPORTANTE:NOretireel cierreplateadodelotto lade.
4. Vuelvaa colocareltapOndecombustibleenel dep6sito.
5. Compruebeperi6dicamenteelcartuchoparaasegurarsedeque
sigaconteniendoestabilizadorde combustible.Siest_vacio,
cambieelcartuchoperunonuevo.
Granaltitud
Enaltitudes superiores a 1.524 metros (5.000 pies), se deberA
utilizar gasolina con un minimo de 85 octanes /85 AKI (89 RON).
Paraseguir cumpliendo la normativa sobre emisiones, es necesario
ajustar la unidad para su use a gran altitud. De no realizarseeste
ajuste, el rendimiento se reducirAy el consume de combustible y
las emisiones aumentar_m.Para obtener mAsinformaci6n sobre el
ajuste para gran altitud, consulte con un distribuidor cualificado de
Sears.No se recomienda utilizar el motor a altitudes inferiores a
762 metros (2.500 pies) con el juego de gran altitud.
43

COM0USARSU GENERADOR
SI TIENEPROBLEMASoperandosu generadordespu_sdeleerel
manual,porfavorIlamea lalineadeayudaparageneradoresal
1-888-222-3136.
Tierra del Sistema
Elgeneradordisponedeunaconexi6natierradelsistemaque
conectalos componentesdelbastidoralos terminalesdetierra de
los enchufeshembradesalidadeCA.LatierradelsistemaestA
conectadaal cabledeCAneutroque,a suvez,est,.conectadoal
bastidordelgenerador.
Ubicaci_n del 6enerador
Es_aci0LibreAlrededordel Generador
ADVERTENCIA
Los gasesy el calor de escapepueden inflamar
,_los materiales combustibles y las estructuras o
da_arel dep6sito de combustible y provocar un
incendio.
• Dejeunespaciominimode1.5 m (5 pies)alrededordel
generador,incluidalapartesuperior.
RequisitesEspeciales
Esposiblequehayanormasu ordenanzaslocalesy nacionalesen
materiadeseguridade higieneeneltrabajoaplicablesal usodel
generador.Consultecon unelectricistacualificado,uninspector
el6ctricoo el organismocompetente.
* Enalgunaszonas,esobligatorioregistrarlosgeneradoresenlas
compa_iasel@tricaslocales.
° Si elgeneradorse utilizaenunaobra,puedeser necesario
cumplirnormasy requisitosadicionales.
Coloquelageneradorala intemperieenunazonaendondenose
acumulengasesdeescapemortales.NOinstaleel generadoren
lugaresenlos quelos gasesdeescape(A) sepuedanacumularo
entrarenun edificioquepuedaestarocupado.AsegOresede que
los gasesdeescapenopuedanentrarporventanas,puertas,tomas
deairedeventilaci6nuotrasaberturasenunespaciocerradoenel
quepuedanacumularse.Tengaencuentalos vientosy lascorriente
deairepreponderantescuandoelijala ubicaci6ndelgenerador.
Conexi_n al Sistema El_ctrico de un Edificio
Lasconexionesa efectosdealimentaci6ndereservaal sistema
el_ctricode unedificiodebenser realizadasporun electricista
cualificado.Laconexi6ndebeaislarlaalimentaci6ndelgenerador
delaalimentaci6ndela redpt]blicay debecumplirtodaslasleyesy
normasel_ctricasvigentes.
ADVERTENCIA
Los generadores producen un voltaje muy
iPoderoso.
_¢ Si no aisla el generador de utilidades de energia,
jpuedehacer que los trabajadores de electricidad
sufran heridas graves e inclusive la muerte,
debido a la retroalimentaci6n de la energia
_16ctrica.
°Cuandouseungeneradorcomopoderdeenergiaauxiliar,
notifiqueala compa_iadeutilidades.Useelequipode
transferenciaaprobadoparaaislarelgeneradordeotra utilidad
el6ctrica.
°Useuninterruptorparalafalladelcircuitodetierra(GFCI)en
cualquier_.reabastantehOmedao queseaaltamenteconductiva,
talescomoterrazasdemetalo trabajohechoconacero.
°NOtoquelosalambrespeladoso recept_.culos.
NOuseungeneradorconcablesel_ctricosqueest_n
malgastados,rotos,peladoso dafiadosdecualquierforma.
NOopereel generadorbajolaIluvia.
•NOmanejeelgeneradoro cablesel_ctricosmientrasest6
paradoenagua,descalzoo cuandolasmanosy los piesest_n
mojados.
.NOpermitaquepersonasdescalificadaso ni_osopereno sirvan
algenerador.
El uso de un generador en un espacio interior PUEDE
PROVOCAR LA MUERTE EN POCOS MINUTOS.
Los gases de escape del generador contienen
mon6xido de carbono, un veneno invisible einodoro.
oA A
NUNCAutiiice un generador
en el interiorde una casa o
un garaje, AUNQUEhaya
ventanasy puertas abiertas,
Utilicelo solo en el
EXTERIOR, alejado de
ventanas, puertas y
aberturas de ventilacibn,
44

Encienda el Motor
Desconectetodas las cargas el_ctricas del generador. NUNCA
arranque o pare el motor cuando hayaaparatos el_ctricos
conectados yen funcionamiento. Siga las instrucciones de puesta
en marcha en orden num_rico.
1. AsegL]resede que la unidadest_ enuna superficie plan&
IMPORTANTE:Si la unidad no se arrancay utiliza en una superficie
plana, se pueden producir problemas de arranque y de parada
durante el funcionamiento.
2. Gire la v_.lvuladel combustible a la posiciOn"On". El asidero de
la v_lvula del combustible debe ser vertical (se_alarhacia el
suelo) parael combustible parafluir.
V_lvuladelCombustibleen
posiciOn"On"
3. Coloque la palancadel cebador en la posiciOn"Choke".
Coloqueel interruptor balancindel motor a la posiciOn"On".
Interruptor Balancin del
Motor en posiciOn"On"
5A. Para el arrancado el_ctrico, pulse el interruptor de arranque y
mant_ngalo en la posiciOn de "Start" (arranque) hasta que
arranque el generador. Para prolongar la vida de los
componentes del sistema de arranque, NOmantenga el
interruptor de arranque en la posiciOnde "Start" (arranque)
durante mAsde 15 segundos y realice pausas de al menos
1 minuto entre intentos.
START
• Si el motor arranca, continOecon el paso 7.
• Si el motor no arranca, procedacon el paso 6.
NOTA: Si la bateria se descarga, siga las instrucciones manuales de
arrancado.
5B. Parael arranquemanual,halela manijade retroceso,en
formasuavehastaquesientaresistencia,Luegoparaarrancar
el motorhacertracciOnenformar_pidaunasolavez.
ADVERTENCIA
El retroceso (repliegue r_pido) del cable del
arrancador puede producir ]esiones. El retroceso
_,,, impedir_ que el usuario suelte el cable a tiempo y
tirarA de su manoy brazo hacia el motor.
Como resuitado, podrian producirse fracturas,
contusiones o esguinces.
•Cuandoarranque el motor, tire lentamente del cable hasta sentir
una resistenciay, a continuaciOn,tire r_tpidamentede _1para
evitar su retroceso.
.NUNCAarranque o pare el motor cuando haya aparatos
el_ctricos conectadosyen funcionamiento.
•Si el motor arranca, continQecon el paso 7.
•Si el motor no arranca, procedacon el paso 6.
6. Muevala palancade choque hasta la posiciOn"Half" (media) y
accione dos veces la manija de retroceso.
•Si el motorno arranca,repitalos pasosdesde5 hasta7.
7. Coloque la palanca de retroceso en la posiciOnde "Run"
(marcha). Si el motor vacila, mueva la palancade retroceso
hasta la posiciOn media "Half" hasta que el motor marche
suavemente y luego colOqueloen la posiciOnde marcha "R,n".
liVIPORTANTE:Si el motor se desborda, coloque la palanca
estranguladora en la posiciOn "Run"e intente arrancarlo hasta
conseguirlo.
ADVERTENCIA
_ l contacto con la zona del silenciador puede
producir quemaduras graves.
Los gases y el calor de escape pueden inflamar
f_j los materiales combustibles y las estructuras o
da_ar el depOsito de combustible y provocar un
incendio.
•NOtoque las superficies calientes y evite los gases del escapea
altatemperatura.
.Permita que el equipo se enfrie antes de tocarlo.
.Deje un espacio minimo de 1.5 m (5 pies) alrededordel
generador, incluida la parte superior.
•El COdigode Normativa Federal(CFR,Titulo 36: Parques,
Bosquesy Propiedad PL]blica)obliga a instalar una pantalla
apagachispasen los equipos con motor decombustion interno
y a mantenerlaen buenascondiciones de funcionamiento,
conforme a la norma 5100-1C (o posterior) del Servicio Forestal
de la USDA. En el Estado de California, la ley exigeel uso de una
pantallaapagachispas (SecciOn4442 del COdigode Recursos
POblicosdeCalifornia). En otros estados puede haberleyes
similares envigor.
NOTA: Si el motor arranca despu_s de tirar tres veces del
arrancador pero no sigue funcionando, o si la unidad se para en
funcionamiento, asegOresede que la unidad est,. en una superficie
plana y compruebe que el nivel de aceite del cigOe_ales correcto.
La unidad puede equiparse con un dispositivo de protecciOnde bajo
nivel de aceite. En caso afirmativo, el nivel del aceite debe ser
adecuado para que el motor arranque.
45

Conexion de Cargas Elecricas
o Deje que el motor se estabilicey se caliente por unos minutos
despu_s del arranque.
o Enchufey encienda las cargas eldctricas AC de 120 Voltios,
monof_sicas de 60 Hertzios deseadas.
• NO conectecargas de 240 Voltios a los tomacorrientes de
120 Voltios.
o NO conectecargastrif_.sicas a los tomacorrientes.
° NO conectecargas de 50 Hertzios al generador.
° NO SOBREOARGUEGENERADOR.Vea No Sobrecargue
Generador.
MISO
El sobrepasar ]a capacidad del amperaje y vataje de]
generador, puede da_ar a] generador y los aparatos
elOctricos conectados al mismo.
Vea No sobrecargue generador.
Enciendasu generadory deje que el motor se estabiliceantes
de conectar las cargasel_ctricas.
Conectelas cargas el_ctricas en la posici0n de apagado(OFF),
luego encienda (ON) parasu operaciOn.
Apague (OFF)las cargasel_ctricas y descon_ctelasdel
generador antes de parar el generador.
Detener el Motor
1. Desconectetodas las cargas el_ctricas de la unidad. NUNCA
arranque o detenga el motor con dispositivos el_ctricos
conectados a _1y encendidos.
2. Permita que el motor funcione sin carga durante dos minutos
para estabilizar las temperaturas internas de la unidad.
3. Muevael interruptor balancin del motor a la posiciOn"Off"
(Apagado).
ADVERTENCIA
_EI motor podria petardear, o
incendiarse da_iarse.
°NOcoloque la palancaestranguladora enla posici0n "Choke"
para parar el motor.
4. Gire la v_lvula a la posici0n "Off" (Apagado).
JUEGOSDE CORDONESY ENCHUFES
CONECTORES
Utilice exclusivamente cables prolongadores de alta calidad, bien
aislados y con conexiOna tierra para la toma doble de 120 V del
generador. Examinelos cables prolongadores antes de cada uso.
Revise las capacidadesdetodos las cordones de extension antes de
usarlos. Los juegos de cordones de extension utilizados deberAn
tener una capacidad de 125 Voltios AC a 20 Amperios o mayor para
la mayoria de los dispositivos el_ctricos. Sin embargo, algunos
dispositivos podrian no requerir estetipo de cordon de extension.
Revise el manual del propietario de esos dispositivos para ver las
recomendaciones del fabricante.
Utilice cables prolongadores de la menor Iongitud posible para
reducir al minimo la caida de tension.
ADVERTENCIA
Los cables elOctricos sobrecargados pueden
_ recalentarse, format un arco o quemarse,
)rovocando la muerte, lesiones y/o da_os
materiales.
°Utilice exclusivamentecables regulados para las cargas
aplicadas.
Respetetodas las medidas deseguridad de los cables
el_ctricos.
120/240 VoltiosAC, 30 Amp,Beceptdcuiode
Seguridad
Use un tapOn NEMAL14-30 con este recept_culo. Conecteun juego
de cablede 4 alambres, clasificado como 250 Voltios ACa 30 Amps
(o mayor). Usted puede usar el mismo cable de 4-alambres si
planeatrabajar con una cargade 120 Voltios.
igo de Cable de 4 Alambres
Y (Cargado) | X (Cargado)
/
NEMAL14-30 _ Tierra(Verde)
Esterecept_culo le provee poder a cargas de 120/240 Voltios AC, de
60 Hz,fase sencilla, que requieren hasta 3,150 Voltios deenergia a
26.2 Amperios, para 120 Voltios; 6,300 Voltios de energia (6.3 kW)
a 26.2 Amperios para 240 Voltios. El enchufe est_ protegido pot un
disyuntor basculante.
46

AUISO
Las tomas el@tricas pueden marcar un valor nominal
_acidad de salida del _qenerador.
NUNCAintente conectar un dispositivo que requiera m_.s
amperaje del que el generador o la toma el_ctrica pueden
suministrar.
1/0 sobrecargar el generador. VOaseNo sobrecargar el
generador.
120 Volt AC, 20 Amp, Recept_culos DobJes
Cadarecept_.culoest,. protegido en contra de sobrecargas por un
disyuntor basculante.
Usecadareceptg.culoparaoperar120VoltiosAC,defasesencilla,
decargasde60Hzquerequierenhasta2,400vatios(2.4kW)a
corrientesde20Amps.Uselosjuegosdecablesqueson
calificadosparacargasde125VoltiosAC,a 20Amps(o mayores).
Juego de Cables del Adaptador del Generador
El generador est_ equipado con un Juego de Cables del Adaptador
del Generadorde 25 pies, dise_ado para un circuito neutro a tierra
de 120 voltios, 20 Amperios.
La carga m_xima en cadatomacorriente es de 20 Amperios. La
carga m_xima total tanto en el tomacorriente de cable amarillo
como el tomacorriente de cable negro, es de 20 Amperios.
NOTA:Siga todas las instrucciones de seguridad cuando conecte
cualquier cable de extension o aparato al generador.
C6mo al Uso el Corcel de Bateria
El gatodel corcel de la bateria del uso con el corcel proporcionado
de bateria a mantienela bateria que comienza cargado y se prepara
para el uso. Cargar de bateria se debe hacer en una ubicaciOnseca,
tal como dentro de un garaje.
1. Conecte el cargador al enchufe hembra "Battery Float Charger"
(Cargador deflotaciOn de la bateria) de la unidad, que se
encuentra en el interruptor de arranque. Enchufe el cargador de
la bateria a una toma de pared de 120 V CA.
/
2. Ouiteel corcel de la unidady la salida de pared cuando
arandela de presiOnse comienzay mientras estfi en la
operaciOn.
3. Mantengaeste corcelconectOcuandoarandela de preeiOnNo
estfien est_ acostumbrado a prolongala vida de bateria. El
corcel tiene un construy6 en el equalizer de la flota y hace No
overchargela bateria, a_n cuando conectO por un periodo
extendido de tiempo.
IMPORTANTE:Ve la Mantenimiento de la Baterfa para la
informaciOnadicional.
47

NOSOBRECARGUEGENERADOR
Capacidad
Usted debe asegurarse que su generador puede proveer el
suficiente vatajecalificado(cuandoest_funcionando)y de carga (al
encender)para Ins aparatosa Ins cuales va a proveer la energia,al
mismo tiempo.Sigaestos pasos:
1. Seleccione Ins aparatosque recibir_n la energia,al mismo
tiempo.
2. Totalice Ins vatios calificados (cuandoest_funcionando)de
estos aparatos.Esta es la cantidad de energiaque su
generadordebeproducirpara mantener eso aparatos
funcionando adecuadamente.
3. Calcule la cantidad de vatios de carga (alencender)que usted
necesitar_t. El vatajede carga es la cantidad minima de
electricidad,necesaria para encender herramientas o aparatos
con motores el_ctricos,tales como, sierras circulares o
refrigeradores.Debido a que no todos Ins motores se
encienden al mismo momento, el vatajetotal de carga se
puedeestimar al a_adir solamente el(Ins)aparato(s)con el
vatajeadicional rods alto,al total del vatajecalificado,obtenido
en el paso 2.
Ejemplo:
Herranfienta n
aparato el_ctricn
Bomba del pozo de
agua
Frigorifico
Ventilador del horno
Televisi6n
Luz (75 vatios)
Vatios detuncionamiento
(potencia nominal)
1200
7OO
8OO
5OO
75
Total de ratios de
funcionamiento: 3.275
Vatins de arranque
(pico) adicionales
2100
2200
2350
M_ximo de vatios de
arranque: 2.350
VatajeTotalOalificado(cuandoest_funcionando = 3075
VatajedeCargaAdicionalm_.salto = 1800
SalidaTotalRequeridadelGenerador = 4875
NOTA:Elnivelnominaldevatios(enfuncionamiento)no puedeser
superiora 6,300.Dadaestalimitaci6n,el niveladicionaldevatios
(arranque)nopuedeser superiora9,100.
Control de la Energia
Para prolongar la vida de su generador y Ins aparatos que est_n
conectados al mismo, es muy importante cuidarlo cuando se le
a_aden cargas el6ctricas. Nada deberia estar conectado a Ins
tomacorrientes del generador antes de que su motor sea encendido.
La forma correcta y m_.s segura para controlar la energia del
generador, es la de a_adir en secuencias las cargas, como se
describe a continuaci6n:
1. Sin tener nada conectado al generador, encienda el motor de la
manera descrita en este manual.
2. Conecte y encienda la primera carga, preferiblemente la mayor
que usted tenga.
3. Permita que la salida del generadorse estabilice (el motor
funciona suavemente y el aparato conectado al mismo trabaja
adecuadamente).
4. Conectey enciendala pr6ximacarga.
5. Denuevo,permitaqueelgeneradorse estabilice.
6. RepitaInspasos4 y 5 paracadacargaadicionalqueustedtenga.
NUNCAa_adamAscargassobrelacapacidaddelgenerador.Tome
unaatenci6nespecialenconsiderarlas cargasdecorrienteseg_nla
capacidaddelgenerador,comosedescribearriba.
GUiA DEREFERENCIADE POTENCIAENVATIOS
Nivel nominal* Nivel
Herramienta o aparato el_ctrico (en adicional (de
tuncionamiento) arranque) de
de varies varies
Articulos b_sicos
Luz (75 vatios) 75 --
Ventilador del homo - 1/2 hp 800 2350
Bomba de sentina- 1/3 hp 800 1300
Refrigerador/congelador 700 2200
Bomba para pozo de agua- 1/2 hp 1000 2100
Sistema de caletacci6n/enfriamiento
Ventana con AC -10,000 BTU 1200 3600
Humidificador-491 (13 gal) 175 --
Aire acondicionadocentral- 24.000 BTU 3800 11400
Cocina
Horno de microondas - 1000 vatios 1000 --
Cafetera 1000 --
Estufa el_ctrica - 8" pieza 2100 --
Tostadora 850 --
Estancia
Reproductor de DVD/CD 100 --
VCR 100 --
Receptor de est6reo 450 --
Televisi6n a color - 27 pulg. 500 --
Computadora personal con monitor 800 --
de 17 pulg.
Otrns
Sisterna de seguridad 500 --
Radio reloj AM/FM 100 --
Control autom_itico para puerta de 875 2350
cochera - 1/2 hp
Calentadoreldctrico de agua 4700 11700
Taller/lugar de trabajo
L_mpara hal6gena de cuarzo para tra- 1000 --
bajo
Atomizador sin aire - 1/3 hp 600 1200
Sierra reciprocante 960 --
Taladro el6ctrico - 1/2 hp 600 900
Sierra circular - 7 - 1/4 pulg. 1400 2300
Sierra ingletadora - 10 pulg. 1800 1800
Aplanadora de tablas - 6 pulg. 1800 1800
Sierrade mesa/sierrade brazeradial - 2000 2000
10 pulg.
Compresor de aire - 1 hp 1600 4500
*El vataje que aparece en la lista es solamente una cantidad
aproximada. Verifique la herramienta o aparato el_ctrico para
obtener el vataje verdadero.
48

INFORiVlACIONTI CNICASOBREEL
MOTOR
El motor es de uno cilindros, dev_lvulas en cabeza (OHV),
refrigerado por aire y de baja emisi0n.
Enel Estado de California, los motores de la 210000 han obtenido la
certificaciOndel California Air Resources Board (Consejo de
recursos de aire de California) de cumplimiento de la normativa
sobre emisiones durante 250 horas. Esta certificaciOnno supone
para el comprador, el propietario o el usuario ninguna garantia
adicional en Io relativo al rendimiento y a la vida _til del motor. Las
garantias del motor ata_en exclusivamente al producto y alas
emisiones que se declaran en este manual.
Potencia Nominal
ESPECIFICACIONESDELPRODUCTO
Especificacionesdel Generador
Vataje................................ 6,300 vatios (6.3 kW)
Vataje que Empieza..................... 9,100 Vatios (9.1 kW)
Voltaje Nominal AC.......................... 120/240 Voltios
Corriente M_xima a 240 Voltios ................. 26.2 Amperios
Corriente M_xima a 120 Voltios ................. 52.5 Amperios
FrecuenciaNominal ........................ 60Hz a 3600 rpm
Fase......................................... Monof_.sica
Capacidad de Gasolina .................. 7 galonesamericanos
Peso que Embarca ................................ 198 Ibs.
El valor de potencia bruta de cada modelo de motor de gasolina se
indica enla etiqueta conforme a los requisitos del cOdigoJ1940
(Procedimiento de valoraciOnde potencia y par de pequefios
motores) de la SAE (Society of Automotive Engineers, Sociedad de
ingenieros de automociOn). Los valores nominales se han obtenido
y corregido conforme al cOdigoSAEJ1995 (RevisiOn2002-05). Los
valores de par se obtienen a 3060 rpm, y los valores de potencia, a
3600 rpm. La potencia bruta real del motor ser_.inferior y
dependerg.,entre otros factores, de las condiciones ambientales de
uso y de las variaciones entre distintos motores del mismo modelo.
Dada la amplia variedad de productos que utilizan nuestros motores
y la multitud de factores ambientales que pueden afectar a su
funcionamiento, es posible que el motor de gasolina no desarrolle
toda su potencia bruta nominal en determinados equipos (potencia
"en la aplicaciOn"o neta real). Estadiferencia se debe, entre otros, a
los siguientes factores: accesorios (filtro de aire, escape,carga,
refrigeraciOn, carburador, bomba de combustible, etc.), limitaciones
de la aplicaciOn, condiciones ambientales de uso (temperatura,
humedad, altitud) y variaciones entre distintos motores de un
mismo modelo. Briggs & Stratton podrg,sustituir el motor de esta
serie por otro de mayor potencia nominal en caso de limitaciones
de fabricaciOno capacidad.
Este generador est,. clasificado conforme a la norma
022.2 No. 100-04 (motores y generadores) de la CSA (Canadian
Standards Association [AsociaciOn canadiense de normalizaciOn]).
EspecificacionesdeJMotor
Di_.metrode camisa ................. 83.81 mm (3,3 pulgadas)
Carrera ......................... 61.67 mm (2,438 pulgadas)
Desplazamiento ..................... 342 cc (20,85 pulgadas)
Bujia
Tipo: ......................... Briggs & Stratton 491055
Calibrar SeparaciOna: ........... 0.030 pulgadas (0.76ram)
Entrehierro del inducido:....................... 0,20-0,30 mm
(0,008-0,012
pulgadas)
Holgura de la v_.lvulacon muelles dev_.lvulainstalados y piston de
6 mm (0,25 pulgadas) pasado el punto muerto superior (comprobar
con el motor enfrio)
AdmisiOn ............... 0,10-0,15 mm (0,004-0,006 pulgadas)
Escape................. 0,10-0,15 mm (0,004-0,006 pulgadas)
Capacidad de Aceite ......................... 0.83 I (28 fl.oz.)
NOTA:Para que el rendimiento sea Optimo, la carga del generador
no debe superar el 85% de la potencia nominal en vatios. La
potencia bruta del motor se reducir_ un 3,5% por cada 300 m
(1.000 pies) de altitud sobre el nivel del mary un 1% por cada 5,6
°C (10 °F) por encima de 25 °C (77 °F). El funcionamiento ser_
satisfactorio hasta un _ngulo de inclinaciOnde 15°.
49

PROGRAiVlADEiViANTENIMIENTO
Sigalos intervaloshorarioso decalendario,Io queocurraprimero.
Serequieredeserviciocon mayorfrecuenciacuandooperela
unidaden lascondicionesadversasdescritasa continuaciOn.
*Cambieelaceitedel motor
, Limpielos residuos
Compruebeel niveldeaceite
Mantenimientodelfiltro deaire1
,Cambieelaceitedel motoP
, Servicioa labujia
, Servicioalsistemadela bujia
Limpieel sistemaderefrigeraci6n_
, Compruebelaholgurade lav_.lvula
Servicio m_s a menudo bajo condiciones de suciedad o polvo.
RSCOmendacionss Gsnsr_lJss
Elmantenimientoperi6dicomejorarAelrendimientoy prolongar_la
vidaOtildelgenerador.Si necesitaasistencia,consultecon un
distribuidordeSearso conotro distribuidorcualificado.
Lagarantiadelgeneradornocubreloselementosquehayansido
sujetosalabusoo negligenciadeloperador.Pararecibirelvalor
completode lagarantia,el operadordeberAmantenerel generador
delaformadescritaenestemanual.
SedeberAnIlevaracaboalgunosajustesperi6dicamentepara
mantenercorrectamentesugenerador.
Todoslos ajustesdelasecci6nServicioy Ajustesdeestemanual
deber_mser hechosporIo menosunavezencadaestaci6n.Cumpla
conlos requisitosdelatabla"ProgramadeMantenimiento"descrita
anteriormente.
NOTA:Unavezala_odeber_tlimpiaro reemplazarlabujiay
reemplazarel filtro deaire.Unabujianuevay unfiltro deairelimpio
garantizanunamezcladecombustible-aireadecuaday ayudaa que
su motorfuncionemejory tengaunavida _til m_sprolongada.
Control de Emisiones
Cualquierestahlecimientoo individuoespecializadoen la
reparaci6nde motoresquenoseandeautomoci6npuede
encargarsedelmantenimiento,la sustituci6ny la reparaci6nde
losdispositivosy sistemasde controldeemisiones.Noobstante,
pararealizarlarevisi6ngratuitadecontroldeemisiones,deber_.
acudira undistribuidorautorizadopot elfabricante.V_aseGarantfa
deemisiones.
IVlantenimientodel Generador
Elmantenimientodelgeneradorconsisteenconservarlaunidad
limpiay seca.Operey almacenelaunidaden unambientelimpioy
secodondenoserAexpuestaalpolvo,suciedad,humedado
vaporescorrosivos.Las ranurasdelairedeenfriamientodel
generadorno debenestartapadascon nieve,hojas,o cualquierotro
materialextra_os.
Revisefrecuentemente la limpieza del generador y limpielo cuando
est_con polvo, sucio, con aceite, humedad, o cuando otras
substancias extrafias sean visibles en su superficie exterior.
NOTA:NOrecomendamosel usode manguerasdejardin paralimpiar el
generador.Elagua podriaintroducirseenel sistemade combustible del
motor y causarproblemas.Adem_.s,si elaguase introduceal generador
a trav6s de las ranurasparaaire deenfriamiento,algodel agua quedarA
retenidaen los espaciosvaciosy grietasdel aislamientodel devanado
del estatory rotor. La acumulaci6nde aguay suciedadenlos devanados
internosdel generadordisminuirAeventualmentela resistenciadel
aislamientodeestosdevanados.
Limpiezadel 6enerador
Limpiea diario,o antesdecadauso,los residuosacumuladosenel
generador.Mantengalimpiaslasconexiones,los muellesy los
mandos.Limpietodo restodecombustibledelazonaquerodeaal
silenciadory dedetr_tsdel mismo.Inspeccionelasranurasparaaire
deenfriamientoy laaperturadelgenerador.Estasaperturasdeber_n
mantenerselimpiasy despejadas.
Mantengalimpioslos componentesdelgeneradorparareducirel
riesgodesobrecalentamientoeignici6ndelos residuos
acumulados.
• Utilice un trapo hOmedopara limpiar las superficies exteriores.
AVISO
El tratamiento inadecuadodel generadorpuede da_arlo y
acortar su vida productiva.
NOexpongaal generadoraunahumedadexcesiva,polvo,
suciedadovaporescorrosivos.
NOinsertecualquierobjetoatrav_sdelasranurasde
enfriamiento.
•Puedeusar un cepillo de cerdassuaves pararetirar la suciedad
endurecida, aceite, etc.
• Puedeusar una m_.quinaaspiradora para eliminar suciedad y
residuos sueltos.
50

Mantenimiento de la BaterJa
De otra manera que chorrea un poco cargar, descrito en otra parte,
la conservaci6n nino_n otro se requiere para la bateria.
IMPORTANTE:Cargar de bateria se debe realizar en una ubicaci6n
seca,tal come dentro de un garaje.
StatStation TM
El StatStation*M muestra la carga nominal del generador en funci6n
de la frecuencia de salida. Tambi_n incluye una funci6n de aviso de
mantenimiento integrada.
Monitor de petencia
La pantalla consta de dos LEDde siete segmentos que indican de
forma f_cil de leer la cantidad de energia que suministra el
generador. El monitor de carga muestra la salida del generador en
forma deporcentaje.
Cuandoaumenta la energia del generador, aumentan los valores de
la pantalla. Cuandolos valores que muestra la pantallaempiezan a
parpadear, el usuario debe dejar de a_adir cargasel_ctricas al
generador.
Si el consume de energia es excesivo,lasletras "OL" (Over Load=
Sobrecarga)parpadear_nen la pantalla.Enestecase,el usuariodebe
reducir la carga conectadaal generador.
Funci6n de avise de rnantenimiente
El visor de LED mostrar_, una serie de c6digos paraavisarle cuando
sea necesario comprobar o cambiar el aceite, comprobar o cambiar
el filtro deaire y comprobar o cambiar la bujia. Los c6digos son los
siguientes:
"01 "Comprobar el aceite cada 8 horas
"C2"Cambiar el aceite cada50 horas
"C3"Comprobar o cambiar el filtro deaire cada25 horas
"C4"Comprobar o cambiar la bujia cada 100 horas
Paraaprovecharlas ventajasde la funci6n de"aviso de
mantenimiento" de StatStation,el usuariodebepulsar el bot6n de
rearme (reset) unavez que hayacompletadolas tareasde
mantenimientosolicitadas segt]n el c6digo que se muestra(01, C2,
C3, o C4). Esto har_quese muestre"Co" o "CA", en funci6n del
tiempo que se haya mantenidopulsadoel bot6n:
1) "Co"- Si se pulsa el bot6n de rearme (reset) r_tpidamenteuna
vez, se mostrar_ "Co"(borrado a cero). Esto borrar_ los
c6digos de mantenimiento que hayan cumplido su tiempo
hasta ese punto y se volver_,a contar el tiempo nuevamente
desdecero.
2) "CA" - Si se pulsa el bot6n de rearme (reset) y se Io mantiene
pulsado durante 2 segundos, se mostrar_ "CA"(borrado total).
Esto borra todos los c6digos de mantenimiento, incluso si no
han alcanzado aOnsu punto de servicio y se volver_ a contar el
tiempo nuevamentedesde cero.
Si aparecesimult_.neamentela carga nominaly un c6digo de
mantenimiento, la pantalla LED mostrar_ alternativamentela carga
nominal y el c6digo come se indica a continuaci6n:
El c6digo aparecer_ durante 3 segundos y desaparecer_,durante
medic segundo. La carga aparecer_,durante 6 segundos y
desaparecer_durante medic segundo.
IVlANTENilVIIENTODELMOTOR
ADVERTENCIA
Chispearinvoluntario puedetener come
_¢ resultado el fuego o el golpe el6ctrico.
CUANDOAJUSTE0 HAGAREPARACIONESASUIVI._QUINA
GENERADOR
. Siempredesconecteelalambredelabujiay col6quelodondeno
puedaentrarencontactocon labujia.
CUANDO PRUEBELABUJiADELMOTOR
. Utiliceuncomprobadordebujiashomologado.
•NOcompruebalachispasin labujiainstalada.
Aceite
Recomendacienes sebre el aceite
Paraobtener el rnejor rendirniento, recomendarnos utilizar aceites
certificados con garantia Briggs & Stratton. Tambi_n se pueden
utilizar otros aceites detergentes de alta calidad con clasificaci6n de
servicio SF, SG, SH, SJ o superior. NOutilice aditivos especiales.
Lastemperaturas exteriores determinan la viscosidad adecuadadel
aceite para el motor. Utilice el cuadro para seleccionar la mejor
viscosidad para el intervalo detemperatura exterior previsto.
oF
104 m __
86 __
68 -- w --_
32
14
-4
"22
oc
2O
_ m 0
L-- o
;--JX_/'17- -30
* Per debajo de 4 °C (40 °F), el use de aceite SAE30 provocar_i dificultades
de arranque.
** Perencimade 27°C (80°F) el usede aceite10W30puedeaumentarel
consumede aceite.Compruebeel niveldeaceitecon mayorfrecuencia.
NOTA:Todo aceite sint6tico que cumpla las
especificaciones ILSACGF-2,con marca de certificaci6n
API y con simbolo de servicio API (se muestra a la
izquierda) con "SJ/CF ENERGYCONSERVING"0 superior
es un aceiteaceptable a todas las temperaturas. El uso de
aceite sint_tico no altera los intervalos de cambio de aceite
indicados.
51

Comprohaci6ndel Nivel de Aceite
Compruebeel nivel deaceiteantesde cadausoo cada8 horasde
funcionamiento,como minimo. Rellenesi es necesario.
1. Coloqueel generador sobre una superficie nivelada.
2. Quite el tap6n de Ilenado de aceitey limpielo con un trapo.
3. Compruebe que el aceite Ilega hasta el punto de
desbordamiento en el orificio de Ilenado.
4. Instale eltapOn de Ilenado deaceite, apriete firmemente.
Adici6n tie Aceite del Motor
1. AsegL]resedeque la generador est_ en una superficie plana.
2. Compruebe el nivel de aceitetal como se indica en la secciOn
"ComprobaciOn del nivel de aceite".
3. Si es necesario, vierta lentamente aceite por el orificio de
Ilenado hasta el punto de desbordamiento en el tap6n de
Ilenado de aceite.
4. Instale eltapOn de Ilenado deaceite, apriete firmemente.
Servicio del Depuradorde Aire
Su motor no funcionarA adecuadarnentey puede daffarsesi usted Io
hace funcionar con un depurador de aire sucio.
Suministre servicio al depurador de aire una vez cada 25 horas de
operaciOno una vez por afro, Io que suceda primero. Suministre
servicio mAsfrecuentemente si la unidad funciona bajo condiciones
de mucha suciedad o polvo. Los repuestos se encuentran
disponibles en su centro de servicio local Sears.
Para dar servicioal tiltro de aire, siga los pasosque se detallan a
continuaci6n:
1. Atloje los tornillos (A) y quite aire la cubierta rnAslirnpia (B).
2. Con cuidado quite cartucho (C) de base (D).
3. Instale limpie (o nuevo) aire la asamblea mAslimpia dentro de
la cubierta. DeshAgasedel filtro viejo apropiadamente.
4. Arme la cubierta mAslimpia a_rea en la base y apriete los
tornillos.
NOTA: Ustedpuede comprar los elementos del filtro de aire nuevos
Ilamando al 1-800-4-MY-HOIMIE(46g-4663).
Cambio de Aceite deJ Motor
Gambleel aceite despu_s de las primeras 5 horas deoperaci6n.
Cambie el aceite cada 50 horas de ese momento en adelante.Si est,.
utilizandosu generador bajo condiciones de extrema suciedad o
polvo, o en un clima demasiadocaliente, haga el cambio de aceite
m_.sfrecuentemente.
AVISO
Evite el contacto prolongado o repetido de piel con aceite
usado de motor.
El aceite usadodel motor hasido mostrado al cancer de la piel
de la causa en ciertos animalesdel laboratorio.
Completamente lavado expuso Areascon el jab6n y el agua.
MANTENERFUERADELALCANCEDE LOSNINOS.NO
CONTAMINE.CONSERVELOS RECURSOS.DEPOSITEEL
ACEITEUSADOENUN PUNTODERECOGIDA.
Cambie el aceite cuandoel motor siga estandocaiiente despu_s
de haberfuncionado:
1. AsegL]resede que la unidad est_en unasuperficie plana.
2. Desconecteel cable de la bujia de esta y col6quelo donde no
puedaentrar en contacto con la bujia.
3. Limpie la zona dealrededor del tap6n devaciado de aceite,
situado en la basedel motor, al otro lado del carburador.
4. Quiteel tap6n deIlenado de aceite y vade todo el aceite en un
recipiente adecuado.
5. Vuelva a colocar el tap6n de vaciado y apri_telo bien. Quite el
tapOnde Ilenado de aceite.
6. Vierta lentamente unos 0,83 litros (28 onzas) de aceite por el
orificio de Ilenado hasta el punto de desbordamiento. NOafada
aceite en exceso.
7. Vuelva a colocar el tapOnde Ilenado de aceite Apri_telo
firmemente a mano.
8. Limpie el aceite que se hayapodido derramar.
Limpie/Reemplace la Bujia
Gamble la bujia cada 100 horas de operaci6n o unavez al afro, Io
que suceda primero. Esto ayudar_,a su motor a arrancar m_.s
fAcilmente y a funcionar mejor.
1. Limpie el Areaalrededor de la bujia.
2. Retire y revise la bujia.
3. Revisela separaci6n del electrodo con un calibrador de
alambrey ajuste la separaci6n a 0.030 pulgadas (0.76ram) si
es necesario.
)
4. Reemplacela bujia si los electrodos est_.npicados, quemados
o si la porcelana est,. rota. Utilice una bujia de repuesto
recomendada.
5. Instale la bujia y aprietela firmemente.
NOTA:Puedeadquirir nuevos bujia al n_mero telefOnico
1-800-4-1MIY-NOME(469-4663).
52

Limpie la Pantalla Apagachispas
El silenciadordel escapedel motor posee unapantalla apagachispas.
Inspeccioney limpie la pantallacada 100 horasde operaci6no unavez
al a_o, Io que sucedaprimero.
NOTA: Ustedpuede comprar los apagachispasa trav6s nuevos
Ilamando al 1-800-4-MY-HOME (469-4663).
El generador tendr_ quetener un apagachispassi Io usa en terrenos
no tratados cubiertos de monte, malezao pasto. El apagachispas
deber_,ser mantenido en buenas condiciones por parte del
propietario/operador.
ADVERTENCIA
El contacto con la zona del silenciador puede
producir quemaduras graves.
Los gases y el calor de escape pueden inflamar
los materiales combustibles y las estructuras o
da_ar el dep6sito de combustible y provocar un
incendio.
•NOtoque las superficies calientes y evite los gases del escape a
altatemperatura.
.Permita que el equipo se enfrie antes de tocarlo.
.Deje un espacio minimo de 1.5 m (5 pies) alrededor del
generador, incluida la parte superior.
•El C6digo de Normativa Federal(CFR,Titulo 36: Parques,
Bosquesy Propiedad PL_blica)obliga a instalar una pantalla
apagachispasen los equipos con motor de combusti6n interno
y a mantenerlaen buenascondiciones de funcionamiento,
conforme a la norma 5100-1C (o posterior) del Servicio Forestal
de la USDA. En el Estadode California, la ley exigeel uso de una
pantallaapagachispas (Secci6n4442 del C6digo de Recursos
PL_blicosdeCalifornia). En otros estados puede haber leyes
similares envigor.
Limpie e inspeccioneel apagachispas de la siguiente manera:
1. Para retirar la protecci6n del silenciador (A) de silenciador (B),
retire los cuatro tornillos que conectan la protecci6n a la
m6nsula del silenciador.
Sistema de Refrigeraci6n de Aire
Con el tiempo, se pueden acumular residuos en las aletas de
refrigeraci6n del cilindro y pasarinadvertidos mientras no se
desmonte parcialmente el motor. Recomendamos que encargue la
limpieza del sistema de refrigeraci6n (A) a un distribuidor de
servicio Sears siguiendo los intervalos recomendados (consulte la
secci6n Plan demantenimiento). Es igualmente importante que no
se acumulen residuos en el motor. Consulte la secci6n Limpieza del
generador.
Compruebe la Holgura de la V_lvula
La comprobaci6n y el ajuste peri6dicos de la holgura de la v_.lvula
mejorardn el rendimiento y prolongar_n la vida [_tildel motor. Este
procedimiento requiere el desmontaje parcial del motor y el uso de
herramientas especiales. Por ello, recomendamos acudir a un
distribuidor autorizado de servicio paracomprobar y ajustar la
holgura de la v_lvula siguiendo los intervalos recomendados.
Ajuste del Carburador
El carburador de este motor es de bajaemisi6n. Est,.equipado con
una v_lvula de mezcla de ralenti no ajustabley, en algunos casos,
con ralenti regulado. Los niveles de ralenti regulado y velocidad
m_.ximase ajustan en la f_.brica.Si es necesario modificarlos, acuda
un distribuidor autorizado deservicio Sears.
PRECAUCION
Las velocidades de operaci6n en exceso, aumentan los
riesgos de hefidas y da_os a] generador.
Las velocidades bajan en exceso, imponen una carga muy
)esada.
NOcambie ninguna velocidad determinada. El generador
suministra unafrecuencia y un voltaje calificado cuando
funciona a una velocidad determinada.
NOmodifique al generador en ninguna forma.
2. Retire los cuatro tornillos que sostienen la pantalla
apagachispas (C).
3. Inspeccionela pantallay reempl_.celasi est_rota,perforadao
dafiada.NOusepantallasdefectuosas.Si la pantallano est,.
dafiada,limpielacon un disolventecomercial.
4. Vuelvaa instalar la pantallay la protecci6n del silenciador.
53

GENERALIDADES
El generador deber_tser encendido al menos una vez cada siete dias
y deber_ dejarlo funcionar al menos durante 30 minutes. Si no
puede haceresto y debe almacenar la unidad per m_.sde 30 dias,
use la siguiente informaciOncome guia parapreparar su unidad
paraalmacenamiento.
Instrucciones de Almacenamiento para Periodos
Prolongados
Esirnportanteevitar quese formen depOsitosde goma en las partes
esencialesdel sistemade combustible,come el carburador,filtro de
combustible,manguerao tanquedecombustible, duranteel
almacenamiento.TambiOn,la experienciaindicaque los combustibles
con mezclasde alcohol(llamadosgasohol,etanolo metanol)pueden
atraer humedad,lacual Ilevaa la separaciOny formaciOnde _.cidos
duranteel almacenamiento.Elgas_cido puededafiarel sistemade
combustible deun motor durantesu almacenamiento.
ADVERTENCIA
f_La combustible y sus vapores son
extremadamente inflamables y explosives.
El fuego o una explosion pueden causarquemaduras severas e inclusive la muerte.
CUANDOALMACENE0GUARDEEL EQUIPOCONCOMBUSTIBLE
ENELTANQUE
*Almacenealejado de calderas,estufas, calentadoresde agua,
secadorasde ropa u otros aparatos electrodom_sticos que
posean pilotos u otras fuentes de igniciOn,porque ellos pueden
encender los vapores dela combustible.
CUANDOVACJEEL DEPOSITO
*Apague el generador (posiciOn OFF)y d_jelo enfriar al menos
per 2 minutes antes de remover la tapa de la combustible.
Afloje la tapa lentamente paradejar que la presiOnsalga del
tanque.
*Vacieel depOsitode combustible a la intemperie.
*Mantenga la combustible alejada dechispas, llamas abiertas,
pilotos, calory otras fuentes de igniciOn.
*NOencienda un cigarrillo o fume.
Camhio de Aceite
Con el motor todavia caliente, drene el aceite de la caja del cig_efial.
Vuelva a Ilenarla con el grade deaceite recomendado.
Acetic el Bidmetre Interior del Cilindre
*Quite la bujiay vierta aproximadamente30 nil (1 onza) deaceite
de motor limpio en el interior del cilindro.
o Coloque la bujia y arranque lentamente para distribuir el aceite.
ADVERTENCIA
f'_l_ Chispear involuntario puede tener come
¢ resultado el fuego o el golpe elOctrico.
*NUNCAarranque el motor sin la bujias instalada.
Generador
°Limpie el generador come est4 descrito en ParaLimpiar et
Generador.
o Reviseque las ranuras para el aire de enfriamiento y las
aperturas del generador se encuentren abiertasy despejadas.
Otras Sugerencias para el AJmacenamiento
1. No guarde combustible de una temporada a otra a menos que
Io haya tratado come se indica en la secciOnProtecciSn del
Sistema de Combustible.
2. Reemplacela canecade gasolina si comienzaa oxidarse. El
Oxidey/o la suciedad en la gasolina le causarAproblemas.
3. Si es posible, almacene su unidad en un recinto encerrado y
et]brala para protegerla del polvo y la suciedad.
4. Cubra su unidad con una cubierta de protecciOn adecuadaque
no retenga humedad.
ADVERTENCIA
Las cubiertas para almacenamiento pueden ser
inflamables.
Proteja el Sistema de Combustible
Aditive paraCombustible:
Lleneel depOsitocon combustible nuevo y dejeaproximadamente
4 cm (1,5") de espacio parapermitir la expansiondel combustible,
come se muestraen la pAgina42, cudndo utiliza un cartucho de
aditivo parael combustible con eltapOnFreshStarFM.Si solo se Ilena
parcialmente,el aire contenido en el depOsitofavorecerg,el deterioro
del combustible durante el almacenamiento.El motor y el
combustible se puedenalmacenar hasta6 mesescon aditivo.
o Compruebe el nivel del cartucho de aditivo para el combustible.
Eladitivo es de color oscuro.
o Si el cartucho estd vacio o cast vacio, cdmbielo per otro nuevo
conforme alas instrucciones de la secciOn TapSnde
combustible Fresh StarY.
Si no usaaditivo paracombustible, retire todo el combustible del
tanque y hagafuncionar el motor hasta que se detenga per falta de
combustible.
NOcoloque una cubierta encima de un generador caliente.
Deje que la unidad se enfrie Io suficientementeantes de que le
coloque la cubierta.
Almacene la unidad en un _realimpia y seca.
54

Problema
EI motorest;_funcionandoperonoexiste
salida deACdisponible.
EI motorfunciona bien sin cargaspero
"funcionamap cuandolas cargasson
conectadas.
Causa
1. Uno de los cotacircuitos est,. abierto.
2. Falla enel generador.
3. Malaconexi6no juegodecordones
defectuoso.
4. Eldispositivoconectadoest,.enmal
estado.
1. Cortocircuitoenlacargaconectada.
2. Lavelocidaddelmotores muylenta.
3. El generador est_sobrecargado.
4. Circuito del generador en corto.
1. Interruptorbalancinen"Off".
2. VAIvuladelcombustiblea laposici6n
Soluci6n
1. Reajusteel cortacircuito.
2. P6ngaseen contacto con Searsu otto
distribuidor de servicio cualificado.
3. Revisey repare.
4. Conecteotro dispositivoqueest_en
buenascondiciones.
1. Desconectelacargael_ctricaencorto.
2. P6ngaseencontactoconSearsu otro
distribuidordeserviciocualificado.
3. VeaNo SobrecargueGenerador.
4. P6ngaseencontactoconSearsu otto
distribuidordesen,,iciocualificado.
1. Coloqueel interruptoren"On"(En).
2. Girelav_.lvuladelcombustiblea la
EI motornoarranca;o arrancay fun¢iona
real.
"Off".
3. Depuradordeairesucio.
4. Sincombustible.
5. Combustiblevieja.
6. El alambre de la bujia no est,.
conectado.
7. Bujia en mal estado.
8. Agua en la combustible.
9. Excesodecebado.
posici6n "On".
3. Limpie o reemplace el depurador de aire.
4. Llene el tanque de combustible.
5. Dreneel tanque de combustible; 116nelo
con combustible fresco.
6. Conecteel alambre a la bujia.
7. Reemplacela bujia.
8. Dreneel tanque de combustible; 116nelo
con combustible fresco.
9. Espere5 minutos y haga girar el motor.
10. Mezcladecombustibleexcesivamente
rica. 10. P6ngaseen contacto con Searsu otro
distribuidor de servicio cualificado.
El motor se apaga en pleno Sin combustible. Llene el tanque del combustible.
funcionamiento.
AI motor le hace falta poten¢ia. 1. Lacargaes muyalta.
2. Filtro de aire sucio.
Carburador con mezcla de aire-combustible
muy rica o muy pobre.
El motor"no funciona¢ontinuamente"o se
detiene.
1. Yea No Sobrecargue Generador.
2. Reemplaceel filtro de aire.
P6ngaseen contacto conSears u otro
distfibuidor de serviciocualificado.
55

56

57

Sears,RoebuckandCo., U.S.A.(Sears),CaliforniaAir ResourcesBoard(Consejode Recursossobreel Aire de California,CARB,por
sussiglasen ingles)yUnitedStatesEnvironmentalProtectionAgency(AgenciadeProtecci6nAmhientaldeEE.UU., EPA,porsos
siglasen ingles).
Declaraci6ndegarantiadel sistemadecontrolde emisiones
(derechosy obligacionesdel propietarioparala garantiacontradeiectos)
California Air Resources Board (CARB), U.S. EPAy Sears le explican a continuaci6n
la garantia del sistema de control de emisiones de su pequeSo motor para mdquinas
de servicio (SORE, Small Offroad Engine). En California, los modelos de pequeSos
motores para m_quinas de servicio a partir del aiio 2006 deben estar diseiiados,
fabricados y equipados conforme a los exigentes est_ndares de lucha contra la
contaminaci6n del Estado.
En otras regiones de Estados Unidos, los nuevos motores para interiores de
ignici6n por chispa certificados para modelos a_o 1997 y posteriores deben
cumplir con normas similares establecidas por la EPA de EE.UU. Sears debe
garantizar el sistema de control de emisiones de su motor para los pefiodos
indicados a continuaci6n, siempre y cuando no se haya abusado, descuidado o
dado mantenimiento incorrecto al motor peque_o para exteriores.
Su sistema de control de emisiones incluye piezas como el carburador, el filtro de
aire, el sistema de arranque, el tubo de combustible, el silenciador y el conver[idor
cataldico. Tambi6n puede inoluir conectores y otros conjuntos relacionados con las
emisiones.
Cuando exista una condici6n que pueda ser cubierta por la garantia, Sears
reparar;_ el motor peque_o para exteriores sin costo alguno, incluyendo el
diagn6stico, las partes de repuesto y la mano de obra.
Cebertura de la garantia de Sears, Roebuck and Co. contra defectos en el
control de emisiones
Los peque_os nlotores para nl_quinas de servioio est_ll garantizados contra defectos
de las piezas de control de emisiones durante un periodo de dos aiios, conforme alas
siguientes disposiciones. Si cualquier pieza del motor con cobertura es defectuosa,
ser_ reparada o sustituida por Sears.
ResponsabilJdades deJ propJetarJepara la garantia
Como propietario del motor peque_o para exteriores, usted es responsable de
realizar las actividades de mantenimiento requeridas que se indican en
Instrucciones de uso y mantenimiento. Sears recomienda que conserve todos los
recibos que cubran el mantenimiento de su motor peque_o para exteriores, pero
Sears no puede negar la garantia solamente por la falta de recibos ni por su
imposibilidad de garantizar la realizaci6n de todas las actividades de
mantenimiento programadas.
Como propietario del motor peque_o para exteriores, usted siempre debe tener
en cuenta que Sears podr_ negar la cobertura de la garantia si su motor pequeiio
para exteriores o una parte del mismo presenta fallas debido a abuso, descuido,
mantenimiento incorrecto o modificaciones no aprobadas.
Usted es responsable de presentar su motor peque_o para exteriores a un
distribuidor autorizado de servicio de Sears aprobado tan pronto como se
presente el problema.
Las reparaciones cubiertas por la garantia se Ilevar_n a cabo en un plazo
razonable, 11osuperior a 30 dias en ning_n caso.
Si tiene alguna pregunta con respecto a sus derechos y responsabilidades para la
garantia, p6ngase en contacto con un representante de servicio Sears al 1-800-
469-4663.
La garantia de emisiones es una garantia contra defectos. Los defeotos se juzgan
en funci6n del rendimiento normal del motor. La garantia no depender_ de
ninguna prueba de emisiones en funcionamiento.
Disposicienes de la garautia de Sears, Roebuck and Co. contra defectos en el
control de emisienes
Las siguientes son disposiciones especificas relacionadas con la cobertura de la
garantia contra defectos en el control de emisiones. Se aiiade a la garantia de
motores de Sears para motores no regulados, que figura en las Instrucciones de
uso y mantenimiento.
1. Partes garantizadas
La cobertura bajo esta garantia incluye solamente aquellas partes que se
enumeran a continuaci6n (las partes del sistema de control de emisiones)
en la medida que dichas partes hayan estado presentes en el motor
adquirido.
a. Sistema de medici6n de combustible
Sistema de enriquecimiento para arranque en frio
Carburador y partes internas
Bomba de combustible
Tubo de combustible, acoplamientos del tubo de combustible,
abrazaderas
Dep6sito de combustible, tap6n y cadena
Bote de carbono
b. Sistema de inducci6n de aire
Filtro de aire
Colector de entrada
Linea de purga y ventilaci6n
c. Sistema de ignici6n
Bujias
Sistema de ignici6n por magneto
d. Sistema catalizador
Convertidor catalitico
Colector de escape
Sistema de inyecci6n de aire o v;_lvula por impulsos
e. Distintos elementos utilizados en los sistemas anteriores
Wlvulas e interruptores de vacio, temperatura, posici6n y de
detecci6n de tiempo
Conectores y conjuntos
2. Vigencia de la cobertera
Sears garantiza al propietario inicial y a cada comprador subsiguiente que
las partes garantizadas estar_n libres de defectos en material y en mano de
obra, que ocasionen fallas de las partes garantizadas durante un periodo de
dos a_os a partir de la fecha en que el motor sea entregado al comprador
minorista.
3. No habr_ cargos
La reparaci6n o reemplazo de cualquier parte garantizada se realizar;_sin
cargo alguno para el propietario, incluyendo la mano de obra de diagn6stico
que derive en la determinaci6n de que una parte garantizada esterdefectuosa,
si la labor de diagn6stico se realiza en un Centro de servicio Sears aprobado.
4. Reclamos yexclosiones de ceber|ura
Los reclamos vinculados con la garantia se presentar_n conforme alas
disposiciones de la P61izade garantia de Sears. La cobertura de la garantia
se excluir_ para aquellas fallas de partes garantizadas que no sean partes
originales de Sears o debido a abuso, descuido o mantenimiento incorrecto,
segl3n se establece en la P61izade garantia de motores de Sears. Sears 11o
es responsable por la cobertura de fallas de partes garantizadas ocasionadas
por el uso de partes adicionales, no originales o modificadas.
5. Manteniudento
Cualquier parte garantizada cuyo reemplazo no est6 programado como
mantenimiento requerido o que est6 programada _nicamente para
inspecci6n frecuente con el fin de "reparar o reemplazar conforme sea
necesario", estar_ garantizada en cuanto a defectos por el pefiodo de la
garantia. Cualquier parte garantizada cuyo reemplazo est6 programado
como mantenimiento requerido tendr_ solamente una garantia contra
defectos _nicamente por el periodo hasta el primer reemplazo programado
para esa parte. Se podr_ utilizar cualquier parte de repuesto que tenga un
rendimiento y durabilidad equivalentes, al realizar cualquier actividad de
mantenimiento o reparaci6n. El propietario es responsable de realizar todo
el mantenimiento requerido, seg_n se define en Instrucciones de uso y
mantenimiento de Sears.
6. Cobertura consiguiente
La cobertura bajo la presente se ampliar_ a la falla de cualquier componente
del motor provocada por un desperfecto en cualquier parte garantizada que
siga gozando de la cobertura de la garantia.
En EE.UU. y Canad_ contamos con una linea de emergencia las 24 horas (1-800-469-4663), que ofrece un menQ de mensajes pregrabados con informaci6n sobre
mantenimiento de productos.
58

InformatiOn sobre emisiones
Los motores con certificaci6n de cumplimiento de la normativa
sobre emisiones del California Air ResourcesBoard (CARB) deben
mostrar informaci6nsobre el periodo de durabilidad de las
emisiones y el indice de aire. Elfabricante del motor ofrece esta
informaci6nal consumidor medianteetiquetas de emisiones. La
etiqueta de emisiones del motor contiene la informaci6nde
certifica.ci6n.
El Periodo de Durabilidad de las Emisiones indica el nOmerode
horas durante las cuales el motor puedefuncionar cumpliendo las
normas sobre emisiones, siempre que se realicen las operaciones
de mantenimiento que se detallan en las instrucciones de uso y
mantenimiento. Se utilizan las siguientes categorias:
Mederado: El motor est,. certificado para cumplir la normativa
sobre emisiones durante 125 horas de funcionamiento real.
Intermedio: El motor est_ certificado para cumplir la normativa
sobre emisiones durante 250 horas de funcionamiento real.
Prolongado: El motor est_ certificado para cumplir la normativa
sobre emisiones durante 500 horas de funcionamiento real.
Por ejemplo, un cortac_spedcon operario a pie se suele utilizar
entre 20 y 25 horas al a_o. Por tanto, el Periodo de Burabilidad de
las Ernisienes de un motor con clasificaci6n intermedia equivaldria
a 10-12 a_os.
Algunos motores cuentan con la certificaci6n de cumplimiento de la
fase 2 de las normas sobre emisiones de la United States
Environmental Protection Agency (USEPA,Agencia estadounidense
de protecciOndel medioambiente). En el caso de los motores con
certificaci6n de fase 2, el periodo de cumplimiento de la normativa
sobre emisiones que figura en la etiqueta de cumplimiento de
emisiones indica el n0mero de horas de funcionamiento durante las
cualesel motor ha demostrado cumplir los requisitos federales
sobre emisiones.
Paramotoresdemenosde225cc:
CategoriaC = 125horas
CategoriaB= 250horas
CategoriaA = 500horas.
Paramotoresde225cco m_.s:
CategoriaC = 250horas
CategoriaB= 500horas
CategoriaA = 1000horas.
59

..................................________________________________________ __________________________________________i__!_iii_ilil_
i_iiii_iii_iii_iiiiiiii!;_ Your Home '_!!i:!iiiiiii!iiiiiiiiiii!!"'
iiiiiiiiiiiiiiiiiiiiiii!!!!_
iHiiiiiiiiiiiiiiiiiiiiill Forrepair-inyourhome -of all majorbrandappliances, i:iiiiiiiii!!ii%
iiiiiiiiiiiiiiiiiiiiiiiill lawn and garden equipment, or heating and cooling systems, iiiiiiiiiiiiiiiiii!iiiiii
iHiiiiiiiiiiiiiiiiiiiillI nomatterwhomadeit, nomatterwhosoldit!
iHiiiiiiiiiiiiiiiiiiiiill Forthereplacementparts, accessoriesand
iiiiiiiiiiiiiiiiiiiiiiiill owner's manuals that you need to do-it-yourself, iiiiiiiiii!iiiii!iiiiiiii
i_iiiiiiiiiiiiiiiiiii.... iiiiiiiii!!iiiiiiiiiiiii_
iiiiiiiiiiiiiiiiiiiiiiiill ForSears professional installation of home appliances
iiiiiiiiiiiiiiiiiiiiiiiiiiiHiiiiiiiiiiiiiiiiiiiiilland itemslikegaragedooropenersandwaterheaters.
iiiiiiiiiiiiiiiiiiiiiiiill 1-800-4-MY-HOME ® (1-800-469-4663) iiiiiiiiii!!iiiii!iiiiiiii
%iiiiiiiiiiiii_ iiiiiiii!_!iii!!ii!!iiiil
iiiiiiiiiiiiiiiiiiiiiiiill CaB anytime, day or night (U.S.A. and Canada)
iiiiiiiiiiiiiiiiiiiiiiiiii www.sears.com www.sears.ca iiiiiiiiiiiiiii!!iiiiiiii
iiiiiiiiiiiiiiiiiiiiiii_H.....................................................................................................................................................................................................................................................................................................................................................................................................................................................................................................................................................................................................................................................................................................................................................................................................i_iiiiii!!!iiiiiiiii_iii
iiiiiiiiiiiiiiiiiiiiii_H Our Home
For repair of carry-in items like vacuums, lawn equipment,
and electronics, call or go on-line for the location of your nearest
Sears Parts & Repair Center.
iiiiiiiiiiiiiiiii!!iiiiiHi!i
ii_iiiii!iiiiiii!!iiiiiiiii
iiiiiiiiiiiii!!iiiiiii_
ii_iiiiiiiiiiiiiiiiiiii!_!i!
iiiiiiiiiiiiiiiiiiiiiii!i!!!
iiiiiiiiiiiiiiiiiiiiiii!i!!!
iiiiiiiiiiiiiiiiiiiiiii!i!!!
iiiiiiiiiiiiiiiiiiiiiii!i!!!
iiiiiiiiiiiiiiiiiiiiiii!i!!!
iiiiiiiiiiiiiiiiiiiiiii!i!!!
iiiiiiiiiiiiiiiiiiiiiii!i!!!
1-800-488-1222
Callanytime, dayornight(U.S.A, only)
iiiiiiiiiiiiiiiiiiiiiiiillPara pedir servicio de reparaci6n
iiiiiiiiiiiiiiiiiiiiii_ii
iiiiiiiiiiiiiiiiiiiiiiiiiia domicilio, y para ordenar piezas:
iiiiiiiiiiiiiiiiiiiiiiiii!i 1-888-SU-HOGAR ®
ii_iiiiiiiiiiiiiiiiiiiiii!,i
iiiiiiiiiiiiii!_iiiiill (1-888-784-6427)
_i_iiiiiiiiiii!!iiiiiiiiiill
Au Canada pour service en fran(_ais:
MC
1-800-LE-FOYER
(1-800-533-6937)
www.sears.ca
ii
iiiiii
L_iiiiiiiiiiiiiiiiiiiiiii
iii!i;
iiiiI
iiiiiiiiiiii%!!_i
Jiiiii!!iiiiiiiiiiii!!iiiiil_¸
,,_i!ii!!i_iiiiiiiiiiiiiiiiiiiiiiiiiii!_
..........._!iiiiiiiiiiiiiiiiiiiiiiiii!!iiiii!!iiiiiii!_'
® Registered Trademark /TMTrademark /SMService Mark of Sears Brands, LLC
® Marca Registrada /TM Marca de F_brica /sM Marca de Servicio de Sears Brands, LLC
MD
MCMarque de commerce /Marque d6pos_e de Sears Brands, LLC © Sears Brands, LLC