Craftsman 10 Jobsite Table Saw Owners Manual Espanol
2015-03-28
: Craftsman Craftsman-10-Jobsite-Table-Saw-Owners-Manual-Espanol-661858 craftsman-10-jobsite-table-saw-owners-manual-espanol-661858 craftsman pdf
Open the PDF directly: View PDF
.
Page Count: 52

57 57
Manual del Operario
SIERRA DE MESA PORTÁTIL
DE 254 MM (10 PULG.)
Modelo N.° 137.415020
PRECAUCION:
Antes de utilizar esta sierra de mesa
cortar ingletes, lea este manual
y siga todas las reglas de seguridad
y las instrucciones de operación
● Instrucciones de seguridad
● Instalación
● Funcionamiento
● Mantenimiento
● Lista de piezas
Línea de asistencia a
cliente
1-800-843-1682
Centro de repuestos y
reparaciones de Sears
1-888-331-4569
Sears Brands Management Corporation Hoffman Estates, IL 60179 USA
Ver la línea completa de la Craftsman® productos en craftsman.com
haga clic en el enlace del Craftsman Club® y unirse a día de hoy!
Parte N.° 137415020001 Impreso en Taiwan

58 59
58 59
PROPOSICION 65 DE CALIFORNIA
Parte del polvo originado por el empleo de lijas, sierras, moledoras y taladros
eléctricos y por otros métodos de construcción contiene productos químicos que el
Estado de California reconoce como causantes de cáncer, malformaciones congénitas
u otros daños reproductivos. Algunos ejemplos de estos productos químicos son:
● Pinturas a base de plomo
● Sílice cristalina de los ladrillos, el cemento y otros productos de albañilería
● Arsénico y cromo de las maderas tratadas con productos químicos
El riesgo que implican estas exposiciones varía según la frecuencia con que se realice
este tipo de trabajo. Para reducir la exposición a estos productos químicos: trabaje en
un área bien ventilada y utilice un equipo de seguridad aprobado, como mascarillas
contra polvo especialmente diseñadas para ltrar partículas microscópicas. Evite el
contacto prolongado con el polvo generado por el lijado, aserrado, amolado, taladrado
y por otras actividades de construcción. Utilice vestimenta de protección y lave las
áreas expuestas con agua y jabón. Dejar que el polvo ingrese en la boca o en los ojos, o
permanezca en la piel, puede provocar la absorción de agentes químicos nocivos.
SECCIÓN PÁGINA
Garantía ................................................................................................................ 58
Especicaciones del producto................................................................................ 59
Simbolos................................................................................................................ 60
Seguridad de herramientas eléctricas .................................................................. 61
Seguridad de su sierra de mesa ........................................................................... 64
Requisitos eléctricos y de seguridad .................................................................... 68
Accesorios y acoples ............................................................................................ 70
Herramientas necesarias para el ensamblado....................................................... 70
Contenido de la caja .............................................................................................. 71
Conozca su sierra de mesa ................................................................................... 73
Glosario de términos ............................................................................................. 74
Ensamble y ajustes................................................................................................ 76
Funcionamiento ..................................................................................................... 91
Mantenimiento ....................................................................................................... 101
Guía para la solución de problemas ...................................................................... 103
Acuerdos para la protección de reparaciones ...................................................... 107
2014/01
ÍNDICE
GARANTÍA
ADVERTENCIA
!
CRAFTSMAN GARANTIA LIMITADA POR UN AÑO
POR EL PLAZO DE UN AÑO desde la fecha de compra, este producto es garantizado contra
los defectos en materiales o mano de obra. Con la prueba de compra, el producto defectuoso
recibirá reparación gratuita o reemplazo según lo desee el vendedor. En cuanto a los detalles
de esfera de garantía sobre reparación gratuida o sustitución, sírvase visitar el página web:
www.craftsman.com/warranty
La presente garantía no incluye la hoja, que es una parte consumible y desgasta bano uso normal
dentro el plazo de garantía. La presente Garantía por el plazo de UN AÑO es inválida siempre
que este producto sea usado para ofrecer los servicios comerciales o cuando el mismo sea alqui-
lado a otra persona. En cuanto a las condiciones de uso comercial o de alquiler por el plazo de
90 DIAS, véase Página Web sobre Garantía de Craftsman. Esta garantía le da derechos legales
especícos; usted podría tener otros derechos que varían de un estado a otro.
Sears Brands Management Corporation, Hoffman Estates, IL 60179

58 59
58 59
MOTOR
Tipo.................................................................................. Universal
Amperios......................................................................... 15 Amp
Voltaje.............................................................................. 120 V AC
Hz..................................................................................... 60 Hz
RPM (sin carga).............................................................. 4000 RPM (sin carga)
Protección por sobrecarga............................................ SÍ
TAMAÑO DE LA HOJA
Diámetro...................................................................... 25,4 cm
Arbol............................................................................ 15,88 mm
SIERRA
Separador-limitador...................................................... SÍ
Indicador de bisel......................................................... SÍ
Capacidad de corte ..................................................... 279,4 mm Izquierdo
622,3 mm Derecho
Profundidad máxima de corte a 90°.............................. 79 mm
Profundidad máxima de corte a 45°.............................. 64 mm
Diámetro máximo de la hoja para cortar ranuras.......... 203,2 mm
(Apilable solamente)
Ancho de corte máximo de la hoja
para cortar ranuras ....................................................... 20,6 mm
ESPECIFICACIONES DEL PRODUCTO
Para evitar riesgos de descargas eléctricas, incendios o daños en las
herramientas, utilice una protección para
circuitos adecuada. Esta herramienta está fabricada para funcionar con un
voltaje de 110 V a 120 V. Debe estar conectada a un fusible de retardo o a
un interruptor de circuitos de 110 V o 120 V y de 15 A. Para evitar descargas
eléctricas o incendios, reemplace el cable eléctrico inmediatamente si está
desgastado, cortado o dañado de alguna manera.
Antes de utilizar la herramienta, es imprescindible que lea y entienda estas
reglas de seguridad. Si no sigue estas reglas, puede sufrir lesiones graves
o dañar la herramienta.
ADVERTENCIA
!

60 61
60 61
SIMBOLOS
UTILICE PROTECCIÓN RESPIRATORIA Y AUDITIVA: Siempre utilice
protección respiratoria y auditiva.
ICONOS DE ADVERTENCIA
La herramienta eléctrica y el manual del usuario pueden contener “ICONOS DE
ADVERTENCIAS” (símbolos dibujados para alertar o instruir al usuario para
que evite situaciones de riesgo). La comprensión y la observación de estos
símbolos lo ayudarán a manipular su herramienta mejor y con más seguridad.
Abajo se muestran algunos de los símbolos que puede encontrar.
PROHIBIDO
UTILICE PROTECCION PARA LOS OJOS: Siempre use gafas o anteojos
de seguridad con protectores laterales.
LEA Y ENTIENDA EL MANUAL DE INSTRUCCIONES: Para reducir
el riesgo de lesiones, el usuario y todos los espectadores deben leer y
comprender el manual de instrucción antes de usar este producto.
APOYE LA PIEZA DE TRABAJO Y ASEGURELA CON
ABRAZADERAS
MANTENGA LAS MANOS ALEJADAS DE LA HOJA: El no mantener
las manos alejadas de la hoja puede causar graves lesiones personales.
PELIGRO: Indica una situación de riesgo inminente que, si
no se evita, puede ocasionar lesiones graves o la muerte.
ADVERTENCIA: Indica una posible situación de riesgo
que, si no se evita, puede ocasionar lesiones graves o la
muerte.
PRECAUCION: Indica una posible situación de riesgo,
que si no se evita, puede ocasionar lesiones mínimas o
moderadas.
PRECAUCION: Cuando aparece sin el símbolo de alerta de
seguridad, indica una situación de riesgo potencial que, si
no se evita, puede producir daños materiales.
PELIGRO
!
PRECAUCION
ADVERTENCIA
!
PRECAUCION
!
ALERTA DE SEGURIDAD: Precauciones para su seguridad.

60 61
60 61
SEGURIDAD DE HERRAMIENTAS ELÉCTRICAS
INSTRUCCIONES GENERALES DE
SEGURIDAD ANTES DE UTILIZAR
ESTA HERRAMIENTA ELECTRICA
La seguridad es una combinación
de sentido común, precaución y
conocimiento del manejo de la herr
mienta eléctrica.
● Para evitar errores que podrían
ocasionarle lesiones graves, no
enchufe la herramienta hasta
haber leído y entendido lo
siguiente.
● Lea todas las instrucciones antes
de trabajar con el producto.
La inobservancia de todas
las instrucciones indicadas a
continuación puede ocasionar
una descarga eléctrica, fuego y/o
lesiones graves.
1. LEA y familiarícese
con todo el Manual del
operador. APRENDA
todo lo relacionado con
la utilización, las limitaciones y los
posibles riesgos de la herramienta.
2. MANTENGA LOS PROTECTORES
EN SU POSICION y en correcto
funcionamiento.
3. EXTRAIGA LAS LLAVES
DE AJUSTE Y LAS LLAVES
INGLESAS. Acostúmbrese a revisar
la herramienta y a ver que se
extraigan de ella las llaves de ajuste
antes de ENCENDERLA.
4. MANTENGA LIMPIA EL AREA DE
TRABAJO. Los bancos y las áreas
de trabajo desordenados provocan
accidentes.
5. NO LA USE EN UN AMBIENTE
PELIGROSO. No use las
herramientas eléctricas en lugares
húmedos, ni las exponga a la lluvia
o a la nieve. Mantenga el área de
trabajo bien iluminada.
6. MANTENGA ALEJADOS A LOS
NIÑOS. Todos los visitantes y los
transeúntes deben permanecer a
una distancia segura del área de
trabajo.
7. EVITE QUE SUS HERRAMIENTAS
PUEDAN SER UTILIZADAS POR
LOS NIÑOS, mediante candados o
interruptores maestros, o mediante
la extracción de las llaves de
encendido.
8. NO FUERCE LA HERRAMIENTA.
De esta manera, realizará su trabajo
mejor, con más seguridad y a la
velocidad para la que está diseñada
la herramienta.
9. UTILICE LA HERRAMIENTA
ADECUADA. No intente hacer que
la herramienta o los acoplamientos
realicen trabajos para los cuales no
fueron diseñados.
10.UTILICE UNA EXTENSION
ELECTRICA ADECUADA.
Asegúrese de que la extensión
eléctrica esté en buenas
condiciones. Al utilizar una
extensión eléctrica, asegúrese de
que sea sucientemente gruesa
para proporcionar la corriente
que la herramienta necesita. La
utilización de una extensión de
ADVERTENCIA
!

62 63
62 63
menor medida ocasionará una
caída en el voltaje de la línea y
una pérdida de ujo eléctrico que
recalentará la herramienta. La tabla
de la página 69 muestra la medida
correcta que debe utilizar según el
largo de la extensión y el rango de
amperios especicado en la placa.
Si tiene dudas, utilice el calibre
mayor más próximo. Cuanto menor
sea el calibre, mayor deberá ser el
grosor del cable.
11. USE LA VESTIMENTA
APROPIADA. No utilice ropa
suelta, guantes, corbatas, anillos ni
brazaletes u otros tipos de alhajas
que puedan atascarse en las piezas
móviles. Se recomienda utilizar
calzado antideslizante. Utilice una
protección para cubrir y contener el
cabello largo.
12. UTILICE SIEMPRE
PROTECCION PARA
LOS OJOS. Cualquier
herramienta eléctrica
podría despedir y hacer que se
introduzcan en sus ojos objetos
extraños que podrían ocasionar un
daño permanente. Utilice SIEMPRE
gafas de seguridad (no lentes co-
munes) que cumplan con la norma
de seguridad Z87.1 de ANSI. Los
lentes comunes sólo tienen cris-
tales resistentes a los golpes. NO
SON gafas de seguridad. Las gafas
de seguridad están disponibles
en Sears. NOTA: Los lentes o las
gafas que no cumplan con la norma
ANSI Z87.1 podrían ocasionarle
graves lesiones si se rompen.
13. UTILICE UNA MASCARA
FACIAL O UNA
MASCARILLA CONTRA
EL POLVO. El trabajo
realizado con sierras produce polvo.
14. REALICE UN TRABAJO
SEGURO. Si le resulta
práctico, utilice prensas o
un tornillo de banco para
sujetar el material de trabajo. Es
más seguro que utilizar una mano y
libera las dos manos para manejar
la herramienta.
15.DESCONECTE LAS
HERRAMIENTAS DE LA FUENTE
DE ENERGIA antes de realizar el
mantenimiento y cuando cambie
accesorios, como hojas, brocas y
cortadores.
16.REDUZCA EL RIESGO DE QUE
SE PRODUZCA UN ARRANQUE
NO DESEADO. Asegúrese de que
el interruptor esté en la posición de
APAGADO antes de enchufar la
herramienta.
17. UTILICE LOS ACCESORIOS
RECOMENDADOS. Consulte el
Manual del operador para hallar
los accesorios recomendados.
La utilización de los accesorios
inapropiados puede implicar riesgos
de lesiones para usted o para otras
personas.
18.NUNCA SE PARE ENCIMA DE
LA HERRAMIENTA. Dar vuelta la
herramienta o tocar accidentalmente
la hoja de corte puede ocasionarle
lesiones graves.

62 63
62 63
23. NO utilice herramientas eléctricas
en presencia de líquidos o gases
inamables.
24. NO opere la herramienta bajo
la inuencia de drogas, alcohol
o medicamentos que pudieran
afectar su capacidad para utilizar la
herramienta correctamente.
25. El polvo
originado
por ciertos materiales puede ser
dañino para su salud. Maneje
siempre la sierra en lugares bien
ventilados y proporcione un método
adecuado para la remoción de
polvo.
26. Las personas
que tienen
dispositivos electrónicos, como
marcapasos, deben consultar
al médico antes de usar este
producto. La operación de equipo
eléctrico cerca de un marcapasos
puede causar interferencia o la falla
del marcapasos.
27. UTILICE PROTECCIÓN
AUDITIVA para reducir
el riesgo de pérdida de la
audición ocasionada por el
ruido.
19.COMPRUEBE QUE NO HAYA
PIEZAS DAÑADAS. Antes de
seguir utilizando la herramienta,
debe revisar cuidadosamente los
protectores u otras piezas que
estén dañados para comprobar que
funcionarán correctamente. Revise
la alineación y el acoplamiento de
las piezas móviles y compruebe
que no haya roturas en las piezas
o en el montaje y que no existan
otras condiciones que puedan
afectar su funcionamiento. Los
protectores u otras piezas que
estén dañados deben arreglarse o
reemplazarse debidamente.
20.NUNCA DEJE DESATENDIDA
UNA HERRAMIENTA. CORTE EL
SUMINISTRO ELECTRICO. No se
aleje de una herramienta hasta que
la hoja se detenga por completo y
la herramienta esté desenchufada
de la fuente de energía.
21.NO FUERCE LA POSTURA.
Mantenga el equilibrio y el apoyo
correcto de los pies en todo
momento.
22.MANTENGA LAS
HERRAMIENTAS CON CUIDADO.
Mantenga las herramientas
aladas y límpielas para que su
funcionamiento sea mejor y más
seguro. Siga las instrucciones para
la lubricación y el reemplazo de
los accesorios.
ADVERTENCIA
!
PELIGRO
!

64 65
64 65
1. SIEMPRE UTILICE UN
PROTECTOR DE HOJA DE
SIERRA, una cuchilla separadora
y adores antirebote en cada
operación de corte de un lado a
otro. Las operaciones de corte de
lado a lado son aquellos en los que
la hoja corta la pieza de trabajo de
lado a lado por completo cuando
se realizan cortes en dirección a
la veta o transversales. Asegúrese
siempre de que el protector de la
hoja esté bien ajustado.
2. SIEMPRE SUJETE FIRMEMENTE
LA PIEZA DE TRABAJO contra
el cartabón de ingletes o contra la
guía de corte en dirección a la veta.
3. SIEMPRE UTILICE una vara o
bloque de empuje, especialmente
cuando asierre troncos estrechos.
Lea las instrucciones sobre cómo
realizar cortes en dirección a la
veta, que encontrará en el Manual
del operador, en la sección que se
reere a la pieza de empuje. En
la página 49, aparece ilustrado un
modelo para hacer su propia pieza
de empuje.
4. NUNCA REALICE CORTES A
PULSO, lo que signica utilizar sólo
las manos para sostener o guiar la
pieza de trabajo. Utilice siempre la
guía o el cartabón de ingletes para
ubicar y guiar la pieza de trabajo.
EL CORTE A PULSO ES LA CAUSA
PRINCIPAL DE RETROCESO
Y AMPUTACIONES DE DEDOS
Y MANOS. EVITE USAR EL
CARTABON DE INGLETES Y LA
GUIA SIMULTANEAMENTE.
SEGURIDAD DE SU SIERRA DE MESA
5. NUNCA SE PARE delante de la
hoja ni deje que alguna parte de
su cuerpo quede en línea con la
trayectoria de la hoja de la sierra.
Mantenga las manos fuera de la
trayectoria de la hoja de la sierra.
6. NUNCA COLOQUE LAS MANOS
detrás de la herramienta de corte ni
sobre ella por ningún motivo.
7. NUNCA use una guía de corte en
dirección a la veta cuando esté
realizando un corte transversal.
8. NO USE cabezales para moldear
con esta sierra.
9. DIRECCION DE AVANCE Haga
avanzar la pieza de trabajo por
una hoja o cortador en contra del
sentido de rotación de la hoja o
cortador únicamente.
10.NUNCA use la guía de corte en
dirección a la veta como cartabón
para realizar cortes transversales.
11. NUNCA INTENTE LIBERAR
UNA HOJA DE LA SIERRAQUE
SE HAYA ATASCADO sin antes
APAGAR la sierra. Ponga el
interruptor en la posición de
APAGADO y desconecte el
enchufe de la fuente de energía de
inmediato para evitar que se dañe
el motor, antes de quitar el material.
12. PROPORCIONE UN SOPORTE
ADECUADO para la parte posterior
y para las partes laterales de la
mesa para piezas de trabajo largas
o anchas.
ADVERTENCIA
!

64 65
64 65
13.EVITE CONTRAGOLPES (el
rebote hacia usted de la pieza
de trabajo) manteniendo la hoja
alada, la guía de corte paralela a
la hoja de la sierra y manteniendo
la cuchilla separadora, los adores
antirebote y los protectores en su
lugar, alineados y funcionando. No
suelte la pieza de trabajo hasta
que ésta haya atravesado la hoja
de la sierra. No realice cortes
en dirección a la veta en piezas
de trabajo que estén retorcidas,
deformadas o que no tengan un
borde recto para dirigirlas por la
guía. No intente retirar la pieza
de trabajo mientras la sierra esté
funcionando.
14. EVITE TAREAS EXTRAÑAS y
posturas de las manos que puedan,
en un desplazamiento repentino,
hacer que su mano toque la hoja.
15. NUNCA USE SOLVENTES para
limpiar las piezas plásticas. Los
solventes pueden disolver o
incluso dañar el material. Debe
usar únicamente un paño suave
y húmedo para limpiar las piezas
plásticas.
16.MONTE la sierra de mesa sobre
un banco o un pedestal antes
de realizar cualquier operación
de corte. Fije la herramienta
debidamente para evitar el
movimiento inesperado. Vea la
sección ENSAMBLE Y AJUSTES
en la página 76.
17.
NUNCA corte metales o productos
de mampostería con esta
herramienta. Esta sierra para
ingletes está diseñada para uso
con madera y productos similares a
la madera únicamente.
18.UTILICE SIEMPRE LA
SIERRA EN UNA ZONA
CORRECTAMENTE VENTILADA.
Elimine el polvo generado con
frecuencia. Limpie el polvo
generado y acumulado en el interior
de la sierra para evitar los posibles
riesgos de incendio. Conecte una
aspiradora al conducto de escape
del aserrón, para poder extraer más
polvo.
19.NUNCA DEJE DESATENDIDA LA
SIERRA. No deje la sierra hasta
que se detenga por completo.
20.Siga las instrucciones del Manual
del operador para su ENSAMBLE
Y AJUSTES adecuado (consulte
las páginas 76). Si no hace este
agujero, el aserrín se acumulará en
el área del motor y puede ocasionar
un riesgo de incendio y un potencial
daño en el motor.
21.UTILICE ÚNICAMENTE hojas
de sierra recomendadas con la
advertencia de que la cuchilla
separadora no debe ser más
gruesa que el ancho de la ranura
de corte por la hoja de la sierra ni
más delgada que el cuerpo de la
hoja de la sierra.
22.UTILICE UNA VARA O BLOQUE
DE EMPUJE para alimentar la
pieza de trabajo más allá de la hoja
de la sierra. La vara o bloque de
empuje debe siempre guardarse
con la máquina cuando no esté en
uso.
ADVERTENCIA
!

66 67
66 67
ENSAMBLE DE PROTECCIÓN
DE LA HOJA DE LA SIERRA,
ENSAMBLE Y CUCHILLA
SEPARADORA
Su sierra de mesa viene equipada
con un ensamble de protección de
hoja, ensamble antirrebote y cuchilla
separadora que cubre la hoja y
disminuye la posibilidad de contacto
accidental con la hoja. La cuchilla
separadora es una placa plana que
encaja en el corte hecho por la hoja de
la sierra y combate de manera efectiva
el rebote disminuyendo la tendencia
de la hoja a doblarse en el corte. El
ensamble de protección de la hoja y el
ensamble antirrebote pueden utilizarse
solamente para hacer cortes de lado a
lado que separan la madera. Cuando
haga rebajes y otros cortes que no
sean cortes de un lado a otro, deberá
retirar el ensamble de protección de
la hoja y el ensamble antirrebote y
bajar la cuchilla separadora hasta la
posición de corte sin traspasar (de
un lado a otro), la cual está marcada
en la cuchilla separadora. Los dos
adores antirrebote ubicados a los
lados de la cuchilla separadora
permiten que la madera pase a través
de la hoja en la dirección de corte
pero disminuyen la posibilidad de que
el material rebote hacia el operador.
Utilice todos los componentes del
sistema de protección (Compartimiento
para almacenaje del protector de
la hoja, cuchilla separadora y el
ensamble antirrebote) para cada
operación para la cual puedan ser
utilizados incluyendo todos los cortes
de un lado a otro. Si elige no utilizar
ninguno de estos componentes para
una aplicación en particular, ejerza
precaución adicional en relación al
control de la pieza de trabajo, el uso
de piezas de empuje, la posición de
sus manos con relación a la hoja, el
uso de gafas de seguridad, los medios
para evitar el contragolpe y todas
las otras advertencias contenidas en
este manual y en la sierra misma.
Reemplace los sistemas de protección
tan pronto como vuelva a efectuar los
cortes de lado a lado.
CONTRAGOLPES
CONTRAGOLPES: Los contragolpes
pueden ocasionar lesiones graves. El
contragolpe ocurre cuando una parte
de la pieza de trabajo se atora entre el
disco y la guía, o el disco mismo u otro
objeto jo se levanta de la supercie
de trabajo y es arrojado hacia el
operador. Los contragolpes se pueden
evitar atendiendo a las siguientes
condiciones.
SEGURIDAD DE SU SIERRA DE MESA

66 67
66 67
Como Evitarlos y Como Protegerse
de Posibles lesiones:
a. Asegúrese que el disco esté
paralelo a la guía.
b. No corte tiras aplicando fuerza a
la sección de la pieza de trabajo
que se desprenderá. La fuerza de
alimentación debe ser aplicada
siempre entre el disco y la guía.
Utilice una vara para piezas cortas,
de 6 pulg. (152 mm) o menores.
c. Conserve el ensamble de protección
de la hoja de la sierra, la cuchilla
separadora y el ensamble
antirrebote en su lugar y en
condiciones operativas adecuadas.
Si el ensamble antirrebote no
está operativo, devuelva la unidad
al centro de servicio autorizado
más cercano para su reparación.
La cuchilla separadora deberá
estar alineada con la hoja de la
sierra y el ensamble antirrebote
deberá detener un rebote una vez
que se haya iniciado. Revise su
accionamiento antes de aserrar
presionando la madera debajo del
ensamble antirrebote. Verique el
funcionamiento antes de cortar en
tiras.
d. Se pueden cortar plásticos y
aglomerados en su sierra. Sin
embargo, ya que estos materiales
son duros y resbalosos, los
trinquetes anti contragolpes pueden
no funcionar. Por consiguiente,
ponga especial atención a los
siguientes procedimientos iniciales y
de corte en tiras.
e. Utilice la guarda del disco y el
separador en todas las operaciones
que puedan ser empleados,
incluyendo cortes a todo lo largo.
f. Push the workpiece past the saw
blade prior to release.
g. Nunca asierre una pieza de trabajo
que esté torcida o deformada o no
tenga un borde recto que actúe
como indicador en la guía de corte.
h. Nunca asierre una pieza de trabajo
grande que no pueda controlar.
i. Nunca utilice la guía de corte como
indicador o tope de largo cuando
haga cortes transversales.
j. Nunca asierre una pieza de trabajo
con nudos sueltos, fallas, clavos ni
otros objetos extraños.
k. Nunca asierre una pieza de trabajo
de menos de 10 pulg. (254 mm).
l. NUNCA utilice una hoja sin lo
– cámbiela o mándela a alar.
m.NUNCA utilice una guía de corte y
un calibrador de ingletes juntos.
n. Mantenga las manos apartadas de
la hoja de la sierra.
SEGURIDAD DE SU SIERRA DE MESA

68 69
68 69
REQUISITOS ELÉCTRICOS Y DE SEGURIDAD
ESPECIFICACIONES DEL
SUMINISTRO ELÉCTRICO
Y DEL MOTOR
Para evitar riesgos de descargas
eléctricas, incendios o daños en las
herramientas, utilice una protección
para circuitos adecuada. Utilice un
circuito eléctrico diferente para sus
herramientas. Laherramientas
viene cableada de fábrica para
operaciones de 120 voltios.
Conéctela a un circuito de 120 V
y 15 A, y use un interruptor de
circuito o un fusible de acción
retardada de 15 A. Para evitar
descargas eléctricas o incendios,
si el cable de alimentación está
desgastado, cortado o dañado
de alguna manera, solicite sea
reemplazado inmediatamente.
INSTRUCCIONES PARA LA
CONEXIÓN A TIERRA
La herramienta debe estar
conectada a tierra mientras
esté funcionando, para proteger
al operador contra descargas
eléctricas.
EN CASO DE QUE EXISTA UNA
FALLA EN EL FUNCIONAMIENTO
O UNA AVERIA, la conexión a tierra
proporciona una menor resistencia
para la corriente eléctrica y reduce
el riesgo de descargas. Esta
herramienta está equipada con un
cable eléctrico que tiene un conductor
y un enchufe para conexión a tierra.
El enchufe debe estar conectado a
un tomacorriente de combinación
que esté instalado debidamente y
conectado a tierra según TODOS los
códigos y las ordenanzas locales.
NO MODIFIQUE EL ENCHUFE QUE
SE PROPORCIONA. Si no encaja en
el tomacorriente, haga que un técnico
cali cado instale uno adecuado.
LA CONEXION INAPROPIADA del
conductor de conexión a tierra del
equipo puede ocasionar un riesgo de
descarga eléctrica. El conductor con
aislamiento verde (con rayas amarillas
o sin ellas) es el conductor de
conexión a tierra. Si el cable eléctrico
o el enchufe necesitan ser reparados
o remplazados, NO conecte este
conductor a una terminal que tenga
corriente.
HAGA QUE un electricista calicado
o una persona del servicio técnico
revisen la conexión si no entiende
completamente las instrucciones
para la conexión a tierra o si no está
seguro de que la herramienta está
correctamente conectada a tierra.
UTILICE únicamente extensiones
eléctricas de 3 cables que tengan
enchufes de conexión a tierra de
3 espigas y tomacorrientes de
3 polos que concuerden con el
enchufe de la herramienta. Repare
o reemplace inmediatamente las
extensiones eléctricas dañadas o
desgastadas.
Utilice un circuito eléctrico separado
para la herramienta. Este circuito no
debe tener cables menores que los
N.° 14 y debe estar protegido con
un fusible de retardo de 15 A. Antes
de conectar el motor a la línea de
energía eléctrica, asegúrese de que
el inter ruptor esté en la posición
de APAGADO y de que la corriente
eléctrica sea la misma que la
ADVERTENCIA
!
ADVERTENCIA
!

68 69
68 69
especicada en la placa del motor. Si
la herramienta funciona con un voltaje
menor, el motor se dañará.
UTILICE UNA EXTENSIÓN
ELÉCTRICA APROPIADA.
Asegúrese de que la extensión
eléctrica esté en buenas condiciones.
Al utilizar una extensión eléctrica,
asegúrese de que sea su cientemente
gruesa para proporcionar la corriente
que la herramienta necesita. Una
extensión eléctrica de menor medida
puede ocasionar una caída en el
voltaje de la línea y, en consecuencia,
una pérdida de potencia y el
recalentamiento de la máquina.
DIRECTRICES PARA LOS
EXTENSIONES ELECTRICAS
Asegúrese de que la extensión
eléctrica esté bien conectada y en
buenas condiciones. Reemplace
siempre las extensiones eléctricas
dañadas o haga que un técnico cali
cado las repare antes de utilizarlas.
Proteja las extensiones eléctricas
contra los objetos a lados y el calor
excesivo, y aléjelas de las áreas
húmedas o mojadas.
Esta herramienta puede usarse
solamente en interiores. No la exponga
a la lluvia ni la utilice en lugares
mojados. Esta herramienta está
diseñada para ser utilizada con
un circuito que tenga un tomacorriente
como el que se muestra en la Figura
1. La Figura 1 muestra un enchufe
eléctrico de tres espigas y un
tomacorriente con conexión a tierra. Si
no dispone de un tomacorriente
adecuadamente conectado a tierra,
puede utilizar un adaptador (Fig. 2,)
para conectar provisoriamente este
enchufe a un tomacorriente de 2
espigas, con conexión a tierra.
El adaptador (Fig. 2) tiene un borne
rígido que DEBE estar conectado
permanentemente a tierra, por
ejemplo, en una caja de tomacorriente.
El Código Eléctrico Canadiense
prohíbe el uso de adaptadores.
En todos los casos, asegúrese de que
el tomacorriente esté correctamente
conectado a tierra. Si no está seguro,
haga que un técnico calicado revise
el tomacorriente.
Enchufe de 3 espigas
Espiga de conexión a tierra
Tomacorriente de 3
espigas adecuadamente
conectado a tierra
Borne de
conexión a tierra Asegúrese de
enchufarla a una
conexión a tierra
con able.
Tomacorriente
de 2 espigas
Adaptador
Fig. 1
Fig. 2
ADVERTENCIA
!
PRECAUCIÓN
!
CALIBRE MINIMO PARA EXTENSIONES
ELECTRICAS (AWG)
(Sólo cuando la corriente es de 120 V)
Rango de amperios Longitud total del cable en pies
Más de No más de 25 50 100 150 pies
(7,62 15,24 30,48 45,72 m)
0 6 18 16 16 14
6 10 18 16 14 12
10 12 16 16 14 12
12 16 14 12 No se recomienda

70 71
70 71
ACCESORIOS Y
ACOPLES
ACCESORIOS RECOMENDADOS
Visite el Departamento de ferretería
de Sears o consulte el catálogo de
herramientas manuales y eléctricas
de Sears para comprar los accesorios
recomendados para esta herramienta
eléctrica.
10K1 RANURAS INSERTAR PLATO
Para evitar el riesgo de heridas
personales:
● No use hojas para cortar ranuras
que sean ajustables (oscilantes)
o que tengan puntas de carburo.
● Utilice hojas apilables para cortar
muescas solamente.
● El ancho máximo de la hojas para
muesca es de 20,6 mm.
● No utilice una hoja para muesca
con un diámetro superior a las
203,2 mm.
● No utilice un juego de cabezales
para molduras con esta sierra.
● No modique esta sierra ni utilice
accesorios que no hayan sido
recomendados.
ADVERTENCIA
!
ADVERTENCIA
!
HERRAMIENTAS NECESARIAS
PARA EL ENSAMBLADO
NO SE SUMINISTRAN
Destornillador plano
Llave ajustable y/o
llave de 8 mm,
10 mm,13 mm,
14 mm, 17 mm
Destornillador
Phillips
Escuadra mixta
Regla de acero
SUMINISTRAN
Llave de hoja
Llave hexagonal
de 4 mm
Llave hexagonal
de 5 mm

70 71
70 71
Saque todas las piezas del embalaje. Compruebe cada pieza con la ilustración
de la siguiente página y con la “Tabla de Piezas”, para asegurarse de que
dispone de todos los elementos antes de deshacerse del material de embalaje.
NOTA: Para facilitar el montaje, mantenga en una misma ubicación el contenido
de la caja.
Si faltase alguna pieza o si se encontrase dañada, no intente montar la
sierra de mesa, conectar el cable, o encender la unidad, hasta que consiga
la pieza que falta y la instale correctamente. Llame al 1-800-843-1682 en
caso de que falten piezas o estén dañadas.
TABLA DE PIEZAS SUELTAS
SIERRA DE LA MESA
CONTENIDO DE LA CAJA
ADVERTENCIA
!
ARTÍCULO DESCRIPCIÓN CANTIDAD
AEnsamblado de la sierra de mesa 1
BVolante manejar 1
C Bolsa de herrajes para la cuchilla separadora 1
D Separador-limitador 1
E Cartabón de ingletes 1
F Ensamble del protector de la hoja 1
G Pieza de empuje 1
H Llave hexagonal de 4 mm & 5 mm / Llave de hoja 1 cada
IEnsamble de los adores antirebote 1
J Hoja 1
K Bolsa de herrajes para del protector de la hoja/adores 1
L Bolsa de herrajes para mesa de montaje 1
PEDESTAL
M Bolsa de herrajes para el ensamble de la rueda 2 aparato
N Pedestal 1

72 73
72 73
DESEMPAQUE DE LA SIERRA DE MESA
ABC
DEF
GHI
JKL
MN

72 73
72 73
CONOZCA SU SIERRA DE MESA
Inserto de la mesa
Pieza de empuje
Guía de corte en
dirección a la veta
Palanca de bloqueo
de ala de extensión
Rueda de mano de
elevación de la hoja
Interruptor de ENCENDIDO/
APAGADO con llave
Almacenamiento de
la guía de ingletes
Interruptor de reinicio
por sobrecarga
Cartabón de ingletes
Almacenamiento de
la separador-limitador
Soportar manejar
Pata ajustable
Rueda
Almacenaje del protector de hoja
y de los adores antirebote
Hoja
Dispositivo
anti-retroceso
Cuchilla separadora
Mesa de extensión derecha
Pedestal
Puerto de polvo
Palanca de bloqueo
de pedestal
Almacenaje del cable
de alimentación
Protector de la hoja
Almacenaje de la hoja y
llave de hoja

74 75
74 75
GLOSARIO DE TÉRMINOS
FIADORES ANTIREBOTE – Evita que
la pieza de trabajo sea golpeada hacia
la parte delantera de la sierra de mesa
mediante la hoja giratoria.
BASTIDOR – Eje sobre el que se
monta la hoja o dado.
CORTE EN CHAFLÁN – Un corte en
ángulo sobre la pieza de trabajo.
ESCALA DE HOJA EN CHAFLÁN
– Mide el ángulo de inclinación de la
hoja cuando se realiza un corte en
chaán.
VOLANTE DE MANO PARA ELEVAR
E INCLINAR LA HOJA: Eleva y baja
la hoja. Inclina la hoja hasta colocarla
en un ángulo de 0° a 45° para realizar
cortes de bisel.
PROTECTOR DE HOJA – Cubierta
de plástico transparente que se coloca
sobre la hoja mientras se realiza el
corte.
CORTE COMPUESTO – Un corte en
chaán y con bisel.
CORTE TRANSVERSAL – Un corte a
todo lo ancho de la pieza de trabajo.
HOJA PARA MUESCA – Hoja
especial para cortar que se utiliza
para hacer muescas en una pieza de
trabajo.
TABLA CON CANTOS BISELADOS
– Cuando asierre una pieza de trabajo
en su sierra de mesa, la mantiene de
manera rme y segura contra la guía
de corte. También ayuda a evitar la
vibración, escopleado y el peligroso
rebote.
OPERACIÓN A MANOS LIBRES
– Realización de un corte utilizando
el separador-limitador, el indicador
de bisel, jador u otro dispositivo
adecuado para evitar que la pieza de
trabajo se doble durante la operación
de corte.
SAVIA – Una sustancia viscosa de las
maderas.
INCLINACIÓN – Incorrecta alineación
de la hoja.
TUERCA DE AGARRE – Tuerca
utilizada para mantener otra tuerca en
su posición sobre un pasador o perno
roscado.
RESIDUOS – El material retirado por
la hoja de corte.
OPERACIÓN A MANOS LIBRES
– Realización de un corte utilizando el
separador-limitador, el indicador de
bisel, jador u otro dispositivo
adecuado para evitar que la pieza de
trabajo se doble durante la operación
de corte.
CORTE EN BISEL – Un corte en
ángulo a lo ancho de la pieza de
trabajo.
CARTABÓN DE INGLETE – Una
guía utilizada para las operaciones
de corte transversal que se desliza
en los canales superiores de la
mesa (ranuras) ubicados a cada lado
de la hoja. Ayuda a realizar cortes
transversales precisos rectos o en
ángulo.
ASERRADO SIN TRASPASAR – se
reere a cualquier corte que no sea de
un lado a otro de la pieza de trabajo.

74 75
74 75
TRAYECTORIA DE CORTE DE
LA SIERRA – El área de la pieza
de trabajo o parte superior de la
mesa directamente en línea con el
desplazamiento de la hoja o parte de
la pieza de trabajo cortada.
ANCHURA – La distancia
comprendida entre dos puntas de hoja
de la sierra, dobladas hacia fuera en
dirección opuesta la una a la otra.
Cuanto más alejadas se encuentran
las puntas, mayor es la anchura.
PASADOR DE MESA – Pasador de
metal que se retira de la mesa para
instalar o retirar las hojas. También
se retira para el corte con dado. Al
realizar un corte con dado, habrá que
utilizar un pasador de dado.
CORTE COMPLETO – Realización de
un corte de lado a lado del largo o el
ancho total de la pieza de trabajo.
PIEZA DE TRABAJO – Material que
se va cortar.
NOTA: El ensamble de la pieza de
trabajo se ha retirado para nes de la
ilustración únicamente.
INTERRUPTOR DE REINICIO POR
SOBRECARGA – Protege el motor si
se sobrecarga durante el.
PIEZA DE EMPUJE – Accesorio
especial de madera que se utiliza para
empujar una pequeña pieza de trabajo
al realizar un corte muy cerca de la
hoja de la sierra.
BLOQUE DE EMPUJE – Se utiliza
para la operación de aserrado cuando
la pieza de trabajo es demasiado
estrecha para utilizar una vara de
empuje. Siempre utilice un bloque de
empuje para aserrar piezas con un
ancho de menos de 50,8 mm.
VOLVER A ASERRAR – darle vuelva
al material para hacer un corte que la
sierra no es capaz de hacer con un
pase.
No se recomienda hacer esto.
REVOLUCIONES POR MINUTO
(RPM) – El número de giros realizados
por un objeto giratorio durante un
minuto.
GUIA DE CORTE EN DIRECCION
A LA VETA – Guía que se usa para
cortar en dirección a la veta y que se
sujeta en la parte superior de la mesa.
Permite cortar la pieza de modo que el
corte quede derecho.
CORTE EN VETA – Corte con la veta
de la madera sólida o a lo largo de la
longitud de la pieza de trabajo.
CUCHILLA SEPARADORA – Una
pieza de metal del ensamble del
protector ubicada detrás que se
mueve con la hoja. Ligeramente más
delgada que la hoja de la sierra, ayuda
a mantener el corte abierto y evita el
rebote.
ADVERTENCIA
!
Borde principal
Ranura
Supercie
Guía de la hoja
de la sierra
Borde posterior
Pieza de
trabajo

76 77
76 77
Para su seguridad, nunca conecte
el enchufe al tomacorriente hasta
haber concluido todos los pasos del
ensamblaje y hasta haber leído y
entendido las instrucciones de
seguridad y de operación.
MONTAJE LA RUEDA AL SOPORTE
DE APOYO (FIG. A)
1. Fije una rueda de rodillos (1) a la pie
con el perno hexagonal largo (2),
dos arandelas planas (3) y la
contratuerca (4) como mostrados en
Fig. A. Aprete la tuerca (4) con un
llave 14 mm.
2. Repite los pasos arriba mencionados
para otra rueda de rodillos para la
otra pie.
Fig. A
MONTAJE DEL SOPORTE DE
APOYO (FIG. B, C, D)
1. Levante el pedestal a su posición
vertical, como lo mostrado en Fig. B.
2. Desdoble el juego de patas
izquierdo (1) soltando las palancas
de jación (2) de la ranura A a la
ranura B, luego descanse el lado
izquierdo del pedestal en el piso.
3. Libere el gancho (3) del tornillo
limitador.
4. Levante el marco lateral derecho de
estar de pie lentamente hacia arriba
por el mango hasta su posición más
2
3
1
34
alta, la palanca de bloqueo (5) se
recuperará de forma automática a la
izquierda para jar la base.
Fig. B
Para bloquear el pie correctamente,
la palanca roja debe ser asegurado
en la ranura de la tapa (4).
Fig. C
Fig. D
1
2
3
C
A
B
Lado Derecho
4
5
6
palanca de bloqueo
hacia la liberación
1 1
11
MONTAJE
ENSAMBLE Y AJUSTES
ADVERTENCIA
!
ADVERTENCIA
!

76 77
76 77
ENSAMBLE DE LA SIERRA DE
MESA EN EL PEDESTAL (FIG. E)
1. Levante el cuerpo de la sierra (1)
y ponga en el soporte (2). Alinee
cuatro ranuras de montaje (3) de
la base de la sierra con cuatro
agujeros de montaje (4) en la placa
superior del soporte.
2. Fije la sierra de mesa al soporte
con cuatro pernos de cabezal
hexagonales (5) y cuatro
arandelas (6).
3. Aprete todos los pernos de montaje
con un llave 13 mm.
NOTA: No apriete demasiado los
cuatro pernos que esto puede causar
daños en la base de la sierra.
Fig. E
4. Coloque el soporte sobre una
supercie nivelada y ajuste la perilla
de ajuste de pie (7) situado en la
pata delantera izquierda de pie.
Ajuste hasta que todas las patas
estén en contacto con el suelo y se
encuentran en un ángulo similar
al suelo.
NOTA: Antes de usar la sierra,
compruebe que la sierra de mesa esté
asegurada en su posición, y que la
posición izquierda la perilla de ajuste
se ha estabilizado la sierra de mesa.
COMO PLEGAR EL SOPORTE DE
APOYO (FIG. B, C, F)
1. Levante el lado derecho de la sierra
de mesa un poco, eleve la placa
de cubierta (4) del lado derecho del
pedestal, hale hacia afuera el
1
2
5
6
3
4
7
mango de jación (5) y luego mueva
la sierra acercándola a la rueda (6).
(Fig. C, F)
2. Gire el gancho (1) hacia el tornillo
limitador para asegurar las patas del
pedestal en su posición.(Fig. B)
3. Descanse el lado derecho de la
sierra en el piso.
4. Pliegue el juego de pata izquierda (3)
cerca de la base liberando las dos
palancas de jación del lado
izquierdo (2) de la ranura B a la
ranura A. (Fig. B)
5. Doble el pedestal lentamente hacia
abajo como se ilustra en Fig. F.
COMO DESDOBLAR EL PEDESTAL
1. Repita los pasos del 1 al 3 en la
sección “MONTAJE DEL SOPORTE
DE APOYO”.
2. Levante el marco lateral derecho de
estar de pie lentamente hacia arriba
por agarrar el asimiento tabla de
extensión mano hasta su posición
más alta, la palanca de bloqueo (5)
se recuperará de forma automática
a la izquierda para jar la base.
CÓMO TRANSPORTAR LA SIERRA
(FIG. B, C, F)
1. Repita los pasos del 1 al 3 en
la sección “COMO PLEGAR EL
SOPORTE DE APOYO”.
2. Pliegue el juego de pata izquierda (3)
liberando las dos palancas de
jación del lado izquierdo (2) de la
ranura B a la ranura C. (Fig. B)
3. Mueva la sierra a la posición
deseada para trabajar o guárdela en
un ambiente seco utilizando el juego
de pata del lado izquierdo (3) como
manija. (Fig. B)
Fig. F
11
1
1
1
como plegar
cómo transportar
ADVERTENCIA
!

78 79
78 79
ALMACENAJE
(FIG. G, H, I, J, K, L, M, N)
Guía de corte en dirección a la veta
y cartabón de ingletes (Fig. G)
Los soportes para almacenaje de la
guía de corte en dirección a la veta (1)
y el cartabón de ingletes (2) integrado
en la base y están ubicados en el lado
izquierdo de la carcasa de la sierra.
Fig. G
Pieza de empuje (Fig. H)
El titular de almacenamiento para la
varilla de empuje (1) se encuentra en
el lado izquierdo de la caja de sierra.
Fig. H
1
2
1
1
2
3
Hoja y llave de hoja (Fig. I)
El almacenamiento para la hoja y llave
de hoja (3) se encuentra en el lado
derecho de la caja de sierra.
1. Aoje y retire la perilla (2), coloque
la hoja (1) y la llaves de hoja (3) en
el eje. Vuelva a colocar la perilla (2)
y apriete.
Fig. I
Instalación la almacenaje de
protector de la hoja y los
adores antirebote (Fig. J)
1. Coloque el clip de sujeción (1) al
soporte (2) utilizando dos
tornillos (3) y apriete con un
destornillador.
2. Coloque la placa de ajuste (4) al
en el lado derecho de soporte (2)
utilizando dos tornillos (3) y apriete
con un destornillador.
Fig. J
4
1
2
33

78 79
78 79
Protector de la hoja (Fig. K)
El compartimiento de almacenaje
del ensamble del protector de la hoja
está ubicado en el lado derecho del
pedestal.
1. Tome la guardia de hoja (1), y
prense abajo en el rojo botón
de resorte (2) en el cumbre del
ensamblaje.
2. Ponga la guardia de hoja sobre
el cuchillo de rajar (1), y alinee la
ranura (3) sobre la placa ja (4).
3. Baje el ensamblaje de guardia (1)
sobre el placa ja (4), y aoje rojo
botón de resorte (2) para que dos
pestillos (5) pueda engranarse
en dos ganchos cerrados (6)
enteramente.
Fig. K
Fiadores antirebote (Fig. L)
El compartimiento de almacenaje de
los adores antirebote (1) está ubicado
en el lado derecho del pedestal.
1. Tome el ensamble de los adores
antirebote (1) y levante la palanca
de traba (2) ubicada en la parte
superior.
2. Gire los trinquetes adores
antirebote (1) al revés para hacer
el diente hacia arriba como lo
mostrado. Alinee la ranura (3) de
trinquetes adores antirebote con la
ranura (4) sobre la placa ja, y
mueva los trinquetes adores
antirebote (1) hacia arriba para
jar el ensamble entero en el
almacenaje. Aprete abajo en la
palanca de jación (2).
Fig. L
Cuchilla separadora (Fig. M)
Almacenamiento para la cuchilla
separadora se encuentra en el lado
derecho del pedestal. Inserte el
cuchillo de rajar (1) en la ménsula (2)
como se ilustra en Fig. M.
Fig. M
Cable de alimentacion (Fig. N)
Enrolle en cable de alimentación (1)
en los soportes (2) cuando la sierra no
esté en uso. Esto puede evitar daños
al cable. No enrolle el cable alrededor
del oricio para polvo (3).
2
3
5
1
4
6
12
2
3
41
5

80 81
80 81
1. Retire el inserto de la mesa (1)
insertando sus dedo en la
apertura (2) y tirando arriba. Eleve
el bastidor de la hoja hasta la
máxima altura, girando la manivela
de elevación de la hoja en dirección
contraria a las agujas del reloj.
(Fig. P)
Fig. P
2. Retire la tuerca del bastidor (3) y la
brida exterior (4). (Fig. Q)
Fig. Q
3. Instale la hoja sobre el eje (5) con
los dientes mirando hacia la parte
frontal de la sierra. (Fig. Q)
NOTA: Deje la franja plástica acerca
de la hoja de la sierra, y quite antes
de usar la sierra por la primera vez.
4. Compruebe que la hoja quede a ras
contra la brida interna (6).
5. Limpie la brida externa de la hoja (4)
e instálela en el eje (5) y contra la
hoja. (Fig. Q)
1
2
43
5
6
ADVERTENCIA
!
Fig. N
INSTALACIÓN DE LA MANIJA DEL
VOLANTE (FIG. O )
NOTA: UP-DOWN (Arriba-Abajo) está
impreso en este volante.
1. Inserte la manija del volante (1) en
el agujero del volante (2) y luego
apriete.
Fig. O
INSTALACION DE LA HOJA
(FIG. P, Q, R)
Para evitar lesiones por encendidos
accidentales, asegúrese de que el
interruptor esté en la posición de
APAGADO y de que el enchufe no
esté conectado al tomacorriente.
1
3
2
1
1
2

80 81
80 81
6. Inserte la tuerca (3) del eje en el
eje (5), vericando que el lado plano
de la tuerca (3) se encuentre contra
la hoja, luego apriete a mano.
(Fig. Q)
7. Hale la palanca de jación del
motor (7) hacia el frente de la
máquina mientras hace girar la hoja
hasta que la aldaba tranque en su
lugar y la hoja no gire. (Fig. R)
8. Coloque la llave de hoja (8) en la
tuerca del eje (3) y gire en dirección
hacia la parte trasera de la sierra de
mesa. (Fig. R)
9. Baje la hoja a la posición inferior
y vuelva a colocar el inserto de la
mesa (1). (Fig. P)
Fig. R
REMOCION DE LA HOJA
(FIG. P, Q, R)
Para evitar lesiones por encendidos
accidentales, asegúrese de que el
interruptor esté en la posición de
APAGADO y de que el enchufe no
esté conectado al tomacorriente.
1. Retire el inserto de la mesa (1)
insertando sus dedo en la
apertura (2) y tirando arriba. (Fig. P)
2. Cierre la perilla con jación de bisel,
y levante la hoja a la altura máxima
girando el volante de hoja en el
sentido de aguja del reloj.
3. Si la hoja no está hacia arriba,
ajuste la hoja a la 90° posición
vertical. Para el ajuste, abra la
perilla con jación de bisel, y gira el
volante de hoja para girar la hoja a
la posición vertical. Cierra la perilla
con nación de bisel a n de cerrar
la hoja en su lugar.
4. Hale la palanca de jación del
motor (7) hacia el frente de la
máquina mientras hace girar la hoja
hasta que la aldaba tranque en su
lugar y la hoja no gire. (Fig. R)
5. Coloque la llave de hoja (8) en la
tuerca del eje (3). (Fig. R)
6. Aoje y retire la tuerca del eje (3) y
la brida halando la llave de hoja (8)
hacia el frente de la máquina.
(Fig. R)
7. Luego retire la hoja. Limpie pero no
retire la brida interna (6) de la hoja
antes de volver a ensamblar la hoja.
(Fig. Q)
ENSAMBLE DE LA CUCHILLA
SEPARADORA
● Para evitar las lesiones que
pudieran ocurrir por la activación
accidental, compruebe que
el interruptor esté en la
posición OFF (APAGADO) y el
enchufe esté desconectado del
tomacorriente que suministra
energía.
● Nunca utilice esta herramienta
sin la cuchilla separadora en la
posición correcta.
8
7
3
5
ADVERTENCIA
!
ADVERTENCIA
!

82 83
82 83
● Para evitar la injerencia del
inserto de mesa por la perilla
de jación, después de haber
apretado la cuchilla rajada, ponga
la perilla de jación de la cuchilla
separadora (3) hacia abajo antes
de usar la sierra. Si el inserto
de nivel no es mantenecido
propiamente, es posible causar el
daño serio al operador. (Fig. U)
● La perilla de jación de la cuchilla
separadora (3) se puede tirar
afuera a n de permitir a girar a
una posición nueva abajo. (Fig. U)
Fig. T
Fig. U
Instale el ensamble de la cuchilla
separadora (Fig. S, T, U)
NOTA: El Inserto de mesa deberá ser
quitado, y la hoja se levanta hasta la
más alta posición antes de continuar.
1. Aoje la perilla de jación del
bisel (1). Simplemente gire y mueva
el volante manual (2) a 45° en la
escala del bisel, y apriete la perilla
de jación del bisel (1).
Fig. S
2. Aoje la perilla de jación de la
cuchilla separadora (3) antihorario.
3. Inserte la cuchillo de rajar (4) en
el espacio entre la ménesula de
montaje y la placa ja (5) ubicada
detrás la hoja de sierra (6).
Asegúrese que el pasador cerrado
de la perilla de nación de cuchillo
de rajar (3) engrana con una de las
ranuras (A, B) en la cuchillo de
rajar (4).
4. Apriete la perilla de jación de la
cuchilla separadora (3) las agujas
del reloj. NOTA: La cuña tiene
dos posiciones, la posición alta
para todos a través de cortes y la
posición más baja para todos los
no-a través de recortes.
5. Aoje la perilla de jación del bisel (1)
y devuelve la hoja a 0° y sujete.
(Fig. S)
● NO opera la sierra sin el cuchillo
de rajar cerrado a su lugar, que
esté en las posiciones de corte
directo (A) o corte indirecto (B).
1
2
3
ADVERTENCIA
!
5
4
3
A
B
6

82 83
82 83
Alineación de la cuchilla separadora
(Fig. S, U)
● Para evitar las lesiones que
pudieran ocurrir por la activación
accidental, compruebe que
el interruptor esté en la
posición OFF (APAGADO) y el
enchufe esté desconectado del
tomacorriente que suministra
energía.
● Nunca utilice esta herramienta
sin la cuchilla separadora en la
posición correcta.
● Nunca opere esta herramienta
sin el protector de seguridad
en su lugar para todas las
operaciones de corte de lado
a lado.
● Este ajuste se efectuó en fábrica
pero debe revisarse y reajustarse
si fuese necesario.
1. Retire el inserto de la mesa y eleve
la hoja a su altura máxima girando
el volante manual de elevación de
la hoja en el sentido horario.
2. Retire el protector de la hoja y el
ensamble del adores antirebote.
3. Ajuste la hoja a la posición vertical
de 0° destrabando la perilla de
jación del bisel (1) y girando la
rueda de mano (2) en el sentido
antihorario. Sujete la perilla de
jación del bisel (1). (Fig. S)
4. Para ver si la hoja (6) y la
cuchilla separadora (4) están
correctamente alineadas, coloque
una escuadra combinada (7) a
lo largo del costado de la hoja
y contra lacuchilla separadora
(asegurándose de que la escuadra
quede entre los dientes de la hoja).
5. Incline la hoja a la posición de 45°
y compruebe la alineación
nuevamente.
NOTA:
● Esta sierra de mesa se suministra
con una hoja de corte de 254 mm
(10 pulg.) de diámetro con un
espesor de cuerpo de 1,8 mm
(0,07 pulg.) con muescas de 2,6 mm
(0,1 pulg.). La cuchilla separadora
tiene 2,2 mm (0,09 pulg.) de
espesor. El diámetro y el cuerpo de
la hoja de corte, y las dimensiones
de las muescas deberán
corresponder con el espesor de la
cuchilla separadora.
● La distancia radial máxima entre
la cuchilla separadora y el borde
dentado de la hoja de la sierra es
0,12 pulg. ~ 0,31 pulg. (3 mm ~
8 mm).
● La punta de la cuchilla separadora
no debe estar más baja de
0,04 pulg. ~ 0,2 pulg. (1 mm ~
5 mm) desde la punta del diente.
● La cuchilla separadora es más
delgada que el ancho del corte en
aproximadamente 1/64 pulg.
(0,4 mm) en cada lado.
● La cuchilla separadora es más
delgada que el ancho del corte en
aproximadamente 1/64 pulg.
(0,4 mm) en cada lado.
7. Verique la alineación de la cuchilla
separadora y la hoja de nuevo tanto
a 0° como a 45°.
8. Reemplace el inserto de la mesa, el
protector de la hoja y el ensamble
del adores antirebote.
Fig. V
6
4
7
ADVERTENCIA
!

84 85
84 85
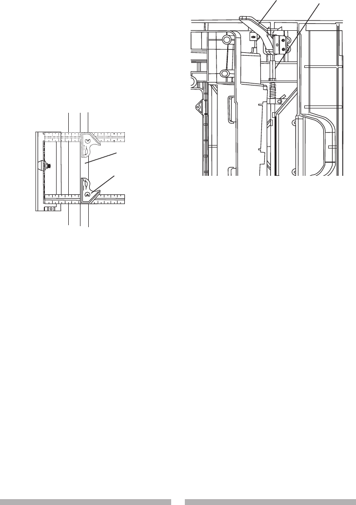
PROTECTOR DE LA HOJA Y LA
ENSAMBLE DEL FIADORES
ANTIREBOTE
Para evitar lesiones por un
encendido accidental, asegúrese de
que el interruptor esté en la posición
de APAGADO y de que el enchufe no
esté conectado al tomacorriente.
● Cuando instale el protector de la
hoja, cubra los dientes de la hoja
con un trozo de cartón doblado
para protegerse a sí mismo de
posibles lesiones.
● Nunca opere esta herramienta sin
el protector de seguridad en su
lugar para todas las operaciones
de corte de lado a lado.
Instalación del protector de la hoja
y del ensamble del adores
antirebote (Fig. X, Y, Z)
1. Cerciórese de que la hoja esté
elevada a su posición de altura
máxima y que el bisel esté colocado
a 0°. Cerciórese de que la manija de
traba del bisel esté apretada.
2. Levante la cuchilla separadora (1)
a su posición más alta (a través de
corte). Tome el ensamble de los
adores antirebote (2) y levante la
palanca de traba (3) ubicada en la
parte superior. (Fig. X)
3. Coloque el frente del ensamble
en la ranura (4) sobre la cuchilla
separadora (1) y presione hacia
abajo asegurándose de que el
ensamble esté enganchado en las
ranuras (4). Presione hacia abajo la
palanca de traba (3). (Fig. X)
Fig. X
AJUSTES ADICIONALES DE LA
HOJA (FIG. W)
1. Si las medidas del frente y trasera
no son la misma, retire la
escuadra combinada y apriete
los cuatro tornillos de ajuste (1)
en la parte superior de la mesa
aproximadamente la mitad de
un giro.
2. Cubra la hoja con un trozo de cartón
doblado para protegerse las manos.
Mueva la hoja y la varilla de montaje
del motor cuidadosamente hacia la
izquierda o la derecha tanto como
sea necesario para alinear la hoja
correctamente.
3. Apriete los cuatro tornillos (1) y
vuelva a tomar la medida, según se
describe en los pasos 4 al 9 en la
sección anterior.
4. Si no puede ajustar sucientemente
con los cuatro tornillos de ajuste (1),
entonces aoje los dos tornillos
de ajuste (2) y repita todos los
pasos previos. Aoje estos tornillos
solamente si fuese necesario ya que
vienen ajustados para graduaciones
precisas a 90° y 45°.
5. Vuelva a revisar el despeje de la
hoja y compruebe que la hoja no
golpea el inserto de la mesa u
otras partes cuando esté en las
graduaciones de 90° o 45°.
6. Vuelva a apretar todos los cuatro
tornillos de ajuste (1) y recoloque las
graduaciones de 90° y 45° como se
establece en la página 88.
Fig. W
4
3
1
2
Aoje
1
2
ADVERTENCIA
!

84 85
84 85
Fig. Y
4. Tome la guardia de hoja (5), y
prense abajo en el rojo botón
de resorte (6) en el cumbre del
ensamblaje.
5. Ponga la guardia de hoja sobre
el cuchillo de rajar (1), y alinee la
ranura (7) al cuchillo de rajar (1)
como lo mostrado en Fig. Z.
6. Baje el ensamblaje de guardia (5)
en el cuchillo de rajar (1). Aoje
rojo botón de resorte (6) para que
dos pestillos (8) pueda engranarse
en dos ganchos cerrados (9)
enteramente. (Fig. Z)
7. Cerciórese de que el ensamble esté
jado en su lugar tanto al frente
como en la parte posterior.
para reducir el riesgo de lesiones,
utilice la guarda del disco y el
separador en todas las operaciones
que puedan ser empleados,
incluyendo cortes a todo lo largo.
Fig. Z
Retire del protector de la hoja y del
ensamble del adores antirebote
(Fig. AA, BB)
para evitar lesiones por un
encendido accidental, asegúrese
de que el interruptor esté en la
posición de APAGADO y de que
el enchufe no esté conectado al
tomacorriente.
1. Con el volante manual de elevación
de la hoja, eleve la hoja a su
máxima altura.
2. Aoje el mango cerrado de bisel de
hoja, y gire la rueda de mano hasta
0° en la escala de bisel.
3. Apriete la manija de jación del
bisel.
4. Retire el ensamble del ador de
rebote (2) presionando la palanca
de traba (3). (Fig. AA)
5. Quite el ensamblaje de guardia de
hoja prensando abajo el rojo botón
de resorte (6) y levantando arriba el
ensamblaje. (Fig. BB)
EVITE CONTRAGOLPES (FIg. BB)
A evite contragolpes (Teniendo el
trabajo tirado violentamente hacia
atrás Ud), manteniendo la hoja alada,
la guía de corte en dirección a la veta
paralela a la hoja de la sierra, y el
separador, los trinquetes para evitar
contragolpes y los protectores en sus
lugares correspondientes y en correcto
funcionamiento. No suelte la pieza
antes de que ésta haya atravesado
completamente la hoja de la sierra
y haya salido de la mesa. No realice
cortes en dirección a la veta en piezas
de trabajo que estén retorcidas,
deformadas o que no tengan un borde
recto para guiarlas según la guía.
La alineación incorrecta de
la cuchilla separadora puede
ocasionar “contragolpe” y lesiones
serias.
3
Apriete
56
918
7
Apretar
ADVERTENCIA
!
ADVERTENCIA
!
ADVERTENCIA
!

86 87
86 87
Fig. AA
INSTALE EL SEPARADOR-
LIMITADOR (FIG. BB)
1. Levante la manivela del separador-
limitador (1) de manera que la
abrazadera de agarre posterior (2)
quede totalmente extendida.
2. Coloque el tope-guía en la mesa
de sierra y je la abrazadera de
sujeción (2) a el riel trasero (3).
Baje el extremo frontal sobre el riel
delantero (4).
3. Presione sobre la manivela del
separador-limitador (1) para
bloquear.
Fig. BB
AJUSTE DEL SEPARADOR-
LIMITADOR (FIG. CC)
1. El separador-limitador (1) puede
ser movido levantando arriba en
el mango (2) y deslizándolo hasta
la ubicación deseada. Al presionar
hacia abajo sobre la manivela, se
bloquea la posición del separador.
2. Coloque el separador-limitador a la
derecha de la mesa y a lo largo del
extremo de la ranura del indicador
de bisel.
3. Bloquee la manivela del separador-
limitador. El separador-limitador
debería encontrarse en paralelo
con la ranura del indicador de bisel.
4. Si fuese necesario realizar un
ajuste para colocar en paralelo el
separador-limitador con la ranura,
siga los siguientes pasos:
● Aoje los dos tornillos (3) y
levante la manivela (2).
● Sujete rmemente la agarradera
del separador-limitador (4) contra
la parte frontal de la mesa de
sierra. Desplace el separador
hasta que se encuentre paralelo
con la ranura del indicador de
bisel.
● Presione la manija para trabarla
y apriete ambos tornillos.
5. Si el separador-limitador se
encuentra suelto cuando la
manivela se encuentra en la
posición de bloqueo (hacia abajo),
realice los siguientes pasos:
● Mueva la manivela (2) hacia
arriba y gire la tuerca de
ajuste (5) en el sentido de las
agujas del reloj hasta que el
agarre posterior se encuentre
ajustado.
● Un apriete excesivo del tornillo
de ajuste hará que el separador-
limitador se salga de la
alineación.
NOTA: Un rodillo (6) es proveido para
el ajuste de precisión, girando a la
izquierda o derecha.
La incorrecta alineación del
separador puede provocar un
retroceso de la sierra y heridas
graves.
4
1
2
3
Fiadores antirebote
ADVERTENCIA
!

86 87
86 87
Fig. CC
AJUSTE DEL INDICADOR DEL
SEPARADOR-LIMITADOR (FIG. DD)
1. El indicador del separador-
limitador (1) apunta hacia la escala
de medición. La escala muestra
la distancia desde el lateral del
separador hasta el lado más próximo
de la hoja.
2. Mida la distancia con una regla. Si
existe distancia suciente entre la
medición y el indicador, ajuste el
indicador (1).
3. Aoje dos tornillos (2) y deslice
el indicador (1) hasta la medición
correcta en la escala. Apriete dos
tornillos (2) y vuelva a medir con la
regla.
Fig. DD
AJUSTE DEL CARTABON DE
INGLETES (FIG. EE)
1. Aoje el mango de sujeción (1)
para permitir que la estructura
del cartabón (2) gire libremente.
Coloque la estructura del cartabón
de ingletes a 90° de modo que los
topes predeterminados la sujeten
en la posición correcta. Ajuste el
mango de sujeción para sujetar
la estructura del cartabón en su
posición.
2. Si el indicador (3) requiere ajuste,
aoje con una llave hexagonal los
dos tornillos que están debajo de
éste. Ajuste el indicador a 90° de la
escala y luego ajuste rmemente
ambos tornillos de ajuste.
3. Para cambiar los ángulos del
cartabón de ingletes, aoje el
mango de sujeción (1) y haga girar
la estructura para ingletes hasta el
ángulo deseado según lo indique
el indicador. Trábela en su posición
ajustando el mango de sujeción.
Fig. EE
AJUSTE DEL INSERTO DE LA
MESA (FIG. FF)
Para evitar lesiones graves, el
inserto de la mesa (1) deberá estar a
nivel con la mesa. Si el inserto de la
mesa no está a nivel con la misma,
ajuste los dos pernos (2) con una
llave hexagonal de 4 mm hasta que
esté paralelo con la mesa.
3
1
2
1
2
1
4
2
5
3
6
ADVERTENCIA
!

88 89
88 89
6. Aoje la perilla de jación del bisel y
desplazar la hoja hasta la posición
de 90°, luego apriete la perilla de
jación del bisel.
7. Verique de nuevo para ver si la
hoja está a 90° de la mesa. Si no lo
está, repita el paso 5.
Fig. GG
Tope de seguridad 45°
1. Desconecte la sierra del
tomacorriente.
2. Suba la hoja a su máxima elevación.
3. Aoje la perilla de jación del bisel
de la hoja y mueva la hoja a la
máxima posición del bisel (45°) y
apriete la perilla de jación del bisel.
4. Coloque una escuadra combinada
en la mesa y contra la hoja (2) para
determinar si la hoja está a 45° de la
mesa. (Fig. GG)
5. Si la hoja no está a 45° de la mesa,
aoje o apriete (dependiendo de si
aumentan o disminuyen los grados)
el tornillo hexagonal (4) con una
llave hexagonal de 5 mm hasta que
logre 45°. (Fig. HH)
6. Aojar la perilla de jación del bisel
y reajustar la hoja a la posición
máxima del bisel (45°), luego apriete
la perilla de jación del bisel.
7. Verique de nuevo para ver si la
hoja está a 45° de la mesa. Si no lo
está, repita el paso 5.
NOTA: Para elevar el inserto, gire los
tornillos hexagonales en el sentido
contrario a las manecillas del reloj,
para bajar el inserto, gire los tornillos
hexagonales en dirección a las
manecillas del reloj. No retire el
inserto, los ajustes deberán efectuarse
con el inserto en su lugar para obtener
el nivel adecuado.
Fig. FF
AJUSTE DE LOS TOPES DE
SEGURIDAD DE 90° Y 45°
(FIG. GG, HH)
Su sierra cuenta con topes de
seguridad que permitirán un
posicionamiento rápido de la hoja de
sierra en un ángulo de 90° y 45° con
respecto a la mesa. Realice los ajustes
sólo si es necesario.
Tope de seguridad a 90°
1. Desconecte la sierra de la toma de
corriente.
2. Coloque la hoja a la altura máxima.
3. Aoje la perilla de jación del bisel
de la hoja, mueva la hoja a su
posición vertical máxima y apriete la
perilla de jación del bisel.
4. Coloque una escuadra de
combinación sobre la mesa y contra
la hoja (1) para determinar si la hoja
se encuentra en una posición de 90°
con respecto a la mesa. (Fig. GG)
5. Si la hoja no está a 90° de la mesa,
aoje o apriete (dependiendo de si
aumenta o disminuye los grados) el
tornillo hexagonal (3) con una llave
hexagonal de 5 mm hasta que logre
90°. (Fig. HH)
1
2
90˚ 45˚
12

88 89
88 89
Para evitar lesiones corporales:
● Siempre desconecte el enchufe
de la fuente de energía antes de
hacer un ajuste.
● Este ajuste debe ser correcto
y preciso, caso contrario, no
se podrán realizar los cortes.
De la misma manera, un ajuste
inexacto puede ocasionar una
descarga eléctrica o provocar
una lesión grave.
1. Quite la llave de seguridad del
interruptor y desenchufe la sierra.
2. Retire el protector de la hoja para
este procedimiento pero vuélvalo
a instalar y realinear después del
ajuste.
3. Levante la hoja hasta la posición
más alta y colóquela en el ángulo de
0° (90° en posición vertical).
4. Seleccione y marque con un
marcador con punta de eltro un
diente de la hoja y rote la hoja de
forma que el diente marcado se
encuentre a 1/2 pulg. (12,7 mm)
sobre la mesa.
5. Coloque la base de escuadra
combinada (1) en la ranura derecha
del cartabón de ingletes (2).
6. Ajuste la regla para que toque el
diente delantero marcado y trábela
para que se mantenga en su
posición en el ensamblado de la
escuadra.
7. Gire la hoja y lleve el diente marcado
hacia la parte trasera hasta que
quede aproximadamente a 1/2 pulg.
(12,7 mm) sobre la hoja.
8. Deslice cuidadosamente la
escuadra mixta hacia la parte
trasera hasta que la regla toque el
diente marcado.
ADVERTENCIA
!
Fig. HH
INDICADOR DE ESCALA PARA LA
INCLINACION DE LA HOJA (FIG. II)
1. Cuando la hoja se encuentre en una
posición de 90°, ajuste el indicador
de inclinación de la hoja para que
indique 0° en la escala.
2. Aoje el tornillo de montaje (1),
coloque el puntero de posición
sobre 0° y apriete el tornillo (1).
NOTA: Realice un corte de prueba
en una madera de sobra antes de
realizar cortes críticos. Mida para
lograr exactitud.
Fig. II
ALINEACION DE LA HOLA CON
LA RANURA DEL CARTABON DE
INGLETES (FIG. JJ)
Este ajuste se realiza en la fábrica,
pero se debe volver a controlar y a
ajustar, si es necesario.
3
4
1
ADVERTENCIA
!

90 91
90 91
9. Si la regla toca el diente marcado en
la posición delantera y en la trasera,
no es necesario hacer ningún
ajuste. Si no es así, o si la regla ya
no está alineada con el borde de
la ranura del cartabón de ingletes,
realice el procedimiento de ajuste
descrito en la sección de AJUSTES
ADICIONALES DE LA HOJA en la
página 84.
Fig. JJ
AJUSTE DE LA PALANCA DE
FIJACION (FIG. KK)
Si la extensión de la mesa se mueve
cuando está abierta y trabada en su
sitio, es posible que la palanca de
leva de jación (1) esté oja y requiera
ajuste.
Para ajustar la tensión de la palanca
de jación gire la barra (2) con una
llave de 10 mm hasta que quede
correctamente apretada. ¡No apriete
demasiado!
12
Vista de la parte de abajo de la mesa
2
1
Fig. KK

90 91
90 91
FUNCIONAMIENTO
FUNCIONAMIENTO BASICO DE LA
SIERRA
ELEVACION DE LA HOJA (FIG. LL)
Para elevar o bajar la hoja, gire el
volante manual de elevación de la
hoja (1) hasta la altura de hoja
deseada y, a continuación, apriete
la perilla de jación del bisel (2) para
mantener el ángulo de hoja deseado.
Fig. LL
INCLINACION DE LA HOJA (FIG. LL)
Existen dos métodos para inclinar la
hoja de la sierra.
Inclinación rápida de la hoja:
Aoje la perilla de jación del bisel (2),
mueva el volante manual (1) al ángulo
deseado y luego apriete la perilla de
jación del bisel (2).
Inclinación na para ajuste de la
hoja:
Aoje la perilla de jación del bisel (2),
presione hacia adentro el volante
manual (1) y al mismo tiempo gire el
volante manual (1) para inclinar la hoja
de la sierra. Cuando la hoja de la sierra
esté en el ángulo deseado, apriete la
perilla de jación del bisel (2).
INTERRUPTOR ENCENDIDO/
APAGADO (FIG. MM)
El interruptor ENCENDIDO/APAGADO
tiene una llave de remoción como
medida de seguridad. Con la
eliminación de la llave de seguridad
amarilla, se minimiza el uso no
autorizado o peligroso por parte de los
niños u otras personas.
1. Para activar la sierra, inserte la llave
del interruptor de seguridad (1) en
la ranura del interruptor (2). Mueva
el interruptor hacia arriba hacia la
posición ENCENDIDO.
2. Para apagar la sierra, mueva el
interruptor hacia abajo a la posición
APAGADO.
3. Para asegurar el interruptor en
la posición APAGADO, agarre el
extremo (o la parte amarilla) de la
llave del interruptor de seguridad (1)
y hálelo hacia afuera.
4. Cuando la llave de remoción
de seguridad se ha retirado, el
interruptor no funciona.
5. Si la llave de remoción de seguridad
se retira mientras la sierra está
en funcionamiento, puede que se
apague pero no podrá arrancar
nuevamente sin insertar la llave del
interruptor (1).
Fig. MM
PROTECCION CONTRA LA
SOBRECARGA (FIG. LL)
Esta sierra tiene un botón de reinicio
por sobrecarga (3) que restablece
el motor después de que se apague
debido a una sobrecarga o una
bajada de tensión. Si el motor se
detiene durante el funcionamiento,
coloque el interruptor de encendido
(ENCENDIDO/APAGADO) en la
posición APAGADO. Espere unos
cinco minutos para que se enfríe el
motor. Pulse el botón de reposición (3)
y coloque el interruptor en la posición
ENCENDIDO.
1
2
12
3

92 93
92 93
304,8 mm a 622,3 mm, guíese por las
instrucciones siguientes.
1. Suelte las palancas de bloqueo de la
cámara de extensión (1) en la parte
delantera y trasera posiciones de la
tabla.
2. Deslice la extensión (2) hacia fuera
hasta que la medición correcta
aparezca reejada en la escala del
tubo.
3. Apriete todas las manivelas de
bloqueo de extensión (1).
Fig. OO
OPERACIONES DE CORTE
Existen dos tipos básicos de corte:
corte siguiendo la veta y corte
transversal. El primero es un corte
que se realiza siguiendo la veta de la
pieza de trabajo. El corte transversal
es un corte a todo lo ancho de la pieza
de trabajo o de la veta de la pieza de
trabajo. Ninguno de estos dos tipos de
corte puede realizarse de forma
segura simplemente utilizando las
manos. El corte siguiendo la veta
requiere del uso del separador-
limitador, y el corte transversal
requiere el uso del indicador de bisel.
NUNCA UTILICE LOS DOS CORTES
A LA VEZ.
NOTA: Aplique una capa de cera de
automóvil sobre la mesa. Limpie todas
las piezas con un trapo limpio y seco.
Ello reducirá la fricción durante la
realización de trabajos.
Antes de utilizar la sierra,
compruebe siempre los siguientes
puntos:
Para evitar heridas, el interruptor
ENCENDIDO/APAGADO debería
encontrarse en la posición
APAGADO y el enchufe tendrá
que estar desconectado mientras
se produce la refrigeración. De este
modo se evita un arranque
imprevisto en caso de pulsar
el botón de reinicio. El
sobrecalentamiento puede estar
provocado por piezas mal alineadas,
por una hoja poco alada o por un
cable extensor demasiado corto.
Inspeccione la sierra para que
presente los ajustes necesarios
antes de volver a ser utilizada.
COMO USAR EL CONDUCTO PARA
EL ASERRÍN (FIG. NN)
Para prevenir peligros de incendio,
limpie y retire frecuentemente el
aserrín que se encuentra debajo de
la sierra.
Para prevenir la acumulación de aserrín
en la caja de la sierra, conecte
una manguera de aspiradora (1) (la
manguera no está incluida) al conducto
para el aserrín (2) en la parte posterior
de la sierra de mesa. NO opere la
sierra con la manguera conectada a
menos que la aspiradora se encuentre
encendida.
Fig. NN
USO DE LA EXTENSIÓN DE LA
MESA (FIG. OO)
NOTA: Utilice la escala en el larguero
del frente para cortes hasta 304,8 mm.
Para cortes paralelos a la bra desde
2
2
1
ADVERTENCIA
!
ADVERTENCIA
!
ADVERTENCIA
!

92 93
92 93
1. Retire el cartabón de ingletes y
guárdelo en el compartimiento de
almacenaje en la base de la sierra.
2. Asegure la guía de corte en
dirección a la veta a la mesa.
3. Eleve la hoja de manera que quede
aproximadamente a 3,18 mm por
encima de la parte superior de la
pieza de trabajo.
4. Coloque la pieza de trabajo de
orma plana en la mesa y contra la
guía. Mantenga la pieza de trabajo
alejada de la hoja.
5. Encienda la sierra y espere a que la
hoja adquiera velocidad.
6. Incorpore lentamente la pieza de
trabajo a la sierra presionando hacia
adelante únicamente en la sección
de la pieza de trabajo (1) que pasará
entre la hoja y la guía. (Fig. PP)
7. Mantenga los pulgares fuera de la
parte superior de la mesa. Cuando
ambos pulgares toquen el borde
frontal de la mesa (2), termine el
corte con una pieza de empuje (3).
Para hacer una pieza de empuje
adicional, utilice el patrón en la
página 105. (Fig. PP)
EVITE EL RETROCESO empujando
hacia adelante en la sección de
la pieza de trabajo que pasa entre
la hoja y la guía. Nunca ejecute
operaciones a pulso.
Fig. PP
1. Que la hoja se encuentra
correctamente apretada sobre el
cenador.
2. La perilla de jación del bisel se
encuentra apretado.
3. Si el corte realizado es el de veta,
compruebe que el picaporte del
separador se encuentra apretado
y que éste se encuentra paralelo
a las ranuras del indicador de
bisel.
4. Que el protector de la hoja se
encuentra en su lugar y funciona
de forma adecuada.
5. Que se llevan puestas las gafas
de seguridad.
El incumplimiento de estas
normas de seguridad comunes
y el de aquellas impresas en la
parte delantera de este manual
puede afectar en gran medida a
las posibilidades de aparición de
heridas graves.
CORTE EN DIRECCION LA VETA
(FIG. PP, QQ)
Para evitar lesiones graves:
● Nunca intente utilizar el cartabón
de ingletes al realizar un corte en
dirección a la veta.
● Nunca utilice más de una guía
de corte en dirección a la veta
durante un corte individual.
● No permita que la costumbre
ni el uso frecuente de su sierra
de mesa le hagan cometer
errores por falta de cuidado.
Recuerde que simplemente con
una fracción de segundo sin
atención, pueden producirse
heridas graves.
● Mantenga ambas manos
apartadas de la hoja y de la
trayectoria de la hoja.
● La pieza de trabajo debe tener un
extremo recto apoyado contra el
separador, y no debe encontrarse
doblada o combada cuando corte
en dirección a la veta.
3
1
2
ADVERTENCIA
!
ADVERTENCIA
!

94 95
94 95
CORTES DE PIEZAS PEQUEÑAS EN
DIRECCION A LA VETA
Para evitar las lesiones por causa del
contacto con la hoja, nunca haga cortes
más pequeños de 1,9 cm de ancho.
1. Cortar pieza pequeñas en dirección
a la veta es inseguro. En lugar de
hacer esto, corte en dirección a la
veta una pieza de mayor tamaño
para obtner el tamaño de la pieza
deseada.
2. Cuando vaya a aserrar una pieza
de poco ancho, su mano no estará
colocada de forma segura entre
la hoja y la guía de corte; utilice
la vara o el bloque de empuje
para pasar la pieza de trabajo
completamente a través y más allá
de la hoja.
IMPLEMENTOS ÚTILES
Para hacer algunos cortes, es
necesario utilizar dispositivos como
bloque de empuje, tabla de cantos
biselados y guía auxiliar, los cuales
puede hacer usted mismo. He aquí
algunas plantillas para su referencia.
TABLA DE CANTOS BISELADOS
(FIG. RR, SS)
Una tabla de cantos biselados es un
dispositivo utilizado para ayudar a
controlar la pieza de trabajo guiándola
de forma segura contra la mesa o la
guía. Las tablas de cantos biselados
son especialmente útiles cuando
corta piezas de trabajo pequeñas y
para hacer cortes que no sean de
un lado a otro. El extremo está en
ángulo con una cantidad de cortes
de poca longitud para darle un agarre
por fricción en la pieza de trabajo y
jarla en posición en la mesa con las
abrazaderas en C. Compruebe que
pueda resistir un contragolpe.
Coloque la tabla de cantos
biselados contra la porción sin
cortar de la pieza de trabajo para
evitar el contragolpe que podría
causar lesiones personales serias.
Cuando el ancho o el corte sea
inferior a 5,1 cm no puede utilizarse
la vara de empuje porque el
protector de la hoja interferirá.
Utilice la guía auxiliar (4) y el bloque
de empuje (5) como se ilustra.
(Fig. QQ)
Fig. QQ
8. Continúe presionando la pieza de
trabajo (6) con la vara de empuje
(3) o el bloque de empuje (4) hasta
que pase a través del protector de
la hoja y la parte posterior de la
mesa. (Fig. PP, QQ)
9. Nunca hale la pieza hacia atrás
cuando la hoja esté girando.
Mueva el interruptor a la posición
OFF. Cuando la hoja se detenga
completamente, puede entonces
retirar la pieza de trabajo.
Nunca intente tirar de la pieza de
trabajo hacia atrás durante una
operación de corte. Ello podría
provocar un retroceso y heridas
serias al operador. Cuando la hoja
se detenga completamente, eleve
los adores antirebote (7) en cada
lado de la cuchilla separadora y
deslice la pieza de trabajo hacia
afuera. (Fig. QQ)
CORTE EN BISEL EN DIRECCION A
LA VETA
Este corte es igual que el corte en
dirección a la veta, excepto que el
ángulo del bisel de la hoja es distinto
a “0°”.
4
5
6
7
ADVERTENCIA
!
ADVERTENCIA
!
ADVERTENCIA
!

94 95
94 95
HAGA UNA TABLA DE CANTOS
BISELADOS (FIG. RR)
Elija una pieza sólida de madera de
aproximadamente 1,9 cm de espesor,
10,2 cm de ancho y 45,7 cm de largo.
Para hacer una tabla de cantos
biselados, corte un extremo de la
madera a 60 grados, luego corte
ranuras de 20,3 cm de largo con una
separación de 6,4 mm en el extremo
en ángulo como se ilustra en la
Fig. RR.
Fig. RR
UTILICE UNA TABLA DE CANTOS
BISELADOS (FIG. SS)
1. Baje la hoja de la sierra (1).
2. Coloque la guía de corte (2) en el
ajuste deseado y je la guía de corte.
3. Coloque la pieza de trabajo (3)
contra la guía de corte y sobre el
área de la hoja de la sierra.
4. Ajuste la tabla de cantos
biselados (4) para que oponga
resistencia a la pieza de trabajo
hacia adelante de la hoja.
5. Fije las abrazaderas en C (5)
para asegurar la tabla de cantos
biselados al borde de la mesa.
Fig. SS
12
3
4
5
60o
10,2 cm
3,2 mm
1,9 cm
5,8 cm
20,23 cm
45,72 cm
SEPARADOR AUXILIAR (FIG. TT)
Realización la base:
● Comience con una pieza de
contrachapado de 9,5 mm y de al
menos 13,97 cm de ancho y 53,34
cm ó más de largo.
● Corte esta pieza con el tamaño y
forma indicados.
Realización del lateral:
● Comience con una pieza de
contrachapado de 1,9 cm y de al
menos 4,44 cm de ancho y
53,34 cm ó más de largo.
● Corte esta pieza con el tamaño y
forma indicados.
Acoplamiento:
● Fije las piezas juntas con
pegamento y tornillos para madera.
Asegúrese de que las cabezas de
los tornillos no sobresalgan de la
parte inferior de la base, deben
quedar a ras o embutidas. La parte
inferior deberá quedar plana y lisa
lo suciente para que descanse
en la mesa de la sierra sin que se
balancee.
Fig. TT
BLOQUE DE EMPUJE
Utilice para la operación de aserrado
cuando la pieza de trabajo sea
demasiado estrecha para utilizar una
vara de empuje. Siempre utilice un
bloque de empuje para aserrar piezas
con un ancho de menos de 5,1 cm.
El borde deberá estar
paralelo con la cara
21 in
5-1/2 in
3/8 in
1-3/4 in
Base de contrachapado
de 9,5 mm de grosor
Madera dura de ¾ in. (1,9 cm)
Madera contrachapada
de 3/8 in. (9,5 mm)
53,34 cm
13,97 cm
9,5 mm
4,44 cm
ADVERTENCIA
!

96 97
96 97
CORTE TRANSVERSAL (Fig. VV)
Para evitar lesiones graves:
● No permita que el hecho de
estar familiarizado con la sierra
de mesa debido a la utilización
frecuente lo lleve a cometer un
error por descuido. Recuerde
que un descuido de una fracción
de segundo es suciente para
ocasionar una lesión grave.
● Mantenga ambas manos lejos de
la hoja y de la trayectoria de la
hoja.
● Nunca intente tirar de la pieza de
trabajo mientras está realizando
un corte. Esto causará un
retroceso, y usted puede resultar
gravemente herido.
1. Retire la guía de corte en dirección
a la veta y coloque el cartabón de
ingletes en una ranura del cartabón
de ingletes en la mesa.
2. Ajuste la altura de la hoja de manera
que quede a 3,18 mm sobre la parte
superior de la pieza de trabajo.
3. Sostenga la pieza de trabajo
rmemente contra el cartabón de
ingletes con la trayectoria de la hoja
en línea con la ubicación deseada
del corte. Coloque la pieza de
trabajo de modo que quede a una
pulgada de distancia de la hoja.
4. Encienda la sierra y espere a que
la hoja (1) tome el máximo de
velocidad. Nunca se ubique en línea
con la trayectoria de la hoja de la
sierra, ubíquese siempre del lado de
la hoja que está cortando.
5. Mantenga la pieza de trabajo (2)
contra la cara del cartabón de
ingletes (3) y en posición horizontal
sobre la mesa. Luego empuje
lentamente la pieza de trabajo a
través de la hoja.
6. No intente tirar de la pieza de
trabajo con la hoja en movimiento.
Ponga el interruptor en la
posición de apagado y deslice
cuidadosamente la pieza de trabajo
hacia afuera cuando la hoja se haya
detenido por completo.
HAGA UN BLOQUE DE EMPUJE
(Fig. UU)
Cómo hacer la base:
● Comience con madera
contrachapada de 9,5 mm y al
menos 14 cm de ancho o más y
30,5 cm de largo o más.
● Corte la pieza a la forma y tamaño
que se ilustran.
Cómo hacer la agarradera:
● Comience con madera dura de
1,9 cm y al menos 12,7 cm de ancho
o más y 17,8 cm de largo o más.
● Corte la pieza a la forma y tamaño
que se ilustran.
Cómo hacer el soporte:
● Comience con una madera de
9,5 mm y al menos 9,5 mm de
ancho o más y 6,4 cm de largo o
más.
● Corte la pieza a la forma y tamaño
que se ilustran.
Como armarlo:
● Fije la base y la agarradera juntas
con pegamento y tornillos para
madera.
Asegúrese de que las cabezas de
los tornillos no sobresalgan de la
parte inferior de la base, deben
quedar a ras o embutidas.
● Fije la base y el soporte juntos con
pegamento.
Para evitar lesiones, no utilice los
tornillos para jar la base y el
soporte.
Fig. UU
ADVERTENCIA
!
ADVERTENCIA
!
ADVERTENCIA
!
12 in
2-1/2 in
5-1/2 in
3/8 in
3/8 in
2-1/2 in
3
/
8
i
n
5 in
7 i
n
1
2
Base de madera contrachapada de
3/8 in. (9,5 mm) de espesor
17,78 cm
12,7 cm
9,5 mm
6,35 cm
9,5 mm
13,97 cm
9,5 mm
6,35 cm
30,48 cm

96 97
96 97
Ubique siempre la supercie de
mayor tamaño de la pieza de trabajo
sobre la mesa cuando realice
cortes transversales y/o cortes
transversales de bisel, para evitar la
inestabilidad.
Fig. VV
UTILIZACION DE UNA GUARNICION
DE MADERA EN EL CARTABON DE
INGLETES (FIG. WW)
Se proporcionan ranuras en el
cartabón de ingletes para jar una
guarnición auxiliar (1) para facilitar el
corte de piezas muy largas o cortas.
Elija una pieza adecuada de madera
lisa, perfore dos agujeros a través de
ella y fíjela al cartabón de ingletes con
tornillos. Compruebe que la guarnición
no interera con el funcionamiento
adecuado del protector de la hoja de la
sierra. Cuando corte piezas de trabajo
largas, puede hacer un soporte simple
del lado de salida jando una pieza de
contrachapado a un burro.
Fig. WW
321
CORTE TRANSVERSAL DE BISEL
(FIG. XX)
Bisel de la hoja de 0° a 45° y
Angulo de inglete de 90°
Esta operación de corte es igual a la
del corte transversal, salvo en que el
ángulo del bisel de la hoja no es de 0°.
Siempre trabaje a la derecha
de la hoja durante este tipo de
operaciones de corte. El cartabón
de ingletes debe estar en la ranura
derecha, ya que el ángulo del bisel
puede hacer que el protector de la
hoja. interrumpa el corte si se usa
en la ranura izquierda.
1. Baje la hoja a la posición inferior.
2. Ajuste la hoja (1) según el ángulo
deseado y ajuste la perilla de
sujeción de bisel de la hoja.
3. Ajuste el mango de sujeción de
ingletes (2) a 90°.
4. Sostenga rmemente la pieza
de trabajo (3) contra la cara del
cartabón de ingletes durante la
operación de corte.
NOTA: Cuando operando el 45°
corte de bisel, tiene que bajar la
hoja la la posición descendente
primero, y entonces puede ajustar la
hoja hasta 45°.
Fig. XX
1
ADVERTENCIA
!
ADVERTENCIA
!
132

98 99
98 99
3. Coloque el bisel de la hoja (1) en el
ángulo del bisel deseado y ajuste la
perilla de jación del bisel de
la hoja.
4. Sostenga la pieza de trabajo (2)
rmemente contra la cara del
cartabón de ingletes durante toda la
operación de corte.
Fig. ZZ
USO DE FRENTES DE MADERA EN
LA GUIA DE CORTE EN DIRECCION
A LA VETA (FIG. aa)
Cuando realice algún tipo de corte
especial, puede agregar un frente de
madera en cualquiera de los lados de
la guía de corte (2).
1. Use una tabla de madera lisa y recta
de 19 mm de ancho (1) que tenga el
mismo largo que la guía de corte.
2. Fije la guarnición de madera a la
guía con tornillos para madera (3)
(no se suministran) a través de
los agujeros en la guía. Debe
utilizarse una guía de madera si
corta en dirección a la veta algunos
materiales, como paneles delgados,
a n de evitar que el material se
atasque entre la parte inferior de la
guía y la mesa.
Fig. aa
3
2
1
1
23
UNION DE INGLETE (FIG. YY)
Del angulo de inglete de 0° a 45°
Esta operación de corte es igual a a la
de corte transversal, excepto cuando
el cartabón de ingletes se bloquea en
un ángulo que diferente a 90°.
1. Coloque la hoja a 0° del ángulo del
bisel y ajuste la perilla de jación del
bisel de la hoja.
2. Coloque el cartabón de ingletes (1)
en el ángulo de inglete deseado y
trábelo en su posición ajustando el
mango de sujeción del cartabón de
ingletes.
3. Sostenga la pieza de trabajo (2)
rmemente contra la cara del
cartabón de ingletes durante todo el
corte.
Fig. YY
CORTE COMPUESTO (FIG. ZZ)
Bisel de la hoja de 0° a 45° y Angulo
de ingletes de 0° a 45°
Esta operación de corte con la sierra
incluye un ángulo de inglete y uno del
bisel.
Siempre trabaje a la derecha
de la hoja durante este tipo de
operaciones de corte. El cartabón
de ingletes debe estar en la ranura
derecha, ya que el ángulo del bisel
puede hacer que el protector de la
hoja. interrumpa el corte si se usa
en la ranura izquierda.
1. Coloque el cartabón de ingletes (3)
en el ángulo deseado.
2. Coloque el cartabón de ingletes en
la ranura derecha de la mesa.
1
2
ADVERTENCIA
!

98 99
98 99
CORTES QUE NO SEAN DE UN
LADO A OTRO (FIG. bb)
Un corte que no sea de un lado a otro
se utiliza para cortar y ranuras de
trabajo sin exponer la hoja.
● Únicamente este tipo de corte se
efectúa sin instalar el ensamble
de la hoja, el ensamble de los
adores antirebote.
● Para evitar lesiones procedentes
de un arranque accidental,
compruebe que el interruptor
esté en la posición OFF
(apagado) y el enchufe esté
desconectado del tomacorriente.
● Para evitar el riesgo de lesiones
personales. Siempre utilice el
bloque de empuje, la guía auxiliar
y la tabla de cantos biselados
cuando haga un corte que no sea
de un lado a otro.
1. Antes de arrancar la sierra de mesa,
baje la hoja a la posición inferior.
2. Retire el ensamble del protector de
la hoja y el ensamble de los adores
antirebote cuando vaya a efectuar
un corte que no sea de un lado a
otro.
3. Utilice la tabla de cantos
biselados (1) con las abrazaderas
en C (3) para jar la pieza de trabajo
de forma segura.
4. Monte la guía auxiliar (4) con las
abrazaderas en C.
5. Utilice el bloque de empuje (2) para
mover la pieza de trabajo.
NOTA: Monte la tabla de cantos
biselados en la mesa como se
ilustra, de modo que los bordes
delanteros de la tabla con cantos
biselados ayuden al corte completo
de la pieza de trabajo.
Fig. bb
CORTES DE RANURAS (FIG. cc, dd)
● Para esta sierra, deben utilizarse
únicamente hojas para cortar
ranuras que sean apilables.
● No utilice hojas ajustables ni
oscilantes para cortar ranuras.
● El ancho máximo de corte de
ranuras es de 20,6 mm.
● No utilice una hoja para muesca
con un diámetro superior a las
203,2 mm.
NOTA: Una placa opcional de
insertar ranuras (número 10K1 no
incluido) es necesaria para este
procedimiento.
1. Retire el inserto de la mesa, la hoja
de la sierra, el ensamble del ador
de rebote, el ensamble del protector
de la hoja y el ensamble de la
cuchilla separadora para los cortes
de dado ÚNICAMENTE. Vuelva a
instalar y a alinear el protector de
la hoja para todas las operaciones
de corte de lado a lado. Instale una
hoja para cortar ranuras con un
diámetro no mayor de 203,2 mm y
un ancho no mayor de 20,6 mm.
Cortes que no sean
de un lado a otro
31
2
4
ADVERTENCIA
!
ADVERTENCIA
!

100 101
100 101
7. Check the saw to ensure that the
dado will not strike the housing,
insert, or motor when in operation.
Revise la sierra para asegurarse
de que la hoja para cortar ranuras
no golpeará la carcasa, el inserto
o el motor cuando esté en
funcionamiento.
Fig. dd Cortes de ranuras
2. Instale el inserto de la mesa
tipo hoja para cortar ranuras
asegurándose de que la parte
trasera del inserto esté alineada con
la mesa. Si el inserto del dado no
está a nivel con la mesa, ajuste los
dos pernos en el inserto con una
llave hexagonal de 4 mm hasta que
esté paralelo con la mesa.
3. Las instrucciones para operar la
hoja para cortar ranuras vienen
empacadas con el juego hojas para
cortar ranuras, que se compra por
separado.
4. El eje de esta sierra (1) limita el ancho
máximo del corte a 20,6 mm.
5. No es necesario instalar el reborde
exterior (2) antes de enroscar la
tuerca del eje (3) para cortes de
ranuras con un ancho máximo de
20,6 mm. Asegúrese de que la
tuerca del eje (3) esté ajustada y de
que por lo menos una rosca del eje
exceda la tuerca.
6. Utilice únicamente el número
adecuado de hojas externas
redondeadas y de astilladores
internas, como se muestra en el
manual de instrucciones del juego
de hojas para cortar ranuras. La
hoja y los astilladores no deben
tener un ancho total mayor de
20,6 mm.
Fig. cc
2
1
3
ADVERTENCIA
!

100 101
100 101
MANTENIMIENTO
MANTENIMIENTO DE LA SIERRA
DE MESA
MANTENIMIENTO GENERAL
Por su propia seguridad, coloque el
interruptor en OFF y retire la llave
del interruptor. Retire el enchufe del
tomacorriente antes de
proporcionar mantenimiento o
lubricar su sierra.
1. Extraiga todo el aserrín que se haya
acumulado dentro del gabinete de la
sierra y dentro del motor.
2. Pula la mesa de la sierra con cera
para automóviles para mantenerla
limpia y facilitar el deslizamiento de
la pieza de trabajo.
3. Limpie las hojas de corte con
removedor de resina y goma.
4. Si el cable está gastado, cortado
o dañado deberá cambiarse de
inmediato.
Las reparaciones eléctricas o
mecánicas sólo podrán er realizadas
por técnicos especializados.
Contacte el departamento de
servicio al cliente para que le
proporcione asistencia. Cualquier
otra pieza puede suponer un peligro.
5. Utilice lavavajillas y agua para
limpiar las piezas de plástico.
NOTA: Determinados productos
químicos de limpieza puede dañar
las piezas de plástico.
6. Evite el uso de los siguientes
químicos o disolventes, amoníaco
o detergentes que contengan
amoníaco.
MECANISMO DE ELEVACIÓN E
INCLINACIÓN DE LA HOJA (FIG. ee)
Después de cada cinco horas de
operación, los mecanismos de
elevación e inclinación de la cuchilla
deberán revisarse para detectar
anormalidades de aojamiento, unión u
otras.
1. Con la sierra desconectada de la
toma de energía, déle vuelta a la
sierra y hale hacia arriba y presione
hacia abajo en la unidad del motor.
2. Observe cualquier movimiento en el
mecanismo de montaje del motor.
La holgura o juego de la varilla del
tornillo que eleva la hoja (1) deberá
limitarse a 3,2 mm o menos.
3. Coloque una pequeña cantidad de
lubricante seco en el engranaje del
bisel (2). La barra de empuje
deberá mantenerse limpia y sin
aserrín, goma, alquitrán u otros
contaminantes para lograr un
funcionamiento sin obstáculos.
Fig. ee
NOTA: Si se observa holgura excesiva
en cualquier parte de los mecanismos
de elevación o inclinación de la
cuchilla, llame al servicio al cliente, al
número que aparece en el frente de
este manual.
1
2
ADVERTENCIA
!
ADVERTENCIA
!

102 103
102 103
LUBRICACIÓN
Todos los cojinetes del motor se
lubrican permanentemente en la fábrica
y no requieren lubricación adicional. En
todas las partes mecánicas de su
sierra de mesa donde está presente
un gorrón o vástago roscado, lubricar
usando gra to o silicona. Estos
lubricantes secos no atraparán polvo
como el aceite o la grasa.
REEMPLAZO DE LAS ESCOBILLAS
DE CARBON (FIG. ff, gg)
Siempre desconecte el enchufe
del suministro eléctrico antes de
inspeccionar las escobillas.
Las escobillas de carbón que se
incluyen con la unidad durarán
aproximadamente 50 horas de
tiempo de operación o 10.000 ciclos
de encendido/apagado (ON/OFF).
Reemplace las dos escobillas de
carbón cuando tengan menos de
6,35 mm de carbón restante a lo largo
o si el resorte o el cable están dañados
o quemados.
1. Quite de la sierra de mesa el
protector de la hoja, la hoja, la guía
de corte en dirección a la veta, el
cartabón de ingletes y la estructura
del pedestal.
2. Baje la hoja hasta su posición de
altura mínima. Esto facilitará el
acceso a los cepillos.
3. Coloque un trozo de cartón o una
sábana en el piso para proteger la
supercie de la sierra de mesa.
4. Coloque la sierra en posición
invertida sobre el material de
protección.
5. Incline el volante manual de
elevación/inclinación de la hoja (1)
a 45°.
6. Retire el capuchón plástico negro (2)
del lado del motor (3).
7. Quite cuidadosamente la tapa, ya
que tiene un resorte, y después
quite la escobilla (4) y reemplácela.
8. Repita el paso 6 y 7 para el otro
lado del motor.
9. Ponga el cepillo nuevo en la
abertura del motor. Asegure que
las orejas en el cabo metálico de
ensamble pueda entrar en el mismo
agujero en que la parte de carbono
se adapta. No ajuste demasiado la
tapa plástica.
10.Coloque cuidadosamente la sierra
en posición vertical sobre una
supercie limpia y plana.
11.Reemplace el protector de la hoja,
la hoja, la guía de corte en dirección
a la veta, el cartabón de ingletes y
la estructura del pedestal.
NOTA: Para volver a instalar
las mismas escobillas, primero
asegúrese de que ingresen en la
misma forma en que salieron. Esto
evitará un período de adaptación,
que reduce el rendimiento del motor
y aumenta el desgaste.
Fig. ff
Fig. gg
1
2
3
ADVERTENCIA
!
23
4

102 103
102 103
GUÍA PARA LA SOLUCIÓN DE PROBLEMAS
PROBLEMA CAUSAS DEL PROBLEMA SOLUCIÓN
La sierra no
enciende. 1. La sierra no está enchufada.
2. Hay un fusible quemado o
un interruptor de circuito
averiado.
3. El cable está dañado.
4. Desechos en el interruptor de
encendido/apagado
1. Enchufe la sierra.
2. Reemplace el fusible o
einicie el interruptor de
circuito.
3. Substituya el cable eléctrico.
4. Quite el interruptor de la
sierra y sepárelo por la
mitad. Limpie cualquier
desecho acumulada adentro.
La sierra no
realiza cortes
precisos de 45°
ni de 90° en
dirección a la
veta.
1. Las posiciones
predeterminadas no se han
ajustado correctamente.
2. Indicador del ángulo de la
inclinación no se ha jado
correctamente.
1. Revise la hoja con la
escuadra y ajuste las
posiciones predeterminadas.
2. Revise la hoja con la
escuadra y ajústela en el
punto cero.
El material
pellizcó la hoja
cuando realizaba
un corte en
dirección a la
veta.
1. La guía de corte en dirección
a la veta no está alineada con
la hoja.
2. La madera está deformada,
y el borde apoyado contra la
guía no es recto.
1. Verique y alinee la hoja.
2. Seleccione otra pieza de
madera.
El material
se adhiere
a la cuchilla
separadora.
1. La cuchilla separadora no
está correctamente alineada
con la hoja.
1. Verique y alinee la cuchilla
separadora con la hoja.
La sierra hace
cortes que no lo
satisfacen.
1. La hoja está desalada.
2. La hoja está montada con los
dientes hacia atrás.
3. Hay goma o resina sobre la
hoja.
4. La hoja no es la adecuada
para el trabajo que realiza.
5. La goma o la resina en la hoja
hacen que la alimentación
sea errática.
1. Reemplace la hoja.
2. Los dientes de la hoja deben
apuntar hacia adelante.
3. Extraiga la hoja y límpiela
con trementina y con bra de
acero gruesa.
4. Extraiga la hoja y límpiela
con trementina y con bra de
acero gruesa.
5. Límpie la mesa con
trementina y con bra de
acero.
Para evitar lesiones por encendidos accidentales, APAGUE y desconecte
siempre la herramienta antes de moverla, reemplazar las hojas o hacer
ajustes.
ADVERTENCIA
!

104 105
104 105
Para evitar lesiones por encendidos accidentales, APAGUE y desconecte
siempre la herramienta antes de moverla, reemplazar las hojas o hacer
ajustes.
ADVERTENCIA
!
PROBLEMA CAUSAS DEL PROBLEMA SOLUCIÓN
El material fue
despedido por
la hoja.
1. La guía de corte en dirección
a la veta no está ajustada
correctamente.
2. La cuchilla separadora no está
alineada con la hoja.
3. Se guía el material sin la guía de
corte en dirección a la veta.
4. La cuchilla separadora no está
en su lugar.
5. El usuario suelta el material
antes de que haya pasado por la
hoja de la sierra.
6. El mango de sujeción del ángulo
de inglete no está ajustado.
7. La perilla de la cerradura del
ángulo de los ingletes no es
apretada.
1. Alinee la guía de corte
con la ranura del calibre
del inglete.
2. Alinee la cuchilla
separadora con la hoja.
3. Instale y utilice la guía
de corte en dirección a la
veta.
4. Instale y utilice la
cuchilla separadora. (con
protector)
5. Empuje el material hasta
que haya atravesado
completamente la hoja
antes de soltar la pieza
de trabajo
6. Ajuste el mango.
7. Apriete la perilla.
La hoja no
se eleva ni
se inclina
libremente.
1. Hay aserrín y suciedad
acumulados en los mecanismos
de elevación e inclinación.
1. Cepille o sople y el
aserrín o la suciedad.
La sierra no
desarrolla
la velocidad
máxima.
1. La extensión eléctrica es
demasiado liviana o demasiado
larga.
2. El voltaje de la línea de su casa
es bajo.
1. Reemplácela con una
extensión de la medida
adecuada.
2. Contáctese con su
compañía proveedora de
electricidad.
La máquina
vibra
excesivamente.
1. La sierra no está bien
asegurada sobre el banco de
trabajo.
2. El pedestal no está a nivel.
3. La hoja de la sierra está
dañada.
1. Ajuste todos los
aditamentos de montaje.
2. Coloque de nuevo en
supercie llana plana.
3. Reemplace la hoja.
La sierra no
realiza cortes
transversales
de 45° ni de 90°
precisos.
1. El cartabón de ingletes no está
ajustado correctamente. 1. Ajuste la galga de los
ingletes.

104 105
104 105
CONSTRUCCION DEL EMPUJADOR
● Use madera contrachapada de buena
calidad o madera sólida.
● Use material de 1/2 pulgada ó 3/4 pulgada.
● EI empujador DEBE ser más angosto que
el ancho del material que está cortando.
90°
20° - 30°
Taladre el agujero
para colgarlo
Muesca para
evltar que la
mano se deslice
15-3/4 pulgada (400 mm)
Corte aquí para empujar una
madera de 1/2 pulg.
Corte aquí para empujar
una madera de 3/4 pulg.

106 107
106 107
NOTES

106 107
106 107
Felicitaciones por realizar una compra inteligente.
Su nuevo producto
Craftsman® pestá diseñado y fabricado para proporcionarle años de
funcionamiento conable. Pero, como todos los productos, puede que necesite
reparaciones de cuando en cuando. Es ahí donde tener un acuerdo para la
protección de reparaciones puede ahorrarle dinero y molestias.
Aquí está lo que incluye el acuerdo de protección de reparaciones:
Servicio experto por parte de nuestros 10,000 profesionales especialistas
en reparación
Servicio ilimitado sin cargo para las piezas y mano de obra en todas las
reparaciones amparadas
Reemplazo del producto hasta $1,500 si el producto amparado no puede
ser reparado
Descuento del 25% del precio regular del servicio y de las piezas
instaladas relacionadas que no estén amparadas por el acuerdo; también
25% de descuento sobre el precio regular de la revisión de mantenimiento
preventivo
Ayuda rápida telefónica – lo llamamos Resolución Rápida – apoyo
telefónico por parte de un representante de Sears. Piense en nosotros
como en un “manual parlante del propietario”
Una vez que compre el acuerdo de protección para reparaciones, una simple
llamada telefónica es todo lo que necesita hacer para programar el servicio.
Puede llamar a cualquier hora del día o de la noche o programar una cita de
servicio a través de Internet.
El acuerdo de protección de reparaciones es una compra sin riesgos.
Si cancela por cualquier razón durante el período de garantía del producto, le
reembolsaremos la totalidad del monto pagado. O, efectuaremos un reembolso
prorrateado en cualquier momento después de que venza el período de la
garantía. Adquiera su acuerdo para la protección de reparaciones hoy mismo!
Se aplican algunas limitaciones y exclusiones. Para los precios y mayor
información en EE.UU., llame al 1-800-827-6655.
*La cobertura en Canadá varía sobre algunos productos. Para obtener
información más detallada llame a Sears Canadá al 1-800-361-6665.
Servicio de instalación de Sears
Para contactar a Sears para la instalación profesional de electrodomésticos
para el hogar, abridores de puertas de garaje, calentadores u otros artículos
importantes en EE.UU. o Canadá, llame al 1-800-MY-HOME®.
ACUERDOS PARA LA PROTECCIÓN DE REPARACIONES

108 108
® Registered Trademark /
TM
Trademark of KCD IP, LLC in the United States, or Sears Brands, LLC in other countries
® Marca Registrada /
TM
Marca de Fábrica de KCD IP, LLC en Estados Unidos, o Sears Brands, LLC in otros países
Product questions or problems?
1-888-331-4569
Customer Care Hot Line
Get answers to questions, troubleshoot problems,
order parts, or schedule repair service.
Para respuestas a preguntas o problemas, y ordenar
piezas o pedir servicio para la reparación de su equipo.
To help us help you, register your product at www.craftsman.com/registration
Para poderte ayudar mejor, registra tu producto en www.craftsman.com/registration
Join the Craftsman Club today!
Receive exclusive member benefits including special pricing and offers,
project sharing, expert advice, and SHOP YOUR WAY REWARDS!
Como miembro exclusivo, recibe diversos beneficios como ofertas, precios especiales, proyectos
nuevos, consejos de expertos y nuestro programa de puntos SHOP YOUR WAY REWARDS!